Geophysical Survey Systems 4105 4105 GPR User Manual
Geophysical Survey Systems, Inc. 4105 GPR Users Manual
Users Manual

Model 4105 Horn Antenna
System Settings and User Notes
The Difference is the Data
13 Klein Drive, P.O. Box 97
North Salem, NH 03073-0097
Phone: (603) 893-1109 / Fax: (603) 889-3984
www.Geophysical.com
Sales@Geophysical.com
September 2004
Geo
p
h
y
sical Surve
y
S
y
stems, Inc.

Geophysical Survey Systems, Inc. Model 4105 Antenna
System Settings and User’s Notes
MN 34-559 Rev C
LIMITED WARRANTY, LIMITATIONS OF LIABILITY AND RESTRICTIONS
Geophysical Survey Systems, Inc. hereinafter referred to as GSSI, warrants that, for a period of
24 months from the delivery date to the original purchaser, this GSSI product will be free from
defects in materials and workmanship. EXCEPT FOR THE FOREGOING LIMITED
WARRANTY, GSSI DISCLAIMS ALL WARRANTIES, EXPRESS OR IMPLIED,
INCLUDING ANY WARRANTY OF MERCHANTABILITY OR FITNESS FOR A
PARTICULAR PURPOSE. GSSI's obligation is limited to repairing or replacing parts or
equipment which are returned to GSSI, transportation and insurance pre-paid, without alteration
or further damage, and which in GSSI's judgment, were defective or became defective during
normal use.
GSSI ASSUMES NO LIABILITY FOR ANY DIRECT, INDIRECT, SPECIAL, INCIDENTAL
OR CONSEQUENTIAL DAMAGES OR INJURIES CAUSED BY PROPER OR IMPROPER
OPERATION OF ITS EQUIPMENT OR SOFTWARE, WHETHER OR NOT DEFECTIVE.
Before returning any equipment to GSSI, a Return Material Authorization (RMA) number must
be obtained. Please call the GSSI Customer Service Manager who will assign an RMA number.
Be sure to have the serial number of the unit available.
GSSI does not convey any license under its patent or other intellectual property rights or the
rights of others.
NOTE: Information in this manual is subject to change without notice. Please consult the
manual updates supplied with your system and contact GSSI with any additional questions.
Copyright © 2003, 2004 Geophysical Survey Systems, Inc.
All rights reserved including the right of reproduction in whole or in part in any form.
Published by Geophysical Survey Systems, Inc.
13 Klein Drive
North Salem, New Hampshire 03073-0097
Printed in the United States
GSSI and SIR are registered trademarks of Geophysical Survey Systems, Inc.
Windows is a registered trademark of the Microsoft Corporation.
Geophysical Survey Systems, Inc. Model 4105 Antenna
System Settings and User’s Notes
MN 34-559 Rev C
FCC Notice (for U.S. Customers):
This device complies with part 15 of the FCC Rules:
Operation is subject to the following conditions:
1. This device many not cause harmful interference, and
2. This device must accept any interference received, Including interference that may cause
undesired operation
Warning: Changes or modifications to this unit not expressly approved by the party responsible for
compliance could void the user’s authority to operate the equipment.
Operation of this device is restricted to law enforcement, fire and rescue officials,
scientific research institutes, commercial mining companies, and construction
companies. Operation by any other party is a violation of 47 U.S.C. § 301 and could
subject the operator to serious legal penalties.
Coordination Requirements.
(a) UWB imaging systems require coordination through the FCC before the equipment may
be used. The operator shall comply with any constraints on equipment usage resulting from this
coordination.
(b) The users of UWB imaging devices shall supply detailed operational areas to the FCC
Office of Engineering and Technology who shall coordinate this information with the Federal
Government through the National Telecommunications and Information Administration. The
information provided by the UWB operator shall include the name, address and other pertinent
contact information of the user, the desired geographical area of operation, and the FCC ID number
and other nomenclature of the UWB device. This material shall be submitted to the following
address:
Frequency Coordination Branch., OET
Federal Communications Commission
445 12th Street, SW
Washington, D.C. 20554
ATTN: UWB Coordination
(d) Users of authorized, coordinated UWB systems may transfer them to other qualified users and to
different locations upon coordination of change of ownership or location to the FCC and coordination with
existing authorized operations.
(e) The NTIA/FCC coordination report shall include any needed constraints that apply to
day-to-day operations. Such constraints could specify prohibited areas of operations or areas
located near authorized radio stations for which additional coordination is required before operation
of the UWB equipment. If additional local coordination is required, a local coordination contact will be
provided.
(f) The coordination of routine UWB operations shall not take longer than 15 business days
from the receipt of the coordination request by NTIA. Special temporary operations may be handled
with an expedited turn-around time when circumstances warrant. The operation of UWB systems in
emergency situations involving the safety of life or property may occur without coordination provided
a notification procedure, similar to that contained in CFR47 Section 2.405(a)-(e), is followed by the
UWB equipment user.
NOTICE: Use of this device as a wall imaging system is prohibited by FCC regulations.

Geophysical Survey Systems, Inc. Model 4105 Antenna
System Settings and User’s Notes
MN34-559 Rev C 1
Introduction
Thank you for purchasing a Model 4105 High Frequency Air Launched Antenna (Horn). The
4105 Horn represents the state of the art in high-speed, high-resolution pavement thickness and
bridge deck analysis ground penetrating equipment. This antenna is designed for applications
requiring very high resolution survey from a moving vehicle. The unique air-launched design
allows you to survey at high speeds without causing damage and wear to the antenna.
Furthermore, it allows GSSI’s RADAN post-processing software to separate the direct-coupling
reflection from the pavement surface reflection. This allows a very accurate measure of
pavement thickness.
The 4105 has a center frequency of 2.0 GHz in air.
Please read through this manual, as well as the manual for the control unit you are using,
thoroughly before attempting to set up and collect data.
If you experience operation problems with your system, GSSI Tech Support can be reached 9am-
5pm EST, Monday-Friday, at 1-800-524-3011, or at (603) 893-1109 (International).
The Difference is the Data

Geophysical Survey Systems, Inc. Model 4105 Antenna
System Settings and User’s Notes
MN34-559 Rev C 2
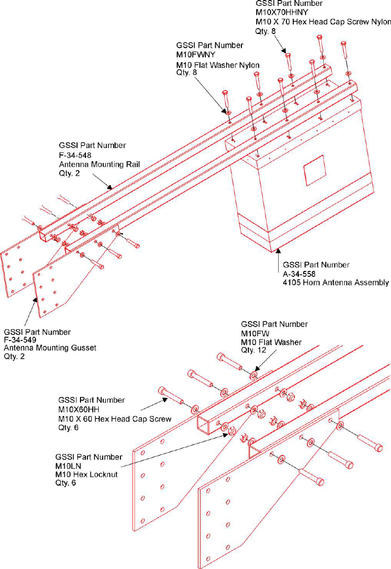
Antenna Mounting Assembly

Geophysical Survey Systems, Inc. Model 4105 Antenna
System Settings and User’s Notes
MN34-559 Rev C 3
Mounting and Data Collection Recommendations
Mounting Specifications:
The Model 4105 antenna mounting kit includes 2 square fiberglass tubes, 2 gusset plates and
associated hardware. Figure 1 shows a typical 4105 setup on the back of GSSI’s van.
Figure 1: Typical Model 4105 setup showing fiberglass rods and gusset plates.
The vertical metal pieces attached to the gusset plates are sold separately.
GSSI recommends that you follow the following specifications for mounting the
4105 antennas:
1. Recommended antenna bottom height above pavement with vehicle stationary:
18-20” (46 – 51 cm)
2. Recommended closest distance between antenna and significant metal (vertical metal rods
or the vehicle’s bumper) should be at least 40” (1 m).
3. The control cable should be fastened to one of fiberglass rails to prevent cable movement.
4. Excessive antenna bouncing should be minimized. The GSSI universal horn antenna
mounting kit includes 4 adjustable straps (ratchet straps) that minimize vertical and
horizontal antenna movement, especially on bumpy roads.
18-20” (46-51 cm)
40” (1 meter)
Control cable fastened to rail
Adjustable straps

Geophysical Survey Systems, Inc. Model 4105 Antenna
System Settings and User’s Notes
MN34-559 Rev C 4
Data Collection Recommendations:
The following software settings are recommended for general Model 4105 data collection.
See the SIR-10B/H or SIR-20 manual for instructions on how to make setting modifications.
Table 1. Recommended data collection settings for Model 4105 antenna.
SIR-10B/H SIR-20
Transmit Rate Fast 100-500 KHz †
Samples/Scan 512 512
Scans/Sec: 160 100 – 500* †
Time Range 10 ns 10 ns
Bits/Sample 16 16
Vertical Filter Settings:
IIR High Pass 100 MHz (1 Pole) 0-1 MHz **
FIR High Pass 250 MHz (Boxcar) 250 MHz
FIR Low Pass 4000 MHz (Boxcar) 5000 MHz
* Use higher scans/sec rate when collecting data at higher scans/m.
** Use 1 MHz IIR High Pass to remove signal slopes near bottom of scan (as shown in
Figure 2).
†
– FCC regulations require that SIR-20 systems sold in the U.S. are limited to a transmit rate
of 100 KHz.

Geophysical Survey Systems, Inc. Model 4105 Antenna
System Settings and User’s Notes
MN34-559 Rev C 5
Position: Signal position should be adjusted so that the latest arriving wavelet of the direct-
coupling is near the top of the scan. This wavelet should always be visible in the data. GSSI’s
RADAN post-processing software requires the presence of this wavelet in the data. Figure 2
shows a typical scan of data with the signal properly positioned. The largest amplitude reflection
will be the pavement surface. The next largest reflection will be desired direct-coupling
waveform. This will occur several nanoseconds before the pavement surface reflection and
appear in the Position window (below) as the next significant waveform to the left of that
pavement surface. Unlike ground-coupled antennas, the desired direct-coupling waveform is not
the first significant return in the trace. You may see another waveform that looks similar to the
direct-coupling higher in the trace. You do not want this waveform, but the second one. Since the
antenna and the pavement are separated by nothing but air, the trace between the pavement
reflector and the desired waveform should be fairly flat (as below). If you accidentally set the
position to the incorrect waveform, the post-processing will not work correctly.
Figure 2: Typical data scan obtained with Model 4105 and recommended software settings.
Direct-coupling waveform Pavement surface reflection

Geophysical Survey Systems, Inc. Model 4105 Antenna
System Settings and User’s Notes
MN34-559 Rev C 6
Gain: Data collection gain for the 4105 antenna should be adjusted so that the peak amplitude of
the pavement surface reflection is approximately 2/3 of the total screen width. For example, in
Figure 2 the pavement surface reflection has an amplitude of approximately 20000 and the full
screen width is 32000. It is very important that the pavement surface reflection amplitude
(and metal plate reflection when performing calibration) never reach its maximum
(i.e., clip). If they jump off of the top or the bottom of the window, they are collected with too
much gain. This will cause errors in the post-processing. Figure 3 shows an improperly gained
signal.
Figure 3: Example of Model 4105 data scan collected with too much gain.
Quick Setup Procedure SIR-10B/H
1. Connect the transducer cable from the SIR unit (Channel 1) to the Model 4105 antenna.
2. Connect all other necessary cables to the SIR unit (power, video, keyboard).
3. Turn on the SIR unit.
4. From the Main menu select Recall Saved Radar Setting (Option 4).
5. Select Highway Data (Option 4).
6. From the list of antenna configurations select “2G”.
7. Back in the Main menu, select Collect Radar Data (Option 2).
8. A message will appear on the screen indicating that settings have been changed, then the
screen should change and you should see a signal similar to the signal shown in Figure 2 on
the right side of the screen. The position of the signal may be shifted and the data collection
settings may be slightly different than those currently recommended.
• Compare all of the settings listed in the Data Collection Recommendations section to
those on the SIR unit and make any necessary adjustments prior to collecting data.

Geophysical Survey Systems, Inc. Model 4105 Antenna
System Settings and User’s Notes
MN34-559 Rev C 7
Quick Setup Procedure SIR-20
1. Connect the transducer cable from the SIR-20 (Channel 1) to the Model 4105 antenna.
2. Connect the power supply to the SIR-20.
3. Turn on the SIR-20 and wait until it is booted-up.
4. Double-click on the SIR-20 Desktop shortcut.
5. Press to recall a saved project for the Model 4105 antenna.
• First time users should locate the folder “Fixed SIR-20 Setups” and select the project
“2.5 GHz Horn Free Run.” Note, this setup applies to both 2.0 and 2.5 GHz horns.
• If the project cannot be found (older RADAN versions don’t have this project) select
the “1GHz Horn Free Run” project from the folder.
6. Press to run the project.
7. The position of the signal may be shifted and the data collection settings may be slightly
different than those currently recommended. Change the signal position if necessary so that
it is similar to the signal position shown in Figure 1.
• Compare all of the settings listed in Table 1 to those on the SIR unit and make any
necessary adjustments prior to collecting data.
• Also check the gain of the signal to make sure it is not clipping. Save any changes made
to the signal position and signal gain to a new macro prior to collecting data.
• Prior to collecting any distance-based data, the survey wheel option will need to be
checked (see SIR-20 manual for details).