Goodman Mfg Gpg13M Users Manual SS GPG13
GPG13M to the manual 84b2f034-5cb1-48ee-877a-b547e7ae729d
2015-02-02
: Goodman-Mfg Goodman-Mfg-Gpg13M-Users-Manual-429610 goodman-mfg-gpg13m-users-manual-429610 goodman-mfg pdf
Open the PDF directly: View PDF
.
Page Count: 24

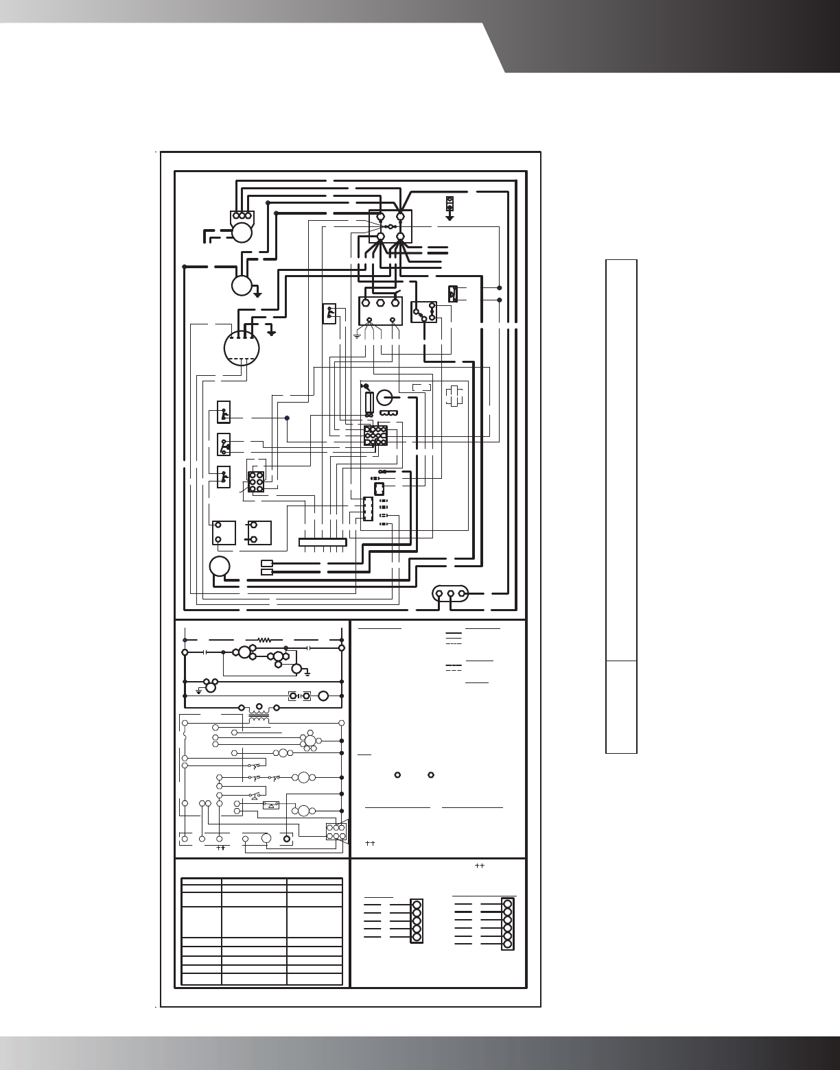
SS-GPG13M www.GoodManMfG.coM 4/11
SuPerSedeS 2/10
2- to 5-ton
Packaged gas/electric Units
cooling caPacities: 23,600 to 57,000 BtU/h
heating caPacities: 46,000 to 138,000 BtU/h
Standard Features
• High-efciencycompressor
• Durable,corrosion-resistantT-140
aluminizedsteeltubularheatexchanger
• Coppertube/aluminumncoilwithowrater
expansiondevice
• Recirculatingblowermotor:PSCtype
on2to3½ton;X-13typeon4-and5-tonunits
• FullychargedR-410Asystem
• Redundantgasvalveandeasyconversiontopropane
• Power-assistedcombustion
• Directsparkignitionsystemincludesamicroprocessor-based
controlfortheentireignitionsequence,allbloweroperation,
andallsafetycircuitscompletewithself-diagnostics
• AllmodelscomplywithCaliforniaLowNOxstandards
• AHRICertied;ETLListed
Cabinet Features
• High-qualityUV-resistantpowder-paintnish
• Horizontalordownowapplication
• Convenientaccesspanels
• Oneroofcurbtsallunits
• Fullyinsulatedcabinet
• Bottom,2”highbaserailsforeasierhandling
• AllGPG13Mmodelstinastandard-sizepick-uptruck
• Whenproperlyanchored,meetsthe2001FloridaBuilding
Codeunitintegrityrequirementsforhurricane-typewinds
(Anchorbracketkitsavailable.)
*Completewarrantydetailsavailablefromyourlocaldealeroratwww.goodmanmfg.com.Toreceivethe10-YearParts
LimitedWarranty,onlineregistrationmustbecompletedwithin60daysofinstallation.Onlineregistrationisnot
requiredinCaliforniaorQuébec
.
13 SEER / 80% AFUE
GPG13M
Contents
Nomenclature......................................................................... 2
ProductSpecications............................................................ 3
ExpandedCoolingData.......................................................... 6
AirowData.......................................................................... 18
Dimensions........................................................................... 21
WiringDiagrams.................................................................. 22
Accessories............................................................................ 24

ProdUct sPecifications ProdUct sPecifications
2
www
.
GoodManMfG
.
coM
SS-GPG13M
nomenclatUre
Brand
G Goodman® Brand Electrical
1 208-230/1/60
Product Category 3 208-230/3/60
P Packaged Unit
Refrigerant
Unit Type 2 R-22
G Gas/Electric 4 R-410A
Configuration
Efficiency H Horizontal
13 13 SEER M Multi-Position
15 15 SEER
Heat Input
Nominal Capacity 45 46 MBTU/h
24 2 Tons
42 3½ Tons 70 69 MBTU/h
30 2½ tons 48 4 Tons 90 92 MBTU/h
36 3 Tons 60 5 Tons 115 115 MBTU/h
140 138 MBTU/h
4
12
1
13
13
4,5
24
6,7
M
11
045
8,9,10
G
1
P
2
G
3

Product SPecificationS Product SPecificationS
SS-GPG13M
www
.
GoodManMfG
.
coM
3
SPecificationS
GPG1324
045M41A*
GPG1324
070M41A*
GPG1330
045M41A*
GPG1330
070M41A*
GPG1336
045M41A*
Cooling Capacity
Total BTU/h 23,600 23,600 28,600 28,600 36,000
Sensible BTU/h 18,800 18,800 22,600 22,600 27,800
SEER / EER 13.0 / 11.0 13.0 / 11.0 13.0 / 11.0 13.0 / 11.0 13.0 / 10.75
Decibels 78 78 78 78 78
AHRI Reference #s 4385090 4385090 4385091 4385091 4385094
Heating Capacity
Input BTU/h 46,000 69,000 46,000 69,000 46,000
Output BTU/h 36,700 55,000 36,700 55,000 36,700
AFUE 80 80 80 80 80
Temperature Rise Range 30 - 60 35 - 65 30 - 60 35 - 65 30 - 60
No. of Burners 2 3 2 3 2
Orice Size (Natural/Propane) 43 / 55 43 / 55 43 / 55 43 / 55 43 / 55
Evaporator Motor
Type PSC PSC PSC PSC PSC
Wheel (D x W) 10” x 8” 10” x 8” 10” x 8” 10” x 8” 10” x 9”
Indoor Nominal CFM 800 800 1,000 1,000 1,200
Motor Speed Tap (Cooling) Med Med Med Med High
RPM/Amps (Cooling) 952/1.5 952/1.5 1,015/1.85 1,015/1.85 910/3.06
Horsepower 1/4 1/4 1/3 1/3 1/3
Evaporator Coil
Face Area (²) 4.33 4.33 4.33 4.33 4.33
Rows Deep/Fins per Inch 3/16 3/16 4/16 4/16 4/14
Piston Size (Cooling) 0.053 0.053 0.062 0.062 0.070
Filter Size (²) 2.7 2.7 3.3 3.3 4.2
Drain Size (NPT) ¾” ¾” ¾” ¾” ¾”
Refrigerant Charge (oz.) 80 80 80 80 85
Condenser Fan / Coil
Horsepower - RPM 1/4 - 830 1/4 - 830 1/4 - 1,100 1/4 - 1,100 1/4 - 830
Diameter / # of Blades 22” / 3 22” / 3 22” / 3 22” / 3 22” / 3
Outdoor Nominal CFM 2,400 2,400 2,700 2,700 2,400
Face Area (²) 12.3 12.3 12.3 12.3 12.3
Rows Deep/Fins per Inch 1/24 1/24 1/24 1/24 1/24
Compressor
Quanty / Type 1 / Recip 1 / Recip 1 / Recip 1 / Recip 1 / Scroll
Stage Single Single Single Single Single
Compressor RLA/LRA 8.3 / 43.0 8.3 / 43.0 10.6 / 54.0 10.6 / 54.0 16.7/79.0
Electrical Data
Voltage/Phase/Frequency 208/230-1-60 208/230-1-60 208/230-1-60 208/230-1-60 208/230-1-60
Indoor Blower FLA/LRA 1.5 / 2.2 1.5 / 2.2 1.9 / 3.1 1.9 / 3.1 3.06/4.1
Outdoor Fan RLA/LRA 1.5 / 3.0 1.5 / 3.0 1.4 / 2.9 1.4 / 2.9 1.5 / 3.0
Total Unit Amps 11.3 11.3 13.9 13.9 21.2
Min. Circuit Ampacity 13.4 13.4 16.6 16.6 25.4
Max. Overcurrent Protecon 20 amps 20 amps 25 amps 25 amps 40 amps
Entrance Size Power Supply 1⅛” 1⅛” 1⅛” 1⅛” 1⅛”
Entrance Size Control Voltage ⅞” ⅞” ⅞” ⅞” ⅞”
Operating Weight (lbs) 412 417 415 420 449
Ship Weight (lbs) 435 439 438 442 470
¹ Wire size should be determined in accordance with National Electrical Codes. Extensive wire runs will require larger wire sizes.
² Must use time-delay fuses or HACR-type circuit breakers of the same size as noted.
Note: Always check the S&R plate for electrical data on the unit being installed.

Product SPecificationS Product SPecificationS
4
www
.
GoodManMfG
.
coM
SS-GPG13M
SPecificationS (cont.)
GPG1336
070M41A*
GPG1336
090M41A*
GPG1342
070M41A*
GPG1342
090M41A*
GPG1348
070M41A*
Cooling Capacity
Total BTU/h 36,000 36,000 40,500 40,500 46,000
Sensible BTU/h 27,800 27,800 30,800 30,800 36,700
SEER / EER 13.0 / 10.75 13.0 / 10.75 13.0 / 11.0 13.0 / 11.0 13.0 / 11.0
Decibels 78 78 78 78 80
AHRI Reference #s 4385094 4385094 4385096 4385096 4385097
Heating Capacity
Input BTU/h 69,000 92,000 69,000 92,000 69,000
Output BTU/h 55,000 73,600 55,000 73,600 55,000
AFUE 80 80 80 80 80
Temperature Rise Range 35 - 65 45 - 75 35 - 65 45 - 75 35 - 65
No. of Burners 3 4 3 4 3
Orice Size (Natural/Propane) 43 / 55 43 / 55 43 / 55 43 / 55 43 / 55
Evaporator Motor
Type PSC PSC PSC PSC EEM
Wheel (D x W) 10” x 9” 10” x 9” 10” x 10” 10” x 10” 11” x 10”
Indoor Nominal CFM 1,200 1,200 1,300 1,300 1,550
Motor Speed Tap (Cooling) High High Medium Medium T4
RPM/Amps (Cooling) 910/3.06 910/3.06 910/3.06 910/3.06 1,050/5.8
Horsepower 1/3 1/3 1/3 1/3 3/4
Evaporator Coil
Face Area (²) 4.33 4.33 5.67 5.67 5.67
Rows Deep/Fins per Inch 4/14 4/14 4/14 4/14 4/14
Piston Size (Cooling) 0.070 0.070 0.072 0.072 0.076
Filter Size (²) 4.2 4.2 4.7 4.7 5.1
Drain Size (NPT) ¾” ¾” ¾” ¾” ¾”
Refrigerant Charge (oz.) 85 85 105 105 125
Condenser Fan / Coil
Horsepower - RPM 1/4 - 830 1/4 - 830 1/4 - 1100 1/4 - 1100 1/4 - 1100
Diameter / # of Blades 22” / 3 22” / 3 22” / 3 22” / 3 22” / 3
Outdoor Nominal CFM 2,400 2,400 3,500 3,500 3,500
Face Area (²) 12.3 12.3 15.4 15.4 15.4
Rows Deep/Fins per Inch 1/24 1/24 1/24 1/24 1/24
Compressor
Quanty / Type 1 / Scroll 1 / Scroll 1 / Scroll 1 / Scroll 1 / Scroll
Stage Single Single Single Single Single
Compressor RLA/LRA 16.7/79.0 16.7/79.0 17.9 / 112 17.9 / 112 19.9/109
Electrical Data
Voltage/Phase/Frequency 208/230-1-60 208/230-1-60 208/230-1-60 208/230-1-60 208/230-1-60
Indoor Blower FLA/LRA 3.06/4.1 3.06/4.1 3.0 / 4.1 3.0 / 4.1 5.8
Outdoor Fan RLA/LRA 1.5 / 3.0 1.5 / 3.0 1.4/ 2.9 1.4/ 2.9 1.4/ 2.9
Total Unit Amps 21.2 21.2 22.3 22.3 27.1
Min. Circuit Ampacity 25.4 25.4 26.8 26.8 32.1
Max. Overcurrent Protecon 40 amps 40 amps 40 amps 40 amps 50 amps
Entrance Size Power Supply 1⅛” 1⅛” 1⅛” 1⅛” 1⅛”
Entrance Size Control Voltage ⅞” ⅞” ⅞” ⅞” ⅞”
Operating Weight (lbs) 453 458 493 496 518
Ship Weight (lbs) 475 480 515 520 540
¹ Wire size should be determined in accordance with National Electrical Codes. Extensive wire runs will require larger wire sizes.
² Must use time-delay fuses or HACR-type circuit breakers of the same size as noted.
Note: Always check the S&R plate for electrical data on the unit being installed.

Product SPecificationS Product SPecificationS
SS-GPG13M
www
.
GoodManMfG
.
coM
5
SPecificationS (cont.)
GPG1348
090M41A
GPG1348
115M41A
GPG1360
090M41A
GPG1360
115M41A
GPG1360
140M41A
Cooling Capacity
Total BTU/h 46,000 46,000 57,000 57,000 57,000
Sensible BTU/h 36,700 36,700 43,800 43,800 43,800
SEER / EER 13.0 / 11.0 13.0 / 11.0 13.0 / 10.75 13.0 / 10.75 13.0 / 10.75
Decibels 80 80 80 80 80
AHRI Reference #s 4385097 4385097 4385099 4385099 4385099
Heating Capacity
Input BTU/h 92,000 115,000 92,000 115,000 138,000
Output BTU/h 73,600 92,000 73,600 92,000 110,400
AFUE 80 80 80 80 80
Temperature Rise Range 45 - 75 45 - 75 45 - 75 45 - 75 45 - 75
No. of Burners 4 5 4 5 6
Orice Size (Natural/Propane) 43 / 55 43 / 55 43 / 55 43 / 55 43 / 55
Evaporator Motor
Type EEM EEM EEM EEM EEM
Wheel (D x W) 11” x 10” 11” x 10” 11” x 10” 11” x 10” 11” x 10”
Indoor Nominal CFM 1,550 1,550 1,750 1,750 1,750
Motor Speed Tap (Cooling) T4 T4 T4 T4 T4
RPM/Amps (Cooling) 1,050/5.8 1,050/5.8 1,050/7.6 1,050/7.6 1,050/7.6
Horsepower 3/4 3/4 1.0 1.0 1.0
Evaporator Coil
Face Area (²) 5.67 5.67 5.67 5.67 5.67
Rows Deep/Fins per Inch 4/14 4/14 4/14 4/14 4/14
Piston Size (Cooling) 0.076 0.076 0.087 0.087 0.087
Filter Size (²) 5.1 5.1 6.3 6.3 6.3
Drain Size (NPT) ¾” ¾” ¾” ¾” ¾”
Refrigerant Charge (oz.) 125 125 185 185 185
Condenser Fan / Coil
Horsepower - RPM 1/4 - 1100 1/4 - 1100 1/4 - 1100 1/4 - 1100 1/4 - 1100
Diameter / # of Blades 22” / 3 22” / 3 22” / 3 22” / 3 22” / 3
Outdoor Nominal CFM 3,500 3,500 3,500 3,500 3,500
Face Area (²) 15.4 15.4 15.2 15.2 15.2
Rows Deep/Fins per Inch 1/24 1/24 2/16 2/16 2/16
Compressor
Quanty / Type 1 / Scroll 1 / Scroll 1 / Scroll 1 / Scroll 1 / Scroll
Stage Single Single Single Single Single
Compressor RLA/LRA 19.9/109 19.9/109 26.4 / 134 26.4 / 134 26.4 / 134
Electrical Data
Voltage/Phase/Frequency 208/230-1-60 208/230-1-60 208/230-1-60 208/230-1-60 208/230-1-60
Indoor Blower FLA/LRA 5.8 5.8 7.6 7.6 7.6
Outdoor Fan RLA/LRA 1.4/ 2.9 1.4/ 2.9 1.4/ 2.9 1.4/ 2.9 1.4/ 2.9
Total Unit Amps 27.1 27.1 35.4 35.4 35.4
Min. Circuit Ampacity 32.1 32.1 42 42 42
Max. Overcurrent Protecon 50 amps 50 amps 60 amps 60 amps 60 amps
Entrance Size Power Supply 1⅛” 1⅛” 1⅛” 1⅛” 1⅛”
Entrance Size Control Voltage ⅞” ⅞” ⅞” ⅞” ⅞”
Operating Weight (lbs) 523 528 533 538 543
Ship Weight (lbs) 545 550 555 560 565
¹ Wire size should be determined in accordance with Naonal Electrical Codes. Extensive wire runs will require larger wire sizes.
² Must use me-delay fuses or HACR-type circuit breakers of the same size as noted.
Note: Always check the S&R plate for electrical data on the unit being installed.

ProdUct sPecifications ProdUct sPecifications
6
www
.
GoodManMfG
.
coM
SS-GPG13M
exPanded cooling data — gPg1324***m41
65 75 85 95 105 115
59 63 67 71 59 63 67 71 59 63 67 71 59 63 67 71 59 63 67 71 59 63 67 71
70
890
MBh 23.5 24.4 26.7 - 23.0 23.8 26.1 - 22.4 23.2 25.5 - 21.9 22.7 24.8 - 20.8 21.5 23.6 - 19.3 20.0 21.9 -
S/T 0.8 0.7 0.5 - 0.8 0.7 0.5 - 0.8 0.7 0.5 - 0.9 0.7 0.5 - 0.9 0.7 0.5 - 0.9 0.8 0.5 -
∆T 19 17 13 - 19 17 13 - 19 17 13 - 19 17 13 - 19 17 13 - 18 16 12 -
kW 1.7 1.7 1.8 - 1.8 1.9 1.9 - 1.9 2.0 2.0 - 2.0 2.1 2.1 - 2.1 2.2 2.2 - 2.2 2.2 2.3 -
Amps 6.7 6.8 7.0 - 7.1 7.3 7.5 - 7.7 7.9 8.1 - 8.2 8.4 8.6 - 8.7 8.9 9.1 - 9.2 9.4 9.7 -
Hi Pr 243 262 276 - 273 294 310 - 310 334 353 - 353 380 402 - 398 428 452 - 439 473 499 -
Lo Pr 112 119 130 - 119 126 138 - 123 131 143 - 129 138 150 - 136 144 158 - 140 149 163 -
790
MBh 22.8 23.7 25.9 - 22.3 23.1 25.3 - 21.8 22.6 24.7 - 21.2 22.0 24.1 - 20.2 20.9 22.9 - 18.7 19.4 21.2 -
S/T 0.8 0.6 0.4 - 0.8 0.6 0.4 - 0.8 0.7 0.5 - 0.8 0.7 0.5 - 0.9 0.7 0.5 - 0.9 0.7 0.5 -
∆T 20 17 13 - 20 17 13 - 20 18 13 - 20 18 13 - 20 17 13 - 19 16 12 -
kW 1.7 1.7 1.8 - 1.8 1.8 1.9 - 1.9 2.0 2.0 - 2.0 2.1 2.1 - 2.1 2.1 2.2 - 2.2 2.2 2.3 -
Amps 6.6 6.7 6.9 - 7.1 7.2 7.5 - 7.6 7.8 8.0 - 8.1 8.3 8.6 - 8.6 8.8 9.1 - 9.1 9.3 9.6 -
Hi Pr 241 259 274 - 270 291 307 - 307 331 349 - 350 377 398 - 394 424 447 - 435 468 494 -
Lo Pr 111 118 129 - 117 125 136 - 122 130 142 - 128 136 149 - 134 143 156 - 139 148 161 -
690
MBh 21.1 21.8 23.9 - 20.6 21.3 23.4 - 20.1 20.8 22.8 - 19.6 20.3 22.3 - 18.6 19.3 21.1 - 17.3 17.9 19.6 -
S/T 0.7 0.6 0.4 - 0.7 0.6 0.4 - 0.8 0.6 0.4 - 0.8 0.7 0.5 - 0.8 0.7 0.5 - 0.8 0.7 0.5 -
∆T 20 18 13 - 21 18 14 - 21 18 14 - 21 18 14 - 20 18 13 - 19 17 13 -
kW 1.6 1.7 1.7 - 1.8 1.8 1.9 - 1.9 1.9 2.0 - 2.0 2.0 2.1 - 2.0 2.1 2.2 - 2.1 2.2 2.2 -
Amps 6.4 6.6 6.8 - 6.9 7.1 7.3 - 7.4 7.6 7.8 - 7.9 8.1 8.3 - 8.4 8.6 8.8 - 8.8 9.0 9.3 -
Hi Pr 233 251 265 - 262 282 298 - 298 321 339 - 339 365 386 - 382 411 434 - 422 454 479 -
Lo Pr 108 115 125 - 114 121 132 - 118 126 137 - 124 132 144 - 130 139 151 - 135 143 157 -
75
890
MBh 23.9 24.6 26.7 28.6 23.4 24.1 26.0 27.9 22.8 23.5 25.4 27.3 22.2 22.9 24.8 26.6 21.1 21.8 23.6 25.3 19.6 20.2 21.8 23.4
S/T 0.9 0.8 0.6 0.4 0.9 0.8 0.6 0.4 1.0 0.9 0.6 0.4 1.0 0.9 0.7 0.4 1.0 0.9 0.7 0.4 1.0 0.9 0.7 0.4
∆T 22 20 17 12 22 21 17 12 22 21 17 12 23 21 17 12 22 20 17 12 20 19 16 11
kW 1.7 1.7 1.8 1.8 1.8 1.9 1.9 2.0 1.9 2.0 2.0 2.1 2.0 2.1 2.2 2.2 2.1 2.2 2.2 2.3 2.2 2.2 2.3 2.4
Amps 6.7 6.9 7.1 7.3 7.2 7.4 7.6 7.8 7.8 7.9 8.2 8.5 8.3 8.4 8.7 9.0 8.7 8.9 9.2 9.6 9.2 9.4 9.7 10.1
Hi Pr 246 264 279 291 276 297 313 327 313 337 356 371 357 384 406 423 402 432 456 476 444 478 504 526
Lo Pr 113 121 132 140 120 127 139 148 124 132 145 154 131 139 152 162 137 146 159 170 142 151 165 175
790
MBh 23.2 23.9 25.9 27.8 22.7 23.4 25.3 27.1 22.1 22.8 24.7 26.5 21.6 22.2 24.1 25.8 20.5 21.1 22.9 24.5 19.0 19.6 21.2 22.7
S/T 0.9 0.8 0.6 0.4 0.9 0.8 0.6 0.4 0.9 0.8 0.6 0.4 0.9 0.8 0.6 0.4 1.0 0.9 0.7 0.4 1.0 0.9 0.7 0.4
∆T 23 21 17 12 23 22 18 12 23 22 18 12 24 22 18 12 23 21 18 12 22 20 16 11
kW 1.7 1.7 1.8 1.8 1.8 1.9 1.9 2.0 1.9 2.0 2.0 2.1 2.0 2.1 2.1 2.2 2.1 2.2 2.2 2.3 2.2 2.2 2.3 2.4
Amps 6.7 6.8 7.0 7.2 7.1 7.3 7.5 7.8 7.7 7.9 8.1 8.4 8.2 8.4 8.6 8.9 8.7 8.9 9.1 9.5 9.2 9.4 9.7 10.0
Hi Pr 243 262 276 288 273 294 310 323 310 334 353 368 353 380 402 419 398 428 452 471 439 473 499 521
Lo Pr 112 119 130 139 119 126 138 147 123 131 143 152 129 138 150 160 136 144 158 168 140 149 163 174
690
MBh 21.4 22.1 23.9 25.6 20.9 21.6 23.3 25.0 20.4 21.0 22.8 24.4 19.9 20.5 22.2 23.8 18.9 19.5 21.1 22.7 17.5 18.1 19.6 21.0
S/T 0.8 0.7 0.6 0.4 0.9 0.8 0.6 0.4 0.9 0.8 0.6 0.4 0.9 0.8 0.6 0.4 0.9 0.8 0.6 0.4 0.9 0.8 0.6 0.4
∆T 23 22 18 12 24 22 18 12 24 22 18 12 24 22 18 12 24 22 18 12 22 20 17 11
kW 1.7 1.7 1.7 1.8 1.8 1.8 1.9 1.9 1.9 1.9 2.0 2.0 2.0 2.0 2.1 2.2 2.1 2.1 2.2 2.2 2.1 2.2 2.2 2.3
Amps 6.5 6.6 6.8 7.1 7.0 7.1 7.3 7.6 7.5 7.7 7.9 8.2 8.0 8.2 8.4 8.7 8.5 8.6 8.9 9.2 8.9 9.1 9.4 9.7
Hi Pr 236 254 268 280 265 285 301 314 301 324 342 357 343 369 390 406 386 415 438 457 426 459 484 505
Lo Pr 109 116 126 135 115 122 134 142 120 127 139 148 126 134 146 155 132 140 153 163 136 145 158 168
IDB: Entering Indoor Dry Bulb Temperature Shaded area reects ACCA (TVA) condions. kW = Total system power
High and low pressures are measured at the liquid and sucon access ngs. Amps: Unit amps (comp.+ evaporator + condenser fan motors)

ProdUct sPecifications ProdUct sPecifications
SS-GPG13M
www
.
GoodManMfG
.
coM
7
exPanded cooling data — gPg1324***m41 (cont.)
65 75 85 95 105 115
59 63 67 71 59 63 67 71 59 63 67 71 59 63 67 71 59 63 67 71 59 63 67 71
80
890
MBh 24.3 24.9 26.6 28.4 23.8 24.3 26.0 27.7 23.2 23.7 25.3 27.1 22.6 23.1 24.7 26.4 21.5 22.0 23.5 25.1 19.9 20.4 21.8 23.3
S/T 1.0 0.9 0.7 0.6 1.0 1.0 0.8 0.6 1.0 1.0 0.8 0.6 1.0 1.0 0.8 0.6 1.0 1.0 0.9 0.6 1.0 1.0 0.9 0.6
∆T 25 24 21 16 25 24 21 17 24 24 21 17 23 24 21 17 22 23 21 17 21 21 19 15
kW 1.7 1.8 1.8 1.9 1.8 1.9 1.9 2.0 2.0 2.0 2.1 2.1 2.1 2.1 2.2 2.2 2.1 2.2 2.3 2.3 2.2 2.3 2.3 2.4
Amps 6.8 6.9 7.1 7.4 7.3 7.4 7.6 7.9 7.8 8.0 8.3 8.5 8.3 8.5 8.8 9.1 8.8 9.0 9.3 9.6 9.3 9.5 9.8 10.2
Hi Pr 248 267 282 294 278 300 316 330 317 341 360 375 361 388 410 427 406 437 461 481 448 482 509 531
Lo Pr 115 122 133 142 121 129 141 150 126 134 146 156 132 141 153 163 138 147 161 171 143 152 166 177
790
MBh 23.6 24.1 25.8 27.6 23.1 23.6 25.2 26.9 22.5 23.0 24.6 26.3 22.0 22.5 24.0 25.7 20.9 21.3 22.8 24.4 19.3 19.8 21.1 22.6
S/T 0.9 0.9 0.7 0.5 1.0 0.9 0.7 0.6 1.0 0.9 0.8 0.6 1.0 1.0 0.8 0.6 1.0 1.0 0.8 0.6 1.0 1.0 0.8 0.6
∆T 26 25 21 17 26 25 22 17 26 25 22 17 26 25 22 17 24 25 22 17 23 23 20 16
kW 1.7 1.7 1.8 1.8 1.8 1.9 1.9 2.0 1.9 2.0 2.0 2.1 2.0 2.1 2.2 2.2 2.1 2.2 2.2 2.3 2.2 2.2 2.3 2.4
Amps 6.7 6.9 7.1 7.3 7.2 7.4 7.6 7.8 7.8 7.9 8.2 8.5 8.3 8.4 8.7 9.0 8.7 8.9 9.2 9.6 9.2 9.4 9.7 10.1
Hi Pr 246 264 279 291 276 297 313 327 313 337 356 372 357 384 406 423 402 432 456 476 444 478 504 526
Lo Pr 113 121 132 140 120 127 139 148 125 132 145 154 131 139 152 162 137 146 159 170 142 151 165 175
690
MBh 21.8 22.3 23.8 25.5 21.3 21.8 23.3 24.9 20.8 21.3 22.7 24.3 20.3 20.7 22.2 23.7 19.3 19.7 21.0 22.5 17.9 18.2 19.5 20.8
S/T 0.9 0.8 0.7 0.5 0.9 0.9 0.7 0.5 1.0 0.9 0.7 0.5 1.0 0.9 0.8 0.6 1.0 1.0 0.8 0.6 1.0 1.0 0.8 0.6
∆T 26 25 22 17 27 25 22 18 27 25 22 18 27 26 22 18 26 25 22 18 25 24 21 16
kW 1.7 1.7 1.8 1.8 1.8 1.8 1.9 1.9 1.9 1.9 2.0 2.1 2.0 2.0 2.1 2.2 2.1 2.1 2.2 2.3 2.1 2.2 2.3 2.3
Amps 6.5 6.7 6.9 7.1 7.0 7.2 7.4 7.6 7.6 7.7 8.0 8.3 8.0 8.2 8.5 8.8 8.5 8.7 9.0 9.3 9.0 9.2 9.5 9.8
Hi Pr 238 256 271 282 267 288 304 317 304 327 346 360 346 373 394 410 390 419 443 462 430 463 489 510
Lo Pr 110 117 128 136 116 124 135 144 121 128 140 149 127 135 147 157 133 141 154 164 138 146 160 170
85
890
MBh 24.8 25.2 26.4 28.2 24.2 24.7 25.8 27.6 23.6 24.1 25.2 26.9 23.0 23.5 24.6 26.2 21.9 22.3 23.4 24.9 20.3 20.7 21.6 23.1
S/T 1.0 1.0 0.9 0.7 1.0 1.0 0.9 0.8 1.0 1.0 1.0 0.8 1.0 1.0 1.0 0.8 1.0 1.0 1.0 0.8 1.0 1.0 1.0 0.8
∆T 26 26 24 21 25 25 25 21 24 25 25 21 24 24 25 22 23 23 24 21 21 21 22 20
kW 1.7 1.8 1.8 1.9 1.9 1.9 2.0 2.0 2.0 2.0 2.1 2.1 2.1 2.1 2.2 2.3 2.2 2.2 2.3 2.4 2.2 2.3 2.4 2.4
Amps 6.8 7.0 7.2 7.4 7.3 7.5 7.7 8.0 7.9 8.1 8.3 8.6 8.4 8.6 8.9 9.2 8.9 9.1 9.4 9.7 9.4 9.6 9.9 10.3
Hi Pr 251 270 285 297 281 303 319 333 320 344 363 379 364 392 414 432 410 441 466 486 453 487 514 537
Lo Pr 116 123 134 143 122 130 142 151 127 135 148 157 133 142 155 165 140 149 162 173 145 154 168 179
790
MBh 24.0 24.5 25.7 27.4 23.5 23.9 25.1 26.8 22.9 23.4 24.5 26.1 22.4 22.8 23.9 25.5 21.2 21.7 22.7 24.2 19.7 20.1 21.0 22.4
S/T 1.0 0.9 0.9 0.7 1.0 1.0 0.9 0.7 1.0 1.0 0.9 0.7 1.0 1.0 0.9 0.8 1.0 1.0 1.0 0.8 1.0 1.0 1.0 0.8
∆T 27 27 26 22 27 27 26 22 27 27 26 22 26 27 26 23 25 25 26 22 23 23 24 21
kW 1.7 1.8 1.8 1.9 1.8 1.9 1.9 2.0 2.0 2.0 2.1 2.1 2.1 2.1 2.2 2.2 2.1 2.2 2.3 2.3 2.2 2.3 2.3 2.4
Amps 6.8 6.9 7.1 7.4 7.3 7.4 7.6 7.9 7.8 8.0 8.3 8.5 8.3 8.5 8.8 9.1 8.8 9.0 9.3 9.6 9.3 9.5 9.8 10.2
Hi Pr 248 267 282 294 278 300 316 330 317 341 360 375 361 388 410 427 406 437 461 481 448 482 509 531
Lo Pr 115 122 133 142 121 129 141 150 126 134 146 156 132 141 153 163 138 147 161 171 143 152 166 177
690
MBh 22.2 22.6 23.7 25.3 21.7 22.1 23.1 24.7 21.2 21.6 22.6 24.1 20.6 21.0 22.0 23.5 19.6 20.0 20.9 22.3 18.2 18.5 19.4 20.7
S/T 0.9 0.9 0.8 0.7 1.0 0.9 0.9 0.7 1.0 1.0 0.9 0.7 1.0 1.0 0.9 0.7 1.0 1.0 0.9 0.8 1.0 1.0 0.9 0.8
∆T 28 28 26 23 28 28 26 23 28 28 26 23 28 28 27 23 26 27 26 23 24 25 24 21
kW 1.7 1.7 1.8 1.8 1.8 1.8 1.9 2.0 1.9 2.0 2.0 2.1 2.0 2.1 2.1 2.2 2.1 2.1 2.2 2.3 2.2 2.2 2.3 2.4
Amps 6.6 6.7 6.9 7.2 7.1 7.2 7.5 7.7 7.6 7.8 8.0 8.3 8.1 8.3 8.6 8.9 8.6 8.8 9.1 9.4 9.1 9.3 9.6 9.9
Hi Pr 241 259 273 285 270 291 307 320 307 330 349 364 350 376 397 415 393 423 447 466 435 468 494 515
Lo Pr 111 118 129 137 117 125 136 145 122 130 142 151 128 136 149 158 134 143 156 166 139 148 161 172
IDB: Entering Indoor Dry Bulb Temperature Shaded area reects AHRI (TVA) condions. kW = Total system power
High and low pressures are measured at the liquid and sucon access ngs. Amps: Unit amps (comp.+ evaporator + condenser fan motors)

ProdUct sPecifications ProdUct sPecifications
8
www
.
GoodManMfG
.
coM
SS-GPG13M
exPanded cooling data — gPg1330***m41
Outdoor Ambient Temperature
65 75 85 95 105 115
59 63 67 71 59 63 67 71 59 63 67 71 59 63 67 71 59 63 67 71 59 63 67 71
70
1125
MBh 28.0 29.0 31.8 - 27.4 28.4 31.1 - 26.7 27.7 30.3 - 26.1 27.0 29.6 - 24.8 25.7 28.1 - 22.9 23.8 26.1 -
S/T 0.8 0.7 0.5 - 0.8 0.7 0.5 - 0.8 0.7 0.5 - 0.9 0.7 0.5 - 0.9 0.8 0.5 - 0.9 0.8 0.5 -
∆T 18 16 12 - 18 16 12 - 18 16 12 - 19 16 12 - 18 16 12 - 17 15 11 -
kW 2.1 2.1 2.2 - 2.2 2.3 2.4 - 2.4 2.4 2.5 - 2.5 2.5 2.6 - 2.6 2.6 2.7 - 2.7 2.7 2.8 -
Amps 7.7 7.9 8.1 - 8.3 8.5 8.7 - 8.9 9.1 9.4 - 9.5 9.7 10.0 - 10.1 10.3 10.7 - 10.7 10.9 11.3 -
Hi Pr 238 256 271 - 267 288 304 - 304 327 345 - 346 373 393 - 390 419 443 - 430 463 489 -
Lo Pr 114 122 133 - 121 129 140 - 126 134 146 - 132 140 153 - 138 147 161 - 143 152 166 -
1000
MBh 27.2 28.2 30.9 - 26.6 27.5 30.2 - 25.9 26.9 29.5 - 25.3 26.2 28.7 - 24.0 24.9 27.3 - 22.3 23.1 25.3 -
S/T 0.8 0.6 0.4 - 0.8 0.7 0.5 - 0.8 0.7 0.5 - 0.8 0.7 0.5 - 0.9 0.7 0.5 - 0.9 0.7 0.5 -
∆T 19 16 12 - 19 17 13 - 19 17 13 - 19 17 13 - 19 16 13 - 18 15 12 -
kW 2.1 2.1 2.2 - 2.2 2.3 2.3 - 2.4 2.4 2.5 - 2.5 2.5 2.6 - 2.6 2.6 2.7 - 2.7 2.7 2.8 -
Amps 7.6 7.8 8.0 - 8.2 8.4 8.6 - 8.9 9.1 9.4 - 9.4 9.7 10.0 - 10.0 10.2 10.6 - 10.6 10.8 11.2 -
Hi Pr 236 254 268 - 265 285 301 - 301 324 342 - 343 369 390 - 386 415 438 - 426 459 484 -
Lo Pr 113 120 131 - 120 127 139 - 124 132 144 - 131 139 152 - 137 146 159 - 142 151 164 -
875
MBh 25.1 26.0 28.5 - 24.5 25.4 27.9 - 23.9 24.8 27.2 - 23.4 24.2 26.5 - 22.2 23.0 25.2 - 20.6 21.3 23.3 -
S/T 0.7 0.6 0.4 - 0.8 0.6 0.4 - 0.8 0.6 0.4 - 0.8 0.7 0.5 - 0.8 0.7 0.5 - 0.8 0.7 0.5 -
∆T 19 17 13 - 20 17 13 - 20 17 13 - 20 17 13 - 19 17 13 - 18 16 12 -
kW 2.0 2.1 2.1 - 2.2 2.2 2.3 - 2.3 2.3 2.4 - 2.4 2.5 2.5 - 2.5 2.6 2.6 - 2.6 2.6 2.7 -
Amps 7.4 7.6 7.8 - 8.0 8.2 8.4 - 8.6 8.8 9.1 - 9.2 9.4 9.7 - 9.7 10.0 10.3 - 10.3 10.5 10.9 -
Hi Pr 229 246 260 - 257 276 292 - 292 314 332 - 333 358 378 - 374 403 425 - 413 445 470 -
Lo Pr 110 117 128 - 116 123 135 - 121 128 140 - 127 135 147 - 133 141 154 - 137 146 159 -
75
1125
MBh 28.5 29.3 31.8 34.1 27.8 28.7 31.0 33.3 27.2 28.0 30.3 32.5 26.5 27.3 29.5 31.7 25.2 25.9 28.1 30.1 23.3 24.0 26.0 27.9
S/T 0.9 0.8 0.6 0.4 0.9 0.8 0.6 0.4 1.0 0.9 0.6 0.4 1.0 0.9 0.7 0.4 1.0 0.9 0.7 0.4 1.0 0.9 0.7 0.5
∆T 21 19 16 11 21 20 16 11 21 20 16 11 21 20 16 11 21 19 16 11 19 18 15 10
kW 2.1 2.1 2.2 2.3 2.3 2.3 2.4 2.4 2.4 2.4 2.5 2.6 2.5 2.6 2.6 2.7 2.6 2.7 2.7 2.8 2.7 2.8 2.8 2.9
Amps 7.8 7.9 8.2 8.5 8.3 8.5 8.8 9.1 9.0 9.2 9.5 9.9 9.6 9.8 10.1 10.5 10.2 10.4 10.8 11.2 10.8 11.0 11.4 11.8
Hi Pr 241 259 273 285 270 291 307 320 307 330 349 364 350 376 397 415 393 423 447 466 435 468 494 515
Lo Pr 116 123 134 143 122 130 142 151 127 135 147 157 133 142 155 165 140 149 162 173 144 154 168 179
1000
MBh 27.7 28.5 30.8 33.1 27.0 27.8 30.1 32.3 26.4 27.2 29.4 31.6 25.7 26.5 28.7 30.8 24.5 25.2 27.3 29.2 22.7 23.3 25.2 27.1
S/T 0.9 0.8 0.6 0.4 0.9 0.8 0.6 0.4 0.9 0.8 0.6 0.4 0.9 0.8 0.6 0.4 1.0 0.9 0.7 0.4 1.0 0.9 0.7 0.4
∆T 22 20 17 11 22 20 17 12 22 20 17 12 22 21 17 12 22 20 17 11 21 19 16 11
kW 2.1 2.1 2.2 2.3 2.2 2.3 2.4 2.4 2.4 2.4 2.5 2.6 2.5 2.5 2.6 2.7 2.6 2.6 2.7 2.8 2.7 2.7 2.8 2.9
Amps 7.7 7.9 8.1 8.4 8.3 8.5 8.7 9.0 8.9 9.1 9.4 9.8 9.5 9.7 10.1 10.4 10.1 10.3 10.7 11.1 10.7 10.9 11.3 11.7
Hi Pr 238 256 271 282 267 288 304 317 304 327 346 360 346 373 394 410 390 419 443 462 430 463 489 510
Lo Pr 114 122 133 141 121 129 140 149 126 134 146 155 132 140 153 163 138 147 161 171 143 152 166 177
875
MBh 25.5 26.3 28.5 30.5 24.9 25.7 27.8 29.8 24.4 25.1 27.1 29.1 23.8 24.5 26.5 28.4 22.6 23.2 25.2 27.0 20.9 21.5 23.3 25.0
S/T 0.8 0.7 0.6 0.4 0.9 0.8 0.6 0.4 0.9 0.8 0.6 0.4 0.9 0.8 0.6 0.4 0.9 0.8 0.6 0.4 1.0 0.9 0.6 0.4
∆T 22 21 17 12 23 21 17 12 23 21 17 12 23 21 17 12 22 21 17 12 21 19 16 11
kW 2.0 2.1 2.1 2.2 2.2 2.2 2.3 2.4 2.3 2.4 2.4 2.5 2.4 2.5 2.6 2.6 2.5 2.6 2.7 2.7 2.6 2.7 2.7 2.8
Amps 7.5 7.7 7.9 8.2 8.1 8.2 8.5 8.8 8.7 8.9 9.2 9.5 9.3 9.5 9.8 10.1 9.8 10.1 10.4 10.8 10.4 10.6 11.0 11.4
Hi Pr 231 249 263 274 259 279 295 307 295 317 335 350 336 361 382 398 378 407 429 448 418 449 474 495
Lo Pr 111 118 129 137 117 125 136 145 122 130 141 151 128 136 149 158 134 143 156 166 139 148 161 172
IDB: Entering Indoor Dry Bulb Temperature Shaded area reects ACCA (TVA) condions. kW = Total system power
High and low pressures are measured at the liquid and sucon access ngs. Amps: Unit amps (comp.+ evaporator + condenser fan motors)

ProdUct sPecifications ProdUct sPecifications
SS-GPG13M
www
.
GoodManMfG
.
coM
9
exPanded cooling data — gPg1330***m41 (cont.)
65 75 85 95 105 115
59 63 67 71 59 63 67 71 59 63 67 71 59 63 67 71 59 63 67 71 59 63 67 71
80
1125
MBh 29.0 29.6 31.7 33.9 28.3 29.0 30.9 33.1 27.7 28.3 30.2 32.3 27.0 27.6 29.5 31.5 25.6 26.2 28.0 29.9 23.7 24.3 25.9 27.7
S/T 1.0 0.9 0.8 0.6 1.0 1.0 0.8 0.6 1.0 1.0 0.8 0.6 1.0 1.0 0.8 0.6 1.0 1.0 0.9 0.6 1.0 1.0 0.9 0.6
∆T 24 22 20 16 23 23 20 16 23 23 20 16 22 23 20 16 21 21 20 16 19 20 18 15
kW 2.1 2.2 2.2 2.3 2.3 2.3 2.4 2.5 2.4 2.5 2.5 2.6 2.5 2.6 2.7 2.7 2.6 2.7 2.8 2.9 2.7 2.8 2.9 3.0
Amps 7.8 8.0 8.2 8.5 8.4 8.6 8.9 9.2 9.1 9.3 9.6 9.9 9.7 9.9 10.2 10.6 10.3 10.5 10.9 11.3 10.9 11.1 11.5 11.9
Hi Pr 243 262 276 288 273 294 310 323 310 334 352 368 353 380 401 419 397 428 452 471 439 473 499 520
Lo Pr 117 124 136 144 123 131 143 152 128 136 149 158 135 143 156 166 141 150 164 174 146 155 169 180
1000
MBh 28.2 28.8 30.7 32.9 27.5 28.1 30.0 32.1 26.9 27.4 29.3 31.3 26.2 26.8 28.6 30.6 24.9 25.4 27.2 29.0 23.1 23.6 25.2 26.9
S/T 0.9 0.9 0.7 0.5 1.0 0.9 0.7 0.6 1.0 0.9 0.8 0.6 1.0 1.0 0.8 0.6 1.0 1.0 0.8 0.6 1.0 1.0 0.8 0.6
∆T 24 23 20 16 25 24 21 16 25 24 21 16 24 24 21 17 23 23 20 16 21 22 19 15
kW 2.1 2.1 2.2 2.3 2.3 2.3 2.4 2.4 2.4 2.4 2.5 2.6 2.5 2.6 2.6 2.7 2.6 2.7 2.7 2.8 2.7 2.8 2.8 2.9
Amps 7.8 7.9 8.2 8.5 8.3 8.5 8.8 9.1 9.0 9.2 9.5 9.9 9.6 9.8 10.1 10.5 10.2 10.4 10.8 11.2 10.8 11.0 11.4 11.8
Hi Pr 241 259 273 285 270 291 307 320 307 331 349 364 350 376 398 415 394 423 447 466 435 468 494 515
Lo Pr 116 123 134 143 122 130 142 151 127 135 147 157 133 142 155 165 140 149 162 173 144 154 168 179
875
MBh 26.0 26.6 28.4 30.3 25.4 25.9 27.7 29.6 24.8 25.3 27.1 28.9 24.2 24.7 26.4 28.2 23.0 23.5 25.1 26.8 21.3 21.7 23.2 24.8
S/T 0.9 0.9 0.7 0.5 0.9 0.9 0.7 0.5 1.0 0.9 0.7 0.6 1.0 0.9 0.8 0.6 1.0 1.0 0.8 0.6 1.0 1.0 0.8 0.6
∆T 25 24 21 17 25 24 21 17 25 24 21 17 25 24 21 17 25 24 21 17 23 22 19 16
kW 2.1 2.1 2.2 2.2 2.2 2.2 2.3 2.4 2.3 2.4 2.5 2.5 2.4 2.5 2.6 2.7 2.5 2.6 2.7 2.8 2.6 2.7 2.8 2.9
Amps 7.6 7.7 8.0 8.2 8.1 8.3 8.6 8.9 8.8 9.0 9.3 9.6 9.4 9.6 9.9 10.2 9.9 10.2 10.5 10.9 10.5 10.7 11.1 11.5
Hi Pr 233 251 265 277 262 282 298 310 298 321 339 353 339 365 386 402 382 411 434 452 422 454 479 500
Lo Pr 112 119 130 139 118 126 137 146 123 131 143 152 129 137 150 160 135 144 157 168 140 149 163 173
85
1125
MBh 29.5 30.1 31.5 33.6 28.8 29.4 30.8 32.8 28.1 28.7 30.0 32.1 27.5 28.0 29.3 31.3 26.1 26.6 27.8 29.7 24.2 24.6 25.8 27.5
S/T 1.0 1.0 0.9 0.7 1.0 1.0 0.9 0.8 1.0 1.0 1.0 0.8 1.0 1.0 1.0 0.8 1.0 1.0 1.0 0.8 1.0 1.0 1.0 0.8
∆T 24 25 23 20 24 24 24 20 23 23 24 20 22 23 24 21 21 22 23 20 20 20 21 19
kW 2.1 2.2 2.2 2.3 2.3 2.3 2.4 2.5 2.4 2.5 2.6 2.6 2.5 2.6 2.7 2.8 2.6 2.7 2.8 2.9 2.7 2.8 2.9 3.0
Amps 7.9 8.1 8.3 8.6 8.5 8.7 8.9 9.3 9.2 9.4 9.7 10.0 9.8 10.0 10.3 10.7 10.4 10.6 11.0 11.4 11.0 11.2 11.6 12.0
Hi Pr 245 264 279 291 275 296 313 326 313 337 356 371 357 384 405 423 401 432 456 476 444 477 504 526
Lo Pr 118 125 137 146 125 132 145 154 129 138 150 160 136 145 158 168 142 152 165 176 147 157 171 182
1000
MBh 28.7 29.2 30.6 32.6 28.0 28.5 29.9 31.9 27.3 27.9 29.2 31.1 26.7 27.2 28.5 30.4 25.3 25.8 27.0 28.8 23.5 23.9 25.0 26.7
S/T 1.0 1.0 0.9 0.7 1.0 1.0 0.9 0.7 1.0 1.0 0.9 0.7 1.0 1.0 0.9 0.8 1.0 1.0 1.0 0.8 1.0 1.0 1.0 0.8
∆T 26 26 24 21 26 26 25 21 25 26 25 21 25 25 25 21 23 24 24 21 22 22 23 20
kW 2.1 2.2 2.2 2.3 2.3 2.3 2.4 2.5 2.4 2.5 2.5 2.6 2.5 2.6 2.7 2.7 2.6 2.7 2.8 2.9 2.7 2.8 2.9 3.0
Amps 7.8 8.0 8.2 8.5 8.4 8.6 8.9 9.2 9.1 9.3 9.6 9.9 9.7 9.9 10.2 10.6 10.3 10.5 10.9 11.3 10.9 11.1 11.5 11.9
Hi Pr 243 262 276 288 273 294 310 323 310 334 352 368 353 380 401 419 397 428 452 471 439 473 499 520
Lo Pr 117 124 136 144 123 131 143 152 128 136 149 158 135 143 156 166 141 150 164 174 146 155 169 180
875
MBh 26.4 27.0 28.2 30.1 25.8 26.3 27.6 29.4 25.2 25.7 26.9 28.7 24.6 25.1 26.3 28.0 23.4 23.8 25.0 26.6 21.7 22.1 23.1 24.7
S/T 1.0 0.9 0.8 0.7 1.0 1.0 0.9 0.7 1.0 1.0 0.9 0.7 1.0 1.0 0.9 0.7 1.0 1.0 0.9 0.8 1.0 1.0 1.0 0.8
∆T 27 26 25 21 27 26 25 22 26 26 25 22 26 26 25 22 25 25 25 21 23 23 23 20
kW 2.1 2.1 2.2 2.2 2.2 2.3 2.3 2.4 2.4 2.4 2.5 2.6 2.5 2.5 2.6 2.7 2.6 2.6 2.7 2.8 2.7 2.7 2.8 2.9
Amps 7.6 7.8 8.0 8.3 8.2 8.4 8.6 8.9 8.9 9.1 9.3 9.7 9.4 9.7 10.0 10.3 10.0 10.2 10.6 11.0 10.6 10.8 11.2 11.6
Hi Pr 236 254 268 279 265 285 301 314 301 324 342 357 343 369 389 406 386 415 438 457 426 458 484 505
Lo Pr 113 120 131 140 120 127 139 148 124 132 144 154 131 139 152 161 137 146 159 169 141 151 164 175
IDB: Entering Indoor Dry Bulb Temperature Shaded area reects AHRI (TVA) condions. kW = Total system power
High and low pressures are measured at the liquid and sucon access ngs. Amps: Unit amps (comp.+ evaporator + condenser fan motors)

ProdUct sPecifications ProdUct sPecifications
10
www
.
GoodManMfG
.
coM
SS-GPG13M
exPanded cooling data — gPg1336***m41
65 75 85 95 105 115
59 63 67 71 59 63 67 71 59 63 67 71 59 63 67 71 59 63 67 71 59 63 67 71
70
1350
MBh 35.1 36.4 39.8 - 34.3 35.5 38.9 - 33.4 34.7 38.0 - 32.6 33.8 37.1 - 31.0 32.1 35.2 - 28.7 29.8 32.6 -
S/T 0.8 0.7 0.5 - 0.8 0.7 0.5 - 0.8 0.7 0.5 - 0.9 0.7 0.5 - 0.9 0.7 0.5 - 0.9 0.7 0.5 -
∆T 19 16 12 - 19 16 12 - 19 16 12 - 19 16 12 - 19 16 12 - 18 15 12 -
kW 2.6 2.6 2.7 - 2.8 2.8 2.9 - 2.9 3.0 3.1 - 3.1 3.1 3.2 - 3.2 3.3 3.4 - 3.3 3.4 3.5 -
Amps 11.1 11.3 11.6 - 11.8 12.1 12.4 - 12.7 12.9 13.3 - 13.4 13.7 14.1 - 14.1 14.4 14.9 - 14.9 15.2 15.6 -
Hi Pr 249 268 283 - 280 301 318 - 318 343 362 - 363 390 412 - 408 439 463 - 451 485 512 -
Lo Pr 111 119 129 - 118 125 137 - 122 130 142 - 129 137 149 - 135 143 156 - 139 148 162 -
1200
MBh 34.1 35.3 38.7 - 33.3 34.5 37.8 - 32.5 33.7 36.9 - 31.7 32.8 36.0 - 30.1 31.2 34.2 - 27.9 28.9 31.7 -
S/T 0.7 0.6 0.4 - 0.8 0.6 0.4 - 0.8 0.7 0.5 - 0.8 0.7 0.5 - 0.8 0.7 0.5 - 0.9 0.7 0.5 -
∆T 19 17 13 - 20 17 13 - 20 17 13 - 20 17 13 - 20 17 13 - 18 16 12 -
kW 2.6 2.6 2.7 - 2.7 2.8 2.9 - 2.9 3.0 3.1 - 3.0 3.1 3.2 - 3.2 3.2 3.3 - 3.3 3.4 3.5 -
Amps 11.0 11.2 11.5 - 11.7 12.0 12.3 - 12.6 12.8 13.2 - 13.3 13.6 14.0 - 14.0 14.3 14.7 - 14.8 15.1 15.5 -
Hi Pr 247 266 281 - 277 298 315 - 315 339 358 - 359 386 408 - 404 435 459 - 446 480 507 -
Lo Pr 110 117 128 - 117 124 135 - 121 129 141 - 127 135 148 - 133 142 155 - 138 147 160 -
1050
MBh 31.4 32.6 35.7 - 30.7 31.8 34.9 - 30.0 31.1 34.0 - 29.2 30.3 33.2 - 27.8 28.8 31.5 - 25.7 26.7 29.2 -
S/T 0.7 0.6 0.4 - 0.7 0.6 0.4 - 0.8 0.6 0.4 - 0.8 0.7 0.5 - 0.8 0.7 0.5 - 0.8 0.7 0.5 -
∆T 20 17 13 - 20 17 13 - 20 17 13 - 20 17 13 - 20 17 13 - 19 16 12 -
kW 2.5 2.5 2.6 - 2.7 2.7 2.8 - 2.8 2.9 3.0 - 3.0 3.0 3.1 - 3.1 3.2 3.3 - 3.2 3.3 3.4 -
Amps 10.8 11.0 11.3 - 11.5 11.7 12.0 - 12.3 12.5 12.9 - 13.0 13.3 13.6 - 13.7 14.0 14.4 - 14.4 14.7 15.1 -
Hi Pr 240 258 272 - 269 289 305 - 306 329 347 - 348 375 396 - 392 422 445 - 433 466 492 -
Lo Pr 107 114 124 - 113 120 131 - 118 125 136 - 123 131 143 - 129 138 150 - 134 142 155 -
75
1350
MBh 35.7 36.7 39.8 42.7 34.8 35.9 38.8 41.7 34.0 35.0 37.9 40.7 33.2 34.2 37.0 39.7 31.5 32.5 35.1 37.7 29.2 30.1 32.5 34.9
S/T 0.9 0.8 0.6 0.4 0.9 0.8 0.6 0.4 0.9 0.8 0.6 0.4 1.0 0.9 0.7 0.4 1.0 0.9 0.7 0.4 1.0 0.9 0.7 0.4
∆T 22 20 16 11 22 20 16 11 22 20 16 11 22 20 17 11 21 20 16 11 20 19 15 11
kW 2.6 2.6 2.7 2.8 2.8 2.8 2.9 3.0 3.0 3.0 3.1 3.2 3.1 3.2 3.3 3.4 3.2 3.3 3.4 3.5 3.3 3.4 3.5 3.6
Amps 11.2 11.4 11.7 12.1 11.9 12.2 12.5 12.9 12.8 13.0 13.4 13.8 13.5 13.8 14.2 14.7 14.3 14.6 15.0 15.5 15.0 15.3 15.8 16.3
Hi Pr 252 271 286 299 283 304 321 335 322 346 365 381 366 394 416 434 412 443 468 488 455 490 517 540
Lo Pr 113 120 131 139 119 127 138 147 124 131 144 153 130 138 151 161 136 145 158 168 141 150 163 174
1200
MBh 34.6 35.7 38.6 41.4 33.8 34.8 37.7 40.5 33.0 34.0 36.8 39.5 32.2 33.2 35.9 38.5 30.6 31.5 34.1 36.6 28.4 29.2 31.6 33.9
S/T 0.8 0.8 0.6 0.4 0.9 0.8 0.6 0.4 0.9 0.8 0.6 0.4 0.9 0.8 0.6 0.4 1.0 0.9 0.7 0.4 1.0 0.9 0.7 0.4
∆T 22 21 17 12 23 21 17 12 23 21 17 12 23 21 17 12 23 21 17 12 21 19 16 11
kW 2.6 2.6 2.7 2.8 2.8 2.8 2.9 3.0 2.9 3.0 3.1 3.2 3.1 3.1 3.2 3.3 3.2 3.3 3.4 3.5 3.3 3.4 3.5 3.6
Amps 11.1 11.3 11.6 12.0 11.8 12.1 12.4 12.8 12.7 12.9 13.3 13.7 13.4 13.7 14.1 14.5 14.2 14.5 14.9 15.4 14.9 15.2 15.6 16.2
Hi Pr 249 268 283 296 280 301 318 332 318 343 362 377 363 390 412 430 408 439 464 483 451 485 512 534
Lo Pr 111 119 129 138 118 125 137 146 122 130 142 151 129 137 149 159 135 143 156 167 139 148 162 172
1050
MBh 32.0 32.9 35.6 38.2 31.2 32.2 34.8 37.3 30.5 31.4 34.0 36.5 29.7 30.6 33.1 35.6 28.3 29.1 31.5 33.8 26.2 26.9 29.2 31.3
S/T 0.8 0.7 0.6 0.4 0.8 0.8 0.6 0.4 0.9 0.8 0.6 0.4 0.9 0.8 0.6 0.4 0.9 0.8 0.6 0.4 0.9 0.8 0.6 0.4
∆T 23 21 17 12 23 21 17 12 23 21 17 12 23 21 18 12 23 21 17 12 21 20 16 11
kW 2.5 2.6 2.6 2.7 2.7 2.8 2.8 2.9 2.9 2.9 3.0 3.1 3.0 3.1 3.2 3.3 3.1 3.2 3.3 3.4 3.2 3.3 3.4 3.5
Amps 10.8 11.1 11.4 11.7 11.6 11.8 12.1 12.5 12.4 12.6 13.0 13.4 13.1 13.4 13.8 14.2 13.8 14.1 14.5 15.0 14.5 14.8 15.3 15.8
Hi Pr 242 260 275 287 272 292 309 322 309 332 351 366 352 378 400 417 396 426 450 469 437 470 497 518
Lo Pr 108 115 126 134 114 122 133 141 119 126 138 147 125 133 145 154 131 139 152 162 135 144 157 167
IDB: Entering Indoor Dry Bulb Temperature Shaded area reects ACCA (TVA) condions. kW = Total system power
High and low pressures are measured at the liquid and sucon access ngs. Amps: Unit amps (comp.+ evaporator + condenser fan motors)

ProdUct sPecifications ProdUct sPecifications
SS-GPG13M
www
.
GoodManMfG
.
coM
11
exPanded cooling data — gPg1336***m41 (cont.)
65 75 85 95 105 115
59 63 67 71 59 63 67 71 59 63 67 71 59 63 67 71 59 63 67 71 59 63 67 71
80
1350
MBh 36.3 37.1 39.6 42.4 35.5 36.2 38.7 41.4 34.6 35.4 37.8 40.4 33.8 34.5 36.9 39.4 32.1 32.8 35.0 37.4 29.7 30.4 32.4 34.7
S/T 1.0 0.9 0.7 0.6 1.0 0.9 0.8 0.6 1.0 1.0 0.8 0.6 1.0 1.0 0.8 0.6 1.0 1.0 0.8 0.6 1.0 1.0 0.9 0.6
∆T 25 23 20 16 24 23 20 16 24 23 20 16 23 24 20 16 22 22 20 16 20 21 19 15
kW 2.6 2.7 2.7 2.8 2.8 2.9 3.0 3.0 3.0 3.0 3.1 3.2 3.1 3.2 3.3 3.4 3.3 3.3 3.4 3.5 3.4 3.4 3.5 3.7
Amps 11.3 11.5 11.8 12.2 12.0 12.3 12.6 13.0 12.9 13.1 13.5 13.9 13.6 13.9 14.3 14.8 14.4 14.7 15.1 15.6 15.1 15.4 15.9 16.4
Hi Pr 255 274 289 302 286 307 325 338 325 350 369 385 370 398 420 438 416 448 473 493 460 495 523 545
Lo Pr 114 121 132 141 120 128 140 149 125 133 145 154 131 140 152 162 137 146 160 170 142 151 165 176
1200
MBh 35.3 36.0 38.5 41.1 34.4 35.2 37.6 40.2 33.6 34.3 36.7 39.2 32.8 33.5 35.8 38.3 31.2 31.8 34.0 36.4 28.9 29.5 31.5 33.7
S/T 0.9 0.9 0.7 0.5 1.0 0.9 0.7 0.5 1.0 0.9 0.8 0.6 1.0 1.0 0.8 0.6 1.0 1.0 0.8 0.6 1.0 1.0 0.8 0.6
∆T 25 24 21 17 25 24 21 17 25 24 21 17 25 24 21 17 24 24 21 17 22 23 20 16
kW 2.6 2.6 2.7 2.8 2.8 2.8 2.9 3.0 3.0 3.0 3.1 3.2 3.1 3.2 3.3 3.4 3.2 3.3 3.4 3.5 3.3 3.4 3.5 3.6
Amps 11.2 11.4 11.7 12.1 11.9 12.2 12.5 12.9 12.8 13.0 13.4 13.8 13.5 13.8 14.2 14.7 14.3 14.6 15.0 15.5 15.0 15.3 15.8 16.3
Hi Pr 252 271 286 299 283 304 321 335 322 346 365 381 366 394 416 434 412 443 468 488 455 490 517 540
Lo Pr 113 120 131 139 119 127 138 147 124 132 144 153 130 138 151 161 136 145 158 168 141 150 163 174
1050
MBh 32.5 33.2 35.5 38.0 31.8 32.5 34.7 37.1 31.0 31.7 33.9 36.2 30.3 30.9 33.0 35.3 28.8 29.4 31.4 33.6 26.6 27.2 29.1 31.1
S/T 0.9 0.8 0.7 0.5 0.9 0.9 0.7 0.5 1.0 0.9 0.7 0.5 1.0 0.9 0.7 0.6 1.0 1.0 0.8 0.6 1.0 1.0 0.8 0.6
∆T 25 24 21 17 26 25 21 17 26 25 22 17 26 25 22 17 26 25 21 17 24 23 20 16
kW 2.5 2.6 2.7 2.7 2.7 2.8 2.9 2.9 2.9 2.9 3.0 3.1 3.0 3.1 3.2 3.3 3.1 3.2 3.3 3.4 3.3 3.3 3.4 3.5
Amps 10.9 11.1 11.4 11.8 11.6 11.9 12.2 12.6 12.5 12.7 13.1 13.5 13.2 13.5 13.9 14.3 13.9 14.2 14.6 15.1 14.6 14.9 15.4 15.9
Hi Pr 244 263 278 290 274 295 312 325 312 336 354 370 355 382 404 421 400 430 454 474 442 475 502 523
Lo Pr 109 116 127 135 115 123 134 143 120 128 139 148 126 134 146 156 132 140 153 163 137 145 159 169
85
1350
MBh 36.9 37.7 39.4 42.1 36.1 36.8 38.5 41.1 35.2 35.9 37.6 40.1 34.4 35.0 36.7 39.1 32.6 33.3 34.9 37.2 30.2 30.8 32.3 34.4
S/T 1.0 1.0 0.9 0.7 1.0 1.0 0.9 0.7 1.0 1.0 0.9 0.8 1.0 1.0 1.0 0.8 1.0 1.0 1.0 0.8 1.0 1.0 1.0 0.8
∆T 25 25 24 21 25 25 24 21 24 24 24 21 23 24 24 21 22 23 24 21 21 21 22 19
kW 2.6 2.7 2.8 2.9 2.8 2.9 3.0 3.1 3.0 3.1 3.2 3.3 3.1 3.2 3.3 3.4 3.3 3.3 3.5 3.6 3.4 3.5 3.6 3.7
Amps 11.3 11.6 11.9 12.2 12.1 12.3 12.7 13.1 13.0 13.2 13.6 14.1 13.7 14.0 14.4 14.9 14.5 14.8 15.2 15.7 15.2 15.6 16.0 16.6
Hi Pr 257 277 292 305 288 310 328 342 328 353 373 389 374 402 425 443 420 452 478 498 464 500 528 550
Lo Pr 115 122 133 142 121 129 141 150 126 134 146 156 132 141 154 164 139 148 161 172 144 153 167 178
1200
MBh 35.9 36.6 38.3 40.9 35.0 35.7 37.4 39.9 34.2 34.9 36.5 39.0 33.4 34.0 35.6 38.0 31.7 32.3 33.8 36.1 29.4 29.9 31.3 33.4
S/T 1.0 0.9 0.8 0.7 1.0 1.0 0.9 0.7 1.0 1.0 0.9 0.7 1.0 1.0 0.9 0.8 1.0 1.0 1.0 0.8 1.0 1.0 1.0 0.8
∆T 27 26 25 21 27 27 25 22 26 27 25 22 26 26 25 22 24 25 25 22 22 23 23 20
kW 2.6 2.7 2.7 2.8 2.8 2.9 3.0 3.0 3.0 3.0 3.1 3.2 3.1 3.2 3.3 3.4 3.3 3.3 3.4 3.5 3.4 3.4 3.5 3.7
Amps 11.3 11.5 11.8 12.2 12.0 12.3 12.6 13.0 12.9 13.1 13.5 13.9 13.6 13.9 14.3 14.8 14.4 14.7 15.1 15.6 15.1 15.4 15.9 16.4
Hi Pr 255 274 289 302 286 307 325 338 325 350 369 385 370 398 420 438 416 448 473 493 460 495 523 545
Lo Pr 114 121 132 141 120 128 140 149 125 133 145 154 131 140 152 162 137 146 160 170 142 151 165 176
1050
MBh 33.1 33.7 35.3 37.7 32.3 33.0 34.5 36.8 31.6 32.2 33.7 36.0 30.8 31.4 32.9 35.1 29.3 29.8 31.2 33.3 27.1 27.6 28.9 30.9
S/T 0.9 0.9 0.8 0.7 1.0 0.9 0.8 0.7 1.0 1.0 0.9 0.7 1.0 1.0 0.9 0.7 1.0 1.0 0.9 0.8 1.0 1.0 0.9 0.8
∆T 27 27 25 22 27 27 26 22 28 27 26 22 27 27 26 22 26 26 25 22 24 24 24 21
kW 2.6 2.6 2.7 2.8 2.7 2.8 2.9 3.0 2.9 3.0 3.1 3.2 3.0 3.1 3.2 3.3 3.2 3.2 3.3 3.5 3.3 3.4 3.5 3.6
Amps 11.0 11.2 11.5 11.9 11.7 12.0 12.3 12.7 12.6 12.8 13.2 13.6 13.3 13.6 14.0 14.4 14.0 14.3 14.7 15.2 14.8 15.1 15.5 16.0
Hi Pr 247 266 281 293 277 298 315 328 315 339 358 373 359 386 408 425 404 434 459 478 446 480 507 529
Lo Pr 110 117 128 136 117 124 135 144 121 129 141 150 127 135 148 157 133 142 155 165 138 147 160 171
IDB: Entering Indoor Dry Bulb Temperature Shaded area reects AHRI (TVA) condions. kW = Total system power
High and low pressures are measured at the liquid and sucon access ngs. Amps: Unit amps (comp.+ evaporator + condenser fan motors)

ProdUct sPecifications ProdUct sPecifications
12
www
.
GoodManMfG
.
coM
SS-GPG13M
exPanded cooling data — gPg1342***m41
Outdoor Ambient Temperature
65 75 85 95 105 115
Entering Indoor Wet Bulb Temperature
IDB Airow 59 63 67 71 59 63 67 71 59 63 67 71 59 63 67 71 59 63 67 71 59 63 67 71
70
1440
MBh 39.7 41.1 45.1 - 38.8 40.2 44.0 - 37.8 39.2 43.0 - 36.9 38.3 41.9 - 35.1 36.4 39.8 - 32.5 33.7 36.9 -
S/T 0.8 0.6 0.4 - 0.8 0.7 0.5 - 0.8 0.7 0.5 - 0.8 0.7 0.5 - 0.9 0.7 0.5 - 0.9 0.7 0.5 -
∆T 19 17 13 - 20 17 13 - 20 17 13 - 20 17 13 - 19 17 13 - 18 16 12 -
kW 2.9 3.0 3.1 - 3.1 3.2 3.3 - 3.3 3.4 3.5 - 3.5 3.5 3.7 - 3.6 3.7 3.8 - 3.7 3.8 3.9 -
Amps 12.6 12.9 13.2 - 13.5 13.7 14.1 - 14.4 14.7 15.1 - 15.3 15.6 16.0 - 16.1 16.5 16.9 - 16.9 17.3 17.8 -
Hi Pr 237 255 269 - 266 286 302 - 302 325 343 - 344 370 391 - 387 417 440 - 428 460 486 -
Lo Pr 113 120 131 - 119 127 138 - 124 132 144 - 130 138 151 - 136 145 158 - 141 150 164 -
1280
MBh 38.5 39.9 43.8 - 37.6 39.0 42.7 - 36.7 38.1 41.7 - 35.8 37.1 40.7 - 34.1 35.3 38.7 - 31.5 32.7 35.8 -
S/T 0.7 0.6 0.4 - 0.8 0.6 0.4 - 0.8 0.6 0.4 - 0.8 0.7 0.5 - 0.8 0.7 0.5 - 0.8 0.7 0.5 -
∆T 20 17 13 - 20 18 13 - 20 18 13 - 21 18 14 - 20 18 13 - 19 16 12 -
kW 2.9 3.0 3.0 - 3.1 3.2 3.3 - 3.3 3.4 3.5 - 3.4 3.5 3.6 - 3.6 3.7 3.8 - 3.7 3.8 3.9 -
Amps 12.5 12.8 13.1 - 13.4 13.6 14.0 - 14.3 14.6 15.0 - 15.2 15.5 15.9 - 16.0 16.3 16.8 - 16.8 17.2 17.7 -
Hi Pr 234 252 266 - 263 283 299 - 299 322 340 - 341 367 387 - 383 413 436 - 424 456 481 -
Lo Pr 112 119 130 - 118 125 137 - 122 130 142 - 129 137 149 - 135 143 157 - 139 148 162 -
1125
MBh 35.6 36.9 40.4 - 34.7 36.0 39.4 - 33.9 35.1 38.5 - 33.1 34.3 37.6 - 31.4 32.6 35.7 - 29.1 30.2 33.1 -
S/T 0.7 0.6 0.4 - 0.7 0.6 0.4 - 0.7 0.6 0.4 - 0.8 0.6 0.4 - 0.8 0.7 0.5 - 0.8 0.7 0.5 -
∆T 20 18 13 - 21 18 14 - 21 18 14 - 21 18 14 - 21 18 14 - 19 17 13 -
kW 2.8 2.9 3.0 - 3.0 3.1 3.2 - 3.2 3.3 3.4 - 3.4 3.4 3.5 - 3.5 3.6 3.7 - 3.6 3.7 3.8 -
Amps 12.3 12.5 12.8 - 13.1 13.3 13.7 - 14.0 14.3 14.7 - 14.8 15.1 15.5 - 15.6 15.9 16.4 - 16.4 16.8 17.2 -
Hi Pr 227 245 258 - 255 275 290 - 290 312 330 - 331 356 376 - 372 400 423 - 411 442 467 -
Lo Pr 108 115 126 - 114 122 133 - 119 126 138 - 125 133 145 - 131 139 152 - 135 144 157 -
75
1440
MBh 40.4 41.6 45.0 48.3 39.4 40.6 43.9 47.2 38.5 39.6 42.9 46.0 37.5 38.7 41.8 44.9 35.7 36.7 39.7 42.7 33.0 34.0 36.8 39.5
S/T 0.9 0.8 0.6 0.4 0.9 0.8 0.6 0.4 0.9 0.8 0.6 0.4 1.0 0.9 0.6 0.4 1.0 0.9 0.7 0.4 1.0 0.9 0.7 0.4
∆T 22 21 17 12 23 21 17 12 23 21 17 12 23 21 17 12 23 21 17 12 21 19 16 11
kW 3.0 3.0 3.1 3.2 3.2 3.2 3.3 3.4 3.3 3.4 3.5 3.6 3.5 3.6 3.7 3.8 3.6 3.7 3.8 3.9 3.8 3.8 4.0 4.1
Amps 12.7 13.0 13.3 13.7 13.6 13.8 14.2 14.7 14.6 14.9 15.3 15.8 15.4 15.7 16.2 16.7 16.2 16.6 17.1 17.6 17.1 17.5 18.0 18.6
Hi Pr 239 257 272 283 268 289 305 318 305 328 347 362 348 374 395 412 391 421 444 464 432 465 491 512
Lo Pr 114 121 132 141 120 128 140 149 125 133 145 155 131 140 152 162 138 146 160 170 142 151 165 176
1280
MBh 39.2 40.3 43.7 46.9 38.3 39.4 42.7 45.8 37.4 38.5 41.6 44.7 36.5 37.5 40.6 43.6 34.6 35.7 38.6 41.4 32.1 33.0 35.7 38.4
S/T 0.8 0.7 0.6 0.4 0.9 0.8 0.6 0.4 0.9 0.8 0.6 0.4 0.9 0.8 0.6 0.4 0.9 0.8 0.6 0.4 1.0 0.9 0.6 0.4
∆T 23 21 18 12 24 22 18 12 24 22 18 12 24 22 18 12 23 22 18 12 22 20 17 11
kW 2.9 3.0 3.1 3.2 3.1 3.2 3.3 3.4 3.3 3.4 3.5 3.6 3.5 3.5 3.7 3.8 3.6 3.7 3.8 3.9 3.7 3.8 3.9 4.0
Amps 12.6 12.9 13.2 13.6 13.5 13.7 14.1 14.6 14.4 14.7 15.2 15.6 15.3 15.6 16.0 16.6 16.1 16.5 16.9 17.5 16.9 17.3 17.8 18.4
Hi Pr 237 255 269 281 266 286 302 315 302 325 343 358 344 370 391 408 387 417 440 459 428 460 486 507
Lo Pr 113 120 131 139 119 127 138 147 124 132 144 153 130 138 151 161 136 145 158 168 141 150 164 174
1125
MBh 36.2 37.2 40.3 43.3 35.3 36.4 39.4 42.3 34.5 35.5 38.4 41.2 33.6 34.6 37.5 40.2 32.0 32.9 35.6 38.2 29.6 30.5 33.0 35.4
S/T 0.8 0.7 0.5 0.3 0.8 0.7 0.6 0.4 0.8 0.8 0.6 0.4 0.9 0.8 0.6 0.4 0.9 0.8 0.6 0.4 0.9 0.8 0.6 0.4
∆T 24 22 18 12 24 22 18 12 24 22 18 12 24 22 18 13 24 22 18 12 22 20 17 12
kW 2.9 2.9 3.0 3.1 3.1 3.1 3.2 3.3 3.2 3.3 3.4 3.5 3.4 3.5 3.6 3.7 3.5 3.6 3.7 3.8 3.6 3.7 3.8 4.0
Amps 12.3 12.6 12.9 13.3 13.2 13.4 13.8 14.2 14.1 14.4 14.8 15.3 14.9 15.2 15.7 16.2 15.7 16.1 16.5 17.1 16.5 16.9 17.4 18.0
Hi Pr 230 247 261 272 258 277 293 306 293 315 333 347 334 359 379 396 376 404 427 445 415 447 472 492
Lo Pr 109 116 127 135 115 123 134 143 120 128 139 148 126 134 146 156 132 141 153 163 137 145 159 169
IDB: Entering Indoor Dry Bulb Temperature Shaded area reects ACCA (TVA) condions. kW = Total system power
High and low pressures are measured at the liquid and sucon access ngs. Amps: Unit amps (comp.+ evaporator + condenser fan motors)

ProdUct sPecifications ProdUct sPecifications
SS-GPG13M
www
.
GoodManMfG
.
coM
13
exPanded cooling data — gPg1342***m41 (cont.)
Outdoor Ambient Temperature
65 75 85 95 105 115
Entering Indoor Wet Bulb Temperature
IDB Airow 59 63 67 71 59 63 67 71 59 63 67 71 59 63 67 71 59 63 67 71 59 63 67 71
80
1440
MBh 41.1 42.0 44.8 47.9 40.1 41.0 43.8 46.8 39.2 40.0 42.8 45.7 38.2 39.0 41.7 44.6 36.3 37.1 39.6 42.4 33.6 34.4 36.7 39.2
S/T 1.0 0.9 0.7 0.5 1.0 0.9 0.8 0.6 1.0 0.9 0.8 0.6 1.0 1.0 0.8 0.6 1.0 1.0 0.8 0.6 1.0 1.0 0.8 0.6
∆T 25 24 21 17 26 24 21 17 25 24 21 17 24 25 21 17 23 24 21 17 21 22 20 16
kW 3.0 3.0 3.1 3.2 3.2 3.2 3.3 3.4 3.4 3.4 3.5 3.6 3.5 3.6 3.7 3.8 3.7 3.7 3.9 4.0 3.8 3.9 4.0 4.1
Amps 12.8 13.1 13.4 13.8 13.7 13.9 14.3 14.8 14.7 15.0 15.4 15.9 15.5 15.8 16.3 16.8 16.4 16.7 17.2 17.8 17.2 17.6 18.1 18.7
Hi Pr 242 260 275 286 271 292 308 321 308 332 350 365 351 378 399 416 395 425 449 468 436 470 496 517
Lo Pr 115 122 133 142 121 129 141 150 126 134 147 156 133 141 154 164 139 148 161 172 144 153 167 178
1280
MBh 39.9 40.8 43.5 46.5 39.0 39.8 42.5 45.5 38.0 38.9 41.5 44.4 37.1 37.9 40.5 43.3 35.2 36.0 38.5 41.1 32.6 33.4 35.6 38.1
S/T 0.9 0.9 0.7 0.5 0.9 0.9 0.7 0.5 1.0 0.9 0.7 0.6 1.0 0.9 0.8 0.6 1.0 1.0 0.8 0.6 1.0 1.0 0.8 0.6
∆T 26 25 22 17 26 25 22 18 26 25 22 18 27 25 22 18 25 25 22 17 23 23 20 16
kW 3.0 3.0 3.1 3.2 3.2 3.2 3.3 3.4 3.3 3.4 3.5 3.6 3.5 3.6 3.7 3.8 3.6 3.7 3.8 3.9 3.8 3.8 4.0 4.1
Amps 12.7 13.0 13.3 13.7 13.6 13.8 14.2 14.7 14.6 14.9 15.3 15.8 15.4 15.7 16.2 16.7 16.2 16.6 17.1 17.6 17.1 17.5 18.0 18.6
Hi Pr 239 257 272 284 268 289 305 318 305 329 347 362 348 374 395 412 391 421 444 464 432 465 491 512
Lo Pr 114 121 132 141 120 128 140 149 125 133 145 155 131 140 152 162 138 146 160 170 142 151 165 176
1125
MBh 36.8 37.6 40.2 43.0 36.0 36.7 39.3 42.0 35.1 35.9 38.3 41.0 34.2 35.0 37.4 40.0 32.5 33.2 35.5 38.0 30.1 30.8 32.9 35.2
S/T 0.9 0.8 0.7 0.5 0.9 0.9 0.7 0.5 0.9 0.9 0.7 0.5 1.0 0.9 0.7 0.5 1.0 0.9 0.8 0.6 1.0 0.9 0.8 0.6
∆T 26 25 22 18 27 26 22 18 27 26 22 18 27 26 22 18 27 25 22 18 25 24 21 16
kW 2.9 2.9 3.0 3.1 3.1 3.1 3.2 3.3 3.3 3.3 3.4 3.5 3.4 3.5 3.6 3.7 3.6 3.6 3.7 3.9 3.7 3.7 3.9 4.0
Amps 12.4 12.7 13.0 13.4 13.3 13.5 13.9 14.3 14.2 14.5 14.9 15.4 15.0 15.3 15.8 16.3 15.9 16.2 16.7 17.2 16.7 17.0 17.5 18.1
Hi Pr 232 250 264 275 260 280 296 309 296 319 336 351 337 363 383 400 379 408 431 450 419 451 476 497
Lo Pr 110 117 128 137 117 124 135 144 121 129 141 150 127 135 148 157 133 142 155 165 138 147 160 171
85
1440
MBh 41.8 42.6 44.6 47.6 40.8 41.6 43.6 46.5 39.9 40.6 42.5 45.4 38.9 39.6 41.5 44.3 36.9 37.6 39.4 42.1 34.2 34.9 36.5 39.0
S/T 1.0 1.0 0.9 0.7 1.0 1.0 0.9 0.7 1.0 1.0 0.9 0.7 1.0 1.0 1.0 0.8 1.0 1.0 1.0 0.8 1.0 1.0 1.0 0.8
∆T 27 26 25 21 26 27 25 22 25 26 25 22 25 25 25 22 24 24 25 22 22 22 23 20
kW 3.0 3.1 3.1 3.2 3.2 3.3 3.4 3.5 3.4 3.5 3.6 3.7 3.6 3.6 3.7 3.9 3.7 3.8 3.9 4.0 3.8 3.9 4.0 4.1
Amps 12.9 13.2 13.5 13.9 13.8 14.1 14.4 14.9 14.8 15.1 15.5 16.0 15.6 16.0 16.4 17.0 16.5 16.9 17.4 17.9 17.4 17.7 18.3 18.9
Hi Pr 244 263 277 289 274 295 311 325 311 335 354 369 355 382 403 420 399 429 453 473 441 474 501 523
Lo Pr 116 124 135 144 123 130 142 152 127 136 148 158 134 142 156 166 140 149 163 174 145 154 169 180
1280
MBh 40.6 41.4 43.3 46.2 39.6 40.4 42.3 45.1 38.7 39.4 41.3 44.1 37.7 38.5 40.3 43.0 35.9 36.6 38.3 40.8 33.2 33.9 35.5 37.8
S/T 1.0 0.9 0.8 0.7 1.0 1.0 0.9 0.7 1.0 1.0 0.9 0.7 1.0 1.0 0.9 0.7 1.0 1.0 0.9 0.8 1.0 1.0 1.0 0.8
∆T 28 27 26 22 28 28 26 23 28 28 26 23 27 28 26 23 26 26 26 22 24 24 24 21
kW 3.0 3.0 3.1 3.2 3.2 3.2 3.3 3.4 3.4 3.4 3.5 3.6 3.5 3.6 3.7 3.8 3.7 3.7 3.9 4.0 3.8 3.9 4.0 4.1
Amps 12.8 13.1 13.4 13.8 13.7 13.9 14.3 14.8 14.7 15.0 15.4 15.9 15.5 15.8 16.3 16.8 16.4 16.7 17.2 17.8 17.2 17.6 18.1 18.7
Hi Pr 242 260 275 286 271 292 308 321 308 332 350 365 351 378 399 416 395 425 449 468 436 470 496 517
Lo Pr 115 122 133 142 121 129 141 150 126 134 147 156 133 141 154 164 139 148 161 172 144 153 167 178
1125
MBh 37.5 38.2 40.0 42.7 36.6 37.3 39.1 41.7 35.7 36.4 38.1 40.7 34.8 35.5 37.2 39.7 33.1 33.7 35.3 37.7 30.7 31.3 32.7 34.9
S/T 0.9 0.9 0.8 0.6 1.0 0.9 0.8 0.7 1.0 0.9 0.8 0.7 1.0 1.0 0.9 0.7 1.0 1.0 0.9 0.7 1.0 1.0 0.9 0.7
∆T 28 28 26 23 28 28 26 23 28 28 26 23 28 28 27 23 27 28 26 23 25 26 25 21
kW 2.9 3.0 3.0 3.1 3.1 3.2 3.3 3.4 3.3 3.4 3.5 3.6 3.4 3.5 3.6 3.7 3.6 3.7 3.8 3.9 3.7 3.8 3.9 4.0
Amps 12.5 12.8 13.1 13.5 13.4 13.6 14.0 14.4 14.3 14.6 15.0 15.5 15.2 15.5 15.9 16.4 16.0 16.3 16.8 17.4 16.8 17.2 17.7 18.3
Hi Pr 234 252 266 278 263 283 299 312 299 322 340 354 341 367 387 404 383 412 435 454 423 456 481 502
Lo Pr 111 119 129 138 118 125 137 146 122 130 142 151 129 137 149 159 135 143 157 167 139 148 162 172
IDB: Entering Indoor Dry Bulb Temperature Shaded area reects AHRI (TVA) condions. kW = Total system power
High and low pressures are measured at the liquid and sucon access ngs. Amps: Unit amps (comp.+ evaporator + condenser fan motors)

ProdUct sPecifications ProdUct sPecifications
14
www
.
GoodManMfG
.
coM
SS-GPG13M
exPanded cooling data — gPg1348***m41
65 75 85 95 105 115
59 63 67 71 59 63 67 71 59 63 67 71 59 63 67 71 59 63 67 71 59 63 67 71
70
1700
MBh 45.4 47.0 51.5 - 44.3 45.9 50.3 - 43.3 44.9 49.1 - 42.2 43.8 47.9 - 40.1 41.6 45.5 - 37.2 38.5 42.2 -
S/T 0.8 0.7 0.5 - 0.8 0.7 0.5 - 0.8 0.7 0.5 - 0.9 0.7 0.5 - 0.9 0.7 0.5 - 0.9 0.7 0.5 -
∆T 19 17 13 - 19 17 13 - 19 17 13 - 20 17 13 - 19 17 13 - 18 16 12 -
kW 3.3 3.3 3.4 - 3.5 3.6 3.7 - 3.7 3.8 3.9 - 3.9 4.0 4.1 - 4.0 4.1 4.3 - 4.2 4.3 4.4 -
Amps 15.9 16.2 16.6 - 16.9 17.2 17.6 - 17.9 18.3 18.7 - 18.9 19.2 19.7 - 19.8 20.2 20.7 - 20.7 21.1 21.7 -
Hi Pr 241 259 274 - 270 291 307 - 308 331 349 - 350 377 398 - 394 424 448 - 435 468 495 -
Lo Pr 115 123 134 - 122 129 141 - 126 135 147 - 133 141 154 - 139 148 162 - 144 153 167 -
1520
MBh 44.7 46.3 50.8 - 43.7 45.3 49.6 - 42.6 44.2 48.4 - 41.6 43.1 47.2 - 39.5 41.0 44.9 - 36.6 37.9 41.6 -
S/T 0.7 0.6 0.4 - 0.8 0.6 0.4 - 0.8 0.7 0.5 - 0.8 0.7 0.5 - 0.9 0.7 0.5 - 0.9 0.7 0.5 -
∆T 20 17 13 - 20 18 13 - 20 18 13 - 21 18 14 - 20 18 13 - 19 16 12 -
kW 3.3 3.3 3.4 - 3.5 3.6 3.7 - 3.7 3.8 3.9 - 3.9 3.9 4.1 - 4.0 4.1 4.2 - 4.2 4.2 4.4 -
Amps 15.9 16.1 16.5 - 16.8 17.1 17.5 - 17.9 18.2 18.6 - 18.8 19.1 19.6 - 19.7 20.1 20.6 - 20.6 21.0 21.6 -
Hi Pr 239 258 272 - 269 289 305 - 305 329 347 - 348 374 395 - 391 421 445 - 432 465 491 -
Lo Pr 114 122 133 - 121 129 140 - 126 134 146 - 132 140 153 - 138 147 161 - 143 152 166 -
1330
MBh 41.3 42.8 46.9 - 40.3 41.8 45.8 - 39.4 40.8 44.7 - 38.4 39.8 43.6 - 36.5 37.8 41.4 - 33.8 35.0 38.4 -
S/T 0.7 0.6 0.4 - 0.7 0.6 0.4 - 0.8 0.6 0.4 - 0.8 0.7 0.5 - 0.8 0.7 0.5 - 0.8 0.7 0.5 -
∆T 21 18 14 - 21 18 14 - 21 18 14 - 21 18 14 - 21 18 14 - 19 17 13 -
kW 3.2 3.3 3.3 - 3.4 3.5 3.6 - 3.6 3.7 3.8 - 3.8 3.9 4.0 - 3.9 4.0 4.1 - 4.1 4.1 4.3 -
Amps 15.5 15.8 16.2 - 16.4 16.7 17.1 - 17.5 17.8 18.3 - 18.4 18.7 19.2 - 19.3 19.7 20.2 - 20.2 20.6 21.1 -
Hi Pr 232 250 264 - 260 280 296 - 296 319 337 - 337 363 383 - 380 408 431 - 419 451 477 -
Lo Pr 111 118 129 - 117 125 136 - 122 130 141 - 128 136 149 - 134 143 156 - 139 148 161 -
75
1700
MBh 46.2 47.5 51.4 55.2 45.1 46.4 50.2 53.9 44.0 45.3 49.0 52.6 42.9 44.2 47.8 51.4 40.8 42.0 45.5 48.8 37.8 38.9 42.1 45.2
S/T 0.9 0.8 0.6 0.4 0.9 0.8 0.6 0.4 0.9 0.8 0.6 0.4 1.0 0.9 0.7 0.4 1.0 0.9 0.7 0.4 1.0 0.9 0.7 0.4
∆T 22 20 17 12 22 21 17 12 22 21 17 12 23 21 17 12 22 21 17 12 20 19 16 11
kW 3.3 3.4 3.5 3.6 3.5 3.6 3.7 3.8 3.7 3.8 3.9 4.1 3.9 4.0 4.1 4.3 4.1 4.2 4.3 4.4 4.2 4.3 4.4 4.6
Amps 16.0 16.3 16.7 17.2 17.0 17.3 17.7 18.2 18.1 18.4 18.9 19.4 19.0 19.4 19.9 20.5 20.0 20.3 20.9 21.5 20.9 21.3 21.9 22.6
Hi Pr 243 262 277 289 273 294 310 324 311 334 353 368 354 381 402 419 398 428 452 472 440 473 500 521
Lo Pr 116 124 135 144 123 131 143 152 128 136 148 158 134 143 156 166 141 150 163 174 145 155 169 180
1520
MBh 45.5 46.8 50.7 54.4 44.4 45.7 49.5 53.1 43.4 44.6 48.3 51.9 42.3 43.6 47.1 50.6 40.2 41.4 44.8 48.1 37.2 38.3 41.5 44.5
S/T 0.8 0.8 0.6 0.4 0.9 0.8 0.6 0.4 0.9 0.8 0.6 0.4 0.9 0.8 0.6 0.4 1.0 0.9 0.7 0.4 1.0 0.9 0.7 0.4
∆T 23 22 18 12 24 22 18 12 24 22 18 12 24 22 18 12 24 22 18 12 22 20 17 11
kW 3.3 3.3 3.4 3.5 3.5 3.6 3.7 3.8 3.7 3.8 3.9 4.0 3.9 4.0 4.1 4.2 4.1 4.1 4.3 4.4 4.2 4.3 4.4 4.5
Amps 16.0 16.2 16.6 17.1 16.9 17.2 17.6 18.1 18.0 18.3 18.8 19.3 18.9 19.3 19.8 20.4 19.9 20.2 20.8 21.4 20.8 21.2 21.8 22.4
Hi Pr 242 260 275 287 271 292 308 321 308 332 351 366 351 378 399 416 395 425 449 468 437 470 496 518
Lo Pr 116 123 134 143 122 130 142 151 127 135 147 157 133 142 155 165 140 149 162 173 144 154 168 179
1330
MBh 42.0 43.2 46.8 50.2 41.0 42.2 45.7 49.0 40.0 41.2 44.6 47.9 39.0 40.2 43.5 46.7 37.1 38.2 41.3 44.4 34.4 35.4 38.3 41.1
S/T 0.8 0.7 0.6 0.4 0.8 0.8 0.6 0.4 0.9 0.8 0.6 0.4 0.9 0.8 0.6 0.4 0.9 0.8 0.6 0.4 0.9 0.8 0.6 0.4
∆T 24 22 18 12 24 22 18 13 24 22 18 13 24 22 18 13 24 22 18 12 22 21 17 12
kW 3.2 3.3 3.4 3.5 3.4 3.5 3.6 3.7 3.6 3.7 3.8 3.9 3.8 3.9 4.0 4.1 4.0 4.0 4.2 4.3 4.1 4.2 4.3 4.4
Amps 15.6 15.9 16.3 16.7 16.6 16.8 17.3 17.7 17.6 17.9 18.4 18.9 18.5 18.9 19.4 19.9 19.4 19.8 20.3 20.9 20.3 20.7 21.3 21.9
Hi Pr 234 252 266 278 263 283 299 312 299 322 340 355 341 367 387 404 383 413 436 454 424 456 481 502
Lo Pr 112 119 130 139 118 126 138 146 123 131 143 152 129 138 150 160 135 144 157 168 140 149 163 173
IDB: Entering Indoor Dry Bulb Temperature Shaded area reects ACCA (TVA) condions. kW = Total system power
High and low pressures are measured at the liquid and sucon access ngs. Amps: Unit amps (comp.+ evaporator + condenser fan motors)

ProdUct sPecifications ProdUct sPecifications
SS-GPG13M
www
.
GoodManMfG
.
coM
15
exPanded cooling data — gPg1348***m41 (cont.)
65 75 85 95 105 115
59 63 67 71 59 63 67 71 59 63 67 71 59 63 67 71 59 63 67 71 59 63 67 71
80
1700
MBh 47.0 48.0 51.3 54.8 45.9 46.9 50.1 53.5 44.8 45.8 48.9 52.3 43.7 44.7 47.7 51.0 41.5 42.4 45.3 48.4 38.5 39.3 42.0 44.9
S/T 1.0 0.9 0.7 0.6 1.0 0.9 0.8 0.6 1.0 1.0 0.8 0.6 1.0 1.0 0.8 0.6 1.0 1.0 0.8 0.6 1.0 1.0 0.9 0.6
∆T 25 24 21 16 25 24 21 17 24 24 21 17 24 24 21 17 22 23 21 17 21 21 19 15
kW 3.3 3.4 3.5 3.6 3.6 3.6 3.7 3.9 3.8 3.8 4.0 4.1 4.0 4.0 4.2 4.3 4.1 4.2 4.3 4.5 4.2 4.3 4.5 4.6
Amps 16.1 16.4 16.8 17.3 17.1 17.4 17.8 18.3 18.2 18.5 19.0 19.6 19.2 19.5 20.0 20.6 20.1 20.5 21.0 21.7 21.1 21.5 22.0 22.7
Hi Pr 246 265 279 291 276 297 314 327 314 338 357 372 357 385 406 424 402 433 457 477 444 478 505 527
Lo Pr 118 125 137 145 124 132 144 154 129 137 150 160 136 144 157 168 142 151 165 176 147 156 171 182
1520
MBh 46.3 47.3 50.5 54.0 45.2 46.2 49.4 52.8 44.1 45.1 48.2 51.5 43.1 44.0 47.0 50.2 40.9 41.8 44.7 47.7 37.9 38.7 41.4 44.2
S/T 0.9 0.9 0.7 0.5 1.0 0.9 0.7 0.6 1.0 0.9 0.8 0.6 1.0 1.0 0.8 0.6 1.0 1.0 0.8 0.6 1.0 1.0 0.8 0.6
∆T 26 25 22 17 26 25 22 18 26 25 22 18 26 26 22 18 25 25 22 17 23 23 20 16
kW 3.3 3.4 3.5 3.6 3.5 3.6 3.7 3.8 3.7 3.8 3.9 4.1 3.9 4.0 4.1 4.3 4.1 4.2 4.3 4.4 4.2 4.3 4.4 4.6
Amps 16.1 16.3 16.7 17.2 17.0 17.3 17.7 18.2 18.1 18.4 18.9 19.5 19.1 19.4 19.9 20.5 20.0 20.4 20.9 21.6 20.9 21.4 21.9 22.6
Hi Pr 244 263 277 289 274 295 311 325 312 335 354 369 355 382 403 421 399 430 454 473 441 475 501 523
Lo Pr 117 124 136 144 123 131 143 153 128 136 149 159 135 143 156 167 141 150 164 175 146 155 169 180
1330
MBh 42.7 43.6 46.6 49.9 41.7 42.6 45.6 48.7 40.7 41.6 44.5 47.5 39.7 40.6 43.4 46.4 37.8 38.6 41.2 44.1 35.0 35.7 38.2 40.8
S/T 0.9 0.8 0.7 0.5 0.9 0.9 0.7 0.5 1.0 0.9 0.7 0.5 1.0 0.9 0.8 0.6 1.0 1.0 0.8 0.6 1.0 1.0 0.8 0.6
∆T 27 25 22 18 27 26 22 18 27 26 22 18 27 26 23 18 27 26 22 18 25 24 21 17
kW 3.2 3.3 3.4 3.5 3.5 3.5 3.6 3.7 3.7 3.7 3.8 4.0 3.8 3.9 4.0 4.2 4.0 4.1 4.2 4.3 4.1 4.2 4.3 4.5
Amps 15.7 16.0 16.4 16.8 16.7 17.0 17.4 17.9 17.7 18.1 18.5 19.0 18.7 19.0 19.5 20.1 19.6 19.9 20.5 21.1 20.5 20.9 21.4 22.1
Hi Pr 237 255 269 281 266 286 302 315 302 325 343 358 344 370 391 408 387 417 440 459 428 460 486 507
Lo Pr 113 120 131 140 120 127 139 148 124 132 144 154 131 139 152 162 137 146 159 169 142 151 164 175
85
1700
MBh 47.8 48.7 51.0 54.4 46.7 47.6 49.8 53.2 45.6 46.5 48.7 51.9 44.5 45.3 47.5 50.6 42.2 43.1 45.1 48.1 39.1 39.9 41.8 44.6
S/T 1.0 1.0 0.9 0.7 1.0 1.0 0.9 0.7 1.0 1.0 0.9 0.8 1.0 1.0 1.0 0.8 1.0 1.0 1.0 0.8 1.0 1.0 1.0 0.8
∆T 26 26 25 21 25 26 25 21 25 25 25 21 24 25 25 22 23 23 24 21 21 22 23 20
kW 3.4 3.4 3.5 3.6 3.6 3.7 3.8 3.9 3.8 3.9 4.0 4.1 4.0 4.1 4.2 4.3 4.1 4.2 4.4 4.5 4.3 4.4 4.5 4.6
Amps 16.2 16.5 16.9 17.4 17.2 17.5 18.0 18.5 18.3 18.7 19.1 19.7 19.3 19.7 20.2 20.8 20.3 20.6 21.2 21.8 21.2 21.6 22.2 22.9
Hi Pr 248 267 282 294 279 300 317 330 317 341 360 376 361 388 410 428 406 437 461 481 449 483 510 532
Lo Pr 119 126 138 147 125 133 146 155 130 139 151 161 137 146 159 169 143 153 167 177 148 158 172 184
1520
MBh 47.1 48.0 50.3 53.6 46.0 46.9 49.1 52.4 44.9 45.8 47.9 51.1 43.8 44.7 46.8 49.9 41.6 42.4 44.4 47.4 38.5 39.3 41.2 43.9
S/T 1.0 0.9 0.9 0.7 1.0 1.0 0.9 0.7 1.0 1.0 0.9 0.7 1.0 1.0 0.9 0.8 1.0 1.0 1.0 0.8 1.0 1.0 1.0 0.8
∆T 28 27 26 22 28 28 26 23 27 28 26 23 26 27 26 23 25 26 26 23 23 24 24 21
kW 3.3 3.4 3.5 3.6 3.6 3.6 3.7 3.9 3.8 3.9 4.0 4.1 4.0 4.0 4.2 4.3 4.1 4.2 4.3 4.5 4.3 4.3 4.5 4.6
Amps 16.2 16.5 16.8 17.3 17.1 17.4 17.9 18.4 18.2 18.6 19.0 19.6 19.2 19.6 20.1 20.7 20.2 20.5 21.1 21.7 21.1 21.5 22.1 22.8
Hi Pr 247 265 280 292 277 298 314 328 315 339 358 373 358 386 407 425 403 434 458 478 446 479 506 528
Lo Pr 118 125 137 146 125 132 145 154 129 138 150 160 136 145 158 168 142 152 165 176 147 157 171 182
1330
MBh 43.5 44.3 46.4 49.5 42.5 43.3 45.3 48.4 41.4 42.2 44.2 47.2 40.4 41.2 43.2 46.0 38.4 39.2 41.0 43.7 35.6 36.3 38.0 40.5
S/T 0.9 0.9 0.8 0.7 1.0 0.9 0.8 0.7 1.0 1.0 0.9 0.7 1.0 1.0 0.9 0.7 1.0 1.0 0.9 0.8 1.0 1.0 0.9 0.8
∆T 28 28 26 23 29 28 27 23 29 28 27 23 28 28 27 23 27 27 26 23 25 25 25 21
kW 3.3 3.3 3.4 3.5 3.5 3.6 3.7 3.8 3.7 3.8 3.9 4.0 3.9 3.9 4.1 4.2 4.0 4.1 4.2 4.4 4.1 4.2 4.4 4.5
Amps 15.8 16.1 16.5 17.0 16.8 17.1 17.5 18.0 17.9 18.2 18.6 19.2 18.8 19.1 19.6 20.2 19.7 20.1 20.6 21.2 20.6 21.0 21.6 22.3
Hi Pr 239 257 272 284 268 289 305 318 305 329 347 362 348 374 395 412 391 421 445 464 432 465 491 512
Lo Pr 114 122 133 141 121 129 140 149 126 134 146 155 132 140 153 163 138 147 161 171 143 152 166 177
IDB: Entering Indoor Dry Bulb Temperature Shaded area reects AHRI (TVA) condions. kW = Total system power
High and low pressures are measured at the liquid and sucon access ngs. Amps: Unit amps (comp.+ evaporator + condenser fan motors)

ProdUct sPecifications ProdUct sPecifications
16
www
.
GoodManMfG
.
coM
SS-GPG13M
exPanded cooling data — gPg1360***m41
65 75 85 95 105 115
59 63 67 71 59 63 67 71 59 63 67 71 59 63 67 71 59 63 67 71 59 63 67 71
70
2035
MBh 56.3 58.4 64.0 - 55.0 57.0 62.5 - 53.7 55.7 61.0 - 52.4 54.3 59.5 - 49.8 51.6 56.5 - 46.1 47.8 52.4 -
S/T 0.8 0.6 0.4 - 0.8 0.7 0.5 - 0.8 0.7 0.5 - 0.8 0.7 0.5 - 0.9 0.7 0.5 - 0.9 0.7 0.5 -
∆T 19 17 13 - 20 17 13 - 20 17 13 - 20 17 13 - 20 17 13 - 18 16 12 -
kW 4.3 4.3 4.5 - 4.6 4.7 4.8 - 4.8 4.9 5.1 - 5.1 5.2 5.3 - 5.3 5.4 5.6 - 5.5 5.6 5.7 -
Amps 18.0 18.4 18.9 - 19.2 19.6 20.2 - 20.7 21.1 21.7 - 21.9 22.3 23.0 - 23.1 23.6 24.3 - 24.3 24.9 25.6 -
Hi Pr 241 260 274 - 271 291 308 - 308 331 350 - 351 377 399 - 395 425 448 - 436 469 495 -
Lo Pr 109 116 127 - 115 123 134 - 120 127 139 - 126 134 146 - 132 140 153 - 136 145 158 -
1810
MBh 54.7 56.7 62.1 - 53.4 55.4 60.7 - 52.2 54.1 59.2 - 50.9 52.7 57.8 - 48.3 50.1 54.9 - 44.8 46.4 50.9 -
S/T 0.7 0.6 0.4 - 0.8 0.6 0.4 - 0.8 0.6 0.4 - 0.8 0.7 0.5 - 0.8 0.7 0.5 - 0.8 0.7 0.5 -
∆T 20 18 13 - 21 18 13 - 21 18 13 - 21 18 14 - 20 18 13 - 19 16 13 -
kW 4.2 4.3 4.4 - 4.5 4.6 4.8 - 4.8 4.9 5.1 - 5.0 5.1 5.3 - 5.2 5.3 5.5 - 5.4 5.5 5.7 -
Amps 17.9 18.2 18.7 - 19.1 19.5 20.0 - 20.5 20.9 21.5 - 21.7 22.2 22.8 - 22.9 23.4 24.1 - 24.1 24.7 25.4 -
Hi Pr 239 257 272 - 268 289 305 - 305 328 346 - 347 374 395 - 391 420 444 - 432 465 491 -
Lo Pr 108 115 125 - 114 121 132 - 119 126 138 - 125 132 145 - 131 139 152 - 135 144 157 -
1590
MBh 50.5 52.3 57.3 - 49.3 51.1 56.0 - 48.1 49.9 54.7 - 47.0 48.7 53.3 - 44.6 46.2 50.7 - 41.3 42.8 46.9 -
S/T 0.7 0.6 0.4 - 0.7 0.6 0.4 - 0.7 0.6 0.4 - 0.8 0.6 0.4 - 0.8 0.7 0.5 - 0.8 0.7 0.5 -
∆T 21 18 13 - 21 18 14 - 21 18 14 - 21 18 14 - 21 18 14 - 19 17 13 -
kW 4.1 4.2 4.3 - 4.4 4.5 4.7 - 4.7 4.8 4.9 - 4.9 5.0 5.2 - 5.1 5.2 5.4 - 5.3 5.4 5.6 -
Amps 17.5 17.8 18.3 - 18.6 19.0 19.6 - 20.0 20.4 21.0 - 21.2 21.6 22.3 - 22.4 22.8 23.5 - 23.5 24.0 24.8 -
Hi Pr 232 249 263 - 260 280 296 - 296 318 336 - 337 363 383 - 379 408 431 - 419 451 476 -
Lo Pr 105 111 122 - 111 118 129 - 115 122 134 - 121 129 140 - 127 135 147 - 131 139 152 -
75
2035
MBh 57.3 59.0 63.9 68.5 56.0 57.6 62.4 66.9 54.6 56.3 60.9 65.3 53.3 54.9 59.4 63.8 50.6 52.1 56.4 60.6 46.9 48.3 52.3 56.1
S/T 0.9 0.8 0.6 0.4 0.9 0.8 0.6 0.4 0.9 0.8 0.6 0.4 1.0 0.9 0.6 0.4 1.0 0.9 0.7 0.4 1.0 0.9 0.7 0.4
∆T 23 21 17 12 23 21 17 12 23 21 17 12 23 21 17 12 23 21 17 12 21 19 16 11
kW 4.3 4.4 4.5 4.6 4.6 4.7 4.8 5.0 4.9 5.0 5.1 5.3 5.1 5.2 5.4 5.6 5.3 5.4 5.6 5.8 5.5 5.6 5.8 6.0
Amps 18.1 18.5 19.0 19.6 19.4 19.8 20.3 21.0 20.8 21.3 21.9 22.6 22.1 22.5 23.2 24.0 23.3 23.8 24.5 25.3 24.5 25.1 25.8 26.7
Hi Pr 244 262 277 289 274 294 311 324 311 335 354 369 354 381 403 420 399 429 453 472 440 474 501 522
Lo Pr 110 117 128 136 116 124 135 144 121 129 141 150 127 135 148 157 133 142 155 165 138 147 160 170
1810
MBh 55.6 57.3 62.0 66.5 54.3 55.9 60.6 65.0 53.0 54.6 59.1 63.4 51.8 53.3 57.7 61.9 49.2 50.6 54.8 58.8 45.5 46.9 50.8 54.5
S/T 0.8 0.7 0.6 0.4 0.9 0.8 0.6 0.4 0.9 0.8 0.6 0.4 0.9 0.8 0.6 0.4 0.9 0.8 0.6 0.4 1.0 0.9 0.6 0.4
∆T 23 22 18 12 24 22 18 12 24 22 18 12 24 22 18 12 24 22 18 12 22 20 17 11
kW 4.3 4.3 4.5 4.6 4.6 4.7 4.8 5.0 4.8 4.9 5.1 5.3 5.1 5.2 5.3 5.5 5.3 5.4 5.6 5.7 5.5 5.6 5.7 5.9
Amps 18.0 18.4 18.9 19.5 19.2 19.6 20.2 20.8 20.7 21.1 21.7 22.4 21.9 22.4 23.0 23.8 23.1 23.6 24.3 25.1 24.3 24.9 25.6 26.5
Hi Pr 241 260 274 286 271 291 308 321 308 331 350 365 351 378 399 416 395 425 449 468 436 469 496 517
Lo Pr 109 116 127 135 115 123 134 143 120 127 139 148 126 134 146 156 132 140 153 163 136 145 158 169
1590
MBh 51.3 52.9 57.2 61.4 50.2 51.6 55.9 60.0 49.0 50.4 54.6 58.6 47.8 49.2 53.2 57.1 45.4 46.7 50.6 54.3 42.0 43.3 46.8 50.3
S/T 0.8 0.7 0.5 0.3 0.8 0.7 0.6 0.4 0.8 0.8 0.6 0.4 0.9 0.8 0.6 0.4 0.9 0.8 0.6 0.4 0.9 0.8 0.6 0.4
∆T 24 22 18 12 24 22 18 13 24 22 18 13 24 22 18 13 24 22 18 12 22 21 17 12
kW 4.2 4.3 4.4 4.5 4.5 4.6 4.7 4.8 4.7 4.8 5.0 5.1 5.0 5.1 5.2 5.4 5.2 5.3 5.4 5.6 5.3 5.4 5.6 5.8
Amps 17.6 17.9 18.4 19.0 18.8 19.2 19.7 20.3 20.2 20.6 21.2 21.9 21.4 21.8 22.4 23.2 22.6 23.0 23.7 24.5 23.7 24.2 25.0 25.8
Hi Pr 234 252 266 277 263 283 299 311 299 322 340 354 340 366 387 403 383 412 435 454 423 455 481 501
Lo Pr 106 113 123 131 112 119 130 138 116 124 135 144 122 130 142 151 128 136 149 158 132 141 154 164
IDB: Entering Indoor Dry Bulb Temperature Shaded area reects ACCA (TVA) condions. kW = Total system power
High and low pressures are measured at the liquid and sucon access ngs. Amps: Unit amps (comp.+ evaporator + condenser fan motors)

ProdUct sPecifications ProdUct sPecifications
SS-GPG13M
www
.
GoodManMfG
.
coM
17
exPanded cooling data — gPg1360***m41 (cont.)
65 75 85 95 105 115
59 63 67 71 59 63 67 71 59 63 67 71 59 63 67 71 59 63 67 71 59 63 67 71
80
2035
MBh 58.3 59.6 63.7 68.1 57.0 58.2 62.2 66.5 55.6 56.8 60.7 64.9 54.3 55.4 59.2 63.3 51.5 52.7 56.3 60.1 47.7 48.8 52.1 55.7
S/T 1.0 0.9 0.7 0.5 1.0 0.9 0.8 0.6 1.0 1.0 0.8 0.6 1.0 1.0 0.8 0.6 1.0 1.0 0.8 0.6 1.0 1.0 0.8 0.6
∆T 25 24 21 17 26 24 21 17 25 24 21 17 25 25 21 17 23 24 21 17 22 22 20 16
kW 4.3 4.4 4.5 4.7 4.6 4.7 4.9 5.0 4.9 5.0 5.2 5.3 5.2 5.3 5.4 5.6 5.4 5.5 5.7 5.8 5.5 5.7 5.8 6.0
Amps 18.3 18.7 19.2 19.8 19.5 19.9 20.5 21.2 21.0 21.4 22.0 22.8 22.2 22.7 23.4 24.2 23.5 24.0 24.7 25.6 24.7 25.3 26.0 26.9
Hi Pr 246 265 280 292 276 297 314 327 314 338 357 372 358 385 407 424 403 433 458 477 445 479 506 527
Lo Pr 111 118 129 138 118 125 137 145 122 130 142 151 128 137 149 159 135 143 156 166 139 148 162 172
1810
MBh 56.6 57.9 61.8 66.1 55.3 56.5 60.4 64.5 54.0 55.2 58.9 63.0 52.7 53.8 57.5 61.5 50.0 51.1 54.6 58.4 46.3 47.4 50.6 54.1
S/T 0.9 0.9 0.7 0.5 0.9 0.9 0.7 0.5 1.0 0.9 0.7 0.6 1.0 0.9 0.8 0.6 1.0 1.0 0.8 0.6 1.0 1.0 0.8 0.6
∆T 26 25 22 17 26 25 22 18 26 25 22 18 27 26 22 18 25 25 22 18 24 24 20 16
kW 4.3 4.4 4.5 4.6 4.6 4.7 4.8 5.0 4.9 5.0 5.1 5.3 5.1 5.2 5.4 5.6 5.3 5.4 5.6 5.8 5.5 5.6 5.8 6.0
Amps 18.1 18.5 19.0 19.6 19.4 19.8 20.3 21.0 20.8 21.3 21.9 22.6 22.1 22.5 23.2 24.0 23.3 23.8 24.5 25.3 24.5 25.1 25.8 26.7
Hi Pr 244 262 277 289 274 294 311 324 311 335 354 369 354 381 403 420 399 429 453 473 440 474 501 522
Lo Pr 110 117 128 136 116 124 135 144 121 129 141 150 127 135 148 157 133 142 155 165 138 147 160 170
1590
MBh 52.3 53.4 57.1 61.0 51.0 52.2 55.7 59.6 49.8 50.9 54.4 58.2 48.6 49.7 53.1 56.7 46.2 47.2 50.4 53.9 42.8 43.7 46.7 49.9
S/T 0.9 0.8 0.7 0.5 0.9 0.9 0.7 0.5 0.9 0.9 0.7 0.5 1.0 0.9 0.7 0.5 1.0 0.9 0.8 0.6 1.0 0.9 0.8 0.6
∆T 26 25 22 18 27 26 22 18 27 26 22 18 27 26 23 18 27 26 22 18 25 24 21 17
kW 4.2 4.3 4.4 4.5 4.5 4.6 4.7 4.9 4.8 4.9 5.0 5.2 5.0 5.1 5.3 5.4 5.2 5.3 5.5 5.6 5.4 5.5 5.7 5.8
Amps 17.7 18.1 18.6 19.2 18.9 19.3 19.9 20.5 20.3 20.8 21.3 22.0 21.5 22.0 22.6 23.4 22.7 23.2 23.9 24.7 23.9 24.4 25.2 26.0
Hi Pr 236 255 269 280 265 286 302 315 302 325 343 358 344 370 391 407 387 416 439 458 427 460 486 506
Lo Pr 107 114 124 132 113 120 131 140 117 125 136 145 123 131 143 152 129 137 150 160 134 142 155 165
85
2035
MBh 59.3 60.5 63.3 67.6 58.0 59.1 61.9 66.0 56.6 57.7 60.4 64.4 55.2 56.3 58.9 62.9 52.4 53.5 56.0 59.7 48.6 49.5 51.9 55.3
S/T 1.0 1.0 0.9 0.7 1.0 1.0 0.9 0.7 1.0 1.0 0.9 0.8 1.0 1.0 1.0 0.8 1.0 1.0 1.0 0.8 1.0 1.0 1.0 0.8
∆T 27 26 25 22 26 27 25 22 26 26 25 22 25 25 25 22 24 24 25 22 22 22 23 20
kW 4.4 4.4 4.6 4.7 4.7 4.8 4.9 5.1 5.0 5.1 5.2 5.4 5.2 5.3 5.5 5.6 5.4 5.5 5.7 5.9 5.6 5.7 5.9 6.1
Amps 18.4 18.8 19.3 19.9 19.7 20.1 20.7 21.3 21.2 21.6 22.2 23.0 22.4 22.9 23.6 24.4 23.7 24.2 24.9 25.8 24.9 25.5 26.2 27.1
Hi Pr 249 268 283 295 279 300 317 331 317 342 361 376 361 389 411 428 407 438 462 482 449 484 511 533
Lo Pr 112 120 131 139 119 126 138 147 123 131 143 153 130 138 151 160 136 145 158 168 141 150 163 174
1810
MBh 57.6 58.7 61.5 65.6 56.3 57.4 60.1 64.1 54.9 56.0 58.6 62.6 53.6 54.6 57.2 61.0 50.9 51.9 54.4 58.0 47.2 48.1 50.3 53.7
S/T 1.0 0.9 0.8 0.7 1.0 1.0 0.9 0.7 1.0 1.0 0.9 0.7 1.0 1.0 0.9 0.7 1.0 1.0 0.9 0.8 1.0 1.0 1.0 0.8
∆T 28 27 26 22 28 28 26 23 28 28 26 23 27 28 26 23 26 26 26 23 24 24 24 21
kW 4.3 4.4 4.5 4.7 4.6 4.7 4.9 5.0 4.9 5.0 5.2 5.3 5.2 5.3 5.4 5.6 5.4 5.5 5.7 5.8 5.5 5.7 5.8 6.0
Amps 18.3 18.7 19.2 19.8 19.5 19.9 20.5 21.2 21.0 21.4 22.0 22.8 22.2 22.7 23.4 24.2 23.5 24.0 24.7 25.6 24.7 25.3 26.0 26.9
Hi Pr 246 265 280 292 276 297 314 327 314 338 357 372 358 385 407 424 403 433 458 477 445 479 506 527
Lo Pr 111 118 129 138 118 125 137 145 122 130 142 151 128 137 149 159 135 143 156 166 139 148 162 172
1590
MBh 53.2 54.2 56.8 60.6 51.9 52.9 55.4 59.2 50.7 51.7 54.1 57.7 49.5 50.4 52.8 56.3 47.0 47.9 50.2 53.5 43.5 44.4 46.5 49.6
S/T 0.9 0.9 0.8 0.6 1.0 0.9 0.8 0.7 1.0 0.9 0.9 0.7 1.0 1.0 0.9 0.7 1.0 1.0 0.9 0.7 1.0 1.0 0.9 0.7
∆T 28 28 26 23 29 28 27 23 29 28 27 23 29 28 27 23 27 28 26 23 25 26 25 21
kW 4.2 4.3 4.4 4.6 4.5 4.6 4.8 4.9 4.8 4.9 5.0 5.2 5.0 5.1 5.3 5.5 5.2 5.3 5.5 5.7 5.4 5.5 5.7 5.9
Amps 17.9 18.2 18.7 19.3 19.1 19.5 20.0 20.7 20.5 20.9 21.5 22.2 21.7 22.2 22.8 23.6 22.9 23.4 24.1 24.9 24.1 24.6 25.4 26.2
Hi Pr 239 257 271 283 268 288 305 318 305 328 346 361 347 374 395 411 391 420 444 463 432 464 490 511
Lo Pr 108 115 125 134 114 121 132 141 119 126 138 147 125 132 145 154 130 139 152 161 135 144 157 167
IDB: Entering Indoor Dry Bulb Temperature Shaded area reects AHRI (TVA) condions. kW = Total system power
High and low pressures are measured at the liquid and sucon access ngs. Amps: Unit amps (comp.+ evaporator + condenser fan motors)

ProdUct sPecifications ProdUct sPecifications
18
www
.
GoodManMfG
.
coM
SS-GPG13M
airflow data for Psc motors
gPg13m— 2-ton models
E.S.P. RPM RPM RPM
0.1 1,190 380 823 1.67 850 230 647 1.02 600 150 514 0.67
0.2 1,140 360 845 1.62 830 220 690 1.00 570 140 585 0.65
0.3 1,080 350 878 1.58 765 215 740 0.97 510 130 654 0.63
0.4 1,025 340 907 1.54 715 210 784 0.94 450 125 728 0.61
0.5 975 330 933 1.38 660 205 834 0.90 380 120 801 0.58
0.6 920 310 945 1.37 610 195 888 0.88 - - - -
0.7 830 300 961 1.35 - - - - - - - -
0.8 730 290 978 1.32 - - - - - - - -
gPg13m— 2½-ton models
E.S.P. RPM RPM RPM
0.1 1,370 509 899 2.23 1,261 452 840 1.95 1,056 350 723 1.51
0.2 1,310 492 926 2.13 1,221 442 867 1.9 1,010 339 773 1.43
0.3 1,262 489 942 2.09 1,174 428 899 1.84 971 343 800 1.45
0.4 1,208 475 963 2.06 1,125 414 921 1.8 937 329 836 1.41
0.5 1,140 453 982 1.93 1,063 398 948 1.7 878 318 852 1.27
0.6 1,081 440 999 1.9 1,004 380 971 1.66 811 306 917 1.29
0.7 1,006 425 1,017 1.88 919 368 998 1.59 723 291 960 1.21
0.8 879 403 1,043 1.74 796 371 1,033 1.46 545 259 1,013 1.1
gPg13m— 3½-ton models
E.S.P. RPM RPM RPM
0.1 1,575 585 934 2.64 1,450 480 862 2.15 1,100 340 709 1.55
0.2 1,515 565 951 2.58 1,390 460 894 2.06 1,040 325 760 1.49
0.3 1,430 550 974 2.50 1,300 445 922 1.98 1,000 320 816 1.44
0.4 1,340 525 995 2.42 1,215 425 950 1.89 925 305 848 1.38
0.5 1,240 505 1,005 2.34 1,115 395 967 1.79 860 290 887 1.32
0.6 1,130 465 1,030 2.22 1,030 375 1,000 1.71 800 275 920 1.22
0.7 1,010 450 148 2.18 945 350 1,028 1.60 690 255 964 1.16
0.8 910 430 1,064 2.12 860 335 1,038 1.54 - - - -
gPg13m— 3-ton models
E.S.P RPM RPM RPM
0.1 1,462 596 957 2.58 1,337 471 885 2.08 1,029 346 732 1.51
0.2 1,398 563 972 2.53 1,265 452 921 2.01 982 334 775 1.46
0.3 1,326 550 988 2.47 1,227 448 934 1.97 946 329 808 1.4
0.4 1,260 534 1,002 2.39 1,159 429 955 1.87 888 313 846 1.38
0.5 1,188 513 1,012 2.34 1,073 405 980 1.73 823 304 891 1.29
0.6 1,090 496 1,034 2.27 1,008 393 997 1.71 750 287 932 1.23
0.7 997 478 1,047 2.2 895 371 1,025 1.61 668 271 971 1.16
0.8 852 454 1,064 2.16 760 346 1,050 1.49 454 238 1,017 1

ProdUct sPecifications ProdUct sPecifications
SS-GPG13M
www
.
GoodManMfG
.
coM
19
airflow data for eem motors
gPg13m– 4-ton models — heating
E.S.P RPM RPM RPM
0.1 - - - - - - - - - - - -
0.2 914 125 611 1.07 1,105 186 686 1.56 1,397 323 801 2.57
0.3 822 134 652 1.14 1,024 193 712 1.6 1,346 331 828 2.67
0.4 733 140 691 1.2 967 202 747 1.65 1,288 342 845 2.76
0.5 664 150 733 1.26 884 214 786 1.76 1,273 352 855 2.82
0.6 606 154 765 1.28 816 220 818 1.78 1,178 359 889 2.88
0.7 584 162 792 1.32 769 230 854 1.85 1,120 369 925 2.97
0.8 551 164 801 1.34 698 236 880 1.89 1,057 381 941 3.09
gPg13m– 4-ton models — cooling
E.S.P RPM RPM
0.1 - - - - - - - -
0.2 1,593 449 884 3.55 1,699 532 921 4.22
0.3 1,545 463 905 3.69 1,654 539 944 4.25
0.4 1,506 476 934 3.82 1,610 551 969 4.3
0.5 1,448 481 950 3.87 1,545 557 989 4.36
0.6 1,400 493 972 3.95 1,512 566 1,002 4.41
0.7 1,341 502 991 4.03 1,433 578 1,019 4.59
0.8 1,289 511 1,013 4.11 1,392 591 1,036 4.65
gPg13m– 5-ton models — cooling
E.S.P RPM RPM
0.1 1,942 649 993 4.83 2,067 792 1,054 5.81
0.2 1,883 657 1,010 4.87 2,030 811 1,077 5.85
0.3 1,859 670 1,029 4.96 1,982 814 1,088 5.88
0.4 1,827 675 1,047 4.97 1,909 808 1,101 5.86
0.5 1,749 683 1,069 4.99 1,842 798 1,110 5.85
0.6 1,706 693 1,083 5.1 1,789 772 1,117 5.65
0.7 1,655 703 1,104 5.12 1,703 763 1,129 5.58
0.8 1,588 705 1,120 5.11 1,618 732 1,135 5.29
gPg13m– 5-ton models — heating
E.S.P RPM RPM RPM
0.1 1,125 162 645 1.44 1,466 315 783 2.67 1,780 496 914 3.33
0.2 1,049 168 678 1.53 1,384 322 817 2.74 1,730 506 937 3.89
0.3 1,000 178 708 1.6 1,347 329 839 2.78 1,664 520 955 4.01
0.4 910 184 741 1.64 1,291 341 865 2.83 1,608 526 977 4.03
0.5 857 197 783 1.75 1,237 350 894 2.9 1,568 532 997 4.12
0.6 809 201 807 1.83 1,185 362 921 3.05 1,515 546 1,020 4.14
0.7 739 207 838 1.86 1,134 369 945 3.09 1,477 552 1,040 4.18
0.8 703 218 869 1.96 1,087 382 976 3.21 1,422 562 1,062 4.23

ProdUct sPecifications ProdUct sPecifications
20
www
.
GoodManMfG
.
coM
SS-GPG13M
temPeratUre rise range chart
27
BLOWER PERFORMANCE DATA
30 40 50 60 70 80 90 110 120
100 130 140 150
100
90
80
70
60
50
40
30
20
10
OUTPUT BTU/HR x 1000
BTU OUTPUT vs TEMPERATURE RISE CHART
TEMPERATURE RISE
600 CFM
700
900
1000
1100
1200
1400
1600
1800
2000
2200
2400 CFM
FORMULAS
BTU OUTPUT = CFM x 1.08 x RISE
RISE = BTU OUTPUT
1.08 ÷ CFM
800

ProdUct sPecifications ProdUct sPecifications
SS-GPG13M
www
.
GoodManMfG
.
coM
21
dimensions
A
GPG1324***M41 Medium 32” 16”
GPG1330***M41 Medium 32” 16”
GPG1336***M41 Medium 32” 16”
GPG1342***M41 Large 40” 18”
GPG1348***M41 Large 40” 18”
GPG1360***M41 Large 40” 18”
7
PACKAGE GAS SPECIFICATIONS
UNIT DIMENSIONS
COMBUSTION
AIR INTAKE
EXHAUST FLUE HOOD
CONTROL WIRE ENTRANCE
POWER WIRE ENTRANCE
7 7/8
7 5/16
SUCTION/LIQUID PRESSURE PORTS
BEHIND COMPRESSOR ACCESS PANEL
HEAT EXCHANGE ACCESS PANEL
GAS SUPPLY ENTRANCE
CONDENSATE DRAIN CONNECTION
3/4" NPT FEMALE
16 1/8
19 1/8
EVAPORATOR/CONTROL PANEL ACCESS PANEL
4 3/4
B
7 15/16
16
B
5 1/2
1 3/8
16
2 3/4
A
18 7/16
FLUE EXHAUST
51
47
BLOWER ACCESS PANEL
22
22
11
11
3SUPPLY
RETURN
SUPPLY RETURN
5 3/4
5 1/4
C
20
24
DIMENSION
(INCHES) MEDIUM LARGE
A 32 40
B 16 18
C 9 1/2 14
CENTEROF
GRAVITY
COMBUSTION AIR INTAKE
FLUE EXHAUST
HOOD
7”

ProdUct sPecifications ProdUct sPecifications
22
www
.
GoodManMfG
.
coM
SS-GPG13M
wiring diagram — gPg1324-42m41
8765 421
3
876 54 21
3
E
D
B
A
C
E
D
B
A
C
CONFIDENTIAL PROPERTY OF THE GOODMAN MANUFACTURING COMPANY, L.P. NOT TO BE DISCLOSED TO OTHERS, COPIED, OR USED FOR ANY PURPOSE
EXCEPT AS AUTHORIZED IN WRITING. MUST BE RETURNED UPON DEMAND, ON COMPLETION OF ORDER, OR OTHER PURPOSE FOR WHICH IT WAS LENT.
COMPONENTS AND MATERIALS SPECIFIED HEREIN WILL ALSO CONFORM TO THE APPLICABLE SECTION OF GOODMAN MSP 824.01 WORKMANSHIP
STANDARD FOR FIT, FEEL AND FINISH.
SPECIAL CHARACTERISTICS:
= 6SIGMA = CRITICAL CHARACTERISTIC = SIGNIFICANT CHARACTERISTIC
SC
CC
6s
LABEL, WIRING DIAGRAM
DATE: 09-14-09
ENG: S. JOHNS
DWN BY: CHRIS MORRIS
DO NOT SCALE DRAWING
0140G01233 A
REV
SHT 1 OF 1
THE GOODMAN MANUFACTURING
COMPANY, L.P.
TOLERANCES:
ANGLES ± 1.5°
.X : ± .1
.XX : ± .03
.XXX : ± .015
HOLE Ø : ± .005
TUBE CUT LG: ± .063
DRAWING TO BE INTERPRETED IN
ACCORDANCE WITH ASME Y14.100
DIMENSIONS ARE IN INCHES
UNLESS OTHERWISE NOTED
ECN REV DESCRIPTION CHK DR DATE
0904067 ACSM 09-14-09INITIAL RELEASE
ZONE
CHK BY: DION MASSEY
-SK
5.000±.125
11.250±.125
NOTES:
1. DIMENSIONS - 5" x 11.250"
2. MATERIAL - 4 MILS WHITE VINYL WITH PRESSURE SENSITIVE
PERMANENT ACRYLIC ADHESIVE AS PER SPEC S4900061, TYPE A.
3. COLOR -WHITE BACKGROUND WITH BLACK PRINTING
Y
6. USE COPPER WIRE
NOTE 3
CONNECTED AT L1, L2
CH OPTIONAL
BL/PK
HPS
BL/PK BLUE/PINK
BL/PK
HPS HIGH PRESSURE SWITCH
HPS
1. REPLACEMENT WIRE MUST BE THE SAME SIZE AND TYPE OF
3 BLINKS
6 BLINKS
2 BLINKS
STATUS LIGHT
4 BLINKS
5 BLINKS
INSULATION AS ORIGINAL.(USE COPPER CONDUCTOR ONLY).
3. CRANKCASE HEATER (OPTIONAL).
2. FOR 208 VOLT TRANSFORMER OPERATION MOVE BLACK WIRE
FROM TERMINAL 3 TO TERMINAL 2 ON TRANSFORMER.
1 BLINK
4. FOR DIFFERENT THAN FACTORY SPEED TAP. CHANGE COOLING
SPEED AT COOL TERMINAL (IIC). CHANGE HEATING SPEED AT HEAT
TERMINAL (IIC)
4SPEED MOTOR
B - HIGH SPEED
BL - MEDIUM HIGH SPEED
Y - MEDIUM LOW SPEED
5. ACCESSORY ECONOMIZER PLUG ADJACENT TO BLOWER HOUSING
IN RETURN AIR COMPARMENT.
R - LOW SPEED
0140G01233 REV. A
INSTALLER/SERVICEMAN
TROUBLESHOOTING THIS APPLIANCE. STATUS LIGHT CODES ARE AS FOLLOWS:
THE STATUS LIGHT ON THE FURNACE CONTROL MAY BE USED AS A GUIDE TO
97
TO THC
RG
IIC
ECON
5
10 12
Y/Y2W Y1
11
C
PS
ALS
LS
8
6
3
RS
NOTE 5
PL
65
23
CC
1
4
GV
FALSE FLAME SENSED
OUTPUT DELAY
OPEN LIMIT SWITCH
COMPRESSOR
ANTI-CYCLE TIMER
MAIN LIMIT OPEN
STICKING GAS VALVE
BAD SWITCH
3 MIN. COMP.
WITHOUT INDUCER ON
PRESSURE SWITCH CLOSED
OR
PRESSURE SWITCH
OPEN AUX. LIMIT
OPEN ROLLOUT
SWITCH
OPEN
SWITCH
OR
EQUIP. STATUS
IGNITION FAILURE
NORMAL OPERATION
NO POWER OR
INTERNAL CONTROL
OFF
ON
FAULT
GAS PRESSURE
PRESSURE SWITCH
PRESSURE SWITCH
FLAME ROLLOUT
AUX. LIMIT OPEN
FLAME SENSOR
BAD SWITCH
GAS VALVE
CHECK
CHECK
CHECK FUSE ON CONTROL
CHECK INPUT POWER
REPLACE CONTROL
208-230/1/60
GAS FLOW
CHECK
-
R - LOW SPEED
B - HIGH SPEED
BL - MEDIUM SPEED
3SPEED MOTOR
NOTE 4
TRANS TRANSFORMER
FS FLAME SENSOR
IGN IGNITOR
EM EVAPORATOR MOTOR
GV GAS VALVE
IIC INTEGRATED IGNITION CONTROL
LS LIMIT SWITCH
PL PLUG
RS ROLLOUT SWITCH
THC THERMOSTAT HEAT & COOL
VM VENT MOTOR
ALS AUXILLARY LIMIT SW ITCH
COMPONENT LEGEND
CAP CAPACITOR
COMP COMPRESSOR
CM CONDENSER MOTOR
CC CONTACTOR
CH CRANKCASE HEATER
PS PRESSURE SWITCH
C
CC T1
FUSE
4
FS
1
L1
L1
L1
L1
L1
L1
R
L2
NOTE 4
TRANS
FS
IGN
NOTE 2
(LOW)
(HIGH)
CAP1
D1
H
C
COMP
S H
VM
C
F
CC
CM
L2
NOTES
2
EM
L2
L2
CAP 2
SUPPLY VOLTAGE
208-230/1/60
T2
CH
NOTE 3
PU
R
VM IGN
FS
L2
GAS VALVE
BL
PU
PU
NOTE 5
(ALT.) HONEYWELL
GV
BL
W. R.
PU
GV
MV
GAS VALVE
MV
RS
PL
PU
Y
1 4
G
3
2 5
6BL
Y
Y1
Y/Y2 CR
PU
YBL
R
WG
G
W
PU
PS
Y
Y
ALS
MOTOR
4 SPEED
PU
B
BL
WIRING
Y YELLOW
FIELD INSTALLED POWER
FIELD INSTALLED CONTROL
LINE VOLTAGE
LOW VOLTAGE
BR BROWN
R RED
W WHITE
PK PINK
PU PURPLE
G GREEN
O ORANGE
WIRE CODE
B BLACK
BL BLUE
CAP
WIRE SPLICE
MARKED TERMINAL
UNMARKED TERMINAL
BR
Y
FCH
R
10
O
R
7
4
1
FS
11 12
89
2
56
3
DI L1
R
Y
BL
B
COOLHEAT
UNUSED
L2
PU(L2)
R
NOTE 4
CAP2
HIGH
B
PU
BR
CAP.2
EM
3 SPE ED
OPTI ONAL
MEDIUM
BL
RLOW
32
1
Y
54
EM
BR BR
CM
BR B
LS
R
RPU
PU
B
BCOMP
SCR
PU
Y
B
BL
B
BL
BL
BL
R
PU
B
GR
240
TRANS
BL
24V
1
C
2
208
NOTE 2
3B
208-230/1/60
SEE NOTE 6
CH OPTIONAL
L1
T1
R
CC L2
T2
B
B
Y
Y
R
POWER SUPPLY
GRD
IIC
PU
R
PU
ECON
R
B
B
R
Y
BL
R
O
PU
ALT. 3 SPEED
MOTOR
TO THC
(SEE THC FIELD WIRING BELOW)
THC-FIELD WIRING
THC-NO ECONOMIZER
W W
G
G
RR
YY
BL C
RR
C
Y2Y
BL
W
G
W
G
2 STAGE COOLING WITH ECONOMIZER
Y1PU
Y
SEE NOTE 5
Y
Y
Wiringis subject to change. Always
refer to the wiring diagram or the
unitforthemostup-to-datewiring.
⚠ WarninG High Voltage: Disconnect all power before servicing or installing this unit. Multiple power
sourcesmaybepresent.Failuretodosomaycausepropertydamage,personalinjury,ordeath. ⚡

ProdUct sPecifications ProdUct sPecifications
SS-GPG13M
www
.
GoodManMfG
.
coM
23
wiring diagram — gPg1348-60m41
8765 421
3
876 5421
3
E
D
B
A
C
E
D
B
A
C
CONFIDENTIAL PROPERTY OF THE GOODMAN MANUFACTURING COMPANY, L.P. NOT TO BE DISCLOSED TO OTHERS, COPIED, OR USED FOR ANY PURPOSE
EXCEPT AS AUTHORIZED IN WRITING. MUST BE RETURNED UPON DEMAND, ON COMPLETION OF ORDER, OR OTHER PURPOSE FOR WHICH IT WAS LENT.
COMPONENTS AND MATERIALS SPECIFIED HEREIN WILL ALSO CONFORM TO THE APPLICABLE SECTION OF GOODMAN MSP 824.01 WORKMANSHIP
STANDARD FOR FIT, FEEL AND FINISH.
SPECIAL CHARACTERISTICS:
= 6SIGMA = CRITICAL CHARACTERISTIC = SIGNIFICANT CHARACTERISTIC
SC
CC
6s
LABEL, WIRING DIAGRAM
DATE: 09-11-09
ENG: S. JOHNS
DWN BY: CHRIS MORRIS
DO NOT SCALE DRAWING
0140G01234 A
REV
SHT 1 OF 1
THE GOODMAN MANUFACTURING
COMPANY, L.P.
TOLERANCES:
ANGLES ± 1.5°
.X : ± .1
.XX : ± .03
.XXX : ± .015
HOLE Ø : ± .005
TUBE CUT LG: ± .063
DRAWING TO BE INTERPRETED IN
ACCORDANCE WITH ASME Y14.100
DIMENSIONS ARE IN INCHES
UNLESS OTHERWISE NOTED
ECN REV DESCRIPTION CHK DR DATE
0904067 ACSM 09-11-09INITIAL RELEASE
ZONE
CHK BY: DION MASSEY
-SK
NOTES:
1. DIMENSIONS - 5" x 11.250"
2. MATERIAL - 4 MILS WHITE VINYL WITH PRESSURE SENSITIVE
PERMANENT ACRYLIC ADHESIVE AS PER SPEC S4900061, TYPE A
3. COLOR -WHITE BACKGROUND WITH BLACK PRINTING
HPS
BL/PK
BL/PK
BL/PK BLUE/PINK
HIGH PRESSURE SWITCH
HPS
HPS
PU
OR RD BL
4
NOTE 2
H
F
RCCF
C
BK
BK
YL
YL
HC
F
RD
WH
WH
YL
YL
RD
T2 T1
T5
RUN CAPACITOR FOR COMPRESSOR/FAN
RCCF
5
IIC
1
2
3
N
L
VENT MOTOR RELAY
VMR
FUSE
F
SEE
NOTE 7
GR
SEE NOTE 6
T3
T4
NOTE 2
NOTE 4
EM
208
YL
YL
WH
BL
2 STAGE COOLING WITH ECONOMIZER
THERMOSTAT FIELD WIRING
R
G
RD
GR
C
Y2
YL
BL
Y1PU
G
R
C
Y
0140G01234 REV A
WWWH
INSTALLER/SERVICEMAN
-
GAS PRESSURE
FLAME ROLLOUT
AUX. LIMIT OPEN
FLAME SENSOR
BAD SWITCH
GAS VALVE
CHECK FUSE ON CONTROL
CHECK INPUT POWER
REPLACE CONTROL
GAS FLOW
ANTI-CYCLE TIMER
MAIN LIMIT OPEN
STICKING GAS VALVE
BAD SWITCH
3 MIN. COMP.
PRESSURE SWITCH
PRESSURE SWITCH
CHECK
CHECK
OFF
ON
OR
OR
1 BLINK
3 BLINKS
6 BLINKS
2 BLINKS
4 BLINKS
5 BLINKS FALSE FLAME SENSED
OUTPUT DELAY
OPEN LIMIT SWITCH
COMPRESSOR
WITHOUT INDUCER ON
PRESSURE SWITCH CLOSED
PRESSURE SWITCH
OPEN AUX. LIMIT
OPEN ROLLOUT
SWITCH
OPEN
SWITCH
IGNITION FAILURE
NORMAL OPERATION
NO POWER OR
INTERNAL CONTROL
FAULT
STATUS LIGHT EQUIP. STATUS CHECK
NO ECONOMIZER
WH
GR
RD
YL
BL
208-230/1/60
T4 - LOW SPEED
COOLING SPEED (YELLOW WIRE)
USE NEC CLASS 2 WIRE.
6. USE COOPER CONDUCTORS ONLY.
T5 - HIGH SPEED
T3 - HIGH SPEED
T2 - MED. SPEED
T1 - LOW SPEED
HEATING SPEED (WHITE WIRE)
SPEED AT MOTOR T1, T2 AND T3 TERMINALS.
SPEED AT MOTOR T4 AND T5 TERMINALS. CHANGE HEATING
4. FOR DIFFERENT THAN FACTORY SPEED TAP. CHANGE COOLING
3. CRANKCASE HEATER NOT SUPPLIED ON ALL UNITS.
IN RETURN AIR COMPARMENT.
5. ACCESSORY ECONOMIZER PLUG ADJACENT TO BLOWER HOUSING
FROM TERMINAL 3 TO TERMINAL 2 ON TRANSFORMER.
2. FOR 208 VOLT TRANSFORMER OPERATION MOVE BLACK WIRE
INSULATION AS ORIGINAL.(USE COPPER CONDUCTOR ONLY).
1. REPLACEMENT WIRE MUST BE THE SAME SIZE AND TYPE OF
WH
YL
BL
BL
BL YL
PU
RD
BL
PU
PU
BK
NG L
T5T4T3T2
T1
BR
BR
VENT MOTOR
VM
COMPRESSOR
COMP
LINE VOLTAGE
FACTORY WIRING
OPTIONAL HIGH VOLTAGE
HIGH VOLTAGE
FIELD WIRING
LOW VOLTAGE
LOW VOLTAGE
BK BLACK
WIRE CODE
PK PINK
OR ORANGE
GR GREEN
BR BROWN
BL BLUE
RD RED
WH WHITE
YL YELLOW
PU PURPLE
ALS
CH
C
CM
COMPONENT LEGEND
CRANKCASE HEATER
CONTACTOR
CONDENSER MOTOR
AUXILLARY LIMIT SWITCH
GAS VALVE
GV
FS
GND
IGNITOR
PS
PLF
LS
IGN
IIC
EQUIPMENT GROUND
PRESSURE SWITCH
FEMALE PLUG/CONNECTOR
LIMIT SWITCH
INTEGRATED IGNITION CONTROL
FLAME SENSOR
TR TRANSFORMER
ROLLOUT SWITCH
RS
EM EVAPORATOR MOTOR
NOTE 7 NOTE 7
WH
RD
OR
BL
BL
BL
BL
RD RD RD
2
PU
BK
VMR
RD
PU
BL RD
WH
RD
OR
RD
VMR
VMR
EM
31
C
D1
1
2
4
3
240
3
TR
2
RD
BL
24V
C
1
BL
YL
C
NOTE
PLF
YL
TR
NOTE 3
BK
BK
CH OPTIONAL
BK
BK
YL
YL PU
GR
PU
YL
Y/Y2Y1
BL
6
5
41
2
3
IGN
NOTE 3
CONNECTED AT L1, L2
CH OPTIONAL
208-230/1/60
POWER SUPPLY
FS
RCCF
IIC
GND
C
PU
BL
BR
PU
RD
RD
RD
YL
YL
RS
PU
PU
BL
YL
BK PU
BK
PU
RD
BK
VM
BL
PU
BR
PU
BK
RS
COMP
C
RD
RD
BL
L2
UNUSED
HEAT
FS L1
DI
13
6
5
2
4
10
79
12
8
11
150
120
ECON
135
P1
F1
FUSE 3 AMP MAX
P3
GR
RD
YL
WH
YL YL
COMPRESSOR
COOL
SCREW
REQUIRED
P2
T1
MOUNT
C22
T2
BREAK FOR TWO STAGE
SPEED-UP
GR
WH
WG
BL
RD
CR
TO THERMOSTAT
T2T1
C
L2L1
ALS
LS
PS
GV
MV
(ALT.) HONEYWELL
GAS VALVE
GV
MV
GAS VALVE
W. R.
CM
L2
2
CH
T2
208-230/1/60
CM
C
L1
R
T1
C
S
COMP
C
1
SUPPLY VOLTAGE
L2
VM
IGN
FS
NOTES
GV
LS
RS
ALS
PS
L1
FFS
3
5
6
12
10
8
7
9
ECON
IIC
4
4
321
56
PLF
C
Y/Y2
11
TO THERMOSTAT
Y1WGR
EM
Y
SEE
NOTE 5
TROUBLESHOOTING THIS APPLIANCE. STATUS LIGHT CODES ARE AS FOLLOWS:
THE STATUS LIGHT ON THE FURNACE CONTROL MAY BE USED AS A GUIDE TO
C
H
BL
5.000 ±.125
11.250 ±.125
Wiringis subject to change. Always
refer to the wiring diagram or the
unitforthemostup-to-datewiring.
⚠ WarninG High Voltage: Disconnect all power before servicing or installing this unit. Multiple power
sourcesmaybepresent.Failuretodosomaycausepropertydamage,personalinjury,ordeath. ⚡

Product SPecificationS Product SPecificationS
24
www
.
goodmanmfg
.
com
SS-gPg13m
Goodman Manufacturing Company, L.P., reserves the right to discontinue, or change at any time, specications or designs without
notice or without incurring obligations. © 2011 • Goodman Manufacturing Company, L.P. • Houston, Texas • Printed in the USA.
acceSSorieS
Accessory
Description
Item #
Medium Chassis Large Chassis
Concentric Converter CDK1-2 CDK3
Downow Economizer PGED102 PGED103
Downow Manual Damper PGMDD102 PGMDD103
Downow Motorized Damper PGMDMD102 PGMDMD 103
Downow Square-to-Round SQRPG102 SQRPG103
Filter Rack PGFR102 PGFR103
Horizontal Duct Cover 20464501PDGK 20464502PDGK
Horizontal Economizer PGEH102 PGEH103
Horizontal Manual Damper PGMDH102 PGMDH103
Horizontal Motorized Damper PGMDMH102 PGMDMH 103
Horizontal Square-to-Round SQRPGH102 SQRPGH103
LP Conversion Kit¹ LPT-00A LPT-00A
LP Conversion Kit² LPT-03 LPT-03
Roof Curb PGC102 PGC103
¹ For Rev AA models only (White-Rodgers valve only)
² For all model revisions (White-Rodgers and Honeywell valves)