Grizzly G0696X G0605X1 Manual 3.9.9 User To The 40f2d140 A7f5 4949 9738 5dfca17e7935
User Manual: Grizzly G0696X to the manual
Open the PDF directly: View PDF
.
Page Count: 12

<%+%*M&"+M&!<%+.+M".,MIVWaZHVl B[\#&%$%-VcYAViZg ",&"
,&
)%
(.
,-
,,
*, *-
() *- *, ,,
+%
*.
'&
'%
&'
&&
&(
')
,
+
*
-
.
&%
&*
&'
&(
&)
+(
',
++
+*
',
+)
&- +*
(.
)%
+-
+.
,%
(-
*%
&.
&- &* +,
&(*
,'
&()
&((
+&
+&"&
+'
'*
&,
+&
(-
'.
&(&
&(%
&'.
&'-
&',
&'+
&('
&*-
(,
(&
((
()
('
'+
',
(%
'- '(
(-
''
'*
(+
(*
*+
*'
()
&')
),
*&
',
*'
*(
)'
**
*)
'+
)(
)+
(-
))
)*
',
)'
).
)-
)& ..
**
+
+"'
+"& +"(
+"'
+"& +")
+"*
+"( +"-
+"+
+",
<%+%+M&<%+.,M
,"&$'=E("E=
''%$))%K
BDIDG
+
<%+%*M&<%+.+M
*E=&"E=
''%K
BDIDG
&+
&+
-&
-%
-&")
-&"(
&*)"&
&*)"* &*)"'
&*)"(
&*)")
-&"&
&+% &*.
-&"*
-&"+
-&"'
&*)
<%+%*M&$<%+.+M
*=E''%K
&"E=HL>I8=
<%+%+M&$<%+.,M
,"&$'=E''%$))%K
("E=HL>I8=
-&
-&")
-&"(
-&"&
-&"'
Motor and Arbor
SECTION 9: PARTS

",'" <%+%*M&"+M&!<%+.+M".,MIVWaZHVl
B[\#&%$%-VcYAViZg
REF PART # DESCRIPTION REF PART # DESCRIPTION
5 P0605X137 STRAIN RELIEF 52 P0605X1052 FLAT WASHER 19MM
7 PN02M HEX NUT M10-1.5 53 P0605X1053 BLADE HEIGHT HANDWHEEL SHAFT
8 PW04M FLAT WASHER 10MM 54 P0605X1054 ALIGNMENT PIN
9 PLW06M LOCK WASHER 10MM 55 PN03M HEX NUT M8-1.25
10 P0605X113 SPECIAL MOTOR BOLT 56 P0605X1056 BEVEL GEAR (R)
11 PK02M KEY 5 X 5 X 40 57 PSB06M CAP SCREW M6-1 X 25
12 PSS03M SET SCREW M6-1 X 8 58 PLW03M LOCK WASHER 6MM
13 P0605X1013 MOTOR PULLEY 59 PS06M PHLP HD SCR M5-.8 X 20
14 P0605X1014 FLAT BELT 220-J12 60 P0605X1060 BLADE COVER
15 P6005 BALL BEARING 6005ZZ 61 PS09M PHLP HD SCR M5-.8 X 10
16 PFB15M FLANGE BOLT M8-1.25 X 12 61-1 PW02M FLAT WASHER 5MM
17 P0605X1017 SPLITTER MOUNTING BRACKET 62 P0605X1062 DUST CHUTE
18 PSB14M CAP SCREW M8-1.25 X 20 63 P0605X1063 TRUNNION
19 P0605X1019 MOUNTING BOLT 64 P0605X1064 FRONT COLUMN
20 P0605X1020 STRUT 65 PSB12M CAP SCREW M8-1.25 X 40
21 P0605X1021 BUSHING 66 P0605X1066 REAR COLUMN
22 P0605X1022 BRACKET 67 P0605X1067 SHAFT
23 P0605X1023 SPECIAL SCREW 68 P0605X1068 BLADE
24 P0605X1024 WAVE WASHER 10MM 69 P0605X1069 ARBOR FLANGE
25 PW04M FLAT WASHER 10MM 70 P0605X1070 ARBOR NUT 1"-10
26 PB09M HEX BOLT M8-1.25 X 20 71 P0605X1071 ARBOR EXTENSION 1"-10
27 PLW04M LOCK WASHER 8MM 72 PSB49M CAP SCREW M6-1 X 60
28 PW01M FLAT WASHER 8MM 77 P0605X1077 HOSE CLAMP 60MM DIA-80MM
29 P0605X1029 BRUSH 78 P0605X066 DUST CHUTE HOSE 63 X 1000
30 P0605X1030 LEADSCREW 80 P0605X1080 NYLON SCREW #10-24 X 1/2
31 P0605X1031 BUSHING 99 PB20M HEX BOLT M8-1.25 X 35
32 P0605X1032 GASKET 124 P0605X1124 HANDWHEEL HANDLE
33 P0605X1033 LEAD SCREW BRACKET 126 PWR810 WRENCH 8 X 10
34 PSS07M SET SCREW M5-.8 X 5 127 PWR1113 WRENCH 11 X 13
35 P0605X1035 BEVEL GEAR (L) 128 PWR1417 WRENCH 14 X 17
36 PLN10M LOCK NUT M10-1.25 129 PAW04M HEX WRENCH 4MM
37 P51102 THRUST BEARING 51102 130 PAW05M HEX WRENCH 5MM
38 PK14M KEY 5 X 5 X 18 131 PAW06M HEX WRENCH 6MM
39 PB14M HEX BOLT M10-1.5 X 35 132 P0605X1132 PHILLIPS/STANDARD SCREWDRIVER
40 P0605X1040 TRUNNION SLIDE 133 P0605X1133 ARBOR EXTENSION 5⁄8"-12 x 1-1⁄4"
41 P0605X1041 PLATE 134 P0605X1134 ARBOR NUT 5/8"-12
42 PSB31M CAP SCREW M8-1.25 X 25 135 P0605X1135 ARBOR FLANGE 5/8"
43 P0605X1043 WOODRUFF KEY 22 X 5 154 P0605X154 ON/OFF SWITCH ASSEMBLY
44 PTLW05M EXT TOOTH WASHER 6MM 154-1 P0605X154-1 ON/OFF PUSH BUTTON SWITCH
45 P0605X021 TILT ARROW POINTER 154-2 P0605X154-2 ON/OFF SWITCH BRACKET
46 PS14M PHLP HD SCR M6-1 X 12 154-3 P0605X154-3 ON/OFF SWITCH BOX
47 P0605X1047 HANDWHEEL 154-4 P0605X154-4 ON/OFF SWICH CORD 14AWG X 3C
48 P0605X014 HANDWHEEL LOCK KNOB 154-5 P0605X154-5 SAFETY PIN
49 PSS17 SET SCREW 5/16-18 X 5/16 158 PAW03M HEX WRENCH 3MM
50 P0605X1050 SHIM 159 P0605X1159 MOTOR CORD 12AWG X 3C
51 P0605X1051 LOCK COLLAR 160 P0605X1160 POWER CORD 12AWG X 3C
Motor and Arbor Parts List

<%+%*M&"+M&!<%+.+M".,MIVWaZHVl B[\#&%$%-VcYAViZg ",("
6 P0605X1006 MOTOR 5HP 220V 1-PH 6 P0606X1006 MOTOR 7-1/2 HP 220V/440V 3-PH
6-1 P0605X1006-1 MOTOR FAN COVER 6-1 P0606X1006-1 MOTOR FAN COVER
6-2 P0605X1006-2 MOTOR FAN 6-2 P0606X1006-2 MOTOR FAN
6-3 P0605X1006-3 WIRING JUNCTION BOX 6-3 P0606X1006-3 WIRING JUNCTION BOX
6-4 P0605X1006-4 R CAPACITOR COVER
6-5 P0605X1006-5 R CAPACITOR 60M 250V 1-3/4 X 3-5/16
6-6 P0605X1006-6 S CAPACITOR COVER
6-7 P0605X1006-7 S CAPACITOR 800M 250V 1-3/4 X 3-3/4
6-8 P0605X1006-8 CENTRIFUGAL SWITCH
81 P0605X075 MAG SWITCH ASSY MPE-30 81 P0606X075 MAGNETIC SWITCH ASSY MPE-30
81-1 P0605X075-1 MAG SWITCH FRONT COVER 81-1 P0606X075-1 MAG SWITCH FRONT COVER
81-2 P0605X075-2 MAG SWITCH BACK COVER 81-2 P0606X075-2 MAG SWITCH BACK COVER
81-3 P0605X075-3 CONTACTOR SDE MA-30 220V 81-3 P0606X075-3 CONTACTOR SDE MA-30 220V
81-4 P0605X075-4 OL RELAY SDE RA-30 22~34 81-4 P0606X075-4 OL RELAY SDE RA-30 11~22
81-5 P0606X075-7 TRANSFORMER
81-6 P0606X075-8 FUSE
G0605X1/G0696X 5HP, 1-PH MOTOR
G0605X1/G0696X 5HP, 1-PH MAG SWITCH
G0606X1/G0697X 71⁄2HP, 3-PH MOTOR
G0606X1/G0697X 71⁄2HP, 3-PH MAG SWITCH

",)" <%+%*M&"+M&!<%+.+M".,MIVWaZHVl
B[\#&%$%-VcYAViZg
*'
..
)( (-
)'
&'' ',
.'
.(
.'
,*
,+
-
.+
.&%%
>
,
-
.
,(
,)
.
.+
&(-
-
(.
&%&
.
&+
.,
.,&+
&(.
,.
**
&&'
&&*
&&)
&'& &'%
&&+
-)
*
-(
-.
-'
.% .&
*'
&&(
&&.
*
&'( &+
&'( &+
&(+ &+
.*
&%'
&%* &%+
&(,
&%-
&%,
&%)
&&&
&%.
**
.)
-.
.)
**
&%( &%)
&%)
.-
&&,
&&-
)-
),
&')
).
&*'"& &*'"'
&*'
&&%
--"*
--"+
--
--")
--"(
--"'
--"&
--"- --",
G0696X & G0697X ONLY
Cabinet

<%+%*M&"+M&!<%+.+M".,MIVWaZHVl B[\#&%$%-VcYAViZg ",*"
REF PART # DESCRIPTION REF PART # DESCRIPTION
5 P0605X137 STRAIN RELIEF 95 P0605X1095 STRAIN RELIEF PGA13.5-11B
7 PN02M HEX NUT M10-1.5 96 PB32M HEX BOLT M10-1.5 X 25
8 PW04M FLAT WASHER 10MM 97 P0651097 FENCE RESTING BRACKET
9 PLW06M LOCK WASHER 10MM 98 P0605X1098 STRAIN RELIEF
16 PFB15M FLANGE BOLT M8-1.25 X 12 99 PB20M HEX BOLT M8-1.25 X 35
27 PLW04M LOCK WASHER 8MM 100 P0605X1100 CHAIN
38 PK14M KEY 5 X 5 X 18 101 P0605X116 EXTENSION WING (L)
39 PB14M HEX BOLT M10-1.5 X 35 102 PFH54M FLAT HD SCR M5-.8 X 20
42 PSB31M CAP SCREW M8-1.25 X 25 103 P0605X1103 TABLE INSERT
43 P0605X1043 WOODRUFF KEY 22 X 5 104 PSS04M SET SCREW M6-1 X 12
47 P0605X1047 HANDWHEEL 105 P0605X1105 PLATE (L)
48 P0605X014 HANDWHEEL LOCK KNOB 106 P0605X1106 PLATE (R)
49 PSS17 SET SCREW 5/16-18 X 5/16 107 P0605X1107 TAPE (L)
52 P0605X1052 FLAT WASHER 19MM 108 P0605X1108 TAPE (R)
55 PN03M HEX NUT M8-1.25 109 P0605X1109 RIVING KNIFE
73 P0605X1073 ALIGNMENT PIN 110 P0605X035 TABLE
74 P0605X073 MOTOR COVER 111 PHTEK39M TAP SCREW M4 X 12
75 P0605X1075 RUBBER BUMPER 112 P0605X1112 CABINET
76 P0605X1076 LOCK KNOB M6-1 X 17 113 P0605X1113 WORM GEAR
79 P0605X1079 RIGHT COVER 114 P0605X1114 BLADE TILT SHAFT BRACKET
82 PSB26M CAP SCREW M6-1 X 12 115 P0605X1115 BLADE TILT SHAFT
83 P0605X1083 COVER 116 P0651083-6 SENSOR PLATE
84 PS05M PHLP HD SCR M5-.8 X 8 117 PSS16M SET SCREW M8-1.25 X 10
88 P0651083 DIGITAL SENSOR ASSEMBLY 118 P0605X1118 SPECIAL RING
88-1 PS05M PHLP HD SCR M5-.8 X 8 119 P0651112 L-PLATE
88-2 P0651083-2 DIGITAL READOUT COVER 120 PW02M FLAT WASHER 5MM
88-3 PS79M PHLP HD SCR M3-.5 X 8 121 PHTEK30M TAP SCREW M3 X 6
88-4 PW07M FLAT WASHER 3MM 122 PRP27M ROLL PIN 5 X 28
88-5 P0651083-5 CIRCUIT BOARD 123 P0651106 MITER GAUGE MOUNTING BRACKET
88-6 P0651083-6 SENSOR PLATE 124 P0605X1124 HANDWHEEL HANDLE
88-7 P0651083-7 DATA CORD 24 AWG X 450 136 P0651107 WRENCH MOUNTING BRACKET
88-8 P0651083-8 DIGITAL READOUT CORD 18 AWG X 2C 137 P0651087 DUST COVER
89 PS79M PHLP HD SCR M3-.5 X 8 138 P0651108 ARBOR WRENCH
90 PN06M HEX NUT M5-.8 139 PFH06M FLAT HD SCR M6-1 X 20
91 P0605X079 PLATE 152 P0696X152 EXTENSION WING
92 PS17M PHLP HD SCR M4-.7 X 6 152-1 PLW06M LOCK WASHER 10MM
93 PW05M FLAT WASHER 4MM 152-2 PB14M HEX BOLT M10-1.5 X 35
94 PSS42M SET SCREW M8-1.25 X 50
Cabinet Parts List

",+" <%+%*M&"+M&!<%+.+M".,MIVWaZHVl
B[\#&%$%-VcYAViZg
Blade Guard
''*
'%%
'%&
'%'
'%(
'%)
'%*
'%+
'%,
'%-
'%.
'&%
'&&
'&'
'&'
'&(
'&)
'&)
'&*
'&+
'&+
'&,
'&,
'&-
'&.
''%
''&
'''
''(
''(
'')
'')
''*
REF PART # DESCRIPTION REF PART # DESCRIPTION
200 P0605X200 BLADE GUARD ASSEMBLY 213 P0605X213 TORSION SPRING
201 P0605X201 SPLITTER 214 P0605X214 RING 6MM
202 P0605X202 SUPPORT 215 P0605X215 PIN 6 X 24
203 P0605X203 BLADE GUARD SWING BRACKET 216 PFH43M FLAT HD SCR M6-1 X 10
204 P0605X204 BRACKET 217 PFH54M FLAT HD SCR M5-.8 X 20
205 P0605X205 BLADE GUARD COVER 218 PS22M PHLP HD SCR M5-.8 X 25
206 P0605X206 RIGHT ANTI-BACK PAWL 219 PRP95M ROLL PIN 8 X 55
207 P0605X207 LEFT ANTI-BACK PAWL 220 PRP45M ROLL PIN 5 X 32
208 P0605X208 MITER GAUGE LOCK KNOB 221 PRP07M ROLL PIN 6 X 20
209 P0605X209 FRONT COVER 222 PS07M PHLP HD SCR M4-.7 X 8
210 P0605X210 UPPER COVER 223 PLN02M LOCK NUT M5-.8
211 P0605X211 BLOCK 224 PW02M FLAT WASHER 5MM
212 P0605X212 SPACER 225 P0605X225 RING 6MM

<%+%*M&"+M&!<%+.+M".,MIVWaZHVl B[\#&%$%-VcYAViZg ",,"
Fence
('+
(%-
('*
(%%
(%&
(%'
(%(
(%)
('(
(%)
(%*
(%+
(%,
(')
(%.
(&%
(&&
(&'
(&(
(&)
(&*
(&+
(&,
(&-
(&-
(&.
(&.
('%
('&
(''
REF PART # DESCRIPTION REF PART # DESCRIPTION
300 P0605X1300 FENCE ASSEMBLY 314 PLN05M LOCK NUT M10-1.5
301 PS14M PHLP HD SCR M6-1 X 12 315 P0605X315 PLATE
302 PW03M FLAT WASHER 6MM 316 P0605X316 CLAMPING BRACKET
303 P0605X303 POINTER 317 PSS20M SET SCREW M8-1.25 X 8
304 P0605X304 PLASTIC SET SCREW 318 P0605X318 PLATE CAP
305 PB73M HEX BOLT M10-1.5 X 50 319 P0605X319 FENCE PLATE
306 PN01M HEX NUT M6-1 320 P0605X320 FENCE
307 P0605X307 REAR RAIL WHEEL 321 P0605X321 T-BOLT M8-1.25 X 20
308 P0605X1308 PLATE 322 PW01M FLAT WASHER 8MM
309 P0605X1309 BRACKET 323 P0605X1323 BLOCK
310 PN03M HEX NUT M8-1.25 324 PB71M HEX BOLT M6-1 X 45
311 P0605X1311 FENCE HANDLE 325 PLN03M LOCK NUT M6-1
312 P0605X1312 CAM ASSEMBLY 326 P0605X1326 SHAFT
313 PFH43M FLAT HD SCR M6-1 X 10

",-" <%+%*M&"+M&!<%+.+M".,MIVWaZHVl
B[\#&%$%-VcYAViZg
)&+
)%%
)%&
)%&
)%'
)%(
)%)
)%*
)%+
)%,
)%-
)%.
)%.
)&%
)&&
)&'
)&(
)&)
)&*
Miter Gauge
REF PART # DESCRIPTION REF PART # DESCRIPTION
400 P0605X1400 MITER GAUGE 409 P0605X1409 SET SCREW M5-.8 X 12
401 PS06 PHLP HD SCR 10-24 X 3/8 410 P0605X1410 MITER GAUGE HANDLE
402 P0605X1402 POINTER 411 PW01M FLAT WASHER 8MM
403 P0605X403 BLOCK 412 P0605X412 MITER GAUGE
404 P0605X1404 SHAFT 413 P0605X413 PLATE
405 P0605X405 MITER GAUGE LABEL 414 P0605X414 GUIDE PLATE
406 PS25 PHLP HD SCR 8-32 X 5/8 415 PFH9M FLAT HD SCR M6-1 X 6
407 PN14 HEX NUT 8-32 416 PORP005 O-RING 4.8 X 1.9 P5
408 P0605X1408 SPECIAL SCREW 1/4-20 X 1/2

<%+%*M&"+M&!<%+.+M".,MIVWaZHVl B[\#&%$%-VcYAViZg ",."
Extension Table (G0605X1/G0606X1)
*%%
*%&*%'
*%(
*%)
*%)
*%+
*%,
*%-
*%.
*&%
*&&
*&'
*&(
*&)
*&*
*&*
*'. *'.
*'.
*(%
*(%
*(% *(%
*(%
*(&
*('
*((
*()
*(*
*(+
*(+
*(-
*(. *)%*)&
*)'
*)'
*)'
*)(
*)(
*%*
*)%
*)%
*)(
*)(
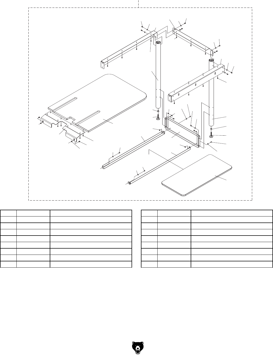
REF PART # DESCRIPTION REF PART # DESCRIPTION
500 P0605X1500 EXTENSION TABLE ASSEMBLY 515 PHTEK6M TAP SCREW M4 X 16
501 P0605X1501 LEFT SCALE 18" 529 PS14M PHLP HD SCR M6-1 X 12
502 P0605X1502 RIGHT SCALE 52" 530 PW03M FLAT WASHER 6MM
503 P0605X503 EXTENSION TABLE PLATE 531 PW04M FLAT WASHER 10MM
504 P0605X504 EXTENSION TABLE SUPPORT 532 PN01M HEX NUT M6-1
505 P0605X505 FRONT EXTENSION BRACKET 533 PN08 HEX NUT 3/8-16
506 P0605X506 FRONT RAIL 534 P0605X534 FOOT 3/8-16 X 2
507 P0605X507 FENCE TUBE 535 PB32M HEX BOLT M10-1.5 X 25
508 P0605X508 END CAP 536 PS14M PHLP HD SCR M6-1 X 12
509 P0605X509 REAR RAIL 538 PFH21M FLAT HD SCR M8-1.25 X 25
510 P0605X510 REAR EXTENSION BRACKET 539 PFB15M FLANGE BOLT M8-1.25 X 12
511 P0605X511 LOWER SHELF 540 PLW04M LOCK WASHER 8MM
512 P0605X512 LOWER SHELF BRACKET 541 PSB31M CAP SCREW M8-1.25 X 25
513 P0605X513 SHELF END PLATE 542 PW01M FLAT WASHER 8MM
514 P0605X514 SUPPORT LEG 543 PN03M HEX NUT M8-1.25

"-%" <%+%*M&"+M&!<%+.+M".,MIVWaZHVl
B[\#&%$%-VcYAViZg
Rails (Model G0696X/G0697X)
REF PART # DESCRIPTION REF PART # DESCRIPTION
500 P0696X500 RAIL ASSEMBLY 511 PSB31M CAP SCREW M8-1.25 X 25
501 P0696X501 REAR RAIL 512 PFB15M FLANGE BOLT M8-1.25 X 12
502 P0696X502 END CAP 513 PB07M HEX BOLT M8-1.25 X 25
503 P0696X503 FENCE TUBE 514 PN03M HEX NUT M8-1.25
504 P0696X504 FRONT RAIL 516 P0605X1501 LEFT SCALE 18"
509 PW01M FLAT WASHER 8MM 517 P0696X517 RIGHT SCALE 36"
510 PLW04M LOCK WASHER 8MM
*%%
*&+
*&,
*%&
*%'
*%(
*%)
*%.*&%
*&%
*&%
*&%
*&%
*&&
*&'
*&(
*&)
*&)
*&)
*&)

<%+%*M&"+M&!<%+.+M".,MIVWaZHVl B[\#&%$%-VcYAViZg "-&"
Outfeed Table (G0605X1/G0606X1)
+%%
+%&
+%'
+%'
+%(
+%)
+%)
+%*
+%+
+%,
+%,
+%-
+%.
+%.
+%.
+%.
+'% +'&
+'%
+'&
+'%
+'%
+'&
+'&
+'% +'%
+'& +'&
+'&
+'&
+'& +'&
+''
+'(
+')
+')
+') +')
+'*
+'+
+'*
+'+
+',
+',
REF PART # DESCRIPTION REF PART # DESCRIPTION
600 P0605X600 OUTFEED TABLE ASSEMBLY 609 PHTEK6M TAP SCREW M4 X 16
601 P0605X601 OUTFEED TABLE PLATE 620 PS14M PHLP HD SCR M6-1 X 12
602 P0605X602 OUTFEED TABLE SUPPORT 621 PW03M FLAT WASHER 6MM
603 P0605X603 REAR OUTFEED TABLE BRACKET 622 PFB16M FLANGE BOLT M8-1.25 X 16
604 P0605X604 SUPPORT LEG 623 PN03M HEX NUT M8-1.25
605 P0605X605 FRONT OUTFEED TABLE BRACKET 624 PB02M HEX BOLT M6-1 X 12
606 P0605X606 LOWER SHELF 625 PN08 HEX NUT 3/8-16
607 P0605X607 LOWER SHELF BRACKET 626 P0605X626 FOOT 3/8-16 X 2
608 P0605X608 SHELF END PLATE 627 PN01M HEX NUT M6-1

"-'" <%+%*M&"+M&!<%+.+M".,MIVWaZHVl
B[\#&%$%-VcYAViZg
Safety labels warn about machine hazards and ways to prevent injury. The owner of this machine
MUST maintain the original location and readability of the labels on the machine. If any label is
removed or becomes unreadable, REPLACE that label before using the machine again. Contact
Grizzly at (800) 523-4777 or www.grizzly.com to order new labels.
Labels
,%&
,%%
,%'
,%(
,%)
,%*
,%+
,%,
,%-
,%.
,&%
REF PART # DESCRIPTION REF PART # DESCRIPTION
700 P0605X700 GUARD AND ANTI-KICK BACK LABEL 706 P0605X1706 MACHINE ID LABEL G0605X1
701 P0605X701 DISCONNECT PWR-BLADE CHANGE LABEL 706 P0606X1706 MACHINE ID LABEL G0606X1
702 PLABEL-57 GLASSES/RESPIRATOR LABEL 706 P0696X706 MACHINE ID LABEL G0696X
703 P0605X703 EXTREME SERIES PLATE 706 P0697X706 MACHINE ID LABEL G0697X
704 P0605X1704 MODEL # LABEL G0605X1 707 PLABEL-12A READ MANUAL-VERTICAL NS 7/05
704 P0606X1704 MODEL # LABEL G0606X1 708 PLABEL-14 ELECTRICITY LABEL
704 P0696X704 MODEL # LABEL G0696X 709 PPAINT-1 GRIZZLY GREEN PAINT
704 P0697X704 MODEL # LABEL G0697X 710 PPAINT-11 PUTTY TOUCH-UP PAINT
705 G8589 GRIZZLY NAMEPLATE-LARGE