Grizzly G0715P Manual 3.14.11[1] User To The 746fec09 32bf 40d8 9652 192fd8aebe0d
User Manual: Grizzly G0715P to the manual
Open the PDF directly: View PDF .
Page Count: 88

MODEL G0715P
POLAR BEAR SERIES®
10" HYBRID TABLE SAW
w/RIVING KNIFE
OWNER'S MANUAL
8DENG><=I?JAN!'%&%7N<G>OOAN>C9JHIG>6A!>C8#G:K>H:9B6G8=!'%&&7A
WARNING: NO PORTION OF THIS MANUAL MAY BE REPRODUCED IN ANY SHAPE
OR FORM WITHOUT THE WRITTEN APPROVAL OF GRIZZLY INDUSTRIAL, INC.
;DGBD9:AHB6CJ;68IJG:9H>C8:)$&&&(%,'IG8G7AIH?7EG>CI:9>C8=>C6
'('-*,

This manual provides critical safety instructions on the proper setup,
operation, maintenance, and service of this machine/tool. Save this
document, refer to it often, and use it to instruct other operators.
Failure to read, understand and follow the instructions in this manual
may result in fire or serious personal injury—including amputation,
electrocution, or death.
The owner of this machine/tool is solely responsible for its safe use.
This responsibility includes but is not limited to proper installation in
a safe environment, personnel training and usage authorization,
proper inspection and maintenance, manual availability and compre-
hension, application of safety devices, cutting/sanding/grinding tool
integrity, and the usage of personal protective equipment.
The manufacturer will not be held liable for injury or property damage
from negligence, improper training, machine modifications or misuse.
3OMEDUSTCREATEDBYPOWERSANDINGSAWINGGRINDINGDRILLINGAND
OTHERCONSTRUCTIONACTIVITIESCONTAINSCHEMICALSKNOWNTOTHE3TATE
OF#ALIFORNIATOCAUSECANCERBIRTHDEFECTSOROTHERREPRODUCTIVE
HARM3OMEEXAMPLESOFTHESECHEMICALSARE
s ,EADFROMLEADBASEDPAINTS
s #RYSTALLINESILICAFROMBRICKSCEMENTANDOTHERMASONRYPRODUCTS
s !RSENICANDCHROMIUMFROMCHEMICALLYTREATEDLUMBER
9OURRISKFROMTHESEEXPOSURESVARIESDEPENDINGONHOWOFTENYOU
DOTHISTYPEOFWORK4OREDUCEYOUREXPOSURETOTHESECHEMICALS
7ORKINAWELLVENTILATEDAREAANDWORKWITHAPPROVEDSAFETYEQUIP
MENTSUCHASTHOSEDUSTMASKSTHATARESPECIALLYDESIGNEDTOFILTER
OUTMICROSCOPICPARTICLES
Table of Contents
INTRODUCTION ............................................... 2
BVcjVa6XXjgVXn########################################### '
8dciVXi>c[d####################################################'
BVX]^cZ9ZhXg^ei^dc###################################### '
>YZci^[^XVi^dc################################################### (
<%,&*EBVX]^cZ9ViVH]ZZi######################## )
SECTION 1: SAFETY ....................................... 7
HV[Zin>chigjXi^dch[dgBVX]^cZgn################## ,
6YY^i^dcVaHV[Zin[dgIVWaZHVlh################### .
EgZkZci^c\@^X`WVX`#################################### &%
EgdiZXi^c\NdjghZa[;gdb@^X`WVX`############## &%
<adhhVgnd[IZgbh####################################### &&
SECTION 2: POWER SUPPLY ...................... 12
KdaiV\Z8dckZgh^dc###################################### &)
SECTION 3: SETUP ....................................... 15
CZZYZY[dgHZije######################################### &*
JceVX`^c\#################################################### &*
=VgYlVgZGZXd\c^i^dc8]Vgi####################### &+
>ckZcidgn######################################################&,
8aZVcje######################################################## &.
H^iZ8dch^YZgVi^dch###################################### '%
6hhZbWan##################################################### '&
EdlZg8dccZXi^dc######################################## ')
9jhi8daaZXi^dc############################################# '*
IZhiGjc###################################################### '+
GZXdbbZcYZY6Y_jhibZcih######################## '+
SECTION 4: OPERATIONS ........................... 27
DeZgVi^dcDkZgk^Zl##################################### ',
7Vh^X8dcigdah############################################## '-
Cdc"I]gdj\]I]gdj\]8jih##################### '-
Ldg`e^ZXZ>cheZXi^dc################################### '.
7aVYZGZfj^gZbZcih#################################### '.
7aVYZHZaZXi^dc############################################ '.
7aVYZ>chiVaaVi^dc########################################## (&
7aVYZ<jVgY6hhZbWan################################ ('
G^k^c\@c^[Z################################################## (*
G^ee^c\######################################################### (+
8gdhhXjii^c\################################################# (,
B^iZg8jih##################################################### (,
7aVYZI^ai$7ZkZa8jih################################### (-
9VYd8jii^c\################################################ (-
GVWWZi8jii^c\############################################# )&
GZhVl^c\##################################################### )(
SECTION 5: SHOP MADE SAFETY
ACCESSORIES .............................................. 46
;ZVi]ZgWdVgYh############################################## )+
Ejh]Hi^X`h################################################## ).
Ejh]7adX`h################################################# *%
CVggdl"G^e6jm^a^Vgn;ZcXZEjh]7adX`## *&
Dji[ZZYHjeedgiIVWaZh########################### *(
8gdhhXjiHaZY############################################### *(
SECTION 6: AFTERMARKET ACCESSORIES
FROM GRIZZLY ............................................. 54
SECTION 7: MAINTENANCE ......................... 57
HX]ZYjaZ###################################################### *,
8aZVc^c\#######################################################*,
JceV^ciZY8Vhi>gdc##################################### *,
AjWg^XVi^dc################################################### *-
SECTION 8: SERVICE ................................... 59
IgdjWaZh]ddi^c\########################################### *.
7aVYZI^aiHideh############################################ +&
B^iZgHadiid7aVYZEVgVaaZa^hb##################### +(
HegZVYZgdgG^k^c\@c^[Z6a^\cbZci############ ++
;ZcXZ6Y_jhibZcih###################################### +,
B^iZg<Vj\Z6Y_jhibZcih############################ ,%
7ZaiIZch^dcGZeaVXZbZci####################### ,&
SECTION 9: WIRING ...................................... 72
L^g^c\HV[Zin>chigjXi^dch############################ ,'
L^g^c\9^V\gVb############################################ ,(
:aZXig^XVa8dbedcZcih################################# ,)
SECTION 10: PARTS ..................................... 75
7dYn############################################################# ,*
Igjcc^dc#######################################################,+
EdlZgHl^iX]############################################### ,-
B^iZg<Vj\Z################################################# ,-
7aVYZ<jVgY################################################# ,.
;ZcXZ########################################################### -%
GV^ah############################################################# -&
BVX]^cZAVWZah############################################ -'
WARRANTY AND RETURNS ........................ 85

"'" BdYZa<%,&*EB[\#)$&&
INTRODUCTION
I]^h]nWg^YiVWaZhVl[ZVijgZhVhiZZaXVW^cZi"ineZ
hiVcY!XVhi^gdcigjcc^dch!VcYVegZX^h^dc"\gdcY
XVhi^gdciVWaZ#
8VW^cZi"hinaZ YZh^\c VcY XdaaZXi^dc jcYZg i]Z
WaVYZ egdk^YZ ]^\]an Z[[ZXi^kZ Yjhi gZbdkVa! VcY
i]Z'=Ebdidgl^i]edan"KhZgeZci^cZWZaihZ[[^"
X^ZcianigVch[ZghedlZg#
>cXajYZh V XVbadX` I"h]VeZY [ZcXZ l^i] =9E:
[VXZ! b^iZg \Vj\Z! fj^X`"gZaZVhZ hegZVYZg$WaVYZ
\jVgY!g^k^c\`c^[Z!VcYiVWaZ^chZgih[dghiVcYVgY
VcYYVYdWaVYZh#
Machine Description
LZ hiVcY WZ]^cY djg bVX]^cZh# >[ ndj ]VkZ
VcnfjZhi^dchdg cZZY]Zae! jhZi]Z ^c[dgbVi^dc
WZadlidXdciVXijh#7Z[dgZXdciVXi^c\!eaZVhZ\Zi
i]ZhZg^VacjbWZg VcYbVcj[VXijgZ YViZd[ ndjg
bVX]^cZ#I]^hl^aa]Zaejh]Zaendj[VhiZg#
<g^ooanIZX]c^XVaHjeedgi
&'%(AnXdb^c\BVaa8^gXaZ
BjcXn!E6&,,*+
E]dcZ/*,%*)+".++(
:bV^a/iZX]hjeedgi5\g^ooan#Xdb
LZlVcindjg[ZZYWVX`dci]^hbVcjVa#L]ViY^Y
ndj a^`Z VWdji ^i4 L]ZgZ XdjaY ^i WZ ^begdkZY4
EaZVhZiV`ZV[Zlb^cjiZhid\^kZjh[ZZYWVX`#
<g^ooan9dXjbZciVi^dcBVcV\Zg
E#D#7dm'%+.
7Zaa^c\]Vb!L6.-'',"'%+.
:bV^a/bVcjVah5\g^ooan#Xdb
Contact Info
LZVgZegdjYidd[[Zgi]^hbVcjVal^i]ndjgcZl
bVX]^cZ LZkZ bVYZ ZkZgn Z[[dgi id WZ ZmVXi
l^i] i]Z ^chigjXi^dch! heZX^[^XVi^dch! YgVl^c\h!
VcY e]did\gVe]h d[ i]Z bVX]^cZ lZ jhZY l]Zc
lg^i^c\i]^hbVcjVa#=dlZkZg!hdbZi^bZhlZhi^aa
bV`ZVcdXXVh^dcVab^hiV`Z#
6ahd!dl^c\iddjgeda^Xnd[ Xdci^cjdjh^begdkZ"
bZci!your machine may not exactly match the
manual#>[ndj[^cYi]^hidWZi]ZXVhZ!VcYi]ZY^["
[ZgZcXZWZilZZci]ZbVcjVaVcYbVX]^cZaZVkZh
ndj ^c YdjWi! X]ZX` djg lZWh^iZ [dg i]Z aViZhi
bVcjVajeYViZdgXVaaiZX]c^XVahjeedgi[dg]Zae#
7Z[dgZXVaa^c\![^cYi]ZbVcj[VXijgZYViZd[ndjg
bVX]^cZWnadd`^c\Vii]ZYViZhiVbeZY^cidi]Z
bVX]^cZ >9 aVWZa hZZ WZadl# I]^h l^aa ]Zae jh
YZiZgb^cZ ^[ i]Z bVcjVa kZgh^dc ndj gZXZ^kZY
bViX]Zhi]ZbVcj[VXijgZYViZd[ndjgbVX]^cZ#
;dgndjgXdckZc^ZcXZ!lZedhiVaaVkV^aVWaZbVc"
jVahVcYbVcjVajeYViZh[dg[gZZdcdjglZWh^iZ
Viwww.grizzly.com#6cnjeYViZhidndjgbdYZa
d[ bVX]^cZ l^aa WZ gZ[aZXiZY ^c i]ZhZ YdXjbZcih
VhhddcVhi]Z
n
VgZXdb
e
aZiZ#
BVcj[VXijgZ9ViZ
d[NdjgBVX]^cZ
Manual Accuracy

BdYZa<%,&*EB[\#)$&& "("
Identification
Figure 1. BdYZa<%,&*E>YZci^[^XVi^dcd[bV^cXdcigdahVcYXdbedcZcih#
;gdciGV^a
IjWZ
;ZcXZ
7aVYZ
=Z^\]i
AdX`
7aVYZ=Z^\]i
=VcYl]ZZa
B^iZg
<Vj\Z
7aVYZI^ai
AdX`
7aVYZ<jVgY
HXVaZ
;ZcXZ
AdX`
=VcYaZ
AZ[i
:miZch^dc
L^c\
7aVYZI^ai
=VcYl]ZZa
7aVYZ
I^ai
HXVaZ )9jhiEdgi
For Your Own Safety Read Instruction
Manual Before Operating Saw
a) Wear eye protection.
b) Use saw-blade guard and spreader for
every operation for which it can be used,
including all through sawing.
c) Keep hands out of the line of saw blade.
d) Use a push-stick when required.
e) Pay particular attention to instructions
on reducing risk of kickback.
f) Do not perform any operation freehand.
g) Never reach around or over saw blade.
HiVgi$Hide
Hl^iX]
G^\]i
:miZch^dc
L^c\

")" BdYZa<%,&*EB[\#)$&&
MODEL G0715P
POLAR BEAR SERIES 10" HYBRID TABLE SAW
W/RIVING KNIFE
8jhidbZgHZgk^XZ/*,%*)+".++(IdDgYZg8Vaa/-%%*'("),,,;Vm/-%%)(-"*.%&
MACHINE DATA
SHEET
Product Dimensions:
LZ^\]i########################################################################################################################################################################### (.(aWh#
AZc\i]$L^Yi]$=Z^\]i##########################################################################################################################################+%m(+m)%
;ddiEg^ciAZc\i]$L^Yi]############################################################################################################################################'%m'&&¿'
Shipping Dimensions:
Carton #1
IneZ############################################################################################################################################# 8VgYWdVgY$LddYH`^Yh
8dciZci################################################################################################################################################################ BVX]^cZ
LZ^\]i################################################################################################################################################################## (*,aWh#
AZc\i]$L^Yi]$=Z^\]i##################################################################################################################################(%m'+m)'
Carton #2
IneZ##################################################################################################################################################################8VgYWdVgY
8dciZci####################################################################################################################################################################;ZcXZ
LZ^\]i#################################################################################################################################################################### '&aWh#
AZc\i]$L^Yi]$=Z^\]i########################################################################################################################## (+&¿'m&+&¿'m+&¿'
Carton #3
IneZ##################################################################################################################################################################8VgYWdVgY
8dciZci######################################################################################################################################################################GV^ah
LZ^\]i#################################################################################################################################################################### ('aWh#
AZc\i]$L^Yi]$=Z^\]i################################################################################################################################ +'&¿'m*m(&¿'
Electrical:
EdlZgGZfj^gZbZci########################################################################################################## &&%Kdg''%K!H^c\aZ"E]VhZ!+%=o
EgZl^gZY############################################################################################################################################################################# ''%K
B^c^bjb8^gXj^iH^oZ############################################################################################################################'%65&&%K$'%65''%K
Hl^iX]############################################################################################################################DC$D;;Ejh]7jiidcl^i]AdX`djiE^c
Hl^iX]KdaiV\Z##########################################################################################################################################################&&%K$''%K
8dgYAZc\i]##########################################################################################################################################################################+[i#
8dgY<Vj\Z#################################################################################################################################################################&)\Vj\Z
Eaj\>cXajYZY########################################################################################################################################################################NZh
>cXajYZYEaj\IneZ################################################################################################################################### C:B6+"'%[dg''%K
GZXdbbZcYZYEaj\IneZ######################################################################################################################## C:B6*"'%[dg&&%K

BdYZa<%,&*EB[\#)$&& "*"
Motors:
Main
IneZ################################################################################################################################ I:;88VeVX^idgHiVgi>cYjXi^dc
=dghZedlZg###############################################################################################################################################################'=E
KdaiV\Z############################################################################################################################################################&&%K$''%K
EgZl^gZY################################################################################################################################################################### ''%K
E]VhZ######################################################################################################################################################################H^c\aZ
6beh####################################################################################################################################################################### &+$-6
HeZZY###############################################################################################################################################################()*%GEB
8nXaZ######################################################################################################################################################################## +%=o
CjbWZgD[HeZZYh##########################################################################################################################################################&
EdlZgIgVch[Zg####################################################################################################################Edan"KHZgeZci^cZ7Zai9g^kZ
7ZVg^c\h##################################################################################################################### H]^ZaYZYVcYEZgbVcZcianHZVaZY
Main Specifications:
Blade Information
BVm^bjb7aVYZ9^VbZiZg########################################################################################################################################## &%
G^k^c\@c^[Z$HegZVYZgI]^X`cZhh################################################################################################################# %#&'#*bb
GZfj^gZY7aVYZ7dYnI]^X`cZhh############################################################################################ %#%,&"%#%.)&#-"'#)bb
GZfj^gZY7aVYZ@Zg[I]^X`cZhh############################################################################################## %#&%'"%#&'+'#+"(#'bb
BVm^bjbL^Yi]d[9VYd############################################################################################################################################&($&+
7aVYZI^ai########################################################################################################################################################### AZ[i%")*§
6gWdgH^oZ######################################################################################################################################################################*¿-
6gWdgHeZZY#####################################################################################################################################################(-*%GEB
6gWdg7ZVg^c\h######################################################################################################## HZVaZYVcYEZgbVcZcianAjWg^XViZY
Cutting Capacities
BVm^bjb9Zei]d[8jiVi.%9Z\gZZh####################################################################################################################### (&$-
BVm^bjb9Zei]d[8jiVi)*9Z\gZZh###################################################################################################################### '($&+
BVm^bjbG^eidG^\]id[7aVYZ"HiVcYVgY################################################################################################################### (%
BVm^bjbG^eidAZ[id[7aVYZ##################################################################################################################################### &'
Table Information
;addgidIVWaZ=Z^\]i################################################################################################################################################### ()
IVWaZH^oZ9Zei]######################################################################################################################################################### ',
IVWaZH^oZL^Yi]######################################################################################################################################################### '%
IVWaZH^oZI]^X`cZhh################################################################################################################################################# &&$'
IVWaZH^oZl^i]:miZch^dcL^c\h9Zei]##################################################################################################################### ',
IVWaZH^oZl^i]:miZch^dcL^c\hL^Yi]###################################################################################################################### )%
9^hiVcXZ;gdcid[IVWaZid8ZciZgd[7aVYZ################################################################################################################ &+
9^hiVcXZ;gdcid[IVWaZid7aVYZViBVm^bjb8ji################################################################################################## &&&$'
Fence Information
;ZcXZIneZ################################################################################################# 8VbadX`I"H]VeZY;ZcXZl^i]=9E:;VXZ
;ZcXZH^oZAZc\i]####################################################################################################################################################()&$)
;ZcXZH^oZL^Yi]########################################################################################################################################################(&$-
;ZcXZH^oZ=Z^\]i###################################################################################################################################################### '&$'
;ZcXZGV^aIneZ###############################################################################################################################HfjVgZHiZZaIjW^c\
;ZcXZGV^aAZc\i]####################################################################################################################################################### +%
;ZcXZGV^aL^Yi]########################################################################################################################################################### '
;ZcXZGV^a=Z^\]i########################################################################################################################################################&*¿-

"+" BdYZa<%,&*EB[\#)$&&
Miter Gauge Information
B^iZg<Vj\ZHadiIneZ############################################################################################################################################ I"Hadi
B^iZg<Vj\ZHadiH^oZL^Yi]######################################################################################################################################## ($)
B^iZg<Vj\ZHadiH^oZ=Z^\]i####################################################################################################################################### ($-
Construction
IVWaZ8dchigjXi^dc################################################################################################################ EgZX^h^dc<gdjcY8Vhi>gdc
L^c\h8dchigjXi^dc############################################################################################################### EgZX^h^dc<gdjcY8Vhi>gdc
Igjcc^dch8dchigjXi^dc###################################################################################################################################### 8Vhi>gdc
8VW^cZi8dchigjXi^dc############################################################################################################################ EgZ";dgbZYHiZZa
;ZcXZ6hhZbWan8dchigjXi^dc#############################################################################################HiZZal^i]=9E:H^YZEaViZh
GV^ah8dchigjXi^dc#####################################################################################################################################################HiZZa
B^iZg<Vj\Z8dchigjXi^dc#################################################################################################################################6ajb^cjb
<jVgY8dchigjXi^dc###################################################################################################################### HiZZaVcY8aZVgEaVhi^X
Other Related Information:
EV^ci###################################################################################################################################################################EdlYZg8dViZY
CjbWZgd[9jhiEdgih##############################################################################################################################################################&
9jhiEdgiH^oZ######################################################################################################################################################################### )
BdW^aZ7VhZ##################################################################################################################################################################<,(&)O
Other Specifications:
>HD;VXidgn################################################################################################################################################################# >HD.%%&
8djcignd[Dg^\^c############################################################################################################################################################### 8]^cV
LVggVcin########################################################################################################################################################################### &NZVg
HZg^VaCjbWZgAdXVi^dc##############################################################################################################################>9AVWZadc8VW^cZi
6hhZbWanI^bZ################################################################################################################################################################&=djg
HdjcYGVi^c\Vi>YaZ######################################################################################################################################################### -(Y7
Features:
L]^iZedlYZgXdViZYeV^cidcXVW^cZi
EgZX^h^dc\gdjcYXVhi^gdciVWaZ
8Vhi^gdcigjcc^dch
)Yjhiedgi
I"hadib^iZg\Vj\Z
8VbadX`I"h]VeZY[ZcXZl^i]=9E:[VXZ
:Vhn\a^YZ[ZcXZhnhiZb
EdlYZgXdViZYeV^ci
Fj^X`gZaZVhZg^k^c\`c^[ZVcYWaVYZ\jVgYVhhZbWan
@cjgaZY`cdWh[dgVY_jhi^c\[ZcXZ
>cXajYZhgZ\jaVgVhlZaaVhYVYdWaVYZiVWaZ^chZgih
9Zk^XZdcWaVYZ\jVgYVaadlhZcVWa^c\dgY^hVWa^c\d[Vci^"`^X`WVX`eVlah

BdYZa<%,&*EB[\#)$&& ","
For Your Own Safety, Read Instruction
Manual Before Operating this Machine
The purpose of safety symbols is to attract your attention to possible hazardous conditions.
This manual uses a series of symbols and signal words intended to convey the level of impor-
tance of the safety messages. The progression of symbols is described below. Remember that
safety messages by themselves do not eliminate danger and are not a substitute for proper
accident prevention measures.
WEARING PROPER APPAREL. 9d cdi lZVg
Xadi]^c\! VeeVgZa! dg _ZlZagn i]Vi XVc WZXdbZ
ZciVc\aZY ^c bdk^c\ eVgih# 6alVnh i^Z WVX` dg
XdkZgadc\]V^g#LZVgcdc"ha^e[ddilZVg idVkd^Y
VXX^YZciVaha^ehl]^X]XdjaYXVjhZVadhhd[ldg`"
e^ZXZXdcigda#
HEARING PROTECTION. 6alVnh lZVg ]ZVg"
^c\egdiZXi^dcl]ZcdeZgVi^c\dgdWhZgk^^c\ adjY
bVX]^cZgn# :miZcYZY ZmedhjgZ id i]^h cd^hZ
l^i]dji]ZVg^c\ egdiZXi^dcXVc XVjhZeZgbVcZci
]ZVg^c\adhh#
MENTAL ALERTNESS. 7Z bZciVaan VaZgi l]Zc
gjcc^c\ bVX]^cZgn# CZkZg deZgViZ jcYZg i]Z
^c[ajZcXZd[Ygj\hdgVaXd]da!l]Zci^gZY!dgl]Zc
Y^higVXiZY#
OWNER’S MANUAL. GZVY VcY jcYZghiVcY
i]^h dlcZg»h bVcjVa 7:;DG: jh^c\ bVX]^cZ#
JcigV^cZYjhZghXVcWZhZg^djhan]jgi#
EYE PROTECTION.6alVnhlZVg6CH>"VeegdkZY
hV[Zin\aVhhZhdgV[VXZh]^ZaYl]ZcdeZgVi^c\dg
dWhZgk^c\ bVX]^cZgn id gZYjXZ i]Z g^h` d[ ZnZ
^c_jgndgWa^cYcZhh[gdb[an^c\eVgi^XaZh#:kZgnYVn
ZnZ\aVhhZhVgZcdiVeegdkZYhV[Zin\aVhhZh#
HAZARDOUS DUST. 9jhi XgZViZY l]^aZ jh^c\
bVX]^cZgn bVn XVjhZ XVcXZg! W^gi] YZ[ZXih! dg
adc\"iZgb gZhe^gVidgn YVbV\Z# 7Z VlVgZ d[ Yjhi
]VoVgYhVhhdX^ViZYl^i]ZVX]ldg`e^ZXZbViZg^Va!
VcYValVnhlZVgVC>DH="VeegdkZYgZhe^gVidgid
gZYjXZndjgg^h`#
Indicates a potentially hazardous situation which, if not avoided,
MAY result in minor or moderate injury. It may also be used to alert
against unsafe practices.
Indicates a potentially hazardous situation which, if not avoided,
COULD result in death or serious injury.
Indicates an imminently hazardous situation which, if not avoided,
WILL result in death or serious injury.
This symbol is used to alert the user to useful information about
proper operation of the machine.
NOTICE
Safety Instructions for Machinery
SECTION 1: SAFETY

"-" BdYZa<%,&*EB[\#)$&&
DISCONNECTING POWER SUPPLY.6alVnhY^h"
XdccZXi bVX]^cZ [gdb edlZg hjeean WZ[dgZ hZg"
k^X^c\! VY_jhi^c\! dg X]Vc\^c\ Xjii^c\ iddah W^ih!
WaVYZh!XjiiZgh!ZiX## BV`ZhjgZ hl^iX]^h ^cD;;
edh^i^dcWZ[dgZgZXdccZXi^c\idVkd^YVcjcZmeZXi"
ZYdgjc^ciZci^dcVahiVgi#
APPROVED OPERATION. JcigV^cZY deZgVidgh
XVc WZ hZg^djhan ]jgi Wn bVX]^cZgn# Dcan Vaadl
igV^cZY dg egdeZgan hjeZgk^hZY eZdeaZ id jhZ
bVX]^cZ# L]Zc bVX]^cZ ^h cdi WZ^c\ jhZY! Y^h"
XdccZXi edlZg! gZbdkZ hl^iX] `Znh! dg adX`"dji
bVX]^cZidegZkZcijcVji]dg^oZYjhZ·ZheZX^Vaan
VgdjcYX]^aYgZc#BV`Zldg`h]de`^Yegdd[
DANGEROUS ENVIRONMENTS. 9d cdi jhZ
bVX]^cZgn ^c lZi dg gV^cn adXVi^dch! XajiiZgZY
VgZVh! VgdjcY [aVbbVWaZh! dg ^c eddgan"a^i VgZVh#
@ZZe ldg` VgZV XaZVc! Ygn! VcY lZaa"a^\]iZY id
b^c^b^oZg^h`d[^c_jgn#
ONLY USE AS INTENDED. Dcan jhZ bVX]^cZ
[dg ^ih ^ciZcYZY ejgedhZ# CZkZg bdY^[n dg VaiZg
bVX]^cZ[dgVejgedhZcdi^ciZcYZYWni]ZbVcj"
[VXijgZgdghZg^djh^c_jgnbVngZhjai
USE RECOMMENDED ACCESSORIES.8dchjai
i]^hdlcZg»hbVcjVadgi]ZbVcj[VXijgZg[dggZX"
dbbZcYZY VXXZhhdg^Zh# Jh^c\ ^begdeZg VXXZh"
hdg^Zhl^aa^cXgZVhZi]Zg^h`d[hZg^djh^c_jgn#
CHILDREN & BYSTANDERS. @ZZe X]^aYgZc
VcYWnhiVcYZghVhV[ZY^hiVcXZVlVn[gdbldg`
VgZV#Hidejh^c\bVX]^cZ^[X]^aYgZcdgWnhiVcY"
ZghWZXdbZVY^higVXi^dc#
REMOVE ADJUSTING TOOLS. CZkZg aZVkZ
VY_jhibZciiddah!X]jX``Znh!lgZcX]Zh!ZiX#^cdg
dcbVX]^cZ·ZheZX^VaancZVgbdk^c\eVgih#KZg^[n
gZbdkVaWZ[dgZhiVgi^c\
SECURING WORKPIECE. L]Zc gZfj^gZY! jhZ
XaVbehdg k^hZhidhZXjgZldg`e^ZXZ# 6hZXjgZY
ldg`e^ZXZegdiZXih]VcYhVcY[gZZhWdi]d[i]Zb
iddeZgViZi]ZbVX]^cZ#
FEED DIRECTION.JcaZhhdi]Zgl^hZcdiZY![ZZY
ldg` V\V^chi i]Z gdiVi^dc d[ WaVYZh dg XjiiZgh#
;ZZY^c\^ci]ZhVbZY^gZXi^dcd[gdiVi^dcbVnejaa
ndjg]VcY^cidi]ZXji#
FORCING MACHINERY.9dcdi[dgXZbVX]^cZ#
>il^aa Ydi]Z _dWhV[ZgVcYWZiiZgVii]ZgViZ[dg
l]^X]^ilVhYZh^\cZY#
GUARDS & COVERS. <jVgYh VcY XdkZgh XVc
egdiZXi ndj [gdb VXX^YZciVa XdciVXi l^i] bdk^c\
eVgih dg [an^c\ YZWg^h# BV`Z hjgZ i]Zn VgZ egde"
Zgan^chiVaaZY!jcYVbV\ZY!VcY ldg`^c\XdggZXian
WZ[dgZjh^c\bVX]^cZ#
NEVER STAND ON MACHINE.HZg^djh^c_jgndg
VXX^YZciVa XdciVXi l^i] Xjii^c\ idda bVn dXXjg ^[
bVX]^cZ^hi^eeZY#BVX]^cZbVnWZYVbV\ZY#
STABLE MACHINE. JcZmeZXiZYbdkZbZciYjg"
^c\deZgVi^dch\gZVian^cXgZVhZhi]Zg^h`d[^c_jgn
VcY adhh d[ Xdcigda# KZg^[n bVX]^cZh VgZ hiVWaZ$
hZXjgZ VcY bdW^aZ WVhZh ^[ jhZY VgZ adX`ZY
WZ[dgZhiVgi^c\#
AWKWARD POSITIONS. @ZZe egdeZg [ddi^c\
VcYWVaVcXZViVaai^bZhl]ZcdeZgVi^c\bVX]^cZ#
9dcdidkZggZVX]6kd^YVl`lVgY]VcYedh^i^dch
i]Vi bV`Z ldg`e^ZXZ Xdcigda Y^[[^Xjai dg ^cXgZVhZ
i]Zg^h`d[VXX^YZciVa^c_jgn#
UNATTENDED OPERATION. CZkZg aZVkZ
bVX]^cZgjcc^c\l]^aZjcViiZcYZY#IjgcbVX]^cZ
OFFVcYZchjgZVaabdk^c\eVgihXdbeaZiZanhide
WZ[dgZlVa`^c\VlVn#
MAINTAIN WITH CARE.;daadlVaabV^ciZcVcXZ
^chigjXi^dch VcY ajWg^XVi^dc hX]ZYjaZh id `ZZe
bVX]^cZ^c\ddYldg`^c\XdcY^i^dc#6c^begdeZgan
bV^ciV^cZYbVX]^cZbVn^cXgZVhZi]Zg^h`d[hZg^"
djh^c_jgn#
CHECK DAMAGED PARTS. GZ\jaVgan ^cheZXi
bVX]^cZ [dg YVbV\ZY eVgih! addhZ Wdaih! b^h"
VY_jhiZY dg b^h"Va^\cZY eVgih! W^cY^c\! dg Vcn
di]Zg XdcY^i^dch i]Vi bVn V[[ZXi hV[Z deZgVi^dc#
6alVnhgZeV^gdggZeaVXZYVbV\ZYdgb^h"VY_jhi"
ZYeVgihWZ[dgZdeZgVi^c\bVX]^cZ#
EXPERIENCING DIFFICULTIES. >[ Vi Vcn i^bZ
ndj VgZ ZmeZg^ZcX^c\ Y^[[^Xjai^Zh eZg[dgb^c\ i]Z
^ciZcYZYdeZgVi^dc!hidejh^c\i]ZbVX]^cZ
8dciVXi djg IZX]c^XVa Hjeedgi 9ZeVgibZci Vi
*,%*)+".++(#

BdYZa<%,&*EB[\#)$&& "."
Additional Safety for Table Saws
HAND POSITIONING.CZkZgejgedhZanidjX]V
hVl WaVYZ Yjg^c\ deZgVi^dc# 6alVnh `ZZe ]VcYh$
[^c\Zgh dji d[ i]Z WaVYZ eVi]0 eaVXZ i]Zb l]ZgZ
i]ZnXVccdiha^e^cidi]ZWaVYZVXX^YZciVaan#CZkZg
gZVX]VgdjcY!WZ]^cY!dgdkZgi]ZWaVYZ#IdjX]^c\
Vhe^cc^c\hVlWaVYZl^aaXVjhZhZg^djhaVXZgVi^dc
dgVbejiVi^dc^c_jg^Zh#
BLADE GUARD. JhZ i]Z WaVYZ \jVgY [dg Vaa
¸i]gdj\]Xjih¹[dgl]^X]^iXVcWZjhZY#6i]gdj\]
Xji^hVcdeZgVi^dcl]ZgZi]ZWaVYZXjihXdbeaZiZ"
an i]gdj\] i]Z ide d[ i]Z ldg`e^ZXZ# BV`Z hjgZ
i]ZWaVYZ\jVgY^h^chiVaaZYVcYVY_jhiZYXdggZXian0
egdbeiangZeV^gdggZeaVXZ^i^[YVbV\ZY#6alVnh
gZ"^chiVaaWaVYZ\jVgY^bbZY^ViZanV[iZgdeZgVi^dch
i]Vi gZfj^gZ ^ih gZbdkVa# DeZgVi^c\ hVl l^i] i]Z
WaVYZ\jVgYgZbdkZY\gZVian^cXgZVhZhi]Zg^h`d[
hZkZgZaVXZgVi^dcdgVbejiVi^dc^c_jg^Zh[gdbVXX^"
YZciVaWaVYZXdciVXi#
RIVING KNIFE. JhZ i]Z g^k^c\ `c^[Z [dg Vaa ¸cdc"
i]gdj\]Xjih¹[dgl]^X]^iXVcWZjhZY#6cdc"
i]gdj\]Xji^hVcdeZgVi^dcl]ZgZi]ZWaVYZYdZh
cdi Xji i]gdj\] i]Z ide d[ i]Z ldg`e^ZXZ# BV`Z
hjgZi]Zg^k^c\`c^[Z^hVa^\cZYVcYedh^i^dcZYXdg"
gZXian0VcYegdbeiangZeV^gdggZeaVXZ^i^[YVbV\ZY#
Jh^c\i]Zg^k^c\`c^[Z^cXdggZXianl^aa^cXgZVhZ i]Z
g^h`d[`^X`WVX`dgVXX^YZciVaWaVYZXdciVXi#
KICKBACK.@^X`WVX`dXXjghl]Zci]ZhVlWaVYZ
Z_ZXih i]Z ldg`e^ZXZ WVX` idlVgY i]Z deZgVidg#
@cdl]dlidgZYjXZi]Zg^h`d[`^X`WVX`!VcYaZVgc
]dlidegdiZXindjghZa[^[^iYdZhdXXjg#
FEEDING WORKPIECE. ;ZZY^c\ i]Z ldg`e^ZXZ
^cXdggZXianl^aa^cXgZVhZg^h`d[`^X`WVX`#CZkZg
hiVgii]ZhVll^i]Vldg`e^ZXZidjX]^c\i]ZWaVYZ0
Vaadli]ZWaVYZidgZVX][jaaheZZYWZ[dgZXjii^c\#
Dcan [ZZY i]Z ldg`e^ZXZ V\V^chi i]Z Y^gZXi^dc d[
WaVYZ gdiVi^dc# 6alVnh jhZ hdbZ ineZ d[ \j^YZ
[ZcXZ! b^iZg \Vj\Z! ha^Y^c\ iVWaZ dg haZY! ZiX# id
[ZZYi]Zldg`e^ZXZ^cVhigV^\]ia^cZ#CZkZgWVX`V
ldg`e^ZXZdjid[VXjidgignidbdkZ^iWVX`lVgYh
dgh^YZlVnhV[iZghiVgi^c\VXji#;ZZYXjihVaai]Z
lVn i]gdj\] id XdbeaZi^dc# CZkZg eZg[dgb Vcn
deZgVi^dc¸[gZZ]VcY¹bV`^c\VXjil^i]djijh^c\V
[ZcXZ!b^iZg\Vj\Z!dgdi]Zg\j^YZ#
FENCE. BV`Z hjgZ i]Z [ZcXZ gZbV^ch egdeZgan
VY_jhiZYVcY eVgVaaZal^i] i]ZWaVYZ# 6alVnh adX`
i]Z[ZcXZ^ceaVXZWZ[dgZjh^c\#Jh^c\dgVY_jhi^c\
i]Z[ZcXZ^cXdggZXianl^aa^cXgZVhZg^h`d[`^X`WVX`#
PUSH STICKS/BLOCKS.JhZejh]hi^X`hdgejh]
WadX`hl]ZcZkZgedhh^WaZid`ZZendjg]VcYh[Vg"
i]ZgVlVn[gdbi]ZWaVYZl]^aZXjii^c\0^ci]ZZkZci
d[VcVXX^YZcii]ZhZYZk^XZhl^aad[iZciV`ZYVb"
V\Zi]VildjaY]VkZ]VeeZcZYid]VcYh$[^c\Zgh#
CUT-OFF PIECES.CZkZgjhZndjg]VcYhidbdkZ
Xji"d[[hVlVn[gdbi]ZWaVYZl]^aZi]ZhVl^hgjc"
c^c\# >[ V Xji"d[[ WZXdbZh igVeeZY WZilZZc i]Z
WaVYZVcYiVWaZ^chZgi!ijgci]ZhVlOFFVcYVaadl
i]ZWaVYZidXdbeaZiZanhideWZ[dgZgZbdk^c\^i#
BLADE ADJUSTMENTS. 6Y_jhi^c\ i]Z WaVYZ
]Z^\]idgi^aiYjg^c\deZgVi^dc^cXgZVhZhi]Zg^h`d[
XgVh]^c\ i]Z WaVYZ VcY hZcY^c\ bZiVa [gV\bZcih
[an^c\l^i]YZVYan[dgXZVii]ZdeZgVidgdgWnhiVcY"
Zgh#DcanVY_jhii]ZWaVYZ]Z^\]iVcYi^ail]Zci]Z
WaVYZ^hXdbeaZiZanhideeZYVcYi]ZhVl^hOFF#
CHANGING BLADES. 6alVnh Y^hXdccZXi edlZg
WZ[dgZ X]Vc\^c\ WaVYZh# 8]Vc\^c\ WaVYZh l]^aZ
i]Z hVl ^h XdccZXiZY id edlZg \gZVian ^cXgZVhZh
i]Z^c_jgng^h`^[hVl^hVXX^YZciVaanedlZgZYje#
DAMAGED SAW BLADES.CZkZgjhZWaVYZh
i]Vi ]VkZ WZZc YgdeeZY dg di]Zgl^hZ YVbV\ZY#
9VbV\ZYWaVYZhXVc[anVeVgiVcYhig^`Zi]ZdeZg"
Vidgl^i]h]VgYhd[bZiVa#
DADO AND RABBET OPERATIONS. 9D CDI
ViiZbei YVYd dg gVWWZi^c\ deZgVi^dch l^i]dji
[^ghi gZVY^c\ i]dhZ hZXi^dch ^c i]^h bVcjVa# 9VYd
VcYgVWWZi^c\deZgVi^dchgZfj^gZheZX^VaViiZci^dc
WZXVjhZ i]Zn bjhi WZ eZg[dgbZY l^i] i]Z WaVYZ
\jVgYgZbdkZY#
CUTTING CORRECT MATERIAL.CZkZgXji
bViZg^Vahcdi^ciZcYZY[dgi]^hhVl0dcanXjicVijgVa
VcYbVc"bVYZ lddYegdYjXih!aVb^cViZXdkZgZY
lddYegdYjXih!VcYhdbZeaVhi^Xh#8jii^c\bZiVa!
\aVhh!hidcZ!i^aZ!ZiX#^cXgZVhZhi]Zg^h`d[deZgVidg
^c_jgnYjZid`^X`WVX`dg[an^c\eVgi^XaZh#

"&%" BdYZa<%,&*EB[\#)$&&
Below are ways to avoid the most common
causes of kickback:
DcanXjildg`e^ZXZhl^i]ViaZVhidcZhbddi]
VcY higV^\]i ZY\Z# 9D CDI Xji lVgeZY!
XjeeZYdgil^hiZYlddY#
@ZZe i]Z WaVYZ \jVgY ^chiVaaZY VcY ldg`^c\
XdggZXian[dgVaai]gdj\]Xjih#
CZkZgViiZbei[gZZ]VcYXjih#>[i]Zldg`e^ZXZ
^hcdi[ZYeVgVaaZal^i]i]ZWaVYZ!`^X`WVX`l^aa
a^`ZandXXjg#6alVnhjhZi]Zg^e[ZcXZdgb^iZg
\Vj\Zidhjeedgii]Zldg`e^ZXZ#
BV`Z hjgZ i]Z hegZVYZg dg g^k^c\ `c^[Z ^h
Va^\cZYl^i]i]ZWaVYZ#6b^hVa^\cZYhegZVYZg
dg g^k^c\ `c^[Z XVc XVjhZ i]Z ldg`e^ZXZ id
XViX]dgW^cY!^cXgZVh^c\i]ZX]VcXZd[`^X`"
WVX`#
IV`Z i]Z i^bZ id X]ZX` VcY VY_jhi i]Z g^e
[ZcXZ eVgVaaZa l^i] i]Z WaVYZ0 di]Zgl^hZ! i]Z
X]VcXZhd[`^X`WVX`VgZZmigZbZ#
I]Z hegZVYZg dg g^k^c\ `c^[Z bV^ciV^ch i]Z
`Zg[^ci]Zldg`e^ZXZ!gZYjX^c\i]ZX]VcXZd[
`^X`WVX`# 6alVnh jhZ i]Z g^k^c\ `c^[Z [dg Vaa
cdc"i]gdj\]deZgVi^dch!jcaZhhVYVYdWaVYZ
^h^chiVaaZY#6alVnhjhZi]ZhegZVYZgl^i]i]Z
WaVYZ\jVgY[dgVaai]gdj\]Xjih#
;ZZY Xjih i]gdj\] id XdbeaZi^dc# 6cni^bZ
ndj hide [ZZY^c\ V ldg`e^ZXZ ^c i]Z b^YYaZ
d[ V Xji! i]Z X]VcXZ d[ `^X`WVX` ^h \gZVian
^cXgZVhZY#
@ZZe i]Z WaVYZ \jVgY ^chiVaaZY VcY ^c \ddY
ldg`^c\ dgYZg# Dcan gZbdkZ ^i l]Zc eZg"
[dgb^c\ cdc"i]gdj\] Xjih VcY ^bbZY^ViZan
gZ"^chiVaa i]Z WaVYZ \jVgY l]Zc [^c^h]ZY#
GZbZbWZg!ValVnhjhZi]Zg^k^c\`c^[Z[dgVaa
cdc"i]gdj\]deZgVi^dch!jcaZhhVYVYdWaVYZ
^h^chiVaaZY#
BV`Z bjai^eaZ! h]Vaadl eVhhZh l]Zc eZg"
[dgb^c\ V cdc"i]gdj\] Xji# BV`^c\ V YZZe
cdc"i]gdj\] Xji l^aa \gZVian ^cXgZVhZ i]Z
X]VcXZd[`^X`WVX`#
Preventing Kickback
Statistics show that most common acci-
dents among table saw users can be linked
to kickback. Kickback is typically defined as
the high-speed expulsion of stock from the
table saw toward its operator. In addition to
the danger of the operator or others in the
area being struck by the flying stock, it is
often the case that the operator’s hands are
pulled into the blade during kickback.
Even if you know how to prevent kickback, it
may still happen. Here are some ways to pro-
tect yourself if kickback DOES occur:
HiVcYidi]Zh^YZd[i]ZWaVYZYjg^c\ZkZgnXji#
>[`^X`WVX`YdZhdXXjg!i]Zi]gdlcldg`e^ZXZ
jhjVaanigVkZahY^gZXian^c[gdcid[i]ZWaVYZ#
LZVghV[Zin\aVhhZhdg V[VXZh]^ZaY# >ci]Z
ZkZcid[`^X`WVX`!ndjgZnZhVcY[VXZVgZi]Z
bdhikjacZgVWaZeVgid[ndjgWdYn#
CZkZg! [dg Vcn gZVhdc! eaVXZ ndjg ]VcY
WZ]^cY i]Z WaVYZ# H]djaY `^X`WVX` dXXjg!
ndjg]VcYl^aaWZejaaZY^cidi]ZWaVYZ!l]^X]
XdjaYXVjhZVbejiVi^dc#
JhZVejh]hi^X`id`ZZendjg]VcYh[Vgi]Zg
VlVn [gdb i]Z bdk^c\ WaVYZ# >[ `^X`WVX`
dXXjgh!i]Zejh]hi^X`l^aabdhia^`ZaniV`Zi]Z
YVbV\Zndjg]VcYldjaY]VkZgZXZ^kZY#
JhZ [ZVi]ZgWdVgYh dg Vci^"`^X`WVX` YZk^XZh
id Vhh^hi l^i] [ZZY^c\ VcY egZkZci dg hadl
Ydlc`^X`WVX`#
Protecting Yourself
From Kickback
CZkZgbdkZi]Zldg`e^ZXZWVX`lVgYhdgign
idWVX`^idjid[VXjil]^aZi]ZWaVYZ^hbdk"
^c\# >[ ndj XVccdi XdbeaZiZ V Xji [dg hdbZ
gZVhdc! hide i]Z hVl bdidg VcY Vaadl i]Z
WaVYZid XdbeaZiZanhide WZ[dgZWVX`^c\i]Z
ldg`e^ZXZdji#Egdbeian[^mi]ZXdcY^i^dci]Vi
egZkZciZYndj[gdbXdbeaZi^c\i]ZXjiWZ[dgZ
hiVgi^c\i]ZhVlV\V^c#

BdYZa<%,&*EB[\#)$&& "&&"
I]Z[daadl^c\^hVa^hid[XdbbdcYZ[^c^i^dch!iZgbhVcYe]gVhZhjhZYi]gdj\]djii]^hbVcjVaVhi]ZngZaViZ
idi]^hiVWaZhVlVcYlddYldg`^c\^c\ZcZgVa#7ZXdbZ[Vb^a^Vgl^i]i]ZhZiZgbh[dgVhhZbWa^c\!VY_jhi^c\
dgdeZgVi^c\i]^hbVX]^cZ#NdjghV[Zin^hVERY ^bedgiVciidjhVi<g^ooan
Arbor: 6 bZiVa h]V[i ZmiZcY^c\ [gdb i]Z Yg^kZ
bZX]Vc^hbi]Vi^hi]Zbdjci^c\adXVi^dc[dgi]Z
hVlWaVYZ#
Bevel Edge Cut:6XjibVYZl^i]i]ZWaVYZi^aiZY
idVcVc\aZWZilZZc%ßVcY)*ßidXjiVWZkZaZY
ZY\Z dcid V ldg`e^ZXZ# GZ[Zg id Page 38[dg
bdgZYZiV^ah#
Blade Guard Assembly:BZiVadgeaVhi^XhV[Zin
YZk^XZi]VibdjcihdkZgi]ZhVlWaVYZ#>ih[jcX"
i^dc^hidegZkZcii]ZdeZgVidg[gdbXdb^c\^cid
XdciVXi l^i] i]Z hVl WaVYZ# GZ[Zg id Page 32
[dgbdgZYZiV^ah#
Crosscut: 8jii^c\deZgVi^dc^c l]^X]i]Z Xgdhh"
Xji [ZcXZ ^h jhZY id Xji VXgdhh i]Z h]dgiZhi
l^Yi] d[ i]Z ldg`e^ZXZ# GZ[Zg id Page 37[dg
bdgZYZiV^ah#
Dado Blade:7aVYZdghZid[WaVYZhi]ViVgZjhZY
idXji\gddkZhVcYgVWWZih#GZ[ZgidPage 38
[dg bdgZ YZiV^ah# I]Z hVl VcY VgWdg VgZ cdi
^ciZcYZYidhV[ZanjhZVaVg\ZgYVYdWaVYZ#
Dado Cut: 8jii^c\ deZgVi^dc i]Vi jhZh V YVYd
WaVYZidXjiV[aViWdiidbZY\gddkZ^cidi]Z[VXZ
d[ i]Z ldg`e^ZXZ# GZ[Zg id Page 38 [dg bdgZ
YZiV^ah#
Featherboard: HV[Zin YZk^XZ jhZY id `ZZe i]Z
ldg`e^ZXZ V\V^chi i]Z g^e [ZcXZ VcY V\V^chi
i]Z iVWaZ hjg[VXZ# GZ[Zg id Page 46 [dg bdgZ
YZiV^ah#
Kerf: I]Z gZhjai^c\ Xji dg \Ve ^c i]Z ldg`e^ZXZ
V[iZg i]Z hVl WaVYZ eVhhZh i]gdj\] Yjg^c\ V
Xjii^c\deZgVi^dc#
Kickback: 6c ZkZci ^c l]^X] i]Z ldg`e^ZXZ ^h
egdeZaaZYWVX`idlVgYh i]ZdeZgVidgViV]^\]
gViZd[heZZY#
Non-Through Cut:6Xji^cl]^X]i]ZWaVYZYdZh
cdiXjii]gdj\]i]Zided[i]Zldg`e^ZXZ#GZ[Zg
idPage 28[dgbdgZYZiV^ah#
Parallel:7Z^c\VcZfjVaY^hiVcXZVeVgiViZkZgn
ed^ci Vadc\ ild \^kZc a^cZh dg eaVcZh ^#Z# i]Z
g^e[ZcXZ[VXZ^heVgVaaZaidi]Z[VXZd[i]ZhVl
WaVYZ#
Perpendicular:A^cZhdgeaVcZhi]Vi^ciZghZXiVcY
[dgbg^\]iVc\aZh^#Z#i]ZWaVYZ^heZgeZcY^XjaVg
idi]ZiVWaZhjg[VXZ#
Push Stick: HV[Zin YZk^XZ jhZY id ejh] i]Z
ldg`e^ZXZ i]gdj\] V Xjii^c\ deZgVi^dc# JhZY
bdhi d[iZc l]Zc g^e Xjii^c\ i]^c ldg`e^ZXZh#
GZ[ZgidPage 49[dgbdgZYZiV^ah#
Rabbet:8jii^c\deZgVi^dci]ViXgZViZhVcA"h]VeZY
X]VccZaVadc\i]ZZY\Zd[i]Zldg`e^ZXZ#GZ[Zg
idPage 41[dgbdgZYZiV^ah#
Rip Cut:8jii^c\deZgVi^dc^cl]^X]i]Zg^e[ZcXZ
^h jhZY id Xji VXgdhh i]Z l^YZhi l^Yi] d[ i]Z
ldg`e^ZXZ#GZ[ZgidPage 36[dgbdgZYZiV^ah#
Riving Knife:BZiVaeaViZadXViZYWZ]^cYi]Z
WaVYZ#>ibV^ciV^chi]Z`Zg[deZc^c\^ci]ZlddY
l]Zc eZg[dgb^c\ V Xjii^c\ deZgVi^dc# GZ[Zg id
Page 35[dgbdgZYZiV^ah#
Straightedge:6iddajhZYidX]ZX`i]Z[aVicZhh!
eVgVaaZa^hb!dgXdch^hiZcXnd[Vhjg[VXZh#
Thin Kerf Blade: 6WaVYZl^i]V`Zg[dgi]^X`cZhh
i]Vi^hi]^ccZgi]VcVhiVcYVgYWaVYZXVccdiWZ
jhZYdci]^hhVl#
Through Cut:6Xji^cl]^X]i]ZWaVYZXjihXdb"
eaZiZan i]gdj\] i]Z ldg`e^ZXZ# GZ[Zg id Page
28[dgbdgZYZiV^ah#
Glossary of Terms

"&'" BdYZa<%,&*EB[\#)$&&
SECTION 2: POWER SUPPLY
Availability
7Z[dgZ^chiVaa^c\i]ZbVX]^cZ!Xdch^YZgi]ZVkV^a"
VW^a^inVcYegdm^b^ind[i]ZgZfj^gZYedlZghjeean
X^gXj^i# >[ Vc Zm^hi^c\ X^gXj^i YdZh cdi bZZi i]Z
gZfj^gZbZcih[dgi]^hbVX]^cZ!VcZlX^gXj^ibjhi
WZ ^chiVaaZY# Id b^c^b^oZ i]Z g^h` d[ ZaZXigdXj"
i^dc![^gZ!dgZfj^ebZciYVbV\Z!^chiVaaVi^dcldg
`
VcYZaZXig^XVal^g^c\bjhiWZYdcZWnVfjVa^[^ZY
ZaZXig^X^Vc^cVXXdgYVcXZl^i]VaaVeea^XVWaZXdYZh
VcYhiVcYVgYh#
Electrocution, fire, or
equipment damage may
occur if machine is not
correctly grounded and
connected to the power
supply.
Full-Load Current Rating
I]Z [jaa"adVY XjggZci gVi^c\ ^h i]Z VbeZgV\Z V
bVX]^cZYgVlhVi&%%d[i]ZgViZYdjiejiedlZg#
Dc bVX]^cZh l^i] bjai^eaZ bdidgh! i]^h ^h i]Z
VbeZgV\ZYgVlcWni]ZaVg\Zhibdidgdghjbd[Vaa
bdidgh VcYZaZXig^XVaYZk^XZhi]Vib^\]i deZgViZ
VidcZi^bZYjg^c\cdgbVadeZgVi^dch#
Full-Load Current Rating at 220V ....... 8 Amps
Full-Load Current Rating at 110V ...... 16 Amps
I]Z[jaa"adVYXjggZci^hcdii]ZbVm^bjbVbdjci
d[Vbehi]Vii]ZbVX]^cZl^aaYgVl#>[i]ZbVX]^cZ
^hdkZgadVYZY!^il^aaYgVlVYY^i^dcVaVbehWZndcY
i]Z[jaa"adVYgVi^c\#
>[i]ZbVX]^cZ^hdkZgadVYZY[dgVhj[[^X^ZciaZc\i]
d[i^bZ!YVbV\Z!dkZg]ZVi^c\!dg[^gZbVngZhjai·
ZheZX^Vaan ^[ XdccZXiZY id Vc jcYZgh^oZY X^gXj^i#
IdgZYjXZ i]Zg^h`d[i]ZhZ ]VoVgYh!Vkd^YdkZg"
adVY^c\ i]Z bVX]^cZ Yjg^c\ deZgVi^dc VcY bV`Z
hjgZ^i^hXdccZXiZYidVedlZghjeeanX^gXj^ii]Vi
bZZihi]ZgZfj^gZbZcih^ci]Z[daadl^c\hZXi^dc#
For your own safety and protection of
property, consult a qualified electrician if
you are unsure about wiring practices or
electrical codes in your area.
Note: The circuit requirements listed in this man
-
ual apply to a dedicated circuit—where only on
e
machine will be running at a time. If this machin
e
will be connected to a shared circuit where mul
-
tiple machines will be running at the same time,
consult a qualified electrician to ensure that th
e
circuit is properly sized for safe operation.
6 edlZg hjeean X^gXj^i ^cXajYZh Vaa ZaZXig^XVa
Zfj^ebZciWZilZZci]ZWgZV`ZgWdmdg[jhZeVcZa
^ci]ZWj^aY^c\VcYi]ZbVX]^cZ#I]ZedlZghje"
eanX^gXj^ijhZY[dgi]^hbVX]^cZbjhiWZh^oZYid
hV[Zan]VcYaZi]Z[jaa"adVYXjggZciYgVlc[gdbi]Z
bVX]^cZ [dg Vc ZmiZcYZY eZg^dY d[ i^bZ# >[ i]^h
bVX]^cZ ^h XdccZXiZY id V X^gXj^i egdiZXiZY Wn
[jhZh!jhZVi^bZYZaVn[jhZbVg`ZY9#
Circuit Information
Circuit Requirements for 220V
I]^h bVX]^cZ ^h egZl^gZY id deZgViZ dc V ''%K
edlZghjeeanX^gXj^ii]Vi]VhVkZg^[^ZY\gdjcYVcY
bZZihi]Z[daadl^c\gZfj^gZbZcih/
Nominal Voltage .............................. 220V/240V
Cycle ..........................................................60 Hz
Phase ........................................... Single-Phase
Circuit Rating ...................................... 20 Amps
Plug/Receptacle ............................. NEMA 6-20
Circuit Requirements for 110V
I]^h bVX]^cZ XVc WZ XdckZgiZY id deZgViZ dc V
&&%KedlZghjeeangZ[ZgidVoltage Conversion
^chigjXi^dchi]Vi]VhVkZg^[^ZY\gdjcYVcYbZZih
i]Z[daadl^c\gZfj^gZbZcih/
Nominal Voltage ...............................110V/120V
Cycle ..........................................................60 Hz
Phase ........................................... Single-Phase
Circuit Rating ...................................... 20 Amps
Plug/Receptacle ............................. NEMA 5-20

BdYZa<%,&*EB[\#)$&& "&("
>begdeZgXdccZXi^dcd[i]ZZfj^ebZci"\gdjcY^c\
l^gZ XVc gZhjai ^c V g^h` d[ ZaZXig^X h]dX`# I]Z
l^gZl^i] \gZZc^chjaVi^dcl^i]dgl^i]dji nZaadl
hig^eZh^hi]ZZfj^ebZci"\gdjcY^c\l^gZ#>[gZeV^g
dggZeaVXZbZcid[i]ZedlZgXdgYdgeaj\^hcZX"
ZhhVgn!YdcdiXdccZXii]ZZfj^ebZci"\gdjcY^c\
l^gZidVa^kZXjggZciXVggn^c\iZgb^cVa#
8]ZX`l^i]VfjVa^[^ZYZaZXig^X^VcdghZgk^XZeZg"
hdccZa^[ndjYdcdijcYZghiVcYi]ZhZ\gdjcY^c\
gZfj^gZbZcih!dg^[ndjVgZ^cYdjWiVWdjil]Zi]Zg
i]Z idda ^h egdeZgan \gdjcYZY# >[ ndj ZkZg cdi^XZ
i]ViVXdgYdgeaj\^hYVbV\ZYdgldgc!Y^hXdc"
cZXi^i[gdbedlZg!VcY^bbZY^ViZangZeaVXZ^il^i]
VcZldcZ#
Extension Cords
LZ Yd cdi gZXdbbZcY jh^c\ Vc ZmiZch^dc XdgY
l^i] i]^h bVX]^cZ# >[ ndj bjhi jhZ Vc ZmiZch^dc
XdgY!dcanjhZ^i^[VWhdajiZancZXZhhVgnVcYdcan
dcViZbedgVgnWVh^h#
:miZch^dcXdgYhXVjhZkdaiV\ZYgde!l]^X]bVn
YVbV\ZZaZXig^XVaXdbedcZcihVcYh]dgiZcbdidg
a^[Z#KdaiV\ZYgde^cXgZVhZhVhi]ZZmiZch^dcXdgY
h^oZ\Zihadc\ZgVcYi]Z\Vj\Zh^oZ\ZihhbVaaZg
]^\]Zg\Vj\ZcjbWZgh^cY^XViZhbVaaZgh^oZh#
6cnZmiZch^dcXdgYjhZYl^i]i]^hbVX]^cZbjhi
XdciV^c V \gdjcY l^gZ! bViX] i]Z gZfj^gZY eaj\
VcY gZXZeiVXaZ! VcY bZZi i]Z [daadl^c\ gZfj^gZ"
bZcih/
Minimum Gauge Size ...........................12 AWG
Maximum Length (Shorter is Better).......50 ft.
Grounding Requirements
I]^h bVX]^cZ BJHI WZ \gdjcYZY# >c i]Z ZkZci
d[XZgiV^cbVa[jcXi^dchdgWgZV`Ydlch!\gdjcY^c\
gZYjXZhi]Z g^h`d[ZaZXig^X h]dX`Wnegdk^Y^c\V
e
Vi]d[aZVhigZh^hiVcXZ[dgZaZXig^XXjggZci#
Figure 3. Ine^XVa*"'%eaj\VcYgZXZeiVXaZ#
<gdjcY^c\Egdc\
=di CZjigVa
5-20 PLUG
GROUNDED
5-20 RECEPTACLE
Figure 2. Ine^XVa+"'%eaj\VcYgZXZeiVXaZ#
<gdjcY^c\Egdc\
8jggZci8Vggn^c\Egdc\h
6-20 PLUG
GROUNDED
6-20 RECEPTACLE
Serious injury could occur if you connect
the machine to power before completing the
setup process. DO NOT connect to power
until instructed later in this manual.
For 220V operation: I]^h bVX]^cZ ^h Zfj^eeZY
l^i]VedlZgXdgYi]Vi]VhVcZfj^ebZci"\gdjcY"
^c\l^gZVcYV\gdjcY^c\eaj\hZZ[daadl^c\[^\"
jgZ#I]Zeaj\bjhidcanWZ^chZgiZY^cidVbViX]"
^c\ gZXZeiVXaZ djiaZi i]Vi ^h egdeZgan ^chiVaaZY
VcY\gdjcYZY^cVXXdgYVcXZl^i]VaaadXVaXdYZh
V
c
Y
d
g
Y
^c
V
c
XZh
#
For 110V operation:I]Zeaj\heZX^[^ZYjcYZg
¸8^gXj^i GZfj^gZbZcih [dg &&%K¹ dc i]Z egZk^"
djh eV\Z ]Vh V \gdjcY^c\ egdc\ i]Vi bjhi WZ
ViiVX]ZYid i]ZZfj^ebZci"\gdjcY^c\ l^gZ^ch^YZ
i]Z^cXajYZYedlZgXdgY#I]Zeaj\bjhidcanWZ
^chZgiZY ^cid V bViX]^c\ gZXZeiVXaZ hZZ WZadl
i]Vi ^h egdeZgan ^chiVaaZY VcY \gdjcYZY ^c VXXdg"
YV
c
XZ
l^i]
V
aaa
dXV
a
XdYZh
V
c
Y
d
g
Y
^c
V
c
XZh
#

"&)" BdYZa<%,&*EB[\#)$&&
Voltage Conversion
I]^h hZXi^dc h]dlh ]dl id XdckZgi i]Z BdYZa
<%,&*E[gdb''%Kid&&%K#I]Zeaj\cZZYZY[dg
i]^hXdckZgh^dcXVcWZejgX]VhZYViVcnadXVa
]VgYlVgZhidgZdgZaZXig^XVahjeeanhidgZ#I]ZX^g"
Xj^iWgZV`ZgbjhiWZejgX]VhZY[gdb<g^ooan#
Items Needed Qty
E]^aa^eh=ZVYHXgZlYg^kZg'##################### &
C:B6*"'%Eaj\######################################### &
8^gXj^i7gZV`Zg'%6E%,&*E'%)"&########### &
5. 8adhZVcYhZXjgZi]Zbdidg_jcXi^dcWdm#
6. GZbdkZ i]Z hiVgi$hide hl^iX] Wdm [gdb i]Z
hl^iX]bdjci^c\eaViZ#
7. GZeaVXZ i]Z egZ"^chiVaaZY &% Vbe X^gXj^i
WgZV`ZghZZFigure 6l^i]V'%VbeX^gXj^i
WgZV`ZgeVgiE%,&*E'%)"&!i]ZcgZ"^chiVaa
i]ZhiVgi$hidehl^iX]#
NOTICE
This manual was current at the time of print-
ing; however, if the wiring diagram provided
on the inside cover of the motor junction
box conflicts with this manual, always use
that wiring diagram instead, as it will accu-
rately reflect any changes that may have
occurred after printing.
Converting G0715P to 110V
1. 9>H8DCC:8IH6L;GDBEDL:G
2. 8ji d[[ i]Z egZ"^chiVaaZY +"'% eaj\ [gdb i]Z
ZcYd[i]ZedlZgXdgY#
3. DeZci]Zbdidg_jcXi^dcWdm!i]ZcaddhZci]Z
hXgZlh^cY^XViZY^cFigure 4#
Figure 4.AdXVi^dcd[hXgZlhidWZaddhZcZY#
BdidgEgZl^gZY
[dg''%K
<gdjcYcY
AddhZc
I]ZhZ
HXgZlh
8ZciZg
?jbeZgh
4. GZbdkZ i]Z ild XZciZg _jbeZgh i]Zn VgZ
hiVX`ZYid\Zi]Zg!gZedh^i^dci]ZbVhh]dlc
^cFigure5!i]Zci^\]iZci]Z[djghXgZlhaddh"
ZcZY^cStep 2#
Figure 5.GZadXViZY_jbeZgh#
BdidgGZl^gZY
[dg&&%K
BdidgEg
Z
[dg''%K
<gdjcY
CZl?jbeZg
AdXVi^dc
8^gXj^i
7gZV`Zg
Figure 6.AdXVi^dcd[X^gXj^iWgZV`Zg#
8. >chiVaa V *"'% eaj\ dc i]Z ZcY d[ i]Z XdgY!
VXXdgY^c\idi]Z^chigjXi^dchVcY l^g^c\Y^V"
\gVbhegdk^YZYWni]Zeaj\bVcj[VXijgZg#
·>[ i]Z eaj\ bVcj[VXijgZg Y^Y cdi ^cXajYZ
^chigjXi^dch!i]Zl^g^c\d[V\ZcZg^XC:B6
*"'% eaj\ ^h ^aajhigViZY ^c i]Z Wiring hZX"
i^dc!hiVgi^c\dcPage 72#

BdYZa<%,&*EB[\#)$&& "&*"
Wear safety glasses dur-
ing the entire setup pro-
cess!
This machine presents
serious injury hazards
to untrained users. Read
through this entire manu-
al to become familiar with
the controls and opera-
tions before starting the
machine!
SECTION 3: SETUP
Needed for Setup
I]Z [daadl^c\ VgZ cZZYZY id XdbeaZiZ i]Z hZije
egdXZhh!WjiVgZcdi^cXajYZYl^i]i]ZbVX]^cZ/
Description Qty
HV[Zin<aVhhZh[dg:VX]EZghdc################ &
9Z\gZVhZgdgHdakZci[dg8aZVc^c\##### KVg^Zh
GV\h[dg8aZVc^c\############################### KVg^Zh
HigV^\]iZY\Z############################################### &
AZkZa########################################################### &
9jhi8daaZXi^dcHnhiZb############################## &
)9jhi=dhZ############################################## &
)=dhZ8aVbe########################################### &
6cdi]ZgEZghdc[dgA^[i^c\########################## &
CZZYaZCdhZEa^Zgh#################################### &
LgZcX]dgHdX`Zi&,bb############################ &
LgZcX]dgHdX`Zi&)bb############################ &
LgZcX]dgHdX`Zi&%bb############################ &
6Y_jhiVWaZLgZcX]##################################### &
This machine and its com-
ponents are very heavy.
Get lifting help or use
power lifting equipment
such as a forklift to move
heavy items.
Ndjg bVX]^cZ lVh XVgZ[jaan eVX`V\ZY [dg hV[Z
igVchedgiVi^dc# GZbdkZ i]Z eVX`V\^c\ bViZg^Vah
[gdb VgdjcY ndjg bVX]^cZ VcY ^cheZXi ^i# >[ ndj
Y^hXdkZgVcnYVbV\Z! please call us immediatel
y
at (570) 546-9663for advice.
HVkZi]ZXdciV^cZghVcYVaaeVX`^c\bViZg^Vah[dg
edhh^WaZ ^cheZXi^dc Wn i]Z XVgg^Zg dg ^ih V\Zci#
Otherwise, filing a freight claim can be difficult.
L]ZcndjVgZXdbeaZiZanhVi^h[^ZYl^i]i]ZXdcY^"
i^dcd[
n
djgh]^ebZci!^ckZcidg
n
i]ZXdciZcih#
Unpacking
SUFFOCATION HAZARD!
Keep children and pets away
from plastic bags or packing
materials unpacked with this
machine. Discard immediately.

"&+" BdYZa<%,&*EB[\#)$&&
Hardware Recognition Chart

BdYZa<%,&*EB[\#)$&& "&,"
Inventory
I]Z[daadl^c\^hVYZhXg^ei^dcd[i]ZbV^cXdbed"
cZcihh]^eeZYl^i]ZVX]BdYZa<%,&*E#AVni]Z
XdbedcZcihdjiid^ckZcidgni]Zb#
Note: If you can't find an item on this list, check
the mounting location on the machine or examine
the packaging materials carefully. Occasionally
we pre-install certain components for shipping
purposes.
>[ Vcn cdcegdeg^ZiVgn eVgih VgZ b^hh^c\ Z#\# V
cjidgVlVh]Zg!lZl^aa\aVYangZeaVXZi]Zb0dg
[dgi]ZhV`Zd[ZmeZY^ZcXn!gZeaVXZbZcihXVcWZ
dWiV^cZYVindjgadXVa]VgYlVgZhidgZ#
Box Contents: (Figures 7–9) Qty
A. BV^cIVWaZHVlJc^i################################## &
B. :miZch^dcL^c\h######################################## '
C. HVl7aVYZ&%m)%I################################## &
D. LgZcX],¿&+$&(bb###################################### &
E. 6gWdgLgZcX]')bb################################## &
F. Bdidg9ddg################################################# &
G. 7aVYZ<jVgY6hhZbWan############################## &
H. G^k^c\@c^[Z################################################ &
I. Ejh]Hi^X`################################################## &
J. =VcYl]ZZa=VcYaZh################################### '
K. B^iZg<Vj\Z################################################ &
L. =ZmLgZcX]+"E^ZXZHZi'#*"-bb############ &
M. 9VYdIVWaZ>chZgi####################################### &
Hardware (Not Shown) Qty
8VeHXgZlB*"#-m&'BV\Hl^iX]################# '
AdX`LVh]Zgh*bbBV\Hl^iX]##################### '
;aViLVh]Zgh*bbBV\Hl^iX]###################### '
Figure 7.BV^ciVWaZhVljc^i#
Figure 9. 8dbedcZci^ckZcidgn#
Figure 8.:miZch^dcl^c\h#
6
7
B
A
8
9
:
;
=
?
>
@
<

"&-" BdYZa<%,&*EB[\#)$&&
Hardware and Tools (Not Shown) Qty
;aVi=YHXgZlhB-"&#'*m(*;gdciGV^a$IVWaZ)
;aViLVh]Zgh-bb;gdciGV^a$IVWaZ################ )
AdX`LVh]Zgh-bb;gdciGV^a$IVWaZ############## )
=ZmCjihB-"&#'*;gdciGV^a$IVWaZ################# )
8VeHXgZlhB+"&m&+;gdciGV^a$IjWZ########## *
;aViLVh]Zgh+bb;gdciGV^a$IjWZ################ *
AdX`LVh]Zgh;gdciGV^a$IjWZ######################## *
8VeHXgZlhB&%"&#*m'*GZVgGV^a$IVWaZ##### '
;aViLVh]Zgh&%bbGZVgGV^a$IVWaZ############## '
AdX`LVh]Zgh&%bbGZVgGV^a$IVWaZ############# '
8VeHXgZlhB-"&#'*m(*GZVgGV^a$L^c\##### '
=ZmCjihB-"&#'*GZVgGV^a$L^c\################## '
;aViLVh]Zgh-bbGZVgGV^a$L^c\################# '
AdX`LVh]Zgh-bbGZVgGV^a$L^c\############### '
Figure 10.>ckZcidgncZZYZYid^chiVaai]Z[ZcXZ
dci]ZBdYZa<%,&*E#
Components Qty
N. ;gdciGV^aIjWZ*-##################################### &
O. ;gdciGV^aIVeZHXVaZ################################# &
P. GZVgGV^a*()"=daZh############################## &
Q. ;gdciGV^a*(&%"=daZh############################ &
R. ;ZcXZ6hhZbWan######################################### &
C
F
E
G
D

BdYZa<%,&*EB[\#)$&& "&."
I]Z jceV^ciZY hjg[VXZh d[ ndjg bVX]^cZ VgZ
XdViZY l^i] V ]ZVkn"Yjin gjhi egZkZciVi^kZ i]Vi
egZkZcihXdggdh^dc Yjg^c\h]^ebZciVcYhidgV\Z#
I]^hgjhiegZkZciVi^kZldg`hZmigZbZanlZaa!Wji^i
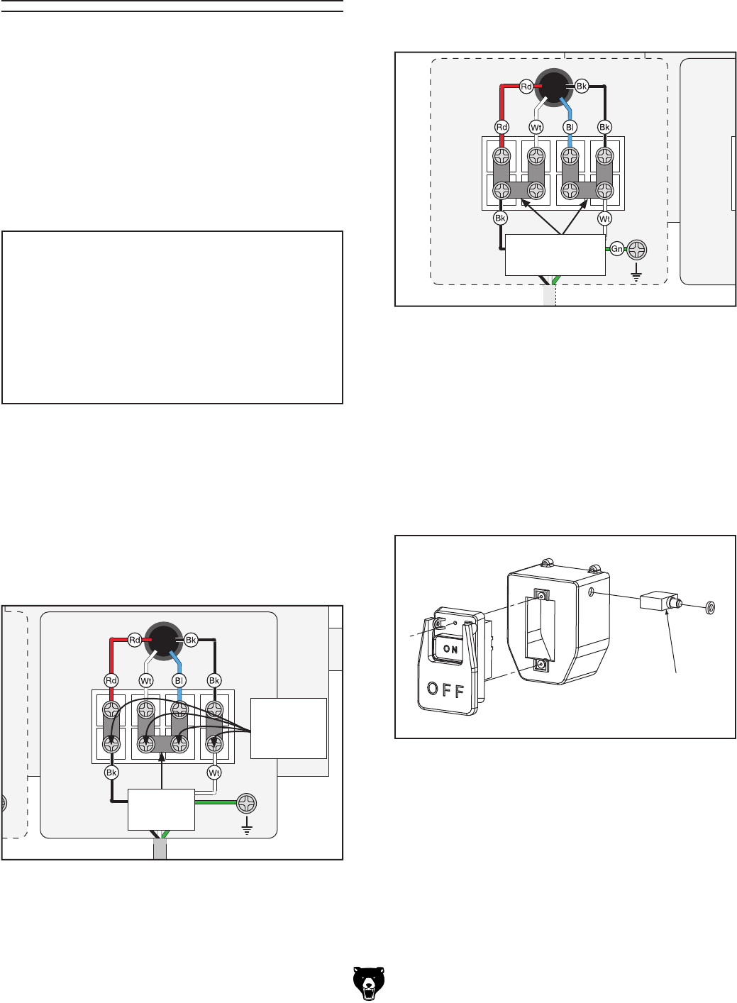
l^aaiV`ZVa^iiaZi^bZidXaZVc#
7ZeVi^ZciVcYYdVi]dgdj\]_dWXaZVc^c\ndjg
bVX]^cZ#I]Zi^bZndjheZcYYd^c\i]^hcdll^aa
\^kZndjVWZiiZgVeegZX^Vi^dc[dgi]ZegdeZgXVgZ
d[ndjgbVX]^cZhjceV^ciZYhjg[VXZh#
I]ZgZVgZbVcnlVnhidgZbdkZi]^hgjhiegZkZc"
iVi^kZ!Wjii]Z[daadl^c\hiZehldg`lZaa^cVl^YZ
kVg^Zin d[ h^ijVi^dch# 6alVnh [daadl i]Z bVcj[VX"
ijgZg»h^chigjXi^dchl^i]VcnXaZVc^c\egdYjXindj
jhZVcYbV`ZhjgZndjldg`^cVlZaa"kZci^aViZY
VgZVidb^c^b^oZZmedhjgZididm^X[jbZh#
Before cleaning, gather the following:
9^hedhVWaZGV\h
8aZVcZg$YZ\gZVhZgL9)%ldg`hlZaa
HV[Zin\aVhhZhY^hedhVWaZ\adkZh
EaVhi^XeV^cihXgVeZgdei^dcVa
Basic steps for removing rust preventative:
1. EjidchV[Zin\aVhhZh#
2. 8dVi i]Z gjhi egZkZciVi^kZ l^i] V a^WZgVa
Vbdjcid[XaZVcZg$YZ\gZVhZg!i]ZcaZi^ihdV`
[dg*¶&%b^cjiZh#
3. L^eZd[[i]Zhjg[VXZh#>[ndjgXaZVcZg$YZ\gZVh"
Zg^hZ[[ZXi^kZ!i]ZgjhiegZkZciVi^kZl^aal^eZ
d[[ZVh^an#>[ndj]VkZVeaVhi^XeV^cihXgVeZg!
hXgVeZd[[VhbjX]VhndjXVc[^ghi!i]Zcl^eZ
d[[i]ZgZhil^i]i]ZgV\#
4. GZeZViSteps 2–3VhcZXZhhVgnjci^aXaZVc!
i]ZcXdViVaajceV^ciZYhjg[VXZhl^i]VfjVa^in
bZiVaegdiZXiVciidegZkZcigjhi#
Gasoline or products
with low flash points can
explode or cause fire if
used to clean machin-
ery. Avoid cleaning with
these products.
Many cleaning solvents
are toxic if concentrat-
ed amounts are inhaled.
Only work in a well-venti-
lated area.
NOTICE
Avoid chlorine-based solvents, such as
acetone or brake parts cleaner, that may
damage painted surfaces. Test all cleaners
in an inconspicuous area before using to
make sure they will not damage paint.
Cleanup

"'%" BdYZa<%,&*EB[\#)$&&
Site Considerations
Figure 11.B^c^bjbldg`^c\XaZVgVcXZh#
2EdlZg8dccZXi^dc
)9jhiEdgi
6XXZhh
9ddg
Hl^c\Vi.%§
B^c#(%
(.
LVaa
++&$'
Weight Load
GZ[Zgidi]ZMachine Data Sheet[dgi]ZlZ^\]i
d[ndjgbVX]^cZ#BV`ZhjgZi]Vii]Zhjg[VXZjedc
l]^X]i]ZbVX]^cZ^heaVXZYl^aaWZVgi]ZlZ^\]i
d[i]ZbVX]^cZ!VYY^i^dcVaZfj^ebZcii]VibVnWZ
^chiVaaZYdci]ZbVX]^cZ!VcYi]Z]ZVk^Zhildg`"
e^ZXZi]Vil^aaWZjhZY#6YY^i^dcVaan!Xdch^YZgi]Z
lZ^\]id[i]ZdeZgVidgVcYVcnYncVb^XadVY^c\
i]VibVndXXjgl]ZcdeZgVi^c\i]ZbVX]^cZ#
Space Allocation
8dch^YZg i]Z aVg\Zhi h^oZ d[ ldg`e^ZXZ i]Vi l^aa
WZ egdXZhhZY i]gdj\] i]^h bVX]^cZ VcY egdk^YZ
Zcdj\]heVXZVgdjcYi]ZbVX]^cZ[dgVYZfjViZ
deZgVidg bViZg^Va ]VcYa^c\ dg i]Z ^chiVaaVi^dc d[
Vjm^a^VgnZfj^ebZci#L^i]eZgbVcZci^chiVaaVi^dch!
aZVkZZcdj\]heVXZVgdjcYi]ZbVX]^cZiddeZc
dggZbdkZYddgh$XdkZghVhgZfj^gZYWni]ZbV^c"
iZcVcXZ VcY hZgk^XZ YZhXg^WZY ^c i]^h bVcjVa#
See below for required space allocation.
Physical Environment
I]Z e]nh^XVa Zck^gdcbZci l]ZgZ ndjg bVX]^cZ
^hdeZgViZY^h^bedgiVci[dghV[ZdeZgVi^dcVcY
i]Zadc\Zk^ind[^ihXdbedcZcih#;dgWZhigZhjaih!
deZgViZi]^hbVX]^cZ^cVYgnZck^gdcbZcii]Vi^h
[gZZ [gdb ZmXZhh^kZ bd^hijgZ! ]VoVgYdjh X]Zb^"
XVah! V^gWdgcZ VWgVh^kZh! dg ZmigZbZ XdcY^i^dch#
:migZbZXdcY^i^dch[dgi]^hineZd[bVX]^cZgnVgZ
\ZcZgVaan i]dhZ l]ZgZ i]Z VbW^Zci iZbeZgVijgZ
gVc\Z ZmXZZYh )&¶&%);0 i]Z gZaVi^kZ ]jb^Y^in
gVc\ZZmXZZYh'%¶.*cdc"XdcYZch^c\0dgi]Z
Zck^gdcbZci ^h hjW_ZXi id k^WgVi^dc! h]dX`h! dg
Wjbeh#
Electrical Installation
EaVXZi]^hbVX]^cZcZVgVcZm^hi^c\edlZghdjgXZ#
BV`Z hjgZ Vaa edlZg XdgYh VgZ egdiZXiZY [gdb
igV[[^X! bViZg^Va ]VcYa^c\! bd^hijgZ! X]Zb^XVah!
dgdi]Zg]VoVgYh#BV`ZhjgZidaZVkZVXXZhhid
V bZVch d[ Y^hXdccZXi^c\ i]Z edlZg hdjgXZ dg
Zc\V\^c\VadX`dji$iV\djiYZk^XZ#
Lighting
A^\]i^c\ VgdjcY i]Z bVX]^cZ bjhi WZ VYZfjViZ
Zcdj\]i]VideZgVi^dchXVcWZeZg[dgbZYhV[Zan#
H]VYdlh!\aVgZ!dghigdWZZ[[ZXihi]VibVnY^higVXi
dg^beZYZi]ZdeZgVidgbjhiWZZa^b^cViZY#
Children or untrained people
may be seriously injured by
this machine. Only install in an
access restricted location.

BdYZa<%,&*EB[\#)$&& "'&"
Assembly 4. I]gZVY ZVX] d[ i]Z ]VcYaZh dcid i]Z
]VcYl]ZZah!i]Zci^\]iZci]Zbl^i]V&)bb
lgZcX]hZZFigure 14#
Figure 14.=VcYl]ZZa^chiVaaZY#
=VcYaZ
5. GZbdkZ i]Z h^m XVe hXgZlh! [aVi lVh]Zgh!
VcYadX`lVh]Zgh[gdbWdi]h^YZhd[i]ZbV^c
iVWaZ#
6. >cheZXi i]Z ZmiZch^dc l^c\h VcY bV^c iVWaZ
bVi^c\hjg[VXZh[dgWjgghdg[dgZ^\cbViZg^Vah
i]VibVn^c]^W^iVhhZbWan#
;dgVXdggZXi[^i!i]ZbVi^c\ZY\Zhd[i]ZiVWaZ
VcYl^c\hbjhiWZXaZVc!hbddi]!VcY[aVi#>[
cZXZhhVgn!jhZVl^gZWgjh]dg[^aZidgZbdkZ
Vcn[aVh]^c\!Y^c\h!dg]^\]hedih#
7. L]^aZ V ]ZaeZg ]daYh i]Z l^c\h ^c eaVXZ!
ViiVX]ZVX]ZmiZch^dcl^c\idi]ZbV^ciVWaZ
l^i] i]Z i]gZZ B&%"&#* m '* XVe hXgZlh!
&%bbadX`lVh]Zgh!VcY&%bb[aVilVh]Zgh
gZbdkZY^cStep 5hZZFigure15#
m(
Figure 15.:miZch^dcl^c\h^chiVaaZY#
6hhZbWan Xdch^hih d[ ^chiVaa^c\ b^cdg Xdbed"
cZcih!i]ZZmiZch^dcl^c\h![ZcXZgV^ah![ZcXZ!VcY
WaVYZ\jVgY#
To assemble the table saw:
Figure 13.9ddg^chiVaaZY#
=^c\Z
HdX`Zi
3. 7Z[dgZ Xadh^c\ i]Z Yddg! i]dgdj\]an XaZVc
i]Z ]ZVkn"Yjin gjhi egZkZciVi^kZ d[[ d[ i]Z
\ZVg^c\ ^ch^YZ i]Z hVl VcY XdVi i]ZhZ l^i]
i]Z Veegdeg^ViZ bZiVa egdiZXiVci gZ[Zg id
Lubrication dc Page58 [dg i]Z adXVi^dc d[
\ZVgh#
1. GZbdkZi]Zh]^ee^c\WgVXZhZZFigure 12!
VcYgZ^chiVaai]Z[VhiZcZgh#HVkZi]Zh]^ee^c\
WgVXZ[dgaViZgbVX]^cZigVchedgi#
Figure 12.H]^ee^c\WgVXZadXVi^dc#
2. Ejaai]ZbV\cZi^Xhl^iX]djid[i]ZhVlXVW^"
cZi!VcY^chiVaai]ZYddgWn^chZgi^c\i]ZYddg
e^ch ^cid i]Z ]^c\Z hdX`Zih dc i]Z XVW^cZi
hZZFigure13#

"''" BdYZa<%,&*EB[\#)$&&
8. EaVXZ V higV^\]iZY\Z VXgdhh i]Z ZmiZch^dc
l^c\hVcY bV^ciVWaZ idbV`ZhjgZ i]Vii]Z
XdbW^cZYiVWaZhjg[VXZ^h[aVi#
·>[i]ZXdbW^cZYiVWaZhjg[VXZ^h[aVi!h`^eid
i]ZcZmihiZe#
·>[ i]Z djih^YZ ZcY d[ i]Z ZmiZch^dc l^c\
i^aih Ydlc! eaVXZ V hig^e d[ bVh`^c\ iVeZ
Vadc\i]ZWdiidbZY\Zd[i]ZbV^ciVWaZid
h]^bi]ZZcYd[i]ZZmiZch^dcl^c\jehZZ
Figure 16#
Figure 16.BVh`^c\iVeZadXVi^dc[dgi^ai^c\i]Z
ZmiZch^dcl^c\je#
·>[i]Zdjih^YZZcYd[i]ZZmiZch^dcl^c\i^aih
je!eaVXZVhig^ed[bVh`^c\iVeZVadc\i]Z
ideZY\Zd[i]ZbV^ciVWaZidh]^bi]ZZcY
d[ i]Z ZmiZch^dc l^c\ Ydlc hZZ Figure
17#
Note: After reinstalling wings, remove all
excess masking tape with a razor blade.
Figure 17.BVh`^c\iVeZadXVi^dc[dgVY_jhi^c\
i]ZZmiZch^dcl^c\Ydlc#
9. 6iiVX] i]Z [gdci gV^a id i]Z iVWaZ VcY ZmiZc"
h^dc l^c\h l^i] [djg B-"&#'* m (* [aVi ]ZVY
hXgZlh!-bb [aVilVh]Zgh!-bb adX`lVh]"
Zgh! VcY B-"&#'* ]Zm cjih! Vh h]dlc ^c
Figure 18# BV`Z hjgZ i]Z ide d[ i]Z gV^a ^h
eVgVaaZal^i]i]ZiVWaZideWZ[dgZ[jaani^\]iZc"
^c\i]Z[VhiZcZgh#
10. >chiVaa i]Z [gdci gV^a ijWZ dcid i]Z [gdci gV^a
l^i]i]Z[^kZB+"&m&+XVehXgZlh!+bb[aVi
lVh]Zgh!VcY+bbadX`lVh]Zgh!Vhh]dlc
^cFigure 19#;^c\Zgi^\]iZci]Z[VhiZcZgh#
Figure 19.GZXiVc\jaVgijWZViiVX]ZYid[gdci
gV^a#
m*
Figure 18.;gdcigV^a^chiVaaZY#
:fjVa
11. L]^aZ hiVcY^c\ Vi i]Z [gdci d[ i]Z iVWaZ! ejaa
i]Z gV^a ijWZ idlVgY ndj Vh [Vg Vh edhh^WaZ!
i]Zc [^cVa i^\]iZc i]Z [VhiZcZgh ^chiVaaZY ^c
Step 10# I]^h l^aa ]Zae bV`Z hjgZ i]ZgZ ^h
Zcdj\]gddb[dgi]Z[ZcXZidha^YZ#

BdYZa<%,&*EB[\#)$&& "'("
12. 6iiVX]i]ZgZVggV^aidi]Z]daZhdci]ZbV^c
iVWaZ jh^c\ ild B&%"&#* m '* XVe hXgZlh!
&%bbadX`lVh]Zgh!VcY&%bb[aVilVh]Zgh!
Vhh]dlc^cFigure20#8]ZX`idbV`ZhjgZ
i]ZgZVggV^a^heVgVaaZaidi]ZiVWaZVcYWZadl
i]Z b^iZg hadih WZ[dgZ XdbeaZiZan i^\]iZc^c\
i]ZXVehXgZlh#
Figure 20.GZVggV^a^chiVaaZY#
m'
m'
16. 6Y_jhii]Z[ddiVii]ZgZVgd[i]Z[ZcXZhdi]Vi
i]Z\VeWZilZZci]Z[ZcXZVcYi]ZiVWaZide
^hZkZc[gdb[gdciidWVX`#
17. Ha^YZi]Z[ZcXZjeV\V^chii]Zg^\]i]VcYZY\Z
d[i]Zb^iZghadi!VcYadX`^i^ceaVXZ#:mVb^cZ
]dli]Z[ZcXZa^cZhjel^i]i]Zb^iZghadi#
Note:It is permissible for the back of the
fence to pivot outward not more than 1⁄64" from
being parallel with the miter slot. This creates
a slightly larger opening between the fence
and the blade, at the rear of the blade, to
reduce the risk of workpiece binding or burn-
ing as it is fed through the cut. Many wood-
workers intentionally set up their fence in this
manner. Keep this in mind before adjusting
your fence. For more details, see Figure 117
on Page 69.
Figure 22.8]ZX`^c\[ZcXZeVgVaaZa^hbl^i]
WaVYZ#
;ZcXZ^h
EVgVaaZaid
B^iZgHadi!
l]^X]^h
EVgVaaZaid
7aVYZ
B^iZgHadi
7aVYZ
;ZcXZ
·>[ i]Z [ZcXZ ^h hi^aa eVgVaaZa l^i] i]Z b^iZg
hadi!egdXZZYidStep 18#
·>[ i]Z [ZcXZ ^h cdi eVgVaaZa l^i] i]Z b^iZg
hadi! i]Zc ndj BJHI VY_jhi i]Z [ZcXZ! Vh
YZhXg^WZY^cFence AdjustmentsdcPage
67!hdi]Vi^i^heVgVaaZa#
·>[i]Zb^iZghadi^hcdieVgVaaZal^i]i]ZWaVYZ!
ndjbjhi[daadli]ZegdXZYjgZhYZhXg^WZY
^c Miter Slot to Blade Parallelism dc
Page 63#
13. HZXjgZ i]Z gZVg gV^a id i]Z ZmiZch^dc l^c\h
l^i]ildB-"&#'*m(*XVehXgZlh![djg-bb
[aVilVh]Zgh!ild-bbadX`lVh]Zgh!VcYild
B-"&#'*]Zmcjih#
14. >chiVaa i]Z hVl WaVYZ Vh djia^cZY ^c Blade
InstallationdcPage 31.
Figure 21.;ZcXZ^chiVaaZYdcgV^ah#
8Vb 8Vb
;ddi
15. EaVXZi]Z[ZcXZdci]ZgV^ahdci]Zg^\]i]VcY
h^YZd[i]ZWaVYZ!Vhh]dlc^cFigure 21#
Note: Make sure the cam foot contacts the
cam on the fence lock handle before you
place the fence on the rail; otherwise, the
fence will not lock onto the rail tube.

"')" BdYZa<%,&*EB[\#)$&&
Figure 24.BV\cZi^Xhl^iX]^chiVaaZY#
23. 6iiVX]i]ZbV\cZi^Xhl^iX]idi]ZWdiidbaZ[i"
]VcYh^YZd[i]Z[gdcigV^ajh^c\ildB*"#-m
&'XVehXgZlh!*bbadX`lVh]Zgh!VcY*bb
[aVilVh]Zgh!Vhh]dlc^cFigure 24#
Power Connection
7Z[dgZ i]Z bVX]^cZ XVc WZ XdccZXiZY id i]Z
edlZghdjgXZ!VcZaZXig^XVaX^gXj^ibjhiWZbVYZ
VkV^aVWaZ i]Vi bZZih i]Z b^c^bjb heZX^[^XVi^dch
\^kZc^c i]Z8^gXj^i GZfj^gZbZcihdc Page 12#
>[VedlZgX^gXj^i]VhcdiWZZcegZeVgZY[dgi]Z
bVX]^cZ!Ydi]Vicdl#IdZchjgZVhV[ZVcYXdYZ"
Xdbea^VcihZije!lZhigdc\angZXdbbZcYi]ViVaa
ZaZXig^XValdg`WZYdcZWnVfjVa^[^ZYZaZXig^X^Vc#
To connect to the power supply:
1. BV`Z hjgZ Vaa egZk^djh VhhZbWan VcY hZije
^chigjXi^dch ^c i]^h bVcjVa ]VkZ WZZc Xdb"
eaZiZY#
2. 8aZVgVlVnVaaiddahVcYdW_ZXihjhZYYjg^c\
hZije[gdbi]ZbVX]^cZ#
3. >chZgii]Zeaj\^cidVbViX]^c\gZXZeiVXaZ#
m'
18. 8VgZ[jaanha^YZi]Z[ZcXZhd^iWVgZanidjX]Zh
i]ZhVlWaVYZVcYadX`^i^ceaVXZ#
19. A^\]ian bVg` i]Z % adXVi^dc dc i]Z [ZcXZ
ijWZl^i]VeZcX^a!i]ZcgZbdkZi]Z[ZcXZ#
20. EZZai]ZiVeZ!XVgZ[jaanVa^\ci]Z%bVg`dc
i]ZhXVaZl^i]i]ZeZcX^abVg`ndjbVYZdc
i]Z [ZcXZ ijWZ! VcY bV`Z hjgZ i]Z iVeZ ^h
eVgVaaZaidi]Z[ZcXZijWZVadc\^ihaZc\i]#
21. GZ"^chiVaai]Z[ZcXZ!bdkZ^idkZgid_jhiidjX]
i]ZWaVYZ!VcYkZg^[ni]Vii]Z^cY^XVidga^cZ^h
Y^gZXiandkZgi]Z%bVg`#
·>[ ndj cZZY id XdggZXi i]Z edh^i^dc d[ i]Z
^cY^XVidg a^cZ! addhZc i]Z hXgZlh dc i]Z
ed^ciZgl^cYdl!VY_jhii]Zed^ciZgl^cYdl
hdi]Za^cZ^hdkZgi]Z%bVg`dci]ZiVeZ
hZZFigure 23!i]ZchZXjgZi]ZhXgZlh#
Figure 23.6a^\c^c\gV^aiVeZl^i]hXVaZed^ciZg#
8Ve
HXgZlh
Ed^ciZg
L^cYdl
A^cZ
22. >chiVaa i]Z WaVYZ \jVgY Vh djia^cZY dc Page
32.

BdYZa<%,&*EB[\#)$&& "'*"
Figure 25.9jhi]dhZViiVX]ZYidYjhiedgi#
DO NOT operate the Model G0715P without
an adequate dust collection system. This
saw creates substantial amounts of wood
dust while operating. Failure to use a dust
collection system can result in short and
long-term respiratory illness.
Recommended CFM at Dust Port: 400 CFM
Do not confuse this CFM recommendation with
the rating of the dust collector. To determine the
CFM at the dust port, you must consider these
variables: (1) CFM rating of the dust collector,
(2) hose type and length between the dust col-
lector and the machine, (3) number of branches
or wyes, and (4) amount of other open lines
throughout the system. Explaining how to cal-
culate these variables is beyond the scope of
this manual. Consult an expert or purchase a
good dust collection "how-to" book.
Dust Collection To connect a dust collection hose:
1. ;^i V ) Yjhi ]dhZ dkZg i]Z Yjhi edgi! Vh
h]dlc ^c Figure 25! VcY i^\]ian hZXjgZ ^i ^c
eaVXZl^i]V]dhZXaVbe#
2. Ij\i]Z]dhZidbV`ZhjgZ^iYdZhcdiXdbZ
d[[# Note: A tight fit is necessary for proper
performance.
Components and Hardware Needed: Qty
9jhi=dhZ)cdi^cXajYZY###############################&
=dhZ8aVbeh)cdi^cXajYZY##########################'
9jhi8daaZXi^dcHnhiZbcdi^cXajYZY###############&

"'+" BdYZa<%,&*EB[\#)$&&
Test Run
DcXZ i]Z VhhZbWan ^h XdbeaZiZ! iZhi gjc ndjg
bVX]^cZ id bV`Z hjgZ ^i gjch egdeZgan VcY ^h
gZVYn[dggZ\jaVgdeZgVi^dc#
I]Z iZhi gjc Xdch^hih d[ kZg^[n^c\ i]Z [daadl^c\/
&I]Zbdidg edlZghjeVcYgjchXdggZXian!VcY
'i]ZhV[ZinY^hVWa^c\bZX]Vc^hbdci]Zhl^iX]
ldg`hXdggZXian#
>[! Yjg^c\ i]Z iZhi gjc! ndj XVccdi ZVh^an adXViZ
i]ZhdjgXZd[VcjcjhjVacd^hZdgk^WgVi^dc!hide
jh^c\ i]Z bVX]^cZ ^bbZY^ViZan! i]Zc gZk^Zl
TroubleshootingdcPage 59#>[ndjhi^aaXVccdi
gZbZYn V egdWaZb! XdciVXi djg IZX] Hjeedgi Vi
*,%*)+".++([dgVhh^hiVcXZ#
To test run the machine:
1. BV`ZhjgZndj]VkZgZVYi]ZhV[Zin^chigjX"
i^dchVii]ZWZ\^cc^c\d[i]ZbVcjVaVcYi]Vi
i]ZbVX]^cZ^hhZijeegdeZgan#
2. BV`Z hjgZ i]Z bVX]^cZ ]Vh WZZc XdccZXi"
ZY id i]Z edlZg! Vh YZhXg^WZY ^c Power
ConnectiondcPage 24#
3. KZg^[ni]Vii]ZbVX]^cZ^hdeZgVi^c\XdggZXian
Wnijgc^c\i]ZbVX]^cZON#
·L]Zc deZgVi^c\ XdggZXian! i]Z bVX]^cZ
gjchhbddi]an l^i]a^iiaZ dgcdk^WgVi^dcdg
gjWW^c\cd^hZh#
·>ckZhi^\ViZVcYXdggZXihigVc\ZdgjcjhjVa
cd^hZh dg k^WgVi^dch WZ[dgZ deZgVi^c\ i]Z
bVX]^cZ [jgi]Zg# 6alVnh Y^hXdccZXi i]Z
bVX]^cZ[gdbedlZgl]Zc^ckZhi^\Vi^c\dg
XdggZXi^c\ediZci^VaegdWaZbh#
4. Ijgci]ZbVX]^cZOFF#
5. >chZgi i]Z hl^iX] Y^hVWa^c\ e^c i]gdj\] i]Z
\gZZc HI6GI Wjiidc! Vh h]dlc ^c Figure
26#
;dg ndjg XdckZc^ZcXZ! i]Z VY_jhibZcih a^hiZY
WZadl]VkZWZZceZg[dgbZYVii]Z[VXidgnVcYcd
[jgi]ZghZije^hgZfj^gZYiddeZgViZi]^hbVX]^cZ#
=dlZkZg!WZXVjhZd[i]ZbVcnkVg^VWaZh^ckdakZY
l^i]h]^ee^c\!lZgZXdbbZcYi]VindjkZg^[ni]Z
[daadl^c\VY_jhibZcihidZchjgZi]Vii]^hhVlXjih
hV[ZanVcYVXXjgViZan#
HiZe"Wn"hiZe ^chigjXi^dch [dg i]ZhZ VY_jhibZcih
XVcWZ[djcY^cSECTION 7: SERVICE#
Adjustments that should be verified:
1. 7aVYZI^aiHide6XXjgVXnPage 61#
2. B^iZgHadiEVgVaaZaid7aVYZPage 63#
3. HegZVYZg$G^k^c\@c^[Z6a^\cbZciPage 66#
Recommended
Adjustments
6. EgZhh i]Z \gZZc HI6GI Wjiidc id iZhi i]Z
Y^hVWa^c\[ZVijgZdci]Zhl^iX]#
·>[ i]Z bVX]^cZ YdZh cdi hiVgi! i]Z hl^iX]
Y^hVWa^c\[ZVijgZ^hldg`^c\VhYZh^\cZY#
·>[i]ZbVX]^cZhiVgih!^bbZY^ViZanhidei]Z
bVX]^cZ# I]Z hl^iX] Y^hVWa^c\ [ZVijgZ ^h
cdi ldg`^c\ XdggZXian# I]^h hV[Zin [ZVijgZ
bjhildg`egdeZganWZ[dgZegdXZZY^c\l^i]
gZ\jaVg deZgVi^dch# 8Vaa IZX] Hjeedgi [dg
]Zae#
DC$HI6GI
7jiidc
E^c
D;;$HIDE
EVYYaZ
Figure 26.:mVbeaZd[hl^iX]Y^hVWa^c\e^c
^chZgiZY^cidHI6GIWjiidc#

BdYZa<%,&*EB[\#)$&& "',"
SECTION 4: OPERATIONS
Damage to your eyes, lungs, and hearing
could result from using this machine without
proper protective gear. Always wear safety
glasses, a respirator, and hearing protection
when operating this machine.
For Your Own Safety Read Instruction
Manual Before Operating Saw
a) Wear eye protection.
b) Use saw-blade guard and riving knife for
every operation for which it can be used,
including all through sawing.
c) Keep hands out of the line of saw blade.
d) Use a push-stick when required.
e) Pay particular attention to instructions
on reducing risk of kickback.
f) Do not perform any operation freehand.
g) Never reach around or over saw blade.
NOTICE
If you have never used this type of machine
or equipment before, seek training from an
experienced machine operator or read "how
to" books before beginning any projects.
Regardless of the content in this section,
Grizzly Industrial will not be held liable for
accidents caused by lack of training.
To reduce the risk of
serious injury when using
this machine, read and
understand this entire
manual before beginning
any operations.
Operation Overview
To complete a typical operation, the operator
does the following:
1. :mVb^cZh i]Z ldg`e^ZXZ id bV`Z hjgZ ^i ^h
hj^iVWaZ[dgXjii^c\#
2. 6Y_jhihi]ZWaVYZi^ai!^[cZXZhhVgn!idi]ZXdg"
gZXiVc\aZ[dgi]ZYZh^gZYXji#
3. ;dgI]gdj\]8jih!VY_jhihi]ZWaVYZ]Z^\]i
cdbdgZi]Vc&¿)]^\]Zgi]Vci]Zi]^X`cZhhd[
i]Zldg`e^ZXZ#
4. 6Y_jhihi]Z[ZcXZidi]ZYZh^gZYl^Yi]d[Xji!
i]ZcadX`h^i^ceaVXZ#
5. 8]ZX`h i]Z dji[ZZY h^YZ d[ i]Z bVX]^cZ
[dg egdeZg hjeedgi VcY id bV`Z hjgZ i]Z
ldg`e^ZXZXVchV[ZaneVhhVaai]ZlVni]gdj\]
i]ZWaVYZl^i]dji^ciZg[ZgZcXZ#
6. Ejih dc hV[Zin \aVhhZh VcY V gZhe^gVidg#
AdXViZhejh]hi^X`h$WadX`h^[cZZYZY#
7. HiVgihi]ZhVl#
8. ;ZZYhi]Zldg`e^ZXZVaai]ZlVni]gdj\]i]Z
WaVYZl]^aZbV^ciV^c^c\[^gbegZhhjgZdci]Z
ldg`e^ZXZ V\V^chi i]Z iVWaZ VcY [ZcXZ! VcY
`ZZe^c\ ]VcYh VcY [^c\Zgh dji d[ i]Z WaVYZ
eVi]VcYVlVn[gdbi]ZWaVYZ#
9. Hidehi]ZbVX]^cZ^bbZY^ViZanV[iZgi]ZXji
^hXdbeaZiZ#
I]Z ejgedhZ d[ i]^h dkZgk^Zl ^h id egdk^YZ i]Z
cdk^XZbVX]^cZdeZgVidgl^i]VWVh^XjcYZghiVcY"
^c\ d[ ]dl i]Z bVX]^cZ ^h jhZY Yjg^c\ V ine^XVa
deZgVi^dc!hdi]ZXdcigdah$XdbedcZcihY^hXjhhZY
aViZg^ci]^hbVcjVaVgZZVh^ZgidjcYZghiVcY#
9jZ id i]Z \ZcZg^X cVijgZ d[ i]^h dkZgk^Zl! ^i ^h
cdi^ciZcYZYidWZVc^chigjXi^dcVa\j^YZ#IdaZVgc
bdgZ VWdji heZX^[^X deZgVi^dch! gZVY i]^h Zci^gZ
bVcjVa!gZVY]dlidWdd`h!VcYhZZ`VYY^i^dcVa
igV^c^c\[gdbZmeZg^ZcXZYbVX]^cZdeZgVidgh#

"'-" BdYZa<%,&*EB[\#)$&&
Figure 27#HI6GI$HIDEhl^iX]#
Hl^iX]
Basic Controls
START/STOP Switch: HiVgihVcYhidehi]Z
bdidg# HI6GI Wjiidc ]Vh V ]daZ i]gdj\] ^i i]Vi
XVcVXXdbbdYViZVeVYadX`idY^hVWaZi]Zhl^iX]
V\V^chijcVji]dg^oZYjhV\Z#
Blade Tilt: Id VY_jhi i]Z WaVYZ i^ai! addhZc i]Z
WaVYZ i^ai adX`! ijgc i]Z WaVYZ i^ai ]VcYl]ZZa id
edh^i^dc i]Z WaVYZ Vi i]Z YZh^gZY Vc\aZ! i]Zc
i^\]iZci]ZadX`h]dlc^cFigure28#
Blade Height/IdhZii]ZWaVYZ]Z^\]i!jcadX`i]Z
WaVYZ]Z^\]i adX`! ijgci]Z ]VcYl]ZZaid hZii]Z
WaVYZ ]Z^\]i Veegdm^bViZan &¿) ]^\]Zg i]Vc i]Z
ldg`e^ZXZ[dgi]gdj\]Xjihdcan!i]ZcgZ"i^\]iZc
i]ZWaVYZ]Z^\]iadX`#
Fence Lock: 6[iZg VY_jhi^c\ i]Z [ZcXZ id i]Z
YZh^gZYl^Yi]d[Xji!adX`^i^ceaVXZWn[^gbanejh]"
^c\i]Z[ZcXZadX`Ydlcjci^a^ihideh#
Non-Through &
Through Cuts
:mVbeaZh d[ cdc"i]gdj\] Xjih ^cXajYZ YVYdZh
VcYgVWWZih#Cdc"i]gdj\]Xjih]VkZV]^\]Zgg^h`
d[^c_jgn[gdb`^X`WVX`WZXVjhZi]ZWaVYZ\jVgY
bjhiWZgZbdkZY#=dlZkZg!i]Zg^k^c\`c^[ZBJHI
WZ^chiVaaZYWZXVjhZ^ihi^aaegdk^YZhhdbZegdiZX"
i^dc#L]ZcbV`^c\cdc"i]gdj\]Xjihl^i]VYVYd
WaVYZ!YdcdiViiZbeiidXjii]Z[jaaYZei]^cdcZ
eVhh#>chiZVY!iV`Zbjai^eaZa^\]ieVhhZhidgZYjXZ
i]ZadVYdci]ZWaVYZ#6YVYdWaVYZhbVaaZgi]Vc
&%"l^aagZfj^gZgZbdkVad[i]Zg^k^c\`c^[Z!WZXVjhZ
i]Zg^k^c\`c^[Zl^aaWZ]^\]Zgi]Vci]ZWaVYZ#
Non-Through Cuts
Figure 29.:mVbeaZd[Vcdc"i]gdj\]Xji#
6 cdc"i]gdj\] Xji ^h V hVl^c\ deZgVi^dc l]ZgZ
i]ZWaVYZYdZhcdiegdigjYZVWdkZi]Zide[VXZd[
i]ZlddYhidX`!Vhh]dlc^ci]ZFigureWZadl#
Figure 30.:mVbeaZd[Vi]gdj\]XjiWaVYZ
\jVgYcdih]dlc[dg^aajhigVi^kZXaVg^in#
Through Cuts
6i]gdj\]Xji^hVhVl^c\deZgVi^dc^cl]^X]i]Z
ldg`e^ZXZ^hXdbeaZiZanhVlci]gdj\]!Vhh]dlc
^ci]ZFigureWZadl#:mVbeaZhd[i]gdj\]XjihVgZ
g^eXjih!XgdhhXjih!b^iZgXjih!VcYWZkZaZYXjih#
I]ZWaVYZ\jVgYVhhZbWanBJHIWZjhZYl]Zc
eZg[dgb^c\i]gdj\]Xjih#
Figure 28. 7Vh^XiVWaZhVlXdcigdah#
7aVYZ=Z^\]i
AdX`
;ZcXZAdX`
7aVYZ=Z^\]i
=VcYl]ZZa
7aVYZI^ai
=VcYl]ZZa
7aVYZ
I^ai
AdX`

BdYZa<%,&*EB[\#)$&& "'."
I]Zg^k^c\`c^[Z^cXajYZYl^i]i]^hbVX]^cZ^h%#&
'#*bbi]^X`VcY^hdcanYZh^\cZY[dg&%Y^Vb"
ZiZgWaVYZh#
L]Zc X]ddh^c\ V bV^c WaVYZ! bV`Z hjgZ i]Z
WaVYZ h^oZ bZZih i]Z gZfj^gZbZcih a^hiZY WZadl#
I]Zi]^X`cZhhd[i]ZWaVYZWdYnVcYiZZi]XVcWZ
bZVhjgZYl^i]XVa^eZghdgVcnegZX^h^dcbZVhjg"
^c\YZk^XZ#
Blade Size Requirements:
7dYnI]^X`cZhh/%#%,&"%#%.)&#-"'#)bb
@Zg[Iddi]I]^X`cZhh/%#&%'"%#&'+
'#+"(#'bb
Blade Requirements
Figure 31. G^ee^c\WaVYZ#
Blade Selection
I]^h hZXi^dc dc WaVYZ hZaZXi^dc ^h Wn cd bZVch
XdbegZ]Zch^kZ# 6alVnh [daadl i]Z hVl WaVYZ
bVcj[VXijgZgh gZXdbbZcYVi^dch id ZchjgZ hV[Z
VcYZ[[^X^ZcideZgVi^dcd[ndjgiVWaZhVl#
Ripping Blade Features:
7Zhi[dgXjii^c\l^i]i]Z\gV^c
'%")%iZZi]
;aVi"ide\gdjcYiddi]egd[^aZ
AVg\Z\jaaZih[dgaVg\ZX]^egZbdkVa
;aVi
Ide
7aVYZ
Workpiece
Inspection
HdbZ ldg`e^ZXZh VgZ cdi hV[Z id Xji dc i]^h
bVX]^cZdgbVncZZYidWZbdY^[^ZYWZ[dgZi]Zn
XVc WZ hV[Zan Xji# Before cutting, inspect all
workpieces for the following:
Material Type:I]^hbVX]^cZ^h^ciZcYZY[dg
Xjii^c\ cVijgVa VcY bVc"bVYZ lddY egdY"
jXih! aVb^cViZ XdkZgZY lddY egdYjXih! VcY
hdbZeaVhi^Xh#8jii^c\YgnlVaadgXZbZci^i^djh
WVX`ZgWdVgYXgZViZhZmigZbZan[^cZYjhiVcY
bVn gZYjXZ i]Z a^[Z d[ i]Z bdidg WZVg^c\h#
I]^hbVX]^cZ^hCDIYZh^\cZYidXjibZiVa!
\aVhh!hidcZ!i^aZ!ZiX#0Xjii^c\i]ZhZbViZg^Vah
l^i]ViVWaZhVl\gZVian^cXgZVhZhi]Zg^h`d[
^c_jgnVcYYVbV\Zidi]ZhVldgWaVYZ#
Foreign Objects: CV^ah! hiVeaZh! Y^gi! gdX`h
VcY di]Zg [dgZ^\c dW_ZXih VgZ d[iZc ZbWZY"
YZY ^c lddY# L]^aZ Xjii^c\! i]ZhZ dW_ZXih
XVcWZXdbZY^hadY\ZYVcY]^i i]ZdeZgVidg!
XVjhZ `^X`WVX`! dg WgZV` i]Z WaVYZ! l]^X]
b^\]ii]Zc[anVeVgi#6alVnh k^hjVaan^cheZXi
ndjgldg`e^ZXZ[dgi]ZhZ ^iZbh#>[i]ZnXVc»i
WZgZbdkZY!9DCDIXjii]Zldg`e^ZXZ#
s Large/Loose Knots:AddhZ `cdih XVc
WZXdbZ Y^hadY\ZY Yjg^c\ i]Z Xjii^c\ deZgV"
i^dc# AVg\Z `cdih XVc XVjhZ `^X`WVX` VcY
bVX]^cZ YVbV\Z# 8]ddhZ ldg`e^ZXZh i]Vi
Ydcdi]VkZaVg\Z$addhZ`cdihdgeaVcV]ZVY
idVkd^YXjii^c\i]gdj\]i]Zb#
s Wet or “Green” Stock:8jii^c\lddYl^i]V
bd^hijgZXdciZcidkZg'%XVjhZhjccZXZh"
hVgnlZVgdci]ZWaVYZh!^cXgZVhZhi]Zg^h`d[
`^X`WVX`!VcYn^ZaYheddggZhjaih#
Excessive Warping:Ldg`e^ZXZhl^i]ZmXZh"
h^kZXjee^c\!Wdl^c\!dgil^hi^c\VgZYVc\Zg"
djh id Xji WZXVjhZ i]Zn VgZ jchiVWaZ VcY
bVnbdkZjcegZY^XiVWanl]ZcWZ^c\Xji#
Minor Warping:Ha^\]ianXjeeZYldg`e^ZXZh
XVc WZ hV[Zan hjeedgiZY l^i] XjeeZY h^YZ
[VX^c\ i]Z iVWaZ dg [ZcXZ0 ]dlZkZg! ldg`"
e^ZXZhhjeedgiZYdci]ZWdlZYh^YZl^aagdX`
Yjg^c\i]ZXji!l]^X]XdjaYXVjhZ`^X`WVX`#

"(%" BdYZa<%,&*EB[\#)$&&
Figure 32. 8gdhhXjii^c\WaVYZ#
Crosscut blade features:
7Zhi[dgXjii^c\VXgdhhi]Z\gV^c
+%"-%iZZi]
6aiZgcViZideWZkZaiddi]egd[^aZ
HbVaa]dd`Vc\aZVcYVh]Vaadl\jaaZi
6aiZgcViZ
Ide
7ZkZa
Figure 34. AVb^cViZWaVYZ#
Laminate blade features:
7Zhi[dgXjii^c\eanlddYdgkZcZZg
)%"-%iZZi]
Ig^eaZX]^eiddi]egd[^aZ
KZgnh]Vaadl\jaaZi
Ig^eaZ
8]^e
7aVYZ
Figure 33. 8dbW^cVi^dcWaVYZ#
Combination blade features:
9Zh^\cZYidXjiWdi]l^i]VcYVXgdhh\gV^c
)%"*%iZZi]
6aiZgcViZide WZkZaVcY [aVi!dgVaiZgcViZ ide
WZkZaVcYgV`Zgiddi]egd[^aZ
IZZi]VgZVggVc\ZY^c\gdjeh
<jaaZih VgZ hbVaa VcY h]Vaadl h^b^aVg id V
Xgdhh"XjiWaVYZ!i]ZcaVg\ZVcYYZZeh^b^aVg
idVg^ee^c\WaVYZ
6aiZgcViZ
Ide
7ZkZa
VcY
;aVi
Thin Kerf Blade: 6WaVYZl^i] i]^ccZg`Zg[ i]Vc
VhiVcYVgYWaVYZ#H^cXZi]ZhegZVYZg$g^k^c\`c^[Z
^cXajYZYl^i]i]^hiVWaZhVl^hh^oZY[dghiVcYVgY
WaVYZh! i]^c `Zg[ WaVYZh XVccdi WZ jhZY dc i]^h
hVljcaZhh i]ZnbZZii]ZBlade Requirements
heZX^[^ZY ^c i]^h bVcjVa0 di]Zgl^hZ! i]Zn l^aa
^cXgZVhZi]Zg^h`d[`^X`WVX`#
Figure 35. HiVX`ZYYVYdWaVYZ#
Dado Blades
Stacked Dado Blade (see below): Bjai^eaZ
WaVYZhVgZhiVX`ZYid\Zi]ZgidXdcigdai]ZXjii^c\
l^Yi]#HiVX`ZYYVYd WaVYZh VgZbdgZ ZmeZch^kZ
i]VcldWWaZWaVYZh!Wjiine^XVaanegdYjXZ]^\]Zg
fjVa^ingZhjaih#
Wobble Dado Blade:6h^c\aZWaVYZbdjciZYVi
Vha^\]iVc\aZdcVcVgWdg]jW#I]ZWaVYZVc\aZ^h
VY_jhiVWaZdci]Z]jW!VcYi]Zl^Yi]d[i]ZYVYd
Xji^hXdcigdaaZYWni]ZVc\aZhZii^c\d[i]ZWaVYZ#

BdYZa<%,&*EB[\#)$&& "(&"
Blade Installation
GZk^Zli]^hhZXi^dc!ZkZc^[ndjghVlWaVYZXVbZ
egZ"^chiVaaZY#
To install the blade:
1. 9>H8DCC:8IH6L;GDBEDL:G
2. GZbdkZi]ZiVWaZ^chZgiVcYWaVYZ\jVgY$g^k"
^c\`c^[Z!YZeZcY^c\dcl]Vi^h^chiVaaZY#
5. GZ"^chiVaai]ZVgWdg[aVc\ZVcYi]ZVgWdgcji#
6. HZXjgZ i]Z WaVYZ l^i] i]Z VgWdg adX`! i]Zc
i^\]iZc i]Z [aVc\Z VcY VgWdg cji V\V^chi i]Z
WaVYZl^i]i]ZVgWdglgZcX]#9DCDIdkZg"
i^\]iZc#
Before proceeding with the next step, wear
gloves to protect your hands while handling
and installing the blade.
Note:The arbor nut has right hand threads;
turn it counterclockwise to loosen.
3. Ejh]i]ZVgWdgadX`^cVcYijgci]ZWaVYZjci^a
^iadX`h^ceaVXZ!i]ZcjhZi]ZVgWdglgZcX]id
addhZcVcYgZbdkZi]ZVgWdgcji![aVc\Z!VcY
WaVYZ#
Figure 37. 7aVYZdgYZgd[^chiVaaVi^dcVcYiZZi]
[VX^c\i]ZXdggZXiY^gZXi^dc#
4. Ha^YZi]ZWaVYZdkZgi]ZVgWdg l^i]i]ZiZZi]
[VX^c\ i]Z [gdci d[ i]Z hVl! Vh h]dlc ^c
Figures 37.
Figure 36.AdXVi^dcd[VgWdgadX`#
6gWdgAdX`

"('" BdYZa<%,&*EB[\#)$&&
Blade Guard
Assembly
I]Z iZgb WaVYZ \jVgY gZ[Zgh id i]Z VhhZbWan
i]Vi Xdch^hih d[ i]Z XaZVg edanXVgWdcViZ h]^ZaY!
i]Z hegZVYZg! VcY i]Z Vci^"`^X`WVX` eVlah dc
ZVX]h^YZd[i]ZhegZVYZghZZFigure 38#:VX]
d[i]ZhZXdbedcZcih]VkZ^bedgiVcihV[Zin[jcX"
i^dchYjg^c\i]ZdeZgVi^dcd[i]ZhVl#
Figure 38.7aVYZ\jVgYVhhZbWanXdbedcZcih#
8aZVgH]^ZaY
6ci^"@^X`WVX`
EVla
Guard
I]ZXaZVgedanXVgWdcViZ\jVgYVaadlhi]ZdeZgV"
idg id hZZ i]Z WaVYZ Xji i]Z ldg`e^ZXZ Yjg^c\
deZgVi^dc# I]^h \jVgY ^h YZh^\cZY id a^[i Vh i]Z
ldg`e^ZXZ^hejh]ZY^cidi]ZWaVYZVcYgZbV^c^c
XdciVXi l^i]i]Z ldg`e^ZXZi]gdj\]djii]ZZci^gZ
Xji#
I]Z\jVgYgZYjXZh^c_jgng^h`Wnegdk^Y^c\VWVg"
g^Zg VgdjcY i]Z WaVYZ i]Vi egZkZcih VXX^YZciVa
XdciVXiVcYXdciV^ch[an^c\lddYX]^eh#
IdZchjgZi]Vii]Z\jVgYYdZh^ih_dWZ[[ZXi^kZan!
i]Z\jVgYbjhiValVnhWZ^ci]ZYdlclVgYedh^"
i^dc V\V^chi i]Z iVWaZ Yjg^c\ ^YaZ deZgVi^dc! VcY
i]Z]^c\ZbZX]Vc^hbbjhiWZbV^ciV^cZY^c\ddY
ldg`^c\ XdcY^i^dc hd i]Z \jVgY XVc [gZZan e^kdi
je VcY Ydlc id VXXdbbdYViZ i]Z ]Z^\]i d[ i]Z
ldg`e^ZXZVcYgZijgcidi]ZiVWaZhjg[VXZ#
Spreader
I]Z hegZVYZg ^h V bZiVa eaViZ i]Vi egZkZcih i]Z
cZlanXji`Zg[d[i]Zldg`e^ZXZ[gdbe^cX]^c\i]Z
WVX`h^YZd[i]ZWaVYZ!XVjh^c\`^X`WVX`#
I]Z hegZVYZg Vahd VXih Vh V WVgg^Zg WZ]^cY i]Z
WaVYZ id h]^ZaY ]VcYh [gdb WZ^c\ ejaaZY ^cid i]Z
WaVYZ^[V`^X`WVX`dXXjgh#
Installing Blade Guard & Spreader
1. 9>H8DCC:8IH6L;GDBEDL:G
2. >chiVaai]ZiVWaZ^chZgi#
3. Ha^YZ i]Z `cjgaZY `cdW dji hZZ Figure 39
VcYgdiViZ ^ihd ^iZc\V\Zhi]Z jeeZgWgVX`"
Zi#
4. Ha^YZ i]Z WaVYZ \jVgY hegZVYZg Vaa i]Z lVn
Ydlc ^cid i]Z VY_jhibZci WadX`! i]Zc gdiViZ
i]Z`cjgaZY`cdWhd^iY^hZc\V\Zhi]ZWgVX`Zi
VcYi]Z adX`^c\e^c Zc\V\Zhi]Z ]daZ^c i]Z
XZciZgd[i]ZhegZVYZg#
5. <^kZi]ZhegZVYZgVcjelVgYij\idkZg^[ni]Vi
^i^hadX`ZY#
Figure 39.@cjgaZY`cdWjhZYidhZXjgZ
hegZVYZg#
6Y_jhibZci
7adX`
AdX`^c\E^c
@cjgaZY
@cdW
7gVX`Zi
In order to work properly, the spreader
cannot be bent or misaligned with the blade.
If the spreader gets accidentally bent, take
the time to straighten it or just replace it.
Using a bent or misaligned spreader will
increase the risk of kickback! Refer to
Page 66 to check or adjust alignment if
necessary.

BdYZa<%,&*EB[\#)$&& "(("
I]Z WaVYZ \jVgY! l]Zc egdeZgan ^chiVaaZY!
h]djaY WZ hZije h^b^aVg id Figure 40. >i
h]djaYe^kdi[gZZanjeVcYYdlcVcYgZijgcid
i]ZiVWaZ^ci]ZgZhi^c\edh^i^dc#>ih]djaYVahd
hl^c\ je ]^\] Zcdj\] id VXXdbbdYViZ i]Z
ldg`e^ZXZ#
Figure 41.HegZVYZg$g^k^c\`c^[ZVa^\cbZciodcZ#
6a^\cbZci
OdcZ
HegZVYZgdg
G^k^c\@c^[Z
7aVYZ HigV^\]iZY\Z
7. Hl^c\dcZh^YZd[i]ZWaVYZ\jVgYjeVcYdji
d[i]ZlVn#
8. L]^aZ a^[i^c\ je dc i]Z g^\]i hegZVYZg eVla!
eaVXZ V higV^\]iZY\Z V\V^chi i]Z WaVYZ VcY
i]Z hegZVYZg! bV`^c\ hjgZ i]Z higV^\]iZY\Z
YdZhcdiidjX]VWaVYZiddi]#
L]Zc egdeZgan Va^\cZY! i]Z hegZVYZg$g^k^c\
`c^[Zl^aaWZ^ci]Z6a^\cbZciOdcZ!h]dlc
^c Figure 41! VcY l^aa WZ eVgVaaZa l^i] i]Z
WaVYZ#
·>[ i]Z hegZVYZg$g^k^c\ `c^[Z ^h cdi ^ch^YZ
i]Z Va^\cbZci odcZ VcY cdi eVgVaaZa l^i]
i]Z WaVYZ! i]Zc ^i cZZYh id WZ VY_jhiZY#
EgdXZZYid6Y_jhi^c\6a^\cbZci"dcPage
66#
Figure 40.7aVYZ\jVgY^chiVaaZY#
6. 6Y_jhi i]Z [aVi ]ZVY hXgZlh id bV`Z hjgZ
i]ZiVWaZ^chZgi^h[ajh]l^i]i]ZiVWaZjhZV
higV^\]iZY\ZVhV\j^YZ#
Anti-Kickback Pawls
I]Z Vci^"`^X`WVX` eVlah Vaadl i]Z ldg`e^ZXZ id
igVkZa^cdcandcZY^gZXi^dc#>[i]Zldg`e^ZXZbdkZh
WVX`lVgYh!hjX]VhYjg^c\V`^X`WVX`!i]ZeVlah
l^aaY^\^cidi]Zldg`e^ZXZidhadldghide^i#
Id ldg` egdeZgan! i]Z eVlah bjhi gZijgc id i]Z^g
gZhi^c\edh^i^dcV[iZge^kdi^c\!Vhh]dlc^cFigure
42! VcYi]ZnbjhicdiWZZc\V\ZY^ci]ZVggZhi^c\
]dd`h#
Figure42#EVlah^cgZhi^c\edh^i^dc#
EVla
6ggZhi^c\
=dd`h
>[i]ZeVlah[V^aidgZijgcidi]ZgZhi^c\edh^i^dc!i]Z
e^kdiVgZVbVncZZYidWZXaZVcZYdgi]Zheg^c\
bVn]VkZWZZcY^hadY\ZYdgWgd`ZcVcYl^aacZZY
idWZ[^mZY$gZeaVXZY#
;aVi=ZVYHXgZl

"()" BdYZa<%,&*EB[\#)$&&
Enabling Pawls
Id ZcVWaZ i]Z eVlah! a^[i je dc ZVX] eVla VcY
bdkZ i]Zb djilVgY VcY Ydlc jci^a i]Zn Wdi]
idjX] i]Z iVWaZ hjg[VXZ! Vh h]dlc ^c Figure 42
dcPage 33#
When to Use the Blade Guard
I]Z WaVYZ \jVgY VhhZbWan BJHI ValVnh WZ
^chiVaaZY dc i]Z hVl [dg Vaa cdgbVa i]gdj\] Xjih
i]dhZ l]ZgZ i]Z WaVYZ Xjih Vaa i]Z lVn i]gdj\]
i]Z i]^X`cZhh d[ i]Z ldg`e^ZXZ# >[ i]Z WaVYZ
\jVgY^hgZbdkZY[dgheZX^[^XdeZgVi^dch!ValVnh
^bbZY^ViZangZeaVXZ^iV[iZgi]dhZdeZgVi^dchVgZ
XdbeaZiZ#
When Not to Use the Blade Guard
I]Z WaVYZ \jVgY XVccdi WZ jhZY dc Vcn cdc"
i]gdj\] Xjih i]dhZ ^c l]^X] i]Z WaVYZ YdZh
cdi Xji Vaa i]Z lVn i]gdj\] i]Z i]^X`cZhh d[ i]Z
ldg`e^ZXZ#
IMPORTANT/L]ZcZkZgi]ZWaVYZ \jVgYXVccdi
WZjhZY!i]Zg^k^c\`c^[ZbjhiWZ^chiVaaZY#
HdbZi^bZh i]Z WaVYZ \jVgY dg ^ih XdbedcZcih
XVc \Zi ^c i]Z lVn l]Zc Xjii^c\ kZgn cVggdl
ldg`e^ZXZhdgdi]ZgheZX^Va^oZYXjih#7ZXVjhZ
i]ZWaVYZ\jVgY^hegdk^YZYidYZXgZVhZndjgg^h`
d[^c_jgn!^ih]djaYcdiWZjhZY^[^i\Zih^ci]ZlVn
d[bV`^c\VhV[ZXji#JhZ\ddY_jY\bZci
Disabling Pawls
Ndjb^\]iY^hVWaZi]ZeVlah^[ndjVgZXdcXZgcZY
VWdji i]Zb hXgViX]^c\ V YZa^XViZ ldg`e^ZXZ! dg
^[ ndj WZa^ZkZ i]Vi i]Zn l^aa dWhigjXi V cVggdl
ldg`e^ZXZVcYXVjhZ[ZZY^c\Y^[[^Xjaindgadhhd[
Xdcigda#JhZndjgWZhi_jY\bZciWZ[dgZgZigVXi^c\
i]ZeVlah!Vhi]ZnVgZegdk^YZY[dgndjghV[Zin#
Figure43#EVlaY^hVWaZY#
6ggZhi^c\=dd`h
DcZH]dlc
EVla
We do not recommend disabling the pawls
during normal operations unless absolutely
necessary. In most situations, disabling the
pawls will increase your risk of serious per-
sonal injury in the event of a kickback.
The pawls are sharp and can lacerate fingers
or hands. Use caution, and wear leather
gloves when handling the pawls to reduce
the risk of injury.
To disable the pawls:
1. 9>H8DCC:8IH6L;GDBEDL:G
2. GdiViZ dcZ dg Wdi] VggZhi^c\ ]dd`h Ydlc"
lVgY! i]Zc eaVXZ i]Z eVlah dc ZVX] d[ i]Z
]dd`h!Vhh]dlc^cFigure 43#

BdYZa<%,&*EB[\#)$&& "(*"
Riving Knife
I]Z g^k^c\ `c^[Z ldg`h ^c i]Z hVbZ bVccZg Vh
i]ZhegZVYZgdci]ZWaVYZ\jVgYVhhZbWan#>i^hV
bZiVaeaViZi]ViegZkZcihi]ZcZlanXjildg`e^ZXZ
[gdbe^cX]^c\i]ZWVX`h^YZd[i]ZWaVYZVcYXVjh"
^c\`^X`WVX`#
=Z^\]i9^[[ZgZcXZ
B^c^bjb&bb
BVm^bjb*bb
I]Z`ZnY^[[ZgZcXZWZilZZci]ZhegZVYZgVcYi]Z
g^k^c\ `c^[Z ^h i]Vi i]Z g^k^c\ `c^[Z bdjcih WZadl
i]ZWaVYZh]^\]Zhied^cid[gdiVi^dc!Vhh]dlc^c
Figure 44#
Figure 44.=Z^\]iY^[[ZgZcXZWZilZZcg^k^c\`c^[Z
VcYWaVYZ#
I]Z]Z^\]iY^[[ZgZcXZWZilZZci]Zg^k^c\`c^[ZVcY
i]ZWaVYZ Vaadlh i]Zldg`e^ZXZ ideVhh dkZgi]Z
WaVYZYjg^c\cdc"i]gdj\]Xjihi]dhZ^cl]^X]i]Z
WaVYZYdZhcdiXjiVaai]ZlVni]gdj\]i]Zi]^X`"
cZhhd[i]Zldg`e^ZXZ#
I]Zg^k^c\`c^[ZVXihVhVWVgg^ZgWZ]^cYi]ZWaVYZ
idgZYjXZi]Zg^h`d[]VcYhWZ^c\ejaaZY^cidi]Z
WaVYZ^[V`^X`WVX`dXXjgh#
I]Z g^k^c\ `c^[Z bjhi WZ `Zei l^i]^c i]Z gVc\Z
h]dlc ^c Figure 45# ;dg i]Vi gZVhdc! lZ dcan
gZXdbbZcYjh^c\V&%WaVYZ[dgdeZgVi^dchi]Vi
gZfj^gZjhZd[i]Zg^k^c\`c^[Z#
B^c^bjb(bb
Ide9^hiVcXZ
7diidb9^hiVcXZ
BVm^bjb-bb
B^c^bjb(bb
BVm^bjb-bb
Figure45#6aadlVWaZideVcYWdiidbY^hiVcXZh
WZilZZcg^k^c\`c^[ZVcYWaVYZ#
When to Use the Riving Knife
JhZi]Zg^k^c\`c^[Z[dgVaacdc"i]gdj\]XjihbVYZ
l^i] V hiVcYVgY iVWaZ hVl WaVYZ ^#Z#! YVYdZh dg
gVWWZi Xjih! VcY l]Zc jh^c\ V iZcdc^c\ _^\! dg
l]Zcjh^c\V&%Y^VbZiZgYVYdWaVYZ#
6ahd!jhZi]Zg^k^c\`c^[Z[dgi]dhZheZX^VadeZgV"
i^dch l]ZgZ i]Z WaVYZ \jVgY dg ^ih XdbedcZcih
\Zi^ci]ZlVnd[hV[ZdeZgVi^dc!hjX]Vhl^i]kZgn
cVggdlXjih#
When Not to Use the Riving Knife
9d cdi jhZ i]Z g^k^c\ `c^[Z l^i] V YVYd WaVYZ
i]Vi]VhVY^VbZiZghbVaaZgi]Vc&%^cY^VbZiZg#
Di]Zgl^hZ!i]Zg^k^c\`c^[Z]Z^\]il^aaZmXZZYi]Z
WaVYZ]Z^\]iVcYi]Zldg`e^ZXZl^aa]^ii]Zg^k^c\
`c^[Z Yjg^c\ i]Z Xji! [dgX^c\ i]Z deZgVidg ^cid V
YVc\Zgdjh h^ijVi^dc d[ ign^c\ id ijgc i]Z hVl d[[
l^i]i]Zldg`e^ZXZhijX`]Va[lVni]gdj\]i]ZXji#
>cVYY^i^dc!Vai]dj\]^i^hedhh^WaZidjhZi]Zg^k"
^c\`c^[Z[dgi]gdj\]Xjii^c\deZgVi^dch!i]ZWaVYZ
\jVgYVhhZbWan d[[Zgh [VgbdgZ^c_jgn egdiZXi^dc
VcYg^h`gZYjXi^dci]Vci]Zg^k^c\`c^[Z#I]ZgZ[dgZ!
we strongly recommendi]VindjjhZi]ZWaVYZ
\jVgY VhhZbWan ^chiZVY d[ i]Z g^k^c\ `c^[Z [dg
i]gdj\]Xjih#
How to Install the Riving Knife
I]Zg^k^c\`c^[Z^h^chiVaaZY^cVh^b^aVgbVccZg
idi]ZWaVYZ\jVgYVcYhegZVYZg#GZ[ZgidBlade
Guard dcPage32[dg^chiVaaVi^dc^chigjXi^dch#
To ensure that the riving knife works safe-
ly, it MUST be aligned with and correctly
adjusted to the blade. Refer to Page 66 to
check or adjust the riving knife alignment.

"(+" BdYZa<%,&*EB[\#)$&&
To make a rip cut:
1. GZk^Zl Preventing Kickback dc Page 10
VcYiV`Zi]ZcZXZhhVgnegZXVji^dchidgZYjXZ
i]Za^`Za^]ddYd[`^X`WVX`#
2. >[jh^c\cVijgValddY!_d^cidcZadc\ZY\Zd[
i]Zldg`e^ZXZdcV_d^ciZg#
3. 9>H8DCC:8IH6L;GDBEDL:G
4. :chjgZ i]Vi i]Z WaVYZ \jVgY$hegZVYZg ^h
^chiVaaZY#
5. HZii]Z[ZcXZidi]ZYZh^gZYl^Yi]d[Xjidc
i]ZhXVaZ#
6. 6Y_jhi i]Z WaVYZ ]Z^\]i hd i]Z ]^\]Zhi hVl
iddi]egdigjYZhcd bdgZi]Vc &¿)VWdkZ i]Z
ldg`e^ZXZ#
7. HZijehV[ZinYZk^XZhhjX]Vh[ZVi]ZgWdVgYh
dgdi]ZgVci^"`^X`WVX`YZk^XZh#
8. GdiViZ i]Z WaVYZ id bV`Z hjgZ ^i YdZh cdi
XdbZ ^cid XdciVXi l^i] Vcn d[ i]Z hV[Zin
YZk^XZh#
9. Eaj\ i]Z hVl ^cid i]Z edlZg hdjgXZ! ijgc ^i
ON,VcYVaadl^iidgZVX][jaaheZZY#
G^ee^c\bZVchXjii^c\l^i]i]Z\gV^cd[VcVijgVa
lddYldg`e^ZXZ#>cbVc"bVYZbViZg^VahhjX]Vh
B9; dg eanlddY! g^ee^c\ h^bean bZVch Xjii^c\
aZc\i]l^hZ#
Ripping
Serious injury can be caused by kickback.
Kickback is a high-speed ejection of stock
from the table saw toward an operator. The
operator or bystanders may be struck by
flying stock, or the operator’s hands can be
pulled into the blade during kickback.
Keep the blade guard installed and in the
down position. Failure to do this could
result in serious personal injury or death.
Note: The jointed edge of the workpiece
must slide against the fence during the cut-
ting operation.
10. JhZ V ejh] hi^X` id [ZZY i]Z ldg`e^ZXZ
i]gdj\] i]Z hVl WaVYZ! Vh h]dlc ^c Figure
46!jci^ai]Zldg`e^ZXZ^hXdbeaZiZanWZndcY
i]ZhVlWaVYZ#
Turn OFF the saw and allow the blade to
come to a complete stop before removing
the cut-off piece. Failure to follow this warn-
ing could result in serious personal injury.
Figure 46. Ine^XVag^ee^c\deZgVi^dc#

BdYZa<%,&*EB[\#)$&& "(,"
Turn OFF the saw and allow the blade to
come to a complete stop before removing
the cut-off piece. Failure to follow this warn-
ing could result in serious personal injury
8gdhhXjii^c\bZVchXjii^c\ VXgdhhi]Z \gV^cd[
V cVijgVa lddY ldg`e^ZXZ# >c di]Zg bVc"bVYZ
bViZg^Vah!hjX]VhB9;dgeanlddY!XgdhhXjii^c\
bZVchXjii^c\VXgdhhi]Zl^Yi]d[i]Zldg`e^ZXZ#
To make a crosscut using the miter gauge:
1. 9>H8DCC:8IH6L;GDBEDL:G
2. :chjgZ i]Vi i]Z WaVYZ \jVgY$hegZVYZg ^h
^chiVaaZY#
3. BdkZ i]Z g^e [ZcXZ Vh^YZ VcY edh^i^dc i]Z
b^iZg\Vj\Z!VY_jhiZYid.%!^cVb^iZghadi#
4. 6Y_jhii]ZWaVYZ]Z^\]ihdi]ZiZZi]egdigjYZ
cdbdgZi]Vc&¿)VWdkZi]Zldg`e^ZXZ#
5. Ha^YZ i]Z b^iZg \Vj\Z cZVg i]Z WaVYZ VcY
VY_jhii]Zldg`e^ZXZhdi]ZWaVYZl^aaXjidc
i]ZlVhiZh^YZd[i]Za^cZ#
6. Eaj\^ci]ZiVWaZhVl!ijgc^iON,VcYVaadl^i
idgZVX][jaaheZZY#
7. =daYi]Zldg`e^ZXZ[^gbanV\V^chii]Z[VXZd[
i]Zb^iZg\Vj\ZVhh]dlc^cFigure 47!VcY
ZVhZ^ii]gdj\]i]ZWaVYZjci^ai]Zldg`e^ZXZ
^hXdbeaZiZaneVhii]ZhVlWaVYZ#
Figure 47. Ine^XVaXgdhhXjii^c\deZgVi^dc#
Crosscutting Miter Cuts
6b^iZg^hVcVc\aZYXgdhhXji#B^iZghVgZjhjVaan
Xji ^c i]Z hVbZ bVccZg Vh XgdhhXjih! jh^c\ i]Z
b^iZg \Vj\Z VcY V egZYZiZgb^cZY bVg` dc i]Z
ldg`e^ZXZ#
To perform a miter cut:
1. 9>H8DCC:8IH6L;GDBEDL:G
2. :chjgZ i]Vi i]Z WaVYZ \jVgY$hegZVYZg ^h
^chiVaaZY#
3. 9ZiZgb^cZi]ZVc\aZd[ndjgXji#>[i]ZVc\aZ
cZZYhidWZkZgnegZX^hZ!jhZVegdigVXidgid
hZii]Zb^iZg\Vj\Zidi]ZWaVYZ#
4. EaVXZ i]Z [VXZ d[ i]Z b^iZg \Vj\Z V\V^chi
i]ZZY\Zd[i]Zldg`e^ZXZVcYeaVXZi]ZWVg
VXgdhh i]Z [VXZ d[ i]Z ldg`e^ZXZ# JhZ i]Z
WVgVhV\j^YZidbVg`ndjgXji!Vhh]dlc^c
Figure 48#
Figure 48.:mVbeaZd[bVg`^c\b^iZga^cZ#
5. EaVXZi]Zb^iZg\Vj\ZWVX`^cidi]ZhadiVcY
]daY i]Z ldg`e^ZXZ [^gban V\V^chi i]Z b^iZg
\Vj\ZWdYn# Ha^YZi]Z b^iZg\Vj\ZcZVg i]Z
WaVYZVcYVY_jhii]Zldg`e^ZXZhdi]ZWaVYZ
l^aaXjidci]ZlVhiZh^YZd[i]Za^cZ#
6. EgdXZZYidbV`Zi]ZXji^ci]ZhVbZbVccZg
Vh YZhXg^WZY ^c i]Z Crosscutting ^chigjX"
i^dch#

"(-" BdYZa<%,&*EB[\#)$&&
Blade Tilt/Bevel Cuts
L]Zci]ZWaVYZi^aihideWdaihVgZegdeZganVY_jhi"
ZY Vh YZhXg^WZY dc Page 61! i]Z WaVYZ i^ai
]VcYl]ZZaVaadlhi]ZdeZgVidgidi^aii]ZWaVYZid
i]Z aZ[i! WZilZZc % VcY )*# I]^h ^h jhZY bdhi
d[iZc l]Zc Xjii^c\ WZkZah! XdbedjcY b^iZgh! dg
X]Vb[Zgh# Figure 49 h]dlh Vc ZmVbeaZ d[ i]Z
WaVYZl]Zci^aiZYid)*#
Figure 49#7aVYZi^aiZYid)*[dgWZkZaXjii^c\dc
Vine^XVaiVWaZhVl#
Installing a Dado Blade
1. 9>H8DCC:8II=:H6L;GDBEDL:G
2. GZbdkZ i]Z iVWaZ ^chZgi! i]Z WaVYZ \jVgY
VhhZbWandgg^k^c\`c^[Z!VcYi]ZhVlWaVYZ#
3. 6iiVX] VcY VY_jhi i]Z YVYd WaVYZ hnhiZb
VXXdgY^c\ id i]Z YVYd WaVYZ bVcj[VXijgZg»h
^chigjXi^dch
4. >chiVaai]ZYVYdiVWaZ^chZgi#
Never try to dado a warped board by holding
it down against the table. If kickback occurs,
your hand will likely be pulled into the blade,
resulting in serious personal injury.
Dado blades have a higher risk of kickback
than normal blades because their larger size
applies stronger forces to the workpiece.
This risk increases relative to the depth and
width of the cut. To minimize your risk of
serious personal injury, ensure that stock
is flat and straight, and make multiple light
cuts (rather than one deep cut) to achieve
the desired cutting depth.
DO NOT make through cuts with a dado
blade. Dado blades are only intended for
non-through cuts. Failure to heed this
warning could result in serious injury.
Dado Cutting
Figure 50. :mVbeaZd[VYVYdWZ^c\Xjil^i]V
YVYdWaVYZ#
8dbbdcan jhZY ^c [jgc^ijgZ _d^cZgn! V YVYd ^h V
higV^\]iX]VccZaXji^ci]Z[VXZd[i]Zldg`e^ZXZ#
9VYdZhVgZcdc"i]gdj\]Xjihi]ViXVcWZbVYZ
l^i]VYVYdWaVYZdgVhiVcYVgYhVlWaVYZ#I]Z
FigureWZadlh]dlhVXjiVlVnk^Zld[VYVYdXji
WZ^c\bVYZl^i]VYVYdWaVYZ#
Dado Blade
Ldg`e^ZXZ
;ZcXZ
DO NOT make through cuts with a dado
blade. Dado blades are only intended for
non-through cuts. Failure to heed this
warning could result in serious injury.

BdYZa<%,&*EB[\#)$&& "(."
To cut a dado with a dado blade:
1. 6Y_jhii]ZYVYdWaVYZidi]ZYZh^gZYYZei]d[
Xji#
2. 6Y_jhii]ZY^hiVcXZWZilZZci]Z[ZcXZVcYi]Z
^ch^YZZY\Zd[i]ZWaVYZ!Vhh]dlc^cFigure
50!idYVYdi]ZaZc\i]d[Vldg`e^ZXZ#
— >[ YVYd^c\ VXgdhh i]Z ldg`e^ZXZ! jhZ i]Z
b^iZg \Vj\Z VcY XVgZ[jaan a^cZ je i]Z
YZh^gZYXjil^i]i]ZYVYdWaVYZ#9DCDI
jhZi]Z[ZcXZ^cXdbW^cVi^dcl^i]i]Zb^iZg
\Vj\Z#
3. GZXdccZXii]ZhVlidi]ZedlZghdjgXZ#
4. Ijgc i]Z hVl ON# I]Z WaVYZ h]djaY gjc
hbddi]!l^i]cdk^WgVi^dch#
5. L]Zci]ZWaVYZ]VhgZVX]ZY[jaaheZZY!eZg"
[dgbViZhiXjil^i]VhXgVee^ZXZd[lddY#
6. >[ i]Z Xji ^h hVi^h[VXidgn! gZeZVi i]Z Xji l^i]
i]ZVXijValdg`e^ZXZ#
Cutting Dadoes with a Dado Blade
7ZXVjhZYVYdWaVYZhVgZbjX]l^YZgi]VchiVc"
YVgYWaVYZh!i]ZneaVXZV\gZViZgVbdjcid[[dgXZ
V\V^chii]Zldg`e^ZXZl]ZcXjii^c\#I]^hVYY^i^dc"
Va [dgXZ ^cXgZVhZh i]Z g^h` d[ `^X`WVX`! gZfj^g^c\
i]ZdeZgVidgidiV`ZVYY^i^dcVahiZehl]ZcXjii^c\
id`ZZei]Z^g^c_jgng^h`ViVcVXXZeiVWaZaZkZa#
Dado blades have a higher risk of kickback
than normal blades because their larger size
applies stronger forces to the workpiece.
This risk increases relative to the depth and
width of the cut. To minimize your risk of
serious personal injury, ensure that stock
is flat and straight, and make multiple light
cuts (rather than one deep cut) to achieve
the desired cutting depth.
Figure 51.:mVbeaZd[YVYdWZ^c\Xjil^i]
bjai^eaZa^\]iXjih!^chiZVYd[dcZYZZeXji#
I]Z Figure WZadl YZbdchigViZh i]Z hZfjZci^Va
egdXZhh d[ bV`^c\ bjai^eaZ! a^\]i Xjih i]Vi \Zi
egd\gZhh^kZanYZZeZg#I]ZVXijVacjbWZgd[Xjih
jhZY h]djaY WZ YZiZgb^cZY Wn ldg`e^ZXZ ]VgY"
cZhh!idiVaYVYdYZei]!VcY[ZZYgViZ#>c\ZcZgVa!^[
ndj]ZVgi]ZbdidghadlYdlcYjg^c\i]ZXji!ndj
VgZXjii^c\iddYZZedg[ZZY^c\idd[Vhi#
Dado Blade
Ldg`e^ZXZ
;ZcXZ
Cut 1
Ldg`e^ZXZ
;ZcXZ
Cut 2
Ldg`e^ZXZ
;ZcXZ
Cut 3
Finished
Dado Cut
Ldg`e^ZXZ
;ZcXZ

")%" BdYZa<%,&*EB[\#)$&&
6g^ee^c\WaVYZYZhXg^WZYdcPage 29^hine^XVaan
i]Z WZhi WaVYZ id jhZ [dg Xjii^c\ YVYdZh l]Zc
jh^c\VhiVcYVgYWaVYZ!WZXVjhZ^igZbdkZhhVl"
YjhikZgnZ[[^X^Zcian#
To use a standard saw blade to cut dadoes:
1. 9>H8DCC:8IH6L;GDBEDL:G
2. BVg` i]Z l^Yi] d[ i]Z YVYd Xji dc i]Z
ldg`e^ZXZ# >cXajYZbVg`hdci]ZZY\Zd[i]Z
ldg`e^ZXZ hd i]Z Xji eVi] XVc WZ Va^\cZY
l]Zci]Zldg`e^ZXZ^han^c\dci]ZiVWaZ#
Cutting Dadoes with a Standard
Blade
6. GZXdccZXii]ZhVlidi]ZedlZghdjgXZVcY
ijgci]ZhVlON#6aadli]ZWaVYZidgZVX][jaa
heZZY!i]ZceZg[dgbi]ZXjii^c\deZgVi^dc#
7. GZeZVi i]Z Xjii^c\ deZgVi^dc dc i]Z di]Zg
h^YZd[i]ZYVYdX]VccZa!Vhh]dlc^cFigure
53.
8. BV`ZVYY^i^dcVaXjih hZZFigure 54 ^c i]Z
XZciZgd[i]ZYVYdidXaZVgdjii]ZcZXZhhVgn
bViZg^Va# I]Z YVYd ^h XdbeaZiZ l]Zc i]Z
X]VccZa^hXdbeaZiZanXaZVgZYdji#
Ldg`e^ZXZ
;ZcXZ
Cut 2 Blade
Figure 53. HZXdcYXji[dgVh^c\aZWaVYZYVYd#
Ldg`e^ZXZ
;ZcXZ
Cuts 3+
Figure 54. 6YY^i^dcVah^c\aZWaVYZYVYdXjih#
Blade
Ldg`e^ZXZ
;ZcXZ
Cut 1
Figure 52. ;^ghiXji[dgVh^c\aZ"WaVYZYVYd#
3. GV^hZi]ZWaVYZjeidi]ZYZh^gZYYZei]d[Xji
YZei]d[YVYdX]VccZaYZh^gZY#
4. HZii]ZhVlje[dgi]ZineZd[XjindjcZZY
idbV`Z!YZeZcY^c\dc^[^i^hVg^eXjiPage
36dgXgdhhXjiPage 37#
5. 6a^\ci]ZWaVYZidXjidcZd[i]ZYVYdh^YZh!
Vhh]dlc^cFigure 52#

BdYZa<%,&*EB[\#)$&& ")&"
8dbbdcanjhZY^c[jgc^ijgZ_d^cZgn!VgVWWZi^hVc
A"h]VeZY\gddkZXji^ci]ZZY\Zd[i]Zldg`e^ZXZ#
GVWWZihXVcWZXjil^i]Z^i]ZgVYVYdWaVYZdgV
hiVcYVgYhVlWaVYZ#
GVWWZiXjii^c\dci]ZZY\Zd[i]Zldg`e^ZXZl^i]
VYVYdWaVYZgZfj^gZhVhVXg^[^X^Va[ZcXZFigure
55#BV`Zi]ZhVXg^[^X^Va[ZcXZi]ZhVbZaZc\i]Vh
i]Z[ZcXZVcY(¿)i]^X`#6iiVX]^iidi]Z[ZcXZl^i]
hXgZlhdgXaVbeh!bV`^c\hjgZi]ZnVgZVaahZXjgZ
VcYi^\]i#GV^hZi]ZWaVYZ^cidi]ZhVXg^[^X^Va[ZcXZ
idi]Z]Z^\]icZZYZY#
G^e;ZcXZ
HVXg^[^X^Va
;ZcXZ
9VYd>chZgi
7aVYZ8ji"Dji
Figure 55. HVXg^[^X^Va[ZcXZ#
Rabbet Cutting
Always use push sticks, featherboards,
push paddles and other safety accessories
whenever possible to increase safety and
control during operations which require
that the blade guard be removed from the
saw. ALWAYS replace the blade guard after
dadoing is complete.
Dado blades have a higher risk of kickback
than normal blades because their larger size
applies stronger forces to the workpiece.
This risk increases relative to the depth and
width of the cut. To minimize your risk of
serious personal injury, ensure that stock
is flat and straight, and make multiple light
cuts (rather than one deep cut) to achieve
the desired cutting depth.
Ldg`e^ZXZ
;ZcXZ
9VYd7aVYZ
HVXg^[^X^Va;ZcXZ
Figure 56. GVWWZiXjii^c\#
4. GZXdccZXi i]Z hVl id i]Z edlZg hdjgXZ
VcY ijgc i]Z hVl ON# L]Zc i]Z WaVYZ ]Vh
gZVX]ZY[jaaheZZY!eZg[dgbViZhiXjil^i]V
hXgVee^ZXZd[lddY#
· >[i]ZXji^hhVi^h[VXidgn!gZeZVii]ZXjil^i]
i]Z[^cValdg`e^ZXZ#
3. 6Y_jhii]Z [ZcXZVcYVa^\ci]Z ldg`e^ZXZid
eZg[dgb i]Z Xjii^c\ deZgVi^dc! Vh h]dlc ^c
Figure 56#
1. 9>H8DCC:8IH6L;GDBEDL:G
2. 6Y_jhi i]ZYVYdWaVYZ idi]Z ]Z^\]icZZYZY
[dg i]Z gVWWZi^c\ deZgVi^dc# L]Zc Xjii^c\
YZZe gVWWZih! iV`Z bdgZ i]Vc dcZ eVhh id
gZYjXZi]Zg^h`d[`^X`WVX`#
Cutting Rabbets with a Dado Blade

")'" BdYZa<%,&*EB[\#)$&&
Ldg`e^ZXZ
;ZcXZ
Blade
Figure 58. HZXdcYXjiidXgZViZVgVWWZi#
6. GZXdccZXii]ZhVlidi]ZedlZghdjgXZ!i]Zc
eZg[dgbi]ZXji#
7. AVni]Zldg`e^ZXZ[aVidci]ZiVWaZ!Vhh]dlc
^cFigure 58!VY_jhii]ZhVlWaVYZ]Z^\]iid
^ciZghZXi l^i] i]Z [^ghi Xji! i]Zc eZg[dgb i]Z
hZXdcYXjiidXdbeaZiZi]ZgVWWZi#
;ZcXZ
Blade
Ldg`e^ZXZ
Figure 57. GVWWZiXjii^c\l^i]VhiVcYVgYWaVYZ#
6g^ee^c\WaVYZ^hine^XVaani]ZWZhiWaVYZidjhZ
[dgXjii^c\gVWWZih l]Zcjh^c\ VhiVcYVgYWaVYZ
WZXVjhZ^igZbdkZhhVlYjhikZgnZ[[^X^Zcian#HZZ
Page 29[dgWaVYZYZiV^ah#6ahd!VhVXg^[^X^Va[ZcXZ
^hcdigZfj^gZYl]ZcXjii^c\gVWWZihl^i]VhiVc"
YVgYWaVYZ#
To cut rabbets with the standard blade:
1. 9>H8DCC:8IH6L;GDBEDL:G
2. :chjgZ i]Vi i]Z g^k^c\ `c^[Z VcY hiVcYVgY
iVWaZ^chZgiVgZ^chiVaaZY#
3. BVg`i]Zl^Yi]d[i]ZgVWWZiXjidci]ZZY\Z
d[i]Zldg`e^ZXZ!hdndjXVcXaZVgan^YZci^[n
i]Z^ciZcYZYXjil]^aZ^i^haVn^c\[aVidci]Z
hVliVWaZ#
4. GV^hZi]ZWaVYZjeidi]ZYZh^gZYYZei]d[Xji
YZei]d[gVWWZiX]VccZaYZh^gZY#
5. HiVcY i]Z ldg`e^ZXZ dc ZY\Z! Vh h]dlc ^c
Figure 57, i]ZcVY_jhii]Z[ZcXZhdi]ZWaVYZ
^hVa^\cZYl^i]i]Z^ch^YZd[ndjggVWWZiX]Vc"
cZa#
Cutting Rabbets with a Standard
Blade
·>[i]Zldg`e^ZXZ^hkZgniVaa! dg^hjchiVWaZ
l]ZceaVXZYV\V^chii]Z[ZcXZ!aVn^i[aVidc
i]ZiVWaZVcYjhZVYVYdWaVYZideZg[dgb
i]ZgVWWZiXji#
DO NOT place a tall board on edge to per-
form a rabbet cut with a standard blade.
Workpieces that are too tall to properly
support with the fence can easily shift dur-
ing operation and cause kickback. Instead,
place the stock flat on the saw and perform
the rabbet cut with a dado blade, as instruct-
ed on Page 41.
15
30
45

BdYZa<%,&*EB[\#)$&& ")("
Resawing
GZhVl^c\^h i]ZegdXZhhd[Xjii^c\Vi]^X` e^ZXZ
d[hidX`^ciddcZdgbdgZi]^ccZge^ZXZh#6ai]dj\]
gZhVl^c\XVcWZYdcZl^i]ViVWaZhVl!lZhigdc\"
angZXdbbZcYi]VindjjhZVWVcYhVl^chiZVY#
6WVcYhVl^hi]Z^YZVabVX]^cZ[dggZhVl^c\!VcY
gZhVl^c\l^i]dcZ^h[V^ganZVhnVcYhV[Z#6iVWaZ
hVl ^h cdi ^ciZcYZY [dg gZhVl^c\! VcY gZhVl^c\
l^i] dcZ ^h Y^[[^Xjai VcY YVc\Zgdjh YjZ id i]Z
^cXgZVhZYg^h`d[`^X`WVX`[gdbW^cY^c\VcYYZZe
Xjih!VcYi]Z^cXgZVhZYg^h`d[^c_jgn[gdb]Vk^c\
idgZbdkZi]Z\jVgY#
>[ndj^ch^hidcgZhVl^c\l^i]ViVWaZhVl!9DCDI
Ydhdl^i]djijh^c\VgZhVlWVgg^ZgVcYlZVg^c\V
[jaa[VXZh]^ZaY#I]Z[daadl^c\^chigjXi^dchYZhXg^WZ
]dlidWj^aYVgZhVlWVgg^ZgVcYVYYVcVjm^a^Vgn
[ZcXZ id ndjg hiVcYVgY [ZcXZ! id gZYjXZ i]Z g^h`
^c_jgn[gdbgZhVl^c\dcViVWaZhVl#
Note: To determine the maximum resawing height
for this table saw, find the maximum blade height,
then double it and subtract 1⁄8".
Resawing operations require proper pro-
cedures to avoid serious injury. Extra care
must be taken to prevent kickback when
resawing. Any tilting or movement of the
workpiece away from the fence will cause
kickback. Be certain that stock is flat and
straight. Failure to follow these warnings
could result in serious personal injury.
-m'
LddYHXgZl
6hhZbWaZY
GZhVl7Vgg^Zg
(¿)
(¿)
Figure 59.GZhVlWVgg^Zg#
Making Resaw Barrier
I]Z gZhVl WVgg^Zg VXih ^c iVcYZb l^i] i]Z g^e
[ZcXZ l]Zc gZhVl^c\ id egdk^YZ iVaa hjeedgi [dg
i]Z ldg`e^ZXZ id b^c^b^oZ i]Z egdWVW^a^in d[ ^i
W^cY^c\V\V^chii]ZWaVYZVcYXVjh^c\`^X`WVX`#
Tools Needed: Qty
IVWaZHVl##########################################################&
?d^ciZgVcYEaVcZg####################### GZXdbbZcYZY
8aVbeh############################################### 'B^c^bjb
9g^aaVcY9g^aa7^ih################################################&
Components Needed for Resaw Barrier:
LddY(¿)m*&¿'mAZc\i]d[;ZcXZ###################&
LddY(¿)m(mAZc\i]d[;ZcXZ######################&
LddYHXgZlh-m'########################################)
LddY<ajZ#########################################6hCZZYZY
Only use furniture-grade plywood, kiln dried
hardwood, or HDPE plastic to prevent warping.
To build the resaw barrier:
1. 8ji ndjg lddY e^ZXZh id i]Z h^oZ heZX^[^ZY
VWdkZ# >[ ndj VgZ jh^c\ ]VgYlddY! Xji i]Z
e^ZXZhdkZgh^oZ!i]Zc_d^ciVcYeaVcZi]Zbid
i]ZXdggZXih^oZidbV`ZhjgZi]ZnVgZhfjVgZ
VcY[aVi#
2. EgZ"Yg^aa VcY XdjciZgh^c` [djg ]daZh Veegdm^"
bViZan (¿- [gdb i]Z Wdiidb d[ i]Z *&¿' iVaa
lddYe^ZXZ#
3. <ajZi]ZZcYd[i]Z(WdVgY!i]ZcXaVbei]Z
WdVgYhViV.%Vc\aZl^i]i]ZaVg\ZgWdVgY^c
i]ZkZgi^XVaedh^i^dc!Vhh]dlc^cFigure 59!
[VhiZcid\Zi]Zgl^i]i]ZlddYhXgZlh#

"))" BdYZa<%,&*EB[\#)$&&
Auxiliary Fence
I]Z Vjm^a^Vgn [ZcXZ ^h cZXZhhVgn ^[ ndj VgZ
gZhVl^c\Vldg`e^ZXZi]Vi^hiVaaZgi]Vc^i^hl^YZ#
>i h]djaY WZ cd aZhh i]Vc &¿' h]dgiZg i]Vc i]Z
WdVgYidWZgZhVlc#
Components Needed for the Auxiliary Fence:
LddY(¿)m=Z^\]imAZc\i]d[;ZcXZ############&
Only use furniture-grade plywood, kiln dried
hardwood, or HDPE plastic to prevent warping.
Tools Needed for the Auxiliary Fence:
IVWaZHVl##########################################################&
?d^ciZgVcYEaVcZg####################### GZXdbbZcYZY
8aVbeh############################################### 'B^c^bjb
To build the auxiliary fence:
1. 8ji i]Z Vjm^a^Vgn [ZcXZ WdVgY id h^oZ# >[ ndj
VgZjh^c\]VgYlddY!Xjii]ZWdVgYdkZgh^oZ!
i]Zc_d^ciVcYeaVcZi]ZWdVgYidi]ZXdggZXi
h^oZ id bV`Z hjgZ i]Z WdVgY ^h hfjVgZ VcY
[aVi#
2. Jci]gZVYi]Z[ZcXZ[VXZbdjci^c\]VgYlVgZ
VcY gZbdkZ i]Z [ZcXZ [VXZ [gdb i]Z [ZcXZ
VhhZbWan#
3. EaVXZ i]Z Vjm^a^Vgn [ZcXZ cZmi id i]Z [ZcXZ
[VXZ ndj gZbdkZY ^c Step 1! bVg` i]Z
adXVi^dc d[ i]Z c^cZ bdjci^c\ ]daZh dc i]Z
Vjm^a^Vgn[ZcXZ!i]ZcYg^aai]Z]daZh#
4. JhZ i]Z bdjci^c\ ]VgYlVgZ i]Vi ]VY
egZk^djhanViiVX]ZY i]Z[ZcXZ [VXZidViiVX]
i]ZVjm^a^Vgn[ZcXZ#I]ZZcYgZhjaih]djaYWZ
h^b^aVgidFigure 60#
Figure 60.6jm^a^Vgn[ZcXZ#
;ZcXZ
;VX^c\
;ZcXZ
7dYn
6jm^a^Vgn
;ZcXZ
To perform resawing operations:
1. 9>H8DCC:8IH6L;GDBEDL:G
2. GZbdkZ i]Z hiVcYVgY iVWaZ ^chZgi VcY i]Z
WaVYZ\jVgYVhhZbWan#
3. >chiVaaVg^ee^c\WaVYZ!^chiVaai]Zg^k^c\`c^[Z!
adlZgi]Z WaVYZWZadl i]ZiVWaZ! i]Zc^chiVaa
i]Z dei^dcVa BdYZa I'(&)+ oZgd XaZVgVcXZ
iVWaZ^chZgi#
4. 6iiVX] i]Z Vjm^a^Vgn [ZcXZ VcY hZi ^i id i]Z
YZh^gZYl^Yi]#
Note: When figuring out the correct width,
don't forget to account for blade kerf and
the inaccuracy of the fence scale while the
auxiliary fence is installed.
5. EaVXZ i]Z ldg`e^ZXZ V\V^chi i]Z Vjm^a^Vgn
[ZcXZ VcY ha^YZ i]Z gZhVl WVgg^Zg V\V^chi
i]Zldg`e^ZXZ!Vhh]dlc^cFigure 61#Cdl
XaVbei]ZgZhVlWVgg^Zgidi]Zided[i]ZiVWaZ
hVlViWdi]ZcYh#
You may experience kickback during this
procedure. Stand to the side of the blade
and wear a full face shield to prevent injury
when resawing.
Resawing Operations
I]ZiVWaZhVlbdidg^hejh]ZYid^iha^b^ihl]Zc
gZhVl^c\# >[ i]Z bdidg hiVgih id Wd\ Ydlc! hadl
Ydlcndjg[ZZYgViZ#BdidgdkZgadVY^c\VcYWaVYZ
lZVg XVc WZ gZYjXZY Wn jh^c\ V g^ee^c\ WaVYZ#
G^ee^c\WaVYZhVgZYZh^\cZYidXaZVgi]ZhVlYjhi
fj^X`an#
Components Needed for Resawing:
OZgd"XaZVgVcXZ>chZgi#########################################&
G^ee^c\7aVYZ&%###############################################&
8aVbeh###############################################################'
H]deBVYZ6jm^a^Vgn;ZcXZ###############################&
H]deBVYZGZhVl7Vgg^Zg#################################&

BdYZa<%,&*EB[\#)$&& ")*"
6jm^a^Vgn
;ZcXZ
;ZcXZ
GZhVl
7Vgg^Zg
Ldg`e^ZXZ (Front View)
Figure 61#>YZVagZhVlldg`e^ZXZhZije#
The danger of kickback increases relative to
the depth of a cut. Reduce the risk of kick-
back by making multiple passes to achieve
the desired depth of cut. Failure to follow
these warnings could result in serious per-
sonal injury.
Always use push sticks or push paddles to
increase safety and control during opera-
tions which require that the blade guard
and spreader must be removed from the
saw. ALWAYS replace the blade guard after
resawing is complete.
8. Eaj\^ci]ZiVWaZhVl!ijgc^iON!VcYjhZV
ejh]hi^X`dgejh]WadX`id[ZZYi]Zldg`e^ZXZ
i]gdj\] i]Z WaVYZ! jh^c\ V hadl VcY hiZVYn
[ZZYgViZ#
9. ;a^ei]Z ldg`e^ZXZZcY [dgZcY! `ZZe^c\i]Z
hVbZ h^YZ V\V^chi i]Z [ZcXZ! VcY gjc i]Z
ldg`e^ZXZi]gdj\]i]ZWaVYZ#
6. AdlZgi]ZWaVYZXdbeaZiZanWZadli]ZiVWaZ!
VcY ha^YZ i]Z ldg`e^ZXZ dkZg i]Z WaVYZ
id bV`Z hjgZ ^i bdkZh hbddi]an VcY [^ih
WZilZZci]ZgZhVlWVgg^ZgVcY[ZcXZ#
7. GV^hZ i]Z WaVYZ Veegdm^bViZan Vc ^cX]! dg
XadhZ id ]Va[ i]Z ]Z^\]i d[ i]Z ldg`e^ZXZ
Figure 62!l]^X]ZkZg^haZhh#
6jm^a^Vgn
;ZcXZ
;ZcXZ
GZhVl
7Vgg^Zg
&$-8dccZXi^dc
Ldg`e^ZXZ
Figure 62.>YZVaXdbeaZiZYgZhVlXji#
11. Ijgc OFF i]Z iVWaZ hVl! i]Zc hZeVgViZ i]Z
eVgih d[ i]Z ldg`e^ZXZ VcY ]VcY eaVcZ i]Z
gZbV^c^c\g^Y\ZidgZbdkZ^i#
12. L]Zc [^c^h]ZY gZhVl^c\! gZbdkZ i]Z gZhVl
WVgg^ZgVcYVjm^a^Vgn[ZcXZ!i]ZcgZ"^chiVaai]Z
WaVYZ\jVgY$hegZVYZgdgg^k^c\`c^[ZVcYhiVc"
YVgYiVWaZ^chZgi#
10. GZeZViSteps 7–9jci^ai]ZWaVYZ^hXadhZid
]Va[d[i]Z]Z^\]id[i]ZWdVgYidWZgZhVlc#
I]Z^YZVaXdbeaZiZYgZhVlXjil^aaaZVkZVc
&¿- XdccZXi^dc l]Zc i]Z gZhVl^c\ ^h Xdb"
eaZiZVhh]dlc^cFigure 62#AZVk^c\Vc&¿-
XdccZXi^dcl^aagZYjXZi]Zg^h`d[`^X`WVX`#

")+" BdYZa<%,&*EB[\#)$&&
SECTION 5: SHOP MADE SAFETY
ACCESSORIES
:Vh^an bVYZ [gdb hXgVe hidX`! [ZVi]ZgWdVgYh
egdk^YZ Vc VYYZY YZ\gZZ d[ egdiZXi^dc V\V^chi
`^X`WVX`! ZheZX^Vaan l]Zc jhZY id\Zi]Zg l^i]
ejh]hi^X`h#I]ZnVahd bV^ciV^cegZhhjgZdc i]Z
ldg`e^ZXZ id `ZZe ^i V\V^chi i]Z [ZcXZ dg iVWaZ
l]^aZ Xjii^c\! l]^X] bV`Zh i]Z deZgVi^dc ZVh^Zg
VcYhV[ZgWZXVjhZi]ZXjiXVcWZXdbeaZiZYl^i]"
dji i]Z deZgVidg»h ]VcYh \Zii^c\ cZVg i]Z WaVYZ#
I]ZVc\aZYZcYhVcY[aZm^W^a^ind[i]Z[^c\ZghVaadl
i]Zldg`e^ZXZidbdkZ^cdcandcZY^gZXi^dc#
Making a Featherboard
I]^h hjW"hZXi^dc XdkZgh i]Z ild WVh^X ineZh d[
[ZVi]ZgWdVgYh/&I]dhZhZXjgZYWnXaVbeh!dg'
i]dhZhZXjgZYl^i]i]Zb^iZghadi#
Material Needed for Featherboard
=VgYlddY(¿)m(m&%B^c^bjb
=VgYlddY(¿)m+m'-BVm^bjb##################&
Additional Material Needed for Mounting
Featherboard in Miter Slot
=VgYlddY(¿-mB^iZgHadiL^Yi]m*A###########&
L^c\Cji&$)"'%##################################################&
;aVi=ZVYHXgZl&¿)"'%m'###############################&
;aViLVh]Zg&¿)"'%##############################################&
To make a featherboard:
1. 8jiV]VgYlddYWdVgYVeegdm^bViZan(¿)i]^X`
id h^oZ# I]Z aZc\i] VcY l^Yi] d[ i]Z WdVgY
XVc kVgn VXXdgY^c\ id ndjg YZh^\c# Bdhi
[ZVi]ZgWdVgYh VgZ &%¶'- adc\ VcY (¶+
l^YZ#BV`Z hjgZi]Z lddY\gV^cgjch eVgVa"
aZal^i]i]ZaZc\i]d[i]Z[ZVi]ZgWdVgY!hdi]Z
[^c\Zgh ndj l^aa XgZViZ ^c Step 3 l^aa WZcY
l^i]djiWgZV`^c\#
Featherboards
2. 8jiV(%§Vc\aZVidcZZcYd[i]ZWdVgY#
We recommend using a bandsaw for making
fingers in the next step because it tends to
be safer. A table saw can be used, but it will
over-cut the underside of the ends, produce
a thicker kerf, and require you to stop the
blade half-way through the cut, which can be
dangerous.
6
7
(%
'"(
&¿&+"&¿-
@Zg[
&¿&+"&¿-
@Zg[
'"(
&%B^c^bjb
>c^i^Va8ji
Egd\gZhh^kZan
Adc\Zg8jih
(¿-
(¿-
Figure 63.EViiZgch[dg[ZVi]ZgWdVgYh
idek^Zlh]dlc#
3. BV`ZVhZg^Zhd[ZcYXjihl^i]i]Z\gV^c(¿-¶
&¿)VeVgiVcY'¶(adc\!Vhh]dlc^cFigure
63 6#6aiZgcVi^kZan!hiVgiXjihVi'"(YZZe!
i]Zc bV`Z i]Zb egd\gZhh^kZan YZZeZg! Vh
h]dlc^cFigure 63 7#
IMPORTANT:8jihbVYZVXgdhhi]Z\gV^cgZhjai
^c lZV` [^c\Zgh i]Vi ZVh^an WgZV` l]Zc [aZmZY#
L]Zc bVYZ XdggZXian! i]Z [^c\Zgh h]djaY l^i]"
hiVcY[aZm^c\[gdbbdYZgViZegZhhjgZ#IdiZhii]Z
[^c\Zg[aZm^W^a^in!ejh][^gbandci]ZZcYhl^i]ndjg
i]jbW#>[i]Z[^c\ZghYdcdi[aZm!i]ZnVgZa^`Zanidd
i]^X`i]ZXjihVgZidd[VgVeVgi#
NOTICE
Only Steps 1–3 are required to make a
clamp-mounted featherboard. Refer to Page
48 for instructions on clamping.

BdYZa<%,&*EB[\#)$&& "),"
*
*
)Hadi
IdeK^Zl H^YZK^Zl
($-
8djciZgh^c`dc7diidb
&$)=daZ
Figure 65.B^iZgWVgeViiZgc#
5. 8jiVb^iZgWVgi]Vil^aa[^i^ci]ZiVWaZb^iZg
hadi Veegdm^bViZan * adc\! Vh h]dlc ^c
Figure 65#
Tip: Consider making the miter bar longer for
larger featherboards—approximately half the
length of the total featherboard—to support
the force applied to the featherboard during
use.
7. BVg`V)a^cZi]gdj\]i]ZXZciZgd[i]ZXdjc"
iZghjc`]daZ^ci]ZXZciZg!i]ZcjhZV_^\hVl
l^i]VcVggdlWaVYZidXji^idji#
8. 6hhZbWaZ i]Z b^iZg WVg VcY [ZVi]ZgWdVgY
l^i] V &¿)"'% m [aVi ]ZVY hXgZl! [aVi lVh]Zg!
VcY V l^c\ cji dg V hiVg `cdW hZZ Figure
66# 8dc\gVijaVi^dch Ndjg [ZVi]ZgWdVgY ^h
XdbeaZiZ#
4. Gdji V &¿)¶(¿- l^YZ hadi )¶* adc\ ^c i]Z
ldg`e^ZXZVcY&¶'[gdbi]Zh]dgiZcYd[i]Z
[ZVi]ZgWdVgYhZZFigure 64#
Figure 64.HadigdjiZY^c[ZVi]ZgWdVgY#
&"'
)"*
&$)"($-Hadi
H^YZK^Zl
L^c\Cji
B^iZg7Vg
;ZVi]ZgWdVgY
;aVi=ZVYHXgZl
;aViLVh]Zg
Figure 66.6hhZbWa^c\b^iZghadi[ZVi]ZgWdVgY
XdbedcZcih#
Note:The routed slot, countersink hole, and
the flat head screw are essential for the miter
bar to clamp into the miter slot. When the
wing nut is tightened, it will draw the flat head
screw upward into the countersunk hole. This
will spread the sides of the miter bar and
force them into the walls of the miter slot,
locking the featherboard in place.
Tip:The length of the flat head screw depends
on the thickness of the featherboard—though
11⁄2" to 2" lengths usually work.
Cdl!egdXZZYidMounting Featherboard in
Miter SlotdcPage 48#
6. 9g^aaV&¿)]daZ^ci]ZXZciZgd[i]ZWVg!i]Zc
XdjciZgh^c`i]ZWdiidbid[^iV&¿)"'%[aVi]ZVY
hXgZl#

")-" BdYZa<%,&*EB[\#)$&&
Mounting Featherboard in Miter Slot
;ZVi]ZgWdVgY
7aVYZ
Ldg`e^ZXZ
Figure 68.;ZVi]ZgWdVgY^chiVaaZY^cb^iZghadi
VcYhjeedgi^c\ldg`e^ZXZ[dgg^ee^c\Xji#
4. Edh^i^dc i]Z [^c\ZgZY ZY\Z d[ i]Z [ZVi]Zg"
WdVgYV\V^chii]ZZY\Zd[i]Zldg`e^ZXZ!hd
i]ViVaad[i]Z[^c\Zgh XdciVXii]Zldg`e^ZXZ#
Ha^YZi]Z[ZVi]ZgWdVgYidlVgYi]ZWaVYZjci^a
i]Z[^ghi[^c\Zg^hcZVganZkZcl^i]i]ZZcYd[
i]Zldg`e^ZXZ!l]^X]h]djaYWZ&VlVn[gdb
i]ZWaVYZ#
5. 9djWaZX]ZX`i]Zldg`e^ZXZVcYi]Z[ZVi]Zg"
WdVgYidZchjgZi]ZnVgZegdeZganedh^i^dcZY
Vh YZhXg^WZY ^c Step 4# I]Zc hZXjgZ i]Z
[ZVi]ZgWdVgYidi]ZiVWaZ#8]ZX`i]Z[ZVi]Zg"
WdVgYWn]VcYidbV`ZhjgZ^i^hi^\]i#
Note: The featherboard should be placed
firmly enough against the workpiece to keep
it against the fence but not so tight that it is
difficult to feed the workpiece.
Mounting Featherboards w/Clamps
4. HZXjgZ i]Z [ZVi]ZgWdVgY id i]Z iVWaZ l^i] V
XaVbe#
5. 8]ZX` i]Z [ZVi]ZgWdVgY Wn ejh]^c\ ^i l^i]
ndjgi]jbWidZchjgZ^i^hhZXjgZ#
·>[ i]Z [ZVi]ZgWdVgY bdkZh! i^\]iZc i]Z
XaVbebdgZ#
6. Bdjci V hZXdcY [ZVi]ZgWdVgY id i]Z [ZcXZ
l^i] Vcdi]Zg XaVbe hZZ Figure 67! i]Zc
gZeZViStep 5idZchjgZ^i^hhZXjgZ#
Figure 67.:mVbeaZd[[ZVi]ZgWdVgYhhZXjgZY
l^i]XaVbeh#
;ZcXZ;ZVi]ZgWdVgY
IVWaZ
;ZVi]ZgWdVgY
8aVbe
8aVbe
1. AdlZgi]ZhVlWaVYZ!i]ZcVY_jhii]Z[ZcXZid
i]ZYZh^gZYl^Yi]VcYhZXjgZ^i#
2. EaVXZi]Zldg`e^ZXZZkZcanV\V^chii]Z[ZcXZ!
bV`^c\hjgZ^i^h&^c[gdcid[i]ZWaVYZ#
3. Ha^YZi]Z[ZVi]ZgWdVgYb^iZgWVg^cidi]Zb^iZg
hadi!bV`^c\hjgZi]Z[^c\ZghhaVciidlVgYi]Z
WaVYZ!Vhh]dlc^cFigure 68#
1. AdlZgi]ZhVlWaVYZ!i]ZcVY_jhii]Z[ZcXZid
i]ZYZh^gZYl^Yi]VcYhZXjgZ^i#
2. EaVXZi]Zldg`e^ZXZV\V^chii]Z[ZcXZ!bV`"
^c\hjgZ^i^h&^c[gdcid[i]ZWaVYZ#
3. EaVXZV[ZVi]ZgWdVgYdci]ZiVWaZVlVn[gdb
i]Z WaVYZ hd Vaa [^c\Zgh ed^ci [dglVgY VcY
XdciVXii]Zldg`e^ZXZhZZFigure 67#

BdYZa<%,&*EB[\#)$&& ")."
L]ZcjhZYXdggZXian!ejh]hi^X`hgZYjXZi]Zg^h`
d[ ^c_jgn Wn `ZZe^c\ ]VcYh VlVn [gdb i]Z WaVYZ
l]^aZXjii^c\#>ci]ZZkZcid[VcVXX^YZci!Vejh]
hi^X` XVc Vahd VWhdgW YVbV\Z i]Vi ldjaY ]VkZ
di]Zgl^hZ]VeeZcZYid]VcYhdg[^c\Zgh#
Using a Push Stick
JhZ ejh] hi^X`h l]ZcZkZg ndjg ]VcYh l^aa \Zi
l^i]^c&'d[i]ZWaVYZ#IdbV^ciV^cXdcigdal]Zc
Xjii^c\aVg\Zldg`e^ZXZh!hiVgii]ZXjiWn[ZZY^c\
l^i] ndjg ]VcYh i]Zc jhZ ejh] hi^X`h id [^c^h]
i]ZXji!hdndjg]VcYhVgZcdidci]ZZcYd[i]Z
ldg`e^ZXZVh^ieVhhZhi]gdj\]i]ZWaVYZ#
Feeding: EaVXZ i]Z cdiX]ZY ZcY d[ i]Z ejh]
hi^X`V\V^chii]ZZcYd[i]Zldg`e^ZXZhZZ^chZi
FigureWZadl!VcYbdkZi]Zldg`e^ZXZ^cidi]Z
WaVYZ l^i] hiZVYn YdlclVgY VcY [dglVgY egZh"
hjgZ#
Push Sticks
Figure 69.Jh^c\ejh]hi^X`hidg^ecVggdlhidX`#
Feeding
Supporting
7aVYZ
EVi] Ejh]Hi^X`
Ejh]Hi^X`
Push Stick
Prohibition
Zone HidgZEjh]
Hi^X`=ZgZ
[dg:Vhn
6XXZhh
Supporting:6hZXdcYejh]hi^X`XVcWZjhZYid
`ZZei]Zldg`e^ZXZ[^gbanV\V^chii]Z[ZcXZl]^aZ
Xjii^c\#L]Zcjh^c\Vejh]hi^X`^ci]^hbVccZg!
dcanVeeanegZhhjgZ WZ[dgZi]ZWaVYZ0di]Zgl^hZ!
ejh]^c\ i]Z ldg`e^ZXZ V\V^chi dg WZ]^cY i]Z
WaVYZl^aa^cXgZVhZi]Zg^h`d[`^X`WVX`hZZEjh]
Hi^X`Egd]^W^i^dcOdcZ^ci]ZFigure WZadl#
.%§
8ji]ZgZid
ejh]&¿)hidX`
8ji]ZgZidejh]&¿'hidX`
CdiX][dgeaVX^c\dc
XdgcZghd[ldg`e^ZXZh
&*($)B^c^bjbAZc\i]
MATERIAL: DcanjhZ
]VgYlddY!hijgYneanlddY!
dg]^\]"YZch^ineaVhi^X#9d
cdijhZhd[ilddYi]VibVn
WgZV`jcYZgegZhhjgZdg
bZiVai]ViXVcWgZV`iZZi]
[gdbi]ZWaVYZ
SANDING: HVcY
ZY\ZhidgZbdkZ
gdj\]ZY\ZhVcY
^cXgZVhZXdb[dgi#
SIZING: Ejh]hi^X`
bjhiWZViaZVhi&*
(¿)
adc\#JhZ&¿'¶(¿)i]^X`
bViZg^Va#
CdiX]id]Zae
egZkZci]VcY
[gdbha^ee^c\
1⁄2" Grid
Figure71#IZbeaViZ[dgVWVh^Xh]de"bVYZejh]hi^X`cdih]dlcViVXijVah^oZ#
Figure 70.H^YZk^Zld[Vejh]hi^X`^c"jhZ#
Making a Push Stick
JhZi]^hiZbeaViZidbV`Z
ndjgdlcejh]hi^X`#

"*%" BdYZa<%,&*EB[\#)$&&
Figure 74#IZbeaViZ[dgVh]de"bVYZejh]WadX`h]dlcVi*%d[[jaah^oZ#
.&%B^c^bjbAZc\i]
A^e[dgejh]^c\ldg`e^ZXZ
=VcYaZ[dg
[^gb\g^e
BV`Zejh]WadX`l^i]
&¿'¶(¿)i]^X`bViZg^Va
&$)¶&$'
)
CdiX][dgjhZ
VhVejh]hi^X`
1⁄2" Grid
CAUTION: DcanjhZ]VgYlddY!hijgYneanlddY!
dg]^\]"YZch^ineaVhi^X#9dcdijhZhd[ilddYi]Vi
bVnWgZV`jcYZgegZhhjgZdgbZiVai]ViXVcWgZV`
iZZi][gdbi]ZWaVYZ
CAUTION: 7diidb
d[]VcYaZbjhiWZ
ViaZVhi)VWdkZ
Wdiidbd[ejh]
WadX`id`ZZe
]VcYVlVn
[gdbWaVYZ#
Figure 72#H^YZk^Zld[Vejh]WadX`^cjhZ#
L]Zc jhZY XdggZXian! V ejh] WadX` gZYjXZh i]Z
g^h` d[ ^c_jgn Wn `ZZe^c\ ]VcYh VlVn [gdb i]Z
WaVYZ l]^aZ Xjii^c\# >c i]Z ZkZci d[ Vc VXX^YZci!
Vejh]WadX`d[iZciV`Zhi]ZYVbV\Zi]VildjaY
]VkZdi]Zgl^hZ]VeeZcZYid]VcYhdg[^c\Zgh#
Using a Push Block
6ejh]WadX`XVcWZjhZY^ceaVXZd[dg^cVYY^"
i^dcidVejh]hi^X`[dg[ZZY^c\ldg`e^ZXZh^cidi]Z
WaVYZ#9jZidi]Z^gYZh^\c!ejh]WadX`hVaadli]Z
deZgVidgidVeean[^gbYdlclVgYegZhhjgZdci]Z
ldg`e^ZXZ i]Vi XdjaY cdi di]Zgl^hZ WZ VX]^ZkZY
l^i]Vejh]hi^X`#
I]Zejh]WadX`YZh^\cdci]^heV\ZXVcWZjhZY
^c ild Y^[[ZgZci lVnh hZZ ^chZi Figure WZadl#
Ine^XVaan! i]Z Wdiidb d[ i]Z ejh] WadX` ^h jhZY
jci^ai]ZZcYd[i]Zldg`e^ZXZgZVX]Zhi]ZWaVYZ#
Push Blocks
7aVYZ
EVi]
Ejh]Hi^X`
Ejh]
7adX`
Push Stick
Prohibition
Zone
Feeding
Supporting
Figure 73.Jh^c\Vejh]WadX`VcYejh]hi^X`id
bV`ZVg^eXji#
I]ZcdiX]ZYZcYd[i]Zejh]WadX`^hi]ZcjhZY
idejh]i]Zldg`e^ZXZi]ZgZhid[i]ZlVni]gdj\]
i]Z Xji! `ZZe^c\ i]Z deZgVidgh ]VcYh Vi V hV[Z
Y^hiVcXZ [gdb i]Z WaVYZ# 6 ejh] hi^X` ^h d[iZc
jhZYVii]ZhVbZi^bZ^ci]Zdi]Zg]VcYidhje"
edgi i]Z ldg`e^ZXZ Yjg^c\ i]Z Xji hZZ Jh^c\ V
Ejh]Hi^X`dcegZk^djheV\Z#
Making a Push Block
JhZi]^hiZbeaViZidbV`Zndjgdlcejh]WadX`#

BdYZa<%,&*EB[\#)$&& "*&"
Note:We recommend cutting the hardwood
board oversize, then jointing and planing it
to the correct size to make sure the board
is square and flat. Only use furniture-grade
plywood or kiln dried hardwood to prevent
warping.
(
(¿)=VgYlddY
*&¿)
(¿)EanlddY
AZc\i]d[IVWaZ
HVl;ZcXZ
AZc\i]d[IVWaZ
HVl;ZcXZ
Figure 75.6jm^a^Vgn[ZcXZY^bZch^dch#
Making a Narrow-Rip Push Block for
an Auxiliary Fence
1. 8jiVe^ZXZd[(¿)i]^X`eanlddY*
&¿)l^YZVcY
Vhadc\VhndjgiVWaZhVl[ZcXZ0XjiVe^ZXZ
d[(¿)i]^X`]VgYlddY(l^YZVcYVhadc\Vh
ndjg iVWaZ hVl [ZcXZ! Vh h]dlc ^c Figure
75.
Narrow-Rip Auxiliary
Fence & Push Block
I]ZgZ VgZ YZh^\ch [dg ]jcYgZYh d[ heZX^Vain _^\h
i]ViXVcWZ[djcY^cWdd`h!igVYZbV\Vo^cZh!VcY
dc i]Z ^ciZgcZi# I]ZhZ ineZh d[ _^\h XVc \gZVian
^begdkZi]ZhV[ZinVcYXdch^hiZcXnd[Xjih#I]Zn
VgZ eVgi^XjaVgan jhZ[ja Yjg^c\ egdYjXi^dc gjch
l]ZcYdoZchdg]jcYgZYhd[i]ZhVbZineZd[Xji
cZZYidWZbVYZ#
I]Z cVggdl"g^e Vjm^a^Vgn [ZcXZ VcY ejh] WadX`
hnhiZb h]dlc ^c i]^h hZXi^dc ^h Vc ZmVbeaZ d[
VheZX^Vain_^\ i]ViXVcWZ bVYZid^cXgZVhZ i]Z
hV[Zind[kZgncVggdlg^eXjih#
2. EgZ"Yg^aaVcYXdjciZgh^c`Z^\]ie^adi]daZh(¿-
[gdb i]Z Wdiidb d[ i]Z ( l^YZ WdVgY! i]Zc
hZXjgZ i]Z WdVgYh id\Zi]Zg l^i] Z^\]i - m
&&¿'lddYhXgZlh!Vhh]dlc^cFigure 76#
(¿)EanlddY
8dbeaZiZY
;ZcXZ
(¿)=VgYlddY
-m&&¿'
LddYHXgZl
Figure 76.AdXVi^dcd[e^adi]daZh#
**¿-
&*
*&¿)
&'&¿'
'&¿'
(¿-A^e
=VcYaZ
(¿-
*¿-
'&¿'
Figure 77.Ejh]WadX`Y^bZch^dchVcY
XdchigjXi^dc#
3. Jh^c\i]Z(¿)bViZg^VandjjhZY^ci]ZegZk^"
djhhiZeh!Xjidjie^ZXZh[dgi]Zejh]WadX`
eZgi]Z Y^bZch^dchh]dlc ^cFigure 770 [dg
i]Z]VcYaZ!XjiVe^ZXZ&%adc\Wn*¶.]^\]
VcYh]VeZ^iVhYZh^gZYid[^indjg]VcY#
4. 6iiVX]i]Z]VcYaZidi]ZWVhZl^i]-m&&¿'
lddYhXgZlh!VcYViiVX]i]Za^eidi]ZWVhZ
l^i]XnVcdVXgnaViZineZlddY\ajZ#
Material Needed for Narrow Rip Auxiliary
Fence & Push Block
=VgYlddY(¿)m(mAZc\i]d[;ZcXZ################&
EanlddY(¿)m*&¿)mAZc\i]d[;ZcXZ################&
LddYHXgZlh-m&&¿'######################################-
Material Needed for Push Block
=VgYlddYdgEanlddY(¿)m&*m**¿-###############&
=VgYlddYdgEanlddY(¿)m&%m*¶.############&
8nVcdVXgnaViZLddY<ajZ#########################KVg^Zh
LddYHXgZlh-m&&¿'######################6hCZZYZY

"*'" BdYZa<%,&*EB[\#)$&&
Using the Auxiliary Fence and Push
Block
1. EaVXZ i]Z Vjm^a^Vgn [ZcXZ dc i]Z iVWaZ VcY
XaVbe^iidi]Z[ZcXZViWdi]ZcYh!i]ZcVY_jhi
i]ZY^hiVcXZWZilZZci]ZVjm^a^Vgn[ZcXZVcY
i]Z WaVYZ·i]^h YZiZgb^cZh ]dl l^YZ i]Z
ldg`e^ZXZl^aaWZg^eeZYhZZFigure 78#
2. >chiVaa i]Z WaVYZ \jVgY! i]Zc hZXjgZ i]Z
hegZVYZg eVlah ^c i]Z jeg^\]i edh^i^dc! Vh
h]dlc^cFigure 43dcPage 34!hdi]ZnYd
cdi^ciZg[ZgZl^i]i]Zejh]WadX`a^e#
Ldg`e^ZXZ
8jii^c\L^Yi]
7aVYZ
6jm^aa^Vgn;ZcXZ
Figure 78.6Y_jhi^c\g^ee^c\Y^hiVcXZWZilZZc
WaVYZVcYVjm^a^Vgn[ZcXZ#
Keep the blade guard installed and in the
down position. Failure to do this could
result in serious personal injury or death.
Turn OFF the saw and allow the blade to
come to a complete stop before removing
the cut-off piece. Failure to follow this warn-
ing could result in serious personal injury.
6jm^aa^Vgn;ZcXZ
7aVYZ
Ldg`e^ZXZ
Ejh]Hi^X`
[dgH^YZ
Hjeedgi
7aVYZEVi]
Ejh]
7adX`
Figure 79.Ejh]WadX`^cedh^i^dcidejh]
ldg`e^ZXZi]gdj\]WaVYZ#
3. EaVXZi]Zldg`e^ZXZ&WZ]^cYi]ZWaVYZVcY
ZkZcan V\V^chi i]Z iVWaZ VcY i]Z Vjm^a^Vgn
[ZcXZ#
4. Ijgc i]Z hVl ON! i]Zc WZ\^c g^ee^c\ i]Z
ldg`e^ZXZ jh^c\ V ejh] hi^X` [dg h^YZ hje"
edgi#
5. 6h i]Z ldg`e^ZXZ cZVgh i]Z ZcY d[ i]Z Xji!
eaVXZ i]Z ejh] WadX` dc i]Z Vjm^a^Vgn [ZcXZ
l^i] i]Z a^e Y^gZXian WZ]^cY i]Z ldg`e^ZXZ!
i]Zc gZaZVhZ i]Z ejh] hi^X` _jhi WZ[dgZ i]Z
WaVYZ#
6. <j^YZ i]Z ldg`e^ZXZ i]Z gZhi d[ i]Z lVn
i]gdj\]i]ZXjil^i]i]Zejh]WadX`!Vhh]dlc
^cFigure 80#
Ejh]
7adX`
A^e
GZaZVhZ
Ejh]Hi^X`
7Z[dgZ7aVYZ
7aVYZEVi]
Figure80#G^ee^c\l^i]ejh]WadX`#

BdYZa<%,&*EB[\#)$&& "*("
6 XgdhhXji haZY hZZ Figure 82^hV[VciVhi^X
lVnid^begdkZi]ZhV[ZinVcYVXXjgVXnd[Xgdhh"
Xjii^c\ dc i]Z iVWaZ hVl# Bdhi ZmeZgi iVWaZ hVl
deZgVidgh jhZ V XgdhhXji haZY l]Zc i]Zn ]VkZ
idXgdhhXjiVaVg\ZkdajbZd[ldg`!WZXVjhZi]Z
haZYd[[ZghhjWhiVci^VaegdiZXi^dcV\V^chi`^X`WVX`
l]ZcXgdhhXjii^c\#
Figure 82. :mVbeaZd[XgdhhXjihaZY#
8gdhhXji
HaZY
Crosscut Sled
DcZ d[ i]Z WZhi VXXZhhdg^Zh [dg ^begdk^c\ i]Z
hV[ZinVcYZVhZd[jh^c\ViVWaZhVl^hh^beaneaVX"
^c\VaVg\ZiVWaZdji[ZZYiVWaZWZ]^cYi]ZhVlid
XViX]i]Zldg`e^ZXZhZZFigure 81#6YY^i^dcVaan!
Vcdi]ZgiVWaZidi]ZaZ[id[i]ZhVlhjeedgiiVWaZ
XVc Vahd ]Zae hjeedgi aVg\Z ldg`e^ZXZh hd i]Zn
XVcWZXjihV[ZanVcYVXXjgViZan#
Figure 81.:mVbeaZd[dji[ZZYhjeedgiiVWaZh#
Dji[ZZY
IVWaZ
Hjeedgi
IVWaZ
Outfeed & Support
Tables

"*)" BdYZa<%,&*EB[\#)$&&
688:HHDG>:H
H7583—Grizzly Tenoning Jig
Djg [jaan VY_jhiVWaZ iZcdc^c\ _^\ ]VcYaZh hidX`
jeid(&¿)i]^X`VcY[ZVijgZhVcVY_jhiVWaZWZkZa
Vc\aZl^i]V.%id,*gVc\Z#I]ZildaVg\Z\g^e
]VcYaZh!VY_jhiVWaZ\j^YZWVg!bjai^"edh^i^dcXdc"
igdaaZkZgh!VcYZmigVaVg\ZXaVbe^c\]VcYl]ZZa
l^aaZchjgZVXXjgViZVcYgZeZViVWaZgZhjaih#6ide
hZaaZg
Figure 83#BdYZa=,*-(IZcdc^c\?^\#
G7314Z—Heavy-Duty E:AB 8AJ Mobile
Base
BV`ZndjgBdYZa<%,&*EbdW^aZl^i]i]^hedejaVg
eViZciZYbdW^aZWVhZ#I]Zjc^fjZdjig^\\ZgineZ
hjeedgih ^cXgZVhZ hiVW^a^in VcY adlZg bVX]^cZ
]Z^\]i#I]^h]ZVknYjinbdW^aZ WVhZ^h gViZY[dg
jeidV,%%aW#XVeVX^in#
Figure 84. <,(&)OE:AB8AJ BdW^aZ7VhZ#
Some aftermarket accessories can be
installed on this machine that could cause
it to function improperly, increasing the risk
of serious personal injury. To minimize this
risk, only install accessories recommended
for this machine by Grizzly.
NOTICE
Refer to the newest copy of the Grizzly
Catalog for other accessories available for
this machine.
T10222—Router Table Attachment
T10223—Sliding Table Attachment
6XXZhhdg^oZndjgIVWaZ HVll^i]Z^i]Zgd[i]ZhZ
ViiVX]bZcih[dgjai^bViZiVWaZhVl[jcXi^dcVa^in#
Figure 85. I&%'''"'(Ha^Y^c\IVWaZGdjiZg
IVWaZ6iiVX]bZcih#
T10223 T10222
T23146—Zero Clearance Insert for G0715P
SECTION 6: AFTERMARKET
ACCESSORIES FROM GRIZZLY

BdYZa<%,&*EB[\#)$&& "**"
G1163—1HP Dust Collector
G3591—30 Micron Replacement Bag
H4043—3.0 Micron Upgrade Bag
:mXZaaZci ed^ci"d["jhZ Yjhi XdaaZXidg i]Vi XVc
WZ jhZY cZmi id i]Z bVX]^cZ l^i] b^c^bVa YjXi"
^c\# HeZX^[^XVi^dch ^cXajYZ )*% 8;B! '#- hiVi^X
egZhhjgZ!VcY(%b^Xgdc[^aiZgje\gVYVWaZid(#%
b^Xgdc#;ZVijgZh&=E!&&%K$''%K!&)6$,6bdidg#
Figure 88.<&&+(&=EYjhiXdaaZXidg#
G1317—37" Wide Outfeed Roller System
H8875—26" Wide Outfeed Roller System
I]ZhZ jc^fjZ gdaaZg hnhiZbh [daY Ydlc ZVh^an
l^i]djiiddahVcYhcVeje^ceaVXZfj^X`anl]Zc
cZZYZY# 7di] jc^ih ]VkZ V YdjWaZ aZkZa hnhiZb
l]^X]aZihndjhZii]ZgdaaZghZ^i]Zg^ca^cZl^i]i]Z
iVWaZdgha^\]ianWZadl^i#
Figure 86. Dji[ZZYgdaaZghnhiZb#
Model G1317 Shown
Figure 89. <)&,.EdlZg;ZZYZg#
G4173—1⁄8 HP Power Feeder
G4176—1⁄4 HP Power Feeder
G4179—1⁄2 HP Power Feeder
>chiVaa^c\ V edlZg [ZZYZg dc ndjg iVWaZ hVl l^aa
bV`Z gZeZi^i^kZ Xjih bjX] ZVh^Zg VcY hV[Zg#
8Vc WZ ^chiVaaZY dc cZVgan Vcn iVWaZ hVl# :Vhn
id VY_jhil]ZgZkZgcZZYZY! ^cXajY^c\djid[ i]Z
lVnl]ZccdicZZYZY6bjhi[dgVcnegdYjXi^dc
h]de#
Figure 90. =((%.E:AB8AJ ;ZVi]ZgWdVgY#
H3309—E:AB8AJ Featherboard
9Zh^\cZY id adX` ^cid V hiVcYVgY (¿- m (¿) b^iZg
hadi!i]^h[ZVi]ZgWdVgY^h[jaanVY_jhiVWaZidVXXdb"
bdYViZVl^YZgVc\Zd[ldg`e^ZXZh#
Figure 87. GZXdbbZcYZYegdYjXih[dg
egdiZXi^c\ndjgXVhi^gdciVWaZide#
G5562—SLIPIT® 1 Qt. Gel
G5563—SLIPIT® 12 oz Spray
G2871—Boeshield® T-9 12 oz Spray
G2870—Boeshield® T-9 4 oz Spray
H3788—G96® Gun Treatment 12 oz Spray
H3789—G96® Gun Treatment 4.5 oz Spray

"*+" BdYZa<%,&*EB[\#)$&&
H1052—Clear Flexible Hose 4" x 10'
G1536—Black Flexible Hose 4" x 10'
G3179—Heavy-Duty Clear Flex Hose 4" x 10'
G8830—Hose Hanger 4
1⁄2"
G1552—Y-Fitting 4" x 4" x 4"
G1545—90° Elbow 4"
G2482—Hose Coupler (Splice) 4"
G2974—Wire Hose Clamp 4"
G1843—Plastic Blast Gate 4"
G4679—Anti-Static Grounding Kit
LZkZ]VcYe^X`ZYVhZaZXi^dcd[XdbbdcanjhZY
YjhiXdaaZXi^dcXdbedcZcih[dgbVX]^cZhl^i] )
Yjhiedgih#
Figure 93.9jhiXdaaZXi^dcVXXZhhdg^Zh#
=&%*'
<'.,)
<&*(+
<&-)(
<&*)*
<)+,.
Figure 94.BdYZaI'%(.'HjXXZhhl^i]
IVWaZhVlh\j^YZWdd`#
T20392—Success with Tablesaws
I]Z iVWaZhVl ^h i]Z XdgcZghidcZ d[ Vcn ldg`"
h]de! nZi! idd bVcn lddYldg`Zgh hi^aa ]VkZc»i
aZVgcZY_jhi]dlkZghVi^aZi]^hiddagZVaan^h#I]^h
^cY^heZchVWaZ]VcYWdd`ZmeaV^ch]dlidX]ddhZ
VcYhZijei]Zg^\]ihVl[dgVcnh]de!VcYYZb"
dchigViZhWVh^XVcYVYkVcXZYiZX]c^fjZh[dgg^e"
e^c\!XgdhhXjii^c\!VcYXjii^c\WZkZahVcYb^iZgZY
ZY\Zh#&,+e\h#
Forrest Woodworker II Saw Blades
T20778—10", 20 Teeth
T20779—10", 40 Teeth
T23527—10", 48 Teeth
=V^aZYVh i]Z8VY^aaVXd[VaaWaVYZh! ;dggZhihVl
WaVYZh]VkZWZXdbZaZ\ZcYVgn[dgi]Z^gVW^a^inid
aZVkZ ]^\]an eda^h]ZY! [^c^h] gZVYn hjg[VXZh dc
cZVganZkZgni]^c\i]ZnXji#BVYZ^cJH6#
L^i]i]^hVaaejgedhZWaVYZ[dgiVWaZhVlhndjXVc
g^eVcYXgdhhXji&'gdX`]VgYhVcYhd[ilddYh
gZhjai^c\ ^c V hbddi] Vh hVcYZY hjg[VXZ# L^i]
'% [VXZ ]dd`! ean kZcZZgh l^aa XgdhhXji l^i] cd
Wdiidb hea^ciZg Vi bdYZgViZ [ZZY gViZh# 9djWaZ
]VgYVcY)%higdc\Zg8)XVgW^YZl^aa\^kZje
id (%% adc\Zg a^[Z WZilZZc h]VgeZc^c\h# :cYh
WaVYZX]Vc\^c\dcZWaVYZ YdZhg^e!XdbWd VcY
XgdhhXji! hZXdcY"hiZe [^c^h]^c\ VcY Xjii^c\ &¿&+
dkZgh^oZidVaadl[dggZhjg[VX^c\#7jnVcYh]VgeZc
dcZWaVYZ^chiZVYd[(')Ig^e!*%IXdbW^cVi^dc
VcY-%IXgdhhXji#*¿-VgWdg!&¿-`Zg[#
Figure 91. ;dggZhiLddYldg`Zg>>HVl7aVYZ#
Figure 92. =),*+9VYd=ZVY#
Forrest Dado Blades
H4756— 8", 24 Teeth, 1/4"–29/32" Groove
T23267—8", 24 Teeth, 3/16"–1/4" Groove
I]Z ldgaYh [^cZhi YVYd ]ZVY XaZVcXjih Vaa ndjg
\gddkZh Cd hea^ciZg^c\ l]Zc Xgdhh"Xjii^c\ dV`!
ean kZcZZgh VcY bZaVb^cZ# EZg[ZXi [dg [aVi"Wdi"
idbZY \gddkZh# Cd hiV\\ZgZY hiZeh dg gdjcY
Wdiidbh a^`Z V ldWWaZ"YVYd aZVkZh 8jih ^c Vaa
Y^gZXi^dch"g^e!Xgdhh"Xji! b^iZg!VcnYZei]#8jih
Vaah^oZY\gddkZh&¿)i]gdj\]'.¿('^cXgZbZcih#

BdYZa<%,&*EB[\#)$&& "*,"
SECTION 7: MAINTENANCE
I]Z[gZfjZcXnd[bV^ciZcVcXZcZXZhhVgn[dgVcn
bVX]^cZl^aaValVnhYZeZcYdci]ZdeZgVi^c\Xdc"
Y^i^dchVcYZck^gdcbZci#I]ZhX]ZYjaZWZadl^hV
WVh^X\j^YZa^cZ[dg`ZZe^c\ndjgbVX]^cZ^cegde"
ZgdeZgVi^c\XdcY^i^dc#6alVnhgZeV^gVcnVYkZghZ
XdcY^i^dch^bbZY^ViZanjedcY^hXdkZgn#
Daily (Ongoing)
>cheZXiWaVYZh[dgYVbV\ZdglZVg#
8]ZX`[dgaddhZbdjci^c\Wdaih$VgWdgcji#
8]ZX`XdgYh!eaj\h!VcYhl^iX][dgYVbV\Z#
8]ZX`[dgVcndi]ZgXdcY^i^dci]ViXdjaY]Vb"
eZgi]ZhV[ZdeZgVi^dcd[i]^hbVX]^cZ#
L^eZ i]Z iVWaZ XaZVc V[iZg ZkZgn jhZ·i]^h
ZchjgZh bd^hijgZ [gdb lddY Yjhi YdZh cdi
gZbV^cdcWVgZbZiVahjg[VXZh#
Weekly
L^eZ Ydlc i]Z iVWaZ hjg[VXZ VcY \gddkZh
l^i]V ajWg^XVciVcY gjhiegZkZci^kZhjX] Vh
HA>E>I#
KVXjjbYjhiWj^aYje[gdbi]Zbdidg]djh^c\
VcYigjcc^dch#
8aZVci]Ze^iX]VcYgZh^c[gdbi]ZhVlWaVYZ
l^i]VXaZVcZghjX]VhDm^Hdak7aVYZ7^i
8aZVcZg#
Monthly
8]ZX`K"WZaiiZch^dc!YVbV\Z!dglZVg
Page 71#
Every 6–12 Months
AjWg^XViZi]Zigjcc^dchPage 58#
AjWg^XViZ i]Z ZaZkVi^dc VcY i^ai aZVYhXgZlh
Page 58#
Schedule
8aZVc^c\i]ZiVWaZhVl^hgZaVi^kZanZVhn#KVXjjb
ZmXZhh lddY X]^eh VcY hVlYjhi [gdb i]Z iVWaZ
hVlVcY^ch^YZi]ZXVW^cZi#L^eZd[[i]ZgZbV^c"
^c\Yjhil^i]VYgnXadi]#
JhZXdbegZhhZYV^gbV`ZhjgZidlZVghV[Zin
\aVhhZhVcYVgZhe^gVidgl]ZcYd^c\i]^hidWadl
Yjhi[gdbi]Z bVX]^cZ#>[VcngZh^c ]VhWj^ai je!
jhZVgZh^c"Y^hhdak^c\XaZVcZgidgZbdkZ^i#IgZVi
VaajceV^ciZYXVhi^gdcVcYhiZZal^i]Vcdc"hiV^c"
^c\ajWg^XVciV[iZgXaZVc^c\#
Cleaning
EgdiZXi i]Z jceV^ciZY XVhi ^gdc hjg[VXZh dc i]Z
iVWaZWnl^e^c\i]ZiVWaZXaZVcV[iZgZkZgnjhZ·
i]^h ZchjgZh bd^hijgZ [gdb lddY Yjhi YdZh cdi
gZbV^c dc WVgZ bZiVa hjg[VXZh# 9D CDI XaZVc
XVhi^gdcl^i]lViZgdg^il^aagjhi
@ZZeiVWaZhgjhi"[gZZl^i]gZ\jaVgVeea^XVi^dchd[
egdYjXih a^`Z <.+ <jc IgZVibZci! HA>E>I! dg
7dZh]^ZaYI".hZZPage 55[dgbdgZYZiV^ah#
Unpainted Cast Iron
To prevent serious per-
sonal injury from shock
or accidental startup,
always disconnect power
from machine before
doing any maintenance.

"*-" BdYZa<%,&*EB[\#)$&&
Lubrication
>i ^h ZhhZci^Va id XaZVc XdbedcZcih WZ[dgZ ajWg^"
XVi^c\i]ZbWZXVjhZYjhiVcYX]^ehWj^aYjedc
ajWg^XViZY XdbedcZcih VcY bV`Z i]Zb ]VgY id
bdkZ#H^beanVYY^c\bdgZ\gZVhZidi]Zbl^aacdi
n^ZaYhbddi]bdk^c\XdbedcZcih#
8aZVci]ZXdbedcZcih^ci]^hhZXi^dcl^i]Vcd^a$
\gZVhZhdakZciXaZVcZgVcYh]degV\h#
>[ndji]dgdj\]anXaZVci]ZXdbedcZcih^ci]^h
hZXi^dc WZ[dgZ ajWg^XVi^c\ i]Zb! i]Z gZhjai l^aa
WZ h^a`n hbddi] bdkZbZci l]Zc ijgc^c\ i]Z
]VcYl]ZZah! l]^X] l^aa gZhjai ^c bjX] ]^\]Zg
Zc_dnbZcidcndjgeVgi
The following are the main components that
need to be lubricated:
Igjcc^dcHa^YZhVcYDg^ZciVi^dc<ZVgh
Ldgb<ZVgh!Igjcc^dc!VcY7ZVg^c\=djh^c\
IZZi]
Trunnion Slides
8aZVcdji i]Z[gdciVcY gZVgigjcc^dcha^YZhl^i]
b^cZgVa he^g^ih VcY V gV\! i]Zc Veean a^i]^jb
\gZVhZ^cidZVX]\gddkZ#BdkZi]ZWaVYZi^aiWVX`"
VcY"[dgi]idhegZVYi]Z\gZVhZhZZFigure 95#
Figure 95.Igjcc^dcha^YZdcan[gdciha^YZ
h]dlc#
;gdciIgjcc^dc
Ha^YZ
Figure 96. LdgbVcYWjaa\ZVg#
7jaa<ZVg
Ldgb<ZVg
Figure 97. AZVYhXgZl#
AZVYhXgZl
8aZVcVlVnVcnWj^aije\g^bZVcYYZWg^h[gdbi]Z
ldgb\ZVg!Wjaa\ZVg!VcYaZVYhXgZlhZZFigures
96–97l^i]Vl^gZWgjh]!gV\h!VcYb^cZgVahe^g"
^ih#6aadli]ZXdbedcZcihidYgn!i]ZcVeeanVi]^c
XdVid[l]^iZa^i]^jb\gZVhZidi]Zb#
Worm Gear, Bull Gear & Leadscrew

BdYZa<%,&*EB[\#)$&& "*."
SECTION 8: SERVICE
Troubleshooting
Hnbeidb Edhh^WaZ8VjhZ Edhh^WaZHdaji^dc
BVX]^cZ YdZh cdi
hiVgi dg V WgZV`Zg
ig^eh#
&# AdX`^c\e^c^chiVaaZY#
'# 7adlc[jhZ#
(# LVaaX^gXj^iWgZV`Zgig^eeZY#
)# EdlZghjeeanhl^iX]ZYD;;dgVi[Vjai#
*# Eaj\$gZXZeiVXaZVi[Vjai$l^gZYlgdc\#
+# BdidgXdccZXi^dcl^gZYlgdc\#
,# L^g^c\deZc$]Vh]^\]gZh^hiVcXZ#
-# BdidgHI6GI$HIDEhl^iX]Vi[Vjai#
.# HiVgiXVeVX^idgVi[Vjai#
&%#BdidgVi[Vjai#
&# GZbdkZadX`^c\e^c[gdbHI6GIWjiidc#
'# GZeaVXZ[jhZ$ZchjgZcdh]dgih#
(# :chjgZX^gXj^ih^oZ^hXdggZXi$gZeaVXZlZV`WgZV`Zg#
)# :chjgZedlZghjeean^hdc$]VhXdggZXikdaiV\Z#
*# IZhi[dg\ddYXdciVXih0XdggZXii]Zl^g^c\#
+# 8dggZXibdidgl^g^c\XdccZXi^dch#
,# 8]ZX`$[^mWgd`Zc!Y^hXdccZXiZY!dgXdggdYZYl^gZh#
-# GZeaVXZhl^iX]#
.# IZhi$gZeaVXZ^[[Vjain#
&%#IZhi$gZeV^g$gZeaVXZ#
BVX]^cZ hiVaah dg ^h
jcYZgedlZgZY#
&# ;ZZYgViZ$Xjii^c\heZZYidd[Vhi#
'# Ldg`e^ZXZbViZg^Vajchj^iVWaZ[dgbVX]^cZ#
(# Ldg`e^ZXZXgdd`ZY0[ZcXZb^h"VY_jhiZY#
)# BVX]^cZjcYZgh^oZY[dgiVh`0lgdc\WaVYZ#
*# GjcXVeVX^idgVi[Vjai#
+# 7Zaiha^ee^c\#
,# Bdidgl^gZY^cXdggZXian#
-# Eaj\$gZXZeiVXaZVi[Vjai#
.# EjaaZn$hegdX`Ziha^ee^c\dch]V[i#
&%#BdidgWZVg^c\hVi[Vjai#
&dciVXidgcdiZcZg\^oZY$]VheddgXdciVXih#
&'#BdidgdkZg]ZViZY#
&(#BdidgVi[Vjai#
&# 9ZXgZVhZ[ZZYgViZ$Xjii^c\heZZY#
'# DcanXjilddY$ZchjgZbd^hijgZ^hWZadl'%#
(# HigV^\]iZcdggZeaVXZldg`e^ZXZ$VY_jhi[ZcXZ#
)# JhZXdggZXiWaVYZ$gZYjXZ[ZZYgViZdgYZei]d[Xji#
*# IZhi$gZeV^g$gZeaVXZ#
+# IZch^dc$gZeaVXZWZaiPage 71#
,# L^gZbdidgXdggZXian#
-# IZhi[dg\ddYXdciVXih$XdggZXil^g^c\#
.# GZeaVXZaddhZejaaZn$h]V[i#
&%#IZhi$gZeV^g$gZeaVXZ#
&&#IZhiVaaaZ\h[dgedlZg$gZeaVXZ^[[Vjain#
&'#8aZVcbdidg!aZiXdda!VcYgZYjXZldg`adVY#
&(#IZhi$gZeV^g$gZeaVXZ#
BVX]^cZ ]Vh
k^WgVi^dc dg cd^hn
deZgVi^dc#
&# BdidgdgXdbedcZciaddhZ#
'# 7aVYZVi[Vjai#
(# 7ZaihldgcdgaddhZ#
)# EjaaZnaddhZ#
*# BdidgbdjciaddhZ$Wgd`Zc#
+# BVX]^cZ^cXdggZXianbdjciZY#
,# 6gWdgejaaZnaddhZ#
-# Bdidg[VcgjWW^c\dc[VcXdkZg#
.# 6gWdgWZVg^c\hVi[Vjai#
&%#BdidgWZVg^c\hVi[Vjai#
&# >cheZXi$gZeaVXZ YVbV\ZY Wdaih$cjih! VcY gZ"i^\]iZc
l^i]i]gZVYadX`^c\[aj^Y#
'# GZeaVXZlVgeZY$WZciWaVYZ0gZh]VgeZcYjaaWaVYZ#
(# IZch^dc$gZeaVXZWZaihPage 71#
)# GZVa^\c$gZeaVXZh]V[i!ejaaZn!hZihXgZl!VcY`Zn#
*# I^\]iZc$gZeaVXZ#
+# I^\]iZcbdjci^c\Wdaih0gZadXViZ$h]^bbVX]^cZ#
,# GZi^\]iZc$gZeaVXZVgWdgejaaZn#
-# ;^m$gZeaVXZ[VcXdkZg0gZeaVXZaddhZ$YVbV\ZY[Vc#
.# GZeaVXZVgWdg]djh^c\WZVg^c\h0gZeaVXZVgWdg#
&%#IZhi WngdiVi^c\ h]V[i0\g^cY^c\$addhZ h]V[i gZfj^gZh
WZVg^c\gZeaVXZbZci#
GZk^Zli]ZigdjWaZh]ddi^c\VcYegdXZYjgZh^ci]^hhZXi^dc^[VegdWaZbYZkZadehl^i]ndjgbVX]^cZ#>[ndj
cZZYgZeaVXZbZcieVgihdgVYY^i^dcVa]Zael^i]VegdXZYjgZ!XVaadjgIZX]c^XVaHjeedgiVi*,%*)+".++(#
Note:Please gather the serial number and manufacture date of your machine before calling.

"+%" BdYZa<%,&*EB[\#)$&&
Hnbeidb Edhh^WaZ8VjhZ Edhh^WaZHdaji^dc
7aVYZ ^h cdi Va^\cZY
l^i] b^iZg hadi dg
[ZcXZ#
&# 7aVYZ^hlVgeZY#
'# IVWaZide^hcdieVgVaaZaidWaVYZ#
(# ;ZcXZ^hcdieVgVaaZaidWaVYZ#
&# GZeaVXZWaVYZPage 31#
'# BV`ZiVWaZeVgVaaZaidWaVYZPage 63#
(# BV`Z[ZcXZeVgVaaZaidWaVYZPage 68#
7aVYZ YdZh cdi
gZVX].%#
&# .%hideXdaaVg^hdjid[VY_jhibZci#
'# HVlYjhihijX`dchideXdaaVg#
&# 6Y_jhi.%hideXdaaVgPage 61#
'# 8aZVchVlYjhid[[hideXdaaVg#
7aVYZ ]^ih ^chZgi Vi
)*#
&# )*hideXdaaVg^hdjid[VY_jhibZci#
'# HVlYjhihijX`dchideXdaaVg#
(# Hadi^c^chZgi^h^cVYZfjViZ#
)# IVWaZdjid[Va^\cbZci#
*# 7aVYZedh^i^dc^h^cXdggZXi#
&# 6Y_jhi)*hideXdaaVgPage 61#
'# 8aZVchVlYjhid[[hideXdaaVg#
(# ;^aZdgb^aai]Zhadi^ci]Z^chZgi#
)# 6a^\cWaVYZidi]ZiVWaZPage 63#
*# 6Y_jhiWaVYZedh^i^dc#
7dVgY W^cYh dg
Wjgch l]Zc [ZZY^c\
i]gdj\]iVWaZhVl#
&# 9jaaWaVYZ#
'# 7aVYZ^hlVgeZY#
(# ;ZcXZ^hcdieVgVaaZaidWaVYZ#
)# IVWaZide^hcdieVgVaaZaidWaVYZ#
&# GZeaVXZWaVYZPage 31#
'# GZeaVXZWaVYZPage 31#
(# BV`Z[ZcXZeVgVaaZaidWaVYZPage 68#
)# BV`ZiVWaZeVgVaaZaidWaVYZPage 63#

BdYZa<%,&*EB[\#)$&& "+&"
Blade Tilt Stops
I]ZiVWaZhVl[ZVijgZhhideXdaaVghi]Vihidei]Z
WaVYZ ZmVXian Vi )* VcY .% l]Zc i^ai^c\ ^i l^i]
i]Z ]VcYl]ZZa# I]Z hideh ]VkZ WZZc hZi Vi i]Z
[VXidgnVcYh]djaYgZfj^gZcdVY_jhibZcih!jcaZhh
ndjcdi^XZi]VindjgXjihVgZcdiVXXjgViZ#
Note:The tilt scale reads "0" when the blade is
90° to the table.
Tools Needed Qty
.%° HfjVgZ######################################################## &
)*HfjVgZ######################################################## &
=ZmLgZcX])bb############################################## &
Setting 90° Stop Collar
1. 9>H8DCC:8IH6L;GDBEDL:G
2. GV^hZi]ZWaVYZVh]^\]Vh^il^aa\d!i]Zci^ai
^iidlVgY%jci^a^ihidehVcYXVccdiWZi^aiZY
VcnbdgZ#
3. EaVXZ V .% hfjVgZ V\V^chi i]Z iVWaZ VcY
WaVYZ hd ^i XdciVXih i]Z WaVYZ ZkZcan [gdb
Wdiidbidide!Vhh]dlc^cFigure 98#BV`Z
hjgZ V WaVYZ iddi] YdZh cdi dWhigjXi i]Z
eaVXZbZcid[i]ZhfjVgZ#
Figure 99#I^ai^cY^XVidgVggdl#
·>[i]ZWaVYZ^h.%idi]ZiVWaZ!i]ZcVY_jhi"
bZcihYdcdicZZYidWZbVYZ#BV`ZhjgZ
i]Zi^ai^cY^XVidgVggdlh]dlc^cFigure 99
ed^cihidi]Z%bVg`dci]ZhXVaZ#6Y_jhi
i]Zedh^i^dcWnaddhZc^c\i]Z Wjiidc]ZVY
hXgZl! bdk^c\ i]Z ^cY^XVidg l^i] ndjg [^c"
\Zgh!i]Zci^\]iZc^c\i]ZhXgZl#
Figure 98. 8]ZX`^c\WaVYZVi.%#
IVWaZ
.%HfjVgZ
7aVYZ
·>[i]ZWaVYZ^hcdi.%idi]ZiVWaZ!ndjl^aa
cZZYidVY_jhii]Z.%hideXdaaVg#EgdXZZY
idi]ZcZmihiZe#
4. I^ai i]Z WaVYZ VlVn [gdb % Wn VWdji *!
hd i]ZgZ ^h gddb [dg i]Z .% hide XdaaVg id
bdkZ#
5. DeZci]ZbdidgVXXZhhXdkZg!addhZci]ZXVe
hXgZlhh]dlc^cFigure 100!i]Zci]gZVYi]Z
.%hideXdaaVgdcZijgcVlVn[gdbi]Zigjc"
c^dcWgVX`Zi#I]^hl^aaVaadlndjidhfjVgZi]Z
WaVYZ^ci]ZcZmihiZe#
Figure 100..%hideWdaiVcY_Vbcji#
>cY^XVidg
6. EaVXZVhfjVgZV\V^chii]ZWaVYZ!Vhh]dlc
^cFigure 98!i]ZcVY_jhii]ZWaVYZjci^a^i^h
eZg[ZXianhfjVgZidi]ZiVWaZ#
7. L^i]dji ijgc^c\ i]Z WaVYZ i^ai aZVYhXgZl! [^c"
\Zg"i^\]iZci]Z.%XdaaVgV\V^chii]Zigjcc^dc
WgVX`Zi! i]Zc i^\]iZc i]Z ild XVe hXgZlh id
hZXjgZi]ZXdaaVgedh^i^dc#
.%Hide8daaVg
8VeHXgZlh
Igjcc^dc
7gVX`Zi

"+'" BdYZa<%,&*EB[\#)$&&
Setting 45° Stop Collar
1. 9>H8DCC:8IH6L;GDBEDL:G
2. GV^hZi]ZWaVYZVh]^\]Vh^il^aa\d!i]Zci^ai^i
idlVgYh)*jci^a^ihidehVcYXVccdiWZi^aiZY
VcnbdgZ#
3. EaVXZ V )* hfjVgZ V\V^chi i]Z iVWaZ VcY
WaVYZ hd ^i XdciVXih i]Z WaVYZ ZkZcan [gdb
Wdiidbidide!Vhh]dlc^cFigure 101#BV`Z
hjgZ V WaVYZ iddi] YdZh cdi dWhigjXi i]Z
eaVXZbZcid[i]ZhfjVgZ#
Figure 101. 8]ZX`^c\WaVYZVi)*#
7aVYZ
)*HfjVgZ
IVWaZ
·>[i]ZWaVYZ^h)*idi]ZiVWaZ!i]ZcVY_jhi"
bZcihYdcdicZZYidWZbVYZ#
·>[i]ZWaVYZ^hcdi)*idi]ZiVWaZ!ndjl^aa
cZZYidVY_jhii]Z)*hideXdaaVg#EgdXZZY
idi]ZcZmihiZe#
4. I^aii]ZWaVYZid(*!hdi]ZgZ^hgddb[dgi]Z
hideXdaaVgidbdkZ#
8. GZeZVi Steps 2¶3 id kZg^[n i]Vi i]Z XdaaVg
VY_jhibZcindjbVYZlVhXdggZXi#L]Zci]Z
VY_jhibZci ^h hVi^h[VXidgn! XadhZ i]Z bdidg
VXXZhhXdkZg#
6. EaVXZ V )* hfjVgZ V\V^chi i]Z WaVYZ! Vh
h]dlc ^c Figure 101! i]Zc VY_jhi i]Z WaVYZ
jci^a^i^hZmVXian)*idi]ZiVWaZ#
7. L^i]dji ijgc^c\ i]Z WaVYZ i^ai aZVYhXgZl!
[^c\Zg"i^\]iZci]Z)*hide XdaaVgV\V^chi i]Z
igjcc^dc WgVX`Zi! i]Zc i^\]iZc i]Z ild XVe
hXgZlhidhZXjgZi]ZXdaaVgedh^i^dc#
8. GZeZVi Steps 2¶3 id kZg^[n i]Vi i]Z XdaaVg
VY_jhibZcindjbVYZlVhXdggZXi#L]Zci]Z
VY_jhibZci ^h hVi^h[VXidgn! XadhZ i]Z bdidg
VXXZhhXdkZg#
Figure 102. 45° stop collar.
8VeHXgZlh
Igjcc^dc
7gVX`Zi
)*Hide
8daaVg
5. DeZci]ZbdidgVXXZhhXdkZg!addhZci]ZXVe
hXgZlh dc i]Z )* hide XdaaVg hZZ Figure
102!i]Zcijgci]ZXdaaVgdcZijgcVlVn[gdb
i]Z igjcc^dc WgVX`Zi# I]^h l^aa Vaadl ndj id
VY_jhi i]Z WaVYZ id ZmVXian )* ^c i]Z cZmi
hiZe#

BdYZa<%,&*EB[\#)$&& "+("
3. L^i] i]Z ZcY d[ i]Z VY_jhiVWaZ hfjVgZ _jhi
idjX]^c\ i]Z i^e! adX` i]Z hfjVgZ ^c eaVXZ#
Cdl! bVg` i]Z XVgW^YZ i^e l^i] V bVg`Zg
l]ZgZndjbVYZi]^hbZVhjgZbZci#
4. GdiViZi]ZbVg`ZYWaVYZi^eidi]Zdi]ZgZcY
d[i]ZiVWaZ^chZgi#
5. Ha^YZi]ZVY_jhiVWaZhfjVgZYdlcidi]Zdi]Zg
ZcYd[i]ZiVWaZ^chZgi!VcYXdbeVgZi]ZY^h"
iVcXZ [gdb i]Z bVg`ZY WaVYZ i^e id i]Z ZcY
d[i]ZVY_jhiVWaZhfjVgZ!Vhh]dlc^cFigure
104#
The saw blade is sharp. Use extra care or
wear gloves when handling the blade or
working near it.
Miter Slot to Blade
Parallelism
Figure 103. :mVbeaZd[VY_jhi^c\WaVYZidb^iZg
hadi#
Ndjg iVWaZ hVl l^aa \^kZ i]Z WZhi gZhjaih ^[ i]Z
b^iZg hadi VcY i]Z g^e [ZcXZ VgZ VY_jhiZY eVgVa"
aZaidi]ZWaVYZ#>[Z^i]Zgd[i]ZhZVgZcdiZmVXian
eVgVaaZa!ndjgXjihVcYndjg[^c^h]ZYldg`l^aaWZ
adlZg^cfjVa^in!WjibdgZ^bedgiVcian!i]Zg^h`d[
`^X`WVX`l^aaWZ^cXgZVhZY#
Tools Needed Qty
6Y_jhiVWaZHfjVgZ############################################# &
BVg`Zg############################################################### &
GjWWZg9ZVY7adl=VbbZg############################# &
=ZmLgZcX]Zh(!-bb############################&:VX]
To adjust the blade parallel to the miter slot:
1. 9>H8DCC:8IH6L;GDBEDL:G
2. JhZ Vc VY_jhiVWaZ hfjVgZ id bZVhjgZ i]Z
Y^hiVcXZ [gdb i]Z b^iZg hadi id V XVgW^YZ i^e
dci]ZWaVYZ!Vhh]dlc^cFigure 103#BV`Z
hjgZi]Vii]Z[VXZd[i]ZVY_jhiVWaZhfjVgZ^h
ZkZcVadc\i]Zb^iZghadi#
7aVYZi^aiZYid.%§
;gdci
HI:E6
·>[ i]Z WaVYZ i^e bZVhjgZbZci ^h i]Z hVbZ
dcWdi]h^YZh!\didStep 11#
· >[ i]ZWaVYZi^e YdZhcdi idjX]i]Z ZcYd[
i]Z VY_jhiVWaZ hfjVgZ h^b^aVg id i]Z [^ghi
bZVhjgZbZci! i]Z iVWaZ l^aa cZZY id WZ
VY_jhiZY#EgdXZZYidStep 6#
7aVYZi^aiZYid.%§
;gdci
7
HI:E7
Figure 104.BZVhjg^c\Y^hiVcXZ[gdbb^iZghadi
idXVgW^YZi^edcdeedh^iZh^YZd[iVWaZ^chZgi#

"+)" BdYZa<%,&*EB[\#)$&&
6. GZbdkZi]Zh^mWjiidc]ZVYXVehXgZlhi]Vi
hZXjgZ i]Z gZVg igjcc^dc VXXZhh eVcZa hZZ
Figure 105!gZbdkZi]ZeVcZa!VcYdeZci]Z
YddgXVW^cZiidVXXZhhi]Zigjcc^dch#
7. IdVY_jhii]ZiVWaZ!addhZci]ZildXVehXgZlh
i]VihZXjgZi]ZgZVgigjcc^dcidi]ZjcYZgh^YZ
d[ i]Z iVWaZ &¶&&¿' ijgch hZZ Figure 106!
VcY ha^\]ian iVe i]Z igjcc^dc l^i] V gjWWZg
YZVYWadl]VbbZg^ci]ZcZZYZYY^gZXi^dc#
8. I^\]iZci]ZildXVehXgZlhVcYgZX]ZX`i]Z
b^iZghadi"id"WaVYZeVgVaaZa^hb! VhndjY^Y^c
Steps 2–5#
Figure 105.GZVgigjcc^dcVXXZhheVcZa#
Figure 106.GZVgigjcc^dcbdjciXVehXgZl#
GZVgIgjcc^dc
Bdjci^c\8VeHXgZl
&d['
·>[i]ZbZVhjgZbZci^hi]ZhVbZ[gdb[gdci"
id"WVX`!h`^eV]ZVYidStep 11#
·>[i]ZVY_jhibZcihndjbVYZ^cStep 7lZgZ
cdiZcdj\]idVY_jhii]Zb^iZghadieVgVaaZa
idi]ZWaVYZ!Xdci^cjZidStep 9#
Figure 107. ;gdciigjcc^dcbdjci^c\hXgZl#
;gdciIgjcc^dc
Bdjci^c\8VeHXgZl
&d['
9. AddhZci]ZildXVehXgZlhi]VihZXjgZi]Z
[gdciigjcc^dcidi]ZjcYZgh^YZd[i]ZiVWaZ
hZZFigure 107VcYiVei]Zigjcc^dc^cV
h^b^aVgbVccZgVhndjY^Y^cStep 7.
10. I^\]iZci]ZildXVehXgZlhVcYgZX]ZX`i]Z
b^iZghadi"id"WaVYZeVgVaaZa^hb#
·>[ i]Z WaVYZ i^e bZVhjgZbZci ^h i]Z hVbZ
dcWdi]h^YZh!Xdci^cjZidStep 11#
·>[ i]Z VY_jhibZcih ndj bVYZ ^c Step 9
lZgZ cdi Zcdj\] id VY_jhi i]Z b^iZg hadi
eVgVaaZa l^i] i]Z WaVYZ! Xdci^cjZ VY_jhi^c\
i]Z[gdciVcYgZVgigjcc^dchVhcZZYZYjci^a
i]Zb^iZghadiVcYWaVYZVgZeVgVaaZa#
11. I^ai i]Z WaVYZ id )* VcY gZX]ZX` i]Z b^iZg
hadi"id"WaVYZeVgVaaZa^hb#
·>[ i]Z WaVYZ ^h hi^aa eVgVaaZa l^i] i]Z b^iZg
hadi!cdVYY^i^dcVaVY_jhibZcihcZZYidWZ
bVYZ#H`^eV]ZVYidStep 15#
·>[i]ZWaVYZlVheVgVaaZal^i]i]Zb^iZghadi
Vi.%WjicdiVi)*!Xdci^cjZidStep 12#
GZVgIgjcc^dc
6XXZhhEVcZa
The trunnion and motor assembly could
fall and crush your hands or arms if the
trunnion mounting cap screws are loosened
too much during the following steps. DO
NOT remove the cap screws that secure the
trunnions to the table or loosen them more
than 11⁄2 turns!

BdYZa<%,&*EB[\#)$&& "+*"
12. 9ZeZcY^c\ dc i]Z gZhjai d[ Step 11! addhZc
i]Z[gdcidggZVgigjcc^dcXVehXgZlh&&¿'ijgch
VcY gZbdkZ & h]^b [gdb ZVX] h^YZ d[ i]Vi
igjcc^dc#
GZ[Zg id Figures 108–109 id YZiZgb^cZ
l]ZgZidgZbdkZh]^bh[gdbi]Zigjcc^dch#
·>[ i]Z Y^hiVcXZ d[ 6 ^h \gZViZg i]Vc 7!
gZbdkZ dcZ h]^b [gdb ZVX] h^YZ d[ i]Z
[gdciigjcc^dc&VcY'dcFigure 108#
Figure 108. H]^bgZbdkVaegdXZYjgZY^V\gVb6#
;gdci
Igjcc^dc
&
'
Figure 109. H]^bgZbdkVaegdXZYjgZY^V\gVb7#
(
)
GZVg
Igjcc^dc
·>[ i]Z Y^hiVcXZ d[ 7 ^h \gZViZg i]Vc 6!
gZbdkZ dcZ h]^b [gdb ZVX] h^YZ d[ i]Z
gZVgigjcc^dc(VcY)dcFigure 109#
13. I^\]iZc i]Z XVe hXgZlh VcY gZX]ZX` i]Z
WaVYZ"id"b^iZg hadi eVgVaaZa^hb Vi .% VcY
)*#
·>[ i]Z Y^hiVcXZ d[ 6 VcY 7 VgZ ZfjVa! cd
[jgi]ZgVY_jhibZcihcZZYidWZbVYZ#
·>[i]ZY^hiVcXZhd[6VcY7VgZcdiZfjVa!
gZX]ZX`i]Zb^iZghadi"id"WaVYZeVgVaaZa^hb#
14.DcXZ i]Z b^iZg hadi ^h VY_jhiZY eVgVaaZa id
i]Z WaVYZ! gZX]ZX` Vaa bZVhjgZbZcih VcY
WZhjgZi]ZiVWaZbdjci^c\XVehhXgZlhVgZ
hZXjgZ#
15. GZ"^chiVaai]ZgZVgigjcc^dcVXXZhheVcZaVcY
XadhZi]ZXVW^cZiYddg#

"++" BdYZa<%,&*EB[\#)$&&
Spreader or Riving
Knife Alignment
Checking Alignment
I]Z WaVYZ \jVgY hegZVYZg VcY g^k^c\ `c^[Z bjhi
WZ Va^\cZY l^i] i]Z WaVYZ l]Zc ^chiVaaZY# >[ i]Z
hegZVYZg$g^k^c\`c^[Z^hcdiVa^\cZYl^i]i]ZWaVYZ!
i]Zc i]Z ldg`e^ZXZ l^aa WZ[dgZ [dgXZY h^YZlVnh
Yjg^c\i]ZXji!l]^X]l^aa^cXgZVhZi]Zg^h`d[`^X`"
WVX`#
Tools Needed Qty
HigV^\]iZY\Z###################################################### &
To check the spreader/riving knife alignment:
1. 9>H8DCC:8IH6L;GDBEDL:G
2. GV^hZi]ZhVlWaVYZidi]ZbVm^bjb]Z^\]i
hdndj]VkZZVhnldg`^c\VXXZhh#
3. EaVXZ i]Z higV^\]iZY\Z V\V^chi i]Z h^YZ d[
i]ZWaVYZVcYhegZVYZg$g^k^c\`c^[ZVii]Zide
VcY Wdiidb! Vh h]dlc ^c Figure 110# I]Z
hegZVYZg$g^k^c\ `c^[Z h]djaY WZ eVgVaaZa l^i]
i]Z WaVYZ Vadc\ ^ih aZc\i] Vi Wdi] edh^i^dch!
VcY ^c i]Z 6a^\cbZci OdcZ! Vh h]dlc ^c
Figure 111#
Figure 111.HegZVYZg$g^k^c\`c^[ZVa^\cbZci
odcZ#
6a^\cbZci
OdcZ
HegZVYZgdg
G^k^c\@c^[Z
7aVYZ
·>[ i]Z hegZVYZg$g^k^c\ `c^[Z ^h cdi eVgVaaZa
l^i] i]Z WaVYZ VcY ^ch^YZ i]Z Va^\cbZci
odcZ!i]Zc^icZZYhidWZVY_jhiZY#EgdXZZY
idAdjusting Alignment^chigjXi^dch#
·>[ i]Z hegZVYZg$g^k^c\ `c^[Z ^h cdi eVgVaaZa
l^i]i]ZWaVYZViZ^i]Zgi]ZidedgWdiidb!^i
bVnWZWZci#
4. GZbdkZ i]Z hegZVYZg$g^k^c\ `c^[Z VcY eaVXZ
^i dc V [aVi hjg[VXZ VcY X]ZX` id hZZ ^[ i]Z
hegZVYZg$g^k^c\ `c^[Z aVnh ZkZcan Vadc\ ^ih
aZc\i]#
·>[ i]Z hegZVYZg$g^k^c\ `c^[Z YdZh cdi
aVn ZkZcan! egdXZZY id Adjusting Bent
Spreader/Riving KnifedcPage 67#
Adjusting Alignment
I]Z hegZVYZg$g^k^c\ `c^[Z bdjci^c\ edh^i^dc XVc
WZ VY_jhiZY ^cid Va^\cbZci l^i] i]Z WaVYZ jh^c\
i]Z XVe hXgZlh dc i]Z hegZVYZg$g^k^c\ `c^[Z A
WgVX`Zi#
Possible Tools Needed Qty
=ZmLgZcX]*bb############################################## &
To adjust the spreader/riving knife position:
1. 9>H8DCC:8IH6L;GDBEDL:G
2. GZbdkZi]ZiVWaZ^chZgi#
Figure 110.8]ZX`^c\ideVcYWdiidbg^k^c\`c^[Z
eVgVaaZa^hbl^i]WaVYZ#
Ide6a^\cbZci
7diidb6a^\cbZci

BdYZa<%,&*EB[\#)$&& "+,"
3. AddhZci]ZildXVehXgZlhdci]ZAWgVX`Zi
hZZFigure 112!i]Zcha^YZ^iVhcZZYZYid
bdkZ^i^cidVa^\cbZcil^i]i]ZWaVYZ#
Adjusting Bent Spreader/Riving
Knife
1. 9>H8DCC:8IH6L;GDBEDL:G
2. 7ZcY i]Z hegZVYZg dg g^k^c\ `c^[Z Wn ]VcY
l]^aZ ^chiVaaZY! i]Zc [daadl Steps 1–3 ^c
Checking AlignmentidYZiZgb^cZ^[^i^heVg"
VaaZal^i]i]ZWaVYZVcY^ch^YZi]Z6a^\cbZci
OdcZgZ[ZgidChecking Alignment#
·>[i]^hYdZhcdildg`!gZbdkZ^iidhigV^\]i"
Zc#
·>[ndjXVccdihigV^\]iZc^iegdeZgan!gZeaVXZ
^i#
5. ;daadlChecking Alignment! Steps 1–3#
·>[ i]Z hegZVYZg$g^k^c\ `c^[Z ^h ^c i]Z Va^\c"
bZciodcZ!cdVYY^i^dcVahiZehVgZcZXZh"
hVgn#
·>[i]ZhegZVYZg$g^k^c\`c^[Z^hhi^aacdi^ci]Z
Va^\cbZci odcZ! Xdci^cjZ VY_jhi^c\ i]Z
edh^i^dcd[i]ZAWgVX`ZiVhcZXZhhVgnid
XdggZXianVa^\ci]ZhegZVYZg$g^k^c\`c^[Z#
6. I^\]iZc i]Z ild XVe hXgZlh dc i]Z bdjci"
^c\WadX` idhZXjgZ i]ZhegZVYZg$g^k^c\`c^[Z
VY_jhibZci#
8Ve
HXgZlh
Figure 112. 8VehXgZlh[dgVY_jhi^c\hegZVYZg$
g^k^c\`c^[Zedh^i^dc#
8Ve
HXgZlh
Fence Adjustments
I]ZgZ VgZ [djg bV^c VY_jhibZcih [dg i]Z [ZcXZ/
]Z^\]id[[i]ZiVWaZ!hfjVgZcZhh!eVgVaaZa^hbl^i]
i]Z b^iZg hadi! VcY XaVbe^c\ egZhhjgZ# I]ZhZ
VY_jhibZcihVgZ^ciZgXdccZXiZYVcYhdbZgZeZi^"
i^dcbVnWZcZZYZYl]ZcVY_jhi^c\#
Tools Needed Qty
=ZmLgZcX]+bb############################################## &
HfjVgZ############################################################### &
;Zai"I^eeZYBVg`Zg############################################ &
A
7gVX`Zi
Figure 113.AdXVi^dcd[hZihXgZlhjhZYid
VY_jhi[ZcXZeVgVaaZa^hbVcYXaVbe^c\egZhhjgZ#
;gdciI]jbW@cdWh
VcYHZiHXgZlh
GZVgHZiHXgZlh
;ZcXZ
;aVc\Z
4. 7VX`djii]ZgZVghZihXgZlhjci^ai]ZnVgZ
_jhii]gZVYZY^cidi]Z[ZcXZ[aVc\ZhZZ
Figure 113#
Height and Square
I]Z[ZcXZh]djaYWZVY_jhiZY]^\]Zcdj\]d[[i]Z
iVWaZhdi]Vi^iYdZhcdiYgV\VXgdhhi]Zhjg[VXZdg
VaadllddYX]^ehid\ZiXVj\]iWZilZZci]Z[ZcXZ
VcYiVWaZ#6ahd!i]Z[ZcXZ[VXZbjhiWZhfjVgZid
i]ZiVWaZ^cdgYZgidegdYjXZVXXjgViZXjih#
To check/adjust the fence height and square-
ness to the table:
1. 9>H8DCC:8IH6L;GDBEDL:G
2. GZbdkZi]Z[ZcXZ[gdbi]ZhVlVcYeaVXZ^i
dcV[aVihjg[VXZ#
3. JchXgZl i]Z [gdci i]jbW `cdWh VcY hZi
hXgZlh h]dlc ^c Figure 113 jci^a i]Zn VgZ
WVgZani]gZVYZY^cidi]Z[ZcXZ[aVc\Z#

"+-" BdYZa<%,&*EB[\#)$&&
9. AddhZci]Z ideadX` cjihVcYVY_jhi i]Zide
hZi hXgZlh hZZ Figure 114 id bV`Z i]Z
[ZcXZ[VXZ.%idi]ZiVWaZ!i]Zci^\]iZc i]Z
adX`cjih#
Figure 115.8]ZX`^c\^[[ZcXZ^hhfjVgZidiVWaZ#
.%HfjVgZ
;ZcXZ
IVWaZ
Figure 114.;ZcXZXdbedcZcihjhZYidVY_jhi
[ZcXZ]Z^\]iVcYhfjVgZcZhhidiVWaZ#
;ZcXZ
;aVc\Z
IdeAdX`Cji
GZVgGV^a
;ddiAdX`
Cji
IdeHZiHXgZlh
5. >chiVaai]Z[ZcXZdcidi]ZiVWaZ#
6. AddhZci]ZideadX`cjihdci]Z[ZcXZ[aVc\Z
VcYi]ZadX`cjidci]ZgZVggV^a[ddi!h]dlc
^cFigure 114#
Figure 116#6a^\c^c\[ZcXZidb^iZghadi#
;ZcXZ
;VXZ
B^iZg
Hadih
IdeK^Zl
DkZgaVe
H^YZK^Zl7VY
;ajh]
H^YZK^Zl<ddY
A
B
7. 6Y_jhii]ZidehZihXgZlhVcYgZVg[ddi
hZihXgZlhdi]ZgZ^hVeegdm^bViZan&¿&+
XaZVgVcXZWZilZZci]ZWdiidbd[i]Z[ZcXZ
VcYi]ZiVWaZ![gdci"id"WVX`VcYh^YZ"id"h^YZ!
i]Zci^\]iZci]ZadX`cjih#
8. EaVXZVhfjVgZdci]ZiVWaZVcYV\V^chii]Z
[VXZd[i]Z[ZcXZ!Vhh]dlc^cFigure 115!id
X]ZX`^[i]Z[ZcXZ^hhfjVgZidi]ZiVWaZ#
·>[i]Z[ZcXZ^hhfjVgZidi]ZiVWaZ!egdXZZY
idParallelism & Clamping Pressure#
·>[i]Z[ZcXZ^hcdihfjVgZidi]ZiVWaZ!egd"
XZZYidStep 9#
HZi hXgZlh dc i]Z gZVg h^YZ d[ i]Z [ZcXZ [aVc\Z
edh^i^dci]Z[ZcXZeVgVaaZaidi]ZWaVYZVcYVY_jhi
i]ZXaVbe^c\egZhhjgZid]daYndjg[ZcXZhZXjgZ"
an#7Z[dgZhiVgi^c\i]^hegdXZYjgZ!bV`ZhjgZi]Z
WaVYZ^heVgVaaZal^i]i]Zb^iZghadi#
To adjust the fence parallelism and clamping
pressure:
1. 9>H8DCC:8IH6L;GDBEDL:G
2. AdX` i]Z [ZcXZ! iVe i]Z [gdci h^YZ l^i] ndjg
[^hi! VcY X]ZX` id hZZ ^[ ^i bdkZY h^YZlVnh
dkZgi]ZiVWaZ#
·>[i]Z[ZcXZY^YcdibdkZ!egdXZZYidStep
5#
·>[i]Z[ZcXZbdkZY!gZbdkZ^i[gdbi]ZiVWaZ
VcYegdXZZYidStep 3#
3. IjgcZVX]gZVghZihXgZlhZZFigure 113 dc
Page 67^c&¿+i]d[Vijgc#
4. GZ"^chiVaai]Z[ZcXZVcYgZeZViStep 2#
5. Ha^YZ i]Z [ZcXZ je V\V^chi i]Z g^\]i"]VcY
ZY\Z d[ i]Z b^iZg hadi! Vh h]dlc ^c Figure
116!VcYadX`^i^ceaVXZ#
Parallelism & Clamping Pressure

BdYZa<%,&*EB[\#)$&& "+."
HdbZlddYldg`ZghegZ[Zgidd[[hZii]ZgZVgd[i]Z
[ZcXZ&$+)[gdbi]ZWaVYZ!Vhh]dlc^cFigure 117!
id ]Zae egZkZci i]Z ldg`e^ZXZ [gdb W^cY^c\ VcY
Wjgc^c\#
I]ZVg\jbZci^hi]Vii]^hd[[hZiVY_jhibZcigZYjX"
Zhi]ZX]VcXZd[`^X`WVX`WnVaaZk^Vi^c\ediZci^Va
W^cY^c\i]VibVndXXjgWZilZZci]ZWVX`h^YZd[
i]ZWaVYZVcY[ZcXZ#I]ZigVYZd[[^hha^\]ianaZhh
VXXjgViZXjih#
Figure 117.6Y_jhi^c\[ZcXZl^i]V&¿+)d[[hZi#
M
M &$+)
:migVHeVXZ
idEgZkZci7^cY^c\
Dei^dcVa
M2NdjgBZVhjgZbZci
7aVYZ
6. :mVb^cZ ]dl i]Z [ZcXZ a^cZh je l^i] i]Z
b^iZghadiVadc\^ihaZc\i]#
·>[ i]Z [ZcXZ VcY b^iZg hadi VgZ [ajh] [gdb
[gdci id gZVg! Vh h]dlc ^c Figure 116A!
egdXZZYidStep 8#
·>[i]Z gZVgd[ i]Z[ZcXZ dkZgaVehi]Z b^iZg
hadi!Vhh]dlc^cFigure 116B!i]Z[ZcXZ^h
b^hVa^\cZY#EgdXZZYididStep 7#
7. GZbdkZ i]Z [ZcXZ! i]Zc VaiZgcViZan addhZc
VcYi^\]iZci]ZgZVg[ZcXZhZihXgZlh^cZfjVa
VbdjcihidVY_jhii]ZgZVgd[i]Z[ZcXZjci^a^i
^heVgVaaZal^i]i]Zb^iZghadi#
8. AddhZcWdi][gdcii]jbW`cdWhhZZ Figure
113 dcPage 67#I^\]iZci]ZhZihXgZlhhd
i]Zn _jhi idjX] i]Z [ZcXZ ijWZ! WVX` d[[ i]Z
hZi hXgZlh &¿' ijgc! i]Zc i^\]iZc i]Z i]jbW
`cdWh#
Optional Offset Fence Adjustment
To offset the fence:
1. 9>H8DCC:8IH6L;GDBEDL:G
2. L^i]V [Zaii^e eZc!bVg`dcZ hVliddi] VcY
gdiViZi]ZWaVYZhdi]^hiddi]^hedh^i^dcZYVi
i]ZWVX`d[i]ZWaVYZ#
3. EaVXZi]Z[ZcXZdci]ZiVWaZ!VcYXaVbei]Z
[ZcXZidi]ZiVWaZ#
4. BZVhjgZi]ZY^hiVcXZWZilZZci]Ziddi]VcY
i]Z[ZcXZ[VXZ!Vhh]dlc^cFigure 117#
5. GZbdkZ i]Z [ZcXZ! VcY VY_jhi i]Z gZVg hZi
hXgZlhVhegZk^djhanY^hXjhhZYidVX]^ZkZVc
d[[hZid[&$+)WZilZZci]Z bVg`ZYiddi]VcY
i]Z[ZcXZ[VXZ#
6. GZ"^chiVaa i]Z [ZcXZ VcY bZVhjgZ i]Z Y^h"
iVcXZ V\V^c WZilZZc i]Z bVg`ZY iddi] VcY
i]Z[ZcXZ[VXZ#I]ZgZVgbZVhjgZbZcih]djaY
WZ &$+) \gZViZg i]Vc egZk^djhan bZVhjgZY ^c
Step 4#

",%" BdYZa<%,&*EB[\#)$&&
Miter Gauge
Adjustments
I]Zb^iZg\Vj\Z^hZfj^eeZYl^i]hidehXgZlhi]Vi
VaadlndjidZVh^anVY_jhii]Zb^iZg\Vj\Z%¶(%
aZ[i!.%!VcY%¶)*g^\]i#I]ZhidehXgZlhXdc"
iVXi i]Zh]V[i! l]^X]bdkZh^c dgdji d[i]Z lVn
[dgVY_jhibZcih#
Tools Needed Qty
E]^aa^eh=ZVYHXgZlYg^kZg################################## &
.%HfjVgZ######################################################## &
)*HfjVgZ######################################################## &
(%HfjVgZ######################################################## &
LgZcX]-bb#####################################################&
Checking/Setting 90° Stops
1. 9>H8DCC:8IH6L;GDBEDL:G
2. Ha^YZ i]Z b^iZg \Vj\Z ^cid i]Z I"hadi dc i]Z
iVWaZ#
3. 6Y_jhii]Zb^iZg\Vj\Zhdi]Z.%hidehXgZl
gZhihV\V^chii]Zha^Y^c\h]V[i#
4. EaVXZi]Z hfjVgZZkZcan V\V^chii]Z [VXZd[
i]Zb^iZg\Vj\ZVcY i]ZWaVYZ!Vhh]dlc^c
Figure 118#
Figure 118.8]ZX`^c\.%hidedcb^iZg\Vj\Z#
HfjVgZ
B^iZg<Vj\Z
7aVYZ
·>[ i]Z hfjVgZ idjX]Zh i]Z b^iZg WdYn VcY
i]ZWdYnd[i]ZWaVYZcdii]ZiZZi]ZkZcan
Vi i]Z hVbZ i^bZ! i]Zc ^i ^h hfjVgZ id i]Z
WaVYZVcYi]Z.%hide^hhZiXdggZXian#Cd
[jgi]ZgVY_jhibZcihVgZcZXZhhVgn#
·>[i]ZhfjVgZYdZhcdiidjX]i]Zb^iZgWdYn
VcY WaVYZ ZkZcan Vi i]Z hVbZ i^bZ! i]Zc
egdXZZYidStep 4#
5. AddhZci]Z]Zmcji_Vbcjii]VihZXjgZhi]Z
.%hidehXgZlhZZFigure 119!VcYVY_jhi
i]Z hide hXgZl jci^a ^i ^h hZViZY V\V^chi i]Z
h]V[il]^aZi]ZhfjVgZ^hZkZcanidjX]^c\i]Z
b^iZgWdYnVcYi]ZWaVYZWdYn!i]Zci^\]iZc
i]Z]Zmcji#
Checking/Setting 45° Stops
;daadl i]Z hVbZ egdXZhh l^i] i]Z )* VcY (%
hidehi]Vindj[daadlZYl^i]i]Z.%!ZmXZeijh^c\
V )* VcY (% hfjVgZ dg VY_jhiVWaZ hfjVgZ id
kZg^[ni]Vii]Z b^iZgWdYn ^h)*idi]ZWaVYZ!Vh
h]dlc^c#
Figure 119. 8]ZX`^c\)*hidedcb^iZg\Vj\Z#
6. AddhZc i]Z hXgZl dc i]Z [gdci d[ i]Z b^iZg
WVg!VY_jhii]Zed^ciZgid%!i]Zci^\]iZci]Z
hXgZl#
=ZmCji
Ha^Y^c\H]V[i
.%Hide
HXgZl

BdYZa<%,&*EB[\#)$&& ",&"
Belt Tension &
Replacement
Tools Needed Qty
=ZmLgZcX]+bb############################################## &
Tensioning Belt
1. 9>H8DCC:8IH6L;GDBEDL:G
2. GV^hZ i]Z WaVYZ XdbeaZiZan! i]Zc deZc i]Z
bdidgXVW^cZi#
3. AddhZci]ZXVehXgZldci]Zbdidgh]dlc^c
Figure 120!VcYe^kdii]ZbdidgjeVcYYdlc
idbV`ZhjgZi]Vi^i^hbdkVWaZ#
4. EgZhh Ydlc dc i]Z bdidg l^i] dcZ ]VcY id
`ZZei]ZWZaiiZch^dci^\]iVcYi^\]iZci]ZXVe
hXgZl#
5. EgZhhi]ZWZai^ci]ZXZciZgidX]ZX`WZaiiZc"
h^dc# I]Z WZai ^h XdggZXian iZch^dcZY l]Zc
i]ZgZ^h Veegdm^bViZan&¿)YZ[aZXi^dcl]Zc^i
^hejh]ZYl^i]bdYZgViZegZhhjgZ!Vhh]dlc
^cFigure 121#
I]Z Yg^kZ WZai higZiX]Zh ha^\]ian Vh i]Z hVl ^h
jhZY#Bdhid[i]ZWZaihigZiX]^c\l^aa]VeeZcYjg"
^c\i]Z[^ghi&+]djghd[jhZ!Wji^ibVnXdci^cjZ
i]gdj\]Xdci^cjZYjhZ#>[ndjcdi^XZi]Vii]ZWZai
^hha^ee^c\!^il^aacZZYidWZiZch^dcZY#>[i]ZWZai^h
XgVX`ZY![gVnZY!dgh]dlhdi]Zgh^\chd[ZmXZhh^kZ
lZVg!^il^aacZZYidWZgZeaVXZY#
Replacing Belt
1. 9>H8DCC:8IH6L;GDBEDL:G
2. AdlZg i]Z WaVYZ XdbeaZiZan! i]Zc deZc i]Z
bdidgVXXZhhXdkZg#
3. AddhZci]ZXVehXgZli]VihZXjgZhi]Zbdidg
hZZ Figure 120 VcY a^[i i]Z bdidg [jaan id
gZbdkZiZch^dcdci]ZWZai# I^\]iZci]ZXVe
hXgZlid]daYi]Zbdidg^ci]^hedh^i^dc!i]Zc
gdaa i]Z WZai d[[ d[ i]Z VgWdg VcY bdidg eja"
aZnh#
4. >chiVaa V cZl WZai dcid i]Z ejaaZnh! addhZc
i]ZXVehXgZl!i]ZcadlZgi]Zbdidg#JhZi]Z
WaVYZZaZkVi^dc]VcYl]ZZaidgV^hZi]ZWaVYZ
XdbeaZiZan#
5. EgZhh Ydlc dc i]Z bdidg l^i] dcZ ]VcY id
`ZZei]ZWZaiiZch^dci^\]iVcYi^\]iZci]ZXVe
hXgZl#
6. ;daadl Step 5 ^c i]Z Tensioning Belt hjW"
hZXi^dcdci]^heV\ZidX]ZX`K"WZaiiZch^dc#
7. 8adhZi]ZbdidgVXXZhhXdkZg#
EjaaZn
9Z[aZXi^dc
EjaaZn
Figure 121#8]ZX`^c\WZaiiZch^dc#
&¿)
·>[ i]ZgZ ^h bdgZ i]Vc &¿) YZ[aZXi^dc l]Zc
i]ZWZai^hejh]ZYl^i]bdYZgViZegZhhjgZ!
addhZc i]Z XVe hXgZl! ejh] i]Z bdidg
YdlclVgY!i]Zci^\]iZci]ZXVehXgZl#
6. 8adhZi]ZbdidgVXXZhhXdkZg#
Figure 120.Bdidgbdjci^c\cji#
7Zai
Bdidg
8VeHXgZl

",'" BdYZa<%,&*EB[\#)$&&
SHOCK HAZARD. Ldg`^c\dcl^g^c\i]Vi^hXdc"
cZXiZYidVedlZghdjgXZ^hZmigZbZanYVc\Zgdjh#
IdjX]^c\ ZaZXig^[^ZY eVgih l^aa gZhjai ^c eZghdcVa
^c_jgn ^cXajY^c\ Wji cdi a^b^iZY id hZkZgZ Wjgch!
ZaZXigdXji^dc! dg YZVi]# 9^hXdccZXi i]Z edlZg
[gdbi]ZbVX]^cZWZ[dgZhZgk^X^c\ZaZXig^XVaXdb"
edcZcih
MODIFICATIONS. BdY^[n^c\ i]Z l^g^c\ WZndcY
l]Vi^hh]dlc^ci]ZY^V\gVbbVnaZVYidjcegZ"
Y^XiVWaZ gZhjaih! ^cXajY^c\ hZg^djh ^c_jgn dg [^gZ#
I]^h^cXajYZhi]Z^chiVaaVi^dcd[jcVeegdkZYV[iZg"
bVg`ZieVgih#
WIRE CONNECTIONS. 6aa XdccZXi^dch bjhi
WZ i^\]i id egZkZci l^gZh [gdb addhZc^c\ Yjg^c\
bVX]^cZ deZgVi^dc# 9djWaZ"X]ZX` Vaa l^gZh Y^h"
XdccZXiZYdgXdccZXiZYYjg^c\Vcnl^g^c\iVh`id
ZchjgZi^\]iXdccZXi^dch#
CIRCUIT REQUIREMENTS. Ndj BJHI [daadl
i]Z gZfj^gZbZcih Vi i]Z WZ\^cc^c\ d[ i]^h bVc"
jVa l]Zc XdccZXi^c\ ndjg bVX]^cZ id V edlZg
hdjgXZ#
WIRE/COMPONENT DAMAGE.9VbV\ZYl^gZh
dg XdbedcZcih ^cXgZVhZ i]Z g^h` d[ hZg^djh eZg"
hdcVa^c_jgn![^gZ!dgbVX]^cZYVbV\Z#>[ndjcdi^XZ
i]ViVcnl^gZhdgXdbedcZcihVgZYVbV\ZYl]^aZ
eZg[dgb^c\ V l^g^c\ iVh`! gZeaVXZ i]dhZ l^gZh dg
XdbedcZcih#
MOTOR WIRING. I]Z bdidg l^g^c\ h]dlc ^c
i]ZhZ Y^V\gVbh ^h XjggZci Vi i]Z i^bZ d[ eg^ci^c\
WjibVncdibViX]ndjgbVX]^cZ#>[ndj[^cYi]^h
idWZi]ZXVhZ!jhZi]Zl^g^c\Y^V\gVb^ch^YZi]Z
bdidg_jcXi^dcWdm#
CAPACITORS/INVERTERS. HdbZ XVeVX^idgh
VcYedlZg^ckZgiZghhidgZVcZaZXig^XVaX]Vg\Z[dg
je id &% b^cjiZh V[iZg WZ^c\ Y^hXdccZXiZY [gdb
i]Z edlZg hdjgXZ# Id gZYjXZ i]Z g^h` d[ WZ^c\
h]dX`ZY!lV^iViaZVhii]^hadc\WZ[dgZldg`^c\dc
XVeVX^idgh#
EXPERIENCING DIFFICULTIES. >[ndjVgZZmeZ"
g^ZcX^c\Y^[[^Xjai^ZhjcYZghiVcY^c\i]Z^c[dgbVi^dc
^cXajYZY ^c i]^h hZXi^dc! XdciVXi djg IZX]c^XVa
HjeedgiVi*,%*)+".++(#
Wiring Safety Instructions
The photos and diagrams
included in this section are
best viewed in color. You
can view these pages in
color at www.grizzly.com.
I]ZhZeV\ZhVgZXjggZciVii]Zi^bZd[eg^ci^c\#=dlZkZg!^ci]Zhe^g^id[^begdkZbZci!lZbVnbV`ZX]Vc\"
Zhidi]ZZaZXig^XVahnhiZbhd[[jijgZbVX]^cZh#8dbeVgZi]ZbVcj[VXijgZYViZd[ndjgbVX]^cZidi]ZdcZ
hiViZY^ci]^hbVcjVa!VcYhijYni]^hhZXi^dcXVgZ[jaan#
>[i]ZgZVgZY^[[ZgZcXZhWZilZZcndjgbVX]^cZVcYl]Vi^hh]dlc^ci]^hhZXi^dc!XVaaIZX]c^XVaHjeedgiV
i
*,%*)+".++([dgVhh^hiVcXZ7:;DG:bV`^c\VcnX]Vc\Zhidi]Zl^g^c\dcndjgbVX]^cZ#6cjeYViZY
l^g^c\ Y^V\gVb bVn WZ VkV^aVWaZ# Note:Please gather the serial number and manufacture date of you
r
machine before calling. This information can be found on the main machine label.
SECTION 9: WIRING
bVX]^cZ

BdYZa<%,&*EB[\#)$&& ",("
READ ELECTRICAL SAFETY
ON PAGE 72!
Wiring Diagram
AdVY A^cZ
@:9J=N*+
'%6'*%K
(*6&'*K
CZjigVa
=di
<gdjcY
110 VAC
5-20 Plug
(As Recommended)
110V/220V
MOTOR
SWITCH
BOX
GZl^gZY[dg&&%K
BdidgGZl^gZY
[dg&&%K
BdidgEgZl^gZY
[dg''%K
HiVgi
8VeVX^idg
'%%B;9
'*%K68
Gjc
8VeVX^idg
+%B;9
(%%K68
<gdjcY
<gdjcY
<gdjcY
8^gXj^i7gZV`Zg
&%6Vi''%K
'%6Vi&&%K
DC$D;;
HL>I8=
<gdjcY
=di
=di
6-20 PLUG
220 VAC
GZl^gZY[dg&&%K
HZZFigure 122
HZZFigure 123
HZZFigure 124

",)" BdYZa<%,&*EB[\#)$&&
READ ELECTRICAL SAFETY
ON PAGE 72!
Electrical Components
Figure 122. Motor capacitors.
Figure 123. Motor junction box.
Figure 124. Switch box components.
Bdidg?jcXi^dc
7dm
DC$D;;
Hl^iX]
8VeVX^idgh 8^gXj^i
7gZV`Zg

BdYZa<%,&*EB[\#)$&& ",*"
SECTION 10: PARTS
Body
REF PART # DESCRIPTION REF PART # DESCRIPTION
1 P0715P001 EXTENSION WING 17 PS14M PHLP HD SCR M6-1 X 12
2 PCAP88M CAP SCREW M10-1.25 X 25 18 PLW03M LOCK WASHER 6MM
3 PLW06M LOCK WASHER 10MM 19 PWF06M FENDER WASHER 6MM
4 PW04M FLAT WASHER 10MM 20 P0715P020 BASE PLATE
5 P0715P005 TABLE 21 PW02M FLAT WASHER 5MM
7 PFH07M FLAT HD SCR M5-.8 X 10 22 PLW01M LOCK WASHER 5MM
8 P0715P008 MAGNET 23 PCAP33M CAP SCREW M5-.8 X 12
9 P0715P009 STANDARD TABLE INSERT 24 P0715P024 DUST HOOD 4"
10 P0715P010 DADO TABLE INSERT 25 P0715P025 LEADSCREW EXTERNAL BRACKET
11 P0715P011 MOTOR COVER 26 P0715P026 CABINET REAR ACCESS PANEL
12 PTLW13M INT TOOTH WASHER 6MM 27 P0715P027 LEADSCREW INTERNAL BRACKET
13 P0715P013 KNOB BOLT M6-1 28 PCAP31M CAP SCREW M8-1.25 X 25
14 P0715P014 TILT SCALE 29 PLW04M LOCK WASHER 8MM
15 P0715P015 STRAIN RELIEF 30 PW01M FLAT WASHER 8MM
16 P0715P016 CABINET STAND 31 PCAP15M CAP SCREW M5-.8 X 20
&
'
(
)
*
,
-
.&%
&&
&'
&(
&)
&*
&+
&,
&-
&.
'%
'&
''
'(
')
'*
'+
',
&
'()
'& ''
(&
'& '' '(
'- '.
(%

",+" BdYZa<%,&*EB[\#)$&&
Trunnion
&%& &%'
&%(
&%)
&%*
&%+
&%+"&
&%+"'
&%+"(
&%+")
&%+"*
&%+"+
&%,
&%-
&%.
&&% &&&
&&' &&( &&) &&*
&&+
&&,
&&-
&&.
&'%
&'&
&''
&'(
&')
&'*
&'+
&',
&'-
&'. &(%
&(&
&('
&((
&() &(*
&(+
&(,
&(-
&(.
&)%
&)&
&)'
&)(
&))
&)*
&)+
&),
&)-
&). &*%
&*&
&*' &*(
&*)
&** &*+ &*,
&*-
&*.
&+%
&+&
&+'
&+(
&+)
&+*
&++
&+,
&+-
&+.
&,%
&,&
&,'
&,(
&,)
&,*
&,+
&,,
&,-
&,.
&-%
&-&
&-'
&-(
&-)
&-*
&-+
&-,
&--
&)*
&))
&)*
&)+
&)) &)* &*,
&*,
&'(
&-,
&+(
&+)
&+*
&-.
&))
&)*
&,%
&((
&()
&(*

BdYZa<%,&*EB[\#)$&& ",,"
Trunnion Parts List
REF PART # DESCRIPTION REF PART # DESCRIPTION
101 PB03M HEX BOLT M8-1.25 X 16 143 P0715P143 LOCK PIN CAM
102 PLW04M LOCK WASHER 8MM 144 PW03M FLAT WASHER 6MM
103 PLN07M LOCK NUT M16-2 145 PLW03M LOCK WASHER 6MM
104 PWF08M FENDER WASHER 8MM 146 PCAP02M CAP SCREW M6-1 X 20
105 PW08M FLAT WASHER 16MM 147 P0715P147 COMPRESSION SPRING
106 P0715P106 MOTOR 2HP 110/220V 1PH 148 P0715P148 SPACER
106-1 P0715P106-1 MOTOR FAN COVER 149 P0715P149 LOCK PIN
106-2 P0715P106-2 MOTOR FAN 150 P0715P150 RIVING KNIFE CLAMP PLATE
106-3 P0715P106-3 MOTOR JUNCTION BOX 151 P0715P151 LOCK COLLAR
106-4 P0715P106-4 R CAPACITOR 60M 300V 1-3/4 X 4 152 PSS26M SET SCREW M5-.8 X 6
106-5 P0715P106-5 S CAP. 200M 250V 1-3/4 X 2-1/2 153 PR32M EXT RETAINING RING 48MM
106-6 P0715P106-6 CAPACITOR COVER 154 P0715P154 SAW BLADE 10" X 40T 5/8" ARBOR
107 PLN09M LOCK NUT M12-1.75 155 P0715P155 ARBOR FLANGE
108 PK07M KEY 6 X 6 X 20 156 P0715P156 ARBOR NUT
109 P0715P109 ARBOR PULLEY 157 PCAP04M CAP SCREW M6-1 X 10
110 P0715P110 MOTOR PULLEY 158 P0715P158 LOWER BLADE GUARD
111 PSS01M SET SCREW M6-1 X 10 159 P0715P159 GROOVED CAPTIVE PIN
112 P0715P112 RIBBED V-BELT 6PJ-365 160 P0715P160 SPRING RETAINING SCREW
113 P0715P113 ARBOR BUSHING 161 PEC02M E-CLIP 4MM
114 P6202-2RS BALL BEARING 6202-2RS 162 P0715P162 TENSION SPRING
115 P0715P115 MOTOR MOUNT 163 P0715P163 HANDWHEEL
116 P0715P116 COMPRESSION SPRING 164 P0715P164 HANDWHEEL LOCK KNOB
117 P0715P117 ARBOR LOCK BUSHING 165 P0715P165 HANDWHEEL HANDLE
118 P0715P118 ARBOR LOCK PIN 166 P0715P166 BEVELED BUSHING
119 P0715P119 BEVEL STOP SUPPORT 167 PEC10M E-CLIP 9MM
120 PW02M FLAT WASHER 5MM 168 P0715P168 SPACER
121 PLW01M LOCK WASHER 5MM 169 P0715P169 BEARING WASHER
122 P0715P122 ARBOR LOCK PIN KNOB 170 PRP42M ROLL PIN 3 X 20
123 PS08M PHLP HD SCR M5-.8 X 12 171 P0715P171 TILT LEADSCREW
124 P0715P124 ARBOR 172 P0715P172 TILT LEADSCREW NUT
125 PK20M KEY 5 X 5 X 15 173 PS14M PHLP HD SCR M6-1 X 12
126 P6202-2RS BALL BEARING 6202-2RS 174 P0715P174 POINTER BRACKET
127 PN01M HEX NUT M6-1 175 PEC12M E-CLIP 12MM
128 PCAP29M CAP SCREW M6-1 X 40 176 P0715P176 POINTER
129 PCAP90M CAP SCREW M10-1.5 X 55 177 PW05M FLAT WASHER 4MM
130 PN02M HEX NUT M10-1.5 178 PS07M PHLP HD SCR M4-.7 X 8
131 P0715P131 MAIN TRUNNION 179 P0715P179 ELEVATION SHAFT
132 P0715P132 MOTOR MOUNT PIVOT SHAFT 180 P0715P180 SPACER
133 PB177M HEX BOLT M10-1.25 X 30 181 P0715P181 FRONT TRUNNION
134 PLW06M LOCK WASHER 10MM 182 P0715P182 ELEVATION SHAFT BUSHING
135 PW04M FLAT WASHER 10MM 183 P0715P183 COMPRESSION SPRING
136 P0715P136 TABLE SHIM 184 P0715P184 WAVE WASHER
137 P0715P137 REAR TRUNNION 185 P0715P185 LOCK COLLAR 90 DEG
138 P0715P138 SPACER 186 P0715P186 LOCK COLLAR 45 DEG
139 P0715P139 SPRING BRACKET 187 PCAP24M CAP SCREW M5-.8 X 16
140 PLN02M LOCK NUT M5-.8 188 P0715P188 TILT LEADSCREW SPACER
141 P0715P141 ARBOR SUPPORT 189 P0715P189 ELEVATION SHAFT SPACER
142 P0715P142 RIVING KNIFE MOUNT

",-" BdYZa<%,&*EB[\#)$&&
Power Switch
REF PART # DESCRIPTION REF PART # DESCRIPTION
201 PHTEK44M TAP SCREW M3.5 X 19 207 PLW01M LOCK WASHER 5MM
202 P0715P202 ON/OFF PADDLE SWITCH W/PIN 208 PW02M FLAT WASHER 5MM
203 P0715P203 SWITCH BOX 209 P0715P209 CLAMP-ON TERMINAL RING
204 P0715P204 CIRCUIT BREAKER 10A 220V 210 PTLW02M EXT TOOTH WASHER 5MM
204-1 P0715P204-1 CIRCUIT BREAKER 20A 110V 211 P0715P211 SWITCH BRACKET
205 P0715P205 CIRCUIT BREAKER NUT 212 PHTEK18M TAP SCREW M3.5 X 10
206 PS05M PHLP HD SCR M5-.8 X 8 213 P0715P213 STRAIN RELIEF
'%&
'%'
'%(
'%)
'%)"&
[dg&&%KXdckZgh^dc
'%*
'%+ '%, '%- '%.
'&%
'&& '&'
'&(
Miter Gauge
REF PART # DESCRIPTION REF PART # DESCRIPTION
400 P0715P400 MITER GAUGE ASSEMBLY 409 PW05M FLAT WASHER 4MM
401 P0715P401 HANDLE PLUG 410 P0715P410 POINTER
402 P0715P402 HANDLE 411 P0715P411 STOP BLOCK
403 P0715P403 SPACER 412 P0715P412 STOP PIN
404 P0715P404 MITER GAUGE BODY 413 P0715P413 MITER BAR
405 PN06M HEX NUT M5-.8 414 PFH19M FLAT HD SCR M4-.7 X 10
406 PS06M PHLP HD SCR M5-.8 X 20 415 P0715P415 T-SLOT WASHER
407 PS38M PHLP HD SCR M4-.7 X 10 416 PFH04M FLAT HD SCR M6-1 X 8
408 P0715P408 PIVOT PIN
)%& )%' )%(
)%)
)%* )%+
)%,
)%-
)%. )&% )&&
)&' )&(
)&)
)&*
)&+
)%%

BdYZa<%,&*EB[\#)$&& ",."
Blade Guard
REF PART # DESCRIPTION REF PART # DESCRIPTION
300V2 P0715P300V2 BLADE GUARD ASSEMBLY V2.11.10 315V2 P0690354V2 RIVET 5 X 12MM V2.11.10
301 PRP39M ROLL PIN 4 X 20 316 PB122M HEX BOLT M4-.7 X 8
302 P0690319 TORSION SPRING 317 P0690332V2 GUARD SUPPORT
303 PLN03M LOCK NUT M6-1 318 PS62M PHLP HD SCR M6-1 X 30
304 P0690322V2 SUPPORTING ARM 319 P0690342V2 SUPPORT ARM SPACER
305 PS47M PHLP HD SCR M6-1 X 25 320 P0690345 PAWL SPACER
306 PW03M FLAT WASHER 6MM 321V2 PB42M HEX BOLT M5-.8 X 20
307 P0690326 TOP GUARD 322 PW02M FLAT WASHER 5MM
308 PS17M PHLP HD SCR M4-.7 X 6 323 P0690349 PAWL
309 P0690328 FRONT GUARD PLASTIC 324 P0690350 SPLITTER
310 P0690331V2 SIDE GUARD PLASTIC 325V2 P0715P325V2 RIVING KNIFE V2.04.11
311 P0690356 GUARD CLAMP 326V2 P0690352V2 RIVET V2.11.10
312 PLN02M LOCK NUT M5-.8 327 P0690353 RIVING KNIFE HOOK PLATE
313 PS38M PHLP HD SCR M4-.7 X 10 328V2 PB11M HEX BOLT M5-.8 X 8
314 PRP107M ROLL PIN 6 X 32 329V2 PS31M PHLP HD SCR M6-1 X 35
(%&
(%'
(%(
(%)
(%(
(%*
(%+
(%,
(%-
(%%K'
(%.
(&%
(&&
(&'
(&(
(&)
(&*K'
(&+
(&,
(&-
(&.
('%
('&K'
(''
('(
(') ('*K'
('+K'
(',
('-K'
('.K'
(''
(%+
(''
(&+
(&,
(&%
(''
(&(
(''
(''
(&'
('%
('(

"-%" BdYZa<%,&*EB[\#)$&&
Fence
REF PART # DESCRIPTION REF PART # DESCRIPTION
500 P0715P500 RIP FENCE ASSEMBLY 511 P0715P511 BALL KNOB
501 P0715P501 GLIDE PAD 512 PLN10M LOCK NUT M10-1.25
502 P0715P502 ROUND LOCK NUT M12-1.75 513 PS22M PHLP HD SCR M5-.8 X 25
503 PSS109M SET SCREW M12-1.75 X 16 514 PLW01M LOCK WASHER 5MM
504 PSS108M SET SCREW M12-1.75 X 10 515 P0715P515 FENCE SCALE WINDOW
505 PB47M HEX BOLT M6-1 X 40 516 P0715P516 FENCE FACE
506 P0715P506 LOCK FOOT 517 PS11M PHLP HD SCR M6-1 X 16
507 PLN03M LOCK NUT M6-1 518 P0715P518 FENCE BASE
508 PB22M HEX BOLT M8-1.25 X 50 519 P0715P519 FENCE BASE END CAP 50 X 50MM
509 P0715P509 FENCE LOCK LEVER 520 PSS32M SET SCREW M12-1.75 X 30
510 P0715P510 MAGNET
*%&
*%'
*%( *%)
*%*
*%+
*%,
*%-
*%.
*&%
*&&
*&'
*&(
*&)
*&*
*&+
*&, *&-
*&.
*'%
*%&
*&+
*&,
*%'
*%(
*%'
*%%

BdYZa<%,&*EB[\#)$&& "-&"
Rails
REF PART # DESCRIPTION REF PART # DESCRIPTION
601 P0715P601 REAR RAIL 611 PLW03M LOCK WASHER 6MM
602 PW04M FLAT WASHER 10MM 612 PCAP01M CAP SCREW M6-1 X 16
603 PLW06M LOCK WASHER 10MM 613 P0715P613 GUIDE TUBE END CAP 40 X 50MM
604 PCAP64M CAP SCREW M10-1.5 X 25 614 P0715P614 FENCE SCALE
605 PCAP40M CAP SCREW M8-1.25 X 35 615 P0715P615 FENCE GUIDE TUBE
606 PW01M FLAT WASHER 8MM 616 PFH36M FLAT HD SCR M8-1.25 X 35
607 PLW04M LOCK WASHER 8MM 617 PCAP33M CAP SCREW M5-.8 X 12
608 PN03M HEX NUT M8-1.25 618 PW02M FLAT WASHER 5MM
609 P0715P609 FRONT RAIL 619 PLW01M LOCK WASHER 5MM
610 PW03M FLAT WASHER 6MM
+%&
+%'
+%( +%)
+%*
+%+
+%, +%-
+%.
+&%
+&&
+&'
+&(
+&)
+&*
+&+
+&,
+&-
+&.
+&(
+%+
+%+
+%,
+%-
+%*
+%)

"-'" BdYZa<%,&*EB[\#)$&&
Machine Labels
Safety labels warn about machine hazards and ways to prevent injury. The owner of this machine
MUST maintain the original location and readability of the labels on the machine. If any label is
removed or becomes unreadable, REPLACE that label before using the machine again. Contact
Grizzly at (800) 523-4777 or www.grizzly.com to order new labels.
REF PART # DESCRIPTION REF PART # DESCRIPTION
701 PLABEL-14A ELECTRICITY LABEL 709 PLABEL-75 POLAR BEAR LOGO LABEL
702 P0715P702 RIVING KNIFE PRECAUTIONS LABEL 710 P0715P710 MODEL NUMBER LABEL
703 PLABEL-76 BLADE GUARD LABEL 711 PLABEL-77 GRIZZLY.COM PB LABEL
704 P0715P704 RIP FENCE LABEL 712 P0715P712 MACHINE ID LABEL
705 PLABEL-57 EYE/LUNG HAZARD LABEL 713 PLABEL-12A READ MANUAL LABEL
706 PPAINT-24 PB WHITE TOUCH-UP PAINT 714 PLABEL-78 TABLE SAW WARNING LABEL
707 G8588 GRIZZLY NAMEPLATE 715 PLABEL-79A MOTOR DOOR WARNING LABEL
708 P0715P708 GRIZZLY GREEN TAPE 716 PLABEL-63 DISCONNECT POWER LABEL
,%& ,%'
,%(
,%)
,%*
,%+
,%,
,%-
,%.
,&%
,&&
,&'
,&(
,&)
,&*
,&+

8JI6ADC<9DII:9A>C:
CVbZTTTTTTTTTTTTTTTTTTTTTTTTTTTTTTTTTTTTTTTTTTTTTTTTTTTTTTTTTTTTTTTTTTTTTTTTTTTTT
HigZZiTTTTTTTTTTTTTTTTTTTTTTTTTTTTTTTTTTTTTTTTTTTTTTTTTTTTTTTTTTTTTTTTTTTTTTTTTTTTT
8^in TTTTTTTTTTTTTTTTTTTTTTT HiViZTTTTTTTTTTTTTTTTTTTTTTTTT O^e TTTTTTTTTTTTTTTTTTTTT
E]dcZTTTTTTTTTTTTTTTTTTTT :bV^a TTTTTTTTTTTTTTTTTTTTTTTT >ckd^XZTTTTTTTTTTTTTTTTT
BdYZaTTTTTTTTTTTTTTTTTTTT DgYZgTTTTTTTTTTTTTTTTTTTTTTT HZg^VaTTTTTTTTTTTTTTTTTT
WARRANTY CARD
The following information is given on a voluntary basis. It will be used for marketing purposes to help us develop
better products and services. Of course, all information is strictly confidential.
1. =dlY^YndjaZVgcVWdjijh4
TTTT 6YkZgi^hZbZci TTTT ;g^ZcY TTTT 8ViVad\
TTTT 8VgY9ZX` TTTT LZWh^iZ TTTT Di]Zg/
2. L]^X]d[i]Z[daadl^c\bV\Vo^cZhYdndjhjWhXg^WZid4
3. L]Vi^hndjgVccjVa]djhZ]daY^cXdbZ4
TTTT '%!%%%"'.!%%% TTTT (%!%%%"(.!%%% TTTT )%!%%%").!%%%
TTTT *%!%%%"*.!%%% TTTT +%!%%%"+.!%%% TTTT ,%!%%%
4. L]Vi^hndjgV\Z\gdje4
TTTT '%"'. TTTT (%"(. TTTT )%").
TTTT *%"*. TTTT +%"+. TTTT ,%
5. =dladc\]VkZndjWZZcVlddYldg`Zg$bZiValdg`Zg4
TTTT %"'NZVgh TTTT '"-NZVgh TTTT -"'%NZVgh TTTT'% NZVgh
6. =dlbVcnd[ndjgbVX]^cZhdgiddahVgZ<g^ooan4
TTTT %"' TTTT ("* TTTT +". TTTT &%
7. 9dndji]^c`ndjgbVX]^cZgZegZhZcihV\ddYkVajZ4 TTTTTNZh TTTTTCd
8. LdjaYndjgZXdbbZcY<g^ooan>cYjhig^VaidV[g^ZcY4 TTTTTNZh TTTTTCd
9. LdjaYndjVaadljhidjhZndjgcVbZVhVgZ[ZgZcXZ[dg<g^ooanXjhidbZgh^cndjgVgZV4
Note: We never use names more than 3 times. TTTTTNZh TTTTTCd
10. 8dbbZcih/ _____________________________________________________________________
_________________________________________________________________________________
_________________________________________________________________________________
_________________________________________________________________________________
TTTT 8VW^cZibV`Zg;9B
TTTT ;Vb^an=VcYnbVc
TTTT =VcYAdVYZg
TTTT =VcYn
TTTT =dbZH]deBVX]^c^hi
TTTT ?djgcVad[A^\]i8dci#
TTTT A^kZHiZVb
TTTT BdYZa6^geaVcZCZlh
TTTT DaY=djhZ?djgcVa
TTTT EdejaVgBZX]Vc^Xh
TTTT EdejaVgHX^ZcXZ
TTTT EdejaVgLddYldg`^c\
TTTT EgZX^h^dcH]ddiZg
TTTT Egd_ZXih^cBZiVa
TTTT G8BdYZaZg
TTTT G^ÄZ
TTTT H]deCdiZh
TTTT H]di\jcCZlh
TTTT IdYVn»h=dbZdlcZg
TTTT LddY
TTTT LddYZc7dVi
TTTT LddYh]deCZlh
TTTT LddYhb^i]
TTTT LddYldg`
TTTT LddYldg`ZgLZhi
TTTT LddYldg`Zg»h?djgcVa
TTTT Di]Zg/

I6E:6ADC<:9<:H""EA:6H:9DCDIHI6EA:
;DA96ADC<9DII:9A>C:
;DA96ADC<9DII:9A>C:
'2)::,9).$5342)!,).#
0/"/8
"%,,).'(!-7!
EaVXZ
HiVbe
=ZgZ
CVbZTTTTTTTTTTTTTTTTTTTTTTTTTTTTTTT
HigZZiTTTTTTTTTTTTTTTTTTTTTTTTTTTTTTT
8^inTTTTTTTTTTTTTTHiViZTTTTTTO^eTTTTTT
HZcYV<g^ooan8ViVad\idV[g^ZcY/

WARRANTY AND RETURNS
<g^ooan>cYjhig^Va!>cX#lVggVcihZkZgnegdYjXi^ihZaah[dgVeZg^dYd[YEARidi]Zdg^\^cVaejgX]VhZg[gdb
i]ZYViZd[ejgX]VhZ#I]^hlVggVcinYdZhcdiVeeanidYZ[ZXihYjZY^gZXiandg^cY^gZXianidb^hjhZ!VWjhZ!
cZ\a^\ZcXZ!VXX^YZcih!gZeV^ghdgVaiZgVi^dchdgaVX`d[bV^ciZcVcXZ#I]^h^h<g^ooan»hhdaZlg^iiZclVggVcin
VcYVcnVcYVaalVggVci^Zhi]VibVnWZ^bea^ZYWnaVl!^cXajY^c\VcnbZgX]VciVW^a^indg[^icZhh![dgVcneVg"
i^XjaVgejgedhZ!VgZ]ZgZWna^b^iZYidi]ZYjgVi^dcd[i]^hlg^iiZclVggVcin#LZYdcdilVggVcidggZegZhZci
i]Vii]ZbZgX]VcY^hZXdbea^Zhl^i]i]Zegdk^h^dchd[VcnaVldgVXihjcaZhhi]ZbVcj[VXijgZghdlVggVcih#
>ccdZkZcih]Vaa<g^ooan»ha^VW^a^injcYZgi]^hlVggVcinZmXZZYi]ZejgX]VhZeg^XZeV^Y[dgi]ZegdYjXiVcY
VcnaZ\VaVXi^dchWgdj\]iV\V^chi<g^ooanh]VaaWZig^ZY^ci]ZHiViZd[LVh]^c\idc!8djcind[L]ViXdb#
LZh]Vaa^ccdZkZciWZa^VWaZ[dgYZVi]!^c_jg^ZhideZghdchdgegdeZgindg[dg^cX^YZciVa!Xdci^c\Zci!heZX^Va!
dgXdchZfjZci^VaYVbV\ZhVg^h^c\[gdbi]ZjhZd[djgegdYjXih#
IdiV`ZVYkVciV\Zd[i]^hlVggVcin!XdciVXijhWnbV^adge]dcZVcY\^kZjhVaai]ZYZiV^ah#LZl^aai]Zc
^hhjZndjV¸GZijgcCjbWZg!»»l]^X]bjhiWZXaZVganedhiZYdci]Zdjih^YZ VhlZaaVh i]Z^ch^YZ d[i]Z
XVgidc#LZl^aacdiVXXZeiVcn^iZbWVX`l^i]djii]^hcjbWZg#Egdd[ d[ ejgX]VhZ bjhi VXXdbeVcn i]Z
bZgX]VcY^hZ#
I]ZbVcj[VXijgZghgZhZgkZi]Zg^\]iidX]Vc\ZheZX^[^XVi^dchViVcni^bZWZXVjhZi]ZnXdchiVcianhig^kZid
VX]^ZkZWZiiZgfjVa^inZfj^ebZci#LZbV`ZZkZgnZ[[dgiidZchjgZi]VidjgegdYjXihbZZi]^\]fjVa^inVcY
YjgVW^a^inhiVcYVgYhVcYlZ]deZndjcZkZgcZZYidjhZi]^hlVggVcin#
EaZVhZ[ZZa[gZZidlg^iZdgXVaajh^[ndj]VkZVcnfjZhi^dchVWdjii]ZbVX]^cZdgi]ZbVcjVa#
I]Vc`ndjV\V^c[dgndjgWjh^cZhhVcYXdci^cjZYhjeedgi#LZ]deZidhZgkZndjV\V^chddc#
7!22!.49!.$2%452.3

Buy Direct and Save with Grizzly®– Trusted, Proven and a Great Value!
~Since 1983~
ORDER
24 HOURS A DAY!
1-800-523-4777
Visit Our Website Today For
Current Specials!