Gto Sl 1000B Users Manual DC R
SL-1000B to the manual bc01da24-3e96-4485-9c0c-66c707e2bebd
2015-02-09
: Gto Gto-Sl-1000B-Users-Manual-562979 gto-sl-1000b-users-manual-562979 gto pdf
Open the PDF directly: View PDF
.
Page Count: 43

AUTOMATIC GATE OPERATOR
FOR VEHICULAR SLIDE GATES
INSTALLATION MANUAL FOR THE PROFESSIONAL INSTALLER
3121 Hartsfield Road • Tallahassee, Florida, USA 32303
Telephone GTO Sales: 1-800-543-GATE (4283) or (850) 575-0176 • Fax (850) 575-8912
or GTO Technical Service: 1-800-543-1236 or (850) 575-4144 • Fax (850)575-8950
www.gtoinc.com
DO NOT INSTALL THIS OPERATOR WITHOUT SAFETY EDGES AND ROLLER GUARDS!
RB270 rev - 4/5/06
WARNING!
This equipment is similar to other gate or door equipment and meets or exceeds
Underwriters Laboratory Standard 325 (UL 325). However, gate equipment has
hazards associated with its use and therefore by installing this product the installer
and user accept full responsibility for following and noting the installation and
safety instructions. Failure to follow installation and safety instructions can result
in hazards developing due to improper assembly. You agree to properly install this
product and that if you fail to do so GTO, Inc. shall in no event be liable for direct,
indirect, incidental, special or consequential damages or loss of profits whether
based in contract tort or any other legal theory during the course of the warranty
or at any time thereafter. The installer and/or user agree to assume responsibility
for all liability and use of this product releasing GTO, Inc. from any and all liability.
If you are not in agreement with this disclaimer or do not feel capable of properly
following all installation and safety instructions you may return this product for full
replacement value.
READ ALL INSTRUCTIONS CAREFULLY AND COMPLETELY before attempting
to install and use this automatic gate opener. This gate opener produces a high level of
force. Stay clear of the unit while it is operating and exercise caution at all times.
All automatic gate openers are intended for use on vehicular gates only.
This product meets and exceeds the requirements of UL 325, the standard which regulates gate opener safety,
as established and made effective March 1, 2000, by Underwriters Laboratories Inc.
TABLE OF CONTENTS
Gate Operator Class Categories --------------------------------------------------------inside cover
Important Safety Instructions -----------------------------------------------------------page 1
Important Safety Instructions for the System Designer ----------------------------page 2
Important Safety Instructions for the Installer ---------------------------------------page 2
Secondary means of Protection Against Entrapment -------------------------------page 4
Important Safety Instructions for the Consumer/End User ------------------------page 5
Warning Labels and Signs --------------------------------------------------------------page 7
Technical Specifications for SL-1000 ----------------------------------------------------page 9
Technical Specifications for SL-2000 ----------------------------------------------------page 10
Parts Identification (Single Gate Operator) -------------------------------------------page 11
Single Gate Operator Installation -------------------------------------------------------page 12
Overview and Gate Preparation -------------------------------------------------------page 12
Suggested Conduit & Wiring and Mounting the Legs ------------------------------page 13
Determining the Mounting Position and Mounting the Operator -----------------page 14
Installing the Chain ----------------------------------------------------------------------page 15
Disconnecting Operator Chain for Manual Operation of Gate --------------------page 15
Powering the System -----------------------------------------------------------------------page 16
Maximum Operational Cycles Chart --------------------------------------------------page 16
Installation of the Transformer ---------------------------------------------------------page 16
Control Board settings ---------------------------------------------------------------------page 20
DIP Switches ----------------------------------------------------------------------------------page 20
Potentiometers --------------------------------------------------------------------------------page 21
Connecting the Receiver to the Control Board ---------------------------------------page 22
Setting Your Personal Transmitter Code --------------------------------------------------page 22
Mounting the Receiver ----------------------------------------------------------------------page 23
Adjusting the Limit Switches ------------------------------------------------------------page 24
Connecting Safety Devices ----------------------------------------------------------------page 25
Connecting Accessories ---------------------------------------------------------------------page 26
Maintenance ---------------------------------------------------------------------------------page 28
Troubleshooting Guide ---------------------------------------------------------------------page 29
Warranty and Repair Information ------------------------------------------------------page 31
Dual Gate System Installation -----------------------------------------------------------page 32
Preparing the Gates ----------------------------------------------------------------------page 34
Wiring the Second Operator -----------------------------------------------------------page 35
Setting the Control Board for Dual Gate Installations -----------------------------page 36
Accessory Catalog -------------------------------------------------------------------------page 38
Installation Check List ------------------------------------------------------- inside back cover

1
IMPORTANT SAFETY INSTRUCTIONS
Because automatic gate operators produce high levels of force, all system designers, installers, and consumers
have an obligation to know the potential hazards associated with improperly designed, installed, or maintained gate
operator systems. Keep in mind that the gate operator is just one component of the total gate operating system.
Each component must work in unison to provide the consumer with convenience, security, and safety.
This manual contains various safety precautions and warnings for the system designer, installer, and consumer.
Because there are many possible applications of the gate operator, the safety precautions and warnings contained in
this manual cannot be completely exhaustive in nature. They do, however, provide an overview of the safe design,
installation, and use of this product. CAREFULLY READ AND FOLLOW ALL SAFETY PRECAUTIONS,
WARNINGS, AND INSTALLATION INSTRUCTIONS TO ENSURE THE SAFE SYSTEM DESIGN,
INSTALLATION, AND USE OF THIS PRODUCT.
The precautions and warnings in this manual are identified with this warning symbol.
The symbol identifies the conditions that can result in damage to the operator or its components, serious
injury, or death.
Because GTO automatic gate operators are only part of a total gate operating system, it is the responsibility
of the designer, installer, and purchaser to ensure the total system is safe for its intended use. Bypassing
safety devices or neglecting to use safety devices with the gate operator is NOT acceptable.
FOR THE GTO/PRO SL-1000/2000 AND GTO/PRO SL-1000B/2000B
AUTOMATIC SLIDE GATE OPERATORS
Quick Release Pin (211IH)
Chain Bracket (204IH)
TO MANUALLY OPEN AND CLOSE THE GATE, FOLLOW
THE PROCEDURE BELOW:
CAUTION: Disconnect the
operator chain ONLY when the
gate is NOT moving.
1. Lift the quick release pins UP, then
pull them OUT of the chain brackets
(see illustration).
2. Lay the chain down and manually slide
the gate to the desired position.
To prevent unauthorized removal of the
quick release pins, install pin locks (see
accessory catalog) above the quick release
pins in both chain brackets.

2
IMPORTANT SAFETY INSTRUCTIONS
FOR THE SYSTEM DESIGNER
WARNING: To reduce the risk of injury or death:
1. READ AND FOLLOW ALL INSTRUCTIONS.
2. This operator is intended for use only on vehicular gates. Pedestrians must be supplied with a separate
walk-through gate (see Entrapment Protection on page 6).
3. When designing a system that will be entered from a highway or main thoroughfare, make sure the system
is placed far enough from the road to prevent traffic congestion.
FOR THE INSTALLER
WARNING-To reduce the risk of injury or death:
I. Before Installation
1. READ AND FOLLOW ALL INSTRUCTIONS.
2. Verify this operator is proper for the type and size of gate, and its frequency of use.
3. Make sure the gate has been properly installed and slides freely in both directions. Repair or replace all
worn or damaged gate hardware prior to installation. A freely moving gate will require less force to operate
and will enhance the performance of the operator and safety devices used with the system.
4. All openings of a horizontal slide gate must be guarded or screened to prevent a 21/4 inch diameter sphere
from passing through openings anywhere in the gate. This screen (or guard) must also be installed over the
portion of adjacent fence that the gate covers in the open position (see page 6).
5. Review the operation of the system and become familiar with its safety features. Understand how to
disconnect the operator chain with the quick release pins for manual operation of the gate (see page 1).
6. This gate operator is intended for vehicular gates ONLY. A separate entrance or gate must be installed for
pedestrian use (see page 6). NO ONE SHOULD CROSS THE PATH OF A MOVING GATE.
II. During Installation
1. Install the gate operator on the inside of the property and fence line. DO NOT install an operator on the
outside of the gate where the public has access to it.
2. Be careful with moving parts and avoid close proximity to areas where fingers or hands could be
pinched.
3. Determine the best obstruction sensing setting for this installation. The gate MUST stop and reverse on
contact with an obstruction or when an object activates the non-contact sensors. After adjusting the force
or the limit of travel, retest the gate operator. Failure to adjust and retest the gate operator properly
increases the risk of injury or death.
4. Additional safety equipment such as roller guards and safety edges (or photoelectric sensors) MUST
be installed to prevent bodily injury (see page 6).

3
IMPORTANT SAFETY INSTRUCTIONS
5. Mount access controls away from the gate (minimum distance is 10 feet). The user must have full view
of the gate but be unable to touch it while operating the controls.
6. Secure outdoor or easily accessed gate operator controls in order to prohibit unauthorized use of the
gate.
III. After Installation
1. Review ALL safety instructions with the consumer/end user and explain the basic operation and safety
systems of the entire gate operator system, including disconnecting the chain for manual gate operation.
2. Inform the consumer/end user that servicing of the operator must only be done by an experienced
technician.
3. Attach the warning signs (included) to each side of the gate to alert public of automatic gate operation.
Take a photo of warning signs installed on gate. Record the date of the photo for your reference.
4. SAVE THESE INSTRUCTIONS. Leave IMPORTANT SAFETY INSTRUCTIONS
(included) with consumer/end user.

4
IMPORTANT SAFETY INSTRUCTIONS
SECONDARY MEANS OF PROTECTION AGAINST ENTRAPMENT
As specified by Underwriters Laboratories Inc. UL 325 (31.1.1), automatic gate operators shall have provisions
for, or be supplied with, at least one independent primary and one independent secondary means to protect against
entrapment. GTO gate operators utilize Type A, an inherent entrapment sensing system, as the primary type of
entrapment protection. The GTO/PRO SL-1000/2000 and GTO/PRO SL-1000B/2000B gate operators have provisions
for the connection of Type B1 and B2 protection to be used as the secondary type of entrapment protection.
1. For gate operators utilizing a non-contact sensor (Type B1) in accordance with UL 325 (31.1.6):
A. Refer to the sensor manufacturer’s instructions on the placement of non-contact sensors for each type of
application.
B. Care shall be exercised to reduce the risk of nuisance tripping, such as when a vehicle trips the sensor while
the gate is still moving.
C. One or more non-contact sensors shall be located where the risk of entrapment or obstruction exists, such
as the perimeter reachable by a moving gate or barrier.
2. For gate operators utilizing a contact sensor (Type B2) in accordance with UL 325 (31.1.10):
A. One or more contact sensors shall be located at the leading edge, trailing edge, and post mounted edge, both
inside and outside of a vehicular slide gate system.
B. A hard wired contact sensor shall be located and its wiring arranged so that the communication between the
sensor and the gate operator is not subjected to mechanical damage.
C. A wireless contact sensor such as one that transmits radio frequency (RF) signals to the gate operator for
entrapment protection functions shall be located where the transmission of the signals are not obstructed or
impeded by building structures, natural landscaping or similar obstruction. A wireless contact sensor shall
function under the intended end-use conditions.
ENTRAPMENT ALARM (UL 325; 31.2.1)
The GTO/PRO SL-2000 and GTO/PRO SL-2000B operators are designed to stop and reverse for 2 seconds
when the gate comes in contact with an obstruction or when an object activates the non-contact sensors.
Additionally, these operators are equipped with an audio entrapment alarm which will function if the unit
obstructs twice while opening or closing. This alarm will sound for a period of 5 minutes or until the
operator receives an intended signal (e.g., transmitter signal) and the gate returns to a fully open or fully
closed position.
RED
BLK
ORG
BLU
GRN
CLS EDG
OPN EDG
RED
GRN
ORG
BLU
WHT
BLK
ORG
BLU
GRN
CLS EDG
OPN EDG
LEARN
AUTO
CLOSE
INERTIA
STATUS
BATT
+–
OBSTR.
SENS.
RCVR
RGB
ALARM
SECOND OPERATOR
FIRST OPERATOR
POWER IN
18VAC SOLAR
~ ~ – +
ACCESSORY
PWR. SW.
Entrapment Alarm
(bottom right of control box)

5
IMPORTANT SAFETY INSTRUCTIONS
FOR THE CONSUMER/END USER
WARNING: To reduce the risk of injury or death:
1. READ AND FOLLOW ALL INSTRUCTIONS.
2. Distribute and discuss copies of the IMPORTANT SAFETY INSTRUCTIONS manual with all persons
authorized to use your gate. SAVE THESE INSTRUCTIONS.
3. Always keep people and objects away from the gate and its area of travel.
NO ONE SHOULD CROSS THE PATH OF THE MOVING GATE.
4. Your automatic gate is not for pedestrian use. If pedestrian traffic is expected near the gate, a walk-through
gate must be installed for this purpose (see page 6).
5. Do not allow children or pets near your gate. Never let children operate or play with gate controls.
Keep the remote controls away from children and unauthorized users; store controls where children and
unauthorized users cannot access them.
6. If push buttons or key switches are installed, they should be within sight of the gate, yet located far enough
from the gate (at least 10 feet) so the gate cannot be touched while in operation. Do not operate any control
without watching the movement of the gate.
7. Do not activate your gate operator unless you can see it and can determine that its area of travel is clear of
people, pets, or other obstructions.
8. If your gate has open rollers, be sure that roller guards have been installed to prevent hands and fingers
from being caught in the rollers (see page 6).
9. It is your responsibility to make sure that the installer posted warning signs on both sides of your gate. If
any of these signs or warning decals become damaged, illegible or missing, replace them immediately.
Contact your installer or GTO for replacements.
10. Verify that electric safety edge sensors (or photoelectric sensors) have been installed (see page 6). These
safety devices should be tested monthly.
11. KEEP GATES PROPERLY MAINTAINED. Have a qualified service person make repairs to the gate
hardware. NEVER REMOVE THE OPERATOR HOUSING.
12. DO NOT attempt to service this operator yourself; for service, contact your installer or another experienced
technician.
13. Have your gate operator tested monthly and serviced regularly by an experienced technician. The gate MUST
stop and reverse on contact with an obstruction or when an object activates the non-contact sensors. If these
functions are observed to operate improperly, discontinue use and have operator serviced immediately.
14. To operate this equipment safely, YOU must receive detailed instructions on disconnecting the operator
chain with the quick release pins (see page 1). If you feel you have not received full and proper instructions,
contact your installer.
15. Disconnect the operator chain ONLY when the gate is NOT moving and turned off.

6
IMPORTANT SAFETY INSTRUCTIONS
INSTALL SCREEN GUARD OVER GATE AND FENCE
Injuries may occur when people place their hands, arms, legs, etc., through openings in the gate grill when the gate
is operated, trapping them between the grill and the fence post (or fence). All openings of a horizontal slide gate
must be guarded or screened to prevent a 21/4” diameter sphere from passing through openings anywhere in the
gate. This screen/guard must also be installed over the portion of adjacent fence that the gate covers in the open
position. Screening will prevent access through openings in areas where the gate may travel.
Contact Sensor Screen Mesh
Contact Sensor Contact Sensor
Roller guard to prevent
pinch point hazard.
Roller guard to prevent
pinch point hazard.
Contact Sensor
REQUIRED SAFETY PRECAUTIONS FOR GATES
CAUTION
AUTOMATIC GATE
STAND CLEAR
1-800-543-GATE
®
Operator
Contact Sensor
Warning Sign
Contact Sensor
Roller Guard
Roller Guard
Pedestrian Gate
1. KEEP CLEAR! Gate may move at any time.
2. Do not allow children to operate gate or
play in gate area.
3. This gate is for vehicles only. Pedestrians
must use a separate entrance.
Moving Gate Can Cause
Injury Or Death
WARNING
!
Vehicle Gate
ROLLER GUARDS
Injuries occur
when people get
their hands caught
between the gate
and the roller.
Roller guards or
enclosed tracks
must be installed to
prevent this pinch
point hazard.
WARNING SIGNS
The warning signs (above right) must
be installed on both sides of the gate
(see page 7 for details).
1. KEEP CLEAR! Gate may move at any time.
2. Do not allow children to operate gate or
play in gate area.
3. This gate is for vehicles only. Pedestrians
must use a separate entrance.
Moving Gate Can Cause
Injury Or Death
WARNING
!
ENTRAPMENT PROTECTION
GTO’s internal obstruction settings, even when properly adjusted, may not be sensitive enough to prevent bodily
injury. For this reason, safety devices such as safety edges MUST be installed. Furthermore, a pedestrian gate
must be installed if walk-through traffic is expected near the gate. We recommend the GTO Bulldog Pedestrian
Gate Lock (see accessory catalog) for controlled access.

7
IMPORTANT SAFETY INSTRUCTIONS
These warning labels should be found at the locations specified below. If any of them are missing, immediately
contact your installer for replacements.
WARNING
!
• Fingers, hands, and
loose clothing may be
dragged into chain
sprockets.
• Fingers and hands can
be injured by rotating
sprockets.
• Keep hands, fingers,
and loose clothing
away from chain and
chain opening in
operator housing.
• Fingers, hands, and loose clothing
may be dragged into chain sprockets.
• Fingers and hands can be injured by
rotating sprockets.
•
Keep hands, fingers, and loose clothing
away from chain and sprockets.
WARNING
!
warning labels (3). Located on both sides and back
of operator housing
warning label located on top
of control box
• Moving parts inside are capable of
causing injury to fingers and hands.
• DO NOT remove operator housing.
• Consult your safety manual before
making adjustments.
•
For service, call an experienced technician.
AUTOMATIC GATE OPENERS 1-800-543-GATE
WARNING
!
warning label located on front of operator housing
product identification and manual operation instruction
label installed on control box cover
RB2002
Maximum Gate: 1000 lb. (453.4 kg); 30 ft. (9.1 m)
Voltage: 12 Vdc; Frequency: 0 Hz; Power: 93.2 W
Class I, II and III Vehicular Slide Gate Operator
Serial Number: SL2000-xxxxxxx
9901178
Conforms to UL 325 STANDARDS
Certified to CAN/CSA-C22.2 No.247-92
Disconnect operator ONLY when the gate is NOT moving.
TO MANUALLY OPEN AND CLOSE THE GATE:
1. Lift quick release pins UP, then pull them OUT of chain brackets.
2. Lay chain down and manually slide gate to desired position.
Series
GTO, Inc. Tallahassee, Florida USA
L
I
S
T
E
D
USC
RB2001
Maximum Gate: 500 lb. (226.7 kg); 30 ft. (9.1 m)
Voltage: 12 Vdc; Frequency: 0 Hz; Power: 93.2 W
Class I, II and III Vehicular Slide Gate Operator
Serial Number: SL1000-xxxxxxx
9901178
Disconnect operator ONLY when the gate is NOT moving.
TO MANUALLY OPEN AND CLOSE THE GATE:
1. Lift quick release pins UP, then pull them OUT of chain brackets.
2. Lay chain down and manually slide gate to desired position.
Series
GTO, Inc. Tallahassee, Florida USA
SL
L
I
S
T
E
D
USC
Conforms to UL 325 STANDARDS
Certified to CAN/CSA-C22.2 No.247-92

8
These warning labels should be found at the locations specified below. If any of them are missing, immediately
contact your installer for replacements.
Continued from page 7
• Fingers, hands, and
loose clothing may be
dragged into chain
sprockets.
• Fingers and hands can
be injured by rotating
sprockets.
• Keep hands, fingers,
and loose clothing
away from chain and
sprockets.
WARNING
!
• Adjusting limit switches with power on will
activate gate.
• Injury may result if fingers get caught under
switch plate while adjusting switches.
•
Use extreme caution when adjusting switches.
WARNING
!
• Fingers, hands, and loose clothing
may be dragged into chain sprockets.
• Fingers and hands can be injured by
rotating sprockets.
• Keep hands, fingers, and loose clothing
away from chain and sprockets.
WARNING
!
warning label located
on limit switch plate
1. KEEP CLEAR! Gate may move at any time.
2. Do not allow children to operate gate or
play in gate area.
3. This gate is for vehicles only. Pedestrians
must use a separate entrance.
Moving Gate Can Cause
Injury Or Death
WARNING
!
warning signs (2) to be installed on each side of the gate
(3–5 feet above the bottom of the gate)
warning sign located (inside housing)
over the top sprocket at back of operator
warning label located (inside housing) next to
sprockets on back of operator
IMPORTANT SAFETY INSTRUCTIONS

9
DRIVE
• Powered by a 12 V motor with integral case hardened steel gear reduction to 90 rpm. Generates 155 in. lb. of torque at 12
V. Motor temperature range -30 °F to +160 °F.
• Gate velocity: 1 ft/s.
POWER
• The PRO SL-1000 system is powered by a 12 Vdc, 7.0 Ah, sealed, rechargeable battery.
• Battery charge for PRO SL-1000 is maintained by a 18 Vac (40 VA) transformer rectified to 14.5 Vdc through the GTO
Control Board. Two (2) blade-style control board fuses rated for 15 A.
NOTE: The transformer should not be connected directly to any battery. Transformer must be connected with a
minimum of 16 gauge, multi-stranded, dual conductor, direct burial low voltage wire. NOTE: Do not replace fuses
with higher ampere rated fuses; doing so will void the warranty and may damage the control board.
• Battery charge maintained by GTO Solar Panel Charger: float voltage 14.5 Vdc output from a
193/8” x 151/4” silicon alloy panel. Generates minimum of 10 W at 600 mA. Gated diode on the control board prevents
battery discharge.
CONTROL
• GTO microprocessor controlled board with temperature compensated circuits. Auto-memorization of digital transmitter
code. Charging regulated by circuit on control board. “Sleep draw” is 40 mA; “active draw” is 2 to 5 A.
• GTO remote-mounted RF receiver tuned to 318 MHz.
• Limit controls are mechanical. Normally open contact.
• Adjustable auto-close timer (OFF to 120 s), inertia, and obstruction sensitivity using three (3)
potentiometers.
• Power terminal block accommodates a transformer and solar panels.
• Operator terminal blocks accommodate safety edges and photoelectric sensors for opening and closing modes.
• Fully compatible accessory terminal block provides connections for safety loops, wands, intercoms, card readers, phone
systems, etc.
• DIP switches simplify setup of gate operator.
• audio entrapment alarm sounds if unit obstructs twice while opening or closing.
OPERATIONAL CAPACITY
• The GTO/PRO SL-1000 and GTO/PRO SL-1000B will handle gates weighing up to 500 lb. (226.7 kg) and up to 30 ft.
(9.14 m) in length (per leaf) if the proper installation procedures have been followed. Note that ball bearing rollers
and covers should be used on all gates.
• The GTO/PRO SL-1000 series operators are capable high volume cycling; however, the total cycles per day will depend
on the motor current and efficiency of the gate installation (see chart below). For questions relating to specific applications
and for information regarding cycling duty when charged by solar panels, call the GTO Service Department at (800) 543-
1236.
GTO PRO SL-1000 SERIES TECHNICAL SPECIFICATIONS
Rollers should be lubricated at least four times per year.
SPECIFICATIONS SUBJECT TO CHANGE WITHOUT NOTICE.
Housing Dimensions: Height: 18” Width: 211/2” Depth: 11”
Shipping Weight: Approximately 90 lb.
Gate Weight
Gate Opening
Gate Capacity Chart for SL-1000 Series
(estimated number of cycles based on use with a transformer)
20 ft.
16 ft.
12 ft.
8 ft.
120
140
160
180
200 lb.
110
130
150
170
300 lb.
100
120
140
160
400 lb.
90
110
130
150
500 lb.
Cycles shown are for single gate, dual gates will get approximately half as many cycles.

10
DRIVE
• Powered by a 12 V motor with integral case hardened steel gear reduction to 90 rpm. Generates 310 in. lb. of torque at 12
V. Motor temperature range -30 °F to +160 °F.
• Gate velocity: 1 ft/s.
POWER
• The PRO SL-2000 system is powered by a 12 Vdc, 7.0 Ah, sealed, rechargeable battery.
• Battery charge for PRO SL-2000 is maintained by a 18 Vac (40 VA) transformer rectified to 14.5 Vdc through the GTO
Control Board. Two (2) blade-style control board fuses rated for 20 A.
IMPORTANT:
The transformer should not be connected directly to any battery. Transformer must be connected to the control
board with a minimum of 16 gauge, multi-stranded, dual conductor, direct burial low voltage wire. Do not replace fuses with
higher ampere rated fuses; doing so will void the warranty and may damage the control board.
•
Solar Panel Charger can only be used on the SL-2000 if the optional 24 Amp hour battery kit is used
(see Accessory Catalog on
page 41).
Battery charge maintained by GTO Solar Panel Charger: float voltage 14.5 Vdc output from a 193/8” x 151/4”
silicon alloy panel. Generates minimum of 10 W at 600 mA. Gated diode on the control board prevents battery discharge.
CONTROL
• GTO microprocessor controlled board with temperature compensated circuits. Auto-memorization of digital transmitter
code. Charging regulated by circuit on control board. “Sleep draw” is 40 mA; “active draw” is 5 to 13 A.
• GTO remote-mounted RF receiver tuned to 318 MHz.
• Limit controls are mechanical. Normally open contact.
• Adjustable auto-close timer (OFF to 120 s), inertia, and obstruction sensitivity using three (3)
potentiometers.
• Power terminal block accommodates a transformer and solar panels.
• Operator terminal blocks accommodate safety edges and photoelectric sensors for opening and closing modes.
• Fully compatible accessory terminal block provides connections for safety loops, wands, intercoms, card readers, phone
systems, etc.
• DIP switches simplify setup of gate operator.
• audio entrapment alarm sounds if unit obstructs twice while opening or closing.
OPERATIONAL CAPACITY
• The GTO/PRO SL-2000 and GTO/PRO SL-2000B will handle gates weighing up to 1000 lb. (453.4 kg) and up to 30 ft.
(9.14 m) in length (per leaf) if the proper installation procedures have been followed. Note that ball bearing rollers
and covers should be used on all gates.
• The GTO/PRO SL-2000 series operators are capable of high volume cycling; however, the total cycles per day will depend
on the motor current and efficiency of the gate installation (see chart below). For questions relating to specific applications
and for information regarding cycling duty when charged by solar panels, call the GTO Service Department at (800) 543-
1236.
GTO PRO SL-2000 SERIES TECHNICAL SPECIFICATIONS
Rollers should be lubricated at least four times per year.
SPECIFICATIONS SUBJECT TO CHANGE WITHOUT NOTICE.
Housing Dimensions: Height: 18” Width: 211/2” Depth: 11”
Shipping Weight: Approximately 90 lb.
Cycles shown are for single gate, dual gates will get approximately half as many cycles.
Gate Weight
Gate Opening
Gate Capacity Chart for SL-2000 Series
(estimated number of cycles based on use with a transformer)
20 ft.
16 ft.
12 ft.
8 ft.
80
100
120
140
400 lb.
70
90
110
130
600 lb.
60
80
100
120
800 lb.
50
70
90
110
1000 lb.

11
PARTS IDENTIFICATION
(4) 3/8”-16 x 2” diameter U-Bolts
and (8) 3/8” Serrated Nuts (RB210)
(2) Quick Release Pins (211IH)
(2) Chain Master Links
(RB208)
(4) 1/4”-20 x 1/2” Screws
(RB226)
(2) Chain Brackets (204IH)
Operator Housing
(A207)
32’ Drive Chain
(RB207)
18 Vac Transformer
120 Volt (RB570) GTO Transmitter
(RB740)
Operator
Receiver
(AQ202)
(2) 2” square x 48” long legs (206IH)
(4) 3/8” -16 x 3” Carriage Bolts (RB659)
(4) 3/8” Nuts
(RB668)
(4) 3/8” Lock Washers
(RB641)
Control Box with
Control Board
and Battery

12
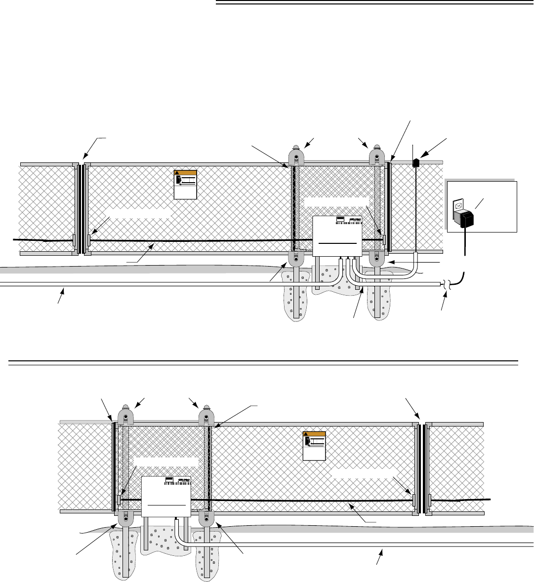
SINGLE GATE OPERATOR INSTALLATION
OVERVIEW OF OPERATOR INSTALLATION
GATE PREPARATION
Level
Plumb
Concrete
Concrete
Be sure the gate is properly installed and slides smoothly before installing the GTO/PRO Slide Gate Operator. The
gate must be plumb, level, and move freely. The gate must not bind or drag on the ground. Never use a wheel
on the gate, because the additional drag and resistance can cause the operator to obstruct.
The diagram below shows a single slide gate installation with recommended safety features. The operator must
be installed on the inside of the gate. GTO requires using safety edges and roller guards to help reduce the
possibility of bodily injury.
Chain
Contact Sensor
Roller Guard
Receiver
(cable in separate
conduit)
Roller Guard
CAUTION
AUTOMATIC GATE
STAND CLEAR
1-800-543-GATE
®
Operator
Contact Sensor
Contact Sensor
(REQUIRED)
(REQUIRED)
(REQUIRED)
(REQUIRED)
(REQUIRED)
Use PVC Conduit
(not included)
Run 1000' (max.) of low
voltage wire to control
box from transformer
(wire not included).
120 Volt Indoor
Transformer
(Surge Protector
not supplied)
Roller Guard
(REQUIRED)
Chain Bracket
Chain Bracket
for power cables.
1. KEEP CLEAR! Gate may move at any time.
2. Do not allow children to operate gate or
play in gate area.
3. This gate is for vehicles only. Pedestrians
must use a separate entrance.
Moving Gate Can Cause
Injury Or Death
WARNING
!

13
RECOMMENDED WIRING AND USE OF CONDUIT
CAUTION
AUTOMATIC GATE
STAND CLEAR
1-800-543-GATE
®
Separate PVC Conduits
for power, receiver
and control wiring.
Roller Guard
Roller Guard
Operator
Conduit through the concrete pad.
Roller Guard
Separate PVC Conduits
for power, receiver
and control wiring.
Roller Guard
Roller Guard
Roller Guard
Conduit around the concrete pad.
CAUTION
AUTOMATIC GATE
STAND CLEAR
1-800-543-GATE
®
Operator
Run the low voltage wire and receiver wire through PVC conduit into the slider unit to protect it from lawn mowers,
weed eaters, grazing animals, etc. PVC conduit should be used for accessory wires such as loop detectors, key
pads, card readers or any other entry device.
WARNING
WARNING
3/8"-16x3" Carriage Bolts
3/8" Lock Washers
& Nuts
48" x 2" sq. Legs
MOUNTING THE LEGS ON THE SLIDE GATE OPERATOR
STEP 1
Mount the legs on the slide gate operator
using the 3/8” x 3” Carriage Bolts, 3/8” Flat
Washers, 3/8” Lock Washers, and 3/8” Nuts.
See Illustration A.
Illustration A

14
STEP 2
Install chain brackets at each end of the gate on the inside
(operator side) of the gate (see Overview Illustration, page. 12).
Position the tops of chain brackets no more than 6” above the
bottom corners of the gate frame and secure with U-bolts (see
Illustration B). The chain brackets will work on gate frames
13/4” to 21/2” in diameter or square tube gates. The U-bolts
provided will work on 2” diameter pipe gate frames.
DETERMINING THE MOUNTING POSITION AND MOUNTING THE OPERATOR
STEP 4
Find the center point between the two roller/fence posts (see
Illustration D). This should coincide with the position of the
center point of the operator. Dig a hole approximately 12” x 28”
wide x 28” deep. Place the operator in the hole on its legs and
position the bottom idler sprockets on the top of the string and
level the unit (see Illustration E). Make sure operator is level
and plumb. With the unit level and in place, pour the concrete
and let set for 24 hours (checking the level periodically) before
proceeding to the next step.
BEFORE POURING CONCRETE: 1] Make sure operator is
centered between roller posts and aligned with string; and,
2]
Determine method of installing conduit for wiring (see page
13)!
STEP 3
Insert a quick release pin into the center slot in each of the chain brackets
(see Illustration C). Tie a string to the end of each quick release pin so
that the string is tight between the two chain brackets (the string will
be used to align the operator). The string should be 7”-10” from the
ground (see Illustration B). The chain brackets can be adjusted up or
down on the gate to achieve the proper height. The goal here is to set
the height of the operator so that when the housing is in place it will
clear the ground by 1” to 4” (see Illustration E).
Quick Release Pin String
Chain Bracket
String
Chain Sprockets
Operator
(centered between post)
Roller
Gate Fence Post Fence Post
Center point between posts
Roller
C
L
Sprockets
String 7" to 10"
above ground
Housing
!
!
Level
1" to 4" clearance
Ground Level
position bracket so that string
will be approximately 7" to 10"
from ground level at the point where
the operator will be mounted
Quick Release Pin
String
Chain Bracket
Illustration B
Illustration C
Illustration D
Illustration E

15
STEP 5
After the concrete has hardened, remove the string
from the quick release pins. Attach the chain to one
quick release pin with a master link (see Illustration
F). Run the chain through the chain sprockets (see
Illustration G).
INSTALLING THE CHAIN
Quick Release Pin
Chain
Master Link
Chain Bracket
Quick Release Pin
Chain
Master Link
Chain Bracket
Allow 1" of slack for every 10' of chain
Sprockets
Chain
Chain Bracket
• Fingers, hands, and
loose clothing may be
dragged into chain
sprockets.
• Fingers and hands can
be injured by rotating
sprockets.
• Keep hands, fingers,
and loose clothing
away from chain and
sprockets.
WARNING
!
WARNING
!
Chain Bracket
Gate
STEP 6
Pull the chain to the second chain bracket leaving
approximately four inches of slack (see Illustration
G). Do not pull chain tight; a tight chain will
interfere with the operation of the operator. Mark
the chain where it meets the second quick release
pin.
STEP 7
Drive the pin out of the chain link using a tool
such as a punch or chain break. Connect the
chain to the second quick release pin using a
master link (see Illustration H).
Illustration F
Illustration G
Illustration H
TO OPEN THE GATE MANUALLY:
1. LIFT the quick release pins UP, then
PULL them OUT of the chain brackets
(see illustration).
2. Lay the chain down and manually slide
the gate to the desired position.
To prevent unauthorized removal of the
quick release pins, install pin locks (see
accessory catalog) above the quick release
pins in both chain brackets.

16
POWERING THE SYSTEM
Make sure the control box power switch
is in the OFF position.
ON-OFF
OFF
CONNECTING THE BATTERY
INSTALLATION OF THE GTO TRANSFORMER
STEP 8
Unscrew and remove the front cover of the control box and slide battery into
position with its terminals to the left (see illustration). Make sure the battery
fits snugly in control box.
Connect the black battery lead to the negative (–) terminal,
and the red battery lead to the positive (+) terminal. DO
NOT allow battery leads to touch the control board!
Touching the control board with battery leads can short
circuit the system!
HINT: a dab of household petroleum jelly on
each terminal will help prevent corrosion.
RED WIRE to positive (+)
BLACK WIRE to negative (–)
Choose the electrical outlet into which the transformer will be plugged. Measure the distance from the electrical
outlet to the control box, following the path where the low voltage wire will run
(the maximum distance can be
no more than 1000 ft.).
NOTE:
Transformer must be connected with no more than 1000 ft. of 16 gauge multi-stranded, dual conductor,
direct burial low voltage wire.
Predicting the exact maximum number of operational cycles at peak load is more of an art form than an exact
science. The charts below illustrate the average maximum number of cycles (the “MNC”) in a 24 hour period on
a typical single gate, and is installed such that the motor draws 10 amperes to move the gate.
1) The MNC for the GTO/PRO SL-2000 is roughly comparable to most AC powered operators, and the transformer
provided with this operator should handle most high traffic situations. If the battery does not seem to be able to
provide the constant charge required for your application, the addition of the GTO/PRO 24 Amp Hour Battery
Kit (see Accessoy Catalog) should provide ample power to handle any situation. For more information, call
GTO’s service department at 1-800-543-1236.
Gate Weight
Gate Opening
Gate Capacity Chart for SL-1000 Series
(estimated number of cycles based on use with a transformer)
20 ft.
16 ft.
12 ft.
8 ft.
120
140
160
180
200 lb.
110
130
150
170
300 lb.
100
120
140
160
400 lb.
90
110
130
150
500 lb.
Gate Weight
Gate Opening
Gate Capacity Chart for SL-2000 Series
(estimated number of cycles based on use with a transformer)
20 ft.
16 ft.
12 ft.
8 ft.
80
100
120
140
400 lb.
70
90
110
130
600 lb.
60
80
100
120
800 lb.
50
70
90
110
1000 lb.
NOTE: Cycles shown are for single gate, dual gates will get approximately half as many cycles.

17
Winter Ratings Watts Zone 1 Zone 2 Zone 3
SL1000 10 4 8 13
SL1000 15 6 12 20
SL1000 20 8 16 26
Dual SL1000 15 3 6 10
Dual SL1000 20 4 8 13
Requires 24 Amp Hour Battery
SL2000 10 4 8 13
SL2000 15 6 12 20
SL2000 20 8 16 26
Dual SL2000 15 3 6 10
Dual SL2000 20 4 8 13
2) If the gate is binding or dragging, or if ball bearing rollers are not used, it will require more than 10 amps to
move it. This will reduce the MNC.
3) The charts are based on the transformer being plugged into an outlet that provides a line voltage of 120 volts; if
the outlet provides less than 120 volts (for example, some rural areas may only provide 105 volts), it can reduce
the MNC by as much as 50%.
4) A fully charged standard battery has an inherent reserve of 20-50 cycles without requiring a charge. This allows
peak loads at several points during the day, depending upon how much time the transformer has to provide a
charge to the battery between cycles. The transformer is capable of fully recharging the battery in as little as
five minutes at optimum conditions.
5) The charts on page 16 are based upon an ambient temperature of 40º F. Battery performance and speed at which
it will recharge will fluctuate based upon temperature.
6) The MNC for dual gate applications will be about 50% less of those for a single gate.
IMPORTANT:
• The GTO transformer is intended for indoor use. If the transformer can only be plugged into
an outside electrical outlet, a weatherproof housing or cover (available at electrical supply
stores) must be used.
• Use of a surge protector is highly recommended.
• Optional Solar Panels are available from a GTO dealer; see Accessory Catalog.
• The GTO/PRO 24 Amp Hour Battery Kit is required for the SL-2000 in solar applications,
see Accessory Catalog.
NOTE: If your are considering using the GTO solar panel to maintain the system battery
charge, please see the following chart:
INSTALLATION OF THE GTO TRANSFORMER CONT.
This table and map illustrates the maximum
number of cycles per day to be expected in
a particular area, using either one or two of
GTO’s 10 watt solar panels (see Accessory
Catalog). Figures are shown for winter
(minimum sunlight) and do not account for
use of any accessory items.
SOLAR ZONES AND GATE ACTIVITY
Estimated Maximum Number of Cycles Per Day
Zone 1
Zone 2
Zone 3
Zone 3 Zone 3
NOTE: Accessories will draw additional
power from the battery.

18
STEP 11:
Feed the low voltage wires upward through the
strain relief on the bottom of the control box
(see Illustration J). Pull 6” to 8” of wire into the
control box.
If accessories (i.e. safety loops, card readers, etc.)
are to be added during this installation, do not
tighten the strain relief screw against the wires
until the accessories have been connected. When
all accessories have been connected, fully tighten
the strain relief screw against the wires.
INSTALLATION OF THE GTO TRANSFORMER CONT.
STEP 10:
Strip 3/16” off the ends of the low voltage wire
and attach ends to the transformer terminals;
red wire to [RED], black wire to [BLK], (see
Illustration I). A dab of household petroleum
jelly on each terminal will help prevent
corrosion.
We recommend crimping a spade-tongue
terminal (not provided) to the end of each wire
before attaching it to the transformer.
To prevent damage to transformer, make
sure the exposed wire ends do not touch
each other!
Transformer
Red
Spade Tongue
terminal
Black
DO NOT plug the transformer into outlet.
The transformer will be plugged in during STEP 13.
Illustration I
NOTE: Wires coming from the ground to the control
box should be run through PVC conduit to protect
them from lawn mowers, weed eaters and grazing
animals (see illustrations on page 13).
Illustration J
STEP 9
Run the low voltage wire from the electrical outlet to the control box. Do not exceed 1000’.
NOTE: Pull approximately 1 foot of extra low voltage wire into the control box to accommodate terminal connections.
To maintain adequate charging power, use appropriate gauge, stranded, direct burial wire (see Accessory Catalog).
Do not use telephone wire or any solid core wire because it will not provide adequate current. Never splice
wires together.
RED
BLK
ORG
BLU
GRN
CLS EDG
OPN EDG
RED
GRN
ORG
BLU
WHT
BLK
ORG
BLU
GRN
CLS EDG
OPN EDG
LEARN
AUTO
CLOSE
INERTIA
STATUS
BATT
+–
OBSTRUCT
SENS.
RCVR
RGB
ALARM
SECOND OPERATOR
FIRST OPERATOR
POWER IN
18VAC SOLAR
~ ~ – +
ACCESSORY
PWR. SW.
Operator Power Cable
PVC Conduit
Strain Relief Screw
Low Voltage Wire
from AC Transformer

19
STEP 12:
Strip 3/16” off the ends of the low voltage wire and
twist tightly. These wire ends will be attached to
the control board at the 18VAC terminals located
on the POWER IN terminal block (see Illustration
L). Wire sheathing should not come in contact with
terminals, however, it should not be stripped so far
that wires can come in contact with one another
(see Illustration K).
Insert one transformer wire
into an 18VAC terminal.
Insert the other transformer
wire into the remaining
1 8 VAC terminal (s ee
illustration L). Transformer
wires can be connected to the
18VAC terminals regardless
of color.
Tighten set screws against
exposed end of wires (see
Illustration K). A dab of
household petroleum jelly
on each wire end will help
prevent corrosion.
The ACCESSORY terminal
block provides the connection
point for safety loops, wands,
push buttons, intercoms, card
readers, etc. See page 27
for more information about
connecting accessories.
STEP 13:
Plug the transformer into the electrical outlet. Check to see
if the green LED on the control board is on. If it is not, see
the Troubleshooting Guide on page 30.
NOTE: Use of a surge protector is strongly recommended.
SURGE PROTECTOR
Transformer
HINT: Keep a few mothballs in the control
box to discourage insects from entering it
and damaging the control board.
INSTALLATION OF THE GTO TRANSFORMER CONT.
Correct Wrong Wrong
Wire Terminal
Block
Terminal
Block Terminal
Block
Wire
Wire
Illustration K
FIRST OPERATORPOWER IN
18VAC SOLAR
~ ~ – +
RED
BLK
ORG
BLU
GRN
CLS EDG
OPN EDG
RE
RED
BLACK
RED
BLACK
Power Cable
from First Operator
Low Voltage Wire
from AC Transformer
SECOND OPER

20
The four DIP switches on the control board match the operator with the type of gate on which it is mounted.
For example, gates may open right to left or left to right. Prior to packaging, the GTO/PRO SL-1000 and
SL-2000 series control board was configured for a single slide gate that opens right to left. If your gate type
matches this configuration, you DO NOT need to adjust the DIP switches. Proceed to the Potentiometers
section on the next page. NOTE: The direction a gate opens is determined by standing inside the property and
facing toward the gate.
NOTE: To change the DIP switch settings, you must turn the control box power switch OFF; move the
switch; then turn the power back ON. Use a small screwdriver to
move the switches.
PULL/PUSH: Set to PULL for slide gates that open RIGHT to
LEFT [factory setting]; PUSH for slide gates that open LEFT to
RIGHT.
SNGL/DUAL: Set to SNGL for a single gate leaf [factory setting];
DUAL for dual gate leaves.
SEQ1: Controls the opening order of dual gate leaves. See Setting
the Control Board for Dual Gate Operator Installation on page 37
for more information. (the factory setting is OFF).
SEQ2: Controls the opening order of dual gate leaves. See Setting
the Control Board for Dual Gate Operator Installation on page 37 for more information
(the factory setting is OFF).
CONTROL BOARD SETTINGS
1234
ON
OBSTRUCT
SENS.
PULL/PUSH
SEQ1
SNGL/DUAL
SEQ2 LEARN
DIP switches
MIN MAX
DIP SWITCHES
RED
BLK
ORG
BLU
GRN
CLS EDG
OPN EDG
RED
GRN
ORG
BLU
WHT
BLK
ORG
BLU
GRN
CLS EDG
OPN EDG
LEARN
AUTOCLOSE
INERTIA
STATUS
PULL/PUSH
SNGL/DUAL
SEQ1
SEQ2
MINMAX
MINMAX
OFF
60
120
BATT
+–
OBSTRUCT
SENS.
RCVR
R
BG
ALARM
SECOND OPERATOR
FIRST OPERATOR
POWER IN
18VAC SOLAR
~ ~ – +
ACCESSORY
PWR. SW.

21
POTENTIOMETERS
The three (3) potentiometers on the control board operate like a volume control on a radio. They control the
auto close timer, inertia, and obstruction sensitivity of the operator. Use a small slotted screwdriver to turn the
arrow in the center of the potentiometer. Clockwise rotation increases the setting (MAX). Counterclockwise
rotation decreases the setting (MIN).
AUTO CLOSE (auto close timer): Determines how long the gate will remain
open before it automatically closes. The limits are OFF to 120 seconds. The
factory setting is OFF.
INERTIA: Fine tunes obstruction sensitivity in the opening and closing
modes. INERTIA allows the operator to attempt to push an obstruction clear
of the gate path. When INERTIA is set to MIN the operator will obstruct
quickly (i.e, will attempt to push an obstruction briefly); when set to MAX the
operator will obstruct slowly (i.e., will push against an obstruct for a longer
period). The factory setting is MIN.
OBSTRUCT SENS. (obstruction sensitivity): Determines the amount of force
exerted by the gate on an obstruction before the operator stops and reverses.
The gate will exert minimum force before obstructing when set to MIN. When
set to MAX, the operator will exert maximum gate force before obstructing
(i.e., the operator will require greater resistance before stopping and revers-
ing.). The factory setting is MIN.
READ WARNING BELOW!
NOTE: Heavy gates and gates with high wind resistance may require the OB-
STRUCT SENS. potentiometer to be set closer to MAX to prevent the opera-
tor from obstructing. Keep in mind, however, that while you must determine
the best setting for smooth gate operation, you must ALSO determine the low-
est possible setting for safe gate operation.
ALWAYS KEEP SAFETY AT THE TOP OF YOUR LIST WHEN ADJUSTING OR SERVICING
YOUR AUTOMATIC GATE OPERATOR!
1234
ON
AUTOCLOSE
INERTIA
OBSTRUCT
SENS.
RCVR
SEQ1
SEQ2 LEARN
R B G
PULL/PUSH
SNGL/DUAL MIN MAX
MIN
OFF 120
60
MAX
WARNING!
All three potentiometers were set to minimum at the factory. The OBSTRUCT SENS.
potentiometer MUST be adjusted above the factory setting for your GTO/PRO SL-1000 or
SL-2000 operator to function properly. If the potentiometer is left at MIN, your gate operator
may “obstruct” (i.e., stop and reverse) as soon as it is activated.
BE SURE TO PROPERLY RETEST THE GATE OPERATOR AFTER MAKING ANY
ADJUSTMENTS; FAILURE TO DO SO MAY RESULT IN SERIOUS INJURY OR
DEATH.

22
1 2 3 4 5 6 7 8 9
ECE
A23S 12V
ALKALINE BATTERY
+
0
–
LED
3. “TEACH” THE NEW CODE TO CONTROL BOARD MEMORY
A. Turn control box power switch OFF.
B. Unscrew and remove the control box cover.
C. Press and hold the LEARN button on the control board,
and turn the power switch ON. Release LEARN button.
Wait 15 seconds for the receiver to charge.
D. Press and hold transmitter button until the red STATUS
LED comes ON.
E. Release transmitter button. The new code is stored in the
control board memory.
1234
ON
RCVR
SEQ1
SEQ2 LEARN
STATUS
R B G
AUTOCLOSE
INERTIA
OBSTRUCT
SENS.
PULL/PUSH
SNGL/DUAL MIN MAX
MIN
OFF 120
60
MAX
STATUS LED
SETTING THE PERSONAL TRANSMITTER CODE
All GTO transmitters are set to a standard code at the factory and are ready to activate the automatic gate operator.
For safety and security, however, we strongly recommend that the factory setting be replaced with a personal
code. Follow the directions below:
Replace the control box cover and turn the power switch to the ON position.
2. SET THE TRANSMITTER DIP SWITCHES
There are nine (9) transmitter DIP switches; each can be placed in
three different positions (+, 0, –). DO NOT set all the switches in
the same position, such as all +, all 0, or all –. Once the DIP switches
have been set to a personal code, replace front cover.
WARNING: No other adjustments should be made inside the
transmitter.
1. REMOVE THE TRANSMITTER COVER
On the back of the transmitter use a small phillips head screw driver
to remove the two screws on the sides of the visor clip and separate
the front cover from the transmitter. With the front cover removed,
the battery and the DIP switches will be exposed. To set a new code,
use a small screwdriver to move the switches.
+
0
ECE
1 2 3 4 5 6 7 8 9

23
MOUNTING THE RECEIVER
Consider the following when mounting the receiver:
• Receiver cable length is 20 feet (receivers with a longer cable are available as special
order items; Call the GTO Sales Department). NEVER splice receiver cable!
• Run the cable through PVC conduit to protect it from damage.
• DO NOT run cable through metal conduit because the receiver signal range will be
decreased.
• DO NOT run cable in a conduit containing AC wiring.
• DO NOT mount receiver on a metal fence or post; doing so will decrease signal
range.
• DO NOT overtighten the mounting screws.
• The receiver range can vary from 50 to 100 feet depending upon weather, topography,
and external interference.
FCC Regulation
This device complies with FCC rules Part 15. Operation is subject to the following conditions:
1. This device may not cause harmful interference.
2. This device must accept an interference that may cause undesired operation.
Transmitter distance may vary due to circumstances beyond our control. NOTE: The manufacturer is not
responsible for any radio or TV interference caused by unauthorized modifications to this equipment.
Such modifications could void the user’s authority to operate the equipment.
Use the transmitter to check the range of the receiver before permanently mounting it.

24
Limit Nut B
Closed position stop –
if gate opens right to left.
Open position stop –
if gate opens left to right.
Limit Nut A
Open position stop –
if gate opens right to left.
Closed position stop –
if gate opens left to right.
After the operator is installed, adjust the open and
closed position limit switches as needed. The limit
switches determine how far the gate travels to open
and to close.
Adjust the limit switches using the limit nuts. Lift limit
switch plate to adjust limit nuts (see Illustration M).
The open and closed position switches will be reversed
depending on whether the gate opens from left to right
or from right to left (see Illustration N).
WARNING! In order to adjust switches, the
control box must be ON. USE EXTREME
CAUTION when adjusting limit switches
to prevent fingers, hair, clothing, etc., from
getting caught under the limit switch plate and
possibly causing bodily injury.
ADJUSTING THE LIMIT SWITCHES
Illustration M
Illustration N
Limit Nut B
Limit Nut A
Limit Switch Plate
Motor
However, if your gate opens from Left to Right:
1. Gate Opening: For gate to open further, turn Limit
Nut B counterclockwise. For gate to open less, turn
Limit Nut B clockwise.
2. Gate Closing: For gate to close further, turn Limit
Nut A counterclockwise. For gate to close less, turn
Limit Nut A clockwise.
Once the limit switches are adjusted, make sure the limit
switch plate rests in the grooves on both limit nuts.
If your gate opens from Right to Left:
1. Gate Opening: For gate to open further, turn Limit
Nut A counterclockwise. For gate to open less,
turn Limit Nut A clockwise.
2. Gate Closing: For gate to close further, turn Limit
Nut B counterclockwise. For gate to close less,
turn Limit Nut B clockwise.
Clockwise
Counter Clockwise

25
CONNECTING SAFETY DEVICES
The GTO/PRO SL-1000 and SL-2000 series operators are equipped with built-in obstruction sensitivity. These
operators are designed to stop and reverse the gate for 2 seconds when it comes in contact with an obstruction.
However, obstruction sensitivity, even when properly adjusted, may not be sensitive enough to prevent bodily
injury. For this reason, safety edges or photoelectric sensors MUST be installed on the gate. Safety edges (or
photoelectric sensors) must be mounted in compliance with Underwriters Laboratories’ safety standard for gate
operators, UL 325. Review page 6 for information about mounting requirements for safety edges and photo-
electric sensors.
Refer to the sensor manufacturer’s instructions for information about installing these devices on a vehicular
gate.
Make sure the control box power switch is OFF before connecting safety device wiring to the terminal
blocks.
Insert the safety device wires into the CLS EDG terminal (located on the FIRST OPERATOR terminal block)
for the gate closing mode. Ground the safety device at the GRN terminal. Connect the safety device wires for
the gate opening mode to the OPN EDG terminal in the same manner.
MAKE SURE TO GROUND THE SAFETY DEVICES AT THE GRN TERMINAL! THE CONTROL
BOARD COULD BE DAMAGED IF THE SAFETY DEVICES ARE NOT GROUNDED!
ON
SECOND OPERATORFIRST OPERATORPOWER IN ALARM ACCESSORY RCVR
SEQ1
SEQ2 LEARN
18VAC SOLAR
~ ~ – +
RED
BLK
ORG
BLU
GRN
CLS EDG
OPN EDG
RED
BLK
BLU
ORG
ORG
BLU
WHT
GRN
GRN
CLS EDG
OPN EDG
R B G
Power Cable
from First Operator
Wire from Close Safety Edge
or Photoelectric Sensor
Wire from Open
Safety Edge or Photoelectric Sensor
Ground Wire
Ground Wire
CONNECTING ADDITIONAL SAFETY DEVICES
Although GTO strongly recommends the use of additional safety devices, we do not endorse
any specific brand names. Only use products that are certified and listed to be in compliance
with UL (United Laboratories) and national and regional safety codes.
Call GTO Sales at 1-800-543-4283 for information on compatible products for your specific
application.

26
CONNECTING ACCESSORIES
The ACCESSORY terminal block is the connection point for accessories such as push buttons, safety loops,
intercoms, etc. The ACCESSORY terminal marked GRN (green) is the common ground for all accessories.
GRN is paired with the terminals shown below when connecting accessories to the control board.
IMPORTANT: Make sure to twist exposed wires tightly and insert them into the terminals without
loose strands. Tighten set screws against exposed end of wires. A dab of household petroleum jelly in each
terminal will help prevent corrosion.
WHT (WHITE) USED WITH GRN (GREEN):
This is the most frequently used pairing for a doorbell button,
keypad, or keyswitch. Accepts input from or is used with N/O
contact devices.
First contact will start the gate.
Second contact will stop the gate.
Third contact will reverse the gate.
NOTE: Never use a lighted doorbell button!
It will discharge the battery and the gate operator
will fail to operate.
BLU (BLUE) USED WITH GRN (GREEN):
This pairing is typically used for a free exit or free entry
devices. Accepts input from or is used with N/O contact
devices
First contact will open the gate.
NOTE: If the gate is in the open position and begins to close,
the activation of the accessory device will reopen the gate.
In communities where the use of an emergency entry device
is mandatory, it should be connected to these terminals.
ORG (ORANGE) USED WITH GRN (GREEN):
This pairing is frequently used for safety loops. Accepts input
from or is used with N/O contact devices.
This connection will not open your gate. The safety loop will
activate only while the gate is in use. When using this combination,
the gate will remain open or reopen if it is closing.
Make sure the control box power switch is OFF before connecting accessories.
ON
ALARM ACCESSORY RCVR
SEQ1
SEQ2LEARN
BLU
ORG
WHT
GRN
R B G
ON
ALARM ACCESSORY RCVR
SEQ1
SEQ2
LEARN
BLU
ORG
WHT
GRN
R B G
ON
ALARM ACCESSORY RCVR
SEQ1
SEQ2LEARN
BLU
ORG
WHT
GRN
R B G
Low Voltage Wire
from Doorbell Button,
Keypad, or Key Switch
Low Voltage Wire
from Free Entry or
Free Exit Devices
Low Voltage Wire
from Safety Loops

27
Mount the operator housing after
all installation procedures are
complete. Slide operator housing
over legs, align holes, and use
screws provided to attach housing
to operator.
IMPORTANT: Hang the two (2)
GTO Warning Signs (provided)
on both sides of the gate before
operating. Make sure all warning
signs and labels are in place. Make
sure that the packet containing
end user safety instructions and
warranty procedures remains
attached to the operator housing
(as shown in the illustration).
ATTACHING THE HOUSING
IMPORTANT
Safety Instructions
Review the safety precautions & operator warranty procedures contained in
packet (attached to the operator housing) with the customer. Leave packet
attached to the housing for future reference.

28
MAINTENANCE
GATE
Having a well maintained gate will ensure that the operator runs smoothly and safely. Make sure gate is hung
level and plumb. Check and adjust periodically. Lubricate rollers periodically with grease appropriate for the
coldest weather in your area.
SAFETY EDGES
Periodically test the safety edges to make sure they are functioning correctly. If they are not, discard and replace
immediately.
CONTROL DEVICES
From time to time, check to ensure that all of the control devices connected to the operator are functioning. This
is especially important for safety devices.
OPERATOR
Occasionally inspect the chain to ensure that it is well lubricated, and oil the chain as necessary. Use CHAIN
AND CABLE LUBE for best results. Check the gear sprockets and grease them as needed. Check the rollers
and spray oil on them as needed.
The GTO Slide Gate Operator is designed for minimum maintenance. However, for optimum performance and
safety, the following maintenance procedures should be taken:

29
TROUBLE SHOOTING GUIDE
Maintenance:
• On all gates weighing 250 lb. or more, routinely grease the ball bearing rollers at least 4 times a year; grease
more frequently if the gates are near a coastal area.
• Keep a few mothballs in the control box to discourage insects from entering it and damaging the control
board.
• Have your gate operator tested monthly and serviced regularly by an experienced technician. The gate
MUST stop and reverse on contact with an obstruction or when an object activates the non-contact sensors.
If these functions are observed to operate improperly, discontinue use and have operator serviced
immediately.
The operator has a 12 Vdc motor with mechanical limit switches.
• To test the motor, put a voltmeter on DC and place the meter leads on the wire connections inside the plastic
cover above the switches. The reading should be at least 11.5 V when the system is active. If it is not, see The
Control Board section
• To test the switches, put the meter on “ohms.” Place the leads on each of the wires on the switch. You should
have an open circuit. Click the switch and you should have .2 ohms. Do this for both switches.
• To test the cable, put the meter on ohms. At one end of the cable place the lead on the green wire, and on the
other end of the cable place the lead on the green wire and the other wires. This should show a maximum of 1.0
ohms on the green wire and nothing on the other wires. Test each wire as you have above. If all have the proper
readings, then this is not the problem.
• Note: Inspect the cable for any signs of any punctures because wires inside the PVC jacket can be shorted and
the cable will still show proper ohms.
The control board: This is a micro processor board. The power that runs the gate is from the battery and recharged,
through the board only, by a 18 volt 40 VA. (2.9 A) transformer.
There is one (1) green and one (1) red LED (light emitting diode) on the control board. They are for a quick
reference only. All readings must be measured by a voltmeter!
The red light serves two purposes. The first is to aid in storing the personal transmitter code. See “Setting the
Personal Transmitter Code”.
The second is to show the condition of the battery. If it is flashing, see the following section on “ Testing the
battery.” The normal state of this light is on, but dim.
If the red LED is flashing it means that the system may have reached low voltage lockout; the unit does not have
enough voltage to operate the system. One of the following problems may exist:
• Broken or spliced wires from the transformer or solar panel to the control board.
• A transformer or solar panel that has no output voltage.
• Incorrect number of solar panels, or solar panels not properly hooked up.
The green light serves as a quick visual indication that the control board is receiving power from the
transformer.

30
TELEPHONE (800) 543-1236 OR (850) 575-4144
FAX (850) 575-8950 • E-M AIL: TECHSUP P ORT@GTOINC.COM • WWW.GTOINC.COM
SYSTEM TEST SPECIFICATIONS
Transformer: 120 Vac / 60 Hz input
18 Vac / 40 VA output
10 W solar panel: 18-22 Vdc / 600 mA per hour
Battery: 12 Vdc / 7 Ah
Wire: 16 gauge, multi stranded, direct burial
Motor: 12 Vdc 90 rpm with case hardened gears. The motor current range
is 2.5 to 10 A if the gate is in good working order.
Receiver: 5 Vdc / digital communication. ONLY GTO receivers can be
connected to these terminals.
Control board: Microprocessor driven. Powered by 12 Vdc.
The transformer: Two things can cause failure: the first is shorting the leads during the installation, or letting
the strands touch at the terminal on the control board. The second is a static charge (generally associated with
a lightning storm or power outage); use of a surge protector will help.
Testing the battery: This is a 12 volt 7 Ah battery. The proper way to test this is to perform a load test. Place
the voltmeter on D.C.; put the red probe on the (+) positive terminal and place the black probe on (-) negative
terminal. Then activate the unit and watch the voltmeter. The drop should not be more than 1 volt.
Note: A loose battery terminal will cause the same symptoms that a bad battery will cause. Terminals should be
secure and corrosion free.
Remote control range: This will vary at each installation. (see FCC disclaimer on page 23), but generally varies
from 50 ft. to 100 ft.
• Make sure that the receiver is located above metal fences.
• Moving the receiver even a few inches can change the range of operation.
• Move the receiver as far from the motor as possible to avoid the chance of electrical interference.
• Check or change the battery in the transmitter.
The GTO, Inc. Technical Service Department is open
Monday – Friday 8:00 A.M. – 5:00 P.M. (Eastern Time)

31
If the GTO gate operator system is not operating properly and you have not been able to solve the problem, please
follow the steps below:
1. Check the Trouble Shooting Guide (page 29).
2. Call your installer.
3. If you still cannot solve the problem, call the GTO Service Department at (850) 575-4144.
4. If repair or replacement is necessary, you will be assigned a Return Goods Authorization Number (RGA).
Write the RGA # in LARGE BOLD PRINT on the outside of the package.
5. Carefully pack the component(s) authorized for return and ship freight prepaid to GTO, Inc., 3121 Hartsfield
Road, Tallahassee, Florida, USA 32303.
NOTE: GTO products returned without a Return Goods Authorization Number (RGA) or returned freight
collect WILL NOT be accepted at the factory. A copy of the owner’s receipt with date of sale and
installation must accompany warranty related request for service.
6. If the repair service or replacement is covered by the warranty, GTO, Inc. will pay shipping costs (equal
to United Parcel Service ground rate) for return to owner of items repaired under warranty.
WARRANTY AND REPAIR SERVICE
Limited Two Year Warranty
GTO/PRO DC powered gate operators are warranted by the manufacturer against defects in materials and
manufacturer workmanship for a period of two (2) years from date of purchase, provided recommended installation
procedures have been followed.
In the case of product failure due to defective material or manufacturer workmanship within the two (2) year
warranty period, the operator will be repaired or replaced (at the manufacturer’s option) at no charge to the customer,
if returned freight prepaid to GTO, Inc., 3121 Hartsfield Road, Tallahassee, Florida 32303. IMPORTANT: Call
(850)575-4144 or fax (850) 575-8950 for a Return Goods Authorization (RGA) number before returning to
factory. Products received at the factory without an RGA number will not be accepted. Replacement or repaired
parts are covered by this warranty for the remainder of the two (2) year warranty period or six (6) months, whichever
is greater. GTO will pay the shipping costs (equal to United Parcel Service ground rate) for return to the owner
of items repaired under warranty.
The manufacturer will not be responsible for any charges or damages incurred in the removal of the defective parts
for repair, or for the reinstallation of those parts after repair. This warranty shall be considered void if damage
to the product(s) was due to improper installation or use, tampering, connection to an improper power source,
or if damage was caused by lightning, wind, fire, flood, insects or other natural agent. This warranty gives you
specific legal rights, and you may also have other rights which may vary from state to state. This warranty is in
lieu of all other warranties, expressed or implied. NOTE: Verification of the warranty period requires copies
of receipts or other proof of purchase. Please retain these records.
After the two (2) years warranty period, GTO or one of its authorized service centers will make any necessary
repairs for a nominal fee. Call GTO at (850) 575-4144 for more information.
AUTOMATIC GATE OPERATORS
®

32
INSTRUCTIONS FOR THE INSTALLATION OF
A DUAL SLIDE GATE SYSTEM
AUTOMATIC GATE OPERATORS
®
Use the SL-1200 with the SL-1000 and the SL-2200 with
the SL-2000 for dual slide gate systems.

33
DUAL GATE SYSTEM INSTALLATION
(2) Chain Brackets
Operator Housing
32’ Drive Chain
Second Gate Operator
(2) 2” square x 48” long legs
60’ Power Cable
w/ Strain Relief
Install the second gate operator in the same manner as the Single gate operator starting on page 14 of this
manual. The second gate preparation and wiring of the second (auxiliary) operator follow on the next two
pages. Once the second gate operator is installed, Set the DIP switches for DUAL gates and the order in
which the gates open (“sequencing”). Setting the Control Board for Dual Gate Installations begins on
page 37.
SECOND GATE (AUXILIARY) OPERATOR PARTS & HARDWARE
Battery Cable
Battery
The SL-2200 comes with
a battery and control box
the SL-1200 does not.
(4) 3/8”-16 x 2” diameter U-Bolts and
(8) 3/8” Serrated Nuts (RB210)
(2) Quick Release Pins (211IH)
(2) Chain Master Links
(RB208)
(4) 1/4”-20 x 1/2” Screws
(RB226)
(4) 3/8” -16 x 3” Carriage Bolts (RB659)
(4) 3/8” Nuts
(RB668)
(4) 3/8” Lock Washers
(RB641)

34
PREPARING THE GATES
Install PVC conduit (not included) needed for power cables and low voltage wiring – see illustration below. The
PRO SL-1200 and SL-2200 power cable and safety edge (required) wiring should be run through PVC conduit
underneath the driveway. If you cut the driveway be sure to reseal it after all wiring is installed.
Chain
Roller Guard
Roller Guard
(REQUIRED)
(REQUIRED)
(REQUIRED)
PVC Conduit for
second operator
power cable.
CAUTION
AUTOMATIC GATE
STAND CLEAR
1-800-543-GATE
®
Roller Guard
(REQUIRED)
Chain Bracket
Chain Bracket
PVC Conduit for
second operator
power cable.
Chain
Contact Sensor
Roller Guard
Receiver
(cable in separate
conduit)
Roller Guard
CAUTION
AUTOMATIC GATE
STAND CLEAR
1-800-543-GATE
®
First Operator
SL-1000
or SL-2000
Contact Sensor Contact Sensor
Contact Sensor
Contact Sensor
(REQUIRED)
(REQUIRED)
(REQUIRED)
(REQUIRED) (REQUIRED)
(REQUIRED)
(REQUIRED)
PVC Conduit for
power cable.
Run up to 1000' of low
voltage wire to control
box from transformer
(wire not included).
120 Volt Indoor
Transformer
(Surge Protector
not supplied)
Roller Guard
(REQUIRED)
Chain Bracket
Chain Bracket
Chain Bracket
First Gate Operator
(Control Unit)
Second Gate Operator
(Auxiliary Unit)
1. KEEP CLEAR! Gate may move at any time.
2. Do not allow children to operate gate or
play in gate area.
3. This gate is for vehicles onl y. Pedestrians
must use a separate entrance.
Moving Gate Can Cause
Injury Or Death
WARNING
!
1. KEEP CLEAR! Gate may move at any time.
2. Do not allow children to operate gate or
play in gate area.
3. This gate is for vehicles onl y. Pedestrians
must use a separate entrance.
Moving Gate Can Cause
Injury Or Death
WARNING
!
Second Operator
SL-1200
or SL-2200
Contact Sensor

35
Limit Nut A
Open position stop –
if gate opens right to left.
Closed position stop –
if gate opens left to right.
Limit Nut B
Closed position stop –
if gate opens right to left.
Open position stop –
if gate opens left to right.
ORANGE (N/O contact)
BLUE (N/O contact)
GREEN (common)
BLACK to Motor RED
RED to Motor BLACK
Second Operator
Power Cable
Limit Switches
Motor
WIRING THE SECOND OPERATOR
Step 1: With the PRO SL-1000 or SL-2000 control box open,
use a screw driver to punch out the round knockout hole located
on the bottom next to the First Operator power cable. Install the
strain relief for the Second Operator power cable. Leave about 6”
of the power cable and tighten the strain relief nut to secure the
wires.
Step 2: Run the second power cable through
PVC conduit to the Second Operator. Con-
nect the wires to the motor and limit switch-
es as shown in illustration
Step 3: Adjust the DIP switches on the
First Operator control board for the ap-
propriate dual gate settings, following
the directions on next page.
When the units are set in place and you have completed wiring the
first unit follow the instructions below.
ON
SECOND OPERATORFIRST OPERATORPOWER IN ALARM ACCESSORY RCVR
SEQ1
SEQ2 LEARN
18VAC SOLAR
~ ~ – +
RED
BLK
ORG
BLU
GRN
CLS EDG
OPN EDG
RED
BLK
BLU
ORG
ORG
BLU
WHT
GRN
GRN
CLS EDG
OPN EDG
R B G
Power Cable
from First Operator
Power Cable
from Second Operator
Low Voltage Wire
from AC Transformer
RED
BLACK
ORANGE
BLUE
GREEN
RED
BLACK
ORANGE
BLUE
GREEN
RED
BLACK
ORANGE
BLUE
GREEN
RED
BLACK
ORANGE
BLUE
GREEN
First Operator Power Cable
Second Operator Power Cable
RED
BLK
ORG
BLU
GRN
CLS EDG
OPN EDG
RED
GRN
ORG
BLU
WHT
BLK
ORG
BLU
GRN
CLS EDG
OPN EDG
LEARN
AUTO
CLOSE
INERTIA
STATUS
BATT
+–
OBSTR.
SENS.
RCVR
RGB
ALARM
SECOND OPERATOR
FIRST OPERATOR
POWER IN
18VAC SOLAR
~ ~ – +
ACCESSORY
PWR. SW.
Lock Nut
Hub
Sealing Nut
Sealing Nut
Hub
Lock Nut
Strain Relief
Wire From Second
Operator Battery
THIS STEP IS FOR SL-2000/2200
INSTALLATION ONLY
Step 1a: Run the battery jumper wire
through the PVC from the battery in
the Second Operator to the battery
in the First Operator. Use the side
strain reliefs on the control boxes to
run battery jumper wire into control
boxes. Using spade connectors, con-
nect positive to positive and negative
to negative.

36
SETTING THE CONTROL BOARD FOR DUAL GATE INSTALLATIONS
DIP SWITCHES
The Control Board DIP switches must be set to accommodate your particular type of installation. Since the
SNGL / DUAL, SEQ1, and SEQ2 DIP switches are used by dual gate operator systems, they will be discussed
in the following steps.
STEP 4:
Make sure the control box power switch is OFF.
STEP 5:
Unscrew and remove the control box cover. Use a small
screwdriver to move the SNGL / DUAL DIP switch to DUAL
(see illustration).
The order of gate operation (“sequencing”) must now be determined
for your dual gate operators to function properly.
Refer to the illustrations on the next page.
NOTE: The terms “FIRST OPERATOR” and “SECOND
OPERATOR” refer to a unit wired to the terminal block of the
same name.
STEP 6:
BOTH OPERATORS OPEN SIMULTANEOUSLY
BOTH OPERATORS CLOSE SIMULTANEOUSLY
SEQ1 = ON SEQ2 = OFF
If SEQ1 is set to ON, and SEQ2 is set to OFF, the FIRST
OPERATOR and SECOND OPERATOR open simultaneously,
and the FIRST OPERATOR and SECOND OPERATOR close
simultaneously (see illustration).
1234
ON
OBSTRUCT
SENS.
PULL/PUSH
SEQ1
SNGL/DUAL
SEQ2
MIN MAX
LEARN
1234
ON
OBSTRUCT
SENS.
PULL/PUSH
SEQ1
SNGL/DUAL
SEQ2
MIN MAX
LEARN

37
FIRST OPERATOR OPENS FIRST,
SECOND OPERATOR CLOSES FIRST
SEQ1 = OFF SEQ2 = ON
If SEQ1 is set to OFF, and SEQ2 is set to ON, the
FIRST OPERATOR will open first, and the SECOND
OPERATOR will close first (see illustration).
1234
ON
OBSTRUCT
SENS.
PULL/PUSH
SEQ1
SNGL/DUAL
SEQ2
MIN MAX
LEARN
FIRST OPERATOR OPENS FIRST,
FIRST OPERATOR CLOSES FIRST
SEQ1 = ON SEQ2 = ON
If SEQ1 is set to ON, and SEQ2 is set to ON, The
FIRST OPERATOR opens and closes first.
1234
ON
OBSTRUCT
SENS.
PULL/PUSH
SEQ1
SNGL/DUAL
SEQ2
MIN MAX
LEARN
1234
ON
OBSTRUCT
SENS.
PULL/PUSH
SEQ1
SNGL/DUAL
SEQ2
MIN MAX
LEARN
BOTH OPERATORS OPEN SIMULTANEOUSLY
SECOND OPERATOR CLOSES FIRST
SEQ1 = OFF SEQ2 = OFF
If both SEQ1 and SEQ2 are set to OFF, the FIRST
OPERATOR and SECOND OPERATOR will open
simultaneously. The SECOND OPERATOR will close
first.
STEP 7:
Replace the control box cover. Turn the control box power switch to ON.
Set the closed gate positions for the first and second operators by adjusting
the limit switch (review page 24).

38
Solar Panel (FM123), (FM122)
The FM123 Solar Panel is a 10 watt solar powered battery charger for use with the all GTO/PRO DC gate op-
erator systems. Particularly suited for remote installations, each Solar Panel comes with tubular steel support,
mounting clips, wire connectors, and 8 ft. of low voltage wire (see Low Voltage Wire for additional wire). The
GTO/PRO® control board has clearly labeled terminal connections for easy installation of the Solar Panel.
Installation in some regions of the world will require multiple solar panels for adequate charging power. The
FM122 Solar Panel is a 5 watt solar powered battery charger with all the same features as (FM123).
Push Button (doorbell) Control (RB101)
Unlit doorbell button for remote entry or exit control. Wires directly to the control board and uses 16 gauge
multi-stranded, dual conductor low voltage wire (sold separately).
Pin Lock (RB975)
The pin lock can be inserted in the chain brackets of the GTO/PRO SL-1000/1200 and SL-2000/2200 to prevent
unauthorized removal of the quick release pins.
Key Chain Mini Transmitter (RB744)
The Key Chain Mini Transmitter is a miniature version of the GTO entry transmitter that comes with the SL-
1000/2000 and has the same adjustable code settings. 12 Volt battery included.
Entry Transmitter (RB741)
The GTO entry transmitter, with adjustable code settings, is standard equipment with all GTO/PRO systems.
9 Volt battery included.
Dual & Triple Button Transmitters (RB742 & RB743)
The Dual (RB742) & Triple (RB743) Button Transmitters are for remote control of multiple separate gate openers,
and/or gate opener(s) and garage door opener(s) (see Garage Door Receiver). 9 Volt battery included.
Digital Keypad (FM137)
The specially designed digital keypad can be easily installed as a wireless or wired keypad. It can be programmed
to use up to 25 different personal identification number (PIN) codes. Each code is face programmable with
additional security features built in. Wired installations require 16 gauge, low voltage, multi-stranded, dual
conductor, direct burial wire (sold separately). Requires 3 AA batteries (not included).
Exit Wand (FM138)
The exit wand is designed for residential and agricultural applications and is compatible with most automatic
gate openers. The wand is an electromagnetic sensor, which offers 'hands free' operation of the gate opener with
a 12 ft. radius of detection of vehicles in motion.
Wireless Entry Intercom / Keypad (FM136)
Allows owner to screen guest at the gate before allowing access to the property. Keypad also allows owner
to give up to 25 programmable entry codes to family, friends or approved delivery personnel. Codes can be
permanent of temporary. Can be wireless or hard wired up to 1000 feet.
Gate Opener Light Kit with Digital Controller (FM124)
The light kit’s control board and the daylight sensor integrate the two low voltage lights with the existing gate
opener, allowing the lights to come on when the driveway gate is opened and shut off after the gate closes, at
night. Lights can be face mounted or mounted on top of the gate post
ACCESSORIES AND PARTS AVAILABLE FROM YOUR DEALER
ACCESSORIES
POWER
Keypad
Batt Low
Grant
Permission
Answer
DV 9V
ACCESS CONTROL SYSTEMS
1-800-543-4283
1
2
ABC
3
DEF
4
GHI
5
JKL
6
MNO
7
PRS
8
TUV
9
WXY
0

39
If you have a question about any special order item,
just call 1-800-543-GATE!
11" Push to Open Bracket (FM148)
Required when Mighty Mule® 500/502 gate opener(s) must push the gate open, such as on a sloping driveway
or where space prevents gate(s) from opening inward (pulled open). Order two PTO brackets for conversion
of a dual swing gate installation.
Column Mount Lock Receiver (433IH)
For mounting the Automatic Gate Lock on brick columns, walls, or for other applications with limited space
between gate and post.
Replacement Transformer (RB570)
Standard 18 volt AC transformer for maintaining the battery included with the Mighty Mule® gate opener.
This is the only transformer approved for use with all UL325 Mighty Mule® gate opener systems.
Garage Door Receiver (RB709)
The Garage Door Receiver allows you to use the same Mighty Mule® entry transmitter (see Dual and Triple
Transmitters) to operate your gate opener and your garage door opener. Compatible with most garage door
openers.
#41 Slide Gate Chain (RB207)
The #41 chain (32’ only) is used with the GTO/PRO SL-1000/1200 and SL-2000/22000 DC Slide Gate
Operators.
HEDDOLF
UNIVERSAL
RECEIVER
MODEL 294
Replacement Battery (RB500)
Standard 12 volt, 7.0 amp-hour, maintenance-free battery for the PRO-SL1000/2000 gate operators. This battery
is approved for use with the PRO-SL1000/2000 gate operators. Life expectancy is 3-5 years.
GTO/PRO 24 Amp Hour Battery Kit (FB295)
This large 12 volt, 24 ampere-hour, maintenance-free battery is for the GTO/PRO SL-2000&2200 gate
operators. It will supply additional power for increasing the number of open and close cycles of the GTO/PRO
SL-2000&2200 operators. The kit comes with the battery, battery pan and wiring harness for easy installation
inside the existing operator housing. This battery is approved for use with GTO gate operators. Battery life
3 to 5 years.
Low Voltage Wire (RB509)
The 16 gauge, multi-stranded, dual conductor Low Voltage Wire is for connecting the AC powered transformer,
or the Solar Panel to the control board. Also used for the connection of accessories, such as locks, keypads,
push buttons and other wired control devices. This specially designed wire is UV treated, PVC coated and
ready for direct burial. Available in 1000' rolls or special lengths.
ACCESSORIES AND PARTS AVAILABLE FROM YOUR RETAIL STORE (CON'T)
The contents of all material available on this installation manual are copyrighted by GTO, Inc. (“GTO”), unless otherwise indicated. All rights are reserved by GTO, and content may not be reproduced,
downloaded, disseminated, published, or transferred in any form or by any means, except with the prior, written permission of GTO. Any reprinting of GTO publications is by permission only. Copyright
infringement is a violation of federal law.
Mighty Mule¨, E-Z Gate¨, GTO¨, are registered trademarks of GTO, Inc. America’s DIY Automatic Gate Openers is a trademark of GTO, Inc. and are the exclusive property of GTO, Inc. (“GTO”).
All rights are reserved by GTO, and these marks may not be used, in any for without the prior, written permission of GTO.

Conversion Chart
VEHICULAR GATE OPERATOR CLASS CATEGORIES
Residential Vehicular Gate Operator-Class I: A vehicular gate operator (or system) intended
for use in a home of one-to-four single family dwelling, or a garage or parking area associated
therewith.
Commercial/General Access Vehicular Gate Operator-Class II: A vehicular gate operator
(or system) intended for use in a commercial location or building such as a multifamily housing
unit (five or more single family units), hotel, garages, retail store, or other building servicing the
general public.
Industrial/Limited Access Vehicular Gate Operator–Class III: A vehicular gate operator (or
system) intended for use in an industrial location or building such as a factory or loading dock
area or other locations not intended to service the general public.
Restricted Access Vehicular Gate Operator–Class IV: A vehicular gate operator (or system)
intended for use in a guarded industrial location or building such as an airport security area or
other restricted access locations not servicing the general public, in which unauthorized access is
prevented via supervision by security personnel.
GTO PRO SL-1000 and SL-2000 series automatic gate operators are intended for use with vehicular slide
gates. These operators can be used in Class I, Cass II and Class III applications.
Converting Metric Units to English Equivalents
When You Know Multiply By To Find Symbol
centimeters 0.3937 inches in. (or “)
meters 3.2808 feet ft. (or ‘)
kilograms 2.2046 pounds lb. (or #)
Converting English Units to Metric Equivalents
When You Know Multiply By To Find Symbol
inches 2.5400 centimeters cm
feet 0.3048 meters m
pounds 0.4535 kilograms kg
Temperature
deg. Celsius (ºC x 1.8) + 32 deg. Fahrenheit ºF
deg. Fahrenheit (ºF-32) / 1.8 deg. Celsius ºC

INSTALLATION CHECK LIST
The installation of this operator conforms to CLASS __________.
The installer verifies that (each item must be checked):
____ Required safety edges were installed.
____ Roller guards were installed over gate rollers.
____ Fence was screened so that no one can reach through the gate to operate controls.
____ Customer was informed that this gate is for vehicular use ONLY. Pedestrians MAY NOT use this gate.
____ A separate gate or entrance was installed for pedestrian use.
____ All warning signs and labels were installed as specified in the IMPORTANT SAFETY
INSTRUCTIONS.
____ Safety instructions were reviewed with the customer.
___ The IMPORTANT SAFETY INSTRUCTIONS manual was given to the customer.
____ Customer was instructed about proper use of the foot pedal release.
____ Customer was instructed about proper use of transmitter and (or) other entry controls.
____ Customer was asked to fill out customer support card and mail it to GTO, Inc.
____ Customer was asked to retain all receipts (receipts provide proof of warranty).
___ Customer was asked to retain IMPORTANT SAFETY INSTRUCTIONS, etc. for future reference.
____ The completed installation was photographed from both the front and back of the gate. Photo was dated.
Customer’s Signature
Installer’s Signature
Date
Date