HONEYWELL Controls And HVAC Accessories Manual L0210044
User Manual: HONEYWELL HONEYWELL Controls and HVAC Accessories Manual HONEYWELL Controls and HVAC Accessories Owner's Manual, HONEYWELL Controls and HVAC Accessories installation guides
Open the PDF directly: View PDF
.
Page Count: 24

Honeywell
L7148F
ElectronicAquastatController
APPLICATION
The L7148F ElectronicAquastat_ Controller replaces the
functionof the bulb and capillary electromechanical
Aquastat_ with electronictemperature sensingand
microprocessor controlled relays.
The L7148F ElectronicAquastat@has an internalhighlimit
controtlerand is intended for use in gas-firad boilers using
a 24 Vac bumer circuitwith vestibulesfora wiring enclo-
sure. The L7148F can replace a Honeywell L4080 High-
Limitand R8285 Transformer Relay,
The L7148F hasa24 Vac bumer output and is used in
gas boilerswhere ignitioncontrolssuch as the Honeywell
$8600 Spark Ignitionor SV9500/SV9501 SmadValve TM
controlsor standing pilotgas controls such as the Honey-
well VR8300 are powered from24 Vac.
An external 120 Vac to 24 Vas transformerwith 10 VA
minimumis requiredto power the L7148F. Fortotal
external transformerVA requirements, add the 10 VA
requirement for the control,gas valve load requirement
(connectionsB1, B2), zone valve connection requirement
(see zone valve specifications),vent damper requirement
and VA requirementfor any other equipment. Total low
voltage load mustnot exceed 4A.
The L7148F ElectronicAquastat@is available withquick
connect orAMP@ plugconnections. The 3/16 in. (5 mm)
B1 quickconnect and AMP@ plugconnections meet ANSI
miswiringrequirements.T, TV and Z terminals are
provided in a terminal block with screw connections.
The complete L7148F system requires a sensor, immer-
sionwell and transformerall of which must be ordered
separately. See Table 1 for sensor specifications.
High Limit Setpolnt Range:
130OFto 2400F (54°C to 116°C).
Dlfferentlah
Fixed 10°F (6°C).
Operating Voltage Range:
L1-L2 Line Voltage Power. Nominal, 120 Vac.
R-C 24V Transformer Ouput: Nominal,24 Vac.
Minimum/Maximum Ambient Temperature:
-30°F (-9°C) with2.0A 24V load.
150°F (66°C) with2.0A 24V load.
OperatingRelativeHumidity:
0 to95% RHnon-conpensing.
ElectricalRatings:
B1-B2:2.0Aat24 Vac,
C1-C2:FullLoad7.4Aat 120Vac;LockedRotor,44.4A
at120Vac.
Sen6or:
Thermistor sensor available separately. Lesdwire lengths
availableare: 18 in., 24 in. and 36 in. Includesone 114in.
(6 ram) and one 3/16 in. (5 ram) quick connect.
See Table 1.
Immersion Well:
Available separately. Contactyour distributoror Honeywell
sales representativeto order, or refer to Accessoriesfor
Immersion Wells, CompressionFittings,and Element
Holders, form 68-0040,
INSTALLATION
WhenInstallingthisProduct...
1. Read these instructionscarefully. Failureto follow
them could damage the productor cause • hazard-
ous condition.
2. Check the ratingsgiven inthe instructionsand on
the productto make sure the product is suitablefor
your application.
3. installermust be atrained,experienced service
technician.
4. After installationIs complete, check out product
operation as providedin these insbuctlons,
WARNING
Can cause property damage, severe Injury
or death.
Use this productonly in systemswitha pressure
reliefvalve.
CAUTION
Can cause electrical shock or equipment
damage.
Disconnect power supplybefore beginningwiring.
Never apply a jumper across (or shod) terminals
B1 and B2. This bums out the transformer,
AMP@Is aregisteredtrademarkofAMP Incorporated.
@U,S.RegisteredTrademark ,<'ix
Copyright(_1997 HoneywellInc. • _) • AllRightsReserved I[llllllllll[lllll[ILIIlllllll[llll[lllllllllllllllllllll
69-1065B-1

L/148t- _-L*-L,JJ-K.)NI(.;Aquastat_
Sensor
209659A
209659S
209659C
TermlnaUon
one 1/4 in. (6 ram) and
one 3/16 in. (5 ram)
quick connect terminal
Table 1. Sensor Spaofflc_ons.
Lead Length
36 in. (914 ram)
18-gauge wire
24 in. ( 610 mm),
18-gauge wire
18 in. (458 ram),
18-gauge wire
Diameter
3/8 in.
(10 mm)
Capsule Length
1-1/4 in. (32ram)
Mounting
Compression
Material
"l'nermal
I plastic
Mounting
IMPORTANT
The L7148F is not designedfor spud mounting to
the sensing well
WARNING
Cancause explosion,fireor
systemoverheating.
Sensormustbefullyinsertedtobottomof well.
Sensor and immersionwell are not provided and must be
purchased separately.Mountingscrews must be obtained
locally.See Table 1 for sensor specifications.The sensor
is adaptable to existingimmersionwells witha shell I.D. of
3/8 in. (10 ram). To order an immersionwell, contact your
distributoror Honeywell sales representative,or refer to
Accessoriesfor ImmersionWails, Compression Fittings,
and Element Holders,form 68-0040.
In new and replacamentapplications,mount the Electronic
Aquastat@on the vestibule away from heated surfaces.
Use four no. 6 screws, obtainedlocally,to mount the
controlthroughthe four mountingholes.
Mount the immersionwell, purchased separately, where
boiler water of average temperature can circulatefreely
around it.
To insertthe immersionwell intothe boiler:.
1. Turn off all power and drain the boiler.
2. Ifno tappingis provided,prepare properlysized and
threaded tapping nearthe top of the boiler.
3. Coat the well threads sparinglywithpipe dope,
installthe well inti_ boiler tapping,and tighten
securely.
4. Refill the boiler and check for water leakage.
IMPORTANT
• Sensor must be fullyinsertedto bottomof well or
explosion, fireor system overheatingcan result.
• Remove all heat conductive compoundfrom the
wellpriorto sensor insertion.
5. Insertthe sensor into the well. Make surethe sensor
fits securely againstthe bottomof the well.
Tosecuresensorandleadwirewithmountingclamp
(seeFig.1):
1. Loosenthedrawnutandspreadthe jawsofthe
ct_mp.
2. Slidethejawsofthe clampoverthe mounting
_ange,
3. Adjustthe sensorleadwiratofit throughthegroove
inthe mountingclamp.
IMPORTANT
Do not overtightenthe draw nut or a systemshut.
down could occur.
4. Tightenthe draw nut so that the c_ampis firmly
attachedto the welland the leadwire is held
securelyin place.
5. Secure excess leedwireto preventdisconnectionof
sensoror removal from the well.
- MOUNTING
JAWSOF
CL.*,MP OVER
MOUNTINGFLANGE
TIGHTEN SCREW AND DRAW NUT
TO SECURE CLAMP
M11483
Fig. 1. Secure eansor and leadwtre with
mounting clamp.
Widng
CAUTION
Cancause electricalshock or equipment
damage.
Disconnectpowersupplybeforebeginningwiring,
69-1065B-1 2

L71_I8F ELECTRONIC Aquastat •
IMPORTANT
•An external transformeris required for operation.
The user must size the transformer for the
specificapplication.
•If L7148Fis used to power zone valves, totallow
voltage(24V) load mustnot exceed 4,4. Use a
zoningpanel such as the Honeywell R8889 when
load exceeds these ratings.
All wiring mustcomplywith local electrical codes and
ordinances, Refer to the specificationsinthe Application
section when applyingthis control. For appropriate wiring
diagrams, see Fig. 2 through9.
For screw terminal connections:
1. Strip1/16 in. of insulationfrom
the wire end.
2. Insertthe wire under the terminal
screw and contact plate.
3. Usinga standard, fiat-heeded
screwdriver, tighten the screw
untilthe wire is firmly in contact
withthe screw and contact plate. /_
4. Tighten the screw an additional
one-hafttum.
Ml1484
For quick connect termina! connections:
Connect the quickconnect to the appropriateterminal on
the control B1 and $1 are 3/16 in. (5 ram) quickconnect
terminals;all other terminals are 1/4 in. (6 ram).
For AMF_ plug connections:
Connect the AMP_ plugs to the receptacles on the control.
An AMP_ plug connection is shown in Fig. 7.
The L7148Fandapproptiatelysizedextemaltransformer
can poweruptothree HoneywellV8043ZoneValves.
Additionalvalves,ingroupsofthreeorless,requirean
additionaltransformer,oruse HoneywellR8889 Zone
ValvePanel.Followthe appropriatewtdngdiagramswhen
usingzonevalves.See Fig.3 through5 andFig.8.
NOTE: On systems requiring a vent damper, the
Honeywell vent damper can be connected
directlyto some L7148F Electronic Aquestat_
models (Fig. 7) or $8610 Spark Ignition Modules
(Fig. 6). With the vent damper plugged into the
Electronic&questerS, a fuse in the Electronic
Aquastat_ blows when the thermostatfirst
closes. Once the fuse is blown, the Electronic
Aquestat® does not operate unlessthe vent
damper is connected. With the vent damper
pluggedinto the $8610, a fuseinthe igni_on
module blows when firstpowered. Once the fuse
is blown, the ignition module does not operate
unlessthe vent damper is connected.
DISCONNECT
SWITCH
,,x L7148F
L1 C2 L2
C_RCULATOR HIGH uMrr DIAL
©
TO ADVANCED
FEATURE
MOOULE
COM.
BURNER
CONTROL
24V HOT
TO VALVE
IGNITION
CONTROL
z T "W
I[
TO BOILER
SENSOR
_ TO THERMOSTAT OR
;=I "E 'DEuDE'
COM 24V
//_ F(_VER SUPPLY,PROVIDEDISCONNECTMEANSAND OVERLOAD
PROTECTIONAS REQUIRED.
//_ GROUND MUST BE AN EARTHGROUNDCONNECTION,
./_E1 AND $1 ARE3/16 IN.QUICK CONNECTTERMINALS,ALLOTHER
TERMINALSARE 1/4 IN,
/_C, COM, Z, B2. G AREALLCONNECI_D INSIOEDEVICE.
/_FOR EXTERNAL"i_RANSFORMERVAREQUIREMENTS,REFERTO
APPUCA'RONSECTION.
//_R IS A CONVENIENCETERMINAL FOR24V HOTCONNECTION
FOR USEWITH IGN_ _, ul t*7_
Fig. 2. Extemal connections for L7148F.
3 69-1_5_1

L7148F ELECTRONIC Aquastate
LIX
DISCONNECT
L7148F
LI G2 L2 []
OPTIONALVENT R
DAMPERPLUG
"COM
BURNER
CONTROL
•24V HOT
TO VALVE OR
IGNITION CONTROL
HIGH LIMFTDIAL
©
z T IV
$1 $2
TO BOILER
SENSORTO ADVANCED
FEATURE
MODULE
COM 24V
/'_ POWERSUPPLY.PROVIOEDISCONNECTMEANSAND OVERLOAD
PROTECi30N AS REQUJRED_
/_ GROUHOMUST 8E ANEARITt GROUND CONNECTION_
I/_ ADD JUMPER ASSHOWN_
II_ FOR EXTERNALTRANSFORMERVAREGUIRF.MENTS_RF.FERTO
APPUCATIONSECTION_
LI [.2
L_ (HOT)
_BI AND $1 ARE 3/16 iN.QUICK CONNECTTERMINALS.ALLOTHER
TERMINALSARE 1/4IN.
Z_C. COM, Z. B2,GAREALL CONNECTEDINSIDE DEVICE.
Z_R ISA CONVSNIENCETERMINALFOR 24V HOTCONNECTION
FOR USE_IGNitION CONTROLS. M1141r_
Rg. 3. Wldng L7148F with multlzone valves.
69-I065B-1 4

L7148F ELECTRON/C Aquastat_
OISCONNECT
SWITCH
L24
HIGH UMIT DIAL
O
T87F R845
Ittt
LOW VOLTAGE
GAS VALVE
_)
TOADVANCED
FEATURE
MOOULE
/_ POWERSUPPLY.PROVIDEO_SCO_NECTMEANS COM
AND OVERLOADPROTECllON ASREQUIRED.
•_GROUNDMUST 8E AN EARTHGROUNDCOI_I_'_ION."
/_B1 AND81 ARE 3/16 IN. QUICKCONNECTTERMINALS.
ALLOII_ER TERMinALSARE 114IN.
24V ,/_C. COM. _B2, GAREALLCONNECTED INSIDE DEV1CE*
,/_ FOR EXTERNALTRANSFORMERVAREQUIREMENT_
REFERTO APPUCATIONSECTION.
//_R IS A CONVENII_ICE TERMINAL FOR24V HOTCONNECTION
FORUSE _IGNITIONCONTROLS, M11477A
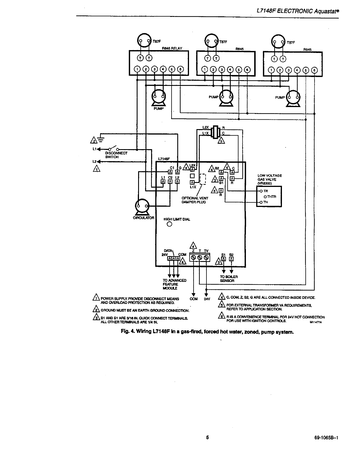
Rg. 4. Wldng L7148F In a gas-fired, forced hot water, zoned, pump system.
569-106513-1

L7148F ELECTRONIC Aquastato
LOW VOLTAGE
GAS VALVE
(VR8300)
TO ADDITIONAL R845A
RELAYS FOR OTHER ZONES
LdL ,R845ARELAyZI_NE1
THERMOSTAT
CIRCULATOR
ZONE 1
"_TO ADVANCED
FEATURE
I./_ MO°ULE MI_/,SI^
Rg. 5. Wlrlng L7148F in mulfi_ system with R_ switched clmulat_,
//_ PO_R SUPPLY.PROVtDIEI_SCONNECT
MEANSAND OVERLOADPROTECTION
ASREQUIRED.
/_ GROUND MUST BEAN EARTHGROUND
CONNECTION,
Z_S1 AND Sl ARE3/16 IN. QUICK CONNECT
T]_RMINALS.ALLOTHER1]ERMINALS
ARE 1/4 JN
INSIDED_ClGE,
REQUIREMEWrS,REFER1"O
_R IS A I_NVB_II_'_£ "_RMIN,_. FOR
24V HOTC_E2,1qlNECTIONFOR USE WITH
69-106513--1 6

L7148F ELECTRONIC Aquastate
CIRCULATOR
DISCONNECTswITCHL7148FL1C2 L2 _
HIGH OMIT DIAL
0
TOAOVANCED
FEATURE
MODULE
Z T TV
I ]
TOBOILER
SENSOR
'r _r
COM 24V THERM_AT
7
$8610
/_ POWERSUPPLY.PROVIDEDISCONNECTMEANSANOOVERLOAD
PROTECTIONASREQUIRED.
AGROUND MUST BEAN EARTHGROUNDCONNECTION.
//_81 AND $1 ARE 3116IN, QUtC_<CONNECTTERMINALS,ALLOTHER
TERMINALSARE 1/4 _N.
//_C, Z. B_,G AREALLCONNECTED INSIOEDEVICE.
Z_FOR EXTERNAL_NSFORM ERVAREQUIREMENTS,REFERTO
APPLICATIONSECTION.
//_R IS A CONVENIENCETERMINALFOR 24V HOTCONNECTION
FOR USEWITH IGNITIONCONTROLS,
M11476A
Flg.6, Wldng L7148Fwith $8610 IntermittentPilot IgnitionModulewithautomaticvent damperplugand
Honeywell D892/D896/M892/MSg6Vent Damper.
7 69-I_5_1

L7148F ELECTRONIC Aquastat_
CIRCULATOR
[_SCONNECT
POLARIZED 4-PRONG
MALE MOLEX PLUG AND
4-PRONG FEMALE
MATING PLUG ON GABLE
L7148F
CABLE
I
I
I I
I
I
I
e_=R(_IG FEMALEMOLEX
RECEPTACLEIN L7148F
AND S-PRONGMALE
MOLEXPLUG ON CABLE
//_ POWER SUPPLY. PROVIDE DISCONNECT MEANS AND OVERLOAD PROTE_RON AS REQUIRED.
//_ REMOVE PLUG-IN THAT JUMPERS PINS 2 AND 3 WHEN USING VENT DAMPER.
Z_ AP-TER VENT CAMPER IS pLUGGED INTO L7148F. FUSE BLOWS WHEN THERMOSTAT FIRST
CLOSES. AFTER FUSE BLOWS, L7148F OPERATES ONLY WHEN VENT DAMPER IS CONNECTED.
_E_E VENT DAMPER PRODUCT SpECIFIC&lIONS FOR INTERNAL SCHEMATICS.
/_Sl IS A 3/16 IN, QUICK CONNECTTERMINAL; $2 IS 1/4 IN.
//_ THIS DEVICE HAS AMP O PLUGS.
_C, COM. Z. IBm,G ARE ALL CONNECTED INSIDE DEVtCE.
//_ FOR EXTERNAL TRANSFORMER VA REQUIREMENTS, REFER TO APPLICATION SECTION.
HIGH UMIT DIAl.
0
/x
_Z T TV
_) S1 S2
TO BOfLER
TO ADVANCED SENSOR
FEATURE
'r '_'
COM 24V THERMOSTAT
MII400A
Rg. 7, Wldng L7148FwithAMPOplugconnectionsand Intemalplug directlyto D892/DSg6/M892iM896Vent
DamperInhydronlcIntermittentpilotsystem.
69-1065B-1 8

L7148F ELECTRONIC Aquastat •
TO
VALVE _
IGN_
_ROL_
L71_
m®
®
@-
@-
/_@--
IRI
_RI)
A_
--@
A®
@
@
@-
@-
@-
@-
IDAT_
.I_OM 1
I
m
_TO
SENSOR
_VRNC_
-(m,,FEATURE
.m..OO-_
"OIN O
O N.C.
--'O COM.
I"O IN-O,
O N,C,
i
ZONE 2
L _c
_l N'O"
O N.C.
-- ,oIN.O.
O N.C.
_____-
i _TORZONE 2
-O N.O.
O N.C.
-O N.O.
O N.C.
NA
iCIRCULATOR
ZONE3
/_ POW'ERSUPPLY. PROVIDE DkSCONNECTMEANSAND OVERLOADPRO1NECTIONAS REQUIRED.
//2_ QROUND MUST BEAN EAR3HQROUNO CONNECTION.
Z_FOR EXTERNALTRANSFORMERVAREQUIREMENTS,REFERTO APPLICATIONSECTION.
/_ RB82CIS PROVIDEDWRH NEC CLASS1ENCLO6URE.
Z_IBI AND $I ARE3/16 IN.QU¢CKCONNECTTERMINALS.ALLOTHERTERM[N.tCSARE 1/4 IN.
Z_ C, OOM, Z, B_, O AREALL CONNECTEDiNSIOE _
/_R 18RCONVENIENCETERMINAL FOR24V HOT CONNECTIONFOR USEWITH
IGNITION CONTROLS. Mli,a_.A
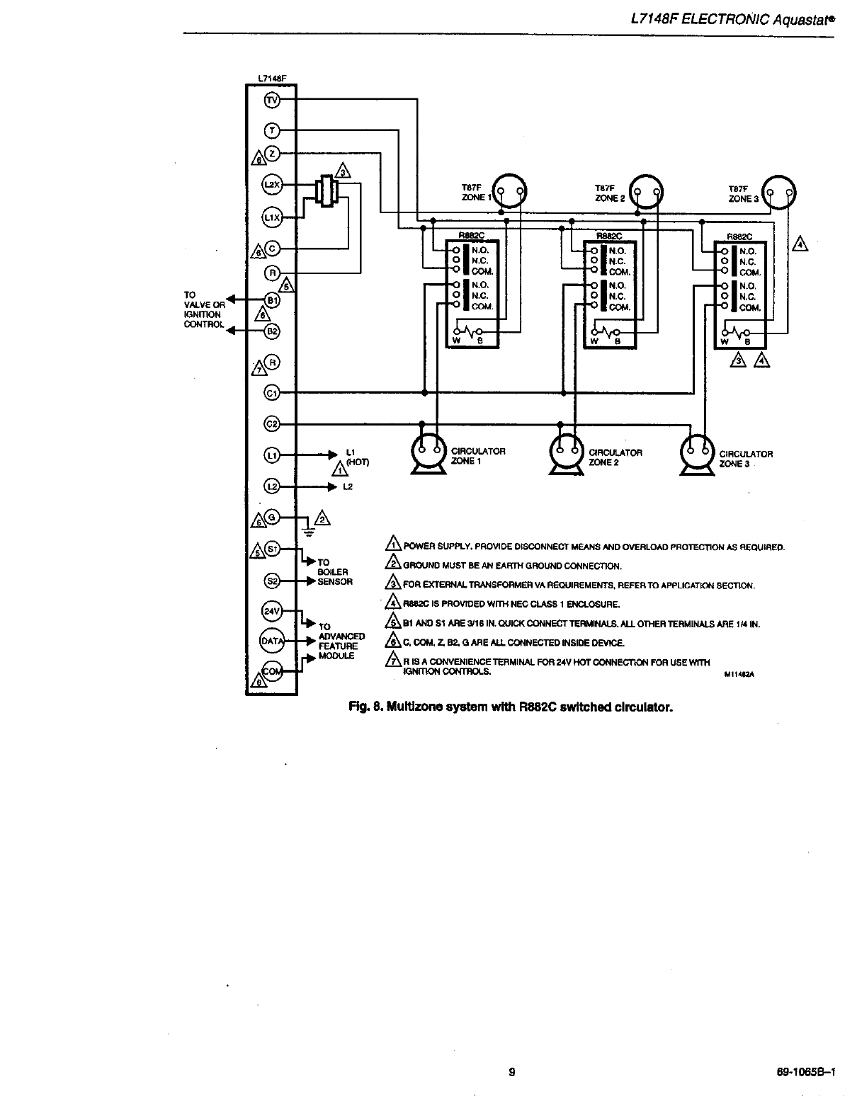
Rg. 8, MulUzone system with R882C swltched circulator.
)
A
9 69-1065B.-1

L/148_- _.LEC TRONIC Aquastate
L1X
OPTIONAL V_NT
DAMPER PLUG
CIRCULATOR
24V_T
HOT
TO ADVANCED
FEATURE
MODULE
T TV $I $2
TO BO_LER
SENSOR
II_ TO THERMOSTAT OR
SWITCHCLOSURES
7FOR ZONES
v
COM 24V
24 VO_.T
THERMOSTAT OR
PRESSURE SWrTCH -OUTPUT
//_ POWERSUPPLY.PROVIDEDISCONNECTMEANSANDOVERLOAD
PROTECTIONAS REQUIRED,
AGROUND MUST BEAN EARTHGROUNDCONNECTION.
/_B1 AND S_ARE 3/16 IN.QUICKCONNECTTERMINALS.ALLOTHER
TERMINALSAR_ 1/4IN,
/_C, Z, B2.e ARE ALLCONNECTED INSIDEDEVICE.
._FOR EXTERNALTRANSFORMERVAREQUIREMENTS,REFERTO
APPLICATIONSECT1ON.
J_R IS A CONVENIENCETERMINALFOR24V HOT CONNECTION
FOR USEWITH _GNIT',ONCONTROLS, M_1479A
TM
Fig. g. Wiring L7148F with SV9501/SV9502/SVg601/SV9602 SmarWelve System Controls.
OPERATION
A system containingan L7148F ElectronicAquastat_
does not require a separate highlimitcontroller.The
L7148F can replace aHoneywell L4080 High-Umit
Controllerand an R8285 Transformer Relay. The L7148F
does not providea lowlimit function. An external trans-
former, appropriatelysized for the specificapplication;a
sensor, and an immersion well are requiredfor Aquastat_
operation.
In the L7148F system, the circulatoris on any time there is
a thermostat call for heat. The burner is also on duringa
thermostatcall for heat unlessthe boiler watertempera-
ture exceeds the high limitsetting.
The L7148F ElectronicAquastat_) has three statesof
operation: normal, high-limitand reset: (The controlmoves
back and forth between the normal and high-limitstates,
as needed. However, the control onlyenters the reset
state when there is an abnormal condition such as an
intemal error orshorted sensor.)
1. Normal: The controlenters the normal state when
the temperature of the boiter dropsbelow the high
limit setting minus 10°F (-12°C). The controlexits
the normal state and returnsto the high limitstate
when the temperature of the boiler exceeds the high
limitsetting.
2. High limit:The control entersthe high limitstate
when the temperature of the boiler exceeds the high
limitsetting. The control exits the highlimitstate end
returnsto the normal state when the temperature of
the boilerdrops to the high limitsettingminus 10°F
(-12°C),
3. Reset: Detects an error condition such as an open
sensor and shutsdown alloutputs.The control
continues to function and automaticallyrestartsifthe
errorcondition is corrected.
HighUmit
The high4imitswitch shutsoff the burner(B1,132 output)
when the boiler water ternpemture exceeds the high-limit
setting. Because heating systemsdiffer,the corre_
temperature settingfor each systemcan vary. Foliowthe
boiler manufacturer recommendationsfor the proper
setting. Tum the HIGH-LIMIT dial on the control untilthe
desired settingis directlybelow the indicator.
SequenceofOperations
The state of the burner and circulatoroutputsare depen-
dent onthe thermostat inputmode (On/Off) and the
currentoperation mode (High limit/Normal/Reset). See
Table 2 Sequence of Operations.
69-1_5_1 10

L7148F ELECTRONIC Aquastate
NOTE: Table 2 applies only to the operation of the
ElectronicAquastat_ withoutan advanced
feature module. Advanced feature modules
provideadditional functionssuch as boiler
temperature display and outdoor reset of high
limit.Changes in output states and operation
modescaused by these additionalfunctions are
not included.
Table 2. Sequence ofOperations.
Operation
Thermostat Mode Burner Circulator
Off Normal Off Off
Off High Limit Off Off
On Normal On On
On High Limit Off On
Either Reset Off Off
ADJUSTMENT
Amanual adjustmentpotentiometer is used to set the high
limit controller.At the maximum setpointof 240°F (116°C),
the calibration tolerance is plus 10°F (6°(3) and minus 15°F
(8°(3) (meets ASME and UL353 standards).
NOTES:
Setpoint Range: 130°F (54=(3)to 240°F (116°C).
Differential: Fixedat IO°F (6°0).
CHECKOUT
Check to make certain that the ElectronicAquastat®
Controller has been properly installedand adjusted. Put
the system into operationand observe the action of the
device through several cycles to make certain that it
provides proper controlof the systemas described in the
Operationsection.
11 69-1065B-I

Home and Building Control
Honeywell Inc.
Honeywell Plaza
P.O. Box 524
Minneapolis, MN 55408-0524
Home and Building Control
Honeywell Limited-Honeywell L'n_it6e
155 Gordon Baker Road
North York, Ontario
M2H 3N7
Honeywell
69-I065B-1 G.H. Rev.4-gg Printed in U.S.A

Hone) well
AquastaPdlectroniqueL7148F
APPLICATION
L'Aquastat_ 61ectroniqueL7148Fremplacolesfonctions
dubulbsetducapillalredesAquastatsO
61ectmm6caniquesparla d6tection61ectmniquede la
temp6mtureetdesmlalscommandospar
microprecoeseur.
UAquastat_ 61sotroniqueL7148F dispose d'un rdgulateur
maximuminteme et convlentaux chaudi6res _gaz
comportantun circuitde brfileurde 24 V c.a. avec
vestibulescomme compartlment de c_biage. Le L7148F
peut remplacer la rdgulateurt_maximum L4080 et la relais
de transformateurR8285 de Honeywell.
Le L7148F comports one sortie de bn31eurde 24 V c.a. et
est employ6 darts des chaudi_reabgaz o0 les r_Julateum
d'allumage tels que le module d'allumage par 6tincelles
$8600, ou les r_:JulateursSmartValveTM SV9500/SV9501,
ou encore les r6gulateumbgaz bveilleuse permanente
tels que le VR8300 de Honeywell, sont aliment6spar du
courant 24 Vc.a.
Un transformateur exteme 120 V c.a. _24 V c.a. d'une
intensit6minimale de 10 VA doit alimentar le L7148F. Pour
obtenirI'intensit6totale requisepour le transformateur
exteme, additionnerios 10 VA requispar le r6gulateur,la
charge de la vanne bgaz (connexionsB1 et B2), la
connexionde la vance de zone (voirles caract6ristiques
de la vanne de zone), le reglstred'a6rationet rintensit6
requisepar toutautre materiel. La charge totale bbasse
tension ne doit pas d_pesser 4 A.
L'Aquastat_ 61ectmniqueL7148F eat offertavec bomes
connexionmpide ou bomes #.fiches AMP_. La borne
connexionrapids B1 de 3/16 po (5 ram) et les bomes
fiche AMP_ respectentles exigences des normes ANSi
en mafi6re de mauvais mccordements. Les bornes T, "IV
et Z sontfoumies sur bomiers b connexion _ vis.
Le syst6me L7148F complet n_cossite un capteur, une
gains d'immersionet on transformateurqui doiventtous
_tre command6s s6par_ment. Consulterle Tableau 1 pour
conna_trelescarectddsfiquestechniques du capteur.
Gamme de re_glagadu r6gulateur =_maximum :
54 °C _116 °C (130 OF_,240 oF).
Dlff6rentlel :
Fixe 6 °C (10 °F).
Tension de service :
Alimentationsecteur L1-L2 : Nominal, 120 V c.a.
Sodie R-C dutransformateur24 V : Nominal,24 V c.a.
AMF_ estunemarquede commercedeAMp Incorporated.
_LI.S. RegisteredTrademark
_t; ...t, t '7 N_,r r *I_ -- • All ,q_ie
Temp_raturu amblantes minimumet maximum:
-9 °C ( -30 °F)866°C(150°F)_,pleinecharge.
Humldlt6mlatlve de service:
0_95 % h.r.sanscondensation.
Caract6rlstlques 61ectrlques nomlnslea :
B1-B2 : 2,0 A sous 24 V c.a.
C1..C2 : Pleine charge 7,4 A sous 120 V c.a.; Rotor
bioqud,44,4 A sous 120 V c.a.
Capteur :
Capteur b.thermistoroffertsdpardment. Longueursdes
conducteurs : 18 po, 24 poet 36 po. Comprend one borne
connexton'mpidede 6 mm (114po) etune de 5 mrn (3/
16 po). Voir le Tableau 1.
Galne d'lmmemion :
Offerte sdpar6ment. Communlquer avec votre distributeur
ou avec un repr_sentantde Honeywell pour commander,
ou encore consulterta publicationsur les accessoires pour
gaines d'immersion, raccordsde serrageet supports
d'dl6ments, no 68-0040.
INSTALLA110N
Avantd'installerceproduit...
1. Lire lesdirectivesattentivement. Le fair de ne pas
les suivre risque de constituer un danger et
d'endommager le produit.
2. V6rifler les camct_ristiquesspdcifidesdens les
instructionset indiqudessur leprodult, et s'assurer
que celui-ciconvientbI'applicationpr_vue.
3. Uinstallateurdoit _tre on techniclend'exp6fience
ayant rev"uone formation per_nente.
4. Une lois rinstailation terminus, v6rifier le
fonctionnsment du produitcomme rindiquent les
pr6sentes instructions.
AAVERTISSEMENT
Peut causer des dommagee bla propddtd,
provoquer des blessums ou entrat'ner la mort.
Utiliserce produitseulement dans des syst_mes
munis d'un d_tendeur de pression.
rlllllJlllJllllllllllllllllllllllllllllllllllllllllllllll

Aquastate 61ectroniqueL7148F
MISE EN GARDE
Peut provoquer de= (_hoc861ectrlqess ou des
dommages i_ I'_lulpement.
Coupar I'altmentationavant d'effectuer les
raccordements.
Nejamaisplacar de cavalier entre les bomas B1 et
B2 (ni les court-clrcuiter).Cala auralt pour effet de
griller le transformateur.
Montage
AAVERTISSEMENT
Peut provoquer urm sxploslon, un Incendls st
la aurchauffs du aystbms.
Le cepteur dolt _tre insdr6jusqu'au fond de la
galne.
IMPORTANT
Le L7148F n'est pas con_u pour un montage
avec raccord-6crou.
Le capteur etla galne d'immersionne sent pas foumis et
doivent _tre command6s s6par6ment. On doit _galement
se procurer des vis de montage. Voir la Tableau I pour
obtenir lescaract6dstiquestechniques du captaur. La
capteur s'adapte aux gaines d'immersionsxistantas dent
renvaloppe a un diam6tre interne de10 mm (3/8 po). Pour
commander une gainad'immersion,communiqueravoc
votre distributeurouun repr6sentantde Honeywell,ou
encore, consulterla publicetiorrsur les accessoires pour
gaines d'immersion,racocrdsde sen'age at supports
d'_l_ments, no68-0040.
Pour les nouvallas applications comme pour les
rempiacemects, installerrAquastat_ dlectroniqua L7148F
dens le vestibule,;_distance des surfaces chauff_as.
Utiliserdes vis no 6, obtenuas sur place, pour installerla
rdgulateursur lesquatre ouverfuresde montage.
Monter la gains d'immersion,cornmand6e s6par6ment, b
unendroitoOreau b temp6rature moysnna peut circular
librement autour de ta gains.
Pour ins6rer la gainsd'immersiondens la chaudi6re :
1. Couper toutesles sources d'alimentationat vidangar
la chaudi@re.
2. S'il n'y a pas de robinetde vidange, pratiquar une
ouverture de videge filet6e d'un diam_)tread_:luat
pros du dessus de la chaudi_)re.
3. Appliquar una mince couchede mastic pourfilets
sur Is filetage de la galne, putsfairs passer la gaina
par l'ouverturefiletde pratiqu6e dens la chaudi6re;
serrer fsrmement.
4. Remplir la chaudi6re et v6rifiar la prdsence de fuitas.
IMPORTANT
Le capteurdolt 6tre ins6r6jusqu'au fondde Is
gains; #risque sinon d'y avo/r une explosion, un
incendie ou une surchauffedu syst6me.
Retirer tout compos# conducteurde la gains
avant rinsertion du capteur.
5, Ins6rerlecapteurdens lagains.S'aasurerquele
capteurestblenins6r6}usqu'aufond de la galna.
Pourfixer le capteur et le conducteur ;_raids des pincas
de fixation (voirla Fig. 1 ) :
1. Deeserrar rdcrou de tractionat ouvdr las machoires
de la pincede fixationbralde d'un toumevis.
2. Fairs passer la pince de fixationpar-dessus la bdde
de montage.
3. Ajuster le fil conducteurdu capteurpour qu'il
s'ins_redens la ralnurede la pince de fixation.
IMPORTANT
Ne pas trop setter 1'6croude traction;sinon, Is
syst6ms pourraitcesser de fonctionnsr.
4. Serrer rdcroude tractionpour qua la pinca de
fixationsoitfermement fix6e _.la gaine et qua le
conducteurtienne bien en,place.
5. Rxar Is filconductauren trop amp_cher qu'ilsoit
d_branch6 du captaurou qu'ilsoil retirdde la galna.
Tableau 1. Carect6dstlques techniques du capteur.
Longueur du
Captaur manchon. Montage Mat6rlau
209659A 32 mm (1 g po) A compression Tharmoplastique
209659B
209659C
Bornes
!Une borne
connexion rapids
de 6 mm (1/4 13o)
at une de 5 mm
(3/16 po).
Longusur des
conducteure
Filde calibre
18 de 458mm
(18 po)
Fil de calibre
18 de 610 mm
(24 po) J
Fil de calibre
18 de 914 mm
(36 po)
Dlam&trs
10 mm
3/8 po
RO.lr _1

Aquastate dlectroniqueL7148F
-BRIDE DE
LES MACHOiRES
DE LA PINCEBE
FtxA'noN PAR-DESSUS
L_ BRIDE
SERRER U_CROU DE TRACTION MF114eO
POUR FIXER LA PtNCE
Fig. 1. Fixer le capteur et ta conducteur _I'alde de la
plnce de fixation.
C blage
MISE EN GARDE
Peut provoquer des chocs 61ectrlques ou
endommager I'_lulpemenL
Couper I'alimentafion avec d'effectuar le
raccordemenL
IMPORTANT
• /I faut installerun transforrnateurexteme pour
qua I'appereilfonctionne correctemenL La
puissance du transformateur dolt convenird
/'application.
• Si un L7148F Bert dalimenter des vat]naBde
zone, la charge basse tension totale (24 V) ne
doltpas d6passer 4A. Utiliser untableau de
zonage tel le R8889 de Honeywell Iorsquela
charge d6passe cette intensit(_nominale.
Tout le c_.blagedolt _tre conforme aux codes et aux
r_glementa Iocauxen vigueur.Voir les directives do la
sectionApplicationavant d'utiliserce r6gulateur. Les
figures 2&9 illustrentdes schdmas de raccordement.
Raccordement des bornes _.vis :
1. D_1_uderle boutdutll sur une
Iongueurde 1/16 po.
2. Faire glleserle filentre la vlset la
Iplaquede contact
3. A I'aide d'un tournevJsblame
plate standard, serrer la vls
jusqu'8 ce que Is filsoit
fermement en contact avsc la vis
et ta plaque de contact. "'=
4. Serrer la vis crundeml-tour de
plus,
Raccordement des homes 8connexionraplde:
Raccorder la borne _,connexion rapide _.ta home
ad6quata du r_gulataur. Les boreas B1 et $1 sont des
bomes _ connexion rapldede 5 mm (3/16 po);toutas les
autres bomes sontde 6 mm (1/4 Ix)).
Raccordement des fichesAMP_ :
Ins6rer les fichesAMP® dans les pdsessitu_es sur le
r6gulateur.La fiche AMP® est illustr6e8la Rg. 7.
Le L7148F et un transformateurextame de puissance
addquate peuvent alimenterjusqu'_ troisvannes de zone
V8043 de Honeywell. Des vannes additionnelles, par
groupede troisou moins, n6cessitentI'instaltationd'un
transformateuradditionnel ou rutilisation d'un tableau pour
vannes de zone R8889 de Honeywell. Suivre les
diagrammes de mccordemant ad6quats Iorsquades
vannes de zones sont utilist_es.Voir les figures 3 _5et la
Fig. 8.
REMARQUE: Dans tes syst_mesqui exigentun
registred'a_ration,le registred'a_ration
de Honeywell peut_tre branch_
directament _,certainsmodOles
d'Aquastat_ Olectmnique L7148F (Fig.
7) ou de modulesd'allumage par
dtincelle $8610 (Fig.6). Lorsque le
registm d'a_mtion est branch_
rAquastat_ _lectronique, unfusible de
I'Aquastat_ _lectronique fond Iorsque le
circuitdu thermostatse refarme pourla
premiere fois. Une fois ta fusible fondu,
rAquastat_ _lectronique ne fonctionne
pas _mothsque le registred'a_ration
ne soitbranch,. Lorsque le registre
d'a_rationest reli_ au $8610, un fusible
du module d'allumage fond _ la
premiere raise soustension. Lorsquece
fusible est fondu, le moduled'allumage
ne fonctionne passl le registre
d'alimentationn'est pas branchd.
3;lr --1

Aquastat edlectronique L7148F
LI<I---
._DISJONCTEUR
) L7148F _G_
E_tPE DE
CIRCULATK_
_. _Z_e c
0
LIX
FICHE
DE REGISTRE
_AF_RAT_ON
oP'nONNELLE
CADRAN UMIFE HAUTE
©
VANNE
OU
R_GULATEUR
D'ALLUMAGE
DONN_ES /_Z T TV
24V COkl $1 32
• • • VERS LE CAPTEUR
FERMETURE DES ZONES
COM 24V
/_ AL}MENTATION. FOURNIR. AU SESOIN, UN DISPOSIT]F DE
COUPURE ETUNE PROTECRON CONTRE LIES SURCHARGES.
./_LA MISE A LA TERRE DOlT SE EAIRE AU MOYEN D'UNE PRISE DE TERRE.
ALES BORNES BI ET S1 _DES BORNES A CONNEXION RAPIDE DE
3/16 PO, TOUTE$ LES AUTRES BORNSS SONT DE 1/4 PO.
./4_ LIES BORNES C, COM, Z_ BE., G SONT TOUTES RACCORD_ES
_. L'INTE_RIEUR DE L'APPARFJL. .
•_POUR CONNA_TRE LA PUISSANCE RSOUISE DES TRANSFORMATEURS,
CONSULTER LA SECTION APPUCATION. MF11474A
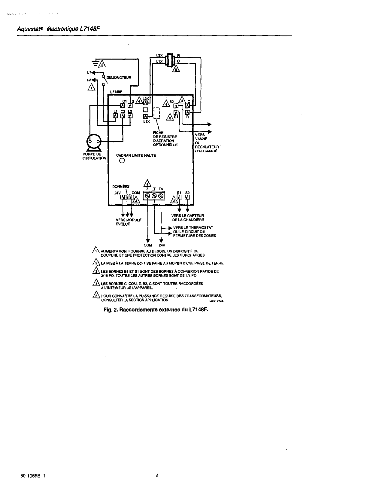
Fig, 2. Raccordements externes du L7148F.
69-1065B-1 4

Aquastate dlectmnique L7148F
LI<p--
L7148F _QZ
4-4'
POMPEDE
CIRCULATION
E]
FICHEDE REGISTRE
[7AI_RATIONOPTIONNELLE
CADRANLIMITEHAUTE
©
DONNI_ES //_
24 _ 81 $2
VERSLE CAPTEUR
VERSMOOULE DELA CHAUD_RE
_VOLU_
COM E4V
/_ ALIMENTATiON.FOURNIR,AU BESOtN,UN DISPOSITIFDE
COUPUREET UNE PROTECTIONCONTRELEE SURCHARGES.
/_LA M_SEALATERRE DOlTSE FNRE AU MOYEN DIJNE
PRISE DETERRE.
,/_ AJOUTERUNCAVALIERTELQU_ILLUSTRI_.
VaO43F
_ITERRUPTEDE
DERN DE
RSE
b !
J
VSO43F VS043F
X
i/x
L2
(SOUS
TENSION)
/_ POURCONNAI'TRELAPUISSANCE REQUISEDEETRANSFORMATEURS,
CONSULTERLA SECT_ONAPFtJCATION.
Z_LES 8ORNES B2ET 81 SONT DESBORNESACONNEXIONRAPIDE
DE 3/1SP(I TOUTESLEE AUTRESBORNESSONT DE 114PO.
ALES BORNESC, COM, Z, BI, Q SONTTOUTES RACCORDI_ES
At:INTI_RIEURDE L:APPARE_L MFT_475A
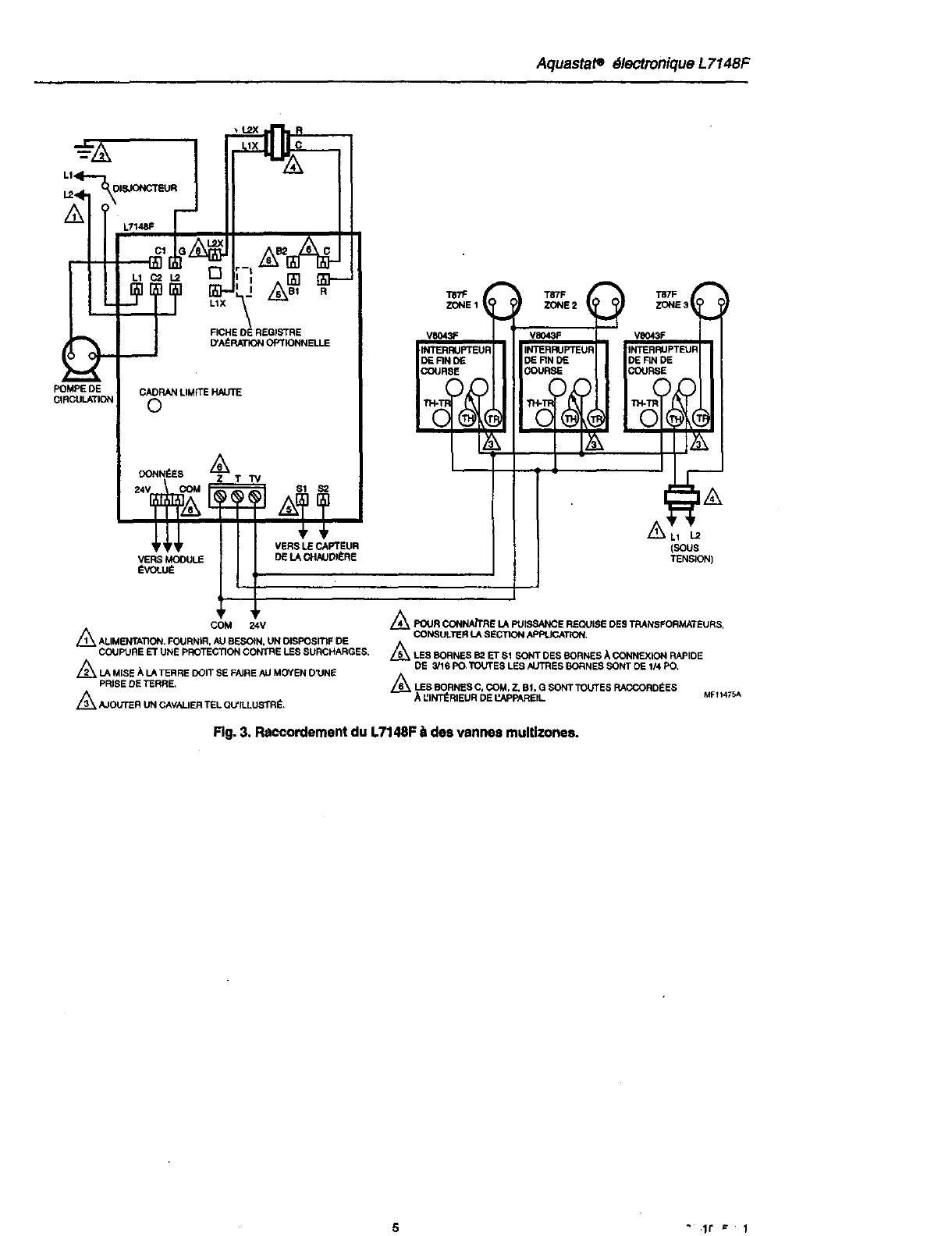
Fig. 3. Reccordement du LTI48F _, des vannes multlzones.
5 " lr = 1

Aquastat edlectronique L7148F
T87F T87F
RELA)SR845 R845
L1_q*..-O_O
D]SJONCTEU R
L:4
POMPE DE
CIRCULATION
PoM_
L2X R
L1X
CADRAN LIMFrE HAUTE
©
DONN_ES "/_
ZT 7V $1 $2
POMpE
VANNE A QAZ BASSE
VERSMODULE
_'VOLU_
VERSLECAPTEUR
DE LACHAUDI_RE
COM
Z./_ ALIMENTATION. FOURNIR, AU 6ESOIN, UN DISPOSITIF
DE COUPURE ET UNE PROTECTION CONTRE LEB SURCHARGES,
Z_LA M4SE _LA TERRE DOlT SE FAIRE ALl MOYEN D'UNE
PRISE DE TERRE
24V /_ LES BORNES BI ET S1SONT DES BORNES ,_ CONNEXION RAPIDE
DE 3/'16 PO. TOUTES LIES AUTRES BORNES SONT DE 1/4 FO.
//_ LE_; BORNES C, COM, Z, B2. G SONT TOUTES RACCORDI_ES
_. L:tHT_.P_EUF. OF.t_/_PPkF;f.tt.
//_ POUR CONNAITRE LA PUISSANCE REQUISE DES
TRANSFORMATEURE. CONSULTER LA SECTION APPLICATION.
MFlt 4T/A
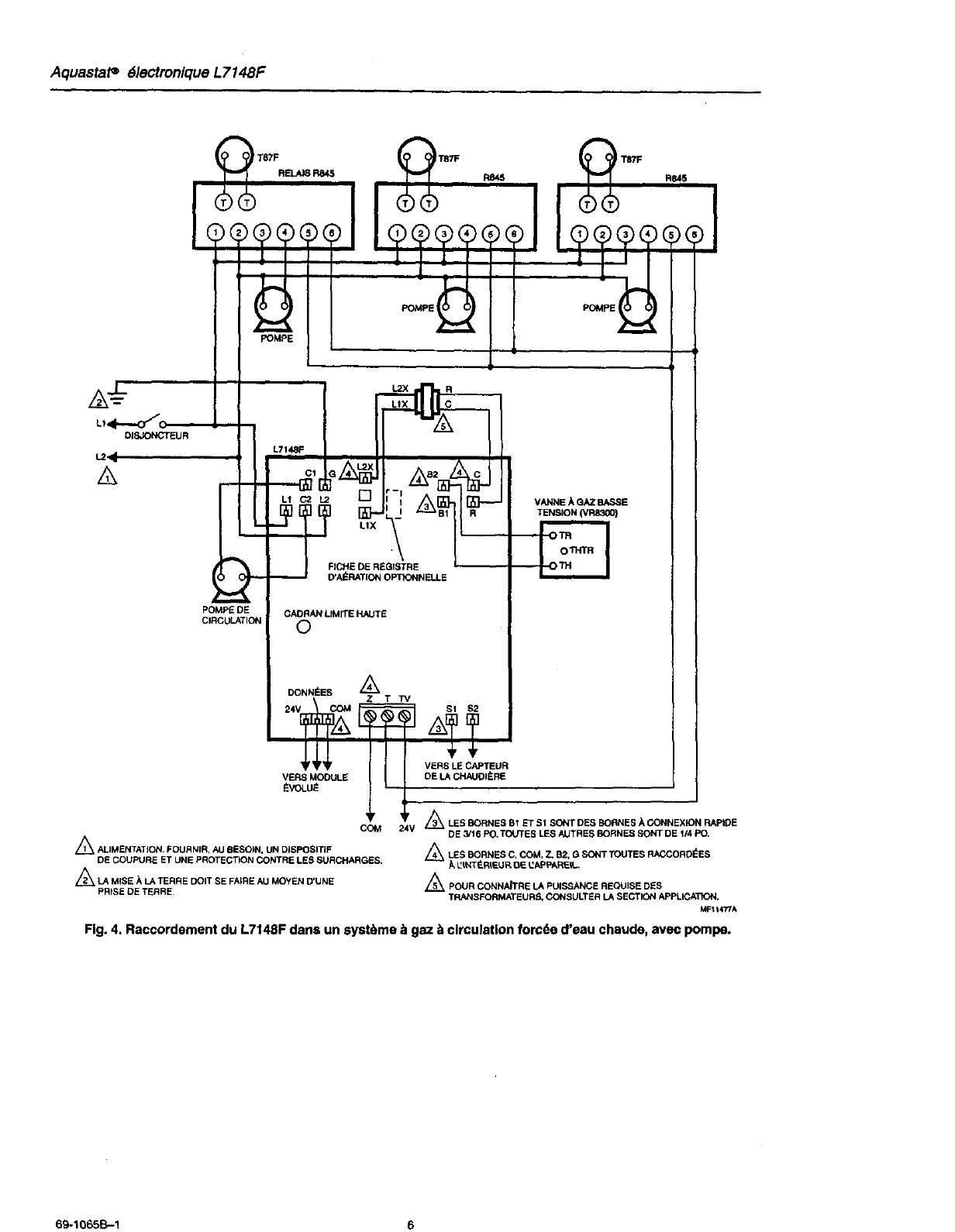
Fig. 4. Raccordement du L7148F dans un $yst6me _,gaz _circulation forcde d'eau chaude, avec pompe.
69-1065B-1 6

Aquastat• dlectroniqueL7148F
m
%1
@1
mmmm
VERSBAUTRE8 RELAJSR845A
POURD'A fiRE8 ZONE-.q
_. L _ , RELAI$ Ra45AZONE t
-c 311
8ASSE _ON
_ _IER_AT
_24 V
(Sleds TE_K_I) DECII_ LKrK_
ZONE t
1.2
_DtS_mF DE _PURE E-r_
_PROTECTIONIN_N'mE _ SUN(_'_RGES,
A
•_ _ LAM;_EA _ TERRE DOff SE FNRE
AU MOYr_ID'UNEPRISE DE TERRE.
]'_L_ _LE8 BORNESB1 ETSl 80NT DESBORNE8
R A CONNEX:ONRAPIDEDE 3/16 PO.TOUTES
OE LA LES AUTRESBORNESSONT DE 114PO.
CHAUDtI_RE /_ LES BORNE$ C, COM. Z. B.?..Q SONT
TOUTE8 RACCORO_ES_L'INT_RIEUR
I_)" VERS DEL'APPAREIL
A
!1_MODULE /5_ POUR_RE LA PUISSANCEREQUISE
!_ _VOLU_ DESLASECTIoNTRANSFORMATEURS'APPU_ATION.CONSULTER
MFI148tA
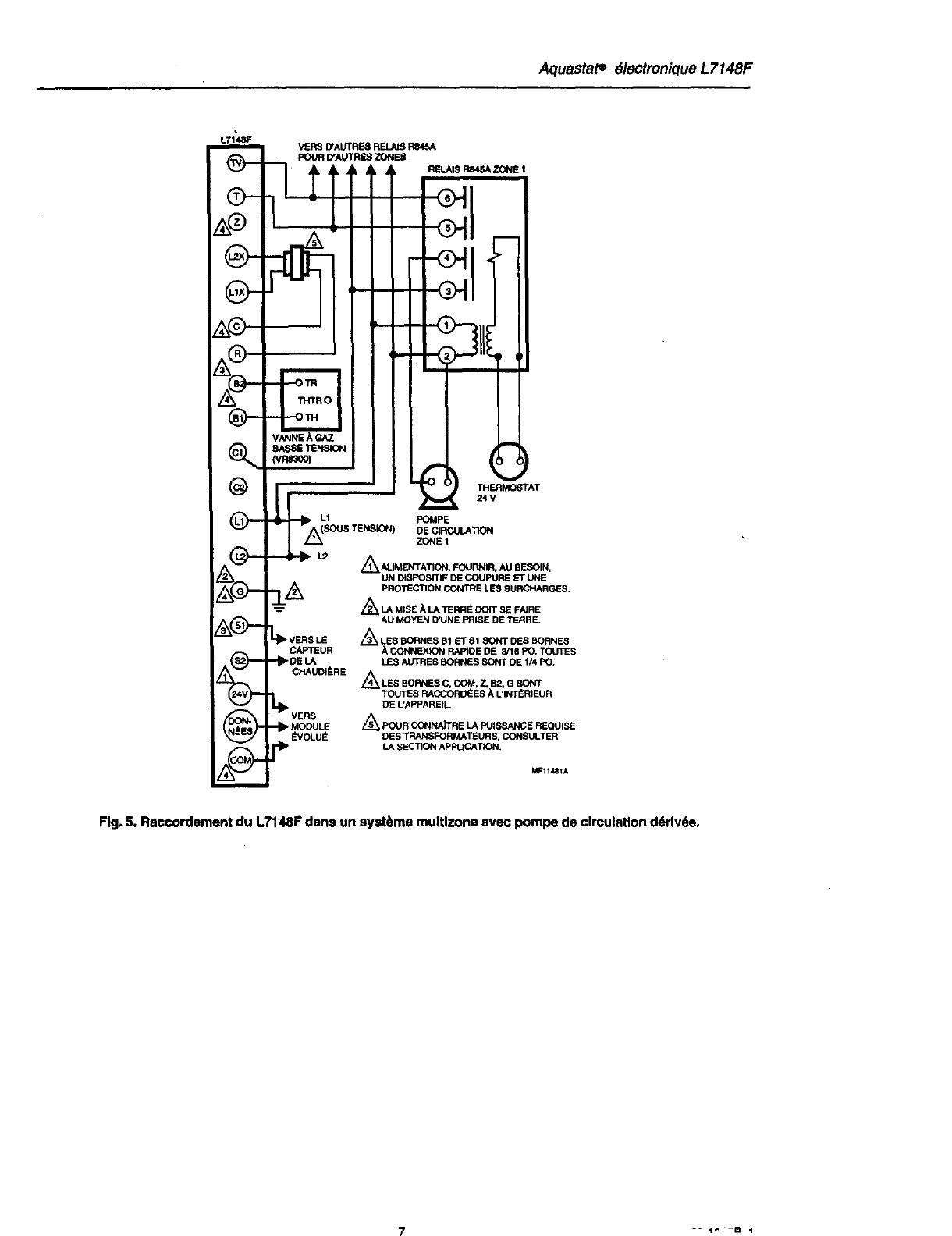
Rg. 5. Raccordement du L7148F dans un syst_me multlzone avec pompe de circulation d6rlv6ao

Aquastate _lectronique L7148F
ux
DI,_JONCTEUR
__M L1X '_ R
FICHE _,_
DE REG
POMPEDE MiTE HAUTE
CIRCULATION
_z_T $1 _
H
COM 24V
VERS MODULE VERSLECAPTEUR
DELA CHAUOI_:RE
88810
TERRE TERRE REGISTRE " I
I
_ALIMENTATION,FOURNIR,AU BESOIN,UN D)_F DE
COUPURE ET UNE PROTECTION CONTRELESSURCHARGES,
//_LA MISE J_LA TERRE DOn"_SEFNRE AU MOYF.NDUNE PRISE DE TERRE.
/_ LF,BBORNESBI ETSI SONT DES BORNES,_ CONNE)QONRAPIDE
DE 3/t6 PO. TOUTES L£S AUTRES BORNE8SONT DiE1/4 PO.
ALES BORNESC. 7- B2,G SONT TOUTESRACCORD_ES
J_U_NT_RIEURDEL'APPARFJL.
_', FOUR CONNAJTRELA PUISSANCEREQU_E 0ES TRANSFORMATEURS.
CONSULTERLA SECTIONAPpUCA'rlON.
MFIf4_
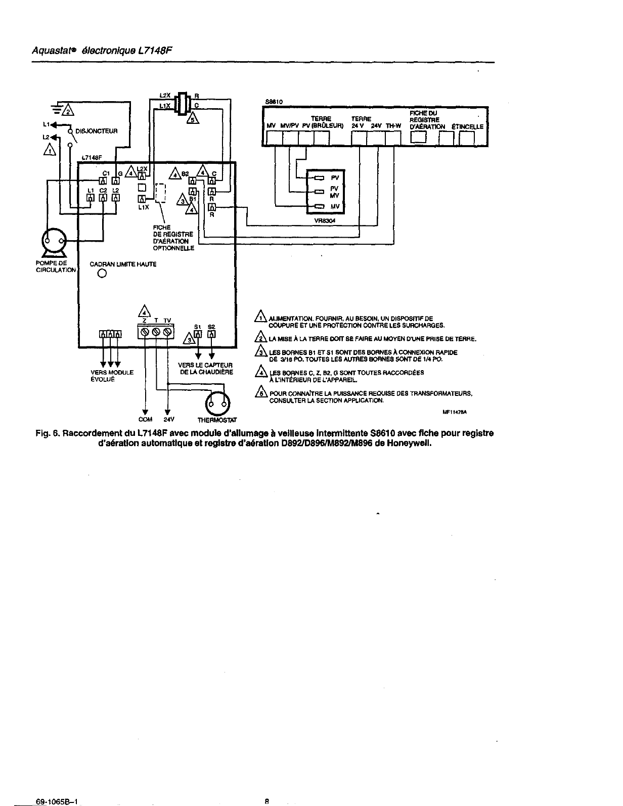
Fig. 6. Raccordement du L7148F avec module d'ellumage _,vellleuse Intermlttente $8610 avec fiche pour reglstre
d'a6ratlon automatlque et reglstre d'a6ratlon D892/D896/M892/M896 de Honeywell.
69+1065B-1 R

Aquastate _lectronique L7148F
POMr_ OE
FICHE MOt.EX M_.E _-4 -'-I
BROCHE8 POLARIS_ES ET
FICHE FEMELLE A 4 BROCHES
CORR ESPONO_8
SUR CABLE
I
I
I
L2ql •
L7148F I
I CADRANLIMITEHALITE
:<<, 0
I
PRISE MOLE< FEMEI.LE
6 BROCHES DANSLIEL7148F DONN_ES
E'r FICHE MOLEX MALE A 24V[_
5 BRCCHESSUR CABLE _
VERSMODULE
_VOLU_
i_ ALIMENTATION.FOURNIR.AU BESOIN,UN DISPOSITIFDECOUPURE ET UNE pROTECTION
cOWrRI_LEe SURCHARGES.
Z_ RETtRERLAFICHE QUI FNT OFFICE DE CAVALIERENTRELES 9ROCHES2 ET 3 LORSQU'UN
REGISTRED'AI_RATIONEST UTIUSt_.
/_ LORSQUELEREGI_TRE C'AI_RATIONEST BRANCHI_ALlL7148F,L!EFUSIBLEFO_O LORSQUE
LETHERMOSTATSE REFERME POURLA PREMIERE FOIS.UNE FOIS LE FUSIBLEFONDU.LE L7148F
NE FONCTIONNEQUE SILIERIEGISTRED'AI_RATIONEST BRANCH,.
•/_ CONSULTERLA FICHE TECHNIQUE DU REGISTRED'AI_RATIONPOUR VOIR LESCHf_MAINTERNE.
,/_LA BORNE$1 EST UNE BORNEACONNEXIONRAPIDE DE 3/16 PO;LA BORNES2 ESTUNE BORNE
ACONNEXIONRAPIOEDE 1/4PO.
//_ CET APPAREiLCOMPORTEOEE FICHESAMR
ALES BORNE8 C. COM. Z. 112,G SONTTOUTES RACCORD_E8At-'INTL-'RIEURDE _APPAREIt-
Z_I POURCONNAITRELA PUISSANCEREQUISE DESTRANSFORMATEURS.CONSULTERLASECTION APPLICATION
AT TV
VERS LE CAPTEUR
DE LACHAUDI_RE
: 6
COM 24V THERMOSTAT
MF11480A
Fig. 7. Raccordement du L7148F avec fiches de raccordement AMPO et raccordement Inteme direct _un reglstre
d'adratlon D892/D896/M892/M896 dane un syst_me/_ eau chaude _vellleuse Intermlttente,
9 11" -r , 1

AquastatO 61ectronique L7148F
VERS 4-"
VANNE
OUR_GULATEUR
D*ALLUMAGE_I_.
L7148F
=_=mmm I
®1
®1
G-t
R882C R882C R882C
__., --_ .._ ___
.O mN.O, _ m N.U. -D m N.O,
UNNt; V lING. QNN_ I
I
=OII N.O. '0 _N,U, 'O mN.Q.
UIINC 0 N.C. UNNC
"v IpDM <_ COM _ NCOM.
w_wH
m m
-- AN
'__-'-_-'--_ _' us FoMPEDE _PEDE _ POMPEOE
ZONE ZONE2
m
_L2_ _ L2
&
CONTRE LIES SURCHARGSS.
DE LA Z_ POUR CONI_h'R E LA PUISSANCIE REQUISE DES TRANSFORMATEURS,
| $2 )-'-- "-_ CHAUDI_RE CONSULTERL_SEGT_AP_.=CAT_.
(_" _._ Z_UZR_._CESTR:)URm^vEcBOmERN_CCL,_EI.
m
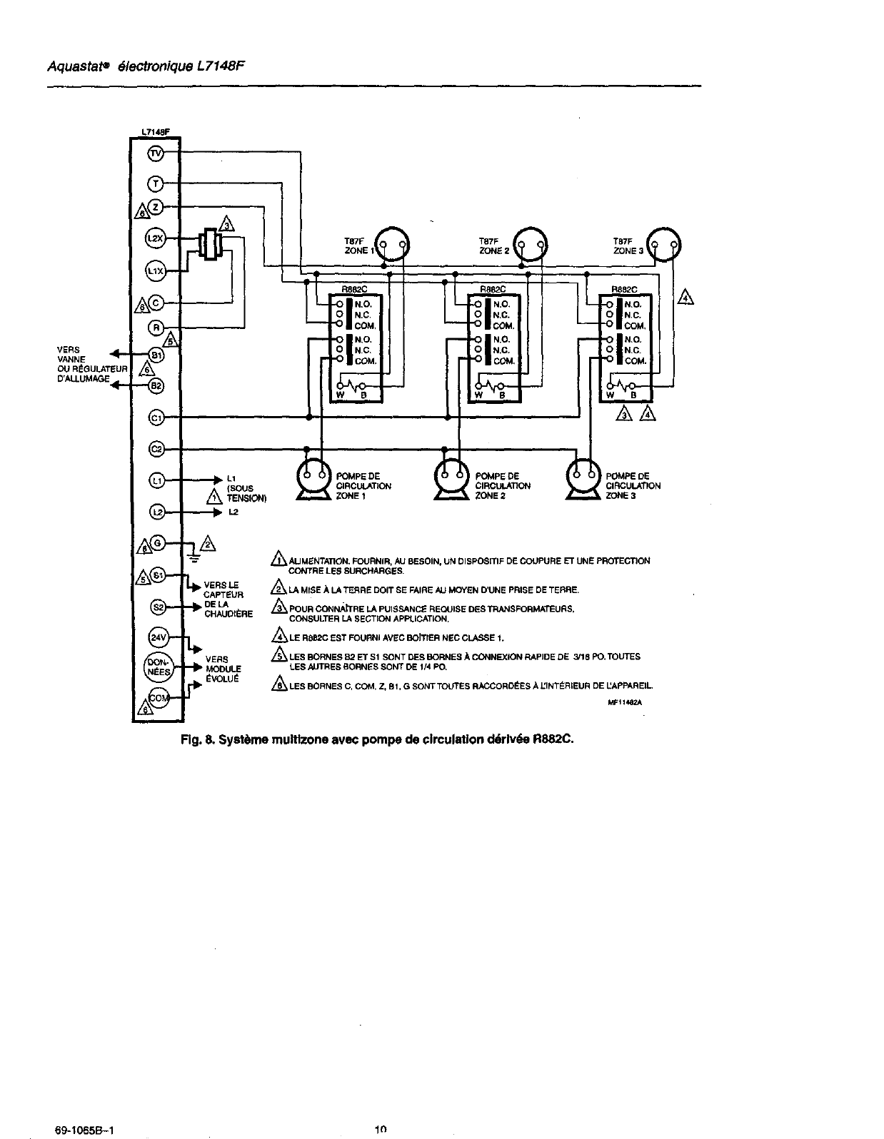
Fig. 8, Syst6me mul_zone avec pompe de circulation ddrlvde R882C.
69-I065B-1 In

Aquastate dlectronique L7148F
$V9S0IiSVgSO_;S_i9_01/SVge_
L7148F
POMPE DE
CIRCULATION
LI C2 L2
LIX
FICHE DE REOI_ri'R E
I_A_RAT1ON
OPTIONNELLf
CADRANLIMITE HAUTE
O
z T "iv
VERS MODULE
I_VOLU_
COM 24V
DU _BROLEURDE
LA VEILLLmJ_E(FARLA
C_AUSAIION
DE LAVIEI_
GOMMUN
11_ERMO_TAT - _'n EMVI_
OU INTERRUPTEUR
VERSLE CAPTEUR
DE LACP.AUDI_RE
OuLECIRCUff DE
•/_ AUMENTATION, FOURNIR,ALIBESOIN,UN DIBPOSmF DE
COUPURE ET UNE PROTECTIONCONTRELE8 SURCHARGES.
//_LA MISE ALA TIERREDOlT SE FNRE AU MOYEN _UNE
PRISE DETERRE.
ALES BORNESBI ET S1 SeNT DESBORNE$._ CONNEXIONRAPIDE
DE 3/16 PO.TOUTES LESAUTRESBORNESSeNT DE 114PO.
Z_LE8 BORNESO,7..a2, a 5ONT TOUTESRACCORDI_ES
A LtNT_RIEUR DE L'APPAREIL
//_ POURCO_E LA PUISSANCEREQUISEDESTRANSFORMATEURS,
CONSULTERLA SECTIONAPPLICATICN _.___,_
Rg. 9. Raccordement du L7148F &un syst&me de rdgulatlon SmartValveMC SV9501JSV9502/SV9601/SV9602.
FONCTIONNEMENT
Un systt)meob se trouve un Aquastat_ 61ectronique
L7148F ne requied pas de rdgulateur b.maximum distfnct.
Le L7148F pout remplacer un r_gulateur t_maximum
L4080 de Honeywa{Iat un transformataurR8285. Le
L7148F nejoue pas le r61ed'un r6gulateur_minimum. II
faut dgalement untransformateurexteme, dont la puis-
sance convient8I'applicationprdvue, uncapteur etune
gains d'immersionpour fairs fonctionner le L7148F.
Dans un systems L7148F, la pomps de circulationest en
marche d_s qua [e thermostateffectue un sppe!de
chaleur. Le br01eurast dgalement en marcha Iors d'un
appel de chaleur. & moins qua la tempdrature de reau de
la chaudi_re ne d(_passele pointde consignsdu
r_gulateur_ maximum.
UAquastat_ 61ectroniqueL7148F offre troismodes de
fonctionnement: norma_,r_g_eteur _ maximum et
r(§armement;(Le r6gulateurpasse du mode normal au
mode r_gulataur_maximum, puis Rnveme, selonles
besoins.Toutefois, le rdgulateurpasse an mode
rdarmamentsaulement en situationanormale. Iorsqu'llse
produitune erraurinterne ou que le capteur est court-
cimuit_.)
1. Normal : Le r6gulateurpasse en mode normal
Iomque la temp(_raturede la chaodi6ra diminue sous
la point de consignedu r_gulateur_ maximum,
rnoins12°C (10°F) Le rdgulateurqultte le mode
normal et revientau mode r_gulataur_maximum
Iorsque la temperature de la chaudi6re ddpassa te
pointde consignemaximal du limiteur.
2. Rdgulateur8maximum : Le rdgulateurpasse au
mode r(_gulateur8maximum Iorsquela temperature
de la chaudi_re depasse te pointde consignedu
r_gulateur_.maximum. Le r_gulateurquittele mode
r_gulateur_ maximum et revient au mode normal
Iorsque la terop_raturede la chaodi6ro revientau
point de consignedu r_gulateur8maximum moins
12°C (10_F).
3. R_armement : D_tecte les erreurs tatlasqu'un
capteur ouved et interrompt ie fonctionnement de
toutas les sorties.Le r_gulatsurcontinua de
fonctionneret se remet automatiquement en marche
si I'erreurast corrigde.
R ulateur maximum
Le r_gulateur_ maximum interromptle br01eur(sortie B1,
B2) Iorsque la temperaturede I'aau de la chaudi_re
d_passe le pointde consignsdu r_gulateur& maximum
_tant donnd las diffdrencasentre las syst_mes de
chauffage, te r_glaga correctde la temp(_raturepeut varier
d'un syst_me _ rautre Suivre las directivesdufabrioant de
la chat_re po_r obtenirte r_g_agecorrect.Fairs toumer
le cadran de r_glage du r_gul_teur& maximum jusqu'_ ce
qua le point de consignevoulu se trouvediroctement
devant la fl(_che.
11

Aquastate61ectroniqueL7148F
Ordredefonctionnement
Le signalde sortie du brOleurot de la pompe de circulation
d6pandant directement du signaldentr_e du thermostat
(mamhe/arr6t) et du mode de fonctionnement en cours
(r_gulateur&maximum/normal/r6armemant). Voir le
Tableau 2 pour connaffre I'ordre de fonctfonnament.
REMARQUE: Le Tableau 2 n'est valable que pourle
fonctionnement de rAquastat_
_lectronique sans module 6volu_, Les
modules dvolu_s offrent desfonctions
additionnellesrelies qua raffichage de
la temp6rature de la chaudi_reet la
compensation extdrieure du r6guIateur
,_maximum, Les modifications aux _tats
de sortie et aux modes de
fonctionnemant caus6es par des
caract_ristiques additionnellesne sont
pas comprises.
Tableau
Thermostat
Arr6t
Arr6t
Mamhe
Mamhe
IL'un OUl'autre
2. Ordre de fonctlonnement.
Mode de Pompe de
fonctlonnement Brnleur circulation
Normal Arr_t Arr_t
R6gulateur _Arr6t Arr_t
max.
Normal Marche Mamhs
R_gulateur EArr_t Mamhe
max.
R_rmement Arr_t Arr_t
R#GLAGES
Un potentiom6tre de r6glage manuel sad _tr6gler Is
r6gulateur_,maximum. Au point de consignemaximum de
116_C (240°F), la tol6rance d'6talonnage est de +6/-8°C
(+10/-15°F). (Respecte lesnormes ASME at UL353).
REMARQUES :
Gamma de r6glage du pointde consigna: 54°C
(130°F) _116°(3 (240°F).
Diff_rantiel: Fixe _6°C (IO°F).
VI RIRCA'IION
Effectuer la vdrificationpour s'assumr qua I'Aquastat®
_lectmnique L7148F a6td correctement install6et rdgl6.
Maitre le syst6ma en marche et v6rifier I'actionde
rappareil pendant plusieurscycles pour s'assurer qu'il
commanda la syst6me comme le d_odtla section
Fonctionnemant.
Groupe de la R_,ulation R_sidentielle et Commerdale
Honeywell Limit_e Honeywell Inc.
155 Gordon Baker Road Honeywell Plaza
North York, Ontario P.O. Box 524
M2H 3N7 Minneapolis, MN 55408-0524
69-1065B-1 _H F-,4-g9 Prin' tinH_'A
Honeywell