Hangzhou Hikvision Digital Technology KV8102 Video Intercom Indoor Station User Manual
Hangzhou Hikvision Digital Technology Co., Ltd. Video Intercom Indoor Station
User Manual

UD.6L0206D1104A01
Video Intercom
Door Station (V Series)
User Manual

Video Intercom Door Station·User Manual
i
User Manual
© 2015 Hangzhou Hikvision Digital Technology Co., Ltd.
This user manual is intended for users of the models below:
Series
Model
Door Station (V Series)
DS-KV8102-IM
DS-KV8202-IM
DS-KV8402-IM
DS-KV8102-IP
DS-KV8102-VP
It includes instructions on how to use the Product. The software embodied in the
Product is governed by the user license agreement covering that product.
About this Manual
This Manual is subject to domestic and international copyright protection. Hangzhou
Hikvision Digital Technology Co., Ltd. (“Hikvision”) reserves all rights to this manual. This
manual cannot be reproduced, changed, translated, or distributed, partially or wholly,
by any means, without the prior written permission of Hikvision.
Trademarks
and other Hikvision marks are the property of Hikvision and are
registered trademarks or the subject of applications for the same by Hikvision and/or its
affiliates. Other trademarks mentioned in this manual are the properties of their
respective owners. No right of license is given to use such trademarks without express
permission.
Disclaimer
TO THE MAXIMUM EXTENT PERMITTED BY APPLICABLE LAW, HIKVISION MAKES NO WARRANTIES,
EXPRESS OR IMPLIED, INCLUDING WITHOUT LIMITATION THE IMPLIED WARRANTIES OF
MERCHANTABILITY AND FITNESS FOR A PARTICULAR PURPOSE, REGARDING THIS MANUAL.
HIKVISION DOES NOT WARRANT, GUARANTEE, OR MAKE ANY REPRESENTATIONS REGARDING THE
USE OF THE MANUAL, OR THE CORRECTNESS, ACCURACY, OR RELIABILITY OF INFORMATION
CONTAINED HEREIN. YOUR USE OF THIS MANUAL AND ANY RELIANCE ON THIS MANUAL SHALL BE
WHOLLY AT YOUR OWN RISK AND RESPONSIBILITY.
TO THE MAXIMUM EXTENT PERMITTED BY APPLICABLE LAW, IN NO EVENT WILL HIKVISION, ITS
DIRECTORS, OFFICERS, EMPLOYEES, OR AGENTS BE LIABLE TO YOU FOR ANY SPECIAL,
CONSEQUENTIAL, INCIDENTAL, OR INDIRECT DAMAGES, INCLUDING, AMONG OTHERS, DAMAGES

Video Intercom Door Station·User Manual
ii
FOR LOSS OF BUSINESS PROFITS, BUSINESS INTERRUPTION, SECURITY BREACHES, OR LOSS OF DATA
OR DOCUMENTATION, IN CONNECTION WITH THE USE OF OR RELIANCE ON THIS MANUAL, EVEN IF
HIKVISION HAS BEEN ADVISED OF THE POSSIBILITY OF SUCH DAMAGES.
SOME JURISDICTIONS DO NOT ALLOW THE EXCLUSION OR LIMITATION OF LIABILITY OR CERTAIN
DAMAGES, SO SOME OR ALL OF THE ABOVE EXCLUSIONS OR LIMITATIONS MAY NOT APPLY TO YOU.
Support
Should you have any questions, please do not hesitate to contact your local dealer.
0103011051116

Video Intercom Door Station·User Manual
iii
Regulatory Information
FCC Information
Please take attention that changes or modification not expressly approved by the party
responsible for compliance could void the user’s authority to operate the equipment.
FCC compliance: This equipment has been tested and found to comply with the limits
for a Class B digital device, pursuant to part 15 of the FCC Rules. These limits are
designed to provide reasonable protection against harmful interference in a residential
installation. This equipment generates, uses and can radiate radio frequency energy and,
if not installed and used in accordance with the instructions, may cause harmful
interference to radio communications. However, there is no guarantee that interference
will not occur in a particular installation. If this equipment does cause harmful
interference to radio or television reception, which can be determined by turning the
equipment off and on, the user is encouraged to try to correct the interference by one
or more of the following measures:
—Reorient or relocate the receiving antenna.
—Increase the separation between the equipment and receiver.
—Connect the equipment into an outlet on a circuit different from that to which the
receiver is connected.
—Consult the dealer or an experienced radio/TV technician for help.
This equipment should be installed and operated with a minimum distance 20cm
between the radiator and your body.
FCC Conditions
This device complies with part 15 of the FCC Rules. Operation is subject to the following
two conditions:
1. This device may not cause harmful interference.
2. This device must accept any interference received, including interference that may
cause undesired operation.
EU Conformity Statement
This product and - if applicable - the supplied accessories too are
marked with "CE" and comply therefore with the applicable
harmonized European standards listed under the R&TTE Directive
1999/5/EC, the EMC Directive 2004/108/EC, the RoHS Directive
2011/65/EU.
2012/19/EU (WEEE directive): Products marked with this symbol
cannot be disposed of as unsorted municipal waste in the European
Union. For proper recycling, return this product to your local supplier
upon the purchase of equivalent new equipment, or dispose of it at
designated collection points. For more information see:
www.recyclethis.info

Video Intercom Door Station·User Manual
iv
2006/66/EC (battery directive): This product contains a battery that
cannot be disposed of as unsorted municipal waste in the European
Union. See the product documentation for specific battery information.
The battery is marked with this symbol, which may include lettering to
indicate cadmium (Cd), lead (Pb), or mercury (Hg). For proper recycling,
return the battery to your supplier or to a designated collection point.
For more information see: www.recyclethis.info
Industry Canada ICES-003 Compliance
This device meets the CAN ICES-3 (B)/NMB-3(B) standards requirements.
This device complies with Industry Canada licence-exempt RSS standard(s). Operation is
subject to the following two conditions:
(1) this device may not cause interference, and
(2) this device must accept any interference, including interference that may cause
undesired operation of the device.
Le présent appareil est conforme aux CNR d'Industrie Canada applicables aux appareils
radioexempts de licence. L'exploitation est autorisée aux deux conditions suivantes :
(1) l'appareil ne doit pas produire de brouillage, et
(2) l'utilisateur de l'appareil doit accepter tout brouillage radioélectrique subi, même si
le brouillage est susceptible d'en compromettre le fonctionnement.
Under Industry Canada regulations, this radio transmitter may only operate using an
antenna of a type and maximum (or lesser) gain approved for the transmitter by
Industry Canada. To reduce potential radio interference to other users, the antenna type
and its gain should be so chosen that the equivalent isotropically radiated power (e.i.r.p.)
is not more than that necessary for successful communication.
Conformément à la réglementation d'Industrie Canada, le présent émetteur radio peut
fonctionner avec une antenne d'un type et d'un gain maximal (ou inférieur) approuvé
pour l'émetteur par Industrie Canada. Dans le but de réduire les risques de brouillage
radioélectrique à l'intention des autres utilisateurs, il faut choisir le type d'antenne et
son gain de sorte que la puissance isotrope rayonnée équivalente (p.i.r.e.) ne dépasse
pas l'intensité nécessaire à l'établissement d'une communication satisfaisante.

Video Intercom Door Station·User Manual
v
Safety Instruction
These instructions are intended to ensure that user can use the product correctly to
avoid danger or property loss.
The precaution measure is divided into Warnings and Cautions:
Warnings: Neglecting any of the warnings may cause serious injury or death.
Cautions: Neglecting any of the cautions may cause injury or equipment damage.
Warnings
All the electronic operation should be strictly compliance with the electrical safety
regulations, fire prevention regulations and other related regulations in your local
region.
Please use the power adapter, which is provided by normal company. The power
consumption cannot be less than the required value.
Do not connect several devices to one power adapter as adapter overload may cause
over-heat or fire hazard.
Please make sure that the power has been disconnected before you wire, install or
dismantle the device.
When the product is installed on wall or ceiling, the device shall be firmly fixed.
If smoke, odors or noise rise from the device, turn off the power at once and unplug
the power cable, and then please contact the service center.
If the product does not work properly, please contact your dealer or the nearest
service center. Never attempt to disassemble the device yourself. (We shall not
assume any responsibility for problems caused by unauthorized repair or
maintenance.)
Cautions
Do not drop the device or subject it to physical shock, and do not expose it to high
electromagnetism radiation. Avoid the equipment installation on vibrations surface or
places subject to shock (ignorance can cause equipment damage).
Do not place the device in extremely hot (refer to the specification of the device for
the detailed operating temperature), cold, dusty or damp locations, and do not
expose it to high electromagnetic radiation.
The device cover for indoor use shall be kept from rain and moisture.
Warnings Follow
these safeguards to
prevent serious
injury or death.
Cautions Follow these
precautions to prevent
potential injury or
material damage.

Video Intercom Door Station·User Manual
vi
Exposing the equipment to direct sun light, low ventilation or heat source such as
heater or radiator is forbidden (ignorance can cause fire danger).
Do not aim the device at the sun or extra bright places. A blooming or smear may
occur otherwise (which is not a malfunction however), and affecting the endurance of
sensor at the same time.
Please use the provided glove when open up the device cover, avoid direct contact
with the device cover, because the acidic sweat of the fingers may erode the surface
coating of the device cover.
Please use a soft and dry cloth when clean inside and outside surfaces of the device
cover, do not use alkaline detergents.
Please keep all wrappers after unpack them for future use. In case of any failure
occurred, you need to return the device to the factory with the original wrapper.
Transportation without the original wrapper may result in damage on the device and
lead to additional costs.
Improper use or replacement of the battery may result in hazard of explosion.
Replace with the same or equivalent type only. Dispose of used batteries according to
the instructions provided by the battery manufacturer.

Video Intercom Door Station·User Manual
vii
Table of Contents
1 Overview ...................................................................................................... 1
1.1 Introduction ............................................................................................................. 1
1.2 Main Features .......................................................................................................... 1
2 Appearance .................................................................................................. 2
2.1 Appearance of DS-KV8X02-IM ................................................................................. 2
2.2 Appearance of DS-KV8102-XP ................................................................................. 3
3 Typical Application ....................................................................................... 4
3.1 Typical Application of DS-KV8X02-IM ...................................................................... 4
3.2 Typical Application of DS-KV8102-XP ....................................................................... 4
4 Terminals and Interfaces of Wiring ............................................................... 7
5 Installation and Wiring ................................................................................. 8
5.1 Installation of DS-KV8X02-IM .................................................................................. 8
5.1.1 Gang Box for DS-KV8X02-IM ............................................................................. 8
5.1.2 Wall Mounting with Gang Box of DS-KV8X02-IM .............................................. 9
5.2 Installation of DS-KV8102-XP ................................................................................. 10
5.2.1 Installation Plate for DS-KV8102-XP ................................................................ 10
5.2.2 Wall Mounting with Gang Box of DS-KV8102-XP ............................................ 11
5.3 Wiring Description ................................................................................................. 13
5.3.1 Door Lock Wiring ............................................................................................. 13
5.3.2 Door Magnetic Wiring ..................................................................................... 14
5.3.3 Exit Button Wiring ........................................................................................... 14
5.3.4 Alarm Device Input Wiring .............................................................................. 15
6 Before You Start ......................................................................................... 16
7 Video Intercom Device Set-up Tool ............................................................. 17
7.1 Setting a Community Structure ............................................................................. 17
7.1.1 Setting Project ................................................................................................. 17
7.1.2 Setting Community ......................................................................................... 18
7.1.3 Setting Building ............................................................................................... 19
7.1.4 Setting Floor .................................................................................................... 19
7.1.5 Setting Room ................................................................................................... 20
7.2 Activating and Setting Main Door Station .............................................................. 21
7.3 Activating and Setting Sub Door Station ................................................................ 22
8 Batch Configuration Tool ............................................................................ 25
8.1 Activating Device Remotely ................................................................................... 25
8.2 Editing Network Parameters .................................................................................. 26
8.3 Adding Device ........................................................................................................ 27
8.3.1 Adding Online Devices .................................................................................... 27

Video Intercom Door Station·User Manual
viii
8.3.2 Adding by IP Address or IP Segment. .............................................................. 28
8.4 Remote Configuration ........................................................................................... 29
8.4.1 System ............................................................................................................. 29
8.4.2 Video Intercom ................................................................................................ 36
8.4.3 Network .......................................................................................................... 40
8.4.4 Video Display ................................................................................................... 42
9 Setting the Door Station via iVMS-4200 ..................................................... 44
9.1 System Configuration ............................................................................................. 44
9.2 Device Management .............................................................................................. 44
9.3 Live View of Device ................................................................................................ 45
9.4 Picture Storage on Storage Server ......................................................................... 46
9.4.1 Adding Storage Server ..................................................................................... 46
9.4.2 Formatting the HDDs ....................................................................................... 47
9.4.3 Configuring Storage Server Picture Storage .................................................... 48
9.5 Group Management .............................................................................................. 49
9.5.1 Adding Group .................................................................................................. 50
9.5.2 Assigning Device to Group .............................................................................. 51
9.5.3 Modifying Device Information ........................................................................ 52
9.5.4 Deleting Device ............................................................................................... 52
9.6 Card Management ................................................................................................. 53
9.6.1 Unauthorized Card Management .................................................................... 53
9.6.2 Normal Card Management .............................................................................. 59
9.7 Notice Management .............................................................................................. 60
9.7.1 Querying Unlocking Log .................................................................................. 60
9.8 Device Arming Control ........................................................................................... 60
10 Local Operation ........................................................................................ 62
10.1 Calling Resident ................................................................................................... 62
10.1.1 Calling Resident (DS-KV8X02-IM) .................................................................. 62
10.1.2 Calling Resident (DS-KV8102-XP) .................................................................. 63
10.2 Issuing Card ......................................................................................................... 64
10.3 Unlocking Door .................................................................................................... 64
Appendix ...................................................................................................... 66
Installation Notice ....................................................................................................... 66
Wiring Cables ............................................................................................................... 66
Specification ................................................................................................................ 66

Video Intercom Door Station·User Manual
1
1 Overview
1.1 Introduction
The door station (V series) can realize functions such as video intercom, access control,
one-card system, zone alarm, and visitor messages to form a complete smart community
video intercom solution.
The door station (V series) is mainly applied in the villa, and can works as door station,
outer door station, and doorphone.
1.2 Main Features
Video intercom function
HD video surveillance (Max. resolution 1280×720@25fps, WDR, 120° wide angle)
Self-adaptive light supplement
Access control function
Activating card via local station function (This function will be invalid if the card has
been activated via iVMS-4200)
Auto-uploading captured pictures to FTP or iVMS-4200 Client while unlocking the
door
Door magnetic alarm and tamper alarm function
Noise suppression and echo cancellation
Remote upgrade, batch setting functions

Video Intercom Door Station·User Manual
2
2 Appearance
2.1 Appearance of DS-KV8X02-IM
For device DS-KV8X02- IM, the number of calling buttons varies according to its model.
Take the figure of device DS-KV8402-IM as an example.
For device DS-KV8102-IM, there is only 1 calling button.
For device DS-KV8202-IM, there are 2 calling buttons.
For device DS-KV8402-IM, there are 4 calling buttons.
8
Figure 2-1 Appearance of DS-KV8402-IM
Table 2-1 Description of DS-KV8X02-IM
Models
No.
Description
DS-KV8102-IM
DS-KV8202-IM
DS-KV8402-IM
1
Low Illumination Supplement
Light
2
Built-in Camera
3
Card Induction Area
4
Calling Button
5
Loudspeaker
6
Room No. (Customized)

Video Intercom Door Station·User Manual
3
Models
No.
Description
7
Microphone
8
Tamper Button
You need not customize the Room No. for device DS-KV8102-IM.
2.2 Appearance of DS-KV8102-XP
1
2
3
4
5
Figure 2-2 Appearance of DS-KV8102-XP
Table 2-2 Description of DS-KV8102-XP
Models
No.
Description
DS-KV8102-IP
DS-KV8102-VP
1
Microphone
2
Low Illumination Supplement
Light
3
Built-in Camera
4
Card Induction Area
5
Calling Button
6
Tamper Button
7
Loudspeaker

Video Intercom Door Station·User Manual
4
3 Typical Application
3.1 Typical Application of DS-KV8X02-IM
Please refer to the following figure for typical application of DS-KV8102-IM/
DS-KV8202-IM/ DS-KV8402-IM door station.
Center Master Station
(Master Station)
Master Station
in Guard's Room
Switch
Client Software
Network Cable
Optical Fiber
Door Station
Resident 2 Resident 1
Resident 2 Resident 1
Indoor Station
IPC
Video/Audio
Distributor
Outer Door Station
Estate LAN
Switch
Indoor
Extension 1
Indoor
Extension 2
One Resident
Figure 3-1 Typical Application
DS-KV8102-IM door station can also work as doorphone both in a villa or an apartment.
Please refer to the typical application (2) and the typical application (3) in 3.2.
3.2 Typical Application of DS-KV8102-XP
Please refer to the following figures for typical applications of DS-KV8102-IP/
DS-KV8102-VP door station.

Video Intercom Door Station·User Manual
5
DS-KV8102-IP/ DS-KV8102-VP door station can also work as doorphone both in a villa or
an apartment. Please refer to the typical application (2) and the typical application (3).
Switch
Client Software
Network Cable
Optical Fiber
Door Station
Resident 1
Indoor Station
IPC
Video/Audio
Distributor
Outer Door Station
Estate LAN
Switch
Indoor
Extension 1
Indoor
Extension 2
One Resident
Center Master Station
(Master Station)
Master Station
in Guard's Room
Figure 3-2 Typical Application (1)
Switch
Client Software
Network Cable
Optical Fiber
Door Station
IPC
Video/Audio
Distributor
Outer Door Station
Estate LAN
Switch
Indoor
Extension 1
Indoor
Extension 2
One Resident
Resident 2
Resident 2
Indoor Stations Doorphones
Resident 1
Resident 1
Indoor Stations
Doorphones
Center Master Station
(Master Station)
Master Station
in Guard's Room
Figure 3-3 Typical Application (2)

Video Intercom Door Station·User Manual
6
In typical applicatin (2), DS-KV8102-IP/ DS-KV8102-VP door station and DS-KV8102-IM
door station work as doorphone in a villa.
Switch
Client Software
Network Cable
Optical Fiber
Door Station
Building
IPC
Outer Door Station
Switch
Indoor
Extension 1
Indoor
Extension 2
One Resident
Video/Audio
Distributor
Resident 2 Resident 1
Resident 2 Resident 1
Resident 2 Resident 1
Resident 2 Resident 1
Estate LAN
Video/Audio
Distributor
Center Master Station
(Master Station)
Master Station
in Guard's Room
Figure 3-4 Typical Application (3)
In typical applicatin (3), DS-KV8102-IP/ DS-KV8102-VP door station and DS-KV8102-IM
door station work as doorphone in an apartment.

Video Intercom Door Station·User Manual
7
4 Terminals and Interfaces of Wiring
Please refer to the following figure for terminals and interfaces of door station.
①-⑤
⑥-⑦
⑧-⑨
⑩-⑫ ⑬
Figure 4-1 Terminals and Interfaces
Table 4-1 Descriptions of Terminals and Interfaces
Terminals and Interfaces
Name
No.
Color
Description
ALARM IN
1
YELLOW/BLUE
ALARM_1
2
YELLOW/ORANGE
ALARM_2
3
YELLOW/GREEN
ALARM_3
4
YELLOW/BROWN
ALARM_4
5
YELLOW/BLACK
ALARM_GND
Power Supply
6
RED
12V DC Power Supply Input
GND
7
BLACK
Grounding
RS485
8
ORANGE
RS485+
9
YELLOW
RS485-
ALARM OUT
10
PINK
DR_NC
11
BLUE
DR_NO
12
BROWN
DR_COM
LAN
13
LAN
Network Interface
4 I/O Input terminals (ALARM_1~ALARM_4) can be set as door magnetic input or
door switch key input, and terminal ALARM_GND is for grounding connection.
1 I/O Output terminal can be enabled for controlling electric lock or disabled.

Video Intercom Door Station·User Manual
8
5 Installation and Wiring
5.1 Installation of DS-KV8X02-IM
To install the door station onto the wall, you are required to utilize a matched gang box.
5.1.1 Gang Box for DS-KV8X02-IM
Please refer to the following figures for the dimensions of gang box for DS-KV8102-IM/
DS-KV8202-IM/ DS-KV8402-IM door station.
89
168
49
54
97
50
45
100
73.92
Figure 5-1 Front View & Rear View (DS-KV8X02-IM)
The dimension of gang box for model DS-KV8102-IM/ DS-KV8202-IM/ DS-KV8402-IM
door station is: 89 (width) × 168 (length) ×38 (depth) mm.
The dimensions above are theoretical. The actual size can be slightly different from
the theoretical dimension.

Video Intercom Door Station·User Manual
9
5.1.2 Wall Mounting with Gang Box of DS-KV8X02-IM
Steps:
1. Take the gang box and screws from the packing box.
2. Chisel a hole in the wall for inserting the gang box. The size of the hole should be 90
(width) ×170 (length) × 38(depth) mm.
3. Insert the gang box into the hole and fix it with 4 PA4 screws, as shown in the figure
below.
PA4 Screws
Figure 5-2 Insert the Gang Box (DS-KV8X02-IM)
4. After fixing the gang box, install the door station into the gang box according to the
direction of the arrow, as shown in the figure below.
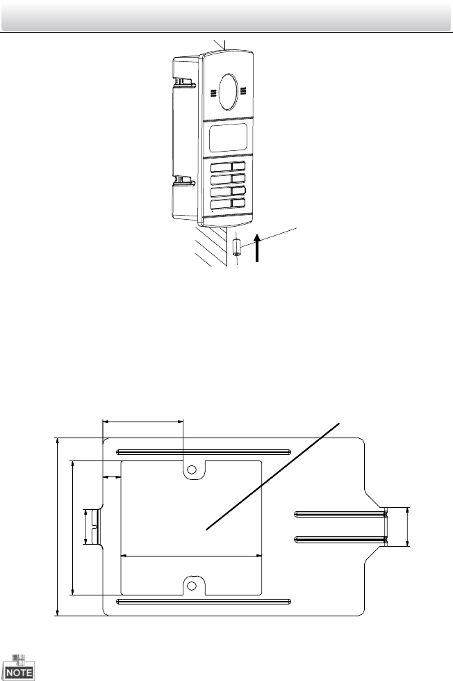
Figure 5-3 Insert the Door Station (DS-KV8X02-IM)
5. After inserting the door station into the gang box, pull the device downwards to hook
the door station with the gang box.
6. Secure the door station by inserting the fixing screw according to the direction of the
arrow of the figure below.

Video Intercom Door Station·User Manual
10
M4 Screw
Figure 5-4 Secure the Door Station (DS-KV8X02-IM)
5.2 Installation of DS-KV8102-XP
5.2.1 Installation Plate for DS-KV8102-XP
To install the DS-KV8102-XP model onto the wall, an installation plate and a gang box are
required.
20
69
18
41.48
9.3
72.7
Hollow Area
91.6
Figure 5-5 Dimensions of Installation Plate (DS-KV8102-XP)

Video Intercom Door Station·User Manual
11
The dimension of gang box for model DS-KV8102-IP/ DS-KV8102-VP door station is: 75
(width) × 75 (length) × 50 (depth) mm.
The dimensions above are theoretical. The actual size can be slightly different from
the theoretical dimension.
5.2.2 Wall Mounting with Gang Box of DS-KV8102-XP
Steps:
1. Take the gang box, installation plate and screws from the packing box.
2. Chisel a hole in the wall for inserting the gang box. The size of the hole should be 76
(width) × 76 (length) × 50 (depth) mm.
3. Insert the gang box into the hole, as shown in the figure below.
Figure 5-6 Insert the Gang Box (DS-KV8102-XP)
4. Attach the installation plate to the gang box and align the screw holes of the
installation plate with the screw holes of the gang box.
5. Insert 2 PA4 screws and a KA4 screw into the screw holes to fix the installation plate
onto the gang box. (The KA4 screw is optional.)
PA4 Screws
KA4 Screw
Figure 5-7 Attach the Installation Plate (DS-KV8102-XP)

Video Intercom Door Station·User Manual
12
6. After installing the installation plate, install the door station by inserting the rear
component into the hollow area of the installation plate.
While inserting the door station into the installation plate, incline the device by 5~10°,
as shown in the figure below.
Hollow Area
Rear Component
Figure 5-8 Install the Door Station (DS-KV8102-XP)
7. Secure the door station by inserting the fixing screw according to the direction of the
arrow of the figure below.
KM3 Screw
Figure 5-9 Secure the Door Station (DS-KV8102-XP)

Video Intercom Door Station·User Manual
13
5.3 Wiring Description
5.3.1 Door Lock Wiring
Figure 5-10 Door Lock Wiring
Terminal DR_NC/DR_COM is set as default for connecting magnetic lock/electric bolt;
terminal DR_NO/DR_COM is set as default for connecting electric strike.
To connect electric lock, it is required to set the output of terminal
DR_NC/DR_COM/DR_NO to be electric lock with Batch Configuration Tool or
iVMS-4200 client software.

Video Intercom Door Station·User Manual
14
5.3.2 Door Magnetic Wiring
Figure 5-11 Door Magnetic Wiring
To connect door magnetic, it is required to set the input of one alarm in terminal
(ALARM_1, ALARM_2, ALARM_3, or ALARM_4) to be door magnetic with Batch
Configuration Tool or iVMS-4200 client software.
5.3.3 Exit Button Wiring
Figure 5-12 Exit Button Wiring

Video Intercom Door Station·User Manual
15
To connect exit button, it is required to set the input of one alarm in terminal (ALARM_1,
ALARM_2, ALARM_3, or ALARM_4) to be exit button with Batch Configuration Tool or
iVMS-4200 client software.
5.3.4 Alarm Device Input Wiring
Figure 5-13 Alarm Device Input Wiring
To connect other alarm devices, it is required to set the input of one alarm in terminal
(ALARM_1, ALARM_2, ALARM_3, or ALARM_4) to be custom with Batch Configuration
Tool or iVMS-4200 client software.

Video Intercom Door Station·User Manual
16
6 Before You Start
For the first time use of the device, you are required to activate the device. You can
activate the device and set the device password via internet with Batch Configuration
Tool, or with iVMS-4200 client software, or with Video Intercom Set-up Tool.
To activate the device with Video Intercom Device Set-up Tool, refer
to Chapter 7.
To activate the device with Batch Configuration Tool or iVMS-4200,
refer to Chapter 8 and Chapter 9.
Please refer to 8.1 for creating the device password.

Video Intercom Door Station·User Manual
17
7 Video Intercom Device Set-up Tool
Purpose:
You can assign the device to the community, active and set the device by using the video
intercom device set-up tool.
7.1 Setting a Community Structure
Purpose:
You can set a community structure, based on the real community situation, on the video
intercom device set-up tool, and then assign devices to the community accordingly.
The concept Project, be self-defined in every individual application, is used to describe a
collection of communities. A project can involve multi communities. While if there is
only 1 community in a project, the default project No. is 1.
7.1.1 Setting Project
Steps:
1. Run the software to enter the main interface of video intercom device set-up tool.
Figure 7-1 Main Interface of Device Set-up Tool
2. Select Project from the drop-down list and enter a number in the textbox to set the
amount of project.

Video Intercom Door Station·User Manual
18
Figure 7-2 Project Settings
3. Click the Apply button to enable the settings.
The default amount of project is 1 if the amount is not set in the textbox.
7.1.2 Setting Community
Steps:
1. Check the checkbox of a certain project from the community structure.
2. Select Community from the drop-down list and enter a number in the textbox to set
the amount of community.
Figure 7-3 Community Settings
3. Click the Apply button to enable the settings.

Video Intercom Door Station·User Manual
19
If you check the checkbox of All, then all projects in the community structure will be
selected, and will be added the same amount of community.
7.1.3 Setting Building
Steps:
1. Check the checkbox of a certain community from the community structure.
2. Select Building from the drop-down list and enter a number in the textbox to set the
amount of building.
Figure 7-4 Building Settings
3. Click the Apply button to enable the settings.
If you check the checkbox of All, then all communities in the community structure will
be added the same amount of building.
If you check the checkbox of a certain project, then all communities in the selected
project will be added the same amount of building.
7.1.4 Setting Floor
Steps:
1. Check the checkbox of a certain building from the community structure.
2. Select Floor from the drop-down list and enter a number in the textbox to set the
amount of floor.

Video Intercom Door Station·User Manual
20
Figure 7-5 Floor Settings
3. Click the Apply button to enable the settings.
If you check the checkbox of All, then all buildings in the community structure will be
added the same amount of floor.
If you check the checkbox of a certain project, then all buildings in the selected
project will be added the same amount of floor.
If you check the checkbox of a certain community, then all buildings in the selected
community will be added the same amount of floor.
7.1.5 Setting Room
Steps:
1. Check the checkbox of a certain floor from the community structure.
2. Select Room from the drop-down list and enter a number in the textbox to set the
amount of room
Figure 7-6 Room Settings

Video Intercom Door Station·User Manual
21
3. Click the Apply button to enable the settings.
If you check the checkbox of All, then all floors in the community structure will be
selected, and will be added the same amount of room.
If you check the checkbox of a certain project, then all floors in the selected project
will be added the same amount of floor.
If you check the checkbox of a certain community, then all floors in the selected
community will be added the same amount of floor.
If you check the checkbox of a certain building, then all floors in the selected building
will be added the same amount of floor.
7.2 Activating and Setting Main Door Station
Purpose:
You can activate the online main door station, and configure the building number of
online main door station.
Before You Start:
Press the Main Door Station tab to switch to the main door station settings.
Steps:
1. Select the community to configure the building numnber for the main door station.
Figure 7-7 Selecting Community
2. Enter the main door station start IP address.
3. Click the Calculate button to generate the main door station end IP address
automatically.

Video Intercom Door Station·User Manual
22
4. Set the main door station floor No..
5. Enter the SIP IP address, master station IP address, center IP address, center port No.,
subnet mask, and gateway address.
6. Click the Refresh button to view the online indoor station of the same segment.
7. Select a door station and enter the login password.
8. Click the Set button to accomplish the settings of main door station.
Figure 7-8 Main Door Station Settings Interface
The default main door station floor No. is 1.
You can select one project or multiple projects; one community or multiple
communities; one building or multiple buildings.
The Main Door Station IP Address is usually set to be the same as Start IP Address of
main door station.
If the main door station is not activated, create a login password and enter it in the
textbox to activate the device.
If the main door station is not activated, the device is configured and activated
simultaneously by clicking the Set button.
When the device is successfully configured, it prompts the note: Configuring main
door station parameters succeeded.
7.3 Activating and Setting Sub Door Station
Purpose:

Video Intercom Door Station·User Manual
23
You can activate the online sub door station, and configure the number of online sub
door station.
Before You Start:
Press the Sub Door Station tab to switch to the sub door station settings.
Steps:
1. Select the community to configure the numnber for the sub door station.
Figure 7-9 Selecting Community
2. Set the sub door station floor No..
3. Set the sub door station amount.
4. Enter the sub door station start IP address.
5. Click the Calculate button to generate the sub door station end IP address
automatically according to the sub door station amount.
6. Enter the main door station IP address, SIP IP address, master station IP address,
center IP address, center port No., subnet mask, and gateway address.
7. Click the Refresh button to view the online indoor station of the same segment.
8. Select a door station and enter the login password.
9. Click the Set button to accomplish the settings of sub door station.

Video Intercom Door Station·User Manual
24
Figure 7-10 Sub Door Station Settings Interface
The default sub door station floor No. is 1.
The sub door station amount should be no higher than 8.
You can select one project or multiple projects; one community or multiple
communities; one building or multiple buildings.
The Sub Door Station IP Address is usually set to be the same as Start IP Address of
sub door station.
If the sub door station is not activated, create a login password and enter it in the
textbox to activate the device.
If the sub door station is not activated, the device is configured and activated
simultaneously by clicking the Set button.
When the device is successfully configured, it prompts the note: Configuring sub door
station parameters succeeded.

Video Intercom Door Station·User Manual
25
8 Batch Configuration Tool
8.1 Activating Device Remotely
Purpose:
The device cannot be operated until it is activated. You can remotely activate the device
via Batch Configuration Tool or via iVMS-4200 client. Here take the Batch Configuration
Tool as example, and for further information, please refer to the user manual in the disk.
Steps:
1. Run the software, and select the inactivated device from the online devices and click
the Activate button.
Figure 8-1 Activating Device
2. Create a password, and enter the password into the password field.
STRONG PASSWORD RECOMMENDED– We highly recommend you create a
strong password of your own choosing (Using a minimum of 8
characters, including at least three of the following categories:
upper case letters, lower case letters, numbers, and special
characters.) in order to increase the security of your product. And we
recommend you reset your password regularly, especially in the high security
system, resetting the password monthly or weekly can better protect your
product.
3. Confirm the password.
4. Click the OK button to activate the device.

Video Intercom Door Station·User Manual
26
When the device is not activated, the basic operation and remote operation of device
cannot be performed.
8.2 Editing Network Parameters
Purpose:
You can edit the network parameters of online devices.
Steps:
1. Select an online device in the online devices list in the lower part of the batch
configuration software interface.
2. Click the Edit NET Parameters button.
Figure 8-2 Edit NET Parameters
3. Enter a new IP address, subnet mask, gateway address, port No. and the password.
4. Click the OK button to accomplish the editing.
Figure 8-3 Edit Network Parameters
The default port No. is 8000.
After editing the network parameters of device, you should add the devices to the
device list again.
When you edit network parameters remotely, the device should be in the same
network segment.

Video Intercom Door Station·User Manual
27
8.3 Adding Device
The software provides 3 ways for adding the door station (V series). You can add the
active online devices within your subnet, add devices by IP address, and add devices by
IP segment.
8.3.1 Adding Online Devices
Steps:
1. Run the software to enter the main interface of video intercom batch configuration
tool software.
Figure 8-4 Main Interface of Batch Configuration Software
2. Select an online device or hold the Ctrl or Shift key to select multiple devices in the
online devices list in the lower part of the batch configuration software interface.
Figure 8-5 Online Devices Interface
3. Click the button to pop up the login dialog box.

Video Intercom Door Station·User Manual
28
Figure 8-6 Login Dialog Box
4. Enter the user name and password.
5. Click the OK button to save the settings.
Only the devices that are successfully logged in will be added to the device list for
configuration.
8.3.2 Adding by IP Address or IP Segment.
Click the button to pop up the adding devices dialog box.
Figure 8-7 Adding Button
Adding by IP Address
Purpose:
You can add the device by entering IP address.
Steps:
1. Select IP Address in the adding mode drop-down list.
2. Enter the IP address, and set the port No., user name and password of the device.
Figure 8-8 Adding by IP Address
3. Click the OK button to add the device to the device list.

Video Intercom Door Station·User Manual
29
Adding by IP Segment
Purpose:
You can add many devices at once whose IP addresses are among the IP segment.
Steps:
1. Select IP Segment in the adding mode drop-down list.
2. Set the Start IP Address and End IP Address.
3. Enter port No., user name, and password.
Figure 8-9 Adding by IP Segment
4. Click the OK button to search and add the devices whose IP addresses are within the
range of the defined IP segment to the device list.
8.4 Remote Configuration
In the device list area, select a device and click or to enter
the remote configuration interface.
Figure 8-10 Remote Configuration
8.4.1 System
Click the System button on the remote configuration interface to display the device
information: Device Information, General, Time, System Maintenance, User, and
RS485.

Video Intercom Door Station·User Manual
30
Device Information
Click the Device Information button to enter device basic information interface. You can
view basic information (the device type, and serial No.), and version information of the
device.
Figure 8-11 Device Information Interface
General
Click the General button to enter device general parameters settings interface. You can
view and edit the device name and device ID.
Figure 8-12 Device General Parameters Settings Interface
Time
Steps:
1. Click the Time button to enter the device time settings interface.
Figure 8-13 Time Settings Interface
2. Select Time Zone or Enable NTP.
Time Zone
1) Select a time zone from the drop-down list menu.
2) Click the Synchronization button.
NTP

Video Intercom Door Station·User Manual
31
1) Check the checkbox of Enable NTP to enable NTP.
2) Enter the server address, NTP port, and synchronization interval.
3. Click the Apply button to save and realize the time settings.
The default Port No. is 123.
System Maintenance
Purpose:
You can operate the system management and remote upgrading on the system
maintenance interface.
Steps:
1. Click the System Maintenance button to enter the system maintenance interface.
Figure 8-14 System Maintenance Interface
2. Select System Management or Remote Upgrade.
System Management
• Reboot
1) Click the Reboot button to pop up the reboot dialog box.

Video Intercom Door Station·User Manual
32
Figure 8-15 Reboot
2) Click the Yes button to reboot the system.
• Restore Default Settings
1) Click the Restore Default Settings button to pop up the restore default
settings dialog box.
Figure 8-16 Restore Default Settings
2) Click the Yes button to restore the default parameters.
• Restore All
1) Click the Restore All button to pop up the restore all settings dialog box.
Figure 8-17 Restore All Settings
2) Click the Yes button to restore all parameters of device and reset the device to
inactive status.
• Import Configuration File
1) Click the Import Configuration File button to pop up the import file window.

Video Intercom Door Station·User Manual
33
Figure 8-18 Import Configuration File Window
2) Select the path of remote configuration files.
3) Click the Open button to import the remote configuration file and pop up a
reboot information dialogue box.
Figure 8-19 Reboot Information
• Export Configuration File
1) Click the Export Configuration File button to pop up the export file window.
Figure 8-20 Export Configuration File Window
2) Select the save path of remote configuration files.

Video Intercom Door Station·User Manual
34
3) Click the Save button to export the configuration file, and pop up an
information box for exporting.
Figure 8-21 Information Box for Exporting
Remote Upgrade
• Reboot
1) Click the button to pop up the window for opening upgrade file.
Figure 8-22 Window for Opening Upgrade File
2) Select the upgrade file, and click the Open button.
3) Click the Upgrade button to remotely upgrade the device.
Figure 8-23 Remote Upgrade
User
Purpose:
You can edit the password to log in the device.
Steps:
1. Click the User button to enter the user information editing interface

Video Intercom Door Station·User Manual
35
Figure 8-24 User Information Editing Interface
2. Select the user to edit and click the Modify button to enter the user parameter
interface.
Figure 8-25 User Parameter Interface
3. Enter the new password, and confirm it.
4. Click the Apply button to realize the editing of password.
The new password and confirm password should be identical.
After editing the password of device, click button from the device list, the added
device will not be there. You should add the device again with new password to
operate the remote configuration.
RS485
Click the RS485 button to enter the RS485 settings interface. You can view and edit the
RS485 parameters of the device.

Video Intercom Door Station·User Manual
36
Figure 8-26 RS485 Parameters
RS485 configuration is reserved in this version.
8.4.2 Video Intercom
Device Number Configuration
Steps:
1. Click the Device Information button to enter device number configuration interface.
Door Station
1) Select door station from the drop-down list of the device type
Figure 8-27 Device Number Configuration (V Series Door Station)
2) Enter the project No., community No., building No., floor No., and serial No.
3) Select Yes or No from the drop-down list menu of auto login.
Doorphone
1) Select doorphone from the drop-down list of the device type.

Video Intercom Door Station·User Manual
37
Figure 8-28 Device Number Configuration (Doorphone)
2) Select Yes or No from the drop-down list menu of auto login.
1. Click the Apply button to enable the device number configuration.
For V series door station, the default serial No. is 0. When the serial No. is 0, the
device is main door station, and when the serial No. is larger than 0, the device is sub
door station. The serial No. is numeric from 1 to 99.
For each main door station, at most 8 sub door stations can be installed.
For doorphone, the serial No. is not necessary to be configured. Please use the
doorphone along with the main door station (V series or D series).
The models DS-KV8102-IP, DS-KV8102-VP and DS-KV8102-IM are supported for using
as doorphone and door station (V Series). The models DS-KV8202-IM, DS-KV8402-IM
are supported for using only as door station (V Series).
Time Parameters
1. Click the Time Parameters button to enter time parameters settings interface.
Figure 8-29 Time Parameters Settings Interface
2. Set the maximum speaking time and the maximum message time.
3. Click the Apply button to enable the time parameters settings.
Maximum speaking time cannot exceed 120s; and maximum visitor message time
cannot exceed 60s.

Video Intercom Door Station·User Manual
38
Access Control and Elevator
1. Click the Access Control and Elevator button to enter password changing interface.
Figure 8-30 Access Control and Elevator Settings Interface
2. Set corresponding parameters on the access control and elevator settings interface.
Access Control
1) Select the door No..
2) Set the door-unlocked duration.
3) Click the Apply button to enable the settings.
Elevator Control
1) Select the elevator No., interface, RS485 protocol.
2) Select Yes/No of the elevator linkage.
3) Enter the server IP address and server port No..
4) Click the Apply button to enable the settings.
The doorphone does not support the elevator control function.
I/O Input and Output
Steps:
1. Click the I/O Input and Output button to enter the I/O input and output interface.

Video Intercom Door Station·User Manual
39
Figure 8-31 I/O Input and Output Interface
2. Select I/O input No., input mode, I/O output No., and output mode.
3. Click the Apply button to enable the settings.
There are 4 I/O Input Terminals, Terminal 1~4 correspond to ALARM_1~ALARM_4
interfaces of door station. You can enable/disable IO In or set IO In as door magnetic
or door switch by selecting from the dropdown list.
There is only 1 I/O Output Terminals, which corresponds to DR_NC/DR_COM/DR_NO
interface of door station. You can enable/disable IO Out or set IO Out as electric lock
by selecting from the dropdown list.
Volume Input and Output
Click the Volume Input and Output button to enter the volume input and output
interface. Slide the slider to adjust the volume input and volume output.
Figure 8-32 Volume Input and Output Interface
Calling Buttons
1. Click the Calling Buttons button to enter the calling buttons settings interface.

Video Intercom Door Station·User Manual
40
Figure 8-33 Calling Buttons Interface
2. Select the button number.
3. Enter the floor No. and the room No..
4. Click the Apply button to enable the settings.
For DS-KV8102-IM, DS-KV8102-IP, and DS-KV8102-VP, there is no need setting the Room
No..
8.4.3 Network
Local Network Configuration
Steps:
1. Click the Local Network Configuration button to enter the local network
configuration interface.
Figure 8-34 Local Network Configuration Interface
2. Enter the local IP address, subnet mask, gateway address, and port No..
3. Click the Apply button to enable the settings.
The default port No. is 8000.
After editing the local network parameters of device, you should add the devices to
the device list again.

Video Intercom Door Station·User Manual
41
Linked Devices Network Configuration
Purpose:
On the linked devices network configuration interface, you can configure the network
parameters of master stations, SIP servers and management centers of the same LAN.
Steps:
1. Click the Linked Device Network Configuration button to enter the devices network
configuration interface.
Figure 8-35 Linked Devices Network Configuration Interface
2. Select the device type from the drop-down list.
3. Enter the IP address of the master station, SIP server address, management center IP
address, and management center port No..
4. Click the Apply button to link the master station, SIP server and management center
to the device.
After adding master station IP address, the linkage between door station and master
station can be realized.
After adding SIP server address, the video intercom of the same community can be
realized, such as the video intercom between indoor stations of different building,
calling indoor station from outer door station and video intercom between
management center and indoors.
After adding management center IP address, the events can be uploaded to the
management center.
FTP
Steps:
1. Click the FTP button to enter the FTP parameters interface.

Video Intercom Door Station·User Manual
42
Figure 8-36 FTP Parameters Interface
2. Check the checkbox of Enable Main FTP.
3. Select IP address from the drop-down list of server mode.
4. Enter the FTP server address, and port No..
5. Check the checkbox to enable the anonymity (optional).
6. Enter the name and password.
7. Select the directory structure and set the separator, naming item, and naming
element.
8. Click the Apply button to enable the FTP parameters settings.
The default port No. is 21.
To enable anonymity or not is according to whether the FTP server enables
anonymity.
After configuring the FTP parameters, the captured pictures of door station will be
uploaded to the FTP server automatically.
The doorphone does not support the FTP function.
8.4.4 Video Display
Steps:
1. Click the Video Display button to enter the video parameters interface.

Video Intercom Door Station·User Manual
43
Figure 8-37 Video Parameters Interface
2. Select the channel No.
3. Select the resolution, frame rate, and video format.
4. Select to enable/disable WDR.
5. Set the WDR level.
6. Set the brightness, hue, contrast, saturation, and sharpness of the video.
7. Click the Apply button to enable the settings.
Click the Restore Default Settings button to restore all parameters excluding network
parameters to the factory settings.

Video Intercom Door Station·User Manual
44
9 Setting the Door Station via iVMS-4200
9.1 System Configuration
After running the iVMS-4200, enter Control Panel -> Maintenance and Management ->
System Configuration -> Video Intercom to configure the video intercom parameters
accordingly.
You can configure the ringtone, Max. ring duration, Max. speaking time with indoor
station and Max. speaking time with door station.
Figure 9-1 System Configuration Interface
9.2 Device Management
Device management includes device activation, adding device, editing device, deleting
device and remote configuration. Please refer to Chapter 8 Batch Configuration Tool for
detailed information.
To add door station (V Series) to iVMS-4200 client software, you should add it as
encoding device.
You can add at most 16 door stations to iVMS-4200 client software.

Video Intercom Door Station·User Manual
45
9.3 Live View of Device
Steps:
1. Enter the main view interface of iVMS-4200 client software to display the live view of
door station (V Series).
Figure 9-2 Live View of Door Station (V Series)
2. Right click on the live view interface to display the menu and select Unlock Door to
remote unlock the door.
Figure 9-3 Menu of Live View Interface

Video Intercom Door Station·User Manual
46
9.4 Picture Storage on Storage Server
9.4.1 Adding Storage Server
Purpose:
When the device is under armed status, it will capture the picture automatically after
unlocking the door. The captured picture can be uploaded and stored in the storage
server.
Before you start:
The storage server application software needs to be installed and it is packed in the
iVMS-4200 software package. When installing the iVMS-4200, check the checkbox
Storage Server to enable the installation of storage server.
1. Click the icon on the desktop to run the storage server.
2. Open the Device Management page and click the Server tab.
3. Click Add New Device Type, select Storage Server and click OK.
Figure 9-4 Adding Storage Server
4. Click Storage Server on the list to enter the Storage Server Adding interface.

Video Intercom Door Station·User Manual
47
Figure 9-5 Storage Sever Interface
You can add the storage server by referring to Section 8.3 Adding Device.
This function does not apply to the doorphone.
9.4.2 Formatting the HDDs
The HDDs of the storage server need to be formatted for the captured picture storage.
Steps:
1. Select the added storage server from the list and click Remote Config.
2. Click Storage->General to enter the HDD Formatting interface.
3. Select the HDD from the list and click Format. You can check the formatting process
from the process bar and the status of the formatted HDD changes from
Unformatted to Normal Status.

Video Intercom Door Station·User Manual
48
Figure 9-6 Remote Configuration Interface of Storage Server
Formatting the HDDs is to pre-allocate the disk space for storage and the original data of
the formatted HDDs will not be deleted.
9.4.3 Configuring Storage Server Picture Storage
Before you start:
The storage server needs to be added to the client software and the HDDs need to be
formatted for the captured pictures storage.
Steps:
1. Open the Record Schedule page.
2. Select the camera from the Camera Group list.
3. Select the storage server from the Storage Server drop-down list.
You can click Storage Server Management to add, edit or delete the storage server.
4. Check the checkbox of Picture Storage to store the alarm pictures of the camera
when event occurs.

Video Intercom Door Station·User Manual
49
Figure 9-7 Record Schedule Settings
5. Click Set Quota to enter the HDD management interface of the storage server. You
can set the corresponding quota ratio for captured picture information.
Figure 9-8 Storage Settings
Example: If you set the picture quota as 60%, then the 60% of the storage space
can be used for storing the captured pictures.
6. Click Save to save the settings.
9.5 Group Management
Purpose:

Video Intercom Door Station·User Manual
50
You can add groups to community, outer door station, or other, and assign devices to
each group.
9.5.1 Adding Group
1. Click the Group Management tab to enter the group management interface.
Figure 9-9 Group Management Interface
2. Click the button on the right group list to pop-up group adding dialog box.
3. Select a kind of group type.
Selecting Building as Group Type
Figure 9-10 Group Adding Interface (Building)
1) Check the checkbox of building.
2) Enter the project No., community No., and building No..
Selecting Outer Door Station as Group Type

Video Intercom Door Station·User Manual
51
Figure 9-11 Group Adding Interface (Outer Door Station)
1) Check the checkbox of outer door station.
2) Enter the project No..
Selecting Other as Group Type
Figure 9-12 Group Adding Interface (Other)
1) Check the checkbox of other.
2) Enter the name.
4. Click the OK button to complete the group adding settings.
Groups that have been successfully added will be automatically listed in the group list
according to different group types.
You can add group to Other Group and set different groups to assign cards to staff
other than residents, such as administrator, security guard and cleaning staff, etc.,. So
you can assign corresponding cards and configure their different permissions.
9.5.2 Assigning Device to Group
1. Click the Add button on the right to enter resident adding interface for adding devices
to the list.

Video Intercom Door Station·User Manual
52
Figure 9-13 Resident Adding Interface
2. Check the checkbox of device and enter the Room No. of indoor stations to assign the
device to the community.
3. Click the OK button to save the settings.
9.5.3 Modifying Device Information
1. Select an added device.
2. Click the Modify button to enter the device modifying interface.
Figure 9-14 Device Modifying Interface
3. Click the OK button to complete the device modifying operation.
9.5.4 Deleting Device
1. Select an added device.
2. Click the Delete button to pop up a dialog box.

Video Intercom Door Station·User Manual
53
Figure 9-15 Group Deleting Interface
3. Click the OK button to complete the group deleting operation.
9.6 Card Management
Purpose:
You can add unauthorized cards to the community and then you can assign the cards to
the corresponding indoor station and outdoor stations. For example, if there are 3
residents living in Room 401, you can assign 3 cards to No. 401 indoor Station. For each
indoor station, you can assign many cards, and you can assign these cards to the door
station from same building.
Steps:
1. Click the Video Intercom button on the control panel to enter the video intercom
interface.
2. Press the Card Management tab to enter the card management interface.
Figure 9-16 Card Management Interface
9.6.1 Unauthorized Card Management
Adding Card
1. Click the Add Card button to pop up card adding dialog box.
2. Select card adding mode: In Batch, By Single, Card Reader.

Video Intercom Door Station·User Manual
54
3. Select card type: Resident Card, Other Card.
4. Enter Start Card No. and End Card No. (adding in batch), or enter card No. (adding by
single or card reader).
Figure 9-17 Adding in Batch
Figure 9-18 Adding by Single or Card Reader
5. Click the OK button to save the settings.
Two card types are recommended. Resident card is used by residents living in the
community, and other card is used by visitors (guest, serviceman, etc.) in the
community.
Issuing Card
1. Click the Issue Card button to pop up card issuing dialog box.
Figure 9-19 Card Issuing Interface

Video Intercom Door Station·User Manual
55
2. Issue Resident Card or Other Card.
Issuing Resident Card
1) Select Community on the left and the indoor stations of the community will be
listed in the resident list.
Figure 9-20 Resident Card Issuing Interface
2) Click the button to pop up card selection
interface for selecting unauthorized cards to be issued to the indoor station.
Figure 9-21 Resident Card Selection Interface
3) Check the checkboxes of the cards that need issuing to the indoor station, and
check the checkbox of door stations, doorphones and outer door stations (only
resident cards can be assigned to indoor stations).
4) Click the Issue Card button to complete the resident card issuing settings.
Multiply resident card can be issued to an indoor station.
Issuing Other Card

Video Intercom Door Station·User Manual
56
1) Select Other on the left group list and the name for other card issuing will be
listed in the right list.
Figure 9-22 Other Card Issuing Interface
2) Click the button to pop up card selection
interface for selecting unauthorized cards to be issued to the indoor station.
Figure 9-23 Other Card Selection Interface
3) Check the checkboxes of the cards that need issuing to the indoor station, and
check the checkbox of door stations, doorphones and outer door stations (only
resident cards can be assigned to indoor stations).
4) Click the Issue Card button to complete the other card issuing settings.
Multiply other cards can be issued to a same group.

Video Intercom Door Station·User Manual
57
Deleting Card
Deleting Unauthorized Card
1) On the card management interface (Figure 8-11), check the checkbox(ex) of
unauthorized card(s).
2) Click the Delete Card button to pop up unauthorized card deleting box.
Figure 9-24 Card Deleting Information Box
3) Click the OK button to delete the card(s).
Deleting Issued Card
1) On the resident/other card issuing interface (Figure 8-15, Figure 8-17), select
a community group or an Other group.
2) Click the button to enter the card
selection interface for deleting issued card.
3) Cancel the checkbox(ex) of issued card(s) and check the checkbox door
stations, doorphones or outer door stations.
4) Click the Issue Card button to complete the issued card deleting settings.
You can cancel issued card(s) from single or certain door stations by cancelling
the checkbox(es) from the device list.
To cancel all issued cards, check the checkbox(es) of Room No. / name, and
click the Cancel Card button to cancel all cards issued to the device. The card
state will be reset to unauthorized card.
Importing Unauthorized Cards in Batch
1. Click the Batch Import button to pop up card batch importing dialog box.

Video Intercom Door Station·User Manual
58
Figure 9-25 Bath Import Interface
2. Click the Export Template button to export the template of the batch import file.
Figure 9-26 Template File Exporting Interface
3. Fill in the template of the batch import file and click the Save button to save it.
4. Click the button to select the batch import file.
Figure 9-27 Batch Import File Opening Interface

Video Intercom Door Station·User Manual
59
5. Click the Open button.
6. Click the OK button to start importing the batch import file.
Exporting Unauthorized Cards in Batch
1. Click the Batch Export button after adding unauthorized cards.
Figure 9-28 Batch Export Interface
2. Select the saving file path and click the Save button.
3. Generate an excel file in the saving directory after exporting unauthorized cards in
batch.
9.6.2 Normal Card Management
On card management interface, click the normal card button to enter the normal card
interface for listing normal cards including resident card and other card. After issuing
cards, the issued cards will be listed in the normal card list, as shown in the figure below.
Figure 9-29 Normal Card Interface

Video Intercom Door Station·User Manual
60
To issue cards with card issuer, please connect the card reader DS-K1F100-D8
(purchased separately) to PC via USB interface. Open iVMS-4200 and enter the
directory of Video Intercom->Card Management->Unauthorized Card->Add Card.
Swipe the unauthorized card in turn and the card No. will be read and added to the
device automatically.
After issuing each card via iVMS-4200, the device plays the voice prompt: Issuing card
finished
9.7 Notice Management
9.7.1 Querying Unlocking Log
Steps:
1. Click the Query Unlocking Logs button to enter query unlocking logs interface.
2. Select the unlocking type, device type, and set the start time and end time.
Figure 9-30 Query Unlocking Logs
3. Click the Query button to search the unlocking log.
4. Click the Export button to export the unlocking logs.
9.8 Device Arming Control
Steps:
1. Select Tool->Device Arming Control to enter the device arming control interface.

Video Intercom Door Station·User Manual
61
Figure 9-31 Tool Menu
2. Set the arming status of the device as armed, and the alarm information will be auto
uploaded to the client software when alarm occurs
Figure 9-32 Device Arming Control
Figure 9-33 Alarm Events
After adding the device to the client software, it will be armed automatically.

Video Intercom Door Station·User Manual
62
10 Local Operation
10.1 Calling Resident
10.1.1 Calling Resident (DS-KV8X02-IM)
You can call the resident by pressing the calling button. For device DS-KV8X02- IM, the
number of calling buttons varies according to its model. Take the figure of device
DS-KV8402-IM as an example.
For device DS-KV8102-IM, there is only 1 calling button.
For device DS-KV8202-IM, there are 2 calling buttons.
For device DS-KV8402-IM, there are 4 calling buttons.
Calling ButtonRoom Number
Figure 10-1 Calling Button of DS-KV8402-IM
Steps:
1. Press the corresponding calling button of the resident.
2. The resident can receive/decline the video call, unlock the door, call the elevator, etc.
When the video intercom between you and the resident is realized, you can speak to
the resident, and the live view of door station will be displayed on the connected
indoor station.

Video Intercom Door Station·User Manual
63
When live view of door station is displayed on other devices or door station is calling
resident, the door station will detect the brightness of video. When the brightness is
lower than the expected threshold, the supplement light will be enabled.
When the supplement light is enabled, the backlight of key will be auto-enabled,
otherwise, the door station will detect the brightness of live view and enable the
backlight of key when the brightness of live view is lower than expected threshold.
10.1.2 Calling Resident (DS-KV8102-XP)
You can call the resident by pressing the calling button. For device DS-KV8102-IP/VP,
there is only 1 calling button.
Calling Button
Figure 10-2 Calling Button of DS-KV8102-XP
Steps:
1. Press the corresponding calling button of the resident.
2. The resident can receive/decline the video call, unlock the door, call the elevator, etc.
When the video intercom between you and the resident is realized, you can speak to
the resident, and the live view of door station will be displayed on the connected
indoor station.
When live view of door station is displayed on other devices or door station is calling
resident, the door station will detect the brightness of video. When the brightness is
lower than the expected threshold, the supplement light will be enabled.

Video Intercom Door Station·User Manual
64
When the supplement light is enabled, the backlight of key will be auto-enabled,
otherwise, the door station will detect the brightness of live view and enable the
backlight of key when the brightness of live view is lower than expected threshold.
10.2 Issuing Card
Purpose:
You can assign the card to the door station or doorphone by issuing cards. You can issue
cards by swiping the main card with the door station, or issue the card with iVMS-4200
client software. For more information about issuing card by iVMS-4200, please refer to
Chapter 9.
Steps:
1. Swipe the main card on the card induction area to enter the card issuing mode.
2. Hear a voice prompt of the device: Issuing card started.
3. Swipe the unauthorized sub card in turn on the card induction area.
4. Hear a voice prompt of the device (Issuing card finished.) after issuing each card
successfully.
Only Mifare card supported, and Mifare card with non-standard shape is
recommended.
No more than 256 cards can be issued to and managed by V series door station. A
voice prompt (Card amount exceeds limit.) can be heard when the issued card
amount exceeds the upper limit.
Swipe the main card again or perform no operation for more than 10s, the device will
exit the card issuing mode automatically.
After issuing cards with client software, the local card issuing function will be
disabled.
For each main door station, at most 8 sub door stations can be added.
10.3 Unlocking Door
Purpose:
After issuing the cards, you can unlock the door by swiping the assigned card.
Step:
1. Swipe the card on the card induction area.
2. Hear a voice prompt of the device: Door is open.

Video Intercom Door Station·User Manual
65
You cannot unlock the door by swiping the main card.

Video Intercom Door Station·User Manual
66
Appendix
Installation Notice
While installing the door station, please make sure that the distance between any two
devices is far as possible to avoid the howling and echo. The distance between two
devices is recommended to be longer than 10 meters.
Devices here refer to indoor station, door station, doorphone and master station.
Wiring Cables
Cable
Specification
Power Cord of Door Station
RVV 2*1.0
Network Cable of Door Station
UTP-five Categories
Door Lock Wiring (With Door Magnetic)
RVV 4*1.0
Door Lock Wiring (Without Door Magnetic)
RVV 2*1.0
Exit Button Wiring
RVV 2*0.5
Specification
Model
Parameters
DS-KV8102-IM
DS-KV8202-IM
DS-KV8402-IM
System Parameters
Processor
High-Performance Embedded SOC Processor
Operation System
Embedded Linux OS
Video Parameters
Camera
CMOS Low Illumination 1.3 MP HD Colorful Camera
Video Compression
Standards
H.264

Video Intercom Door Station·User Manual
67
Model
Parameters
DS-KV8102-IM
DS-KV8202-IM
DS-KV8402-IM
Resolution
1280 × 720
Video Frame
25 fps
Audio Parameters
Audio Input
Built-in Omnidirectional Microphone
Audio Output
Built-in Loudspeaker
Audio Compression
Standard
G.711U
Audio Compression
Rate
64Kbps
Audio Quality
Noise Suppression and Echo Cancellation
Access Control Parameters
Internal Card
Reader
Built-in IC Card Reader
Exit Button
Exit Button for Opening Door
NO/NC
Support NO/NC Status Settings
Door Magnetic
Detection
Detect Door Magnetic Status
Light Supplement
Light Supplement
Mode
IR Supplement
Network Parameters
Ethernet
10M/100M Self-Adaptive Ethernet
Network Protocol
TCP/IP, SNMP, SIP, RTSP
Alarm Parameters
Alarm Input
Door Magnetic Alarm, Tamper Alarm
Device Interfaces
Internet Access
1 RJ45 10M/100M Self-Adaptive Ethernet Access
RS485
1 RS485 Half-Duplex Port
I/O Input
4

Video Intercom Door Station·User Manual
68
Model
Parameters
DS-KV8102-IM
DS-KV8202-IM
DS-KV8402-IM
I/O Output
1
Other Parameters
Indoor Station
Access Amount
1
2
4
Material
Aluminum Ally
Power Supply
Power Over Network Cable (DS-KAD606,
DS-KAD612)/12 VDC
Consumption
≤10 W
Working
Temperature
- 40° C to + 70°C (-40° F to 158° F)
Working Humidity
10% to 90%
IP Protection Level
IP65
Dimension
182 mm × 100 mm × 33 mm (7.17" × 3.94" × 1.30")
Certification
FCC, IC, CE, C-TICK, ROHS, REACH, WEEE
Model
Parameters
DS-KV8102-IP
DS-KV8102-VP
System Parameters
Processor
High-Performance Embedded SOC Processor
Operation System
Embedded Linux OS
Video Parameters
Camera
CMOS Low Illumination 1.3 MP HD Colorful Camera
Video Compression
Standards
H.264
Resolution
1280 × 720
Video Frame
25 fps
Audio Parameters
Audio Input
Built-in Omnidirectional Microphone
Audio Output
Built-in Loudspeaker

Video Intercom Door Station·User Manual
69
Model
Parameters
DS-KV8102-IP
DS-KV8102-VP
Audio Compression
Standard
G.711 U
Audio Compression
Rate
64 Kbps
Audio Quality
Noise Suppression and Echo Cancellation
Access Control Parameters
Internal Card
Reader
Built-in IC Card Reader
Exit Button
Exit Button for Opening Door
NO/NC
Support NO/NC Status Setting
Door Magnetic
Detection
Detect Door Magnetic Status
Light Supplement
Light Supplement
Mode
IR Supplement
Visible Light Supplement
Network Parameters
Ethernet
10M/100M Self-Adaptive Ethernet
Network Protocol
TCP/IP, SNMP, SIP, RTSP
Alarm Parameters
Alarm Input
Door Magnetic Alarm, Tamper Alarm
Device Interfaces
Internet Access
1 RJ45 10M/100M Self-Adaptive Ethernet Access
RS485
1 RS485 Half-Duplex Port
I/O Input
4
I/O Output
1
Other Parameters
Material
Plastic
Power Supply
Power Over Network Cable (DS-KAD606,
DS-KAD612)/12 VDC
Consumption
≤10 W

Video Intercom Door Station·User Manual
70
Model
Parameters
DS-KV8102-IP
DS-KV8102-VP
Working
Temperature
-40° C to +70° C (-40° F to 158° F)
Working Humidity
10% to 90%
IP Protection Level
IP65
Dimension
164 mm × 97 mm × 40.6 mm (6.46" × 3.82" × 1.60")
Certification
FCC, IC, CE, C-TICK, ROHS, REACH, WEEE

Video Intercom Door Station·User Manual
71