Harbor Freight R 410A Users Manual S3423 (2012 11)
R-410A to the manual dcfa3f48-6282-4169-b54d-21d9f2854ef8
2015-01-25
: Harbor-Freight Harbor-Freight-R-410A-Users-Manual-210141 harbor-freight-r-410a-users-manual-210141 harbor-freight pdf
Open the PDF directly: View PDF
.
Page Count: 28

Form No. S3423-1112
Supersedes S3423-912
Page 1 of 28
TYPICAL INSTALLATION APPLICATIONS
Compressor, Blower and A Coil Sections stack
vertically for upflow and counterflow
installations. Blower and A Coil Sections can
be remotely mounted in attics or crawl spaces
providing horizontal right or left opportunities.
Steel Cabinet:
Galvanized 20 gauge zinc coated steel
cabinet with baked-on, textured enamel
which allows it to withstand 1000 hours of
salt spray exposure.
Multi-Capacity Two-Stage:
Simple thermostatic control seamlessly
stages the compressor and indoor airflow
rate between full and part load capacity
operation without cycling the compressor.
This helps to maximize comfort, humidity
control, energy efficiency and overall
reduction in compressor cycling for
improved system life.
Step Capacity Compressor:
Copeland step-capacity (2-stage) scroll
compressors are designed for increased
efficiency, quieter operation and improved
reliability for longer life.
R-410A Refrigerant:
Designed with R-410A (HFC) non-ozone
depleting refrigerant in compliance with the
Montreal protocol and 2010 EPA requirements.
Liquid Line Drier:
Protects system against moisture.
Thermostatic Expansion Valve:
For wide range refrigerant control
(2-way operation).
High Pressure Switch:
Provides additional protection for the system.
Low Pressure Switch:
Two switches provided. Factory wired
switch is for ground water applications,
alternate switch is field connected for
ground loop applications.
Control Panel:
Mid-level for easy access. Blower section
includes transformer and blower control.
High Efficiency Coaxial Water Coil in
either Copper or Cupronickel
Water to refrigerant coil is completely
insulated to prevent frost build-up at low
temperature operation.
The Bard Geo-Trio™ Geothermal/Water Source
Heat Pump delivers economical year-round
comfort by utilizing nature’s most abundant and
efficient solar energy collector – the earth. The
Geo-Trio™ Series heat pumps are designed for
low water flow rates and offer cooling efficiencies
up to 29.1 EER and heating efficiencies up to 4.8
COP on ground water, and cooling efficiencies up
to 24.9 EER and heating efficiencies up to 4.4
COP on ground loop.
All units are shipped prewired for fast, easy
installation in residential or commercial buildings.
Engineered Features
Indoor Air Coil:
Grooved copper tubing and enhanced
louvered aluminum fin for maximum heat
transfer and energy efficiency.
Coil coating is black E-Coat electrostatic
coating on complete coil.
Cased Indoor Air Coils for Fossil Fuel
(Dual Fuel):
Insulated cased coils to fit standard 17.5"
and 21" width furnaces.
Lockout Circuit:
Built-in lockout circuit resets from the room
thermostat. Provides commercial quality
protection to the compressor.
Variable Speed ECM Blower Motor:
• High Efficiency
• Soft starting - low noise on start up
• Continuous fan - will operate at 50%
of rated Stage 2 airflow
Mild Weather Operation:
Part Load Cooling Operation will operate at
20% reduced airflow for the first 5 minutes
of operation. This results in 32% increased
applied moisture removal during this 5-
minute period, and helps humidity control
during short-run conditions. This is
seamlessly controlled internal of the unit
controls with no required user intervention.
Water Connections:
All water connections on outside of
cabinet. Brass full swivel double o-ring
connection with 1" full flow ports.
Refrigerant Connections:
Special self-sealing fittings are used with 3'
line set for stacked upflow or downflow
applications, and line sets up to 50'
available for horizontal or dual-fuel
applications.
Service Access Ports:
Permits service pressure check of
discharge and suction pressures.
Filter Rack (Optional):
Accessory kit with 1" filter (reversible for left or
right side access for upflow installations).
Accessory Electric Duct Heater Option:
5, 10, 15 and 20KW nominal size. Field
installed external to unit. For upflow and
horizontal duct installation only.
Optional Accessories:
Room thermostat - Water accessory kit -
Waterflow controls.
Domestic Hot Water Heat Exchanger System:
Double wall vented heat exchanger and pump
with ECM motor and operating controls,
factory installed on all 1-phase models.
Hot Water Heating Performance and
Operating Cost Savings: The actual amount
of hot water (gallons of hot water per day)
generated and resultant operating cost
savings can vary greatly because of several
factors: heat pump system size, hours per day
of operation of the heat pump, mode of
operation (cooling vs. heating), hot water
usage patterns, heat pump water supply
system (ground water, ground or pond loop,
etc.), and climatic conditions. The gallons of
hot water per day are dependent upon the
above variables, and in general can range up
to 125 gallons per day for a nominal 24,000
BTU heat pump system, and up to 375
gallons per day for a nominal 60,000 BTU
heat pump system in the cooling mode,
offering a 100% energy savings over
conventional electric water heaters. During
the winter months when the heat pump is
operating in the heating mode, less hot water
is available, but at the same time, the electric
water heater will consume less electricity.
Geo-Trio™ High Efficiency Geothermal/Water Source
Step-Capacity Heat Pump — R-410A
Ground Water Application: Water Temp 40° to 100°
Ground Loop Application: Temp Range 25° to 110°

Form No. S3423-1112
Supersedes S3423-912
Page 2 of 28
Geo-Trio™ GT*-Series Geothermal / Water Source Heat Pump Nomenclature
noitceSlioC"A" AA1DU0063ATG AA1DU0684ATG .sbl39
.
sbl201
noitceSrewolB"B"A-1BTG.sbl59
noitceSrosserpmoC"C" 1S63CTG 1S84CTG 1S06CTG
.sbl842 .sbl062 .sbl392
B-2463-PDATG C-2463-PDATG C-0684-PDATG
.sbl55 .sbl95 .sbl66
rosserpmoC noitceStinU draB .oNledoM .oNtraPPDA
1S63CTG B-2463-PDATG C-2463-PDATG WA5052B571D24973EH WA5052B012D24973EH
1S84CTG 1S06CTG C-0684-PDATGWA5072B012D84994EH
Cross-Reference Table
Shipping Weights - Fossil Fuel Coils
Shipping Weights - GT Series
GT A3600 UD 1 A A
Revision
Level
Series
"A" = Coil Section
Geo-Trio
GT B1– A
GT C36 S1–A D C X
D = Desuperheater
S = Step Capacity
C = Compressor
Section
Option
A = 230 Volt 1-Phase
X = Future
Use
C = Copper Coil
N = Cupronickel Coil
A = 230 Volt 1-Phase
Nominal Capacity
36 = 36K
48 = 48K
60 = 60K
B = Blower
Section
Revision
Level
Revision
Level
Option
3600 (3 Ton)
4860 (4 & 5 Ton) A = Black E-
Coated Coils Option
Geo-Trio
Geo-Trio
GT ADP – 3642 – B
Fossil Fuel “A” Coil Section (For Use on Hi-Boy, Lo-Boy & Counterflow Gas or Oil Furnaces in place of GTA Coil)
Geo-Trio
A = Coil Manufactuer
ADP = Advanced Distributor Products
3642 (3 Ton)
4860 (4 & 5 Ton)
B = 17.50" Wide Furnace
C = 21.00" Wide Furnace
"A" Coil Section
Blower Section
Compressor Section

Form No. S3423-1112
Supersedes S3423-912
Page 3 of 28
LEDO
M
1S63CTG 1S84CTG 1S06CTG
)HP1/ZH06(gnitaRlacirtcelE 1-06-802/032
egnaRegatloVgnitarepO CAV791-352
yticapmAtiucriCmuminiM 0.620.430.83
eziSeriWdleiF+ 8#6#4#
eziSeriWdnuorG 01#8#6#
.xaMrekaerBtiucriCroesuFyaleD++ 040506
ROSSERPMOC
stloV 1-06-802/032
)802/032(spmAdaoLdetaR 0.31/2.116.91/4.616.32/2.91
tnerruCnoitceleStiucriChcnarB 7.612.126.52
)802/032(spmArotoRdekcoL 28/2869/69811/811
ROTOMREWOL
B
)rotoMMCE(rewopesroH deepSelbairaV4/3
stloV 1-06-802/032
)MFCdetaR@2#egatS(spmArotoM 4.33.44.4
)2-CFRODnodesaB(RETNECWOL
F
stloV 1-06-802/032
spmA 41.241.241.2
ROTOMPMUPRETAEHREPUSE
D
stloV 1-06-802/032
spmA 51.051.051.0
Specifications (Compressor & Blower Sections Stacked Together)
+75°C copper wire ++ HACR type circuit breaker
Specifications (for Blower Section Only when Remote Mounted from Compressor)
+75°C copper wire ++ HACR type circuit breaker
Indoor Blower Performance (Rated CFM)
1
Airflow Corrections
fo% detaR wolfriA
latoT yticapaC )HutBM(
elbisneS yticapaC )HutBM(
rewoP tupnI )WK(
fotaeH noitcejeR )HutBM(
latoT yticapaC )HutBM(
rewoP tupnI )WK(
fotaeH
n
oitprosbA )HutBM(
%09589.0448.0879.0389.0889.0030.1879.0
DETAR000.1000.1000.1000.1000.1000.1000.1
%011010.1050.1520.1310.1010.1889.0510.1
)detnuoMyletomeRfI(NOITCESREWOL
B
ledo
M
A-1BTG
epyT/P
H
deepSelbairaV4/3
)ALR(spmAroto
M
1.6
yticapmAtiucriCmumini
M
8
eziSeriWdleiF
+
41
rekaerBtiucriCro.xaMesuFyaleD+
+
51
NOTE: This applies only if blower section is remote mounted
from compressor section. When blower section is coupled
directly to compressor section, the blower is powered from the
compressor section.
LEDOM
22
2
22
detaR PSE
33
3
33
XAM PSE
44
4
44
suounitnoC wolfriA
55
5
55
etamilCdliM traPninoitarepO gnilooCdaoL
66
6
66
wolfriAdaoLtraPwolfriAdaoLlluF
77
7
77
taeHcirtcelE wolfriA
1S63CTG51.006.000600705800210031
1S84CTG02.006.0057578051100510061
1S06CTG02.006.00090501003100810081
1Motor will automatically step through the various airflows with thermostatic control
2ESP = External Static Pressure (inches of water)
3Maximum allowable duct static
4Continuous airflow is the CFM being circulated with manual fan operation without any additional function occurring.
5Will occur automatically for first 5 minutes of Part Load Cooling Operation.
6Will occur automatically after five minutes of Part Load Cooling Operation.
7Will occur automatically with control signal input.
NOTE: All values can be changed + 10% via the + adjustment dip switches on the tap select control inclusive in the GTB1-A
Blower Section (see Airflow Corrections for performance impact).

Form No. S3423-1112
Supersedes S3423-912
Page 4 of 28
Approved Compressor, GTA-Coil & Blower Section Combinations
Approved Compressor and GTA-Coil
ISO Standard 13256-1:1998, “Water to Air and Brine to Air Heat Pumps”, which includes watt allowance for water pumping.
Cooling capacity based on 80.6°F DB, 66.2°F WB entering air temperature. Heating capacity based on 68°F DB entering air temperature.
LEDOM
metsyS
yticapaC
noitaludoM
wolFdiulF
MPGetaR MFCwolfriA
—pmuPtaeHpooLdnuorG 8991:1-65231OSIotdeifitreC&detseT
enirBgnilooC
F°86daoLtraP/F°77daoLlluF
enirBgnitaeH
F°14daoLtraP/F°23daoLlluF
yticapaC
HUTB
REE
W/UTB
yticapaC
HUTB POC
1S63CTG lluF
traP 80021
058
008,83
000,82
5.71
9.42
008,82
008,22
09.3
04.4
1S84CTG lluF
traP 21 0051
0511
000,15
000,83
0.61
5.12
005,73
000,13
06.3
50.4
1S06CTG lluF
traP 51 0081
0031
005,16
005,74
5.51
7.02
000,94
005,93
05.3
09.3
LEDOM
metsyS
yticapaC
noitaludoM
wolFdiulF
MPGetaR MFCwolfriA
—pmuPtaeHretaWdnuorG 8991:1-65231OSIotdeifitreC&detseT
F°95TWE—gnilooC F°05TWE—gnitaeH
yticapaC
HUTB
REE
W/UTB
yticapaC
HUTB POC
1S63CTG lluF
traP 60021
058
000,24
006,92
8.12
4.92
000,43
000,52
05.4
08.4
1S84CTG lluF
traP 70051
0511
000,45
000,04
0.91
5.42
000,64
000,43
02.4
54.4
1S06CTG lluF
traP 90081
0031
005,36
000,94
8.81
7.42
000,85
000,24
50.4
52.4
Ratings Based on Approved Compressor & GTA-Coil Only
LEDOM
metsyS
yticapaC
noitaludoM
wolFdiulF
MPGetaR MFCwolfriA
—pmuPtaeHpooLdnuorG 8991:1-65231OSIotdeifitreC&detseT
enirBgnilooC
F°86daoLtraP/F°77daoLlluF
enirBgnitaeH
F°14daoLtraP/F°23daoLlluF
yticapaC
HUTB
REE
W/UTB
yticapaC
HUTB POC
1S63CTG lluF
traP 80021
058
000,93
008,72
2.81
0.52
006,72
002,22
09.3
03.4
1S84CTG lluF
traP 21 0051
0511
000,15
000,83
6.61
6.12
004,63
004,03
06.3
59.3
1S06CTG lluF
traP 51 0081
0031
000,26
000,84
4.61
2.32
000,74
005,73
04.3
09.3
LEDOM
metsyS
yticapaC
noitaludoM
wolFdiulF
MPGetaR MFCwolfriA
—pmuPtaeHretaWdnuorG 8991:1-65231OSIotdeifitreC&detseT
gnilooC
TWE—
F°95 gnitaeH
TWE—
F°05
yticapaC
HUTB
REE
W/UTB
yticapaC
HUTB POC
1S63CTG lluF
traP 60021
058
000,24
006,92
8.22
5.92
002,33
002,42
54.4
07.4
1S84CTG lluF
traP 70051
0511
005,45
000,04
1.02
7.42
005,44
004,33
02.4
53.4
1S06CTG lluF
traP 90081
0031
000,46
000,94
0.02
4.72
000,65
000,04
01.4
53.4
• Intertek ETL Listed to Standard for Safety Heating and Cooling Equipment
ANSI/UL 1995/CSA 22.2 No. 236-05, Third Edition.
See Page 5 for alternate Fossil Fuel A-coil Ratings.
Ratings Based on Approved Compressor, GTA-Coil & Blower Combinations
noitceStinUrosserpmoC noitceSlioC noitceSrewolB
1S63CTGAA1DU0063ATG,A-1DU0063ATG
A-1BTG1S84CTG AA1DU0684ATG,A-1DU0684ATG
1S06CTG
PATENT PENDING
noitceStinUrosserpmoC noitceSlioC
1S63CTGA-1DU0063ATG
1S84CTG
A-1DU0684ATG
1S06CTG

Form No. S3423-1112
Supersedes S3423-912
Page 5 of 28
1 Pump output (feet of head) @ GPM at top of column.
sledoMpmuP spmuPfo.oN MPGNIDERIUQERETARWOLFRETAW
7 9 21 51 61
1-CFROD15.825.72525.2222
2-CFROD27555055444
Loop Pump Modules and Pump Outputs for Ground Loop Installations 1
Correction Factors @ Increased Water Flows
wolFdetaR sulP
gnilooC gnitaeH
HutB sttaW HutB sttaW
MPG2500.1889.0600.1200.1
MPG3700.1489.0900.1300.1
MPG4800.1979.0110.1300.1
1 Loop antifreeze protection must be determined based on loop design and geographic location.
2 Must not be denatured with any petroleum based product.
epyT noitcetorPezeerFroferutarepmeTmuminiM
)C°2.21-(F°01 )C°4.9-(F°51 )C°7.6-(F°02 )C°9.3-(F°52
lonahteM%52%12%61%01
lonahtE 2%92%52%02%41
locylGenelyporPedarGdooFPSU%001%72%42%02%31
Antifreeze Percentages by Volume for Ground Loop Installations 1
Ratings Based on Approved Compressor and Fossil Fuel A-Coil
ROSSERPMOC NOITCES LEDOM
lissoF leuF lioC-A .oNdraB
11
1
11
metsyS yticapaC noitaludoM wolFdiulF MPGetaR MFCwolfriA
—pmuPtaeHpooLdnuorG 8991:1-65231OSIotdeifitreC&detseT
enirBgnilooC F°86daoLtraP/F°77daoLlluF enirBgnitaeH F°14daoLtraP/F°23daoLlluF
yticapaC HUTB REE W/UTB yticapaC HUTB POC
1S63CTG 1lluF traP 80021 058 000,93 003,82 02.81 05.62 002,72 004,12 00.4 05.4
1S84CTG 1lluF traP 21 0051 0511 000,84 000,73 05.71 06.22 000,53 000,82 08.3 00.4
1S06CTG 1lluF traP 51 0081 0031 000,95 005,44 05.61 00.12 000,54 000,73 06.3 57.3
LEDOM
metsyS yticapaC noitaludoM wolFdiulF MPGetaR MFCwolfriA
—pmuPtaeHretaWdnuorG 8991:1-65231OSIotdeifitreC&detseT
F°95TWE—gnilooC F°05TWE—gnitaeH
yticapaC HUTB REE W/UTB yticapaC HUTB POC
1S63CTG 1lluF traP 60021 058 000,24 006,92 04.32 08.13 005,43 007,42 09.4 00.5
1S84CTG 1lluF traP 70051 0511 000,35 005,73 00.22 00.62 000,44 000,33 05.4 07.4
1S06CTG 1lluF traP 90081 0031 000,36 005,54 08.02 52.52 000,45 005,93 02.4 03.4
.gnipmupretawrofecnawollattawsedulcni)spmuPtaeHriA-ot-enirBdnariA-ot-retaW(1-65231dradnatSOS
I
.erutarepmetriagniretneBDF86nodesabyticapacgnitaeH.erutarepmetriagniretneBWF2.66,BDF6.08nodesabyticapacgniloo
C
All Models are Energy Star qualified for Ground Loop and Ground Water Applications.
For Use with Gas or Oil Furnace as Dual Fuel Installation
The GTC Compressor Unit Sections are approved for use with certain 3rd Party A-Coils.
See Below.
1 See Cross-Reference Chart (Page 2) for approved Bard/ADP Coil part numbers.
Charge must be adjusted when using a Fossil Fuel A-Coil. See Installation Manual.
A coil spacer with a minimum height of 6" must be used on all Oil Furnaces to protect the coil drain pan and ensure even airflow across the coil.
GTLS-SK2-1 Line Set Stub Kit is required for installation to make connections to the GTC Compressor Section.

Form No. S3423-1112
Supersedes S3423-912
Page 6 of 28
Refrigerant Connections (Self-Sealing Fittings)
Horizontal Drain Pan Kit
Remote Condenser Cover
Side Filter Rack – For Upflow Installations
Optional Field Installed Start Kits for 1-Phase Models 1
Optional Field Installed Start Kit for 1-Phase Models 2
rebmuNtraPnoitpircseD.D.OeziSeniL
1-4KS-SLTGsdnEriaPowThtiwtiKbutSteSeniL 1"8/7&"8/3
1-2KS-SLTGsdnEriaPelgniShtiwtiKbutSteSeniL 1"8/7&"8/3
1-30-SLTGsgnittiFhtiwteSeniL'3"8/7&"8/3
1-51-SLTGsgnittiFhtiwteSeniL'51"8/7&"8/3
1-52-SLTGsgnittiFhtiwteSeniL'52"8/7&"8/3
1-53-SLTGsgnittiFhtiwteSeniL'53"8/7&"8/3
1-05-SLTGsgnittiFhtiwteSeniL'05"8/7&"8/3
1ZHTG snoitceS"lioC-A"ATGroftiKnaPniarDlatnoziroH
DILTG metsyS-tilpSsadellatsnInehwsnoitceSgnisnednoCCTGrofrevoCpoT
sledoMtinU rebmuNtraPdellatsnIdleiF
A-1S63CTG 411KS
A-1S84CTG 111KS
A-1S06CTG 511KS
sledoMtinU rebmuNtraPdellatsnIdleiF
esahP-1llA 51-CMC
1One pair consists of one each of 3/8" liquid and 7/8"
vapor self-sealing fittings with short section of tube with
90° bend and each has 1/4" service port.
32RF retliF2VREMhtiw1x52x61kcaRretliF
)MPF056yticolevmumixam,elbahsawhsemmunimulA(
1Start capacitor and potential relay start kit can be used with all -A single phase models only. Increases starting torque 9x.
Do not use if CMC-15 is used.
2PTCR start kit can be used with all -A single phase models. Increases starting torque 2-3x.
Do not use if SK111, SK114 or SK115 is used.
GTLS-SK2-1 (Shown)
Coil Spacers for GTADP Fossil Fuel Coils
0222PDASC sledoM011,001,580,570RLF/FLFsecanruFliOdraBstiF
0252PDASC sledoM041,031RLFsecanruFliOdraBstiF

Form No. S3423-1112
Supersedes S3423-912
Page 7 of 28
Ground Loop Accessories
Ground Loop Service Accessories
pmuPtaeH ledoM rebmuNtraPdraB deriuqeR ytitnauQ noitpircseD
:poolrofderiuqerdaehfoteefdnapmuptaehrofMPGderiuqernodesabretnecwolfpool1redrO:ETON
llA1-CFROD1 sgnittifgnir-oelbuod,MPG61@.dH.tF22,pmup1,hP1-zH06-V032,tenibaChtiwretneCwolFpooL
llA2-CFROD1 sgnittifgnir-oelbuod,MPG61@.dH.tF44,pmup2,hP1-zH06-V032,tenibaChtiwretneCwolFpooL
llA1-KCFLROD1
:gniniatnoctiKretneCwolFpooL tseterutarepmet/erusserp620-3068dnastropTPF"4/1htiwswoblegnir-oelbuod°09debrab"1)2( ecnereferrofCH4-09-1BRODeeS.)noitcennocpmuptaehrof(sgulp )edispmuptaehnonoitcennocretnecwolfpoolrof(sgnittifgnir-oelbuodthgiartsdebrab"1)2( ecnereferrofCH4-S-1BRODeeS esohISP051DI"1fonoitces'21)1( spmalcesohSS"1)8(
:retnecwolfpoolotsnoitcennocedis-poolrofgniwollofehtfo1redrO:ETON
llACH4-S-1BROD1 spmalcesohSS"1)4(htiwsgnittifgnir-oelbuodthgiartsdebrab"1)2(
llAS-521FROD1 sgnittifgnir-oelbuodthgiartsnoisuf"52.1)2(
:elbaliavasmetiyrosseccalanoitiddA
52-1KHhcaEesohISP051DI"1fonoitces'52)1(
DORFC-2
Elbow, 1" Hose Barb X Double
O-ring with 1/4" Port and
Pressure/Temperature Test Plugs
DORB1-90-4HC
1" Hose Barb X
Double O-ring
DORB1-S-4HC
1-1/4" Socket Fusion X
Double O-ring
DORF125-S
1" Cam Lever Male X
Double O-ring
DORCL1-90
Garden Hose Male X O-ring
(single) Adapter
DORGHMT
CLB1-S
GGK-1
pmuPtaeH ledoM rebmuNtraPdraB deriuqeR ytitnauQ noitpircseD
09-1LCRODhcaE retnecwolfpoolottnemhcattahsulfrofsgnittifelamrevel-mactcennoc-kciuqgnir-oelbuod°09)2(
S-1BLChcaE evobasgnittif09-1LCRODottcennocotsgnittifelamefrevel-mactcennoc-kciuqdebrabthgiarts"1)2(
1-KGGhcaE eborp'8/1gnittifT/P,noitcennocesohnedrag,eguagISP001-0,evlavffo-tuhs/wresooG-oeG)1(
TMHGRODhcaE )pooltsoob/prubot(retnecwolfpoolrofgnittifretpadaesohnedragelamxgnir-oelbuoD)1(

Form No. S3423-1112
Supersedes S3423-912
Page 8 of 28
Ground Water/Water Loop Accessories
Ground Water/Water Loop Service Accessories
pmuPtaeH ledoM rebmuNtraPdraB deriuqeR ytitnauQ noitpircseD
llA1-KWG1
:gniniatnoctiKretaWdnuorG sgulptseterutarepmet/erusserp620-3068dnastropTPF"4/1htiwswoblegnir-oelbuod°09TPM"1)2( ecnereferrof09-1PMRODeeS.)noitcennocpmuptaehrof( .ecnereferrof330-3068eeS–hctiwsdne/wevlavllabesolc/nepowolsdezirotomssarbV42TPF"4/3)1(
tinurepderiuqer1,pmuptaehfoMPGdetarrofevlavwolftnatsnoctcerrocredrO:ETON
63CTG6-VFC1 TPF"4/3,MPG6,evlavwolftnatsnoC
84CTG7-VFC1 TPF"4/3,MPG7,evlavwolftnatsnoC
06CTG9-VFC1 TPF"4/3,MPG9,evlavwolftnatsnoC
llA710-3068hcaETPF"1,MPG71-1,reteMwolF
llA620-3068hcaEgulptseterutarepmet/erusserp"4/1
llA720-3068hcaEeborpytudyvaeh"8/1/wretpadaeguagTPF"4/1
llA820-3068hcaEeguagISP001-0TPM"4/1
llA920-3068hcaEF022+ot0,eborp"8/1,retemomrehttekcoP
Elbow, 1" MPT X Double
O-ring with 1/4" Port and
Pressure/Temperature Test Plugs
DORMP1-90
8603-033
)kcaprep2ytQ(skcaPgnittiFgniR-OelbuoDlaudividnI
CH4-09-1BROD ,sgulptseterutarepmet/erusserp620-3068,stropTPF"4/1htiwswoblegnir-oelbuod°09debrab"1)2( spmalcesoh"1SS)4(dna
CH4-S-1BROD spmalcesohSS"1)4(htiwsgnittifgnir-oelbuodthgiartsdebrab"1)2(
09-1PMROD sgulptseterutarepmet/erusserp620-3068dnastropTPF"4/1htiwswoblegnir-oelbuod°09TPM"1)2(
S-1PMRODsgnittifgnir-oelbuodthgiartsTPM"1)2(
S-1PFRODsgnittifgnir-oelbuodthgiartsTPF"1)2(
S-1SROD sgulptseterutarepmet/erusserp620-3068dnastropTPF"4/1htiwsgnittifgnir-oelbuodthgiartstaewsreppoc"1)2(
1" MPT X Double O-ring
DORMP1-S
1" FPT X Double O-ring
DORFP1-S
1" Copper Sweat X Double O-ring with 1/4"
FPT Port & Pressure/Temperature Test Plugs
DORS1-S
8603-006
sevlaVylppuSretaW
330-3068hcaEhctiwsdnehtiwevlavllabesolc/nepowolsssarbV42TPF"4/3
600-3068hcaE reveldeelblaunamlanretnidnalortnocwolfhtiwevlavdionelosCVPV42TPF"1
8603-026 8603-027 8603-028
8603-017 8603-029

Form No. S3423-1112
Supersedes S3423-912
Page 9 of 28
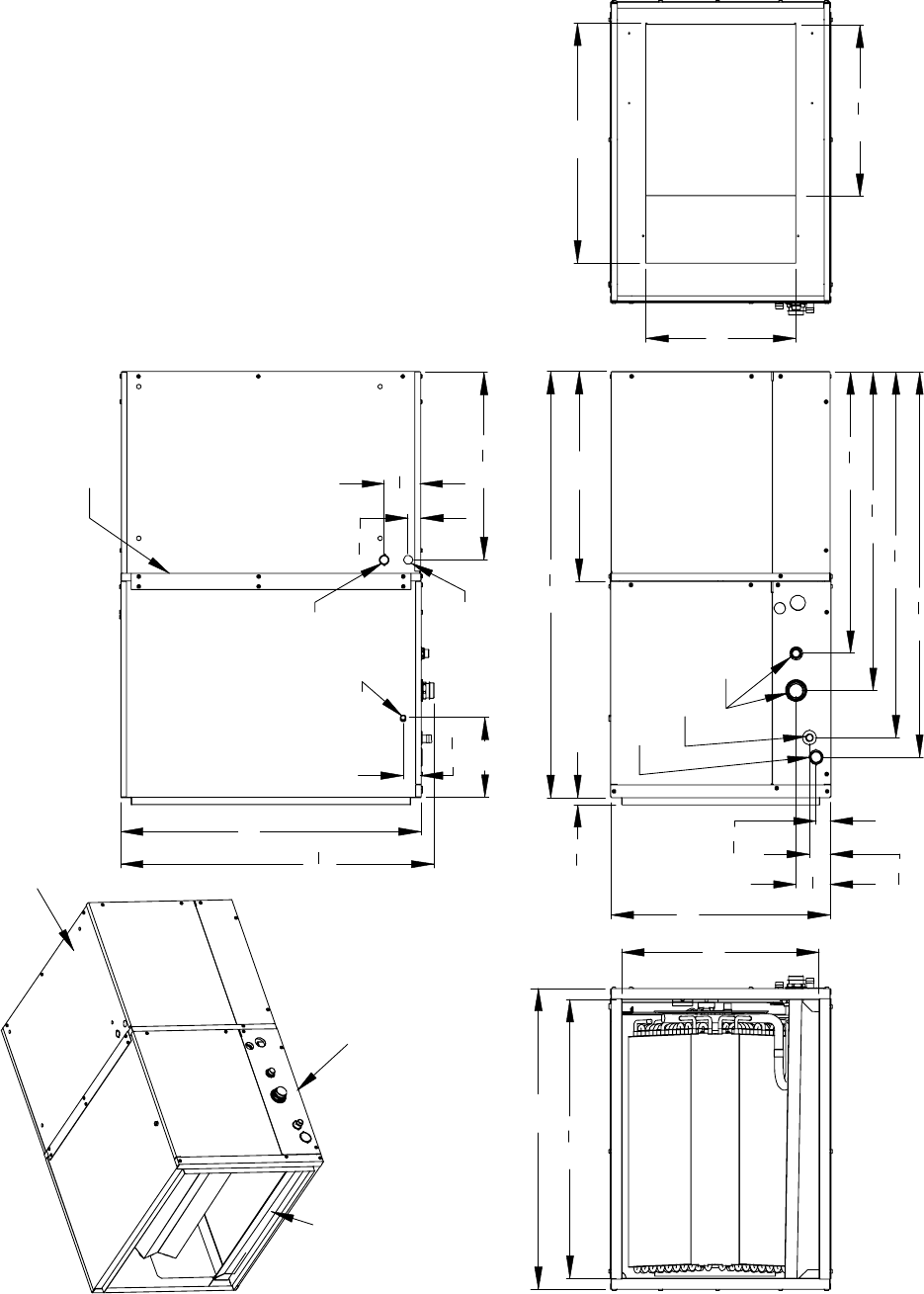
365
8"
38 1
2"
11
2"
21
8"
(Remote Compressor Section)
Evaporator and Blower in Horizontal Position
Left Side View
MIS-2824 A
Opening
Evaporator Opening Blower
Right Side View
15"
24"
171
8"
Evaporator
Section
Blower
Section
GTHZ1
Horizontal
Drain Pan
(Req'd)
Low Voltage
Entrance
Entrance
Horiz. Support Bracket
High Voltage
Low Voltage
Entrance
Top View
3 "
"
1
30"
2
1
3"318
3
4
18
4
1
"
"
13
4
8"
Front View
"
19 7/8"
277
8
30"
Outlet
Main Drain
Outlet
Overflow Drain
Refrigerant
Connections
8
1
22"
31 "
3
7
2
21"
3"
"
4
1"288
425
8"
NOTE:
Requires
horizontal
drain pan kit
Model GTHZ-1

Form No. S3423-1112
Supersedes S3423-912
Page 10 of 28
Blower Air
Blower Air
Blower Air
Blower Air
Return
Remote Condenser Section
Supply
Supply
Supply
Return
Return
Return
Counterflow
Return
Main Drain
Horizontal, Left Discharge
Return
MIS-2826
Evap. Coil
Evap. Coil
Evap. Coil Evap. Coil
Position
Optional Top
Horizontal, Right Discharge
Drain
Desuper.
Secondary Drain
Position
Upflow
Drain
Main Drain
Secondary Drain
Secondary
Main Drain
Blower in
Shipped Position
Blower in
Shipped Position
Blower in
Alternate Position
Alternate Position
Blower in
Supply
Cond. Coil
Water Out
Cond. Coil
Water In
Desuper.
Water In
Water Out
Secondary
Main Drain
Refrigerant
Return
Refrigerant
Connections
Refrigerant
Connections
Connections
Refrigerant
Connections
snoitallatsnIllArofediSriAnruteRnoderiuqeRretliFriA
notnelaviuqedeilppusdleifro)1x52x61(32RF)1(esunacsnoitallatsniwolfpU .lanoitposisedishtobno)2(foesU.noitcesrewolbehtfoedisrehtie
.deilppusdleifebtsumwolfnwodrofnruterpotdnawolfpurofnrutermottoB
dleifebtsumtnemegnarraretlifsnoitallatsniecapslwarcrocittalatnozirohroF .resuehtrofnoitacolelbisseccaylidaernidetacolebdluohs&deilppus
.41&31segaPnonoitamrofnilanoitiddaeeS
< >
NOTE: Requires horizontal
drain pan kit Model GTHZ-1
Model GTLID

Form No. S3423-1112
Supersedes S3423-912
Page 11 of 28
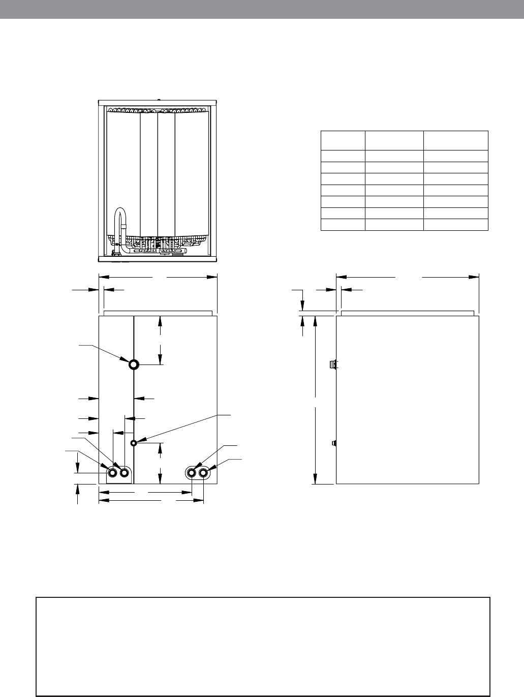
15 5/8"
24 9/16"
27 7/8"
37 1/16"
15 5/8"
55"
24 9/16"
51 1/4"
MODEL DIM. A
GTC36S1 39 7/16"
GTC48S1 40 15/16"
GTC60S1 41 15/16"
RIGHT SIDEFRONT
LEFT SIDE
(UPFLOW ONLY)
ENTRANCE
AIR
(UPFLOW ONLY)
AIR
ENTRANCE
TOP
MIS-2821 A
MAIN DRAIN OUTLET
INLET
OVERFLOW DRAIN OUTLET
WATER OUT
OUTLET
DESUPERHEATER
DESUPERHEATER
WATER IN
30 9/16"
46 3/16"
46 3/4"
33 1/4"
23 7/16"
22"
"A"
TOP DUCT OUTLET FLANGE
27 15/16"
19 13/16"
SECURE SECTIONS TOGETHER
USING BOLT PART #1012-015
AND WASHER PART #1012-109
LOW VOLTAGE
VOLTAGE
LOW
VOLTAGE
HIGH
LOW VOLTAGE
57 3/4"
25 3/4"
28 15/16"
37 7/8"
18 13/16"
30"
REFRIGERANT
CONNECTIONS
65 5/8"
30"
21"
23"
21 5/8"
3/4" 31 1/4"

Form No. S3423-1112
Supersedes S3423-912
Page 12 of 28
Blower Air
Evap. Coil
Counterflow
Position
Cond. Coil
Water Out
Cond. Coil
Desuper.
Water In
Water In
Desuper.
Water Out
Supply
Return
Main Drain
Blower in
Alternate Position
7/8" Line Set
3/8" Line Set
Blower Air
Evap. Coil
Upflow
Cond. Coil
Position
Cond. Coil
Water Out
Desuper.
Water In
Desuper.
Water In
Water Out
Supply
Return
Return
Secondary
Return
Drain
Main Drain
Blower in
Shipped Position
7/8" Line Set
Control Panel
MIS-2828
Control Panel
3/8" Line Set
Drain
Secondary
Air Filter Required
One FR23 (16 x 25 x 1) or
field supplied equivalent
required for upflow side
return installation
Bottom return upflow and
top return counterflow filter
provision must be field
supplied
NOTE:
See Page 20 for physical
dimensions of GTA coil
if removed from casing
for installation on a
fossil-fuel furnace.
snoitallatsnIllArofediSriAnruteRnoderiuqeRretliFriA
tnelaviuqedeilppusdleifro)1x52x61(32RF)1(esunacsnoitallatsniwolfpU .lanoitposisedishtobno)2(foesU.noitcesrewolbehtfoedisrehtieno
.deilppusdleifebtsumwolfnwodrofnruterpotdnawolfpurofnrutermottoB
.41&31segaPnonoitamrofnilanoitiddaeeS

Form No. S3423-1112
Supersedes S3423-912
Page 13 of 28
Filter Application Table
NOTE: FR23 16x25x1 side filter rack has a washable multi-layer aluminum mesh filter that is rated at 650 FPM maximum.
eziSlanimoNretliF2TFaerAecafruSepyTretliF
MFCwolfriA
003@ytilibapaC
yticoleVMPF
MFCwolfriA
005@ytilibapaC
yticoleVMPF
MFCwolfriA
526@ytilibapaC
yticoleVMPF
"1X"02X"0193.1
elbasopsiDssalgrebiF"1
514
dednemmoceRtoN dednemmoceRtoN
"1X"02X"2176.1005
"1X"02X"4149.1085
"1X"52X"4134.2037
"1X"02X"6122.2076
"1X"52X"6187.2048
"1X"02X"0287.2048
"1X"52X"0274.30501
"1X"42X"4200.40021
"2X"02X"0193.1
elbasopsiDssalgrebiF.dtS"2
514007
dednemmoceRtoN
"2X"42X"2100.20060001
"2X"02X"4149.1085579
"2X"52X"4134.20375121
"2X"02X"6122.20760211
"2X"52X"6187.20480041
"2X"02X"0287.20480041
"2X"52X"0274.305010571
"2X"42X"420.400210002
"1X"02X"0193.1
retliFdetaelP"1
524007
dednemmoceRtoN
"1X"42X"2100.20060001
"1X"02X"4149.1095089
"1X"52X"4134.20375121
"1X"02X"6122.20765111
"1X"52X"6187.20480041
"1X"02X"0287.20480041
"1X"52X"0274.305010471
"1X"42X"4200.400210002
"2X"02X"0193.1
retliFdetaelP"2
524007078
"2X"42X"2100.200600010521
"2X"02X"4149.10950895121
"2X"52X"4134.203751210251
"2X"02X"6122.207651110041
"2X"52X"6187.204800410471
"2X"02X"0287.204800410471
"2X"52X"0274.3050104710712
"2X"42X"4200.4002100020052
"4X"42X"212
retliFdetaelP"4
00600010521
"4X"02X"6122.207651110041
"4X"02X"0287.204800410471
"4X"52X"0274.3050104710712
"4X"42X"424 002100020052
Many standard size filters are represented below since there can be a wide variety of possibilities depending upon application
position of the heat pump system and the return air duct installation.

Form No. S3423-1112
Supersedes S3423-912
Page 14 of 28
Filter Application for All Installation Positions
MIS-2881
AIR FILTER
AIRFLOW
AIRFLOW
AIRFLOW
AIR FILTER
*
*
INFORMATION.
AIR FILTER
*
*
*NOTE: SINGLE FILTER MAY REQUIRE
A TRANSITION FOR ADEQUATE FILTER
SIZING. SEE FILTER APPLICATION
AIRFLOW
AIR FILTER
(ONE OR MULTIPLE)
CENTRAL RETURN GRILLE(S)
SIDE INLET(S); ONE OR
BOTH SIDES OR IN COMBINATION
WITH BOTTOM INLET
AIR FILTER
AIR FILTER
AIR FILTER
AIR FILTER
AIR FILTER
AIR FILTER
AIRFLOW
*NOTE: SINGLE FILTER MAY REQUIRE
A TRANSITION FOR ADEQUATE FILTER
SIZING. SEE FILTER APPLICATION
INFORMATION.
*
AIRFLOW
CONFIGURATION "V" FILTER CONFIGURATION
*
AIRFLOW
"A" FILTER CONFIGURATION
AIRFLOW AIRFLOW
SINGLE FILTER
MIS-2882
AIR FILTER
CENTRAL RETURN GRILLE(S)
(ONE OR MULTIPLE)
MIS-2883
(ONE OR MULTIPLE)
CENTRAL RETURN GRILLE(S)
AIR FILTER
SIDE INLET(S); ONE OR
BOTH SIDES OR IN COMBINATION
WITH BOTTOM INLET
AIR FILTER
AIR FILTER
*
**
*
AIRFLOW
AIRFLOW
AIRFLOW
AIR FILTER
AIRFLOW
*NOTE: SINGLE FILTER MAY REQUIRE
A TRANSITION FOR ADEQUATE FILTER
SIZING. SEE FILTER APPLICATION
INFORMATION.
AIR FILTER
*
AIR FILTER
AIR FILTER
AIR FILTER
AIR FILTER
AIR FILTER
*
AIR FILTER
AIRFLOW
AIRFLOW
AIRFLOW
AIRFLOW
MIS-2884
AIRFLOW
CONFIGURATION
SINGLE FILTER
"A"/"V" FILTER
CONFIGURATION
CENTRAL RETURN
(ONE OR MULTIPLE)
INFORMATION.
*NOTE: SINGLE FILTER MAY REQUIRE
A TRANSITION FOR ADEQUATE FILTER
SIZING. SEE FILTER APPLICATION
AIRFLOW
FILTERS SHOULD ALWAYS BE APPLIED IN A MANNER THAT MAKES THEM EASY TO ACCESS & CHANGE.
HORIZONTAL FRONT DISCHARGE
HORIZONTAL LEFT DISCHARGE
UPFLOW COUNTERFLOW

Form No. S3423-1112
Supersedes S3423-912
Page 15 of 28
GTC36S1 Matched with GTA3600UD1-A Coil
gniretnE diulF )F°(.pmeT
gniretnE .pmeTriA )F°(
latoT yticapaC )HutBM(
elbisneS yticapaC )HutBM(
elbisneS latoTot oitaR
rewoP tupnI )WK(
fotaeH noitcejeR )HutBM( REE
°05
BD°07 BW°95
0.049.8227.005.11.54
6
.62
°061.831.8247.047.10.44
8
.12
°072.634.7267.099.10.34
2
.81
°083.436.6287.032.29.14
4
.51
°094.239.5208.074.28.04
1
.31
°0015.031.5228.027.28.93
2
.11
°0116.823.4258.069.27.83
7
.9
°05
BD°57 BW°36
0.341.0307.015.12.84
4
.82
°060.143.9227.067.10.74
2
.32
°079.835.8237.010.28.54
3
.91
°089.637.7257.062.26.44
3
.61
°099.439.6277.015.24.34
9
.31
°0018.231.6208.067.22.24
9
.11
°0118.033.5228.010.31.14
2
.01
°05
BD°08 BW°76
2.642.1386.045.14.15
0
.03
°060.444.0396.097.11.05
6
.42
°078.146.9217.040.28.84
5
.02
°086.938.8237.092.24.74
3
.71
°094.739.7257.045.21.64
7
.41
°0012.531.7277.097.28.44
6
.21
°0110.333.6208.040.34.34
9
.01
°05
BD°58 BW°17
5.943.2356.065.18.45
7
.13
°061.745.1376.028.13.35
0
.62
°078.446.0386.070.29.15
6
.12
°085.248.9207.023.24.05
3
.81
°091.049.8227.085.29.84
6
.51
°0018.731.8247.038.24.74
3
.31
°0114.532.7277.080.39.54
5
.11
gniretnE diulF )F°(.pmeT
gniretnE riA .pmeT )F°(
latoT yticapaC )HutBM(
gnivaeL riA .pmeT )F°(
rewoP tupnI )WK(
fotaeH noitprosbA )HutBM( POC
°52
°56
7.323.3829.10.71
7
.3
°033.623.5889.13.91
9
.3
°044.133.9821.20.42
3
.4
°056.632.3962.27.82
8
.4
°068.142.7993.24.33
1
.5
°079.642.10135.21.83
4
.5
°081.252.50176.28.24
8
.5
°52
°07
2.329.7879.15.61
5
.3
°037.528.9840.27.81
7
.3
°047.037.3981.23.32
1
.4
°058.536.7923.29.72
5
.4
°068.045.10164.24.23
8
.4
°079.544.50106.20.73
2
.5
°089.053.90147.26.14
5
.5
°52
°57
4.321.3912.20.61
1
.3
°030.620.5992.22.81
3
.3
°041.130.9944.26.22
7
.3
°052.639.20106.20.72
1
.4
°063.148.60167.25.13
4
.4
°074.648.01129.29.53
7
.4
°085.157.41170.33.04
9
.4
gniretnE diulF )F°(.pmeT
gniretnE .pmeTriA )F°(
latoT yticapaC )HutBM(
elbisneS yticapaC )HutBM(
elbisneS latoTot oitaR
rewoP tupnI )WK(
fotaeH noitcejeR )HutBM( REE
°05
BD°07 BW°95
9.620.2228.037.04.92
0
.73
°061.528.0238.039.03.82
1
.72
°073.326.9148.021.11.72
7
.02
°084.124.8168.023.10.62
2
.61
°096.912.7188.025.18.42
9
.21
°0018.710.6109.027.17.32
3
.01
°0110.618.4139.029.15.22
3
.8
°05
BD°57 BW°36
0.929.2297.037.05.13
6
.93
°060.726.1208.049.02.03
9
.82
°070.524.0218.041.19.82
0
.22
°081.322.9138.043.17.72
2
.71
°091.129.7158.055.14.62
6
.31
°0011.917.6178.057.11.52
9
.01
°0112.714.5109.059.19.32
8
.8
°05
BD°08 BW°76
1.137.3257.057.06.33
1
.13
°060.925.2277.059.02.23
2
.72
°079.622.1297.051.18.03
3
.32
°088.429.9118.063.14.92
4
.91
°097.226.8128.065.10.82
5
.51
°0016.023.7148.077.16.62
6
.11
°0114.810.6168.079.12.52
7
.7
°05
BD°58 BW°17
3.336.4247.067.09.53
0
.44
°061.132.3257.069.04.43
2
.23
°078.829.1267.071.18.23
6
.42
°086.626.0277.083.13.13
3
.91
°093.422.9197.095.17.92
3
.51
°0010.229.7118.097.11.82
3
.21
°0118.916.6148.000.26.62
9
.9
gniretnE diulF )F°(.pmeT
gniretnE riA .pmeT )F°(
latoT yticapaC )HutBM(
gnivaeL riA .pmeT )F°(
rewoP tupnI )WK(
fotaeH noitprosbA )HutBM( POC
°52
°56
3.810.5884.11.31
7
.3
°030.028.6894.18.41
9
.3
°044.324.0925.10.81
5
.4
°057.621.4955.13.12
1
.5
°061.037.7975.16.42
6
.5
°074.334.10106.19.72
1
.6
°088.630.50136.11.13
6
.6
°52
°07
9.715.9825.17.21
5
.3
°036.913.1935.13.41
7
.3
°048.229.4965.15.71
3
.4
°051.624.8995.17.02
8
.4
°064.920.20126.19.32
3
.5
°077.236.50146.10.72
8
.5
°089.531.90176.12.03
3
.6
°52
°57
1.817.4907.14.21
1
.3
°038.915.6927.19.31
4
.3
°041.321.00157.10.71
9
.3
°054.628.30187.11.02
3
.4
°067.924.70118.12.32
8
.4
°070.330.11158.12.62
2
.5
°083.636.41188.13.92
7
.5
COOLING FULL LOAD HEATING FULL LOAD
Full Load Capacities based upon rated flow of 8 GPM of 15% methanol/mass at 1200 CFM airflow.
Part Load Capacities based upon rated flow of 8 GPM of 15% methanol/mass at 850 CFM airflow.
COOLING PART LOAD HEATING PART LOAD

Form No. S3423-1112
Supersedes S3423-912
Page 16 of 28
GTC36S1 Matched with GTA3600UD1-A Coil
gniretnE diulF )F°(.pmeT
gniretnE .pmeTriA )F°(
latoT yticapaC )HutBM(
elbisneS yticapaC )HutBM(
elbisneS latoTot oitaR
rewoP tupnI )WK(
fotaeH noitcejeR )HutBM( REE
°04
BD°07 BW°95
8.537.5227.065.11.14
0
.32
°058.532.6237.017.16.14
9
.02
°067.537.6257.068.11.24
2
.91
°077.531.7267.010.26.24
7
.71
°087.537.6257.068.11.24
2
.91
°098.532.6237.017.16.14
9
.02
°0018.537.5227.065.11.14
0
.32
°04
BD°57 BW°36
5.838.6207.085.19.34
4
.42
°055.833.7267.037.14.44
2
.22
°064.838.7257.088.18.44
4
.02
°074.832.8247.040.23.54
8
.81
°084.838.7227.088.18.44
4
.02
°095.833.7217.037.14.44
2
.22
°0015.838.6207.085.19.34
4
.42
°04
BD°08 BW°76
3.148.7257.006.18.64
9
.52
°053.143.8247.057.12.94
6
.32
°062.148.8227.019.17.84
6
.12
°072.143.9217.070.23.84
9
.91
°082.148.8207.019.18.74
6
.12
°093.143.8296.057.13.74
6
.32
°0013.148.7276.006.18.64
9
.52
°04
BD°58 BW°17
3.448.8256.026.18.94
4
.72
°053.443.9266.087.13.05
9
.42
°062.448.9276.049.18.05
8
.22
°072.443.0396.001.23.15
1
.12
°082.448.9276.049.18.05
8
.22
°093.443.9266.087.13.05
9
.42
°0013.448.8256.026.18.94
4
.72
gniretnE diulF )F°(.pmeT
gniretnE riA .pmeT )F°(
latoT yticapaC )HutBM(
gnivaeL riA .pmeT )F°(
rewoP tupnI )WK(
fotaeH noitprosbA )HutBM( POC
°04
°56
2.828.6869.15.12
2
.4
°541.130.9840.21.42
5
.4
°050.432.1931.27.62
7
.4
°067.937.5913.28.13
0
.5
°075.541.00194.20.73
4
.5
°082.155.40166.22.24
6
.5
°090.750.90148.23.74
9
.5
°04
°07
6.723.1910.27.02
0
.4
°544.034.3901.22.32
2
.4
°052.336.5991.27.52
4
.4
°068.830.00173.27.03
8
.4
°075.443.40155.27.53
1
.5
°081.056.80137.28.04
4
.5
°097.550.31119.28.54
8
.5
°04
°57
9.725.6962.22.02
6
.3
°547.037.8963.27.22
8
.3
°056.339.00164.22.52
0
.4
°063.933.50166.22.03
3
.4
°079.447.90178.22.53
6
.4
°086.051.41170.32.04
8
.4
°093.655.81172.32.54
0
.5
gniretnE diulF )F°(.pmeT
gniretnE .pmeTriA )F°(
latoT yticapaC )HutBM(
elbisneS yticapaC )HutBM(
elbisneS latoTot oitaR
rewoP tupnI )WK(
fotaeH noitcejeR )HutBM( REE
°04
BD°07 BW°95
7.825.0227.037.02.13
3
.93
°056.721.0237.068.06.03
2
.23
°066.626.9147.099.00.03
9
.62
°075.521.9157.021.13.92
9
.22
°085.427.8167.052.17.82
7
.91
°094.322.8187.073.11.82
1
.71
°0014.227.7197.005.15.72
9
.41
°04
BD°57 BW°36
8.034.1296.047.04.33
7
.14
°057.929.0207.078.07.23
2
.43
°066.824.0217.000.10.23
6
.82
°075.729.9137.031.13.13
3
.42
°083.624.9147.062.16.03
9
.02
°092.529.8157.093.10.03
1
.81
°0011.425.8177.025.13.92
8
.51
°04
BD°08 BW°76
1.332.2276.057.07.53
2
.44
°059.137.1286.088.09.43
2
.63
°067.032.1296.010.12.43
7
.82
°075.927.0207.051.14.33
7
.52
°083.822.0217.082.16.23
7
.22
°091.727.9137.014.19.13
8
.91
°0019.522.9147.045.11.13
8
.61
°04
BD°58 BW°17
5.530.3256.067.01.83
7
.64
°052.434.2266.098.03.73
2
.83
°069.239.1276.030.14.63
0
.23
°076.134.1286.061.16.53
2
.72
°083.039.0296.003.17.43
4
.32
°090.924.0207.034.19.33
3
.02
°0017.728.9127.065.11.33
7
.71
gniretnE diulF )F°(.pmeT
gniretnE riA .pmeT )F°(
latoT yticapaC )HutBM(
gnivaeL riA .pmeT )F°(
rewoP tupnI )WK(
fotaeH noitprosbA )HutBM( POC
°04
°56
0.129.7834.11.61
3
.4
°549.229.9864.19.71
6
.4
°058.420.2984.17.91
9
.4
°065.821.6935.13.32
5
.5
°073.232.00185.19.62
0
.6
°081.633.40126.15.03
5
.6
°099.934.80176.12.43
0
.7
°04
°07
5.023.2974.15.51
1
.4
°544.224.4905.12.71
4
.4
°052.424.6925.10.91
7
.4
°069.724.00175.15.22
9
.4
°076.134.40126.11.62
2
.5
°083.534.80176.16.92
5
.5
°090.934.21117.11.33
8
.5
°04
°57
7.026.7956.11.51
7
.3
°546.226.9986.19.61
9
.3
°055.427.10117.16.81
2
.4
°062.827.50167.12.22
7
.4
°079.138.90128.17.52
2
.5
°087.538.31178.13.92
6
.5
°094.939.71139.18.23
0
.6
COOLING FULL LOAD HEATING FULL LOAD
Full Load Capacities based upon rated flow of 6 GPM water at 1200 CFM airflow.
Part Load Capacities based upon rated flow of 6 GPM water at 850 CFM airflow.
COOLING PART LOAD HEATING PART LOAD

Form No. S3423-1112
Supersedes S3423-912
Page 17 of 28
GTC48S1 Matched with GTA4860UD1-A Coil
gniretnE diulF )F°(.pmeT
gniretnE .pmeTriA )F°(
latoT yticapaC )HutBM(
elbisneS yticapaC )HutBM(
elbisneS latoTot oitaR
rewoP tupnI )WK(
fotaeH noitcejeR )HutBM( REE
°05
BD°07 BW°95
4.151.6307.024.27.95
3
.12
°060.941.5317.017.23.85
1
.81
°077.640.4337.010.39.65
5
.51
°083.440.3347.013.36.55
4
.31
°099.149.1367.016.32.45
6
.11
°0015.939.0387.009.38.25
1
.01
°0111.738.9208.002.45.15
8
.8
°05
BD°57 BW°36
3.556.7386.044.26.36
7
.22
°068.255.6396.047.21.26
2
.91
°072.054.5317.050.36.06
5
.61
°086.743.4327.053.31.95
2
.41
°091.542.3347.066.36.75
3
.21
°0015.242.2367.079.30.65
7
.01
°0119.931.1387.072.45.45
3
.9
°05
BD°08 BW°76
4.950.9366.084.29.76
9
.32
°066.659.7376.097.21.66
3
.02
°079.358.6386.090.34.46
4
.71
°081.156.5307.093.37.26
1
.51
°094.845.4317.007.30.16
1
.31
°0016.544.3337.000.43.95
4
.11
°0119.242.2357.013.46.75
0
.01
°05
BD°58 BW°17
7.364.0436.025.22.27
3
.52
°067.062.9356.038.24.07
5
.12
°078.750.8366.031.35.86
4
.81
°088.459.6376.044.36.66
9
.51
°099.157.5396.057.37.46
8
.31
°0019.845.4317.060.48.26
0
.21
°0110.644.3337.073.49.06
5
.01
gniretnE diulF )F°(.pmeT
gniretnE riA .pmeT )F°(
latoT yticapaC )HutBM(
gnivaeL riA .pmeT )F°(
rewoP tupnI )WK(
fotaeH noitprosbA )HutBM( POC
°52
°56
1.431.6839.28.32
4
.3
°032.730.8840.35.62
6
.3
°045.348.1942.31.23
9
.3
°057.947.5944.36.73
2
.4
°060.655.9946.32.34
5
.4
°072.264.30158.37.84
7
.4
°084.862.70150.43.45
0
.5
°52
°07
4.336.0910.31.32
3
.3
°034.635.2921.38.52
4
.3
°045.242.6933.32.13
7
.3
°056.840.00135.35.63
0
.4
°067.458.30147.39.14
3
.4
°078.065.70159.33.74
5
.4
°089.663.11161.47.25
8
.4
°52
°57
7.338.5983.34.22
9
.2
°038.637.7905.30.52
1
.3
°040.345.10137.32.03
4
.3
°051.943.50179.34.53
6
.3
°063.551.90102.47.04
8
.3
°075.169.21134.49.54
1
.4
°086.768.61176.41.15
3
.4
gniretnE diulF )F°(.pmeT
gniretnE .pmeTriA )F°(
latoT yticapaC )HutBM(
elbisneS yticapaC )HutBM(
elbisneS latoTot oitaR
rewoP tupnI )WK(
fotaeH noitcejeR )HutBM( REE
°05
BD°07 BW°95
1.933.8227.053.17.34
0
.92
°061.735.7247.006.16.24
2
.32
°071.536.6267.068.14.14
9
.81
°081.338.5287.011.23.04
7
.51
°091.130.5208.073.22.93
1
.31
°0011.922.4238.026.20.83
1
.11
°0111.723.3268.088.29.63
4
.9
°05
BD°57 BW°36
1.245.9207.063.17.64
0
.13
°069.936.8227.026.14.54
7
.42
°077.737.7237.088.12.44
1
.02
°086.539.6267.041.29.24
6
.61
°094.330.6287.014.27.14
9
.31
°0013.132.5208.076.24.04
7
.11
°0111.923.4238.039.21.93
9
.9
°05
BD°08 BW°76
2.546.0376.083.19.94
1
.72
°068.247.9296.046.15.84
2
.42
°075.048.8217.019.10.74
3
.12
°082.839.7237.071.26.54
3
.81
°099.530.7257.034.22.44
4
.51
°0016.331.6287.096.28.24
5
.21
°0113.132.5208.059.24.14
6
.9
°05
BD°58 BW°17
4.847.1356.004.12.35
5
.43
°069.547.0376.076.16.15
5
.72
°074.348.9296.039.10.05
5
.22
°080.149.8207.002.25.84
6
.81
°095.839.7237.074.29.64
6
.51
°0010.630.7257.037.23.54
2
.31
°0115.331.6287.000.38.34
2
.11
gniretnE diulF )F°(.pmeT
gniretnE riA .pmeT )F°(
latoT yticapaC )HutBM(
gnivaeL riA .pmeT )F°(
rewoP tupnI )WK(
fotaeH noitprosbA )HutBM( POC
°52
°56
8.325.5871.21.61
2
.3
°033.627.7812.25.81
5
.3
°043.130.2982.23.32
0
.4
°053.633.6953.21.82
5
.4
°064.146.00134.29.23
0
.5
°074.649.40105.27.73
4
.5
°084.152.90175.24.24
9
.5
°52
°07
3.320.0932.27.51
1
.3
°037.522.2972.20.81
3
.3
°046.034.6943.26.22
8
.3
°055.536.00124.23.72
3
.4
°064.048.40194.29.13
7
.4
°073.540.90175.26.63
2
.5
°082.053.31146.22.14
6
.5
°52
°57
5.323.5915.22.51
8
.2
°030.624.7955.24.71
0
.3
°040.137.10136.20.22
4
.3
°059.539.50117.25.62
9
.3
°069.042.01108.20.13
3
.4
°078.545.41188.25.53
7
.4
°088.057.81179.20.04
0
.5
COOLING FULL LOAD HEATING FULL LOAD
Full Load Capacities based upon rated flow of 12 GPM of 15% methanol/mass at 1500 CFM airflow.
Part Load Capacities based upon rated flow of 12 GPM of 15% methanol/mass at 1150 CFM airflow.
COOLING PART LOAD HEATING PART LOAD

Form No. S3423-1112
Supersedes S3423-912
Page 18 of 28
GTC48S1 Matched with GTA4860UD1-A Coil
gniretnE diulF )F°(.pmeT
gniretnE .pmeTriA )F°(
latoT yticapaC )HutBM(
elbisneS yticapaC )HutBM(
elbisneS latoTot oitaR
rewoP tupnI )WK(
fotaeH noitcejeR )HutBM( REE
°04
BD°07 BW°95
5.841.4307.044.28.65
9
.91
°057.747.3317.036.27.65
2
.81
°060.744.3317.028.26.65
7
.61
°072.640.3317.010.35.65
4
.51
°080.744.3317.028.26.65
7
.61
°097.747.3317.036.27.65
2
.81
°0015.841.4307.044.28.65
9
.91
°04
BD°57 BW°36
2.255.5386.074.26.06
1
.12
°054.151.5307.066.24.06
3
.91
°065.057.4396.058.23.06
7
.71
°077.944.4396.050.31.06
3
.61
°085.057.4396.058.23.06
7
.71
°094.151.5386.066.24.06
3
.91
°0012.255.5386.074.26.06
1
.12
°04
BD°08 BW°76
0.658.6386.005.25.46
4
.22
°051.554.6376.007.26.36
4
.02
°063.450.6376.098.28.36
8
.81
°074.357.5376.090.39.36
3
.71
°083.450.6366.098.21.46
8
.81
°091.554.6366.007.23.46
4
.02
°0010.658.6366.005.25.46
4
.22
°04
BD°58 BW°17
0.061.8336.045.27.86
7
.32
°051.957.7346.047.24.86
6
.12
°062.853.7346.039.22.86
8
.91
°072.759.6346.031.39.76
3
.81
°082.853.7346.039.22.86
8
.91
°091.957.7346.047.24.86
6
.12
°0010.061.8336.045.27.86
7
.32
gniretnE diulF )F°(.pmeT
gniretnE riA .pmeT )F°(
latoT yticapaC )HutBM(
gnivaeL riA .pmeT )F°(
rewoP tupnI )WK(
fotaeH noitprosbA )HutBM( POC
°04
°56
2.739.7816.23.82
2
.4
°543.145.0918.27.13
3
.4
°055.541.3920.32.53
4
.4
°069.353.8934.32.24
6
.4
°072.264.30158.31.94
7
.4
°086.076.80162.40.65
9
.4
°099.877.31176.40.36
9
.4
°04
°07
3.634.2986.22.72
0
.4
°544.049.4998.26.03
1
.4
°055.445.7901.39.33
2
.4
°067.255.20125.36.04
4
.4
°078.066.70159.34.74
5
.4
°080.966.21173.41.45
7
.4
°092.776.71108.48.06
8
.4
°04
°57
7.636.60100.35.62
6
.3
°549.042.01142.38.92
7
.3
°050.548.31184.31.33
8
.3
°062.359.02169.37.93
9
.3
°075.160.82134.44.64
1
.4
°088.961.53119.40.35
2
.4
°090.872.24193.56.95
2
.4
gniretnE diulF )F°(.pmeT
gniretnE .pmeTriA )F°(
latoT yticapaC )HutBM(
elbisneS yticapaC )HutBM(
elbisneS latoTot oitaR
rewoP tupnI )WK(
fotaeH noitcejeR )HutBM( REE
°04
BD°07 BW°95
1.632.7257.052.14.04
9
.82
°059.530.7257.044.18.04
9
.42
°067.537.6257.036.13.14
9
.12
°075.535.6257.028.17.14
5
.91
°083.532.6247.010.21.24
5
.71
°090.539.5247.002.25.24
9
.51
°0018.437.5247.093.20.34
6
.41
°04
BD°57 BW°36
9.834.8237.072.12.34
7
.03
°056.831.8237.064.16.34
5
.62
°064.838.7227.056.10.44
2
.32
°072.835.7227.048.15.44
7
.02
°089.733.7227.040.29.44
6
.81
°097.730.7227.032.23.54
9
.61
°0014.737.6217.024.27.54
5
.51
°04
BD°08 BW°76
7.144.9217.082.11.64
5
.23
°055.142.9207.084.15.64
1
.82
°062.149.8207.076.19.64
8
.32
°070.146.8207.078.13.74
9
.12
°087.043.8296.060.28.74
1
.02
°095.040.8296.062.22.84
2
.81
°0012.047.7296.054.26.84
4
.61
°04
BD°58 BW°17
7.445.0386.003.12.94
4
.43
°055.442.0386.005.16.94
6
.92
°062.449.9286.007.10.05
0
.62
°079.346.9276.009.14.05
2
.32
°086.343.9276.090.28.05
8
.02
°094.340.9276.092.22.15
9
.81
°0011.347.8276.094.26.15
3
.71
gniretnE diulF )F°(.pmeT
gniretnE riA .pmeT )F°(
latoT yticapaC )HutBM(
gnivaeL riA .pmeT )F°(
rewoP tupnI )WK(
fotaeH noitprosbA )HutBM( POC
°04
°56
2.920.3831.20.22
0
.4
°547.136.4861.23.42
3
.4
°052.431.6891.27.62
6
.4
°061.931.9852.24.13
1
.5
°070.442.2923.21.63
6
.5
°080.942.5983.29.04
0
.6
°099.353.8944.26.54
5
.6
°04
°07
6.826.4991.21.12
8
.3
°540.137.6922.24.32
1
.4
°054.338.8952.27.52
3
.4
°062.839.20113.23.03
6
.4
°071.341.70183.29.43
9
.4
°089.742.11144.25.93
1
.5
°097.254.51115.22.44
4
.5
°04
°57
9.829.9954.25.02
4
.3
°543.130.20194.28.22
7
.3
°058.331.40135.21.52
9
.3
°066.833.80106.28.92
4
.4
°075.345.21176.24.43
8
.4
°084.847.61147.20.93
2
.5
°093.359.02118.27.34
5
.5
COOLING FULL LOAD HEATING FULL LOAD
Full Load Capacities based upon rated flow of 7 GPM water at 1500 CFM airflow.
Part Load Capacities based upon rated flow of 5 GPM water at 1150 CFM airflow.
COOLING PART LOAD HEATING PART LOAD

Form No. S3423-1112
Supersedes S3423-912
Page 19 of 28
GTC60S1 Matched with GTA4860UD1-A Coil
gniretnE diulF )F°(.pmeT
gniretnE .pmeTriA )F°(
latoT yticapaC )HutBM(
elbisneS yticapaC )HutBM(
elbisneS latoTot oitaR
rewoP tupnI )WK(
fotaeH noitcejeR )HutBM( REE
°05
BD°07 BW°95
7.958.2427.097.22.96
4
.12
°061.758.1437.091.30.86
9
.71
°075.458.0457.095.37.66
2
.51
°089.158.9377.099.35.56
0
.31
°092.948.8397.093.42.46
2
.11
°0016.648.7318.087.40.36
7
.9
°0110.448.6348.081.57.16
5
.8
°05
BD°57 BW°36
2.466.4496.028.28.37
8
.22
°064.166.3417.032.34.27
0
.91
°076.855.2437.036.30.17
1
.61
°088.555.1447.040.46.96
8
.31
°090.354.0467.054.42.86
9
.11
°0011.054.9397.068.47.66
3
.01
°0113.744.8318.072.53.56
0
.9
°05
BD°08 BW°76
9.863.6476.078.27.87
0
.42
°069.562.5496.082.31.77
1
.02
°079.261.4407.086.35.57
1
.71
°089.950.3427.090.49.37
6
.41
°099.650.2447.005.42.27
6
.21
°0018.359.0467.019.46.07
0
.11
°0118.058.9387.023.50.96
6
.9
°05
BD°58 BW°17
9.379.7456.019.28.38
4
.52
°067.078.6466.023.30.28
3
.12
°074.767.5486.047.32.08
0
.81
°082.465.4496.051.44.87
5
.51
°099.064.3417.075.45.67
3
.31
°0017.753.2437.089.47.47
6
.11
°0115.452.1467.093.59.27
1
.01
gniretnE diulF )F°(.pmeT
gniretnE riA .pmeT )F°(
latoT yticapaC )HutBM(
gnivaeL riA .pmeT )F°(
rewoP tupnI )WK(
fotaeH noitprosbA )HutBM( POC
°52
°56
4.649.8858.38.23
5
.3
°036.945.0959.37.53
7
.3
°048.557.3941.43.14
9
.3
°051.269.6933.49.64
2
.4
°064.862.00125.45.25
4
.4
°076.474.30127.41.85
6
.4
°089.086.60119.47.36
9
.4
°52
°07
4.544.3969.39.13
4
.3
°035.849.4950.46.43
5
.3
°046.451.8952.41.04
8
.3
°057.062.10154.45.54
0
.4
°068.664.40156.40.15
2
.4
°070.375.70148.44.65
4
.4
°081.977.01140.59.16
6
.4
°52
°57
9.546.8944.49.03
0
.3
°030.942.00155.46.33
2
.3
°042.554.30177.49.83
4
.3
°054.166.60100.52.44
6
.3
°066.768.90122.54.94
8
.3
°078.379.21144.57.45
0
.4
°089.971.61166.50.06
2
.4
gniretnE diulF )F°(.pmeT
gniretnE .pmeTriA )F°(
latoT yticapaC )HutBM(
elbisneS yticapaC )HutBM(
elbisneS latoTot oitaR
rewoP tupnI )WK(
fotaeH noitcejeR )HutBM( REE
°05
BD°07 BW°95
8.447.0396.005.19.94
8
.92
°066.241.0317.048.18.84
2
.32
°074.045.9237.071.28.74
6
.81
°082.839.8267.005.28.64
3
.51
°091.633.8287.048.27.54
7
.21
°0019.337.7228.071.37.44
7
.01
°0117.130.7258.005.37.34
1
.9
°05
BD°57 BW°36
1.840.2366.015.13.35
8
.13
°068.544.1386.068.11.25
7
.42
°075.347.0317.002.20.15
8
.91
°081.141.0337.045.28.94
2
.61
°098.834.9267.088.26.84
5
.31
°0014.638.8297.022.34.74
3
.11
°0111.432.8238.065.33.64
6
.9
°05
BD°08 BW°76
7.152.3336.045.10.75
9
.62
°062.945.2366.088.16.55
9
.32
°077.649.1386.032.23.45
0
.12
°082.442.1317.075.29.25
0
.81
°096.145.0347.019.26.15
0
.51
°0011.939.9267.052.32.05
0
.21
°0116.632.9297.095.39.84
1
.9
°05
BD°58 BW°17
4.554.4326.075.17.06
4
.53
°067.257.3346.019.12.95
6
.72
°070.050.3366.062.27.75
1
.22
°083.743.2386.016.22.65
2
.81
°096.446.1317.059.27.45
1
.51
°0019.149.0347.003.32.35
7
.21
°0112.932.0377.056.37.15
8
.01
gniretnE diulF )F°(.pmeT
gniretnE riA .pmeT )F°(
latoT yticapaC )HutBM(
gnivaeL riA .pmeT )F°(
rewoP tupnI )WK(
fotaeH noitprosbA )HutBM( POC
°52
°56
5.037.6887.26.02
2
.3
°031.336.8838.21.32
4
.3
°044.834.2929.21.82
8
.3
°058.342.6920.32.33
2
.4
°061.940.00111.32.83
6
.4
°074.457.30112.32.34
0
.5
°087.955.70103.32.84
3
.5
°52
°07
8.922.1968.20.02
1
.3
°034.231.3919.25.22
3
.3
°046.738.6900.33.72
7
.3
°058.245.00101.32.23
0
.4
°060.842.40102.31.73
4
.4
°072.359.70192.39.14
7
.4
°084.856.11193.38.64
1
.5
°52
°57
1.034.6912.34.91
8
.2
°037.233.8962.38.12
9
.2
°040.831.20173.35.62
3
.3
°052.348.50184.32.13
6
.3
°065.845.90195.30.63
9
.3
°078.353.31107.37.04
3
.4
°080.950.71118.34.54
6
.4
COOLING FULL LOAD HEATING FULL LOAD
Full Load Capacities based upon rated flow of 15 GPM of 15% methanol/mass at 1800 CFM airflow.
Part Load Capacities based upon rated flow of 15 GPM of 15% methanol/mass at 1300 CFM airflow.
COOLING PART LOAD HEATING PART LOAD

Form No. S3423-1112
Supersedes S3423-912
Page 20 of 28
GTC60S1 Matched with GTA4860UD1-A Coil
gniretnE diulF )F°(.pmeT
gniretnE .pmeTriA )F°(
latoT yticapaC )HutBM(
elbisneS yticapaC )HutBM(
elbisneS latoTot oitaR
rewoP tupnI )WK(
fotaeH noitcejeR )HutBM( REE
°04
BD°07 BW°95
9.350.0447.017.21.36
9
.91
°058.354.0457.000.30.46
9
.71
°067.357.0467.092.39.46
3
.61
°076.351.1477.085.38.56
0
.51
°087.357.0467.092.39.46
3
.61
°098.354.0457.000.30.46
9
.71
°0019.350.0447.017.21.36
9
.91
°04
BD°57 BW°36
9.756.1427.057.23.76
1
.12
°059.750.2467.040.32.86
0
.91
°068.754.2457.033.31.96
3
.71
°077.758.2447.026.30.07
9
.51
°088.754.2437.033.31.96
3
.71
°099.750.2437.040.32.86
0
.91
°0019.756.1427.057.23.76
1
.12
°04
BD°08 BW°76
2.262.3486.08.27.17
4
.22
°051.266.3407.080.36.27
2
.02
°060.260.4427.04.35.37
4
.81
°079.164.4427.076.35.47
9
.61
°080.260.4417.083.35.37
4
.81
°091.266.3407.080.36.27
2
.02
°0012.262.3496.087.27.17
4
.22
°04
BD°58 BW°17
7.667.4476.028.23.67
6
.32
°056.661.5486.021.32.77
3
.12
°065.665.5486.024.32.87
4
.91
°074.669.5496.037.31.97
8
.71
°085.665.5486.024.32.87
4
.91
°096.661.5486.021.32.77
3
.12
°0017.667.4476.028.23.67
6
.32
gniretnE diulF )F°(.pmeT
gniretnE riA .pmeT )F°(
latoT yticapaC )HutBM(
gnivaeL riA .pmeT )F°(
rewoP tupnI )WK(
fotaeH noitprosbA )HutBM( POC
°04
°56
3.154.1947.35.83
0
.4
°543.459.2958.32.14
1
.4
°053.755.4959.38.34
2
.4
°063.366.7961.41.94
5
.4
°073.966.00173.43.45
6
.4
°083.577.30195.46.95
8
.4
°093.188.60108.49.46
0
.5
°04
°07
1.058.5948.30.73
8
.3
°541.353.7959.36.93
9
.3
°050.658.8960.41.24
0
.4
°069.168.10182.43.74
2
.4
°077.768.40194.44.25
4
.4
°086.378.70117.45.75
6
.4
°094.979.01129.46.26
8
.4
°04
°57
7.051.10123.40.63
4
.3
°547.356.20144.45.83
5
.3
°056.651.40165.41.14
6
.3
°065.262.70108.41.64
8
.3
°075.862.01140.52.15
0
.4
°084.473.31192.53.65
1
.4
°093.083.61135.54.16
3
.4
gniretnE diulF )F°(.pmeT
gniretnE .pmeTriA )F°(
latoT yticapaC )HutBM(
elbisneS yticapaC )HutBM(
elbisneS latoTot oitaR
rewoP tupnI )WK(
fotaeH noitcejeR )HutBM( REE
°04
BD°07 BW°95
6.442.2327.024.14.94
4
.13
°059.244.1337.076.16.84
8
.52
°062.146.0347.019.17.74
5
.12
°075.938.9257.061.28.64
3
.81
°087.730.9277.004.20.64
7
.51
°090.632.8287.056.21.54
6
.31
°0013.434.7208.009.22.44
8
.11
°04
BD°57 BW°36
0.845.3307.044.19.25
4
.33
°051.647.2307.096.19.15
4
.72
°063.448.1327.049.19.05
9
.22
°074.240.1337.091.29.94
4
.91
°086.042.0347.034.29.84
7
.61
°098.833.9267.086.29.74
4
.41
°0019.635.8277.039.29.64
6
.21
°04
BD°08 BW°76
5.158.4386.064.15.65
4
.53
°055.949.3386.017.14.55
0
.92
°065.740.3396.069.12.45
0
.32
°076.542.2317.012.21.35
6
.02
°086.343.1327.074.20.25
2
.81
°096.144.0337.027.29.05
7
.51
°0016.936.9257.079.28.94
3
.31
°04
BD°58 BW°17
2.550.6356.084.12.06
4
.73
°051.351.5366.037.10.95
6
.03
°060.152.4376.099.17.75
6
.52
°078.843.3386.052.25.65
7
.12
°087.644.2396.005.23.55
7
.81
°096.445.1317.067.20.45
2
.61
°0015.246.0327.020.38.25
1
.41
gniretnE diulF )F°(.pmeT
gniretnE riA .pmeT )F°(
latoT yticapaC )HutBM(
gnivaeL riA .pmeT )F°(
rewoP tupnI )WK(
fotaeH noitprosbA )HutBM( POC
°04
°56
7.620.4867.17.02
4
.4
°548.331.9802.23.62
5
.4
°059.041.4936.29.13
6
.4
°061.552.40105.31.34
6
.4
°073.963.41173.43.45
6
.4
°084.384.42142.55.56
7
.4
°096.795.43111.67.67
7
.4
°04
°07
1.624.3818.10.02
7
.4
°541.330.7862.24.52
7
.4
°050.046.0917.28.03
3
.4
°069.357.7906.36.14
4
.4
°077.768.40194.44.25
4
.4
°086.180.21183.52.36
5
.4
°094.591.91182.60.47
5
.4
°04
°57
4.628.3930.25.91
8
.3
°544.338.8945.28.42
9
.3
°054.048.30140.31.03
9
.3
°064.458.31140.47.04
9
.3
°075.868.32140.52.15
0
.4
°085.287.33150.68.16
0
.4
°095.697.34150.74.27
0
.4
COOLING FULL LOAD HEATING FULL LOAD
Full Load Capacities based upon rated flow of 9 GPM water at 1800 CFM airflow.
Part Load Capacities based upon rated flow of 9 GPM water at 1300 CFM airflow.
COOLING PART LOAD HEATING PART LOAD

Form No. S3423-1112
Supersedes S3423-912
Page 21 of 28
gniretnE diulF )F°(.pmeT
gniretnE .pmeTriA )F°(
latoT yticapaC )HutBM(
elbisneS yticapaC )HutBM(
elbisneS latoTot oitaR
rewoP tupnI )WK(
fotaeH noitcejeR )HutBM( REE
°05
BD°07 BW°95
0.040.0357.004.18.445.82
°060.830.9267.076.17.348.22
°071.630.8287.039.17.247.81
°082.431.7297.091.27.146.51
°092.231.6218.064.26.04
1
.31
°0013.031.5238.027.26.93
1
.11
°0114.821.4258.089.26.835.9
°05
BD°57 BW°36
0.342.1337.014.18.744.03
°069.042.0347.086.17.643.42
°078.832.9257.059.15.549.91
°088.632.8277.022.23.445.61
°097.432.7287.094.22.349.31
°0016.231.6208.067.20.248.11
°0115.031.5228.030.39.04
1
.01
°05
BD°08 BW°76
2.644.2307.044.11.15
1
.23
°069.344.1317.017.18.947.52
°077.143.0337.089.15.84
1
.12
°085.932.9247.052.21.745.71
°092.732.8267.025.28.548.41
°0010.531.7277.097.25.445.21
°0118.231.6208.060.32.347.01
°05
BD°58 BW°17
5.946.3386.064.15.459.33
°061.745.2396.037.10.35
1
.72
°077.444.1307.010.25.153.22
°083.243.0327.082.21.055.81
°099.932.9237.065.26.846.51
°0015.731.8257.038.22.743.31
°0111.530.7277.001.37.543.11
gniretnE diulF )F°(.pmeT
gniretnE riA .pmeT )F°(
latoT yticapaC )HutBM(
gnivaeL riA .pmeT )F°(
rewoP tupnI )WK(
fotaeH noitprosbA )HutBM( POC
°52
°56
7.323.3829.10.71
7
.3
°033.623.5889.13.91
9
.3
°044.133.9821.20.42
3
.4
°056.632.3962.27.82
8
.4
°068.142.7993.24.33
1
.5
°079.642.10135.21.83
4
.5
°081.252.50176.28.24
8
.5
°52
°07
2.329.7879.15.61
5
.3
°037.528.9840.27.81
7
.3
°047.037.3981.23.32
1
.4
°058.536.7923.29.72
5
.4
°068.045.10164.24.23
8
.4
°079.544.50106.20.73
2
.5
°089.053.90147.26.14
5
.5
°52
°57
4.321.3912.20.61
1
.3
°030.620.5992.22.81
3
.3
°041.130.9944.26.22
7
.3
°052.639.20106.20.72
1
.4
°063.148.60167.25.13
4
.4
°074.648.01129.29.53
7
.4
°085.157.41170.33.04
9
.4
gniretnE diulF )F°(.pmeT
gniretnE .pmeTriA )F°(
latoT yticapaC )HutBM(
elbisneS yticapaC )HutBM(
elbisneS latoTot oitaR
rewoP tupnI )WK(
fotaeH noitcejeR )HutBM( REE
°05
BD°07 BW°95
0.038.2267.046.02.239.64
°065.724.1287.068.05.032.23
°071.521.0208.070.18.824.32
°087.227.8138.092.11.726.71
°092.024.7168.015.14.524.31
°0018.710.6109.027.17.323.01
°0114.516.4159.049.10.229.7
°05
BD°57 BW°36
3.237.3247.046.04.432.05
°066.923.2257.068.06.233.43
°070.729.0277.090.17.039.42
°084.425.9108.013.18.827.81
°098.121.8138.035.10.722.41
°0011.917.6178.057.11.529.01
°0115.612.5129.079.13.324.8
°05
BD°08 BW°76
6.436.4296.066.09.632.63
°068.132.3227.088.08.433.13
°070.927.1257.001.18.234.62
°082.622.0287.023.17.035.12
°094.328.8118.045.16.825.61
°0016.023.7148.077.16.626.11
°0117.718.5178.099.15.427.6
°05
BD°58 BW°17
1.735.5296.066.04.938.55
°061.430.4207.098.01.733.83
°071.135.2227.021.19.439.72
°081.829.0257.043.16.239.02
°090.524.9187.075.14.030.61
°0010.229.7118.097.11.823.21
°0110.914.6168.020.29.524.9
gniretnE diulF )F°(.pmeT
gniretnE riA .pmeT )F°(
latoT yticapaC )HutBM(
gnivaeL riA .pmeT )F°(
rewoP tupnI )WK(
fotaeH noitprosbA )HutBM( POC
°52
°56
7.612.3882.12.21
9
.3
°036.812.5813.19.31
1
.4
°043.223.9893.14.71
7
.4
°050.623.3964.19.02
2
.5
°067.923.7935.14.42
7
.5
°074.334.10116.18.72
1
.6
°081.734.50186.13.13
5
.6
°52
°07
3.618.7813.18.11
7
.3
°031.818.9853.15.31
9
.3
°048.127.3934.19.61
4
.4
°054.527.7905.13.02
0
.5
°060.926.10185.17.32
4
.5
°077.236.50156.10.72
8
.5
°083.635.90137.14.03
2
.6
°52
°57
5.610.3974.15.11
3
.3
°033.810.5925.11.31
5
.3
°040.220.9906.14.61
0
.4
°057.520.30186.17.91
5
.4
°063.920.70177.19.22
8
.4
°070.330.11158.12.62
2
.5
°087.630.51149.15.92
6
.5
COOLING FULL LOAD HEATING FULL LOAD
Full Load Capacities based upon rated flow of 8 GPM of 15% methanol/mass at 1200 CFM airflow.
Part Load Capacities based upon rated flow of 8 GPM of 15% methanol/mass at 850 CFM airflow.
COOLING PART LOAD HEATING PART LOAD
GTC36S1 Matched with GTADP-3642-B (HE37942D175B2505AW) and GTADP-3642-C (HE37942D210B2505AW) -A Coils

Form No. S3423-1112
Supersedes S3423-912
Page 22 of 28
GTC36S1 Matched with GTADP-3642-B (HE37942D175B2505AW) and GTADP-3642-C (HE37942D210B2505AW) -A Coils
gniretnE diulF )F°(.pmeT
gniretnE .pmeTriA )F°(
latoT yticapaC )HutBM(
elbisneS yticapaC )HutBM(
elbisneS latoTot oitaR
rewoP tupnI )WK(
fotaeH noitcejeR )HutBM( REE
°04
BD°07 BW°95
8.538.5227.045.10.142.32
°058.535.6247.036.14.140.22
°068.532.7267.027.17.148.02
°078.530.8287.018.10.248.91
°088.532.7267.027.17.148.02
°098.535.6247.036.14.140.22
°0018.538.5227.045.10.142.32
°04
BD°57 BW°36
5.839.6207.065.18.347.42
°055.836.7297.056.12.443.32
°065.834.8277.047.15.44
1
.22
°076.831.9257.048.18.440.12
°085.834.8247.047.15.44
1
.22
°095.836.7227.056.12.443.32
°0015.839.6207.065.18.347.42
°04
BD°08 BW°76
3.149.7287.085.17.642.62
°054.147.8277.076.14.847.42
°064.144.9257.077.11.844.32
°074.142.0337.068.17.743.22
°084.144.9217.077.14.744.32
°094.147.8296.076.11.747.42
°0013.149.7276.085.17.642.62
°04
BD°58 BW°17
3.449.8256.006.18.946.72
°053.447.9276.007.11.05
1
.62
°063.445.0396.097.15.057.42
°074.443.1307.098.18.055.32
°083.445.0396.097.15.057.42
°093.447.9276.007.11.05
1
.62
°0013.449.8256.006.18.946.72
gniretnE diulF )F°(.pmeT
gniretnE riA .pmeT )F°(
latoT yticapaC )HutBM(
gnivaeL riA .pmeT )F°(
rewoP tupnI )WK(
fotaeH noitprosbA )HutBM( POC
°04
°56
9.921.8838.17.32
8
.4
°545.231.0949.19.52
9
.4
°051.531.2950.21.82
0
.5
°063.041.6972.26.23
2
.5
°075.541.00194.20.73
4
.5
°087.051.40117.24.14
5
.5
°099.551.80139.29.54
6
.5
°04
°07
2.925.2978.18.22
6
.4
°548.135.4999.10.52
7
.4
°053.435.6901.21.72
8
.4
°064.934.00133.24.13
9
.4
°075.443.40155.27.53
1
.5
°085.942.80187.21.04
3
.5
°096.451.21100.34.44
4
.5
°04
°57
5.928.7901.24.22
1
.4
°541.238.9932.25.42
2
.4
°057.438.10163.26.62
3
.4
°068.937.50116.29.03
5
.4
°079.447.90178.22.53
6
.4
°081.056.31121.34.93
7
.4
°092.556.71173.37.34
8
.4
gniretnE diulF )F°(.pmeT
gniretnE .pmeTriA )F°(
latoT yticapaC )HutBM(
elbisneS yticapaC )HutBM(
elbisneS latoTot oitaR
rewoP tupnI )WK(
fotaeH noitcejeR )HutBM( REE
°04
BD°07 BW°95
0.723.1297.007.04.928.83
°054.628.0297.038.02.929.13
°068.523.0297.069.01.929.62
°072.528.9197.090.19.82
1
.32
°086.423.9187.022.18.82
1
.02
°090.428.8187.053.16.827.71
°0014.323.8187.094.15.827.51
°04
BD°57 BW°36
1.922.2267.017.05.132.14
°054.827.1267.048.03.139.33
°068.722.1267.079.01.136.82
°071.726.0267.011.19.035.42
°085.621.0267.042.17.034.12
°098.526.9167.073.15.038.81
°0011.520.9167.005.13.037.61
°04
BD°08 BW°76
2.131.3247.027.06.336.34
°055.035.2247.058.04.339.53
°068.920.2247.099.02.337.82
°071.924.1247.021.19.230.62
°084.829.0237.062.17.232.32
°097.723.0237.093.14.235.02
°0010.728.9137.035.12.237.71
°04
BD°58 BW°17
4.339.3217.037.09.53
1
.64
°057.233.3217.068.06.539.73
°069.137.2217.000.13.530.23
°072.131.2217.041.11.535.72
°084.036.1217.072.18.439.32
°097.920.1217.014.15.43
1
.12
°0019.824.0217.055.12.437.81
gniretnE diulF )F°(.pmeT
gniretnE riA .pmeT )F°(
latoT yticapaC )HutBM(
gnivaeL riA .pmeT )F°(
rewoP tupnI )WK(
fotaeH noitprosbA )HutBM( POC
°04
°56
2.121.8842.10.71
0
.5
°541.321.0903.17.81
2
.5
°059.422.2953.13.02
4
.5
°066.822.6964.16.32
7
.5
°073.232.00185.19.62
0
.6
°080.632.40196.12.03
3
.6
°097.932.80108.16.33
5
.6
°04
°07
8.026.2982.14.61
8
.4
°546.226.4933.10.81
0
.5
°054.425.6993.16.91
1
.5
°060.825.00105.18.22
3
.5
°076.134.40126.11.62
5
.5
°082.533.80137.13.92
7
.5
°098.833.21158.15.23
8
.5
°04
°57
0.129.7934.11.61
3
.4
°548.229.9905.17.71
5
.4
°056.428.10165.13.91
6
.4
°063.828.50196.15.22
9
.4
°079.138.90128.17.52
2
.5
°086.538.31149.19.82
4
.5
°092.937.71170.22.23
5
.5
COOLING FULL LOAD HEATING FULL LOAD
Full Load Capacities based upon rated flow of 6 GPM water at 1200 CFM airflow.
Part Load Capacities based upon rated flow of 6 GPM water at 850 CFM airflow.
COOLING PART LOAD HEATING PART LOAD

Form No. S3423-1112
Supersedes S3423-912
Page 23 of 28
gniretnE diulF )F°(.pmeT
gniretnE .pmeTriA )F°(
latoT yticapaC )HutBM(
elbisneS yticapaC )HutBM(
elbisneS latoTot oitaR
rewoP tupnI )WK(
fotaeH noitcejeR )HutBM( REE
°05
BD°07 BW°95
2.840.8397.058.15.45
1
.62
°067.646.6387.062.24.457.02
°072.542.5387.076.23.459.61
°087.347.3377.080.32.452.41
°092.243.2377.005.31.45
1
.21
°0017.049.0367.019.30.454.01
°0112.935.9257.023.49.35
1
.9
°05
BD°57 BW°36
8.156.9367.068.12.859.72
°062.051.8367.082.20.850.22
°076.846.6357.007.28.750.81
°080.741.5357.031.37.750.51
°094.546.3347.055.35.758.21
°0018.342.2337.079.33.750.11
°0112.247.0337.004.42.756.9
°05
BD°08 BW°76
7.551.1447.098.11.264.92
°069.355.9337.023.28.163.32
°072.250.8337.047.26.16
1
.91
°085.055.6327.061.33.160.61
°097.849.4327.095.30.166.31
°0010.744.3317.010.47.067.11
°0113.548.1307.034.44.062.01
°05
BD°58 BW°17
7.955.2417.029.12.66
1
.13
°068.759.0417.053.28.566.42
°079.553.9307.087.24.56
1
.02
°081.457.7307.012.30.569.61
°092.251.6396.046.37.464.41
°0014.055.4396.070.43.464.21
°0115.849.2386.005.49.368.01
gniretnE diulF )F°(.pmeT
gniretnE riA .pmeT )F°(
latoT yticapaC )HutBM(
gnivaeL riA .pmeT )F°(
rewoP tupnI )WK(
fotaeH noitprosbA )HutBM( POC
°52
°56
1.431.6839.28.32
4
.3
°032.730.8840.35.62
6
.3
°045.348.1942.31.23
9
.3
°057.947.5944.36.73
2
.4
°060.655.9946.32.34
5
.4
°072.264.30158.37.84
7
.4
°084.862.70150.43.45
0
.5
°52
°07
4.336.0910.31.32
3
.3
°034.635.2921.38.52
4
.3
°045.242.6933.32.13
7
.3
°056.840.00135.35.63
0
.4
°067.458.301147.39.14
3
.4
°078.065.70159.33.74
5
.4
°089.663.11161.47.25
8
.4
°52
°57
7.338.5983.34.22
9
.2
°038.637.7905.30.52
1
.3
°040.345.10137.32.03
4
.3
°051.943.50179.34.53
6
.3
°063.551.90102.47.04
8
.3
°075.169.21134.49.54
1
.4
°086.768.61176.41.15
3
.4
gniretnE diulF )F°(.pmeT
gniretnE .pmeTriA )F°(
latoT yticapaC )HutBM(
elbisneS yticapaC )HutBM(
elbisneS latoTot oitaR
rewoP tupnI )WK(
fotaeH noitcejeR )HutBM( REE
°05
BD°07 BW°95
0.538.8228.010.15.836.43
°068.339.7228.033.14.833.52
°076.239.6238.066.13.837.91
°085.130.6238.089.12.839.51
°093.031.5238.003.21.832.31
°0011.922.4238.026.20.83
1
.11
°0119.722.3238.059.20.835.9
°05
BD°57 BW°36
7.730.0308.020.11.140.73
°064.630.9208.053.10.140.72
°071.530.8208.086.18.049.02
°088.331.7208.010.27.049.61
°096.231.6208.043.25.049.31
°0013.132.5208.076.24.047.11
°0110.032.4218.000.33.040.01
°05
BD°08 BW°76
4.041.1377.040.10.446.82
°061.931.0377.073.17.344.52
°077.731.9277.007.15.342.22
°083.631.8277.030.23.349.81
°090.531.7287.063.20.347.51
°0016.331.6287.096.28.245.21
°0112.231.5287.020.35.242.9
°05
BD°58 BW°17
3.342.2347.050.19.64
1
.14
°069.142.1347.093.16.64
1
.03
°074.041.0357.027.13.644.32
°089.831.9257.060.20.649.81
°095.731.8257.004.27.546.51
°0010.630.7257.037.23.542.31
°0115.430.6257.070.30.543.11
gniretnE diulF )F°(.pmeT
gniretnE riA .pmeT )F°(
latoT yticapaC )HutBM(
gnivaeL riA .pmeT )F°(
rewoP tupnI )WK(
fotaeH noitprosbA )HutBM( POC
°52
°56
8.325.5871.21.61
2
.3
°033.627.7812.25.81
5
.3
°043.130.2982.23.32
0
.4
°053.633.6953.21.82
5
.4
°064.146.00134.29.23
0
.5
°074.649.40105.27.73
4
.5
°084.152.90175.24.24
9
.5
°52
°07
3.320.0932.27.51
1
.3
°037.522.2972.20.81
3
.3
°046.034.6943.26.22
8
.3
°055.536.00124.23.72
3
.4
°064.048.40194.29.13
7
.4
°073.540.90175.26.63
2
.5
°082.053.31146.22.14
6
.5
°52
°57
5.323.5915.22.51
8
.2
°030.624.7955.24.71
0
.3
°040.137.10136.20.22
4
.3
°059.539.50117.25.62
9
.3
°069.042.01108.20.13
3
.4
°078.545.41188.25.53
7
.4
°088.057.81179.20.04
0
.5
COOLING FULL LOAD HEATING FULL LOAD
Full Load Capacities based upon rated flow of 12 GPM of 15% methanol/mass at 1500 CFM airflow.
Part Load Capacities based upon rated flow of 12 GPM of 15% methanol/mass at 1075 CFM airflow.
COOLING PART LOAD HEATING PART LOAD
GTC48S1 Matched with GTADP-4860-C (HE49948D210B2705AW) -A Coils

Form No. S3423-1112
Supersedes S3423-912
Page 24 of 28
GTC48S1 Matched with GTADP-4860-C (HE49948D210B2705AW) -A Coils
gniretnE diulF )F°(.pmeT
gniretnE .pmeTriA )F°(
latoT yticapaC )HutBM(
elbisneS yticapaC )HutBM(
elbisneS latoTot oitaR
rewoP tupnI )WK(
fotaeH noitcejeR )HutBM( REE
°04
BD°07 BW°95
6.743.4327.014.28.558.91
°052.746.4337.064.26.552.91
°068.649.4357.025.24.556.81
°074.642.5367.075.22.550.81
°088.649.4357.025.24.556.81
°092.746.4337.064.26.552.91
°0016.743.4327.014.28.558.91
°04
BD°57 BW°36
2.158.5307.044.25.950.12
°058.050.6367.094.23.954.02
°064.053.6357.055.21.958.91
°079.946.6337.006.28.852.91
°084.053.6327.055.21.958.91
°098.050.6317.094.23.954.02
°0012.158.5307.044.25.950.12
°04
BD°08 BW°76
0.551.7347.074.24.363.22
°055.454.7337.035.21.266.12
°061.457.7327.085.23.269.02
°076.350.8317.046.26.263.02
°081.457.7307.085.29.269.02
°095.454.7396.035.22.366.12
°0010.551.7376.074.24.363.22
°04
BD°58 BW°17
9.854.8356.015.25.765.32
°054.857.8366.065.22.768.22
°069.750.9376.026.29.66
1
.22
°074.753.9386.086.26.665.12
°089.750.9376.026.29.66
1
.22
°094.857.8366.065.22.768.22
°0019.854.8356.015.25.765.32
gniretnE diulF )F°(.pmeT
gniretnE riA .pmeT )F°(
latoT yticapaC )HutBM(
gnivaeL riA .pmeT )F°(
rewoP tupnI )WK(
fotaeH noitprosbA )HutBM( POC
°04
°56
2.739.7816.23.82
2
.4
°543.145.0918.27.13
3
.4
°055.541.3920.32.53
4
.4
°069.353.8934.32.24
6
.4
°072.264.30158.31.94
7
.4
°086.076.80162.40.65
9
.4
°099.877.31176.40.36
9
.4
°04
°07
3.634.2986.22.72
0
.4
°544.049.4998.26.03
1
.4
°055.445.7901.39.33
2
.4
°067.255.20125.36.04
4
.4
°078.066.70159.34.74
5
.4
°080.966.21173.41.45
7
.4
°092.776.71108.48.06
8
.4
°04
°57
7.636.60100.35.62
6
.3
°549.042.01142.38.92
7
.3
°050.548.31184.31.33
8
.3
°062.359.02169.37.93
9
.3
°075.160.82134.44.64
1
.4
°088.961.53119.40.35
2
.4
°090.872.24193.56.95
2
.4
gniretnE diulF )F°(.pmeT
gniretnE .pmeTriA )F°(
latoT yticapaC )HutBM(
elbisneS yticapaC )HutBM(
elbisneS latoTot oitaR
rewoP tupnI )WK(
fotaeH noitcejeR )HutBM( REE
°04
BD°07 BW°95
3.432.7297.041.12.83
1
.03
°052.439.6297.043.18.836.52
°061.437.6287.035.13.933.22
°079.335.6287.027.18.937.91
°088.332.6287.029.14.046.71
°097.330.6277.011.29.049.51
°0016.337.5277.013.24.145.41
°04
BD°57 BW°36
9.633.8277.051.19.040.23
°058.630.8267.053.14.142.72
°066.638.7267.055.19.147.32
°075.635.7257.057.15.249.02
°084.633.7257.049.10.347.81
°092.630.7257.041.25.349.61
°0011.638.6247.043.21.444.51
°04
BD°08 BW°76
7.934.9247.071.16.349.33
°055.931.9247.073.12.448.82
°064.938.8237.075.17.44
1
.42
°072.936.8237.077.12.54
1
.22
°081.933.8237.079.18.542.02
°099.831.8227.071.23.643.81
°0018.838.7227.073.28.644.61
°04
BD°58 BW°17
5.244.0327.091.15.648.53
°053.241.0317.093.11.745.03
°062.249.9217.095.16.745.62
°070.246.9207.008.11.844.32
°089.143.9207.000.27.849.02
°097.140.9207.002.22.949.81
°0015.148.8296.004.27.943.71
gniretnE diulF )F°(.pmeT
gniretnE riA .pmeT )F°(
latoT yticapaC )HutBM(
gnivaeL riA .pmeT )F°(
rewoP tupnI )WK(
fotaeH noitprosbA )HutBM( POC
°04
°56
2.920.3831.20.22
0
.4
°547.136.4861.23.42
3
.4
°052.431.6891.27.62
6
.4
°061.931.9852.24.13
1
.5
°070.442.2923.21.63
6
.5
°080.942.5983.29.04
0
.6
°099.353.8944.26.54
5
.6
°04
°07
6.826.4991.21.12
8
.3
°540.137.6922.24.32
1
.4
°054.338.8952.27.52
3
.4
°062.839.20113.23.03
6
.4
°071.341.70183.29.43
9
.4
°089.742.11144.25.93
1
.5
°097.254.51115.22.44
4
.5
°04
°57
9.829.9954.25.02
4
.3
°543.130.20194.28.22
7
.3
°058.331.40135.21.52
9
.3
°066.833.80106.28.92
4
.4
°075.345.21176.24.43
8
.4
°084.847.61147.20.93
2
.5
°093.359.02118.27.34
5
.5
COOLING FULL LOAD HEATING FULL LOAD
Full Load Capacities based upon rated flow of 7 GPM water at 1500 CFM airflow.
Part Load Capacities based upon rated flow of 5 GPM water at 1150 CFM airflow.
COOLING PART LOAD HEATING PART LOAD

Form No. S3423-1112
Supersedes S3423-912
Page 25 of 28
gniretnE diulF )F°(.pmeT
gniretnE .pmeTriA )F°(
latoT yticapaC )HutBM(
elbisneS yticapaC )HutBM(
elbisneS latoTot oitaR
rewoP tupnI )WK(
fotaeH noitcejeR )HutBM( REE
°05
BD°07 BW°95
7.166.3417.094.22.078.42
°064.957.2427.048.21.969.02
°071.758.1437.002.30.869.71
°088.459.0457.055.39.664.51
°094.250.0467.009.38.564.31
°0011.051.9387.062.47.468.11
°0118.743.8308.016.46.364.01
°05
BD°57 BW°36
3.664.5486.015.29.475.62
°069.365.4407.078.27.372.22
°074.166.3417.042.34.270.91
°089.856.2427.006.32.174.61
°094.657.1447.079.39.962.41
°0019.358.0467.033.47.865.21
°0114.158.9377.096.45.760.11
°05
BD°08 BW°76
2.171.7466.055.29.979.72
°066.862.6476.029.25.875.32
°079.562.5496.082.31.77
1
.02
°082.362.4407.046.37.574.71
°096.063.3417.010.42.47
1
.51
°0019.753.2437.073.48.272.31
°0112.553.1457.037.44.177.11
°05
BD°58 BW°17
3.678.8446.095.22.585.92
°065.378.7456.069.26.388.42
°076.078.6466.033.30.282.12
°088.768.5486.007.34.083.81
°099.468.4496.060.48.870.61
°0011.268.3417.034.42.770.41
°0112.958.2427.008.46.573.21
gniretnE diulF )F°(.pmeT
gniretnE riA .pmeT )F°(
latoT yticapaC )HutBM(
gnivaeL riA .pmeT )F°(
rewoP tupnI )WK(
fotaeH noitprosbA )HutBM( POC
°52
°56
1.447.7877.38.03
4
.3
°034.649.8858.39.23
5
.3
°042.153.1999.31.73
7
.3
°059.557.3941.43.14
0
.4
°066.062.6992.45.54
1
.4
°073.566.8934.47.94
3
.4
°080.070.10185.49.35
5
.4
°52
°07
1.342.2988.39.92
3
.3
°034.544.3959.39.13
4
.3
°040.057.5901.40.63
6
.3
°056.451.8952.41.04
8
.3
°062.955.00104.42.44
9
.3
°078.368.20155.43.84
1
.4
°084.862.50107.44.25
3
.4
°52
°57
6.344.7953.40.92
9
.2
°039.546.8944.40.13
0
.3
°046.050.10106.49.43
2
.3
°052.554.30177.49.83
4
.3
°069.958.50149.49.24
5
.3
°075.462.80111.58.64
7
.3
°082.966.01182.58.05
9
.3
gniretnE diulF )F°(.pmeT
gniretnE .pmeTriA )F°(
latoT yticapaC )HutBM(
elbisneS yticapaC )HutBM(
elbisneS latoTot oitaR
rewoP tupnI )WK(
fotaeH noitcejeR )HutBM( REE
°05
BD°07 BW°95
5.641.1376.042.17.054.73
°065.446.0396.045.18.940.92
°076.241.0317.038.19.843.32
°087.046.9237.031.29.74
1
.91
°097.830.9257.024.20.740.61
°0018.635.8277.027.21.645.31
°0119.430.8208.010.32.546.11
°05
BD°57 BW°36
0.054.2356.052.12.450.04
°069.749.1376.055.12.359.03
°078.543.1386.058.12.257.42
°087.348.0307.061.21.153.02
°097.142.0337.064.21.059.61
°0016.937.9257.067.20.943.41
°0115.731.9287.070.30.842.21
°05
BD°08 BW°76
7.356.3326.072.10.855.33
°064.151.3346.085.18.658.92
°072.945.2366.088.16.552.62
°080.749.1386.081.24.455.22
°097.444.1307.094.22.359.81
°0015.248.0327.097.20.252.51
°0113.042.0357.090.38.056.11
°05
BD°58 BW°17
5.758.4316.092.19.165.44
°061.552.4326.006.16.065.43
°077.256.3346.019.12.956.72
°083.051.3366.012.29.757.22
°099.745.2386.025.26.650.91
°0016.549.1307.038.22.55
1
.61
°0112.343.1337.041.39.358.31
gniretnE diulF )F°(.pmeT
gniretnE riA .pmeT )F°(
latoT yticapaC )HutBM(
gnivaeL riA .pmeT )F°(
rewoP tupnI )WK(
fotaeH noitprosbA )HutBM( POC
°52
°56
5.037.6887.26.02
2
.3
°031.336.8838.21.32
4
.3
°044.834.2929.21.82
8
.3
°058.342.6920.32.33
2
.4
°061.940.00111.32.83
6
.4
°074.457.30112.32.34
0
.5
°087.955.70103.32.84
3
.5
°52
°07
8.922.1968.20.02
1
.3
°034.231.3919.25.22
3
.3
°046.738.6900.33.72
7
.3
°058.245.00101.32.23
0
.4
°060.842.40102.31.73
4
.4
°072.359.70192.39.14
7
.4
°084.856.11193.38.64
1
.5
°52
°57
1.034.6912.34.91
8
.2
°037.233.8962.38.12
9
.2
°040.831.20173.35.62
3
.3
°052.348.50184.32.13
6
.3
°065.845.90195.30.63
9
.3
°078.353.31107.37.04
3
.4
°080.950.71118.34.54
6
.4
COOLING FULL LOAD HEATING FULL LOAD
Full Load Capacities based upon rated flow of 15 GPM of 15% methanol/mass at 1800 CFM airflow.
Part Load Capacities based upon rated flow of 15 GPM of 15% methanol/mass at 1300 CFM airflow.
COOLING PART LOAD HEATING PART LOAD
GTC60S1 Matched with GTADP-4860-C (HE49948D210B2705AW) -A Coils

Form No. S3423-1112
Supersedes S3423-912
Page 26 of 28
GTC60S1 Matched with GTADP-4860-C (HE49948D210B2705AW) -A Coils
gniretnE diulF )F°(.pmeT
gniretnE .pmeTriA )F°(
latoT yticapaC )HutBM(
elbisneS yticapaC )HutBM(
elbisneS latoTot oitaR
rewoP tupnI )WK(
fotaeH noitcejeR )HutBM( REE
°04
BD°07 BW°95
9.357.9347.035.25.263.12
°059.350.0447.037.22.367.91
°068.353.0457.029.28.364.81
°078.355.0457.021.34.462.71
°088.353.0457.029.28.364.81
°099.350.0447.037.22.367.91
°0019.357.9347.035.25.263.12
°04
BD°57 BW°36
0.853.1417.075.27.666.22
°059.756.1447.067.24.760.12
°069.759.1447.069.20.866.91
°078.752.2437.061.36.863.81
°089.759.1427.069.20.866.91
°099.756.1427.067.24.760.12
°0010.853.1417.075.27.666.22
°04
BD°08 BW°76
3.269.2486.06.21.179.32
°052.262.3496.008.28.172.22
°062.265.3417.00.34.277.02
°071.268.3417.002.30.374.91
°082.265.3407.000.34.277.02
°092.262.3496.008.28.172.22
°0013.269.2496.006.21.179.32
°04
BD°58 BW°17
7.664.4476.046.27.573.52
°057.667.4476.048.24.675.32
°066.660.5486.040.30.779.12
°076.663.5486.052.36.775.02
°086.660.5486.040.30.779.12
°097.667.4476.048.24.675.32
°0017.664.4476.046.27.573.52
gniretnE diulF )F°(.pmeT
gniretnE riA .pmeT )F°(
latoT yticapaC )HutBM(
gnivaeL riA .pmeT )F°(
rewoP tupnI )WK(
fotaeH noitprosbA )HutBM( POC
°04
°56
6.050.1927.39.73
0
.4
°545.250.2987.35.93
1
.4
°053.459.2958.32.14
1
.4
°061.859.4989.35.44
3
.4
°078.168.6911.48.74
4
.4
°085.567.8942.40.15
5
.4
°093.966.00173.43.45
6
.4
°04
°07
5.944.5928.34.63
8
.3
°543.154.6988.30.83
9
.3
°051.353.7959.36.93
9
.3
°068.652.9990.48.24
1
.4
°074.061.10122.40.64
2
.4
°081.469.20163.42.94
3
.4
°097.768.40194.44.25
4
.4
°04
°57
0.057.00182.44.53
4
.3
°548.157.10163.40.73
5
.3
°057.356.20144.45.83
5
.3
°064.755.40195.47.14
7
.3
°071.164.60147.49.44
8
.3
°088.463.80198.41.84
9
.3
°094.862.01140.52.15
0
.4
gniretnE diulF )F°(.pmeT
gniretnE .pmeTriA )F°(
latoT yticapaC )HutBM(
elbisneS yticapaC )HutBM(
elbisneS latoTot oitaR
rewoP tupnI )WK(
fotaeH noitcejeR )HutBM( REE
°04
BD°07 BW°95
9.548.2317.024.17.053.23
°056.442.2327.076.13.058.62
°063.346.1337.019.18.946.22
°070.240.1347.061.24.945.91
°087.044.0357.004.29.849.61
°094.938.9267.056.24.849.41
°0011.832.9277.009.20.84
1
.31
°04
BD°57 BW°36
4.942.4396.044.13.454.43
°050.845.3307.096.17.355.82
°066.649.2317.049.12.35
1
.42
°072.543.2317.091.26.257.02
°088.347.1327.034.21.250.81
°094.240.1337.086.25.158.51
°0010.144.0347.039.20.150.41
°04
BD°08 BW°76
0.355.5376.064.10.854.63
°055.158.4386.017.13.75
1
.03
°060.052.4386.069.17.653.42
°075.845.3396.012.21.659.12
°080.749.2307.074.24.555.91
°095.542.2317.027.28.452.71
°0010.446.1327.079.21.458.41
°04
BD°58 BW°17
8.657.6356.084.18.165.83
°052.550.6356.037.11.168.13
°066.353.5366.099.14.069.62
°070.257.4376.052.26.95
1
.32
°084.050.4376.005.29.85
1
.02
°098.843.3386.067.22.857.71
°0012.747.2396.020.35.756.51
gniretnE diulF )F°(.pmeT
gniretnE riA .pmeT )F°(
latoT yticapaC )HutBM(
gnivaeL riA .pmeT )F°(
rewoP tupnI )WK(
fotaeH noitprosbA )HutBM( POC
°04
°56
0.528.2866.14.91
4
.4
°544.920.6839.19.22
5
.4
°059.331.9802.23.62
5
.4
°067.244.5957.23.33
6
.4
°076.157.10192.33.04
6
.4
°084.060.80148.33.74
6
.4
°093.963.41183.43.45
6
.4
°04
°07
5.426.2807.16.81
6
.4
°548.828.4889.10.22
7
.4
°051.330.7862.24.52
3
.4
°068.145.1928.21.23
3
.4
°074.059.5983.39.83
4
.4
°081.954.00149.36.54
4
.4
°097.768.40105.43.25
4
.4
°04
°57
7.426.2919.12.81
8
.3
°541.927.5922.25.12
8
.3
°055.338.8945.28.42
9
.3
°062.241.50171.34.13
9
.3
°070.153.11108.30.83
9
.3
°087.955.71124.46.44
0
.4
°094.867.32150.52.15
0
.4
COOLING FULL LOAD HEATING FULL LOAD
Full Load Capacities based upon rated flow of 9 GPM water at 1800 CFM airflow.
Part Load Capacities based upon rated flow of 9 GPM water at 1300 CFM airflow.
COOLING PART LOAD HEATING PART LOAD

Form No. S3423-1112
Supersedes S3423-912
Page 27 of 28
Fossil Fuel ADP Coil Section Dimensions
TYP
21 1/4"
"B"
3/4"
3/4"
TYP
MAIN DRAIN
CONNECTION
MAIN DRAIN
SUCTION
CONNECTION
OVERFLOW
LIQUID
OVERFLOW
"F"
"A"
"E"
"C"
6 1/16"
TYP
5 1/4"
"D"
1 5/8"
3/4"
"G"
FOSSIL FUEL ADP COIL SECTION DIMENSIONS
MIS-3119
FIGURE 1B - GTADP****-*
DIMENSION GTADP-3642-B GTADP-3642-C
GTADP-4860-C
"A" 17 5/8" 21 1/8"
"B" 25 1/2" 27 1/2"
"C" 7 1/4" 6 3/4"
"D" 2 1/8" 2 1/2"
"E" 3 7/8" 4 1/4"
"F" 13 7/8" 16 7/8"
"G" 15 5/8" 18 5/8"
NOTE: Fossil Fuel coil applications must be controlled with operating
system that will delay restart of compressor if the fossil fuel furnace has
been in operation. This is required to allow cool-down of the refrigerant
bearing coil downstream of the furnace so the refrigerant pressures will be
in acceptable operating range. Failure to do this can result in high pressure
safety shutdown of the heat pump system.

Form No. S3423-1112
Supersedes S3423-912
Page 28 of 28
GTA Coil Dimensions if Used Without Cabinet
Duct Heaters for Upflow and Horizontal Installation Only
(Field Installed, Separate Power Supply Required)
esUroF
htiW
tcuD
retaeH
rebmuNtraP
retaeH
egakcaP
stloV042stloV802 muminiM
tiucriC
yticapmA
mumixaM
RCAH
tiucriC
rekaerB
eriWdleiF
eziS
+
WKspmAHUTBWKspmAHUTB
llA
1S*CTG
sledoM
080-4068
1-5-218RM 1-06-802/0420.58.02560,7157.30.81997,210.620301#
180-4068
1-8.9-618RM 1-06-802/0428.98.04744,3353.73.53680,520.25066#
280-4068
1-7.41-8121RM 1-06-802/0427.412.16171,050.119.25345,736.67084#
380-4068
1-2.91-8121RM 1-06-802/0422.917.18035,564.412.96741,940.2015211#
+ Based upon 75°C copper wire. All wiring must conform to National Electric Code (Latest Edition) and all local codes.
retaeHtcuD
rebmuNtraP
SEHCNINISNOISNEMID
A B C D E F
080-406875.115.48 5.116.8
180-406875.515.45.95.116.8
280-4068115.715.55.41816.8
380-4068115.715.55.41816.8
Due to our continuous product improvement
policy, all specifications subject to change
without notice.
Before purchasing this appliance, read important energy
cost and efficiency information available from your retailer.
Bard Manufacturing Company, Inc.
Bryan, Ohio 43506
www.bardhvac.com
Form No.
S3423
November, 2012
Supersedes S3423-912
20.50-.000
+.125 WIDTH
16.13-.000
+.125 HEIGHT
DRAIN PAN
GTA Coil Dimensions If Used Without Cabinet
PRIMARY DRAIN HOLE
SECONDARY DRAIN HOLE
MIS-2876 A
COATED
COIL
.125
2.25-.000
+
28.25-.000
+.125 DEPTH
AIR FLOW
MIS-2880
C
D
B
E
A
F
Horizontal – Left to Right Airflow (Shown)