Honeywell Boiler C Users Manual 68 0281—16 L7224A,C; L7248A,C,L Oil And Electric Electronic Aquastat® Controllers
C to the manual 8f52946c-bc2a-4714-9caf-3de4d095e678
2015-01-23
: Honeywell Honeywell-Honeywell-Boiler-C-Users-Manual-261156 honeywell-honeywell-boiler-c-users-manual-261156 honeywell pdf
Open the PDF directly: View PDF
.
Page Count: 16

INSTALLATION INSTRUCTIONS
68-0281-16
L7224A,C; L7248A,C,L
Oil and Electric Boiler
Electronic Aquastat® Controllers
APPLICATION
The L7224A,C and L7248A,C,L 2012 Compliant
Electronic Aquastat® Controllers provide electronic
temperature sensing in a UL limit-rated control with a
single sensing probe. The L7224A,C and L7248A,C,L
control the circulator, oil or electric burner or contactor,
and boiler temperature. The L7224/L7248 is “Outdoor
Temperature Reset” ready which is enabled when
connected to the W8735Y1000 wireless or W8735S1000
wired Outdoor Reset Kit. Outdoor Reset with the L7224/
L7248 is intended for all applications except for tankless
coil systems for domestic hot water. Compliance to 2012
DOE regulation ensures efficiency is maximized without
interfering with domestic hot water demand.
The L7224A,C and L7248A,C,L replace the L8124A,
L8124C, L7124A,C, L7148A and L8148A Controllers.
The L7224A,C and L7248A,C,L series controls provide
status and diagnostic information through an LED display
combined with LED lights as well as EnviraCOM™
communications enabled thermostats and diagnostic
tools to enhance the diagnostic process.
L7224/L7248 Aquastat Controllers are intended for use
in residential-type applications.
IMPORTANT
Use of Outdoor Temperature Reset on a tank-
less coil application requiring a Low Limit setting
will result in reduced system effectiveness and
efficiency.
SPECIFICATIONS
Electrical Ratings:
Voltage: 120 Vac, 60 Hz.
Power: 7 VA maximum at 120 Vac plus external loads.
Thermostat current: 100 mA nominal at 24 Vac.
Burner Relay:
7.4 A at 120 Vac Full Load Amperage (FLA);
44.4 A inrush Locked Rotor Amperage (LRA);
Less Ignition Load: 360 VA.
Circulator Relay:
7.4 A at 120 Vac FLA; 44.4 A inrush LRA.
Zone Controller (ZC): 7.4 A at 120 Vac FLA;
44.4 A inrush LRA.
NOTE: All loads combined cannot exceed 2000 VA.
Environmental Ratings:
Temperature: -30 °F to +150 °F (-34 °C to +66 °C).
Humidity: 0 to 95% relative humidity, noncondensing.
Approvals:
Underwriters Laboratories Inc. Component Recognized.
Canadian Underwriters Laboratories Inc. Component
Recognized.
2012 DOE Compliance and Operation
Operation of this control may delay the burner operation while the residual heat is
circulated out of the boiler.
NOTE: This operation may be different than earlier electronic Aquastat®
revisions which did not implement thermal purge.

L7224A,C; L7248A,C,L OIL AND ELECTRIC BOILER ELECTRONIC AQUASTAT® CONTROLLERS
68-0281—16 2
Accessories:
W8735Y1000 Wireless Outdoor Reset Kit
W8735ER1000 Wireless Outdoor Reset Module
C7089R1013 Wireless Outdoor Temperature Sensor
(requires W8735ER1000)
W8735S1000 AquaReset™ Outdoor Reset Kit (includes
50022037-002 Outdoor Reset Module and
C7089U1006 Outdoor Temperature Sensor)
W8735S1008 AquaReset™ Domestic Hot Water Kit
(includes 50022037-005 Domestic Hot Water Module
and 32003971-003 Sensor)
W8735S3000 EnviraCOM™ Alarm Module
C7089U1006 Outdoor Temperature Sensor (used with the
50022037-002)
32003971-003 Temperature Sensor (used with
50022037-005)
Sensor (See Table 2).
120650 Heat Conductive Compound.
121371AA Sensor Well Clamp.
Table 1. Wells for L7224A,C; L7248A,C,L Controllers.
Table 2. Sensors for L7224A,C and
L7248A,C,L Controllers.
INSTALLATION
When Installing this Product...
1. Read these instructions carefully. Failure to follow
them could damage the product or cause a
hazardous condition.
2. Check the ratings given in the instructions and on
the product to make sure the product is suitable for
your application.
3. The installer must be a trained, experienced service
technician.
4. After installation is complete, check out product
operation as provided in these instructions.
5. Set High Limit, Low Limit and Low Limit Differential
to the settings recommended by the boiler OEM.
6. Record the maximum High Limit setting from the
replaced controller in the text box provided on the
cover insert label.
7. Record the High Limit setting at time of installation
in the text box provided on the cover insert label.
WARNING
Electrical Shock Hazard.
Can cause severe injury, death or property
damage.
Disconnect power supply before beginning
installation to prevent electrical shock or
equipment damage.
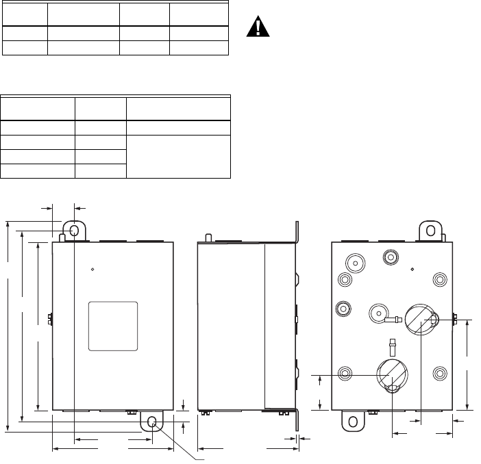
Mounting
The L7224A,C and L7248A,C,L models are available in a
well-mount, horizontal position, vertical position, or flush
mounted remote from the well versions. Dimensions for
the variety of mounting options are shown in Fig. 1. Note
that each identity will have only a single mounting option.
Fig. 1. L7224A,C; L7248A,C,L mounting dimensions in inches (mm).
IMPORTANT
Immersion well must fit sensing element and
sensor must rest against bottom of well.
Part
Number
Spud Size
in. (mm)
Insertion
in. (mm)
Insulation
in. (mm)
123869A 1/2 (12.7) NPT 3 (76.2) 1-1/2 (38.1)
123870A 3/4 (19.05) NPT 3 (76.2) 1-1/2 (38.1)
Part Number
Length in.
(mm) Application
50001464-001 12 (304.8) Well-mounted controls
50001464-003 24 (609.6) Flush-mounted controls
50001464-004 36 (914.4)
50001464-005 48 (1219.2)
M22147B
3/4
(75)
5-11/16
(145)
3/8
(10)
2-5/8 (67)
7-1/8
(181)
6-1/2
(166)
3-13/32 (86)
2x 1/4 (7) x 3/8 (9)
1/16 (2)
1-3/16
(30)
3-1/32
(77)
2-1/16 (53)
1-1/8 (29)
4-1/4 (109)

L7224A,C; L7248A,C,L OIL AND ELECTRIC BOILER ELECTRONIC AQUASTAT® CONTROLLERS
368-0281—16
New Installation
Order well assemblies separately; see Table 1 and form
no. 68-0040, Immersion Wells and Compression Fittings
for Temperature Controllers. Boilers usually have tappings
that allow the well to be mounted horizontally so boiler
water of average temperature can circulate freely over the
well.
1. Turn off all power and drain the boiler, if applicable.
2. If no tapping is provided, prepare properly sized and
threaded tapping near the top of the boiler.
3. Sparingly coat the well threads with pipe dope.
NOTE: Do not attempt to tighten by using the case
as a handle.
4. Install the well in the boiler tapping and tighten
securely.
5. Refill boiler and check for water leakage.
6. Loosen but do not remove the well clamp screw.
7. Fit the case into the well so the clamp on the case
slides over the flange on the well.
8. Securely tighten the clamp screw.
9. Insert the sensor element into the well until it bot-
toms. See Replacement Sensor Installation section
for details. (If necessary, slightly bend the wire
inside the case to hold the sensor against the bot-
tom of the well.)
10. Turn power ON.
11. Set High Limit, Low Limit and Low Limit Differential
to the settings recommended by the boiler OEM.
(See OPERATION section.) (See INSTALLATION
steps 6 and 7.)
12. On L7248L models, adjust ELL option to match your
configuration (see OPERATION section, and Fig. 11
and 13).
IMPORTANT
Best thermal response is obtained with a well
that snugly fits the sensor. Insert the sensor until
it rests against the bottom of the well. Use a well
of correct length and bend the wiring, if neces-
sary, to hold the bulb against the bottom of the
well.
If the well is not a snug fit on the sensor, use the
heat-conductive compound (furnished with
TRADELINE® models) as follows: Fold the
plastic bag of compound lengthwise and twist it
gently. Then snip off end of bag and work the
open end of the bag all the way into the well.
Slowly pull out the bag while squeezing it firmly
to distribute compound evenly in the well. Bend
the wiring, if necessary, to hold the sensor
against the bottom of the well and to hold outer
end of the sensor in firm contact with the side of
the well. See Fig. 2. Wipe excess compound
from the outer end of the well.
Fig. 2. Position of sensor in immersion well.
Flush-Mounted Aquastat
Replacement
Turn off all power and remove the old control. Refer to the
cover insert of the old control to identify and tag each
external lead as it is disconnected. If the old well is
unsuitable for the new installation, remove it and replace it
with a suitable new well. If the old well is suitable, use it.
Well-Mounted Aquastat
Replacement
Turn off all power and remove the old control. Refer to the
cover insert of the old control to identify and tag each
external lead as it is disconnected. If the old well is
unsuitable for the new installation, remove it and proceed
with instructions for new installation. If the old well is
suitable, use it.
1. Loosen, but do not remove, the well clamp screw on
the side of the control case.
2. Position immersion well clamp snugly over the
flange of the adapter and tighten the clamp screw.
3. Insert the sensor into the well as shown in Fig. 2 or
3. (See Replacement Sensor Installation section for
details.)
Fig. 3. Circuit board, showing sensor connection and
well holes for horizontal mount models.
SENSOR WIRES
IMMERSION WELL
CLAMP SCREW
IMMERSION
WELL CLAMP
M16120
HEAT-CONDUCTIVE COMPOUND
(OPTIONAL)
CONTROLLER CASE
BOILER
IMMERSION
WELL
SENSOR
C1
B1
ZC
L2
LINE
C2
ZR
L1
B2
T
T3
2
1
THERMOSTAT
TERMINALS
ENVIRACOMTM
TERMINALS SENSOR HOLES
FUSE
M32186
SENSOR
CONNECTOR
DISPLAY

L7224A,C; L7248A,C,L OIL AND ELECTRIC BOILER ELECTRONIC AQUASTAT® CONTROLLERS
68-0281—16 4
Fig. 4. Replacement sensor installation.
Replacement Sensor Installation
Turn off all power and:
1. Carefully disconnect sensor from circuit board by
pulling gently on the connector.
2. Gently pull sensor from thermo well and through cir-
cuit board by pulling on leadwires.
3. Carefully align replacement sensor with hole in cir-
cuit board and guide through Aquastat case and
into well. (See Fig. 5).
4. Make sure sensor is fully seated to bottom of well
(See Fig. 4). Use a small pencil to measure depth of
sensor in well, if necessary.
5. Connect sensor to circuit board by pressing con-
nector on sensor unit into mating connector on cir-
cuit board (See Fig. 5).
6. For remote sensors (flush-mounted Aquastat Con-
trollers) be sure to use 121571AA Clamp (see
Accessories) to securely hold sensor in place.
Fig. 5. Circuit board, showing sensor connection and
well holes for vertical mount models.
Fuse
The 1 Amp fuse located near the transformer is intended
to protect the EnviraCOM circuit from incorrect wiring. The
Aquastat will continue to function should the fuse blow or
be removed though no EnviraCOM communication will be
possible on the bus and Err 6 will be displayed. See
Table 1 0 .
WIRING
WARNING
Electrical Shock Hazard.
Can cause serious injury or death.
Disconnect power supply before making wiring
connections to prevent electrical shock or
equipment damage.
All wiring must comply with local electrical codes and
ordinances. Do not exceed the specifications in the
Application section when wiring this control. Use wire
rated for 194 °F (90 °C) or higher.
IMPORTANT
The terminals on these Aquastat Controllers are
approved for use with copper wire only.
Follow the appropriate wiring diagrams shown on the
inside of the front cover of the L7224A,C; L7248A,C,L or
in Fig. 8–13.
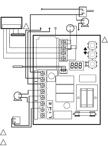
Refer to Fig. 6 for Connections for the optional Outdoor
Reset Module and the Domestic Hot Water (DHW)
module. In subsequent wiring diagrams these modules
will be displayed with a dotted line signifying that they are
optional.
Fig. 6. Wiring the Outdoor Reset Module and the
Domestic Hot Water Module.
OPERATION
General
The L7224A,C and L7248A,C,L Oil Electronic Aquastat
Controllers are primary safety limit-rated devices
designed for use with oil fired boilers with line voltage
burners and circulators. Many boilers do not include
wiring or control compartments as part of the design, but
are provided with an integral, replaceable, immersion well
that is the mounting hardware for the Aquastat
Controllers. Wiring to the other controls is done through
flexible metal conduit.
For boilers that do include a remotely (flush) mounted
control, the wiring may be completed with conduit or
routed behind the boiler sheet metal.
SENSOR WIRES
M22026
HEAT-CONDUCTIVE COMPOUND
(OPTIONAL)
BOILER
IMMERSION
WELL
SENSOR
C1
B1
ZC
L2
LINE
C2
ZR
L1
B2
T
T3
2
1
THERMOSTAT
TERMINALS
ENVIRACOM
TM
TERMINALS
DISPLAY
SENSOR
CONNECTOR
SENSOR HOLES
FUSE
RELAYS
M32187
C1
B1
ZC
L2
LINE
C2
ZR
L1
B2
T
T3
2
1
1 2 3 OT OT
C7089U1006
OUTDOOR
SENSOR
W8735Y1000 OR W8735S1000
OUTDOOR RESET MODULE
(W8735S1000 SHOWN)
1 2 3 TS TS
W8735S1008
DOMESTIC HOT
WATER MODULE
32003971-003
TEMPERATURE
SENSOR
M34961

L7224A,C; L7248A,C,L OIL AND ELECTRIC BOILER ELECTRONIC AQUASTAT® CONTROLLERS
568-0281—16
A separate electromechanical high-limit is not required in
a system that uses this control to meet Underwriters
Laboratories Inc. requirements for oil-fired boiler
assemblies, UL 726.
On the L7224 models, the High Limit, Low Limit, Low Limit
Differential, and Anti Short-Cycle time can be adjusted to
the setting recommended by the boiler OEM. On the
L7248 models, the High Limit, and Anti Short-Cycle time
are also adjustable, see “Adjusting Settings”.
The overall range of the High Limit is from 130 °F to
240 °F (54 °C to 116 °C). Select devices may have
different ranges. Some models have limited ranges on the
High Limit setpoint; this limited range is listed on the
device label.
Some models also have a Low Limit and Low Limit
Differential adjustment. The range of the Low Limit is from
110 °F to 220 °F (43 °C to 104 °C). Select devices may
have different ranges.
The Zr setting can be set to DHW, Zoning, or for tankless
coil applications depending on the L7224/L7248.
If an Outdoor Reset Module is installed, the reset curve
can be set by entering the minimum outdoor temperature,
minimum (boiler) temperature, and maximum outdoor
temperature on the 3-digit display. The range of the
minimum outdoor temperature is from -40 °F to 40 °F (-
40 °C to 4.4 °C) and has a default setting of 0 °F (-18 °C).
The range of the maximum outdoor temperature is from
30 °F to 70 °F
(-1.1 °C to 21.1 °C) and has a default setting of 40 °F. The
range of the minimum (water or boiler) temperature is
from 80 °F to 180 °F (26.7 °C to 82.2 °C) and has a
default setting of 130 °F. See the “Outdoor Reset Module”
Installation Instructions (form number 69-2335) for more
information on setting the boiler reset curve and all related
parameters.
The L7224A,C and L7248A,C,L are designed for use with
24 Vac electronic and electromechanical thermostats or
EnviraCOM™ enabled thermostats, and have screw-type
terminals for easy field connection.
Adjusting Settings
To discourage unauthorized changing of Aquastat
settings, a procedure to enter the ADJUSTMENT mode is
required. To enter the ADJUSTMENT mode, press the
UP, DOWN, and I buttons (Refer to Fig. 5) simultaneously
for three seconds. Press the I button until the feature
requiring adjustment is displayed:
* Settings available for adjustment on the 3-digit display
only if a W8735Y1000 or W8735S1000 Outdoor Reset
Kit is installed.
**Settings available for adjustment only when the
W8735Y1000 or W8735S1000 Outdoor Reset Kit is
NOT installed.
Then press the UP and/or DOWN buttons to move the set
point to the desired value, to change between °F and °C,
or to enable (On) or disable (Off) the External Low Limit.
After 60 seconds without any button inputs, the control will
automatically return to the RUN mode.
Display
In the RUN mode, the Aquastat will flash “bt” (boiler temp)
followed by the temperature (i.e., 220), followed by °F or
°C.
To read boiler settings, press the I key to read the
parameter of interest. For example, press I and High Limit
(HL) is displayed, followed by a three-digit number, i.e.,
220, followed by °F or °C. Pressing the I button again (on
L7224 models) will display the Low Limit (LL) followed by
a three-digit number and the corresponding degree
designator. See Display Readout, Table 4.
After approximately 60 seconds without any key presses,
the display will enter a dim display mode. To return to the
bright display mode, simply press any key.
Table 3. Adjustable Features.
Display Definition
HL_ High Limit.
Hdf High Limit Differential.
LL_ Low Limit. (L7224A, C)
Ldf Low Limit Differential (L7224A, C)
ELL External Low Limit (L7248L only)
duu ZR input configured as external Domestic Hot
Water (DHW) request (ON/OFF) (L7224A,C/
L7248L)
ASC Anti Short-Cycle Timeout (seconds); “OFF” is
disabled.
otL* Outdoor Temperature Low (minimum)
parameter for the outdoor reset curve (°F or °C)
otH* Outdoor Temperature High (maximum)
parameter for outdoor reset curve (°F or °C)
btL* Boiler Temperature Low (minimum) parameter
for outdoor reset curve
bP* Boost Period (minutes). “OFF” is displayed if
Boost is inactive
bS* Boost step (°F or °C) shown only if Boost is
active (bP=ON)
UUS* Warm Weather Shutdown Temperature
(°F or °C)
tPL** Thermal Purging Limit Temperature (°F or °C),
“OFF” if disabled
tPt** Termal Purging Time Delay (minutes), shown
only if tPL is enabled
PC Pump Cycling (ON / OFF)
F-C Temperature units (°F or °C)

L7224A,C; L7248A,C,L OIL AND ELECTRIC BOILER ELECTRONIC AQUASTAT® CONTROLLERS
68-0281—16 6
1 Display shows local setting; not the setting as modified by an
external enviracom control.
2 Settings are viewable only if the outdoor reset module and out-
door temperature sensor are installed and functioning properly.
3 Settings are viewable only if the domestic hot water module
and sensor are installed and functioning properly.
Operation
The L7224 and L7248 models can be in any of four
operational states: Normal, High Limit, Low Limit and
Error. The controller moves back and forth from
High Limit to Normal to Low Limit state as part of normal
operation. Only devices having High Limit settings are
restricted to the High Limit and Normal states. However,
the controller will enter the Error state when there is an
abnormal condition. The operating states are:
1. Normal: Boiler temperature went below the High
Limit setting (minus the Differential) and has not
exceeded the High Limit setting; or, the boiler
temperature went above the Low Limit setting and
has not gone below the Low Limit setting (minus the
Differential); or, ZR input is not powered with 120
Vac (only L7248L with ELL set On).
2. High Limit: Boiler temperature went above the High
Limit setting and has not dropped below the High
Limit setting (minus the Differential).
3. Low Limit: Boiler temperature went below the Low
Limit setting (minus the Low Limit Differential) and
has not gone above the Low Limit setting; or, ZR
input is powered with 120 Vac (only L7248L with
ELL set On).
4. Error: The controller has detected an error condition
(e.g., open sensor) and has shut down the burner
output. The ZC output is energized. The controller
continues to monitor the system and automatically
restarts if the error condition clears. Refer toTable 4.
The operating sequence for the L7224/L7248 is shown in
Table 6–9.
High Limit Controller
The High Limit opens and turns off the burner when the
water temperature reaches the setpoint. The High Limit
automatically resets after the water temperature drops
past the setpoint and through the Differential. The L7248
models have High Limit Differential presets of 15 °F
(8 °C). The L7224 models have High Limit Differential
presets of 10 °F (6 °C).
Low Limit and Circulator
Controller
On a temperature rise, with the adjustable Differential at
the default setting of 10 °F (6 °C), the burner circuit
breaks and the circulator circuit makes (assuming no call
for heat is present) at the Low Limit setpoint. On a
temperature drop of 10 °F (6 °C) below the Low Limit
setpoint, the burner circuit makes and the circulator circuit
breaks. See Fig. 7.
Fig. 7. Setpoints and differentials.
Anti Short-Cycle Feature
The Anti Short-Cycle feature allows for field selection of a
delay time between burner cycles. Should a call for heat
occur following the end of the previous heat cycle and
before the Anti Short-Cycle delay time is expired, the
circulator will be allowed to run, but the burner will be held
off until the time has elapsed. The range of the Anti Short-
Cycle time is from OFF to five minutes.
Table 4. Display readout definitions.
Text Description Display
Err Error Code (if one is present)
bT Boiler Temperature
HL High Limit 1
HdF High Limit Differential
LL Low Limit (L7224 only)
Ldf Low Limit Differential (L7224 only)
tt Local Thermostat Status
ttE EnviraCOM Thermostat Status
brn B1 (Burner) output (ON or OFF)
Cir C1 (Circulator) output (ON or OFF)
ZC ZC (Zone Control) output (ON or OFF)
Zr ZR (Zone Request) Call for HEAT (ON or OFF)
ELL External Low Limit Enabled (L7248L only)
duu ZR Configured as Domestic Hot Water
Request (L7224, L7248L only)
ASC Anti Short-Cycle Timeout
bSP Boiler Set-Point 2
dhc DHW Module Connected 3 (YES or NO)
ot Outdoor Temperature 2
otL Outdoor Temperature Low 2
otH Outdoor Temperature High 2
btL Boiler Temperature Low 2
bP Boost Period 2
bS Boost Step 2
UUS Warm Weather Shutdown Temperature 2
LOW LIMIT
SETTING
HIGH LIMIT
SETTING
SWITCH BREAKS ON
TEMPERATURE RISE.
BURNER TURNS OFF.
CIRCULATOR OPERATES
ON A CALL FOR HEAT.
SWITCH MAKES ON
TEMPERATURE FALL.
BURNER OPERATES ON A
CALL FOR HEAT.
WITH NO HEATING
DEMAND, SWITCH BREAKS
ON TEMPERATURE RISE.
SWITCH MAKES ON
TEMPERATURE FALL,
BURNER IS ON TO
MAINTAIN MINIMUM
WATER TEMPERATURE.
CIRCULATOR IS OFF.
M23364
WHEN WATER REACHES LOW LIMIT SETTING, THE BURNER SHUTS
OFF OR THE CIRCULATOR PUMP STARTS (WHEN CALLING FOR HEAT).
1
1
10ºF (6ºC)
DIFFERENCE
L7224: 10°F (6°C)
DIFFERENCE
L7248: 15°F (8°C)
DIFFERENCE

L7224A,C; L7248A,C,L OIL AND ELECTRIC BOILER ELECTRONIC AQUASTAT® CONTROLLERS
768-0281—16
NOTE: This feature is blocked if a Domestic Hot
Water demand occurs. Domestic Hot Water
demands are serviced immediately, without
any delay.
NOTE: When the Aquastat is connected to the oil
primary and/or thermostat via the EnviraCOM
bus, the Anti Short-Cycle time does not apply
to recycle events such as loss of airflow or
flame. It applies only to loss of demand.
ZR-Domestic Hot Water (DHW)
Request
The ZR terminal can be selected to service an indirect
water heater heat request. This parameter is set via the 3
digit display (see Adjusting Settings section of this
document). A heat request via the ZR terminal will have
priority over all other features such as the Anti Short-
Cycle feature or those enabled by the Outdoor Reset
Module (See form #69-2335 for more information).
Frost Protection
The Frost Protection function protects the boiler and
potentially the boiler plumbing from possible damage
which may occur should the water in the system begin to
freeze. The Frost Protection feature is enabled only in the
L7248 (cold start models). The feature default setting is
enabled (ON), but can be disabled using the 3-digit
display. See “Adjusting Settings” on page 5.
When the Boiler temperature drops to the Frost Protection
Limit temperature (fixed 40 °F), the burner is forced on.
The Circulator and ZC outputs remain in the same state
as before the Frost Protection function was enabled.
They can be either ON or OFF during the Frost Protection
cycle.
When the Boiler temperature reaches the Frost Protection
Limit temperature plus a fixed 10 °F differential, the burner
is turned off unless requested to stay on due to a different
demand.
Thermal Purge Operation
The intent of thermal purge is to insure usable residual
heat in the boiler is circulated until it is sufficiently
depleted from the system before the burner is allowed to
fire. To that end, on a call for heat, the burner is held off
while the circulator runs until the boiler temperature drops
to the thermal purge temperature or a time delay is
exceeded. Both of these parameters are adjustable.
When the boiler temperature reaches the thermal purge
temperature, the burner is allowed to fire. Thermal purge
is only applied to cold start Aquastat models (L7248) and
will not interfere with domestic hot water call for heat or
boilers equipped with Honeywell outdoor reset
accessories. For warm start models where a Low Limit
must be set, thermal purge is not applied.
In addition to the thermal purge temperature and thermal
purge time delay parameters, two other conditions release
the Aquastat from thermal purge in order to maintain
comfort in the space:
• The boiler temperature has dropped 10 °F from the
beginning of the thermal purge.
• Boiler temperature is cooling at a rate greater than
5 °F/minute while the circulator is running.
The thermal purge feature applies to single zone as well
as multi-zone applications.
Thermal Purge Settings
Some thermal purge parameters are configurable using
the 3 digit display. See “Adjusting Settings” on page 5.
Thermal purge may be disabled by setting the thermal
purge temperature limit to "OFF".
Thermal Purge and Domestic Hot
Water
The thermal purge feature is automatically disabled
whenever there is a call for domestic hot water either from
the Zr terminal or from the DHW Module to insure hot
water is available in a timely manner. See “ZR-Domestic
Hot Water (DHW) Request” on page 7.
Pump Cycling
The Pump Cycling feature exercises the system pump for
15 seconds after a non-adjustable five day period of no
boiler activity. The Pump Cycling feature default setting is
enabled (ON) but can be disabled (OFF) using the 3-digit
display. See “Adjusting Settings” on page 5.
CHECKOUT
Put the system into operation and observe at least one
complete cycle to make sure that the controller operates
properly. See TROUBLESHOOTING section to use LED
to assist in determining system operation.
TROUBLESHOOTING
When attempting to diagnose system performance,
reference to the LED display can help to identify specific
areas not working properly. The LED display will scroll
Err, followed by a digit (1-8). Refer to Table 10 and 11 for
a description of each error and suggested actions.
Table 5. Thermal Purge Settings.
Parameter name Minimum value Maximum Value Default
Boiler temperature drop Not adjustable Not adjustable 10 °F
Thermal purge temperature limit 120 °F (or OFF) 160 °F 140 °F (L7248)
Thermal purge temperature rate of drop Not adjustable Not adjustable 5 °F/minute
Thermal purge time delay 1 minute 10 minutes 2 minutes

L7224A,C; L7248A,C,L OIL AND ELECTRIC BOILER ELECTRONIC AQUASTAT® CONTROLLERS
68-0281—16 8
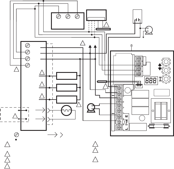
Fig. 8. L7224A,C; L7248L single heat zone with indirect water tank and circulators. Optional Outdoor Reset
Module.
C1
B1
ZC
L2
LINE
C2
ZR
L1
B2
T
T3
2
1
M32023A
L1
(HOT)
SENSOR
LINE
VOLTAGE
CIRCULATOR
LINE
VOLTAGE
OIL BURNER
RELAY
L2
OUTDOOR RESET MODULE IS OPTIONAL. W8735S1000 WIRED OUTDOOR
RESET MODULE SHOWN.
FOR BEST PERFORMANCE SET DUU=”ON”.
1
1 2 3 OT OT
C7089U
OUTDOOR
SENSOR
1
W8735Y1000 OR
W8735S1000
INDIRECT
TANK
CIRCULATOR
LINE VOLTAGE INDIRECT
TANK AQUASTAT
L1
(HOT)
L2
2
2

L7224A,C; L7248A,C,L OIL AND ELECTRIC BOILER ELECTRONIC AQUASTAT® CONTROLLERS
968-0281—16
* Error condition only available when the Outdoor Reset Module is installed.
Table 6. L7224/L7248 Controller Operating Sequence.
Action System Response
Thermostat calls for heat. Circulator starts when water temperature is above Low Limit setting (if
applicable) or above the Thermal Purge Temperature Limit (tPL) if
Thermal Purge is enabled. Boiler temperature is checked. Burner
starts when water temperature is below High Limit setting minus the
differential or at or below the Thermal Purge Temperature Limit (tPL)
for cold start boilers if the Thermal Purge Temperature Limit is
enabled. If tPL is enabled, the burner may also start if the boiler
temperature is cooling at 10 ºF or greater per minute or the Thermal
Purge Time Delay (tPt) has expired.
If Anti Short-Cycle Time is enabled, the burner does not start until the
set Anti Short-Cycle Time between cycles expires after the previous
call for heat was satisfied.
Boiler temperature exceeds the High Limit. Burner is turned off. Burner restarts when the water temperature
drops below the High Limit setting minus the Differential. If Thermal
Purge is enabled, the burner is turned on when either the Thermal
Purge Temperature Limit is reached, the Thermal Purge Time Delay
has expired or the boiler temperature cooling rate exceeds 10 ºF/
minute.
Thermostat is satisfied. Circulator and burner turn off.
Boiler temperature drops below the Low Limit
setting minus the differential (if applicable).
Burner is turned on, Circulator is turned off. Burner stops when the
water temperature exceeds the Low Limit setting. Power to Zc is
removed.
Error condition
1-5.
If an error condition is detected, all outputs except ZC are shut down.
Burner is off. Control continues to function and restarts when error is
corrected.
During the error check sequence, the system checks for drift in the
sensor and corrosion in the connections.
Error condition 6. EnviraCOM communication is not available.
Error condition 7. The control has reset the High Limit, Low Limit and Differential setting to
a default setting and will continue to run at those settings.
Performance of the system will be degraded.
Error condition 8. If the error condition is detected, all outputs except ZC are shut down.
Burner is off. Control continues to function and restarts when all three
user keys have been pressed longer than 60 seconds.
Error condition 9*. System continues to run with no outdoor reset functionality
Error condition 10*. System continues to run with outdoor reset parameters enabled as
programmed. Error cleared automatically.
Error condition 11*. System continues to run with boiler temp set to High Limit.
Table 7. L7224/L7248 Controller Operating Sequence with multiple zones connected through the ZR terminal.
Action System Response
Zone Request (ZR) terminal is connected to
L1 (Zone calls for heat).
Boiler temperature is checked. Burner starts when water temperature
is below High Limit setting or at or below the Thermal Purge
Temperature Limit (tPL) for cold start boilers if the Thermal Purge
Temperature Limit is enabled. If tPL is enabled, the burner may also
start if the boiler temperature is cooling at 10 ºF or greater per minute
or the Thermal Purge Time Delay (tPt) has expired. Anti Short-Cycle
Time is applied, see Table 6.
Boiler temperature exceeds the High Limit. Burner is turned off. Burner restarts when the water temperature
drops below the High Limit setting minus the Differential. If Thermal
Purge is enabled, the burner is turned on when either the Thermal
Purge Temperature Limit is reached, the Thermal Purge Time Delay
has expired or the boiler temperature cooling rate exceeds 10 ºF/
minute.
Zone Request input is de-energized (Zones
are satisfied).
Burner turns off.
Boiler temperature drops below the Low Limit
setting minus the differential (if applicable).
Burner turns on and Zone Control is de-energized. Burner turns off
and Zone Control is re-energized when the water temperature
exceeds the Low Limit setting.

L7224A,C; L7248A,C,L OIL AND ELECTRIC BOILER ELECTRONIC AQUASTAT® CONTROLLERS
68-0281—16 10
.
aWarnings are generated to enunciate the system is not operating optimally, but the Aquastat is still operating and
maintaining boiler temperature. In the instance where an Outdoor Reset Module is used, the warnings may indicate a
reset curve setting error one or more features is not running optimally, and the Aquastat is reverting to default settings
or has stopped running the Outdoor Reset algorithms. The warnings are cleared when the issue(s) is resolved.
bTo clear Err 8 condition, depress and hold all three user keys simultaneously for 60 seconds. Err 8 condition clears
and display returns to normal. Err 8 condition is designed to catch welded relays on the Aquastat and will normally
only occur near end of life for the control. If Err 8 condition has occurred early in the controls life, be sure to check for
voltage feedback to B1 when B1 should be off and check current draw on b terminal to be sure oil burner is not draw-
ing excessive current. Err 8 condition will keep repeating if B1 fault is not cleared.
Table 8. Controller Operating Sequence with External Low Limit device connected trough the ZR terminal.
Action System Response
Zone Request (ZR) terminal is connected to
L1 (External Low Limit call for heat).
Boiler temperature is checked. Burner starts when water temperature
is below High Limit setting. Circulator turns off.
Boiler temperature exceeds the High Limit. Burner is turned off. Burner restarts when the water temperature
drops below the High Limit setting minus the Differential.
Zone Request input is de-energized (External
Low Limit is satisfied).
Burner is turned off.
Table 9. L7224 Controller Operating Sequence with Domestic Hot Water connected trough the ZR terminal.
Action System Response
Zone Request (ZR) terminal is connected to
L1 (Domestic Hot Water calls for heat).
Boiler temperature is checked. Burner starts when water temperature
is below High Limit setting.
Boiler temperature exceeds the High Limit. Burner is turned off. Burner restarts when the water temperature
drops below the High Limit setting minus the Differential.
Zone Request input is de-energized
(Domestic Hot Water is satisfied).
Burner is turned off.
Table 10. LED Error Codes.
Aquastat
Error Code Cause/Action
EnviraCOM
Alarm
Err1 Aquastat sensor fault; check water sensor. 18
Err2 ECOM fault; check EnviraCOM™ wiring. 18
Err3 Excessive electrical noise or frequency out of range. Hardware fault; replace controller. 18, 58
Err4 B1 fault; check B1 wiring/voltage. 64
Err5 Low Line; check L1-L2, 110 Vac. 59
Err6aWarning: Fuse; check ECOM wires, replace fuse. 92
Err7 Warning: EEPROM, HL, LL, Hdf, Ldf; reset to default values. N/A
Err 8bRepeated B1 fault (voltage present at B1 when output is turned off); check B1 wiring/voltage. 25
Err9aWarning: Outdoor Reset System failure; communication to Outdoor Reset Module lost,
Outdoor Reset Module failure, multiple outdoor temperature sensors detected on the bus, or
outdoor temperature sensor failure. Check EnviraCOM wiring (1, 2, 3), check sensor wiring.
50, 53, 149
Err 10aWarning: Boost Failure; Boost Mode active at least once per cycle for the last 60 consecutive
cycles. Check Outdoor Reset curve settings.
150
Err 11aDHW Module/Sensor failure; communication to DHW Module lost, DHW Module failure, or
temperature sensor failure. Check EnviraCOM wiring (1, 2, 3), check sensor wiring.
146, 147,
148
Table 11. Troubleshooting Guide
System
Condition
Diagnostic
Condition Check Action
Boiler is cold,
house is cold.
Display is OFF. 120 Vac System power. Turn system power on.
Display is ON. 24 Vac T-T No 24 V; replace control.
24 V present; disconnect
thermostat, short T-T.
Boiler starts, check wiring and thermostat.
120 Vac at B1-B2 •If no, replace control.
•If yes, check burner and wiring.
Refer to Err on display. —

L7224A,C; L7248A,C,L OIL AND ELECTRIC BOILER ELECTRONIC AQUASTAT® CONTROLLERS
11 68-0281—16
Fig. 9. L7224A,C multizone system with circulator connections.
Boiler is hot,
house is cold.
Display is ON. 120 Vac at C1-C2 •120 Vac at C1-C2, check wiring to pump.
•Wiring OK, is pump running?
•If not, replace the pump.
•If pump is running, check for trapped air or
closed zone valves.
Boiler below the Low Limit
temperature, wait for boiler to go
above Low Limit temperature.
—
Boiler above LL? If yes, check for
120 Vac between ZC and L2.
•If no 120 Vac, replace control.
•If yes, check zone relays, circulators and
wiring.
ELL setting (L7248L only) •Set ELL to Off for multizone system (see Fig.
11).
•Set ELL to On for External Low Limit (see
Fig. 13).
Boiler above LL? If yes, check 120
Vac at ZR-L2 (only L7248L with
ELL set On)
•If no 120 Vac, check C1-C2 (see above).
•If yes, check the External Low Limit control.
Boiler is hot,
no hot potable
water.
Display is ON. Boiler Demand signal from the
water heater (either 120 Vac at
ZR-L2, or 0 Vac on T-T; depends
on installation and “duu” setting)
•24 Vac on T-T (or 0 Vac on ZR-L2), check
wiring to water heater
•Wiring OK, check the water heater
“duu” setting •Set duu to ON if 120 Vac water heater
demand is connected to ZR
•Set duu to OFF if open/closed water heater
demand is connected to T-T
Check DHW Module and DHW
Sensor
•DHW Module not properly connected and/or
DHW Sensor improperly positioned
Table 11. Troubleshooting Guide
System
Condition
Diagnostic
Condition Check Action
M27115
POWER SUPPLY. PROVIDE DISCONNECT
MEANS AND OVERLOAD
PROTECTION AS REQUIRED.
1
CONTROL CASE MUST BE CONNECTED
TO EARTH GROUND. USE GROUNDING
SCREW PROVIDED.
2
C1
B1
ZC
L2
LINE
C2
ZR
L1
B2
T
T3
2
1
SENSOR
LINE
VOLTAGE
CIRCULATOR
LINE
VOLTAGE
OIL BURNER
RELAY
2
LOW
VOLTAGE
THERMOSTAT
L7224
3
L1
(HOT)
L2
1
2
1
4
5
6
ZONE 2
LOW VOLTAGE
THERMOSTAT
R845A RELAY ZONE 2
ZONE 2
CIRCULATOR
TO ADDITIONAL R845A
RELAYS FOR OTHER ZONES

L7224A,C; L7248A,C,L OIL AND ELECTRIC BOILER ELECTRONIC AQUASTAT® CONTROLLERS
68-0281—16 12
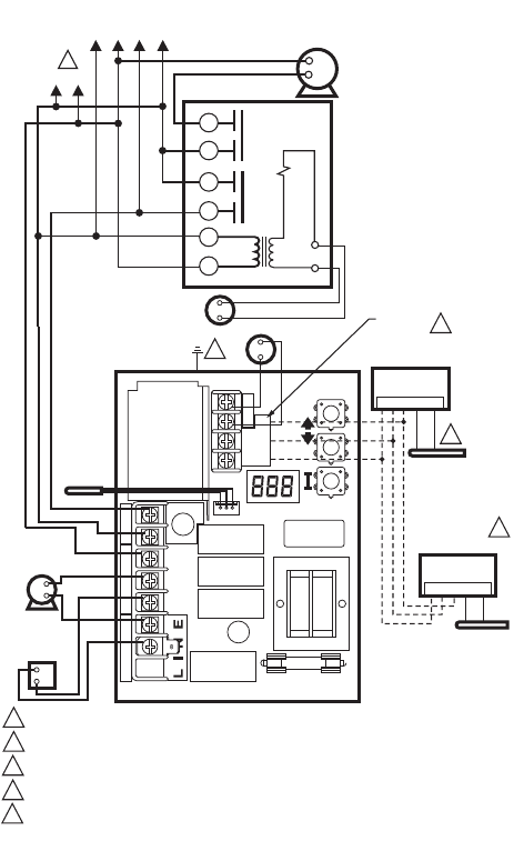
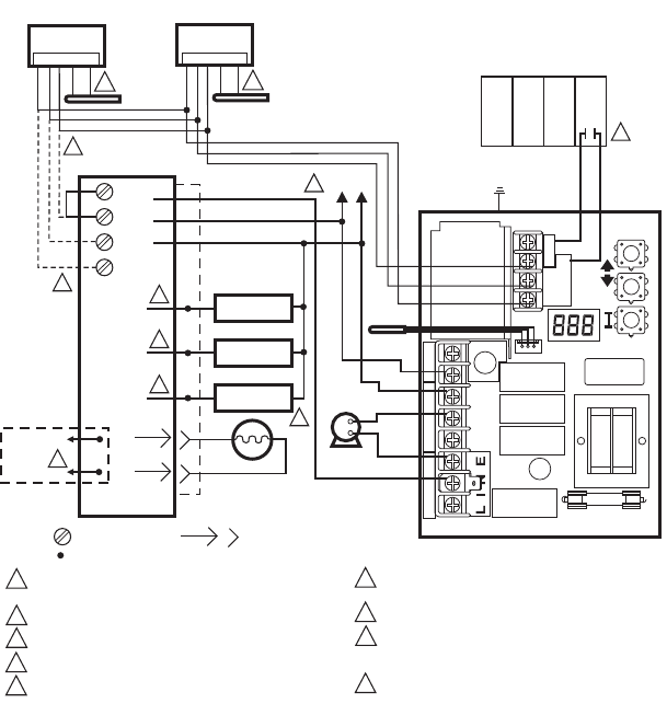
Fig. 10. L7224A,C single zone system with circulator and indirect water tank with EnviraCOM™ thermostat.
M32025B
POWER SUPPLY. PROVIDE DISCONNECT MEANS AND OVERLOAD
PROTECTION AS REQUIRED.
OPTIONAL FEATURE ON SELECT MODELS.
REFER TO DEVICE LABEL FOR WIRE COLOR CODE.
VALVE IS OPTIONAL ON SPECIFIED MODELS.
1
2
3
C1
B1
ZC
L2
LINE
C2
ZR
L1
B2
T
T3
3
3
2
2
2
1
1
1
SENSOR
LINE
VOLTAGE
CIRCULATOR
L7224
3
4
3
3
5
BURNER
MOTOR
IGNITER
VALVE
BURNER
MOTOR
IGNITER
VALVE
CAD
CELL
JUNCTION
BOX
TO REMOTE
ALARM
CIRCUIT
ENVIRACOM™
TERMINAL
TH9421C
R7184/R7284
LIMIT
L1
L2
2
CAD
CELL
T
T3
2
1
L1
(HOT) L2
1
LEGEND SCREW TERMINAL 1/4 IN. (6 MM) QUICK CONNECT TERMINAL
SOLDERLESS WIRE CONNECTION
ENVIRACOM™ TERMINAL 3 IS ALSO THE FIRST THERMOSTAT TERMINAL.
OPTIONAL OUTDOOR RESET MODULE AND OUTDOOR SENSOR.
W8735S1000 WIRED OUTDOOR RESET MODULE SHOWN.
DUU MUST BE SET TO “ON” ON THE AQUASTAT.
5
6
1 2 3 OT OT
C7089U1006
OUTDOOR
SENSOR
6
W8735Y1000 OR
W8735S1000
7
INDIRECT
TANK
CIRCULATOR
LINE VOLTAGE
INDIRECT
TANK AQUASTAT
L2
7
4

L7224A,C; L7248A,C,L OIL AND ELECTRIC BOILER ELECTRONIC AQUASTAT® CONTROLLERS
13 68-0281—16
Fig. 11. L7248L multizone system with circulator connections.
M29655A
POWER SUPPLY. PROVIDE DISCONNECT MEANS AND OVERLOAD PROTECTION AS REQUIRED.
1
CONTROL CASE MUST BE CONNECTED TO EARTH GROUND. USE GROUNDING SCREW PROVIDED.
2
3
L1
(HOT) L2
1
2
1
4
5
6
ZONE 2
LOW VOLTAGE
THERMOSTAT
R845A RELAY ZONE 2
ZONE 2
CIRCULATOR
TO ADDITIONAL R845A
RELAYS FOR OTHER ZONES
C1
B1
ZC
L2
LINE
C2
ZR
L1
B2
T
T3
2
1
SENSOR
LINE
VOLTAGE
CIRCULATOR
LINE
VOLTAGE
OIL BURNER
RELAY
2
LOW VOLTAGE
THERMOSTAT
L7248L
ELL=OFF
OPTIONAL OUTDOOR RESET MODULE AND OUTDOOR SENSOR. W8735S1000 WIRED OUTDOOR RESET MODULE SHOWN.
ENVIRACOM TERMINALS.
OPTIONAL DOMESTIC HOT WATER MODULE AND TEMPERATURE SENSOR.
3
4
5
1 2 3 OT OT
C7089U1006
OUTDOOR
SENSOR
W8735Y1000 OR
W8735S1000
1 2 3 TS TS
W8735S1008
DOMESTIC HOT
WATER MODULE
32003971-003
TEMPERATURE
SENSOR
4
ENVIRACOM
TERMINALS
3
5

L7224A,C; L7248A,C,L OIL AND ELECTRIC BOILER ELECTRONIC AQUASTAT® CONTROLLERS
68-0281—16 14
Fig. 12. L7224/L7248 multizone system with Outdoor Reset and Domestic Hot Water Modules (indirect tank
applications).
M32024A
POWER SUPPLY. PROVIDE DISCONNECT MEANS AND OVERLOAD
PROTECTION AS REQUIRED.
OPTIONAL FEATURE ON SELECT MODELS.
REFER TO DEVICE LABEL FOR WIRE COLOR CODE.
VALVE IS OPTIONAL ON SPECIFIED MODELS.
ENVIRACOM™ TERMINAL 3 IS ALSO THE FIRST THERMOSTAT TERMINAL.
1
2
3
C1
B1
ZC
L2
LINE
C2
ZR
L1
B2
T
T3
2
1
SENSOR
LINE
VOLTAGE
CIRCULATOR
L7224
3
4
3
3
5
BURNER
MOTOR
IGNITER
VALVE
BURNER
MOTOR
IGNITER
VALVE
CAD
CELL
JUNCTION
BOX
TO REMOTE
ALARM
CIRCUIT
ENVIRACOM™
TERMINAL
R7184/R7284
LIMIT
L1
L2
2
CAD
CELL
T
T3
2
1
L1
(HOT) L2
1
LEGEND SCREW TERMINAL 1/4 IN. (6 MM) QUICK CONNECT TERMINAL
SOLDERLESS WIRE CONNECTION
OPTIONAL OUTDOOR RESET MODULE AND OUTDOOR SENSOR.
W8735S1000 WIRED OUTDOOR RESET MODULE SHOWN.
OPTIONAL DOMESTIC HOT WATER MODULE.
WIRE ONLY THE ENVIRACOM TERMINALS (1, 2, 3) ON OIL PRIMARY
IF CONNECTING TO REMOTE DIAGNOSTICS, OTHERWISE CONNECT
A JUMPER BETWEEN THE TT TERMINALS.
ZONE PANEL TERMINALS MAY HAVE DIFFERENT LABEL. CHECK
PANEL MANUFACTURER SPECIFICATIONS FOR WIRING INSTRUCTIONS.
6
7
8
1 2 3 TS TS
32003971-003
TEMPERATURE
SENSOR
7
W8735S1008
9
MULTI-ZONE
RELAY PANEL
T T
4
5
1 2 3 OT OT
C7089U
OUTDOOR
SENSOR
6
W8735Y1000 OR
W8735S1000
8
9

L7224A,C; L7248A,C,L OIL AND ELECTRIC BOILER ELECTRONIC AQUASTAT® CONTROLLERS
15 68-0281—16
Fig. 13. L7248L External Low Limit connections.
M27113
POWER SUPPLY. PROVIDE DISCONNECT MEANS AND OVERLOAD
PROTECTION AS REQUIRED.
1
CONTROL CASE MUST BE CONNECTED TO EARTH GROUND.
USE GROUNDING SCREW PROVIDED.
2
W
L1 (HOT)
L2
1
B
R
C1
B1
ZC
L2
LINE
C2
ZR
L1
B2
T
T3
2
1
SENSOR
LINE
VOLTAGE
CIRCULATOR
LINE
VOLTAGE
OIL BURNER
RELAY
2
LOW
VOLTAGE
THERMOSTAT
L7248L
ELL=ON
L6006
LOW LIMIT
CONTROLLER

L7224A,C; L7248A,C,L OIL AND ELECTRIC BOILER ELECTRONIC AQUASTAT® CONTROLLERS
Automation and Control Solutions
Honeywell International Inc.
1985 Douglas Drive North
Golden Valley, MN 55422
customer.honeywell.com
® U.S. Registered Trademark
© 2013 Honeywell International Inc.
68-0281—16 M.S. Rev. 09-13
Printed in United States