Honeywell Home Security System K5305 1V5 Users Manual 1v5_ii
honeywell-vista-15p-.. honeywell-vista-15p-20p-control-panel-installation-and-setup-guide
Honeywell Home Security System K5305-1V5 v15pand20pinstallation
K5305-1V5 to the manual 4095973b-ef10-4fc8-92a2-ee53178295a5
2015-01-23
: Honeywell Honeywell-Honeywell-Home-Security-System-K5305-1V5-Users-Manual-261522 honeywell-honeywell-home-security-system-k5305-1v5-users-manual-261522 honeywell pdf
Open the PDF directly: View PDF
.
Page Count: 80

ADEMCO VISTA SERIES
VISTA-20P / VISTA-20PSIA
VISTA-15P / VISTA-15PSIA
Security Systems
Installation and Setup Guide
K5305-1V5 10/04 Rev. A
Page 2-8 and 8-1 Has been edited by Tech Support. If you have any
questions call 1.800.645.7492

RECOMMENDATIONS FOR PROPER PROTECTION
The Following Recommendations for the Location of Fire and Burglary Detection
Devices Help Provide Proper Coverage for the Protected Premises.
Recommendations For Smoke And Heat Detectors
With regard to the number and placement of smoke/heat detectors, we subscribe to the
recommendations contained in the National Fire Protection Association's (NFPA) Standard #72 noted
below.
Early warning fire detection is best achieved by the installation of fire detection equipment in all rooms
and areas of the household as follows: For minimum protection a smoke detector should be installed
outside of each separate sleeping area, and on each additional floor of a multi-floor family living unit,
including basements. The installation of smoke detectors in kitchens, attics (finished or unfinished), or
in garages is not normally recommended.
For additional protection the NFPA recommends that you install heat or smoke detectors in the living
room, dining room, bedroom(s), kitchen, hallway(s), attic, furnace room, utility and storage rooms,
basements and attached garages.
In addition, we recommend the following:
• Install a smoke detector inside every bedroom where a smoker sleeps.
• Install a smoke detector inside every bedroom where someone sleeps with the door partly or
completely closed. Smoke could be blocked by the closed door. Also, an alarm in the hallway outside
may not wake up the sleeper if the door is closed.
DINING
KITCHEN
BEDROOM
BEDROOM
BEDROOM
BEDROOM
LIVING ROOM
BEDROOM
BDRM
BDRM
DINING
LIVING ROOM
TV ROOM KITCHEN
BEDROOM BEDROOM
TO
BR
LVNG RM
BASEMENT
KTCHN
.
CLOSED
DOOR
GARAGE
Smoke Detectors for Minimum Protection
Smoke Detectors for Additional Protection
Heat-Activated Detectors
floor_plan-001-V0
• Install a smoke detector inside bedrooms
where electrical appliances (such as
portable heaters, air conditioners or
humidifiers) are used.
• Install a smoke detector at both ends of a
hallway if the hallway is more than 40
feet (12 meters) long.
• Install smoke detectors in any room where
an alarm control is located, or in any room
where alarm control connections to an AC
source or phone lines are made. If
detectors are not so located, a fire within
the room could prevent the control from
reporting a fire or an intrusion.
THIS CONTROL COMPLIES WITH NFPA
REQUIREMENTS FOR TEMPORAL PULSE
SOUNDING OF FIRE NOTIFICATION
APPLIANCES.
Recommendations For Proper Intrusion Protection
For proper intrusion coverage, sensors should be located at every possible point of entry to a home or
commercial premises. This would include any skylights that may be present, and the upper windows
in a multi-level building.
In addition, we recommend that radio backup be used in a security system so that alarm signals can
still be sent to the alarm monitoring station in the event that the telephone lines are out of order
(alarm signals are normally sent over the phone lines, if connected to an alarm monitoring station).
ii
Table Of Contents
Features and Installation Highlights............................................................................................................1-1
Capabilities and Functions................................................................................................................................................1-1
Compatible Devices ...........................................................................................................................................................1-2
Important Installation Highlights (Installer Please Read) .............................................................................................1-2
Mounting and Wiring the Control .................................................................................................................2-1
Installing the Control Cabinet and PC Board ..................................................................................................................2-1
Cabinet and Lock .........................................................................................................................................................2-1
Mounting the PC Board Alone (no RF Receiver) ........................................................................................................2-1
Mounting Board with RF Receiver..............................................................................................................................2-1
AUXILIARY DEVICE CURRENT DRAW WORKSHEET ..............................................................................2-2
AC Power, Battery, and Ground Connections ..................................................................................................................2-3
1321 Transformer.........................................................................................................................................................2-3
1361X10 Transformer ..................................................................................................................................................2-3
Battery Connections.....................................................................................................................................................2-3
Battery Saver Feature .................................................................................................................................................2-3
Earth Ground ...............................................................................................................................................................2-3
Sounder (Bell) Connections ...............................................................................................................................................2-4
Basic Connections ........................................................................................................................................................2-4
Supervised output ........................................................................................................................................................2-4
Connecting the Keypads and Other Addressable Devices ...............................................................................................2-4
Connections ..................................................................................................................................................................2-4
Supplementary Power (optional).................................................................................................................................2-4
Keypad Notes ...............................................................................................................................................................2-5
Long Range Radio Connections...................................................................................................................................2-5
Table of Device Addresses .................................................................................................................................................2-5
Hardwire Zones and Zone Expansion ...............................................................................................................................2-6
Hardwire Zones............................................................................................................................................................2-6
Double-Balanced Zones................................................................................................................................................2-6
Zone Doubling ..............................................................................................................................................................2-6
Smoke Detectors...........................................................................................................................................................2-6
Smoke Detector Notes..................................................................................................................................................2-7
4219/4229 Expansion Zones ........................................................................................................................................2-7
Installing the RF Receiver and Wireless Transmitter Zones ..........................................................................................2-8
Compatible Receivers...................................................................................................................................................2-8
Receiver Connections ...................................................................................................................................................2-8
RF Receiver Notes........................................................................................................................................................2-8
Installing a 5800TM Module .......................................................................................................................................2-9
Installing the Transmitters .........................................................................................................................................2-9
Transmitter Battery Life .............................................................................................................................................2-9
Installing a Keyswitch.....................................................................................................................................................2-10
Keyswitch Connections..............................................................................................................................................2-10
Keyswitch Notes.........................................................................................................................................................2-10
Connecting Relay Modules, Powerline Carrier Devices and Output Triggers..............................................................2-11
4204/4229 Relay Modules ..........................................................................................................................................2-11
Powerline Carrier Devices .........................................................................................................................................2-11
On-Board Triggers .....................................................................................................................................................2-12
Phone Line/Phone Module, and Audio Alarm Verification (AAV) Connections............................................................2-13
Phone Line..................................................................................................................................................................2-13
4285/4286 Phone Module...........................................................................................................................................2-13
Phone Module Problems ............................................................................................................................................2-13
Audio Alarm Verification Connections......................................................................................................................2-14
Programming Overview ...................................................................................................................................3-1
About Programming ..........................................................................................................................................................3-1
Mechanics of Programming...............................................................................................................................................3-1
Data Field Programming Procedures..........................................................................................................................3-1
Interactive Mode Programming (∗56, *57, ∗58, ∗79, ∗80, ∗81, ∗82)...........................................................................3-2
Loading Factory Defaults/Initializing for Download..................................................................................................3-2
Exiting the Programming Mode..................................................................................................................................3-2
Zone Type Definitions........................................................................................................................................................3-2
iii
Table Of Contents (continued)
Data Field Programming .................................................................................................................................4-1
About Data Field Programming........................................................................................................................................4-1
System Setup Fields (∗20 – ∗29) .......................................................................................................................................4-1
Zone Sounds & Timing (∗31–∗39) .....................................................................................................................................4-1
Dialer Programming (∗40 – ∗50) .......................................................................................................................................4-2
System Status Report Codes .............................................................................................................................................4-4
Miscellaneous System Fields ............................................................................................................................................4-5
Pager Programming Fields................................................................................................................................................4-7
Miscellaneous System Fields ............................................................................................................................................4-8
Configurable Zone Type Fields .........................................................................................................................................4-9
Touch Screen Device (AUI) Enable.................................................................................................................................4-11
Keypad Programming Fields...........................................................................................................................................4-11
Menu Mode Programming ...............................................................................................................................5-1
Zones and Partitions..........................................................................................................................................................5-1
About Zone Programming (∗56 and ∗58 Menu Modes) ....................................................................................................5-1
✱56 Zone Programming Procedure ...................................................................................................................................5-1
Completing Zone Programming ........................................................................................................................................5-4
∗58 Expert Programming Mode Procedures .....................................................................................................................5-4
Wireless Key Programming Templates ............................................................................................................................5-6
About Output Device Programming (*79/*80 Menu Mode) .............................................................................................5-8
Programming Output Devices...........................................................................................................................................5-8
*79 Menu Mode: Output Device Mapping ........................................................................................................................5-8
*80 Menu Mode: Defining Output Functions .................................................................................................................5-10
About Zone Lists (*81 Menu Mode) ................................................................................................................................5-12
Zone List Programming...................................................................................................................................................5-12
About Function Keys (*57 Menu Mode)..........................................................................................................................5-13
Programming Function Keys ..........................................................................................................................................5-13
About Descriptor Programming (*82 Menu Mode) ........................................................................................................5-14
Programming Zone Descriptors (Menu Mode ∗82).........................................................................................................5-14
Adding Custom Words (will not be annunciated by 4285/4286 Phone Module) ...........................................................5-15
Programming Installer and User Schedules ..................................................................................................................5-17
System Communication and Operation .......................................................................................................6-1
Panel Communication with Central Station ....................................................................................................................6-1
Report Code Formats.........................................................................................................................................................6-1
Ademco Contact ID®.........................................................................................................................................................6-3
System Security Codes ......................................................................................................................................................6-4
Panic Keys......................................................................................................................................................................6-6
Setting the Real-Time Clock .............................................................................................................................................6-6
Various System Trouble Displays .....................................................................................................................................6-7
Testing the System.............................................................................................................................................7-1
About Test Procedures.......................................................................................................................................................7-1
System Test........................................................................................................................................................................7-1
Checking Transmitter Enrollment (Sniffer Mode)...........................................................................................................7-1
Go/No Go Test Mode ..........................................................................................................................................................7-2
Dialer Communication Test and Periodic Test Reports...................................................................................................7-2
Automatic Standby Battery Tests.....................................................................................................................................7-2
Specifications & Accessories...........................................................................................................................8-1
Security Control.................................................................................................................................................................8-1
Compatible Devices ...........................................................................................................................................................8-1
5800 Series Transmitter Input Loop Identification .........................................................................................................8-3
Regulatory Agency Statements ......................................................................................................................9-1
Limitations and Warranty .............................................................................................................................10-7
iv

SECTION 1
Features and Installation Highlights
This manual applies to the following Honeywell security systems:
ADEMCO VISTA-20P/ADEMCO VISTA-20PSIA/ADEMCO VISTA-20PCN (collectively referred to as
VISTA-20P series), ADEMCO VISTA-15P/ADEMCO VISTA-15PSIA/ADEMCO VISTA-15PCN
(collectively referred to as VISTA-15P series)
Features and procedures apply to all, except where differences are noted.
SIA Installations: The VISTA-20PSIA and VISTA-15PSIA are certified SIA-compliant controls that
meet SIA specifications for False Alarm Reduction. The other controls described in this manual are
not certified as SIA compliant, but can be programmed for False Alarm Reduction. To program for
False Alarm Reduction, follow the SIA Guidelines noted in the applicable programming fields.
NOTE: Throughout this manual, device model numbers are ADEMCO model numbers
unless otherwise noted.
Capabilities and Functions
Feature/Function ADEMCO VISTA-20P Series ADEMCO VISTA-15P Series
Partitions
• 2 partitions, can protect two independent
areas
• Common zone option allows either
partition to arm, while leaving a common
area (ex. lobby or foyer) disarmed for
access into the other partition.
VISTA-15P is not a partitioned system.
Zones Up to 48 protection zones plus 16 keyfob
zones (zones 49-64) for total of 64 zones:
• 8 basic hardwired zones (zones 1-8) with
optional zone-doubling feature
• Up to 40 additional wired zones (zones 9-
48) using up to 5 4219/4229 modules
• Up to 40 wireless transmitter zones (5800
series; zones 9-48)
• Up to 4 configurable zone types
Up to 32 zones plus 8 keyfob zones (zones
49-56) for total of 40 zones:
• 6 basic hardwired zones (zone 1-6)
• Up to 16 additional wired zones (zones 9-
24) using up to 2 4219/4229 modules
• Up to 26 wireless transmitter zones
(5800 series; zones 9-34)
• Up to 2 configurable zone types
Security Codes Up to 48 Security Codes, with separate
authority levels and partition access
Up to 32 Security Codes, with separate
authority levels
One-button arming Dedicated keys can arm the system. Dedicated keys can arm the system.
Schedules Up to 32; can control devices and/or auto-
arm/disarm
Up to 8; can control devices and/or auto-
arm/disarm
Keypad macros Up to 4; activated by wired keypads Up to 2; activated by wired keypads
Paging Up to 4 pagers; certain system conditions
can report to pagers; can use a dedicated
key on keypads to send a signal to a pager
Up to 2 pagers; certain system conditions
can report to pagers; can use a dedicated
key on keypads to send a signal to a pager
Event Logging 100 events; log display is done via Ademco
Compass Downloader software or
installer/master code at Keypad
50 events; log display is done via Ademco
Compass Downloader software or
installer/master code at Keypad
Zone descriptors Can assign for all zones (for alpha display keypads and/or 4285/4286 Phone Module).
Bell supervision Optional, detects external sounder wiring short or open; causes a trouble condition,
keypad display, and sends a report to the central monitoring station, if enabled.
RF jam detection Optional, for wireless systems detects a condition that may impede proper RF reception
(i.e., jamming or other RF interference); causes keypad display, and sends a report to the
central monitoring station (if trouble reporting is enabled).
Telephone Line
Monitoring
Built-in option can monitor the telephone line voltage and can cause a local display, or a
display and trouble/alarm sound
Downloading Via an IBM compatible computer, Compass downloading software, and a compatible
HAYES or CIA modem specified by Ademco.
1-1

Compatible Devices
Device VISTA-20P VISTA-15P Notes
Addressable Keypads 8 8 6150 Fixed-Word Keypad, 6160 Alpha Keypad, 6150V
Fixed-Word Display Voice Keypad, 6160V Alpha
Display Voice Keypad, 6150RF Keypad/Transceiver
Touch Screen (AUI)
Devices
2 2 Touch Screen (AUI) devices are in addition to the 8
addressable keypads. E.g., Symphony, 6270
4219, 4229 Zone
Expander Modules
Up to 5 for
up to 40
exp. zones
Up to 2 for
up to 16
exp. zones
Zone numbers are predefined according to the device
addresses used. See Expander Module Addresses table
in Wiring section and set addresses accordingly.
5800 Series Wireless Up to 40 RF
zones
Up to 26 RF
zones
Uses 5881/5883 Series Receivers/Transceivers.
Output relays and/or
Powerline Carrier
Devices (X-10 type)
Up to 16 Up to 8 Use any combination of 4204, 4229 and or Powerline
Carrier Devices.
Map output devices via *79 Menu mode.
On-Board Triggers 2 2 Can be used to reset 4-smoke detectors.
Output functions Up to 48 Up to 24 Program output functions via *80 Menu mode.
4285/4286 Phone
Module
Partition 1
only
yes Provides access to the system via on premises or off-
premises phones for arming, disarming, etc., plus
control of relay outputs and Powerline Carrier devices.
Audio Alarm
Verification
Using AAV
module
Using AAV
module
Use ADEMCO UVS or Eagle Model 1250; can be used
in conjunction with an output trigger to permit voice
dialog between an operator at the central station and
a person at the premises.
Alarm output 12VDC, 2
AMP output
12VDC, 2
AMP output
Can drive the compatible sounders; steady output for
burglary/panic, or temporal pulse (3 pulses – pause –
3 pulses – pause – 3 pulses. . .) for fire. Uses current
limiting circuitry for protection.
Auxiliary Power Output See note. See note 12VDC, 600 mA maximum; uses fuse for protection.
Backup Battery See note. See note. Rechargeable (sealed lead-acid type) 12VDC, 4AH
minimum.
Long Range Radio See note. See note. Primary telephone number messages can be reported
via ECP connection to various Long Range Radios
(check compatibility/availability of specific models)
AC Power Supply See note. See note. Plug-in 120VAC transformer, ADEMCO 1321
(1321CN in Canada) or, if using Powerline Carrier
devices, ADEMCO 1361X10 Transformer Module
NOTE: All devices and accessories used in a Canadian installation must be Listed for use in Canada.
Important Installation Highlights (Installer Please Read)
• This system uses addressable keypads and Zone Expander Modules (see Table of Addresses in
Section 2. Mounting and Wiring – Wiring the Keypads and Other Addressable Devices).
• Keypads must be set for addresses 16-23 (first keypad is address 16, which is different from
previous controls) and programmed in data fields *190-*196.
• Zone Expander Modules must be set for specific addresses (07-11), based on the zone numbers used.
• 4204 Relay Modules must be set for specific addresses (12-15).
• This control will not power-up unless AC power is connected (will not power-up on battery alone).
However, once the system is powered up, it will operate on battery power in the event of AC loss.
• Relays have two programming menu modes: Use *79 Menu mode to map module addresses and
device (output) numbers. Use *80 Menu mode to define the output functions.
• This system supports programmable function keys. Use *57 Menu mode to define the function
keys.
• This system provides various paging features. Refer to the Programming Overview section for a
summary on pager programming.
Installation and Setup Guide
1-2

SECTION 2
Mounting and Wiring the Control
Installing the Control Cabinet and PC Board
Cabinet and Lock
1. Mount the control cabinet to a
sturdy wall in a clean, dry area,
which is not readily accessible to
the general public, using fasteners
or anchors (not supplied) with the
four cabinet mounting holes.
2. Remove cabinet door, then remove
the lock knockout from the door.
Insert the key into the lock.
CABINET DOOR
BOTTOM
LOCKED
UNLOCKED
cab_lock_snap-001-V0
ADEMCO
ADEMCO
PUSH
SNAP
TAB
SNAP
TAB
PUSH
ON LOCK
UNTIL IT
IS SEATED
SECURELY
STEP 2STEP 1
CHECK
POSITION
Figure 1. Installing the Cabinet Lock
3. Position the lock in the hole, making certain that the latch will make contact with the
latch bracket when the door is closed. When correctly positioned, push the lock until
the snap tabs hold it securely.
The cabinet can be secured without a lock by using 2 screws in the cover's edge.
Mounting the PC Board
Alone (no RF Receiver)
Before installing the cabinet's contents, remove the metal cabinet knockouts required for
wiring entry. Do not remove the knockouts after the circuit board has been installed.
1. Hang two short mounting clips (provided) on the raised cabinet tabs (see Detail B).
2. a. Insert the top of the circuit board into the slots at the top of the cabinet. Make sure
that the board rests on the correct row (see Detail A).
b. Swing the base of the board into the mounting clips and secure the board to the
cabinet with the accompanying screws (see Detail B).
+
+
CIRCUIT
BOARD
DETAIL B
SIDE VIEW
OF MOUNTING
CLIPS
DETAIL A
SIDE VIEW
OF BOARD
SUPPORTING
SLOTS
CIRCUIT
BOARD
MOUNTING-001-V0
CABINET
CABINET
Figure 2. Mounting the PC Board
Mounting Board with RF
Receiver
• Do not mount the cabinet on or near metal objects. This will decrease RF range and/or
block RF transmissions from wireless transmitters.
• Do not locate the cabinet in an area of high RF interference (revealed by frequent or
prolonged lighting of the LED in the receiver (random flicker is OK)
1. a. Remove the receiver board from its case, then insert the top of the board into the
slots at the top of the cabinet, as shown in Detail A in Figure 3 on the next page.
Make sure that the board rests on the correct row of tabs.
b. Swing the base of the board into the mounting clips and secure it to the cabinet
with the accompanying screws.
c. Insert the top of the control's board into the slot in the clips and position two clips
at the lower edge of the board.
d. Swing this board into place and secure it with two additional screws.
2. Insert grounding lugs (supplied with the receiver) through the top of the cabinet into
the left-hand terminals of the antenna blocks (at the upper edge of the receiver board)
and secure them to the cabinet top with the screws provided (see Detail B).
3. Insert the receiver's antennas through the top of the cabinet, into the blocks' right-
hand terminals, and tighten the screws.
2-1

ANTENNA
MOUNT
(2 PLACES)
ANTENNA
(2)
SCREW
(2)
BLACK
MOUNTING
CLIP
RED
MOUNTING
CLIP
WHITE
MOUNTING
CLIP
GROUNDING
LUG
(2)
NOTE
A COMBINATION OF THESE MOUNTING CLIPS HAS BEEN
INCLUDED IN YOUR INSTALLATION KIT.
USE THE APPROPRIATE CLIPS FOR MOUNTING.
IF NO RF RECEIVER IS USED, MOUNT THE PC BOARD USING
EITHER THE WHITE OR BLACK CLIPS, WHICHEVER ARE
INCLUDED IN THE CONTROL PANEL'S HARDWARE KIT.
DETAIL A
SIDE VIEW
OF BOARD -
SUPPORTING SLOTS
CIRCUIT
BOARD
CABINET
MOUNTING
CLIP
CABINET
MOUNTING
CLIP
CONTROL
CIRCUIT
BOARD
BOARD
SUPPORTING
SLOTS
RECEIVER CIRCUIT BOARD
++
AB
pc_mount-001-V1
DETAIL B
ANTENNA AND GROUNDING
LUG INSTALLATION
INSTALLATION WITH RECEIVER CIRCUIT BOARD
Figure 3. Mounting the PC Board and RF Receiver
AUXILIARY DEVICE CURRENT DRAW WORKSHEET
DEVICE CURRENT No. UNITS TOTAL CURRENT
6150 Fixed-Word Keypad 40mA/70mA**
6160 Alpha Keypad 40mA/150mA**
6150V Fixed-Word Display Voice Keypad 60mA/160mA**
6160V Alpha Display Voice Keypad 60mA/190mA**
8132/8142 Series AUI (Symphony) 150mA/400mA**
6270 Touch Screen Keypad 180mA/280mA**
5881/5882 RF Receiver 60mA
5883 Transceiver 80mA
4219 Zone Expander 30mA
4204 Relay Unit 15/180mA‡
4229 Zone Expander/Relay Unit 30/100mA‡
4285 Phone Module 160mA
4286 Phone Module 300mA
*
(Current available from Aux. terminals = 600 mA max.)† TOTAL =
*If using hardwire devices such as PIRs, refer to the specifications for that particular unit's current draw.
** Values are for standby/alarm; alarm for keypads means armed with backlighting on and sounder on
†In UL installations, maximum current draw from the Auxiliary Output and the Alarm Output combined must not exceed 600 mA (500 mA max from Aux. Output).
‡Values are for relays OFF/relays ON.
CALIFORNIA STATE FIRE MARSHALL (CSFM) AND UL RESIDENTIAL FIRE
24-HOUR BATTERY BACKUP REQUIREMENTS
The California State Fire Marshal and UL have regulations which require that all residential fire alarm control panels must be
provided with a backup battery which has sufficient capacity to operate the panel and its attached peripheral devices for 24 hours in
the intended standby condition, followed by at least 4 minutes in the intended fire alarm signaling condition. This control panel can
meet these requirements without using a supplementary power supply, provided that the panel’s auxiliary power and bell output
currents are limited as indicated below.
OUTPUT LIMITATIONS AND CORRESPONDING REQUIRED BATTERIES
OUTPUT CURRENT LIMITATIONS BATTERY INFORMATION
Output Current Total Maximum Auxiliary Current Battery Capacity
To Use (Amp/Hrs)
Recommended Battery
(Yuasa Model No.)
600mA maximum total of
auxiliary power plus bell
output currents
45mA
160mA
200mA
425mA
500mA
4AH
7AH
8AH
14AH
17.2AH
NP4-12 (or ADEMCO 467)
NP7-12
NP4-12 (two) ‡
NP7-12 (two) ‡
NPG18-12
‡ NOTE: Use two batteries, connected in parallel. Obtain an Ademco Battery Harness Kit SA5140-1. (Both batteries will fit inside the cabinet.)
Installation and Setup Guide
2-2

AC Power, Battery, and Ground Connections
1321 Transformer
TO
TERMINALS
1 AND 2
1321X10-001-V0
1
2
Connect the 1321 Transformer (1321CN in
Canada) to terminals 1 and 2 on the
control board. See Wire Run Chart for
wire size to use.
• Use caution when wiring the
transformer to the control to guard
against blowing the transformer fuse
(the fuse is non-replaceable).
Wire Run Chart
Distance from control Wire Size
Up to 50 feet # 20
50–100 feet # 18
100-250 feet # 16
• Wiring to the AC transformer must not exceed 250 feet using 16 gauge wire. The
voltage reading between terminals 1 and 2 of the control must not fall below 16.5VAC
or an “AC LOSS” message will be displayed.
• Do not plug the transformer into the AC outlet until all wiring connections to the
control are complete. As a safety precaution, always power down the control when
making such connections.
1361X10 Transformer
(required if using
Powerline Carrier devices)
AC AC
Sync
Output
Signal
Common
X10
Data
TO
8-PIN
CONNECTOR
TO
TERMINALS
1 AND 2
1361X10-001-V0
12
1. Splice one end of a 3-conductor cable
to the wire ends of the SA4120XM-1
Cable.
2. Connect the SA4120XM-1 cable plug
to the 8-pin connector on the control
(see the Summary of Connections
diagram for location of the 8-pin
connector).
3. Connect the other end of the
3-conductor cable to the 1361X10
Transformer, as shown in Figure 4.
Canadian Installations: See
Powerline Carrier Device section for
connections to the PSC04 X-10 Interface
and trigger pins.
AC AC SYNC COM DATA
2
34 5
1
2
1
SA412OXM
CABLE
CONTROL
BOARD
TERMS.
1361X10 TRANSFORMER
1 345678
8-PIN TRIGGER CONNECTOR
KEY
+12 AUX.
DATA
COM
SYNC
GND (-)
OUTPUT 17 (RED)
OUTPUT 18 (GREEN)
(ORANGE)
(YELLOW)
(BLUE)
(PURPLE)
(BLACK)
Figure 4. 1361X10 Transformer Connections
Battery Connections
batt_conn-001-V0
CONNECT
FLYING LEADS
AFTER AC POWER
IS APPLIED
BLACK
RED
1. Place the 12-volt backup battery in the cabinet.
2. After all connections to the control are completed and AC power has been applied,
connect the red and black flying leads on the control board to the battery. Do not
attach these leads to the battery terminals until all connections are completed.
UL For UL installations and Residential fire installations, refer to the chart on page 2-2
at left for the correct battery size required to meet the mandatory standby time.
Battery Saver Feature
The battery will disconnect from the system after its voltage decreases below 9VDC.
This assists the control panel in recharging the battery when AC is restored.
IMPORTANT: The panel will not power up initially on battery power only. You must
plug the transformer in first, and then connect the battery.
Earth Ground
earth_gnd-001-V0
CONNECT
PROPER
EARTH
GROUND
IF
DESIRED
CONTROL BOARD
25
• This product has been designed and laboratory-tested to ensure its resistance to
damage from generally expected levels of lightning and electrical discharge, and does
not normally require an earth ground.
• If an earth ground is desired for additional protection in areas of severe electrical
activity, terminal 25 on the control board, or the cabinet, may be used as the ground
connection point. The following are examples of good earth grounds available at most
installations.
Metal Cold Water Pipe: Use a non-corrosive metal strap (copper is recommended) firmly
secured to the pipe to which the ground lead is electrically connected and secured.
AC Power Outlet Ground: Available from 3-prong, 120VAC power outlets only. To test
the integrity of the ground terminal, use a 3-wire circuit tester with neon lamp
indicators, such as the UL Listed Ideal Model 61-035, or equivalent, available at most
electrical supply stores.
Mounting and Wiring the Control
2-3

Sounder (Bell) Connections
Basic Connections
spkr_conn-001-V0
ALARM OUTPUT
10.5 - 13.5 VDC
2A MAX.
34
Make sounder connections to alarm output terminals 3 (+) and 4 (–).
• The 12VDC sounder output activates when an alarm occurs.
• Total current drawn from this output cannot exceed 2 amps (going beyond 2 amps will
overload the power supply, or may cause the electronic circuit protecting the sounder
output to trip).
• You must install a battery, since the battery supplies this current.
Supervised output
1. Cut the red Bell Supervision Jumper located above terminals 2 and 3 on the PC board.
2. Connect a 2k ohm resistor across the terminals of the last sounder. See Figure 5.
This control complies with NFPA requirements for temporal pulse sounding of fire notification
appliances. Temporal pulse sounding for a fire alarm consists of: 3 pulses – pause – 3 pulses –
pause – 3 pulses–etc..
UL
• Use only UL Listed sounding devices for
UL installations.
• Bell supervision is required for fire alarm
installations.
• The total current drawn from the alarm
output and the auxiliary power output,
combined, cannot exceed 600 mA. In
addition, the sounding device must be a
UL Listed audible signal appliance rated
to operate in a 10.2-13.8 VDC voltage
range, and must be mounted indoors.
+
+
2
EXTERNAL ALARM
SOUNDER
TERMINALS ON
CONTROL BOARD
ALARM
OUTPUT
TERMINALS
sounder-001-V0
3
4
CUT RED JUMPER ON CONTROL
BOARD TO ENABLE BELL
(SOUNDER) SUPERVISION.
2000
OHM
EOL
RESISTOR
IF BELL SUPERVISION IS ENABLED
(RED JUMPER ON CONTROL BOARD IS CUT)
CONNECT A 2000 OHM RESISTOR ACROSS
THE EXTERNAL SOUNDER AS SHOWN BY
THE DOTTED LINE.
DO NOT CONNECT THE RESISTOR AT THE
ALARM OUTPUT TERMINALS THEMSELVES!
OBSERVE
POLARITY
Figure 5. Sounder Wiring (Supervised)
Connecting the Keypads and Other Addressable Devices
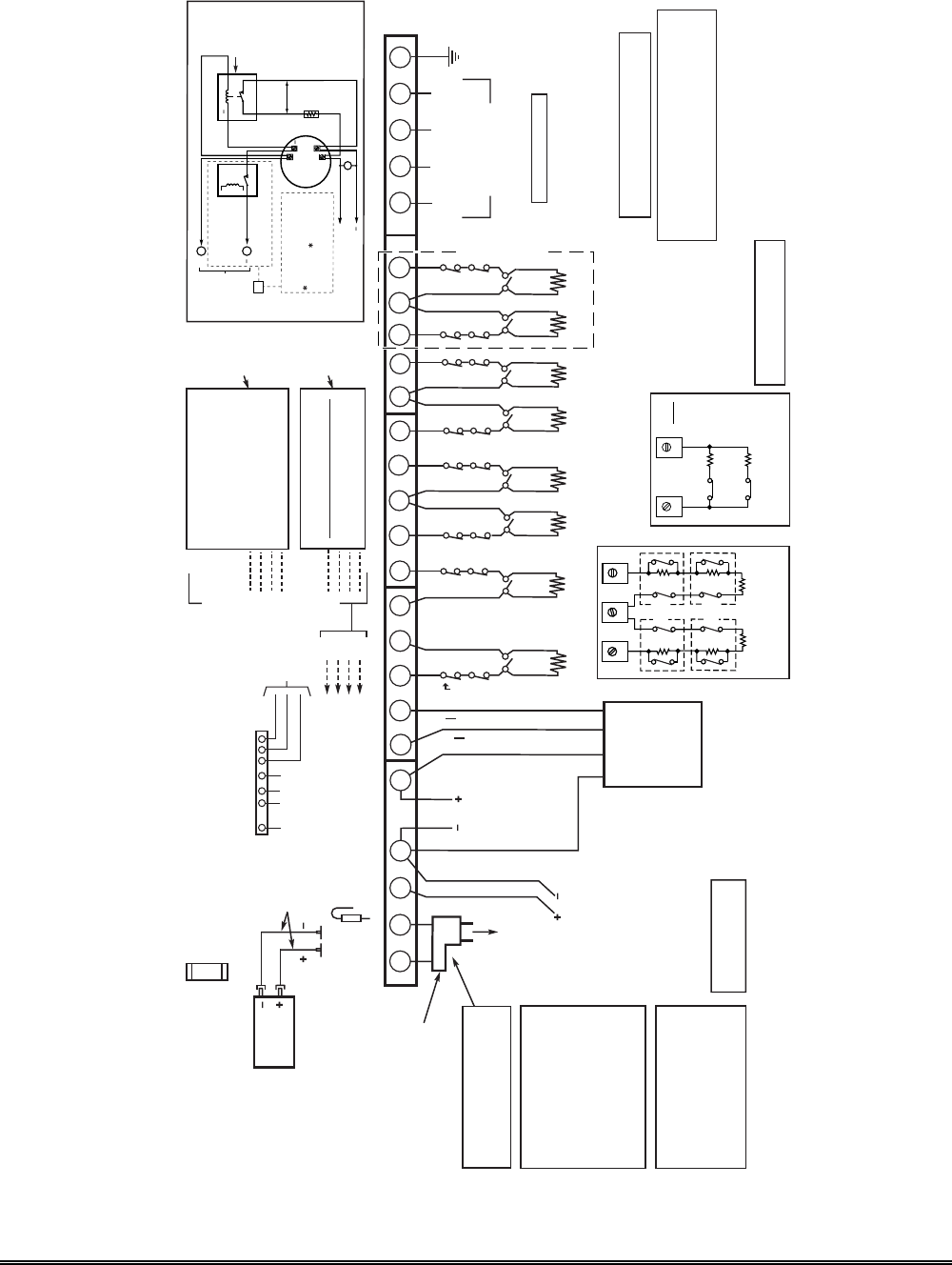
Connections
conn-001-V0
RED
GREEN
YELLOW
BLACK
ARMED
READY
4 _
5+6 IN
7 OUT
Connect keypads and other addressable devices (4204, 4219, 4229, 4286, 5881, LRR,
etc.) to the control’s keypad terminals as shown on the Summary of Connections
diagram. The system supports up to 8 keypads, which can be assigned to partitions in
any combination (see program fields *190-*196).
Determine wire size using the Wire Run Chart on the following page. For single 4-wire
runs, determine the current drawn by all units, then refer to the Wiring Run chart to
determine the maximum length that can be safely used for each wire size.
Supplementary Power
(optional)
UL Use a UL Listed,
battery-backed supply for
UL installations. The battery
supplies power to these
keypads in case of AC
power loss.
The battery-backed power
supply should have enough
power to supply the
keypads with the UL
required minimum standby
power time.
Use supplementary power if the
control’s aux. power load for all
devices exceeds 600mA (suggested
power supply: AD12612). Connect
as shown in Figure 6. Be sure to
connect the negative (–) terminal
on the power supply unit to
terminal 4 (AUX –) on the control.
IMPORTANT: Keypads
powered from supplies that do
not have a backup battery will
not function if AC power is lost.
Make sure to power at least one
keypad in each partition from
the control’s auxiliary power
output.
+–
+
456 7
SUPPLEMENTARY
POWER SUPPLY
–
CONTROL TERMINAL STRIP
AUX. AUX. DATA
IN
DATA
OUT
IMPORTANT:
MAKE THESE
CONNECTIONS
DIRECTLY TO
SCREW
TERMINALS AS
SHOWN.
TO KEYPAD RED WIRE
TO KEYPAD BLK WIRE
TO KEYPAD YEL WIRE
TO KEYPAD GRN WIRE
TO KEYPAD BLK WIRE
TO KEYPAD RED WIRE
TO KEYPAD GRN WIRE
TO KEYPAD YEL WIRE
supp_pwr_supply-V0
Figure 6. Using a Supplementary Power Supply
Installation and Setup Guide
2-4

Keypad Notes
ARMED
READY
1
OFF
4
MAX
7
INSTANT
READY
2
AWAY
5
TEST
8
CODE
0
3
STAY
6
BYPASS
9
CHIME
#
Set device addresses. Refer to the instructions included with the devices and set each
address according to the Table of Devices Addresses.
See Keypad Programming Fields (fields *190-*196) in Section 4. Data Field
Programming for details on enabling keypad addresses, assigning keypad partitions
and selecting keypad sounding options.
IMPORTANT: Each keypad must be assigned a unique, predefined address, from 16 to
23. The first keypad is address 16 (default = partition 1, all sounds enabled).
TOUCH SCREEN KEYPAD (AUI) NOTES:
•
••
• Use of up to 2 AUI devices (e.g., 6270, Symphony) is independent from standard
keypads and does not affect the number of standard keypads the system can support.
•
••
• AUI devices must be set for either address 1 or address 2, depending on which unit is
enabled in field *189.
•
••
• To ensure proper AUI device operation, connect only to controls having microprocessor
version 3.0 or higher, and use AUI devices with the following rev levels: 6270 series
use version 1.0.9 or higher; 8132/8142 (Symphony) series use version 1.1.175 or higher.
Long Range Radio
Connections
Connect the data in/data out terminals and voltage input terminals of the Long Range
Radio to the control's keypad connection points.
Set the radio’s address to “03” following the instructions provided with the radio.
• Use compatible Long Range Radios (e.g., 7720PLUS, 7820, 7835C, or 7845C).
Wire Run Chart For Devices* Drawing Aux Power From The Control (12V+ & 12V–)
Wire TOTAL CURRENT DRAWN BY ALL DEVICES CONNECTED TO A SINGLE WIRE RUN
Size 50 mA or less 100 mA 300 mA 500 mA 600 mA
#22 900 ft (274m) 450 ft (137m) 150 ft (46m) 90 ft (27m) 75 ft (23m)
#20 1400 ft (427m) 700 ft (213m) 240 ft (73m) 140 ft (43m) 120 ft (37m)
#18 1500 ft (457m) 1100 ft (335m) 350 ft (107m) 220 ft (67m) 170 ft (52m)
#16 1500 ft (457m) 1500 ft (457m) 550 ft (168m) 350 ft (107m) 270 ft (82m)
* Includes Keypads, RF Receivers, Zone Expander/Relay Units, 4285/4286 Phone Module, and Long Range Radio.
Maximum wire lengths for any device that is homerun to the control can also be determined from the Wiring Run Chart, based on the
current draw of that device alone.
The length of all wire runs for both partitions combined must not exceed 1500 feet (457m) when unshielded quad conductor cable is used
(750 feet if shielded cable is used). This restriction is due to the capacitive effect on the data lines when quad cable is used.
Table of Device Addresses
This Device Uses Address Reports as†† Enabled By…
RF Receiver 00 100 *56 zone programming: input device type entry
AUI 1 01 101 automatic if AUI enable field *189 enabled for AUI 1
AUI 2 02 102 automatic if AUI enable field *189 enabled for AUI 2
Long Range Radio 03 103 automatic if output to long range radio field *29 enabled
4286 Voice Module 04 104 automatic if phone module access code field *28 enabled
Zone Expanders (4219/4229):
module 1 (for zones 09 - 16)
module 2 (for zones 17 - 24)
module 3 (for zones 25 - 32)
module 4 zones 33 - 40
module 5 zones 41 - 48
07**
08
09†
10†
11†
107
108
109
110
111
*56 zone programming: input device type, entry 2, then:
automatic if zone no. 9-16 set as AW type or relay assigned
automatic if zone no. 17-24 set as AW type or relay assigned
automatic if zone no. 25-32 set as AW type or relay assigned
automatic if zone no. 33-40 set as AW type or relay assigned
automatic if zone no. 41-48 set as AW type or relay assigned
Relay Modules (4204):
module 1
module 2
module 3
module 4
12
13
14†
15†
112
113
114
115
*79 output device programming: device address prompt:
entered at device address prompt
entered at device address prompt
entered at device address prompt
entered at device address prompt
Keypads:
keypad 1
keypad 2
keypad 3
keypad 4
keypad 5
keypad 6
keypad 7
keypad 8
16
17
18
19
20
21
22
23
n/a
n/a
n/a
n/a
n/a
n/a
n/a
n/a
data field programming as listed below:
always enabled for partition 1, all sounds enabled.
data field *190
data field *191
data field *192
data field *193
data field *194
data field *195
data field *196
5800TM Module 28 n/a automatic
** address 07 not available if zone-doubling enabled
† 4219/4229 addresses 9-11 and 4204 addresses 14-15 apply to the VISTA-20P.
†† Addressable devices are identified by “1” plus the device address when reporting. Enter a report code for zone 91 to enable
addressable device reporting (default = reports enabled). See field *199 for addressable device (ECP) 3-digit/2-digit identification
keypad display options.
Mounting and Wiring the Control
2-5

Hardwire Zones and Zone Expansion
Hardwire Zones
zones-001-V0
HI LO
Normally Open Zones/ N.O. EOLR Zones
1. Connect open circuit devices in parallel across the loop; for EOLR zones, connect the
EOLR across the loop wires at the last device.
2. Enable normally open/EOLR zones using Zone Programming mode, “Hardwire Type”
prompt.
Normally Closed Zones/ N.C. EOLR Zones
1. Connect closed circuit devices in series in the high (+) side of the loop; for EOLR
zones, connect the EOLR in series following the last device.
2. Enable normally closed/EOLR zones using Zone Programming mode, “Hardwire
Type” prompt.
End of Line Resistor (EOLR) Notes
• If the EOLR is not at the end of the loop, the zone is not properly supervised and the
system may not respond to an “open” on the zone.
• Zone 1 is intended for EOLR only.
UL For UL commercial burglar alarm installations, use EOLR zones.
Double-Balanced Zones
(V20P only)
Connect as shown below (resistor provided
for one device).
IMPORTANT: Double-balanced zones
provide zone tamper protection, and should
be used as burglary zones only.
Do not use double-balanced zones as fire
zones.
2k
2k
2k
ZONE 3
2k
2k
2k
ZONE 4
12 13 14
zone-002-V0
TAMPER
CONTACTS
TAMPER
CONTACTS
Fig. 7. Typical Double Balanced Zones
Zone Doubling
(V20P only)
This feature provides two hardwired
normally closed zones for each standard
hardwired zone connected to the control’s
terminals (but does not increase the total
number of zones supported by the control). If
enabled (Zone Programming mode,
“Hardwire Type” prompt, option “3”),
hardwire zones are automatically paired as
shown in the table. Connect as shown below
(resistors provided).
•
••
• Do not use zone doubling for fire
zones.
NOTE: A short across the EOL (i.e., at
terminal) on either zone of a zone-doubled
pair or on a double-balanced zone causes a
tamper condition (displayed as CHECK plus
zone numbers).
10 11
6.2k
ZONE 10
3k
ZONE 2
zone-004-V0
Fig. 8. Typical Zone Doubling Wiring
Zone Doubling Table
Zone Paired with zone
2 10
3 11
4 12
5 13
6 14
7 15
8 16
Smoke Detectors
5806-001-V0
8
9
HI LO
TO ZONE 1
TERMINALS
2-WIRE
SMOKE
DETECTOR
ZONE 1
1. Connect up to 16 (10, if “clean me” option used) 2-wire smoke detectors across zone 1
terminals 8 (+) and 9 (-) as shown in the Summary of Connections diagram at the
back this manual. Observe proper polarity when connecting the detectors.
2. Connect an EOL resistor across the loop wires at the last detector.
3. Connect 4-wire smoke detectors (up to 16, depending on detector current draw) to
any zone from 2-8 as shown in Figure 7 (on next page).
Power Reset: This control does not automatically reset power to 4-wire smoke
detector zones, so you must use a relay (e.g., 4204, 4229), or on-board trigger to reset
power (also required for fire verification). Do this by programming the designated
relay/trigger as zone type 54 (fire zone reset); see On-Board Trigger section for
other information.
NOTE: Maximum current on trigger 17 is 100mA.
Installation and Setup Guide
2-6

Smoke Detector Notes •
••
• Fire Verification (zone type 16): The control panel will “verify” a fire alarm by
resetting the smoke detectors after the first alarm trigger, and then waiting 90 seconds
for a second alarm trigger. If the smoke detector or thermostat does not trigger again,
the control will disregard the first trigger, and no alarm signal will occur. This feature
eliminates false alarms due to electrical or physical transients.
SIA Installations: If using fire verification on zones other than zone 1, UL Fire Alarm
Listed relay accessories must be used to reset power as described in the Power Reset
paragraph above.
• The zone 1 alarm current supports only one smoke detector in the alarmed state.
•
••
• Clean Me Option: If enabled (field *174 = 1; *56 zone programming, response time
prompt = 3), certain ESL smoke detectors send “clean me” reports as appropriate. If
used, the maximum number of detectors is reduced to 10 (not standard 16). Refer to the
ESL documentation included with the smoke detector for information regarding
compatibility with the clean-me option.
• Do not use 4-wire smoke detectors on zone 1.
+
+
2000
OHMS
EOLR
HEAT
DETECTOR
RED
EOL
POWER
SUPERVISION
RELAY MODULE
A77-716B.
USE N.O.
CONTACT,
WHICH CLOSES
WHEN POWER
IS APPLIED.
VIOLET
AUX PWR
OUTPUT
TERMINALS
5
4
+
BLK
+
4_wiresmk-007-V0
TO ZONE TERM. ( )
TO ZONE TERM. ( )
RELAY
CONTACT OPENS
MOMENTARILY UPON
FIRE ALARM RESET
PROGRAM
RELAY
AS ZONE
TYPE 54
(FIRE ZONE
RESET)
4-WIRE SMOKE
OR COMBUSTION
DETECTOR
N.C.
N.O.
Figure 9a. 4-Wire Smoke Detector Using Relay for Power Reset
+
2000
OHMS
EOLR
HEAT
DETECTOR
RED
VIOLET
AUX PWR 5
+
BLK
+
4_wiresmk-008-V0
4-WIRE SMOKE
OR COMBUSTION
DETECTOR
( )
( )
+
TO ZONE TERM. ( )
TO ZONE TERM. ( )
TO OUTPUT 17
PROGRAM OUTPUT 17
FOR "OUT NORM
LOW" = YES IN 79 MENU
MODE AND AS ZONE
TYPE 54 IN
80 MENU MODE
EOL
POWER
SUPERVISION
RELAY MODULE
A77-716B.
USE N.O.
CONTACT,
WHICH CLOSES
WHEN POWER
IS APPLIED.
N.O.
Figure 9b. 4-Wire Smoke Detector Using Output 17 for Power Reset
4219/4229 Expansion
Zones
➞
➞
➞
1. Connect each module to the control’s keypad terminals and set the device addresses.
• VISTA-20P: Up to 40 expansion zones using up to 5 Zone Exp. Modules.
• VISTA-15P: Up to 16 expansion zones using up to 2 Zone Exp. Modules.
2. Connect sensors to the module’s loops. See Figure 8 on the following page.
• Use 1000 ohm end-of-line resistors at the end of loops connected to the 4219/4229
modules. (EOLRs used on the control terminals are 2000 ohms.)
• Expansion zones have normal response time (300–500 msec), except zone connected
to each module’s loop “A,” which can be set for fast response (10–15 msec).
3. If using relays with the 4229, connect the desired field wiring to the unit's relay contact
terminals.
Mounting and Wiring the Control
2-7

BRN
GRN
BLK
(–) GROUND
RED
(+) 12VDC
YEL
4
3
2
1
ZONES ABC DFGH
DIP SWITCH
FOR SETTING ADDRESS
AND ZONE "A" RESPONSE
TAMPER JUMPER POSITION
4229 IN CABINET
(NOT TAMPER)
4229 REMOTE
(TAMPER PROTECTED) TB1
4229
TB2
WHT
GRY
VIO
BLK
YEL
ORG
NO
NC
C
GND
NO
NC
C
RLY
1
RLY
2
RELAYS OFF
RELAY
CONNECTOR RELAY
2
RELAY
1
(TERM 6)
(TERM 4)
(TERM 5)
(TERM 7)
NO C NC
TERMINALS ON
CONTROL PANEL
1
2
3
4DATA OUT (>)
TO CONTROL
DATA IN (<)
FROM
CONTROL
5811
REED
(TAMPER)
SWITCH
2
E
134 6 7910 12
TERMINATE EACH
PROGRAMMED ZONE
WITH 1000 OHM (1K)
END-OF-LINE RESISTOR
(EACH ZONE'S MAX.
LOOP RESISTANCE
300 OHMS + EOL)
4-PIN CONSOLE PLUG
EITHER OR BOTH CAN BE USED
4229-002-V0
Figure 10. Wiring Connections, 4219 & 4229 (4229 shown)
Installing the RF Receiver and Wireless Transmitter Zones
Compatible Receivers
Use any ADEMCO 5800 Series Wireless Receivers, such as:
RF Receiver No. of Zones
5881L/5882L up to 8
5881M/5882M up to 16
5881H/5882H, VISTA-20P = up to 40 plus 16 buttons
5883, 6150RF VISTA-15P = up to 26 plus 8 buttons
Receiver Connections
WIRELESS ZONE
NUMBERS
VISTA-20P:
transmitter zones 9-48
button zones 49-64
VISTA-15P:
transmitter zones 9-34
button zones 49-56
1. Set Device Address to “00” (set all switches to the right, “off” position).
2. Mount the receiver, noting that the RF receiver can detect signals from transmitters
within a nominal range of 200 feet.
3. Connect the receiver's wire harness to the control's keypad terminals. Plug the
connector at the other end of the harness into the receiver. Refer to the installation
instructions provided with the receiver for further installation procedures regarding
antenna mounting, etc.
MOUNTING
HOLES INTERFERENCE
INDICATOR
LED
CIRCUIT BOARD
DIP
SWITCH
ANTENNAS
(INSERT IN
RIGHT-HAND
TERMINALS)
YELLOW
RED
BLACK
GREEN
WIRING OPENING
KNOCKOUT AREA
FOR SURFACE WIRING
TO CONTROL'S
REMOTE KEYPAD
CONNECTION
POINTS.
5882
LOCATION
TO RELEASE CIRCUIT BOARD,
REMOVE SCREWS AND
BEND BACK TABS
NOTE
CIRCUIT BOARD IS MOUNTED IN
CONTROL'S CABINET. GROUNDING
LUGS (2) PROVIDED
MUST
BE INSERTED
IN LEFT-HAND TERMINALS OF ANTENNA
BLOCKS AND SECURED TO CABINET.
(SEE RECEIVER'S AND CONTROL'S
INSTRUCTIONS)
SOCKET PLUG
MODEL NO. IS INDICATED ON CIRCUIT BOARD
5881-003-V0
INSERT IN
RIGHT- HAND
TERMINALS
Figure 11. 5881/5882 RF Receiver (cover removed)
RF Receiver Notes
† These fields must be
enabled for Residential Fire,
UL Residential Burglar
Alarm, and UL Commercial
Burglar Alarm installations.
Set the following options:
*22 RF Jam Option†
*24 RF House ID Code (if using wireless keypads) for each partition
*67 Transmitter Low Battery Report Code†
*75 Transmitter Low battery restore report code†
• The receiver is supervised and a trouble report is sent (“CHECK 100” displayed) if
communication between the panel and receiver is interrupted, or if no valid RF signals
from at least one supervised transmitter are received within 12 hours.
If the receiver is mounted remotely:
• Place the RF receiver in a high, centrally located area for best reception.
• Do not locate the receiver or transmitters on or near metal objects. This will decrease
range and/or block transmissions.
• Do not locate the RF receiver in an area of high RF interference (indicated by frequent
or prolonged lighting of the LED in the receiver; random flicker is OK).
• Do not locate RF receiver closer than 10 feet from any keypads to avoid interference
from the microprocessors in those units.
Installation and Setup Guide
2-8
The 6150rf is a Medium receiver
only capable of support 16 wireless
zones

Installing a 5800TM
Module
• Use this module only if you are using one or more wireless bi-directional keypads or
keyfobs with a wireless Receiver; 5800TM is not necessary if using a Transceiver (e.g.,
5883).
• The 5800TM must be set to address 28 (cut red-W1 jumper).
• The 5800TM can be used in partition 1 only.
• For additional information regarding the 5800TM, refer to the 5800TM’s instructions.
1. Mount the 5800TM next to the RF receiver (between one and two feet from the
receiver’s antennas) using its accompanying mounting bracket. Do not install within
the control cabinet.
2. Connect the 5800TM to the control panel’s keypad connection terminals as shown on
the Summary of Connections diagram and set to address 28.
Installing the
Transmitters
• Refer to the table of compatible devices at the back of this manual.
• Supervised transmitters† send check-in signals to the receiver at 70-90 minute
intervals. If at least one check-in message is not received from each transmitter within
a 12-hour period, the “missing” transmitter number(s) and “CHECK” is displayed. (†
Hand-held transmitters, e.g., 5802, 5802CP, 5804, 5804BD, 5827, 5827BD, do not send
check-in signals.)
• To be sure reception of the transmitter's signal at the proposed mounting location is
adequate, perform a Go/No Go Test, described in the Testing the System section.
• Install transmitters in accordance with the instructions provided with each.
• Set 5827, 5827BD, 5804BD wireless keypads to the programmed House ID (field *24),
using its DIP switches (5827) or follow the instructions provided with the device.
• Use *56 or *58 Zone Programming Menu modes to program zone information and enroll
transmitters (VISTA-20P: zones 9-48, buttons 49-64; VISTA-15P: zones 9-34, buttons
49-56).
•
••
• Wireless Keys: Use Wireless Key Programming Templates section of the *58 Zone
Programming Menu mode to program zone information and enroll each button of the
wireless keys used. Once a wireless key is enrolled, it must be assigned to a user before
it becomes active. See Adding/Deleting Security Codes section for procedure.
ULC NOTE: In accordance with ULC standards, the RF supervision period for the VISTA-20PCN
and VISTA-15PCN is three hours for Fire zones (Zone Type 9 and 16) and 12 hours for all other zone
types.
UL The following transmitters are not intended for use in UL installations: 5802MN, 5802MN2, 5804,
5804BD, 5814, 5816TEMP, 5819, 5819WHS & BRS, and 5850.
The 5827BD and 5800TM can be used in UL Listed Residential Burglar installations.
Transmitter Battery Life • See Wireless Transmitter paragraph in the Limitations of This Alarm System
statement located at the end of this manual for information on transmitter battery
life.
• Some transmitters (e.g., 5802 and 5802CP) contain long-life but non-replaceable
batteries, and no battery installation is required. At the end of their life, the complete
unit must be replaced (and a new serial number enrolled by the control).
• Button-type transmitters (such as 5801, 5802, and 5802CP) should be periodically
tested for battery life.
• The 5802MN and 5804 Button Transmitters have replaceable batteries.
Do not install batteries in wireless transmitters until you are ready to enroll during
system programming. After enrolling, batteries need not be removed.
Mounting and Wiring the Control
2-9

Installing a Keyswitch
Keyswitch Connections
GREEN RED
1. Connect the 4146 keyswitch's normally open momentary switch to a zone’s (2-8)
terminals. Remove the 2000 ohm EOL resistor if connected across the selected zone.
2. Using a standard keypad cable as shown:
Connect the yellow and white keyswitch wires to trigger connector pin 3 (+12V).
Connect the Red and Green LED wires to the appropriate output 17/output 18
trigger connector pins.
3. Connect a 2000 ohm EOL resistor across the momentary switch.
4. You can wire an optional closed-circuit tamper switch (model 112) in series with the
zone. If the switchplate is then removed from the wall, the tamper will open,
disabling keyswitch operation until the system is next disarmed from the keypad.
If the tamper is opened when the system is armed, an alarm will occur.
4146 KEYSWITCH
(READY)
GREEN
LOCK
SWITCH (N. O.)
TAMPER
SWITCH (N. C.)
(ARMED)
RED
YELLOW
WHITE
EOLR
(use appropriate value)
11
10
TYPICAL ZONE
ON CONTROL
BOARD
BROWN
BLUE
BROWN
BLUE
820
ohms
820
ohms
00-trigcon-004-V1
1345678
STANDARD
KEYPAD
CABLE
8-PIN TRIGGER CONNECTOR
KEY
+12 AUX.
OUTPUT 17
OUTPUT 18
(RED)
(YELLOW)
(GREEN)
RED
BLACK
Figure 12. Keyswitch Wiring Connections
Keyswitch Notes
UL A UL Listed keyswitch is required for fire installations and UL commercial and residential
burglar alarm installations. The Ademco 4146 keyswitch is UL Listed.
If a keyswitch is used on:
• an installation that transmits opening and closing signals, the keyswitch zone must be programmed
to send opening and closing signals.
• a UL commercial burglar alarm installation, the keyswitch’s tamper switch must be connected in to
the alarm system. This tamper switch zone must also be programmed for Zone Type 05 – Trouble
by Day / Alarm by Night.
• a fire alarm installation, the keyswitch must be located next to an alphanumeric display keypad.
• Use 4146 keyswitch or any N.O. keyswitch.
• Use only one keyswitch per partition.
• When using a keyswitch, the zone it is connected to is no longer available for use as a
protective zone.
• Use *56 Menu mode to program the keyswitch zone and assign it zone type 77.
• Use *80 Menu mode to program the LED functions: program outputs 17 and 18 for
system operation zone type 78 (red LED) and 79 (green LED) as appropriate (see
Output Device Programming section).
Installation and Setup Guide
2-10

Connecting Relay Modules, Powerline Carrier Devices and Output Triggers
4204/4229 Relay Modules
UL For UL installation
requirements, refer to the
Installation Instructions for
the 4204.
1. Mount either remotely or in the control panel.
2. Connect each module to the control’s keypad terminals and set the device addresses
as previously described in the Connecting Keypads and Other Addressable
Device section. Use the connector harness supplied with the module. Use standard
4-conductor twisted cable for long wiring runs.
VISTA-20P: Up to 16 relays (if no powerline carrier devices are used)
VISTA-15P: Up to 8 relays (if no powerline carrier devices are used)
3. Connect the desired field wiring to the unit's relay contact terminals.
TB2
121110
9
87654321
(–) GROUND
(+) 12V
YEL
BLK
GRN
RED
13 14 15 16
DIP SWITCH
FOR SETTING DEVICE ADDRESS
AND ENABLING/DISABLING TAMPER
COVER TAMPER (REED) SWITCH
TB1
4204
4-PIN TOUCHPAD PLUG
3
2
RELAY
1
4
TYPICAL
(SHOWN "OFF")
C
NC
NO
C
NC
NO
C
NC
4204_conn-1-V0
NC
NO
C
NC
NO
EITHER OR BOTH
CAN BE USED
DATA IN
FROM CONTROL
DATA OUT
TO CONTROL
RELAY
RELAY
RELAY
Figure 13. 4204 Connections to Control
• Supervision: 4204 and 4229 modules are supervised against removal. The module’s
device address is displayed as follows if a module is disconnected from the control’s
terminals, or if the module cover is removed and the tamper jumper is installed:
Alpha: CHECK xx Wire Expansion
FAULT xx Wire Expansion
ALARM xx Wire Expansion
Fixed-Glass: lxx (or 91 if field *199 set for 2-digit display)
where “xx is the module’s address.
• If communication/tamper failure occurs on a device with zones wired to it, all zones on
the device will be displayed in their respective partitions.
Powerline Carrier
Devices
UL Powerline Carrier
devices and the 1361X10
Transformer are not UL
Listed for fire or burglary
functions and are intended
for home automation.
1. Install the powerline carrier devices according to the instructions included with each.
VISTA-20P: Up to 16 devices (if no relays are used)
VISTA-15P: Up to 8 devices (if no relays are used)
2. Use Programming Mode to enter the device house ID in data field*27, and enter the
unit code using *79 Output Device menu Mode.
3. See connections diagram in the AC Wiring section for connecting the 1361X10
transformer to the triggers.
• You must use a 1361X10 Transformer instead of the 1321 Transformer.
• The 1361X10 Transformer provides AC power to the control panel, and also supplies
signals from the control panel through the premises AC wiring to the Powerline
Carrier devices (which are plugged into AC outlets). You can then make devices that
are plugged into Powerline Carrier devices perform various functions in response to
commands you enter at the security system keypads.
Canada: Use the PSC04 Powerline Interface as shown below.
1 2 3 4
SA4120XM-1 CABLE
X-10 PSC04
POWERLINE INTERFACE
YEL
RED
GRN
BLK MODULAR PHONE CORD (not supplied)
1 - BLACK
2 - RED
3 - GREEN
4 - YELLOW
SYNC
DATA
COM
1345678
KEY
+12 AUX.
DATA
COM
SYNC
GND (-)
OUTPUT 17 (RED)
OUTPUT 18 (GREEN)
(ORANGE)
(YELLOW)
(BLUE)
(PURPLE)
(BLACK)
8-PIN TRIGGER CONNECTOR
Figure 14. PSC04 Powerline Interface Connections
Mounting and Wiring the Control
2-11

On-Board Triggers
Connect field wiring to the desired trigger pin on the 8-pin trigger connector centrally
located above the terminal strip.
• If using 1361X10 transformer and powerline carrier devices, use the SA4120XM-1
cable (part of 4120TR Trigger Cable). See Wiring the AC Transformer section for
transformer connections.
• If only using the on-board triggers, you can use a 4-wire cable (N4632-4, supplied
with the control) as shown below.
1345678
SA412OXM-1
CABLE
8-PIN TRIGGER CONNECTOR
KEY
00-trigcon-003-V1
+12 AUX.
DATA
COM
SYNC
GND (-)
OUTPUT 17 (RED)
OUTPUT 18 (GREEN)
(ORANGE)
(YELLOW)
(BLUE)
(PURPLE)
(BLACK)
4-WIRE
CABLE
00-trigcon-005-V2
+12 AUX.
GND (-)
OUTPUT 17
OUTPUT 18
(RED)
(YELLOW)
(BLACK)
(GREEN)
1345678
8-PIN TRIGGER CONNECTOR
KEY
Figure 15a. On-Board Trigger Connector Figure 15b. On-Board Trigger Connector
with SA4120XM-1 Cable for Use With with 4-Wire Cable for Trigger Use Only
1361X10 Transformer
• Trigger outputs are normally high, and go low upon programmed condition.
• The outputs can be programmed for inverted operation (normally low, go high) using
*79 Menu mode.
• Program these triggers using *80/*81 Menu modes as you would for any other relay
output.
• When using these outputs, note:
pin 1 = output number 17 (trigger 1):
15 ohms to ground when closed (output low), open when off (output high, normal
default); can be used to reset smoke detector power (must set “output normal low
= yes” in *79 Menu mode, and set for zone type 54, fire zone reset, in *80 Menu
mode); or can support 12V relay module (e.g., Altronix AX-RBS) that draws less
than 100mA
pin 5 = output number 18 (trigger 2):
100 ohms to ground when closed (output low); open when off (output high,
normal default); or can support 12V relay module that draws less than 20mA
UL If on-board triggers are used, the wiring between the control unit and the UL Listed device must
be run in conduit, be no more than 3 feet apart and have no intervening barriers or walls.
Installation and Setup Guide
2-12

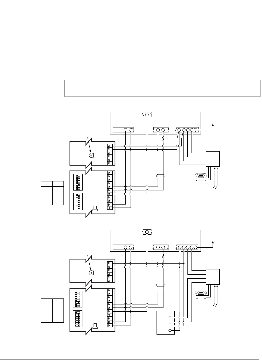
Phone Line/Phone Module, and Audio Alarm Verification (AAV) Connections
Phone Line Connect incoming phone line and handset wiring to the main terminal block (via an
RJ31X jack) as shown in the Summary of Connections diagram at the back of this
manual.
Wire colors represent the colors of the cable to the RJ31X jack.
4285/4286 Phone Module
Compatibility: 4286 Phone
Modules must have
software version WA4286-
15.1 or higher (refer to the
label on the square 4286
microprocessor chip).
UL The 4285 and 4286
modules are UL Listed only
for use on residential fire
and UL residential burglar
alarm installations.
1. Make 12V (+) and (–) and data in and data out connections from the phone module to
the control, using the connector cable supplied with the phone module, then insert
the keyed connector at the other end of the connector cable into the header on the
phone module.
2. Connect Phone Module terminals as shown below. Use an RJ31X jack with a direct-
connect cord and make all connections exactly as shown.
3. Caller ID Units: If a Caller ID unit is being used, connect the unit directly to the
“Handset” terminals (21 & 22) on the control, as shown.
ANSWERING
MACHINE
TERMINALS
ON CONTROL
TO EARTH GROUND (COLD WATER PIPE, ETC.)
UNUSED
KEYED
HEADER
4285/4286
V IP MODULE
123456 7
YELLOW: TO DATA OUT (term. 7)
NO CONNECTION
RED: TO AUX (+) (term. 5)
BLACK: TO AUX. GROUND (–) (term.4)
GREEN: TO DATA IN (term. 6)
CONNECTOR
WITH FLYING
LEADS
TO CONTROL
PANEL
TERMINALS
USED FOR
KEYPAD
CONNECTIONS
PREMISES ANSWERING
MACHINE AND PHONES
HANDSET
INCOMING
TELCO LINE
TIP
RING
PLUG
DIRECT
CONNECT
CORD
TIP
RING
GROUND
(TIP)
(RING)
GREEN (TIP)
RED (RING)
INCOMING TELCO LINE
GREY (R)
BROWN (T)
4285/4286
TERMINAL ASSIGNMENTS
1 - TIP
2 - RING PHONE INPUT
3 - TIP
4 - RING PHONE OUTPUT
5 - NO CONNECTION
6 -
7 -
AUDIO OUT
4286 ONLY
}
}
}
{
{
IMPORTANT NOTE FOR
EXISTING INSTALLATIONS:
EXISTING WIRES
CONNECTED TO THE
"HANDSET" TERMINALS ON
CONTROL MUST BE MOVED
FROM THERE TO TERMINALS
3 AND 4 ON THE 4285/4286.
*
*
*
NOTE: IF THE TELEPHONE HAS BUILT-IN CALLER ID,
THE CALLER ID FUNCTION MAY NOT WORK
.
CA38A
IN
CANADA
4286_cntrl-001-V0
LOUDER
VOLUME
(4286
ONLY)
21 22 23 24 25
CALLER ID
UNIT
RJ31X
JACK
Figure 16. 4285/4286 Phone Module Wiring Connections
• Only one phone module can be used and it can only be connected to partition 1.
• The phone lines must be in service for the phone module to function, even when
accessing the system from an on-premises phone.
• If you are also using an Audio Alarm Verification (AAV) unit, refer to Audio Alarm
Verification (AAV) section for special wiring connections.
CAUTION: To reduce the risk of fire, use only No. 26 AWG or larger telecommunication
line cord for phone line connections.
Phone Module Problems If no touch tones are produced following access to the security system from on-premises
(this problem may arise in rare cases), it may be necessary to reverse the wires connected
to terminals 3 and 4 on the phone module and the wires connected to terminals (21) &
(22) on the control. The wiring diagram shows the wiring connections that will provide
proper operation in most cases.
Connection to the incoming telco line via a RJ31X jack and direct-connect cord, as shown,
is essential, even if the system is not connected to a central station. The 4285 or 4286 will
not function if this is not done and an error signal (fast busy signal) will occur when
trying to access the system via the phone.
The house phone lines (gray and brown wires) must be wired to the phone module
terminals; not to the control terminals. Otherwise, an error signal (fast busy signal) will
occur when trying to access the system from an on-premises phone.
Mounting and Wiring the Control
2-13

Audio Alarm Verification
Connections
(AAV, “listen-In”)
• Refer to the connection diagrams below. One diagram shows connections when a
4285/4286 Phone Module is used, the other shows connections when the 4285/4286 is not
used.
• Connections use one of the on-board triggers.
• Set field *91 for AAV and program the appropriate output (output 17 or 18) using *80
Menu mode: select zone type 60 and output action 1 (close for 2 seconds) or action 2 (stay
closed).
• For voice session monitoring, connect an EOLR zone to UVCM module terminals 6 & 7,
and program the zone as zone type 81 (*56 Menu mode).
E.g., Using output 18 for the trigger, program an output function in *80 Menu mode as:
ZT = 60, P = 0, Action = 1, Device = 18
• Suggested AAV Module: ADEMCO UVS (shown) or Eagle 1250
UL UL installations using the AAV feature must use the ADEMCO UVCM module (part of the
ADEMCO UVS system).
ON ON
12345678 12345678
1234567891011 29 30 31 32 33 34
NOTE:
REFER TO UVCM MODULE
INSTRUCTIONS FOR
CONNECTIONS TO AUDIO
SPEAKERS AND MICROPHONE.
UVCM
MODULE
ZONE
TERMINALS
EARTH
GROUND
RED (R)
GREEN (T)
GREY (R)
BROWN (T)
TRIGGER
CONNECTOR
OUTPUT 18
EOL
RING
TIP
OPTIONAL
MONITORING ZONE
CONNECTION
(USE ZONE TYPE 81)
FALLING VOICE TRIG
GND
+12VDC IN
SWITCH
BANK 2
SWITCH
BANK 1
SWITCH BANK 2
SWITCH BANK 1
AUXILIARY
AUDIO LEVEL
ADJUSTMENT
TRIM POT
aav_uvcm-003-V0
CONTROL
INCOMING
PHONE LINE
TO
PREMISES
HANDSET
5
1 = ON
2 = ON
3 = OFF
4 = ON
5 = ON
6 = ON
7 = ON
8 = ON
1 = OFF
2 = OFF
3 = OFF
4 = OFF
5 = OFF
6 = OFF
7 = OFF
8 = ON
23 24 25
+12VDC
GND
4521 22
RJ31X
Figure 17a. Connection of AAV Unit When Not Using a 4285/4286 Phone Module
1234567891011 29 30 31 32 33 34
NOTE:
REFER TO UVCM MODULE
INSTRUCTIONS FOR
CONNECTIONS TO AUDIO
SPEAKERS AND MICROPHONE.
UVCM
MODULE
CONTROL
EARTH
GROUND
RED (R)
GREEN (T)
GREY (R)
BROWN (T)
TRIGGER
CONNECTOR
OUTPUT 18
4285/4286
RING
TIP
FALLING VOICE TRIG
GND
+12VDC IN
SWITCH
BANK 2
SWITCH
BANK 1
SWITCH BANK 2
SWITCH BANK 1
AUXILIARY
AUDIO LEVEL
ADJUSTMENT
TRIM POT
aav_uvcm-004-V0
ZONE
TERMINALS
OPTIONAL
MONITORING
ZONE
CONNECTION
(USE ZONE
TYPE 81)
23 24 25
22
21
45
INCOMING
PHONE LINE
TO
PREMISES
HANDSET
RJ31X
2
3
4
1
5
1 = ON
2 = ON
3 = OFF
4 = ON
5 = ON
6 = ON
7 = ON
8 = ON
1 = OFF
2 = OFF
3 = OFF
4 = OFF
5 = OFF
6 = OFF
7 = OFF
8 = ON
ON ON
12345678 12345678
RING
TIP
+12VDC
GND
EOL
Figure 17b. Connection of AAV Unit When Using a 4285 or 4286 Phone Module
Installation and Setup Guide
2-14

SECTION 3
Programming Overview
About Programming
• You can program the system at any time, even at the installer's premises prior to the actual installation.
• Programming can also be performed remotely from the installer’s office/home, using an IBM personal
computer, a modem, and Compass downloading software.
The following is a list of the various Programming modes used to program this system.
Programming Mode… Used to …
Data Field Programming Program basic data fields used for setting the various system options.
Most of the data fields in this system have been programmed for specific default
values. However, some fields must be programmed for each particular installation to
establish its specific alarm and reporting features.
∗56 Zone Programming Assign zone characteristics, report codes, alpha descriptors, and serial numbers for
5800 RF transmitters. See *56 Zone Programming in Section 5. Menu Mode
Programming for procedures for programming zones.
∗57 Function Key
Programming
Program each of the four alphabet function keys to perform one of several system
operations.
∗58 Zone Programming
(Expert Mode)
Similar to ∗56 mode, but provides a faster programming procedure and is intended for
those more experienced in programming controls of this type.
∗79 Output Device Mapping Assign device addresses used by 4229 or 4204 Relay modules and map specific relays
and device outputs, and assign unit codes for Powerline Carrier devices.
See About Output Device Programming in Section 5. Menu Mode
Programming for details on setting devices for manual/automatic operation.
∗80 Output Definitions Define up to 48 output definitions which can control the output relays mapped using
*79 Output Device Mapping mode.
∗81 Zone List Programming Create Zone Lists for relay/powerline carrier zones, chime, night-stay, cross zones,
and pager zones.
∗82 Alpha Programming Create alpha descriptors for easy zone identification.
Scheduling Mode
(code + [#] +64)
Create schedules to automate various system functions.
Mechanics of Programming
To program the system from a keypad:
• You must use a 2-line Alpha display keypad.
• Both partitions must be disarmed.
Data Field Programming Procedures
Task Procedure
Entering Program Mode A) Press both [∗] and [#] at the same time within 50 seconds after power is applied,
OR
B) After power-up, enter [Installer code (4-1-1-2)] + 8 0 0 (long beep indicates one of the
partitions is armed and system cannot enter program mode).
(method “B” is disabled if you exit Program mode using ∗98)
Go to a Data Field Press [∗] + [Field Number]. A display of “EE” or “Entry Error” means you have entered a
nonexistent field. Simply re-enter [∗] plus a valid field number.
Entering Data When the desired field number appears, simply enter the digits required. The keypad
beeps three times after the last digit is entered and automatically displays the next data
field in sequence.
If entering less than the maximum digits available (e.g., phone number field), enter the
desired digits, then press [∗] to end the entry.
Review a Data Field Press [#] + [Field Number]. The field’s data is displayed, but no changes can be made.
Deleting an Entry Press [∗] + [Field No.] + [∗] (applies only to phone number, account number, and pager
character fields).
3-1

Interactive Mode Programming (∗
∗∗
∗56, *57, ∗
∗∗
∗58, ∗
∗∗
∗79, ∗
∗∗
∗80, ∗
∗∗
∗81, ∗
∗∗
∗82)
Entering Interactive Mode Press [∗] + [Interactive Mode No.] (for example, ∗56) while in Program Mode. The Alpha
display keypad will display the first of a series of prompts.
After making the appropriate entry, press the [∗] key to accept the entry and continue to
the next prompt.
Loading Factory Defaults/Initializing for Download
To Load Default Entries Press ∗97 while in Program Mode. This resets all data fields to the default values shown
on the Program Form. Use ∗97 only if you wish to return to the original factory-
programmed defaults.
To Initialize Download ID Press ∗96 while in Program Mode. This initializes the system for downloading and resets
all the subscriber account numbers and CSID.
Do not press ✱97 to load defaults if any programming has been done previously—data
already programmed into the system will be changed!
Exiting the Programming Mode
Prevent installer code
reentry
Press ∗98. Exits Programming Mode and prevents re-entry by:
Installer Code + [8] + [0] + [0]. To enter the programming mode if ∗ 98 was used to exit,
you must first power the system down. Then power up again, and press [∗] and [#] at the
same time, within 50 seconds of powering up.
See field *88 for other Program mode lockout options.
Allow installer code
reentry
Press ∗99. Exits Programming Mode and allows re-entry by:
Installer Code + [ 8] + [0] + [0] or by: Pressing [∗] and [#] at the same time, within 50
seconds of power-up.
Zone Type Definitions
Zone types define the way in which the system responds to faults in each zone.
Zone Type Description
Type 00
Zone Not Used
Program a zone with this zone type if the zone is not used.
Type 01
Entry/Exit
Burglary #1
• Assign to zones that are used for primary entry and exit.
• Provides entry delay when zone is faulted if control is armed in the Away, Stay, or Night-Stay
modes.
• No entry delay provided when the panel is armed in the Instant/Maximum mode.
• Entry delay #1 is programmable for each partition (field *35).
• Exit delay begins whenever the control is armed, regardless of the arming mode selected, and
is programmable (field ✱34).
Type 02
Entry/Exit
Burglary #2
• Assign to zones that are used for entry and exit and require more time than the primary
entry/exit point.
• Provides a secondary entry delay, in same manner as entry delay #1.
• Entry delay #2 is programmable for each partition (field *36).
• Exit delay is same as described for Type 01.
Type 03
Perimeter
Burglary
• Assign to all sensors or contacts on exterior doors and windows.
• Provides an instant alarm if the zone is faulted when the panel is armed in the Away, Stay,
Night-Stay, Instant or Maximum modes.
Type 04
Interior Follower
• Assign to a zone covering an area such as a foyer, lobby, or hallway through which one must
pass upon entry (to and from the keypad).
• Provides a delayed alarm (using the programmed entry 1 time) if the entry/exit zone is faulted
first. Otherwise this zone type gives an instant alarm.
• Active when the panel is armed in the Away mode.
• Bypassed automatically when the panel is armed in the Stay or Instant modes;
if armed in Night-Stay mode, zones assigned to zone list 05 (night-stay zone list) are not
bypassed when system armed in Night-Stay mode.
Installation and Setup Guide
3-2

Type 05
Trouble by Day/
Alarm by Night
• Assign to a zone that contains a foil-protected door or window (such as in a store), or to a zone
covering a sensitive area such as a stock room, drug supply room, etc.
• Can also be used on a sensor or contact in an area where immediate notification of an entry is
desired.
• Provides an instant alarm if faulted when armed in the Away, Stay, Night-Stay, Instant or
Maximum (night) modes.
• During the disarmed state (day), the system will provide a latched trouble sounding from the
keypad (and a central station report, if desired).
Type 06
24-hr Silent Alarm
• Usually assigned to a zone containing an emergency button.
• Sends a report to the central station but provides no keypad display or sounding.
Type 07
24-hour Audible
Alarm
• Assign to a zone that has an emergency button.
• Sends a report to the central station, and provides an alarm sound at the keypad, and an
audible external alarm.
Type 08
24-hour
Auxiliary Alarm
• Assign to a zone containing an emergency button, or to a zone containing monitoring devices
such as water or temperature sensors.
• Sends a report to the central station and provides an alarm sound at the keypad. (No bell
output is provided.)
Type 09
Supervised Fire
• Provides a fire alarm on short circuit and a trouble condition on open circuit. A fire alarm
produces a pulsing bell output.
• This zone type is always active and cannot be bypassed.
Type 10
Interior w/Delay
• Provides entry delay (using the programmed entry time), if tripped when the panel is armed in
the Away mode.
• Entry Delay 1 begins whenever sensors in this zone are violated, regardless of whether or not
an entry/exit delay zone was tripped first.
• Bypassed when the panel is armed in the Stay or Instant modes; if armed in Night-Stay mode,
zones assigned to zone list 05 (night-stay zone list) are not bypassed when system armed in
Night-Stay mode.
Type 12
Monitor Zone
• Works as a dynamic monitor of a zone fault/trouble (not alarm). In the case of a short/open, the
message, "*ALARM*-24 Hr. Non-Burg. -#XXX " (where XXX is the zone number) will be sent
to the Central Station. The system keypad will display a “check” message indicating the
appropriate zone (but keypad beeping does not occur). Upon restoral of the zone, the message,
"*RESTORE*-24 Hr. Non-Burg. -#XXX " will be sent to the Central Station.
• The “check” message will automatically disappear from the keypad dynamically, when the
zone restores; a user code + off sequence is not needed to reset the zone.
• Faults of this zone type are independent of the system, and can exist at the time of arming
without interference.
• Since this is a “trouble” zone type, do not use this zone type with relays set to activate upon
“alarm.”
Type 14
24 Hour Carbon
Monoxide
Monitor
• Assigned to any zone with a carbon monoxide detector.
• The bell output will pulse when this zone type is alarmed.
• Always active and cannot be bypassed.
Type 16
Fire
w/Verification
• Provides a fire alarm when zone is shorted, but only after alarm verified.
• System verifies alarm by resetting zones for 12 seconds after short is detected. A subsequent
short circuit within 90 seconds triggers fire alarm.
• Provides a trouble response when zone is open.
Type 20
Arm-Stay (BR
only)
• Arms the system in Stay mode when the zone is activated.
• Pushbutton units send the user number to the central station when arming or disarming.
• User number for button must be assigned.
Type 21
Arm-Away (BR
only)
• Arms the system in Away mode when the zone is activated.
• Pushbutton units send the user number to the central station when arming or disarming.
• User number for button must be assigned.
Type 22
Disarm (BR only)
• Disarms the system when the zone is activated.
• User number for button must be assigned.
Programming Overview
3-3

Type 23 *
No Alarm
Response
• Can be used on a zone when an output relay action is desired, but with no accompanying
alarm (e.g., lobby door access).
Type 24
Silent Burglary
• Usually assigned to all sensors or contacts on exterior doors and windows where bells and/or
sirens are NOT desired.
• Provides an instant alarm, with NO audible indication at any keypad or external sounder, if
the zone is faulted when the system is armed in the Away, Stay, Instant, or Maximum modes.
• A report is sent to the central station.
Type 77
Keyswitch
• Assign to zone wired to a keyswitch.
• Do not use devices assigned as input type “BR” with this zone type.
Type 81
AAV Monitor
Zone
• Assign to zone connected to AAV module.
• Monitors 2-way voice sessions as follows:
- When the zone is faulted, all alarm sounding and dialer reporting stops, except
for fire alarms, which immediately terminate the voice session and cause
a fire report to be sent.
- When the zone is restored (session ended), sounding resumes (if bell timeout
has not expired) and reports that were stopped are sent.
Types 90-93
Configurable
Allows for various custom responses. Options include response to entry/exit delays, response
opens/shorts, types of alarm/trouble sounding, dial delay, and unique Contact ID report codes.
Types 92 and 93 can only be programmed via downloader. UL installations: Zone Types 90 -93
may not be used as fire or burglar alarm zones on fire or UL burglar alarm installations.
* The system can still be armed when these zone types are in a faulted condition.
NOTE: All of the zone types described are available for the wireless portion of the system, if used.
Installation and Setup Guide
3-4

SECTION 4
Data Field Programming
About Data Field Programming
The following pages list this control’s data fields in numerical order. Valid entries for each field are shown
in italics. Explanations and special notes are presented below the entries.
Use the separate Programming Guide to record the data for this installation.
Data field programming involves making the appropriate entries for each of the data fields.
Start Data Field programming by entering the installer code + 8 + 0 + 0.
SIA Guidelines: Notes in certain fields give instructions for programming the VISTA-20P/VISTA-15P for False Alarm
Reduction. Fields unique to the VISTA-20PSIA/VISTA-15PSIA are indicated by heavy borders and reverse type
heading “V20PSIA/V15PSIA” for easy identification.
System Setup Fields (∗
∗∗
∗20 – ∗
∗∗
∗29)
*20 Installer Code
Enter 4 digits, 0-9
The Installer Code can perform all system functions
except it cannot disarm the system unless it was used
to arm the system.
*21 Quick Arm Enable
0 = do not allow quick arm; 1 = allow quick arm
If enabled, a user code is not needed to arm the system.
Instead, users can press the [#] followed by an arming
key to arm the system. However, the user code is always
needed to disarm the system.
*22 RF Jam Option
0 = no RF jam detection; 1 = send RF jam report
If enabled, a report is sent if the system detects an RF
jamming signal.
UL installations must be 1 if wireless devices are used.
*23 Quick (Forced) Bypass
0 = no quick bypass
1 = allow quick bypass (code + [6] + [#] )
Zones bypassed by this function will be displayed after
the bypass is initiated.
UL installations must be 0 (no forced bypass)
*24 RF House ID Code
00 = disable all wireless keypad usage
01–31 = House ID for partition 1, 2 and common
The House ID identifies receivers and wireless
keypads. If a 5827 or 5827BD Wireless Keypad or
5804BD Transmitter is being used, a House ID code
must be entered and the keypad set to the same House
ID. You can assign RF house ID for each partition.
*26 Chime By Zone List 3
0 = no zone list (chimes on fault of any entry/exit or
perimeter zone when chime mode on)
1 = use zone list (chimes on fault of specific zones
programmed in relay zone list 3 when Chime mode on)
If enabled, you can define the specific zones intended
to chime when faulted while the system is in Chime
mode. Use zone list 3 to assign these zones (see
∗
∗∗
∗
81
Zone List Programming section for details).
*27 Powerline Carrier Device (X-10) House ID
0 = A; 1 = B; 2 = C; 3 = D; 4 = E; 5 = F; 6 = G; 7 = H;
8 = I; 9 = J; # + 10 = K; # + 11 = L; # + 12 = M;
# + 13 = N; # + 14 = O; # + 15 = P
Powerline Carrier devices require a House ID,
identified in this field. Program Powerline Carrier
devices in interactive modes ∗79, *80 and *81.
Not intended for fire or UL installations.
*28 Access Code for Phone Module
1-9 = first digit of access code
∗
or # = second digit of access code
(# +11 for “
∗
”, or # +12 for “#”)
You must assign a 2-digit access code for the 4285/4286
Phone Module, if used. Example: If desired access code
is 7∗, then 7 is the first entry, and [#] + 11 (for ∗) is the
second entry.
NOTE: A 0 in either digit disables the phone module.
Must be 00 for UL Commercial Burglar Alarm
installations.
*29 Long Range Radio Output
0 = not used; 1 = using Long Range Radio output
If selected, all messages programmed to go to the
primary telephone line receiver will also be sent to the
connected 7720PLUS, 7820, 7835, or 7845 Radio (sent
in Contact ID format). The data line is supervised as
well as certain functions in the radio. If communication
is lost or a trouble develops, an attempt will be made to
send a message via both radio and telephone to the
central station. Program the radio for device address 3.
Zone Sounds & Timing (∗
∗∗
∗31–∗
∗∗
∗39)
*31 Single Alarm Sounding Per Zone (per armed period)
0 = no limit on alarm sounding per zone
1 = limit alarm sounding to once per arming period for a
given zone
V20PSIA/V15PSIA: If “0” selected, “alarm sounding
per zone” will be the same as the “number of reports
in armed period” set in field *93 (1 if one report, 2 if 2
reports, unlimited for zones in zone list 7).
4-1

*32 Fire Alarm Sounder Timeout
0 = yes; sounder timeout after time selected in field
∗
33
1 = no timeout; sounds until manually turned off
This control complies with NFPA requirements for
temporal pulse sounding of fire notification appliances.
Temporal pulse sounding for a fire alarm consists of the
following: 3 pulses – pause – 3 pulses – pause – 3 pulses.
UL fire alarm installations: must be 1.
*33 Alarm Sounder Timeout
0 = No timeout; 1 = 4 min; 2 = 8 min; 3 = 12 min; 4 = 16 min
This field determines whether the external sounder
will shut off after time allotted, or continue until
manually turned off.
UL Installations: For residential fire alarm
installation, must be set for a minimum of 4 min
(option 1); for UL Commercial Burglary installations,
must be minimum of 16 min (option 4).
*34 Exit Delay
00 - 96 = 0 - 96 seconds; 97 = 120 seconds
V20PSIA/V15PSIA: 45 - 96 = 45 - 96 secs; 97 = 120 secs
NOTE: Entries less than 45 will result in a 45-sec delay.
The system waits the time entered before arming
entry/exit zones. If the entry/exit door is left open after
this time expires, an alarm will occur. Common zones
use same delay as partition 1.
UL installations: For UL Commercial Burglar Alarm
(Grade AA) and UL Residential Burglar Alarm
installations with line security, total exit time must
not exceed 60 seconds. For UL Burglar Alarm
installations without line security (Grade A), total exit
time must not exceed 120 seconds.
SIA Guidelines: minimum exit delay is 45 seconds
*35 Entry Delay 1 (*35), Entry Delay 2 (*36)
*36
00 - 96 = 0 - 96 seconds; 97 = 120 secs; 98 = 180
secs; 99 = 240 secs
V20PSIA/V15PSIA: 30-96 = 30 - 96 secs;
97 = 120 secs; 98 = 180 secs; 99 = 240 secs
NOTE: Entries less than 30 will result in a 30-sec delay.
Upon entering, the system must be disarmed before
the time entered expires, otherwise it sounds an alarm.
Common zones use same delay as partition 1.
UL Installations: For UL Residential Burglary Alarm
installations, must be set for a maximum of 30 seconds;
entry delay plus dial delay should not exceed 1 min.
For UL Commercial Burglar Alarm, total entry delay
may not exceed 45 seconds.
SIA Guidelines: minimum entry delay is 30 seconds
*37 Audible Exit Warning
0 = no; 1 = yes
Warning sound consists of slow continuous beeps until
the last 10 seconds, and then it changes to fast beeps.
Sound ends when exit time expires.
SIA Guidelines: must be enabled (enter 1)
V20PSIA/V15PSIA: feature always enabled; field does
not exist.
*38 Confirmation Of Arming Ding
0 = no ding; 1 = confirmation ding after arming system
2 = ding after arming from RF button or RF keypad only
Confirmation of arming is 1/2-sec external sounder “ding.”
If 1 selected, ding occurs when closing report is sent, or
at the end of Exit Delay.
If 2 selected, ding occurs upon reception of the wireless
arming command.
UL Installations: must be 1 for UL Commercial
Burglar Alarm installations.
*39 Power-Up In Previous State
0 = always power-up in a disarmed state
1 = assume the system status prior to power down
When the system powers up armed, an alarm will
occur 1 minute after arming if a zone is faulted.
Note that if the previous state was armed Away or Stay,
the system will not respond to sensor changes for 1
minute, which allows sensors such as PIRs to stabilize.
UL Installations: must be 1 (power-up in previous state)
SIA Guidelines: must be 1
Dialer Programming (∗
∗∗
∗40 – ∗
∗∗
∗50)
*40 PABX Access Code or Call Waiting Disable
Enter up to 6 digits if PABX is needed to access an
outside line. Do not fill unused spaces. 0–9, # + 11 for ‘
∗
’,
# + 12 for ‘#’, # + 13 for a pause (2 seconds)
To clear entries from field, press ∗40∗. If fewer than 6
digits need to be entered, exit by pressing [∗].
Call Waiting: If the subscriber’s phone service has
“call waiting” (and is not using PABX), enter “*70” (“#
+ 11”) plus “# + 13” (pause) as the PABX entry to
disable “call waiting” during control panel calls. If the
subscriber does not have “call waiting” and is not using
PABX, make no entry in this field.
NOTES: 1. The call waiting disable feature cannot be
used on a PABX line. 2. Using Call Waiting Disable on
a non-call waiting line will prevent successful
communication to the central station.
V20PSIA/V15PSIA: If call waiting is used, enter call
waiting disable digits as described above, and also set Call
Waiting Disable option in field *91.
*41 Primary (*41) and Secondary (*42) Phone No.
*42
Enter up to 20 digits. 0–9, # + 11 = ‘
∗
’, # + 12 = ‘#’,
# + 13 = pause (2 secs)
If entering fewer than 20 digits, exit by pressing [∗] +
next field number. To clear entries, press ∗41∗ or *42*
respectively. Do not fill unused spaces.
NOTE: Backup reporting (see field *49) is automatic
only if there is a secondary phone number (field ∗42).
*43 Primary/Secondary Account Numbers
*44
Enter 4 or 10 digits, depending on selection in
*45
*48 Report Format field. Enter 0–9; # + 11 = B,
*46
# + 12 = C, # + 13 = D, # + 14 = E, # + 15 = F.
*43: Partition 1 primary. To clear entries: ∗43∗.
*44: Partition 1 secondary. To clear entries: ∗44∗.
*45: VISTA-20P. Part. 2 prim. To clear entries: ∗45∗.
*46: VISTA-20P. Part. 2 second. To clear entries: ∗46∗.
Installation and Setup Guide
4-2

*47 Phone System Select
If Central Station Receiver is not on WATS line:
0 = Pulse Dial; 1 = Tone Dial
If Central Station Receiver is on WATS line:
2 = Pulse Dial; 3 = Tone Dial
Select the type of telephone service.
*48 Report Format (Primary/Secondary)
0 = 3+1, 4+1 ADEMCO L/S STANDARD
1 = 3+1, 4+1 RADIONICS STANDARD
2 = 4+2 ADEMCO L/S STANDARD
3 = 4+2 RADIONICS STANDARD
5 = ADEMCO 10-digit Contact ID®
6 = 4+2 ADEMCO EXPRESS
7 = ADEMCO 4-digit Contact ID®
8 = 3+1, 4+1 ADEMCO L/S EXP.
9 = 3+1, 4+1 RADIONICS EXP.
Select format for primary/secondary phone numbers.
*49 Split/Dual Reporting
0 = standard/backup reporting only (see Backup
Reporting below)
To Primary No. To Secondary No.
1 = alarms, restore, cancel others
2 = all except open/close, test open/close, test
3 = alarms, restore, cancel all
4 = all except open/close, test all
5 = all all
Backup Reporting: All reports are sent only to the
primary number unless unsuccessful after 8 attempts.
If unsuccessful, the system will make up to8 attempts
to send all reports to the secondary number. If still
unsuccessful after the 16 attempts, the system
displays the “COMM. FAILURE” message (FC for
fixed-word displays).
*50 Burglary Dialer Delay
0 = no dial delay; 1 = 15 secs; 2 = 30 secs; 3 = 45 secs
UL: must be 0.
SIA Guidelines: delay must be minimum 30 seconds
V20PSIA/V15PSIA:
Delay Time: 1 = 15 secs; 2 = 30 secs; 3 = 45 secs
Delay Disable:
0 = use delay set in entry 1
1 = dial delay disabled for zones listed in zone list 6
(use zone list 6 to enter those zones that require
dial delay to be disabled; these zones ignore the
setting in entry 1)
UL: Dial delay plus entry delay must not exceed one
minute; use zone list 6 to disable dial delay from
appropriate zones, if necessary.
Provides delay of “BURGLARY ALARM” report to the
central station, which allows time for the subscriber to
avoid a false alarm transmission. This delay does not
apply to zone type 24 alarms (silent burglary) or to 24-
hour zone types 6, 7, and 8 (silent panic, audible
alarm, auxiliary alarm), which are always sent as soon
as they occur.
*53 SESCOA/Radionics Select
0 = Radionics (0-9, B-F); 1 = SESCOA (0-9 only)
Select SESCOA or Radionics format.
Select 0 for all other formats.
*54 Dynamic Signaling Delay
0 = disabled (both signals sent);
1–15 = entry times a 15-second delay.
e.g., 1 = 15 seconds, 2 = 30 seconds, etc.
Intended for use with Long Range Radio reporting.
This field lets you select the time the panel should wait
for acknowledgment from the first reporting
destination (see ∗55) before it attempts to send a
message to the second destination. Delays can be
selected from 0 to 225 seconds, in 15-second
increments. This delay is per message. If 0 is entered
in this field, the control panel will send redundant
reports to both Primary Dialer and LRR.
UL Installations:
For Fire Alarm and UL Burglar Alarm installations
without Line Security (Grade A), the maximum
Dynamic Signaling Delay must be no more than 15 secs.
For UL Burglar Alarm installations with Line
Security (Grade AA), Dynamic Signaling Delay must
be 0. Reports will be sent to both the dialer and the LRR.
*55 Dynamic Signaling Priority
0 = Primary dialer first; 1 = Long Range Radio (LRR) first.
Intended for use with Long Range Radio reporting.
You must also enable field ∗29, OUTPUT TO LONG
RANGE RADIO.
Select the initial reporting destination for messages as
follows:
Primary Dialer First selected (0):
• If acknowledged before delay expires (see ∗54), then
message will not be sent to LRR.
• If not acknowledged before delay expires, message is
sent to both the Primary Phone No. and LRR.
Long Range Radio First selected (1):
• If acknowledged before delay expires, then message
will not be sent to the primary dialer.
• If not acknowledged before delay expires, message is
sent to both the Primary Phone No. and LRR.
UL Installations: For UL Commercial Burglary
installations that use a DACT and LRR, the DACT
must be programmed for priority (option 0).
*56 Zone Programming Menu Mode
For programming zone information.
See Zone Programming section for procedures.
*57 Function Key Menu Mode
For programming keypad function keys.
See Function Key section for procedures.
*58 Expert Zone Programming Menu Mode
For quickly programming zone information, but is
recommended only for those already familiar with *56
menu mode. See Zone Programming section for
procedures.
Data Field Programming
4-3

System Status Report Codes
Zone report codes are programmed using interactive
✱56 or ✱58 Zone Programming modes, while system
status (non-alarm) codes and restore codes are entered
in data fields *59 - *68, *70 - *76, *89. The actual report
code digits that you enter depend upon the particular
installation, and should agree with the Central Station
office receiving the signals.
3+1 or 4+1 Standard Format: Enter a code in the
first box: 1–9, A, B, C, D, E, or F. Enter #+10 for A (this
reports a 0 on some receivers), #+11 for B, #+12 for C,
#+13 for D, #+14 for E, #+15 for F.
An entry of 0 in the first box disables a report.
Entering 0 in the second box advance to the next field.
Expanded or 4+2 Format: Enter codes in both boxes
(first/second digits) for 1–9 or A–F, as described above.
A 0 in the first box disables a report. A 0 in the second
box eliminates the expanded message for that report.
ADEMCO Contact ID® Reporting: Enter a digit in
the first box to enable the zone to report. Use a
different digit for each zone until you have used up
available digits. If the number of zones exceeds the
number of available digits, begin with digit 1 again.
This is an “enabling” code only and is not the actual
code sent to the Central Station office. Entries in the
second boxes are ignored. An entry of 0 in the first box
disables the report.
UL Report codes are required in fields *61, *65, *71, *72,
for UL Commercial Burglar Alarm installations.
Report codes are required in fields *60, *62, *63, *64, *70, *73,
*74, *75, *76, for UL Commercial Burglar Alarm installations
and required for Residential Fire Alarm installations.
*59 Exit Error Report Code
0 = no report; 1-F = see description above
V20PSIA/V15PSIA: [1] Always enabled. Also see field *69.
After arming the system, entry/exit and interior zones
remaining open after exit delay expires cause an alarm
sound at the keypad and external sounder (keypad also
displays “EXIT ALARM”), and entry delay begins.
Disarming before the end of the entry delay stops the
alarm sounding and no message is sent to the central
station. The keypad will display “CA” (fixed-word) or
“ALARM CANCELED” (alpha display).
If the system is not disarmed before entry delay expires,
an “EXIT ALARM” message (V20PSIA/V15PSIA: also
zone alarm message) will be sent to the central station.
The keypad will display “EA” (fixed-word ) or “EXIT
ALARM” (alpha display), and alarm sounding continues
until the system is disarmed (or timeout occurs).
An Exit Alarm condition will also result if a fault occurs
in an exit or interior zone within 2 minutes following
the end of the exit delay, and an “EXIT ALARM”
message will be sent to the central station (except for
V20PSIA/V15PSIA, see field *69 Recent Closing
report). With Contact ID format, the message will
contain the zone number and error code 374
(“ALARM–EXIT ERROR”).
*60 Trouble Report Code
(0 = no report; 1-F = see description above *59
Sent if a zone has a trouble condition. See UL System
Reporting Note above *59.
*61 Bypass Report Code
0 = no report; 1-F = see description above *59
Sent when a zone is manually bypassed. See UL
System Reporting Note above *59.
*62 AC Loss Report Code
0 = no report; 1-F = see description above *59
Timing of this report is random with up to a 4-hour
delay. If AC restores before the report goes out, there
is no “AC RESTORE” report. See UL System Reporting
Note above *59.
*63 Low Bat Report Code
0 = no report; 1-F = see description above *59
Sent when the system’s backup battery has a low-battery
condition. See UL System Reporting Note above *59.
*64 Test Report Code
0 = no report; 1-F = see description above *59
Sent periodically to test that the communicator and
phone lines are operational. See System Reporting UL
Note above *59. Frequency of report is set in Scheduling
mode (event 11) or by the following key commands:
installer code + [#] + 0 + 0 = test report sent every 24 hrs
installer code + [#] + 0 + 1 = test report sent once per week
installer code + [#] + 0 + 2 = test report sent every 28 days
Each of these modes sets schedule 32 (VISTA-20P) or 8
(VISTA-15P) to the selected repeat option; first test
report sent 12 hours after command†.
† NOTE: Make sure the Real-Time Clock is set to the proper
time before entering the test report schedule command to
ensure that test reports are sent when expected. (see Setting
the Real-Time Clock section)
*65 Open Report Code
0 = no report; 1-F = see description above *59
Sent upon disarming the system in the selected
partitions. See UL System Reporting Note above *59.
*66 Arm Away/Stay Report Code
0 = no report; 1-F = see description above *59
This option allows for independent programming of
Away and Stay reports for each partition, including the
common lobby.
NOTE: “OPEN” reports are not sent if the associated
closing report is not enabled.
*67 RF Trans. Low Batt. Report Code
0 = no report; 1-F = see description above *59
Sent when a transmitter low-battery condition exists.
UL installations: must be enabled if wireless devices
are used.
*68 Cancel Report Code
0 = no report; 1-F = see description above *59
Sent upon disarming the system after an alarm
condition was reported.
V20PSIA/V15PSIA: [10] Report enabled.
Installation and Setup Guide
4-4

*69 Recent Closing Report V20PSIA/V15PSIA only
Always enabled. Field does not apply to other controls.
Similar to the Exit Error condition described in field
*59, but occurs if an entry/exit door or interior zone is
faulted within two minutes after the initial exit delay
expires. Disarming the system within the two minutes
stops the alarm sound and displays "ALARM
CANCELED " or "CA" and the faulted zone number.
No message is sent to the Central Monitoring Station.
If the system is not disarmed within two minutes, the
alarm sound continues and a “recent closing” and a
“zone alarm” message are sent to the Central
Monitoring Station (after dial delay expires).
*70 Alarm Restore Report Code
0 = no report; 1-F = see description above *59
Sent when an alarm zone is restored to non-faulted
state. See UL System Reporting Note above *59.
*71 Trouble Restore Report Code
0 = no report; 1-F = see description above *59
Sent when a trouble in a zone is restored. See UL
System Reporting Note above *59.
*72 Bypass Restore Report Code
0 = no report; 1-F = see description above *59
Sent when a zone that has been bypassed is
unbypassed. See UL System Reporting Note above *59.
*73 AC Restore Report Code
0 = no report; 1-F = see description above *59
Sent when AC power has been restored after an AC
power outage. See UL System Reporting Note above *59.
*74 Low Bat Restore Report Code
0 = no report; 1-F = see description above *59
Sent when a system low-battery condition is restored
to normal. See UL System Reporting Note above *59.
*75 RF Xmtr Low Batt. Restore Code
0 = no report; 1-F = see description above *59
Sent when a transmitter’s low battery condition is
restored (i.e., new battery installed).
UL: must be enabled if wireless devices are used. See
UL System Reporting Note above *59.
*76 Test Restore Report Code
0 = no report; 1-F = see description above *59
This is sent when the Test mode is exited. See UL
System Reporting Note above *59.
Miscellaneous System Fields
*77 Daylight Saving Time Start/End Month
0 = Disabled; 1 = Jan; 2 = Feb; 3 = Mar; 4 = April;
# + 10 = Oct; # + 11 = Nov; # + 12 = Dec
Enter the start and end month for daylight savings
time, if applicable to the region.
*78 Daylight Saving Time Start/End Weekend
0 = disabled; 1 = first; 2 = second; 3 = third; 4 = fourth;
5 = last; 6 = next to last; 7 = third to last
Enter the start and end weekend for daylight savings
time, if applicable to the region.
*79 Output Device Mapping Menu Mode
Use this menu mode to enter output devices/powerline
carrier devices into the system. See Output Device
Programming section for procedures.
*80 Output Programming Menu Mode
Use this menu mode to define output functions for use
with output devices/powerline carrier devices. See
Output Programming section for procedures.
*81 Zone List Programming Menu Mode
Use the menu mode to define zone lists. See Zone List
Programming section.
*82 Alpha Descriptor Programming Menu Mode
Use this menu mode to assign alpha descriptors to
zones and/or create partition descriptors (VISTA-20P).
*84 Auto-Stay Arm
0 = no; 1 = partition 1 only; 2 = part. 2 only; 3 = both parts.
If enabled, the system will automatically change
AWAY mode to STAY mode if the entry/exit door is
not opened and closed within the exit delay time after
a user arms in AWAY mode from a wired keypad (non-
RF device). An Opening report followed by an Armed
Stay report is sent to the Central Station.
If the door is opened and closed within the exit delay
period, the system remains in AWAY mode.
Any RF device that arms the system AWAY overrides
this feature and the system remains armed AWAY.
*85 Cross Zone Timer
0 = 15 secs 4 = 90 secs 8 = 4 min #+12 = 8 min
1 = 30 secs 5 = 2 min 9 = 5 min #+13 = 10 min
2 = 45 secs 6 = 2-1/2 min #+10 = 6 min #+14 = 12 min
3 = 60 secs 7 = 3 min #+11 = 7 min #+15 = 15 min
Sets the maximum amount of time in which two cross
zones must be tripped in an armed system to send an
alarm message to the Central Station. If only one cross
zone is tripped during this time, a trouble message (CID
code 380) for that zone is sent to the Central Station.
Assign cross zone pairs in zone list 4.
This option not for use in UL installations.
*86 Cancel Verify Keypad Display
0 = no “alarm canceled” display
1 = display “Alarm Canceled” when system is disarmed
after an alarm has occurred. (To clear the “ALARM
CANCELED” display, the user must enter the security
code + OFF again.)
This feature causes a “ALARM CANCELED” display on
the LCD keypad under the following conditions:
• After the kissoff of the cancel message to the Central
Station, indicating a successful transmission.
• When an alarm is successfully canceled before the
Central Station received the Alarm message. E.g., if
an alarm is incorrectly triggered and the user
presses code + OFF before the dial delay time has
expired, the message will never go out to the CS.
• When the Cancel report is not enabled and the
system is disarmed:
a. before dialer delay expires (alarm report not
sent) message “Alarm Canceled” is displayed.
b. after dialer delay expires message “Alarm
Canceled” is not displayed.
Data Field Programming
4-5

*87 Misc. Fault Delay Time
0 = 15 secs 4 = 90 secs 8 = 4 min #+12 = 8 min
1 = 30 secs 5 = 2 min 9 = 5 min #+13 = 10 min
2 = 45 secs 6 = 2-1/2 min #+10 = 6 min #+14 = 12 min
3 = 60 secs 7 = 3 min #+11 = 7 min #+15 = 15 min
Used with zones assigned to a configurable zone type
with fault delay on (configurable zone type digit “6”),
and sets a zone response time of 15 seconds to 15 min.
It can be assigned to zones with sensors that provide a
trouble indication when an oil tank is low, or similar
applications for critical condition monitoring where a
non-alarm response is desired.
UL: May only be used on non-burglar alarm and non-
fire alarm zones when used on a fire and/or UL burglar
alarm installation.
*88 Program Mode Lockout Options
0 = standard *98 installer code lockout
1 = lockout [
∗
] + [#] reentry after *98 exit (reentry via
installer code only)
2 = not used; 3 = lockout all local programming after *98
exit (reentry via downloader only)
The following table summarizes the Program mode
lockout options:
Exit *88 Reentry By:
Command Entry Installer Power-up† Downloader
*99 n/a yes yes yes
*98 0 no yes yes
*98 1 yes no yes
*98 3 no no yes
† pressing [∗] + [#] within 50 seconds of power up
*89 Event Log Full Report Code
0 = no report; 1-F = see description above *59
If an Event Logging selection is made in field ∗90, a
message can be sent to the central station receiver
when the log is 80% full. If the log becomes full, new
messages overwrite the oldest messages in the log.
*90 Event Log Enables
0 = no event logging; 1 = log Alarm and Restore; 2 = log
Trouble and Restore
4 = log Bypass and Restore; 8 = log Open/Close
x = log combination of events (add value of entries)
This system can record various events in a history log
(VISTA-20P = 100 events; VISTA-15P = 50 events). At
any time, the downloader operator can then upload the
log and view or print out all or selected categories of
the log. The downloader operator can also clear the log.
Event log can also be viewed at an alpha keypad. The
display/printout at the central station will show the
date, time, event, and description of the occurrences.
Data Entry Example: To select Alarm/Alarm Restore”
and “Open/Close”, enter 9 (1+ 8); to select all events,
enter #15.
*91 Option Selection
0 = none; 4 = using Audio Alarm Verification (AAV) unit;
8 = Enable Exit delay restart/reset ††
Select by adding the values of each option. E.g., for both
AAV and Exit delay restart, enter # + 12 (4 + 8).
V20PSIA/V15PSIA: Options: Same as listed above.
Call Waiting Disable: 0 = call waiting not used
1 = call waiting disable digits (*70) entered in field *40;
(when selected, the system dials the entry in field *40 only
on alternate dial attempts; this allows proper dialing in the
event call waiting service is later canceled by the user).
††“Exit Delay Restart/reset” option allows use of the [∗] key to restart
the exit delay at any time when the system is armed STAY or
INSTANT. This feature also enables automatic exit delay reset, which
resets exit delay if the entry/exit door is re-opened and closed before
exit delay time expires after arming AWAY. Automatic Exit Delay
Reset occurs only once during an armed period.
IMPORTANT: AAV should not be used when Paging or Alarm
Reports are sent to a secondary number unless the monitoring
zone option is used (which pauses calls). Otherwise, the call to
the secondary number by the communicator after the alarm
report will prevent the AAV from taking control of the telephone
line, and the AAV “Listen in” session cannot take place.
UL UL installations using the AAV feature must use the
ADEMCO UVCM module (part of the ADEMCO UVS system).
Exit Delay Restart/Reset must be disabled.
SIA Guidelines: Exit delay should be enabled.
*92 Phone Line Monitor Enable
Entry 1–Timeout:
0 = disabled; 1-15 = 1 minute to 15 minutes respectively
(2 = 2 min, 3 = 3 min, etc.; # + 10 =10 min, # + 11 = 11 min,
# + 12 = 12 min, # + 13 = 13 min, # + 14 = 14 min, # + 15 = 15 min)
Entry 2–Display/Sound:
0 = keypad display only when phone line is faulted.
1 = keypad display plus keypad trouble sound when line is
faulted.
Each partition turns off its own trouble sound. No
automatic timeout.
2 = Same as “1” plus programmed output device STARTS.
If either partition is armed, external sounder activates.
External sounder will be turned off by normal bell timeout, or
by security code plus OFF from either partition (it does not
have to be the one that was armed).
Entry 1: Sets the length of time a phone line fault
must remain after detected before the second digit
option is activated.
Entry 2: Selects the desired phone line fault response.
Option 2 may be used even if a relay unit or Powerline
carrier device is not connected to the control.
Programmed Output Device must either be
programmed to be STOPPED in field ∗80 or STOPPED
by entry of [security code] + [#] + 8 + device number.
Partition in ∗80 should be set to “0,” for STOP.
UL Field *92 must be enabled for fire alarm installations, UL
commercial burglar alarm installations and UL residential
burglar alarm installations.
If the control unit is used on a UL commercial burglar alarm
system which requires 2 methods of remote communication,
then the control unit’s DACT and the other method of signal
transmission must monitor each other against communication
failure and line fault. The fault must be received and
annunciated within 200 seconds of its occurrence.
Installation and Setup Guide
4-6

*93 No. of Reports In Armed Period per Zone
(Swinger Suppression)
0 = unlimited number of reports
1 = 1 report pair per zone per armed period
2 = 2 report pairs per zone per armed period
Selection limits the number of alarm/alarm restore
message pairs per zone sent to the CS in an armed
period.
SIA Guidelines: Must be set for option 1 or 2.
V20PSIA/V15PSIA:
Report Pairs: 1 = 1 report pair; 2 = 2 report pairs
Unlimited Reports Enable:
0 = restrict reports to the setting in entry 1
1 = unlimited reports for zones listed in zone list 7;
(use zone list 7 to list zones that require unlimited
reporting; these zones ignore the setting in entry 1)
*94 Download Phone Number
Enter up to 20 digits as follows: 0–9, # +11 for “
∗
”,
# + 12 for “#”, # + 13 for a pause.
Enter the phone number of the downloading computer.
Do not fill unused spaces. End field by entering ∗. To
clear entries from field, press ∗94∗.
*95 Ring Count For Downloading
0–15 = number of rings before control picks up phone line.
Refer to the chart below and program accordingly.
phone answer down-
module machine loading Set field ∗
∗∗
∗95 to…
yes no no 1-14 (not 0)
yes yes no higher than number of
rings set on answer
machine (e.g., if ans.
machine is 4 rings, set
this field to 5). This allows
access to the phone
module if the answer
machine is off.
yes no yes 1-14 (not 0)
yes yes yes 15 (bypasses answer
machine†)
no no no 0
no yes no 0
no no yes 1-14
no yes yes 15
† NOTE: If “15” is entered to bypass an answering
machine, and a 4285 or 4286 Phone Module is included in
the system, you should note the following:
When calling in from an off-premises phone, the user
should make the initial call, allow 1 or 2 rings only, then
hang up, then call again. The phone module will now seize
the line, and 2 long tones sound, followed by the usual
voice prompt for the access code. If this procedure is not
followed, phone module operation will not be possible.
*96 Command to Initialize CSID and Subscriber
Account Number
Use this command, if necessary, to reset all subscriber
account numbers and the internal CSID to the factory
default values.
*97 Command to Reset System to Factory
Default Values
Pressing ∗97 resets all data fields to the factory default
values (shown on the Program Form).
IMPORTANT: Do not press ∗97 to load defaults if any
programming has been done previously—data already
programmed into the system will be changed!
*98 Command to Exit Program Mode (with
installer code lockout)
Exits Programming Mode and prevents re-entry by:
Installer Code + [8] + [0] + [0].
To enter the programming mode if ∗ 98 was used to
exit, you must first power down the system. Then
power up again, and press [∗] and [#] at the same time,
within 50 seconds of powering up. See field *88 for
other Program mode lockout options.
*99 Command to Exit Program Mode
Exits Programming Mode and allows re-entry by:
Installer Code + [ 8] + [0] + [0]
or by: Pressing [∗] and [#] at the same time, within 50
seconds of power-up.
Pager Programming Fields
The system can send various reports to several pagers
(VISTA-20P = up to 4; VISTA-15P = up to 2).
To program pager reporting, do the following:
1. Enter the pager phone number(s), preface characters,
and pager report options in data fields *160 - *171:
2. Enable Pager Delay, if desired, in field *172 (delays
alarm reporting for ALL pagers).
3. Make sure appropriate user open/close pager
reports are enabled (see Security Codes, Assigning
Attributes in Section 6. System Communication
and Operation). Users that perform actions in
partition 1 will, if enabled, attempt to report to all
pagers enabled for open/close reporting in partition
1. Users that perform actions in partition 2 will, if
enabled, attempt to report to all pagers enabled for
open/close reporting in partition 2.
4. If using latchkey pager report, define the latchkey
report schedule using Scheduling mode (master
code + [#] [6] [4] then select event type 03). System
must be armed for the Latchkey report to be sent.
5. If using a function key to manually send a message
to a pager, use *57 Function Key Menu mode to
define the key (function 01).
6. If reporting zone alarms and troubles to a pager,
use *81 Zone List menu mode to assign the zones
associated with each pager (zone lists 9-12†).
† VISTA-20P supports four pagers and partitioning;
VISTA-15P supports two pagers and zone lists 9 and 10
only.
*160 Pager 1 Phone No.
Enter up to 20 digits.
If entering fewer than 20 digits, exit by pressing [∗] +
next field number. To clear entries, press ∗160∗.
Data Field Programming
4-7

*161 Pager 1 Characters
Enter up to 16 characters.
Up to 16 optional characters may be sent as a prefix to
the 7-digit system status code sent to Pager #1 (if used).
Phone number in field *160 must have been entered. If
fewer than 16 characters, exit by pressing [∗] and next
field number. To clear entries: press ∗161∗.
The 16 characters may be composed of the following:
PIN number, Subscriber account number,
∗ (enter # + 11 to send ∗), # (enter # + 12 to send #),
Pause (enter # + 13 to allow a 2-second pause),†
special character(s) the user may decide to transmit
† Some paging systems require pause(s) before the prefix.
The Pager format for the 7-digit status code is defined
as follows: XXX-YYYY where:
XXX = 3-digit event code: 911 = Alarm, 811 =
Trouble, 101 = Opening (disarm), 102 =
Closing (arm AWAY)
YYYY = 4-digit user or zone number (depending on
type of event). The first digit indicates partition (0 =
system, 1 = part 1, 2 = part 2, 3 = common), followed
by the 3-digit user or zone number.
Display Example 1. 911–1004 Indicates an alarm
(911) caused by a fault in zone 4 (0004) in part. 1.
Display Example 2. 102–2005 Indicates the system
is reporting a closing–system arming (102) by User 5
(0005) in partition 2.
*162 Pager 1 Report Options
0 = No reports sent; 1 = Open/close for all users enabled
to page†; 4 = All alarms and troubles
5 = All alarms, troubles, and open/close for all users
enabled to page
12 = Alarms and troubles for zones entered in zone list 9
13 = Alarms and troubles for zones listed in zone list 9
and open/close for all users enabled to page
Enter the types of reports to be sent to Pager 1 for each
partition.
† Reports to pager only when arming (close)/disarming (open)
from a keypad using a security code; auto-arming/disarming,
arming with assigned button, and keyswitch arming do not
send pager messages.
*163 Pager 2 Phone No.
up to 20 digits
If entering fewer than 20 digits, exit by pressing [∗] +
next field number. To clear entries, press ∗163∗.
*164 Pager 2 Characters
up to 16 characters
See field ∗161 for explanation of entries. If fewer than
16 characters, exit by pressing [∗] and next field
number. To clear entries, press ∗164∗.
*165 Pager 2 Report Options
See pager 1 reports, field *162 for entries, except use
zone list 10
*166 Pager 3 Phone No.
VISTA-20P. Enter up to 20 digits
If entering fewer than 20 digits, exit by pressing [∗] +
next field number. To clear entries, press ∗166∗.
*167 Pager 3 Characters
VISTA-20P. Enter up to 16 characters
See field ∗161 for explanation of entries. If fewer than
16 characters, exit by pressing [∗] and next field
number. To clear entries, press ∗167∗.
*168 Pager 3 Report Options
VISTA-20P. See pager 1 reports, field *162, except use
zone list 11
*169 Pager 4 Phone No.
VISTA-20P. Enter up to 20 digits
If entering fewer than 20 digits, exit by pressing [∗] +
next field number. To clear entries, press ∗169∗.
*170 Pager 4 Characters
VISTA-20P. Enter up to 16 characters
See field ∗161 for explanation of entries. If fewer than
16 characters, exit by pressing [∗] and next field
number. To clear entries, press ∗170∗.
*171 Pager 4 Report Options
VISTA-20P. See pager 1 reports, field *162, except use
zone list 12
*172Pager Delay Option for Alarms
0 = none; 2 = 2 minutes; 1 = 1 minute; 3 = 3 minutes
This field determines the delay of alarm reports to the
pager. This gives the Central Station enough time to
verify the alarm report that it received, before the
dialer attempts to dial the pager.
This delay is for ALL pagers in the system
Miscellaneous System Fields
*174 Clean Me Option
0 = disable; 1 = enable
This is a maintenance feature for ESL 2-wire smoke
detectors on Zone 1. If used, this option limits the
number of smoke detectors to a maximum of 10, rather
than 16. To enable the “clean me” feature, a time
response setting of “3” (1.2 seconds) must be entered in
∗56 Zone Programming for zone 1.
*177 Device Duration 1, 2
0 = 15 secs 4 = 90 secs 8 = 4 min #+12 = 8 min
1 = 30 secs 5 = 2 min 9 = 5 min #+13 = 10 min
2 = 45 secs 6 = 2-1/2 min #+10 = 6 min #+14 = 12 min
3 = 60 secs 7 = 3 min #+11 = 7 min #+15 = 15 min
These entries set the duration for output action options
5 (duration 1) and 6 (duration 2) programmed in ∗80
Output Function Programming.
*181 50/60 Hz AC Operation
0 = 60 Hz; 1 = 50 Hz
Select the type of AC power applied to the control
(option is used for Real-Time Clock synchronization)
Installation and Setup Guide
4-8

Configurable Zone Type Fields
• The system allows you to define custom zone types
(VISTA-20P supports 4 [types 90-93]; VISTA-15P
supports 2 [types 90, 91]), based on the options
described at right.
• All configurable zone types can be programmed via
the downloader.
• Configurable zone types 90 and 91 can also be
programmed from a keypad using data fields *182-*185.
UL installations: Do not configure zones as fire alarm
or UL burglar alarm zones.
*182 Configurable Zone Type 90
0-15 = values for each of 10 entries
(0-9, # + 10 = 10,
# + 11 = 11, # + 12 = 12, # + 13 = 13, # + 14 = 14, # + 15 = 15
)
Enter the appropriate value for each entry, 1-10, based
on the charts on the next page. To calculate the value
for each entry, add the values of the selected options in
each of the entry’s columns shown in the respective
chart (one option per column). For example, to program
entry 2 for “alarm response to short,” “auto restore on,”
but not a “vent zone,” enter 5 (“1” for alarm short + “4”
for auto restore-yes + “0” for vent zone-no).
*183 Zone Type 90 Report Codes
90 ALARM ID: XXX
TROUBLE ID: XXX
Enter the desired 3-digit Contact ID® report codes for
alarms and troubles occurring on zones assigned to
this zone type. Use existing Contact ID® codes, if
appropriate, or define unique codes in CID code range
750-789. Press [∗] to accept and continue.
Important Notice on Report Codes: To avoid
confusion at the central station, it is recommended
that existing Contact ID® codes be used with
configurable zone types whenever possible. See list in
System Communication section and/or check with
the central station for a complete list of Contact ID®
report codes. If none of the codes are suitable, choose a
code in the reserved range of 750-789 and make sure to
define the code with your central station.
*184 Configurable Zone Type 91
0-15 = values for each of 10 entries (see field *182 for
explanation of entries.)
*185 Zone Type 91 Report Codes
91 ALARM ID: XXX See field *183 for explanation of
TROUBLE ID: XXX entries and read the Important
notice on using these codes.
Configurable Zone Type Options
Auto Restore (entry 2): Faults on zones set for this option
are cleared; restore messages sent upon restoral of faults.
Vent Zone (entry 2): Zones set for this option are ignored if
faulted when arming the system, but are protected if the zone
is later restored (e.g., an open window can be ignored when
arming, but if the window is later closed, it will be protected;
opening the window again causes an alarm.)
Bypass Disarmed (entry 4): Zones set for this option can be
bypassed only while the system is disarmed.
Bypass Armed (entry 4): Zones set for this option can be
bypassed when the system is armed or disarmed.
Dial Delay (entry 6): Alarms on zones set for this option
participate in dial delay central station reporting, if system
dial delay enabled in field *50.
Fault Delay (entry 6): Faults on zones set for this option are
delayed by the time set in field *87. Do not use this option if
using entry/exit delay for this zone type.
Faults Display (entry 7): Selects how faults on zones set for
this zone type are displayed.
Power Reset/Verification(entry 7): Selects whether the
system resets power (when user enters code + OFF), and
whether the system performs alarm verification (see
description for zone type 16 in Programming Overview
section) when a fault occurs on these zones.
Use Entry Delay (entry 8): Selects whether to use the
system’s entry delay times.
Use Exit Delay (entry 8): Selects whether to use the system’s
exit delay time.
Interior Type (entry 8): Zones set for this option are treated
same as standard zone type 4 (bypasses when armed STAY,
faults displayed).
Alarm Sounds (entry 9): Selects the type of alarms sound for
zones set for this zone type.
Bell Timeout (entry 9): Alarm sounding on zones set for this
option remain for the duration set in fields *32 / *33.
Fire Zone (entry 9): Zones set for this option respond in the
same manner as if programmed for zone type 9. Do not set
fire zones to respond as a “fault” in entries 1-6.
Trouble Sounds (entry 10): Selects the type of trouble
sounds for zones set for this zone type (periodic beeps = once
every 30 seconds; trouble beeps = rapid beeping).
Chime Enable (entry 10): Zones set for this option cause a
chime when Chime mode is on.
Data Field Programming
4-9

Configurable Zone Type Charts
ENTRY 1 ENTRY 2
Response when system disarmed and zone is:
Intact EOL
RF zone normal
Open
RF zone N/A
Shorted
RF zn off-normal
Auto
Restore
Vent Zone
0 = normal
1 = alarm
2 = trouble
3 = fault
0 = normal
4 = alarm
8 = trouble
12 = fault
see note 5
0 = normal
1 = alarm
2 = trouble
3 = fault
see note 6
0 = no
4 = yes
0 = no
8 = yes
Entry 1 = EOL + Open Entry 2 = Short + auto restore + vent zone
ENTRY 3 ENTRY 4
Response when armed STAY and zone is:
Intact EOL
RF zone normal
Open
RF zone N/A
Shorted
RF zn off-normal
Byp. when
disarmed
Byp. when
armed
0 = normal
1 = alarm
2 = trouble
3 = fault
0 = normal
4 = alarm
8 = trouble
12 = fault
see note 5
0 = normal
1 = alarm
2 = trouble
3 = fault
see note 6
0 = no
4 = yes
0 = no
8 = yes
Entry 3 = EOL + Open Entry 4 = Short + byp. disarmed + byp. armed
ENTRY 5 ENTRY 6
Response when armed AWAY and zone is:
Intact EOL
RF zone normal
Open
RF zone N/A
Shorted
RF zn off-normal
Dial Delay
(see field *50)
Fault Delay
(see field *87)
0 = normal
1 = alarm
2 = trouble
3 = fault
0 = normal
4 = alarm
8 = trouble
12 = fault
see note 5
0 = normal
1 = alarm
2 = trouble
3 = fault
see note 6
0 = no
4 = use delay
0 = no
8 = use delay
see note 1
Entry 5 = EOL + Open Entry 6 = Short + dial delay + fault delay
ENTRY 7 ENTRY 8
Display Faults Power Reset/
Verification
Use Entry
Delay 1/2
Use Exit
Delay
Respond as
Interior Type
0 = show alarms
when armed
& disarmed
1 = don’t show
alarms when
armed (show
alarms, trbles,
faults when
disarmed)
3 = never show
any alarms,
trbles, faults
0 = no
4 = power reset
after fault
(with code +
OFF)
12 = verification
(see zone
type 16)
0 = no
1 = delay 1
2 = delay 2
0 = no
4 = use exit
delay
0 = no
8 = yes
see note 2
Entry 7 = fault display + power
reset/verification
Entry 8 = entry delay 1/entry delay 2 + exit delay +
interior zone type
ENTRY 9 ENTRY 10
Alarm Sounds Use Bell
Timeout
Respond as
Fire Zone
Trouble
Sounds
Chime when Chime
Mode On
0 = none
1 = steady
keypad
2 = steady bell
and keypad
3 = pulsing bell
and keypad
0 = no
4 = yes
see fields *32,
*33
0 = no
8 = yes
see zone type
09; see note 4
0 = none
1 = periodic
beep
2 = trouble
beeps
0 = no
4 = yes
Entry 9 = alarm sounds + bell timeout + fire zone Entry 10 = trouble sounds + chime
OPEN SHORTEDINTACT
EOL
ZONE-003-V0
Zone Conditions Represented
in Entries 1-6
Configurable Zone Type Notes
1. Do not use the “fault delay” option
with a configurable zone type if it
is set for an entry or exit delay,
otherwise unpredictable results
may occur.
2. To create an interior type zone,
select “respond as interior zone
type” (entry 8, interior type = yes),
and set zone response to “fault” in
entries 3-4 to ensure fault
displays; do not set as “normal,”
“alarm,” or “trouble.”
3. Do not set fire zones to respond as
a “fault” (entries 1-6), otherwise
faults will not display unless the
[∗] key is pressed.
4. 4219/4229 modules must use
EOLRs or unpredictable results
may occur.
5. RF Zones: The “open” options in
entries 1, 3, and 5 are not
applicable for RF zones. Use the
“intact EOL” option for normal RF
zone conditions and “shorted” for
off-normal RF zone conditions.
6. a. Zone-Doubling/Double-
Balanced: A short on either
zone of a zone-doubled pair or
on a double-balanced zone
causes a tamper condition.
b. For double-balanced zones, this
entry must be “0”.
c. For zone-doubled zones, both
zones of the doubled pair must
be assigned the same response
to a short.
Installation and Setup Guide
4-10

Touch Screen Keypad (AUI) Enable
The system supports up to two touch screen style
keypads (e.g., Symphony Advanced User Interface
(AUI), and 6270 Touch Screen keypad. NOTE: Use of
touch screen devices does not affect the number of
standard keypads supported.
*189 AUI Device 1 and 2 Enable
VISTA-20P: Enter each touch screen (AUI) device’s
home partition.
0 = disabled; 1 = partition 1; 2 = partition 2; 3 = common
VISTA-15P: 0 = disabled; 1 = enabled
Set AUI 1 address to 1. Set AUI 2 address to 2.
AUI Compatibility Note: To ensure proper AUI device
operation, connect only to controls having microprocessor
version 3.0 or higher, and use AUI devices with the following
rev levels: 6270 series use version 1.0.9 or higher; 8132/8142
(Symphony) series use version 1.1.175 or higher.
Keypad Programming Fields
To enable keypads:
1. Set desired address at keypad (refer to keypad’s
instructions for setting the address).
2. Use data field program mode to enable keypad
addresses, assign a partition, enable sound options
in fields *190-*196 as shown in the table above.
3. If desired, use data field *198 to turn on the display
of the partition number.
4. Set the following keypad-related data fields as
required by the installation:
*21 Quick Arm Enable, *23 Forced Bypass, *84
Auto STAY Arm
5. If using touch screen devices (AUI), enable each
unit in field *189 and set AUI 1 to address 1, AUI 2
to address 2.
NOTE: Each keypad must be assigned a unique
address, starting at address 16 (address 16 is
reserved for keypad 1, which is automatically set to
partition 1 with all sounds enabled). Keypads
programmed with the same address will give
unpredictable results.
*190 Keypad 2 Device Address 17
Entry 1 – Partition Assignment:
0 = keypad disabled
1 = partition 1 (VISTA-20P)/keypad enabled (VISTA-15P)
2 = partition 2; 3 = common
Entry 2 – Sound Option:
0 = no suppression
1 = suppress arm/disarm and E/E/ beeps
2 = suppress chime beeps only
3 = suppress arm/disarm, E/E/ beeps and chime beeps
Entry 1: For VISTA-20P, enter the partition in which
the keypad is located; for VISTA-15P, enter 1 to
enable, or 0 to disable the keypad.
Entry 2: Enter the desired sound option for this
keypad.
*191 Keypad 3 Device Address 18
See field *190 for entries and explanation.
*192 Keypad 4 Device Address 19
See field *190 for entries and explanation.
*193 Keypad 5 Device Address 20
See field *190 for entries and explanation.
*194 Keypad 6 Device Address 21
See field *190 for entries and explanation.
*195 Keypad 7 Device Address 22
See field *190 for entries and explanation.
*196 Keypad 8 Device Address 23
See field *190 for entries and explanation.
*197 Exit Time Display Interval
0 = no display; 1-5 = seconds between display updates
If enabled, keypads display the exit time remaining
after arming the system, updated at the interval
selected (i.e. if the exit delay is 30 seconds and “2” is
selected in this field, the keypad display refreshes every
2 seconds, displaying 30, 28, 26, 24, etc.).
An interval greater than “1” may be necessary for some
older keypads to allow users time to enter key presses
between display updates.
FIXED-WORD KEYPAD NOTE: If using 2-digit
display keypads (e.g. 6150RF), do not use exit times
greater than the 96-second delay option. Using a longer
delay time may cause end-user confusion because 2-digit
display keypads cannot display times greater than “99.”
If longer exit time is required by the installation, it is
recommended that the Exit Time Display option be
disabled (“0”).
*198 Display Partition Number
VISTA-20P. 0 = no; 1 = yes
If selected, the partition number is displayed in the
upper-left corner of the display. This is useful when
using the GOTO partition function.
*199 ECP Fail Display
0 = 3-digit display (“1” + device address)
1 = 2-digit fixed-display as “91”
Select “0” if using Alpha keypads and/or 3-digit Fixed-
Word Display keypads. ECP faults will display “1” plus
the device address (00-30) of device causing the fault
(e.g., faults on device 07 display as “107”).
Select “1” if using 2-digit Fixed-Word Display keypads
(e.g., certain 6128 series keypads). If selected, ECP
faults for all devices will display as “91” on 2-digit
displays, and “191” on 3-digit or Alpha keypads.
4-11

Installation and Setup Guide
4-12

SECTION 5
Menu Mode Programming
Zones and Partitions
Each protection zone needs to be programmed with various attributes using *56 Zone Programming mode
or ✱58 Expert Programming Mode.
The VISTA-20P system can control two independent areas of protection (known as partitions) for use by
independent users, if desired, by simply assigning zones to one or the other partition during zone
programming. The VISTA-20P, by default, automatically distributes users between the two partitions. The
master user can change the user number distributions.
Zones can also be assigned to a common partition, which is an area shared by users of both partitions (such
as a lobby in a building). This allows either partition to arm, while leaving the common partition disarmed
for access into the other partition. The following describes the functioning of the VISTA-20P common
partition:
• The common zone sounds and reports alarms only when both partitions are armed. If only one partition
is armed, the system ignores faults on the common zone.
• Either partition may arm its system if the common zone is faulted, but once armed, the other partition
will not be able to arm unless the common zone is first bypassed or the fault is corrected.
• Faults on the common zone are displayed on common zone keypads, and will also appear on another
partition’s keypad when that partition is armed.
• Either partition can clear and restore the common zone after an alarm.
About Zone Programming (∗
∗∗
∗56 and ∗
∗∗
∗58 Menu Modes)
• Used to program zones, zone types, report codes, enroll 5800 RF Wireless Transmitter serial numbers,
and identify the type of loop input device(s).
• Can also be used to enter alpha descriptors for programmed zones; however, we recommend entering
descriptors in menu mode ✱82 (Alpha Descriptor Programming after all zone programming has been
completed).
• *58 Expert Programming mode provides a faster method of zone programming than *56 Menu mode, but
is recommended only for those who have had previous experience in programming controls of this type.
NOTE: Alpha display prompts are shown in a double-line box.
✱56 Zone Programming Procedure
1. Enter the zone number to be programmed.
2. Make appropriate entries at the prompts.
3. Confirm the serial number of wireless transmitter zones.
Start Zone Programming mode by pressing ✱56 while in Data Programming mode.
SET TO CONFIRM?
0 = NO 1 = YES
Set to Confirm
0 = no; 1 = yes
If 1 (Yes) is entered, you will be prompted to confirm each transmitter after entering the
serial and loop numbers (at the “XMIT TO CONFIRM” prompt later in this procedure). We
recommend that you confirm the programming of every transmitter.
5-1

Enter Zn Num.
(00 = Quit) 10
Zone Number
VISTA-20P: wired 01-08 (and 09-48†); wireless 09-48; RF button zones 49-64
VISTA-15P: wired 01-06 (and 07-22†); wireless 09-34; RF button zones 49-56
Both Controls: 91 = addr. device report enable; 92 = duress report enable
95, 96, 99 =emerg. zones
[
∗
] to continue; 00 to quit
† if zone expanders are used.
Enter the zone number that you wish to program. Zone 10 has been entered in the example
display at left.
Enter a report code for zone 91 to enable addressable device reporting.
Enter a report code for zone 92 to enable duress reporting.
95, 96, 99 are emergency (panic) key zones.
Zn ZT P RC In: L
10 00 1 10 RF: 1
OR
Zn ZT P RC In: AD
10 00 1 10 AW: 07
OR
Zn ZT P RC HW: RT
10 00 1 10 EL 1
Summary Screen
[
∗
] to continue
A summary display appears.
“IN: L” appears for wireless zones and indicates input type and loop.
“IN: AD” appears for hardwire expansion zones (AW) and indicates the module’s address
(AD), which is based on the zone number.
“HW: RT” appears for hardwire zones and indicates configuration (EOL, NO, NC, zone
doubling, double-balanced) and response time selection.
10 Zone Type
Perimeter 03
Zone Type (ZT)
See table below.
Each zone must be assigned to a zone type, which defines the way in which the system
responds to faults in that zone. Enter the Zone Type code from the list below:
Note: If 00 is entered, Delete Zone ? will be displayed.
00 = Not used 07 = 24-Hr Audible 20 = Arm–STAY*
01 = Entry/exit #1 08 = 24-Hr Aux 21 = Arm–AWAY*
02 = Entry/exit #2 09 = Fire 22 = Disarm*
03 = Perimeter 10 = Interior w/Delay 23 = No Alarm Resp
04 = Interior Follower 12 = Monitor Zone 24 = Silent Burglary
05 = Day/Night 14 = Carbon Monoxide 77 = Keyswitch
06 = 24-Hr Silent 16 = Fire w/Verify 81 = AAV Mon. Zone
*5800 button-type transmitters only 90-91 = Configurable
10 Partition
1
Partition No. (P) (VISTA-20P)
1-3 = partition (3 = common); [
∗
] to continue
Enter the Partition number for this zone. Partition 1 is shown entered.
10 Report Code
1st 01 2nd 00 10
Report Code (RC)
First Digit: 1-9, #+10 for 0, #+11 for B, #+12 for C, #+13 for D, #+14 for E, #+15 for F
00 to disable
Second Digit: same as above; [
∗
] to continue
Enter the report code for this zone, which consists of 2 hexadecimal digits, each in turn
consisting of 2 numerical digits. For example, for a report code of “10,” enter 01 and 00.
For Contact ID®, entering any non-zero entry as the first digit enables the report code for
this zone. Refer to the System Communication section for information about report codes
and formats.
02 HARDWIRE TYPE
EOL 0
Hardwire Type
0 = EOL; 1 = NC; 2 = NO; 3 = zn doubling
(ZD)
†;
4 = dble-balanced (DB)
†
[
∗
] to continue
† VISTA-20P
This prompt appears only for zone numbers 02-08.
Zone 1 is automatically set for EOL operation.
02 Response Time
1
Response Time (RT)
0 = 10mSec; 1 = 350mSec; 2 = 700mSec; 3 = 1.2 seconds; [
∗
] to continue
This prompt appears only for hard-wired zones 01-08 (zone 02 is the display shown).
Option 3: used for “clean me” option on zone 1 (see field ∗174).
NOTE: If zone doubling is being used, the response time selected for zones 02-08
automatically applies to each zone’s associated doubled zone.
Installation and Setup Guide
5-2

10 INPUT TYPE
RF TRANS 3
Input Device type (In)
2 = AW (Aux wired zone)
3 = RF (supervised RF transmitter
4 = UR (unsupervised RF transmitter)
5 = Button type RF transmitter (unsupervised).
[
∗
] to continue
This prompt is skipped for zones 2-8, or 2-16 if zone-doubling was enabled at “Hardwire
Type” prompt.
All of the RF transmitters have one or more unique factory-assigned input (loop) ID codes.
Each of the inputs requires its own programming zone (e.g., a 5804's four inputs require
four programming zones).
RF Transmitters can be enrolled as one of the following types:
Type Description
RF
(Supervised RF)
Sends periodic check-in signals, as well as fault, restore, and low-
battery signals. The trans. must stay within receiver's range.
UR
(Unsupervised RF)
Sends all the signals that the “RF” type does, but the control does
not supervise the check-in signals. The transmitter may therefore be
carried off-premises.
BR
(Unsupervised
Button RF)
Sends only fault signals. It will not send a low-battery signal until it
is activated. The transmitter may be carried off-premises.
NOTE:
• For the built-in hardwired zones, the Input Device type is automatically displayed as HW
and cannot be edited.
• To change the input type of a previously programmed wireless device (type RF, UR, BR)
to a wired zone (type AW), you must first delete transmitter’s serial number (see To
Delete A Serial Number prompt on next page)
10 INPUT S/N: L
A022-4064 1
Serial number Entry and Loop Number Entry
[
∗
] to continue
Used only when enrolling wireless transmitters.
a. Transmit two open/close sequences. If using a button-type transmitter, press and
release the button twice, but wait about 4 seconds before pressing the button the second
time.
OR
b. Manually enter the 7-digit serial number printed on the label of the transmitter. Then
press the [✱] key – the cursor will move to the “L” position. You can edit the loop
number, if necessary. When the loop number is acceptable, press [✱].
c. Press key [C] to copy the serial number previously enrolled (used when programming a
transmitter with several input loops).
10 INPUT S/N L
A022-4064 ?
Loop Number Change
[
∗
] to continue
NOTE: If the [C] key is used to copy the previously enrolled serial number, the cursor will
move to the Loop column (L) with the previous serial number displayed, and display a
highlighted question mark for the loop number.
Enter the loop number and press [✱]. The system will now check for a duplicate serial/loop
number combination.
10 INPUT S/N L
A022-4064 1
Enroll Summary
[
∗
] to continue
If the serial/loop number combination is not a duplicate in the system, a display showing
the serial number and loop number entry will appear.
XMIT TO CONFIRM
PRESS ✱ TO SKIP
Confirmation Option
[
∗
] to continue
This prompt will only appear if you answered “Yes” at the first prompt in this section.
The system will enter a confirmation mode so that the operation of the actual programmed
input can be confirmed.
Activate the loop input or button that corresponds to this zone.
Menu Mode Programming
5-3

Entd A022-4063 1
Rcvd A022-4064 1
If Serial or Loop Numbers do not match after activating the transmitter
[
∗
] to continue
If the serial number transmitted does not match the serial number entered, a display
similar to the one shown appears. If the loop number does not match, it will also be
displayed.
If so, activate the loop input or button on the transmitter once again. If a match is not
obtained (i.e., summary display does not appear), press the [#] key twice and then enter (or
transmit) the correct serial number.
10 INPUT S/N: L
A000-0000 0
To Delete a Serial No.
0 in loop number field = delete serial number; # = undo deletion; [
∗
] to continue
To delete an existing serial number, enter 0 in the loop number field. The serial number
will change to 0's.
If 0 was entered in error, simply re-enter the loop number or press [#], and the serial
number will return to the display.
Zn ZT RC In: L
10 03 10 RF: 1s
Summary Screen
[
∗
] to continue
If the serial number transmitted matches the serial number entered, the keypad will
beep 3 times and a summary display will appear, showing that zone's programming.
Note that an “s” indicates that a transmitter’s serial number has been enrolled.
Press [∗] to accept the zone information and continue.
PROGRAM ALPHA?
0 = NO 1 = YES 0
Alpha Descriptors
0 = no; 1 = yes; [
∗
] to continue
If you want to program descriptors for zones now, enter 1 (Yes) and refer to the Alpha
Descriptor Programming section for available descriptors.
ENTER ZN NUM.
(00 = QUIT) 11
Next Zone Number
[
∗
] to continue; 00 = quit
If 0 (No) was entered above, the system will return you to the ENTER ZN NUM. prompt
for the next zone.
When all zones have been programmed, enter 00 to quit.
Completing Zone Programming
• When you have finished programming all zones, test each zone using the system’s TEST mode.
• Do not use the Transmitter ID Sniffer Mode for checking wireless transmitting devices, as it
will only check for transmission of one zone on a particular transmitter, NOT the zones assigned to each
additional loop.
NOTE: Following the successful enrollment of each wireless device, note the device serial number in the
appropriate column on the ENROLLED TRANSMITTERS worksheet in the Programming Form; then
enter the other information (zone number, zone type, loop number, etc.) relevant to that device.
∗
∗∗
∗58 Expert Programming Mode Procedures
This method is designed for use by installers with previous experience in programming ADEMCO control
panels. This mode is also used to program wireless keys using pre-defined templates.
Start Expert Programming mode by pressing ✱58 while in Data Programming mode.
SET TO CONFIRM?
0 = NO 1 = YES 0
Confirm?
0 = no; 1 = yes; [
∗
] to continue
This display appears upon entry into this mode.
The default is 0 (No).
If 1 (Yes) is entered, you will be prompted to confirm each transmitter after entering the
serial and loop numbers (at the “XMIT TO CONFIRM” prompt later).
Installation and Setup Guide
5-4

Zn ZT P RC HW: RT
01 09 1 10 EL 1
Zn ZT P RC IN: L
10 00 1 10 :RF –
Summary Screen
01-64 = zone number; [
∗
] to continue; 00 = quit
OR [D] to go to prompts for wireless key programming templates
A summary screen appears, showing zone 1’s currently programmed values.
Enter the zone number being programmed, then press [∗], which displays a summary
screen for that zone. See next prompt (zone 10 in this example).
If programming a wireless key, press the [D] key then skip to the Wireless Key
Programming Templates section following this section. When [D] is pressed, you can choose
from a series of preset templates for easy programming of wireless key zones.
When all zones have been programmed, press 00 at this prompt to quit this menu mode.
Zn ZT P RC IN: L
10 00 1 10 RF 1
Zone Programming
ZT = see Zone Type chart shown in *56 Menu Mode “Zone Type” prompt
P = partition 1, 2, 3 (common); RC = 1 (send CID report); 0 (no report)
IN = input type; L = loop number
[
∗
] to continue
A summary screen with the selected zone’s current programming appears.
Begin programming zone information as follows:
• Enter Zone Type (ZT), Partition (P), Report Code (RC), and Input Device Type (IN)*
sequentially, but not the Loop No. (L).
• Use the [A] (Advance) and [B] (Back) keys on the keypad to move the cursor within the
screen.
• Use the [C] key to copy the previous zone’s attributes.
Press [✱] to save the programming and continue to the serial number/loop number prompt.
If needed, you can press the [#] key to back up without saving.
* If HW (hardwired) or AW (Auxiliary) is entered for Input Device Type, the next screen
will be similar to the prompt shown, except that HW or AW will be displayed under “IN”.
If RF, BR, or UR is entered, a prompt for Serial and Loop number will be displayed, as
follows.
10 INPUT S/N: L
AXXX-XXX –
Serial number
S/N = serial number; L = loop number; [
∗
] to continue
Manually enter the serial number (found on the transmitter label), by typing digits in the
“X” locations, using the [A] (advance) or [B] (back) keys as required. You can also perform
two open and close sequences; for button-type transmitters that means pressing and
releasing the button twice.
NOTE: If you want to copy the previous zone’s serial number, press the [C] key.
Press [✱] to advance to the loop number, then enter loop number.
Press [✱] to accept the existing serial and loop number and continue to the “Confirm”
prompt below. If necessary, press [#] to back up and re-enter or edit the serial number.
10 INPUT S/N: L
A000-0000 0
To Delete a Serial Number
[
∗
] to continue
To delete an existing serial number, enter 0 in the loop number field. The serial number
will change to all 0's as shown.
If 0 was entered in error, simply re-enter the loop number, and the serial number will
return to the display.
10 XMIT TO CONFIRM
PRESS ✱ TO SKIP
Confirm
[
∗
] to continue
The prompt to confirm appears. This prompt will only appear if the first prompt after
entering ✱58 was answered “Yes.” To confirm, activate the loop input or button that
corresponds to this zone.
The system checks for duplicate. If a duplicate exists, a long error beep will sound.
Press [#] to back up and re-enter the serial and/or loop number.
Menu Mode Programming
5-5

Entd A022-4063
Rcvd A022-4064
If Serial or Loop Numbers do not match after activating the transmitter
[
∗
] to continue
If the serial/loop number combination transmitted does not match the serial and loop
number entered, a display similar to the one below will appear. If the loop number does
not match, it will also be displayed. If so, activate the transmitter’s loop input or
button one or more times.
If a match is still not obtained (i.e., summary display does not appear), press the [#] key
twice and enter the correct loop input or, if correct, press [#] again and then enter the
correct serial number.
Zn ZT P RC In L
10 03 1 10 RF: 1s
Note that an “s” indicates
that a transmitter’s serial
number has been
enrolled.
Summary Screen
If the serial number transmitted matches the serial number entered, the keypad will beep
3 times and a summary display will appear, showing the programmed information for that
zone.
Press [∗] to begin programming the next zone. See first “Summary Screen” prompt
paragraph on previous page.
To exit this mode, enter 00 at the Summary Screen prompt.
Wireless Key Programming Templates
This procedure programs the wireless keys, but a key is not active for arming/disarming until it is
assigned to a user number (see System Operation section, assigning attributes command).
Enter this mode by pressing the D key while at the *58 Menu mode Summary Screen. The following
prompts appear.
TEMPLATE ?
1–6 1
Template Number
1–3 = 5804 templates; 4–6 = 5804BD templates
• Enter Template number 1–6 (see chart on next page).
See the defaults provided for each template in the chart that follows these procedures.
• Select from templates. Press [∗] to display template (1 shown selected).
NOTE: If necessary, press [#] to back up and re-enter template number.
• Press [#] if you want to return to *58 Menu mode summary screen.
L 01 02 03 04
T 23 22 21 23
Template Display
• When [∗] is pressed, the selected template will be displayed.
Top line of display represents loop numbers; bottom line represents zone type assigned
for each loop.
• Press [∗] to accept template.
PARTITION
1
Partition
VISTA-20P. 1 = partition 1; 2 = partition 2; 3 = common partition
• Enter the partition in which the key is to be active, then press [∗] to continue.
ENTER START ZONE
00 = QUIT 36
Start Zone Number
• The system will search for the highest available consecutive 4-zone group (the four zones
in the case of the 5804 and 5804BD), and display the lowest zone number of the group.
If you want to start at a different zone, enter the zone desired, and press [✱]. If that zone
number is displayed, the system has the required number of consecutive zones available,
beginning with the zone you entered. If not, the system will again display a suggested
zone that can be used.
If the required number of consecutive zones is not available at all, the system will display
“00”.
To quit this mode and return to *58 Menu mode, enter 00 at this prompt.
• Press [∗] to accept.
INPUT S/N L
AXXX-XXXX –
Serial Number
• Manually enter the serial number printed on the label for the wireless key or press and
release the button to transmit its serial number.
• Press [∗] to accept the serial number. The system will check for a duplicate.
• If necessary, press the [#] key to back up without saving, and re-enter the serial number.
• Use the [A] key to move forward within the screen, and the [B] key to move backward.
Installation and Setup Guide
5-6

XMIT TO CONFIRM
PRESS ✱ TO SKIP
Confirm
[∗] to continue
• If “Yes” was entered at the SET TO CONFIRM? prompt previously (see first prompt
following entry into the ∗58 Expert Programming Mode), the display on the left will
appear. Confirm serial and loop numbers by activating the wireless key.
IMPORTANT:
When confirmed, the key is not active for arming/disarming until it is assigned to a user
number (using the assigning attributes command, attribute “4”). See System Operation
section for procedure.
Entd A022-4063
Rcvd A022-4064
Not Confirmed
[∗] to continue
If the serial number transmitted does not match the serial number entered, a display
similar to the one shown will appear. If the loop number does not match, it will also be
displayed.
If so, activate the button on the wireless key once again. If a match is not obtained (i.e.,
summary display does not appear), press the [#] key and then enter the correct serial
number.
If the serial number transmitted matches the serial number entered, the keypad will beep
3 times and will return you to the Zone Number prompt to enter the starting zone for the
next wireless key.
Or you can return to *58 Menu mode by pressing 00 at the Zone Number prompt.
NOTE: Following the successful enrollment of each wireless device, remove ONE of the
serial number labels from the device and affix it in the appropriate column on the ZONE
PROGRAMMING worksheet of the Programming Form; then enter the other information
(zone number, zone type, loop number, etc.) relevant to that device.
Wireless Key Predefined Default Templates
YOU MUST
PROGRAM
THIS BUTTON
LOOP 4
LOOP 3
ENROLL AS "BR"
LOOP 1
LOOP 2
ON OFF
5804-001-V1
5804 Wireless Key Transmitter
Note:
These transmitters
are not intended for
use in UL
installations.
LOOP 3
LOOP 1
LOOP 2
LOOP 4
(YOU MUST
PROGRAM
THIS BUTTON)
RED/YELLOW
LED
•
•
••
•
•
•
•
•
•
•
•
•
•
•
•
•••
GREEN/YELLOW
LED
ENROLL AS "BR"
5804BD-007-V0
5804BD 2-Way Wireless Key
Transmitter
For 5804
For 5804BD
TEMPLATE 1 Loop Function Zone Type TEMPLATE 4 Loop Function Zone Type
1 No Response 23 1 No Response 23
2 Disarm 22 2 No Response 23
3 Arm Away 21 3 Arm Away 21
4 No Response 23 4 Disarm 22
TEMPLATE 2 Loop Function Zone Type TEMPLATE 5 Loop Function Zone Type
1 No Response 23 1 No Response 23
2 Disarm 22 2 Arm Stay 20
3 Arm Away 21 3 Arm Away 21
4 Arm Stay 20 4 Disarm 22
TEMPLATE 3 Loop Function Zone Type TEMPLATE 6 Loop Function Zone Type
1 24-hour audible 7 1 24-hour audible 7
2 Disarm 22 2 Arm Stay 20
3 Arm Away 21 3 Arm Away 21
4 Arm Stay 20 4 Disarm 22
Menu Mode Programming
5-7

About Output Device Programming (*79/*80 Menu Mode)
Output Devices: The VISTA-20P system supports up to 16 relays and/or Powerline Carrier devices
(X-10 devices) plus 2 built-in trigger outputs in any combination. These 18 “outputs”
are assigned to system-wide output numbers (01-18). Use *79 Menu Mode to assign
output numbers and map them to device addresses.
The VISTA-15P supports 8 relays and 2 built-in trigger outputs (total 10 outputs).
Output Functions: The system also provides installer-defined output functions, which can be assigned to
any of the physical outputs. Therefore, the action of any one of the outputs can be
based on as many of these functions as desired. This lets a single relay or X-10 device
perform many functions.
The controls support up to 48 output functions.
Use *80 Menu Mode to define output functions.
Relays and output devices are not recommended for life safety applications.
NOTE: When navigating the *79 and *80 menus: The [✱] key is used to accept an entry and advance to
the next prompt. The [#] key is used to revert back to the last question to check or change an entry. Press
[✱] to go forward again.
Programming Output Devices
1. Use *79 Menu Mode to assign module and output numbers and map them to device addresses.
NOTE: You must map output devices using *79 Menu Mode before you can use *80 menu Mode.
2. Use *80 Menu Mode to create output definitions, which control the output devices, if desired.
3. Use *81 Zone List Menu mode to define zone lists for use with output devices if the device action is
based on more than one zone.
• To program a device for manual activation (user code + [#] [7] / [#] [8] + 2-digit device number) or for
scheduled automatic activation, simply map the device using *79 Menu mode.
• To program a device to automatically activate upon a system event (or function key), use *79 Menu mode to
map the device, then use *80 Menu mode to define the automated device action.
*79 Menu Mode: Output Device Mapping
Use this menu to assign Relay Module device addresses and specific relay numbers, and Powerline Carrier
unit numbers. The system is based on predefined module addresses for 4204 and 4229 modules. Refer to the
table shown at the “Module Address” prompt on the next page and set the modules’ addresses (via module
DIP switches) accordingly.
The following table shows how these outputs are identified.
Output Identification
This output… is identified by…
Relays the Relay Module’s device address and the relay position on that module (i.e. the physical relay
number, 1-4, on that module).
X-10 Device a house ID (entered in data field *27) and the unit number of the device.
Built-in Outputs the output number assigned, 17 for Trigger 1 and/or 18 for Trigger 2.
Installation and Setup Guide
5-8

Start Output Device Mapping by pressing *79 while in Data Programming Mode.
∗
∗∗
∗79 Menu Mode
ENTER OUTPUT NO.
00 = QUIT xx
Device Output Number
01-18 = VISTA-20P relays/X-10; 01-08, 17, 18 = VISTA-15P relays/X-10
[
∗
] to continue; 00 to quit
This is the logical (or reference) relay number as used in the system. Relays and X-10
devices are numbered 01-16; the on-board triggers are numbered 17 and 18 and can be
programmed for inverted output, if required. Use the worksheet on the Programming Form
(printed separately) to organize device numbers.
17 OUT NORM LOW
0 = NO 1 = YES 0
Output Normally Low (prompt appears only for Triggers 17 and 18)
0 = no (standard default); 1 = yes
[
∗
] to continue
Selecting 0 (no) sets the output level normally high (default setting).
Selecting 1 (yes) sets the output normally low.
Output Trigger 17 can be used for resetting 4-wire smoke detectors by connecting it to the
negative power terminal of the smoke detector, selecting 1 at this prompt, and setting as
zone type 54, fire zone reset, in *80 Menu mode.
After entry, display returns to Output Number prompt. Use *80 Menu mode to program
the function of the trigger.
XX OUTPUT TYPE
DELETE 0
Output Type
0 = delete; 1 = relay on 4204/4229 module; 2 = Powerline Carrier device (X-10)
[
∗
] to continue
Select whether this is a relay or a Powerline Carrier (X-10) device.
If Powerline Carrier is selected, go to “A” prompt.
If relay is selected, skip to “B” prompt.
“A”
XX UNIT No.
yy
Unit Number (prompt appears if X-10 is selected)
01-16 = predefined address
[
∗
] to continue
Enter the unit code (set at the device) and press [∗].
The system returns to the Output Number prompt.
“B”
XX MODULE ADDR
07-15 yy
Module Address (prompt appears if relay is selected)
07-15 = predefined address
[
∗
] to continue
Enter the predefined address for this module as listed below. Make sure the module’s DIP
switches are set to the selected address.
Module Addresses
Address Module † These addresses apply to VISTA-20P only.
07 1st 4229 (with zones 09-16)
08 2nd 4229 (with zones 17-24)
09† 3rd 4229 (with zones 25-32)
10† 4th 4229 (with zones 33-40)
11† 5th 4229 (with zones 41-48)
12 1st 4204
13 2nd 4204
14† 3rd 4204
15† 4th 4204
XX REL POSITION
1-4 zz
Relay Position
1-4 = relay position
[
∗
] to continue
This is the actual (or physical) relay number with respect to the Relay Module upon which
it is located. For 4204 modules, relay numbers are 1-4. For 4229 modules, relay numbers
are 1-2.
The system returns to the Output Number prompt for programming the next device.
Menu Mode Programming
5-9

*80 Menu Mode: Defining Output Functions
Use this mode to program output function definitions (up to 48 functions) that provide automated control of
any of the output devices, based on events occurring on individual zones or zones with certain zone types.
Each output definition is identified by an output function number, and includes the following components:
Output Definition Components
Component Description
Output Function No. A reference number that defines an output’s characteristics.
Activated By Determines whether the initiating event occurs on a zone, a zone list, or a zone type.
Event Event that triggers the output action. Can be an event occurring on a specific zone number or
a zone list, or a specific zone type.
Partition If the output is activated by zone type, this defines the partition in which the programmed
event is to cause the device action.
Output Action Defines the action of the relay/X-10 device when the defined event occurs. Can close for 2
seconds, stay closed until reset, continuously pulse (1-second close-open-close-open, etc.),
toggle the device state, or activate for a defined duration (set in data field *177).
Output No. Assigns this function to a specific output number (defined in *79 Menu Mode). This is the
output number that will perform this function upon the triggering event. Note that each
defined function is associated with only one output number. This means that if more than one
output device needs to perform this particular function, you need to define another output
function number with the same attributes, but assign the appropriate output number. (i.e.
output devices can be assigned more than one function number, but each function number can
only be assigned a single output number.
For example, if you want to pulse a strobe light upon fire alarms on zone 4 using a relay mapped to
output number 2 (as programmed in *79 Menu Mode), program the following in *80 Menu Mode:
Prompt Entry
Output Funct. # = 01 (assuming this is the first output function)
Activated By: = 3 (zone number)
Enter Zn No. = 04 (requires 2-digit zone numbers)
Output Action = 3 (continuous pulse)
Output Number = 02 (device mapped in *79 Menu Mode)
Start Output Definition mode by pressing ✱80 while in Data Programming mode.
∗
∗∗
∗80 Menu Mode
Output Funct. #
(00 = Quit) 01
Output Function No.
VISTA-20P: 01-48 = output function number; VISTA-15P: 01-24 = output function number
[
∗
] to continue; 00 to quit
Enter the output function number to be defined (or 00 to exit).
01 A E P Trig
?00 0 0 – ZL=00
Summary Screen
[
∗
] to continue
This screen displays a summary of the current output programming (for this example, Zone
List has been selected-this is the default screen).
A = Output Action; E = Triggering event; P = Partition; Trig = Trigger type
NOTE: A question mark in the summary screen indicates that the device number shown
has not been mapped. Use *79 Menu mode to map the device.
01 Activated By:
Zone List
Activated By
0 = delete
1 = zone list (go to “A” prompt)
2 = zone type (go to “B” prompt)
3 = zone number (go to “C” prompt;)
[
∗
] to continue
Select where the initiating event for this output definition is to occur as follows:
If you enter “0,” the following prompt appears:
Delete? Press 1 to delete this output definition. The system
0 = NO, 1 = YES deletes the output function and any previous programming.
Installation and Setup Guide
5-10

“A”
01 Zn List
1
Zone List (prompt appears if zone list was selected)
01-08 = zone list; [
∗
] to continue
Enter the desired zone list number associated with this output number.
NOTE: Do not use pager zone lists 09-12 in output definitions.
Enter the zone list event that will activate this output.
Enter Event 0 = restore; 1 = alarm;
Alarm 1 2 = fault; 3= trouble
NOTE: For alarm, fault, and trouble, an event on ANY zone in the list activates the output,
but ALL zones in the list must be restored before the output is restored.
Press [✱] to continue and skip to the “Output Action” prompt.
“B”
01 Enter Zn type
Perimeter 03
Zone Type (prompt appears if zone type was selected)
Enter the desired zone type associated with this output number. See below for a list of
available zone types.
CHOICES FOR ZONE TYPES:
00 = Not Used 05 = Day/Night 12 = Monitor Zone
01 = Ent/Exit #1 06 = 24 Hr Silent 14 = Carbon Monoxide
02 = Ent/Exit #2 07 = 24 Hr Audible 16 = Fire w/verification
03 = Perimeter 08 = 24 Hr Aux 23 = No Alarm Response
04 = Interior Follower 09 = Fire 24 = Silent Burglary
10 = Interior w/Delay 77 = Keyswitch Zone
81 = AAV Monitor Zone
90-91 = Configurable
CHOICES FOR SYSTEM OPERATION:
20 = Arming–Stay 36 = **At Bell Timeout*** 52 = Kissoff
21 = Arming–Away 38 = Chime 54 = Fire Zone Reset
22 = Disarming 39 = Any Fire Alarm 58 = Duress
31 = End of Exit Time 40 = Bypassing 60 = AAV
32 = Start of Entry Time 41 = **AC Power Failure 66 = Function Key†
33 = Any Burglary Alarm 42 = **System Battery Low 67 = Bell Fail
43 = Comm. Failure 68 = Telco Line Cut
78 = Keyswitch Red LED
79 = Keyswitch Green LED
** Use 0 (Any) for Partition No. (P) entry.
*** Or at Disarming, whichever occurs earlier.
† Use *57 Menu Mode to assign the function key (function “07”).
Note: In normal operation mode:
Code + # + 7 + NN Key Entry starts Device NN.
Code + # + 8 + NN Key Entry stops Device NN.
Enter the partition in which this zone type will occur.
01 Partition 0 = any partition; 1 = partition 1;
Any partition 0 2 = partition 2; 3 = common
Press [✱] to continue and skip to the “Output Action” prompt.
“C”
01 Enter Zn No.
12
Zone Number (prompt appears if zone number was selected)
Enter the desired zone number associated with this output number.
Press [✱] to continue.
Enter the zone event that will activate this output.
01 Enter Event 0 = restore; 1 = alarm/fault/trouble
Restore 0
Press [✱] to continue to the “Output Action” prompt
01 Output Action
Close for 2 sec 1
Output Action
0 = off 4 = Change Device State
1 = Close for 2 seconds 5 = Duration 1 (see data field *177)
2 = Stay Closed 6 = Duration 2 (see data field *177)
3 = Pulse on & off (1 sec ON, 1 sec OFF)
Enter the desired device action as listed above. Press the [✱] key to continue.
Menu Mode Programming
5-11

Enter Output No.
R02 02
Output Number
01-16 = VISTA-20P output no.; 01-08 = VISTA-15P output no.; 17-18 = on-board triggers
Enter the device output number (programmed in *79 Menu Mode) you want associated with
this output. Press [✱] to continue.
02 A E P TRIG
R02 1 1 3 ZL=00
Summary Screen
A summary screen appears showing the programmed settings.
Press [✱] to continue.
About Zone Lists (*81 Menu Mode)
Zone lists let you group individual zones for use with certain system actions. The following table shows
the available zone lists and their purposes:
List No. Used for… Notes
1, 2 general purpose (GP)
3 chime-by-zone (see field *26 to enable option)
4 cross zones (see note at right)
5 night stay zones
6 general purpose
V20PSIA/V15PSIA: dial delay disable
7 general purpose
V20PSIA/V15PSIA: unlimited reports
8 general purpose
9 zones that activate Pager 1
10 zones that activate Pager 2
11 zones that activate Pager 3 (VISTA-20P)
12 zones that activate Pager 4 (VISTA-20P)
• Any list may include any or all of the system's zone
numbers.
• A zone list can be assigned to more than one output relay.
• Zone List 4: When creating zone list 4 for cross zoning,
include only zones assigned to zone types 3, 4, or 5. Do not
include zones that have delays (entry/exit zones, interior
w/delay) or 24-hour zones, as these zone types may produce
unpredictable operation and may not function as intended.
See field *85 for Cross Zone Timer option.
• Zone List 6: V20PSIA/V15PSIA: See field *50 for Dial Delay
Disable option.
• Zone List 7: V20PSIA/V15PSIA: See field *93 for Unlimited
Reports option.
Zone List Programming
1. Select an appropriate zone list number.
2. Add the desired zone numbers to be included in that list.
Start Zone List Program Mode by pressing ✱81 while in Data Programming mode.
*81 Menu Mode
Zone List No.
(00 = Quit) 01
Zone List Number
01-12 = zone list number; [
∗
] to continue
Enter the Zone List Number to program (or 00 to quit). Press [✱] to advance.
In the following displays, zone list 01 has been selected for programming.
01 Enter Zn Num.
(00 = Quit) 00
Zone Number
01-64† = zone numbers followed by [
∗
] to accept each zone; 00 to continue
Enter each zone number to add to the zone list, followed by pressing [✱] (example, 01✱,
02✱, 03✱). After all zones are entered, press 00 to continue.
IMPORTANT: Do not include fire zones in zone lists that are used to STOP device actions.
† VISTA-20P = 01-64; VISTA-15P = 01-06, 09-34, 49-56.
01 Del Zn List?
0 = No 1 = Yes 0
Deleting Zone Lists
0 = don’t delete list; 1 = delete this zone list; [
∗
] to continue
To delete the zone list, enter 1. All zones in the zone list will be deleted automatically and
the system returns to the Zone List No. prompt.
To save the zone list, enter 0.
01 Delete Zone?
0 = No 1 = Yes 0
Deleting a Zone
0 = don’t delete zones; 1 = go to next prompt to delete zones; [
∗
] to continue
To save the zone list, enter 0 and the system returns to the Zone List No. prompt.
To delete a zone or zones in a zone list, enter 1 to continue.
01 Zn to Delete?
(00 = Quit) 00
Delete the Zone
01-64† = zones to be deleted from list followed by [
∗
] to accept each zone; 00 to continue
Enter each zone to be deleted from the list, followed by [✱]. After all zones to be deleted are
entered, enter 00 to return to the Zone List No. prompt so that another list can be
programmed, if desired.
† VISTA-20P = 01-64; VISTA-15P = 01-06, 09-34, 49-56.
Installation and Setup Guide
5-12

About Function Keys (*57 Menu Mode)
The system provides the ability to program each of the four keypad function keys to perform one of 12
system operations. The end user can then activate the function by simply pressing and holding the
programmed key for 2 seconds. Typical functions (listed below) include single-button arming, turning lights
on/off, or single-button paging.
To assign emergency key functions (function key option “00”), first program the respective emergency zone
number (95 for “A” key, 96 for “C” key, 99 for “B” key) with the desired zone type using *56 Zone
Programming mode, then use *57 Function Key menu mode to assign the desired key.
To use a function key to activate a relay action (*57 Menu mode key function 07), use *79 Menu mode to map
the output, and use *80 Menu mode to define the output’s action; select system operation type “66.”
To use a function key for a user macro, use *57 menu mode to activate the desired key, then define the
actual macro functions using the user code + [#] + [6] [6] command.
Programming Function Keys
1. Assign the function key number and partition.
2. Select the desired function for that key.
Start Function Key Programming mode by pressing ✱57 while in Data Programming mode.
Press Key to Pgm
0 = Quit 0
Function Key
Press the desired function key, A-D.
[
∗
] to continue
0 = Exit this mode
Press the desired function key (A-D) you
want to program.
NOTE: A key programmed as a function
key is no longer available to be used as
an end-user macro key or panic key.
321
654
987
#0
*
READY
INSTANT
MAX
OFF
CODE
AWAY
TEST
CHECK
STAY
BYPASS
A
B
C
D
keypad_keys-00-001-V0
Partition
1
Partition Numbe
1 = partition 1; 2 = partition 2; 3 = common partition; [
∗
] to continue
Enter the partition in which the function key is active.
Key "A" Func
Zone 95 00
† System defaults to
these function key
settings.
†† Macros 11-12 apply
to VISTA-20P only.
††† If Night-Stay zones
are listed in zone list 5.
Define Key Function
00† = For the Function key selected, the function will be as follows:
If A selected = Zone 95 (emergency key, same as [1] [
∗
] pair)
If B selected = Zone 99 (emergency key, same as [
∗
] [#] pair)
If C selected = Zone 96 (emergency key, same as [3] [#] pair)
If D selected = Single-button paging
01 = Single-button paging (sends a 999-9999 message to pager)
02 = Display time
03 = Arm AWAY (reports as User 00 if closing reports are enabled)
04 = Arm STAY (reports as User 00 if closing reports are enabled)
05 = Arm NIGHT-STAY (reports as User 00 if closing reports enabled)
06 = Step Arming (arms STAY, then NIGHT-STAY
†††
, then AWAY)
07 = Output Device Command (for device programmed as system operation type 66–function
key in *80 Menu Mode)
08 = Communication Test (sends Contact ID code 601)
09 = Macro Key 1 (define macro by user code + [#] [6] [6] command)
10 = Macro Key 2 (define macro by user code + [#] [6] [6] command)
11
††
= Macro Key 3 (define macro by user code + [#] [6] [6] command)
12
††
= Macro Key 4 (define macro by user code + [#] [6] [6] command)
[
∗
] to continue
Enter the desired function for this key, 00 to 12, from the options listed. (00 selected for
example display shown at left). Press [∗] to returns to key number prompt with the next
function key letter displayed.
Menu Mode Programming
5-13

About Descriptor Programming (*82 Menu Mode)
The system lets you assign zone descriptors for protection zones, keypad panics, and RF receiver supervision
faults. Each description can be composed of a combination of words (up to 3) selected from a vocabulary of
196 words stored in memory (see a following page). In addition, up to 10 installer-defined words can be added
to those already in memory, plus 3 additional words can be assigned as partition descriptors. Thus, when an
alarm or trouble occurs in a zone, an appropriate description for that zone's location can be displayed at the
keypad. Zone descriptors are recommended for systems using Alpha display keypads, and are necessary if a
4285 or 4286VIP Phone Module is used.
NOTE: You can enter zone descriptors when the zone is being defined in ✱56 Menu mode, but we
recommend you do it using ✱82 Menu mode.
If using a 4285 or 4286VIP Phone Module, select from those words in the Alpha Vocabulary List shown
in boldface type. The phone module will not provide annunciation of the other words.
If a 4285/4286 Phone Module is added to an existing system, the Alpha descriptors presently in the
system should be reprogrammed, selecting from those words shown in boldface type in the Alpha
Vocabulary List. The phone module will not provide annunciation of any other words.
Programming Zone Descriptors (Menu Mode ∗
∗∗
∗82)
1. Enter index numbers for up to three words from the Alpha Vocabulary List for each descriptor by
following the prompts.
2. Enter up to ten 10-digit custom words, if desired, which can then be used in descriptors.
When defining descriptors:
Pressing... Does This...
[6] Accepts the entered index number and moves the cursor to the next position for a descriptor.
[8] Saves the entered descriptor and moves to the next descriptor.
Start Zone Descriptor Programming mode by pressing *82 while in Data Programming mode.
Program Alpha ?
0=No, 1=Yes 00
Program Alpha
0 = no; 1 = yes; [
∗
] to continue
The “Program Alpha ?” prompt will appear. Press 1 to continue.
Custom Words ?
0=No, 1=Yes 00
Custom Words
0 = no; 1 = yes; [
∗
] to continue
The “Custom Words” prompt will appear.
Press 0 to program standard alpha descriptors from the fixed vocabulary. The system will
then automatically display the descriptor for zone 1.
Press 1 to define custom words (described later in “Adding Custom Words” section).
✱ ZN 01
Summary Screen
[
∗
] to continue
Note that this is a “Summary mode,” and that no entries can be made. Entries can be made
only when the display contains a flashing cursor, which signifies the “Entry mode.”
To exit the Alpha descriptor mode, press ✱ + 0 + 0 at the summary display.
✱ ZN 01
Flashing Cursor
[
∗
] to continue
To delete or change the default descriptor for zone 1, press [✱] plus the same zone number
(01). This will clear that descriptor and allow changes to be made at the flashing cursor.
NOTE: If you do not wish to change the existing descriptor for zone 1, enter [✱] plus the
next zone number for which you wish to enter (or check) a descriptor. A summary display
for that zone will appear. You must then press [✱] plus the same zone number again to
gain access to the entry mode (flashing cursor) for that zone.
✱ ZN 01 B ACK
First 3-Digit Index No.
see index for entries; [
∗
] to continue
Press [#] plus the 3-digit number for the first word from the Alpha Vocabulary List.
Example: If the descriptor for zone 1 is BACK DOOR. From the list, BACK = 013.
Therefore, you would enter #013. If you accidentally enter the wrong word, simply press [#]
plus the correct 3-digit number for the word you want.
Installation and Setup Guide
5-14

✱ ZN 01 BACK
Accept First Word
6 = save word and go to next word in this descriptor; 8 = save word and go to next zone
Press [6] to accept the selected word and continue to the next word, or press [8] if this is
the only word you are using for the descriptor.
✱ ZN 01 BACK
DOOR
Second 3-Digit Index No.
see index for entries; [
∗
] to continue
Enter the 3-digit number for the next word. In our example, the word is DOOR, whose
number is “057.” Enter # 0 5 7.
✱ ZN 01 BACK
DOOR
Accept Second Word
6 = save word and go to last word in this descriptor; 8 = save word and go to next zone
Press [6] to accept the selected word and continue to the next word, or press [8] if these are
the only words you are using for the descriptor.
When descriptor is finished, press [8] to save all words in memory.
✱ ZN 01 BACK
DOOR
Summary Screen
[
∗
] to continue
The flashing cursor will disappear, indicating that the word(s) are stored in memory for
that zone, as shown in the summary display at the left.
To enter a descriptor for the next zone, press [✱] plus the desired zone number. The
summary display appears. Repeat the previous steps to enter the descriptor for the zone.
Adding Custom Words (will not be annunciated by 4285/4286 Phone Module)
You can add up to 10 installer-defined words to the built-in vocabulary, which can then be used when
programming zone descriptors. Each of the 10 words can actually consist of a word string of one or more
words, but no more than ten characters can be used for each word or word string.
When adding custom words, the keypad keys perform the following functions:
[4] Moves cursor one space to the left.
[6] Moves cursor one space to the right.
[8] Saves the new word in the system's memory.
1. Select Custom Word mode (enter 1) when the prompt “CUSTOM WORD ?” is displayed.
2. Enter the number (01–10†) of the custom word or word string to be created, corresponding to index
numbers 245 - 254 respectively (for example, if you are creating the first custom word or word-string,
enter 01, for the second, enter 02, etc.). A cursor will now appear at the beginning of the second line.
† or 11, 12, 13 for partition 1, partition 2 and common lobby descriptors respectively. See Assigning Partition Descriptors
paragraph below.
NOTE: Custom words 8, 9, and 10 are “reminder words” that are programmed using Scheduling Mode.
3. Refer to the Character List of letters, numbers, and symbols on a following page.
Press [#], followed by the two-digit entry for the first letter you would like to display (e.g., # 65 for “A”).
The cursor will then move to the right, in position for the next character.
To delete a character, simply enter the SPACE character (#32).
4. Repeat Step 3 to create the desired word(s). Note that the “4” key can be used to move the cursor to the
left, if necessary. Remember, no word or word-string can exceed 10 characters.
5. Press the [8] key to save the custom word(s) and return to the “CUSTOM WORD ?” display.
Repeat Steps 2–5 for other custom words to be entered. To change a custom word, just overwrite it. If no
more are to be entered now, press [0] to return to the Descriptor entry. The custom word(s) will be
automatically added to the built-in vocabulary.
Assigning Partition/Custom Message Descriptors
VISTA-15P: You can create a custom message display that appears on alpha keypads instead of “System
Ready.” To assign a custom message, use word number 11 as described below.
VISTA-20P: You can assign a partition descriptor (up to 16 characters) for each partition plus the common
lobby. The system displays the appropriate partition’s word instead of “DISARMED READY TO ARM.”
Use the same procedure as for adding custom words (described above), but use these word numbers in step 2:
11 = partition 1 ___________________________________________
12 = partition 2 ___________________________________________ (VISTA-20P only)
13 = common lobby ________________________________________ (VISTA-20P only)
Once a custom word is entered in any of these word locations (11-13),
Menu Mode Programming
5-15

ALPHA VOCABULARY LIST
(For Entering Zone Descriptors)
000
(Word Space)
– A –
• 001 AIR
• 002 ALARM
∗
∗∗
∗
004 ALLEY
005 AMBUSH
• 006 AREA
• 007 APARTMENT
• 009 ATTIC
∗
∗∗
∗
010 AUDIO
– B –
• 012 BABY
∗
∗∗
∗
• 013 BACK
∗
∗∗
∗
• 014 BAR
• 016 BASEMENT
∗
∗∗
∗
• 017 BATHROOM
∗
∗∗
∗
• 018 BED
• 019 BEDROOM
∗
∗∗
∗
020 BELL
• 021 BLOWER
• 022 BOILER
023 BOTTOM
025 BREAK
• 026 BUILDING
– C –
028 CABINET
• 029 CALL
030 CAMERA
031 CAR
033 CASH
034 CCTV
035 CEILING
036 CELLAR
• 037 CENTRAL
038 CIRCUIT
• 040 CLOSED
∗
∗∗
∗
• 046 COMPUTER
047 CONTACT
– D –
• 048 DAUGHTERS
049 DELAYED
• 050 DEN
∗
∗∗
∗
051 DESK
• 052 DETECTOR
∗
∗∗
∗
• 053 DINING
∗
∗∗
∗
054 DISCRIMINATOR
055 DISPLAY
• 057 DOOR
∗
∗∗
∗
• 059 DOWN
• 060 DOWNSTAIRS
061 DRAWER
• 062 DRIVEWAY
• 064 DUCT
– E –
• 065 EAST
066 ELECTRIC
067 EMERGENCY
∗
∗∗
∗
068 ENTRY
• 069 EQUIPMENT
• 071 EXIT
∗
∗∗
∗
072 EXTERIOR
– F –
• 073 FACTORY
075 FAMILY
• 076 FATHERS
• 077 FENCE
• 079 FIRE
∗
∗∗
∗
• 080 FLOOR
∗
∗∗
∗
081 FLOW
082 FOIL
• 083 FOYER
084 FREEZER
• 085 FRONT
∗
∗∗
∗
– G –
• 089 GARAGE
∗
∗∗
∗
• 090 GAS
091 GATE
• 092 GLASS
093 GUEST
094 GUN
– H –
• 095 HALL
∗
∗∗
∗
• 096 HEAT
098 HOLDUP
099 HOUSE
100 INFRARED
• 101 INSIDE
∗
∗∗
∗
102 INTERIOR
103 INTRUSION
– J –
104 JEWELRY
– K –
• 105 KITCHEN
∗
∗∗
∗
–
L –
• 106 LAUNDRY
∗
∗∗
∗
• 107 LEFT
108 LEVEL
• 109 LIBRARY
∗
∗∗
∗
• 110 LIGHT
111 LINE
• 113 LIVING
∗
∗∗
∗
• 114 LOADING
115 LOCK
116 LOOP
117 LOW
• 118 LOWER
– M –
• 119 MACHINE
121 MAIDS
122 MAIN
∗
∗∗
∗
• 123 MASTER
∗
∗∗
∗
• 125 MEDICAL
∗
∗∗
∗
126 MEDICINE
128 MONEY
129 MONITOR
• 130 MOTHERS
• 131 MOTION
∗
∗∗
∗
132 MOTOR
– N –
• 134 NORTH
135 NURSERY
– O –
• 136 OFFICE
∗
∗∗
∗
• 138 OPEN
∗
∗∗
∗
139 OPENING
• 140 OUTSIDE
142 OVERHEAD
– P –
143 PAINTING
• 144 PANIC
∗
∗∗
∗
145 PASSIVE
• 146 PATIO
∗
∗∗
∗
147 PERIMETER
• 148 PHONE
150 POINT
151 POLICE
∗
∗∗
∗
152 POOL
∗
∗∗
∗
• 153 POWER
– R –
155 RADIO
• 156 REAR
157 RECREATION
159 REFRIGERATION
160 RF
• 161 RIGHT
• 162 ROOM
∗
∗∗
∗
163 ROOF
– S –
164 SAFE
165 SCREEN
166 SENSOR
• 167 SERVICE
• 168 SHED
∗
∗∗
∗
169 SHOCK
• 170 SHOP
∗
∗∗
∗
171 SHORT
• 173 SIDE
∗
∗∗
∗
174 SKYLIGHT
175 SLIDING
∗
∗∗
∗
• 176 SMOKE
∗
∗∗
∗
• 178 SONS
• 179 SOUTH
180 SPRINKLER
• 182 STATION
184 STORE
• 185 STORAGE
∗
∗∗
∗
186 STORY
190 SUPERVISED
∗
∗∗
∗
191 SUPERVISION
192 SWIMMING
193 SWITCH
– T –
194 TAMPER
196 TELCO
197 TELEPHONE
• 199 TEMPERATURE
200 THERMOSTAT
• 201 TOOL
202 TRANSMITTER
– U –
• 205 UP
• 206 UPPER
• 207 UPSTAIRS
∗
∗∗
∗
• 208 UTILITY
∗
∗∗
∗
– V –
209 VALVE
210 VAULT
212 VOLTAGE
– W –
213 WALL
214 WAREHOUSE
• 216 WEST
• 217 WINDOW
∗
∗∗
∗
• 219 WING
220 WIRELESS
– X –
222 XMITTER
– Y –
223 YARD
– Z –
224 ZONE (No.)
• 225 ZONE
∗
∗∗
∗
• 226 0
• 227 1
• 228 1ST
∗
∗∗
∗
• 229 2
• 230 2ND
∗
∗∗
∗
• 231 3
• 232 3RD
∗
∗∗
∗
• 233 4
• 234 4TH
• 235 5
• 236 5TH
• 237 6
• 238 6TH
• 239 7
• 240 7TH
• 241 8
• 242 8TH
• 243 9
• 244 9TH
245 Custom Word #1
246 Custom Word #2
247 Custom Word #3
248 Custom Word #4
249 Custom Word #5
250 Custom Word #6
251 Custom Word #7
252 Custom Word #8
253 Custom Word #9
254 Custom Word #10
NOTE: Custom words 8,
9, 10 are “reminder
words” that can be
programmed to display
using Scheduling Mode.
Note: Bulleted (•) words in boldface type are those that are also available for use by the 4285/4286 Phone Module. If using a
phone module, and words other than these are selected for Alpha descriptors, the phone module will not provide
annunciation of those words.
Italicized words followed by an asterisk indicate those words supported by the 6160V/6150V Voice Keypads
––––––––––––––––––––––––––– CHARACTER (ASCII) CHART –––––––––––––––––––––––––––
(For Adding Custom Words)
32 (space)
33 !
34 “
35 #
36 $
37 %
38 &
39 '
40 (
41 )
42 *
43 +
44 ,
45 –
46 .
47 /
48 0
49 1
50 2
51 3
52 4
53 5
54 6
55 7
56 8
57 9
58 :
59 ;
60 <
61 =
62 >
63 ?
64 @
65 A
66 B
67 C
68 D
69 E
70 F
71 G
72 H
73 I
74 J
75 K
76 L
77 M
78 N
79 O
80 P
81 Q
82 R
83 S
84 T
85 U
86 V
87 W
88 X
89 Y
90 Z
VISTA-20SE Installation Instructions
5-16

Programming Installer and User Schedules
The system provides schedules, which can be used to automatically control 11 types of system events at pre-
defined times. Some events are reserved for the installer only.
VISTA-20P: Provides up to 32 schedules: 16 schedules for use by the end-user, 16 for use by the installer.
VISTA-15P: Provides up to 8 schedules: 4 schedules for use by the end user, 4 for use by the installer.
Start Scheduling mode by entering installer code + [#] + [6] [4] while in normal operating mode.
NOTE: The master code can only access schedules 01-16 (VISTA-15P = 01-04) and events 00-07.
ENTER SCHED NO.
00=QUIT 00
Schedule Number
VISTA-20P VISTA-15P
01-16 = end-user schedules 01-04 = end-user schedules
17-32 = installer-only schedules 05-08- = installer-only schedules
[
∗
] to continue
Enter the desired schedule number.
ENTER EVENT
NOTE: Events 07 and
10 cause the keypad to
beep every 30 seconds
when messages are
displayed. Stop the
beeps by pressing any
key.
Enter Event
00 = clear event 05 = Forced Away Arming
†
01 = Relay On/Off 06 = Auto Disarm
02 = User Access 07 = Display “Reminder”
03 = Latch Key Report to Pager 10 = Display custom words
††
04 = Forced Stay Arming
†
11 = Periodic Test Report
†††
Press [
∗
] to continue
Enter the desired event number for event you want to occur at a specified time.
Events 10-11 are reserved for the installer only.
Latch key report (option 03) is sent to all pagers in the user’s partition and is active only
when the system is armed (message sent is 777-7777). User must be enabled for paging
(see User Attributes in System Operation section).
† Forced bypass is automatically enabled regardless of setting in field *23.
†† If selected, system displays custom words 8, 9, and 10 at defined time. Can be used as
installer’s reminder message to the end user.
††† See key commands in Testing the System section to quickly set periodic test
reporting intervals.
DEVICE NUMBER
XX
Device Number (For event 01-relay on/off)
01-18 = device number; press [
∗
] to continue
Enter the physical device number as programmed in ∗79 Menu Mode, then press [*] to
continue to the “Start” prompt.
Device numbers 17 and 18 designate built-in triggers 1 and 2 respectively.
GROUP NUMBER
X
Group Number (For event 02-user access)
1-8 = group number; press [
∗
] to continue to the “Start” prompt
PARTITION
X
Partition (For events 03-07, 10)
0 = all partitions; 1 = partition 1; 2 = partition 2; 3 = common
Press [*] to continue to the “Start” prompt.
START SMTWTFS
HH MMAM 0010000
Start Time
01-12 = hour; 00-59 = minute; 0 = AM; 1 = PM; Days = place “1” under days
Press [
∗
] to continue.
Enter the event’s start time and days of the week to occur.
To select days, position the cursor under the desired days using the [∗] key to move
forward, then press “1” to select the day.
Menu Mode Programming
5-17

STOP SMTWTFS
HH MMAM 0010000
Stop Time (For events 01-relay on/off; 02-user access; 03-latch key report)
01-12 = hour; 00-59 = minute; 0 = AM; 1 = PM; Days = place “1” under days
Press [
∗
] to continue.
Enter the event’s stop time and days of the week to occur.
To select days, position the cursor under the desired days using the [∗] key to move
forward, then press “1” to select the day.
REPEAT OPTION
0-4 X
Repeat Option
0 = do not repeat; 1 = repeat weekly; 2 = repeat biweekly (every other week)
3 = repeat every third week; 4 = repeat every fourth week
Press [
∗
] to continue.
Enter the desired repeat option for this schedule.
e.g., To make a schedule that happens everyday you would select all days with a repeat
count of 1. To make a schedule that runs for one week then stops, select everyday with a
repeat count of 0.
RANDOMIZE
0=NO 1=YES X
Randomize (For events 01 and 11)
0 = no; 1 = yes
Press [
∗
] to continue.
If selected, the scheduled start and stop times will vary within 60 minutes of the “hour”
time. For example, if a schedule is set to start at 6:15pm, it will do so the first time 6:15pm
arrives, but on subsequent days it will start anytime between 6:00 and 6:59 p.m.
NOTE: Do not use the random option if the start and stop times are within the same “hour”
setting, otherwise unpredictable results may occur (e.g., the randomized stop time may occur
before the start time).
Installation and Setup Guide
5-18

SECTION 6
System Communication and Operation
Panel Communication with Central Station
This system accommodates several formats for reporting alarms and other system conditions to the Central
Station. The process of a successful transmission consists of both the method of communication between the
control panel and the Central Station receiver; and the actual way the information is sent and displayed at
the Central Station.
When the panel calls the Central Station receiver, it waits to hear a “handshake” frequency from the receiver
to confirm that the receiver is on-line and ready to receive its message. Once the panel hears the handshake
it is programmed to listen for, it sends its message. The panel then waits for a “kissoff” frequency from the
receiver acknowledging that the message was received and understood.
If the handshake frequency is not given or is not understood by the panel, the panel will not send its
message. Once the handshake frequency is received and understood by the panel, the panel sends its
message. If there is an error in the transmission (the receiver does not receive a “valid” message), the kissoff
frequency is not given by the Central Station receiver.
The panel makes a total of eight attempts to the primary telephone number and eight attempts to the
secondary telephone number (if programmed) to get a valid message through. If the panel is not successful
after its numerous attempts, the keypad displays COMM. FAILURE (on alpha keypads) or FC (on fixed-
word keypads).
Report Code Formats
The following chart indicates the types of (handshake/kissoff) frequencies that the panel supports and the
different formats that can be sent with each.
FORMAT HANDSHAKE TRANSMITS DATA KISSOFF TRANSMIT TIME
Low Speed 1400 Hz 1900Hz (10PPS) 1400 Hz Under 15 secs
3+1, 4+1, 4+2
(Standard report)
Sescoa/Rad 2300 Hz 1800Hz (20PPS) 2300 Hz Under 10 secs
3+1, 4+1, 4+2
(Standard report)
Express 1400–2300 Hz DTMF (10 cps) 1400 Hz Under 3 secs
4+2
Contact ID 1400–2300 Hz DTMF (10 cps) 1400 Hz Under 3 secs
The following table describes each format in greater detail.
FORMAT TYPE DESCRIPTION
3+1 and 4+1
Standard Formats
Comprises a 3- (or 4-) digit subscriber number and a single-digit report
code (e.g., Alarm, Trouble, Restore, Open, Close, etc).
3+1 and 4+1
Expanded Formats
Comprises a 3- (or 4-) digit subscriber number and a two-digit report code.
The first digit is displayed on the first line. On the second line, it is repeated
3 (or 4) times and is followed by the second digit. This is the “expanded”
digit.
4+2 Format Comprises a 4-digit subscriber number and 2-digit report code.
ADEMCO Contact ID
Reporting Format
Comprises a 4- or 10-digit subscriber number (depending on format
selected), 1-digit event qualifier (“new” or “restore”), 3-digit event code, and
3-digit zone number, user number, or system status number (see the
following page).
6-1

The following table lists codes for reports sent in different formats:
Code for Code for
Type of 3+1/4+1 3+1/4+1 Code for
Report Standard Expanded 4+2
Alarm SSS(S) A SSS(S) A SSSS AZ
AAA(A) Z
Trouble SSS(S) T SSS(S) T SSSS Tt
TTT(T) t
Bypass SSS(S) B SSS(S) B SSSS Bb
BBB(B) b
AC Loss SSS(S) E SSS(S) E SSSS EAC
EEE(E) AC
Low Batt SSS(S) L SSS(S) L SSSS LLB
LLL(L) LB
Open SSS(S) O SSS(S) O SSSS OU
OOO(O) U
Close SSS(S) C SSS(S) C SSSS CU
CCC(C) U
Test SSS(S) G SSS(S) G SSSS Gg
GGG(G)g
Restore SSS(S) R SSS(S) R SSSS RZ
Alarm RRR(R) Z
AC Restore SSS(S) RA SSS(S) RA SSSSRA Ac
R
ARARA(RA)Ac
LoBat Res. SSS(S) RL SSS(S) RL SSSS RLLB
R
LRLRL(RL)LB
Trouble Res. SSS(S) RT SSS(S) RT SSSS RTt
R
TRTRT (RT)t
Bypass Res. SSS(S) RB SSS(S) RB SSSS RBb
R
BRBRB (RB)b
Where:
SSS or SSSS = Subscriber ID C = Close Code–1st Digit
A = Alarm Code–1st digit U = User Number (in hex)
Z = Typically Zone Number*–2nd digit Gg = Test Code (1st & 2nd digits)
Tt = Trouble Code (1st & 2nd digits) R = Restore Code (Alarm)
Bb = Bypass Code (1st & 2nd digits) RTt = Restore Code (Trbl) 1st & 2nd digits
EAC = AC Loss Code (1st & 2nd digits) RBb = Restore Code (Byps) 1st & 2nd digits
LLB = Low Battery Code (1st & 2nd digits) RAAC = Restore Code (AC) 1st & 2nd digits
O = Open Code–1st Digit RLLB = Restore Code (Bat) 1st & 2nd digits
*Zone numbers for:
✱ & #, or B = 99; 1 + ✱, or A = 95; 3 + #, or C = 96; Duress = 92
Installation and Setup Guide
6-2

Ademco Contact ID®
The Ademco Contact ID® Reporting Format comprises the following:
4-digit or 10-digit subscriber number (depending on format selected).
1-digit event qualifier (“new” or “restore”).
3-digit event code.
2-digit Partition No.
3-digit zone number, user number, or system status number (see the following page).
Ademco Contact ID® Reporting takes the following format: CCCC(CCCCCC) Q EEE GG ZZZ
where:
CCCC(CCCCCC) =Customer (subscriber) ID
Q = Event qualifier, where:
E = new event , and R = restore
EEE = Event code (3 hexadecimal digits)
Note: For a complete list of event codes, refer to the central office
receiver manual.
GG = Partition Number (system messages show “00”)
ZZZ = Zone/contact ID number reporting the alarm, or user number for
open/close reports. System status messages (AC Loss, Walk Test, etc.)
contain zeroes in the ZZZ location.
TABLE OF CONTACT ID EVENT CODES
(some event codes may not apply to certain control panels)
Code Definition
110 Fire Alarm
121 Duress
122 Alarm, 24-hour Silent
123 Alarm, 24-hour Audible
131 Alarm, Perimeter
132 Alarm, Interior
134 Alarm, Entry/Exit
135 Alarm, Day/Night
143 Alarm, Expansion Module
145 ECP Module cover tamper
146 Silent Burglary
150 Alarm, 24-Hour Auxiliary/Monitor zone
162 Carbon Monoxide
301 AC Power
302 Low System Battery/Battery Test Fail
305 System Reset (Log only)
309 Battery Test Failure
321 Bell/Siren Trouble
333 Trouble, Expansion Mod. Supervision
341 Trouble, ECP Cover Tamper
344 RF Receiver Jam
351 Telco Line Fault
353 Long Range Radio Trouble
373 Fire Loop Trouble
374 Exit Error Alarm
380 Global Trouble, Trouble Day/Night
Code Definition
381 RF Sensor Supervision
382 Supervision Auxiliary Wire Zone
383 RF Sensor Tamper
384 RF Sensor Low-battery
393 Clean Me
401 Disarmed, Armed AWAY, Armed
MAXIMUM
403 Schedule Arm/Disarm AWAY
406 Cancel by User
407 Remote Arm/Disarm (Downloading)
408 Quick Arm AWAY
409 Keyswitch Arm/Disarm AWAY
441 Disarmed/Armed STAY/INSTANT,
Quick-Arm STAY/INSTANT
442 Keyswitch Arm/Disarm STAY
459 Recent Closing
570 Bypass
601 Manually Triggered Dialer Test
602 Periodic Test
606 AAV to Follow
607 Walk Test Entered/Exited
623 Event Log 80% Full
625 Real-Time Clock was Changed (log only)
627 Program Mode Entry (log only)
628 Program Mode Exit (log only)
642 Latch Key (log only)
750 -
789
Reserved for Configurable Zone Type
report codes (check with central station
when using these codes)
System Communication
6-3

System Security Codes
The systems provides one Installer code, one System Master code, plus a set of other user codes intended
for other users of the system. These codes can each be assigned one of 5 authority levels, which determine
the functions each code can perform as listed in the table below.
VISTA-20P: Provides 48 security codes (plus Installer code), including one System Master code, two
Partition Master codes, and 45 general user codes.
VISTA-15P: Provides 32 security codes (plus Installer code), including one System Master code and 31
general user codes.
Authority Levels (can be assigned to users 03-49 only; users 1 and 2 cannot be changed)
Level User No. Functions
Installer 01 (default=4112) perform all security functions except can disarm only if used to arm; can
enter program mode; can change System Master code; cannot assign any other user
codes
System
Master
02 (default 1234) only one system master code per system; can perform all security
functions, add/delete users in either partition, change system master code, view event
log, set system clock, program keypad macro, program scheduled events, activate output
devices (triggers/relays)
Partition
Master
(default)
P1 = 03
P2 = 33
VISTA-20P. Same as Master, except add/delete users limited to assigned partition
only, (these users can be assigned different authority levels, if desired; any user can be
assigned the partition master authority level)
0-User 03-49 (V20P)
03-33 (V15P)
perform security functions (arm, disarm, etc.) only; cannot add/delete users, view event
log, set system clock or program scheduled events
1-Arm Only see “user” arm system only
2-Guest see “user” can disarm the system only if it was used to arm the system
3-Duress see “user” performs security functions, but also silently sends a duress message to the central
station; reports as duress code user number.
4-Partition
Master
see “user” VISTA-20P. See Partition Master paragraph above; used to assign other user numbers
as partition masters
Refer to the user guide for detailed procedures on adding/deleting security codes and changing user
attributes.
The following is a brief description of how to add user codes.
Changing the System Master code...
Using Installer code: Installer code + [8] + 02 + new code
Using current System Master code: System Master code + [8] + 02 + new code + new code again
Adding a User Code: Master code + [8] + 2-digit user no. + user’s code
Deleting a User Code: Master code + [8] + 2-digit user no. + [#] [0]
Assigning Attributes: Master code + [8] + 2-digit user no. + [#] [attribute no.] + value
Attributes: Values
1 = Authority Level 0-4 (see Authority Level table above)
2 = Access Group 0-8 (0 = not assigned to a group)
3 = Active Partition(s) 1, 2, 3 (common)
for this user; Enter partitions consecutively if more than one and press [#] to
end the entries.
4 = RF Zone No. Assigns user number to button type zone for arm/disarm
(keyfob must be enrolled in system first; see Wireless Key
Templates section).
5 = Open/Close Paging 1 for yes, 0 for no
Installation and Setup Guide
6-4

Keypad Functions
The following is a brief list of system commands. For detailed information concerning system functions,
refer to the User's Manual. For Touch Screen style keypad users, refer to the separate Touch Screen
keypad (AUI) User’s Guide.
Voice Keypads
The 6150V/6160V Voice Keypads provide the following features:
• Message Center, which lets the user record and playback one message.
• Voice Status, which can announce system status by using the STATUS key.
• Voice Chime, which can alert users to the opening of doors/windows while the system is disarmed.
Refer to the User Guide for specific procedures for activating and using these features.
Keypad Commands
Function Description
Silence alarms Pressing any key will silence the keypad sounder for 10 seconds. Disarming the system will
silence both keypad and external sounders.
Quick Arm If enabled (field ∗21), you can press [#] in place of the system's security code, plus the
desired arming key (Away, Stay, Instant, Maximum)
Single-Button arming If programmed (*57 Function Key menu mode), lettered keys A-D can be used for arming,
using options 3-AWAY, 4-STAY, 5-NIGHT-STAY, or 6-Step-Arming
If used, no security code is required to arm the system.
Alarm Memory When the system is disarmed, any zones that were in an alarm condition during the armed
period will be displayed. To clear this display, simply repeat the disarm sequence (enter
the security code and press the OFF key) again.
Arming Away Enter code + AWAY [2] or simply press appropriate lettered key on the keypads (see
“Single-Button Arming” above). If the “Auto-Stay Arm” feature is enabled (field *84) and
the entry/exit door is not opened and closed within the programmed exit delay time, the
system will automatically arm in STAY mode if armed from a wired keypad (non-RF
device). If the door is opened and closed within the exit delay period, the system arms in
AWAY mode.
Arming Stay Enter code + STAY [3] or simply press appropriate key on the keypads (see “Single-Button
Arming” above). See “Arming Away” above for Auto-Stay arming feature.
Arming Night-Stay Enter code + STAY [3] + STAY [3] or simply press appropriate key on the keypads (see
“Single-Button Arming” above).
Arming Instant Enter code + INSTANT [7].
Arming Maximum Enter code + MAXIMUM [4] or simply press appropriate lettered key on the keypads (see
“Single-Button Arming” above).
Disarming Enter code + OFF [1]. If entry delay or an alarm is active, you do not need to press
OFF.
Bypassing Zones Enter code + BYPASS [6] + zone number(s).
Forced (Quick) Bypass To automatically bypass all faulted zones, use the “Quick Bypass” method. Enter code +
BYPASS + [#], then wait for all open zones to be displayed. Arm when display indicates
“ZONE BYPASSED” and “READY TO ARM”.
Chime Mode Enter code + CHIME [9]. To turn chime off, enter code + CHIME again.
Activate Output
Devices
If relay outputs (via a 4204, or 4229), or Powerline Carrier devices are used, two keypad
entries available to the user are included. If programmed, these entries can be used to
manually activate or deactivate the device(s) for starting or stopping some action, such as
turning lights on or off, etc. These keypad entries are:
[Security Code] + # + 7 + [2-digit Device #] activates (starts) that device.
[Security Code] + # + 8 + [2-digit Device #] deactivates (stops) that device.
System Operation
6-5

SUMMARY OF ARMING MODES
Features for Each Arming Mode
Arming Mode
Exit Delay Entry Delay Perimeter Armed Interior Armed
AWAY Yes Yes Yes Yes
STAY Yes Yes Yes No
NIGHT-STAY Yes Yes Yes only those zones
listed in Night-
Stay zone list
INSTANT Yes No Yes No
MAXIMUM Yes No Yes Yes
Panic Keys
There are three Panic keys (A, B, and C) that, if programmed, can be used to manually initiate alarms and
send a report to the central station.
Each key can be programmed for 24-hour Silent, 24-hour Audible, Fire, or Personal Emergency responses.
The programmed Panic response is activated when the appropriate key is pressed for at least 2 seconds.
The Panic keys are identified by the system as follows:
Keys Displayed as Zone
[A] (∗
∗∗
∗/1) 95
[B] (∗
∗∗
∗/#) 99
[C] (3/#) 96
IMPORTANT: For a Silent panic function (if programmed) to be of practical value, you must program a
report code for the zone and the system must be connected to a central station.
Setting the Real-Time Clock
Set the time and date by doing the following:
1.
+[#] + [6] [3]
(Security Code)
Alpha Display:
DISARMED
READY TO ARM
2. Press [∗] when the time/date is displayed.
A cursor appears under the first digit of the hour.
To move cursor ahead, press [
∗
]. To go back, press [#].
• Enter the 2-digit hour setting.
• Enter the 2-digit minute setting.
• Press [1] for PM or [2] for AM.
• Enter the last two digits of the current year.
• Enter the 2-digit month setting.
• Enter the 2-digit day setting.
3. To exit, press [∗] when cursor is at the last digit, or wait 10 seconds.
TIME/DATE SAT
04:04PM 10/17/00
Current time display
TIME/DATE SAT
04:04P2000/10/17
Time/date editing display
Installation and Setup Guide
6-6

Various System Trouble Displays
Alpha Display Fixed Disp. Meaning
ALARM CANCELED CA will appear if an exit or interior zone contained a fault during closing at the
time the Exit Delay ended (e.g., exit door left open), but the system was
disarmed during the Entry Delay time. The alarm sounder and keypad sound
continuously, but stop when the system is disarmed. No message will be
transmitted to the central station.
EXIT ALARM EA appears when Exit Delay ends if an exit or interior zone contained a fault
during closing. The alarm sounder and keypad sound continuously until the
system is disarmed (or timeout occurs). An “Exit Alarm” message is sent to the
central station. Also results if an alarm from an exit or interior zone occurs
within 2 minutes after the end of an Exit Delay.
CHECK CHECK
indicates that a problem exists with the displayed zone(s) and requires
attention.
ALARM 1xx
FAULT 1xx
CHECK 1xx
1xx
1xx
1xx
91
indicates that communication between control and a zone expander or wireless
receiver is interrupted, where “xx” is the device address. Check the wiring and
DIP switch settings on the units.
If field *199 is set to “1,” all ECP module problems are displayed as “91.”
If there are wireless sensors in the system, the Check condition may also be
caused by some change in the environment that prevents the receiver from
receiving signals from a particular sensor.
SYSTEM LO BAT BAT with no zone number indicates that the system's standby battery is weak.
LO BAT BAT with a zone number and a once-per-minute beeping at the keypad indicates
that a low-battery condition exists in the wireless sensor displayed (zone “00”
indicates a wireless keypad). If the battery is not replaced within 30 days, a
“CHECK” display may occur.
NOTE: Some wireless sensors contain a non-replaceable long-life battery which
requires replacement of the entire unit at the end of battery life (e.g., Nos.
5802, 5802CP).
TELCO FAULT 94 Telephone Line Failure, indicates that a monitored telephone line (if
programmed in field *92) has been cut or disconnected. Depending on how the
system was programmed, the keypad may also produce a trouble sound, and
the external sounder may be activated. Silence by entering installer code +
OFF.
Busy-Standby dl If this remains displayed for more than 1 minute, the system is disabled.
Mode m Comm CC The system is in communication with the central station for change of function
or status verification.
no display no display Power Failure
If there is no keypad display at all and the LEDs are unlit, operating power
(AC and battery) for the system has stopped and the system is inoperative.
If the message “AC LOSS” (Alpha display keypads) or “NO AC” (Fixed-Word
display keypads) is displayed, the keypad is operating on battery power only.
If the battery standby capacity is used up during a prolonged AC power outage,
the control's power will shut down to minimize deep discharge of the battery.
Comm. Failure FC A communication failure has occurred.
Open Circuit OC The keypad is not receiving signals from the control; sees an open circuit.
Long Rng Trbl bF Backup LRR communication failure.
Bell Failure 70 Bell supervision failure.
RCVR Jam 90 RF jam detected.
KEYPAD LOW BAT 00 BAT Wireless keypad low battery.
Phone Okay Cd The dialer test has been successful (CID code 601).
Dialer Off dO The dialer is disabled.
Test in Progress dd Walk test mode is active(CID code 607).
Upload Completed dC The upload or download session was completed.
Upload Failed dF The upload or download session failed before completion.
System Operation
6-7

Installation and Setup Guide
6-8

SECTION 7
Testing the System
About Test Procedures
After the installation is complete, you should perform the following tests:
System Test: Checks that all zones have been installed properly and the system responds to faults.
Dialer Test: Checks that the phone connection to the central station is working properly.
Go/No Go Test: Checks that transmissions can be received from transmitters. Should be performed
before permanently mounting transmitters.
RF Sniffer Mode: Checks that RF transmitter serial numbers have been properly enrolled.
Battery Tests: Automatic battery tests are performed by the system.
System Test
With the system in the disarmed state, check that all zones are intact (not faulted). Doors and windows
with contacts should be closed, PIRs should be covered (use a cloth to mask them temporarily if necessary).
If a “NOT READY” message is displayed, press [∗] to display the faulted zone(s). Restore faulted zone(s) if
necessary, so that the “READY” message is displayed.
1. Enter Installer Code + 5 [TEST] , then press “0” at the prompt to start Walk Test mode.
1=DIAL, 0=WALK (no special display on Fixed-Word keypads)
The following will be displayed and a Contact ID report will be sent (code 607):
TEST IN PROGRESS (“dd” displayed on Fixed-Word Display Keypads)
2. Upon entering the system test mode, the outside sounder should sound for 1 second.
If the backup battery is discharged or missing, the sounder may not turn on and a “LOW BATTERY”
report will be transmitted with a “TEST” report.
The keypad will beep about every 40 seconds as a reminder that the system is in the Test mode.
NOTE: Wireless motion detectors (Passive Infrared units) will send signals out only if they have been
inactive for 3 minutes (conserves battery life).
3. Test all sensors using the procedure described in the User’s Guide “Testing the System” section.
4. After checking sensors, turn off the test mode by entering installer code + OFF.
NOTE: Test mode automatically ends after 4 hours. During the final 5 minutes (after 3 hours 55
minutes of Test mode), the keypad emits a double-beep every 30 seconds to alert that the end of Test
mode is nearing.
Checking Transmitter Enrollment (Sniffer Mode)
Use this mode to verify that all transmitters have been properly programmed. Make sure both partitions
are disarmed before trying to enter this mode, since this is a system-wide command.
1. Press [Installer code] + [#] + 3.
NOTE: If the communicator is in the process of sending a report to the central station, the system will
not go into the Sniffer mode. If so, wait a few minutes, and try again.
The keypads in both partitions will display all zone numbers of wireless units (in both
partitions) programmed into the system. Fault each transmitter in turn, causing each one to
send a signal. As the system receives a signal from each of the transmitters, the zone number of
that transmitter disappears from the display.
2. After all transmitters have been checked, exit the sniffer mode by keying [Installer code] + OFF.
IMPORTANT: Sniffer mode does not automatically expire. You must manually exit Sniffer mode (by
entering [Installer code] + OFF) to return to normal operation.
7-1

NOTES: • All BR type units must physically be activated to clear the display.
• When one button of a transmitter (RF, UR, or BR) is activated, all zones assigned to other
buttons on that transmitter are cleared from the display. This also applies to 5816 and
5817 transmitters, which have multiple loops (zones).
• Any transmitter that is not “enrolled” will not turn off its zone number.
Go/No Go Test Mode
The Go/No Go Test verifies adequate RF signal strength from the proposed transmitter location, and allow
you to reorient or relocate transmitters if necessary, before mounting the transmitters permanently. This
mode is similar to the Transmitter Test mode, except that the wireless receiver gain is reduced. This will
enable you to make sure that the RF signal from each transmitter is received with sufficient signal
amplitude when the system is in the normal operating mode.
1. Enter [Installer code] + [#] + 4 from the partition being tested. For multi-partition systems, repeat this
test for each partition.
2. After you have placed transmitters in their desired locations and the approximate length of wire to be
run to sensors is connected to the transmitter's screw terminals (if used), fault each transmitter. Do not
conduct this test with your hand wrapped around the transmitter, as this will cause inaccurate results.
a. The keypad will beep three times to indicate signal reception and display the zone number.
b. If the keypad does not beep, you should reorient or move the transmitter to another location.
Usually a few inches in either direction is all that is required.
4. If each transmitter produces the proper keypad response when it is faulted, you can then permanently
mount each of the transmitters according to the instructions provided with them.
5. Exit the Go/No Go Test mode by entering: [any user code (partition-specific)] + OFF.
Dialer Communication Test and Periodic Test Reports
1. Enter Installer Code + 5 [TEST], then press “1” at the prompt to start the Dialer Test.
1=DIAL, 0=WALK (no special display on Fixed-Word keypads)
The following will be displayed (accompanied by 2 beeps) if test is successful:
PHONE OKAY (“Cd” displayed on Fixed-Word Display Keypads)
A Contact ID report will also be sent (code 601)
If the dialer test is unsuccessful, “COMM FAILURE” (or FC) is displayed.
2. Enter Installer code + OFF to clear the display and exit.
Automatic Periodic Test Report
The system can be set to automatically send test reports (enabled in field *64; Contact ID code 602) at
specified intervals. Frequency of the reports is set in Scheduling mode (event 11) or by the following key
commands: installer code + [#] + 0 + 0 = test report sent every 24 hours
installer code + [#] + 0 + 1 = test report sent once per week
installer code + [#] + 0 + 2 = test report sent every 28 days
Each mode sets schedule 32 (VISTA-20P) or schedule 08 (VISTA-15P) to the selected repeat option; the first
test report is sent 12 hours after command.
To ensure that test reports are sent at the times expected, set the Real-Time Clock to the proper time
before entering the test report schedule command.
Automatic Standby Battery Tests
1. An automatic test is conducted every 3 minutes to ensure that a standby battery is present and
properly connected. If a battery is not present or is not properly connected, a “LOW BATTERY”
message is displayed and, if so programmed, will be reported to the central station.
2. A battery capacity test is automatically conducted for 2 minutes every 4 hours, beginning 4 hours after
exiting the Programming mode or after powering up the system. In addition, entry into the Test mode
will also cause a battery capacity test to be initiated. If the battery cannot sustain a load, a “Low
Battery” message is displayed and, if so programmed, will be reported to the central station.
Installation and Setup Guide
7-2

SECTION 8
Specifications & Accessories
Security Control
1. Physical: 12-1/2” W x 14-1/2” H x 3” D (318mm x 368mm x 76mm)
2. Electrical:
VOLTAGE INPUT: 16.5VAC from plug-in 25VA transformer, ADEMCO 1321 (in U.S.A.)
RECHARGEABLE BACKUP BATTERY: 12VDC, 4AH (sealed lead acid type). Charging
Voltage: 13.8VDC.
ALARM SOUNDER: 12V, 2.0 Amp output can drive 12V BELLS or can drive one or two
702 (series connected) self-contained 20-watt sirens. Do not connect
two 702s in parallel.
AUXILIARY POWER OUTPUT: 12VDC, 600mA max.
NOTE: For UL installations, Alarm Sounder plus Auxiliary Power currents should
not exceed 600mA total.
FUSE: Battery (3A) No. 90–12
3. Communication:
FORMAT SUPPORTED:
ADEMCO Express: 10 characters/sec, DTMF (TouchTone) Data Tones,
1400/2300Hz ACK, 1400Hz KISSOFF.
ADEMCO Low Speed: 10 pulses/sec, 1900Hz Data Tone, 1400Hz ACK/KISSOFF.
Radionics/SESCOA: 20 pulses/sec, 1800Hz Data Tone, 2300Hz ACK/KISSOFF.
Can report 0-9, B-F
Ademco Contact ID 10 characters/sec., DTMF (TouchTone) Data Tones,
1400/2300Hz ACK, 1400Hz KISSOFF.
LINE SEIZE: Double Pole
RINGER EQUIVALENCE: 0.1B
FCC REGISTRATION No.: 5GBUSA-44003-AL-E
4. Maximum Zone Resistance: Zones 1–8 = 300 ohms excluding EOLR standard zones
Compatible Devices
Keypads: 6150 Fixed-Word Keypad, 6160 Alpha Keypad, 6150V and
6160V Voice Keypads, 6270 Touch Screen Keypad,
Symphony Advanced User Interface
Wireless Receivers: 5881L/5882L: accepts up to 8 transmitters
5881M/5882M: accepts up to 16 transmitters
5881H/5882H: accepts up to system maximum transmitters
5800TM Transmitter Module (used with Wireless 2-Way Keypads)
5883 Transceiver: accepts up to system maximum transmitters
6150RF Keypad/Transceiver: accepts up to system max. transmitters
Zone Expansion: 4219 WIRED EXPANSION MODULE
4229 WIRED EXPANSION/RELAY MODULE
Relay Module: 4204 RELAY MODULE
Phone Modules: 4285 PHONE MODULE
4286VIP PHONE MODULE
Long Range Radio 7835C/7845C
8-1
The Receiver in the 6150rf is the
equivalent of a Medium receiver and
will support only 16 wireless zones.

2-Wire Smoke Detector:
Detector Type
System Sensor
Model No.
Photoelectric w/heat sensor, direct wire 2300TB
Photoelectric, direct wire 2400
Photoelectric w/heat sensor, direct wire 2400TH
Photoelectric 2451 w/B401B base
Photoelectric w/heat sensor 2451TH w/B401B base
Ionization, direct wire 1400
Ionization 1451 w/B401B base
Photoelectric duct detector 2451 w/DH400 base
Ionization duct detector 1451D w/DH400 base H
Low-profile, Photoelectric, w/135°F thermal 2100T
Low-profile, Ionization type, direct wire 1100
Transformers: 1321: 16.5VAC, 25VA Plug-In Transformer (No. 1321CN in Canada)
1361X10: 16.5VAC, 40VA Powerline Carrier device Interface AC Transformer
Sounders: Ademco AB-12M 10” Motorized Bell & Box
Ademco 1011BE12M 10” Motorized Bell & Box
Ademco 702 Outdoor Siren
Ademco 719 2-Channel Siren
Ademco 747 Indoor Siren
Ademco 747UL Indoor Siren
Ademco 744 Siren Driver
Ademco 745X3 Voice Siren Driver
Ademco 705-820, 5-inch Round Speaker
Ademco 713 Speaker
System Sensor PA400B (beige)/; PA400R (red) Indoor Piezo Sounder
Installation and Setup Guide
8-2

5800 Series Transmitter Input Loop Identification
All of the transmitters illustrated below have one or more unique factory assigned input (loop) ID codes. Each of the input
loops requires its own programming zone
(e.g., a 5804's four inputs require four programming zones).
5802MN
ENROLL AS
"UR" OR "RF"
LOOP
1
V20P-006-V0
5817
ENROLL AS
"RF"
5890
ENROLL AS
"RF" OR "RM"
LOOP 1
5808
ENROLL AS
"RF"
LOOP 1
5809
ENROLL AS
"RF"
5850 (GBD)
ENROLL AS
"RF"
(Green)
(Red)
(Yellow)
5804BD
ENROLL AS
"BR"
LOOP 4
YOU MUST
ENROLL
THIS BUTTON
SET
HOUSE
CODE
LOOP 3 LOOP 1
LOOP 2
5804
ENROLL AS "BR"
ON
5816MN
ENROLL AS
"RF"
LOOP 2
(REED)
5816
ENROLL AS
"RF"
LOOP 1
(TERMINALS)
LOOP 2
(REED)
LOOP 3
(TERMINALS)
5819S (WHS & BRS)
ENROLL AS
"RF"
LOOP 1
(INTERNAL
SHOCK
SENSOR
LOOP 2
(REED)
5819
ENROLL AS
"RF"
LOOP 2
(REED)
LOOP 3
(TERMINALS)
LOOP 1
(TERMINALS)
5801
ENROLL AS
"UR" OR "RF"
LOOP 3
LOOP 1
LOOP 2
LOOP 4
YOU MUST
ENROLL
THIS
BUTTON
LOOP 1
LOOP 2
LOOP 4
YOU MUST
ENROLL
THIS
BUTTON
LOOP 3
LOOP
1
MOTION
LOOP 2
(AUX.
CENTER)
LOOP 1
(PRIMARY)
LOOP 3
(AUX.
RIGHT)
LOOP 1
(TERMINALS)
ALTERNATE
POSITION
FOR LOOP 2
OFF
NOTE: For information on any transmitter not
shown, refer to the instructions accompanying
that transmitter for details regarding loop
numbers, etc.
UL NOTE: The following transmitters are
not intended for use in UL
installations:
5802MN, 5802MN2, 5804,
5804BD, 5814, 5816TEMP,
5819, 5819WHS & BRS, and
5850.
Compatible 5800 Series Transmitters Table
Model Product Input Type Description
5801 Wireless Panic
Transmitter
UR or RF • Four pushbuttons, each with a unique input (loop) code.
• Programmable responses (e.g., Panic, Arm, Disarm, etc.)
5802 Pendant (Personal
Emergency Transmitter)
BR Only • Has single pushbutton.
• Usually programmed for response type of 24-Hr audible or 24-Hr
Silent (other zone responses are possible).
5802CP Belt Clip (Personal
Emergency)
BR Only Same as 5802.
5802MN Miniature (Personal
Emergency Trans.)
UR or RF Same as 5802.
5804 Wireless Key
Transmitter
BR Only • Has four pushbuttons, each with a unique input (loop) code.
• Programmable responses (e.g., Arm, Disarm, etc.)
5804BD Bi-Directional
Wireless Key
BR • House ID must be set.
• Requires 5800TM Transmitter Module.
• Can indicate system status via its 2 LEDs and built-in sounder.
• Has four pushbuttons, each with a unique input (loop) code.
• Operates the system similarly to wired keypads.
5806
5807
5808
Wireless
Photoelectric Smoke
Detectors
RF One-piece smoke detectors with a built-in transmitter.
5809 Heat Detector RF One-piece rate-of-rise heat detector with a built-in transmitter.
5816
5816MN
Door/Window
Transmitters
RF Has two unique input (loop) codes: one for a wired closed circuit
contact loop; the other for its built-in reed switch (used with a
magnet).
5816TEMP Low-Temp. Sensor RF Transmits a fault condition when temperature drops below 45°F.
8-3

Compatible 5800 Series Transmitters Table (continued)
Model Product Input Type Description
5817 Multi-Point Universal
Transmitter
RF Has three unique input (loop) codes: one for a “Primary” contact
loop with programmable options; the others for two “auxiliary”
closed circuit contact loops.
5818 Recessed Transmitter RF • Reed switch magnetic contact sensor; easily hidden in the frame
and edge of a door or window.
• Has a single unique input (loop) code.
5819 Shock Processor
Transmitter
RF • Connects to externally mounted inertia-type shock detector (not
supplied).
• Has built-in tampered cover switch.
• Has 3 unique input (loop) codes:
Loop 1:
Terminals for a wired, N.C. sensor loop.
Loop 2:
For a closed circuit contact loop using the built-in reed
switch in conjunction with a magnet.
Loop 3:
Terminals for a wired, closed circuit contact loop.
5819WHS
5819BRS
Shock Processor
Transmitter
RF • Has built-in shock sensor.
• Has built-in tampered cover switch.
• Has 3 unique input (loop) codes:
Loop 1:
Built-in shock sensor loop wired to TB1 (normally closed).
Loop 2:
For a closed circuit contact loop using the built-in reed
switch in conjunction with a magnet.
Loop 3:
Externally wired, closed circuit loop connected to TB2.
5827 Wireless Keypad Uses House
ID only
• Can be used to turn the burglary protection on and off.
• Features the same built-in panic functions as wired keypads.
• The keypad is identified as zone “00” on wired keypads when it
transmits with a low battery.
5827BD Wireless Two-Way
Keypad
Uses House
ID only
• Requires 5800TM Transmitter Module.
• Operates the system similarly to wired keypads, including panics.
• Can indicate system status via its 3 LEDs and sounder.
• Includes 3 panic keys.
5849 Glassbreak Detector RF
• House ID must also be set.
• Requires both sound and shock of breaking glass to cause alarm
to be transmitted.
5890 PR Detector RF Dual-element passive infrared detector/transmitter with built-in
selectable pulse count.
Note:
There is a 3-minute lockout between fault transmissions to
conserve battery life.
5899 Magnets Package of 4 magnets for use with 5816 and 5817 transmitters.
Installation and Setup Guide
8-4

SECTION 9
Regulatory Agency Statements
RADIO FREQUENCY EMISSIONS
Federal Communications Commission (FCC) Part 15
This device complies with part 15 of the FCC rules. Operation is subject to the following two conditions: (1) This device may not cause harmful
interference, and (2) this device must accept any interference received, including interference that may cause undesired operation.
Industry Canada
This Class B digital apparatus complies with Canadian ICES-003.
Cet Appareil numérique de la classe B est conforme à la norme NMB-003 du Canada.
TELEPHONE/MODEM INTERFACE
FCC Part 68
This equipment complies with Part 68 of the FCC rules. On the front cover of this equipment is a label that contains the FCC registration
number and Ringer Equivalence Number (REN). You must provide this information to the telephone company when requested.
This equipment uses the following USOC jack: RJ31X
This equipment may not be used on telephone-company-provided coin service. Connection to party lines is subject to state tariffs. This
equipment is hearing-aid compatible.
Industry Canada
NOTICE: The Industry Canada Label identifies certified equipment. This certification means that the equipment meets telecommunications
network protective, operational and safety requirements as prescribed in the appropriate Terminal Equipment Technical Requirements
document(s). The Department does not guarantee the equipment will operate to the user’s satisfaction.
Before installing this equipment, users should ensure that it is permissible to be connected to the facilities of the local telecommunications
company. The equipment must also be installed using an acceptable method of connection. The customer should be aware that compliance with
the above conditions may not prevent degradation of service in some situations.
Repairs to certified equipment should be coordinated by a representative designated by the supplier. Any repairs or alterations made by the
user to this equipment, or equipment malfunctions, may give the telecommunications company to request the user to disconnect the
equipment.
Users should ensure for their own protection that the electrical ground connections of the power utility, telephone lines and internal metallic
water pipe system, if present, are connected together, This precaution may be particularly important in rural areas.
Caution: Users should not attempt to make such connections themselves but should contact appropriate electric inspection authority, or
electrician, as appropriate.
Ringer Equivalence Number Notice:
The Ringer Equivalence Number (REN) assigned to each terminal device provides an indication of the maximum number of terminals
allowed to be connected to a telephone interface. The termination on an interface may consist of any combination of devices subject only to the
requirement that the sum of the Ringer Equivalence Numbers of all the devices does not exceed 5.
Industrie Canada
AVIS: l’étiquette d’Industrie Canada identifie le matériel homologué. Cette étiquette certifie que le matériel est conforme aux normes de
protection, d’exploitation et de sécurité des réseaux de télécommunications, comme le prescrivent les documents concernant les exigences
techniques relatives au matériel terminal. Le Ministère n’assure toutefois pas que le matériel fonctionnera à la satisfaction de l’utilisateur.
Avant d’installer ce matériel, l’utilisateur doit s’assurer qu’il est permis de le raccorder aux installations de l’enterprise locale de
télécommunication. Le matériel doit également être installé en suivant une méthode acceptée da raccordement. L’abonné ne doit pas oublier
qu’il est possible que la conformité aux conditions énoncées ci-dessus n’empêche pas la dégradation du service dans certaines situations.
Les réparations de matériel nomologué doivent être coordonnées par un représentant désigné par le fournisseur. L’entreprise de
télécommunications peut demander à l’utilisateur da débrancher un appareil à la suite de réparations ou de modifications effectuées par
l’utilisateur ou à cause de mauvais fonctionnement.
Pour sa propre protection, l’utilisateur doit s’assurer que tous les fils de mise à la terre de la source d’energie électrique, de lignes
téléphoniques et des canalisations d’eau métalliques, s’il y en a, sont raccordés ensemble. Cette précaution est particulièrement importante
dans les régions rurales.
Avertissement : L’utilisateur ne doit pas tenter de faire ces raccordements lui-même; il doit avoir racours à un service d’inspection des
installations électriques, ou à un électricien, selon le cas.
AVIS : L’indice d’équivalence de la sonnerie (IES) assigné à chaque dispositif terminal indique le nombre maximal de terminaux qui
peuvent être raccordés à une interface. La terminaison d’une interface téléphonique peut consister en une combinaison de quelques dispositifs,
à la seule condition que la somme d’indices d’équivalence de la sonnerie de tous les dispositifs n’excède pas 5.
9-1

UL NOTICES
1. Entry Delay No. 1 and No. 2 (fields ✱35, ✱36) cannot be greater than 30 seconds for UL
Residential Burglar Alarm installations, and entry delay plus dial delay should not
exceed 1 minute. For UL Commercial Burglar Alarm installations, total entry delay may
not exceed 45 seconds.
2. For UL Commercial Burglar Alarm (Grade AA) and UL Residential Burglar Alarm
installations with line security, total exit delay time must not exceed 60 seconds. For UL
Burglar Alarm installations without line security (Grade A), total exit delay time must
not exceed 120 seconds.
3. The maximum number of reports per armed period (field ✱93) must be set to “0”
(unlimited) for UL installations.
4. Periodic testing (see scheduling mode) must be at least every 24 hours.
5. Alarm Sounder plus Auxiliary Power currents must not exceed 600mA total for UL
installations (Aux power 500mA max.).
6. All partitions must be owned and managed by the same person(s).
7. All partitions must be part of one building at one street address.
8. If used, the audible alarm device(s) must be placed where it/they can be heard by all
partitions.
9. For UL commercial burglar alarm installations the control unit must be protected from
unauthorized access. The tamper switch installed to protect the control unit enclosure
door is suitable for this purpose.
10. Remote downloading without an alarm company technician on-site (unattended
downloading) is not permissible for UL installations.
11. Auto-disarming is not a UL Listed feature.
Notes for SIA Installations
1. As SIA limits for delay of alarm reporting and sounding can exceed UL limits for
commercial and residential applications, the following UL requirements per UL681 are
provided:
The maximum time that a control unit shall be programmed to delay the transmission of
a signal to a remote monitoring location, or to delay the energizing of a local alarm
sounding device to permit the alarm system user to enter and disarm the system, or to
arm the system and exit shall not exceed:
a) 60 seconds for a system with standard line security or encrypted line security,
b) 120 seconds for a system without standard line security or encrypted line security, or
c) 120 seconds for a system that does not transmit an alarm signal to a remote
monitoring location.
2. *34 Exit Delay: minimum exit delay is 45 seconds
3. *35/*36 Entry Delay 1 and 2: minimum entry delay is 30 seconds.
4. *39 Power Up in Previous State: must be “1,” power up in previous state
5. *40 PABX Access Code or Call Waiting Disable: If call waiting is used, call waiting
disable option in field *91 must be set.
6. *50 Burglary Dial Delay: delay must be minimum of 30 seconds.
7. *59 Exit Error Alarm Report Code: Always enabled.
8. *69 Recent Closing Report Code: Always enabled.
9. *91 Option Selection: Exit Delay option should be enabled. If call waiting is used, Call
Waiting Disable must be set to “1” (enabled).
10. *93 No. reports in Armed Period: Must be set for 1 or 2 report pairs.
Installation and Setup Guide
9-2

Notes
9-3

Notes
Installation and Setup Guide
9-4

Notes
9-5

Notes
Installation and Setup Guide
9-6

SECTION 10
Limitations and Warranty
WARNING
THE LIMITATIONS OF THIS ALARM SYSTEM
While this System is an advanced design security system, it does not offer guaranteed protection against
burglary, fire or other emergency. Any alarm system, whether commercial or residential, is subject to
compromise or failure to warn for a variety of reasons. For example:
• Intruders may gain access through unprotected openings or have the technical sophistication to bypass an
alarm sensor or disconnect an alarm warning device.
• Intrusion detectors (e.g., passive infrared detectors), smoke detectors, and many other sensing devices will
not work without power. Battery-operated devices will not work without batteries, with dead batteries, or if
the batteries are not put in properly. Devices powered solely by AC will not work if their AC power supply
is cut off for any reason, however briefly.
• Signals sent by wireless transmitters may be blocked or reflected by metal before they reach the alarm
receiver. Even if the signal path has been recently checked during a weekly test, blockage can occur if a
metal object is moved into the path.
• A user may not be able to reach a panic or emergency button quickly enough.
• While smoke detectors have played a key role in reducing residential fire deaths in the United States, they
may not activate or provide early warning for a variety of reasons in as many as 35% of all fires, according
to data published by the Federal Emergency Management Agency. Some of the reasons smoke detectors
used in conjunction with this System may not work are as follows. Smoke detectors may have been
improperly installed and positioned. Smoke detectors may not sense fires that start where smoke cannot
reach the detectors, such as in chimneys, in walls, or roofs, or on the other side of closed doors. Smoke
detectors also may not sense a fire on another level of a residence or building. A second floor detector, for
example, may not sense a first floor or basement fire. Finally, smoke detectors have sensing limitations. No
smoke detector can sense every kind of fire every time. In general, detectors may not always warn about
fires caused by carelessness and safety hazards like smoking in bed, violent explosions, escaping gas,
improper storage of flammable materials, overloaded electrical circuits, children playing with matches, or
arson. Depending on the nature of the fire and/or location of the smoke detectors, the detector, even if it
operates as anticipated, may not provide sufficient warning to allow all occupants to escape in time to
prevent injury or death.
• Passive Infrared Motion Detectors can only detect intrusion within the designed ranges as diagrammed in
their installation manual. Passive Infrared Detectors do not provide volumetric area protection. They do
create multiple beams of protection, and intrusion can only be detected in unobstructed areas covered by
those beams. They cannot detect motion or intrusion that takes place behind walls, ceilings, floors, closed
doors, glass partitions, glass doors, or windows. Mechanical tampering, masking, painting or spraying of
any material on the mirrors, windows or any part of the optical system can reduce their detection ability.
Passive Infrared Detectors sense changes in temperature; however, as the ambient temperature of the
protected area approaches the temperature range of 90° to 105°F (32° to 40°C), the detection performance
can decrease.
• Alarm warning devices such as sirens, bells or horns may not alert people or wake up sleepers if they are
located on the other side of closed or partly open doors. If warning devices are located on a different level of
the residence from the bedrooms, then they are less likely to waken or alert people inside the bedrooms.
Even persons who are awake may not hear the warning if the alarm is muffled by noise from a stereo,
radio, air conditioner or other appliance, or by passing traffic. Finally, alarm warning devices, however
loud, may not warn hearing-impaired people.
• Telephone lines needed to transmit alarm signals from a premises to a central monitoring station may be
out of service or temporarily out of service. Telephone lines are also subject to compromise by sophisticated
intruders.
• Even if the system responds to the emergency as intended, however, occupants may have insufficient time
to protect themselves from the emergency situation. In the case of a monitored alarm system, authorities
may not respond appropriately.
• This equipment, like other electrical devices, is subject to component failure. Even though this equipment
is designed to last as long as 10 years, the electronic components could fail at any time.
(Continued)
10-7

WARNING
THE LIMITATIONS OF THIS ALARM SYSTEM
(Continued)
The most common cause of an alarm system not functioning when an intrusion or fire occurs is inadequate
maintenance. This alarm system should be tested weekly to make sure all sensors and transmitters are
working properly. The security keypad (and remote keypad) should be tested as well.
Wireless transmitters (used in some systems) are designed to provide long battery life under normal operating
conditions. Longevity of batteries may be as much as 4 to 7 years, depending on the environment, usage, and
the specific wireless device being used. External factors such as humidity, high or low temperatures, as well as
large swings in temperature, may all reduce the actual battery life in a given installation. This wireless
system, however, can identify a true low-battery situation, thus allowing time to arrange a change of battery
to maintain protection for that given point within the system.
Installing an alarm system may make the owner eligible for a lower insurance rate, but an alarm system is
not a substitute for insurance. Homeowners, property owners and renters should continue to act prudently in
protecting themselves and continue to insure their lives and property.
We continue to develop new and improved protection devices. Users of alarm systems owe it to themselves and
their loved ones to learn about these developments.
Installation and Setup Guide
10-8

– INDEX –
1-9
1321 AC Transformer ...... 1-2, 2-3, 2-11
1361X10................. 2-3, 2-11, 2-12, 8-2
24-Hour Audible Alarm .................... 3-3
24-Hour Auxiliary Alarm................... 3-3
24-Hour Silent Alarm .......................3-3
3+1 and 4+1 Standard Formats..... 6-1
42041-2, 2-2, 2-5, 2-6, 2-11, 3-1, 5-8, 5-
9, 6-5, 8-1
4219 ......1-1, 1-2, 2-2, 2-5, 2-7, 2-8, 8-1
4229 .1-1, 1-2, 2-2, 2-5, 2-6, 2-7, 2-8, 2-
11, 3-1, 5-8, 5-9, 6-5, 8-1
4285 ..................................... 2-14, 5-15
4285 Phone Module....................... 5-14
4286 ..................................... 2-14, 5-15
4286 Phone Module....................... 5-14
5800 Series Transmitters...2-9, 8-3, 8-4
5800TM ......................2-9, 8-1, 8-3, 8-4
5801 .........................................2-9, 8-3
5802 ..................................2-9, 6-7, 8-3
5802CP .............................2-9, 6-7, 8-3
5827 ..................................2-9, 4-1, 8-4
5827BD .............................2-9, 4-1, 8-4
5881 .........................................2-2, 2-8
7720PLUS or 7820 ..........................1-2
9-pin connector.............................. 2-10
A
AC Power Supply ............................ 1-2
AC Transformer...............2-3, 2-12, 8-2
Ademco Contact ID.......................... 6-3
Alarm Bell Timeout .......................... 4-2
Alarm Output ............................2-2, 2-4
Alarm Sounder Timeout ................4-2
Alpha Descriptor.............. 5-1, 5-4, 5-14
Alpha Vocabulary .......................... 5-14
Alpha Vocabulary .......................... 5-14
Alpha Vocabulary List .................... 5-14
ALPHA VOCABULARY LIST........ 5-16
Arm Away/Stay Report Code ...........4-4
Arm–Away .......................................3-3
Arming Away ...................................6-5
Arming Instant .................................6-5
Arming Modes ................................. 6-6
Arming Stay..................................... 6-5
Arm–Stay......................................... 3-3
Audio Alarm Verification..........2-13, 4-6
Audio Alarm Verification (AAV) ...... 2-13
AUI .................................................. 2-5
Authority Levels ............................... 6-4
Auxiliary Output ...............................2-2
B
Backup Battery ................................ 1-2
Battery Life ......................................2-9
Battery Tests...........................7-1, 7-2
Bell Supervision...............................2-4
Bell Supervision Jumper .................. 2-4
Bypassing Zones ............................. 6-5
C
Cabinet ............................................2-1
CALIFORNIA STATE FIRE
MARSHALL.................................2-2
Caller ID Unit ................................. 2-13
Character (ASCII) Chart.................. 16
Character List ................................5-15
Charging Voltage .............................8-1
Chime By Zone................................4-1
Chime Mode ...........................4-10, 6-5
Clean Me Option..............................2-7
common zone..................................5-1
Communication................5-13, 6-1, 8-1
Configurable Zone Type Programming
Fields ..........................................4-9
Confirmation Of Arming Ding ...........4-2
Contact ID Reporting .......................8-1
CSFM ..............................................2-2
Custom Message...........................5-15
Custom Words................ 5-14, 5-15, 16
D
Defining Output Functions .............5-10
Descriptor Programming................5-14
device address2-5, 2-11, 3-1, 4-1, 4-11,
5-8, 6-7
Device number ................................5-2
Dialer Communication Test..............7-2
DIP Switches. ..................................2-9
Disarm .............................................3-3
Disarming ...............................5-11, 6-5
Double-Balanced .............................2-6
E
Enrolling ...................................2-9, 5-1
entering serial number .....................5-5
Entry Delay..........3-3, 4-4, 4-9, 6-6, 6-7
Entry Delay 02 ................................4-2
Entry/Exit Burglary...........................3-2
Entry/Exit Burglary................................
EOLR .......................................2-6, 8-1
Event Logging..................................4-6
Exit Delay .....4-2, 4-4, 4-6, 4-9, 6-6, 6-7
Exit Error Alarm ..................................3
Exit Error Alarm ...............................6-7
Exit Error Report Code.....................4-4
Expansion Zones...........................2-7
Expert Programming Mode 5-1, 5-4, 5-7
F
Factory Defaults...............................3-2
Fast Busy Signal............................ 2-13
Fault Delay Time ............................4-6
Fire Sounder Timeout ......................4-2
Forced Bypass Function ..................4-1
Function Key Programming............ 5-13
Function Keys.........................4-7, 5-13
G
Go/No Go Test Mode.......................7-2
H
Handshake ......................................6-1
hardwired zones .......................1-1, 5-3
HAYES Modem ...............................1-1
House ID ....................2-9, 4-1, 8-3, 8-4
I
Ideal Model 61–035 .........................2-3
Input Device Type..............5-5, 8-3, 8-4
Installer Code..............3-2, 4-7, 7-1, 7-2
Interior Follower...............3-2, 5-2, 5-11
Interior w/Delay................3-3, 5-2, 5-11
K
keypad addresses...................2-5, 4-11
Keypad Programming Fields..........4-11
Keyswitch ....................2-10, 3-4, 5-2, 3
Kissoff.....................................5-11, 6-1
L
Lock.................................................2-1
Long Range Radio..2-5, 4-1, 4-3, 3, 8-1
Low Battery Message ......................7-2
M
model 112......................................2-10
Modem ............................................6-7
Module Addresses ...........................5-9
momentary switch..........................2-10
N
No Alarm Response................3-4, 5-11
O
on-board triggers ...........................2-14
Output Device Mapping .....3-1, 5-8, 5-9
Output Devices ................................5-8
Output Functions .............................5-8
Output relays ...................................1-2
Output To Long Range Radio ..........4-1
P
PABX Access Code .........................4-2
Pager #1 Phone No. ................4-7, 4-8
Pager Programming.........................4-7
Pager Programming Fields ..............4-7
Pager Report Options ......................4-8
Paging .............................................4-6
Panic Keys.......................................6-6
Partitions..........................................5-1
Perimeter Burglary...........................3-2
Periodic Test Reports ......................7-2
Phone Line ....................................2-13
Phone Module.1-1, 2-2, 2-5, 2-13, 2-14,
4-1, 4-7, 5-14, 5-15, 16, 8-1
Phone Module Access Code............4-1
Power Failure..........................5-11, 6-7
power supply ...................2-2, 2-4, 10-6
Power Up In Previous State.............4-2
Powerline Carrier Device (X-10) House
ID ................................................4-1
Powerline Carrier Devices1-2, 2-11, 6-5
Primary Phone No............................4-3
Primary Phone No............................4-2
prompt to confirm.............................5-5
PSC04 Powerline Interface ............2-11
Q
Quick Arm Enable..........................4-11
10-9

R
Relay Modules........................ 1-2, 2-11
Relay Programming......................... 3-1
Report Code..4-4, 4-5, 4-6, 4-9, 5-2, 5-
5, 6-1
Report Code Formats ...................... 6-1
Reports In Armed Period...............4-7
response time....................2-7, 4-6, 5-2
RF House ID Code ...................2-8, 4-1
RF Interference................................2-8
RF jam detection ......................1-1, 4-1
RF Jam Option ................................2-8
RF Receiver ...........2-1, 2-2, 2-5, 2-8, 3
RF System....................................... 4-1
Ring Detection Count For Downloading
....................................................4-7
RJ31X Jack ................................... 2-13
S
SA4120XM-1 Cable ......................... 2-3
Schedules........................................5-2
Security Codes ......................... 1-1, 6-4
Silent Burglary ............. 3-4, 5-2, 5-11, 3
Silent Panic .....................................6-6
Single Alarm Sounding Per Zone..... 4-1
Smoke Detectors ............................. 8-3
Sniffer Mode ............................. 5-4, 7-1
sounder connections........................2-4
Supervised Fire ............................... 3-3
Supplementary Power ..................... 2-4
Swinger Suppression ....................4-7
System Communication.....4-9, 5-2, 6-1
System Operation.....5-6, 5-7, 5-11, 5-2
System Status Report Codes........... 4-4
System Test ................................... 7-1
T
tamper switch .........................2-10, 9-2
Telco Line.................................. 2-13, 3
Telephone Line Monitoring...............1-1
Test Mode ................................7-1, 7-2
Test Restore Report Code ...............4-5
Touch Screen Device (AUI) Enable .4-9
touchpads........................................4-4
Transmitter Input Types ...................5-3
Trigger outputs .............................. 2-12
Trouble by Day/ ...............................3-3
Trouble Displays.......................6-6, 6-7
V
Verify Operation...............................2-7
Vocabulary List..............................5-14
W
Wire Run Chart .........................2-4, 2-5
Wireless Key Predefined Default
Templates ..................................5-7
Wireless Key Programming Templates
....................................................5-6
wireless key templates.....................5-6
Word String....................................5-15
Worksheet .......................................2-2
Z
Zone Doubling .................................2-6
Zone Lists...............................3-1, 5-12
Zone Not Used.................................3-2
Zone Programming Procedure .........5-1
Zone Type .......................................5-5
Zone Types......................3-2, 5-2, 5-11
Installation and Setup Guide
10-10

CLASS 2 PLUG-IN TRANSFORMER
16.5VAC, 25VA
(e.g. ADEMCO No. 1321).
(USE No. 1321CN IN CANADA)
TO 110VAC
UNSWITCHED
OUTLET (24HR)
THIS EQUIPMENT SHOULD BE INSTALLED
IN ACCORDANCE WITH THE NATIONAL
FIRE PROTECTION ASSOCIATION'S
STANDARD 72, CHAPTER 2 (NATIONAL
FIRE PROTECTION ASSOCIATION,
BATTERY-MARCH PARK, QUINCY,MA
02269).
PRINTED INFORMATION
DESCRIBING PROPER INSTALLATION,
OPERATION,TESTING, MAINTENANCE,
EVACUATION PLANNING AND REPAIR
SERVICE IS TO BE PROVIDED WITH THIS
EQUIPMENT.
24-HR BATTERY STANDBY REQUIRED FOR
FIRE INSTALLATIONS. USE 12V, 17.2AH
BATTERY FOR 600mA AUX POWER. SEE
INSTRUCTIONS.
BATTERY CAPACITY FOR EMERGENCY
BURGLARY STANDBY USE AT LEAST 4 HRS
USE UL LISTED LIMITED ENERGY
CABLE FOR ALL CONNECTIONS
USE 1361X10 TRANSFORMER
INTERFACE IN PLACE OF 1321 OR
1321CN WHEN POWER LINE CARRIER
DEVICES ARE BEING USED. (SEE
INSTRUCTIONS FOR CONNECTIONS)
FOR COMPLETE
INFORMATION, SEE
INSTRUCTIONS K5305-1V2
ALARM OUTPUT
10.5–13.8VDC, 2A MAX.
(600mA MAX. FOR UL
USAGE, INCLUDING
AUX POWER) STEADY
FOR BURGLARY/PANIC,
TEMPORAL PULSE
SOUNDING FOR FIRE.
CAN USE ADEMCO No. 702
SIREN, OR 12V BELL).
SEE INSTRUCTIONS.
CHARGING VOLTAGE
13.8VDC. MAXIMUM
CHARGING CURRENT
650mA.
BATTERY
12V, 4AH
BLACK
RED
SEALED LEAD-ACID TYPE.
BATTERY NORMALLY NEED NOT BE
REPLACED FOR AT LEAST 3 YRS.
TO DETERMINE TOTAL STANDBY LOAD
ON BATTERY, ADD 100mA TO TOTAL OF
AUX. POWER OUTPUT AND REMOTE
KEYPAD CURRENTS.
FLYING LEADS
FOR BATTERY
CONNECTION
CONNECTION OF THE FIRE ALARM
SIGNAL TO A FIRE ALARM
HEADQUARTERS OR A CENTRAL STATION
SHALL BE PERMITTED ONLY WITH THE
PERMISSION OF THE LOCAL AUTHORITY
HAVING JURISDICTION. THE BURGLAR
ALARM SIGNAL SHALL NOT BE
CONNECTED TO A POLICE EMERGENCY
NUMBER.
OPTIONAL
FOR UP TO 40 ADDITIONAL ZONES
( FROM EITHER OR BOTH GROUPS)
BLK
RED
GRN
YEL
12378
11 12 17
20 21 22 23 24 25
EARTH
GROUND
SEE
INSTRUCTIONS
FOR PROPER
GROUNDING
TELEPHONE WIRING
(VIA RJ31X* JACK AND DIRECT
CONNECT CORD)
*CA38A IN CANADA
DOC LOAD NO.: 3
BLACK: KEYPAD GROUND (- ) RETURN
RED: KEYPAD PWR (
+
)
GREEN: DATA IN FROM KEYPAD
YELLOW: KEYPAD DATA OUT
▲
▲
REMOTE
KEYPADS
AND OTHER
ADDRESSABLE
DEVICES
(e.g. 5800TM,
4285/4286, LRR,
4219, 4229,
4204, 5881)
WARNING:
TO PREVENT RISK OF SHOCK,
DISCONNECT TELEPHONE LINE AT TELCO
JACK BEFORE SERVICING THIS UNIT.
BLK
RED
GRN
YEL
TO TERM 4
TO TERM 5
TO TERM 6
TO TERM 7
BLK
RED
GRN
YEL
AND/OR
RING
(GRAY)
TIP
(GREEN)
RING
(RED)
INCOMING
PHONE LINE
HANDSET
ZONE 1
ZONE 2
HI
LO
HI
LO
ZONE 3
ZONE 4
HI
LO
HI
LO
ZONE 5
ZONE 6
HI
LO
HI
LO
ZONE 7
ZONE 8
HI
LO
HI
LO
•
MAXIMUM LOOP RESISTANCE: (EACH ZONE) 300 OHMS (PLUS EOLR)
•
•
RESPONSE, ZONES 1-8: 10, 350, OR 700 MSEC (PROGRAMMABLE)
8-PIN CONNECTOR
USED FOR 1361X10
TRANSFORMER
CONNECTIONS AND FOR
ON-BOARD TRIGGERS
SEE INSTRUCTIONS.
78 (USE SA4120XM-1
CABLE)
TIP
(BROWN)
}
}
THIS DEVICE COMPLIES WITH PART 15 OF FCC RULES.
OPERATION IS SUBJECT TO THE FOLLOWING TWO
CONDITIONS: (1) THIS DEVICE MAY NOT CAUSE HARMFUL
INTERFERENCE, AND (2) THIS DEVICE MUST ACCEPT ANY
INTERFERENCE RECEIVED, INCLUDING INTERFERENCE
THAT MAY CAUSE UNDESIRED OPERATION.
COMPLIES WITH FCC RULES, PART 68.
FCC REGISTRATION NO. 5GBUSA-44003-AL-E
RINGER EQUIVALENCE: 0.1B.
WEEKLY TESTING IS REQUIRED TO ENSURE PROPER OPERATION OF THIS
SYSTEM. IN ADDITION, THIS SYSTEM MUST BE CHECKED BY A QUALIFIED
TECHNICIAN AT LEAST ONCE EVERY THREE (3) YEARS.
CAN BE USED FOR 2-WIRE SMOKE DETECTORS
RED JUMPER
CUT FOR BELL SUPERVISION.
ALSO, CONNECT 2000 OHM
RESISTOR DIRECTLY ACROSS
SOUNDER.
FOR CONNECTION OF OPTIONAL 4285 OR 4286 VIP
MODULES TO PHONE TERMINALS, SEE INSTRUCTIONS.
NOTE:
KEYPAD (S)
CURRENT (IN
BOTH
PARTITIONS)
AND ALL
OTHER DEVICES
DRAWING
POWER FROM
TERMS 4 & 5
MUST BE
INCLUDED IN
AUX CURRENT
DRAIN
CALCULATIONS.
AUX. POWER
OUTPUT
10.5-13.8VDC
600mA MAX.
(500mA MAX.
FOR UL
INSTALLATIONS)
ALL OUTPUTS
ARE POWER
LIMITED.
}
2000
OHMS
EOLR
2000
OHMS
EOLR
2000
OHMS
EOLR
2000
OHMS
EOLR
2000
OHMS
EOLR
2000
OHMS
EOLR
2000
OHMS
EOLR
2000
OHMS
EOLR
SYNC
COM
DATA
TO
TRANS.
GND
+12 AUX
18 19
16
15
14
13
10
9
6
4
1234 5 6
OUTPUT 18
(TRIG. 2)
OUTPUT 17
(TRIG. 1)
ALL DEVICES AND ACCESSORIES
USED IN A CANADIAN INSTALLATION
MUST BE LISTED FOR USE IN CANADA
BATTERY FUSE
FOR REPLACEMENT,
USE SAME VALUE
(e.g. ADEMCO No. 90-12)
3A
SET
RECEIVER’S
DIP SWITCH
FOR DEVICE
ADDRESS
OF “0”.
SEE
INSTRUCTIONS.
SET UNIT’S
DIP SWITCH
FOR DEVICE
ADDRESSES
7 - 15
SEE
INSTRUCTIONS.
MAXIMUM NUMBER OF 2-WIRE SMOKE DETECTORS ON ZONE 1 IS 16;
DETECTORS MUST HAVE COMPATIBILITY IDENTIFIER AS "A".
ZONE
PAIRS
2 / 10
3 / 11
4 / 12
5 / 13
6 / 14
7 / 15
8 / 16
1312 14
10 11
6.2k
ZONE 10
3k
ZONE 2
2k
2k
2k
ZONE 3
2k
2k
2k
ZONE 4
TAMPER
CONTACTS
TAMPER
CONTACTS
VISTA-20P ONLY
TYPICAL WIRING FOR
ZONE DOUBLING
(VISTA-20P ONLY)
TYPICAL WIRING FOR
DOUBLE BALANCED ZONE
(VISTA-20P ONLY)
REMOTE KEYPADS
CAN USE 6150 OR 6160
KEYPADS. LOCAL
PROGRAMMING
MUST BE DONE WITH A
6139/6160, BUT NEED NOT
REMAIN IN THE SYSTEM
(SET TO ADDRESS 16).
POWER SHUTDOWN NOTE:
SYSTEM SHUTS DOWN SENSOR
DETECTION PROCESSING IF
CONTROL'S VOLTAGE DROPS
BELOW 9.6V.
5
BLK
4-WIRE SMOKE DETECTOR CONNECTIONS
+
+
2000
OHMS
EOLR
HEAT
DETECTOR
RED
EOL
POWER
SUPERVISION
RELAY MODULE
A77-716B.
USE N.O.
CONTACT,
WHICH CLOSES
WHEN POWER
IS APPLIED.
VIOLET
AUX PWR
OUTPUT
TERMINALS
5
4
+
BLK
TO ZONE TERM. ( )
TO ZONE TERM. ( )
(ZONES 2 - 8 ONLY)
RELAY
CONTACT OPENS MOMENTARILY
UPON FIRE ALARM RESET
PROGRAM RELAY
AS ZONE TYPE 54
(FIRE ZONE RESET)
+
4-WIRE SMOKE
OR COMBUSTION
DETECTOR
N.C. N.O.
TO OUTPUT 17
PROGRAM OUTPUT 17 FOR
"OUT NORM LOW" = YES IN
79 MENU MODE AND AS ZONE
TYPE 54 IN 80 MENU MODE
MAX. CURRENT = 100 mA
(UP TO 16 DETECTORS
PLUS EOL MODULE)
OR
ADEMCO No. 4219
WIRED EXPANSION MODULE
(8 ADD'L EOLR WIRED ZONES)
-AND/OR-
ADEMCO No. 4229
WIRED EXPANSION/RELAY MODULE
(8 ADD'L EOLR WIRED ZONES PLUS 2
OUTPUT RELAYS)
-AND/OR-
ADEMCO No. 4204 RELAY MODULE
(4 OUTPUT RELAYS)
ADEMCO 5881* Type
RF RECEIVER
WIRELESS ZONES
*5882 IN CANADA
5881L: UP TO 8
5881M: UP TO 16
5881H: UP TO 56
V20P_V15P-SOC-V5
ADEMCO VISTA-20P / VISTA-20PSIA SERIES / VISTA-15P / VISTA-15PSIA SERIES
SUMMARY OF CONNECTIONS
Figure 17. Summary of Connections
10-11

LIMITED WARRANTY
Honeywell International Inc., acting through its Security & Custom Electronics business ("Seller") 165 Eileen Way,
Syosset, New York 11791, warrants its product(s) to be in conformance with its own plans and specifications and to be
free from defects in materials and workmanship under normal use and service for 24 months from the date stamp
control on the product(s) or, for product(s) not having a manufacturer’s date stamp, for 12 months from date of original
purchase unless the installation instructions or catalog sets forth a shorter period, in which case the shorter period
shall apply. Seller's obligation shall be limited to repairing or replacing, at its option, free of charge for materials or
labor, any product(s) which is proved not in compliance with Seller's specifications or proves defective in materials or
workmanship under normal use and service. Seller shall have no obligation under this Limited Warranty or otherwise
if the product(s) is altered or improperly repaired or serviced by anyone other than Honeywell factory service.
Connection of any device(s) to a communicating bus of a Honeywell security system (e.g., keypad bus, polling loop)
other than those manufactured or approved by Honeywell shall void this warranty. For warranty service, return
product(s) transportation prepaid, to Honeywell Factory Service, 165 Eileen Way, Syosset, New York 11791.
THERE ARE NO WARRANTIES, EXPRESS OR IMPLIED, OF MERCHANTABILITY, OR FITNESS FOR A PARTICULAR
PURPOSE OR OTHERWISE, WHICH EXTEND BEYOND THE DESCRIPTION ON THE FACE HEREOF. IN NO CASE SHALL
SELLER BE LIABLE TO ANYONE FOR ANY CONSEQUENTIAL OR INCIDENTAL DAMAGES FOR BREACH OF THIS OR
ANY OTHER WARRANTY, EXPRESS OR IMPLIED, OR UPON ANY OTHER BASIS OF LIABILITY WHATSOEVER, EVEN IF
THE LOSS OR DAMAGE IS CAUSED BY THE SELLER'S OWN NEGLIGENCE OR FAULT.
Seller does not represent that the product(s) it sells may not be compromised or circumvented; that the product(s) will
prevent any personal injury or property loss by burglary, robbery, fire or otherwise; or that the product(s) will in all
cases provide adequate warning or protection. Customer understands that a properly installed and maintained alarm
system may only reduce the risk of a burglary, robbery, fire, or other events occurring without providing an alarm, but
it is not insurance or a guarantee that such will not occur or that there will be no personal injury or property loss as a
result. CONSEQUENTLY, SELLER SHALL HAVE NO LIABILITY FOR ANY PERSONAL INJURY, PROPERTY
DAMAGE OR OTHER LOSS BASED ON A CLAIM THAT THE PRODUCT(S) FAILED TO GIVE WARNING.
HOWEVER, IF SELLER IS HELD LIABLE, WHETHER DIRECTLY OR INDIRECTLY, FOR ANY LOSS OR
DAMAGE ARISING UNDER THIS LIMITED WARRANTY OR OTHERWISE, REGARDLESS OF CAUSE OR
ORIGIN, SELLER'S MAXIMUM LIABILITY SHALL NOT IN ANY CASE EXCEED THE PURCHASE PRICE OF
THE PRODUCT(S), WHICH SHALL BE THE COMPLETE AND EXCLUSIVE REMEDY AGAINST SELLER.
This warranty replaces any previous warranties and is the only warranty made by Seller on this product(s). No
increase or alteration, written or verbal, of the obligations of this Limited Warranty is authorized.
165 Eileen Way, Syosset, NY 11791
Copyright © 2004 Honeywell International Inc.
www.honeywell.com/security
ÊK5305-1V5ÈŠ
K5305-1V5 10/04 Rev. A