Honeywell Trol A Temp Q674B Users Manual 69 0580 T874A,D Zone Thermostats/Q674B,D,E Subbases
TROL-A-TEMP T874A 69-0580
T874A to the manual db3f0361-6f4b-4bb0-a045-8d1dc520f8be
2015-01-23
: Honeywell Honeywell-Trol-A-Temp-Q674B-Users-Manual-262550 honeywell-trol-a-temp-q674b-users-manual-262550 honeywell pdf
Open the PDF directly: View PDF
.
Page Count: 10

S. M. • Rev. 6-93 • • ©Honeywell Inc. 1993 • Form Number 69-0580—2
M3375
T874A,D Zone Thermostats/
Q674B,D,E Subbases
TABLE 2—THERMOSTAT/SUBBASE SPECIFICATIONS.
Thermostat/ Anticipator Range (A)
Thermostat/Subbase Switching Subbase Heating Cooling
Order NumberaSystem Fan Color (Adj.) (Fixed)
T874A1465/Q674B1471 HEAT-OFF-COOL ON-AUTO White/Gray Stg. 1— Stg. 1—
T874A1465/Q674D1123 None None White/Gray 0.1 to 1.2 0 to 1.5
T874A1465/Q674E1379 HEAT-OFF-COOL-AUTO ON-AUTO White/Gray
T874D1801/Q674B1463 HEAT-OFF-COOL ON-AUTO Beige/Brown Stg. 1— Stg. 1—
T874D1827/Q674B1471 HEAT-OFF-COOL ON-AUTO White/Gray 0.1 to 1.2; 0 to 1.2;
T874D1801/Q674D1115 None None Beige/Brown Stg. 2— Stg. 2—
T874D1827/Q674D1123 None None White/Gray 0.1 to 1.0. 0 to 1.0.
T874D1827/Q674E1379 HEAT-OFF-COOL-AUTO ON-AUTO White/Gray
aSubbase not included with thermostat; order separately.
Operation
On a 2-heat thermostat, the two stages of heat make
sequentially as the temperature drops. Make refers to the
mercury switch initiating a call for heat or cool.
There are about 2° F [1° C] between stages so that the
second stage makes only when the first stage cannot
handle the load. This is the interstage differential.
Recycling Notice
This control contains mercury in a sealed tube. Do not
place control in the trash at the end of its useful life.
If this control is replacing a control that contains mercury
in a sealed tube, do not place your old control in the trash.
Contact your local waste management authority for
instructions regarding recycling and the proper disposal of
this control, or of an old control containing mercury in a
sealed tube.
If you have questions, call Honeywell at 1-800-468-1502.
M3375
Installation Instructions for the Trained Service Technician.
TABLE 1—THERMOSTAT/SUBBASE AND SYSTEM COMPATIBILITY.
Thermostat/ Application
Subbase Model
NumberaMini-Zone Mabs II, Mabs II-L Mabs XX Stages
T874A/Q674B Zone 1; conventional Zone 1; conventional Any zone; conventional heat-cool. Single-stage
heat-cool. heat-cool.
T874A/Q674D Zones other than zone 1; Zones other than zone 1; Not applicable Single-stage
conventional heat-cool. conventional heat-cool.
T874A/Q674E Not applicable Not applicable Any zone; conventional heat-cool. Single-stage
T874D/Q674B Not applicable Zone 1; conventional Any zone; conventional heat-cool. Multistage
heat-cool.
T874D/Q674D Not applicable Zones other than zone 1; Not applicable Multistage
conventional heat-cool
and heat pump.
T874D/Q674E Not applicable Not applicable Any zone; conventional heat-cool. Multistage
aSubbase not included with thermostat; order separately.
Application
These T874A,D Zone Thermostats and Q674B,D,E
Subbases provide 24 to 30 Vac temperature control in
Honeywell Trol-A-Temp heating/cooling zone systems.
See Table 1 for thermostat/subbase and system compatibil-
ity; see Table 2 for thermostat specifications. For complete
Honeywell Trol-A-Temp System specification and appli-
cation information, refer to the system specification in-
cluded with the control panel.

Installation
WHEN INSTALLING THIS PRODUCT…
1. Read these instructions carefully. Failure to fol-
low them could damage the product or cause a hazard-
ous condition.
2. Check the ratings given in the instructions and on
the product to make sure the product is suitable for your
application.
3. Installer must be a trained, experienced service
technician.
4. After installation is complete, check out product
operation as provided in these instructions.
CAUTION
1. Disconnect power supply to prevent electrical
shock or equipment damage.
2. To prevent interference with the thermostat
linkage, keep wire length to a minimum and
run wires as close as possible to the subbase.
3. Do not overtighten thermostat captive mount-
ing screws, because damage to subbase threads
can result.
4. Do not short across terminals of systems con-
trols. This can burn out the thermostat heat
anticipator.
IMPORTANT: Thermostats are calibrated at the factory by
using subbases mounted at true level. Inaccurate sub-
base leveling will cause thermostat control deviation.
LOCATION
Locate the subbase about 5 ft [1.5 m] above the floor in
an area with good air circulation at average temperature.
Do not mount the subbase where the thermostat may be
affected by:
— drafts or dead spots behind doors and in corners.
— hot or cold air from ducts.
— radiant heat from sun, appliances or fireplace.
— concealed pipes and chimneys.
— unheated (uncooled) areas such as an outside wall
behind the thermostat.
MOUNTING THE SUBBASE
The thermostat subbase can be mounted on a horizontal
outlet box or directly on the wall.
1. To mount on a horizontal outlet box, install the sub-
base on the outlet box as shown in Fig. 1.
For a wall installation, hold the subbase in position and
mark holes for the anchors (Fig. 2). Obtain wall anchors
locally. Take care that the wires do not fall back into the
wall opening. Set aside subbase. Drill two 3/16 in. [4.8 mm]
holes and gently tap anchors into the holes until flush with the
wall.
2. Pull electrical wires through the cover plate (if used)
and subbase cable opening (Fig. 3). See Wiring the Sub-
base section before pulling any wires.
IMPORTANT: Use 18 gauge, color-coded thermostat
cable for proper wiring.
3. Secure the subbase with the screws provided. Do not
fully tighten the subbase screws.
2
Fig. 1—Installation of subbase on outlet box.
!
M3703
SUBBASE
HORIZONTAL
OUTLET
BOX 1
NOT INCLUDED WITH UNIT.
1
Fig. 2—Installation of subbase on wall.
WIRES THROUGH
WALL OPENING
WALL
WALL
ANCHORS
(2)
SUBBASE MOUNTING
SCREWS (2)
M926
MOUNTING
HOLES
Fig. 3—Subbase components and leveling
procedure.
SPIRIT LEVEL
MOUNTING
HOLES (2)
M927
TOP
MOUNTING
HOLES (2)
WIRING
TERMINAL
THERMOSTAT
CABLE OPENING
TO SPRING FINGER
CONTACTS ON THE
THERMOSTAT
(UP TO 12)
POST (2) FOR
MOUNTING
THERMOSTAT
4. Level the subbase using a spirit level, as shown in
Fig. 3, and firmly tighten the subbase mounting screws.
The subbase mounting holes allow minor out-of-level
adjustments.
IMPORTANT: An incorrectly leveled subbase will cause
the temperature control to deviate from set point.
WIRING THE SUBBASE
All wiring must comply with local electrical codes and
ordinances. Follow equipment manufacturer wiring in-
structions when available. To wire subbase:
1. Connect wires to the subbase terminals. Refer to
Figs. 6-10 for wiring diagrams of typical zone systems. A

3 69-0580—2
letter code is located near each subbase terminal for identi-
fication. The terminal barrier permits straight or conven-
tional wraparound wiring connection (Fig. 4).
2. Some Q674 Subbases have RC and RH terminals
for isolated heating and cooling transformers. For zoning
systems, jumper RC and RH terminals as shown in Fig. 5
and wire as single R terminal.
3. Firmly tighten each terminal screw.
4. Fit wires as close as possible to the subbase. Push
excess wire back into hole.
5. Plug the hole with nonflammable insulation to pre-
vent drafts from affecting the thermostat.
Fig. 5—Jumper RC and RH terminals for single
transformer system. Strip wire 3/4 in. [19 mm].
RCRH
RCRH
M929
Fig. 6—Typical hookup for MM-2 Mini-zone Control Panel with T874A Thermostat/Q674B,D Subbase in
single-stage heating-cooling two-zone system.
POWER SUPPLY. PROVIDE DISCONNECT MEANS AND OVERLOAD PROTECTION AS REQUIRED.
ZONE 1 O AND B TERMINALS MUST BE CONNECTED FOR PROPER SYSTEM OPERATION.
JUMPER RC AND RH TERMINALS TOGETHER AND WIRE AS SINGLE R TERMINAL.
DO NOT CONNECT W2 AND Y2 TERMINALS TO CONTROL PANEL.
1
1
M1633
HEAT
RELAY COOL
RELAY ZONE 1
RELAY ZONE 2
RELAY
Y2
Y1
O
G2
G1
RC
RH
B
W2
W1
E
T6
T5
T4
M6
M4
M1
T6
T5
T4
M6
M4
M1
O1
G1
B1
B
2
1
CHANGEOVER
CONTROL
COOL
FAN
HEAT
24 V, 40 VA
TRANSFORMER
MINIZONE
(MM-2)
CONTROL
PANEL
456Z
DAMPER
ACTUATOR
123X
456Z
DAMPER
ACTUATOR
123X
L2
L1
(HOT)
2
ZONE 2ZONE 1
3
4
OG BY1 RC RH W1
4
T874A THERMOSTAT/Q674B SUBBASE
2
Y1 Y2 RC RH W2
4
T874A THERMOSTAT/
Q674D SUBBASE
3
TO SINGLE-
STAGE
HEATING/
COOLING
EQUIPMENT
W2 Y2 W1
3
Fig. 4—Wiring connections.
FOR STRAIGHT
INSERTION–
STRIP 5/16 in. [8 mm] FOR WRAPAROUND–
STRIP 7/16 in. [11 mm]
SUBBASE TERMINAL SCREW
M928
BARRIER

MOUNTING THE THERMOSTAT
1. Remove the thermostat cover by pulling the bottom
edge of the cover outward away from the base until it snaps
free from the cover clip.
NOTE: The cover is hinged at the top and is removed by
pulling out at the bottom.
2. Carefully remove and discard the polystyrene packing
insert that protects the mercury switches during shipment.
3. Turn over the thermostat base and note the spring
fingers that engage the subbase contacts. Make sure the
spring fingers are not bent flat, preventing proper electri-
cal contact with the subbase.
4. Set the heat anticipator indicator(s) to 0.1A for
proper system operation (Fig. 11).
5. Note the two tabs on the top inside edge of the
thermostat base. The tabs fit into the corresponding slots
on the top of the subbase. Mount the thermostat on the
subbase. See Fig. 12.
6. Align the two captive mounting screws in the thermo-
stat base with the posts on the subbase (Fig. 12). Tighten
both screws. Do not overtighten the screws or damage to
the subbase posts can result.
Fig. 7—Typical hookup for MABS II and MABS II-L Control Panels with T874A Thermostat/Q674B,D
Subbases in single-stage heating-cooling zone system. MABS II Control Panel shown; MABS II-L Control
Panel hookup is the same.
4
M1634
Y
2
1 POWER SUPPLY. PROVIDE DISCONNECT MEANS AND OVERLOAD PROTECTION AS REQUIRED.
JUMPER RC, RH TOGETHER AND WIRE AS SINGLE R TERMINAL.
ZONE 1 O AND B TERMINALS MUST BE CONNECTED FOR PROPER SYSTEM OPERATION.
DO NOT CONNECT W2 AND Y2 TERMINALS TO CONTROL PANEL.
Y
1
O
G
2
G
1
R
C
R
H
B
W
2
W
1
E
ADD-A-
ZONE
EM. HEAT
RELAY
SECOND
STAGE
RELAY
FAN
RELAY HEAT
RELAY COOL
RELAY CAC
RELAY ZONE 1
RELAY ZONE 2
RELAY ZONE 3
RELAY
A
4
A
3
A
2
A
1
T
8
T
7
T
6
T
5
T
4
M
6
M
4
M
1
ZONE 3
T
8
T
7
T
6
T
5
T
4
M
6
M
4
M
1
ZONE 2
T
8
T
7
T
6
T
5
T
4
M
6
M
4
M
1
ZONE 1
O
1
G
1
B
1
E
1
2
1
CHANGEOVER
CONTROL
COOL
FAN
HEAT
EM. HEAT
24 V, 40 VA
TRANSFORMER
45 6Z
DAMPER
ACTUATOR
12 3X
45 6Z
DAMPER
ACTUATOR
12 3X
45 6Z
DAMPER
ACTUATOR
12 3X
L1
(HOT)
L2
1
MABS II
CONTROL PANEL
Y1 Y2 RC RH W2 W1
2
T874A THERMOSTAT/
Q674D SUBBASE
Y1 Y2 RC RH W2 W1
2
T874A THERMOSTAT/
Q674D SUBBASE
Y1 RC RH W1 W2 Y2
2
T874A THERMOSTAT/Q674B SUBBASE
OGB
TO SINGLE-
STAGE
HEATING/
COOLING
EQUIPMENT
3 4 4 2
4
3
4

569-0580—2
Fig. 8—Typical hookup for MABS II and MABS II-L Control Panels with T874D Thermostat/Q674B,D
Subbases in multistage heating-cooling zone system. MABS II Control Panel shown; MABS II-L Control
Panel hookup is the same.
M1393A
Y2
1POWER SUPPLY. PROVIDE DISCONNECT MEANS AND OVERLOAD PROTECTION AS REQUIRED.
JUMPER RC, RH TOGETHER AND WIRE AS SINGLE R TERMINAL.
ZONE 1 O AND B TERMINALS MUST BE CONNECTED FOR PROPER SYSTEM OPERATION.
IF SINGLE-STAGE COOLING, DO NOT CONNECT Y2; IF SINGLE-STAGE HEATING, DO NOT CONNECT W2.
Y1
O
G2
G1
RC
RH
B
W2
W1
E
ADD-A-ZONE
EM. HEAT
RELAY
SECOND
STAGE
RELAY
FAN
RELAY HEAT
RELAY COOL
RELAY CAC
RELAY ZONE 1
RELAY ZONE 2
RELAY ZONE 3
RELAY
A4
A3
A2
A1
T8
T7
T6
T5
T4
M6
M4
M1
ZONE 3
T8
T7
T6
T5
T4
M6
M4
M1
ZONE 2
T8
T7
T6
T5
T4
M6
M4
M1
ZONE 1
O1
G1
B1
E1
2
1
CHANGEOVER
CONTROL
COOL
FAN
HEAT
EM. HEAT
24 V, 40 VA
TRANSFORMER
45 6Z
DAMPER
ACTUATOR
123X
45 6Z
DAMPER
ACTUATOR
12 3X
45 6Z
DAMPER
ACTUATOR
12 3X
L1
(HOT)
L2
1
MABS II
CONTROL PANEL
RC Y2 W2 Y1 RH W1
2
2
T874D THERMOSTAT/
Q674D SUBBASE
RC Y2 W2 Y1 RH W1
2
T874D THERMOSTAT/
Q674D SUBBASE
BY2W2Y1RH W1
3
T874D THERMOSTAT/Q674B SUBBASE
RC OG
TO SINGLE-
STAGE
HEATING/
COOLING
EQUIPMENT
2
3
4
444

6
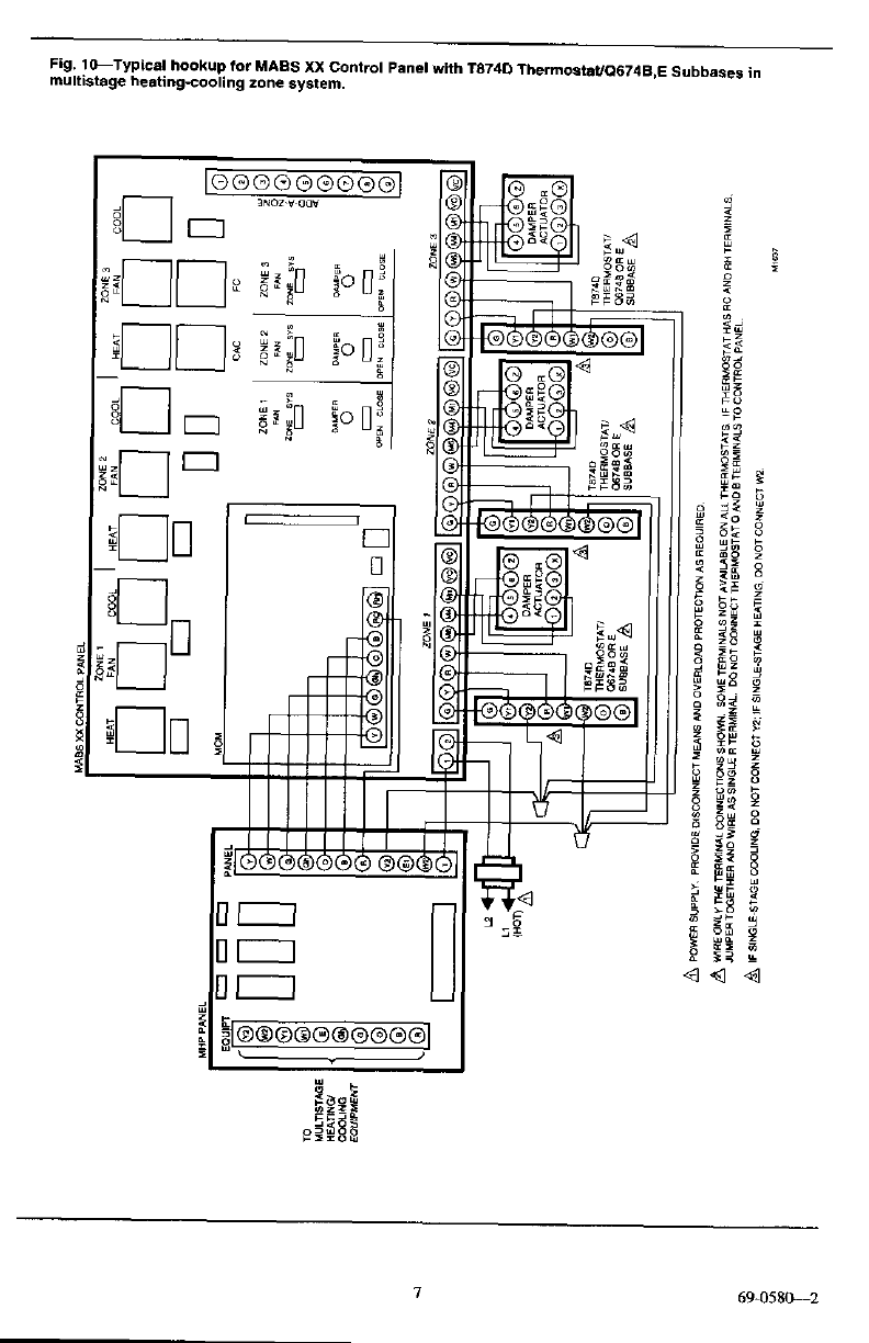
Fig. 9—Typical hookup for MABS XX Control Panel with T874A Thermostat/Q674B,E Subbases in single-
stage heating-cooling zone system.
M1636
1
2
3
4
5
6
7
8
9
ADD-A-
ZONE
HEAT FAN COOL HEAT FAN COOL HEAT FAN COOL
YWGGh
456Z
DAMPER
ACTUATOR
12
3X
L1
(HOT)
L2
1
MABS XX
CONTROL PANEL
1POWER SUPPLY. PROVIDE DISCONNECT MEANS AND OVERLOAD PROTECTION AS REQUIRED.
WIRE ONLY THE TERMINAL CONNECTIONS SHOWN. SOME TERMINALS NOT AVAILABLE ON ALL THERMOSTATS. IF THERMOSTAT HAS
R/RC/RH TERMINALS, JUMPER TOGETHER AND WIRE AS SINGLE R TERMINAL. DO NOT CONNECT THERMOSTAT O AND B TERMINALS
TO CONTROL PANEL.
2
ZONE 1 ZONE 2 ZONE 3
O B RC RH
12 GYR W
M6 M4 M1 VO VC
ZONE 1
GYRW
M6 M4 M1 VO VC
ZONE 2
GYRWM6 M4 M1 VO VC
ZONE 3
OPEN CLOSE
DAMPER
ZONE SYS
ZONE 1
OPEN CLOSE
DAMPER
ZONE SYS
ZONE 2
OPEN CLOSE
DAMPER
ZONE SYS
ZONE 3
FAN FAN FAN
G
Y1
Y2
R
W1
W2
O
T874A
THERMOSTAT/
Q674B OR E
SUBBASE
2
456Z
DAMPER
ACTUATOR
123X
G
Y1
Y2
R
W1
W2
O
T874A
THERMOSTAT/
Q674B OR E
SUBBASE
2
456Z
DAMPER
ACTUATOR
123X
G
Y1
Y2
R
W1
W2
O
T874A
THERMOSTAT
Q674B OR E
SUBBASE
2
CAC FC
TO SINGLE-
STAGE
HEATING/
COOLING
EQUIPMENT
MCM
B B B

r

Settings

9 69-0580—2
Checkout
TABLE 5—SYSTEM SET-UP FOR THERMOSTAT CHECKOUT.
Heating Cooling
Control Zones Other Zones Other
Panel Zone 1 Than Zone 1 Zone 1 Than Zone 1
Mini-zone Set thermostat Move the heating set Set thermostat Move the cooling set
MABS II system switch to point lever 10° F system switch to point lever 10° F
MABS II-L HEAT; set fan switch [6° C] below room COOL; set fan [6° C] above room
to AUTO. Move the temperature. switch to AUTO. temperature.
heating set point Move the cooling
lever 10° F [6° C] set point lever 10° F
below room [6° C] above room
temperature. temperature.
MABS XX On all zone thermostats, set the system On all zone thermostats, set the system
switch to HEAT; set the fan switch to AUTO. switch to COOL; set the fan switch to AUTO.
Move the heating set point lever 10° F [6° C] Move the cooling set point lever 10° F [6° C]
below room temperature. above room temperature.
NOTE: The control panel provides a three- NOTE: The control panel provides a three-
minute time delay when 24V is applied to minute time delay when 24V is applied to
the control panel and at the end of each the control panel and at the end of each
equipment cycle. The high-speed fan runs equipment cycle. The high-speed fan runs
during this time delay. during this time delay.
HEATING
NOTE: If a plenum fan control is used in the heating
system, there will be a short delay on a call for heat to
allow the furnace to heat the plenum. The fan starts
immediately in electric heat systems. Allow 30 seconds
for the damper to open or close completely.
Make sure all zone thermostats are set as instructed in
the Heating column in Table 5. Check each zone thermo-
stat as follows:
1. If thermostat has a fan switch, set it to ON. See
Fig. 13. After 30 seconds, place your hand in front of an
air register in that zone to check for air flow at the register.
2. Reset fan switch, if provided, to AUTO. After 30 sec-
onds, make sure air flow at register has stopped.
3. Move heating set point lever on zone thermostat
10° F [6° C] above room temperature to call for heat.
4. After 30 seconds (longer, if necessary, for time delay
on plenum fan control), check for warm air at the register.
5. Move heating set point lever on the zone thermostat
10° F [6° C] below room temperature to end a call for heat.
After 30 seconds (longer, if necessary, for time delay on
plenum fan control or control panel), check that air flow at
the register has stopped.
6. Repeat steps 1-5 for each zone thermostat.
COOLING
CAUTION
Do not operate cooling equipment if outdoor
temperature is below 50° F [10° C]. Refer to
manufacturer recommendations.
Make sure all zone thermostats are set as instructed in
the Cooling column in Table 5. Check each zone thermo-
stat as follows:
1. Move cooling set point lever on the zone thermostat
10° F [6° C] below room temperature to call for cooling.
2. After 30 seconds, place your hand in front of an air
register in that zone to check for cool air at the register.
3. Move the cooling set point lever on the zone thermo-
stat 10° F [6° C] above room temperature to end the call for
cooling. After 30 seconds (longer, if necessary, for time
delay on control panel), check that air flow at the register
has stopped.
4. Repeat steps 1-3 for each zone thermostat.
When system checkout is complete, return all thermo-
stats to the desired settings for normal system operation.
!
Before beginning checkout of thermostat operation,
set switches on the control panel for the desired system
operation. See instructions provided with the control panel.
To set up the system for thermostat checkout, adjust
each thermostat settings as shown in Table 5.

Fig. 14—Thermometer calibration.
Calibration
THERMOSTAT
T874 thermostats are accurately calibrated at the
factory. They do not have provision for field calibration.
THERMOMETER
The thermometer in your thermostat has been accu-
rately calibrated at the factory. The thermometer should
only need adjustment if it has been dropped or shifted due
to mishandling.
If the set point lever and the thermometer reading do
not agree:
1. Remove the thermostat cover by pulling up from the
bottom of cover until it clears the mounting slots.
2. Set the thermostat cover on a table near an accurate
thermometer.
3. Allow ten minutes for the cover thermometer to
sense the area temperature; compare the readings. Be care-
ful not to touch the thermometer or breathe on it.
4. If the readings are the same, replace the cover and put
the system into operation.
5. If the readings are different, insert a small screw-
driver in the thermometer slot (Fig. 14) and turn it until the
thermometers have the same reading.
6. Replace the thermostat cover and put the system into
operation.
NOTE: Hand heat will offset the thermometer reading.
After making each adjustment, wait ten minutes for
the thermometer to stabilize before comparing.
M5070
Home and Building Control Home and Building Control Helping You Control Your World
Honeywell Inc. Honeywell Limited—Honeywell Limitée
1985 Douglas Drive North 740 Ellesmere Road
Golden Valley, Minnesota 55422 Scarborough, Ontario
M1P 2V9
Printed in U.S.A.
QUALITY IS KEY