Honeywell Y343B1002 Users Manual 68 0014 Direct Spark Gas Burner Ignition Package
Y343B1002 68-0014
Y343B1002 to the manual dfefcc4d-040e-427f-86a4-4357999f5d2a
2015-01-23
: Honeywell Honeywell-Y343B1002-Users-Manual-261201 honeywell-y343b1002-users-manual-261201 honeywell pdf
Open the PDF directly: View PDF 
.
Page Count: 11

Honevwell 
THE  Y343B  IGNITION  PACKAGE  PROVIDES 
DIRECT  SPARK  IGNITION  (DSI)  FOR  GAS 
HEATING  SYSTEMS.  THE  PACKAGE  IN- 
CLUDES  THE  S87D  ELECTRONIC  MODULE, 
Q354A  FLAME  SENSOR,  Q347A  SPARK  IG- 
NITER-SENSOR  AND  392286-l  IGNITION 
CABLE. 
DEPENDABLE  BURNER  IGNITION 
0  Spark  generated  by  electronic  module  and 
internal  step-up  transformer. 
SOLID  STATE  DESIGN 
17 Compact,  solid  state  components  provide 
accurate,  long-lasting  performance. 
0  No  mechanical  friction  or  wear. 
MAXIMUM  OPERATING  SAFETY 
0  Proves  presence  of  flame  on  burner  igni- 
tion,  then  protects  against  burner  flame-out 
and  interruption  of  electric  power  or  gas  sup- 
ply  during  run  cycle. 
0  Open  or  short  circuit  in  any  electronic  com- 
ponent  results  in  safety  shutdown. 
USES  FLAME  RECTIFICIATION  PRINCIPLE 
0  Any  false  flame  signal,  including  electrical 
short  or  ground,  results  in  safety  shutdown. 
0  Ignition  is  started,  main  burner  is  ignitied, 
burner  flame  is  proved  and  continuously 
monitored  during  main  burner-on  period.  lg- 
nition  spark  is  discontinued  when  flame  is 
proved. 
CONVENIENT  REMOTE 
RESTART  PROCEDURE 
0  After  safety  shutdown,  equipment  must  be 
manually  reset  from  remote  thermostat  or 
temperature  controller. 
0  System  automatically  locks  out  after 
trial-for-ignition.  If  malfunction  exists,  correc- 
tion  must  be  made  before  system  is  manually 
reset. 
LOW  VOLTAGE  CONTROL  CIRCUIT 
0  Permits  use  of  24  V  thermostat  for  op- 
timum  temperature  control. 
0  Reduced  wiring  costs  -  both  on  appliance 
and  on  job. 
GAS  VALVE  CONTROL 
0  S87D  internal  relay  switches  the  gas  valve 
on  and  off. 
0  System  can  be  used  with  a  P-stage  gas 
valve,  if  desired. 
ALARM  CONTROL 
El  Optional  alarm  circuit  provides  24  Vat  for 
an  automatic  visual  or  audible  signal  if  any 
part  of  system  malfunctions  and  causes  a 
lockout. 
L.H.  Form  Number  68-0014 
1-630  0 Honeywell  Inc.  1983 

SPECIFICATIONS  4 
The  Y34381002  Direct  Soark  Gas  Burner  lanition 
Package  includes  the  S87D  ilectronic  Module,  6347A 
Spark  Igniter-Sensor,  Q354A  Flame  Sensor  and 
392286-l  Ignition  Cable  Assembly. 
Other  controls  needed  to  complete  the  heating  sys- 
tem  include  a  24  V,  DSI  gas  valve;  24  V  thermostat; 
24  V  transformer  and  high  temperature  limit 
controller. 
S87D  CONTROL  MODULE 
The  S87D  contains  the  electronic  components  of 
the  system  and  also  serves  as  a  central  wiring  panel 
for  the  external  controls.  Powered  by  a  24  V  trans- 
former  and  controlled  by  a  thermostat,  it  performs  the 
following  functions. 
1.  Checks  for  a  false  flame  condition  (short  to 
ground).  Module  will  lock  out  if  false  flame  condition 
is  present. 
2.  Generates  a  potential  of  15,000  V  (open  circuit) 
at  the  spark-igniter  stud  for  direct  ignition  of  the  main 
burner. 
3.  Operates  gas  valve  (internal  relay  controls  inde- 
pendent  gas  valve  circuit). 
4.  Senses  the  presence  of  main  burner  flame  and 
discontinues  ignition  spark.  If  the  burner  fails  to  ignite 
within  the  trial-for-ignition  period,  safety  lockout  oc- 
curs. 
5.  If  there  is  a  loss  of  power,  the  system  will  shut 
down  safely.  Start-up  is  initiated  when  power  is 
restored. 
6.  If there  is  a  loss  of  main  burner  flame,  the  timed 
trial-for-ignition  is  repeated.  Safety  shutdown  occurs 
if  flame  is  not  reestablished  within  the  trial-for-ignition 
period. 
7.  Normally  closed  contacts  in  internal  relay  may 
be  used  for  an  alarm  circuit  to  signal  safety  shutdown 
of  system. 
ELECTRICAL  RATINGS: 
Voltage  and  Frequency-24  Vat,  60  Hz. 
Current  Rating-O.2  A  plus  gas  valve  current  draw. 
SAFETY  LOCKOUT  TIMING:  11  seconds. 
FLAME  FAILURE  REIGNITION  TIME:  0.8  seconds 
maximum. 
FLAME  CURRENT  SIGNAL  REQUIRED:  1.5  YA  dc 
minimum. 
SPARK  GENERATOR  VOLTAGE:  15,000  V  open 
circuit. 
MOUNTING:  Mounts  in  any  position.  See  Fig.  1 
DIMENSIONS:  See  Fig.  1. 
FIG.  1-DIMENSIONS  FOR  S87  IN  in.  [mm  IN 
BRACKETS]. 
(continued  on  page  3) 
WHEN  PURCHASING  REPLACEMENT  AND  MODERNIZATION  PRODUCTS  FROM  YOUR  TRADELINE 
WHOLESALER  OR  YOUR  DISTRIBUTOR,  REFER  TO  THE  TRADELINE  CATALOG  OR  PRICE  SHEETS  FOR 
COMPLETE  ORDERING  NUMBER,  OR  SPECIFY- 
1.  Order  number  Y343BlW2.  c.  Combination  gas  control  (for  DSI 
2.  Safety  lockout  timing  (11  seconds).  application). 
3.  DSI  system  controls,  as  required.  d.  High  limit  temperature  controller  and 
a.  24  V,  60  Hz  transformer.  auxiliary  safety  controls. 
b.  Low  voltage  thermostat  or  temperature  controller.  e.  Alarm  signal  (if  required). 
IF  YOU  HAVE  ADDITIONAL  QUESTIONS,  NEED  FURTHER  INFORMATION,  OR  WOULD  LIKE  TO  COMMENT  ON  OUR 
PRODUCTS  OR  SERVICES,  PLEASE  WRITE  OR  PHONE: 
1. 
2. 
YOUR  LOCAL  HONEYWELL  RESIDENTIAL  SALES  OFFtCE  (CHECK  WHtTE  PAGES  OF  YOUR  PHONE 
DIRECTORY). 
RESIDENTIAL  MVISKIN  CUSTOMER  SERWCE 
HONEYWELL  INC.,  1995  DOUGLAS  DRIVE  NORTH 
MINNEAPOLIS,  MINNESOTA  55422  (612)542-7500 
(IN  CANADA-HONEYWELL  LIMITED/HONEYWELL  LIMITEE,  740  ELLESMERE  ROAD,  SCARBOROUGH, 
ONTARIO  MlP  2V9).  INTERNATIONAL  SALES  AND  SERVICE  OFFICES  IN  ALL  PRINCIPAL  CITIES  OF  THE 
WORLD. 
2 

AMBIENT  TEMPERATURE  RATING:  Minus  40  F  to 
plus  175  F  [minus  40  C  to  plus  79  C]. 
WIRING  CONNECTIONS:  l/4  in.  [6.4  mm]  male 
quick-connect  terminals,  for  all  except  ALARM  ter- 
minal.  ALARM  terminal,  l/4  in.  [6.4  mm]  female 
quick-connect.  l/4  in.  [6.4  mm]  diameter  stud 
base  for  ignition  cable. 
REPLACEMENT  PARTS:  3  A  fuse. 
Q347A  SPARK  IGNITER-SENSOR 
The  Q347A,  powered  by  the  S87D  Electronic  Mod- 
ule,  produces  a  spark  for  direct  ignition  of  the  main 
burner.  The  Q347A  consists  of  an  inner  electrode 
(insulated  rod)  and  an  outer  electrode  (rigid,  formed 
strap  bent  at  end  to  extend  over  tip  of  inner  rod).  Tip  of 
electrodes  extend  into  path  of  main  burner  gas;  arcing 
across  spark  gap  ignites  gas. 
SPARK  GAP:  5/32  in.  [4 mm]. 
LENGTH  OF  ELECTRODE  ASSEMBLY  (mounting  sur- 
face  to  tip):  2-318  in.  [60.3  mm]. 
ELECTRODE  MATERIAL:  Kanthal. 
MAXIMUM  TEMPERATURE  RATINGS:  1800  F  [982  C] 
at  tip  of  electrode  assembly,  1250  F  [677  C]  at 
ceramic  insulator. 
WIRING  CONNECTION:  l/4  in.  [8.4  mm]  diameter  base 
stud  for  ignition  cable. 
MOUNTING:  Bracket,  see  Fig.  2. 
DIMENSIONS:  See  Fig.  2. 
FIG.  2-lUSTALLA’F(ON  MMHBIONS  NV in.  [mm  IN 
BRACKETS]  OF Q347A. 
Q354A  FLAME  SENSOR 
The  Q354A  consists  of  a  flame  rod  supported  in  a 
ceramic  insulator  with  mounting  bracket.  Positioned  so 
that  the  end  of  the  flame  rod  is  immersed  in  the  main 
burner  flame,  and  with  the  burner  head  serving  as  the 
ground  area,  it  operates  on  the  flame  rectification 
principle.  In the  presence  of  main  burner  flame,  a direct 
current  is  established  to  prove  burner  ignition  and  to 
continuously  monitor  the  flame  during  the  burner-on 
period. 
MAXIMUM  TEMPERATURE  RATING:  2200  F  [1204  C] 
at  tip  of  rod,  1250  F [677  C] at  ceramic  insulator. 
WIRING  CONNECTION:  l/4  in.  [6.4  mm]  male 
quick-connect  terminal. 
FLAME  ROD  MATERIAL:  Kanthal. 
MOUNTING:  Bracket,  see  Fig.  3. 
DIMENSIONS:  See  Fig.  3. 
FIG.  3-DIMENSIONS  IN  in.  [mm  IN  BRACKETS]  OF 
Q354A. 
392286-l  IGNITION  CABLE 
This  cable  is  used  to  connect  the  Q347A  Spark 
Igniter-Sensor  to  the  S87  Electronic  Module. 
CABLE:  No.  16  gauge  high  tension,  485  F  [251  C] 
heated,  oil  resistant. 
LENGTH:  30  in.  [762  mm]. 
CONNECTORS  (2):  l/4  in.  [6.4  mm]  diameter  spring 
clip  type  with  insulating  boot.  Two  straight  boots. 
GAS  CONTROLS 
Combination  gas  controls  are  directly  controlled  by 
the  internal  relay  in  the  S87D.  Maximum  electrical 
rating  for  DSI  gas  valve  control  is  2.0  A.  See  individual 
publication  for  complete  specifications  and  installation 
instructions  in  the  following  recommended 
gas  controls. 
3  68-0014 

TABLE  l-GAS  CONTROLS. 
MODEL  NO. 
V845A 
VR8450A 
V845C 
VR8450C 
VR8540A 
VR8590A 
VR8600A 
TYPE  OF  PRESSURE 
REGULATOR 
Standard 
Standard 
Step-open 
Step-open 
Two-stage 
Negative 
Negative 
CAPACITY  RANGE  OF 
STANDARD  MODEL 
cfh  mJ/hr 
110to335  3.1  to  9.5 
110to290  3.1  to  7.8 
11oto335  3.1  to  9.5 
110to290  3.1  to  7.8 
110to290  3.1  to  7.8 
37  to  400  1.oto  11.3 
37  to  400  1.oto11.3 
PUBLICATION  FORM 
NUMBER 
60-2315 
68-0016 
60-2315 
68-0016 
68-0021 
68-0017 
68-0017 
AUXILIARY  CONTROLS 
REQUIRED  FOR  BASIC  DSI  SYSTEM 
1.  TRANSFORMER.  Select  transformer  with  ade- 
quate  VA.  S87D  requires  a  24  Vat  transformer.  For 
common  system  transformers,  capacity  must  be  ade- 
quate  for  S87D,  temperature  controller,  gas  control  and 
any  other  device  powered  by  the  transformer  (see 
Table  2). 
2.  LOW  VOLTAGE  TEMPERATURE  CONTROLLER. 
Select  a  24  Vat  thermostat  for  single-stage  or 
two-stage  burner  control  (depending  on  heating  sys- 
tem). 
DETERMINED  BY  PARTICULAR  APPLlCATiON 
Refer  to  separate  publications  for  information  on  the 
controls  utilized  by  the  appliance  manufacturer.  These 
controls  are: 
1.  High  limit  temperature  controller  and  other  safety 
controls  as  required. 
2.  Gas  valve.  Refer  to  Table  1 above. 
3.  Alarm  signal  as  desired  for  the  circuit  under 
control  of  the  S87D. 
1.  When  using  a  common  transformer  to  power 
both  S87D  and  gas  control  circuit,  use  a  good 
quality  transformer  of  adequate  VA.  If  trans- 
former  VA  is  inadequate,  the  S87D  internal 
relay  may  chatter. 
2.  When  two  or  more  transformers  are  used,  they 
must  be  properly  phased  and  grounded. 
;NSlAL~~lON  *  I 
WHEN  INSTALLING  THIS  IGNITION  PACKAGE.  . . 
1.  Read  these  instructions  carefully.  Failure  to  follow 
them  could  damage  the  product  or  cause  a  hazardous 
condition. 
2.  Check  the  ratings  given  in the  instructions  and  on 
the  product  to  make  sure  it  is  suitable  for  your 
application. 
3.  The  installer  must  be  a  trained,  experienced 
service  technician. 
4.  After  installation  is  complete,  check  out  system 
operation. 
1.  Disconnect  power  supply  before  wiring  to  pre- 
vent  electrical  shock  or  equipment  damage. 
2.  If  a  new  gas  control  is  to  be  installed,  turn  off 
gas  supply  before  starting  installation.  Be sure 
to  conduct  a  Gas  Leak  Test  after  the  gas 
control  is  installed  (follow  manufacturer’s 
instructions). 
IMPORTANT 
If  this  is  a  replacement  application,  follow  the 
appliance  manufacturer’s  instructions.  The  manu- 
facturer  usually  provides  wiring  diagrams, 
start-up  and  checkout  instructions  and  service 
procedures  for  their  system.  If  manufacturer’s 
instructions  are  not  available,  the  information 
below  may  be  used  as a general  guide. 
S87D  CONTROL  MODULE 
Select  a  location  within  30  in.  [762  mm]  maximum  of 
the  burner  that  will  permit  a  direct  cable  route  to  the 
Q347A  spark  igniter.  Ready  access  to  the  terminals  is 
necessary  for  wiring  and  servicing.  Do  not  exceed  the 
ambient  temperature  rating  given  in  the  SPECIF- 
ICATION  section. 
The  S87  may  be  mounted  in  any  position.  See  Fig.  1 
for  mounting  dimensions.  Use  No.  6-32  machine  screws 
or  No.  8  sheetmetal  screws  1  in.  long  for  fastening. 
Fasten  securely. 
Q347A  SPARK  IGNITER-SENSOR 
The  Q347A  should  be  rigidly  mounted  in  an  ac- 
cessible  location.  It  must  remain  in  a  fixed  position 
relative  to  the  main  burner.  The  CT347 may  be  mounted 
on  a  separate  bracket  or  on  the  same  bracket  with  the 
Q354A  Flame  Sensor.  On  multiple  burners,  the  Q347 
may  be  mounted  at  one  end  of  the  row  and  the  Q354  at 
the  other  end  to  delay  spark  cutoff  until  all  burners  are 
ignited. 
Q347  and  S87  to  30  in.  [762  mm]  or  less.  This  may 
affect  the  location  selected  for  the  0347  and/or 
S87.  Ignition  cable  must  not  touch  grounded 

Position  the  Q347  so  that  only  the  tips  of  the  elec- 
trodes  are  immersed  in  the  burner  flame.  The  burner 
must  ignite  smoothly  -  usually  this  will  be  ac- 
complished  with  tip  of  electrodes  (spark  gap)  spaced 
approximately  l/4  in.  [6.4  mm]  from  the  surface  of  the 
burner.  Gas  must  flow  into  one  of  the  three  open  sides 
of  the  spark  gap  (where  outer  electrode  does  not  block 
gas).  The  center  electrode  must  not  be  near  any 
ground. 
The  spark  gap  is factory-adjusted  to  5/32  in.  [4  mm]. 
If  this  setting  is  disturbed  in  shipment  or  installation, 
readjust  by  carefully  bending  the  bent  tip  of  the  ground 
(outer)  electrode  only. 
Q354A  FLAME  SENSOR 
The  Q354  should  be  rigidly  mounted  in an  accessible 
location.  It must  remain  in  a fixed  position  relative  to  the 
main  burner.  Mount  the  Q354  on  a  separate  bracket  or 
on  the  same  bracket  with  the  Q347  Spark  Igniter. 
Tip  of  rod  must  be  immersed  in  main  burner  flame. 
Depth  of  immersion  (usually  about  1 in.  [25.4  mm])  and 
distance  from  rod  to  burner  surface  (usually  l/4  in.  [6.4 
mm])  depends  on  type  of  burner  and  flame  configura- 
tion.  Position  selected  must  produce  sensor  current  of 
1.5  microamperes  (minimum).  See  Fig.  9,  Page  10,  to 
measure  current. 
The  main  burner  serves  as  the  grounding  area  for 
the  flame  signal.  Install  ground  wire  from  the  main 
burner  to  the  ground  terminal  of the  S87D. 
AUXILIARY  CONTROLS 
1.  If a common  transformer  is used  to  power  both 
the  S87D  and  the  burner  valve  circuit,  its 
capacity  (VA)  must  be  adequate  for  all  of  the 
system  components  (see  Table  2). 
2.  Turn  off  gas  supply  before  beginning  installa- 
tion.  After  installing  gas  control,  be  sure  to 
conduct  Gas  Leak  Test,  page  8. 
Install  the  auxiliary  controls  required  in the  complete 
control  system,  following  the  instructions  of  the  ap- 
pliance  or  control  manufacturer. 
TABLE  2-TRANSFORMER  RATINGS  FOR 
S87D  AND  DUAL  VALVE  COMBINATION 
GAS  CONTROL. 
MINIMUM  TOTAL 
VA  VALVE 
RATING  CURRENT 
(24  V  transformer)  (in  amperes) 
S87D 
CURRENT 
(in  amperes) 
20  Up to 0.6  0.2 
30  0.7 to  1 .o  0.2 
40  1.1  to  1.4  0.2 
55  1.5  to  2.0  0.2 
WIRING 
GENERAL  PRECAUTIONS’-f 
1. 
2. 
3. 
4. 
5. 
6. 
7. 
Check  the  wiring  diagram  furnished  by  the 
appliance  manufacturer,  if  available,  for 
circuits  differing  from  the  ones  shown  in  this 
publication.  Carefully  follow  all  instructions  af- 
fecting  the  general  procedures  outlined  below. 
All  wiring  must  comply  with  applicable  elec- 
trical  codes  and  ordinances. 
Disconnect  the  power  supply  before  wiring  to 
prevent  electrical  shock  and  equipment 
damage. 
The  flame  sensor  leadwire  should  be  kept  as 
short  as  possible  and  should  not  be  allowed  to 
rest  against  grounded  metal  surfaces. 
A  common  ground  is  required  for  the  S87D 
Electroic  Module,  Q347A  Spark  lg- 
niter-Sensor,  Q354A  Flame  Sensor  and  main 
burner.  The  S87  ground  (GND)  terminal  in- 
ternally  grounds  one  side  of  the  transformer. 
Any  auxiliary  controls  or  limits  used  must  not 
be  in the  grounded  leg. 
Ignition  cable  should  not  touch  any  metal  sur- 
face  or  current-carrying  wires.  It  must  not  be 
more  than  30  in.  1762 mm]  long. 
Do  not  short  valve  terminals  as  this  may  burn 
out  the  temperature  controller  or  the 
transformer. 
S87D  CONTROL  MODULE 
1.  Connect  the  system  components  to  the  S87D 
quick-connect  terminals  as  shown  in  the  wiring  dia- 
grams.  Refer  to  the  appliance  manufacturer’s  instruc- 
tions  for  wiring  any  other  auxiliary  controls. 
2.  Adjust  thermostat  heat  anticipator  to  match 
system  current  draw.  The  current  draw  equals  the  total 
current  required  for  the  S87D  (0.2  A)  plus  the  gas  valve. 
Gas  valve  must  be  designed  for  DSI application. 
Q347A  SPARK  IGNITER  AND 
IGNITION  CABLE 
1.  Connect  the  GND  burner,  quick-connect  terminal 
on  the  S87D  to  one  of  the  mounting  screws  on  the 
Q347A  as shown  in  Fig.  4.  The  S87  and  Q347  must  have 
a  common  ground.  Use  thermoplastic  insulated  wire 
with  a  minimum  rating  of  105  C  [221  F]  for  the  ground 
wire;  asbestos  insulation  is  not  acceptable.  If  neces- 
sary,  use  a  shield  to  protect  the  wire  from  radiant  heat 
generated  by  the  burner. 
2.  Connect  one  end  of  the  ignition  cable  (supplied 
with  the  Y343B  package)  to  the  ignition  terminal  on  the 
S87  and  the  other  end  to  the  Q347. 
NOTE:  Ignition  cable  must  not  run  in  contact  with  a 
metal  surface  or  current-carrying  wires.  Use  ceramic 
or  plastic  standoff  insulators  to  protect  voltage  to 
spark  electrode  from  being  reduced.  If cable  passes 
through  a  metal  panel,  use  an  insulated  bushing  in 
the  panel  to  prevent  voltage  reduction  to  spark 
electrode. 
5  68-0014 

Q354A  FLAME  SENSOR 
1.  Mate  quick-connect  terminals  (l/4  in.  [6.4  mmf)’ 
are  provided  on  both  the  Q354  and  S87D.  Connect  the 
SENSOR  terminal  on  the  587  to  the  terminal  on  the 
Q354  as  shown  in  Fig.  4.  Use  thermoplastic  insulated 
wire  with  a  minimum  rating  of  105  C  [221  F]  for  the 
flame  sensor  leadwire;  asbestos  insulation  is  not 
acceptable. 
AUXILIARY  CONTROLS 
The  auxiliary  controls  (transformer,  thermostat, 
limit)  must  be  connected  to  the  24  V  terminal, 
gas  valve  must  be  connected  to  the  VALVE 
terminals  and  the  alarm  control  to  the  ALARM 
terminal  on  the  S87D.  Only  one  side  of  the 
transformer  secondary  can  be  connected  to  the 
24  V  (GND)  terminal.  A  short  to  ground  could 
cause  the  system  to malfunction. 
Connect  the  system  transformer,  thermostat,  high 
temperature  limit  controller,  combination  gas  valve  and 
alarm  (if  used)  as  shown  in  Fig.  4. 
FIG.  4-WIRING  HOOKUP  FOR  Y343B  PACKAGE  IN  A 
TYPICAL  DSI  HEATING  SYSTEM. 
IOTOR 
PRESSURE 
FOR  VALVE  AN0 
WRNER  HOOKUP. 
SEE  FIG.  4  AND  7. 
n 
1  POWER  SUPPLY.  PROVIDE  01SCONNECT  MEANS  AND  OVERLOAD 
PROTECTlON  AS  REQVIRED. 
n 2  OPTIONAL  LlMlT  CONTROLLER  l_OCATION.  I I .3*1 
FIG.  6-WIRING  HOOKUP  FOR  Y343B  PACKAGE  IN A TYPICAL  HEATING-  COOLING  SYSTEM. 
6 

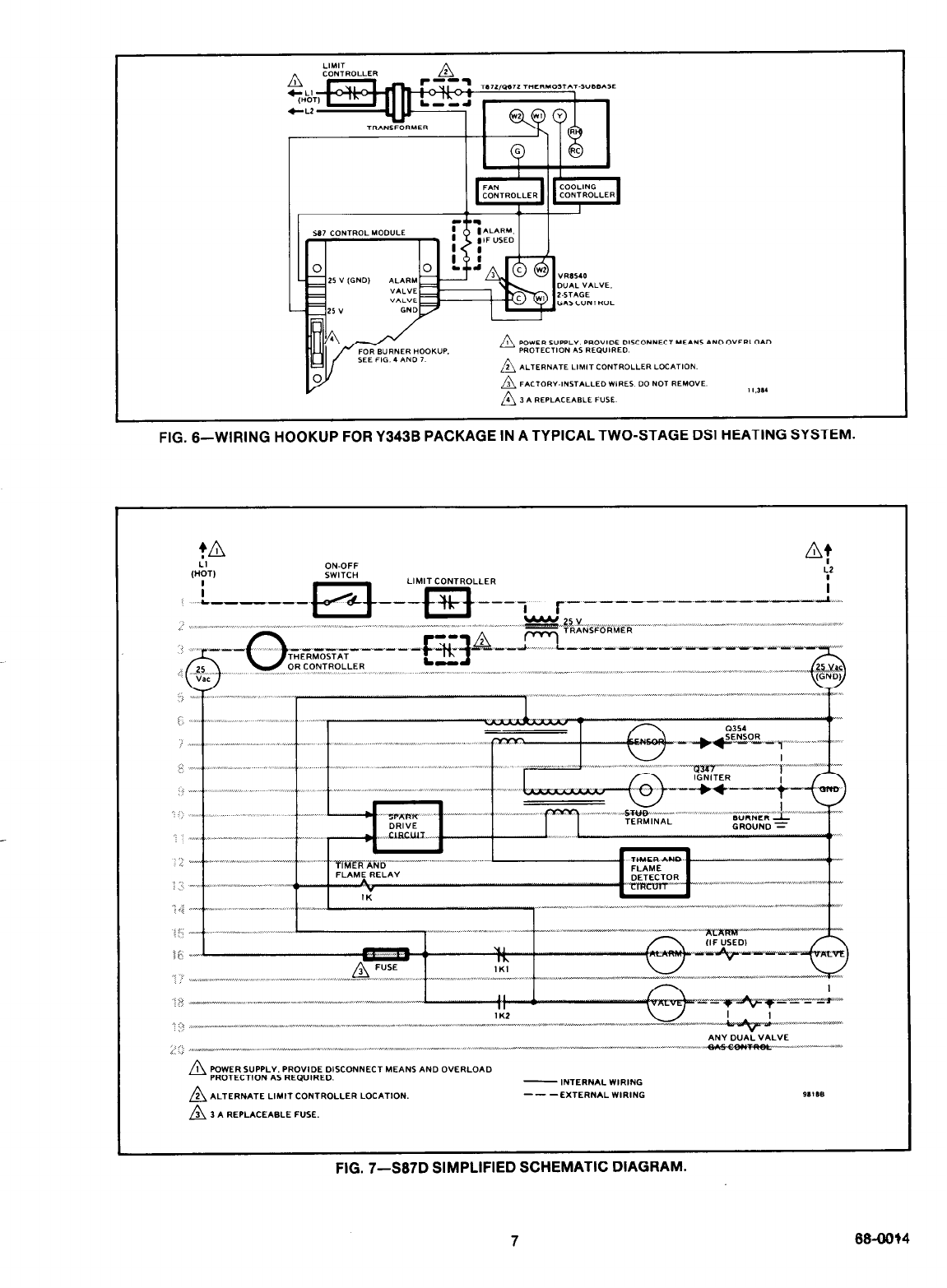
FIG.  B-WIRING  HOOKUP  FOR  Y343B  PACKAGE  IN  A TYPICAL  TWO-STAGE  DSI  HEATING  SYSTEM. 
,,  “,,  ~  ,,,  I  ,,,,  ,. 
,..,  :.  II  ,,  , 
.xI,. j ,,,.  ., 
_ ,-,  CI  ,x  .,,,  .,  .  .x 
_^.,” ~.. ,, ,IX  ^  _, 
FIG.  7-S67D  SIMPLIFIED  SCHEMATIC  DIAGRAM. 
7  66-00?4 

STARTUP  AND  CHECKOUT 
The  following  start-up  and  checkout  procedures  are 
basic  to  the  S87.  If  possible,  refer  to  the  specific 
instructions  provided  by  the  appliance  manufacturer 
since  the  application  and  controls  used  may  differ. 
NOTE:  If  one  of  the  system  components  fails,  the  S87 
will  either  not  operate  or  it will  go  into  safety  lockout 
(depending  on  the  type  of failure).  If the  system  does 
not  perform  as  outlined  in  START  SYSTEM  and 
CHECK  SAFETY  LOCKOUT  steps  below,  refer  to  the 
SERVICE  section  to  determine  the  cause. 
START  SYSTEM 
1.  Turn  on  power  and  gas  supply. 
2.  Perform  the  following  Test  for  Gas  Leaks. 
I  DO  NOT OMIT  THIS  TEST. 
With  main  burner  in  operation,  paint  pipe  joints, 
gas  tubing  connections,  and  valve  gasket  lines 
with  rich  soap  and  water  solution.  Bubbles  in- 
dicate  gas  leaks.  To  stop  leak,  tighten  joints 
and/or  screws,  or  replace  gasket.  Never  use  a 
flame  to check  for gas leaks. 
1  I 
3.  Set  temperature  controller  to  call  for  heat  and 
watch  for  spark  at  the  igniter.  Time  the  length  of  the 
spark  operation;  it  must  be  within  the  lockout  timing 
period  (see  Table  3). 
4.  Check  that  the  system  starts  as  follows:  Spark 
turns  on,  gas  valve  opens  at  once,  and  burner  ignites 
after  gas  reaches  the  main  burner.  Once  burner  flame 
is established,  spark  igniter  shuts  off. 
NOTE:  If the  gas  control  has  been  replaced  or  serviced, 
lightoff  may  not  be  satisfactory  until  air  has  been 
purged  from  the  gas  line  or  the  gas  input  and 
combustion  air  have  been  adjusted  (see  manufac- 
turer’s  instructions). 
CHECK  SAFETY  LOCKOUT 
1.  With  the  system  power  off  and  the  temperature 
controller  set  to  call  for  heat,  manually  shut  off  the  gas 
supply. 
2.  Turn  power  on  to  energize  the  S87  and  begin 
spark  ignition.  Immediately  start  timing. 
3.  Determine  the  number  of  seconds  to  safety 
lockout  (spark  cutoff).  It  should  not  exceed  the  time 
shown  in  Table  3. 
TABLE  3-S87  LOCKOUT  TIMES. 
SPECIFIED  S87  LOCKOUT 
TIME  (stamped  on  SAFETY  LOCKOUT  TIME 
S87  Control  Module)  SHOULD  NOT  EXCEED- 
11 .O sec.  15.0  sec. 
4.  After  spark  cutoff,  manually  reopen  gas  supply 
cock.  No  gas  should  flow  to  the  main  burner. 
5.  Reset  system  as  described  below. 
RESET  S87  AFTER  SAFETY  LOCKOUT 
If  the  control  goes  into  safety  lockout,  it  will  remain 
locked  out  until  the  system  is reset. 
To  reset  the  system,  adjust  the  thermostat  setting 
below  room  temperature,  wait  30  seconds,  and  move 
the  thermostat  setting  up  to  call  for  heat.  Normal 
ignition  should  occur  as  described  in  START  SYSTEM, 
above. 
CHECKOUT 
Start  system  and  observe  operation  through  at  least 
one  complete  cycle  to  make  certain  all  controls  are 
operating  safely. 
OPERATION 
OPERATION 
The  S87D  is  powered  by  a  24  Vat  transformer  and 
activated  when  the  temperature  controller  calls  for 
heat.  Operation  is as follows  (refer  to  Fig.  8). 
When  the  S87  is  activated,  an  internal  transformer 
provides  power  to  the  electronic  generator  circuit  for 
spark  ignition  and  the  safety  lockout  timing  begins.  At 
the  same  time,  the  S87  opens  the  gas  control’s  main 
valves  which  allows  gas  to  flow  to  the  main  burner. 
Power  is supplied  to  the  generator  until: 
l  the  main  burner  lights  and  flame  sensor  current 
reaches  1.5  uA,  or... 
l  the  safety  lockout  timing  period  ends. 
If  the  main  burner  lights,  a  circuit  is  completed 
through  the  flame  to  the  burner  head  to  ground.  This 
current  flow  returns  the  safety  lockout  timer  to  the  reset 
(normal)  condition  and  interrupts  the  spark  ignition 
circuit.  Should  the  current  flow  be  interrupted;  i.e., 
flame-out  condition,  the  trial-for-ignition  begins  again. 
The  S87  will  keep  the  gas  control  main  valve  open  as 
long  as  there  is  a  call  for  heat  and  current  through  the 
flame  sensing  circuit.  If,  however,  the  safety  lockout 
timing  period  ends  before  the  main  burner  lights  or  the 
flame  sensor  establishes  enough  current,  the  system 
will  go  into  safety  lockout. 
When  the  system  goes  into  safety  lockout,  power  to 
the  generator  is  interrupted,  the  gas  control  circuit  is 
interrupted  and  the  alarm  relay  circuit  is  completed. 
The  system  will  stay  locked  out  until  it  is  reset  by 
moving  the  thermostat  set  point  below  room  tem- 
perature,  no  call  for  heat,  for  30  secondsThen, 
re-energize  the  system  by  moving  the  thermostat  set 
point  5 F [2.8  C]  above  room  temperature. 
8 

FIG.  a--NORMAL  SYSTEM  SEQUENCE  OF OPERATION. 
SERVICE 
l 
Only  persons  trained  and  experienced  in  DSI 
systems  should  service  this  equipment. 
If  a  condition  exists  that  causes  the  S87D 
electronic  module  to  go  into  safety  lockout, 
meter  readings  must  be  taken  quickly  after 
restart  -  within  trial-for-ignition  period. 
Always  de-energize  the  system  for  at  least  30 
seconds  before  recycling  for  further  tests. 
The  S87D  electronic  module  cannot  be  re- 
paired.  If  the  troubleshooting  procedure  in- 
dicates  a  malfunction  in  the  S87,  it  must  be 
replaced. 
The  following  service  procedures  are  for  the 
S87  and  basic  DSI  systems.  On  all  installa- 
tions,  refer  to  the  appliance  manufacturer’s 
service  instructions. 
1. 
2. 
3. 
4. 
5. 
IMPORTANTLY 
PRELIMINARY  CHECK 
The  following  checks  should  be  made  before  trou- 
bleshooting  the  system. 
1.  Check  for  power  to  the  heating  appliance  and  the 
S87D. 
2.  Check  fuse  on  S87D  electronic  module  and  re- 
place  if blown. 
3.  Make  certain  that  the  manual  shutoff  gas  cock  in 
the  supply  line  and  on  the  combination  gas  control 
valve  are  open. 
4.  Make  certain  that  all  wiring  connections  are  clean 
and  tight. 
5.  Make  certain  the  S87  is  not  in  safety  lockout. 
De-energize  the  system  by  moving  the  thermostat  set 
point  below  room  temperature.  Wait  at  least  30  seconds 
and  re-energize  the  system  by  moving  the  thermostat 
set  point  5 F [2.8  C] above  room  temperature. 
6.  Check  ceramic  insulator  on  flame  sensor  and 
spark  igniter.  A  cracked  insulator  will  allow  current  to 
leak  to  ground.  Replace  device  if insulator  is cracked. 
7.  Check  the  flame  sensor  and  its  mounting  bracket. 
Correct  the  position  if bent  out  of  shape. 
8.  Review  the  S87  normal  sequence  of  operation. 
See  START  SYSTEM  section. 
S87D  COMPONENT  CHECKS 
SPARK  IGNITION  CIRCUIT 
The  step-up  transformer  in  the  S87  provides  spark 
ignition  at  15,000  volts  (open  circuit).  To  check  the 
spark  ignition  circuit,  proceed  as follows: 
1.  Shut  off  gas  supply  to  the  gas  control. 
2.  Disconnect  the  ignition  cable  at  the  S87  stud 
terminal  to  isolate  the  circuit  from  the  spark-igniter. 
Prepare  a  short  jumper  wire,  using  heavily  insulated 
wire  such  as  ignition  cable. 
very  high  voltage  circuit  and  electrical  shock 
3.  Perform  this  test  immediately  upon  energizing 
the  system  --  before  the  S87D  goes  into  safety  lockout 
and  interrupts  the  spark  circuit.  Touch  one  end  of  the 
jumper  firmly  to  the  587  GND  terminal.  (DO  NOT 
remove  the  existing  ground  lead.)  Slowly  move  the 
other  end  of  the  jumper  wire  toward  the  stud  terminal 
on  the  S87  to  establish  a spark.  Pull  the  wire  away  from 
the  stud  and  note  the  length  of  gap  at  which  spark 
discontinues. 
4.  A  spark  length  of  l/8  in.  [3.2  mm]  or  more 
indicates  satisfactory  voltage  output.  If  no  arc  can  be 
established  or  the  maximum  spark  is  less  than  l/8  in. 
[3.2  mm],  and  power  to  the  S87  input  terminals  was 
proved,  replace  the  S87. 
IGNITION  CABLE 
Check  the  electrical  continuity  of  the  ignition  cable 
and  make  certain  the  cable  is  not  in  contact  with  metal 
surfaces.  The  total  cable  length  should  not  exceed  3  ft 
[0.9  m].  A  loose  connection  to  the  spark  igniter-sensor 
may  not  conduct  a  signal  even  though  spark  ignition  is 
satisfactory.  Check  connections  to  the  stud  terminal  on 
the  S87D  and  the  boot  connection  to  the  spark  ig- 
niter-sensor  and  make  certain  they  are  clean  and  tight. 
9  68-0014 

GROUNDING  CONNECTIONS 
A  common  ground  is  required  for  the  burner,  spark 
igniter-sensor  mounting  bracket  and  the  GND  terminal 
of  the  587.  If ground  is  poor  or  erratic,  safety  shutdown 
may  occur  occasionally  even  though  operation  is  nor- 
mal  at  time  of  checkout.  Therefore,  if  nuisance  shut- 
downs  have  been  reported,  be  sure  to  check  ground 
connections. 
Electrical  ground  connections  at  the  spark  ig- 
niter-sensor  and  the  S87D  must  be  clean  and  tight.  If 
leadwire  is damaged  or  deteriorated,  use  only  No.  14 or 
No.  18  gauge,  moisture-resistant,  thermoplastic  in- 
sulated  wire  with  105  C  [221  F]  minimum  rating  as 
replacement. 
FLAME  SENSOR  CIRCUIT 
The  S87D  provides  ac  power  to  the  flame  sensor 
which  the  burner  flame  rectifies  to  direct  current.  If the 
flame  signal  back  to  the  S87  is not  at least  1.5 uA  dc,  the 
system  will  lock  out. 
The  output  of  the  flame  sensing  circuit  can  be 
checked  directly  on  the  S87D.  Check  the  flame  sensing 
circuit  as  follows. 
1.  Connect  a  meter  (dc  microammeter  scale)  in 
series  with  the  sensor  wire  as  shown  in  Fig.  9.  Use  the 
Honeywell  Wl36A  Test  Meter  or  equivalent.  Disconnect 
the  sensor  wire  at  the  S87D.  Connect  the  red  (positive) 
lead  of  the  meter  to  the  free  end  of  the  sensor  wire. 
Connect  the  black  (negative)  meter  lead  to  the  sensor 
terminal  on  the  S87. 
2.  Restart  the  system  and  read  the  meter.  The  flame 
sensor  current  must  be  at  least  1.5uA  and  steady.  If the 
reading  is  less  than  1.5  uA  or  unsteady,  see  LOW  OR 
UNSTEADY  FLAME  CURRENT  section,  below. 
FLAME  SENSOR CURRENT CHECK-USE  YA  SCALE 
FIG.  g-S87  FLAME  CURRENT  MEASUREMENT. 
LOW  OR  UNSTEADY  FLAME  CURRENT 
If the  current  to  the  S87D  flame  circuit  is less  than  1.5 
AIA or  is  unsteady,  check  the  burner  flame  and  flame 
sensor  location  and  electrical  connections  as follows. 
Burner  Flame 
The  flame  sensor  must  be  constantly  immersed  in 
flame.  Check  burner  flame  conditions  as  shown  in 
Fig.  10.  If  necessary,  improve  the  flame  condition  or 
relocate  the  flame  sensor  to  a place  on  the  main  burner 
where  flame  conditions  are  better. 
Flame  Sensor 
The  flame  signal  is  best  when  about  1 in.  [25.4  mm] 
of  flame  rod  is  immersed  in  the  burner  flame.  A  bent 
flame  rod  or  mounting  bracket  can  affect  flame  signal. 
Bend  flame  rod  bracket  to  correct  position  if necessary. 
Excess  temperature  at  the  ceramic  flame  rod  insulator 
may  cause  leakage  to  ground,  decreasing  the  flame 
signal.  Replace  the  flame  sensor  if the  ceramic  insulator 
is  cracked,  and  relocate  the  sensor  to  an  area  of  lower 
ambient  temperature  if necesary. 
Electrical  Connections  and  Shorts 
Connections  at  the  flame  sensor  must  be  clean  and 
tight.  If  wiring  needs  replacement,  use  moisture- 
resistant  No.  18 wire  rated  for  continuous  dutv  up  to  105 
_ 
C [221  F]. 
FIG.  lo--BURNER  FLAME  CONDITIONS. 
CHECKOUT  AFTER  SERVICE 
Perform  the  following  steps  before  leaving  the  job 
(described  in  CHECKOUT  section)- 
* START  SYSTEM 
l  SAFETY  LOCKOUT  CHECK 
.  SAFETY  LOCKOUT  RESET 
Also  perform  any  other  checks  recommended  by  the 
heating  appliance  manufacturer  if  system  components 
other  the  the  Y343B  were  serviced. 
10 

t  TROUBLESHOOTING  . 
Start  the  system  by  setting  the  thermostat  (tem-  down  to  the  next  box.  If the  condition  is  not  true  or  not 
perature  controller)  to  call  for  heat.  Observe  the  system  okay  (answer  is  no),  go  to  the  box  at  right.  Continue 
response  and  establish  the  type  of  malfunction  or  checking  and  answering  conditions  in  each  box  until  a 
deviation  from  normal  operation  by  using  Table  4.  problem  and/or  repair  is  explained.  After  any  main- 
Use  Table  4  by  following  the  instructions  in  the  tenance  or  repair,  the  troubleshooting  sequence  should 
boxes.  If the  condition  is true  or  okay  (answer  is yes),  go  be  repeated  until  normal  system  operation  is obtained. 
TABLE  4-537  DIRECT  SPARK  IGNITION  SYSTEM  TROUBLESHOOTING 
DIRECT  SPARK  IGNITIDN  SYSTEM  TROUBLESHOOTING  TABLE 
I  NOTE:  BEFORE  TRO”BLE*HOOTING.  BE  S”RE  START-UP  AND  CHECKOUT 
START  PROCEDURE HAS BEEN COYPLETEO.  I 
I  TRO”BLESHOOTlNG  ENDS  1 REPEAT  PROCEDURE  “NTlLTROUBLEFREE  OPERATION  IS OBTAINED.  1 I .1e.m 
HONEYWELL  MINNEAPOLIS,  MN  55408  INTERNATIONAL  Sales  Offices  in  all  principal  cities  of  the  world.  Manufacturing  in 
Australia.  Canada,  Flnland,  France,  Germany,  Japan,.Mexico.  Spain,  Taiwan,  United  Kingdom,  U.S.A. 
PRINTED  IN  U.S.A