Hp Dl380 G7 Users Manual ProLiant Server User Guide
DL380 G7 to the manual 1a08a1c2-fd94-412a-b227-8e53192bcaef
2015-02-09
: Hp Hp-Dl380-G7-Users-Manual-549633 hp-dl380-g7-users-manual-549633 hp pdf
Open the PDF directly: View PDF
.
Page Count: 126 [warning: Documents this large are best viewed by clicking the View PDF Link!]
- HP ProLiant DL380 G7 Server User Guide
- Abstract
- Notice
- Contents
- Component identification
- Front panel components
- Front panel LEDs and buttons
- Systems Insight Display LEDs
- Systems Insight Display LED combinations
- Rear panel components
- Rear panel LEDs and buttons
- Non-hot-plug PCI riser board slot definitions
- System board components
- SAS and SATA device numbers
- SAS and SATA hard drive LEDs
- SAS and SATA hard drive LED combinations
- PCI riser cage LEDs
- FBWC module LEDs
- Battery pack LEDs
- Hot-plug fans
- Operations
- Power up the server
- Power down the server
- Extend the server from the rack
- Remove the access panel
- Install the access panel
- Access the product rear panel
- Remove the full-length expansion board retainer
- Remove the PCI riser cage
- Install the PCI riser cage
- Install the full-length expansion board retainer
- Remove the air baffle
- Setup
- Hardware options installation
- Introduction
- Processor option
- Memory options
- Memory subsystem architecture
- Single-, dual-, and quad-rank DIMMs
- DIMM identification
- Memory configurations
- General DIMM slot population guidelines
- Installing a DIMM
- Hot-plug SAS hard drive options
- Flash-backed write cache module option
- Optical drive option
- Redundant hot-plug power supply option
- Expansion board options
- PCI riser board option
- Hard drive cage option
- HP Trusted Platform Module option
- Cabling
- Configuration and utilities
- Troubleshooting
- Battery replacement
- Regulatory compliance notices
- Regulatory compliance identification numbers
- Federal Communications Commission notice
- Declaration of conformity for products marked with the FCC logo, United States only
- Modifications
- Cables
- Canadian notice (Avis Canadien)
- European Union regulatory notice
- Disposal of waste equipment by users in private households in the European Union
- Japanese notice
- BSMI notice
- Korean notice
- Chinese notice
- Laser compliance
- Battery replacement notice
- Taiwan battery recycling notice
- Power cord statement for Japan
- Electrostatic discharge
- Specifications
- Technical support
- Acronyms and abbreviations
- Index

HP ProLiant DL380 G7 Server
User Guide
Abstract
This document is for the person who installs, administers, and troubleshoots servers and storage systems. HP assumes you are qualified in the
servicing of computer equipment and trained in recognizing hazards in products with hazardous energy levels.
Part Number: 594660-002
February 2011
Edition: 2
© Copyright 2010, 2011 Hewlett-Packard Development Company, L.P.
The information contained herein is subject to change without notice. The only warranties for HP products and services are set forth in the express
warranty statements accompanying such products and services. Nothing herein should be construed as constituting an additional warranty. HP shall
not be liable for technical or editorial errors or omissions contained herein.
Microsoft and Windows Server are U.S. registered trademarks of Microsoft Corporation.

Contents 3
Contents
Component identification ............................................................................................................... 7
Front panel components ............................................................................................................................. 7
Front panel LEDs and buttons ...................................................................................................................... 8
Systems Insight Display LEDs ....................................................................................................................... 9
Systems Insight Display LED combinations ................................................................................................... 10
Rear panel components ............................................................................................................................ 11
Rear panel LEDs and buttons ..................................................................................................................... 12
Non-hot-plug PCI riser board slot definitions ................................................................................................ 12
System board components ........................................................................................................................ 14
System maintenance switch ............................................................................................................. 15
NMI functionality ........................................................................................................................... 15
DIMM slot locations ....................................................................................................................... 16
SAS and SATA device numbers ................................................................................................................. 17
SAS and SATA hard drive LEDs ................................................................................................................. 18
SAS and SATA hard drive LED combinations .............................................................................................. 18
PCI riser cage LEDs .................................................................................................................................. 19
FBWC module LEDs ................................................................................................................................. 20
Battery pack LEDs .................................................................................................................................... 21
Hot-plug fans .......................................................................................................................................... 22
Operations ................................................................................................................................. 24
Power up the server ................................................................................................................................. 24
Power down the server ............................................................................................................................. 24
Extend the server from the rack ................................................................................................................. 24
Remove the access panel.......................................................................................................................... 25
Install the access panel............................................................................................................................. 26
Access the product rear panel ................................................................................................................... 26
Cable management arm with left-hand swing .................................................................................... 26
Cable management arm with right-hand swing .................................................................................. 27
Remove the full-length expansion board retainer .......................................................................................... 28
Remove the PCI riser cage ........................................................................................................................ 29
Install the PCI riser cage ........................................................................................................................... 29
Install the full-length expansion board retainer ............................................................................................. 30
Remove the air baffle ............................................................................................................................... 31
Setup ......................................................................................................................................... 32
Optional installation services .................................................................................................................... 32
Rack planning resources........................................................................................................................... 32
Optimum environment .............................................................................................................................. 33
Space and airflow requirements ...................................................................................................... 33
Temperature requirements ............................................................................................................... 34
Power requirements ....................................................................................................................... 34
Electrical grounding requirements .................................................................................................... 34
Rack warnings ........................................................................................................................................ 35
Identifying the contents of the server shipping carton .................................................................................... 35
Installing hardware options ....................................................................................................................... 35
Installing the server into the rack ................................................................................................................ 35
Contents 4
Installing the operating system................................................................................................................... 37
Powering up and configuring the server ..................................................................................................... 37
Registering the server ............................................................................................................................... 38
Hardware options installation ....................................................................................................... 39
Introduction ............................................................................................................................................ 39
Processor option ...................................................................................................................................... 39
Memory options ...................................................................................................................................... 46
Memory subsystem architecture ....................................................................................................... 46
Single-, dual-, and quad-rank DIMMs ............................................................................................... 46
DIMM identification ....................................................................................................................... 47
Memory configurations ................................................................................................................... 47
General DIMM slot population guidelines ......................................................................................... 49
Installing a DIMM .......................................................................................................................... 53
Hot-plug SAS hard drive options ............................................................................................................... 54
Installing a hot-plug SAS hard drive ................................................................................................. 54
Removing a hot-plug SAS hard drive ................................................................................................ 55
Flash-backed write cache module option .................................................................................................... 55
Optical drive option ................................................................................................................................ 57
Redundant hot-plug power supply option .................................................................................................... 59
Expansion board options .......................................................................................................................... 60
Removing expansion slot covers ...................................................................................................... 60
Installing a half-length expansion board ........................................................................................... 62
Installing a full-length expansion board ............................................................................................. 62
PCI riser board option .............................................................................................................................. 63
Hard drive cage option ............................................................................................................................ 64
HP Trusted Platform Module option ............................................................................................................ 65
Installing the Trusted Platform Module board ..................................................................................... 66
Retaining the recovery key/password .............................................................................................. 68
Enabling the Trusted Platform Module ............................................................................................... 68
Cabling ..................................................................................................................................... 69
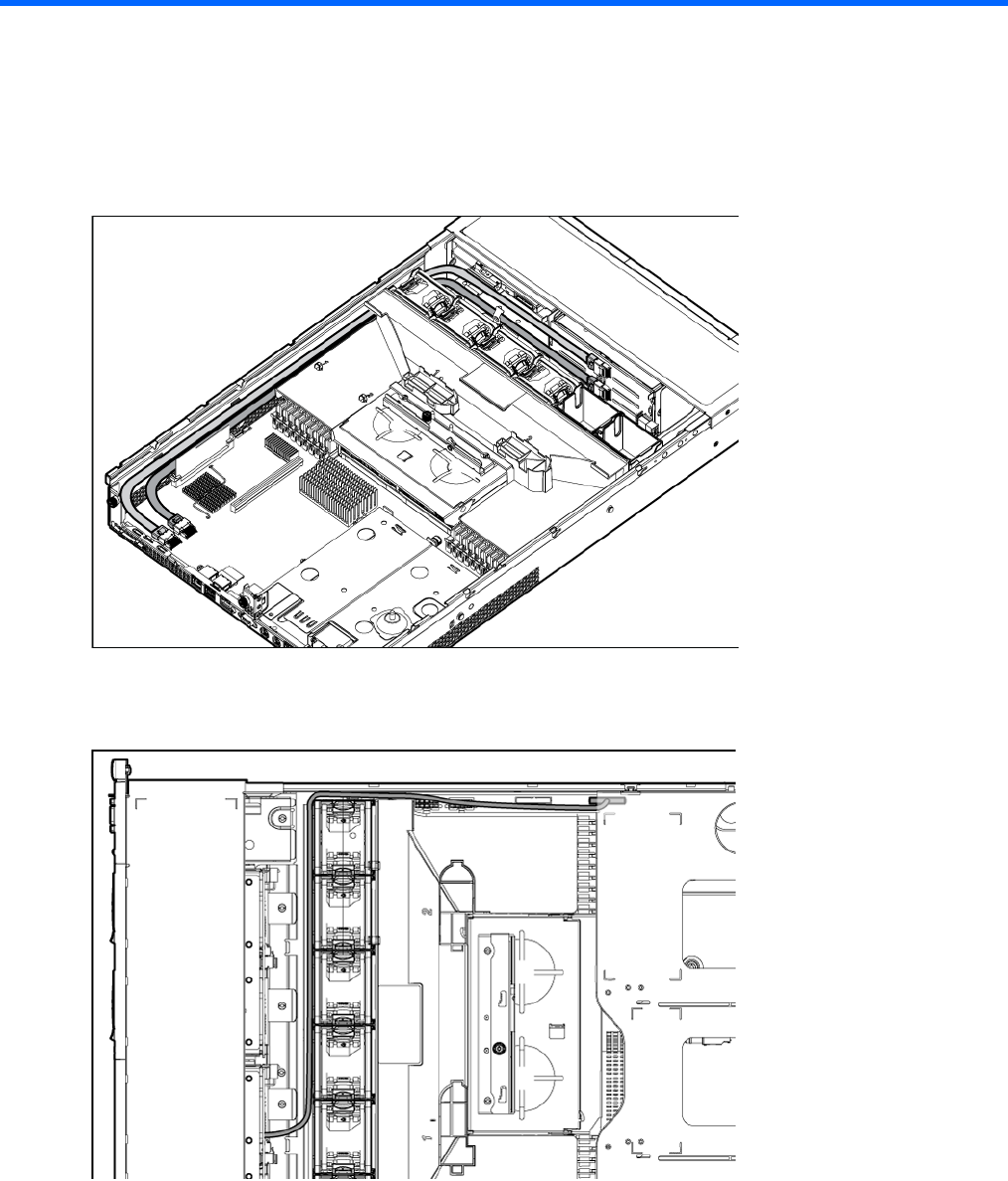
SAS hard drive cabling ............................................................................................................................ 69
Optical drive cabling ............................................................................................................................... 69
BBWC battery cabling ............................................................................................................................. 70
FBWC battery cabling ............................................................................................................................. 70
Configuration and utilities ............................................................................................................ 71
Configuration tools .................................................................................................................................. 71
SmartStart software ........................................................................................................................ 71
HP ROM-Based Setup Utility ............................................................................................................ 72
Array Configuration Utility .............................................................................................................. 75
Option ROM Configuration for Arrays ............................................................................................. 75
Re-entering the server serial number and product ID ........................................................................... 76
Management tools ................................................................................................................................... 76
Automatic Server Recovery ............................................................................................................. 76
ROMPaq utility .............................................................................................................................. 77
Integrated Lights-Out 3 technology ................................................................................................... 77
Erase Utility .................................................................................................................................. 77
Redundant ROM support ................................................................................................................ 78
USB support and functionality ......................................................................................................... 78
Internal SD support ........................................................................................................................ 79
Diagnostic tools ...................................................................................................................................... 79
HP Insight Diagnostics .................................................................................................................... 79
Contents 5
HP Insight Diagnostics survey functionality ........................................................................................ 79
Integrated Management Log ........................................................................................................... 79
Remote support and analysis tools ............................................................................................................. 80
HP Insight Remote Support software ................................................................................................. 80
Keeping the system current ....................................................................................................................... 80
Drivers ......................................................................................................................................... 80
Version control .............................................................................................................................. 81
ProLiant Support Packs ................................................................................................................... 81
Operating System Version Support .................................................................................................. 81
Firmware ...................................................................................................................................... 81
HP Smart Update Manager ............................................................................................................. 82
Change control and proactive notification ........................................................................................ 82
Care Pack .................................................................................................................................... 82
Troubleshooting .......................................................................................................................... 83
Troubleshooting resources ........................................................................................................................ 83
Pre-diagnostic steps ................................................................................................................................. 83
Important safety information ............................................................................................................ 83
Symptom information ..................................................................................................................... 85
Prepare the server for diagnosis ...................................................................................................... 85
Loose connections ................................................................................................................................... 87
Service notifications ................................................................................................................................. 88
Server health LEDs ................................................................................................................................... 88
Troubleshooting flowcharts ....................................................................................................................... 88
Start diagnosis flowchart ................................................................................................................ 88
General diagnosis flowchart ........................................................................................................... 89
Server power-on problems flowchart ................................................................................................ 91
POST problems flowchart ............................................................................................................... 94
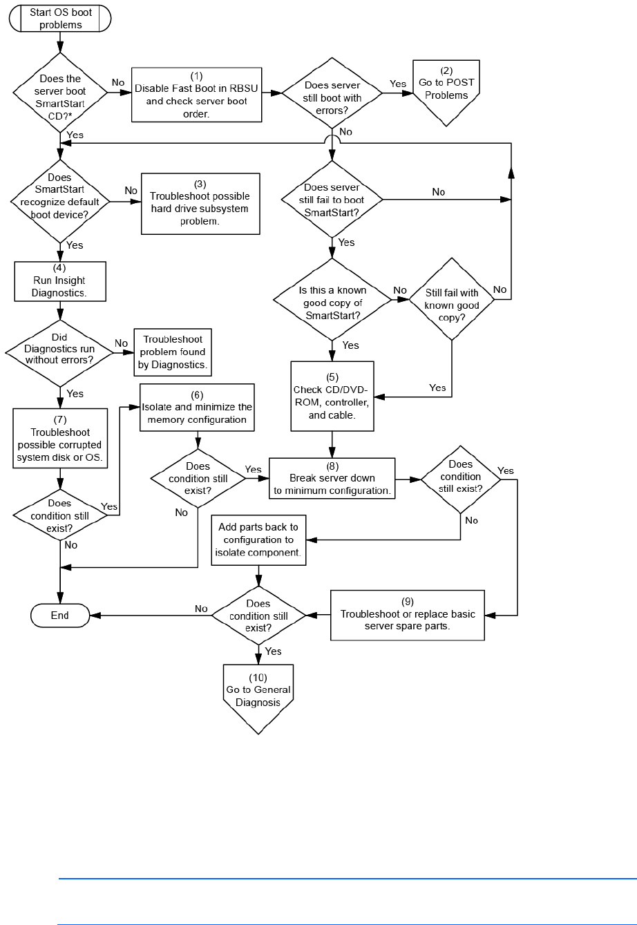
OS boot problems flowchart ........................................................................................................... 96
Server fault indications flowchart ..................................................................................................... 97
POST error messages and beep codes ....................................................................................................... 99
Battery replacement .................................................................................................................. 101
Regulatory compliance notices ................................................................................................... 102
Regulatory compliance identification numbers ........................................................................................... 102
Federal Communications Commission notice ............................................................................................. 102
FCC rating label .......................................................................................................................... 102
Class A equipment....................................................................................................................... 102
Class B equipment ....................................................................................................................... 102
Declaration of conformity for products marked with the FCC logo, United States only ..................................... 103
Modifications ........................................................................................................................................ 103
Cables ................................................................................................................................................. 103
Canadian notice (Avis Canadien) ............................................................................................................ 103
European Union regulatory notice ........................................................................................................... 104
Disposal of waste equipment by users in private households in the European Union ....................................... 104
Japanese notice .................................................................................................................................... 105
BSMI notice .......................................................................................................................................... 105
Korean notice ....................................................................................................................................... 105
Chinese notice ...................................................................................................................................... 106
Laser compliance .................................................................................................................................. 106
Battery replacement notice ...................................................................................................................... 106
Taiwan battery recycling notice ............................................................................................................... 107
Power cord statement for Japan ............................................................................................................... 107
Contents 6
Electrostatic discharge ............................................................................................................... 108
Preventing electrostatic discharge ............................................................................................................ 108
Grounding methods to prevent electrostatic discharge ................................................................................ 108
Specifications ........................................................................................................................... 109
Environmental specifications ................................................................................................................... 109
Mechanical specifications ...................................................................................................................... 109
Power supply specifications .................................................................................................................... 109
Technical support ...................................................................................................................... 112
Before you contact HP ............................................................................................................................ 112
HP contact information ........................................................................................................................... 112
Customer Self Repair ............................................................................................................................. 112
Acronyms and abbreviations ...................................................................................................... 120
Index ....................................................................................................................................... 123

Component identification 7
Component identification
Front panel components
• SFF model
Item Description
1 Quick release levers (2)
2 Systems Insight Display
3 Hard drive bays
4 SATA optical drive bay
5 Video connector
6 USB connectors (2)
• SFF model with optional hard drive cage
Item Description
1 Quick release levers (2)
2 Systems Insight Display
3 Hard drive bays
4 Hard drive bays (optional)
5 Video connector

Component identification 8
Item Description
6 USB connectors (2)
• LFF model
Item Description
1 Quick release levers (2)
2 Systems Insight Display
3 Hard drive bays
4 USB connectors (2)
5 Video connector
Front panel LEDs and buttons
Item Description Status
1 UID LED and button Blue = Activated
Flashing blue = System being remotely managed
Off = Deactivated

Component identification 9
Item Description Status
2 System health LED Green = Normal
Amber = System degraded.
Red = System critical.
To identify components in degraded or critical state, see "Systems
Insight Display LEDs (on page 9)."
3 Power On/Standby button
and system power LED
Green = System on
Amber = System in standby, but power is still applied
Off = Power cord not attached or power supply failure
Systems Insight Display LEDs
The HP Systems Insight Display LEDs represent the system board layout. The display enables diagnosis with
the access panel installed.

Component identification 10
Item Description Status
1 NIC link/activity LED Green = Network link
Flashing green = Network link and activity
Off = No link to network. If the power is off,
view the rear panel RJ-45 LEDs for status
("Rear panel LEDs and buttons" on page
12)
2 Power cap To determine Power cap status, see
"Systems Insight Display LED combinations
(on page 10)."
3 AMP status Green = AMP mode enabled
Amber = Failover
Flashing amber = invalid configuration
Off = AMP modes disabled
— All other LEDs Off = Normal
Amber = Failure
For detailed information on the activation
of these LEDs, see "Systems Insight Display
LED combinations (on page 10)."
Systems Insight Display LED combinations
When the health LED on the front panel illuminates either amber or red, the server is experiencing a health
event. Combinations of illuminated Systems Insight Display LEDs, the system power LED, and the health LED
indicate system status.
Systems Insight Display
LED and color
Health LED System power
LED
Status
Processor (amber) Red Amber One or more of the following conditions may
exist:
•
Processor in socket X has failed.
•
Processor X is not installed in the socket.
•
Processor X is unsupported.
•
ROM detects a failed processor during
POST
Processor (amber)
Amber
Green
Processor in socket X is in a pre-failure
condition.
DIMM (amber) Red Green One or more DIMMs have failed.
DIMM (amber) Amber Green DIMM in slot X is in a pre-failure condition.
Overtemperature (amber) Amber Green The Health Driver has detected a cautionary
temperature level.
Overtemperature (amber) Red Amber The server has detected a hardware critical
temperature level.
Fan (amber) Amber Green One fan has failed or has been removed.
Fan (amber) Red Green Two or more fans have failed or been
removed.

Component identification 11
Systems Insight Display
LED and color
Health LED System power
LED
Status
Power supply (amber)
Red
Amber
•
Only one power supply is installed and
that power supply is in standby.
•
Power supply fault
•
System board fault
Power supply (amber) Amber Green
•
Redundant power supply is installed and
only one power supply is functional.
•
AC power cord is not plugged into
redundant power supply.
•
Redundant power supply fault
•
Power supply mismatch at POST or
power supply mismatch through hot-plug
addition.
Power cap (off) — Amber Standby
Power cap (green) — Flashing green Waiting for power
Power cap (flashing
amber)
— Amber Power cap has been exceeded
Power cap (green) — Green Power is available
IMPORTANT: If more than one DIMM slot LED is illuminated, further troubleshooting is required.
Test each bank of DIMMs by removing all other DIMMs. Isolate the failed DIMM by replacing
each DIMM in a bank with a known working DIMM.
Rear panel components
Item Description
1 PCI slot 5
2 PCI slot 6
3 PCI slot 4
4 PCI slot 2
5 PCI slot 3
6 PCI slot 1
7 Power supply bay 2
8 Power supply bay 1 (populated)
9 USB connectors (2)

Component identification 12
10
Video connector
11 NIC 1 connector
12 NIC 2 connector
13 Mouse connector
14 Keyboard connector
15 Serial connector
16 iLO 3 connector
17 NIC 3 connector
18 NIC 4 connector
Rear panel LEDs and buttons
Item Description Status
1 Power supply LED Green = Normal
Off = System is off or power supply has failed.
2 UID LED/button Blue = Activated
Flashing blue = System being managed remotely
Off = Deactivated
3 NIC/iLO 3 activity
LED
Green = Network activity
Flashing green = Network activity
Off = No network activity
4 NIC/iLO 3 link LED Green = Network link
Off = No network link
Non-hot-plug PCI riser board slot definitions

Component identification 13
Secondary
(slot - form factor)
Primary
(slot - form factor)
PCIe2 riser
slot description
PCIe2 x16 riser
slot description
PCIe2/PCI-X riser
slot description
4 - FL/FH
1 - FL/FH
PCIe2 x16 (8,4,1)
PCIe2 x16
(16,8,4,1)
PCI-X 64 bit/133 MHz
5 - LP 2 - HL/FH PCIe2 x8 (4,1) — PCIe2 x16 (8,4,1)
6 - LP 3 - HL/FH PCIe2 x8 (4,1) — PCIe2 x8 (4,1)
Notes:
• "Primary" denotes the risers are installed in the primary riser connector.
• "Secondary" denotes the risers are installed in the secondary riser connector.
• Installing the risers listed in the table above in either the primary or secondary riser connectors
determines the form factor of the PCI cards supported by those risers.
• FL/FH denotes full-length, full-height. HL/FH denotes half-length, full-height. LP denotes low profile.
• The PCIe2 x16 riser supports a maximum power of 150 W with an HP power cable. This cable must be
used for PCIe card wattages greater than 75 W.

Component identification 14
System board components
Item Description
1 Processor 2 DIMM slots
2 SAS power connector A
3 SAS power connector B
4 Front I/O connector
5 SATA optical drive connector
6 Internal USB connector
7 System battery
8 Power supply backplane connector
9 NMI jumper
10 System maintenance switch
11 Processor socket 2
12 Primary riser connector
13 SD card slot
14 TPM connector
15 Processor socket 1 (populated)
16 Processor 1 DIMM slots
17 Secondary riser connector

Component identification 15
Item Description
18 SAS connector A
19 SAS connector B
20 Cache module connector
21 Fan connector 1
22 Fan connector 2
23 Fan connector 3
24 Fan connector 4
25 Fan connector 5
26 Fan connector 6
System maintenance switch
Position Default Function
S1 Off Off = iLO 3 security is enabled.
On = iLO 3 security is disabled.
S2 Off Off = System configuration can be
changed.
On = System configuration is locked.
S3 Off Reserved
S4 Off Reserved
S5
Off
Off = Power-on password is enabled.
On = Power-on password is disabled.
S6 Off Off = No function
On = Clear NVRAM
S7 — Reserved
S8 — Reserved
S9 — Reserved
S10 — Reserved
When the system maintenance switch position 6 is set to the On position, the system is prepared to erase all
system configuration settings from both CMOS and NVRAM.
CAUTION: Clearing CMOS and/or NVRAM deletes configuration information. Be sure to
properly configure the server or data loss could occur.
NMI functionality
An NMI crash dump enables administrators to create crash dump files when a system is hung and not
responding to traditional debug mechanisms.
Crash dump log analysis is an essential part of diagnosing reliability problems, such as hangs in operating
systems, device drivers, and applications. Many crashes freeze a system, and the only available action for
administrators is to cycle the system power. Resetting the system erases any information that could support

Component identification 16
problem analysis, but the NMI feature preserves that information by performing a memory dump before a
hard reset.
To force the OS to invoke the NMI handler and generate a crash dump log, the administrator can do any of
the following:
• Short the NMI jumper pins
• Press the NMI switch
• Use the iLO Virtual NMI feature
For additional information, see the whitepaper on the HP website
(http://h20000.www2.hp.com/bc/docs/support/SupportManual/c00797875/c00797875.pdf).
DIMM slot locations
DIMM slots are numbered sequentially (1 through 9) for each processor. The supported AMP modes use the
letter assignments for population guidelines.

Component identification 17
SAS and SATA device numbers
• SFF device bay numbering
• Optional SFF device bay numbering
• LFF device bay numbering

Component identification 18
SAS and SATA hard drive LEDs
Item Description
1 Fault/UID LED (amber/blue)
2 Online LED (green)
SAS and SATA hard drive LED combinations
Online/activity
LED (green)
Fault/UID LED
(amber/blue)
Interpretation
On, off, or
flashing
Alternating amber and
blue
The drive has failed, or a predictive failure alert has been
received for this drive; it also has been selected by a management
application.
On, off, or
flashing
Steadily blue
The drive is operating normally, and it has been selected by a
management application.
On Amber, flashing
regularly (1 Hz)
A predictive failure alert has been received for this drive.
Replace the drive as soon as possible.
On Off The drive is online, but it is not active currently.
Flashing regularly
(1 Hz)
Amber, flashing
regularly (1 Hz)
Do not remove the drive. Removing a drive may terminate the
current operation and cause data loss.
The drive is part of an array that is undergoing capacity
expansion or stripe migration, but a predictive failure alert has
been received for this drive. To minimize the risk of data loss, do
not replace the drive until the expansion or migration is complete.
Flashing regularly
(1 Hz)
Off Do not remove the drive. Removing a drive may terminate the
current operation and cause data loss.
The drive is rebuilding, or it is part of an array that is undergoing
capacity expansion or stripe migration.
Flashing
irregularly
Amber, flashing
regularly (1 Hz)
The drive is active, but a predictive failure alert has been received
for this drive. Replace the drive as soon as possible.
Flashing
irregularly
Off The drive is active, and it is operating normally.

Component identification 19
Online/activity
LED (green)
Fault/UID LED
(amber/blue)
Interpretation
Off
Steadily amber
A critical fault condition has been identified for this drive, and the
controller has placed it offline. Replace the drive as soon as
possible.
Off Amber, flashing
regularly (1 Hz)
A predictive failure alert has been received for this drive. Replace
the drive as soon as possible.
Off Off The drive is offline, a spare, or not configured as part of an array.
PCI riser cage LEDs
CAUTION: To prevent damage to the server or expansion boards, power down the server and
remove all AC power cords before removing or installing the PCI riser cage.
Status
On = AC power is connected.
Off = AC power is disconnected.
Missing = Riser is not installed, or power might not be connected.

Component identification 20
FBWC module LEDs
The FBWC module has two single-color LEDs (green and amber). The LEDs are duplicated on the reverse side
of the cache module to facilitate status viewing.
Green LED Amber LED Interpretation
Off On A backup is in progress.
Flashing (1 Hz) On A restore is in progress.
Flashing (1 Hz) Off The capacitor pack is charging.
On Off The capacitor pack has completed charging.
Flashing (2 Hz)
Alternating with
amber LED
Flashing (2 Hz)
Alternating with
green LED
One of the following conditions exists:
•
The charging process has timed out.
•
The capacitor pack is not connected.
On On The flash code image failed to load.
Off Off The flash code is corrupt.

Component identification 21
Battery pack LEDs
Item ID Color Description
1 Green System Power LED. This LED glows steadily when the system
is powered up and 12 V system power is available. This
power supply is used to maintain the battery charge and
provide supplementary power to the cache microcontroller.
2 Green Auxiliary Power LED. This LED glows steadily when 3.3V
auxiliary voltage is detected. The auxiliary voltage is used
to preserve BBWC data and is available any time that the
system power cords are connected to a power supply.
3 Amber Battery Health LED. To interpret the illumination patterns of
this LED, see the following table.
4 Green BBWC Status LED. To interpret the illumination patterns of
this LED, see the following table.
LED3 pattern LED4 pattern Interpretation
— One blink every
two seconds
The system is powered down, and the cache contains data that has not
yet been written to the drives. Restore system power as soon as
possible to prevent data loss.
Data preservation time is extended any time that 3.3 V auxiliary
power is available, as indicated by LED 2. In the absence of auxiliary
power, battery power alone preserves the data. A fully-charged
battery can normally preserve data for at least two days.
The battery lifetime also depends on the cache module size. For further
information, refer to the controller QuickSpecs on the HP website
(http://www.hp.com).
— Double blink, then
pause
The cache microcontroller is waiting for the host controller to
communicate.

Component identification 22
LED3 pattern LED4 pattern Interpretation
— One blink per
second
The battery pack is below the minimum charge level and is being
charged. Features that require a battery (such as write cache, capacity
expansion, stripe size migration, and RAID migration) are temporarily
unavailable until charging is complete. The recharge process takes
between 15 minutes and two hours, depending on the initial capacity
of the battery.
— Steady glow The battery pack is fully charged, and posted write data is stored in the
cache.
— Off The battery pack is fully charged, and there is no posted write data in
the cache.
One blink per
second
One blink per
second
An alternating green and amber blink pattern indicates that the cache
microcontroller is executing from within its boot loader and receiving
new flash code from the host controller.
Steady glow — There is a short circuit across the battery terminals or within the battery
pack. BBWC features are disabled until the battery pack is replaced.
The life expectancy of a battery pack is typically more than three
years.
One blink per
second
— There is an open circuit across the battery terminals or within the
battery pack. BBWC features are disabled until the battery pack is
replaced. The life expectancy of a battery pack is typically more than
three years.
Hot-plug fans
CAUTION: To avoid damage to server components, fan blanks must be installed in fan bays 5
and 6 in a single-processor configuration.
The only two valid fan configurations are listed in the following table.
Configuration Fan bay 1 Fan bay 2 Fan bay 3 Fan bay 4 Fan bay 5 Fan bay 6
1 processor Fan Fan Fan Fan Fan blank Fan blank
2 processors Fan Fan Fan Fan Fan Fan

Component identification 23
For a single-processor configuration, four fans and two blanks are required in specific fan bays for
redundancy. A fan failure or missing fan causes all fans to spin at high speed. A second fan failure or missing
fan causes an orderly shutdown of the server.
Installing more than the required number of fans in a single-processor configuration is not a supported
configuration.
For a dual-processor configuration, six fans are required for redundancy. A fan failure or missing fan causes
all fans to spin at high speed. A second fan failure or missing fan causes an orderly shutdown of the server.
The server supports variable fan speeds. The fans operate at minimum speed until a temperature change
requires a fan speed increase to cool the server. The server shuts down during the following
temperature-related scenarios:
• At POST and in the OS, iLO 3 performs an orderly shutdown if a cautionary temperature level is
detected. If the server hardware detects a critical temperature level before an orderly shutdown occurs,
the server performs an immediate shutdown.
• When the Thermal Shutdown feature is disabled in RBSU, iLO 3 does not perform an orderly shutdown
when a cautionary temperature level is detected. Disabling this feature does not disable the server
hardware from performing an immediate shutdown when a critical temperature level is detected.
CAUTION: A thermal event can damage server components when the Thermal Shutdown feature
is disabled in RBSU.

Operations 24
Operations
Power up the server
To power up the server, press the Power On/Standby button.
Power down the server
WARNING: To reduce the risk of personal injury, electric shock, or damage to the equipment,
remove the power cord to remove power from the server. The front panel Power On/Standby
button does not completely shut off system power. Portions of the power supply and some internal
circuitry remain active until AC power is removed.
IMPORTANT: If installing a hot-plug device, it is not necessary to power down the server.
1. Back up the server data.
2. Shut down the operating system as directed by the operating system documentation.
NOTE: If the operating system automatically places the server in Standby mode, omit the next
step.
3. Press the Power On/Standby button to place the server in Standby mode. When the server activates
Standby power mode, the system power LED changes to amber.
IMPORTANT: Pressing the UID button illuminates the blue UID LEDs on the front and rear panels.
In a rack environment, this feature facilitates locating a server when moving between the front and
rear of the rack.
4. Disconnect the power cords.
The system is now without power.
Extend the server from the rack
1. Pull down the quick release levers on each side of the server.
2. Extend the server from the rack.
WARNING: To reduce the risk of personal injury or equipment damage, be sure that the rack is
adequately stabilized before extending a component from the rack.

Operations 25
3. After performing the installation or maintenance procedure, slide the server back into the rack, and then
press the server firmly into the rack to secure it in place.
WARNING: To reduce the risk of personal injury, be careful when pressing the server rail-release
latches and sliding the server into the rack. The sliding rails could pinch your fingers.
Remove the access panel
WARNING: To reduce the risk of personal injury from hot surfaces, allow the drives and the
internal system components to cool before touching them.
CAUTION: For proper cooling do not operate the server without the access panel, baffles,
expansion slot covers, or blanks installed. If the server supports hot-plug components, minimize
the amount of time the access panel is open.
To remove the component:

Operations 26
1. Power down the server if performing a non-hot-plug installation or maintenance procedure ("Power
down the server" on page 24).
2. Extend the server from the rack (on page 24).
3. Use the T-15 Torx screwdriver attached to the rear of the server to loosen the security screw on the hood
latch.
4. Lift up on the hood latch handle, and then remove the access panel.
Install the access panel
1. Place the access panel on top of the server with the hood latch open. Allow the panel to extend past the
rear of the server approximately 1.25 cm (0.5 in).
2. Push down on the hood latch. The access panel slides to a closed position.
3. Use the T-15 Torx screwdriver attached to the rear of the server to tighten the security screw on the hood
latch.
Access the product rear panel
Cable management arm with left-hand swing
To access the server rear panel:
1. Remove the cable arm retainer.

Operations 27
2. Open the cable management arm.
Cable management arm with right-hand swing
NOTE: To access some components, you may need to remove the cable management arm.
To access the product rear panel components, open the cable management arm:
1. Power down the server (on page 24).
2. Swing open the cable management arm.
3. Remove the cables from the cable trough.
4. Remove the cable management arm.

Operations 28
Remove the full-length expansion board retainer
CAUTION: To prevent damage to the server or expansion boards, power down the server and
remove all AC power cords before removing or installing the PCI riser cage.
1. Power down the server (on page 24).
2. Extend the server from the rack (on page 24).
3. Remove the access panel (on page 25).
4. Remove the full-length expansion board.
o If there are no full-length expansion board installed, remove the full-length expansion board retainer
as follows:
o If there are any full-length expansion boards installed, remove the full-length expansion board
retainer as follows:

Operations 29
Remove the PCI riser cage
CAUTION: To prevent damage to the server or expansion boards, power down the server and
remove all AC power cords before removing or installing the PCI riser cage.
1. Power down the server (on page 24).
2. Extend the server from the rack (on page 24).
3. Remove the access panel (on page 25).
4. Remove the full-length expansion board retainer (on page 28) if any full-length expansion boards are
installed.
5. Remove the PCI riser cage.
Install the PCI riser cage
1. Power down the server (on page 24).
2. Extend the server from the rack (on page 24).
3. Remove the access panel (on page 25).

Operations 30
4. Install the PCI riser cage.
5. Install the access panel (on page 26).
6. Install the server into the rack ("Installing the server into the rack" on page 35).
7. Power up the server (on page 24).
Install the full-length expansion board retainer
1. Power down the server (on page 24).
2. Extend the server from the rack (on page 24).
3. Remove the access panel (on page 25).
4. Install the PCI riser cage (on page 29).
5. Install the full-length expansion board retainer.
6. Install the access panel (on page 26).

Operations 31
7. Install the server into the rack ("Installing the server into the rack" on page 35).
8. Power up the server (on page 24).
Remove the air baffle
CAUTION: For proper cooling do not operate the server without the access panel, baffles,
expansion slot covers, or blanks installed. If the server supports hot-plug components, minimize
the amount of time the access panel is open.
1. Power down the server (on page 24).
2. Extend or remove the server from the rack ("Extend the server from the rack" on page 24).
3. Remove the access panel (on page 25).
CAUTION: Do not detach the cable that connects the battery pack to the cache module.
Detaching the cable causes any unsaved data in the cache module to be lost.
4. Remove the battery pack from the air baffle.
5. Remove the air baffle.

Setup 32
Setup
Optional installation services
Delivered by experienced, certified engineers, HP Care Pack services help you keep your servers up and
running with support packages tailored specifically for HP ProLiant systems. HP Care Packs let you integrate
both hardware and software support into a single package. A number of service level options are available
to meet your needs.
HP Care Pack Services offer upgraded service levels to expand your standard product warranty with
easy-to-buy, easy-to-use support packages that help you make the most of your server investments. Some of
the Care Pack services are:
• Hardware support
o 6-Hour Call-to-Repair
o 4-Hour 24x7 Same Day
o 4-Hour Same Business Day
• Software support
o Microsoft®
o Linux
o HP ProLiant Essentials (HP SIM and RDP)
o VMWare
• Integrated hardware and software support
o Critical Service
o Proactive 24
o Support Plus
o Support Plus 24
• Startup and implementation services for both hardware and software
For more information on HP Care Pack Services, see the HP website
(http://www.hp.com/services/carepack).
Rack planning resources
The rack resource kit ships with all HP branded or Compaq branded 9000, 10000, and H9 series racks. For
more information on the content of each resource, refer to the rack resource kit documentation.
If you intend to deploy and configure multiple servers in a single rack, refer to the white paper on high-density
deployment at the HP website (http://www.hp.com/products/servers/platforms).

Setup 33
Optimum environment
When installing the server in a rack, select a location that meets the environmental standards described in
this section.
Space and airflow requirements
To allow for servicing and adequate airflow, observe the following space and airflow requirements when
deciding where to install a rack:
• Leave a minimum clearance of 63.5 cm (25 in) in front of the rack.
• Leave a minimum clearance of 76.2 cm (30 in) behind the rack.
• Leave a minimum clearance of 121.9 cm (48 in) from the back of the rack to the back of another rack
or row of racks.
HP servers draw in cool air through the front door and expel warm air through the rear door. Therefore, the
front and rear rack doors must be adequately ventilated to allow ambient room air to enter the cabinet, and
the rear door must be adequately ventilated to allow the warm air to escape from the cabinet.
CAUTION: To prevent improper cooling and damage to the equipment, do not block the
ventilation openings.
When vertical space in the rack is not filled by a server or rack component, the gaps between the
components cause changes in airflow through the rack and across the servers. Cover all gaps with blanking
panels to maintain proper airflow.
CAUTION: Always use blanking panels to fill empty vertical spaces in the rack. This arrangement
ensures proper airflow. Using a rack without blanking panels results in improper cooling that can
lead to thermal damage.
The 9000 and 10000 Series Racks provide proper server cooling from flow-through perforations in the front
and rear doors that provide 64 percent open area for ventilation.
CAUTION: When using a Compaq branded 7000 Series rack, you must install the high airflow
rack door insert [P/N 327281-B21 (42U) or P/N 157847-B21 (22U)] to provide proper
front-to-back airflow and cooling.
CAUTION: If a third-
party rack is used, observe the following additional requirements to ensure
adequate airflow and to prevent damage to the equipment:
• Front and rear doors—If the 42U rack includes closing front and rear doors, you must allow
5,350 sq cm (830 sq in) of holes evenly distributed from top to bottom to permit adequate
airflow (equivalent to the required 64 percent open area for ventilation).
• Side—The clearance between the installed rack component and the side panels of the rack
must be a minimum of 7 cm (2.75 in).
IMPORTANT: The HP ProLiant DL380 G7 Server cable management arm is not supported on
Compaq branded 7000 series racks.

Setup 34
Temperature requirements
To ensure continued safe and reliable equipment operation, install or position the system in a well-ventilated,
climate-controlled environment.
The maximum recommended ambient operating temperature (TMRA) for most server products is 35°C
(95°F). The temperature in the room where the rack is located must not exceed 35°C (95°F).
CAUTION: To reduce the risk of damage to the equipment when installing third-party options:
• Do not permit optional equipment to impede airflow around the server or to increase the
internal rack temperature beyond the maximum allowable limits.
• Do not exceed the manufacturer’s TMRA.
Power requirements
Installation of this equipment must comply with local and regional electrical regulations governing the
installation of information technology equipment by licensed electricians. This equipment is designed to
operate in installations covered by NFPA 70, 1999 Edition (National Electric Code) and NFPA-75, 1992
(code for Protection of Electronic Computer/Data Processing Equipment). For electrical power ratings on
options, refer to the product rating label or the user documentation supplied with that option.
WARNING: To reduce the risk of personal injury, fire, or damage to the equipment, do not
overload the AC supply branch circuit that provides power to the rack. Consult the electrical
authority having jurisdiction over wiring and installation requirements of your facility.
CAUTION: Protect the server from power fluctuations and temporary interruptions with a
regulating uninterruptible power supply (UPS). This device protects the hardware from damage
caused by power surges and voltage spikes and keeps the system in operation during a power
failure.
When installing more than one server, you may need to use additional power distribution devices to safely
provide power to all devices. Observe the following guidelines:
• Balance the server power load between available AC supply branch circuits.
• Do not allow the overall system AC current load to exceed 80 percent of the branch circuit AC current
rating.
• Do not use common power outlet strips for this equipment.
• Provide a separate electrical circuit for the server.
Electrical grounding requirements
The server must be grounded properly for proper operation and safety. In the United States, you must install
the equipment in accordance with NFPA 70, 1999 Edition (National Electric Code), Article 250, as well as
any local and regional building codes. In Canada, you must install the equipment in accordance with
Canadian Standards Association, CSA C22.1, Canadian Electrical Code. In all other countries, you must
install the equipment in accordance with any regional or national electrical wiring codes, such as the
International Electrotechnical Commission (IEC) Code 364, parts 1 through 7. Furthermore, you must be sure
that all power distribution devices used in the installation, such as branch wiring and receptacles, are listed
or certified grounding-type devices.

Setup 35
Because of the high ground-leakage currents associated with multiple servers connected to the same power
source, HP recommends the use of a PDU that is either permanently wired to the building’s branch circuit or
includes a nondetachable cord that is wired to an industrial-style plug. NEMA locking-style plugs or those
complying with IEC 60309 are considered suitable for this purpose. Using common power outlet strips for
the server is not recommended.
Rack warnings
WARNING: To reduce the risk of personal injury or damage to the equipment, be sure that:
• The leveling jacks are extended to the floor.
• The full weight of the rack rests on the leveling jacks.
• The stabilizing feet are attached to the rack if it is a single-rack installation.
• The racks are coupled together in multiple-rack installations.
• Only one component is extended at a time. A rack may become unstable if more than one
component is extended for any reason.
WARNING: To reduce the risk of personal injury or equipment damage when unloading a rack:
• At least two people are needed to safely unload the rack from the pallet. An empty 42U rack
can weigh as much as 115 kg (253 lb), can stand more than 2.1 m (7 ft) tall, and may become
unstable when being moved on its casters.
• Never stand in front of the rack when it is rolling down the ramp from the pallet. Always handle
the rack from both sides.
Identifying the contents of the server shipping carton
Unpack the server shipping carton and locate the materials and documentation necessary for installing the
server. All the rack mounting hardware necessary for installing the server into the rack is included with the
rack or the server.
The contents of the server shipping carton include:
• Server
• Power cord
• Hardware documentation, Documentation CD, and software products
• Rack-mounting hardware
In addition to the supplied items, you may need:
• Operating system or application software
• Hardware options
Installing hardware options
Install any hardware options before initializing the server. For options installation information, refer to the
option documentation. For server-specific information, refer to "Hardware options installation (on page 39)."
Installing the server into the rack

Setup 36
CAUTION: Always plan the rack installation so that the heaviest item is on the bottom of the rack.
Install the heaviest item first, and continue to populate the rack from the bottom to the top.
1. Install the server and cable management arm into the rack. For more information, see the installation
instructions that ship with the 2U Quick Deploy Rail System.
2. Connect peripheral devices to the server.For connector identification information, see Rear panel
components (on page 11) in this guide.
WARNING: To reduce the risk of electric shock, fire, or damage to the equipment, do not plug
telephone or telecommunications connectors into RJ-45 connectors.
3. Connect the power cord to the rear of the server.
4. Install power cord anchors.
5. Secure cables to the cable management arm.
IMPORTANT:
When using cable management arm components, be sure to leave enough slack
in each of the cables to prevent damage to the cables when the server is extended from the rack.

Setup 37
6. Connect the power cord to the AC power source.
WARNING: To reduce the risk of electric shock or damage to the equipment:
• Do not disable the power cord grounding plug. The grounding plug is an important safety
feature.
• Plug the power cord into a grounded (earthed) electrical outlet that is easily accessible at all
times.
• Unplug the power cord from the power supply to disconnect power to the equipment.
• Do not route the power cord where it can be walked on or pinched by items placed against it.
Pay particular attention to the plug, electrical outlet, and the point where the cord extends from
the server.
Installing the operating system
To operate properly, the server must have a supported operating system installed. For the latest information
on supported operating systems, refer to the HP website (http://www.hp.com/go/supportos).
Methods to install an operating system on the server include:
• SmartStart assisted installation—Insert the SmartStart CD into the CD-ROM drive and reboot the server.
• Manual installation—Insert the operating system CD into the CD-ROM drive and reboot the server. This
process may require you to obtain additional drivers from the HP website
(http://www.hp.com/support).
For information on using these installation paths, refer to the SmartStart installation poster in the HP ProLiant
Essentials Foundation Pack, included with the server.
Powering up and configuring the server
To power up the server, press the Power On/Standby button.
While the server boots, RBSU and the ORCA utility are automatically configured to prepare the server for
operating system installation.
Setup 38
To configure these utilities manually:
• Press the F8 key when prompted during the array controller initialization to configure the array
controller using ORCA.
• Press the F9 key when prompted during the boot process to change the server settings using RBSU. The
system is set up by default for the English language.
For more information on the automatic configuration, refer to the HP ROM-Based Setup Utility User Guide
located on the Documentation CD.
Registering the server
To register the server, refer to the HP Registration website (http://register.hp.com).

Hardware options installation 39
Hardware options installation
Introduction
If more than one option is being installed, read the installation instructions for all the hardware options and
identify similar steps to streamline the installation process.
WARNING: To reduce the risk of personal injury from hot surfaces, allow the drives and the
internal system components to cool before touching them.
CAUTION: To prevent damage to electrical components, properly ground the server before
beginning any installation procedure. Improper grounding can cause electrostatic discharge.
Processor option
The server supports single- and dual-processor operation.
CAUTION: To avoid damage to the processor and system board, only authorized personnel
should attempt to replace or install the processor in this server.
CAUTION: To help avoid damage to the processor and system board, do not install the
processor without using the processor installation tool.
CAUTION: To prevent possible server malfunction and damage to the equipment, multiprocessor
configurations must contain processors with the same part number.
IMPORTANT: If installing a processor with a faster speed, update the system ROM before
installing the processor.
To install the component:
1. Power down the server (on page 24).
2. Extend the server from the rack (on page 24).
3. Remove the access panel (on page 25).
4. If any full-length expansion boards are installed, complete the following steps:
a. Remove the full-length expansion board retainer (on page 28).
b. Remove the PCI riser cage (on page 29).
5. Remove the air baffle (on page 31).

Hardware options installation 40
6. Open the heatsink retaining bracket, and then remove the processor blank.
CAUTION: The pins on the processor socket are very fragile. Any damage to them may require
replacing the system board.
CAUTION: Failure to completely open the processor locking lever prevents the processor from
seating during installation, leading to hardware damage.
7. Open the processor locking lever and the processor socket retaining bracket. Do not remove the
processor socket cover.
IMPORTANT: Be sure the processor remains inside the processor installation tool.

Hardware options installation 41
8. If the processor has separated from the installation tool, carefully re-insert the processor in the tool.
Handle the processor by the edges only, and do not touch the bottom of the processor, especially the
contact area.

Hardware options installation 42
9. Align the processor installation tool with the socket, and then install the processor. THE PINS ON THE
SYSTEM BOARD ARE VERY FRAGILE AND EASILY DAMAGED.
CAUTION: THE PINS ON THE SYSTEM BOARD ARE VERY FRAGILE AND EASILY DAMAGED. To
avoid damage to the system board:
• Never install or remove a processor without using the processor installation tool.
• Do not touch the processor socket contacts.
• Do not tilt or slide the processor when lowering the processor into the socket.

Hardware options installation 43
10. Press the tabs on the processor installation tool to separate it from the processor, and then remove the
tool.
11. Close the processor socket retaining bracket and the processor locking lever. The processor socket
cover is automatically ejected. Remove the cover.
CAUTION: Be sure to close the processor socket retaining bracket before closing the processor
locking lever. The lever should close without resistance. Forcing the lever closed can damage the
processor and socket, requiring system board replacement.
12. Remove the heatsink cover.
CAUTION: After the cover is removed, do not touch the thermal interface media.

Hardware options installation 44
13. Install the heatsink.

Hardware options installation 45
14. Close the heatsink retaining bracket.
15. Remove the fan blanks in bays 5 and 6. For fan location and numbering information, see "Hot-plug fans
(on page 22)" or the label attached to the access panel.
16. Install the fans into bays 5 and 6.
17. Install the air baffle.
18. If any full-length expansion boards are installed, complete the following steps:
a. Install the PCI riser cage (on page 29).
b. Install the full-length expansion board retainer (on page 30).
19. Install the access panel (on page 26).
20. Install the server into the rack ("Installing the server into the rack" on page 35).
21. Power up the server (on page 24).

Hardware options installation 46
Memory options
IMPORTANT: This server does not support mixing RDIMMs and UDIMMs. Attempting to mix
these two types causes the server to halt during BIOS initialization.
The memory subsystem in this server can support RDIMMs or UDIMMs. Both types are referred to as DIMMs
when the information applies to both types. When specified as RDIMM or UDIMM, the information applies
to that type only. All memory installed in the server must be the same type.
The server supports the following DIMM speeds:
• Single- and dual-rank PC3-10600 (DDR-1333) DIMMs operating at 1333 and 1066 MHz
• Quad-rank PC3-8500 (DDR-1067) DIMMs operating at 1066 MHz
Depending on the processor model, the number of DIMMs installed, and whether UDIMMs or RDIMMs are
installed, the memory clock speed may be reduced to 1066 or 800 MHz. For more information on the effect
of DIMM slot population, see "General DIMM slot population guidelines (on page 49)."
Memory subsystem architecture
The memory subsystem in this server is divided into channels. Each processor supports three channels, and
each channel supports three DIMM slots, as shown in the following table.
Channel Population order Slot number
1 G
D
A
1
2
3
2 H
E
B
4
5
6
3 I
F
C
7
8
9
This multi-channel architecture provides enhanced performance in Advanced ECC mode. This architecture
also enables the Lockstep, Online Spare, and Mirrored Memory modes. This server supports both Registered
PC3 DIMMs (RDIMMs) and Unbuffered DIMMs (UDIMMs).
DIMM slots in this server are identified by number and by letter. Letters identify the slots to populate for
specific AMP modes. Slot numbers are reported by ROM messages during boot and for error reporting.
Single-, dual-, and quad-rank DIMMs
To understand and configure memory protection modes properly, an understanding of single-, dual-, and
quad-rank DIMMs is helpful. Some DIMM configuration requirements are based on these classifications.
A single-rank DIMM has one set of memory chips that is accessed while writing to or reading from the
memory. A dual-rank DIMM is similar to having two single-rank DIMMs on the same module, with only one
rank accessible at a time. A quad-rank DIMM is, effectively, two dual-rank DIMMs on the same module. Only
one rank is accessible at a time. The server memory control subsystem selects the proper rank within the
DIMM when writing to or reading from the DIMM.

Hardware options installation 47
Dual- and quad-rank DIMMs provide the greatest capacity with the existing memory technology. For
example, if current DRAM technology supports 2-GB single-rank DIMMs, a dual-rank DIMM would be 4-GB,
and a quad-rank DIMM would be 8-GB.
DIMM identification
To determine DIMM characteristics, use the label attached to the DIMM and the following illustration and
table.
Item Description Definition
1 Size —
2 Rank 1R = Single-rank
2R = Dual-rank
4R = Quad-rank
3 Data width x4 = 4-bit
x8 = 8-bit
4 Voltage rating L = Low voltage (1.35v)
Blank or omitted = Standard
5 Memory speed 10600 = 1333-MHz
8500 = 1066-MHz
6 DIMM type R = RDIMM (registered)
E = UDIMM (unbuffered with ECC)
For the latest supported memory information, see the QuickSpecs on the HP website (http://www.hp.com).
Memory configurations
To optimize server availability, the server supports the following AMP modes:
• Advanced ECC—provides the greatest memory capacity for a given DIMM size, while providing up to
4-bit error correction. This mode is the default option for this server.

Hardware options installation 48
• Lockstep—provides enhanced protection over Advanced ECC mode while continuing to make all
installed memory available to the operating system. The server can continue to function if a single- or
mulit-bit memory failure within a single DRAM device occurs.
• Online spare memory—provides protection against failing or degraded DIMMs. Certain memory is
reserved as spare, and automatic failover to spare memory occurs when the system detects a DIMM that
is degrading and receiving a high rate of correctable memory errors. This allows DIMMs that have a
higher probability of receiving an uncorrectable memory error (which would result in system downtime)
to be removed from operation.
• Mirrored Memory—provides maximum protection against failed DIMMs. Uncorrectable errors in one
channel are corrected by the mirror channel.
Advanced Memory Protection options are configured in RBSU. If the requested AMP mode is not supported
by the installed DIMM configuration, the server boots in Advanced ECC mode. For more information, see
"HP ROM-Based Setup Utility (on page 72)."
For the latest memory configuration information, see the QuickSpecs on the HP website
(http://www.hp.com).
RDIMM maximum memory configurations
The following table lists the maximum memory configuration possible with 8-GB RDIMMs.
Rank Single-processor Dual-processor
Single-rank 72 GB 144 GB
Dual-rank 72 GB 144 GB
Quad-rank 48 GB 96 GB
UDIMM maximum memory configurations
The server supports a maximum of 12 GB with one processor and 24 GB with two processors using 2-GB
single- or dual-rank UDIMMs.
Advanced ECC memory configuration
Advanced ECC memory is the default memory protection mode for this server. Standard ECC can correct
single-bit memory errors and detect multi-bit memory errors. When multi-bit errors are detected using
Standard ECC, the error is signaled to the server and causes the server to halt.
Advanced ECC protects the server against some multi-bit memory errors. Advanced ECC can correct both
single-bit memory errors and 4-bit memory errors if all failed bits are on the same DRAM device on the DIMM.
Advanced ECC provides additional protection over Standard ECC because it is possible to correct certain
memory errors that would otherwise be uncorrected and result in a server failure. The server provides
notification that correctable error events have exceeded a pre-defined threshold rate.
Lockstep memory configuration
Lockstep mode provides protection against multi-bit memory errors that occur on the same DRAM device.
Lockstep mode can correct any single DRAM device failure on x4 and x8 DIMM types. The DIMMs in each
channel must have identical HP part numbers.

Hardware options installation 49
Lockstep mode uses channel 1 and channel 2. Channel 3 is not populated. Because channel 3 cannot be
populated when using Lockstep mode, the maximum memory capacity is lower than Advanced ECC mode.
Memory performance with Advanced ECC is also slightly higher.
Online Spare memory configuration
Online spare memory provides protection against degraded DIMMs by reducing the likelihood of
uncorrected memory errors. This protection is available without any operating system support.
Online spare memory protection dedicates one rank of each memory channel for use as spare memory. The
remaining ranks are available for OS and application use. If correctable memory errors occur at a rate
higher than a specific threshold on any of the non-spare ranks, the server automatically copies the memory
contents of the degraded rank to the online spare rank. The server then deactivates the failing rank and
automatically switches over to the online spare rank.
Mirrored memory configuration
Mirroring provides protection against uncorrected memory errors that would otherwise result in server
downtime. Mirroring is performed at the channel level. Channels 1 and 2 are used; channel 3 is not
populated.
Data is written to both memory channels. Data is read from one of the two memory channels. If an
uncorrectable error is detected in the active memory channel, data is retrieved from the mirror channel. This
channel becomes the new active channel, and the system disables the channel with the failed DIMM.
General DIMM slot population guidelines
Observe the following guidelines for all AMP modes:
• Populate DIMM slots for a processor only if the processor is installed.
• To maximize performance in multi-processor configurations, distribute the total memory capacity
between all processors as evenly as possible.
• Do not mix Unbuffered and Registered PC3 DIMMs.
• Each channel supports up to two Unbuffered DIMMs.
• If quad-rank DIMMs are installed for a processor, a maximum of two DIMMs can be installed on each
channel for that processor.
• If a channel contains quad-rank DIMMs, the quad-rank DIMM must be installed first on that channel.
DIMM speeds are supported as indicated in the following table.
Populated slots
(per channel)
Rank Speeds supported
(MHz)
1 Single- or dual-rank 1333, 1066
1 Quad-rank 1066
2 Single- or dual-rank 1066
3 Single- or dual-rank 800
Advanced ECC population guidelines
For Advanced ECC mode configurations, observe the following guidelines:
Hardware options installation 50
• Observe the general DIMM slot population guidelines (on page 49).
• DIMMs may be installed individually.
Single-processor Advanced ECC population order
For Advanced ECC mode configurations with a single processor, populate the DIMM slots in the following
order:
• RDIMM: Sequentially in alphabetical order (A through I)
• UDIMM: A through F, sequentially in alphabetical order. Do not populate DIMM slots G through I.
Multi-processor Advanced ECC population order
For Advanced ECC mode configurations with multiple processors, populate the DIMM slots for each
processor in the following order:
• RDIMM: Sequentially in alphabetical order (A through I)
• UDIMM: A through F, sequentially in alphabetical order. Do not populate DIMM slots G through I.
Lockstep Memory population guidelines
For Lockstep memory mode configurations, observe the following guidelines:
• Observe the general DIMM slot population guidelines (on page 49).
• Always install DIMMs in channels 1 and 2 for each installed processor.
• Do not install DIMMs in channel 3 for any processor.
• DIMM configuration on channel 1 and channel 2 of a processor must be identical.
• In multi-processor configurations, each processor must have a valid Lockstep Memory configuration.
• In multi-processor configurations, each processor may have a different valid Lockstep Memory
configuration.
Single-processor Lockstep population order
For Lockstep memory mode configurations with a single processor, populate the DIMM slots in the following
order:
• RDIMM
o First: A and B
o Next: D and E
o Last: G and H
o Do not populate slots C, F, or I.
• UDIMM
o First: A and B
o Last: D and E
o Do not populate slots C, F, G, H, or I.
After installing the DIMMs, use RBSU to configure the system for Lockstep memory support ("Configuring
lockstep memory" on page 75).
Hardware options installation 51
Multi-processor Lockstep population order
For Lockstep memory mode configurations with multiple processors, populate the DIMM slots for each
processor in the following order:
• RDIMM
o First: A and B
o Next: D and E
o Last: G and H
o Do not populate slots C, F, or I.
• UDIMM
o First: A and B
o Last: D and E
o Do not populate slots C, F, G, H, or I.
After installing the DIMMs, use RBSU to configure the system for Lockstep memory support ("Configuring
lockstep memory" on page 75).
Online Spare population guidelines
For Online Spare mode configurations, observe the following guidelines:
• Observe the general DIMM slot population guidelines (on page 49).
• DIMM configuration on each channel of a processor must be identical.
• Each processor must have a valid Online Spare configuration.
• In multi-processor configurations, each processor can have a different valid Online Spare
configuration.
Single-processor Online Spare population order
For Online Spare mode configurations with a single processor, populate the DIMM slots in the following
order:
• RDIMM
o First: A, B, and C
o Next: D, E, and F
o Last: G, H, and I
• UDIMM
o First: A, B, and C
o Last: D, E, and F
o Do not populate slots G, H, and I.
After installing the DIMMs, use RBSU to configure the system for online spare memory support ("Configuring
online spare memory" on page 74).
Hardware options installation 52
Multi-processor Online Spare population order
For Online Spare mode configurations with a multiple processors, populate the DIMM slots for each
processor in the following order:
• RDIMM
o First: A, B, and C
o Next: D, E, and F
o Last: G, H, and I
• UDIMM
o First: A, B, and C
o Last: D, E, and F
o Do not populate slots G, H, and I.
After installing the DIMMs, use RBSU to configure the system for online spare memory support ("Configuring
online spare memory" on page 74).
Mirrored Memory population guidelines
For Mirrored Memory mode configurations, observe the following guidelines:
• Observe the general DIMM slot population guidelines (on page 49).
• Always install DIMMs in channels 1 and 2 for each installed processor.
• Do not install DIMMs in channel 3 for any processor.
• DIMMs installed on channel 1 and channel 2 of an installed processor must be identical.
• In multi-processor configurations, each processor must have a valid Mirrored Memory configuration.
• In multi-processor configurations, each processor may have a different valid Mirrored Memory
configuration.
Single-processor Mirrored Memory population order
For Mirrored Memory mode configurations with a single processor, populate the DIMM slots in the following
order:
• RDIMM
o First: A and B
o Next: D and E
o Last: G and H
o Do not populate slots C, F, or I.
• UDIMM
o First: A and B
o Last: D and E
o Do not populate slots C, F, G, H, or I.
After installing the DIMMs, use RBSU to configure the system for Mirrored Memory support ("Configuring
mirrored memory" on page 74).

Hardware options installation 53
Multi-processor Mirrored Memory population order
For Mirrored Memory mode configurations with multiple processors, populate the DIMM slots for each
processor in the following order:
• RDIMM
o First: A and B
o Next: D and E
o Last: G and H
o Do not populate slots C, F, or I.
• UDIMM
o First: A and B
o Last: D and E
o Do not populate slots C, F, G, H, or I.
After installing the DIMMs, use RBSU to configure the system for mirrored memory support ("Configuring
mirrored memory" on page 74).
Installing a DIMM
CAUTION: To avoid damage to the hard drives, memory, and other system components, the air
baffle, drive blanks, and access panel must be installed when the server is powered up.
1. Power down the server (on page 24).
2. Extend the server from the rack (on page 24).
3. Remove the access panel (on page 25).
4. If installed, remove the BBWC battery pack or the FBWC capacitor pack.
5. Remove the air baffle (on page 31).
6. Open the DIMM slot latches.
7. Install the DIMM.
8. Install the air baffle ("Remove the air baffle" on page 31).

Hardware options installation 54
9. If removed, install the BBWC battery pack or the FBWC capacitor pack.
10. Install the access panel (on page 26).
If you are installing DIMMs in online spare, mirrored, or lock-step configuration, configure this mode in RBSU
("HP ROM-Based Setup Utility" on page 72).
For more information about LEDs and troubleshooting failed DIMMs, see "Systems Insight Display LED
combinations (on page 10)."
Hot-plug SAS hard drive options
When adding hard drives to the server, observe the following general guidelines:
• The system automatically sets all device numbers.
• If only one hard drive is used, install it in the bay with the lowest device number.
• Drives should be the same capacity to provide the greatest storage space efficiency when drives are
grouped together into the same drive array.
Installing a hot-plug SAS hard drive
1. Remove the SAS hard drive blank.
2. Prepare the hard drive.

Hardware options installation 55
3. Install the hard drive.
4. Determine the status of the hard drive from the hot-plug SAS hard drive LED combinations ("SAS and
SATA hard drive LED combinations" on page 18).
Removing a hot-plug SAS hard drive
CAUTION: For proper cooling do not operate the server without the access panel, baffles,
expansion slot covers, or blanks installed. If the server supports hot-plug components, minimize
the amount of time the access panel is open.
1. Determine the status of the hard drive from the hot-plug SAS hard drive LED combinations ("SAS and
SATA hard drive LED combinations" on page 18).
2. Back up all server data on the hard drive.
3. Remove the hard drive.
Flash-backed write cache module option
To install the component:
CAUTION: Do not use this controller with cache modules designed for other controller models,
because the controller can malfunction and you can lose data. Also, do not transfer this cache
module to a different controller module, because you can lose data.
1. Back up all data.
2. Close all applications.
3. Power down the server (on page 24).

Hardware options installation 56
CAUTION: In systems that use external data storage, be sure that the server is the first unit to be
powered down and the last to be powered back up. Taking this precaution ensures that the system
does not erroneously mark the drives as failed when the server is powered up.
4. Extend the server from the rack (on page 24).
5. Remove the access panel (on page 25).
6. Remove the full-length expansion board retainer (on page 28) if any full-length expansion boards are
installed.
7. Remove the PCI riser cage (on page 29).
8. Install the cache module.
9. Connect the capacitor pack cable to the connector on the top of the cache module.

Hardware options installation 57
10. Attach the capacitor pack to the air baffle.
11. Install the PCI riser cage (on page 29).
12. Install the full-length expansion board retainer (on page 30) if any full-length expansion boards are
installed.
13. Install the access panel (on page 26).
14. Install the server into the rack ("Installing the server into the rack" on page 35).
15. Power up the server (on page 24).
Optical drive option
1. Power down the server (on page 24).
2. Extend the server from the rack (on page 24).
3. Remove the access panel (on page 25).

Hardware options installation 58
4. Remove the existing media drive option or blank.
5. Slide the optical drive into the drive bay.
6. Connect the power and data cable to the system board. The air baffle is not shown for clarity.

Hardware options installation 59
7. Connect the power and data cable to the optical drive.
8. Install the access panel (on page 26).
9. Power up the server (on page 24).
Redundant hot-plug power supply option
CAUTION: To prevent improper cooling and thermal damage, do not operate the server unless
all bays are populated with either a component or a blank.
1. Access the product rear panel (on page 26).
2. Remove the power supply blank.
WARNING: To reduce the risk of personal injury from hot surfaces, allow the power supply or
power supply blank to cool before touching it.

Hardware options installation 60
3. Install the power supply in the power supply bay.
4. Connect the power cord to the power supply.
5. Route the power cord through the power cord anchor or cable management arm.
6. Reposition the cable management arm into the operating position.
7. Connect the power cord to the power source.
8. Be sure that the power supply LED is green ("Rear panel LEDs and buttons" on page 12).
9. Verify that the corresponding power supply LED on the SID is green.
Expansion board options
The server supports PCI, PCI-X, and PCI Express expansion boards.
Removing expansion slot covers
CAUTION: To prevent damage to the server or expansion boards, power down the server and
remove all AC power cords before removing or installing the PCI riser cage.
CAUTION: For proper cooling do not operate the server without the access panel, baffles,
expansion slot covers, or blanks installed. If the server supports hot-plug components, minimize
the amount of time the access panel is open.
1. Power down the server (on page 24).
2. Extend the server from the rack (on page 24).
3. Remove the access panel (on page 25).
4. Remove the full-length expansion board retainer (on page 28) if any full-length expansion boards are
installed.
5. Remove the PCI riser cage (on page 29).
6. Remove the expansion slot cover:

Hardware options installation 61
o To remove slot cover 1 or 4, push in on the retainer to release it, and then slide out the cover.
o To remove slot covers 2 and 3, lift up on the latch, remove the latch, and then remove the cover.

Hardware options installation 62
o To remove slot covers 5 and 6, push down on the latch, rotate the latch down, and then remove the
cover.
Installing a half-length expansion board
1. Power down the server (on page 24).
2. Extend the server from the rack (on page 24).
3. Remove the access panel (on page 25).
4. Remove the full-length expansion board retainer (on page 28) if any full-length expansion boards are
installed.
5. Remove the PCI riser cage (on page 29).
6. Remove the expansion slot cover ("Expansion board options" on page 60, "Removing expansion slot
covers" on page 60).
7. Install the expansion board.
8. Connect any required internal or external cables to the expansion board. See the documentation that
ships with the expansion board.
9. Install the PCI riser cage (on page 29).
10. Install the full-length expansion board retainer (on page 30) if any full-length expansion boards are
installed.
11. Install the access panel (on page 26).
Installing a full-length expansion board
1. Power down the server (on page 24).
2. Extend the server from the rack (on page 24).
3. Remove the access panel (on page 25).
4. Remove the full-length expansion board retainer (on page 28).
5. Remove the PCI riser cage (on page 29).
6. Install the expansion board.

Hardware options installation 63
7. Connect any required internal or external cables to the expansion board. See the documentation that
ships with the expansion board.
8. Install the PCI riser cage (on page 29).
9. Install the full-length expansion board retainer (on page 30).
10. Install the access panel (on page 26).
PCI riser board option
CAUTION: For proper cooling do not operate the server without the access panel, baffles,
expansion slot covers, or blanks installed. If the server supports hot-plug components, minimize
the amount of time the access panel is open.
1. Power down the server (on page 24).
2. Extend the server from the rack (on page 24).
3. Remove the access panel (on page 25).
4. Remove the full-length expansion board retainer (on page 28) if any full-length expansion boards are
installed.
5. Remove the PCI riser cage (on page 29).
6. Install the optional riser board.
7. Install any expansion boards. ("Expansion board options" on page 60)
8. Install the PCI riser cage (on page 29).
9. Install the full-length expansion board retainer (on page 30) if any full-length expansion boards are
installed.
10. Install the access panel (on page 26).
11. Install the server into the rack.
12. Power up the server (on page 24).

Hardware options installation 64
Hard drive cage option
Installation of a SAS expander card or an additional SAS controller option is required to support the hard
drive cage option.
1. Power down the server (on page 24).
2. Extend the server from the rack (on page 24).
3. Remove the access panel (on page 25).
4. Disconnect and remove the optical drive cables ("Optical drive cabling" on page 69), if installed.
5. Using a T-15 Torx screwdriver, remove the two optical drive retaining screws, and then remove the
optical drive cage.
6. Remove the two primary hard drive retaining screws, and then slide the primary hard drive cage
forward.
7. Install the optional hard drive cage.

Hardware options installation 65
8. Install the hard drives ("Hot-plug SAS hard drive options" on page 54).
9. Install the hard drive blanks.
10. Remove the full-length expansion board retainer (on page 28) if any full-length expansion boards are
installed.
11. Remove the PCI riser cage (on page 29).
12. Install the optional SAS controller. For installation instructions, see the documentation that ships with the
SAS controller option.
13. Remove the air baffle (on page 31).
14. Connect one end of the power cable to the SAS backplane and the other end to the system board.
15. Install the air baffle.
16. Install the PCI riser cage.
17. Install the full-length expansion board retainer (on page 30) if any full-length expansion boards are
installed.
18. Install the primary hard drive cage.
19. Connect one end of each SAS cable to the SAS controller. For connector information, see the
documentation that ships with the SAS controller option.
20. Install the access panel (on page 26).
21. Install the server into the rack ("Installing the server into the rack" on page 35).
22. Power up the server (on page 24).
HP Trusted Platform Module option
Use these instructions to install and enable a TPM on a supported server. This procedure includes three
sections:
1. Installing the Trusted Platform Module board.
2. Retaining the recovery key/password (on page 68).
3. Enabling the Trusted Platform Module (on page 68).

Hardware options installation 66
Enabling the TPM requires accessing the ROM-Based Setup Utility (RBSU) ("HP ROM-Based Setup
Utility" on page 72). For more information about RBSU, see the HP website
(http://www.hp.com/support/smartstart/documentation).
TPM installation requires the use of drive encryption technology, such as the Microsoft® Windows®
BitLocker™ Drive Encryption feature. For more information on BitLocker™, see the Microsoft website
(http://www.microsoft.com).
CAUTION: Always observe the guidelines in this document. Failure to follow these guidelines
can cause hardware damage or halt data access.
When installing or replacing a TPM, observe the following guidelines:
• Do not remove an installed TPM. Once installed, the TPM becomes a permanent part of the system
board.
• When installing or replacing hardware, HP service providers cannot enable the TPM or the encryption
technology. For security reasons, only the customer can enable these features.
• When returning a system board for service replacement, do not remove the TPM from the system board.
When requested, HP Service provides a TPM with the spare system board.
• Any attempt to remove an installed TPM from the system board breaks or disfigures the TPM security
rivet. Upon locating a broken or disfigured rivet on an installed TPM, administrators should consider the
system compromised and take appropriate measures to ensure the integrity of the system data.
• When using BitLocker™, always retain the recovery key/password. The recovery key/password is
required to enter Recovery Mode after BitLocker™ detects a possible compromise of system integrity.
• HP is not liable for blocked data access caused by improper TPM use. For operating instructions, see the
encryption technology feature documentation provided by the operating system.
Installing the Trusted Platform Module board
WARNING: To reduce the risk of personal injury, electric shock, or damage to the equipment,
remove the power cord to remove power from the server. The front panel Power On/Standby
button does not completely shut off system power. Portions of the power supply and some internal
circuitry remain active until AC power is removed.
WARNING: To reduce the risk of personal injury from hot surfaces, allow the drives and the
internal system components to cool before touching them.
1. Power down the server (on page 24).
2. Remove the server from the rack, if necessary.
3. Place the server on a flat, level work surface.
4. Remove the access panel (on page 25).
5. Remove the full-length expansion board retainer (on page 28) if any full-length expansion boards are
installed.
6. Remove the PCI riser cage (on page 29).
7. Remove the air baffle (on page 31).

Hardware options installation 67
CAUTION: Any attempt to remove an installed TPM from the system board breaks or disfigures
the TPM security rivet. Upon locating a broken or disfigured rivet on an installed TPM,
administrators should consider the system compromised and take appropriate measures to ensure
the integrity of the system data.
8. Install the TPM board. Press down on the connector to seat the board.
9. Install the TPM security rivet by pressing the rivet firmly into the system board.
10.
11. Install the air baffle.
12. Install the PCI riser cage (on page 29).
13. Install the full-length expansion board retainer (on page 30) if any full-length expansion boards are
installed.
14. Install the access panel (on page 26).
15. Install the server into the rack ("Installing the server into the rack" on page 35).
16. Power up the server (on page 24).

Hardware options installation 68
Retaining the recovery key/password
The recovery key/password is generated during BitLocker™ setup, and can be saved and printed after
BitLocker™ is enabled. When using BitLocker™, always retain the recovery key/password. The recovery
key/password is required to enter Recovery Mode after BitLocker™ detects a possible compromise of system
integrity.
To help ensure maximum security, observe the following guidelines when retaining the recovery
key/password:
• Always store the recovery key/password in multiple locations.
• Always store copies of the recovery key/password away from the server.
• Do not save the recovery key/password on the encrypted hard drive.
Enabling the Trusted Platform Module
1. When prompted during the start-up sequence, access RBSU by pressing the F9 key.
2. From the Main Menu, select Server Security.
3. From the Server Security Menu, select Trusted Platform Module.
4. From the Trusted Platform Module Menu, select TPM Functionality.
5. Select Enable, and then press the Enter key to modify the TPM Functionality setting.
6. Press the Esc key to exit the current menu, or press the F10 key to exit RBSU.
7. Reboot the server.
8. Enable the TPM in the OS. For OS-specific instructions, see the OS documentation.
CAUTION: When a TPM is installed and enabled on the server, data access is locked if you fail
to follow the proper procedures for updating the system or option firmware, replacing the system
board, replacing a hard drive, or modifying OS application TPM settings.
For more information on firmware updates and hardware procedures, see the HP Trusted Platform Module
Best Practices White Paper on the HP website (http://www.hp.com/support).
For more information on adjusting TPM usage in BitLocker™, see the Microsoft website
(http://technet.microsoft.com/en-us/library/cc732774.aspx).

Cabling 69
Cabling
SAS hard drive cabling
Optical drive cabling

Cabling 70
BBWC battery cabling
FBWC battery cabling

Configuration and utilities 71
Configuration and utilities
Configuration tools
SmartStart software
SmartStart is a collection of software that optimizes single-server setup, providing a simple and consistent
way to deploy server configuration. SmartStart has been tested on many ProLiant server products, resulting
in proven, reliable configurations.
SmartStart assists the deployment process by performing a wide range of configuration activities, including:
• Preparing the system for installing "off-the-shelf" versions of leading operating system software
• Installing optimized server drivers, management agents, and utilities automatically with every assisted
installation
• Testing server hardware using the Insight Diagnostics Utility ("HP Insight Diagnostics" on page 79)
• Installing software drivers directly from the CD. With systems that have Internet connection, the
SmartStart Autorun Menu provides access to a complete list of ProLiant system software.
• Enabling access to the Array Configuration Utility (on page 75) and Erase Utility (on page 77)
SmartStart is included in the HP Insight Foundation suite for ProLiant. For more information about SmartStart
software, see the HP Insight Foundation suite for ProLiant or the HP website
(http://www.hp.com/go/foundation).
SmartStart Scripting Toolkit
The SmartStart Scripting Toolkit is a server deployment product that allows you to build an unattended
automated installation for high-volume server deployments. The SmartStart Scripting Toolkit is designed to
support ProLiant BL, ML, DL, and SL servers. The toolkit includes a modular set of utilities and important
documentation that describes how to apply these tools to build an automated server deployment process.
The Scripting Toolkit provides a flexible way to create standard server configuration scripts. These scripts are
used to automate many of the manual steps in the server configuration process. This automated server
configuration process cuts time from each deployment, making it possible to scale rapid, high-volume server
deployments.
For more information, and to download the SmartStart Scripting Toolkit, see the HP website
(http://www.hp.com/servers/sstoolkit).
Configuration Replication Utility
CONREP is shipped in the SmartStart Scripting Toolkit and is a program that works with RBSU to replicate
hardware configuration on ProLiant servers. This utility is run during State 0, Run Hardware Configuration
Utility, when doing a scripted server deployment. CONREP reads the state of the system environment
variables to determine the configuration and then writes the results to an editable script file. This file can then
be deployed across multiple servers with similar hardware and software components. For more information,

Configuration and utilities 72
refer to the SmartStart Scripting Toolkit User Guide on the HP website
(http://h18004.www1.hp.com/products/servers/management/toolkit/documentation.html).
HP ROM-Based Setup Utility
RBSU is a configuration utility embedded in ProLiant servers that performs a wide range of configuration
activities that can include the following:
• Configuring system devices and installed options
• Enabling and disabling system features
• Displaying system information
• Selecting the primary boot controller
• Configuring memory options
• Language selection
For more information on RBSU, see the HP ROM-Based Setup Utility User Guide on the Documentation CD or
the HP website (http://www.hp.com/support/smartstart/documentation).
Using RBSU
To use RBSU, use the following keys:
• To access RBSU, press the F9 key during power-up when prompted.
• To navigate the menu system, use the arrow keys.
• To make selections, press the Enter key.
• To access Help for a highlighted configuration option, press the F1 key.
IMPORTANT: RBSU automatically saves settings when you press the Enter key. The utility does
not prompt you for confirmation of settings before you exit the utility. To change a selected setting,
you must select a different setting and press the Enter key.
Default configuration settings are applied to the server at one of the following times:
• Upon the first system power-up
• After defaults have been restored
Default configuration settings are sufficient for proper typical server operation, but configuration settings can
be modified using RBSU. The system will prompt you for access to RBSU with each power-up.
Auto-configuration process
The auto-configuration process automatically runs when you boot the server for the first time. During the
power-up sequence, the system ROM automatically configures the entire system without needing any
intervention. During this process, the ORCA utility, in most cases, automatically configures the array to a
default setting based on the number of drives connected to the server.
NOTE: The server may not support all the following examples.

Configuration and utilities 73
NOTE: If the boot drive is not empty or has been written to in the past, ORCA does not
automatically configure the array. You must run ORCA to configure the array settings.
Drives installed Drives used RAID level
1
1
RAID 0
2 2 RAID 1
3, 4, 5, or 6 3, 4, 5, or 6 RAID 5
More than 6 0 None
To change any ORCA default settings and override the auto-configuration process, press the F8 key when
prompted.
For more information on RBSU, see the HP ROM-Based Setup Utility User Guide on the Documentation CD or
the HP website (http://www.hp.com/support/smartstart/documentation).
Boot options
Near the end of the boot process, the boot options screen is displayed. This screen is visible for several
seconds before the system attempts to boot from a supported boot device. During this time, you can do the
following:
• Access RBSU by pressing the F9 key.
• Access the System Maintenance Menu (which enables you to launch ROM-based Diagnostics or
Inspect) by pressing the F10 key.
• Access the boot menu by pressing the F11 key.
• Force a PXE Network boot by pressing the F12 key.
BIOS Serial Console
BIOS Serial Console allows you to configure the serial port to view POST error messages and run RBSU
remotely through a serial connection to the server COM port. The server that you are remotely configuring
does not require a keyboard and mouse.
For more information about BIOS Serial Console, see the BIOS Serial Console User Guide on the
Documentation CD or the HP website (http://www.hp.com/support/smartstart/documentation).
Configuring AMP modes
Not all ProLiant servers support all AMP modes. RBSU provides menu options only for the modes supported
by the server. Advanced memory protection within RBSU enables the following advanced memory.
• Advanced ECC Mode—Provides memory protection beyond Standard ECC. All single-bit failures and
some multi-bit failures can be corrected without resulting in system downtime.
• Online Spare Mode—Provides protection against failing or degraded DIMMs. Certain memory is set
aside as spare, and automatic failover to spare memory occurs when the system detects a degraded
DIMM. DIMMs that are likely to receive a fatal/uncorrectable memory error are removed from
operation automatically, resulting in less system downtime.
See the server-specific user guide for DIMM population requirements.
• Mirrored Memory Mode—Provides protection against uncorrectable memory errors that would
otherwise result in system failure. In this mode, the system maintains two copies of all data. If an
Configuration and utilities 74
uncorrectable memory error occurs, the system automatically retrieves the good data from the mirrored
copy. The system continues to operate normally without any user intervention. If the system supports
hot-plug memory, the failed memory can be replaced while the system continues to operate.
• RAID Memory Mode—Provides protection levels similar to Mirrored Memory Mode, and it requires less
memory allocation than full redundancy.
Configuring Advanced ECC memory
To configure Advanced ECC memory:
1. Install the required DIMMs ("Installing a DIMM" on page 53).
2. When the prompt appears, access RBSU by pressing the F9 key during power-up.
3. Select System Options.
4. Select Advanced Memory Protection.
5. Select Advanced ECC Memory.
6. Press the Enter key.
7. Press the Esc key to exit the current menu or press the F10 key to exit RBSU.
For more information on Advanced ECC, see the HP website
(http://h18000.www1.hp.com/products/servers/technology/memoryprotection.html).
Configuring online spare memory
To configure online spare memory:
1. Install the required DIMMs ("Installing a DIMM" on page 53).
2. When the prompt appears, access RBSU by pressing the F9 key during power-up.
3. Select System Options.
4. Select Advanced Memory Protection.
5. Select Online Spare with Advanced ECC Support.
6. Press the Enter key.
7. Press the Esc key to exit the current menu, or press the F10 key to exit RBSU.
For more information on online spare memory, see the HP website
(http://h18000.www1.hp.com/products/servers/technology/memoryprotection.html).
Configuring mirrored memory
To configure mirrored memory:
1. Install the required DIMMs ("Installing a DIMM" on page 53).
2. Access RBSU by pressing the F9 key during power-up when the prompt is displayed.
3. Select System Options.
4. Select Advanced Memory Protection.
5. Select Mirrored Memory with Advanced ECC Support.
6. Press the Enter key.
7. Press the Esc key to exit the current menu or press the F10 key to exit RBSU.
Configuration and utilities 75
For more information on mirrored memory, see the white paper on the HP website
(http://h18000.www1.hp.com/products/servers/technology/memoryprotection.html).
Configuring lockstep memory
To configure Lockstep memory:
1. Install the required DIMMs ("Installing a DIMM" on page 53).
2. Access RBSU by pressing the F9 key during power-up when the prompt is displayed.
3. Select System Options.
4. Select Advanced Memory Protection.
5. Select Lockstep with Advanced ECC Support.
6. Press the Enter key.
7. Press the Esc key to exit the current menu, or press the F10 key to exit RBSU.
For more information on Lockstep memory, see the white paper on the HP website
(http://h18000.www1.hp.com/products/servers/technology/memoryprotection.html).
Array Configuration Utility
ACU is a browser-based utility with the following features:
• Runs as a local application or remote service
• Supports online array capacity expansion, logical drive extension, assignment of online spares, and
RAID or stripe size migration
• Suggests the optimum configuration for an unconfigured system
• Provides different operating modes, enabling faster configuration or greater control over the
configuration options
• Remains available any time that the server is on
• Displays on-screen tips for individual steps of a configuration procedure
• Beginning with ACU version 8.28.13.0, provides diagnostic functionality on the Diagnostics tab
(formerly known as Array Diagnostics Utility).
For optimum performance, the minimum display settings are 1024 × 768 resolution and 16-bit color. Servers
running Microsoft® operating systems require one of the following supported browsers:
• Internet Explorer 6.0 or later
• Mozilla Firefox 2.0 or later
For Linux servers, see the README.TXT file for additional browser and support information.
For more information, see the Configuring Arrays on HP Smart Array Controllers Reference Guide on the
Documentation CD or the HP website (http://www.hp.com).
Option ROM Configuration for Arrays
Before installing an operating system, you can use the ORCA utility to create the first logical drive, assign
RAID levels, and establish online spare configurations.
The utility also provides support for the following functions:
Configuration and utilities 76
• Reconfiguring one or more logical drives
• Viewing the current logical drive configuration
• Deleting a logical drive configuration
• Setting the controller to be the boot controller
If you do not use the utility, ORCA will default to the standard configuration.
For more information regarding array controller configuration, refer to the controller user guide.
For more information regarding the default configurations that ORCA uses, refer to the HP ROM-Based Setup
Utility User Guide on the Documentation CD.
Re-entering the server serial number and product ID
After you replace the system board, you must re-enter the server serial number and the product ID.
1. During the server startup sequence, press the F9 key to access RBSU.
2. Select the Advanced Options menu.
3. Select Service Options.
4. Select Serial Number. The following warnings appear:
WARNING! WARNING! WARNING! The serial number is loaded into the system during
the manufacturing process and should NOT be modified. This option should only
be used by qualified service personnel. This value should always match the
serial number sticker located on the chassis.
Warning: The serial number should ONLY be modified by qualified personnel.
This value should always match the serial number located on the chassis.
5. Press the Enter key to clear the warning.
6. Enter the serial number and press the Enter key.
7. Select Product ID. The following warning appears:
Warning: The Product ID should ONLY be modified by qualified personnel. This
value should always match the Product ID on the chassis.
8. Enter the product ID and press the Enter key.
9. Press the Esc key to close the menu.
10. Press the Esc key to exit RBSU.
11. Press the F10 key to confirm exiting RBSU. The server automatically reboots.
Management tools
Automatic Server Recovery
ASR is a feature that causes the system to restart when a catastrophic operating system error occurs, such as
a blue screen, ABEND, or panic. A system fail-safe timer, the ASR timer, starts when the System Management
driver, also known as the Health Driver, is loaded. When the operating system is functioning properly, the
system periodically resets the timer. However, when the operating system fails, the timer expires and restarts
the server.
Configuration and utilities 77
ASR increases server availability by restarting the server within a specified time after a system hang or
shutdown. At the same time, the HP SIM console notifies you by sending a message to a designated pager
number that ASR has restarted the system. You can disable ASR from the HP SIM console or through RBSU.
ROMPaq utility
The ROMPaq utility enables you to upgrade the system firmware (BIOS). To upgrade the firmware, insert a
ROMPaq USB Key into an available USB port and boot the system. In addition to ROMPaq, Online Flash
Components for Windows and Linux operating systems are available for updating the system firmware.
The ROMPaq utility checks the system and provides a choice (if more than one exists) of available firmware
revisions.
For more information, see the Download drivers and software page for the server. To access the
server-specific page, enter the following web address into the browser:
http://www.hp.com/support/<servername>
For example:
http://www.hp.com/support/dl360g6
Integrated Lights-Out 3 technology
The iLO 3 subsystem is a standard component of selected ProLiant servers that provides server health and
remote server manageability. The iLO 3 subsystem includes an intelligent microprocessor, secure memory,
and a dedicated network interface. This design makes iLO 3 independent of the host server and its operating
system.
In addition to remote management features, iLO 3 is also responsible for managing the health of the ProLiant
server. The intelligence of iLO 3 manages the Sea of Sensors thermal control, directs the Dynamic Power
Capping technology, and monitors the health of server components.
The iLO 3 subsystem provides secure remote access from any authorized network client. The enhancements
to iLO 3 enable customers to get work done faster by providing turbo-charged remote access performance,
a streamlined user experience, and enhanced standards support.
Using iLO 3, you can do the following:
• Access a high-performance and secure Remote Console to the server from anywhere in the world.
• Use the shared iLO 3 Remote Console to collaborate with up to six server administrators.
• Remotely mount high-performance Virtual Media devices to the server.
• Securely and remotely control the power state of the managed server.
• Send alerts from iLO 3 regardless of the state of the host server.
• Access advanced troubleshooting features through the iLO 3 interface.
For more information about iLO 3 features (which may require an iLO Advanced Pack or iLO Advanced for
BladeSystem license), see the iLO 3 documentation on the Documentation CD or on the HP website
(http://www.hp.com/go/ilo).
Erase Utility

Configuration and utilities 78
CAUTION:
Perform a backup before running the System Erase Utility. The utility sets the system
to its original factory state, deletes the current hardware configuration information, including
array setup and disk partitioning, and erases all connected hard drives completely. Refer to the
instructions for using this utility.
Run the Erase Utility if you must erase the system for the following reasons:
• You want to install a new operating system on a server with an existing operating system.
• You encounter an error when completing the steps of a factory-installed operating system installation.
To access the Erase Utility, use the System Erase button on the home screen of the SmartStart CD ("SmartStart
software" on page 71).
Redundant ROM support
The server enables you to upgrade or configure the ROM safely with redundant ROM support. The server has
a single ROM that acts as two separate ROM images. In the standard implementation, one side of the ROM
contains the current ROM program version, while the other side of the ROM contains a backup version.
NOTE: The server ships with the same version programmed on each side of the ROM.
Safety and security benefits
When you flash the system ROM, ROMPaq writes over the backup ROM and saves the current ROM as a
backup, enabling you to switch easily to the alternate ROM version if the new ROM becomes corrupted for
any reason. This feature protects the existing ROM version, even if you experience a power failure while
flashing the ROM.
USB support and functionality
USB support
HP provides both standard USB 2.0 support and legacy USB 2.0 support. Standard support is provided by
the OS through the appropriate USB device drivers. Before the OS loads, HP provides support for USB
devices through legacy USB support, which is enabled by default in the system ROM.
Legacy USB support provides USB functionality in environments where USB support is not available normally.
Specifically, HP provides legacy USB functionality for the following:
• POST
• RBSU
• Diagnostics
• DOS
• Operating environments which do not provide native USB support

Configuration and utilities 79
Internal USB functionality
An internal USB connector is available for use with security key devices and USB drive keys. This solution
provides for use of a permanent USB key installed in the internal connector, avoiding issues of clearance on
the front of the rack and physical access to secure data.
For additional security, external USB functionality can be disabled through RBSU. Disabling external USB
support in RBSU disables the USB connectors on the local I/O cable. Internal USB functionality is unaffected.
Internal SD support
An internal SD connector is available for use with embedded Hypervisors. This solution provides for use of a
permanently installed SD card in the internal connector, decreasing the possibility of tampering or loss.
Diagnostic tools
HP Insight Diagnostics
HP Insight Diagnostics is a proactive server management tool, available in both offline and online versions,
that provides diagnostics and troubleshooting capabilities to assist IT administrators who verify server
installations, troubleshoot problems, and perform repair validation.
HP Insight Diagnostics Offline Edition performs various in-depth system and component testing while the OS
is not running. To run this utility, launch the SmartStart CD.
HP Insight Diagnostics Online Edition is a web-based application that captures system configuration and
other related data needed for effective server management. Available in Microsoft® Windows® and Linux
versions, the utility helps to ensure proper system operation.
For more information or to download the utility, refer to the HP website (http://www.hp.com/servers/diags).
HP Insight Diagnostics survey functionality
HP Insight Diagnostics (on page 79) provides survey functionality that gathers critical hardware and software
information on ProLiant servers.
This functionality supports operating systems that may not be supported by the server. For operating systems
supported by the server, see the HP website (http://www.hp.com/go/supportos).
If a significant change occurs between data-gathering intervals, the survey function marks the previous
information and overwrites the survey data files to reflect the latest changes in the configuration.
Survey functionality is installed with every SmartStart-assisted HP Insight Diagnostics installation, or it can be
installed through the HP PSP ("ProLiant Support Packs" on page 81).
NOTE: The current version of SmartStart provides the memory spare part numbers for the server.
To download the latest version, see the HP website (http://www.hp.com/support).
Integrated Management Log
The IML records hundreds of events and stores them in an easy-to-view form. The IML timestamps each event
with 1-minute granularity.

Configuration and utilities 80
You can view recorded events in the IML in several ways, including the following:
• From within HP SIM
• From within Survey Utility
• From within operating system-specific IML viewers
o For NetWare: IML Viewer
o For Windows®: IML Viewer
o For Linux: IML Viewer Application
• From within the iLO 3 user interface
• From within HP Insight Diagnostics (on page 79)
For more information, see the Management CD in the HP Insight Foundation suite for ProLiant.
Remote support and analysis tools
HP Insight Remote Support software
HP strongly recommends that you install HP Insight Remote Support software to complete the installation or
upgrade of your product and to enable enhanced delivery of your HP Warranty, HP Care Pack Service, or
HP contractual support agreement. HP Insight Remote Support supplements your monitoring 24 x 7 to ensure
maximum system availability by providing intelligent event diagnosis, and automatic, secure submission of
hardware event notifications to HP, which will initiate a fast and accurate resolution, based on your product’s
service level. Notifications may be sent to your authorized HP Channel Partner for on-site service, if
configured and available in your country. The software is available in two variants:
• HP Insight Remote Support Standard: This software supports server and storage devices and is
optimized for environments with 1–50 servers. Ideal for customers who can benefit from proactive
notification but do not need proactive service delivery and integration with a management platform.
• HP Insight Remote Support Advanced: This software provides comprehensive remote monitoring and
proactive service support for nearly all HP servers, storage, network, and SAN environments, plus
selected non-HP servers that have a support obligation with HP. It is integrated with HP Systems Insight
Manager. A dedicated server is recommended to host both HP Systems Insight Manager and HP Insight
Remote Support Advanced.
Details for both versions are available on the HP website (http://www.hp.com/go/insightremotesupport).
To download the software, go to Software Depot (http://www.software.hp.com).
Select Insight Remote Support from the menu on the right.
Keeping the system current
Drivers
IMPORTANT: Always perform a backup before installing or updating device drivers.
The server includes new hardware that may not have driver support on all OS installation media.
Configuration and utilities 81
If you are installing a SmartStart-supported OS, use the SmartStart software (on page 71) and its Assisted
Path feature to install the OS and latest driver support.
If you are installing drivers from the SmartStart CD, be sure that you are using the latest SmartStart version
that your server supports. To verify that your server is using the latest supported version, see the HP website
(http://www.hp.com/support). For more information, see the documentation provided with the SmartStart
CD.
If you do not use the SmartStart CD to install an OS, drivers for some of the new hardware are required.
These drivers, as well as other option drivers, ROM images, and value-add software can be downloaded
from the HP website (http://www.hp.com/support).
To directly locate the OS drivers for a particular server, enter the following web address into the browser:
http://www.hp.com/support/<servername>
In place of <servername>, enter the server name.
For example:
http://www.hp.com/support/dl360g6 (http://www.hp.com/support/dl360g6)
Version control
The VCRM and VCA are Web-enabled Insight Management Agents tools that HP SIM uses to facilitate and
schedule software update tasks to the entire enterprise.
• VCRM manages the repository for Windows and Linux PSPs as well as online firmware. Administrators
can browse a graphical view of the PSPs or configure VCRM to automatically update the repository with
Internet downloads of the latest software from HP.
• VCA compares installed software versions and available updates. Administrators can configure VCA to
point to a repository managed by VCRM.
For more information about version control tools, see the HP Systems Insight Manager Help Guide and the
Version Control User Guide on the HP Systems Insight Manager website (http://www.hp.com/go/hpsim).
ProLiant Support Packs
PSPs represent operating system-specific bundles of ProLiant optimized drivers, utilities, and management
agents. Refer to the PSP website (http://h18000.www1.hp.com/products/servers/management/psp.html).
Operating System Version Support
For information about specific versions of a supported operating system, refer to the operating system
support matrix (http://www.hp.com/go/supportos).
Firmware
The Smart Update Firmware DVD is an organized firmware collection for ProLiant servers and options
powered by HP Smart Update Manager (on page 82). The Smart Update Firmware DVD combines the
following resources on a single DVD:
• Firmware Maintenance CD
• HP BladeSystem Firmware Deployment Tool (FDT)
Configuration and utilities 82
• The HP BladeSystem online firmware bundles
• The ProLiant BladeSystem Release Sets
• Offline, automatic mode for HP ProLiant BL, DL, ML, and 100 Series servers
• Firmware deployment support for HP ProLiant 100 Series servers
HP Smart Update Manager
The HP Smart Update Manager provides intelligent and flexible firmware and software deployment. This
technology assists in reducing the complexity of provisioning and updating HP ProLiant Servers, options, and
Blades within the datacenter. HP SUM is delivered on The Smart Update Firmware DVD, ProLiant Support
Packs, and Easy Set-up CDs.
HP SUM enables system administrators to upgrade ROM images efficiently across a wide range of servers
and options. This tool has the following features:
• Enables GUI and a command-line, scriptable interface
• Enables scriptable, command-line deployment
• Requires no agent for remote installations
• Enables dependency checking, which ensures appropriate install order and dependency checking
between components
• Deploys software and firmware on Windows and Linux operating systems
• Performs local or remote (one-to-many) online deployment
• Deploys firmware and software together
• Supports offline and online deployment
• Deploys necessary component updates only (except Linux RPMs)
• Downloads the latest components from Web (except Linux RPMs)
• Enables direct update of BMC firmware (iLO and LO100i)
For more information about HP Smart Update Manager and to access the HP Smart Update Manager User
Guide, see the HP website (http://www.hp.com/go/foundation).
Change control and proactive notification
HP offers Change Control and Proactive Notification to notify customers 30 to 60 days in advance of
upcoming hardware and software changes on HP commercial products.
For more information, refer to the HP website (http://www.hp.com/go/pcn).
Care Pack
HP Care Pack Services offer upgraded service levels to extend and expand bundled services with
easy-to-buy, easy-to-use support packages that help you make the most of your server investments. For more
information, see the HP website (http://www.hp.com/services/carepack).

Troubleshooting 83
Troubleshooting
Troubleshooting resources
The HP ProLiant Servers Troubleshooting Guide provides procedures for resolving common problems and
comprehensive courses of action for fault isolation and identification, error message interpretation, issue
resolution, and software maintenance on ProLiant servers and server blades. This guide includes
problem-specific flowcharts to help you navigate complex troubleshooting processes. To view the guide,
select a language:
• English (http://www.hp.com/support/ProLiant_TSG_en)
• French (http://www.hp.com/support/ProLiant_TSG_fr)
• Italian (http://www.hp.com/support/ProLiant_TSG_it)
• Spanish (http://www.hp.com/support/ProLiant_TSG_sp)
• German (http://www.hp.com/support/ProLiant_TSG_gr)
• Dutch (http://www.hp.com/support/ProLiant_TSG_nl)
• Japanese (http://www.hp.com/support/ProLiant_TSG_jp)
Pre-diagnostic steps
WARNING: To avoid potential problems, ALWAYS read the warnings and cautionary
information in the server documentation before removing, replacing, reseating, or modifying
system components.
IMPORTANT: This guide provides information for multiple servers. Some information may not
apply to the server you are troubleshooting. Refer to the server documentation for information on
procedures, hardware options, software tools, and operating systems supported by the server.
1. Review the important safety information (on page 83).
2. Gather symptom information (on page 85).
3. Prepare the server for diagnosis (on page 85).
4. Use the Start diagnosis flowchart (on page 88) to begin the diagnostic process.
Important safety information
Familiarize yourself with the safety information in the following sections before troubleshooting the server.
Important safety information
Before servicing this product, read the Important Safety Information document provided with the server.

Troubleshooting 84
Symbols on equipment
The following symbols may be placed on equipment to indicate the presence of potentially hazardous
conditions.
This symbol indicates the presence of hazardous energy circuits or electric shock
hazards. Refer all servicing to qualified personnel.
WARNING: To reduce the risk of injury from electric shock hazards, do not open this
enclosure. Refer all maintenance, upgrades, and servicing to qualified personnel.
This symbol indicates the presence of electric shock hazards. The area contains no user
or field serviceable parts. Do not open for any reason.
WARNING: To reduce the risk of injury from electric shock hazards, do not open this
enclosure.
This symbol on an RJ-45 receptacle indicates a network interface connection.
WARNING:
To reduce the risk of electric shock, fire, or damage to the equipment, do
not plug telephone or telecommunications connectors into this receptacle.
This symbol indicates the presence of a hot surface or hot component. If this surface is
contacted, the potential for injury exists.
WARNING: To reduce the risk of injury from a hot component, allow the surface to cool
before touching.
27.2 kg
60.0 lb
This symbol indicates that the component exceeds the recommended weight for one
individual to handle safely.
WARNING: To reduce the risk of personal injury or damage to the equipment, observe
local occupational health and safety requirements and guidelines for manual material
handling.
These symbols, on power supplies or systems, indicate that the equipment is supplied
by multiple sources of power.
WARNING: To reduce the risk of injury from electric shock, remove all power cords to
completely disconnect power from the system.
Warnings and cautions
WARNING: Only authorized technicians trained by HP should attempt to repair this equipment.
All troubleshooting and repair procedures are detailed to allow only subassembly/module-level
repair. Because of the complexity of the individual boards and subassemblies, no one should
attempt to make repairs at the component level or to make modifications to any printed wiring
board. Improper repairs can create a safety hazard.
WARNING: To reduce the risk of personal injury or damage to the equipment, be sure that:
• The leveling feet are extended to the floor.
• The full weight of the rack rests on the leveling feet.
• The stabilizing feet are attached to the rack if it is a single-rack installation.
• The racks are coupled together in multiple-rack installations.
• Only one component is extended at a time. A rack may become unstable if more than one
component is extended for any reason.

Troubleshooting 85
WARNING: To reduce the risk of electric shock or damage to the equipment:
• Do not disable the power cord grounding plug. The grounding plug is an important safety
feature.
• Plug the power cord into a grounded (earthed) electrical outlet that is easily accessible at all
times.
• Unplug the power cord from the power supply to disconnect power to the equipment.
• Do not route the power cord where it can be walked on or pinched by items placed against it.
Pay particular attention to the plug, electrical outlet, and the point where the cord extends from
the server.
27.2 kg
60.0 lb
WARNING: To reduce the risk of personal injury or damage to the equipment:
• Observe local occupation health and safety requirements and guidelines for manual
handling.
• Obtain adequate assistance to lift and stabilize the chassis during installation or
removal.
• The server is unstable when not fastened to the rails.
• When mounting the server in a rack, remove the power supplies and any other
removable module to reduce the overall weight of the product.
CAUTION: To properly ventilate the system, you must provide at least 7.6 cm (3.0 in) of
clearance at the front and back of the server.
CAUTION: The server is designed to be electrically grounded (earthed). To ensure proper
operation, plug the AC power cord into a properly grounded AC outlet only.
Symptom information
Before troubleshooting a server problem, collect the following information:
• What events preceded the failure? After which steps does the problem occur?
• What has been changed since the time the server was working?
• Did you recently add or remove hardware or software? If so, did you remember to change the
appropriate settings in the server setup utility, if necessary?
• How long has the server exhibited problem symptoms?
• If the problem occurs randomly, what is the duration or frequency?
To answer these questions, the following information may be useful:
• Run HP Insight Diagnostics (on page 79) and use the survey page to view the current configuration or
to compare it to previous configurations.
• Refer to your hardware and software records for information.
• Refer to server LEDs and their statuses.
Prepare the server for diagnosis
1. Be sure the server is in the proper operating environment with adequate power, air conditioning, and
humidity control. For required environmental conditions, see the server documentation.
Troubleshooting 86
2. Record any error messages displayed by the system.
3. Remove all diskettes, CD-ROMs, DVD-ROMs, and USB drive keys.
4. Power down the server and peripheral devices if you will be diagnosing the server offline. If possible,
always perform an orderly shutdown:
a. Exit any applications.
b. Exit the operating system.
c. Power down the server (on page 24).
5. Disconnect any peripheral devices not required for testing (any devices not necessary to power up the
server). Do not disconnect the printer if you want to use it to print error messages.
6. Collect all tools and utilities, such as a Torx screwdriver, loopback adapters, ESD wrist strap, and
software utilities, necessary to troubleshoot the problem.
o You must have the appropriate Health Drivers and Management Agents installed on the server.
To verify the server configuration, connect to the System Management homepage and select Version
Control Agent. The VCA gives you a list of names and versions of all installed HP drivers,
Management Agents, and utilities, and whether they are up-to-date.
o HP recommends you have access to the server documentation for server-specific information.
o HP recommends you have access to the SmartStart CD for value-added software and drivers
required during the troubleshooting process. Download the current version of SmartStart from the
HP website (http://www.hp.com/servers/smartstart).
Performing processor procedures in the troubleshooting process
Before performing any troubleshooting steps that involve processors, review the following guidelines:
• Be sure that only authorized personnel perform the troubleshooting steps that involve installing,
removing, or replacing a processor.
• Always locate the documentation for your processor model before performing any steps that require
installing, removing, or replacing a processor. If you cannot locate the hard copy of the instructions that
shipped with the processor, see the processor ("Processor option" on page 39) instructions in this
document.
• Some processor models require the use of a processor installation tool, and specific steps are
documented to ensure that you do not damage the processor or processor socket on the system board.
For server models that have pins inside the processor socket, remember that THE PINS ON THE SYSTEM
BOARD ARE VERY FRAGILE AND EASILY DAMAGED. If you damage the socket, you must replace the
system board.
• Depending on the server model, the contacts may be on the processor or they may be inside the
processor socket. Never touch the contacts. THE PINS ON THE SYSTEM BOARD ARE VERY FRAGILE AND
EASILY DAMAGED. If the contacts inside the processor socket are damaged, the system board must be
replaced.
• Always complete all other troubleshooting procedures before removing or replacing a processor.
Breaking the server down to the minimum hardware configuration
During the troubleshooting process, you may be asked to break the server down to the minimum hardware
configuration. A minimum configuration consists of only the components needed to boot the server and
successfully pass POST.

Troubleshooting 87
When requested to break the server down to the minimum configuration, uninstall the following components,
if installed:
• All additional DIMMs
Leave only the minimum required to boot the server—either one DIMM or a pair of DIMMs. For more
information, see the memory guidelines in the server user guide.
• All additional cooling fans, if applicable
For the minimum fan configuration, see the server user guide.
• All additional power supplies, if applicable (leave one installed)
• All hard drives
• All optical drives (DVD-ROM, CD-ROM, and so forth)
• All optional mezzanine cards
• All expansion boards
Before removing the components, be sure to determine the minimum configuration for each component and
follow all guidelines in the server user guide.
Always use the recommended minimum configuration above before removing any processors. If you are
unable to isolate the issue with the configuration above, you will then remove all all but one of the additional
processors.
CAUTION: Before removing or replacing any processors, be sure to follow the guidelines
provided in "Performing processor procedures in the troubleshooting process (on page 86)."
Failure to follow the recommended guidelines can cause damage to the system board, requiring
replacement of the system board.
Loose connections
Action:
• Be sure all power cords are securely connected.
• Be sure all cables are properly aligned and securely connected for all external and internal
components.
• Remove and check all data and power cables for damage. Be sure no cables have bent pins or
damaged connectors.
• If a fixed cable tray is available for the server, be sure the cords and cables connected to the server are
routed correctly through the tray.
• Be sure each device is properly seated. Avoid bending or flexing circuit boards when reseating
components.
• If a device has latches, be sure they are completely closed and locked.
• Check any interlock or interconnect LEDs that may indicate a component is not connected properly.
• If problems continue to occur, remove and reinstall each device, checking the connectors and sockets
for bent pins or other damage.

Troubleshooting 88
Service notifications
To view the latest service notifications, refer to the HP website (http://www.hp.com/go/bizsupport). Select
the appropriate server model, and then click the Troubleshoot a Problem link on the product page.
Server health LEDs
Some servers have an internal health LED and an external health LED, while other servers have a single
system health LED. The system health LED provides the same functionality as the two separate internal and
external health LEDs. Depending on the model, the internal health LED and external health LED may either
appear solid or they may flash. Both conditions represent the same symptom.
For the location of server LEDs and information on their statuses, see the server documentation on the HP
website (http://www.hp.com/support).
Troubleshooting flowcharts
To effectively troubleshoot a problem, HP recommends that you start with the first flowchart in this section,
"Start diagnosis flowchart (on page 88)," and follow the appropriate diagnostic path. If the other flowcharts
do not provide a troubleshooting solution, follow the diagnostic steps in "General diagnosis flowchart (on
page 89)." The General diagnosis flowchart is a generic troubleshooting process to be used when the
problem is not server-specific or is not easily categorized into the other flowcharts.
The available flowcharts include:
• Start diagnosis flowchart (on page 88)
• General diagnosis flowchart (on page 89)
• Server power-on problems flowchart (on page 91)
• POST problems flowchart (on page 94)
• OS boot problems flowchart (on page 96)
• Server fault indications flowchart (on page 97)
Start diagnosis flowchart
Use the following flowchart to start the diagnostic process.
Item See
1 "General diagnosis flowchart (on page 89)"
2 "Power-on problems flowchart ("Server power-on problems flowchart" on
page 91)"
3 "POST problems flowchart (on page 94)"
4
"OS boot problems flowchart (on page 96)"
5 "Server fault indications flowchart (on page 97)"

Troubleshooting 89
General diagnosis flowchart
The General diagnosis flowchart provides a generic approach to troubleshooting. If you are unsure of the
problem, or if the other flowcharts do not fix the problem, use the following flowchart.
Item See
1 "Symptom information (on page 85)"
2 "Loose connections (on page 87)"
3 "Service notifications (on page 88)"
4 The most recent version of a particular server or option firmware is
available on the HP Support website (http://www.hp.com/support).

Troubleshooting 90
Item See
5 "General memory problems are occurring" in the HP ProLiant Servers
Troubleshooting Guide located on the Documentation CD or see
"Troubleshooting resources (on page 83)"
6 Server maintenance and service guide, located on the Documentation CD
or the HP website (http://www.hp.com/products/servers/platforms)
7
•
"Hardware problems" in the HP ProLiant Servers Troubleshooting
Guide located on the Documentation CD or see "Troubleshooting
resources (on page 83)"
•
Server maintenance and service guide, located on the Documentation
CD or the HP website
(http://www.hp.com/products/servers/platforms)
8 "Breaking the server down to the minimum hardware configuration (on
page 86)" or in the HP ProLiant Servers Troubleshooting Guide located on
the Documentation CD or see "Troubleshooting resources (on page 83)"
9
•
"Server information you need" in the HP ProLiant Servers
Troubleshooting Guide located on the Documentation CD or see
"Troubleshooting resources (on page 83)"
•
"Operating system information you need" in the HP ProLiant Servers
Troubleshooting Guide located on the Documentation CD or see
"Troubleshooting resources (on page 83)"
10
"HP contact information (on page 112)"

Troubleshooting 91
Server power-on problems flowchart
Symptoms:
• The server does not power on.
• The system power LED is off or amber.

Troubleshooting 92
• The external health LED is red or amber.
• The internal health LED is red or amber.
NOTE: For the location of server LEDs and information on their statuses, refer to the server
documentation.
Possible causes:
• Improperly seated or faulty power supply
• Loose or faulty power cord
• Power source problem
• Power on circuit problem
• Improperly seated component or interlock problem
• Faulty internal component
Item See
1 "Server health LEDs (on page 88)" and "Component identification (on
page 7)"
2
"HP Insight Diagnostics (on page 79)" or in the HP ProLiant Servers
Troubleshooting Guide located on the Documentation CD or see
"Troubleshooting resources (on page 83)"
3 "Loose connections (on page 87)"
4 Server maintenance and service guide, located on the Documentation CD,
or the HP website (http://www.hp.com/products/servers/platforms)
5 "Integrated Management Log (on page 79)" or in the HP ProLiant Servers
Troubleshooting Guide located on the Documentation CD or see
"Troubleshooting resources (on page 83)"
6 "Power source problems" in the HP ProLiant Servers Troubleshooting Guide
located on the Documentation CD or see "Troubleshooting resources (on
page 83)"
7
•
"Power supply problems" in the HP ProLiant Servers Troubleshooting
Guide located on the Documentation CD or see "Troubleshooting
resources (on page 83)"
•
Server maintenance and service guide, located on the Documentation
CD, or the HP website
(http://www.hp.com/products/servers/platforms)
8 "System open circuits and short circuits" in the HP ProLiant Servers
Troubleshooting Guide located on the Documentation CD or see
"Troubleshooting resources (on page 83)"

Troubleshooting 93

Troubleshooting 94
POST problems flowchart
Symptoms:
• Server does not complete POST
NOTE: The server has completed POST when the system attempts to access the boot device.
• Server completes POST with errors
Possible problems:
• Improperly seated or faulty internal component
• Faulty KVM device
• Faulty video device
Item See
1 "Video problems" in the HP ProLiant Servers Troubleshooting Guide
located on the Documentation CD or see "Troubleshooting resources (on
page 83)"
2
KVM or iLO 3 documentation
3 "POST error messages and beep codes (on page 99)"
4 "Symptom information (on page 85)"
5 "Port 85 and iLO messages" in the HP ProLiant Servers Troubleshooting
Guide located on the Documentation CD or see "Troubleshooting resources
(on page 83)"
6 "Server health LEDs (on page 88)" and "Component identification (on
page 7)"
7 "Loose connections (on page 87)"
8 "General memory problems are occurring" in the HP ProLiant Servers
Troubleshooting Guide located on the Documentation CD or see
"Troubleshooting resources (on page 83)"
9 Server maintenance and service guide, located on the Documentation CD
or the HP website (http://www.hp.com/products/servers/platforms).
10 "Breaking the server down to the minimum hardware configuration (on
page 86)" or in the HP ProLiant Servers Troubleshooting Guide located on
the Documentation CD or see "Troubleshooting resources (on page 83)"
11
•
"Hardware problems" in the HP ProLiant Servers Troubleshooting
Guide located on the Documentation CD or see "Troubleshooting
resources (on page 83)"
•
Server maintenance and service guide, located on the Documentation
CD or the HP website
(http://www.hp.com/products/servers/platforms)
12 "HP contact information (on page 112)"

Troubleshooting 95
Item See
13
•
"Server information you need" in the HP ProLiant Servers
Troubleshooting Guide located on the Documentation CD or see
"Troubleshooting resources (on page 83)"
•
"Operating system information you need" in the HP ProLiant Servers
Troubleshooting Guide located on the Documentation CD or see
"Troubleshooting resources (on page 83)"

Troubleshooting 96
OS boot problems flowchart
Symptoms:
• Server does not boot a previously installed operating system
• Server does not boot SmartStart
Possible causes:
• Corrupted operating system
• Hard drive subsystem problem
• Incorrect boot order setting in RBSU
Item See
1 HP ROM-Based Setup Utility User Guide
(http://www.hp.com/servers/smartstart)
2 "POST problems flowchart (on page 94)"
3
•
"Hard drive problems" in the HP ProLiant Servers Troubleshooting
Guide located on the Documentation CD or see "Troubleshooting
resources (on page 83)"
•
Controller documentation
4 "HP Insight Diagnostics (on page 79)" or in the HP ProLiant Servers
Troubleshooting Guide located on the Documentation CD or see
"Troubleshooting resources (on page 83)"
5
•
"CD-ROM and DVD drive problems" in the HP ProLiant Servers
Troubleshooting Guide located on the Documentation CD or see
"Troubleshooting resources (on page 83)"
•
Controller documentation
•
"Loose connections (on page 87)"
6 "General memory problems are occurring" in the HP ProLiant Servers
Troubleshooting Guide located on the Documentation CD or see
"Troubleshooting resources (on page 83)"
7
•
"Operating system problems" in the HP ProLiant Servers
Troubleshooting Guide located on the Documentation CD or see
"Troubleshooting resources (on page 83)"
•
"HP contact information (on page 112)"
8 "Breaking the server down to the minimum hardware configuration (on
page 86)" in the HP ProLiant Servers Troubleshooting Guide located on the
Documentation CD or see "Troubleshooting resources (on page 83)"
9
•
"Hardware problems" in the HP ProLiant Servers Troubleshooting
Guide located on the Documentation CD or see "Troubleshooting
resources (on page 83)"
•
Server maintenance and service guide, located on the Documentation
CD or the HP website
(http://www.hp.com/products/servers/platforms)
10 "General diagnosis flowchart (on page 89)"

Troubleshooting 97
Server fault indications flowchart
Symptoms:
• Server boots, but a fault event is reported by Insight Management Agents
• Server boots, but the internal health LED, external health LED, or component health LED is red or amber
NOTE: For the location of server LEDs and information on their statuses, refer to the server
documentation.

Troubleshooting 98
Possible causes:
• Improperly seated or faulty internal or external component
• Unsupported component installed
• Redundancy failure
• System overtemperature condition
Item See
1
•
"Integrated Management Log (on page 79)" or in the HP ProLiant
Servers Troubleshooting Guide located on the Documentation CD or
see "Troubleshooting resources (on page 83)"
•
"Event list error messages" in the HP ProLiant Servers Troubleshooting
Guide located on the Documentation CD or see "Troubleshooting
resources (on page 83)"
2 "Component identification (on page 7)"
3 "Server health LEDs (on page 88)"
4 System Management Homepage (https://localhost:2381)
5 "Power-on problems flowchart ("Server power-on problems flowchart" on
page 91)"
6 "HP Insight Diagnostics (on page 79)" or in the HP ProLiant Servers
Troubleshooting Guide located on the Documentation CD or see
"Troubleshooting resources (on page 83)"
7
•
"Hardware problems" in the HP ProLiant Servers Troubleshooting
Guide located on the Documentation CD or see "Troubleshooting
resources (on page 83)"
•
Server maintenance and service guide, located on the Documentation
CD or the HP website
(http://www.hp.com/products/servers/platforms)
8
•
"Smart Array SCSI Diagnosis feature" or in the HP ProLiant Servers
Troubleshooting Guide located on the Documentation CD or see
"Troubleshooting resources (on page 83)"
•
Server maintenance and service guide, located on the Documentation
CD or the HP website
(http://www.hp.com/products/servers/platforms)
•
"HP contact information (on page 112)"

Troubleshooting 100
WARNING: To avoid potential problems, ALWAYS read the warnings and cautionary
information in the server documentation before removing, replacing, reseating, or modifying
system components.

Battery replacement 101
Battery replacement
If the server no longer automatically displays the correct date and time, you may need to replace the battery
that provides power to the real-time clock.
WARNING: The computer contains an internal lithium manganese dioxide, a vanadium
pentoxide, or an alkaline battery pack. A risk of fire and burns exists if the battery pack is not
properly handled. To reduce the risk of personal injury:
• Do not attempt to recharge the battery.
• Do not expose the battery to temperatures higher than 60°C (140°F).
• Do not disassemble, crush, puncture, short external contacts, or dispose of in fire or water.
• Replace only with the spare designated for this product.
To remove the component:
1. Power down the server (on page 24).
2. Extend the server from the rack (on page 24).
3. Remove the access panel (on page 25).
4. Remove the full-length expansion board retainer (on page 28) if any full-length expansion boards are
installed.
5. Remove the PCI riser cage (on page 29).
6. Remove the air baffle (on page 31).
7. Remove the battery.
To replace the component, reverse the removal procedure.
For more information about battery replacement or proper disposal, contact an authorized reseller or an
authorized service provider.

Regulatory compliance notices 102
Regulatory compliance notices
Regulatory compliance identification numbers
For the purpose of regulatory compliance certifications and identification, this product has been assigned a
unique regulatory model number. The regulatory model number can be found on the product nameplate
label, along with all required approval markings and information. When requesting compliance information
for this product, always refer to this regulatory model number. The regulatory model number is not the
marketing name or model number of the product.
Federal Communications Commission notice
Part 15 of the Federal Communications Commission (FCC) Rules and Regulations has established Radio
Frequency (RF) emission limits to provide an interference-free radio frequency spectrum. Many electronic
devices, including computers, generate RF energy incidental to their intended function and are, therefore,
covered by these rules. These rules place computers and related peripheral devices into two classes, A and
B, depending upon their intended installation. Class A devices are those that may reasonably be expected
to be installed in a business or commercial environment. Class B devices are those that may reasonably be
expected to be installed in a residential environment (for example, personal computers). The FCC requires
devices in both classes to bear a label indicating the interference potential of the device as well as additional
operating instructions for the user.
FCC rating label
The FCC rating label on the device shows the classification (A or B) of the equipment. Class B devices have
an FCC logo or ID on the label. Class A devices do not have an FCC logo or ID on the label. After you
determine the class of the device, refer to the corresponding statement.
Class A equipment
This equipment has been tested and found to comply with the limits for a Class A digital device, pursuant to
Part 15 of the FCC Rules. These limits are designed to provide reasonable protection against harmful
interference when the equipment is operated in a commercial environment. This equipment generates, uses,
and can radiate radio frequency energy and, if not installed and used in accordance with the instructions,
may cause harmful interference to radio communications. Operation of this equipment in a residential area
is likely to cause harmful interference, in which case the user will be required to correct the interference at
personal expense.
Class B equipment
This equipment has been tested and found to comply with the limits for a Class B digital device, pursuant to
Part 15 of the FCC Rules. These limits are designed to provide reasonable protection against harmful
interference in a residential installation. This equipment generates, uses, and can radiate radio frequency
energy and, if not installed and used in accordance with the instructions, may cause harmful interference to
Regulatory compliance notices 103
radio communications. However, there is no guarantee that interference will not occur in a particular
installation. If this equipment does cause harmful interference to radio or television reception, which can be
determined by turning the equipment off and on, the user is encouraged to try to correct the interference by
one or more of the following measures:
• Reorient or relocate the receiving antenna.
• Increase the separation between the equipment and receiver.
• Connect the equipment into an outlet on a circuit that is different from that to which the receiver is
connected.
• Consult the dealer or an experienced radio or television technician for help.
Declaration of conformity for products marked with
the FCC logo, United States only
This device complies with Part 15 of the FCC Rules. Operation is subject to the following two conditions: (1)
this device may not cause harmful interference, and (2) this device must accept any interference received,
including interference that may cause undesired operation.
For questions regarding this product, contact us by mail or telephone:
• Hewlett-Packard Company
P. O. Box 692000, Mail Stop 530113
Houston, Texas 77269-2000
• 1-800-HP-INVENT (1-800-474-6836). (For continuous quality improvement, calls may be recorded or
monitored.)
For questions regarding this FCC declaration, contact us by mail or telephone:
• Hewlett-Packard Company
P. O. Box 692000, Mail Stop 510101
Houston, Texas 77269-2000
• 1281-514-3333
To identify this product, refer to the part, series, or model number found on the product.
Modifications
The FCC requires the user to be notified that any changes or modifications made to this device that are not
expressly approved by Hewlett-Packard Company may void the user’s authority to operate the equipment.
Cables
Connections to this device must be made with shielded cables with metallic RFI/EMI connector hoods in
order to maintain compliance with FCC Rules and Regulations.
Canadian notice (Avis Canadien)
Class A equipment

Regulatory compliance notices 104
This Class A digital apparatus meets all requirements of the Canadian Interference-Causing Equipment
Regulations.
Cet appareil numérique de la classe A respecte toutes les exigences du Règlement sur le matériel brouilleur
du Canada.
Class B equipment
This Class B digital apparatus meets all requirements of the Canadian Interference-Causing Equipment
Regulations.
Cet appareil numérique de la classe B respecte toutes les exigences du Règlement sur le matériel brouilleur
du Canada.
European Union regulatory notice
Products bearing the CE marking comply with the following EU Directives:
• Low Voltage Directive 2006/95/EC
• EMC Directive 2004/108/EC
• Ecodesign Directive 2009/125/EC, where applicable
CE compliance of this product is valid if powered with the correct CE-marked AC adapter provided by HP.
Compliance with these directives implies conformity to applicable harmonized European standards
(European Norms) that are listed in the EU Declaration of Conformity issued by HP for this product or product
family and available (in English only) either within the product documentation or at the following HP website
(http://www.hp.eu/certificates) (type the product number in the search field).
The compliance is indicated by one of the following conformity markings placed on the product:
For non-telecommunications products and for EU harmonized telecommunications products, such as
Bluetooth® within power class below 10mW.
For EU non-harmonized telecommunications products (If applicable, a 4-digit notified body number is
inserted between CE and !).
Please refer to the regulatory label provided on the product.
The point of contact for regulatory matters is Hewlett-Packard GmbH, Dept./MS: HQ-TRE, Herrenberger
Strasse 140, 71034 Boeblingen, GERMANY.
Disposal of waste equipment by users in private
households in the European Union

Regulatory compliance notices 105
This symbol on the product or on its packaging indicates that this product must not be disposed of
with your other household waste. Instead, it is your responsibility to dispose of your waste
equipment by handing it over to a designated collection point for the recycling of waste electrical
and electronic equipment. The separate collection and recycling of your waste equipment at the
time of disposal will help to conserve natural resources and ensure that it is recycled in a manner
that protects human health and the environment. For more information about where you can drop
off your waste equipment for recycling, please contact your local city office, your household
waste disposal service or the shop where you purchased the product.
Japanese notice
BSMI notice
Korean notice
Class A equipment

Regulatory compliance notices 106
Class B equipment
Chinese notice
Class A equipment
Laser compliance
This product may be provided with an optical storage device (that is, CD or DVD drive) and/or fiber optic
transceiver. Each of these devices contains a laser that is classified as a Class 1 Laser Product in accordance
with US FDA regulations and the IEC 60825-1. The product does not emit hazardous laser radiation.
Each laser product complies with 21 CFR 1040.10 and 1040.11 except for deviations pursuant to Laser
Notice No. 50, dated June 24, 2007; and with IEC 60825-1:2007.
WARNING: Use of controls or adjustments or performance of procedures other than those
specified herein or in the laser product's installation guide may result in hazardous radiation
exposure. To reduce the risk of exposure to hazardous radiation:
• Do not try to open the module enclosure. There are no user-serviceable components inside.
• Do not operate controls, make adjustments, or perform procedures to the laser device other
than those specified herein.
• Allow only HP Authorized Service technicians to repair the unit.
The Center for Devices and Radiological Health (CDRH) of the U.S. Food and Drug Administration
implemented regulations for laser products on August 2, 1976. These regulations apply to laser products
manufactured from August 1, 1976. Compliance is mandatory for products marketed in the United States.
Battery replacement notice
WARNING: The computer contains an internal lithium manganese dioxide, a vanadium
pentoxide, or an alkaline battery pack. A risk of fire and burns exists if the battery pack is not
properly handled. To reduce the risk of personal injury:
• Do not attempt to recharge the battery.
• Do not expose the battery to temperatures higher than 60°C (140°F).
• Do not disassemble, crush, puncture, short external contacts, or dispose of in fire or water.
Batteries, battery packs, and accumulators should not be disposed of together with the general
household waste. To forward them to recycling or proper disposal, use the public collection system or
return them to HP, an authorized HP Partner, or their agents.

Regulatory compliance notices 107
For more information about battery replacement or proper disposal, contact an authorized reseller or an
authorized service provider.
Taiwan battery recycling notice
The Taiwan EPA requires dry battery manufacturing or importing firms in accordance with Article 15 of the
Waste Disposal Act to indicate the recovery marks on the batteries used in sales, giveaway or promotion.
Contact a qualified Taiwanese recycler for proper battery disposal.
Power cord statement for Japan

Electrostatic discharge 108
Electrostatic discharge
Preventing electrostatic discharge
To prevent damaging the system, be aware of the precautions you need to follow when setting up the system
or handling parts. A discharge of static electricity from a finger or other conductor may damage system
boards or other static-sensitive devices. This type of damage may reduce the life expectancy of the device.
To prevent electrostatic damage:
• Avoid hand contact by transporting and storing products in static-safe containers.
• Keep electrostatic-sensitive parts in their containers until they arrive at static-free workstations.
• Place parts on a grounded surface before removing them from their containers.
• Avoid touching pins, leads, or circuitry.
• Always be properly grounded when touching a static-sensitive component or assembly.
Grounding methods to prevent electrostatic discharge
Several methods are used for grounding. Use one or more of the following methods when handling or
installing electrostatic-sensitive parts:
• Use a wrist strap connected by a ground cord to a grounded workstation or computer chassis. Wrist
straps are flexible straps with a minimum of 1 megohm ±10 percent resistance in the ground cords. To
provide proper ground, wear the strap snug against the skin.
• Use heel straps, toe straps, or boot straps at standing workstations. Wear the straps on both feet when
standing on conductive floors or dissipating floor mats.
• Use conductive field service tools.
• Use a portable field service kit with a folding static-dissipating work mat.
If you do not have any of the suggested equipment for proper grounding, have an authorized reseller install
the part.
For more information on static electricity or assistance with product installation, contact an authorized
reseller.

Specifications 109
Specifications
Environmental specifications
Specification Value
Temperature range*
Operating
10
°
C to 35
°
C (50
°
F to 95
°
F)
Shipping -30°C to 50°C (-22°F to 122°F)
Storage -30°C to 60°C (-22°F to 140°F)
Maximum wet bulb
temperature
28°C (82.4°F)
Relative humidity
(noncondensing)**
Operating 10% to 90%
Non-operating 5% to 95%
* All temperature ratings shown are for sea level. An altitude derating of 1°C per 300 m (1.8°F per 1,000 ft) to 3048
m (10,000 ft) is applicable. No direct sunlight allowed.
** Storage maximum humidity of 95% is based on a maximum temperature of 45°C (113°F). Altitude maximum for
storage corresponds to a pressure minimum of 70 KPa.
Mechanical specifications
Specification Value
Dimensions
Height 8.59 cm (3.38 in)
Depth 66.07 cm (26.01 in)
Width 44.54 cm (17.54 in)
Weight (maximum) 27.2 kg (60.0 lb)
Weight (no drives installed) 20.4 kg (47.2 lb)
Power supply specifications
Depending on installed options, the server is configured with one of the following power supplies:
• HP ProLiant 1200 W Power Supply
Specification Value
Input requirements
Rated input voltage 100 to 120 VAC, 200 to
240 VAC
Rated input frequency
50 Hz to 60 Hz

Specifications 110
Rated input current
10 A at 100 VAC
4.9 A at 200 VAC
Rated input power 930 W at 100V AC input
1348 W at 200V AC input
BTUs per hour 3530 at 120V AC input
4600 at 200V to 240V AC input
Power supply output
Rated steady-state power 800 W at 100V AC input
900 W at 120V AC input
1200 W at 200V to 240V AC
input
Maximum peak power 800 W at 100V AC input
900 W at 120V AC input
1200 W at 200V to 240V AC
input
• HP ProLiant 750 W Power Supply
Specification Value
Input requirements
Rated input voltage 100 to 120 VAC, 200 to
240 VAC
Rated input frequency 50 Hz to 60 Hz
Rated input current 8.9 A at 100 VAC
4.3 A at 200 VAC
Rated input power 857 W at 100V AC input
824 W at 200V AC input
BTUs per hour 2925 at 100V AC input
2812 at 200V AC input
Power supply output
Rated steady-state power 750 W at 100V to 120V AC input
750 W at 200V to 240V AC input
Maximum peak power 750 W at 100V to 120V AC input
750 W at 200V to 240V AC input
• HP ProLiant 460 W Power Supply
Specification Value
Input requirements
Rated input voltage 100 to 120 VAC, 200 to
240 VAC
Rated input frequency 50 Hz to 60 Hz
Rated input current 5.5 A at 100 VAC
2.6 A at 200 VAC
Rated input power 526 W at 100V AC input
505 W at 200V AC input
BTUs per hour 1794 at 100V AC input
1725 at 200V AC input
Power supply output

Specifications 111
Rated steady-state power
460 W at 100V to 120V AC input
460 W at 200V to 240V AC input
Maximum peak power 460 W at 100V to 120V AC input
460 W at 200V to 240V AC input

Technical support 112
Technical support
Before you contact HP
Be sure to have the following information available before you call HP:
• Technical support registration number (if applicable)
• Product serial number
• Product model name and number
• Product identification number
• Applicable error messages
• Add-on boards or hardware
• Third-party hardware or software
• Operating system type and revision level
HP contact information
For the name of the nearest HP authorized reseller:
• See the Contact HP worldwide (in English) webpage
(http://welcome.hp.com/country/us/en/wwcontact.html).
For HP technical support:
• In the United States, for contact options see the Contact HP United States webpage
(http://welcome.hp.com/country/us/en/contact_us.html). To contact HP by phone:
o Call 1-800-HP-INVENT (1-800-474-6836). This service is available 24 hours a day, 7 days a
week. For continuous quality improvement, calls may be recorded or monitored.
o If you have purchased a Care Pack (service upgrade), call 1-800-633-3600. For more information
about Care Packs, refer to the HP website (http://www.hp.com/hps).
• In other locations, see the Contact HP worldwide (in English) webpage
(http://welcome.hp.com/country/us/en/wwcontact.html).
Customer Self Repair
HP products are designed with many Customer Self Repair (CSR) parts to minimize repair time and allow for
greater flexibility in performing defective parts replacement. If during the diagnosis period HP (or HP service
providers or service partners) identifies that the repair can be accomplished by the use of a CSR part, HP will
ship that part directly to you for replacement. There are two categories of CSR parts:
• Mandatory—Parts for which customer self repair is mandatory. If you request HP to replace these parts,
you will be charged for the travel and labor costs of this service.
Technical support 113
• Optional—Parts for which customer self repair is optional. These parts are also designed for customer
self repair. If, however, you require that HP replace them for you, there may or may not be additional
charges, depending on the type of warranty service designated for your product.
NOTE: Some HP parts are not designed for customer self repair. In order to satisfy the customer warranty,
HP requires that an authorized service provider replace the part. These parts are identified as "No" in the
Illustrated Parts Catalog.
Based on availability and where geography permits, CSR parts will be shipped for next business day
delivery. Same day or four-hour delivery may be offered at an additional charge where geography permits.
If assistance is required, you can call the HP Technical Support Center and a technician will help you over the
telephone. HP specifies in the materials shipped with a replacement CSR part whether a defective part must
be returned to HP. In cases where it is required to return the defective part to HP, you must ship the defective
part back to HP within a defined period of time, normally five (5) business days. The defective part must be
returned with the associated documentation in the provided shipping material. Failure to return the defective
part may result in HP billing you for the replacement. With a customer self repair, HP will pay all shipping
and part return costs and determine the courier/carrier to be used.
For more information about HP's Customer Self Repair program, contact your local service provider. For the
North American program, refer to the HP website (http://www.hp.com/go/selfrepair).
Réparation par le client (CSR)
Les produits HP comportent de nombreuses pièces CSR (Customer Self Repair = réparation par le client) afin
de minimiser les délais de réparation et faciliter le remplacement des pièces défectueuses. Si pendant la
période de diagnostic, HP (ou ses partenaires ou mainteneurs agréés) détermine que la réparation peut être
effectuée à l'aide d'une pièce CSR, HP vous l'envoie directement. Il existe deux catégories de pièces CSR:
Obligatoire - Pièces pour lesquelles la réparation par le client est obligatoire. Si vous demandez à HP de
remplacer ces pièces, les coûts de déplacement et main d'œuvre du service vous seront facturés.
Facultatif - Pièces pour lesquelles la réparation par le client est facultative. Ces pièces sont également
conçues pour permettre au client d'effectuer lui-même la réparation. Toutefois, si vous demandez à HP de
remplacer ces pièces, l'intervention peut ou non vous être facturée, selon le type de garantie applicable à
votre produit.
REMARQUE: Certaines pièces HP ne sont pas conçues pour permettre au client d'effectuer lui-même la
réparation. Pour que la garantie puisse s'appliquer, HP exige que le remplacement de la pièce soit effectué
par un Mainteneur Agréé. Ces pièces sont identifiées par la mention "Non" dans le Catalogue illustré.
Les pièces CSR sont livrées le jour ouvré suivant, dans la limite des stocks disponibles et selon votre situation
géographique. Si votre situation géographique le permet et que vous demandez une livraison le jour même
ou dans les 4 heures, celle-ci vous sera facturée. Pour bénéficier d'une assistance téléphonique, appelez le
Centre d'assistance technique HP. Dans les documents envoyés avec la pièce de rechange CSR, HP précise
s'il est nécessaire de lui retourner la pièce défectueuse. Si c'est le cas, vous devez le faire dans le délai
indiqué, généralement cinq (5) jours ouvrés. La pièce et sa documentation doivent être retournées dans
l'emballage fourni. Si vous ne retournez pas la pièce défectueuse, HP se réserve le droit de vous facturer les
coûts de remplacement. Dans le cas d'une pièce CSR, HP supporte l'ensemble des frais d'expédition et de
retour, et détermine la société de courses ou le transporteur à utiliser.
Pour plus d'informations sur le programme CSR de HP, contactez votre Mainteneur Agrée local. Pour plus
d'informations sur ce programme en Amérique du Nord, consultez le site Web HP
(http://www.hp.com/go/selfrepair).
Technical support 114
Riparazione da parte del cliente
Per abbreviare i tempi di riparazione e garantire una maggiore flessibilità nella sostituzione di parti
difettose, i prodotti HP sono realizzati con numerosi componenti che possono essere riparati direttamente
dal cliente (CSR, Customer Self Repair). Se in fase di diagnostica HP (o un centro di servizi o di assistenza
HP) identifica il guasto come riparabile mediante un ricambio CSR, HP lo spedirà direttamente al cliente per
la sostituzione. Vi sono due categorie di parti CSR:
Obbligatorie – Parti che devono essere necessariamente riparate dal cliente. Se il cliente ne affida la
riparazione ad HP, deve sostenere le spese di spedizione e di manodopera per il servizio.
Opzionali – Parti la cui riparazione da parte del cliente è facoltativa. Si tratta comunque di componenti
progettati per questo scopo. Se tuttavia il cliente ne richiede la sostituzione ad HP, potrebbe dover sostenere
spese addizionali a seconda del tipo di garanzia previsto per il prodotto.
NOTA: alcuni componenti HP non sono progettati per la riparazione da parte del cliente. Per rispettare la
garanzia, HP richiede che queste parti siano sostituite da un centro di assistenza autorizzato. Tali parti sono
identificate da un "No" nel Catalogo illustrato dei componenti.
In base alla disponibilità e alla località geografica, le parti CSR vengono spedite con consegna entro il
giorno lavorativo seguente. La consegna nel giorno stesso o entro quattro ore è offerta con un supplemento
di costo solo in alcune zone. In caso di necessità si può richiedere l'assistenza telefonica di un addetto del
centro di supporto tecnico HP. Nel materiale fornito con una parte di ricambio CSR, HP specifica se il cliente
deve restituire dei componenti. Qualora sia richiesta la resa ad HP del componente difettoso, lo si deve
spedire ad HP entro un determinato periodo di tempo, generalmente cinque (5) giorni lavorativi. Il
componente difettoso deve essere restituito con la documentazione associata nell'imballo di spedizione
fornito. La mancata restituzione del componente può comportare la fatturazione del ricambio da parte di HP.
Nel caso di riparazione da parte del cliente, HP sostiene tutte le spese di spedizione e resa e sceglie il
corriere/vettore da utilizzare.
Per ulteriori informazioni sul programma CSR di HP contattare il centro di assistenza di zona. Per il
programma in Nord America fare riferimento al sito Web HP (http://www.hp.com/go/selfrepair).
Customer Self Repair
HP Produkte enthalten viele CSR-Teile (Customer Self Repair), um Reparaturzeiten zu minimieren und höhere
Flexibilität beim Austausch defekter Bauteile zu ermöglichen. Wenn HP (oder ein HP Servicepartner) bei der
Diagnose feststellt, dass das Produkt mithilfe eines CSR-Teils repariert werden kann, sendet Ihnen HP dieses
Bauteil zum Austausch direkt zu. CSR-Teile werden in zwei Kategorien unterteilt:
Zwingend – Teile, für die das Customer Self Repair-Verfahren zwingend vorgegeben ist. Wenn Sie den
Austausch dieser Teile von HP vornehmen lassen, werden Ihnen die Anfahrt- und Arbeitskosten für diesen
Service berechnet.
Optional – Teile, für die das Customer Self Repair-Verfahren optional ist. Diese Teile sind auch für Customer
Self Repair ausgelegt. Wenn Sie jedoch den Austausch dieser Teile von HP vornehmen lassen möchten,
können bei diesem Service je nach den für Ihr Produkt vorgesehenen Garantiebedingungen zusätzliche
Kosten anfallen.
HINWEIS: Einige Teile sind nicht für Customer Self Repair ausgelegt. Um den Garantieanspruch des
Kunden zu erfüllen, muss das Teil von einem HP Servicepartner ersetzt werden. Im illustrierten Teilekatalog
sind diese Teile mit „No“ bzw. „Nein“ gekennzeichnet.
Technical support 115
CSR-Teile werden abhängig von der Verfügbarkeit und vom Lieferziel am folgenden Geschäftstag geliefert.
Für bestimmte Standorte ist eine Lieferung am selben Tag oder innerhalb von vier Stunden gegen einen
Aufpreis verfügbar. Wenn Sie Hilfe benötigen, können Sie das HP technische Support Center anrufen und
sich von einem Mitarbeiter per Telefon helfen lassen. Den Materialien, die mit einem CSR-Ersatzteil geliefert
werden, können Sie entnehmen, ob das defekte Teil an HP zurückgeschickt werden muss. Wenn es
erforderlich ist, das defekte Teil an HP zurückzuschicken, müssen Sie dies innerhalb eines vorgegebenen
Zeitraums tun, in der Regel innerhalb von fünf (5) Geschäftstagen. Das defekte Teil muss mit der zugehörigen
Dokumentation in der Verpackung zurückgeschickt werden, die im Lieferumfang enthalten ist. Wenn Sie das
defekte Teil nicht zurückschicken, kann HP Ihnen das Ersatzteil in Rechnung stellen. Im Falle von Customer
Self Repair kommt HP für alle Kosten für die Lieferung und Rücksendung auf und bestimmt den
Kurier-/Frachtdienst.
Weitere Informationen über das HP Customer Self Repair Programm erhalten Sie von Ihrem Servicepartner
vor Ort. Informationen über das CSR-Programm in Nordamerika finden Sie auf der HP Website unter
(http://www.hp.com/go/selfrepair).
Reparaciones del propio cliente
Los productos de HP incluyen muchos componentes que el propio usuario puede reemplazar (Customer Self
Repair, CSR) para minimizar el tiempo de reparación y ofrecer una mayor flexibilidad a la hora de realizar
sustituciones de componentes defectuosos. Si, durante la fase de diagnóstico, HP (o los proveedores o socios
de servicio de HP) identifica que una reparación puede llevarse a cabo mediante el uso de un componente
CSR, HP le enviará dicho componente directamente para que realice su sustitución. Los componentes CSR se
clasifican en dos categorías:
• Obligatorio: componentes para los que la reparación por parte del usuario es obligatoria. Si solicita a
HP que realice la sustitución de estos componentes, tendrá que hacerse cargo de los gastos de
desplazamiento y de mano de obra de dicho servicio.
• Opcional: componentes para los que la reparación por parte del usuario es opcional. Estos
componentes también están diseñados para que puedan ser reparados por el usuario. Sin embargo, si
precisa que HP realice su sustitución, puede o no conllevar costes adicionales, dependiendo del tipo de
servicio de garantía correspondiente al producto.
NOTA: Algunos componentes no están diseñados para que puedan ser reparados por el usuario. Para que
el usuario haga valer su garantía, HP pone como condición que un proveedor de servicios autorizado
realice la sustitución de estos componentes. Dichos componentes se identifican con la palabra "No" en el
catálogo ilustrado de componentes.
Según la disponibilidad y la situación geográfica, los componentes CSR se enviarán para que lleguen a su
destino al siguiente día laborable. Si la situación geográfica lo permite, se puede solicitar la entrega en el
mismo día o en cuatro horas con un coste adicional. Si precisa asistencia técnica, puede llamar al Centro de
asistencia técnica de HP y recibirá ayuda telefónica por parte de un técnico. Con el envío de materiales
para la sustitución de componentes CSR, HP especificará si los componentes defectuosos deberán
devolverse a HP. En aquellos casos en los que sea necesario devolver algún componente a HP, deberá
hacerlo en el periodo de tiempo especificado, normalmente cinco días laborables. Los componentes
defectuosos deberán devolverse con toda la documentación relacionada y con el embalaje de envío. Si no
enviara el componente defectuoso requerido, HP podrá cobrarle por el de sustitución. En el caso de todas
sustituciones que lleve a cabo el cliente, HP se hará cargo de todos los gastos de envío y devolución de
componentes y escogerá la empresa de transporte que se utilice para dicho servicio.
Technical support 116
Para obtener más información acerca del programa de Reparaciones del propio cliente de HP, póngase en
contacto con su proveedor de servicios local. Si está interesado en el programa para Norteamérica, visite
la página web de HP siguiente (http://www.hp.com/go/selfrepair).
Customer Self Repair
Veel onderdelen in HP producten zijn door de klant zelf te repareren, waardoor de reparatieduur tot een
minimum beperkt kan blijven en de flexibiliteit in het vervangen van defecte onderdelen groter is. Deze
onderdelen worden CSR-onderdelen (Customer Self Repair) genoemd. Als HP (of een HP Service Partner) bij
de diagnose vaststelt dat de reparatie kan worden uitgevoerd met een CSR-onderdeel, verzendt HP dat
onderdeel rechtstreeks naar u, zodat u het defecte onderdeel daarmee kunt vervangen. Er zijn twee
categorieën CSR-onderdelen:
Verplicht: Onderdelen waarvoor reparatie door de klant verplicht is. Als u HP verzoekt deze onderdelen
voor u te vervangen, worden u voor deze service reiskosten en arbeidsloon in rekening gebracht.
Optioneel: Onderdelen waarvoor reparatie door de klant optioneel is. Ook deze onderdelen zijn ontworpen
voor reparatie door de klant. Als u echter HP verzoekt deze onderdelen voor u te vervangen, kunnen
daarvoor extra kosten in rekening worden gebracht, afhankelijk van het type garantieservice voor het
product.
OPMERKING: Sommige HP onderdelen zijn niet ontwikkeld voor reparatie door de klant. In verband met
de garantievoorwaarden moet het onderdeel door een geautoriseerde Service Partner worden vervangen.
Deze onderdelen worden in de geïllustreerde onderdelencatalogus aangemerkt met "Nee".
Afhankelijk van de leverbaarheid en de locatie worden CSR-onderdelen verzonden voor levering op de
eerstvolgende werkdag. Levering op dezelfde dag of binnen vier uur kan tegen meerkosten worden
aangeboden, indien dit mogelijk is gezien de locatie. Indien assistentie gewenst is, belt u een HP Service
Partner om via de telefoon technische ondersteuning te ontvangen. HP vermeldt in de documentatie bij het
vervangende CSR-onderdeel of het defecte onderdeel aan HP moet worden geretourneerd. Als het defecte
onderdeel aan HP moet worden teruggezonden, moet u het defecte onderdeel binnen een bepaalde
periode, gewoonlijk vijf (5) werkdagen, retourneren aan HP. Het defecte onderdeel moet met de
bijbehorende documentatie worden geretourneerd in het meegeleverde verpakkingsmateriaal. Als u het
defecte onderdeel niet terugzendt, kan HP u voor het vervangende onderdeel kosten in rekening brengen. Bij
reparatie door de klant betaalt HP alle verzendkosten voor het vervangende en geretourneerde onderdeel en
kiest HP zelf welke koerier/transportonderneming hiervoor wordt gebruikt.
Neem contact op met een Service Partner voor meer informatie over het Customer Self Repair programma
van HP. Informatie over Service Partners vindt u op de HP website (http://www.hp.com/go/selfrepair).
Reparo feito pelo cliente
Os produtos da HP são projetados com muitas peças para reparo feito pelo cliente (CSR) de modo a
minimizar o tempo de reparo e permitir maior flexibilidade na substituição de peças com defeito. Se,
durante o período de diagnóstico, a HP (ou fornecedores/parceiros de serviço da HP) concluir que o reparo
pode ser efetuado pelo uso de uma peça CSR, a peça de reposição será enviada diretamente ao cliente.
Existem duas categorias de peças CSR:
Obrigatória – Peças cujo reparo feito pelo cliente é obrigatório. Se desejar que a HP substitua essas peças,
serão cobradas as despesas de transporte e mão-de-obra do serviço.
Technical support 117
Opcional – Peças cujo reparo feito pelo cliente é opcional. Essas peças também são projetadas para o
reparo feito pelo cliente. No entanto, se desejar que a HP as substitua, pode haver ou não a cobrança de
taxa adicional, dependendo do tipo de serviço de garantia destinado ao produto.
OBSERVAÇÃO: Algumas peças da HP não são projetadas para o reparo feito pelo cliente. A fim de
cumprir a garantia do cliente, a HP exige que um técnico autorizado substitua a peça. Essas peças estão
identificadas com a marca "No" (Não), no catálogo de peças ilustrado.
Conforme a disponibilidade e o local geográfico, as peças CSR serão enviadas no primeiro dia útil após o
pedido. Onde as condições geográficas permitirem, a entrega no mesmo dia ou em quatro horas pode ser
feita mediante uma taxa adicional. Se precisar de auxílio, entre em contato com o Centro de suporte técnico
da HP para que um técnico o ajude por telefone. A HP especifica nos materiais fornecidos com a peça CSR
de reposição se a peça com defeito deve ser devolvida à HP. Nos casos em que isso for necessário, é
preciso enviar a peça com defeito à HP dentro do período determinado, normalmente cinco (5) dias úteis.
A peça com defeito deve ser enviada com a documentação correspondente no material de transporte
fornecido. Caso não o faça, a HP poderá cobrar a reposição. Para as peças de reparo feito pelo cliente, a
HP paga todas as despesas de transporte e de devolução da peça e determina a transportadora/serviço
postal a ser utilizado.
Para obter mais informações sobre o programa de reparo feito pelo cliente da HP, entre em contato com o
fornecedor de serviços local. Para o programa norte-americano, visite o site da HP
(http://www.hp.com/go/selfrepair).

Technical support 118

Technical support 119

Acronyms and abbreviations 120
Acronyms and abbreviations
ABEND
abnormal end
ACU
Array Configuration Utility
AMP
Advanced Memory Protection
ASR
Automatic Server Recovery
BBWC
battery-backed write cache
CSA
Canadian Standards Association
CSR
Customer Self Repair
DDR
double data rate
IEC
International Electrotechnical Commission
iLO
Integrated Lights-Out
IML
Integrated Management Log
ISEE
Instant Support Enterprise Edition
Acronyms and abbreviations 121
NMI
non-maskable interrupt
NVRAM
non-volatile memory
ORCA
Option ROM Configuration for Arrays
PCIe
peripheral component interconnect express
PCI-X
peripheral component interconnect extended
POST
Power-On Self Test
PSP
ProLiant Support Pack
RBSU
ROM-Based Setup Utility
RDIMM
Registered Dual In-line Memory Module
RDP
Rapid Deployment Pack
SAS
serial attached SCSI
SATA
serial ATA
SFF
small form-factor
SIM
Systems Insight Manager
Acronyms and abbreviations 122
TMRA
recommended ambient operating temperature
TPM
trusted platform module
UDIMM
Unregistered Dual In-Line Memory Module
UID
unit identification
UPS
uninterruptible power system
USB
universal serial bus
VCA
Version Control Agent

Index 123
A
access panel 25, 26
Advanced ECC memory 48, 49, 73, 74
air baffle 31
Array Configuration Utility (ACU) 75
ASR (Automatic Server Recovery) 76
authorized reseller 112
auto-configuration process 72
Automatic Server Recovery (ASR) 76
B
battery 15, 101, 106
battery cabling for BBWC 70
battery pack LEDs 21
battery-backed write cache (BBWC) 21
BIOS Serial Console 73
BIOS upgrade 77
blue screen event 15
boot options 73
BSMI notice 105
buttons 7
C
cable management arm 26, 27, 35
cables 69, 87, 103
cabling 69
cabling, BBWC 70
Canadian notice 103
capacitor pack 20, 55
Care Pack 32, 82
cautions 84
Change Control 82
Chinese notice 106
components 7
components, identification 7, 15
components, system board 15
configuration of system 37, 71
connection problems 87
connectors 7
contacting HP 112
crash dump analysis 15
CSR (customer self repair) 112
customer self repair (CSR) 112
D
default settings 48
diagnostic tools 76, 77, 79
diagnostics utility 79
DIMM identification 47
DIMM installation guidelines 49
DIMM slot locations 16
DIMM slots 49
DIMMs 16, 46, 74
DIMMs, installation 53
DIMMs, single- and dual-rank 46
drive LEDs 18
drivers 80
E
electrical grounding requirements 34
electrostatic discharge 108
enabling the Trusted Platform Module 68
environmental requirements 33
environmental specifications 109
Erase Utility 77
error messages 99
European Union notice 104
expansion board options 60
expansion slot covers 60
expansion slot covers, removing 60
expansion slots 60, 62
extending server from rack 24
F
FBWC cabling 70
FBWC module 20, 55
FCC rating label 102
features 7
Federal Communications Commission (FCC)
notice 102, 103
firmware 81
front panel buttons 8
front panel components 7
Index
Index 124
G
general diagnosis flowchart 89
grounding methods 108
grounding requirements 34
H
hard drive bays 7
hard drive cage 64
hard drive LEDs 18
hard drives 18
hard drives, determining status of 18
hardware options installation 35, 39
health driver 76
health LEDs 8, 15, 88
help resources 112
hot-plug fans 22, 26
hot-plug SAS hard drive options 54
HP Insight Diagnostics 79
HP Insight Remote Support software 80
HP Smart Update Manager overview 81, 82
HP technical support 112
I
identification number 102
iLO (Integrated Lights-Out) 77
iLO 3 (Integrated Lights-Out 3) 77
IML (Integrated Management Log) 79
Important Safety Information document 83
Insight Diagnostics 79, 80
installation services 32
installation, server options 35, 39
installing a hot-plug SAS hard drive 54
installing hardware 39
installing the full-length expansion board retainer 29
installing the server into the rack 35
installing the Trusted Platform Module board 66
Integrated Lights-Out (iLO) 77
Integrated Lights-Out 3 (iLO 3) 77
Integrated Management Log (IML) 79
internal SD support 79
internal USB connector 79
J
Japanese notice 105
K
Korean notices 105
L
laser devices 106
LEDs 7, 10, 18
LEDs, battery pack 21
LEDs, hard drive 18
LEDs, SAS hard drive 18
LEDs, troubleshooting 19, 83
lockstep memory 48, 50, 75
loose connections 87
M
management tools 76
mechanical specifications 109
memory 46, 47, 49, 74, 75
memory configurations 47, 49
memory dump 15
memory subsystem architecture 46
memory, configuration requirements 47, 50
memory, configuring 47, 48, 49, 74, 75
memory, lockstep 48, 50, 51, 75
memory, mirrored 49, 52, 53, 73, 75
memory, online spare 49, 51, 52, 73, 74
mirrored memory 49, 52, 73, 74, 75
N
NIC connectors 11
NMI jumper 15
O
online spare memory 49, 51, 52, 73
operating system crash 15
operating systems 37, 81
optical drive 7, 57
optical drive cable 69
optimum environment 33
Option ROM Configuration for Arrays (ORCA) 75
options installation 35, 39
ORCA (Option ROM Configuration for Arrays) 75
OS boot problems flowchart 96
P
PCI expansion slots 12, 24
PCI riser cage 29, 63
phone numbers 112
POST error messages 99
POST problems flowchart 94
power cord 84, 107
power distribution unit (PDU) 34
Index 125
power LEDs, system 21
Power On/Standby button 24, 37
power requirements 34
power supply 59
power supply LEDs 12
power supply specifications 109
powering down 24
powering up 24, 72
pre-diagnostic steps 83
preparation procedures 24, 85
problem diagnosis 83
processor tool 39
processors 86
ProLiant Support Pack (PSP) 81
PSPs, overview 81
R
rack installation 32, 35
rack mounting hardware 35
rack resources 32
rack stability 84
rack warnings 35, 84
RBSU (ROM-Based Setup Utility) 72, 73
RDIMM configuration 48
rear panel buttons 12
rear panel components 11
rear panel LEDs 12
rear panel, accessing 26
redundant ROM 78
registering the server 38
regulatory compliance notices 102, 104
removing a hot-plug SAS hard drive 55
removing the access panel 25
removing the full-length expansion board retainer 29
required information 112
resetting the system 15
retaining the recovery key/password 68
ROM redundancy 78
ROMPaq utility 77, 78
S
safety considerations 35, 83
SAS and SATA device numbers 17
SAS drive numbers 18
SAS hard drive LEDs 18
scripted installation 71
serial number 76
series number 102
server fault indications flowchart 97
server features and options 39
server power-on problems flowchart 91
service notifications 88
shipping carton contents 35
SmartStart autorun menu 71
SmartStart Scripting Toolkit 71
SmartStart, overview 71
space and airflow requirements 33
specifications 109
specifications, environmental 109
specifications, mechanical 109
specifications, power 109
start diagnosis flowchart 88
static electricity 108
status lights, battery pack 21
support 80, 112
supported operating systems 81
switches 15
symbols on equipment 84
symptom information 85
system battery 101
system board components 14
system components 7
system maintenance switch 15
system power LED 8, 21
Systems Insight Display 9, 10
Systems Insight Display LEDs 9, 10
T
Taiwan battery recycling notice 107
technical support 112
telephone numbers 112
temperature requirements 34
tool, processor 39
TPM (Trusted Platform Module) 65, 68
TPM connector 14
troubleshooting 83
troubleshooting flowcharts 88
U
UDIMM configuration 48
UID LED 15
updating the system ROM 78
USB connectors 7
USB support 78
utilities 71
utilities, deployment 71, 72
