Hp Performance Optimized Data Center Pod 20Cp Reference Guide Datacenter 20c Site Preparation And Requirements North America
2015-01-05
: Hp Hp-Performance-Optimized-Data-Center-Pod-20Cp-Reference-Guide-141019 hp-performance-optimized-data-center-pod-20cp-reference-guide-141019 hp pdf
Open the PDF directly: View PDF .
Page Count: 37
- HP Performance Optimized Datacenter 20c Site Preparation and Requirements Guide-North America
- Abstract
- Notice
- Contents
- Overview
- HP POD 20c capacities
- Site requirements
- Supported facility connections
- Environmental considerations
- Site plan requirements and actions
- Appendix A: HP site assessment
- Appendix B: Preparing for delivery
- Appendix C: Regulatory compliance notices
- Glossary
- Documentation feedback
- Index

HP Performance Optimized Datacenter 20c
Site Preparation and Requirements Guide—North
America
Abstract
This document provides site preparation guidance and requirements for the HP Performance Optimized Datacenter 20c (HP POD 20c).
Part Number: 703543-001
March 2013
Edition: 1
© Copyright 2013 Hewlett-Packard Development Company, L.P.
The information contained herein is subject to change without notice. The only warranties for HP products and services are set forth in the express
warranty statements accompanying such products and services. Nothing herein should be construed as constituting an additional warranty. HP shall
not be liable for technical or editorial errors or omissions contained herein.

Contents 3
Contents
Overview ..................................................................................................................................... 5
About this document .................................................................................................................................. 5
Safety and NEC compliance ....................................................................................................................... 5
Site assessment ......................................................................................................................................... 6
Site preparation ........................................................................................................................................ 6
Site safety and security .............................................................................................................................. 6
Fire detection and suppression .................................................................................................................... 6
HP POD 20c capacities ................................................................................................................. 7
HP POD 20c capacity limitations ................................................................................................................. 7
Electrical power capacities (critical IT power) ...................................................................................... 7
Mechanical cooling capacities .......................................................................................................... 7
Overall system capacities ........................................................................................................................... 7
Site requirements .......................................................................................................................... 8
Site pad ................................................................................................................................................... 8
HP POD 20c weight .................................................................................................................................. 8
Dimensions and clearances ........................................................................................................................ 8
Future expansions .......................................................................................................................... 10
Grounding requirements ........................................................................................................................... 11
Utilities ................................................................................................................................................... 12
Humidifier water supply ................................................................................................................. 12
Drainage ...................................................................................................................................... 12
Chilled water supply ...................................................................................................................... 13
Piping materials ............................................................................................................................ 14
Power infrastructure installation ................................................................................................................. 14
Site electrical system ...................................................................................................................... 14
Electrical power system configuration ............................................................................................... 15
Supported facility connections ...................................................................................................... 16
Environmental control system .................................................................................................................... 16
Additional POD connections ..................................................................................................................... 16
Connection portals .................................................................................................................................. 16
Humidifier .............................................................................................................................................. 17
HP POD 20c access control ...................................................................................................................... 18
Fire, safety, and access notifications .......................................................................................................... 18
Demarcation box .................................................................................................................................... 18
Environmental considerations ....................................................................................................... 20
Environmental risks .................................................................................................................................. 20
Cold weather .......................................................................................................................................... 20
Areas prone to lightning or power surges ................................................................................................... 20
Seismic activity ....................................................................................................................................... 20
Site plan requirements and actions ............................................................................................... 21
Completing a site assessment .................................................................................................................... 21
HP Site Preparation Drawing Package ....................................................................................................... 21
Zoning and permit requirements ................................................................................................................ 21
Contents 4
Project coordination ................................................................................................................................. 21
Site planning .......................................................................................................................................... 22
HP POD 20c installation ................................................................................................................. 22
Appendix A: HP site assessment ................................................................................................... 25
HP POD 20c site assessment checklist ........................................................................................................ 25
Appendix B: Preparing for delivery ............................................................................................... 28
Pre-delivery tasks ..................................................................................................................................... 28
Installation prerequisites ................................................................................................................. 28
HP POD 20c site readiness checklist .......................................................................................................... 28
Appendix C: Regulatory compliance notices .................................................................................. 31
HP POD 20c regulatory compliance .......................................................................................................... 31
Safety and NEC compliance ........................................................................................................... 31
Safety and regulatory compliance ............................................................................................................. 32
Warranty information .............................................................................................................................. 32
Glossary .................................................................................................................................... 33
Documentation feedback ............................................................................................................. 35
Index ......................................................................................................................................... 36

Overview 5
Overview
About this document
This document outlines the site and preparation requirements for a 6 m (20 ft) HP POD 20c as it is being
released in North America. The customer must provide a qualified architectural or consulting engineering
team to generate site-specific documents for each HP POD 20c installation, including final site drawings. The
customer site installation design must comply with all national, regional, and local regulations, ordinances,
codes, and the specifications that are listed in this document.
This guide is part of the core documentation for the HP POD 20c. The actual location of various components
or included subsystems and their operation for your site-specific HP POD 20c might vary from what is
described in this document. For information that is specific to your HP POD 20c, see the drawings included
in the Operations and Maintenance Manual for the HP Performance Optimized Datacenter 20c, or contact
HP.
Safety and NEC compliance
The HP POD 20c is certified to UL 69050-1/IEC 60950-22 as an Information Technology Product and
classified according to the National Electric Code NFPA 70. For more information, see "HP POD 20c
regulatory compliance (on page 31)."
The HP POD 20c is not suitable for long-term human occupancy. The HP POD 20c is Listed as a Product that
provides service access areas for periodic maintenance and service. These areas must be used only by
owner-authorized and qualified personnel who are trained in the maintenance and service of the HP POD
20c components.
IMPORTANT: Before installing the HP POD 20c, consult your local AHJ for applicable
regulations and to review site-specific location guidelines. If needed, obtain any necessary
permits.
Additional considerations for safety and NEC compliance are as follows:
• The HP POD 20c is listed as an Information Technology Product to UL 60950.
• The HP POD 20c is evaluated as a "non-inhabitable product" that provides "service access" areas for
customer-authorized, qualified, and trained service personnel.
• The electrical connections of the HP POD 20c are evaluated as feeder connections for connection to an
existing facility, and are not suitable as "service entrance" for connection to the utility.
• The HP POD 20c is designed for stationary installation outdoors in a Pollution Degree 3 environment,
in restricted access locations, with field wiring terminals provided for permanent supply connections.
• The HP POD 20c meets the following ratings.
Feature Specification
Category Rated Overvoltage Category III
Protection Surge protection device

Overview 6
Feature Specification
Class Class1
Ambient temperature 2°C to 54°C (35.6°F to 129.2°F)
Relative humidity 0% to 100% humidity
• As part of the overall certification, relevant sections of the International Building Code have been
applied as part of the design and evaluation. The current design supports wind loads up to 90 mph.
Site assessment
HP requires a detailed site assessment prior to planning and preparing the customer site location for the HP
POD 20c. Consult with HP to schedule a site assessment.
Site preparation
Site preparation must be complete before the delivery of the POD for a timely installation and commissioning.
The site must meet all pad, power, and chilled water requirements.
Site safety and security
Each customer site must have its own standard safety and security requirements. The HP Program Managers
work with the customer to ensure adherence to the appropriate precautions. HP is not responsible for
determining or enforcing safety or security requirements. The customer must conduct all health and safety
evaluations of the HP POD 20c, only using HP as a support mechanism.
Fire detection and suppression
The fire suppression system, supplied as an optional component for the HP POD 20c, is a "Manufacturer
Designed" system specifically designed for this HP product, in compliance with national standards.
The HP standard suppression system includes a Novec 1230 clean agent system. However, if the customer
or local AHJ requires specific modifications or a replacement, HP can assist in these actions at the expense
of the customer.
HP does not certify that the fire suppression system that is installed in the HP POD 20c meets all local and
jurisdictional requirements. The customer is responsible for the following actions as related to the fire
suppression system:
• Verifying that the POD suppression system meets local codes, including specific local requirements for
initial and periodic inspections.
• Arranging for and receiving all required local permits, including initial commissioning as well as
standard and repair maintenance.
• Arranging for the connection of the agent tanks, refilling of tanks, and all system testing, including
pressure tests. All general maintenance of the suppression system must be completed by an authorized
technician.
Additional local requirements are not covered as part of the option price or basic installation and
deployment services, unless specifically included in an executed Statement of Work.

HP POD 20c capacities 7
HP POD 20c capacities
HP POD 20c capacity limitations
The capacity limitations for the HP POD 20c are separated into two categories: electrical power and
mechanical cooling capacities. Both of these categories are interdependent and must be considered in
conjunction with the overall customer requirements.
Electrical power capacities (critical IT power)
The electrical system of the HP POD 20c contains two main feeds, A and B, that are each rated at 400 A 480
V Delta 3-wire. The HP POD 20c has two critical IT load circuits that are each rated at 200 A, which
electrically limits the POD regardless of the redundancy configuration.
Mechanical cooling capacities
The HP POD 20c cooling system consists of 3 zones. Each zone includes 2 heat exchangers and 12 fans.
Cooling capacities are based on:
• Chilled water inlet temperature of 15.6ºC (60ºF)
• Pure water cooling
• Chilled water flow rate of 454 lpm (120 gpm)
• Average air flow of 1200 cfm per rack
Overall system capacities
The HP POD 20c overall system capacities are provided in the following table. The customer must understand
the level of redundancy that is required for the application and its associated limiting factor.
Redundancy level Electrical (kW) Thermal (kW) Limiting factor
N 288 300 Electrical
2N 144 150 Electrical
For more information on the electrical limitation factors, see "Electrical power capacities (critical IT power)
(on page 7)."

Site requirements 8
Site requirements
Site pad
The structural design of the HP POD 20c site pad must be based on the specific weight load of the complete
POD solution with IT installed, as well as any additional equipment. During design calculations, HP
recommends that you provide structural support along the entire perimeter of the POD and use the maximum
allowable POD weight.
Upon installation, the POD structure must be leveled to less than or equal to 0.5º. Shimming is allowed
around the perimeter of the POD to ensure that the POD remains level. If significant shimming is required,
shims should be spaced no less than 1.2 m (4 ft) apart to ensure sufficient load transfer. Shims are not
included.
IMPORTANT: The HP POD 20c is designed for ground level installation. If you install the HP POD
20c on an elevated surface, verify that the minimum height requirements for circuit breaker
actuators are considered per national, regional, and local regulations and electrical codes. The
area in front of the outside panels must include a work platform.
HP POD 20c weight
IMPORTANT: The weight provided is a minimum and an absolute maximum rated weight. The
total weight of the HP POD 20c differs based on the IT equipment and optional components
purchased and installed.
The overall weight might significantly vary depending on the final customer-chosen solution for the HP POD
20c. Each site pad must meet the weight requirements of the equipment that is expected to be installed.
The HP POD 20c must be installed on a surface capable of supporting the following weights:
• HP POD 20c with no IT equipment installed—Approximately 7,711 kg (17,000 lb)
• HP POD 20c with IT equipment installed—Maximum 22,680 kg (50,000 lb)
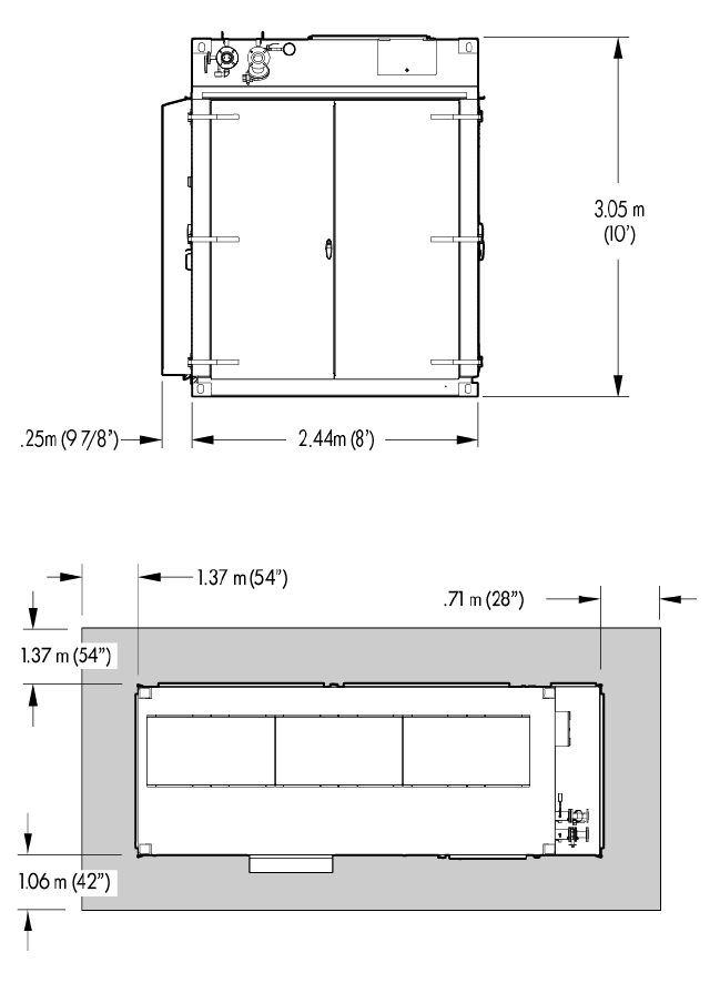
Dimensions and clearances
The selected site for the HP POD 20c must be large enough to install, service, maintain, and provide space
for potential growth or expansion with additional PODs.

Site requirements 9
End 1 view clearances shown
Top view keep-out and door swing clearances shown (shaded areas indicate the required clearance)

Site requirements 10
Side view clearances shown
Top view for multiple POD installation minimum clearances shown
Adequate space around the HP POD 20c is necessary for minimum door clearance.
These minimum clearances provide room for door opening only. Consider additional space as necessary for
your site.
Future expansions
When selecting a site location, consider future space and accessibility requirements. Adequate space
around the HP POD 20c is necessary for locating additional equipment within close proximity, such as
generators and UPS devices. When installing additional equipment within close proximity to the HP POD
20c, consult with HP for site locations.
For specific space requirements, see "Dimensions and clearances (on page 8)."

Site requirements 11
Grounding requirements
The HP POD 20c structure and internal components are all bonded together. A common grounding electrode
conductor connection point is provided on the utility-end of the hot aisle.
WARNING: To avoid the risk of personal injury or electric shock, the HP POD 20c must be
properly grounded (earthed) in accordance with national, regional, and local regulations.
The following is a list of component requirements for grounding and bonding:
• Grounding of the HP POD 20c must comply with the requirements of Article 250 of the NEC, NFPA
70-2008/2011 (NA/JPN).
• Bonding of the piping systems and any exposed structural steel that is installed to support the HP POD
20c must be in accordance with the NEC (NA).
Grounding feature Specification
Grounding electrode
conductor pad
•
The grounding electrode conductor connection bus pad is located on the outside of
the HP POD 20c on the hot aisle side of the utility end of the POD and below the
transformer cabinet.
•
The grounding pad must be connected to the grounding electrode system or
building steel in accordance with Article 250 of the NEC or equivalent regional
regulation.
Grounding lugs
•
Grounding lugs cannot be attached to any painted surface.
•
Grounding lugs must be compression-type 2-hole lugs and UL listed specifically for
grounding.
Ground rod system or
ground well
The customer must provide an effective grounding system with a ground rod or a
ground well.
IMPORTANT: Before installing the HP POD 20c, consult your local AHJ for applicable
regulations and to review site-specific location guidelines. If needed, obtain any necessary
permits.
The following figure shows the grounding electrode conductor connection that is located on the cold aisle of
the HP POD 20c.
Side view shown

Site requirements 12
Utilities
Consider the proximity to required utilities, such as power, water, and network connections. While the
required utilities can be brought to nearly any selected site, there is the potential for increased costs and
decreased efficiency when the HP POD 20c is located farther from the utility sources.
For utility clearance information, see "Dimensions and clearances (on page 8)."
Humidifier water supply
The HP POD 20c requires supply water for the humidifier. The supply water must meet the following
requirements.
Requirement Specification
Pressure Between 20 and 110 psi, 0.1 and 0.8 MPa
Temperature Between 1º and 40°C (33º and 104°F)
Minimum flow rate 1.45 lpm (0.12 gpm)
Connection 1.9 cm (.75 in) G
Adapter to 1.9 cm (.75 in) FPS
Hardness No greater than 40°fH (equal to 400 ppm of CaCO3)
Conductivity 100 to 1250 μS/cm
Organic compounds None
Type of water Drinking water. Do not use de-mineralized or softened water.
Instant water fill flow
rate
0.6 lpm (0.16 gpm)
Humidifier For the exact requirements, see the humidifier documentation.
IMPORTANT: If your water is out of range, consult a water quality expert.
In addition to the previous requirements, observe the following requirements and recommendations:
• Do not treat the water with softeners. Softeners can produce foam, which affects the operation of the
unit.
• Do not use well water, industrial water, water from cooling circuits, or water contaminated by any
chemicals or bacteria.
• Do not add potential irritants to the water, such as disinfectants or anti-corrosive compounds.
• The manufacturer recommends installing an in-line filter for the water supply. It is your responsibility to
determine if a filter should be installed, and if so, its location. The filter cannot be installed inside the HP
POD 20c and must be compatible with the type of humidifier that is installed.
For more information, see the Operations and Maintenance Manual or the HP Performance Optimized
Datacenter 20c Maintenance and Service Guide.
Drainage
Requirement Location Specification
Condensate drains Hot aisle side (2) 3.18 cm (1.25 in) drain line and 26.5 lpm (7 gpm) max
Chill Water Header drains Cold aisle side (2) 3.18 cm (1.25 in) drain line and 26.5 lpm (7 gpm) max

Site requirements 13
Requirement Location Specification
Humidifier drain Cold aisle side (1) 3.18 cm (1.25 in) drain line and 26.5 lpm (7 gpm) max
Chilled water supply
The following are the water quality requirements and specifications:
• Closed-loop water must not contain any lime scale deposits or loose debris.
• The temperature of the chilled water supplied to the HP POD 20c must be 12ºC to 24ºC (55ºF to 75ºF).
CAUTION: Freezing water can cause a blockage and damage to the unit. In outside locations
that are subject to freezing temperatures, an additive such as glycol might be necessary to lower
the freezing point. However, since the heat transfer potential of water with glycol is lower, the HP
POD 20c must be de-rated accordingly.
IMPORTANT: The chilled water system piping and heat exchangers must be drained completely,
and then purged using compressed air when storing or transporting at or below freezing
temperatures.
IMPORTANT: Operating the chilled water system at the higher end of the acceptable range
decreases the overall thermal capacity of the POD.
Acceptable water quality specifications
Water must be maintained per the following acceptable water quality standards.
Parameter Range
pH 8.0–10
Specific conductance at 25ºC (77ºF) 10–2500 µmhos
Alkalinity ("M" as CaCO
3
) 150–1000 ppm
Sulfur (SO
4
) 0–150 ppm
Chloride (Cl) 0–100 ppm
Hardness (CaCO
3
) 0–350 ppm
Calcium hardness (CaCO
3
) 0–200 ppm
Magnesium hardness (CaCO
3
)
0–150 ppm
Copper (Cu) < 0.20 ppm
Iron (Fe) < 3.0 ppm
Aluminum (Al) < 0.50 ppm
Sodium (Na) 0–1000 ppm
Silica (SiO
2
) 0–150 ppm
Zinc (Zn) < 1.0 ppm
Manganese (Mn) < 0.1 ppm
Phosphate Ortho- (PO
4
) < 3 ppm
Bacteria < 1000 CFU/ml
Suspended solids < 10 ppm
If your water is out of range, consult a water quality expert.
The following table describes the chilled water system specifications for the HP POD 20c.

Site requirements 14
Feature Specification
Facility input temperature to the HP POD
20c
12º to 24ºC (55º to 75ºF)
Max design pressure 1,034 kPa (150 psi)
HP POD 20c pressure drop 172.4 kPa (25 psi)
HP POD 20c water flow rate 454 lpm (120 gpm*)
Chilled water supply and return
connections
Two 7.62 cm (3 in) ASME B16.5
class #150 flanges
*Measurement is in US gallons per minute.
Piping materials
Do not use the following interconnecting piping materials in a closed water system:
• Oxidizing biocides
• Aluminum components
• Brass components with high levels of zinc
• Non-stainless steel iron components
• PVC
IMPORTANT: Even though some PVC grade piping materials are designed to handle the
expected water pressure, the use of PVC materials should be reviewed and approved by the
customer site engineers.
Power infrastructure installation
When determining the final location of the power connections, consider the following:
• Distance between the facility utilities and the location of the HP POD 20c
• Distance between possible UPS or generator locations and the HP POD 20c
• Requirements for routing electrical feeders (underground or overhead)
The facility power connection must be installed in compliance with local electrical codes and regulations. HP
reference electrical installation design is based on a maximum distance of 15.2 m (50 ft) or a line of sight
between the disconnect and the HP POD 20c.
Site electrical system
To ensure a complete and safe integration of the HP POD solution with your facility, HP requires that you
complete the following actions for the installed electrical system prior to the installation of the HP POD
solution:
• Short circuit analysis
• Arc flash study
• Circuit breaker coordination study

Site requirements 15
These actions must be performed for all associated parts of the electrical power train. The majority of the
details and factors required to complete these studies are associated with the existing installed facility
infrastructure.
CAUTION: Failure to complete these studies can cause serious issues with the electrical
integration of the POD into your electrical system.
Electrical power system configuration
A preliminary meeting with the HP POD Electrical Engineering team is necessary to discuss your decision
concerning capacity limitations and the impacts of this decision on the electrical design.
A 1N electrical configuration can be achieved by providing all of the required electrical feeders from a
common power source, common switchboards, and transformers.
A 2N electrical configuration can be achieved by feeding parallel power paths from independent power
sources, switchboards, and transformers.

Supported facility connections 16
Supported facility connections
Environmental control system
The ECS developed for the HP water-cooled POD is a stand-alone control system that requires no external
connections with an external site system, BMS, public or private Internet sites, cloud, or wireless system to
properly control the POD operation.
The ECS includes Modbus TCP/IP connections through which a variety of data can be retrieved. These
capabilities enable you to connect, at your expense, with the stand-alone ECS system to monitor the
operating parameters of the POD. It is your responsibility (or your representative's or agent's responsibility)
to integrate this communication capability into any existing BMS or monitoring system.
CAUTION: To ensure that alarm conditions can be identified and resolved, HP recommends that
you remotely monitor all alarm conditions. Failure to monitor the alarm conditions can cause
delays in appropriate action during an alarm condition.
Additional POD connections
The HP POD 20c provides various connection points to your facility. It is your responsibility to facilitate these
connections. HP can make these connections when specifically contracted to deliver these services and a
Scope of Work has been drafted, reviewed, and signed for delivery services. Available POD connections
include the following:
• Life safety systems
o EPO
o Fire detection
o Fire suppression
• Site communication
o Phone
o Access control
• Networking—IT connections
Connection portals
Networking and connection portals are located on the cargo end of the HP POD 20c. Each HP POD 20c has
six 6.35-cm (2.5-in) portals for customer data connection. These portals are provided to allow the customer
to make connections to the HP POD 20c.

Supported facility connections 17
End view shown
Humidifier
A dedicated water supply and approved drainage is required for the humidifier. For more information about
the humidifier, see the HP Performance Optimized Datacenter 20c User Guide that is provided with the HP
POD 20c.
The following image shows the location of the humidifier drain and water supply.
Side view shown
IMPORTANT: Confirm with the AHJ that condensate water and rain water can be mixed in the
same drainage.

Supported facility connections 18
HP POD 20c access control
The HP POD 20c is equipped with standard key lock hardware for each personnel entry door and external
electrical cabinet. Each personnel entry door includes a door access contact that can be connected to the
customer facility security system.
Additional options for controlled access include the following:
• Electronic card reader
• 12-digit access control code keypad
• Magnetic lock on each personnel access door and dynamic hot aisle door
Fire, safety, and access notifications
Dry contacts are provided to enable the connection between the HP POD 20c and the customer’s facility. If
the HP POD 20c is connected to the customer facility systems, then the alarm conditions of the HP POD 20c
can be detected by the facility systems.
It is your responsibility to facilitate these connections. HP can make these connections when specifically
contracted to deliver these services and a Scope of Work has been drafted, reviewed, and signed for
delivery services.
The customer must provide an independent connection for each system listed in the following table.
Alarm Description
Fire prevention alarm Smoke is detected in the HP POD 20c.
Fire suppression
system (optional)
The suppression system alarm is activated and gas is
dispersed to suppress a fire.
Access control A door of the POD has been opened.
EPO The EPO system is activated by manually pressing the
EPO button or by a thermal event, and the HP POD 20c
is shut down.
The electrical layout of the fire alarm system is described in the schematic drawing that is supplied with the
HP Performance Optimized Datacenter 20c Site Drawing Package.
Demarcation box
The following communication connections between the customer facility and the HP POD 20c are made
through the demarcation box:
• ECS communication
• Access control communication
• Telephone
• 120 VAC convenience outlet

Supported facility connections 19
Front view shown
You must make the connections between the facility and the HP POD 20c. For configuration and installation
instructions, consult with HP.

Environmental considerations 20
Environmental considerations
Environmental risks
• Avoid placing the HP POD 20c directly along a drainage path or in an area prone to flooding.
• Verify that the HP POD 20c is properly grounded in accordance with national, regional, and local
regulations, ordinances, codes, and the product specifications.
Cold weather
The HP POD 20c requires a site chilled water supply and return, humidifier supply and drain, and
condensate drains. Extreme cold weather can cause damage to the supply and drain lines. Evaluate the
following for additional cold weather protection:
• Regional location of the HP POD 20c
• Exposure of the supply and drain lines to extreme cold temperatures
Extreme cold weather can affect crane and lifting operations. When temperatures drop below -12.2°C
(10°F), appropriate consideration must be made with respect to shock loading, crane hydraulics, and
possible de-rating of the crane.
Areas prone to lightning or power surges
The HP POD 20c structure and internal components are all bonded together. A common Grounding
Electrode Conductor Connection point is provided. Proper bonding and grounding of the HP POD 20c
minimizes the effects of a lightning strike. A surge protection device is provided on the HP POD 20c input
connection to protect the HP POD 20c electrical system from voltage transients. If your site is in an area that
is subject to frequent lightning strikes, the HP POD 20c must be protected in accordance with NFPA 70 (NA)
and IEC (EMEA and APJ). HP recommends that you contact a certified lightning protection consultant.
Seismic activity
If your site is in an area that has frequent seismic activity, HP recommends that you contact a seismic activity
consultant. If your site is in an area that has high vibration level, HP recommends that you contact a vibration
isolation consultant. You must specify the method of anchoring the HP POD 20c, if necessary.

Site plan requirements and actions 21
Site plan requirements and actions
Completing a site assessment
HP requires a detailed site assessment prior to planning and preparing the customer site location for the HP
POD 20c. Consult with HP to schedule a site assessment.
A standard site assessment visit includes the following tasks:
• Selecting an appropriate site for the HP POD 20c
• Assessing the proposed site for:
o Measurements for clearances
o Infrastructure for the final solution
o Access to utilities
o Site pad
o Installation considerations, including locations for delivery trucks, large installation equipment (such
as cranes), and storage
o Electrical infrastructure
o Chilled water infrastructure
o Facility network and access control systems
• Developing an engagement plan and verifying customer contacts
• Discussing future development and growth plans
For a complete site assessment checklist, see "Appendix A: HP site assessment (on page 25)."
HP Site Preparation Drawing Package
After receiving a signed purchase agreement, HP provides detailed engineering drawings. These drawings
contain information to assist you and your MEP team to prepare the site for POD installation. If there are
areas of special interest, HP can work directly with your MEP team to provide additional assistance.
Zoning and permit requirements
You are responsible for compliance of the overall installation in accordance with all local and national
regulations, ordinances, codes, and the product specifications.
Project coordination
Your Project Manager must perform the following tasks:
• Coordinate with all trades prior to installation to ensure that trade conflicts are resolved.
• Coordinate the installation and integration of all systems.
Site plan requirements and actions 22
• Ensure that the site safety and security programs are properly administered.
• Interface directly with the HP installation project manager to ensure clear lines of communication during
the installation and commissioning processes.
Site planning
A comprehensive site plan assists with the site design (MEP) and ensures the best possible HP POD 20c
installation process. When creating a site plan, consider the following information:
• HP POD 20c site requirements detailed in this document
• HP POD 20c site preparation drawing package
• HP POD 20c readiness checklist ("HP POD 20c site readiness checklist" on page 28)
• HP POD 20c installation (on page 22)
The HP team can assist you by answering questions and help to guiding you throughout the process.
HP POD 20c installation
HP POD 20c installation includes the following:
• Installation equipment staging (on page 22)
• HP POD 20c lifting layout (on page 22)
• HP POD 20c storage requirements (on page 23)
• Additional structures (on page 24)
Installation equipment staging
Staging for the following items must be identified and considered:
• Truck and component staging
• Installation equipment staging
• Site traffic
• Regulatory or local permits
HP POD 20c lifting layout
When preparing a site plan, identify where to place the HP POD 20c and the equipment that is used for
assembly. The following figure shows an HP POD 20c assembly site and includes:
• HP POD 20c location
• Crane location

Site plan requirements and actions 23
• Assembly equipment locations
Item Description
1 Crane
2 Reach
3 Truck
4 Area clear for scissors lift and forklift
HP POD 20c lifting requirements
WARNING: The only approved method for lifting the HP POD 20c is the use of a spreader bar
harness. Lifting an HP POD 20c in any other manner can cause damage to the HP POD 20c and
void your warranty. The harness and lifting connections must be perpendicular to the lifting
blocks.
HP POD 20c storage requirements
If the site is not ready for assembly and operation, determine a location for storage when creating the site
plan.
CAUTION: The HP POD 20c must maintain 20% relative humidity to minimize condensation and
oxidation within the HP POD 20c.
CAUTION: While being stored, the HP POD 20c must be kept in a level position even if stored
on a trailer.
Changes in ambient temperatures can cause condensation in a non-operational HP POD 20c. If the HP POD
20c is placed in storage or is in non-operating mode for over 72 hours, HP recommends using one of the
following methods to minimize condensation and oxidation within the HP POD 20c:
• Desiccant unit
• Desiccant material
• Heater with a fan
• Air conditioner with a heater strip
Consult with HP Services to determine the most effective method.
Site plan requirements and actions 24
Additional structures
If a customer-provided vestibule or other structure is installed and connected to the HP POD 20c, the following
specifications must be maintained:
• To protect the HP POD 20c and ensure a waterproof barrier, flashing must be installed to the exterior
of the HP POD 20c in the location where the other structure is attached.
• Access landings might be required to maintain the required access to the HP POD 20c electrical panels.

Appendix A: HP site assessment 25
Appendix A: HP site assessment
HP POD 20c site assessment checklist
During a survey of the readiness of a proposed customer site for the HP POD 20c, the site is inspected for the
following:
• Accessibility of machinery for the transportation and installation of the HP POD 20c
• Assessment of the suitability of the site infrastructure for installing the HP POD 20c and for supporting
infrastructure preparation and serviceability requirements
HP responsibilities
Item Description Yes No N/A Initial
1. Engagement plan Develop an engagement plan with specific requirements
relating to the proposed installation site.
2. Site visits Schedule site visits on mutually acceptable dates, during
normal HP business hours.
3. Test equipment Document any test equipment used in the customer report.
4. Installation site
review
Review and discuss the proposed installation site with the
customer. This initial review includes physical examination of
the proposed installation site and, at the sole discretion of
HP, can include physical measurements of the area size and
clearances.
5. Indoor/outdoor
installation
Identify whether the HP POD 20c installation is indoors or
outdoors as this can affect the degree and type of
infrastructure required and the mounting needs.
6. Site pad
•
Inspect the proposed installation site to assess
compliance with the HP POD 20c mounting
specifications. Ensure that the customer is fully aware of
the following requirements:
•
Proper support capabilities must exist. If the customer
intends to edge or point load on the utility and cargo
ends, there must be support in the center to prevent
deflection.
•
Upon installation, the POD structure must be leveled to
≤
0.5º, which can be checked at that time with a surveyor’s
transit.
•
Shimming is allowed around the perimeter of the POD.
•
Place shims in increments across the length of the HP
POD 20c to ensure that the HP POD 20c is level. If
significant shimming is required, shims should be spaced
no less than 1.2 m (4 ft) apart to ensure sufficient load
transfer.
7. Materials and
construction
inspection
Visually inspect the materials and construction at the
proposed installation site to identify issues that can impact
the HP POD 20c
installation. Verify that the area is adequate
for truck delivery, staging, and crane location.

Appendix A: HP site assessment 26
Item Description Yes No N/A Initial
8. Clearances Inspect the proposed installation site to confirm clearance
requirements for installation and serviceability per the HP
POD 20c specifications. Necessary clearances are
determined, in part, based on the specific installation plans
and infrastructure design. Location, orientation, and planned
utilization can affect the necessary clearances. Consider
future planning for the space around the installation site.
9. Support
infrastructure
location
Evaluate the HP POD 20c installation site in relation to the
planned support infrastructure location. Conduit lengths and
the utility pathway design must be taken into consideration in
the planning stages. The proposed support infrastructure
design and the location of required utilities are discussed
with the customer's site engineering personnel to identify
elements that can impact the HP POD 20c installation site
decisions.
10. Support
infrastructure for
access requirements
Evaluate the proposed installation site for the HP POD 20c
and the support infrastructure for access requirements. The
evaluation is based on the information provided by the
customer at the time of the site visit. In the absence of
installation-specific information, general requirements are
used as the basis for the evaluation. The delivery path is
visually examined and discussed with the customer's site
engineering personnel to identify obstacles to installation.
11. Site engineering
interviews
Conduct interviews with the customer's site engineering
personnel and site facilities personnel to gather information
related to the origin of the power source and network
services that are proposed for use with the HP POD 20c. HP
must visually inspect the proposed power protection
equipment. Means of delivery, connections, and pathways
are documented.
12. Capacity of
electrical
infrastructure
Based on the review of customer-provided site
documentation (such as single-line and as-built drawings),
examine equipment panels and monitoring system data, as
available. HP must determine whether adequate capacity
exists in the current electrical infrastructure to be used or if
additional study is required. Determine if the level of
redundancy that is required as stated by the site engineering
personnel can be provided by using the existing
infrastructure. This takes into consideration the proposed
installation site of the HP POD 20c, the potential HP POD
20c payload, and the customer stated redundancy
requirement. Components can include generators, UPSs,
and switch gear.
13. Chilled water
infrastructure
Determine the overall chilled water capacity, available flow
rates, and supply/return temperature restrictions. Determine
if any site specific requirements mandate additional chilled
water equipment, such as heat exchangers or mixing
apparatus. Locate any existing or planned supply/return
headers.
14. Access control Conduct interviews with the customer site engineering
personnel to determine the level of access control that is
required for the HP POD 20c and its infrastructure. The
proposed installation site is assessed for suitability in relation
to the customer requirements.

Appendix A: HP site assessment 27
Item Description Yes No N/A Initial
15.
Recommendations
Following the HP installation site visit, analyze the data that is
collected and prepare a report of findings. HP must identify
potential obstacles to installation and make
recommendations for any additional testing or changes to
the installation plan.
Customer responsibilities
Item Description Initial
1. Point of contact
information
Provide HP with the name and telephone number of the designated point of
contact for the purposes of this service.
2. Service listing
information
Provide all information that is required under this service listing or reasonably
determined by HP to be necessary to deliver the service, including but without
limitation, any documentation (internal or external) regarding prior plans or
investigations used to identify the proposed installation site.
3. Timely response
Provide a timely response (such as, in a time period that does not adversely
affect the HP scheduled performance of the service) to all requests for
information by HP.
4. Access to subject
areas and support
areas
Provide HP access to all subject areas and support areas, including the
proposed installation site and the mechanical or electrical infrastructure
provided to support the HP POD 20c.
5. Badge access Provide HP badge access or an escort for the duration of the site visit to
facilitate required access to all necessary areas.
6. Site engineering
personnel
Customer site engineering personnel familiar with the proposed installation site
and personnel responsible for the maintenance and support of the existing
infrastructure must be available to answer questions.
7. Documentation Provide HP copies of all available mechanical and electrical system design
documentation, including as-built drawings and electrical single-line drawings.
As appropriate to the specific location, provide HP with campus maps,
building drawings, floor plans, and other relevant prints to assist in the
documentation and evaluation of the proposed installation site.
8. Network
infrastructure
information
Provide HP information regarding the planned network infrastructure
connection points and pathways.
9. Permission for
Photographs
Grant HP permission to take photographs for report illustration purposes.
10. Project logistics Arrange site-specific project logistics at the time of scheduling. Failure to
provide necessary authorizations can limit the effectiveness of the service and
can, at the discretion of HP, impact scheduling or result in the postponement of
the service.
11. Business visas Provide assistance in instances where a temporary business visa is required for
HP personnel to visit the site. This assistance typically takes the form of
preparing a letter of invitation. In some cases, a formal request must be made
by the local company for which the work is taking place, if applicable.

Appendix B: Preparing for delivery 28
Appendix B: Preparing for delivery
Pre-delivery tasks
Allow adequate time for planning, scheduling, obtaining permits, design approval, inspections, and so on.
Installation prerequisites
Before installing the HP POD 20c, verify that the following prerequisites are met:
• All components are delivered to the facility.
• The HP POD 20c and power distribution components are in the final location.
• Facility power, water, and drainage are at the final location.
• Provisions for properly grounding the HP POD 20c are made.
• Required clearances exist, including overhead.
• All trade personnel required for assembly are coordinated.
HP POD 20c site readiness checklist
Before installing the HP POD 20c, follow all steps listed in this guide, the site plan, and the following
checklists.
Architectural/environmental considerations
Item Description Initial
1
Verify that the site location supplies sufficient locations for support. Ensure that upon
installation the POD can be leveled to less than or equal to 0.5º. If edge or point loading is
used, ensure a center support can be accomplished using shims and so on, to ensure that the
POD can be properly leveled. Shimming is around the perimeter in increments. Use a
surveyor’s transit upon installation to check the POD leveling requirements.
2 Verify that the pad can support the total weight of the HP POD 20c solution by verifying that
load calculations have been performed by your engineering team.
3 Verify that the site has provisions for grounding.
4
Verify the HP POD 20c is not in the direct path of any external heat loads, such as generators.
5 Determine the average local temperatures and ensure that adequate environmental
protection is provided, such as cold weather protection, if required.
6
Verify that the site altitude is less than 3,048 m (10,000 ft).
7 When installing on an elevated surface, verify that the maximum height requirements for the
circuit breaker actuator meet the national, regional, and local regulations. Verify that proper
landings and the catwalk are planned for electrical cabinet access.
8 Verify the planning for required egress routes for all HP POD 20c personnel doors, cargo
doors, and service area doors, including landings, the catwalk, and stairs.
9 Verify that the local AHJ is contacted, all applicable codes and site-specific location
guidelines are reviewed, and all required permits are obtained.

Appendix B: Preparing for delivery 29
Item Description Initial
10 Verify that the site location has clearances for the HP POD 20c installation, including any
permanent structures, such as fences, walls, vestibules, and buildings.
11 Verify that all utilities, overhead and underground, are identified to maintain required
clearance.
12 Verify that there is adequate clearance around the HP POD 20c for door operation,
installation, and maintenance equipment.
13 Verify that the site location and site pads are marked for any transformer, external
switchboard, generators, and powerhouses.
14 Verify that the site has provisions for proper grounding and that the site location includes a
grounding electrode system.
15 Verify that the site location has adequate lighting for the HP POD 20c installation.
16 Verify that a truck and equipment staging areas are identified.
17 Verify the location for the fuel tanks for generators, powerhouses, and other equipment, if
applicable.
18 Verify the locations for cranes off-loading and operation during HP POD 20c installation.
19 Verify site access and clearances for equipment, including the crane and forklifts. A clear
path to the site must be maintained with clearance for all gates, headers, utility lines, and so
on.
20 Verify that the locations for storage and trash disposal are identified.
21 Verify that the safety equipment is planned for and in place in accordance with the
customer’s site safety program.
22 Verify the site interfaces and locations which connect to the fire alarm, access control system,
and communication system to the HP POD 20c to ensure that the POD can be properly
connected to the site BMS.
23 Verify that proper disposal methods are used for existing or potentially contaminated and/or
hazardous materials.
24 Verify the availability of security systems or equipment, including site fences, which are
required after construction.
25 Verify the availability of temporary facilities associated with the relocation of existing
services and operations.
26 Verify that all work relating to soil testing, removal, and site remediation is complete.
27 Verify that a temporary or permanent load bank is available, if applicable.
28 Verify the location of the EPO system external to the powerhouses, if applicable.
29 Verify the location of the remote electronic monitoring system.
30 Verify that tie-downs and other AHJ-required facilities for the HP POD 20c and power
containers are complete at least one week prior to arrival of HP-provided equipment.
General Water Supply
Item Description Initial
1
Verify that the site drainage is complete, and the HP POD 20c is not in a drainage path or
flood prone area. HP recommends placing the HP POD 20c on a raised site pad to prevent
water from entering the HP POD 20c.
2 Verify that the humidification water quality meets or exceeds these standards, which are
essentially drinking water standards.
3 Verify the humidification water supply isolation valve is installed for each POD.
Chilled Water Supply
Item Description Initial
1 Verify the chilled water supply and return headers are accessible, are in the appropriate
location, and are 80 cm (3 in) in diameter.

Appendix B: Preparing for delivery 30
Item Description Initial
2 Verify that the chilled water supply temperature meets the minimum POD chilled water supply
temperature of 12°C (55°F).
3 Verify that a sufficient chilled water flow rate is available.
4 If necessary, verify that the customer-required chilled water return temperatures can be
attained.
Power Requirements
Item Description Initial
1 Verify that the short circuit analysis, arc flash, and circuit breaker coordination studies are
complete. Verify power work is completed according to the approved conduit routing
drawings that show the exact routes, plan view, sections, and elevations.
2 Verify that temporary site po
wer for installation and construction is planned and available, if
applicable.
3 Verify that adequate site power exists per the HP POD 20c requirements.
General
Item Description Initial
1 Verify the utility connection to the HP POD 20c and any required metering equipment.
2 Verify the third-party commissioning services that might be required by the owner.
3 Verify that the HP Project Team coordinates with other site construction activities.

Appendix C: Regulatory compliance notices 31
Appendix C: Regulatory compliance notices
HP POD 20c regulatory compliance
The HP POD 20c complies with the following regulatory standards.
Standard Certification level Standard title
UL 60950 ETL "Listed"
•
UL 60950—Standard for Safety Information Technology
Equipment, Part 1: General Requirements, Issue: 2007/03/27,
Edition: 2
•
UL 60950—Standard for Safety Information Technology
Equipment, Part 22: Equipment to be Installed Outdoors, Issue:
2007/04/23, Edition: 1
NFPA 70 ETL "Classified" NFPA 70—National Electric Code, 2008 Edition, © 2008 National
Fire Protection Association
NFPA 72 Designed to Comply
With applicable
requirements
National Fire Alarm code, 2007 Edition, © 2006 National Fire
Protection Association
NFPA 2001 Designed to Comply
With applicable
requirements
NFPA 2001, Standard on Clean Agent Fire Extinguishing Systems,
2008 Edition, © 2008 National Fire Protection Association
IBC 2009 Designed to Comply
With applicable
requirements
2009 International Building Code, © 2010 International Code
Council, Inc.
Safety and NEC compliance
The HP POD 20c is certified to UL 69050-1/IEC 60950-22 as an Information Technology Product and
classified according to the National Electric Code NFPA 70. For more information, see "HP POD 20c
regulatory compliance (on page 31)."
The HP POD 20c is not suitable for long-term human occupancy. The HP POD 20c is Listed as a Product that
provides service access areas for periodic maintenance and service. These areas must be used only by
owner-authorized and qualified personnel who are trained in the maintenance and service of the HP POD
20c components.
IMPORTANT: Before installing the HP POD 20c, consult your local AHJ for applicable
regulations and to review site-specific location guidelines. If needed, obtain any necessary
permits.
Additional considerations for safety and NEC compliance are as follows:
• The HP POD 20c is listed as an Information Technology Product to UL 60950.
• The HP POD 20c is evaluated as a "non-inhabitable product" that provides "service access" areas for
customer-authorized, qualified, and trained service personnel.
• The electrical connections of the HP POD 20c are evaluated as feeder connections for connection to an
existing facility, and are not suitable as "service entrance" for connection to the utility.

Appendix C: Regulatory compliance notices 32
• The HP POD 20c is designed for stationary installation outdoors in a Pollution Degree 3 environment,
in restricted access locations, with field wiring terminals provided for permanent supply connections.
• The HP POD 20c meets the following ratings.
Feature Specification
Category Rated Overvoltage Category III
Protection Surge protection device
Class Class1
Ambient temperature 2°C to 54°C (35.6°F to 129.2°F)
Relative humidity 0% to 100% humidity
• As part of the overall certification, relevant sections of the International Building Code have been
applied as part of the design and evaluation. The current design supports wind loads up to 90 mph.
Safety and regulatory compliance
For safety, environmental, and regulatory information, see Safety and Compliance Information for Server,
Storage, Power, Networking, and Rack Products, available at the HP website
(http://www.hp.com/support/Safety-Compliance-EnterpriseProducts).
Warranty information
HP ProLiant and X86 Servers and Options (http://www.hp.com/support/ProLiantServers-Warranties)
HP Enterprise Servers (http://www.hp.com/support/EnterpriseServers-Warranties)
HP Storage Products (http://www.hp.com/support/Storage-Warranties)
HP Networking Products (http://www.hp.com/support/Networking-Warranties)

Glossary 33
Glossary
AHJ
authority having jurisdiction
APJ
Asia Pacific Japan
BMS
building management system
door
A hinged portion of an enclosure that covers an opening.
ECS
environmental control system
EMEA
Europe, Middle East, and Africa
EPO
emergency power off
equipment
A general term, including fittings, devices, appliances, luminaires, apparatus, machinery, and the like used
as a part of, or in connection with, a modular data center. (Source: NEC.)
IEC
International Electrotechnical Commission
ISO
International Organization for Standardization
labeled
Equipment or materials to which has been attached a label, symbol, or other identifying mark of an
organization that is acceptable to the authority having jurisdiction and concerned with product evaluation,
that maintains periodic inspection of production of labeled equipment or materials, and by whose labeling
the manufacturer indicates compliance with appropriate standards or performance in a specified manner.
Glossary 34
listed
Equipment, materials, or services included in a list published by an organization that is acceptable to the
authority having jurisdiction and concerned with evaluation of products or services, that maintains periodic
inspection of production of listed equipment or materials or periodic evaluation of services, and whose listing
states that either the equipment, material, or service meets appropriate designated standards potential of not
more than 42.4 V (DC or peak) supplied by a primary battery or by an isolated secondary circuit, and where
the current capacity is limited by an overcurrent device, such as a fuse, or by the inherent capacity of the
secondary transformer or power supply, or a combination of a secondary winding and an impedance. A
circuit derived from a line-voltage circuit by connecting a resistance in series with the supply circuit to limit the
voltage and current is not identified as a low-voltage limited energy circuit. or has been tested and found
suitable for a specified purpose.
The means for identifying listed equipment might vary for each organization concerned with product
evaluation, some of which do not recognize equipment as listed unless it is also labeled. Use of the system
employed by the listing organization allows the authority having jurisdiction to identify a listed product.
overcurrent protection
A device designed to open a circuit when the current through it exceeds a predetermined value. The ampere
rating of the device is selected for a circuit to terminate a condition where the current exceeds the rating of
conductors and equipment due to overloads, short circuits and faults to ground.
structure
Enclosure of sufficient size to enable entry of personnel.
UL
Underwriters Laboratory
UPS
uninterruptible power system
VESDA
very early smoke detection apparatus

Documentation feedback 35
Documentation feedback
HP is committed to providing documentation that meets your needs. To help us improve the documentation,
send any errors, suggestions, or comments to Documentation Feedback (mailto:docsfeedback@hp.com).
Include the document title and part number, version number, or the URL when submitting your feedback.

Index 36
A
about this guide 5
areas prone to lightning or power surges 20
assembly 28
assembly area 22
C
capacity limitations 7
clearance area 8
cold weather considerations 20
communication connections 18
connection portals 16
connections, additional 16
connections, facility 16
D
delivery considerations 28
dimensions 8
drainage 12
E
electrical power capacity 7
electrical system 14, 15
environmental considerations 20
environmental control system (ECS) 16
environmental risks 20
equipment, installation 22
F
facility connections 16
fire and safety 18
fire suppression 6
future expansions 10
G
grounding requirements 11
H
HP site preparation drawing package 21
humidifier 12, 17
I
installation 22
installation equipment 22
L
lifting layout and requirements 22
lightning protection 20
M
materials, piping 14
mechanical cooling capacity 7
modifications, FCC notice 32
O
other objects 24
overview 5
P
permit requirements 21
piping materials 14
power infrastructure installation 14
power surges 20
pre-delivery 28
preparing for assembly 28
project coordination 21
R
regulatory compliance identification numbers 32
regulatory compliance notices 32
regulatory compliance, HP POD 20c 5, 31
S
safety information 6, 32
security 6, 18
seismic activity 20
site assessment 6, 21, 25
site assessment checklist 25
site pad 8
Index
Index 37
site planning considerations 22
site preparation 6
site preparation checklist 28
site requirements 8, 21
storage locations 23
supported facility connections 16
system capacity 7
U
utilities 12
V
vestibule specifications 24
W
warranty information 32
water supply 12, 13
weight 8
Z
zoning and permit requirements 21