Hunter Engineering Quick Check System Specification Sheet B424 01 PNT Brake Er Spec
2015-07-28
: Hunter-Engineering Hunter-Engineering-Quick-Check-System-Specification-Sheet-780043 hunter-engineering-quick-check-system-specification-sheet-780043 hunter-engineering pdf
Open the PDF directly: View PDF
.
Page Count: 2

SPECIFICATIONS
Site Specications
Power Requirements Quick Check Console Supplied
Air Supply Req. (IS Units) 90-150 PSI (6.2-10.3 bar)
Min. Concrete Spec. 3 in. (76 mm) thick,
3000 PSI (20,700kPA) rating
Min. Grout Spec. .2 in. (5 mm) thick below plates
Max. Longitudinal Slope .25 in. per foot (6.4 mm per meter)
Max. Lateral Slope .0625 in. per foot (1.6 mm per meter)
Product Specications
Max. Wheel Weight 3500 lb. (1588 kg) per wheel
Brake Test Entry Speed 4 to 8 mph (7-13 km/h)
Maximum Wheel Base 165 in. (16764 mm)
Minumum Wheel Base 91 in. (9246 mm)
MODEL FEATURES / DIMENSIONS
Continued on Page 2
For inspection information visit:
www.hunter.com/inspection
For local contact visit:
www.hunter.com/company/ndrep.cfm
For general inquiries visit:
www.hunter.com or call 800 448-6848
Because of continuting technological advancements, specications,
models, and options are subject to change without notice.
B424-01-PNT & B424IS-01-PNT
Brake Tester
B424IS-01-PNT
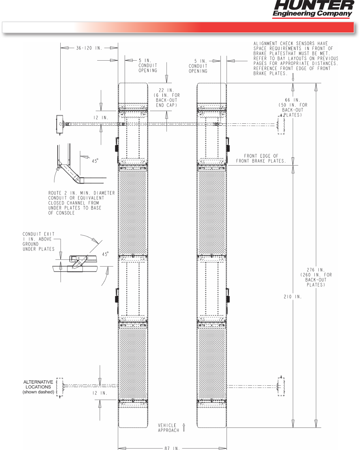
Brake Tester Dimensions
Backout Plates Length (L)260 in.
6604 mm
Surface Plates Length (L1)276 in.
7010 mm
Width (W)87 in.
2210 mm
Inside Width (W1)39 in.
991 mm
Plates w/ Ination Station (W2)94 in.
2388 mm
Runway Width (R)24 in.
610 mm
Depth (D)2 in.
51 mm
Form 6667-T, 06-13
Copyright © 2013, Hunter Engineering Company
R
W
W1
D
W2
LL1
W1

SPECIFICATIONS
Form 6667-T, 06-13
Copyright © 2013 Hunter Engineering Company
Because of continuting technological advancements, specications,
models, and options are subject to change without notice.
B424-01-PNT & B424IS-01-PNT
Brake Tester