IKUSI ELECTRONICA S L RAD-RF RAD-RF radio remote control system User Manual DRAFT
IKUSI-Angel Iglesias RAD-RF radio remote control system DRAFT
Manual

Ver 1.2
USER'S MANUAL
RADS11 / RADF13
RADIO REMOTE CONTROL SYSTEMS
0341
RADS11 and RADF13 Users Manual ver1.2.doc
KCI Hoists Corp. reserves the right to modify this information without prior notification.
Page 1 of 20

I N D E X
Pg.
CONFORMITY DECLARATION.................................................................................... 3
1 DESCRIPTION .......................................................................................................... 4
2 SAFETY PRECAUTIONS......................................................................................... 5
2.1 What you must do .............................................................................................. 5
2.2 What you must not do........................................................................................ 5
3 INSTALLATION ....................................................................................................... 6
3.1 The BC60K battery charger............................................................................... 6
3.2 Receiver ............................................................................................................. 7
3.3 Starting-up ....................................................................................................... 11
3.4 Spurious Disturbance....................................................................................... 13
4 USE...........................................................................................................................14
5 HOW TO ACCESS TO THE HOIST CONDITION MONITORING UNIT IN
RADF13 SYSTEM. SERVICE MODE. ..................................................................15
5.1 General Description of Service Mode .............................................................15
5.2 Entering the Service mode............................................................................... 15
5.3 Keys for moving within the Menus. ................................................................16
5.4 Switching from Tared Load to Actual Load.................................................... 16
5.5 Resetting the Tared Load................................................................................. 16
5.6 Exiting Service mode....................................................................................... 17
5.7 Messages originated in the receiver.................................................................17
6 MAINTENANCE ..................................................................................................... 18
6.1 Precautions....................................................................................................... 18
6.2 Preventive maintenance ................................................................................... 18
6.3 Locating Break-downs..................................................................................... 19
7 Drilling pattern sheet. ............................................................................................... 20
INDEX OF FIGURES
Figure 1 Battery charger BC60K ................................................................................6
Figure 2 Receiver Box dimensions ............................................................................. 7
Figure 3 Receiver to Power Electric Circuit connection............................................. 8
Figure 4 Connection diagram for RADS11................................................................. 9
Figure 5 Connection diagram for RADF13............................................................... 10
Figure 6 RADS11 and RADF13 transmitters ........................................................... 12
Figure 7 Entering the Service mode.......................................................................... 15
Figure 8 LCD Display in Service Mode.................................................................... 16
Figure 9 Pushbutton as a Key board for Hoist Condition Monitoring Unit.............. 16
Figure 10 LCD representing Tared Load .................................................................... 16
RADS11 and RADF13 Users Manual ver1.2.doc
KCI Hoists Corp. reserves the right to modify this information without prior notification.
Page 2 of 20

CONFORMITY DECLARATION
KCI Hoists corp.
Ruununmyllyntie 13
FIN-13210 Hämeenlinna. Finland
NIF A-20-036.018
Phone: +358 (0)20 427 11
FAX: +358 (0)20 427 3399
And in its name,
Mr. Ari Kiviniitty, Managing Director,
declares, conscious of complete responsibility, that the product
Remote Control KCI Hoists Corp.
RADS11 / RADF13
Composed by the transmitters
RAD-TS or RAD-TF
plus receivers
RAD-RS or RAD-RF,
is in conformity with the following standards
ETSI EN 300220:2000, ETS EN301489-3:2000
EN 55022:1994,
EN 61000-4-2:1995, EN 61000-4-3:1996, EN 61000-4-4:1995
EN 61000-4-5: 1995, EN 61000-4-6:1996, EN 61000-4-11:1994,
EN 61000-3-2:1995,
EN 50178:1998
EN 60204-32:1998, EN 60529:1991
PrEN 13557:1999, PrEN 12077-1:1996
and therefore with all essential requirements and provisions of the
Directive 1999/5/EC of the European
Parliament and of the Council of March 9, 1999
on Radio and Telecommunications Terminal Equipment
and with
the requirements of the 93/44/EEC Machinery Directive.
Hämeenlinna, 21st of Jun 2002
Signed: Ari Kiviniitty
Managing Director
RADS11 and RADF13 Users Manual ver1.2.doc
KCI Hoists Corp. reserves the right to modify this information without prior notification.
Page 3 of 20

1 DESCRIPTION
The RADS11 and RADF13 push-button transmitter type, radio remote control systems,
are designed for the remote control of hoists and cranes, and are particularly suitable for
applications when the operator needs to be able to choose the best location from which
to carry out an operation.
The system consists of a transmitter for selecting commands and a receiver that is
connected to the electrical system of the machine to be operated. The system also comes
with a battery charger and two rechargeable batteries.
The main specifications for RADS11 / RADF13 systems are:
RADS11 / RADF13 Systems In EU countries In North America
Frequency band 869.7 to 870MHz 902 to 928MHz
Baud rate 7200 bps
Channel separation 12.5 KHz 25 KHz
Channel Occupation 7.2 KHz
Modulation FM (GMSK)
Response Time 100 ms
Temperature range -20ºC to +65ºC -4F to 150F
The RAD-TS and RAD-TF transmitters
Transmission power <5 mW
Protection IP65 NEMA 4
The RAD-RS and RAD-RF receivers
Power supply 48 Vac, 115 Vac, 230Vac ± 10%, 50/60 Hz
Consumption 30 W
Relays 230 Vac/8 A
Protection IP55 NEMA 12
Communication CL20mA (RAD-RF only)
Protection against electric shock Class II according EN50178 (1997)
The BC60K battery charger
Power supply (± 10%) 230 Vac 50/60Hz 115Vac, 50/60 Hz
The BT06K batteries
Voltage 4.8 V
Capacity 700 mAh, NiMH
Charging temperature 5ºC to 35ºC 41F to 95F
Operating Time 12h at 50% RAD-TS model.
8h at 50% RAD-TF model.
RADS11 and RADF13 Users Manual ver1.2.doc
KCI Hoists Corp. reserves the right to modify this information without prior notification.
Page 4 of 20

SAFETY PRECAUTIONS
These instructions must be read carefully in order to install and use the radio
control system properly and to keep it in perfect working condition and to reduce
the risks of misuse.
Do not use this system on machines for the lifting of persons or in potentially
explosive atmospheres.
Any use other than that specified in this manual is dangerous. The following
instructions must be strictly adhered to.
Important note: To comply with FCC RF exposure compliance requirements, this
device and its antenna must not be operating in conjunction with any other
antenna or transmitter.
WARNING:
Modifications to this equipment are expressly forbidden by the FCC Rules.
Changes or modifications not expressly approved by the party responsible for
compliance may void the user's authority to operate this equipment.
1.1 What you must do
Strictly adhere to the instructions for installation contained in this manual.
Make sure that professional and competent personnel carry out the installation.
Ensure that all site and prevailing safety regulations are followed.
Make sure that this manual is permanently available to the operator and maintenance
personnel.
Keep the transmitter out of reach of unauthorised personnel.
Remove the transmission key when the system is not in use.
At the beginning of each work shift, check to make sure that the STOP button and
other safety measures are working.
When in doubt, press the STOP button.
Whenever several systems have been installed, make sure the transmitter you are going
to use is the correct one. Identify the machine controlled on the label for this purpose
on the transmitter.
Service the equipment periodically.
When carrying out repairs, only use spare parts supplied by the manufacturer dealers.
Use only battery pack BT06K 4.8V 700mAh.
1.2 What you must not do
Never make any changes to the radio control system, which have not been engineered
and approved by the manufacturer.
Never power the equipment other than with the specified power supply.
Never allow unqualified personnel to operate the equipment.
RADS11 and RADF13 Users Manual ver1.2.doc
KCI Hoists Corp. reserves the right to modify this information without prior notification.
Page 5 of 20

After use, never leave the equipment ON-state. Always use the transmission key or the
STOP button to avoid accidentally activating functions.
Do not use the radio control system when visibility is limited.
Avoid knocking, bumping or dropping the transmitter.
Do not use the equipment if failure is detected.
2 INSTALLATION
2.1 The BC60K battery charger
Connect the charger to the power source using the power source and the cable supplied.
The red LED, in the middle, should light up indicating power ON.
When installing the battery charger, bear in mind that the batteries must be charged at
temperatures over 5ºC (41F) and that the power supply must be left on all night. Also
remember that the charger must not be left in direct sunlight, as the batteries may not
become fully charged at temperatures exceeding 35ºC (95F).
Place the batteries in the charger.
There is green LED on top of each
battery. Each LED should light up,
indicating that recharging is in
process. Complete recharging takes
approximately 12 hours. After
charging process is finished, the
green LED is turned OFF. The
batteries may remain in the charger
for an unlimited period of time.
Figure 1 Battery charger BC60K
The capacity of the batteries decreases with use. Their life span is estimated to be 500
recharging cycles, but this depends largely on the conditions of use, for which the
following is recommended:
Do not recharge the battery until it is completely empty. The transmitter will indicate
this when to recharge the batteries.
Always charge the batteries at temperatures between 5º(41F) and 35ºC (95F).
Avoid short-circuits between the battery contacts. Do not carry charged batteries in
toolboxes or next to other metal objects (keys, coins, etc.).
Always keep contacts clean.
Never leave batteries in direct sunlight.
RADS11 and RADF13 Users Manual ver1.2.doc
KCI Hoists Corp. reserves the right to modify this information without prior notification.
Page 6 of 20

2.2 Receiver
Make sure that the crane is stopped for the entire duration of the installation
process, keep the work area free and wear protective clothing.
Park the crane and position at end stop, (if these are not available use appropriate
signs), at a suitable distance so that other cranes do not hit it on the same runway.
Check the power-supply voltage and turn off the main switch.
Find a suitable location for the receiver, away from any intense radioelectric disturbance
sources and install the receiver using the 4 elastic rubber absorbers, (M8) supplied with
the set.
6,7’’(inch)
10’’ (inch)
Figure 2 Receiver Box dimensions
The receiver must be placed free of shielding. Metal parts that could obstruct reception
of the radio signal must be avoided.
The way to connect the receiver box to the crane's electrical installations is using a cable
with a terminal multiple-pole connector:
Note: See attached drilling pattern sheet.
RADS11 and RADF13 Users Manual ver1.2.doc
KCI Hoists Corp. reserves the right to modify this information without prior notification.
Page 7 of 20

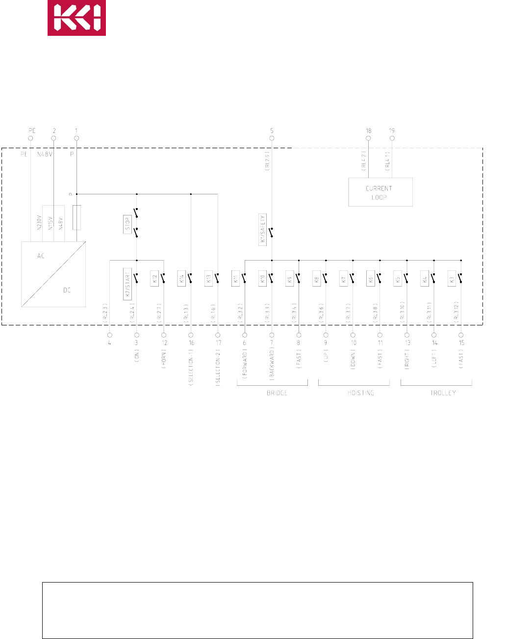
Figure 3 Receiver to Power Electric Circuit connection
The contacts of KSTOP1 and KSTOP2 (KSTOP1+KSTOP2=STOP) relays are in series
and must be connected to the main contactor coil circuit.
The K2/START is activated once the start-up command is held down.
The K1/SAFETY relay is a security relay which is activated when any of the other
function control relay are activated.
The receiver is a class II device, according EN50178, containing a functional earth
connection. A (in Europe green-yellow) ground cable is not recommended for this earth
connection.
The power supply and relays must be protected against current overload with convenient
electric devices, limiting the maximum input/ output current to their limits: 1A fuse is
provided in the receiver circuit board for power supply. 8A fuse(s) has to be provided in
the crane control panel for the for the output relays.
RADS11 and RADF13 Users Manual ver1.2.doc
KCI Hoists Corp. reserves the right to modify this information without prior notification.
Page 8 of 20

Figure 4 Connection diagram for RADS11
Remember to connect the ground cable.
Use only the approved cables.
Select the appropriate voltage on the receiver, (230, 115 or 48 Vac).
RADS11 and RADF13 Users Manual ver1.2.doc
KCI Hoists Corp. reserves the right to modify this information without prior notification.
Page 9 of 20

Figure 5 Connection diagram for RADF13
Remember to connect the ground cable.
Use only the approved cables.
Select the appropriate voltage on the receiver, (230, 115 or 48 Vac).
RADS11 and RADF13 Users Manual ver1.2.doc
KCI Hoists Corp. reserves the right to modify this information without prior notification.
Page 10 of 20

2.3 Starting-up
Proceed with caution; Incorrect connections may lead to unforeseeable movements
on starting-up.
Remember that the receiver has several voltage-powered circuits. Even when the
receiver’s power supply has been cut off, there is still a risk of electrical shocks.
Once the receiver has been connected, disconnect the power supply to the motors (if
possible), for example, by removing the fuses and power on the receiver. The receiver
will enter into the SCANNING mode while the transmitter is off. The following receiver
LEDs should now light up:
POWER: ON, indicating that the power supply is correct.
HARDOK: ON, indicating the absence of defects on the board.
SIGNAL: OFF if all radio channels in the band are free.
Flashing ON if the receiver is finding channels with RF signals.
DATA: OFF if none of the radio channels contains signals belonging to a
RADF13 or RADS11 radio remote control system in the area.
Flashing ON if some do.
ID: OFF.
To enter into Normal Working mode follow the sequence:
1. Put a charged battery in the transmitter.
2. Turn on the key-switch
3. Push down STOP pushbutton (if the button was in up position)
4. Pull up STOP pushbutton. The transmitter LED should flash yellow-green for a
second.
5. Press START The transmitter LED should light up green indicating that
the transmitter is transmitting.
RADS11 and RADF13 Users Manual ver1.2.doc
KCI Hoists Corp. reserves the right to modify this information without prior notification.
Page 11 of 20

Figure 6 RADS11 and RADF13 transmitters
On receiving a signal from the transmitter, the receiver will enter into the WORKING
mode. The following LEDs will light up on the receiver:
POWER: ON, indicating that the power supply is correct.
HARDOK: ON, indicating the absence of defects on the board.
SIGNAL: Flashing ON, indicate that it is receiving a RF signal at the working
frequency.
DATA: Flashing ON each time a good frame is received without caring about
ID. This means that the data received has a correct format.
ID: Flashing ON (quickly) each time a good frame is received with ID
correct. This means that the receiver has recognised the transmitter’s
identification code
RADS11 and RADF13 Users Manual ver1.2.doc
KCI Hoists Corp. reserves the right to modify this information without prior notification.
Page 12 of 20

After pushing the START button, STOP relays will be activated. K2/START and
K12/HORN relays are activated only when the start button is pushed.
Relays K13 and K14 on RADF13 system will be activated to the corresponding state of
the Hoist Selector.
Push any of the transmitter’s motion buttons and its corresponding relay should be
activated. The safety relay K1/SEC will also be activated.
Check to make sure all other motions work in this way.
Turn OFF the transmitter using the STOP button, and make sure the relays are
deactivated and the DATA, ID and SIGNAL LEDs light corresponding to the
SCANNING mode.
Reconnect the power supply to the motors, move to the usual work position and check to
see if all the motions and the STOP button are functioning correctly.
2.4 Spurious Disturbance
The receiver has designed to become blocked if there is intense spurious disturbance
arising from galvanic, inductive, or capacitive coupling, thus preventing unwanted
movement.
As a precautionary measure, it is recommended that spurious-preventing devices
(diodes, capacitors, RC circuits) be fitted at the source of the disturbance. These devices
should be connected directly to the contactor coil terminals, etc. and can be obtained
from the usual contactor suppliers.
If the equipment is installed on a crane with a friction power supply, where electric arcs
are produced as a result of defective contact, an RC circuit should be fitted between each
phase and earth.
RADS11 and RADF13 Users Manual ver1.2.doc
KCI Hoists Corp. reserves the right to modify this information without prior notification.
Page 13 of 20

3 USE
To ensure correct use of the equipment, follow the instructions below:
Make sure the transmitter you are going to use is the correct one, identifying the
hoist/crane on the identification label.
Attach the strap to the transmitter unit. Its use is recommended to prevent the
equipment from falling.
Install a charged battery, turn the key-switch and activate the transmitter.
To activate the system, you must first pull out the STOP button, the transmitter LED
should then give a yellow-green pulse; then press the START button. If you find that
the STOP button has already been pulled out, it is necessary to push it in and then pull
it out again, as this sequence will allow the checking of the STOP circuit. If the unit
has experienced a time-out auto-disconnection, it is not necessary to repeat the STOP
button procedure, simply push the START button for 1 second.
The transmitter LED should light up in green, indicating that the transmitter has started
transmitting. From now on, if any of the transmitter’s command buttons are pressed,
the corresponding motion will be activated.
To be able to start up the transmitter, all the command pushbuttons must be in the
neutral position (not activated). This is not the case for the Hoist Selection functions.
When 4 minutes have passed and no active motion command have been activated, the
transmitter automatically switch OFF. To start it up once more, press the START
button.
The transmitter is equipped with a circuit for monitoring the battery level. When this
level drops below a pre-established limit, the transmitter LED starts to flash in red; 5
minutes later the transmitter switches OFF, and the crane’s main contactor is
deactivated. During this time, the load has to be located in a safe position.
The LCD display of the RAD-TF transmitter also shows the battery level of charge:
Three dots for charge bigger than 50%, two dots when 50% or less, one dot when 10%
or less, none when 5% or less.
To switch OFF the transmitter, press the STOP button or turn OFF the key -switch
Remember that you are going to control remotely a moving piece of machinery.
The safety instructions described in chapter 3 of this manual must be strictly
adhered to.
RADS11 and RADF13 Users Manual ver1.2.doc
KCI Hoists Corp. reserves the right to modify this information without prior notification.
Page 14 of 20

4 HOW TO ACCESS TO THE HOIST CONDITION
MONITORING UNIT IN RADF13 SYSTEM. SERVICE
MODE.
4.1 General Description of Service Mode
For RADF13 systems, there is a special “Service Mode” of operation for maintenance
and set up of the Hoist Condition Monitoring Unit via radio.
This unit is connected to the receiver RAD-RF by a serial data communication
CL20mA.
When in Service mode, the transmitter RAD-TF is able to act as a data console for the
Hoist Condition Monitoring Unit, sending commands and receiving information, using
the radio link and the appropriate software in the transmitter RAD-TF and in the receiver
RAD-RF.
During the Service Mode of operation, due to the amount of data being sent in the
reverse link, the amount of frames per second in reverse mode is increased such that the
feedback in the display is fast enough. The movements of the crane in this mode of
operation are inhibited, this is, there are no movement orders being sent by the
transmitter or acknowledged by the receiver. The Stop relays are activated.
PLEASE NOTE:
It could be too slow to enter in service mode by the receiver if the transmitter and the
receiver are in different channels. Whenever possible, avoid the scanning of radio
channels.
4.2 Entering the Service mode.
To access the Hoist Condition Monitoring Unit mode follow
the sequence:
1. Install a charged battery in the transmitter.
2. Move close to the receiver.
3. Turn on the key-switch.
4. Push down STOP pushbutton (If it was in up
position.
5. Pull up STOP pushbutton.
6. Press Pushbutton UP in second step, and then,
START . The system enters in Service
Mode. See figure 7.
Figure 7 Entering the Service mode.
RADS11 and RADF13 Users Manual ver1.2.doc
KCI Hoists Corp. reserves the right to modify this information without prior notification.
Page 15 of 20

While the system is in service mode the “envelope” icon in the
display will be switched ON. (Figure 8).
Figure 8 LCD Display in Service Mode
4.3 Keys for moving within the Menus.
The keys for moving within the menu are the following (Figure 9):
UP: Button that simulates the Up Key. Up button. ▲
DOWN: Button that simulate the Down Key. Down button. ▼
ESC: Button that simulate the Esc Key. Left button. ◄
ENTER: Button that simulate the Enter Key. Right button. ►
Figure 9 Pushbutton as a Key board for Hoist Condition
Monitoring Unit
4.4 Switching from Tared Load to Actual Load.
The actual load is shown in the display unit as the Tared Load, but an “A” is shown below the
“t” in the bottom right hand side of the display unit. In order to switch from Tared Load to
actual load, this is performed by pressing UP and/or DOWN. Pressing ENTER, the password is
requested.
Figure 10 LCD representing Tared Load
4.5 Resetting the Tared Load.
Pressing the ESC button for several seconds performs the reset of
the Tared Load.
RADS11 and RADF13 Users Manual ver1.2.doc
KCI Hoists Corp. reserves the right to modify this information without prior notification.
Page 16 of 20

4.6 Exiting Service mode.
There are two ways of exiting this mode.
Pressing the STOP button. (The transmitter will be switched OFF and the receiver will switch
to standby mode). If the system is switched ON again and the system was switched OFF in a
menu within the service mode, when receiving the new frames in normal operation, first of all
the following message may appear: “EXITING SERVICE MODE”. The receiver will send as
many Escape messages as needed to return to the load message.
Pressing the START button for 3 seconds. The transmitter will switch from Service Mode to
Standard mode of operation while the receiver will go to Standard mode passing through the
Standby status. The STOP relays are deactivated and activated again. If you exit service mode
within a menu in the Hoist Condition Monitoring Unit, the system will exit to the Load status.
This may take several seconds where the message “EXITING SERVICE MODE” will be ON.
4.7 Messages originated in the receiver.
There are three possible messages that may appear apart from the messages originated by the
Hoist Condition Monitoring Unit. These are:
• “EXITING SERVICE MODE”: This message is originated when the Hoist Condition
Monitoring Unit is in Service mode within the menus and the transmitter is in Normal
mode of operation. This message will appear prior to show the Load or Fault messages
while exiting the Service mode. The receiver will send the Hoist Condition Monitoring
Unit as many Escape messages as needed to return to Normal mode.
• “RECEIVER FAULT”: This message will appear whenever the receiver RADF13 is not
able to open the current loop communications channel. There will be a problem in the
receiver.
• “CURRENT LOOP FAULT”: This message will appear whenever the receiver
RADF13 is not able to read any data frame from the Hoist Condition Monitoring Unit.
This message can be seen when switching the unit to display mode or by unplugging
Hoist Condition Monitoring Unit from the receiver. There is an error in the connection
between both systems.
• If the transmitter does not receive a valid frame from the receiver within 2.5 seconds,
the display will erase the data being displayed. This means that there is faulty link
between transmitter and receiver.
RADS11 and RADF13 Users Manual ver1.2.doc
KCI Hoists Corp. reserves the right to modify this information without prior notification.
Page 17 of 20

5 MAINTENANCE
5.1 Precautions
This equipment is designed for use in an industrial environment. However, we recommend you
follow the instructions below to extend the life span of your remote control set:
Use the strap provided with the transmitter to prevent the transmitter from falling.
Do not clean the transmitter with solvents or pressurised water. Use a damp cloth or soft
brush.
Use and recharge the batteries regularly.
Check every day that the STOP button is working.
Disconnect the receiver cables if soldering/welding work is going to be carried out on the
crane.
5.2 Preventive maintenance
A few simple checks can show certain defects which can later be the cause of subsequent
break-downs and which can be readily rectified. We recommend the following checks to be
made from time to time:
Transmitter:
Check the transmitter’s closing screws to make sure they are securely tightened.
Check the rubber protection seals on the transmitter’s command buttons from time to
time. Replace them if they are found to have deteriorated. This will protect the unit’s
water tightness.
Keep the battery contacts clean.
Receiver:
Check to make sure the cable fixture screws are tight.
Check the contacts on the fuses and the fuse-holders.
Battery charger and batteries:
Keep all contacts clean.
RADS11 and RADF13 Users Manual ver1.2.doc
KCI Hoists Corp. reserves the right to modify this information without prior notification.
Page 18 of 20

1.2.doc
y
5.3 Locating Break-downs
The transmitter and receiver both have status monitoring LEDs that help to identify
irregularities. The most common signals are contained in the tables below:
5.3.1 TRANSMITTER
LED MEANS
Green double flashing Transmitter ready for start-up
Solid green Transmitter transmitting normally
Red flashing Battery level low
Red double flashing Transmitter cannot start up because a manoeuvre
command is present
Solid red Transmitter failure
5.3.2 RECEIVER
In WORKING mode, the 5 green LEDs should light as described in Starting-up procedure. If
this is so, press the transmitter motion buttons and observe the response of the output relays. If
the response is normal, the problem is not related to the remote control equipment and the
installation must be checked. If any of the relays is not activated, the problem is associated with
the remote control equipment.
LED COLOUR ON FLASHING ON OFF
SIGNAL Green - Own or more Radio
Systems sharing the
own channel
Receiver doesn’t
receive any RF signal.
POWER Green Power supply OK - Power supply NOTOK
HARD
OK
Green Board OK Slow: Failure in board.
Fast: EEPROM error
Failure in board
ID Green - ID Code OK Not recognised ID
Code
DATA Green - Own or other valid
messages are presents
No correct messages
are being received.
RADS11 and RADF13 Users Manual ver
KCI Hoists Corp. reserves the right to modif
this information without prior notification.
Page 19 of 20
If the problem is associated with the equipment, please send both the transmitter and the
receiver to the Technical Assistance Service, together with a description of the problem and the
status of the LEDs.

6 Drilling pattern sheet.
255,5
169,5
NO SCALE
255,5mm = 10”
169,5mm = 6,7”
RADS11 and RADF13 Users Manual ver1.2.doc
KCI Hoists Corp. reserves the right to modify this information without prior notification.
Page 20 of 20