Ibm Thinkpad T500 Users Manual And W500 (15.4 Inch Widescreen) Hardware Maintenance
T500 to the manual a142c12d-55e9-4ee3-a9a2-3651de17f275
2015-03-11
: Ibm Ibm-Thinkpad-T500-Users-Manual-431485 ibm-thinkpad-t500-users-manual-431485 ibm pdf
Open the PDF directly: View PDF
.
Page Count: 188 [warning: Documents this large are best viewed by clicking the View PDF Link!]
- Contents
- About this manual
- Safety information
- Important service information
- General checkout
- Related service information
- ThinkPad T500 and W500 (15.4-inch widescreen)
- Specifications
- Status indicators
- FRU tests
- Fn key combinations
- FRU replacement notices
- Removing and replacing a FRU
- 1010 Battery pack
- 1020 Serial Ultrabay Slim device
- 1030 Hard disk drive (HDD) cover, HDD and HDD rubber rails or solid state drive (SSD) and storage converter
- 1040 Palm rest or palm rest with fingerprint reader
- 1050 DIMM
- 1060 Keyboard
- 1070 Modem daughter card (MDC-3.0)
- 1080 PCI Express Mini Card for wireless LAN
- 1090 Intel Turbo Memory Minicard or wireless USB adapter
- 1100 Backup battery
- 1110 SIM card slot
- 1120 Keyboard bezel
- 1130 PCI Express Mini Card for wireless WAN
- 1140 Speaker assembly
- 1150 Fan assembly
- 1160 CPU
- 1170 LCD unit
- 1180 Base cover and USB sub card with cable
- 1190 Structure frame
- 1200 System board and ExpressCard slot assembly
- 2010 LCD front bezel (LCD cover kit)
- 2020 LCD rear cover (LCD cover kit)
- 2030 Inverter card
- 2040 Integrated camera
- 2050 Bluetooth daughter card (BDC-2.1)
- 2060 Antenna assembly
- 2070 LCD panel and LCD cable
- 2080 Hinges and LCD magnesium frame
- Locations
- Parts list
- Notices

ThinkPad® T500 and W500 (15.4-inch
widescreen)
Hardware Maintenance Manual

ThinkPad® T500 and W500 (15.4-inch
widescreen)
Hardware Maintenance Manual

Note
Before using this information and the product it supports, be sure to read the general information under “Notices” on page
177.
Second Edition (September 2008)
© Copyright Lenovo 2008. All rights reserved.
LENOVO products, data, computer software, and services have been developed exclusively at private expense and
are sold to governmental entities as commercial items as defined by 48 C.F.R. 2.101 with limited and restricted
rights to use, reproduction and disclosure.
LIMITED AND RESTRICTED RIGHTS NOTICE: If products, data, computer software, or services are delivered
pursuant a General Services Administration ″GSA″ contract, use, reproduction, or disclosure is subject to restrictions
set forth in Contract No. GS-35F-05925.
© 2008 Lenovo

Contents
About this manual . . . . . . . . . .v
Safety information . . . . . . . . . .1
General safety . . . . . . . . . . . . . .2
Electrical safety . . . . . . . . . . . . .3
Safety inspection guide . . . . . . . . . . .5
Handling devices that are sensitive to electrostatic
discharge . . . . . . . . . . . . . . .6
Grounding requirements . . . . . . . . . .6
Safety notices: multilingual translations . . . . .7
Laser compliance statement . . . . . . . . .14
Important service information . . . . .17
Strategy for replacing FRUs . . . . . . . . .17
Strategy for replacing a hard disk drive . . . .18
Important notice for replacing a system board . .18
How to use error message . . . . . . . .18
Strategy for replacing FRUs for CTO, CMV, and
GAV . . . . . . . . . . . . . . . . .19
Product definition . . . . . . . . . . .19
FRU identification for CTO, CMV, and GAV
products . . . . . . . . . . . . . .19
Important information about replacing RoHS
compliant FRUs . . . . . . . . . . . . .21
General checkout . . . . . . . . . .23
What to do first . . . . . . . . . . . . .24
Checkout guide . . . . . . . . . . . . .25
Diagnostics using PC-Doctor for DOS . . . .26
PC-Doctor for Windows . . . . . . . . .28
PC-Doctor for Rescue and Recovery . . . . .28
Power system checkout . . . . . . . . . .29
Checking the AC adapter . . . . . . . . .29
Checking operational charging . . . . . . .30
Checking the battery pack . . . . . . . .30
Checking the backup battery . . . . . . .31
Related service information . . . . . .33
Restoring the factory contents by using Product
Recovery discs . . . . . . . . . . . . .33
Passwords . . . . . . . . . . . . . . .34
Power-on password . . . . . . . . . .34
Hard-disk password . . . . . . . . . .34
Supervisor password . . . . . . . . . .34
How to remove the power-on password . . . .35
How to remove the hard-disk password . . . .35
Power management . . . . . . . . . . .37
Screen blank mode . . . . . . . . . . .37
Standby mode . . . . . . . . . . . .37
Hibernation mode . . . . . . . . . . .38
Symptom-to-FRU index . . . . . . . . . .39
Numeric error codes . . . . . . . . . .39
Error messages . . . . . . . . . . . .43
Beep symptoms . . . . . . . . . . . .44
No-beep symptoms . . . . . . . . . . .44
LCD-related symptoms . . . . . . . . .45
Intermittent problems . . . . . . . . . .46
Undetermined problems . . . . . . . . .46
ThinkPad T500 and W500 (15.4-inch
widescreen) . . . . . . . . . . . .47
Specifications . . . . . . . . . . . . . .47
Status indicators . . . . . . . . . . . . .50
FRU tests . . . . . . . . . . . . . . .53
Fn key combinations . . . . . . . . . . .55
FRU replacement notices . . . . . . . . . .58
Screw notices . . . . . . . . . . . . .58
Retaining serial numbers . . . . . . . . .59
Removing and replacing a FRU . . . . . . . .62
1010 Battery pack . . . . . . . . . . .63
1020 Serial Ultrabay Slim device . . . . . .64
1030 Hard disk drive (HDD) cover, HDD and
HDD rubber rails or solid state drive (SSD) and
storage converter . . . . . . . . . . .65
1040 Palm rest or palm rest with fingerprint
reader . . . . . . . . . . . . . . .67
1050 DIMM . . . . . . . . . . . . .70
1060 Keyboard . . . . . . . . . . . .71
1070 Modem daughter card (MDC-3.0) . . . .73
1080 PCI Express Mini Card for wireless LAN . .75
1090 Intel Turbo Memory Minicard or wireless
USB adapter . . . . . . . . . . . . .77
1100 Backup battery . . . . . . . . . .79
1110 SIM card slot . . . . . . . . . . .80
1120 Keyboard bezel . . . . . . . . . .81
1130 PCI Express Mini Card for wireless WAN 83
1140 Speaker assembly . . . . . . . . .85
1150 Fan assembly . . . . . . . . . . .87
1160 CPU . . . . . . . . . . . . . .91
1170 LCD unit . . . . . . . . . . . .92
1180 Base cover and USB sub card with cable . .95
1190 Structure frame . . . . . . . . . . 100
1200 System board and ExpressCard slot
assembly . . . . . . . . . . . . . . 103
2010 LCD front bezel (LCD cover kit) . . . . 106
2020 LCD rear cover (LCD cover kit) . . . . 108
2030 Inverter card . . . . . . . . . . . 109
2040 Integrated camera . . . . . . . . .110
2050 Bluetooth daughter card (BDC-2.1) . . . 111
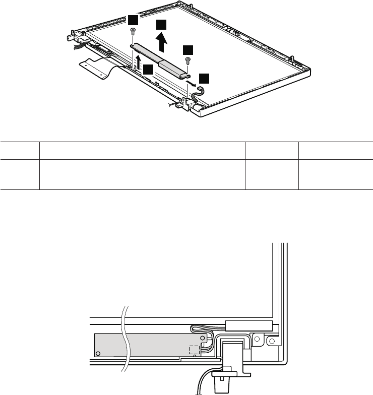
2060 Antenna assembly . . . . . . . . .112
2070 LCD panel and LCD cable . . . . . .115
2080 Hinges and LCD magnesium frame . . .118
Locations . . . . . . . . . . . . . . .119
Front view . . . . . . . . . . . . .119
Rear view . . . . . . . . . . . . . 120
Bottom view . . . . . . . . . . . . . 120
Parts list . . . . . . . . . . . . . . . 121
Overall . . . . . . . . . . . . . . 122
LCD FRUs . . . . . . . . . . . . . 152
© Copyright Lenovo 2008 iii
Keyboard . . . . . . . . . . . . . . 159
Miscellaneous parts . . . . . . . . . . 161
AC adapters . . . . . . . . . . . . . 163
Power cords . . . . . . . . . . . . . 164
Recovery discs . . . . . . . . . . . . 165
Common service tools . . . . . . . . . 175
Notices . . . . . . . . . . . . . . 177
Trademarks . . . . . . . . . . . . . . 178
iv ThinkPad T500 and W500 (15.4-inch widescreen) Hardware Maintenance Manual

About this manual
This manual contains service and reference information for the following
ThinkPad® products.
ThinkPad T500
MT 2055, 2056, 2081, 2082, 2083, 2087, 2088, 2089, 2241, 2242, 2243, 2246,
2247, and 2261
ThinkPad W500
MT 4058, 4061, 4062, 4063, 4064, and 4065
Use this manual along with the advanced diagnostic tests to troubleshoot
problems.
The manual is divided into sections as follows:
v The common sections provide general information, guidelines, and safety
information required in servicing computers.
v The product-specific section includes service, reference, and product-specific
parts information.
Important:
This manual is intended only for trained servicers who are familiar with
ThinkPad products. Use this manual along with the advanced diagnostic tests to
troubleshoot problems effectively.
Before servicing a ThinkPad product, be sure to read all the information under
“Safety information” on page 1 and “Important service information” on page 17.
© Copyright Lenovo 2008 v
vi ThinkPad T500 and W500 (15.4-inch widescreen) Hardware Maintenance Manual

Safety information
This chapter presents following safety information that you need to be familiar
with before you service a ThinkPad computer.
v “General safety” on page 2
v “Electrical safety” on page 3
v “Safety inspection guide” on page 5
v “Handling devices that are sensitive to electrostatic discharge” on page 6
v “Grounding requirements” on page 6
v “Safety notices: multilingual translations” on page 7
v “Laser compliance statement” on page 14
© Copyright Lenovo 2008 1

General safety
Follow these rules to ensure general safety:
v Observe good housekeeping in the area of the machines during and after
maintenance.
v When lifting any heavy object:
1. Make sure that you can stand safely without slipping.
2. Distribute the weight of the object equally between your feet.
3. Use a slow lifting force. Never move suddenly or twist when you attempt to
lift.
4. Lift by standing or by pushing up with your leg muscles; this action removes
the strain from the muscles in your back. Do not attempt to lift any object that
weighs more than 16 kg (35 lb) or that you think is too heavy for you.
v Do not perform any action that causes hazards to the customer, or that makes
the equipment unsafe.
v Before you start the machine, make sure that other service representatives and
the customer’s personnel are not in a hazardous position.
v Place removed covers and other parts in a safe place, away from all personnel,
while you are servicing the machine.
v Keep your toolcase away from walk areas so that other people will not trip over
it.
v Do not wear loose clothing that can be trapped in the moving parts of a
machine. Make sure that your sleeves are fastened or rolled up above your
elbows. If your hair is long, fasten it.
v Insert the ends of your necktie or scarf inside clothing or fasten it with a
nonconductive clip, about 8 centimeters (3 inches) from the end.
v Do not wear jewelry, chains, metal-frame eyeglasses, or metal fasteners for your
clothing.
Attention: Metal objects are good electrical conductors.
v Wear safety glasses when you are hammering, drilling, soldering, cutting wire,
attaching springs, using solvents, or working in any other conditions that might
be hazardous to your eyes.
v After service, reinstall all safety shields, guards, labels, and ground wires.
Replace any safety device that is worn or defective.
v Reinstall all covers correctly before returning the machine to the customer.
v Fan louvers on the machine help to prevent overheating of internal components.
Do not obstruct fan louvers or cover them with labels or stickers.
2 ThinkPad T500 and W500 (15.4-inch widescreen) Hardware Maintenance Manual

Electrical safety
Observe the following rules when working on electrical equipment.
v Find the room emergency power-off (EPO) switch, disconnecting switch, or
electrical outlet. If an electrical accident occurs, you can then operate the switch
or unplug the power cord quickly.
v Do not work alone under hazardous conditions or near equipment that has
hazardous voltages.
v Disconnect all power before:
– Performing a mechanical inspection
– Working near power supplies
– Removing or installing main units
v Before you start to work on the machine, unplug the power cord. If you cannot
unplug it, ask the customer to power-off the wall box that supplies power to the
machine, and to lock the wall box in the off position.
v If you need to work on a machine that has exposed electrical circuits, observe the
following precautions:
– Ensure that another person, familiar with the power-off controls, is near you.
Attention: Another person must be there to switch off the power, if
necessary.
– Use only one hand when working with powered-on electrical equipment;
keep the other hand in your pocket or behind your back.
Attention: An electrical shock can occur only when there is a complete
circuit. By observing the above rule, you may prevent a current from passing
through your body.
– When using testers, set the controls correctly and use the approved probe
leads and accessories for that tester.
– Stand on suitable rubber mats (obtained locally, if necessary) to insulate you
from grounds such as metal floor strips and machine frames.
Observe the special safety precautions when you work with very high voltages;
Instructions for these precautions are in the safety sections of maintenance
information. Use extreme care when measuring high voltages.
v Regularly inspect and maintain your electrical hand tools for safe operational
condition.
v Do not use worn or broken tools and testers.
v Never assume that power has been disconnected from a circuit. First, check that it
has been powered off.
v Always look carefully for possible hazards in your work area. Examples of these
hazards are moist floors, nongrounded power extension cables, power surges,
and missing safety grounds.
Important:
Use only approved tools and test equipment. Some hand tools have handles
covered with a soft material that does not insulate you when working with live
electrical currents.
Many customers have, near their equipment, rubber floor mats that contain small
conductive fibers to decrease electrostatic discharges. Do not use this type of mat
to protect yourself from electrical shock.
Safety information 3
v Do not touch live electrical circuits with the reflective surface of a plastic dental
mirror. The surface is conductive; such touching can cause personal injury and
machine damage.
v Do not service the following parts with the power on when they are removed
from their normal operating places in a machine:
– Power supply units
– Pumps
– Blowers and fans
– Motor generators
and similar units. (This practice ensures correct grounding of the units.)
v If an electrical accident occurs:
– Use caution; do not become a victim yourself.
– Switch off power.
– Send another person to get medical aid.
4 ThinkPad T500 and W500 (15.4-inch widescreen) Hardware Maintenance Manual

Safety inspection guide
The purpose of this inspection guide is to assist you in identifying potentially
unsafe conditions. As each machine was designed and built, required safety items
were installed to protect users and service personnel from injury. This guide
addresses only those items. You should use good judgment to identify potential
safety hazards due to attachment of non-ThinkPad features or options not covered
by this inspection guide.
If any unsafe conditions are present, you must determine how serious the apparent
hazard could be and whether you can continue without first correcting the
problem.
Consider these conditions and the safety hazards they present:
v Electrical hazards, especially primary power (primary voltage on the frame can
cause serious or fatal electrical shock)
v Explosive hazards, such as a damaged CRT face or a bulging capacitor
v Mechanical hazards, such as loose or missing hardware
To determine whether there are any potentially unsafe conditions, use the
following checklist at the beginning of every service task. Begin the checks with
the power off, and the power cord disconnected.
Checklist:
1. Check exterior covers for damage (loose, broken, or sharp edges).
2. Power off the computer. Disconnect the power cord.
3. Check the power cord for:
a. A third-wire ground connector in good condition. Use a meter to measure
third-wire ground continuity for 0.1 ohm or less between the external
ground pin and the frame ground.
b. The power cord should be the type specified in the parts list.
c. Insulation must not be frayed or worn.
4. Check for cracked or bulging batteries.
5. Remove the cover.
6. Check for any obvious non-ThinkPad alterations. Use good judgment as to the
safety of any non-ThinkPad alterations.
7. Check inside the unit for any obvious unsafe conditions, such as metal filings,
contamination, water or other liquids, or signs of fire or smoke damage.
8. Check for worn, frayed, or pinched cables.
9. Check that the power-supply cover fasteners (screws or rivets) have not been
removed or tampered with.
Safety information 5

Handling devices that are sensitive to electrostatic discharge
Any computer part containing transistors or integrated circuits (ICs) should be
considered sensitive to electrostatic discharge (ESD.) ESD damage can occur when
there is a difference in charge between objects. Protect against ESD damage by
equalizing the charge so that the machine, the part, the work mat, and the person
handling the part are all at the same charge.
When handling ESD-sensitive parts:
v Keep the parts in protective packages until they are inserted into the product.
v Avoid contact with other people.
v Wear a grounded wrist strap against your skin to eliminate static on your body.
v Prevent the part from touching your clothing. Most clothing is insulative and
retains a charge even when you are wearing a wrist strap.
v Use the black side of a grounded work mat to provide a static-free work surface.
The mat is especially useful when handling ESD-sensitive devices.
v Select a grounding system, such as those listed below, to provide protection that
meets the specific service requirement.
– Attach the ESD ground clip to any frame ground, ground braid, or green-wire
ground.
– When working on a double-insulated or battery-operated system, use an ESD
common ground or reference point. You can use coax or connector-outside
shells on these systems.
– Use the round ground prong of the ac plug on ac-operated computers.
Grounding requirements
Electrical grounding of the computer is required for operator safety and correct
system function. Proper grounding of the electrical outlet can be verified by a
certified electrician.
Notes:
1. Use product-specific ESD procedures when they exceed the requirements
noted here.
2. Make sure that the ESD protective devices you use have been certified (ISO
9000) as fully effective.
Note:
The use of a grounding system to guard against ESD damage is desirable but not
necessary.
6 ThinkPad T500 and W500 (15.4-inch widescreen) Hardware Maintenance Manual

Safety notices: multilingual translations
The safety notices in this section are provided in English, French, German, Hebrew,
Italian, Japanese, and Spanish.
Safety notice 1
Before the computer is powered on after FRU replacement, make sure all screws,
springs, and other small parts are in place and are not left loose inside the
computer. Verify this by shaking the computer and listening for rattling sounds.
Metallic parts or metal flakes can cause electrical shorts.
Avant de remettre l’ordinateur sous tension après remplacement d’une unité en
clientèle, vérifiez que tous les ressorts, vis et autres pièces sont bien en place et
bien fixées. Pour ce faire, secouez l’unité et assurez-vous qu’aucun bruit suspect
ne se produit. Des pièces métalliques ou des copeaux de métal pourraient causer
un court-circuit.
Bevor nach einem FRU-Austausch der Computer wieder angeschlossen wird,
muß sichergestellt werden, daß keine Schrauben, Federn oder andere Kleinteile
fehlen oder im Gehäuse vergessen wurden. Der Computer muß geschüttelt und
auf Klappergeräusche geprüft werden. Metallteile oder-splitter können
Kurzschlüsse erzeugen.
Prima di accendere l’elaboratore dopo che é stata effettuata la sostituzione di una FRU,
accertarsi che tutte le viti, le molle e tutte le altri parti di piccole dimensioni siano nella
corretta posizione e non siano sparse all’interno dell’elaboratore. Verificare ciò scuotendo
l’elaboratore e prestando attenzione ad eventuali rumori; eventuali parti o pezzetti
metallici possono provocare cortocircuiti pericolosi.
Antes de encender el sistema despues de sustituir una FRU, compruebe que todos los
tornillos, muelles y demás piezas pequeñas se encuentran en su sitio y no se encuentran
sueltas dentro del sistema. Compruébelo agitando el sistema y escuchando los posibles
ruidos que provocarían. Las piezas metálicas pueden causar cortocircuitos eléctricos.
Safety information 7

Safety notice 2
DANGER
Some standby batteries contain a small amount of nickel and cadmium. Do not
disassemble a standby battery, recharge it, throw it into fire or water, or short-circuit it.
Dispose of the battery as required by local ordinances or regulations. Use only the
battery in the appropriate parts listing. Use of an incorrect battery can result in
ignition or explosion of the battery.
Certaines batteries de secours contiennent du nickel et du cadmium. Ne les démontez
pas, ne les rechargez pas, ne les exposez ni au feu ni à l’eau. Ne les mettez pas en
court-circuit. Pour les mettre au rebut, conformez-vous à la réglementation en vigueur.
Lorsque vous remplacez la pile de sauvegarde ou celle de l’horloge temps réel, veillez
à n’utiliser que les modèles cités dans la liste de pièces détachées adéquate. Une
batterie ou une pile inappropriée risque de prendre feu ou d’exploser.
Die Bereitschaftsbatterie, die sich unter dem Diskettenlaufwerk befindet, kann
geringe Mengen Nickel und Cadmium enthalten. Sie darf nur durch die Verkaufsstelle
oder den IBM Kundendienst ausgetauscht werden. Sie darf nicht zerlegt,
wiederaufgeladen, kurzgeschlossen, oder Feuer oder Wasser ausgesetzt werden. Die
Batterie kann schwere Verbrennungen oder Verätzungen verursachen. Bei der
Entsorgung die örtlichen Bestimmungen für Sondermüll beachten. Beim Ersetzen der
Bereitschafts-oder Systembatterie nur Batterien des Typs verwenden, der in der
Ersatzteilliste aufgeführt ist. Der Einsatz falscher Batterien kann zu Entzündung oder
Explosion führen.
Alcune batterie di riserva contengono una piccola quantità di nichel e cadmio. Non
smontarle, ricaricarle, gettarle nel fuoco o nell’acqua né cortocircuitarle. Smaltirle
secondo la normativa in vigore (DPR 915/82, successive disposizioni e disposizioni
locali). Quando si sostituisce la batteria dell’RTC (real time clock) o la batteria di
supporto, utilizzare soltanto i tipi inseriti nell’appropriato Catalogo parti. L’impiego di
una batteria non adatta potrebbe determinare l’incendio o l’esplosione della batteria
stessa.
Algunas baterías de reserva contienen una pequeña cantidad de níquel y cadmio. No
las desmonte, ni recargue, ni las eche al fuego o al agua ni las cortocircuite.
Deséchelas tal como dispone la normativa local. Utilice sólo baterías que se
encuentren en la lista de piezas. La utilización de una batería no apropiada puede
provocar la ignición o explosión de la misma.
8 ThinkPad T500 and W500 (15.4-inch widescreen) Hardware Maintenance Manual

Safety notice 3
DANGER
The battery pack contains small amounts of nickel. Do not disassemble it, throw it
into fire or water, or short-circuit it. Dispose of the battery pack as required by local
ordinances or regulations. Use only the battery in the appropriate parts listing when
replacing the battery pack. Use of an incorrect battery can result in ignition or
explosion of the battery.
La batterie contient du nickel. Ne la démontez pas, ne l’exposez ni au feu ni à l’eau.
Ne la mettez pas en court-circuit. Pour la mettre au rebut, conformez-vous à la
réglementation en vigueur. Lorsque vous remplacez la batterie, veillez à n’utiliser que
les modèles cités dans la liste de pièces détachées adéquate. En effet, une batterie
inappropriée risque de prendre feu ou d’exploser.
Akkus enthalten geringe Mengen von Nickel. Sie dürfen nicht zerlegt,
wiederaufgeladen, kurzgeschlossen, oder Feuer oder Wasser ausgesetzt werden. Bei
der Entsorgung die örtlichen Bestimmungen für Sondermüll beachten. Beim Ersetzen
der Batterie nur Batterien des Typs verwenden, der in der Ersatzteilliste aufgeführt ist.
Der Einsatz falscher Batterien kann zu Entzündung oder Explosion führen.
La batteria contiene piccole quantità di nichel. Non smontarla, gettarla nel fuoco o
nell’acqua né cortocircuitarla. Smaltirla secondo la normativa in vigore (DPR 915/82,
successive disposizioni e disposizioni locali). Quando si sostituisce la batteria,
utilizzare soltanto i tipi inseriti nell’appropriato Catalogo parti. L’impiego di una
batteria non adatta potrebbe determinare l’incendio o l’esplosione della batteria stessa.
Las baterías contienen pequeñas cantidades de níquel. No las desmonte, ni recargue,
ni las eche al fuego o al agua ni las cortocircuite. Deséchelas tal como dispone la
normativa local. Utilice sólo baterías que se encuentren en la lista de piezas al
sustituir la batería. La utilización de una batería no apropiada puede provocar la
ignición o explosión de la misma.
Safety information 9

Safety notice 4
DANGER
The lithium battery can cause a fire, an explosion, or a severe burn. Do not recharge it,
remove its polarized connector, disassemble it, heat it above 100°C (212°F), incinerate
it, or expose its cell contents to water. Dispose of the battery as required by local
ordinances or regulations. Use only the battery in the appropriate parts listing. Use of
an incorrect battery can result in ignition or explosion of the battery.
La pile de sauvegarde contient du lithium. Elle présente des risques d’incendie,
d’explosion ou de brûlures graves. Ne la rechargez pas, ne retirez pas son connecteur
polarisé et ne la démontez pas. Ne l’exposez pas à une temperature supérieure à 100°C,
ne la faites pas brûler et n’en exposez pas le contenu à l’eau. Mettez la pile au rebut
conformément à la réglementation en vigueur. Une pile inappropriée risque de
prendre feu ou d’exploser.
Die Systembatterie ist eine Lithiumbatterie. Sie kann sich entzünden, explodieren
oder schwere Verbrennungen hervorrufen. Batterien dieses Typs dürfen nicht
aufgeladen, zerlegt, über 100 C erhitzt oder verbrannt werden. Auch darf ihr Inhalt
nicht mit Wasser in Verbindung gebracht oder der zur richtigen Polung angebrachte
Verbindungsstecker entfernt werden. Bei der Entsorgung die örtlichen Bestimmungen
für Sondermüll beachten. Beim Ersetzen der Batterie nur Batterien des Typs
verwenden, der in der Ersatzteilliste aufgeführt ist. Der Einsatz falscher Batterien
kann zu Entzündung oder Explosion führen.
La batteria di supporto e una batteria al litio e puo incendiarsi, esplodere o procurare
gravi ustioni. Evitare di ricaricarla, smontarne il connettore polarizzato, smontarla,
riscaldarla ad una temperatura superiore ai 100 gradi centigradi, incendiarla o gettarla
in acqua. Smaltirla secondo la normativa in vigore (DPR 915/82, successive
disposizioni e disposizioni locali). L’impiego di una batteria non adatta potrebbe
determinare l’incendio o l’esplosione della batteria stessa.
La batería de repuesto es una batería de litio y puede provocar incendios, explosiones
o quemaduras graves. No la recargue, ni quite el conector polarizado, ni la desmonte,
ni caliente por encima de los 100°C (212°F), ni la incinere ni exponga el contenido de
sus celdas al agua. Deséchela tal como dispone la normativa local.
10 ThinkPad T500 and W500 (15.4-inch widescreen) Hardware Maintenance Manual

Safety notice 5
If the LCD breaks and the fluid from inside the LCD gets into your eyes or on
your hands, immediately wash the affected areas with water for at least 15
minutes. Seek medical care if any symptoms from the fluid are present after
washing.
Si le panneau d’affichage à cristaux liquides se brise et que vous recevez dans les
yeux ou sur les mains une partie du fluide, rincez-les abondamment pendant au
moins quinze minutes. Consultez un médecin si des symptômes persistent après
le lavage.
Die Leuchtstoffröhre im LCD-Bildschirm enthält Quecksilber. Bei der Entsorgung
die örtlichen Bestimmungen für Sondermüll beachten. Der LCD-Bildschirm
besteht aus Glas und kann zerbrechen, wenn er unsachgemäß behandelt wird
oder der Computer auf den Boden fällt. Wenn der Bildschirm beschädigt ist und
die darin befindliche Flüssigkeit in Kontakt mit Haut und Augen gerät, sollten
die betroffenen Stellen mindestens 15 Minuten mit Wasser abgespült und bei
Beschwerden anschließend ein Arzt aufgesucht werden.
Nel caso che caso l’LCD si dovesse rompere ed il liquido in esso contenuto entrasse in
contatto con gli occhi o le mani, lavare immediatamente le parti interessate con acqua
corrente per almeno 15 minuti; poi consultare un medico se i sintomi dovessero
permanere.
Si la LCD se rompe y el fluido de su interior entra en contacto con sus ojos o sus manos,
lave inmediatamente las áreas afectadas con agua durante 15 minutos como mínimo.
Obtenga atención medica si se presenta algún síntoma del fluido despues de lavarse.
Safety information 11

Safety notice 6
DANGER
To avoid shock, do not remove the plastic cover that protects the lower part of the
inverter card.
Afin d’éviter tout risque de choc électrique, ne retirez pas le cache en plastique
protégeant la partie inférieure de la carte d’alimentation.
Aus Sicherheitsgründen die Kunststoffabdeckung, die den unteren Teil der
Spannungswandlerplatine umgibt, nicht entfernen.
Per evitare scosse elettriche, non rimuovere la copertura in plastica che avvolge la
parte inferiore della scheda invertitore.
Para evitar descargas, no quite la cubierta de plástico que rodea la parte baja de la
tarjeta invertida.
Safety notice 7
DANGER
Though the main batteries have low voltage, a shorted or grounded battery can
produce enough current to burn personnel or combustible materials.
Bien que le voltage des batteries principales soit peu élevé, le court-circuit ou la mise
à la masse d’une batterie peut produire suffisamment de courant pour brûler des
matériaux combustibles ou causer des brûlures corporelles graves.
Obwohl Hauptbatterien eine niedrige Spannung haben, können sie doch bei
Kurzschluß oder Erdung genug Strom abgeben, um brennbare Materialien zu
entzünden oder Verletzungen bei Personen hervorzurufen.
Sebbene le batterie di alimentazione siano a basso voltaggio, una batteria in corto
circuito o a massa può fornire corrente sufficiente da bruciare materiali combustibili o
provocare ustioni ai tecnici di manutenzione.
Aunque las baterías principales tienen un voltaje bajo, una batería cortocircuitada o
con contacto a tierra puede producir la corriente suficiente como para quemar material
combustible o provocar quemaduras en el personal.
12 ThinkPad T500 and W500 (15.4-inch widescreen) Hardware Maintenance Manual

Safety notice 8
DANGER
Before removing any FRU, power off the computer, unplug all power cords from
electrical outlets, remove the battery pack, and then disconnect any interconnecting
cables.
Avant de retirer une unité remplaçable en clientèle, mettez le système hors tension,
débranchez tous les cordons d’alimentation des socles de prise de courant, retirez la
batterie et déconnectez tous les cordons d’interface.
Die Stromzufuhr muß abgeschaltet, alle Stromkabel aus der Steckdose gezogen, der
Akku entfernt und alle Verbindungskabel abgenommen sein, bevor eine FRU entfernt
wird.
Prima di rimuovere qualsiasi FRU, spegnere il sistema, scollegare dalle prese elettriche
tutti i cavi di alimentazione, rimuovere la batteria e poi scollegare i cavi di
interconnessione.
Antes de quitar una FRU, apague el sistema, desenchufe todos los cables de las tomas
de corriente eléctrica, quite la batería y, a continuación, desconecte cualquier cable de
conexión entre dispositivos.
Safety information 13

Laser compliance statement
Some models of ThinkPad computer are equipped from the factory with an optical
storage device such as a CD-ROM drive or a DVD-ROM drive. Such devices are
also sold separately as options. If one of these drives is installed, it is certified in
the U.S. to conform to the requirements of the Department of Health and Human
Services 21 Code of Federal Regulations (DHHS 21 CFR) Subchapter J for Class 1
laser products. Elsewhere, the drive is certified to conform to the requirements of
the International Electrotechnical Commission (IEC) 825 and CENELEC EN 60 825
for Class 1 laser products.
If a CD-ROM drive, a DVD-ROM drive, or another laser device is installed, note
the following:
Opening the CD-ROM drive, the DVD-ROM drive, or any other optical storage
device could result in exposure to hazardous laser radiation. There are no
serviceable parts inside those drives. Do not open.
CAUTION:
Use of controls or adjustments or performance of procedures other than those
specified herein might result in hazardous radiation exposure.
O uso de controles, ajustes ou desempenho de procedimentos diferentes daqueles aqui
especificados pode resultar em perigosa exposição à radiação.
Pour éviter tout risque d’exposition au rayon laser, respectez les consignes de réglage
et d’utilisation des commandes, ainsi que les procédures décrites.
Werden Steuer- und Einstellelemente anders als hier festgesetzt verwendet, kann
gefährliche Laserstrahlung auftreten.
L’utilizzo di controlli, regolazioni o l’esecuzione di procedure diverse da quelle
specificate possono provocare l’esposizione a.
El uso de controles o ajustes o la ejecución de procedimientos distintos de los aquí
especificados puede provocar la exposición a radiaciones peligrosas.
14 ThinkPad T500 and W500 (15.4-inch widescreen) Hardware Maintenance Manual

A CD-ROM drive, a DVD-ROM drive, or any other storage device installed may
contain an embedded Class 3A or Class 3B laser diode. Note the following:
DANGER
Emits visible and invisible laser radiation when open. Do not stare into the beam, do
not view directly with optical instruments, and avoid direct exposure to the beam.
Radiação por raio laser ao abrir. Não olhe fixo no feixe de luz, não olhe diretamente
por meio de instrumentos óticos e evite exposição direta com o feixe de luz.
Rayonnement laser si carter ouvert. Évitez de fixer le faisceau, de le regarder
directement avec des instruments optiques, ou de vous exposer au rayon.
Laserstrahlung bei geöffnetem Gerät. Nicht direkt oder über optische Instrumente in
den Laserstrahl sehen und den Strahlungsbereich meiden.
Kinyitáskor lézersugár ! Ne nézzen bele se szabad szemmel, se optikai eszközökkel.
Kerülje a sugárnyalábbal való érintkezést !.
Aprendo l’unità vengono emesse radiazioni laser. Non fissare il fascio, non guardarlo
direttamente con strumenti ottici e evitare l’esposizione diretta al fascio.
Radiación láser al abrir. No mire fijamente ni examine con instrumental óptico el haz
de luz. Evite la exposición directa al haz.
Safety information 15
16 ThinkPad T500 and W500 (15.4-inch widescreen) Hardware Maintenance Manual

Important service information
This chapter presents following important service information:
v “Strategy for replacing FRUs”
– “Strategy for replacing a hard disk drive” on page 18
– “Important notice for replacing a system board” on page 18
– “How to use error message” on page 18
v “Strategy for replacing FRUs for CTO, CMV, and GAV” on page 19
– “Product definition” on page 19
– “FRU identification for CTO, CMV, and GAV products” on page 19
v “Important information about replacing RoHS compliant FRUs” on page 21
Strategy for replacing FRUs
Use the following strategy to prevent unnecessary expense for replacing and
servicing FRUs:
Important:
BIOS and device driver fixes are customer-installable. The BIOS and device
drivers are posted on the customer support site http://www.lenovo.com/support
System Disassembly/Reassembly videos that show the FRU removals or
replacements for the Lenovo® authorized service technicians are available in the
following support site: http://www.lenovoservicetraining.com/ion/
Advise customers to contact the Customer Support Center at 800-426-7378 if they
need assistance in obtaining or installing any software fixes, drivers, and BIOS
downloads.
Customers in Canada should call the Customer Support Center at 800-565-3344
for assistance or download information.
Before replacing parts:
Make sure that all software fixes, drivers, and BIOS downloads are installed
before replacing any FRUs listed in this manual.
After a system board is replaced, ensure that the latest BIOS is loaded to the
system board before completing the service action.
To download software fixes, drivers, and BIOS, do as follows:
1. Go to http://www.lenovo.com/support
2. Enter the product number of the computer or press Auto-detect button on the
screen.
3. Select Downloads and drivers.
4. Follow the directions on the screen and install the necessary software.
© Copyright Lenovo 2008 17
v If you are instructed to replace a FRU but the replacement does not correct the
problem, reinstall the original FRU before you continue.
v Some computers have both a processor board and a system board. If you are
instructed to replace either the processor board or the system board, and
replacing one of them does not correct the problem, reinstall that board, and
then replace the other one.
v If an adapter or a device consists of more than one FRU, any of the FRUs may
be the cause of the error. Before replacing the adapter or device, remove the
FRUs, one by one, to see if the symptoms change. Replace only the FRU that
changed the symptoms.
Attention: The setup configuration on the computer you are servicing may have
been customized. Running Automatic Configuration may alter the settings. Note
the current configuration settings (using the View Configuration option); then,
when service has been completed, verify that those settings remain in effect.
Strategy for replacing a hard disk drive
Always try to run a low-level format before replacing a hard disk drive. This will
cause all customer data on the hard disk to be lost. Be sure that the customer has a
current backup of the data before doing this task.
Attention: The drive startup sequence in the computer you are servicing may
have been changed. Be extremely careful during write operations such as copying,
saving, or formatting. If you select an incorrect drive, data or programs can be
overwritten.
Important notice for replacing a system board
Some components mounted on a system board are very sensitive. Improper
handling of a system board can cause damage to those components, and may
cause a system malfunction.
Attention: When handling a system board:
v Do not drop a system board or apply any excessive force to it.
v Avoid rough handling of any kind.
v Avoid bending a system board and hard pushing to prevent cracking at each
BGA (Ball Grid Array) chipset.
How to use error message
Use the error codes displayed on the screen to diagnose failures. If more than one
error code is displayed, begin the diagnosis with the first error code. Whatever
causes the first error code may also cause false error codes. If no error code is
displayed, see whether the error symptom is listed in the Symptom-to-FRU Index
for the computer you are servicing.
18 ThinkPad T500 and W500 (15.4-inch widescreen) Hardware Maintenance Manual

Strategy for replacing FRUs for CTO, CMV, and GAV
Product definition
Dynamic Configure To Order (CTO)
This provides the ability for a customer to configure an IBM® or a Lenovo solution
from an eSite, and have this configuration sent to fulfillment, where it is built and
shipped directly to the customer. The machine label, Product Entitlement
Warehouse (PEW), eSupport, and the HMM will load these products as the 4-digit
MT and 3-digit model, where model = “CTO” (Example: 1829-CTO).
Custom Model Variant (CMV)
This is a unique configuration that has been negotiated between IBM or Lenovo
and the customer. A unique 4-digit MT and 3-digit model is provided to the
customer to place orders (Example: 1829-W15). A CMV is a special bid offering.
Therefore, it is NOT generally announced.
v The MTM portion of the machine label is the 4-digit MT and 3-digit model,
where model = “CTO” (Example: 1829-CTO). The PRODUCT ID portion of the
machine label is the 4-digit MT and 3-digit CMV model (Example: 1829-W15).
v The PEW record is the 4-digit MT and 3-digit model, where model = “CTO”
(Example: 1829-CTO).
v eSupport will show both the CTO and CMV machine type models (Example:
1829-CTO and 1829-W15 will be found on the eSupport site.)
v The HMM will have the 4-digit MT and 3-digit CTO model only (Example:
1829-CTO). Again, CMVs are custom models and are not found in the HMM.
General Announce Variant (GAV)
This is a standard model (fixed configuration). GAVs are announced and offered to
all customers. The MTM portion of the machine label is a 4-digit MT and 3-digit
model, where model = a “fixed part number”, not “CTO” (Example: 1829-F1U).
Also, PEW, eSupport, and the HMM will list these products under the same fixed
model number.
FRU identification for CTO, CMV, and GAV products
There are three information resources to identify which FRUs are used to support
CTO, CMV, and GAV products. These sources are PEW, eSupport, and the HMM.
Using PEW
v PEW is the primary source for identifying FRU part numbers and FRU
descriptions for the key commodities for CTO, CMV and GAV products at a MT
- serial number level. An example of key commodities are hard disk drives,
system boards, microprocessors, Liquid Crystal Displays (LCDs), and memory.
v Remember, all CTO and CMV products are loaded in PEW under the 4-digit MT
and 3-digit model, where model = “CTO” (Example: 1829-CTO). GAVs are
loaded in PEW under the 4-digit MT and 3-digit model, where model = a “fixed
part number”, not “CTO” (Example: 1829-F1U).
v PEW can be accessed at the following Web site: http://w3-01.ibm.com/pc/
entitle/pg2/Service.wss/display/Home
Customers can also access PEW via
http://www-307.ibm.com/pc/support/site.wss/product.do?template=/warranty/
Important service information 19
warranty.vm&sitestyle=lenovo
Select Warranty lookup. Input the MT and the Serial number and the list of key
commodities will be returned in the PEW record under COMPONENT
INFORMATION.
v Business Partners using Eclaim will access PEW when performing Entitlement
Lookup. Business Partners will enter Loc ID, MT and Serial, and the key
commodities will be returned in the Eclaim record under SYSTEM DETAILS.
v Authorized IBM Business Partners can access Eclaim at the following Web site:
https://wca.eclaim.com
Using eSupport
For Key Commodities (Examples - hard disk drive, system board,
microprocessor, LCD, and memory)
v eSupport can be used to view the list of key commodities built in a particular
machine serial (this is the same record found in PEW).
v eSupport can be accessed at the following Web site: http://www.lenovo.com/
support
v To view the key commodities, click on PARTS INFORMATION, then PARTS
LOOKUP. Type in the model type and serial number. The key commodities will
be returned in the eSupport record under PARTS SHIPPED WITH YOUR
SYSTEM.
For the Remaining FRUs (the complete list of FRUs at the MT Model level)
v eSupport can be used to view the complete list of FRUs for a machine type and
model.
v To view the complete list of FRUs, type in the machine type and model
(Example: 1829-CTO) under QUICK PATH. Under “View by Document Type”
select PARTS INFORMATION. Under “Filter by Category” select SERVICE
PARTS. Under “Parts Information by Date” select SYSTEM SERVICE PARTS. The
list of service parts by description, with applicable machine type model and FRU
will be displayed.
Using the HMM
For Key Commodities (Examples - hard disk drive, system board,
microprocessor, LCD, and memory)
Use the HMM as a back-up to PEW and eSupport to view the complete list of
FRUs at the MT Model level.
20 ThinkPad T500 and W500 (15.4-inch widescreen) Hardware Maintenance Manual

Important information about replacing RoHS compliant FRUs
RoHS, The Restriction of Hazardous Substances in Electrical and Electronic
Equipment Directive (2002/95/EC) is a European Union legal requirement
affecting the global electronics industry. RoHS requirements must be
implemented on Lenovo products placed on the market after June 2006. Products
on the market before June 2006 are not required to have RoHS compliant parts.
If the original FRU parts are non compliant, replacement parts can also be non
compliant. In all cases if the original FRU parts are RoHS compliant, the
replacement part must also be RoHS compliant.
Note: RoHS and non-RoHS FRU part numbers with the same fit and function are
identified with unique FRU part numbers.
Lenovo plans to transition to RoHS compliance well before the implementation
date and expects its suppliers to be ready to support Lenovo’s requirements and
schedule in the EU. Products sold in 2005 and 2006, will contain some RoHS
compliant FRUs. The following statement pertains to these products and any
product Lenovo produces containing RoHS compliant FRUs.
RoHS compliant FRUs have unique FRU part numbers. Before or after the RoHS
implementation date, failed RoHS compliant parts must always be replaced using
RoHS compliant FRUs, so only the FRUs identified as compliant in the system
HMM or direct substitutions for those FRUs may be used.
Products marketed before June 2006 Products marketed after June 2006
Current or original
part
Replacement FRU Current or original
part
Replacement FRU
Non-RoHS Can be Non-RoHS Must be RoHS Must be RoHS
Non-RoHS Can be RoHS
Non-RoHS Can sub to RoHS
RoHS Must be RoHS
Note: A direct substitution is a part with a different FRU part number that is
automatically shipped by the distribution center at the time of the order.
Important service information 21
22 ThinkPad T500 and W500 (15.4-inch widescreen) Hardware Maintenance Manual

General checkout
This chapter presents following information:
v “What to do first” on page 24
v “Checkout guide” on page 25
– “Diagnostics using PC-Doctor for DOS” on page 26
– “PC-Doctor for Windows” on page 28
– “PC-Doctor for Rescue and Recovery” on page 28
v
“Power system checkout” on page 29
The descriptions in this chapter apply to any ThinkPad model that supports the
PC-Doctor® for DOS diagnostics program. Some descriptions might not apply to
your particular computer.
Before you go to the checkout guide, be sure to read the following important notes.
Important notes:
v Only certified trained personnel should service the computer.
v Before replacing any FRU, read the entire page on removing and replacing
FRUs.
v When you replace FRUs, use new nylon-coated screws.
v Be extremely careful during such write operations as copying, saving, or
formatting. Drives in the computer that you are servicing sequence might
have been altered. If you select an incorrect drive, data or programs might be
overwritten.
v Replace a FRU only with another FRU of the correct model. When you
replace a FRU, make sure that the model of the machine and the FRU part
number are correct by referring to the FRU parts list.
v A FRU should not be replaced because of a single, unreproducible failure.
Single failures can occur for a variety of reasons that have nothing to do with
a hardware defect, such as cosmic radiation, electrostatic discharge, or
software errors. Consider replacing a FRU only when a problem recurs. If you
suspect that a FRU is defective, clear the error log and run the test again. If
the error does not recur, do not replace the FRU.
v Be careful not to replace a nondefective FRU.
© Copyright Lenovo 2008 23

What to do first
When you do return a FRU, you must include the following information in the
parts exchange form or parts return form that you attach to it:
__ 1. Name and phone number of servicer
__ 2. Date of service
__ 3. Date on which the machine failed
__ 4. Date of purchase
__ 5. Failure symptoms, error codes appearing on the display, and beep
symptoms
__ 6. Procedure index and page number in which the failing FRU was detected
__ 7. Failing FRU name and part number
__ 8. Machine type, model number, and serial number
__ 9. Customer’s name and address
Note for warranty: During the warranty period, the customer may be responsible
for repair costs if the computer damage was caused by misuse, accident,
modification, unsuitable physical or operating environment, or improper
maintenance by the customer.
Following is a list of some common items that are not covered under warranty and
some symptoms that might indicate that the system was subjected to stress beyond
normal use.
Before checking problems with the computer, determine whether the damage is
covered under the warranty by referring to the following list:
The following are not covered under warranty:
v LCD panel cracked from the application of excessive force or from being
dropped
v Scratched (cosmetic) parts
v Distortion, deformation, or discoloration of the cosmetic parts
v Plastic parts, latches, pins, or connectors that have been cracked or broken by
excessive force
v Damage caused by liquid spilled into the system
v Damage caused by the improper insertion of a PC Card or the installation of an
incompatible card
v Improper disc insertion or use of an optical drive
v Diskette drive damage caused by pressure on the diskette drive cover, foreign
material in the drive, or the insertion of a diskette with multiple labels
v Damaged or bent diskette eject button
v Fuses blown by attachment of a nonsupported device
v Forgotten computer password (making the computer unusable)
v Sticky keys caused by spilling a liquid onto the keyboard
v Use of an incorrect ac adapter on laptop products
The following symptoms might indicate damage caused by nonwarranted
activities:
v Missing parts might be a symptom of unauthorized service or modification.
v If the spindle of a hard disk drive becomes noisy, it may have been subjected to
excessive force, or dropped.
24 ThinkPad T500 and W500 (15.4-inch widescreen) Hardware Maintenance Manual

Checkout guide
Use the following procedures as a guide in identifying and correcting problems
with the ThinkPad computer.
Note: The diagnostic tests are intended to test only ThinkPad products. The use of
non-ThinkPad products, prototype cards, or modified options can lead to false
indications of errors and invalid system responses.
1. Identify the failing symptoms in as much detail as possible.
2. Verify the symptoms. Try to re-create the failure by running the diagnostic test
or by repeating the operation.
General checkout 25

Diagnostics using PC-Doctor for DOS
The ThinkPad computer has a test program called PC-Doctor for DOS (hereafter
called PC-Doctor.) You can detect errors by running the diagnostics test included in
PC-Doctor. This section is an overview of the procedure. For details that depend
on model-unique functions, refer to “ThinkPad T500 and W500 (15.4-inch
widescreen)” on page 47.
For some possible configurations of the computer, PC-Doctor might not run
correctly. To avoid this problem, you need to initialize the computer setup by use
of the BIOS Setup Utility before you run PC-Doctor.
To enter BIOS Setup Utility, do as follows:
1. Turn on the computer.
2. When the ThinkPad logo comes up, immediately press F1 to enter the BIOS
Setup Utility.
Note: If a supervisor password has been set by the customer, BIOS Setup Utility
menu appears after the password is entered. You can start the utility by pressing
Enter instead of entering the supervisor password; however, you cannot change the
parameters that are protected by the supervisor password.
On the BIOS Setup Utility screen, press F9, Enter, F10, and then Enter.
Note: When you initialize the computer configuration, some devices are disabled,
such as the serial port. If you test one of these devices, you will need to enable it
by using Configuration utility for DOS. The utility is available on the following
Web site: http://www.lenovo.com/support
PC-Doctor cannot be used to test a device that is in the ThinkPad Advanced Dock,
even if the computer supports the ThinkPad Advanced Dock. To test a USB device,
connect it to the USB connector of the computer.
Testing the computer
To run the test, do as follows:
Note: In the following procedure, you can select an item not only with the arrow
keys, but also with the TrackPoint® pointer. Instead of pressing Enter, click the left
button.
1. Insert the PC-Doctor disk into the diskette drive; then power on the computer.
If the computer cannot be powered on, go to “Power system checkout” on page
29, and check the power sources.
If an error code appears, go to “Symptom-to-FRU index” on page 39.
Note:
PC-Doctor for DOS is available at following Web site: http://www.lenovo.com/
support
To create the PC-Doctor diagnostic diskette, follow the instruction on the Web
site.
26 ThinkPad T500 and W500 (15.4-inch widescreen) Hardware Maintenance Manual

On the first screen, select the model and press Enter. Follow the instructions on
the screen.
2. The main panel of PC-Doctor appears.
3. Select Diagnostics with the arrow keys, and press Enter.
A pull-down menu appears. (Its exact form depends on the model.)
Note: PC-Doctor menu does not mean the formal support device list. Some
unsupported device names may appear in the PC-Doctor menu.
The options on the test menu are as follows:
Diagnostics Interactive Tests
v Run Normal Test
v Run Quick Test
v CPU/Coprocessor
v Systemboard
v Video Adapter
v Serial Ports
v Parallel Ports
v Fixed Disks
v Diskette Drives
v Other Devices
v ThinkPad Devices
v Communication
v Wireless LAN
v PM Memory
v Keyboard
v Video
v Internal Speaker
v Mouse
v Diskette
v System Load
v Optical Drive Test
v Intel 5XXX WLAN Radio Test
Notes:
v In the Keyboard test in Interactive Tests, the Fn key should be held down for
at least 2 seconds; otherwise, it cannot be sensed.
v Video Adapter test supports only the LCD display on the ThinkPad computer.
If you have an external monitor attached to your computer, detach it before
running PC-Doctor for DOS.
v To test Digital Signature Chip, the security chip must be set to Active.
v To test Serial Ports or Parallel Ports, the ThinkPad computer must be attached
to the ThinkPad Advanced Dock or ThinkPad Advanced Mini Dock.
4. Run the applicable function test.
Diagnostics
Run Normal Test
Run Quick Test
CPU/Coprocessor
Systemboard
Video Adapter
Serial Ports
Parallel Ports
Fixed Disks
Diskette Drives
Other Devices
Communication
PM Memory
Interactive Tests Hardware Info Utility Quit F1=Help
PC-DOCTOR 2.0 Copyright 2002 PC-Doctor, Inc. All Rights Reserved.
Use the cursor keys and ESC to move in menus. Press ENTER to select.
Wireless LAN
General checkout 27
5. Follow the instructions on the screen. If there is a problem, PC-Doctor shows
messages describing it.
6. To exit the test, select Quit — Exit Diag.
To cancel the test, press Esc.
Note: After running PC-Doctor, check the time and date on the system and reset
them if they are incorrect.
Detecting system information with PC-Doctor
PC-Doctor can detect the following system information:
Hardware Info
v System Configuration
v Memory Contents
v Physical Disk Drives
v Logical Disk Drives
v VGA Information
v IDE Drive Info
v PCI Information
v PNPISA Info
v SMBIOS Info
v VESA LCD Info
v Hardware Events Log
Utility
v Run External Tests
v Surface Scan Hard Disk
v Benchmark System
v DOS Shell
v Tech Support Form
v Battery Rundown
v View Test Log
v Print Log
v Save Log
v Full Erase Hard Drive
v Quick Erase Hard Drive
PC-Doctor for Windows
This product is designed to help you troubleshoot and resolve problems related to
your computer. Select one of the categories listed below to display symptoms and
solutions:
v Check System Health
v System and Device Tests
v Lenovo Troubleshooting Center
v System Reports
v Updates and Support
PC-Doctor for Rescue and Recovery
In some models of ThinkPad computer, the Rescue and Recovery® workspace
enables you to run the PC-Doctor program to test the hardware features of the
computer.
To run the test, click “Run Diagnostics” on the Rescue and Recovery main screen.
28 ThinkPad T500 and W500 (15.4-inch widescreen) Hardware Maintenance Manual

Power system checkout
To verify a symptom, do the following:
1. Turn off the computer.
2. Remove the battery pack.
3. Connect the ac adapter.
4. Check that power is supplied when you turn on the computer.
5. Turn off the computer.
6. Disconnect the ac adapter and install the charged battery pack.
7. Check that the battery pack supplies power when you turn on the computer.
If you suspect a power problem, see the appropriate one of the following power
supply checkouts:
v “Checking the AC adapter”
v “Checking operational charging” on page 30
v “Checking the battery pack” on page 30
v “Checking the backup battery” on page 31
Checking the AC adapter
You are here because the computer fails only when the AC adapter is used.
v If the power problem occurs only when the ThinkPad Essential Port Replicator
is used, replace the port replicator.
v If the power-on indicator does not turn on, check the power cord of the AC
adapter for correct continuity and installation.
v If the computer does not charge during operation, go to “Checking operational
charging” on page 30
To check the AC adapter, do the following:
1. Unplug the AC adapter cable from the computer.
2. Measure the output voltage at the plug of the AC adapter cable. See the
following figure:
1
2
3
(20V)
Pin Voltage (V dc)
1 +20
2 0
3 Ground
Note: Output voltage of pin no.2 of the AC adapter may different from the one
you are servicing.
3. If the voltage is not correct, replace the AC adapter.
4. If the voltage is acceptable, do the following:
v Replace the system board.
v If the problem persists, go to “ThinkPad T500 and W500 (15.4-inch
widescreen)” on page 47.
Note: Noise from the AC adapter does not always indicate a defect.
General checkout 29

Checking operational charging
To check whether the battery charges properly during operation, use a discharged
battery pack or a battery pack that has less than 50% of the total power remaining
when installed in the computer.
Perform operational charging. If the battery status indicator or icon does not turn
on, remove the battery pack and let it return to room temperature. Reinstall the
battery pack. If the charge indicator or icon still does not turn on, replace the
battery pack.
If the charge indicator still does not turn on, replace the system board. Then
reinstall the battery pack. If it is still not charged, go to the next section.
Checking the battery pack
Battery charging does not start until the Power Meter shows that less than 95% of
the total power remains; under this condition the battery pack can charge to 100%
of its capacity. This protects the battery pack from being overcharged or from
having a shortened life.
To check your battery, move your cursor to the Power Meter icon in the icon tray
of the Windows® taskbar and wait for a moment (but do not click), and the
percentage of battery power remaining is displayed. To get detailed information
about the battery, double-click the Power Meter icon.
Note: If the battery pack becomes hot, it may not be able to charge. Remove it
from the computer and leave it at room temperature for a while. After it cools
down, reinstall and recharge it.
To check the battery pack, do the following:
1. Power off the computer.
2. Remove the battery pack and measure the voltage between battery terminals 1
(+) and 7 (-). See the following figure:
1(+)2(+) 3456(-)7(-)
Terminal Voltage (V dc)
1 + 0 to + 12.6
7 Ground (-)
3. If the voltage is less than +11.0 V dc, the battery pack has been discharged.
Note: Recharging will take at least 3 hours, even if the indicator does not turn
on.
If the voltage is still less than +11.0 V dc after recharging, replace the battery.
4. If the voltage is more than +11.0 V dc, measure the resistance between battery
terminals 5 and 7. The resistance must be 4 to 30 K .
If the resistance is not correct, replace the battery pack. If the resistance is
correct, replace the system board.
30 ThinkPad T500 and W500 (15.4-inch widescreen) Hardware Maintenance Manual

Checking the backup battery
Do the following:
1. Power off the computer, and unplug the ac adapter from it.
2. Turn the computer upside down.
3. Remove the battery pack (see “1010 Battery pack” on page 63).
4. Remove the backup battery (see “1100 Backup battery” on page 79).
5. Measure the voltage of the backup battery. See the following figure.
Red (+)
Black (-)
Wire Voltage (V dc)
Red +2.5 to +3.2
Black Ground
v If the voltage is correct, replace the system board.
v If the voltage is not correct, replace the backup battery.
v If the backup battery discharges quickly after replacement, replace the system
board.
General checkout 31
32 ThinkPad T500 and W500 (15.4-inch widescreen) Hardware Maintenance Manual

Related service information
This chapter presents following information:
v “Restoring the factory contents by using Product Recovery discs”
v “Passwords” on page 34
v “Power management” on page 37
v “Symptom-to-FRU index” on page 39
Restoring the factory contents by using Product Recovery discs
When the hard disk drive (HDD) or solid state drive (SSD) is replaced because of a
failure, no Product Recovery program is on the new drive. In this case, you must
use the recovery discs for the computer. Order the recovery discs and the drive at
the same time so that you can recover the new drive with the pre-installed
software when they arrive. For information on which discs to order, see “Recovery
discs” on page 165.
To install the factory contents by using Product Recovery discs, do the following:
1. Insert the bootable Start Recovery Disc into the DVD drive.
2. Select your language and click Next.
3. Read the license. If you agree with the terms, select I accept these terms and
conditions and then click Next.
4. Insert the Operating System Recovery Disc when prompted and click Yes to
begin the operating system recovery process.
5. Insert the Product Recovery Disc when prompted and click OK.
6. If you have a Supplemental Recovery Disc, insert it when prompted and click
Yes. If you do not have a Supplemental Recovery Disc, click No.
Note: Not all recovery disc sets come with a Supplemental Recovery Disc. If
there is a Supplemental Recovery Disc, it will be clearly marked as such.
7. When all of the data has been copied from the last disc in the set, a message is
displayed prompting you to restart the computer. Remove the disc and then
click Yes.
Note: The remainder of the recovery process is fully automated and no action
is required by you. The computer will restart into the Windows desktop several
times and you might experience periods when no activity is apparent on the
screen for several minutes at a time. This is normal.
Service Web site:
When the latest maintenance diskette and the system program service diskette
become available, they will be posted on http://www.lenovo.com/spm
Note: Recovery takes several hours. The length of time depends on the method
you use. If you use recovery discs, recovery takes at least five hours.
© Copyright Lenovo 2008 33

8. When the recovery process is complete, the Welcome to Microsoft Windows
screen is displayed. Follow the instructions on the screen to complete the
Windows setup.
Passwords
As many as three passwords may be needed for any ThinkPad computer: the
power-on password (POP), the hard-disk password (HDP), and the supervisor
password (SVP).
If any of these passwords has been set, a prompt for it appears on the screen
whenever the computer is turned on. The computer does not start until the
password is entered.
Exception: If only an SVP is installed, the password prompt does not appear when
the operating system is booted.
Power-on password
A power-on password (POP) protects the system from being powered on by an
unauthorized person. The password must be entered before an operating system
can be booted. For how to remove the POP, see “How to remove the power-on
password” on page 35.
Hard-disk password
There are two hard-disk passwords (HDPs):
v User HDP—for the user
v Master HDP—for the system administrator, who can use it to get access to the
hard disk even if the user has changed the user HDP
Note: There are two modes for the HDP: User only and Master + User. The
Master + User mode requires two HDPs; the system administrator enters both in
the same operation. The system administrator then provides the user HDP to the
system user.
Attention: If the user HDP has been forgotten, check whether a master HDP has
been set. If it has, it can be used for access to the hard disk drive. If no master
HDP is available, neither Lenovo nor Lenovo authorized servicers provide any
services to reset either the user or the master HDP, or to recover data from the
hard disk drive. The hard disk drive can be replaced for a scheduled fee.
For how to remove the POP, see “How to remove the hard-disk password” on
page 35.
Supervisor password
A supervisor password (SVP) protects the system information stored in the BIOS
Setup Utility. The user must enter the SVP in order to get access to the BIOS Setup
Utility and change the system configuration.
Attention: If the SVP has been forgotten and cannot be made available to the
servicer, there is no service procedure to reset the password. The system board
must be replaced for a scheduled fee.
34 ThinkPad T500 and W500 (15.4-inch widescreen) Hardware Maintenance Manual
How to remove the power-on password
To remove a POP that you have forgotten, do the following:
(A) If no SVP has been set:
1. Turn off the computer.
2. Remove the battery pack.
For how to remove the battery pack, see “1010 Battery pack” on page 63.
3. Remove the backup battery.
For how to remove the backup battery, see “1100 Backup battery” on page 79.
4. Turn on the computer and wait until the POST ends.
After the POST ends, the password prompt does not appear. The POP has been
removed.
5. Reinstall the backup battery and the battery pack.
(B) If an SVP has been set and is known by the servicer:
1. Turn on the computer.
2. When the ThinkPad logo comes up, immediately press F1 to enterBIOS Setup
Utility.
For models supporting the Passphrase function, press F1 while the POP icon is
appearing on the screen; then enter the POP. For the other models, enter the
POP.
Note: To check whether the ThinkPad computer supports the Passphrase
function, enter the BIOS Setup Utility and go to Security --> Password. If the
Using Passphrase item is displayed in the menu, this function is available on
the ThinkPad computer.
3. Select Security, using the cursor directional keys to move down the menu.
4. Select Password.
5. Select Power-On Password.
6. Type the current SVP in the Enter Current Password field. then leave the Enter
New Password field blank, and press Enter twice.
7. In the Changes have been saved window, press Enter.
8. Press F10; then, in the Setup confirmation window, select Yes .
How to remove the hard-disk password
Attention: If User only mode is selected and the user HDP has been forgotten
and cannot be made available to the servicer, neither Lenovo nor Lenovo
authorized servicers provide any services to reset the user HDPs or to recover data
from the hard disk drive. The hard disk drive can be replaced for a scheduled fee.
To remove a user HDP that has been forgotten, when the SVP and the master HDP
are known, do the following:
1. Turn on the computer.
2. When the ThinkPad logo comes up, immediately press F1 to enterBIOS Setup
Utility.
For models supporting the Passphrase function, press F1 while HDP icon is
appearing on the screen; then enter the master HDP. For the other models,
enter the master HDP.
Related service information 35
Note: To check whether the ThinkPad computer supports the Passphrase
function, enter the BIOS Setup Utility and go to Security --> Password. If
Using Passphrase item is displayed in the menu, this function is available on
the ThinkPad computer.
3. Select Security, using the cursor directional keys to move down the menu.
4. Select Password.
5. Select Hard-disk x password, where x is the letter of the hard disk drive. A
pop-up window opens.
6. Select Master HDP.
7. Type the current master HDP in the Enter Current Password field. then leave
the Enter New Password field blank, and press Enter twice.
8. Press F10.
9. Select Yes in the Setup Configuration window.
Both user HDP and master HDP will have been removed.
36 ThinkPad T500 and W500 (15.4-inch widescreen) Hardware Maintenance Manual

Power management
To reduce power consumption, the computer has three power management modes:
screen blank, standby, and hibernation.
Screen blank mode
If the time set on the “Turn off monitor” timer in the operating system expires, the
LCD backlight turns off.
To put the computer into screen blank mode, press the ThinkVantage® button and
use the ThinkVantage Productivity Center.
To end screen blank mode and resume normal operation, press any key.
Standby mode
When the computer enters standby mode, the following events occur in addition to
what occurs in screen blank mode:
v The LCD is powered off.
v The hard disk drive is powered off.
v The CPU stops.
To enter standby mode, press Fn+F4.
Note: If you are using the ACPI operating system, you can change the action of
Fn+F4.
In certain circumstances, the computer goes into standby mode automatically:
v If a “suspend time” has been set on the timer, and the user does not do any
operation with the keyboard, the TrackPoint, the hard disk, the parallel
connector, or the diskette drive within that time.
v If the battery indicator blinks orange, indicating that the battery power is low.
(Alternatively, if Hibernate when battery becomes low has been selected in the
“Power Management Properties” window, the computer goes into hibernation
mode.)
Note for the APM operating system: Even if you do not set the low-battery alarm,
the charge indicator notifies you when the battery is low, and then the computer
enters the power-saving mode automatically. This default low-battery behavior is
independent of the operating system; so if you have set the low-battery alarm, the
computer may not do what you specified. It chooses either your setting or the
default setting, whichever is appropriate.
If you are using the ACPI operating system, only the low-battery alarm is
available.
To cause the computer to return from standby mode and resume operation, do one
of the following:
v Press the Fn key.
v Open the LCD cover.
v Turn on the power switch.
Also, in either of the following events, the computer automatically returns from
standby mode and resumes operation:
Related service information 37
v The ring indicator (RI) is signaled by a serial device or a PC Card device.
v The time set on the resume timer elapses.
Note: The computer does not accept any input immediately after it enters
standby mode. Wait a few seconds before taking any action to reenter operation
mode.
Hibernation mode
In hibernation mode, the following occurs:
v The system status, RAM, VRAM, and setup data are stored on the hard disk.
v The system is powered off.
Note: If the computer enters the hibernation mode while it is docked to the
ThinkPad Advanced Dock or ThinkPad Advanced Mini Dock, do not undock it
before resuming normal operation. If you do undock it and then try to resume
normal operation, you will get an error message, and you will have to restart the
system.
To cause the computer to enter hibernation mode, do any of the following:
v Press the Fn+F12 keys.
v If you are using the APM operating system and have set the mode to Power
switch mode [Hibernation], turn off the power switch.
v If you are using the ACPI operating system and have defined one of the
following actions as the event that causes the system to go into hibernation
mode, perform that action.
– Closing the lid.
– Pressing the power button.
– Pressing Fn+F4 keys.
Also, the computer goes into hibernation mode automatically in either of the
following conditions:
v If a “hibernation time” has been set on the timer, and if the user does not do
any operation with the keyboard, the TrackPoint, the hard disk drive, the
parallel connector, or the diskette drive within that time.
v If the timer conditions are satisfied in suspend mode.
v If you are using the APM operating system and have set the mode to Hibernate
when battery becomes low, and the battery charge becomes critically low.
When the power is turned on, the computer returns from hibernation mode and
resumes operation. The hibernation file in the boot record on the hard disk drive is
read, and system status is restored from the hard disk drive.
38 ThinkPad T500 and W500 (15.4-inch widescreen) Hardware Maintenance Manual

Symptom-to-FRU index
This section contains following information:
v “Numeric error codes”
v “Error messages” on page 43
v “Beep symptoms” on page 44
v “No-beep symptoms” on page 44
v “LCD-related symptoms” on page 45
v “Intermittent problems” on page 46
v “Undetermined problems” on page 46
The symptom-to-FRU index in this section lists symptoms and errors and their
possible causes. The most likely cause is listed first, in boldface type.
Note: Do the FRU replacement or other actions in the sequence shown in the
column headed “FRU or action, in sequence.” If replacing a FRU does not solve
the problem, put the original part back in the computer. Do not replace a
nondefective FRU.
This index can also help you determine, during regular servicing, what FRUs are
likely to need to be replaced next.
A numeric error is displayed for each error detected in POST or system operation.
In the displays, n can be any number.
If no numeric code is displayed, check the narrative descriptions of symptoms. If
the symptom is not described there, go to “Intermittent problems” on page 46.
Numeric error codes
Table 1. Numeric error codes
Symptom or error FRU or action, in sequence
0175
Bad CRC1, stop POST task—The EEPROM
checksum is not correct.
System board.
0176
System Security—The system has been
tampered with.
1. Run BIOS Setup Utility, and save the
current setting by pressing F10.
2. System board.
0177
Bad SVP data, stop POST task—The
checksum of the supervisor password in the
EEPROM is not correct.
System board.
0182
Bad CRC2. Enter BIOS Setup and load Setup
defaults.—The checksum of the CRS2 setting
in the EEPROM is not correct.
1. Run BIOS Setup Utility. Press F9, and
Enter to load the default setting. Then
save the current setting by pressing F10.
2. System board.
0185
Bad startup sequence settings. Enter BIOS
Setup and load Setup defaults.
1. Run BIOS Setup Utility. Press F9, and
Enter to load the default setting. Then
save the current setting by pressing F10.
Note:
For a device not supported by diagnostic codes in the ThinkPad computers, see
the manual for that device.
Related service information 39

Table 1. Numeric error codes (continued)
Symptom or error FRU or action, in sequence
0187
EAIA data access error—The access to
EEPROM is failed.
System board.
0188
Invalid RFID Serialization Information Area.
System board.
0189
Invalid RFID configuration information
area—The EEPROM checksum is not correct.
System board.
0190
Critical low-battery error
1. Charge the battery pack.
2. Battery pack.
0191
System Security—Invalid Remote Change
requested.
1. Run BIOS Setup Utility, and then save
current setting by pressing F10.
2. System board.
0192
System Security— Embedded Security
hardware tamper detected.
System board.
0199
System Security— Security password retry
count exceeded.
1. Run BIOS Setup Utility, and then save
the current setting by pressing F10.
2. System board.
01C8
Two or more modem devices are found.
Remove all but one of them. Press <Esc> to
continue.
1. Remove either a Mini-PCI Card or a
modem daughter card. Otherwise, press
Esc to ignore the warning message.
2. System board.
01C9
More than one Ethernet devices are found.
Remove one of them. Press <Esc> to
continue.
1. Remove the Ethernet device that you
installed; or press Esc to ignore the
warning message.
2. System board.
01CA
More than one Wireless LAN devices are
found. Remove one of them.
1. Remove the wireless LAN device that
you installed.
2. System board.
0200
Hard disk error—The hard disk is not
working.
1. Reseat the hard disk drive.
2. Load Setup Defaults in BIOS Setup
Utility.
3. Hard disk drive.
4. System board.
021x
Keyboard error.
Run interactive tests of the keyboard and
the auxiliary input device.
0220
Monitor type error—Monitor type does not
match the one specified in CMOS.
Load Setup Defaults in BIOS Setup Utility.
0230
Shadow RAM error—Shadow RAM fails at
offset nnnn.
System board.
0231
System RAM error—System RAM fails at
offset nnnn.
1. DIMM.
2. System board.
0232
Extended RAM error— Extended RAM fails
at offset nnnn.
1. DIMM.
2. System board.
40 ThinkPad T500 and W500 (15.4-inch widescreen) Hardware Maintenance Manual

Table 1. Numeric error codes (continued)
Symptom or error FRU or action, in sequence
0250
System battery error—System battery is
dead.
1. Charge the backup battery for more
than 8 hours by connecting the ac
adapter.
2. Replace the backup battery and run BIOS
Setup Utility to reset the time and date.
0251
System CMOS checksum bad— Default
configuration used.
1. Charge the backup battery for more
than 8 hours by connecting the ac
adapter.
2. Replace the backup battery and run BIOS
Setup Utility to reset the time and date.
0252
Password checksum bad—The password is
cleared.
Reset the password by running BIOS Setup
Utility.
0260
System timer error.
1. Charge the backup battery for more
than 8 hours by connecting the ac
adapter.
2. Replace the backup battery and run BIOS
Setup Utility to reset the time and date.
3. System board.
0270
Real-time clock error.
1. Charge the backup battery for more
than 8 hours by connecting the ac
adapter.
2. Replace the backup battery and run BIOS
Setup Utility to reset the time and date.
3. System board.
0271
Date and time error—Neither the date nor
the time is set in the computer.
Run BIOS Setup Utility to reset the time
and date.
0280
Previous boot incomplete— Default
configuration used.
1. Load “Setup Default” in BIOS Setup
Utility.
2. DIMM.
3. System board.
02F0
CPU ID:xx Failed.
1. CPU.
2. System board.
02F4
EISA CMOS not writable.
1. Load Setup Defaults in BIOS Setup
Utility.
2. Replace the backup battery.
3. System board.
02F5
DMA test failed.
1. DIMM.
2. System board.
02F6
Software NMI failed
1. DIMM.
2. System board.
02F7
Fail-safe timer NMI failed
1. DIMM.
2. System board.
1802
Unauthorized network card is plugged
in—Turn off and remove the miniPCI
network card.
1. Remove Mini PCI network card.
2. System board.
1803
Unauthorized daughter card is plugged
in—Turn off and remove the daughter card.
1. Remove the daughter card that you
installed.
2. System board.
Related service information 41

Table 1. Numeric error codes (continued)
Symptom or error FRU or action, in sequence
1804
Unauthorized WAN card is plugged
in—Power off and remove the WAN card.
1. Remove the WAN card that you
installed.
2. System board.
1820
More than one external fingerprint reader is
attached. Power off and remove all but the
reader that you set up within your main
operating system.
Remove all but the reader that you set up
for the authentication.
1830
Invalid memory configuration—Power off
and install a memory module to Slot-0 or
the lower slot.
Install DIMM in Slot-0, but not in Slot-1.
Note: For the construction of the DIMM
slot, see “1050 DIMM” on page 70.
2000
Hard Drive Active Protection sensor
diagnostics failed.Press <Esc> to
continue.Press <F1> to enter SETUP
1. Undock docking station or port
replicator if it is attached to the
ThinkPad computer.
2. Place the ThinkPad computer on a
horizontal surface. Do not apply any
physical shock to the computer.
3. Run Diagnostics --> ThinkPad Devices
--> HDD Active Protection Test.
2010
Warning: Your internal hard disk drive
(HDD) may not function correctly on this
system. Ensure that your HDD is supported
on this system and that the latest HDD
firmware is installed.
Inform the following information to the
customer:If in the primary bay the customer
is using a non-IBM or non-Lenovo hard disk
drive (HDD), or an old generation IBM
HDD which is not supported by this system,
with the risk in mind, the customer can still
use it by pressing ESC. If in the primary
drive bay the customer is using a supported
IBM/Lenovo HDD with an old firmware,
the customer needs to update its firmware to
the latest. The latest version is available at
http://www.lenovo.com/support
2100
Initialization error on HDD0 (Main hard
disk drive)
1. Reseat the hard disk drive.
2. Main hard disk drive.
3. System board.
2102
Initialization error on HDD1 (Ultrabay hard
disk drive)
1. Reseat the hard disk drive.
2. Ultrabay™ hard disk drive.
3. System board.
2110
Read error on HDD0 (Main hard disk drive)
1. Reseat the hard disk drive.
2. Main hard disk drive.
3. System board.
2112
Read error on HDD1 (Ultrabay hard disk
drive)
1. Reseat the hard disk drive.
2. Ultrabay hard disk drive.
3. System board.
42 ThinkPad T500 and W500 (15.4-inch widescreen) Hardware Maintenance Manual

Error messages
Table 2. Error messages
Symptom or error FRU or action, in sequence
Device address conflict. 1. Load “Setup Defaults” in the BIOS
Setup Utility.
2. Backup battery.
3. System board.
Allocation error for device. 1. Load “Setup Defaults” in the BIOS
Setup Utility.
2. Backup battery.
3. System board.
Failing bits: nnnn. 1. DIMM.
2. System board.
Invalid system configuration data. 1. DIMM.
2. System board.
I/O device IRQ conflict. 1. Load “Setup Defaults” in the BIOS
Setup Utility.
2. Backup battery.
3. System board.
Hibernation error. 1. Restore the system configuration to
what it was before the computer
entered hibernation mode.
2. If memory size has been changed,
re-create the hibernation file.
Fan error. 1. Fan.
2. Thermal grease.
3. System board.
Thermal sensing error. System board.
Cannot boot from any device. Check the status of device which you want
to boot from.
Device not found.
1. The device you want to boot from.
2. System board.
Device Error.
1. The device you want to boot from.
2. System board.
No valid operating system.
1. Check that the operating system has no
failure and is installed correctly.
2. Reinstall the operation system.
Excluded from boot order.
v Enter the BIOS Setup Utility and add the
device in boot order.
Related service information 43

Beep symptoms
Table 3. Beep symptoms
Symptom or error FRU or action, in sequence
One beep and a blank, unreadable, or
flashing LCD.
1. Reseat the LCD connector.
2. LCD assembly.
3. External CRT.
4. System board.
One long and two short beeps, and a blank
or unreadable LCD.
1. System board.
2. LCD assembly.
3. DIMM.
Two short beeps with error codes. POST error. See “Numeric error codes” on
page 39.
Two short beeps and a blank screen. 1. System board.
2. DIMM.
Three short beeps, pause, three more short
beeps, and one short beep.
1. DIMM.
2. System board
One short beep, pause, three short beeps,
pause, three more short beeps, and one short
beep.
Only the cursor appears. Reinstall the operating system.
Four cycles of four short beeps and a blank
screen.
System board (security chip)
Five short beeps and a blank screen. System board
No-beep symptoms
Table 4. No-beep symptoms
Symptom or error FRU or action, in sequence
No beep, power-on indicator on, LCD blank,
and no POST.
1. Make sure that every connector is
connected tightly and correctly.
2. DIMM.
3. System board.
No beep, power-on indicator on, and LCD
blank during POST.
1. Reseat DIMM.
2. System board.
The power-on password prompt appears. A power-on password or a supervisor
password is set. Type the password and
press Enter.
The hard-disk password prompt appears. A hard-disk password is set. Type the
password and press Enter.
44 ThinkPad T500 and W500 (15.4-inch widescreen) Hardware Maintenance Manual

LCD-related symptoms
Table 5. Minimum quantity of defective pixels required for LCD replacement on June 2006
or later manufactured ThinkPad
LCD resolution Bright dots Dark dots Bright and dark dots
XGA, WXGA 5 6 6
WXGA+, SXGA+,
WSXGA+
5 8 10
UXGA, WUXGA,
QXGA
5 13 13
Notes:
v Lenovo will not provide replacement if the LCD is within specification as we
cannot guarantee that any replacement LCD will have zero pixel defects.
v A bright dot means a pixel is always on (white or color.)
v A dark dot means a pixel is always off (black color.)
v One pixel consists of R, G, B sub-pixels.
Table 6. LCD-related symptoms
Symptom or error FRU or action, in sequence
No beep, power-on indicator on, and a
blank LCD during POST.
System board.
v LCD backlight not working.
v LCD too dark.
v LCD brightness cannot be adjusted.
v LCD contrast cannot be adjusted.
1. Reseat the LCD connectors.
2. LCD assembly.
3. System board.
v LCD screen unreadable.
v Characters missing pixels.
v Screen abnormal.
v Wrong color displayed.
1. See important note for “LCD-related
symptoms.”
2. Reseat all LCD connectors.
3. LCD assembly.
4. System board.
Horizontal or vertical lines displayed on
LCD.
LCD assembly.
Important: The TFT LCD for the notebook computer contains many thin-film
transistors (TFTs). The presence of a small number of dots that are missing,
discolored, or always lighted is characteristic of TFT LCD technology, but
excessive pixel problems can cause viewing concerns. The LCD should be
replaced if the number of missing, discolored, or lighted dots in any background
is as follows:
Related service information 45
Intermittent problems
Intermittent system hang problems can be due to a variety of causes that have
nothing to do with a hardware defect, such as cosmic radiation, electrostatic
discharge, or software errors. FRU replacement should be considered only when a
problem recurs.
When analyzing an intermittent problem, do the following:
1. Run the diagnostic test for the system board in loop mode at least 10 times.
2. If no error is detected, do not replace any FRUs.
3. If any error is detected, replace the FRU shown by the FRU code. Rerun the
test to verify that no more errors exist.
Undetermined problems
If the diagnostic tests did not identify the adapter or device that has failed, if
wrong devices are installed, or if the system simply is not operating, follow these
procedures to isolate the failing FRU (do not isolate FRUs that have no defects).
Verify that all attached devices are supported by the computer.
Verify that the power supply being used at the time of the failure is operating
correctly. (See “Power system checkout” on page 29.)
1. Turn off the computer.
2. Visually check each FRU for damage. Replace any damaged FRU.
3. Remove or disconnect all of the following devices:
a. Non-ThinkPad devices
b. Devices attached to the docking station or the port replicator
c. Printer, mouse, and other external devices
d. Battery pack
e. Hard disk drive
f. External diskette drive or optical drive
g. DIMM
h. Optical disk or diskette in the internal drive
i. PC Cards
4. Turn on the computer.
5. Determine whether the problem has been solved.
6. If the problem does not recur, reconnect the removed devices one at a time
until you find the failing FRU.
7. If the problem remains, replace the following FRUs one at a time (do not
replace a nondefective FRU):
a. System board
b. LCD assembly
46 ThinkPad T500 and W500 (15.4-inch widescreen) Hardware Maintenance Manual

ThinkPad T500 and W500 (15.4-inch widescreen)
This chapter presents following product-specific service references and
product-specific parts information.
v “Specifications”
v “Status indicators” on page 50
v “FRU tests” on page 53
v “Fn key combinations” on page 55
v “FRU replacement notices” on page 58
v “Removing and replacing a FRU” on page 62
v “Locations” on page 119
v “Parts list” on page 121
Specifications
The following table lists the specifications of the ThinkPad T500 and W500
(15.4-inch widescreen) :
Table 7. Specifications
Feature Description
Processor v Intel® Core™ 2 Duo processor P8400 (2.26 GHz), 3-MB L2
cache
v Intel Core 2 Duo processor P8600 (2.40 GHz), 3-MB L2
cache
v Intel Core 2 Duo processor P9500 (2.53 GHz), 3-MB L2
cache
v Intel Core 2 Duo processor T9400 (2.53 GHz), 6-MB L2
cache
v Intel Core 2 Duo processor T9600 (2.80 GHz), 6-MB L2
cache
Bus architecture v 1067-MHz FSB
v 667-MHz DDR3 SDRAM (PC3-8500)
v PCI bus
v PCI Express bus
v DMI
Graphic memory chip v Intel Integrated Graphics 4500MHD
v AMD M86 256 MB
v AMD M86GL-M 512 MB
Display v 15.4-inch, 16M colors, WXGA (1280 × 800 resolution) TFT
color LCD
v 15.4-inch, 16M colors, WSXGA+ (1680 × 1050 resolution)
TFT color LCD
v 15.4-inch, 16M colors, WUXGA (1920 × 1200 resolution)
TFT color LCD
Standard memory v 512-MB DDR3-1066 SDRAM SO-DIMM (PC3-8500) card ×
1
v 1-GB DDR3-1066 SDRAM SO-DIMM (PC3-8500) card × 1
v 2-GB DDR3-1066 SDRAM SO-DIMM (PC3-8500) card × 1
Extended memory device
(some models)
v Intel® Turbo Memory 2-GB Minicard
© Copyright Lenovo 2008 47

Table 7. Specifications (continued)
Feature Description
Optional memory v 512-MB DDR3-1066 SDRAM SO-DIMM (PC3-8500) card ×
1
v 1-GB DDR3-1066 SDRAM SO-DIMM (PC3-8500) card × 1
v 2-GB DDR3-1066 SDRAM SO-DIMM (PC3-8500) card × 1
(maximum of 4.0 GB)
CMOS RAM v 242 bytes
Hard disk drive v 80 GB, 5400 rpm, 9.5 mm high, SATA interface
v 160 GB, 5400 rpm, 9.5 mm high, SATA interface
v 250 GB, 5400 rpm, 9.5 mm high, SATA interface
v 320 GB, 5400 rpm, 9.5 mm high, SATA interface
v 100 GB, 7200 rpm, 9.5 mm high, SATA interface
v 160 GB, 7200 rpm, 9.5 mm high, SATA interface
v 200 GB, 7200 rpm FDE (Full Disk Encryption), 9.5 mm
high, SATA interface
Supported hard disk drives are depend on the model.
Solid state drive v 64 GB, 8 mm high, SATA interface
Serial Ultrabay Slim device
(standard)
v DVD/CD-RW combo drive, 9.5 mm high
v DVD multi drive, 9.5 mm high
v Blu-ray drive, 9.5 mm high
Fingerprint reader Some models
I/O port v External monitor connector
v Stereo headphone jack
v Monaural microphone jack
v IEEE 1394 connector (some models)
v Docking connector
v RJ11 connector
v RJ45 connector
v Universal serial bus (USB) connector × 3 (compatible with
USB 1.1 and 2.0)
v 7-in-1 media card reader (some models)
Internal modem v 56.6 Kbps
Audio v Built-in stereo speakers
v Software control volume
Ethernet (on the system
board)
v Gigabit Ethernet
PCI Express Mini Card v ThinkPad 11b/g Wireless LAN Mini PCI Express Adapter
III
v Intel WiFi Link 5100
v Intel WiFi Link 5300
ExpressCard slots v One ExpressCard slot and one PC Card (Type-II) slot
v One ExpressCard slot and one Smart Card slot slot
Bluetooth wireless (some
models)
v ThinkPad Bluetooth with Enhanced Data Rate (BDC-2.1)
Modem v ThinkPad Modem (MDC-3.0, 56 kbps HDA)
Touch pad v UltraNav®
ThinkLight® Yes
Battery v Li-ion battery (6 cells) 2.6 Ah
v Li-ion battery (9 cells) 2.6 Ah
v Ultrabay Slim Li Polymer battery (3 cells) (option)
48 ThinkPad T500 and W500 (15.4-inch widescreen) Hardware Maintenance Manual

Table 7. Specifications (continued)
Feature Description
AC adapter v 65-watt type
v 90-watt type
Preinstalled operating
system
v Windows XP Professional
v Windows Vista™ Home Basic (32 bit)
v Windows Vista Home Premium (32 bit)
v Windows Vista Business (32 bit)
v Windows Vista Business (64 bit)
v Windows Vista Ultimate (32 bit)
ThinkPad T500 and W500 (15.4-inch widescreen) 49

Status indicators
The system status indicators show the status of the computer, as follows:
12345678910
11
8910
50 ThinkPad T500 and W500 (15.4-inch widescreen) Hardware Maintenance Manual

Table 8. Status indicators
Indicator Meaning
1 Wireless status
Green: The wireless feature (802.11 standard or 802.11n) is on,
and the radio link is ready for use.
Blinking green:
Data is being transmitted.
2 Wireless PAN
status
R
Green: Bluetooth wireless is operational. This indicator is on
when Bluetooth wireless is on and not in suspend mode.
3 Wireless WAN
status
Green: The wireless WAN is on, and the radio link is ready for
use.
Blinking green:
Data is being transmitted.
4 Num lock
Green: The numeric keypad on the keyboard is enabled. To
enable or disable the keypad, press and hold the Shift
key, and press the NumLk (ScrLk) key.
5 Caps lock
Green: Caps Lock mode is enabled. To enable or disable Caps
Lock mode, press the Caps Lock key.
6 Drive in use
Green: Data is being read from or written to the hard disk
drive, the diskette drive, or the drive in the Serial
Ultrabay Slim device. When this indicator is on, do not
put the computer into standby mode or turn off the
computer.
Note: Do not move the system while the green drive-in-use light
is on. Sudden physical shock could cause drive errors.
7 Power on
Green: The computer is on and ready to use. This indicator
stays lit whenever the computer is on and is not in
standby mode.
8 Battery status
Green: The battery is charged between 80% to 100% of the
capacity, and being discharged between 0% to 80% of
the capacity.
Blinking green:
The battery is charged between 20% to 80% of the
capacity, and being charged.
Orange:
The battery is charged between 5% and 20% of the
capacity, and being discharged.
Blinking orange (slow):
The battery is charged between 5% to 20% of the
capacity, and being charged.
Blinking orange (rapid):
The battery is charged between 0% to 5% of the capacity.
9 AC power
status
Green: The computer is connected to the ac power supply.
10 Standby status
Green: The computer is in standby mode.
Blinking green:
The computer is entering standby mode or hibernation
mode, or is resuming normal operation.
ThinkPad T500 and W500 (15.4-inch widescreen) 51

Table 8. Status indicators (continued)
Indicator Meaning
11 Serial Ultrabay
Slim status
Green: A Serial Ultrabay Slim device is installed and in use.
Blinking green:
A Serial Ultrabay Slim device is in the process of being
detached.
Turn off:
A Serial Ultrabay Slim device is ready to be attached or
detached.
Note: If you are using Windows 2000, the Serial Ultrabay Slim
status indicator does not blink while a Serial Ultrabay Slim
device is being detached. Instead, a message box pops up when
the process is completed; then the indicator turns off.
52 ThinkPad T500 and W500 (15.4-inch widescreen) Hardware Maintenance Manual

FRU tests
The following table shows the test for each FRU.
Table 9. FRU tests
FRU Applicable test
System board 1. Diagnostics --> CPU/Coprocessor
2. Diagnostics --> Systemboard
3. If the ThinkPad Advanced Dock, the ThinkPad Advanced Mini
Dock or the ThinkPad Essential Port Replicator is attached to
the ThinkPad computer, detach it. Place the computer on a
horizontal surface, and run Diagnostics --> ThinkPad Devices
--> HDD Active Protection Test.
Note: Do not apply any physical shock to the computer while
the test is running.
Power Diagnostics --> ThinkPad Devices --> AC Adapter, Battery 1
(Battery2)
LCD unit 1. Diagnostics --> Video Adapter
2. Interactive Tests --> Video
Modem daughter card
(MDC-3.0)
1. Make sure the modem is set up correctly.
2. Replace the modem jack and the modem card in turn, and run
the following tests in Diagnostics --> Communication:
a. Conexant Smart Modem Interrupt
b. Conexant Smart Modem Dialtone
Audio Enter the BIOS Setup Utility and change Serial ATA (SATA) setting
to Compatibility, and run Diagnostics --> Other Devices -->
Conexant Audio
Speaker Interactive Tests --> Internal Speaker
Note: Once Modem/Audio test is done, the no sound is heard
this test. In this case, turn off and turn on the computer. Then, run
this test again.
PC Card slot Diagnostics --> Systemboard --> PCMCIA
ExpressCard slot 1. Insert a PCI-Express/USB Wrap card into the ExpressCard slot.
2. Turn on the computer.
3. Run Diagnostics --> ThinkPad Devices --> ExpressCard slot.
Keyboard 1. Diagnostics --> Systemboard --> Keyboard
2. Interactive Tests --> Keyboard
Hard disk drive Enter the BIOS Setup Utility and change Serial ATA (SATA) setting
to Compatibility, and run Diagnostics --> Fixed Disks
You can also diagnose the hard disk drive without starting up the
operating system. To diagnose the hard disk drive from the BIOS
Setup Utility, do as follows:
1. Remove any diskette from the diskette drive, and then turn off
the computer.
2. Turn on the computer.
3. While the message, “To interrupt normal startup, press the
blue ThinkVangate button,” is displayed at the lower left of the
screen, press F1 to enter the BIOS Setup Utility.
4. Using cursor keys, select HDD diagnostic program. Press
enter.
5. Using cursor keys, select Main hard disk drive or Ultrabay
hard disk drive.
6. Press Enter to start the diagnostic program.
ThinkPad T500 and W500 (15.4-inch widescreen) 53

Table 9. FRU tests (continued)
FRU Applicable test
Diskette drive 1. Diagnostics --> Diskette Drives
2. Interactive Tests --> Diskette
Optical drive 1. Diagnostics --> Other Devices--> Optical Drive
2. Interactive Tests --> Optical Drive Test
Memory 1. If two DIMMs are installed, remove one of them and run
Diagnostics --> Memory Test—Quick.
2. If the problem does not recur, return the DIMM to its place,
remove the other one, and run the test again.
3. If the test does not detect the error, run Diagnostics -->
Memory Test—Full.
Fan 1. Turn on the computer and check the air turbulence at the
louver near the PC Card slot.
2. Run Diagnostics --> ThinkPad Devices --> Fan.
TrackPoint or pointing
device
If the TrackPoint does not work, check the configuration as
specified in the BIOS Setup Utility. If the TrackPoint is disabled,
select Automatic to enable it.
After you use the TrackPoint, the pointer may drift on the screen
for a short time. This drift can occur when a slight, steady
pressure is applied to the TrackPoint pointer. This symptom is not
a hardware problem. If the pointer stops after a short time, no
service action is necessary.
If enabling the TrackPoint does not correct the problem, continue
with the following:
v Interactive Tests --> Mouse
Touch Pad If the Touch Pad does not work, check the configuration as
specified in the BIOS Setup Utility. If the Touch Pad is disabled,
select Automatic to enable it. If enabling the Touch Pad does not
correct the problem, continue with the following:
v Interactive Tests --> Mouse
54 ThinkPad T500 and W500 (15.4-inch widescreen) Hardware Maintenance Manual

Fn key combinations
The following table shows the function of each combination of Fn with a function
key.
Table 10. Fn key combinations
Key combination Description
Fn+F1 Reserved.
Fn+F2 Lock your computer.
Fn+F3 Select a power scheme that has been created by Power Manager. When
you press this combination, a panel for selecting a power scheme
appears.
Notes:
1. To use the Fn+F3 key combination, you must have the ThinkPad
PM device driver installed on the computer.
2. If you have logged on with an administrator user ID, and you press
Fn+F3, the panel for selecting a power scheme appears. If you have
logged on with another user ID, and you press Fn+F3, the panel
does not appear.
3. You cannot turn off the computer display by pressing Fn+F3.
Fn+F4 Put the computer in standby mode. To return to normal operation,
press the Fn key only, without pressing a function key.
Notes:
1. To use the Fn+F4 key combination, you must have the ThinkPad
PM device driver installed on the computer.
2. This combination of keys also functions as a sleep button. If you
want to use the combination to put the computer into hibernation
mode or shut the computer down, change the settings in the Power
Manager.
Fn+F5 Enable or disable the built-in wireless networking features and the
Bluetooth features. If you press Fn+F5, a list of wireless features is
displayed. You can quickly change the power state of each feature in
the list.
Note: If you want to use Fn+F5 to enable the feature specified in 802.11
standard, the following device drivers must be installed on the
computer beforehand:
v ThinkPad Power Management driver
v OnScreen Display Utility
v Wireless device drivers
Fn+F6 Reserved.
ThinkPad T500 and W500 (15.4-inch widescreen) 55

Table 10. Fn key combinations (continued)
Key combination Description
Fn+F7 Apply a presentation scheme directly, with no need to start
Presentation Director.
To disable this function and use the Fn+F7 key combination for
switching a display output location, start Presentation Director, and
change the settings.
Switch a display output location
v External monitor (CRT display)
v Computer display and external monitor (LCD + CRT display)
v Computer display (LCD)
Notes:
1. This function is not supported if different desktop images are
displayed on the computer display and the external monitor (the
Extend desktop function).
2. This function does not work while a DVD movie or a video clip is
playing.
To enable this function, start Presentation Director, and change the
Fn+F7 settings.
Note: Multiple users can log on to a single operating system by using
different user IDs. Each user needs to change the settings.
Fn+F8 Change the settings of the UltraNav pointing device.
Fn+F9 Open the ThinkPad EasyEject Utility screen. Buttons for the following
choices are displayed:
v Eject ThinkPad PC from Dock: This button is displayed only if the
ThinkPad computer has been attached to a ThinkPad Advanced Dock
or a ThinkPad Advanced Mini Dock. The computer can be detached
from the ThinkPad Advanced Dock or the ThinkPad Advanced Mini
Dock.
v Eject ThinkPad PC from Mini Dock: This button is displayed only if
the ThinkPad computer has been attached to a ThinkPad Essential
Port Replicator and one or more USB devices have been connected to
the ThinkPad Essential Port Replicator. You can stop and remove all
the USB devices safely by clicking the button.
Note: You cannot use this Utility to detach the computer from the
ThinkPad Essential Port Replicator.
v Run EasyEject Actions: This button is used to select, stop, or remove
external devices connected to the ThinkPad computer.
v Configure EasyEject Actions: Opens the ThinkPad EasyEject Utility
main window.
v Fn+F9 Settings: Configures the settings for the Fn+F9 function.
Fn+F10 Reserved.
Fn+F11 Reserved.
Fn+F12 Put the computer into hibernation mode. To return to normal operation,
press the power button for less than four seconds.
Note: To use Fn+F12 for hibernation, you must have the ThinkPad PM
device driver installed on the computer.
Fn+PgUp Turn the ThinkLight on or off.
Note: This function is supported only on the ThinkPad computers that
have the ThinkLight. The on or off status of the ThinkLight is shown
on the screen for a few seconds when you press Fn+PgUp.
Fn+Home The computer display becomes brighter.
Fn+End The computer display becomes dimmer.
56 ThinkPad T500 and W500 (15.4-inch widescreen) Hardware Maintenance Manual

Table 10. Fn key combinations (continued)
Key combination Description
Fn+Spacebar Enable the FullScreen Magnifier function.
Fn+PrtSc Has the same function as the SysRq key.
Fn+ScrLk Enable or disable the numeric keypad.
Fn+Pause Has the same function as the Break key.
Fn+cursor keys These key combinations work with Windows Windows Media Player.
Fn+down arrow key works for the Play or Pause button, Fn+up arrow
key for the Stop button, Fn+right arrow key for the Next Track button,
and Fn+left arrow key for the Previous Track button.
ThinkPad T500 and W500 (15.4-inch widescreen) 57

FRU replacement notices
This section contains notices related to removing and replacing parts. Read this
section carefully before replacing any FRU.
Screw notices
Loose screws can cause a reliability problem. In the ThinkPad computer, this
problem is addressed with special nylon-coated screws that have the following
characteristics:
v They maintain tight connections.
v They do not easily come loose, even with shock or vibration.
v They are harder to tighten.
v Each one should be used only once.
Do the following when you service this machine:
v Keep the screw kit (for the P/N, see “Miscellaneous parts” on page 161) in your
tool bag.
v Always use new screws.
v Use a torque screwdriver if you have one.
Tighten screws as follows:
v Plastic to plastic
Turn an additional 90 degrees after the screw head touches the surface of the
plastic part:
90 degrees more
(Cross-section)
v Logic card to plastic
Turn an additional 180 degrees after the screw head touches the surface of the
logic card:
180 degrees more
(Cross-section)
v Torque driver
If you have a torque driver, refer to the “Torque” column for each step.
v Make sure that you use the correct screw. If you have a torque screwdriver,
tighten all screws firmly to the torque shown in the table. Never use a screw
that you removed. Use a new one. Make sure that all of the screws are
tightened firmly.
v Ensure torque screw drivers are calibrated correctly following country
specifications.
58 ThinkPad T500 and W500 (15.4-inch widescreen) Hardware Maintenance Manual
Retaining serial numbers
This section includes the following descriptions:
v “Restoring the serial number of the system unit”
v “Retaining the UUID”
v “Reading or writing the ECA information” on page 61
Restoring the serial number of the system unit
When the computer was manufactured, the EEPROM on the system board was
loaded with the serial numbers of the system and all major components. These
numbers need to remain the same throughout the life of the computer.
If you replace the system board, you must restore the serial number of the system
unit to its original value.
Before replacing the system board, save the original serial number by doing the
following:
1. Install the ThinkPad Hardware Maintenance Diskette Version 1.73 or later, and
restart the computer.
2. From the main menu, select 1. Set System Identification.
3. Select 2. Read S/N data from EEPROM.
The serial number of each device in your computer is displayed; the serial number
of the system unit is listed as follows:
v 20: Serial number
Write down that number.
Note: The serial number of the system unit is also written on the label attached to
the bottom of the computer.
After you have replaced the system board, restore the serial number by doing the
following:
1. Install the ThinkPad Hardware Maintenance Diskette Version 1.73 or later and
restart the computer.
2. From the main menu, select 1. Set System Identification.
3. Select 1. Add S/N data from EEPROM.
Follow the instructions on the screen.
If the MTM and Product ID numbers differ from each other on the rear label, use
what is shown for the Product ID field. See example below:
MTM on rear label:
TTTT-CTO S/N SSSSSSS
Product ID on rear label:
TTTT-MMM (Use this number when setting Serial Number)
In the example, the Serial Number to be input is ’1STTTTMMMSSSSSSS’.
Retaining the UUID
The Universally Unique Identifier (UUID) is a 128-bit number uniquely assigned to
your computer at production and stored in the EEPROM of your system board.
The algorithm that generates the number is designed to provide unique IDs until
the year A.D. 3400. No two computers in the world have the same number.
ThinkPad T500 and W500 (15.4-inch widescreen) 59
When you replace the system board, you must set the UUID on the new system
board as follows:
1. Install the ThinkPad Hardware Maintenance Diskette Version 1.73 or later, and
restart the computer.
2. From the main menu, select 4. Assign UUID.
A new UUID is created and written. If a valid UUID already exists, it is not
overwritten.
60 ThinkPad T500 and W500 (15.4-inch widescreen) Hardware Maintenance Manual
Reading or writing the ECA information
Information on Engineering Change Announcements (ECA) are stored in the
EEPROM of the system board. The electronic storage of this information simplifies
the procedure to check if the ECA has been previously applied to a machine. The
machine does not need to be disassembled to check for the ECA application.
To check what ECAs have been previously applied to the machine, use the ECA
Information Read/Write function on the ThinkPad Hardware Maintenance Diskette
Version 1.73 or later.
1. Insert the ThinkPad Hardware Maintenance Diskette Version 1.73 or later, and
restart the computer.
2. From the main menu, select 6. Set ECA Information.
3. To read ECA information, select 2. Read ECA/rework number from EEPROM
and follow the instruction.
4. To read box build date, select 5. Read box build date from EEPROM, and
follow the instruction on the screen.
After an ECA has been applied to the machine, the EEPROM must be updated to
reflect the ECA’s application. Use the ThinkPad Hardware Maintenance Diskette
Version 1.73 or later to update the EEPROM.
Note: Only the ECA number is stored in the EEPROM. The machine type of the
ECA is assumed be the same as the machine type of the machine that had the ECA
applied to it.
1. Insert the ThinkPad Hardware Maintenance Diskette Version 1.73 or later, and
restart the computer.
2. From the main menu, select 6. Set ECA Information.
3. To write ECA information, select 1. Write ECA/rework number from EEPROM,
and follow the instruction.
4. To write box build date, select 4. Write box build date from EEPROM, and
follow the instruction on the screen.
If the system board is being replaced, try to read the ECA information from the old
system board and transfer the information to the new system. If the system board
is inoperable, this will not be possible.
ThinkPad T500 and W500 (15.4-inch widescreen) 61

Removing and replacing a FRU
This section presents directions and drawings for use in removing and replacing a
FRU. Be sure to observe the following general rules:
1. Do not try to service any computer unless you have been trained and certified.
An untrained person runs the risk of damaging parts.
2. Before replacing any FRU, review “FRU replacement notices” on page 58.
3. Begin by removing any FRUs that have to be removed before the failing FRU.
Any such FRUs are listed at the top of the page. Remove them in the order in
which they are listed.
4. Follow the correct sequence in the steps for removing the FRU, as given in the
drawings by the numbers in square callouts.
5. When turning a screw to replace a FRU, turn it in the direction as given by the
arrow in the drawing.
6. When removing the FRU, move it in the direction as given by the arrow in the
drawing.
7. To put the new FRU in place, reverse the removal procedure and follow any
notes that pertain to replacement. For information about connecting and
arranging internal cables, see “Locations” on page 119.
8. When replacing a FRU, use the correct screw as shown in the procedures.
DANGER
Attention: After replacing a FRU, do not turn on the computer until you have
made sure that all screws, springs, and other small parts are in place and none are
loose inside the computer. Verify this by shaking the computer gently and listening
for rattling sounds. Metallic parts or metal flakes can cause electrical short circuits.
Attention: The system board is sensitive to, and can be damaged by, electrostatic
discharge. Before touching it, establish personal grounding by touching a ground
point with one hand or by using an electrostatic discharge (ESD) strap (P/N
6405959).
Before removing any FRU, turn off the computer, unplug all power cords from
electrical outlets, remove the battery pack, and then disconnect any
interconnecting cables.
62 ThinkPad T500 and W500 (15.4-inch widescreen) Hardware Maintenance Manual

1010 Battery pack
DANGER
Table 11. Removal steps of battery pack
Unlock the battery release lever 1. Holding the battery release lever in the
unlocked position 2, remove the battery pack in the direction shown by arrow
3.
3
1 2
When installing: Install the battery pack along the slide rails of the slot. Then
make sure that the battery release lever is in the locked position.
Use only the battery specified in the parts list for your computer. Any other
battery could ignite or explode.
ThinkPad T500 and W500 (15.4-inch widescreen) 63

1020 Serial Ultrabay Slim device
Table 12. Removal steps of Serial Ultrabay Slim device
When you release the switch in step 1, the lever pops out. In step 2, pull the
lever a little to release the device from the bay.
1
2
3
Note:
Serial Ultrabay Slim does not accept any of the following devices:
v Ultrabay Plus™ devices
v Ultrabay 2000™ devices
v Ultrabay Enhanced devices
v Ultrabay Slim devices
v Ultrabay devices
64 ThinkPad T500 and W500 (15.4-inch widescreen) Hardware Maintenance Manual

1030 Hard disk drive (HDD) cover, HDD and HDD rubber rails
or solid state drive (SSD) and storage converter
For access, remove this FRU:
v “1010 Battery pack” on page 63
Table 13. Removal steps of HDD cover, HDD and HDD rubber rails or SSD and storage
converter
1
Step Screw (quantity) Color Torque
1 Hard disk drive screw, nylon-coated (1) Black 0.189 Nm
(1.85 kgfcm)
3
4
2
When installing: Make sure that the HDD connector or SSD connector is
attached firmly.
Attention:
v Do not drop the hard disk drive or apply any physical shock to it. The hard
disk drive is sensitive to physical shock. Improper handling can cause damage
and permanent loss of data.
v Before removing the drive, have the user make a backup copy of all the
information on it if possible.
v Never remove the drive while the system is operating or is in suspend mode.
ThinkPad T500 and W500 (15.4-inch widescreen) 65

Table 13. Removal steps of HDD cover, HDD and HDD rubber rails or SSD and storage
converter (continued)
HDD and HDD rubber rails:
5
5
When installing: The rubber rails on the hard disk drive must be attached to
the replacement drive. Otherwise the drive cannot be installed properly.
SSD and storage converter:
5
6
66 ThinkPad T500 and W500 (15.4-inch widescreen) Hardware Maintenance Manual

1040 Palm rest or palm rest with fingerprint reader
For access, remove this FRU in order:
v “1010 Battery pack” on page 63
Table 14. Removal steps of palm rest
1
1
1
1
Step Icon Screw (quantity) Color Torque
1
M2 × 14 mm, wafer-head,
nylon-coated (4)
Black 0.189 Nm
(1.85 kgfcm)
2
Note:
In models with the fingerprint reader, the sensor is attached to the palm rest
FRU. If the fingerprint reader has any defects, you can replace it by the
procedures given in this section, which are the same for a palm rest with or
without a fingerprint reader.
ThinkPad T500 and W500 (15.4-inch widescreen) 67

Table 14. Removal steps of palm rest (continued)
3
When installing: When you attach the palm rest, do as follows:
Table 15. Installation of the palm rest
1. Attach the fingerprint reader connector firmly to the system board.
2. Attach the palm rest so that the two projections of the palm rest (a) firmly
fit into the guide holes of the keyboard bezel as shown in this figure.
a
a
68 ThinkPad T500 and W500 (15.4-inch widescreen) Hardware Maintenance Manual

Table 15. Installation of the palm rest (continued)
3. Push the front side of the palm rest until it clicks into place.
4. Close the LCD cover and turn the computer over. Then fasten the four screws
to secure the palm rest.
ThinkPad T500 and W500 (15.4-inch widescreen) 69

1050 DIMM
For access, remove these FRUs in order:
v “1010 Battery pack” on page 63
v “1040 Palm rest or palm rest with fingerprint reader” on page 67
Table 16. Removal steps of DIMM
Note: If only one DIMM is used on the computer you are servicing, the card
must be installed in SLOT-0 (a: lower slot), but not in SLOT-1 (b: upper
slot).
2
1
a1
b
When installing: Insert the notched end of the DIMM into the socket. Press the
DIMM firmly, and pivot it until it snaps into the place. Make sure that it is
firmly fixed in the slot and does not move easily.
70 ThinkPad T500 and W500 (15.4-inch widescreen) Hardware Maintenance Manual

1060 Keyboard
For access, remove these FRUs in order:
v “1010 Battery pack” on page 63
v “1040 Palm rest or palm rest with fingerprint reader” on page 67
Table 17. Removal steps of keyboard
1
Step Icon Screw (quantity) Color Torque
1
M2 × 14 mm, wafer-head,
nylon-coated (1)
Black 0.189 Nm
(1.85 kgfcm)
Lift the keyboard a little in the direction shown by arrow 2, and then detach
the connector 3.
3
2
ThinkPad T500 and W500 (15.4-inch widescreen) 71

Table 17. Removal steps of keyboard (continued)
When installing: Make sure that the keyboard edges a are under the frame as
shown in this figure.
a
a
72 ThinkPad T500 and W500 (15.4-inch widescreen) Hardware Maintenance Manual

1070 Modem daughter card (MDC-3.0)
For access, remove these FRUs in order:
v “1010 Battery pack” on page 63
v “1040 Palm rest or palm rest with fingerprint reader” on page 67
v “1060 Keyboard” on page 71
Table 18. Removal steps of MDC-3.0
3
1
1
2
1
Step Screw (quantity) Color Torque
1 M2 × 3 mm, small-head, nylon-coated (3) Silver 0.189 Nm
(1.85 kgfcm)
In step 3, remove the card by pulling the tab with your fingers in the direction
shown by the arrow.
ThinkPad T500 and W500 (15.4-inch widescreen) 73

Table 18. Removal steps of MDC-3.0 (continued)
Turn the card over 4, and detach the modem connector 5.
4
5
When installing: Make sure that the modem connector and the connector on the
underside of the card are attached firmly.
74 ThinkPad T500 and W500 (15.4-inch widescreen) Hardware Maintenance Manual

1080 PCI Express Mini Card for wireless LAN
For access, remove these FRUs in order:
v “1010 Battery pack” on page 63
v “1040 Palm rest or palm rest with fingerprint reader” on page 67
v “1060 Keyboard” on page 71
Table 19. Removal steps of PCI Express Mini Card for wireless LAN
In step 1, unplug the jacks by using the removal tool antenna RF connector
(P/N: 08K7159) or pick the connectors with your fingers and gently unplug
them in direction of the arrow.
Note: Some models might have only two antenna cables in step 1.
1
2
2
Step Screw (quantity) Color Torque
2 M2 × 9.5 mm, wafer-head, nylon-coated (2) Black 0.189 Nm
(1.85 kgfcm)
ThinkPad T500 and W500 (15.4-inch widescreen) 75

Table 19. Removal steps of PCI Express Mini Card for wireless LAN (continued)
3
When installing:
v In models with wireless LAN card that has two antenna connectors, plug the
gray cable into the jack labeled MAIN, and the black cable into the jack
labeled AUX on the card. If the computer you are servicing has three cables,
put the white cable in the cable holder and place it under the card.
v In models with wireless LAN card that has three antenna connectors, plug the
gray cable (MAIN) into the jack labeled TR1, the white cable (3rd) into jack
labeled TR3, and the black cable (AUX) into jack labeled TR2 on the card.
76 ThinkPad T500 and W500 (15.4-inch widescreen) Hardware Maintenance Manual

1090 Intel Turbo Memory Minicard or wireless USB adapter
For access, remove these FRUs in order:
v “1010 Battery pack” on page 63
v “1040 Palm rest or palm rest with fingerprint reader” on page 67
v “1060 Keyboard” on page 71
Table 20. Removal steps of Intel Turbo Memory Minicard or wireless USB adapter
Note: Step 1 is only for the models with the wireless USB adapter. For the
models with the Intel Turbo Memory Minicard, skip step 1.
In step 1, unplug the jack by using the removal tool antenna RF connector
(P/N: 08K7159) or pick the connector with your fingers and gently unplug it in
direction of the arrow.
1
ThinkPad T500 and W500 (15.4-inch widescreen) 77

Table 20. Removal steps of Intel Turbo Memory Minicard or wireless USB
adapter (continued)
2
3
Step Screw (quantity) Color Torque
2 For Japan
M2 × 3 mm, tamper proof (2) Black 0.189 Nm
(1.85 kgfcm)
Other than Japan
M2 × 3 mm, wafer-head, nylon-coated (2) Silver 0.189 Nm
(1.85 kgfcm)
4
78 ThinkPad T500 and W500 (15.4-inch widescreen) Hardware Maintenance Manual

1100 Backup battery
DANGER
For access, remove these FRUs in order:
v “1010 Battery pack” on page 63
v “1040 Palm rest or palm rest with fingerprint reader” on page 67
v “1060 Keyboard” on page 71
Table 21. Removal steps of backup battery
2
1
When installing: Make sure that the battery connector is attached firmly.
Use only the battery specified in the parts list for your computer. Any other
battery could ignite or explode.
ThinkPad T500 and W500 (15.4-inch widescreen) 79

1110 SIM card slot
For access, remove these FRUs, in order:
v “1010 Battery pack” on page 63
v “1040 Palm rest or palm rest with fingerprint reader” on page 67
v “1060 Keyboard” on page 71
Note: If the SIM card has been inserted in the slot, remove it before you start the
servicing. After you finish the servicing, make sure that you insert the card back
into the slot firmly.
Table 22. Removal steps of SIM card slot
1
2
Step Screw (quantity) Color Torque
1 M2 × 3.5 mm, wafer-head, nylon-coated (1) Silver 0.189 Nm
(1.85 kgfcm)
When installing: Make sure the connector 2 is attached firmly.
80 ThinkPad T500 and W500 (15.4-inch widescreen) Hardware Maintenance Manual

1120 Keyboard bezel
For access, remove these FRUs in order:
v “1010 Battery pack” on page 63
v “1040 Palm rest or palm rest with fingerprint reader” on page 67
v “1060 Keyboard” on page 71
Table 23. Removal steps of keyboard bezel
11
Step Screw (quantity) Color Torque
1 M2 × 14 mm, wafer-head, nylon-coated (2) Black 0.189 Nm
(1.85 kgfcm)
ThinkPad T500 and W500 (15.4-inch widescreen) 81

Table 23. Removal steps of keyboard bezel (continued)
3
3
3
2
34
4
In step 2, release the wireless antenna cables from the cable guide.
Step Screw (quantity) Color Torque
3 M2 × 3 mm, small-head, nylon-coated (4) Silver 0.189 Nm
(1.85 kgfcm)
4 M2 × 3.5 mm, wafer-head, nylon-coated (2) Black 0.189 Nm
(1.85 kgfcm)
In step 5, detach the claws. Then remove the keyboard bezel in the direction
shown by arrow 6.
5
5
5
5
6
6
When installing: Make sure that all the claws are attached firmly.
82 ThinkPad T500 and W500 (15.4-inch widescreen) Hardware Maintenance Manual

1130 PCI Express Mini Card for wireless WAN
For access, remove these FRUs in order:
v “1010 Battery pack” on page 63
v “1040 Palm rest or palm rest with fingerprint reader” on page 67
v “1060 Keyboard” on page 71
v “1120 Keyboard bezel” on page 81
Table 24. Removal steps of PCI Express Mini Card for wireless WAN
In step 1, unplug the jacks by using the removal tool antenna RF connector
(P/N: 08K7159) or pick the connectors with your fingers and gently unplug
them in direction of the arrow.
2
1
2
Step Screw (quantity) Color Torque
1 M2 × 3 mm, wafer-head, nylon-coated (1) Silver 0.189 Nm
(1.85 kgfcm)
When installing: Plug the red cable into the jack labeled MAIN on the card,
and the blue cable into the jack labeled AUX.
ThinkPad T500 and W500 (15.4-inch widescreen) 83

Table 24. Removal steps of PCI Express Mini Card for wireless WAN (continued)
3
Table 25. Installation of the PCI Express Mini Card for wireless WAN
Cable routing: When you install the card, route the antenna cables as shown in
this figure.
If the computer you are servicing is the wireless WAN-ready model, put the
cables in the cable holders and secure them with tape as shown in this figure.
84 ThinkPad T500 and W500 (15.4-inch widescreen) Hardware Maintenance Manual

1140 Speaker assembly
For access, remove these FRUs in order:
v “1010 Battery pack” on page 63
v “1040 Palm rest or palm rest with fingerprint reader” on page 67
v “1060 Keyboard” on page 71
v “1120 Keyboard bezel” on page 81
Table 26. Removal steps of speaker assembly
The speaker cables are secured with tapes (a).
a
1
1
1
a
1
Step Screw (quantity) Color Torque
1 M2 × 3 mm, small-head, nylon-coated (4) Silver 0.189 Nm
(1.85 kgfcm)
In step 2, release the antenna cable from the cable guide of the left speaker.
4
3
4
2
ThinkPad T500 and W500 (15.4-inch widescreen) 85

Table 26. Removal steps of speaker assembly (continued)
Cable routing: Make sure that the speaker connector is attached firmly, and the
cables are routed as in this figure.
86 ThinkPad T500 and W500 (15.4-inch widescreen) Hardware Maintenance Manual

1150 Fan assembly
For access, remove these FRUs in order:
v “1010 Battery pack” on page 63
v “1040 Palm rest or palm rest with fingerprint reader” on page 67
v “1060 Keyboard” on page 71
v “1120 Keyboard bezel” on page 81
v “1140 Speaker assembly” on page 85
Table 27. Removal steps of fan assembly
3
2
1
3
1
2
Step Screw (quantity) Color Torque
1 M2 × 3 mm, small-head, nylon-coated (2) Silver 0.189 Nm
(1.85 kgfcm)
2 M2 × 9.5 mm, wafer-head, nylon-coated (2) Black 0.189 Nm
(1.85 kgfcm)
Attention: Do not handle the fan roughly. Improper handling of the fan can
cause distortion or deformation and imperfect contact with components.
ThinkPad T500 and W500 (15.4-inch widescreen) 87

Table 27. Removal steps of fan assembly (continued)
4
4
5
5
Step Screw (quantity) Color Torque
4 M2 × 9.5 mm, wafer-head, nylon-coated (2) Silver 0.189 Nm
(1.85 kgfcm)
In step 5, release the wireless antenna cables from the cable guide of the fan
assembly.
6
7
88 ThinkPad T500 and W500 (15.4-inch widescreen) Hardware Maintenance Manual

Table 28. Installation of the fan assembly
When installing:
v Before you attach the fan assembly to the computer, apply thermal grease, at an
amount of 0.2 grams, on the part marked a as in the following figure. Either
too much or too less application of grease can cause a thermal problem due to
imperfect contact with a component. In some modes, you need to peel the thin
film off from the rubber b.
For the integrated graphics models:
a
For the switchable graphics models:
a
b
v Make sure that the fan connector is attached firmly.
ThinkPad T500 and W500 (15.4-inch widescreen) 89

Table 28. Installation of the fan assembly (continued)
v When attaching the fan assembly to the frame, take care not to damage the heat
sink and the cable guides (b) of the fan assembly.
b
b
90 ThinkPad T500 and W500 (15.4-inch widescreen) Hardware Maintenance Manual

1160 CPU
For access, remove these FRUs in order:
v “1010 Battery pack” on page 63
v “1040 Palm rest or palm rest with fingerprint reader” on page 67
v “1060 Keyboard” on page 71
v “1120 Keyboard bezel” on page 81
v “1140 Speaker assembly” on page 85
v “1150 Fan assembly” on page 87
Attention: CPU is extremely sensitive. When you service the CPU, avoid any
kind of rough handling.
Table 29. Removal steps of CPU
Rotate the head of the screw in the direction shown by arrow 1 to release the
lock; then remove the CPU.
3
1
b
a
2
When installing: Place the CPU on the CPU socket a, and then rotate the head
of the screw in the direction shown by arrow b to secure the CPU.
ThinkPad T500 and W500 (15.4-inch widescreen) 91

1170 LCD unit
For access, remove these FRUs in order:
v “1010 Battery pack” on page 63
v “1040 Palm rest or palm rest with fingerprint reader” on page 67
v “1060 Keyboard” on page 71
v “1080 PCI Express Mini Card for wireless LAN” on page 75
v “1120 Keyboard bezel” on page 81
v “1130 PCI Express Mini Card for wireless WAN” on page 83
Table 30. Removal steps of LCD assembly
11
Step Screw (quantity) Color Torque
1 M2.5 × 6.5 mm, wafer-head, nylon-coated
(2)
Black 0.392 Nm
(4 kgfcm)
92 ThinkPad T500 and W500 (15.4-inch widescreen) Hardware Maintenance Manual

Table 30. Removal steps of LCD assembly (continued)
3
2
3
Step Screw (quantity) Color Torque
3 M2.5 × 6.5 mm, wafer-head, nylon-coated
(2)
Black 0.392 Nm
(4 kgfcm)
ThinkPad T500 and W500 (15.4-inch widescreen) 93

Table 30. Removal steps of LCD assembly (continued)
4
4
When installing:
1. Route the antenna cables along the cable guides and secure them with the
tapes. As you route the cables, make sure that they are not subjected to any
tension. Tension could cause the cables to be damaged by the cable guides,
or a wire to be broken.
2. Make sure that the LCD connector is attached firmly.
94 ThinkPad T500 and W500 (15.4-inch widescreen) Hardware Maintenance Manual

1180 Base cover and USB sub card with cable
For access, remove these FRUs, in order:
v “1010 Battery pack” on page 63
v “1040 Palm rest or palm rest with fingerprint reader” on page 67
v “1060 Keyboard” on page 71
v “1080 PCI Express Mini Card for wireless LAN” on page 75
v “1120 Keyboard bezel” on page 81
v “1130 PCI Express Mini Card for wireless WAN” on page 83
v “1170 LCD unit” on page 92
Table 31. Removal steps of base cover and USB sub card with cable
1
1
1
1
1
1
1
2
Step Screw (quantity) Color Torque
1 M2 × 5 mm, wafer-head, nylon-coated (8) Black 0.189 Nm
(1.85 kgfcm)
2 M2 × 3.5 mm, wafer-head, nylon-coated (1) Black 0.189 Nm
(1.85 kgfcm)
ThinkPad T500 and W500 (15.4-inch widescreen) 95

Table 31. Removal steps of base cover and USB sub card with cable (continued)
3
4
4
Step Screw (quantity) Color Torque
3 M2 × 9.5 mm, wafer-head, nylon-coated (1) Black 0.189 Nm
(1.85 kgfcm)
4 M2 × 14 mm, wafer-head, nylon-coated (2) Black 0.189 Nm
(1.85 kgfcm)
96 ThinkPad T500 and W500 (15.4-inch widescreen) Hardware Maintenance Manual

Table 31. Removal steps of base cover and USB sub card with cable (continued)
5
6
6
6
Step Screw (quantity) Color Torque
5 M2 × 3 mm, small-head, nylon-coated (1) Silver 0.189 Nm
(1.85 kgfcm)
When installing: Make sure that the connectors are attached firmly.
ThinkPad T500 and W500 (15.4-inch widescreen) 97

Table 31. Removal steps of base cover and USB sub card with cable (continued)
Attention: Before step 7, be sure that the Serial Ultrabay Slim device eject
lever has not popped out. It must be housed in its position as shown in the
figure a.
7
a
8
Remove the USB sub card with cable as shown in this figure.
2
1
1
Step Screw (quantity) Color Torque
1 M2 × 3.5 mm, wafer-head, nylon-coated (2) Black 0.189 Nm
(1.85 kgfcm)
98 ThinkPad T500 and W500 (15.4-inch widescreen) Hardware Maintenance Manual

Note: Applying labels to the base cover
The new base cover FRU is shipped with a kit containing labels of several kinds.
When you replace the base cover, you need to apply the following labels:
1 Product label
2 Homologation label
Following labels need to be peeled off from the old base cover, and need to be
put on the new base cover.
3 Wireless LAN LMA label
4 SIM ICCID label
5 Windows license label (COA)
6 Wireless WAN LMA label
7 SIRM label
8 Israel label
9 China modem label
10 Wireless WAN IMEI label or wireless WAN ESN label
11 Wireless WAN MAC address label
12 MAC address label
13 Serial number label
For some models, you also need to apply one or two FCC labels. Check the old
base cover; if it has one or two FCC labels, find duplicates of them in the label
kit and apply them to the new base cover.
For the location of each label, refer the following figure:
1
2
12
13
34
5
6
11
10
9
8
7
ThinkPad T500 and W500 (15.4-inch widescreen) 99

1190 Structure frame
For access, remove these FRUs, in order:
v “1010 Battery pack” on page 63
v “1020 Serial Ultrabay Slim device” on page 64
v “1030 Hard disk drive (HDD) cover, HDD and HDD rubber rails or solid state
drive (SSD) and storage converter” on page 65
v “1040 Palm rest or palm rest with fingerprint reader” on page 67
v “1060 Keyboard” on page 71
v “1070 Modem daughter card (MDC-3.0)” on page 73
v “1080 PCI Express Mini Card for wireless LAN” on page 75
v “1090 Intel Turbo Memory Minicard or wireless USB adapter” on page 77
v “1120 Keyboard bezel” on page 81
v “1130 PCI Express Mini Card for wireless WAN” on page 83
v “1140 Speaker assembly” on page 85
v “1150 Fan assembly” on page 87
v “1170 LCD unit” on page 92
v “1180 Base cover and USB sub card with cable” on page 95
Table 32. Removal steps of structure frame
1
Step Screw (quantity) Color Torque
1 M2 × 3 mm, wafer-head, nylon-coated (1) Silver 0.189 Nm
(1.85 kgfcm)
100 ThinkPad T500 and W500 (15.4-inch widescreen) Hardware Maintenance Manual

Table 32. Removal steps of structure frame (continued)
Remove the AC power jack cable a.
2
3
a
When installing: Make sure the connector is attached firmly, and that the cable
is routed as in the figure above.
Remove the CPU support plate.
45
Step Screw (quantity) Color Torque
4 M2 × 5 mm, wafer-head, nylon-coated (1) Black 0.189 Nm
(1.85 kgfcm)
ThinkPad T500 and W500 (15.4-inch widescreen) 101

Table 32. Removal steps of structure frame (continued)
6
7
8
66
6
9
9
a
Step Screw (quantity) Color Torque
6 M2 × 3.5 mm, wafer-head, nylon-coated (4) Black 0.189 Nm
(1.85 kgfcm)
7 M2 × 9.5 mm, wafer-head, nylon-coated (1) Black 0.189 Nm
(1.85 kgfcm)
8 M2 × 3 mm, small-head, nylon-coated (1) Silver 0.189 Nm
(1.85 kgfcm)
In step 9, loosen the hex screws.
When installing: When attaching the system board to the frame, adjust the
placement with the small projection a. Then secure the system board with the
screws.
Remove the system board and the PC Card/ExpressCard slots assembly from
the structure frame together.
11
10
102 ThinkPad T500 and W500 (15.4-inch widescreen) Hardware Maintenance Manual

1200 System board and ExpressCard slot assembly
Important notices for handling the system board:
When handling the system board, bear the following in mind.
v The system board has an accelerometer, which can be broken by applying
several thousands of G-forces.
Note: Dropping a system board from a height of as little as 6 inches so that it
falls flat on a hard bench can subject the accelerometer to as much as 6,000 G’s
of shock.
v Be careful not to drop the system board on a bench top that has a hard
surface, such as metal, wood, or composite.
v If a system board is dropped, you must test it, using PC-Doctor for DOS, to
make sure that the HDD Active Protection still functions (see below).
Note: If the test shows that HDD Active Protection is not functioning, be sure
to document the drop in any reject report, and replace the system board.
v Avoid rough handling of any kind.
v At every point in the process, be sure not to drop or stack the system board.
v If you put a system board down, be sure to put it only on a padded surface
such as an ESD mat or conductive corrugated material.
After replacing the system board, run PC-Doctor for DOS to make sure that
HDD Active Protection still functions. The procedure is as follows:
1. Place the computer on a horizontal surface.
2. Run Diagnostics --> ThinkPad Devices --> HDD Active Protection Test.
Attention:: Do not apply physical shock to the computer while the test is
running.
ThinkPad T500 and W500 (15.4-inch widescreen) 103

d
a
b
c
e
For access, remove these FRUs, in order:
v “1010 Battery pack” on page 63
v “1020 Serial Ultrabay Slim device” on page 64
v “1030 Hard disk drive (HDD) cover, HDD and HDD rubber rails or solid state
drive (SSD) and storage converter” on page 65
v “1040 Palm rest or palm rest with fingerprint reader” on page 67
v “1050 DIMM” on page 70
v “1060 Keyboard” on page 71
v “1070 Modem daughter card (MDC-3.0)” on page 73
v “1080 PCI Express Mini Card for wireless LAN” on page 75
v “1090 Intel Turbo Memory Minicard or wireless USB adapter” on page 77
v “1100 Backup battery” on page 79
v “1110 SIM card slot” on page 80
v “1120 Keyboard bezel” on page 81
v “1130 PCI Express Mini Card for wireless WAN” on page 83
v “1140 Speaker assembly” on page 85
v “1150 Fan assembly” on page 87
v “1160 CPU” on page 91
v “1170 LCD unit” on page 92
v “1180 Base cover and USB sub card with cable” on page 95
v “1190 Structure frame” on page 100
Following components soldered on the top side of the system board are extremely
sensitive. When you service the system board, avoid any kind of rough handling.
a CPU
b Video chip
c MCH (Memory Controller Hub)
d Accelerometer chip for the HDD Active Protection System™
e ICH (I/O Controller Hub)
104 ThinkPad T500 and W500 (15.4-inch widescreen) Hardware Maintenance Manual

Table 33. Removal steps of system board and ExpressCard slot assembly
1
1
Step Screw (quantity) Color Torque
1 M2 × 2.7 mm, wafer-head, nylon-coated (2) Black 0.189 Nm
(1.85 kgfcm)
Turn the system board over, and then disconnect the ExpressCard slot assembly
a from the system board.
2
a
When installing: Make sure that the connector of the Express Card slot
assembly is attached to the system board firmly.
ThinkPad T500 and W500 (15.4-inch widescreen) 105

2010 LCD front bezel (LCD cover kit)
For access, remove this FRU:
v “1010 Battery pack” on page 63
Table 34. Removal steps of LCD front bezel
2
1
1
2
1
1
Step Screw cap Screw (quantity) Color Torque
1
M2.5 × 6.5 mm, bind-head,
nylon-coated (3)
Black 0.392 Nm
(4 kgfcm)
2
M2.5 × 6.5 mm, bind-head,
nylon-coated (2)
Black 0.392 Nm
(4 kgfcm)
106 ThinkPad T500 and W500 (15.4-inch widescreen) Hardware Maintenance Manual

Table 34. Removal steps of LCD front bezel (continued)
Close the LCD cover. Detach the LCD rear cover a little as shown in step 3 of
this figure, and detach the rear edge of the LCD rear cover 4.
4
5
3
3
33
33
3
3
ThinkPad T500 and W500 (15.4-inch widescreen) 107

2030 Inverter card
For access, remove these FRUs in order:
v “1010 Battery pack” on page 63
v “2010 LCD front bezel (LCD cover kit)” on page 106
Table 36. Removal steps of inverter card
1
4
2
1
3
Step Screw (quantity) Color Torque
1 M2 × 2.8 mm, wafer-head, nylon-coated (2) Silver 0.189 Nm
(1.85 kgfcm)
Cable routing: When replacing the inverter card, route the connector cable as in
this figure:
ThinkPad T500 and W500 (15.4-inch widescreen) 109

2040 Integrated camera
For access, remove these FRUs in order:
v “1010 Battery pack” on page 63
v “2010 LCD front bezel (LCD cover kit)” on page 106
Table 37. Removal steps of integrated camera
1
2
2
Step Screw (quantity) Color Torque
1 M2 × 3.5 mm, wafer-head, nylon-coated (2) Black 0.189 Nm
(1.85 kgfcm)
Cable routing: When replacing the inverter card, route the connector cable as in
this figure:
3
110 ThinkPad T500 and W500 (15.4-inch widescreen) Hardware Maintenance Manual

2050 Bluetooth daughter card (BDC-2.1)
For access, remove these FRUs in order:
v “1010 Battery pack” on page 63
v “2010 LCD front bezel (LCD cover kit)” on page 106
Table 38. Removal steps of BDC-2.1
1
2
Step Screw (quantity) Color Torque
1 M2 × 2.8 mm, wafer-head, nylon-coated (1) Silver 0.189 Nm
(1.85 kgfcm)
When installing: Make sure that connector is attached firmly.
ThinkPad T500 and W500 (15.4-inch widescreen) 111

2060 Antenna assembly
For access, remove these FRUs in order:
v “1010 Battery pack” on page 63
v “1040 Palm rest or palm rest with fingerprint reader” on page 67
v “1060 Keyboard” on page 71
v “1120 Keyboard bezel” on page 81
v “1130 PCI Express Mini Card for wireless WAN” on page 83
v “1170 LCD unit” on page 92
v “2010 LCD front bezel (LCD cover kit)” on page 106
v “2020 LCD rear cover (LCD cover kit)” on page 108
Table 39. Removal steps of antenna assembly
1
1
1
1
1
1
1
When installing: As you route the cables, make sure that they are not subjected
to any tension. Tension could cause the cables to be damaged by the cable
guides, or a wire to be broken.
2
2
2
2
2
2
2
Step Screw (quantity) Color Torque
2 M2 × 3.5 mm, small-head, nylon-coated (7) Black 0.189 Nm
(1.85 kgfcm)
112 ThinkPad T500 and W500 (15.4-inch widescreen) Hardware Maintenance Manual

Table 39. Removal steps of antenna assembly (continued)
3
3
ThinkPad T500 and W500 (15.4-inch widescreen) 113

Table 39. Removal steps of antenna assembly (continued)
4
4
5
114 ThinkPad T500 and W500 (15.4-inch widescreen) Hardware Maintenance Manual

2070 LCD panel and LCD cable
For access, remove these FRUs in order:
v “1010 Battery pack” on page 63
v “1040 Palm rest or palm rest with fingerprint reader” on page 67
v “1060 Keyboard” on page 71
v “1080 PCI Express Mini Card for wireless LAN” on page 75
v “1120 Keyboard bezel” on page 81
v “1130 PCI Express Mini Card for wireless WAN” on page 83
v “1170 LCD unit” on page 92
v “2010 LCD front bezel (LCD cover kit)” on page 106
v “2020 LCD rear cover (LCD cover kit)” on page 108
v “2030 Inverter card” on page 109
v “2040 Integrated camera” on page 110
v “2050 Bluetooth daughter card (BDC-2.1)” on page 111
v “2060 Antenna assembly” on page 112
Table 40. Removal steps of LCD panel and LCD cable
1
1
1
2
3
Step Screw (quantity) Color Torque
1 M2.5 × 6.5 mm, wafer-head, nylon-coated
(3)
Black 0.392 Nm
(4 kgfcm)
2 M2 × 2.8 mm, wafer-head, nylon-coated (1) Silver 0.189 Nm
(1.85 kgfcm)
ThinkPad T500 and W500 (15.4-inch widescreen) 115

Table 40. Removal steps of LCD panel and LCD cable (continued)
5
4
6
6
7
6
6
6
7
8
9
Step Screw (quantity) Color Torque
6 M2 × 2.8 mm, small-head, nylon-coated (5) Silver 0.189 Nm
(1.85 kgfcm)
116 ThinkPad T500 and W500 (15.4-inch widescreen) Hardware Maintenance Manual

Table 40. Removal steps of LCD panel and LCD cable (continued)
b9
8
When installing: Make sure that the LCD cable is attached firmly.
ThinkPad T500 and W500 (15.4-inch widescreen) 117

2080 Hinges and LCD magnesium frame
For access, remove these FRUs in order:
v “1010 Battery pack” on page 63
v “1040 Palm rest or palm rest with fingerprint reader” on page 67
v “1060 Keyboard” on page 71
v “1080 PCI Express Mini Card for wireless LAN” on page 75
v “1120 Keyboard bezel” on page 81
v “1130 PCI Express Mini Card for wireless WAN” on page 83
v “1170 LCD unit” on page 92
v “2010 LCD front bezel (LCD cover kit)” on page 106
v “2020 LCD rear cover (LCD cover kit)” on page 108
v “2030 Inverter card” on page 109
v “2040 Integrated camera” on page 110
v “2050 Bluetooth daughter card (BDC-2.1)” on page 111
v “2060 Antenna assembly” on page 112
v “2070 LCD panel and LCD cable” on page 115
Table 41. Removal steps of hinges
2
2
1
1
Step Screw (quantity) Color Torque
1 M2.5 × 6.5 mm, wafer-head, nylon-coated
(2)
Black 0.392 Nm
(4.0 kgfcm)
118 ThinkPad T500 and W500 (15.4-inch widescreen) Hardware Maintenance Manual

Locations
Front view
1 ThinkLight
2 Integrated camera (for some models)
3 Status indicators
Note: For the description of each indicator, see “Status indicators” on page
50.
4 Stereo speakers
5 RJ-11 (modem) connector
6 Serial Ultrabay Slim status indicator
7 Serial Ultrabay Slim latch
8 Serial Ultrabay Slim device eject lever
9 Serial Ultrabay Slim
10 Fingerprint reader (for some models)
11 TrackPoint pointing stick
12 TrackPoint buttons
13 Touch pad buttons
14 Touch pad
15 UltraNav
16 ThinkVantage button
17 Volume control buttons
18 Power switch
12
4
43
10 6
5
7
8
9
11
12
13
14
15
18
17
16
ThinkPad T500 and W500 (15.4-inch widescreen) 119

Rear view
1 Status indicators
Note: For the description of each indicator, see “Status indicators” on page
50.
2 PC Card/ExpressCard slots or PC Card/Smart Card eject buttons
3 PC Card/ExpressCard slots or PC Card/Smart Card slots
4 USB (Universal serial bus) connectors
5 RJ-45 (Ethernet) connector
6 Display port
7 External monitor connector
8 AC power connector
9 Security key hole
1
2
3
4
5
6
7
8
9
Bottom view
1 Battery pack
2 Battery pack latch
3 Docking connector
4 IEEE 1394 connector
5 Wireless radio switch
6 Stereo headphone jack
7 Microphone jack
8 7–in-1 media card reader
9 LCD cover latch
10 Hard disk drive or solid state drive
1
2
3
4
5
6
7
9
8
10
120 ThinkPad T500 and W500 (15.4-inch widescreen) Hardware Maintenance Manual

Parts list
This section contains following lists of the service parts.
v “Overall” on page 122
v “LCD FRUs” on page 152
v “Keyboard” on page 159
v “Miscellaneous parts” on page 161
v “AC adapters” on page 163
v “Power cords” on page 164
v “Recovery discs” on page 165
v “Common service tools” on page 175
Notes:
v Each FRU is available for all types or models, unless specific types or models
are specified.
v FRU with specific models listed and described as xxU (where U is an example
of a country designator) should be used for all models ending in U.
v FRU with specific models listed and described as 3Dx (where 3D is an
example of a unique configuration) should be used for all of these models,
unless specific country or region designator is specified.
v A CRU (customer replaceable unit) is identified by a single asterisk (*) or two
asterisks (**) in the CRU ID column. An N in the CRU ID column means that
the part is not a CRU. A single asterisk (*) means that the part is a Self-service
CRU; two asterisks (**) means that the part is an Optional-service CRU.
ThinkPad computers contain the following types of CRUs:
Self-service CRUs
These CRUs unplug or are held by no more than two screws.
Examples of these types of CRUs include an AC adapter, a power
cord, a battery, and a hard disk drive. Other Self-service CRUs
depending on product design may include a memory, a wireless card,
a keyboard, and a palm rest with finger print reader and touchpad.
Optional-service CRUs
These CRUs are isolated parts within the computer that are concealed
by an access panel that is typically secured by more than two screws.
Once the access panel is removed, the specific CRU is visible.
v
A RoHS compliant FRU is identified by an R. An N in the RoHS ID column
means the part is not a RoHS compliant FRU.
v FRUs marked with OP are available as options.
ThinkPad T500 and W500 (15.4-inch widescreen) 121

Overall
1
25 3
4
d
e
5
6
7
8
9
10
11
14
12
13
15
16
17
18
f
19
20
21
22
23
24
26
27
a
b
c
2
122 ThinkPad T500 and W500 (15.4-inch widescreen) Hardware Maintenance Manual

Table 42. Parts list—Overall
No. FRU FRU no. RoHS
ID
CRU
ID
a - d See “Miscellaneous parts” on page 161.
1 LCD unit (see “LCD FRUs” on page 152.)
2 Keyboard bezel assembly 43Y9742 R N
3 SIM card slot 42X3919 R N
4 Speaker assembly 42W3803 R N
5 Modem daughter card (MDC-3.0) 43Y6463 R **
6 ThinkPad 11b/g Wireless LAN Mini PCI Express
Adapter III
v 2055-CTO
v 2056-CTO
v 2081-CTO
v 2082-CTO
v 2083-CTO
v 2087-CTO
v 2088-CTO
v 2089-CTO, 3Lx
v 2241-CTO
v 2242-CTO
v 2243-CTO
v 2246-CTO
v 2247-CTO
v 2261-CTO
v 4058-CTO
v 4061-CTO
v 4062-CTO
v 4063-CTO
v 4064-CTO
v 4065-CTO
42T0979 R **
ThinkPad T500 and W500 (15.4-inch widescreen) 123

Table 42. Parts list—Overall (continued)
No. FRU FRU no. RoHS
ID
CRU
ID
6 Intel WiFi Link 5100
v 2055-CTO, 2Bx, 2Cx, 2Ex, 3Ax, 45x, 46x, 47x, 4Bx E1x,
E2x
v 2056-CTO, 34x, 4Kx, 4Px, 4Qx, 4Rx, 4Sx, 4Tx, E1x,
E2x
v 2081-CTO
v 2082-CTO, 26x, 27x, 3Gx, 3Hx
v 2083-CTO, 4Yx
v 2087-CTO, 4Zx
v 2088-CTO
v 2089-CTO, 2Jx, 2Kx, 2Lx, 2Mx, 2Vx, 2Wx, 2Xx, 2Yx,
3Hx, 3Jx, 3Kx, 3Mx, 3Nx, 3Rx, 3Tx, E1x, E2x, E3x
v 2241-CTO, 3Wx, 3Xx, 3Yx, 3Zx, 42x, 43x, 44x, E1x,
E2x, E3x
v 2242-CTO, 22x, 23x, 24x, 25x, 26x, 27x, 28x, 32x, 33x,
34x, 35x, 36x, 37x, 38x, 4Ex, 4Fx
v 2243-CTO, 2Bx, 2Cx, 3Cx
v 2246-CTO, 4Bx
v 2247-CTO, 4Cx
v 2261-CTO, 2Dx, 2Ex, 2Fx, 2Gx, 2Hx, 3Dx
v 4058-CTO
v 4061-CTO
v 4062-CTO, 24x, 25x, 26x, 27x
v 4063-CTO
v 4064-CTO
v 4065-CTO
43Y6461 R **
6 Intel WiFi Link 5300
v 2055-CTO, 2Lx, 2Mx, 2Nx, 2Px, 2Xx, 48x, 49x, 4Ax,
4Cx, 4Dx, 4Ex, 4Fx, 4Gx, 4Hx
v 2056-CTO
v 2081-CTO, 22x, 24x, 3Ex, 52x, 53x
v 2082-CTO, 28x, 3Fx, 3Jx, 3Kx, 3Lx, 3Mx, 3Nx, 3Rx,
52x, 53x, 54x, 55x, 56x, 57x, 58x, 59x, 5Ax, 5Bx
v 2083-CTO
v 2087-CTO
v 2088-CTO, 3Tx, 3Wx, 3Yx, 3Zx, 42x, 43x, 44x
v 2089-CTO, 2Hx, 2Qx, 2Rx, 2Sx, 2Ux, 3Px, 3Qx, 3Sx,
3Ux, 3Vx, 4Dx
v 2241-CTO
v 2242-CTO, 39x, 3Ax
v 2243-CTO, 3Bx, 4Dx, 4Ex, 4Lx, 4Mx
v 2246-CTO
v 2247-CTO
v 2261-CTO, 3Ex, 3Fx, 3Gx
v 4058-CTO, 22x, 23x
v 4061-CTO, 2Hx, 2Jx, 2Kx, 2Lx, 2Mx, 2Nx, 2Px, 2Qx,
2Rx, 2Sx
v 4062-CTO, 28x, 29x, 2Ax, 2Bx, 2Cx, 2Dx, 2Ex, 2Fx,
2Gx, 2Xx, 2Yx
v 4063-CTO, 2Tx, 2Ux
v 4064-CTO, 2Vx
v 4065-CTO, 2Wx
43Y6459 R **
124 ThinkPad T500 and W500 (15.4-inch widescreen) Hardware Maintenance Manual

Table 42. Parts list—Overall (continued)
No. FRU FRU no. RoHS
ID
CRU
ID
7 Intel Turbo Memory, 2GB (half size)
v 2055-CTO, 2Ex, 2Nx, 2Px, 3Ax, 48x, 49x, 4Ax, 4Ex,
4Fx, 4Gx, 4Hx
v 2056-CTO, 4Sx
v 2081-CTO, 52x
v 2082-CTO, 3Fx, 3Gx, 3Jx, 3Kx
v 2083-CTO
v 2087-CTO
v 2088-CTO, 3Yx, 3Zx, 42x, 43x, 44x
v 2089-CTO, 2Kx, 2Lx, 2Ux, 2Wx, 2Xx, 3Jx, 3Nx, 3Rx,
3Sx
v 2241-CTO, 3Xx
v 2242-CTO, 25x, 27x, 34x, 36x, 37x, 39x
v 2243-CTO, 2Bx, 3Cx
v 2246-CTO
v 2247-CTO
v 2261-CTO, 2Dx, 2Ex, 2Gx, 3Dx, 3Ex, 3Fx
v 4058-CTO, 22x
v 4061-CTO, 2Jx, 2Lx, 2Mx, 2Nx, 2Px, 2Qx, 2Sx
v 4062-CTO, 24x, 27x, 2Ax, 2Gx, 2Yx
v 4063-CTO, 2Tx, 2Ux
v 4064-CTO
v 4065-CTO
42T0991 R **
8 Structure frame 43Y9744 R N
9 Backup battery 02K6572 R **
10 Hard disk drive rubber rails 41V9756 R *
11 SATA hard disk drive, 80 GB, 9.5 mm, 5,400 rpm
v 2055-CTO, 2Bx
v 2056-CTO, 4Px
v 2081-CTO
v 2082-CTO
v 2083-CTO, 4Yx
v 2087-CTO, 4Zx
v 2088-CTO, 2Jx
v 2089-CTO, 2Jx
v 2241-CTO, 3Wx
v 2242-CTO
v 2243-CTO
v 2246-CTO, 4Bx
v 2247-CTO, 4Cx
v 2261-CTO
v 4058-CTO
v 4061-CTO
v 4062-CTO
v 4063-CTO
v 4064-CTO
v 4065-CTO
39T2885 R **
ThinkPad T500 and W500 (15.4-inch widescreen) 125

Table 42. Parts list—Overall (continued)
No. FRU FRU no. RoHS
ID
CRU
ID
11 SATA hard disk drive, 80 GB, 9.5 mm, 5,400 rpm
v 2055-CTO, 2Bx
v 2056-CTO, 4Px
v 2081-CTO
v 2082-CTO
v 2083-CTO, 4Yx
v 2087-CTO, 4Zx
v 2088-CTO, 2Jx
v 2089-CTO, 2Jx
v 2241-CTO, 3Wx
v 2242-CTO
v 2243-CTO
v 2246-CTO, 4Bx
v 2247-CTO, 4Cx
v 2261-CTO
v 4058-CTO
v 4061-CTO
v 4062-CTO
v 4063-CTO
v 4064-CTO
v 4065-CTO
42T1491 R **
11 SATA hard disk drive, 80 GB, 9.5 mm, 5,400 rpm
v 2055-CTO, 2Bx
v 2056-CTO, 4Px
v 2081-CTO
v 2082-CTO
v 2083-CTO, 4Yx
v 2087-CTO, 4Zx
v 2088-CTO, 2Jx
v 2089-CTO, 2Jx
v 2241-CTO, 3Wx
v 2242-CTO
v 2243-CTO
v 2246-CTO, 4Bx
v 2247-CTO, 4Cx
v 2261-CTO
v 4058-CTO
v 4061-CTO
v 4062-CTO
v 4063-CTO
v 4064-CTO
v 4065-CTO
42T1305 R **
126 ThinkPad T500 and W500 (15.4-inch widescreen) Hardware Maintenance Manual

Table 42. Parts list—Overall (continued)
No. FRU FRU no. RoHS
ID
CRU
ID
11 SATA hard disk drive, 160 GB, 9.5 mm, 5,400 rpm
v 2055-CTO, 2Cx, 2Lx, 2Mx, 47x, 4Bx
v 2056-CTO, 34x, 4Kx, 4Qx
v 2081-CTO
v 2082-CTO, 3Nx, 52x, 53x, 57x, 58x, 5Ax, 5Bx
v 2083-CTO
v 2087-CTO
v 2088-CTO
v 2089-CTO, 2Hx, 2Kx, 2Lx, 2Qx, 2Rx, 2Sx, 2Vx, 2Xx,
2Yx, 3Hx, 3Jx, 3Kx, 3Lx, 3Nx, 3Px, 3Rx, 3Sx, 3Tx,
4Dx, E1x
v 2241-CTO, 3Xx, 3Yx, 3Zx, 43x, E1x
v 2242-CTO, 22x, 26x, 28x, 33x, 36x, 37x, 38x, 4Ex, 4Fx
v 2243-CTO, 2Cx, 3Bx, 3Cx, 4Dx, 4Ex, 4Lx, 4Mx
v 2246-CTO
v 2247-CTO
v 2261-CTO, 2Ex, 2Fx, 2Gx, 2Hx, 3Dx, 3Ex, 3Fx
v 4058-CTO
v 4061-CTO
v 4062-CTO
v 4063-CTO
v 4064-CTO, 2Vx
v 4065-CTO, 2Wx
39T2899 R **
11 SATA hard disk drive, 160 GB, 9.5 mm, 5,400 rpm
v 2055-CTO, 2Cx, 2Lx, 2Mx, 47x, 4Bx
v 2056-CTO, 34x, 4Kx, 4Qx
v 2081-CTO
v 2082-CTO, 3Nx, 52x, 53x, 57x, 58x, 5Ax, 5Bx
v 2083-CTO
v 2087-CTO
v 2088-CTO
v 2089-CTO, 2Hx, 2Kx, 2Lx, 2Qx, 2Rx, 2Sx, 2Vx, 2Xx,
2Yx, 3Hx, 3Jx, 3Kx, 3Lx, 3Nx, 3Px, 3Rx, 3Sx, 3Tx,
4Dx, E1x
v 2241-CTO, 3Xx, 3Yx, 3Zx, 43x, E1x
v 2242-CTO, 22x, 26x, 28x, 33x, 36x, 37x, 38x, 4Ex, 4Fx
v 2243-CTO, 2Cx, 3Bx, 3Cx, 4Dx, 4Ex, 4Lx, 4Mx
v 2246-CTO
v 2247-CTO
v 2261-CTO, 2Ex, 2Fx, 2Gx, 2Hx, 3Dx, 3Ex, 3Fx
v 4058-CTO
v 4061-CTO
v 4062-CTO
v 4063-CTO
v 4064-CTO, 2Vx
v 4065-CTO, 2Wx
42T1501 R **
ThinkPad T500 and W500 (15.4-inch widescreen) 127

Table 42. Parts list—Overall (continued)
No. FRU FRU no. RoHS
ID
CRU
ID
11 SATA hard disk drive, 160 GB, 9.5 mm, 5,400 rpm
v 2055-CTO, 2Cx, 2Lx, 2Mx, 47x, 4Bx
v 2056-CTO, 34x, 4Kx, 4Qx
v 2081-CTO
v 2082-CTO, 3Nx, 52x, 53x, 57x, 58x, 5Ax, 5Bx
v 2083-CTO
v 2087-CTO
v 2088-CTO
v 2089-CTO, 2Hx, 2Kx, 2Lx, 2Qx, 2Rx, 2Sx, 2Tx, 2Vx,
2Xx, 2Yx, 3Hx, 3Jx, 3Kx, 3Lx, 3Nx, 3Px, 3Rx, 3Sx, 3Tx,
4Dx, E1x
v 2241-CTO, 3Xx, 3Yx, 3Zx, 43x, E1x
v 2242-CTO, 22x, 26x, 28x, 33x, 36x, 37x, 38x, 4Ex, 4Fx
v 2243-CTO, 2Cx, 3Bx, 3Cx, 4Dx, 4Ex, 4Lx, 4Mx
v 2246-CTO
v 2247-CTO
v 2261-CTO, 2Ex, 2Fx, 2Gx, 2Hx, 3Dx, 3Ex, 3Fx
v 4058-CTO
v 4061-CTO
v 4062-CTO
v 4063-CTO
v 4064-CTO, 2Vx
v 4065-CTO, 2Wx
42T1309 R **
11 SATA hard disk drive, 250 GB, 9.5 mm, 5,400 rpm
HGST
v 2055-CTO, 46x, 48x, 49x, 4Dx, 4Ex, 4Fx, 4Gx, 4Hx,
E2x
v 2056-CTO, 4Tx, E2x
v 2081-CTO, 52x
v 2082-CTO, 3Kx, 3Lx, 3Mx, 54x, 55x, 56x, 59x
v 2083-CTO
v 2087-CTO
v 2088-CTO, 3Yx, 3Zx, 42x, 43x
v 2089-CTO, 2Wx, 3Mx, 3Qx, 3Vx, E2x
v 2241-CTO, 42x, E2x
v 2242-CTO, 24x, 25x, 27x, 39x, 3Ax
v 2243-CTO, 2Bx
v 2246-CTO
v 2247-CTO
v 2261-CTO, 2Dx, 3Gx
v 4058-CTO, 22x
v 4061-CTO
v 4062-CTO, 29x, 2Ax, 2Bx
v 4063-CTO
v 4064-CTO
v 4065-CTO
42T1471 R **
128 ThinkPad T500 and W500 (15.4-inch widescreen) Hardware Maintenance Manual

Table 42. Parts list—Overall (continued)
No. FRU FRU no. RoHS
ID
CRU
ID
11 SATA hard disk drive, 320 GB, 9.5 mm, 5,400 rpm
Fujitsu
v 2055-CTO, 4Ax, 4Cx
v 2056-CTO
v 2081-CTO
v 2082-CTO, 3Jx
v 2083-CTO
v 2087-CTO
v 2088-CTO
v 2089-CTO, 3Ux
v 2241-CTO
v 2242-CTO
v 2243-CTO
v 2246-CTO
v 2247-CTO
v 2261-CTO
v 4058-CTO
v 4061-CTO, 2Lx, 2Mx, 2Nx, 2Px, 2Qx
v 4062-CTO
v 4063-CTO, 2Ux
v 4064-CTO
v 4065-CTO
42T1507 R **
11 SATA hard disk drive, 100 GB, 9.5 mm, 7,200 rpm OP
v 2055-CTO, 2Nx
v 2056-CTO
v 2081-CTO
v 2082-CTO
v 2083-CTO
v 2087-CTO
v 2088-CTO
v 2089-CTO, 2Ux
v 2241-CTO
v 2242-CTO
v 2243-CTO
v 2246-CTO
v 2247-CTO
v 2261-CTO
v 4058-CTO
v 4061-CTO
v 4062-CTO
v 4063-CTO
v 4064-CTO
v 4065-CTO
42T1485 R **
ThinkPad T500 and W500 (15.4-inch widescreen) 129

Table 42. Parts list—Overall (continued)
No. FRU FRU no. RoHS
ID
CRU
ID
11 SATA hard disk drive, 100 GB, 9.5 mm, 7,200 rpm
v 2055-CTO, 2Nx
v 2056-CTO
v 2081-CTO
v 2082-CTO
v 2083-CTO
v 2087-CTO
v 2088-CTO
v 2089-CTO, 2Ux
v 2241-CTO
v 2242-CTO
v 2243-CTO
v 2246-CTO
v 2247-CTO
v 2261-CTO
v 4058-CTO
v 4061-CTO
v 4062-CTO
v 4063-CTO
v 4064-CTO
v 4065-CTO
39T2799 R **
11 SATA hard disk drive, 160 GB, 9.5 mm, 7,200 rpm
v 2055-CTO, 2Ex, 2Px, 3Ax, 45x, E1x
v 2056-CTO, 4Rx, 4Sx, E1x
v 2081-CTO
v 2082-CTO, 26x, 27x, 3Fx, 3Gx, 3Hx
v 2083-CTO
v 2087-CTO
v 2088-CTO, 44x
v 2089-CTO, 2Mx, E3x
v 2241-CTO, 44x, E3x
v 2242-CTO, 23x, 32x, 34x, 35x
v 2243-CTO
v 2246-CTO
v 2247-CTO
v 2261-CTO
v 4058-CTO
v 4061-CTO, 2Hx, 2Jx, 2Sx
v 4062-CTO, 24x, 27x, 2Gx, 2Yx
v 4063-CTO, 2Tx
v 4064-CTO
v 4065-CTO
42T1461 R **
130 ThinkPad T500 and W500 (15.4-inch widescreen) Hardware Maintenance Manual

Table 42. Parts list—Overall (continued)
No. FRU FRU no. RoHS
ID
CRU
ID
11 SATA hard disk drive, 160 GB, 9.5 mm, 7,200 rpm
v 2055-CTO, 2Ex, 2Px, 3Ax, 45x, E1x
v 2056-CTO, 4Rx, 4Sx, E1x
v 2081-CTO
v 2082-CTO, 26x, 27x, 3Fx, 3Gx, 3Hx
v 2083-CTO
v 2087-CTO
v 2088-CTO, 44x
v 2089-CTO, 2Mx, E3x
v 2241-CTO, 44x, E3x
v 2242-CTO, 23x, 32x, 34x, 35x
v 2243-CTO
v 2246-CTO
v 2247-CTO
v 2261-CTO
v 4058-CTO
v 4061-CTO, 2Hx, 2Jx, 2Sx
v 4062-CTO, 24x, 27x, 2Gx, 2Yx
v 4063-CTO, 2Tx
v 4064-CTO
v 4065-CTO
42T1439 R **
11 SATA hard disk drive, 200 GB, 9.5 mm, 7,200 rpm (FDE)
v 2055-CTO, 2Xx
v 2056-CTO
v 2081-CTO, 22x, 24x, 3Ex, 53x
v 2082-CTO, 28x, 3Rx
v 2083-CTO
v 2087-CTO
v 2088-CTO, 3Tx, 3Wx
v 2089-CTO
v 2241-CTO
v 2242-CTO
v 2243-CTO
v 2246-CTO
v 2247-CTO
v 2261-CTO
v 4058-CTO, 23x
v 4061-CTO, 2Kx
v 4062-CTO, 25x, 26x, 28x, 2Fx, 2Xx
v 4063-CTO
v 4064-CTO
v 4065-CTO
42T1463 R **
ThinkPad T500 and W500 (15.4-inch widescreen) 131

Table 42. Parts list—Overall (continued)
No. FRU FRU no. RoHS
ID
CRU
ID
12 1.8-inch - 2.5-inch storage converter
v 2055-CTO
v 2056-CTO
v 2081-CTO
v 2082-CTO
v 2083-CTO
v 2087-CTO
v 2088-CTO
v 2089-CTO
v 2241-CTO
v 2242-CTO
v 2243-CTO
v 2246-CTO
v 2247-CTO
v 2261-CTO
v 4058-CTO
v 4061-CTO, 2Rx
v 4062-CTO, 2Cx, 2Dx, 2Ex
v 4063-CTO
v 4064-CTO
v 4065-CTO
42W7888 R **
13 SATA solid state drive, 64 GB, 9 mm
v 2055-CTO
v 2056-CTO
v 2081-CTO
v 2082-CTO
v 2083-CTO
v 2087-CTO
v 2088-CTO
v 2089-CTO
v 2241-CTO
v 2242-CTO
v 2243-CTO
v 2246-CTO
v 2247-CTO
v 2261-CTO
v 4058-CTO
v 4061-CTO, 2Rx
v 4062-CTO, 2Cx, 2Dx, 2Ex
v 4063-CTO
v 4064-CTO
v 4065-CTO
42T1896 R **
132 ThinkPad T500 and W500 (15.4-inch widescreen) Hardware Maintenance Manual

Table 42. Parts list—Overall (continued)
No. FRU FRU no. RoHS
ID
CRU
ID
14 Battery pack, Li-ion (6 cell)
v 2055-CTO, 2Bx, 2Cx, 2Dx, 2Lx, 2Mx, 2Nx, 2Px, 47x,
48x, 49x, 4Ax
v 2056-CTO, 34x, 4Kx, 4Px, 4Qx
v 2081-CTO, 52x, 53x
v 2082-CTO, 3Lx, 3Mx, 3Nx, 52x, 53x, 54x, 55x, 56x,
57x, 58x, 59x, 5Ax, 5Bx
v 2083-CTO, 4Yx
v 2087-CTO, 4Zx
v 2088-CTO
v 2089-CTO, 2Hx, 2Jx, 2Kx, 2Mx, 2Qx, 2Rx, 2Sx, 2Ux,
2Vx, 2Wx, 2Xx, 2Yx, 3Hx, 3Kx, 3Lx, 3Mx, 3Nx, 3Px,
3Qx, 3Rx, 3Sx, 3Tx, 3Ux, 3Vx, 4Dx, E1x, E2x
v 2241-CTO, 3Wx, 3Xx, 3Yx, 3Zx, 42x, 43x, 44x, E1x,
E2x
v 2242-CTO, 22x, 23x, 24x, 25x, 26x, 27x, 28x, 32x, 33x,
34x, 35x, 36x, 37x, 38x, 39x, 3Ax, 4Ex, 4Fx
v 2243-CTO, 2Bx, 2Cx, 3Bx, 3Cx, 4Dx, 4Ex, 4Lx, 4Mx
v 2246-CTO, 4Bx
v 2247-CTO, 4Cx
v 2261-CTO, 2Dx, 2Ex, 2Fx, 2Gx, 2Hx, 3Dx, 3Ex, 3Fx,
3Gx
v 4058-CTO, 22x, 23x
v 4061-CTO, 2Jx, 2Rx, 2Sx
v 4062-CTO, 29x, 2Bx, 2Dx, 2Ex, 2Xx
v 4063-CTO
v 4064-CTO
v 4065-CTO
42T4504 R *
14 Battery pack, Li-ion (6 cell)
v 2055-CTO, 2Bx, 2Cx, 2Dx, 2Lx, 2Mx, 2Nx, 2Px, 47x,
48x, 49x, 4Ax
v 2056-CTO, 34x, 4Kx, 4Px, 4Qx
v 2081-CTO, 52x, 53x
v 2082-CTO, 3Lx, 3Mx, 3Nx, 52x, 53x, 54x, 55x, 56x,
57x, 58x, 59x, 5Ax, 5Bx
v 2083-CTO, 4Yx
v 2087-CTO, 4Zx
v 2088-CTO
v 2089-CTO, 2Hx, 2Jx, 2Kx, 2Mx, 2Qx, 2Rx, 2Sx, 2Ux,
2Vx, 2Wx, 2Xx, 2Yx, 3Hx, 3Kx, 3Lx, 3Mx, 3Nx, 3Px,
3Qx, 3Rx, 3Sx, 3Tx, 3Ux, 3Vx, 4Dx, E1x, E2x
v 2241-CTO, 3Wx, 3Xx, 3Yx, 3Zx, 42x, 43x, 44x, E1x,
E2x
v 2242-CTO, 22x, 23x, 24x, 25x, 26x, 27x, 28x, 32x, 33x,
34x, 35x, 36x, 37x, 38x, 39x, 3Ax, 4Ex, 4Fx
v 2243-CTO, 2Bx, 2Cx, 3Bx, 3Cx, 4Dx, 4Ex, 4Lx, 4Mx
v 2246-CTO, 4Bx
v 2247-CTO, 4Cx
v 2261-CTO, 2Dx, 2Ex, 2Fx, 2Gx, 2Hx, 3Dx, 3Ex, 3Fx,
3Gx
v 4058-CTO, 22x, 23x
v 4061-CTO, 2Jx, 2Rx, 2Sx
v 4062-CTO, 29x, 2Bx, 2Dx, 2Ex, 2Xx
v 4063-CTO
v 4064-CTO
v 4065-CTO
92P1139 R *
ThinkPad T500 and W500 (15.4-inch widescreen) 133

Table 42. Parts list—Overall (continued)
No. FRU FRU no. RoHS
ID
CRU
ID
14 Battery pack, Li-ion (6 cell)
v 2055-CTO, 2Bx, 2Cx, 2Dx, 2Lx, 2Mx, 2Nx, 2Px, 47x,
48x, 49x, 4Ax
v 2056-CTO, 34x, 4Kx, 4Px, 4Qx
v 2081-CTO, 52x, 53x
v 2082-CTO, 3Lx, 3Mx, 3Nx, 52x, 53x, 54x, 55x, 56x,
57x, 58x, 59x, 5Ax, 5Bx
v 2083-CTO, 4Yx
v 2087-CTO, 4Zx
v 2088-CTO
v 2089-CTO, 2Hx, 2Jx, 2Kx, 2Mx, 2Qx, 2Rx, 2Sx, 2Ux,
2Vx, 2Wx, 2Xx, 2Yx, 3Hx, 3Kx, 3Lx, 3Mx, 3Nx, 3Px,
3Qx, 3Rx, 3Sx, 3Tx, 3Ux, 3Vx, 4Dx, E1x, E2x
v 2241-CTO, 3Wx, 3Xx, 3Yx, 3Zx, 42x, 43x, 44x, E1x,
E2x
v 2242-CTO, 22x, 23x, 24x, 25x, 26x, 27x, 28x, 32x, 33x,
34x, 35x, 36x, 37x, 38x, 39x, 3Ax, 4Ex, 4Fx
v 2243-CTO, 2Bx, 2Cx, 3Bx, 3Cx, 4Dx, 4Ex, 4Lx, 4Mx
v 2246-CTO, 4Bx
v 2247-CTO, 4Cx
v 2261-CTO, 2Dx, 2Ex, 2Fx, 2Gx, 2Hx, 3Dx, 3Ex, 3Fx,
3Gx
v 4058-CTO, 22x, 23x
v 4061-CTO, 2Jx, 2Rx, 2Sx
v 4062-CTO, 29x, 2Bx, 2Dx, 2Ex, 2Xx
v 4063-CTO
v 4064-CTO
v 4065-CTO
92P1141 R *
14 Battery pack, Li-ion (9 cell)
v 2055-CTO, 2Ex, 2Xx, 3Ax, 45x, 46x, 4Bx, 4Cx, 4Dx,
4Ex, 4Fx, 4Gx, 4Hx, E1x, E2x
v 2056-CTO, 4Rx, 4Sx, 4Tx, E1x, E2x
v 2081-CTO, 22x, 24x, 3Ex
v 2082-CTO, 26x, 27x, 28x, 3Fx, 3Gx, 3Hx, 3Jx, 3Kx, 3Rx
v 2083-CTO
v 2087-CTO
v 2088-CTO, 3Tx, 3Wx, 3Yx, 3Zx, 42x, 43x, 44x
v 2089-CTO, 2Lx, 3Jx, E3x
v 2241-CTO, E3x
v 2242-CTO
v 2243-CTO
v 2246-CTO
v 2247-CTO
v 2261-CTO
v 4058-CTO
v 4061-CTO, 2Hx, 2Kx, 2Lx, 2Mx, 2Nx, 2Px, 2Qx
v 4062-CTO, 24x, 25x, 26x, 27x, 28x, 2Ax, 2Cx, 2Fx, 2Gx,
2Yx
v 4063-CTO, 2Tx, 2Ux
v 4064-CTO, 2Vx
v 4065-CTO, 2Wx
42T4511 R *
134 ThinkPad T500 and W500 (15.4-inch widescreen) Hardware Maintenance Manual

Table 42. Parts list—Overall (continued)
No. FRU FRU no. RoHS
ID
CRU
ID
14 Battery pack, Li-ion (9 cell)
v 2055-CTO, 2Ex, 2Xx, 3Ax, 45x, 46x, 4Bx, 4Cx, 4Dx,
4Ex, 4Fx, 4Gx, 4Hx, E1x, E2x
v 2056-CTO, 4Rx, 4Sx, 4Tx, E1x, E2x
v 2081-CTO, 22x, 24x, 3Ex
v 2082-CTO, 26x, 27x, 28x, 3Fx, 3Gx, 3Hx, 3Jx, 3Kx, 3Rx
v 2083-CTO
v 2087-CTO
v 2088-CTO, 3Tx, 3Wx, 3Yx, 3Zx, 42x, 43x, 44x
v 2089-CTO, 2Lx, 3Jx, E3x
v 2241-CTO, E3x
v 2242-CTO
v 2243-CTO
v 2246-CTO
v 2247-CTO
v 2261-CTO
v 4058-CTO
v 4061-CTO, 2Hx, 2Kx, 2Lx, 2Mx, 2Nx, 2Px, 2Qx
v 4062-CTO, 24x, 25x, 26x, 27x, 28x, 2Ax, 2Cx, 2Fx, 2Gx,
2Yx
v 4063-CTO, 2Tx, 2Ux
v 4064-CTO, 2Vx
v 4065-CTO, 2Wx
92P1133 R *
15 RJ11 sub card 42W7887 R N
15 RJ11 sub card 42W7886 R N
16 DVD/CD-RW combo drive, 9.5 mm
v 2055-CTO, 2Bx
v 2056-CTO, 34x, 4Px
v 2081-CTO
v 2082-CTO
v 2083-CTO, 4Yx
v 2087-CTO, 4Zx
v 2088-CTO
v 2089-CTO, 2Jx, 2Yx
v 2241-CTO, 3Wx
v 2242-CTO, 4Ex, 4Fx
v 2243-CTO
v 2246-CTO, 4Bx
v 2247-CTO, 4Cx
v 2261-CTO, 2Fx, 2Hx
v 4058-CTO
v 4061-CTO
v 4062-CTO
v 4063-CTO
v 4064-CTO
v 4065-CTO
42T2543 R *
ThinkPad T500 and W500 (15.4-inch widescreen) 135

Table 42. Parts list—Overall (continued)
No. FRU FRU no. RoHS
ID
CRU
ID
16 DVD/CD-RW combo drive, 9.5 mm OP
v 2055-CTO, 2Bx
v 2056-CTO, 34x, 4Px
v 2081-CTO
v 2082-CTO
v 2083-CTO, 4Yx
v 2087-CTO, 4Zx
v 2088-CTO
v 2089-CTO, 2Jx, 2Yx
v 2241-CTO, 3Wx
v 2242-CTO, 4Ex, 4Fx
v 2243-CTO
v 2246-CTO, 4Bx
v 2247-CTO, 4Cx
v 2261-CTO, 2Fx, 2Hx
v 4058-CTO
v 4061-CTO
v 4062-CTO
v 4063-CTO
v 4064-CTO
v 4065-CTO
42T2513 R *
16 DVD-RAM/RW drive, 9.5 mm
v 2055-CTO, 2Cx, 2Dx, 2Ex, 2Lx, 2Mx, 2Nx, 2Px, 2Vx,
2Xx, 3Ax, 45x, 46x, 47x, 48x, 49x, 4Ax, 4Bx, 4Cx, 4Dx,
4Ex, 4Fx, 4Gx, 4Hx E1x, E2x
v 2056-CTO, 4Kx, 4Qx, 4Rx, 4Sx, 4Tx, E1x, E2x
v 2081-CTO, 22x, 24x 3Ex, 52x, 53x
v 2082-CTO, 3Fx, 26x, 27x, 28x, 3Gx, 3Hx, 3Kx, 3Lx,
3Mx, 3Nx, 3Rx, 52x, 53x, 54x, 55x, 56x, 57x, 58x, 59x,
5Ax, 5Bx
v 2083-CTO
v 2087-CTO
v 2088-CTO, 3Tx, 3Wx, 3Yx, 3Zx, 42x, 43x, 44x
v 2089-CTO, 2Hx, 2Jx, 2Kx, 2Lx, 2Mx, 2Qx, 2Rx, 2Sx,
2Ux, 2Vx, 2Wx, 2Xx, 3Hx, 3Jx, 3Kx, 3Lx, 3Mx, 3Nx,
3Px, 3Qx, 3Rx, 3Sx, 3Tx, 3Ux, 3Vx, 4Dx, E1x, E2x, E3x
v 2241-CTO, 3Xx, 3Yx, 3Zx, 42x, 43x, 44x, E1x, E2x, E3x
v 2242-CTO, 22x, 23x, 24x, 25x, 26x, 27x, 28x, 32x, 33x,
34x, 35x, 36x, 37x, 38x, 39x, 3Ax
v 2243-CTO, 2Bx, 2Cx, 3Bx, 3Cx, 4Dx, 4Ex, 4Lx, 4Mx
v 2246-CTO
v 2247-CTO
v 2261-CTO, 2Dx, 2Ex, 2Gx, 3Dx, 3Ex, 3Fx, 3Gx
v 4058-CTO, 22x, 23x
v 4061-CTO, 2Hx, 2Jx, 2Kx, 2Lx, 2Mx, 2Nx, 2Px, 2Qx,
2Rx, 2Sx, 2Zx, 32x
v 4062-CTO, 24x, 25x, 26x, 27x, 28x, 29x, 2Ax, 2Bx, 2Cx,
2Dx, 2Ex, 2Gx, 2Xx, 2Yx
v 4063-CTO, 2Tx, 33x, 34x
v 4064-CTO, 2Vx, 2Vx
v 4065-CTO, 2Wx
42T2545 R *
136 ThinkPad T500 and W500 (15.4-inch widescreen) Hardware Maintenance Manual

Table 42. Parts list—Overall (continued)
No. FRU FRU no. RoHS
ID
CRU
ID
16 DVD-RAM/RW drive, 9.5 mm OP
v 2055-CTO, 2Cx, 2Dx, 2Ex, 2Lx, 2Mx, 2Nx, 2Px, 2Vx,
2Xx, 3Ax, 45x, 46x, 47x, 48x, 49x, 4Ax, 4Bx, 4Cx, 4Dx,
4Ex, 4Fx, 4Gx, 4Hx, E1x, E2x
v 2056-CTO, 4Kx, 4Qx, 4Rx, 4Sx, 4Tx, E1x, E2x
v 2081-CTO, 22x, 24x 3Ex, 52x, 53x
v 2082-CTO, 3Fx, 26x, 27x, 28x, 3Gx, 3Hx, 3Kx, 3Lx,
3Mx, 3Nx, 3Rx, 52x, 53x, 54x, 55x, 56x, 57x, 58x, 59x,
5Ax, 5Bx
v 2083-CTO
v 2087-CTO
v 2088-CTO, 3Tx, 3Wx, 3Yx, 3Zx, 42x, 43x, 44x
v 2089-CTO, 2Hx, 2Jx, 2Kx, 2Lx, 2Mx, 2Qx, 2Rx, 2Sx,
2Ux, 2Vx, 2Wx, 2Xx, 3Hx, 3Jx, 3Kx, 3Lx, 3Mx, 3Nx,
3Px, 3Qx, 3Rx, 3Sx, 3Tx, 3Ux, 3Vx, 4Dx, E1x, E2x, E3x
v 2241-CTO, 3Xx, 3Yx, 3Zx, 42x, 43x, 44x, E1x, E2x, E3x
v 2242-CTO, 22x, 23x, 24x, 25x, 26x, 27x, 28x, 32x, 33x,
34x, 35x, 36x, 37x, 38x, 39x, 3Ax
v 2243-CTO, 2Bx, 2Cx, 3Bx, 3Cx, 4Dx, 4Ex, 4Lx, 4Mx
v 2246-CTO
v 2247-CTO
v 2261-CTO, 2Dx, 2Ex, 2Gx, 3Dx, 3Ex, 3Fx, 3Gx
v 4058-CTO, 22x, 23x
v 4061-CTO, 2Hx, 2Jx, 2Kx, 2Lx, 2Mx, 2Nx, 2Px, 2Qx,
2Rx, 2Sx, 2Zx, 32x
v 4062-CTO, 24x, 25x, 26x, 27x, 28x, 29x, 2Ax, 2Bx, 2Cx,
2Dx, 2Ex, 2Gx, 2Xx, 2Yx
v 4063-CTO, 2Tx, 33x, 34x
v 4064-CTO, 2Vx, 2Vx
v 4065-CTO, 2Wx
42T2513 R *
16 Blu-ray drive, 9.5 mm
v 2055-CTO
v 2056-CTO
v 2081-CTO
v 2082-CTO, 3Jx
v 2083-CTO
v 2087-CTO
v 2088-CTO
v 2089-CTO
v 2241-CTO
v 2242-CTO
v 2243-CTO
v 2246-CTO
v 2247-CTO
v 2261-CTO
v 4058-CTO
v 4061-CTO
v 4062-CTO, 2Fx
v 4063-CTO, 2Ux
v 4064-CTO
v 4065-CTO
42T2517 R *
ThinkPad T500 and W500 (15.4-inch widescreen) 137

Table 42. Parts list—Overall (continued)
No. FRU FRU no. RoHS
ID
CRU
ID
16 Travel cover, 9.5 mm
v 2055-CTO, xxE, xxJ
v 2056-CTO, xxE, xxJ
v 2081-CTO, xxE, xxJ
v 2082-CTO, xxE, xxJ
v 2083-CTO, xxE, xxJ
v 2087-CTO, xxE, xxJ
v 2088-CTO, xxE, xxJ
v 2089-CTO, xxE, xxJ
v 2241-CTO, xxE, xxJ
v 2242-CTO, xxE, xxJ
v 2243-CTO, xxE, xxJ
v 2246-CTO, xxE, xxJ
v 2247-CTO, xxE, xxJ
v 2261-CTO, xxE, xxJ
v 4058-CTO, xxE, xxJ
v 4061-CTO, xxE, xxJ
v 4062-CTO, xxE, xxJ
v 4063-CTO, xxE, xxJ
v 4064-CTO, xxE, xxJ
v 4065-CTO, xxE, xxJ
13N5108 R *
17 Hard disk drive cover assembly 42W2609 R *
18 Base cover assembly for 2055
World-wide
v 2055-CTO, xxA, xxB, xxC, xxE, xxF, xxG, xxH, xxJ,
xxK, xxL, xxM, xxP, xxQ, xxS, xxT, xxU, xxY
43Y9749 R N
Taiwan
v 2055-CTO, xxV
43Y9769 R N
18 Base cover assembly for 2056
World-wide
v 2056-CTO, xxA, xxB, xxC, xxE, xxF, xxG, xxH, xxJ,
xxK, xxL, xxM, xxP, xxQ, xxS, xxT, xxU, xxY
43Y9750 R N
Taiwan
v 2056-CTO, xxV
43Y9770 R N
18 Base cover assembly for 2081
World-wide
v 2081-CTO, xxA, xxB, xxC, xxE, xxF, xxG, xxH, xxJ,
xxK, xxL, xxM, xxP, xxQ, xxS, xxT, xxU, xxY
43Y9746 R N
Taiwan
v 2081-CTO, xxV
43Y9766 R N
18 Base cover assembly for 2082
World-wide
v 2082-CTO, xxA, xxB, xxC, xxE, xxF, xxG, xxH, xxJ,
xxK, xxL, xxM, xxP, xxQ, xxS, xxT, xxU, xxY
43Y9747 R N
Taiwan
v 2082-CTO, xxV
43Y9767 R N
138 ThinkPad T500 and W500 (15.4-inch widescreen) Hardware Maintenance Manual

Table 42. Parts list—Overall (continued)
No. FRU FRU no. RoHS
ID
CRU
ID
18 Base cover assembly for 2083
World-wide
v 2083-CTO, xxA, xxB, xxC, xxE, xxF, xxG, xxH, xxJ,
xxK, xxL, xxM, xxP, xxQ, xxS, xxT, xxU, xxY
43Y9751 R N
Taiwan
v 2083-CTO, xxV
43Y9771 R N
18 Base cover assembly for 2087
World-wide
v 2087-CTO, xxA, xxB, xxC, xxE, xxF, xxG, xxH, xxJ,
xxK, xxL, xxM, xxP, xxQ, xxS, xxT, xxU, xxY
43Y9752 R N
Taiwan
v 2087-CTO, xxV
43Y9772 R N
18 Base cover assembly for 2088
World-wide
v 2088-CTO, xxA, xxB, xxC, xxE, xxF, xxG, xxH, xxJ,
xxK, xxL, xxM, xxP, xxQ, xxS, xxT, xxU, xxY
43Y9748 R N
Taiwan
v 2088-CTO, xxV
43Y9768 R N
18 Base cover assembly for 2089
World-wide
v 2089-CTO, xxA, xxB, xxC, xxE, xxF, xxG, xxH, xxJ,
xxK, xxL, xxM, xxP, xxQ, xxS, xxT, xxU, xxY
43Y9756 R N
Taiwan
v 2089-CTO, xxV
43Y9776 R N
18 Base cover assembly for 2241
World-wide
v 2241-CTO, xxA, xxB, xxC, xxE, xxF, xxG, xxH, xxJ,
xxK, xxL, xxM, xxP, xxQ, xxS, xxT, xxU, xxY
43Y9757 R N
Taiwan
v 2241-CTO, xxV
43Y9777 R N
18 Base cover assembly for 2242
World-wide
v 2242-CTO, xxA, xxB, xxC, xxE, xxF, xxG, xxH, xxJ,
xxK, xxL, xxM, xxP, xxQ, xxS, xxT, xxU, xxY
43Y9753 R N
Taiwan
v 2242-CTO, xxV
43Y9773 R N
18 Base cover assembly for 2243
World-wide
v 2243-CTO, xxA, xxB, xxC, xxE, xxF, xxG, xxH, xxJ,
xxK, xxL, xxM, xxP, xxQ, xxS, xxT, xxU, xxY
43Y9754 R N
Taiwan
v 2243-CTO, xxV
43Y9774 R N
ThinkPad T500 and W500 (15.4-inch widescreen) 139

Table 42. Parts list—Overall (continued)
No. FRU FRU no. RoHS
ID
CRU
ID
18 Base cover assembly for 2246
World-wide
v 2246-CTO, xxA, xxB, xxC, xxE, xxF, xxG, xxH, xxJ,
xxK, xxL, xxM, xxP, xxQ, xxS, xxT, xxU, xxY
43Y9758 R N
Taiwan
v 2246-CTO, xxV
43Y9778 R N
18 Base cover assembly for 2247
World-wide
v 2247-CTO, xxA, xxB, xxC, xxE, xxF, xxG, xxH, xxJ,
xxK, xxL, xxM, xxP, xxQ, xxS, xxT, xxU, xxY
43Y9759 R N
Taiwan
v 2247-CTO
43Y9779 R N
18 Base cover assembly for 2261
World-wide
v 2261-CTO, xxA, xxB, xxC, xxE, xxF, xxG, xxH, xxJ,
xxK, xxL, xxM, xxP, xxQ, xxS, xxT, xxU, xxY
43Y9755 R N
Taiwan
v 2261-CTO, xxV
43Y9775 R N
18 Base cover assembly for 4058
World-wide
v 4058-CTO, xxA, xxB, xxC, xxE, xxF, xxG, xxH, xxJ,
xxK, xxL, xxM, xxP, xxQ, xxS, xxT, xxU, xxY
43Y9760 R N
Taiwan
v 4058-CTO, xxV
43Y9780 R N
18 Base cover assembly for 4061
World-wide
v 4061-CTO, xxA, xxB, xxC, xxE, xxF, xxG, xxH, xxJ,
xxK, xxL, xxM, xxP, xxQ, xxS, xxT, xxU, xxY
43Y9762 R N
Taiwan
v 4061-CTO, xxV
43Y9782 R N
18 Base cover assembly for 4062
World-wide
v 4062-CTO, xxA, xxB, xxC, xxE, xxF, xxG, xxH, xxJ,
xxK, xxL, xxM, xxP, xxQ, xxS, xxT, xxU, xxY
43Y9761 R N
Taiwan
v 4062-CTO, xxV
43Y9781 R N
18 Base cover assembly for 4063
World-wide
v 4063-CTO, xxA, xxB, xxC, xxE, xxF, xxG, xxH, xxJ,
xxK, xxL, xxM, xxP, xxQ, xxS, xxT, xxU, xxY
43Y9763 R N
Taiwan
v 4063-CTO, xxV
43Y9783 R N
140 ThinkPad T500 and W500 (15.4-inch widescreen) Hardware Maintenance Manual

Table 42. Parts list—Overall (continued)
No. FRU FRU no. RoHS
ID
CRU
ID
18 Base cover assembly for 4064
World-wide
v 4064-CTO, xxA, xxB, xxC, xxE, xxF, xxG, xxH, xxJ,
xxK, xxL, xxM, xxP, xxQ, xxS, xxT, xxU, xxY
43Y9764 R N
Taiwan
v 4064-CTO, xxV
43Y9784 R N
18 Base cover assembly for 4065
World-wide
v 4065-CTO, xxA, xxB, xxC, xxE, xxF, xxG, xxH, xxJ,
xxK, xxL, xxM, xxP, xxQ, xxS, xxT, xxU, xxY
43Y9765 R N
Taiwan
v 4065-CTO, xxV
43Y9785 R N
19 1-GB DDR2-667 SDRAM SO-DIMM (PC2-5300) card
v 2055-CTO, 2Bx, 46x, 47x, 4Ax, 4Bx, 4Dx
v 2056-CTO, 34x, 4Kx, 4Px, 4Tx
v 2081-CTO, 24x, 3Ex, 52x
v 2082-CTO, 26x, 3Fx, 3Hx, 3Rx, 56x, 57x
v 2083-CTO, 4Yx
v 2087-CTO, 4Zx
v 2088-CTO, 44x
v 2089-CTO, 2Hx, 2Jx, 2Lx, 2Qx, 2Rx, 2Sx, 2Ux, 2Vx,
2Xx, 2Yx, 3Hx, 3Jx, 3Kx, 3Lx, 3Mx, 3Px, 3Qx, 3Rx,
3Tx, 3Vx, 4Dx, E1x, E2x
v 2241-CTO, 3Wx, 3Yx, 3Zx, 42x, E1x, E2x
v 2242-CTO, 22x, 23x, 24x, 25x, 26x, 27x, 28x, 32x, 33x,
34x, 35x, 37x, 38x, 39x, 3Ax, 4Ex, 4Fx
v 2243-CTO, 2Bx, 2Cx, 3Bx, 3Cx, 4Dx, 4Ex, 4Lx, 4Mx
v 2246-CTO, 4Bx
v 2247-CTO, 4Cx
v 2261-CTO, 2Ex, 2Fx, 2Gx, 2Hx, 3Dx, 3Gx
v 4058-CTO, 22x
v 4061-CTO
v 4062-CTO, 29x, 2Dx
v 4063-CTO
v 4064-CTO
v 4065-CTO
40Y8403 R **
ThinkPad T500 and W500 (15.4-inch widescreen) 141

Table 42. Parts list—Overall (continued)
No. FRU FRU no. RoHS
ID
CRU
ID
19 2-GB DDR2-667 SDRAM SO-DIMM (PC2-5300) card
v 2055-CTO, 2Cx, 2Dx, 2Ex, 2Lx, 2Mx, 2Nx, 2Px, 2Vx,
2Xx, 3Ax, 45x, 48x, 49x, 4Cx, 4Ex, 4Fx, 4Gx, 4Hx, E1x,
E2x
v 2056-CTO, 4Qx, 4Rx, 4Sx, E1x, E2x
v 2081-CTO, 22x, 53x
v 2082-CTO, 27x, 28x, 3Gx, 3Jx, 3Kx, 3Lx, 3Mx, 3Nx,
52x, 53x, 54x, 55x, 58x, 59x, 5Ax, 5Bx
v 2083-CTO
v 2087-CTO
v 2088-CTO, 3Tx, 3Wx, 3Yx, 3Zx, 42x, 43x
v 2089-CTO, 2Kx, 2Mx, 2Wx, 3Nx, 3Sx, 3Ux, E3x
v 2241-CTO, 3Xx, 43x, 44x, E3x
v 2242-CTO, 36x
v 2243-CTO
v 2246-CTO
v 2247-CTO
v 2261-CTO, 2Dx, 3Ex, 3Fx
v 4058-CTO, 23x
v 4061-CTO, 2Hx, 2Jx, 2Kx, 2Lx, 2Mx, 2Nx, 2Px, 2Qx,
2Rx, 2Sx, 2Zx, 32x
v 4062-CTO, 24x, 25x, 26x, 27x, 28x, 2Ax, 2Bx, 2Cx, 2Ex,
2Fx, 2Gx, 2Xx, 2Yx
v 4063-CTO, 2Tx, 2Ux, 33x, 34x
v 4064-CTO, 2Vx
v 4065-CTO, 2Wx
40Y8404 R **
20 System board assembly, Intel Integrated graphics
4500MHD, non-AMT, TPM
v 2242-CTO, 22x, 23x, 24x, 25x, 26x, 27x, 28x, 32x, 33x,
34x, 35x, 36x, 37x, 38x, 39x, 3Ax, 4Ex, 4Fx, 4Gx, 4Hx,
4Jx, 4Kx, 55x, 5Ex, 5Fx, 5Gx, 5Hx
v 2243-CTO, 2Bx, 2Cx, 3Bx, 3Cx, 5Fx, 4Dx, 4Ex, 4Lx,
4Mx, 4Nx, 4Px, 4Qx, 4Rx, 4Sx, 4Ux, 5Bx, 5Cx, 5Dx,
56x, 57x
42W7978 R N
20 System board assembly, Intel Integrated graphics
4500MHD, non-AMT, non-TPM
v 2242-CTO
v 2243-CTO, 4Tx, 5Jx, 5Kx, 5Lx, 5Mx
42W8104 R N
20 System board assembly, Intel Integrated graphics
4500MHD, AMT, TPM
v 2089-CTO, 2Hx, 2Jx, 2Kx, 2Lx, 2Mx, 2Qx, 2Rx, 2Sx,
2Ux, 2Vx, 2Wx, 2Xx, 2Yx, 3Hx, 3Jx, 3Kx, 3Lx, 3Mx,
3Nx, 3Px, 3Qx, 3Rx, 3Sx, 3Tx, 3Ux, 3Vx, 4Dx, 4Wx,
4Xx, 4Yx, 4Zx, 52x, 53x, 54x, 58x, 59x, 5Ax, E1x, E2x,
E3x
v 2241-CTO, 3Wx, 3Xx, 3Yx, 3Zx, 42x, 43x, 44x, 4Xx,
58x, E1x, E2x, E3x
v 2242-CTO
v 2243-CTO
v 2246-CTO, 4Bx
v 2247-CTO, 4Cx
v 2261-CTO, 2Dx, 2Ex, 2Fx, 2Gx, 2Hx, 3Dx, 3Ex, 3Fx,
3Gx, 4Vx
42W8129 R N
142 ThinkPad T500 and W500 (15.4-inch widescreen) Hardware Maintenance Manual

Table 42. Parts list—Overall (continued)
No. FRU FRU no. RoHS
ID
CRU
ID
20 System board assembly, Intel Integrated graphics
4500MHD, AMT, non-TPM
v 2089-CTO, 5Nx, 5Px, 5Qx, 5Rx
v 2241-CTO, 5Sx, 5Tx, 5Ux
v 2242-CTO
v 2243-CTO
v 2246-CTO
v 2247-CTO
v 2261-CTO
42W8130 R N
20 System board assembly, AMD M86 256 MB, non-AMT,
TPM
v 2081-CTO, 22x, 24x, 3Ex, 52x, 53x
v 2082-CTO, 26x, 27x, 28x, 3Fx, 3Gx, 3Hx, 3Jx, 3Kx, 3Lx,
3Mx, 3Nx, 3Rx, 52x, 53x, 54x, 55x, 56x, 57x, 58x, 59x,
5Ax, 5Bx, 5Cx, 5Dx, 5Ex, 5Fx, 5Gx, 5Jx, 5Kx, 5Mx,
5Nx, 66x, 67x, 68x, 69x, 6Ax, 6Bx, 6Cx, 6Dx, 6Ex, 6Fx,
6Gx, 6Hx, 6Jx, 6Kx, 6Lx, 5Xx, 5Yx, 5Zx, 6Px, 6Qx,
6Mx, 6Nx
42W7980 R N
20 System board assembly, AMD M86 256 MB, non-AMT,
non-TPM
v 2081-CTO
v 2082-CTO, 5Px, 5Qx, 5Rx, 6Rx, 6Sx, 6Tx, 6Ux, 6Vx,
6Wx, 6Xx, 6Yx, 6Zx, 72x, 73x
42W8105 R N
20 System board assembly, AMD M86 256 MB, AMT, TPM
v 2055-CTO, 2Bx, 2Cx, 2Dx, 2Ex, 2Lx, 2Mx, 2Nx, 2Px,
2Vx, 2Xx, 3Ax, 45x, 46x, 47x, 48x, 49x, 4Ax, 4Bx, 4Cx,
4Dx, 4Ex, 4Fx, 4Gx, 4Hx, 5Rx, 5Sx, 5Tx, 5Ux, 5Vx,
5Wx, 62x, 63x, 65x, E1x, E2x
v 2056-CTO, 34x, 4Kx, 4Px, 4Qx, 4Rx, 4Sx, 4Tx, 5Tx,
63x, E1x, E2x
v 2081-CTO
v 2082-CTO
v 2083-CTO, 4Yx
v 2087-CTO, 4Zx
v 2088-CTO, 3Tx, 3Wx, 3Yx, 3Zx, 42x, 43x, 44x
42W8131 R N
20 System board assembly, AMD M86 256 MB, AMT,
non-TPM
v 2055-CTO, 64x, 74x, 75x, 76x, 77x, 78x
v 2056-CTO, 79x, 7Ax, 7Bx, 7Cx
v 2081-CTO
v 2082-CTO
v 2083-CTO
v 2087-CTO
v 2088-CTO
42W8132 R N
20 System board assembly, AMD M86GL-M 512 MB,
non-AMT, TPM
v 4058-CTO, 22x, 23x
v 4062-CTO, 24x, 25x, 26x, 27x, 28x, 29x, 2Ax, 2Bx, 2Cx,
2Dx, 3Ax, 2Ex, 2Fx, 2Gx, 3Bx, 2Xx, 2Yx, 35x, 36x, 37x,
3Cx
42W7981 R N
20 System board assembly, AMD M86GL-M 512 MB,
non-AMT, non-TPM
v 4058-CTO
v 4062-CTO
42W8106 R N
ThinkPad T500 and W500 (15.4-inch widescreen) 143

Table 42. Parts list—Overall (continued)
No. FRU FRU no. RoHS
ID
CRU
ID
20 System board assembly, AMD M86GL-M 512 MB, AMT,
TPM
v 4058-CTO
v 4061-CTO, 2Hx, 2Jx, 2Kx, 2Lx, 2Mx, 2Nx, 2Px, 2Qx,
2Rx, 2Sx, 2Zx, 32x, 38x, 39x, 3Dx, 3Ex, 3Fx
v 4062-CTO
v 4063-CTO, 2Tx, 2Ux, 33x, 34x, 3Fx
v 4064-CTO, 2Vx
v 4065-CTO, 2Wx
24W8133 R N
20 System board assembly, AMD M86GL-M 512 MB, AMT,
non-TPM
v 4058-CTO
v 4061-CTO
v 4062-CTO
v 4063-CTO
v 4064-CTO
v 4065-CTO
42W8134 R N
21 CPU assembly, Intel Core 2 Duo processor P8400 (2.26
GHz)
v 2055-CTO, 48x, 4Bx
v 2056-CTO, 34x, 4Kx
v 2081-CTO,
v 2082-CTO, 26x, 3Fx, 3Hx, 3Nx
v 2083-CTO, 4Yx
v 2087-CTO, 4Zx
v 2088-CTO, 44x
v 2089-CTO, 2Hx, 2Jx, 2Qx, 2Vx, 2Yx, 3Kx, 3Lx, 3Px,
3Qx, 3Rx, 3Tx, 4Dx, E1x
v 2241-CTO, 3Wx, 3Zx, E1x
v 2242-CTO, 22x, 26x, 28x, 32x, 33x, 35x, 37x, 38x, 3Ax,
4Ex, 4Fx
v 2243-CTO, 2Cx, 3Bx, 3Cx, 4Dx, 4Ex, 4Lx, 4Mx
v 2246-CTO, 4Bx, 4Bx
v 2247-CTO, 4Cx
v 2261-CTO, 2Fx, 2Hx, 3Dx, 3Gx
v 4058-CTO
v 4061-CTO
v 4062-CTO
v 4063-CTO
v 4064-CTO
v 4065-CTO
42W7984 R N
144 ThinkPad T500 and W500 (15.4-inch widescreen) Hardware Maintenance Manual

Table 42. Parts list—Overall (continued)
No. FRU FRU no. RoHS
ID
CRU
ID
21 CPU assembly, Intel Core 2 Duo processor P8600 (2.40
GHz)
v 2055-CTO, 2Lx, 2Mx, 47x, 49x, 4Ax, 4Dx, 4Ex
v 2056-CTO
v 2081-CTO, 52x
v 2082-CTO, 3Lx, 3Mx, 52x, 53x, 56x, 57x, 58x, 59x, 5Ax,
5Bx
v 2083-CTO
v 2087-CTO
v 2088-CTO, 3Yx
v 2089-CTO, 2Rx, 2Sx, 2Wx, 2Xx, 3Nx, 3Sx, 3Vx
v 2241-CTO, 43x
v 2242-CTO, 24x, 25x, 27x, 36x, 39x
v 2243-CTO, 2Bx
v 2246-CTO
v 2247-CTO
v 2261-CTO, 2Dx, 2Ex, 2Gx, 3Ex, 3Fx
v 4058-CTO
v 4061-CTO
v 4062-CTO
v 4063-CTO
v 4064-CTO
v 4065-CTO
42W7985 R N
21 CPU assembly, Intel Core 2 Duo processor P9500 (2.53
GHz)
v 2055-CTO, 2Xx, 4Cx, 4Fx
v 2056-CTO
v 2081-CTO, 22x, 24x
v 2082-CTO, 28x, 3Jx, 3Kx
v 2083-CTO
v 2087-CTO
v 2088-CTO, 3Tx, 3Wx, 42x
v 2089-CTO, 3Ux
v 2241-CTO
v 2242-CTO
v 2243-CTO
v 2246-CTO
v 2247-CTO
v 2261-CTO
v 4058-CTO
v 4061-CTO, 2Jx, 2Lx, 2Mx
v 4062-CTO, 2Gx, 2Yx
v 4063-CTO
v 4064-CTO
v 4065-CTO
42W7986 R N
ThinkPad T500 and W500 (15.4-inch widescreen) 145

Table 42. Parts list—Overall (continued)
No. FRU FRU no. RoHS
ID
CRU
ID
21 CPU assembly, Intel Core 2 Duo processor T9400 (2.53
GHz)
v 2055-CTO, 2Bx, 2Cx, 2Dx, 2Ex, 2Nx, 2Px, 2Vx, 45x,
46x, 4Gx, E1x, E2x
v 2056-CTO, 4Px, 4Qx, 4Rx, 4Tx, E1x, E2x
v 2081-CTO, 3Ex
v 2082-CTO, 27x, 3Gx, 3Rx, 54x, 55x
v 2083-CTO
v 2087-CTO
v 2088-CTO, 3Zx
v 2089-CTO, 2Kx, 2Lx, 2Mx, 2Ux, 3Hx, 3Jx, 3Mx, E1x,
E3x
v 2241-CTO, 3Xx, 3Yx, 42x, 44x, E2x, E3x
v 2242-CTO, 23x, 34x
v 2243-CTO
v 2246-CTO
v 2247-CTO
v 2261-CTO
v 4058-CTO, 22x
v 4061-CTO, 2Hx, 2Nx, 2Zx
v 4062-CTO, 29x, 2Dx, 2Xx
v 4063-CTO, 2Tx, 33x
v 4064-CTO, 2Vx
v 4065-CTO, 2Wx
42W7987 R N
21 CPU assembly, Intel Core 2 Duo processor T9600 (2.80
GHz)
v 2055-CTO, 3Ax, 4Hx
v 2056-CTO, 4Sx
v 2081-CTO, 53x
v 2082-CTO
v 2083-CTO
v 2087-CTO
v 2088-CTO, 43x
v 2089-CTO
v 2241-CTO
v 2242-CTO
v 2243-CTO
v 2246-CTO
v 2247-CTO
v 2261-CTO
v 4058-CTO, 23x
v 4061-CTO, 2Kx, 2Px, 2Qx, 2Rx, 2Sx, 32x
v 4062-CTO, 24x, 25x, 26x, 27x, 28x, 2Ax, 2Bx, 2Cx, 2Ex,
2Fx
v 4063-CTO, 2Ux, 34x
v 4064-CTO
v 4065-CTO
42W7988 R N
146 ThinkPad T500 and W500 (15.4-inch widescreen) Hardware Maintenance Manual

Table 42. Parts list—Overall (continued)
No. FRU FRU no. RoHS
ID
CRU
ID
22 ExpressCard/PC Card slot
v 2055-CTO, 2Bx, 2Cx, 2Dx, 2Ex, 2Lx, 2Mx, 2Nx, 2Px,
3Ax, 45x, 46x, 47x, 49x, 4Ax, 4Bx, 4Cx, 4Dx, 4Fx, 4Gx,
4Hx, E1x, E2x
v 2056-CTO, 4Kx, 4Px, 4Qx, 4Rx, 4Sx, 4Tx, E1x, E2x
v 2081-CTO, 3Ex, 52x, 53x
v 2082-CTO, 26x, 27x, 3Fx, 3Gx, 3Hx, 3Jx, 3Kx, 3Lx,
3Mx, 3Nx, 3Rx, 52x, 53x, 54x, 55x, 56x, 57x, 58x, 59x,
5Ax, 5Bx
v 2083-CTO, 4Yx
v 2087-CTO, 4Zx
v 2088-CTO, 3Zx, 42x, 43x, 44x
v 2089-CTO, 2Hx, 2Jx, 2Kx, 2Lx, 2Mx, 2Qx, 2Rx, 2Sx,
2Ux, 2Vx, 2Xx, 2Yx, 3Hx, 3Jx, 3Kx, 3Lx, 3Mx, 3Nx,
3Px, 3Qx, 3Rx, 3Tx, 3Ux, 3Vx, 4Dx, E1x, E2x, E3x
v 2241-CTO, 3Wx, 3Xx, 3Yx, 3Zx, 42x, 43x, 44x, E1x,
E2x, E3x
v 2242-CTO, 22x, 23x, 26x, 28x, 32x, 33x, 34x, 35x, 36x,
37x, 38x, 39x, 3Ax, 4Ex, 4Fx
v 2243-CTO, 2Cx, 3Bx, 3Cx, 4Dx, 4Ex, 4Lx, 4Mx
v 2246-CTO, 4Bx
v 2247-CTO, 4Cx
v 2261-CTO, 2Ex, 2Fx, 2Gx, 2Hx, 3Dx, 3Ex, 3Fx, 3Gx
v 4058-CTO, 22x
v 4061-CTO, 2Hx, 2Jx, 2Kx, 2Lx, 2Px, 2Qx, 2Rx, 2Sx,
2Zx, 32x
v 4062-CTO, 24x, 25x, 26x, 27x, 2Fx, 2Gx, 2Xx, 2Yx
v 4063-CTO, 2Tx, 2Ux, 33x, 34x
v 4064-CTO, 2Vx
v 4065-CTO, 2Wx
42W3436 R N
22 ExpressCard/Smart Card slot
v 2055-CTO, 2Vx, 2Xx, 48x, 4Ex
v 2056-CTO, 34x
v 2081-CTO, 22x, 24x
v 2082-CTO, 28x
v 2083-CTO
v 2087-CTO
v 2088-CTO, 3Tx, 3Wx, 3Yx
v 2089-CTO, 2Wx, 3Sx
v 2241-CTO
v 2242-CTO, 24x, 25x, 27x
v 2243-CTO, 2Bx
v 2246-CTO
v 2247-CTO
v 2261-CTO, 2Dx
v 4058-CTO, 23x
v 4061-CTO, 2Mx, 2Nx
v 4062-CTO, 28x, 29x, 2Ax, 2Bx, 2Cx, 2Dx, 2Ex
v 4063-CTO
v 4064-CTO
v 4065-CTO
42X4992 R N
ThinkPad T500 and W500 (15.4-inch widescreen) 147

Table 42. Parts list—Overall (continued)
No. FRU FRU no. RoHS
ID
CRU
ID
23 Qualcomm® UNDP1 - Wireless WAN card
v 2055-CTO, 2Ex
v 2056-CTO
v 2081-CTO
v 2082-CTO
v 2083-CTO
v 2087-CTO
v 2088-CTO
v 2089-CTO, 2Lx
v 2241-CTO
v 2242-CTO
v 2243-CTO
v 2246-CTO
v 2247-CTO
v 2261-CTO
v 4058-CTO
v 4061-CTO
v 4062-CTO
v 4063-CTO
v 4064-CTO
v 4065-CTO
42T0961 R **
23 Ericsson F3507g USA - Wireless WAN card
v 2055-CTO
v 2056-CTO
v 2081-CTO
v 2082-CTO, 26x, 27x
v 2083-CTO
v 2087-CTO
v 2088-CTO
v 2089-CTO, 3Jx
v 2241-CTO
v 2242-CTO, 22x, 23x, 32x, 4Ex
v 2243-CTO
v 2246-CTO
v 2247-CTO
v 2261-CTO
v 4058-CTO
v 4061-CTO
v 4062-CTO, 24x, 25x
v 4063-CTO
v 4064-CTO
v 4065-CTO
42T0957 R **
148 ThinkPad T500 and W500 (15.4-inch widescreen) Hardware Maintenance Manual

Table 42. Parts list—Overall (continued)
No. FRU FRU no. RoHS
ID
CRU
ID
23 Ericsson F3507g Other - Wireless WAN card
v 2055-CTO
v 2056-CTO
v 2081-CTO
v 2082-CTO, 52x, 54x, 5Ax
v 2083-CTO
v 2087-CTO
v 2088-CTO
v 2089-CTO, 2Hx, 4Dx
v 2241-CTO
v 2242-CTO
v 2243-CTO, 4Dx, 4Lx
v 2246-CTO
v 2247-CTO
v 2261-CTO
v 4058-CTO
v 4061-CTO
v 4062-CTO, 28x
v 4063-CTO
v 4064-CTO
v 4065-CTO
42T0959 R **
24 Thermal device and fan (Integrated)
v 2089-all
v 2241-all
v 2242-all
v 2243-all
v 2246-all
v 2247-all
v 2261-all
42X5114 R N
24 Thermal device and fan (Discrete)
v 2055-all
v 2056-all
v 2083-all
v 2087-all
v 2081-all
v 2082-all
v 2088-all
v 4058-all
v 4061-all
v 4062-all
v 4063-all
v 4064-all
v 4065-all
42X5115 R N
ThinkPad T500 and W500 (15.4-inch widescreen) 149

Table 42. Parts list—Overall (continued)
No. FRU FRU no. RoHS
ID
CRU
ID
25 Palm rest assembly without fingerprint reader
v 2055-CTO, 2Vx, 4Bx, 4Cx, 4Dx
v 2056-CTO
v 2081-CTO
v 2082-CTO
v 2083-CTO
v 2087-CTO
v 2088-CTO
v 2089-CTO, 2Vx, 3Tx, 3Ux, 3Vx
v 2241-CTO
v 2242-CTO, 4Ex, 4Fx
v 2243-CTO
v 2246-CTO
v 2247-CTO
v 2261-CTO
v 4058-CTO
v 4061-CTO
v 4062-CTO
v 4063-CTO
v 4064-CTO
v 4065-CTO
44C0662 R **
25 Palm rest assembly with fingerprint reader
v 2055-CTO, 2Bx, 2Cx, 2Dx, 2Ex, 2Lx, 2Mx, 2Nx, 2Px,
2Xx, 3Ax, 45x, 46x, 47x, 48x, 49x, 4Ax, 4Ex, 4Fx, 4Gx,
4Hx, E1x, E2x
v 2056-CTO, 34x, 4Kx, 4Px, 4Qx, 4Rx, 4Sx, 4Tx, E1x,
E2x
v 2081-CTO, 22x, 24x, 3Ex, 52x, 53x
v 2082-CTO, 26x, 27x, 28x, 3Fx, 3Gx, 3Hx, 3Jx, 3Kx, 3Lx,
3Mx, 3Nx, 3Rx, 52x, 53x, 54x, 55x, 56x, 57x, 58x, 59x,
5Ax, 5Bx
v 2083-CTO, 4Yx
v 2087-CTO, 4Zx
v 2088-CTO, 3Tx, 3Wx, 3Yx, 3Zx, 42x, 43x, 44x
v 2089-CTO, 2Hx, 2Jx, 2Kx, 2Lx, 2Mx, 2Qx, 2Rx, 2Sx,
2Ux, 2Wx, 2Xx, 2Yx, 3Hx, 3Jx, 3Kx, 3Lx, 3Mx, 3Nx,
3Px, 3Qx, 3Rx, 3Sx, 4Dx, E1x, E2x, E3x
v 2241-CTO, 3Wx, 3Xx, 3Yx, 3Zx, 42x, 43x, 44x, E1x,
E2x, E3x
v 2242-CTO, 22x, 23x, 24x, 25x, 26x, 27x, 28x, 32x, 33x,
34x, 35x, 36x, 37x, 38x, 39x, 3Ax
v 2243-CTO, 2Bx, 2Cx, 3Bx, 3Cx, 4Dx, 4Ex, 4Lx, 4Mx
v 2246-CTO, 4Bx
v 2247-CTO, 4Cx
v 2261-CTO, 2Dx, 2Ex, 2Fx, 2Gx, 2Hx, 3Dx, 3Ex, 3Fx,
3Gx
v 4058-CTO, 22x, 23x
v 4061-CTO, 2Hx, 2Jx, 2Kx, 2Lx, 2Mx, 2Nx, 2Px, 2Qx,
2Rx, 2Sx, 2Zx, 32x
v 4062-CTO, 24x, 25x, 26x, 27x, 28x, 29x, 2Ax, 2Bx, 2Cx,
2Dx, 2Ex, 2Fx, 2Gx, 2Xx, 2Yx
v 4063-CTO, 2Tx, 2Ux, 33x, 34x
v 4064-CTO, 2Vx
v 4065-CTO, 2Wx
44C0664 R **
26 Keyboard (see “Keyboard” on page 159.)
150 ThinkPad T500 and W500 (15.4-inch widescreen) Hardware Maintenance Manual

15.4-in. WXGA TFT
Table 43. Parts list—15.4-in. WXGA TFT
No. FRU FRU no. RoHS
ID
CRU
ID
1 LCD cover kit 43Y9735 R N
2 Wireless LAN/WAN/wireless USB antenna assembly 44C5386 R N
2 Wireless LAN/WAN/wireless USB antenna assembly 44C5387 R N
3 LCD magnesium structure frame assembly 43Y9736 R N
4 LCD cable assembly 44C5385 R N
5 Hinge assembly 43Y9737 R N
5 Hinge assembly 43Y9738 R N
6 Inverter card 41W1338 R N
6 Inverter card 13R1015 R N
7 Bluetooth daughter card (BDC-2.1)
v 2055-CTO, 2Lx, 2Nx, 48x
v 2056-CTO
v 2081-CTO
v 2082-CTO, 3Mx, 3Nx, 58x
v 2083-CTO
v 2087-CTO
v 2088-CTO
v 2089-CTO, 2Hx, 2Jx, 2Kx, 2Lx, 2Mx, 2Rx, 2Vx, 2Yx,
3Hx, 3Jx, 3Kx, 3Lx, 3Mx, 3Nx, 3Px, 3Qx, 3Rx, 3Sx,
3Tx, 3Ux, 3Vx, E1x, E2x, E3x
v 2241-CTO, 3Wx, 3Xx, 3Yx, 3Zx, 42x, 43x, 44x, E2x, E3x
v 2242-CTO, 23x, 26x, 28x, 32x, 34x, 35x, 36x, 37x, 38x,
3Ax
v 2243-CTO, 2Cx, 3Bx, 3Cx, 4Dx, 4Ex, 4Lx, 4Mx
v 2246-CTO, 4Bx
v 2247-CTO, 4Cx
v 2261-CTO, 2Fx, 2Hx, 3Dx, 3Ex, 3Fx, 3Gx
v 4058-CTO
v 4061-CTO
v 4062-CTO
v 4063-CTO
v 4064-CTO
v 4065-CTO
42T0969 R N
ThinkPad T500 and W500 (15.4-inch widescreen) 153

Table 43. Parts list—15.4-in. WXGA TFT (continued)
No. FRU FRU no. RoHS
ID
CRU
ID
8 LCD panel, 15.4-in. WXGA
v 2055-CTO, 2Lx, 2Nx, 48x
v 2056-CTO
v 2081-CTO
v 2082-CTO, 3Mx, 3Nx, 58x
v 2083-CTO
v 2087-CTO
v 2088-CTO
v 2089-CTO, 2Hx, 2Jx, 2Kx, 2Lx, 2Mx, 2Rx, 2Vx, 2Yx,
3Hx, 3Jx, 3Kx, 3Lx, 3Mx, 3Nx, 3Px, 3Qx, 3Rx, 3Sx,
3Tx, 3Ux, 3Vx, E1x, E2x, E3x
v 2241-CTO, 3Wx, 3Xx, 3Yx, 3Zx, 42x, 43x, 44x, E1x,
E2x, E3x
v 2242-CTO, 22x, 23x, 26x, 28x, 32x, 33x, 34x, 35x, 36x,
37x, 38x, 3Ax, 4Ex, 4Fx
v 2243-CTO, 2Cx, 3Bx, 3Cx, 4Dx, 4Ex, 4Lx, 4Mx
v 2246-CTO, 4Bx
v 2247-CTO, 4Cx
v 2261-CTO, 2Fx, 2Hx, 3Dx, 3Ex, 3Fx, 3Gx
v 4058-CTO
v 4061-CTO
v 4062-CTO
v 4063-CTO
v 4064-CTO
v 4065-CTO
42T0486 R N
8 LCD panel, 15.4-in. WXGA
v 2055-CTO, 2Lx, 2Nx, 48x
v 2056-CTO
v 2081-CTO
v 2082-CTO, 3Mx, 3Nx, 58x
v 2083-CTO
v 2087-CTO
v 2088-CTO
v 2089-CTO, 2Hx, 2Jx, 2Kx, 2Lx, 2Mx, 2Rx, 2Vx, 2Yx,
3Hx, 3Jx, 3Kx, 3Lx, 3Mx, 3Nx, 3Px, 3Qx, 3Rx, 3Sx,
3Tx, 3Ux, 3Vx, E1x, E2x, E3x
v 2241-CTO, 3Wx, 3Xx, 3Yx, 3Zx, 42x, 43x, 44x, E1x,
E2x, E3x
v 2242-CTO, 22x, 23x, 26x, 28x, 32x, 33x, 34x, 35x, 36x,
37x, 38x, 3Ax, 4Ex, 4Fx
v 2243-CTO, 2Cx, 3Bx, 3Cx, 4Dx, 4Ex, 4Lx, 4Mx
v 2246-CTO, 4Bx
v 2247-CTO, 4Cx
v 2261-CTO, 2Fx, 2Hx, 3Dx, 3Ex, 3Fx, 3Gx
v 4058-CTO
v 4061-CTO
v 4062-CTO
v 4063-CTO
v 4064-CTO
v 4065-CTO
42T0484 R N
9 Clear plate kit 43Y9739 R N
154 ThinkPad T500 and W500 (15.4-inch widescreen) Hardware Maintenance Manual

15.4-in. WSXGA+ TFT
Table 44. Parts list—15.4-in. WSXGA+ TFT
No. FRU FRU no. RoHS
ID
CRU
ID
1 LCD cover kit 43Y9735 R N
2 Wireless LAN/WAN/wireless USB antenna assembly 44C5386 R N
2 Wireless LAN/WAN/wireless USB antenna assembly 44C5387 R N
3 LCD magnesium structure frame assembly 43Y9736 R N
4 LCD cable assembly 44C5385 R N
5 Hinge assembly 43Y9737 R N
5 Hinge assembly 43Y9738 R N
6 Inverter card 41W1338 R N
6 Inverter card 13R1015 R N
7 Bluetooth daughter card (BDC-2.1)
v 2055-CTO, 2Bx, 2Cx, 2Dx, 2Ex, 2Mx, 2Px, 2Xx, 3Ax,
45x, 46x, 47x, 49x, 4Ax, 4Bx, 4Cx, 4Dx, 4Ex, 4Fx, 4Gx,
4Hx, E1x, E2x
v 2056-CTO, 4Px, 4Qx, 4Rx, 4Sx, 4Tx, E1x, E2x
v 2081-CTO, 22x, 24x, 3Ex, 52x, 53x
v 2082-CTO, 26x, 27x, 28x, 3Fx, 3Gx, 3Hx, 3Jx, 3Kx, 3Lx,
3Rx, 52x, 53x, 54x, 55x, 56x, 57x, 59x, 5Ax, 5Bx
v 2083-CTO, 4Yx
v 2087-CTO, 4Zx
v 2088-CTO, 3Tx, 3Wx, 3Yx, 3Zx, 42x, 43x, 44x
v 2089-CTO, 2Qx, 2Sx, 2Ux, 2Wx, 2Xx, 4Dx
v 2241-CTO
v 2242-CTO, 24x, 25x, 27x, 39x
v 2243-CTO, 2Bx
v 2246-CTO
v 2247-CTO
v 2261-CTO, 2Dx, 2Ex, 2Gx
v 4058-CTO
v 4061-CTO, 2Hx, 2Mx, 2Nx, 2Px, 2Qx, 2Zx
v 4062-CTO, 29x
v 4063-CTO, 2Tx, 33x
v 4064-CTO
v 4065-CTO
42T0969 R N
ThinkPad T500 and W500 (15.4-inch widescreen) 155

Table 44. Parts list—15.4-in. WSXGA+ TFT (continued)
No. FRU FRU no. RoHS
ID
CRU
ID
8 LCD panel, 15.4-in. WSXGA+
v 2055-CTO, 2Bx, 2Cx, 2Dx, 2Ex, 2Mx, 2Px, 2Vx, 2Xx,
3Ax, 45x, 46x, 47x, 49x, 4Ax, 4Bx, 4Cx, 4Dx, 4Ex, 4Fx,
4Gx, 4Hx, E1x, E2x
v 2056-CTO, 34x, 4Kx, 4Px, 4Qx, 4Rx, 4Sx, 4Tx, E1x, E2x
v 2081-CTO, 22x, 24x, 3Ex, 52x, 53x
v 2082-CTO, 3Fx, 26x, 27x, 28x, 3Gx, 3Hx, 3Jx, 3Kx, 3Lx,
3Rx, 52x, 53x, 54x, 55x, 56x, 57x, 59x, 5Ax, 5Bx
v 2083-CTO, 4Yx
v 2087-CTO, 4Zx
v 2088-CTO, 3Tx, 3Wx, 3Yx, 3Zx, 42x, 43x, 44x
v 2089-CTO, 2Qx, 2Sx, 2Ux, 2Wx, 2Xx, 4Dx
v 2241-CTO
v 2242-CTO, 24x, 25x, 27x, 39x
v 2243-CTO, 2Bx
v 2246-CTO
v 2247-CTO
v 2261-CTO, 2Dx, 2Ex, 2Gx
v 4058-CTO
v 4061-CTO, 2Hx, 2Mx, 2Nx, 2Px, 2Qx, 2Zx
v 4062-CTO, 29x
v 4063-CTO, 2Tx, 33x
v 4064-CTO
v 4065-CTO
42T0488 R N
8 LCD panel, 15.4-in. WSXGA+
v 2055-CTO, 2Bx, 2Cx, 2Dx, 2Ex, 2Mx, 2Px, 2Vx, 2Xx,
3Ax, 45x, 46x, 47x, 49x, 4Ax, 4Bx, 4Cx, 4Dx, 4Ex, 4Fx,
4Gx, 4Hx, E1x, E2x
v 2056-CTO, 34x, 4Kx, 4Px, 4Qx, 4Rx, 4Sx, 4Tx, E1x, E2x
v 2081-CTO, 22x, 24x, 3Ex, 52x, 53x
v 2082-CTO, 3Fx, 26x, 27x, 28x, 3Gx, 3Hx, 3Jx, 3Kx, 3Lx,
3Rx, 52x, 53x, 54x, 55x, 56x, 57x, 59x, 5Ax, 5Bx
v 2083-CTO, 4Yx
v 2087-CTO, 4Zx
v 2088-CTO, 3Tx, 3Wx, 3Yx, 3Zx, 42x, 43x, 44x
v 2089-CTO, 2Qx, 2Sx, 2Ux, 2Wx, 2Xx, 4Dx
v 2241-CTO
v 2242-CTO, 24x, 25x, 27x, 39x
v 2243-CTO, 2Bx
v 2246-CTO
v 2247-CTO
v 2261-CTO, 2Dx, 2Ex, 2Gx
v 4058-CTO
v 4061-CTO, 2Hx, 2Mx, 2Nx, 2Px, 2Qx, 2Zx
v 4062-CTO, 29x
v 4063-CTO, 2Tx, 33x
v 4064-CTO
v 4065-CTO
42T0423 R N
9 Clear plate kit 43Y9739 R N
156 ThinkPad T500 and W500 (15.4-inch widescreen) Hardware Maintenance Manual

15.4-in. WUXGA TFT
Table 45. Parts list—15.4-in. WUXGA TFT
No. FRU FRU no. RoHS
ID
CRU
ID
1 LCD cover kit 43Y9735 R N
2 Wireless LAN/WAN/wireless USB antenna assembly 44C5386 R N
2 Wireless LAN/WAN/wireless USB antenna assembly 44C5386 R N
3 LCD magnesium structure frame assembly 43Y9736 R N
4 LCD cable assembly 44C5385 R N
5 Hinge assembly 43Y9737 R N
5 Hinge assembly 43Y9738 R N
6 Inverter card 41W1338 R N
6 Inverter card 13R1015 R N
7 Bluetooth daughter card (BDC-2.1)
v 2055-CTO
v 2056-CTO
v 2081-CTO
v 2082-CTO
v 2083-CTO
v 2087-CTO
v 2088-CTO
v 2089-CTO
v 2241-CTO
v 2242-CTO
v 2243-CTO
v 2246-CTO
v 2247-CTO
v 2261-CTO
v 4058-CTO, 22x, 23x
v 4061-CTO, 2Jx, 2Kx, 2Lx, 2Rx, 2Sx, 32x
v 4062-CTO, 24x, 25x, 26x, 27x, 28x, 2Ax, 2Bx, 2Cx, 2Dx,
2Ex, 2Fx, 2Gx, 2Xx, 2Yx
v 4063-CTO, 2Ux, 34x
v 4064-CTO, 2Vx
v 4065-CTO, 2Wx
42T0969 R N
ThinkPad T500 and W500 (15.4-inch widescreen) 157

Table 45. Parts list—15.4-in. WUXGA TFT (continued)
No. FRU FRU no. RoHS
ID
CRU
ID
8 LCD panel, 15.4-in. WUXGA
v 2055-CTO
v 2056-CTO
v 2081-CTO
v 2082-CTO
v 2083-CTO
v 2087-CTO
v 2088-CTO
v 2089-CTO
v 2241-CTO
v 2242-CTO
v 2243-CTO
v 2246-CTO
v 2247-CTO
v 2261-CTO
v 4058-CTO, 22x, 23x
v 4061-CTO, 2Jx, 2Kx, 2Lx, 2Rx, 2Sx, 32x
v 4062-CTO, 24x, 25x, 26x, 27x, 28x, 2Ax, 2Bx, 2Cx, 2Dx,
2Ex, 2Fx, 2Gx, 2Xx, 2Yx
v 4063-CTO, 2Ux, 34x
v 4064-CTO, 2Vx
v 4065-CTO, 2Wx
42T0574 R N
9 Clear plate kit 43Y9739 R N
158 ThinkPad T500 and W500 (15.4-inch widescreen) Hardware Maintenance Manual

Keyboard
Table 46. Parts list—Keyboard
Language P/N RoHS
ID
CRU
ID
Arabic 42T4005 42T4069 42T3940 R **
Belgian 42T4006 42T4070 42T3941
Brazilian Portuguese 42T4033 42T4097 42T3968
Bulgarian 42T4145 42T4142 42T4138
Canadian French (058) 42T4004 42T4068 42T3939
Canadian French (Acnor) 42T4003 42T4067 42T3938
Czech 42T4007 42T4071 42T3942
Danish 42T4008 42T4072 42T3943
Dutch 42T4016 42T4080 42T3951
Finnish, Swedish 42T4023 42T4087 42T3958
French 42T4010 42T4074 42T3945
German 42T4011 42T4075 42T3946
Greek (U.S. English and Greek layout) 42T4012 42T4076 42T3947
Hebrew 42T4014 42T4078 42T3949
Hungarian 42T4013 42T4077 42T3948
Icelandic — — 42T3969
Italian 42T4015 42T4079 42T3950
Japanese 42T4028 42T4092 42T3963
Korean 42T4032 42T4096 42T3967
Latin American Spanish 42T4031 42T4095 42T3966
Norwegian 42T4017 42T4081 42T3952
Polish 42T4018 42T4082 42T3953
Portuguese 42T4019 42T4083 42T3954
Russian 42T4020 42T4084 42T3955
Slovak 42T4021 42T4085 42T3956
Slovenian 42T4022 42T4086 42T3957
Spanish 42T4009 42T4073 42T3944
Swiss 42T4024 42T4088 42T3959
Thai 42T4030 42T4094 42T3965
Traditional Chinese 42T4029 42T4093 42T3964
Turkish 42T4025 42T4089 42T3960
U.K. English 42T4026 42T4090 42T3961
U.S. English 42T4002 42T4066 42T3937
U.S. English (International, with a Euro
symbol)
42T4027 42T4091 42T3962
ThinkPad T500 and W500 (15.4-inch widescreen) 159

Table 47. Parts list—Keyboard
Language P/N RoHS
ID
CRU
ID
Arabic 42T3212 42T3276 42T3146 R **
Belgian 42T3213 42T3277 42T3147
Brazilian Portuguese 42T3240 42T3304 42T3174
Canadian French (058) 42T3211 42T3275 42T3145
Canadian French (Acnor) 42T3210 42T3274 42T3144
Czech 42T3214 42T3278 42T3148
Danish 42T3215 42T3279 42T3149
Dutch 42T3223 42T3287 42T3157
Finnish, Swedish 42T3230 42T3294 42T3164
French 42T3217 42T3281 42T3151
German 42T3218 42T3282 42T3152
Greek (U.S. English and Greek layout) 42T3219 42T3283 42T3153
Hebrew 42T3221 42T3285 42T3155
Hungarian 42T3220 42T3284 42T3154
Icelandic — — 42T3175
Italian 42T3222 42T3286 42T3156
Japanese 42T3235 42T3299 42T3169
Korean 42T3239 42T3303 42T3173
Latin American Spanish 42T3238 42T3302 42T3172
Norwegian 42T3224 42T3288 42T3158
Polish 42T3225 42T3289 42T3159
Portuguese 42T3226 42T3290 42T3160
Russian 42T3227 42T3291 42T3161
Slovak 42T3228 42T3292 42T3162
Slovenian 42T3229 42T3293 42T3163
Spanish 42T3216 42T3280 42T3150
Swiss 42T3231 42T3295 42T3165
Thai 42T3237 42T3301 42T3171
Traditional Chinese 42T3236 42T3300 42T3170
Turkish 42T3232 42T3296 42T3166
U.K. English 42T3233 42T3297 42T3167
U.S. English 42T3209 42T3273 42T3143
U.S. English (International, with a Euro
symbol)
42T3234 42T3298 42T3168
160 ThinkPad T500 and W500 (15.4-inch widescreen) Hardware Maintenance Manual

Miscellaneous parts
Table 48. Parts list—Miscellaneous parts
FRU P/N RoHS
ID
CRU
ID
Screw kit (including nylon-coated screws):
v M2 × 5 mm (black), wafer head (11)
v M2 × 2.7 mm (black), wafer head (10)
v M2 × 4 mm (black), bind head (17)
v M2 × 2.7 mm (black), flat head (2)
v M2 × 2.8 mm (silver), flat head (14)
v M2 × 3 mm (silver), small head (15)
v M2 × 3.6 mm (gold), flat head (24)
v M2 × 5 mm (black), flat head (20)
v M2 × 9.5 mm (black), bind head (11)
v M2 × 14 mm (black), flat head (10)
v M2 × 14 mm HDD security (2)
v M2 × 19 mm (black), bind head (2)
v M2.5 × 4 mm (black), flat head (7)
v Security screw (5)
v Hex stud (4)
v Screw cap, dia. 7 mm (10)
v Tape, cable fix (4)
v Tape (2)
v Tape, cable fix, circle (5)
v Tape for LCD FPC (2)
43Y9733 R N
Base miscellaneous parts:
v Knob, wireless switch
v Lever, wireless switch
v Slide lever, eject
v Spring, slide lever/battery eject
v Bracket puller, eject
v Pull lever, eject
v Spring, eject
v Rubber foot (front)
v Rubber foot (rear L)
v Shield plate 1 (GND docking)
v Insulation sheet 1
v Lens, LED-bay switch
v Latch, battery eject
v Screw cap (dia. 7 mm)
v Form-battery
v Lens, LED-SD Card
v Lens, LED-RJ45
v Bracket-RJ45
v Form, under planar-1
v Form, under planar-2
v Spreader, heatsink base cover
v Foil, heatsink-1
v Foil, heatsink-2
v Insulation sheet ODD
43Y9731 R N
ThinkPad T500 and W500 (15.4-inch widescreen) 161

Table 48. Parts list—Miscellaneous parts (continued)
FRU P/N RoHS
ID
CRU
ID
System miscellaneous parts:
v (a)Cable assembly, DC in.
v (b) Bracket, N/B, fan discrete/integ.
v (c) Bracket, VGA, fan discrete/integ.
v (d)Cable assembly, AMOM (modem)
v (e) Bracket, CPU support assembly
v Bracket, Kensington
v Guide, SIM
v Bracket, IEEE 1394
v EMI shield bracket for MDC
Note: Italicized letters in parentheses are references to the
exploded view in “Overall” on page 122.
43Y9732 R N
System board miscellaneous parts:
v Insulation sheet, docking
v Insulation under 4-in-1
v Insulation sheet, front louver formed
v Insulation sheet, PC Card slot
v Insulation sheet, bottom CPU
v Insulation sheet, front top
v Shield sheet for NB
v Insulation sheet for video
v Insulation sheet, bottom louver
v Shield sheet, AMOM
43Y9730 R N
Wireless WAN shield kit:
v (e) EMI shield bracket for MDC, Verizon
v (e) EMI shield bracket for MDC, Vodafone/Cingular
v Cushion sheet
v Ferrite core for speaker
42X4332 R N
162 ThinkPad T500 and W500 (15.4-inch widescreen) Hardware Maintenance Manual

AC adapters
Table 49. Parts list—2-pin AC adapters
FRU P/N RoHS
ID
CRU
ID
2-pin (90 W, 20 V) adapter (models CTO, xxE, xxF, xxJ, xxL,
xxP, xxS, xxY, xxU)
42T5000 R *
2-pin (90 W, 20 V) adapter (models CTO, xxE, xxF, xxJ, xxL,
xxP, xxS, xxY, xxU)
42T5277
2-pin (90 W, 20 V) adapter (models CTO, xxE, xxF, xxJ, xxL,
xxP, xxS, xxY, xxU)
93P5026
2-pin (65 W, 20 V) adapter (models CTO, xxE, xxF, xxJ, xxL,
xxP, xxS, xxY, xxU)
42T5282
2-pin (65 W, 20 V) adapter (models CTO, xxE, xxF, xxJ, xxL,
xxP, xxS, xxY, xxU)
92P1214
2-pin (65 W, 20 V) adapter (models CTO, xxE, xxF, xxJ, xxL,
xxP, xxS, xxY, xxU)
92P1159
Table 50. Parts list—3-pin AC adapters
FRU P/N RoHS
ID
CRU
ID
3-pin (90 W, 20 V) adapter (models CTO, xxA, xxB, xxC, xxG,
xxH, xxK, xxM, xxT, xxV)
92P1104 R *
3-pin (90 W, 20 V) adapter (models CTO, xxA, xxB, xxC, xxG,
xxH, xxK, xxM, xxT, xxV)
42T5275
3-pin (90 W, 20 V) adapter (models CTO, xxA, xxB, xxC, xxG,
xxH, xxK, xxM, xxT, xxV)
92P1108
3-pin (65W, 20 V) adapter (models CTO, xxA, xxB, xxC, xxG,
xxH, xxK, xxM, xxT, xxV) OP
42T5283
3-pin (65W, 20 V) adapter (models CTO, xxA, xxB, xxC, xxG,
xxH, xxK, xxM, xxT, xxV)
92P1212
3-pin (65W, 20 V) adapter (models CTO, xxA, xxB, xxC, xxG,
xxH, xxK, xxM, xxT, xxV)
92P1157
ThinkPad T500 and W500 (15.4-inch widescreen) 163

Power cords
A ThinkPad power cord for a specific country or region is usually available only in
that country or region:
Table 51. Parts list—2-pin power cords
Region P/N RoHS
ID
CRU
ID
Argentina
v models -CTO, xxY
42T5020 42T5105 R *
Brazil
v models -CTO, xxP
42T5180 42T5183
Canada, U.S.
v models -CTO, xxF, xxL, xxS, xxU
42T5008 42T5093
Japan
v models -Exx, Jxx
42T5014 42T5099
Table 52. Parts list—3-pin power cords
Region P/N RoHS
ID
CRU
ID
Australia, New Zealand
v models -CTO, xxG, xxM
42T5050 42T5135 R *
Bangladesh, Sri Lanka, South Africa
v models -CTO, xxG
42T5056 42T5141
Canada, U.S.
v models -CTO, xxF, xxL, xxS, xxU
42T5004 42T5089
China (P.R.C.) (other than Hong Kong S.A.R.)
v models -xxC
42T5065 42T5150
Denmark
v models -CTO, xxG
42T5041 42T5126
European countries
v models -CTO, xxG
42T5029 42T5114
India
v models -CTO, xxG
42T5083 42T5168
Israel
v models -CTO, xxG
42T5062 42T5147
Italy
v models -CTO, xxG
42T5047 42T5132
Korea
v models -xxK
42T5077 42T5162
Switzerland
v models -CTO, xxG
42T5044 42T5129
Taiwan
v models -CTO, xxV
42T5071 42T5156
U.K., China (Hong Kong S.A.R.)
v models -CTO, xxB, xxG, xxH
42T5035 42T5120
164 ThinkPad T500 and W500 (15.4-inch widescreen) Hardware Maintenance Manual
Recovery discs
Windows XP Professional DVDs
Windows XP Professional is preinstalled as the operating system in the following
models:
v 2055-CTO
v 2056-CTO
v 2081-CTO
v 2082-CTO, 5Ax, 5Bx
v 2083-CTO
v 2087-CTO
v 2088-CTO, 53x
v 2089-CTO
v 2241-CTO
v 2242-CTO
v 2243-CTO, 4Lx, 4Mx
v 2246-CTO
v 2247-CTO
v 2261-CTO
v 4058-CTO
v 4061-CTO
v 4062-CTO
v 4063-CTO
v 4064-CTO
v 4065-CTO
ThinkPad T500 and W500 (15.4-inch widescreen) 165

Table 53. Parts list—Windows XP Professional recovery DVDs
Language P/N RoHS
ID
CRU
ID
Arabic 46V1468 R *
Brazilian Portuguese 46V1469
Czech 46V1471
Danish 46V1472
Dutch 46V1483
English 46V1494
English (modem-disabled) 46V1493
Finnish 46V1473
French 46V1474
German 46V1476
Greek 46V1475
Hebrew 46V1477
Hungarian 46V1479
Italian 46V1480
Japanese 46V1481
Korean 46V1482
Norwegian 46V1484
Polish 46V1485
Russian 46V1487
Russian (English-enabled) 46V1486
Simplified Chinese 46V1470
Slovenian 46V1488
Spanish 46V1489
Swedish 46V1490
Traditional Chinese 46V1492
Traditional Chinese (Hong Kong S.A.R.) 46V1478
Turkish 46V1491
166 ThinkPad T500 and W500 (15.4-inch widescreen) Hardware Maintenance Manual
Windows Vista Home Basic (32 bit) DVDs
Windows Vista Home Basic (32 bit) is preinstalled as the operating system in the
following models:
v 2055-CTO
v 2056-CTO
v 2081-CTO
v 2082-CTO
v 2083-CTO
v 2087-CTO
v 2088-CTO
v 2089-CTO
v 2241-CTO
v 2242-CTO, 28x
v 2243-CTO
v 2246-CTO
v 2247-CTO
v 2261-CTO, 2Hx
v 4058-CTO
v 4061-CTO
v 4062-CTO
v 4063-CTO
v 4064-CTO
v 4065-CTO
ThinkPad T500 and W500 (15.4-inch widescreen) 167

Table 54. Parts list—Windows Vista Home Basic (32 bit) DVDs
Language P/N RoHS
ID
CRU
ID
Czech 46U9824 R *
Danish 46U9820
English 46U9804
English (modem-disabled) 46U9805
French 46U9807
German 46U9808
Greek 46U9827
Hebrew 46U9811
Hungarian 46U9828
Italian 46U9812
Japanese 46U9813
Korean 46U9817
Norwegian 46U9821
Polish 46U9825
Romanian 46U9831
Russian (English-enabled) 46U9806
Serbian-Latin 46U9832
Simplified Chinese 46U9814
Slovak 46U9833
Slovenian 46U9830
Spanish 46U9809
Traditional Chinese 46U9815
Traditional Chinese (Hong Kong S.A.R.) 46U9816
Turkish 46U9826
168 ThinkPad T500 and W500 (15.4-inch widescreen) Hardware Maintenance Manual

Windows Vista Home Premium (32 bit) DVDs
Windows Vista Home Premium (32 bit) is preinstalled as the operating system in
the following models:
v 2055-CTO
v 2056-CTO
v 2081-CTO, 52x
v 2082-CTO
v 2083-CTO
v 2087-CTO
v 2088-CTO
v 2089-CTO
v 2241-CTO
v 2242-CTO, 27x, 38x, 39x
v 2243-CTO
v 2246-CTO
v 2247-CTO
v 2261-CTO, 2Gx
v 4058-CTO
v 4061-CTO
v 4062-CTO
v 4063-CTO
v 4064-CTO
v 4065-CTO
Table 55. Parts list—Windows Vista Home Premium (32 bit) DVDs
Language P/N RoHS
ID
CRU
ID
Danish 46U9853 R *
English 46U9837
English (modem-disabled) 46U9838
French 46U9840
German 46U9841
Hebrew 46U9844
Italian 46U9845
Japanese 46U9846
Korean 46U9850
Norwegian 46U9854
Polish 46U9858
Russian (English-enabled) 46U9839
Simplified Chinese 46U9847
Spanish 46U9842
Traditional Chinese 46U9848
Traditional Chinese (Hong Kong S.A.R.) 46U9849
Turkish 46U9859
ThinkPad T500 and W500 (15.4-inch widescreen) 169
Windows Vista Business (32 bit) DVDs
Windows Vista Business (32 bit) is preinstalled as the operating system in the
following models:
v 2055-CTO, 2Bx, 2Cx, 2Dx, 2Ex, 2Lx, 2Mx, 2Nx, 2Px, 2Vx, 2Xx, 45x, 46x, 47x, 48x,
49x, 4Ax, 4Ex, 4Fx, 4Gx, 4Hx, E1x, E2x
v 2056-CTO, 34x, 4Kx, 4Px, 4Qx, 4Rx, 4Tx, E1x, E2x
v 2081-CTO, 22x, 24x
v 2082-CTO, 26x, 27x, 28x, 3Fx, 3Gx, 3Hx, 3Jx, 3Kx, 3Lx, 3Mx, 3Nx, 3Rx, 52x, 53x,
54x, 55x, 56x, 57x, 58x, 59x, 5Vx
v 2083-CTO, 4Yx
v 2087-CTO, 4Zx
v 2088-CTO, 3Tx, 3Wx, 3Yx, 3Zx, 42x, 43x, 44x
v 2089-CTO, 2Jx, 2Kx, 2Lx, 2Mx, 2Qx, 2Hx, 3Px, 2Jx, 2Rx, 2Sx, 2Ux, 2Vx, 2Wx, 2Xx,
2Yx, 3Hx, 3Jx, 3Kx, 3Lx, 3Mx, 3Nx, 3Qx, 3Rx, 3Sx, 4Dx E1x, E2x, E3x
v 2241-CTO, 3Wx, 3Xx, 3Yx, 3Zx, 42x, 43x, 44x, E1x, E2x, E3x
v 2242-CTO, 22x, 23x, 32x, 33x, 34x, 35x, 25x, 26x, 36x, 37x, 4Ex, 4Fx
v 2243-CTO, 2Bx, 2Cx, 3Bx, 3Cx, 4Dx, 4Ex
v 2246-CTO, 4Bx
v 2247-CTO, 4Cx
v 2261-CTO, 2Dx, 2Ex, 2Fx, 3Dx, 3Ex, 3Fx, 3Gx
v 4058-CTO, 22x, 23x
v 4061-CTO, 2Hx, 2Jx, 2Kx, 2Lx, 2Rx, 2Sx, 2Zx
v 4062-CTO, 24x, 27x, 29x, 2Bx, 2Cx, 2Dx, 2Ex, 2Gx, 2Yx
v 4063-CTO, 33x
v 4064-CTO, 2Vx
v 4065-CTO, 2Wx
170 ThinkPad T500 and W500 (15.4-inch widescreen) Hardware Maintenance Manual

Table 56. Parts list—Windows Vista Business (32 bit) DVDs
Language P/N RoHS
ID
CRU
ID
Brazilian Portuguese 46U9744 R *
Czech 46U9758
Danish 46U9754
English 46U9738
English (modem-disabled) 46U9739
French 46U9741
German 46U9742
Greek 46U9761
Hebrew 46U9745
Hungarian 46U9762
Italian 46U9746
Japanese 46U9747
Korean 46U9751
Norwegian 46U9755
Polish 46U9759
Portuguese 46U9763
Romanian 46U9765
Russian 46U9756
Russian (English-enabled) 46U9740
Serbian-Latin 46U9766
Simplified Chinese 46U9748
Slovak 46U9767
Slovenian 46U9764
Spanish 46U9743
Traditional Chinese 46U9749
Traditional Chinese (Hong Kong S.A.R.) 46U9750
Turkish 46U9760
ThinkPad T500 and W500 (15.4-inch widescreen) 171

Windows Vista Business (64 bit) DVDs
Windows Vista Business (64 bit) is preinstalled as the operating system in the
following models:
v 2055-CTO
v 2056-CTO
v 2081-CTO
v 2082-CTO
v 2083-CTO
v 2087-CTO
v 2088-CTO
v 2089-CTO
v 2241-CTO
v 2242-CTO
v 2243-CTO
v 2246-CTO
v 2247-CTO
v 2261-CTO
v 4058-CTO
v 4061-CTO, 32x
v 4062-CTO, 25x, 2Fx
v 4063-CTO, 34x
v 4064-CTO
v 4065-CTO
Table 57. Parts list—Windows Vista Business (64 bit) DVDs
Language P/N RoHS
ID
CRU
ID
English 46U9903 R *
English (modem-disabled) 46U9904
German 46U9907
Japanese 46U9912
Traditional Chinese 46U9913
172 ThinkPad T500 and W500 (15.4-inch widescreen) Hardware Maintenance Manual
Windows Vista Ultimate (32 bit) DVDs
Windows Vista Ultimate (32 bit) is preinstalled as the operating system in the
following models:
v 2055-CTO
v 2056-CTO
v 2081-CTO, 3Ex, 53x
v 2082-CTO
v 2083-CTO
v 2087-CTO
v 2088-CTO
v 2089-CTO
v 2241-CTO
v 2242-CTO, 24x, 3Ax
v 2243-CTO
v 2246-CTO
v 2247-CTO
v 2261-CTO
v 4058-CTO
v 4061-CTO, 2Mx, 2Nx, 2Px, 2Qx
v 4062-CTO, 28x, 2Ax, 2Xx
v 4063-CTO, 2Tx, 2Ux
v 4064-CTO
v 4065-CTO
ThinkPad T500 and W500 (15.4-inch widescreen) 173

Table 58. Parts list—Windows Vista Ultimate (32 bit) DVDs
Language P/N RoHS
ID
CRU
ID
Czech 46U9890 R *
Danish 46U9886
English 46U9870
English (modem-disabled) 46U9871
French 46U9873
German 46U9874
Greek 46U9893
Hebrew 46U9877
Hungarian 46U9894
Italian 46U9878
Japanese 46U9879
Korean 46U9883
Norwegian 46U9887
Polish 46U9891
Romanian 46U9897
Russian 46U9888
Russian (English-enabled) 46U9872
Serbian-Latin 46U9898
Simplified Chinese 46U9880
Slovak 46U9899
Slovenian 46U9896
Spanish 46U9875
Swedish 46U9884
Traditional Chinese 46U9881
Traditional Chinese (Hong Kong S.A.R.) 46U9882
Turkish 46U9892
174 ThinkPad T500 and W500 (15.4-inch widescreen) Hardware Maintenance Manual

Common service tools
Table 59. Parts list—Common service tools
Tool P/N
Screwdriver kit 95F3598
1/4″ drive spinner handle 1650840
1/4″ Sq. to 1/4″ hex torx adapter 93F2838
TR7-TR-10 tamper resistant torx bits 00P6967
Removal tool antenna RF connector 08K7159
USB 2.0 CD-RW/DVD-ROM combo drive II 40Y8687
USB cable 40Y8704
USB floppy diskette drive for maintenance diskette 05K9283
USB floppy diskette drive tool kit 27L3452
Test card for integrated Smart Card 42W7820
ThinkPad Hardware Maintenance Diskette Version 1.73 or later
Note: Download the file from the following Web site: http://www.lenovo.com/
spm
—
ThinkPad T500 and W500 (15.4-inch widescreen) 175
176 ThinkPad T500 and W500 (15.4-inch widescreen) Hardware Maintenance Manual

Notices
Lenovo may not offer the products, services, or features discussed in this
document in all countries. Consult your local Lenovo representative for
information on the products and services currently available in your area. Any
reference to a Lenovo product, program, or service is not intended to state or
imply that only that Lenovo product, program, or service may be used. Any
functionally equivalent product, program, or service that does not infringe any
Lenovo intellectual property right may be used instead. However, it is the user’s
responsibility to evaluate and verify the operation of any other product, program,
or service.
Lenovo may have patents or pending patent applications covering subject matter
described in this document. The furnishing of this document does not give you
any license to these patents. You can send license inquiries, in writing, to:
Lenovo (United States), Inc.
1009 Think Place - Building One
Morrisville, NC 27560
U.S.A.
Attention: Lenovo Director of Licensing
LENOVO GROUP LTD. PROVIDES THIS PUBLICATION “AS IS” WITHOUT
WARRANTY OF ANY KIND, EITHER EXPRESS OR IMPLIED, INCLUDING, BUT
NOT LIMITED TO, THE IMPLIED WARRANTIES OF NON-INFRINGEMENT,
MERCHANTABILITY OR FITNESS FOR A PARTICULAR PURPOSE. Some
jurisdictions do not allow disclaimer of express or implied warranties in certain
transactions, therefore, this statement may not apply to you.
This information could include technical inaccuracies or typographical errors.
Changes are periodically made to the information herein; these changes will be
incorporated in new editions of the publication. Lenovo may make improvements
and/or changes in the product(s) and/or the program(s) described in this
publication at any time without notice.
The products described in this document are not intended for use in implantation
or other life support applications where malfunction may result in injury or death
to persons. The information contained in this document does not affect or change
Lenovo product specifications or warranties. Nothing in this document shall
operate as an express or implied license or indemnity under the intellectual
property rights of Lenovo or third parties. All information contained in this
document was obtained in specific environments and is presented as an
illustration. The result obtained in other operating environments may vary.
Lenovo may use or distribute any of the information you supply in any way it
believes appropriate without incurring any obligation to you.
Any references in this publication to non-Lenovo Web sites are provided for
convenience only and do not in any manner serve as an endorsement of those Web
sites. The materials at those Web sites are not part of the materials for this Lenovo
product, and use of those Web sites is at your own risk.
Any performance data contained herein was determined in a controlled
environment. Therefore, the result obtained in other operating environments may
© Copyright Lenovo 2008 177

vary significantly. Some measurements may have been made on development-level
systems and there is no guarantee that these measurements will be the same on
generally available systems. Furthermore, some measurements may have been
estimated through extrapolation. Actual results may vary. Users of this document
should verify the applicable data for their specific environment.
Trademarks
The following terms are trademarks of Lenovo in the United States, other countries
or both:
Active Protection System
Lenovo®
Rescue and Recovery®
ThinkLight®
ThinkPad®
ThinkVantage®
TrackPoint®
Ultrabay
Ultrabay 2000
Ultrabay Plus
UltraNav®
The following terms are trademarks of the International Business Machines
Corporation in the United States, other countries, or both:
IBM (used under license)
The following terms are trademarks of Microsoft Corporation in the United States,
other countries, or both:
Windows®
Windows Vista
The following are trademarks of Intel Corporation or its subsidiaries in the United
States, other countries, or both:
Intel®
Intel® Core™ 2 Duo
Other company, product, or service names may be the trademarks or service marks
of others.
178 ThinkPad T500 and W500 (15.4-inch widescreen) Hardware Maintenance Manual

Part Number: 43Y6630
(1P) P/N: 43Y6630


