Innovative Control Systems IGWT-660098 Low Power Transmitter Below 1705 kHz User Manual Manual

Innovative Control Systems Inc Low Power Transmitter Below 1705 kHz Manual

Manual

    LC 1200 Manual                          800-356-2671  |  Accutech  |  www.accutech-ics.com
    LC 1200 Manual                     800-356-2671  |  Accutech  |  www.accutech-ics.com Version 1.00 October 12, 2004 DOC.970015
i Preface                                                                                                                 LC 1200 Manual   FCC STATEMENT OF CONDITIONS     FCC ID/DOC for the LC 1200 unit:  FCC ID: JM7-IGWT-660098 IC: 2683A-660098  Compliance Statement (Part 15.19) This device complies with Part 15 of the FCC rules. Operation is subject to the following two conditions: 1. This device may not cause harmful interference, and 2. This device must accept any interference received, including interference that may cause undesired operation.  Warning (Part 15.21) Changes or modification not expressly approved by the party responsible for compliance could void the user’s authority to operate the equipment.         FCC ID/DOC for the LC Sensor:  FCC ID: JM7-IGWT-662002 IC: 2683A-662002    Compliance Statement (Part 15.19) This device complies with Part 15 of the FCC rules. Operation is subject to the following two conditions: 1. This device may not cause harmful interference, and 2. This device must accept any interference received, including interference that may cause undesired operation.
LC 1200 Manual                                                                                                                Preface ii   IMPORTANT:  Keep all Televisions, Computers, X-ray  equipment, etc. at least 10 feet away from the LC 1200 unit. This includes equipment located on the other side of walls and doors.                Picture the area around the monitored zone as a big globe with the receive antenna as the center. Keep all sources of interference outside this globe.       IMPORTANT NOTICE:  Do not store LC Sensor(s) within 3 feet of ANY of the sources of electrical noise listed on this page. These sources can induce sensor activation. This activation can lead to possible undesirable responses from the system. Common Sources of Interference Include:    Television Sets   Computer Monitors   Medical Monitoring Equipment   Electric Motors   Electrical Distribution Panels and Transformers   Fluorescent Lighting   Some Electronic Washers and Dryers   X-ray and other Imaging Equipment   Unshielded Computer Cables
iii Preface                                                                                                               LC 1200 Manual  ICS/ACCUTECH LIMITED WARRANTY  Innovative Control Systems, Inc. (ICS) warrants its Accutech™ equipment (Product) against defect in materials and workmanship under normal use for a minimum of one (1) year and up to four (4) years depending on contract from the date of product shipment.   Defective equipment will be either repaired or replaced at ICS’ discretion, free of charge to the Customer during the warranty period. ICS will supply labor depending on contract to repair or replace defective equipment, free of charge, during the warranty period only if ICS or an ICS-certified subcontractor hired by ICS installed such equipment.  In addition, ICS warrants its Accutech™ LC 1200 System Tags against defects in materials and workmanship under normal use and service for a period of one (1) year from the date stamp.   If a Tag fails during the warrant period due to defects in material and workmanship, ICS will replace the Tag, free of charge, although overnight shipping charges may apply.  Furthermore, the express limited warranty of ICS shall be the sole and exclusive warranty of ICS, and ICS hereby disclaims all other warranties, express, implied or statutory, including but not limited, all other implied warranties of merchantability or fitness for a particular purpose. In no way should ICS be liable for special, incidental, or consequential damages. ICS reserves the right to change such limited warranty from time to time upon thirty (30) days written notice.  ICS assumes no responsibility if any Product shall fail to function during any warranty period by reason of any one or more of the following causes:    Abuse or misuse of the Product or failure to operate the Product in accordance with operating instructions or specifications.   Improper preventive maintenance of the Product.   Alteration or modification of the Product not specifically approved in writing by ICS.   Improper installation, repair, modification, or servicing the Product performed by any unauthorized service personnel.    Equipment or cabling damaged by unauthorized personnel knowingly or unknowingly.   Use or operation of the Product in conjunction with any accessories or auxiliary equipment not specifically approved in writing by ICS.   Acts of God, including, but not limited to, natural disaster, fire, explosions, flood, accidents and the like.    24-hour, 7-days-a-week, 365-days-a-year over the phone technical support at 1-800-356-2671
LC 1200 Manual                                                                                                                            Preface iv How to use this manual Thank you for purchasing the LC 1200 System. This manual will aid you in the understanding and installation of the LC 1200 System. The manual is arranged to build upon the information contained in the previous chapter.   The first three chapters will likely be the chapters you reference most frequently after the initial installation. They discuss how the system works, the inside of an LC unit, activating and deactivating Tags, monitored zones, addressing alarms, and attaching Tags and bands.  Each chapter thereafter focuses on a particular component that interfaces with the LC unit in the order of the required components (Magnetic Switch or Passive Infrared Reader, and Keypad) to additional optional components (External sounders, Magnetic Locks, Elevator and Automatic Door Deactivation, Timer, and Alert Panels). These chapters contain the specifications, positioning, mounting, and wiring of each component. You may not have all the components listed in this manual with your initial system. However they can easily be added at a future date as your needs warrant. Besides basic mounting tools, the only tools needed for installation are:   Spanner key/bit   Small flat screwdriver   Wire strippers When mounting, use mounting hardware appropriate for the component weight and mounting surface.  The FAQ and Troubleshooting chapter rounds out the manual. Here you will find solutions to common questions about the operation of the system and remedies to common scenarios.
800-356-2671  |  Accutech  |  www.accutech-ics.com Contents   Chapter 1: The LC 1200 system    Overview  1-1    Features  1-1    How the system works  1-1    Single vs. Double Conditioning  1-2    Monitored zones  1-2    Perimeter Door application  1-3    Alarms  1-3    Internal vs. External alarms  1-4    Addressing Alarms  1-4    Escorting  1-5    Chapter 2: The LC unit    Specifications  2-1    Positioning  2-1    Mounting  2-3    Wiring  2-3    A Look Inside  2-4    Tamper Switch adjustment  2-7    Tuning  2-8       Chapter 3: Tags & TAD    Overview  3-1    Attaching Tags  3-1    Tag and Band Maintenance  3-2    LED Tag  3-3    The TAD  3-5    Chapter 4: The Magnetic Switch    Specifications  4-1    Positioning  4-1    Mounting  4-2    Wiring  4-3    Double Door Applications  4-3    Perimeter Door Applications  4-3    Chapter 5: Passive Infrared Reader (PIR)    Specifications  5-1    Positioning  5-2    Mounting  5-2    Wiring  5-3    Adjusting the PIR beam angle  5-3    PIR “Masking”  5-5    Chapter 6: The Keypad     Specifications  6-1    Positioning  6-2    Surface Mounting  6-2    Flush Mounting  6-3    Wiring  6-4    Programming  6-6    Chapter 7: Push Button Override (PBO)    Specifications  7-1    Positioning  7-1    Mounting  7-2    Wiring to the Keypad  7-2    Wiring to the LC unit  7-3    Chapter 8: External Sounders     System Sensor sounder  8-1    Multi-Tone Local Alert (MTLA)  8-2 Chapter 9: Magnetic Locks     Operation  9-1    What is Delayed Egress Circuitry?  9-2    3101 Series Magnetic Locks  9-2    3000 Series Magnetic Locks  9-8    Chapter 10: Elevator Deactivation     What to expect  10-1    Working with the Elevator Company  10-1    Specifications  10-1    Positioning  10-2    Mounting  10-2    Wiring  10-3    Summary for the Elevator Company  10-3    Chapter 11: Automatic Door Deactivation    Specifications  11-1    Positioning and Mounting  11-1    Wiring  11-1    Chapter 12: Fire Panel Interface (FPI)    Specifications  12-3    Positioning and Mounting  12-3    Verifying the Fire Alarm Dry Contacts  12-3    Wiring  12-4    Terminals  12-4    Chapter 13: Timer     Specifications  13-1    Positioning and Mounting  13-1    Wiring  13-2    Programming  13-3    Chapter 14: Alert Panels     Staff Alert Panel (SAP)  14-1    Graphic Display Panel (GDP)  14-4    Chapter 15: System Maintenance & Testing    Tag and Band Maintenance  15-1    LC units  15-1    Testing monitored zones  15-1    Chapter 16: FAQ & Troubleshooting    Tag  16-1    Tag Band  16-1    TAD  16-1    System (General)  16-2    System (Maintenance)  16-2    Troubleshooting  16-3    Appendix A: Component Cut Sheets    Glossary G-1    Index  I-1
 LC 1200 Manual Chapter 1:  The LC 1200 system           (Part # 800121)    IMPORTANT: No Security System can replace human vigilance. Creating a safe environment requires the combined efforts of personnel, physicians, security, and patients. Global policies, procedures, and processes on patient care should be discussed and disseminated. Education, communication, and coordination are key. No level of security can replace an informed and knowledgeable staff. Any electronic or physical security system should be considered as a  supplemental deterrent, but by no means an end-all.
LC 1200 Manual                                                                                                    The LC 1200 System 1-1                          The LC 1200 system   Overview   Features    How the system works   Single vs. Double Conditioning   Monitored zones    Perimeter Door application   Alarms   Internal vs. External alarms   Addressing Alarms   Escorting  Overview The LC 1200 system (Part # 800121) is designed to be a turnkey, patient egress monitoring system. The function of the LC 1200 system is to alert facility personnel of the possible egress of a monitored resident and can be utilized for special care residents suffering from wandering malady or tendencies of straying into unauthorized areas or leaving a facility. The LC 1200 system consists of:   the LC unit (Part # 800121)   Magnetic Switch (Part # 650514) (for door applications) or a Passive Infrared Reader (Part # 300302)  (for hallway and elevator applications)   a Keypad (Part # 650202).  Additional options for the LC unit are:   External sounders  (Part # 700216 or 300150)    Magnetic Locks  (Part # 700218 or 700228)   Elevator Deactivation (Part # 700027).    Automatic Door Deactivation  (Part # 700033).   Timer (Perimeter door function)  (Part # 7000018).   Staff Alert Panel (Part # 700080).   Graphic Display Panel (Part # 700050 or 700052).   Fire Panel Interface (Part # 700013). Note: Since a facility may have multiple LC units, from now on the LC 1200 system shall be simply referred to as an LC unit. Features The LC unit comes with the following features:   Single zone monitoring (Tag Detect)   Tamper Switch    Power Loss Supervisor   Perimeter Door function (Timer)   Stagger Tuning How the system works The LC unit uses a simple but effective concept.  A small unobtrusive Tag is banded to the resident to be monitored and LC units are placed at points of egress.  When a Tag enters a monitored area, the system can automatically:   sound alarms   lock doors   deactivate elevators   flash lights   trigger Visual Displays  (e.g., SAPs or GDPs)  Since LC units only react to Tags, the LC unit does not restrict the movement of other residents, staff, or visitors.  The LC unit’s range of coverage is determined by the size of the Tx Activation Field. An LC unit’s Tx Activation Field can be expanded or reduced to accommodate the environmental conditions of virtually any doorway, hallway, or elevator you wish to monitor.
1-2 The LC 1200 System                                                                                                    LC 1200 Manual Single vs. Double Conditioning Egress alarms can be set for either single or double conditioning.  In single conditioning, one event has to happen (i.e., a Tag being detected in the zone) to generate an egress alarm.  In double conditioning, two events have to happen (such as a Tag being detected in the zone and the door opened or PIR tripped) to generate an egress alarm.  Double conditioning is achieved when a Magnetic Switch or Passive Infrared Reader (PIR) is connected to the LC unit for that zone. The “Monitored zones” section describes how single and double conditioning is used in various zone types. Monitored zones    Single Conditioning   Double Conditioning  - Door and Hallway   Double Conditioning – Door with Lock(s)   Double Conditioning – Elevator   Double Conditioning – Automatic Door  Single Conditioning Single conditioning reacts the same for all monitored zone types (e.g., door, hallway, elevator, and automatic door). With single conditioning, if an active Tag enters a monitored zone, the system will detect the Tag and an egress alarm will be generated.  To clear this alarm, remove the Tag from the zone and enter a valid code into the zone Keypad. Double Conditioning – Door and Hallway In double conditioning, two events have to happen to generate an egress alarm. At a door zone, a Tag must be detected in the zone and the door opened or PIR detection to generate an egress alarm. In hallway zones, a Tag must be detected in the zone and PIR detection to generate an alarm.  To clear this alarm, remove the Tag from the zone, and enter a valid code into the zone Keypad.
LC 1200 Manual                                                                                                    The LC 1200 System 1-3                          Double conditioning – Door with Lock(s) Notes: Although most locks can be interfaced with an LC unit, the instructions hereafter are only applicable to an Accutech supplied 3101 Magnetic Lock.  If an active Tag enters a monitored door zone, the system will detect the Tag. At that moment (provided the door is closed, has a Magnetic Lock(s), and the Lock is unobstructed) the Magnetic Lock will energize, locking the door. The Lock will remain locked for as long as the Tag is in the monitored zone. When the Tag leaves the monitored zone, the door will unlock after an adjustable period of time (02-18 seconds; set by potentiometer R43 (Tag Detect Delay).  Accutech’s 3101 Magnetic Locks also incorporates Delayed Egress Circuitry that complies with N.F.P.A. 101 Life Safety Codes 5-2.1.6.1. If engaged, the Lock will release within 15 seconds (after 1-3 second nuisance delay) whenever a maintained force (less than 15 pounds required) is applied to the door. An audible tone enunciates both countdown and release. When the Lock releases, the red LED will turn solid green and the Lock alarm will sound continuously. However, if the door is not opened and the Tag leaves the zone, the audible tone will cease and the Lock will return to normal operation. The Lock will NOT engage (or will disengage) when the facility’s Fire Alarm is activated or power is lost.     Double conditioning - Elevator Note: The use of Elevator Deactivation with the LC unit will require a relay board. Elevator Deactivation Circuitry restricts the wearer of a Tag from using an elevator. If a Tag enters a monitored elevator zone, the elevator’s call button on that floor will be deactivated (Call buttons on other floors are unaffected and no one is restricted from coming to the floor). If the elevator car is en route to the floor when a Tag approaches the zone, the elevator will arrive on the floor, the door(s) will open, and the system will alarm. When a Tag is in the zone (or approaches the zone) and the elevator doors are open, the doors will remain open and an alarm will sound. Double Conditioning - Automatic Door If an active Tag enters a monitored automatic door zone, the system will detect the Tag and the automatic door operation (motion detector and/or push paddle) will be disabled.  If the door is manually opened while the Tag is in the zone, an egress alarm will be generated. When the Tag leaves the zone, the door will return to normal operation after an adjustable period of time (02-18 seconds; set by potentiometer R43 (Tag Detect Delay).  To clear this alarm, remove the Tag from the zone, close the door, and enter a valid code into the zone Keypad.
1-4 The LC 1200 System                                                                                                    LC 1200 Manual Perimeter Door application If desired, the LC unit can be used as a perimeter door system. When in this mode, the door would alarm the instant it was opened. If the door has Magnetic Locks, the door would remain locked (Lock energized) at all times and would require a valid code entered into the Keypad or activating a PBO to open the door. Delayed Egress Circuitry would function normally if 3101 Magnetic Locks were used. To use the LC unit as a perimeter door full time  remove the jumper from P1-1 and P1-2 (Perimeter Door) or to use the LC unit as a perimeter part time use a Timer. Alarms   Egress    Tamper   Power Loss Supervisor   Perimeter Door The LC unit has the following alarms: Egress An Egress alarm occurs whenever a Tag enters an LC unit’s Tx Activation Field and contacts P2-3 and P2-4 of the LC unit are open (usually interfaced with a Magnetic Switch or PIR).  Tamper A Tamper alarm occurs when the LC unit cover is removed and the Tamper Switch (S1) is disengaged. Remember, JP2 (Tone Enable) must be in place for this alarm to be heard. Power Loss Supervisor (Optional) A Power Loss Supervisor alarm occurs when a charged 9V NiCAD battery is installed and the LC unit loses power. Remember, JP2 (Tone Enable) must be in place for this alarm to be heard. Note: This battery does not power the LC unit. When the battery is installed and the power is applied to the LC unit, the battery is being trickle-charged constantly. When power is lost to the LC unit, a Piezo Alert of the LC unit will sound for as long as the 9-volt battery has enough power to drive the Piezo.   WARNING: For the Power Loss Supervise function, use a 9-volt Ni-Cad (nickel-cadmium) rechargeable battery ONLY as other types of batteries may explode or leak causing damage to the LC unit or injury to the person(s) working on the equipment. If a battery is not installed, make sure that the battery clip cover is in place over the battery lead terminals. If you have lost the cover, then be sure to cover the terminals of the battery clip with electrical tape or heat shrink tubing before you apply power to the unit.  Failure to do so can result in the terminal leads shorting to something conductive inside the unit and causing damage to the LC unit or electric shock.
LC 1200 Manual                                                                                                    The LC 1200 System 1-5                          Perimeter Door A Perimeter Door alarm occurs when the LC unit is in Perimeter Door mode (see page 1-3 for more information) and the door is opened (Magnetic Switch open).  Internal vs. External alarms The LC unit comes with an internal alarm sounder (a piezo) and the capability of triggering external sounders.  When jumper JP2 “Tone Enable” is in place, all four alarm types (Egress, Tamper, Power Loss Supervisor, and Perimeter) will be announced through the LC unit’s internal piezo. Note: The internal peizo’s volume level is controlled by potentiometer R32 “Volume Control” (see page 2-5). A charged 9-volt Ni-Cad rechargeable battery is also required for the Power Loss Supervisor alarm. In addition to the internal piezo, the LC unit is capable of triggering external sounders (see Chapter 8: External Sounders). An external sounder can be positioned away from the zone at a remote location (such as a hallway intersection or nurse station) for alarm notification. Note: External sounders are not silenced by the removal of jumper JP2 “Tone Enable”. The internal piezo and an external sounder can operate simultaneously and will be silenced by a Keypad reset. A Staff Alert Panel (SAP) or Graphic Display Panel (GDP) is another option for remote alarm notification (see Chapter 14: Alert Panels). Addressing Alarms   Egress    Tamper   Power Loss Supervisor   Perimeter Door  Egress An Egress alarm occurs whenever a Tag enters an LC unit’s Tx Activation Field and contacts P2-3 and P2-4 of the LC unit are open (usually interfaced with a Magnetic Switch or PIR). When an Egress alarm occurs: 1.  Go to the alarm location and take appropriate action to find the cause of the alarm. 2.  After taking appropriate action, you can clear the alarm by closing the door and entering a valid code into the zone Keypad. Tamper A Tamper alarm occurs when the LC unit cover is removed and the Tamper Switch (S1) is disengaged. When a Tamper alarm occurs: 1.  Go to the alarm location and take appropriate action to find the cause of the alarm. 2.  To silence the internal piezo buzzer while you address the alarm, remove the LC unit cover and jumper JP2 (Tone Enable).   3.  When finished, replace jumper JP2 and the LC unit cover, then enter a valid code into the zone Keypad.
1-6 The LC 1200 System                                                                                                    LC 1200 Manual Power Loss Supervisor A Power Loss Supervisor alarm occurs when a charged 9V NiCAD battery is installed and the LC unit loses power (see page 1-4 for more information). When a Power Loss Supervisor alarm occurs: 1.  Go to the alarm location and take appropriate action to find the cause of the alarm.  2.  Check the LC unit connections. 3.  Verify the power source is working. 4.  To silence the internal piezo buzzer while you address the alarm, remove the LC unit cover and remove jumper JP2 (Tone Enable).   5.  If you cannot locate an immediate cause for the alarm. Call your service technician for further assistance. Perimeter Door A Perimeter Door alarm occurs when the LC unit is in Perimeter Door mode (see page 1-3 for more information) and the door is opened.  When a Perimeter Door alarm occurs: 1.  Go to the alarm location and take appropriate action to find the cause of the alarm. 2.  When finished close the door, and enter a valid code into the zone Keypad to clear the alarm. Escorting  From time to time, it may be necessary to escort a monitored resident through a protected zone. This is done using the Keypad’s Escort function. The Keypad’s Escort function allows passage of a monitored resident through that monitored zone without alarm for a predetermined time (01-98 seconds; factory default 15 seconds). To modify the Escort time, see page 6-9. PLEASE NOTE: While escorting, be aware of “tailgating.” Tailgating is the practice of residents lingering near a monitored zone (usually an exit point) until an authorized escort passes through the zone then immediately following behind through the zone. To prevent tailgating, be aware of all traffic near a monitored zone and once you are through the monitored zone wait until the escort time has timed-out before proceeding.: To escort a monitored resident through a monitored zone, use the following instructions 1.  Enter a valid code into the zone’s Keypad. This will invoke the Keypad’s Escort function. The Keypad’s green LED will illuminate.  Note: Depending on the type of zone you are escorting through, you may have to leave the resident just out of the Tx Activation Field while you enter the Keypad code and then escort them through. 2.  Escort the monitored resident through the zone. Note: For slower moving residents, an alarm may sound if you move too
LC 1200 Manual                                                                                                    The LC 1200 System 1-7                          slowly and you may have to invoke the Escort function again. Therefore, take into consideration the Escort time duration at that zone. If the door handles slow moving residents often, consider extending the Escort time or using a wheelchair to escort residents.  3.  To prevent tailgating, once you are through the zone wait until the escort time has timed-out before proceeding.
 LC 1200 Manual Chapter 2:  The LC unit
LC 1200 Manual                                                                                                                   The LC unit 2-1 The LC unit   Specifications   Positioning   Mounting   Wiring   A Look Inside   Tamper Switch adjustment   Tuning  Specifications   Power Requirements   Temperature   Weight   Location Power Requirements   12V DC   0.5A for one 3101 Magnetic Lock 1.0A for two 3101 Magnetic Locks 1.0A for one 3000 Magnetic Lock  Temperature The LC unit and its associated peripherals operate best in an ambient temperature between 35 and 90 degrees Fahrenheit. Operation outside of this range may cause unexpected or undesirable results, including premature component or device failure. Weight The LC unit weighs approximately 1 U.S. pounds, which should be considered when choosing mounting location and hardware. Positioning The recommended location of the LC unit is on the latch side of the door with its lowest point about 2 feet above the floor (Figure 2.1) Mount the LC unit at least 3 inches away from any type of metal including:   metal door frames   metal studs   metal lathe walls   metal electrical box   metal conduit   metal pipes In addition, the LC unit should be positioned within 18” maximum of the monitored door or elevator to assure proper coverage. The recommended distance is 3 to 6 inches.  Positioning the LC unit correctly will help in avoiding unintended activation of a Tag in a nearby room or a passerby. The goal is to produce a Tx Activation Field that adequately covers the doorway but does not extend into nearby rooms.  Figures 2.1 through 2.4 show the recommended location of the equipment in a typical door, double door, elevator, and hallway application. Use them for reference during installation.
2-2 The LC unit                                                                                                                   LC 1200 Manual  Figure 2.1 Positioning the LC unit (Single door)   Figure 2.2 Positioning the LC unit (Double Door)   Figure 2.3 Positioning the LC unit (Elevator)   Figure 2.4 Positioning the LC unit (Hallway)
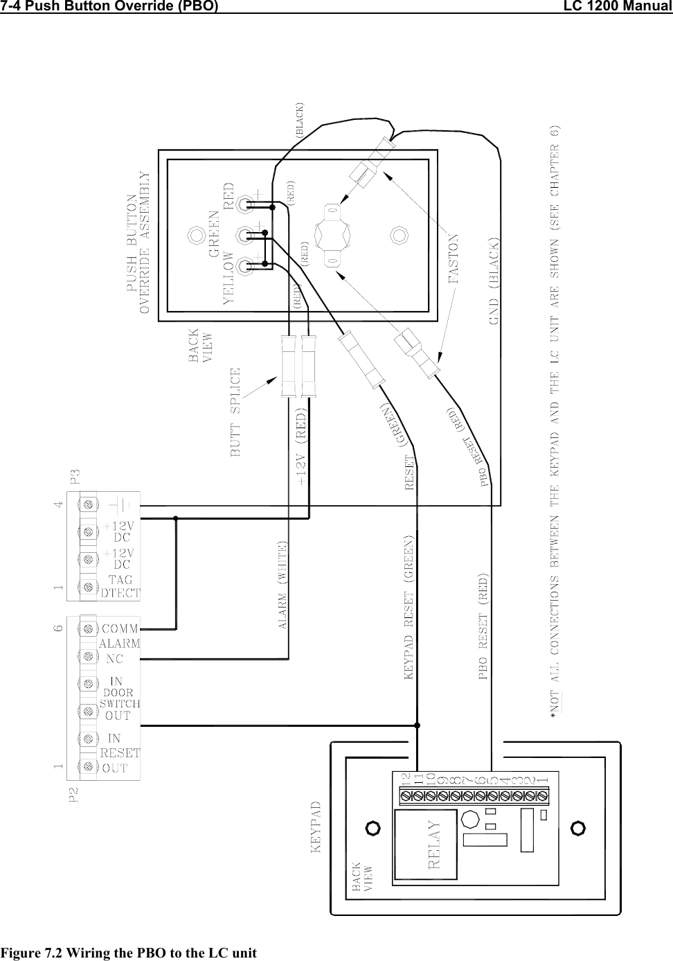
LC 1200 Manual                                                                                                                   The LC unit 2-3 Mounting To mount an LC unit, refer to Figure 2.5 and use the following instructions: 1.  Remove the LC unit cover and screws. 2.  Locate, align, mark-out, and drill 4 mounting holes in the wall corresponding to the mounting holes of the LC unit. 3.  Using appropriate hardware for the mounting surface, install the four anchors. 4.  Install the upper screws leaving about a 1/8th of an inch exposed. 5.  Make any wire accommodations (such as fishing wires through the back cover or planning conduit/panduit interface) that are easier completed with the LC unit unmounted. 6.  When finished, install the last two mounting screws then tighten all 4 mounting screws. 7.  Note the Tamper Switch adjustment section on page 2-7. 8.  Proceed to wiring. Wiring The LC unit uses a 12V DC plug-in for power. For instructions on wiring to the LC unit, refer to the chapter of the component you are interfacing with. Note: P3 pins 1 and 2 come from the factory with a jumper wire between them (see page 2-6).  Figure 2.5 The LC unit
2-4 The LC unit                                                                                                                   LC 1200 Manual A Look Inside   LEDs   Jumpers   Potentiometers   Tamper Switch   Terminals  Let’s take a look at a simplified version of the inside of the LC unit (Figure 2.6).  Figure 2.6  The LC unit PCB (modified for simplicity)LEDs LED1 (Tx Gain Level) (Yellow) This LED indicates the strength of the Tx Activation Field. The size of the Tx Activation Field determines the “range” of the LC unit to activate Tags and take appropriate action. LED1 should be illuminated when the LC unit has power. LED2 (Rx Indicator 1) (Red) This LED indicates a 418 MHz signal is present in the immediate area (not necessarily a valid Tag). For Tag validation, see LED5. LED3 (Rx Indicator 2) (Red) This LED indicates a 418 MHz signal is present in the general area (not necessarily a valid Tag). For Tag validation, see LED5. LED4 (Delayed Tag Detect) (Yellow) This LED indicates the Delayed Tag Detect is active. The LC unit uses Delayed Tag Detect to assure complete coverage and prevent relay contact damage. LED5 (Real-time Tag Detect) (Red) This LED indicates an active valid Tag in the area. Jumpers JP1 (Frequency Select) Default position: IN 1-2  Available frequency written on sticker. This jumper is used to select the operating frequency of the LC unit.  JP2 (Tone Enable) Default position: IN This jumper controls the internal peizo. This jumper should only be removed during service to the LC unit since it disables audible notification of all internal alarms (i.e., Egress, Tamper, and Power Loss Supervisor).
LC 1200 Manual                                                                                                                   The LC unit 2-5 Potentiometers  NOTE:    Environmental conditions may cause a need to deviate slightly from the potentiometers’ default settings (Figure 2.7).    Each LC unit should be tuned properly for its environment during installation.    All potentiometers are increased clockwise.  C2 (Tuning capacitor) Default setting: Varies Looser setting yields lower frequencies Tighter setting yields higher frequencies This capacitor maximizes the Tx Activation Field strength of the chosen frequency. R4 (Tx Gain) Default setting: Full scale This potentiometer controls the range of the Tx Activation Field on a properly tuned unit. R16 (Rx Gain) Default setting: Half scale This potentiometer controls the gain of the received signal amplifier.  R26 (Rx Sensitivity) Default setting: Half scale This potentiometer controls the sensitivity of the internal receiver. R32 (Volume Control) Default setting: Full scale This potentiometer controls the volume of the internal peizo. R43 (Tag Detect Delay) Default setting: Half scale (9 seconds) This potentiometer sets the Tag Detect Delay time (2 to 18 seconds).   Figure 2.7 Potentiometers Tamper Switch  The Tamper Switch (S1) (Figure 2.8) is provided to prevent unauthorized access to the LC unit. An alarm will be generated if the LC unit cover is removed (power to the unit is required).  Figure 2.8 Tamper Switch
2-6 The LC unit                                                                                                                   LC 1200 Manual Terminals Below is an explanation of each terminal on an LC unit (Figure 2.9). P1 P1-1 (Perimeter Door Out) P1-2 (Perimeter Door In) These contacts control the Perimeter Door function of the LC unit:   When a jumper is installed between these two terminals, the Perimeter Door function is disabled (Factory Default).   When a jumper is not present between these two terminals, the Perimeter Door function is enabled and the door will remained locked at all times. A reset-authorizing device such as a Keypad would be required to gain access through the door. If present, Delayed Egress Circuitry will function as normal. No Tag needed for alarms. Typically used with a Day/Night Timer (see Chapter 13).    For more information on the Perimeter door function, see page 4-3. P2 P2-1 (Reset Out) P2-2 (Reset In) Closure across these contacts allows the unit to be reset. P2-3 (Door Switch Out)  P2-4 (Door Switch In) Closure across these contacts means the door is closed. Also used for Passive Infrared Readers.  P2-5 (Alarm NC) P2-6 (Alarm Comm) The dry contacts are used to interface to external peripherals in the event of an alarm. P3 P3-1 (Tag Detect) The Tag Detect contact is a low going signal to external peripherals.  P3-2 (+12V DC) P3-3 (+12V DC) P3-4 (Ground)  BC1 – Battery Clip Cover If a battery is not used for the Power Loss Supervisor function then leave the provided clip protector on or place electrical tape over the contacts.   Figure 2.9 Terminals (modified for simplicity)
LC 1200 Manual                                                                                                                   The LC unit 2-7 Tamper Switch adjustment The Tamper Switch (S1) (Figure 2.10) is provided to prevent unauthorized access to the LC unit. An alarm is generated if the LC unit cover is removed (i.e., the Tamper Switch clip is open). During normal use, the Tamper Switch clip is held closed with pressure between the contact of the clip and the outside case (see Figure 2.11). After initial installation and wiring, replace the outside cover and enter a Keypad reset. If you receive a Tamper alarm, it may be necessary to adjust the Tamper Switch to maintain good contact with the outside case.  Using needle-nosed pliers, gently bend the Tamper Switch clip slightly outward (see Figure 2.11). Make only one or two small adjustments, as repeated bending can cause the metal to break. Replace the LC unit cover and enter a Keypad reset. If a Tamper alarm persists, repeat the procedure until a good contact is made between the Tamper Switch clip and the outside case.  Figure 2.10 Tamper Switch    Figure 2.11 Tamper Switch with adjustment
2-8 The LC unit                                                                                                                   LC 1200 Manual Tuning   Notify staff and security   Why tune the LC unit?   Tuning an LC unit   Adjusting the Tx Activation Field   Stagger Tuning  Notify staff and security Whenever making adjustments to an LC unit, notify staff and security and remind them they will need to pay special attention to area traffic during this time. Why tune the LC unit? The LC unit comes from the factory tuned to typical parameters that will be effective under most circumstances. However, there are 3 possible reasons to tune: a.  During initial installation to accommodate special environmental conditions. This is the most likely reason to tune since every zone should be tested and adjusting during initial installation to assure proper coverage. b.  The unit had to be mounted close to a metal object during installation and was detuned. c.  Stagger Tuning was implemented. IMPORTANT:  A Tamper alarm will be generated when you remove the LC unit cover or if you remove power from the unit (and a 9V NiCAD battery is installed) a Power Loss Supervisor alarm will be generated.  Tuning an LC unit To tune the LC unit, refer to Figure 2.6 and use the following instructions: 1.  Notify staff and security that you will be adjusting the zone and they will need to pay special attention to area traffic during this time. 2.  Open the LC unit cover by removing the two spanner screws. A Tamper alarm will be generated. 3.  Silence the Tamper alarm by removing jumper JP2 (Tone Enable).   4.  Adjust potentiometer R4 (Tx Gain) until LED1 is dim. This is done so that you can detect minor light changes on LED1 while you are tuning the unit. 5.  Slowly adjust C2 (Tuning capacitor) until LED1 is as bright as possible. 6.  Adjust R4 (Tx Gain) until LED1 is as bright as possible. 7.  Confirm the zone has adequate coverage and readjust as necessary (see Chapter 15: System Maintenance & Testing). 8.  Replace jumper JP2 and the LC cover with spanner screws. 9.  Reset the zone by entering a valid code into the zone Keypad.
LC 1200 Manual                                                                                                                   The LC unit 2-9 Adjusting the Tx Activation Field The Tx Activation Field can be reduced or expanded to match each unique zone’s needs. Each monitored zone may have circumstances that require an adjustment to the range of the Tx Activation Field. The most common reason is that the Field is overlapping or “bleeding” into other areas. IMPORTANT:  A Tamper alarm will be generated when you remove the LC unit cover or if you remove power from the unit (and a 9V NiCAD battery is installed) a Power Loss Supervisor alarm will be generated.  To adjust the range of the Tx Activation Field, refer to Figure 2.6 and use the following instructions: 1.  Notify staff and security that you will be adjusting the zone and they will need to pay special attention to area traffic during this time. 2.  Open the LC unit cover by removing the two spanner screws. A Tamper alarm will be generated. 3.  Silence the Tamper alarm by removing jumper JP2 (Tone Enable).   4.  Slowly adjust potentiometer R4 (Tx Gain) on the LC unit. Turn counterclockwise to reduce the range of the Field (LED1 is dim), turn clockwise to expand the range of the Field (LED1 is bright).  5.  As you adjust, use a Tag to test the range of the Field to ensure there is adequate coverage for the zone. 6.  Replace jumper JP2 and the LC cover with spanner screws. 7.  Reset the zone by entering a valid code into the zone Keypad.
2-10 The LC unit                                                                                                                 LC 1200 Manual Stagger Tuning Stagger Tuning allows monitored zones to be located closer than the normal minimum 70 feet distance by using different Tx operating frequencies for adjacent zones. When two LC units are close enough to “see” a Tag in the other zone, you should implement Stagger Tuning. This will help keep egress alarms associated with the appropriate LC unit. To implement Stagger Tuning, refer to Figure 2.6 and use the following instructions: 1.  Notify staff and security that you will be adjusting the zone and they will need to pay special attention to area traffic during this time. 2.  Open the LC unit cover by removing the two spanner screws. A Tamper alarm will be generated. 3.  Silence the Tamper alarm by removing jumper JP2 (Tone Enable).   4.  Remove power to the LC unit by unplugging the unit or removing the P3 terminal block  5.  The LC unit comes from the factory with 2 different crystals, normally Y1 (130 KHZ) and Y2 (132 KHZ).  6.  Jumper JP1 on the LC unit selects which crystal frequency is in use. Position 1-2 selects crystal Y1. Position 2-3 selects crystal Y2. Place the jumper in the desired position. 7.  Restore power to the LC unit after you have set the jumper in place. 8.  Retune the zone (see page 2-7). 9.  Confirm the frequency has been changed by testing the zone. Generate an alarm in the adjacent zone and make sure it does not alarm in the current zone and then test again vice versa. 10.  When finished, replace jumper JP2 and the LC cover with spanner screws. 11.  Reset the zone by entering a valid code into the zone Keypad. IMPORTANT: A Tamper alarm will be generated when you remove the LC unit cover or if you remove power from the unit (and a 9V NiCAD battery is installed) a Power Loss Supervisor alarm will be generated.
 LC 1200 Manual Chapter 3:  Tags & TAD        (Part #s 77L016, 67L016, 660021)
LC 1200 Manual                                                                                                     Tags & TAD 3-1 Tags & TAD    Overview   Tag material   Attaching Tags   Tag and Band Maintenance    LED Tag   The TAD  Overview The LC system uses LC 1200 System Tags (Figure 3.1). The Tags have two styles –    LT (Long Term) (Part # 77L016)   SB (Slotted Back) (Part # 67L016) The Tag band (Part # 100901) is made of nylon-mesh-reinforced vinyl (latex-free). The band is designed to resist tearing caused by pulling or chewing on the band. However, if the band becomes frayed or torn it will need to be replaced. In long-term applications, the band should be replaced periodically for cleanliness.   or      LT                                      SB Figure 3.1 LT and SB Tag styles (bands not shown)   Tag material  The Tag case is made of FDA-approved Lexan® plastic and the Tag band is latex-free. Attaching LT/SB Tags To attach an LT/SB Tag to the resident use the following instructions:  1.  With the snaps pointing in the same direction as the Accutech logo, slide the plastic band through the Slot. (Figure 3.2).   Figure 3.2 Attaching LT Tag style  2.  Adjust the band length to the nearest accommodating hole for a comfortable fit around the resident’s extremity. NOTE: Once the band is secured, it cannot be adjusted.  3.  Put the male part of the Snap through the selected hole.  4.  Fold over the female part of the Snap and secure to the male part by squeezing until they snap together.  5.  Using scissors, trim any excess band material (Figure 3.3).  Figure 3.3 Securing the band
3-2 Tags & TAD                                                                                                     LC 1200 Manual                                  6.  Follow the same procedure for SB Tags (Figure 3.4).   Figure 3.4 Attaching SB Tag style  Tag and Band Maintenance   Testing Tags   Cleaning Tags   Cleaning Bands   Storing Tags   Storing Bands Testing Tags For maximum protection of residents or assets, Accutech recommends that Tags be tested on a weekly basis. There are 2 ways that you can test Tags:   Enter a monitored zone   With a TAD (see page 3-5) Cleaning Tags All Tags are reusable but they must be cleaned and sanitized between applications. In long-term applications, periodically replace the bands and clean the Tags.  There are a few methods that can be used to clean and sanitize Tags: However, DO NOT:   Do not soak Tags in cleaning solutions   Do not put Tags in an AutoClave   Do not put Tags in a dishwasher   Do not steam clean Tags   Do not put Tags in a washing machine or dryer   Do not use solvents or abrasive cleaners Acceptable Tag Cleaning Methods:   Antibacterial wipes   Hydrogen peroxide (wipe, do not soak) Cleaning Bands All Tag bands are for one-time use only. In long-term applications, periodically replace the bands and clean the Tags.  Storing Tags Ideally, to preserve battery life, Tags should be turned off with a TAD during storage.  If for any reason your TAD is unavailable and you have active Tags no longer in use, store them in a metal container with lid and away from sources of electrical noise (see below). Do not store Tags within 3 feet of any of the following sources of electrical noise:   Computer monitors   Unshielded computer cables   Television sets   Medical Monitoring Equipment   X-ray and other imaging equipment   Fluorescent Lighting   Wireless Communication Devices  Storing Bands  Extra Tag bands should be stored in clean and dry environment.
LC 1200 Manual                                                                                                     Tags & TAD 3-3 LED Tag    Verifying Proper Zone Coverage   Identifying Foreign Tag-Activating Sources  DISCLAIMER: Due to each facility’s unique environment, an LED Tag cannot give an exact measurement of zone coverage; it can only give an estimation of zone coverage.    Verifying Proper Zone Coverage  An LED Tag (Part # 660008;  Figure 3.5) is used to verify proper zone coverage during installation, adjustment, or testing of a monitored zone.   Proper zone coverage fully protects the intended area (door, elevator, hallway, or any other passageway) without extending into other areas (in front, in back, on sides, above, and beneath the intended area).   Monitored zones emit a Tag-activating signal called the Tx Activation Field. When a Tag enters a zone’s Tx Activation Field, the system will detect the Tag and take appropriate action response.   An LED Tag can detect a zone’s Tx Activation Field without causing alarms making it a quick and easy way to verify proper zone coverage. This is not only useful in ensuring complete zone coverage but also in locating areas where a Tx Activation Field may be extending into common areas and causing nuisance alarms or locating sources of electrical noise.  To verify proper zone coverage with an LED Tag, use the following instructions:  1.  Using a TAD, activate the LED Tag. NOTE: The Signal Strength LEDs of the TAD will not indicate the state of the LED Tag. Once activated the LED Tag’s LED will illuminate when it is in a Tx Activation Field. Therefore, to verify the LED Tag is active, turn on the TAD and place the LED Tag near it. The LED Tag’s LED should illuminate (since a TAD has a small Tx Activation Field associated with it).   2.  With the LED Tag in your hand, slowly approach each zone at various angles and orientations. The LED Tag’s LED will illuminate when it detects the zone’s Tx Activation Field.   Figure 3.5 The LED Tag  3.  If you find that a zone’s coverage is at unacceptable levels (too small, too big, extends too far in one direction), look for factors that may be affecting the zone (food carts, medical equipment, and/or building construction).   4.  If you cannot locate any immediate causes, contact your system maintenance technician for further assistance.  5.  When finished, deactivate the LED Tag using a TAD.
3-4 Tags & TAD                                                                                                     LC 1200 Manual                                  Identifying Foreign Tag-Activating Sources In addition to verifying proper zone coverage, an LED Tag (Figure 3.5) can be used to identify foreign Tag-activating sources to help preserve your Tags’ battery life and prevent nuisance alarms.  Monitored zones emit a Tag-activating signal called the Tx Activation Field. When a Tag enters a zone’s Tx Activation Field, it is activated. The system detects the activated Tag and takes appropriate action response.   However, there are sources that can activate a Tag other than a Tx Activation Field. When Tags are activated by these “foreign” sources, battery life is depleted and/or nuisance alarms can be caused.  Therefore, identifying these sources will prolong Tags battery life and prevent nuisance alarms.   To identify activating sources with an LED Tag, use the following instructions:  1.  Using a TAD, activate the LED Tag. NOTE: The Signal Strength LEDs of the TAD will not indicate the state of the LED Tag. Once activated the LED Tag’s LED will illuminate when it is in a Tx Activation Field. Therefore, to verify the LED Tag is active, turn on the TAD and place the LED Tag near it. The LED Tag’s LED should illuminate (since a TAD has a small Tx Activation Field associated with it).   2.  With the LED Tag in your hand, slowly investigate each area for possible activating sources*. The LED Tag’s LED will illuminate when it detects an activating source.  3.  Note each activating source and keep Tags away from those sources.  4.  When finished, deactivate the LED Tag using a TAD.  *Some activating sources can be:   Computer Monitors   Unshielded computer cables   Television Sets   Medical Monitoring equipment   X-ray and other imaging equipment   Fluorescent Lighting   Wireless Communication Devices
LC 1200 Manual                                                                                                     Tags & TAD 3-5 The TAD     TAD Overview   The “Active Band Removal or Low Battery on Tag” LED   The “WAIT” LED   The “Signal Strength” LEDs   Using the TAD to activate/deactivate Tags   Testing Tags with a TAD   TAD Troubleshooting Tips   Locating Lost Tags TAD The TAD (Tag Activator/Deactivator)  (Part # 660021; Figure 3.6) is used to check the functionality of an Accutech Tag.   Accutech Tags operate by internal battery. Over the course of normal operation, Tags eventually lose battery power and the Tags will need to be replaced. The TAD is used to determine if a Tag has sufficient battery power to respond to an activating signal. The TAD requires a 9-volt battery to operate.  The TAD is used to activate Tags and is compatible with LT and SB Tag styles.   Figure 3.6 The TADThe “Active Band Removal or Low Battery on Tag” LED   A TAD can detect the low battery bit of Tags. Simply turn on the TAD and place a Tag behind the TAD. If the Tag’s battery is low (e.g., low enough that the Tag’s operation is diminished below an acceptable level) the “Active Band Removal or Low Battery on Tag” LED will blink rapidly. The Tag should then be replaced.  The Active Band Removal function of this LED is not applicable to LC systems.  The “WAIT” LED  The “WAIT” LED illuminates briefly during Tag activation/deactivation. Do not move the Tag while the “WAIT” LED is illuminated. The “Signal Strength” LEDs The “Signal Strength” LEDs of the TAD indicate:     The current state of a Tag (on or off)       (Both LEDs will illuminate)   Tag is Very Near (within approx. 6 inches*)      (Both LEDs will illuminate)   Tag in Area (within approx. 2 feet*)      (Left LED will illuminate)  *Inexact due to variations of the remaining Tag battery power, remaining TAD battery power, and if the Tag is alarming in Band Removal. DISCLAIMER:  A TAD reading is in no way meant to be a replacement for taking a Tag to an active zone to test the range capability of the Tag. When you use a TAD all you really know is that the Tag has enough power to respond; it is not an indication of the range capability. In order to check the range capability of a Tag, you must take it to an active zone.
3-6 Tags & TAD                                                                                                                  LC 1200 Manual                           Using the TAD to activate/deactivate Tags  To activate/deactivate Tags using the TAD (Figure 3.6 and 3.7), use the following instructions:   1.  With no Tag in the TAD, slide the Power switch to the On position. The TAD Power LED illuminates. If it doesn’t, check the TAD’s 9-volt battery. NOTE: If a Tag is in the receptacle and the power to the TAD is cycled, the Tag may be turned on or off unintentionally.  2.  Place the Tag into the tag receptacle on the back of the TAD unit in proper orientation for the Tag type (Figure 3.7).  3.  The Signal Strength LEDs on the TAD indicate the current state (on or off) of the Tag.  4.  The Signal Strength LEDs indicate:  a.  Tag is Very Near – A Tag is very close to the TAD (within approximately 6 inches). b.  Tag in Area – A Tag is nearby the TAD (within approximately 2 feet)  5.  To change the state of a Tag (from either on to off or off to on), press and release the “TAD” button. The WAIT LED will illuminate for about a second (Do not remove Tag while WAIT LED is on) and the Signal Strength LEDs will change accordingly.  6.  Once activated, if the “Active Band Removal or Low Battery on Tag” LED blinks (indicating low Tag battery), the Tag should be replaced.  7.  Turn off the TAD.        Figure 3.7 Proper Tag orientation
LC 1200 Manual                                                                                                                  Tags & TAD 3-7 TAD Troubleshooting Tips: If the Signal Strength LEDs do not illuminate after repeated attempts to turn a Tag on with the “TAD” button, the Tag may not be functioning. Set it aside and try to activate another Tag. If no Tags can be activated, consider that your TAD may not be functioning (even if the Power LED is on). Try another TAD unit to activate Tags. Testing Tags with a TAD Accutech systems respond to RF signals generated by the Tags. When an active Tag enters a monitored zone, the zone detects the Tag signal and takes the appropriate response action. A TAD is like a mini zone. It can detect an active Tag signal.  A TAD can test the following Tag functions:   Tag state (on or off)   Low Battery on Tag (Tag must be within 6 inches of the TAD to detect) NOTE: Keep in mind when using a TAD to test a Tag all you really know is that the Tag has enough power to respond; it is not an indication of the range capability. In order to check the range capability of a Tag, you must make take and test it at an active zone.  To test a Tag with a TAD, use the following instructions: 1.  With no Tag in the TAD, slide the Power switch to the On position. The TAD Power LED illuminates. If it doesn’t, check the TAD’s 9-volt battery. CAUTION: If a Tag is in the receptacle and the power to the TAD is cycled, the Tag may be turned on or off unintentionally. 2.  Place the TAD near the Tag. 3.  The Signal Strength LEDs indicate the current state (on or off) of the Tag. They should be on. If they are not, the Tag should be replaced. 4.  The Signal Strength LEDs indicate:  Tag is Very Near – A Tag is very close to the TAD (within approximately 6 inches). Tag in Area – A Tag is nearby the TAD (within approximately 2 feet). 5.  If the “Active Band Removal or Low Battery on Tag” LED blinks (indicating low Tag battery) the Tag should be replaced. 6.  When finished, move the TAD away from the Tag and then turn off.  Locating Lost Tags Most lost Tags are brought to a staff’s attention because they are causing alarms in a zone; however, since monitored zones may cover large areas, finding the exact location of the Tag can be difficult. Using a TAD can help pinpoint the location of a lost Tag.
3-8 Tags & TAD                                                                                                                  LC 1200 Manual                           Accutech systems respond to RF signals generated by the Tags. When an active Tag enters a monitored zone, the zone detects the Tag signal and takes the appropriate response action. A TAD is like a mini zone. It can detect an active Tag signal. Although not as powerful as an actual monitored zone, a TAD can be useful in locating active lost Tags. In order for a TAD to detect a lost Tag, the Tag has to be active and be in the range of a monitored zone.  To locate an active lost Tag, use the following instructions: 1.  Turn on the TAD and observe the “Signal Strength” LEDs as you slowly wave the TAD side to side in front of you. Their intensity will change as you get closer or farther away from the active lost Tag.  NOTE: Initially as you search the zone you will get the Signal Strength LED(s) to blink once or twice. Search the zone slowly in a systematic pattern until both LEDs are illuminated. When searching remember to check the backsides of walls and doors.  2.  The “Signal Strength” LEDs of the TAD indicate*:    Left LED - Tag in Area  (within approximately 2 feet**)   Right LED - Tag is Very Near  (within approximately 6 inches*) *Inexact due to variations of the remaining Tag battery power, remaining TAD battery power, and if the Tag is alarming in Band Removal. **For a Tag to be detected by the TAD at this range the Tag must be being activated by another source such as at a monitored zone since the TAD is not strong enough to activate Tags by itself at this range.  ***Furthermore, it is helpful to turn off the zone when searching for the lost Tag. Notify staff and security when you do this. Leaving the zone turned on can mislead your search since the TAD will detect the zone’s signal as well as the Tag’s signal.  Some places to look:   Clothes hanging on the back of doors   Desk or cabinet drawers   Laundry baskets   Underneath beds, dressers, tables   Behind doors, curtains, dividers    Waste baskets
 LC 1200 Manual Chapter 4:  The Magnetic Switch         (Part # 650514)
LC 1200 Manual                                                                                                   The Magnetic Switch 4-1 The Magnetic Switch   Specifications   Positioning    Mounting    Wiring   Double Door Applications   Perimeter Door Applications  Magnetic Switches (Part #650514; Figures 4.1-4.2; GRI 29 Series) are used on doors where alarm activation is not desired unless the door is opened when a Tag is in the Tx Activation Field. Specifications   Power Requirements   Temperature   Weight Power Requirements No power required;  dry contacts rated for 175V DC Temperature Magnetic Switches operate best in an ambient temperature between 35 and 90 degrees Fahrenheit. Operation outside of this range may cause unexpected or undesirable results, including premature failure.  Weight A Magnetic Switch weighs approximately 1.0 ounce. Figure 4.1 Magnetic Switch parts Positioning Magnetic Switches are usually located at the top of the monitored door on the doorstop. The part that contains the Switch is mounted on the header or doorframe, while the part that contains the activating Magnet is mounted on the door itself (see Figure 4.3). A recessed model is also available. For simplicity, in this manual the term “Magnetic Switch” will reference the entire Switch as a unit, not just the parts that contain the contacts. Position the Magnetic Switch so that it is nearest the latch side of the door. If a Magnetic Lock is used, mount the Switch closest to the latch side and then the Lock immediately after it.  Figure 4.2 Magnetic Switch Dimensions
4-2 The Magnetic Switch                                                                                                   LC 1200 Manual                           Mounting To mount the Magnetic Switch, refer to Figure 4.3 and use the following instructions: 1.  After choosing your location, following the hole pattern shown in Figure 4.2, drill two 7/64” (0.109) mounting holes in the doorframe to accommodate the Switch. This size hole also coincides with the self-tapping screws provided with the Switch. Be careful not to drill these holes oversize. 2.  Drill a 5/16” (0.312) pass-through hole in the doorframe to accommodate the wire from the LC unit to the Switch.  NOTE: This door frame hole should be drilled so that the wire will come up just under the middle screw terminal (N.C.) of the switch. This hole can be drilled a little smaller, but not larger. If this hole is drilled too far out from the body of the Switch, then the Switch cover will not be able to hide this hole. Be sure to “de-burr” this hole. 3. Fish the 2-conductor/22-gauge wire through the large hole and strip enough insulation to make a good connection to the switch. 4. Connect the RED wire to the “COM” terminal of the Switch. 5. Connect the BLACK wire to the “N.O.” terminal of the Switch. 6.  Gently guide the excess cable back through the hole in the frame, while moving the Switch into position over its mounting holes. 7.  While positioning the Switch, insert a mounting screw through each hole and secure the Switch in place.  NOTE: Be careful not to pinch the wires when tightening.  8.  Using the spacer provided in the kit, position the Door Magnet as shown in Figure 4.3 and mark where the mounting holes (7/64”) will be drilled.   Figure 4.3 Mounting the Magnetic Switch 9.  After you have marked and drilled your holes, mount the magnet with the 1/8” spacer in between the magnet and the door.  NOTE: Remember, if the door frame is metal, you must install the spacer in between the magnet and the door or the magnet will lose effectiveness.
LC 1200 Manual                                                                                                   The Magnetic Switch 4-3 Wiring You will need 22-gauge, 2-conductor plenum-rated cable for this connection. To wire the Magnetic Switch to the LC unit, refer to Figure 4.4 and use the following instructions: 1. Using the RED wire, connect “COM” on the Switch terminal to P2-4 (Door Switch In) of the LC unit. 2. Using  the  BLACK wire, connect “N.O.” on the Switch terminal to P2-3 (Door Switch Out) of the LC unit.   Figure 4.4 Wiring the Magnetic Switch to the LC unitDouble Doors Applications For double doors applications, connect the Switches in series (Figure 4.5) so that one Switch will open when either door is opened.    Figure 4.5  Wiring Two Magnetic Switches in Series  Perimeter Door Applications   Perimeter Door (No Locks)   Perimeter Door (Locks) Perimeter Door (No Locks) The LC unit can be made to function like a perimeter door and alarm the instant a door is opened regardless if there is a Tag in the zone.   To activate this mode, remove the jumper (or terminal block) from P1 pins 1 and 2 (Perimeter Door) of the LC unit. A Timer can also be used. When in this mode, whenever the door is opened (detected by the magnetic door position switch or PIR tripped), the LC unit will alarm.  To reset the zone, close the door and enter a valid code into the zone Keypad. Perimeter Door (Locks) The LC unit can be used as a perimeter door access control device. When in this mode, the door will remain locked (Magnetic Lock energized) at all times and will require a valid
4-4 The Magnetic Switch                                                                                                   LC 1200 Manual                           Keypad code or a PBO to pass through the door. If the zone uses a 3101 Magnetic Lock, the Delayed Egress function would still be effect. To use the LC unit as a perimter door access control device, remove the jumper (or terminal block) from P1 pins 1 and 2 of the LC unit. A Timer can also be used. To reset the zone, close the door and enter a valid code into the zone Keypad.
 LC 1200 Manual Chapter 5:  Passive Infrared Reader (PIR)  (Part # 300302)
LC 1200 Manual                                                                                    Passive Infrared Reader (PIR) 5-1           Passive Infrared Reader (PIR)   Specifications   Positioning   Mounting   Wiring   Adjusting the PIR beam angle   PIR “Masking” Passive Infrared Readers (PIRs) (Part # 300302; Figure 5.1) are sensitive to changes in infrared energy caused by an object moving across a PIR’s field of view. Detection depends on the difference between the infrared energy trasmitted by the moving object and the temperature of background objects.  The PIR Accutech provides (DSC Bravo Series) is for indoor use only. Its intended use is to detect movement through doors, corridors, and passageways. The relay contacts provided by the PIR (which control detect validation) can be set to trigger on programmable timer between a duration of 1 to 7 seconds.  A typical use for a PIR is a hallway, where there is no door to mount a Magnetic Switch to, or an elevator, where placing anything on the door or frame of the car might be undesirable.    Figure 5.1 The Passive Infrared Reader (PIR) Specifications   Power Requirements   Temperature   Weight Power Requirements 12V DC; contact rating: 100 mA @ 24V DC Temperature A PIR operates best in an ambient temperature between 35 and 90 degrees Fahrenheit. Operation outside of this range may cause unexpected or undesirable results, including premature failure.  Weight A PIR weighs approximately 2.8 ounces.
5-2 Passive Infrared Reader (PIR)                                                                                    LC 1200 Manual                           Positioning Position the PIR to have the best coverage possible for your situation.  Accutech recommends ceiling mounting the PIR  (Figure 5.2) to assure complete and focused coverage of the opening.  Wall mounting the PIR may result in detection beyond the desired area (Figure 5.3). If you decide to wall mount the PIR, “mask” the PIR to reduce the range.   While positioning the PIR, keep in mind:   The more precisely you place and focus the PIR, the less likely you are to get a nuisance alarm on a simple pass-by instead of a true egress.   The maximum coverage area of a PIR wall-to-wall curtain is 50’L x 60’W.   The PIR must be must be pointed at an object (e.g., the floor) to be able to detect.   Do  not point the PIR at reflective surfaces such as mirrors or windows as this may distort the coverage pattern or reflect sunlight directly into the PIR.   When mounting a PIR close to an elevator, you can avoid nuisance detection by locating the PIR at an adequate distance away from the elevator doors. The movement of air caused by an operating elevator can cause nuisance PIR detection.  Figure 5.2 Ceiling-mounted PIR  Figure 5.3 Wall-mounted PIR  Mounting To mount the PIR, refer to Figure 5.1 and use the following instructions: 1.  Push in the tab at the bottom of the case and pull the cover straight out at the bottom. 2.  Loosen the PCB screw and push the board up as far as it will go. 3.  Using a small screwdriver, remove the appropriate knockouts for the mounting screws. 4.  Remove the left and/or right wiring entrance knockouts located at the top of the backplate.
LC 1200 Manual                                                                                    Passive Infrared Reader (PIR) 5-3           5.  Mount the backplate to the wall using the screws supplied. NOTE: For wall and ceiling installations, use the two knock-outs at the back of the base. For corner or 45º mounting use the knock-outs on the angled sides. The unit must be fastened securely to the mouting surface to avoid possible vibrations.  Wiring  You will need 22-gauge, 4-conductor plenum-rated cable for this connection. To wire the PIR to the LC unit, refer to Figure 5.4 and use the following instructions: 1.  Using the WHITE wire, connect ( C )  of the PIR to P2-3 (Door Switch Out) on the LC unit. 2.  Using the GREEN wire, connect (N.C.) of the PIR to P2-4 (Door Switch In) on the LC unit. 3.  Using the BLACK wire, connect (GND) of the PIR to P3-4 (Ground) on the LC unit. 4.  Using the RED wire, connect P1 (+12V) of the PIR to P3-2 (+12V) on the LC unit. Adjusting the PIR beam angle To change the angle of the PIR beam, use the following instructions: 1.  Loosen the PCB screw and move the board up or down. The scale on the lower right side of the board indicates the angle. 2.  Moving the PCB down will increase the far range and move the near beams farther out from the mounting wall. 3. Moving the PCB up will reduce the far range and bring the near beams closer to the mounting wall. 4.  When finished adjusting, tighten the adjustment screw in place.
5-4 Passive Infrared Reader (PIR)                                                                                    LC 1200 Manual                            Figure 5.4 Wiring the PIR
LC 1200 Manual                                                                                    Passive Infrared Reader (PIR) 5-5                           PIR “Masking” If you have adjusted the PIR beam angle and the area covered is still too large and is overlapping into undesired areas, use the following “masking” method to reduce the effective area of the beams: 1.  The PIR has 3 “beams.” The low beam reaches about 10’, the middle beam reaches about 30’, and the high beam can reach 40-60’ (see Figure 5.3). “Masking” a PIR means covering one or more of the beams to reduce the PIR’s range. 2. Place one strip of electrical tape horizontally across the top of the PIR lens (see Figure 5.5); this will cover the high beam. 3.  Test the range of the PIR.  4.  If necessary, place another strip of tape horizontally in the middle of the PIR lens; this will cover the middle beam. 5.  Test the range of the PIR. 6.  OPTIONAL: If the PIR is extending too far outward (to the sides), place stripes of tape vertically on the sides of the PIR lens (see Figure 5.6); this will cover all outward beams producing a narrower coverage area. 7.  Test the range of the PIR.  Figure 5.5 PIR Masking horizontal example    Figure 5.6 PIR Masking vertical example
 LC 1200 Manual Chapter 6:  The Keypad                         (Part # 650202)
LC 1200 Manual                                                                                                                  The Keypad 6-1 The Keypad   Specifications   Positioning   Surface Mounting    Flush Mounting    Wiring   Programming PLEASE NOTE:  For complete information about the Keypad, consult the manufacturer’s manual. The Keypad (Part # 650202; Figure 6.1) provided by Accutech (the Visonic Ltd. CL-8A) is used to escort residents through a monitored zone and to reset zone equipment once an alarm has occurred.  Figure 6.1 The Keypad  Specifications   Power Requirements   Temperature   Weight Power Requirements 12V DC @ 55 mA Temperature The Keypad operates best in an ambient temperature between 35 and 90 degrees Fahrenheit. Operation outside of this range may cause unexpected or undesirable results, including premature failure.  Weight The Keypad weighs approximately 4.4 ounces.
6-2 The Keypad                                                                                                                  LC 1200 Manual                           Positioning The Keypad should be located within 3 to 5 feet of the monitored door or elevator. In hallway applications, mount the Keypad just outside of the zone to avoid alarm activation when escorting a monitored resident.   Figure 6.2 Surface Mounting the Keypad  Surface Mounting The Keypad is designed to be surface mounted using the white back box provided.  To surface mount the Keypad, refer to Figure 6.2 and use the following instructions: 1. Using a screwdriver, separate the Keypad from the white back box by removing the two screws. 2.  If you are using wire molding, push or cut out the two knock-outs located on the top and bottom of the white back box for the wiring molding to interface with the white back box. 3.  If you are running cable behind the wall, put or drill out the center knock-out in the white back box to wire from behind the wall into the white back box. 4.  Drill out the four mounting knock-outs in the white back box. 5.  Using the white back box as a template, mark all the holes that need to be drilled. 6. Drill the necessary holes in the mounting surface. 7. Secure the white back box to the mounting surface with appropriate hardware. 8.  Replace the Keypad to the white back box using the two screws.
LC 1200 Manual                                                                                                                  The Keypad 6-3 Flush Mounting If flush mounting is required, use a plastic single gang electrical switch box, instead of the original white back box (see Figure 6.3). A flush mount box can be obtained from your local building supply outlet. CAUTION: The Keypad manual shows the use of a standard single gang, metal electrical switch box. Accutech does not recommend the use of this type of box for two reasons: 1.  The fit is very, very tight. If the wires are stripped a little “long” as they enter the terminal block they may short to the side of the metal box. 2.  If this is not new construction and an electrical box with “zip” mounts is to be retrofitted in the wall, these zip mount tabs may actually protrude into the box and then it will be impossible to fit the Keypad circuitry inside the box. If a metal box is required, you will need to find a single gang box fitting the dimensions indicated in Figure 6.3. You may find it easier to use a 4” square metal box and then use one of the many varieties of face plates available from your local building supply outlet that will accommodate the Keypad.  Figure 6.3 Flush Mounting the Keypad
6-4 The Keypad                                                                                                                  LC 1200 Manual                           Wiring You will need 22-gauge, 4-conductor plenum-rated cable for this connection. To wire the Keypad to the LC unit, refer to Figures 6.4 and use the following instructions: 1.  Unmount the Keypad from the white back box and screws. 2.  Remove the LC unit cover. 3.  Feed the cable from the LC unit to the Keypad through the raceway, conduit, or wall and then through the access hole you made in the white back box. 4.  With the WHITE wire, pin 1 of the Keypad to P2-5 (Alarm NC) of the LC unit. 5.  With the BLACK wire, connect pin 2 of the Keypad to P3-4 (Ground) of the LC unit. 6.  With the RED wire, connect pin 10 of the Keypad to P2-6 (Alarm Comm) of the LC unit. 7.  With the GREEN wire, connect pin 11 of the Keypad to P2-2 (Reset In) of the LC unit. 8.  Place a jumper connecting the Keypad pins 2, 4, 6, and 10. 9.  Place a jumper connecting the Keypad pins 3 and 7. 10.  Replace the LC unit cover and screws. 11. Remount the Keypad to the white back box and screws. 12.  OPTIONAL: If you wish to use the Tag Detect feature of the Keypad, use a separate 22-gauge, 2-condutor plenum-rated cable to connect pin 4 of the Keypad to P3-1 (Tag Detect) of the LC unit (see Figure 6.5).   The Tag Detect feature of the Keypad will cause the yellow LED of the Keypad to illuminate when a Tag enters the monitored zone.
LC 1200 Manual                                                                                                                  The Keypad 6-5    Figure 6.4 Wiring the Keypad to the LC unit    Figure 6.5 Wiring the Keypad to the LC unit with Tag Detect option
6-6 The Keypad                                                                                                                  LC 1200 Manual                           Programming   Initiating a Keypad Reset/Escort   Programming the master code   Programming user codes   Deleting user codes   Resetting the master code   Adjusting the Keypad Escort Time PLEASE NOTE:  For complete information about the Keypad, consult the manufacturer’s manual. The Keypad provided by Accutech (the Visonic Ltd. CL-8A; Figure 6.6) is used to escort residents through a monitored zone and to reset zone equipment once an alarm has occurred.  Figure 6.6 The Keypad Programming the Keypad is, in simple terms, providing it with a set of instructions on how to react in various contingencies. The Keypad must be programmed as soon as all installation and wiring have been completed. Later on, as changes take place, partial or full reprogramming may be carried out as many times as necessary. The Keypad’s EEPROM memory can store up to 56 different 1-8 digit user codes, each assigned to an authorized individual user or to a group of users. The Keypad has three LED indicators. See Table 6.1 for their functions during normal operation.  Table 6.1 Keypad LED Indicators LED Status Function Green  Off Zone Ready  On* Keypad Reset or Escort Time initiated Yellow  Off No Power or No Tag  On Power indicator or Tag in Zone indicator (dependant on installation) Red  Off Zone Normal  On Alarm * During programming, the green LED functions differently.  Initiating a Keypad Reset/Escort To initiate a Keypad Reset or the Escort function, enter a valid user code and press the [#] key. The green LED will light.  Keypad Resets are used to reset zone equipment after an alarm has been addressed. When you initiate a Keypad Reset, all zone equipment and alarms will be reset. However, if the alarm condition is not properly corrected, the alarm will resume.  The Keypad’s Escort function is used to escort Tags through a monitored zone without triggering alarms. When you initiate the Escort function, for the duration of the Escort time, you will be able to escort the Tag through the door, hallway, or use an elevator without triggering alarms.
LC 1200 Manual                                                                                                                  The Keypad 6-7 Programming the master code The master code controls access to the Keypad’s programming menu. The factory default master code is [1][2][3][4], but after subsequent programming, this default code will be automatically superseded by user code No. 1, which becomes the real master code. The master code (User code No. 01) must be tightly controlled at all times to prevent unauthorized changes in the Keypad’s programming;  do not use this code for day-to-day Keypad operation. WARNING: It is dangerous to continue using the factory default master code [1][2][3][4] for day-to-day Keypad operation! It is mandatory to set a new master code, which will be used for programming purposes only and not for everyday requirements. When programming note that:   The [#] key functions like an “enter” key.   In any Keypad operation, if any code is entered 3 times or more incorrectly, the Keypad will lockout for 10 minutes (indicated by a green blinking LED).    If you make an error while programming, press  [*] to return to the programming menu.  To program the master code, use the following instructions: 1.  Invoke the programming menu by entering [*][*][master code][*][*]. At this point we shall assume that the factory default of [1][2][3][4] is still valid (Figure 6.7). When the programming menu is active, the green LED flashes slowly, approximately once every two seconds.  Figure 6.7  Entering the Programming Menu example  2. Enter  [1] to select user code programming. The green LED begins to flash rapidly (approximately 5 times per second) indicating that the Keypad is ready to receive data. 3.  Enter [0][1], followed by [#] for user code number 1. The green LED lights steadily for two seconds and then returns to rapid flashing indicating that the step has been completed successfully 4.  Enter the code to be used as the master code followed by [#] (see Figure 6.8 for example). The green LED lights steadily for two seconds and then returns to rapid flashing.  Figure 6.8 Code example 5.  Repeat the user code followed by [#]. The green LED will acknowledge as in the previous step. 6.  Now select which outputs will be tripped by the new master code, select [3] for all outputs followed by [#]. The green LED lights steadily for two seconds and then flashes slowly, indicating that the new master code has been programmed successfully and that
6-8 The Keypad                                                                                                                  LC 1200 Manual                           the Keypad has returned to the programming menu. 7. Press [#] to exit the programming menu and return the Keypad to normal operation. Programming user codes 1.  Prepare a list of user codes you want to program. 2.  Invoke the programming menu by entering [*][*][master code][*][*]. When the programming menu is active, the green LED flashes slowly, approximately once every two seconds. 3. Press [1] to select user code programming. The green LED begins to flash rapidly (approximately 5 times per second) indicating that the Keypad is ready to receive data. 4.  Enter the user number (02 through 52) followed by [#]. For example, to program user code number 2 you enter [0][2] followed by [#]. The green LED lights steadily for two seconds and then returns to rapid flashing indicating that the step has been completed successfully. 5.  Enter the code assigned to this user followed by [#] (see Figure 5.3 for example). The green LED lights steadily for two seconds and then returns to rapid flashing. 6.  Repeat the user code followed by [#]. The green LED will acknowledge as in the step above. 7.  Now select which outputs will be tripped by the user code, select [3] for all outputs followed by [#]. The green LED lights steadily for two seconds and then flashes slowly, indicating that the new user code has been programmed successfully and that the Keypad has returned to the programming menu.  8.  Repeat steps 3 through 7 to program the next user code or press [#] to exit the programming menu and return the Keypad to normal operation. Deleting user codes To delete individual or all user codes, use the following instructions:  1.  Invoke the programming menu by entering [*][*][master code][*][*]. When the programming menu is active, the green LED flashes slowly, approximately once every two seconds. 2. Enter [4] to select the user code deleting function. The green LED will respond by flashing rapidly indicating that the Keypad is ready to receive data. 3.  Enter the user number whose code you wish to delete (02 through 56), or enter [*][*] to delete all user codes and then press [#].  The green LED will light steadily for 2 seconds and then will resume rapidly flashing. Note: The master code cannot be deleted in this manner. 4. Enter the [master code] once more, followed by [#]. The green LED will
LC 1200 Manual                                                                                                                  The Keypad 6-9 light steadily for 2 seconds and will return to slow flashing 5.  Repeat steps 2-5 to delete another user code or press [#] to exit the programming menu and return the Keypad to normal operation. Resetting the master code NOTE: The following operation should only be performed by authorized personnel.  If you forget the master code, you will need to reset the Keypad to the factory default master code of [1][2][3][4] and then assign a new master code.  NOTE:  This operation is time-sensitive. Please read through all the instructions before beginning. To reset the master code, use the following instructions: 1.  Open the Keypad’s case, revealing the printed circuit board. 2.  Install the jumper across the two pins labeled JP2. 3.  Using a screwdriver or jumper wire, momentarily short circuit the pins labeled JP1.  4.  Wait ten seconds, remove the jumper from JP2, and immediately enter [1][2][3][4][#]. The green LED will light steadily for two seconds and then start flashing slowly, indicating that the programming menu is active. NOTE: The master code is temporarily reverted to default [1][2][3][4]. However, all other data programmed previously remains intact. 5.  Program a new master code immediately (see page 6.7) and record it in a secure place. Adjusting the Keypad Escort Time To adjust the Keypad Escort Time, use the following instructions: 1.  Invoke the programming menu by entering [*][*][master code][*][*]. When the programming menu is active, the green LED flashes slowly, approximately once every two seconds. 2. Enter [2] to select the relay timer function. The green LED will respond by flashing rapidly, indicating that the Keypad is ready to receive data. 3.  Enter the escort time (two digits, from 01-98 seconds) and then press the [#] key. For example to set the escort time for 15 seconds, enter [1][5] followed by [#]. The green LED will light steadily for 2 seconds and then will resume rapid flashing. 4. Press [#] to exit the programming menu and return the Keypad to normal operation. 5.  To verify the new escort time, enter a valid user code to initiate the Escort function. The green LED will illuminate for the duration of the Escort time.
 LC 1200 Manual Chapter 7:  Push Button Override (PBO) (Part # 700022)
LC 1200 Manual                                                                                      Push Button Override (PBO) 7-1 Push Button Override (PBO)   Specifications   Positioning   Mounting   Wiring to the Keypad   Wiring to the LC unit The Push Button Override (PBO) (Part # 700022; Figure 7.1) triggers the Keypad’s Escort function; this option overrides the presence of a Tag in the zone to allow free access through the doorway (no locks or alarms) from the non-Keypad side of the door. The PBO uses three LEDs:   The Green LED indicates power.   The Red LED indicates an alarm.    The Yellow LED indicates the PBO has been activated and the allotted escort time is in progress. The time allotted to pass through the doorway or zone is the same as the Escort time on the Keypad. Figure 7.1 Push Button Override (PBO) Specifications   Power Requirements   Temperature   Weight Power Requirements 12V DC @ 55 mA NOTE: The PBO triggers the Keypad; therefore, the PBO current draw is based on the Keypad used. Temperature The PBO operates best in an ambient temperature between 35 and 90 degrees Fahrenheit. Operation outside of this range may cause unexpected or undesirable results, including premature failure.  Weight A PBO weighs approximately 4.3 ounces. Positioning The PBO should be positioned on the side of the door opposite the Keypad. In other words, if the Keypad is on the inside of the door, the PBO should be on the outside of the door. The PBO can be flush mounted or surface mounted using the appropriate mounting box and hardware.
7-2 Push Button Override (PBO)                                                                                      LC 1200 Manual          Mounting The PBO is designed to be surface mounted using the back box provided. To mount the PBO use the following instructions: 1.  Using a screwdriver, separate the PBO from the back box. 2.  Push out the back knock-out. 3.  Using the back box as a template, mark the mounting holes. 4. Drill the necessary holes in the mounting surface. 5.  Secure the back box to the mounting surface with appropriate hardware. 6.  Make any and all wire connections that require the PBO to be unmounted. 7.  Replace the PBO to the back box.  Wiring to the Keypad You will need 22 AWG, 4 –conductor Plenum-rated cable for installation. NOTE: The following instructions assume that the Keypad and LC unit are already wired. See Chapter 6 for these instructions. To wire the PBO to the Keypad, refer to Figure 7.2 and use the following instructions: 1.  Remove the Keypad from the white back box. 2.  Remove the LC Unit cover. 3.  Using the RED wire, connect (with a spade crimp connector) the left prong of the PBO plug to pin 5 of the Keypad. 4.  Using the GREEN wire, connect (with a butt splice) the negative (-) of the Green LED of the PBO to pin 11 of the Keypad which will also be connected to “Reset In” of the LC unit.
LC 1200 Manual                                                                                      Push Button Override (PBO) 7-3           Wiring to the LC Unit  You will need 22-gauge, 4-conductor plenum-rated cable for this connection. Note:  The following instructions assume that the Keypad and LC unit are already wired (see Chapter 6 for these wiring instructions). If desired, you can splice into these wires when connecting a PBO for easier installation.  To wire the PBO to the LC unit, refer to Figure 7.2 and use the following instructions: 1.  Remove the Keypad from the white back box. 2.  Remove the LC unit cover and screws. 3.  Using BLACK wire, jumper the negatives (-) of the Red and Yellow LEDs together, then to the right prong of the PBO plug (with a spade crimp connector). 4.  Continue from the right prong of the PBO plug (with a spade crimp connector) to the P3-4 “Ground” of the LC unit). Note: If desired, you can splice into the BLACK wire already present from the connection of the Keypad to the LC unit.  5.  Using RED wire, connect the positive (+) side of the Yellow and Green LEDs on the PBO to a Butt Splice, then to P3-3 “+12V DC” of the LC unit. Note: If desired, you can splice into the RED wire already present from the connection of the Keypad to the LC unit. 6.  Jumper P2-6 “Alarm Comm” and P3-3 “+12V DC” on the LC unit. Note: This jumper should already be present if the Keypad has been wired. 7.  Using GREEN wire, connect the negative (-) side of the Green LED to P2-2 “Reset In” on the LC unit. Note: If desired, you can splice into the GREEN wire already present from the connection of the Keypad to the LC unit. 8.  Using WHITE wire, connect the positive (+) side of the Red LED to P2-5 “Alarm NC” of the LC unit. Note: If desired, you can splice into the WHITE wire already present from the connection of the Keypad to the LC unit. 9.  Using RED wire and a spade crimp connector, connect the left prong to the PBO plug to Pin 5 of the Keypad. 10.  Replace the LC unit cover and screws. 11.  Replace the Keypad to its white back box.
7-4 Push Button Override (PBO)                                                                                      LC 1200 Manual  Figure 7.2 Wiring the PBO to the LC unit
 LC 1200 Manual Chapter 8:  External Sounders     (Part #s 700216, 300150)
LC 1200 Manual                                                                                                       External Sounders 8-1 External Sounders   System Sensor sounder   Multi-Tone Local Alert (MTLA) PLEASE NOTE:  For complete information about an external sounder, consult the manufacturer’s manual. If desired, the LC unit can drive an external sounder. Accutech provides two types of external sounders: the System Sensor sounder and Multi-Tone Local Alert (MLTA). An external sounder will alarm simultaneously with the internal peizo of the LC unit when an alarm occurs and is silenced by a Keypad Reset.  An external sounder will not be silenced by removing jumper JP2 (Tone Enable), however, removing this jumper will disable audible notification of all internal alarms (i.e., Egress, Tamper, Power Loss Supervisor, and Perimeter).  System Sensor sounder   Specifications   Mounting   Wiring The System Sensor sounder (Part # 700216; Figure 8.1; System Sensor PA400 Series), a 90db at 10 feet piezo-signaling device, is intended to attract attention near the monitored zone.   Figure 8.1 System Sensor external sounder Specifications   Power Requirements   Temperature   Weight Power Requirements 12V DC Temperature The  System Sensor sounder operates best in an ambient temperature between 35 and 90 degrees Fahrenheit. Operation outside of this range may cause unexpected or undesirable results, including premature failure.  Weight The System Sensor sounder weighs approximately 2.5 ounces.
8-2 External Sounders                                                                                                       LC 1200 Manual Mounting Use a standard 2-1/2” deep single-gang box to   mount the System Sensor sounder with the two mounting screws supplied at the desired location. Wiring You will need 22-gauge, 2-conductor plenum-rated cable for this connection. To wire the System Sensor sounder to the LC unit, refer to Figure 8.2 and use the following instructions: 1. Using the RED wire, connect the positive (+) terminal of the System Sensor sounder to P2-5 (NC) of the LC unit. 2.  Using the BLACK wire, connect the negative (-) terminal of the System Sensor sounder to P3-4 (Ground) of the LC unit. 3.  Jumper P2-6 (Alarm Comm) to P3-3 (+12V DC) on the LC unit.      Figure 8.2 Wiring the System Sensor sounder  Multi-Tone Local Alert (MTLA)   Specifications   Mounting   Wiring The Multi-Tone Local Alert (MTLA) (Part # 300150; Figure 8.3; System Sensor Chime CH1224 Series), a wall-mount electronic chime, offers multiple chime tones and is intended to attract attention near the monitored zone.  The MTLA sound output is 54dBA at 12V DC and 60dBA at 24V DC. The chime has sixteen field-selectable tone options, each with three volume settings. These options are activated through the appropriate settings on the DIP switch located on the rear of the MTLA. Therefore, you can differentiate LC units located in close proximity by using separate tones.   Figure 8.3 The MTLA
LC 1200 Manual                                                                                                       External Sounders 8-3 Specifications   Power Requirements   Temperature   Weight Power Requirements 12 or 24V DC Temperature The MTLA operates best in an ambient temperature between 35 and 90 degrees Fahrenheit. Operation outside of this range may cause unexpected or undesirable results, including premature failure.  Weight A MTLA weighs approximately 0.5 pounds. Mounting A MTLA is capable of being mounted to a standard 4” x 4” or 1-1/2” back box or a single gang 2” x 4” 1-7/8” back box.  Wiring You will need 22-gauge, 2-conductor plenum-rated cable for this connection. To wire the MTLA to the LC unit, refer to Figure 8.4 and use the following instructions: 1. Using the RED wire, connect the positive (+) terminal of the MTLA to P2-5 (NC) of the LC unit. 2.  Using the BLACK wire, connect the negative (-) terminal of the MTLA to P3-4 (Ground) of the LC unit. 3.  Jumper P2-6 (Alarm Comm) to P3-3 (+12V DC) on the LC unit.         Figure 8.4 Wiring the MTLA
 LC 1200 Manual Chapter 9:  Magnetic Locks          (Part #s 700218, 700228)
LC 1200 Manual                                                                                                            Magnetic Locks 9-1 Magnetic Locks   Operation   What is Delayed Egress Circuitry?   3101 Series Magnetic Locks   3000 Series Magnetic Locks  Each Magnetic Lock is comprised of 3 basic components: a lock housing, an electromagnetic coil and an armature. The coil and housing assembly mounts rigidly to the door frame while the armature mounts to the door in a manner that allows it to pivot slightly to compensate for door irregularities. When the door is closed and the lock is energized the armature is magnetically bonded to the lock face, thus securing the door without utilizing any moving parts.  Operation The Magnetic Lock will engage when a Tag is on the Tx Activation Field.  The Lock remains engaged as long as a Tag is in the Field.  Once locked, the Lock will disengage when any of the following conditions occur:   All Tags leave the Field and the preset delay times out (02-18 seconds; set by R43 Tag Detect Delay)    A Keypad Reset.   A PBO is activated.   The facility’s Fire Alarm is activated.   The removal of power, for any reason, will de-energize the lock allowing the door to be opened.   DELAYED EGRESS CIRCUITRY (3101 SERIES LOCKS ONLY) - When a maintained force (less than 15 pounds required) is applied to the door for an adjustable period of time (1 to 3 seconds).
9-2 Magnetic Locks                                                                                                            LC 1200 Manual                          What is Delayed Egress Circuitry? In compliance with the N.F.P.A 101 Life Safety Codes 5-2.1.6.1, Accutech’s 3101 Magnetic Locks feature Delayed Egress Circuitry.  This means that even though the door will Lock when an active Tag approaches, the door can still be opened after 15 seconds (plus the 1-3 second nuisance delay) of constant pushing on the door. If the Lock is engaged (meaning the LC unit has detected an active Tag in the zone) and the person pushes on the door, the Lock will release within 15 seconds (after a 1-3 nuisance delay) whenever a maintained force (less than 15 pounds required) is applied to the door.  An audible tone enunciates both countdown and release. When the Lock releases, the red Led will turn solid green and the alarm will sound continuously. To reset the zone after an alarm, close the door and enter a valid code into the zone Keypad. 3101 Magnetic Locks   3101 Magnetic Lock Specifications   Lock Jumper   Mounting   Wiring   Terminals    Adjusting the Sensor Pin   Changing the Lock Nuisance delay time   Changing the Egress Alarm delay time The 3101 Magnetic Lock (Part # 700228) features 1200 pound holding force, Delay Egress Circuitry, NFPA101 Life Safety Codes conformity, a selectable nuisance delay and an Accutech custom-designed electromagnetic coil. Our custom-designed electromagnetic coil, only available through Accutech, results in lower current draw (only 12V AC/DC required). 3101 Magnetic Lock Specifications   Power Requirements   Temperature   Weight Power Requirements 12V AC/DC Temperature 3101 Magnetic Locks operate best in an ambient temperature between 35 and 90 degrees Fahrenheit. Operation outside of this range may cause unexpected or undesirable results, including premature failure.  Weight The 3101 Magnetic Lock weighs 11 U.S. pounds.
LC 1200 Manual                                                                                                            Magnetic Locks 9-3  Lock Jumper The 3101 Lock has one jumper on it, the Fire Panel Jumper (Figure 11.2). By default it is placed in position 2-3. You must move this jumper (and leave it) into position 1-2 (the left two pins) before you install the Lock.  Mounting To mount the 3101 Magnetic Lock, follow the DynaLock Corp. Mounting and Operating Instructions that came with the Lock.  Wiring IMPORTANT: Follow the wiring instructions in this manual only. Terminal connections and functions vary from the locks original design and documentation.  You will need 18-gauge, 4-conductor plenum-rated cable for this connection. NOTE:  State codes require that all lock and elevator deactivation circuitry be wired into the facility’s fire alarm system (see Chapter 12: Fire Panel Interface). This is done so that in case of a fire, any lock or elevator deactivation unit disengages, allowing for free egress or ingress. To connect the 3101 Magnetic Lock, consult the Connections and Operation section as well as Figures 9.1 and 9.2. Terminals This section quickly explains the functions of Lock pins 1-6. Lock Power Pins 1 and 2 require a constant 12-volt AC or DC which is supplied DC by the LC unit power supply. Lock Trigger  Tag Detect of the LC Unit (P3-1) goes low when a Tag is present. Pin 4 of the Lock needs a low signal to energize Lock. Lock Reset When Lock Reset is initiated, Reset Out (P2-1) sends a low signal to pin 5 of the Lock, which needs a low signal to reset the Lock. With the Lock engaged, if delayed egress is initiated and the Tag leaves the Tx Activation Field before the door is opened, the Lock will automatically reset after the “Lock Hold timer” times out. The Lock will not reset is if the door is opened by anyone during the Lock hold time. If the door is opened while the Lock is in delayed egress, or during the Lock Hold time after the egress sequence is complete, the Lock will latch into egress and the Keypad must be reset to return the Lock to its normal non-locked state.
9-4 Magnetic Locks                                                                                                            LC 1200 Manual                          Figure 9.1 3101 Magnetic Lock PCB
LC 1200 Manual                                                                                                            Magnetic Locks 9-5    Figure 9.2 Wiring the 3101 Magnetic Lock
9-6 Magnetic Locks                                                                                                            LC 1200 Manual                          Adjusting the Sensor Pin Accurate adjusting of the Sensor pin will help prevent nuisance alarms from slight disturbances and small vibrations such as someone bumping into the door or someone shutting a door nearby. To adjust the Sensor pin, refer to Figure 9.1 - 9.3 and use the following instructions: 1.  Remove power from the Lock by powering down the LC unit. 2.  Remove the cover to the Lock housing. 3.  Remove the Fire Alarm Control jumper from the Lock. 4.  Make sure DS1 (the Lock selector switch) Position 3 is in the OFF position.  5.  Move DS1 Position 1 to the ON position  NOTE: The ON position denotes “set-up” mode. 6.  Be certain that the Set screw in the Sensor Ring is loose and will not make contact with the Sensor pin (Figure 9.3) WARNING: Failure to follow this step can damage the threads of the Sensor pin as you make adjustments.  7.  Start with the Sensor pin adjusted out as far as possible while still solidly threaded into the Sensor ring.   Figure 9.3 Adjusting the Lock Sensor pin 8.  Apply power to the Lock by powering up the LC unit. The Lock LED will light up both Green and Red (kind of Yellow) while it goes through its power up sequence (about 5 seconds)  9.  When the power up sequence is over, the LED will either turn solid Red (Door closed and locked) or the LED will turn off (Door open and unlocked). You want the door to be closed and locked. 10.  With the door closed and locked, apply as much pressure to the door as needed to fully deflect the door, and while holding it in this position, adjust the Sensor pin with the included ¼ Allen wrench until the (Red) LED goes out on the Lock.  NOTE: For slight adjustments, there is a Sensor pin access hole in the PCB of the Lock. However, depending on how the internal lock wires are situated this may not be feasible. If this is the case, it is recommended that you deflect the door farther until you can adjust the Sensor pin directly with the Allen wrench.
LC 1200 Manual                                                                                                            Magnetic Locks 9-7 11.  When you have completed the adjustment, gently allow the door to be pulled by the weight of the door. NOTE: When the door is closed the LED will be Red, when the door is open the LED will be Off. 12.  Remove power from the Lock by powering down the LC unit. 13.  Tighten the set screw with the Allen wrench provided. This will prevent the Sensor pin from coming out of adjustment.  NOTE: Be careful not to over tighten. 14.  Replace the Fire Alarm Control jumper into the N.C. position (pins 1-2). 15.  Move DS1 Position 1 into the OFF position. NOTE: This will take the lock out of set-up mode and into normal operation mode. 16.  Move DS1 Position 3 into the ON position 17.  Replace the cover to the Lock housing. 18.  Apply power to the Lock from the LC unit and test the function of the Lock. Changing the Lock Nuisance delay time The Lock Nuisance Delay time prevents nuisance alarms by requiring a door disturbance to be sustained for a set length of time before registering an alarm. The delay time is set by Position 3 on the Selector Switch (S1) on the Lock PCB (see Figure 9.1).   The OFF position results in a 1-second delay   The ON position results in a 3-second delay Changing the Egress Alarm delay time The Egress Alarm delay time requires a door disturbance to be sustained for a set length of time before unlocking the door and allowing egress. The delay time is set by Position 4 on the Selector Switch (DS1) on the Lock PCB (see Figure 9.1).   The OFF position results in a 15-second delay   The ON position results in a 30-second delay
9-8 Magnetic Locks                                                                                                            LC 1200 Manual                          3000 Series Magnetic Locks   Specifications   Mounting   Wiring Specifications   Power Requirements   Temperature   Weight Power Requirements 12V or 24V AC/DC Temperature 3000 Magnetic Locks (Part # 700218) operate best in an ambient temperature between 35 and 90 degrees Fahrenheit. Operation outside of this range may cause unexpected or undesirable results, including premature failure.  Weight The 3000 Magnetic Lock weighs 9 U.S. pounds. Mounting To mount the 3000 Magnetic Lock, follow the DynaLock Corp. Mounting and Operating Instructions that came with the Lock.  NOTE: State codes require that all lock and elevator deactivation circuitry be wired into the facility’s fire alarm system. This is done so that in case of a fire, any lock or elevator deactivation unit disengages, allowing for free egress or ingress. Be sure to check Local, State and Federal Codes as well as Chapter 12: Fire Panel Interface (FPI). Wiring You will need 18-gauge, 2-conductor plenum-rated cable for this connection. The basic operation of this Lock will center on supplying power to the Lock coil whenever a Tag is detected in the zone, and removing that power when there are no Tags detected in the zone.  To connect the 3000 Series Magnetic Lock to the LC unit, refer to Figure 9.4
LC 1200 Manual                                                                                                            Magnetic Locks 9-9   Figure 9.4 Wiring a 3000 Series Magnetic Lock
 LC 1200 Manual Chapter 10:  Elevator Deactivation        (Part # 700027)
LC 1200 Manual                                                                                                Elevator Deactivation 10-1                           Elevator Deactivation    What to expect   Working with the Elevator Company   Specifications   Positioning   Mounting   Wiring    Summary for the Elevator Company   Elevator Deactivation (Part # 700027) prevents a Tag from using an elevator. There are two conditions where Elevator Deactivation would be engaged. The first condition is if the system detects a Tag at a monitored elevator landing, the Elevator Deactivation prevents the elevator from being called to that floor by deactivating the elevator’s call button at that floor. The second condition is if the system detects a Tag and the elevator is at the floor or en route, the alarm will sound, the elevator doors will remain open and the call button will be deactivated. What to expect As soon as a Tag is detected, the elevator’s Call Button for that floor/landing is deactivated. The Call Button will remain deactivated for as long as the Tag is in the Tx Activation Field, and for an adjustable period of time (a delay) after the Tag leaves.  If a delay is used with the Call Button, that delay will “fool” the system into thinking a Tag is present longer than it actually is. This means that if the door is opened during this delay, the system will go into alarm. Once that time expires and there are no Tags in the zone, the Call Button will resume operation. Furthermore, if an elevator is already on its way to that floor (because it was called before the Tag entered the zone) the elevator will continue to that floor. If the Tag leaves the Field before the elevator doors open, the zone will not go into alarm and the elevator will function as if the Tag had never been there. Finally, if the doors open while a Tag is present, the system will go into “alarm” and the elevator will be deactivated. This deactivation will take place only for the elevator at that zone. The alarm is “latched”, meaning that it will not automatically reset itself once the Tag has left the area. A reset-authorizing device (such as a Keypad) is required to reset the zone and reactivate the elevator. Working with the Elevator Company It will be necessary to work with the facility’s elevator company in order to connect the Elevator Deactivation Circuitry. The Accutech system contains most of the circuitry needed to deactivate the elevators; however, the elevator company will need to be provided with relays. The Elevator Deactivation cabinet is used for this purpose. Specifications   Power Requirements   Temperature   Weight Power Requirements 12V DC
10-2 Elevator Deactivation                                                                                                LC 1200 Manual Temperature The Elevator Deactivation unit operates best in an ambient temperature between 35 and 90 degrees Fahrenheit. Operation outside of this range may cause unexpected or undesirable results, including premature failure.  Weight The Elevator Deactivation cabinet weighs 3.5 U.S. pounds.  Positioning The cabinet containing the relays for the Elevator Deactivation circuitry (Figure 10.1) should be located in the room containing the elevator controls.   Figure 10.1 The Elevator Deactivation unit Mounting To mount the Elevator Deactivation cabinet, use the following instructions: 1.  Choose your location and appropriate mounting hardware. 2.  Open the Elevator Deactivation cabinet and locate the four mounting holes. 3.  Mark-out and drill four holes corresponding to the holes in the back of the cabinet. 4.  Push out one of the knock-outs in the cabinet for wire/conduit access. 5.  Connect conduit or strain relief fittings. 6.  Position the cabinet over the holes you drilled and secure the cabinet to the mounting surface. NOTES: The first condition is the presence of a Tag at a monitored zone. The second condition, in the case of elevator deactivation, is an indication of an open door at a monitored zone. If a door position switch, typically dry contacts from the elevator control or some form of magnetic switch, is not available, then a Passive Infrared Reader (PIR) is focused near the monitored opening.   Local or State Code may require the wire to be run in conduit. Be sure to check your requirements before beginning work. NOTE: State codes require that all lock and elevator deactivation circuitry be wired into the facility’s fire alarm system. This is done so that
LC 1200 Manual                                                                                                Elevator Deactivation 10-3 in case of fire, any lock or elevator deactivation unit disengages, allowing for free egress or ingress. Be sure to check your local codes and see Chapter 12 on Fire Panel Interface Units.  Wiring You will need 22-gauge, 6-conductor plenum-rated cable for this connection. To wire the Elevator Deactivation, refer to Figure 10.2. At the Second Condition Source: If the second condition source is provided by the elevator controls, Use the previously wired terminals on the 4- position screw terminal strip in the Elevator Deactivation Relay cabinet to hookup to the dry contract. If the second condition source is a locally mounted Magnetic Switch or a Passive Infrared Reader (PIR) unit, wire them to the Controller. Summary for the Elevator Company   Call Button Deactivation   Elevator Car Deactivation The following is a brief summary of Elevator Deactivation that can be given to the Elevator Company. Call Button Deactivation When a Tag is detected in the monitored Elevator zone, the LC unit energizes Relay K2 and the Call Button for that Elevator zone is deactivated. When the K2 Relay is de-energized, the Call Button is reactivated. Elevator Car Deactivation When a Tag is detected in the monitored Elevator zone and the second condition is met, the LC unit energizes Relay K1.  If the elevator car is at the floor (with doors open) the elevator will be deactivated. If the elevator car is on its way to that floor, it will continue to that floor and upon arrival (with doors open) will be deactivated.  As long as relay K1 is energized, the elevator doors will remain open preventing the car from leaving the floor. When Relays K1 is de-energized, the Elevator will return to normal operation.
10-4 Elevator Deactivation                                                                                                LC 1200 Manual                      Figure 10.2 Wiring Elevator Deactivation
 LC 1200 Manual Chapter 11:  Automatic Door Deactivation   (Part # 700033)
LC 1200 Manual                                                                                   Automatic Door Deactivation 11-1 Automatic Door Deactivation   Specifications   Positioning and Mounting   Wiring In automatic door applications (doors that open via a motion sensor or push paddle), the LC unit can deactivate this feature when a Tag enters a monitored zone’s Tx Activation Field. With Automatic Door Deactivation (Part # 700033), when a Tag is detected in the Tx Activation Field, the motion detector and/or push paddle is disabled. When the Tag leaves the zone, the door will function normally after the preset delay times out (02-18 seconds; set by R43 Tag Detect Delay). If the door is opened manually while a Tag is the zone, an alarm will sound. To reset the alarm, remove the Tag from the zone, close the door, and enter a valid code into the zone Keypad. Specifications   Power Requirements   Temperature   Weight Power Requirements 12V DC Temperature The PBO operates best in an ambient temperature between 35 and 90 degrees Fahrenheit. Operation outside of this range may cause unexpected or undesirable results, including premature failure.  Weight The Automatic Door Deactivation cabinet weighs approximately 3 pounds. Positioning and Mounting Automatic Door Deactivation is enclosed in a 6”x6”x4” cabinet and should be located in the room containing the door controls. Use hardware appropriate for the weight, size, and mounting surface. Wiring  You will need 22-gauge, 2-conductor plenum-rated cable for this connection. To wire the LC unit for Automatic Door Deactivation, refer to Figure 11.1 on the next page.
11-2 Automatic Door Deactivation                                                                                   LC 1200 Manual                      Figure 11.1 Wiring for Automatic Door Deactivation on Tag Detection
 LC 1200 Manual Chapter 12:  Fire Panel Interface (FPI)     (Part # 700013)
LC 1200 Manual                                                                                          Fire Panel Interface (FPI) 12-1 Fire Panel Interface (FPI)   Specifications   Positioning and Mounting   Verifying the Fire Alarm Dry Contacts   Wiring   Terminals State codes require that all Locks, Elevator Deactivation, and Automatic Door Deactivation be wired into the facility’s fire alarm system. This is done so that in case of a fire, any restraint disengages, allowing for free egress or ingress. For more information on this policy, check your local codes. For each FPI unit (Part #700013;  Figure 12.1) used, you will need one set of dry contacts from the facility’s fire panel. Each FPI unit provides dry contact outputs for up to 8 LC units.   In addition, the FPI unit can provide:   An Optional Central Override, which allows the facility to disable all Locks, Elevator Deactivation, and Automatic Door Deactivation units controlled by that FPI. Each FPI requires its own override switch.   A Manual Reset, which will re-engage the Locks, Elevator Deactivation, and Automatic Door Deactivation after the fire alarm is reset. This switch can be replaced with a jumper that will make the reset process automatic once the fire alarm is reset.   An Auxiliary Output (+12VDC) for alerting staff that the Locks, Elevator Deactivation, and Automatic Door Deactivation are disengaged. This is typically connected to the Staff Alert or Graphic Panel(s).
12-2 Fire Panel Interface (FPI)                                                                                          LC 1200 Manual  Figure 12.1 The FPI with cabinet
LC 1200 Manual                                                                                          Fire Panel Interface (FPI) 12-3 FPI Specifications   Power Requirements   Temperature   Weight Power Requirements 12V DC Temperature The FPI operates best in an ambient temperature between 35 and 90 degrees Fahrenheit. Operation outside of this range may cause unexpected or undesirable results, including premature failure. Weight The FPI (including cabinet) weighs approximately 1 pound.  Positioning and Mounting The FPI is enclosed in a 6”x6”x2” cabinet can be located and should be located in the room containing the fire alarm controls. Use hardware appropriate for the weight, size, and mounting surface.  Verifying the  Fire Alarm Dry Contacts  The facility must provide an unused dry contact in the fire alarm system for each FPI unit. (This contact must be closed during a non-alarm state and must OPEN in case of a fire alarm or loss of fire alarm function.) Verifying the Fire Alarm Dry Contacts WARNING: Before you test the system, notify the facility and the local fire department that you will be testing the fire alarm system. To verify the operation of the fire alarm dry contacts, use the following instructions: 1.  Connect an ohmmeter across the dry contacts. There should be continuity in the non-alarm state. (Contact should be closed.) NOTE:  There should never be voltage on this contact. 2.  Trip the fire alarm to verify that the contacts change state. You should now see an OPEN on your meter. 3.  Reset the fire alarm and verify the contacts go back to their closed state.
12-4 Fire Panel Interface (FPI)                                                                                          LC 1200 Manual Wiring For instructions on wiring the FPI, refer to the chapter of the component you are using (e.g., Magnetic Locks, Elevator Deactivation, or Automatic Door Deactivation).  Terminals    Pins 1 and 2   Pins 3 and 4   Pins 5 and 6   Pins 7 and 8   Pins 9 and 10 Because of the variety of possible mounting locations, and therefore distances between signals and sources, it is recommended that you use no less than 18-gauge plenum-rated wire and cable for connecting the FPI unit.  You must use a separate dry contact for each LC unit that controls a Lock, Elevator Deactivation, or Automatic Door Deactivation.  This dry contact may come directly from the facility’s fire panel, or from the  Accutech Fire Panel Interface (FPI) unit. The FPI unit will allow you to connect multiple LC units to the facility fire panel.  Pins 1 and 2 (Power) IMPORTANT:  For fire code safety, the FPI must be powered separately from an LC unit. You will need a separate 2-conductor cable run from a +12V DC supply power (Part # 500250) and ground to the pins 1 & 2, respectively.     Pins 3 and 4 (Fire Voltage) The dry contacts from the fire panel connect to pins 3 (“C”) and 4 (“NC”) of P1 on the FPI. Pin 3 is simply +12V DC that is sent out through the fire alarm contacts. Pin 4 is the return of the voltage and should only be present when the fire alarm system is working properly and the fire alarm is not engaged. Pins 5 and 6 (Central Override) Pins 5 (“C”) & 6 (“NC”) of P1 on the FPI are for the Central Override contacts.   If this option is not used, you will see a shorting jumper between these two points or you need to place one.   When using more than one FPI, each FPI should have its own shorting jumper or central override switch. Pins 7 and 8 (Fire Alarm Indicator) Pins 7 (“DPLY”) & 8 (“G”) of P1 on the FPI are the Auxiliary Output that are typically used to power a Fire Alarm indicator LED at a Staff Alert or Graphic Panel. Pin 7 is the signal, and pin 8 is the Ground. Pins 9 and 10 (Reset)  Pins 9 (“C”) & 10 (“NO”) of P1 on the FPI are the Reset pins. The push button switch in the cover of the FPI is connected to these two points. If an automatic reset is desired this switch can be replaced by a jumper from pin 9 to 10. NOTE: On the FPI, connector P2 has 8 pairs of contacts for each of 8 LC units that can be connected to the FPI.
 LC 1200 Manual Chapter 13:  Timer                                    (Part # 700018)
LC 1200 Manual                                                                                                                           Timer 13-1                          Timer   Specifications   Positioning and Mounting   Wiring   Programming PLEASE NOTE:  For complete information about the Timer, consult the manufacturer’s manual. If desired, the LC unit can be interfaced with a Timer. A Timer allows the user to engage or disengage certain system functions on a time schedule. A typical application of a Timer would be at a perimeter door that has high traffic during the day but almost not traffic at night. During the day it may make sense to allow the free ingress and egress of staff and visitors, but at night, locking the door would mean added security for staff and residents.  Accutech provides the AlarmSaf FT-100 Timer (Part # 700018;  Figure 13.1) which uses military time units and can be set for daily, weekly or block period events.  Figure 13.1 The Timer Specifications   Power Requirements   Temperature   Weight Timer Specifications   Power Requirements   Temperature   Weight Power Requirements 12V DC Temperature The Timer operates best in an ambient temperature between 35 and 90 degrees Fahrenheit. Operation outside of this range may cause unexpected or undesirable results, including premature failure.  Weight The Timer (including cabinet) weighs 2 U.S. pounds. Positioning and Mounting The Timer is enclosed in a 6”x6”x4” cabinet and should be located nearby the LC unit it will interface with. Use hardware appropriate for the weight, size, and mounting surface.
13-2 Timer                                                                                                                           LC 1200 Manual                          Wiring  You will need 22-gauge, 4-conductor plenum-rated cable for this connection. To wire the Timer to the LC unit, refer to Figure 13.2 and use the following instructions: 1.  Using the BLACK wire, connect the “-“ pin of the Timer to P3-pin5 (Ground) of the LC unit. 2.  Using the RED wire, connect the “+” pin of the Timer to P3-pin4 (+12V) of the LC unit. 3.  Using the WHITE wire, connect the “N.O” pin of the Timer to P1-pin2 (Perimeter In) of the LC unit. 4.  Using the GREEN wire, connect the “C” pin of the Timer to P1-pin1 (Perimeter Out) of the LC unit.  Figure 13.2 Wiring the Timer
LC 1200 Manual                                                                                                                           Timer 13-3                         Programming   Setting the Time   Programming for a Day and Time   Programming for all Week   Setting ON/OFF times PLEASE NOTE:  For complete information about the Timer, consult the manufacturer’s manual. Programming the Timer requires you to set event times and whether to turn the system on or off at those times.  Setting the Time To set the Timer time, refer to Figure 13.2 and use the following instructions: 1.  Activate the Memory Backup Battery by switching mode set dipswitch 1 to ON. NOTE: The LCD will come on flashing displaying: Off 00:00 2.  Apply system power to the FT-100 unit. 3. Press and hold the “clock” button. 4.  To set hours, use the button marked “h+”. 5.  To set minutes, use the button marked “m+”. 6.  To set day of the week, use the button marked “Day”. 7.  Release the “clock” button. Programming for a Day and Timer To program an ON or OFF instruction for a particular day and time, refer to Figure 13.1 and use the following instructions: 1.  Select the desired timer (1 thru 6 ON; 1 thru 6 OFF) using the “Timer” button. 2.  Program the desired time and day using the “h+”, “m+” and “Day” buttons. 3.  Press and release the “clock” button to exit the program mode. Programming for all week To program an ON or OFF instruction for all week, refer to Figure 13.1 and use the following instructions: 1.  Select the desired timer (1 thru 6 ON; 1 thru 6 OFF) using the “Timer” button. 2.  Program the desired time using the “h+” and “m+” buttons. 3.  Press and release the “clock” button to exit the program mode. Setting ON/OFF times To set ON/OFF times for predetermined timer events, refer to Figure 13.1 and use the following instructions: 1.  To enter the program mode, press and release the button marked “Timer” once. NOTE: The LCD will show: Timer 1 ON --:-- 2.  Pressing the “Timer” button a second time will set the unit to OFF timer 1. NOTE: This sequence will continue for 6 ON timers and 6 OFF timers for a total of 12 timers.  3.  Press and release the “clock” button to exit the program mode.
 LC 1200 Manual Chapter 14:  Alert Panels         (Part #s 700080, 700050, 700052)
LC 1200 Manual                                                                                                                Alert Panels 14-1 Alert Panels   Staff Alert Panel (SAP)   Graphic Display Panel (GDP) If desired, the LC unit can interface with a Staff Alert Panel (SAP) or Graphic Display Panel (GDP). PLEASE NOTE: When wiring, remember SAPs and GDPs should be powered separately from LC units so its display capability for all LC units is not dependant upon one LC unit. Staff Alert Panel (SAP)   Specifications   Mounting    Wiring A Staff Alert Panel (SAP) (Part # 700080; Figure 14.1), typically located at a staff station, notifies staff when an alarm occurs in a monitored zone through a piezo buzzer and alarm-specific LEDs. The LEDs in the left column will flash and the LEDs in the right column will light steady. PLEASE NOTE:  Although labeled on the SAP, some functions are not available when used with an LC unit. SAPs can display these alarms (or events):   Alarm (Egress)   Fire Alarm  Figure 14.1 A SAP example Specifications   Power Requirements   Temperature   Weight Power Requirements 12V DC Power Supply (Part # 500250) Temperature A SAP operates best in an ambient temperature between 35 and 90 degrees Fahrenheit. Operation outside of this range may cause unexpected or undesirable results, including premature failure.  Weight A SAP weighs approximately 1 pound.
14-2 Alert Panels                                                                                                                LC 1200 Manual Mounting To mount a SAP, use the following instructions: 1.  Remove the front panel from its frame.   2.  Using the SAP frame as a template, mark the four mounting holes on the mounting surface. 3.  Drill the mounting holes. 4.  Secure the SAP frame to the mounting surface using appropriate hardware and replace the front panel.  Wiring You will need 22-gauge, 6-conductor plenum-rated cable for this connection. To wire a SAP to an LC unit, refer to Figure 14.2 and use the following instructions: 1.  Run a separate 6-conductor unshielded cable for each SAP that is connecting to an LC unit. The wire gauge will be based upon the distance it will run.  On the SAP panel, P1 is for Zone 1, P2 is for Zone 2 and so on. 2.  For each zone, connect the appropriate alarm outputs into their respective pins.  3.  A SAP only needs the use of 2 of these wires for all but one zone. That zone will be the one that provides power to connector labeled P9 near the bottom of the SAP circuit board. 4.  If you have locks or elevator deactivation, you need to run a single conductor cable from the Fire Panel Interface (FPI) for the fire alarm indicator. 5.  For systems that do not have restraints (Magnetic Locks, Elevator Deactivation, or Automatic Door Deactivation) a Fire Panel Interface (FPI) is not necessary unless you want Fire Alarm notification on the SAP/GDP.  6.  Remember SAPs, GDPs, and FPIs must be powered separately from an LC unit.
LC 1200 Manual                                                                                                                Alert Panels 14-3   14.2 Wiring a SAP or GDP (FPI also shown)
14-4 Alert Panels                                                                                                                LC 1200 Manual Graphic Display Panel (GDP)   Specifications   Positioning and Mounting   Wiring  The GDP (Graphic Display Panel) (Part # 700050 or 700052; Figure 14.3) provides the staff with a visual representation of the floor being monitored. GDPs are custom-made to a facility’s floor plan and notify staff when an alarm condition occurs in a monitored zone through a piezo buzzer and alarm-specific LEDs. Up to 16 LC units can be linked to a single GDP. GDPs can display these alarms (or events):   Alarm (Egress)   Fire Alarm   Figure 14.3 A GDP example Specifications   Power Requirements   Temperature   Weight Power Requirements 12V DC Temperature A GDP operates best in an ambient temperature between 35 and 90 degrees Fahrenheit. Operation outside of this range may cause unexpected or undesirable results, including premature failure.  Weight Dependant on facility size and floor layout.  A typical GDP weighs approximately 2 pounds. Positioning and Mounting Position the GDP near a centralized staff location.  To mount a GDP, use the following instructions: 1.  Open the front hinge panel.  2.  Using the GDP frame as a template, mark the mounting holes on the mounting surface. 3.  Drill the mounting holes. 4.  Secure the GDP frame to the mounting surface using appropriate hardware and replace the front hinge panel. Wiring For LC units, a GDP wires the same as a SAP. Refer to page 14-2 and Figure 14.2 for wiring instructions.
 LC 1200 Manual Chapter 15:  System Maintenance & Testing
LC 1200 Manual                                                                                System Maintenance & Testing 15-1 System  Maintenance & Testing   Tag and Band maintenance   LC units   Testing monitored zones  PLEASE NOTE: This chapter is intended as a guidance document only.  Each facility should review these recommendations and modify as necessary to meet their own unique security requirements. Tags and Bands  For information on cleaning Tag and Bands, see page 3-2. For information of testing a Tag’s functionality or a Tag’s battery life, see page 3-5. LC units LC unit covers can be cleaned with antibacterial wipes or hydrogen peroxide. Testing monitored zones    Zone Functions Tested   Test Equipment Required   Zone, Lock Test   Zone, Egress Test (3000 and 3101 Magnetic Locks)   Zone, Delayed Egress Test (3101 Magnetic Locks only)   Zone, Hallway Test   Zone, Elevator Deactivation Test   Zone, Automatic Door Deactivation Test   Fire Panel Interface (FPI) Test Note: These tests should only be performed by trained personnel.  This document defines the recommended periodic testing procedures for the Accutech security systems. Accutech recommends that these tests be performed (at the minimum) on a monthly basis. Periodic testing of these critical performance functions can help prevent undetected security system failures.   Zone Functions Tested Accutech systems respond to RF signals generated by the Tags. Most conditions occur at a monitored zone. Each exit point around the area of protection should be evaluated to determine:   if doors lock and/or elevators disable when a Tag approaches   if alarms are generated due to passage of a Tag through an exit point Test Equipment Required You will need to designate Tags to be used solely for testing purposes only and a TAD.
15-2 System Maintenance & Testing                                                                                LC 1200 Manual   Zone, Lock Test When a Tag approaches a monitored door zone equipped with Locks, the Lock should engage. When the Tag leaves the monitored zone, the Lock should disengage. This test will evaluate this operation. Note: In the event of a fire, all Locks are disabled and the door can be opened immediately. Test results should be written down and kept in a test log.  Make your own, or use the included, to ensure that every monitored zone is tested.  These test reports should become part of your permanent quality assurance records.   1.  Notify staff and security that you will be testing zone performance and alarms may be generated. They should pay special attention to traffic during this time. 2.  While not in a monitored zone, use a TAD to activate the test Tag. 3.  Hold the test Tag in your hand and approach each monitored door zone.   4.  Each door should lock as you approach. NOTE: You may be able to hear the lock “click” as it changes states. Otherwise, For 3000 Series Magnetic Locks, you can push on the door to verify the Lock is engaged. For 3101 Series Magnetic Locks, the LED will turn from green to red when the Lock is engaged. However, do not open the door; this test is intended only for verifying that a door locks when a Tag approaches.  5.  As you approach each zone, try varying your approach angle (i.e., straight on, from the sides, down low, etc.). Make sure there is adequate coverage from all angles leading to the monitored zone.  6.  Record the results (pass or fail).  7.  If the test fails to lock the door: a.  Notify staff and security of the vulnerable area. b.  Check for visible damage or tampering to the zone equipment. c.  Have a maintenance technician verify power to the zone equipment.  d.  Have a maintenance technician verify the FPI is set properly. e.  Call your Accutech Representative. 8.  To reset the Lock, deactivate the test Tag or leave the monitored zone. Depending upon your settings, the Lock may disengage itself automatically. Otherwise enter a Keypad Reset code.
LC 1200 Manual                                                                                System Maintenance & Testing 15-3  Zone, Egress Test  (3000 and 3101 Magnetic Locks) Most monitored door zones equipped with Locks are configured to generate an alarm if a Tag is detected in the zone and the door is open. This test will evaluate this operation. NOTE: In the event of a fire, all Locks are disabled and the door can be opened immediately. This test should be conducted selectively; create a rotating schedule to test a different set of zones each time that periodic testing is conducted.  Test results should be written down and kept in a test log.  Make your own, or use the included, to ensure that every monitored zone is tested.  These test reports should become part of your permanent quality assurance records.   1.  Notify staff and security that you will be testing zone performance and alarms will be generated. They should pay special attention to traffic during this time. 2.  Prop the door open. 3.  While not in the zone, use a TAD to activate the test Tag. 4.  Approach the door. An alarm should sound.  5.  Record the results (pass or fail). 6.  If the test fails to cause an alarm: a.  Notify staff and security of the vulnerable area. b.  Check for visible damage or tampering to the zone equipment. c.  Have a maintenance technician verify power to the zone equipment  d.  Have a maintenance technician verify the FPI is set properly e.  Call your Accutech Representative. 7.  To reset the zone, enter a Keypad reset, deactivate the test Tag, and close the door completely, and if necessary, clear the alarm on the PC. Zone, Delayed Egress Test (3101 Magnetic Locks only) Delayed Egress Circuitry is a feature of the Accutech 3101 Magnetic Lock that, due to fire and life safety codes, allows free egress through a door after 15 seconds (plus a 1 to 3 second nuisance delay) of constant force is applied. This test will evaluate this operation. NOTE: In the event of a fire, Delayed Egress Circuitry is disabled and the door can be opened immediately.  This test should be conducted selectively; create a rotating schedule to test a different set of zones each time that periodic testing is conducted.  Test results should be written down and kept in a test log.  Make your own, or use the included, to ensure that every monitored zone is tested.  These test reports should become part of your permanent quality assurance records.
15-4 System Maintenance & Testing                                                                                LC 1200 Manual   1.  Notify staff and security that you will be testing zone performance and alarms will be generated. They should pay special attention to traffic during this time. 2.  While not in the zone, use a TAD to activate the test Tag. 3.  Approach the door. 4.  The Lock should engage.  NOTE: The LED on the Lock will turn from green to red when the Lock is engaged. 5.  Remember once the Lock is engaged, in order to open the door, you have invoke the Delayed Egress Circuitry feature. To do this, press on the door for the duration of the nuisance delay (1 to 3 seconds) and the delayed egress countdown (15 to 30 seconds) then the Lock will disengage and you can open the door. NOTE: During the delayed egress countdown the Lock’s piezo will beep. After you open the door, the Lock’s piezo will sound continuously.  6.  Record the results (pass or fail).  7.  If the test fails to cause an alarm: a.  Notify staff and security of the vulnerable area. b.  Check for visible damage or tampering to the zone equipment. c.  Have a maintenance technician verify power to the zone equipment.  d.  Have a maintenance technician verify the FPI is set properly. e.  Call your Accutech Representative. 9.  To reset the zone, enter a Keypad reset, deactivate the test Tag, close the door completely, and, if necessary, clear the alarm on the PC. Zone, Hallway Test Two conditions are required to generate an alarm at a hallway zone: Tag detection and PIR detection. This test will evaluate this operation. 1.  Notify staff and security that you will be testing zone performance and alarms will be generated. They should pay special attention to traffic during this time. 2.  Using a TAD, activate the test Tag.  3.  Enter the monitored hallway zone and move in the path of the PIR. An alarm should be generated and an alarm may sound. 4.  Record the results (pass or fail). 5.  If the test fails to cause an alarm: a.  Notify staff and security of the vulnerable area. b.  Check for visible damage or tampering to the zone equipment. c.  Have a maintenance technician verify power to the zone equipment d.  Call your Accutech Representative.
LC 1200 Manual                                                                                System Maintenance & Testing 15-5  6.  To reset the zone, enter a Keypad reset, deactivate the test Tag, and, if necessary, clear the alarm on the PC. Zone, Elevator Deactivation Test When a Tag approaches an elevator zone the elevator call buttons will be disabled. This test will evaluate this operation. 1.  Notify staff and security that you will be testing zone performance and alarms will be generated. They should pay special attention to traffic during this time. 2.  Using a TAD, activate the test Tag.  3.  Enter the elevator zone. The zone’s response will depend on the state of the elevator door(s):  a.  Elevators with door(s) open will disable as you approach and an alarm will sound. The car will not be able to leave the floor. b.  Elevators with door(s) closed will have their call button(s) disabled. c.  Elevators en route will arrive, open, and then an alarm will sound. The car will not be able to leave the floor. 4.  Record the results (pass or fail) 5.  If the test fails to cause an alarm: a.  Notify staff and security of the vulnerable area. b.  Check for visible damage or tampering to the zone equipment. c.  Have a maintenance technician verify power to the zone equipment d.  Have a maintenance technician verify the FPI is set properly e.  Call your Accutech Representative. 6.  To reset the zone, deactivate the test Tag and, if necessary, enter a Keypad reset and clear the alarm on the PC. Zone, Automatic Door Deactivation Test When a Tag approaches an automatic door deactivation zone, the motion detector and/or push paddle will be disabled be disabled. This test will evaluate this operation. 1.  Notify staff and security that you will be testing zone performance and alarms will be generated. They should pay special attention to traffic during this time. 2.  Using a TAD, activate the test Tag.  3.  Enter the automatic door deactivation zone. The door’s motion sensor or push paddle is disabled.  4.  Record the results (pass or fail) 5.  If the test fails to cause an alarm: a.  Notify staff and security of the vulnerable area. b.  Check for visible damage or tampering to the zone equipment.
15-6 System Maintenance & Testing                                                                                LC 1200 Manual   c.  Have a maintenance technician verify power to the zone equipment d.  Have a maintenance technician verify the FPI is set properly e.  Call your Accutech Representative. 7.  To reset the zone, deactivate the test Tag and, if necessary, enter a Keypad reset.  Fire Panel Interface (FPI) Test State codes require that all Lock, Elevator Deactivation, and Automatic Door Deactivation be wired into a facility’s fire alarm system. In Accutech Systems this is done via the Fire Panel Interface (FPI). This is done so in the case of a fire, any Lock, Elevator Deactivation, or Automatic Door Deactivation disengages, allowing free egress or ingress. For more information on this policy, check your local codes. This test should be performed concurrently with your facility’s fire alarm test. WARNING! Before you test the system, notify the facility and the local fire department that you will be testing the fire alarm system. 1.  Using a TAD, activate a test Tag. 2.  Activate your facility’s fire alarm.  NOTE: The LED on the FPI enclosure will blink.  3.  Proceed to each zone to be tested and verify that doors are unlocked and egress is possible. Elevators and automatic doors should be inoperable due to the fire alarm.  4.  Record the results (pass or fail). 5.  If a zone fails to disengage during the fire alarm, call your system service technician immediately for further assistance. 6.  After your facility’s fire alarm has been reset the FPI may automatically reset or press the Reset button on the outside of the FPI enclosure to reset the FPI and engage all restraints. NOTE: The Reset button on the FPI enclosure will not work during the fire alarm. You must reset the fire alarm first and then reset the FPI. 7.  Return to each tested zone with the test Tag and verify that doors now lock and elevators disable as you approach. 8.  Using a TAD, deactivate the test Tag.
LC 1200 Manual                                                                                System Maintenance & Testing 15-7   NOTE: Copy this form for future use. FACILITY PERFORMANCE TEST LOG Facility Name:                                                                                                                                         Page __   of __ Date  Floor  Zone Name/Type  Test Performed Results (P/F) Comments  Signature
 LC 1200 Manual Chapter 16:  FAQ & Troubleshooting
LC 1200 Manual    FAQ & Troubleshooting 16-1  FAQ & Troubleshooting   Tag   Tag Band   TAD   System (General)   System (Maintenance)   Troubleshooting Tag: What can I use to clean Tags? Use antibacterial wipes or hydrogen peroxide (wipe, do not soak) to clean Tags. How should I store Tags? Ideally, to preserve battery life, Tags should be turned off with a TAD. However, if you do not have a TAD or your Tags are always activated, Tags should be stored away from sources of electrical noise and stored in a metal container with lid.  How can I be sure the Tag is on and functioning properly? You can test that a Tag is on and functioning properly by the testing it with a TAD or taking the Tag to a monitored zone (this may cause alarms). For more information on the TAD, see chapter 3. How often should I check a Tag’s battery with my TAD? Accutech recommends testing a Tag’s battery during assignment then again during unassignment prior to cleaning and restocking of the Tag for new use. Periodic weekly testing of Tags for long-term patients is also recommended.  How long will the Tags last before I need to replace them? Accutech Tags operate by internal battery. The Tags have been engineered for greater than 12 months usage.  Can I replace or recharge the battery in the Tag? No. Once a Tag’s battery is drained, the Tag will have to be replaced.  What is the Tag case made of? The Tag case is made of FDA-approved Lexan® plastic Tag Band: What is the Tag band made of? The Tag band is nylon-mesh-reinforced latex-free vinyl.  Are Tag bands reusable? No. Tag bands are for one-time use only. TAD: How long will the 9-volt battery last in the TAD? The life of the 9-volt battery in the TAD is dependant upon usage. You should always switch off the TAD when not in use. Can I use a rechargeable battery in the TAD? Yes.
16-2 FAQ & Troubleshooting                                                                                            LC 1200 Manual System (General): If you are locking the doors, what happens in the case of a fire? Accutech follows NFPA codes and regulations. Therefore, in the event of a fire, all Accutech restraints will be disabled (audial and visual alarms remain active). How can I reduce nuisance alarms? Nuisance alarms are typically caused by:   improper zone coverage (see page 3-3 “Verifying proper zone coverage” and page 2-8 “Adjusting the Tx Activation Field”)   improper storage of Tags (see page 3-2) How do I change the Keypad Escort time? To change the Keypad Escort time, see page 6-9.  System (Maintenance): How often should I test my zones? Accutech recommends that performance testing be done on a monthly basis. However, each facility should review and modify the testing procedures as necessary to meet their own unique security requirements.  Who do I call about upgrading or adding to my system? If you would like information about upgrading or adding to your system, contact your local area Accutech Representative. How do I order replacement Tags/Bands/Components? If you would like to order replacement Tags/Band/Components for your system, contact your local area Accutech Representative.
LC 1200 Manual                                           FAQ & Troubleshooting 16-3  Troubleshooting A Tag is not being detected by the monitored zone. 1.  Use a TAD to verify Tag is active. 2.  Use a TAD to verify Tag battery is sufficient. 3.  Verify proper zone coverage (page 3-3) 4.  Verify proper zone wiring of LC unit I am getting an abundance of nuisance alarms.   A nuisance alarm is undesired alarm activation stemming from such things improper zone coverage and the improper storage of Tags. 1.  Verify proper zone coverage. Proper zone coverage fully protects the intended area without extending into other areas (see page 3-3 “Verifying proper zone coverage” and page 2-8 “Adjusting the Tx Activation Field”). 2.  Be sure proper Tag storage techniques are followed (see page 3-2)  When I escort a patient through a zone via a Keypad Reset, the Reset time allotted is too brief and an alarm occurs. Adjust the Keypad Escort time to accommodate slower moving patients (see page 6-9) An alarm has occurred and I am addressing the alarm but the internal piezo buzzer will not cease. 1.  After you have identified the cause of the alarm and are addressing it, you may silence the internal piezo buzzer by removing the LC unit cover and  jumper JP2 (Tone Enable). I am getting a Tamper alarm after initial installation or service. What am I doing wrong? Verify the Tamper Switch (S1) is making good contact with the outside case (see Tamper Switch adjustment; page 2-7).
 LC 1200 Manual Appendix A:  Component Cut Sheets
Accutech reserves the right to substitute comparable components without notice.  R051903 M090503  CUT SHEET: 3000 Magnetic Lock      The 3000 Magnetic Lock will engage when the zone Controller detects a Tag in the Tx Activation Field. The Lock will remain engaged as long as the Tag is in the Tx Activation Field. When the Tag leaves the Tx Activation Field, the Lock will disengage after an adjustable period of time (0-120 seconds).   SAFETY FEATURES: The Lock will NOT engage (or will disengage) when the facility’s Fire Alarm is activated or power is lost.  ELECTRICAL: Operating Voltage: 12 or 24V AC/DC Current Consumption at 12V: .42 amp Current Consumption at 24V: .21 amp Cable: non-shielded 18-gauge, 2-conductor   MECHANICAL: Lock Size: 1-1/2” x 2-3/4” x 11” Armature Size: 1-1/2” x 2-3/8” x 3-5/8” Finish: US28 Satin Aluminum with clear anodize Mounting Hardware: 5 #10 PNHD Self Tapping Screws 1” long Weight: 9 US pounds  OPERATING CHARACTERISTICS: Holding Force: 1500 pounds  ENVIRONMENTAL: Operating Temperature: 32º to 120º Fahrenheit Intended for indoor use only.  DUTY CYCLE: Rated for continuous use.                    3000 Magnetic Lock  UL Listed: GWXT.R15538  Model Number: ML      800-356-2671  |  Accutech  |  www.accutech-ics.com
Accutech reserves the right to substitute comparable components without notice.  R051903 M090503  CUT SHEET: Accutech 3101 Magnetic Lock      WARNING: The Accutech 3101 Magnetic Lock is custom-designed to our specifications and should not be purchased directly from the manufacturer.  The 3101 Magnetic Lock will engage when the zone Controller detects a Tag in the Tx Activation Field. The Lock will remain engaged as long as the Tag is in the Tx Activation Field. When the Tag leaves the Tx Activation Field, the Lock will disengage after an adjustable period of time (0-120 seconds).   SAFETY FEATURES: The Lock will NOT engage (or will disengage) when the facility’s Fire Alarm is activated or power is lost.  The 3101 Magnetic Lock also incorporates Delayed Egress Circuitry that complies with N.F.P.A. 101 Life Safety Codes 5-2.1.6.1. If engaged, the Lock will release within 15 seconds (after 1-3 second nuisance delay) whenever a maintained force (less than 15 pounds required) is applied to the door. An audible tone enunciates both countdown and release. When the Lock releases, the red LED will turn solid green and the alarm will sound continuously.    Accutech 3101 Magnetic Lock  Model Number: MLE  UL Listed:  FWAX.SA9532  Auxiliary Locks listed 2N98  Special Arrangements listed 1M59 ELECTRICAL: Operating Voltage: 12 V AC Current Consumption: 450 mA Cable: non-shielded 18-gauge, 6-conductor  MECHANICAL: Lock Size: 3” x 2 ¾” x 11”  Armature Size ½” x 2-5/16” x 7-3/8”  Standard Finish: Satin Aluminum-US28 Mounting Hardware: 5 #10 PNHD Self Tapping Screws 1” long Weight: 11 US pounds  OPERATING CHARACTERISITICS: Holding Force: 1200 pounds  Once locked, the Lock will disengage when any of the following conditions occur:   All Tags leave the Tx Activation Field   A Keypad Reset   A PBO is activated   The facility’s fire alarm is activated.   Power is removed from the Lock.   The Central Override is activated.   When a maintained force (less than 15 pounds required)  is applied to the door for an adjustable period of time  (1-3 seconds).      ENVIRONMENTAL: Operating Temperature: 32º to 120º Fahrenheit Intended for indoor use only.  DUTY CYCLE: Rated for continuous use.  Lock LED status during normal operation:   Green – Power indicator   Red – Lock engaged (Tag detected in zone)   Red blinking – Egress countdown (15-30 seconds adjustable)   No Power To LED – Escort function or Reset  800-356-2671  |  Accutech  |  www.accutech-ics.com
Accutech reserves the right to substitute comparable components without notice. R051903 M090503  CUT SHEET: Automatic Door Deactivation  In automatic door applications (doors that open via a motion sensor or push paddle), the Accutech System can deactivate this feature when a Tag enters a monitored zone’s Tx Activation Field.    ELECTRICAL: Operating Voltage: 12V DC Current Consumption: 120 mA maximum Contact Rating: 100 mA  / 12V DC Cable: need minimum 22-gauge, 6-conductor  MECHANICAL: Construction: Metal case Enclosure size: 6.00” x 6.00” x 4.00”  Enclosure weight: 3.85 US pounds  OPERATING CHARACTERISTICS Dry contacts are provided for the automatic door company’s use.  ENVIRONMENAL: Operating Temperature: 32º to 120º Fahrenheit Intended for indoor use only.  DUTY CYCLE: Rated for continuous use.                         Automatic Door Deactivation  Model Number: ADD      800-356-2671  |  Accutech  |  www.accutech-ics.com
Accutech reserves the right to substitute comparable components without notice. R051903 M090503  CUT SHEET: Elevator Deactivation  Elevator Deactivation Circuitry is designed to prevent someone (or an asset) wearing an Accutech Tag from using an elevator to leave a monitored floor. Using Relays enclosed in the Elevator Deactivation Relay Cabinet, the Elevator Company is able to interface with the Accutech System.   Therefore:    If a Tag enters a monitored elevator zone, the elevator’s call button on that floor will be deactivated  (Call buttons on other floors are unaffected and no one is restricted from coming to the floor).    When a Tag is in the zone (or approaches the zone) and the elevator doors are open, an alarm will sound and the elevator doors will remain open.   If the elevator car is en route to the floor when a Tag approaches the zone, the elevator will arrive on the floor, the door(s) will open, and the system will alarm.   ELECTRICAL: Operating Voltage: 12V DC Current Consumption: 120 mA maximum Contact Rating: 100 mA  / 12V DC Cable: need minimum 22-gauge, 6-conductor  MECHANICAL: Construction: Metal case Enclosure size: 7.80” x 8.25” x 3.75”  Enclosure weight: 3.5 US pounds  OPERATING CHARACTERISITICS:   Dry Contacts supplied by Elevator Company for door switch   12V DC Alarm Voltage energizes K1 Relay to deactivate the Car when a Tag is detected and the elevator door is open.   12V DC Tag Detect Voltage energizes K2 Relay to deactivate the Call Button when a Tag is detected.  ENVIRONMENTAL: Operating Temperature: 32º to 120º Fahrenheit Intended for indoor use only.  DUTY CYCLE: Rated for continuous use.            Elevator Deactivation  Model Number: ED            800-356-2671  |  Accutech  |  www.accutech-ics.com
Accutech reserves the right to substitute comparable components without notice. R051903 M090503  CUT SHEET: Fire Panel Interface (FPI)  The Fire Panel Interface (FPI) ensures, in the event of a fire, the Magnetic Lock(s) and/or Elevator Deactivation Circuitry will be disengaged. Accutech follows NFPA codes and regulations. Therefore, in the event of a fire, all Accutech restraints will be disabled (audial and visual alarms remain intact).  For each FPI unit used, one set of dry contacts will be needed from the facility’s fire panel. Each FPI unit provides dry contact outputs for up to eight Controllers.   ELECTRICAL: Operating Voltage: 12V DC Current Consumption: 120 mA maximum Contact Rating: 2 amps/24V DC Cable: needs minimum 22-gauge, 2-conductor             non-shielded to each Controller  MECHANICAL: Enclosure size: 6.29” x 5.68” x 2.00” Weight: 25 ounces  OPERATING CHARACTERISTICS: Fire Panel Alarm State: Open contacts Contact State:  N.O. during alarm state                          N.C. during operating state  ENVIRONMENTAL: Operating Temperature: 32º to 120º Fahrenheit Intended for indoor use only.                      Fire Panel Interface (FPI)  Model Number: FPI                    800-356-2671  |  Accutech  |  www.accutech-ics.com
Accutech reserves the right to substitute comparable components without notice. R051903 M090503  CUT SHEET: Graphic Display Panel (GDP)  A Graphic Display Panel (GDP) provides the staff with a visual representation of the floor being monitored. GDPs are custom-made to a facility’s floor plan and notify staff when an alarm or event occurs in a monitored zone through a piezo buzzer and alarm-specific LEDs. Each monitored zone is labeled and marked with an LED that will light to indicate that an Alarm Condition has occurred for that particular zone. In addition, a “Fire Alarm” LED will light on the display if the fire circuit is activated.    ELECTRICAL: Operating Voltage: 12V DC Current Consumption: 60 mA per 8-zone board Cable: Dependant on number of zones + 3  MECHANICAL: Sizes available: 11”x17”, 13”x19”, custom Weight: dependant on size, number of zone (approximately 5 US pounds)  OPERATING CHARACTERISTICS: Pre-selected color themes or custom color matching available.  Built-in Sounder  ENVIRONMENTAL: Operating Temperature: 32º to 120º Fahrenheit Intended for indoor use only.  DUTY CYCLE: Rated for continuous use.               Graphic Display Panel (GDP) example  Model Number: GDP                         800-356-2671  |  Accutech  |  www.accutech-ics.com
Accutech reserves the right to substitute comparable components without notice. R051903 M090503  CUT SHEET: Keypad  The Keypad is used to escort residents through a monitored zone and to reset zone equipment once an alarm has occurred.  Up to 56 different (3 to 8 digit) user codes can be used to reset the alarm and to activate the Escort function.   ELECTRICAL: Operating Voltage:     UL rated at 12V DC    Manufacturer rated at 9 to 16V DC Stand-by Current Drain: 15 mA typical Current Drain with outputs active: 55 mA typical Contacts: 10 A / 30V AC/DC Cable: minimum 22-gauge, 4-conductor  MECHANICAL: Size: 4-5/8” x 2-7/8” x 1-3/8” Weight: 4.3 ounces Mounting: Flush or Surface Mount                   *Metal box not recommended  OPERATING CHARACTERISTICS: Power Failure: EEPROM retains programmed data                                 during power failures. Relay Control: Programmable 1-98 seconds  LED Status:    Green – Escort or Reset    Yellow – Power    Red - Alarm  ENVIRONMENTAL: Operating Temperature: 32º to 120º Fahrenheit Intended for indoor use only.  DUTY CYCLE: Rated for continuous use.            Keypad (Flush Mount) (box not included)  Model Number: KD      Keypad (Surface Mount)   800-356-2671  |  Accutech  |  www.accutech-ics.com
Accutech reserves the right to substitute comparable components without notice. R051903 M090503  CUT SHEET: Local Alarm  The Local alarm, a sounder, is intended to attract attention near the monitored zone.     ELECTRICAL: Operating Voltage: 12V DC nominal Alarm Signal Current: 12 mA Cable: needs minimum 22-gauge, 2-conductor  MECHANICAL: Mounting variations (not provided):    Handy box: 4” x 2-1/8” (approx.)    Switch box: 3” x 2” (approx.) with conduit knockouts.    Masonry box: 3-3/4” (approx.) with ½” and ¾”                               concentric knockouts.    Nonmetallic Switch box: 3-3/4” x 2-5/16” (approx.)  OPERATING CHARACTERISTICS: Sound Pressure Level at 10 feet: 85 db  ENVIRONMENTAL: Operating Temperature: 32º to 120º Fahrenheit Intended for indoor use only.  DUTY CYCLE: Rated for continuous use.                    Local Alarm  Model Number: LA  UL Listed: ULSZ.54011                        800-356-2671  |  Accutech  |  www.accutech-ics.com
Accutech reserves the right to substitute comparable components without notice. R051903 M090503  CUT SHEET: Magnetic Switch  The Magnetic Switch is used on doors when alarm activation is not desired unless the door is opened.    ELECTRICAL: Operating Voltage: 150V DC maximum Contact Rating: 3 watts Maximum Switch Voltage: 30V AC/DC Switching Current: 0.5 amps DC Cable: needs minimum 22-gauge, 2-conductor  MECHANICAL: Size: 2.50” x 0.80” x 0.60” Weight: 1.2 ounces Color: Brown Surface mounted (Flush available)  OPERATING CHARACTERISITICS: Contacts: N.O., N.C., and Common Initial contact resistance: 100 ohms maximum Operating Time: 1.0 ms maximum Bounce Time: N.C. leg 1.5 ms maximum N.O. leg 1.0 ms maximum Release Time 0.5 ms maximum Maximum Operating Frequency: 200 Hz Insulation resistance: 1 x 10 ohms maximum  Electrostatic capacitance: 1.5 pF maximum  ENVIRONMENTAL: Operating Temperature: 32º to 120º Fahrenheit Intended for indoor use only.  DUTY CYCLE: Rated for continuous use.             Magnetic Switch  Model Number: MCSM  UL Listed: AMQV.BP2343     Magnetic Switch Placement     800-356-2671  |  Accutech  |  www.accutech-ics.com
Accutech reserves the right to substitute comparable components without notice. R051903 M090503  CUT SHEET: Passive Infrared Reader (PIR)  The Passive Infrared Reader (PIR) is a device that uses an infrared sensor to monitor elevators, hallways, corridors, and passageways. Like the Magnetic Switch, the PIR is used in areas where alarm activation is not desired immediately upon Tag detection. It can also be used in hallways or other areas where a Magnetic Switch would not be feasible.    ELECTRICAL: Operating Voltage: 12V DC Current: Stand-by 10 mA Relay Output: N.O./N.C. 2A/28V AC/DC maximum Cable: needs minimum 22-gauge 4-conductor stranded,            non-shielded  MECHANICAL: Dimensions: 2.50” x 4.40” x 1.40”  Weight: 3 ounces Color: White  OPERATING CHARACTERISTICS Beam Coverage: Vertical curtain up to 15 x 15 feet. *The beam is adjustable from its normal 0º setting (perpendicular to the unit) up to 12º.  ENVIRONMENTAL: Operating Temperature: 32º to 120º Fahrenheit Intended for indoor use only.  DUTY CYCLE: Rated for continuous use.               Passive Infrared Reader (PIR)  Model Number: PIR  UL Listed: ANSR.BP6082       PIR Ceiling Mounted Coverage Area Example       800-356-2671  |  Accutech  |  www.accutech-ics.com
Accutech reserves the right to substitute comparable components without notice. R051903 M090503  CUT SHEET: Push Button Override (PBO)  The Push Button Override (PBO) triggers the Keypad’s Escort or Reset function; this option allows access through a monitored door from the non-Keypad side of the door.    ELECTRICAL: Operating Voltage Range: 2 to 13V DC Stand-by Current Drain: 15mA typical Current Drain with outputs active: 55 mA typical Cable: needs minimum 22-gauge, 4-conductor  MECHANICAL: Size: 4-5/8” x 2-7/8” x 1-3/8” Weight: 4.3 ounces Mounting: Flush or Surface mount                  *Metal box not recommended  OPERATING CHARACTERISTICS LEDs:     Green – Reset status    Red - Alarm status    Yellow – Power status  ENVIRONMENAL: Operating Temperature: 32º to 120º Fahrenheit Intended for indoor use only.  DUTY CYCLE: Rated for continuous use.                      Push Button Override (PBO)  Model Number: PBO   800-356-2671  |  Accutech  |  www.accutech-ics.com
Accutech reserves the right to substitute comparable components without notice. R051903 M090503  CUT SHEET: Staff Alert Panel (SAP)  The Staff Alert Panel (SAP) notifies staff when an alarm occurs in a monitored zone through a piezo buzzer and alarm-specific LEDs. Each monitored zone is labeled and marked with an LED that will light to indicate that an Alarm Condition has occurred for that particular zone. In addition, a “Fire Alarm” LED will light on the display if the fire circuit is activated.   ELECTRICAL: Operating Voltage: 10 to 13V DC Current Consumption: 300 mA Max Cable: needs minimum 22-gauge, 6-conductor from             each Controller  MECHANICAL: Size: 11” x 5-3/8” x 1-3/8” Weight: 1 US pound  OPERATING CHARACTERISTICS LED Alarm indicators:    Flashing Red – ALARM    Steady Red – DOOR AJAR    Flashing Yellow – CHECK SYSTEM    Steady Yellow – LOITER Fire Alarm LED Power LED  Built-in Piezo buzzer  ENVIRONMENTAL:  Operating Temperature: 32º to 120º Fahrenheit Intended for indoor use only.  DUTY CYCLE: Rated for continuous use.              Staff Alert Panel (SAP)  Model Number: SAP             800-356-2671  |  Accutech  |  www.accutech-ics.com
Accutech reserves the right to substitute comparable components without notice. R051903 M090503  CUT SHEET: Tag Activator/Deactivator (TAD)  DISCLAIMER: A TAD reading is in no way meant to be a replacement for taking a Tag to an active zone to test the range capability of the Tag. When you use a TAD all you really know is that the Tag has enough power to respond; it is NOT an indication of the range capability. In order to test the range capability of a Tag, you must take it to an active zone.  The Tag Activator/Deactivator (TAD) is used to check the functionality of an Accutech Tag. Accutech Tags operate by internal battery. Over the course of normal operation, Tags eventually lose battery power and the Tags will need to be replaced. The TAD is used to determine if a Tag has sufficient battery power to respond to an activating signal.   NOTE: A TAD CAN activate or deactivate Tags, preserving Tag battery life and preventing nuisance alarms.  ELECTRICAL: A TAD requires a 9-volt battery to operate.   MECHANICAL: Size: approximately 4.75” x 2.25” x 1.25” Weight: 4.7 ounces  OPERATING CHARACTERISTICS: Transmit Frequency: 128 kHz Receive Frequency: 418 MHz  The “Active Band Removal or Low Battery on Tag” LED A TAD can detect a BR42 Tag in active Band Removal alarm; the “Active Band Removal or Low Battery on Tag” LED will illuminate blink slowly. This may help locate lost BR42 Tags that are alarming.  A TAD can also detect the low battery bit of yellow Tags. Simply turn on the TAD and place a Tag in the Tag receptacle. If the Tag’s battery is low (e.g., low enough that the Tag’s operation is diminished below an acceptable level) the “Active Band Removal or Low Battery on Tag” LED will blink rapidly. The Tag should then be replaced.   The “WAIT” LED The “WAIT” LED illuminates briefly during Tag activation/deactivation.  The “Signal Strength” LEDs The “Signal Strength” LEDs of the TAD indicate:    The current state of a Tag (on or off)   Tag is Very Near (within approx. 1 foot*)   Tag in Area (within approx. 20 feet*) *Inexact due to variations of the remaining Tag battery power, remaining TAD battery power, and if the Tag is alarming in Band Removal.  ENVIRONMENTAL: Operating Temperature: 32º to 120º Fahrenheit Intended for indoor use only.   Model Number: TAD      800-356-2671  |  Accutech  |  www.accutech-ics.com
Accutech reserves the right to substitute comparable components without notice. R051903 M090503  CUT SHEET: Timer  A Timer allows the user to engage or disengage certain system functions on a time schedule. A typical application of a Timer would be at a perimeter door that has high traffic during the day but almost no traffic at night. During the day it may make sense to allow the free ingress and egress of staff and visitors, but at night, locking the door would mean added security for staff and residents.    ELECTRICAL: Operating Voltage: 6 to 12V AC/DC Relay Inactive: 14 mA Relay Active: 40 mA Contacts: N.O. & N.C. Contact Rating:   1A @ 26V DC                           0.5A @ 115V AC  MECHANICAL: Size:  8.25” x 8.25” x 4.00” (includes enclosure Weight: 6 US pounds (includes enclosure)  OPERATING CHARACTERISTICS Internal 10-year Lithium Battery will provide clock memory backup for 6 months continuously Relay Hold in Time Adjustment: 1 to 60 seconds Time format: 24 hour (military) format  ENVIRONMENTAL: Operating Temperature: 32º to 120º Fahrenheit Intended for indoor use only.  DUTY CYCLE: Rated for continuous use.               Timer  Model Number: DNT                          800-356-2671  |  Accutech  |  www.accutech-ics.com
LC 1200 Manual                                                                                                         Glossary G-1 Glossary   Automatic Door Deactivation  In automatic door applications (doors that open via a motion sensor or push paddle), the LC unit can deactivate this feature when a Tag enters a monitored zone’s Tx Activation Field.  Delayed Egress Circuitry  A feature of the Accutech 3101 Magnetic Lock that, due to fire and life safety codes, allows free egress through a door after 15 seconds of constant force. In the event of a fire alarm, the Delayed Egress Circuitry is disabled.   Double conditioning  A characteristic of a zone that requires two conditions to be met (such as Tag detection and PIR detection) before an alarm is generated.  Egress alarm  An alarm condition that occurs when a Tag is in the Tx Activation Field and a door is opened (or PIR detection).  Elevator  Deactivation Circuitry Circuitry that deactivates an elevator’s call button(s) when a Tag is a monitored elevator zone.   Escort Function  A function of the Keypad used to escort Tags through a monitored zone without triggering alarms.   Fire Panel Interface  (FPI) A FPI ties Accutech Security System components into the facility’s fire panel. Required if the system includes Magnetic Locks and/or Elevator Deactivation Circuitry. In the event of a fire, Magnetic Locks and Elevator Deactivation Circuitry are disabled. However, if there is still power to the system, the alarms will still sound.   Graphic Display Panel (GDP) A display panel, which provides staff with a representation of the floor being monitored. GDPs are custom-made to a facility’s floor plan and notify staff when an alarm condition occurs in a monitored zone through a piezo buzzer and alarm-specific LEDs.  Keypad   A Keypad is used to reset zone equipment once an alarm has been addressed (Keypad Reset) or to escort Tags through a monitored zone without triggering alarms (Keypad Escort). The Keypad is also capable of providing visual indicators for Tag detection, alarms, and escort time.  Keypad Reset  A feature of the Keypad that is used to reset zone equipment after an alarm has been addressed.   LED Tag  A Tag designed to verify proper zone coverage (without causing alarms) during installation, adjustment, or testing of a monitored zone.
G-2 Glossary                                                                                                         LC 1200 Manual LT  “Long Term”, a Tag classification  Magnetic Lock  A device using a magnetic coil and plate to lock a door when a Tag is detected in the monitored door zone. Accutech’s exclusive 3101 Magnetic Lock feature Delayed Egress Circuitry.  Magnetic Switch  A device that monitors a door’s position (open or closed). A Magnetic Switch is used on a door when alarm activation is not desired unless the door is opened when a Tag in the monitored door zone.   Masking  In PIR applications, limiting the infrared beam by placing stripes of tape over the lens.  In Software applications, during text insertion into a field, characters are replaced with symbols (usually asterisks “*”) for privacy.  Master Code  User Code Number 1 for the Keypad, used for Keypad programming purposes only.  Monitored Zone  Any door, hallway, stairwell, elevator, or other passageway that has an LC unit associated to it.  Nuisance Alarms  Undesired alarm activation stemming from such things as the mishandling of Tags, improper storage of Tags, slow patient transferring, and/or Loiter alarm time being too brief (passersby causing alarms).  Passive Infrared Reader (PIR) A device that uses an infrared light to detect motion.    Perimeter Door mode  If desired, the LC unit can be used as a perimeter door system. When in this mode, the door would alarm the instant it is opened. If the door has Magnetic Locks, the door would remain locked (Lock energized) at all times and would require a valid code entered into the Keypad to open the door. Perimeter Door alarm  A Perimeter Door alarm occurs when the LC unit is in Perimeter mode and the door is opened. Power Loss Supervisor alarm A Power Loss Supervisor alarm occurs when a 9V NiCAD battery is installed and the LC unit loses power. Push Button Override (PBO) A switch (push button) that triggers the Keypad’s Escort function.   SB  “Slotted Back”, a Tag classification
LC 1200 Manual                                                                                                         Glossary G-3  Staff Alert Panel  (SAP) A display panel used to indicate to staff where an Alarm, Door Ajar, Loiter, or Supervise warning condition has occurred; it employs bi-color LEDs, a Piezo Buzzer, and digital logic to control its outputs.  Stagger Tuning  Stagger Tuning allows monitored zones to be located closer than the normal minimum 70 feet distance by using different Tx operating frequencies for adjacent zones. Tag Activator/Deactivator (TAD) A device used to turn Tags on and off. A TAD can also, in short range, detect low Tag batteries and detect Band Removal events.   Tag  See ES 2200 System Tag, IS 3200 System Tag, or BR 4200 System Tag  Tag Test Station  (TTS) A TTS is used in conjunction with the Accutech Software for Tag assignments.  Tamper alarm  A Tamper alarm occurs when the LC unit cover is removed and the Tamper Switch (S1) is disengaged. Tamper Switch  The Tamper Switch is provided to prevent unauthorized access to the LC unit. An alarm will be generated if the LC unit cover is removed.  Tx Activation Field  A radio frequency field created by a Tx antenna to detect Tags. Doors, hallways, elevators, stairwells, and other passageways that have a Tx Activation Field are commonly referred to as a “monitored zone.”
I-1 Index                                                                                                                 LC 1200 Manual                                  Index   Alarms     Addressing  1-5    Egress  1-4    Perimeter Door  1-5    Internal vs. External alarms  1-5    Power Loss Supervisor  1-4    Tamper  1-4 Automatic Door Deactivation  11-1 Delayed Egress Circuitry  9-2 Double Conditioning  1-2 Egress alarm  1-4 Elevator Deactivation Circuitry  10-1 Escorting  1-6 FAQ 16-1 FCC Statement  Preface i Features 1-1 Fire Panel Interface (FPI)  12-1 Frequency     Operating  2-4    Changing  2-10 Graphic Display Panel (GDP)   14-4 Internal vs. External alarms  1-5 Jumpers 2-4 Keypad      Adjusting the Keypad Escort Time  6-9    Deleting user codes  6-8    Escort function  1-6    Initiating a Keypad Reset/Escort  6-6    Programming the master code  6-7    Programming user codes  6-8    Resetting the master code  6-9 LED Tag  3-3    Verifying Proper Zone Coverage  3-3    Identifying Tag-Activating Sources  3-4 Maintenance      Bands  3-2    System  15-1    Tags  3-2 Magnetic Locks  9-1    Operation  9-1    What is Delayed Egress Circuitry?  9-2    3101 Series Magnetic Locks  9-2    3101 Series Magnetic Locks  9-8 Magnetic Switch  4-1 Monitored zones  1-2    Single Conditioning  1-2    Double Conditioning – Door and Hallway  1-2    Double Conditioning – Door with Lock(s)  1-3    Double Conditioning – Elevator  1-3    Double Conditioning – Automatic Door  1-3 Multi-Tone Local Alarm (MTLA)  8-2 Nuisance Alarms  16-3 Overview 1-1 Passive Infrared Reader (PIR)  5-1 Perimeter Door application  1-4 Power Loss Supervisor  1-4 Power Requirements  2-1 Push Button Override (PBO)  7-1                   Sounders 8-1    Internal vs. External alarms  1-5 Stagger Tuning  2-9 Staff Alert Panel (SAP)  14-1 System Maintenance and Testing  15-1    Fire Panel Interface (FPI) Test  15-6    Zone, Automatic Door Deactivation  15-5    Zone, Egress Test     (3000 Series Magnetic Lock) 15-3    Zone, Egress Test     (3101 Series Magnetic Lock) 15-3    Zone, Elevator Deactivation Test  15-5    Zone, Hallway Test   15-4 TAD (Tag Activator/Deactivator)      LEDs   3-5    Locating Lost Tags  3-7    Overview  3-5    Testing Tags with a TAD  3-7    Using the TAD to activate/deactivate Tags  3-6 Tags      Attaching  3-1    Cleaning Bands  3-2    Cleaning Tags  3-2    Locating Lost Tags  3-7    Storing Bands  3-2    Storing Tags  3-2    Testing  3-5 Tamper Switch      Definition 2-5    Adjustment 2-7 Testing      Coverage  3-3    System  15-1    Tags  3-2 Timer 13-1 Troubleshooting  16-1 Tuning  2-8 Tx Activation Field  2-9 Using this manual  Preface iv Volume Control  2-5 Warranty Preface iii

Navigation menu