Intercontinental Technologies F24-J-019 Industrial Radio Remote Control Transmitter User Manual F21 2 and 4 Manual
Intercontinental Technologies Ltd Industrial Radio Remote Control Transmitter F21 2 and 4 Manual
User Manual

Intercontinental Technologies Ltd. 558 Plate Drive Bldg. #2, East Dundee, IL 60118
Ph: 847-426-9597, Fax: 847-426-9724, TELECRANE.COM
Telecrane Radio Remote Control
F24 Joystick
Manual
Rev. 1c
October 10, 2007
Telecrane F24-J Manual
Section Page
General Specifications 3
1.0 Warranty/FCC Approval Information 4
2.0 Installation Instructions 5
3.0 Operation Instructions 6
4.0 Safety 7
5.0 Preventive Maintenance Checklist 9
6.0 Troubleshooting 10
7.0 Transmitter Function Settings.. 11
8.0 Receiver Function Settings 12
9.0 Programming Options 13
10.0 Product Options 14
11.0 Receiver Wiring Diagram 15
12.0 Program and Button Labeling 17
This manual Copyright© 2006 Intercontinental Technologies, Ltd.
1
This Page Intentionally Left Blank
2

Technical specifications for: F24-J
Receiver input voltage: 110 volts AC.
Other Input voltages available 220 VAC, 12V AC/DC, 24 VAC/DC
Temperature: -35 deg C to 75 deg C (-31 deg F to 167 deg F)
Receiver relay ratings: The receiver relays are rated at 10 amps at 250 volts AC. All COM
wires are fused at 10A. The total current drawn through the receiver relays (through the COM
wire) must not exceed 10A.
Receiver dimensions: W 14.25” x D 4.5” x L 11.0”
Frequency generation: Crystal (plug-in)
Transmitter and receiver housing material: 30% glass fiber-reinforced nylon-6
Transmitter joysticks: 2 joysticks operating a total of 4 axis motions. Full 360-degree range of
motion. Rated for 10 million cycles.
Transmitter dials: 2 On/Off dials and 2 A, B dials.
Transmitter button life: Tested to 2,000,000 operations
Transmitter weight and dimensions: 2.3lbs with batteries. W 4.25” x D 4.25” x L 8.5”
Control range: 500+ feet
Transmitter batteries: 4 AA alkaline batteries.
Channel Frequency Channel Frequency Channel Frequency Channel Frequency
1 310.0325 11 312.7075 21 315.3825 31 318.0575
2 310.3000 12 312.9750 22 315.6500 32 318.3250
3 310.5675 13 313.2425 23 315.9175 33 318.5925
4 310.8350 14 313.5100 24 316.1850 34 318.8600
5 311.1025 15 313.7775 25 316.4525 35 319.1275
6 311.3700 16 314.0450 26 316.7200 36 319.3950
7 311.6375 17 314.3125 27 316.9875 37 319.6625
8 311.9050 18 314.5800 28 317.2550 38 319.9300
9 312.1725 19 314.8475 29 317.5225
10 312.4400 20 315.1150 30 317.7900
Channel Frequency Channel Frequency Channel Frequency Channel Frequency
112 428.5350 123 431.4775 134 434.4200 145 437.3625
113 428.8025 124 431.7450 135 434.6875 146 437.6300
114 429.0700 125 432.0125 136 434.9550 147 437.8975
115 429.3375 126 432.2800 137 435.2225 148 438.1650
116 429.6050 127 432.5475 138 435.4900 149 438.4325
117 429.8725 128 432.8150 139 435.7575
118 430.1400 129 433.0825 140 436.0250
119 430.4075 130 433.3500 141 436.2925
120 430.6750 131 433.6175 142 436.5600
121 430.9425 132 433.8850 143 436.8275
122 431.2100 133 434.1525 144 437.0950
3

1.0 Warranty:
Intercontinental Technologies, Ltd. (ITL) guarantees that this product meets its published specifications at the time
of shipment. This equipment is warranted against defects in material and manufacturing for a period of one year
from the date of shipment. During the warranty period, ITL will repair or replace defective components at no
charge, if the failure of the product was due to defective material or manufacturing. For warranty service, the
product must ultimately be returned to ITL. The buyer must pay shipping charges to the ITL service facility, and
ITL will pay return ground shipping charges. Warranty service on F21 and F24 units shall be provided by ITL only
and ITL will not be responsible for service or repair costs charged by third parties. ITL will not be liable for any
damage to the warranted product, and no other warranty is expressed or implied, except as explicitly described. ITL
does not warranty any consumable parts, including batteries, fuses, buttons, relays, or housings. This warranty does
not include damage caused by improper installation (including ignoring environmental specifications), improper or
insufficient maintenance, any modifications, improper operation, or improper software interfacing. The remedies
provided herein are the buyer’s sole and exclusive remedies. ITL shall not be liable for any direct, indirect, special,
incidental, or consequential damages.
FCC and Industry Canada Approval Information
The following information applies to transmitters:
This device complies with part 15 of the FCC Rules. Operation is subject to the following two conditions: (1) This
device may not cause harmful interference, and (2) this device must accept any interference received, including
interference that may cause undesired operation.
Changes or modifications not expressly approved by Intercontinental Technologies, Ltd. could void the user’s
authority to operate equipment.
This device complies with RSS-210 of Industry Canada. Ce dispositif est conforme aux normes CNR-210
d’Industrie Canada. L’utilisation de ce dispositif est autorisée seulement aux conditions suivantes: 1) il ne doit pas
produire de brouillage et 2) l’utilisateur du dispositif doit être prêt à accepter tout brouillage radioelectrique reçu,
même si ce brouillage est susceptible de compromettre le fonctionnement du dispositif .
This equipment has been tested and found to comply with the limits for a Class A digital device, pursuant to Part 15
of the FCC Rules. These limits are designed to provide reasonable protection against harmful interference when the
equipment is operated in a commercial environment. This equipment generates, uses, and can radiate radio
frequency energy and, if not installed and used in accordance with the instruction manual, may cause harmful
interference to radio communications. Operation of this equipment in a residential area is likely to cause harmful
interference in which case the user will be required to correct the interference at his own expense.
The following information applies to receivers: Model F24-J
4

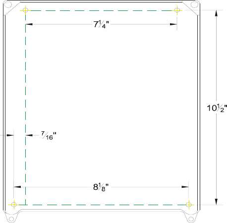
2.0 Installation Instructions:
1. The receiver should be mounted in a location that is convenient to the control box and is
securely attached to the equipment. The receiver is mounted by drilling four ¼” (6mm) holes
(see diagram below). Mount the receiver using the supplied hardware. It is best to keep the
receiver as far away as possible (approximately 6 feet) from variable frequency drives and the
motors and cables attached to them to avoid interference.
F24-J-RX Receiver Mounting Diagram
2. The receiver wires are numbered. The wires are identified on the label on the top of the
receiver.
3. All the contacts in the receiver are “dry” relay contacts. This means that is there is no internal
source of power to the contacts. You will need to connect the “common” lead for each output
or set of outputs that you plan to use to the same power supply that it would be connected to in
a corded pendant. For most cranes this wire is X1 (the 120 volt AC control transformer “hot”
side). Some cranes have separate hoist/trolley and bridge transformers. In these cases,
connect each transformer’s X1 to the function(s) it powers. There is no requirement that the
common leads be connected to a 120 volt AC supply- these are “dry” relay contacts; whatever
you put into the common wire, comes out each function’s wire when that relay closes. The
only restrictions are, do not exceed 10 amps or 250 volts AC. For DC applications call the
factory at 1-800-382-3558.
5

4. Put 4 AA alkaline batteries into each transmitter. To insert the batteries in the F24-J-TX
(transmitter), unscrew and open the hinged battery cover on the bottom of the unit. Remove
the battery pack. Insert the batteries as indicated on the label inside the battery pack noting
polarity markings. Insert the battery pack into the bottom of the transmitter. Replace the
cover and tighten the thumbscrew until the cover is fully seated against the transmitter body.
5. Test the system thoroughly before releasing it for use.
6. If the transmitter does not work check battery polarity.
3.0 Operation Instructions:
1. Battery Indicator:
The LED on the front of the transmitter indicates the condition of the batteries. It will
flash green during operation if the battery power is sufficient, and will flash red if the battery
power is low. If the LED is flashing red, or if the operation becomes erratic, or will only
work from a short distance, replace all 4 batteries with new AA alkaline batteries using the
procedure given in section 2.4.
2. Fuses
There are seven fuses in the F24-J-RX. There is one fuse in the AC power line that
operates the receiver (0.5A, 250V), and one in the internal 12 volt DC supply (1.5A, 250V).
There are five fuses in the COM wires (10A, 250V). The fuses on the COM wires are for
relay contact protection in the event of a short circuit in the equipment being controlled by
the radio. To replace a fuse, push down the fuse cover and turn counter-clockwise ¼ turn
with thumb and forefinger or a flat-blade screwdriver. Remove the fuse from the cover and
insert a new one of the same rating. Insert the fuse and cover into the fuse holder, press
down, and turn clockwise ¼ turn. For protection from fire hazard, damage, or injury,
always replace a blown fuse with one of the same rating.
3. Start Procedures for the F24-J
1. If the red STOP knob is pushed in, turn it clockwise about 45 degrees to reset it and allow
it to pop up. This knob must be in the up position in order to operate the transmitter.
2. Put the green key into its socket in the front of the transmitter.
3. Turn the green key clockwise to the ON position, and then press the green (START)
pushbutton. This will engage the mainline contactor and prepare the radio for operation.
4. Use the joysticks and/or pushbuttons to control the equipment.
5. Press the red STOP knob or turn the green key to OFF to stop movement immediately
and drop out the mainline contactor.
6
6. Turn the green key to OFF and remove it whenever the transmitter is not in use to prevent
unintentional operation.
7. The receiver has an extra relay labeled R0. Pushing the green start button after the
equipment has already been started will close this relay. This relay will not engage the
first time the Start pushbutton is pressed when starting up the equipment. See section 8.0
for detailed information on this option.
4.0 Safety:
EMERGENCY PROCEDURE: In case of emergency, perform these steps IN ORDER.
1. Press the red STOP button.
2. Turn the green key to OFF position.
3. Switch off the main power to the equipment.
4. Contact qualified service personnel.
This manual is intended for the user as a general reference only. Please consult your distributor
for specific installation or assistance with technical issues. In an industrial environment, safety
must always be a top priority. Persons responsible for installation, operation, and maintenance
must make certain that both their actions and the equipment on which they work are safe.
Following are a list of safety rules that must be followed when working with TELECRANE
products, as well as cranes and industrial equipment in general. This list is not intended to be all-
inclusive. General industrial safety rules must always be followed. If there is any doubt about
how to proceed, always take the safest course of action.
- Only qualified personnel who are familiar with the product and who have read
these safety instructions should install TELECRANE products.
- Before installing or operating this product, read this manual thoroughly. If you
have any questions, please contact ITL.
- All sources of power to the crane or controlled equipment must be de-energized
and locked out before installing the unit.
- Before installing the receiver, energize it in a controlled environment (such as an
office) where it can be tested and set up properly before it is mounted in the field.
If it does not work exactly as intended, fix the problem and test it again.
- Before installation, be certain to understand the electrical functioning of the crane
or equipment, including the sequence and relationship of motions and contactors.
7
- Fall prevention devices should be used when anyone is working at an elevated
height.
- The receiver must be securely attached and located where it will not be hit by any
moving part of the building, crane, or load.
- The crane or hoist must be equipped with limit switches for each motion and a
main power contactor that cuts off all power to the motors of the crane when it is
de-energized.
- Special care must be taken for magnets and other load-carrying devices to ensure
that if the crane is de-energized the load remains supported.
- The receiver must be located so that it receives sufficient signal strength from the
transmitter.
- Operating any piece of equipment in an industrial facility can be dangerous.
Adequate training must be provided to operators of cranes or other equipment
using a TELECRANE product.
- At least once each shift, check the amount of power remaining in the transmitter
batteries. If it is low, change all four batteries before beginning operation.
Operating the unit with excessively discharged batteries can be unsafe.
- The safety key should be removed from the transmitter whenever it is not in use
and should only be issued to authorized personnel.
- All TELECRANE Radio Remote Controls are tested before they leave the
factory. However, they should not be used in dangerous situations or in a manner
such that damage might result.
- Although the transmitter is very durable and weather-resistant, precautions should
always be taken to limit its exposure to weather, physical impact, and corrosives.
- After use, or if the unit will not be used for a long interval, turn off power to the
crane or equipment and remove the safety key from the transmitter.
- Remove the batteries from the transmitter if the transmitter will not be used for
two weeks or longer.
- Transmitters that are not in use, including spare transmitters, should be stored
with batteries removed, and secured to prevent accidental operation.
- Before each shift, check that the limit switches function correctly and that
movement corresponds to the button being pressed or joystick being operated on
the transmitter.
- Do not use the equipment during lightning storms or high electrical interference
conditions.
- In general only authorized service facilities should perform maintenance on this
product.
8
- Ensure that anyone performing maintenance on the unit is thoroughly familiar
with its operation.
- Power should be shut off to the crane or equipment before any maintenance
begins, unless absolutely required for troubleshooting the unit. When the power
is on, use extreme caution. High voltage or unexpected movement could cause
death or severe injury.
- Only certified maintenance personnel should attempt a repair more involved than
the swapping of printed circuit boards. Improper repair can compromise the built-
in safety features and cause unexpected operation and damage.
- This product uses four AA alkaline batteries. When replacing batteries, all four
must be replaced at the same time.
- ITL does not recommend use of nickel-cadmium or nickel-metal-hydride batteries
due to voltage characteristics that cause a sudden loss of power when discharged.
They also have less capacity than alkaline batteries and therefore will not last as
long.
5.0 Preventive Maintenance Checklist
1. Inspection
A. Look for damage such as, cracks, holes, missing parts, etc.
1. External parts includes:
a. Guard bar
b. Joystick boots- stretch them slightly to find any holes
c. Case- twist and flex slightly
2. Internal problems
a. Cleanliness- any dust indicates a hole somewhere. Inspect external parts
b. Ensure that wires are routed away from moving parts of joysticks.
c. Excessive backlash in joystick mechanism- may indicate wear or
loosened parts in mechanism. Examination by factory is required.
d. Grinding sounds from joystick mechanism- indicate prior dust or grit
intrusion. Examination and repair by factory is required.
9

2. Cleaning
A. External
1. Case- general
2. Emergency stop knob.
3. Start key and socket. Remove key and blow out socket with low-pressure
compressed air.
4. Around dials and buttons.
B. Internal
1. Battery compartment and holder.
2. The inside of the unit should not require cleaning if covers, gaskets, and
joystick boots are intact. Low-pressure compressed air may be used
sparingly if desired.
3. Test the unit thoroughly
A. Verify all functions are operating correctly.
1. A thorough, discriminating test of all transmitter functions will disclose most
problems before they can cause trouble. Use the TEST/RUN switch in the
receiver to prevent crane movement. Set this switch to TEST position. Match
functions with corresponding LED on receiver.
6.0 Troubleshooting Common Mistakes In Installation:
− Receiver dead: Is 120 volt AC applied between X1 and X2 wires? These are
wires 1 and 2. You must provide both the hot and the neutral sides of the control
transformer secondary to power the unit.
− Relays close but there is no movement from the crane: Are the COMMON
wires hooked up properly? The receivers have “dry” contacts. Even though X1
and X2 have been applied to power the receiver, you still need to apply power to
the common side of the relay contacts in order to get power to your contactors.
These are the COM wires for each of the outputs on the receiver. Each COM
wire is completely isolated from the others as well as the power wires. In most
cranes, the COM wires will be connected to the X1 supply.
− If the transmitter does not work: Check that all four batteries have sufficient
power and verify correct battery polarity as shown on the battery pack.
If you have any problems or questions not covered above, please call ITL at 1-800-382-3558.
10

7.0 Transmitter Function Settings
Function/
Setting Description
/Notes Available Settings Default
Settings
Second
Function
of the
Start
Button
Control button • Normal control of R0
• Toggle (on/off) control of R0
• Inching (in seconds)
o 0.05
o 0.1
o 0.2
o 0.3
o 0.4
o 0.5
o 0.6
o 0.8
Normal control
of R0
F1 Button Control button • Normal
• Toggle (on/off)
Normal
1 Button Control button • Normal, not interlocked
• Normal, interlocked with button 2
• Toggle (on/off)
• On (off is button “2”)
Normal,
interlocked with
button 2
2 Button Control button • Normal, not interlocked
• Normal, interlocked with button 1
• Toggle (on/off)
• Off (on is button “1”)
Normal,
interlocked with
button 1
3 Button Control button • Normal, not interlocked
• Normal, interlocked with button 4
• Toggle (on/off)
• On (off is button “4”)
Normal,
interlocked with
button 4
4 Button Control button • Normal, not interlocked
• Normal, interlocked with button 3
• Toggle (on/off)
• Off (on is button “3”)
Normal,
interlocked with
button 3
11

7.0 Transmitter Function Settings Cont.
A Dial Control dial On/off On/off
B Dial Control dial • A, A+B, B
• A, Off, B
A, A+B, B
C Dial Control dial • A, A+B, B
• A, Off, B
A, A+B, B
D Dial Control dial On/off On/off
Joystick 1 2-axis (X and Y)
joystick controller
• 4 directions, 5 or fewer detents* in
each direction.
• Extensive custom programming
available, see Technical Sheet in
Section 11.
4 directions, 5
detents in each
direction
Joystick 2 2-axis (X and Y)
joystick controller
• 4 directions, 5 or fewer detents* in
each direction.
• Extensive custom programming
available, see Technical Sheet in
Section 11.
4 directions, 5
detents in each
direction
* Refer to Section 11 for additional detent settings
8.0 Receiver Function Settings
Function/Setting Description
Notes Available Settings Default Settings
Auto-Shutdown
Time Elapsed idle time
before receiver is
automatically shut
down
• Never
• 10 minutes
• 20 minutes
• 30 minutes
• 1 hour
• 2 hours
• 3 hours
• 4 hours
1 hour
Joystick 1 X-Axis
Acceleration Delay
Joystick 1 Y-Axis
Acceleration Delay
Joystick 2 X-Axis
Acceleration Delay
Joystick 2 Y-Axis
Acceleration Delay
Time between
actuation of relays
when joystick is
moved
• 0 seconds
• 0.3 seconds
• 0.5 seconds
• 1.0 seconds
• 1.5 seconds
• 2.0 seconds
• 3.0 seconds
• 4.0 seconds
0.5 seconds
12

9.0 Programming options:
- Auto-shut-down time. An auto-shut-down feature is available. If the radio has not been
used for a period of time the receiver automatically drops out the main line contactor. The
default setting is 1 hour. Auto-shut-down times can be set between 0 and 4 hours.
Typical selections are available on the programming data sheets in the back of this
manual.
- Pushbutton options. Each pushbutton is set by default to momentary (relay closes when
a button is pressed and opens when released), and interlocked in opposed motion pairs
(UP-DOWN, EAST-WEST, SOUTH-NORTH). When set as momentary, they can be set
as un-interlocked. They can also be set as toggle (press once to close relay, press again to
open) or as On-Off pairs (press On to close relay, press Off to open relay). When
programmed as toggle or On-Off, they will be set as controlled by Stop (opening
automatically when the STOP button is pressed). They can be reprogrammed by the
factory for uncontrolled by Stop (unaffected by STOP button); please call for more
information.
- Acceleration delay. Delay between actuation of relays for each of the detents of the
joysticks can be programmed. This delay time can be set between 0 and 4 seconds;
default is 0 seconds. Typical selections are available on the programming data sheet.
- R0 function. The R0 relay operates only when the START button is pushed after the
unit has already been started. It is by default set to momentary (closed when START
button is pressed, open when released). It can also be set to toggle (push the START
button once to close, then push the button again to open), or inching (does not activate the
R0 relay, but instead only allows pushbuttons pressed, after pushing the START button,
to remain on for a preset length of time, no matter how long the button is held). For
inching, the inch time may be set to a minimum of 0.05 seconds or anywhere from 0.1 to
0.8 seconds in 0.1-second increments. Typical selections are available on the
programming data sheet.
Call Factory for more information 1-800-382-3558.
13

10.0 Product Options
- Below are the legend sets that are available to change the button labels of the F24 series
transmitters. Part # 22A3001
Part # 22A3003
- An antenna kit is available for the joystick models effectively extending the range to
1500+ feet (line of sight). Call factory for details. 1-800-382-3558
- Cables are available as well for mounting the stock antenna outside an enclosure. Call
Factory for details. 1-800-382-3558
14

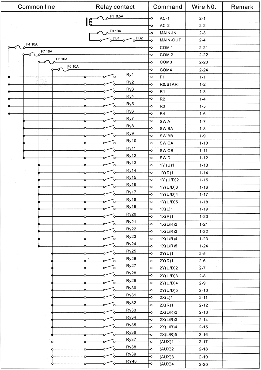
11.0 F24-J Wiring Diagram (Standard)
15
This Page Intentionally Left Blank
16

12.0 Programming and button labeling
WEST
NORTH
SOUTH
EAST
aux aux
DOWN
UP
DOWN
UP
1 2 3 4
5
5
4 3 2 1
5
4 3 2 1
1 2 3 4
5
1 2 3 4
5
5
4 3 2 1
5
4 3 2 1
1 2 3 4
5
Custom labels for F24-J
Restrict maximum speed position of any motion
Customize travel path of joystick
The words in bold appear on the joystick motion if you do not fill in the squares below.
Ciircle the last detent that the that motion can achieve. Default detent is all the way through to the 5th step.
To customize where the joystick can travel circle one of the drawings below for each joystick or fill in the blank circle
with the path desired. The fully black circle represents the default setting of complete 360 degree range of motion.
If you wish to
eliminate all the
detents from any of
the 4 motions write
NONE above the
motion’s arrow
instead of circling a
number.
17
This Page Intentionally Left Blank
18

Normal
Normal
Toggle (on/off)
Toggle (on/off)
Normal, not interlocked
Toggle (on/off)
Off (on is button “3”)
normal, interlocked with button “3”
F1
Start
12
34
ABCD
On / Off On / Off
A, A+B, B
A
, A+B, B
A
, OFF, B
A
, OFF, B
The A & B associated with dial B
pertain to only dial B. The A & B
associated with dial C pertain to
only dial C.
20 minutes
30 minutes
never
1 hour
2 hours
3 hours
4 hours
Auto Shut Down time
Default setting of 1 hour
Inching
Controlled by stop
Not controlled by stop
0.05
0.1
0.2
0.3
0.4
0.5
0.6
0.8
Button and Dials Programming Sheet: F24-J
Controlled by stop
Not controlled by stop Controlled by stop
Not controlled by stop
Controlled by stop
Not controlled by stop
Controlled by stop
Not controlled by stop
Controlled by stop
Not controlled by stop
Normal, not interlocked
Toggle (on/off)
On (off is button “4”)
normal, interlocked with button “4”
Controlled by stop
Not controlled by stop
Normal, not interlocked
Toggle (on/off)
On (off is button “2”)
normal, interlocked with button “2”
Controlled by stop
Not controlled by stop
Normal, not interlocked
Toggle (on/off)
Off (on is button “1”)
normal, interlocked with button “1”
Controlled by stop
Not controlled by stop
Controlled by stop
Not controlled by stop
19
This Page Intentionally Left Blank
20

Custom relay configuration sheet for model:
F24-J
Standard Configurations Custom Configurations
WEST EAST WEST EAST
5
4
3
2
1
0
1
2
3
4
5
5
4
3
2
1
0
1
2
3
4
5
1X1
X
X
X
X
X
1X1
1X2
X
X
X
X
X
1X2
1X3
X
X
X
X
X
X
X
X
1X3
1X4
X
X
X
X
X
X
1X4
1X5
X
X
X
X
1X5
1X6
X
X
1X6
Acceleration delay in seconds: 0.0, 0.3, 0.5 , 1.0, 1.5, 2.0, 3.0, 4.0,
NORTH SOUTH NORTH SOUTH
5
4
3
2
1
0
1
2
3
4
5
5
4
3
2
1
0
1
2
3
4
5
1Y1
X
X
X
X
X
1Y1
1Y2
X
X
X
X
X
1Y2
1Y3
X
X
X
X
X
X
X
X
1Y3
1Y4
X
X
X
X
X
X
1Y4
1Y5
X
X
X
X
1Y5
1Y6
X
X
1Y6
Acceleration delay in seconds: 0.0, 0.3, 0.5 , 1.0, 1.5, 2.0, 3.0, 4.0,
AUX DOWN AUX UP AUX DOWN AUX UP
5
4
3
2
1
0
1
2
3
4
5
5
4
3
2
1
0
1
2
3
4
5
2X1
X
X
X
X
X
2X1
2X2
X
X
X
X
X
2X2
2X3
X
X
X
X
X
X
X
X
2X3
2X4
X
X
X
X
X
X
2X4
2X5
X
X
X
X
2X5
2X6
X
X
2X6
Acceleration delay in seconds: 0.0, 0.3, 0.5 , 1.0, 1.5, 2.0, 3.0, 4.0,
UP DOWN UP DOWN
5
4
3
2
1
0
1
2
3
4
5
5
4
3
2
1
0
1
2
3
4
5
2Y1
X
X
X
X
X
2Y1
2Y2
X
X
X
X
X
2Y2
2Y3
X
X
X
X
X
X
X
X
2Y3
2Y4
X
X
X
X
X
X
2Y4
2Y5
X
X
X
X
2Y5
2Y6
X
X
2Y6
Acceleration delay in seconds: 0.0, 0.3, 0.5 , 1.0, 1.5, 2.0, 3.0, 4.0,
Notes:
*The default relay configuration chart is on the left side. If you want the relays to close in
different combinations than the default settings then mark the appropriate chart to the
right with X’s in the appropriate squares.
This Page Intentionally Left Blank
22
Intercontinental Technologies Ltd. 558 Plate Drive Bldg. #2, East Dundee, IL 60118
Ph: 847-426-9597, Fax: 847-426-9724, TELECRANE.COM