Invacare Wheelchair 2Gt Users Manual 1114842A
2GT to the manual 601a7e6a-aa4e-4457-9dc0-0e9d1164943c
2015-02-02
: Invacare Invacare-Invacare-Wheelchair-2Gt-Users-Manual-433632 invacare-invacare-wheelchair-2gt-users-manual-433632 invacare pdf
Open the PDF directly: View PDF
.
Page Count: 168 [warning: Documents this large are best viewed by clicking the View PDF Link!]

Service Manual
DEALER: Keep this manual. The
procedures in this manual MUST be
performed by a qualified technician.
For more information regarding
Invacare products, parts, and services,
please visit www.invacare.com
2G Tarsys®Powered
Seating System
2GT™- Tilt Only
2GR™- Recline Only
2GTR™- Tilt/Recline
on
TDX®Wheelchairs

USEFUL TERMS
2G Tarsys®Powered Seating System 2Part No 1114842
WARNING
A QUALIFIED TECHNICIAN MUST PERFORM THE INITIAL SET UP
OF THIS SEATING SYSTEM. ALSO, A QUALIFIED TECHNICIAN
MUST PERFORM ALL PROCEDURES IN THIS SERVICE MANUAL.
DEALERS AND QUALIFIED TECHNICIANS: DO NOT SERVICE OR
OPERATE THIS EQUIPMENT WITHOUT FIRST READING AND
UNDERSTANDING (1) THE OWNER’S OPERATOR AND
MAINTENANCE MANUAL, (2) THE SERVICE MANUAL (IF
APPLICABLE) AND (3) THE SEATING SYSTEM’S MANUAL (IF
APPLICABLE). IF YOU ARE UNABLE TO UNDERSTAND THE
WARNINGS, CAUTIONS AND INSTRUCTIONS, CONTACT
INVACARE TECHNICAL SUPPORT BEFORE ATTEMPTING TO
SERVICE OR OPERATE THIS EQUIPMENT - OTHERWISE, INJURY
OR DAMAGE MAY RESULT.
USEFUL TERMS
The following acronyms are used throughout this manual:
\
REFERENCE DOCUMENTS
Refer to the table below for part numbers of additional documents which are referenced
in this manual.
ACRONYM DEFINITION
BPO Back Post Only option ordered on Tilt Only systems.
TRSS Tilt Recline Single Switch
SAC Single Actuator Control
TAC Two Actuator Control
TRCM Tilt Recline Control Module
VSR Vernier Shear Reduction
TDX BASE OWNER’S
MANUAL
TDX SERVICE MANUAL ELECTRONICS MANUAL
1114809 1114819 1114808 - MK5™EX™and MK5
TT-EX
NOTE: Updated versions of this manual are available on www.invacare.com.

TABLE OF CONTENTS
Part No 1114842 32G Tarsys®Powered Seating System
TABLE OF CONTENTS
USEFUL TERMS ................................................................................. 2
REFERENCE DOCUMENTS ................................................................. 2
SPECIAL NOTES ................................................................................ 9
LABEL LOCATIONS ......................................................................... 11
TYPICAL PRODUCT PARAMETERS .................................................. 12
SECTION 1—GENERAL GUIDELINES ................................................. 14
Repair or Service Information ...............................................................................................................14
Operation Information............................................................................................................................14
Grounding Instructions ...........................................................................................................................16
SECTION 2—SAFETY/HANDLING OF WHEELCHAIRS ......................... 17
Pinch Points................................................................................................................................................17
SECTION 3—EMI INFORMATION ..................................................... 18
SECTION 4—SAFETY INSPECTION/TROUBLESHOOTING .................... 20
Safety Inspection Checklist.....................................................................................................................20
Post-Service Inspection Checklist.........................................................................................................21
Troubleshooting........................................................................................................................................22
SECTION 5—INTERFACE HARDWARE .............................................. 24
Repositioning the Seat.............................................................................................................................24
About Repositioning the Seat ...........................................................................................................24
Repositioning the Seat on 2GR Systems ........................................................................................24
Repositioning the Seat for 2GT and 2GTR Systems....................................................................33
Removing/Installing the Rear Pivot Assembly ....................................................................................41
Tilt Only and Tilt/Recline Systems...................................................................................................41
Recline Only Systems..........................................................................................................................44
Removing/Installing the Front Pivot Assembly...................................................................................45
Removing ...............................................................................................................................................45
Installing..................................................................................................................................................45
Removing/Installing the Linear Guides.................................................................................................46
Removing/Installing the Seat Brackets .................................................................................................48
Tilt Only and Tilt/Recline Systems...................................................................................................48
Recline Only Systems..........................................................................................................................51
Removing/Installing the Lower Interface Brackets............................................................................52
Removing ...............................................................................................................................................52
Installing..................................................................................................................................................52
SECTION 6—SEAT ADJUSTMENTS .................................................... 54
Replacing Seat Positioning Strap ...........................................................................................................54

TABLE OF CONTENTS
2G Tarsys®Powered Seating System 4Part No 1114842
TABLE OF CONTENTS
Removing/Installing Seat Pan..................................................................................................................54
Removing ...............................................................................................................................................54
Installing..................................................................................................................................................54
Adjusting Seat Width...............................................................................................................................55
Preparing to Adjust Seat Width .......................................................................................................55
Tilt-Only Seating Systems...................................................................................................................56
Recline Only or Tilt/Recline Seating Systems................................................................................57
Adjusting Seat Depth ...............................................................................................................................58
About Seat Depth................................................................................................................................58
Adjusting Seat Depth...........................................................................................................................60
Adjusting Seat Angle ................................................................................................................................61
Tilt-Only and Tilt/Recline Seating Systems ....................................................................................61
Recline-Only Seating Systems ...........................................................................................................61
Removing/Installing Side Frames ...........................................................................................................66
Removing Side Frames........................................................................................................................66
Preparing Side Frames for Replacement.........................................................................................67
Installing Side Frames ..........................................................................................................................69
Removing/Installing Center Seat Frame ..............................................................................................70
Removing Center Seat Frame ...........................................................................................................70
Installing Center Seat Frame .............................................................................................................71
Adjusting/Replacing Telescoping Front Rigging Supports................................................................73
Adjusting/Replacing Leg Support Tubes ..............................................................................................73
Adjusting Leg Support Tubes ............................................................................................................73
Replacing Leg Support Tubes............................................................................................................74
Removing/Installing the Seat...................................................................................................................75
Removing ...............................................................................................................................................75
Installing..................................................................................................................................................77
SECTION 7—BACK ADJUSTMENTS .................................................. 80
Adjusting Back Width..............................................................................................................................80
Adjusting Back Angle ...............................................................................................................................80
Removing/Installing the Curved Links..................................................................................................82
Tilt Only Systems.................................................................................................................................82
Recline Only and Tilt/Recline Systems............................................................................................83
Removing/Installing Back Pan .................................................................................................................85
Removing ...............................................................................................................................................85
Installing..................................................................................................................................................85
Removing/Installing Spreader Bar .........................................................................................................87
Slotted Back Canes..............................................................................................................................87
Round Back Canes...............................................................................................................................88

TABLE OF CONTENTS
Part No 1114842 52G Tarsys®Powered Seating System
TABLE OF CONTENTS
Removing/Installing Back Canes ............................................................................................................89
Removing ...............................................................................................................................................89
Installing..................................................................................................................................................89
Removing/Installing Back Slide Assembly ............................................................................................90
Removing ...............................................................................................................................................90
Installing..................................................................................................................................................90
Removing/Installing Back Assembly ......................................................................................................91
Removing ...............................................................................................................................................91
Installing..................................................................................................................................................91
Adjusting the Back Height ......................................................................................................................92
Overview ...............................................................................................................................................92
Removing/Installing Arm Pivots.............................................................................................................93
Removing ...............................................................................................................................................93
Installing..................................................................................................................................................93
Removing/Installing/Adjusting Chest Positioning Strap....................................................................94
Removing ...............................................................................................................................................94
Installing..................................................................................................................................................94
Adjusting Height...................................................................................................................................94
Installing/Removing/Adjusting Lateral Supports.................................................................................95
Slotted Canes........................................................................................................................................95
Round Canes.........................................................................................................................................97
SECTION 8—SHROUDS .................................................................... 99
Shroud Overview .....................................................................................................................................99
Removing/Installing VSR Shroud ........................................................................................................ 100
Removing/Installing Side Shrouds....................................................................................................... 100
Removing/Installing Rear Seat Shroud .............................................................................................. 101
Removing/Installing Rear Shroud ....................................................................................................... 102
Removing/Installing Lower Seat Shroud........................................................................................... 102
SECTION 9—POWER ELEVATING LEGRESTS .................................... 104
Installing/Removing the Power Elevating Legrests ......................................................................... 104
Installing the Power Elevating Legrests ........................................................................................ 105
Removing the Power Elevating Legrests...................................................................................... 105
Adjusting the Power Elevating Legrests ........................................................................................... 106
Adjusting the Footplate ................................................................................................................... 106
Adjusting the Calf Pad...................................................................................................................... 108
Adjusting the Length of Power Legrest ....................................................................................... 110
Removing/Installing the Power Elevating Legrest Harness .......................................................... 110
Removing ............................................................................................................................................ 110
Installing............................................................................................................................................... 110

TABLE OF CONTENTS
2G Tarsys®Powered Seating System 6Part No 1114842
TABLE OF CONTENTS
Removing/Installing the Power Elevating Legrest Actuator......................................................... 112
Removing ............................................................................................................................................ 112
Installing............................................................................................................................................... 112
SECTION 10—ARMS ...................................................................... 114
Removing/Installing Reclining Armrests ........................................................................................... 114
Removing Armrests.......................................................................................................................... 114
Installing Armrests ............................................................................................................................ 114
Adjusting Armrest Height.................................................................................................................... 115
Installing/Removing Flip-Back Armrests ........................................................................................... 116
Installing............................................................................................................................................... 116
Removing ............................................................................................................................................ 117
Adjusting Flip-Back Armrest Height.................................................................................................. 118
SECTION 11—CENTER MOUNT FOOTRESTS ................................... 119
Removing/Installing the Center Mount Footrest ........................................................................... 119
Removing ............................................................................................................................................ 119
Installing............................................................................................................................................... 119
Adjusting the Height of the Center Mount Footrest.................................................................... 120
Adjusting the Angle of the Center Mount Footrest...................................................................... 121
Adjusting the Center Mount Footplate Angle ................................................................................ 121
After 2/14/07...................................................................................................................................... 121
Before 2/15/07................................................................................................................................... 122
Adjusting the Tension of the Center Mount Footplate................................................................ 122
Removing/Installing the Release Lever Assembly........................................................................... 122
SECTION 12—HEADREST .............................................................. 124
Removing/Installing/Adjusting Headrest ........................................................................................... 124
Removing ............................................................................................................................................ 124
Installing............................................................................................................................................... 124
Adjusting Headrest Height.............................................................................................................. 125
Adjusting Headrest Depth/Direction ........................................................................................... 125
Replacing Headrest ............................................................................................................................... 125
SECTION 13—TILT AND RECLINE .................................................. 126
A Note About Drive Lock-Out ......................................................................................................... 126
Operating Powered Seating Systems ................................................................................................ 127
Single Function Toggle Switch (TRSS).......................................................................................... 128
Optional Four-Way Toggle Switch ............................................................................................... 129
Vernier Shear Reduction (2G Tarsys Systems Only) ............................................................... 130
Removing/Installing the Tilt Actuator ............................................................................................... 131
Removing ............................................................................................................................................ 131
Installing............................................................................................................................................... 131
Removing/Installing the VSR Actuator.............................................................................................. 132

TABLE OF CONTENTS
Part No 1114842 72G Tarsys®Powered Seating System
TABLE OF CONTENTS
Removing ............................................................................................................................................ 132
Installing............................................................................................................................................... 133
Removing/Installing the Recline Actuator........................................................................................ 133
Removing ............................................................................................................................................ 133
Installing............................................................................................................................................... 133
Testing the Actuators........................................................................................................................... 134
Removing/Installing Recline Links ...................................................................................................... 135
Removing ............................................................................................................................................ 135
Installing............................................................................................................................................... 135
Removing/Installing Tilt Links.............................................................................................................. 137
Removing ............................................................................................................................................ 137
Installing............................................................................................................................................... 137
SECTION 14—ELECTRONICS .......................................................... 139
Removing/Installing the Single Actuator Control (SAC) .............................................................. 139
Removing ............................................................................................................................................ 139
Installing............................................................................................................................................... 140
Removing/Installing the TAC or TRCM ........................................................................................... 141
Removing the TAC/TRCM Controller Bracket......................................................................... 141
Installing the TAC/TRCM Controller Bracket........................................................................... 142
Removing the TAC/TRCM from the Controller Bracket ....................................................... 144
Installing the TAC/TRCM onto the Controller Bracket.......................................................... 144
Programming the TAC ......................................................................................................................... 146
Calibrating the Tilt Potentiometer for a TAC................................................................................ 146
Replacing the Tilt Recline Single Switch (TRSS) ............................................................................. 148
Removing/Installing Joystick(s)............................................................................................................ 149
Removing ............................................................................................................................................ 149
Installing............................................................................................................................................... 149
Drive Lock-Out...................................................................................................................................... 150
Removing/Installing the Tilt Potentiometer..................................................................................... 150
Removing ............................................................................................................................................ 150
Installing............................................................................................................................................... 151
Adjusting the Tilt Potentiometer....................................................................................................... 152
Adjusting a Tilt Potentiometer Used With a TRSS................................................................... 152
Adjusting Tilt Potentiometer Used With a TRCM, TAC or SAC......................................... 153
Adjusting Recline Potentiometer....................................................................................................... 154
Removing/Installing the Recline Potentiometer.............................................................................. 155
Removing ............................................................................................................................................ 155
Installing............................................................................................................................................... 155

TABLE OF CONTENTS
2G Tarsys®Powered Seating System 8Part No 1114842
TABLE OF CONTENTS
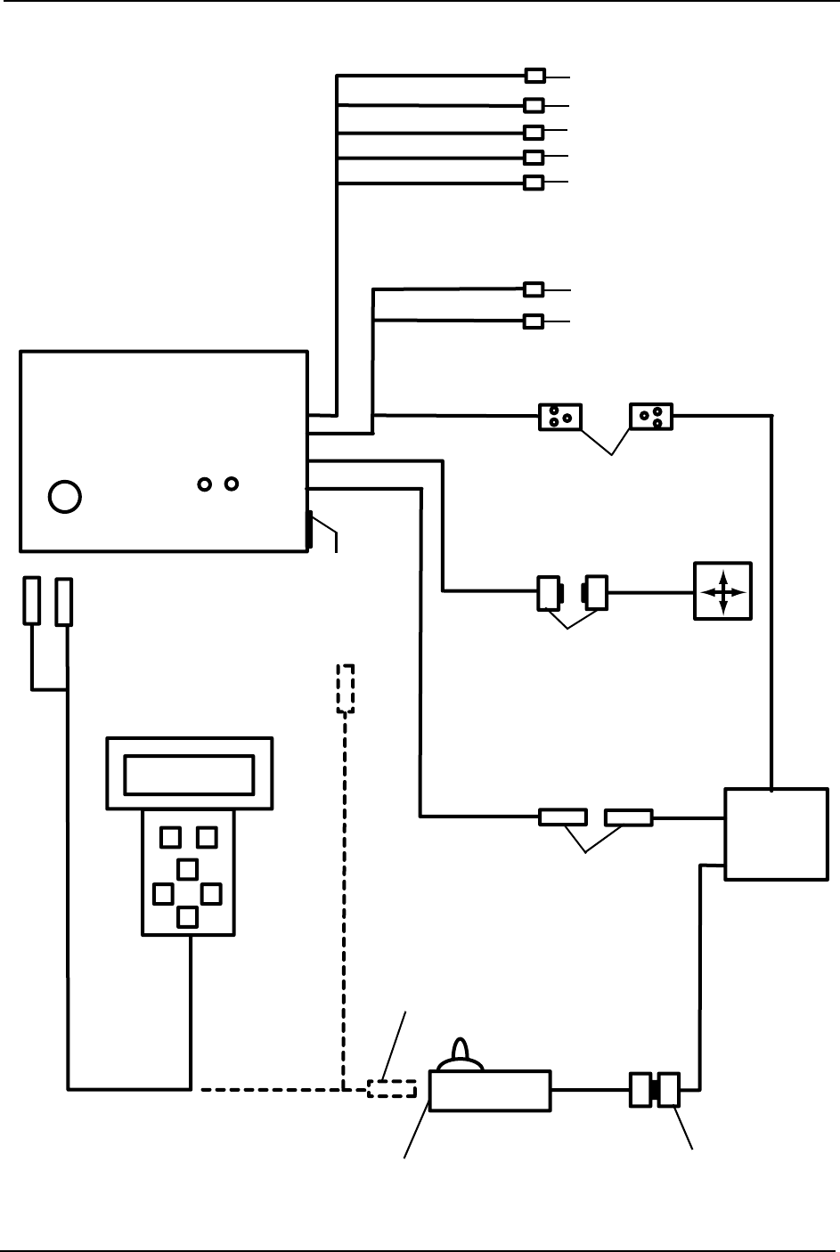
SECTION 15—WIRING AND CABLES .............................................. 157
Securing the Cables............................................................................................................................... 157
TAC Cables........................................................................................................................................ 157
Tilt Actuator Cable........................................................................................................................... 158
Tilt Potentiometer Cable ................................................................................................................ 158
Power Elevating Legrest, Recline Actuator and Recline Potentiometer Cables................ 159
4-Way Switch, TRCM and/or TAC Cables................................................................................. 161
Joystick, SAC or TRSS Cables........................................................................................................ 163
All Cables (Final Steps) .................................................................................................................... 163
Wiring Schematics................................................................................................................................. 164
TRSS..................................................................................................................................................... 164
SAC ...................................................................................................................................................... 165
TRCM/TAC........................................................................................................................................ 166
LIMITED WARRANTY ................................................................... 168

SPECIAL NOTES
Part No 1114842 92G Tarsys®Powered Seating System
SPECIAL NOTES
Signal words are used in this manual and apply to hazards or unsafe practices which
could result in personal injury or property damage. Refer to the table below for
definitions of the signal words.
NOTICE
THE INFORMATION CONTAINED IN THIS DOCUMENT IS SUBJECT TO
CHANGE WITHOUT NOTICE.
WHEELCHAIR TIE-DOWN RESTRAINTS AND SEAT RESTRAINTS (TRBKTS)
TRBKTS includes four factory-installed wheelchair transport brackets. TRBKTS has
not been crash-tested in accordance with WC 19. Use these transport brackets only
to secure an unoccupied wheelchair during transport.
As of this date, the Department of Transportation has not approved any tie-down
systems for transportation of a user while in a wheelchair, in a moving vehicle of any
type. It is Invacare’s position that users of wheelchairs should be transferred into
appropriate seating in vehicles for transportation and use be made of the restraints
made available by the auto industry. Invacare cannot and does not recommend any
wheelchair transportation systems.
TRBKTS WARNINGS
Only use the transport brackets included with TRBKTS for the purposes described
in the wheelchair base owner’s manual.
WARNING
Invacare products are specifically designed and manufactured for use in conjunction
with Invacare accessories. Accessories designed by other manufacturers have not
been tested by Invacare and are not recommended for use with Invacare products.
The seat positioning strap is a positioning belt ONLY. It is not designed for use as a
safety device withstanding high stress loads such as auto or aircraft safety belts. If
signs of wear appear, belt MUST be replaced immediately.
Wheelchairs should be examined during maintenance for signs of corrosion (water
exposure, incontinence, etc.). Electrical components damaged by corrosion should
be replaced IMMEDIATELY.
SIGNAL WORD MEANING
DANGER
Danger indicates an imminently hazardous situation which, if not avoided,
will result in death or serious injury.
WARNING
Warning indicates a potentially hazardous situation which, if not avoided,
could result in death or serious injury.
CAUTION
Caution indicates a potentially hazardous situation which, if not avoided,
may result in property damage.

SPECIAL NOTES
2G Tarsys®Powered Seating System 10 Part No 1114842
WARNING
Wheelchairs that are used by incontinent users and/or are frequently exposed to
water may require replacement of electrical components more frequently.
Refer to wheelchair base service manual for additional safety and operation
information.

TYPICAL PRODUCT PARAMETERS
2G Tarsys®Powered Seating System 12 Part No 1114842
TYPICAL PRODUCT PARAMETERS
2G TARSYS SEATING SYSTEM
SEAT WIDTH RANGE: 16 - 22 inches in 1-inch increments
SEAT DEPTH RANGE: 16 - 22 inches in 1-inch increments
BACK HEIGHT RANGE
TILT/RECLINE:
RECLINE:
TILT:
20 - 26 inches in 1-inch increments
20 - 26 inches in 1-inch increments
20 - 25 inches in 1-inch increments
BACK ANGLE RANGE
TILT: 90° - 115° in 5° increments
TILT RANGE
TILT AND TILT/RECLINE
0° Seat Angle:
5° Seat Angle:
0° - 45° ± 3°
5° - 50° ± 3°
RECLINE RANGE (MEASURED RELATIVE
TO THE GROUND)
RECLINE
0° Seat Angle:
5° Seat Angle:
10° Seat Angle:
15° Seat Angle:
TILT/RECLINE
0° Seat Angle:
5° Seat Angle:
90° - 175° ± 3°
95° - 175° ± 3°
100° - 175° ± 3°
105° - 175° ± 3°
90° - 175° ± 3°
95° - 175° ± 3°
SEAT-TO-FLOOR
0° SEAT ANGLE:
5° SEAT ANGLE:
18.5 inches ± .25 inches
20 inches ± .25 inches
*OVERALL WIDTH
WITH 4-WAY SWITCH: 28.9 inches
*OVERALL HEIGHT
(WITHOUT HEADREST): 40.9 inches
*OVERALL LENGTH
WITH CENTER MOUNT FOOTREST AT 90°:
WITHOUT FRONT RIGGINGS, FULL LENGTH
ARM, MPJ™ JOYSTICK:
41.5 inches
39.3 inches
ARMRESTS
TILT:
RECLINE AND TILT/RECLINE:
Flip Back, Adjustable Height (9 - 13 inches) - Desk or Full
Length
Adjustable Height (11 - 16 inches) - Desk or Full Length
LEGRESTS: Swingaway Footrests, Center Mount Footrests, Mechanical
Elevating, Genius Legrests, or Power Elevating Legrests
HEADRESTS: Curved, Contoured, Small or Large
*NOTE: 20 inch deep x 20 inch wide with 24 inch high back.
NOTE: All dimensions are ± .50 inches unless otherwise indicated.
NOTE: All parameters apply to Tilt only, Recline only and Tilt/Recline systems except where
specified. All parameters are approximate.

TYPICAL PRODUCT PARAMETERS
Part No 1114842 13 2G Tarsys®Powered Seating System
WARNING
If the seating system is mounted onto a power wheelchair that has a weight
limitation greater than that of the seating system, the weight limitation is
maintained at the seating system’s limitation. (Example: If the wheelchair is a TDX
5 with a 400 lb. weight limitation, the seating system still has a weight limitation of
350 lbs.).
WEIGHT LIMITATION:
ALL SEATING SYSTEMS WITHOUT HEAVY
DUTY OPTION:
TILT ONLY, RECLINE ONLY OR TILT/RECLINE
SYSTEMS WITH HEAVY DUTY OPTION:
ALL SEATING SYSTEMS WITH VENT TRAY:
250 lbs
350 lbs
Subtract 50 lbs from the seating system weight limitations
(200 and 300 lbs respectively)
BATTERY REQUIREMENTS: Refer to Batteries on page 137.
ELECTRONICS
SEATING SYSTEM CONTROL MODULES:
WHEELCHAIR CONTROL MODULE:
JOYSTICKS:
TRCM, SAC, TAC, TRSS
MK5 EX or MK5 TT-EX
MPJ™or DPJ™
2G TARSYS SEATING SYSTEM
*NOTE: 20 inch deep x 20 inch wide with 24 inch high back.
NOTE: All dimensions are ± .50 inches unless otherwise indicated.
NOTE: All parameters apply to Tilt only, Recline only and Tilt/Recline systems except where
specified. All parameters are approximate.

SECTION 1—GENERAL GUIDELINES
2G Tarsys®Powered Seating System 14 Part No 1114842
SECTION 1—GENERAL GUIDELINES
WARNING
SECTION 1 - GENERAL GUIDELINES contains important information for the safe
operation and use of this product. DO NOT use this product or any available
optional equipment without first completely reading and understanding these
instructions and any additional instructional material such as Owner’s Manuals,
Service Manuals or Instruction Sheets supplied with this product or optional
equipment. If you are unable to understand the Warnings, Cautions or Instructions,
contact a healthcare professional, dealer or technical personnel before attempting
to use this equipment - otherwise, injury or damage may occur.
Repair or Service Information
Except for programming, DO NOT service or adjust the wheelchair while occupied,
unless otherwise noted.
After ANY adjustments, repair or service and before use, make sure all attaching
hardware is tightened securely - otherwise injury or damage may occur.
Before adjusting, repairing or servicing the seating system, ALWAYS turn the wheelchair
power OFF, otherwise, injury or damage may result.
Pinch points exist between seat and base frames. Use caution, otherwise injury may occur.
Cables MUST be routed and secured properly to ensure that the cables DO NOT become
entangled and damaged during normal operation of seating system.
Cables MUST be secured to the wheelchair frame and/or base with tie-wraps after
servicing is complete. Failure to follow the warnings and instructions listed within this
manual could result in injury to the users, attendants and/or bystanders and/or damage
to the wheelchair.
Cables MUST be secured so there are no loops of excess cable extending away from the
wheelchair. Bundle all excess cable together and secure with a tie-wrap. It may also be
necessary to secure these bundles to the frame and/or base.
ALWAYS test all wheelchair functions after securing the cables to be sure cables DO NOT
get pinched, crushed, or strained during operation of the wheelchair.
Operation Information
Invacare products are specifically designed and manufactured for use in conjunction with
Invacare accessories. Accessories designed by other manufacturers have not been tested
by Invacare and are not recommended for use with Invacare products.
DO NOT attempt to lift the wheelchair by any removable (detachable) parts. Lifting by
means of any removable (detachable) parts of a wheelchair may result in injury to the user
or damage to the wheelchair.

SECTION 1—GENERAL GUIDELINES
Part No 1114842 15 2G Tarsys®Powered Seating System
Performance adjustments should only be made by professionals of the healthcare field or
persons fully conversant with this process and the driver's capabilities. Incorrect settings
could cause injury to the driver, bystanders, damage to the chair and to surrounding
property.
After the seating system has been set-up/adjusted, check to make sure that the seating
system performs to the specifications entered during the set-up procedure. If the seating
system does NOT perform to specifications, turn the wheelchair OFF IMMEDIATELY
and re-enter the set-up specifications. Repeat this section until the seating system
performs to specifications. Refer to Reference Documents on page 2.
Avoid storage or use near external flame or combustible products.
DO NOT operate the seating system while on an incline.
DO NOT operate the seating system while the wheelchair is moving.
NEVER operate the wheelchair while in any tilted/reclined/back angle position over 20°
relative to the vertical position. If the drive lock-out does not stop the wheelchair from
operating in a tilt position over 20° relative to the vertical position, DO NOT operate the
wheelchair. The drive lock-out settings MUST be adjusted.
Pinch points may occur when returning the tilted seat to the full upright position. Make
sure the hands and body of both the occupant and attendants/bystanders are clear of all
pinch points before returning the tilted seat to the full upright position.
DO NOT operate tilt seat around children.
DO NOT overtighten hardware attaching to the frame. This could damage the frame
tubing.
ALWAYS keep hands and fingers clear of moving parts to avoid injury.
ALWAYS keep hands and feet out from underneath tilt seat - otherwise serious injury
may result.
When on an incline, NEVER leave an unoccupied wheelchair unattended at any time.
Use only SAC, TRSS, TRCM and TAC actuator controls to activate the tilt/recline
functions*. DO NOT USE any other actuator controls. Such devices may result in excess
heating and cause damage to the actuator and associated cables and could cause a fire,
death, physical injury or property damage. If such devices are used, Invacare shall not be
liable and the limited warranty is void.
*NOTE: Specific actuator controls are noted for each function or combination throughout this
manual.

SECTION 1—GENERAL GUIDELINES
2G Tarsys®Powered Seating System 16 Part No 1114842
Grounding Instructions
DO NOT, under any circumstances, cut or remove the round grounding prong from any
plug used with or for Invacare products. Some devices are equipped with three-prong
(grounding) plugs for protection against possible shock hazards. Where a two-prong wall
receptacle is encountered, it is the personal responsibility and obligation of the customer
to contact a qualified electrician and have the two-prong receptacle replaced with a
properly grounded three-prong wall receptacle in accordance with the National Electrical
Code. If you must use an extension cord, use ONLY a three-wire extension cord having
the same or higher electrical rating as the device being connected. In addition, Invacare
has placed RED/ORANGE warning tags on some equipment. DO NOT remove these tags.

SECTION 2—SAFETY/HANDLING OF WHEELCHAIRS
Part No 1114842 17 2G Tarsys®Powered Seating System
SECTION 2—SAFETY/HANDLING OF
WHEELCHAIRS
Pinch Points
NOTE: For this procedure, refer to FIGURE 2.1.
WARNING
Pinch points may occur when returning the tilted seat to the full upright position.
Make sure the hands and body of both the occupant and attendants/bystanders are
clear of all pinch points before returning the tilted seat to the full upright position.
FIGURE 2.1 Pinch Points
Fully Tilted Seat
Pinch Point
Pinch Points

SECTION 3—EMI INFORMATION
2G Tarsys®Powered Seating System 18 Part No 1114842
SECTION 3—EMI INFORMATION
WARNING
CAUTION: IT IS VERY IMPORTANT THAT YOU READ THIS INFORMATION
REGARDING THE POSSIBLE EFFECTS OF ELECTROMAGNETIC
INTERFERENCE ON YOUR POWERED WHEELCHAIR.
Electromagnetic Interference (EMI) From Radio Wave Sources
Powered wheelchairs and motorized scooters (in this text, both will be referred to
as powered wheelchairs) may be susceptible to electromagnetic interference (EMI),
which is interfering electromagnetic energy (EM) emitted from sources such as
radio stations, TV stations, amateur radio (HAM) transmitters, two way radios, and
cellular phones. The interference (from radio wave sources) can cause the powered
wheelchair to release its brakes, move by itself, or move in unintended directions. It
can also permanently damage the powered wheelchair's control system. The
intensity of the interfering EM energy can be measured in volts per meter (V/m).
Each powered wheelchair can resist EMI up to a certain intensity. This is called its
“immunity level.” The higher the immunity level, the greater the protection. At
this time, current technology is capable of achieving at least a 20 V/m immunity
level, which would provide useful protection from the more common sources of
radiated EMI.
There are a number of sources of relatively intense electromagnetic fields in the
everyday environment. Some of these sources are obvious and easy to avoid.
Others are not apparent and exposure is unavoidable. However, we believe that by
following the warnings listed below, your risk to EMI will be minimized.
The sources of radiated EMI can be broadly classified into three types:
1) Hand-held Portable transceivers (transmitters-receivers with the antenna
mounted directly on the transmitting unit. Examples include: citizens band (CB)
radios, “walkie talkie”, security, fire and police transceivers, cellular telephones,
and other personal communication devices. NOTE: Some cellular telephones
and similar devices transmit signals while they are ON, even when not being
used;
2) Medium-range mobile transceivers, such as those used in police cars, fire trucks,
ambulances and taxis. These usually have the antenna mounted on the outside of
the vehicle; and
3) Long-range transmitters and transceivers, such as commercial broadcast
transmitters (radio and TV broadcast antenna towers) and amateur (HAM)
radios.
NOTE: Other types of hand-held devices, such as cordless phones, laptop computers,
AM/FM radios, TV sets, CD players, cassette players, and small appliances, such as
electric shavers and hair dryers, so far as we know, are not likely to cause EMI problems
to your powered wheelchair.

SECTION 3—EMI INFORMATION
Part No 1114842 19 2G Tarsys®Powered Seating System
WARNING
Powered Wheelchair Electromagnetic Interference (EMI)
Because EM energy rapidly becomes more intense as one moves closer to the
transmitting antenna (source), the EM fields from hand-held radio wave sources
(transceivers) are of special concern. It is possible to unintentionally bring high
levels of EM energy very close to the powered wheelchair's control system while
using these devices. This can affect powered wheelchair movement and braking.
Therefore, the warnings listed below are recommended to prevent possible
interference with the control system of the powered wheelchair.
Electromagnetic interference (EMI) from sources such as radio and TV stations,
amateur radio (HAM) transmitters, two-way radios, and cellular phones can affect
powered wheelchairs and motorized scooters.
FOLLOWING THE WARNINGS LISTED BELOW SHOULD REDUCE THE
CHANCE OF UNINTENDED BRAKE RELEASE OR POWERED WHEELCHAIR
MOVEMENT WHICH COULD RESULT IN SERIOUS INJURY.
1) DO NOT operate hand-held transceivers (transmitters receivers), such as
citizens band (CB) radios, or turn ON personal communication devices, such as
cellular phones, while the powered wheelchair is turned ON;
2) Be aware of nearby transmitters, such as radio or TV stations, and try to avoid
coming close to them;
3) If unintended movement or brake release occurs, turn the powered wheelchair
OFF as soon as it is safe;
4) Be aware that adding accessories or components, or modifying the powered
wheelchair, may make it more susceptible to EMI (NOTE: There is no easy way
to evaluate their effect on the overall immunity of the powered wheelchair); and
5) Report all incidents of unintended movement or brake release to the powered
wheelchair manufacturer, and note whether there is a source of EMI nearby.
Important Information
1) 20 volts per meter (V/m) is a generally achievable and useful immunity level
against EMI (as of May 1994) (the higher the level, the greater the protection);
2) This device has been tested to a radiated immunity level of 20 volts per meter.
3) The immunity level of the product is unknown.
Modification of any kind to the electronics of this wheelchair as manufactured by
Invacare may adversely affect the EMI immunity levels.

SECTION 4—SAFETY INSPECTION/TROUBLESHOOTING
2G Tarsys®Powered Seating System 20 Part No 1114842
SECTION 4—SAFETY
INSPECTION/TROUBLESHOOTING
Safety Inspection Checklist
These adjustments should be made whenever this product is serviced, especially as
part of the initial unit setup. Follow these procedures:
CAUTION
As with any vehicle, the wheels and tires should be checked periodically for cracks
and wear, and should be replaced.
❑Make sure all electrical connections are secure.
❑Check that cables are routed and secured properly to ensure that cables DO NOT
become entangled and damaged during normal operation of seating system.
❑Make sure drive lock-out works properly.
❑Make sure tilt operates smoothly and properly.
❑Make sure recline operates smoothly and properly.
❑Ensure all fasteners are secure on clothing guards.
❑Ensure arms are secure but easy to release.
❑Ensure arm adjustment levers operate and lock securely.
❑Ensure adjustable height arms operate and lock securely.
❑Inspect for rips in upholstery on armrests.
❑Ensure armrest pad sits flush against arm tube.
❑Inspect seat and back cushions for rips or sagging.
❑Inspect hand grips for looseness. If loose, have them replaced by a qualified
technician.
❑Inspect seat positioning strap for any signs of wear. Ensure buckle latches. Verify
hardware that attaches strap to frame is secure and undamaged. Replace if necessary.
❑Check that all labels are present and legible. Replace if necessary.

SECTION 4—SAFETY INSPECTION/TROUBLESHOOTING
Part No 1114842 21 2G Tarsys®Powered Seating System
Post-Service Inspection Checklist
WARNING
NEVER operate the wheelchair while in any tilted/reclined/back angle position over
20° relative to the vertical position. If the drive lock-out does not stop the
wheelchair from operating in a tilt position over 20° relative to the vertical position,
DO NOT operate the wheelchair. The drive lock-out settings MUST be adjusted.
Refer to Reference Documents on page 2.
Cables MUST be secured to the wheelchair frame and/or base with tie-wraps after
servicing is complete. Failure to follow the warnings and instructions below could
result in injury to the users, attendants and/or bystanders and/or damage to the
wheelchair.
Cables MUST be secured so there are no loops of excess cable extending away from
the wheelchair. Bundle all excess cable together and secure with a tie-wrap. It may
also be necessary to secure these bundles to the frame and/or base.
ALWAYS test all wheelchair functions after securing the cables to be sure cables
DO NOT get pinched or crushed during operation of the wheelchair.
The following checklist must be performed after any procedure that requires:
• Removing/installing the seat
• Removing/installing/adjusting the tilt links
• Replacing electronic components
• Replacing actuators
❑Verify all attaching hardware is tightened securely.
❑Make sure drive lock-out engages when the wheelchair is in any tilt/recline/back angle
combination over 20° relative to the vertical position.
❑Cycle system up and down to verify wiring harnesses DO NOT obstruct the path of
the system. If they do, perform one of the following:
• Wires were damaged during inspection - Replace damaged wires.
• Wires were not damaged during inspection - Cut tie-wraps and relocate wires to a
location where they will not become damaged.
❑Tilt Systems - Verify tilt link is properly secured to the frame.
❑Tilt Systems - Ensure there is no interference with the base frame when the system is
fully tilted.
❑With the wheelchair unoccupied, test all system functions to verify proper operation.
❑Verify charger function.
❑Install all shrouds.
❑Make sure linear guides DO NOT bind.

SECTION 4—SAFETY INSPECTION/TROUBLESHOOTING
2G Tarsys®Powered Seating System 22 Part No 1114842
Troubleshooting
NOTE: Refer to Reference Documents on page 2 for complete mechanical and electrical
troubleshooting guides on the base.
NOTE: Refer to the Electronics Manual listed in Reference Documents on page 2 for additional
troubleshooting information and explanation of error codes.
SYMPTOM PROBABLE CAUSE SOLUTIONS
Wheelchair power ON
but does not drive
System tilted or reclined
beyond drive lock-out
angle (20°).
Return to neutral position (upright). Refer to Operating
Powered Seating Systems on page 127.
Seating system not
functioning or working
intermittently.
Low batteries.
Faulty electrical
connection.
Seat has been driven
under a heavy load for an
extended period of time.
Charge batteries.
Check all connections.
Allow time for the electronics to cool down (light duty
use).
Tilt and/or recline
functions DO NOT
respond.
Open motor connection
or bad switch.
Possible programming
error.
E06 or E07
potentiometers
calibration error code.
Blown fuse in auxiliary
power connectors on
wiring harness.
Use the MKIV™remote programmer to check the
Current Status menu.
Verify TRCM/TAC programming.
Recalibrate potentiometers. Refer to the MK5 EX
Electronics Service manual that is listed in Reference
Documents on page 2.
Replace fuse, and possibly wiring harness.
Tilt and/or recline
functions DO NOT stop
at the desired position
(excessive “drift”).
NOTE: It is normal to
have some amount of
“drift”. However it
should not be more
than 5°.
Programming error for
tilt/recline limits.
Bad potentiometers or
potentiometers out of
calibration.
Damaged tilt actuator.
Use the MKIV remote programmer to verify correct
TRCM/TAC programming.
Recalibrate potentiometers or replace. Refer to the MK5
EX Electronics Service manual that is listed in Reference
Documents on page 2, Removing/Installing the Tilt
Potentiometer on page 150, or Removing/Installing the
Recline Potentiometer on page 155.
Replace tilt actuator. Refer to Removing/Installing the Tilt
Actuator on page 131.

SECTION 4—SAFETY INSPECTION/TROUBLESHOOTING
Part No 1114842 23 2G Tarsys®Powered Seating System
Error Code:
E28 - MPJ joystick
or
5 flashes - DPJ™ and
SPJ™-80 joysticks
System tilted or reclined
beyond drive lock-out
angle (20°).
Charger is plugged into
wheelchair.
Bad potentiometers or
out of calibration.
Return to neutral position (upright). Refer to Operating
Powered Seating Systems on page 127.
Unplug charger.
Recalibrate potentiometers or replace. Refer to the MK5
EX Electronics Service manual that is listed in Reference
Documents on page 2, Removing/Installing the Tilt
Potentiometer on page 150, or Removing/Installing the
Recline Potentiometer on page 155.
Programmer does not
work or gives
“communication error”.
System tilted or reclined
beyond drive lock-out
angle (20°).
Return to neutral position (upright). Refer to Operating
Powered Seating Systems on page 127.
Switch response
incorrect.
Programming error or
bad switch.
Use the programmer to verify controller programming.
Save the proper standard program to reset switch
functions.
Drive lockout does not
engage.
Programming error.
Bad potentiometers or
out of calibration.
Check drive lockout settings using the programmer.
Recalibrate potentiometers or replace. Refer to the MK5
EX Electronics Service manual that is listed in Reference
Documents on page 2, Removing/Installing the Tilt
Potentiometer on page 150, or Removing/Installing the
Recline Potentiometer on page 155.
Slow motor speeds. Low battery voltage or
programming speed set
too low.
Recharge batteries.
Check seating system controller performance adjustment
settings for actuator speed and acceleration using
programmer.
Motor speed too fast. Programming error. Check seating system controller performance adjustment
settings for speed using programmer.
Seating system functions
respond to switch
commands, but not to
driver control.
Programming error.
Incorrect/malfunctioning
driver control.
Check the performance adjustment menu for the base
and make sure that the tilt/recline adjustment is turned
on in all available drives.
Replace drive control.
Seating system function
will only operate in one
direction.
Bad potentiometers or
out of calibration.
Current Rollback.
Check for physical damage to potentiometers and wiring
and replace if necessary.
Recalibrate potentiometers.
Leave power on, and DO NOT activate seating functions
for at least 3 minutes. Call Invacare Technical Services.
Motor runs then loses
power, then runs again.
Heavy load sensed by
seating system controller.
Leave power on, and DO NOT activate seating functions
for at least 3 minutes. Call Invacare Technical Services.
SYMPTOM PROBABLE CAUSE SOLUTIONS

SECTION 5—INTERFACE HARDWARE
2G Tarsys®Powered Seating System 24 Part No 1114842
SECTION 5—INTERFACE
HARDWARE
WARNING
After ANY adjustments, repair or service and BEFORE use, make sure all attaching
hardware is tightened securely - otherwise injury or damage may occur.
Before adjusting, repairing or servicing the seating system, ALWAYS turn the
wheelchair power OFF, otherwise, injury or damage may result.
Pinch points exist between seat and base frames. Use caution, otherwise injury may
occur.
Repositioning the Seat
About Repositioning the Seat
The seat position MUST be adjusted under the following conditions:
• The seat depth changes.
• The seating system changes so it has both a ventilator-ready battery tray and center
mount footrests.
The mounting location of the seat depends on the seat depth of the seating system and
whether or not both a ventilator-ready battery tray and center mount footrests are
installed. The ventilator battery tray requires a long battery box door. When used in
combination with center mount riggings, the seating system MUST be positioned further
forward for proper clearance.
Repositioning the Seat on 2GR Systems
NOTE: For this procedure, refer to Table 1 - Table 7 on page 26 to page 32.
1. Refer to the tables at the end of this procedure to determine if a seat position
adjustment is needed.
NOTE: The seat adjustment tables are based on the seat depth of the system. Some seat depths share
the same mounting position.
2. Remove the six hex screws, washers and locknuts securing the rear pivot assembly,
spacer bars and seat brackets to the lower interface brackets.
3. Remove the two hex screws and locknuts securing the insides of the seat brackets to
the lower interface brackets.
4. If necessary, remove the four hex screws and locknuts securing the front pivot
assembly to the seat brackets and lower interface brackets.

SECTION 5—INTERFACE HARDWARE
Part No 1114842 25 2G Tarsys®Powered Seating System
NOTE: Not all mounting positions require the front pivot assembly to be secured to the lower
interface brackets. Some mounting positions require that the front pivot assembly be secured to the
seat brackets only. The hex screws securing the front pivot assembly to the seat brackets DO NOT
need to be removed.
5. Adjust the position of the seating system on the lower interface brackets.
6. Using the two hex screws and locknuts removed in STEP 3, secure the insides of the
seat brackets to the lower interface brackets. Torque to 13 ft-lbs ± 20%.
7. Using the hex screws and locknuts removed in STEP 4, secure the front pivot assembly
to the front of the seat brackets and the front of the seat brackets to the lower interface
brackets. Torque to 13 ft-lbs ± 20%.
NOTE: Not all mounting positions require the front pivot assembly to be secured to the lower
interface brackets. Some mounting positions require that the front pivot assembly be secured to the
seat brackets only.
8. Using the six hex screws, washers and locknuts removed in STEP 2, secure the rear
pivot assembly and the spacer bars to the seat brackets and lower interface brackets.
Torque to 75 in-lbs ± 20%.
9. Perform the post-service inspection checklist. Refer to Post-Service Inspection
Checklist on page 21.

SECTION 5—INTERFACE HARDWARE
2G Tarsys®Powered Seating System 26 Part No 1114842
TABLE 1 - 2GR Systems WITHOUT Center Mount Footrests AND
Ventilator-Ready Battery Tray
SEAT
DEPTH
MOUNTING POSITION
16-INCH
17-INCH
NOTE: Torque the hardware as listed below:
• Hex screws or socket screws (securing the rear pivot): 75 in-lbs ± 20%.
• Hex screws (securing the front pivot assembly and front of seat bracket) and shoulder
screw (securing the tilt actuator): 13 ft-lbs ± 20%.
Hex Screws
Rear Pivot
Assembly
Spacer Bar
Seat Bracket
Lower Interface
Bracket
Washer
Locknut
DO NOT Remove -
Exploded for Clarity
Locknuts
Hex Screws
Front Pivot
Assembly

SECTION 5—INTERFACE HARDWARE
Part No 1114842 27 2G Tarsys®Powered Seating System
TABLE 2 - 2GR Systems WITHOUT Center Mount Footrests AND
Ventilator-Ready Battery Tray
SEAT
DEPTH
MOUNTING POSITION
18-INCH
19-INCH
NOTE: Torque the hardware as listed below:
• Hex screws or socket screws (securing the rear pivot): 75 in-lbs ± 20%.
• Hex screws (securing the front pivot assembly and front of seat bracket) and shoulder
screw (securing the tilt actuator): 13 ft-lbs ± 20%.
Hex Screw
Rear Pivot
Assembly
Spacer Bar
Seat Bracket
Lower Interface
Bracket
Washer
Locknut
DO NOT Remove -
Exploded for Clarity
Locknuts
Hex Screws
Front Pivot
Assembly

SECTION 5—INTERFACE HARDWARE
2G Tarsys®Powered Seating System 28 Part No 1114842
TABLE 3 - 2GR Systems WITHOUT Center Mount Footrests AND
Ventilator-Ready Battery Tray
SEAT
DEPTH
MOUNTING POSITION
20-INCH
21-INCH
22-INCH
NOTE: Torque the hardware as listed below:
• Hex screws or socket screws (securing the rear pivot): 75 in-lbs ± 20%.
• Hex screws (securing the front pivot assembly and front of seat bracket) and shoulder
screw (securing the tilt actuator): 13 ft-lbs ± 20%.
Hex Screw
Rear Pivot
Assembly
Spacer Bar
Seat Bracket
Lower Interface
Bracket
Washer
Locknut
DO NOT Remove -
Exploded for Clarity
Locknuts
Hex Screws
Front Pivot
Assembly

SECTION 5—INTERFACE HARDWARE
Part No 1114842 29 2G Tarsys®Powered Seating System
TABLE 4 - 2GR Systems WITH Center Mount Footrests AND
Ventilator-Ready Battery Tray
SEAT
DEPTH
MOUNTING POSITION
16-INCH
NOTE: Torque the hardware as listed below:
• Hex screws or socket screws (securing the rear pivot): 75 in-lbs ± 20%.
• Hex screws (securing the front pivot assembly and front of seat bracket) and shoulder
screw (securing the tilt actuator): 13 ft-lbs ± 20%.
Hex Screw
Rear Pivot
Assembly
Spacer Bar
Seat Bracket
Lower Interface
Bracket
Washer
Locknut
DO NOT Remove -
Exploded for Clarity
Locknuts
Hex Screws
Front Pivot Assembly

SECTION 5—INTERFACE HARDWARE
2G Tarsys®Powered Seating System 30 Part No 1114842
TABLE 5 - 2GR Systems WITH Center Mount Footrests AND
Ventilator-Ready Battery Tray
SEAT
DEPTH
MOUNTING POSITION
17-INCH
18-INCH
19-INCH
NOTE: Torque the hardware as listed below:
• Hex screws or socket screws (securing the rear pivot): 75 in-lbs ± 20%.
• Hex screws (securing the front pivot assembly and front of seat bracket) and shoulder
screw (securing the tilt actuator): 13 ft-lbs ± 20%.
Hex Screw
Rear Pivot
Assembly
Spacer Bar
Seat Bracket
Lower Interface
Bracket
Washer
Locknut
DO NOT Remove -
Exploded for Clarity
Locknuts
Hex Screws
Front Pivot Assembly

SECTION 5—INTERFACE HARDWARE
Part No 1114842 31 2G Tarsys®Powered Seating System
TABLE 6 - 2GR Systems WITH Center Mount Footrests AND
Ventilator-Ready Battery Tray
SEAT
DEPTH
MOUNTING POSITION
20-INCH
NOTE: Torque the hardware as listed below:
• Hex screws or socket screws (securing the rear pivot): 75 in-lbs ± 20%.
• Hex screws (securing the front pivot assembly and front of seat bracket) and shoulder
screw (securing the tilt actuator): 13 ft-lbs ± 20%.
Hex Screw
Rear Pivot
Assembly
Spacer Bar
Seat Bracket
Lower Interface
Bracket
Washer
Locknut
DO NOT Remove -
Exploded for Clarity
Locknuts
Hex Screws
Front Pivot
Assembly

SECTION 5—INTERFACE HARDWARE
2G Tarsys®Powered Seating System 32 Part No 1114842
TABLE 7 - 2GR Systems WITH Center Mount Footrests AND
Ventilator-Ready Battery Tray
SEAT
DEPTH
MOUNTING POSITION
21-INCH
22-INCH
NOTE: Torque the hardware as listed below:
• Hex screws or socket screws (securing the rear pivot): 75 in-lbs ± 20%.
• Hex screws (securing the front pivot assembly and front of seat bracket) and shoulder
screw (securing the tilt actuator): 13 ft-lbs ± 20%.
Hex Screw
Rear Pivot
Assembly
Spacer Bar
Seat Bracket
Lower Interface
Bracket
Washer
Locknut
DO NOT Remove -
Exploded for Clarity
Locknuts
Hex Screws
Front Pivot
Assembly

SECTION 5—INTERFACE HARDWARE
Part No 1114842 33 2G Tarsys®Powered Seating System
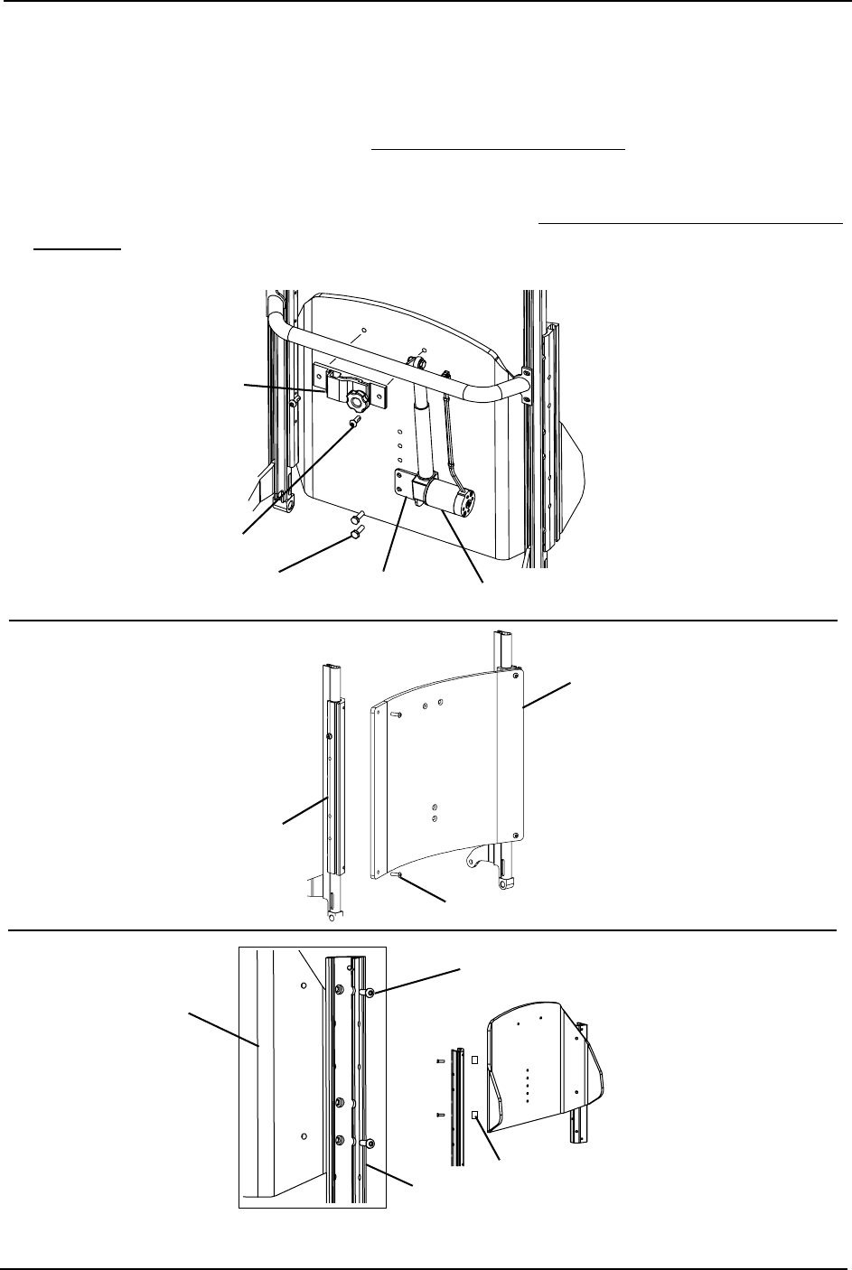
Repositioning the Seat for 2GT and 2GTR Systems
NOTE: For this procedure, refer to FIGURE 5.1 on page 34 and Table 8 - Table 14 on page 35 to
page 41.
1. Refer to the tables at the end of this procedure to determine if a seat position
adjustment is needed.
NOTE: The seat adjustment tables are based on the seat depth of the system. Some seat depths share
the same mounting position.
2. Note the appropriate mounting holes to use to secure the seating system to the lower
interface brackets.
3. Remove the locknut and shoulder bolt to disconnect the front of the tilt actuator from
the front pivot assembly.
4. Remove the two hex screws and locknuts securing the insides of the seat brackets to
the lower interface brackets.
5. If necessary, remove the four hex screws and locknuts securing the front pivot
assembly to the seat brackets and lower interface brackets.
NOTE: Not all mounting positions require the front pivot assembly to be secured to the lower
interface brackets. Some mounting positions require that the front pivot assembly be secured to the
seat brackets only. The hex screws securing the front pivot assembly to the seat brackets DO NOT
need to be removed.
6. Remove the four socket screws, washers and locknuts securing the linear guides, rear
pivot assembly, shims* and seat brackets to the lower interface brackets.
NOTE: To remove the hardware securing the linear guides, it is necessary to slide the rear pivot
assembly back and forth. Use the access holes to remove the socket screws from mounting holes in
the lower portion of the linear guides (FIGURE 5.1).
*NOTE: Shims are not present on seating systems manufactured after 12/18/2005.
7. Adjust the position of the seating system on the lower interface brackets.
8. Using the two hex screws and locknuts removed in STEP 4, secure the insides of the
seat brackets to the lower interface brackets. Torque to 13 ft-lbs ± 20%.
9. Using the four hex screws and locknuts removed in STEP 5, secure the front pivot
assembly to the front of the seat brackets and the front of the seat brackets to the lower
interface brackets. Torque to 13 ft-lbs ± 20%.
NOTE: Not all mounting positions require the front pivot assembly to be secured to the lower
interface brackets. Some mounting positions require that the front pivot assembly be secured to the
seat brackets only.
10. Using the four socket screws, washers and locknuts removed in STEP 6, secure the
linear guides, rear pivot assembly and shims* to the seat brackets and lower interface
brackets. Hand tighten.
NOTE: To secure the linear guides, it is necessary to slide the rear pivot assembly back and forth.
Use the access holes to install the socket screws through mounting holes in the lower portion of the
linear guides (FIGURE 5.1).

SECTION 5—INTERFACE HARDWARE
2G Tarsys®Powered Seating System 34 Part No 1114842
*NOTE: Shims are not present on seating systems manufactured after 12/18/2005.
CAUTION
The linear guides MUST be parallel and the rear pivot assembly MUST move freely
on the linear guides. Otherwise, damage to the seating system will occur during
operation.
11. Adjust the linear guides until they are parallel.
12. Slide the rear pivot assembly forward and back to see if it slides freely on the linear
guides.
13. Perform one of the following:
• Rear Pivot Assembly Slides Freely - Proceed to STEP 14.
• Rear Pivot Assembly Is Hard To Move - Repeat STEP 11 and STEP 12 until the rear
pivot assembly moves freely.
NOTE: It may be necessary to loosen the screws installed in STEP 10 to adjust the linear guides.
14. Torque the socket screws to 75 in-lbs ± 20%.
15. Install the shoulder bolt and locknut to secure the front of the tilt actuator to the front
pivot assembly. Torque to 23 ft-lbs ± 20%.
16. Perform the post-service inspection checklist. Refer to Post-Service Inspection
Checklist on page 21.
FIGURE 5.1 Repositioning the Seat for 2GT and 2GTR Systems - Securing the Linear Guides
Lower Portion of Linear Guide
Rear Pivot Assembly
Socket Screw
Access Hole
Mounting Hole

SECTION 5—INTERFACE HARDWARE
Part No 1114842 35 2G Tarsys®Powered Seating System
TABLE 8 - 2GT and 2GTR Systems WITHOUT Center Mount Footrests AND
Ventilator-Ready Battery Tray
SEAT
DEPTH
MOUNTING POSITION
16-INCH
17-INCH
NOTE: Torque the hardware as listed below:
• Hex screws or socket screws (securing the rear pivot): 75 in-lbs ± 20%.
• Hex screws (securing the front pivot assembly and front of seat bracket) and shoulder
screw (securing the tilt actuator): 13 ft-lbs ± 20%.
Hex Screw
Locknut
Locknuts
(STEP 9)
Hex Screws
Seat Bracket
Lower Interface
Bracket
Front Pivot
Assembly
Shoulder Bolt and Locknut
Tilt Actuator
Socket Screw
Linear Guide*
*NOTE: Linear guides are exploded for clarity. DO NOT disconnect the upper
and lower portions of the linear guides. The linear guide cannot be reassembled.
Shim
Locknuts
Washers
Rear Pivot Assembly

SECTION 5—INTERFACE HARDWARE
2G Tarsys®Powered Seating System 36 Part No 1114842
TABLE 9 - 2GT and 2GTR Systems WITHOUT Center Mount Footrests AND
Ventilator-Ready Battery Tray
SEAT
DEPTH
MOUNTING POSITION
18-INCH
19-INCH
NOTE: Torque the hardware as listed below:
• Hex screws or socket screws (securing the rear pivot): 75 in-lbs ± 20%.
• Hex screws (securing the front pivot assembly and front of seat bracket) and shoulder
screw (securing the tilt actuator): 13 ft-lbs ± 20%.
Hex Screw
Locknut
Locknuts
(STEP 9)
Hex Screws
Seat Bracket
Lower Interface
Bracket
Front Pivot
Assembly
Shoulder Bolt
and Locknut
Tilt Actuator
Socket Screw
Linear Guide*
*NOTE: Linear guides are exploded for clarity. DO NOT disconnect the upper
and lower portions of the linear guides. The linear guide cannot be reassembled.
Shim
Locknuts
Washer
Rear Pivot Assembly

SECTION 5—INTERFACE HARDWARE
Part No 1114842 37 2G Tarsys®Powered Seating System
TABLE 10 - 2GT and 2GTR Systems WITHOUT Center Mount Footrests AND
Ventilator-Ready Battery Tray
SEAT
DEPTH
MOUNTING POSITION
20-INCH
21-INCH
22-INCH
NOTE: Torque the hardware as listed below:
• Hex screws or socket screws (securing the rear pivot): 75 in-lbs ± 20%.
• Hex screws (securing the front pivot assembly and front of seat bracket) and shoulder
screw (securing the tilt actuator): 13 ft-lbs ± 20%.
Hex Screw
Locknut
Locknuts
(STEP 9)
Hex Screws
Seat Bracket
Lower Interface
Bracket
Front Pivot
Assembly
Shoulder Bolt
and Locknut
Tilt Actuator
Socket Screw
Linear Guide*
*NOTE: Linear guides are exploded for clarity. DO NOT disconnect the upper
and lower portions of the linear guides. The linear guide cannot be reassembled.
Shim
Locknuts
Washer
Rear Pivot Assembly

SECTION 5—INTERFACE HARDWARE
2G Tarsys®Powered Seating System 38 Part No 1114842
TABLE 11 - 2GT and 2GTR Systems WITH Center Mount Footrests AND
Ventilator-Ready Battery Tray
SEAT
DEPTH
MOUNTING POSITION
16-INCH
NOTE: Torque the hardware as listed below:
• Hex screws or socket screws (securing the rear pivot): 75 in-lbs ± 20%.
• Hex screws (securing the front pivot assembly and front of seat bracket) and shoulder
screw (securing the tilt actuator): 13 ft-lbs ± 20%.
Hex Screw
Locknut
Locknuts
Hex Screws
Seat Bracket
Lower Interface
Bracket
Front Pivot
Assembly
Shoulder Bolt
and Locknut
Tilt Actuator
Socket Screw
Linear Guide*
*NOTE: Linear guides are exploded for clarity. DO NOT disconnect the upper
and lower portions of the linear guides. The linear guide cannot be reassembled
.
Shim
Locknuts
Washer
Rear Pivot Assembly

SECTION 5—INTERFACE HARDWARE
Part No 1114842 39 2G Tarsys®Powered Seating System
TABLE 12 - 2GT and 2GTR Systems WITH Center Mount Footrests AND
Ventilator-Ready Battery Tray
SEAT
DEPTH
MOUNTING POSITION
17-INCH
18-INCH
19-INCH
NOTE: Torque the hardware as listed below:
• Hex screws or socket screws (securing the rear pivot): 75 in-lbs ± 20%.
• Hex screws (securing the front pivot assembly and front of seat bracket) and shoulder
screw (securing the tilt actuator): 13 ft-lbs ± 20%.
Hex Screw
Locknut
Locknuts
(STEP 9)
Hex Screws
Seat Bracket
Lower Interface
Bracket
Front Pivot
Assembly
Shoulder Bolt
and Locknut
Tilt Actuator
Socket Screw
Linear Guide*
*NOTE: Linear guides are exploded for clarity. DO NOT disconnect the uppe
r
and lower portions of the linear guides. The linear guide cannot be reassemble
d
Shim
Locknuts
Washers
Rear Pivot Assembly

SECTION 5—INTERFACE HARDWARE
2G Tarsys®Powered Seating System 40 Part No 1114842
TABLE 13 - 2GT and 2GTR Systems WITH Center Mount Footrests AND
Ventilator-Ready Battery Tray
SEAT
DEPTH
MOUNTING POSITION
20-INCH
NOTE: Torque the hardware as listed below:
• Hex screws or socket screws (securing the rear pivot): 75 in-lbs ± 20%.
• Hex screws (securing the front pivot assembly and front of seat bracket) and shoulder
screw (securing the tilt actuator): 13 ft-lbs ± 20%.
Hex Screw
Locknut
Locknuts
(STEP 9)
Hex Screws
Seat Bracket
Lower Interface
Bracket
Front Pivot
Assembly
Shoulder Bolt
and Locknut
Tilt Actuator
Socket Screw
Linear Guide*
*NOTE: Linear guides are exploded for clarity. DO NOT disconnect the upper
and lower portions of the linear guides. The linear guide cannot be reassembled.
Shim
Locknuts
Washer
Rear Pivot Assembly

SECTION 5—INTERFACE HARDWARE
Part No 1114842 41 2G Tarsys®Powered Seating System
Removing/Installing the Rear Pivot Assembly
Tilt Only and Tilt/Recline Systems
NOTE: For this procedure, refer to FIGURE 5.2 on page 43.
Removing
1. Remove the seat assembly. Refer to Removing/Installing the Seat on page 75.
TABLE 14 - 2GT and 2GTR Systems WITH Center Mount Footrests AND
Ventilator-Ready Battery Tray
SEAT
DEPTH
MOUNTING POSITION
21-INCH
22-INCH
NOTE: Torque the hardware as listed below:
• Hex screws or socket screws (securing the rear pivot): 75 in-lbs ± 20%.
• Hex screws (securing the front pivot assembly and front of seat bracket) and shoulder
screw (securing the tilt actuator): 13 ft-lbs ± 20%.
Hex Screw
Locknut
Locknuts
(STEP 9)
Hex Screws
Seat Bracket
Lower Interface
Bracket
Front Pivot
Assembly
Shoulder Bolt
and Locknut
Tilt Actuator
Socket Screw
Linear Guide*
*NOTE: Linear guides are exploded for clarity. DO NOT disconnect the upper
and lower portions of the linear guides. The linear guide cannot be reassembled.
Shim
Locknuts
Washer
Rear Pivot Assembly

SECTION 5—INTERFACE HARDWARE
2G Tarsys®Powered Seating System 42 Part No 1114842
2. Remove the shoulder bolt, two bushings and locknut securing the rear of the tilt
actuator to the rear pivot assembly.
3. Slide the rear pivot assembly forward.
4. Align the rear access holes with the rear two socket screws securing the rear of the
lower portion of the linear guides to the seat bracket.
NOTE: If necessary, remove the batteries and turn the wheelchair on its side to check the alignment
of the hardware with the access hole.
5. Remove the two socket screws, washers and locknuts securing the rear of the lower
portion of the linear guides to the seat bracket.
6. Slide the rear pivot assembly backward.
7. Align the rear access holes with the rear two socket screws securing the upper portion
of the linear guides and clamp bars to the rear pivot assembly.
8. Remove the two socket screws securing the upper portion of the linear guides and
clamp bars to the rear pivot assembly.
9. Slide the rear pivot assembly forward.
10. Align the access holes revealed after performing STEP 6 with the front two socket
screws securing the upper portion of the linear guides and clamp bars to the rear pivot
assembly.
11. Repeat STEPS 9 and 10 for the remaining two socket screws securing the upper
portion of the linear guides and clamp bars to the rear pivot assembly.
12. Remove the clamp bars and rear pivot assembly from the wheelchair.
Installing
1. Reverse STEP 7 to STEP 12 in Removing to install the rear pivot onto the linear guides.
Torque socket screws to 75 in-lbs + 20%.
2. Reverse STEP 3 to STEP 6 in Removing to install the linear guides onto the seat
bracket. Hand tighten the two socket screws securing the linear guides to the seat
brackets.
CAUTION
The linear guides MUST be parallel and the rear pivot assembly MUST move freely
on the linear guides. Otherwise, damage to the seating system will occur during
operation.
3. Adjust the linear guides until they are parallel.
4. Slide the rear pivot assembly forward and back to see if it slides freely on the linear
guides.
5. Perform one of the following:
• Rear Pivot Assembly Slides Freely - Proceed to STEP 6.

SECTION 5—INTERFACE HARDWARE
Part No 1114842 43 2G Tarsys®Powered Seating System
• Rear Pivot Assembly Is Hard To Move - Repeat STEP 3 and STEP 4 until the rear
pivot assembly moves freely.
NOTE: It may be necessary to loosen the socket screws to adjust the linear guides.
6. Torque the socket screws to 75 in-lbs ± 20%.
7. Secure the rear of the tilt actuator to the rear pivot assembly using the shoulder bolt,
two bushings and the locknut. Torque to 23 ft-lbs ± 20%.
8. Install the seat assembly. Refer to Removing/Installing the Seat on page 75.
FIGURE 5.2 Removing/Installing the Rear Pivot Assembly - Tilt Only and Tilt/Recline Systems
Locknut
NOTE: Front of tilt actuator shown disassembled
for clarity only. There is no need to remove the
hardware securing the front of the tilt actuator for
this procedure.
Bushings Tilt Actuator
Shoulder Bolt
Clamp Bar
Rear Pivot Assembly
Upper Portion of
Linear Guide
Lower Portion of
Linear Guide
Socket Screw
Access Hole
Seat Bracket

SECTION 5—INTERFACE HARDWARE
2G Tarsys®Powered Seating System 44 Part No 1114842
Recline Only Systems
NOTE: For this procedure, refer to FIGURE 5.3.
Removing
1. Remove the seat assembly. Refer to Removing/Installing the Seat on page 75.
2. Note the mounting location of the six hex screws, washers and locknuts securing the
rear pivot assembly to the spacer bars, seat brackets and lower interface brackets.
3. Remove the six hex screws, washers and locknuts securing the rear pivot assembly to
the spacer bars, seat brackets and lower interface brackets.
4. Remove the rear pivot assembly from the wheelchair.
Installing
1. Align the rear pivot assembly, spacer bars, seat brackets and lower interface brackets.
2. Using the six hex screws, washers and locknuts, secure the rear pivot assembly to the
spacer bars, seat brackets and lower interface brackets in the locations noted in STEP
2 of Removing on page 44. Torque to 75 in-lbs ± 20%.
3. Install the seat assembly. Refer to Removing/Installing the Seat on page 75.
FIGURE 5.3 Removing/Installing the Rear Pivot Assembly
NOTE: Only one seat
adjustment position shown.
All seat adjustment positions
remove/install in the same
way.
Locknuts
Lower Interface Bracket
Washer
Seat
Bracket
Spacer Bar
Rear Pivot Assembly
Hex Screw

SECTION 5—INTERFACE HARDWARE
Part No 1114842 45 2G Tarsys®Powered Seating System
Removing/Installing the Front Pivot Assembly
NOTE: For this procedure, refer to FIGURE 5.4 on page 46.
Removing
1. Remove the seat assembly. Refer to Removing/Installing the Seat on page 75.
2. Tilt Only and Tilt/Recline Systems - Remove the shoulder bolt and locknut securing
the front of the tilt actuator to the front pivot assembly.
3. Note the mounting location of the four hex screws and locknuts securing the front
pivot assembly to the seat brackets.
4. Remove the four hex screws and locknut securing the front pivot assembly to the seat
brackets.
5. Remove the front pivot assembly from the seat brackets.
Installing
1. Align the front pivot assembly with the seat brackets.
2. Secure the front pivot assembly to the seat brackets in the location noted in STEP 3 of
Removing on page 45. Torque to 13 ft-lbs ± 20%.
3. Tilt Only and Tilt/Recline Systems - Secure the front of the tilt actuator to the front
pivot assembly using the shoulder bolt and the locknut. Torque to 23 ft-lbs ± 20%.
4. Install the seat assembly. Refer to Removing/Installing the Seat on page 75.

SECTION 5—INTERFACE HARDWARE
2G Tarsys®Powered Seating System 46 Part No 1114842
FIGURE 5.4 Removing/Installing the Front Pivot Assembly
Removing/Installing the Linear Guides
NOTE: For this procedure, refer to FIGURE 5.5 on page 48.
NOTE: This procedure applies to Tilt Only and Tilt/Recline Systems Only.
Removing
1. Remove the seat assembly from the rear pivot assembly. Refer to Removing/Installing
the Seat on page 75.
2. Remove the shoulder bolt, two bushings and locknut securing the rear of the tilt
actuator to the rear pivot assembly.
3. Slide the rear pivot assembly forward.
4. Align the rear access holes with the rear two socket screws securing the rear of the
lower portion of the linear guides to the seat bracket.
NOTE: If necessary, remove the batteries and turn the wheelchair on its side to check the alignment
of the hardware with the access hole.
5. Remove the two socket screws, washers and locknuts securing the rear of the lower
portion of the linear guides to the seat bracket.
6. Slide the rear pivot assembly backward.
Locknuts
Tilt Actuator* Shoulder Bolt*
Front Pivot Assembly
Seat
Bracket
*NOTE: These
items are on tilt
systems only.
Hex Screws
Locknut*

SECTION 5—INTERFACE HARDWARE
Part No 1114842 47 2G Tarsys®Powered Seating System
7. Remove the two socket screws, washers and locknuts securing the front of the lower
portion of the linear guides to the seat bracket.
8. Slide the rear pivot assembly backward.
9. Align the rear access holes with the rear two socket screws securing the upper portion
of the linear guides and clamp bars to the rear pivot assembly.
10. Remove the two socket screws securing the upper portion of the linear guides and
clamp bars to the rear pivot assembly.
11. Slide the rear pivot assembly forward.
12. Align the access holes revealed after performing STEP 6 with the front two socket
screws securing the upper portion of the linear guides and clamp bars to the rear pivot
assembly.
13. Repeat STEP 10 and STEP 11 for the remaining two socket screws securing the upper
portion of the linear guides and clamp bars to the rear pivot assembly.
NOTE: Retain the clamp bars for reinstallation.
Installing
1. Reverse STEP 8 to STEP 13 in Removing to install the rear pivot onto the linear guides.
Torque socket screws to 75 in-lbs ± 20%.
2. Reverse STEP 3 to STEP 7 in Removing to install the linear guides onto the seat
bracket. Hand tighten the two socket screws securing the linear guides to the seat
brackets.
CAUTION
The linear guides MUST be parallel and the rear pivot assembly MUST move freely
on the linear guides. Otherwise, damage to the seating system will occur during
operation.
3. Adjust the linear guides until they are parallel.
4. Slide the rear pivot assembly forward and back to see if it slides freely on the linear
guides.
5. Perform one of the following:
• Rear Pivot Assembly Slides Freely - Proceed to STEP 6.
• Rear Pivot Assembly Is Hard To Move - Repeat STEP 3 and STEP 4 until the rear
pivot assembly moves freely.
NOTE: It may be necessary to loosen the socket screws to adjust the linear guides.
6. Torque the socket screws to 75 in-lbs ± 20%.
7. Secure the rear of the tilt actuator to the rear pivot assembly using the shoulder bolt,
two bushings and the locknut. Torque to 23 ft-lbs ± 20%.
8. Install the seat assembly. Refer to Removing/Installing the Seat on page 75.

SECTION 5—INTERFACE HARDWARE
2G Tarsys®Powered Seating System 48 Part No 1114842
FIGURE 5.5 Removing/Installing the Linear Guides
Removing/Installing the Seat Brackets
Tilt Only and Tilt/Recline Systems
NOTE: For this procedure, refer to FIGURE 5.6 on page 50.
Removing
1. Remove the seat assembly from the rear pivot assembly. Refer to Removing/Installing
the Seat on page 75.
2. Note the mounting location of the four hex screws and locknuts securing the front
pivot assembly to the seat brackets.
Locknut
NOTE: Front of tilt actuator
shown disassembled for clarity
only. There is no need to remove
the hardware securing the front of
the tilt actuator for this procedure.
Bushings Tilt Actuator
Shoulder Bolt
Clamp Bar
Rear Pivot Assembly
Upper Portion of
Linear Guide
Lower Portion of
Linear Guide
Socket Screw
Seat Bracket
Lower Interface Bracket
Shim
Washer
Locknut
Access Hole

SECTION 5—INTERFACE HARDWARE
Part No 1114842 49 2G Tarsys®Powered Seating System
3. Remove the four hex screws and locknuts securing the front pivot assembly to the seat
brackets.
4. Remove the front pivot assembly from the seat brackets.
5. Note the mounting location of the hex screw and locknut securing the inside of the
seat bracket to the lower interface bracket.
6. Remove the hex screw and locknut securing the inside of the seat bracket to the lower
interface bracket.
7. Slide the rear pivot assembly forward.
8. Note the mounting location of the two socket screws, washers and locknuts securing
the lower portion of the linear guide to the shim*, seat bracket and lower interface
bracket.
*NOTE: Shims are not present on seating systems manufactured after 12/18/2005.
9. Align the rear access holes with the rear two socket screws securing the rear of the
lower portion of the linear guides to the seat bracket.
NOTE: If necessary, remove the batteries and turn the wheelchair on its side to check the alignment
of the hardware with the access hole.
10. Remove the two socket screws, washers and locknuts securing the rear of the lower
portion of the linear guides to the seat bracket.
11. Slide the rear pivot assembly backward.
12. Remove the two socket screws, washers and locknuts securing the front of the lower
portion of the linear guides to the seat bracket.
13. Remove the seat bracket from the lower interface bracket.
14. Repeat STEP 8 to STEP 13 for the opposite side if desired.
Installing
1. Using the hex screws and locknuts, secure the insides of the seat brackets to the lower
interface brackets in the location noted in STEP 5 of Removing. Torque to 13 ft-lbs ±
20%.
2. Reverse STEP 7 to STEP 12 in Removing to install the linear guides onto the seat
bracket. Hand tighten the two socket screws securing the linear guides to the seat
brackets.
CAUTION
The linear guides MUST be parallel and the rear pivot assembly MUST move freely
on the linear guides. Otherwise, damage to the seating system will occur during
operation.
3. Adjust the linear guides until they are parallel.
4. Slide the rear pivot assembly forward and back to see if it slides freely on the linear
guides.

SECTION 5—INTERFACE HARDWARE
2G Tarsys®Powered Seating System 50 Part No 1114842
5. Perform one of the following:
• If the rear pivot assembly slide freely, proceed to STEP 6.
• If the rear pivot assembly is hard to move, repeat STEP 3 and STEP 4 until the rear
pivot assembly moves freely.
NOTE: It may be necessary to loosen the socket screws to adjust the linear guides.
6. Torque the socket screws to 75 in-lbs ± 20%.
7. Align the front pivot assembly with the seat brackets.
8. Secure the front pivot assembly to the seat brackets in the location noted in STEP 1 of
Removing. Torque to 13 ft-lbs ± 20%.
9. Secure the front of the tilt actuator to the front pivot assembly using the shoulder
screw and locknut. Torque to 23 ft-lbs ± 20%.
10. Install the seat assembly. Refer to Removing/Installing the Seat on page 75.
FIGURE 5.6 Removing/Installing the Seat Brackets - Tilt Only and Tilt/Recline Systems
Locknuts
Tilt Actuator
Socket
Screw
Lower Portion of
Linear Guide
Socket Screw
Locknut
Washer
Hex Screws
Rear Pivot
Assembly
Seat Bracket
Shim
Lower
Interface
Bracket

SECTION 5—INTERFACE HARDWARE
Part No 1114842 51 2G Tarsys®Powered Seating System
Recline Only Systems
NOTE: For this procedure, refer to FIGURE 5.7 on page 52.
Removing
1. Remove the seat assembly from the rear pivot assembly. Refer to Removing/Installing
the Seat on page 75.
2. Note the mounting location of the four hex screws and locknuts securing the front
pivot assembly to the seat brackets.
3. Remove the four hex screws and locknuts securing the front pivot assembly to the seat
brackets.
4. Remove the front pivot assembly from the seat brackets.
5. Note the mounting location of the six socket screws, washers and locknuts securing
the rear pivot assembly to the spacer bars, seat brackets and lower interface brackets.
6. Remove the six socket screws, washers and locknuts securing the rear pivot assembly
to the spacer bars, seat brackets and lower interface brackets.
7. Remove the rear pivot assembly from the wheelchair.
8. Note the mounting location of the hex screw and locknut securing the inside of the
seat bracket to the lower interface bracket.
9. Remove the hex screw and locknut securing the inside of the seat bracket to the lower
interface bracket.
10. Remove the seat bracket from the lower interface bracket.
11. Repeat STEP 8 to STEP 10 for the opposite side if desired.
Installing
1. Using the hex screw and locknut, secure the inside of the seat bracket to the lower
interface bracket in the location noted in STEP 8 of Removing. Torque to 13 ft-lbs ±
20%.
2. Repeat STEP 1 for the opposite side if necessary.
3. Align the front pivot assembly with the seat brackets.
4. Secure the front pivot assembly to the seat brackets in the location noted in STEP 2 of
Removing above. Torque to 13 ft-lbs ± 20%.
5. Using the six hex screws, washers and locknuts, secure the rear pivot assembly to the
spacer bars, seat brackets and lower interface brackets in the location noted in STEP 5
of removing above. Torque to 75 in-lbs ± 20%.
6. Install the seat assembly. Refer to Removing/Installing the Seat on page 75.

SECTION 5—INTERFACE HARDWARE
2G Tarsys®Powered Seating System 52 Part No 1114842
FIGURE 5.7 Removing/Installing the Seat Brackets - Recline Only Systems
Removing/Installing the Lower Interface Brackets
NOTE: For this procedure, refer to FIGURE 5.8 on page 53.
Removing
1. Remove the seat assembly from the rear pivot assembly. Refer to Removing/Installing
the Seat on page 75.
2. Remove both seat brackets. Refer to Removing/Installing the Seat Brackets on page 48.
3. Remove the six button screws, washers and locknuts securing the lower interface
brackets to the battery box.
Installing
1. Secure the lower interface brackets to the battery box using the six button screws,
washers and locknuts. Torque to 13 ft-lbs ± 20%.
2. Install both seat brackets. Refer to Removing/Installing the Seat Brackets on page 48.
3. Install the seat assembly onto the rear pivot assembly. Refer to Removing/Installing
the Seat on page 75.
Locknuts
Lower Interface Bracket
Washer
Seat Bracket
Spacer
Bar
Rear Pivot
Assembly
Hex
Screw
Locknuts
Hex Screws
Front Pivot
Assembly

SECTION 6—SEAT ADJUSTMENTS
2G Tarsys®Powered Seating System 54 Part No 1114842
SECTION 6—SEAT ADJUSTMENTS
WARNING
After ANY adjustments, repair or service and BEFORE use, make sure all attaching
hardware is tightened securely - otherwise injury or damage may occur.
Before adjusting, repairing or servicing the seating system, ALWAYS turn the
wheelchair power OFF, otherwise, injury or damage may result.
Pinch points exist between seat and base frames. Use caution, otherwise injury may
occur.
Replacing Seat Positioning Strap
NOTE: For this procedure, refer to
FIGURE 6.1.
1. Remove the two hex bolts, washers and
locknuts that secure the two halves of
the seat positioning strap to the seat
frame.
2. Remove the existing seat positioning
strap from the seat frame.
3. Position the new seat positioning strap
on the seat frame as shown.
4. Reinstall the hex bolt, washer and
locknut as shown. Tighten securely.
FIGURE 6.1 Replacing Seat Positioning
Strap
Removing/Installing Seat Pan
NOTE: For this procedure, refer to FIGURE 6.2 on page 55.
Removing
1. Remove the seat cushion from the seat pan.
2. Remove the five hex bolts, locknuts, coved washer and spacers that secure the seat pan
to the seat frame.
Installing
1. Position the new/existing seat pan on the seat frame, aligning the mounting holes of
the seat pan and the mounting holes of the seat frame.
Seat
Positioning
Strap
Strap
Mounts
Here
Locknut
Spacer
Hex
Bolt
Seat Frame

SECTION 6—SEAT ADJUSTMENTS
Part No 1114842 55 2G Tarsys®Powered Seating System
2. Reinstall the five hex bolts, locknuts, coved washer and spacers that secure the seat
pan to the seat frame. Torque to 75 in-lbs ± 20%.
3. Remove the protective strips from the new seat pan and reinstall the seat cushion onto
the seat pan.
FIGURE 6.2 Removing/Installing Seat Pan
Adjusting Seat Width
Preparing to Adjust Seat Width
NOTE: Reverse these steps after adjusting seat width and before returning the wheelchair to the user.
1. Tilt backward 5 to 10 degrees and/or recline backward 5 to 10 degrees in order to
enable hardware removal.
2. Remove the telescoping front rigging supports. Refer to Adjusting/Replacing
Telescoping Front Rigging Supports on page 73.
3. Remove the joystick(s). Refer to Removing/Installing Joystick(s) on page 149.
4. Remove the arms. Refer to Arms on page 114.
5. Remove the existing spreader bar. Refer to Removing/Installing Spreader Bar on page 87.
6. Remove the existing back pan. Refer to Removing/Installing Back Pan on page 85.
7. Remove the side shrouds. Refer to Removing/Installing Side Shrouds on page 100.
8. Remove the existing seat pan. Refer to Removing/Installing Seat Pan on page 54.
Hex
Bolts
Seat Pan
Coved
Washer
Seat Frame
Spacers
Locknut
Locknut

SECTION 6—SEAT ADJUSTMENTS
2G Tarsys®Powered Seating System 56 Part No 1114842
Tilt-Only Seating Systems
NOTE: For this procedure, refer to FIGURE 6.3.
1. Remove the four hex bolts, coved washers, spacers and locknuts that secure the side
frames to the center seat frame.
WARNING
Both side frames MUST be adjusted to the same mounting hole position to
maintain an even weight distribution of user and seat frame over the base frame. If
weight is not distributed evenly, injury to the assistant and/or user and damage to
the wheelchair may occur.
2. Slide the side frames in and/or out to the desired seat width. Make sure both side
frames are at the same seat width. Refer to Detail “A” in FIGURE 6.3.
3. Reinstall the four hex bolts, coved washers, spacers and locknuts that secure the side
frames to the center seat frame. Torque to 75 in-lbs ± 20%.
4. Reassemble the wheelchair by reversing the instructions in Preparing to Adjust Seat
Width on page 55.
FIGURE 6.3 Adjusting Seat Width - Tilt-Only Seating Systems
16 17 18 19 20 22
21
Spacer
Coved Washer Hex
Bolts
Side Frame
Locknut
Center Seat Frame
DETAIL “A”
Seat Width Mounting
Hole Positions
NOTE: One side frame shown
for clarity. Opposite side frame
has the same mounting hole
pattern.

SECTION 6—SEAT ADJUSTMENTS
Part No 1114842 57 2G Tarsys®Powered Seating System
Recline Only or Tilt/Recline Seating Systems
CAUTION
If the crossbeam has to be changed for the desired seat width, the wheelchair MUST
be returned to Invacare. Otherwise, damage to the recline function may occur.
NOTE: For this procedure, refer to FIGURE 6.4 on page 58.
1. Measure across the side frames to determine the current seat width.
2. Determine the desired seat width.
3. Refer to the following chart and determine if the existing crossbeam needs to be
replaced.
• Example #1: If the current seat width is 16 inches and desired seat width is 18
inches, a new crossbeam of 18–19-inches is required.
• Example #2: If the current seat width is 20 inches and the desired seat width is 21
inches, a new crossbeam is NOT required.
4. Perform one of the following:
• New Crossbeam Required - Return seating system to Invacare for adjustment.
• New Crossbeam NOT Required - Proceed to STEP 5.
5. Remove the four hex bolts, coved washers, spacers and locknuts that secure the side
frames to the center seat frame.
6. Loosen the two socket bolts, washers and locknuts that secure the two connector
brackets to the crossbeam.
7. Slide the side frames to the desired seat width. Make sure both side frames are at the
same seat width. Refer to Detail “A” of FIGURE 6.4.
8. Tighten the two socket bolts, washers and locknuts that secure the two connector
brackets to the crossbeam.
9. Reinstall the four hex bolts, coved washers, spacers and locknuts that secure the side
frames to the center seat frame. Torque to 75 in-lbs ± 20%.
10. Reassemble the wheelchair by reversing the instructions in Preparing to Adjust Seat
Width on page 55.
SEAT WIDTH CROSSBEAM REQUIRED
16 or 17 inches 16-17-inch
18 or 19 inches 18-19-inch
20 or 21 inches 20-21-inch
22 inches 22-inch

SECTION 6—SEAT ADJUSTMENTS
2G Tarsys®Powered Seating System 58 Part No 1114842
FIGURE 6.4 Adjusting Seat Width - Recline Only or Tilt/Recline Seating Systems
Adjusting Seat Depth
CAUTION
Read and understand About Seat Depth BEFORE changing the seat depth.
Otherwise, damage to the seating system may occur.
About Seat Depth
Seat depths range from 16 to 22 inches in one inch increments.
NOTE: Seat depths are a combination of side frames, center seat frames, seat pans, leg support
tubes (if equipped) and telescoping front rigging supports.
16 17 18 19 20 22
21
Hex Bolt
Coved
Washer
Locknuts
Spacers
Hex Bolts
Coved
Washer
Hex Bolt
Coved
Washer
Locknuts Spacer
Spacer
Locknut
Side Frame
Center Seat
Frame Crossbeam
Socket Bolt
Socket
Bolt
DETAIL “A”
Available Seat Width Adjustments
Seat Width Mounting Hole Positions
Connector Bracket
NOTE: Any other seat
width adjustment
requires a new
crossbeam, and the
wheelchair MUST be
returned to Invacare.

SECTION 6—SEAT ADJUSTMENTS
Part No 1114842 59 2G Tarsys®Powered Seating System
CAUTION
Seating systems with recline MUST be returned to Invacare if the center frame has
to be changed for a particular seat depth. Otherwise, damage to the recline function
could occur.
Side Frames
Side frames are available in four depths: 16, 18, 20 or 22 inches.
The seat depth of the wheelchair can be adjusted up to two inches from the original depth
without changing the side frames. The two additional seat depths per side frame are
available by replacing the seat pan and adjusting (replacing) the leg support tubes (if
equipped) and telescoping front rigging supports.
EXAMPLE:
Center Seat Frames
CAUTION
Seating systems with recline MUST be returned to Invacare if the center frame has
to be changed for a particular seat depth. Otherwise, damage to the recline function
could occur.
There are two center seat frame sizes:
Small - used for 16 and 18-inch deep side frames
Large - used for 20 and 22-inch deep side frames
NOTE: If changing from a 16 or 18-inch deep side frame to a 20 or 22-inch deep side frame (or vice
versa), the center seat frame must be changed.
Leg Support Tubes
For seating systems with mechanical legrests, the leg support tubes are available in two
sizes:
Short - adjusts from 16 to 19-inch seat depths
Long - adjusts from 20 to 22-inch seat depths
NOTE: If changing from any seat depth between and including 16 and 19 inches to any seat depth
between and including 20 and 22 inches (or vice versa), the leg support tube must be changed.
SIDE FRAME AVAILABLE SEAT DEPTHS
16-inch 16, 17 or 18-inch
18-inch 18, 19 or 20-inch
20-inch 20, 21 or 22-inch
22-inch 22-inch

SECTION 6—SEAT ADJUSTMENTS
2G Tarsys®Powered Seating System 60 Part No 1114842
Adjusting Seat Depth
WARNING
To ensure stability, the seat may need repositioning when the seat depth is changed.
Refer to Repositioning the Seat on page 24. Otherwise, injury or damage may
occur.
CAUTION
Seat depth adjustments that require a new center seat frame on Tilt-Only seating
systems are permissible. Seat depth adjustments that require a new center seat
frame on Tilt/Recline or Recline-Only seating systems are NOT permissible, and the
system MUST be returned to Invacare for service. Otherwise, damage to the
recline function may occur.
1. Refer to the following chart to determine the components that are required for a
particular seat depth.
*NOTE: Seating systems with mechanical legrests only.
2. To replace an applicable component, refer to the following list of procedures:
3. It may be necessary to reposition the seat. Refer to Repositioning the Seat on page 24
and to determine if this adjustment is necessary.
SEAT DEPTH (INCHES)
COMPONENT 16 17 18 19
20
OPTION 1
20
OPTION 2 21 22
Side Frame
(inches) 16 16 16 or 18 18 18 20 20 20 or 22
Center Seat Frame Small Small Small Small Small Small Large Large
Seat Pan
(inches) 16 17 18 19 20 20 21 22
*Leg Support Tube Short Short Short Short Short Long Long Long
COMPONENT PROCEDURE
Side Frame Removing/Installing Side Frames on page 66
Center Seat Frame Removing/Installing Center Seat Frame on page 70
Seat Pan Removing/Installing Seat Pan on page 54
Leg Support Tube Adjusting Leg Support Tubes on page 73

SECTION 6—SEAT ADJUSTMENTS
Part No 1114842 61 2G Tarsys®Powered Seating System
Adjusting Seat Angle
Tilt-Only and Tilt/Recline Seating Systems
NOTE: For this procedure, refer to FIGURE 6.5 on page 61.
1. To gain access to the mounting hardware, tilt seating system back to 45 degrees.
2. Remove the batteries.
3. Remove the shoulder bolt, spacer and locknut that secure the angle block to the front
pivot assembly.
4. Secure the angle blocks and links to the front pivot assembly with the shoulder bolts,
spacers and locknuts in one of the positions shown in FIGURE 6.5. Securely tighten.
5. Adjust the tilt potentiometer. Refer to the electronics manual listed in Reference
Documents on page 2.
6. Perform the post-service inspection. Refer to Post-Service Inspection Checklist on
page 21.
FIGURE 6.5 Adjusting Seat Angle - Tilt-Only and Tilt/Recline Seating Systems
Recline-Only Seating Systems
Preparing to Adjust the Seat Angle
NOTE: For this procedure, refer to FIGURE 6.6 on page 62.
1. Visually inspect the seating system for either 10°/15° recline links or 0°/5° recline links.
2. Perform one of the following:
Orientation of Angle Block
Shown is for 5° Seat Angle
Locknuts
Spacer
Spacer
Link
Shoulder Bolt
Mounting Hole for 0°
Seat Angle
Use this Mounting
Hole for 0° Seat
Front Pivot Assembly
Orientation of Angle Block
Shown is for 0° Seat Angle
Shoulder Bolt
Link
Mounting Hole
for 5° Recline
Use this Mounting
Hole for 5° Seat
Angle

SECTION 6—SEAT ADJUSTMENTS
2G Tarsys®Powered Seating System 62 Part No 1114842
• Use Existing Hardware to Adjust the Seat Angle Between 10° and 15° or Between
0° and 5° - Refer to Changing Seat Angle from 10° to 15° (or Vice Versa) on page 62
or Changing Seat Angle from 0° to 5° (or Vice Versa) on page 64.
• Change Hardware to Adjust the Seat Angle From 10°/15° to 0°/5° (or Vice Versa) -
Refer to Replacing Recline Links on page 65.
FIGURE 6.6 Recline-Only Seating Systems - Preparing to Adjust the Seat Angle
Changing Seat Angle from 10° to 15° (or Vice Versa)
NOTE: For this procedure, refer to FIGURE 6.7 on page 63.
1. Make sure the wheelchair is on a level surface.
2. Remove the batteries.
3. Remove the seat pan. Refer to Removing/Installing Seat Pan on page 54.
4. Remove the retaining ring and washer that secure the 10°/15° recline link to the pin of
the seat frame. Refer to Detail “A”. Discard the retaining ring.
@
Rear of
Wheelchair
General
Area of
Inspection
Front of
Wheelchair
10°/15° Recline Link 0°/5° Recline Link
Mounting
Hardware
10°/15° Recline
Link
Mounting
Hardware
0°/5° Recline Link

SECTION 6—SEAT ADJUSTMENTS
Part No 1114842 63 2G Tarsys®Powered Seating System
5. Remove the shoulder bolt and locknut that secure the 10°/15° recline link to the front
pivot assembly. Refer to Detail “B”.
6. Remove the recline link.
7. Reposition the recline link to the seat frame pin through the other mounting hole.
Refer to Detail “A” in FIGURE 6.7.
8. Secure the 10°/15° recline link to the seat frame pin with the washer and a new
retaining ring.
CAUTION
Be sure to use a new retaining ring that is not bent or damaged.
NOTE: When completed, verify that the retaining ring is fully seated in the groove in the pin.
9. Insert the existing shoulder bolt through the other mounting hole in the front pivot
assembly and then through the pivot hole in the recline link. Refer to Detail “B” in
FIGURE 6.7.
10. Securely tighten the locknut.
11. Repeat STEPS 4–10 for the opposite side.
12. Perform the post-service inspection. Refer to Post-Service Inspection Checklist on
page 21.
FIGURE 6.7 Changing Seat Angle from 10° to 15° (or Vice Versa)
Mounting Hole for
10° Seat Angle
Mounting Hole for
15° Seat Angle
Washer
*Retaining
Ring
*NOTE: Use
new retaining
ring.
DETAIL “A”
NOTE: Drawing shows attachment for 15°
seat angle as an example.
Pin
10° and 15°
Recline Link
Shoulder
Bolt
Front Pivot
Assembly
Locknut
Mounting Hole for
10° Seat Angle
Mounting Hole for
15° Seat Angle
DETAIL “B”
NOTE: Drawing shows attachment
for 15° seat angle as an example.

SECTION 6—SEAT ADJUSTMENTS
2G Tarsys®Powered Seating System 64 Part No 1114842
Changing Seat Angle from 0° to 5° (or Vice Versa)
NOTE: For this procedure, refer to FIGURE 6.8 on page 64.
1. Make sure the wheelchair is on a level surface.
2. Remove the batteries. Refer to Reference Documents on page 2.
3. Remove the seat pan. Refer to Removing/Installing Seat Pan on page 54.
4. Remove the retaining ring and washer that secure the 0°/5° recline link to the pin of the
seat frame. Discard the retaining ring.
5. Remove the shoulder bolt and locknut that secure the 0°/5° recline link to the front
pivot assembly.
6. Remove the recline link.
7. Reposition the recline link to the seat frame pin through the other mounting hole.
Refer to Detail “A” in FIGURE 6.8.
8. Secure the 0°/5° recline link to the seat frame pin with the washer and a new retaining
ring.
CAUTION
Be sure to use a new retaining ring that is not bent or damaged.
NOTE: When completed, verify that the retaining ring is fully seated in the groove in the pin.
9. Insert the existing shoulder bolt through the other mounting hole in the front pivot
assembly and then through the pivot hole in the recline link. Refer to Detail “B” in
FIGURE 6.8.
10. Securely tighten the locknut.
11. Repeat STEPS 4–10 for the opposite side.
12. Perform the post-service inspection. Refer to Post-Service Inspection Checklist on
page 21.
FIGURE 6.8 Changing Seat Angle from 0° to 5° (or Vice Versa)
Mounting Hole
for 5° Recline
*NOTE: Use new retainin
g
rin
g
.
Mounting Hole
for 0° Recline
*Retaining
Ring
Washer Mounting Hole
for 5° Recline
Mounting Hole
for 0° Recline
Front Pivot
Assembly
Locknut
0° and 5°
Recline Link
Shoulder
Bolt
DETAIL “A” DETAIL “B”
NOTE: Drawing shows attachment for
5° recline as an exam
p
le.

SECTION 6—SEAT ADJUSTMENTS
Part No 1114842 65 2G Tarsys®Powered Seating System
Replacing Recline Links
NOTE: For this procedure, refer to FIGURE 6.9 on page 66.
1. Make sure the wheelchair is on a level surface.
2. Remove the batteries.
3. Remove the seat pan. Refer to Removing/Installing Seat Pan on page 54.
4. Remove the retaining ring and washer that secure the recline link to the pin of the seat
frame.
5. Remove the shoulder bolt and locknut that secure the recline link to the front pivot
assembly.
6. Remove the existing recline link.
7. Perform one of the following:
• For 15° recline - Secure the 10°/15° recline link with the washer and a new retaining
ring to the pin in the mounting hole and orientation shown in FIGURE 6.9
(Detail “A”).
• For 10° recline - Secure the 10°/15° recline link with the washer and a new retaining
ring to the pin in the mounting hole and orientation shown in FIGURE 6.9
(Detail “B”).
• For 5° recline - Secure the 0°/5° recline link with the washer and a new retaining
ring to the pin in the mounting hole and orientation shown in FIGURE 6.9
(Detail “C”).
• For 0° recline - Secure the 0°/5° recline link with the washer and a new retaining
ring to the pin in the mounting hole and orientation shown in FIGURE 6.9
(Detail “D”).
CAUTION
Be sure to use a new retaining ring that is not bent or damaged.
NOTE: When completed verify retaining ring is fully seated in the groove in the pin.
8. Secure the recline link to the front pivot assembly with the existing shoulder bolt and
locknut in the mounting hole shown in the respective details of FIGURE 6.9. Securely
tighten.
9. Repeat for opposite side.
10. Install the seat pan. Refer to Removing/Installing Seat Pan on page 54.
11. Install the batteries.

SECTION 6—SEAT ADJUSTMENTS
2G Tarsys®Powered Seating System 66 Part No 1114842
FIGURE 6.9 Replacing Recline Links
Removing/Installing Side Frames
Removing Side Frames
NOTE: For this procedure, refer to FIGURE 6.10 on page 67.
1. Recline backward 5 to 10 degrees and/or tilt backward 5 to 10 degrees in order to
enable hardware removal.
2. Remove the side shrouds. Refer to Removing/Installing Side Shrouds on page 100.
3. Remove the seat pan. Refer to Removing/Installing Seat Pan on page 54.
4. Remove the arms. Refer to Arms on page 114.
5. Remove the back. Refer to Removing/Installing Back Assembly on page 91.
6. Remove the telescoping front rigging supports. Refer to Adjusting/Replacing
Telescoping Front Rigging Supports on page 73.
Mounting Hole
for 10° Recline
Mounting Hole
for 15° Recline
Washer
*Retaining
Ring
*NOTE: Use new retaining ring.
DETAIL A: 10°/15° RECLINE LINK
Mounting Hole
for 10° Recline
Mounting Hole
for 15° Recline
Shoulder
Bolt
Front Pivot
Assembly
Locknut
10° and 15° Recline Link
Mounting Hole for 5° Recline
Mounting Hole
for 0° Recline
Washer
*Retaining
Ring
*NOTE: Use new retaining ring.
DETAIL B: 0°/5° RECLINE LINK
Mounting Hole for 0° Recline
Mounting Hole
for 5° Recline
Shoulder
Bolt
Front Pivot
Assembly
Locknut
0° and 5° Recline Link
Mounting Reclining Link to Center Seat Frame Mounting Reclining Link to Center Seat Frame
Mounting Reclining Link
to Front Pivot Assembly
Mounting Reclining Link
to Front Pivot Assembly

SECTION 6—SEAT ADJUSTMENTS
Part No 1114842 67 2G Tarsys®Powered Seating System
7. Observe the mounting position of the existing side frame to the center seat frame for
proper re-installation.
8. Remove two hex bolts, coved washers, spacers and locknuts that secure one side frame
to the center seat frame.
NOTE: For Tilt/Recline and Recline-Only seating systems, remove the socket screw, washer and
locknut that secure the connecting bracket to the crossbeam.
9. Remove the existing side frame from the center seat frame.
10. Perform STEPS 6-8 for the remaining side frame if necessary.
11. If replacing the side frame, refer to either Preparing Side Frames for Replacement on
page 67.
FIGURE 6.10 Removing Side Frames
Preparing Side Frames for Replacement
Tilt-Only Seating Systems
NOTE: For this procedure, refer to FIGURE 6.11 on page 68.
NOTE: The mounting location of the hex screw on the connecting bracket determines the back
angle of the back assembly.
1. Note the mounting position of the hex screw on the connecting plate to obtain the
same back angle when re-assembling. Refer to Detail “A”.
2. Remove the hex screw and washer that secure the slide block to the connecting
bracket.
3. Remove the two hex screws and washers that secure the slide rod to the side frame.
4. Remove the slide rod, slide block and connecting bracket from the existing side frame.
5. Secure the slide block to the connecting bracket with the hex screw, washer, and
locknut.
Hex Bolt
Coved
Washer
Locknuts
Spacers
Hex Bolts
Coved
Washer
Hex Bolt
Coved Washer
Locknut Spacer
Spacer
Locknut
Side Frame
Center Seat
Frame
NOTE: Tilt/Recline seat frame shown.
Crossbeam Socket
Screw*
*NOTE: Only on systems with recline.
Connecting Bracket

SECTION 6—SEAT ADJUSTMENTS
2G Tarsys®Powered Seating System 68 Part No 1114842
6. Secure the slide rod to the side frame, with the slide block in position, with the two
hex screws and washers. Torque to 13 ft-lbs ± 20% (156 in-lbs ± 20%).
FIGURE 6.11 Preparing Side Frames for Replacement - Tilt-Only Seating Systems
Tilt/Recline and Recline-Only Seating Systems
NOTE: For this procedure, refer to FIGURE 6.12 on page 69.
1. Remove the hex screw and washer that secure the slide block to the slide block
connecting bracket.
2. Remove the two hex screws and washers that secure the slide rod to the side frame.
3. Remove the slide rod and slide block from the side frame.
4. Secure the slide rod to the side frame, with the slide block in position, with the two
hex screws and washers. Torque to 13 ft-lbs ± 20% (156 in-lbs ± 20%).
5. Secure the slide block to the slide block connecting bracket with the hex screw and
washer. Torque to 156 in-lbs ± 20%.
Side Frame
Locknut
Connecting
Bracket
Hex Screw
Washer
Slide Rod
Hex Screw
Washer
Washer Hex Screw
DETAIL “A” - INSIDE
VIEW OF CONNECTING
BRACKET ON SIDE
FRAME
NOTE: In Detail “A”, the mounting position of
the hex screw on the connecting bracket shows a
back angle of 115°. For additional back angles
refer to Adjusting Back Angle on page 80.
Mounting Position
Slide Block

SECTION 6—SEAT ADJUSTMENTS
Part No 1114842 69 2G Tarsys®Powered Seating System
FIGURE 6.12 Preparing Side Frames for Replacement - Tilt/Recline and Recline-Only Seating
Systems
Installing Side Frames
WARNING
Both side frames MUST be adjusted to the same mounting hole position to
maintain an even weight distribution of the user and seat frame over the base
frame. If weight is not distributed evenly, injury to the assistant and/or user and
damage to the wheelchair may occur.
NOTE: For this procedure, refer to FIGURE 6.13 on page 70.
1. Recline and/or tilt the seating system 5 to 10 degrees to enable hardware installation.
2. Install the side frame into the center seat frame and slide to the seat width noted in the
removal process.
NOTE: If a new seat width is desired, refer to Adjusting Seat Width on page 55.
NOTE: For Tilt/Recline and Recline-Only seating systems, be sure to align the slide block
connecting bracket with the crossbeam.
3. Make sure both side frames are at the same mounting hole position.
4. Reinstall the four hex bolts, coved washers, spacers and locknuts that secure the side
frames to the center seat frame. Torque to 75 in-lbs ± 20%.
NOTE: For Tilt/Recline and Recline-Only seating systems, secure the connecting bracket to the
crossbeam with the socket screw, spacer and washer. Torque to 156 in-lbs ± 20%.
Hex Screw Washers
Hex Screw
Side Frame
Locknut
Slide Rod
Slide Block
Hex Screw
Washer
Slide Block
Connecting
Bracket

SECTION 6—SEAT ADJUSTMENTS
2G Tarsys®Powered Seating System 70 Part No 1114842
FIGURE 6.13 Installing Side Frames
Removing/Installing Center Seat Frame
WARNING
Pinch points exist between seat and base frames. Use caution to avoid injury.
CAUTION
For Tilt/Recline and Recline-Only seating systems, the center seat frame assembly is
a non-serviceable part. Whenever a new center seat frame is required (e.g., to
achieve a desired seat width or depth), return the complete wheelchair to Invacare
for service.
NOTE: For this procedure, refer to FIGURE 6.14 on page 72.
NOTE: The following procedure is for Tilt-Only seating systems.
Removing Center Seat Frame
1. Remove the side shrouds. Refer to Removing/Installing Side Shrouds on page 100.
2. Remove the seat pan. Refer to Removing/Installing Seat Pan on page 54.
3. Remove the arms. Refer to Removing Armrests on page 114.
4. Remove the back. Refer to Back Adjustments on page 80.
5. Remove the legrests.Refer to Installing/Removing the Power Elevating Legrests on
page 104.
6. Remove the side frames. Refer to Removing/Installing Side Frames on page 66.
Hex Bolt
Coved
Washer
Locknuts
Spacers
Hex Bolts
Coved Washer
Hex Bolt
Coved Washer
Locknuts
Spacer
Spacer
Locknut
Side Frame
Center Seat
Frame
NOTE: Tilt/Recline seat frame shown.
Crossbeam
Connecting
Bracket
Socket
Screw*
*NOTE: Only on systems with recline.

SECTION 6—SEAT ADJUSTMENTS
Part No 1114842 71 2G Tarsys®Powered Seating System
7. Remove the two shoulder bolts and locknuts that secure the existing center seat frame
to the rear pivot assembly. Refer to Detail “A”.
8. Note the mounting position of the two tilt links. Refer to Detail “B”.
WARNING
Support the center seat frame before removing the shoulder bolt and locknuts that
secure the tilt links to the front pivot assembly. Otherwise, injury or damage could
occur.
9. While supporting the center seat frame, remove the shoulder bolt and locknut that
secure the tilt link to the front pivot assembly. Refer to Detail “B”.
10. Remove the existing center seat frame from the base frame.
11. Remove the retaining ring that secures the tilt link and washers to the existing center
seat frame. Refer to Detail ”C”.
12. Remove the washers and tilt link from the existing center seat frame.
13. If installing a new center seat frame, remove the four washers and one retaining ring
from the front pin on the existing center seat frame and transfer onto the new center
seat frame. Refer to Detail “B”.
14. Repeat STEPS 11-13 for the opposite tilt link.
Installing Center Seat Frame
1. Position the tilt link and washers on the new center seat frame. Refer to FIGURE 6.14
for hardware orientation.
2. Install the retaining ring that secures the tilt link and washers to the new center seat frame.
3. Repeat STEPS 1-2 for the opposite tilt link.
4. Align the mounting holes on the new center seat frame with the mounting holes on
the rear pivot assembly.
5. Secure the new center seat frame to the rear pivot assembly with two shoulder bolts
and locknuts. Torque to 75 in-lbs ± 20%.
6. Position the mounting hole in the tilt link with the mounting hole determined in STEP
8 of Removing Center Seat Frame on page 70.
7. Secure the tilt links to the front pivot assembly with the shoulder bolts and locknuts.
Torque to 75 in-lbs ± 20%.
8. Install the new/existing side frames. Refer to Removing/Installing Side Frames on
page 66.
9. Install the side shroud. Refer to Removing/Installing Side Shrouds on page 100.
10. Install the seat pan. Refer to Removing/Installing Seat Pan on page 54.
11. Install the telescoping front rigging supports. Refer to Adjusting/Replacing
Telescoping Front Rigging Supports on page 73.

SECTION 6—SEAT ADJUSTMENTS
2G Tarsys®Powered Seating System 72 Part No 1114842
12. Install the back. Refer to Removing/Installing Back Assembly on page 91.
13. Install the arms. Refer to Arms on page 114.
FIGURE 6.14 Removing/Installing Center Seat Frame
!
Front
Pivot
Assembly
Shoulder
Bolt
Tilt
Link
DETAIL “B” - TILT LINK AND FRONT
PIVOT ASSEMBLY MOUNTING LOCATION
Locknut
Pin
Retaining
Ring
DETAIL “D” - TRANSFER HARDWARE
Washers
Retaining
Ring
Washer
Shoulder
Bolt
Tilt
DETAIL “C” - CENTER FRAME AND REAR
PIVOT ASSEMBLY MOUNTING LOCATION
Washers
Center Seat
Frame
See Detail “C”
Locknut
Center Seat
Frame
Shoulder
Bolt
Rear Pivot
Assembly
DETAIL “A” - CENTER FRAME AND REAR
PIVOT ASSEMBLY MOUNTING LOCATION
See Detail “D”

SECTION 6—SEAT ADJUSTMENTS
Part No 1114842 73 2G Tarsys®Powered Seating System
Adjusting/Replacing Telescoping Front Rigging
Supports
NOTE: For this procedure, refer to FIGURE 6.15.
1. Remove the two hex bolts, spacers and locknuts that secure the telescoping front
rigging support to the seat frame.
2. Perform one of the following:
• Slide existing telescoping front rigging support to one of three depth positions.
• Remove existing telescoping front rigging support and install new telescoping
front rigging support.
3. Secure telescoping front rigging at desired depth with existing two hex bolts, spacers,
and locknuts. Torque mounting screws to 75 in-lbs ± 20%.
NOTE: The two telescoping front rigging supports can be positioned at different depths depending
on the need of the user.
FIGURE 6.15 Adjusting/Replacing Telescoping Front Rigging Supports
Adjusting/Replacing Leg Support Tubes
NOTE: For this procedure, refer to FIGURE 6.16 on page 74.
NOTE: Only systems equipped with mechanical legrests require leg support tubes.
Adjusting Leg Support Tubes
1. Refer to FIGURE 6.16 and determine the corresponding mounting hole on the
adjustment slide for the desired seat depth.
2. Remove the socket bolt and locknut that secure the adjustment slide to the leg support
tube.
3. Position the adjustment slide to the mounting hole determined in STEP 1.
Hex Bolts
Seat Frame
Telescoping Front
Rigging Support
Locknuts
Spacers

SECTION 6—SEAT ADJUSTMENTS
2G Tarsys®Powered Seating System 74 Part No 1114842
4. Reinstall socket screw and locknut that secure the adjustment slide to leg support
tube. Tighten securely.
5. Repeat STEPS 1-4 for the opposite leg support tube.
Replacing Leg Support Tubes
1. Remove the locknut and spacer that secure the existing leg support tube to the
connecting bracket.
2. Remove existing leg support from seating system.
3. Position the spacer and new leg support on the connecting bracket.
4. Install the locknut and tighten securely.
5. Adjust the leg support tube for the desired seat depth. Refer to Adjusting Leg Support
Tubes on page 73.
FIGURE 6.16 Adjusting/Replacing Leg Support Tubes
SEAT DEPTH LEG SUPPORT TUBE MOUNTING POSITION
ADJUSTMENT SLIDE
16 inches Short
17 inches Short
18 inches Short
19 inches Short
20 inches Long
21 inches Long
22 inches Long
Socket Bolt
Connecting Bracket
(Under Seat Pan)
Leg Support Tube
Locknuts
Spacers
Locknuts
Adjustment
Slide
18 inches
16 inche
s
19 inches
17 inches
DO NOT use these holes
22 inches
20 inches
21 inches
DO NOT use these holes

SECTION 6—SEAT ADJUSTMENTS
Part No 1114842 75 2G Tarsys®Powered Seating System
Removing/Installing the Seat
NOTE: If retrofitting a seating system, DO NOT use this procedure. Refer to the 2G Tarsys
Seating System Installation on TDX instruction sheet, part number 1134889.
Removing
Disconnecting Cables
NOTE: For this procedure, refer to FIGURE 6.17 on page 76.
NOTE: Invacare recommends two people perform this procedure.
1. Tilt Only and Tilt/Recline Systems - Tilt the seat back 10° to 15° to allow easier access
to the hardware securing the seating system to the base.
2. Turn off the joystick.
3. Disconnect the joystick.
4. Disconnect the TRCM, TAC or SAC from the MK5 controller (5-pin connector).
5. Disconnect the auxiliary power connectors from the power take off connectors (not
shown) on the controller.
6. Perform one of the following:
• Tilt Only and Tilt/Recline Systems -
i. Disconnect the tilt actuator connector (2-pin Anderson) from the TRCM, TAC,
SAC or TRSS.
ii. Disconnect the tilt potentiometer connector (3-pin Molex) from the TRCM,
TAC, SAC or TRSS.
• Recline Only Systems - Disconnect the recline potentiometer connector (3-pin
Molex) from the TRCM or TAC.

SECTION 6—SEAT ADJUSTMENTS
2G Tarsys®Powered Seating System 76 Part No 1114842
FIGURE 6.17 Disconnecting Cables - Connecting Cables
To Recline
Actuator (2-pin
Anderson
Connector)
To Tilt
Actuator
(2-pin
Anderson
Connector)
To VSR
Actuator
(2-pin
Anderson
Connector)
To Right Power
Elevating
Legrest (2-pin
Anderson
Connector)
To Left Power
Elevating Legrest
(2-pin Anderson
Connector)
To Recline
Potentiometer
(3-pin Molex
Connector)
To Tilt
Potentiometer
(3-pin Molex
Connector)
Auxiliary
Power
Connector
To MK5
Controller
(5-pin
Connector)
Accessory
Connector
(9-pin Sub D)
Remote
Programmer
Port TRCM or
TAC
DETAIL “A” - TRCM OR TAC DETAIL “B” - SAC
DETAIL “C” - TRSS
SAC
5-pin Connector
(To Controller)
Auxiliary
Power
Connector
Actuator Connector
(WHITE 2-pin Anderson)
Mercury Switch Connector
(3-Pin Molex Connector)
Auxiliary Power
Connector
Actuator
Connector
(WHITE)
Mercury Switch Connector
(Molex Connector)
TRSS
Rear Pivot
Assembly

SECTION 6—SEAT ADJUSTMENTS
Part No 1114842 77 2G Tarsys®Powered Seating System
Removing the Seat
NOTE: For this procedure refer to FIGURE 6.18 on page 78.
1. Perform one of the following steps:
• Tilt Only and Tilt/Recline Seating Systems:
i. Remove the socket screw to disconnect the tilt potentiometer linkage from the
center seat frame (Detail “A”).
ii. Note the mounting position of the tilt angle blocks for proper installation
(Detail “B”).
iii. One person should support the front of the seating frame.
iv. The remaining person should remove the two shoulder bolts and locknuts
securing the tilt links, bushings and tilt angle blocks to the front pivot assembly
(Detail “B”).
v. Carefully set the front of the seating system down onto the base.
• Recline Only Seating Systems:
i. Note the mounting position of the recline links for proper installation (Detail
“C”).
ii. One person should support the front of the seat frame.
iii. The remaining person should remove the two shoulder bolts and locknuts
securing the recline links to the front pivot assembly (Detail “C”).
2. Remove the two socket head shoulder screws and locknuts securing the rear of the
center seat frame to the rear pivot assembly (Detail “D”).
3. Carefully remove the seat from the base.
Installing
Connecting the Seat
NOTE: For this procedure refer to FIGURE 6.18 on page 78.
1. Carefully set the seating system onto the base.
2. Install the two socket head shoulder screws and locknuts to secure the rear of the
center seat frame to the rear pivot assembly (Detail “D”). Torque to 23 ft-lbs ± 20%.

SECTION 6—SEAT ADJUSTMENTS
2G Tarsys®Powered Seating System 78 Part No 1114842
FIGURE 6.18 Removing the Seat - Connecting the Seat
DETAIL “A” - TILT POTENTIOMETER LINKAGE
DETAIL “B” - TILT LINKS AND TILT ANGLE BLOCKS
DETAIL “C” - RECLINE LINKS DETAIL “D” - REAR PIVOT
ASSEMBLY
Socket
Screw
Tilt Potentiometer
Linkage
Center
Seat
Frame
Orientation of angle block shown
is for 5° seat angle
Locknuts
Spacer
Spacer
Link
Shoulder Bolt
Mounting Hole for 0°
seat angle
Use this mounting hole for
0° seat angle
Front Pivot Assembly
Orientation of angle block shown
is for 0° seat angle
Shoulder Bolt
Link
Mounting Hole for 5°
Seat Angle
Use this mounting
hole for 5° seat angle
10° and 15°
Recline Link
Shoulder
Bolt
Front Pivot
Assembly
Locknut
Mounting hole
for 10° recline
Mounting
hole for 15°
recline
Mounting
hole for 5°
recline
Mounting hole for
0° recline
Front Pivot
Assembly
Locknut
0° and 5° Recline Link
Shoulder Bolt
0° and 5° Recline Link
10° and 15° Recline Link
Locknut
Center
Seat
Frame
Shoulder
Bolt
Rear Pivot Assembly

SECTION 6—SEAT ADJUSTMENTS
Part No 1114842 79 2G Tarsys®Powered Seating System
3. Perform one of the following:
• Recline Only Systems -
i. One person should support the front of the seating system.
ii. The other person should secure the recline links to the front pivot assembly,
using the two shoulder bolts and locknuts in the location noted when removing
the seating system (Detail “C”). Torque to 23 ft-lbs ± 20%.
iii. Connect the recline potentiometer connector (3-pin Molex) to the TRCM.
• Tilt Only and Tilt/Recline Systems -
i. One person should support the front of the seating system.
ii. Using the two shoulder bolts and locknuts, the other person should secure the
tilt links, bushings and tilt angle blocks to the front pivot assembly (Detail “B”).
Torque to 23 ft-lbs ± 20%.
NOTE: The tilt angle blocks should be mounted in the position noted when removing the
seating system.
iii. Install the socket screw to secure the tilt potentiometer linkage to the center seat
frame (Detail “A”).
4. Connect the cables.
Connecting Cables
NOTE: For this procedure refer to FIGURE 6.17 on page 76.
1. Perform one of the following:
• Tilt Only and Tilt/Recline Systems -
i. Connect the tilt actuator connector (2-pin Anderson) to the TRCM, TAC, SAC
or TRSS.
ii. Connect the tilt potentiometer connector (3-pin Molex) to the TRCM, TAC, SAC
or TRSS.
• Recline Only Systems - Connect the recline potentiometer connector (3-pin Molex)
to the TRCM, TAC, SAC or TRSS.
2. Connect the auxiliary power connector to the power take-off connector (not shown)
on the controller.
3. Connect the TRCM, SAC or TAC to the MK5 controller (5-pin connector).
4. Connect the joystick.
5. Perform the post-service inspection of the system. Refer to Post-Service Inspection
Checklist on page 21.

SECTION 7—BACK ADJUSTMENTS
2G Tarsys®Powered Seating System 80 Part No 1114842
SECTION 7—BACK ADJUSTMENTS
WARNING
After ANY adjustments, repair or service and BEFORE use, make sure all attaching
hardware is tightened securely - otherwise injury or damage may occur.
Before adjusting, repairing or servicing the seating system, ALWAYS turn the
wheelchair power OFF, otherwise, injury or damage may result.
Pinch points exist between seat and base frames. Use caution, otherwise injury may
occur.
Adjusting Back Width
NOTE: When changing the width of the back, the width of the entire seating system needs to be
changed. Refer to Adjusting Seat Width on page 55.
Adjusting Back Angle
NOTE: The following procedure is for Tilt-Only seating systems.
NOTE: For this procedure, refer to FIGURE 7.1 on page 81.
1. Refer to Detail “A” in FIGURE 7.1 to determine the corresponding connector bracket
mounting holes for the desired back angle.
WARNING
Support the weight of the back BEFORE removing the hex bolt and shoulder bolt on
the opposite side of the seat frame. Otherwise, injury or damage may occur.
2. Remove the shoulder bolt, washer and locknut that secure the curved link to the rear
of the slide block and connector bracket.
3. Remove the hex bolt, washer and locknut that secure the front of the slide block to the
connector bracket.
4. With back supported, repeat STEPS 2-3 for the opposite side of the seat frame.
5. Line up the mounting holes in the slide block with the connector bracket mounting
holes determined in STEP 1.
6. Reinstall the hex bolt, washer and locknut that secure the front of the slide block to the
connector bracket and loosely tighten. Refer to FIGURE 7.1 for hardware orientation.
7. Repeat STEP 6 for the opposite side of the seat frame.
8. Line up the mounting holes in the curved link, slide block and connector bracket.

SECTION 7—BACK ADJUSTMENTS
Part No 1114842 81 2G Tarsys®Powered Seating System
9. Reinstall the shoulder bolt, washer and locknut that secure the curved link to the rear
of the slide block and connector bracket and loosely tighten. Refer to FIGURE 7.1 for
hardware orientation.
10. Repeat STEPS 8-9 for the opposite side of the seat frame.
11. Torque all locknuts to 13 ft-lbs ± 20% (156 in-lbs ± 20%).
12. Adjust tilt and/or recline potentiometers. Refer to the electronics manual listed in
Reference Documents on page 2.
FIGURE 7.1 Adjusting Back Angle
Connector Bracket (not shown)
Locknuts
Slide Block
Washer
Hex Bolt
Shoulder Bolt
Washer
Curved Link
90°
100°
110°
95°
105°
115°
DETAIL “A” - CONNECTOR BRACKET MOUNTING HOLES

SECTION 7—BACK ADJUSTMENTS
2G Tarsys®Powered Seating System 82 Part No 1114842
Removing/Installing the Curved Links
Tilt Only Systems
NOTE: For this procedure, refer to FIGURE 7.2 on page 83.
Removing
WARNING
Perform this procedure on one side of the wheelchair at a time. Otherwise the back
will be completely disconnected from the seat and injury or damage may occur.
1. Remove the side shroud. Refer to Removing/Installing Side Shrouds on page 100.
2. Remove the small socket screw and locknut securing the top of the curved link to the
back cane.
3. Remove the large socket screw, nylon washer and locknut securing the rear of the slide
block to the connecting bracket.
4. Remove the curved link from the wheelchair.
Installing
1. Secure the top of the curved link to the back cane using the small socket screw and
locknut. Torque to 23 ft-lbs ± 20%.
2. Secure the bottom of the curved link to the rear of the slide block and the connecting
bracket using the large socket screw, nylon washer and locknut in the same position
used on the opposite side of the wheelchair. Torque to 156 in-lbs ± 20%.
WARNING
Side shroud(s) MUST be reinstalled before operation of the seating system. Other-
wise injury may result.
3. Install the side shroud. Refer to Removing/Installing Side Shrouds on page 100.

SECTION 7—BACK ADJUSTMENTS
Part No 1114842 83 2G Tarsys®Powered Seating System
FIGURE 7.2 Removing/Installing the Curved Links - Tilt Only Systems
Recline Only and Tilt/Recline Systems
NOTE: For this procedure, refer to FIGURE 7.3 on page 84.
Removing
WARNING
Perform this procedure on one side of the wheelchair at a time. Otherwise the back
will be completely disconnected from the seat and injury or damage may occur.
1. Remove the side shroud. Refer to Removing/Installing Side Shrouds on page 100.
2. Remove the short socket screw, nylon washer, flat washer and locknut securing the top
of the curved link to the back cane.
3. Remove the long socket screw, nylon washer and locknut securing the rear of the slide
block to the connecting bracket.
4. Remove the curved link from the wheelchair.
Nylon
Washer
Locknuts
Connecting
Bracket
Small Socket Screw
Curved Link
Back Cane
Large Socket Screw
Slide
Block

SECTION 7—BACK ADJUSTMENTS
2G Tarsys®Powered Seating System 84 Part No 1114842
Installing
CAUTION
The curved link MUST be installed with the notched side facing out. Otherwise,
damage to the seating system may result.
1. Orient the curved link so the notched side is facing out.
2. Secure the top of the curved link to the back cane using the short socket screw, nylon
washer, flat washer and locknut. Torque to 156 in-lbs ± 20%.
3. Secure the bottom of the curved link to the rear of the slide block and the connecting
bracket using the long socket screw, nylon washer and locknut in the same position
used on the opposite side of the wheelchair. Torque to 23 ft-lbs ± 20%.
WARNING
Side shroud(s) MUST be reinstalled before operation of the seating system.
Otherwise injury may result.
4. Install the side shroud. Refer to Removing/Installing Side Shrouds on page 100.
FIGURE 7.3 Removing/Installing the Curved Links - Recline Only and Tilt/Recline Systems
Long Socket Screw
Nylon
Washer
Locknuts
Connecting
Bracket
Short
Socket
Screw
Curved Link
Back
Cane
Nylon
Washer
Flat
Washer
Slide Block
Notch

SECTION 7—BACK ADJUSTMENTS
Part No 1114842 85 2G Tarsys®Powered Seating System
Removing/Installing Back Pan
NOTE: For this procedure, refer to FIGURE 7.4 on page 86.
Removing
1. Remove the headrest from the seating system. Refer to
Removing/Installing/Adjusting Headrest on page 124.
2. Lift up on the fastening straps and remove the cushion from the existing back pan.
3. Perform one of the following:
• Tilt-Only Systems - Proceed to STEP 4.
• Tilt/Recline and Recline-Only Systems:
i. Disconnect the VSR actuator cable from the TRCM or TAC.
ii. Remove the two mounting screws and locknuts that secure the VSR actuator
mounting bracket to the existing back pan.
4. Remove the two mounting screws that secure the headrest mounting bracket to the
existing back pan.
5. Remove headrest bracket from the existing back pan.
NOTE: For 17, 19, and 21-inch width backs, spacers are required for proper installation.
6. Remove the four mounting screws and spacers (if applicable) that secure the existing
back pan to the two back slides.
7. Remove existing back pan from the two back slides.
Installing
1. Line up the mounting holes in the new/existing back pan with the two new/existing
back slides.
NOTE: For 17, 19, and 21-inch width profile backs, spacers are required for proper installation.
2. Install the four mounting screws and spacers (if applicable) that secure the
new/existing back pan to the two new/existing back slides. Tighten securely.
3. Position the headrest bracket on the new/existing back pan.
4. Install the two mounting screws and locknuts that secure the headrest bracket to the
new/existing back pan. Tighten securely.
5. Perform one of the following:
• Tilt-Only Systems - Proceed to STEP 6.
• Tilt/Recline and Recline-Only Systems:
i. Reposition the mounting holes in the VSR actuator bracket with the mounting
holes in the new back pan.

SECTION 7—BACK ADJUSTMENTS
2G Tarsys®Powered Seating System 86 Part No 1114842
ii. Reinstall the two mounting screws and locknuts that secure the VSR actuator
mounting bracket to the new back pan. Tighten securely.
iii. Connect the VSR actuator to the TRCM or TAC.
iv. Adjust back height. Refer to Adjusting the Back Height on page 92.
6. Install the cushion onto the new back pan.
7. Install the headrest onto the seating system. Refer to Removing/Installing/Adjusting
Headrest on page 124.
FIGURE 7.4 Removing/Installing Back Pan
Headrest Mounting Bracket
Button
Screws
Hex
Screws VSR Actuator
Mounting Bracket VSR Actuator
Back Pan
Back Slide
Mounting Screws
ABS Back
Back Pan
Back Slide
Mounting Screws
Rear View
Profile Back
Spacer
NOTE: For back
widths of 17, 19, or 21
inches, spacers are
required between back
slide and back pan.

SECTION 7—BACK ADJUSTMENTS
Part No 1114842 87 2G Tarsys®Powered Seating System
Removing/Installing Spreader Bar
Slotted Back Canes
NOTE: For this procedure, refer to FIGURE 7.5.
Removing
1. Note the position of the existing spreader bar, by measuring from the top of the back
canes to the top of the spreader bar.
2. Note the position of the back pan, by measuring from the top of the back pan to the
top of the back canes. Systems with Recline - remove the hex bolt and locknut that
secure the VSR actuator to the existing spreader bar.
NOTE: When the spreader bar is disconnected from the VSR actuator, the back pan ASM may slide
out of position.
3. Loosen, but DO NOT remove, the four hex screws that secure the existing spreader bar
to the back canes.
4. Lift up and remove the existing spreader bar, with T-nuts, from the slots on the back canes.
5. If installing a new spreader bar, remove the four screws and T-nuts from the existing
spreader bar.
FIGURE 7.5 Removing/Installing Spreader Bar - Slotted Back Canes
Hex
Screws/T-Nuts
(T-Nuts in Back
Cane Slot)
Spreader Bar
DETAIL “A”
VSR Actuator
Locknut
Hex Bolt
Back Pan ASM
NOTE A: Measurements from
the top of the back cane to the top
of the back pan MUST be equal.
NOTE B: Measurements from
the top of the back cane to the top
of the spreader bar MUST be
equal.
NOTE A
NOTE B

SECTION 7—BACK ADJUSTMENTS
2G Tarsys®Powered Seating System 88 Part No 1114842
Installing
1. For new spreader bars, loosely install the four T-nuts and hex screws onto the new
spreader bar.
2. Align the T-nuts on the spreader bar with the slots in the back canes.
3. Slide the spreader bar to the position noted in STEP 1 of Removing on page 87.
4. Perform one of the following:
• Tilt-Only systems - Proceed to STEP 5.
• Tilt/Recline and Recline-Only Systems:
i. Line up the mounting holes in the VSR actuator and spreader bar.
ii. Install hex bolt and locknut through VSR actuator and spreader bar. Tighten
securely.
5. Make sure the measurements shown in Detail “A” are the same on both sides.
6. Tighten the four hex screws that secure the spreader bar to the back canes. Torque to
75 in-lbs ± 20%.
Round Back Canes
NOTE: For this procedure, refer to
FIGURE 7.6.
Removing
1. Note the position of the existing
spreader bar.
2. Remove the three mounting screws
that secure the two half clamps and
existing spreader bar to the back cane.
Repeat for other side.
3. Remove the existing spreader bar and
half clamps from the back canes.
Installing
1. Install the spreader bar to the position
noted in STEP 1 of Removing with the
existing two half clamps and six
mounting screws.
2. Make sure the measurements shown in
FIGURE 7.6 are the same.
3. Torque the six mounting screws that
secure the half clamps and spreader bar
to the back canes to 75 in-lbs ± 20%.
FIGURE 7.6 Removing/Installing Spreader
Bar - Round Back Canes
Spreader Bar
Round
Back
Cane
Half
Clamps
Mounting
Screws

SECTION 7—BACK ADJUSTMENTS
Part No 1114842 89 2G Tarsys®Powered Seating System
Removing/Installing Back Canes
NOTE: For this procedure, refer to FIGURE 7.7.
Removing
1. Remove the arms. Refer to Arms on page 114.
2. Remove the spreader bar. Refer to Removing/Installing Spreader Bar on page 87.
3. Remove the short shoulder bolt, two washers and locknut that secure the existing back
cane to the curved link.
4. Remove the long shoulder bolt and locknut that secure the existing back cane to the
seat frame.
5. Remove the existing back cane from the wheelchair.
6. If necessary, repeat STEPS 2-4 for opposite back cane.
Installing
1. Position the new back cane on the seat frame as shown in FIGURE 7.7.
2. Install the long shoulder bolt that secures the new back cane to the seat frame.
3. Install the locknut onto the shoulder bolt and torque to 13 ft-lbs ± 20% (156 in-lbs ±
20%).
4. Line up the mounting holes in the new back cane and curved link.
5. Install the short shoulder bolt and two washers that secure the new back cane to the
curved link. Refer to FIGURE 7.7 for correct hardware orientation.
6. Install the locknut onto the shoulder bolt and torque to 13 ft-lbs ± 20% (156 in-lbs ±
20%).
7. If necessary, repeat STEPS 1-6 for the opposite back cane.
8. Install the spreader bar. Refer to Removing/Installing Spreader Bar on page 87.
9. Install the arms. Refer to Arms on page 114.
FIGURE 7.7 Removing/Installing Back Canes
Back Cane
Washer
Short
Shoulder
Bolt
Curved Link
Seat Frame
Locknuts
Washer
Long
Shoulder
Bolt

SECTION 7—BACK ADJUSTMENTS
2G Tarsys®Powered Seating System 90 Part No 1114842
Removing/Installing Back Slide Assembly
NOTE: For this procedure, refer to FIGURE 7.8 on page 91.
Removing
1. Remove the back pan. Refer to Removing/Installing Back Pan on page 85.
2. Perform one of the following:
• Tilt-Only Systems - Remove the two shoulder screws and washers that secure the
two existing back slides to the existing back canes from the BOTTOM mounting
hole.
• Tilt/Recline and Recline-Only Systems - Remove the two shoulder screws and
washers that secure the two existing back slides to existing back canes from the
TOP mounting hole.
3. Slide the existing back slide assembly up and off the existing back canes.
NOTE: There are plastic sleeves positioned between the back slides and the back canes. These may
fall out when back slide assembly is removed.
Installing
1. Install the two new/existing plastic sleeves on the new/existing back canes.
2. Slide the new/existing back/back slide assembly onto the two new/existing back canes.
3. Line up the mounting holes in the new/existing back/back slide assembly, two plastic
sleeves and new/existing back canes.
4. Perform one of the following:
• Tilt-Only Systems - Install the two shoulder screws that secure the two
new/existing back slides and plastic sleeves to the new/existing back canes on the
BOTTOM mounting hole. Tighten securely.
• Tilt/Recline and Recline-Only Systems - Install the two shoulder screws that secure
the two new/existing back slides and plastic sleeves to the new/existing back canes
on the TOP mounting hole. Tighten securely.
5. Perform one or more of the following:
• Replace the back canes. Refer to Removing/Installing Back Canes on page 89.
• Install the back pan. Refer to Removing/Installing Back Pan on page 85.

SECTION 7—BACK ADJUSTMENTS
Part No 1114842 91 2G Tarsys®Powered Seating System
FIGURE 7.8 Removing/Installing Back Slide Assembly
Removing/Installing Back Assembly
NOTE: For this procedure, refer to FIGURE 7.9 on page 92.
Removing
1. Remove the two large shoulder bolts, washers and locknuts that secure the two curved
links to the two slide blocks.
2. Remove the two small shoulder bolts and locknuts that secure the two back canes to
the seat frame.
3. Remove the back assembly from the seat frame.
Installing
1. Line up the mounting holes in the back assembly and the seat frame.
2. Loosely install the two small shoulder bolts and locknuts that secure the two back
canes to the seat frame.
3. Loosely install the two large shoulder bolts, washers and locknuts that secure the two
curved links to the two slide blocks.
4. Torque the four locknuts to 13 ft-lbs ± 20% (156 in-lbs ± 20%).
Washer
Plastic Sleeve
(Between Back Cane
and Back Slide)
Back Cane
Shoulder
Screw
TOP
Mounting
Hole
Back Slide
Tilt/Recline
Washer
Plastic Sleeve
(Between Back Cane
and Back Slide)
Back
Cane
Shoulder Screw
BOTTOM
Mounting
Hole
Back
Slide
Tilt-Only Systems

SECTION 7—BACK ADJUSTMENTS
2G Tarsys®Powered Seating System 92 Part No 1114842
FIGURE 7.9 Removing/Installing Back Assembly
Adjusting the Back Height
Overview
Back heights can be adjusted 1-inch within the range of back canes up to 25 inches high.
NOTE: The back pan may need to be replaced**. Refer to Removing/Installing Back Pan on
page 85.
The back height can be adjusted beyond the range of the existing back canes, up to 26
inches*, when the back canes and back slides/plastic inserts** are replaced.
• Refer to Removing/Installing Back Canes on page 89.
• Refer to Removing/Installing Back Slide Assembly on page 90.
NOTE: All measurements in inches.
*NOTE: Tilt Only systems with round back canes can only be adjusted up to 25 inches.
**NOTE: For systems with slotted back canes only.
Back Height Components
BACK
HEIGHT
BACK CANE BACK SLIDE/PLASTIC
INSERT**
20 20 11¼
21
22 22 13¼
23
24 24 15¼
25
26* 26 17¼
Slide Block
Small Shoulder Bolt Locknuts
Seat Frame
Large Shoulder Bolt
Small Shoulder Bolt
Large Shoulder Bolt
Back Assembly

SECTION 7—BACK ADJUSTMENTS
Part No 1114842 93 2G Tarsys®Powered Seating System
Removing/Installing Arm Pivots
NOTE: For this procedure, refer to FIGURE 7.10.
NOTE: The following procedure is for Tilt/Recline and Recline-Only seating systems.
Removing
1. If necessary, remove the lateral supports from the seating system. Refer to
Installing/Removing/Adjusting Lateral Supports on page 95.
2. Note the position of the existing arm pivot.
3. Loosen, but DO NOT remove, the two hex bolts that secure the existing arm pivot to
the back slide.
4. Slide the existing arm pivot off the back slide.
Installing
1. If necessary, loosely install the four T-nuts and hex bolts onto the new arm pivot.
2. Position the new/existing arm pivot and line up the T-nuts with the slots in the
new/existing back slides.
3. Slide the new/existing arm pivot to the position noted in STEP 2 above.
NOTE: If a change in armrest height is desired, Refer to Adjusting Armrest Height on page 115.
4. Torque the two hex bolts that secure the new/existing arm pivot to the back slide to 50
in-lbs ± 20%.
5. If necessary, repeat STEPS 1-4 for the opposite side of the seating system.
6. If necessary, install the lateral supports onto the seating system. Refer to
Installing/Removing/Adjusting Lateral Supports on page 95.
FIGURE 7.10 Removing/Installing Arm Pivots
Hex Bolts T-Nuts
Channel
Back Slid
e
Arm Pivot
Back Cane

SECTION 7—BACK ADJUSTMENTS
2G Tarsys®Powered Seating System 94 Part No 1114842
Removing/Installing/Adjusting Chest Positioning Strap
NOTE: For this procedure, refer to FIGURE 7.11.
NOTE: This procedure applies to systems with slotted canes only.
Removing
1. Note the position of the existing chest positioning strap.
2. Loosen, but DO NOT remove, the socket screw that secures the existing chest
positioning strap to the back slide.
3. Slide the existing chest positioning strap off the back slide.
Installing
1. If necessary, loosely install the T-nut and hex screw onto the new chest positioning
strap.
2. Position the new/existing chest positioning strap and line up the T-nuts with the slots
in the back slide.
3. Slide new/existing chest positioning strap to the position noted in STEP 1 in Removing
on page 93.
4. Tighten the two socket screws that secure the new/existing chest positioning strap to
the back slide securely.
Adjusting Height
1. Loosen, but DO NOT remove, the two
socket screws that secure the chest
positioning strap to the back slide.
2. Slide the chest positioning strap to the
desired position.
3. Tighten the two socket screws that
secure the chest positioning strap to the
back slide securely.
FIGURE 7.11 Removing/Installing/Adjusting
Chest Positioning Strap
Chest
Positioning Strap
Back
Slide
Washer T-Nut
Socket Screw

SECTION 7—BACK ADJUSTMENTS
Part No 1114842 95 2G Tarsys®Powered Seating System
Installing/Removing/Adjusting Lateral Supports
Slotted Canes
Removing Lateral Supports
NOTE: For this procedure, refer to FIGURE 7.12.
1. Note the position of the existing lateral support on the back slide.
2. Loosen, but DO NOT remove, the two socket screws that secure the existing lateral
support to the back slide.
3. Slide the existing lateral support up and off the back slide.
Installing Lateral Supports
NOTE: For this procedure, refer to FIGURE 7.12.
1. If necessary, loosely install the two T-nuts and hex screws onto the new lateral
support.
2. Position the new/existing lateral support and line up the T-nuts with the slots in the
new/existing back slide.
3. Slide new/existing lateral support to the desired position.
4. Tighten the two socket screws that secure the new/existing lateral support to the back
slide securely.
FIGURE 7.12 Removing Lateral Supports - Installing Lateral Supports
Lateral Support
Back Slide
Socket Screw

SECTION 7—BACK ADJUSTMENTS
2G Tarsys®Powered Seating System 96 Part No 1114842
Adjusting Height
NOTE: For this procedure, refer to FIGURE 7.13.
1. Loosen, but DO NOT remove, the two socket screws that secure the existing lateral
support to the back slide.
2. Slide the lateral support to the desired position.
3. Tighten the two socket screws that secure the lateral support to the back slide securely.
Adjusting Depth
NOTE: For this procedure, refer to FIGURE 7.13.
1. Remove the two flat screws that secure the lateral support pad to the mounting
bracket.
2. Reposition the lateral support pad to the other set of mounting holes.
3. Reinstall the two flat screws and tighten securely.
Adjusting Width
NOTE: For this procedure, refer to FIGURE 7.13.
1. Note depth mounting position of the lateral support.
2. Remove the two flat screws that secure the lateral support pad to the existing
mounting bracket.
3. Remove the two socket screws that secure the mounting bracket to the hinge.
4. Line up the mounting holes in the new mounting bracket with the hinge.
5. Install the socket screws to secure the new mounting bracket to the hinge and tighten
securely.
6. Line up the lateral support pad to the position noted in STEP 1.
7. Reinstall the two flat screws and tighten securely.
FIGURE 7.13 Adjusting Lateral Supports
Lateral
Support
Pad
Socket
Screws
Mounting
Brackets
(Available)
Back Slide
Flat Screws
Hinge

SECTION 7—BACK ADJUSTMENTS
Part No 1114842 97 2G Tarsys®Powered Seating System
Round Canes
Removing Lateral Supports
NOTE: For this procedure, refer to FIGURE 7.14.
1. Remove the three hex screws securing the half clamps to the back canes.
2. Remove the two socket screws securing the bracket (with lateral support attached) to
the half clamp.
Installing Lateral Supports
NOTE: For this procedure, refer to FIGURE 7.14.
1. Position the half clamps on the back cane.
NOTE: Ensure the half clamp with the threaded holes is towards the front of the wheelchair.
2. Secure the half clamps to the back canes using the three hex screws.
3. Secure the bracket (with lateral support attached) to the half clamp with threaded
holes using two socket screws.
FIGURE 7.14 Removing/Installing Lateral Supports - Round Canes
Adjusting Lateral Height
NOTE: For this procedure, refer to
FIGURE 7.15.
1. Loosen, but DO NOT remove, the three
socket screws securing the half clamps
to the back cane.
2. Adjust the height of the lateral support.
3. Tighten the three socket screws to
secure the half clamps to the back cane. FIGURE 7.15 Adjusting Lateral Height
Lateral
Support
Socket
Screws
Half Clamp with
Threaded Holes
Half Clamp
Back Cane
Socket
Screws
Bracket
Front of
Wheelchair
Rear of
Wheelchair
Lateral
Support
Socket Screws
Half Clamp
Back Cane

SECTION 7—BACK ADJUSTMENTS
2G Tarsys®Powered Seating System 98 Part No 1114842
Adjusting Lateral Depth
NOTE: For this procedure, refer to FIGURE 7.16.
1. Remove the two flat screws that secure the lateral support pad to the bracket.
2. Reposition the bracket to the other set of mounting holes in the lateral support.
3. Install the two flat screws to secure the lateral support pad to the bracket.
FIGURE 7.16 Adjusting Lateral Depth
Adjusting Lateral Width
NOTE: For this procedure, refer to FIGURE 7.17.
1. Note the depth mounting position of the lateral support pad.
2. Remove the two flat screws that secure the lateral support pad to the existing bracket.
3. Remove the two socket screws that secure the existing bracket to the hinge.
4. Align the mounting holes in the new bracket with the mounting holes in the hinge.
5. Use the two socket screws to secure the new bracket to the hinge.
6. Secure the lateral support pad to the new bracket with the two flat screws.
FIGURE 7.17 Adjusting Lateral Width
Lateral Support Pad
Flat Screws
Mounting Holes Bracket
Lateral Support Pad
Flat Screws
Hinge
Socket Screws
Bracket

SECTION 8—SHROUDS
Part No 1114842 99 2G Tarsys®Powered Seating System
SECTION 8—SHROUDS
WARNING
After ANY adjustments, repair or service and BEFORE use, make sure all attaching
hardware is tightened securely - otherwise injury or damage may occur.
Before adjusting, repairing or servicing the seating system, ALWAYS turn the
wheelchair power OFF, otherwise, injury or damage may result.
Pinch points exist between seat and base frames. Use caution, otherwise injury may
occur.
Shroud Overview
NOTE: For this procedure, refer to FIGURE 8.1.
FIGURE 8.1 Shroud Overview
VSR Shroud
Refer to
Removing/Installing VSR
Shroud on page 100.
Rear Seat Shroud
Refer to
Removing/Installing Rear
Seat Shroud on page 101.
Side Shroud
(also on opposite side)
Refer to
Removing/Installing Side
Shrouds on page 100.
Lower Seat Shroud
Refer to
Removing/Installing Lower
Seat Shroud on page 102.
Controller Shroud
Refer to
Removing/Installing Rear
Shroud on page 102.

SECTION 8—SHROUDS
2G Tarsys®Powered Seating System 100 Part No 1114842
Removing/Installing VSR Shroud
NOTE: For this procedure, refer to FIGURE 8.2.
1. To remove, cut the two tie-wraps that secure the VSR shroud in place.
2. Pull on the VSR shroud to disengage from the fastening strip.
3. Secure VSR shroud to VSR mounting tube in place with two tie-wraps as shown in
FIGURE 8.2.
FIGURE 8.2 Removing/Installing VSR Shroud
Removing/Installing Side Shrouds
WARNING
Side shroud(s) MUST be reinstalled before operation of the seating system.
Otherwise injury may result.
NOTE: For this procedure, refer to FIGURE 8.3 on page 101.
1. Remove the mounting screw and washer that secure the side shroud to the seat frame.
2. To install side shrouds, align side shroud with fastening strips and secure with
mounting screw and washer. Securely tighten.
NOTE: Only the right side shroud is shown for clarity. The left side shroud removes/installs in the
same manner.
VSR Mounting
Tube
Tie-Wraps
VSR
Shroud
Fastening
Strip

SECTION 8—SHROUDS
Part No 1114842 101 2G Tarsys®Powered Seating System
FIGURE 8.3 Removing/Installing Side Shrouds
Removing/Installing Rear Seat Shroud
NOTE: For this procedure, refer to FIGURE 8.4.
1. Remove the screw located on the back of the shroud.
2. To remove, pull up on rear seat shroud to disengage from fastening strips.
3. To install, align fastening strips on rear seat shroud with fastening strips on frame.
Position rear seat shroud in place and firmly press down. Install the phillips head
screw.
FIGURE 8.4 Removing/Installing Rear Seat Shroud
Side Shroud
Washer
Mounting
Screw
Seat Frame
Fastening
Strip
Fastening
Strip
Fastening
Strips
Fastening Strips
(Located on
underside of Shroud)
NOTE: There are three
fastening strips located on
rear pivot assembly.

SECTION 8—SHROUDS
2G Tarsys®Powered Seating System 102 Part No 1114842
Removing/Installing Rear Shroud
NOTE: For this procedure, refer to FIGURE 8.5.
1. Verify the joystick On/Off switch is in the Off position.
2. Remove the two thumb screws that secure the rear shroud to the wheelchair.
3. Remove the rear shroud from the wheelchair.
FIGURE 8.5 Removing/Installing Rear Shroud
Removing/Installing Lower Seat Shroud
NOTE: For this procedure, refer to FIGURE 8.6 on page 103.
1. Perform one of the following actions:
• Tilt-Only Systems and Tilt/Recline Systems - Tilt seat to maximum angle.
• Recline-Only Systems:
i. Note the mounting location of the hardware securing the recline links to the
front pivot assembly.
ii. Remove the two shoulder bolts, washers and locknuts that secure the recline
links to the front pivot assembly (Detail “A”).
WARNING
To ensure safety, secure seat in tilted position before removing/installing the lower
seat shroud. Otherwise, injury may result.
iii. Tilt seat back and secure in tilted position.
2. Remove the mounting screw, coved washer, washer and locknut that secure the rear
portion of the lower seat shroud to the seat frame (Detail “B”).
NOTE: The mounting screw, coved washer, washer and locknut also secure the seat pan to the seat
frame.
3. Remove the two mounting screws that secure the front portion of the lower seat
shroud to the seat frame (Detail “C”).
4. To install lower seat shroud, reverse STEPS 1-3.
Thumb Screws
Rear
Shroud

SECTION 8—SHROUDS
Part No 1114842 103 2G Tarsys®Powered Seating System
FIGURE 8.6 Removing/Installing Lower Seat Shroud
@
Seat Frame
Mounting
Screw
Locknut
Lower Seat
Shroud
Coved
Washer
DETAIL B: REAR MOUNTING HARDWARE
DETAIL “A” - RECLINE ONLY SYSTEMS
Recline Link Locknut
Shoulder
Bolt
Front Pivot
Assembly
NOTE: 10°/15° recline link
shown. 0°/5° recline link
installs in the same way.
DETAIL C: FRONT MOUNTING HARDWARE
Washer
Mounting
Screw
Seat Frame
NOTE: Seat pan not shown for clarity.
Hardware shown also secures seat pan to seat
frame.
Lower Seat
Shroud

SECTION 9—POWER ELEVATING LEGRESTS
2G Tarsys®Powered Seating System 104 Part No 1114842
SECTION 9—POWER ELEVATING
LEGRESTS
WARNING
After ANY adjustments, repair or service and BEFORE use, make sure all attaching
hardware is tightened securely - otherwise injury or damage may occur.
Before adjusting, repairing or servicing the seating system, ALWAYS turn the
wheelchair power OFF, otherwise, injury or damage may result.
Pinch points exist between seat and base frames. Use caution, otherwise injury may
occur.
NOTE: For complete operating information on Invacare elevating legrests, refer to the TDX
Owner's Manual, listed in Reference Documents on page 2.
Installing/Removing the Power Elevating Legrests
WARNING
To prevent personal injury, ALWAYS verify proper positioning of legs and feet prior
to use. Individual user weight may impact the rate of travel for each legrest
assembly. If simultaneous operation is desired, select a speed which allows for the
most uniform travel.
DO NOT insert fingers between legrest components. Otherwise personal injury
may occur.
CAUTION
NEVER allow items to become trapped between the legrest assemblies. Otherwise
damage to the power legrests may occur.
Ensure that all parts of both power legrests are clear of any obstructions before
raising and lowering, otherwise damage to the power legrests may occur.
NOTE: For this procedure, refer to FIGURE 9.1 on page 105.
NOTE: Power legrests are linked to the recline function of the seating system. Operating the
recline function automatically operates power legs. Power legrests can also be operated
independently of the recline function.

SECTION 9—POWER ELEVATING LEGRESTS
Part No 1114842 105 2G Tarsys®Powered Seating System
Installing the Power Elevating Legrests
1. Turn power legrest to side (open footplate is perpendicular to wheelchair) and
position the mounting pin on the legrest with mounting holes on the seat frame
(Detail “A”).
2. Insert the mounting pin of power legrest into the mounting hole of the seat frame
(Detail “A”).
NOTE: Make sure the legrest sits flush on the seat frame.
3. Rotate the power leg toward the inside of the wheelchair until it locks in place.
NOTE: The footplate will be on the inside of the wheelchair when locked in place.
4. Repeat STEPS 1-3 for the opposite legrest.
5. Connect the power legrest connectors (Detail “B”).
6. If necessary, adjust powered legs. Refer to Adjusting the Power Elevating Legrests on
page 106.
Removing the Power Elevating Legrests
1. Disconnect power legrest connectors.
2. Push powered legrest release handle toward the opposite side of the wheelchair and
swing legrest to the outside of the wheelchair.
3. Lift up powered legrest and remove from wheelchair.
4. Repeat STEPS 1-3 for opposite power legrest.
FIGURE 9.1 Installing/Removing the Power Elevating Legrests
Calf Pad
Footplate
Legrest Release
Handle
DETAIL “A” DETAIL “B”
Power Legrest
Connectors
Mounting
Hole Mounting Pin

SECTION 9—POWER ELEVATING LEGRESTS
2G Tarsys®Powered Seating System 106 Part No 1114842
Adjusting the Power Elevating Legrests
Adjusting the Footplate
WARNING
DO NOT remove heel loops without providing some other adequate means of
support, otherwise personal injury may occur.
Adjusting the Footplate Height
NOTE: For this procedure, refer to FIGURE 9.2.
NOTE: The following procedure should be performed with the user in the wheelchair.
NOTE: T-nuts ride in the channels of the exterior/interior rails of the power legrests.
1. Loosen, but DO NOT remove, the two interior button screws that secure the footplate
assembly to the T-nuts.
2. Loosen, but DO NOT remove, the two exterior button screws that secure the footplate
assembly to the T-nuts.
3. Loosen, but DO NOT remove, the two button screws that secure the heel loop to the
T-nuts.
4. Slide footplate assembly up or down, until desired height is achieved.
5. While holding footplate assembly in position, tighten all six button screws that were
loosened in STEPS 1-3.
6. Repeat STEPS 1–5 for opposite footplate if necessary.
FIGURE 9.2 Adjusting the Footplate Height
Exterior Rail
Channel
T-Nuts (Not Shown)
Footplate
Assembly
Exterior
Button Screws
Outside View Inside View
Channel
T-Nuts (Not Shown)
Footplate Assembly Interior Button
Screws
Button Screws
for Heel Loop

SECTION 9—POWER ELEVATING LEGRESTS
Part No 1114842 107 2G Tarsys®Powered Seating System
Adjusting the Footplate Depth
NOTE: For this procedure, refer to
FIGURE 9.3.
1. Remove the two flat head screws and
the two barrel nuts that secure the
footplate to the footplate clamp.
2. Reposition the footplate on the
footplate clamp.
3. Align the depth adjustment holes on
the footplate to the mounting holes on
the footplate clamp. FIGURE 9.3 Adjusting the Footplate Depth
4. Insert the barrel nuts through the bottom of the footplate clamp.
5. Install the two flat head screws through the footplate and footplate clamp.
6. Securely tighten with two barrel nuts.
7. Repeat STEPS 1-6 for opposite footplate if necessary.
Adjusting the Footplate Angle
NOTE: For this procedure, refer to FIGURE 9.4 on page 108.
1. Loosen, but DO NOT remove, the two flat head screws and the two barrel nuts that
secure the footplate to the footplate clamp. Refer to Detail “A”.
2. Rotate the footplate clamp on the pivot hinge until the desired angle is achieved. Refer
to Detail “B”.
3. Securely tighten footplate to footplate clamp and hinge pivot with the two flat head
screws and barrel nuts.
4. Repeat STEPS 1-3 for opposite side if necessary.
5. For additional angle adjustment, perform the following:
A. Loosen the set screw.
B. Rotate footplate up or down to desired position.
C. Retighten set screw.
Footplate Clamp
Flat Head Screws
Depth
Adjustment
Holes
Barrel Nuts
Footplate
Mounting Holes

SECTION 9—POWER ELEVATING LEGRESTS
2G Tarsys®Powered Seating System 108 Part No 1114842
FIGURE 9.4 Adjusting the Footplate Angle
Adjusting the Calf Pad
Adjusting the Calf Pad Width
NOTE: For this procedure, refer to FIGURE 9.5.
1. Remove the two button head screws from the calf pad and calf pad bracket.
2. Reposition calf pad to calf pad bracket to desired mounting position.
3. Align button head screws to mounting holes on calf pad and calf pad bracket.
4. Install button head screws into calf pad bracket and calf pad. Securely tighten.
5. Repeat STEPS 1-4 for opposite side, if necessary.
FIGURE 9.5 Adjusting the Calf Pad Width
DETAIL “A” DETAIL “B”
Direction of
Rotation
Set Screw
Barrel Nuts
Footplate
Clamp
Footplate
Flat Head
Screws
Footplate
Footplate
Clamp Pivot Hinge
Back View
of Legrest
Calf Pad Bracket
Calf Pad
Mounting
Holes
Button
Head
Screws
Calf Pad
Button
Head
Screws
Calf Pad Bracket
Mounting
Holes

SECTION 9—POWER ELEVATING LEGRESTS
Part No 1114842 109 2G Tarsys®Powered Seating System
Adjusting the Calf Pad Depth
NOTE: For this procedure, refer to
FIGURE 9.6.
1. Loosen, but DO NOT remove, depth
adjustment bracket mounting screws.
2. Slide calf pad assembly up and out of
the mounting channel.
3. Remove the flat head socket screw and
locking hex nut that secure the calf
bracket to the depth adjustment
bracket.
4. Reposition the calf bracket on the depth
adjustment bracket to desired position.
5. Install the flat head socket screw
through the calf bracket, depth
adjustment bracket and locking
hex nut. FIGURE 9.6 Adjusting the Calf Pad Depth
6. Tighten locking hex nut until snug. DO NOT overtighten nut or calf pad will not pivot
properly.
7. Align the two T-nuts on depth adjustment bracket assembly with channel on legrest.
8. Slide calf pad assembly to desired height. Tighten the two hex mounting screws
securely.
9. Repeat STEPS 1-6 for opposite side.
Adjusting the Calf Pad Height
NOTE: For this procedure, refer to FIGURE 9.7.
1. Loosen, but DO NOT remove, the two
hex head screws that secure depth
adjustment bracket to the T-nuts.
2. Slide the calf pad assembly with T-nuts
up or down in the channel to desired
position.
3. Holding the calf pad assembly into
position, tightly secure the hex screws
to the T-nuts.
4. Repeat STEPS 1-3 for opposite side, if
necessary.
FIGURE 9.7 Adjusting the Calf Pad Height
Mounting
Channel
Depth
Adjustment
Holes
Flat Head
Mounting
Screw
Locking
Hex
Nut
Calf
Bracket
Depth
Adjustment
Bracket
Depth
Adjustment
Bracket Hex
Head Screws
NOTE: Calf pad not shown for clarity.
T-Nuts
Hex Head
Screws
(T-Nuts
are NOT
SHOWN)
Depth
Adjustment
Bracket
Channel
Outer Rail

SECTION 9—POWER ELEVATING LEGRESTS
2G Tarsys®Powered Seating System 110 Part No 1114842
Adjusting the Length of Power Legrest
NOTE: For this procedure, refer to FIGURE 9.8.
1. Loosen, but DO NOT remove, the
length adjustment button screw (screw
also secures lower end of shroud).
2. Slide footplate with outer cover up or
down to desired position.
3. Securely tighten length adjustment
button screw.
4. Repeat STEPS 1-3 for remaining legrest.
FIGURE 9.8 Adjusting the Length of Power
Legrest
Removing/Installing the Power Elevating Legrest
Harness
NOTE: For this procedure, refer to FIGURE 9.9 on page 111.
Removing
1. Unplug the power elevating legrest connectors.
2. Unplug the harness from the TRCM.
3. Cut the tie-wraps securing the harness to the lower seat shroud (Detail “A”).
4. Remove the hook and loop fastening strips securing the harness to the underside of
the lower seat shroud.
5. Remove the two cap screws and locknuts securing the harness connector to the
harness wire bracket.
6. Remove the harness from the seating system.
Installing
1. If power legrests were not previously installed, perform the following steps:
A. Install the socket screw through the half clamp and harness wire bracket.
B. Position the half clamp with harness wire bracket onto the seat frame.
C. Install the locknut onto the socket screw to secure the half clamp to the seat frame.
D. Repeat STEPS A-C for the opposite side of the wheelchair.
Outer
Cover
Button
Screw
NOTE: Length
adjustment is
from 15½ - 20
inches.

SECTION 9—POWER ELEVATING LEGRESTS
Part No 1114842 111 2G Tarsys®Powered Seating System
2. Secure the power elevating legrest connector to the harness wire bracket using the two
cap screws and locknuts.
3. Tie-wrap the harness to the lower seat shroud (Detail “A”).
4. Secure the harness to the lower seat shroud using hook and loop fastening strips.
5. Plug the harness into the TRCM 2-pin Anderson connector.
6. Repeat STEPS 2-5 for the opposite side of the wheelchair.
7. Install the power elevating legrests. Refer to Installing/Removing the Power Elevating
Legrests on page 104.
FIGURE 9.9 Removing/Installing the Power Elevating Legrest Harness
DETAIL “A” - TIE-WRAPS AND FASTENING STRIPS
Power Legrest
Connectors
Anderson 2-Pin
Connector (To TRCM)
Tie-Wraps
Tie-Wraps
Lower Seat Shroud
Hook and Loop
Fastening Strips
Hook and Loop
Fastening Strip
Hook and Loop
Fastening Strip
To Left Power Elevating
Legrest
To Right Power
Elevating Legrest
To TRCM
To TRCM
Cap Screws
Locknuts
Harness
Connector
Harness Wire Bracket
Socket Screw
Half Clamp
Seat Frame

SECTION 9—POWER ELEVATING LEGRESTS
2G Tarsys®Powered Seating System 112 Part No 1114842
Removing/Installing the Power Elevating Legrest
Actuator
NOTE: For this procedure, refer to FIGURE 9.10 on page 113.
Removing
1. Remove the power elevating legrest from the wheelchair. Refer to
Installing/Removing the Power Elevating Legrests on page 104.
2. Remove the long shoulder screw, flat washer, washer and locknut securing the top of
the power elevating legrest actuator to the power legrest bracket.
3. Remove the short shoulder screw and locknut securing the actuator rod to the actuator
bracket.
4. Remove the power elevating legrest actuator from the legrest.
Installing
1. Unscrew the actuator rod one half turn.
2. Secure the actuator rod to the actuator bracket using the short shoulder screw and
locknut.
3. Secure the top of the power elevating legrest actuator to the power legrest bracket
using the long shoulder screw, flat washer, washer and locknut.
NOTE: The shoulder screw should be on the inside of the legrest and the locknut should be toward
the outside of the legrest.
4. Install the power elevating legrest. Refer to Installing/Removing the Power Elevating
Legrests on page 104.
5. Perform the post-service inspection. Refer to Post-Service Inspection Checklist on
page 21.

SECTION 9—POWER ELEVATING LEGRESTS
Part No 1114842 113 2G Tarsys®Powered Seating System
FIGURE 9.10 Removing/Installing the Power Elevating Legrest Actuator
Power Elevating Legrest Actuator
Short Shoulder Screw
Locknut
Actuator Rod
Actuator Bracket
Long Shoulder
Screw
Flat Washer
Washer
Locknut
Power Legrest Bracket NOTE: Rear of
right power
elevating legrest
shown. Left
legrest actuator
mounts in the
same way.
Outside of
Legrest
Inside of
Legrest

SECTION 10—ARMS
2G Tarsys®Powered Seating System 114 Part No 1114842
SECTION 10—ARMS
WARNING
After ANY adjustments, repair or service and BEFORE use, make sure all attaching
hardware is tightened securely - otherwise injury or damage may occur.
Before adjusting, repairing or servicing the seating system, ALWAYS turn the
wheelchair power OFF, otherwise, injury or damage may result.
Pinch points exist between seat and base frames. Use caution, otherwise injury may
occur.
Make sure armrests are locked securely in place before using the wheelchair.
Pinch points exist on the armrests.
Removing/Installing Reclining Armrests
NOTE: For this procedure, refer to FIGURE 10.1 on page 115.
Removing Armrests
1. Lift the armrest release lever at the front of the wheelchair to the unlocked (horizontal)
position.
2. Lift the armrest and remove from the front arm socket.
3. Press the release button at the rear of the armrest.
4. While holding the release button in, remove the armrest from the seat frame.
Installing Armrests
1. Position the armrest on the seat frame as shown in FIGURE 10.1.
2. Press the release button at the rear of the armrest.
3. While holding the release button in, slide the armrest onto the seat frame.
4. Make sure the armrest release lever is in the unlocked (horizontal) position.
5. Install the armrest into the front socket.
6. Push the armrest release lever down into the locked (vertical) position.

SECTION 10—ARMS
Part No 1114842 115 2G Tarsys®Powered Seating System
FIGURE 10.1 Removing/Installing Reclining Armrests
Adjusting Armrest Height
NOTE: For this procedure, refer to FIGURE 10.2 on page 116.
1. Make sure the seating system is in the full upright position.
2. Remove the socket bolt and locknut that secure the front of the upper armrest to the
lower armrest.
3. Loosen, but DO NOT remove, the two socket screws and T-nuts that secure the rear of
the recliner armrest to the back cane.
4. Refer to the chart below and adjust the armrest to the desired height for the user.
*NOTE: Front armrest mounting holes are numbered from bottom to top for reference only. There
are no numbers on the armrests.
5. Reinstall the socket bolt through the mounting hole determined in STEP 4.
6. Reinstall the locknut and tighten securely.
7. While holding the armrest level, tighten the two socket screws and T-nuts securely.
8. Repeat STEPS 2-7 for the opposite side if necessary.
*HOLE NUMBER 123456
ARMREST HEIGHT (IN INCHES) 111213141516
Armrest
Release Lever
Release Button
Locked
(DOWN -
VERTICAL)
Unlocked
(UP -
HORIZONTAL)

SECTION 10—ARMS
2G Tarsys®Powered Seating System 116 Part No 1114842
FIGURE 10.2 Adjusting Armrest Height
Installing/Removing Flip-Back Armrests
WARNING
Make sure the flip-back armrest release and height adjustment levers are in the
locked position before using the wheelchair.
NOTE: For this procedure, refer to FIGURE 10.3 on page 117.
NOTE: Flip-back armrest release lever MUST be in the unlocked (up-horizontal) position when
placing the armrest into the arm sockets.
Installing
1. Visually inspect to ensure flip back armrest release lever is in the unlocked
(up-horizontal) position (Detail “C”).
2. Slide the flip-back armrest into the arm sockets on the seat frame.
3. Install the quick-release pin through the rear arm socket and flip-back armrest.
4. Lock the flip-back armrest by pressing the flip-back armrest release lever into the
down (vertical) position (Detail “C”).
5. Connect joystick cable to joystick connector. Refer to FIGURE 10.3, Detail “A.”
6. Attach the cable to the back cane with a tie-wrap (not shown).
7. Repeat STEPS 1-6 for the opposite flip-back armrest.
Armrest
Socket Bolt
Height Adjustment Holes
Locknut
Back Cane
Socket
Screws/T-Nuts

SECTION 10—ARMS
Part No 1114842 117 2G Tarsys®Powered Seating System
FIGURE 10.3 Installing/Removing Flip-Back Armrests
Removing
1. Disconnect joystick. Refer to Detail “A.”
2. Cut the tie-wrap attaching the joystick cable to the back cane (not shown).
3. Unlock the flip-back armrest by positioning the flip-back armrest release lever into the
up (horizontal) position. Refer to Detail “C”.
4. Remove the quick-release pin that secures the flip-back armrest to the rear arm socket.
5. Pull on the flip-back armrest and remove the armrest from the arm sockets.
6. Repeat STEPS 3-5 for the opposite flip-back armrest, if necessary.
Locked
(Down -
Vertical)
Unlocked
(Up - Horizontal)
Flip Back
Armrest
Release Lever
Flip Back
Armrest
Rear
Arm
Socket
Quick-
Release
Pin
Seat
Frame
Front
Arm
Socket
DETAIL “A”
Joystick
Connector
Connector
Cable
DETAIL “B” Toggle
Switch
Bolts
DETAIL “C”

SECTION 10—ARMS
2G Tarsys®Powered Seating System 118 Part No 1114842
Adjusting Flip-Back Armrest Height
NOTE: For this procedure, refer to FIGURE 10.4.
1. Unlock top of flip back armrest by pulling height adjustment lever into the up
(horizontal) position.
2. Adjust top of the flip back armrest to the desired height.
3. Lock top of flip back armrest by pushing height adjustment lever into the down
(vertical) position.
NOTE: The arm is not locked until an audible “click” is heard.
FIGURE 10.4 Adjusting Flip-Back Armrest Height
Flip Back Armrest
Release Lever
Height
Adjustment
Lever
Flip Back
Armrest
Front Arm
Socket
Unlocked
(UP - HORIZONTAL)
Locked
(DOWN - VERTICAL)

SECTION 11—CENTER MOUNT FOOTRESTS
Part No 1114842 119 2G Tarsys®Powered Seating System
SECTION 11—CENTER MOUNT
FOOTRESTS
WARNING
After ANY adjustments, repair or service and BEFORE use, make sure all attaching
hardware is tightened securely - otherwise injury or damage may occur.
Before adjusting, repairing or servicing the seating system, ALWAYS turn the
wheelchair power OFF, otherwise, injury or damage may result.
Pinch points exist between seat and base frames. Use caution, otherwise injury may
occur.
NOTE: For complete operating information on Invacare footrests, refer to the TDX Owner's
Manual, part number 1114809, supplied for the base of the wheelchair.
Removing/Installing the Center Mount Footrest
NOTE: For this procedure, refer to FIGURE 11.1.
Removing
1. Remove the rigging pivot pin that
secures the footrest to the mounting
bracket of the seat frame.
2. Hold the footrest with one hand and
engage the release lever with the other
while simultaneously pulling the
center mount footrest out of the
mounting bracket of the seat frame.
Installing
1. Engage the release lever with one hand,
hold the center mount footrest with the
other, and insert the center mount
footrest into the mounting bracket of
the seat frame.
2. Reinstall the rigging pivot pin to secure
the center mount footrest to the
mounting bracket of the seat frame.
FIGURE 11.1 Removing/Installing the
Center Mount Footrest
Seat Frame
Rigging Pivot
Pin
Release Lever
Center Mount
Footrest
Mounting Bracket
of Seat Frame

SECTION 11—CENTER MOUNT FOOTRESTS
2G Tarsys®Powered Seating System 120 Part No 1114842
Adjusting the Height of the Center Mount Footrest
WARNING
After adjusting the Center Mount Footrest, minimum ground clearance for the
footrest in the driving position is three inches. If the Center Mount Footrest is in the
retracted position and the wheelchair is not moving, the footrest must maintain a
minimum of one inch ground clearance. Otherwise personal injury and damage may
result.
NOTE: For this procedure, refer to FIGURE 11.2.
1. Remove the two mounting screws that secure the footrest extension tube to the
extension tube housing.
2. If adjusting to one of the three shortest settings for footrest height, remove the
retaining ring on the angle adjustment pin and slide it out.
3. Adjust the footrest extension tube to the desired height and align the corresponding
holes to the mounting holes on the extension tube housing.
4. If adjusting to one of the three shortest settings for footrest height, install the angle
adjustment pin and the retaining ring.
5. Reinstall the two mounting screws to secure the footrest extension tube to the
extension tube housing. Securely tighten.
6. Repeat STEPS 1-5 for the other extension tube.
FIGURE 11.2 Adjusting the Height of the Center Mount Footrest
Release Lever
Seat Frame
Extension Tube Housing
Height Adjustment Holes
Mounting Screws
Extension Tube Mounting Holes
Extension Tube
Retaining Ring
Angle Adjustment Pin

SECTION 11—CENTER MOUNT FOOTRESTS
Part No 1114842 121 2G Tarsys®Powered Seating System
Adjusting the Angle of the Center Mount Footrest
WARNING
After adjusting the Center Mount Footrest, minimum ground clearance for the
footrest in the driving position is three inches. If the Center Mount Footrest is in the
retracted position and the wheelchair is not moving, the footrest must maintain a
minimum of one inch ground clearance. Otherwise personal injury and damage may
result.
NOTE: For this procedure, refer to FIGURE 11.2 and FIGURE 11.3.
1. Engage the release lever with one hand (FIGURE 11.2) and move the center mount
footrest to the desired angle with the other hand (FIGURE 11.3).
2. Disengage the release lever to lock the center mount footrest in the new position.
FIGURE 11.3 Adjusting the Angle of the Center Mount Footrest
Adjusting the Center Mount Footplate Angle
After 2/14/07
NOTE: For this procedure, refer to FIGURE 11.4.
1. Loosen, but DO NOT remove, the two
rear mounting screws and side mounting
screw.
2. Move the footplate to the desired angle.
3. Tighten the two rear mounting screws
and side mounting screw to secure the
footplate in the desired position.
4. Repeat STEPS 1 and 2 for the other
footplate. FIGURE 11.4 Adjusting the Center Mount
Footplate Angle - After 2/14/07
Footplate
Center
Mount
Footrest
Center Mount
Front Rigging
Footplate
Side Mounting
Screw
Rear Mounting
Screws

SECTION 11—CENTER MOUNT FOOTRESTS
2G Tarsys®Powered Seating System 122 Part No 1114842
Before 2/15/07
NOTE: For this procedure, refer to FIGURE 11.5.
1. Loosen, but DO NOT remove, the
footplate mounting screw.
2. Move the footplate to the desired angle.
3. Tighten the footplate mounting screw to
secure the footplate in the desired
position.
4. Repeat STEPS 1 and 2 for the other
footplate. FIGURE 11.5 Adjusting the Center Mount
Footplate Angle - Before 2/15/07
Adjusting the Tension of the Center Mount Footplate
NOTE: For this procedure, refer to FIGURE 11.6.
NOTE: The tension can be adjusted to increase or
decrease the rotation effort of the flip up footplates.
1. Loosen the mounting screw on the
footrest angle hinge to decrease the
rotation effort.
NOTE: DO NOT remove the mounting screw.
2. Tighten the footrest angle hinge
mounting screw to increase the rotation
effort.
3. Repeat STEPS 1 and 2 for the other
footplate.
FIGURE 11.6 Adjusting the Tension of the
Center Mount Footplate
Removing/Installing the Release Lever Assembly
NOTE: For this procedure, refer to FIGURE 11.7 on page 123.
1. Remove the mounting screw that secures the side shroud in place.
2. Secure the ratchet housing to the mounting bracket on the seat frame with the mounting
screw and locknut provided. Securely tighten.
3. Secure the release handle to the seat frame with the mounting screw, spacer and square
nut provided. Securely tighten.
4. Tie-wrap cable as shown in Detail “A”. Leave enough slack in the cable to loop around the
mounting screw that secures the side shroud in place.
5. Secure the side shroud in place with existing mounting screw. Securely tighten.
Center Mount
Footrest
Footplate
Footplate
Mounting
Screw
Footplate
Footrest Angle Hinge
Mounting Screw
Footrest Angle Hinge
Center Mount
Footrest

SECTION 11—CENTER MOUNT FOOTRESTS
Part No 1114842 123 2G Tarsys®Powered Seating System
FIGURE 11.7 Removing/Installing the Release Lever Assembly
Mounting
Bracket
Locknut
Ratchet Housing Mounting Screw
Square Nut
Spacer
Mounting Screw
Seat Frame
Release Handle
DETAIL “A”
Tie-Wrap the Cable Here
Ratchet Housing
NOTE: Side shroud
omitted for clarity.
Seat Frame

SECTION 12—HEADREST
2G Tarsys®Powered Seating System 124 Part No 1114842
SECTION 12—HEADREST
WARNING
After ANY adjustments, repair or service and BEFORE use, make sure all attaching
hardware is tightened securely - otherwise injury or damage may occur.
Before adjusting, repairing or servicing the seating system, ALWAYS turn the
wheelchair power OFF, otherwise, injury or damage may result.
Pinch points exist between seat and base frames. Use caution, otherwise injury may
occur.
Removing/Installing/Adjusting Headrest
NOTE: For this procedure, refer to FIGURE 12.1.
Removing
1. Loosen, but DO NOT remove, the thumb screw that secures the headrest to the
headrest mounting bracket.
2. Remove the headrest from the headrest mounting bracket.
Installing
1. Make sure thumb screw is loose.
2. Install the headrest until the headrest stop sits on the headrest mounting bracket.
3. If necessary, adjust the height, depth or direction of the headrest. Refer to Adjusting
Headrest Height on page 125.
FIGURE 12.1 Removing/Installing/Adjusting Headrest
Depth
Adjustment
Offset Fixture
Slide Tube
Socket Screws
Height Adjustment
Thumb Screw
Headrest Mounting Bracket Headrest Stop
Set Screw

SECTION 12—HEADREST
Part No 1114842 125 2G Tarsys®Powered Seating System
Adjusting Headrest Height
1. Loosen the set screw on the headrest stop.
2. Loosen, but DO NOT remove, the thumb screw that secures the headrest to the
headrest mounting bracket.
3. Position the headrest to the desired height.
4. Tighten the thumb screw that secures the headrest to the headrest mounting bracket.
5. Tighten the set screw on the headrest stop.
6. If necessary, adjust the depth or direction of the headrest. Refer to Adjusting Headrest
Depth/Direction below.
Adjusting Headrest Depth/Direction
1. Loosen, but DO NOT remove, the three socket screws that secure the offset fixture to
the slide tube.
2. If necessary, reposition the headrest to the desired depth by sliding the headrest
towards the front of the wheelchair or towards the rear of the wheelchair.
3. If necessary, reposition the headrest to the desired position (headrest will move in any
direction).
4. While holding the headrest in the desired position, securely tighten the three socket
screws.
5. If necessary, adjust the height of the headrest. Refer to Adjusting Headrest Height
above.
Replacing Headrest
NOTE: For this procedure, refer to FIGURE 12.2.
1. Remove the three socket screws that
secure the headrest to the headrest
mounting bracket.
2. Position the new headrest on the
headrest mounting bracket and secure
with the existing three socket screws.
3. If necessary, adjust the height, depth or
direction of the headrest. Refer to
Adjusting Headrest Height above.
FIGURE 12.2 Replacing Headrest
Headrest Mounting
Bracket
Socket
Screw Headrest
NOTE: One style of headrest shown
for clarity. Both styles of headrest
attach the same way.

SECTION 13—TILT AND RECLINE
2G Tarsys®Powered Seating System 126 Part No 1114842
SECTION 13—TILT AND RECLINE
WARNING
After ANY adjustments, repair or service and before use, make sure all attaching
hardware is tightened securely - otherwise injury or damage may occur.
Before adjusting, repairing or servicing the seating system, ALWAYS turn the
wheelchair power OFF, otherwise, injury or damage may result.
Pinch points exist between seat and base frames. Use caution, otherwise injury may
occur.
A Note About Drive Lock-Out
WARNING
NEVER operate the wheelchair while in any tilted/reclined/back angle position over
20° relative to the vertical position. If the drive lock-out does not stop the
wheelchair from operating in a tilt position over 20° relative to the vertical position,
DO NOT operate the wheelchair. DO NOT attempt to adjust the drive lock-out.
Have the wheelchair serviced by a qualified technician.
The wheelchair user MUST have a clear line of sight to drive safely. On initial chair
delivery and after adjusting the back angle, drive lock-out switch, tilt system or
recline system, tilt and recline the seat back to the farthest driving position
immediately before drive lock-out engages and ensure there is a clear line of sight
present in which to drive the wheelchair. If a clear line of sight is not present, have
the back angle repositioned or readjust the lockout angle such that safe driving with
a clear line of sight is achieved. Otherwise injury or damage may occur.
The LED on the single function toggle switch will light when the drive lock-out feature
has been activated. Drive lock-out is a feature designed to prevent the wheelchair from
being driven after the seating system has been tilted or reclined beyond 20°* relative to
the vertical position. The back can be positioned at a 10° relative offset to the seat base,
thereby resulting in a back angle potential of 30° before which the drive lock-out is
activated. This may affect the wheelchair user’s line of sight while driving. Make sure the
wheelchair user can see properly to ensure safe driving.
*NOTE: 20° back angle can be any combination of recline, tilt and/or surface angle.
NOTE: Refer to Typical Product Parameters on page 12 for tilt and/or recline angle ranges.

SECTION 13—TILT AND RECLINE
Part No 1114842 127 2G Tarsys®Powered Seating System
Operating Powered Seating Systems
GENERAL WARNINGS
Refer to A Note About Drive Lock-Out on page 126 before performing this
procedure.
Pinch points may occur when returning the seat from any tilted position to the full
upright position. Make sure the hands and body of both the occupant and
attendants/bystanders are clear of all pinch points before returning the seat to the
full upright position.
Use caution when driving in a tilted or reclined position.
DO NOT operate the seating system while on an incline.
DO NOT operate the seating system while the wheelchair is moving.
DO NOT operate the tilt function near or under a fixed object such as a table or
desk.
CAUTION
DO NOT operate the recline function of the seating system if one or both of the
mechanical elevating legrest push rods are bent. Damage to the seating system can
occur.
Use only the actuator controls listed in the following chart to activate the tilt/recline
functions. DO NOT use any other actuator controls. Such devices may result in
excess heating and cause damage to the actuator and associated cables and could
cause a fire, death, physical injury or property damage. If such devices are used,
Invacare shall not be liable and the limited warranty is void.
NOTE: For this section, refer to FIGURE 13.1 on page 128.
SEATING SYSTEM ACTUATOR CONTROL
TRSS TRCM SAC TAC
TILT ONLY YYYY
TILT ONLY WITH POWER ELEVATING LEGRESTS NYNN
RECLINE ONLY NYNY
RECLINE ONLY WITH POWER ELEVATING LEGRESTS NYNN
TILT/RECLINE NYNN

SECTION 13—TILT AND RECLINE
2G Tarsys®Powered Seating System 128 Part No 1114842
FIGURE 13.1 Operating Powered Seating Systems
Single Function Toggle Switch (TRSS)
NOTE: For this procedure, refer to FIGURE 13.2.
1. Make sure the wheelchair is on a level surface.
2. Refer to the chart which follows for the operation of the seating system using a single
function toggle switch mounted on the right side of the wheelchair:
3. Release single function toggle switch to neutral position.
FIGURE 13.2 Single Function Toggle Switch (TRSS)
SEATING SYSTEM SINGLE FUNCTION TOGGLE SWITCH
FORWARD BACK
TILT ONLY Increase Tilt Angle Decrease Tilt Angle
RECLINE ONLY Increase Recline Angle Decrease Recline Angle
DETAIL “A” - FULL UPRIGHT POSITION DETAIL “B” - FULL TILT POSITION
DETAIL “C” - FULL RECLINE POSITION DETAIL “D” - TILT/RECLINE COMBINATION
LED
Single Function
Toggle Switch

SECTION 13—TILT AND RECLINE
Part No 1114842 129 2G Tarsys®Powered Seating System
Optional Four-Way Toggle Switch
NOTE: For this procedure, refer to FIGURE 13.3.
1. Make sure the wheelchair is on a level surface.
2. Refer to the charts which follow for the operation of the seating system using a
four-way toggle switch:
NOTE: The charts which follow show the factory programmed settings only. Switch assignments
can be reprogrammed.
NOTE: If the wheelchair is equipped with switch options, scan to the correct ECU or Auxiliary
Mode and activate the control device in the corresponding “forward” direction to operate the tilt
function. Refer to MK5 EX and MK5 TT-EX Electronics Service Manual, part number 1114808,
for complete switch option operating instructions.
3. Release four-way toggle switch to neutral position.
FIGURE 13.3 Optional Four-Way Toggle Switch
SEATING SYSTEM FOUR-WAY TOGGLE SWITCH
FORWARD REAR LEFT RIGHT
Tilt Only Increase/Decrease
the Tilt Angle* N/A N/A
Power Legrest
Up/Down*
Recline Only
N/A
Increase/Decrease
the Recline Angle*
Increase/Decrease
the Back Height
(VSR)*
Power Legrest
Up/Down*
Tilt/Recline
Increase/Decrease
the Tilt Angle*
Increase/Decrease
the Recline Angle
Increase/Decrease
the Back Height
(VSR)*
Power Legrest
Up/Down*
*NOTE: The four-way toggle switch will alternate functions (increase tilt angle, decrease tilt
angle) after it has been released to the neutral position for a minimum of three seconds. Refer to
MK5™ EX™ and MK5 TT-EX ELECTRONICS Service Manual, part number 1114808 for
complete four-way toggle switch operating instructions.
LED
Left
Forward
Rear
Four-Way Toggle Switch
Right

SECTION 13—TILT AND RECLINE
2G Tarsys®Powered Seating System 130 Part No 1114842
Vernier Shear Reduction (2G Tarsys Systems Only)
NOTE: For this procedure, refer to FIGURE 13.3 on page 129.
About Vernier Shear Reduction
WARNING
The relationship between Vernier Shear Reduction (VSR) and the recline function
of the seating system is dependant on the needs of the user and MUST be set and
adjusted by a trained qualified technician.
Vernier Shear Reduction (VSR) moves the back of the seating system along with the
recline function. VSR reduces shear between the user and the seating system as the
seating system reclines.
NOTE: VSR is electronically linked to the recline function of the seating system and operating the
recline function automatically activates VSR.
VSR function can also be used independently from the recline function to allow for a
change in seating position or access to additional seating system options. Refer to Using
Vernier Shear Reduction (VSR) Independently of Recline Function on page 130.
Using Vernier Shear Reduction (VSR) Independently of Recline Function
WARNING
The back of the seating system MUST be returned to original position before the
degree of recline is changed (increased or decreased). Otherwise, the relationship
between VSR and the recline function of the seating system will change, possibly
resulting in injury to the user.
1. Make sure the wheelchair is on a level surface.
2. Note the current position of the back.
3. Push four-way toggle switch toward the left of the wheelchair until the desired VSR is
achieved.
NOTE: Left and right are determined by standing behind the wheelchair.
NOTE: The four-way toggle switch will alternate functions (move VSR actuator up, move VSR
actuator down) after it has been released to the neutral position for a minimum of one second.
NOTE: If the wheelchair is equipped with switch options, scan to the correct ECU or Auxiliary
Mode and activate the control device in the corresponding "left" direction to operate the tilt
function. Refer to MK5 EX and MK5 TT-EX Electronics Service Manual, part number 1114808,
for complete switch option operating instructions.
4. Return the back to the position noted in STEP 2 before changing the degree of recline.

SECTION 13—TILT AND RECLINE
Part No 1114842 131 2G Tarsys®Powered Seating System
Removing/Installing the Tilt Actuator
NOTE: For this procedure, refer to FIGURE 13.4 on page 132.
Removing
1. Tilt the seat back until the front of the actuator is visible.
2. Turn the wheelchair power OFF.
3. Remove the rear shroud. Refer to Removing/Installing Rear Shroud on page 102.
4. Disconnect the existing tilt actuator connector from the TRCM tilt actuator connector.
5. Remove the shoulder bolt, two spacers and locknut that secure the rear of the existing
actuator to the rear pivot assembly.
WARNING
Hold the seat frame while removing the front actuator hardware, otherwise injury
may occur.
6. While holding the seat frame, remove the shoulder bolt and locknut that secure the
existing actuator to the front pivot assembly.
7. Remove the existing actuator from the rear pivot assembly.
Installing
1. Position the tilt actuator on the rear pivot assembly as shown in FIGURE 13.4.
2. Line up the mounting holes in the rear of the actuator and the rear pivot assembly.
3. Install the shoulder bolt, two spacers and locknut that secure the rear of the actuator
to the rear pivot assembly. Securely tighten. Torque to 13 ft-lbs ± 20%. Refer to
FIGURE 13.4 for correct hardware orientation.
4. Line up the mounting holes in the front of the actuator and the front pivot assembly.
5. Install the shoulder bolt and locknut that secure the front of the actuator to the front
pivot assembly. Securely tighten. Torque to 13 ft-lbs ± 20%. Refer to FIGURE 13.4 for
correct hardware orientation.
6. Connect the tilt actuator connector to the TRCM tilt actuator connector.
7. Reinstall the rear shroud. Refer to Removing/Installing Rear Shroud on page 102.
8. Perform the post-service inspection. Refer to Post-Service Inspection Checklist on
page 21.

SECTION 13—TILT AND RECLINE
2G Tarsys®Powered Seating System 132 Part No 1114842
FIGURE 13.4 Removing/Installing the Tilt Actuator
Removing/Installing the VSR Actuator
NOTE: For this procedure, refer to FIGURE 13.5.
Removing
1. Remove the VSR actuator shroud. Refer
to Removing/Installing VSR Shroud on
page 100.
2. Disconnect the VSR actuator connector
from the TRCM or TAC VSR actuator
connectors (Not shown).
3. Remove the hex bolt and locknut that
secure the existing VSR actuator to the
spreader bar.
NOTE: When the spreader bar is disconnected
from the VSR actuator, the back pan ASM may
slide out of position.
4. Remove the hex bolt, washers and
locknut that secure the existing VSR
actuator to the actuator mounting
bracket.
FIGURE 13.5 Removing/Installing the VSR
Actuator
Rear Pivot
Assembly
Locknut
Shoulder
Bolt
Rear of Tilt
Actuator
Shoulder
Bolt
Front of Tilt
Actuator
Tilt Actuator
Locknut
DETAIL “A”
DETAIL “B”
Front Pivot
Assembly
Spacers
Locknut
Spreader Bar
VSR Actuator Bracket
Locknut
Washers
Hex Bolt
Hex Bolt
VSR
Actuator
Connector
VSR
Actuator

SECTION 13—TILT AND RECLINE
Part No 1114842 133 2G Tarsys®Powered Seating System
Installing
1. Position the new VSR actuator on the back as shown in FIGURE 13.5.
2. Line up the mounting holes in the new VSR actuator and VSR actuator bracket.
3. Install the hex bolt, washers and locknut that secure the new VSR actuator to the VSR
actuator mounting bracket. Tighten securely. Torque to 75 ft-lbs ± 20%. Refer to
FIGURE 13.5 for hardware orientation.
4. Connect the VSR actuator connector to the TRCM or TAC VSR actuator connectors
(Not shown).
5. Reinstall the VSR actuator shroud. Refer to Removing/Installing VSR Shroud on
page 100.
6. Perform the post-service inspection. Refer to Post-Service Inspection Checklist on
page 21.
Removing/Installing the Recline Actuator
NOTE: For this procedure, refer to FIGURE 13.6 on page 134.
Removing
1. Remove the locknut and screw that secure the front of the recline actuator to the seat
frame assembly.
2. Remove the four socket head screws and locknuts that secure the right and left
actuator brackets to the crossbeam.
3. Take note of the right and left actuator bracket orientations.
NOTE: The left and right brackets have long and short sides. The right and left brackets must be
put back correctly or range of motion will be lost.
4. Release the pins that secure the actuator brackets to the recline actuator.
5. Remove the recline actuator.
Installing
1. Secure the pins in the right and left actuator brackets to the recline actuator. Make sure
the orientation of each bracket is correct.
2. Install the right and left actuator brackets, with the recline actuator attached, to the
crossbeam assembly with the four socket head screws and locknuts.
3. Install the front of the recline actuator to the seat frame assembly with the locknut and
screw.

SECTION 13—TILT AND RECLINE
2G Tarsys®Powered Seating System 134 Part No 1114842
FIGURE 13.6 Removing/Installing the Recline Actuator
Testing the Actuators
1. Cycle each function of the seating system (tilt, recline, VSR, power legs) through the
full range of motion and observe the cables to make sure no cables are pinched,
crushed or pulled by the mechanisms.
2. Flip back armrests and observe the cables to make sure the joystick and/or switch
cables are free to move and not pulled.
3. Perform one of the following:
• If damage to the cables is found, replace the cables and re-route the new cables so
they DO NOT get damaged during wheelchair/seating system operation.
• If the cables are in danger of becoming damaged, re-route the cables to ensure
damage does not occur.
4. Secure the cables. Refer to Securing the Cables on page 157.
5. Perform the post-service inspection. Refer to Post-Service Inspection Checklist on
page 21.
Recline
Actuator
Locknut
(1 of 4)
Screw
Actuator
Bracket
(1 of 2)
Socket Head
Screw
(1 of 4)
Locknut
Pin
Seat Frame Assembly
NOTE: The crossbeam is
shown removed for clarity.
Crossbeam

SECTION 13—TILT AND RECLINE
Part No 1114842 135 2G Tarsys®Powered Seating System
Removing/Installing Recline Links
NOTE: For this procedure, refer to FIGURE 13.7 on page 136.
Removing
1. Make sure the wheelchair is on a level surface.
2. Remove the batteries. Refer to the owner’s manual shipped with the wheelchair.
3. Remove the seat pan. Refer to Removing/Installing Seat Pan on page 54.
4. Remove the retaining ring and washer that secure the recline link to the pin of the seat
frame.
5. Remove the shoulder bolt and locknut that secure the recline link to the front pivot
assembly.
6. Remove the existing recline link.
Installing
1. Perform one of the following:
• For 15° recline - Secure the 10°/15° recline link with the washer and a new retaining
ring to the pin in the mounting hole and orientation shown in FIGURE 13.7
(Detail “A”).
• For 10° recline - Secure the 10°/15° recline link with the washer and a new retaining
ring to the pin in the mounting hole and orientation shown in FIGURE 13.7
(Detail “B”).
• For 5° recline - Secure the 0°/5° recline link with the washer and a new retaining
ring to the pin in the mounting hole and orientation shown in FIGURE 13.7
(Detail “C”).
• For 0° recline - Secure the 0°/5° recline link with the washer and a new retaining
ring to the pin in the mounting hole and orientation shown in FIGURE 13.7
(Detail “D”).
CAUTION
Be sure to use a new retaining ring that is not bent or damaged.
NOTE: When completed verify retaining ring is fully seated in the groove in the pin.
2. Secure the recline link to the front pivot assembly with the existing shoulder bolt and
locknut in the mounting hole shown in the respective details of FIGURE 13.7. Securely
tighten. Torque to 13 ft-lbs ± 20%. ‘
3. Repeat for opposite side.
4. Install the seat pan. Refer to Removing/Installing Seat Pan on page 54.
5. Install the batteries. Refer to the owner’s manual shipped with the wheelchair.

SECTION 13—TILT AND RECLINE
2G Tarsys®Powered Seating System 136 Part No 1114842
FIGURE 13.7 Removing/Installing Recline Links
Mounting hole
for 10° recline
Mounting hole
for 15° recline
Washer
*Retaining
Ring
*NOTE: Use new retaining ring.
DETAIL A: 10°/15° RECLINE LINK
Mounting hole
for 10° recline
Mounting hole
for 15° recline
Shoulder
Bolt
Front Pivot
Assembly
Locknut
10° and 15° Recline Link
Mounting hole for 5° recline
Mounting hole
for 0° recline
Washer
*Retaining
Ring
*NOTE: Use new retaining ring.
DETAIL B: 0°/5° RECLINE LINK
Mounting hole for 0° recline
Mounting hole
for 5° recline
Shoulder
Bolt
Front Pivot
Assembly
Locknut
0° and 5° Recline Link
Mounting Reclining Link to Center Seat Frame Mounting Reclining Link to Center Seat Frame
Mounting Reclining Link
to Front Pivot Assembly
Mounting Reclining Link
to Front Pivot Assembly

SECTION 13—TILT AND RECLINE
Part No 1114842 137 2G Tarsys®Powered Seating System
Removing/Installing Tilt Links
WARNING
Remove the existing tilt link and install the new tilt link on one side of the
wheelchair at a time. Otherwise, injury or damage may occur.
NOTE: For this procedure, refer to FIGURE 13.8 on page 138.
Removing
1. Note the orientation of the tilt angle blocks for proper reinstallation.
2. Remove the locknut, bushing and shoulder bolt securing the tilt link to the front pivot
assembly.
3. Remove the retaining ring securing the flat washer, two nylon washers and the tilt link
to the center seat frame pin.
4. Remove the tilt link from the center seat frame pin.
Installing
1. Position one nylon washer, tilt link, one nylon washer, and flat washer onto the center
seat frame pin.
CAUTION
Be sure to use a new retaining ring that is not bent or damaged.
2. Secure the flat washer, two nylon washers and the tilt link to the center seat frame pin
using a new retaining ring.
3. Verify that the retaining ring is fully seated in the groove in the pin.
4. Install the shoulder bolt through the front pivot assembly, tilt link, front pivot
assembly, bushing and tilt angle block.
NOTE: The tilt angle block should be oriented as noted in STEP 1 of Removing on page 137. If
unsure of the orientation, refer to Adjusting Seat Angle on page 61.
5. Secure the tilt link, tilt angle block and bushing to the front pivot assembly using the
locknut. Torque to 23 ft-lbs ± 20%.
6. Perform the post-service inspection. Refer to Post-Service Inspection Checklist on
page 21.

SECTION 13—TILT AND RECLINE
2G Tarsys®Powered Seating System 138 Part No 1114842
FIGURE 13.8 Removing/Installing Tilt Links
Shoulder Bolt
Shoulder Bolt
Bushing
Locknuts
Retaining
Ring
Flat Washer
Nylon
Washers
Tilt Link
Center Seat
Frame Pin
Front Pivot
Assembly
Tilt Angle Block
NOTE: Tilt Only center seat
frame shown for clarity.
Tilt/Recline systems install in
the same way.

SECTION 14—ELECTRONICS
Part No 1114842 139 2G Tarsys®Powered Seating System
SECTION 14—ELECTRONICS
WARNING
After ANY adjustments, repair or service and before use, make sure all attaching
hardware is tightened securely - otherwise injury or damage may occur.
Before adjusting, repairing or servicing the seating system, ALWAYS turn the
wheelchair power OFF, otherwise, injury or damage may result.
After performing any of the procedures in this section, perform the post-service
inspection. Refer to Post-Service Inspection Checklist on page 21.
Pinch points exist between seat and base frames. Use caution, otherwise injury may
occur.
Use only the actuator controls listed in the following chart to activate the tilt/recline
functions. DO NOT use any other actuator controls. Such devices may result in
excess heating and cause damage to the actuator and associated cables and could
cause a fire, death, physical injury or property damage. If such devices are used,
Invacare shall not be liable and the limited warranty is void.
Removing/Installing the Single Actuator Control (SAC)
NOTE: For this procedure, refer to FIGURE 14.1 on page 141.
NOTE: The SAC is no longer available for replacement. If replacement is necessary, a TAC must
be installed. Refer to Removing/Installing the TAC or TRCM on page 141.
Removing
1. Turn the joystick off.
2. Remove the two thumb screws (not shown) that secure the rear shroud to the base.
3. Remove the rear shroud. Refer to Removing/Installing Rear Shroud on page 102.
4. Disconnect the SAC 5-pin connector from the MK5 controller (at the rear of the battery
box). Refer to Detail “B”.
5. Disconnect the SAC actuator connector (WHITE, 2-pin Anderson) from the tilt
actuator cable. Refer to Detail “B”.
SEATING SYSTEM ACTUATOR CONTROL
TRSS TRCM SAC TAC
TILT ONLY YYYN
TILT ONLY WITH POWER ELEVATING LEGRESTS NYNN
RECLINE ONLY NYNY
RECLINE ONLY WITH POWER ELEVATING LEGRESTS NYNN
TILT/RECLINE NYNN

SECTION 14—ELECTRONICS
2G Tarsys®Powered Seating System 140 Part No 1114842
6. Disconnect the auxiliary power connector of the SAC from the power take off
connector of the MK5 controller.
7. Disconnect the tilt potentiometer connector from the SAC 3-pin Molex connector.
8. Remove the two hex screws securing the half clamps to the armrest. Refer to
Detail “A”.
9. Remove the SAC and mounting hardware from the armrest.
NOTE: The mounting hardware includes the half clamps, mounting plate, hex screws and
mounting screws.
10. Remove the two mounting screws securing the SAC to the mounting plate.
11. Remove the SAC from the mounting plate.
Installing
1. Secure the SAC to the mounting plate using the two mounting screws.
2. If necessary, secure the mounting plate to the non-threaded half clamp using the two
hex screws.
3. Position the non-threaded half clamp onto the armrest.
4. Secure the threaded half clamp to the armrest by tightening the two hex screws.
5. Connect the SAC 5-pin connector to the MK5 controller (at the rear of the battery box).
6. Connect the SAC actuator connector (WHITE, 2-pin Anderson) to the tilt actuator
cable.
7. Connect the auxiliary power connectors.
8. Connect the tilt potentiometer connector to the SAC 3-pin Molex connector.
9. Secure the SAC cables. Refer to Securing the Cables on page 157.
10. Adjust the tilt potentiometer. Refer to Adjusting the Tilt Potentiometer on page 152.
11. Perform the post-service inspection. Refer to Post-Service Inspection Checklist on
page 21.
12. Install the rear shroud. Refer to Removing/Installing Rear Shroud on page 102.

SECTION 14—ELECTRONICS
Part No 1114842 141 2G Tarsys®Powered Seating System
FIGURE 14.1 Removing/Installing the Single Actuator Control (SAC)
Removing/Installing the TAC or TRCM
NOTE: For this procedure, refer to FIGURE 14.2 on page 143 and FIGURE 14.3 on page 145.
NOTE: TAC stands for Two Actuator Control.
NOTE: TRCM stands for Tilt Recline Control Module.
Removing the TAC/TRCM Controller Bracket
Round Back Canes
1. Remove the two long hex screws and locknuts securing the controller bracket to the
upper bracket (Detail “C”).
Half Clamp
(Threaded)
Armrest
Half Clamp (Non-threaded)
Mounting Screws
Mounting Plate
SAC
Hex Screws
SAC
5-pin Connector
(To Controller)
Auxiliary Power Connector
Actuator Connector
(WHITE 2-pin Anderson) SAC Connector
(3-Pin Molex)
DETAIL “A”
DETAIL “B”

SECTION 14—ELECTRONICS
2G Tarsys®Powered Seating System 142 Part No 1114842
2. Remove the two short hex screws, washers and coved washers securing the upper
bracket to the back cane.
3. Remove the controller bracket with TAC/TRCM from the back cane.
Extruded Canes
1. Loosen the four hex screws that secure the spreader bar to the back canes.
2. Loosen the two hex screws and washers that secure the controller bracket to the T-nuts
and back cane.
3. Remove the T-nuts.
4. Remove the controller bracket with TAC/TRCM from the back cane.
Installing the TAC/TRCM Controller Bracket
Securing the Controller Bracket to the Back Cane
NOTE: For this procedure, refer to FIGURE 14.2 on page 143 and FIGURE 14.3 on page 145.
Round Back Canes
1. If necessary, install the TAC/TRCM onto the controller bracket. Refer to Installing the
TAC/TRCM onto the Controller Bracket on page 144.
2. If necessary, install the two short hex screws, washers and coved washers to secure the
upper bracket to the back cane (Detail “C”). Torque the hex screws to 75 in-lbs ± 20%.
3. Install the two long hex screws and locknuts to secure the controller bracket to the
upper bracket.
4. Program the TAC. Refer to Refer to Programming the TAC on page 146.
Extruded Canes
1. If necessary, install the TAC/TRCM onto the controller bracket. Refer to Installing the
TAC/TRCM onto the Controller Bracket on page 144.
2. Note the position of the existing spreader bar, by measuring from the top of the back
canes to the top of the spreader bar (Detail “B” of FIGURE 14.2 on page 143).
3. Note the position of the back pan, by measuring from the top of the back pan to the
top of the back canes.
4. Loosen, but DO NOT remove, the four hex screws that secure the existing spreader bar
to the back canes (Detail “A” of FIGURE 14.2 on page 143).
5. Lift up and remove the existing spreader bar, with T-nuts, from the slots on the back canes.
6. Loosely install the two hex screws and washers to secure the controller bracket to the
T-nuts (Detail “B” of FIGURE 14.3 on page 145).
7. Slide the T-nuts into the slots in the back cane.

SECTION 14—ELECTRONICS
Part No 1114842 143 2G Tarsys®Powered Seating System
8. Slide the controller bracket up/down on the back cane until the bottom of the
controller bracket is 1-inch ± ¼-inch above the top of the pivot arm (Detail “A”
FIGURE 14.3 on page 145).
9. Torque the hex screws to 75 in-lbs ± 20% to secure the controller bracket to the T-nuts
and back cane.
10. Align the T-nuts on the spreader bar with the slots in the back canes.
11. Slide the spreader bar to the position noted when removing the spreader bar (Detail
“A” of FIGURE 14.2).
12. Make sure the measurements shown in Detail “B” of FIGURE 14.2 and noted in STEP
2 are the same on both sides.
13. Tighten the four hex screws that secure the spreader bar to the back canes. Torque to
75 in-lbs ± 20%.
14. Program the TAC. Refer to Programming the TAC on page 146.
FIGURE 14.2 Controller Bracket
Hex
Screws/T-Nuts
(T-Nuts in Back
Cane Slot)
Spreader Bar
DETAIL “B”
VSR Actuator
Locknut
Hex Bolt
Back Pan ASM
NOTE A: Measurements from
the top of the back cane to the top
of the back pan MUST be equal.
NOTE B: Measurements from
the top of the back cane to the top
of the spreader bar MUST be
equal.
NOTE A
NOTE B
DETAIL “A”

SECTION 14—ELECTRONICS
2G Tarsys®Powered Seating System 144 Part No 1114842
Removing the TAC/TRCM from the Controller Bracket
1. Turn the joystick off.
2. Remove the rear shroud. Refer to Removing/Installing Rear Shroud on page 102
3. Disconnect the auxiliary power connectors.
4. Disconnect the tilt and/or recline potentiometers from the 3-pin Molex connectors.
5. Disconnect the tilt, recline, VSR and/or power legrest actuators from the 2-pin
Anderson connectors.
6. Disconnect the TRCM or TAC from the 9 pin sub D connector on the MK5 controller.
7. Remove the two Phillips screws securing the TRCM/TAC to the controller bracket
(Detail “B”).
8. Note the location of any tie-wraps securing the TRCM/TAC cables to the wheelchair
frame and/or other cables.
9. Cut any tie-wraps securing the TRCM/TAC cables to the wheelchair frame and/or
other cables.
Installing the TAC/TRCM onto the Controller Bracket
NOTE: For this procedure, refer to FIGURE 14.3 on page 145.
1. Secure the TAC to the controller bracket using the two mounting screws (Detail “B”).
2. Connect the tilt actuator to the 2-pin Anderson connector labeled “Tilt” on the TAC.
3. Connect the tilt potentiometer to the 3-pin Molex connector labeled “Tilt” on the TAC.
4. Connect the auxiliary power connector of the TAC to the power take off connector of
the MK5 controller.
5. Connect the TAC to the 5-pin connector on the MK5 controller.
6. Secure the controller bracket to the back cane. Refer to Securing the Controller Bracket
to the Back Cane on page 142.
7. Install the rear shroud. Refer to Removing/Installing Rear Shroud on page 102

SECTION 14—ELECTRONICS
Part No 1114842 145 2G Tarsys®Powered Seating System
FIGURE 14.3 Removing/Installing the TAC or TRCM
9-pin Sub D
Accessory
Connector
Left Power Legrest
Actuator Connector
(2-pin Anderson)
Right Power Legrest
Actuator Connector
(2-pin Anderson)
VSR Actuator Connector
(2-pin Anderson)
Tilt Actuator Connector
(2-pin Anderson)
Recline Actuator
Connector
(2-pin
Anderson)
Recline Potentiometer
Connector (3-pin Molex)
5-pin
Connector to
MK5
Controller
Auxiliary Power
Connector
Tilt Potentiometer
Connector (3-pin Molex)
TAC/TRCM
Description
DETAIL “A” - POSITIONING MOUNTING
BRACKET ON EXTRUDED CANES
TRCM/TAC
TRCM/TAC
Controller Bracket
Pivot Arm
1-inch ± ¼-inch
TRCM/TAC
Controller Bracket
DETAIL “B”
DETAIL “C”
Hex Screw
Washer
T-Nut
Extruded
Back
Cane
Mounting Screw
Controller
Bracket
Round
Back
Cane
Coved
Washer
Washer
Short Hex Screw
Long
Hex
Screws
Upper Bracket
Locknut

SECTION 14—ELECTRONICS
2G Tarsys®Powered Seating System 146 Part No 1114842
Programming the TAC
1. Connect the remote programmer into the front face of the TAC.
2. Press the Power button to turn on the remote programmer.
3. Scroll to the ADVANCED menu and press the Select button.
4. Scroll to SYSTEM TYPE and select the appropriate standard program.
5. Press the Menu button.
6. Scroll to ACTUATOR SELECTION and press the Select button.
7. Select each direction input control and adjust to the following settings:
• Forward - U/D
• Reverse - U/D
• Right - Up
• Left - Down
8. Press the Save button.
9. Press the Menu button.
10. Scroll to PERFORMANCE ADJUST and press the Select button.
11. Scroll to LIMITS TYPE and press the Select button.
12. Select the appropriate input type (Potentiometers) and press the Save button.
13. Calibrate the tilt potentiometer. Refer to Calibrating the Tilt Potentiometer for a TAC
on page 146.
Calibrating the Tilt Potentiometer for a TAC
1. Select CALIBRATIONS from the main menu. The calibrations menu will be displayed.
2. Select the menu item that corresponds to the potentiometer to be adjusted. The Up
Angle adjustment screen will then be displayed.
3. Position the seat back in the fully upright position.
4. Using a protractor or angle pitch calculator, measure the actual angle of the seat with
respect to the floor. This measurement should range from 0° to 10°.
5. Adjust the tilt up angle setting on the programmer to the measured angle.
¸TILT ANGLE
RECLINE ANGLE

SECTION 14—ELECTRONICS
Part No 1114842 147 2G Tarsys®Powered Seating System
6. Press the SELECT key on the programmer to proceed to the Tilt Down adjustment
screen.
7. Tilt the seat until the measured angle is approximately 50°.
8. Adjust the tilt down angle setting on the programmer to the measured angle. The
range is between 45°and 55°.
9. Press the SAVE key on the programmer to store both the up and down angle
adjustments in the user memory.
NOTE: The adjustments in STEPS 10 to 15 will ensure the programmed angle setting for the seat
matches the mechanical adjustment made for the seat. This will prevent the actuator from running
excessively when the seat has finished moving.
10. Press the Menu button.
11. Select PERFORMANCE ADJUST and press the Select button.
NOTE: For STEP 12, listen to the tilt actuator while observing the seat position.
12. Tilt the seating system to the full upright position.
13. Perform one of the following:
• If the tilt actuator continues to run after the seating system stops moving, proceed
to STEP 14.
• If the tilt actuator stops when the seating system stops moving, proceed to STEP 17.
14. Increase the tilt up angle setting on the programmer.
15. Press the Save button.
16. Repeat STEPS 10 to 15 until the actuator stops when the seating system stops moving.
17. Press the Power button.
18. Disconnect the remote programmer from the TAC.
TILT UP ANGLE
5
PRESS SELECT
TO CONTINUE
TILT DOWN ANGLE
50
PRESS SAVE
TO SET ANGLES

SECTION 14—ELECTRONICS
2G Tarsys®Powered Seating System 148 Part No 1114842
WARNING
NEVER operate the wheelchair while the seat is in any seat angle position over 20°
RELATIVE TO THE VERTICAL POSITION. Drive lockout MUST not be adjusted
beyond 20°.
The wheelchair user MUST have a clear line of sight to drive safely. On initial chair
delivery and after adjusting the back angle, drive lockout switch or tilt system, tilt
the seat back to the farthest driving position immediately before drive lockout
engages and ensure there is a clear line of sight present in which to drive the wheel-
chair. If a clear line of sight is not present, have the back angle repositioned or read-
just the lockout angle such that safe driving with a clear line of sight is achieved.
Otherwise injury or damage may occur.
19. Tilt the system up and down and test that the drive lockout works at no more than 20°
of tilt.
20. Secure the TAC cables. Refer to TAC Cables on page 157.
Replacing the Tilt Recline Single Switch (TRSS)
NOTE: For this procedure, refer to FIGURE 14.4 on page 149.
1. Turn the joystick off.
2. Disconnect the joystick.
3. Disconnect the auxiliary power connectors.
4. Disconnect the actuator (WHITE connector).
5. Disconnect the mercury switch (3-pin Molex connector).
6. Note the locations of any tie-wraps securing cables connected to the TRSS for proper
installation.
7. Cut the tie-wraps securing the cables connected to the TRSS.
8. Remove the two button head screws securing the TRSS to the mounting bracket.
9. Remove the TRSS from the mounting bracket.
10. Reverse STEPS 2–9 to install the TRSS.
11. Perform the post-service inspection. Refer to Post-Service Inspection Checklist on
page 21.

SECTION 14—ELECTRONICS
Part No 1114842 149 2G Tarsys®Powered Seating System
FIGURE 14.4 Replacing the Tilt Recline Single Switch (TRSS)
Removing/Installing Joystick(s)
NOTE: For this procedure, refer to FIGURE 14.5 on page 150.
Removing
1. Disconnect the joystick.
2. Turn the adjustment lock lever to release the joystick mounting tube.
3. Cut any tie-wraps securing the joystick to the seating system.
4. Remove the joystick mounting tube from wheelchair.
Installing
1. Slide the joystick mounting tube through the bracket to the desired position.
2. Slide the adjustment lock with lever over the end of the joystick mounting tube and
secure the adjustment lock to the tube by turning the adjustment lock lever.
3. Tie-wrap the joystick cable to the joystick mounting tube and to the bottom of the
armrest (not shown).
4. Connect the joystick connectors (not shown).
5. Perform the post-service inspection. Refer to Post-Service Inspection Checklist on
page 21.
Auxiliary Power
Connector
Actuator
Connector
(WHITE)
Mercury Switch Connector
(Molex Connector)
TRSS
Button Head Screws
Mounting Bracket
TRSS
Joystick
Mounting
Tube
Socket
Screws
TRSS

SECTION 14—ELECTRONICS
2G Tarsys®Powered Seating System 150 Part No 1114842
FIGURE 14.5 Removing/Installing Joystick(s)
Drive Lock-Out
Drive lock-out is a feature designed to prevent the wheelchair from being driven after the
seating system has been tilted or reclined beyond 20°* relative to the vertical position. The
back can be positioned at a 10° relative offset to the seat base, thereby resulting in a back
angle potential of 30° before which the drive lock-out is activated. This may affect the
wheelchair user’s line of sight while driving. Make sure the wheelchair user can see
properly to ensure safe driving. When the drive lock-out feature has been activated, the
LED on the single function toggle switch will light.
*NOTE: 20° back angle can be any combination of tilt, recline, back angle, and/or surface angle.
WARNING
NEVER operate the wheelchair while in any tilted/reclined position over 20° relative
to the vertical position. If the drive lock-out does not stop the wheelchair from
operating in a tilt/recline position 20° relative to the vertical position, DO NOT
operate the wheelchair. Adjust the potentiometers. Refer to Adjusting the Tilt
Potentiometer on page 152 or Adjusting Recline Potentiometer on page 154.
Removing/Installing the Tilt Potentiometer
NOTE: For this procedure, refer to FIGURE 14.6 on page 151.
Removing
1. Remove the rear seat shroud. Refer to Removing/Installing Rear Shroud on page 102.
2. Remove the nylon washer and socket screw that secure the tilt linkage to the center
seat frame.
Mounting
Bracket
Joystick
Mounting
Tube
Joystick
NOTE: It is not necessary to remove the mounting brackets.
Opened Hole
Half Clamp
Adjustment Lock
with Lever
Joystick Mounting Bracket
Tie-Wrap
HERE

SECTION 14—ELECTRONICS
Part No 1114842 151 2G Tarsys®Powered Seating System
3. Loosen the set screw from the tilt linkage.
4. Remove the tilt linkage from the tilt potentiometer.
5. Remove the nut and washer securing the tilt potentiometer to the rear pivot assembly.
6. Remove the tilt potentiometer from the rear pivot assembly.
7. Disconnect the tilt potentiometer cable from the TRCM or TAC (3-pin Molex
connector).
8. Cut any tie-wraps that secure the tilt potentiometer cable to the wheelchair.
Installing
1. Install the tilt potentiometer onto the rear pivot assembly.
2. Install the washer and nut onto the tilt potentiometer.
3. Install and secure the tilt linkage onto the tilt potentiometer with the set screw.
4. Secure the tilt linkage to the center seat frame using the socket screw and nylon
washer.
5. Connect the tilt potentiometer cable to the TRCM or TAC (3-pin Molex connector).
6. Tie-wrap the tilt potentiometer cable to the wheelchair frame as described in Securing
the Cables on page 157.
7. Adjust the tilt potentiometer. Refer to Adjusting the Tilt Potentiometer on page 152.
8. Perform the post-service inspection. Refer to Post-Service Inspection Checklist on
page 21.
FIGURE 14.6 Removing/Installing the Tilt Potentiometer
Tilt
Potentiometer Washer
Nut
Set Screw
Socket Screw
Nylon Washer
Tilt Linkage
Center Seat
Frame
Rear Pivot Assembly

SECTION 14—ELECTRONICS
2G Tarsys®Powered Seating System 152 Part No 1114842
Adjusting the Tilt Potentiometer
NOTE: For this procedure, refer to FIGURE 14.7 on page 153.
NOTE: The tilt potentiometer is adjusted at the factory for 20° drive lockout and should not require
further adjustment. However, if it becomes necessary to adjust the tilt potentiometer, the following
procedure may be used.
Adjusting a Tilt Potentiometer Used With a TRSS
To adjust the tilt potentiometer on a seating system with a single function toggle switch,
follow these steps:
NOTE: A single function toggle switch can only be used in conjunction with a tilt only seating
system.
1. Loosen the set screw on the tilt potentiometer. Refer to Detail “A”.
NOTE: Loosening the set screw enables the tilt potentiometer to be adjusted independently of the
chair seat movement.
NOTE: The up and down directions are noted on the front face of the single function toggle switch.
2. Push the single function toggle switch in the down direction and verify that the seat
tilts back.
3. Push the single function toggle switch in the up direction and verify that the seat raises
to the upright position.
4. Tilt the seat back 20° from the vertical position. Verify angles by using magnetic
protractor (available at any hardware store).
NOTE: 20° from the vertical position is the angle at which drive-lock out should occur.
5. Disconnect the single function toggle switch connector from the actuator connector.
6. Push and hold the single function toggle switch in the up direction.
7. Turn the tilt potentiometer clockwise until it stops.
8. Verify that the drive lock-out light on the single function toggle switch is NOT
illuminated.
9. Push the single function toggle switch in the down direction and verify that the drive
lock-out light on the single function toggle switch is still NOT illuminated.
10. Holding the single function toggle switch in the down direction, turn the tilt
potentiometer counter-clockwise until the drive lock-out light is illuminated.
11. Release the single function toggle switch.
12. Tighten the set screw on the tilt potentiometer.
13. Apply Glyptal to top of set screw to secure in place.
14. Reconnect actuator and single function toggle switch.
15. Tilt the seat up and down to confirm that the drive lock-out light illuminates on/off
when the seat angle passes through the 20° lockout angle.

SECTION 14—ELECTRONICS
Part No 1114842 153 2G Tarsys®Powered Seating System
NOTE: If drive lock-out light does NOT react as described in STEP 15, repeat procedure. If drive
lock-out light still does NOT react as described in STEP 15, DO NOT use unit. Contact Invacare
Technical Support at the number listed on the back cover.
FIGURE 14.7 Adjusting the Tilt Potentiometer
Adjusting Tilt Potentiometer Used With a TRCM, TAC or SAC
To adjust the tilt potentiometer on a seating system with a TRCM, TAC or SAC, follow
these steps:
1. Plug the remote programmer into the wheelchair TRCM controller.
2. Set remote programmer to the current status screen.
NOTE: For STEPS 1-2, refer to the MK5 electronics service manual supplied with wheelchair.
3. Measure the back angle relative to the seat. Verify angles by using magnetic protractor
(available at any hardware store).
4. Loosen the set screw on the tilt potentiometer.
Tilt Potentiometer
Located on Rear
Pivot Assembly
Place Magnetic
Protractor
Here
To Wiring
Harness
To
Potentiometer
Connector
To Actuator
Drive Lock-Out Light
Single Function
Toggle Switch
Tilt Potentiometer
Set Screw
Set Screw
Side View
DETAIL “A”
DETAIL “B” DETAIL “C”

SECTION 14—ELECTRONICS
2G Tarsys®Powered Seating System 154 Part No 1114842
5. Turn potentiometer with small flat screwdriver until screen on remote programmer
reads the angle noted in STEP 3.
NOTE: Seat angle is relative to the horizontal position.
NOTE: Tilt Up Limit - Shows the status of the limit as programmed in the Performance Menu. If
the limit has been reached the status will be TRUE. If the seat or back is not at a limit the status
will be FALSE.
NOTE: Tilt Down Limit - Shows the status of the limit as programmed in the Performance Menu.
If the limit has been reached the status will be TRUE. If the seat or back is not at a limit the status
will be FALSE.
6. While monitoring the current status screen on the remote programmer, tighten the set
screw on the tilt potentiometer shaft.
7. Apply Glyptal to top of set screw to secure in place.
Adjusting Recline Potentiometer
NOTE: For this procedure, refer to FIGURE 14.8 on page 155.
To adjust the recline potentiometer on a seating system with a TRCM or TAC, follow these
steps:
1. Hook up remote programmer to the wheelchair TRCM or TAC.
2. Set remote programmer to the current status screen.
NOTE: For STEPS 1-2, refer to the MK5 electronics Service Manual supplied with wheelchair.
3. Measure the back angle relative to the seat. Verify angles by using magnetic protractor.
(Available at any hardware store).
4. Remove the seat pan. Refer to Removing/Installing Seat Pan on page 54.
5. Loosen the set screw on the recline potentiometer shaft.
6. Turn potentiometer until screen on remote programmer reads 90° recline angle in
current status screen of TRCM or TAC.
NOTE: Back angle is relative to the seat frame.
NOTE: Recline Up Limit - Shows the status of the limit as programmed in the Performance Menu
of TRCM or TAC. If the limit has been reached the status will be TRUE. If the seat or back is not
at a limit the status will be FALSE.
NOTE: Recline Down Limit - Shows the status of the limit as programmed in the Performance
Menu of TRCM or TAC. If the limit has been reached the status will be TRUE. If the seat or back
is not at a limit the status will be FALSE.
7. While monitoring the current status screen on the remote programmer, tighten the set
screw on the recline potentiometer shaft.
8. Apply Glyptal to top of set screw to secure in place.

SECTION 14—ELECTRONICS
Part No 1114842 155 2G Tarsys®Powered Seating System
FIGURE 14.8 Adjusting Recline Potentiometer
Removing/Installing the Recline Potentiometer
NOTE: For this procedure, refer to FIGURE 14.9 on page 156.
Removing
1. Remove the socket screw, spacer and locknut securing the linkage to the center seat
frame.
2. Loosen the set screw on the recline linkage.
3. Remove the recline linkage from the recline potentiometer.
4. Remove the nut and washer securing the recline potentiometer to the bracket.
5. Remove the recline potentiometer from the bracket.
6. Unplug the recline potentiometer cable from the TRCM or TAC.
7. Cut any tie-wraps securing the recline potentiometer cable to the wheelchair.
Installing
1. Install the recline potentiometer up through the bracket.
2. Install the washer onto the recline potentiometer and secure to the bracket using the
nut.
3. Install the recline linkage onto the recline potentiometer.
DETAIL “A”
Set Screw
Recline
Potentiometer

SECTION 14—ELECTRONICS
2G Tarsys®Powered Seating System 156 Part No 1114842
4. Turn the potentiometer fully clockwise until it stops, and then back 1/8 turn
counter-clockwise.
5. Tighten the set screw to secure the recline linkage to the recline potentiometer.
6. Secure the recline linkage to the center seat frame using the socket screw, spacer and
locknut.
7. Route and secure the recline potentiometer cable as described in Securing the Cables
on page 157.
8. Plug the recline potentiometer cable into the TRCM or TAC (3-pin Molex connector).
9. Adjust the recline potentiometer. Adjusting Recline Potentiometer on page 154.
10. Perform the post-service inspection. Refer to Post-Service Inspection Checklist on
page 21.
FIGURE 14.9 Removing/Installing the Recline Potentiometer
Recline
Linkage
Washer and
Nut
Set Screw
Bracket
Socket
Screw
Spacer
Locknut
Center
Seat
Frame
Recline
Potentiometer

SECTION 15—WIRING AND CABLES
Part No 1114842 157 2G Tarsys®Powered Seating System
SECTION 15—WIRING AND CABLES
WARNING
After ANY adjustments, repair or service and before use, make sure all attaching
hardware is tightened securely - otherwise injury or damage may occur.
Before adjusting, repairing or servicing the seating system, ALWAYS turn the
wheelchair power OFF, otherwise, injury or damage may result.
Pinch points exist between seat and base frames. Use caution, otherwise injury may
occur.
Securing the Cables
WARNING
Cables MUST be secured to the wheelchair frame and/or base with tie-wraps after
servicing is complete. Failure to follow the warnings and instructions below could
result in injury to the users, attendants and/or bystanders and/or damage to the
wheelchair.
Cables MUST be secured so there are no loops of excess cable extending away from
the wheelchair. Bundle all excess cable together and secure with a tie-wrap. It may
also be necessary to secure these bundles to the frame and/or base.
Always test all wheelchair functions after securing the cables to be sure cables DO
NOT get pinched or crushed during operation of the wheelchair.
TAC Cables
NOTE: For this procedure, refer to FIGURE 15.1 on page 158.
1. Make sure the wheelchair is in the upright position.
CAUTION
The wheelchair MUST be in the upright position before securing the TAC cables to
prevent stretching and possibly breaking cables.
2. Tie-wrap the auxiliary power connector/potentiometer cable, actuator cable and MK5
Controller (5-pin connector) cable from the TAC.
NOTE: The accessory cable (9-pin sub D) does not need to be tie-wrapped with the other cables.

SECTION 15—WIRING AND CABLES
2G Tarsys®Powered Seating System 158 Part No 1114842
FIGURE 15.1 Securing the TAC Cables
Tilt Actuator Cable
NOTE: For this procedure, refer to FIGURE 15.2.
1. Connect the tilt actuator cable to the TRCM, SAC or TRSS connector (2-pin Anderson).
2. Bundle up the tilt actuator cable and tie-wrap it to the tilt actuator. Refer to
FIGURE 15.2.
FIGURE 15.2 Tilt Actuator Cable
Tilt Potentiometer Cable
NOTE: For this procedure, refer to FIGURE 15.3 on page 159.
1. Connect the tilt potentiometer cable to the TRCM, SAC or TRSS connector (3-pin
Molex).
2. Bundle up the tilt potentiometer cable and tie-wrap it to the rear pivot assembly. Refer
to FIGURE 15.3.
TAC Controller
Accessory Cable
(9-Pin Sub D Cable)
Tie-Wraps
Auxiliary Power
Connector/Potentiometer
Cable
Actuator
Cable
MK5 (5-pin Connector) Cable
Tilt Actuator
Tie-Wrap

SECTION 15—WIRING AND CABLES
Part No 1114842 159 2G Tarsys®Powered Seating System
FIGURE 15.3 Tilt Potentiometer Cable
Power Elevating Legrest, Recline Actuator and Recline Potentiometer
Cables
NOTE: For this procedure, refer to FIGURE 15.4 on page 160 and FIGURE 15.5 on page 161.
1. Perform one of the following:
• Recline Only Systems - Perform the following steps:
NOTE: Two people need to perform this procedure.
i. One person should support the front of the seat assembly.
ii. Note the mounting location of the recline links for proper installation.
iii. The remaining person should remove the two shoulder bolts and locknuts
securing the recline links to the front pivot assembly.
iv. Carefully tilt the seat assembly back.
• Tilt Only or Tilt/Recline Systems - Use the tilt mechanism to tilt the seat back 15°
to allow room to work.
NOTE: Right and left are determined from the perspective of an observer in front of the wheelchair.
2. Route the left power elevating legrest cable and the recline actuator cable to the
bottom of the lower seat shroud and tie-wrap the cables to the lower seat shroud. Refer
to FIGURE 15.4.
3. Repeat STEP 2 for the right power elevating legrest cable.
4. Connect the power elevating legrest and recline potentiometer cables to the TRCM or
TAC connectors (3-pin Molex).
5. Connect the recline actuator cable to the TRCM or TAC connector (2-pin Anderson).
6. Perform one of the following:
• Recline Only Systems - Perform the following steps:
NOTE: Two people need to perform this procedure.
i. One person should support the front of the seat assembly.
Rear Pivot
Assembly
Tilt Potentiometer
Tie-Wrap

SECTION 15—WIRING AND CABLES
2G Tarsys®Powered Seating System 160 Part No 1114842
ii. The remaining person should secure the recline links to the front pivot
assembly in the position noted using the two shoulder bolts and locknuts.
Torque to 23 ft-lbs ± 20%.
• Tilt Only or Tilt/Recline Systems - Use the tilt mechanism to return the seat to the
upright position.
FIGURE 15.4 Power Elevating Legrest, Recline Actuator and Recline Potentiometer Cables -
Tie-Wrap to Lower Seat Shroud
CAUTION
The wheelchair MUST be reclined backward to the maximum position before
securing the power elevating legrest, recline actuator and recline potentiometer
cables to prevent stretching and possibly breaking cables.
7. Recline back as far as possible.
8. From behind the wheelchair, tie-wrap the power elevating legrest, recline actuator
and recline potentiometer cables to the tilt actuator. Refer to FIGURE 15.5.
Left Tie-Wrap
Right Tie-Wraps
NOTE: Right
and left are
determined
from the
perspective of
an observer in
front of the
wheelchair.
Lower Seat
Shroud
Top View

SECTION 15—WIRING AND CABLES
Part No 1114842 161 2G Tarsys®Powered Seating System
9. Use the recline function to return the wheelchair to the upright position.
FIGURE 15.5 Power Elevating Legrest, Recline Actuator and Recline Potentiometer Cables -
Tie-Wrap to Tilt Actuator
4-Way Switch, TRCM and/or TAC Cables
NOTE: For this procedure, refer to FIGURE 15.6 on page 162 and FIGURE 15.7 on page 162.
1. Make sure the wheelchair is in the upright position.
CAUTION
The wheelchair MUST be in the upright position before securing the 4-way switch,
TRCM and/or TAC cables, to prevent stretching and possibly breaking cables.
2. Bundle up the cable for the 4-way toggle switch and tie-wrap it to the TRCM or TAC
controller bracket. Refer to FIGURE 15.6.
Tilt Actuator
Tie-Wrap
Power Elevating
Legrest, Recline
Actuator, and
Recline
Potentiometer
Cables

SECTION 15—WIRING AND CABLES
2G Tarsys®Powered Seating System 162 Part No 1114842
FIGURE 15.6 4-Way Toggle Switch Cable
3. Tie-wrap the auxiliary power connector/potentiometer cable, actuator cable and MK5
Controller (5-pin connector) cable from the TRCM or TAC as shown in FIGURE 15.7.
NOTE: The accessory cable (9-pin sub D) does not need to be tie-wrapped with the other cables.
4. Connect the accessory cable to the 4-way switch cable.
FIGURE 15.7 4-Way Switch, TRCM and/or TAC Cables
Tie-Wraps
4-Way Toggle Switch Cable
TRCM Controller
Bracket
TAC or TRCM Controller
Accessory Cable
(9-Pin Sub D Cable)
Tie-Wraps
Auxiliary Power
Connector/Potentiometer
Cable
Actuator
Cable
MK5 (5-pin
Connector) Cable

SECTION 15—WIRING AND CABLES
Part No 1114842 163 2G Tarsys®Powered Seating System
Joystick, SAC or TRSS Cables
NOTE: For this procedure, refer to FIGURE 15.8.
1. Tie-wrap the joystick cable from the MK5 controller to the rear pivot assembly. Refer
to FIGURE 15.8.
FIGURE 15.8 Joystick, SAC or TRSS Cables
2. Connect the joystick cables.
3. Bundle up the connected cables until there is no slack and then tie-wrap them and the
SAC or TRSS cables (if present) to the armrest.
All Cables (Final Steps)
NOTE: For this procedure, refer to FIGURE 15.9 on page 164.
1. Connect the auxiliary power connectors and any remaining cables.
2. Bundle up all loose cables and then tie-wrap them to the rear pivot assembly and to
the rear of the tilt actuator. Refer to FIGURE 15.9.
3. Install the rear shroud in the location indicated in FIGURE 15.8. Refer to
Removing/Installing Rear Shroud on page 102.
CAUTION
The wheelchair must be carefully tilted backward and forward to the maximum
positions in order to determine if any cables are snagged and stretched by the bat-
tery controller shroud. Tie-wrap any loose cables and test again until there is no
snagging.
Rear Pivot assembly
Joystick Cable
Battery Controller
Shroud
Tie-Wraps

SECTION 15—WIRING AND CABLES
2G Tarsys®Powered Seating System 164 Part No 1114842
FIGURE 15.9 All Cables (Final Steps)
Wiring Schematics
TRSS
Tilt
Actuator
Rear Pivot
Assembly
Tilt Actuator Connector
(Anderson Connector)
TRSS
MKIV™Programmer
(For Programming
Actuator and
Wheelchair Control)
MK5 Joystick
MK5 Joystick Connection
(15-Pin D-Sub for Control of
Wheelchair and Actuators)
24 VDC Auxiliary Power Connectors
to AUX Output of Wheelchair
Controller (Custom 3-Pin Plug)
MK5
Wheelchair
Controller
Wheelchair Controller Programmer
Port/Battery Charging Port
(3-Pin Circular DIN Socket)
Tilt Potentiometer
Connector (Molex)
Network Connection to
Programmer Port of Joystick
(3-Pin Circular DIN Plug)

SECTION 15—WIRING AND CABLES
Part No 1114842 165 2G Tarsys®Powered Seating System
SAC
Tilt Actuator Connector (2-Pin Anderson)
SAC
MKIV Programmer
(For Programming
Actuator and
Wheelchair Control)
MK5 Joystick
MK5 Joystick Connection
(15-Pin D-Sub for
Control of Wheelchair
and Actuators)
Network Connection
to ACC Port of
Wheelchair Control
(5-Pin Circular DIN
Plug)
24 VDC Auxiliary Power
Connectors to AUX Output
of Wheelchair Controller
(Custom 3-Pin Plug)
MK5
Wheelchair
Controller
Wheelchair Controller Programmer
Port/Battery Charging Port
(3-Pin Circular DIN Socket)
Network Connection to
Programmer Port of Joystick
(3-Pin Circular DIN Plug)
Tilt Potentiometer Connector (3-Pin Molex)

SECTION 15—WIRING AND CABLES
2G Tarsys®Powered Seating System 166 Part No 1114842
TRCM/TAC
To Tilt Actuator
To Recline Actuator
To VSR Actuator
To Left Legrest Actuator
To Tilt Potentiometer
TRCM/TAC
TRCM/TAC
Programming
Port (5-Pin)
Wheelchair Controller
Auxiliary Programmer Port
(5-Pin Circular DIN Socket)
MK5 Joystick Connection
(15-Pin D-Sub for Control of
Wheelchair and Actuators)
24 VDC Auxiliary Power Connectors to
AUX Output of Wheelchair Controller
(Custom 3-Pin Plug)
Attendant/User Switch Input
(9-Pin D-Sub)
To Right Legrest Actuator
Actuator Controls
(2-Pin Anderson Connectors)
Limit Sensor Inputs
(3-Pin Molex/Amp Connectors)
To Recline Potentiometer
MKIV Programmer
(For Programming
Actuator and
Wheelchair Control)
MK5 Joystick
MK5
Wheelchair
Controller
Wheelchair Controller Programmer
Port/Battery Charging Port (3-Pin
Circular DIN Socket)
Network
Connection to
Programmer Port
of Joystick
(3-Pin Circular
DIN Plug)
Actuator
Control Inputs
(TAC Only)
Network
Connection to ACC
Port of Wheelchair
Control (5-Pin
Circular DIN Plug)

LIMITED WARRANTY
For warranty information, please refer to the original owner's manual which came with
this product, or contact Invacare for more information.
Invacare Corporation www.invacare.com
USA
One Invacare Way
Elyria, Ohio USA
44036-2125
800-333-6900
Invacare Technical
Support
800-832-4707
Canada
570 Matheson Blvd E Unit 8
Mississauga Ontario
L4Z 4G4 Canada
800-668-5324
All rights reserved. Trademarks are
identified by the symbols ™ and ®.
All trademarks are owned by or licensed
to Invacare Corporation unless otherwise
noted.
Phillips is a registered trademark of the
Phillips Screw Company.
© 2007 Invacare Corporation
Part No 1114842
Rev A - 4/07


