Kenmore 11081422510 User Manual LAUNDRY CENTER Manuals And Guides 1505405L
User Manual: Kenmore 11081422510 11081422510 KENMORE LAUNDRY CENTER - Manuals and Guides View the owners manual for your KENMORE LAUNDRY CENTER #11081422510. Home:Laundry & Garment Care Parts:Kenmore Parts:Kenmore LAUNDRY CENTER Manual
Open the PDF directly: View PDF
.
Page Count: 108 [warning: Documents this large are best viewed by clicking the View PDF Link!]

Use & Care Guide & Installation instructions
Manual de uso y cuidado y las Instrucciones de instalaci6n
Guide d ut_l_sat_on et d entret_en et instructions pour Iinstallation
English /Espa_ol /Franc;ais
Table of Contents..2
{ndJce...38
Table des mafi_res...74
Models/Modelos/Mod_les: 110.81422, 110.81432
.entro
Lava
_entrede
Laveuse
re®
Wide
IGVGn
ry Center
GnC
P/N W10746859A
Sears Brands Management Corporation
Hoffman Estates, IL 60179 U.S.A.
www.ken more.corn
www.sears.com
Sears Canada Inc.
Toronto, Ontario, Canada MSB 2B8
www.sears.ca

TABLEOF CONTENTS
WASHER/DRYER SAFETY ...................................................... 3
iNSTALLATION iNSTRUCTIONS ............................................ 5
Tools and Parts ..................................................................... 5
Alternate Parts ...................................................................... 6
Location Requirements ........................................................ 6
Drain System ......................................................................... 7
Electrical Requirements - 240 Volt Models .................... 7
Electrical Requirements - 120 Volt Models ..................... 9
Electrical Connection - 240 Volt Models ...................... 10
Venting Requirements ........................................................ 16
Install Leveling Legs ........................................................... 17
Remove Foam Packing ...................................................... 17
Connect Drain Hose ........................................................... 17
Connect Inlet Hoses ........................................................... 18
Secure Drain Hose ............................................................. 19
Plan Vent System .............................................................. 20
Install Vent System ............................................................. 21
Connect Vent ...................................................................... 21
Level Laundry Center ........................................................ 22
Complete Installation ........................................................ 22
WASHER USE .......................................................................... 23
Control Panel and Features .............................................. 23
Starting Your Washer ........................................................ 23
Cycles ................................................................................. 24
Rinse and Spin ................................................................... 24
Drain and Spin .................................................................. 24
Understanding Washer Cycles ......................................... 25
Normal Sounds ................................................................... 25
LAUNDRY TiPS ........................................................................ 25
Loading ............................................................................... 25
DRYER USE ............................................................................... 26
Control Panel and Features .............................................. 26
Starting Your Dryer ........................................................... 27
Stopping and Restarting .................................................. 27
Loading .............................................................................. 27
Drying, Cycle, and Temperature Tips ............................. 27
Cycles .................................................................................. 28
LAUNDRY CENTER CARE ...................................................... 28
Cleaning the Laundry Center Location ........................... 28
Cleaning Your Washer ...................................................... 28
Water Inlet Hoses .............................................................. 28
Cleaning the Lint Screen ................................................... 29
Cleaning the Dryer Interior .............................................. 29
Removing Accumulated Lint ............................................. 29
Vacation, Storage, and Moving Care ............................. 29
TROUBLESHOOTING WASHER ............................................ 31
TROUBLESHOOTING DRYER ............................................... 35
PROTECTION AGREEMENTS ............................................... 37
WARRANTY ............................................................................. 37
SERVICE NUMBERS ................................................ Back Cover
2

WASHER/DRYER SAFETY
Your safety and the safety of others are very important.
We have provided many important safety messages in this manual and on your appliance. Always read and obey all safety
messages.
This is the safety alert symbol.
This symbol alerts you to potential hazards that can kill or hurt you and others.
All safety messages will follow the safety alert symbol and either the word "DANGER" or "WARNING."
These words mean:
You can be killed or seriously injured if you don't immediately
follow instructions.
You can be killed or seriously injured if you don't follow
instructions.
All safety messages will tell you what the potential hazard is, tell you how to reduce the chance of injury, and tell you what can
happen if the instructions are not followed.
WARNING -...i.kofFi,o..
- Clothes dryer installation must be performed by a qualified installer.
-Install the clothes dryer according to the manufacturer's instructions and local codes,
- Do not install aclothes dryer with flexible plastic venting materials or flexible metal
(foil type) duct. If flexible metal duct is installed, it must be of a specific type identified
by the appliance manufacturer as suitable for use with clothes dryers. Flexible venting
materials are known to collapse, be easily crushed, and trap lint. These conditions will
obstruct clothes dryer airflow and increase the risk of fire.
-To reduce the risk of severe injury or death, follow all installation instructions.
-Save these instructions.

IMPORTANT SAFETY INSTRUCTIONS
WARNING: To reduce the risk of fire, electric shock, or injury to persons when using the washer/dryer, follow basic
precautions, including the following:
[] Read all instructions before using the washer/dryer.
[] Do not place items exposed to cooking oils in your dryer.
Items contaminated with cooking oils may contribute to a
chemical reaction that could cause a load to catch fire.
[] Do not wash or dry articles that have been previously
cleaned in, washed in, soaked in, or spotted with gasoline,
dry-cleaning solvents, other flammable, or explosive
substances as they give off vapors that could ignite or
explode.
[] Do not add gasoline, dry-cleaning solvents, or other
flammable, or explosive substances to the wash water.
These substances give off vapors that could ignite or
explode.
[] Do not allow children to play on or in the washer/dryer.
Close supervision of children is necessary when the
washer/dryer is used near children.
[] Before the washer/dryer is removed from service or
discarded, remove the doors to the washer/dryer
compartments.
[] Do not reach into the washer/dryer if the tub, agitator or
drum is moving.
[] Do not install or store the washer/dryer where it wilt be
exposed to the weather.
[] Do not tamper with controls.
[] Clean dryer lint screen before or after each load.
[] Under certain conditions, hydrogen gas may be produced in
a hot water system that has not been used for 2 weeks or
more. HYDROGEN GAS IS EXPLOSIVE. If the hot water
system has not been used for such a period, before using
the washing machine, turn on all hot water faucets and let
the water flow from each for several minutes. This will
release any accumulated hydrogen gas. As the gas is
flammable, do not smoke or use an open flame during this
time.
[] Do not repair or replace any part of the washer/dryer or
attempt any servicing unless specifically recommended in
this Use and Care Guide or in published user-repair
instructions that you understand and have the skills to carry
out.
[] Do not use fabric softeners or products to eliminate static
unless recommended by the manufacturer of the fabric
softener or product.
[] Do not use heat to dry articles containing foam rubber or
similarly textured rubber-like materials.
[] Keep area around the exhaust opening and adjacent
surrounding areas free from the accumulation of lint, dust,
and dirt.
[] The interior of the machine and dryer exhaust vent should
be cleaned periodically by qualified service personnel.
[] See "Electrical Requirements" section for grounding
instructions.
SAVE THESE INSTRUCTIONS
State of California Proposition 65 Warnings:
WARNING: This product contains one or more chemicals known to the State of California to cause cancer.
WARNING: This product contains one or more chemicals known to the State of California to cause birth defects or other
reproductive harm.
I IMPORTANT: When discarding or storing your old clothes dryer_ remove the door.
4

iNSTALLATiON iNSTRUCTiONS
TOOLS AND PARTS
Gather the required tools and parts before starting installation. Read and follow the instructions provided with any tools listed here.
Tools needed:
#2 Phillips and fiat-
blade screwdriver
Adjustable wrench that
opens to 1" (25 mm) or
9/16" open-end wrench
(for adjusting dryer feet)
Wire stripper (direct wire
installations)
Tin snips (for new vent Caulking gun and Level Knife
installations) compound (for instaliing
new exhaust vent)
Vent clamps Pliers Wood block
(for leveling)
1/4" (6 mm) nut
driver or socket wrench
(recommended)
Ruler or measuring tape
Parts supplled:
Remove parts package from the washer basket. Check that all parts were included.
Rear leveling legs (2) Front leveling legs (2) Removable tie strap Drain hose
Silver, double-wire hose clamp
Parts needed: (Not supplied)
Check local codes, electrical supply, and venting, and read "Electrical Requirements" and "Venting
Requirements" before purchasing parts.
Mobile home installations require metal exhaust system hardware available for purchase from your
local Sears store or Sears Service Center. For further information, please call 1-800-4-MY-HOMi:®
(1-800-469-4663).
Inlet hoses with flat washers

ALTERNATE PARTS
Parts listed are available from your local Sears store or
Sears Service Center. For further information, please call
1=800=4=MY-HOME ® (1=800=469=4663).
If you have:
Laundry tub or
standpipe taller than
96" (2.4 m)
1" (25 mm)
diameter standpipe
Overhead sewer
Floor drain
You will need to buy:
Sump pump system (if not already
available)
2" (51 mm) diameter to 1" (25 mm)
diameter standpipe adapter,
Part Number 3363920
Standard 20 gal. (76 L) 34" (864 mm)
tall drain tub or utility sink and sump
pump (available from local plumbing
suppliers)
Siphon break, Part Number 285320,
additional drain hose, Part Number
285702, and connector kit, Part
Number 285442
Drain hose too short
Lint clogged drain
Water faucets
beyond reach
of fill hoses
Drain hose, Part Number 285664
and connector kit, Part Number 285442
Drain protector, Part Number 367031
2 longer water fill hoses:
6ft (1.8 m), Part Number 76314,
10 ft (3.0 m), Part Number 350008
LOCATION REQUIREMENTS
Explosion Hazard
Keep flammable materials and vapors, such as
gasoline, away from dryer.
Do not install in a garage.
Failure to do so can result in death, explosion, or fire.
You wlll need
[] A location that allows for proper exhaust installation. See
"Venting Requirements".
[] For 240 volt models, a separate 30-amp circuit. For 120 volt
models, a 120 volt, 60 Hz., AC only, 15- or 20-amp circuit.
[] If using a power supply cord on 240 volt models, and for 120
volt models, a grounded electrical outlet located within 2 ft.
(610 ram) of either side of the Laundry Center. See "Electrical
Requirements".
[] A sturdy floor to support the Laundry Center weight (Laundry
Center, water, and load) of 500 Ibs (226.8 kg).
[] A level floor with a maximum slope of 1" (25 mm) under
entire Laundry Center. Clothes may not tumble properly and
automatic sensor cycles may not operate correctly if Laundry
Center is not level. Installing on carpet is not recommended.
[] A water heater set to deliver 120°F (49°C) water to the washer.
[] Hot and cold water faucets located within 4ft (1.2 m) of the
hot and cold water fill valves, and water pressure of 5-100 psi
(34.5-689.6 kPa).
The Laundry Center must not be installed or stored in an area
where it will be exposed to water and/or weather.
6
Do not operate your washer in temperatures at or below 32°F
(0°C). Some water can remain in the washer and can cause
damage in low temperatures. See "Vacation, Storage, and Moving
Care" for winterizing information.
Do not operate your dryer at temperatures below 45°F (7°C). At
lower temperatures, the dryer might not shut off at the end of an
automatic cycle. This can result in longer drying times.
Check code requirements. Some codes limit, or do not permit,
installation of the Laundry Center in garages, closets, mobile
homes, or sleeping quarters. Contact your local building inspector.
Installation Clearances
The location must be large enough to allow the dryer door
to open fully.
Laundry Center Dimensions
15 3/o"
(390ram)
71%"
(1.82 m)
(816 ram)
*27 ¼" "_
(692ram) *23 z/8"
(606 ram)
*Most installations require a minimum 5" (127 ram) clearance behind
the dryer for the exhaust vent with elbow. See "Venting Requirements".
Minimum spacing far recessed area or closet installation
The following spacing dimensions are recommended for this
Laundry Center. This Laundry Center has been tested for spacing
of 0" (0 mm) clearance on the sides, rear, and top. Recommended
spacing should be considered for the following reasons:
[] Additional spacing should be considered for ease of installation
and servicing.
[] Additional clearances might be required for wall, door, and
floor moldings.
[] Additional spacing on all sides of the Laundry Center is
recommended to reduce noise transfer.
[] For closet installation, with a door, minimum ventilation openings
in the top and bottom of the door are required. Louvered doors
with equivalent ventilation openings are acceptable.
o oo o o
m
1"--_1N-26'/_"-_11_-_"
(25mm) (606ram) (25rnm)
A
_I"* 1-27'J,"÷I
(25mm)(692mm)
B
A. Recessed area
T (305turn}, __ 3!'(76mm)
48in,;<.-1
(310crn2) I_ t
(155cm2} I
'(76ram)
_.- 6"**
(127mm) C
B. Side view -closet or confined area
C. Closet door with vents
*Required spacing
**Rear clearance may be 0" (0 mm) when house exhaust system
is lined up directly with dryer exhaust.

Moblle Home- Addltlanal Instaffaflon Requirements
This Laundry Center is suitable for mobile home installations. The
installation must conform to the Manufactured Home Construction
and Safety Standard, Title 24 CFR, Part 3280 (formerly the
Federal Standard for Mobile Home Construction and Safety,
Title 24, HUD Part 280) or the Canadian Manufactured Home
Standard, CAN/CSA-Z240 MH.
Mobile home installations require:
[] Metal exhaust system hardware, which is available for
purchase from your local Sears store or Sears Service Center.
[] Special provisions must be made in mobile homes to introduce
outside air into the dryer. The opening (such as a nearby
window) should be at least twice as large as the dryer exhaust
opening.
DRAI N SYSTEM
The Laundry Center can be installed using the standpipe drain
system (floor or wall), the laundry tub drain system, or the floor
drain system. Select the drain hose installation method you need.
See "Alternate Parts".
Standpipe drain system - wall or floor (views A8, B)
The standpipe drain requires a minimum diameter standpipe of 2"
(51 ram). The minimum carry-away capacity can be no less than
17 gal. (64 L) per minute. A 2" (51 mm) diameter to 1" (25 mm)
diameter standpipe adapter kit is available. See "Alternate Parts".
The top of the standpipe must be at least 39" (991 ram) high and
no higher than 96" (2.4 m) from the bottom of the washer.
39" 1
(991
A B
Laundry tub drain system (view C)
The laundry tub needs a minimum 20 gal. (76 L) capacity. The top
of the laundry tub must be at least 34" (864 ram) above the floor
and no higher than 96" (2.4 m) from the bottom of the washer.
Floor drain system (view D)
The floor drain system requires a siphon break that may be
purchased separately. See "Alternate Parts".
The siphon break must be a minimum of 28" (710 mm) from
the bottom of the washer. Additional hoses might be needed.
ELECTRICAL REQUIREMENTS - 240 VOLT MODELS
(U.S.A.)
Jt is your responslbility
[] To contact a qualified electrical installer.
[] To be sure that the electrical connection is adequate and in
conformance with the National Electrical Code, ANSI/NFPA
70-latest edition and all local codes and ordinances.
A copy of the above code standards can be obtained from:
National Fire Protection Association, One Batterymarch Park,
Quincy, MA 02269.
[] To supply the required 3 or 4 wire, single phase, 240 volt, 60
Hz., AC only electrical supply (or 3 or 4 wire, 208 volt electrical
supply, if specified on the serial/rating plate) on a separate 30-
amp circuit, fused on both sides of the line. A time-delay fuse
or circuit breaker is recommended. Connect to an individual
branch circuit. Do not have a fuse in the neutral or grounding
circuit.
[] Do not use an extension cord.
[] If codes permit and a separate ground wire is used, it is
recommended that a qualified electrician determine that the
ground path is adequate.
ElecfricaJ Connection
To properly install your Laundry Center, you must determine the
type of electrical connection you will be using and follow the
instructions provided for it here.
[] This dryer is manufactured ready to install with a 3-wire
electrical supply connection. The neutral ground wire is
permanently connected to the neutral conductor (white wire)
within the dryer. If the dryer is installed with a 4-wire electrical
supply connection, the neutral ground wire must be removed
from the internal ground connector (green screw), and secured
under the neutral terminal (center or white wire) of the terminal
block. When the neutral ground wire is secured under the
neutral terminal (center or white wire) of the terminal block,
the dryer cabinet is isolated from the neutral conductor,
[] If local codes do not permit the connection of a neutral ground
wire to the neutral wire, see "Optional 3-wire connection" in
"Electrical Connection" section.
[] Use a A-wire conductor cord when the dryer is installed in
a mobile home or an area where local codes do not permit
grounding through the neutral.
if using apower supply cord:
[] Use a UL listed power supply cord kit marked for use with
clothes dryers. The kit should contain:
[] A UL listed 30-amp power supply cord, rated 240 volt
minimum. The cord should be type SRD or SRDT and be at least
4ft (1.22 m) long. The wires that connect to the dryer must end
in ring terminals or spade terminals with upturned ends.
[] A UL listed strain relief.
if your outlet looks llke this:
4-wire
receptacle
(14-30R)
Then choose a 4-wire power supply cord with
ring or spade terminals and UL listed strain
relief. The 4-wire power supply cord, at least
4ft (1.22 m) long, must have four 10-gauge
copper wires and match a 4-wire receptacle of
NEMA Type 14-30R. The ground wire (ground
conductor) may be either green or bare. The
neutral conductor must be identified by a white
cover.
C D

If your outlet looks llke this:
(_ hen choose a 3-wire power supply cord with
ring or spade terminals and UL listed strain
relief. The 3-wire power supply cord, at least 4ft
3-wire
receptacle
(10-30R)
(1.22 m) long, must have three lO-gauge copper
wires and match a 3-wire receptacle of NEMA
Type 10-30R.
If connecting by direct wire:
Power supply cable must match power supply (4-wire or 3-wire)
and be:
[] Flexible armored cable or nonmetallic sheathed copper cable
(with ground wire), protected with flexible metallic conduit.
All current-carrying wires must be insulated.
[] 10-gauge solid copper wire. (Do not use aluminum.)
[] At least 5ft (1.52 m) long.
GROUNDING iNSTRUCTIONS
[] For a grounded, cord-connected washer/dryer:
This washer/dryer must be grounded. In the event of
malfunction or breakdown, grounding will reduce the risk of
electric shock by providing a path of least resistance for
electric current. This washer/dryer uses a cord having an
equipment-grounding conductor and a grounding plug. The
plug must be plugged into an appropriate outlet that is
properly installed and grounded in accordance with all local
codes and ordinances.
[] For a permanently connected washer/dryer:
This washer/dryer must be connected to a grounded metal,
permanent wiring system, or an equipment-grounding
conductor must be run with the circuit conductors and
connected to the equipment-grounding terminal or lead on
the washer/dryer.
WARNING: Improper connection of the equipment-
grounding conductor can result in a risk of electric shock.
Check with a qualified electrician or service representative or
personnel if you are in doubt as to whether the washer/dryer
is properly grounded. Do not modify the plug on the power
supply cord: if it will not fit the outlet, have a proper outlet
installed by a qualified electrician.
SAVE THESE INSTRUCTIONS
ELECTRICAL REQUIREMENTS -240 VOLT MODELS
(CANADA)
Electrical Shock Hazard
Plug into agrounded 4prong outlet.
Failure to do so can result in death or electrical shock.
It is your responsibility
[] To contact a qualified electrical installer.
[] To be sure that the electrical connection is adequate and in
conformance with the Canadian Electrical Code, C22.1 - latest
edition and all local codes A copy of above codes standard
may be obtained from: Canadian Standards Association, 178
Rexdale Blvd., Toronto, ON M9W 1R3 CANADA.
[] To supply the required 4 wire, single-phase_ 240 volt_ 60 Hz.,
AC-only electrical supply on a separate 30-amp circuit_ fused
on both sides of the line. A time-delay fuse or circuit breaker is
recommended, Connect to an individual branch circuit.
[]
[]
[]
This dryer is equipped with a CSA
International Certified Power Cord
intended to be plugged into a
standard 14-30R wall receptacle.
The cord is 5ft. (1.52 m) long.
Be sure wall receptacle is within
reach of laundry center's location. 4-wire receptacle (14-30R)
If using a replacement power supply cord, it is recommended
that you use Power Supply Cord Replacement Part Number
9831317.
For further information, please reference service numbers
located on the back cover.
GROUNDING INSTRUCTIONS
[] For a grounded, cord=connected washer/dryer:
This washer/dryer must be grounded. In the event of
malfunction or breakdown, grounding will reduce the risk of
electric shock by providing a path of least resistance for
electric current. This washer/dryer is equipped with a cord
having an equipment-grounding conductor and a grounding
plug. The plug must be plugged into an appropriate outlet
that is properly installed and grounded in accordance with
all local codes and ordinances.
WARNING" Improper connection of the equipment-
grounding conductor can result in a risk of electric shock.
Check with a qualified electrician or service representative
or personnel if you are in doubt as to whether the
washer/dryer is properly grounded. Do not modify the plug
provided with the washer/dryer: if it will not fit the outlet,
have a proper outlet installed by a qualified electrician.
SAVE THESE INSTRUCTIONS

ELECTRICALREQUIREMENTS - 120 VOLT MODELS
Electrical Shock Hazard
Plug into a grounded 3 prong outlet.
Do not remove ground prong.
Do not use an adapter.
Do not use an extension cord.
Failure to follow these instructions can result in death,
fire, or electrical shock.
[] A 120 volt, 60 Hz., AC only, 15- or 20-amp fused electrical
supply is required.
[] This Laundry Center is equipped with a power supply cord
having a 3 prong grounding plug.
[] Be sure that the electrical connection is adequate and in
conformance with the National Electrical Code, ANSI/NFPA
70-latest edition, or Canadian Electrical Code, C22.1 = latest
edition and all local codes and ordinances.
A copy of the above code standards can be obtained from:
National Fire Protection Association, One Batterymarch
Park, Quincy, MA 02269 (U.S.A.), or Canadian Standards
Association, 178 Rexdale Blvd., Toronto, ON M9W 1R3
CANADA.
[] A time-delay fuse or circuit breaker is recommended. Be sure
fuse or circuit breaker matches the rating of your line.
[] Use a separate circuit serving only your dryer.
[] To minimize possible shock hazard, the cord must be plugged
into a mating, 3 prong, grounding-type outlet, grounded in
accordance with local codes and ordinances. If a mating outlet
is not available, it is the personal responsibility and obligation
of the customer to have the properly grounded outlet installed
by a qualified electrician.
[] If codes permit and a separate ground wire is used, it is
recommended that a qualified electrician determine that the
ground path is adequate.
[] Do not ground to a gas pipe.
[] Do not use an extension cord.
[] Do not have a fuse in the neutral or ground circuit.
[] Check with a qualified electrician if you are not sure the
Laundry Center is properly grounded.
GROUNDING iNSTRUCTiONS
[] For a grounded, cord-connected washer/dryer:
This washer/dryer must be grounded. In the event of
malfunction or breakdown, grounding wilt reduce the risk of
electric shock by providing a path of least resistance for
electric current. This washer/dryer uses a cord having an
equipment-grounding conductor and a grounding plug. The
plug must be plugged into an appropriate outlet that is
properly installed and grounded in accordance with all local
codes and ordinances.
WARNING" Improper connection of the equipment-
grounding conductor can result in a risk of electric shock.
Check with a qualified electrician or service representative or
personnel if you are in doubt as to whether the washer/dryer
is properly grounded. Do not modify the plug on the power
cord: if it will not fit the outlet, have a proper outlet installed
by a qualified electrician.
SAVE THESE iNSTRUCTiONS

ELECTRICAL CONNECTION -240 VOLT MODELS
(U.S.A ONLY)
Electrlcal Options
1. Choose electrical connection type
Power supply cord 4-wire receptacle
(NEMA Type 14-30R):
Go to Power Supply Cord Connection,
Power supply cord 3-wire receptacle
(NEMA Type 10-30R):
Go to Power Supply Cord Connection,
4-wire direct connection:
Go to Direct Wire Connection.
__: 3-wire direct connection:
Go to Direct Wire Connection.
NOTE: If local codes do not permit connection of a
cabinet-ground conductor to the neutral wire_ go to
"Optional 3-wire connection" section.
2. Remove terminal block cover
A
B
n n c
Before you start, disconnect power. Remove hold-down screw
(B) and terminal block cover (C).
A. Center terminal block screw
B. Hold-down screw
C. Terminal block cover
D. External ground conductor screw
I0

Power Supply Cord Connection
Fire Hazard
Use a new UL listed 30 amp power supply cord.
Use aUL Jisted strain relief.
Disconnect power before making electrical connections.
Connect neutral wire (white or center wire) to center
terminal
Ground wire (green or bare wire) must be connected to
green ground connector.
Connect remaining 2 supply wires to remaining
2terminals (gold).
Securely tighten all electrical connections.
Failure to do so can result in death, fire, or
electrical shock.
1, Attach power supply cord
strain relief
-=-=----==='- A
Remove the screws from a 3/4" (19 mm) UL listed strain relief
(UL marking on strain relief). Put the tabs of the two clamp
sections (C) into the hole below the terminal block opening
(B) so that one tab is pointing up (A) and the other is pointing
down (D), and hold in place. Tighten strain relief screws just
enough to hold the two clamp sections (C) together.
A. Strain relief tab pointing up
B. Hole below terminal block opening
C. Clamp section
D. Strain relief tab pointing down
f_
2. Attach power supply cord
to strain relief
-- ,m
Put power supply cord through the strain relief. Be sure that
the wire insulation on the power supply cord is inside the strain
relief. The strain relief should have a tight fit with the dryer
cabinet and be in a horizontal position. Do not further tighten
strain relief screws at this point.
4=wire Power Supply Cord Connection
iMPORTANT: A 4-wire connection is required for mobile
homes and where local codes do not permit the use of
3-wire connections.
4-wire receptacle
(NEMA type 14-30R)
4=prong plug
Spade terminals
with upturned ends
Ring terminals
11

1. Connect neutral ground wire
and neutral wire
A
o
B
\\
E D _C
3-wire Power Supply Cord Connection
Use where local codes permit connecting cabinet-ground
conductor to neutral wire.
3-wire receptacle
(NEMA type 10-30R)
3-prong plug
Remove center terminal block screw. Remove neutral ground
wire from external ground conductor screw. Connect neutral
ground wire and the neutral wire (white or center wire)
of power supply cord under center terminal block screw.
Tighten screw.
A. Center terminal block screw
B. Neutral ground wire
C. External ground conductor screw - Dotted
line shows position of NEUTRAL ground
wire before being moved to center terminal
block screw.
D. Neutral wire (white or center wire)
E. 3/4" (19 mm) UL listed strain relief
"2. Connect ground wire
B
-o
A C
Connect ground wire (green or bare) of power supply cord
to external ground conductor screw. Tighten screw.
A. Neutral wire (white or center wire)
B. Center terminal block screw
C. Neutral ground wire
D. External ground conductor screw
E. Ground wire (green or bare) of power
supply cord
F. 3/4" (19 mm) UL listed strain relief
Connect the other wires to outer terminal block screws, Tighten
screws. Tighten strain relief screws, Insert tab of terminal block
cover into slot of dryer rear panel. Secure cover with hold down
screw. Now go to "Venting Requirements'.
12
Spade terminals
with upturned ends
Ring terminals
1. Connect neutral wire
B
m __ m
Loosen or remove center terminal block screw. Connect neutral
wire (white or center wire) of power supply cord to the center
terminal screw of the terminal block. Tighten screw.
A. Neutral wire (white or center wire)
B. Center terminal block screw
C. Neutral ground wire
D. External ground conductor screw
E. 3/4" (19 mm) UL listed strain relief
Connect the other wires to outer terminal block screws. Tighten
screws. Tighten strain relief screws. Insert tab of terminal block
cover into slot of dryer rear panel. Secure cover with hold-down
screw. Now go to "Venting Requirements'.

Direct Wire Connection
Fire Hazard
Use 10 gauge copper wire.
Use aUL listed strain relief.
Disconnect power before making electrical connections.
Connect neutral wire (white or center wire) to center
terminal.
Ground wire (green or bare wire) must be connected to
green ground connector.
Connect remaining 2supply wires to remaining
2 terminals (gold).
Securely tighten all electrical connections.
Failure to do so can resuff in death, fire, or
electrical shock.
2. Attach direct wire cable to strain relief
Put direct wire cable through the strain relief. The strain relief
should have a tight fit with the dryer cabinet and be in a
horizontal position. Tighten strain relief screw against the
direct wire cable.
if your wiring looks like |his:
4-wire direct connection:
Go to "4=wire Direct Wire Connection"
on this page.
3=wire direct connection:
Go to "3=wire Direct Wire Connection".
1. Attach direct wire strain relief
o
Unscrew the removable conduit connector and any screws
from a 3/4" (19 mm) UL listed strain relief (UL marking on
strain relief). Put the threaded section of the strain relief
through the hole below the terminal block opening. Reaching
inside the terminal block opening, screw the removable conduit
connector onto the strain relief threads.
A. Removable conduit connector
B. Hole below terminal block opening
C. Strain relief threads
4=wire Direct Wire Connection
IMPORTANT: A 4-wire connection is required for mobile
homes and where local codes do not permit the use of
3-wire connections.
fl. Prepare your 4-wire cable
for direct connection
(127
Direct wire cable must have 5 ft. (1.52 m)
of extra length so Laundry Center can
be moved if needed.
Strip 5" (127 mm) of outer covering
from end of cable, leaving bare ground
wire at 5" (127 ram). Cut 1-1/2" (38 mm)
from remaining 3 wires. Strip insulation
back 1" (25 mm). Shape ends of wires into a hook shape.
When connecting to the terminal block, place the hooked end
of the wire under the screw of the terminal block (hook facing
right), squeeze hooked end together, and tighten screw. See
example above.
13

2. Connect neutral ground wire
and neutral wire
©
D
A
Remove center terminal block screw. Remove neutral ground
wire from external ground conductor screw. Connect neutral
ground wire and place the hooked end (hook facing right)
of the neutral wire (white or center wire) of direct wire cable
under the center screw of the terminal block. Squeeze hooked
ends together. Tighten screw.
A. Center terminal block screw
B. Neutral ground wire
C. External ground conductor screw - Dotted
line shows position of NEUTRAL ground
wire before being moved to center terminal
block screw.
D. Neutral wire (white or center wire)
E. 3/4" (19 mm) UL listed strain relief
3. Connect ground wire
B
°
Connect ground wire (green or bare) of direct wire cable
to external ground conductor screw. Tighten screw.
A. Neutral wire (white or center wire)
B. Center terminal block screw
C. Neutral ground wire
D. External ground conductor screw
E. Ground wire (green or bare) of direct
wire cable
F. 3/4" (19 mm) UL listed strain relief
f4." Connect remaining wires
Place the hooked ends of the other direct wire cable wires
under the outer terminal block screws (hooks facing right).
Squeeze hooked ends together. Tighten screws. Tighten strain
relief screw. Insert tab of terminal block cover into slot of dryer
rear panel. Secure cover with hold-down screw. Now go to
"Venting Requirements".
3-wlre Direct Wire Connection
Use where local codes permit connecting cabinet-ground
conductor to neutral wire.
f-
1. Prepare your 3-wire cable
for direct connection
Direct wire cable must have 5ft. (1.52 m)
of extra length so Laundry Center can
be moved if needed.
Strip 3-1/2" (89 mm) of outer covering
from end of cable. Strip insulation back
1" (25 mm). if using 3-wire cable with
ground wire, cut bare wire even with
outer covering. Shape ends of wires into a hook shape.
When connecting to the terminal block, place the hooked end
of the wire under the screw of the terminal block (hook facing
right), squeeze hooked end together, and tighten screw. See
example above.
14

2. Connect neutral wire
B
C
L
E
Loosen or remove center terminal block screw. Place the
hooked end of the neutral wire (white or center wire) of direct
wire cable under the center screw of terminal block (hook
facing right). Squeeze hooked end together. Tighten screw.
A. Neutral wire (white or center wire)
B. Center terminal block screw
C. Neutral ground wire
D. External ground conductor screw
E. 3/4" (19 mm) UL listed strain relief
3. Connect remaining wires
Place the hooked ends of the other direct wire cable wires
under the outer terminal block screws (hooks facing right).
Squeeze hooked ends together. Tighten screws. Tighten strain
relief screw. Insert tab of terminal block cover into slot of dryer
rear panel. Secure cover with hold-down screw. Now go to
"Venting Requirements".
Optional 3-wire Connection
Use for direct wire or power supply cord where local codes
do not permit connecting cabinet-ground conductor to neutral
wire.
. Connect neutral ground wire
and neutral wire
A "o o 1 'B
Remove center terminal block screw. Remove neutral ground
wire from external ground conductor screw. Connect neutral
ground wire and the neutral wire (white or center wire) of
power supply cord/cable under center terminal block screw.
Tighten screw.
A. Neutral wire (white or center wire)
B. Neutral ground wire
C. External ground conductor screw - Dotted
line shows position of NEUTRAL ground
wire before being moved to center terminal
block screw.
D. Grounding path determined by a qualified
electrician
f2. Connect remaining wires and
connect separate ground wire
Connect the other wires to outer terminal block screws. Tighten
screws. Tighten strain relief screws. Connect a separate copper
ground wire from the external ground conductor screw to an
adequate ground. Insert tab of terminal block cover into slot
of dryer rear panel. Secure cover with hold-down screw. Now
go to "Venting Requirements".
15

VENTING REQUIREMENTS
Fire Hazard
Use aheavy metal vent,
Do not use a plastic vent.
Do not use ametal foil vent.
Failure to follow these instructions can result in death
or fire.
WARNING: To reduce the risk of fire, this Laundry Center
MUST BE EXHAUSTED OUTDOORS.
iMPORTANT: Observe all governing codes and ordinances.
Dryer exhaust must not be connected into any gas vent, chimney,
wall, ceiling, attic, crawlspace, or a concealed space of a
building. Only rigid or flexible metal vent shall be used for
exhausting.
04"
(102 mm)
t
4" (102 mm) heavy metal exhaust vent
[] Only a 4" (102 ram) heavy metal exhaust vent and clamps
may be used. DURASAFE TM venting products are recommended.
[] Do not use plastic or metal foil vent.
Rigid metal vent:
[] Recommended for best drying performance and to avoid
crushing and kinking.
Fle×ible metal vent: (Acceptable only if accessible to clean)
[] Must be fully extended and supported in final Laundry
Center location.
[] Remove excess to avoid sagging and kinking that may
result in reduced airflow and poor performance.
[] Do not install in enclosed walls, ceilings, or floors.
[] The total length should not exceed 7=3/4 ft. (2.4 m).
[] The length of flexible metal vent used must be included in the
overall vent system design as shown in the "Vent System Chart".
NOTE: If using an existing vent system, clean lint from entire length
of the system and make sure exhaust hood is not plugged with
lint. Replace plastic or metal foil vents with rigid metal or flexible
metal vents. Review Vent System Chart and if necessary, modify
existing vent system to achieve best drying performance.
Exhaust hoods:
[] Must be at least 12" (305 ram) from ground or any object
that may obstruct exhaust (such as flowers, rocks, bushes,
or snow).
[] Do not use an exhaust hood with a magnetic latch.
Recommended Styles:
Louvered Hood Box Hood
Acceptable Style:
Angled Hood
Elbows:
[] 45 ° elbows provide better airflow than 90 ° elbows.
Recommended Styles:
Bet
Clamps:
[] Use clamps to seal all joints.
[] Exhaust vent must not be connected or secured with screws
or other fastening devices that extend into interior of duct
and catch lint. Do not use duct tape.
improper venting can cause moisture and lint to collect
indoors, which may result in:
[] Moisture damage to woodwork, furniture, paint, wallpaper,
carpets, etc.
[] Housecleaning problems and health problems.
16
Vent products can be purchased from your dealer. For further
information, please call I=800=4-MY=HOME ® (1=800=469=4663)
or visit our website at wv_w.sears.corn or v_ww.sears.ca.

iNSTALL LEVELING LEGS
Excessive Weight Hazard
Use two or more people to move and install washer/dryer.
Failure to do so can result in back or other injury,
To avoid damaging floor, use a large flat piece of cardboard from
shipping carton. Gently place Laundry Center on its side, on the
cardboard.
1. install rear leveling legs
Push legs into holes in rear corners until they snap into place.
Check adjustability of rear legs by pushing in one leg. The
other leg should come out. Check both legs. If they do not
move freely, repeat procedure.
Examine front leveling legs; find diamond marking. Screw front
legs by hand into holes in triangular braces in front corners.
Use wrench to finish turning the legs until diamond marking is
no longer visible. Gently stand Laundry Center upright.
REMOVE FOAM PACKING
1. Pull foam packing ring out of washer
-- w __
Open the washer lid. The latch under the dryer will keep
the lid open. PuJJthe foam packing ring out of the washer.
NOTE: Keep the foam ring and use it when transporting
your Laundry Center. This packing material is used to keep
the washer tub stable during transport.
CONNECT DRAIN HOSE
Proper connection of the drain hose avoids damage to your floors
due to water leakage. To keep the drain hose from coming off or
leaking, it must be installed according to the following instructions:
iMPORTANT: To ensure proper installation, this procedure must be
followed exactly.
. Attach clamp to drain hose
Check the drain hose to see whether it is the proper length.
Wet the inside of the straight end of the drain hose with
tap water.
iMPORTANT: Do not use any lubricant other than water.
Squeeze the ears of the silver, double=wire clamp with pliers to
open. Place clamp over the straight end of the drain hose 1/4"
(6.4 mm) from the end.
F2. Attach drain hose to drain connector
-m
Open clamp. Twist hose back and forth while pushing onto
drain connector on the side of the Laundry Center. Continue
until hose contacts the ribbed stops on the cabinet. Place
clamp over the area marked "CLAMP." Release clamp.
17

Place drain hose in standpipe
or laundry tub
Drain
Make sure drain hose form is in correct position. Place
hose into standpipe (shown) or over side of laundry tub.
IMPORTANT: 4.5" (114 mm) of drain hose should be inside
standpipe; do not force excess hose into standpipe or lay
on bottom of laundry tub. Drain hose form must be used.
For use with floor drain: Do not install the drain hose form
onto the corrugated drain hose. You may need additional
parts. See Floor drain under "Alternate Parts".
CONNECT iNLET HOSES
Laundry Center must be connected to water faucets with new
inlet hoses with flat washers (not provided). Do not use old hoses.
NOTE: Both hoses must be attached and have water flowing to
inlet valves.
"1. insert washer into each hose _
|
% ........... _,
Insert a new fiat washer into each end of the inlet hoses (not
provided). Firmly seat the washers in the couplings.
2. Connect inlet hoses to water faucets
Make sure the washer basket is empty. Attach hose to the hot
water faucet. Screw on coupling by hand until it is seated on
the washer. Attach hose to the cold water faucet. Screw on
coupling by hand until it is seated on the washer. Using pliers0
tighten the couplings with an additional two-thirds turn.
iMPORTANT: Do not overtighten or use tape or sealants
when attaching inlet hoses to faucets or to the Laundry Center.
Damage can result.
3. Clear water lines
Run water through both faucets and inlet hoses s into a
laundry tub, drainpipe, or bucket to get rid of particles in the
water lines that might clog the inlet valve screens. Check the
temperature of the water to make sure that the hot water hose
is connected to the hot water faucet and that the cold water
hose is connected to the cold water faucet.
18

4. Connect inlet hoses to washer
A
B
Attach the hot water hose to the bottom inlet valve. Attaching
the hot water hose first makes it easier to tighten connection
with pliers. Screw on coupling by hand until it is seated on the
washer. Using pliers, tighten the coupling with an additional
two-thirds turn.
Attach the cold water hose to the top inlet valve. Screw on
coupling by hand until it is seated on the washer. Using pliers,
tighten the coupling with an additional two-thirds turn.
iMPORTANT: Do not overfighten or use tape or sealants
when attaching inlet hoses to faucets or to the Laundry Center.
Damage can result.
A. Cold water inlet valve (top)
B. Hot water inlet valve (bottom)
5. Move laundry center to final location
If you are working in a closet or recessed area_ move the
Laundry Center into its final location and remove cardboard
from under the Laundry Center. Remove the access panel by
removing 2 Phillips-head screws located at the top of the
access panel. Set panel and screws aside. Complete hookup
of water hoses through the access area. Replace access panel
upon completion of Laundry Center installation.
f6. Check for leaks
0
66 66
Turn on the water faucets and check for leaks. A small amount
of water might enter the washer. You wHJ drain this later.
NOTE: Replace inlet hoses after 5years of use to reduce the
risk of hose failure. Record hose installation or replacement
dates for future reference.
If you connect only one water hose, you must cap off the
remaining water inlet port.
Periodically inspect and replace hoses if bulges, kinks, cuts,
wear, or leaks are found.
The Laundry Center must be connected to the water faucets
using the new hoses. Do not use old hoses.
SECURE DRAIN HOSE
Move Laundry Center to its flnaJ location and remove any
cardboard used to move Laundry Center.
q. Wrap the drain hose to laundry tub leg
or standpipe
A
B C D
Locate removable tie strap (A) included in parts package.
Wrap the drain hose to the laundry tub leg (B) or standpipe (C)
with the removable tie strap and secure. If the water faucets
and the drain standpipe are recessed, put the hooked end of
the drain hose in the standpipe. Tightly wrap the removable tie
strap around the water inlet hoses and the drain hose (D).
19

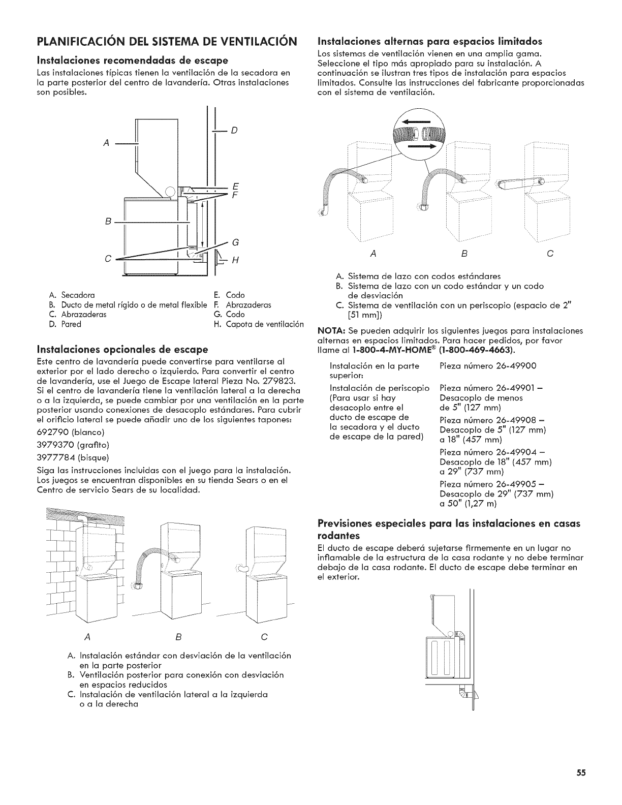
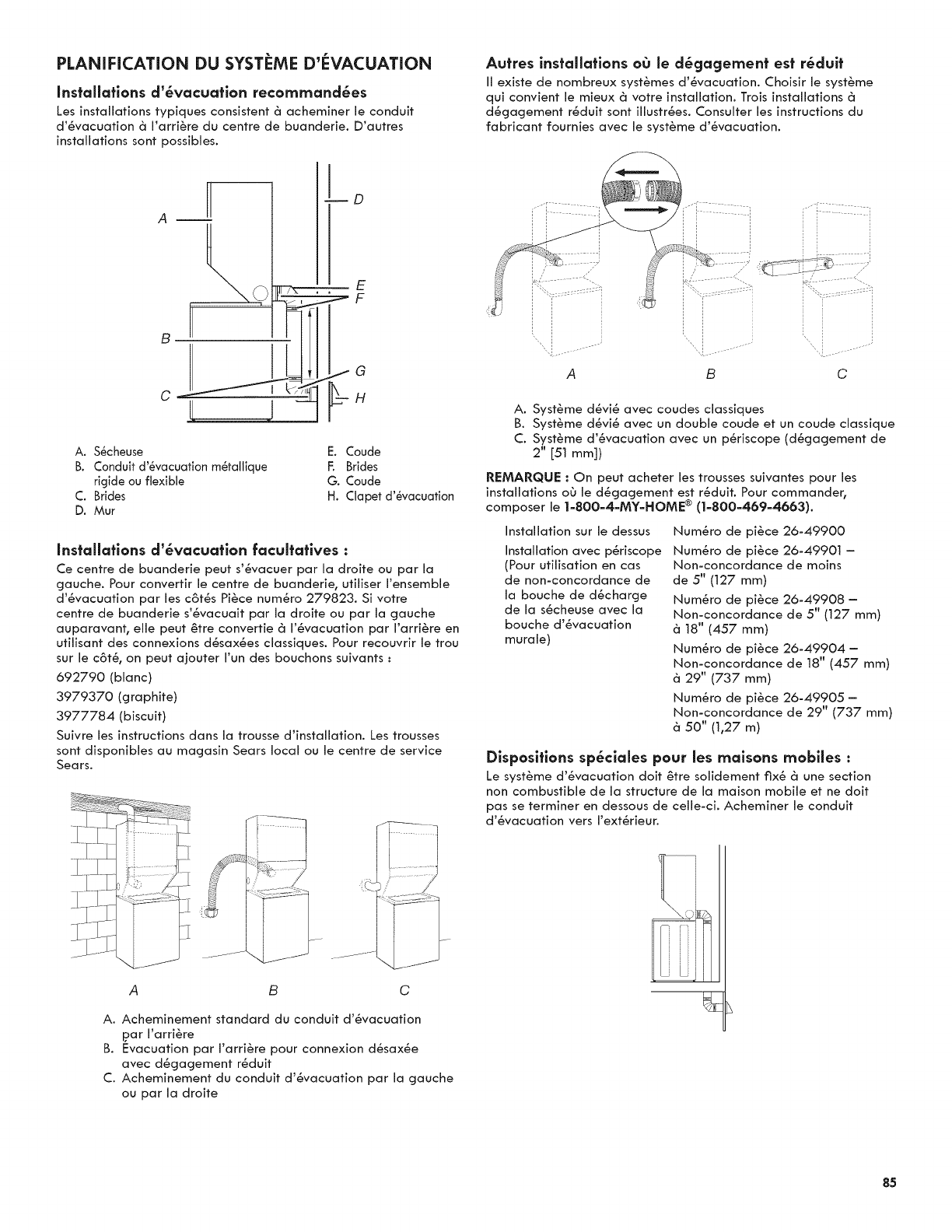
PLAN VENT SYSTEM
Recommended exhaust installations
Typical installations vent the dryer from the rear of the Laundry
Center. Other installations are possible.
--D
A
c
A. Dryer E. Elbow
B. Rigid metal or flexible metal vent F. Clamps
C. Clamps G. Elbow
D. Wall H. Exhaust hood
Optional exhaust installations
This Laundry Center can be converted to exhaust out the right or
left side. To convert the Laundry Center, use Side Exhaust Kit Part
Number 279823. If your Laundry Center was previously exhausted
from the right or left side, it can be converted to rear exhaust by
using standard offset connections. To cover the hole in the side,
one of the following plugs can be added:
692790 (white)
3979370 (graphite)
3977784 (biscuit)
Follow the instructions in the kit to install. Kits are available from
your local Sears store or Sears Service Center.
C
A. Standard rear offset exhaust installation
B. Rear exhaust for offset close clearance connection
C. Left or right side exhaust installation
Alternate installations for close clearances
Venting systems come in many varieties. Select the type best
for your installation. Three close-clearance installations are shown.
Refer to the manufacturer's instructions provided with the vent
system.
S ........
i
i
! i
i!
ii !
i!
,,,! i
A B C
A. Loop system with standard elbows
B. Loop system with one offset and one standard elbow
C. Vent system with one periscope (2" [51 mm] clearance)
NOTE: The following kits for close clearance alternate
installations are available for purchase. To order, please call
1-800-4-MY-HOME ® (1-800-469-4663).
Over-the-Top Installation:
Periscope Installation
(For use with dryer vent
to wall vent mismatch):
Part Number 26-49900
Part Number 26-49901 -
Less than 5" (127 mm)
mismatch
Part Number 26-49908 -
5" (127 mm) to 18" (457 mm)
mismatch
Part Number 26-49904 -
18" (457 mm) to 29" (737 mm)
mismatch
Part Number 26-49905 -
29" (737 mm) to 50" (1.27 m)
mismatch
Speclal provisions for mobile home installations
The exhaust vent must be securely fastened to a noncombustible
portion of the mobile home structure and must not terminate
beneath the mobile home. Terminate the exhaust vent outside.
2O

Determine vent path
[] Select the route that will provide the straightest and most
direct path outdoors.
[] Plan the installation to use the fewest number of elbows
and turns.
[] When using elbows or making turns, allow as much room
as possible.
[] Bend vent gradually to avoid kinking.
[] Use the fewest 90 ° turns possible.
Determine vent length and elbows needed
for best drying performance
[] Use the Vent system chart below to determine the type of vent
material and hood combinations acceptable to use.
NOTE= Do not use vent runs longer than those specified in the
Vent system chart. Exhaust systems longer than those specified
wilh
[] Shorten the life of the dryer.
[] Reduce performance, resulting in longer drying times and
increased energy usage.
The Vent system chart provides venting requirements that wJJJ
help to achieve the best drying performance.
Vent System Chart
Side exhaust installations add a 90 ° turn inside the
Laundry Center. To determine maximum exhaust length, add
one 90 ° turn to the chart.
Number Box or
of 90 ° turns Type iouvered Angled
or elbows of vent hoods hoods
0 Rigid metal 43 ft. (13.1 m) 36 ft. (11.0 m)
1 Rigid metaJ 33 ft. (10.1 m) 26 ft. (7.9 m)
2Rigid metaJ 23 ft. (7.0 m) 16 ft. (4.9 m)
INSTALL VENT SYSTEM
]. install exhaust hood
Install exhaust hood and use caulking compound to seal
exterior wall opening around exhaust hood.
2. Connect vent to exhaust hood
Vent must fit inside the exhaust hood. Secure vent to exhaust
hood with 4" (102 mm) clamp. Run vent to dryer location using
straightest path possible. See "Determine vent path" Jn "Plan
Vent System". Avoid 90 ° turns. Use clamps to seal all joints.
Do not use duct tape, screws, or other fastening devices that
extend into interior of vent to secure vent, because they can
catch lint.
CONNECT VENT
. Connect vent to exhaust outlet
Connecting from front
(for closet or recessed area)
Connecting
from rear
Using a 4" (102 mm) clamp, connect vent to exhaust outlet in
Laundry Center. if connecting to existing vent, make sure the
vent is clean. Dryer vent must fit over dryer exhaust outlet and
inside exhaust hood. Check that vent is secured to exhaust
hood with a 4" (102 mm) clamp.
2. Move Laundry Center to final location
_11| ii ,,_.......... }:/
Move Laundry Center to its final location. Avoid crushing or
kinking vent.
21

LEVEL LAUNDRY CENTER
Properly (evelJng your Laundry Center avoids excessive noise
and vibration.
1. Check levelness of laundry center
Check levelness of Laundry Center by placing a level on the
top edge of washer, first side to side, then front to back. if
Laundry Center is not level, prop up front with a wood block
and adjust feet up or down as necessary. Remove wood block
and lower Laundry Center. Repeat this step until Laundry
Center is level.
[] When the dryer has been running for 5minutes, open the dryer
door and feel for heat. if you feel heat, cancel cycle and close
the door.
if you do not feel heat, turn the dryer off and check
the follow(rig:
* Controls are set on a heated cycle, not an air cycle.
* On 240 volt models, there may be 2 household fuses or
circuit breakers for the dryer. Check that both fuses are
intact and tight, or that both circuit breakers have not
tripped. If there is still no heat, contact a qualified
technician.
NOTE: You may notice an odor when dryer is first heated. This
odor is common when the heating element is first used. The odor
wJH go away.
COMPLETE iNSTALLATiON
[] Check that all parts are now Jnsta(Ned. if there is an extra
part, go back through the steps to see what was skipped.
[] Check that you have all of your tools.
[] Dispose of/recycle all packaging materials. Keep the plastic
foam for use if Laundry Center should be transported.
[] Check Laundry Center's final location. Be sure vent is not
crushed or kinked.
[] Check that Laundry Center is level and front leveling feet
are tight. See "Level Laundry Center."
[] On 240 volt models, for power supply cord installation,
plug into an outlet. For direct wire installation (U.S. only),
turn on power. On 120 volt models, plug into a grounded
3 prong outlet.
[] Check that the water faucets are on.
[] Check for leaks around faucets and inlet hoses.
[] Remove film on the console and any tape remaining
on Laundry Center.
[] Read "Washer Use" and "Dryer Use."
[] Wipe dryer drum interior thoroughly with a damp cloth
to remove any dust.
[] To test the washer, measure 1/2 the normal recommended
amount of detergent and pour it into the washer. C(ose the lid.
Select HEAVY DUTY and pull out the CYCLE CONTROL knob.
Allow the washer to complete one whole cycle.
[] To test the dryer, set the dryer on a full heat cycle
(not an air cycle) for 20 minutes and start the dryer.
if the dryer wff[ not start, check the follow(rig:
*Controls are set in a running or "On" position.
*PUSH TO START DRYER button has been firmly pushed.
*On 240 volt models, Laundry Center is plugged into an
outlet and/or electrical supply is on. On 120 volt models_
Laundry Center is plugged into a grounded 3 prong outlet
and/or electrical supply is on.
*Household fuse is intact and tight, or circuit breaker
has not tripped.
*Dryer door is closed.
22

WASHER USE
CONTROL PANEL AND FEATURES
240 Volt Models
f
Heavy
Duty
12
Spi_
Rinse
Spin
Delicates
Wash Temp Soil Level
Cool Lights Medium
Cool __oe Light •Heavy
oo. \ wo.m zj
Cold • H _. _. _I•Hot
120 Volt Models
f
Heavy
Duty
12
Rinse
Spin
68FP
=_elicates
Rinse
Spin
PUSH TO STOP
Wash Temp Soil Level
Cool Lights Medium
Cool _Light e Heavy
Darks(L_" _\'x_War m ___
Cold e ff_ "_ I1e Hot
WASH =SELECT =DRY
Not all features and options are available on all models.
Appearance may vary.
J
STARTING YOUR WASHER
Fire Hazard
Never place items in the washer that are dampened
with gasoline or other flammable fluids.
No washer can completely remove off.
Do not dry anything that has ever had any type of oil on
it (including cooking oils).
Doing so can result in death, explosion, or fire.
WARNING: To reduce the risk of fire, electric shock, or injury to
persons, read the IMPORTANT SAFETY INSTRUCTIONS before
operating this washer.
The following is a guide to starting your washer. Periodic
references to other sections of this manual provide more detailed
information.
[] Add a measured amount of detergent or single-dose laundry
packet into the basket before adding clothes. If using OxJ-type
boosters, color=safe bleach, or fabric softener crystals, add to
the bottom of the washer basket as well.
[] Place a load of sorted clothes in the washer.
•Load evenly to maintain washer balance. Mix large and
small items. See "Loading".
Tightly packed loads may cause poor cleaning.
[]
[]
Close the washer lid.
Turn the SOIL LEVEL selector knob
to the correct setting for your wash
load and the type of fabric
being washed.
Soil Level
Medium
Light _ee Heavy
23

[]
[]
Set the WASH TEMP selector
to the correct setting for the type
of fabric and soils being washed.
Use the warmest water safe for
the fabric. Follow garment label
instructions. All rinses are cold
rinses.
Wash Ternp
Hot
Warm
Cool
Cold
WashTamp
Cool Lights
Cool
Colde_ _J;oHot
Use For
Whites and pastels; Heavy soils
Bright colors; Moderate to light soils
Colors that bleed or fade; Light soils
Colors that bleed or fade; Light soils
Push in the CYCLE CONTROL knob and turn it clockwise
to the wash cycle you want. Pull out the CYCLE CONTROL
knob to start the washer.
To stop or restart your washer:
[] To stop the washer at any time, push in the CYCLE CONTROL
knob.
[] To restart the washer, close the lid (if open) and pull out the
CYCLE CONTROL knob.
CYCLES
This section describes the available
wash cycles and will help you
make the best cycle
selections for your Heavy
wash loads. Each Duty
cycle is designed
for different types 18
of fabric and soil levels. 12
[] The washer pauses
briefly throughout
each cycle. These
pauses are normal.
[]
Refer to "Normal Sounds"
for sounds you may
hear during a wash cycle.
Rinse
Spin
Delicates
Rinse
Spln
Refer to "Understanding Washer Cycles" to learn what happens
during a wash cycle.
Heavy Duty
Use this cycle for sturdy or heavily soiled loads. The wash
combines fast-speed agitation and fast spin speed.
[] Select cycle agitation time (8, 10, or 12 minutes); choose more
time for heavily soiled, sturdy fabrics and less time for lightly
soiled, sturdy fabrics.
Casua_
The Casual cycle includes a load-cooling process that reduces
wrinkling. The wash combines fast- and slow-speed agitation and
slow spin speed.
Part way through the cycle, the washer will pause for
approximately 2 minutes while some of the wash water is drained
and replaced with rinse water.
Delicates
Use this cycle for lingerie and loosely knit items. Part way through
the cycle, the washer pauses and soaks the load for gentler care
of lightly soiled delicate items. The wash combines slow speed
agitation for gentle soil removal and slow spin speed to reduce
wrinkling.
Soak
The Soak cycle features 4 minutes of agitation followed by an
unlimited soak time to help remove heavy soils and stains that
need pretreatment. You will need to reset the washer to a Spin
setting to remove water.
[] The Soak cycle should be followed by the Heavy Duty,
Casual, or Prewash cycle with additional detergent.
NOTE: Hot water is not recommended for soaking. It may set
some stains.
Prewash
Use this cycle to get up to 4 minutes of agitation to help remove
heavy soils and stains that need pretreatment.
[] The Prewash cycle should be followed by the Heavy Duty or
Casual cycle with additional detergent.
RINSE AND SPIN
When using extra detergent for heavily soiled clothes, or when
washing special-care items, you may find an extra rinse and spin
is needed.
[] Push in the CYCLE CONTROL knob and turn it clockwise to any
of the Rinse settings.
*For fast agitation and spin, use the Heavy Duty cycle.
*For slow agitation and spin, use the Casual cycle.
[] Set SOIL LEVEL and WASH TEMP controls to the desired
setting.
[] Pull out the CYCLE CONTROL knob. The washer automatically
fills to the correct load size, agitates, drains, and spins.
DRAIN AND SPIN
A drain and spin may help shorten drying times for some heavy
fabrics or special-care items by removing excess water.
[] Push in the CYCLE CONTROL knob and turn it clockwise
to any of the Spin settings.
*For a fast spin, use the Heavy Duty cycle.
*For a slow spin, use the Casual cycle.
[] Pull out the CYCLE CONTROL knob. The washer drains,
then spins.
24

UNDERSTANDING WASHER CYCLES
When the Cycle Control knob is set to a cycle and pulled out,
the washer fills before agitation and timing start. The washer
begins agitating immediately after filling; agitation occurs
with the washer lid down.
During agitation, the agitator creates
a continuous roJlover action that provides
a thorough cleaning of the wash load.
After agitation starts, the Cycle Control
knob turns clockwise until it points to an
Off: area and the cycle ends.
NOTE: The washer pauses briefly throughout each cycle. These
pauses are normal for washer operation.
Wash Rinse
1. Fill _ 1. Fill
2. Wash
selected
time
2. Rinse
3. Drain _" _J 3. Drain
No agitation No agitation
_J_ 4. Spin _ 4. Spin-Spray
Rinse
5. Spin
_The Casual cycle partially _ J I I 6. Off
drains, fills, agitates briefly,
and drains
NORMAL SOUNDS
As with any new product, you will hear sounds that you are not
accustomed to. You may hear various sounds occurring during
the washing, rinsing, and spinning process. Between changes in
wash actions, there will be momentary pauses. You will hear water
spraying and splashing during the wash and rinse cycles. You may
hear air being pulled through the pump during the end of draining
or gears changing when the cycle changes. These sounds are part
of normal washer operation.
LAUNDRY TiPS
Preparing clothes for washing
Follow these recommendations to help you prolong the life
of your garments.
[] Close zippers, snaps, and hooks to avoid snagging other
items. Remove p(ns, buckles, and other hard objects to avoid
scratching the washer interior. Remove non-washable trim
and ornaments.
[] Empty pockets and turn them inside out.
[] Turn down cuffs, brush away lint and dirt.
[] Turn synthetic knits inside out to avoid pilling.
[] Tie strings and sashes so they will not tangle.
[] Mend tears, loose hems, and seams.
[] Treat spots and stains.
[] Stained or wet garments should be washed promptly
for best results.
[]
[]
Sorflng
[] Separate heavily soiled items from lightly soiled ones, even
if they would normally be washed together. Separate lint
givers (towels, cheni((e) from lint takers (corduroy, synthetics,
permanent press). When possible, turn lint givers inside out.
Separate dark colors from light colors, colorfast items from non
colorfast items.
Sort by fabric and construction (sturdy cottons, knits, delicate
items).
LOADING
Loading suggestions (maximum size loads)
Laundry Center
Heavy Work Clothes
2 pair pants
3 work shirts
Towels
9bath towels or
6 bath towels,
3 hand towels &
6washcloths
Casual
6 shirts or
2 double sheets &
2 pillowcases or
2 single sheets &
2 pillowcases
Knits
2 pair pants & 2 shirts or
3 dresses
Mixed Load
1 pair pants
2 pillowcases
2 shirts
1 T-shirt
Delicates
1 camisole
2 slips
4 undergarments
1 set of sleepwear
1 half slip
25

CONTROL PANEL AND FEATURES
240 Voff Models
DRYER USE
120 Voff Models
Push to Start
Dryer
Auto Dry Less_._ OFF=._More Auto Dry
M°re___ ess
AirO.,Y_o___ ..%
20- Touch Up
WASH - SELECT - DRY Touch
LID LATCH V
110
100
_0
0
Not all features and options are available on all models.
Appearance may vary.
26

STARTING YOUR DRYER
Explosion Hazard
Keep flammable materials and vapors, such as
gasoline, away from dryer.
Do not dry anything that has ever had anything
flammable on it (even after washing).
Failure to follow these instructions can result in death,
explosion, or fire.
WARNING: To reduce the risk of fire, electric shock, or injury to
persons, read the IMPORTANT SAFETY INSTRUCTIONS before
operating this appliance.
Before using your dryer, wipe the dryer drum with a damp cloth
to remove dust from storing and shipping.
[] Clean lint screen before each load.
See "Cleaning the Lint Screen".
[] Load clothes loosely into the dryer and
close the door. Do not pack the dryer.
Allow space for clothes to tumble freely.
[] Turn the CYCLE CONTROL knob to the
recommended cycle and temperature
for the type of load being dried. See
"Drying, Cycle, and Temperature Tips."
[] On 120 volt models, slide WASH/DRY
selector to DRY.
Push fo Start
Dryer
v
[] Press the PUSH TO START DRYER knob.
STOPPING AND RESTARTING
You can stop your dryer anytime during a cycle.
To stop your dryer
Open the dryer door or turn the CYCLE CONTROL knob to Off.
NOTE: The Cycle Control knob should point to an Off area when
the dryer is not in use.
To restart your dryer
[] Close the door.
[] Select a new cycle and temperature (if desired).
[] Press the PUSH TO START DRYER knob.
LOADING
Load clothes loosely into the dryer. Do not pack the dryer. Allow
space for clothes to tumble freely. The following chart shows
examples of balanced loads that would allow for proper tumbling.
Heavy work
clothes 2 pair pants, 3 work shirts
Delicates I camisole, 2 slips, 4undergarments,
1 set of sleep wear, I half slip
Towels 9bath towels or 6 bath towels,
3 hand towels, 6washcloths
Mixed Load 2 pillowcases, 1 T-shirt, 2 shirts,
I pair pants
Knits 2 pants, 2 shirts; or 3 dresses
Permanent 6shirts; or 2 double sheets & 2 pillowcases;
Press or 2 single sheets & 2 pillowcases
Fire Hazard
No washer can compJetely remove oil.
Do not dry anything that has ever had any type of oil on
it (including cooking oils).
items containing foam, rubber, or plastic must be dried
on a clothesline or by using an Air Cycle.
Failure to follow these instructions can result in death
or fire.
DRYING, CYCLE, AND TEMPERATURE TiPS
Select the correct cycle and temperature for your load.
Drying flps
[] Follow care label directions when they are available.
[] If you use fabric softener sheets, use only those labeled
as dryer safe. Follow package instructions.
[] Remove the load from the dryer as soon as tumbiing stops
to reduce wrinkJing. This is especially important for permanent
press, knits, and synthetic fabrics.
Cycle and temperature flps
[] Dry most loads using the Auto Dry Normai setting.
[] Use the More setting for drying heavyweight items such
as towels and work clothes.
[] Use an Auto Dry NormaJ setting for drying medium weight
items such as sheets, underwear, permanent press fabrics,
and some knits.
[] Use the Less setting for drying lightweight items such as
lingerie, blouses, dresses, and some knits.
[] Use Air Only setting for rubber, plastic, or heat-sensitive
fabrics.
[] Line dry bonded or laminated fabrics.
If you are unsure of the temperature to select for a load, select a
lower setting rather than a higher setting.
NOTE: If you have questions about drying temperatures for various
loads, refer to the care label directions.
27

CYCLES
Auto Dr_ AuotODTrY Le_ OFF_Morl[:e_ e Au,toDry
Use this cycle to dry Normal_ _- -_ormaJ
most loads. Dryness is ,,if _ "_Less
determinedbythermostats/\ l
that react to the temperature OFF //'-_ _ \_
or amount of moisture [I "_ _ II OFF
in the air exhausted _ \\ "_ "x,,J/ r-_
from the dryer. 10\'\ \\ X / /_50
.. Air OnlY'2o_ _/'/_o
This cycle includes a //_0
5minute (approximate) OFF _ _j_,-',,_30Timed Dry
cool down period at the end "_---_'_20-Touch Up
of the cycle to make clothes ]0
easier to handle and to reduce 240 volt model shown
wrinkling.
Use Auto Dry Normal cycle to dry most heavy- to medium-weight
fabrics. When the cycle ends, check the dryness of the load.
[] If the load is drier than you like, select a setting closer to LESS
the next time you dry a similar load.
[] If the load is not as dry as you like, complete drying using the
Timed Dry cycle. The next time you dry a similar load, select
a setting closer to MORE.
NOTE: Drying time with an automatic cycle varies according
to the type of fabric, size of load, and temperature setting.
See "Drying, Cycle, and Temperature Tips".
Timed Dry
Use this cycle to complete drying if items are still damp after
the Auto Dry cycle. Timed Dry is also useful for heavyweight
and bulky items, such as bedspreads, work clothes, and large
loads that require a long drying time. Use this cycle to get up
to 50 minutes of heated drying time on 240 volt models, or
up to 110 minutes of heated drying time on 120 volt models.
The heating cycle is followed by a 5minute (approximately)
cool down period.
Touch Up
Use this cycle to smooth already dry synthetic and permanent
press clothes that are clean but wrinkled from being crowded in a
closet or suitcase. This setting provides approximately 20 minutes
of heated tumbling followed by a 5minute (approximately) cool
down period. Remove clothes immediately when tumbling stops.
Air Only
Use the Air Only cycle for items that require drying without heat
such as rubber, plastic, and heat-sensitive fabrics. This chart shows
examples of items that can be dried using an air cycle.
Type af Laad Minutes _
Foam rubber - pillows, padded bras, 20-30
stuffed toys
Plastic items - shower curtains, tablecloths 20-30
Rubber-backed rugs 40-50
Olefin, polypropylene, sheer nylon 10-20
_Reset time as needed to allow items to completely dry.
When using Air Only
[] Check that coverings are securely stitched.
[] Shake and fluff pillows by hand periodically during the cycle.
[] Dry items completely. Foam rubber pillows are slow to dry.
End of Cycle Signal
Your dryer sounds a signal when a drying cycle is finished.
This signal is helpful when you are drying items that need to be
removed as soon as the dryer stops in order to help keep wrinkles
from forming.
LAUNDRY CENTER CARE
CLEANING THE LAUNDRY CENTER LOCATION
Keep the Laundry Center area clear and free from items that
would obstruct the flow of combustion and ventilation air.
Explosion Hazard
Keep flammable materials and vapors, such as
gasoline, away from dryer.
Failure to do so can result in death, explosion, or fire.
CLEANING YOUR WASHER
Cleanlng the exterior
Use a soft, damp cloth or sponge to wipe up any spills such as
detergent or bleach. Occasionally wipe the outside of your washer
to keep it looking new.
Cleanlncj the interior
Keep your washer as clean and fresh as your clothes. To keep
washer interior odor-free, follow this recommended monthly
cleaning procedure:
1. Make sure the washer is empty.
2. Using recommended affresh <_>washer cleaner, add one tablet
to washer basket
OR
If using liquid chlorine bleach, add 1 cup (250 mL) to washer
basket.
iMPORTANT: Do not add detergent. Do not use more than
recommended amount of bleach to avoid damaging product
over time.
3. Close washer lid.
4. Select Heavy Duty cycle, hot temperature, and
Heavy soil level.
5. Pull out the Cycle knob. Water will pour into washer
for a moment and pause, lid will lock, then cycle
will continue.
NOTE: For best results, do not interrupt cycle. If cycle must be
interrupted, push in the Cycle knob.
WATER INLET HOSES
Replace inlet hoses after 5years of use to reduce the risk of hose
failure. Periodically inspect and replace inlet hoses if bulges, kinks,
cuts, wear, or leaks are found.
When replacing your inlet hoses, mark the date of replacement
on the label with a permanent marker.
28

CLEANING THE LINT SCREEN
Every load cleaning
The lint screen is located on the back wall of the dryer. Remove
lint before each load. A screen blocked by lint can increase
drying time.
To clean
1. Pull out the lint screen and its cover.
To wash
1. Roll lint off the screen with your fingers.
2. Wet both sides of lint screen with hot water.
3. Wet a nylon brush with hot water and liquid detergent.
Scrub lint screen with the brush to remove residue buildup.
2. Separate the cover and the screen by squeezing the screen
and pulling on the cover at the same time.
A
A. Screen
B. Cover
3. Roll lint off the screen with your fingers. Do not rinse or wash
screen to remove lint. Wet lint is hard to remove.
4. Put the lint screen and cover back together and push firmly
back into place.
iMPORTANT:
[] Do not run the dryer with the lint screen loose, damaged,
blocked, or missing. Doing so can cause overheating and
damage to both the dryer and fabrics.
[] If lint falls off the screen into the dryer during removal, check
the exhaust hood and remove lint. See "Venting Requirements".
As needed cleanlng
Laundry detergent and fabric softener residue can build up on
the lint screen. This buildup can cause longer drying times for your
clothes, or cause the dryer to stop before your load is completely
dry. The screen is probably clogged if lint falls off the screen.
Clean the lint screen (as outlined following) every 6 months, or
more frequently if it becomes clogged due to a residue buildup.
4. Rinse screen with hot water.
5. Thoroughly dry lint screen with a clean towel. Replace screen
in dryer.
CLEANING THE DRYER INTERIOR
To dean dryer drum
1. Apply a liquid, nonflammable household cleaner to the stained
area and rub with a soft cloth until all excess dye is removed.
2. Wipe drum thoroughly with a damp cloth.
3. Tumble a load of clean cloths or towels to dry drum.
NOTE: Garments that contain unstable dyes, such as denim blue
jeans or brightly colored cotton items, may discolor the dryer
interior. These stains are not harmful to your dryer and will not
stain future loads of clothes. Dry unstable dye items inside out
to avoid dye transfer.
REMOVING ACCUMULATED LINT
From Inslde the Dryer Cabinet
Lint should be removed every 2 years, or more often, depending
on dryer usage. Cleaning should be done by a qualified person.
From the Exhaust Vent
Lint should be removed every 2 years, or more often, depending
on dryer usage.
VACATION, STORAGE, AND MOVING CARE
Install and store your Laundry Center where it will not freeze.
Because some water may stay in the hoses, freezing can damage
your Laundry Center. If storing or moving your Laundry Center
during freezing weather, winterize it.
Non=use or vacation care
Operate your Laundry Center only when you are at home.
If you will be on vacation or not using your Laundry Center
for an extended period of time, you should:
[] Unplug Laundry Center or disconnect power.
[] Turn off the water supply to the washer. This helps avoid
accidental flooding (due to a water pressure surge) while
you are away.
To winterize Laundry Center
LShut off both water faucets.
2. Disconnect and drain water inlet hoses.
3. Put 1 qt (1 L) of R.V.-type antifreeze in the basket.
4. Run washer on a drain and spin setting for about 30 seconds
to mix the antifreeze and water.
5. Unplug Laundry Center or disconnect power.
29

To use Laundry Center again
1. Flush water pipes and hoses.
2. Reconnect water inlet hoses.
3. Turn on both water faucets.
Electrical Shock Hazard
Plug into a grounded 3 prong outlet.
Do not remove ground prong.
Do not use an adapter.
Do not use an extension cord.
Failure to foflow these instructions can result in death,
fire, or electrical shock.
4. Hug in Laundry Center or reconnect power.
5. Run the washer through a complete cycle with 1 cup (250 mL)
of detergent to clean out antifreeze.
To transport the Laundry Center
1. Shut off both water faucets.
2. Disconnect and drain water inlet hoses.
3. If Laundry Center will be moved during freezing weather,
put a qt (1 L) of R.V.-type antifreeze in the basket. Run washer
on a spin setting for about 30 seconds to mix the antifreeze
and water.
40 Disconnect the drain hose from the drain system.
5. Unplug Laundry Center or disconnect power. Disconnect wiring
if Laundry Center is direct wired (240 volt model only).
6. Disconnect the exhaust vent.
7. Wash lint screen.
80 Make sure leveling legs are secure.
90 Place the inlet hoses into the basket.
10. Place the foam packing ring (removed during installation)
in the washer to keep the washer tub stable during transport.
11. Drape the power cord and drain hose over edge
and into the basket.
12. Use tape to secure the washer lid and dryer door.
Reinstalling your Laundry Center
1. Follow the "Installation Instructions" to locate, level, and
connect the Laundry Center.
2. Run the washer through a complete cycle with 1 scoop or
capful of detergent to clean the washer and remove the
antifreeze, if used.
3O

if you experience
TROUBLESHOO'rING mWASHER
First try the solutions suggested here for assistance and to possibly avoid a service call.
Possible Causes _Solution
J
Check the following for Feet may not be in firm contact Front and rear feet must be in firm contact with floor° and
proper installation or with the floor, washer/dryer must be level to operate properly.
see "Washer Use"
section. Washer/dryer may not be level.
Clicking or metallic
noises
Gurgling or humming
Humming
Load could be unbalanced.
Objects caught in washer drain
system.
Washer may be draining water.
Washer is draining.
Check the following for Washer not level.
proper installation:
Fill hoses not attached tightly.
Fill hose washers.
Drain hose connection.
Washer won't run
or fill, washer stops
working
Check household plumbing for leaks
or clogged sink or drain.
Washer not loaded as
recommended.
Check for proper water supply.
Check floor for flexing or sagging. If flooring is uneven, a 3/4"
(19 mm) piece of plywood under your Laundry Center will reduce
sound.
See "Level Laundry Center" in Installation Instructions section.
Load dry items in loose heaps evenly around basket wall.
Adding wet items to washer or adding more water to basket
could unbalance washer.
Do not tightly pack. Avoid washing single items.
See "Washer Use" in this Use and Care Guide.
Empty pockets before washing. Loose items such as coins
could fail between basket and tub or may block pump.
it may be necessary to call for service to remove items.
It is normal to hear metal items on clothing such as metal snaps,
buckles, or zippers touch against the basket.
It is normal to hear the pump making a continuous humming
sound with periodic gurgling or surging as final amounts of
water are removed during the Spin cycle.
When the washer drains, the pump will make a continuous
humming with periodic gurgling or surging sounds as the final
amounts of water are removed. This is normal.
Water may splash off basket if washer is not level. Check that
load is not unbalanced or tightly packed.
Tighten flJJ hose connection.
Make sure all four flJJ hose flat washers are properly seated.
Pull drain hose from washer cabinet and properly secure it to
drainpipe or laundry tub.
Do not place tape over drain opening.
Water can back up out of a clogged sink or drainpipe. Check
all household plumbing for leaks (laundry tubs, drain pipe, water
pipes, and faucets.)
improper loading can cause basket to be out of alignment
and cause water to splash off tub. See "Washer Use" for
loading instructions.
Both hoses must be attached and have water flowing to
inlet valve.
Both hot and cold water faucets must be turned on.
Check that inlet valve screens have not become clogged.
Check for any kinks in inlet hoses, which can restrict water flow. J
31

TROUBLESHOOTING mWASHER (cont.)
Electrical Shock Hazard
Plug into agrounded 3 prong outlet.
Do not remove ground prong.
Do not use an adapter.
Do not use an extension cord.
Failure to follow these instructions can result in death,
fire, or electrical shock.
if you experience
Washer won't run
or fill, washer stops
working (cont.)
Washer not draining/
spinning, loads are
still wet
k.
First try the solutions suggested here for assistance and to possibly avoid a service call.
Possible Causes Solution
Check proper electrical supply. Plug into a grounded outlet or reconnect power.
Do not use an extension cord.
Ensure there is power to outlet.
Reset a tripped circuit breaker. Replace any blown fuses.
NOTE: if problems continue, contact an electrician.
Normal washer operation. Lid must be closed for washer to run.
Washer will pause during certain phases of cycle. Do not
interrupt cycle.
Washer spins the dry load for several minutes before filling to
determine if load is balanced. You may hear the hum of the spins.
This is normal.
Washer not loaded as Remove several items, rearrange load evenly in basket and add
recommended, detergent. Close lid and pull Cycle knob to start washer.
Do not add more than 1 or 2 additional items after cycle has
started to avoid tightly packing or unbalancing.
Small items may have been caught Empty pockets and use garment bags for small items.
in pump or between basket and tub,
which can slow draining.
Used a cycle with a low spin speed. Cycles with lower spin speeds remove less water than cycles
with high spin speeds. Use the recommended cycle/spin speed for
your garment. To remove extra water in the Ioad_ select Spin. Load
may need to be rearranged to allow even distribution of the load
in the basket.
Washer not loaded as recommended. Tightly packing or unbalanced loads will not allow the washer to
spin correctly, leaving the load wetter than normal. See "Washer
Use" for loading recommendations.
Check plumbing for correct drain hose Check drain hose for proper installation. Use drain hose form
installation. Drain hose extends into and securely attach to drainpipe or tub. Do not tape over drain
standpipe farther than 4.5" (114 mm). opening. Lower drain hose if the end is higher than 96" (2.4 m)
above the floor. Remove any clogs from drain hose.
Too much detergent causing suds Always measure and follow detergent directions for your load.
to slow or stop draining and spinning. To remove extra suds, select Rinse and Spin. Do not add
detergent. J
32

If you experience
TROUBLESHOOTING mWASHER (cont.)
First try the solutions suggested here for assistance and to possibly avoid a service call.
Possible causes Solution
Water level seems The top of the agitator is much higher This is normal and necessary for clothes to move freely.
too low, or the washer than the highest water level.
appears to not fill
completely
Clothes not completely This washer uses much Jesswater than Clothes may not be completely covered with water.
covered with water traditional top-load washers.
Dry spots on load This washer uses much Jesswater than Wash a smaller load.
after cycle traditional top-load washers.
High speed spins extract more
moisture than traditional top=load
washers.
Check for proper water supply.Incorrect or wrong
wash or rinse
temperatures
The high spin speeds combined with air flow during the final
spin can cause items near the top of the load to develop dry spots
during the final spin. This is normal.
Check that hot and cold inlet hoses are not reversed.
Both hoses must be attached to both washer and faucet, and
have both hot and cold water flowing to inlet valve.
Check that inlet valve screens are not clogged.
Remove any kinks in hoses.
Energy-saving controlled This washer uses cooler wash and rinse water temperatures
wash temperatures, than your previous washer. This includes cooler hot and warm
washes.
Load not rinsed Check for proper water supply.
Sand, pet hair, lint,
etc. on load after
washing
Load is tangling
Not cleaning or
removing stains
Using too much detergent.
Washer not loaded as recommended.
Heavy sand, pet hair, lint, and
detergent or bleach residues may
require additional rinsing.
Washer not loaded as recommended.
Washer not loaded as recommended.
Adding detergent on top of load.
Check that hot and cold inlet hoses are not reversed.
Both hoses must be attached and have water flowing to the
inlet valve.
Both hot and cold water faucets must be on.
Inlet valve screens on washer may be clogged.
Remove any kinks in the inlet hose.
The suds from too much detergent can keep washer from
operating correctly. Always measure detergent and follow
detergent directions based on load size and soil level.
The washer is Jess efficient at rinsing when load is tightly packed.
Load garments in loose heaps evenly around the basket wall.
The washer will not rinse well if tightly packed. Load with dry
items only.
Use cycle designed for the fabrics being washed.
Add only 1 or 2 garments after washer has started.
Increase soil level setting.
See "Washer Use" section.
Select a cycle with a slower wash action and spin speed;
however, items wJJJbe wetter than those using a higher
speed spin.
Load garments in loose heaps evenly around the basket wall.
Reduce tangling by mixing types of load items. Use the
recommended cycle for the type of garments being washed.
Washer is Jess efficient at cleaning when load is tightly packed.
Load garments Jn loose heaps evenly around the basket wall.
Load with dry items only.
Add only 1 or 2 garments after washer has started.
Add detergent, oxi products, and color-safe bleach to the
bottom of the basket before adding the load items. J
33

if you experience
Not cleaning or
removing stains (cont.)
TROUBLESHOOTING mWASHER (cont.)
First try the solutions suggested here for assistance and to possibly avoid a service call.
PossibleCauses Solution
Using too much detergent.
Not using correct cycle for fabric type.
Not washing like colors together.
Fabric damage Sharp items were in pockets during
wash cycle.
Strings and straps could have tangled.
Items may have been damaged before
washing.
Fabric damage can occur if load is
tightly packed.
Liquid chlorine bleach may have been
added incorrectly.
Garment care instructions may not
have been followed.
Odors Cleaning of interior not done as
recommended.
The suds from too much detergent can keep washer from
operating correctly. Always measure detergent and follow
manufacturer's directions based on load size and soil level.
Use a higher soil level cycle option and warmer wash
temperature to improve cleaning.
Use Heavy Duty cycle for tough cleaning.
Wash like colors together and remove promptly after the cycle
is complete to avoid dye transfer.
Empty pockets, zip zippers, and snap or hook fasteners before
washing to avoid snags and tears.
Tie all strings and straps before starting wash load.
Mend rips and broken threads in seams before washing.
Load garments in loose heaps evenly around the basket wall.
Load with dry items only.
Use cycle designed for the fabrics being washed.
Add only 1 or 2 garments after washer is started.
Do not pour liquid chlorine bleach directly onto load. Wipe up
bleach spills.
Undiluted bleach will damage fabrics. Do not use more than
recommended by manufacturer.
Always read and follow garment manufacturer's care label
instructions.
See "Cleaning Your Washer" in "Laundry Center Care".
Unload washer as soon as cycle is complete.
Be sure to measure correctly. Always follow the manufacturer's
directions.
Using too much detergent.
Single-dose laundry Adding laundry packet incorrectly. Be sure laundry packet is added to washer basket before adding
packet not dissolving clothes. Follow the manufacturer's instructions to avoid damage
to your garments.
34

TROUBLESHOOTING DRYER
rFirst try the solutions suggested here for assistance and to possibly avoid a service call.
Clothes are not drying Lint screen should be cleaned before each load.
satisfactorily, drying
times are too long Select the correct cycle for the types of garments being dried.
Separate the load to tumble freely.
Lint screen clogged with lint.
The Air Only cycle has been selected.
Load too large and heavy to dry
quickly.
Exhaust vent or outside exhaust
hood clogged with lint, restricting
air movement.
Run the dryer for 5=10 minutes. Hold your hand under the
outside exhaust hood to check air movement. If you do not feel
air movement_ clean exhaust system of lint or replace exhaust
vent with heavy metal or flexible metal vent. Make sure vent is
not crushed or kinked. See Installation Instructions.
Fabric softener sheets blocking Use only one fabric softener sheet, and use it only once.
the grille.
Exhaust vent not the correct length. Check that the exhaust vent is not too long or has too many
turns. Long venting will increase drying times. Make sure vent
is not crushed or kinked. See Installation Instructions.
Exhaust vent diameter not the Use 4" (102 mm) diameter vent material.
correct size.
Dryer located in a room with Proper operation of dryer cycles requires temperatures above
temperature below 45°F (7°C). 45°F (7°C).
Dryer located in a closet without Closet doors must have ventilation openings at the top and
adequate opening, bottom of the door. The front of the dryer requires a minimum
of 1" (25 mm) of airspace, and, for most installations, the rear
of the dryer requires 5" (127 mm). See Installation Instructions.
Dryer wJJJ not run Door not closed completely. Make sure the dryer door is closed completely.
PUSH TO START DRYER knob not Press and hold the PUSH TO START DRYER knob until you hear
pressed firmly or held long enough, the dryer drum moving.
Household fuse is blown or circuit Some electric dryers use 2 household fuses or circuit breakers.
breaker has tripped. The drum may be turning, but you may not have heat. Replace
both fuses or reset the circuit breaker. If the problem continues,
call an electrician.
Incorrect power supply. 240 volt electric dryers require 240-volt power supply.
Check with a qualified electrician.
Wrong type of fuse. Use a time-delay fuse.
Unusual sounds Dryer had a period of non-use. If the dryer hasn't been used for a while, there may be a
thumping sound during the first few minutes of operation.
A coin, button, or paper clip is Check the front and rear edges of the drum for small objects.
caught between the drum and front Clean out pockets before laundering.
or rear of the dryer.
The four legs are not installed_ or the The dryer may vibrate if not properly installed.
dryer is not level front to back and See Installation Instructions.
side to side.
Clothing knotted or balled up. When balled up, the load will bounce, causing the dryer
to vibrate. Separate the load items and restart the dryer. J
35

TROUBLESHOOTING DRYER (cont.)
First try the solutions suggested here for assistance and to possibly avoid a service call.
No heat Household fuse is blown or circuit
breaker has tripped.
Incorrect power supply. 240 volt electric dryers require 240-volt power supply.
Check with a qualified electrician.
Cycle time too short Automatic cycle ending early.
SoluEon
The drum may be turning, but you may not have heat. Some
electric dryers use 2 household fuses or circuit breakers. Replace
both fuses or reset the circuit breaker. If the problem continues,
call an electrician.
Lint screen clogged.
Dryer fabric softener not properly
used.
The load may not be contacting the sensor strips. Level the dryer.
Use Timed Drying for very small loads. Change the Dryness Level
setting on Automatic Dry cycles.
Increasing or decreasing the Dryness Level setting will change the
amount of drying time in a cycle.
Lint on load Lint screen should be cleaned before each load.
Stains on load or drum Add dryer fabric softener sheets at the beginning of the cycle.
Fabric softener sheets added to a partially dried load can stain
your garments.
Drum stains are caused by dyes in clothing (usually blue jeans).
These wJJJnot transfer to other clothing.
Loads are wrinkled Load not removed from dryer Remove loads promptly at the end of the cycle to avoid
at the end of the cycle, wrinkling.
Dryer tightly packed. Dry smaller loads that can tumble freely to reduce the chance
of wrinkles forming.
Odors You have recently been painting, Ventilate the area. When the odors or fumes are gone from the
staining, or varnishing in the area area, rewash and dry the clothing.
where your dryer is located.
The electric dryer is being used The new electric heating element may have an odor. The odor
for the first time. wJJJ be gone after the first cycle.
Load is too hot Laundry items were removed from Allow Cool Down cycle to flnish before removing laundry from
the dryer before the end of the dryer. All cycles are cooled slowly to reduced wrinkling and
cycle, make it easier to handle. Items removed before Cool Down
may feel very warm.
A high temperature cycle was used. Select a lower temperature (on some models), and use an
automatic drying cycle. These cycles sense the temperature or
the moisture level in the load and shut off when the load reaches
the selected dryness. This reduces overdrying.
36

PROTECTION AGREEMENTS
Master Protection Agreements
Congratulations on making a smart purchase. Your new Kenmore ®
product is designed and manufactured for years of dependable
operation.
But like all products, it may require preventive maintenance or
repair from time to time. That's when having a Master Protection
Agreement can save you money and aggravation.
The Master Protection Agreement also helps extend the life
of your new product. Here's what the Agreement _"includes..
Parts and labor needed to help keep products operating properly
under normal use, not just defects. Our coverage goes well
beyond the product warranty. No deductibles,no functional
failure excluded from coverage--real protection.
Expert service by a force of more than 10,000 authorized Sears
service technicians, which means someone you can trust will be
working on your product.
Unlimited service coils and nationwide service, as often as you
want us, whenever you want us.
- replacement of your covered product if four or more product
failures occur within twelve months.
Product replacement if your covered product can't be fixed.
Annual Preventive Maintenance Check at your request -
no extra charge.
Fast help by phone - we call it Rapid Resolution -phone support
from a Sears representative on all products. Think of us as a
"talking owner's manual."
Power surge protection against electrical damage due
to power fluctuations.
Rental reimbursement if repair of your covered product takes
longer than promised.
25% discount off the regular price of any non-covered repair
service and related installed parts.
Once you purchase the Agreement, a simple phone call is all
that it takes for you to schedule service. You can call anytime
day or night, or schedule a service appointment online.
The Master Protection Agreement is a risk free purchase. If you
cancel for any reason during the product warranty period, we
will provide a full refund. Or, a prorated refund anytime after the
product warranty period expires. Purchase your Master Protection
Agreement today! Some limitations and exclusions apply.
For prices and additional information in the U.S.A., call
1-800-827-6655. _Coverage in Canada varies on some items.
For full details, call Sears Canada at 1-800-361-6665.
Sears Installatlon Service
For Sears professional installation of home appliances, garage
door openers, water heaters, and other major home items,
in the U.S.A. or Canada, call 1-800-4-MY=HOME ®.
KENMORE APPLIANCE WARRANTY
KENMORE LIMITED WARRANTY 7. Damage to or failure of this appliance, including discoloration
FOR ONE YEAR from the date of sale this appliance is warranted
against defects in material or workmanship when it is correctly
installed, operated, and maintained according to all supplied
instructions.
WITH PROOF OF SALE, a defective appliance will receive free
repair or replacement at option of seller.
For warranty coverage details to obtain free repair or
replacement, visit the web page: www.kenmore.com/warranty.
This warranty applies for only 90 DAYS from the sale date in the
United States, and is void in Canada, if this appliance is ever used
for other than private household purposes.
This warranty covers ONLY defects in materlal and
workmanship, and will NOT pay for:
1. Expendable items that can wear out from normal use, including
but not limited to filters, belts, bags, or screw-in base light
bulbs.
2. A service technician to clean or maintain this appliance, or to
instruct the user in correct appliance installation, operation, and
maintenance.
3. Service calls to correct appliance installation not performed
by Sears authorized service agents, or to repair problems with
house fuses, circuit breakers, house wiring, and plumbing or gas
supply systems resulting from such installation.
4. Damage to or failure of this appliance resulting from
installation not performed by Sears authorized service agents,
including installation that was not in accord with electrical, gas,
or plumbing codes.
5. Damage to or failure of this appliance, including discoloration
or surface rust, if it is not correctly operated and maintained
according to all supplied instructions.
6. Damage to or failure of this appliance, including discoloration
or surface rust, resulting from accident, alteration, abuse, misuse
or use for other than its intended purpose.
or surface rust, caused by the use of detergents, cleaners,
chemicals, or utensils other than those recommended in all
instructions supplied with the product.
8. Damage to or failure of parts or systems resulting from
unauthorized modifications made to this appliance.
9. Service to an appliance if the model and serial plate is missing,
altered, or cannot easily be determined to have the appropriate
certification logo.
DISCLAIMER OF IMPLIED WARRANTIES; LIMITATION
OF REMEDIES
Customer's sole and exclusive remedy under this limited warranty
shall be product repair or replacement as provided herein. Implied
warranties, including warranties of merchantability or fitness
for a particular purpose, are limited to one year or the shortest
period allowed by law. Seller shall not be liable for incidental
or consequential damages. Some states and provinces do not
allow the exclusion or limitation of incidental or consequential
damages, or limitation on the duration of implied warranties of
merchantability or fitness, so these exclusions or limitations may
not apply to you.
This warranty applies only while this appliance is used in the
United States or Canada _.
This warranty gives you specific legal rights, and you may also
have other rights which vary from state to state.
_"In-home repair service is not available in all Canadian
geographical areas, nor will this warranty cover user or servicer
travel and transportation expenses if this product is located
in a remote area (as defined by Sears Canada Inc.) where an
authorized servicer is not available.
Sears Brands Management Corporation
Hoffman Estates, IL 60179
Sears Canada inc.
Toronto, Ontario, Canada M5B 2C3
10/2014
37

|NDICE
SEGURIDAD DE LA LAVADORA/SECADORA ................. 39
INSTRUCCIONES DE INSTALACI6N .................................. 41
Herramientas y piezas ...................................................... 41
Piezas alternativas ............................................................ 42
Requisitos de ubicaci6n ................................................... 42
Sistema de desacjLie ......................................................... 43
Requisitos el_ctricos - modelos de 240 voltios ........... 43
Requisitos el_ctricos - modelos de 120 voltios ............ 44
Conexi6n el_ctrica - modelos de 240 voltios .............. 45
Requisitos de ventilaci6n .................................................. 51
Instalaci6n de las patas niveladoras .............................. 52
Quite el embalaje de hule espuma ................................ 52
Conecte la mancjuera de desacjLie .................................. 52
Conecte las mancjueras de entrada ................................ 53
Fijaci6n de la mancjuera de desacjLie ............................ 54
Planificaci6n del sistema de ventilaci6n ........................ 55
Instalaci6n del sistema de ventilaci6n ............................ 56
Conexi6n del ducto de escape ........................................ 56
Para nivelar el centro de lavanderia ............................. 57
C6rno terminar la instalaci6n ......................................... 57
USO DE LA LAVADORA ........................................................ 58
Panel de control y caracteristicas ................................... 58
Puesta en marcha de la lavadora ................................... 58
Ciclos ................................................................................... 59
Enjuacjue y exprimido ....................................................... 59
DesacjiJe y exprimido ........................................................ 59
Para comprender los ciclos de la lavadora .................. 60
Sonidos normaJes .............................................................. 60
CONSEJOS DE LAVANDERiA .............................................. 60
C6mo carcjar ..................................................................... 60
USO DE LA SECADORA ......................................................... 61
Panel de control y caracteristicas ................................... 61
Puesta en marcha de ia secadora .................................. 62
Para detener y voiver a poner en marcha ..................... 62
C6rno carcjar ...................................................................... 62
Consejos de secado, cicios ytemperatura ..................... 62
Ciclos ................................................................................... 63
CUIDADO DEL CENTRO DE LAVANDERiA ........................ 63
Limpieza del lugar donde est6 del centro
de lavanderia ..................................................................... 63
C6rno iimpiar su iavadora ................................................ 63
Mangueras de entrada de agua ..................................... 63
Limpieza del filtro de pelusa .......................................... 64
Limpieza dei interior de ia secadora ............................. 64
Eiiminaci6n de peiusa acumuiada ................................. 64
Cuidado para ias vacaciones0 ei aimacenaje
oen caso de mudanza .................................................... 64
SOLUCION DE PROBLEMAS DE LA LAVADORA ............. 66
SOLUCKbN DE PROBLEMAS DE LA SECADORA ............. 71
CONTRATOS DE PROTECCION .......................................... 73
GARANTJA ............................................................................... 73
NOMEROS DE SERVICIO ............................... Contraportada
38

SEGURIDAD DE LA LAVADORA/SECADORA
Su seguridad y la seguridad de los demos es muy importante.
Hemos incluido muchos mensajes importantes de seguridad en este manual y en su electrodom6stico. Lea y obedezca siempre
todos los mensajes de seguridad.
Este es el simbolo de advertencia de seguridad.
Este simbolo le llama la atenci6n sobre peligros potenciales que pueden ocasionar la muerte o una lesi6n a
usted y a los demas,
Todos los mensajes de seguridad iron a continuaci6n del sfmbolo de advertencia de seguridad y de la palabra
"PELIGRO" o "ADVERTENClA", Estas palabras significan:
Si no sigue las instruccienes de inmediato, usted puede
rnorir o sufrir una lesi6n grave.
Si no sigue las instrucciones, usted puede morir osufrir
una lesibn grave.
Todos los mensajes de seguridad le diran el peligro potencial, le diran c6mo reducir las posibilidades de sufrir una lesi6n y Io que
puede suceder si no se siguen las instrucciones.
" = Riesgo de incendio"
- La instalaci6n de la secadora de ropa debe estar a cargo de un instalador competente.
= instale la secadora de ropa segOn las instrucciones del fabricante y los c6digos locales.
= No instale una secadora de ropa con materiales de ventilaci6n de pl_stico flexible o un
conducto de metal flexible {de hoja de metal). Si se usa un conducto de metal flexible,
6ste deber_ set de un tipo especifico, que est6 identificado pot el fabricante de
electrodom6sticos como apto para set usado con secadoras de ropa. Es sabido que
los materiales de ventilaci6n flexible se derrumban, se aplastan con facilidad yatrapan
pelusa. Estas condiciones obstruir_n el flujo de aire de la secadora de ropa y
aumentar_n el riesgo de incendio.
- Para reducir el riesgo de lesiones severas ola muerte, siga todas las instrucciones
de instalaci6n.
-Guarde estas instrucciones.
39

INSTRUCCIONES IMPORTANTES DE SEGURIDAD
ADVERTENC|A: A fin de reducir el riesgo de incendio, descarga el6ctrica o de dafio alas personas que usen
la lavadora/secadora, deben seguirse las precauciones bAsicas, incluidas las siguientes:
[] Lea todas las instrucciones antes de usar la
lavadora/secadora.
[] No coloque los objetos expuestos a aceite para cocinar en
su secadora. Los objetos expuestos a aceites para cocinar
pueden contribuir a una reacci6n qu{mica que podria
causar que la ropa se inflame.
[] No lave o seque articulos que hayan sido previamente
limpiados, lavados, remojados o humedecidos con
gasolina, solventes de limpieza en seco, u otras sustancias
infiamables o explosivas ya que 6stas emanan vapores que
podrian encenderse o causar una explosi6n.
[] No agregue gasolina, solvents para lavar en seco,
u otras sustancias inftamables o explosivas al agua
de lavado. Estas sustancias emanan vapores que
podrian encenderse o causar una explosi6n.
[] No permita que los nifios jueguen encima o dentro
de la lavadora/secadora. Es necesario una supervisi6n
cuidadosa de los nifios cada vez que se use la lavadora/
secadora cerca de ellos.
[] Antes de poner la lavadora/secadora fuera de servicio
o desecharla, quite las puertas a los compartimientos
de la lavadora/secadora.
[] No introduzca las manos en la lavadora/secadora cuando
la tina, el agitador, o el tambor estan movimiento.
[] No instale o almacene esta lavadora/secadora donde est6
expuesta al agua o a la intemperie.
[] No trate de jugar con los controles.
[] Limpie el filtro de pelusa antes o despu6s de cada carga
de ropa.
[] En ciertas condiciones, puede generarse gas hidrSgeno
en un sistema de agua caliente que no se haya usado
por dos semanas o un per{odo mayor. EL GAS HIDR6GENO
ES EXPLOSIVO. SI no se ha usado el agua caliente durante
dicho periodo, antes de usar la lavadora, abra todos los
grifos de agua caliente y deje que corra el agua por varios
minutos. Esto liberarA todo el gas hidr6geno que se haya
acumulado. Debido a la infiamabilidad de dicho gas,
no fume ni use una llama abierta durante este lapso.
[] No repare o reemplace ninguna pieza de la
lavadora/secadora ni trate de reparada a menos que esto se
recomiende especificamente en el Manual de Uso y Cuidado
o en instrucciones de reparaci6n publicadas para el usuario
que usted comprenda y s61o si cuenta con la experiencia
necesaria para Ilevar a cabo dicha reparaci6n.
[] No utilice suavizante de telas o productos para eliminar la
estAtica de prendas a menos que Io recomiende el
fabricante del suavizante de telas o del producto en uso.
[] No utilice calor para secar prendas que contengan hule
espuma o materiales con textura de hule similar.
[] Mantenga el Area alrededor de la abertura de ventilaci6n y
las Areas adyacentes a esta abertura sin pelusa, polvo o
suciedad.
[] La parte interior de la maquina y el ducto de escape se
deben limpiar peri6dicamente. Esta limpieza la debe Hevar a
cabo un reparador calificado.
[] Consulte la secci6n "Requisitos el6ctricos" del folleto de
Instrucciones de instalaci6n para ver las instrucciones de
conexi6n a tierra.
GUARDE ESTAS INSTRUCCIONES
Advertencias de la Proposici6n 65 del estado de California:
ADVERTENCIA: Este producto contiene una o m&s sustancias quimicas identificadas per el estado de California como
causantes de cancer.
ADVERTENCIA: Este producto contiene una o m&s sustancias quimicas identificadas por el estado de California como
causantes de defectos congenitos o algQn otro tipo de dafios en la funci6n reproductora.
IIMPORTANTE: Cuando descarte o guarde su vieja secadora de ropa, quffele la puerta. I
40

INSTRUCCIONES DE INSTALACI6N
HERRAMIENTAS Y PIEZAS
ReOna las herramientas y piezas necesarias antes de ¢omenzar la instalaci6n. Lea y siga las instrucciones provistas con ¢ualquiera de las
herramientas enlistadas aquf.
Herramlentas necesarlas:
Destornillador Phillips #2
y de hoja piana
eras de lata
instalaciones del nuevo
ducto de escape)
Abrazaderas para ducto
Llave de tuercas ajustabie
que se abra a 1" (25 mm)
o una Ilave de boca de
9/16" (para regular las
_atas de la secadora)
Pistola y masilla para
¢alafateo (para instalar
el nuevo ducto de escape)
Pelacables (instalaciones
de cableado directo)
Nivel
Bloque de madera
Alicates (para nivelar)
Llave de tuercas de 1/4"
(6 mm) o Ilave de ¢ubo
(se recomienda)
Cuchillo
Regla o cinta para medir
Piezas suministradas:
Retire el paquete de piezas de la canasta de la lavadora. Verifique que est_n todas las piezas.
Patas niveladoras
traseras (2)
Patas niveladoras
delanteras (2)
Fleje de atadura
removible
_J
Manguera de desag0e
Abrazadera plateada de
manguera, de doble hilo
Herramlentas necesarlas: (no est6n provistas)
Verifique los c6digos locales, el suministro el_ctrico y la ventilaci6n, y lea "Requisitos el_ctricos" y
"Requisitos de ventilaci6n" antes de comprar las piezas.
Las instalaciones en casas rodantes necesitan arficulos de ferreteHa para sistemas de ventilaci6n de
metal que se pueden comprar en su tienda Sears o en el centro de servicio tScnico Sears de su Iocalidad.
Para m_s informaci6n, flame por favor al I=800=4=MY=HOME ® (I=800=469=4663).
Mangueras de entrada
con las arandelas planas
41

PIEZAS ALTERNATIVAS
Las pJezas aqu[ enumeradas se pueden adquirir en la fienda Sears o
en el Centro de Servicio Sears de su Iocaiidad. Para mc_sinformaci6n,
Ilame por favor al 1=800=4=MY-HOME ® (1=800=469=4663).
Si tlene:
Un tavadero o tubo
vertical a una attura
mayor de 96" (2,4 m)
Tubo vertical de 1"
(25 ram) de di6metro
Una alcantarilla
suspendida
Sistema de desagLie
por el piso
Una manguera de
desagLie muy corta
DesagLie obstruido
por pelusa
Grifos det agua fuera
det atcance de tas
mangueras de Ilenado
Necesltarc_ adqulrlr:
Sistema de bomba de sumidero
(si ya no est6 disponibte)
Adaptador de tubo vertical de 2"
(51 mm) de di6metro a 1" (25 mm)
de di6metro, pieza n6mero 3363920
Tina de desagLie est6ndar de 20 gal.
(76 L) 34" (864 mm) de attura o lavadero
utititario y bomba de sumidero (disponibte
en tiendas locales de artfcutos de plomerfa)
Desviaci6n de sif6n, pieza n6mero 285320,
Manguera de desagLie adicionat, pieza
n0mero 285702 y Juego de conectores,
pieza n0mero 285442
Manguera de desagi.ie, pieza n6mero
285664 y Juego de conectores, pieza
n6mero 285442
Protector det desagLie,pieza n0mero
367O31
2 mangueras de tlenado de agua m6s
largas: de 6pies (1,8 m), pieza n6mero
76314, de 10 pies (3,0 m), pieza n6mero
350008
REQUISITOS DE UBICACION
Peligro de Explosi6n
Mantenga los materiales y vapores inflamables, tales
come la gasolina, alejados de la secadera.
No instale en un garage.
No seguir estas instrucciones puede ocasionar la
muerte, explosi6n o incendio.
Usfed neceslfarc_
[] Una localizaci6n que permita una instataci6n adecuada
del ducto de escape. Vea "Requisitos de ventilaci6n'.
[] Para modelos de 240 vottios, un circuito separado de 30 amperios.
Para modelos de 120 vottios, un circuito de 120 vottios, 60 hertzios,
CA sotamente, de 15 6 20 amperios.
[] Si est6 usando un cable de suministro de energia en modelos de 240
votfios, y para modelos de 120 voltios, un contacto con conexi6n a
tierra ubicado a unos 2 pies (610 ram) de cuatquiera de los lados del
centro de lavanderfa. Vea "Requisitos et_ctricos'.
[] Un piso resistente que sostenga el peso det centro de lavanderfa
(el centro de tavanderfa, et agua y la carga) de 500 Ibs (226,8 kgs).
[] Un piso nivetado con un declive m6ximo de 1" (25 mm) debajo
del centro de lavanderfa completo. La ropa quiz6s no rote
adecuadamente y los cictos del sensor autom6tico posibtemente no
funcionen debidamente si el centro de tavanderfa no est6 nivetado.
No se recomienda la instalaci6n sobre una alfombra.
[] Un calentador de agua ajustado para suministrar agua de 120°F
(49°C) a ta tavadora.
[] Grifos de agua frfa y caliente ubicados, cuando mucho, a 4 pies
(1,2 m) de las v61vulas de Ilenado de agua fda y catiente y la presi6n
det agua deber6 set de 5-100 lbs/pulg 2 (34,5-689,6 kPa).
No debe instalarse ni guardarse et centro de lavanderfa en un 6rea
en donde pueda estar expuesto al agua y/o a la intemperie.
42
No haga funcionar su lavadora a temperaturas iguales o inferiores a 32°F
(0°C). El agua que quede en la lavadora puede ocasionar da_os a bajas
temperaturas. Vea ta secci6n "Cuidado para las vacaciones, atmacenaje
o en caso de mudanza" para saber c6mo acondicionarta para et invierno.
No haga funcionar su secadora a temperaturas inferiores a 45°F (7°C). A
temperaturas inferiores, es posible que la secadora no se apague al final de
un ciclo autom6fico. Esto puede resuttar en fiempos de secado m6s largos.
Veriflque los requisitos de los c6digos. Algunos c6digos limitan, o no
permiten, ta instataci6n det centro de lavanderfa en garajes, cl6sets,
casas rodantes o en dormitorios. P6ngase en contacto con et inspector
de construcciones de su Iocalidad.
Espaclos para la instalaci6n
La ubicaci6n debe ser 1o suflcientemente grande para poder abrir
completamente la puerta de la secadora.
Dimenslones del centre de lavanderia
15 3/8"
(390
71%"
(1,82 m)
*27 ¼"
(692ram)
*La mayorfa de Jas instalaciones requieren un espacio Jibre minimo de 5"
(127 mm) detr6s de la secadora para acomodar et ducto de escape con
codo. Vea "Requisitos de venfilaci6n'.
Espaclo minimo para la insfalaci6n en un lugar
empofrado oen un cl6set
Se recomiendan tas siguientes medidas de espacio para este centro
de tavanderfa. Estecentro de lavanderfa ha sido puesta a prueba para
espacios de 0" (0 mm) en los costados, en ta parte posterior y superior.
El espacio recomendado debe set considerado por los siguientes mofivos=
[] Debe considerarse et espacio adicional para facilitar la instalaci6n
y et servicio t_cnico.
[] Se podrian necesitar espacios tibres adicionates para las motduras
de la pared, de la puerta y det piso.
[] Se recomienda un espacio adicional en todos los lados del centro
de lavanderfa para reducir ta transferencia de ruido.
[] Para ta instalaci6n en ct6set, con una puerta, se requieren aberturas
de venfilaci6n minimas en ta parte superior e inferior de ta puerta. Se
aceptan puertas fipo persianas con aberturas de ventilaci6n equivalentes.
ooo o O
T (305mnl)i i
48in,z .J _' (76turn)
(310cm2) I_ =
-HI"* J-27,/,"*1
(26ram)(692mm)
B
A. Lugar empotrado
/
24in.z -_ _.
(155cm2)I
__ 3" (76 ram)
1"-',4I_ 26'/,"-_11÷_" ÷ 6....
(25ram) (606ram) (25ram) (127mm)
A C
B. Vista lateral -ct6set o lugar confinado
C. Puerta del cl6set con orificios de ventilaci6n
*Espacio necesario
**_uando el sistema de ventilaci6n de la casa est6 alineado directamente con
la venfitaci6n de la secadora, el espacio de atr6s puede ser de 0" (0 ram).

Requlsifos de instalaci6n adlclonales para los casas rodantes
Este centro de tavander[a es apropiado para instataciones en casas
rodantes. La instalaci6n debe a]ustarse al Estc_ndar de seguridad
y construcci6n de casas fabricadas, Tffulo 24 CFR, Parte 3280
(anteriormente conocido como Est6ndar federal para la seguridad
y construcci6n de casas rodantes, Tffulo 24, HUD Parte 280).
Las instalaciones en casas rodantes necesitan:
[] Arficutos de ferreterfa para sistemas de venfilaci6n de metal que se
pueden comprar en su fienda Sears o en et centro de servicio t_cnico
Sears de su tocatidad.
[] Se deben tomar medidas especiates en el caso de casas rodantes
para introducir el aire det exterior en ta secadora. La abertura (como
la de una ventana adyacente) deber6 ser por 1o menos et doble de
tama_o que la abertura de venfitaci6n de la secadora.
SISTEMA DE DESAGOE
Se puede instalar et centro de lavanderfa usando el sistema de desagiJe
de tubo vertical (piso o pared), el sistema de desagiJe en un tavadero
o et sistema de desagiJe en et piso. Elija el sistema de instalaci6n de la
manguera que necesite. Vea "Piezas alternafivas'.
Sisfema de desagLie de fuba verflcal - plsa a pored
(ilusfracianes A y B)
El sistema de desagiJe de tubo vertical requiere de un tubo vertical con
un di6metro mfnimo de 2" (51 mm). La capacidad mfnima de desatojo no
puede set menor de 17 gal. (64 L) por minuto. Se dispone de un juego de
adaptador para tubo vertical de 2" (51 ram) a 1" (25 ram) de dk_metro.
Vea "Piezas alternafivas'.
La parte superior det tubo vertical deber6 estar a 39" (991 mm) de altura
cuando menos y no podrc_ estar a m6s de 96" (2,4 m) desde la base de
la lavadora.
AB
Sisfema de desagLie en un lavadera (ilusfraci6n C)
El lavadero debe tener una capacidad mfnima de 20 gal. (76 L). La parte
superior del tavadero debe estar por Io menos 34" (864 mm) sobre et piso
y no podrc_ estar a mc_sde 96" (2,4 m) de la base de la lavadora.
Sisfema de desagLie en el pisa (ilustraci6n D)
El sistema de desagLie en el piso requiere de una desviaci6n det sif6n
que se puede comprar por separado. Vea "Piezas atternafivas'.
La desviaci6n del sif6n deber6 estar por 1o menos 28" (710 ram)
de la base de la lavadora. Quiz6s se necesiten mangueras adicionales.
REQUISJTOS EL{_CTRJCOS-
MODELOS DE 240 VOLTIOS
Usted es respansable de
[] Ponerse en contacto con un instalador et_ctrico calificado.
[] Asegurarse de que la conexi6n el_ctrica sea adecuada y de
conformidad con el C6digo Nacionat El_ctrico, ANSI/NFPA 70 -
Olfima edici6n y con todos los c6digos y ordenanzas locales.
Usted puede obtener una copia de todas las normas arriba indicadas
en: National Fire Protection Association, One Batterymarch Park,
Quincy, MA 02269.
[] Proveer el suministro el_ctrico requerido de 3 6 4 atambres,
monof6sico, de 240 volfios, 60 Hz, CA sotamente (o un suministro
el6ctrico de 3 6 4 atambres, de 208 volfios, si se especifica en la
ptaca indicadora de corriente/de ta serie) en un circuito separado
de 30 amperios, protegido con fusibtes en ambos lados de ta Ifnea.
Se recomienda un fusible retardador o un cortacircuitos. Con_cteta
a un circuito derivado individual. No tenga un fusible en et circuito
neutro o de conexi6n a fierra.
[] No use un cable et&ctrico de extensi6n.
[] Si los c6digos Io permiten y se emplea un alambre de conexi6n
a fierra separado, es recomendabte que un electricista catiflcado
determine si la trayectoria de conexi6n a fierra es adecuada.
Canexi6n el_ctrlca
Para instalar su centro de lavanderfa adecuadamente, usted debe
determinar el fipo de conexi6n el_ctrica que va a usar y seguir las
instrucciones que aquf se proveen para el caso.
[] Esta secadora ha sido manufacturada lista para ser instalada en una
conexi6n de suministro de energfa et6ctrica de 3 hitos. El hilo neutro
de puesta a fierra est6 permanentemente conectado aJ conductor
neutral (cable btanco) dentro de la secadora. Si la secadora est6
instalada con una conexi6n de suministro et_ctrico de 4 hilos, el hito
neutro de puesta a fierra se debe quitar del conector de puesta a
fierra interno (tornitto verde) y ajustar debajo del terminal neutral
(cable central o btanco) del bloque de terminal. Cuando el hilo neutro
de puesta a fierra est_ ajustado debajo det terminal neutral (cable
central o btanco) del bloque de terminal, et gabinete de la secadora
queda aistado det conductor neutral.
[] Si los c6digos locales no permiten ta conexi6n de un conductor neutro
conectado a fierra al atambre neutro, vea "Conexi6n opcionat de 3
hilos" en ta secci6n "Conexi6n el_ctrica".
[] Use un cable conductor de 4 alambres cuando se instale la secadora
en una casa rodante o un 6rea donde los c6digos locales no permiten
la conexi6n a fierra mediante el alambre neutro.
Si emplea un cabJe de suministra el_cfrlca:
[] Use un ]uego que est_ en la lista de UL para cable de suministro
el6ctrico que est_ marcado para ser usado en secadoras de ropa.
El iuego deber6 contener:
[] Un cable de suministro el6ctrico de 30 amperios que est_ en ta tista de
UL, con 240 votfios mfnimo. El cable deber6 ser det tipo SRD o SRDT
y deberc_ tenet un largo de por 1omenos 4pies (1,22 m). Los hilos que
conectan con ta secadora deberc_n terminar en terminales de anitlo o
de horquilla con los extremos hacia arriba.
[] Un protector de cables que est_ en ta lista de UL.
Si
Contacto
de 4 hilos
(14-30R)
el canfacfo de pored luce coma Sste:
Entonces etija un cable de suministro el_ctrico de
4 atambres con terminates de anitlo o de horquilla
y con protector de cables que est_ en la tista de UL.
El cable de suministro de corriente de 4hilos, de por
Io menos 4 pies (1,22 m) de largo, debe tener 4 hilos
de cobre de calibre 10 y encajar en un tomacorriente
para 4 hitos de Tipo NEMA 14-30R. El hilo de puesta
a fierra (conductor de puesta a fierra) puede ser
verde o desnudo. El conductor neutral debe set
idenfificado con una cubierta btanca.
C D
43

Si el cantacta de pored luce coma _ste:
Contacto de
3 hilos
(IO-30R)
Entonces elija un cable de suministro ei6ctrico
de 3 alambres con terminales de anillo o de
horquilla y con protector de cables que est_ en
la lista de UL. El cable de suministro de corriente
de 3 hilos, de pot Io menos 4 pies (1,22 m) de
largo, debe tener 3 hilos de cobre de calibre 10
y encajar en un tomacorriente para 3 hilos de
Tipo NEMA 10=30R.
Si hace la canexi6n con cableada dlrecta:
El cable de suministro el_ctrico debe ser igual al del suministro
el_ctrico (de 4 alambres o de 3 alambres) y debe sen
[] Cable blindado flexible o cable de cobre forrado no met_lico
(con alambre puesto a tierra), protegido con un conducto
met_lico flexible. Todos los alambres conductores de corriente
deben estar aislados.
[] Alambre de cobre s61ido de calibre 10, (No utilice aluminio.)
[] Tenet por Io menos 5pies (1,52 m) de Iongitud.
INSTRUCCIONES PARA LA CONEXION A TIERRA
[] Para la conexion de una lavadora/secadora mediante
cable electrico conectado a tierra:
Esta lavadora/secadora debe estar conectada a tierra. En el
caso de funcionamiento defectuoso o averia, la conexion a
tierra reducira el riesgo de choque etectrico al proporcionar
una via de menor resistencia para la corriente electrica. Esta
lavadora/secadora usa un cable que cuenta con un conductor
para la conexion a tierra del equipo y un enchufe de conexion
a tierra. El enchufe debe conectarse en un contacto apropiado,
que este debidamente instalado y conectado a tierra de
acuerdo con todos los codigos y ordenanzas locales.
[] Para la conexion permanente de una lavadora/secadora:
Esta lavadora/secadora debe estar conectada a un sistema
de cabteado de metal permanente, conectado a tierra, o se
debe tender un conducto para la conexion a tierra det equipo
con los conductores de circuito y conectado al terminal de
tierra del equipoo al conductor de suministro de la lavadora/
la secadora.
ADVERTENCiA: La conexion indebida del conductor
para la conexion a tierra del equipo puede ocasionar un riesgo
de choque electrico. Verifique con un electricista,
representante o personal de servicio tecnico calificado para
asegurarse de que ta conexion a tierra de la lavadora/la
secadora sea apropiada. No modifique el enchufe que viene
con el cable electrico. Si no encaja en el contacto, contrate un
etectricista calificado para que instale un contacto adecuado.
GUARDE ESTAS INSTRUCCIONES
REQUISITOS EL_:CTRICOS-
MODELOS DE 120 VOLTIOS
Peligro de Cheque EI6ctrico
Conecte a un contacto de pared de cone×i6n a tierra de
3 terminales.
No quite la terminal de cone×i6n a tierra.
No use un adaptador.
No use un cable el6ctrice de extension.
No seguir estas instrucoiones puede ocasionar
la muerte, incendio e choque el6ctrico.
[] Se necesita un suministro el6ctrico de 120 volfios, 60 hertzios,
CA solamente, de 15 6 20 ampedos y protegido con fusible.
[] Este centro de lavander[a est_ equipado con un cable el6ctrico
provJsto de un enchufe de tres terminales conectado a tierra.
[] Aseg0rese de que la conexi6n el6ctrica sea adecuada y de
conformidad con el C6digo Nacional El6ctrico, ANSI/NFPA 70 -
01tima edici6n y con todos los c6digos y ordenanzas locales.
Usted puede obtener una copia de todas las normas
arriba indicadas en: National Fire Protection Association,
One Batterymarch Park, Quincy, MA 02269.
[] Se recomienda un fusible retardador o un cortacircuitos.
Aseg0rese de que el fusible o el cortacircuitos es igual
a la clasiflcaci6n de su I[nea.
[] Use un circuito separado s61o para la secadora.
[] Para reducir el peligro de posibles choques el_ctdcos, el cable
debe ser enchufado en un contacto apropiado de pared
de tres terminales, conectado a tierra de acuerdo con los
c6digos y normas locales. Si no hubiera un contacto de pared
adecuado, el cliente tiene la responsabilidad de contratar a
un electricista califlcado para instalar un contacto de pared
apropiado con conexi6n a tierra.
[] Si los c6digos Io permiten y se emplea un alambre
de conexi6n a tierra separado, es recomendable que
un eiectricista califlcado determine si la trayectoria
de conexi6n a tierra es adecuada.
[] No conecte a un tubo de gas.
[] No use un cable de extensi6n.
[] No tenga un fusible en el circuito neutro o de conexi6n a tierra.
[] Consuite un electricista calJflcado si no est_ seguro que
el centro de lavander[a est_ bien conectado a tierra.
44

INSTRUCCIONES PARA LA CONEXI(_N A TIERRA
I Para la conexi6n de una lavadora/secadora mediante
cable electrico conectado a tierra:
Esta lavadora/secadora debe estar conectada a tierra. En el
caso de funcionamiento defectuoso o averia, la conexi6n a
tierra reducir& el riesgo de choque electrico al proporcionar
una via de menor resistencia para la corriente electrica. Esta
lavadora/secadora est& equipada con un cable que cuenta
con un conductor para la conexi6n a tierra del equipo y un
enchufe de conexi6n a tierra. El enchufe debe conectarse en
un contacto apropiado, que este debidamente instalado y
conectado a tierra de acuerdo con todos los c6digos y
ordenanzas locales.
ADVERTENCIA: La conexi6n indebida del conductor
para la conexi6n a tierra del equipo puede ocasionar un
riesgo de choque electrico. Verifique con un electricista,
representante o personal de servicio tecnico calificado para
asegurarse de que la conexi6n a tierra de la lavadora/la
secadora sea apropiada. No modifique el enchufe
proporcionado con la lavadora/la secadora. Si no encaja en
el contacto, contrate un electricista calificado para que instale
un contacto adecuado.
GUARDE ESTAS INSTRUCCIONES
CONEXION ELECTRICA-
MODELOS DE :240 VOLTiOS
Op¢_ones de ¢onexi6n
1. Seleccione el tipo de conexi6n el_ctrica
Contacto de 4 hilos (tipo NEMA 14-30R):
Vaya a "Conexi6n de cable de suministro
de energ[a".
Contacto de 3 hiios (tipo NEMA 10-30R):
Vaya a "Conexi6n de cable de suministro
de energ_a".
Conexi6n por cable directo de 4 hilos:
Vaya a "ConexJ6n por cable directo'.
_ onexi6n por cable directo de 3 hilos:
Vaya a "Conexi6n por cable directo'.
NOTA: Si los c6digos locales no permiten la conexi6n
de un conductor para conexi6n a fierra de la carcasa ai
alambre neutro, prosiga a la seccJ6n "Conexi6n optional
de 3 hilos'.
B
n n c
Desconecte ei suministro de energfa antes de comenzar. Quite
el tornillo de sujeci6n (B) y la tapa del bloque de terminal (C).
A. Tornillo central del bioque de terminal
B. Tornillo de sujeci6n
C. Tapa del bioque de terminal
D. Tornillo conductor a tierra externo
45

Cone×i6n de cable de surnlnlstro de energia
Peligro de Incendio
Use un cable de suministro el6ctrico nuevo de
30 amperes que est6 en la lista de UL.
Use un protector de cables que est6 en la lista de UL.
Desconecte el suministro el6ctrico antes de hater las
cone×iones el6ctricas.
Conecte el alambre neutro (el blanco o el del centro}
al terminal central.
El alambre de tierra (el verde o el no aislado) se debe
conectar con el conector verde de tierra.
Conecte los 2 alambres de suministro restantes con
las 2 terminales restantes (las doradas).
Apriete firmemente todas las cone×iones el6ctricas.
No seguir estas instrucciones puede ocasionar la
muerte, incendio, o choque el6ctrico.
1. Sujete el protector de cables
del cable de suministro de energia
Quite los tornillos de un protector de cables de 3/4" (19 mm)
que est6 en la lista de UL (con la marca UL en el protector
de cables). CaJoque Jas JengLietas de Jas dos secciones de Ja
abrazadera (C) en el orificio que est_ debaio de la abertura
del bJoque de terminal (B) de manera que una lenggeta est_
apuntando hacia arrJba (A) y la otra est_ apuntando hacia
abaio (D), y sui_telas en su lugar. Apriete los tornillos deJ
protector de cables s61o Io suficJente para mantener las
dos secciones de la abrazadera (C) iuntas.
A. LengLieta deJ protector de cables
apuntando hacia arriba
B. Orificio debaio de la abertura del bloque
de terminal
C. Secci6n de la abrazadera
D. LengLieta del protector de cables
apuntando hacia abaio
f_
2. Sujete el cable de suministro
de energia al protector de cables
Haga pasar el cable de suministro de energfa a trav_s
del protector de cables. Asegl)rese de que el aislamiento
de cables del cable de suministro de energfa est_ dentro
del protector de cables. EJ protector de cables deber_ encaiar
de manera aiustada con la carcasa de la secadora y estar
en posici6n horizontal. No ajuste m_s los torniJJos del protector
de cables en este momento.
C6rno hacer la conexi6n de 4hllos:
Cable de surnlnlstro de energia
iMPORTANT[=: Se necesJta una conexJ6n de 4 hilos para las
casas rodantes y donde los c6digos locales no permitan el uso
de conexJones de 3 hHos.
Contacto de 4 hilos
(tipo NEMA 14-30R)
Conectares de horquilla
con bridas
Enchufe de 4 terminales
Conectores de anillo
46

1. Conecte el hilo neutro de puesta
a tierra V el hilo neutro
E D
B
Saque el tornillo central del bJoque de terminal. Saque el
hJJo neutro de puesta a tierra del tornillo conductor de tierra
externo. Conecte el hNo neutro de puesta a fierra y eJ hilo
neutro (hilo blanco o central) del cable de suministro de
energ_a deba]o del tornillo central del bloque de terminal.
Apriete el tornillo.
A.
B.
C.
a.
E.
Tornillo central del bloque de terminal
Hilo neutro de puesta a tierra
Tornillo conductor a tierra externo - La
Ifnea punteada ilustra la posici6n del hilo
de tierra NEUTRO antes de moverlo al
tornillo central del bloque de terminal.
Hilo neutro (hJlo blanco o central)
Protector de cables de 3/4" (19 mm),
que est_ en la lista de UL
2. Conecte el hilo neutro
B
o
AC
Conecte el hilo de conexi6n fierra (verde o desnudo) del cable
de sumJnistro de energfa al torniilo conductor de tierra externo.
Apriete el tornillo.
A. Hilo neutro (hilo blanco o central)
B. Tornillo central del bloque de terminal
C. Hilo neutro de puesta a fierra
D. Tornillo conductor a fierra externo
E. Hilo de tierra (verde o desnudo) del cable
de suministro de energfa
F. Protector de cables de 3/4" (19 mm),
que est_ en la lista de UL
Conecte los arras hilos a los tornillos exteriores del bloque de
terminal. Apriete los tornJllos. AprJete los tornillos del protector de
cables. Introduzca la lengOeta de la cubierta del bioque terminal
en la ranura del panel posterior de la secadora. Asegure la cubierta
con el tornillo de sujeci6n. Ahora vaya a "Requisitos de ventiJaci6n".
C6rna hacer la canexi6n de 3 hilas:
Cable de surnlnlstra de energia
Oselo donde los c6digos locales permitan la conexi6n
del conductor de fierra de la carcasa al hilo neutral.
Contacto de 3 hilos
(tipo NEMA 10-30R)
Enchufe de 3 terminales
Conectores de horquilla
con bridas
Conectores de anillo
]. Conecte el hilo neutro
B
C
D
m
Afloje o saque el torniJlo central del bloque de terminal. Conecte
el hilo neutro (hJlo blanco o central) del cable de sumJnistro de
energfa al torniilo central del bloque terminal. Apriete el torniilo.
A. HJlo neutro (hiio blanco o central)
B. Tornillo central del bloque de terminal
C. HJJo neutro de puesta a fierra
D. Tornillo conductor a fierra externo
E. Protector de cables de 3/4" (19 mm),
que est_ en la lista de UL
Conecte los otros hilos a los tornilios exteriores del bioque de
terminal. Apriete los tornillos. Apriete los tornillos del protector
de cables. Inserte la leng0eta de la tapa del bloque de terminal
dentro de la ranura del panel posterior de la secadora. Asegure
la tapa con el tornillo de sujeci6n. Ahora vaya a "Requisitos
de ventiiaci6n".
47

C6mo hacer la conexi6n de cable dlrecto
Peligro de Incendio
Utilice alambres de cobre s61ido de ancho 10.
Use un protector de cables que est6 en la lista de UL.
Deseonecte el suministro el6ctrico antes de hacer las
cone×iones el6ctricas.
Conecte el alambre neutro (el blanco o el del centro)
al terminal central.
E! alambre de tierra (el verde o el no aislado) se debe
conectar con el conector verde de tierra.
Conecte los 2alarnbres de suministro restantes con
las 2 terminales restantes (las doradas).
Apriete firmernente todas las conexiones el6ctricas.
No seguir estas instrucciones puede causar la muerte,
incendio ochoque el6ctrico.
1. $ujete el protector de cables
para cable directo
Desatornille el conector de conducto removibie y cualquier
tornillo del protector de cables de 3/4" (19 mm) que est6 en la
lista de UL (con la marca UL en el protector de cables). Haga
pasar la secci6n trenzada del protector de cables a trav6s
del orificio que est6 debajo de la abertura del bloque de
terminal. Busque dentro de Ja abertura del bioque de terminal
y atornille el conector de conducto removible sobre las roscas
del protector de cables.
A. Conector del conducto removibie
B. Orificio debajo de la abertura
del bloque de terminal
C. Roscas del protector de cables
48
2. $ujete el cable directo al protector
de cables
Haga pasar el cable directo a trav6s del protector de cables.
El protector de cables deberc] encajar bien con el gabinete
de la secadora y estar en posici6n horizontal. Apriete el
torniilo del protector de cables contra el cable directo.
$i el cabJeado iuce come _s|e:
Conexi6n pot cable directo de 4 hilos:
Vaya a "Conexi6n por cable directo
de 4 hiios" en esta p6gina.
Conexi6n pot cable directo de 3 hilos:
Vaya a "Conexi6n por cable directo
de 3 hHos'.
Conexi6n pot cable dlrecto de 4 hllos
IMPORTANTE: Se necesita una conexi6n de 4 hilos para
Jas casas rodantes y donde los c6dJgos locales no permJtan
ei uso de conexJones de 3 hiios.
I. Prepare el cable de 4 hilos
para la conexi6n directa
(127
El cable del hilo directo deber6 tener
5 pies (1,52 m) de largo adicional, para
poder mover el centro de iavanderfa si
es necesarJo.
Pele 5" (127 mm) de la cubJerta exterior
desde el extremo del cable, dejando el
hilo de tierra desnudo a 5" (127 mm).
Corte 1-1/2" (38 mm) de los 3 hilos restantes. Pele el aislamiento
1" (25 mm) hacia atrSs. Dobie los extremos de los hiios para
format un gancho.
AI conectar el hilo aJ bloque de terminal, coloque el extremo
del hilo en forma de gancho debajo del tornillo del bioque
de terminal (gancho mirando hacia la derecha). Apriete y junte
el extremo en forma de gancho y apriete el tornilio. Vea el
ejempio de arriba.

2. Conecte el hilo neutro de puesta
atierra V el hilo neutro
o
D
Saque el tornillo central del bloque de terminal. Saque el
hNo neutro de puesta a tierra del tornillo conductor de fierra
externo. Conecte el hilo neutro de puesta a tierra y coloque
el extremo en forma de gancho (gancho mirando hacia la
derecha) del hilo neutro (blanco o central) del cable
de conexi6n directa deba]o del tornillo central del bloque
de terminal. Apriete y ]unte los extremos enganchados.
Apriete el tornillo.
A,
B.
C.
a.
E.
Tornillo central del bloque de terminal
Hilo neutro de puesta a tierra
Tornillo conductor a fierra externo - La
Ifnea punteada ilustra la posici6n del hilo
de fierra NEUTRO antes de moverlo al
torniilo central del bloque de terminal.
Hilo neutro (hilo blanco o central)
Protector de cables de 3/4" (19 mm),
que est_ en la lista de UL
3. Conecte el hilo de puesta a tierra
B
Conecte el hilo de puesta a tierra (verde o desnudo) del cable
directo al torniilo conductor a tierra externo. Apriete el tornillo.
A. Hilo neutro (hiJo blanco o central)
B. Tornillo central del bioque de terminal
C. Hilo neutro de puesta a tierra
D. Tornillo conductor a fierra externo
E. Hilo de puesta a tierra (verde o desnudo)
del cable directo
F. Protector de cables de 3/4" (19 mm),
que est_ en la lista de UL
f4." Conecte los hilos restantes
Coloque los extremos enganchados de los otros hilos del cable
directo debajo de los tornillos exteriores del bioque terminal
(con los ganchos mirando hacia la derecha). Apriete y junte
los extremos enganchados. Apriete los tornillos. Apriete el
tornillo del protector de cables. Introduzca la leng0eta de la
cubierta del bioque terminal en la ranura del panel posterior
de la secadora. Asegure la cubierta con el torniilo de sujeci6n.
Ahora vaya a _"Requisitos de ventilaci6n".
Conexi6n por cable dlrecto de 3 hilos
0selo donde los c6digos locales permitan la conexJ6n
del conductor de tierra de la carcasa al hJlo neutral.
f]. Prepare el cable de 3 hilos
para la conexi6n directa
El cable del hilo directo deberc] tener
5pies (1,52 m) de largo adicional, para
poder mover la lavadora/secadora
si es necesario.
PeJe 31/2'' (89 ram) de la cubierta exterior
del extremo del cable. Pele el aislamiento
1" (25 mm). Siva a usar el cable de
3 hilos con hilo a tierra, corte el hilo desnudo alineado
con la cubierta exterior. D_ forma de gancho a los extremos
de los alambres.
AI conectar el hilo al bloque de terminal, coloque el extremo
del hilo en forma de gancho debajo del tornillo del bloque
de terminal (gancho mirando hacia la derecha). Apriete y junte
el extremo en forma de gancho y apriete el tornillo. Vea el
ejemplo de arriba.
49

"_. Conecte el hilo neutro
B
E
Afloie o saque el tornillo central del bloque de terminal
Coloque el extremo en forma de gancho del hilo neutro (hNo
blanco o central) deJ cable directo debaio del torniJlo central
del bloque terminal (con el gancho mirando hacia la derecha).
Apriete y junte el extremo en forma de gancho. Apriete
el tornillo.
A. Hilo neutro (hilo blanco o central)
B. Tornillo central del bloque de terminal
C. Hilo neutro de puesta a t_erra
D. Tornillo conductor a t_erra externo
E. Protector de cables de 3/4" (19 mm)0
que est_ en la lista de UL
3. Conecte los hilos restantes
Coloque los extremos enganchados de los otros Hlos del cable
directo debajo de los tornillos exterJores del bioque terminal
(con los ganchos mirando hacia la derecha). Apriete y junte
los extremos enganchados. AprJete los tornillos. AprJete el
torniilo del protector de cables. Introduzca la lengOeta de la
cubierta del bioque terminal en la ranura del panel posterior
de la secadora. Asegure la cubierta con el torniilo de sujecJ6n.
Ahora vaya a "Requisitos de venfilaci6n'.
C6rno hacer la conexi6n de 3 hilos opclonal
Use para cable directo o cable de suministro de energfa donde
los c6digos locales no permitan la conexi6n del conductor de
fierra del gabJnete con el hJJo neutro.
_|". Conecte el hilo neutro de puesta
a tierra V el hilo neutro
A "o o 1 'B
J
Saque el tornillo central del bloque terminal. Saque el hilo
neutro de puesta a fierra del tornillo conductor a tierra externo0
Conecte el hilo neutro de puesta a fierra y el hilo neutro (hilo
bianco o central) del cable de suministro de energfa/cable
directo debajo del torniilo central del bloque de terminal.
Apriete el tornilio.
A.
B.
C.
D.
Hilo neutro (hilo blanco o central)
Hilo neutro de puesta a fierra
TorniHo conductor a tierra externo - La
ifnea punteada ilustra ia posJcJ6n dei hilo
de tJerra NEUTRO antes de moverlo aJ
torniilo central del bioque de terminal.
Camino de puesta a fierra determinado
por un electricista capacitado
F_.,_ Conecte los hilos restantes V ¢onecte
el hilo de puesta a tierra separado
Conecte los otros hilos a los tornillos exteriores del bloque
de terminal. Apriete los tornillos. Apriete los tornillos del
protector de cables. Conecte un hilo de fierra de cobre
separado del tornillo conductor a fierra externo a fierra
adecuada. Introduzca la lengOeta de la cubierta del bloque
de terminal en la ranura del panel posterior de la secadora.
Asegure la cubierta con el tornillo de sujeci6n. Ahora vaya
a "Requisitos de venfilaci6n".
5O

REQUISITOS DE VENTILACION
Peligro de Incendio
Use un ducto de escape de metal pesado,
No use un ducto de escape de pl_stico.
No use un ducto de escape de aluminio,
No seguir estas instrucciones puede ocasionar
la muerte o incendio.
ADVERTENCIA: Para reducir el riesgo de incendio, este
centro de lavanderfa DEBE VENTILARSE HACIA EL EXTERIOR.
IMPORTANTE: Observe todas las normas y ordenanzas vigentes.
El ducto de escape de la secadora no debe conectarse en ningOn
ducto de gas, chimenea, pared, techo, desv6n, espacio angosto
o el espacio oculto de un ediflcio. Deber6 usarse solamente un
ducto de metal rfgido o flexible para la ventilaci6n.
Capotas de ventllaci6n:
[] La capota de ventilaci6n debe estar par Io menos a 12" (305
[]
mm) de distancia del piso o de cualquier objeto que pudiese
estar en el trayecto del ducto de escape (coma flares, rocas,
arbustos o nieve).
No use capotas de ventilaci6n con pestillos magn6ticos.
Estilos recomendados:
Capota tipo persiana
Estilo aceptable:
Capota angular
Codos:
[]
Capota tipo caja
Los codas de 45 ° proveen un mejor flujo de aire que los codas
de 90 °.
04"
(102 mm)
t
Ducto de escape de metal pesado de 4" (]02 mm)
[] S6io puede usarse un ducto de escape de metal pesado
de 4" (102 mm) y abrazaderas. Los productos de ventilaci6n
DURASAFE TM son recomendables.
[] No utilice un ducto de escape de pl6stico ni de aluminio.
Ducto de escape de metal rigida:
[] Se recomienda para un mejor desempe_o en el secado
y para evitar que se aplaste o se tuerza.
Ducto de escape de metal flexible: (Es aceptable s6io si es
accesibie para la limpieza)
[] El ducto de escape de metal flexible debe extenderse y
sostenerse par completo cuando el centro de lavanderfa
est6 en su ubicaci6n final.
[] Quite el exceso del ducto de metal flexible para evitar que
se dobie y se tuerza, Io cual podr[a dar lugar a una reducci6n
del flujo de aire y a un rendimiento insuficiente.
[] No instaie el ducto de escape de metal flexible en paredes,
techos o pisos encerrados.
[] La Iongitud total del ducto de metal flexible no deber6 exceder
los 73¼ pies (2,4 m).
[] El largo del ducto de escape de metal flexible que se va
a utiiizar debe inciuirse en el dise_o compieto del sistema
de ventilaci6n, coma se muestra en "Cuadro del sistema de
ventilaci6n'.
NOTA: Si se usa un sistema de venfilaci6n existente, limpie
la pelusa que est6 en toda la Iongitud del sistema y asegOrese
de que la capota de ventilaci6n no est6 obstruida con pelusa.
Reempiace los ductos de escape de pi6stico o de ho]a de metal
par ductos de metal r[gido o de metal flexible. Revise el cuadro
del sistema de ventilaci6n y si es necesario modiflque el sistema
de ventilaci6n existente para Iograr el mejor desempe_o de secado.
Estilos recomendados:
Me'
Abrazaderas:
[] Ufilice abrazaderas para seliar todas las juntas.
[] No debe conectarse ni asegurarse el ducto de escape con
tornillos ni con ning0n otro disposifivo de sujeci6n que se
extienda hacia el interior de dicho ducto y atrape peiusa.
No utilice cinta para ductos.
La ventilaci6n inadecuada puede ocasionar la
acumulaci6n de humedad y pelusa en la casa, Io cual
puede dar corno resultado:
[] Da_os de humedad en la carpinteria, muebles, pintura,
empapelado, alfombras, etc.
[] Problemas en la limpieza de la casa y de salud.
Los productos de ventilaci6n se pueden comprar con su distribuidor.
Para obtener m6s informaci6n, flame 1=800=4-MY-HOME ® (1=800=
469=4663) o visite nuestro sitio web: www.sears.com.
51

INSTALACI6N DE LAS PATAS NIVELADORAS
Peligro de Peso Excesivo
Use dos o m_s personas para mover e instalar
la lavadora]secadora.
No seguir esta instruccibn puede ocasionar una lesibn
en la espalda u otto tipo de lesiones.
Para evitar da_os al piso, use un pedazo de cart6n grande de la
caia de transporte. Coloque el centro de lavanderfa de costado,
con cuidado, sobre el cart6n.
1. instale las paras niveladoras traseras
Empuje las patas dentro de los orificios en las esquJnas traseras
hasta que encajen en su lugar. Revise la ajustabilidad de las
paras traseras empujando una de las paras. La otra pata
deberfa salir. Revise ambas paras. Si no se mueven libremente0
repita el procedimiento.
2. instale las paras niveladoras delanteras
Examine las paras niveladoras delanteras. Localice la marca
en forma de diamante. Atornille las patas delanteras a mano
dentro de los orJficios de los puntales triangulares en Jas
esquinas frontales. Use una Ilave de tuercas para terminar de
atornillar las paras hasta que la marca en forma de diamante
no quede visible. Ponga con cuidado el centro de lavanderfa
en la posici6n vertical.
QUITE EL EMBALAJE DE HULE ESPUMA
1. Retire el aniJJo de embaJaje de huie
espuma fuera de ia iavadora
Abra la tapa de la lavadora. El seguro debajo de la secadora
mantendr_ la tapa abJerta. Retire el anJllo de embalaje de
hule espuma fuera de la lavadora. NOTA: Conserve el aniilo
de hule espuma y Oselo durante el transporte de su centro de
lavanderfa. Este material de embalaje se usa para estabilizar
la tina de la lavadora durante el transporte.
52
CONECTE LA MANGUERA DE DESAGOE
Para proteger sus pisos de los da_os ocasionados por las fugas de
agua, conecte correctamente la manguera de desagLie. Para evJtar
que la manguera de desagLie se salga o tenga p_rdidas, se debe
instalar de acuerdo alas siguientes instrucciones:
IMPORTANTE: Para una instalaci6n correcta, se debe seguir este
procedimiento con toda exactitud.
1. Sujete la abrazadera a la mancjuera
de desacjUe
-- m
Inspeccione la manguera de desagLie para vet sJtiene el largo
correcto. Moje el interior deJ extremo recto de la manguera
de desagLie con agua del grifo.
IMPORTANTE: No use ning6n otto lubricante que no sea agua.
Apriete con el alicate las aletas de la abrazadera piateada
de dobJe hJio para abrJrJa. Coloque la abrazadera sobre el
extremo recto de la manguera de desag(ie a 1/4" (6,4 mm)
del mismo.
f2. Sujete la mancjuera de desagUe
al conector de desacjUe
m
Abra la abrazadera. Tuerza la manguera hacia atrc_s y
hacia adeiante mJentras empuia sobre el conector de desag(ie
en el lado del centro de lavanderfa. ContinOe hasta que la
manguera entre en contacto con los topes estriados sobre
el gabinete. Coloque la abrazadera sobre el c]rea que tiene
la marca "CLAMP" ("Abrazadera"). Suelte la abrazadera.

*_.'_ Coloque le rnencjuere de desegUe en
el tuba vertical o en une tine de levedero
Molde de
la
de desagOe
AsegOrese de que el molde de la manguera de desagLie est6
en la posici6n correcta. Coloque la manguera en el tubo
vertical (mostrado) o sobre el iado de ia tina de lavadero.
IMPORTANTE: Deber_ haber 4,5" (114 mm) de manguera de
desag0e dentro del tubo vertical; no fuerce el exceso de la
manguera dentro del tubo vertical, ni Io coloque en el fondo
de la fina de lavadero. Ei molde de la manguera de desag0e
debe usarse.
Pare usarse con desagUe par el piso: No instale el moide
de la manguera de desagLie a la manguera de desagOe
corrugada. Puede necesitar piezas adJcionales. Yea DesagOe
par el piso bajo "Piezas alternativas".
CONECTE LAS MANGUERAS DE ENTRADA
El centro de lavander[a debe estar conectado a los grifos
de agua con mangueras de entrada nuevas y arandelas planas
(no provistas). No use mangueras viejas.
NOTA: Deber_n sujetarse ambas mangueras y tenet flujo de agua
aias v_lvulas de entrada.
"1. inserte une erendele en cede rnencjuere _
|
Inserte las nuevas arandelas para manguera en cada extremo
de las mangueras de entrada (no suministradas). Asiente
firmemente las arandelas en los acoplamientos.
Asegl)rese de que la canasta de la lavadora est6 vacfa.
Conecte la manguera al gdfo de agua caliente. Atornille
el acoplamiento con la mano hasta que se asiente en la
arandela. Conecte la manguera al grifo de agua fr[a.
Atornille el acoplamiento con la mano hasta que se asiente
en la arandela. AprJete los acoplamJentos con los alicates,
gir6ndolos dos tercios de vuelta adicional.
IMPORTANTE: No apdete demasiado ni use cinta o selladores
al conectar las mangueras de entrada a los grJfos o al centro
de lavander[a. Pueden causar da_os.
3. Despeje les I(nees de ecjue
Haga cotter el agua a trav_s de los grJfos y de las mangueras
de entrada dentro de una fina de lavadero_ tuberfa de
desagiJe o balde para desechar las partfculas de las ffneas de
agua que pudieran obstruJr los fHtros de la v_lvula de entrada.
VerJfique la temperatura del agua para asegurarse de que la
manguera de agua caliente est_ conectada al grJfo de agua
caliente y que la manguera de agua fr[a est6 conectada al
grifo de agua if[a.
53

*4.J Conecte las mancjueras de entrada
ala lavadora
A
B
Afiance la manguera de agua caliente a la v_lvula de entrada
inferior. El conectar la manguera de agua caliente primero
facilita el ajuste de la conexi6n con los alicates. Atornille el
acoplamiento con la mano hasta que quede asentado en la
arandela. Utilizando los alicates, apriete el acoplamiento con
una vuelta adicional de dos tercios.
Afiance ia manguera de agua frfa a la v_lvula de entrada
superior. Atornille el acopiamiento con la mano hasta que
quede asentado en la arandela. Utilizando los alicates, apriete
el acoplamiento con una vuelta adicional de dos tercios.
IMPORTANTE: No apriete demasiado ni use cinta o selladores
al conectar ias mangueras de entrada a los grifos o al centro
de lavanderfa. Pueden causar da_os.
A. V_lvula de entrada de agua frfa (superior)
B. V_lvula de entrada de agua caliente (inferior)
5. Mueva el centro de lavanderia
asu posici6n final
SJ usted est6 trabajando en un cl6set o en un 6rea empotrada,
traslade el centro de lavanderfa a su posici6n final y quite el
cart6n que est6 debajo del mismo. Quite el panel de acceso
desatornillando 2 tornillos Phillips, ubicados en la parte
superior del panel de acceso. Deje a un lado el panel y los
tornillos. Complete la conexi6n de las mangueras de agua
a travSs del 6tea de acceso. Vuelva a colocar el panel de
acceso una vez que haya terminado la instalaci6n del centro
de lavanderfa.
6. Revise si hay fugas
C
66 66
Abra los grifos de agua y revise si hay fugas. Una peque_a
canfidad de agua podrfa entrar en la lavadora. Haga el
desagLie m_s tarde.
NOTA: Reemplace las mangueras de entrada despu_s de
cinco a_os de uso para reducir el desgo de que fallen. Anote
las fechas de instalaci6n y de reposici6n de la manguera
para consulta futura.
Si conecta s61o una manguera de agua, debe tapar el orificio
restante de entrada del agua.
De vez en cuando inspeccione y reemplace las mangueras sJ
encuentra bultos0 torceduras0 cortaduras0 desgaste o p_rdidas
de agua.
El centro de lavanderfa debe conectarse a los grifos de agua
usando las mangueras nuevas. No use mangueras viejas.
FIJACION DE LA MANGUERA DE DESAGOE
Traslade el centro de lavanderfa a su ubicaci6n final y quite
el cart6n que haya usado para moverlo.
]. Asegure la rnanguera de desagUe a la pata
de la tina de lavadero oal fubo vertical
A
B C D
Ubique el fleje de atadura removible (A) que est(] incluido en
el paquete de piezas. Asegure la manguera de desagLie a la
pata de la fina de lavadero (B) o al tubo vertical (C) con el
fleje de atadura removible y asegOrela. Si los grifos de agua
y el tubo vertical de desagiJe est_n empotrados, coloque el
extremo con forma de gancho de la manguera de desagLie
en el tubo vertical. Enrolle el fleje de atadura removJble
con firmeza alrededor de las mangueras de entrada de agua
y de la manguera de desag(ie (D).
54

PLANIFICACI6N DEL SISTEMA DE VENTILACI6N
Instalaclanes recamendadas de escape
Las instalaciones fipicas tienen la ventilaci6n de la secadora en
la parte posterior del centro de lavanderfa. Otras instalaciones
son posibles.
Instalaclanes alternas para espaclas llmltadas
Los sistemas de ventilaci6n vienen en una amplia gama.
Seleccione el tipo m6s apropiado para su instalaci6n. A
continuaci6n se ilustran tres tipos de instalaci6n para espacios
limitados. Consulte las instrucciones del fabricante proporcionadas
con el sistema de ventilaci6n.
--D
A
CL_H
A. Secadora E. Coda
B. Ducto de metal rfgido o de metal flexible F. Abrazaderas
C. Abrazaderas G. Coda
D. Pared H. Capota de ventitaci6n
Instalaclanes opclonales de escape
Este centro de lavanderfa puede convertirse para ventilarse al
exterior par el lado derecho o izquierdo. Para convertir el centro
de lavander[a_ use el Juego de Escape lateral Pieza No. 279823.
Si el centro de lavanderfa tiene la ventilaci6n lateral a la derecha
o a la izquierda, se puede cambiar par una ventilaci6n en la parte
posterior usando conexiones de desacoplo est6ndares. Para cubrir
el orificio lateral se puede a_adir uno de los siguientes tapones:
692790 (blanco)
3979370 (grafito)
3977784 (bisque)
Siga las instrucciones incluidas con el juego para la instalaci6n.
Los juegos se encuentran disponibles en su tienda Sears o en el
Centro de servicio Sears de su Iocalidad.
C
A. Instalaci6n est6ndar con desviaci6n de la ventilaci6n
en la parte posterior
B. Ventilaci6n posterior para conexi6n con desviaci6n
en espacios reducidos
C. Instalaci6n de ventilaci6n lateral a la izquierda
o a la derecha
A
2 i
'",,i o-
B C
A. Sistema de lazo con codas est6ndares
B. Sistema de lazo con un coda est6ndar y un coda
de desviaci6n
C. Sistema de ventilaci6n con un periscopio (espacio de 2"
[51 ram])
NOTA: Se pueden adquirir los siguientes juegos para instalaciones
alternas en espacios limitados. Para hacer pedidos, par favor
Ilame al 1-800-4-MY-HOME ® (1-800-469-4663).
Instaiaci6n en la parte
superior:
Instalaci6n de periscopio
(Para usar si hay
desacoplo entre el
ducto de escape de
la secadora y el ducto
de escape de la pared)
Pieza nOmero 26-49900
Pieza nOmero 26-49901 -
Desacoplo de menos
de 5" (127 mm)
Pieza nOmero 26-49908 -
Desacoplo de 5" (127 ram)
a 18" (457 ram)
Pieza nOmero 26-49904 -
Desacoplo de 18" (457 ram)
a 29" (737 ram)
Pieza nOmero 26-49905 -
Desacoplo de 29" (737 ram)
a 50" (1,27 m)
Previslanes especlales para las instalaclanes en casas
radantes
El ducto de escape deber6 sujetarse firmemente en un lugar no
inflamable de la estructura de la casa rodante y no debe terminar
debajo de la casa rodante. El ducto de escape debe terminar en
el exterior.
55

Determlnaci6n de la via dei ducb de escape
[] Seleccione la vfa que proporcione el trayecto m6s recto
y directo al exterior.
[] Pianifique la instalaci6n a fin de usar el manor nOmero posible
de codes y vueltas.
[] Cuando use los codes o haga vueltas, deje todo el espacio
qua sea posible.
[] Doble el ducto gradualmente para evitar torceduras.
[] Use la manor cantidad posible de vueltas de 90 °.
Determlnaci6n de la iongltud dei ducto de escape y de
los codas necesarlos para obtener un 6primo rendirnlen|o
de secado
[] Use el cuadro del sistema de ventilaci6n a confinuaci6n para
determinar el tipo de material para ducto y Ja combinaci6n
de capota aceptable a usar.
biOTA: No use tendidos de ducto de escape m6s largos qua
los especificados en el cuadro del sistema de ventilaci6n. Los
sistemas de ventilaci6n m6s largos qua los especificados:
[] Acortar6n la vJda de la secadora.
[] Reduck6n el rendimiento, dando lugar a fiempos de secado
m6s largos y un aumento en el consume de energfa.
EI cuadro del sistema de ventiiaci6n indica los requMtos de
ventilaci6n qua le ayudar6n a alcanzar el major rendimiento
de secado.
Cuadro del sistema de venfilaci6n
Para las instalaciones de venfilaci6n laterales, a_ada
una vuelta de 90 ° dentro de la secadora. Para determinar la
Iongitud m6xima de ventiiaci6n, agregue una vuelta de 90 °
al cuadro.
Capotas de
No. de venfilaci6n
vueltas de Tipo de caja o ripe Capotas
90 ° o codes de ducfo perslanas angulares
0Me|ai r_gldo 43 pies (13,1 m) 36 pies (11,0 m)
Metal rkJido 33 pies (10,1m) 26 pies (7,9 m)
2 Metal rJgide 23 pies (7,0 m) 16 pies (4,9 m)
INSTALACi6N DEL SISTEMA DE VENTILACi6N
'1. instale la capota de ventilaci6n
__ ___ 12" rain.
(305 ram)
Instale la capota de ventilaci6n. Emplee una masilla de
calafateo para sellar la abertura de la pared externa
alrededor de ia capota de ventilaci6n.
56
2. Conecte el ducto de escape ala capota
de venfilaci6n
I
El ducto de escape debe encajar dentro de la capota de
ventilaci6n. Asegure el ducto de escape a la capota de
venfilaci6n con una abrazadera de 4" (102 mm). Extienda el
ducto de escape a la ubicaci6n de la secadora. Use la vfa
m6s recta posible. Vea "Determinaci6n de la vfa del ducto
de escape" en "Planicaci6n del sistema de venfilaci6n".
Evite giros de 90 °. Use las abrazaderas para sellar todas las
uniones. No use cinta para ductos, tornillos u otros dispositivos
que se extiendan hacia el interior del ducto de escape para
asegurarlo. Los artfculos qua se pagan aio largo dei ducto
pueden atrapar pelusa.
CONEXION DEL DUCTO DE ESCAPE
F'I. Conecfe el ducfo de escape ala salida
de escape
Conexi6n desde la parte
frontal (para cl6set o un 6rea
encerrada)
Conexi6n desde
la parte posterior
Usando una abrazadera de 4" (102 mm), conecte el ducto
de escape a la salida de escape en el centre de lavander[a.
Si se conecta a un ducto de escape existente, asegOrese de
que el mismo est_ Jimpio. El ducto de escape de la secadora
debe encajar sabre Ja salida de aire de Ja secadora y dentro
de la capota de venfilaci6n. Cerci6rese de que el ducto de
escape est_ asegurado a Ja capota de venfiJaci6n con una
abrazadera de 4" (102 ram).
' _. Mueva el centre de lavandeda
a su posici6n final
J_ ........... ,
i
L ........... i
_,,,i .....j
m
Mueva el centre de lavander[a a su posici6n final. Evite aplastar
o retorcer el ducto de escape.

PARA NWELAR EL CENTRO DE LAVANDERiA
Una buena nivelaci6n de su centro de lavanderfa evita ruidos
y vibraciones excesivos.
1. Revise la nivelaci6n del centro
de lavanderia
Verifique la nivelaci6n del centro de lavanderfa colocando
un nivel sobre el borde superior de la lavadora, primero de
lado a lado y luego de frente hacia atr6s. Si el centro de
lavanderfa no est6 nivelado, apuntale el frente del mismo,
usando un bloque de madera y ajuste las patas hacia arriba
o hacia abajo, segOn sea necesario. Retire el bloque de
madera y baje el centro de lavanderfa. Repita este paso
hasta que el centro de lavanderfa quede nivelado.
COMO TERMINAR LA INSTALACION
[] Revise para cercJorarse de que todas las piezas est_n
instaladas. Si hay alguna pieza extra, vuelva a revisar todos
los pasos para vet cu61 se omiti6.
[] Verifique si tiene todas las herramientas.
[] Desh6gase de todos los materiales de embalaje o recfclelos.
Guarde la espuma de pl_stico en el caso de que deba
transportar el centro de lavanderfa.
[] Revise la Iocalizaci6n final del centro de lavanderfa. AsegOrese
de que el ducto de escape no est8 apiastado o retorcido.
[] Cerci6rese de que el centro de iavanderfa est8 niveiado
y las patas niveladoras delanteras estSn ajustadas. Consuite
"Para nivelar el centro de lavanderfa".
[] En los modelos de 240 voltios0 para una instalaci6n con cable
de suministro de energfa, enchufe en el contacto. Para una
instalaci6n con cableado directo, encienda el suministro de
energfa. En los modelos de 120 voltios, conecte a un contacto
de pared de conexi6n a tierra de 3 terminales.
[] Cerci6rese de que est6n abiertos los grifos de agua.
[] Busque si hay fugas alrededor de los grifos y de las mangueras
de entrada.
[] Quite la pelfcula que est6 en la consola y cualquier cinta
adhesJva que haya quedado en el centro de lavanderfa.
[] Vea _Uso de la lavadora" y _Uso de la secadora'.
[] LJmpie el interior del tambor de la secadora meticulosamente
con un pa_o hOmedo para quJtar resJduos de polvo.
[] Para probar la lavadora, mJda 1/2 de la cantJdad normalmente
recomendada de detergente y vJ_rtala en la lavadora. CJerre
la tapa. Seleccione HEAVY DUTY (Lavado pesado) y jale la
perJlla de CONTROL DE CICLOS. Deje que la lavadora termine
un ciclo completo.
[] Para probar la secadora, ajOstela en un ciclo completo
de calor (no en un ciclo de aim) pot 20 minutos y p6ngala
en marcha.
$i la secadora no funciona, revise 1o siguiente:
• Que los controles est_n fljados en una posici6n de
funcJonamiento u _On '_ (EncendJdo).
•Que se ha presionado con firmeza el bot6n de PUSH TO
START DRYER (Empuje para poner en marcha la secadora).
En los modelos de 240 voltJos, que el centro de lavanderfa
est_ enchufado en un contacto y/o el sumJnJstro de energfa
el_ctrJca est_ encendJdo. En los modelos de 120 voltJos_ que
el centro de lavanderfa est6 enchufado en un contacto de
pared de conexJ6n a tJerra de 3 termJnales y/o el sumJnJstro
de energ_a el_ctrJca est_ encendJdo.
Que el fusible de la casa est_ Jntacto y ajustado, o que
no se haya dJsparado el cortacJrcuJtos.
Que la puerta de la secadora est_ cerrada.
[] Cuando la secadora haya estado funcJonando por 5mJnutos,
abra Ja puerta y sJenta sJ hay calor. SJ sJente calor, canceJe
el cJclo y cierre la puerta.
$i no siente el calor, apague la secadora ¥ revise lo siguiente:
•Que los controles est_n fijados en un ciclo con calor, y no
un cJcJo de aJre.
En los modelos de 240 voltJos_ es posible que la secadora
tenga 2 fusJbles o cortacJrcuJtos. AsegOrese de que ambos
fusJbles est_n intactos y ajustados, o de que ambos
cortacJrcuJtos no se hayan dJsparado. SJ aOn asf no sJente
calor, contacte a un t_cnJco calificado.
NOTA: Es posible que sJenta olor cuando la secadora se calJente
por primera vez. Este olor es comOn cuando se usa pot prJmera
vez el elemento de calefacci6n. El olor desaparecer6.
57

USO DE LA LAVADORA
PANEL DE CONTROL Y CARACTERiSTICAS
Modelos de 240 voffios
f
Spi_
Wash Temp Soil Level
Cool Lights Medium
Cool t-_-e _ Light •Heavy
oo. \ wo.m zj
Cold • _[ x_ • Hot
Rinse
Spin
Delicates
Modelos de 120 volfios
f
Heavy
Duty
12
Rinse
Spin
68FF
=_elicates
Rinse
Spin
PUSH TO STOP
Wash Temp Soil Level
Cool Lights Medium
Cool _Light e Heavy
Darks_/,__Warm __"_
Cold e ff_ "_ I_e Hot
WASH =SELECT =DRY
No todas las caracterfsticas y opciones est6n disponibles en todos los modelos.
Ei aspecto puede variar.
J
PUESTA EN MARCHA DE LA LAVADORA
Peligro de Incendio
Nunca co|oque en la lavadora arficulos que est6n
humedecidos con gasolina ocualquier otto
liquido inflamable.
Ninguna lavadora puede eliminar completamente
el aceite.
No seque ning_n articulo que haya tenido alguna vez
cualquier Upo de aceite (incluyendo aceites de cocina).
No seguir estas instrucciones puede ocasionar
la muerte, explosi6n o incendio.
ADVERTENCIA: A fin de reducir el rJesgo de incendio, de choque
el_ctrico o de da_os personales, lea Jas INSTRUCCIONES
IMPORTANTES DE SEGURIDAD antes de operar esta lavadora.
58
La sJguiente es una gufa para poner su lavadora en marcha.
Las consultas perJ6dicas a otras secciones de este manual
proporcionar6n Jnformaci6n m6s detallada.
[] Agregue una canHdad medida de detergente o un paquete
de lavanderfa de una dosJs 6nica dentro de la canasta de la
Javadora antes de agregar las prendas. Si va a usar productos
para realzar eJ lavado tales como OxJ, blanqueador no
decoiorante o crJstales de suavJzante de telas, agr_guelos
al fondo de la canasta de la lavadora tambi_n.
[] Coloque una carga de ropa separada en la lavadora.
*Cargue la lavadora uniformemente para mantener
el equJlibrJo de la misma. Mezcle artfculos grandes
con artfculos peque_os. Vea "C6mo cargar'.
*SJcarga la lavadora de manera apretada, esto puede
[]
[]
causar una limpieza insatisfactoria.
Cierre la tapa de la lavadora.
Gire la perilla de SOIL LEVEL (Nivel
de suciedad) al ajuste apropiado
para Ja carga y el tJpo de teJa que
se van a lavar.
Soil Level
Medium
Light _Heavy

[] FUe ei selector de WASH TEMP (Temp.
de lavado) al ajuste apropiado para
la carga y la suciedad que se van
a lavar. Use la temperatura de agua
m6s caliente que se pueda que no
da_e las telas. Siga las instrucciones
en la etiqueta de la prenda. Todos
los enjuagues son los enjuagues fr[os.
Wash Ternp
Coom Lights
Cool
Cold • II \ \ II o Hot
Temp.
de lavado
Hot (Caliente)
Warm (Tibia)
Cool (Fresca)
Cold (Frfa)
Para usar con
Ropa blanca y de color pastel;
Suciedad profunda
Colores brillantes; Suciedad entre moderada
y ligera
Colores que destJ_en o se opacan;
Suciedad ligera
Colores que desti_en o se opacan;
Suciedad ligera
[] Empuje la perilla de CONTROL DE CICLOS y gfreia en la
direcci6n de las maneciilas deJ reloi hasta el ciclo de lavado
que desee. Jaie la periila de CONTROL DE CICLOS para
poner la lavadora en marcha.
Para detener ovolver aporter en marcha su lavadora:
[] Para detener la iavadora en cualquier momenta, empuje ia
perilla de CONTROL DE CICLOS.
[] Para volver a poner en marcha la lavadora, cierre ia tapa
(si est6 abierta) y jale la perilla de CONTROL DE CICLOS.
CICLOS
Esta secci6n describe los ciclos de
lavado disponibles y le ayudar6
a hacer ias mejores selecciones runs,
para sus cargas de lavado.
Cada ciclo fue disefiado Dut
para distintos tipos de
tela y niveles de suciedad. 1°8
12
[] La lavadora hace una
breve pausa durante cada o_F
ciclo. Estas pausas son
normaies. Vea _'Sonidos Prewas
normales" para los sonidos
que se pueden escuchar durante
un ciclo de lavado.
Spin
PUSH TO STOP
[] Vea "Para comprender los ciclos de la lavadora"
para aprender Io que sucede durante un ciclo de lavado.
Rinse
Spin
DeEcates
Heavy Duty (Lavado intensa)
Use este ciclo para cargas pesadas o con suciedad profunda.
EI lavado combina una veiocidad r6pida de agitaci6n con
velocidades r6pidas de exprimido.
[] SeJeccione el tiempo de agitaci6n del ciclo (8, 10 o 12 minutos);
elUa m6s fiempo para telas pesadas y con suciedad profunda;
elija menos tiempo para telas pesadas y con poca suciedad.
Casua_
El ciclo Casual inciuye un proceso de enfriamiento para la carga,
Io cual evita que se formen arrugas. EI lavado combina una
velocidad lenta y r6pida de agitaci6n con velocidades lentas
de exprimido.
Parciaimente a travSs del ciclo, la lavadora har6 una pausa
durante 2 minutos aproximadamente mientras un poco del agua
de lavado se vacia y se reemplaza con agua de enjuague.
Deffcates (Deffcado)
Use este ciclo para lenceria y tejidos sueltos de punto. Parcialmente
a trav6s del ciclo, la lavadora hace una pausa y remoja la carga
para un cuidado m6s delicado de prendas con suciedad ligera.
El lavado combina una velocidad lenta de agitaci6n para remover
delicadamente la suciedad con velocidades lentas de exprimido
para evitar que se formen arrugas.
Soak (Remojo)
El cicloSoak (Remojo) incJuye4 minutos de agitaci6n seguido
par un tiempo ilimitado de remojo para ayudar a quitar suciedad
profunda y manchas rebeldes que necesiten un pretratamiento.
Usted tendr6 que reajustar la lavadora a un ajuste de Spin
(Exprimido) para quitar el agua.
[] El ciclo Soak deber6 seguirse par el ciclo Heavy Duty (Lavado
intenso), Casual o Prewash (Prelavado), agregando detergente
adicional.
NOTA: No se recomienda usar agua caliente para el remojo.
Es posible que se fijen algunas manchas.
Prewash (Prelavado)
Use este ciclo para obtener hasta 4 minutos de agitaci6n para
ayudar a quitar suciedad profunda y manchas rebeldes que
necesiten un pretratamiento.
[] El ciclo Prewash (Prelavado) deber6 seguirse par el ciclo
Heavy Duty (Lavado intenso) o Casual, agregando detergente
adicional.
ENJUAGUE Y EXPRIMIDO
Cuando se use detergente adicional para ropa con suciedad
profunda, o si se est6 lavando prendas que necesiten un cuidado
especial, se puede necesitar un enjuague y exprimido adicionales.
[] Empuje la perilla de CONTROL DE CICLOS y girela en la
direcci6n de las manecillas del relo] hasta cualquiera de los
ajustes de Rinse (Enjuague).
*Para una agitaci6n y un exprimido r6pidos, use el ciclo
Heavy Duty (Lavado intenso).
*Para una agitaci6n y un exprimido lentos, use el ciclo Casual.
[] File los controles de SOIL LEVEL (Nivel de suciedad) y WASH
TEMP (Temp. de lavado) al ajuste deseado.
[] Jale la perilla de CONTROL DE CICLOS. La lavadora se Ilena
al nivel de la carga seleccionada, agita, desagua y exprime.
DESAGOE Y EXPRIMIDO
Un desag0e y exprimido pueden ayudar a proporcionar un fiempo
de secado m6s corto para algunas telas pesadas o art[culos que
necesiten un cuidado especial al quitar el exceso de agua.
[] Empuje la perilla de CONTROL DE CICLOS y girela en la
direcci6n de las maneciJlas del relo] hasta cualquiera de los
ajustes de Spin (Exprimido).
"Para un exprimido r6pido, use el ciclo Heavy Duty
(Lavado intenso).
"Para un exprimido lento, use el ciclo Casual.
[] Jale la perilla de CONTROL DE CICLOS. La lavadora desagua,
luego exprime.
59

PARA COMPRENDER LOS CICLOS
DE LA LAVADORA
Cuando se flja la perJlla del Control de ciclos en un ciclo y se
jaia hacia afuera, la lavadora se Ilena antes de que comience la
agitaci6n y la medida del tiempo. Inmediatamente despu6s del
Ilenado la lavadora comienza la agitaci6n con la tapa cerrada.
Durante la agitaci6n, el agitador crea
una acci6n continua envolvente que
proporciona una limpieza minuciosa
de la carga de lavado.
Una vez iniciada la agitaci6n, la perilla
de Control de ciclos gira a la derecha
hasta se_aiar la zona Apagado (Off:)
y el ciclo termina.
NOTA: La lavadora hate pausas breves durante cada ciclo. Estas
pausas son normales para ei funcionamiento de la lavadora.
Lavado Enjuague
1. Lienado _ 1. Lienado
2. Tiempo _ 2. Eniuague
de lavado
seleccionado
._ 3. DesagOe _ _ 3. Desag0e
Sin agitaci6n Sin agitaci6n
4. Exprimido _ 4. Exprimido-
Enjuague por rocio
5. Exprimido
_EI ciclo Casual desagua
parciaimente, Ilena, agita
brevemente y desagua L_ 6. Apagado (Off:)
SONIDOS NORMALES
Como ocurre con cualquier producto nuevo_ usted escuchar_
sonidos a los cuales no estc_ acostumbrado. Usted escuchar6
varios sonidos que ocurren durante el proceso de lavado,
enjuague y exprimido. Durante los intervaios entre las etapas
de lavado, habrc_ pausas momentc_neas. Usted escuchar_
el rociado y chapoteo del agua durante los ciclos de lavado
y enjuague. Usted escucharc_ el aire cuando es empuiado
a travSs de la bomba durante el final del desag0e o los
engrana]es que cambian cuando cambia el ciclo. Estos sonidos
forman parte del funcionamiento normal de la lavadora.
CONSEJOS DE LAVANDER|A
Preparaci6n de la ropa para lavar
Siga estas recomendaciones para ayudarle a prolongar la vida
de sus prendas de vestir.
[] Cierre los zfpers, broches de presi6n y corchetes para evitar
que enganchen otros arficulos. Quite alfileres, hebillas y demc_s
objetos duros para evitar que rayen el interior de la lavadora.
Quite todo adorno y ornamento que no sea lavable.
[] Vacfe los boisiilos y vu_lvaios al rev_s.
[] Doble los pu_os y limpie con un cepillo la pelusa y la suciedad.
[] Vuelva al revSs las prendas de tejido sintStico para evitar que
se llenen de pelusas.
[] Ate los cordones y fajas de modo que no se enreden.
[] Remiende Io que est8 roto as{ como las costuras y dobladillos
flojos.
[] Trate las manchas y suciedades.
[] Las prendas manchadas o mojadas deberc_n lavarse
con prontitud para obtener mejores resultados.
Selecci6n de la ropa
[] Separe las prendas con suciedad profunda de las que est_n
ligeramente sucias, aOn cuando 8stas normalmente se lavarfan
juntas. Separe las prendas que sueltan pelusa (toallas, felpilla)
de las que atraen pelusa (pana, arficulos sint6ticos, planchado
permanente). Siempre que sea posible, vuelva al revSs las
prendas que sueitan peiusa.
[] Separe los colores oscuros de los colores claros, los arficulos
no deste_ibles de los que sf Io son.
[] Separe por tipo de teia y estructura (prendas fuertes de
algod6n, tejidos de punto y prendas finas).
COMO CARGAR
Sugerencias para cargar (cargas rn_xlrnas de ropa)
Centro de lavanderia
Ropa de trabajo pesacla
2 pantalones
3camisas de trabajo
Toaffas
9toailas de ba_o o
6toailas de ba_o,
3 toailas de mano
y6toailas faciaies
Casual
6camisas o
2 sc_banas dobles y
2 fundas o
2 sc_banas de individuales y
2 fundas
Carga mixta
1 pantal6n
2 fundas
2 camisas
1 camiseta
Tejidos de punto
2 pantalones y 2 camisas o
3 vestidos
Articulos delicaclos
1 camisola
2 rondos
4piezas de ropa interior
I juego de pijamas
1 enagua
6O

USO DE LA SECADORA
PANEL DE CONTROL Y CARACTERiSTICAS
Modelos de 240 raffias
Modelos de 120 volfios
Push to Start
Dryer
Auto Dry Less_ OFF=._More Auto Dry
Low;,.:.mo,_,,._or_';_HFAT
Airo.,Y_o___ ..%
20- Touch Up
WASH -SELECT -DRY
II0
100
_0
0
TouchUTimed Dry
LID LATCH T
No todas las caracteristicas y opciones est6n disponibles en todos los modeios.
El aspecto puede variar.
61

PUESTA EN MARCHA DE LA SECADORA
Peligro de Explosi6n
Mantenga los materiales y vapores inflarnables, tales
como la gasolina, alejados de la secadora.
No seque ningdn articulo que haya tenido alguna vez
cualquier substancia inflamable (adn despu6s de
lavarlo).
No seguir estas instrucciones puede ocasionar
la muerte, explosi6n o incendio.
ADVERTENCIA: A fin de reducir el riesgo de incendio, de choque
et6ctrico o de da_os personales, lea tas INSTRUCCIONES IMPORTANTES
DE SEGURIDAD antes de operar este electrodom6stico.
Antes de usar su secadora, timpie el interior del tambor con un paso
hOmedo para quitar residuos de potvo que se acumularon durante el
almacenaje y et transporte.
[] Limpie et filtro de pelusa antes de cada
ciclo. Vea %impieza del fittro de pelusa". Push _o S|_r|
[] Coloque ta ropa en la secadora de modo Dryer
suelto y cierre ta puerta. No tlene en exceso
la secadora. Deje suficiente espacio para
que ta ropa rote con libertad.
[] Gire ta peritla de CONTROL DE CICLOS al
ciclo y a ta temperatura recomendados para
el fipo de carga que se va a secar. Vea
"Consejos de secado, ciclos y temperatura'.
[] En los modelos de 120 votfios0 deslice el selector
de WASH/DRY a ta posici6n DRY (secar).
[] Presione el bot6n PUSH TO START DRYER
(Empuie para poner en marcha la secadora).
PARA DETENER Y VOLVER A PONER EN MARCHA
Usted puede detener su secadora en cualquier momento durante un ciclo.
Para detener su secadora
Abra la puerta de la secadora o gire la peritta de CONTROL DE CICLOS
a Off (Apagado).
NOTA: La peritla de CONTROL DE CICLOS debe apuntar hacia el 6rea
de Off (Apagado) cuando la secadora no est6 en uso.
Para volver a poner en marcha su secadora
[] Cierre la puerta.
[] Seleccione un nuevo ciclo y temperatura (si Io desea).
[] Presione el bot6n PUSH TO START DRYER (Empuje para poner
en marcha la secadora).
COMO CARGAR
Cotoque ta ropa en la secadora de modo suetto. No Ilene en exceso
la secadora. Deje suficiente espacio para que la ropa rote con libertad.
El cuadro a continuaci6n ilustra ejemplos de cargas batanceadas que
permitir6n el movimiento de tambor adecuado.
Ropa de traba]o pesada 2 pantatones, 3 camisas de trabaio
Ropa deJicada I camisota, 2 fondos, 4piezas de ropa
interior, 1juego de piyama, 1 enagua
Toaffas 9toatlas de ba_o o 6toallas de ba_o,
3 toatlas de mano, 6toallas faciates
Carcja mixta 2 fundas, 1 camiseta, 2 camisas, 1 pantal6n
Tejidos de punto 2 pantatones, 2 camisas; o 3 vestidos
Planchado 6camisas; o 2 s6banas dobles y 2 fundas;
Permanemte o 2 s6banas de individuates y 2 fundas
62
Peligro de Incendio
Ninguna lavadora puede eliminar completamente
el aceite.
No seque ning_n articulo que haya tenido alguna vez
cualquier tipo de aceite (incluyendo los aceites de
cocina).
Los articulos que contengan espuma, hule o pl_stico
deben secarse en un tendedero o usando un
Ciclo de Aire.
No seguir estas instrucciones puede ocasionar
la muerte o un incendio.
CONSEJOS DE SECADO, CICLOS Y TEMPERATURA
Seteccione el ciclo y la temperatura correctos para su carga de ropa.
Consejos de secado
[] Siga las instrucciones de cuidado de la etiqueta siempre que est6n
disponibtes.
[] Si usa hoias de suavizantes de tejidos, emplee 6nicamente las que
Ilevan etiquetas de "para uso en secadoras'. Siga las instrucciones
det paquete.
[] Quite la carga de ropa de la secadora tan pronto se detenga la
rotaci6n para evitar que las prendas se arruguen. Esto es de singular
importancia para las prendas de planchado permanente, teiidos de
punto y fibras sint6ticas.
Consejos de femperatura y de ciclos
[] Sequela mayorfa de sus cargas usando et ajuste Auto Dry Normal
(Secado autom6tico normal).
[] Use un aiuste de More (M6s) para secar artfculos pesados tales como
toatlas y ropa de trabajo.
[] Use un ajuste de Auto Dry Normal (Secado autom6tico normal) para
secar articulos de peso mediano tales como s6banas, ropa interior,
tetas de planchado permanente y atgunos tejidos de punto.
[] Use un ajuste de Less (Menos) para secar art/cutos de peso liviano
tales como lencerfa, btusas, vestidos y algunos tejidos de punto.
[] Use un ajuste sin cator (Air Only) para artfcutos de goma, de pl6stico
o tetas sensibles al cator.
[] Seque en et tendedero las tetas laminadas o tratadas.
Si tiene duda respecto a la temperatura que debe seleccionar para
una carga de ropa, elija et ajuste m6s bajo en vez del ajuste m6s alto.
NOTA: Si usted tiene preguntas acerca de las temperaturas de secado
para tas diferentes cargas de ropa, refi6rase alas instrucciones en ta
etiqueta de cuidado de las prendas.

CICLOS
Auto A?oL%Dfy . Mo oA ,t £ry
(Secado automatico) Norm=_ _ _ormal
Useestecidoparasecar Motor oss
la mayorfa de sus cargas. 4f' /_ x\
El nivel de secado est6 OFF /f_ _ _'_ --
determinado por termostatos Jl _, _ I) oF_
que reaccionan ata _ \\ "_ "x_j/ r-_
temperatura o la lo\*\ \\ "_ / /=/5o
canfidad de humedad Air Only 2o_/ _ /",,_40
del aJre que sate de zuv "2"/_v " Dry
_s;ee;adoOrina:tuye unpe r,odo OFF _Olu2Up
de enfriamJento de 5mJnutos modelo de 240 vottios itustrado
(aproximadamente) al fin det ciclo para hacer que ta ropa sea m6s f6cil
de manejar y para reducir la formaci6n de arrugas.
Use Auto Dry Normal (Secado autom6fico normal) para secar ta mayoria
de tas telas pesadas a medJanas. AI final de ciclo, asegOrese de que la
ropa est& seca.
[] SJest6 m6s seca de Io que le gustarfa, seleccione un ajuste m6s cerca
de Less (Menos) la pr6xima vez que seque una carga similar.
[] Si la carga no est6 tan seca como a usted te gustarfa, termine el
secado con el ciclo de Timed Dry (Secado programado). La pr6xima
vez que seque una carga sJmJlar_seleccJone un ajuste mBs cerca de
More (M6s).
NOTA: El fiempo de secado con un ciclo autom6fico varfa segOn el
fipo de teta, el tamatio de ta carga y et ajuste de la temperatura. Vea
"Consejos de secado, dclos y temperatura'"
Timed Dry (Secado programado)
Use este dclo para terminar et secado si los arficulos todavfa est6n
h0medos luego del cicto de Auto Dry (Secado autom6fico). Timed Dry
(Secado procjramado) tambi6n es grit para arficulos muy pesados o
votuminosos, tales como cubrecamas, ropa de trabajo y cargas de ropa
voluminosas que requieren un fiempo de secado protongado. Use este
ciclo para obtener hasta 50 minutos de fiempo de secado con calor
(modetos de 240 votfios) o 110 minutos de fiempo de secado con calor
(modetos de 120 votfios). At ciclo con calor le sigue un perfodo de
enfriamiento de 5 minutos (aproximadamente).
Touch Up (Retoque)
Useesteciclo para quitar lasarrugas de ropa timpia de telassint_ticas
o de planchadopermanenteque ha estadoempacada apretadamente en
unavatija o ropero.Esteajusteproporciona20 minutosde rotaci6n con
calor aproximadamentey le sigueun perfodode enfriamientode 5 minutos
(aproximadamente).Quite la ropa tan pronto como terminela rotaci6n.
Air Only (Secado al aire)
Use el ciclo Air Only (Secado al aire) para arffcutos que requieren secado
sin cator, tales como arficutos de goma, pt6sfico y tejidos sensibtes at
cator. Este cuadro muestra ejemplos de artfculos que pueden secarse
usando et cicto Air Only (Secado at aire).
Tipo de cerga Minutos _;
Hule espuma - atmohadas, sostenes 20-30
acotchados, juguetes de peluche
PI6sfico - cortinas de batio, mantetes 20-30
Alfombras con el reverso de goma 40-50
Olefina, potipropileno, nylon di6fano 10-20
_Vuetva a ajustar el fiempo segOn sea necesario para permitir
que los artfculos se sequen completamente.
Siernpre que use Air Only (Secado c=laire)
[] Revise que tas cubiertas tengan buenas costuras.
[] Sacuda y ahueque las atmohadas a mano peri6dicamente durante
el ciclo.
[] Seque los articutos completamente. Las almohadas de hule espuma
tardan en secarse.
Alarma de Fin de Ciclo
La secadora emifir6 una alarma una vez terminado et ciclo de secado. Esta
atarma es gill cuando est_ secando arficulos que necesitan quitarse de la
secadora tan pronto como se detenga para evitar que se formen arrugas.
CUIDADO DEL CENTRO DE LAVANDERJA
LIMPIEZA DEL LUGAR DONDE ESTA DEL CENTRO
DE LAVAN DERJA
Mantenga et 6rea donde est6 la secadora despejada y libre de arffculos
que pudieran obstruir et flu]o de aire para la combusfi6n y la venfitaci6n.
Explosion Hazard
Keep flammable materials and vapors, such as
gasoline, away from dryer,
Failure to do so can result in death, explosion, or fire.
COMO LIMPIAR SU LAVADORA
Limpieza externa
Use un patio o una esponja suave y hOmeda para limpiar cuatquier
derrame, tales como los de detergente o de blanqueador. De vez en
cuando, limpie et exterior de su lavadora para que se vea como nueva.
Limpieza interne
Mantenga su lavadora como limpio y fresco como su ropa. Para
mantener el interior de la tavadora tibre de olores, siga cada rues este
procedimiento de timpieza recomendado a confinuaci6n:
1. AsegOrese de que la lavadora est_ vacia.
2. Usando et timpiador para lavadora affresh _ (se recomienda), cotoque
una pasfitla en ta canasta de lavado
O
Si usando btanqueador con cloro, agregue 1 taza (250 mL) en ta canasta
de lavado.
iMPORTANTE: No agregue detergente. No use m6s de la canfidad
recomendada de btanqueador pare evitar datiar la lavadora con el
fiempo.
3. Cierre la tapa de la lavadora.
4. Seleccione el dclo Heavy Duty (Lavado intenso), temperatura Hot
(Catiente) y nivel de suciedad Heavy (Profundo).
5. Jale ta perilla de dclos. Se verter6 agua en ta lavadora durante
un momento y se har6 una pausa; la tapa se btoquear6 y el dclo
confinuar6.
NOTA: Para obtener los mejores resuttados, no interrumpa et ciclo.
Si debe interrumpirse el ciclo, empuje hacia dentro la perilla de ciclos.
MANGUERAS DE ENTRADA DE AGUA
Reemplace tas mangueras de entrada de agua despu_s de 5atios de
uso para reducir et riesgo de fallas. Inspeccione peri6dicamente y cambie
las mangueras si se hallan protuberancias, torceduras, cortes, desgaste
o p@didas de agua.
Cuando reemplace sus mangueras de entrada de agua, anote la fecha
de reposici6n en ta efiqueta con un marcador permanente.
63

LiMPIEZA DEL FILTRO DE PELUSA
Lirnpleza de cada carga
El filtro de pelusa est6 Iocalizado en la pared posterior de
la secadora. Limpie la pelusa antes de cada carga. Un filtro
obstruido con pelusa puede aumentar el tiempo de secado.
Para limpiar
1. Quite el filtro de pelusa y la tapa.
Para lavar
1. Quite la pelusa enroll6ndola con los dedos.
2. Moje ambos lados del filtro de pelusa con agua caliente.
3. Moje un cepillo de nylon con agua ¢aliente y detergente
Ifquido. Talle el filtro de pelusa con el ¢epillo para quitar
la acumulaci6n de residuos.
2. Separe la tapa y el flltro apretando el filtro y jalando la tapa
al mismo tiempo.
A
A. Filtro
B. Tapa
3. Quite la pelusa enroll6ndola con los dedos. No enjuague o
lave el filtro para quitar la pelusa. La pelusa mojada es diffcil
de quitar.
4. Vuelva a juntar el filtro y la tapa y empOjelos firmemente
hasta que queden en su lugar.
IMPORTANTE:
[] No ponga a funcionar la secadora con el filtro de pelusa
flojo, da_ado, obstruido o ausente. El hacerlo puede causar
un sobrecalentamiento y da_ar tanto la secadora como
las prendas.
[] Sial quitar la pelusa del filtro _sta cae dentro de la
secadora r revise la capota de ventilaci6n y quite la pelusa.
Vea "Requisitos de ventilaci6n'.
Lirnpleza cuando se requlera
Los residuos de detergente y suavizante de telas pueden
acumularse en el filtro de pelusa. Esta acumulaci6n puede dar
lugar a perfodos m6s prolongados de secado de su ropa, o
¢ausar que la secadora se detenga antes de que su ropa est8
¢ompletamente seca. El filtro est6 probablemente obstruido si
la pelusa se cae del mismo.
Limpie el filtro de pelusa (como se indica a continuaci6n)
cada seis meses o con m6s frecuencia si se obstruye debido
a la acumulaci6n de residuos.
64
4. Enjuague el filtro con agua caliente.
5. Seque mJnucJosamente el f]Itro de pelusa con una toaila iimpia.
Vuelva a coiocar el fiitro en ia secadora.
LIMPIEZA DEL INTERIOR DE LA SECADORA
Para llmplar el tambor de la secadora
1. Aplique un producto de limpieza dom6stico Ifquido no
inflamable en el area manchada y frote con un paso suave
hasta quitar todo el tinte en exceso.
2. Limpie el tambor minuciosamente con un paso hOmedo.
3. Seque una ¢arga de pa_os limpios o toallas para secar
el tambor.
NOTA: Las prendas de colores que desti_en tales como mezclillas
o arficulos de algod6n de colores vivos, pueden te_ir el interior de
la secadora. Estas manchas no da_an su secadora ni manchar6n
las cargas futuras de ropa. Seque los artfculos de colores que
desti_en al revSs para evitar la transferencia del tinte.
ELIMINACION DE PELUSA ACUMULADA
En el inferior del gabinete de la secadora
SegOn el uso de la secadora, se debe quitar la pelusa cada
2 a_os, o con m6s frecuencia. La limpieza deber6 efectuarla
una persona calificada.
En el ducto de escape
SegOn el uso de la secadora, se debe quitar la pelusa cada
2 a_os, o con m6s frecuencia.
CUlDADO PARA LAS VACACIONES, EL
ALMACENAJE 0 EN CASO DE MUDANZA
Instale y almacene su centro de lavanderfa en un lugar donde no
se congele. Debido a que queda algo de agua en las mangueras,
la congelaci6n de _sta puede da_ar su centro de lavanderia. Si
va a almacenar o a mover su centro de lavanderia durante una
temporada de invierno riguroso, acondici6nelo para el invierno.
Falta de uso o culdado durante las vacaclones
Ponga a funcionar su centro de lavanderia s61o cuando usted est_
en casa. Siva a salir de vacaciones o no va a usar su ¢entro de
lavanderia por un tiempo prolongado, usted deber6:
[] Desenchufar el centro de lavanderia o desconecte el suministro
de energia.
[] Interrumpir el suministro de agua a la lavadora. Esto ayuda
a evitar inundaciones accidentales (debido a aumentos en
la presi6n del agua) en ausencia suya.
Para acondlclonar su centro de lavanderia para el invlerno
1. Cierre ambos grifos de agua.
2. Desconecte y elimine el agua de las mangueras de entrada
de agua.
3. Vierta un litro (1 L) de anticongelante tipo R.V. en la canasta.
4. Ponga a funcionar la lavadora en un ajuste de desag0e y
exprimido por 30 segundos aproximadamente para mezclar
el anticongelante y el agua.
5. Desenchufe el ¢entro de lavanderia o desconecte el suministro
de energfa.

Para volver a usar el centro de lavander_a
1. Deje correr el agua por los tubos y las mangueras.
2. Vuelva a conectar las mangueras de entrada de agua.
3. Abra ambos grifos de agua.
Peligro de Choque EI6ctrico
Conecte a un eontaeto de pared de eone×i6n a tierra de
3terminales.
No quite la terminal de cone×i6n a tierra.
No use un adaptador,
No use un cable el6ctrico de extensibn,
No seguir estas instrueciones puede ocasionar
la muerte, incendio o ehoque el6ctrico.
4. Enchufe el centro de lavanderfa o vuelva a conectar
el suministro de energfa.
5. Ponga a funcionar la lavadora por un ciclo completo con
1 taza (250 mL) de detergente para limpiar el anticongelante.
Para transportar el centro de lavanderia
1. Cierre ambos grifos de agua.
2. Desconecte y elimine el agua de las mangueras de entrada
de agua.
3. Siva a mover el centro de lavanderfa durante una temporada
de invierno riguroso, coloque un litro (1 L) de anticongelante
tipo R.V. en la canasta. Ponga a funcionar la lavadora en un
ajuste de exprimido por 30 segundos aproximadamente para
mezclar el anticongelante y el agua.
4. Desconecte la manguera de desagOe del sistema de desagOe.
5. Desenchufe el centro de lavanderfa o desconecte el suministro
de energfa. Desconecte el cable si el centro de lavanderfa
est6 conectado por cableado directo (modelo de 240 voltios
solamente).
6. Desconecte el ducto de escape.
7. Lave el filtro de pelusa.
8. Cerci6rese de que las paras niveladoras est6n seguras.
9. Coloque las mangueras de entrada en la canasta.
10. Coloque el anillo de embalaje de hule espuma (quitado
durante la instalaci6n) en la lavadora para estabilizar la tina
de la lavadora durante el transporte del centro de lavanderfa.
11. Cuelgue el cable el6ctrico y la manguera de desagOe sobre
el borde y hacia adentro de la canasta.
12. Use cinta adhesiva para asegurar la tapa de la lavadora
y la puerta de la secadora.
Relnstalaci6n de su cen|ro de lavander_a
1. Siga las "lnstrucciones de instalaci6n" para ubicar, nivelar
y conectar el centro de lavander[a.
2. Ponga en marcha la lavadora en un ciclo completo usando una
taza o una tapa Ilena de detergente para lavarla y para quitar
el anticongelante, de haberlo usado.
65

SOLUC[ON DE PROBLEMAS DE LA LAVADORA
Pruebe primero las soluciones sugeridas aquf para obtener asistencia y posiblemente evitar una visita de servicio.
Si exper[menta
[o s[gu[ente
Causas posib[es So[uc[6n
Verifique Io siguiente Es posible que ias paras no est_n Las paras frontales y posteriores deber6n hacer contacto firme
para la instaiaci6n haciendo contacto firme con el piso. con el piso y la lavadora/secadora deberd_ estar nivelada para
adecuada o vea la funcionar adecuadamente.
secci6n "Uso de la Es posible que la iavadora/secadora
lavadora', no est8 niveiada.
La carga podrfa estar desequiiibrada.
Revise si el piso est6 irregular o hundido. Si el piso no est6 parejo,
el colocar una pieza de madera de 3/4" (19 mm) debajo dei
centro de iavandrfa reducir5 ei sonido.
Vea "Para nivelar el centro de lavanderfa" en [a secci6n de las
Instrucciones de instalaci6n.
Cargue los artfculos secos de modo uniforme en montones
flojos alrededor de la pared de la canasta. El agregar arffculos
mojados o agregar m6s agua a la canasta podrfa causar un
desequilJbrio en la lavadora.
No cargue de manera apretada. Evite lavar un solo artfculo.
Vea "Uso de la lavadora" en este Manual de uso y cuidado.
Chasquidos o ruidos
met61icos
Gorgoteo o zumbido
Zumbido
Obietos atrapados en el sistema
de desagLie de la lavadora.
La lavadora puede estar
desagu6ndose.
La lavadora est6 en el ciclo
de desagLie
Vacfe los bolsillos antes del lavado. Los artfculos sueltos, tales
como monedas, podrfan caer entre la canasta y la tina o
bioquear la bomba. Tal vez sea necesario solJcffar servicio
t_cnico para quffar los arffcuios.
Es normal escuchar el ruido de los artfcuios de metal en las
prendas, tales como broches a presi6n de metal, hebiilas o
cierres cuando tocan la canasta.
Es normal escuchar que la bomba haga un sonido confinuo de
zumbido, con gorgoteos peri6dicos o repentinos, a medida que
salen los O[timos restos de agua durante el ciclo de exprimido.
Cuando Ja iavadora desagua, Ja bomba generar6 un zumbido
confinuo con sonidos de gorgoteo perJ6dicos a medida que se
quffan las 6[timas canfidades de agua. Esto es normal.
Verifique que Io La [avadora no est6 nivelada. Es posible se salpique agua de la canasta si la lavadora no
siguiente est_ instalado est6 nivelada. Verifique que Ja carga no est_ desequiiibrada
adecuadamente: ni se haya cargado apretada.
Las mangueras de [Jenado no est6n Apriete la conexi6n de la manguera de [Jenado.
bien suietas.
Arandelas de la manguera Cerci6rese de que est_n debidamente coJocadas las cuatro
de [Jenado. arandelas planas de las mangueras de Henado.
Conexi6n de la manguera
de desagLie.
Revise Ja plomerfa de Ja casa para
ver si hay fugas o si el fregadero o
el desagiJe est6 obstruido.
Jaie Ja manguera de desagLie de Ja carcasa de Ja lavadora y
asegOrela correctamente ai tubo vertical o fina de lavadero.
No coloque cinta adhesiva sobre la abertura del desagLie.
Es posibJe que el agua se saiga de un lavadero o tubo vertical
bJoqueado. Revise toda la plomerfa de Ja casa y fijese si hay
fugas de agua (finas de iavadero, tubo de desagiJe, tubos de
agua y grifos). J
66

SOLUCI6N DE PROBLEMAS DE LA LAVADORA (cont.)
Pruebe primero las soluciones sugeridas aquf para obtener asistencia y posiblemente evitar una visita de servicio.
Si experimenta
Io siguiente
Verifique que Io
siguiente est_ instalado
adecuadamente: (cont.)
k.
Causas posibles
No se ha cargado la lavadora
segOn io recomendado.
Soluci6n
Una carga desequilibrada puede hacer que la canasta quede
desalineada y que salpique agua fuera de la tina. Vea "Uso
de su lavadora" para ias instrucciones de carga. J
Peligro de Cheque EI6ctrico
Conecte a un contacto de pared de conexibn a tierra de
3terminales.
No quite la terminal de conexi6n a tierra.
No use un adaptador.
No use un cable el6ctrico de extensi6n.
No seguir estas instrucciones puede ocasionar
la muerte, incendio o cheque el6ctrico.
La lavadora no
funciona o no Ilena,
la Javadora se detiene
l!ii ii!i iiiii! !iii@@! ii! iii iiiii iiii!iiiii i i!iiiiIi!ii iiii iiiIi!iiii iii iii Hiii!i iiiiii i!iiiiii! iiii iiiiiiiiiiiiiiiiiiiiiiii iiii i!ii!iiiiiIiii!i!i!iiii iiiiiii! iiiiiii ii!iiii Iiiii iiiiiiiiHi!ii!iiiiii!ii!iiiiiiiiiiiiiiii!i!iii iiiiiii ii ii!iiiiii!ii!i!iiii iii iii i!i!i!iii iii!!iiHiiii!iiiii! iiiiiiiiii iiiiiiii!iiiiiiiiii!iiiii!iii!iii i iiiiiiiiiIiii i¸iiiii!iiiiiii!iiiiiiiii!i!iii!i!iiiiiiiiiiiiiiiiiiiiiii
Verifique si hay el suministro Deber6n sujetarse ambas mangueras y tener flujo de agua
adecuado de agua. a la v61vuia de IJenado.
Verifique que el suministro ei_ctrico
sea el adecuado.
Funcionamiento normal
de la lavadora.
Los grifos de agua frfa y calJente deben estar abiertos.
Revise que los filtros de la v_lvula de entrada no se hayan obstruido.
Revise si hay torceduras en las mangueras de entrada, las cuales
pueden restringir el flujo de agua.
Enchufe en un contacto de conexi6n a fierra o reconecte
el suministro de energfa.
No use un cable el_ctrico de extensi6n.
Cerci6rese de que haya suministro el_ctrico en el contacto.
Reposicione el cortacircuitos sJse ha disparado. Reempiace
los fusibles que se hayan quemado.
NOTA= Si los problemas continOan, contacte a un electricista.
La puerta deber_ estar cerrada para que funcione la lavadora.
La lavadora hat5 una pausa durante ciertas fases del ciclo.
No interrumpa el ciclo.
La lavadora hace girar la carga en seco durante varios minutos
antes de Ilenarse, para determinar si la carga est_ equilibrada.
Es posible que escuche el zumbido de los giros. Esto es normal.
67

SOLUCI6N DE PROBLEMAS DE LA LAVADORA (cont.)
f Pruebe primero las soluciones sugeridas aquf para obtener asistencia y posiblemente evitar una visita de servicio.
Si experimenta
lo sJguienfe
La lavadora no
funciona o no Ilena,
la lavadora se detiene
(cont.)
La lavadora no
desagua/exprime, las
cargas todavfa est6n
mojadas
EI nivel del agua parece
demasiado bajo o la
lavadora parece no
Ilenarse pot completo
Las prendas no est6n
cubiertas de agua pot
completo
Manchas de sequedad
en la carga despu_s
del ciclo
Causas posibles
No se ha cargado la lavadora
segOn Io recomendado.
Es posible que los arffcuios pequeSos
hayan quedado atrapados en la
bomba o entre la canasta y la tina,
Io que puede enientecer el desagLie.
Se utiliz6 un ciclo con una veiocidad
baia de exprimido.
No se ha cargado la lavadora
segOn io recomendado.
Revise la piomerfa para ver si
estd_ instalada correctamente la
manguera de desagLie. La manguera
de desagLie se extiende dentro del
tubo vertical m6s de 4,5" (114 mm).
Hay demasJado detergente,
ocasionando espuma excesiva que
enlentece o defiene ei desagLie y
el expdmido.
La parte superior del agitador est6
mucho m6s alta que el nivel m6s alto
del agua.
Esta Javadora usa bastante menos
agua que las lavadoras tradicionales
de carga superior.
Esta lavadora usa bastante menos
agua que las lavadoras tradicionales
de carga superior.
Los exprJmidos a alta velocidad
quitan mayor humedad que los de
las lavadoras tradicionales de carga
superior.
Soluci6n
Saque varJos artfculos, vuelva a arreglar la carga uniformemente
en Ja canasta, y agregue detergente. CJerre Ja tapa y iale la
periJJa de ciclos para poner la lavadora en marcha.
No agregue m6s de 1 o 2 artfculos adicionales despu_s de que
haya comenzado el ciclo para evitar colocar la ropa apretada
o que se produzca un desequiiJbrio.
Vacfe los boisillos y use boisas para prendas para los arffcuios
pequefios.
Los ciclos con velocidades de exprimido m6s bajas quitan menos
agua que los ciclos con velocidades de exprJmido m6s altas. Use
el cJclo/la velocidad de exprJmido recomendado para la prenda.
Para remover el agua adicional de Ja carga, seJeccione Spin
(Exprimido). Tal vez deba reacomodarse la carga para permitir
una distribuci6n uniforme de la carga en la canasta.
El cargar apretadamente o las cargas desequJlJbradas no
permifir6n que la lavadora exprima correctamente_ deiando
la carga m6s moiada de Io normal. Vea "Uso de la lavadora"
para obtener recomendaciones sobre c6mo cargar.
Revise la manguera de desagLie para vet sJ est6 instalada
correctamente. Use eJ moJde de la manguera de desagLie
y sui_telo bien ai tubo vertical o a la fina. No ponga cinta
adhesiva sobre la abertura del desagLie. Baie la manguera
de desagiJe si el extremo est6 a m6s de 96" (2,4 m) par
encima del piso. Quite Io que est_ obstruyendo la manguera
de desagLie.
Mida siempre el detergente y siga las Jnstrucciones dei mismo
para su carga. Para quitar el exceso de espuma, seleccione Rinse
& Spin (Enjuague & expdmido). No agregue detergente.
Esto es normal yes necesario para que la ropa se mueva
Hbremente.
Es posible que las prendas no est_n cubiertas de agua
pot compJeto.
Lave una cargam6s pequefia.
Las altas velocidades de exprJmido, combinadas con el fluio
de aire durante el exprJmido final, pueden hacer que partes
de los arffculos que est6n cerca de la parte superior de la carga
se sequen durante el exprimido final. Esto es normal. J
68

f
SOLUCI6N DE PROBLEMAS DE LA LAVADORA (cont.)
Pruebe primero las soluciones sugeridas aquf para obtener asistencia y posiblemente evitar una visita de servicio,
Si exper[menta Causos pos[bies Soiuci6n
[o siguJente
Temperaturas incorrectas
o equivocadas de lavado
o enjuague
Verifique si hay el suministro
adecuado de agua.
La carga no est6
enjuagada
Temperaturas de lavado con control
de ahorro de energfa.
Hay arena, peJo de
mascotas, pelusa, etc.
en la carga despu_s
del lavado
La carga est6
enredada
Verifique si hay el suministro
adecuado de agua.
Se est6 usando demasiado
detergente.
No se ha cargado la lavadora
segOn Io recomendado.
La arena, pelo de mascotas,
pelusa o los restos de detergente
o blanqueador excesivos pueden
requerir enjuague adicional.
No se ha cargado la lavadora
segOn Io recomendado.
Verifique de que no est_n invertidas [as mangueras de entrada
de agua caliente y agua frfa.
Ambas mangueras deber6n sujetarse a la lavadora y al grifo,
y deber6n tenet flujo de agua caliente y frfa a la v61vula
de entrada.
Revise que los filtros de la v61vula de entrada no est_n obstruidos.
Enderece las torceduras que pueda haber en las mangueras.
Esta lavadora usa temperaturas de agua y enjuague m6s frfas
que su lavadora anterior. Esto incluye lavados con agua no tan
tibia ni tan caliente.
Verifique de que no est_n invertidas las mangueras de entrada
de agua caliente y agua frfa.
Deber6n sujetarse ambas mangueras y tener flujo de agua
a la v61vula de Henado.
Deber6n estar abiertos los grifos de agua frfa y caliente.
Es posible que est6n obstruidos los filtros de la v61vula
de entrada en la lavadora.
Enderece las torceduras que pueda haber en la manguera
de entrada.
Es posible que la espuma ocasJonada par usar mucho detergente
impida que la lavadora funcione correctamente. Mida siempre
el detergente y sJga las JnstruccJones del mismo segOn el tamaffo
de la carga y el nivel de suciedad.
La lavadora es menos eficaz en el enjuague cuando la carga
est6 apretada.
Cargue las prendas de modo uniforme en montones flojos
alrededor de la pared de la canasta.
La lavadora no enjuagar6 bien si la carga est6 apretada.
Cargue solamente con artfculos secos.
Use el ciclo dise_ado para las telas que se van a lavar.
Agregue solamente 1o 2 artfculos despu_s de que haya
comenzado ia lavadora.
Aumente el ajuste de Soil Level (Nivel de suciedad).
Yea la secci6n "Uso de la iavadora'.
Seleccione un ciclo con una acci6n de lavado y velocidad
de exprimido m6s lenta; los arficulos estar6n m6s mojados
que aquSIIos que usan un exprimido a velocidad m6s alta.
Cargue las prendas de modo uniforme en montones flojos
alrededor de ia pared de ia canasta.
Reduzca los enredos mezclando diferentes tipos de arficulos
en Ja carga. Use el cicJo recomendado para el fipo de prendas
que se van a lavar. J
69

SOLUCI6N DE PROBLEMAS DE LA LAVADORA (cont.)
fPruebe primero las soluciones sugeridas aquf para obtener asistencia y posiblemente evitar una visita de servicio.
Si exper[menta
[o sJguJente
No limpia ni quita
las manchas
Causas posibles Soluci6n
No se ha cargado la lavadora
segOn io recomendado.
Agregado de detergente
sobre ia carga.
Se est6 usando demasiado
detergente.
No est6 usando el ciclo correcto
para el tipo de tela.
La lavadora es menos eficaz en el enjuague cuando [a carga
est6 apretada.
Cargue [as prendas de modo uniforme en montones flojos
aJrededor de Ja pared de la canasta. Cargue solamente
con arficu[os secos.
Agregue soiamente I o 2 artfculos despu_s de que haya
comenzado ia iavadora.
Agregue el detergente, los productos OxJ y el blanqueador no
decoiorante al fondo de la canasta antes de poner las prendas
en la misma.
Es posible que la espuma ocasionada por usar mucho
detergente impida que la lavadora funcione correctamente.
Mida siempre el detergente y siga las Jnstrucciones del
fabricante segOn el tamaffo de [a carga y el nivel de suciedad.
Use una opci6n de ciclo con nivel de suciedad m6s alto y
temperatura de lavado m6s caliente para meiorar la [impieza.
Use el cicloHeavy Duty (Lavado intenso) para una [Jmpieza
intensa.
No est6 lavando los colores Lave los colores similares juntos y quite la carga inmediatamente
similares juntos, despu_s de que se termine el cicIo, para evitar la transferencia
de tJnte.
Daffos en las telas Habfa objetos filosos en los bolsillos Vacfe los bolsillos, cierre los zfpers, los broches de presi6n y los
durante el ciclo de lavado, corchetes antes del lavado para evJtar enganches y rasgaduras.
Es posibie que se hayan enredado Ate todos los cordones y las fajas antes de comenzar a lavar
los cordones y Jas fajas. [a carga.
Los arficulos pueden haberse daffado Remiende [o que est_ roto y descosido antes del lavado.
antes del lavado.
O[ores
No se dJsuelve el
paquete de detergente
de lavanderfa de una
dosis 6nica
SJ la carga est6 apretada, las teJas
pueden daffarse.
El blanqueador ffquido con
cloro puede haberse agregado
incorrectamente.
Tal vez no se hayan seguido
las instrucciones de las efiquetas
de las prendas.
No se ha hecho el mantenimiento
mensual segOn io recomendado.
Se est6 usando demasiado
detergente.
Se est6 agregando el paquete
de detergente de lavander[a
de modo incorrecto.
Cargue [as prendas de modo uniforme en montones flojos
alrededor de la pared de la canasta. Cargue solamente
con arficulos secos.
Use el ciclo dise_ado para las telas que se van a lavar.
Agregue soJamente 1 6 2 artfcu[os despu_s de que haya
comenzado la lavadora.
No vierta el blanqueador Ifquido con cloro directamente
en [a carga. Limpie los derrames del blanqueador.
El blanqueador no diluido daffa los tejidos. No use m6s
de [o recomendado por el fabricante.
Lea y siga sJempre las Jnstrucciones de la etJqueta de cuidado
proporcionadas por el fabricante de la prenda.
Vea "C6mo iimpiar su secadora" en "Cuidado del centro
de iavander[a".
Descargue la lavadora en cuanto termine el ciclo.
Cerci6rese de medirlo correctamente. Siga siempre
las indicaciones del fabricante.
Cerci6rese de que el paquete de detergente de lavander[a
se agregue a Ja canasta de la lavadora antes de agregar las
prendas. Siga las instrucciones del fabricante para evJtar que
se da_en las prendas. J
7O

SOLUCI6N DE PROBLEMAS DE LA SECADORA
Pruebe primero las soluciones sugeridas aquf para obtener asistencia y posiblemente evitar una visita de servicio.
Si experirnenta
Io siguiente
Causas posibles Soluci6n
Fiitro de pelusa obstruido con pelusa.
Se ha seleccionado un ciclo Air Only
(Secado ai aire).
La carga es demasiado voluminosa
y pesada para secarse con rapidez.
EI ducto de escape o la capota
de venfilaci6n exterior est6 obstruido
con pelusa, restringiendo el flujo
del aire.
Las prendas no se El filtro de pelusa debe ser limpiado antes de cada carga.
secan satisfactoriamente Seleccione el ciclo correcto para el fipo de prendas que se van
o los tiempos de secado
son demasiado largos a secar.
Separe la carga de modo que pueda rotar libremente.
Ponga a funcionar la secadora unos 5 a 10 minutos. Ponga su
mano debajo de la capota de ventilaci6n exterior para verificar
el movimiento del aire. Si no Io siente, limpie la peiusa del
sistema de venfiiaci6n o reempJace el ducto de escape con uno
de metal pesado o de metal flexible. AsegOrese de que el ducto
de escape no est_ apJastado ni retorcido. Vea las Instrucciones
de instaiaci6n.
Las hojas del suavizante de telas Use Onicamente una hoja de suavizante de telas y Osela
est6n bloqueando la rejilla, una sola vez.
EI ducto de escape no tiene Controle el ducto de escape para verificar que no sea
el largo correcto, demasiado largo o no d8 demasiadas vueltas. Una ventilaci6n
larga aumentar6 el tiempo de secado. AsegOrese de que el ducto
de escape no est8 aplastado ni retorcido. Vea las Instrucciones
de instalaci6n.
EI di6metro del ducto de escape Use un material de ventilaci6n de 4" (102 mm) de di6metro.
no es del tama_o correcto.
La secadora est6 ubicada en una Ei funcionamiento apropiado de los ciclos de la secadora
habitaci6n cuya temperatura est6 requiere temperaturas superiores a 45°F (7°C).
por debajo de 45°F (7°C).
La secadora est6 ubicada en un cl6set Las puertas del armario deben tenet aberturas de ventilaci6n
sin ia apertura adecuada, en la parte superior e inferior de la puerta. La parte anterior
de la secadora necesita un mfnimo de 1" (25 mm) de espacio y,
para la mayorfa de las instalaciones, la parte posterior necesita
5" (127 mm). Vea las Instrucciones de instalaci6n.
La secadora no funciona La puerta no est6 cerrada pot completo. Cerci6rese de que la puerta de la secadora est8 bien cerrada.
No se presion6 por suficiente tiempo Optima y sostenga el bot6n PUSH TO START DRYER (Empuje
o con firmeza el bot6n PUSH TO START para poner en marcha la secadora) hasta que oyes el movimiento
DRYER (Empuje para poner en marcha del tambor de la secadora.
la secadora).
Hay un fusible de la casa fundido Algunas secadoras el_ctricas utilJzan 2 fusibles o cortacircuitos
o se dispar6 el cortacircuitos, dom_sficos. El tambor quiz6s rote pero sin calor. Reempiace
ambos los fusibles o reposicione el cortacircuitos. Si el problema
continOa, Ilame a un electricista.
Fuente de suministro el_ctrico Las secadoras el_ctricas de 240 voltios requieren un suministro
incorrecta, el_ctrico de 240 volfios. Verifique con un electricista calificado.
Tipo de fusible equivocada. Utiiice un fusible de acci6n retardada.
Sonidos raros La secadora no se utiliz6 por cierto Si la secadora ha estado en desuso por una temporada,
fiempo, podr6 ofrse un ruido de golpeteo durante los primeros minutos
de funcionamiento.
Una moneda, bot6n o sujetapapeles Revise los bordes frontales y posteriores del tambor para verificar
atrapado entre el tambor y Ja parte si hay objetos peque_os. Limpie los bolsJJJos antes del lavado.
frontal o trasera de Ja secadora.
Las cuatro paras no est6n instaladas La secadora puede vibrar si no est6 instalada adecuadamente.
o la secadora no est6n nivelada de Vea las Jnstrucciones de instalaci6n.
frente hacia atr6s y de lado a lado.
71

SOLUCI6N DE PROBLEMAS DE LA SECADORA (cont.)
Pruebe primero las soluciones sugeridas aquf para obtener asistencia y posiblemente evitar una visita de servicio.
Si experimenta
Io siguiente Causas posibles Soluci6n
Sonidos raros (cont.) La ropa est6 enredada o hecha Si la carga est6 hecha un ovillo, _sta rebotar6 haciendo
un ovJllo, vibrar a la secadora. Separe los arficuios de la carga y reinicie
la secadora.
Sin calor Hay un fusible de la casa fundido El tambor quiz6s rote pero sin calor. Algunas secadoras elSctricas
o se dispar6 el cortacircuitos, utilizan 2 fusibles o cortacircuitos domSsticos. Reemplace el
fusible o reposicione el cortacircuitos. Si el problema continOa0
ilame a un electricista.
Fuente de suministro elSctrico Las secadoras el_ctricas de 240 voltios requieren un suministro
incorrecta, elSctrico de 240 voltios. Verifique con un electricista calificado.
EI tiempo del ciclo EI ciclo autom6tico termina Quiz6s la carga no est6 haciendo contacto con las bandas
es demasiado corto muy r6pido, dei sensor. Nivele ia secadora.
El filtro de peiusa est6 obstruido.
No se us6 de modo apropiado
el suavizante de telas para
secadoras.
Pelusa en ia carga
Manchas en la carga
o en ei tambor
Use Timed Drying (Secado programado) para cargas muy
peque_as. Cambie el ajuste del nivel de secado en los ciclos
Automatic Dry (Secado autom6tico).
Aumentar o disminuir el nivel de secado cambiar6 la cantidad
de tiempo de secado en un ciclo.
Las cargas est6n No se quit6 la carga de ia secadora
arrugadas al terminar el ciclo.
Se sobrecarg6 la secadora.
OIores Pint6, ti_6 o barniz6 recientemente
en el 6rea donde se encuentra
su secadora.
La secadora eiSctrica se est6 usando Ei nuevo elemento calefactor el_ctrico puede emitir un olor.
por primera vez. Ei olor desaparecer6 despuSs del primer ciclo.
Los artfculos de lavado se quitaron
de la secadora antes del final del
ciclo.
La carga est6 demasiado
caliente
Un ciclo con temperatura alta
se ha usado.
Ei filtro de pelusa debe ser iimpiado antes de cada carga.
Agregue las hojas del suavizante de telas para secadora
al comienzo del ciclo. Las hojas del suavizante de telas que
se agregan a una carga parcialmente seca pueden manchar
las prendas.
Las manchas en el tambor son causadas pot los tintes en las
prendas (habitualmente los pantalones de mezclilla). Estas no se
transferirSn aotras prendas.
Quite inmediatamente ia carga al final del ciclo para evitar
arrugas.
Seque cargas menos voluminosas que puedan rotar con iibertad
para reducir la ocasi6n de la formaci6n de las arrugas.
Si es asf0 ventile el 6rea. Cuando los olores y el humo se hayan
ido del 5tea0 vuelva a lavar la ropa y luego sSquela.
Deie que termine el ciclo de Cool Down (Enfriamiento) antes de
quitar las prendas de la secadora. La carga se enfrfa lentamente
en todos los ciclos para reducir las arrugas y hacer que la carga
sea m6s f6cil de manipular0 Es posibie que los arficulos que se
han quitado antes dei Cool Down (Enfriamiento) queden muy
calientes al tacto.
Seieccione una temperatura m6s baia (en algunos modeios) y
use un ciclo de secado autom6tico. Estos ciclos detectan el nivel
de humedad en la carga y se apagan cuando la carga alcanza
el grado de sequedad seleccionado. Esto reduce el exceso de
secado, j
72

CONTRATOS DE PROTECCION
Confreres maestros de profecci6n
iFelicitaciones per su inteligente adquisici6n! Su nuevo producto
Kenmore ® esta dise_ado y fabricado para proporcionarle a_os de
funcionamiento confiable.
Pero al igual que todos los productos, puede necesitar
mantenimiento preventive o reparaci6n de vez en cuando. Es allf
donde el Contrato maestro de protecci6n puede ahorrarle dinero
e inconvenientes.
El Contrato maestro de protecci6n tambiBn ayuda a prolonger
la vida de su nuevo producto. He aquf Io que se incluye en el
Contrato_:
Piezas y mane de ebre necesarias para ayudar a mantener los
productos funcionando correctamente bejo use normal, no s61o
en case de defectos. Nuestra cobertura va touche m_s ell6 de
le geranfie del preducto. No existen deducibles ni fallas de
funcionamiento que estBn excluidas de la cobertura -pretecci6n
verdadere.
Servicio experte acargo de un personal de m6s de 10.000
t_cnices de servicie eutorizedos per Sears, Io que significa que su
producto sera reparado per alguien en quien usted puede contqar.
Llemedes de servicie ilimitedo y servicio en redo el peis, con
la frecuencia que usted desee, cuando usted desee.
- reempleze de su producte protegido si ocurren cuatro fallas
o m6s del producto en el transcurso de dote meses.
Reemplazo del producto si su producto protegido no puede ser
reparado.
Revisi6n enual de mentenirniente preventive a solicitud suya -
sin costo adicional.
Ayude r6pide per tel(_fene -Io que nosotros Ilamamos Seluci6n
r6pide -apoyo per tel_fono a cargo de un representante de
Sears para todos los productos. Piense en nosotros come si
fuBramos un "manual parlante pare el propietario'.
Pretecci6n per sebreveltaje contra da_os el_ctricos debido a
fluctuacJones de electricidad.
Reembolso de la rente si la reparaci6n de su producto protegido
tarda m6s de Io prometido.
Descuento del 25% sobre el precio comOn per el servicio de
reparaci6n que no est_ cubierto, asf come tambi6n las piezas
relacionadas con el mismo que se hayan instalado.
Una vez adquirido el Contrato, tan s61o tiene que Ilamar para fijar
la visita de servicio t_cnico. Usted puede Ilamar a cualquier hera,
de dfa o de noche, o fijar una visita t6cnica en Internet.
El Contrato maestro de protecci6n es una compra sin riesgo. Si per
algOn motive usted Io cancela durante el periodo de la garantia
del producto, le proveeremos un reembolso total. O un reembolso
proporcional en cualquier memento posterior a la expiraci6n del
periodo de la garantia, iAdquiera hey su Contrato maestro de
protecci6n! Se eplican algunes limitaciones y exclusienes. Pare
informerse sebre los precies yebtener infermeci6n edicionel, en
los EE.UU. Ilame el 1=800=827=6655. _Le ceberture en Caned6
veHe pare algunos arffculos. Pare ebtener los detalles completes,
flame a Seers Canada el 1=800=361=6665.
Servlclo de instalaci6n de Sears
Para la instalaci6n profesional de Sears de aparatos
electrodom_sticos, abridores de puertas de garaje, calentadores
de agua y otros articulos principales del hogar, en los EE.UU. o en
Canada, flame a 1-800=4=MY=HOME ®.
GARANTiA DE LOS ELECTRODOM_:STICOS DE KENMORE
GARANTJA LIMITADA DE KENMORE
DURANTE UN A_IO a partir de la fecha de venta de este
electrodom_stico, el aparato posee garantia centre defectos en
los materiales o en la mane de obra cuando se instale, opere y
mantenga correctamente de acuerdo con todas las instrucciones
provistas.
CON EL COMPROBANTE DE VENTA, un electrodom_stico
defectuoso recibir6 la reparaci6n o sustituci6n gratuita, a discreci6n
del vendedon
Pare obtener detalles de la cobertura de la garanfia sobre
reparaciones y repuestos sin cargo, visite la p6gina web:
www.kenmore.com/wa rranty.
Esta garanfia es v61ida solamente durante 90 DiAS a partir de la
fecha de venta en los Estados Unidos, y no tiene validez en Canada,
si este electrodom_stico se utilize en alg0n memento
para fines que no sean dom_sticos.
Esfa garanfia cubre SOLAMENTE los defecfos de materlal
y mane de obra, y NO pager6 per:
1. Los articulos no reutilizables que puedan gastarse con el use
normal, incluyendo, pero sin limitaci6n, filtros, correas, bolsas
y bombillas de luz con rosca en la base.
'2. Un t_cnico de servicio pare limpiar o mantener este
electrodom_stico o pare ense_arle al usuario la correcta
instalaci6n, use y mantenimiento de este.
3. Visitas del servicio t_cnico para corregir la instalaci6n
del electrodom_stico la cual no fue realizada per agentes
autorizados del servicio t_cnico de Sears, o para reparar
problemas con fusibles dom6sticos, cortacircuitos, cableado de la
casa y plomeria o sistemas de suministro de gas que resulten de
tel instalaci6n.
4. Da_os o fallas en el electrodom_stico que resulten de la
instalaci6n la cual no fue realizada per agentes autorizados de
servicio t_cnico de Sears, Io que incluye instalaciones que no se
realizaron de acuerdo con los c6digos el_ctricos, de gas o de
plomeda.
5. Da_os o fallas en el electrodom_stico, Io que incluye decoloraci6n
u 6xido en la superficie, si no se hizo un use y mantenimiento
correcto de acuerdo con todas las instrucciones provistas.
6. Da_os o fallas en el electrodom_stico, Io que incluye
decoloraci6n u 6xido en la superficie come consecuencia de un
accidente, alteraci6n, abuse, use indebido o un use diferente de
aqu_l para el cual fue dise_ado.
7. Da_os o fallas en el electrodom_stico Io que incluye decoloraci6n
u 6xido en la superficie causados per el use de detergentes,
limpiadores, productos quimicos o utensilios diferentes de
los recomendados en todas las instrucciones provistas con el
prod ucto.
8. Da_os o fallas en piezas o sistemas come resultado de
modificaciones no autorizadas que se hayan efectuado en este
electrodom_stico.
9. Servicio t_cnico a un electrodom_stico si la placa de modelo y
n0mero de serie falta, est6 alterada o no puede determinarse con
facilidad el Iogotipo de certificaci6n correspondiente.
EXCLUSI6N DE GARANTJASIMPLJCITAS;LIMITACI6N
DE RECURSOS
El Onico y exclusive recurso del cliente segOn los t_rminos de esta
garanfia limitada ser6 el de reparar o sustituir el producto segOn
se estipula en la presente. Las garanfias implicitas, incluyendo
las garanfias de comerciabilidad o de capacidad para un
prop6sito particular, ser6n limitadas a un a_o o al pedodo m6s
corto permitido per ley. El vendedor no se har6 responsable per
defies incidentales o consecuentes. Algunos estados y provincias
no permiten la exclusi6n o limitaci6n de da_os incidentales o
consecuentes, la limitaci6n acerca de cu6nto debe durar una
garanfia implicita de comerciabilidad o capacidad, de mode
que las limitaciones o exclusiones arriba mencionadas pueden
no aplicarse en su case.
Esta garanfia se aplica s61o mientras este electrodom_stico
se usa en los Estados Unidos o Canad6 _.
Esta garantia le otorga derechos legales especfficos, y es posible
que usted tenga tambi_n otros derechos, los cuales varian de un
estado a otro.
El servicio de reparaci6n a domicilio no est6 disponible para
redes las areas de Canada y esta garantia no cubrir6 los gastos
de transporte o traslado del usuario o t_cnico de servicio si el
producto se encuentra ubicado en un lugar remote (de acuerdo con
la definici6n de Sears Canada Inc.) donde no haya un t_cnico de
servicio autorizado.
Seers Brands Management Corporation
Hoffmen Estates, IL 60179 U.S.A.
Sears Canada inc.
Toronto,Ontario, Canada M5B 2C3 10/2014
73

TABLE DES MATIERES
S CURIT DELALAVEUSE/S CHEUSE............................75
iNSTRUCTiONS POUR L'INSTALLATION .......................... 77
Outillacje et pi_ces ........................................................... 77
Autres pi_ces ..................................................................... 78
Exigences d_emplacement ............................................... 78
Syst_me de vidange ......................................................... 79
Specifications _lectriques - modules de 240 volts ..... 79
SpScifications 8iectriques - modSies de 120 volts ...... 80
Exigences concernant i'Svacuation ................................. 81
Installation des pieds de nivellement .............................. 82
Eniever i'embaiiage en mousse ....................................... 82
Raccordement du tuyau de vidange ............................... 82
Raccordement des tuyaux d'arrivSe d'eau .................... 83
Immobilisation du tuyau de vidange ............................. 84
Planification du systSme d'_vacuation ........................... 85
Installation du conduit d'Svacuation .............................. 86
Raccordement du conduit d'Svacuation ........................ 86
Niveilement du centre de buanderie ............................. 87
Achever i'installation ........................................................ 87
UTILISATION DE LA LAVEUSE ............................................. 88
Tableau de commande et caract_ristiques ................... 88
Pour mettre en marche ia iaveuse .................................. 88
Procjrammes ....................................................................... 89
Rin_:age et essorage ......................................................... 89
Vidange et essorage ........................................................ 89
ComprShension des programmes de iavage ................ 90
Sons normaux .................................................................... 90
CONSEILS DE LESSIVE .......................................................... 90
Chargement ....................................................................... 90
UTILISATION DE LA SECHEUSE ............................................ 91
Tableau de commandeet caract_ristiques .................... 91
Pour mettre en marche ia s_cheuse ................................ 92
Pour arrSter et remettre en marche ia s_cheuse ........... 92
Chargement ........................................................................ 92
Conseiis de sSchage0 de programmes
et de tempSrature .............................................................. 92
Programmes ........................................................................ 93
ENTRETIEN DU CENTRE DE BUANDERIE ........................... 93
Nettoyacje de I'emplacement du centre
de buanderJe ...................................................................... 93
Nettoyacje de la laveuse .................................................. 93
Tuyaux d'arriv_e d'eau ..................................................... 93
Nettoyacje du filtre & charpie ......................................... 94
Nettoyacje de i'int_rieur de ia s_cheuse ........................ 94
Retirer la charpie accumui_e .......................................... 94
Precautions & prendre avant les vacances0
un entreposacje ou un d_m_nacjement .......................... 94
DEPANNAGE -- LAVEUSE ................................................... 96
DEPANNAGE -- SECHEUSE .............................................. 102
CONTRATS DE PROTECTION ............................................ 104
GARANTIE ............................................................................. 104
NUMEROS DE SERVICE ........................... Couverture arri_re
74

SECURITE DE LA LAVEUSE/SECHEUSE
Votre s@curit@ et celle des autres est tr@s importante.
Nous donnons de nombreux messages de securit6 importants dans ce manuel et sur votre appareil m6nager. Assurez-vous de
toujours lire tousles messages de s6curit6 et de vous y conformer.
Voici le symbole d'alerte de s6curit6.
Ce symbole d'alerte de s6curit_ vous signale les dangers potentiels de d6c_s et de blessures graves & vous
et & d'autres.
Tousles messages de securit6 suivront le symbole d'alerte de s6curit6 et le mot "DANGER" ou
"AVERTISSEMENT". Ces roots signifient :
Risque possible de d_c_s ou de blessure grave si vous ne
suivez pas imm_diatement les instructions.
Risque possible de d_c_s ou de blessure grave si vous
ne suivez pas les instructions.
Tousles messages de s6curit_ vous diront quel est le danger potentiel et vous disent comment r6duire le risque de blessure et
ce qui peut se produire en cas de non-respect des instructions.
AVERT|SSEM ENT - ,,.i...o d,i.oo.di ,,
- L'installation de la s_cheuse _ linge doit _tre effectu@e par un installateur qualifi_.
- installer la s6cheuse conform_rnent au× instructions du fabricant et au× codes Iocau×.
-Ne pas installer de s@cheuse _ linge avec des rnat6riau× d'@vacuation en plastique
souple ou un conduit rn@tallique souple (de type papier d'aluminiurn). Si un conduit
mq_tallique souple est install6, celui-ci dolt @tre d'un type sp6cifique identifi6 par le
fabricant de I'appareil et convenir aune utilisation avec les s6cheuses _linge. Les
mat6riaux d'_vacuation souples sont connus pour s'affaisser, _tre facilernent 6cras6s
et bloquer la charpie. Ces situations obstrueront le d6bit d'air de ia s_cheuse alinge et
augrnenteront le risque d'incendie.
- Pour r@duire le risque de blessure grave ou de d@c@s, suivre toutes
les instructions d'installation.
-Conserver ces instructions.
75

IMPORTANTES INSTRUCTIONS DE S¢:CURITE
AVERTiSSEMENT " Pour r6duire les risques d'incendie, de choc 61ectrique ou de blessures Iors de I'utilisation de
la laveuseis6cheuse, suivre les pr6cautions fondamentales dont les suivantes :
[] Lire toutes les instructions avant d'utiliser la
laveuse/s6cheuse.
[] Ne pas placer des articles expos6s aux huiles de cuisson
darts votre secheuse. Les articles contamin6s par des huiles
de cuisson peuvent contribuer & une r6action chimique qui
pourrait causer #,la charge de s'enflammer.
[] Ne pas faire laver ou s6cher des articles qui ont 6t6 nettoy6s
ou lav6s avec de I'essence ou imbib6s d'essence, solvants
de nettoyage & sec, ou autres substances inflammables ou
explosives; ces substances peuvent 6mettre des vapeurs
susceptibles de s'enflammer ou d'exploser.
[] Ne pas ajouter d'essence, solvant de nettoyage #. sec ou
autre produit inflammable ou explosif dans I'eau de lavage.
Ces substances peuvent 6mettre des vapeurs susceptibles
de s'enflammer ou d'exploser.
[] Ne pas laisser des enfants jouer sur ou & I'int6rieur de la
laveuse/s6cheuse. Bien surveiller les enfants Iorsque la
laveuse/s6cheuse est utilis6e & proximite d'enfants.
[] Avant de mettre la laveuse/s6cheuse au rebut ou hors de
service, enlever la porte ou le couvercle.
[] Ne pas tenter d'atteindre un article & I'int6rieur de la cuve de
la laveuse/s6cheuse Iorsque le tambour, la cuve ou
I'agitateur est en mouvement.
[] Ne pas installer ou remiser cette laveuse/s6cheuse & un
endroit oQ erie serait expos6e aux intemp6ries.
[] Ne pas modifier les organes de commande.
[] Nettoyer le filtre & charpie avant et apr_s chaque charge.
[] Dans certaines conditions, de I'hydrog6ne gazeux peut se
former dans un circuit d'eau chaude qui n'a pas 6te utilis6
pendant 2 semaines ou plus. LE GAZ HYDROGENE EST
EXPLOSIBLE. Si le circuit d'eau chaude n'a pas et6 utilis6
pendant une telle p6riode, avant d'utiliser la laveuse/
secheuse, ouvrir tous les robinets d'eau chaude et laisser
I'eau s'6couler pendant plusieurs minutes par chaque
robinet. Ceci permettra 1'6vacuation de I'hydrogene gazeux
accumul& Comme ce gaz est inflammable, ne pas fumer
ou utiliser une flamme nue au cours de cette periode.
[] Ne pas reparer ou remplacer un composant quelconque de
la laveuse/s6cheuse, ni entreprendre une op6ration de
service, si ce n'est sp6cifiquement recommand6 dans ce
manuel ou dans un manuel d'instructions de r6parations
destin6 & I'utilisateur; il est alors essentiel que la personne
concern6e comprenne ces instructions et soit comp6tente
pour les ex6cuter.
[] Ne pas utiliser un produit assouplissant de tissu ou des
produits pour 61iminer la statique & moins qu'ils ne soient
recommandes par le fabricant du produit assouplissant de
tissu ou du produit.
[] Ne pas utiliser la chaleur pour faire secher des articles
fabriqu6s avec du caoutchouc mousse ou des mat6riaux
semblables.
[] Ne pas laisser la charpie, la poussiere, ou la salet6
s'accumuler autour du systeme d'evacuation ou autour de
I'appareil.
[] Un nettoyage p6riodique de I'int6rieur de la secheuse et du
conduit d'6vacuation dolt 6tre effectue par une personne
qualifi6e.
[] Voir la section "Sp6cifications 61ectriques" dans les
instructions d'installation pour les instructions de mise & la
term.
CONSERVEZ CES INSTRUCTIONS
Avertissements de la proposition 65 de I'l_tat de Californie •
AVERTISSEMENT " Ce produit contient au moins un produit chimique connu par I'#tat de Californie pour 6tre & I'origine de
cancers.
AVERTISSEMENT " Ce produit contient au moins un produit chimique connu par I'#tat de Californie pour 6tre & I'origine de
malformations et autres d6ficiences de naissance.
i iMPORTANT :Pour mettre I'ancienne s6cheuse au rebut ou pour la remiser_ enlever la porte, i
76

INSTRUCTIONS POUR L'INSTALLATION
OUTILLAGE ET PIECES
Rassembler les outils et pi6ces nScessaires avant de commencer l'instaHation. Lire et observer les instructions fournies avec chacun
des outils de la liste ci-dessous.
Oufillage n_cessa_re :
TournevJs Phillips n ° 2
et tournevis _ lame plate
CI8 6 molette avec
ouverture jusqu'6
1" (25 mm) ou cl_ plate
de 9/16" (pour ajuster
les pieds de la s_cheuse)
Pince 6 dSnuder Tourne-6crou de 1/4"
(6 mm) ou cl_ 6 douille
(recommand_)
Cisaille de ferblantier
(pour lqnstallation d'un
nouveau conduit)
Brides de conduit
Pistolet 6 caifeutrage et
compos_ de calfeutrage
(pour rinstallation d'un
nouveau conduit d'_vacuation)
Pince
Niveau
Cale en bois
(pour le nivellement)
Couteau
RSgle ou mStre ruban
Pi_ces fournles :
Retirer le sachet de pi_ces du panier de la laveuse. V_rifier que toutes les pi_ces de la liste sont pr_sentes.
Pieds de nivellement
arri_re (2)
Pieds de nivellement
avant (2)
Attache de fixation
amovible
_J
Tuyau de vidange
Bride de serrage argent,
6 deux ills
Pi_ces n_cessalres :(non fournies)
Consulter les codes Iocaux r v6rifier I'alimentation _lectrique et le conduit d'_vacuation existants r et
consulter les sections °'Specifications 81ectriques" et "Exigences concernant 1'Svacuation" avant d'acheter
les pisces nScessaires.
Les installations pour maison mobile nScessitent un systSme d'Svacuation en instal qui peut 8tre achet6
chez votre magasin Sears local ou le centre de service Sears. Pour plus d_information, veuillez composer
le 1=800=4=MY=HOME ® (1=800=469=4663).
Tuyaux d'arriv6e d'eau
avec rondelles plates
77

AUTRES PIECES
Pi_ces _num_r_es sent disponibles aupr_s de votre magasin Sears
local ou le centre de Service Sears. Pour plus d'information, veuillez
composer le I=8OO=4=MY-HOME ® (1=800=469=4663).
$i vous avez :
Evier de buanderie ou
tuyau de rejet 6t'_gout
de plus de 96" (2,4 m)
Tuyau de rejet 6l'_gout
rigide de 1" (25 mm)
Un _gout surSlev_
Egout au plancher
Un tuyau de vidange
trop court
Le systSme d'_vacuafion
obstru_ par de ta charpie
Robinets d'eau hers
de portSe des tuyaux
de remptissage
II veus faudra :
Syst_me de pompe de puisard
(si non dSj6 disponible)
Adaptateur pour tuyau de rejet
6t'_gout rigide de diamStre 2" (51 ram)
61" (25 ram) Piece n° 3363920
Tuyau de vidange standard de 20 gal.
(76 L) de 34" (864 mm) de haut ou
Evier de dScharge et pompe de puisard
(disponibles chez les vendeurs de matSriel
de plomberie locaux)
Brise-siphon PiSce n° 285320, tuyau de
vidange supplSmentaire PiSce n ° 285702,
et kit de connexion PiSce n° 285442
Tuyau de vidange PiSce n ° 285664,
Ensemble de connexion PiSce n ° 285442
Protecteur de canalisafion
Pi$ce n° 367031
2 tuyaux de remplissage d'eau plus
longs : 6pi (1,8 m) Piece n° 76314,
10 pi (3,0 m) PiSce n ° 350008
EXIGENCES D'EMPLACEMENT
Risque d'explosion
Garder les mati_res et les vapeurs inflammables, telle
que ressence, loin de la s6cheuse.
Ne pas installer dans un garage.
Le non=respect de ces instructions peut causer
un d6cbs, une explosion ou un incendie.
II veus faudra
[] Un emplacement permettant une _vacuafion appropri_e. Voir
"Exigences concernant I'_vacuafion ".
[] Pour tes modSles de 240 volts, un circuit distinct de 30 A. Pour les
modStes de 120 volts, un circuit de 120 volts, 60 Hz, CA seulement,
de 15 ou 20 A.
[] Une prise _lectrique avec liaison 6ta terre situ_e 6moins de 2 pi
(610 mm) de l'un des c6tSs du centre de buanderie. Voir
"Specifications _lectriques'.
[] Un plancher capable de supporter le poids total de 500 Ib (226,8 kg)
du centre de buanderie (eau et charge compris).
[] Un ptancher de niveau avec une pente maximate de 1" (25 ram) sous
I'ensembte du centre du buanderie. Si le centre de buanderie n'est
pas d'aptomb, te linge peut ne pas cutbuter convenablement et les
programmes commandSs par des dStecteurs automafiques peuvent
ne pas foncfionner correctement. L'installafion sur de la moquette
n'est pas recommandSe.
[] Un chauffe-eau rSgl_ 6120°F (49°C).
[] Des robinets d'eau chaude et d'eau froide situ_s 6moins de 4pi
(1,2 m) des _lectrovannes de remptissage d'eau chaude et d'eau froide
situ_es sur la laveuse et une pression d'eau de 5-100 Ib/po 2 (34,5 6
689,6 kPa).
Le centre de buanderie ne doit pas 8tre instatl8 ou remis_ dans un endroit
o0 eJle sera expos_ 6l'eau et/ou aux intemp_ries.
78
Ne pas fake foncfionner la laveuse 6une tempSrature de 32°F (0°C) ou
moins. Un peu d'eau peut rester dans ta taveuse et causer des dommages
6basses temperatures. Voir "PrScaufions 6prendre avant tes vacances, un
entreposage ou un dSm_nagement" pour les renseignements sur I'hivSrisafion.
.Ne pas faire fonctionner ta s_cheuse6des temperatures inf_rieures 645°F (7°C).
A des temperatures inf_rieures, ta s_cheuserisque de ne pas s'arrSter 6la fin d'un
programme automafique. Ced risque de prolonger lesdurSesde s_chage.
V_rifier les rSgtements Iocaux. Certains codes timitent ou n'autorisent pas
rinstaltafion du centre de buanderie dans un garage, un placard, une
maison mobile ou une chambre 6coucher. Communiquer avec rinspecteur
des bSfiments local.
D6gagements
L'emptacement doit _tre assez grand pour permettre d'ouvrir
compl_tement la porte de la s_cheuse.
71 ¾"
(1,82 rn)
*27 ¼"
(692rnrn)
_La plupart des installations requi$rent un minimum de 5" (127 mm) derriSre
la s_cheuse pour le conduit d'_vacuafion avec coude. Voir "Exigences
concernant 1_vacuafion.
Espacemenf minimum pour I'insfallaflon
dans un encasfremenf ou un placard
On recommande les dimensions d'espacement ci-dessous pour le centre
de buanderie. Le centre de buanderie a _t8 test$ pour une installation
avec des dSgagements de 0" (0 mm) sur les c6tSs. L'espacement
recommand_ dolt _tre considSr_ pour tes raisons suivantes :
[] On pr_voira un peu plus d'espace pour faciliter l'installafion et t'entrefien.
[] Un espace supptSmentaire peut _tre requis pour les moulures de porte
et de ptancher et pour les plinthes.
[] Ajouter un espace suppl$mentaire de tousles c6t_s du centre de
buanderie pour rSduire le transfert de bruit.
[] Pour une installation dans un placard avec porte, on dolt prSvoir des
ouvertures minimums d'entr_e d'air en haut et en bas de ta porte. Les
portes 6claire-voie offrant des ouvertures _quivalentes de passage de
rair sent acceptables.
ooo o O
2__ 12"
"_ (305mm}
,6in,' -4._-ff (76mrn)
(310cmz) I
(25mm)(692mm)
B
A. Encastrement
/
24in.z _- _.
(155cmZ(I
__ __ _ (76turn}
_"-N I_-26'/,"-_1I÷_" _- 6....
(25mm) (606ram) (25rnm) (127mm)
A C
B. Vue lat_rale, placard ou endroit exigu
C. Porte de placard avec orifices de ventilation
_Espacement requis
__L'espacement6t'arritre peut _tre de 0" (0 mm) lorsque te systtme d'_vacuafion
de ta maison estalign_ directement avec r_vacuafion de ta s_cheuse.

installation dans une malson mobile - autres exlgences
Le centre de buanderie peut &tre install_ dans une maison mobile.
L'installafion doit safisfaire les crit_res de ta Norme canadienne des
habitations pr_fabriqu_es, CAN/CSA-Z240 MH.
L'installation darts une maison mobile exige :
[] Un syst_me d'_vacuation en m_tal qui peut &tre achet_ chez votre
magasJn Sears local ou le centre de service Sears.
[] Dispositions sp_ciates dans les maJsons mobiles pour I'apport d'aJr
de l'ext_rJeur dans ta s_cheuse. Uouverture (tetle qu'une fen_tre 6
proximitY) devraJt _tre au moins deux lois plus grande que I'ouverture
de d_charge de la s_cheuse.
SYSTEME DE VIDANGE
Le syst_me de vidange de ta laveuse peut &tre install_ 6 l'aide d'un
conduit d'_vacuafion au plancher, un tuyau de rejet 6 l'_gout au plancher
ou mural ou un _vier de buanderie. S61ecfionner la m_thode 6 ufiliser.
Voir "Autres pi_ces'.
Sysf_me de vidange avec fuyau de rejet 6I'_gout -
mural ou au plancher (illustrations A et B)
La vidange avec tuyau de rejet 6 %gout n_cessite un tuyau de rejet
6 l'6gout d'un diam6tre minimum de 2" (51 mm). La capacit& minimum
de vidange ne peut pas &tre de moins de 17 gal. (64 L) par minute. Un
adaptateur de 2" (51 ram) 6 1" (25 mm) de diam6tre est disponible pour
le tuyau de rejet 6 l'_gout. Voir "Autres pi_ces".
Le dessus du tuyau de rejet 6 t'&gout doit 6tre au moins 6 39" (991 mm)
de hauteur et au maximum 6 96" (2,4 m) du bas de la laveuse.
39" 1
(991
AB
Sysf_me de vidange avec _vier de buanderie (illustration C)
L'&vier de buanderie n_cessite une capacit& minimum de 20 gal. (76 L).
Le dessus de I'&vier de buanderie doit &tre au moins 6 34" (864 mm)
au-dessus du sot et au maximum 6 96" (2,4 m) du bas de la laveuse.
Syst_me de vidange par le plancher (illustration D)
Le syst_me de vidange par le plancher n_cessite un brise-siphon qui peut
&tre achet_ s6par6ment. Voir "Autres pi6ces".
Le brise-siphon doit &tre au moins 6 28" (710 ram) du bas de la laveuse.
Des tuyaux suppl&mentaires peuvent &tre requis.
C D
SPECIFICATIONS I'-:LECTRIQUES-
MODi::LES DE 240 VOLTS (CANADA)
Risque de choc 61ectrique
Brancher sur une prise & 4 alv6oles reli6e & la terre.
Le non=respect de cette instruction peut causer
un d6c_s ou un choc 61ectrique,
C'esf eI'ufillsafeur clu'incombe la responsabillt_ de
[] Contacter un &lectricien quatifi&
[] S'assurer que les connexions &lectriques sont ad6quates et conformes
au Code canadien de t'&lectricit&, C22.1 - derni6re &difion et 6 tous
les codes Iocaux. Pour obtenir un exemptaire de ta norme des codes
ci-dessus, contacter : Association canadienne de normalisafion, 178
Rexdate Blvd., Toronto, ON M9W 1R3 CANADA.
[] Alimenter t'appareil uniquement par un circuit monophas6 de 240
volts CA, 60 Hz 6 4 ills, sur un circuit s6par6 de 30 amperes, fusionn6
aux deux extr6mit&s de la ligne. On recommande d'ufiliser un fusible
ou un disjoncteur temporis& On recommande 6galement que cet
appareil soit aliment& par un circuit ind&pendant.
[] Ce centre de buanderie est _quJp_e d'un
cordon 61ectrique homotogu6 par la CSA
international 6 introduire dans une prise
murale standard 14-30R. Le cordon mesure
5pi (1,52 m). Veitler 6 ce que la prise murale
se trouve 6 proxlmlt& de t'emptacement
d_finifif du centre de buanderie. Prise mutate 6 4 fils (14-30R)
[] Si on ufilise un cordon d'alimentafion de rechange, it est recommand&
d'ufitiser le cordon d'alimentafion de rechange num6ro de pi6ce 983131Z
[] Pour plus de renseignements, consulter les num&ros de service sur
la couverture arriSre.
iNSTRUCTiONS DE LiAiSON ALA TERRE
[] Pour une laveuse/s6cheuse reli6e & la terre et
connect6e par un cordon :
Cette laveuse/secheuse dolt 6tre reliee a la terre. En cas
de mauvais fonctionnement ou de panne, la liaison & la terre
reduira le risque de choc electrique en offrant au courant
electrique un acheminement d'evacuation de moindre
resistance. Cette laveuse/secheuse est aliment6e par un
cordon electrique comportant un conducteur relie a la terre
et une fiche de branchement munie d'une broche de liaison
la terre. La fiche doit 6tre branchee sur une prise
appropriee qui est bien installee et reli6e a la terre
conformement a tousles codes et reg_ements Iocaux.
AVERTiSSEMENT : Le raccordement incorrect
de cet appareil au conducteur de liaison & la terre peut
susciter un risque de choc electrique. En cas de doute
quant & la qualit6 de liaison & la terre de la
laveuse/secheuse, consulter un 61ectricien ou un technicien
ou un personnel qualifi6. Ne pas modifier la fiche de
branchement foumie avec la laveuse/s6cheuse; si la fiche
ne correspond pas & la configuration de la prise de courant,
demander & un 61ectricien qualifi6 d'installer une prise de
courant appropriee.
CONSERVEZ CES iNSTRUCTiONS
79

SP{_CIFICATIONS ELECTRIQUES-
MODi::LES DE 120 VOLTS (CANADA)
Risque de choc 61ectrique
Brancher sur une prise b3alv6oles reliee ala terre.
Ne pas enlever la broche de |iaison &la terre.
Ne pas utiliser un adaptateur.
Ne pas utiliser un c&ble de rallonge.
Le non=respect de ces instructions peut causer
un d6c_s, un incendie ou un choc 61ectrique.
[] Une alimentation de 120 volts, 60 Hz, CA seulement_
de 15 ou 20 amperes, prot_g6e par un fusible est requJse.
[] Ce centre de buanderJe est dot6 d'un cordon d'alimentation
avec fiche de branchement _ 3 broches, pour liaison 6 la terre.
[] S'assurer que les connexions 61ectrJques sont adSquates et
conformes au Code canadien de F_lectricit_, C22.1 - derni_re
8dition et 6 tous les codes Iocaux. Pour obtenir un exemplaire
de la norme des codes ci-dessus, contacter :Association
canadienne de normalisation, 178 Rexdale Blvd., Toronto, ON
M9W 1R3 CANADA.
[] On recommande I'emploi d'un fusible temporis_ ou dis]oncteur.
V6rifier que le fusible ou le disjoncteur correspond 6 la
puissance de votre ligne.
[] On recommande 6galement que la s6cheuse soit aliment6e
par un circuit ind6pendant.
[] Pour minimiser le risque de choc 61ectrique, on doit brancher
le cordon d'alimentafion sur une prise de courant murale
de configuration correspondante (3 alv6oles) reli6e 6 la
terre conform6ment aux codes et r6glements Iocaux. Si une
prise de configuration correspondante n'est pas disponible,
c'est au client qu'incombent la responsabilit6 et I'obligation
personnelles de faire installer par un 61ectricien qualifi6 une
prise ad6quatement raise 6 la terre.
[] Si les codes le permettent et si un conducteur distinct de raise
6 la terre est ufilis6, il est recommand6 qu'un 61ectricien qualifi6
d_termine si la liaison 6 la terre est ad6quate.
[] Ne pas effectuer la liaison 6 la terre sur une canalisation
de gaz.
[] Ne pas ufiliser un cSble de rallonge.
[] Ne pas ufiliser un fusible dans le circuit neutre ou de liaison
6 la terre.
[] En cas de doute quant 6 la qualit6 de la liaison 6 la terre du
centre de buanderie, v6rifier aupr_s d'un 61ectricien qualifi&
iNSTRUCTiONS DE LiAiSON ALA TERRE
[] Pour une laveuse/s6cheuse reliee & la terre et
connectee par un cordon :
Cette laveuse/s6cheuse dolt 6tre reliee & la terre. En cas
de mauvais fonctionnement ou de panne, la liaison & la terre
reduira le risque de choc 61ectrique en offrant au courant
electrique un acheminement d'6vacuation de moindre
resistance. Cette laveuse/secheuse est aliment6e par un
cordon 61ectrique comportant un conducteur relie & la terre
et une fiche de branchement munie d'une broche de liaison
#t la terre. La fiche dolt 6tre branch6e sur une prise
appropriee qui est bien install6e et reli6e & la terre
conformement & tousles codes et reglements Iocaux.
AVERTISSEMENT " Le raccordement incorrect
de cet appareil au conducteur de liaison & la terre peut
susciter un risque de choc 61ectrique. En cas de doute
quant & la qualit6 de liaison & la terre de la
laveuse/secheuse, consulter un 61ectricien ou un technicien
ou un personnel qualifie. Ne pas modifier la fiche de
branchement fournie avec la laveuse/s6cheuse; si la fiche
ne correspond pas & la configuration de la prise de courant,
demander & un 61ectricien qualifi6 d'installer une prise de
courant appropri6e.
CONSERVEZ CES iNSTRUCTiONS
80

EXIGENCES CONCERNANT L'_:VACUATION
Risque d'incendie
Utiliser un conduit d'6vacuation en m6tal Iourd.
Ne pas utiliser un conduit d'6vacuation en plastique.
Ne pas utiliser un conduit d'6vacuation en feuille
de m6tal.
Le non=respect de ces instructions peut causer
un d6c_s ou un incendie.
AVERTISSEMENT : Pour rSduire le risque d'incendie, le centre
de buanderie dolt F:VACUER L'AIR A L'EXTERIEUR.
iMPORTANT : Respecter les dispositions de tousles codes et
r_glements en vigueur. Le conduit d'_vacuation de la s_cheuse ne
doit pas _tre connect_ 6 une _vacuafion de gaz, une chemin_e,
un tour, un plafond, un grenier, un vide sanitaire ou un vide de
construction. Seul un conduit en m_tal flexible ou rigide dolt _tre
utilis_ pour I'_vacuation.
k
4"
(102 mm)
t
Conduit d'_vacuation en m_tal Iourd de 4" (102 mm)
[] Ufiliser uniquement un conduit d'_vacuafion en m_tal Iourd
de 4" (102 mm) et des brides de serrage. Les produits
d'_vacuation DURASAFE TM sont recommand6s.
[] Ne pas utiliser de conduit de plasfique ou de m_tal tr_s mince.
Conduit m_tallique rigide :
[] Recommand_ pour une meilleure performance de s6chage
et pour rSduire les risques d'Scrasement et de d_formation.
Conduit m_tallique flexible :(Acceptable uniquement si accessible
pour le nettoyage)
[] Doit 8tre compiStement d_ploy8 et support8 dans i'empiacement
final du centre de buanderie.
[] Enlever tout execs de conduit pour 8vJter tout afl:aissement
et d_formation susceptibie de r_duire la capacit_ d'_vacuation
et le rendement.
[] Ne pas installer le conduit dans ies cavit_s fermSes des tours,
plafonds ou planchers.
[] La iongueur totale ne doJt pas exc_der 73_ pi (2,4 m).
[] La iongueur du conduit m_tallique flexible utilis_ doff figurer
dans la conception de syst_me d'_vacuation gSn_raie, comme
indiqu_ dans le "Tableau des systSmes d'SvacuatJon ".
REMARQUE :Lors de I'ufilisafion d'un systSme de dScharge
existant, nettoyer et 8liminer la charpie sur route la Iongueur
du systSme et veiller 6 ce que le clapet d'6vacuation ne soit
pas obstru6 par une accumulation de charpie. Remplacer tout
conduit de plasfique ou de feuille mStallique par un conduit
mStallique rigide ou flexible. Examiner le "Tableau des systSmes
d'Svacuation" et au besoin, apporter les modifications n6cessaires
au systSme d'Svacuation pour atteindre le meilleur rendement
de s_chage.
Clapets de d_charge :
[] Doit se situer au moins 12" (305 mm) au-dessus du sol ou
de tout objet susceptible d'obstruer I'6vacuation (par exemple
fleurs, roches, arbustes ou neige).
[] Ne pas utiliser un clapet d'6vacuation 6 fermeture magn6tique.
Styles recommand_s :
Clapet 6 persiennes
Style acceptable :
Ciapet inclin8
Coudes :
[]
Clapet de type bo?te
Les coudes 6 45 ° permettent une meilleure circulation de I'air
que les coudes 6 90 °.
Styles recommand_s :
Meil
Brides de serrage :
[] Utiliser des brides de serrages pour sceller tousles joints.
[] Le conduit d'Svacuation ne doit pas 8tre connect8 ou flx_ avec
des vis ou avec tout autre dispositif de serrage qui se prolonge
6 I'intSrieur du conduit et oO la charpie risque de s'accrocher.
Ne pas utiliser de ruban adhSsif pour conduit.
Une rnauvaise 6vacuation de I'air peut causer de
I'hurnidit6 et une accumulation de charpie _ I'int6rieur de
la maison, ce qui peut provoquer :
[] Dommages par I'humidit6 aux boiseries, meubles, peinture,
papier-peint, tapis, etc.
[] Problemes de nettoyage dans la maison et problemes
de sant6.
Le matSriel d'Svacuation peut 8tre achet8 aupr&s de votre revendeur.
Pour plus d'informations, veuillez composer le 1=800=4=MY=HOME ®
(1=800=469=4663) o visiter notre site web : www.sears.ca. 81

iNSTALLATiON DES PIEDS DE NWELLEMENT
Risque du poids excessif
Utiliser deux ou plus de personnes pour d6placer et
installer la laveuse!s6cheuse,
Le non=respect de cette instruction peut causer une
blessure au dos ou d'autre blessure.
Pour prot6ger le plancher, ufiliser une grande pJ_ce plate du carton
d'emballage. Placer doucement Je centre de buanderie sur Je c6t_,
sur le carton.
_i. Installation des pieds de nivellement arri_re _
Pousser Jes pJeds dans Jes trous des coins arri_re ]usqu'6 ce
qu'Jls s'enclenchent. V_rJfier que Jes pJeds arrJ_re sont bJen en
place en poussant sur i'un d'eux. L'autre pied devraJt sortJr.
V_rifier les deux pieds. S'iis ne bougent pas librement, r_p_ter
la procedure.
2. Installation des pieds de nivellement avant
Examiner Jes pieds de niveliement avant. Trouver Je symboJe
de rep_rage (Iosange). Visser Jes pieds avant 6 Ja main, dans
les trous des emplacements triangulaires aux coins avant.
Utiliser une cl_ 6 molette pour visser les pieds jusqu'6 ce que
le symbole de rep_rage (Iosange) ne soit plus visible. Placer
lentement le centre de buanderie en position verticale.
ENLEVER VEMBALLAGE EN MOUSSE
rl. Retirer ranneau d_emballage en mousse
de la laveuse
\
F f
Ouvrir le couvercle de la laveuse. Le Ioquet sous la s_cheuse
maintiendra le couvercie ouvert. Retirer ranneau d'embaliage
en mousse de la laveuse. REMARQUE =Conserver ranneau
en mousse et I'utJiJser lots du transport du centre de buanderie.
Ce mat_riau d'emballage est utiiis_ pour maintenir la cuve
de la laveuse stable pendant le transport.
82
RACCORDEMENT DU TUYAU DE VIDANGE
Une bonne connexion du tuyau de vidange protege vos planchers
contre les dommages imputabies 6 une fuite d'eau. Pour _viter que
le tuyau de vJdange se d_tache ou fuie, rinstaller en suivant les
instructions cJ-dessous :
iMPORTANT : Pour une installation correcte, suivre attentJvement
les _tapes ci-dessous.
1. Fixer la bride au tuyau de vidancje
V_rifier que le tuyau de vJdange a la bonne Iongueur. Mouiller
la surface int_rieure de I'extr_mit_ rectiiJgne du tuyau de
vidange avec de I'eau du robinet.
iMPORTANT : Ne pas utJliser de lubrifiant autre que de I'eau.
Presser Jes pattes de Ja bride de serrage argent 6 deux fJJs
raide d'une pJnce pour I'ouvrir. Placer la bride sur I'extr_mit_
droite du tuyau de vidange 6 1/4" (6,4 mm) de I'extr_mit_.
F2. Fixer le tuyau de vidancje au raccord
de vidancje
Ouvrir la bride de serrage. Tourner le tuyau d'un c6t_ et
de rautre en poussant sur le raccord de vJdange sur le c6t_
du centre de buanderie. Continuer jusqu'6 ce que le raccord
touche Jes buttes nervur_es sur Je placard. Placer la bride
6I'endroit indiqu_ "CLAMP". Rel_cher la bride.

3. Placer le tuyau de vidange dans le tuyau de
rejet _ r_gout ou dans r_vier de buanderie
Bride de retenue
pour tuyau
devidange
V6rJfier que la bride de retenue pour tuyau de vJdange est
install6e correctement. Placer le tuyau dans le tuyau de rejet 6
r_gout (Jllustr_) ou par-dessus le c&t_ de r_vJer de buanderie.
IMPORTANT :4,5" (114 ram) du tuyau de vidange doit _tre 6
rint6rieur du tuyau de rejet 6 r_gout; ne pas forcer I'exc_dent
de tuyau dans le tuyau de rejet 6 I'_gout nile placer dans
r_vier de buanderie. On doit utiliser la bride de retenue pour
tuyau de vidange.
Pour ufilisafion avec vidange par le plancher : Ne pas
installer la bride de retenue pour tuyau de vidange sur Je
tuyau de vidange ondui_. Vous pouvez avoir besoin de pi&ces
suppl_mentaires. Voir Egout au plancher dans "Autres pi&ces".
RACCORDEMENT DESTUYAUX D'ARRIVEE D'EAU
Le centre de buanderie doit _tre raccord_ aux robinets 6 I'aide
de tuyaux d'arriv_e d'eau neufs dot_s de rondeiies plates (non
compris). Ne pas utiliser de tuyaux usages.
REMARQUE :Les deux tuyaux doivent &tre fixes et I'eau doit
p_n_trer dans les robinets d'arriv6e d'eau.
]. insurer une rondelle dans chaque tuyau
|
InsUrer une nouvelie rondelle plate dans chaque extr_mit_
des tuyaux d'arriv_e d'eau (non fournis). InsUrer fermement
les rondelles dans les raccords.
2. Raccorder les tuvau× d'arriv_e d'eau
aux robinets
S'assurer que le panier de la laveuse est vide. Raccorder un
tuyau au robinet d'eau chaude. Visser le raccord 6 la main
pour qu'Jl comprime la rondelle. Raccorder un tuyau au robinet
d'eau froide. Visser le raccord 6 la main pour qu'il comprime
la rondelle. Terminer le serrage des raccords - deux tiers de
tour avec une pince.
iMPORTANT : Ne pas setter excessivement ni utiliser de ruban
adh_sif ou de dispositif d'_tanch_it_ Jots de la fixation des
tuyaux d'arriv_e d'eau aux robinets d'eau ou pour le centre
de buandede. Cela pourrait entra?ner des dommages.
3. Purger les canalisations d'eau
Laisser I'eau couler des deux robinets et des tuyaux d'arriv_e
d'eau, dans un _vier de buanderie, un conduit d'6vacuation
ou un seau pour _liminer les parficules dans les conduites
d'eau qui pourraient obstruer les tamis des valves des tuyaux
d'arriv_e d'eau. V_rifier la temperature de I'eau pour s'assurer
que le tuyau d'eau chaude est connect_ au robinet d'eau
chaude et que le tuyau d'eau froide est connect_ au robinet
d'eau froide.
83

*4. Raccorder les tuyaux d_arriv_e d_eau
la laveuse
A
B
Fixer ie tuyau d'eau chaude & la valve d'arriv_e d'eau en
bas. Le fait de fixer d'abord le tuyau d'eau chaude permet
de setter plus facilement la connexion avec une pince. Visser
complStement le raccord 6 la main pour quql comprime Ba
rondeile. Terminer le serrage des raccords - deux tiers de tour
avec une pince.
Fixer ie tuyau d'eau froide 6 la valve d'arrivSe d'eau en haut.
Visser compl_tement le raccord 6 la main pour quql comprime
la rondelle. Terminer le serrage des raccords -deux tiers de
tour avec une pince.
iMPORTANT : Ne pas setter excessivement ni utiliser de ruban
adhSsif ou de dispositif d_Stanch6it8 Jars de la fixation des
tuyaux d'arrivSe d'eau aux robinets d'eau ou pour le centre
de buanderie. Cela pourrait entra?ner des dommages.
A. Valve du tuyau d'arriv6e d'eau froide (haut)
B. Valve du tuyau d'arrivSe d'eau chaude (bas)
Placer le centre de buanderie
sa position finale
Pour un placard ou un endroit exigu, placer le centre de
buanderie 6 sa position finale et enlever le carton du dessous
du centre de buanderie. Oter le panneau d'accSs en enlevant
2 vis Phillips situ_s sur le dessus du panneau d'acc_s. Mettre le
panneau et les vis de c6t& Terminer iqnstallation des tuyaux
d_eau. Replacer le panneau d'acc_s apr_s installation complete
du centre de buanderie.
6. Rechercher les fuites _ventuelles
0
66 66
Ouvrir les robinets d'eau pour v_rifier quql n'y a pas de fuite.
Une petite quantit_ d'eau peut entrer dans la laveuse. Elie
s'_vacuera plus tard.
REMARQUE :Remplacer les tuyaux d'arriv_e d'eau apr_s 5ans
d'ufiiisation pour r_duire le risque de d_faiilance intempestive.
Prendre note de la date d'installation ou de remplacement des
tuyaux d'arriv_e d'eau, pour r_f_rence uit_rieure.
Si on ne raccorde qu'une canalisafion d'eau, il faut placer
un bouchon sur I'autre entree d'arriv_e d'eau.
Inspecter p_riodiquement les tuyaux; les remplacer en cas de
gonfiement0 d'_crasement0 de coupure, d'usure ou si une fuite
se manifeste.
L'appareil doit _tre raccord_ aux robinets d'eau avec des
tuyaux neufs. Ne pas utilJser de vJeux tuyaux.
IMMOBILiSATION DU TUYAU DE VIDANGE
Placer le centre de buanderie _ sa position finale et enlever
tout carton utilis_ pour d_placer le centre de buanderie.
1. Fixer le tuyau de vidange au pied de
Y_vier de buanderie ou au tuyau de rejet
bI'_gout
A
B C D
Localiser I'attache de fixation amovible (A) incluse dans le
sachet de pi6ces. Attacher le tuyau de vidange au pied de
F6vier de buanderie (B) ou au tuyau de rejet 6 F&gout (C) avec
Fattache de fixation amovJbie. SJ les robinets d'eau et le tuyau
de rejet 6 1'6gout sont places en retrait, introduire I'extr6mit_
en col de cygne du tuyau de vidange dans le tuyau de rejet
i'6gout. Attacher fermement les tuyaux d'arriv6e d'eau et
le tuyau de vidange ensemble° avec Fattache de fixation
amovible (D).
84

PLANIFICATION DU SYSTEME D'EVACUATION
Installations d'_vacuatlon recommand_es
Les installations typiques consistent 6 acheminer le conduit
d'Svacuafion 6 I'arriSre du centre de buanderie. D'autres
installations sont possibles.
--D
A
c
A. S6cheuse E. Coude
B. Conduit d'_vacuation m_tallique R Brides
rigide ou flexible G. Coude
C. Brides H. Clapet d'_vacuation
D. Mur
Installatlons d'_vacuatlon facultatlves :
Ce centre de buanderie peut s'_vacuer par la droite ou par la
gauche. Pour convertir le centre de buanderie, utiliser I'ensemble
d'_vacuafion par les c6tSs Piece numSro 279823. Si votre
centre de buanderie s'6vacuait par la droite ou par la gauche
auparavant, elle peut 6tre converfie 8 1'6vacuation par I'arri&re en
utilisant des connexions d_sax_es classiques. Pour recouvrir le trou
sur le c6t8, on peut ajouter Fun des bouchons suivants :
692790 (blanc)
3979370 (graphite)
3977784 (biscuit)
Suivre les instructions dans la trousse d'instailation. Les trousses
sont disponibles au magasin Sears local ou le centre de service
Sears.
C
A. Acheminement standard du conduit d'Svacuation
,par I'arri6re
B. Evacuation par I'arri&re pour connexion dSsax_e
avec d6gagement rSduit
C. Acheminement du conduit d'Svacuation par la gauche
ou par la droite
Autres installations o_ le d_gagement est r_dult
II existe de nombreux syst_mes d'6vacuation. Choisir le syst_me
qui convient le mieux 8 votre installation. Trois installations 8
dSgagement rSduit sont illustrSes. Consulter les instructions du
fabricant fournies avec le systSme d'Svacuation.
S ........
i
i
! i
i!
ii !
i!
A B C
A. Syst&me dSvi8 avec coudes classiques
B. Syst&me d_vi8 avec un double coude et un coude classique
C. Syst6me d'Svacuation avec un p_riscope (dSgagement de
2" [51 ram])
REMARQUE :On peut acheter les trousses suivantes pour les
installations o0 le d_gagement est r_duit. Pour commander,
composer le 1-800-4-MY-HOME ® (1-800-469-4663),
Installation sur le dessus
Installation avec p_riscope
(Pour utilisation en cas
de non-concordance de
la bouche de d6charge
de la s6cheuse avec la
bouche d'6vacuation
murale)
Num@ro de piece 26-49900
Num6ro de piece 26-49901 -
Non-concordance de moins
de 5" (127 mm)
Num6ro de piece 26-49908 -
Non-concordance de 5" (127 mm)
6 18" (457 mm)
Num6ro de piece 26-49904 -
Non-concordance de 18" (457 mm)
6 29" (737 mm)
Num6ro de piece 26-49905 -
Non-concordance de 29" (737 mm)
650" (1,27 m)
Dispositions sp_clales pour les malsons mobiles :
Le syst_me d'_vacuafion dolt 6tre solidement fix_ c] une section
non combustible de la structure de la maison mobile et ne dolt
passe terminer en dessous de celle-ci. Acheminer le conduit
d'6vacuation vers Fext6rieur.
85

D_terminer rltin_ralre d'acherninement du conduit :
[] Choisir ritin_raire d'acheminement vers rext_rieur qui sera
(e plus direct et Je plus rectJJJgne.
[] PlanJtier rJnstallation pour introduJre le nombre minimal
de coudes et de changements de direction.
[] SJ des coudes ou changements de direction sont utilJs_s,
pr_voJr autant d'espace que possible.
[] Plier le conduit graduellement pour _vJter de le d_former.
[] UtJlJser (e moins de changements de direction 6 90 ° possible.
D_terrniner la Iongueur du conduit et les coudes
n_cessaires pour la rneiffeure performance de s_chage
[] UtJ(Jser le tableau des syst_mes d'6vacuation ci-dessous
pour dStermJner (e type de composants et (es combinaJsons
acceptables.
REMARQUE :Ne pas utiliser un conduit de Iongueur
sup_rieure 6 (a valeur sp_cifi_e dans le "Tableau des syst_mes
d'_vacuation". SJ la Iongueur du circuit est sup6rieure 6 la
valeur sp_cifi_e dans le tableau, on observera :
[] Une r_duction de la IongSvJt_ de la s_cheuse.
[] Une r_ductJon du rendement, avec temps de s_chage plus
longs et une plus grande consommation d'_nergJe.
Le tableau des syst_mes d'_vacuation fournJt Jes exJgences
d'_vacuation qui vous aideront 6 atteJndre (a meiJJeure
performance de s_chage.
Tableau des syst_mes d'_vacuation
UE :Lesinstallationsd'_vacuation par (ec6t6 comportent un
changement de direction 6 90° 6 I'int_rieur du centre de buanderie. Pour
d6terminer la Iongueur maximaie d'_vacuation (orsqu'on consulte le tableau,
ajouter un changement de direction 6 90 ° au nombre total de coudes.
Nornbrede
changernents Type Clapetsde
de direction_de conduit type boffe ou Clapets
90oou coudes d_vacuatlon _perslennes inclines
O M_ta(((que r(g(de 43 pi (13,1 m) 36 pi (11,0 m)
M_taJJlquerlg(de 33 pi (10,1 m) 26 pi (7,9 m)
2 M_taJJlquerlg(de 23 pi (7,0 m) 16 pi (4,9 m)
Installer un clapet d'_vacuation et calfeutrer I'ouverture
murale 6 rextSrieur autour du clapet d_Svacuation.
86
2. Raccorder (e conduit d'_vacuation
au clapet
(
Le conduit doit 8tre ins_r_ 6 rintSrieur du manchon du clapet.
Fixer ensemble le conduit et le clapet avec une bride de 4" (102
mm). Acheminer le conduit d'Svacuation jusqu'6 remplacement
de la sScheuse en utilisant I'itinSraJre le plus rectiligne possible.
Voir "D6terminer I'itinSraire d'acheminement du conduit" dans
"Planification du syst_me d'_vacuation ". Eviter les changements
de direction 6 90 °. Utiliser des brides de serrage pour sceller
tousles joints. Ne pas utiliser de ruban adhSsif pour conduit,
de vis ou autres dispositifs de fixation qui se prolongeraient 6
Hnt_rieur du conduit pour s_curiser r_vacuation, o0 la charpie
pourrait s'accrocher.
RACCORDEMENT DU CONDUIT D'EVACUATION
. Raccorder (e conduit d'_vacuation
(a bouche d'_vacuation
Raccordement de I'avant
(pour un placard ou
un encastrement)
Raccordement
de I'arri_re
,_, I'aide d'une bride de serrage de 4" (102 mm), relier le
conduit d'_vacuation 6 la bouche d'_vacuation du centre
de buanderie. Si on utilise (e conduit d'_vacuation existant,
s'assurer qu'Jl est propre. Le conduit d'_vacuation de Ja
s_cheuse doit _tre fix_ par-dessus la bouche d'_vacuation et
6 I'int_rieur du clapet d'_vacuation. V_rifier que (e conduit
d'_vacuation est fix_ au ciapet d'_vacuation 6 I'aide d'une
bride de serrage de 4" (102 mm).
' _. Placer (e centre de buanderie
sa position finale
jr ........... ,
(
L ........... i
_, i .....j
Placer le centre de buanderJe 6 sa position finale, en faJsant
attention 6 ne pas d_former ou _craser (e conduit d_vacuation.

NWELLEMENT DU CENTRE DE BUANDERIE
Un bon aplomb du centre de buanderie _vite le bruit et les
vibrations excessifs.
1. V_rifier raplornb du centre de buanderie
IJ.................
V_rifier Vaplomb du centre de buanderie en plagant un
niveau sur Je bord sup_rieur de la Javeus% d'un c6t_ 6I'autre
et d'avant en artiste. Si le centre de buanderJe n'est pas de
niveau0 relever I'avant 6 I'aide d'un bloc de bois et aiuster les
pieds vers Je haut ou vers Je bas au besoin. Retirer le bJoc de
bois et abaisser Je centre de buanderie. R_p_ter cette _tape
]usqu'6 Vapiomb parfait du centre de buanderie.
ACHEVER VINSTALLATION
[] V_rifier que toutes les pi_ces sont maintenant install_es. S'il
reste une piece s passer en revue Jes diff_rentes _tapes pour
d_couvrir laquelle aurait _t_ oubH_e.
[] V_rJfier la presence de tous Jes outils.
[] Jeter ou recycler tout le materiel d'emballage. Garder Ja
mousse plastique pour utJJJsatJon uit_rieure si le centre de
buanderJe dolt _tre d_m_nag_.
[] V_rifier I'emplacement d_finitif du centre de buanderie.
S'assurer que le conduit d'_vacuation n'est pas _cras_ ou pinch.
[] V_rifier que le centre de buanderie est de niveau et que les
pieds de nivellement avant sont serr_s. Voir _'Nivellement du
centre de buanderie".
[] Sur les modules de 240 volts, brancher sur une prise reH_e 6la
terre (6 quatre alv_oles). Sur les modules de 120 volts, brancher
sur une prise 6 3 alv_oles reH_e 6 la terre.
[] V_rifier que chaque robinet d'arriv_e d'eau est ouvert.
[] V_rifier s'il y a des fuites autour des robinets et des tuyaux
d'arriv_e d'eau.
[] Retirer la peflicule de protection sur le panneau de commande
et tout ruban adh6sif qui reste sur le centre de buanderie.
[] Life _'UtiHsation de ia laveuse" et _'Utilisation de la s_cheuse".
[] Essuyer soigneusement J'int_rieur du tambour de la s_cheuse
avec un chiffon humide pour _liminer toute trace de poussi_re.
[] Pour tester le fonctionnement de la laveuse0 verser la moJtJ_
de la quantit_ normale recommand_e de d_tergent dans
la laveuse. Rabattre le couvercle. S_lectionner HEAVY DUTY
(Lavage intense) et tirer sur le bouton de commande des
programmes. Laisser la laveuse ex_cuter le programme
compiet.
[] Pour tester le fonctionnement de la s6cheuse, la r_gler
sur un programme de s_chage complet (pas un programme
de s_chage 6 Vair) de 20 minutes et mettre la s_cheuse
en marche.
Si la s_cheuse ne d_marre pas, v_rifler ce qui suit :
*Les commandes sont r_gl_es 6 la position de marche
ou sur _'ON".
* Le bouton de PUSH TO START DRYER (raise en marche
la s_cheuse) a _t_ enfonc_ fermement.
" Le centre de buanderie est branch_ sur une prise reli_e 6 la
terre (6 quatre alv_oles, mod$1es de 240 volts; 6 3 alv_oies,
modules de 120 volts) et I'alimentation _lectrique
est connect_e.
" Les fusibles du domicile sont intacts et serr_s,
ou les disjoncteurs ne sont pas d_clenchSs.
" La porte de la s_cheuse est ferrule.
[] Apr_s 5minutes de foncfionnement, ouvrir la porte de la
s_cheuse et voir s'il y a de la chaleur. S_JJy a chaleur, annuler
le programme et fermer la porte.
Si aucune chaleur n'est perceptible, d_sacfiver la s_cheuse
et v_rifler ce qui suit :
*Que les commandes sont r_gl_es sur un cycle de chaleur,
pas un s_chage 6 I'air.
*Sur les modules de 240 volts, il peut y avoir 2 fusibles ou
disjoncteurs pour la s_cheuse. V_rifier que les deux fusJbles
sont intacts et serr_s ou que les deux disjoncteurs ne sont pas
d_clench_s. S'il n'y a toujours pas de chaleur, contacter un
technicien qualifi_.
REMARQUE :II est possible que la s_cheuse d_gage une odeur
lots du chauffage initial. Cette odeur est normale Iorsque I'_l_ment
chauffant est utilis_ pour la premiere fois. Uodeur dispara?tra.
87

UTILiSATION DE LA LAVEUSE
TABLEAU DE COMMANDE ET CARACTERISTIQUES
ModUles de 240 voffs
f
Rinse
Heavy
Duty
12
Spi_
Wash Temp Soil Level
Cool Lights Medium
Cool ..._e Light •Heavy
oo. \ wo.m zj
Cold • H X. "x. _I•Hot
Rinse
Spin
Delicates
Mod61es de 120 volts
f
Heavy
Duty
12
Rinse
Spin
68FP
=_elicates
Rinse
Spin
PUSH TO STOP
Wash Temp Soil Level
Cool Lights Medium
Cool _Light e Heavy
Darks_-_x_x_Warm __/_
Cold e ff_ "_ I_e Hot
WASH = SELECT = DRY
Certains programmes et options ne sont pas disponibles sur certains mod6ies.
L'apparence des appareils peut varlet.
J
POUR METTRE EN MARCHE LA LAVEUSE
Risque d'incendie
Ne jarnais rnettre des articles humect6s d'essence ou
d'autres fluides inflammables darts la laveuse.
Aucune laveuse ne peut compl_ternent enlever I'huile.
Ne pas faire s6cher des articles qui ont _t6 salis par
tout genre d'huile (y compris les huiles de cuisson).
Le non-respect de ces instructions peut causer un
d_c_s, une explosion ou un incendie.
AVERTISSEMENT : Pour r6duire le risque d'incendie, de choc
6lectrique ou de blessures 6a utrui, lire les IMPORTANTES
INSTRUCTIONS DE SECURITE avant de fake foncfionner cette
laveuse.
Uinformafion suivante est un guide pour mettre votre laveuse en
marche. R_f6rences p6riodiques 6d'autres sections de ce manuel
fournissent des informations plus d6taill6es.
[] Verser une mesure de d6tergent ou un sachet de JessJve
dose unique dans le panier avant d'ajouter les v6tements. Si
Fon utilise des produits activateurs de d6tergent de type Oxi,
un agent de bianchiment sans danger pour Jes couJeurs ou
de I'assoupiissant pour tissu sous forme de crJstaux, Fajouter
6galement dans le fond du panier de Ja laveuse.
[] PJacer une charge de v_tements tri_s dans la laveuse.
•Charger Jes articles uniform6ment pour maintenir F6quilibre
de la laveuse. M_Janger les articles petits et grands. Voir
"Chargement'.
Charges serf, s peuvent provoquer un nettoyage inad6quat.
[]
[]
Fermer le couvercle de la laveuse.
Tourner le bouton de SOIL LEVEL
(niveau de salet6) sur le r_glage
adapt6 6Ja charge 6Javer et
pour le type de tJssu 6Javer.
Soil Level
Medium
Light _e_e Heavy
88

[]
[]
R6gler le s61ecteur de WASH TEMP Wash Temp
(temp. de lavage) sur le r6glage coomLights
adapt_ au type de tissu et le niveau Cool t
de salet_ 6 laver. Utiliser I'eau la Darks _ _x_Warm
plus chaude sans danger pour le tissu. [/",_ "_ \\
Suivre les instructions des _tJquettes Coredet/ _ "_ ))o Hot
de soin des v_tements. Tousles ringages _ _ y
se font 6 la tempSrature de I'eau froide.
Temp.
de Iovage
Hot (Chaude)
Warm (TiSde)
Cool (FraTche)
Cold (Froide)
Tissus sugg@r@s
Blancs et couleurs claires; salet6 intense
Couleurs vires; Salet8 mod_r_e 6 18gSre
Couieurs qui d_teignent ou s'att_nuent;
Salet8 I_gSre
Couieurs qui d_teignent ou s'att_nuent;
Salet8 I_gSre
Appuyer le bouton de COMMANDE DE PROGRAMMES et
tourner vers la droite pour le cycle de lavage d_sirS. Tirer le
bouton de COMMANDE DE PROGRAMMES pour mettre en
marche la laveuse.
Pour arr@ter ou red_marrer votre laveuse:
[] Pour arr_ter la laveuse 6 tout moment, appuyer le bouton
de COMMANDE DE PROGRAMMES.
[] Pour red_marrer la laveuse, fermer le couvercle (s'il est ouvert)
et tirer le bouton de COMMANDE DE PROGRAMMES.
PROGRAMMES
Cette section d_crit les programmes
disponibles et aidera 6 faire les
meilleurs choix pour les charges
de lavage. Chaque
programme est con_u
pour un autre type de tissu 108
et niveau de salet_. 12
[] La laveuse s'arr_te
bri_vement tout au long
de chaque programme.
Ces pauses sont normaux.
Voir "Sons normaux" pour
[]
Rinse
Spin
les sons qu'on peut entendre
pendant un programme de lavage.
Voir "ComprShension des programmes de lavage" d'apprendre
ce qui se produit au cours d'un programme de lavage.
Delicates
Spin
PULL TO START PUSH TO STOP
Heavy Duty (Lavage intense)
Utilisez ce programme pour les tissus robustes ou de charges tr_s
sales. Le programme combine une agitation 6 haute vitesse et un
essorage 6 haute vitesse.
[] SSlectionner une p_riode d'agitation de programme (8, 10
ou 12 minutes); choisir plus de temps pour les tissus trSs sales,
robustes et moins de temps pour les tissus robustes, I_gSrement
sales.
Casual (Tout-aller)
Le programme Casual (Tout-aller)comprend un processus de
refroidissementde charge qui r6duitlefroJssement.Ce programme
combine une agitation 6 haute vitesse et basse vitesse et un
essorage 6 basse vitesse.
PartJellement gr6ce au programme, la laveuse se met en pause
pendant environ 2 minutes tandis que la partJe de I'eau de lavage
est vidang_ et remplac8 par I'eau de rin_:age.
Delicates (Articles d_licat)
Utiliser ce programme pour lingerie et articles en tricot.
PartJellement grace au programme, la laveuse se met en pause, et
puis le trempage de la charge pour des soins plus doux des articles
d61icats, I_g_rement sales. Le programme combine une agitation
6 basse vitesse pour enlever d61icatement la salet_ et un essorage
6 basse vitesse pour r_duire le froissement.
Soak (Trempage)
Le programme Soak (Trempage) a 4 minutes de I'agitation,
suivie d'une pSriode de trempage illimit8 pour aider 6 81iminer la
salet6 et les taches quJ n_cessitent un pr_traitement. Vous devrez
rSinitialiser la laveuse 6 un r_glage de Spin (essorage) pour
enlever I'eau.
[] Le programme Soak (Trempage) doit 8tre suivi d'une utilisation
du programme Heavy Duty (Lavage intense), Casual (Tout-aller)
ou Prewash (Pr_lavage), 6 raide d'un supplement de detergent.
REMA_QUE : L'eau chaude n'est pas recommand8 pour le
trempage. EIle peut fixer certaines taches.
Prewash (Pr_lavage)
Utilisez ce programme pour jusqu'6 4 minutes d'agitation
pour aider 6_liminer la salet_ et les taches qui n_cessitent
un pr_traitement.
[] Le programme Prewash (Pr_lavage) dolt _tre suivi d_une
utilisation du programme Heavy Duty (Lavage intense) ou
Casual (Tout-aller), 6Haide d'un supplement de detergent.
RIN(_AGE ET ESSORAGE
Lors de I'utilisation de d_tergent suppl_mentaire pour les
vStements trSs sales, ou Iors du lavage des articles nScessitant un
soin special, vous devrez peut-Stre utiliser un rin_;age et essorage
supplSmentaire.
[] Appuyer le bouton de COMMANDE DE PROGRAMMES
et tourner vers la droite pour les rSglages Rinse (Ringage).
Pour agitation 6 haute vitesse et un essorage 6 haute vitesse,
utiliser le programme Heavy Duty (Lavage intense).
Pour agitation 6 basse vitesse et un essorage 6 basse vitesse,
utiliser le programme Casual (Tout-aller).
[] R_gler SOIL LEVEL (Niveau de saletS) et WASH TEMP (Temp.
de lavage) au rSglage d_sirS.
[] Tirer le bouton de COMMANDE DE PROGRAMMES. La laveuse
se remplit automatiquement 6 la taille correcte de la charge,
agite et puis efFectue une vidange et un essorage.
VIDANGE ET ESSORAGE
Une vidange et un essorage peuvent aider a reduire le temps de
s_chage pour certains tissus Iourds ou articles de soin special en
enlevant I'exc_s d'eau.
[] Appuyer le bouton de COMMANDE DE PROGRAMMES
et tourner vers la droite pour les r_glages Spin (Essorage).
" Pour un essorage 6 haute vitesse, utiliser le programme
Heavy Duty (Lavage intense).
" Pour un essorage 6 basse vitesse, utiliser le programme
Casual (Tout-aller).
[] Tirer le bouton de COMMANDE DE PROGRAMMES. La laveuse
effectue une vidange et un essorage.
89

COMPRI_FIENSION DES PROGRAMMES DE LAVAGE
Lorsque la laveuse est r6gl6e sur un programme et le bouton de
commande de programmes est a tire, la laveuse se remplJt avant
le d6but de I'agJtatJon et le calendrier0 La laveuse commence 6
agiter immSdiatement aprSs le remplissage; agitation se produit
avec le couvercle termS.
Au cours de I'agitation, ragitateur suscite
une action continue de culbutage qui
fournit un nettoyage en profondeur
de la charge 6 laver.
Apr_s le d_but de I'agitation, le bouton
de commande de programme tourne
dans le sens horaire jusqu'6 ce qu'il
pointe vers une zone °'Off:" et le programme se termine.
REMARQUF :La laveuse s'arrSte bri_vement tout au long
de chaque programme. Ces pauses sont normales pour le
fonctionnement de la laveuse.
Lavage Rin_acje
I. Remplissage
1. Remplissage
2. DurSede lavage
s_lectionn8
-_ 3. Vidange*Sans agitation [_ 3. Vidange
Sans agitation
4. Essorage _J 4. Essorage-Ringage
par vaporisation
5. Essorage
*Le programme Casual :
vidange (partielle),
remplissage, agitation (brSve)
et vidange
6. ArrSt (Off:)
SONS NORMAUX
Comme pour tout nouveau produit, vous entendrez les sons que
vous n'Stes pas habitu6. Vous pouvez entendre des sons diff:_rents
qui se produisent pendant le lavage, ringage et d'essorage. Entre
les changements dans I'action de lavage, il y aura des pauses.
Vous entendrez la pulv6risation de I'eau et les 6claboussures
pendant les programmes de lavage et de rin_:age. Vous pouvez
entendre Hair aspir8 par la pompe 6 la fin de la vidange ou
engrenages changer quand les changements de programme.
lls font partie du fonctionnement de la laveuse normale.
CONSEILS DE LESSIVE
PrSparatlon pour le lavacje du llncje
Suivre ces recommandations pour aider 6 prolonger la vie de vos
vStements.
[] Fermer les fermetures 6 glissiSre et boutons-pression agrafes
pour 8viter d'accrocher d'autres articles. Retirer les 8pingles,
boucles et autres objets durs pour ne pas rayer HntSrieur de
la laveuse. C)ter les garnitures et les ornements non lavables.
[] Vider les poches et les transformer 6 I'envers.
[] Baisser les poignets sur le pantalon et brosser les peluches
et la salet_.
[] Retourner les tricots pour _viter le boulochage.
[] Attacher les cordes et les chassis afin qu'ils ne seront emm_le
pas.
[] R_parer les d_chirures, les ourlets d_faits et coutures.
[] Traiter les taches sans dSlai.
[] Les vStements qui sont humides ou teintSs doivent 8tre lavSs
sans tarder pour obtenir les meilleurs rSsultats.
Trl des v_tements
[] S_pare articles tr_s sales des articles I_g_rement sales,
mSme si on les lave normalement ensemble. S_parer les articles
qui torment la charpie (serviettes, chenille) de ceux qui la
retJennent (velours, tJssus synth6tiques, pressage permanent).
Lorsque ceia est possible, mettre articles causant la charpie
6 l'envers.
[] SSparer Jes couJeurs sombres de couleurs claires et sSparer;
trier ainsi que de ia solidit8 des teintures.
[] Trier par type de tissu (eaton r_sistant, tricots, articles dSiicats).
CHARGEMENT
Suggestions de charggement (tallle maxlmale des
charges)
Centre de buanderle
V@tements de travail laurds
2pantalons
3 chemises de travail
Serviettes
9serviettes de bain ou
6 serviettes de bain,
3 serviettes 6 main
et 6d_barbouillettes
Tout-aller
6 chemises ou
2 draps doubles et
2 taies d'oreiller ou
2 draps simples et
2 tales d'oreiller
Charge mixte
1 pantalon
2 tales d'oreiller
2 chemises
1 T-shirt
Tricots
2 pantalons et 2 chemises ou
3 robes
Articles d@licats
1 caraco
2 combinaisons
4sous-vStements
1 jeu de vStements de nuit
1 jupon
9O

UTILISATION DE LA SI_CHEUSE
TABLEAU DE COMMANDE ET CARACTERISTIQUES
Mod_les de 24O vol|s
Mod_les de 120 voffs
Push to Start
Dryer
Auto Dry Less_._ OFF=._More Auto Dry
M°re___ ess
20- Touch Up
WASH -SELECT - DRY
Pushto Start
Dryer
Norrno_ --
Auto Dry _;_ Less
_o___
OFF OFF
LJt) );::o
oE,_...._..__ ,d.,;/oo
Certains programmes et options ne sont pas disponibles sur terrains modSles.
L'apparence des appareils peut varlet.
91

POUR METTRE EN MARCHE LA S_:CHEUSE
Risque d'explosion
Garder Jes matieres et les vapeurs inflammables, telle
qua I'essence, loin de la s6cheuse.
Ne pas faire s6cher un article qui a d6j_ 6t6 touch6 par
un produit inflammable (m6me apr6s un lavage).
Le non=respect de ces instructions peut causer
un d6c_s, une explosion ou un incendie.
AVERTISSEMENT :Pour r&duire le risque d'incendie, de choc &Ject[ique ou.
de blessures 8 autrui, tire les IMPORTANTES INSTRUCTIONS DE SECURITE
avant de faire foncfionner ceffe laveuse.
Avant d'ufiliser Ja s&cheuset essuyer Jetambour de ta s6cheuse
avec un tinge humide pour entever la poussi6re accumul6e au cours
de I'entreposage et de t'exp6difion.
[] Nettoyer le fittre _ charpie avant chaque
charge. VoJr "Nettoyer le filtre _ charpie".
[] Placer le lingo dans la s6cheuse et fermer
la porte. Ne pas tasser excessJvement la
s&cheuse; les v6tements doivent pouvoir
culbuter Iibrement.
[] Tourner le bouton de COMMANDE
DE PROGRAMMES sur le programme
et temp6rature adapt6s _ la charge
s6cher.
[] Sur les modules de ]20 volts r faites gNsser
Push to Start
Dryer
le s_lecteur WASH/DRY sur la position "DRY" (s6cher).
[] Appuyer sur le bouton PUSH TO START DRYER
(Appuyer pour mettre en marche la s&cheuse).
POURARR[_TERETREMETTREEN MARCHELA SECHEUSE
La s_cheuse peut _tre arr6t_e 6 tout moment au cours d'un programme.
Pour arr_ter votre s_cheuse
Ouvrir ta porte de ta s_cheuse ou tourner le bouton de COMMANDE
DE PROGRAMMES sur "Off" (ArrSt).
REMARQUE : Le bouton de COMMANDE DE PROGRAMMES doit pointer
vers une zone de "Off" Iorsque ta s6cheuse n'est pas en usage.
Pour remettre en marche votre s_cheuse
[] Fermer la porte.
[] S6lecfionner un nouveau programme et une nouvelte temp&rature
(si d_sir_).
[] Appuyer sur te bouton PUSH TO START DRYER (Appuyer pour mettre
en marche la s&cheuse).
CHARGEMENT
Placer le linge dans la s6cheuse et fermer la porte. Ne pas tasser
excessivement ta s6cheuse; les v6tements doivent pouvoir culbuter
librement. Le tableau suivant montre des exemples de charges &quilibr6es
qui permettent un culbutage ad&quat.
V_tements de travoil Iourds 2 pantalons, 3 chemisesde travail
Articles d_licats 1 caraco, 2 combinaisons, 4 sous-v6tements
1jeu de v6tements de nuit, 1jupon
Servieffes 9 serviettes de bain ou 6 serviettes de bain,
3 serviettes 6 main, 6d6barbouillettes
Charge mixte 2 tales d'oreiller, 1 T-shirt,2 chemises,1 pantalon
Tricots 2 pantalons, 2 chemises;ou 3 robes
Pressagepermanent 6chemises;ou 2 draps doubles et 2 tales d'oreiller;
ou 2 draps simples et 2 tales d'oreiller
92
Risque d'incendie
Aucune laveuse ne peut compi_tement eniever I'huile.
Ne pas faire s6cher des articles qui ont 6t6 salis par
tout genre d'huile (y compris les huiJes de cuisson),
Les articles contenant de la mousse, du caoutchouc
ou du plastique doivent 6tre s6ch6s sur une corde
&Jingo ou avec le programme de s6chage a I'air ou
le programme de s6chage sans chaieur.
Le non=respect de ces instructions peut causer
un d6c_s ou un incendie.
CONSEILS DE SECHAGE, DE PROGRAMMES
ET DE TEMPERATURE
S6lecfionner le programme et la temperature correctes pour votre charge.
Conseils de s_chage
[] Suivre tes indications sur I'_fiquette de soin du v_tement lorsqu'ettes
sont disponibles.
[] Si los feuilles d'assouplissant de fissu sont ufitis6s, ufitiser uniquement
ceux marqu6s comme s6curis6s pour l'ufilisafion dans une s&cheuse.
Suivre les instructions sur I'emballage.
[] Entever la charge de la s6cheuse d$s que cesse de culbutage pour
r6duire te froissement. Ceciest parficuli$rement important pour le
pressage permanent, tricots et fissus synth6fiques.
Conseils de programrnes et de temp&rature
[] S6cher la ptupart des charges en utilisant le r_gtage Auto Dry Normal
(S&chage automafique normal).
[] Utiliser te r_glage More (Plus) pour s6cher les articles Iourds tets que
des serviettes et v&tements de travail.
[] Ufiliser le r6glage Auto Dry Normal (S6chage automatique normal)
pour s&cher les articles moyennement lourds tets que draps, sous-
v&tements_ tissus de pressage permanent et certains tricots.
[] Utitiser le r6glage Less (Moins) pour s6cher les articles I&gers tels que
IJngerie_ chemisJers, robes et certains tricots.
[] Ufiliser le r_glage Air Only (Air seulement) pour le caoutchouc,
plasfique ou fissus sensibtes 5 ta chateur.
[] Tissus cotl&s ou stratifies doivent _tre s6ch&s sur une corde 5 tinge.
En cas de doute de ta temp6rature pour s&lecfionner pour une charge,
s&lecfionner un r6glage inf&rieur ptut6t qu'un r6glage plus &lev&
REMARQUE :S'il y a des questions sur tes temp6ratures de s6chage
pour diverses charges, consulter les indications sur I'&fiquette de soin
du v&tement.

PROGRAMMES
Auto Dry
(S_chage aufomafique)
Utiliser Auto Dry pour s_cher
la plupart des charges. La
s_cheresse est d&termin_e
Auto Dry Less_ O_F_._More Auto Dry
Morel _-'_'_ ess
Ai'°"lY20
_-'-_ 20 -Touch Up
par thermostats qui r6agissent
6 ta temperature ou ta
quanfit6 d'humidit& dans
Fair de la s&cheuse.
Ce programme comprend une
p6riode de refroidissement lo
(approximafive) de 5minutes mod_te de 240 volts illustr6
6 ta fin du programme pour faire des v&tements plus facile 6 g&rer
et 6 r6duire les faux ptis.
Utiliser Auto Dry Normal pour s6cher la plupart des fissus tourds et des
fissus de poids moyen. Lorsque le programme est termin_, v6rifier le degr6
de s&chage de la charge.
[] Si la charge est plus s6che que pr6f&r_, s6lectionner un r>age de
plus pros au LESS (Moins) la prochaine fois une charge sembtabte
est s_ch4e.
[] Si la charge n'est pas aussi sec que pr_f6r&e, terminer le s6chage 6
I'aide de Timed Dry (s6chage minut&). S61ecfionner un r&glage plus
proche de MORE (Plus) la prochaine fois une charge semblable
est s6ch6e.
REMARQUE :Avec un programme automafique, le temps de s&chage varie
selon te type de fissu, la taille de la charge et te r_glage de la temp&rature.
Voir "Conseits de s&chage, de programmes et de temperature".
Timed Dry (S_chage minut6)
Ufitiser Timed Dry (S_chage minute) pour completer te s_chage si les
articles sont humides apr_s le programme de s6chage automafique.
Le s6chage minut& est 6gatement utile pour tes articles Iourds et
encombrants, tels que tes couvre-lits, v6tements de travail, et de grosses
charges qui n_cessitent un temps de s6chage prolong& Ufilisez ce
programme pour recevoir jusqu'6 50 minutes de chauffage sur les
mod$1es de 240 volts, ou jusqu'6 110 minutes de chauffage sur les mod$1es
de 120 volts. Le programme de chauffage est suivi d'une p6riode de
refroidissement (approximafive) de 5minutes.
Touch Up (Retoucher)
Ufitiser Touch Up (Retoucher) pour lisser tesarticles synth_fiques et des
v&tements de permanent press qui sont d&j6 secs et propres, mais froiss6s
apr6s avoir 6t_ dans un placard ou une valise. Ce programme fournit environ
20 minutes de culbutage chauff6, suivie d'une p6riode de refroidissement de
5minutes (approximafive). Supprimer des articles d$s le culbutage arr6te.
Air Only (Air seulement)
Ufitiser Air Only (Air seulement) pour les articles qui demandent un
s&chage sans chaleur (tels que le caoutchouc, ptasfique et fissus sensibtes
la chaleur). Ce tableau donne des exemples d'arficles qui peuvent &tre
s&ch&s 6 l'aide d'un programme de Fair.
Type de charge Minutes _
Caoutchouc mousse - oreilters, soufiens-gorge 20-30
rembourr6s, jouets en peluche
Articles en ptasfique - rideaux de douche, nappes 20-30
Tapis 6endos de caoutchouc 40-50
Ol6fine, potypropyl6ne, nylon diaphane 10-20
_ R&inifiatiser le temps que n&cessaire pour permettre aux articles
s&cher compl_tement.
Lors de rutiffsation Air Only (Air seulement)
[] V_rifier que les rev_tements sont bien fixes.
[] Secouer et fake bouffer les oreilters 6 la main p&riodiquement
pendant le programme.
[] Faire s6cher des articles compl_tement. Les oreitlers en caoutchouc
mousse s_chent lentement.
Signal de fin de programme
Votre s_cheuse _met un signal Iorsqu'un programme de s_chage est termin&
Ce signal est utile tors du s6chage des articles qui doivent &tre supprim6s
dSs que la s&cheuse s'arr6te pour aider 6&viter les faux plis.
ENTRETIEN DU CENTRE DE BUANDERIE
NETTOYAGE DE L'EMPLACEMENT
DU CENTRE DE BUANDERIE
Eviter de taisser autour du centre de buanderie des _l_ments
qui pourraient obstruer la circulation de l'air et emp6cher le bon
foncfionnement du centre de buanderie.
Risque d'explosion
Garder les rnatibres et les vapeurs inflammables, telle
que I'essence, loin de la secheuse.
Le non=respect de cette instruction peut causer un
d6c_s, une explosion ou un incendie.
NETTOYAGE DE LA LAVEUSE
Neffoyage de I'ext_rieur
Utiliser une &ponge ou un chiffon doux et humide pour essuyer les
renversements &ventuets de d6tergent ou d'agent de btanchiment. Parfois
essuyer I'ext6rieur de votre laveuse 6garder comme neut.
Neffoyage de rint6rieur
Oarder votre laveuse aussi propre et fra;che que vos v&tements. Pour que
Iqnt&rieur de la laveuse reste libre de toute odeur_ suivre la procedure
mensuelle de nettoyage recommand&e suivante :
I. V&rifier que la laveuse est vide.
2. _. l'aide du nettoyant pour laveuse affresh _>(recommand&), placer
une pastille dans le panier de la laveuse
OU
Si vous ufiliser un agent de btanchiment au chlore, verser 1 tasse (250 mL)
dans le panier de la taveuse.
iMPORTANT :Ne pas ajouter de d_tergent. Ne pas utiliser plus
que la quanfit& recommand&e d'agent de btanchiment pour &viter
d'endommager la taveuse au fit du temps.
3. Rabattre le couvercle de ta laveuse.
4. Setecfionner le programme Heavy Duty (Lavage intense), temp&rature
Hot (Chaude) et niveau de satet& Heavy (Intense).
5. Tirer sur le bouton de commande de programme. De t'eau coute
dans la taveuse pendant un moment, puis s'arr6te de couter, le
couvercte se verrouille et le programme reprend.
REMARQUE :Pour de meilteurs r_suttats, ne pas interrompre le
programme. Si I'on doit suspendre le programme, enfoncer le bouton
de programme.
TUYAUX D'ARRIVEE D'EAU
Remplacer les tuyaux d'arriv_e d'eau apr_s 5ans d'ufitisafion pour r_duire
le risque de d&faittance intempestive. Inspecter p6riodiquement tes tuyaux;
les remplacer en cas de renflement, de d&formafion, de coupure et d'usure
ou si une fuite se manifeste.
Lorsque vous remplacez les tuyaux d'arriv&e d'eau, noter la date
de remplacement au marqueur ind&16bite sur I'&fiquette.
93

NETTOYAGE DU FILTRE ACHARPIE
Nettayage avant chaclue charge
Le filtre _ charpJe se trouve dans la s_cheuse sur la paroi arri_re.
Enlever la charpie avant chaque charge. Un filtre obstru8 de
charpie peut augmenter la durSe de s_chage.
Nettoyage
1. Retirer le filtre 6 charpie et sa protection.
Nettoyage
1. Enlever la charpie du filtre en la roulant avec les doigts.
2o Mouiller les deux c6t_s du filtre 6 charpie avec de reau ¢haude.
3. Mouiller une brosse en nylon ave¢ de I'eau chaude et du
d_tergent NquJde. Frotter le filtre avecla brosse pour enlever
I'accumulation de r_sidus.
2. S_parer la protection du filtre en appuyant sur le filtre et
en retirant en m_me temps la protection.
A
A. Filtre
B. Protection
3. Enlever la charpie du filtre en la roulant avec les doigts.
Ne pas rincer ni laver le filtre pour enlever la charpie.
La charpie mouillSe s'enlSve difflcilement.
4. R6assembier et remettre le filtre et sa protection en place
en appuyant fermement.
IMPORTANT :
[] Ne pas faire fonctionner la sScheuse avec un filtre 6 charpie
dSplac6, endommag6, bloqu6 ou manquant. Ceci peut entra?ner
une surchauffe et endommager la sScheuse et les tissus.
[] Si de la charpie tombe dans la s_cheuse au moment du retrait
du filtre, v6rifier le conduit d'Svacuation et retirer la charpie.
Voir "Exigences concernant 1'Svacuation'.
Nettoyage au besoln
Des r_sidus de dStergent ou d'assoupiisseur de tissu peuvent
s'accumuler sur le filtre 6 charpie. Cette accumulation peut
entra?ner des temps de s6chage plus longs, ou entraTner I'arr_t de
la s_cheuse avant que la charge ne soit complStement sSche. Si
de la charpie tombe du flltre alors qu'il est dans la s_cheuse, il est
probablement obstru_.
Nettoyer le filtre 6 charpie (tel que d6crit ci-dessous) avec une
brosse de nylon tousles six mois ou plus fr_quemment s'il se
bouche en raison d'une accumulation de r_sidus.
94
4. Rincer le filtre 6 I'eau chaude.
5. Bien s_cher le flltre 6 charpie avec une serviette propre.
R6installer le flltre dans la s6cheuse.
NETTOYAGE DE L'INTI_RIEUR DE LA S_:CHEUSE
Nettayage du tambour de la s$cheuse
]. Appliquer un nettoyant domestique liquide et ininflammable
sur la surface tach_e du tambour et trotter avec un linge doux
jusqu'6 ce que la tache salt supprim_e.
2. Essuyer compl_tement le tambour avec un linge humide.
3. Faire culbuter une charge de linge ou de serviettes propres
pour s_cher le tambour.
REMARQUE :Les v_tements contenant des teintures instables,
tels que jeans en denim ou articles en coton de couleur vJve,
peuvent d_colorer I'int_rieur de la s_cheuse. Ces taches ne sont
pas nocives pour votre s6cheuse et ne tacheront pas les v_tements
des charges futures. S_cher ces articles sur I'envers pour _viter
de tacher le tambour.
RETIRER LA CHARPIE ACCUMUL_:E
De I'int_rleur de la calsse de la s_cheuse
Retirer la charpie tousles 2 ans, ou plus souvent, selon rutilisation
de la s_cheuse. Le nettoyage doit _tre e_:ectu_ par un personnel
d'entretien qualiflS.
Dans le conduit d'_vacuaflon
Retirer la charpie tous les 2 ans, ou plus souvent, selon I'utilisation
de la s_cheuse.
PRECALITIONS APRENDRE AVANT LESVACANCES,
UN ENTREPOSAGE OU UN DEMENAGEMENT
Installer et remiser le centre de buanderie _ l'abri du gel. L'eau
qui peut rester dans les tuyaux risque d'abTmer le centre de
buanderie en temps de gel. Si ie centre de buanderJe doff faire
l'objet d'un d6m6nagement ou d'entreposage au tours d'une
p6riode de gel, hiv6rJser ie centre de buanderie.
Entretlen en cas de non=utiffsatlan ou d'entrepasage
On ne doit faire fonctionner le centre de buanderie que Iorsqu'on
est present. Si I'utilisateur doit partir en vacances ou n'utilise pas
le centre de buanderie pendant une p6riode prolongSe, il convient
d'ex6cuter les opSrations suivantes :
[] D6brancher le centre de buanderie ou dSconnecter
I'alimentation _lectrique.
[] Fermer I'alimentation en eau 6 la laveuse pour _viter
toute inondation due 6 une surpression.
Hiv_rlsatlan du centre de buanderle
I. Fermer les deux robinets d'eau.
20 D_connecter et vidanger les tuyaux d'arriv_e d'eau.
3. Placer 1 quart (1 L) d'antigel pour vShicule rScrSatif dans
le panier.
4. Faire fonctionner la laveuse sur un programme Drain and
Spin (vidange et essorage) pendant environ 30 secondes
pour mSlanger I'antigel et I'eau restante.
5. D_brancher le centre de buanderie ou dSconnecter la source
de courant 81ectrique.

Remlseen marche du centre de buanderle
1. Vidanger les canalisations d'eau et les tuyaux.
2. Reconnecter les tuyaux d'arrivSe d'eau.
3. Ouvrir les deux robinets d'eau.
Risque de choc 61ectrique
Brancher sur une prise b3alv6oles reli6e bla terre.
Ne pas enlever la broche de liaison bla terre.
Ne pas utiliser un adaptateur.
Ne pas utiliser un c&ble de rallonge.
Le non=respect de ces instructions peut causer
un d6cbs, un incendie ou un choc 61ectrique.
4. Brancher le centre de buanderie ou reconnecter la source
de courant 61ectrique.
5. Faire ex6cuter 6 la laveuse un programme complet pour
nettoyer la laveuse et _liminer I'antigel.
Transport du centre de buanderle
1. Fermer les deux robinets d'eau.
2, D6brancher et vidanger les tuyaux d'arriv6e d'eau.
3. Si I'on d6place le centre de buanderie pendant une p6riode
de gel s placer 1 quart (1 L) d'antigel pour v6hicule r6cr6atif
dans le panier. Faire fonctionner la laveuse sur un programme
Spin (essorage) pendant environ 30 secondes pour m61anger
I'antigel et I'eau.
40 D_connecter le tuyau de vidange du syst_me de vidange.
5. D_brancher le centre de buanderie ou d_connecter
I'alimentation 61ectrique.
6. D_brancher le conduit d'Svacuation
7. Laver le filtre 6 charpie.
80 VSrifier que les pieds de nivellement sont s_curis_s0
90 Placer les tuyaux d'arriv_e d'eau dans le panier de la laveuse.
10. Placer Fanneau d'embailage en mousse (enlev6e durant
I'installation) dans la laveuse pour maintenir la stabilit8
de la cure de la laveuse pendant le transport.
11. Draper le cordon d'alimentation et le tuyau de vidange sur
le bord du centre de buanderie et dans le panier de la laveuse.
12. Utiliser ruban adh6sif pour fixer le couvercle de la laveuse
et la porte de la s_cheuse.
R61nstallafion du centre de buanderle
1. Consulter les Instructions d'installation pour choisir
I'emplacement_ r6gler Faplomb du centre de buanderie
et le raccorder.
2. Faire ex6cuter €] la laveuse un programme complet en faisant
1 mesure ou 1 bouchon de d6tergent pour nettoyer la laveuse
et 61iminer I'antigel, le cas 6chSant.
95

DEPANNAGE LAVEUSE
Si les ph_nom_nes
suivants se produisent
Essayer d'abord les solutions sugg_r_es ici pour tenter d'_viter le co0t d'une intervention de d_pannage.
Solution
V_rifier ce qui suit pour
que rinstallafion soft
correcte ou voir Ja
section "UtilisatJon
de la laveuse".
CIJquetis ou bruits
m_talNques
Gargouillement
ou bourdonnement
Causes possibles
Les pieds ne sont peut-_tre pas
en contact ferme avec ie plancher.
La laveuse/s_cheuse n'est
peut-_tre pas d'apiomb.
La charge est peut-_tre
d_s_quilibr_e.
Des objets sont coinc_s dans le
syst_me de vidange de la laveuse.
La laveuse est peut-_tre en train
d'_vacuer de i'eau.
La iaveuse se vide.Bourdonnement
Les pieds avant et artiste doivent 8tre en contact ferme avec
ie plancher et la laveuse/sScheuse doit _tre d'aplomb pour
fonctionner correctement.
VSrifier que le plancher n'est pas incurv8 ou qu'il ne s'affaisse
pas. Si le plancher est irr_gulier0 un morceau de contrepiaqu8
de 3/4" (19 mm) plac8 sous ie centre de buanderie permettra
de r_duire ie bruit.
Voir "Niveilement du centre de buanderie" dans ia section
des instructions dqnstallation.
Charger les vStements sees sans les tasser et de fa_on uniforme
ie long de la paroi du panier. Le fair d'aiouter des articles
mouiliSs ou de raiouter de reau dans ie panier pourrait
dSs_quiiibrer la iaveuse.
Ne pas trop tasser ie iinge. Eviter de laver un article seui.
Voir "Utiiisation de la laveuse" dans ce Guide d'utilisafion et
d'entretien.
Vider les poches avant le lavage. Les articles mobiles tels des
pi_ces de monnaie sont susceptibles de tomber entre le panier
et la cuve; Jls peuvent aussJ obstruer ia pompe. Un appel pour
intervention de dSpannage s_avSrera peut-_tre nScessaire pour
retirer ces objets.
II est normal d_entendre les articles mStalliques des v_tements
comme les boutons-pression mStaliiques, boucles ou fermetures
6 glissi_re toucher ie panier.
li est normal d'entendre la pompe produire un bourdonnement
continu accompagn8 de gargouiilements ou de bruits de
pompage p_riodiques Iorsque les quantit6s d'eau restantes sont
_iiminSes au cours de programme d_essorage.
Pendant le programme de vidange de la laveuse, la pompe _met
un bourdonnement continu accompagn8 de gargouiliements ou
de bruits de pompage pSriodiques Iorsque ies quantit_s d'eau
restantes sont _iiminSes. C_est normal.
V_rifier ce qui suit pour La iaveuse n'est pas d'apiomb, li est possible que de I'eau 6clabousse en dehors du panier
que i'installation soit si la laveuse n'est pas d'apiomb. VSrifier que la charge n'est pas
correcte :dSs_quiiibr_e ou trop tassSe.
Les tuyaux de remplissage ne sont Setter ie raccord du tuyau de rempiissage.
pas soiidement fixSs.
Rondelles d'Stanch_it8 des tuyaux S'assurer que les quatre rondelles d'StanchSit_ plates des tuyaux
de rempiissage, de rempiissage d'eau sont correctement installSes.
Raccord du tuyau de vidange.
Inspecter le circuit de plomberie du
domicile pour vSrifier quail n'y a pas
de fuites ou que i'Svier ou ie tuyau
de vidange n'est pas obstruS.
Tirer ie tuyau de vidange de la caisse de la laveuse et le
fixer correctement dans ie tuyau de rejet 6 i_gout ou i'_vier
de buanderie.
Ne pas placer de ruban adhSsif sur i_ouverture du syst_me
de vidange.
De reau pourrait refouler de i'Svier ou du tuyau de reiet
6 I'_gout obstru_. Inspecter tout le circuit de plomberie du
domicile (_viers de buanderie, tuyau de vidange, conduites
d'eau et robinets) pour vSrifier quail n'y a aucune fuite. ,J
96

DEPANNAGE mLAVEUSE (suite)
Essayer d'abord les solutions sugg_r_es ici pour tenter d'_viter le coot d'une intervention de d_pannage.
Si les ph_nom_nes
suivants se produisent
V_rifier ce qui suit
pour que rinstallafion
salt correcte =(suite)
k.
Causes possibles
La laveuse n'a pas _t(_ charg_e
tel que recommand_.
Solution
Une charge d_s_quilibr_e peut entra?ner une d_viafion
du panier et de reau pourrait alors _clabousser en dehors
de la cuve. VoJr _'UfilJsation de la laveuse" pour des instructions
sur le chargement. J
Risque de choc 61ectrique
Brancher sur une prise &3aiv6oles reli6e &la terre.
Ne pas enlever la broche de liaison _la terre.
Ne pas utiliser un adaptateur.
Ne pas utiliser un c_ble de rallonge.
Le non-respect de ces instructions peut causer
un d6c_s, un incendie ou un choc 61ectrique.
Risque de choc 61ectrique
Brancher sur une prise &4 alv6oles reli6e _ la terre.
Le non-respect de cette instruction peut causer
un d6c_s ou un choc 61ectrique.
La laveuse ne fonctionne
pas ou ne se rempJJt pas;
elle cesse de foncfionner
k.
V_rifier que la laveuse est
correctement aliment_e en eau.
V_rifier que I'alimentation _lectrique
est correcte.
FonctJonnement normal
de la laveuse.
Les deux tuyaux doivent _tre fixes et reau doit p_n_trer dans
la valve d'arriv_e.
Les robinets d'eau chaude et d'eau froide doivent _tre ouverts
tousles deux.
V_rifier que les tamis des valves d'arriv_e ne sont pas obstru_s.
V_rifier que les tuyaux d'arriv_e d'eau ne sont pas d_form_s;
cecJ peut r_duire le d_bJt.
Brancher Ja s_cheuse ou reconnecter la source de courant
_lectrique.
Ne pas utJlJser de c_ble de rallonge.
V_rifier que la prise est aliment_e.
Remettre en marche un dJsjoncteur quJ seraJt ouvert.
Remplacer tout fusible grJll_.
REMARQUE :Si le probl_me persiste, appeler un 61ectrJcien.
La porte dolt _tre ferm_e pour que la laveuse puisse fonctionner.
La laveuse fait des pauses durant certaines _tapes du
programme. Ne pas interrompre le programme.
La laveuse d_tecte la charge s_che en proc_dant (] de courts
essorages qui peuvent prendre plusieurs minutes avant de se
remplir pour v_rifier r_quilibrage de la charge. Les essorages
peuvent _mettre un bourdonnement avant le remplissage.
Ceci est normal. J
97

DEPANNAGE LAVEUSE (suite)
Essayer d'abord les solutions sugg_r_es ici pour tenter d'_viter le coot d'une intervention de d_pannage.
Si les ph_nom_nes Causes possibles Solution
La laveuse ne foncfionne
pas ou ne se remplJt pas;
elie cesse de fonctionner
(suite)
La Javeuse ne se
vJdange/n'essore pas;
les charges restent
mouiJJ_es
Le niveau d'eau semble
trop bas, ou la laveuse
ne se rempiJt pas
compl_tement
Les v_tements ne sont
pas compl_tement
immerg6s dans J'eau
EndroJts secs sur
la charge apr_s
un programme
La laveuse n'a pas _t_ chargSe
tel que recommand_.
Des petJts articles sont peut=6tre
coiners dans la pompe ou entre le
panJer et la cuve, ce qui peut ralentir
la vidange.
Un programme avec une vitesse
d'essorage infSrieure a _t8 utilisS.
La laveuse n'a pas _t8 charg$e
tel que recommandS.
Inspecter le circuit de plomberie
pour v_rifier que le tuyau de
vidange est correctement installS.
Le tuyau de vidange se proionge
dans le tuyau rigide de rejet 6
F_gout au-del6 de 4,5" (114 mm).
Un exc_s de mousse caus(_ par une
utilisation excessive de d_tergent
peut ralentir ou arr_ter la vidange
OU ressorage.
Le sommet de I'agJtateur est
beaucoup plus haut que ie niveau
d'eau le plus _iev_.
Cette laveuse consomme
beaucoup moJns d'eau que les
laveuses traditionneiles 6 chargement
par ie dessus.
Cette laveuse consomme
beaucoup moins d'eau que les
laveuses traditionneiles 6 chargement
par ie dessus.
Un essorage 6 vitesse _iev_e
extrait davantage d'humidit6 que
ies laveuses traditionnelies 6
chargement par ie dessus.
Retirer plusieurs articles, r_partJr unJformSment ia charge
dans Je panJer et ajouter du d_tergent. Fermer Je couvercle
et tirer ie bouton de programme pour d_marrer ia laveuse.
Ne pas ajouter plus de 1 ou 2 articles supplSmentaires
apr_s le dSbut du programme pour _viter un tassement excessif
de la charge ou un dSs_quilibre.
Vider ies poches et utiliser des sacs 6 iinge pour ies petits articles.
Les programmes avec vitesses d'essorage r_duites 6iimJnent
moins d'eau que les programmes qui comportent des vitesses
d'essorage sup6rieures. Utiliser le programme recommandS/
vitesse d'essorage appropriSe pour le vStement. Pour _Jiminer
i'eau restant dans la charge, sSlectionner Spin (essorage). On
oeut avoir 6 rSarranger ia charge pour en assurer une distribution
uniforme dans le panier.
Des charges excessivement tassSes ou d_s_quiiibr_esempSchent
la laveuse d'essorer correctement, ce qui laisse le linge plus
mouiil6 quail ne devrait I'6tre. Voir "Utiiisation de la laveuse"
pour des recommandations sur le chargement.
VSrifier que ie tuyau de vidange est correctement installS.
UtilJser la bride de retenue pour tuyau de vidange et la fixer
solidement au tuyau de reiet 6FSgout ou 6 FSvier de buanderie.
Ne pas placer de ruban adhSsif sur Fouverture du syst_me de
vidange. Abaisser le tuyau de vidange si I'extr_mit_ se trouve
6 plus de 96" (2,4 m) au=dessus du plancher. Retirer toute
obstruction du tuyau de vidange.
Toujours mesurer Jes quantitSs et suivre les instructions figurant
sur le dStergent en fonction de la charge. Pour _liminer tout
exc_s de mousse, s_iectionner Rinse and Spin (tin,age et
essorage). Ne pas ajouter de dStergent.
Ceci est normal et nScessaire au iibre mouvement
des v_tements.
Les v_tements peuvent ne pas _tre compl_tement immerg_s
dans Veau.
Laver une charge moins importante.
Un essorage 6 vitesse _lev_e associ_ 6 une circulation d'aJr
durant I'essorage final peut entra?ner Fapparition de portions
s_ches sur le linge piac_ sur le haut de la charge au cours
de Vessorage final. Ceci est normal.
98

f
DEPANNAGE LAVEUSE (suite)
Essayer d'abord les solutions sugg_r_es ici pour tenter d'_viter le coot d'une intervention de d_pannage.
Si les ph_nom_nes Causes possibles Solution
suivants se praduisent
Temperatures de lavage
ou de rinc;age incorrectes
Charge non rinc_e
Sable, poils d'animaux,
charpJe, etc. sur Ja
charge apr_s le lavage
La charge
est emm_J_e
V_rifier que la laveuse est
correctement aliment_e en eau.
Temperatures de iavage contr61_es
pour effectuer des _conomies
d'_nergie.
V_rifier que Ja laveuse est
correctement aliment_e en eau.
Utilisation excessive de d_tergent.
La laveuse n'a pas _t_ charg_e
tel que recommand_.
Des r_sidus Iourds de sable,
de polls d'animaux, de charpie
et de d_tergent ou d'agent
de bJanchiment peuvent n_cessiter
un tin,age suppl_mentaire.
La laveuse n'a pas _t_ charg_e
tel que recommand_.
V_rifier que les tuyaux d_arriv_e d_eau chaude et froide n'ont
pas _t_ inverses.
Les deux tuyaux doivent _tre raccord_s 6 la lois & la laveuse
et au robinet, et la valve d_arriv_e doit recevoir 6 la fois de I'eau
chaude et de I'eau froide.
V_rifier que les tamis des valves d_arriv_e ne sont pas obstru_s.
Eliminer toute d_formation des tuyaux.
Cette laveuse utJJise des temperatures de lavage et de tin,age
inf_rieures 6 celles qu'utJlisait votre laveuse pr_c_dente. Cela
signifie _galement des temperatures inf_rieures de lavage 6 reau
chaude et 6 reau tilde.
V_rifier que les tuyaux d_arriv_e d_eau chaude et froide n'ont
pas _t_ inverses.
Les deux tuyaux doivent _tre fixes et I'eau doit p_n_trer dans
la valve d'arriv_e.
Les robinets d'eau chaude et d_eau froide doivent _tre ouverts
tousles deux.
Les tamis des valves d_arriv_e d_eau de la laveuse sont
peut-_tre obstru_s.
Eliminer toute d_formation du tuyau d_arriv_e.
La mousse produite par un exc_s de d_tergent peut emp_cher la
laveuse de foncfionner correctement. Toujours mesurer la quantit_
de d_tergent et toujours suivre les instructions du d_tergent en
foncfion de la taille et du niveau de salet_ de la charge.
La laveuse effectuera un rin_;age moins performant si la charge
est excessivement tass_e.
Charger Jes v_tements sans Jes tasser et de fa_on uniforme
le long de la paroi du panier.
La laveuse ne rincera pas bien si les v_tements sont tass_s.
Charger Ja Javeuse uniquement avec des articles secs.
UtJliser le programme con_u pour les tJssus 6 laver.
Si I'on souhaJte aiouter des v_tements une fois que la laveuse
a d_marr_, n'en raiouter qu'un ou deux.
Augmenter ie r_glage de Soil Level (Niveau de saletS).
Voir ia section "Utilisation de la laveuse'L
SSlectionner un programme comportant un lavage plus
lent et une vitesse d'essorage infSrieure. Noter que les
articles seront plus mouiii_s que si I'on utiiise une vitesse
d'essorage sup_rieure.
Charger les vStements sans les tasser et de fa_;on uniforme
ie long de la paroi du panier.
R6duire I'emm61ement en m_langeant plusieurs types
d'artJcles dans la charge. UtJiJser le programme recommand_
correspondant aux types de v_tements 6 laver. J
99

DEPANNAGE LAVEUSE (suite)
fEssayer d'abord les solutions sugg_r_es ici pour tenter d'_viter le co0t d'une intervention de d_pannage.
Si les ph_norn_nes
suivants se produisent
Ne nettoie ou
ne dStache pas
Dommages aux tissus
Causes possibles Solution
La laveuse n'a pas _t8 chargSe
tel que recommandS.
Ajout de d_tergent sur le dessus
de la charge.
UtJlJsatJon excessive de d_tergent.
Programme utilis_ incorrect
par rapport au type de tissu.
Les couleurs similaires ne sont
pas iavSes ensemble.
Des objets pointus se trouvaient
dans les poches au moment
du programme de lavage.
La laveuse effectue un nettoyage moins performant si la charge
est trop tass_e.
Charger Jes v_tements sans Jes tasser et de fa_}on uniforme le
long de la paroi du panJer. Charger la laveuse uniquement avec
des articles sees.
Si I'on souhaite ajouter des v_tements une fois que la laveuse a
d_marr_, n'en rajouter qu'un ou deux.
Ajouter le d_tergent, les produJts oxi et I'agent de bianchiment
sans danger pour les couleurs au fond du panier avant de
charger les articles dans la laveuse.
La mousse produJte par un exc_s de d_tergent peut emp_cher
la laveuse de fonctJonner correctement. Toujours mesurer la
quantit_ de d_tergent et toujours suJvre les instructions du
d_tergent en fonction de la taille et du niveau de salet_ de
la charge.
UtJiiser une option de programme de niveau de saiet6 plus
_lev_e et une temperature de lavage plus chaude pour am_iJorer
le nettoyage.
Utiliser le programme Heavy Duty (Lavage intense) pour
un nettoyage puissant.
Laver ensemble les couieurs semblables et les retirer rapJdement
une foJs le programme termin_ pour _viter tout transfert de
teinture.
Vider les poches, fermer les fermetures 6 glJssi_re, les boutons
pression et les agrafes avant le lavage pour _viter d'accrocher
et de d_chJrer le IJnge.
Les cordons et les ceintures se sont Attacher tousles cordons et les ceintures avant de d_marrer
peut-_tre emm_i_s, le nettoyage de la charge.
Les articles _taient peut-_tre Raccommoder Jes d_chirures et repriser les ills cass_s des
endommagSs avant le lavage, coutures avant le lavage.
Des dommages au tissu peuvent se
produJre si la charge est trop tass_e.
L'agent de blanchiment au chore
n'a pas _t_ ajout_ correctement.
Les instructions de soin des
v_tements n'ont peut-_tre pas
_t_ suJvJes.
Charger les v_tements sans les tasser et de fa_}on uniforme
le long de la paroJ du panier. Charger la laveuse uniquement
avec des articles sees.
Utiliser le programme con_}u pour les tissus 6 laver.
Si I'on souhaite ajouter des v_tements une foJs que la laveuse
a d_marr_, n'en rajouter qu'un ou deux.
Ne pas verser d'agent de blanchiment au chore IJquJde
directement sur la charge. Essuyer tousles renversements d'agent
de blanchJment.
Un agent de bJanchiment non diiu_ endommagera Jes tissus.
Ne pas utiJJser plus que la quantJt_ recommand_e par
le fabricant.
Toujours life et suivre les instructions d'entretien du fabricant
indiqu_es sur I'_tiquette du v_tement.
J
too

DEPANNAGE LAVEUSE (suite)
Essayer d'abord les solutions sugg_r_es ici pour tenter d'_viter le coot d'une intervention de d_pannage.
Si les ph_nom_nes
suivants se produisent
Odeurs
Causes possibles
L'entretJen mensuel n'est pas efl:ectu_
tel que recommandS.
Solution
Voir "Nettoyage de la iaveuse" dans la section "Entretien
du centre de buanderie".
D_charger la laveuse d_s que le programme est termin_.
UtJJisatJon excessive de d_tergent. VeJJJer 6mesurer correctement. Toujours suJvre les instructions
du fabricant.
Le sachet de JessJve Sachet de lessJve mal utJJJs_. VeJJJer 6 pJacer Je sachet de JessJvedans Je panJer de Ja
dose unique ne Javeuse avant d'ajouter les v_tements. Suivre Jes instructions
se dissout pas du fabricant pour _viter d_endommager les v_tements. J
1ol

DEPANNAGE S :CHEUSE
Essayer d'abord les solutions sugg_r_es ici pour tenter d'_viter le coot d'une intervention de d_pannage.
Si les ph_nom_nes
suivants se produisent
Causes possibles Solution
Le flltre 6 charpie est obstru_ par
de la charpie.
On a choisi un programme de
duvetage 6 rair.
La charge est trop grosse et trop
Iourde pour s_cher rapidement.
Le conduit d'_vacuation ou le clapet
d'_vacuation 6 I'ext_rieur est obstru_
de charpie, restreignant le mouvement
de I'air.
Le s_chage des Le flitre 6 charpie doit _tre nettoy_ avant chaque charge.
v_tements n'est pas
satisfaisant, Jes duties ChoJsJr le bon programme pour le type de v_tements 6 s_cher.
de s_chage sont trop
Iongues
S_parer la charge pour qu'elle cuibute librement.
Faire fonctionner la s_cheuse pendant 5 6 10 minutes. Tenir
la main sous Je ciapet d'_vacuation 6 I'ext_rieur pour v_rifler Je
mouvement de J'aJr. SJ aucun mouvement d'air n'est percepfibJe,
6ter la charpie pr_sente dans Je syst_me d'_vacuatJon ou
rempiacer Je conduit d'_vacuation par un conduit en m_tal Jourd
ou flexible en m6tal. S'assurer que Je conduit d'6vacuafion n'est
pas _cras_ ou d6form_. Voir les Instructions d'installafion.
Des feuilies d'assouplissant de tissu Utiliser seulement une feuille d'assouplissant par charge et
obstruent la grille, rutiliser une seuie fois.
Le conduit d'_vacuation n'est pas V_rifler que Je conduit d'_vacuafion n'est pas trop Jong ou
de la bonne Iongueur. ne comporte pas trop de changements de direction. Un Jong
conduit augmentera Jes duties de s_chage. S'assurer que
le conduit d'_vacuation n'est pas _cras_ ou d_form_. VoJr
Jes Instructions d'instailation.
Utiiiser un composant de 4" (102 mm) de diam_tre.
Le bon fonctJonnement des programmes de Ja s_cheuse
n_cessite une temperature ambiante sup_rieure _ 45°F (7°C).
Diam_tre du conduit d'_vacuation
de tailie incorrect.
La s_cheuse se trouve dans une
piece oO la temperature ambiante
est inf_rieure _ 45°F (7°C).
S_cheuse pJac_e dans un placard
sans une ouverture d'aSration
adequate.
Les portes du placard doivent comporter des ouvertures
d'aSration au sommet et en bas de la porte. Un espace
minimum de 1" (25 mm) est nScessaire 6 i'avant de la sScheuse
et, pour ia piupart des installations, un espace de 5" (127 ram)
est n_cessaire 6 rarri_re de la sScheuse. Voir ies instructions
d_instaiiation.
La s_cheuse ne La porte n'est pas bien ferm_e. S'assurer que la porte de la s_cheuse est compJ_tement ferm_e.
fonctionne pas L_utilisateur n_a pas appuy_
fermement sur le bouton PUSH TO
START DRYER (enfoncer pour mettre
en marche la s_cheuse) ou ne I_a pas
maintenu appuy_ pendant suffisamment
Iongtemps.
Appuyer sans rel6cher sur le bouton PUSH TO START DRYER
(enfoncer pour mettre en marche la s_cheuse) iusqu'6 ce que le
bruit du tambour de la s_cheuse en mouvement se fasse entendre.
Un fusible du domicile est griil_ ou Certains s_cheuses _lectriques utJiisent 2 fusibJes ou disioncteurs.
le disioncteur est ouvert. Le tambour peut tourner_ mais sans chaieur. Rempiacer les deux
fusibies ou r_armer le disioncteur. Si le probl_me persiste,
appeier un _lectricien.
AIJmentation _lectrique incorrecte. Les s_cheuses _iectrJques de 240 V n_cessitent une aiimentation
_lectrique de 240 V. V_rifier avec un _lectricien quaiifl_.
Type de fusible incorrect. UtiJJser un fusible temporis_.
Sons inhabituels Une s_cheuse comporte une Si la s_cheuse n'a pas _t_ utilis_e depuis quelque temps,
p_riode de non-foncfionnement. JJest possibJe qu'elle _mette des bruits saccad_s au cours
des premieres minutes de foncfionnement.
Une piece de monnaie, un bouton, V_rifler les bords avant et arri_re du tambour pour voJr si
ou un trombone est coinc_ entre de petits obiets y sont coinc_s. Vider les poches avant de faire
le tambour et I'avant ou rarri_re la lessJve.
de la s_cheuse.
Les quatre pJeds ne sont pas Jnstall_s La s_cheuse peut vJbrer sJeJie n'est pas correctement instail_e.
ou Ja s_cheuse n'est pas d'apJomb de Voir les Instructions d_instailation.
ravant vers rarri_re et transversalement. J
102

DEPANNAGE mSI CHEUSE (suite)
Essayer d'abord les solutions sugg_r_es ici pour tenter d'_viter le coot d'une intervention de d_pannage.
Si les ph_nom_nes
suivants se produisent
Causes possibles Solution
Sons inhabituels (suite) Les v_tements sont emm_l_s Une charge en boule rebondit, ce quJ fait vJbrer la s_cheuse.
ou en boule. S_parer les articles dans la charge et remettre la s_cheuse
en marche.
Absence de chaleur Un fusible du domicile est grill_ Le tambour peut tourner, mais sans chaleur. Certains s_cheuses
ou le disioncteur est ouvert. _lectrJques utiiisent 2 fusibJes ou disioncteurs. RempJacer
les deux fusibJes ou r_armer le disioncteur. Si le probi_me
persiste, appeler un _lectricien.
Alimentation _lectrique incorrecte. Les s6cheuses _lectriques de 240 V n_cessitent une alimentation
_lectrique de 240 V. V_rifier avec un _lectricien qualifi_.
Temps de programme Un programme automatique La charge n'est peut-_tre pas en contact avec les bandes
trop court se termine pr_matur_ment, de d_tection. R_gler raplomb de la s_cheuse.
Filtre 6 charpie obstru_.
Assouplissant de tissu pour
s_cheuse utJlJs_ de mani_re
incorrecte.
Charpie sur Ja charge
Taches sur la charge
ou sur le tambour
UtJiiser Je s_chage minut_ pour des charges de tr_s petite
taille. Modifier Je r_glage de degr_ de s_chage pour les
programmes de s_chage automafiques.
Uaugmentafion ou la diminution du degr_ de s_chage
modifiera la dur_e de s_chage d'un programme.
Le filtre 6 charpie doit _tre nettoy_ avant chaque charge.
Ajouter Jes feuJlies d'assouplissant de tissu au d_but du
programme. Les feuiiies d'assoupiissant de fissu ajout_es
une charge partieliement s_che peuvent tacher les v_tements.
Les taches sur Je tambour sont dues aux teintures contenues
dans Jes v_tements (Jes jeans en g_n_ral). EJles ne se transmettront
pas aux autres v_tements.
Charges froiss_es Charge non retiree de Ja s_cheuse Retirer Ja charge sans d_lai _ Ja fin du programme pour _viter
la fin du programme. Ja formation de faux-pHs.
S_cheuse est trop tass_e. Faire s_cher de plus petites charges qui peuvent cuJbuter
Hbrement permet de r_duire Ja formation de faux-pHs.
Odeurs Vous avez r_cemment employ_ A_rer Ja piece. Une lois Jes odeurs ou _manations disparues,
de Ja peinture, de la teinture ou laver et s_cher _ nouveau les v_tements.
du vernis dans Ja piece oO votre
s_cheuse est instalJ_e.
La s_cheuse _lectrique est utiHs_e Le nouvel _l_ment d'_mission de chaleur peut _mettre
pour la premiere fois. une odeur. Uodeur dispara?tra apr_s le premier programme.
La charge est trop chaude Vous avez retJr_ des v_tements
de Ja s_cheuse avant Ja fin du
programme.
Vous avez utilis_ un programme
6 temperature _lev_e.
Laisser le programme de refroidissement s'achever avant
de refirer Je Jinge de Ja s_cheuse. Toutes Jes charges sont
refroidies lentement pour r_duire Je froissement et faciliter
leur manipulation. Des articles retires avant la p_riode
de refroidissement peuvent sembier tr_s chauds.
S_Jectionner une temperature plus basse (sur certains mod$1es)
et ufiHser un programme de s_chage automatique. Ces
programmes d_tectent Ja temperature ou le degr_ d'humidit_
de Ja charge, et rappareil s'arr_te Iorsque la charge atteint
le degr_ de s_chage s_lectionn_. Ceci r_duit le risque de
s_chage excessif. J
103

CONTRATS DE
Contrats prlnclpau× de protection
Nous vous f61icitons d_avoir fait un achat judicieux. Votre nouvel
appareil Kenmore ® est con_:u et fabriqu6 pour vous procurer des
ann6es de fonctionnement flable.
Mais comme pour tousles produits, il pourra 6 I'occasion
n6cessiter un entretien pr_ventif ou une r6paration. Le cas
6ch6ant, un Contrat principal de protection peut vous 6pargner
de Fargent et des soucis.
Le Contrat principal de protection contribue aussi 6 prolonger
la vie utile de votre nouvel appareil m6nager. Le Contrat _ inclut :
Pi_ces et main d_0euvre n_cessaires pour conserver les
appareils en 6tat de fonctionnement correct pendant une
utilisation normale, pas uniquement pour rem6dier aux
d6faillances. Notre couverture s'_tend bien au-delb de la
garantie du produit. Aucune franchise, aucune anomalie de
fonctionnement ne sont exclues de ce contrat - protection r_elle.
Un service d'expert propos& par plus de 10 000 techniciens
d_entretien Sears autoris_s, ce qui signifie que quelqu'un de
confiance prendra soin de votre produit.
Appels de service illimit_s et service national, aussi souvent
que vous en avez besoin et quand vous en avez besoin.
- remplacement de votre produit couvert si au moins quatre pannes
se produisent en de_:6 de douze mois.
Remplacement du produit si votre produit couvert ne peut 6tre
r6par&
V_riflcation annueHe d_entretien pr_ventif sur demande -sans frais
suppl_mentaires.
PROTECTION
Aide rapide par t_l_phone -nous appelons cela R_solution
rapide - support t616phonique d'un agent de Sears sur tousles
produits. Consid6rez-nous comme un "manuel d'utilisateur parlant'.
Protection centre les sautes de puissance pour pr6venir les
dommages 61ectriques attribuables aux fluctuations de courant.
Remboursement de location si la r6paration du produit couvert
prend plus de temps que promis.
25 % de r_cluction sur le prix courant de toute intervention de
r6paration non=couverte et pi_ces de rechange.
D_s que vous achetez le Contrat, il suffit d_un appel t616phonique
pour obtenir un rendez-vous pour une intervention de d6pannage ou
d_entretien. Vous pouvez appeler 6 nqmporte quelle heure du jour ou
de la nuit ou prendre un rendez-vous de d6pannage en ligne.
Le Contrat principal de protection constitue un investissement
sans risque. Si vous annulez pour une quelconque raison pendant la
p6riode de garantie du produit, nous vous rembourserons
int_gralement. Ou nous vous verserons un remboursement au
prorata apr_s Fexpiration de la p6riode de garantie. Achetez
votre Contrat principal de protection aujourd_hui re&m!! Certaines
limitations et exclusions s'appliquent. Pour des prix et
renseignements suppl_mentaires aux Etats-Unis, composer le
1-800-827-6655. _Au Canada, la couverture varie en fonction
des articles. Pour des informations d_taill_es, appeler Sears
Canada au 1=800=361-6665.
Service d'instaHatlon Sears
Pour Finstallation professionnelle garantie par Sears d_appareils
m6nagers et d_articles tels que les ouvre-portes de garage, chaufl:e-
eau, et autres gros appareils m6nagers, aux E.-U. ou
au Canada, composer le 1=800-4-MY-HOME ®.
GARANTIE DES APPAREILS M_:NAGERS KENMORE
GARANTIE LIMITEE KENMORE
PENDANT UN AN c] compter de la date d'achat, cet appareil
est garanti contre tout d_faut de mat6riau ou de fabrication en
cas d'installation, d'utilisation et d'entretien conform_ment aux
instructions fournies.
SUR PREUVE DE VENTE, un appareil d6fectueux sera rSpar8 ou
remplac8 gratuitement 6 la discrStion du vendeur.
Pour conna?tre les d_tails sur la couverture de la garantie afin
d%btenir un d_pannage gratuit ou un remplacement, visiter la
page Web suivante :www.kenmore.com/warranty
Sicet appareil mSnager est utilis_ 6 d'autres fins que pour un
usage priv_ et domestique, la prSsente garantie ne s'applique que
pendant 90 JOURS 6 partir de la date d'achat aux Etats-Unis, et
est nulle au Canada.
La pr6sente garanffe couvre UN_QUEMENT les vices de
mat_rlaux et de fabrication et NE prendra PAS en charge :
1. Les pi_ces courantes pouvant s'user suite 6 une utilisation
normale, notamment les filtres, courroies, sacs et les ampoules
d_clairage 6 culot 6 vis.
2. L'intervention d'un technicien de r_paration pour nettoyer ou
entretenir cet appareil, ou pour montrer 6 I'ufilisateur comment
installer, utiliser et entretenir correctement cet appareil.
3. Les interventions de d_pannage pour rectifier Finstallation de
I'appareil non r_alis_e par des agents d'entretien autoris_s
de Sears, ou pour intervenir sur des probl_mes concernant
les fusibles du domicile, les disjoncteurs, et les syst_mes de
plomberie ou d'alimentation de gaz r_sultant de Finstallation.
4. Uendommagement ou I'_tat d_fectueux de cet appareil
imputable 6 Finstallation non r_alis_e par des agents
d'entretien autoris_s de Sears, y compris une installation non
conforme aux codes d'_lectricit_, de gaz et de plomberie.
5. L'endommagement ou F_tat d_fectueux de cet appareil,
notamment une d_coloration ou I'apparition de rouille sur la
surface, dans le cas o6 I'utilisation ou I'entretien ne sont pas
conformes 6 routes les instructions fournies.
6. L'endommagement ou F_tat d_fectueux de cet appareil,
notamment une d_colorafion ou I'apparition de rouille sur la
surface, r_sultant d'un accident, d'un usage impropre ou abusif
ou d'une utilisation autre que celle 6 laquelle il est destin&
104
7. L'endommagement ou I%tat d_fectueux de cet appareil,
notamment une d_coloration ou Fapparition de rouille sur
la surface, caus_ par I'utilisation de dStergents, nettoyants,
produits chimiques ou ustensiles autres que ceux recommandSs
dans routes les instructions fournies avec le produit.
8. L'endommagement ou 1'Star d_fectueux de pisces ou systSmes
r_sultant d'une modification non autoris_e faite 6 cet appareil.
9. L'intervention sur I'appareil si la plaque signal_tique indiquant
le numSro de module et de s_rie est manquante, a subi une
modification, ou s'il est difficile de dSterminer si Fappareil porte
le logo de certification appropri&
CLAUSED'EXONERATION DE RESPONSAB_LITEAU TITRE
DES GARANT_ES IMPLICITES; LIMITATION DES RECOURS
Le seul et exclusif recours du client dans le cadre de la pr_sente
garantie limitSe consiste en la rSparation ou le remplacement
prSvus ci-dessus. Les garanties implicites, y compris les garanties
applicables de qualit8 marchande ou d'aptitude 6 un usage
parficulier, sont limitSes 6 un an ou 6 la plus courte pSriode
autoris_e par la Ioi. Le vendeur n'assume aucune responsabilit8
pour les dommages fortuits ou indirects. Certains Etats ou certaines
provinces ne permettent pas I'exclusion ou la limitation des
dommages fortuits ou indirects, ou la limitation de la durSe des
garanfies implicites de qualit8 marchande ou d'aptitude 6 un
usage particulier, de sorte que cette exclusion ou limitation peut ne
pas 6tre applicable dans votre cas.
Cette garantie,s'applique seulement Iorsque cet appareil mSnager
est utilis8 aux Etats-Unis ou le Canada'*.
Cette garantie vous confSre des droits iuridiques spScifiques et
vous pouvez 8galement jouir d_autres droits qui peuvent varier
d'un Etat 6 I'autre.
Le service de rSparation 6 domicile n'est pas disponible dans
routes les rSgions du Canada; cette garanfie ne couvrira pas non
plus les frais de d_placement et de transport de Futilisateur ou du
dSpanneur sice produit se trouve dans une rSgion 81oignSe (tel
que d_fini par Sears Canada Inc.) o0 aucun dSpanneur autoris_
n'est disponible.
Sears Brands Management Corporation
Hoffman Estates, IL 60179
Sears Canada, inc.
Toronto, Ontario, Canada MSB 2C3
10/2014

NOTES
105

NOTES
106

NOTES
107

Your Home
For troubleshooting, product manuals and expert advice:
www,managemylife,com
For repair - in your home = of all major brand appliances,
lawn and garden equipment, or heating and cooling systems,
no matter who made it, no matter who sold it!
For the replacement parts, accessories and
owner's manuals that you need to do-it-yourself.
For Sears professional installation of home appliances
and items like garage door openers and water heaters.
l..800..4..lViY..H0 ME® (1-8oo-469-4663)
Call anytime, day or night (U.S.A. and Canada)
Our Home
For repair of "carry-ins" like handheld lawn equipment or
home electronics items, call anytime for the location of your nearest
Sears Parts & Repair Service Center
1-800-488-1222 (U.S.A.) 1-800-469-4663 (Canada)
www:sears,com www:sears:ca
To purchase a protection agreement on a product serviced by Sears:
1-800-827-6655 (U.S.A.) 1-800-361-6665 (Canada)
® Registered Trademark /TMTrademark of KCD IP, LLC in the United States, or Sears Brands, LLC in other countries
® Marca Registrada /TM Marca de F&brica de KCD IP, LLC en Estados Unidos, o Sears Brands, LLC en otros paises
MCMarque de commerce /MDMarque depos6e de Sears Brands, LLC
01/15
Printed in U.S.A.
W10746859A Imp ...... EE.UU.
Imprim_ aux E.-U.