Kenmore 79040302411 User Manual WALL OVEN Manuals And Guides 1703387L
User Manual: Kenmore 79040302411 79040302411 KENMORE WALL OVEN - Manuals and Guides View the owners manual for your KENMORE WALL OVEN #79040302411. Home:Kitchen Appliance Parts:Kenmore Parts:Kenmore WALL OVEN Manual
Open the PDF directly: View PDF
.
Page Count: 28

1
GAS WALL OVEN INSTALLATION INSTRUCTIONS
INSTALLATION AND SERVICE MUST BE
PERFORMED BY A QUALIFIED INSTALLER.
IMPORTANT: SAVE FOR LOCAL ELECTRICAL INSPECTOR'S USE.
READ AND SAVE THESE INSTRUCTIONS FOR FUTURE REFERENCE.
P/N 809017901 (1606) Rev. B
English – pages 1-9
Español – páginas 10-18
Français – páginas 19-27
Printed in USA
Cabinet dimensions Cut-out dimensions
A B C D E F G H
10" Min
(25.4 cm Min.) 1 1/2" Min.
(3.8 cm Min.) 24" Min.
(61 cm Min.) 20"
(50.8 cm) 7 5/8"
(19.4 cm) 22"
(55.9 cm) 23 1/2"
(59.7 cm)
37 1/2" Min.
(95.3 Min)
27 1/2" Max.
(69.9 cm Max.) 38" Max.
(96.5 Max.)
FOR YOUR SAFETY:
—Donotstoreorusegasolineorotherammablevaporsandliquidsinthevicinityofthisorany
otherappliance.
— WHAT TO DO IF YOU SMELL GAS:
• Donottrytolightanyappliance.
• Donottouchanyelectricalswitch;donotuseanyphoneinyourbuilding.
• Immediatelycallyourgassupplierfromaneighbor'sphone.Followthegassupplier's
instructions.
• Ifyoucannotreachyourgassupplier,calltheredepartment.
—Installationandservicemustbeperformedbyaqualiedinstaller,serviceagencyorthegas
supplier.
Iftheinformationinthismanualisnotfollowedexactly,areorexplosion
mayresultcausingpropertydamage,personalinjuryordeath.
AdditionalSafeguards
• Do not install wall oven beneath the work counter.
• The oven vent should not be located under 36"
from the oor.
Allowatleast21-1/4"front
clearanceforcompletedoor
opening.
Figure1
A
F
B
C
D
E
G
H
38 7/16"
(97.6 cm)
37 3/8"
(94.0 cm)
23 3/8"
(59.4 cm)
Drill a 1½" diameter
hole for gas hook up
23 7/8"
(60.6 cm) 25 3/8"
(64.4 cm) Hole for cord

GAS WALL OVEN INSTALLATION INSTRUCTIONS
2
ImportantNotestotheInstaller
1. Read all instructions contained in these installa-
tion instructions before installing the appliance.
2. Remove all packing material and literature
from the oven and broiler compartments before
connecting gas and electric supply.
3. Observe all governing codes and ordinances.
4. Be sure to leave these instructions with the
consumer.
5. For operation at 2000 ft. elevations above see
level, appliance rating shall be reduced by 4
percent for each additional 1000 ft.
ImportantNotetotheConsumer
Keep these instructions with your Use and Care
Guide for future reference.
Save these instructions for local inspectors.
IMPORTANT SAFETY
INSTRUCTIONS
• Theinstallationofappliancesdesignedfor
manufactured(mobile)homeinstallation
mustconformwithManufacturedHome
ConstructionandSafetyStandardTitle
24CFR,Part3280[FormerlytheFederal
StandardforMobileHomeConstructionand
Safety,Title24,HUD,(Part280)]orwhen
suchstandardisnotapplicabletheStan-
dardforManufacturedHomeInstallation
1982(ManufacturedHomeSites,Communi-
tiesandSet-Ups),ANSIZ225.1/NFPA501-A-
latestedition,orwithlocalcodes.
Donotstoreitemsorfoodof
interest tochildreninthecabinetsabovethe
appliance.Children could be seriously burned or
injured if they climb on the appliance to reach these
items.
• Donotstoreorusegasolineorotheram-
mablevaporsandliquidsnearthisorany
otherappliance.Explosions or res could
result.
• Be certain all packing materials are removed
from the unit before operating, to prevent re
or smoke damage should the packing material
ignite.
• Do not leave children alone in the kitchen
when the appliance is in use. They should not
be allowed to sit or stand on any part of the
appliance, as injury or burns could result. Keep
children from touching the oven door or glass
window when the appliance is operating, as the
door or window could get hot enough to cause
serious burns.
• Remove broiler tray and other utensils from
oven before using the self-clean cycle (if equip-
ped).
• Do not use the oven as a store space. This
creates a potentially hazardous situation.
• The appliance requires fresh air for proper
burner combustion. Do not obstruct the ow
combustion air at the oven vent or around the
base or beneath the lower front panel of the
appliance. Avoid touching the event openings or
nearby surfaces, as they may become hot.
• Remember, your oven is not designed to heat
your kitchen. Such abuse could result in re
and/or damage to the unit and will void your
warranty.
POWER FAILURE
Donotattempttooperatetheoveninthe
eventofapowerfailure.Ifpowerfailure
shouldoccurduringoperation,turnthe
ovencontroltotheOFFposition.Failureto
turntheovencontroloffwillresultinoven
operationuponresumptionofpowertothe
unit.
Installation of these appliances must conform with
local codes or, in the absence of local codes, with
the National Fuel Gas Code ANSI Z223.1—latest
edition.
These appliances have been design certied
by CSA Group. As with any appliance using gas
and generating heat, there are certain safety
precautions you should follow. You will nd them
in the Use and Care Guide, read it carefully.
• Besureyourwallovenisinstalledand
groundedproperlybyaqualiedinstalleror
servicetechnician.
• Thesewallovensmustbeelectricallygroun-
dedinaccordancewithlocalcodesor,in
theirabsence,withtheNationalElectrical
CodeANSI/NFPANo.70—latestedition.
Seegroundinginstructionsfartherinthis
manual.

3
GAS WALL OVEN INSTALLATION INSTRUCTIONS
Where a standard 2-prong wall receptacle is instal-
led, it is the personal responsibility and obligation
of the consumer to have it replaced by a properly
grounded 3-prong wall receptacle.
Donot,underanycircumstances,cutorre-
movethethird(ground)prongfromthepower
cord.
If an external electrical source is used, the ap-
pliance, when installed, must be electrically groun-
ded in accordance with local codes or in their
absence of local codes with the National Electric
Code ANSI/NFPA No. 70-1987 or latest edition.
Check all code rules and regulations for connecting
the wall oven to be certain the installation conforms
with all local, municipal and state codes as well as
local utility regulations.
Failure to comply with the above could result in a
seriousshockhazard.
Note: All hook-ups and adjustments shall be perfor-
med by qualied technicians.
Disconnect electrical supply cord from
wall receptacle before servicing wall oven.
1.Carpentry
Refer to Figure 1 for the dimensions applicable to
your appliance, and the space necessary to receive
the oven. Corners must be square.
Floor cabinet must be able to support 150 pounds
and must be ush with bottom of opening.
Oven support surface must be solid plywood or
similar material. MDF (medium-density breboard),
particle board, or laminated woods are not to be
used as base support.
2.ConnectElectricitytoGasWall
Oven
Forpersonalsafety,theseappliancesmustbe
properlygrounded.
This appliance is equipped with a
three-prong grounding plug for your protection
against shock hazard and must be plugged directly
into a properly grounded receptacle. Do not cut or
remove grounding prong from this plug.
120 volt, 60 Hertz, properly grounded dedicated
circuit protected by a 15 amp circuit breaker or time
delay fuse.
Donotuseanextensioncordwiththisrange.
Figure3
PreferredMethod Do not, under
any circumstances,
cut, remove,
or bypass the
grounding prong.
Power supply cord with
3-prong grounding plug
Grounding
type wall
receptacle
10" Min
(25.4 cm Min)
27 1/2" Max
(69.9 cm Max)
Figure2
22"
(55.9 cm)
The wall receptacle should be located in the cabinet
beneath the installation cutout. The receptacle
should be easily accessible for service and removal
of power from appliance (see Figure 2)
The wall receptacle and circuit should be checked
by a qualied electrician to make sure the recep-
tacle is properly grounded.

GAS WALL OVEN INSTALLATION INSTRUCTIONS
4
Figure5
Extension
Panel Mounting
Screws
Adjustment
Holes
3.Alternateconstruction
Installation Instructions for installing a 1½ cavity
oven into an existing 2 cavity opening with dimen-
sions 42-1/8" height by 22 ½" Width.
Figure4
(57.2 cm)
Plywood
ller
Wood
runner
42 1/8"
(107 cm)
Height
adjuster
22 1/2"
Hole for
Cord
• If width opening is too wide to secure unit to
cabinet with mounting screws, add plywood
ller strips.
• If height opening is at 42-1/8", lower height
adjuster 1" (see section 4) and secure two 2" X
4" X 22" wood runners on each side at bottom
of opening (see Figure 4).
• The decorative lower trim (not shown) can be
installed to hide the gap under the unit. It should
overlap by ¼" the front of the cabinet at bottom
of cutout (see step 2 of section 5).
4.AdjustingOvenHeight
Remove and lay aside the lower vent decorative
trim that is taped to the side or to the top of the
oven. The decorative trim will be fastened to the
lower front of the oven after it has been installed
in the cabinet.
There is a 1 ½" height adjustment on models
with extension panel (see Figure 5). With this
adjustment and a ½" trim overhang, a unit can be
installed in existing openings 37 ½" to 39" high.

5
GAS WALL OVEN INSTALLATION INSTRUCTIONS
Oven Door
Oven Bottom Extension Panel
Figure 6
Toadjustovenheight:
1. Lay oven on its back (see Figure 6).
2. Remove the 3 screws that fasten the side ex-
tension panel to the bottom sides of the oven.
3. Move each panel down to the position that
increases the oven height to t your opening.
Each position changes oven height approxima-
tely ½".
4. Line up the appropriate holes in the side exten-
sion panels and sides of the oven. Put the 3
screws back.
5. Proceed with oven installation. Return to
upright position.
5.CabinetInstallation
Insert appliance into cutout. Use the 2 mounting
screws provided to fasten the front frame of the
appliance to the cabinet (steps 1 below). Keep the
6 decorative screws to x the decorative trim to the
cabinet (step 2 below). The mounting holes in the
front frame of appliance may be used as a template
to locate the appliance mounting screw holes on
the cabinet.
To fasten the appliance to the cabinet (see
Figure 7):
1. Use 2 mounting screws supplied to secure the
appliance to the cabinetry. 2 holes are located
under the center vent trim on each side.
2. Install the decorative trim panel to appliance
bottom using the 6 supplied screws. Four
screws are installed along the front of the panel.
Two screw are installed at the opper corners of
the panel.
Figure7
Center Vent Trim
Decorative Trim
Mounting Screws
Decorative Screws
Decorative Screws

GAS WALL OVEN INSTALLATION INSTRUCTIONS
6
6.ProvideanAdequateGasSupply
Important: Read these instructions carefully before
connecting this unit to a gas supply.
The units covered in these instructions are desi-
gned to operate on natural gas at 4" of manifold
pressure or on LP gas at 10" of manifold pressure.
A convertible pressure regulator is connected in se-
ries with the manifold of the wall oven unit and must
remain in series with the supply line, regardless of
which type of gas is being used.
Forproperoperation, the maximum inlet pres-
sure to the regulator must not exceed 14" of water
column (W.C.) pressure.
To check the regulator, the inlet pressure must be
at least 1" (or 3.4 kPa) greater than the regulator
pressure setting. If the regulator is set for 4", the
inlet pressure must be at least 5". If the regulator is
set for 10", the inlet pressure must be at least 11".
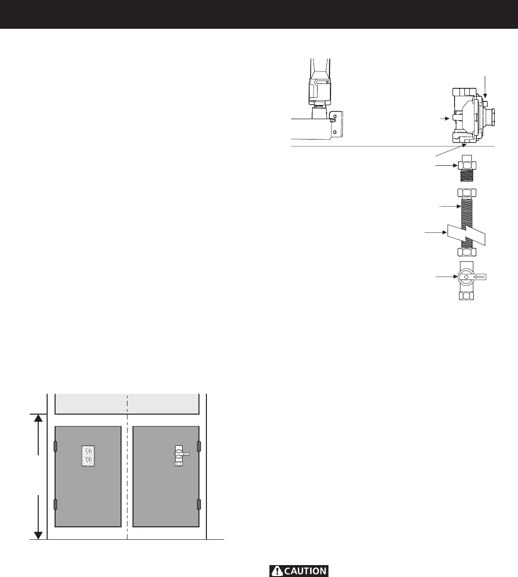
A manual shut-off valve must be installed on the
gas supply line external to the unit and where it can
be easily reached for the purpose of turning the gas
to the unit on and off. The recommended location
for the shut-off valve is in the cabinet beneath the
installation cutout (see Figure 8).
10" Min
(25.4 cm Min)
27 1/2" Max
(69.9 cm Max)
Figure8
The gas supply line to the unit should be ½" (1.3
cm) or ¾" (1.9 cm) pipe.
Close all openings in the cabinet cavity that en-
closes this unit. All openings around gas service
outlets must be closed at the time of installation.
7.ConnectiontoGas(see Figure 9)
BEFORE CONNECTING THE UNIT
Remove all packing material and literature from
wall oven before connecting gas and electrical sup-
ply to the appliance.
If applicable, remove broiler or storage drawer by
pulling drawer out to stops. Lift drawer front to clear
stops and pull out.
Checkforleaks. After connecting gas, check
system for leaks with a manometer. If a manometer
is not available shut all pilots off (if present), turn
on the gas supply to the unit and use a liquid leak
detector at all joints and connections.
Tightenallconnections if necessary to prevent
gas leakage in the wall oven or supply line.
IMPORTANT: A pipe joint sealant resistant to the
action of LP Gas must be used on all pipe connec-
tions.
Do not use a ame to check for leaks
from gas connections. Checking for leaks with a
ame may result in a re or explosion.
Disconnecttheovenanditsindividualshutoff
valve from the gas supply piping system during any
pressure test greater than ½ psig.
Isolatethewallovenfromthegassupplypiping
system by closing its individual manual shutoff
valve during any pressure testing of the gas supply
piping system at test pressures equal to or less
than ½ psig.
Figure9
Shut-Off Valve
Pressure Regulator
Adaptor or Union
External Shut-Off Valve
Solid Pipe Or
Flex Connector
Cabinet Base

7
GAS WALL OVEN INSTALLATION INSTRUCTIONS
Gasket
SMALL End Towards
Regulator For
Natural Gas
Figure10
ENLARGED End
Towards Regulator
For L.P. Gas
Figure12
Pin
L.P.
Nat.
Waist-High
Broiler Orice
Orice
Air Shutter
Using a ½" wrench, turn down the adjustable orice
which injects gas into the oven burner. Turn orice
approximately 2½ turns until snug against the LP
metering pin. Do not overtighten.
8.LP/PropaneGasConversion
A.PressureRegulatorConversion
Note: Do not remove the Pressure Regulator.
ConvertthePressureRegulatorforusewithLP
Gas (see Figure 10).
If applicable, remove broiler or storage drawer by
pulling drawer out to stops. Lift drawer front to clear
stops and pull out.
Locate pressure regulator on lower back wall and
convert as shown in Figure 10.
1. Remove the cap from the pressure regulator.
2. Remove the plunger.
3. Turn the plunger upside down with the enlarged
end TOWARDS regulator.
4. Replace the plunger inside the regulator. The
letters LP or 10" W.C. should be visible on the
exposed end of the plunger.
5. Replace the cap on the pressure regulator.
NOTE: The type of gas pressure the regulator is set
for is indicated on the top of the plunger.
C.AdjustBroilerBurnerOrice(Self-Cleaning)
ModelsOnly)(see gure 12)
Figure11
Pin
L.P.
Nat.
Air Shutter
Oven Burner Orice
Orice
Using a ½" wrench, turn down the adjustable orice
which injects gas into the oven burner. Turn orice
approximately 2½ turns until snug against the LP
metering pin. Do not overtighten.
Regulator
B.AdjustOvenBurnerOrice(see Figure 11)

GAS WALL OVEN INSTALLATION INSTRUCTIONS
8
9.NaturalGasConversion
ConvertthePressureRegulatorforusewith
Natural Gas (see Figure 10)
A. Remove the cap from the pressure regulator.
B. Remove the plunger.
C. Turn the plunger around so that the small end is
TOWARDS the regulator.
D. Replace the plunger inside the regulator. The
letters NAT or 4" W.C. should be visible on the
exposed end of the plunger.
E. Replace the cap on the pressure regulator.
F. Turn orice approximately 2½ turns counter-
clockwise. This will move the spud away from the
pin.
G. Apply gas, adjust pilots (if equipped) and burner
air shutter for proper ame.
H. There should be 4" WC pressure in the manifold
after conversion for proper operation on Natural
Gas.
10.Adjustments
Oven/BroilerFlameAdjustment
The air shutter adjustment is located on the venturi
tube, which sets on the orice of the valve, and
is locked in place with a Phillips head screw. If the
air shutter needs adjusting, loosen the screw and
rotate the shutter to allow more or less air to the
burner tube (see Figure 13).
Air Adjustment
Shutter
Loosen
Figure13
Figure14
For Natural Gas, the air shutter should be approxi-
mately half open. For LP Gas, the air shutter nearly
full open.
Too much air will cause the ame to lift away from
the burner. Too little air will cause the ame to turn
yellow at the outer edges and soot to form.
Remember, the oven will be shipped from the fac-
tory set for Natural Gas, unless otherwise stated. If
connecting to LP gas, be sure to follow procedure
under "Conversion" to change the regulator and
burner orice to the LP setting.
Observe the oven burner ame to determine if it is
right. It should be steady with a blue cone approxi-
mately 1" long and should not extend out over the
edges of bafe. For LP Gas, this will most likely
occur when the air adjustment shutter is completely
open (see Figure 14).
Turn Oven Temperature to 300°F and allow oven
burner to cycle on and off.
To replace broiler or storage drawer, reverse steps
taken for removal (see the Use and Care Guide for
complete instructions). Replace oven racks.

9
GAS WALL OVEN INSTALLATION INSTRUCTIONS
11.CheckOperation
Refer to the Use and Care Guide packaged with
the wall oven for operating instructions and for care
and cleaning of your appliance.
Do not touch the oven burners. They may be hot
enough to cause burns.
1. ChecktheIgniters(somemodels)
Operation of electric igniters should be chec-
ked after oven and supply line connectors have
been carefully checked for leaks and oven has
been connected to electric power.
2. OvenIgniterSystem
Close the door and turn the Oven Temperature
to 300°F. In approximately 60 seconds, the bur-
ner should ignite and stay on until oven reaches
300°F. Burner should then cycle on and off to
maintain an average temperature of approxima-
tely 300°F.
WhenAllHookupsareComplete
Make sure all controls and programmable timer are
left in the OFF position.
Reset all controls to the "OFF" position after using
a programmable timing operation.
ModelandSerialNumberLocation
The serial plate is located on the left side inner trim
of the oven.
When ordering parts for or making inquires about
your wall oven, always be sure to include the model
and serial numbers and a lot number or letter from
the serial plate of your appliance.
Your serial plate also tells you the rating of the
burners, the type of fuel and the pressure the wall
oven was adjusted for when it left the factory.
• Stepping,leaningorsittingontheovendoor
ordrawercanresultinseriousinjuriesand
alsocausedamagetotheappliance.
• Besuretokeepapplianceclearofcom-
bustiblematerials,gasolineandotheram-
mablevaporsandliquids.
BeforeYouCallforService
Read the Avoid Service Checklist and operating
and cleaning instructions in your Use and Care
Guide.
Check to make sure the house fuse or circuit brea-
ker for your wall oven is not blown or open.
Care,CleaningandMaintenanceforWallOvens
If removing the wall oven is necessary for cleaning
or maintenance, shut off gas supply. Disconnect
the gas and electric supply. Remove the installation
screws from front frame and lower trim. Pull out
only as far as necessary to disconnect the electric
supply line. After disconnecting the gas and electric
supply, nish removing the unit for servicing and
cleaning. Reinstall in reverse order and make sure
that appliance is level; check gas connection for
leaks.

HORNO DE GAS DE PARED - INSTRUCCIONES DE INSTALACIÓN
10
LAS TAREAS DE INSTALACIÓN Y SERVICIO DEBERÁN SER REALIZADAS POR UN
INSTALADOR CUALIFICADO.
IMPORTANTE: CONSERVAR PARA USO POR PARTE DE LOS INSPECTORES DE
ELECTRICIDAD.
LEA Y CONSERVE ESTAS INSTRUCCIONES PARA SU CONSULTA FUTURA
P/N 809017901 (1606) Rev. B
English – pages 1-9
Español – páginas 10-18
Français – páginas 19-27
Impreso en EE.UU.
Dimensiones del armario Dimensiones del troquelado
A B C D E F G H
10" Min
(25.4 cm Min.) 1 1/2" Min.
(3.8 cm Min.) 24" Min.
(61 cm Min.) 20"
(50.8 cm) 7 5/8"
(19.4 cm) 22"
(55.9 cm) 23 1/2"
(59.7 cm)
37 1/2" Min.
(95.3 Min)
27 1/2" Max.
(69.9 cm Max.) 38" Max.
(96.5 Max.)
Medidas de seguridad adicionales
• No instale el horno de pared bajo la encimera.
• La abertura de ventilación del horno no deberá
estar situada a menos de 36" del suelo.
Deje un espacio de al menos
21-1/4" por delante para
permitir que la puerta se abra
por completo.
Figura 1
A
F
B
C
D
E
G
H
38 7/16"
(97.6 cm)
37 3/8"
(94.0 cm)
23 3/8"
(59.4 cm)
Practique un oricio de
1½" de diámetro para la
conexión de gas
23 7/8"
(60.6 cm) 25 3/8"
(64.4 cm)
Oricio para cable
PARA SU SEGURIDAD:
— Noalmaceneniutilicegasolinaniotroslíquidosovaporesinamablescercadeéstenideningúnotro
electrodoméstico.
— QUÉ HACER SI SIENTE OLOR A GAS:
• Nointenteencenderningúnelectrodoméstico.
• Notoqueningúninterruptoreléctrico;noutiliceningúnteléfonodesuedicio.
• Llameinmediatamenteasuproveedordegasdesdeelteléfonodeunvecino.Sigalasinstrucciones
del proveedor de gas.
• Si no puede ponerse en contacto con el proveedor de gas, llame a los bomberos.
— Lainstalaciónyelserviciodebenserllevadosacaboporuninstaladorcalicado,agenciadeservicios
o proveedor de gas.
WARNING:
Sinosesiguealpiedelaletralainformacióndeestaguía,sepuedeproducirun
incendio o una explosión, lo cual causaría daños a la propiedad, lesiones personales o la muerte.

11
HORNO DE GAS DE PARED - INSTRUCCIONES DE INSTALACIÓN
Notas importantes para el instalador
1. Lea todas las instrucciones contenidas en estas
instrucciones de instalación antes de instalar el
dispositivo.
2. Retire todo el material de embalaje y papel impreso
de los compartimentos de horno y la asadera antes
de conectar el gas y la corriente eléctrica.
3. Observe todas las normas aplicables.
4. Asegúrese de dejar estas instrucciones al consumi-
dor.
5. Para operación a alturas de 2000 pies sobre el nivel
del mar, deberá reducirse la potencia del dispositivo
en un 4 por ciento por cada 1000 pies adicionales.
Nota importante para el consumidor
Mantenga estas instrucciones con su Guía de uso y
cuidado para consultas futuras.
Conserve estas instrucciones para los inspectores
locales.
INSTRUCCIONES DE
SEGURIDAD IMPORTANTES
• La instalación de los dispositivos diseñados
parainstalaciónencasasprefabricadas(mó-
viles)debecumplirlanormaManufacturedHome
ConstructionandSafetyStandardTitle24CFR,
Parte3280[AntesFederalStandardforMobile
HomeConstructionandSafety,Title24,HUD,
(Parte280)]o,sidichanormanoesaplicable,
laStandardforManufacturedHomeInstallation
1982(ManufacturedHomeSites,Communities
andSet-Ups),ANSIZ225.1/NFPA501-A-última
edición o las normas locales.
WARNING:
No guarde en los armarios situados
sobreelhornoningúnobjetooalimentoquepueda
atraer la atención de los niños. Los niños pueden
sufrirquemadurasolesionesgravessisesubenal
dispositivo para alcanzar estos objetos.
• No almacene ni utilice gasolina ni otros vapores
ylíquidosinamablescercadeestedispositivo
o cualquier otro. Pueden ocasionarse explosiones
o fuegos.
• Asegúrese de retirar todos los materiales de emba-
laje de la unidad antes de ponerla en funcionamien-
to para evitar daños por fuego o humo en el caso de
ignición de estos materiales.
• No deje niños solos en la cocina mientras uti-
liza este dispositivo. No permita que se sienten o
pongan en pie sobre ninguna parte de dispositivo,
ya que pueden producirse lesiones o quemaduras.
Evite que los niños toquen la puerta y la ventana de
cristal del horno mientras está en funcionamiento,
ya que la puerta y la ventana pueden calentarse lo
suciente como para provocar quemaduras graves.
• Retire la bandeja de la asadera y otros utensilios del
horno antes de utilizar el ciclo de autolimpieza (en
su caso).
• No use el horno como espacio de almacenamiento.
Esto puede crear situaciones potencialmente peli-
grosas.
• El dispositivo precisa aire fresco para una adecuada
combustión en el quemador. No obstruya el ujo
de aire de combustión en el oricio de ventilación
del horno ni alrededor de la base o bajo la parte
inferior del panel frontal del dispositivo. Evite tocar
las aberturas o supercies cercanas, que pueden
calentarse.
• Recuerde que su horno no ha sido diseñado para
calentar la cocina. Este mal uso puede producir fue-
go y/o daños en la unidad y dejar nula su garantía.
WARNING:
FALLA ELÉCTRICA
Nointenteusarelhornoencasodefalla
eléctrica.Enelcasodeproducirseuna
fallaeléctricadurantelaoperación,ponga
elcontroldelhornoenposiciónOFF.No
desconectarelhornoharáqueelhorno
vuelvaafuncionaralrecuperarsela
alimentacióneléctrica.
La instalación de estos dispositivos debe cumplir las
normas locales o, en su ausencia, la norma National
Fuel Gas Code ANSI Z223.1—última edición.
El diseño de estos dispositivos está certicado por
CSA Group. Como con cualquier dispositivo que utilice
gas y genere calor, es preciso seguir determinadas
precauciones de seguridad. Encontrará estas
precauciones en la Guía de uso y cuidado; léala
atentamente.
• Asegúresedequeelhornodeparedseaadecua-
damente instalado y conectado a tierra por un
instaladorotécnicodeserviciocualicado.
• Estoshornosdepareddebenestarconectados
atierradeconformidadconlasnormaslocales
o, en su ausencia, a la norma National Electri-
calCodeANSI/NFPANo.70—últimaedición.
Consulte las instrucciones para conexión a tierra
másadelanteenestemanual.

HORNO DE GAS DE PARED - INSTRUCCIONES DE INSTALACIÓN
12
En el caso de que esté instalada una toma estándar de
dos patas, es responsabilidad personal del consumidor
hacer que se reemplace por una toma eléctrica para
enchufes de tres patas con la conexión a tierra corres-
pondiente.
En ninguna circunstancia corte o retire la tercera
pata(tierra)delcabledealimentación.
Si se utiliza una fuente de alimentación eléctrica, el dis-
positivo debe conectarse a tierra durante la instalación,
de conformidad con las normas locales o, en su ausen-
cia, con la norma National Electric Code ANSI/NFPA No.
70-1987 o su última edición.
Compruebe todas las normas de conexión del horno
de pared para asegurarse de que la instalación cumpla
todas las leyes y normas locales, municipales y esta-
tales, así como las de la compañía eléctrica.
El no cumplimiento de los puntos anteriores crea un
peligro potencial de descarga eléctrica grave.
Nota: Todas las conexiones y ajustes deben ser realiza-
das por técnicos cualicados.
WARNING:
Desconecte el cable de alimentación eléc-
trica de la toma de la pared antes de realizar tareas de
servicio en el horno.
1. Carpintería
Consulte las dimensiones de su dispositivo y el espacio
necesario para acomodar el horno en la Figura 1. Las
esquinas deberán ser cuadradas.
El piso del armario deberá ser capaz de soportar 150
libras de peso y deberá estar al nivel de la parte inferior
de la abertura.
La supercie de apoyo del horno deberá ser de contra-
chapado sólido o material similar. No utilice MDF (panel
de bra de densidad media), panel de partículas ni
maderas laminadas como base de apoyo.
2.Conectelacorrienteeléctricaal
hornodegasdepared
Por seguridad de las personas, estos dispositivos
deben estar adecuadamente conectados a tierra.
WARNING:
Este electrodoméstico tiene un enchufe
de tres patas con conexión a tierra para su protección
contra riesgos eléctricos y deberá enchufarse directa-
mente en una toma eléctrica adecuada con conexión a
tierra. No corte ni quite la pata de conexión a tierra de
este enchufe.
120 voltios, 60 Hz, conectado a tierra adecuadamente
circuito dedicado protegida por un fusible de retardo
disyuntor de 15 amperios o tiempo.
No utilice un cable de extensión con este rango.
Figura 3
Métodopreferido Bajo ninguna
circunstancia
corte, retire o
anule la pata de
conexión a tierra.
Cable eléctrico con
enchufe de 3 patas con
conexión a tierra
Toma de
corriente en
la pared con
conexión a
tierra
10" Min
(25.4 cm Min)
27 1/2" Max
(69.9 cm Max)
Figura 2
22"
(55.9 cm)
La toma de la pared deberá estar situada en el armario
bajo el troquelado de instalación. La toma deberá
ser fácilmente accesible para tareas de servicio y
desconexión de la corriente eléctrica del dispositivo (ver
Figura 2).
La toma de pared y el circuito deberán ser comproba-
dos por un electricista cualicado para garantizar que la
toma tenga una adecuada conexión a tierra.

13
HORNO DE GAS DE PARED - INSTRUCCIONES DE INSTALACIÓN
Figura 5
Panel de
Extensión Tornillos
de Montaje
Agujeros de
Ajuste
3. Construcción alternativa
Instrucciones de instalación para instalar un horno con
cavidad de 1½ en una abertura existente de 2 cavidades
con dimensiones de 42-1/8" de altura por 22 ½" de
anchura.
Figura 4
(57.2 cm)
Relleno de
contrachapado
Guía de
madera
42 1/8"
(107 cm)
Ajustador
de altura
22 1/2"
Oricio
para
cable
• Si la abertura es demasiado ancha para jar la
unidad al armario con tornillos de montaje, añada un
relleno de contrachapado.
• Si la abertura tiene altura de 42-1/8", baje el ajus-
tador de altura 1" (ver sección 4) y je dos guías
de madera de 2" X 4" X 22" a cada lado de la parte
inferior de la abertura (ver Figura 4).
• Puede instalarse la moldura decorativa inferior (no
ilustrada) para ocultar el espacio bajo la unidad.
Deberá superponerse por ¼" al frontal del armario
en la parte inferior del troquelado (ver paso 2 de la
sección 5).
4.Ajustedelaalturadelhorno
Retire y deje a un lado la moldura decorativa del
oricio de ventilación inferior que está pegada al lateral
o a la parte superior del horno. La moldura decorativa
se ajustará al frontal inferior del horno después de
haberse instalado en el armario.
Hay un ajuste de altura de 1 ½" en modelos con panel
de extensión (ver Figura 5). Con este ajuste y una
moldura adicional de ½", es posible instalar una unidad
en aberturas ya existentes de 37 ½" a 39" de altura.

HORNO DE GAS DE PARED - INSTRUCCIONES DE INSTALACIÓN
14
Puerta del
horno
Parte inferior
del horno
Panel de
extensión
Figura 6
Paraajustarlaalturadelhorno:
1. Coloque el horno sobre la parte posterior (ver Figura
6).
2. Retire los tres tornillos que ajustan el panel lateral
de extensión a los laterales inferiores del horno.
3. Mueva cada panel hacia abajo a la posición que
aumenta la altura del horno para ajustarse al espa-
cio abierto. Cada posición cambia la altura del horno
aproximadamente en ½".
4. Alinee los oricios correspondientes de los paneles
de extensión laterales y los lados del horno. Vuelva
a colocar los tres tornillos.
5. Continúe con la instalación del horno. Vuelva a colo-
carlo en posición levantada.
5. Instalación del armario
Inserte el dispositivo en el troquelado. Utilice los dos tor-
nillos de montaje suministrados para apretar el bastidor
frontal del dispositivo al armario (paso 1 a continuación).
Mantenga los seis tornillos decorativos para jar la mol-
dura decorativa al armario (paso 2 a continuación). Pue-
den utilizarse los oricios de montaje del bastidor frontal
del dispositivo como plantilla para localizar los oricios
de los tornillos de montaje del dispositivo en el armario.
Para ajustar el dispositivo al armario (ver Figura 7):
1. Utilice dos tornillos de montaje suministrados para
jar el dispositivo al armario. Los dos oricios están
situados bajo la moldura de la abertura de ventila-
ción central a cada lado.
2. Instale el panel de la moldura decorativa en la parte
inferior del dispositivo utilizando los seis tornillos
suministrados. Cuatro tornillos se colocan en el
frontal del panel. Dos tornillos se colocan en las
esquinas superiores del panel.
Figura 7
Moldura de
ventilación central
Moldura
decorativa
Tornillos de montaje
Tornillos decorativos
Tornillos decorativos

15
HORNO DE GAS DE PARED - INSTRUCCIONES DE INSTALACIÓN
6. Proveer un suministro de gas adecuado
Importante: Lea atentamente estas instrucciones antes
de conectar esta unidad a un suministro de gas.
Las unidades a las que se reeren estas instrucciones
están diseñadas para funcionar con gas natural con una
presión de 4" en el colector o gas LP con 10" de presión
en el colector.
Un regulador de presión convertible está conectado en
serie con el colector de la unidad de horno de pared y
debe permanecer en serie con la línea de suministro,
independientemente del tipo de gas utilizado.
Paraunadecuadofuncionamiento, la presión máxima
de entrada del regulador no debe exceder 14" de la
presión de la columna de agua (W.C.).
Para comprobar el regulador, la presión de entrada
debe ser al menos 1" (o 3,4 kPa) mayor que el ajuste
de presión del regulador. Si el regulador está ajustado
a 4", la presión de entrada debe ser de al menos 5". Si
el regulador está ajustado a 10", la presión de entrada
debe ser de al menos 11".
Deberá instalarse una válvula de desconexión manual
en la línea de suministro de gas en el exterior de la
unidad y en lugar fácilmente alcanzable para conectar o
desconectar el gas a la unidad. La ubicación recomen-
dada para la válvula de desconexión es en el armario,
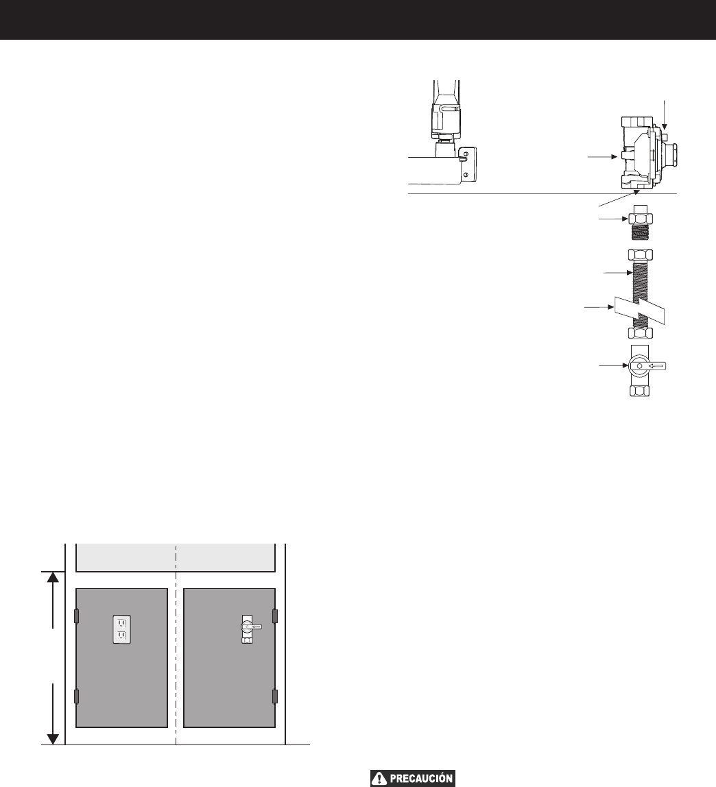
bajo el troquelado de instalación (ver Figura 8).
10" Min
(25.4 cm Min)
27 1/2" Max
(69.9 cm Max)
Figura 8
La línea de entrada de gas a la unidad deberá ser con
tubería de de ½" (1,3 cm) o ¾" (1,9 cm).
Cierre todas las aberturas de la cavidad del armario en
el que se instala la unidad. Todas las aberturas alrede-
dor de las salidas de gas de servicio deben cerrarse en
el momento de la instalación.
7. Conexión al gas (ver Figura 9)
ANTES DE CONECTAR LA UNIDAD
Retire todos los materiales de embalaje e impresos del
horno de pared antes de conectar gas y corriente eléc-
trica al dispositivo.
En su caso, retire la asadera o cajón de almacenamien-
to tirando del cajón hasta los topes. Levante el frontal
del cajón para quitar los topes y sáquelo.
Compruebesihaypérdidas. Después de conectar el
gas, compruebe si hay pérdidas en el sistema con un
manómetro. Si no dispone de manómetro, apague todos
los pilotos (si están encendidos), active la entrada de
gas a la unidad y utilice un detector de gas líquido en
todas las juntas y conexiones.
Apriete todas las conexiones si es preciso para evitar
pérdidas de as en el horno de pared o en la línea de
suministro.
IMPORTANTE: Utilice un sellador de juntas de tu-
bería resistente a la acción del gas LP en todas las
conexiones de tuberías.
WARNING:
No utilice llama para comprobar si hay
pérdidas de gas en las conexiones. Comprobar la exis-
tencia de pérdidas con una llama puede provocar fuego
o explosión.
Desconecteelhornoysuválvuladedesconexión
individual del sistema de suministro de gas durante
cualquier comprobación de la presión superior a ½ psig.
Aísleelhornodepareddelsistemadesuministro
de gas cerrando la válvula manual individual de des-
conexión durante cualquier comprobación de la presión
del sistema de suministro de gas con presiones de
prueba iguales o inferiores a ½ psig.
Figura 9
Válvula de desconexión
Regulador de
presión
Adaptador o unión
Válvula de desconexión externa
Tubería sólida o
conector exible
Base del armario

HORNO DE GAS DE PARED - INSTRUCCIONES DE INSTALACIÓN
16
Junta
Extremo
PEQUEÑO
hacia el
regulador par
gas natural
Figura 10
Extremo
AGRANDADO
hacia el regulador
para gas L.P.
8. Conversión a gas LP/Propano
A. Conversión del regulador de presión
Nota: No retire el regulador de presión.
Convertir el regulador de presión para uso con gas
LP (ver Figura 10).
En su caso, retire la asadera o cajón de almacenamien-
to tirando del cajón hasta los topes. Levante el frontal
del cajón para quitar los topes y sáquelo.
Localice el regulador de presión de la parte inferior de la
pared trasera y haga la conversión según se indica en la
Figura 10.
1. Retire la tapa del regulador de presión.
2. Saque el émbolo.
3. Gire el émbolo boca abajo con el extremo alargado
HACIA el regulador.
4. Vuelva a colocar el émbolo en el regulador. Las
letras LP o 10" W.C. deberán estar visibles en el
extremo del émbolo a la vista.
5. Vuelva a colocar la tapa en el regulador de presión.
NOTA: El tipo de presión del gas para el que está
ajustado el regulador se indica en la parte superior del
émbolo.
B.Ajusteeloriciodelquemadordelhorno
(ver Figura 11)
Con una llave de ½", gire hacia abajo el oricio
ajustable que inyecta gas al quemador del horno. Gire
el oricio aproximadamente 2½ vueltas hasta que
quede bien ajustado contra la espiga de medición de
LP. No apriete excesivamente.
Figura 11
Espiga
L.P.
Nat.
Obturador de aire
Oricio del quemador
del horno
Oricio
Regulador
C.Ajusteeloriciodelquemadordelaasadera(solo
modelos autolimpiadores) (ver Figura 12)
Figura 12
L.P.
Nat.
Oricio de la asa-
dera a altura de la
muñeca
Espiga
Oricio
Obturador de aire
Con una llave de ½", gire hacia abajo el oricio
ajustable que inyecta gas al quemador del horno. Gire
el oricio aproximadamente 2½ vueltas hasta que
quede bien ajustado contra la espiga de medición de
LP. No apriete excesivamente.

17
HORNO DE GAS DE PARED - INSTRUCCIONES DE INSTALACIÓN
9. Conversión de gas natural
Convertir el regulador de presión para uso con gas
natural (ver Figura 10).
A. Retire la tapa del regulador de presión.
B. Saque el émbolo.
C. Dé vuelta al émbolo de modo que el extremo pe-
queño quede HACIA el regulador.
D. Vuelva a colocar el émbolo en el regulador. Las letras
NAT o 4" W.C. deberán estar visibles en el extremo del
émbolo a la vista.
E. Vuelva a colocar la tapa en el regulador de presión.
F. Gire el oricio aproximadamente 2½ vueltas en
sentido contrario a las agujas del reloj. Esto alejará el
mechero de la espiga.
G. Aplique gas, ajuste los pilotos (en su caso) y el
obturador de aire del quemador para obtener una llama
adecuada.
H. Deberá haber 4" WC de presión en el colector tras
la conversión para un correcto funcionamiento con gas
natural.
10. Ajustes
Ajustedelallamaenhorno/asadera
El ajuste del obturador de aire está situado en el tubo de
venturi, que ajusta el mechero de la válvula y se bloquea
en posición con un destornillador de estrella. Si es nece-
sario ajustar el obturador de aire, aoje el tornillo y gire
el obturador para dejar pasar más o menos aire al tubo
del quemador (ver Figura 13).
Obturación Ajuste
de Aire
Aojar
Figura 13
Figura 14
Para gas natural, el obturador de aire deberá estar
abierto aproximadamente a la mitad. Para gas LP, el
obturador de aire deberá estar casi totalmente abierto.
Un exceso de aire hará que la llama se separare del
quemador. Demasiado poco aire hará que la llama se
amarillee en los bordes exteriores y se forme hollín.
Recuerde que el horno se sirve de fábrica ajustado para
gas natural, salvo indicación en otro sentido. Si va a co-
nectarse a gas LP, asegúrese de seguir el procedimiento
del apartado "Conversión" para cambiar el oricio del
quemador y el regulador a la posición para LP.
Observe la llama del quemador para determinar si es
correcta. Deberá mantenerse estable, con un cono azul
de aproximadamente 1" de longitud, y no extenderse
fuera de los bordes del deector. Par gas LP, es más
probable que esto ocurra cuando el obturador del ajuste
de aire esté completamente abierto (ver Figura 14).
Ajuste la temperatura del horno a 300°F y deje que el
quemador haga un ciclo de encendido y apagado.
Para volver a colocar la asadera o el cajón de almace-
namiento, siga en orden inverso los pasos indicados
para sacarlos (encontrará instrucciones completas en la
Guía de uso y cuidado). Vuelva a colocar las parrillas del
horno.

HORNO DE GAS DE PARED - INSTRUCCIONES DE INSTALACIÓN
18
11.Comprobacióndelfuncionamiento
Consulte la Guía de uso y cuidado incluida con el horno
de pared para ver las instrucciones de funcionamiento y
el cuidado y limpieza de su dispositivo.
No toque los quemadores del horno. Pueden tener calor
suciente para provocar quemaduras.
1. Compruebelosignitores(algunosmodelos)
Deberá comprobar el funcionamiento de los igni-
tores eléctricos después de haber comprobado
cuidadosamente que los conectores del horno y
la línea de suministro no tengan fugas y de haber
conectado el horno a la corriente eléctrica.
2. Sistemaignitordelhorno
Cierre la puerta y ajuste la temperatura del horno
a 300°F. Al cabo de aproximadamente 60 segun-
dos, el quemador se encenderá y se mantendrá
encendido hasta que el horno alcance los 300°F. A
continuación, el quemador se encenderá y apagará
para mantener una temperatura media de aproxima-
damente 300°F.
Cuandoesténrealizadastodaslasconexiones
Compruebe que todos los controles y el temporizador
programable queden en posición OFF (Apagado).
Vuelva a poner todos los controles en posición "OFF"
después de utilizar una operación con temporizador
programable.
Ubicacióndelmodeloynúmerodeserie
La placa de serie se encuentra en la parte izquierda del
marco interior del horno.
Al solicitar recambios o hacer consultas sobre su horno
de pared, asegúrese siempre de incluir los números de
modelo y de serie, así como el número de lote o letra de
la placa de serie del dispositivo.
La placa de serie indica también la potencia de los que-
madores, el tipo de combustible y la presión para la que
se ajustó el horno de pared al salir de fábrica.
WARNING:
• Pisar, apoyarse o sentarse sobre la puerta del
hornooelcajónpuedetenercomoresultado
lesionesgravesycausardañostambiénaldis-
positivo.
• Asegúresedetenereldispositivolibredemate-
riales combustibles, gasolina y otros vapores y
líquidosinamables.
Antesdesolicitarserviciotécnico
Lea la Lista de comprobación y las instrucciones de lim-
pieza y funcionamiento en su Guía de uso y cuidado.
Compruebe que el fusible de la toma de corriente o el
cortacircuitos del horno no estén fundidos o abiertos.
Cuidado,limpiezaymantenimientodehornosde
pared
Si es necesario extraer el horno de pared para su
limpieza o mantenimiento, cierre el suministro de gas.
Desconecte el suministro de gas y la corriente eléctrica
Retire los tornillos de instalación del bastidor delantero y
la moldura inferior. Saque el dispositivo solo lo necesa-
rio para desconectar la alimentación eléctrica. Después
de desconectar el suministro de gas y la alimentación
eléctrica, termine de sacar la unidad para las tareas de
servicio y limpieza. Vuelva a instalar el horno siguiendo
el orden inverso y asegúrese de que quede nivelado;
compruebe que no haya fugas de gas.

19
INSTRUCTIONS DE MONTAGE DU FOUR À GAZ MURAL
P/N 809017901 (1606) Rev. B
English – pages 1-9
Español – páginas 10-18
Français – páginas 19-27
Imprimés aux Etats-Unis
Dimensions de la baie Mesures de découpe
A B C D E F G H
10" Min
(25.4 cm Min.) 1 1/2" Min.
(3.8 cm Min.) 24" Min.
(61 cm Min.) 20"
(50.8 cm) 7 5/8"
(19.4 cm) 22"
(55.9 cm) 23 1/2"
(59.7 cm)
37 1/2" Min.
(95.3 Min)
27 1/2" Max.
(69.9 cm Max.) 38" Max.
(96.5 Max.)
Mesures de protection supplémentaires
• Ne jamais installer le four en dessous d'un comptoir de
cuisine.
• Le conduit d'évacuation du fourneau ne doit pas être
installé à moins de 915 cm (36 po) du plancher.
Prévoir un espace libre d'au
moins 540 cm (21¼ po) à l'avant
pour l'ouverture complète de la
porte.
Figure 1
A
F
B
C
D
E
G
H
38 7/16"
(97.6 cm)
37 3/8"
(94.0 cm)
23 3/8"
(59.4 cm)
Percer un trou de 38,10 mm (1½ po)
pour les raccords aux services de gaz
23 7/8"
(60.6 cm) 25 3/8"
(64.4 cm)
Trou de cordon
L’INSTALLATION ET L’ENTRETIEN DOIVENT ÊTRE RÉALISÉS PAR UN INSTALLATEUR QUALIFIÉ.
IMPORTANT : CONSERVEZ CES INSTRUCTIONS EN PRÉVISION D’UN USAGE ÉVENTUEL PAR
L’INSPECTEUR EN ÉLECTRICITÉ DE VOTRE LOCALITÉ. VEUILLEZ LIRE ET CONSERVER CES
INSTRUCTIONS POUR VOUS Y REPORTER ULTÉRIEUREMENT.
Si les directives contenues dans ce guide ne sont pas suivies à la lettre, un feu ou une
explosion pourrait se produire et entraîner des dommages matériels, des blessures, voire la mort.
POUR VOTRE SÉCURITÉ :
— Vousnedeveznientreposer,niutiliserd’essenceoud’autresvapeursouliquidesinammablesà
proximité de cet appareil ou de tout autre appareil électroménager.
— QUE FAIRE SI VOUS DÉTECTEZ UNE ODEUR DE GAZ :
• Ne mettez pas d’appareil en marche.
• Ne touchez à aucun commutateur électrique; ne vous servez pas du
téléphone de la maison.
• En utilisant le téléphone d’un voisin, appelez immédiatement le fournisseur de gaz. Suivez les
directives données par votre fournisseur de gaz.
• Si vous ne pouvez joindre votre fournisseur de gaz, appelez les pompiers.
— L’installationetl’entretiendecetappareildoiventêtreréalisésparuninstallateurqualié,un
technicien de service ou le fournisseur de gaz.

INSTRUCTIONS DE MONTAGE DU FOUR À GAZ MURAL
20
Notes importantes à l'intention de
l'installateur
1. Lire toutes les directives contenues dans les instruc-
tions de montage avant d'installer l'appareil.
2. Enlever soigneusement tout le matériel d'emballage
et toute la documentation des enceintes de four et
de gril avant de raccorder le gaz et l'alimentation
électrique.
3. Respecter tous les codes et règlements applicables.
4. S'assurer de laisser ces instructions au client.
5. Pour utiliser le four à des altitudes de 610 m
(2000 pi) au-dessus du niveau de la mer, réduire les
caractéristiques nominales de l'appareil de 4 pour
cent pour chaque 305 m (1000 pi) supplémentaire.
Note importante à l'intention du consommateur
Conserver ces instructions avec votre manuel d'entretien
et d'utilisation pour vous y reporter ultérieurement.
Conserver ces instructions à l'intention des inspecteurs
en électricité ou en gaz.
IMPORTANTES CONSIGNES
DE SÉCURITÉ
• L'installation d'appareils ménagers conçus pour
l'installation dans les maisons mobiles doivent
se conformer aux normes CSA de la série Z240
pour les maisons fabriquées en usine ou de la
série Z241 pour les maisons mobiles de parc
au Canada, ou aux normes Manufactured Home
Construction and Safety Standard Title 24CFR,
Part 3280 [auparavant Federal Standard for
Mobile Home Construction and Safety, Title
24, HUD, (Part 280)] ou, en l'absence de telles
normes, conformément aux normes locales ou
à la dernière édition des Standard for Manufactu-
red Home Installation 1982 (Manufactured Home
Sites, Communities and Set-Ups), ANSI Z225.1/
NFPA 501-A- des États-Unis.
Ne pas ranger d’articles pouvant inté-
resser les enfants dans les armoires situées au-des-
sus de l’appareil. Sinon, les enfants peuvent subir de
graves brûlures ou blessures s'ils grimpent sur l'appareil
pour attraper ces articles.
• Ne jamais entreposer, ni utiliser d’essence ou
d’autresvapeursouliquidesinammablesà
proximité de cet appareil ou de tout autre appa-
reil ménager. Risque de provoquer des incendies
ou des explosions.
• Retirer tous les éléments d'emballage de l'appareil
avant de l'utiliser pour éviter les dommages dus au
feu ou à la fumée si ce matériel s'enamme.
• Ne pas laisser les enfants seuls dans la cuisine
lorsque l'appareil fonctionne. Ne jamais les laisser
s'asseoir ou se tenir debout sur une partie quel-
conque de l'appareil; il peut en résulter des brûlures
ou d'autres blessures. Empêcher les enfants de
toucher la porte ou la fenêtre du fourneau lorsque
l'appareil électroménager fonctionne; la porte et la
fenêtre peuvent devenir sufsamment chaudes pour
causer de graves brûlures.
• Retirer le plateau à griller et autres ustensiles du
four avant d'activer le cycle autonettoyant (si le four
en est équipé).
• Ne jamais utiliser le four comme rangement. Cela
peut créer une situation potentiellement dangereuse.
• L'électroménager nécessite de l'air extérieur pour
une combustion adéquate. N'obstruer en aucune
circonstance le ux d'air de combustion autour du
conduit d'aération, autour de la base ou directe-
ment sous le panneau avant de l'appareil. Éviter de
toucher les arrivées d'air; ouverture de ventilation;
ou les surfaces environnantes; elles peuvent être
brûlantes.
• Il est essentiel de se rappeler que votre four n'est
pas conçu pour chauffer votre cuisine. Ce type de
comportement peut entraîner un incendie, endom-
mager l'appareil et annuler la garantie.
COUPURE DE COURANT
Ne pas tenter d'allumer le four en cas de
coupure de courant. En cas de coupure de
courant durant l'utilisation, mettre toutes
les commandes en position d'arrêt : « OFF »
ou « O ». Le non-respect de cette mesure de
sécurité donnera lieu à la remise en marche
du four lorsque le courant sera rétabli.
L'installation de ces appareils doit se conformer aux
normes locales ou, en l'absence de telles normes, aux
codes CSA C22.1 et CAN/CSA-B149.1 au Canada ou
à la dernière édition du National Fuel Gas Code, ANSI
Z223.1 aux États-Unis.
Ces appareils ont été homologués par le Groupe CSA.
Comme pour tous les appareils au gaz qui génèrent
de la chaleur, on doit prévoir certaines mesures de
sécurité. On les retrouve dans votre manuel d'entretien
et d'utilisation, à lire attentivement.
• Veiller à ce que le four mural soit installé et mis à
laterreparuninstallateurqualiéouuntechni-
cien autorisé et expérimenté.
• Ce type de four mural doit être mis à la terre
conformément aux normes locales ou, en l'ab-
sence de telles normes, au code CSA C22.1 au
Canada ou à la dernière édition du National Elec-
trical Code ANSI/NFPA n°70. Voir les consignes
de mise à la terre plus loin dans le manuel.

21
INSTRUCTIONS DE MONTAGE DU FOUR À GAZ MURAL
Dans le cas d'une prise de courant murale à 2 broches,
le client répond personnellement de sa responsabilité
et de son obligation de la remplacer par une prise de
courant murale conforme à 3 broches.
Ne jamais, sous aucun prétexte, couper, enlever ou
mettre hors circuit la broche de mise à la terre du
cordon d'alimentation électrique.
En cas d'utilisation d'une source d'alimentation externe,
à l'installation, doit être mis à la terre conformément aux
normes locales ou, en l'absence de telles normes au
code CSA C22.1 au Canada ou à la dernière édition du
National Electrical Code ANSI/NFPA n°70 aux États-
Unis.
Examiner soigneusement tous les règlements ou toutes
les règles pertinentes de raccord et de branchement du
four mural pour conrmer que l'installation est conforme
à tous les codes des pays, des états, provinces, terri-
toires, municipaux ou locaux incluant les règlements
régissant les services publics locaux.
Le non-respect des conditions ci-dessus peut entraîner
des risques de décharge électrique.
Remarque: Tous les raccords et branchements et
réglages doivent être effectués par des techniciens qua-
liés et habilités à le faire.
Débrancher le cordon d'alimentation
électrique avant d'effectuer l'entretien du four mural.
1. Travaux de menuiserie
Se reporter à la gure 1 pour les dimensions de votre
appareil électroménager et les mesures d'espace
nécessaire pour accueillir le four. Les coins doivent être
d'équerre.
Le meuble sur plancher doit pouvoir supporter
681⁄32 kg (150 lb) et doit être de niveau avec le bas de
l'ouverture.
La surface portante du four doit être fabriquée de contre-
plaqué massif ou matériau de même nature. Les pan-
neaux MDF (panneaux de bres à densité moyenne),
panneaux de particules ou de bois lamellé ne doivent
pas être utilisés comme châssis support.
2. Raccords électriques du four à gaz
mural
Ces appareils doivent être correctement reliés à la
terre pour assurer sa propre sécurité.
Cet appareil est muni d’une che à
trois broches avec mise à la terre pour assurer votre
protection contre les risques de secousse électrique.
Cette che doit être branchée directement dans une
prise de courant murale avec mise à la terre. Ne pas
enlever la broche de mise à la terre de cette che.
120 volts, 60 Hertz, terre de circuit dédié protégé par un
disjoncteur de 15 ampères ou fusible temporisé.
Ne pas utiliser une rallonge avec cette gamme.
Figure 3
Méthode privilégiée Ne jamais,
sous aucun prétexte,
couper, enlever ou
mettre hors circuit la
broche de mise à la
terre de cette che.
Cordon
d'alimentation
électrique muni
d'une che à 3
broches avec mise à
la terre
Prise de
courant
murale avec
mise à la
terre
10" Min
(25.4 cm Min)
27 1/2" Max
(69.9 cm Max)
Figure 2
22"
(55.9 cm)
La prise de courant murale doit se retrouver dans
l'armoire, en dessous de la découpe de montage.
Elle doit être facile d'accès pour l'entretien et pour
débrancher l'appareil électroménager (voir la gure 2).
La prise murale et son circuit doivent être inspectés par
un électricien autorisé pour en assurer l'installation adé-
quate de la mise à la terre.

INSTRUCTIONS DE MONTAGE DU FOUR À GAZ MURAL
22
Figure 5
Panneau
d'extension vis de
montage
Trous de
réglage
3. Autre méthode de construction
Instruction de montage d'un four à 1½ cavité dans une
ouverture à 2 cavités dont les dimensions représentent
107 cm (42⅛ po) de haut par 57,150 cm (22½ po) de
largeur.
Figure 4
(57.2 cm)
Languette de
contreplaquér
Montant
de bois
42 1/8"
(107 cm)
Réglage en
hauteur
22 1/2"
Trou de
cordon
• Si l'ouverture est trop large pour xer solidement
l'appareil à l'armoire à l'aide de vis de montage,
ajouter des languettes de contreplaqué.
• Si la hauteur d'ouverture mesure 107 cm (42⅛ po),
réduire le réglage en hauteur de 2,540 cm (1 po)
(voir section 4) et xer des montants de bois de 2
x 4 x 22 de chaque côté au bas de l'ouverture (voir
gure 4).
• On peut installer une garniture décorative (non
illustrée) au bas de l'appareil électroménager pour
cacher le trou. Elle doit chevaucher le bas de la dé-
coupe sur le devant de l'armoire de 635 mm (¼ po)
(voir l'étape 2 à la section 5).
4. Réglage de la hauteur du four
Récupérer la garniture décorative collée sur le côté ou
sur le dessus du four et la mettre de côté. La garniture
sera xée au bas sur le devant du four une fois installé
dans son armoire.
On doit effectuer un réglage de 38 mm (1½ po) en
hauteur sur les modèles avec panneau de rallonge
(voir gure 5). Ce réglage et le chevauchement
de garniture de 12,70 mm (½ po) permettent
l'installation de l'appareil dans des ouvertures de
95,25 à 99,06 cm (37½ à 39 po) de haut.

23
INSTRUCTIONS DE MONTAGE DU FOUR À GAZ MURAL
Porte du four
Fond du four
Panneau de
rallonge
Figure 6
Réglage de la hauteur du four :
1. Coucher le four sur le dos (voir gure 6).
2. Retirer les 3 vis qui retiennent le panneau de ral-
longe latéral sur les côtés du bas du four.
3. En déplaçant chaque panneau vers le bas, trouver
le positionnement qui allonge la hauteur du four
pour cadrer dans l'ouverture. Chaque position ajuste
la hauteur du four d'environ 12,70 mm (½ po).
4. Aligner les trous des panneaux de rallonge latéraux
aux côtés du four. Replacer les 3 vis.
5. Poursuivre l'installation du four. Remettre en position
verticale.
5. Montage de l'armoire
Insérer l'appareil électroménager dans la découpe. Uti-
liser les 2 vis de montage fournies pour xer l'encadre-
ment avant de l'appareil à l'armoire (étape 1 ci-après).
Mettre les 6 vis de quincaillerie décorative de côté pour
xer la garniture sur l'armoire (étape 2 ci-après). Utiliser
les trous de montage sur l'encadrement avant de l'appa-
reil comme modèle pour localiser les trous de montage
sur l'armoire.
Pour xer solidement le four à l'armoire (voir gure 7) :
1. Utiliser les 2 vis de montage fournies pour xer le
four à l'armoire. Les 2 trous se trouvent de chaque
côté en dessous de la garniture de nition de la
sortie d'air centrale.
2. Installer le panneau décoratif au bas du fourneau à
l'aide des 6 vis fournies. Quatre (4) vis sont instal-
lées sur le devant du panneau. Deux (2) vis sont
installées dans les coins supérieurs du panneau.
Figure 7
Garniture de la
sortie d'air centrale
Garniture
décorative
Vis de montage
Vis de quincaillerie
décorative
Vis de quincaillerie
décorative

INSTRUCTIONS DE MONTAGE DU FOUR À GAZ MURAL
24
6. Assurer un niveau adéquat
d'approvisionnement en gaz
Important: Lire soigneusement ces instructions avant
de raccorder le four à un approvisionnement en gaz.
Ces instructions concernent les fourneaux conçus
pour fonctionner au gaz naturel à pression d'admission
de 10 cm H2O (de colonne d'eau [W.C.]) (4 po H2O)
(980,64 Pa) ou au gaz de pétrole liquéé (propane) à
pression d'admission de 25,40 cm H2O (10 po H2O) (24
90,82 Pa).
Un régulateur de pression polyvalent est raccordé en
série avec la tubulure d'alimentation du four mural; il doit
toujours demeurer en série avec la conduite d'alimenta-
tion, quel que soit le type of gaz utilisé.
Pour assurer un bon fonctionnement, la pression
d'admission maximale du régulateur ne doit pas dépas-
ser les 35,560 cm H2O (14 po H2O) (3487,15 Pa).
Pour contrôler le régulateur, la pression d'admission
minimale doit être au moins 2,540 cm H2O (1 po H2O)
(ou 3,4 kPa) plus élevée que le réglage de pression du
régulateur. Si le régulateur est réglé pour 10 cm H2O
(4 po H2O) (980,64 Pa), la pression d'admission doit être
d'au moins 12,700 cm H2O (5 po H2O) (1245,41 Pa).
Si le régulateur est réglé pour 10 cm H2O (10 po H2O)
(980,64 Pa), la pression d'admission doit être d'au moins
12,700 cm H2O (11 po H2O) (1245,41 Pa).
Un robinet d'arrêt manuel doit être installé sur la
conduite approvisionnement, à l'extérieur du four, de
manière à pouvoir être facilement atteint pour ouvrir ou
fermer l'alimentation en gaz. L'emplacement recomman-
dé pour l'installation du robinet d'arrêt est à l'intérieur de
l'armoire, en dessous de la découpe de montage (voir
gure 8).
10" Min
(25.4 cm Min)
27 1/2" Max
(69.9 cm Max)
Figure 8
La conduite approvisionnement en gaz doit être fabri-
quée en tuyau de 1,3 cm (½ po) ou de 1,9 cm (¾ po).
Fermer toutes les ouvertures de la cavité de l'armoire
contenant le four. Toutes les ouvertures autour des sor-
ties de gaz doivent être fermées à l'installation.
7. Connection to Gas (see Figure 9)
AVANT DE RACCORDER L'APPAREIL
Enlever soigneusement tout le matériel d'emballage et
toute la documentation des enceintes de four et de gril
avant de raccorder le gaz et l'alimentation électrique.
Le cas échéant, enlever la grille ou le tiroir de rangement
en le tirant jusqu'aux butées d'arrêt. Soulever le devant
du tiroir au dessus des butées et tirer.
Conrmerl'absencedefuites. Après avoir raccordé
l'approvisionnement en gaz, vérier avec un manomètre
an de déceler des fuites éventuelles. Si un manomètre
n'est pas disponible, éteindre tous les pilotes (si pré-
sents), ouvrir l'alimentation en gaz et utiliser un détec-
teur de fuite liquide pour vérier l'intégrité de tous les
joints et raccords.
Au besoin, serrer tous les raccords pour prévenir les
fuites de gaz de la conduite d'alimentation ou du four
mural.
IMPORTANT: Un produit d'étanchéité résistant à l'action
chimique du propane doit être appliqué sur le letage de
tous les raccords de tuyaux.
Ne jamais utiliser de amme nue pour
contrôler l'étanchéité des raccords de gaz. Utiliser une
amme nue peut provoquer un incendie ou une explo-
sion.
Déconnecter le four et son robinet d'arrêt du système
de conduites d'approvisionnement en gaz durant tout
essai de pression supérieure à 3,447 kPa (½ psig).
Isoler le four mural du système de conduites
d'approvisionnement en gaz en fermant le robinet
d'arrêt manuel durant tout essai de pression égale à ou
moindre que 3,447 kPa (½ psig).
Figure 9
Robinet d'arrêt
Régulateur
de pression
Adaptateur ou raccord union
Robinet d'arrêt extérieur
Raccord rigide ou raccord exible
Base de l'armoire

25
INSTRUCTIONS DE MONTAGE DU FOUR À GAZ MURAL
Joint
d'étanchéité
Le bout le
plus PETIT
vers le
régulateur
pour le gaz
naturel
Figure 10
Le bout le plus
GROS vers le
régulateur pour le
propane gaz
Figure 12
Goupille
L.P.
Nat.
Orice du
grilloir à
hauteur de
la taille
Orice
Obturateur d'air
À l'aide d'une clé de 1,3 cm (½ po), abaisser orice
réglable qui injecte le gaz dans le brûleur du four.
Tourner orice environ 2½ tours jusqu'à ce qu'il soit
bien ajusté contre la goupille de propane. Ne pas trop
serrer.
8. Conversion au propane
A. Conversion du régulateur de pression
Remarque: Ne pas retirer le régulateur de pression.
Convertir le régulateur de pression au propane (voir
Figure 10).
Le cas échéant, enlever la grille ou le tiroir de rangement
en le tirant jusqu'aux butées d'arrêt. Soulever le devant
du tiroir au dessus des butées et tirer.
Trouver le régulateur de pression au bas du mur arrière
et convertir tel qu'illustré à la gure 10.
1. Retirer le bouchon du régulateur de pression.
2. Retirer le piston.
3. Renverser le piston en disposant le bout le plus gros
VERS le régulateur.
4. Replacer le piston dans le régulateur. Les lettres LP
ou10" W.C. doivent être visibles sur le bout exposé
du piston.
5. Replacer le bouchon du régulateur de pression.
REMARQUE: Le bout du piston indique la pression de
réglage du régulateur.
B.Réglezoricedebrûleurdufour(voir Figure 11)
À l'aide d'une clé de 1,3 cm (½ po), abaisser orice
réglable qui injecte le gaz dans le brûleur du four.
Tourner orice environ 2½ tours jusqu'à ce qu'il soit
bien ajusté contre la goupille de propane. Ne pas trop
serrer.
Figure 11
Goupille
L.P.
Nat.
Obturateur d'air
Orice du brûleur du four
Orice
Régulateur
C.Pourajusterl'oricedubrûleurdugrilloir
(modèles autonettoyants seulement) (voir Figure 12)

INSTRUCTIONS DE MONTAGE DU FOUR À GAZ MURAL
26
9. Conversion au gaz naturel
Convertir le régulateur de pression au gaz naturel
(voir Figure 10)
A. Retirer le bouchon du régulateur de pression.
B. Retirer le piston.
C. Renverser le piston en disposant le bout le plus petit
VERS le régulateur.
D. Replacer le piston dans le régulateur. Les lettres NAT
or 4" W.C. doivent être visibles sur le bout exposé du
piston.
E. Replacer le bouchon du régulateur de pression.
F. Tourner orice environ 2½ tours dans le sens antiho-
raire. Cela éloigne l'ergot de la goupille.
G. Ouvrir les gaz, régler les pilotes (si présents) et l'obtu-
rateur d'air du brûleur pour obtenir la amme idéale.
H. Après la conversion, il doit exister une pression
d'admission de 10 cm H2O (de (4 po H2O) (980,64 Pa)
pour un fonctionnement optimal au gaz naturel.
10. Réglages
Réglagedelaammedufouretdugrilloir
Le réglage de l'obturateur d'air se retrouve sur le tube de
venturi installé sur orice de soupape; il est verrouillé en
place par une vis cruciforme (Phillips). Pour régler l'obtu-
rateur d'air, desserrer la vis et tourner l'obturateur pour
admettre plus ou moins d'air au brûleur (voir gure 13).
Adjustment de
l'obturateur d'air
Desserrer
Figure 13
Figure 14
Pour les installations au gaz naturel, l'obturateur d'air
doit être environ semi-ouvert Pour les installations au
propane, presque complètement ouvert.
Trop d'air permet à la amme de s'élever au-dessus du
brûleur. Trop peu d'air produit une amme au pourtour
jaunâtre et forme de la suie.
Ne pas oublier que sauf avis du contraire, le four expé-
dié de l'usine est réglé pour le gaz naturel. Pour les
raccords au propane, veiller à respecter la procédure
« Conversion » pour modier le régulateur et l'orice du
brûleur aux réglages pour gaz propane.
Bien examiner la amme du brûleur du four pour déter-
miner si elle est adéquate. Elle doit être stable, présen-
ter un cône bleu d'environ 2,54 cm (1 po) de long et ne
doit pas s'étendre au-delà des bords du déecteur. Pour
les installations au propane, cela se produit le plus sou-
vent lorsque l'obturateur est complètement ouvert (voir
gure 14).
Régler le four à 300 °F (150 °C) et permettre au brûleur
d'effectuer un cycle complet (allumé-éteint).
Pour remettre le grilloir ou le tiroir de rangement en
place, inverser la procédure d'enlèvement (voir les direc-
tives complètes dans le manuel d'entretien et d'utilisa-
tion). Replacer les grilles du four.

27
INSTRUCTIONS DE MONTAGE DU FOUR À GAZ MURAL
11. Check Operation
Se reporter au manuel d'entretien et d'utilisation expédié
avec le four mural pour le mode d'emploi et pour le net-
toyage et l'entretien de l'appareil électroménager.
Éviter de toucher aux brûleurs de four. Ils peuvent deve-
nir chauds au point de provoquer des brûlures.
1. Contrôler les allumeurs (certains modèles)
Le fonctionnement des allumeurs électriques doit
être contrôlé une fois le four et les raccords de la
conduite d'alimentation soigneusement vériés pour
détecter toute fuite et le four raccordé au réseau
électrique.
2. Système d'allumage du four
Fermer la porte et régler la température du four
à 300 °F (150 °C). Dans environ 60 secondes, le
brûleur doit s'allumer et le demeurer jusqu'à ce que
le four atteigne les 300 °F. Le brûleur doit ensuite
s'allumer et s'éteindre au besoin pour maintenir une
température moyenne autour de 300 °F (150 °C).
Une fois tous les raccords et branchements terminés
S'assurer que tous les boutons de commande et
les minuteries programmables sont en position
d'arrêt :« OFF » ou « O ».
Remettre tous les boutons de commande en position
d'arrêt : « OFF » ou « O », après avoir terminé une
période de minuterie programmée.
Emplacement du numéro de modèle et du numéro
de série
Le numéro de série se trouve sur la garniture intérieure
gauche du four.
Pour commander des pièces ou poser des questions au
sujet de votre four mural, veiller à inclure le numéro de
modèle et le numéro de série en plus d'un numéro de
lot ou la lettre inscrite sur la plaque signalétique de votre
appareil électroménager.
La plaque signalétique indique également la puissance
thermique des brûleurs, le type de carburant et le
réglage de la pression d'admission du four lorsqu'il a
quitté l'usine.
• S'appuyer sur le four ou s'asseoir sur la porte
peut entraîner de graves blessures et endomma-
ger l'appareil.
• Veiller à ce que l'appareil demeure libre de tout
matériel combustible, d'essence et de toute autre
liquideouvapeurinammable.
Avant de contacter le réparateur
Lire soigneusement la liste de contrôle pour éviter les
demandes de réparation et le mode d'emploi et de net-
toyage dans le manuel d'entretien et d'utilisation.
S'assurer que le fusible ou le disjoncteur du four latéral
n'est pas grillé ou ouvert respectivement.
Entretien, nettoyage et réparation des fours muraux
S'il est nécessaire d'enlever le four mural pour le net-
toyage ou l'entretien, fermer l'approvisionnement en gaz.
Démonter la conduite d'alimentation de gaz et débran-
cher l'alimentation électrique. Retirer les vis d'installation
de l'encadrement avant et de la garniture inférieure. Tirer
autant que nécessaire pour débrancher l'alimentation
électrique. Après avoir démonté la conduite d'alimen-
tation de gaz et débranché l'alimentation électrique,
terminer d'enlever l'appareil pour le nettoyage et l'entre-
tien. Remonter en suivant l'ordre inverse et veiller à ce
que l'appareil électroménager soit de niveau; vérier à
nouveau l'étanchéité des raccords de gaz.