Kenmore 13293 Quick Start Guide
Kenmore-13299-Quick-Start-Guide kenmore-13299-quick-start-guide
2014-07-06
: Kenmore Kenmore-13293-Quick-Start-Guide kenmore-13293-quick-start-guide kenmore pdf
Open the PDF directly: View PDF
.
Page Count: 2

22-13292/3/9
Page 1 of 2
Kenmore Ultra Wash® Dishwasher with SmartWash™ Technology
White 22-13292
Stainless 22-13293
Black 22-13299
• Hidden control styling
• Tall Tub design with stainless steel interior
• Ultra Wash® performance with optical soil sensor and automatic
temperature control (ATC)
• SmartWash™ cycle
• QuietGuard™ Deluxe sound insulation (51 dBA)
• Sani Rinse option virtually eliminates bacteria (NSF® Certified.)*
• 4 hour delay start option
• Nylon racks
SELECTION KENMORE
White 22-13292
Stainless 22-13293
Black 22-13299
STYLING
Controls Hidden Electronic
Tub Design Tall Tub
Towerless Design UltraSpace™
Smooth Touch Electronic Controls with Lockout
Start Button Memory •
WASH SYSTEM
Ultra Wash® Performance Optical Soil Sensor + ATC
Filtration System •
CYCLES / OPTIONS 6 / 5
SmartWash™ / SmartWash™ HE •
Hi-Temp Wash Option •
Pots and Pans •
Normal Wash •
China / Gentle Wash •
Fast Wash / 1 Hour Wash •
Quick Rinse •
Hi-Temp Rinse •
Delay Start 4 Hour
Sanitize Rinse Option / Steam Sanitize NSF® Certified
Heated Dry / Air Dry •
Cancel and Drain •
INTERIOR FEATURES
Stainless Steel Interior •
Adjustable Upper Rack Premium Adjusters
Rack Material Nylon
Silverware Basket (Lower Rack) with 2 Covers
No-Flip Clips™2
GENERAL FEATURES
Sound Insulation QuietGuard™ Deluxe (51 dBA)
True-Hold™ Door System •
Detergent Dispenser •
Rinse Aid Dispenser with Indicator •
Drying System Active Vent
Side Mountable Kit Included
Amperage Rating (120V / 60Hz) 9.6
Circuit Breaker Size** 15
ENERGY STAR® Qualified •
CEE Rating†† Tier 2
Est. Yearly Energy Consumption 253 kWh / yr.
Est. Yearly Operating Cost
Elec. / Gas Water Heater†$27 / $22
Item Weight (Approx. Lbs.) 80
Shipping Weight (Approx. Lbs.) 92
WARRANTY
1-Year Limited Warranty –
Entire Appliance Parts & Labor
If used for other than private family purposes, warranty applies for only 90 days.
ATC = Automatic Temperature Control
**20 amps required if disposer is on the same circuit.
† Based on four wash loads a week and a 2007 U.S. Government national average cost of
$.1065 per kWh for electric and $1.218 per therm for natural gas. Your actual operating
cost will vary depending on your local utility rates and your use of the product.
†† The CEE Tier system is based on the Consortium for Energy Efficiency qualified product
listings.
*NSF / ANSI 184 Residential Dishwashers. Certified residential
dishwashers are not intended for licensed food establishments.
08911
Due to Sears policy of continuous improve ment on its products, Sears reserves
the right to change materials and specifications without notice. Before installing,
consult installation instructions packed with product. For complete warranty
information, consult the owner’s manual or visit www.managemylife.com.
22-1329X.PDF
Effective 10/10/11

22-13292/3/9
Page 2 of 2
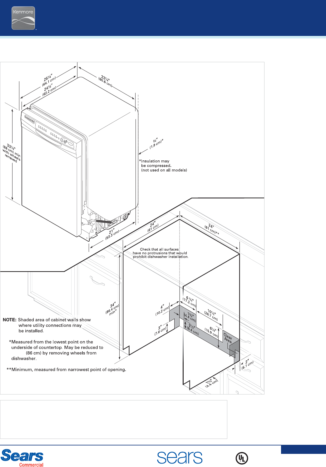
33 1/2"
08911
Due to Sears policy of continuous improve ment on its products, Sears reserves
the right to change materials and specifications without notice. Before installing,
consult installation instructions packed with product. For complete warranty
information, consult the owner’s manual or visit www.managemylife.com.
22-1329X.PDF
Effective 10/10/11
Call Sears Parts At: 1–800-225-2864
SIDE PANEL KIT
8171656 – White
8171657 – Stainless
8171658 – Bisque
8171657 – Black
FLOOR
MOUNTING KIT
8171477
SIDE MOUNT KIT
The side mount kit allows the dishwasher to be secured to the cabinets or partitions
on either side of the unit. This kit may be required if mounting the dishwasher to the
countertop is not a desirable option (for example, granite or natural stone). Call Sears
Parts At: 1–800-225-2864. Order Kit # 22-587-8212560.