Kidde Fire Systems Smoke Alarm Hart Xl Users Manual
2015-02-09
: Kidde-Fire-Systems Kidde-Fire-Systems-Kidde-Fire-Systems-Smoke-Alarm-Hart-Xl-Users-Manual-568180 kidde-fire-systems-kidde-fire-systems-smoke-alarm-hart-xl-users-manual-568180 kidde-fire-systems pdf
Open the PDF directly: View PDF .
Page Count: 98

HART XL
INSTALLATION
OPERATION &
COMMISSIONING
MANUAL
MANUAL NO. TM0042

Installation, Operation and Maintenance Manual
Issue 1 Page i
February 2001
FOREWORD
This manual is intended to clearly and accurately reflect the High-Sensitivity Smoke Detector system with
the Modular Control Equipment. This manual is to be used by trained distributors only. This publication
describes the installation, operation and maintenance for the High-Sensitivity Smoke Detector system.
TERMS AND ABBREVIATIONS
AC/a.c.- Alternating Current
AH Amperes per Hour
CPU- Central Processing Unit
DC/d.c.- Direct Current
DIA- Diameter
ESC- Escape
ESP- Extended Sampling Point
FT- Feet or Foot
FT/S- Feet per Second
GND- Ground
HSSD®- High Sensitivity Smoke Detector
HVAC- Heat, Ventilation and Air-Conditioning
IIM- Intelligent Interface Module
ISOL- Isolate
Km Kilometre
LCD- Liquid Crystal Display
LED- Light Emitting Diode
mA- Milliamperes
mm Millimetres
m/s Metres per Second
PC- Personnel Computer
PCB Printed Circuit Board
P/N - Part Number
Sq. Ft.- Square Feet
TBA To Be Advised
VVolts
VAC- Voltage Alternating Current
VDC - Voltage Direct Current
VS.- Versus
%/m Percent Per Metre
%/ft Percent per Feet

Installation, Operation and Maintenance Manual
Page ii Issue 1
February 2001
TABLE OF CONTENTS
Para Page
1 INTRODUCTION ........................................................................................................................1-1
1.1 Features ................................................................................................................................1-1
2 SYSTEM FUNCTIONAL DESCRIPTION...................................................................................2-1
2.1 General..................................................................................................................................2-1
2.2 Overall Functional Description ..............................................................................................2-1
2.3 Detector .................................................................................................................................2-5
2.3.1 Detector Head ..................................................................................................................2-7
2.3.2 Termination Board............................................................................................................2-9
2.3.3 Fan Module .................................................................................................................... 2-11
2.4 Display Module....................................................................................................................2-11
2.5 Intelligent Interface Module .................................................................................................2-12
2.5.1 PC Port........................................................................................................................... 2-13
2.5.2 RS-485 Connection........................................................................................................ 2-13
2.5.3 Telephone Port (with optional modem) ..........................................................................2-13
2.6 Power Supplies ..............................................................................................................2-14
2.6.1 Self Contained Power Supply ........................................................................................2-14
2.6.2 Battery Calculation .........................................................................................................2-14
2.7 Use of the Elutriator.............................................................................................................2-16
3 CONTROLS AND INDICATORS................................................................................................3-1
3.1 Status Indicator......................................................................................................................3-1
3.2 Termination Board Indicator ..................................................................................................3-1
3.3 Display Module......................................................................................................................3-1
3.4 Sounder .................................................................................................................................3-6
3.5 LaserNET Software ...............................................................................................................3-7
4 INSTALLATION ..........................................................................................................................4-1
4.1 Introduction............................................................................................................................4-1
4.2 Locating the Detector ............................................................................................................4-1
4.3 Installing the Detector............................................................................................................ 4-2
4.4 Termination Board Field Wiring.............................................................................................4-5
4.5 Installing the Display Module.................................................................................................4-6
4.5.1 Installing the Remote Display Module..............................................................................4-7
4.6 Installing Self Contained Power Supply ................................................................................ 4-9
4.7 Installing the Intelligent Interface Module............................................................................4-12
4.7.1 Wiring the RS-485 Network............................................................................................ 4-12
4.7.2 Installing the Stand Alone Intelligent Interface Module .................................................4-12
4.7.3 Setting Detector Address ............................................................................................... 4-16
4.7.4 Installation Checks ......................................................................................................... 4-17
4.7.5 Installing Telephone Line to the Intelligent Interface Module......................................... 4-17
4.7.6 Software Configuration...................................................................................................4-17
4.8 Programming....................................................................................................................... 4-17
4.9 Installation Method for the Elutriator....................................................................................4-17

Installation, Operation and Maintenance Manual
Issue 1 Page iii
February 2001
TABLE OF CONTENTS (Continued)
Para Page
5 SYSTEM DESIGN ......................................................................................................................5-1
5.1 Introduction ............................................................................................................................5-1
5.2 Selecting the Correct Detector...............................................................................................5-1
5.2.1 Ultra Detector....................................................................................................................5-1
5.2.2 Standard Detector.............................................................................................................5-2
5.3 Air Sampling Pipe Network Design........................................................................................5-2
5.4 Pipe Network Design Terms and Details...............................................................................5-2
5.5 Air Velocity .............................................................................................................................5-3
5.6 Branch Point ..........................................................................................................................5-3
5.7 Elutriator.................................................................................................................................5-3
5.8 Elbow, Standard 90 degree ...................................................................................................5-3
5.9 Sweep Elbow .........................................................................................................................5-3
5.9.1 Equivalent Feet.................................................................................................................5-4
5.9.2 Extended Sampling Point (ESP).......................................................................................5-4
5.9.3 Sampling Point (SP) .........................................................................................................5-4
5.10 Pipe Segment ........................................................................................................................5-4
5.11 Sampling Hole........................................................................................................................5-4
5.12 System Transport Time..........................................................................................................5-5
5.13 Suction Pressure....................................................................................................................5-7
5.14 Zones of Varying Static Pressure ..........................................................................................5-7
5.15 Distributed Pipe Network Sampling -
Symmetrical and Non-Symmetrical Balanced Systems ........................................................5-7
5.16 Return Air Grill Sampling .......................................................................................................5-7
5.17 Return Air Duct Sampling ......................................................................................................5-7
5.18 Selecting a Sampling Method................................................................................................5-7
5.18.1 Telephone Central Offices................................................................................................5-8
5.18.2 Computer Rooms..............................................................................................................5-8
5.18.3 Clean Rooms ....................................................................................................................5-8
5.18.4 Atriums..............................................................................................................................5-8
5.18.5 Office Areas......................................................................................................................5-8
5.18.6 Warehouse Storage..........................................................................................................5-8
5.19 Computer Balanced System Design using “SNIFF“ Version 3.0 Software............................5-9
5.19.1 Parameters for Computer Balanced Systems ..................................................................5-9
5.20 Using the “SNIFF“ Version 3.0 Software ...............................................................................5-9
5.21 Return Air Duct Detection Design........................................................................................5-10
5.22 Sampling Pipe Requirements ..............................................................................................5-11
5.23 Return Air Grill Sampling Design.........................................................................................5-12
5.24 Installing the Air-Sampling Pipe Network.............................................................................5-13
5.25 Final touches........................................................................................................................5-14
5.25.1 Air-Sampling Pipe Labels ...............................................................................................5-14
5.25.2 Sample Port Labels ........................................................................................................5-14
5.25.3 Sample Point Labels.......................................................................................................5-14
5.25.4 Mini Sample Point Labels ...............................................................................................5-14
6 SYSTEM COMMISSIONING ......................................................................................................6-1
6.1 Introduction ............................................................................................................................6-1
6.2 System Checkout...................................................................................................................6-1
6.3 Monitoring and Testing Systems ...........................................................................................6-1
6.4 Transport-Time Testing..........................................................................................................6-2
6.4.1 Commissioning Sheet.......................................................................................................6-2
6.5 Suction Pressure Testing.......................................................................................................6-2
6.6 Gross Smoke Test .................................................................................................................6-3
6.6.1 Burning Wire Test.............................................................................................................6-3

Installation, Operation and Maintenance Manual
Page iv Issue 1
February 2001
TABLE OF CONTENTS (Continued)
Para Page
7 ROUTINE MAINTENANCE ........................................................................................................ 7-1
7.1 Introduction............................................................................................................................7-1
7.2 Scheduled Maintenance........................................................................................................7-1
7.3 Maintenance Procedures ...................................................................................................... 7-1
7.3.1 Visual Check ....................................................................................................................7-1
7.3.2 Battery-Status Check .......................................................................................................7-1
7.3.3 Gross Smoke Test............................................................................................................ 7-1
7.3.4 Sampe-Hole Airflow Verification Test...............................................................................7-2
7.3.5 Detector Sensitivity Test................................................................................................... 7-2
7.3.6 Clean Detector .................................................................................................................7-2
7.3.7 Clean Elutriator.................................................................................................................7-3
8 TROUBLE SHOOTING AND CORRECTIVE MAINTENANCE..................................................8-1
8.1 Introduction............................................................................................................................8-1
8.2 Standard Fault Isolation Techniques.....................................................................................8-1
8.2.1 Visual Inspection ...................................................................................................................8-1
8.2.2 Power Checks ....................................................................................................................... 8-1
8.3 Troubleshooting..................................................................................................................... 8-2
8.4 Replacement .........................................................................................................................8-8
8.4.1 Replacing the Detector.....................................................................................................8-8
8.4.2 Replacing the Detector Head ........................................................................................... 8-9
8.4.3 Replacing the Termination Board...................................................................................8-11
8.4.4 Replacing the Fan Module .............................................................................................8-14
8.4.5 Replacing the Display Module........................................................................................8-15
8.4.6 Replacing the Intelligent Interface Module.....................................................................8-17
8.4.7 Replacing the Single Zone Power Supply...................................................................... 8-17
9 PARTS LIST ............................................................................................................................... 9-1
APPENDIX...................................................................................................................................A1
LIST OF ILLUSTRATIONS
Figure Page
1.1 Detector ......................................................................................................................................1-3
2.1 Typical Stand Alone System.......................................................................................................2-3
2.2 Typical System with Stand Alone Intelligent Interface Module................................................... 2-4
2.3 Detector Block Diagram..............................................................................................................2-6
2.4 Detector Head Views.................................................................................................................. 2-8
2.5 Termination Board Internal Wiring Diagram............................................................................. 2-10
2.6 Self Contained Power Supply Diagram....................................................................................2-15
2.7 Elutriator Cut-Away View.......................................................................................................... 2-16
4.1 Detector Installation Diagram ..................................................................................................... 4-4
4.2 Termination Board External Wiring Diagram.............................................................................. 4-5
4.3 Installing the Display Module...................................................................................................... 4-6
4.4 Installing the Remote Display Module ........................................................................................ 4-8
4.5a Connecting the Internal Power Supply ..................................................................................... 4-10
4.5b Installing the Single Zone Power Supply..................................................................................4-11
4.6 Intelligent Interface Module Stand Alone Mounted (4-Wire) ....................................................4-14
4.7 Intelligent Interface Module Stand Alone Mounted (2-Wire) ....................................................4-15

Installation, Operation and Maintenance Manual
Issue 1 Page v
February 2001
LIST OF ILLUSTRATIONS (continued)
Figure Page
5.1 Anemometer................................................................................................................................5-3
5.2 Return Air Grill Sampling Method .............................................................................................5-12
5.3 Mini Sample Point Kit................................................................................................................5-13
6.1 Magnehelic Test Set-Up .............................................................................................................6-3
8.1 Paddle Lever...............................................................................................................................8-9
8.2 Replacing the Detector Head....................................................................................................8-10
8.3 Replacing the Termination Board .............................................................................................8-12
8.4 Termination Board Internal Wiring Diagram .............................................................................8-13
8.5 Replacing the Fan Module........................................................................................................8-14
8.6 Replacing the Display Module ..................................................................................................8-15
8.7 Replacing the Remote Display Module.....................................................................................8-16
8.8 Replacing the Single Zone Power Supply ................................................................................8-18
LIST OF TABLES
Table Page
1.1 Detector Technical Specifications...............................................................................................1-2
2.1 Detector Specifications ...............................................................................................................2-5
2.2 Display Module Specifications ..................................................................................................2-12
2.3 Intelligent Interface Module Specifications ...............................................................................2-13
2.4 Self Contained Power Supply Assembly ..................................................................................2-14
4.1 Detector Address Switch Settings ............................................................................................4-16
5.1 Elbow Equivalent Measurements ...............................................................................................5-4
5.2 Minimum Detector Sensitivity Setting .........................................................................................5-6
8.1 Troubleshooting Guide................................................................................................................8-2
8.2 Intelligent Interface Module to Computer Communications Faults.............................................8-3
8.3 General System Faults ...............................................................................................................8-4
8.4 Intelligent Interface Module to Termination Board Communications Problems..........................8-5
8.5 Faults Indicated on the Display Module or LaserNET Graphic Display......................................8-6

Installation, Operation and Maintenance Manual
Page vi Issue 1
February 2001
SAFETY SUMMARY
Installation Precautions Adherence to the following will aid in problem-free installation with long-term
reliability:
-
Several different sources of power can be connected to this High Sensitivity Smoke Detection system.
Disconnect all sources of power before servicing. The High Sensitivity Smoke Detector (HSSD) system and
associated equipment may be damaged by removing and/or inserting cards, modules, or interconnecting cables while
the unit is energised. Do not attempt to install, service, or operate this unit until this manual is read and understood.
-
Application of the system:
To reduce the possibility of inadvertent alarms caused by “normal” ambient conditions,
the HSSD system must be monitored before final commissioning. Special attention should be given to systems
installed where elevated levels of background ambient smoke or particulate concentrations are present within the
protected area. Examples of such applications would be: kitchens, boiler rooms, manufacturing or other processes
where open flames or unprotected heating surfaces are present.
This monitoring must be conducted for a minimum of two weeks and be conducted during all normal
situations which may cause an elevated level of smoke or particulate to occur in the protected area. This
monitoring process will determine the most appropriate detector sensitivity, alarm threshold and delay
settings for the application.
-
Use with fire suppression systems:
Under no circumstances should the detector be used to directly initiate
the release of a fire suppression system. When used as detection for a fire suppression system, the detector
should provide one initiation signal of a cross zoned detection system.
-
Static Electricity:
Electronic components and modules can be damaged by small amounts of static electricity.
When handling these components or modules, wear an antistatic wrist strap or grounding device.
GENERAL SAFETY NOTICES The following must be observed to maintain personnel safety.
The following general safety notices supplement specific warnings and cautions appearing in the manual. The safety
precautions in this section must be understood and applied during operation and maintenance.
TEST EQUIPMENT
Make certain test equipment is in good operating condition. Do not touch live equipment or personnel working on live
equipment while holding a test meter. Some types of measuring devices should not be grounded; these devices
should not be held when taking measurements.
FIRST AID
Any injury, no matter how slight, should never go unattended. Always obtain first aid or medical attention
immediately.
GENERAL PRECAUTIONS
The following general safety precautions are to be observed at all times:
1. All electrical components associated with equipment shall be installed and grounded in accordance with local
regulation requirements.
2. Special precautionary measures are essential to prevent applying power to equipment at any time maintenance
work is in progress.
3. Before working on electrical equipment, use a voltmeter to ensure that system is not energised.
4. When working near electricity, do not use metal rules, flashlights, metallic pencils, or any other objects having
exposed conductive material.
5. When connecting a meter to terminals for measurement, use range higher than expected voltage.

Installation, Operation and Maintenance Manual
Issue 1 Page 1-1
February 2001
1 INTRODUCTION
This manual contains operation, installation, maintenance, trouble shooting and parts list information for
the High Sensitivity Smoke Detection (HSSD) system.
The HSSD system is designed to provide high sensitivity smoke detection for an area up to 2000 sq/m
(20,000 sq/ft). Detection of smoke is achieved by using a fan to draw air from the protected area through
sampling pipe network back to a Detector. The Detector will analyse the air for the presence of smoke.
The Detector uses laser based particle counting technology to achieve the highest levels of performance.
The unique design ensures that only smoke particles that pass through a focused laser beam are
detected. Consequently, the Detector’s performance will not be affected by the build up of dirt within the
detection head chamber. Therefore no filters are required and system maintenance is minimal.
Air is continuously sampled from risk areas along a pipe network to the Detector. The standard Detector
has a dynamic sensitivity range from 0.005%/m to 1%/m (0.0015% to 0.3%/ft) obscuration. Alternatively
an ultra Detector has an increased sensitivity range 0.001%/m to 0.1% to (0.0003% to 0.03%/ft) for use
in very clean applications. The Detector sensitivity can be set to accommodate varying background
levels.
A Display Module provides a visual indication of the system status, smoke level, alarm and trouble
conditions of the Detector. Software conditions in the Display Module are condition specific i.e. when the
system is in quiescent “Normal” is displayed with the company logo and time and date information.
Should an alarm or trouble condition be activated then the relevant condition will be displayed. The
Display Module can be fitted into the Detector or remotely mounted.
A termination board located within the Detector provides micro processor control of the HSSD system.
The termination board provides the interface between the detector head, the RS485 network, the Display
Module and the PC Port. An on board memory stores configuration details, history events and system
information.
1.1 Features
The following is a list of major features of the HSSD system.
Laser based particle counting technology.
No particle filters required.
Service port located on the side of the Detector to allow ease of commissioning.
Attachable 1 amp Self Contained Power Supply and battery back up unit.
On site sensitivity selection, to meet specific application requirements.
Four individual alarm levels (Pre-Alarm levels 1 and 2/Alarm levels 1 and 2).
Lasernet network options, 1 to 127 Detectors per system. Using RS485 communications.
Modular design for fast and easy servicing.
Smoke history and event log storage and battery back-up.

Installation, Operation and Maintenance Manual
Page 1-2 Issue 1
February 2001
Table 1.1 Detector Technical Specification
DESCRIPTION SPECIFICATION
Weight 3.4 kg (7.5 lbs)
Finish Polycarbonate Light Grey Material
Input Voltage 18 to 30 V DC (24 V DC nominal)
Standard Detector Ultra Detector
Detector Sensitivity Range 0.005%/m to 1%/m
(0.0015% to 0.3%/ft) 0.001%/m to 0.1%/m
(0.0003% to 0.03%/ft)
Stand Alone With Display Module
Input Current (With Standard Head) 315 mA 345/445 mA *
Input Current (With Ultra Head) 395 mA 425/525 mA *
Operating Temperature 0° to 52° C (32° to 125° F)
Operating Humidity (With Standard Head) 10 to 95% non condensing
Operating Humidity (With Ultra Head) TBA
Enclosure IP31
Dimensions 320 mm wide by 228 mm high by 108 mm deep
Alarm Relay(s) Normally open contacts, 2 Amp @ 28 V DC, resistive
Pre-Alarm Relay(s) Normally open contacts, 2 Amp @ 28 V DC, resistive
Isolate Relay Normally open contacts, 2 Amp @ 28 V DC, resistive
Trouble Relay Normally closed contacts, 2 Amp @ 28 V DC, resistive
Electrical Connection Up to 18 GA field wiring to removeable terminal blocks
Service Port Connection RJ12 – RS232 communications
Network Connection 2 pair – RS485 communications
Remote Display Connection RS485 communications ( 4 core including power)
Air Inlet Port 0.75 inch threaded
Exhaust Port 1 inch
* Back-light off/Back-light on

Installation, Operation and Maintenance Manual
Issue 1 Page 1-3
February 2001
Figure 1.1 Detector

Installation, Operation and Maintenance Manual
Page 1-4 Issue 1
February 2001
This Page Intentionally Left Blank

Installation, Operation and Maintenance Manual
Issue 1 Page 2-1
February 2001
2 SYSTEM FUNCTIONAL DESCRIPTION
2.1 General
The following paragraphs provide a functional description of the overall operation of the system, as well
as functional descriptions of the major components that together make up the High Sensitivity Smoke
Detection (HSSD) system.
2.2 Overall Functional Description
The High Sensitivity Smoke Detection system comprises a number of major components. Figures 2.1 to
2.2, show how these components are interconnected. These Figures also show the options available for
configuring the system depending on the application in which it is to be used. The options available are
connecting the Detector via an Intelligent Interface. The system will support up to 127 Detectors. Each
Detector contains the following items:
termination board
detector head
fan module
Display module (optional)
This system is designed to provide high sensitivity smoke detection for an area up to 2000 sq-m (20,000
sq.ft). Smoke detection is accomplished by using a fan, mounted in the Detector, to draw in air from a
protected area through sampling pipe network back to the detector where the air is analysed for the
presence of smoke. The sensitivity of the Detector is programmable over a wide range to meet virtually
any application. In addition, an “Ultra” version of the detector is available with even higher sensitivity,
exclusively for clean room applications.
A three-colour light emitting diode (LED) mounted in the fascia plate of the Detector provides a visual
indication of the current status of the system. Current system conditions are indicated by this LED as
follows:
Continuous Green Normal
Flashing Green Auto Setup
Continuous Yellow Fault/Isolate
Flashing Red Pre-Alarm
Continuous Red Alarm
System status data collated on the termination board is transmitted via an RS-485 serial communications
link to the Display Module. The Display Module is an optional user interface which provides a display on
a back-lit mono LCD. The display provides a visual indication of the system status, smoke level, alarm
and trouble conditions of the Detector. By use of the control keys (4 cursor and 1 enter) an operator is
capable of viewing the information via a password protected menu function. The system status is also
indicated by a three colour LED providing the same functionality as described above.
Connections to a PC via an RS-232 network allow site-specific settings such as pre-alarm and alarm
levels to be loaded into a non-volatile RAM fitted on the termination board. The termination board
connects to the RS-485 network at an address set on a 7 way DIL switch. The Intelligent Interface
Module (IIM) is an optional user interface which serves as a communications controller, networking up to
127 termination boards. The IIM is linked via the RS-232 to a computer, running LaserNET version 3.0
software, situated on site. Alternatively, the IIM can be connected via a modem to a computer, which is
located at a remote site. Connection of the PC to the termination boards allows the system to be
configured and monitored from either a local or remote location. The IIM can also be programmed to dial
out to a remote PC should any alarm or trouble condition occur.

Installation, Operation and Maintenance Manual
Page 2-2 Issue 1
February 2001
In addition to the detector, a sampling pipe network is required to carry the sampled air from the protected
area to the detector. Overall performance of the High Sensitivity Smoke Detection system is dependent
upon the layout of the air sampling pipe network. Use of the “SNIFF” computerised program balances the
piping network to provide for an equal intake of air at each sampling hole. For a detailed description on
how to design a pipe network reference should be made to the SNIFF Manual (Version 3.0).
The sampling pipe network is normally constructed from ½ inch, ¾ inch, or 1-inch internal-diameter
smooth bore pipe. The type of pipe is not critical because of the low operating pressures. Any smooth
bore pipe will be satisfactory provided it is rigid enough so that it does not sag between supports and it
meets all code requirements. Some commonly used types are PVC, ABS, CPVC, EMT and copper
tubing. Flexible tubing can be used for sampling hole drops.

Installation, Operation and Maintenance Manual
Issue 1 Page 2-3
February 2001
Figure 2.1 Typical Stand Alone System

Installation, Operation and Maintenance Manual
Page 2-4 Issue 1
February 2001
Figure 2.2 Typical System with Stand Alone Intelligent Interface Module

Installation, Operation and Maintenance Manual
Issue 1 Page 2-5
February 2001
2.3 Detector
The Detector consists of a backbox with a removable cover, incorporated within the Detector are a
detector head, termination board and a fan. These three items are the major elements of the Detector,
refer to Figure 2.3 detailing the detector block diagram. The design of the Detector allows surface
mounting, thus providing ease of installation and maintenance. Replacement of any of the detector’s
main elements can be achieved without the need to remove the backbox, conduit, inlet or exhaust pipe.
The fan is mounted in a plenum within the Detector and is controlled via the termination board, thus
ensuring optimal fan speed. An LED located on the front panel of the Detector provides a visual
indication of the current system status. Two types of Detector are available; standard and ultra sensitive.
The ultra sensitive version is recommended for use in clean room applications only.
Table 2.1 Detector Specifications
DESCRIPTION SPECIFICATION
Part Number (With Standard Head) 53836-K183
Part Number(With Ultra Head) 53836-K186
Weight 3.4 kg (7.5 lbs)
Finish Polycarbonate Light Grey Material
Input Voltage 18 to 30 V DC (24 V DC nominal)
Stand Alone With Display Module
Input Current (With Standard Head) 315 mA 345/445 mA *
Input Current (With Ultra Head) 395 mA 425/525 mA *
Operating Temperature 0° to 52° C (32° to 125° F)
Operating Humidity (With Standard Head) 10 to 95% non condensing
Operating Humidity (With Ultra Head) 10 to 70% non condensing
Alarm Relay Normally open contacts, 2 Amp @ 28 V DC, resistive
Pre-Alarm Relay Normally open contacts, 2 Amp @ 28 V DC, resistive
Isolate Relay Normally open contacts, 2 Amp @ 28 V DC, resistive
Trouble Relay Normally closed contacts, 2 Amp @ 28 V DC, resistive
Electrical Connection Up to 18 GA field wiring to removable terminal blocks
Service Port Connection RJ12 – RS232 communications
Network Connection 2 pair – RS485 communications
Remote Display Connection RS485 communications (4 core including power)
Air Inlet Port 0.75 inch threaded
Exhaust Port 1 inch
* Back-light off/Back-light on

Installation, Operation and Maintenance Manual
Page 2-6 Issue 1
February 2001
Figure 2.3 Detector Block Diagram

Installation, Operation and Maintenance Manual
Issue 1 Page 2-7
February 2001
2.3.1 Detector Head
Located within the Detector, the detector head is a highly sensitive detector utilising a laser, focussed to a
narrow beam. The laser beam exits a sample chamber into an attached beam dump area which monitors
the laser intensity. A receive optics assembly is mounted on the sample chamber with its optical axis
normal to the laser beam axis (see Figure 2.4).
A particle-size discriminator inhibits the detector from responding to large particles, thus preventing
occasional large particles (dust, pollen, soot, etc.) from generating an alarm. As the smoke particulate
passes into the sampling element a sensor electronically counts each particle. Particle counting HSSD
devices are much more sensitive to the prevailing concentration of small particulate (the tell tale sign of
early combustion) than conventional devices. Although larger particulate such as dust does not
significantly affect the signal recorded (number of particles) from either a background or a prevailing
smoke environment. Most particulate with a diameter greater than 10Pm is electronically recognised and
thus not added to the smoke count register. This ensures a true and clear measurement of the absolute
real time concentration. Electronic circuitry within the detector head ensures that no change in sensitivity
occurs with changes in air flow. The Detector is calibrated so that it will not respond to particle sizes
smaller than 0.01 or greater than 10 microns. The intensity of the laser is monitored by a photocell. If the
intensity of the laser begins to vary from the factory set level, a feedback circuit automatically
compensates the laser drive circuit accordingly. This circuit arrangement virtually eliminates any change
in laser energy output which in turn keeps the detector sensitivity stable.
An airflow measuring circuit monitors the flow of air through the detector. Should the air flow vary or stop,
a status signal is transmitted to the termination board.
One of the features of the detector head signal processing that provides the dynamic sensitivity range.
The sensitivity range can be adjusted via LaserNET software to meet with system requirements. A
processor located on the signal processing board controls communications between the detector head
and the termination board. Information recorded by the detector head is continually communicated to the
termination board.
Two types of detector head are available; the standard detector head which has a dynamic sensitivity
range of 0.005% to 1%/m (0. 0015% to 0.3%/ft) and an ultra sensitive detector head specifically designed
for the clean-room applications. The ultra sensitive detector head incorporates an avalanche photon
detector and has a dynamic sensitivity range of 0.001% to 0.1%m (0.0003% to 0.03%/ft) for use in very
clean applications. Detector sensitivity can be programmed to accommodate varying background levels.

Installation, Operation and Maintenance Manual
Page 2-8 Issue 1
February 2001
Figure 2.4 Detector Head Views

Installation, Operation and Maintenance Manual
Issue 1 Page 2-9
February 2001
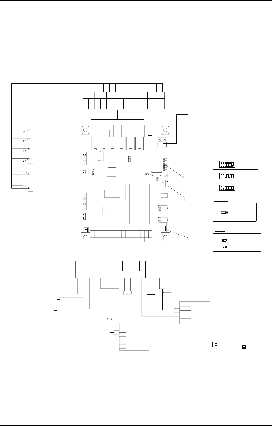
2.3.2 Termination Board
The termination board is micro processor controlled providing the interface between the detector head,
the RS-485 network, the Display module and the PC Port. A seven position DIP switch on the termination
board allows the network address to be set, enabling 127 Detectors to be connected. An on board
memory stores configuration details, history events and system information. In the event of a power
failure, information can be retained for up to a period of approximately 90 days by a battery back-up. An
on board LED, when lit, provides indication of power.
An adjustable switching regulator, located on the termination board, ensuring optimal supply voltage to
the fan.
The termination board provides 6 relays with volt free change-over contact rated at 2 amp, 30 V DC. Each
relay has its own operation as detailed below:
Pre-alarm level 1
Pre-alarm level 2
Alarm level 1
Alarm level 2
Trouble
Isolated
It should be noted that the Trouble relay is energised in its normal condition so it will transfer when power
is lost.
The termination board can communicate to an external PC, running LaserNET software, via an RS-232
output. Connection will be by a standard RJ12 connector. Communications will allow for the up/down
load of configuration and history data. Both configuration and history data are stored within an on board
non-volatile memory. The system will retain the configuration and history data following a CPU reset or
extended periods of power down only when the termination board battery link LK3 is installed.
The termination board provides connections for a supervised power supply unit, Intelligent Interface
Module (IIM) and a remotely mounted Display Module (optional). Ease of installation and maintenance is
achieved by using the removable terminals.

Installation, Operation and Maintenance Manual
Page 2-10 Issue 1
February 2001
PC
INTERNAL WIRING
CABLE ASSEMBLY
TERM BOARD / TRI-COLOUR LED
BLANKING PLATE
C/W STATUS LED
DISPLAY
FRONT PANEL OPTIONS
CABLE ASSEMBLY
TERM BOARD / LCD DISPLAY
WITH FAN ASSEMBLY
CABLE SUPPLIED
CABLE ASSEMBLY
TERM BOARD / DETECTOR
(LCD DISPLAY OR STATUS LED)
DETECTOR
H300/UHSSD
CABLE ASSEMBLY
RJ12 / RJ12
RJ12 SOCKET
LOCATED ON LHS
OF UNIT
43682-K155
43682-K158
43682-K157
43682-K156
CHASSIS
FAN
ANALASER
INTERFACE MODULE
GROUND
(OPTIONAL)
MODULE
REG1
TB2
F1 SW1
LK4
IC4
F2
IC5
IC7
LK1
P1
P2
P3
P5
P6
P7
RL1
RL2 RL3 RL4 RL5 RL6
SW2
BAT1
LK3
P9
TB1
P4
IC9
LK2
STATUS POWER OUT
0V
POWER IN
PRE 2PRE ALARM 2ALARM1ALARM
CM
FAN
1
HSSD
CARD
TERMINATION
M/TERM
1
DET.HEAD RESET
INTERNAL DISPLAY INTERFACE
PROGRAM
POWER ON
RELAY EXP/LOCALASER
STATUS LED
FAN A DJ MAIN LOOP ADDRESS
NO CM NO
ALARM 1
CM NO CM NO
TROUBLE
CM NC NO
ISOLATE
CM NC NO
MAIN LOOP
-++
-
EXTERNAL DISPLAY
+24V
-+-++
++
---
PSU
ON
1
+
1
1
LED
1
CM CMNO NO CM NO CM NO NCCM NO CM NC NO
PRE PREALARM1 ALARM2 ALARM 2ALARM 1 TROUBLE ISOLATE
--
MAIN LOOP
++
STATUSEXTERNAL DISPLAY
0V +24V
-+-
PSU
+--
POWER IN
POWER OUT
+-+
1
+
TB1
TB2
Figure 2.5 Termination Board Internal Wiring Diagram

Installation, Operation and Maintenance Manual
Issue 1 Page 2-11
February 2001
2.3.3 Fan Module
The fan module contains a highly efficient radial fan that has been specifically designed for use within the
Detector. The fan draws air from the sampling pipe network through the detector head and then exhausts
the air through a port on the side of the unit or by an alternative optional rear exhaust port. In addition, an
adapter port returns the sampled air to the protected area. A regulated voltage is supplied to the fan
module from the termination board.
2.4 Display Module
The Display Module is an optional item that can be either mounted within the Detector or alternatively, it is
possible to mount remotely. Remote mount can be achieved by use of a back box or a rack mount
option. Maximum distance of up to 1 km from the Detector to the remote Display Module is allowed. In
either application, RS-485 communication and 28 V DC is supplied via terminals located upon the
termination board. Recommended cable type being Mineral Insulated Copper Cable (MICC).
Various facilities are provided by the Display Module that include the following:
Operator Visual Interface
Internal Audible Sounder alarm
Status LED
Control Keys (4 cursor and 1 enter)
The cursor control keys allow an operator to navigate through the displayed menu and password screens
by operating the Up, Down, Left or Right keys and the Enter key.
Real time system data is displayed which includes the current smoke level and airflow, all alarm
conditions, all trouble conditions and the current system status.
An internal sounder provides an audible indication that an alarm or trouble condition exists on the system.
If a trouble condition exists the sounder alarm operates intermittently. Upon the activation of an event the
sounder will provide an audible indication. The audible indication will continue until the operator silences
the sounder using the control keys.
The conditions that activate the sounder are:
Any Alarm Condition
Any Pre-Alarm Condition
Any Trouble Condition
A multi coloured LED that is controlled via the Display Module provides a visual indication of the current
system status.
Continuous Green Normal
Flashing Green Auto Setup
Continuous Yellow Fault/Isolate
Flashing Red Pre-Alarm
Continuous Red Alarm
Control keys are used to navigate through the menu selections.

Installation, Operation and Maintenance Manual
Page 2-12 Issue 1
February 2001
The Display Module incorporates a removable adapter plate, which permits the module to be mounted to
the wall.
Table 2.2 Display Module Specifications
DESCRIPTION SPECIFICATION
Part Number 53836-K182
Input Voltage 18 to 36 V DC (24 V DC nominal)
Maximum Input Current 30 mA (normal); 104 mA with Back-light ON
Operating Temperature 0° to 52° C (32° to 125° F)
Operating Humidity 10 to 95% non-condensing
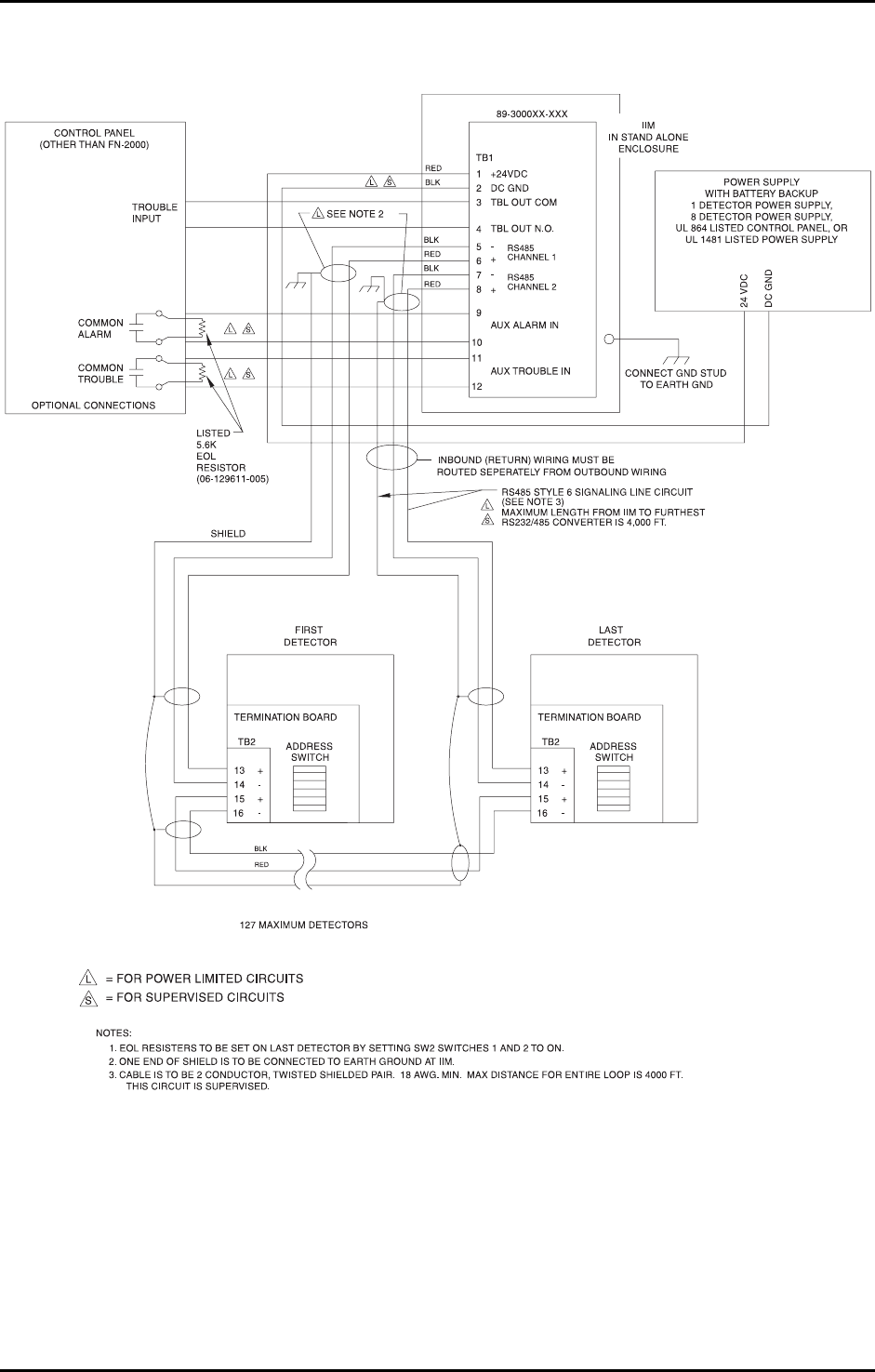
2.5 Intelligent Interface Module
The Intelligent Interface Module (IIM) is an optional item, which can be mounted in a stand alone
enclosure. The IIM allows service and maintenance functions to be undertaken on the Detectors. The
IIM is a communications link networking up to 127 Detectors. A computer running LaserNET software
Version 3.0 can communicate with the IIM either with a local PC or remote PC connected by an optional
modem. This allows the Detectors to be completely configured and monitored from a central location with
the connection of an optional modem, allowing interrogation of the system with a remote PC.
The IIM stores all field-programmed parameters in non-volatile memory, thus ensuring that no
programming will be lost during a complete power failure. Field programmable parameters consist of the
following:
Three telephone numbers for auto-dial sequence
Twenty character owner location message
Installation engineer’s password
Owner’s password
Dial tone supervision enable/disable
FenwalNET interface port enable/disable
AutoDial function enable and disable
Configuration of RS485 Network for style 6 or style 4
Trouble report delay
Security call back scheme enable/disable
Call back phone number

Installation, Operation and Maintenance Manual
Issue 1 Page 2-13
February 2001
2.5.1 PC Port
The PC Port is used for programming and may be used to provide ancillary on premises one way
communication of alarms and troubles to a PC (using LaserNET software).
2.5.2 RS485 Connection
Up to 127 Detectors can be connected via the RS-485 network with the maximum bus length of 1 kM
(4000 feet). This connection is capable of being wired for either Style 4 (Class B) or Style 6 (Class A)
supervised operation.
2.5.3 Telephone Port (with optional modem)
For a HSSD system using a PC running LaserNET software, located at a remote site, a telephone port on
the IIM allows off premises communication through a standard telephone line. The Telephone Port
provides communication via a modem and standard telephone line, and will provide ancillary off-premises
transmittal of Detector alarms and troubles.
Table 2.3 Intelligent Interface Module Specifications
DESCRIPTION SPECIFICATION
IIM with Modem Part Number 53836-K189
IIM without Modem Part Number 53836-K190
Input Voltage 20.4 V DC to 28 V (24 V DC Nominal)
Maximum Input Current 70 mA (Max) Standby
80 mA (Max) Alarm
Operating Temperature 0° to 52° C (32° to 125° F)
Operating Humidity 10 – 95% non-condensing

Installation, Operation and Maintenance Manual
Page 2-14 Issue 1
February 2001
2.6 Power Supplies
An optional self-contained assembly supplies power to a single HSSD system.
2.6.1 Self Contained Power Supply
The self contained power supply powers a single Detector, with or without a Display Module including 4
hours of battery backup.
Table 2.4 Self Contained Power Supply Assembly
DESCRIPTION SPECIFICATION
Part Number 53836-K185
Weight (including batteries) 3.1 kg (7 lbs)
Finish Polycarbonate Material Light Grey Cover with painted steel backbox
Input Voltage 90 to 260 V AC 50/60 Hz
Maximum Input Current 1 A
Operating Temperature 0°C to 52°C with no de-rating
Operating Humidity 10 to 95% non condensing
Output Voltage 28.75 V DC
Output Current Maximum 1 A
Battery Charging Voltage 27.3 V DC
Battery Charge Circuit Fuses 500 mA
Trouble Relay Normally closed contacts, 1 Amp @ 28 V DC., resistive
Batteries Yuasa NP2-12 (12V 2.0 AH) x2
2.6.2 Battery Calculation
The calculation used for determining the battery requirements for the Detector is detailed as follows:
Minimum Battery Capacity (Amps Per Hour) = 1.25 x ((S x A) + (1.75 x ((A + B)/2)))
Where S = standby period in hours.
A = quiescent current in amps.
B = alarm current in amps.

Installation, Operation and Maintenance Manual
Issue 1 Page 2-15
February 2001
Figure 2.6 Self Contained Power Supply Diagram

Installation, Operation and Maintenance Manual
Page 2-16 Issue 1
February 2001
2.7 Use of the Elutriator
The Elutriator is an optional item and can be used if the protected area is expected to have heavy
amounts of non-combustion particulate. An Elutriator should be installed to prevent build-up of material
within the Detector. The elutriator is an inertial particle separator that allows air to flow freely through it
while separating out large particulates by allowing them to accumulate on an impact plate. Refer to
Figure 2.8
Figure 2.7 Elutriator Cut-Away View

Installation, Operation and Maintenance Manual
Issue 1 Page 3-1
February 2001
3 CONTROLS AND INDICATORS
3.1 Status Indicator
A three-colour light emitting diode (LED) mounted in the fascia plate of the Detector provides a visual
indication of the current status of the system. A similar LED is also provided on the Display Module. The
LED changes colour to indicate the system status. System conditions that are indicated by this LED, are
as follows:
Continuous Green Normal
Flashing Green Auto Setup
Continuous Yellow Fault/Isolate
Flashing Red Pre-Alarm
Continuous Red Alarm
3.2 Termination Board Indicator
The termination board provides a Power On LED indicator. This is located in the top right corner of the
board and displays, when lit, that power is present.
3.3 Display Module
The Display Module is an optional item, which provides a back-lit mono Liquid Crystal Display (LCD).
The main function is to provide a visual indication of the system status, these being smoke level, airflow,
alarm and trouble conditions of the Detector. The back-light of the Display Module operates upon
activation of any condition or by use of the control keys. If there are no further activations or operation of
any control key for one minute, the back-light will return to its normal state.
The Display Module allows an operator to request certain functions to be performed by selecting options
from a displayed menu list. The functions are as follows:
Silence Cancels the internal audible sounder.
Reset Reset the Detector.
Status Allows viewing of the current status of the unit.
Smoke Allows viewing of Alarm sensitivity settings, Pre-Alarm settings and current
smoke levels.
Airflow Allows viewing of the airflow thresholds and settings.
Isolate Allows the Detector to be isolated and De-isolated.
Start Test Enables the Sensitivity Test of the detector head.
The above functions are available to an operator and are dependent upon the current status of the
system. Selected functions are only accessed provided a password is correctly entered.
The following is an illustration showing the hierarchy of the display structure. Additionally the key presses
needed to access the required screen are also shown. Subsequent paragraphs in this part of the manual
provide detail information on each screen.

Installation, Operation and Maintenance Manual
Page 3-2 Issue 1
February 2001

Installation, Operation and Maintenance Manual
Issue 1 Page 3-3
February 2001
On system power up the System Status Screen is displayed.
This display is shown during the system’s “quiescent state”.
If the status of the system is anything other than Normal then the respective status will be displayed
instead, e.g. TROUBLE or ALARM.
The Display Module shows, in textual form, the current system status: -
PRE-ALARM 1
PRE-ALARM 2 These system status conditions indicate that the current smoke
ALARM 1 level has reached one of the pre-configured alarm levels.
ALARM 2
TROUBLE This indicates that a trouble condition exists i.e. Airflow, Power
Supply Unit (PSU), CPU or Detector.
ISOLATE This status condition indicates that the system is disabled in
communicating Alarm, Pre-Alarm or Trouble conditions.
TEST Test will be displayed whenever the system is set into test by an
operator.
From the Normal display screen the operator is able to access the smoke display (only when the status
display is showing NORMAL) by pressing any key (any cursor control or ENTER (↵) key).
The smoke display indicates by means of a bar graph the smoke
level currently being detected. Additionally both the current
Alarms and Pre-Alarms settings are displayed. The smoke level
displayed is a value in the range 0% to 100%.

Installation, Operation and Maintenance Manual
Page 3-4 Issue 1
February 2001
Operation of any of the control keys on the Display Module will cause the Menu screen to be displayed.
The Menu screen displays the allowable system functions via a
scrollable menu. Highlighting is used to indicate the current
selection.
However, prior to the system functions being performed, the Password Entry screen is displayed and the
operator is required to enter the relevant password.
The password is entered by highlighting the required digit (using
the cursor control keys) and then pressing the enter key to
accept. As each digit of the password is selected a * is displayed
on the screen. By selecting ‘←’ (backspace), the operator is able
to delete previously incorrectly entered digits. The password field
is a maximum of eight digits and a minimum of three. Once the
required number of digits for the password has been entered the
9 can be highlighted and selected by pressing the enter key.
Once operated the password selection will be verified.
Once verified, the requested system function can be performed. It should be noted that only the TEST,
ISOLATE, RESET and SILENCE functions require a password to be entered before they can be
performed. The menu options available to the user are dependent on the current system status.
If the system is NORMAL then the following options are available, scrollable in the following order:
STATUS
SMOKE
AIRFLOW
ISOLATE
START TEST
EXIT

Installation, Operation and Maintenance Manual
Issue 1 Page 3-5
February 2001
If the system is in any state other then NORMAL (i.e. Alarm and Trouble) the following options are
available scrollable in the following order:
SILENCE
RESET
STATUS
SMOKE
AIRFLOW
ISOLATE
START TEST
EXIT
The control keys are detailed below with a description of their operation.
LEFT UP DOWN RIGHT ENTER
The <RIGHT> and <DOWN> cursor control keys perform the same function, namely to scroll to the next
menu option. The <LEFT> and <UP> cursor control keys perform the same function, namely to scroll to
the previous menu option.
Pressing the enter key whilst a menu option is displayed causes that system function to be performed
(provided a valid password is entered). Any number of functions can be performed without the need to
re-enter the password.
If, after entering the password the operator does not press any key for 1 minute then the validity
of the password will time-out and will need to be re-entered.
The EXIT system function is used to exit the menu display and return to the STATUS screen. This
effectively terminates this session and any further function requests from the menu screen will require the
password to be entered again.
From the system STATUS screen if a fault condition exists on the system then the Smoke Information is
automatically displayed without any operator input required. The operator can then have access to the
menu in the normal manner as outlined above.
Detailed below are examples of the various types of information that can be detailed on the Display.
The Status Information screen appears as shown.

Installation, Operation and Maintenance Manual
Page 3-6 Issue 1
February 2001
The Smoke Information screen appears as shown.
The Airflow information screen appears as shown.
The Test information screen appears as shown.
3.4 Sounder
The Display Module provides an audible indication by use of an internal sounder. Upon activation of an
event the internal sounder will provide an audible indication that an alarm or trouble condition exists on
the system. If a trouble condition exists the sounder alarm operates intermittently and continuous for an
Alarm. The audible indication will continue until the operator silences the sounder using the control keys.

Installation, Operation and Maintenance Manual
Issue 1 Page 3-7
February 2001
The conditions that activate the sounder are as follows:
Alarm condition Continuous operation
Pre-Alarm condition Continuous operation
Trouble condition Intermittent operation
3.5 LaserNET software
Details of the LaserNET software are contained in the LaserNET Software Manual Version 3.

Installation, Operation and Maintenance Manual
Page 3-8 Issue 1
February 2001
This Page is Intentionally Left Blank

Installation, Operation and Maintenance Manual
Issue 1 Page 4-1
February 2001
4 INSTALLATION
4.1 Introduction
The following paragraphs provide information needed to carry out an installation of a High Sensitivity
Smoke Detection (HSSD) system. Installation consists of mounting the Detector and its various optional
items. These items include the Display Module, the Intelligent Interface Module (IIM) andthe stand alone
power supply. Installation should only be carried out by factory trained technicians in accordance with
applicable installation requirements. These being as follows:
(1) British Standard BS6266 : 1992 (Code of practice for Fire protection for electronic data
and processing).
(2) British Standard BS 5839 Pt 1 – Fire Detection & Alarm systems for Buildings – Code of
Practice for System Design, Installation & Service.
(3) British Fire Protection Systems Association – BFPSA Code of Practice for Category 1
Aspirating Smoke Detection Systems.
(4) Any other local installation requirements.
4.2 Locating the Detector
Mount the Detector as close as possible to the protected areas. This minimises transportation time and
air resistance in the air sampling pipe network.
The Detector should be located in an area where the air pressure surrounding the unit is the same, or
lower than the atmospheric pressure around all the sampling ports in the sampling pipe network. A
building’s HVAC fans may positively pressurise a space creating a pressure differential within the
building. If the detector is located in an area where the pressure is greater than the sampling pipe, a
resistance to the normal airflow through the pipe will occur. Also, if individual sampling holes are exposed
to different static pressures air may not flow properly, resulting in uneven sampling.
If the detector must be located in a higher-pressure area than the entire sampling network, or if the
sampled air must be returned to the protected area, an exhaust port adapter must be used. The exhaust
port adapter allows a return pipe to be fitted on to the exhaust port of the Detector.
To reduce the possibility of condensation the Detector must always be at approximately the same (or
higher) temperature than the air-sampling pipe network. If the Detector is protecting ducts it is
reccomended that the exhaust air from the Detector be returned to the duct by use of the exhaust port
adapter and associated piping. This requirement assures positive airflow through the Detector.
When installing a flush mounted unit the option is available to have the exhaust port and cable entry
through the rear. Should this method of mounting the Detector be employed then the self contained
Power Supply cannot be used. A flush mount Bezel kit is available for this type of installation.
The Detector can also be mounted upside down to allow the pipe inlet to come from below the unit to
meet with application requirements. Should this method of installation be employed the Display Module
can be reversed allowing correct orientation of the display.
Should the Detector be mounted in an area which is not easily accessible to a user, then the Display
Module can be situated remotely in a more accessible location.
To enable the Display Module to be monitored by the user, it is a requirement when installing the unit to
use the optimum viewing angle. Therefore it is recommended that the unit be mounted at a height which
can be easily observed.

Installation, Operation and Maintenance Manual
Page 4-2 Issue 1
February 2001
An optional Self Contained Power Supply unit can be installed directly below the Detector. This unit will
provide a supervised supply with the addition of battery back-up in case of mains failure. The Self
Contained Power Supply cannot be used when the Detector is either mounted upside down or when flush
mounted into the wall.
Electrical connections to the Detector are possible by using the provided pre-formed conduit knock-outs.
The conduit knock-outs are located top, bottom or rear of the Detector back box. The Self Contained
Power Supply also provides similar conduit knock-outs for use when it is mounted below.
4.3 Installing the Detector
CAUTION
ANTI-STATIC PRECAUTIONS
WHEN HANDLING ANY ELECTRIC COMPONENTS OR
CIRCUIT BOARDS ANTI-STATIC PRECAUTIONS MUST
BE CARRIED OUT. FAILURE TO DO SO MAY RESULT IN
COMPONENT DAMAGE.
Static discharge can be reduced by adhering to the following guide lines.
(1) Always use conductive or anti-static containers for transportation and storage, if returning
any item.
(2) Wear an earthed wrist strap while handling devices and ensure a good earth is
maintained throughout.
(3) Never subject a static sensitive device to sliding movement over an unearthed surface
and avoid any direct contact with the pins or connections.
(4) Avoid placing sensitive devices onto plastic or vinyl surfaces.
(5) Minimise the handling of sensitive devices and Printed Circuit Boards (PCBs).

Installation, Operation and Maintenance Manual
Issue 1 Page 4-3
February 2001
LASER HAZARD
The detector in the enclosure is a factory-sealed unit
containing a Class-3B laser product with invisible
radiation.
AVOID EXPOSURE TO BEAM
Extended exposure to a Class-3B laser directly or indirectly
may cause severe damage to the human eye.
The Detector is designed for surface mounting. It is also capable of being mounted in different
orientations to meet with the requirements of different applications. The Detector can be mounted
normally with the inlet pipe at the top of the unit. Alternatively the Detector can be mounted upside down
or recessed into the wall. The Detector incorporates conduit knockouts (concentric 0.5 inch and 0.75
inch) two each on the top, bottom, and rear.
The assembly should be mounted in a manner to minimise the number of 90 degree bends needed to
connect the Detector to the piping network. The system drawings should accurately depict the Detector
location and all piping distances and bends required for the connection to the unit. The Detector provides
an exhaust port to which can be either positioned at the side or by an optional rear exhaust port. An
exhaust port adapter can be attached. If the air must be returned from the Detector to the protected
space, then an optional adapter fits into the Detector’s exhaust port and provides a connection to a 1.0
inch threaded pipe.
The Detector is designed with 4-corner mounting holes. Installation must be in accordance with good
electrical and safety practices, although 0.25 inch mounting hardware is recommended. To mount the
assembly proceed as follows:
(1) Remove the Detector from its carton and carry out a visual inspection of the unit to
ensure that no damage has occurred during transit.
(2) Remove the lid of the Detector by turning each of the two locking screws, situated on the
bottom side of the Detector, a quarter turn anti-clockwise and lift the lid clear. Exercise
care during this procedure, as at this point the lid is still connected to the Detector.
(3) Unplug the plastic tether attached between the Detector and the lid.
(4) Unplug the status LED harness connection from the termination board, the lid is now
detached from the Detector
(5) Place the Detector in the selected location ensuring it is in the correct orientation (Display
Module reads correctly). Mark and drill the wall with the appropriate hardware and
secure into position.
CAUTION
!
WARNING
!

Installation, Operation and Maintenance Manual
Page 4-4 Issue 1
February 2001
Reference should be made to Chapter 5, System Design, for information on the design of the sampling
pipe system. The sample inlet port of the Detector provides a 0.75 inch threaded interface section to the
sampling pipe network. Once installed this will provide an airtight connection.
Before connecting the piping network to the Detector, the piping must be connected to a vacuum cleaner
for several minutes (at the Detector end of the network). This will ensure that any loose debris is
removed from the piping network. While the vacuum is connected, the pipe should be tapped lightly
starting from the furthest pipe segment and moving back towards the vacuum.
If the sampled air must be returned from the Detector to the protected space, an exhaust port adapter
must be used. The optional adapter will push fit into the Detector's exhaust port and provides a threaded
connection to a 1 inch pipe.
Figure 4.1 Detector Installation Diagram

Installation, Operation and Maintenance Manual
Issue 1 Page 4-5
February 2001
4.4 Termination Board Field Wiring
The following illustration shows the external connections for the termination board. Cable entries are
from the top, bottom or rear via the conduit knock-outs on the Detector.
RS485
NETWORK
+
-
--
++
24v
0v
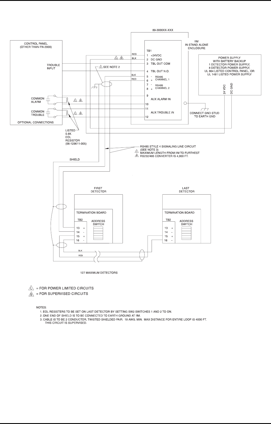
REMOTE
DISPLAY
28V
FAULT
POWER
EXTERNAL WIRING
TEMPORARY CONNECTIONS FOR
SITE PROGRAMMING LEAD
3. MAXIMUM CABLE SIZE OF TERMINALS 14 AWG
BATTERY/MEMORY LINK
NETWORK ADDRESS
RS485
FUSE 1A
24v DC / 2A
SPARE 24v
RS485
SPARE RS485
2. ALL LINKS SHOWN IN NORMAL OPERATING POSITION
VIA SERVICE PORT LOCATED
ON LHS OF UNIT
NORMAL OPERATING
2
LK1, LK2 & LK4
13
21
LK3
21
BATTERY CONNECTED
BATTERY DIS-CONNECTED
BACK-UP
BACK-UP
44782-K155
P2
MODULE
0V
1
2
3
4
5
6
7
ON
ADRESS 1
3
75
64
ADRESS 20
ON
21
3
75
64
ADRESS 32
ON
21
NETWORK ADDRESS EXAMPLES
(SEE DETAIL 1)
(SEE DETAIL 3)
DETAIL 1
SEE NOTE 1&2
DETAIL 3
+
-
DC / 0.5A
1. DO NOT MOVE LK1, LK2 & LK4
NOTES:
SUPPLY UNIT
4. NETWORK NORMAL OPERATING POSITION.
POSITION IF TERMINATION BOARD AT END OF LASERNET NETWORK
DO NOT REMOVE
(SEE NOTE 4)
LINE SELECT
NETWORK END OF
1A
1B
1C
1D
1A
1B
2D
2C
2B
2A
2A
2B
2C
2D
4A
4B
4A
4B
3A
3A
CM
NO
NO
CM
NO
CM
NO
CM
NC
NO
CM
NO
NC
CM
RATED AT 2 AMP 30V DC
PRE-ALARM VFCO CONTACTS
RATED AT 2 AMP 30V DC
FAULT VFCO CONTACTS
NORMALLY ENERGISED ON POWER UP
RATED AT 2 AMP 30V DC
ISOLATE VFCO CONTACTS
ALARM VFCO CONTACTS
RATED AT 2 AMP 30V DC
10B
10C
10A
9C
9B
9A
7B
8B
8A
7A
6B
6A
5B
5A
11A
11A
1D
1C
PC
10B
7A
7B
6B
6A
5B
5A
8A
8B
9A
9B
9C
10A
10C
REG1
TB2
F1 SW1
LK4
IC4
F2
IC5
IC7
LK1
P1
P2
P3
P5
P6
P7
RL1
RL2 RL3 RL4 RL5 RL6
BAT1
LK3
P9
TB1
P4
IC9
LK2
STATUS POWER OUT
0V
POWER IN
PRE 2PRE ALARM 2ALARM1ALARM
CM
FAN
1
HSSD
CARD
TERMINATION
M/TERM
1
DET. HEAD RESET
INTERNAL DISPLAY INTERFACE
PROGRAM
POWER ON
RELAY EXP/LOCALASER
STATUS LED
FAN A DJ MAIN LOOP ADDRESS
NO CM NO
ALARM 1
CM NO CM NO
TROUBLE
CM NC NO
ISOLATE
CM NC NO
MAIN LOOP
-++
-
EXTERNAL DISPLAY
+24V
-+-++
++
---
PSU
+
1
1
LED
ISOLATEALARM 1
CM
PRE
1
CM
PRE
NO
ALARM1
NO
ALARM2
CM NO
TROUBLE
NO
ALARM 2
CM CM NONC CM NC NO
TB2
POWER OUT
+24V
MAIN LOOP
-+-+0V
EXTERNAL DISPLAY
-+-
PSU
-
+
STATUS
+
POWER IN
-+-
1
+
TB1
Figure 4.2 Termination board External Wiring Diagram

Installation, Operation and Maintenance Manual
Page 4-6 Issue 1
February 2001
All external connections to the Detector should be earthed correctly. This is achieved by using the
provided earth stud located in the bottom left corner of the Detector.
4.5 Installing the Display Module
There are two options for installing the Display Module either within the Detector or remotely as a stand
alone item. The following procedures describe installation of the Display Module in the Detector
(1) Remove the Display Module from its carton and carry out a visual inspection of the unit to
ensure that no damage has occurred during transit.
(2) Remove the lid of the Detector by turning each of the two locking screws, situated on the
rear of the Detector, a quarter turn anti-clockwise, lift the lid clear. Exercise caution
during this procedure as at this point the lid is still not totally free from the Detector.
(3) Unplug the plastic tether attached to the lid.
(4) Unplug the status LED connection from the termination board, the lid is now detached
from the Detector
(5) Remove the blank facia plate by pushing the two retaining clips, one each side and
pushing from the rear.
(6) Fit the Display Module into the recess ensuring the correct orientation and secure into
position by the two retaining clips
(7) Replace the plastic tether and reconnect the interconnecting harness to the termination
board. Connection is made to the plug designated Internal Display plug (refer to figure
2.5).
(8) Replace the lid and secure with the two locking screws.
Figure 4.3 Installing the Display Module

Installation, Operation and Maintenance Manual
Issue 1 Page 4-7
February 2001
4.5.1 Installing the Remote Display Module
The Remote Display Module back box is designed for surface mounting and should be mounted before
assembly. The back box is fitted to the wall using four mounting screws. To allow communications
between the Display Module and the Detector a 4-core screened cable is required, recommended Mineral
Insulated Copper Cable (MICC) or Belden 9729 screened twisted pair. This will connect between the
termination board and the terminals positioned within the Display Module. To mount the Remote Display
Module proceed as follows:
(1) Remove the Display Module from its carton and carry out a visual inspection of the unit to
ensure that no damage has occurred during transit.
(2) Remove the screw located at the bottom of the Display Module, remove back box.
(3) Place the back box in location (wall or conduit box) mark and drill the wall. Secure the
unit with the appropriate hardware.
(4) With the back box securely fitted in position connect cable to the appropriate terminations
of the Display Module. Ensure that the connections are correct and secure.
(5) Place the Display Module onto the back box and secure with the screw at the bottom of
the module.

Installation, Operation and Maintenance Manual
Page 4-8 Issue 1
February 2001
Figure 4.4 Installing the Remote Display Module

Installation, Operation and Maintenance Manual
Issue 1 Page 4-9
February 2001
4.6 Installing Self Contained Power Supply
This unit will mount directly below the Detector and has been designed to allow ease of installation and
maintenance. To mount the Self Contained Power Supply proceed as follows:
(1) Remove the Self Contained Power Supply from its carton and carry out a visual
inspection of the unit to ensure that no damage has occurred during transit.
(2) Remove the screw located in the recess of the lid.
(3) Position the inner metal work of the Self Contained Power Supply directly beneath the
Detector. Ensuring that the two posts on the Self Contained Power Supply are directly
beneath the Detector. Check that the position of the Self Contained Power Supply does
not restrict access to the screws on the bottom of the Detector. The Self Contained
Power Supply should fit between these two screws in order to allow the Detector lid to be
secured and removed.
(4) Position the Self Contained Power Supply so that the two posts are just touching the
Detector. This ensures that the Self Contained Power Supply will be mounted the correct
distance from the Detector.
(5) Mark and drill the wall, at this point do not secure the Self Contained Power Supply in
position.
(6) Remove the relevant conduit knock-outs from the Self Contained Power Supply and
Detector to allow routing of the interconnecting cables.
(7) Secure the Self Contained Power Supply to the wall using the previously drilled holes and
the appropriate hardware.
(8) Remove the internal power supply from its fixing and connect the incoming mains
interconnecting cable to the Live, Neutral and Earth terminals indicated on the terminal
block. Secure the power supply in position.
(9) To connect the internal power supply refer to Figure 4.5a, ensure the earth connector is
connected to the earth connection on the Detector.
(10) Do not replace and secure the lid until the unit is powered up.

Installation, Operation and Maintenance Manual
Page 4-10 Issue 1
February 2001
Figure 4.5a Connecting the Internal Power Supply
BATT+BATT+
SELF CONTAINED
POWER SUPPLY UNIT
BATTERIES
BLACK RED
BLUE
(2 x 12 VOLT 2 AMP PER HOUR)
+-+-
TERMINATION BOARD CONNECTIONS (TB1)
RED
BLACK
BLUE
90 TO 260 VAC CONNECTIONS
DETECTOR EARTH STUD CONNECTION
POWER IN +
EARTH
POWER IN -
NEUTRAL
PSU STATUS +
LIVE
BATT-
+28V
+28V
0V
0V
FAULT
C/S
E
N/C
N
L

Installation, Operation and Maintenance Manual
Issue 1 Page 4-11
February 2001
Figure 4.5b Installing the Single Zone Power Supply

Installation, Operation and Maintenance Manual
Page 4-12 Issue 1
February 2001
4.7 Installing the Intelligent Interface Module
The following paragraphs provide information necessary to install the Intelligent Interface Module (IIM).
Installation consists of mounting the module and wiring the module in to the system. All installation work
should be undertaken by factory trained technicians and installed in accordance with applicable
installation requirements. These being as follows:
(1) BS6266 : 1992 (Code of practice for Fire protection for electronic data processing
installations).
(2) Any other local installation requirements.
4.7.1 Wiring the RS-485 Network
The following is a list of procedures that require consideration when wiring the RS-485 Network.
(1) The 4 wire connection method is the preferred wiring because it provides the greatest
reliability. This method requires each pair of wires to be in separate conduit.
(2) The network cable must be twisted, shielded pair with a minimum gauge of 0.75 mm²
(18 AWG) and a maximum of 2.5mm² (12 AWG) wire.
4.7.2 Installing the Stand-Alone Intelligent Interface Module
The following is a list of procedures for installing a stand-alone IIM.
(1) Remove the IIM from the anti-static bag and carry out a visual inspection of the enclosure
and hardware.
(1) Ensure that the kit contains the following items:
2 - E.O.L Resistors ( 5.6k ohm 0.5 W)
1 – Ground Lug Washer
2 – Ground Lug Nut
1 – Stand-alone IIM in a key locked enclosure
CAUTION
All personal installing or servicing the IIM equipment must wear a grounding
strap when working with the module to avoid generating static electricity
which can destroy integrated circuits.
WARNING
DO NOT CONNECT OR DISCONNECT ANY WIRING ON THE IIM WITH THE
POWER SUPPLY CONNECTED.
(3) Mount the enclosure using No. 10 or ¼ inch hardware. This enclosure is designed to be
surface mounted.
(4) Connect the conduit to concentric ½ inch / ¾ inch knock-outs in the enclosure.
(5) Connect the 24 V DC power supply cable to the IIM.

Installation, Operation and Maintenance Manual
Issue 1 Page 4-13
February 2001
(6) Power must be supplied from a listed UL864 power supply, UL listed panel, or power
supply.
(7) Connect ground wire to grounding stud and fasten with washer nut.
(8) Terminate the RS-485 wiring:
(i) Terminate grounding shield to the IIM stand-alone enclosure ground
(9) Connect the wiring from trouble relay to a trouble monitoring circuit.
(i) Install 5.6k ohm (0.5 W) resistors on the Auxiliary Alarm IN and Auxiliary Trouble In
terminals, if these inputs are not used. If used, terminate the wiring at the IIM and
install the resistors at the devices connected to the Auxiliary in puts, as shown in
Figure 4.6.
(10) If the IIM is installed in a Style 4 configuration (see Figure 4.7), the RS485 termination
load on the last termination board of the run should be connected. This is accomplished
by setting both sides of the M/TERM switch on the termination board to the “ON” position
(see Figure 4.2).

Installation, Operation and Maintenance Manual
Page 4-14 Issue 1
February 2001
Figure 4.6 Intelligent Interface Module Stand Alone Mounted (4-Wire)

Installation, Operation and Maintenance Manual
Issue 1 Page 4-15
February 2001
Figure 4.7 Intelligent Interface Module Stand Alone Mounted (2-Wire)

Installation, Operation and Maintenance Manual
Page 4-16 Issue 1
February 2001
4.7.3 Setting Detector Address
The following table provides the Detector Addresses.
Table 4.1 Detector Address Switch Settings
SWITCHES
1234567Address
ON OFF OFF OFF OFF OFF OFF 1
OFF ON OFF OFF OFF OFF OFF 2
ON ON OFF OFF OFF OFF OFF 3
OFF OFF ON OFF OFF OFF OFF 4
ON OFF ON OFF OFF OFF OFF 5
OFF ON ON OFF OFF OFF OFF 6
ON ON ON OFF OFF OFF OFF 7
OFF OFF OFF ON OFF OFF OFF 8
ON OFF OFF ON OFF OFF OFF 9
OFF ON OFF ON OFF OFF OFF 10
ON ON OFF ON OFF OFF OFF 11
OFF OFF ON ON OFF OFF OFF 12
ON OFF ON ON OFF OFF OFF 13
OFF ON ON ON OFF OFF OFF 14
ON ON ON ON OFF OFF OFF 15
OFF OFF OFF OFF ON OFF OFF 16
ON OFF OFF OFF ON OFF OFF 17
OFF ON OFF OFF ON OFF OFF 18
ON ON OFF OFF ON OFF OFF 19
OFF OFF ON OFF ON OFF OFF 20
ON OFF ON OFF ON OFF OFF 21
OFF ON ON OFF ON OFF OFF 22
ON ON ON OFF ON OFF OFF 23
OFF OFF OFF ON ON OFF OFF 24
ON OFF OFF ON ON OFF OFF 25
OFF ON OFF ON ON OFF OFF 26
ON ON OFF ON ON OFF OFF 27
OFF OFF ON ON ON OFF OFF 28
ON OFF ON ON ON OFF OFF 29
OFFONONONONOFFOFF30
ON ON ON ON ON OFF OFF 31
OFF OFF OFF OFF OFF ON OFF 32

Installation, Operation and Maintenance Manual
Issue 1 Page 4-17
February 2001
4.7.4 Installation Checks
Prior to powering up the IIM for the first time ensure that the following procedures have been completed.
(1) The IIM is secured correctly.
(2) The IIM wiring is connected correctly.
(3) Each termination board located in the Detector has had its DIP switch set to the correct
address.
4.7.5 Installing Telephone Line to the Intelligent Interface Module
The following is a list of procedures for installation of a telephone line to the IIM.
(1) A standard telephone line should be installed adjacent to the IIM.
(2) Connect an RJ-11 cable from the telephone port on the IIM to the telephone line.
4.7.6 Software Configuration
For information on the software configuration reference should be made the LaserNET Version 3.0
Software Manual.
4.8 Programming
For system programming instructions reference should be made to the LaserNET Software Manual
Version 3.0.
4.9 Installation Method for the Elutriator
The Elutriator connects in series to the pipe network directly to the input, ¾ inch BSPT threaded hole
located on the top of the unit of the Detector.
NOTE
The orientation of the Elutriator. The side marked with an input connects to the pipe network.
The Elutriator comes with a set of four nylon washers.
If the Detector has been previously mounted, it must be removed and spacers added to the mounting
feet. Open the lid of the Detector by turning the two screws located on the bottom of the unit a quarter-
turn anti-clock wise. Once the lid is removed loosen the four mounting screws enough to slide the unit off
the wall.
Depending on the installation, rigid conduct fittings and Exhaust Port Adapter may need to be loosened or
disconnected. Slide one nylon washer over each of the four screws. Replace the Detector and tighten
the four mounting screws. Reassemble the Detector ensuring that all connections are correct.
Remove the Elutriator and attach it to the input (threaded hole located on the top) of the Detector. Rotate
the Elutriator (clockwise) by hand until the unit is secure. Using a 1-1/8 inch open-end spanner attached
to the bottom of the Elutriator, tighten another quarter-turn.
NOTE
Do not over-tighten.
To allow for greater serviceability it is recommended that a one foot section of smooth bore opaque pipe
be connected between the Elutriator and the pipe network.

Installation, Operation and Maintenance Manual
Page 4-18 Issue 1
February 2001
This Page Intentionally Left Blank

Installation, Operation and Maintenance Manual
Issue 1 Page 5-1
February 2001
5 SYSTEM DESIGN
5.1 Introduction
The chapter contains the necessary information to enable an engineer to determine the correct system
design. The majority of this chapter covers the pipe network design. It is important that this phase is
completed prior to the installation of any components comprising the High Sensitivity Smoke Detection
(HSSD) system.
5.2 Selecting the Correct Detector
Two types of Detector are available; Standard and Ultra sensitive versions. The following paragraphs
should be considered prior to selecting the type of Detector to be used in a particular application.
5.2.1 Ultra Detector
The Ultra sensitive Detector incorporates an avalanche photon detector and has a minimum dynamic
sensitivity range of 0.001 to 0.01 %/m (0.0003 to 0.03 %/Ft) obscuration and should be used in clean
environments. The air within the room being monitored by the detector should be filtered and the
humidity controlled. Typical applications are Low to Ultra high-grade clean.
Sensitivity Ranges Recommended Applications
%/Ft %/m
0.030 - 0.0076 0.10 - 0.025 Low Grade Clean Room
0.024 - 0.0048 0.08 - 0.016
0.018 - 0.0024 0.06 - 0.008
0.016 - 0.0016 0.055 - 0.0055
0.015 - 0.0015 0.050 - 0.005 High Grade Clean Room
0.013 - 0.0013 0.045 - 0.0045
0.012 - 0.0012 0.04 - 0.004
0.010 - 0.0010 0.035 - 0.0035
0.009 - 0.0009 0.03 - 0.003
0.0076 - 0.00076 0.025 - 0.0025 Ultra Grade Clean Room
0.006 - 0.0006 0.02 - 0.002
0.0045 - 0.00030 0.015 - 0.001
0.0038 - 0.00022 0.0125 - 0.00075
0.0030 - 0.00015 0.01 - 0.0005

Installation, Operation and Maintenance Manual
Page 5-2 Issue 1
February 2001
5.2.2 Standard Detector
The Standard Detector has a dynamic sensitivity range 0.001 to 0.1 %/m (0.0003 to 0.3 %/ft) obscuration.
Typical application are low-grade clean rooms to moderate levels of ambient particulate as detailed
below.
Sensitivity Ranges Recommended Applications Smoking 1Elutriator
%/Ft %/m
0.30 - 0.076 1.0 - 0.25 Underground Electric Yes Yes
0.24 - 0.048 0.8 - 0.16 Railways, Semi Dirty
0.18 - 0.024 0.6 - 0.08 Manufacturing Areas
0.16 - 0.016 0.55 - 0.055
0.15 - 0.015 0.50 - 0.05
0.13 - 0.013 0.45 - 0.045
0.12 - 0.012 0.4 - 0.04 Manufacturing Areas Yes Yes
0.10 - 0.010 0.35 - 0.035
0.09 - 0.009 0.3 - 0.03
0.076 - 0.0076 0.25 - 0.025
0.06 - 0.006 0.2 - 0.02 Office Areas, Museums, No Yes
0.045 - 0.0030 0.15 - 0.01 Clean Manufacturing Areas
0.03 - 0.0015 0.1 - 0.005 Low Grade Clean Room No No
0.015 - 0.00076 0.05 - 0.0025
Smoking is permissible with these sensitivity ranges. The maximum protected area for one High
Sensitivity Smoke Detection (HSSD) system is 2000 square metres (20,000 square feet).
5.3 Air Sampling Pipe Network Design
An air sampling pipe network is an arrangement of pipes located within the protected area through which
the air is drawn back to the Detector to be sampled. Piping may be metallic or non-metallic and must be
smooth bore. Metallic pipe must be used in any type of application that is required by an appropriate
code or standard i.e. Return air plenums etc.
NOTES
(1) It is important to ensure that all joints in the sampling pipe network are airtight and that
the system is adequately supported to prevent air leakage. As this could affect system
performance.
(2) White or clear pipe should not be used within 3.05 meters (10 feet) of the Detector input.
This is to prevent light from penetrating the pipe walls and causing a false obscuration
reading and possible false alarms.
5.4 Pipe Network Design Terms and Details
The terms in the following paragraphs are used in the design of a pipe network for the HSSD system. It is
important to become familiar with these terms and their meanings prior to designing the pipe network.

Installation, Operation and Maintenance Manual
Issue 1 Page 5-3
February 2001
5.5 Air Velocity
The air velocity is determined using SNIFF Version 3.0 software. Three settings are available to deal with
all types of sampling systems including return air duct sampling systems. Airflow is measured with a
handheld anemometer. To measure the airflow the meter should be held in close proximity to the
proposed position of the sampling point. The anemometer should then be rotated to obtain the maximum
reading. All related HVAC systems should be operating when the measurements are taken.
Figure 5.1 Anemometer
5.6 Branch Point
This term is used to describe a pipe segment that has been divided into two or more pipe segments by a
tee connector or a junction box.
5.7 Elutriator
The Elutriator is an optional item used if the protected area is expected to have heavy amounts of non-
combustion particulate. If used, it is attached to the inlet of the Detector. This unit is recommended for
use with a Detector using a standard detector head.
5.8 Elbow, Standard 90 Degree
A standard 90-degree elbow is similar to that used in the plumbing industry. However, it should be noted
that each elbow increases the resistance of the system. Bearing this in mind, systems should be
designed to minimise the number of elbows.
5.9 Sweep Elbow
A sweep elbow is the type used in making electrical conduit bends. Sweep elbows have a longer radius
than standard elbows. When included the sweep elbow will minimise the friction loss when making a
90-degree bend resulting in quicker transport times. The sweep elbow is preferred for air sampling
systems (available in electrical conduit fittings).

Installation, Operation and Maintenance Manual
Page 5-4 Issue 1
February 2001
5.9.1 Equivalent Feet
A method used to determine relative efficiencies of different types of plumbing. 3.05 meters (1 foot) of
straight pipe equals 3.05 equivalent meters (1 equivalent foot). The following table gives the equivalent
measurement for different size and types of elbows. This data becomes critical when the maximum
allowed pipe lengths are being approached.
Table 5.1 Elbow Equivalent Measurements
Elbow ID 32 mm (1 in.) 25 mm (0.75 in.) 20 mm (0.5 in.)
Standard 90o Elbow 1.83 meters (6 ft) 1.22 meters (4 ft) 0.92 meters (3 ft)
Sweep Elbow 1.22 meters (4 ft) 0.92 meters (3 ft) 0.61 meters (2 ft)
5.9.2 Extended Sampling Point (ESP)
Extended sampling points are extensions of pipe from the pipe segment to the area being protected.
A typical use of an extended sampling point would be to drop a sampling point down from the main pipe
segment into the protected area.
5.9.3 Sampling Point (SP)
Sampling points extend from rigid pipe segments into the area being protected via a length of 9.5 mm
(3/8 inch) capillary tubing. A Sample Point Kit provides all the hardware necessary to make twenty-five of
these connections. A typical application would be to drop a sampling point down from a main pipe
segment, through a dropped ceiling into the protected area.
5.10 Pipe Segment
A length of pipe with or without sampling holes with nominal Internal Diameters of 32, 25, 20 millimetres
(1, ¾, ½ inch). A pipe segment is defined as the total length of pipe in any of the following:
(1) From Detector to pipe end.
(2) From Detector to branch point.
(3) From branch point to branch point.
(4) From branch point to pipe end.
5.11 Sampling Hole
Sampling holes are strategically located penetrations into a pipe segment. The sampling holes are
specifically designed to draw air into the sampling system. The requirements of BS 5839 (Part 1) or other
local requirements should be considered when spacing sampling points. By the use of SNIFF version 3
software the sampling point hole size will be determined.

Installation, Operation and Maintenance Manual
Issue 1 Page 5-5
February 2001
5.12 System Transport Time
System Transport Time relates to the time required for smoke to travel from the farthest sampling hole in
the system to the Detector.
NOTES
(1) To meet the requirements of BS 6266 the maximum transportation time is 120 seconds.
(2) For systems, which require an open area protection, the minimum detector sensitivity
setting is in accordance with Table 5.2

Installation, Operation and Maintenance Manual
Page 5-6 Issue 1
February 2001
Table 5.2 Minimum Detector Sensitivity Setting
AREA - SQUARE METERS (FEET) LIGHT OBSCURATION - PERCENT PER METER (FOOT)
6096 (20,000) 0.076 (0.25)
5944 (19,500) 0.079 (0.26)
5791 (19,000) 0.085 (0.28)
5639 (18,500) 0.088 (0.29)
5486 (18,000) 0.091 (0.30)
5334 (17,500) 0.098 (0.32)
5182 (17,000) 0.101 (0.33)
5029 (16,500) 0.104 (0.34)
4877 (16,000) 0.110 (0.36)
4724 (15,500) 0.113 (0.37)
4572 (15,000) 0.116 (0.38)
4420 (14,500) 0.122 (0.40)
4267 (14,000) 0.128 (0.42)
4115 (13,500) 0.131 (0.43)
3962 (13,000) 0.137 (0.45)
3810 (12,500) 0.140 (0.46)
3658 (12,000) 0.146 (0.48)
3505 (11,500) 0.149 (0.49)
3353 (11,000) 0.155 (0.51)
3200 (10,500) 0.162 (0.53)
3048 (10,000) 0.165 (0.54)
2896 (9,500) 0.171 (0.56)
2743 (9,000) 0.177 (0.58)
2591 (8,500) 0.180 (0.59)
2438 (8,000) 0.186 (0.61)
2286 (7,500) 0.192 (0.63)
2134 (7,000) 0.198 (0.65)
1981 (6,500) 0.201 (0.66)
1829 (6,000) 0.207 (0.68)
1676 (5,500) 0.213 (0.70)
1524 (5,000) 0.220 (0.72)
1372 (4,500) 0.229 (0.75)
1219 (4,000) 0.235 (0.77)
1067 (3,500) 0.241 (0.79)
914 (3,000) 0.247 (0.81)
762 (2,500) 0.253 (0.83)
610 (2,000) 0.259 (0.85)
457 (1,500) 0.268 (0.88)
305 (1000) 0.274 (0.90)
152 (500) 0.284 (0.93)

Installation, Operation and Maintenance Manual
Issue 1 Page 5-7
February 2001
5.13 Suction Pressure
Suction pressure is a measure, in inches of water column, of the amount of suction available at each
sampling point. Suction pressures can be measured with a 0 – 25 mm (0 - 1.0 inch) H20 Magnehelic
gauge, and a length of micro tube. Insert one end of the micro-tube into a sampling hole, and connect the
free end to the Magnehelic gauge. The suction pressure at each sampling hole should be taken at the
installation and the subsequent data recorded. Suction pressures should be checked periodically for
maintenance purposes. During the periodic checks if it is found that the suction pressures have
significantly decreased, it is likely that the cause is a blockage, a break in the pipe, or a defective fan. If
suction pressures have remained the same, it can be concluded that there is no difference in the
transport time.
5.14 Zones of Varying Static Pressure
“SNIFF” Version 3.0 software provides the ability to vary static pressure between the Detector and the
piping networks. However, the Detector should be installed in areas where ambient pressure is positive
relative to the ambient pressure surrounding the piping. Detectors may, however be installed in
environments containing static pressures that are negative respective to where the piping is installed.
5.15 Distributed Pipe Network Sampling - Symmetrical and
Non-Symmetrical Balanced Systems
Symmetrically and Non-Symmetrically balanced systems are designed with the “SNIFF” Version 3.0
software. The “SNIFF” Version 3.0 software dynamically balances the piping network to provide equal
sensitivity at each point. All pipe ends are typically capped and the program sizes the sample points.
Where an Open Area Protection listing is required and a 60-second transport time cannot be obtained,
“SNIFF” Version 3.0 software will allow and size an extra hole placed in the end of the pipe. This may
occur in larger applications. The “SNIFF” Version 3.0 software will predict transport times and suction
pressures for each system. For design details refer to the “SNIFF” Version 3.0 Software/User Manual.
5.16 Return Air Grill Sampling
Return air grill sampling systems are designed with the “SNIFF” Version 3.0 software. The sampling
takes place in front of or near the return air grill. Some installations benefit by combining both return air
grill sampling and distributed pipe network sampling to protect a given area. This is often accomplished
without the need for an additional Detector.
5.17 Return Air Duct Sampling
Return air duct sampling systems are designed with the “SNIFF” Version 3.0 software. With return air
duct sampling, the sampled air is drawn directly from inside the return air duct that is servicing the
protected area. The Detector must be located no more than 118 meters (388 feet) from the sampling
points.
The HSSD system is well suited for duct detection. This sampling method provides excellent detection
and minimises installation costs.
5.18 Selecting a Sampling Method
Several considerations must be taken into account when selecting the type of sampling method to be
used in this particular application as the type of application will often dictate the method. The following list
of applications should be considered and used as a guideline to aid in selection of the required sampling
method.

Installation, Operation and Maintenance Manual
Page 5-8 Issue 1
February 2001
5.18.1 Telephone Central Offices
In this application it is recommended that distributed pipe network sampling combined with return air grill
sampling. Within this type of installation it is often desirable to provide two levels of sampling. One set of
sampling points would be at ceiling level and the second set below the cable trays just above the
equipment racks. This can be accomplished either, by running the main pipe above the ceiling and using
an extended sampling point. The second method would be to install a second level of piping below the
cable trays. In either case a second detector is usually not required unless the square footage of the
protected area exceeds 2000 square meters (20,000 square feet).
5.18.2 Computer Rooms
Two methods are commonly used in computer room applications. Distributed pipe networks can
sometimes be installed above the dropped ceiling with extended sampling points penetrating the ceiling
into the protected area. Another method is to monitor the return air usually at the top of the air handling
units. Both of these methods are effective however, monitoring the Liebert units has a disadvantage in
that shut down or cycling of the units will affect the overall smoke detection. A combination of both
methods will give the quickest response.
If sub-floor detection is required, a distributed pipe network is used with the sampling points facing down.
5.18.3 Clean Rooms
Place sampling points inside the return air plenum or use return air grill sampling. The exact method will
depend on the air handling equipment and location of the filters. In most clean room applications, the
“SNIFF” Version 3.0 software can be used to design a sampling network located inside the return air
plenum.
5.18.4 Atriums
Use the distributed pipe network method. In many applications of this type multiple level sampling will be
required. Also, monitoring the return air may significantly reduce the response time.
5.18.5 Office Areas
Use the distributed pipe network method. In many applications of this type the main pipes can be run
above a dropped ceiling with extended sampling points dropped through the ceiling into the protected
area. Special attention should be given to the type of pipe used for the installation to ensure compliance
with local requirements. Most office areas use the volume above the ceiling tiles as an air return plenum.
5.18.6 Warehouse Storage
Distributed pipe sampling networks are recommended for use in warehouse applications. In many
instances two or more levels of sampling are required due to the effects of stratification. Freezer
warehouses can be accommodated although it may be necessary to condition the air before it enters the
Detector. Also the Detector must be mounted outside of the low temperature area. Refer to Chapter 2
for the Detector environmental specifications.

Installation, Operation and Maintenance Manual
Issue 1 Page 5-9
February 2001
5.19 Computer Balanced System Design using “SNIFF“ Version 3.0 Software
A distributed pipe network sampling system is designed using the “SNIFF“ Version 3.0 software. The
sampling system may have only one pipe segment or as many as 40 segments. The terminating pipe
segments can be capped or open-ended. The pipe and hole size diameters are calculated and optimised
by the “SNIFF“ Version 3.0 software. “SNIFF“ Version 3.0 software can also optimise hole diameters with
fixed pipe diameters. The “SNIFF“ Version 3.0 software dynamically balances the piping network to
provide equal amounts of air from each sampling hole while maintaining a minimum transport time of the
air sample. This allows each system to meet the needs of a specific installation, where optimal coverage
may call for unequal pipe lengths or an uneven number of sampling holes per sampling pipe. Since each
sampling hole samples an equal amount of air, the sensitivity of each sampling hole remain equal.
5.19.1 Parameters for Computer Balanced Systems
The following parameters must be considered when laying out the pipe network:
(1) The maximum number of sampling points is 100.
(2) The maximum number of pipe segments is 40.
(3) The maximum hole spacing is 9 meters (30 feet) 6 meters (20 foot) spacing
recommended in high value areas).
(4) All pipe segments should be capped at a maximum of 150 mm (6 inches) from the final
sampling hole. Exception with a hole in the end cap on larger systems.
(5) Extended sampling point (ESP) drops using 25 or 20 mm (¾” or ½”) up to 7 meters
(25 feet).
(6) Sampling points (SP) should be constructed of a 25 or 20 mm (¾” x ½”) or 20 or 20 mm
(½” x ½”) tee. The drop is always 9.5 mm (3/8”) tubing. The maximum (SP) length is
3.5 meters (12 feet).
5.20 Using the “SNIFF“ Version 3.0 Software
The “SNIFF” Version 3.0 software is a windows based computer program compatible with Windows 95,
98 or NT. Data input is accomplished graphically, with pop-up windows showing options to select the
following:
(1) Pipe Type
(1) Main and Branch Pipe Diameters
(2) Maximum Transport Time
(3) Average Ambient Temperature
(4) Static Pressure Differential
(5) Air Velocity
(6) Elevation Above Sea Level

Installation, Operation and Maintenance Manual
Page 5-10 Issue 1
February 2001
Then using a graphical interface the user will enter an Isometric View of the Pipe Network comprising of:
(1) the length of pipe to the first sampling hole or branch point
(2) the number of pipes in the system
(3) the number of sampling holes
(4) the spacing of the sampling holes
(5) the number and type of system bends
Once entered the software will automatically calculate the system parameters to ensure the transport time
and suction pressures are met. “SNIFF” Version 3.0 will provide a warning to the designer if the pipe
layout is over extended. An optional facility allows a designer to input fixed pipe diameters.
“SNIFF“ Version 3.0 software allows the user to print to save to a file the following:
(1) System data
(2) Isometric Views of the Pipe Network
(3) Sample hole schedule with size, Maximum Transport Time, Suction Pressure, Airflow
Rate, and % of pipe flow through each individual sampling hole
(4) Parts List, Including total pipe lengths
For additional detailed information on applying the “SNIFF” Version 3.0 software, consult the “SNIFF”
Version 3.0 Software User Guide.
5.21 Return Air Duct Detection Design
Duct sampling is the most cost-effective method of air sampling since the pipe runs are minimal and a
single Detector may be used to cover the large area. The speed of response of the Detector to smoke
will be given by the exchange rate in the rooms ventilated by the duct ventilation system. This tends to be
rapid, giving early warning of any smoke present. This type of sampling is particularly suited to high-
sensitivity devices since the smoke content in the air will tend to be diluted to a level below that of point
type detectors. Also, the relatively high airflow in the duct would reduce the effectiveness of point-
detection devices.
The duct sampling method does have one major disadvantage. If the ventilation becomes inoperative,
the airflow through the duct system ceases and the smoke-detection system becomes ineffective.
The Detector is suited for duct applications with an operating air velocity range of 1.52 – 20.32 meters/sec
(300 to 4000 feet/min.).
“SNIFF” Version 3.0 software is used to design duct detection for High Sensitivity Smoke Detector
(HSSD) systems and will calculate hole sizes and transport time according to the following guidelines:
(1) Only one duct can be monitored per Detector.
(2) If the HSSD system is used as the primary smoke-detection system, methods should be
employed to enunciate stoppage of airflow in the duct(s).
(3) The exhaust air from the Detector must be returned back to the duct using an exhaust-
port adapter and associated piping. This requirement assures positive airflow through the
Detector.

Installation, Operation and Maintenance Manual
Issue 1 Page 5-11
February 2001
(4) Locate sampling pipe in the main supply duct return side, down stream of the filters a
minimum of six duct widths from any source of turbulence (bends, inlets or deflection
plates) to reduce the effects of stratification. In installations where the filter is capable of
removing smoke, install the sampling tube upstream of the filter.
NOTE
Where it is physically impossible to locate the sampling pipe accordingly, the sampling
pipe can be positioned closer than six duct widths, but as far as possible from inlets,
bends or deflection plates.
(5) Locate the sampling pipe so dampers do not restrict airflow at the sampling pipe.
(6) The sampling pipe should be located prior to exhausting air from the building or diluting
return air with outside air.
(7) Locate sampling pipe if close identification of the source of alarm is required.
(8) Locate sampling pipe on the downstream side of the filter to sense fire in the filters.
NOTE
If filters are blocked, sufficient airflow may no longer be present for proper operation.
(9) Do not locate sampling pipe immediately following outside air inlets except to monitor
smoke entry to the handling system for adjacent areas.
(10) When ever possible, locate sampling pipe upstream of air humidifiers and downstream of
dehumidifiers.
5.22 Sampling Pipe Requirements
(1) The intake sampling tube must face into the airflow.
(2) The intake sampling tube must go all the way through the duct and be closed-ended
(capped).
(3) Holes in the sampling tube must be spaced approximately every 100 mm (4 inches).
(4) The exhaust tube must extend a minimum of 60 mm (2 inches) into the duct.
(5) The total pipe network, including the return, must not exceed 188 meters (388 equivalent
feet).

Installation, Operation and Maintenance Manual
Page 5-12 Issue 1
February 2001
5.23 Return Air Grill Sampling Design
Return Air Grill Sampling systems are designed with the “SNIFF” Version 3.0 software. The same basic
rules apply with the exception of the point spacing requirements. The return air grill sampling method and
the distributed pipe sampling method can be used in the same detection zone.
Sampling pipes should be centred in the front of the return air grill. Sampling points can be spaced so
that a minimum of three holes is used for each grill. Large grills may require more sampling holes. The
sampling holes should be 90-degrees to the airflow with a closed-ended pipe (capped).
END CAP
AIR FLOW
SAMPLING PIPE
CENTERED ON GRILL
RETURN AIR
GRILL
SAMPLING HOLES POSITIONED
90 TO AIR FLOW
o
*
Figure 5.2 Return Air Grill Sampling Method

Installation, Operation and Maintenance Manual
Issue 1 Page 5-13
February 2001
5.24 Installing the Air-Sampling Pipe Network
An air-sampling pipe network is an arrangement of pipes within the protected area through which air is
drawn back to the Detector to be sampled. Piping may be metallic or non-metallic. The pipe must be
smooth bore with internal diameters of 20, 25, 32 mm (½, ¾ or 1 inch) depending upon the design
criteria.
Figure 5.3 Mini Sample Point Kit
The sample pipe must be installed according to the system drawings developed from the criteria detailed
in the SNIFF Version 3.0 Users Manual. Any major deviations of the installation from the design drawings
must be brought to the attention of the system designer.
The sample pipe must be suspended using standard pipe hangers and the joints secured with solder or
cement according to standard plumbing practices. It is important to ensure that all joints are airtight and
the system is adequately supported to prevent any leakage, as this would affect system performance.

Installation, Operation and Maintenance Manual
Page 5-14 Issue 1
February 2001
5.25 Final touches
5.25.1 Air-Sampling Pipe Labels
The air-sampling pipe network must be marked with identification labels. These labels should be applied
to the pipework every ten feet (maximum).
5.25.2 Sample Port Labels
This label is placed adjacent to sample holes drilled into the walls of air-sampling pipe network. Each
sample port must be labelled.
5.25.3 Sample Point Labels
This label is used to identify sample holes drilled into the end cap of an extended sample point. Each
sample point must be labelled.
5.25.4 Mini Sample Point Labels
This label is used to identify sample hole drilled into the Mini Sample Point. Each mini sample point must
be labelled. Mini sample point labels come as part of a mini sample point kit in rolls of 25.

Installation, Operation and Maintenance Manual
Issue 1 Page 6-1
February 2001
6SYSTEM COMMISSIONING
6.1 Introduction
This chapter covers the inspection and testing required for the High Sensitivity Smoke Detector (HSSD)
system after completion of the installation.
NOTE Prior to commissioning the system, ensure that all alarms and trouble circuits are disconnected
or the Detector is isolated. This will prevent the signalling of alarms or troubles to ancillary
equipment.
6.2 System Checkout
When the installation has been completed, it is advisable to carry out an inspection to ensure that all
mechanical connectors are in order (sampling pipe network, wiring connected, etc.) as it is quite common
for installations to be carried out by different contractors at different times. In particular, the Detector
should be inspected to ensure that the lid is fitted securely. The only place air should enter and leave the
Detector is through the inlet and exhaust ports.
When commissioning the HSSD system, the environment in which the air sampling system is placed must
be carefully considered. This is especially true in the construction and immediate post-construction
phase where cleaning and surfacing processes may be undertaken.
During this initial stage, the HSSD Detector output may indicate a higher level than expected. This
condition can be ignored temporarily.
It is recommended that the system be left in operation to allow the remaining particulate matter in pipe
networks, ducts, etc. to clear. After which, the smoke background level will stabilise to the normal state
expected for the monitored space.
After the complete stabilisation has occurred and the output does not reduce to the level expected, then
the air is probably more contaminated than anticipated. If doubt exists, the Detector can be changed to
compare outputs withinin the same environment. (with a new detector)
6.3 Monitoring and Testing Systems
It is recommended that the system be run on test for a minimum of one week prior to commissioning.
This test should encompass all the ambient conditions the system will encounter including cycling of the
air handling systems and other routine activities i.e. full occupancy, floor sweeping, etc. This is done to
set the appropriate alarm levels and delay setting to provide for the best response time and reduce false
alarms.
Monitoring can be done by way of the built in history capabilities and by the LaserNET software. Alarm
and trouble signalling should remain disconnected during this initial testing.
In applications where the system may approach the top of the systems operating temperature and
humidity ranges, a low airflow trouble may occur. If this condition exists, simply reduce the low airflow
trouble level by 5 below the real time airflow reading and the trouble condition will clear. Alarm time delay
settings can be determined both from monitored smoke level readings and the requirements of the
application. For instance, if transitory smoke is “normal” set the time delay to ignore those unwanted
alarms. If smoke persists beyond the preset time delay, the alarm relay will activate. Conversely, if the
transitory smoke disappears during the time delay, the control unit will not register an alarm.

Installation, Operation and Maintenance Manual
Page 6-2 Issue 1
February 2001
Areas with higher levels of particulate may be beyond the Detector’s default sensitivity range and
maintain an alarm condition, even during normal periods. In these instances, it is recommended that
range be selected either manually or by the AutoSetup function by use of the LaserNET software.
Commissioning tests will determine and verify that transport time and suction pressure are within design
tolerances.
6.4 Transport-Time Testing
Transport time testing must be done on all systems. The farthest detection point should be exposed to a
smoke source and the time required for that smoke to register on the Detector should be recorded.
Measured transport times will most likely be shorter than the “SNIFF” calculated values. The measured
transport time should not exceed the calculated times by more than 10%. Measured transport times less
than the calculated times are acceptable.
NOTES To meet with British Standard BS6266 (Test A3 and A4) the unit must respond within 120
seconds of cessation of energisation of smoke.
All test results should be entered into an installation commissioning record sheet. This information can
then be used in all subsequent testing to ensure that the piping network has maintained its integrity and is
not blocked.
6.4.1 Commissioning Sheet
Refer to Appendix 1 for Commissioning Sheet.
6.5 Suction Pressure Testing
The suction pressures of the first and last sampling point in each pipe segment must be measured and
recorded on all systems.
The measured suction pressure must be compared with the SNIFF versoin 3.0 calculated values. The
values will most likely be greater than the “SNIFF” calculated values. The measured suction pressures
must never be over 10% less than the calculated values. Measured suction pressures greater than the
calculated values are acceptable.
Use the following method to check suction pressures:
(1) Attach a flexible hose onto the suction side of the magnehelic pressure gauge.
(2) Attach a capiliary tube into the other end of the hose.
(3) Insert the capiliary tube into the sampling hole to be measured. Care should be taken not
to block the hole.
(4) Hold the gauge in the plane it has been calibrated. This should be indicated on the face
of the meter. The suction pressure can now be read.

Installation, Operation and Maintenance Manual
Issue 1 Page 6-3
February 2001
Figure 6.1 Magnehelic Test Set-Up
6.6 Gross Smoke Test
The Detector does not require calibration when installed. However, to insure the entire system is
operational, a gross smoke test should be performed prior to final commissioning.
To perform the gross smoke test, it is sufficient to simply introduce smoke into the last sampling hole of
each branch. This can be smoke from a punk, cotton wick, or the commercially available smoke
simulating aerosols. Refer to the supplier for a recommended satisfactory aerosol simulated smoke
medium. Care should be taken so that excessive simulated smoke is not sprayed into the sampling ports.
Introduce only enough smoke or aerosol to cause a full scale defection on the LaserNET software.
CAUTION
Oil based canisters used to test point detectors are not suitable for testing aspirating systems. The
particulate is heavy and tends to drop out in the pipe, never actually reaching the detector. Also the oily
residue that they leave behind can affect the detector.
6.6.1 Burning Wire Tests
The burning wire test is considered the most representative test of incipient fire hazard detection in a
telecommunications or computer room environment.
There are several types of burning wire test which have been developed specifically for testing HSSD
systems. All tests involve the heating of a PVC insulated cable. Smoke is produced from the overheated
PVC insulation is by evaporation and condensation of the plasticiser. At low temperatures (<210oC) very
small particles are generated from the PVC insulation.
As the wire becomes hotter, hydrochloric acid (HCL) gas is also emitted, although production of
significant quantities of HCL from overheated PVC insulation is delayed until after removal of the
plasticiser.

Installation, Operation and Maintenance Manual
Page 6-4 Issue 1
February 2001
BS6266 Test A4
According to BS6266 the following test is considered unlikely to produce hydrogen chloride vapour. This
test may be undertaken in underfloor spaces or ceiling voids.
NOTE
The wire is subject to cooling if positioned in direct contact with air flows and may need to be
shielded.
Connect a 2 metre length of 10/0.1mm (0.078m2) wire with a total radius of 0.3mm including the PVC
insulation to a 6 V AC source of at least 16 Amps rating per wire for a period of 3 minutes. The system
should respond within 120 seconds of cessation of energisation.
NOTE
After this period very little smoke is given off.
BS6266 Test A3
WARNING
THE FOLLOWING TEST IS CONSIDERED IN
BS6266 TO PRODUCE SUFFICIENTLY HIGH
TEMPERATURES TO GENERATE SMALL
QUANTITIES OF HYDROCHLORIC ACID GAS
This test may be undertaken in under floor spaces or ceiling voids where rapid air flow may render Test 1
unsuitable.
Connect a 1 metre length of 10/0.1mm (0.078mm2) wire with a total radius of 0.3mm including the PVC
insulation to a 6 V AC source of at least 16 Amps rating per wire for a period of 1 minute. The system
should respond within 120 seconds of cessation of energisation.
NOTE
After this period most of the insulation should be burnt off.

Installation, Operation and Maintenance Manual
Issue 1 Page 7-1
February 2001
7 ROUTINE MAINTENANCE
7.1 Introduction
This chapter contains maintenance instructions for the High Sensitivity Smoke Detection (HSSD) system.
These procedures should be accomplished on a scheduled basis. In the event that system problems are
found during the performance of a procedure, reference should be made to Trouble Shooting and
Corrective Maintenance which can be found in Section 8 of this manual.
7.2 Scheduled Maintenance
The scheduled maintenance of the system should be performed at an established interval. The interval
between scheduled maintenance procedures being carried out should not exceed any imposed
regulations. See BS5389 part 1, or other local requirements.
7.3 Maintenance Procedures
The following paragraphs outline general scheduled maintenance procedures to be performed on an
as-necessary basis.
7.3.1 Visual Check
A visual check must be performed every six months. This check is recommended to ensure pipe network
integrity. To perform the visual check, observe the entire piping network and check for abnormalities in
the pipe including any breaks, blockages, crimps, etc.
7.3.2 Battery-Status Check
The battery backup used on the power-supply powering the Detector must be tested every six months as
follows:
A battery-status check is best accomplished by running the load with the batteries for about one hour
then, while the load is still on measuring the individual battery voltages. If any battery reads 1.5 volts or
more below its rated voltage, that battery should be replaced. Generally, if one of a series set of batteries
is low, the others will soon fail. Therefore, it is advisable to replace all the batteries of a series set when
one requires replacement. Any battery that has been in service for 48 months or more must be replaced.
7.3.3 Gross Smoke Test
The gross smoke test is a Go/No-Go type test which insures the Detector responds to smoke. This test
must be performed at system commissioning and every year there after.
To perform this test, smoke must be introduced into the last sampling port and the proper response must
be verified at the Detector. Smoke from a punk or cotton wick may be used. Aerosol test smoke may
also be used. Refer to Chapter 6 for further information.
NOTE For clean-room applications consult with supplier for gross smoke test methods.

Installation, Operation and Maintenance Manual
Page 7-2 Issue 1
February 2001
7.3.4 Sample-Hole Airflow Verification Test
The sample-hole airflow verification test insures each sample port is drawing air from the protected area.
This test should be done at commissioning and within one year after installation and every year
thereafter.
To perform this test the suction pressure of each sample port must be checked. See Chapter 5 of this
manual for the procedure for checking suction pressures. Suction pressures should be compared to the
original measurements. If any differences are noted, the cause of the deviation must be determined.
7.3.5 Detector Sensitivity Test
The Detector sensitivity test must be performed within one year of installation and every alternate year
thereafter. This test can be performed via LaserNET or optional Display module. After the second
required sensitivity test, if the sensitivity test indicates pass, the length of time between calibration tests
can be extended for up to five years.
Example: Year-one check
Year-three check
If years one and three are OK,
Go to five-year interval
The Detector employs a self-monitoring, system. The inspection only requires a periodic visual inspection
for a Detector fault indication and performing the Detector sensitivity test function.
If the self-monitoring feature of the system senses that the operation of the detector head is outside its
normal range a trouble condition will be generated.
7.3.6 Clean Detector
CAUTION
ANTI-STATIC PRECAUTIONS
WHEN HANDLING ANY ELECTRIC COMPONENTS OR
CIRCUIT BOARDS ANTI-STATIC PRECAUTIONS MUST
BE CARRIED OUT. FAILURE TO DO SO MAY RESULT IN
COMPONENT DAMAGE.
Static discharge can be reduced by adhering to the following guide lines.
(1) Always use conductive or anti-static containers for transportation and storage, if returning
any item.
(2) Wear an earthed wrist strap while handling devices and ensure a good earth is
maintained throughout.
(3) Never subject a static sensitive device to sliding movement over an unearthed surface
and avoid any direct contact with the pins or connections.

Installation, Operation and Maintenance Manual
Issue 1 Page 7-3
February 2001
(4) Avoid placing sensitive devices onto plastic or vinyl surfaces.
(5) Minimise the handling of sensitive devices and Printed Circuit Boards (PCBs).
The Detector optics should be cleaned as necessary. When following the step-by-step procedure it is
assumed that the lid and power supply have been removed from the Detector.
(1) Disconnect the connector at plug PL1 (6-way interconnecting harness).
(2) Rotate the paddle lever quarter of a turn anti-clockwise (refer to figure 8.1).
(3) Release in turn the four retaining clips located at each corner of the detector head.
(4) Lift the detector head clear of the Detector.
(5) The paddle lever is fitted with wire gauze this should be inspected and if required
cleaned. Replace when complete.
(6) Blow through the detector head with dry photographic quality air being careful not to
damage the internal components.
To replace the detector head secure the item in position by the four retaining clips. When the detector
head is in position the paddle lever must be rotated quarter of a turn clockwise to ensure a secure fit.
Connection from the termination board can then be fitted to plug PL1 on the detector head.
7.3.7 Clean Elutriator
(1) Open Elutriator by rotating Enclosure 1/8 turn (Clockwise).
(2) Remove and separate the two halves of the housing.
(3) Clean impact plate and two screens using compressed air or mild cleaning solution.
(4) Refer to Figure 2.8. Reassemble the Impact Plate and Screens. Note airflow orientation.

Installation, Operation and Maintenance Manual
Page 7-4 Issue 1
February 2001
This Page Intentionally Left Blank

Installation, Operation and Maintenance Manual
Issue 1 Page 8-1
February 2001
8 TROUBLE SHOOTING AND CORRECTIVE MAINTENANCE
8.1 Introduction
The effectiveness of this chapter is greatly increased by first reading previous chapters of this manual.
The service technician must have a clear understanding of the purpose and correct function of the
Detector before attempting corrective maintenance. The following paragraphs contain instructions to aid
a technician in identifying and rectifying faulty components. LaserNET software should be employed as a
diagnostic tool.
8.2 Standard Fault Isolation Techniques
Trouble indications registered by the Detector include:
(1) CPU Trouble
(2) Airflow Trouble
(3) PSU Trouble
(4) Detector Trouble
(5) PC Line Trouble
(6) Un-registered Display Module trouble
(7) Communications Trouble
Some of these troubles may indicate that the termination board and/or detector head are not functioning
properly. Such failures will usually be caused by one or more of the following fault conditions:
(1) Failure of the power supply
(2) Damaged wiring or corrosion
(3) Component failure
(4) Wiring not properly terminated to the Detector.
(5) Problems associated with the pipe network system.
When a failure occurs and the cause is not known, check as many of these items as is practical before
starting a detailed check. If possible, obtain information about any changes that have taken place that
may affect the system.
8.2.1 Visual Inspection
When troubleshooting, the fault may often be discovered through visual inspection alone. Check for
burned or overheated parts. Check for loose connections. Visual inspection is also useful in avoiding
damage to the system which may occur through improper servicing methods.
8.2.2 Power Checks
Ensure that the modules comprising the HSSD system are receiving the correct power-supply voltages
before disassembling the system.

Installation, Operation and Maintenance Manual
Page 8-2 Issue 1
February 2001
8.3 Troubleshooting
The Detector utilises internal communications for continuous self monitoring. Most system faults can be
isolated by use of either the Display Module or LaserNET software. If any of the Detectors' modules are
defective it is recommended that the module be replaced, as they cannot be serviced in the field. Refer
to Tables 8.1 to 8.5 for troubleshooting tips and references.
CAUTION
ANTI-STATIC PRECAUTIONS
WHEN HANDLING ANY ELECTRIC COMPONENTS OR
CIRCUIT BOARDS ANTI-STATIC PRECAUTIONS MUST
BE CARRIED OUT. FAILURE TO DO SO MAY RESULT IN
COMPONENT DAMAGE.
Static discharge can be reduced by adhering to the following guide lines.
(1) Always use conductive or anti-static containers for transportation and storage if returning
any item.
(2) Wear an earthed wrist strap while handling devices and ensure a good earth is
maintained throughout.
(3) Never subject a static sensitive device to sliding movement over an unearthed surface
and avoid any direct contact with the pins or connections.
(4) Avoid placing sensitive devices onto plastic or vinyl surfaces.
(5) Minimise the handling of sensitive devices and Printed Circuit Boards (PCBs).
Table 8.1 Troubleshooting Guide
Module/Device Detailed
Illustration Functional Description
Paragraph Replacement
Procedure
Detector head 8.2 2.3.1 8.4.2
Termination board 8.3 2.3.2 8.4.3
Fan module 8.4 2.3.3 8.4.4
Display Module 8.5 2.4 8.4.5
Intelligent Interface Module 4.6/4.7 2.5 8.4.6
Self Contained Power Supply 8.8 2.6.1 8.4.7

Installation, Operation and Maintenance Manual
Issue 1 Page 8-3
February 2001
Table 8.2 Intelligent Interface Module to Computer Communications Faults
Intelligent Interface Module to Computer Communications Faults
Symptom Corrective Action
1. Ensure that the computer to IIM cable is plugged in to the port marked
“PC” on the IIM
2. Check the configuration of the LaserNET software under the
Setup/System Computer/Configuration menus. The serial port must be
set to the same COM port as the communications cable is plugged in to.
Connection type must be set to “Local IIM”.
3. Ensure that the IIM is powered and operating. Depress the hard reset on
the IIM. It should momentarily engage the trouble relay and extinguish all
LEDs. The orange (lower) LED will come back on for about 1 min while
the IIM resets. If no action occurs, the IIM may be defective or not
receiving power
No communications
between the IIM and the
computer when using a
direct IIM to computer
connection (Local IIM
connection) 4. Check the DB9 to RJ12 connector by separating the DB9 section from
the plastic housing. The wire configuration must be as follows:
White Pin 2
Blue Pin 3
Black Pin 4
Yellow Pin 5
Red Pin 6
Green Pin 8
1. Check for proper operation of the IIM using a local IIM connection. If this
fails, refer to local IIM troubleshooting section above. If the local IIM
connection functions correctly, check that the correct phone number is
being used and that the phone line is properly connected and operating.
2. Check the configuration of the LaserNET software under the
Setup/System Computer/Configuration menus. The serial port must be
set to same COM port as the communications cable is plugged into.
Connection type must be “ Remote IIM”.
3. Check that the characters “ATSO=1” appear in the initialisation string box
of the configuration screen. For a very few modems this string may
require modification. Consult supplier if problems persist in this area.
No communications
between the IIM and the
computer when using a
modem and phone lines
to connect to the IIM
(Remote IIM Connection)
4. If steps 1 to 3 do not resolve the problem, the IIM may be defective.

Installation, Operation and Maintenance Manual
Page 8-4 Issue 1
February 2001
Table 8.3 General System Faults
General System Faults
Symptom Corrective Action
1. If the system is new, ensure that the actual pipe network system
corresponds with the layout as calculated by the “SNIFF” design
software. Items such as pipe diameters, elbows, sampling hole diameter
and junction configurations should be checked.
2. Check for proper operation of the Fan module.
3. Check the screens located inside the detector head chamber and
Elutirator. Clean if required.
4. Check for broken pipes, loose joints, leaky junction boxes, or missing
pipe caps.
Low Suction Pressure
5. Check for blockages within the pipes. The blockage can be located by
checking the suction pressure at points closest to the detector head(s)
and working outward. The suction pressure will drop downstream from
the blockage.
1. If the system is new, ensure that the actual piping system corresponds
with the layout as calculated by the “SNIFF” design software. Items
such as pipe lengths, pipe diameters, elbows, sampling hole diameters
and junction configurations should be checked.
High Suction Pressure 2. Check for blockages within the pipes and blockage of sampling ports.
Pipe blockage can be located by checking the suction pressures on the
points closest to the detector head(s) and working outward. The suction
pressures will be higher upstream of the blockage.
Long Transport Times 1. Perform checks as outlined for low suction pressure
1. Perform the sensitivity test by selecting the “sensitivity test” option from
the LaserNET graphic display’s options menu. See LaserNET Manual,
LaserNET will either PASS or FAIL.
Low Sensitivity to
Smoke
2. Perform checks as outlined for low suction pressures.

Installation, Operation and Maintenance Manual
Issue 1 Page 8-5
February 2001
Table 8.4 Intelligent Interface Module to Termination Board Communications Problems
Symptom Corrective Action
1. Check the LK1, LK2 and LK4 jumpers on the termination board. They
must be shorting the two pins closest to the centre of the board.
2. Check the RS485 loop wiring.
3. If using a stand-alone IIM, be sure that the LaserNET software is set to
monitor each Detector correctly. From the Setup menu select
Setup>Detectors. The address of each Detector must be selected. Also,
the Alarm and Trouble Monitoring box should be checked.
Loss of Communications
between IIM and
Protected zones
4. Check the programmed address of each termination board to ensure that
it corresponds to the binary equivalent of the address. Zero is not a valid
address.

Installation, Operation and Maintenance Manual
Page 8-6 Issue 1
February 2001
Table 8.5 Faults Indicated on the Display Module or LaserNET Graphic Display
Faults Indicated on the LaserNET Graphic Display
Display Module or LaserNET
Graphic Display Message Indication Corrective Action
1. Check connections at the termination board.
2. Clean the detector head.Detector Fault Detector Head
Trouble
3. If steps 1 and 2 do not resolve the problem,
return the detector to the supplier.
1. Check that no ambient light is penetrating the
pipe and entering the detection chamber.
This can happen in brightly lit areas,
especially when white PVC is used as the
sampling pipe.
2. Disconnect the sampling pipe and connect an
absolute filter to the Detector. If the smoke
deflection goes to zero, there is particulate in
the sampled area. If not proceed.
3. Clean the detector head.
Full-Scale deflection for no
apparent reason
No specific
event is logged
for this fault
4. If steps 1 to 3 do not resolve the problem,
return the unit to the supplier.
1. Check the real-time airflow level (See
LaserNET manual). Ensure that the airflow
thresholds are set according to the manual.
2. Check for proper operation of the Fan
Module.
3. Check for blockages or breaks in the
sampling pipe network.
Airflow Fault Low or High
Airflow Level
4. Check for rapid temperature fluctuations in
the protected area. If found, widen the
airflow thresholds.
1. Measure the output voltage of the supply. It
must be above 24 V DC.
2. Check the power supply fault lights (only if
powered by stand-alone power supply).
Check the indicated circuit as described in
steps 4 to 7 below.
3. Check the connections and continuity of the
wires connected between the power supply
and the termination board.
Power Supply Fault PSU Trouble
4. Check that the AC voltage at the power
supply input terminals is within operating
range.

Installation, Operation and Maintenance Manual
Issue 1 Page 8-7
February 2001
Table 8.5 Faults Indicated on the Display Module or LaserNET Graphic Display
Faults Indicated on the LaserNET Graphic Display
Display Module or LaserNET
Graphic Display Message Indication Corrective Action
5. Check the battery wiring connections and
continuity.
6. Check the batteries for low output voltage.Power Supply Fault PSU Trouble
7. Check for ground fault problems throughout
all associated system wiring.
Fails Sensitivity Test Detector
Trouble 1. Return Detector to supplier.

Installation, Operation and Maintenance Manual
Page 8-8 Issue 1
February 2001
8.4 Replacement
The following paragraphs provide a list of procedures used to replace a faulty item within the High
Sensitivity Smoke Detector (HSSD) system. These procedures describe how to remove the item from its
location and how to insert the replacement item.
LASER HAZARD
The detector in the enclosure is a factory-sealed unit
containing a Class-3B laser product with invisible
radiation.
AVOID EXPOSURE TO BEAM
Extended exposure to a Class-3B laser directly or
indirectly may cause severe damage to the human eye.
8.4.1 Replacing the Detector
When considering the following list of procedures to replace the Detector, it is assumed that the lid has
been removed. Proceed as follows:
(1) Remove the 24 V DC supply.
(2) Disconnect all external cable connections.
(3) Remove the detector head (refer to para 8.4.2).
(4) Disconnect the exhaust port adapter, if used.
(5) Unscrew the mounting screws from the 4-corner mounting holes.
(6) Slide the Detector from the pipe network system. Note the incoming pipe does not
require removing from the inlet adapter, as connection can be removed from the rear of
the enclosure.
To replace the Detector, secure the item in position by using the 4-corner mounting holes. When the
Detector is in position, the detector head can be replaced and all external fittings can be fitted.
Prior to powering up the Detector for the first time, ensure that the following procedures have been
completed:
(1) The Detector is secured correctly.
(2) The Detector is connected correctly.
CAUTION
!
WARNING
!

Installation, Operation and Maintenance Manual
Issue 1 Page 8-9
February 2001
The RS485 network supports up to 127 unique addresses. These are used to identify each zone of the
HSSD system. The hardware address on each termination board must be set for correct operation of the
communications network. Each termination board contains a DIP switch allowing the network address to
be set for each Detector.
If a replacement Detector is required to operate using the default settings no further action is necessary.
If, however, the default settings are not used in a particular application, then the Detector must be
reconfigured using the LaserNET software. Configuration details are contained in the LaserNET Version
3 Software Manual.
8.4.2 Replacing the Detector Head
When considering the following list of procedures to replace the detector head it is assumed that the lid
has been removed from the Detector. To remove the detector head from the Detector proceed as
follows:
(1) Disconnect the connector at plug PL1 (6-way interconnecting harness).
(2) Rotate the paddle lever quarter of a turn anti-clockwise.
ROTATE ANTICLOCKWISE TO UNLOCK
ROTATE CLOCKWISE TO LOCK
Figure 8.1 Paddle Lever

Installation, Operation and Maintenance Manual
Page 8-10 Issue 1
February 2001
(3) Release in turn the four retaining clips located at each corner of the detector head.
(4) Lift the detector head clear of the Detector.
To replace the detector head secure the item in position by the four retaining clips. When the detector
head is in position the paddle lever must be rotated quarter of a turn clockwise to ensure a secure fit. The
connection from the termination board can then be fitted to plug PL1 on the detector head.
Figure 8.2 Replacing the Detector Head

Installation, Operation and Maintenance Manual
Issue 1 Page 8-11
February 2001
8.4.3 Replacing the Termination Board
When considering the following list of procedures to replace the termination board, it is assumed that the
lid has been removed from the Detector. Prior to removal of the termination board, download all data for
the Detector by use of the LaserNET software. However, should default settings apply, this operation is
unnecessary.
To remove the termination board from the Detector, proceed as follows:
(1) Remove the 24 V DC supply.
(2) Remove terminals from connectors TB1 and TB2 (containing the external connections).
(3) Remove connector from RJ12 PC connection.
(4) Remove connection to the detector head.
(5) Remove the FAN supply connection
(6) Remove the connection to either the blank facia status LED or the Display Module.
(7) Remove the screw located in the top right corner and then release the retaining clips.
(8) Remove the termination board from the Detector.
To fit a replacement termination board proceed as follows:
Remove the termination board from its packaging and carry out a visual inspection of the hardware.
The termination board is secured in position by the retaining clips and a screw that locates into a
mounting pillar in the top right hand corner.
Prior to powering up the Detector ensure that the following procedures have been completed:
(1) The termination board is secured correctly.
(2) The termination board is connected correctly.
The RS-485 network supports up to 127 unique addresses that are used to identify each zone of the
HSSD system. The hardware address on each termination board must be set for correct operation of the
communications network. Each termination board contains a DIP switch allowing the network address to
be set for each Detector.
If a replacement Detector is required to operate using the default settings no further action is necessary. If
however, the default settings are not used in a particular application then the Detector must be re-
configured using the LaserNET software. Configuration details are contained in the LaserNET Version 3
Software Manual.

Installation, Operation and Maintenance Manual
Page 8-12 Issue 1
February 2001
Figure 8.3 Replacing the Termination Board

Installation, Operation and Maintenance Manual
Issue 1 Page 8-13
February 2001
PC
INTERNAL WIRING
CABLE ASSEMBLY
TERM BOARD / TRI-COLOUR LED
BLANKING PLATE
C/W STATUS LED
DISPLAY
FRONT PANEL OPTIONS
CABLE ASSEMBLY
TERM BOARD / LCD DISPLAY
WITH FAN ASSEMBLY
CABLE SUPPLIED
CABLE ASSEMBLY
TERM BOARD / DETECTOR
(LCD DISPLAY OR STATUS LED)
DETECTOR
H300/UHSSD
CABLE ASSEMBLY
RJ12 / RJ12
RJ12 SOCKET
LOCATED ON LHS
OF UNIT
43682-K155
43682-K158
43682-K157
43682-K156
CHASSIS
FAN
ANALASER
INTERFACE MODULE
GROUND
(OPTIONAL)
MODULE
REG1
TB2
F1 SW1
LK4
IC4
F2
IC5
IC7
LK1
P1
P2
P3
P5
P6
P7
RL1
RL2 RL3 RL4 RL5 RL6
SW2
BAT1
LK3
P9
TB1
P4
IC9
LK2
STATUS POWER OUT
0V
POWER IN
PRE 2PRE ALARM 2ALARM1ALARM
CM
FAN
1
HSSD
CARD
TERMINATION
M/TERM
1
DET.HEAD RESET
INTERNAL DISPLAY INTERFACE
PROGRAM
POWER ON
RELAY EXP/LOCALASER
STATUS LED
FAN A DJ MAIN LOOP ADDRESS
NO CM NO
ALARM 1
CM NO CM NO
TROUBLE
CM NC NO
ISOLATE
CM NC NO
MAIN LOOP
-++
-
EXTERNAL DISPLAY
+24V
-+-++
++
---
PSU
ON
1
+
1
1
LED
1
CM CMNO NO CM NO CM NO NCCM NO CM NC NO
PRE PREALARM1 ALARM2 ALARM 2ALARM 1 TROUBLE ISOLATE
--
MAIN LOOP
++
STATUSEXTERNAL DISPLAY
0V +24V
-+-
PSU
+--
POWER IN
POWER OUT
+-+
1
+
TB1
TB2
Figure 8.4 Termination Board Internal Wiring Diagram

Installation, Operation and Maintenance Manual
Page 8-14 Issue 1
February 2001
8.4.4 Replacing the Fan Module
When considering the following list of procedures, it is assumed that the lid has been removed from the
Detector.
To remove the fan module proceed as follows:
(1) Remove the 24 V DC supply from the Detector.
(2) Disconnect the exhaust port adapter, if used to return the sampled air to the area of
origin.
(3) Push the exhaust outlet away from the fan module.
(4) Disconnect the 24 V supply connection to the termination board.
(5) Release the three retaining clips around the outside edge of the fan module housing.
(6) Lift the fan module from the Detector, the item is removed as a complete unit.
To replace the fan module simply push into position and secure by the three retaining clips. The exhaust
outlet should then be inserted into position. The 24 V connection to the termination board can be
connected. The 24 V DC supply can then be applied to the Detector.
Figure 8.5 Replacing the Fan Module

Installation, Operation and Maintenance Manual
Issue 1 Page 8-15
February 2001
8.4.5 Replacing the Display Module
When considering the following list of procedures, it is assumed that the lid has been removed from the
Detector. To replace the Display Module when it is fitted within the Detector proceed as follows:
(1) Remove the 24 V DC supply from the Detector.
(2) Unplug the inter-connection harness from the termination board.
(3) Remove the Display Module by pushing the two retaining clips, one each side and
pushing from the rear.
(4) Remove the replacement Display Module from its carton and carry out a visual inspection
of the unit to ensure that no damage has occurred during transit.
(5) Fit the Display Module into the recess ensuring the correct orientation and secure into
position by the two retaining clips.
(6) Connect the interconnection harness to the termination board.
(7) Replace the lid and secure with the two locking screws.
Prior to powering up the Detector ensure that the following procedures have been completed:
(1) The Display Module is secured correctly.
(2) The Display Module is connected correctly.
Figure 8.6 Replacing the Display Module

Installation, Operation and Maintenance Manual
Page 8-16 Issue 1
February 2001
To replace the Remote Display Module proceed as follows:
(1) Remove the 24 V DC supply from the Detector.
(2) Remove the retaining screw located on the bottom of the Display Module.
(3) Remove cover from the housing. Care should be taken as the Display Module is still
connected by the inter-connecting cables from the termination board.
(4) Remove the inter-connecting cables from the Display Module terminals.
(5) Remove the replacement Display Module from its carton and carry out a visual inspection
of the unit to ensure that no damage has occurred during transit.
(6) Remove the screw located at the bottom of the replacement Display Module and remove
back box.
(7) Connect cable harness to the replacement Display Module.
(8) Place the Display Module onto the back box and secure with the screw at the bottom of
the module.
Prior to powering up the Detector ensure that the following procedures have been completed:
(1) The Display Module is secured correctly.
(2) The Display Module is connected correctly.
Figure 8.7 Replacing the Remote Display Module

Installation, Operation and Maintenance Manual
Issue 1 Page 8-17
February 2001
8.4.6 Replacing the Intelligent Interface Module
(1) Remove the terminals from TB1 located on the Intelligent Interface Module (IIM). This
will disconnect 24 V DC, RS485, auxiliary troubles and alarms.
(2) Remove any RJ11 connectors from the three jacks, if used.
(3) Remove the replacement IIM from its carton and carry out a visual inspection of the unit
to ensure that no damage has occurred during transit.
(4) Secure the IIM with the 4 mounting screws.
(5) Reconnect any RJ11 connectors and then the TB1 terminations. When the power
connector is re-attached to the IIM, the orange (lower) LED will illuminate for about 1
minute during IIM initialisation and then extinguish.
8.4.7 Replacing Single Zone Power Supply
To replace the Single Zone Power Supply proceed as follows:
(1) Disconnect mains supply to the Single Zone Power Supply.
(2) Remove the cover from the chassis by removing the screw located in the recess of the
lid.
(3) Remove the battery back-up supply to the power supply (disconnect battery link).
(4) Remove the power supply retaining screws from either end of the chassis.
(5) Remove the power supply by sliding outwards.
(6) Disconnect all interconnecting cables from the terminals.
(7) Remove the replacement power supply from its packaging and carry out a visual
inspection of the unit to ensure that no damage has occurred during transit.
(8) Reconnect all interconnecting cables to the appropriate terminals.
(9) Locate the replacement power supply in position and secure with the screws in either end
on the chassis.
(10) Reconnect battery back-up.
(11) Reconnect the mains supply.
(12) Place the cover in position over the chassis.

Installation, Operation and Maintenance Manual
Page 8-18 Issue 1
February 2001
Figure 8.8 Replacing the Single Zone Power Supply

Installation, Operation and Maintenance Manual
Issue 1 Page 9-1
February 2001
9 PARTS LIST
The following is a list of replacement parts for the HSSD system.
NOMENCLATURE PART NUMBER
Detector
Detector complete with Standard detector head 53836-K183
Detector complete with Ultra detector head 53836-K186
Flush mount trim ring 35100-K180X
Display Module 53836-K182
Power Supplies (120/240 VAC)
Self-Contained Power Supply without batteries 53836-K185
Control Equipment
Intelligent Interface Module - Stand Alone with modem 53836-K189
Intelligent Interface Module - Stand Alone without modem 53836-K190
Accessories
Elutriator TBA
Exhaust Port Adaptor (EPA) 35200-K020X
Miscellaneous Installation Parts
Sampling Point Kit of 25, with Connectors & Labels TBA
Capillary Tube Roll 250 ft TBA
Point Label per reel 39155-H12
Port Label per reel TBA
Pipe Label per reel 39155-H11
Software
“SNIFF” design Program Software CD and User’s Guide TBA
LaserNET Configuration Software Disks (2 x 3.5”) and User’s Guide TBA
Replacement Parts
Self-Contained Switching PSU/Battery Charger 28730-K008X
Detector head (Standard) 53541-K020X
Detector head (Ultra) 53541-K021X
Termination board 44782-K137X
Fan Assembly 43782-K119X
Stand Alone IIM without modem (PCB Assembly only) TBA
Stand Alone IIM with modem (PCB Assembly only) TBA

Installation, Operation and Maintenance Manual
Page 9-2 Issue 1
February 2001
This Page Intentionally Left Blank

Installation, Operation and Maintenance Manual
Issue 1 Page A-1
February 2001
Customer Name:
Client Contact Name:
Client Address:
Project No;
System Designer Name:
Forced Normal None
Air Flow Conditions:*
Air Flow Velocity: m/s ft/s
Temperature: °C °C max °F °F max
Sources of contamination:
Sources of vibration
Sources of shock:
Heat input:* Solar heating Air conditioning Wall heaters Other
YES NO
Stratification problem*
Internally Recirculating External Other
Air input Source*
YES NO
Reference Detector required:*
Location:
Condensing* Non-condensing* Level %
Humidity:
Visible Hidden
Pipe run requirement*
PVC ABS Copper Other
Pipe type:*
mm Inch(es)
Pipe diameter:
Duct sampling Air Handling Distributed pipe network
System Type:*
Building material type(s)
Smoke test type:
Number & Location of areas:
Number & Location of zones:
Use of building:

Installation, Operation and Maintenance Manual
Page A-2 Issue 1
February 2001
DELAYS SENSITIVITY THRESHOLDS
Pre-Alarm Alarm Pre-Alarm Alarm
12121212
Day
Night
High Airflow setting Delay Period sec
Low Airflow setting Delay Period sec
Power Supply Delay sec Detector Trouble Delay sec
Signal averaging* Yes No Period* 2 seconds 4 seconds 8 seconds
Day/Night Set Yes No Day Start Time Night Start Time
Cumulative delays Yes No
Response Time:
Battery Backup requirements (Hours):
* delete as necessary
Commissioned by: Print Name Date:
Sign
Company Name:
Company Address: