Kidde Fire Systems Surge Protector P N 81 Co2Man 001 Users Manual
2015-02-09
: Kidde-Fire-Systems Kidde-Fire-Systems-Kidde-Fire-Systems-Surge-Protector-P-N-81-Co2Man-001-Users-Manual-568189 kidde-fire-systems-kidde-fire-systems-surge-protector-p-n-81-co2man-001-users-manual-568189 kidde-fire-systems pdf
Open the PDF directly: View PDF
.
Page Count: 324 [warning: Documents this large are best viewed by clicking the View PDF Link!]
- Engineered Carbon Dioxide (CO2)
- Fire Suppression Systems
- General Information
- Component Descriptions
- 2-1 Fire Suppression System Components
- 2-2 CO2 Storage
- 2-3 Actuation Components
- 2-4 Check Valves
- 2-5 Directional (Stop) Valves
- 2-6 Lockout Valves
- 2-7 Discharge Nozzles
- 2-8 Auxiliary Equipment
- 2-9 Instruction and Warning Plates
- 2-10 Hose Reel and Rack Systems
- Design
- 3-1 Introduction
- 3-2 Hazard Survey, Definition and Analysis
- 3-3 Design for Safety
- 3-4 Applications
- 3-5 Total Flooding Systems
- 3-6 Local Application Systems
- 3-7 Combination Systems
- 3-8 Multiple Hazard Systems
- 3-9 Pressure Operated Sirens
- 3-10 Extended Discharge Systems
- 3-11 Agent Storage Banks
- 3-12 Manifold and Pipe Network Design
- 3-13 Actuation System Design
- 3-13.1 Discharge Heads
- 3-13.2 Cylinder Actuation
- 3-13.3 Actuation Classifications
- 3-13.4 Control Systems
- 3-14 Detection Devices, Alarm Devices And Control Panels
- 3-15 Auxiliary Equipment and Systems
- 3-16 Hand Hose Line Systems
- Installation
- 4-1 Introduction
- 4-2 General Installation Requirements
- 4-3 Installation of Suppression Systems
- 4-3.1 Discharge Pipe and Fittings
- 4-3.2 Pressure Operated Actuation Pipe, Tubing and Fittings
- 4-3.3 Discharge Manifold
- 4-3.4 Manifold “Y” Fitting
- 4-3.5 Carbon Dioxide Cylinder Assemblies
- 4-3.6 Flexible Discharge Hose to Piping
- 4-3.7 Swivel Adapter to Piping
- 4-3.8 Discharge Head to Cylinder Valve
- 4-3.9 Check Valves and Directional (Stop) Valves
- 4-3.10 Lockout Valves
- 4-3.11 Pneumatic Discharge Delay
- 4-3.12 Discharge Nozzles
- 4-4 Actuation Systems
- 4-4.1 Lever Operated Control Head
- 4-4.2 Cable Operated Actuation System Components
- 4-4.3 Cable Operated Control Head
- 4-4.4 Pull Boxes
- 4-4.5 Main to Reserve Transfer Switch
- 4-4.6 Tandem Control Head
- 4-4.7 Electric Control Heads
- 4-4.8 Electric and Cable Operated Control Heads
- 4-4.9 Pneumatic Heat Actuated Detection (HAD) System Components
- 4-4.10 Pneumatic Control Head
- 4-4.11 Nitrogen Actuation Station
- 4-4.12 Pressure Operated Control Heads
- 4-4.13 Lever and Pressure Operated Control Heads
- 4-5 Auxiliary Components
- 4-6 Hose Reel/Rack
- 4-7 Commissioning The Carbon Dioxide System
- Operation
- Maintenance
- 6-1 General
- 6-2 Preventive Maintenance
- 6-3 Inspection Procedures - Monthly
- 6-4 Semi-Annual Weighing of CO2 Cylinders
- 6-5 Annual Maintenance
- 6-6 5 Year and 12 Year Inspection and Test Guidelines
- 6-7 Repairs
- 6-8 Removal of Cylinders
- 6-9 Installation of Cylinders
- Post-Discharge Maintenance
- Parts List
- Formula Derivations
- A-1 Theoretical CO2 Extinguishing Concentration for a Total Flooding System
- A-2 Quantity of CO2 Required for a Total Flooding System Under a Free Efflux Flooding Condition
- A-3 Derivation of the Material Conversion Factor (MCF)
- A-4 Rate of Carbon Dioxide Loss Through an Opening in an Enclosure
- A-5 Discharge Rates for Deep Seated Fires
- Obsolete Equipment
- European Equipment
- Equivalent Length
- Back Cover

P/N 81-CO2MAN-001
September 2013
R
LISTED
FM
APPROVED
UL Listing File No. EX 4674
Engineered
Carbon Dioxide (CO2)
Fire Suppression Systems
Design, Installation,
Operation and
Maintenance Manual

P/N 81-CO2MAN-001 i September 2013
FOREWORD
Note: This Kidde Fire Systems Engineered Carbon Dioxide (CO2) Fire Suppression System Design,
Installation, Operation, and Maintenance manual, P/N 81-CO2MAN-001, is for use only by qualified
and factory-trained personnel with working knowledge of applicable standards such as NFPA, as well
as a working knowledge of Kidde Fire Systems Engineered Carbon Dioxide (CO2) Fire Suppression
System. Kidde Fire Systems does not authorize or recommend use of this Manual by others.
The data contained herein is provided by Kidde Fire Systems as a guide only. It is not intended to be all
inclusive and should not be substituted for professional judgement. Kidde Fire Systems believes the data
to be accurate, but this data is provided without guarantee or warranty to its accuracy or completeness.
Any questions concerning the information presented in this manual should be addressed to:
Kidde Fire Systems
400 Main Street
Ashland, MA 01721
Phone: (508) 881-2000
Toll Free: (800) 872-6527
Fax: (508) 881-8920
TERMS AND ABBREVIATIONS
MATERIAL SAFETY DATA SHEETS
Hard copies of the Material Safety Data Sheets (MSDS) are not included with this manual. The latest version
of the MSDS you are searching for can be found online at the Kidde Fire Systems website
(www.kiddefiresystems.com). Use the built-in navigation links to view the desired sheet.
ABS: Absolute N.C.: Normally Closed
ADA: Americans with Disabilities Act NFPA: National Fire Protection
Association
AH: Ampere Hour N.O.: Normally Open
AWG: American Wire Gauge N2: Nitrogen
BIL: Basic Installation Level P/N: Part Number
C: Common PED: Pressure Equipment Directive
CFM: Cubic Feet per Minute TC: Transport Canada
CO2: Carbon Dioxide TCF: Temperature Correction Factor
DC: Direct Current TPED: Transportable Pressure Equipment Direc-
tive
DOT: Department of Transportation UL/ULI: Underwriters Laboratories, Inc.
FM: Factory Mutual ULC: Underwriters Laboratories of Canada
H20: Water V: Volts
HVAC: Heating, Venting and Air
Conditioning Vac: Volts AC
Hz: Hertz (Frequency) Vdc: Volts DC
mA: Milliamperes

September 2013 ii P/N 81-CO2MAN-001
THIS PAGE INTENTIONALLY LEFT BLANK.

P/N 81-CO2MAN-001 iii September 2013
SAFETY SUMMARY
The Kidde Fire Systems Engineered Carbon Dioxide (CO2) Fire Suppression System, uses pressurized
equipment, and therefore you MUST notify personnel responsible or who may come into contact with the
Engineered Carbon Dioxide (CO2) Fire Suppression System, of the dangers associated with the improper
handling, installation, maintenance, or use of this equipment.
Fire suppression service personnel must be thoroughly trained by you in the proper handling, installation,
service and use of the equipment in compliance with applicable regulations and codes and following the
instructions in this manual, any Safety Bulletins and also the cylinder nameplate.
Kidde Fire Systems has provided warnings and cautions at a number of locations throughout this manual.
These warnings and cautions are not comprehensive, but provide a good guide as to where caution is
required. These warnings and cautions are to be adhered to at all times. Failure to do so may result in
serious injury.
Material Safety Data Sheets (MSDS) for nitrogen and CO2 are available from Kidde Fire Systems. You
should ensure your personnel are familiar with the information contained in these sheets.
DEFINITIONS
SUBJECT: SPECIFIC HAZARD
PROCEDURES FOR SAFELY HANDLING CYLINDERS
Before handling Kidde Fire Systems products, all personnel must be thoroughly trained in the safe handling
of the containers as well as in the proper procedures for installation, removal, filling, and connection of
other critical devices, such as flex hoses, control heads, discharge heads, and anti-recoil devices.
READ, UNDERSTAND and ALWAYS FOLLOW the operation and maintenance manuals, owners manuals,
service manuals, etc., that are provided with the individual systems.
The following safety procedures are minimal standards that must be adhered to at all times. These are not
intended to be all inclusive.
WARNING Indicates an imminently hazardous situation which, if not avoided, could result
in death, serious bodily injury and/or property damage.
CAUTION Indicates a potentially hazardous situation which, if not avoided, could result in
property or equipment damage.
WARNING
Because carbon dioxide reduces the available oxygen in the atmosphere, it will
not support life. Care must be taken, and appropriate alarms shall be used, to
ensure that all personnel are evacuated from the protected space prior to
discharging the system. Suitable warning signs must be prominently displayed
in clear view at the point of entry into the protected area to alert people to the
asphyxiation properties of carbon dioxide.
WARNING Pressurized (charged) cylinders are extremely hazardous and if not handled
properly are capable of violent discharge. This may result in serious bodily
injury, death and property damage.

September 2013 iv P/N 81-CO2MAN-001
Moving Cylinders: Cylinders must be shipped compactly in the upright position, and properly secured in
place. Cylinders must not be rolled, dragged or slid, nor allowed to be slid from tailgates of vehicles. A
suitable hand truck, fork truck, roll platform or similar device must be used while maintaining properly
secured cylinders at all times.
Rough Handling: Cylinders must not be dropped or permitted to strike violently against each other or
other surfaces.
Storage: Cylinders must be properly secured and safely stored in an upright position and in accordance
with any applicable regulation, rule or law. Safe storage must include some protections from tipping or
being knocked over.
Nothing in this manual is intended as a substitution for professional judgment and will not serve to absolve
any professional from acting in a manner contrary to applicable professional standards.
For additional information on safe handling of compressed gas cylinders, see CGA Pamphlet P-1 titled “Safe
Handling of Compressed Gases in Containers”. CGA pamphlets may be purchased from The Compressed
Gas Association, 14501 George Carter Way, Suite 103, Chantilly VA 20151-292 or from their website
www.cganet.com.
SUBJECT: PROCEDURES FOR SAFELY HANDLING PRESSURIZED CYLINDERS
THESE INSTRUCTIONS MUST BE FOLLOWED IN THE EXACT SEQUENCE AS WRITTEN TO PREVENT SERIOUS
INJURY, DEATH OR PROPERTY DAMAGE.
Shipping Cap
1. Each cylinder is factory equipped with a shipping cap over the cylinder valve connected to the cylinder
collar. The shipping cap is a safety device and will provide a controlled safe discharge when installed
if the cylinder is actuated accidentally.
2. AT ALL TIMES, the shipping cap must be securely installed over the cylinder valve and the actuation
port protection cap shall be attached unless the cylinders are connected into the system piping during
filling or performing testing.
Protection Cap
A protection cap is factory installed on the actuation port and securely chained to the valve to prevent loss.
The cap is attached to the actuation port to prevent tampering or depression of the actuating pin. No
attachments (control head, pressure control head) are to be connected to the actuation port during
shipment, storage, or handling.
WARNING Pressurized (charged) cylinders are extremely hazardous and if not handled
properly are capable of violent discharge. This will result in serious bodily
injury, death and property damage.

P/N 81-CO2MAN-001 v September 2013
Installation
THIS SEQUENCE FOR CYLINDER INSTALLATION MUST BE FOLLOWED AT ALL TIMES:
1. Position cylinder(s) in designed location and secure with cylinder bracket(s).
2. Remove safety (shipping) cap and actuation port protection cap.
3. Attach flex loops or swivel adapter to discharge heads. Connect assembly to system piping. Then
attach assembly to cylinders.
4. Verify control head(s) are in the set position.
5. Install control head(s) on cylinder(s).
Removal From Service
1. Remove control head(s) from cylinder(s).
2. Remove discharge head from each cylinder valve.
3. Attach safety (shipping) protection cap and actuation port protection cap to each cylinder.
4. Remove cylinder from bracketing and properly secure to hand truck. Properly secure each cylinder for
transport. Repeat for remaining cylinders.
WARNING Flex hoses/swivel adapters must always be connected to the system piping and
to the discharge heads before attaching the discharge heads to the cylinder
valves in order to prevent injury in the event of inadvertent carbon dioxide
discharge.
WARNING Control heads must be in the set position before attaching to the cylinder
actuation port in order to prevent accidental discharge.
WARNING Do not remove the cylinder from the bracketing if the safety and protection caps
are missing. Obtain a new safety (shipping) cap from a local gas supplier.
Obtain a new actuation port protection cap from Kidde Fire Systems.

September 2013 vi P/N 81-CO2MAN-001
THIS PAGE INTENTIONALLY LEFT BLANK.

P/N 81-CO2MAN-001 vii September 2013
Foreword.......................................................................................................i
Terms and Abbreviations .................................................................................i
Material Safety Data Sheets .............................................................................i
Safety Summary.............................................................................................iii
Definitions .....................................................................................................iii
Subject: Specific Hazard..................................................................................iii
CHAPTER 1 GENERAL INFORMATION
1-1 Introduction......................................................................................... 1-1
1-2 Classification of Fire .............................................................................. 1-1
1-3 General Characteristics of the System...................................................... 1-1
1-4 System Description ...............................................................................1-2
1-5 Type of Suppression System................................................................... 1-2
1-5.1 Total Flooding....................................................................................... 1-2
1-5.2 Local Application................................................................................... 1-2
1-6 General System Requirements................................................................ 1-3
1-6.1 Safeguards .......................................................................................... 1-3
1-6.1.1 Adequate Path of Egress ........................................................................ 1-3
1-6.1.2 Warning Signs and Personnel Education................................................... 1-3
1-6.1.3 Pre-Discharge Time Delays and Alarms .................................................... 1-4
1-6.1.4 Stop Valves and Lockout Valves.............................................................. 1-4
1-6.1.5 Post-Release Warnings and Procedures.................................................... 1-5
1-6.2 Storage ............................................................................................... 1-5
1-6.3 Discharge Characteristics.......................................................................1-5
1-6.4 Actuation Methods ................................................................................1-6
1-7 Applications ......................................................................................... 1-6
1-8 Extinguishing Properties of Carbon Dioxide...............................................1-7
1-9 Physical Properties of Carbon Dioxide ......................................................1-7
1-10 Clean-up.............................................................................................. 1-8
CHAPTER 2 COMPONENT DESCRIPTIONS
2-1 Fire Suppression System Components ..................................................... 2-1
2-2 CO2 Storage ........................................................................................ 2-1
2-2.1 Cylinder and Valve Assemblies................................................................ 2-1
2-2.1.1 Valves................................................................................................. 2-4
2-2.1.2 Cylinder Filling ..................................................................................... 2-5
2-2.2 Discharge Heads................................................................................... 2-7
2-2.2.1 Plain-nut Discharge Head....................................................................... 2-7
2-2.2.2 Grooved-nut Discharge Head.................................................................. 2-8
2-2.3 Flexible Hoses ...................................................................................... 2-11
2-2.4 Swivel Adapter ..................................................................................... 2-12
2-2.5 Manifold “Y” Fitting................................................................................ 2-12
2-2.6 Cylinder Mounting Hardware................................................................... 2-13
2-2.6.1 Single or Double Cylinder Arrangements .................................................. 2-13
2-2.6.1.1 Single Cylinder Straps. ..........................................................................2-13
2-2.6.1.2 Double Cylinder Straps .......................................................................... 2-14
2-2.6.2 Multiple Cylinder Arrangements .............................................................2-15
2-2.6.2.1 Cylinder Rack and Framing, Example Arrangement.................................... 2-16
2-3 Actuation Components........................................................................... 2-19
TABLE OF CONTENTS

September 2013 viii P/N 81-CO2MAN-001
TABLE OF CONTENTS (CONT.)
2-3.1 Lever-Operated Control Head ................................................................. 2-19
2-3.2 Cable-Operated Control Head ................................................................. 2-20
2-3.3 Manual Control Equipment ..................................................................... 2-21
2-3.3.1 Mechanical Pull Box............................................................................... 2-22
2-3.3.2 Mechanical Pull Box Z-Bracket ................................................................ 2-22
2-3.3.3 Corner Pulleys...................................................................................... 2-23
2-3.3.4 Tee Pulley............................................................................................ 2-23
2-3.3.5 Adapter............................................................................................... 2-24
2-3.3.6 Cable Housing ...................................................................................... 2-24
2-3.3.7 Dual Pull Mechanism ............................................................................. 2-25
2-3.3.8 Dual Pull Equalizer ................................................................................ 2-26
2-3.3.9 1/16-inch Pull Cable ............................................................................. 2-26
2-3.4 Electric Control Heads ........................................................................... 2-27
2-3.4.1 Electric Control Heads ........................................................................... 2-27
2-3.4.2 Electric and Cable-Operated Control Heads............................................... 2-28
2-3.4.3 Explosion Proof Electric and Cable Operated Control Heads......................... 2-29
2-3.5 Pneumatic Control Heads ....................................................................... 2-30
2-3.5.1 Tandem Pneumatic Control Head ............................................................ 2-31
2-3.6 Components for Pneumatic Actuation Systems.......................................... 2-32
2-3.6.1 Pneumatic Cable Housing....................................................................... 2-32
2-3.6.2 Heat Actuated Detector ......................................................................... 2-33
2-3.6.3 Heat Collector ...................................................................................... 2-34
2-3.6.4 Vents .................................................................................................. 2-35
2-3.6.5 1/8-inch Copper Tubing ......................................................................... 2-36
2-3.6.5.1 Fittings................................................................................................ 2-36
2-3.6.5.2 Rubber Grommet.................................................................................. 2-37
2-3.6.6 3/16-inch Copper Tubing ....................................................................... 2-37
2-3.7 Pressure Operated Control Heads............................................................ 2-37
2-3.7.1 Pressure Operated Control Head ............................................................. 2-37
2-3.7.2 Lever and Pressure Operated Control Head............................................... 2-38
2-3.7.3 Stackable Pressure Operated Control Head............................................... 2-39
2-3.8 Components for Pressure Operated Actuation Systems............................... 2-40
2-3.8.1 Nitrogen Pilot Cylinder and Bracket ......................................................... 2-40
2-3.8.1.1 Nitrogen Pilot Cylinder, 108 cu. in. .......................................................... 2-40
2-3.8.1.2 Nitrogen Pilot Cylinder, 1040 cu. in. ........................................................ 2-40
2-3.8.1.3 Nitrogen Pilot Cylinder, 2300 cu. in. ........................................................ 2-41
2-3.8.2 Actuation Hose..................................................................................... 2-41
2-3.8.3 Fittings................................................................................................ 2-41
2-4 Check Valves........................................................................................ 2-42
2-4.1 Check Valves (1/4-inch through 3/8-inch)................................................ 2-42
2-4.2 Check Valves (1/2-inch through 2-inch)................................................... 2-43
2-4.3 Check Valves (2 1/2-inch through 3-inch) ................................................ 2-44
2-4.3.1 2 1/2-inch Welding Neck Flange.............................................................. 2-45
2-4.3.2 3-inch Welding Neck Flange ................................................................... 2-45
2-4.3.3 3-Inch Flange Gasket ............................................................................ 2-45
2-4.3.4 Nuts and Bolts...................................................................................... 2-45
2-5 Directional (Stop) Valves ....................................................................... 2-46

P/N 81-CO2MAN-001 ix September 2013
TABLE OF CONTENTS (CONT.)
2-5.1 Directional (Stop) Valves (1/2-inch through 2-inch)...................................2-46
2-5.2 Directional (Stop) Valves (2 1/2-inch through 4-inch) ................................2-47
2-5.2.1 2 1/2-inch and 3-inch Valves.................................................................. 2-47
2-5.2.2 4-inch Valve......................................................................................... 2-48
2-5.2.3 4-inch Flange ....................................................................................... 2-48
2-5.2.4 4-inch Gasket....................................................................................... 2-48
2-5.2.5 Nuts and Bolts......................................................................................2-48
2-6 Lockout Valves ..................................................................................... 2-49
2-6.1 Lockout Valves without Limit Switches.....................................................2-49
2-6.2 Lockout Valves with Limit Switches..........................................................2-51
2-6.3 Lockout Valve with Explosion Proof Limit Switches..................................... 2-52
2-6.4 CO2 System Lockout Valve Operational Sign............................................. 2-53
2-7 Discharge Nozzles................................................................................. 2-53
2-7.1 Multijet Nozzle, Type S .......................................................................... 2-53
2-7.1.1 Flanged Nozzle Mounting Kit, Type S Nozzle ............................................. 2-56
2-7.1.2 Aluminum Disc .....................................................................................2-59
2-7.1.3 Stainless Steel Disc............................................................................... 2-59
2-7.2 Multijet Nozzle, Type M.......................................................................... 2-59
2-7.3 Vent Nozzle, Type V .............................................................................. 2-61
2-7.3.1 Flange and Cover Assembly, Type V Nozzle ..............................................2-62
2-7.4 Multijet Nozzle, Type L...........................................................................2-62
2-8 Auxiliary Equipment ..............................................................................2-63
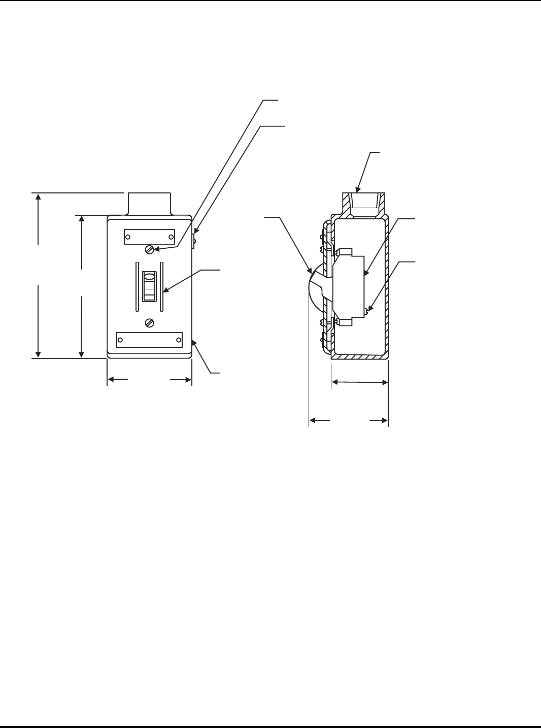
2-8.1 Pressure Operated Switches ...................................................................2-64
2-8.2 Pressure Operated Trip.......................................................................... 2-65
2-8.3 Pneumatic Discharge Delay .................................................................... 2-66
2-8.4 Pressure Operated Siren ........................................................................2-68
2-8.5 Safety Outlet........................................................................................ 2-69
2-8.6 Discharge Indicator............................................................................... 2-70
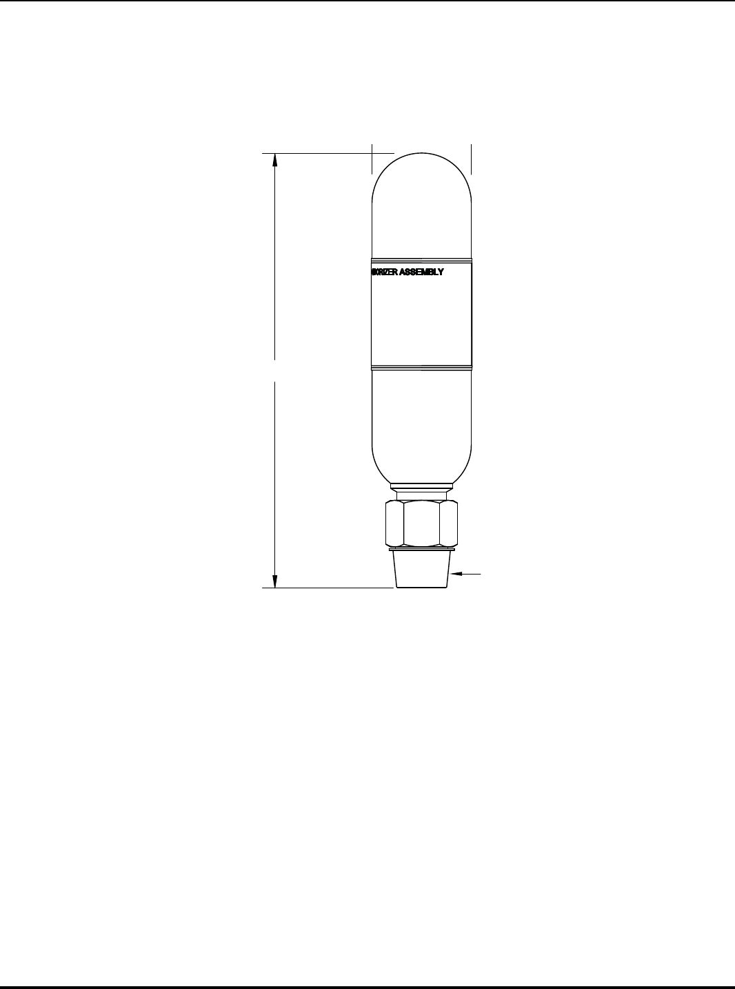
2-8.7 Odorizer Assembly ................................................................................ 2-71
2-8.8 Main to Reserve Transfer Switch .............................................................2-72
2-8.9 Weigh Scale......................................................................................... 2-73
2-8.10 Recharge Adapter ................................................................................. 2-73
2-8.11 Blow-Off Fixture....................................................................................2-74
2-9 Instruction and Warning Plates ...............................................................2-74
2-9.1 Main and Reserve Nameplates ................................................................ 2-74
2-9.2 Warning Signs......................................................................................2-75
2-9.2.1 Vacate Warning Sign, P/N 06-231866-851................................................2-75
2-9.2.2 Do Not Enter Warning Sign, P/N 06-231866-852....................................... 2-76
2-9.2.3 Odorizer Warning Sign, P/N 06-231866-853 ............................................. 2-76
2-9.2.4 Migration Warning Sign, P/N 06-231866-854............................................ 2-77
2-9.2.5 Storage Warning Sign, P/N 06-231866-855..............................................2-77
2-9.2.6 Actuation Warning Sign, P/N 06-231866-856............................................ 2-78
2-10 Hose Reel and Rack Systems.................................................................. 2-78
CHAPTER 3 DESIGN
3-1 Introduction......................................................................................... 3-1
3-2 Hazard Survey, Definition and Analysis ....................................................3-1

September 2013 x P/N 81-CO2MAN-001
TABLE OF CONTENTS (CONT.)
3-3 Design for Safety.................................................................................. 3-2
3-4 Applications ......................................................................................... 3-2
3-4.1 Total Flooding System ........................................................................... 3-2
3-4.2 Local Application System ....................................................................... 3-3
3-4.3 Hand Hose Line Systems........................................................................ 3-3
3-5 Total Flooding Systems.......................................................................... 3-3
3-5.1 Introduction......................................................................................... 3-3
3-5.1.1 Enclosure............................................................................................. 3-3
3-5.1.2 Ventilation ........................................................................................... 3-4
3-5.1.3 Interlocks ............................................................................................ 3-4
3-5.1.4 Interconnected Volumes ........................................................................ 3-4
3-5.2 Calculations for Surface Fires.................................................................. 3-4
3-5.2.1 Extinguishing Concentrations.................................................................. 3-4
3-5.2.2 Basic Total Flooding Quantity.................................................................. 3-6
3-5.2.2.1 Ducts and Covered Trenches .................................................................. 3-7
3-5.2.3 Material Conversion Factor..................................................................... 3-8
3-5.2.4 Special Conditions................................................................................. 3-10
3-5.2.4.1 Uncloseable Openings............................................................................ 3-10
3-5.2.4.2 Forced Ventilation................................................................................. 3-13
3-5.2.4.3 Extreme Temperatures.......................................................................... 3-14
3-5.2.5 Discharge Rates.................................................................................... 3-17
3-5.3 Calculations for Deep-Seated Fires.......................................................... 3-19
3-5.3.1 Flooding Factors ................................................................................... 3-19
3-5.3.2 Special Conditions................................................................................. 3-20
3-5.3.2.1 Uncloseable Openings............................................................................ 3-21
3-5.3.2.2 Forced Ventilation................................................................................. 3-21
3-5.3.2.3 Extreme Temperatures.......................................................................... 3-21
3-5.3.3 Discharge Rates.................................................................................... 3-21
3-5.4 System Design ..................................................................................... 3-24
3-5.4.1 Occupancy........................................................................................... 3-24
3-5.4.2 Discharge Nozzles................................................................................. 3-25
3-5.4.3 Pressure Relief Venting.......................................................................... 3-25
3-6 Local Application Systems...................................................................... 3-26
3-6.1 Carbon Dioxide Requirements................................................................. 3-26
3-6.1.1 Nozzle Location, Orientation, And Coverage Area ...................................... 3-26
3-6.1.2 Rate Of Discharge................................................................................. 3-26
3-6.1.3 Duration Of Liquid Discharge.................................................................. 3-26
3-6.1.4 Quantity Of Carbon Dioxide.................................................................... 3-27
3-6.2 Rate-by-Area Method ............................................................................ 3-27
3-6.2.1 Overhead Nozzles ................................................................................. 3-27
3-6.2.1.1 Nozzle Coverage and Carbon Dioxide Requirements................................... 3-27
3-6.2.1.2 Nozzle Positioning................................................................................. 3-35
3-6.2.2 Tankside Type "L" Nozzle....................................................................... 3-36
3-6.2.2.1 Rate for Liquid Surface .......................................................................... 3-36
3-6.2.2.2 Rate for Coated Surface......................................................................... 3-38
3-6.2.2.3 Nozzle Coverage and Carbon Dioxide Requirements................................... 3-40
3-6.3 Rate by Volume Method......................................................................... 3-44

P/N 81-CO2MAN-001 xi September 2013
TABLE OF CONTENTS (CONT.)
3-6.3.1 Assumed Enclosure ...............................................................................3-44
3-6.3.2 Discharge Rate.....................................................................................3-44
3-6.3.3 Nozzles................................................................................................ 3-49
3-6.4 Safeguards for Local Application Systems................................................. 3-50
3-7 Combination Systems............................................................................ 3-51
3-8 Multiple Hazard Systems........................................................................3-53
3-9 Pressure Operated Sirens.......................................................................3-54
3-10 Extended Discharge Systems.................................................................. 3-55
3-10.1 Increased Agent Supply ........................................................................ 3-55
3-10.2 Secondary System ................................................................................ 3-55
3-10.3 Common Applications............................................................................ 3-56
3-10.3.1 Deep-Fat Cookers ................................................................................. 3-56
3-10.3.2 Enclosed Rotating Electrical Equipment .................................................... 3-56
3-10.3.2.1 Recirculating Ventilation......................................................................... 3-56
3-10.3.2.2 Dampered, Non-Recirculating Ventilation.................................................. 3-56
3-11 Agent Storage Banks.............................................................................3-57
3-11.1 Agent Supply........................................................................................ 3-57
3-11.2 Main and Reserve Supplies..................................................................... 3-59
3-11.3 Cylinder Location .................................................................................. 3-59
3-11.4 Single and Double Cylinder Arrangements................................................ 3-60
3-11.5 Multiple Cylinder Arrangements .............................................................. 3-60
3-12 Manifold and Pipe Network Design...........................................................3-60
3-12.1 Pipe and Fitting Specifications.................................................................3-60
3-12.1.1 Pipe Specifications ................................................................................ 3-60
3-12.1.2 Fitting Specifications ............................................................................. 3-61
3-12.1.3 Tubing Specifications............................................................................. 3-61
3-12.1.4 Closed Piping Sections........................................................................... 3-61
3-12.2 Pipe Size Estimates............................................................................... 3-61
3-12.3 Pipe Hangers and Supports .................................................................... 3-62
3-12.4 Cylinder Manifolds.................................................................................3-62
3-12.4.1 Manifold arrangements .......................................................................... 3-62
3-12.4.1.1 End..................................................................................................... 3-62
3-12.4.1.2 Center................................................................................................. 3-62
3-12.4.1.3 H........................................................................................................ 3-63
3-12.4.1.4 Main And Reserve ................................................................................. 3-63
3-12.4.2 Manifold Pipe Selection ..........................................................................3-64
3-12.4.2.1 Single Pipe Size Manifolds ...................................................................... 3-64
3-12.4.2.2 Stepped Pipe Size Manifolds ................................................................... 3-64
3-12.4.3 Manifold Objects................................................................................... 3-64
3-12.4.3.1 Safety Outlets ......................................................................................3-64
3-12.4.3.2 Discharge Indicators.............................................................................. 3-65
3-12.4.3.3 Lockout Valve....................................................................................... 3-65
3-12.4.3.4 Directional (Stop) Valves ....................................................................... 3-65
3-12.4.3.5 Pneumatic Discharge Delays................................................................... 3-65
3-12.4.3.6 Pressure Operated Sirens.......................................................................3-66
3-12.4.3.7 Check Valves........................................................................................3-67
3-12.4.3.8 Pressure Operated Switches ...................................................................3-67

September 2013 xii P/N 81-CO2MAN-001
TABLE OF CONTENTS (CONT.)
3-12.4.3.9 Odorizers............................................................................................. 3-67
3-12.5 Distribution Networks............................................................................ 3-67
3-12.5.1 Hydraulic Calculations ........................................................................... 3-67
3-12.5.2 Directional Valve Systems...................................................................... 3-68
3-12.5.3 Odorizer Assembly................................................................................ 3-68
3-12.5.4 Electrical Clearances ............................................................................. 3-68
3-13 Actuation System Design ....................................................................... 3-68
3-13.1 Discharge Heads................................................................................... 3-68
3-13.2 Cylinder Actuation................................................................................. 3-68
3-13.2.1 Actuation With A Control Head................................................................ 3-68
3-13.2.2 Actuation With Manifold Backpressure...................................................... 3-68
3-13.3 Actuation Classifications ........................................................................ 3-69
3-13.3.1 Automatic............................................................................................ 3-69
3-13.3.2 Normal Manual..................................................................................... 3-69
3-13.3.3 Emergency Manual................................................................................ 3-70
3-13.4 Control Systems ................................................................................... 3-70
3-13.4.1 Lever Operated Actuation....................................................................... 3-70
3-13.4.2 Cable Operated Actuation ...................................................................... 3-70
3-13.4.2.1 Tandem Control Heads .......................................................................... 3-71
3-13.4.2.2 Multiple Pull Stations............................................................................. 3-71
3-13.4.2.3 Multiple Cylinder Banks.......................................................................... 3-71
3-13.4.3 Pneumatic Heat Detector Operated Actuation............................................ 3-71
3-13.4.3.1 Tandem Control Heads .......................................................................... 3-72
3-13.4.3.2 Main and Reserve System Actuation........................................................ 3-72
3-13.4.4 Electrically Operated Actuation ............................................................... 3-72
3-13.4.5 Nitrogen Pressure Operated Actuation ..................................................... 3-72
3-13.4.5.1 Direct N2 Operation of CO2 Cylinders and Stop Valves............................... 3-72
3-13.4.5.2 Nitrogen Actuation with In-Line Discharge Delay ....................................... 3-73
3-14 Detection Devices, Alarm Devices And Control Panels ................................ 3-74
3-14.1 Suppression Control Panels .................................................................... 3-74
3-14.2 System Power Supply............................................................................ 3-74
3-14.3 Automatic Detection.............................................................................. 3-75
3-14.4 Manual Controls.................................................................................... 3-75
3-14.5 Notification .......................................................................................... 3-75
3-14.6 Supervision of Controls.......................................................................... 3-75
3-14.7 Main and Reserve System Actuation........................................................ 3-75
3-15 Auxiliary Equipment and Systems ........................................................... 3-76
3-15.1 Pressure Operated Switches................................................................... 3-76
3-15.2 Pressure Operated Trips......................................................................... 3-76
3-16 Hand Hose Line Systems........................................................................ 3-77
3-16.1 Uses ................................................................................................... 3-79
3-16.2 Safety Requirements............................................................................. 3-79
3-16.3 Location .............................................................................................. 3-80
3-16.4 System Design ..................................................................................... 3-80
3-16.4.1 Flow Rate ............................................................................................ 3-80
3-16.4.2 Minimum Agent Quantity ....................................................................... 3-81
3-16.4.3 Multiple Stations................................................................................... 3-82

P/N 81-CO2MAN-001 xiii September 2013
TABLE OF CONTENTS (CONT.)
3-16.4.4 Carbon Dioxide Supply ..........................................................................3-82
3-16.4.5 Actuation............................................................................................. 3-82
CHAPTER 4 INSTALLATION
4-1 Introduction......................................................................................... 4-1
4-2 General Installation Requirements........................................................... 4-1
4-3 Installation of Suppression Systems ........................................................4-1
4-3.1 Discharge Pipe and Fittings .................................................................... 4-1
4-3.2 Pressure Operated Actuation Pipe, Tubing and Fittings ............................... 4-2
4-3.3 Discharge Manifold................................................................................ 4-4
4-3.4 Manifold “Y” Fitting................................................................................ 4-5
4-3.5 Carbon Dioxide Cylinder Assemblies ........................................................ 4-5
4-3.6 Flexible Discharge Hose to Piping ........................................................... 4-24
4-3.7 Swivel Adapter to Piping ........................................................................ 4-24
4-3.8 Discharge Head to Cylinder Valve............................................................ 4-25
4-3.9 Check Valves and Directional (Stop) Valves .............................................. 4-25
4-3.9.1 2-inch and Smaller Check Valves and Directional (Stop) Valves................... 4-25
4-3.9.2 2-1/2 inch and Larger Check Valves and Directional (Stop) Valves...............4-25
4-3.10 Lockout Valves ..................................................................................... 4-26
4-3.11 Pneumatic Discharge Delay ....................................................................4-26
4-3.12 Discharge Nozzles................................................................................. 4-27
4-4 Actuation Systems ................................................................................ 4-27
4-4.1 Lever Operated Control Head..................................................................4-27
4-4.2 Cable Operated Actuation System Components......................................... 4-27
4-4.3 Cable Operated Control Head.................................................................. 4-29
4-4.4 Pull Boxes............................................................................................ 4-29
4-4.5 Main to Reserve Transfer Switch .............................................................4-30
4-4.6 Tandem Control Head............................................................................ 4-31
4-4.7 Electric Control Heads............................................................................4-32
4-4.8 Electric and Cable Operated Control Heads ............................................... 4-33
4-4.9 Pneumatic Heat Actuated Detection (HAD) System Components..................4-35
4-4.9.1 HAD.................................................................................................... 4-35
4-4.9.2 Tubing................................................................................................. 4-36
4-4.9.3 Manometer Test Procedure..................................................................... 4-38
4-4.9.4 Control Head Vent Test..........................................................................4-38
4-4.9.4.1 To Test Pneumatic Detectors And/or System Tubing For Tightness............... 4-39
4-4.9.4.2 Other Use For Manometer ...................................................................... 4-39
4-4.9.5 Heat Collector ......................................................................................4-39
4-4.10 Pneumatic Control Head.........................................................................4-40
4-4.11 Nitrogen Actuation Station ..................................................................... 4-42
4-4.11.1 Installation of Nitrogen Cylinder, P/N WK-877940-000, and Mounting Bracket, P/N
WK-877845-0004-42
4-4.11.2 Nitrogen Pilot Cylinder Installation, 1040 cu. in. and 2300 cu. in., P/Ns 90-101040-
000 and 90-102300-1004-43
4-4.12 Pressure Operated Control Heads............................................................ 4-44
4-4.13 Lever and Pressure Operated Control Heads ............................................. 4-44
4-5 Auxiliary Components............................................................................ 4-45
4-5.1 Pressure Operated Switches ...................................................................4-45

September 2013 xiv P/N 81-CO2MAN-001
TABLE OF CONTENTS (CONT.)
4-5.2 Pressure Operated Trip.......................................................................... 4-47
4-5.3 Pressure Operated Sirens....................................................................... 4-48
4-5.3.1 CO2 Pressure Operated Siren ................................................................. 4-48
4-5.3.2 N2 Pressure Operated Siren ................................................................... 4-49
4-5.4 Odorizer .............................................................................................. 4-50
4-5.5 Safety Outlet........................................................................................ 4-51
4-5.6 Discharge Indicator............................................................................... 4-51
4-6 Hose Reel/Rack .................................................................................... 4-52
4-7 Commissioning The Carbon Dioxide System.............................................. 4-55
4-7.1 Pre-Commission Inspection .................................................................... 4-55
4-7.2 Commissioning Procedure ...................................................................... 4-56
4-7.3 Enclosure Inspection ............................................................................. 4-56
4-7.4 System Inspection ................................................................................ 4-56
4-7.5 Labeling .............................................................................................. 4-57
4-7.6 Operational Tests of the Individual Components........................................ 4-57
4-7.7 Full Discharge Test................................................................................ 4-58
4-7.8 Commissioning the System .................................................................... 4-58
4-7.9 References and Checklists...................................................................... 4-58
CHAPTER 5 OPERATION
5-1 Introduction......................................................................................... 5-1
5-2 Automatic Operation ............................................................................. 5-1
5-3 Manual Operation ................................................................................. 5-1
5-3.1 Cable Operated Systems........................................................................ 5-1
5-3.2 Electric Systems ................................................................................... 5-1
5-3.3 Systems Equipped with Remote Nitrogen Actuator..................................... 5-2
5-4 Emergency Operation............................................................................ 5-2
5-4.1 Local Manual Operation - All Systems ...................................................... 5-2
5-5 Hose Reel or Rack Systems.................................................................... 5-3
5-5.1 Remote Manual Operation...................................................................... 5-3
5-5.2 Local Manual Operation ......................................................................... 5-4
5-6 Main and Reserve Systems..................................................................... 5-5
5-7 Lockout Valves ..................................................................................... 5-5
CHAPTER 6 MAINTENANCE
6-1 General ............................................................................................... 6-1
6-2 Preventive Maintenance......................................................................... 6-1
6-3 Inspection Procedures - Monthly ............................................................. 6-2
6-4 Semi-Annual Weighing of CO2 Cylinders .................................................. 6-4
6-4.1 Weighing (using Kidde Fire Systems Weigh Scale)..................................... 6-4
6-4.2 Weighing (without Kidde Fire Systems Weigh Scale).................................. 6-5
6-4.3 Electric Control Head Test...................................................................... 6-6
6-4.4 Pressure Switch Test............................................................................. 6-6
6-4.5 Verify Odorizer Cartridge ....................................................................... 6-7
6-5 Annual Maintenance.............................................................................. 6-7
6-5.1 Equipment Inspection............................................................................ 6-7
6-5.2 Distribution Piping Blow Out................................................................... 6-7
6-5.3 Complete System Inspection .................................................................. 6-7

P/N 81-CO2MAN-001 xv September 2013
TABLE OF CONTENTS (CONT.)
6-5.4 Pneumatic Detection System Tests.......................................................... 6-8
6-5.4.1 Pneumatic Control Head Test - Pressure Setting........................................ 6-8
6-5.4.2 Control Head Vent Test..........................................................................6-9
6-5.4.3 Test for Leakage of System Tubing and Detectors .....................................6-9
6-5.4.4 Troubleshooting of Pneumatic Detection System ....................................... 6-10
6-6 5 Year and 12 Year Inspection and Test Guidelines.................................... 6-10
6-6.1 Carbon Dioxide and Nitrogen Cylinders .................................................... 6-10
6-6.1.1 Carbon Dioxide Cylinders ....................................................................... 6-11
6-6.1.2 Nitrogen Cylinders ................................................................................ 6-11
6-6.2 Flexible Hoses ...................................................................................... 6-11
6-6.3 Cleaning.............................................................................................. 6-11
6-6.4 Nozzle Service...................................................................................... 6-11
6-7 Repairs................................................................................................ 6-12
6-8 Removal of Cylinders............................................................................. 6-12
6-8.1 CO2 Cylinders ...................................................................................... 6-12
6-8.2 Nitrogen Pilot Cylinders.......................................................................... 6-12
6-9 Installation of Cylinders ......................................................................... 6-13
6-9.1 CO2 Cylinders ...................................................................................... 6-13
6-9.2 Nitrogen Pilot Cylinders.......................................................................... 6-13
CHAPTER 7 POST-DISCHARGE MAINTENANCE
7-1 General ............................................................................................... 7-1
7-2 Post Fire Maintenance............................................................................7-1
7-3 Cylinder Recharge................................................................................. 7-2
7-3.1 Carbon Dioxide Agent............................................................................ 7-3
7-3.2 CO2 Cylinders ...................................................................................... 7-3
7-3.2.1 CO2 Cylinder Leak Test.......................................................................... 7-4
7-4 Nitrogen Pilot Cylinder, 108 CU. IN., Service and Maintenance .................... 7-6
7-4.1 Nitrogen Cylinder Replacement...............................................................7-6
7-4.2 Nitrogen Cylinder Recharge.................................................................... 7-7
7-4.3 Nitrogen Cylinder Installation .................................................................7-7
7-5 Hose Reel or Rack System......................................................................7-8
CHAPTER 8 PARTS LIST
8-1 Parts list.............................................................................................. 8-1
APPENDIX A FORMULA DERIVATIONS
A-1 Theoretical CO2 Extinguishing Concentration for a Total Flooding System .....A-1
A-2 Quantity of CO2 Required for a Total Flooding System Under a Free Efflux Flooding
ConditionA-1
A-3 Derivation of the Material Conversion Factor (MCF)....................................A-2
A-4 Rate of Carbon Dioxide Loss Through an Opening in an Enclosure................A-2
A-5 Discharge Rates for Deep Seated Fires.....................................................A-3
APPENDIX B OBSOLETE EQUIPMENT
B-2 Obsolete Equipment ..............................................................................B-1
B-3 Mercury Check......................................................................................B-1
B-3.1 Description ..........................................................................................B-1
B-3.2 Installation...........................................................................................B-3

September 2013 xvi P/N 81-CO2MAN-001
TABLE OF CONTENTS (CONT.)
B-4 Pneumatic Transmitter ..........................................................................B-4
B-4.1 Description ..........................................................................................B-4
B-4.2 Installation ..........................................................................................B-5
B-5 Pneumatic Control Head (1-inch, 40-second)............................................B-6
B-5.1 Description ..........................................................................................B-6
B-5.2 Installation ..........................................................................................B-6
B-6 Pneumatic Main-to-Reserve Valve ...........................................................B-7
B-7 Lockout Valves .....................................................................................B-8
B-7.1 Lockout Valve Installation ......................................................................B-9
B-7.1.1 Stem Seal Adjustment...........................................................................B-9
B-7.1.2 Wiring Diagram ....................................................................................B-10
B-7.2 Lockout Valves Maintenance...................................................................B-10
B-8 Odorizer, 1.5" NPT Housing and Glass Cartridge........................................B-11
B-8.1 Odorizer Protective Housing ................................................................... B-11
B-8.2 Odorizer Cartridge ................................................................................B-11
B-8.3 Odorizer Installation..............................................................................B-12
B-8.4 Semi-annual Maintenance for Odorizer Cartridge.......................................B-13
B-8.5 Post Discharge Odorizer Maintenance ......................................................B-13
APPENDIX C EUROPEAN EQUIPMENT
C-1 Introduction.........................................................................................C-1
APPENDIX D EQUIVALENT LENGTH
D-1 Valve and Delay Equivalent Length..........................................................D-1

P/N 81-CO2MAN-001 xvii September 2013
Figure Name Page Number
2-1 25 through 50 lb. Carbon Dioxide Cylinders, Bent Siphon Tube .................................. 2-2
2-2 75 and 100 lb. Carbon Dioxide Cylinder, Straight Siphon Tube................................... 2-3
2-3 I/2-inch Type “I” Cylinder Valve............................................................................. 2-4
2-4 5/8-inch Type “I” Cylinder Valve............................................................................ 2-5
2-5 Pressure vs. Temperature for CO2 Cylinders............................................................2-6
2-6 Discharge Head, Plain Nut..................................................................................... 2-7
2-7 Installation of Plain Nut Discharge Head to Cylinder Valve .........................................2-8
2-8 Discharge Head, Grooved Nut................................................................................ 2-9
2-9 Installation of Grooved Nut Discharge Head to Cylinder Valve .................................... 2-10
2-10 1/2-inch Flex Hose............................................................................................... 2-11
2-11 3/4-inch Flex Hose............................................................................................... 2-11
2-12 Swivel Adapter.................................................................................................... 2-12
2-13 Manifold “Y” Fitting .............................................................................................. 2-12
2-14 Single Cylinder Straps .......................................................................................... 2-13
2-15 Double Cylinder Straps......................................................................................... 2-14
2-16 Multiple Cylinder Mounting, Arrangement A ............................................................. 2-15
2-17 Multiple Cylinder Mounting, Arrangement B ............................................................. 2-15
2-18 Multiple Cylinder Mounting, Arrangement C ............................................................. 2-16
2-19 Cylinder Rack and Framing, Example Arrangement................................................... 2-18
2-20 Lever-Operated Control Head ................................................................................ 2-20
2-21 Cable-Operated Control Head ................................................................................2-21
2-22 Cable-Operated Control Heads in Tandem ............................................................... 2-21
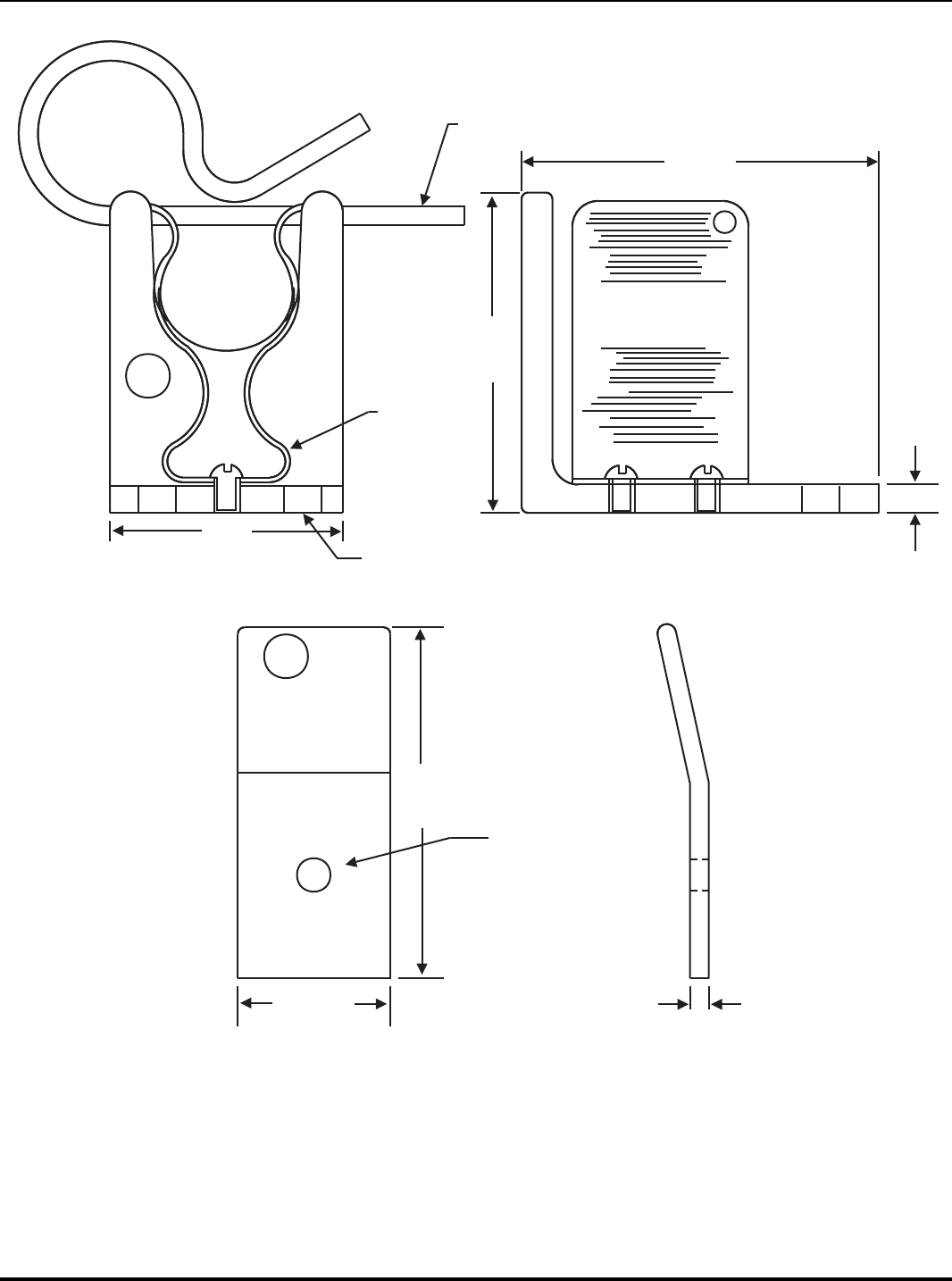
2-23 Mechanical Pull Box.............................................................................................. 2-22
2-24 Mechanical Pull Box Bracket .................................................................................. 2-22
2-25 Corner Pulleys.....................................................................................................2-23
2-26 Tee Pulley........................................................................................................... 2-24
2-27 EMT Adapter ....................................................................................................... 2-24
2-28 Cable Housing.....................................................................................................2-25
2-29 Dual Pull Mechanism ............................................................................................ 2-25
2-30 Dual Pull Equalizer...............................................................................................2-26
2-31 Electric Control Head............................................................................................ 2-27
2-32 Electric Control Head (Cover Removed)................................................................... 2-28
2-33 Electric and Cable-Operated Control Head............................................................... 2-29
2-34 Explosion Proof Electric and Cable Operated Control Head ......................................... 2-30
2-35 Pneumatic Control Head ....................................................................................... 2-31
2-36 Tandem Pneumatic Control Head ...........................................................................2-32
2-37 Pneumatic Cable Housing...................................................................................... 2-33
2-38 Heat Actuated Detector (HAD), Industrial................................................................ 2-34
2-39 Heat Collector ..................................................................................................... 2-35
2-40 Fittings............................................................................................................... 2-36
2-41 3/16-inch Pneumatic Tubing.................................................................................. 2-37
2-42 Pressure Operated Control Head ............................................................................2-38
2-43 Lever and Pressure Operated Control Head.............................................................. 2-39
2-44 Stackable Pressure Operated Control Head.............................................................. 2-40
2-45 1/4-inch Actuation Hose ....................................................................................... 2-41
2-46 Fittings............................................................................................................... 2-42
2-47 Check Valves (1/4-inch and 3/8-inch)..................................................................... 2-42
2-48 Check Valves (1/2-inch to 1-1/4-inch)....................................................................2-43
2-49 Check Valves (1-1/2-inch to 2-inch).......................................................................2-44
2-50 Check Valves (2 1/2-inch to 3-inch) ....................................................................... 2-45
2-51 Directional (Stop) Valves (1/2-inch through 2-inch)..................................................2-46
2-52 Directional (Stop) Valves (2-1/2-inch and 3-inch)..................................................... 2-47
2-53 Directional (Stop) Valve (4-inch)............................................................................2-48
LIST OF FIGURES

September 2013 xviii P/N 81-CO2MAN-001
LIST OF FIGURES (CONT.)
Figure Name Page Number
2-54 Lockout Valves without Limit Switches.................................................................... 2-49
2-55 Lockout Valves with Lock...................................................................................... 2-50
2-56 Lockout Valves with Limit Switches ........................................................................ 2-51
2-57 Lockout Valve with Explosion Proof Limit Switches.................................................... 2-52
2-58 CO2 System Lockout Valve Operational Sign ........................................................... 2-53
2-59 Multijet Nozzle, Type S......................................................................................... 2-55
2-60 Multijet Nozzle, Type S Flanged ............................................................................. 2-56
2-61 Flanged Nozzle Mounting Kit (Orifice Protection Only) ............................................... 2-57
2-62 Flanged Nozzle Mounting Kit (Duct or Enclosure Mounting)........................................ 2-58
2-63 Flange Mounting Hole Pattern................................................................................ 2-59
2-64 Multijet Nozzle, Type M......................................................................................... 2-60
2-65 Vent Nozzle, Type V............................................................................................. 2-61
2-66 Flange and Cover Assembly, Type “V” Nozzle........................................................... 2-62
2-67 Multijet Nozzle, Type L ......................................................................................... 2-63
2-68 Pressure Operated Switch..................................................................................... 2-64
2-69 Pressure Operated Switch, Explosion Proof.............................................................. 2-65
2-70 Pressure Operated Trip......................................................................................... 2-65
2-71 Pneumatic Discharge Delay................................................................................... 2-66
2-72 Pneumatic Discharge Delay, Detail......................................................................... 2-67
2-73 Pneumatic Discharge Delay with Manual Control Head .............................................. 2-68
2-74 Pressure Operated Siren....................................................................................... 2-69
2-75 Safety Outlet ...................................................................................................... 2-70
2-76 Discharge Indicator.............................................................................................. 2-70
2-77 Odorizer Assembly............................................................................................... 2-71
2-78 Main to Reserve Transfer Switch............................................................................ 2-72
2-79 Weigh Scale........................................................................................................ 2-73
2-80 Charging Adapter................................................................................................. 2-73
2-81 Blow-Off Fixture .................................................................................................. 2-74
2-82 Main and Reserve Nameplates............................................................................... 2-75
2-83 Sign in Every Protected SpaceW ............................................................................ 2-75
2-84 Sign at Every Entrance to Protected SpaceW ........................................................... 2-76
2-85 Sign at Every Entrance to Protected Space for Systems with a Wintergreen OdorizerW.. 2-76
2-86 Sign in Every Nearby Space Where CO2 Can Accumulate to Hazardous LevelsW........... 2-77
2-87 Sign Outside Each Entrance to CO2 Storage RoomsW ............................................... 2-77
2-88 Sign at Each Manual Actuation StationW................................................................. 2-78
2-89 Hose-to-Hose Reel Connection............................................................................... 2-79
2-90 Hose-to-Pipe Rack Connection............................................................................... 2-80
2-91 Hose Assembly.................................................................................................... 2-81
2-92 Horn and Valve Assembly ..................................................................................... 2-82
2-93 Handle and Horn Clips.......................................................................................... 2-83
2-94 Model HR-1 Instruction Plate................................................................................. 2-84
3-1 Minimum Design CO2 ConcentrationW.................................................................... 3-8
3-2 Calculated CO2 Loss RateW................................................................................... 3-11
3-3 Nozzle Aiming ..................................................................................................... 3-35
3-4 Partial Enclosure Flow Rate Reduction*................................................................... 3-45
3-5 Nozzle Placement Example................................................................................... 3-50
3-6 Example of an "End" Manifold................................................................................ 3-62
3-7 Example of a "Center" Manifold.............................................................................. 3-63
3-8 Example of an "H" Manifold................................................................................... 3-63
3-9 Example of a "Main and Reserve" "End" Manifold ..................................................... 3-64
3-10 Lockout Valve Release Circuit Wiring ...................................................................... 3-65
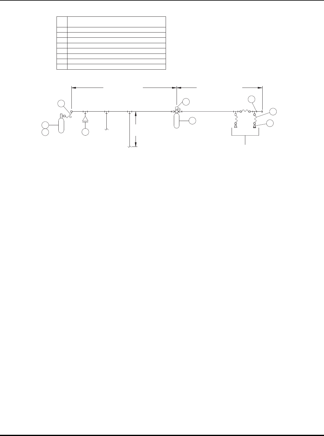
3-11 Pilot Cylinder Position within Manifold..................................................................... 3-69
3-12 Typical Actuation Arrangement Using In-line Discharge Delay .................................... 3-74

P/N 81-CO2MAN-001 xix September 2013
LIST OF FIGURES (CONT.)
Figure Name Page Number
3-13 Pressure Trip Applications ..................................................................................... 3-77
3-14 Typical Hand Hose Line System with Rack............................................................... 3-78
3-15 Typical Hand Hose Line System with Reel................................................................ 3-79
4-1 Typical Manifold Layout ........................................................................................ 4-4
4-2 Manifold “Y” Fitting .............................................................................................. 4-5
4-3 Typical Cylinder Strap Location..............................................................................4-6
4-4 Rack Framing - 3 to 6 Cylinders (50 and 75 lb. Capacity), Single Row......................... 4-7
4-5 Rack Framing - 7 to 12 Cylinders (50 and 75 lb. Capacity), Single Row ....................... 4-8
4-6 Cylinder Racks (50 and 75 lb. Capacity), Single Row.................................................4-9
4-7 Rack Framing - 5 to 12 Cylinders (50 and 75 lb. Capacity), Double Row (One Side)...... 4-10
4-8 Rack Framing - 13 to 24 Cylinders (50 and 75 lb. Capacity), Double Row (One Side) .... 4-11
4-9 Cylinder Racks (50 and 75 lb. Capacity), Double Row (One Side) ............................... 4-12
4-10 Rack Framing - 5 to 12 Cylinders (50 and 75 lb. Capacity), Double Row (Two Sides)..... 4-13
4-11 Rack Framing - 13 to 24 Cylinders (50 and 75 lb. Capacity), Double Row (One Side) .... 4-14
4-12 Cylinder Racks (50 and 75 lb. Capacity), Double Row (Two Sides)..............................4-15
4-13 Rack Framing -3 to 5 Cylinders (100 lb. Capacity), Single Row................................... 4-16
4-14 Rack Framing - 6 to 10 Cylinders (100 lb. Capacity), Single Row................................ 4-17
4-15 Rack Framing - 11 to 15 Cylinders (100 lb. Capacity), Single Row .............................. 4-18
4-16 Cylinder Racks (100 lb. Capacity), Single Row ......................................................... 4-19
4-17 Rack Framing - 5 to 10 Cylinders (100 lb. Capacity), Double Row (One Side)...............4-20
4-18 Rack Framing - 11 to 20 Cylinders (100 lb. Capacity), Double Row (One Side) ............. 4-21
4-19 Rack Framing - 21 to 30 Cylinders (100 lb. Capacity), Double Row (One Side) ............. 4-22
4-20 Cylinder Racks (100 lb. Capacity), Double Row (One Side) ........................................ 4-23
4-21 Swivel Adapter to Piping.......................................................................................4-24
4-22 Wiring Diagram for Lockout Valve when Ball Valve is in Fully Open Position ................. 4-26
4-23 Wiring Diagram with Single Solenoid (Main and Reserve) .......................................... 4-30
4-24 Wiring Diagram with Dual Solenoid (Main and Reserve) ............................................ 4-30
4-25 Cable Operated Control Heads............................................................................... 4-31
4-26 Electric Control Heads .......................................................................................... 4-32
4-27 Electric and Cable Operated Control Heads.............................................................. 4-34
4-28 Pneumatic Detector (HAD) .................................................................................... 4-36
4-29 Manometer Pneumatic Detection............................................................................4-37
4-30 Heat Collector ..................................................................................................... 4-39
4-31 Pneumatic Control Head ....................................................................................... 4-41
4-32 Tandem Pneumatic Control Head ...........................................................................4-42
4-33 Typical 1040 and 2300 cu. in. Pilot (Driver) Cylinder Strap Installation (P/N 90-101040-000 and
90-102300-100)4-43
4-34 Pressure Operated Control Heads...........................................................................4-44
4-35 Lever and Pressure Operated Control Heads ............................................................ 4-45
4-36 Pressure-Operated Switches.................................................................................. 4-46
4-37 Pressure Operated Switches, Explosion Proof........................................................... 4-47
4-38 Pressure Operated Trip......................................................................................... 4-47
4-39 Pressure Operated Siren....................................................................................... 4-48
4-40 Odorizer Installation.............................................................................................4-50
4-41 Safety Outlet....................................................................................................... 4-51
4-42 Discharge indicator ..............................................................................................4-51
4-43 Hose Reel Installation...........................................................................................4-52
4-44 Hose Rack Installation.......................................................................................... 4-53
4-45 Hose Assembly.................................................................................................... 4-53
4-46 Horn and Valve Assembly ..................................................................................... 4-54
4-47 Handle and Horn Clips..........................................................................................4-54
6-1 Nitrogen Temperature vs. Pressure Data................................................................. 6-4
6-2 Carbon Dioxide Cylinder Weighing Scale ................................................................. 6-5

September 2013 xx P/N 81-CO2MAN-001
LIST OF FIGURES (CONT.)
Figure Name Page Number
6-3 Manometer Pneumatic Detection............................................................................ 6-8
7-1 I/2-inch Type “I” Cylinder Valve............................................................................. 7-5
7-2 5/8-inch Type “I” Cylinder Valve............................................................................ 7-6
B-1 3-Well Mercury Check ..........................................................................................B-2
B-2 3-Well Mercury Check - Installation Detail...............................................................B-3
B-3 Pneumatic Transmitter .........................................................................................B-5
B-4 Pneumatic Control Head (1-inch, 40-second)...........................................................B-6
B-5 Pneumatic Main-to-Reserve Valve ..........................................................................B-7
B-6 CO2 Lockout Valve with Limit Switch......................................................................B-8
B-7 Switch When Ball Valve is in Fully Open Position ......................................................B-10
B-8 Switch When Ball Valve is in Fully Closed Position .................................................... B-10
B-9 Odorizer Protective Housing ..................................................................................B-11
B-10 Odorizer Cartridge ...............................................................................................B-11
B-11 Odorizer Installation.............................................................................................B-12

P/N 81-CO2MAN-001 xxi September 2013
Table Name Page Number
1-1 Physical Properties of Carbon Dioxide ..................................................................... 1-8
2-1 Safety Disc Information........................................................................................ 2-4
2-2 CO2 and H20 Capacity Correlation .........................................................................2-6
2-3 Single Cylinder Strap Dimensions........................................................................... 2-13
2-4 Double Cylinder Strap Dimensions.......................................................................... 2-14
2-5 Framing Kits - One Row, 3 through 15 Cylinders ...................................................... 2-17
2-6 Cable Housing Part Numbers ................................................................................. 2-25
2-7 1/16-inch Pull Cable Lengths................................................................................. 2-26
2-8 Electric Control Head............................................................................................2-28
2-9 Electric and Cable Operated Control Head ...............................................................2-29
2-10 Explosion Proof Control Head.................................................................................2-30
2-11 Pneumatic Control Head Settings ........................................................................... 2-31
2-12 Pneumatic Cable Housing Part Numbers.................................................................. 2-33
2-13 Vent Size............................................................................................................ 2-35
2-14 1/8-inch Copper Tubing Part Numbers .................................................................... 2-36
2-15 3/16-inch Copper Tubing Part Numbers ..................................................................2-37
2-16 1/4-inch Actuation Hose Part Numbers ................................................................... 2-41
2-17 Check Valve Dimensions (1/4-inch through 3/8-inch) ............................................... 2-43
2-18 Check Valve Dimensions (1/2-inch through 1-1/4-inch) ............................................ 2-43
2-19 Check Valve Dimensions (1-1/2-inch through 2-inch) ...............................................2-44
2-20 Check Valve Dimensions (1 1/2-inch through 2-inch)................................................ 2-47
2-21 Carbon Steel Lockout Valves without Limit Switches Dimensions and Part Numbers ...... 2-50
2-22 Stainless Steel Lockout Valves without Limit Switches Dimensions and Part Numbers.... 2-50
2-23 Carbon Steel Lockout Valves with Limit Switches Dimensions and Part Numbers........... 2-51
2-24 Stainless Steel Lockout Valves with Limit Switches Dimensions and Part Numbers ........ 2-51
2-25 Carbon Steel Lockout Valve with Explosion Proof Limit Switches Dimensions and Part Numbers
2-52
2-26 Stainless Steel Lockout Valve with Explosion Proof Limit Switches Dimensions and Part Numbers
2-52
2-27 Type S Nozzles.................................................................................................... 2-54
2-28 Flanged Nozzle Mounting Kit BOM ..........................................................................2-56
2-29 Type M Nozzles ................................................................................................... 2-60
2-30 Type V Vent Nozzles............................................................................................. 2-61
2-31 Type L Nozzles .................................................................................................... 2-63
2-32 Pneumatic Discharge Delay Part Numbers ............................................................... 2-66
2-33 Hose Reel and Rack System Part Numbers .............................................................. 2-78
3-1 Minimum Carbon Dioxide Concentrations for Extinguishment ..................................... 3-4
3-2 Volume Factors - Surface Fires (For 34% CO2 Concentration), US Units ......................3-6
3-2 Volume Factors - Surface Fires (For 34% CO2 Concentration), Metric Units.................. 3-7
3-3 Volume Factors for Deep Seated Hazards................................................................ 3-20
3-4 Type “M” Multijet Nozzle (US Units)........................................................................ 3-29
3-4 Type “M” Multijet Nozzle (Metric Units) ................................................................... 3-30
3-5 Type “S” Multijet Nozzle (US Units) ........................................................................3-31
3-5 Type “S” Multijet Nozzle (Metric Units)....................................................................3-32
3-6 Aiming Factors for Angular Placement of Nozzles1....................................................3-35
3-7 Liquid Surfaces1 (US Units)................................................................................... 3-36
3-7 Liquid Surfaces1 (Metric Units) ..............................................................................3-37
3-8 Coated Surfaces1 (US Units) .................................................................................3-38
3-8 Coated Surfaces1 (Metric Units)............................................................................. 3-39
3-9 Pipe Size Estimates.............................................................................................. 3-61
3-10 Siren Driver Cylinder Actuation Limits.....................................................................3-66
3-11 Control Head Actuation Features............................................................................ 3-70
3-12 Corner Pulley Quantity and Cable Length Limits ....................................................... 3-71
LIST OF TABLES

September 2013 xxii P/N 81-CO2MAN-001
LIST OF TABLES (CONT.)
Table Name Page Number
3-13 Nitrogen Pilot Line Length Limitations..................................................................... 3-73
3-14 Equivalent Lengths of Hand Hose Line Components (US Units)................................... 3-80
3-15 Equivalent Lengths of Hand Hose Line Components (Metric Units) .............................. 3-81
4-1 Maximum Horizontal Pipe Hanger and Support Bracing1............................................ 4-3
4-2 Maximum Pipe Hanger and Support Design Load Ratings........................................... 4-4
4-3 Typical Cylinder Strap Location Dimensions............................................................. 4-6
4-4 Corner Pulley and Cable Limitations........................................................................ 4-28
4-5 1040 and 2300 cu. in. Nitrogen Pilot (Driver) Cylinder Strap Installation ..................... 4-43
4-6 Siren Driver Cylinder Actuation Limits..................................................................... 4-49
6-1 Preventive Maintenance Schedule .......................................................................... 6-2
8-1 Cylinders and Associated Equipment....................................................................... 8-1
8-2 Manual and Pressure Control Equipment ................................................................. 8-2
8-3 Electric Control Equipment.................................................................................... 8-2
8-4 Remote Control Equipment, Cable.......................................................................... 8-2
8-5 Pneumatic Control Equipment................................................................................ 8-3
8-6 Check Valves ...................................................................................................... 8-4
8-7 Directional (Stop) Valves ...................................................................................... 8-4
8-8 Lockout Valves.................................................................................................... 8-5
8-9 Hose Equipment .................................................................................................. 8-6
8-10 Auxiliary Equipment............................................................................................. 8-6
8-11 Carbon Dioxide Computer Program ........................................................................ 8-7
8-12 Manuals ............................................................................................................. 8-7
8-13 Maintenance and Repair Parts................................................................................ 8-7
8-14 Carbon Dioxide Nozzles ........................................................................................ 8-8
8-15 Nozzle Identification............................................................................................. 8-8
8-16 Carbon Dioxide Nozzles, Accessories ...................................................................... 8-9
8-17 CO2 Valves Maintenance, Repair and Spare Parts..................................................... 8-9
8-18 Cylinder Rack and Framing Components ................................................................. 8-10
8-19 Framing Kits - One Row, 3 through 15 Cylinders ...................................................... 8-13
8-20 Framing Kits - Two Rows (One Side), 5 through 17 Cylinders..................................... 8-14
8-21 Framing Kits - Two Rows (One Side), 18 through 30 Cylinders................................... 8-15
B-1 Pneumatic Control Head (1-inch, 40-second), Settings..............................................B-6
B-2 CO2 Lockout Valve with Limit Switch Specifications ..................................................B-9
C-1 TPED and PED Approved Equipment for European Community Only*...........................C-1

General Information
P/N 81-CO2MAN-001 1-1 September 2013
CHAPTER 1
GENERAL INFORMATION
1-1 INTRODUCTION
The Kidde Fire Systems carbon dioxide fire suppression system is an engineered, special-
hazard system utilizing a fixed pipe and nozzle distribution network, hose reels, or a
combination of both. These systems provide fire protection, using carbon dioxide (CO2) as the
extinguishant, designed in accordance with the National Fire Protection Association (NFPA) 12,
"Standard on Carbon Dioxide Extinguishing Systems", (latest edition). All components
referenced in this manual are listed by Underwriters Laboratories (UL) and approved by Factory
Mutual (FM), unless as noted.
1-2 CLASSIFICATION OF FIRE
The classification of fire is defined as the following:
• Class A: Surface Type Fires; wood or other cellulose-type material (ordinary combustibles)
• Class B: Flammable liquids
• Class C: Energized electrical equipment
• Class D: Combustible metals (such as magnesium, sodium, zirconium, potassium, and
titanium, or reactive metals, metal hydrides and chemicals containing their own oxygen
supply)
• Class K: Combustible cooking media (vegetable or animal oils and fats)
Note: Kidde Fire Systems carbon dioxide fire suppression system is not suited for Class D type
of fires.
Carbon dioxide is an effective agent for Class A, Class B, Class C, and Class K hazards. Carbon
dioxide must be applied with due consideration of the hazard being protected and its contents.
Carbon dioxide shall not be used on Class D hazards, such as magnesium, potassium, sodium,
and cellulose nitrate. These Class D hazards can only be controlled by special extinguishing
agents and procedures.
1-3 GENERAL CHARACTERISTICS OF THE SYSTEM
Carbon dioxide fire suppression systems are used for applications where the potential property
damage and business interruption from fire are high. Carbon dioxide can control and suppress
fires in easily ignitable fast-burning substances such as flammable liquids. It is also used on
fires involving electrically energized equipment and, in some instances, on fires in ordinary
combustibles such as paper, cloth, and other cellulose materials.
Carbon dioxide is a colorless, odorless, electrically non-conductive gas with a density
approximately 50% greater than air. When applied to a fire, it provides a blanket of heavy gas
which reduces the oxygen content of the atmosphere to a point in which combustion can not
be sustained.

General Information
September 2013 1-2 P/N 81-CO2MAN-001
Carbon dioxide offers many advantages as a fire suppressant. It is a clean agent, does not
leave a residue, and does not wet material or machinery upon which it is discharged, helping
keep costly cleanup or downtime to a minimum. Carbon dioxide may be stored from 0°F (-
18°C) to 130°F (54°C). Carbon dioxide does not deteriorate and is non-corrosive. It is readily
available throughout the world and is inexpensive. Carbon dioxide is effective for the rapid
suppression of Class A (surface or deep seated), B, and C fires and offers a wide range of
hazard protection.
1-4 SYSTEM DESCRIPTION
Carbon dioxide is stored in steel cylinders as a liquid under its own vapor pressure which is
approximately 850 psi at 70°F. This pressure is used to propel the agent out of the container
and through the valve, piping, and nozzles during the discharge. When released, carbon
dioxide will change from a liquid to a gas and expand. The ratio of this expansion is high;
approximately 9 to 1. This allows a large volume of carbon dioxide to be stored in a small
container, minimizing space taken up by the system equipment.
Kidde Fire Systems engineered carbon dioxide suppression systems may be manually operated
or integrated with detection and control devices for automatic operation. A single carbon
dioxide fire suppression system can protect single or multiple hazards by total flooding, local
application, or a combination of both.
1-5 TYPE OF SUPPRESSION SYSTEM
There are two types of fixed carbon dioxide systems: total flooding and local application.
1-5.1 Total Flooding
In a total flooding system, a predetermined amount of carbon dioxide is discharged through
fixed piping and nozzles into an enclosed space or enclosure around the hazard. Total flooding
is applicable when the hazard is totally enclosed and when all openings surrounding the hazard
can be closed automatically prior to or at the start of system discharge. If all the openings
cannot be closed, additional carbon dioxide must be provided to compensate for agent loss
through these openings during the discharge and appropriate concentration retention periods.
The carbon dioxide concentration must be maintained for a sufficient period of time to allow
the fuel and any other surfaces or equipment in contact with the fuel to cool below the ignition
temperature of the combustibles.
1-5.2 Local Application
Local application systems differ from total flooding in that the nozzles are arranged to
discharge directly onto the fire. Local application is practical in those situations where the
protected equipment can be isolated from other combustibles so that fire will not spread
beyond the area protected, and where the entire hazard can be protected. One of the principal
uses of local-application systems is to protect open tanks containing flammable liquids, but this
technique can be generalized to protect three-dimensional hazards such as paint spray booths
and printing presses. Suppression by local application is transitory, and will not be effective
unless suppression occurs quickly and all potential re-ignition sources are eliminated.
WARNING
Carbon dioxide is present in the atmosphere. It is also a normal product of
human and animal metabolism; human life cannot be sustained if this carbon
dioxide is not expelled from the body. The concentration of carbon dioxide in
the air governs the rate at which the carbon dioxide produced by the human
metabolism is released from the lungs. An increasing concentration in the air
where humans are present, therefore, can cause serious personal injury or
death.

General Information
September 2013 1-3 September 2013
Carbon dioxide systems can also consist of hand hose lines permanently connected by means
of fixed piping to a fixed supply of suppression agent. These systems are frequently provided
for manual protection of small, localized equipment. Although not a substitute for a fixed
system, a hose line can be used to supplement a fixed system where the hazard is accessible
for manual firefighting.
1-6 GENERAL SYSTEM REQUIREMENTS
The discharge of carbon dioxide in fire suppression concentrations if not properly handled, can
create a serious threat to people. Suppression systems must be designed with appropriate
safeguards to ensure the safety of all personnel who have reason to occupy a protected area.
Suppression systems also employ a variety of actuation methods and specialized components
to ensure reliable operation and prompt fire suppression.
1-6.1 Safeguards
Carbon dioxide is present in the atmosphere at an average concentration of about 0.03 percent
by volume. It is also a normal end product of human and animal metabolism. The concentration
of carbon dioxide in the air governs the rate at which carbon dioxide is released from the lungs
and thus affects the concentration of carbon dioxide in the blood and tissues. An increasing
concentration of carbon dioxide in air can, therefore, become dangerous due to a reduction in
the rate of release of carbon dioxide from the lungs and rate of oxygen intake.
The safeguards typically used to prevent personnel exposure to fire-fighting concentrations of
CO2 fall into five categories:
• Adequate Path of Egress
• Warning Signs and Personnel Education
• Pre-Discharge Time Delays and Alarms
• Stop Valves and Lock-Out Valves
• Post-Release Warnings and Procedures
Careful study of each particular situation may indicate additional steps that may be required
to prevent injury or death to personnel.
1-6.1.1 ADEQUATE PATH OF EGRESS
To promote quick and safe evacuation in the event of a discharge, the path of egress shall
include:
• Adequate aisleways and routes of exit, that are kept clear at all times
• Necessary additional or emergency lighting, or both, and directional signs to ensure quick,
safe evacuation
• Only outward swinging, self-closing doors at exits from hazardous areas, and, where such
doors are latched, provision of panic hardware
1-6.1.2 WARNING SIGNS AND PERSONNEL EDUCATION
Warning signs shall be posted inside and outside all areas protected by a carbon dioxide
system, and also in adjoining areas where the suppression agent could migrate. These warning
signs shall instruct the occupants to evacuate the area immediately when the alarms operate,
WARNING
Firefighting concentrations of carbon dioxide are lethal. Appropriate
safeguards, as outlined in this chapter, shall be provided to prevent death or
injury to personnel in the protected space or adjoining areas where released
carbon dioxide could migrate.

General Information
September 2013 1-4 P/N 81-CO2MAN-001
as well as to warn personnel not to enter the protected space after a CO2 discharge until the
area has been safely ventilated. See Paragraph 2-9.2 for specific sign and location information.
All personnel shall be informed that discharge of carbon dioxide gas directly at a person will
endanger the person's safety by causing frostbite, eye injury, ear injury, or even falls due to
loss of balance upon the impingement of the high-velocity discharging gas. All personnel shall
be trained on the dangers associated with an increased carbon dioxide concentration, the
proper manual and emergency operation of the system, and the appropriate response to pre-
discharge alarms.
1-6.1.3 PRE-DISCHARGE TIME DELAYS AND ALARMS
Time delay devices are designed to delay the discharge of carbon dioxide for an appropriate
period of time to allow an orderly and safe evacuation from the protected area. Time delays
also are used to provide a time interval for equipment shutdown and auxiliary interlocks prior
to agent discharge.
Pneumatic discharge delays (See Paragraph 2-8.3) shall be provided for:
• All total flooding carbon dioxide systems protecting normally occupied and occupiable
enclosures
• Local application systems protecting equipment or processes in normally occupied and
occupiable areas, where the discharge will expose personnel to hazardous concentrations
of carbon dioxide
An electric time delay may be employed in any circumstance that does not require a pneumatic
discharge delay.
For occupiable spaces where a delayed discharge could result in an unacceptable risk to
personnel or unacceptable damage to critical equipment, time delays need not be provided.
An evacuation dry run shall be conducted to determine the minimum time needed for a person
to evacuate the protected area. Additional time shall be provided to allow for identification of
the evacuation signal.
Pre-discharge alarms, whether electrical or pneumatic in nature, are designed to provide a
warning and evacuation signal during the time delay period. Audible and visual indication shall
be provided when the system is actuated by either automatic or normal manual operation.
Pneumatic pre-discharge alarms (See Paragraph 2-8.4) shall be provided for all applications
that also require a pneumatic discharge delay, as listed above. Electric alarms may be
employed in addition to pneumatic alarms or as the sole means of notification in applications
that do not require a pneumatic discharge delay.
1-6.1.4 STOP VALVES AND LOCKOUT VALVES
A stop valve, when used as a safety device, is employed to ensure that carbon dioxide is not
discharged into a normally occupied area without an evacuation signal. The valve is normally
closed to prevent the flow of carbon dioxide into the distribution piping. Automatic or manual
action is required to open the valve and allow CO2 to be discharged.
A lockout valve is a manually operated valve, installed in the distribution pipe, between the
supply and nozzles. The valve is normally open, but shall be locked in a closed position to
prevent discharge of agent into the protected space when:
• persons not familiar with the system and its operation are present
• persons are present in locations where discharge of the system will endanger them and
where they will be unable to proceed to a safe location within the time delay period
A lockout valve shall be provided on all systems, except where dimensional constraints prevent
personnel from entering the protected space and where discharged carbon dioxide cannot
migrate to adjacent areas, creating a hazard to personnel. Lockout valves shall be supervised
to provide notification of a lockout.

General Information
September 2013 1-5 September 2013
1-6.1.5 POST-RELEASE WARNINGS AND PROCEDURES
After a release of carbon dioxide, provisions shall be made to prohibit entry of unprotected
personnel to spaces made unsafe by a carbon dioxide discharge until the space is ventilated
and appropriate tests of the atmosphere have verified that it is safe for unprotected persons
to enter. Persons who are not properly trained in the use of and equipped with self-contained
breathing apparatus (SCBA) shall not remain in spaces where the CO2 concentration exceeds
4 percent. Such provisions shall include one or more of the following:
• Addition of a distinctive odor to the discharging carbon dioxide, the detection of which
serves as an indication to persons that carbon dioxide gas is present. Personnel shall be
trained to recognize the odor and evacuate spaces wherein the odor is detected.
• Provision of automatic alarms activated by carbon dioxide detectors or oxygen detectors
and located at the entry to and within such spaces. The pre-discharge alarms may be used
to serve this purpose if they operate until the space is ventilated and the safety of the
atmosphere has been verified.
• Establishment and enforcement of confined space entry procedures for such areas.
A means for prompt ventilation of affected areas shall be provided. Forced ventilation will often
be necessary. Care should be taken to properly dissipate hazardous atmospheres and not
merely move them to another location. Careful consideration should be given to low-lying
areas, as carbon dioxide is heavier than air and will settle in such spaces.
Prompt discovery and rescue of persons rendered unconscious in protected areas can be
accomplished by having such areas searched by trained personnel equipped with proper
breathing equipment. Those persons rendered unconscious by carbon dioxide may be restored
without permanent injury by artificial respiration, if removed quickly from the hazardous
atmosphere. Self-contained breathing equipment and personnel trained in its use, and in
rescue practices including artificial respiration, should be readily available.
1-6.2 Storage
The Kidde Fire Systems high pressure carbon dioxide system uses seamless steel cylinders to
store the carbon dioxide at ambient temperature. Each cylinder is equipped with a discharge
valve fitted with a siphon tube to discharge liquid carbon dioxide through the distribution
piping.
The number of cylinders required for a given application is determined by the size and nature
of the hazard being protected. When multiple cylinders are employed, the cylinders are
connected to a common piping system through a manifold.
Cylinders with attached releasing devices are defined as pilot cylinders. The system uses pilot
cylinders to initiate the suppression system discharge. Actuation of the pilot cylinders creates
sufficient pressure in the manifold to actuate the remaining cylinders in the system (called
“slave” cylinders). If the suppression system consists of one or two cylinders, one pilot cylinder
is used to initiate the carbon dioxide discharge. When the suppression system has three or
more storage cylinders, multiple pilot cylinders, actuated simultaneously, are used to initiate
the carbon dioxide discharge.
If permitted by the authority having jurisdiction, a group of carbon dioxide cylinders can be
used to protect one or more areas by means of directional valves. The system designer must
use careful judgment in the design of a directional valve system. The multiple areas protected
by the suppression system must be sufficiently isolated from each other so that two or more
protected areas cannot simultaneously be involved in a fire.
1-6.3 Discharge Characteristics
The Kidde Fire Systems carbon-dioxide suppression system employs siphon tubes fitted to the
valves within the cylinders in conjunction with a variety of discharge nozzles for agent
distribution into a protected space or onto a piece of equipment. The liquid carbon dioxide is

General Information
September 2013 1-6 P/N 81-CO2MAN-001
discharged up through the siphon tube, valve, and distribution piping as a liquid under
pressure. The liquid is transformed into gas and the resulting expansion at the discharge nozzle
orifice and upon discharge a portion immediately flashes to vapor. The remaining liquid
undergoes continuous evaporation and cooling and eventually solidifies as finely divided dry
ice (snow) particles. The percentage of carbon dioxide converted to dry ice depends upon the
temperature of the stored liquid. Approximately 25 percent of the liquid stored at 70°F (21°C)
is converted to dry ice upon discharge. The dry ice particles gasify in a short period of time,
without passing through its liquid phase (sublimation), and no wetting or residue occurs.
The discharge of liquid carbon dioxide creates a white, cloudy appearance due to the dry ice
component. Because of the low discharge temperatures, some water vapor in the surrounding
air will condense, creating a temporary period of fog that lasts after the dry ice particles have
settled out or sublimed. The dry ice helps to reduce the high temperatures created by a fire.
It is important to avoid direct impingement of carbon dioxide onto people and very
temperature sensitive equipment.
Carbon dioxide vapor is approximately one and one-half times as dense as air at the same
temperature. An actual discharge of carbon dioxide gas is much more dense than the
surrounding air. This accounts for carbon dioxide's ability to replace the air above burning
surfaces and maintain an inert atmosphere for a period of time following its discharge.
1-6.4 Actuation Methods
Kidde Fire Systems recommends that carbon dioxide fire suppression systems have an
automatic actuation, and that the automatic actuation be supplemented by one or more modes
of manual actuation.
The quantity and type of detectors required for a particular application are governed by the
type of combustible products being protected. For example, flammable liquids burn in a
manner characterized by rapid flame progression and intense heat generation. Automatic heat
or flame detectors are the most appropriate fire detection methods for this type of hazard.
Electrical fires, on the other hand, progress much more slowly to the stages of ignition and
flame development, and frequently undergo relatively long periods of thermal degradation and
pyrolysis during which large quantities of particulate matter and smoke are generated.
Automatic smoke detectors, usually consisting of a cross-zoned system employing both
ionization and photoelectric principles, or high sensitivity smoke detection, are two examples
of methods typically employed for this application.
It is common practice to supplement automatic actuation by two modes of manual actuation
called the "normal manual control" and the "emergency manual control." The normal manual
control consists of a manually operated device located in close proximity to the equipment or
materials protected by the suppression system. Typically it consists of an electrical switch, or
a mechanical manually operated device designed to transmit a signal via a pull cable. The
emergency manual control is one or more fully mechanical devices that are located on the
control head(s) of the pilot cylinder(s) and other auxiliary components such as time delays and
directional (or stop) valves. Kidde Fire Systems control heads are equipped with a lever-
operated mechanism that serves as the "emergency manual control."
The "normal manual control" is designed to initiate the full operation of the system by one
manual action. It is the responsibility of the system designer to ensure that such action will not
result in immediate carbon-dioxide discharge into a normally occupied area. It is the
responsibility of the system operator to ensure that the protected area has been evacuated
prior to operating the "emergency manual control."
1-7 APPLICATIONS
Carbon dioxide fire suppression systems are used for a wide variety of industrial, commercial,
and marine applications.

General Information
September 2013 1-7 September 2013
Industrial applications typically consist of equipment or processes where flammable liquids are
involved. Examples of industrial hazards that can be protected by carbon dioxide are dip tanks,
mixing tanks, spray booths, ovens and dryers, quench tanks, coating machines, wet benches,
commercial fryers, and printing presses.
Carbon dioxide is used in commercial applications to protect equipment or areas that have:
• high capital costs
• high productivity value
• critical mission role essential to business operations
Examples of commercial applications are cable trenches, computer room subfloors, electrical
cabinets, data (tape) storage units, and so on.
There are numerous marine applications for carbon dioxide systems; these include dry cargo
spaces, machinery spaces, pump rooms, and paint lockers. Refer to the Marine Carbon Dioxide
Design, Installation, Operation and Maintenance Manual, Part No. 81-220610-000, for detailed
information.
1-8 EXTINGUISHING PROPERTIES OF CARBON DIOXIDE
Carbon dioxide is highly efficient in suppressing surface fires including flammable liquids and
solids. When introduced into the combustion zone, carbon dioxide causes almost immediate
flame suppression. It suppresses the fire by reducing the oxygen concentration, the fuel vapor
concentration, or both, in the vicinity of the fire to the point where these available
concentrations are too low to support combustion. In general, a reduction of the oxygen
concentration to 15 percent or less by volume is sufficient to extinguish most diffusion-flame
fires in flammable liquids. The cooling effect is also helpful in certain applications, especially
where carbon dioxide is applied directly on to the burning material.
When deep seated fires are encountered, a higher concentration of carbon dioxide and a much
longer hold (retention) time are needed to allow any smoldering fires to be suppressed and to
allow the material to cool to a temperature at which it will not re-ignite.
1-9 PHYSICAL PROPERTIES OF CARBON DIOXIDE
The physical properties of carbon dioxide are provided in Table 1-1.

General Information
September 2013 1-8 P/N 81-CO2MAN-001
1-10 CLEAN-UP
Since carbon dioxide is a gas, it can penetrate and spread to all parts of a fire area. As a gas
or as a finely divided solid called 'snow' or 'dry ice', it will not conduct electricity and therefore,
can be used on energized electrical equipment. It leaves no residue, thus eliminating cleanup
of the agent itself.
For the safety of the personnel, the area should be thoroughly ventilated and purged with fresh
air.
Table 1-1. Physical Properties of Carbon Dioxide
Parameter US Units Metric Units
Molecular weight 44 44
Specific gravity, @ 32oF and 1 atm
(0oC and 101 kPa abs)
1.524 1.524
Vapor density, @ 32oF and 1 atm
(0oC and 101 kPa abs) 0.1234 lb./ft.31.98 kg/m3
Liquid density, @ 70oF (21oC) 47.6 lb./ft.3 (@ 70oF) 762 kg/m3 (@ 21oC)
Triple point -69.9°F / 75.1 psia -56.6°C / 518 kPa abs
Sublimation temperature @ 1 atm (101 kPa abs) -109.3°F @ 1 atm -78.5°C
Critical temperature 87.9°F 31.1°C
Critical pressure 1071 psia 7382 kPa abs
Latent heat of sublimation, @ -109.3oF (-78.5oC) 245.5 BTU/lb. 199.0 kJ/kg
Latent heat of vaporization, @ 2oF (-17oC) 119.0 BTU/lb. 276.8 kJ/kg

Component Descriptions
P/N 81-CO2MAN-001 2-1 September 2013
CHAPTER 2
COMPONENT DESCRIPTIONS
2-1 FIRE SUPPRESSION SYSTEM COMPONENTS
This chapter provides detailed descriptions of the components comprising the Kidde Fire
Systems CO2 fire suppression system. The information is arranged in the following categories:
•CO
2 storage
• Actuation components
•Check valves
• Directional (Stop) valves
•Lockout valves
• Discharge nozzles
• Auxiliary equipment
• Instruction and warning plates
• Hose reel and rack systems
2-2 CO2 STORAGE
Kidde Fire Systems high pressure carbon-dioxide fire suppression systems use liquid carbon
dioxide agent stored under its own vapor pressure in seamless steel cylinders at ambient
temperature. Each cylinder is equipped with a valve having a connection for attachment of a
discharge head. The discharge heads attach to the distribution piping by means of flexible
hoses or a swivel adapter.
Actuation of the suppression system is initiated by one or more control heads which are
attached to the control ports on the valve(s) of the pilot cylinder(s). Actuation of the pilot
cylinders creates sufficient pressure in the discharge manifold to operate the remaining
cylinders in the system.
Single or dual cylinder suppression systems utilize cylinder straps to secure the storage
cylinders to walls or other rigid structural members. Specially designed racks are utilized for
multiple cylinder systems to secure the cylinders, absorb the discharge reactions, and to
facilitate system servicing and maintenance.
2-2.1 Cylinder and Valve Assemblies
Carbon dioxide agent is stored in steel cylinders as a liquid under its own vapor pressure and
at ambient temperature. Each cylinder is equipped with a forged brass valve assembly which
contains a safety disc device (Table 2-1) for protection against over pressurization due to
elevated temperatures. Each valve is equipped with a side port that serves both as a fill
connection and as a control port for attachment of system actuators. The control port is
designed to accept all of the control heads listed in this manual.
The threaded connection on the top of each valve mates with a discharge head to allow agent
release and distribute the CO2 from the cylinder into the discharge piping.
WARNING
Pressurized (charged) cylinders are extremely hazardous and if not handled
properly are capable of violent discharge. This could result in bodily injury,
death, or property damage. Always handle carbon dioxide cylinders according
to the instructions in this manual.

Component Descriptions
September 2013 2-2 P/N 81-CO2MAN-001
Five cylinder and valve assemblies are available, ranging in capacity from 25 lb. to 100 lb. of
carbon dioxide. The 25, 35, and 50 lb. cylinders (Figure 2-1) are equipped with a 1/2-inch
discharge valve, Part. No. WK-981372-000 (Figure 2-3); the 75 and 100 lb. cylinders
(Figure 2-2) have a 5/8-inch discharge valve, Part No. WK-840253-000 (Figure 2-4).
Figure 2-1. 25 through 50 lb. Carbon Dioxide Cylinders, Bent Siphon Tube
Note: Horizontal or Vertical Installation
WARNING
The cylinders are factory-equipped with a protection cap threaded securely
over the valve assembly. This device is a safety feature and provides protection
during shipment and handling. This cap must be installed at all times, except
when the cylinders are connected into the system piping or being filled. Do not
move or handle a carbon dioxide cylinder unless the protection cap is installed.
B
THREAD FOR
PROTECTION CAP
A
PAR T
NUMBER
CYLINDER CO2
CAPACITY
lbs. kg
VALVE
SIZE
SAFETY
DISC
SIPHON
TUBE
DIM. "A"
(HEIGHT)
in. mm
81-982548-000
81-982547-000
50 22.6 1/2 in. WHITE BENT 55.25 1396
15.835 1/2 in. WHITE BENT 39.25 997
DIM. "B"
(DIAMETER) VOLUME
CYLINDER
WEIGHT
kg
lbs.
NOMINAL CHGD.
33
8.50 215 2300 0377 155 70.3
2158.50 1510 0247 51.7114
81-870486-000 11.325 1/2 in. WHITE BENT 29.63 750 2158.50 1040 0170 38.184
RATING
DOT
3AA-2015
3AA-2015
3AA-2015
CYLINDER
CONTROL
PORT
TYPE “I” CYLINDER
VALVE
THREAD FOR
DISCHARGE HEAD
SAFETY DISC
ASSEMBLY
NAMEPLATE
THIS LINE UP IF
CYLINDER NOT VERTICAL
BENT SIPHON
TUBE
MATERIALS
CYLINDER: STEEL
VALVE BODY: BRASS
VALVE SEAT: BRASS
SLEEVE: BRASS
SLEEVE RETAINER: BRASS
MAIN CHECK: BRASS WITH RUBBER SEAT
PILOT CHECK: STAINLESS STEEL WITH RUBBER SEAT
SIPHON TUBE: ALUMINUM
in. mm in. m

Component Descriptions
P/N 81-CO2MAN-001 2-3 September 2013
Figure 2-2. 75 and 100 lb. Carbon Dioxide Cylinder, Straight Siphon Tube
B
MAIN CHECK BRASS WITH RUBBER SEAT
PILOT CHECK STAINLESS STEEL WITH RUBBER SEAT
SIPHON TUBE: ALUMINUM
CYLINDER: STEEL
MATERIALS:
SIPHON TUBE
A
PROTECTION CAP
CYLINDER
PORT
CONTROL
VALVE
ASSEMBLY
DISCHARGE HEAD
THREAD FOR
SAFETY DISC
THREAD FOR
TYPE "I" CYLINDER
MATERIALS:
VALVE BODY
VALVE SEAT
SLEEVE
SLEEVE RETAINER
BRASS
}
PART
NUMBER
CYLINDER CO
2
CAPACITY
lbs. kg
VALVE
SIZE
SAFETY
DISC
SIPHON
TUBE
DIM. "A"
(HEIGHT)
in. mm
81-870269-000
81-870287-000
100 45.3 5/8 in. RED STRAIGHT 62 1570
34.075 5/8 in. RED STRAIGHT 60 1520
DIM. "B"
(DIAMETER)
in. mm
VOLUME
m
in.
CYLINDER
WEIGHT
kg
lbs.
NOMINAL CHGD.
33
10.55 267 4070 0.0667 288 130.6
2339.22 3055 0.0501 92.9
205
DOT
RATING
3AA - 2300
3AA - 2300

Component Descriptions
September 2013 2-4 P/N 81-CO2MAN-001
2-2.1.1 VALVES
Figure 2-3. I/2-inch Type “I” Cylinder Valve
Table 2-1. Safety Disc Information
Description Part Number Cylinder Size Identification Burst Pressure
Safety Disc and Washer 81-902048-000 25, 35, and 50 lb. White 2650 to 3000 psi @ 160°F
Safety Disc and Washer 81-903684-000 75 and 100 lb. Red 3150 to 3500 psi @ 160°F
1 in. NPT
2-1/2 in. -14 NS-3
(FOR DISCHARGE
HEAD CONNECTION)
VALVE SEAT
MAIN CHECK
SPRING
DISC RETAINER
SAFETY DISC
WASHER
TYPICAL CYLINDER
SIPHON TUBE
THREADED IN PLACE 3/8 in. NPS
TYPICAL
SIPHON TUBE
MATERIALS
VALVE BODY: BRASS
VALVE SEAT: BRASS
SLEEVE: BRASS
SLEEVE RETAINER: BRASS
MAIN CHECK: BRASS WITH RUBBER SEAT
PILOT CHECK: STAINLESS STEEL WITH RUBBER SEAT
SLEEVE
1-1/4 in. -18 NS-3
(FOR CONTROL
HEAD CONNECTION)
PILOT CHECK
SLEEVE
RETAINER
VALVE BODY
4.98 in.
(127 mm)

Component Descriptions
P/N 81-CO2MAN-001 2-5 September 2013
Figure 2-4. 5/8-inch Type “I” Cylinder Valve
2-2.1.2 CYLINDER FILLING
The relationship of cylinder pressure as a function of temperature and fill density is shown in
Figure 2-5. In high pressure CO2 systems the cylinder pressure is directly related to the
ambient temperature at the storage location. The pressure is also affected by the fill density
or percent fill. This is the ratio (expressed in percent), of the weight of carbon dioxide to the
water capacity of the cylinder, expressed in pounds as shown in Table 2-2. The fill density
commonly used is between 60 and 68 percent. The US Department of Transportation (DOT)
and Transport Canada (TC) limits the maximum fill density to 68% for carbon dioxide.
Care must be taken not to over fill the cylinders above their rated capacity. Over filling is an
unsafe practice, is in violation of DOT/TC regulations, and will create rapid increases in
pressure for small increases in temperature. Over filling will cause premature actuation of the
pressure relief device and result in the loss of the cylinder contents.
5.44 in.
(138 mm)
1 in. NPT
2-1/2 in. -14 NS-3
(FOR DISCHARGE
HEAD CONNECTION)
VALVE SEAT
MAIN CHECK
SPRING
DISC RETAINER
SAFETY DISC
WASHER
TYPICAL CYLINDER
SIPHON TUBE
STAKED IN PLACE
TYPICAL
SIPHON TUBE
SLEEVE
1-1/4 in. -18 NS-3
(FOR CONTROL
HEAD CONNECTION)
PILOT CHECK
SLEEVE
RETAINER
VALVE BODY

Component Descriptions
September 2013 2-6 P/N 81-CO2MAN-001
Figure 2-5. Pressure vs. Temperature for CO2 Cylinders
Table 2-2. CO2 and H20 Capacity Correlation
Rated CO2 Capacity of Cylinder (lb) H20 Capacity (%)
25 67
35 64
50 60
75, 100 68
180
170
160
150
140
130
120
110
100
90
88
80
70
60
50
40
30
20
10
0
-10
-20
-30
-40 0
200
400
600
800
1000
1200
1400
1600
1800
2000
2200
2400
2600
68%
PERCENT OF
WATER CAPACITY
PRESSURE, PSIA
TEMPERATURE, F
2800
3000
3200
3400
3600
3800
64%60%
Rated CO capacity of cylinders (in lbs)
2
capacity of cylinders (in lbs) at 60 F
0
HO
2
% of H O capacity =
2x 100
Critical temperature of CO = 88 F
2
0

Component Descriptions
P/N 81-CO2MAN-001 2-7 September 2013
2-2.2 Discharge Heads
Each cylinder and valve assembly must be equipped with a discharge head at installation to
actuate the cylinder valve. The discharge head is assembled to the top of the cylinder valve
and contains a spring-loaded piston which when actuated by carbon dioxide pressure is
designed to depress the main check in the valve and discharge the contents of the cylinder.
The piston provides the necessary mechanical advantage to open the valve's main check. The
discharge outlet is designed to mate with a flexible hose or swivel adapter for connection to
the distribution piping. The discharge head also contains an integral stop check whose function
is to automatically prevent the loss of carbon dioxide during system discharge in the event that
a cylinder is removed from the distribution piping. Two different style discharge heads are
available:
• Plain-nut discharge head
• Grooved-nut discharge head
2-2.2.1 PLAIN-NUT DISCHARGE HEAD
The plain-nut discharge head, Part No. WK-872450-000 (Figure 2-6), discharges the contents
of the cylinder upon activation of its associated control head or upon application of pressure
entering through the outlet. The plain-nut discharge head is used on each cylinder (Figure 2-7)
of a multiple-cylinder system.
Figure 2-6. Discharge Head, Plain Nut
3-15/16 in.
(100 mm)
STOP
CHECK
SET
POSITION
OPERATED
POSITION
SWIVEL NUT
(FOR CONNECTION
TO CYLINDER VALVE)
STEM
INNER O-RING
P/N WF-242467-000
OUTER O-RING
P/N WF-242466-000
2-1/2 - 14N3
3/4 in. NPS
DISCHARGE OUTLET
SPRING
BALL CHECK
BALL RETAINER
PISTON
3-13/16 in.
(97 mm)

Component Descriptions
September 2013 2-8 P/N 81-CO2MAN-001
Figure 2-7. Installation of Plain Nut Discharge Head to Cylinder Valve
2-2.2.2 GROOVED-NUT DISCHARGE HEAD
The grooved-nut discharge head, Part No. 81-872442-000 (Figure 2-8), can only be actuated
by a control head. Pressure entering the outlet will not actuate the cylinder. Grooved-nut
discharge heads are only used for single-cylinder, or connected single cylinder main and
reserve systems (Figure 2-9).
BALL CHECK
PILOT PRESSURE PATH
IN DISCHARGE HEAD
STEM
OUTER O-RING
PILOT PRESSURE PATH
IN VALVE
PILOT PORT
PILOT CHECK
TYPICAL SIPHON TUBE
PISTON
PLAIN NUT
DISCHARGE HEAD
BALL CHECK
PILOT PRESSURE PATH
FOR SLAVE OPERATION
STOP CHECK
DISCHARGE OUTLET
PILOT PRESSURE HERE
WILL DISCHARGE THIS
CYLINDER
INNER O-RING
NO GROOVES IN
SWIVEL NUT
MAIN CHECK
SAFETY OUTLET
TYPE “I” CYLINDER
VALVE (SEE K-1050)
TYPICAL CYLINDER
NEVER CONNECT DISCHARGE HEAD TO CYLINDER
VALVE WITHOUT FLEX LOOP ATTACHED TO
DISCHARGE OUTLET AND CONNECTED TO SYSTEM
PIPING. ARRANGEMENT AS SHOWN IS FOR
ILLUSTRATION PURPOSES ONLY.
CAUTION

Component Descriptions
P/N 81-CO2MAN-001 2-9 September 2013
Figure 2-8. Discharge Head, Grooved Nut
WARNING
The discharge head must be permanently connected into the system piping.
Never attach the discharge heads to the cylinder valves until the cylinders are
secured in brackets or racking. Under no circumstances is the discharge head
to remain attached to the cylinder valve after removal from service, during
shipment, handling, storage, or during filling. Failure to follow these
instructions could result in serious bodily injury, death, or property damage.
2-5/8 in.
(66 mm)
SPRING
3/4 in. NPS
DISCHARGE OUTLET
2 1/2 - 14N3
OUTER O-RING
P/N WF-242466-000
INNER O-RING
P/N WF-242467-000
STEM
SET
POSITION
PISTON
IDENTIFYING
GROOVES IN
SWIVEL NUT
SWIVEL NUT
(FOR CONNECTION
TO CYLINDER VALVE)
OPERATED
POSITION
3-15/16 in.
(100 mm)

Component Descriptions
September 2013 2-10 P/N 81-CO2MAN-001
Figure 2-9. Installation of Grooved Nut Discharge Head to Cylinder Valve
PILOT PRESSURE PATH
IN DISCHARGE HEAD
STEM
OUTER O-RING
PILOT PRESSURE PATH
IN VALVE
PILOT PORT
PILOT CHECK
TYPICAL SIPHON TUBE
PISTON GROOVED NUT
DISCHARGE HEAD
STOP CHECK
DISCHARGE OUTLET
PILOT PRESSURE HERE
WILL DISCHARGE THIS
CYLINDER.
NOT
INNER O-RING
IDENTIFYING GROOVES
IN SWIVEL NUT
MAIN CHECK
SAFETY OUTLET
TYPE “I” CYLINDER
VALVE (SEE K-1050)
TYPICAL CYLINDER
NEVER CONNECT DISCHARGE HEAD TO CYLINDER
VALVE WITHOUT FLEX LOOP ATTACHED TO
DISCHARGE OUTLET AND CONNECTED TO SYSTEM
PIPING. ARRANGEMENT AS SHOWN IS FOR
ILLUSTRATION PURPOSES ONLY.
CAUTION

Component Descriptions
P/N 81-CO2MAN-001 2-11 September 2013
2-2.3 Flexible Hoses
Flexible discharge hoses are used to provide the interconnection between the discharge head
and the distribution manifold or piping. The hoses are made of wire-reinforced rubber.
The 1/2-inch flex hose, Part No. 81-252184-000 (Figure 2-10), is used with the 25, 35, and
50 lb. cylinders.
The 3/4-inch flex hose, Part No. WK-251821-000 (Figure 2-11), is used with the 75 and
100 lb. cylinders.
Figure 2-10. 1/2-inch Flex Hose
Figure 2-11. 3/4-inch Flex Hose
WARNING
Flexible hoses must always be connected to the system piping and to the
discharge heads before attaching the discharge heads to the cylinder valves, in
order to prevent injury in the event of inadvertent carbon dioxide discharge.
14-1/2 in.
(368 mm)
SWAGGED OR CRIMPED
1/2 in. NPT
MALE COUPLING
HOSE
FEMALE SWIVEL COUPLING
3/4 in. NPS
16-3/8 in.
(417 mm)
SWAGGED OR CRIMPED
3/4 in. NPT
MALE COUPLING
HOSE
FEMALE SWIVEL COUPLING
3/4 in. NPS

Component Descriptions
September 2013 2-12 P/N 81-CO2MAN-001
2-2.4 Swivel Adapter
A swivel adapter, Part No. WK-934208-000 (Figure 2-12), can be substituted for a flexible hose
in a single-cylinder suppression system. It is used to connect the discharge head to the
distribution piping.
Figure 2-12. Swivel Adapter
2-2.5 Manifold “Y” Fitting
The manifold “Y” fitting, Part No. 81-207877-000 (Figure 2-13), is used in place of a pipe
manifold to connect a two (2) cylinder system or for connecting a single cylinder main and
reserve system.
Figure 2-13. Manifold “Y” Fitting
WARNING
The swivel adapter must always be connected to the system piping and to the
discharge head before attaching the discharge head to the cylinder valve in
order to prevent injury in the event of inadvertent carbon dioxide discharge.
SWIVEL NUT
1/2 in. NPT
PIPE UNION
2-9/16 in. (66 mm) APPROX.
MATERIAL: BRASS
207877
3/4 in. NPT FEMALE
3/4 in. NPT FEMALE
3/4 in. NPT FEMALE

Component Descriptions
P/N 81-CO2MAN-001 2-13 September 2013
2-2.6 Cylinder Mounting Hardware
Straps are available for securing single or double cylinders against a wall or other supporting
structure. Free standing arrangements are not available. If walls are not available, a simple
free standing support can be built up from the floor.
Specially designed racks are available to secure multiple cylinders in various arrangements.
The racks consist of metal framework with cradles, clamps and spacers to support the
cylinders, and also includes cylinder weighing bars to facilitate service and maintenance.
2-2.6.1 SINGLE OR DOUBLE CYLINDER ARRANGEMENTS
2-2.6.1.1 Single Cylinder Straps.
The dimensions for single cylinder straps (Figure 2-14) are provided in Table 2-3.
Figure 2-14. Single Cylinder Straps
Table 2-3. Single Cylinder Strap Dimensions
Part Number Cylinder
Size
ABCDER
in. mm in. mm in. mm in. mm in. mm in. mm
WK-270014-000 25, 35, & 50 7.94 202 11.5 292 10.4 264 1.00 25.4 3.50 88.9 4.25 108
81-626690-000 75 5.63 143 12.3 312 11.1 282 1.25 31.8 3.75 95.2 4.63 118
WK-270157-000 100 10.0 254 14.0 356 12.4 315 1.75 44.4 4.50 114 5.31 135
C
D
A
E
R
B

Component Descriptions
September 2013 2-14 P/N 81-CO2MAN-001
2-2.6.1.2 Double Cylinder Straps
The dimensions for double cylinder straps (Figure 2-15) are provided in Table 2-4.
Figure 2-15. Double Cylinder Straps
Table 2-4. Double Cylinder Strap Dimensions
Part Number Cylinder
Size
ABCDER
in. mm in. mm in. mm in. mm in. mm in. mm
WK-241219-000 50 & 75 7.75 197 22.8 579 21.5 546 1.75 44.4 2.88 73.1 4.63 118
WK-241254-000 100 10.3 262 25.6 650 24.3 617 1.75 44.4 4.72 120 5.28 134
R
C
R
D
A
E
B

Component Descriptions
P/N 81-CO2MAN-001 2-15 September 2013
2-2.6.2 MULTIPLE CYLINDER ARRANGEMENTS
Three different styles of framing arrangements are available to provide flexibility of installation
for installation of three or more cylinders:
Arrangement A: This style (Figure 2-16) is used for a single row of cylinders, that can be
either wall mounted or free standing.
Figure 2-16. Multiple Cylinder Mounting, Arrangement A
Arrangement B: This style (Figure 2-17) provides for one row of cylinders on each side of the
framing. This arrangement is free standing and requires two aisles. It has the advantage of
permitting free access to any cylinder without disturbing any other cylinder.
Figure 2-17. Multiple Cylinder Mounting, Arrangement B
SERVICING
AISLE
50, 75 or 100 lb.
SERVICING
AISLE
SERVICING
AISLE
50, 75 or 100 lb.
OMIT CYLINDER
HERE FOR ODD
NUMBER

Component Descriptions
September 2013 2-16 P/N 81-CO2MAN-001
Arrangement C: This style (Figure 2-18) provides for a double row of cylinders on the same
side of the framing. This arrangement can be free standing or wall mounted. It is generally
used when the cylinders are to be wall mounted and sufficient space is not available to arrange
them in a single row.
Figure 2-18. Multiple Cylinder Mounting, Arrangement C
Larger quantities of cylinders can be accommodated by adding additional framing. All framing
is supplied with pre-drilled mounting holes. Any combination of cylinder stowage, junction box
installation, pneumatic selector valve installation and cylinder manifold support can be
accommodated by the holes in the framing. All bolts and nuts are supplied as part of the
framing. Drilling is not required at the job site in order to erect the bracketing. In addition the
cylinder manifolds are arranged to be fastened to the framing.
2-2.6.2.1 Cylinder Rack and Framing, Example Arrangement
The components comprising a single-row rack and frame (Arrangement A) for six cylinders
(Framing Kit 81-010001-006) are identified in the highlighted column of Table 2-5 and
illustrated in Figure 2-19. Complete parts information concerning the components required for
all single- and double-row rack and framing arrangements are contained in Table 8-19,
Table 8-20 and Table 8-21 and illustrated in Figure 4-4 through Figure 4-20
SERVICING
AISLE
50, 75 or 100 lb.
OMIT CYLINDER
HERE FOR ODD
NUMBER

Component Descriptions
P/N 81-CO2MAN-001 2-17 September 2013
Table 2-5. Framing Kits - One Row, 3 through 15 Cylinders
Number of Cylinders 3 4 5 6789101112131415
Kit Number 81-010001-XXX -
003 -
004 -
005 -
006 -
007 -
008 -
009 -
010 -
011 -
012 -
013 -
014 -
015
Part No. Description Quantity Supplied in Kit
WK-271566-000 Post 2 2 2 3333344444
WK-241211-000 Gusset 2 2 2 2222222222
WK-207281-000 Channel Support 2 2 2 5555588888
WK-271563-000 3 Cylinder
Channel 1——2 1———1————
WK-271564-000 4 Cylinder
Channel —1——121—2321—
WK-271565-000 5 Cylinder
Channel ——1———1 2——1 2 3
WK-271561-000 CRADLE 3 4 5 6789101112131415
WK-271567-000 1 Row Weigh Bar
Bracket 2223333344444
WK-243796-000 3 Cylinder Weigh
Bar 1——2 1———1————
WK-243797-000 4 Cylinder Weigh
Bar —1——121—2321—
WK-243798-000 5 Cylinder Weigh
Bar ——1———1 2——1 2 3
WK-241105-000 Front Clamp 2 2 3 3445566778
WK-243795-000 Rack Rod 1 Row 2 2 3 3445566778
ADDITIONAL PARTS TO ORDER FOR MAIN & RESERVE - NOT INCLUDED IN KITS
WK-241105-000 Front Clamp — 2 — 4—4—6—6—8—
WK-243795-000 Rack Rod 1 Row — 2 — 4—4—6—6—8—
HARDWARE - NOT SUPPLIED BY KIDDE FIRE SYSTEMS
— 3/8-inch -16 x 1-
inch Long Bolt 16 16 16 26 26 26 26 26 36 36 36 36 36
— 3/8-inch -16 Nut 16 16 16 26 26 26 26 26 36 36 36 36 36
Main 1/2-inch -13 x 1-
inch Long Bolt 2334455667788
M & R 1/2-inch -13 x 1-
inch Long Bolt —3—3—5—5—7—7—
Main 1/2-inch-13 Nut 8 9 12 13 16 17 20 21 24 25 28 29 32
M & R 1/2-inch-13 Nut — 9 — 15—17—23—25—31—
— 1/2-inch Washer2222222222222
Note: No hardware listed for fastening framing to floor or wall.

Component Descriptions
September 2013 2-18 P/N 81-CO2MAN-001
Figure 2-19. Cylinder Rack and Framing, Example Arrangement
6 - CYLINDERS
MODEL 4706
KIDDE
NO
CYLS LENGTH CYL CHANNEL
P/N
WEIGH BAR
P/N
(2) WK-243796-000
(2) WK-271563-000
6
6 ft. 1-3/4 in.
(1873 mm)
TABLE
SECURE MANIFOLD
WITH PIPE CLAMP
ALLOW 2 ft. (610 mm) AISLE IN
FRONT OF CYLINDERS FOR SERVICING
SLOT FOR PIPE CLAMP
WEIGHING BAR (SEE TABLE) FASTEN WITH
3/8 in. X 1 in. LONG BOLT AND NUT
WEIGHING BAR BRACKET
(3) WK-271567-000 - FASTEN
WITH 3/8 in. X 1 in. LONG BOLT AND NUT
POST CHANNEL (3) - WK-271566-000
CYLINDER CHANNEL (SEE TABLE)
GUSSET (2) - WK-241211-000
FASTEN TO FLOOR
CHANNEL SUPPORT (4) - WK-207281-000 - FASTEN WITH
(3) 3/8 in. X 1 in. LONG BOLT AND NUT
NOTE: THIS FRAMEWORK TO BE PLACED AGAINST A WALL,
BUT CAN ALSO BE INSTALLED FREE STANDING
6 ft. 4 in.
(1930 mm)
HOLES FOR KNOCKOUT
JUNCTION BOX
THESE HOLES FOR
PNEUMATIC SYSTEM ONLY.
HOLES FOR PNEUMATIC
SELECTION VALVE.
13-5/16 in.
(338 mm)

Component Descriptions
P/N 81-CO2MAN-001 2-19 September 2013
2-3 ACTUATION COMPONENTS
Actuation of the suppression system is initiated by use of control head(s). Control heads are
components that attach to the control ports of the carbon dioxide cylinder valves. The control
head initiates the suppression system discharge by opening the cylinder valve's pilot check.
This allows carbon dioxide to pressurize the discharge head piston, which opens the main check
in the valve and discharges the contents of the cylinder.
One control head is used for CO2 systems having one or two cylinders. A minimum of two
control heads are required for suppression systems that have three or more carbon dioxide
cylinders.
Control heads are also used in conjunction with pressure operated time delays, stop valves,
and pneumatic transmitters to control the flow of carbon dioxide throughout the piping
network. All of the control heads are self-venting in the set position to prevent accidental
discharge in the event of a slow build-up of pressure in a pilot line or a slow leak at the pilot
check of the cylinder valve.
2-3.1 Lever-Operated Control Head
The lever-operated control head, Part No. WK-870652-000 (Figure 2-20), is used for small,
manually-actuated suppression systems using one or two carbon dioxide cylinders. It is also
used as an emergency manual release device for pressure operated control heads and used in
conjunction with components such as pressure operated time delays and directional (stop)
valves.
This control head is equipped with an operating lever secured in the closed position by a safety
pull pin and seal wire. The lever can be rotated to the open position by removing the safety
pin. This will discharge a cylinder, bypass a time-delay period, or open a directional (stop)
valve.
WARNING Control heads must be in the set position before attaching to the cylinder valves
to prevent accidental carbon dioxide discharge.

Component Descriptions
September 2013 2-20 P/N 81-CO2MAN-001
Figure 2-20. Lever-Operated Control Head
2-3.2 Cable-Operated Control Head
The cable-operated control head, Part No. 81-979469-000 (Figure 2-21 and Figure 2-22), is a
mechanical device that allows for remote manual actuation of carbon dioxide cylinders, stop
valves, and directional valves by means of signals transmitted via pull boxes and cables. A
manual lever is also provided on the control head for local operation.
A tension force transmitted by a cable will cause the control head's cable clamp and wheel
assembly to travel linearly and depress the actuating pin to open the pilot check on a cylinder
valve or directional (stop) valve.
BODY
SWIVEL NUT
1-1/2 in. (81 mm)
SET
OPERATED
STEM
CLOSED
SEAL WIRE
LEVER
1-1/4 in. - 18 NF-3
FEMALE
TO OPEN
ALLOW APPROXIMATELY
2 in. (50 mm) CLEARANCE
FOR OPERATION OF LEVER
3-3/16 in.
(81 mm)
LOCKING PIN
3 in.
(76 mm)

Component Descriptions
P/N 81-CO2MAN-001 2-21 September 2013
Figure 2-21. Cable-Operated Control Head
Figure 2-22. Cable-Operated Control Heads in Tandem
2-3.3 Manual Control Equipment
All carbon dioxide fire suppression systems are equipped with one or more manually-operated
release stations. These stations are located in easily accessible positions around the protected
area or equipment, and activation of any station should permit full operation of the system.
LOCAL MANUAL RELEASE LEVER
SEAL WIRE
LOCKING PIN
DIRECTION
OF PULL THREADED NUT
3/8 in. NPS FOR PIPE
1/16 in. CABLE
CONDUIT
SWIVEL NUT
1-1/2 in.
(38 mm)
1-1/4 in. - 18 NF-3
FEMALE
CABLE CLAMP AND WHEEL ASSEMBLY
5-1/4 in.
(133 mm)
4-1/4 in.
(108 mm)
CLOSURE
DISC
CABLE CLAMP AND
WHEEL ASSEMBLY
CABLE HOUSING
3/8 in. PIPE OR
ADAPTER P/N 843837
1/16 in. CABLE
CYLINDER CENTERS
FLARE ON CABLE
HOUSING FITS INTO
SLOT IN CONTROL
HEAD (CLOSURE DISC REMOVED)

Component Descriptions
September 2013 2-22 P/N 81-CO2MAN-001
2-3.3.1 MECHANICAL PULL BOX
The mechanical pull box, Part No. 81-871403-000 (Figure 2-23), is a cable connected, pull-
handle-type remote release station used for actuating carbon dioxide cylinders and associated
directional (stop) valves. The pull box is designed to transmit a force via a 1/16-inch cable to
the cable operated control heads attached to the pilot CO2 cylinders and the appropriate flow-
control valves. A hammer is attached to the pull box, and operation is accomplished by
breaking the glass front with the hammer and pulling the handle.
Figure 2-23. Mechanical Pull Box
2-3.3.2 MECHANICAL PULL BOX Z-BRACKET
The mechanical pull box Z-bracket, Part No. 81-605320-000 (Figure 2-24) is used to attach
the mechanical pull box to a wall or a rigid structural member. This bracket provides sufficient
offset of the pull box from its mounting surface to allow penetration from behind by the cabling
system.
Figure 2-24. Mechanical Pull Box Bracket
FOR FIRE
BREAK GLASS PULL HANDLE
PULL HARD
OPTIONAL
NAMEPLATE
(BY INSTALLER)
2-NAMEPLATE BRACKETS
(SUPPLIED WITH PULL BOX)
3/8 in. PIPE
1/16 in. CABLE
2-1/4 in.
(57 mm)
5 in.
(127 mm)
4-COVER
SCREWS
PULL
HANDLE
HAMMER
P/N 928103
BREAK GLASS
P/N WK-928103-000
5-7/8 in.
(149 mm)
1/16 in. CABLE
CORNER PULLEY
CONDUIT NIPPLE
Z-BRACKET
P/N 81-605320-000
(3) HOLES FOR 1/4 in.
MOUNTING BOLTS HERE
3-9/16 in.
(90 mm)
4-1/2 in.
(114 mm)

Component Descriptions
P/N 81-CO2MAN-001 2-23 September 2013
2-3.3.3 CORNER PULLEYS
Corner pulleys (Figure 2-25) are used at every change in direction of cable lines and prevent
binding to ensure smooth operation. Part No. 81-803808-000 is used for all watertight
applications; Part No. WK-844648-000 is used for all industrial applications.
Figure 2-25. Corner Pulleys
2-3.3.4 TEE PULLEY
The tee pulley, Part No. 83-843791-000 (Figure 2-26), is used to branch a pull cable line to
multiple remote release stations. The tee pulley is used for cables that are run in 1/2-inch EMT.
UL
(2) 1/2 in. EMT CONNECTIONS
COMPRESSION TYPE
5/8 in.
(16 mm)
2-3/4 in.
(70 mm)
APPROX
13/16 in.
(21 mm)
5/8 in.
(16 mm)
BODY
GASKET
COVER
3/8 in. - 18
NPS FEMALE
1-3/4 in.
(45 mm)
COVER SCREW
2-1/8 in. (54 MM) DIA
WATERTIGHT CORNER PULLEY, P/N 81-803808-000
COVER SCREW
1/2 in. EMT CORNER PULLEY, P/N WK-844648-000

Component Descriptions
September 2013 2-24 P/N 81-CO2MAN-001
Figure 2-26. Tee Pulley
2-3.3.5 ADAPTER
The adapter, Part No. WK-843837-000 (Figure 2-27), is used to connect 1/2-inch EMT to
components with 3/8-inch NPS outlets such as the cable operated control head and the dual
pull equalizer. This adapter has a 1/2-inch female EMT connector on one end and a 3/8-inch
NPS male connector on the other end.
Figure 2-27. EMT Adapter
2-3.3.6 CABLE HOUSING
A cable housing (Figure 2-28) is required when the suppression system consists of three or
more cylinders and utilizes two cable-operated control heads. The cable housing protects the
interconnecting cable between the two cable-operated control heads and secures the two
heads in a fixed position. The length of the cable housing (see Table 2-6) is determined by the
size of the cylinders used in the suppression system.
Kidde
1/16 in. CABLE
PULLEYS
CABLE CLAMP - SUPPLIED
WITH TEE PULLEY
SINGLE 1/16 in. CABLE
1/2 in. EMT 4-5/16 in.
(110 mm)
4-1/2 in.
(114 mm)
(3) 1/2 in. EMT CONNECTIONS
COMPRESSION TYPE
COVER HELD ON BY
(4) NO. 10 SCREWS
THRU HOLES SHOWN
1/2 in. EMT CONNECTION
COMPRESSION TYPE
3/8 in. NPS MALE
1-1/2 in.
(39 mm)

Component Descriptions
P/N 81-CO2MAN-001 2-25 September 2013
Figure 2-28. Cable Housing
2-3.3.7 DUAL PULL MECHANISM
The dual pull mechanism, Part No. 81-840058-000 (Figure 2-29), performs a similar function
as the tee pulley. It is used to branch a pull cable line to two remote release stations, and is
used for cables that are run in 3/8-inch pipe.
Figure 2-29. Dual Pull Mechanism
Table 2-6. Cable Housing Part Numbers
Part Number Cylinders Used With Cylinder Centers “A” Dimension
lb. kg in. mm in. mm
WK-331570-000 25-35 11.3 - 15.8 9.5 241 5.12 130
WK-202355-000 50 - 75 22.6 - 34.0 10.0 254 5.62 143
WK-200822-000 100 45.3 11.625 295 7.12 181
A
FLARED 3/8 in. NPS MALE
1/16 in. CABLE
CABLE CLAMP WITH SET SCREW
12 in.
(305 mm)
10 in.
(254 mm)
(4) MOUNTING HOLES
1/16 in. CABLE
2-1/4 in.
(57 mm)
2 in.
(51 mm)
2-5/8 in.
(67 mm)
3-1/4 in.
(83 mm)
(2) 3/8 in. NPT
FEMALE OUTLETS
HOUSING
USE 3/32 in. HEX KEY FOR CABLE
PULLEY SET SCREWS
(3) 3/8 in. NPT
FEMALE OUTLETS
2 BRASS PLUGS SUPPLIED
WITH DUAL PULL EQUALIZER
3/8 in. PIPE DIRECTION OF PULL
HOUSING COVER

Component Descriptions
September 2013 2-26 P/N 81-CO2MAN-001
2-3.3.8 DUAL PULL EQUALIZER
The dual pull equalizer, Part No. 81-840051-000 (Figure 2-30), is used to equalize the force
transmitted via a pull cable to two separate remote control head locations. It contains a pulley
mechanism to equalize the cable travel to assure that the control heads fully actuate at both
locations.
Figure 2-30. Dual Pull Equalizer
2-3.3.9 1/16-INCH PULL CABLE
The 1/16-inch Pull Cable functions as a control cable used to interconnect mechanically
actuated components. The cable is made of 1/16-inch O.D., stainless-steel having a multi-
strand construction and is available in the lengths identified in Table 2-7.
Table 2-7. 1/16-inch Pull Cable Lengths
Length (feet) Part Number
50 06-118316-050
100 06-118316-100
250 06-118316-150
350 06-118316-350
500 WK-219649-000
1/16 in. CABLE
CABLE PULLEY WITH SET SCREW
12 in.
(305 mm)
10 in.
(254 mm)
(4) MOUNTING HOLES
1/16 in. CABLE
2-1/4 in.
(57 mm)
2 in.
(51 mm)
2-5/8 in.
(67 mm)
3-1/4 in.
(83 mm)
(2) 3/8 in. NPT
FEMALE OUTLETS
HOUSING
USE 3/32 in. HEX KEY FOR CABLE
PULLEY SET SCREWS
(3) 3/8 in. NPT
FEMALE OUTLETS
2 BRASS PLUGS SUPPLIED
WITH DUAL PULL EQUALIZER
3/8 in. PIPE DIRECTION OF PULL
HOUSING COVER

Component Descriptions
P/N 81-CO2MAN-001 2-27 September 2013
2-3.4 Electric Control Heads
2-3.4.1 ELECTRIC CONTROL HEADS
The electric control heads (Figure 2-31 and Figure 2-32) provide for electric and local manual
actuation of the CO2 cylinder valve, or directional (stop) valves. The control head is operated
electrically by a suppression control panel and is equipped with a lever for local manual
operation.
The electric control head contains a microswitch whose contacts are used to break the electrical
circuit to the solenoid when the head is actuated. This reduces the overall power consumption
of the fire suppression system. The actuating pin latches in the released position and must be
mechanically reset.
A suitable suppression control panel, specifically listed and/or approved for use with the
following control heads, shall be provided for supervision of the releasing circuits per NFPA
requirements. In addition, a 24 hour back-up power source shall be provided per NFPA
requirements. Electrical data is contained in Table 2-8.
Figure 2-31. Electric Control Head
ELECTRIC
CONTROL HEAD
VOLTS
AMPS
PART NO.
SET RELEASED
MADE IN U. S. A.
TO RESET
USE SCREWDRIVER
KIDDE-FENWAL, INC.
400 MAIN STREET
ASHLAND, MA 01721
SEAL WIRE
INDICATOR AND
RESET STEM
6-3/16 in.
(157 mm)
CONNECTION FOR FLEXIBLE
ELECTRICAL CONDUIT
3/4 in. NPT FEMALE
LOCKING PIN
LOCAL MANUAL
RELEASE LEVER
SWIVEL NUT
1-1/2 in. (38 mm) HEX
1-1/4 in. - 18 NF-3 THREAD
4 in.
(102 mm)

Component Descriptions
September 2013 2-28 P/N 81-CO2MAN-001
Figure 2-32. Electric Control Head (Cover Removed)
2-3.4.2 ELECTRIC AND CABLE-OPERATED CONTROL HEADS
These control heads (Figure 2-33) provide for electric, local manual and remote manual
actuation of the CO2 cylinder valve or directional (stop) valve. The control head is operated
electrically by a suppression control panel or mechanically by a cable pull box. it is also
equipped with a lever for local manual operation.
These heads contain a microswitch whose contacts are used to break the electrical circuit to
the solenoid when the head is actuated. This reduces the overall power consumption of the fire
suppression system. The actuating pin latches in the released position and must be
mechanically reset.
A suitable suppression control panel, specifically listed and/or approved for use with the
following control heads shall be provided for supervision of the releasing circuits per NFPA
requirements. In addition, a 24 hour back-up power source shall be provided per NFPA
requirements. Electrical data is contained in Table 2-9.
Table 2-8. Electric Control Head
Control Head Part Number Voltage Amps.
WK-890181-000 24 Vdc 2.0 momentary
3/4 in. NPT TO FLEXIBLE
CONDUIT ADAPTER
PLUS OR HOT CONNECTION
(TERMINAL #3)
TERMINAL STRIP
MICROSWITCH
MICROSWITCH LEVER
INDICATOR AND
RESET STEM CAM
SWIVEL NUT
MINUS, NEUTRAL, OR
GROUND CONNECTION
(TERMINAL #1)
OPTIONAL CONNECTION
FOR MICROSWITCH
(TERMINAL #2)
FLEXIBLE
CONDUIT

Component Descriptions
P/N 81-CO2MAN-001 2-29 September 2013
Figure 2-33. Electric and Cable-Operated Control Head
2-3.4.3 EXPLOSION PROOF ELECTRIC AND CABLE OPERATED CONTROL HEADS
The explosion proof electric and cable operated control heads (Figure 2-34) are designed for
use in hazardous areas. The electric solenoid housing is rated for use in Class I, Groups C and
D; and Class II, Groups E, F, and G hazardous locations.
These control heads provide for electric, local manual and remote manual actuation of the CO2
cylinder valve or directional (stop) valve. The control head is operated electrically by a
suppression control panel or mechanically by a cable pull box. It is also equipped with a lever
for local manual operation.
A suitable suppression control panel, specifically listed and/or approved for use with the
following control heads shall be provided for supervision of the releasing circuits per NFPA
requirements. In addition, a 24 hour back-up power source shall be provided per NFPA
requirements. Electrical data is contained in Table 2-10.
Table 2-9. Electric and Cable Operated Control Head
Control Head Part Number Voltage Amps.
81-895630-000 24 Vdc 2.0 momentary
MADE IN U. S. A.
RELEASED
ASHLAND, MA 01721
400 MAIN STREET
KIDDE-FENWAL, INC.
SET
ELECTRIC
PART NO.
VOLTS
CONTROL HEAD
USE SCREWDRIVER
TO RESET
AMPS
PU
1/2 in. EMT CONNECTION
COMPRESSION TYPE FOR
REMOTE CABLE
SEAL
WIRE
7-9/16 in.
(192 mm)
5-7/16 in.
(138 mm)
1/2 in. EMT CONNECTION
COMPRESSION TYPE TO
SECOND CONTROL HEAD
IF USED
CONNECTION FOR FLEXIBLE
ELECTRIC CONDUIT
3/4 in. NPT (FEMALE)
LOCKING PIN
LOCAL MANUAL
RELEASE LEVER
INDICATOR AND
RESET STEM
SWIVEL NUT
1--1/2 in. (38 mm) HEX
1-1/4 in. - 18 NF-3 THREAD

Component Descriptions
September 2013 2-30 P/N 81-CO2MAN-001
Figure 2-34. Explosion Proof Electric and Cable Operated Control Head
2-3.5 Pneumatic Control Heads
The pneumatic control head (Figure 2-35) is a non-electric mechanical device that allows for
automatic actuation of carbon dioxide cylinders, stop valves, and directional valves by means
of pressure pulses transmitted from heat-actuated detectors (HADs) via copper tubing. These
control heads can also be remotely activated using a cable attached from the control head to
a cable operated manual pull station. The control heads are also equipped with a manual lever
for emergency local operation.
Pneumatic control heads operate on the rate-of-temperature-rise principle. This means that a
sudden increase in the temperature must occur to cause the control head to operate.
The control head must be used in conjunction with a pneumatic heat detection system (rate-
of rise) and operates as follows: A pneumatic HAD is connected to the control head by copper
tubing. As the temperature changes, the pressure within the detector varies. If the pressure
increases rapidly, as in the event of fire, a diaphragm in the pneumatic control head will trip a
lever mechanism, causing the control head to operate. The pneumatic control head is fitted
with a vent so that slight changes in pressure due to normal changes in ambient temperature
can be vented to atmosphere. The sensitivity of the pneumatic control head is determined by
the internal pressure required to trip the control head lever. This pressure is called the setting
and is measured in inches of water. Vent sizes are rated in terms of the time (in seconds)
required to relieve two inches of water column pressure in the diaphragm chamber. The higher
Table 2-10. Explosion Proof Control Head
Control Head
Part Number Type Voltage Amps. Power Rating
WK-897494-000 Explosion Proof 24 Vdc 1.65 continuous 33.0 Watts
SET RELEASED
TO RESET
USE SCREWDRIVER
FOR
MAINTENANCE
SEE
INSTRUCTIONS
CABLE
PULL
ELECTRIC
CONTROL HEAD
PART NO.
MADE IN U.S.A.
KIDDE-FENWAL, INC.
400 MAIN STREET
ASHLAND, MA 01721
VOLTS
HZ AMPS
CONNECTION FOR CABLE
HOUSING TO SECOND CONTROL
HEAD IF USED
3/8 in. NPS FEMALE
USE PNEUMATIC CONTROL
HEAD CABLE HOUSINGS
INDICATOR AND
RESET STEM
CONNECTION WIRES
36 in. (914 mm) LONG
7-3/8 in.
(187 mm)
SWIVEL NUT
1-1/2 in. (38 mm) HEX
1-1/4 in. -18 NF-3 THREAD
LOCAL MANUAL
RELEASE LEVER
CONNECTION FOR
REMOTE PULL BOX
PIPE OR CONDUIT
3/8 in. NPS MALE
SEAL WIRE
LOCKING PIN
CONNECTION FOR FLEXIBLE
ELECTRIC CONDUIT 1/2 in. NPT
FEMALE
4-15/16 in.
(125 mm)
OPERATING SOLENOID UL LISTED
FOR USE IN THE FOLLOWING
HAZARD LOCATIONS:
I C -13 TO +150 F
(-25 TO +65 C)
I D -40 TO +150 F
(-40 TO +65 C)
II E, F, G
CLASS GROUP OP TEMP
oo
oo
oo
oo
oo
oo
-40 TO +150 F
(-40 TO +65 C)

Component Descriptions
P/N 81-CO2MAN-001 2-31 September 2013
the vent setting, the smaller the actual size of the vent. A control head with a high setting is
actually a very sensitive device.
The combination of diaphragm and vent settings for pneumatic control heads are shown in
Table 2-11.
Figure 2-35. Pneumatic Control Head
2-3.5.1 TANDEM PNEUMATIC CONTROL HEAD
As previously stated, two or more pilot cylinders are required for suppression systems
consisting of three or more cylinders. When two pneumatic control heads are used to actuate
a bank of cylinders, one control head must be of the type having a vent, and the second must
be a tandem control head. The tandem pneumatic control head (Figure 2-36) is identical to the
Table 2-11. Pneumatic Control Head Settings
Setting Control Head Part Number
3 inches, 5 sec. vent 81-872335-000
6 inches, 5 sec. vent 81-872365-000
6 inches, 2 sec. vent 81-872362-000
1 inch, Tandem 81-872310-000
3 inch, Tandem 81-872330-000
6 inch, Tandem 81-872360-000
PATENT: 246675
WALTER KIDDE
PART NO.
SET RELEASED
INSTRUCTIONS
SEE
MAINTENANCE
FOR USE SCREWDRIVER
PULL
CABLE
Kidde
TO RESET
CONTROL HEAD
PNEUMATIC
CONECTION FOR
DETECTION TUBING
3/16 in. TUBING NUT
FITS HERE
CONNECTION FOR REMOTE PULL
BOX PIPE OR CONDUIT
3/8 in. NPS FEMALE
LOCAL MANUAL
RELEASE LEVER
SWIVEL NUT
1-1/2 in. (38 mm)
HEX 1-1/4-18
NF-3 THREAD
4-13/16 in.
(122 mm)
CONNECTION FOR CABLE
HOUSING TO SECOND
CONTROL HEAD (IF USED)
3/8 in. NPS FEMALE
3-5/16 in.
(84 mm)
INDICATOR AND
RESET STEM
SEAL WIRE
LOCKING PIN

Component Descriptions
September 2013 2-32 P/N 81-CO2MAN-001
regular pneumatic control head except that its detection chamber has no vent. Thus, all the
compensation for normal environmental pressure changes is performed by the vented
pneumatic control head. The diaphragm pressure setting of the tandem control head is chosen
to match that of its corresponding vented pneumatic control head. The two diaphragm
chambers are interconnected via 3/16-inch copper tubing. If the system is to be actuated
remotely via a pull box and cable, the manual cable control is connected to both the pneumatic
and tandem control heads.
Figure 2-36. Tandem Pneumatic Control Head
2-3.6 Components for Pneumatic Actuation Systems
Pneumatic (rate-of-rise) systems utilize a variety of specialized components to control the
actuation of a carbon dioxide suppression system.
2-3.6.1 PNEUMATIC CABLE HOUSING
A pneumatic cable housing (Figure 2-37) is required when a pneumatic control head and a
tandem control head are installed for simultaneous actuation by a remote pull box and cable.
The housing protects the interconnecting cable between the two pneumatically-operated
control heads and to secure the heads in a fixed position. The length of the cable housing (see
Table 2-12) is determined by the size of the cylinders used in the suppression system.
16
1"
3/16 in. x 17 in. LONG
COPPER TUBING
P/N WK-802366-000
CABLE BLOCK
PRIMARY PNEUMATIC
CONTROL HEAD (VENTED)
CYLINDER CENTERS
CABLE HOUSING
TANDEM PNEUMATIC
CONTROL HEAD
3/8 in. PIPE OR
ALTERNATE ASSEMBLY
CABLE
3/16 in. COPPER TUBING
CONNECTION
3/16 in. TUBING TEE (SUPPLIED
WITH TANDEM CONTROL HEAD)

Component Descriptions
P/N 81-CO2MAN-001 2-33 September 2013
Figure 2-37. Pneumatic Cable Housing
2-3.6.2 HEAT ACTUATED DETECTOR
The pneumatic heat-actuated detector (HAD), Part No. WK-840845-000 (Figure 2-38),
consists of a sealed hollow brass chamber having no moving parts. The detector is connected
to the pneumatic control head(s) by copper tubing. The air pressure in the detector increases
upon a rapid rate-of-rise in temperature, such as in the event of a fire. This pressure increase
is transmitted to the pneumatic control head(s) via the copper tubing, causing the control head
to actuate the system. The pneumatic heat detector, tubing, and pneumatic control head(s)
system is vented to prevent normal ambient temperature changes from actuating the system.
Table 2-12. Pneumatic Cable Housing Part Numbers
Part Number Cylinders Used With Cylinder Centers “A” Dimension
lb. Kg in. mm in. mm
81-840044-000 25 - 35 11.3 - 15.8 9.5 241 4.68 119
81-840398-000 50 - 75 22.6 - 34.0 10.0 254 5.19 132
81-841739-000 100 45.3 11.625 295 6.82 173
3/8 in. NPT
MALE
BUSHINGS
3/8 in. NPT
MALE
A3/4 in.
(19 mm)
HEX

Component Descriptions
September 2013 2-34 P/N 81-CO2MAN-001
Figure 2-38. Heat Actuated Detector (HAD), Industrial
2-3.6.3 HEAT COLLECTOR
The heat collector, Part No. WK-312720-000 (Figure 2-39), is a 16-inch square baffle plate
constructed of 18 gauge galvanized steel and is used to capture rising heated air and
combustion products generated by a fire. The heat collector is used when the HADs cannot be
mounted at ceiling level.
7-3/8 in.
(188 mm)
1/4 in.
(6 mm) SLOT FOR
MOUNTING SCREW
1-3/4 in.
(45 mm)
1/2 in. EMT CONNECTOR (TYP)
1/2 in. EMT (TYP)
1/8 in. TUBING
1/8 in. TUBING UNION
(SUPPLIED WITH DETECTOR)
CHAMBER
LOWER CAGE
5-5/16 in.
(135 mm)
2-7/8 in.
(73 mm)
UPPER CAGE
MOUNTING
BRACKET

Component Descriptions
P/N 81-CO2MAN-001 2-35 September 2013
Figure 2-39. Heat Collector
2-3.6.4 VENTS
One of the major factors that determines the response characteristics of a system utilizing heat
actuated detectors is the size of the vents in the pneumatic control heads. If the on-site
conditions change, the vents in the pneumatic control heads can be replaced to adjust to the
new site conditions.
The vent size is measured in terms of seconds, and the number of seconds indicates the time
required for venting two inches of water-column pressure. The larger the vent size, the more
sensitive the system will be to temperature changes in the protected area. The vent sizes
available are listed in Table 2-13.
Table 2-13. Vent Size
Part Number Vent Size
WK-802742-000 2
81-802743-000 3
WK-802745-000 5
WK-802746-000 10
16 in.
(406 mm)
1 in.
(25 mm)
MOUNTING SURFACE FOR
PNEUMATIC HEAT DETECTOR
(MOUNT IN CENTER)
16 in.
(406 mm)

Component Descriptions
September 2013 2-36 P/N 81-CO2MAN-001
2-3.6.5 1/8-INCH COPPER TUBING
Within industrial systems, 1/8-inch copper tubing is used to interconnect the principal
components of a pneumatically-actuated fire suppression system. The tubing is available in 50-
foot, 100-foot and 250-foot bundles as indicated in Table 2-14.
2-3.6.5.1 Fittings
Fittings (Figure 2-40) are available to join segments of 1/8-inch copper tubing, and to interface
the 1/8-inch tubing with 3/16-inch tubing segments used to connect components such as
pneumatic transmitters and control heads.
Figure 2-40. Fittings
Table 2-14. 1/8-inch Copper Tubing Part Numbers
Part Number Length (feet)
WK-802555-000 50
WK-802556-000 100
WK-207809-000 250
1/8 in. TUBING NUT
P/N 81-207648-000
3/16 in. TUBING NUT
P/N WF-528103-000
3/16 in. UNION WITHOUT NUTS
P/N WK-528103-600
3/16 in. TEE WITHOUT NUTS
P/N WK-528103-700
1/8 in. UNION WITH NUTS
P/N 81-802355-000
3/16 X 1/8 in. REDUCING UNION
WITH 1/8 in. NUT
WITHOUT 3/16 in. NUT
P/N 81-802536-000
1/8 in. TEE WITH NUTS
P/N 81-802537-000

Component Descriptions
P/N 81-CO2MAN-001 2-37 September 2013
2-3.6.5.2 Rubber Grommet
The rubber grommet, Part No. WK-207825-000, is used to support and seal a
3/16-inch tubing penetration into a junction box.
2-3.6.6 3/16-INCH COPPER TUBING
In order to prevent damage, 3/16-inch heavy wall copper tubing (Figure 2-41) is used in
pneumatic actuated systems where the tubing is exposed. It is specifically used to connect
pneumatic control heads and pneumatic transmitters to junction boxes, and main-to-reserve
valves. The 17-inch (432 mm) length is used to interconnect tandem control heads; the 46-
inch (1168 mm) length is used only for interface between control heads and tubing for HADs.
The tubing is available for these applications in the lengths indicated in Table 2-15.
Figure 2-41. 3/16-inch Pneumatic Tubing
2-3.7 Pressure Operated Control Heads
Pressure operated control heads utilize the pressure from either a CO2 or nitrogen cylinder to
actuate CO2 cylinder valves or directional (stop) valves.
2-3.7.1 PRESSURE OPERATED CONTROL HEAD
This control head, Part No. 82-878737-000 (Figure 2-42), consists of a spring-loaded piston-
and-stem assembly housed in a brass body. The body has a threaded inlet port that connects
to the pressure line, and a swivel nut for connection to a control port. The supplied pressure
actuates the spring-loaded piston-and-stem assembly to engage the pilot check of the control
port to which it is connected.
Table 2-15. 3/16-inch Copper Tubing Part Numbers
Part Number Length
WK-802366-000 17 in. (432 mm)
81-802367-000 46 in. (1168 mm)
5-1/4 in.
(133 mm)
3/16 in. TUBING NUTS
3-1/4 in. DIA
(83 mm)
ALL LENGTHS HAVE TUBING
NUTS AND FLARED ENDS
P/N WK-802366-000
17 in. (432 mm) LENGTH
ILLUSTRATED

Component Descriptions
September 2013 2-38 P/N 81-CO2MAN-001
Figure 2-42. Pressure Operated Control Head
2-3.7.2 LEVER AND PRESSURE OPERATED CONTROL HEAD
The lever and pressure operated control head, Part No. 82-878751-000 (Figure 2-43), consists
of a spring-loaded piston-and-stem assembly housed in a brass body, and a lever for
emergency manual operation. The body has a threaded inlet port that connects to the pressure
line and a swivel nut for connection to a control port. The supplied pressure, or manual
operation of the lever, actuates the spring-loaded piston-and-stem assembly to engage the
pilot check of the control port to which it is connected.
2-3/16 in.
(56 mm)
SET
OPERATED
1-1/2 in. HEX
(38 mm)
1-1/4 - 18
UNEF-3B
SWIVEL NUT
PISTON
1/8 in. - 27 NPT
PRESSURE INLET
1 in. HEX
(25 mm)

Component Descriptions
P/N 81-CO2MAN-001 2-39 September 2013
Figure 2-43. Lever and Pressure Operated Control Head
2-3.7.3 STACKABLE PRESSURE OPERATED CONTROL HEAD
The stackable pressure operated control head, Part No. 82-878750-000 (Figure 2-44), is
similar in design and construction to the lever and pressure operated control head. It offers a
stackable design and is used where a cable operated or electric/mechanical control head is also
required.
ALLOW APPROX. 2 in. (51 mm)
CLEARANCE FOR OPERATION
OF LEVER
SAFETY PIN
LEVER
SEAL WIRE
PISTON
1/8 in. NPT PRESSURE
INLET
BODY
SET
OPERATED
1-1/4 - 18 UNEF-3B
3 in.
(76 mm)
4-1/2 in.
(114 mm)
TO OPEN
CLOSED
OPEN

Component Descriptions
September 2013 2-40 P/N 81-CO2MAN-001
Figure 2-44. Stackable Pressure Operated Control Head
2-3.8 Components for Pressure Operated Actuation Systems
2-3.8.1 NITROGEN PILOT CYLINDER AND BRACKET
Nitrogen pilot cylinders supply pressure to operate (via pressure operated control heads) CO2
pilot cylinders, stop valves, N2 discharge delays or N2 pressure operated sirens. Three different
sized cylinder capacities are provided for use with CO2 systems. Each cylinder is of steel
material and designed in accordance with USDOT and TC requirements. Each cylinder is factory
pressurized to 1800-psig @ 70F and fitted with a pressure gauge and pressure relief device.
Either pipe, tube or flexible hose connects each pilot cylinder to the pressure operated control
head(s).
2-3.8.1.1 Nitrogen Pilot Cylinder, 108 cu. in.
The 108 cu. in. N2 Pilot Cylinder (P/N WK-877940-000) can be used to operate CO2 pilot
cylinders, stop valves, a N2 discharge delay or a N2 pressure operated siren. Any compatible
control head can be fitted to the cylinder to provide the desired means of operation. The
cylinder valve has a 1/8-in NPT outlet. Any of the 1/8-in NPT x 5/16-in flare fittings can be used
to connect the valve to the corresponding actuation line. The cylinder is secured using the wall
mount bracket (P/N 81-87745-000).
2-3.8.1.2 Nitrogen Pilot Cylinder, 1040 cu. in.
The 1040 cu. in. N2 Pilot Cylinder (P/N 90-101040-001) can be used to operate CO2 pilot
cylinders, stop valves or multiple N2 pressure operated sirens. Any compatible control head
can be fitted to the cylinder to provide the desired means of operation. The cylinder has a 5/8-
in Type "I" style valve affixed with a pressure gauge. In addition to the control head, this valve
requires attachment of a discharge head to allow discharge of the cylinder contents. The ½-in
NPT N2 discharge hose (P/N 06-118207-00X) connects the discharge head to the
3-1/2 in.
(89 mm)
1-1/4 - 18 UNEF-3A
CAP RETAINER
1/8 in. - 27 NPT
PRESSURE INLET
PISTON
BODY
SET
OPERATED
STEM
1-1/4 - 18 UNEF-3B

Component Descriptions
P/N 81-CO2MAN-001 2-41 September 2013
corresponding actuation line. The cylinder is secured using the single cylinder strap (P/N WK-
270014-000). Approved for use in environments from 32°F to 130°F.
2-3.8.1.3 Nitrogen Pilot Cylinder, 2300 cu. in.
The 2300 cu. in. N2 Pilot Cylinder (P/N 90-102300-001) can be used to operate CO2 pilot
cylinders, stop valves or multiple N2 pressure operated sirens. Any compatible control head
can be fitted to the cylinder to provide the desired means of operation. The cylinder has a 5/8-
in Type "I" style valve affixed with a pressure gauge. In addition to the control head, this valve
requires attachment of a discharge head to allow discharge of the cylinder contents. The ½-in
NPT N2 discharge hose (P/N 06-118207-00X) connects the discharge head to the
corresponding actuation line. The cylinder is secured using the single cylinder strap (P/N WK-
270014-000) or the dual cylinder strap (P/N WK-241219-000). Approved for use in
environments from 32°F to 130°F.
2-3.8.2 ACTUATION HOSE
The actuation hose (Figure 2-45), is used to connect a pilot cylinder to pressure operated
control heads or actuation tubing. The 1/4-inch flexible hose is constructed with wire-braided
reinforcements and swivel nuts at both ends for ease of assembly. The hose is available in two
lengths as shown in Table 2-16.
Figure 2-45. 1/4-inch Actuation Hose
2-3.8.3 FITTINGS
Fittings (Figure 2-46) are available to interconnect the actuation hose to the pressure operated
control head(s) or actuation tubing.
Table 2-16. 1/4-inch Actuation Hose Part Numbers
Part Number Dimension “A”
WK-264986-000 30
WK-264987-000 22
5/16 in. TUBING COUPLING
(BOTH ENDS)
1-3/8 in.
(35 mm)
HOSE - 1/4 in. I.D.
5/8 in. HEX SWIVEL
NUT (BRASS)
A

Component Descriptions
September 2013 2-42 P/N 81-CO2MAN-001
Figure 2-46. Fittings
2-4 CHECK VALVES
Check valves are required for fire suppression systems that are equipped with a main and
reserve set of carbon dioxide cylinders. They are installed in each discharge manifold to isolate
the main and reserve cylinders from each other.
Check valves are also employed in directional valve systems that use a common set of carbon
dioxide cylinders to protect areas or equipment of unequal sizes. The check valves divide the
cylinder group into subsets for discharge of the required amounts of carbon dioxide into the
protected areas or equipment.
2-4.1 Check Valves (1/4-inch through 3/8-inch)
The 1/4-inch and 3/8-inch check valves (Figure 2-47) are also used in Nitrogen or CO2 pilot
lines; part numbers and dimensions are provided in Table 2-17.
Figure 2-47. Check Valves (1/4-inch and 3/8-inch)
MALE ELBOW
1/8 in. NPT x 5/16 in. TUBING
P/N WK-699205-030
MALE CONNECTOR
1/8 in. NPT x 5/16 in. TUBING
P/N WK-699205-010
MALE BRANCH TEE
1/8 in. NPT x 5/16 in. TUBING
P/N WK-699205-050
B
A
C
INST ALL VALVE WITH ARROW POINTING
IN DIRECTION OF FLOW
.

Component Descriptions
P/N 81-CO2MAN-001 2-43 September 2013
2-4.2 Check Valves (1/2-inch through 2-inch)
The 1/2-inch through 1 1/4-inch check valves (Figure 2-48) are in-line valves and consist of a
threaded brass body which houses a spring loaded piston; part numbers and dimensions are
provided in Table 2-18. The piston permits flow through the valve in one direction only.
Figure 2-48. Check Valves (1/2-inch to 1-1/4-inch)
The 1-1/2-inch and 2-inch check valves (Figure 2-49) consist of a brass body which houses a
spring loaded stop check; part numbers and dimensions are provided in Table 2-19. The stop
check permits flow in one direction only.
These valves are fitted with threaded inlet and outlet ports.
Table 2-17. Check Valve Dimensions (1/4-inch through 3/8-inch)
Part Number Valve Size Pipe Thread
“C”
“A” “B”
in. mm in. mm
WK-264985-000 1/4 in. 1/4 in. - 18 NPT 2.00 51 0.81 21
WK-261193-000 3/8 in. 3/8 in. - 18 NPT 2.35 60 1.00 25
Table 2-18. Check Valve Dimensions (1/2-inch through 1-1/4-inch)
Part Number Valve Size Pipe Thread
“C”
“A” “B”
in. mm in. mm
81-800327-000 1/2 in. 1/2 in. - 14 NPT 3.34 85 2 51
81-800266-000 3/4 in. 3/4 in. - 14 NPT 3.34 85 2 51
WK-800443-000 1 in. 1 in. - 11.5 NPT 3.97 101 3.18 81
81-800444-000 1-1/4 in. 1-1/4 in. - 11.5 NPT 3.97 101 3.18 81
A
CB
VALVE MUST BE
INSTALLED WITH
ARROW POINTING IN
DIRECTION OF FLOW

Component Descriptions
September 2013 2-44 P/N 81-CO2MAN-001
Figure 2-49. Check Valves (1-1/2-inch to 2-inch)
2-4.3 Check Valves (2 1/2-inch through 3-inch)
The 3-inch check valve, Part No. 81-870100-000 (Figure 2-50) is similar in construction and
operation to the 1 1/2-inch and 2-inch check valves.
This valve has flanged inlet and outlet ports and requires two appropriately sized welding neck
flanges and gaskets for connection to either 2 1/2-inch or 3-inch distribution piping.
Table 2-19. Check Valve Dimensions (1-1/2-inch through 2-inch)
Part Number Valve Size Pipe Thread
“D”
“A” “B” “C”
in. mm in. mm in. mm
81-870152-000 1-1/2 in. 1-1/2 in. - 11.5 NPT 7.50 151 6.28 160 4.75 121
81-870151-000 2 in. 2 in. - 11.5 NPT 7.50 151 6.28 160 4.75 121
AC
D
B
VALVE MUST BE
INSTALLED WITH
ARROW POINTING IN
DIRECTION OF FLOW

Component Descriptions
P/N 81-CO2MAN-001 2-45 September 2013
Figure 2-50. Check Valves (2 1/2-inch to 3-inch)
2-4.3.1 2 1/2-INCH WELDING NECK FLANGE
The 2 1/2-inch welding neck flange, Part No. WK-263716-000 (Figure 2-50), is required to
attach the 3-inch check valve to 2 1/2-inch distribution piping. Two flanges are required per
valve.
2-4.3.2 3-INCH WELDING NECK FLANGE
The 3-inch welding neck flange, Part No. WK-681012-000 (Figure 2-50), is required to attach
the 3-inch check valve to 3-inch distribution piping. Two flanges are required per valve.
2-4.3.3 3-INCH FLANGE GASKET
The 3-inch flange gasket, Part No. WK-200973-000 (Figure 2-50) is required to seal the
connection between the 3-inch check valve and either the 2 1/2-inch or 3-inch welding neck
flange. Two gaskets are required per valve.
2-4.3.4 NUTS AND BOLTS
3/4-inch hex nuts, Part No. WK-152308-000 (Figure 2-50), and 3/4-inch by 4 1/2-inch long
bolts, Part No. WK-196648-720 (Figure 2-50), are required to connect the 2 1/2-inch or 3-inch
welding neck flanges to the 3-inch check valve. A total of 16 nuts and bolts are required per
check valve.
INLET
3/4 in. X 4-1/2 in. (114 mm) LG. HEX BOLT
P/N WK-196648-720
16 REQUIRED
10-1/2 in.
(267 mm)
OUTLET
3/4 in. HEX NUT
P/N WK-152348-000
16 REQUIRED
GASKET
P/N WK-200973-000
2 REQUIRED
2-1/2 in. WELDING NECK FLANGE
P/N WK-263716-000
2 REQUIRED
-OR-
3 in. WELDING NECK FLANGE
P/N WK-681012-000
2 REQUIRED
SIDE VIEW
WITHOUT
ASSEMBLED FLANGE
8-1/4 in. (210 mm) DIAMETER FLANGE
6-5/8 in. (168 mm) BOLT CIRCLE

Component Descriptions
September 2013 2-46 P/N 81-CO2MAN-001
2-5 DIRECTIONAL (STOP) VALVES
Directional (stop) valves find two primary applications in carbon dioxide systems. The first
application is in multi-hazard systems which share a common carbon dioxide suppression
system. Directional valves are used to route the carbon dioxide from the shared supply to the
individual areas or equipment being protected.
The second application for these valves is as a life safety device to prevent the accidental
discharge of carbon dioxide into a normally-occupied area. The stop valve prevents the flow of
carbon dioxide until the attached control head is operated.
All Kidde Fire Systems directional (stop) valves operate on a differential-pressure principle,
utilizing the pressure of the discharging carbon dioxide to open the stop check and allow flow
through the valve. All valves automatically reset (close) after discharge is completed.
2-5.1 Directional (Stop) Valves (1/2-inch through 2-inch)
The 1/2-inch through 2-inch size directional valves (Figure 2-51) have bronze bodies which
house a stop check and an actuating piston, along with an external port for attachment of a
control head (part numbers and dimensions are provided in Table 2-20). Actuation of a control
head allows the discharged carbon dioxide to apply pressure to the actuating piston to open
the stop check.
These directional valves have threaded inlet and outlet ports for connection to the distribution
piping.
Figure 2-51. Directional (Stop) Valves (1/2-inch through 2-inch)
CAUTION Directional (stop) valves do NOT prevent flow in the direction opposite the
arrow.
CAUTION All control heads must be in the set position before attaching to the directional
(stop) valves, in order to prevent accidental CO2 discharge.
B
C
A
INLETVALVE SIZE
OUTLET
NPT
BOTH ENDS
1-1/4 - 18 NF-3 FOR CONTROL HEAD CONNECTION

Component Descriptions
P/N 81-CO2MAN-001 2-47 September 2013
2-5.2 Directional (Stop) Valves (2 1/2-inch through 4-inch)
The 3-inch and 4-inch directional valves, Part Nos. 81-890010-000 and 81-890208-000
respectively (Figure 2-52 and Figure 2-53), are similar in construction and operation as the
1/2-inch through 2-inch size directional valves. These valves have flanged inlet and outlet
ports and require two appropriately-sized flanges and gaskets for connection to the distribution
piping.
2-5.2.1 2 1/2-INCH AND 3-INCH VALVES
For the 3-inch valve, Part No. 81-890010-000 (Figure 2-52), see Paragraph 2-4.3.1 through
Paragraph 2-4.3.4 for descriptions of the components required for connection to 2 1/2-inch
and 3-inch piping.
Figure 2-52. Directional (Stop) Valves (2-1/2-inch and 3-inch)
Table 2-20. Check Valve Dimensions (1 1/2-inch through 2-inch)
Part Number Valve Size Pipe Thread
“D”
“A” “B” “C”
in. mm in. mm in. mm
81-870023-000 1/2 in. 1/2 in. - 14 NPT 3.75 95 2.50 64 4.68 119
81-870022-000 3/4 in. 3/4 in. - 14 NPT 4.25 108 2.81 71 5.68 144
81-870122-000 1 in. 1 in. - 11.5 NPT 5.50 140 3.62 92 6.87 175
81-870032-000 1-1/4 in. 1-1/4 in. - 11.5 NPT 5.50 140 3.62 92 6.87 175
81-800123-000 1-1/2 in. 1-1/2 in. - 11.5 NPT 7.50 191 4.75 121 8.43 214
81-800049-000 2 in. 2 in. - 11.5 NPT 7.50 191 4.75 121 8.43 214
INLET
3/4 in. X 4-1/2 in. (114 mm) LG. HEX BOLT
P/N WK-196648-720
16 REQUIRED
10-1/2 in.
(267 mm)
OUTLET
3/4 in. HEX NUT
P/N WK-152308-000
16 REQUIRED
GASKET
P/N WK-200973-000
2 REQUIRED
2-1/2 in. WELDING NECK FLANGE
P/N WK-263716-000
2 REQUIRED
-OR-
3 in. WELDING NECK FLANGE
P/N WK-681012-000
2 REQUIRED
SIDE VIEW
WITHOUT
ASSEMBLED FLANGE
8-1/4 in. (210 mm) DIAMETER FLANGE
6-5/8 in. (168 mm) BOLT CIRCLE
1-1/4 in. - 18 NF-3 MALE
FOR CONTROL HEAD
CONNECTION
9-13/16 in.
(249 mm)

Component Descriptions
September 2013 2-48 P/N 81-CO2MAN-001
2-5.2.2 4-INCH VALVE
The 4-inch valve, Part No. 81-890208-000 (Figure 2-53), has flanged inlet and outlet ports
that require the flanges, gaskets and fasteners described in Paragraph 2-5.2.3,
Paragraph 2-5.2.4 and Paragraph 2-5.2.5 for connection to the distribution piping.
Figure 2-53. Directional (Stop) Valve (4-inch)
The 4-inch valve has flanged inlet and outlet ports that require the following flanges, gaskets
and fasteners for connection to the distribution piping.
2-5.2.3 4-INCH FLANGE
The 4-inch welding neck flange, Part No. WK-681016-000 (Figure 2-53), is required to attach
the 4-inch directional (or stop) valve to 4-inch distribution piping. Two flanges are required per
valve.
2-5.2.4 4-INCH GASKET
The 4-inch flange gasket, Part No. WK-200150-000 (Figure 2-53), is required to seal the
connection between the 4-inch directional valve and the 4-inch welding neck flange. Two
gaskets are required per valve.
2-5.2.5 NUTS AND BOLTS
7/8-inch hex nuts, Part No WK-152356-000 (Figure 2-53), and 7/8-inch by 5-inch long bolts,
Part No. WK-196656-800 (Figure 2-53), are required to connect the 4-inch welding neck
flanges to the 4-inch directional valve. A total of 16 nuts and bolts are required per valve.
INLET
7/8 in. X 5 in. (127 mm) LG. HEX BOLT
P/N WK-196656-800
16 REQUIRED
12-1/8 in.
(308 mm)
OUTLET
7/8 in. HEX NUT
P/N WK-152356-000
16 REQUIRED
GASKET
P/N WK-200150-000
2 REQUIRED
4 in. WELDING NECK FLANGE
P/N WK-681016-000
2 REQUIRED
SIDE VIEW
WITHOUT
ASSEMBLED FLANGE
10-3/4 in. (273 mm) DIAMETER FLANGE
8-1/2 in. (216 mm) BOLT CIRCLE
11-1/16 in.
(281 mm)
1-1/4 in. - 18 NF-3 MALE
FOR CONTROL HEAD
CONNECTION

Component Descriptions
P/N 81-CO2MAN-001 2-49 September 2013
2-6 LOCKOUT VALVES
A lockout valve is a manually operated valve installed between the CO2 manifold and the
discharge pipe to the protected area. The lockout valve can be locked in the closed position to
prevent carbon dioxide from discharging into the protected area. The lockout valve shall be
installed at the end of the CO2 manifold or, if a common manifold protects multiple hazards,
after each selector valve.
The lockout valve consists of a carbon steel or stainless steel valve with threaded ends. Either
valve style can be provided with or without limit switches.
2-6.1 Lockout Valves without Limit Switches
The lockout valve without limit switches (Figure 2-54) is available in sizes 1/4” thru 2”. The
part numbers and dimensions are provided in Table 2-21.
Figure 2-54. Lockout Valves without Limit Switches

Component Descriptions
September 2013 2-50 P/N 81-CO2MAN-001
Figure 2-55. Lockout Valves with Lock
Table 2-21. Carbon Steel Lockout Valves without Limit Switches Dimensions and Part Numbers
Valve
Size part
number
Approximate Dimensions (inches) Approx.
WT (lb) Valve Style
ABCDEFHJRS
1/4” 10611105 2.73 1.55 0.50 1.03 0.50 1.25 4.00 2.26 0.31 0.19 1.1 Reduced Port
1/2” 70985075 2.73 1.55 0.50 1.03 0.50 1.25 4.00 2.26 0.31 0.19 1.1 Reduced Port
3/4” 70985076 3.50 1.92 0.50 1.38 0.88 1.63 5.50 3.10 0.50 0.31 2.7 Full Port
1” 70985077 3.60 1.92 0.50 1.38 0.88 1.75 5.50 3.10 0.50 0.31 2.8 Reduced Port
1 1/4” 70985078 3.93 2.10 0.56 1.63 1.00 2.00 5.50 3.23 0.50 0.31 3.7 Reduced Port
1 1/2” 70985079 4.55 2.47 0.75 1.88 1.25 2.38 7.00 3.93 0.63 0.38 5.0 Reduced Port
2” 70985080 4.94 2.66 0.75 2.12 1.50 2.88 7.00 4.12 0.63 0.38 6.8 Reduced Port
Table 2-22. Stainless Steel Lockout Valves without Limit Switches Dimensions and Part Numbers
Valve
Size part
number
Approximate Dimensions (inches) Approx.
WT (lb) Valve Style
ABCDEFHJRS
1/4” 10611104 2.73 1.55 0.50 1.03 0.50 1.25 4.00 2.26 0.31 0.19 1.1 Reduced Port
1/2” 10611100 2.73 1.55 0.50 1.03 0.50 1.25 4.00 2.26 0.31 0.19 1.1 Reduced Port
3/4” 10611101 3.50 1.92 0.50 1.38 0.88 1.63 5.50 3.10 0.50 0.31 2.7 Full Port
1” 10611099 3.60 1.92 0.50 1.38 0.88 1.75 5.50 3.10 0.50 0.31 2.8 Reduced Port
1 1/4” 10611102 3.93 2.10 0.56 1.63 1.00 2.00 5.50 3.23 0.50 0.31 3.7 Reduced Port
1 1/2” 10611098 4.55 2.47 0.75 1.88 1.25 2.38 7.00 3.93 0.63 0.38 5.0 Reduced Port
2” 10611103 4.94 2.66 0.75 2.12 1.50 2.88 7.00 4.12 0.63 0.38 6.8 Reduced Port

Component Descriptions
P/N 81-CO2MAN-001 2-51 September 2013
2-6.2 Lockout Valves with Limit Switches
The lockout valve with 2 SPDT limit switches and indicator(Figure 2-56) is available in sizes
1/4” thru 2”. The part numbers and dimensions are provided in Table 2-23.
Figure 2-56. Lockout Valves with Limit Switches
Table 2-23. Carbon Steel Lockout Valves with Limit Switches Dimensions and Part Numbers
Valve Size ASSY P/N Ball Valve P/N Dimensions Approx.
WT (lb)
ABC
1/4” 70985018 10611105 1.55 2.73 9.25 7
1/2” 70985020 70985075 1.55 2.73 9.25 7
3/4” 70985021 70985076 1.92 3.50 9.25 8
1” 70985022 70985077 1.92 3.60 9.25 9
1 1/4” 70985023 70985078 2.10 3.93 9.85 10
1 1/2” 70985024 70985079 2.47 4.55 10.05 12
2” 70985025 70985080 2.66 4.94 10.25 12
Table 2-24. Stainless Steel Lockout Valves with Limit Switches Dimensions and Part Numbers
Valve Size ASSY P/N Ball Valve P/N Dimensions Approx.
WT (lb)
ABC
1/4” 10611106 10611004 1.55 2.73 9.25 7
1/2” 10611107 10611100 1.55 2.73 9.25 7
3/4” 10611108 10611101 1.92 3.50 9.25 8
1” 10611109 10611099 1.92 3.60 9.25 9
1 1/4” 10611110 10611102 2.10 3.93 9.85 10
1 1/2” 10611111 10611098 2.47 4.55 10.05 12
2” 10611112 10611103 2.66 4.94 10.25 12

Component Descriptions
September 2013 2-52 P/N 81-CO2MAN-001
2-6.3 Lockout Valve with Explosion Proof Limit Switches
The lockout valve with 2 SPDT explosion proof limit switches and indicator(Figure 2-57) is
available in sizes 1/4” thru 2”. The part numbers and dimensions are provided in Table 2-25.
Figure 2-57. Lockout Valve with Explosion Proof Limit Switches
Table 2-25. Carbon Steel Lockout Valve with Explosion Proof Limit Switches Dimensions and Part Numbers
Valve
Size ASSY P/N Ball Valve P/N Dimensions Approx.
WT (lb)
ABC
1/4” 70985090 10611105 1.55 2.73 9.25 7
1/2” 70985069 70985075 1.55 2.73 9.25 7
3/4” 70985070 70985076 1.92 3.50 9.25 8
1” 70985071 70985077 1.92 3.60 9.25 9
1 1/4” 70985072 70985078 2.10 3.93 9.85 10
1 1/2” 70985073 70985079 2.47 4.55 10.05 12
2” 70985074 70985080 2.66 4.94 10.25 12
Table 2-26. Stainless Steel Lockout Valve with Explosion Proof Limit Switches Dimensions and Part
Numbers
Valve
Size ASSY P/N Ball Valve P/N Dimensions Approx.
WT (lb)
ABC
1/4” 10611113 10611004 1.55 2.73 9.25 7
1/2” 10611114 10611100 1.55 2.73 9.25 7
3/4” 10611115 10611101 1.92 3.50 9.25 8
1” 10611116 10611099 1.92 3.60 9.25 9
1 1/4” 10611117 10611102 2.10 3.93 9.85 10
1 1/2” 10611118 10611098 2.47 4.55 10.05 12
2” 10611119 10611103 2.66 4.94 10.25 12

Component Descriptions
P/N 81-CO2MAN-001 2-53 September 2013
2-6.4 CO2 System Lockout Valve Operational Sign
An operational sign, P/N 06-231867-379, may be installed with all lockout valves to provide
operational instructions for the lockout valve. The sign is 9” x 5”, made of Aluminium.
Figure 2-58. CO2 System Lockout Valve Operational Sign
2-7 DISCHARGE NOZZLES
Discharge nozzles control the distribution of carbon dioxide into the protected area or onto the
protected equipment (or process). Kidde Fire Systems discharge nozzles are designed to
provide the proper combination of flow rate and discharge pattern to protect vital equipment
in a total-flooding manner or on a local application basis.
Kidde Fire Systems discharge nozzles are marked to identify the nozzle and show the nozzle's
equivalent single orifice diameter. The equivalent diameter refers to the orifice diameter of a
"standard" single orifice type nozzle having the same flow rate as the Kidde Fire Systems
nozzle.
The orifice code numbers indicate the equivalent single-orifice diameter in 1/32-inch
increments. A plus (+) symbol is used to indicate a 1/64-inch increment.
2-7.1 Multijet Nozzle, Type S
The type S multijet nozzles (listed in Table 2-27) have a female 1/2-inch NPT inlet connection
for attaching to the CO2 distribution piping. Strainers are provided with nozzles having orifice
code numbers from 2 to 5+.
Type S nozzle sizes and styles are summarized in Table 2-27.
V
VALVE CLOSED
LOCKED OUT
CARBON DIOXIDE SYSTEM
LOCK OUT VALVE
VALVE OPEN

Component Descriptions
September 2013 2-54 P/N 81-CO2MAN-001
The basic type S nozzle (Figure 2-59) has a red painted cold-rolled steel body. A zinc plated
finish is available as an option. (previous versions were offered with a cadmium plating.)
Table 2-27. Type S Nozzles
Orifice Code
No. S S-Zinc S-Flanged
2 803381 803897 802990
2+ 803365 803881 802974
3 803366 803882 802975
3+ 803367 803883 802976
4 803368 803884 802977
4+ 803369 803885 802978
5 803370 803886 802979
5+ 803371 803887 802980
6 803372 803888 802981
6+ 803373 803889 802982
7 803374 803890 802983
7+ 803375 803891 802984
8 803376 803892 802985
8+ 803377 803893 802986
9 803378 803894 802987
9+ 803379 803895 802988
10 803380 803896 802989

Component Descriptions
P/N 81-CO2MAN-001 2-55 September 2013
Figure 2-59. Multijet Nozzle, Type S
A flanged type S nozzle (Figure 2-60) and flanged mounting kit are also available for mounting
the nozzle on the exterior of a duct or enclosure. The flanged mounting kit includes a frangible
disc which ruptures upon discharge to allow flow from the nozzle. The flanged nozzle and
mounting kit may be used to prevent particulate and liquid matter from clogging the orifices.
The flanged nozzle body is painted red.
2 OR 4 ORIFICES 1-1/8 in. (29 mm) HEX
1/2 in. NPT FEMALE
STRAINER - INCLUDED
IN TYPE “S” NOZZLES
WITH NOZZLE CODE
NOS. FROM 2 TO 5+
THROAT
NOZZLE CODE NUMBER
STAMPED HERE
5 in.
(127 mm)
3-1/2 in.
(89 mm)

Component Descriptions
September 2013 2-56 P/N 81-CO2MAN-001
Figure 2-60. Multijet Nozzle, Type S Flanged
2-7.1.1 FLANGED NOZZLE MOUNTING KIT, TYPE S NOZZLE
The flanged mounting kit, Part No. 81-803330-000 (Figure 2-61, Figure 2-62 and
Figure 2-63), contains two holding rings and a gasket (Part No. WK-201004-000) required to
install a frangible disc on the S-nozzle outlet, or for installation of this nozzle to a duct or an
enclosure.
Table 2-28. Flanged Nozzle Mounting Kit BOM
Description Quantity
Disc, Aluminum, Part Number WK-310020-000 2
Gasket, Part Number WK-201004-000 1
Ring Tapped 1
Ring Holding 2
Bolt, 5/16 in. -18 x 1/2 in. 3
Flat Head Screw - 5/16 in. -18 x 7/8 in. 3
Lockwasher — 5/16 in. 6
Nut, Hex 5/16 in. -18 3
2 OR 4 ORIFICES 1-1/8 in. (29 mm) HEX
1/2 in. NPT FEMALE
THROAT
NOZZLE CODE NUMBER
STAMPED HERE
5 in.
(127 mm)
4-1/4 in.
(108 mm)
STRAINER - INCLUDED
IN TYPE “S” NOZZLES
WITH NOZZLE CODE
NOS. FROM 2 TO 5+

Component Descriptions
P/N 81-CO2MAN-001 2-57 September 2013
Figure 2-61. Flanged Nozzle Mounting Kit (Orifice Protection Only)
BOLTS - 5/16-18 x 1/2 in.
LOCKWASHERS - 5/16
HEX NUTS - 5/16 - 18
3 HEX NUTS
3 LOCKWASHERS
HOLDING RING
FRANGIBLE DISC
GASKET
HOLDING RING
3 BOLTS
TYPICAL TYPE “S”
FLANGED NOZZLE

Component Descriptions
September 2013 2-58 P/N 81-CO2MAN-001
Figure 2-62. Flanged Nozzle Mounting Kit (Duct or Enclosure Mounting)
HOLDING RING
GASKET
FRANGIBLE DISC
(OPTIONAL)
3 FLAT
HEAD SCREWS
3 BOLTS
3 LOCKWASHERS
TYPICAL TYPE “S”
FLANGED NOZZLE
3 TAPPED HOLES
120 DEGREES APART
TAPPED RING
3 DRILLED HOLES
120 DEGREES APART
3 DRILLED HOLES
120 DEGREES APART
HOLDING RING
3 LOCKWASHERS
3 HEX NUTS
BOLTS - 5/16 - 18 x 1/2 in.
FLAT HEAD SCREWS - 5/16 - 18 x 7/8 in.
LOCKWASHERS - 5/16
HEX NUTS - 5/16 - 18

Component Descriptions
P/N 81-CO2MAN-001 2-59 September 2013
Figure 2-63. Flange Mounting Hole Pattern
2-7.1.2 ALUMINUM DISC
A frangible aluminum disc, Part No. WK-310020-000 (Figure 2-61 and Figure 2-62), is
available to prevent the entry of particulate matter into a type S nozzle. This disk is included
with the Flanged Nozzle Mounting Kit, Part No. 81-803330-000.
2-7.1.3 STAINLESS STEEL DISC
A frangible stainless steel disc, Part No. 81-220299-000 (Figure 2-61 and Figure 2-62), is
available to prevent the entry of particulate matter into a type S nozzle.
2-7.2 Multijet Nozzle, Type M
The type M multijet nozzle (Figure 2-64) is similar in design and operation to the type S nozzle,
and is used for applications requiring higher flow rates than those attainable with the type S
nozzle. Strainers are provided with nozzles having orifice code numbers from 4 to 5+. The
nozzle body is longer than the type S body in order to accommodate the higher flow rates. The
type M nozzle has a red painted cold-rolled steel body. The Type M multijet nozzles have a
3/4 inch NPT inlet connection for attaching to the CO2 distribution piping.
NOTE: A FULL-SIZE TEMPLATE IS
AVAILABLE ONLINE FROM KIDDE
FIRE SYSTEMS.
3-3/8 in. (86 mm)
DIAMETER HOLE
FOR AGENT DISCHARGE
4-5/8 in. (118 mm) DIAMETER BOLT CIRCLE
(3) 3/8 in. (9.6 mm) HOLES
EQUALLY SPACED FOR
FLAT HEAD SCREWS

Component Descriptions
September 2013 2-60 P/N 81-CO2MAN-001
Figure 2-64. Multijet Nozzle, Type M
The type M nozzles are summarized in Table 2-29.
Table 2-29. Type M Nozzles
Size Part Number
4 842319
4+ 842320
5 842321
5+ 842322
6 842323
6+ 842324
7 842325
8 842326
9 842327
10 842328
11 842329
12 842330
13 842331
14 842332
15 842333
2OR4
ORIFICES
9-1/2 in.
(241 mm)
5-1/8 in.
(130 mm)
NOZZLE CODE NUMBER
STAMPED HERE
THROAT
STRAINER - INCLUDED IN TYPE “M”
NOZZLES WITH NOZZLE CODE
NOS. FROM 4 TO 5+
3/4 In. NPT FEMALE
1-3/8 in. (35 mm) HEX

Component Descriptions
P/N 81-CO2MAN-001 2-61 September 2013
2-7.3 Vent Nozzle, Type V
The type V vent nozzle (Figure 2-65) is a single-orifice nozzle used to discharge a jet of carbon
dioxide into an enclosure such as a duct. Strainers are provided with nozzles having orifice code
numbers from 1 to 4+. The type V nozzles are only used for total flooding applications.
Figure 2-65. Vent Nozzle, Type V
The sizes are summarized in Table 2-30.
Table 2-30. Type V Vent Nozzles
Orifice Code
No. V V-Stainless
1 930066 81098656
1+ 930067 81098657
2 919309 81098658
2+ 803327 81098659
3 929242 81098660
3+ 803328 81098661
4 915876 81098662
4+ 803329 81098663
5 214721 81098664
5+ 214722 81098665
6 214723 81098666
6+ 214724 81098667
7 214725 81098668
7+ 214726 81098669
8 214727 81098670
8+ 214728 81098671
9 214729 81098672
1/2 in. NPT FEMALE
1-1/4 in.
(29 mm)
HEX
STRAINER - INCLUDED IN
TYPE “V” NOZZLES WITH
NOZZLE CODE NOS. FROM
1TO4+
ORIFICE-(1)
1/2 in. NPT MALE
1-11/16 in.
(43 mm)
ARROW SHOWS
DIRECTION OF FLOW
NOZZLE CODE NUMBER
STAMPED HERE

Component Descriptions
September 2013 2-62 P/N 81-CO2MAN-001
2-7.3.1 FLANGE AND COVER ASSEMBLY, TYPE V NOZZLE
The flange and cover assembly, Part No. 81-844492-000 (Figure 2-66), contains a flanged
adapter, a washer, and a frangible disc for the installation of a vent nozzle to a duct or an
enclosure. The aluminum frangible disc is designed to prevent the entry of particulate matter
into the vent nozzle's orifice. Both the frangible disc (Part No. WK-260885-000) and the washer
(Part No. WK-260884-000) can be purchased separately.
Figure 2-66. Flange and Cover Assembly, Type “V” Nozzle
2-7.4 Multijet Nozzle, Type L
The type L multijet nozzle (Figure 2-67) has a 1/2-inch NPT female connection for attaching to
the CO2 distribution piping. Strainers are provided with nozzles having orifice code numbers
from 3+ to 5+.
The discharge produces a 180o flat fan pattern that is highly effective for protection of dip
tanks, drain boards and similar two dimensional hazards. The nozzle is attached to the side of
a tank and offers no obstruction to overhead trolleys or dipping operations.
The type L nozzles are only used for local application systems.
3 in.
(76 mm) FLANGE
WASHER
ADAPTER
FRANGIBLE DISC
TYPICAL TYPE “V”
NOZZLE
1-11/16 in.
(43 mm)
3-7/32 in. (6 mm)
HOLES EQUALLY
SPACED
HOLE FOR AGENT DISCHARGE
1 in. (25 mm) MINIMUM
2 in. (51 mm) MAXIMUM
RECOMMENDED HARDWARE FOR
MOUNTING - 3/16 in. NUTS AND BOLTS
(3) 7/32 in. HOLES
EQUALLY SPACED
2-1/2 in. (63.5 mm) BOLT CIRCLE
DRILLING PATTERN
NOTE: A FULL-SIZE TEMPLATE IS
AVAILABLE ONLINE FROM KIDDE.
REFERENCE DATASHEET K-81-1141

Component Descriptions
P/N 81-CO2MAN-001 2-63 September 2013
Figure 2-67. Multijet Nozzle, Type L
The sizes are summarized in Table 2-31.
2-8 AUXILIARY EQUIPMENT
Auxiliary equipment consists of supplementary items required for a fully-functional carbon
dioxide system, such as pressure switches and trips, pressure operated time delays, sirens,
and warning and instruction plates.
Table 2-31. Type L Nozzles
Size Part Number
3+ 842334
4 842335
4+ 842336
5 842337
5+ 842338
6 842339
6+ 842340
7 842341
7+ 842342
8 842343
8+ 842344
9 842345
9+ 842346
10 842347
1/2 in. NPT FEMALE
STRAINER INCLUDED
IN TYPE “L” NOZZLES
WITH NOZZLE CODE NOS.
FROM2TO5+
THROAT
NOZZLE CODE NUMBER
STAMPED HERE
7-1/16 in.
(179.4 mm)
6 in.
(152.4 mm)
1-1/4 in.
(31.7 mm)
HEX
ORIFICES
1/4 in.
(6.4 mm)
1-7/8 in.
(47.6 mm)
11 mm DIAMETER
(2) MTG. HOLES
2-3/8 in.
(60.3 mm)
6 in.
(152.4 mm)
3-5/8 in.
(92.1 mm)

Component Descriptions
September 2013 2-64 P/N 81-CO2MAN-001
2-8.1 Pressure Operated Switches
Pressure operated switches (Figure 2-68 and Figure 2-69) are connected to the distribution
piping and utilize the pressure of the discharging carbon dioxide for activation. The carbon
dioxide actuates a pressure operated stem which toggles the electrical switch. Each switch can
also be operated manually by pulling up on the stem. These switches are used to enunciate
alarms, to shut down ventilation and/or other electrical equipment and to turn on electrical
automatic dampers or other electrical equipment. Each pressure switch must be manually
reset, by pushing down on the stem to return the switch to the set position. The minimum
operating pressure required is 50 PSI.
Pressure switches are available in standard (Part No. 81-486536-000) and explosion proof
(Part No. 81-981332-000) models. The standard switch is three-pole, double-throw; the
explosion proof switch is three-pole, single-throw.
Figure 2-68. Pressure Operated Switch
PRESSURE OPERATED SWITCH
3P.D.T.
UL
FM
R
Kidde
4 in.
(102 mm)
4 in.
(102 mm)
OPERATED
SET
(4) 1/4 in. MOUNTING
HOLES
OPERATED
SET
STEM SHOWN IN SET POSITION -
PULL UP ON STEM TO MANUALLY
OPERATE SWITCH
3/8 in.
(8) COVER SCREWS
TO RESET
PUSH STEM TO SET POSITION
15 AMP 125 VAC
10 AMP 250 VAC
3/4 HP 1-2-3 PH 125-480 VAC
1/2 in. SUPPLY PIPE WITH UNION
SWITCH 3PDT
COVER
GASKET
FRONT VIEW
COVER REMOVED
FRONT VIEW
SIDE SECTION
1/2 in. NPT FEMALE -
CONNECT TO SYSTEM PIPING
BOX
(3) 1/2 in. CONDUIT KNOCKOUTS
EACH SIDE
WIRING
SCREW
TERMINALS

Component Descriptions
P/N 81-CO2MAN-001 2-65 September 2013
Figure 2-69. Pressure Operated Switch, Explosion Proof
2-8.2 Pressure Operated Trip
The pressure operated trip, Part No. 81-874290-000 (Figure 2-70), is connected to the
distribution piping and utilizes carbon dioxide pressure for actuation. The carbon dioxide
pressure displaces a spring-loaded piston to disengage a holding ring from the stem connected
to the piston. (Typical applications of the pressure operated trip are addressed in Paragraph 3-
15.2.)
Figure 2-70. Pressure Operated Trip
UL
3 POLE
SINGLE
THROW
TOGGLE
SWITCH
SET POSITION
GAS
INLET
PRESSURE
OPERATED
EXPLOSION
PROOF
SWITCH
3 POLE
4-3/8 in.
(111 mm)
(6) COVER
SCREWS
30 AMP 250 VAC
20 AMP 600 VAC
2 HP 110-600 V
3 PHASE AC
KIDDE-FENWAL INC.
400 MAIN STREET
ASHLAND, MA 01721
UNION CONNECTION
(2) 13/32 in. MOUNTING HOLES
LISTED 472M
SIGNAL SWITCH
FOR USE IN
HAZARDOUS
LOCATIONS
CLASS I, GROUP D
CAUTION: TO PREVENT
IGNITION OF HAZARDOUS
ATMOSPHERES, DISCONNECT
THE DEVICE FROM THE
SUPPLY CIRCUIT BEFORE
OPENING, KEEP ASSEMBLY
TIGHTLY CLOSED WHEN
IN OPERATION
TO RESET PUSH
STEM TO SET
POSITION
OPERATING HEAD
PRESSURE INLET - 1/2 in. NPT FEMALE
CLUTCH
9 in.
(229 mm )
STEM IN OPERATED POSITION
STEM IN SET POSITION -
PULL UP ON STEM TO
MANUALLY OPERATE SWITCH
1 in. NPT FEMALE BOTH ENDS
FOR ELECTRIC CONNECTION.
SWITCH SUPPLIED WITH
(2) 1 in. NPT PIPE PLUGS
6-5/16 in.
(160 mm)
3-1/2 in.
(89 mm)
4-3/16 in.
(106 mm)
EXPLOSION PROOF
MACHINED JOINT.
DO NOT USE GASKET
OR MAR SURFACES.
BODY
2-1/2 in.
(64 mm)
BRACKET WITH
3/8 in. (10 mm) DIA.
MOUNTING HOLE
GUARD
STEM
RING
PISTON
SPRING
1-3/8 in. (41 mm) HEX
1/2 in. NPT FEMALE
PRESSURE INLET 1-5/8 in.
(41 mm)

Component Descriptions
September 2013 2-66 P/N 81-CO2MAN-001
2-8.3 Pneumatic Discharge Delay
This pneumatic discharge delay (Figure 2-71 through Figure 2-73) uses CO2 system pressure
or N2 actuation pressure to provide a pneumatic (automatic mechanical) means to delay the
CO2 discharge for a pre-determined period. The pneumatic discharge delay consists of a
metering tube, a cylinder, and a differential pressure operated valve with a control port for
attaching a compatible control head. This assembly is installed downstream of pressure
operated equipment, but upstream of the nozzle, to allow alarms to sound, and equipment and
ventilation to shut down prior to the carbon-dioxide discharge.
Discharge delay assemblies are available with non-adjustable, factory pre-set delay periods.
Attachment of a compatible control head allows the delay period to be bypassed. Without a
control head the delay period cannot be bypassed.
Consult NFPA 12 (latest edition) for guidance selecting appropriate control heads.
Figure 2-71. Pneumatic Discharge Delay
Table 2-32. Pneumatic Discharge Delay Part Numbers
Part Number Description
81-871071-000 CO2 Discharge Delay, 30 Second (Not FM Approved)
81-897636-000 CO2 Discharge Delay, 60 Second (Not FM Approved)
81-871072-001 N2 Discharge Delay, 30 Second (For Use w/108-cuin N2 Cylinder Only)
81-871072-002 N2 Discharge Delay, 60 Second (For Use w/108-cuin N2 Cylinder Only)
OUT
IN
4-7/16 in.
(113 mm)
1-1/4 in. - 18 NF-3 MAKE
FOR ATTACHMENT
OF CONTROL HEAD
TO OVERRIDE DELAY OUTLET
3/4 in. NPT
FEMALE
INLET
3/4 in. NPT
FEMALE
FILTER
NAMEPLATE
PRESSURE
ACCUMULATOR
TYPICAL
METERING TUBE
(P/N 81-871071-000
SHOWN)
INLET AND OUTLET MAY BE REDUCED
WITH BUSHING OR BELL REDUCER AND
NIPPLE TO 1/2 in. NPT IF NECESSARY
VALVE
17-7/8 IN.
(454 mm)
3-9/16 in.
(90 mm)
DIA.

Component Descriptions
P/N 81-CO2MAN-001 2-67 September 2013
Figure 2-72. Pneumatic Discharge Delay, Detail
ACCUMULATOR
PRESSURE
CONNECTION FOR
CONTROL HEAD
PILOT CHECK
OUTLET CHAMBER
OUTLET
BALL CHECK
PISTON
PISTON CHAMBER
PRESSURE ACCUMULATOR
MAIN CHECK
INLET CHAMBER
CONTROL HEAD PILOT CHECK
BALL CHECK
OUTLET CHAMBER
PISTON
PISTON CHAMBER
OUTLET
MAIN CHECK
INLET
INLET CHAMBER
FILTER
METERING TUBE

Component Descriptions
September 2013 2-68 P/N 81-CO2MAN-001
Figure 2-73. Pneumatic Discharge Delay with Manual Control Head
2-8.4 Pressure Operated Siren
The pressure operated sirens provide a mechanical means to generate an audible alarm. The
flow of carbon dioxide or nitrogen into the siren spins a rotor and creates a high pitch and high
decibel sound. The audible alarm warns personnel of an impending CO2 discharge and the need
to immediately evacuate the protected area prior to the discharge. In order to provide a pre-
discharge warning, the siren supply line shall be installed upstream of the discharge delay.
9/16
3-9/16 in.
(90 mm)
DIA.
PRESSURE OPERATED
DISCHARGE DELAY ASSEMBLY
INSTALL UNIT IN ANY POSITION
BELOW HORIZONTAL AS SHOWN
PREFERRED
1-7/16 in.
(37 mm)
3 in.
(76 mm)
3/4 in. TAPERED PIPE THREAD
(BUSHED 1/2 in. AS REQUIRED)
ALLOW SUITABLE CLEARANCE
FOR MANUAL OPERATION OF
LOCKING PIN AND CONTROL
HEAD LEVER
LOCKING PIN
AND SEAL RING
LOCAL CONTROL LEVER
(OPERATED POSITION)
LOCAL CONTROL HEAD
SWIVEL NUT TO PERMIT
CONTROL TO BE TURNED
AND SECURED IN
POSITION DESIRED
OUTLET
2-1/8 in.
(54 mm)
2-1/8 in.
(54 mm)
INLET
PIPE
(BY INSTALLER)
15-1/8 in.
(384 mm)
22-9/16 in.
(573 mm)
5-11/16 in.
(144 mm)
1-3/4 in.
(44 mm)
TO OPEN
CLOSED
2-9/16 in. R.
(64 mm)
TO OPEN
IN
OUT

Component Descriptions
P/N 81-CO2MAN-001 2-69 September 2013
Figure 2-74. Pressure Operated Siren
2-8.5 Safety Outlet
The safety outlet, Part No. 81-803242-000 (Figure 2-75), consists of a safety disc housed in a
threaded body. The safety disc is designed to relieve at a pressure of 2400 to 2800 PSIG (166
to 194 Bar).
The safety outlet is utilized in systems with directional (stop) valves and lockout valves where
the design of the system creates a closed section of piping. The safety outlet is installed in the
piping upstream of the stop valve (s) to prevent over pressurization in the event of entrapment
of CO2 in the closed pipe segment.
1/2 in. PIPE NIPPLE, 3 in. (76 mm) LONG
PIPE CAP
TYPICAL
DIRT TRAP
PERFORATED HOOD
6-7/8 in.
(175 mm)
5-3/4 in.
(146 mm)
1-9/16 in.
(40 mm)
3-3/4 in.
(95 mm)
4-5/8 in.
(117 mm)
5 in.
(127 mm)
1/2 in. UNION
FILTER
NOZZLE
ROTOR
2-7/16 in. (11 mm)
MOUNTING
HOLES
NOMINAL FLOW RATE AT 70 DEGREES
CARBON DIOXIDE 20.4 LBS/MIN

Component Descriptions
September 2013 2-70 P/N 81-CO2MAN-001
Figure 2-75. Safety Outlet
2-8.6 Discharge Indicator
The discharge indicator, Part No. 81-967082-000 (Figure 2-76), must be installed in the
discharge piping to visually indicate a system discharge. In the set position, the discharge
indicator acts as a vent allowing CO2 pressure that may have accumulated in the manifold (due
to a leaking cylinder valve) to vent to atmosphere. The discharge indicator is required for all
systems.
Figure 2-76. Discharge Indicator
1-3/4 in.
(45 mm)
3/4 in. NPT MALE
BODY
SEAL WIRE
SAFETY DISC
RETAINING NUT
3-1/4 in.
(83 mm) NORMAL
POSITION
DISCHARGE
INDICATION
POSITION
CAP
STEM
1-1/8 in. (29 mm) HEX
ACROSS FLATS
3/4 in. NPT MALE
BODY

Component Descriptions
P/N 81-CO2MAN-001 2-71 September 2013
2-8.7 Odorizer Assembly
The odorizer assembly injects a scent of wintergreen into the carbon dioxide during a
discharge. Upon discharge, the carbon dioxide pressure ruptures a burst disc to release the
scent of wintergreen. This scent warns personnel in the vicinity of the area protected by the
fire suppression system that carbon dioxide gas is present. An odorizer assembly is required
with each CO2 system regardless of size.
Figure 2-77. Odorizer Assembly
8.7” REF

Component Descriptions
September 2013 2-72 P/N 81-CO2MAN-001
2-8.8 Main to Reserve Transfer Switch
The main to reserve transfer switch, Part No. 84-802398-000 (Figure 2-78), is installed on
systems having main and reserve cylinders equipped with electric control heads. Placing the
switch in either the “main” or “reserve” position provides uninterrupted fire protection
capability during system maintenance or in the event of a system discharge.
Figure 2-78. Main to Reserve Transfer Switch
MAIN
RESERVE
(2) COVER SCREWS
NAMEPLATE WITH LOGO
3/4 in. NPT FEMALE
FOR ELECTRICAL
CONNECTION
SWITCH - DOUBLE POLE
DOUBLE THROW
(6) CONNECTION
TERMINALS
2-1/8 in.
(54 mm)
2-1/2 in.
(64 mm)
CONDULET
BOX
TOGGLE
GUARDS
TOGGLE
SWITCH
LEVER
2-3/4 in.
(70 mm)
4-5/8 in.
(117 mm)
5-3/8 in.
(136 mm)

Component Descriptions
P/N 81-CO2MAN-001 2-73 September 2013
2-8.9 Weigh Scale
A weigh scale, Part No. 81-982505-000 (Figure 2-79) is available for weighing the CO2
cylinders in place without disconnecting them from the cylinder manifold. The weigh scale is
used in conjunction with the weigh bars that form part of the framing.
Figure 2-79. Weigh Scale
2-8.10 Recharge Adapter
The recharge adapter, Part No. WK-933537-000 (Figure 2-80), is used to fill the CO2 cylinder
assemblies. The adapter is attached to the cylinder valve pilot port connection during cylinder
charging.
Figure 2-80. Charging Adapter
21 in.
(533 mm)
NOT INCLUDING CLEARANCE FOR
OPERATOR
ADJUSTMENT SLEEVE
WEIGHBAR
BEAM
DISCHARGE HEAD
YOKE
CARBON DIOXIDE CYLINDER
FINGER GRIP
RING
SCALE IS
CALIBRATED IN
POUNDS
POINTER INITIAL
POSITION
FINAL POSITION
WEIGHING SCALE
8-1/4 in. (210 mm) DIA.
ROTATED 90 DEGREES
FOR CLARITY
INITIAL POSITION
7/8-14 NS-3 THREAD
FOR ATTACHMENT TO
RECHARGE SYSTEM
KNURLED SWIVEL NUT
WITH VENT HOLES
O-RING
1-1/4 - 18 NS-3 THREAD
FOR ATTACHMENT TO
VALVE PILOT PORT
2-1/2 in.
(64 mm)
1-1/2 in.
(38 mm)
VENT HOLES - DO

Component Descriptions
September 2013 2-74 P/N 81-CO2MAN-001
2-8.11 Blow-Off Fixture
The blow-off fixture, Part No. 81-930117-000 (Figure 2-81), is used to relieve the CO2 cylinder
assemblies of pressure. The blow-off fixture threads onto the cylinder valve pilot port and
opens the pilot check for controlled discharge.
Figure 2-81. Blow-Off Fixture
2-9 INSTRUCTION AND WARNING PLATES
Instruction and warning plates are available for installation throughout the protected area and
at the cylinder storage area to provide operating instructions and appropriate precautions in
the event of an emergency.
2-9.1 Main and Reserve Nameplates
The main and reserve nameplates, Part Nos. WK-310330-000 and WK-310340-000
respectively (Figure 2-82), are used to identify the primary and backup carbon dioxide
suppression.
(4) VENT HOLES DIAMOND KNURL
PIN
1-1/4 -18 NS-3 THREAD
FOR ATTACHMENT TO
VALVE PILOT PORT
1-1/2 in.
(38 mm)

Component Descriptions
P/N 81-CO2MAN-001 2-75 September 2013
Figure 2-82. Main and Reserve Nameplates
2-9.2 Warning Signs
There are six different safety warning signs with wording specific to each application.
2-9.2.1 VACATE WARNING SIGN, P/N 06-231866-851
The sign shown in Figure 2-83 shall be used in every protected space.
Figure 2-83. Sign in Every Protected Space
RESERVE
MAIN
(2) 9/32 in. (7 mm) DIA
MOUNTING HOLES
5 in.
(127 mm)
1-5/8 in.
(41 mm)
1-5/8 in.
(41 mm)
5 in.
(127 mm)
(2) 9/32 in. (7 mm) DIA
MOUNTING HOLES
WARNING
Carbon dioxide gas
can cause injury or death.
When alarm operates,
vacate immediately.

Component Descriptions
September 2013 2-76 P/N 81-CO2MAN-001
2-9.2.2 DO NOT ENTER WARNING SIGN, P/N 06-231866-852
The sign shown in Figure 2-84 shall be used at every entrance to protected space.
Figure 2-84. Sign at Every Entrance to Protected Space
2-9.2.3 ODORIZER WARNING SIGN, P/N 06-231866-853
The sign shown in Figure 2-85 shall be used at every entrance to protected space for systems
provided with a wintergreen odorizer.
Figure 2-85. Sign at Every Entrance to Protected Space for Systems with a Wintergreen Odorizer
WARNING
Carbon dioxide gas
can cause injury or death.
When alarm operates,
do not enter until ventilated.
WARNING
Carbon dioxide gas
can cause injury or death.
When alarm operates or
wintergreen scent is detected,
do not enter until ventilated.

Component Descriptions
P/N 81-CO2MAN-001 2-77 September 2013
2-9.2.4 MIGRATION WARNING SIGN, P/N 06-231866-854
The sign shown in Figure 2-86 shall be used at every nearby space where carbon dioxide can
accumulate to hazardous levels.
Figure 2-86. Sign in Every Nearby Space Where CO2 Can Accumulate to Hazardous Levels
2-9.2.5 STORAGE WARNING SIGN, P/N 06-231866-855
The sign shown in Figure 2-87 shall be used outside each entrance to carbon dioxide storage
rooms.
Figure 2-87. Sign Outside Each Entrance to CO2 Storage Rooms
WARNING
Carbon dioxide gas discharge
into nearby space can collect
here. When alarm operates,
vacate immediately. Carbon
dioxide gas can cause injury
or death.
WARNING
Carbon dioxide gas can
cause injury or death.
Ventilate the area before
entering. A high carbon
dioxide gas concentration can
occur in this area and cause
suffocation.

Component Descriptions
September 2013 2-78 P/N 81-CO2MAN-001
2-9.2.6 ACTUATION WARNING SIGN, P/N 06-231866-856
The sign shown in Figure 2-88 shall be used at each manual actuation station.
Figure 2-88. Sign at Each Manual Actuation Station
Reprinted with permission from NFPA 12-2005. Carbon Dioxide Extinguishing Systems, Copyright © 2005, National Fire Prevention Association,
Quincy, MA 02169. This reprinted material is not the complete and official position of the NFPA on the referenced subject, which is represented
only by the standard in its entirety
2-10 HOSE REEL AND RACK SYSTEMS
The carbon dioxide hose reel and hose rack systems, Part Nos. as listed in Table 2-33
(Figure 2-89 through Figure 2-93), can be used to manually protect small hazard areas, as a
stand-alone system or as a backup to an automatic fixed pipe system. The system consists of
a carbon dioxide supply, hose reel or rack, and the required size and length of hose connected
to a horn and valve assembly. The hose reel is furnished in a painted red finish.
Reprinted with permission from NFPA 12-2005. Carbon Dioxide Extinguishing Systems, Copyright © 2005, National Fire Prevention Association,
Quincy, MA 02169. This reprinted material is not the complete and official position of the NFPA on the referenced subject, which is represented
only by the standard in its entirety
Table 2-33. Hose Reel and Rack System Part Numbers
Part Number Description
WK-994058-000 Reel, Red
WK-909000-000 Hose Reel Coupling Nut (required for 994058)
81-919842-000 Rack
81-907757-000 Hose, 1/2 in. x 25 ft. (7.5 m)
81-961966-000 Hose, 1/2 in. x 50 ft. (15 m)
81-918990-000 Hose, 3/4 in. x 25 ft. (7.5 m)
81-918435-000 Hose, 3/4 in. x 50 ft. (15 m)
WK-834900-000 Hose-to-Hose Thread Protector (Ferrule)
81-980564-000 Horn/Valve Assembly
81-960099-000 Clip, Handle
81-939000-000 Clip, Horn
WK-282386-000 Instruction Plate, Model HR-1
WARNING
Carbon dioxide gas can
cause injury or death.
Actuation of this device
causes carbon dioxide to
discharge. Before actuating,
be sure personnel are clear
of the area.

Component Descriptions
P/N 81-CO2MAN-001 2-79 September 2013
Figure 2-89. Hose-to-Hose Reel Connection
28-1/2 in.
(724 mm)
18-1/2 in.
(470 mm)
17 in.
(432 mm)
6-1/2 in. REF.
(165 mm)
10 in.
(254 mm) 16-1/2 in.
(419 mm)
18-1/8 in.
(460 mm)
(4) 13/32 DIA.
MOUNTING HOLES
SWIVEL JOINT INLET FOR
CONNECTION TO AGENT SUPPLY
PIPE - 1 in. NPT FEMALE
1 in. NPT RIGHT-HAND MALE
HOSE REEL OUTLET
RIGHT-HAND FEMALE BY LEFT-HAND
FEMALE COUPLING NUT (P/N WK-909000-000)
1 in. NPT LEFT-HAND MALE
TYPICAL HOSE

Component Descriptions
September 2013 2-80 P/N 81-CO2MAN-001
Figure 2-90. Hose-to-Pipe Rack Connection
TYPICAL HOSE ASSEMBLY
3/4 in. NPT MALE
3/4 in. PIPE
P/N WK-834900-000
HOSE THREADED PROTECTOR
1 in. (25 mm) LEFT-HAND
FEMALE FERRULE
HANDLE CLIP
HORN CLIP
31 in.
(787 mm)
38 in.
(965 mm)
13 in.
(330 mm)
9 in.
(229 mm)

Component Descriptions
P/N 81-CO2MAN-001 2-81 September 2013
Figure 2-91. Hose Assembly
P/N WK-834900-000
HOSE-TO-HOSE THREAD PROTECTOR
1 in. LEFT-HAND
FEMALE FERRULE
3/4 in. NPT FEMALE
1 in. NPS MALE
LEFT-HAND
SWAGED
GROUND SPRING TO ESTABLISH
ELECTRICAL CONTINUITY
THROUGH BRAID OF HOSE
SWAGED
3/4 in. NPT MALE
1/2 in. OR 3/4 in. HOSE
(SEE TABLE)

Component Descriptions
September 2013 2-82 P/N 81-CO2MAN-001
Figure 2-92. Horn and Valve Assembly
OPEN POSITION OF
HANDLE TO
DISCHARGE AGENT
CLOSED POSITION OF
HANDLE WHEN SYSTEM
IS NOT IN USE
HANDLE GRIP
HORN
5 in.
(1321 mm)
VALVE
THROAT
TYPICAL HOSE
MALE
FEMALE
3/4 in. NPT
21 in.
(534 mm)
3-3/4 in.
(94 mm)
DIA

Component Descriptions
P/N 81-CO2MAN-001 2-83 September 2013
Figure 2-93. Handle and Horn Clips
L
U
L
U
3 in.
(76 mm)
9/32 in. (7mm)
DIA HOLE FOR
MOUNTING
1-1/4 in.
(32 mm) 1/8 in.
(3 mm)
2-5/16 in. (8 mm)
DIA HOLES FOR MOUNTING
CLIP
2 in.
(51 mm)
2-3/4 in.
(70 mm)
1/4 in.
(6 mm)
3 in.
(76 mm)
PULL OUT PIN

Component Descriptions
September 2013 2-84 P/N 81-CO2MAN-001
THIS PAGE INTENTIONALLY LEFT BLANK.
Figure 2-94. Model HR-1 Instruction Plate

Design
P/N 81-CO2MAN-001 3-1 September 2013
CHAPTER 3
DESIGN
3-1 INTRODUCTION
This chapter provides the information and procedures required to properly design the Kidde
Fire Systems CO2 fire suppression system. The information is arranged in the following
categories:
• Hazard Survey, Definition and Analysis
•Design for Safety
• Applications
• Total Flooding Application Systems
• Local Application Systems
• Combination Systems
•Multiple Hazard Systems
• Pressure Operated Sirens
• Extended Discharge Systems
• Agent Storage Banks
• Manifold and Pipe Network Design
• Actuation System Design
• Detection Devices, Alarm Devices and Control Panels
• Auxiliary Equipment and Systems
3-2 HAZARD SURVEY, DEFINITION AND ANALYSIS
The first step in any fire protection design project is to survey the area to be protected, define
the hazard, and analyze the information to determine the appropriate methods of detecting
and suppressing the fire. In addition, several key concepts for overall safety of the system
should be considered.
As a minimum, a hazard survey should consist of the following:
• Dimensions of the area to be protected, including interconnected spaces and duct work
that extends out of the protected space
• Locations and dimensions of non-closeable openings
• Locations, quantities, and types of likely fuels
• Locations and types of sources of ignition
• Locations and Basic Insulation Level (BIL) of non-insulated live electrical wiring
• Flow rate and wind-down time of forced ventilation that cannot be dampered or shut down
• Minimum and maximum ambient temperatures
• Type of wall construction (for enclosed spaces)
• Occupancy status
•Path of egress
• Hazardous classification (i.e., explosion hazard)
• Locations of pipe, duct work, beams, or other obstructions

Design
September 2013 3-2 P/N 81-CO2MAN-001
• Acceptable locations for agent storage as close to the hazard as possible
• Work flow processes and protected equipment
• Expected emergency response time
Use the information provided in Chapter 1 to determine if carbon dioxide is an appropriate
extinguishing agent for the hazard.
After confirming that carbon dioxide is an acceptable extinguishing agent, the designer must
then select an appropriate design approach (see Paragraph 3-5 through 3-6).
3-3 DESIGN FOR SAFETY
The designer shall be thoroughly familiar with the life safety features required by NFPA 12 and
outlined in Chapter 1. The designer shall be thoroughly familiar with the dangers associated
with carbon dioxide as a fire suppressant and the measures taken to mitigate those dangers.
NFPA 12 shall be referenced for additional considerations not published in this manual.
3-4 APPLICATIONS
Carbon dioxide suppression systems provide a great deal of flexibility to the designer in dealing
with almost any shape, size, or type of hazard. Because of this versatility, CO2 is suitable for
many difficult hazards, including:
Industrial hazards -These typically consist of equipment or processes where flammable
liquids are involved. Examples of industrial hazards that can be protected by carbon dioxide
are:
•Dip tanks
•Mixing tanks
•Ovens and dryers
• Quench tanks
•Coating machines
• Turbines
• Generators
•Printing presses
• Dust collectors
• Industrial fryers.
Marine hazards - These include shipboard applications. Refer to the Kidde Marine Carbon
Dioxide Design, Installation, Operation and Maintenance Manual, Part No. 81-220610-000, for
detailed information on marine system design.
The versatility of carbon dioxide systems is based on its ability to be used as a total flooding
or local application fire-fighting agent.
3-4.1 Total Flooding System
A total flooding system is designed to develop an extinguishing concentration of carbon dioxide
in an enclosed space and to maintain an effective concentration until re-ignition will not occur.
Such systems may be used to extinguish surface fires (Paragraph 3-5.2) and deep-seated fires
(Paragraph 3-5.3). The method of design is similar for both fire types. However, deep-seated
fires generally require a more rigorous treatment.

Design
P/N 81-CO2MAN-001 3-3 September 2013
3-4.2 Local Application System
A local application system is designed to apply carbon dioxide directly to a fire in an area or
space that essentially has no enclosure surrounding it. Such systems may be used to
extinguish surface fires in two-dimensional (Paragraph 3-6.2) or three-dimensional
(Paragraph 3-6.3) hazards.
3-4.3 Hand Hose Line Systems
A hand hose line system is designed to supplement fixed fire protection systems or to
supplement first response portable fire extinguishers for the protection of specific hazards for
which carbon dioxide is the extinguishing agent.
3-5 TOTAL FLOODING SYSTEMS
3-5.1 Introduction
A total flooding system shall consist of a fixed supply of carbon dioxide, permanently connected
to a fixed pipe network, with fixed nozzles arranged to discharge carbon dioxide into an
enclosed space.
3-5.1.1 ENCLOSURE
For total flooding fire protection, the enclosure around the hazard must be essentially
continuous, with as few uncloseable openings as possible, so that an extinguishing
concentration can be developed about the hazard. When openings cannot be closed prior to or
at the start of discharge, an additional quantity of carbon dioxide shall be discharged to
compensate for agent lost through uncloseable openings.
For surface fires, if the quantity of carbon dioxide required to compensate for the openings
alone exceeds the quantity required for total flooding with no openings, then the suppression
system may be designed using local-application methods.
For deep-seated fires, any uncloseable openings shall be restricted to the ceiling or on the
enclosure walls bordering the ceiling. This is to permit the carbon dioxide concentration to be
maintained for a sufficient period of time to allow any smoldering to be suppressed and to allow
the material to cool below its re-ignition temperature. In situations where the openings do not
allow the concentration to be maintained during the required cooling period, additional agent
should be discharged over an extended period of time to compensate for losses through the
openings (See Paragraph 3-10).
WARNING
Carbon dioxide is present in the atmosphere. It is also a normal product of
human and animal metabolism; human life cannot be sustained if this carbon
dioxide is not expelled from the body. The concentration of carbon dioxide in
the air governs the rate at which the carbon dioxide produced by the human
metabolism is released from the lungs. An increasing concentration in the air
where humans are present, therefore, can cause serious personal injury or
death.
WARNING
Total flooding systems shall NOT be used in normally occupied enclosures
except in accordance with the provisions allowed by NFPA 12 (most current
edition).

Design
September 2013 3-4 P/N 81-CO2MAN-001
When the position of an opening is such that a fire in the protected area could spread through
it to adjacent combustibles or work areas, the opening shall be provided with an automatic
closure or local application nozzles. Where such measures are not practical, protection shall be
extended to include the adjacent work area or process.
3-5.1.2 VENTILATION
The total flooding agent quantity calculations are designed for a reasonably tight enclosure
with static conditions prevailing at the time of system discharge. Static conditions prevail when
all forced air ventilating systems servicing the protected area are stopped at the time of agent
discharge. Forced air ventilation systems must be shut down or closed (or both) prior to, or
simultaneously with, the start of the carbon dioxide discharge. Additional carbon dioxide must
be provided if forced ventilation cannot be dampered or shut down.
3-5.1.3 INTERLOCKS
It is essential that all potential re-ignition sources in the protected area be eliminated prior to,
or concurrently with, the start of the carbon dioxide discharge. This requires that a control
system be designed to shut down all processing equipment, to shut off electrical power to all
equipment in the area, and to perform any other interlocks necessary to ensure the
effectiveness of the system.
If interlocks cannot be provided, additional carbon dioxide may be required to compensate for
openings, forced ventilation, or other factors that are detrimental to system performance.
3-5.1.4 INTERCONNECTED VOLUMES
Where two or more interconnected volumes allow "free flow" of carbon dioxide between the
protected spaces, the carbon dioxide quantity for each volume shall be calculated individually.
If one volume requires greater than normal concentration, the higher concentration shall be
used in all interconnected volumes.
3-5.2 Calculations for Surface Fires
Surface fires involve burning of flammable liquids and of ordinary, non-smoldering
combustibles.
3-5.2.1 EXTINGUISHING CONCENTRATIONS
The minimum carbon dioxide design concentration for total flooding systems is 34%. However,
the required concentration may be increased when flammable liquids and gases are involved.
A list of design concentrations for several known fuels can be found in Table 3-1.
Table 3-1. Minimum Carbon Dioxide Concentrations for Extinguishment
Material Minimum Design
CO2 Concentration (%)
Acetylene 66
Acetone 34
Aviation Gas Grades 115/145 36
Benzol, Benzene 37
Butadiene 41
Butane 34

Design
P/N 81-CO2MAN-001 3-5 September 2013
Butane-I 37
Carbon Disulfide 72
Carbon Monoxide 64
Coal or Natural Gas 37
Cyclopropane 37
Diethyl Ether 40
Dimethyl Ether 40
Dowtherm 46
Ethane 40
Ethyl Alcohol 43
Ethyl Ether 46
Ethlylene 49
Ethylene Dichloride 34
Ethylene Oxide 53
Gasoline 34
Hexane 35
Higher Paraffin Hydrocarbons Cn H2m + 2m - 5 34
Hydrogen 75
Hydrogen Sulfide 36
Isobutane 36
Isobutylene 34
Isobutyl Formate 34
JP-4 36
Kerosene 34
Methane 34
Methyl Acetate 35
Methyl Alcohol 40
Methyl Butene-I 36
Methly Ethyl Ketone 40
Methyl Formate 39
Pentane 35
Propane 36
Propylene 36
Quench, Lube Oils 34
Table 3-1. Minimum Carbon Dioxide Concentrations for Extinguishment
Material Minimum Design
CO2 Concentration (%)

Table 3-2A. Volume Factors - Surface Fires (For 34% CO2 Concentration), US Units
Enclosure Volume (ft.3)
Volume Factor
Calculated Quantity
f1
f2
(ft.3/lb.) (lb./ft.3)Not Less Than (lb.)
Up to 140 14 0.072 --
141 - 500 15 0.067 10
501 - 1,600 16 0.063 35
1,601 - 4,500 18 0.056 100
4,501 - 50,000 20 0.050 250
Over 50,000 22 0.046 2,500
Ducts and Covered Trenches
(See Section 3-5.2.2.1)80.125 --
Design
September 2013 3-6 P/N 81-CO2MAN-001
3-5.2.2 BASIC TOTAL FLOODING QUANTITY
The discharge of carbon dioxide into an enclosure will displace a portion of the atmosphere in
the enclosure. The displaced atmosphere is exhausted freely from the enclosure through
openings or vents as the carbon dioxide is discharged. Since some suppression agent is lost
with the vented atmosphere, the volume of carbon dioxide required to develop a given
concentration will be greater than the volume that actually remains in the enclosure. This
method of application is called "free efflux" flooding.
A small volume has proportionally more surface (or boundary) area per unit of enclosed volume
than a larger volume, and has a proportionally greater leakage rate. Accordingly, larger
quantities of carbon dioxide per unit of enclosed volume are injected into smaller volumes to
account for the higher leakage rates anticipated upon discharge. The quantity of carbon dioxide
per unit volume is called the Volume Factor and is shown in Table 3-2. Also note that the
minimum quantity of CO2 is specified for the smallest volume in each group to avoid a possible
overlap of CO2 requirements.
(Equation 1)
or
Where:
= Basic quantity of agent, lb.(kg)
= Enclosure volume,
ft.3 (m3)
= Volume factor from Table 3-2, ft.3/lb.(m3/kg)
= Volume factor from Table 3-2, lb./ft.3 (kg3/m3)
WBVf
1
=
WBVf
2
=
WB
V
f1
f2

Design
P/N 81-CO2MAN-001 3-7 September 2013
3-5.2.2.1 Ducts and Covered Trenches
A flooding factor of 8 ft.3/lb. (0.50 m3/kg), or 0.125 lb./ft.3 (2.00 kg/m3), must be used when
total flooding a duct or a covered trench. This results in a concentration of 65% and does not
require the use of a Material Conversion Factor (see Paragraph 3-5.2.3). If the accumulation
of combustibles on the wall of the duct or trench creates a deep-seated hazard, the system
must be designed according to the criteria specified in Paragraph 3-5.3.
Table 3-2B. Volume Factors - Surface Fires (For 34% CO2 Concentration), Metric Units
Enclosure Volume (m3)
Volume Factor
Calculated Quantity
(m3/kg) (kg/m3)Not Less Than (kg)
Up to 3.96 .086 1.15 --
3.97 - 14.15 .093 1.07 4.5
14.16 - 45.28 0.99 1.01 15.1
45.29 - 127.35 1.11 0.90 45.4
127.36 - 1415.0 1.25 0.80 113.5
Over 1415.0 1.38 0.77 1135.0
Ducts and Covered Trenches
(See Section 3-5.2.2.1) 0.50 2.00 --
EXAMPLE 1 - TOTAL FLOODING FOR SURFACE FIRES - Basic Carbon Dioxide Quantity
Consider a room with dimensions of 20 ft. by 30 ft. by 10 ft. . Determine the
basic carbon dioxide quantity.
From Equation (1):
Where is Volume Of The Protected Space and is the Volume Factor.
=20 ft. x 30 ft. x 10 ft.
=6,000 ft.3
=20 ft.3/lb. from Table 3-2 for volumes 4,501 ft.3 to 50,000 ft.3
f1
f2
L
W
H
WBVf
1
=
V
f1
V
V
f1
WBVf
1
=
WB6000 20=
WB300lb=

Design
September 2013 3-8 P/N 81-CO2MAN-001
3-5.2.3 MATERIAL CONVERSION FACTOR
As shown in Table 3-1, many combustible materials require a carbon dioxide concentration that
is higher than 34% for suppression. When such materials are present, the basic quantity of
carbon dioxide shall be increased by the appropriate Material Conversion Factor, as
determined from the curve shown in Figure 3-1.
(Equation 2)
Where:
= Quantity of agent for given concentration, lb.(kg)
= Basic quantity of agent from Equation (1), lb.(kg)
= Material conversion factor from Figure 3-1
Figure 3-1. Minimum Design CO2 Concentration
Reprinted with permission from NFPA 12-2005. Carbon Dioxide Extinguishing Systems, Copyright © 2005, National Fire Prevention Association,
Quincy, MA 02169. This reprinted material is not the complete and official position of the NFPA on the referenced subject, which is represented
only by the standard in its entirety
WB
WCWBfC
=
WC
WB
fC

WC750 lb.=
Design
P/N 81-CO2MAN-001 3-9 September 2013
EXAMPLE 2 - TOTAL FLOODING FOR SURFACE FIRES - Material Conversion Factor
Consider a room with dimensions of 20 ft. by 30 ft. by 10 ft. . Determine the
carbon dioxide quantity required for suppression, if the hazard contains acetylene.
From Equation (2):
Where is the Basic Quantity (34%) and is the Material Conversion Factor.
From Equation (1):
Where is Volume Of The Protected Space and is the Volume Factor.
= 20 ft. x 30 ft. x 10 ft.
= 6,000 ft.3
= 20 ft.3/lb. from Table 3-2 for volumes 4,501 ft.3 to 50,000 ft.3.
From Table 3-1, the design concentration for acetylene is 66%.
Using Figure 3-1, the Material Conversion Factor for 66% is approximately 2.5.
L
W
H
WCWBfC
=
WB
fC
WBVf
1
=
V
f1
V
V
f1
WBVf
1
=
WB6000 20=
WB300 lb.=
fC
WCWBfC
=
WC300 2.5=

Design
September 2013 3-10 P/N 81-CO2MAN-001
3-5.2.4 SPECIAL CONDITIONS
Additional quantities of carbon dioxide are required to compensate for conditions such as
openings in the enclosure, forced ventilation, and abnormally high or low ambient
temperatures. Such conditions could adversely affect the performance of the carbon dioxide
suppression system.
(Equation 3)
Where:
= Minimum quantity of agent to be supplied, lb.(kg)
= Quantity of agent for design concentration from Equation (2) or Equation
(12), lb.(kg)
= Quantity of agent to compensate for uncloseable openings from Equation
(6), lb.(kg)
= Quantity of agent to compensate for forced ventilation from Equation (7),
lb.(kg)
= Quantity of agent to compensate for extreme temperatures from Equation
(10), lb.(kg)
3-5.2.4.1 Uncloseable Openings
Additional carbon dioxide must be provided to compensate for any loss of agent through
openings that cannot be closed prior to or at the start of discharge. The additional quantity
shall be equal to the anticipated loss at the design concentration for the designed duration of
protection, lasting at least 1 minute. This additional quantity of carbon dioxide shall be
combined with the basic concentration quantity.
The leakage rate through an opening in an enclosure depends on many factors. If there is no
forced ventilation, the leakage will depend on the size and location of the openings. It also will
depend on whether there is sufficient leakage in the upper part of the enclosure to allow free
flow of air into the enclosure. Since carbon dioxide is heavier than air, there may be little or
no loss of carbon dioxide from openings in or near the ceiling. Losses in the walls or at the floor
level may be substantial.
To maintain a constant pressure within the enclosure, fresh air must enter through the same
opening as the carbon dioxide exits. Therefore, the effective area of the opening is reduced by
a factor of 2.
(Equation 4)
Where:
= Effective leakage area, ft.2 (m2)
= Area of all uncloseable opening, ft.2 (m2)
The leakage rate can be determined using the design concentration, the height from the
centerline of the opening to the ceiling, and the graph in Figure 3-2. If multiple openings exist,
Kidde suggests using the height to the centerline of the lowest opening in the enclosure, as
this will result in the most conservative design.
Wmin WCWLWVWT
+++=
Wmin
WC
WL
WV
WT
ALAO2=
AL
AO

Design
P/N 81-CO2MAN-001 3-11 September 2013
(Equation 5)
Where:
= Enclosure leakage rate, lb./min (kg/min)
= Leakage rate from Figure 3-2, lb./min/ft.2 (kg/min/m2)
= Effective leakage area from Equation (4), ft.2 (m2)
Figure 3-2. Calculated CO2 Loss Rate
Note: The loss rate shown in the figure is based on assumed 70°F (21°C) temperature within
the enclosure and 70°F (21°C) ambient outside.
Once the leakage rate is determined, the amount of additional carbon dioxide that is required
for compensation can be calculated.
(Equation 6)
Where:
= Quantity of agent to compensate for uncloseable openings, lb.(kg)
= Enclosure leakage rate from Equation (5), lb./min (kg/min)
= Duration of protection minute, min
qLLA
L
=
qL
L
AL
WLqLtP
=
WL
qL
tP

Design
September 2013 3-12 P/N 81-CO2MAN-001
EXAMPLE 3 - TOTAL FLOODING FOR SURFACE FIRES - Uncloseable Openings
Determine the loss rate through a 1 ft. x 1 ft. opening in the wall of an enclosure. The
midpoint of the opening is 5 feet below the ceiling, and the system is designed to achieve a
34% concentration.
From Equation (4):
Where is the Effective Leakage Area and is the Total Leakage Area.
From Equation (5):
Where is the Enclosure Leakage Rate and is the Leakage Rate from Figure 3-2.
Referring to Figure 3-2, move along the x-axis to the 5 ft. height. Move up at this point to
the 34% curve, which must be estimated between the 30% and 40% curves, and then read
over to the vertical axis. The approximate leakage rate is determined to be 15
lb./min/ft.2.
=7.5 lb./min or say 8 lb./min
ALAO2=
AL
AO
AO11=
AO1 ft2
=
ALAO2=
AL12=
AL0.5 ft.2
=
qLLA
L
=
qL
L
L
qLLA
L
=
qL15 0.5=
qL

Design
P/N 81-CO2MAN-001 3-13 September 2013
3-5.2.4.2 Forced Ventilation
Additional carbon dioxide must be provided for any loss of agent due to forced ventilation in
the protected area that cannot be shut off or dampered prior to or at the start of discharge.
The additional quantity of agent is calculated by dividing the amount of volume moved by the
ventilating system during the designed duration of protection, lasting at least 1 minute, by the
appropriate flooding factor for the enclosure volume from Table 3-2. The calculated quantity is
multiplied by the material conversion factor from Figure 3-1 when the required suppression
concentration is greater than 34%. The additional carbon dioxide required to compensate for
continuing ventilation shall be combined with the basic concentration quantity.
(Equation 7)
or
Where:
= Quantity of agent to compensate for forced ventilation, lb. (kg)
= Ventilation air flow rate, ft.3/min (m3/min)
= Duration of protection 1 minute, min
= Volume factor from Table 3-2 used in Equation (1), ft.3/lb. (m3/kg)
= Volume factor from Table 3-2 used in Equation (1), lb./ft.3 (kg/m3)
= Material conversion factor from Figure 3-1 used in Equation (2)
From Equation (6)
Where is the Quantity of Agent Lost and is the Duration of Protection.
WLqLtp
=
WL
tP
tp1 min.=
WLqLtp
=
WL81=
WL8 lb.=
WVqVtpfC
f1
=
Wv qVtpf2fC
=
WV
qV
tP
f1
f2
fC

Design
September 2013 3-14 P/N 81-CO2MAN-001
3-5.2.4.3 Extreme Temperatures
An additional quantity of carbon dioxide must be provided to compensate for abnormally low
or high ambient temperatures.
For applications where the normal ambient temperature in the enclosure is above 200°F
(93°C), a one-percent increase in the calculated total quantity of carbon dioxide must be
provided for each additional 5°F (2.78°C) above 200°F (93°C).
(Equation 8)
(US Units)
or
(Metric Units)
Where:
= High temperature correction factor
= Degrees Fahrenheit (Celsius) above 200°F (93°C)
For applications where the normal ambient temperature is less than 0°F (-18°C), a one-
percent increase in the calculated total quantity of carbon dioxide must be provided for each
1°F (0.55°C) below 0°F (-18°C).
EXAMPLE 4 - TOTAL FLOODING FOR SURFACE FIRES - Forced Ventilation
Consider a room with dimensions of 20 ft. by 30 ft. by 10 ft. . Determine the
additional carbon dioxide required to compensate for a 1,000 CFM ventilation rate that cannot
be shut off. The design concentration is 34% and the duration of protection will be 1 minute.
From Equation (7):
Where is the Quantity of Agent Lost, is the Ventilation Air Flow Rate, is the
Duration of Protection, is the Material Conversion Factor, and is the Volume Factor.
= 1000 ft.3/min
= 1 min
= 1.0, from Figure 3-1 for 34% concentration
= 20 ft. x 30 ft. x 10 ft.
= 6,000 ft.3
= 20 ft.3/lb. from Table 3-2 for volumes 4,501 ft.3 to 50,000 ft.3.
L
W
H
WVqVtPfC
f1
=
WV
qV
tP
fC
f1
qV
tP
fC
V
V
f1
WVqvtpfC
f1
=
WV1000 1 1.0 20=
WV50 lb.=
HTHigh 5=
HTHigh 2.78=
H
Thigh

Design
P/N 81-CO2MAN-001 3-15 September 2013
(Equation 9)
(US Units)
or
(Metric Units)
Where:
= Low temperature correction factor
= Degrees Fahrenheit (Celsius) below 0°F (-18°C)
The temperature compensation factor, if required, must be added to the basic quantity of agent
calculated from the volume factors, and to all of the additional quantities calculated using
material conversion factors, leakage equations or curves, and ventilation formulas. The
additional carbon dioxide required to compensate for temperature shall be combined with the
basic concentration quantity.
(Equation 10)
Where:
= Quantity of agent to compensate for extreme temperatures, lb. (kg)
= High or Low temperature correction factor from Equation (8) or (9),
whichever factor is greater
= Quantity of agent for given concentration from Equation (2) or Equation
(12), lb. (kg)
= Quantity of agent to compensate for uncloseable openings from Equation
(6), lb. (kg)
= Quantity of agent to compensate for forced ventilation from Equation
(7), lb. (kg)
HTlow 1=
HTlow 0.55=
L
Tlow
WTWCWLWV
++=
WT
WC
WL
WV

Design
September 2013 3-16 P/N 81-CO2MAN-001
EXAMPLE 5 - TOTAL FLOODING FOR SURFACE FIRES - Extreme Temperatures
Consider a temperature cycling enclosure with dimensions of 5 ft. by 5 ft. by 5 ft. .
The design concentration is 34%. The ambient temperature range is -15°F to 250°F. Determine
the additional quantity of carbon dioxide to compensate for the extreme temperature range.
From Equation (10):
Where is the Quantity of Agent to Compensate for Extreme Temperatures, is the
Temperature Correction Factor, is the Quantity of Agent for the Design Concentration, is
the Quantity of Agent to Compensate for Leakage, and is the Quantity of Agent to
Compensate for Ventilation.
From Equation (2)
Where is the Basic Quantity (34%) and is the Material Conversion Factor.
From Equation (1):
Where is Volume Of The Protected Space and is the Volume Factor.
= 5 ft. X 5 ft. X 5 ft.
= 125 ft.3
= 14 ft.3/lb., from Table 3-2 for volumes up to 140 ft.3.
=
= 125 14
= 9 lb.
= 1.0, from Figure 3-1 for 34% concentration
= x
= 9 x 1.0
= 9 lb.
= 0 lb.
= 0 lb.
L
W
H
WTWCWLWV
++=
WT
WC
WL
WV
WCWBfC
=
WB
fC
WBVf
1
=
V
f1
V
V
f1
WB
V
f1
WB
WB
fC
WC
WB
fC
WC
WC
WL
WV

Design
P/N 81-CO2MAN-001 3-17 September 2013
3-5.2.5 DISCHARGE RATES
For surface fires, the design concentration shall be achieved within 1 minute from the start of
discharge.
(Equation 11)
Where: = Minimum discharge rate, lb./min (kg/min)
= Minimum quantity of agent to be supplied from Equation (3), lb. (kg)
= Maximum design discharge time 1 minute, min
Equation (11) may be applied to determine the minimum discharge rate for a complete system,
single hazard, or single nozzle, depending on the value used for
Paragraph 3-7 discusses the effect of combination systems with respect to calculating the
discharge rate.
From Equation (8)
Where is the High Temperature Correction Factor and is the Degrees Fahrenheit
Above 200°F.
= 5
= 50 5
= 10%
From Equation (9)
Where is the Low Temperature Correction Factor and is the Degrees Fahrenheit
below 0°F.
= 1
= 15 1
= 15%
<
Therefore, =
HTHigh 5=
H
THigh
H
THigh
H
H
LTLow 1=
L
TLow
L
TLow
L
L
H
L
L
WTWCWLWV
++=
WT0.15 9 0 0++=
WT1.4 lb.=
qmin Wmin tdmax
=
qmin
Wmin
tdmax
Wmin

Design
September 2013 3-18 P/N 81-CO2MAN-001
EXAMPLE 6 - TOTAL FLOODING FOR SURFACE FIRES - Discharge Rate
Consider a room with dimensions of 20 ft. (L) by 30 ft. (W) by 10 ft. (H). Determine the minimum
flow rate required to create a 34% by volume concentration within the acceptable time limit.
From Equation (11):
Where is the Minimum Discharge Rate, is the Minimum Agent Quantity, and is the
Maximum Discharge Time.
From Equation (3):
Where is the Quantity of Agent for the Design Concentration, is the Quantity of Agent to
Compensate for Leakage, is the Quantity of Agent to Compensate for Ventilation, and is
the Quantity of Agent to Compensate for Extreme Temperatures.
Equation (2):
Where is the Basic Quantity (34%) and is the Material Conversion Factor.
From Equation (1):
Where is Volume Of The Protected Space and is the Volume Factor.
= 20 ft. x 30 ft. x 10 ft.
= 6,000 ft.3
= 20 ft.3/lb. from Table 3-2 for volumes 4,501 ft.3 to 50,000 ft.3.
= 6,000 20
= 300 lb.
= 1.0, from Figure 3-1 for 34% concentration
= 300 X 1.0
= 300 lb.
= 0 lb.
= 0 lb.
= 0 lb.
= 300 + 0 + 0 + 0
= 300 lb.
=
= 300 1
= 300 lb./min
qmin Wmin tdmax
=
qmin
Wmin
tdmax
Wmin WCWLWVWT
+++=
WC
WL
WV
WT
WCWBfC
=
WB
fc
WBVf
1
=
V
f1
V
V
f1
WBVf
1
=
WB
WB
fc
WCWBfC
=
WC
WC
WL
WV
WT
Wmin WCWLWVWT
+++=
Wmin
Wmin
qmin
Wmin
tdmax
qmin
qmin

Design
P/N 81-CO2MAN-001 3-19 September 2013
3-5.3 Calculations for Deep-Seated Fires
Deep-seated fires involve a combination of surface fire and burning within a mass of material.
The surface burning is quickly suppressed when a sufficient quantity of carbon dioxide is rapidly
discharged into the protected enclosure. However, to extinguish the burning within the mass
of material, a sufficiently high concentration must be maintained for an appropriate time period
to allow any smoldering to be suppressed and to allow the material to cool to a temperature
at which it will not reignite when the carbon dioxide dissipates.
Applications that contain materials that produce surface fires may also contain varying
amounts of material that will produce deep-seated fires. Each application must be carefully
analyzed to determine the most appropriate suppression approach. The decision to design the
suppression system for a surface fire or for deep-seated combustion is usually based upon
considerations such as speed of detection versus time to extinguish, mass of materials
involved, thermal insulating factors, manual firefighting capabilities and the economic
importance of the equipment or materials involved. Often the decision will be made after
consultation with the authority having jurisdiction, the owner, and the manufacturer supplying
the equipment or material.
To ensure extinguishment of a smoldering fire, the design concentration must be maintained
for at least 20 minutes. A longer duration of protection may be necessary, depending on the
cooling rate of the smoldering fuel. To accomplish this, a separate extended discharge system
may be necessary to compensate for uncloseable openings and forced ventilation that cannot
be shut off or dampered. (See Paragraph 3-9).
3-5.3.1 FLOODING FACTORS
Carbon dioxide concentrations for deep-seated fires cannot be determined with the same
degree of accuracy as those for surface-burning fires. Flooding factors for deep-seated fires
have been determined on the basis of practical testing. The design concentrations shown in
Table 3-3 must be used for the applications cited.
Flooding factors for other deep-seated hazards must be determined by specific testing and
justified to the satisfaction of the authority having jurisdiction before use.
(Equation 12)
or
Where:
= Quantity of agent for design concentration, lb. (kg)
= Enclosure volume, ft.3 (m3)
= Volume factor from Table 3-3, ft.3/lb. (m3/kg)
= Volume factor from Table 3-3, lb./ft.3 (kg/m3)
WCVf
1
=
WCVf
2
=
WC
V
f1
f2

Design
September 2013 3-20 P/N 81-CO2MAN-001
Table 3-3. Volume Factors for Deep Seated Hazards
Specific Hazard
Design
Concentration
Volume Factor
1
f
2
f
(% CO2)ft.3/lb. m3/kg ft.3/lb. m3/kg
Dry electrical hazards in
general spaces
2000 ft.3) (56.6 m3)
50 10 0.62 0.100 1.60
Dry electrical hazards in
general spaces
> 2000 ft.3) (56.6 m3)
50 12 .75 0.083 1.33
Record (bulk paper) storage,
ducts and covered trenches 65 80.50 0.125 2.00
Fur storage vaults, dust
collectors 75 60.38 0.166 2.66
Note that the Volume Factors given in the table will result in the specified concentration. No
Material Conversion Factor is required, as used for Surface Fire protection.
3-5.3.2 SPECIAL CONDITIONS
As with suppression systems for surface fires, suppression systems protecting potential deep-
seated hazards require additional quantities of carbon dioxide to compensate for openings in
the enclosure, forced air ventilating systems, and abnormally low or high ambient
temperatures. The compensating agent quantities are added to the minimum system agent
quantity in accordance with Paragraph 3-5.2.4.
EXAMPLE 7 - TOTAL FLOODING FOR DEEP-SEATED FIRES - Basic Carbon Dioxide
Quantity
Determine the carbon dioxide quantity required in a bulk paper storage room having
dimensions of 20 ft. by 20 ft. by 10 ft. bulk paper storage room.
From Equation (12):
Where is the Basic Quantity of Agent, is the Volume of the Enclosure, and is the
Volume Factor.
= 20 ft. x 20 ft. x 10 ft.
= 4,000 ft.3
= 8 ft.3/lb. from Table 3-3 for Record (bulk paper) storage
= 4000
= 500 lb.
L
W
H
WCVf
1
=
WC
V
f1
V
V
f1
WC
WC

Design
P/N 81-CO2MAN-001 3-21 September 2013
3-5.3.2.1 Uncloseable Openings
Any openings in the enclosure that either do not border the ceiling or are not in the ceiling itself
and cannot be closed at the time of suppression must be compensated for by additional carbon
dioxide equal to the expected leakage rate during the suppression period. The method
specified in Paragraph 3-5.2.4.1 shall be used to calculate the additional carbon dioxide
quantity. An extended discharge may be required to maintain the concentration for the
designed duration of protection, lasting at least 20 minutes (See Paragraph 3-10).
3-5.3.2.2 Forced Ventilation
Additional carbon dioxide must be provided to compensate for a forced air ventilating system
that cannot be shut off or dampered prior to or at the start of discharge. The method described
in Paragraph 3-5.2.4.2 shall be used to calculate the additional carbon dioxide quantity. An
extended discharge may be necessary to ensure the maintenance of the suppression
concentration for the designed duration of protection, lasting at least 20 minutes (See
Paragraph 3-10).
3-5.3.2.3 Extreme Temperatures
Additional carbon dioxide is required to compensate for abnormally low or high ambient
temperatures in the protected area. The additional quantity shall be calculated using the
methods described in Paragraph 3-5.2.4.3.
3-5.3.3 DISCHARGE RATES
For deep-seated fires, the design concentration shall be achieved within 7 minutes, but the rate
shall not be less than required to develop a concentration of 30% within 2 minutes.
As a guide, the quantity of carbon dioxide required to achieve a 30% concentration is 0.0428
lb./ft.3 (0.686 kg/m3) (See Appendix A-5). Equation (13) may be used to calculate the
discharge rate required to achieve this concentration within 2 minutes.
(Equation 13)
(US Units)
or
(Metric Units)
Where: = Minimum flow rate to achieve a 30% concentration within minutes,
lb./min (kg/min)
= Enclosure volume, ft.3 (m3)
Perform a check to ensure that the discharge will be complete within seven (7) minutes.
(Equation 14)
Where:
= Discharge time, min
= Minimum quantity of agent to be supplied from Equation (3), lb.(kg)
= Flow rate from Equation (13), lb./min (kg/min)
q30 0.0214 V=
q30 0.343 V=
q30
V
tdWmin q30
=
td
Wmin
q30

Design
September 2013 3-22 P/N 81-CO2MAN-001
If the discharge time calculated in Equation (14) is greater than seven (7) minutes, the
minimum discharge rate must be increased.
(Equation 15)
Where: = Minimum flow rate, lb./min (kg/min)
= Minimum quantity of agent to be supplied from Equation (3), lb. (kg)
EXAMPLE 8 - TOTAL FLOODING FOR DEEP-SEATED FIRES - Discharge Rate #1
Consider a bulk paper storage room with dimensions of 20 ft. by 20 ft. by 10 ft.
. Determine the discharge rate required to achieve a 30% concentration within 2 minutes
and to complete the agent discharge within 7 minutes.
From Equation (3):
Where is the Quantity of Agent for the Design Concentration, is the Quantity of Agent
to Compensate for Leakage, is the Quantity of Agent to Compensate for Ventilation, and
is the Quantity of Agent to Compensate for Extreme Temperatures.
From Equation (12):
Where is the Quantity of Agent for the Design Concentration, is the Volume of the
Enclosure, and is the Volume Factor.
= 20 ft. x 20 ft. x 10 ft.
= 4,000 ft.3
= 8 ft.3/lb. from Table 3-3 for Record (bulk paper) storage
= 4000
= 500 lb.
= 0 lb.
= 0 lb.
= 0 lb.
=
= 500+0+0+0
= 500 lb.
td
qmin Wmin 7=
qmin
Wmin
L
W
H
Wmin WCWVWLWT
+++=
WC
WL
WV
WT
WCVf
1
=
WC
V
f1
V
V
f1
WC
WC
WL
WV
WT
Wmin
WCWVWLWT
+++
Wmin
Wmin

Design
P/N 81-CO2MAN-001 3-23 September 2013
From Equation (13):
Where is the Minimum Flow Rate to Achieve 30% Within 2 Minutes.
= 0.0214 x
= 0.0214 x 4,000
= 85.6 lb./min From Equation (14):
Where is the Discharge Time.
=
= 500 85.6
= 5.8 min
Since < 7 min, =
= 86 lb./min
EXAMPLE 8 - TOTAL FLOODING FOR DEEP-SEATED FIRES - Discharge Rate #2
Consider a dust collector having a volume of 3,000 ft.3. Determine the discharge rate required to
achieve a 30% concentration within 2 minutes and to complete agent discharge within 7 minutes.
From Equation (3):
Where is the Quantity of Agent for the Design Concentration, is the Quantity of Agent
to Compensate for Leakage, is the Quantity of Agent to Compensate for Ventilation, and
is the Quantity of Agent to Compensate for Extreme Temperatures.
From Equation (12):
Where is the Quantity of Agent for the Design Concentration, is the Volume of the
Enclosure, and is the Volume Factor.
= 3,000 ft.3
= 6 ft.3/lb. from Table 3-3 for Dust Collectors
= 3000 6
= 500 lb.
q30 0.0214 V=
q30
q30
V
q30
q30
tdWmin q30
=
td
td
Wmin
q30
td
td
td
qmin
q30
qmin
Wmin WCWVWLWT
+++=
WC
WL
WV
WT
WCVf
1
=
WC
V
f1
V
f1
WC
WC

Design
September 2013 3-24 P/N 81-CO2MAN-001
3-5.4 System Design
3-5.4.1 OCCUPANCY
Carbon dioxide total flooding systems shall not be installed in normally occupied enclosures.
Note: NFPA 12, 2005 Edition, allows use under specified conditions.
Consideration shall be given to the possibility of carbon dioxide drifting and settling into
adjacent places outside the protected area and to the possibility that personnel could be
trapped in or enter into an atmosphere made hazardous by a carbon dioxide discharge.
Safeguards shall be provided to ensure prompt evacuation, to prevent entry into such
atmospheres and to provide means for prompt rescue of any trapped personnel. Personnel
training shall be provided.
= 0 lb.
= 0 lb.
= 0 lb.
=
= 500+0+0+0
= 500 lb.
From Equation (13):
Where is the Minimum Flow Rate to Achieve 30% Within 2 Minutes.
= 0.0214 x
= 0.0214 x 3,000
= 64.2 lb./min
From Equation (14):
Where is the Discharge Time.
=
= 500 64.2
= 7.8 min
Since > 7 min, the minimum discharge rate must be increased.
From Equation (15):
Where is the Minimum Flow Rate.
= 7
= 500 7
= 71.4 lb./min
WL
WV
WT
Wmin
WCWVWLWT
+++
Wmin
Wmin
q30 0.0214 V=
q30
q30
V
q30
q30
tdWmin q30
=
td
td
Wmin
q30
td
td
td
qmin Wmin 7=
qmin
qmin
Wmin
qmin
qmin

Design
P/N 81-CO2MAN-001 3-25 September 2013
If personnel could be in the protected space at any time, the following safety devices shall be
integrated into the carbon dioxide fire suppression system (Reference Paragraph 1-6.1):
• Pneumatic pre-discharge alarm (Pressure Operated Siren)
• Pneumatic Discharge delay (Discharge Delay)
• Addition of a distinctive odor to the discharging carbon dioxide (Odorizer Part No.
81-897637-000 and 10030080), or automatic alarms that are activated by an oxygen or
carbon dioxide detector, or establishment and enforcement of confined space entry
procedures
• Warning signs in accordance with NFPA 12 (Warning Signs Part No. 06-231866-8XX
• Carbon dioxide system Lock-Out valve (Lockout Valves)
All closed sections of pipe (i.e., upstream of any time delay or lockout valves) shall be fitted
with a Safety Outlet (Part No. 81-803242-000).
3-5.4.2 DISCHARGE NOZZLES
For total flooding of large enclosures, Type "S" and Type "M" nozzles are generally used. For
total flooding of ducts and small enclosures, the Type "V" nozzle may be used.
The number of nozzles required depends on the following considerations:
• Maximum Spacing: 20 ft. (6.1 m)
• Flow Rate: Up to 120 lb./min (55 kg/min) per nozzle for "S" and "V" nozzles; Up to 240
lb./min (110 kg/min) per nozzle for "M" nozzles
If obstructions within the protected space interfere with the efficient distribution of the carbon
dioxide or if lower nozzle flow rates are desired, it may be necessary to increase the quantity
of nozzles.
The type of nozzles selected and their placement shall be such that the discharge will not
unduly splash flammable liquids or create dust clouds that might extend the fire, create an
explosion, or otherwise adversely affect the contents of the enclosure.
3-5.4.3 PRESSURE RELIEF VENTING
Pressure relief venting shall be verified and provided in accordance with NFPA 12.
WARNING
The Pneumatic Discharge Delay and any other valve that controls the flow of
agent shall be fitted with a manual bypass control that is supervised to alert
personnel when the device is in the bypass mode.

Design
September 2013 3-26 P/N 81-CO2MAN-001
3-6 LOCAL APPLICATION SYSTEMS
A local application system consists of a fixed supply of carbon dioxide permanently connected
to fixed piping with nozzles arranged to discharge directly into the fire where a permanent
enclosure about the hazard does not exist.
3-6.1 Carbon Dioxide Requirements
Local application design is based on three key factors:
• Nozzle location, orientation, and coverage area
• Rate of discharge
• Duration of liquid discharge
3-6.1.1 NOZZLE LOCATION, ORIENTATION, AND COVERAGE AREA
Since the concept of local application fire suppression is based on discharging suppressant
directly onto the burning fuel, the nozzle location, orientation, and coverage area are primary
factors in a successful system design. Each design approach, the Rate-by-Area method (See
Paragraph 3-6.2) or the Rate-by-Volume method (See Paragraph 3-6.3), has specific
requirements.
3-6.1.2 RATE OF DISCHARGE
Since local application systems do not retain an inert atmosphere beyond the end of system
discharge, it is extremely important to discharge carbon dioxide at a rate that is sufficient to
extinguish a flame, while refraining from spreading the fire.
The rate of carbon dioxide discharge is calculated either by the Rate-by-Area method (See
Paragraph 3-6.2) or the Rate-by-Volume method (See Paragraph 3-6.3).
3-6.1.3 DURATION OF LIQUID DISCHARGE
When a cylinder of carbon dioxide is discharged, a portion of the discharge will be liquid and
the remainder will be vapor. It has been found that only the liquid portion of the discharge is
effective in extinguishing fires by local application methods.
The minimum liquid discharge time for local application systems is 30 seconds (0.5 min).
However, the minimum time shall be increased to compensate for any hazard condition that
would require a longer cooling period to ensure complete extinguishment.
In the case where the fuel has an auto ignition temperature below its boiling point, such as
paraffin wax and cooking oils, the liquid discharge time shall be of a sufficient duration such
that the fuel is cooled below the auto ignition temperature. The minimum discharge time for
such fuels is 3 minutes.
WARNING
Personnel should be made aware of the hazards associated with the discharge
of carbon dioxide in local application systems. Hazards to personnel consist of
obstruction of vision and reduction in oxygen to a level that will not support life.
These hazards can be expected to occur not only in the immediate area of
discharge, but also in adjacent areas to which the carbon dioxide gas may
migrate. Appropriate alarms shall be used to alert personnel so that they may
be evacuated from the protected space prior to system discharge. Suitable
warning signs must be prominently displayed in clear view in the protected area
and at the point of entry into the protected area to alert people to the
asphyxiation properties of carbon dioxide.

Design
P/N 81-CO2MAN-001 3-27 September 2013
3-6.1.4 QUANTITY OF CARBON DIOXIDE
The quantity of carbon dioxide to be supplied is based on the total calculated rate of discharge
for the hazard and the design duration of liquid discharge. To account for the vapor portion of
the discharge, a vaporization factor of 40% is applied.
(Equation 16)
Where:
= Minimum quantity of agent to be supplied, lb. (kg)
= Total calculated rate of discharge for local application hazards,
lb./min (kg/min)
= Duration of liquid discharge, min
This quantity shall be increased by a sufficient amount to compensate for vaporization of liquid
due to cooling of the discharge pipe. Kidde Fire Systems CO2 Calculation Software (Part No.
81-190001-XXX) takes this phenomenon into account. NFPA 12 may be referenced for
additional information.
3-6.2 Rate-by-Area Method
The Rate-by-Area application of carbon dioxide is used to suppress fires on flat surfaces or low-
level hazards associated with horizontal surfaces. These include dip tanks, drain boards, fryers,
and floor areas. The basis of this method lies in determining the square footage of the hazard
area. Both the discharge rate and area coverage of the nozzles are based upon nozzle height
above the hazard. Once the nozzle height, discharge rate, and nozzle area coverage has been
established, the nozzle spacing, and consequently, the number of nozzles are determined.
Where deep layer flammable liquid fires are to be protected, a minimum freeboard of 6 in. (152
mm) shall be provided.
3-6.2.1 OVERHEAD NOZZLES
Overhead nozzles are the most common method of applying a rate-by-area local application
system. In this case, Type "S" and Type "M" nozzles are used to suppress fires on liquid
surfaces (e.g., dip tank) or coated surfaces (e.g., drip board).
3-6.2.1.1 Nozzle Coverage and Carbon Dioxide Requirements
Nozzles are selected for their coverage and flow rate to minimize the amount of carbon dioxide
required. Occasionally, hazard conditions may restrict nozzle placements.
Refer to Table 3-4 and Table 3-5 for the height/area coverage/flow rate data, for the Type "S"
and Type "M" nozzles. Extrapolations above or below nozzle approval listings are not
permitted.
The portion of a hazard protected by a single nozzle is based on its "side of square" coverage
and the distance to the protected surface. Generally, the farther the nozzle is from the
protected surface, the larger the area covered and the greater the required discharge rate to
sufficiently penetrate the fire. However, the discharge must also be tempered to prevent
splashing of burning liquid fuels.
The quantity of overhead nozzles needed to protect a hazard may be calculated using
Equations (17) through (19).
Wmin 1.4 qt
liq
=
Wmin
q
tliq

Design
September 2013 3-28 P/N 81-CO2MAN-001
(Equation 17)
Where: = Number of nozzle columns
= Width of protected area, ft. (m)
= Side of square from Table 3-4 or Table 3-5, ft. (m)
(Equation 18)
Where: = Number of nozzle rows
= Length of protected area, ft. (m)
= Side of square from Table 3-4 or Table 3-5, ft. (m)
(Equation 19)
Where: = Quantity of nozzles
= from Equation (17) rounded up to the next whole number
= from Equation (18) rounded up to the next whole number
The total discharge rate for overhead nozzle protection may be calculated using Equation 20.
(Equation 20)
Where: = Total discharge rate for overhead nozzle protection, lb./min (kg/min)
= Single nozzle discharge rate from Table 3-4 or Table 3-5, lb./min
(kg/min)
= Quantity of nozzles from Equation (19)
Nwws=
Nw
w
s
Nlls=
Nl
l
s
NN
wNl
=
N
Nw
Nw
Nl
Nl
qOH qnN=
qOH
qn
N

Design
P/N 81-CO2MAN-001 3-29 September 2013
Table 3-4A. Type “M” Multijet Nozzle (US Units)
COATED SURFACE NOZZLE LIQUID SURFACE
Area
(ft.2)Side of Square
(ft.) Height Flow Rate
(lb./min) Area
(ft.2)Side of Square
(ft.)
12.6 3.54 2’-0” 31.0 9.0 3.00
13.3 3.64 2’-3” 34.5 9.5 3.08
14.0 3.74 2’-6” 38.0 10.0 3.16
14.7 3.83 2’-9” 42.5 10.5 3.24
15.4 3.92 3’-0” 45.0 11.0 3.32
16.1 4.01 3’-3” 47.5 11.5 3.39
16.8 4.09 3’-6” 52.0 12.0 3.46
17.5 4.18 3’-9” 55.5 12.5 3.54
18.2 4.26 4’-0” 59.0 13.0 3.60
18.9 4.35 4’-3” 62.5 13.5 3.67
19.6 4.42 4’-6” 66.0 14.0 3.74
20.3 4.50 4’-9” 69.5 14.5 3.81
21.0 4.57 5’-0” 73.0 15.0 3.87
21.7 4.65 5’-3” 76.5 15.5 3.94
22.4 4.72 5’-6” 80.0 16.0 4.00
23.1 4.80 5’-9” 83.5 16.5 4.05
23.8 4.87 6’-0” 87.0 17.0 4.12
24.5 4.94 6’-3” 90.5 17.5 4.18
25.2 5.01 6’-6” 94.0 18.0 4.24
25.9 5.08 6’-9” 97.5 18.5 4.30
26.6 5.15 7’-0” 101.0 19.0 4.35
27.3 5.22 7’-3” 104.5 19.5 4.41
28.0 5.28 7’-6” 108.0 20.0 4.47
28.0 5.28 7’-9” 111.5 20.0 4.47
28.0 5.28 8’-0” 115.0 20.0 4.47
28.0 5.28 8’-3” 118.5 20.0 4.47
28.0 5.28 8’-6” 122.0 20.0 4.47
28.0 5.28 8’-9” 125.5 20.0 4.47
28.0 5.28 9’-0” 129.0 20.0 4.47

Design
September 2013 3-30 P/N 81-CO2MAN-001
Table 3-4B. Type “M” Multijet Nozzle (Metric Units)
COATED SURFACE NOZZLE LIQUID SURFACE
Area
(m2)Side of Square
(m) Height
(m) Flow Rate
(kg/min) Area
(m2)Side of Square
(m)
1.17 1.08 0.61 14.1 0.84 0.91
1.24 1.11 0.69 15.6 0.88 0.94
1.30 1.14 0.76 17.2 0.93 0.96
1.37 1.17 0.84 19.3 0.98 0.99
1.43 1.19 0.91 20.4 1.02 1.01
1.50 1.22 0.99 21.5 1.07 1.03
1.56 1.25 1.07 23.6 1.11 1.05
1.63 1.27 1.14 25.2 1.16 1.08
1.69 1.30 1.22 26.8 1.21 1.10
1.76 1.33 1.30 28.3 1.25 1.12
1.82 1.35 1.37 29.9 1.30 1.14
1.89 1.37 1.45 31.5 1.35 1.16
1.95 1.39 1.52 33.1 1.39 1.18
2.02 1.42 1.60 34.7 1.44 1.20
2.08 1.44 1.68 36.3 1.49 1.22
2.15 1.46 1.75 37.9 1.53 1.23
2.21 1.48 1.83 39.5 1.58 1.26
2.28 1.51 1.91 41.1 1.63 1.27
2.34 1.53 1.98 42.6 1.67 1.29
2.41 1.55 2.06 44.2 1.72 1.31
2.47 1.57 2.13 45.8 1.77 1.33
2.54 1.59 2.21 47.4 1.81 1.34
2.60 1.61 2.29 49.0 1.86 1.36
2.60 1.61 2.36 50.6 1.86 1.36
2.60 1.61 2.44 52.2 1.86 1.36
2.60 1.61 2.51 53.8 1.86 1.36
2.60 1.61 2.59 55.3 1.86 1.36
2.60 1.61 2.67 56.9 1.86 1.36
2.60 1.61 2.74 58.5 1.86 1.36

Design
P/N 81-CO2MAN-001 3-31 September 2013
Table 3-5A. Type “S” Multijet Nozzle (US Units)
COATED SURFACE NOZZLE LIQUID SURFACE
Area
(ft.2)Side of Square
(ft.) Height Flow Rate
(lb./min) Area
(ft.2)Side of Square
(ft.)
7.0 2.65 1’-0” 16 5.0 2.24
7.7 2.78 1’-3” 17.5 5.5 2.34
8.4 2.9 1’-6” 20 6.0 2.45
9.0 3.0 1’-9” 22 6.4 2.53
9.8 3.13 2’-0” 24 7.0 2.65
10.4 3.22 2’-3” 26 7.4 2.72
10.9 3.3 2’-6” 28 7.8 2.79
11.6 3.41 2’-9” 30 8.3 2.88
12.2 3.49 3’-0” 32 8.7 2.95
12.9 3.59 3’-3” 34.5 9.2 3.03
13.6 3.69 3’-6” 36.5 9.7 3.11
14.3 3.78 3’-9” 38.5 10.2 3.19
15.0 3.87 4’-0” 41 10.7 3.27
15.5 3.94 4’-3” 43 11.1 3.33
16.1 4.01 4’-6” 45 11.5 3.39
16.9 4.1 4’-9” 47 12.1 3.48
17.6 4.19 5’-0” 49 12.5 3.54
18.2 4.26 5’-3” 51 13.0 3.61
18.9 4.34 5’-6” 53 13.5 3.67
19.6 4.42 5’-9” 55 14.0 3.74
20.3 4.5 6’-0” 57 14.5 3.81
21.0 4.57 6’-3” 59.5 15.0 3.87
21.0 4.57 6’-6” 61.5 15.0 3.87
21.0 4.57 6’-9” 63.5 15.0 3.87
21.0 4.57 7’-0” 66 15.0 3.87
21.0 4.57 7’-3” 68 15.0 3.87
21.0 4.57 7’-6” 70 15.0 3.87
21.0 4.57 7’-9” 72 15.0 3.87
21.0 4.57 8’-0” 74 15.0 3.87

Design
September 2013 3-32 P/N 81-CO2MAN-001
Table 3-5B.
COATED SURFACE NOZZLE LIQUID SURFACE
Area
(m2)Side of Square
(m) Height
(m) Flow Rate
(kg/min) Area
(m2)Side of Square
(m)
0.65 0.81 0.30 7.3 0.46 0.68
0.72 0.85 0.38 7.9 0.51 0.71
0.78 0.88 0.46 9.1 0.56 0.75
0.84 0.91 0.53 10.0 0.59 0.77
0.91 0.95 0.61 10.9 0.65 0.81
0.97 0.98 0.69 11.8 0.69 0.83
1.01 1.01 0.76 12.7 0.72 0.85
1.08 1.04 0.84 13.6 0.77 0.88
1.13 1.06 0.91 14.5 0.81 0.90
1.20 1.09 0.99 15.6 0.85 0.92
1.26 1.12 1.07 16.6 0.90 0.95
1.33 1.15 1.14 17.5 0.95 0.97
1.39 1.18 1.22 18.6 0.99 1.00
1.44 1.20 1.30 19.5 1.03 1.01
1.50 1.22 1.37 20.4 1.07 1.03
1.57 1.25 1.45 21.3 1.12 1.06
1.64 1.28 1.52 22.2 1.16 1.08
1.69 1.30 1.60 23.1 1.21 1.10
1.76 1.32 1.68 24.0 1.25 1.12
1.82 1.35 1.75 24.9 1.30 1.14
1.89 1.37 1.83 25.9 1.35 1.16
1.95 1.39 1.91 27.0 1.39 1.18
1.95 1.39 1.98 27.9 1.39 1.18
1.95 1.39 2.06 28.8 1.39 1.18
1.95 1.39 2.13 29.9 1.39 1.18
1.95 1.39 2.21 30.8 1.39 1.18
1.95 1.39 2.29 31.8 1.39 1.18
1.95 1.39 2.36 32.7 1.39 1.18
1.95 1.39 2.44 33.6 1.39 1.18
Type “S” Multijet Nozzle (Metric Units)

Design
P/N 81-CO2MAN-001 3-33 September 2013
EXAMPLE 9 - LOCAL APPLICATION: RATE-BY-AREA - Overhead Nozzles
Consider a dip tank with surface dimensions 4 ft. x 8 ft. . A survey of the hazard indicates
nozzles may be located 4 to 6 ft. above the liquid surface without being an obstacle to normal working
conditions. Determine the optimum nozzle height that minimizes the carbon dioxide supply and nozzle
quantity requirements.
Examine the Type "S" and Type "M" nozzle coverage for liquid surfaces in Table 3-4 and Table 3-5.
For a Type 'M' nozzle at 4 ft. above the protected surface:
From Equation (17):
Where is the Quantity Of Nozzles Along The Width Of The Protected Surface, is the Width of the
Protected Surface, and is the Maximum Side of Square.
From Table 3-4A:
s = 3.6 ft.
= 4 3.6
= 1.1
2
From Equation (18):
Where is the Quantity Of Nozzles Along The Length Of The Protected Surface and is the Length
of the Protected Surface.
= 8 3.6
= 2.2
3
From Equation (19):
Where is the Total Quantity of Nozzles.
= 2 x 3
= 6
From Equation (20):
Where is the Total Discharge Rate and is the Discharge Rate of a Single Nozzle.
From Table 3-4A:
= 59 lb./min
W
L
Nwws=
Nw
w
s
Nwws=
Nw
Nw
Nw
Nlls=
Nl
l
Nlls=
Nl
Nl
Nl
NN
wNl
=
N
NN
wNl
=
N
N
qOH qnN=
qOH
qn
qn

Design
September 2013 3-34 P/N 81-CO2MAN-001
= x
= 59 x 6
= 354 lb./min
Using the same procedure, determine the minimum quantity of agent and nozzles that could
be used. It is best to use a spreadsheet for such calculations. The following table provides a
summary of the results
Nozzle
Type Height
(ft.-in) Flow Rate
(lb./min)
Side of
Square
(ft.)
Qty of Nozzles Total Rate
(lb./min)
Total
M4-0 59 3.6 2 3 6 354
4-3 62.5 3.67 2 3 6 375
4-6 66 3.74 2 3 6 396
4-9 69.5 3.81 2 3 6 417
5-0 73 3.87 2 3 6 438
5-3 76.5 3.94 2 3 6 459
5-6 80 4.0 1 2 2 160
5-9 83.5 4.05 1 2 2 167
6-0 87 4.12 1 2 2 174
S4-0 41 3.27 2 3 6 246
4-3 43 3.33 2 3 6 258
4-6 45 3.39 2 3 6 270
4-9 47 3.48 2 3 6 282
5-0 49 3.54 2 3 6 294
5-3 51 3.61 2 3 6 306
5-6 53 3.67 2 3 6 318
5-9 55 3.74 2 3 6 330
6-0 57 3.81 2 3 6 342
Selecting Type 'M' nozzles at a height of 66 in. results in the lowest quantity of nozzles (2)
and total flow rate (160 lb./min).
From Equation (16):
Where is the Minimum Quantity of Agent to Be Supplied and is the Duration of
Liquid Discharge.
From Paragraph 3-6.1.3:
= 0.5 min
= 1.4 x x
= 1.4 x 160 x 0.5
= 112 lb.
qOH
qn
N
qOH
qOH
Nw
Nl
Wmin 1.4 qt
liq
=
Wmin
tliq
tliq
Wmin
q
tliq
Wmin
Wmin

Design
P/N 81-CO2MAN-001 3-35 September 2013
3-6.2.1.2 Nozzle Positioning
Overhead nozzles shall be aimed and located over the protected area in accordance with
Table 3-6 and as demonstrated in Figure 3-3. The aiming factor is multiplied by the total width
of the protected area to determine the location of the aiming point from the edge nearest the
nozzle.
The height used in determining the flow rate of the nozzle shall be the distance from the aiming
point on the hazard to the face of the nozzle (See Figure 3-3).
The nozzle shall be located so as to be free of possible obstructions that could interfere with
the delivery of carbon dioxide to the protected surface and so as to develop an extinguishing
atmosphere over coated stock extending above a protected surface.
If air currents, wind, or forced drafts are present, discharged carbon dioxide may be prevented
from reaching the protected surface in adequate concentrations to extinguish a fire.
Additionally, sufficient air velocity may cause liquid to splash and escape the hazard area,
potentially spreading a fire. In the event of such circumstances, nozzles shall be located so as
to compensate for these effects and consideration shall be given to installing additional nozzles
outside the hazard area.
Figure 3-3. Nozzle Aiming
Table 3-6. Aiming Factors for Angular Placement of Nozzles1
Discharge Angle2Aiming Factors3
45 - 60 1/4
60 - 75 1/4 - 3/8
75 - 90 3/8 - 1/2
90 (perpendicular) 1/2 (center)
1 Based on 6-inch (152 mm) freeboard.
2 Degrees from plane of hazard surface.
3 Fractional amount of nozzle coverage area.
Note: Also see Figure 3-3.
D
75-90°
60-75°
45-60°
PROTECTED SURFACE
(HEIGHT)
(HEIGHT)
(HEIGHT)
DISCHARGE NOZZLE
(NOZZLE COVERAGE AREA)
1/2D
3/8D
1/4D

Design
September 2013 3-36 P/N 81-CO2MAN-001
3-6.2.2 TANKSIDE TYPE "L" NOZZLE
Type "L" nozzles provide a fanned discharge that blankets a liquid surface (e.g., dip tank) or
coated surface (e.g., drip board) with carbon dioxide. Nozzles are mounted on the freeboard
for liquid surface coverage and on the edge of coated surfaces in accordance with spacing
requirements.
3-6.2.2.1 Rate for Liquid Surface
The minimum flow rate per coverage area per nozzle for tankside protection of liquid surfaces
shall be selected from Table 3-7.
Table 3-7A. Liquid Surfaces1 (US Units)
Area
(ft.2)Min. Rate
(lb./min.-ft.2)Max. Rate
(lb./min.-ft.2)
1 4.14 37.7
2 4.14 19.7
3 4.14 13.7
4 4.14 11.0
54.148.9
64.147.8
74.146.8
84.146.2
94.145.7
10 4.14 5.3
11 4.32 5.0
11.75 4.77 4.8
1 CO2 required is approximately 3 lb./ft.2

Design
P/N 81-CO2MAN-001 3-37 September 2013
Table 3-7B.
Area
(m2)Min. Rate
(kg/min.-m2)Max. Rate
(kg/min.-m2)
0.093 20.2 184.1
0.186 20.2 96.2
0.279 20.2 66.9
0.372 20.2 53.7
0.465 20.2 43.5
0.557 20.2 38.1
0.650 20.2 33.2
0.743 20.2 30.3
0.836 20.2 27.8
0.929 20.2 25.9
1.022 21.1 24.4
1.092 23.3 23.4
1 CO2 required is approximately 3 lb./ft.2
Liquid Surfaces1 (Metric Units)

Design
September 2013 3-38 P/N 81-CO2MAN-001
3-6.2.2.2 Rate for Coated Surface
The minimum flow rate per coverage area per nozzle for tankside protection of coated surfaces
shall be selected from Table 3-8.
Table 3-8A. Coated Surfaces1 (US Units)
Area
(ft.2)Min. Rate
(lb./min.-ft.2)Max. Rate
(lb./min.-ft.2)
1 2.96 37.2
2 2.96 19.4
3 2.96 13.2
4 2.96 10.2
52.968.4
62.967.2
72.966.3
82.965.7
92.965.2
10 2.96 4.8
11 2.96 4.5
12 2.96 4.2
13 2.96 4.0
14 2.96 3.8
15 3.09 3.6
16 3.19 3.5
16.5 3.39 3.4
1 CO2 required is approximately 2 lb./ft.2

Design
P/N 81-CO2MAN-001 3-39 September 2013
Table 3-8B.
Area
(m2)Min. Rate
(kg/min.-m2)Max. Rate
(kg/min.-m2)
0.093 14.5 181.6
0.186 14.5 94.7
0.279 14.5 64.4
0.372 14.5 49.8
0.465 14.5 41.0
0.557 14.5 35.2
0.650 14.5 30.8
0.743 14.5 27.8
0.836 14.5 25.4
0.929 14.5 23.4
1.022 14.5 22.0
1.115 14.5 20.5
1.208 14.5 19.5
1.301 14.5 18.6
1.394 15.1 17.6
1.486 15.6 17.1
1.533 16.6 16.6
1 CO2 required is approximately 2 lb./ft.2
Coated Surfaces1 (Metric Units)

Design
September 2013 3-40 P/N 81-CO2MAN-001
3-6.2.2.3 Nozzle Coverage and Carbon Dioxide Requirements
Whereas overhead nozzles are based on "side of square" coverage (one dimension), tankside
coverage is based on surface area (two dimensions). Since the Type "L" nozzle has a limited
discharge thrust, it is necessary to maintain a maximum dimension on all sides of the coverage
area. The following limits shall be observed:
• Maximum surface area per Table 3-7 or Table 3-8
• Maximum throw (forward): 4 ft. (1.22 m)
• Maximum distance between adjacent nozzles: 5 ft. (1.52 m)
• Maximum distance between first/last nozzle and corner of hazard area: 2-1/2 ft. (0.76 m)
Assuming a row of nozzles on each side of the hazard surface, the maximum hazard width is
8 ft. (2.44 m) for systems using tankside nozzles only. For hazards that exceed this limitation,
additional overhead nozzles may be used to provide coverage of the area along the centerline
of the protected surface. When overhead nozzles are used in conjunction with tankside nozzles,
the flow rate for the overhead portion shall be calculated in accordance with
Paragraph 3-6.3.1. The total discharge rate for the hazard shall be the sum of the tankside
( ) and overhead ( ) portions.
The quantity of tankside nozzles may be calculated using Equations (21) through (27).
(Equation 21)
(US Units)
or
Where:
= Number of nozzle rows
= Width of protected area, ft. (m)
(Equation 22)
Where:
= Width of nozzle coverage area, ft. (m)
= Width of protected area up to 8 ft. (2.44 m), ft. (m)
= from Equation (21) rounded up to the next whole number
(Equation 23)
Where: = Maximum length of nozzle coverage area, ft. (m)
= 11.75 ft.2 (1.092 m2) for liquid surfaces; 16-1/2 ft.2 (1.533 m2) for
coated surfaces
= Width of nozzle coverage area from Equation (22), ft. (m)
qTS
qOH
Nww4=
Nww1.22=
Nw
w
SwwN
w
=
Sw
w
Nw
Nw
SlmaxAmax Sw
=
Slmax
Amax
sw

Design
P/N 81-CO2MAN-001 3-41 September 2013
(Equation 24)
Where:
= Number of nozzles per row
= Length of protected area, ft. (m)
=Maximum length of nozzle coverage area from Equation (23) up to 5 ft.
(1.52 m), ft. (m)
(Equation 25)
Where:
= Length of nozzle coverage area, ft. (m)
= Length of protected area, ft. (m)
= from Equation (24) rounded up to the next whole number
(Equation 26)
Where:
= Actual nozzle coverage area, ft.2 (m2)
= Width of nozzle coverage area from Equation (22), ft. (m)
= Length of nozzle coverage area from Equation (25), ft. (m)
(Equation 27)
Where:
= Quantity of nozzles
= from Equation (21) rounded up to the next whole number
= from Equation (24) rounded up to the next whole number
The total discharge rate for tankside nozzle protection may be calculated using Equation 28.
(Equation 28)
Where:
= Total discharge rate for tankside nozzle protection, lb./min (kg/min)
= Single nozzle discharge rate from Table 3-7 or Table 3-8, lb./min (kg/min)
= Actual nozzle coverage area from Equation (26), ft.2 (m2)
= Quantity of nozzles from Equation (27)
NllS
lmax
=
Nl
l
Slmax
sllN
l
=
sl
l
Nl
Nl
Aact swsl
=
Aact
sw
sl
NN
wNl
=
N
Nw
Nw
Nl
Nl
qTS qnAact
N=
qTS
qn
Aact
N

Design
September 2013 3-42 P/N 81-CO2MAN-001
EXAMPLE 10 - LOCAL APPLICATION: RATE-BY-AREA - Tankside Nozzles
Consider a quench tank with liquid surface dimensions of 3 ft. x 7 ft. . Minimize carbon dioxide
and nozzle requirements while using a tankside nozzle location. Calculate the quantity of nozzles,
minimum flow rate and the minimum carbon dioxide supply for the hazard.
From Equation (21):
Where is the Quantity Of Nozzle Rows and is the Width of the Protected Area.
= 4
= 3 4
= 0.75
1 row
From Equation (22):
Where is the Width of the Nozzle Coverage Area.
= 3 1
= 3 ft.
From Equation (23):
Where is the Maximum Nozzle Coverage Length and is the Maximum Nozzle Coverage
Area.
From Table 3-7A:
= 11.75 ft.2
= 11.75 3
= 3.9 ft.
From Equation (24):
Where is the Quantity of Nozzles per Row and is the Length of the Protected Surface.
=
= 7 3.9
= 1.8
2 nozzles
W
L
Nww4=
Nw
w
Nw
w
Nw
Nw
Nw
swwN
w
=
sw
swwN
w
=
sw
sw
SlmaxAmax Sw
=
slmax
Amax
Amax
SlmaxAmax Sw
=
slmax
slmax
NllS
lmax
=
Nl
l
Nl
l
Slmax
Nl
Nl
Nl

Design
P/N 81-CO2MAN-001 3-43 September 2013
From Equation (25):
Where is the Length of the Nozzle Coverage Area.
= 7 2
= 3-1/2 ft.
From Equation (26):
Where is the Actual Nozzle Coverage Area.
= x
= 3 x 3.5
= 10-1/2 ft.2
From Equation (27):
Where N is the Total Quantity of Nozzles.
= 1 x 2
= 2 nozzles
From Equation (28):
Where is the Total Discharge Rate and is the Discharge Rate of Single Nozzle.
= 4.23 lb./min./ft.2.
= 4.23 x 10.5 x 2
= 89 lb./min
sllN
l
=
sl
sllN
l
=
sl
sl
Aact swsl
=
Aact
Aact
sw
sl
Aact
Aact
NN
wNl
=
NN
wNl
=
N
N
qTS qnAact
N=
qTS
qn
qn
qTS qnAact
N=
qTS
qTS

Design
September 2013 3-44 P/N 81-CO2MAN-001
3-6.3 Rate by Volume Method
The Rate-by-Volume application of carbon dioxide is used when the hazard is an irregular,
three-dimensional object that cannot be easily reduced to equivalent surface areas (Rate-by-
Area) and/or enclosed volumes (Total Flooding). Examples of hazards that can be protected by
this method include: printing presses, metal grinders, wave solder machines, pumps, and
motors.
The Rate-by-Volume method is applied by assuming an enclosure about the hazard. Nozzles
are located in and around the hazard to evenly distribute the agent throughout the protection
envelope and to direct the discharge at the expected flame locations. Since an enclosure does
not actually exist, the duration of protection is only as long as the agent discharge. Reference
Paragraph 3-6.1.3 for guidance on the duration of discharge.
3-6.3.1 ASSUMED ENCLOSURE
The total carbon dioxide discharge rate of the system shall be based on the volume of an
assumed enclosure, entirely surrounding the hazard. The walls and ceiling of the assumed
enclosure shall be a minimum of 2 ft. (0.6 m) from the hazard's actual edges, unless walls or
ceilings are present. The assumed enclosure shall include a solid floor.
No deductions are made to the volume for solid objects within the assumed enclosure. A
minimum dimension of 4 feet must be used during volumetric calculation of the assumed
enclosure. The assumed volume shall be increased to compensate for the losses due to winds
and forced drafts.
3-6.3.2 DISCHARGE RATE
The discharge rate for a basic system shall be 1 lb./min-ft.3 (16 kg/min-m3). If the assumed
enclosure has a closed floor and is partly defined by continuous walls that extend at least 2 ft.
(0.6 m) above the hazard and that are not part of the hazard, the minimum design flow rate
may be proportionately reduced to not less than 0.25 lb./min-ft.3 (4 kg/min-m3).
(Equation 29)
(US Units)
or
(Metric Units)
From Equation (16):
Where is the Minimum Quantity of Agent to Be Supplied and is the Duration of
Liquid Discharge.
From Paragraph 3-6.1.3:
= 0.5 min
= 1.4 x q x
= 1.4 x 89 x 0.5
= 63 lb.
Wmin 1.4 qt
liq
=
Wmin
tliq
tliq
Wmin
tliq
Wmin
Wmin
qV0.75 AOAW 0.25+=
qV12 AOAW 4+=

Design
P/N 81-CO2MAN-001 3-45 September 2013
Where: = Design flow rate per unit volume, lb./min-ft.3 (kg/min-m3)
= Open area of assumed enclosure "walls", ft.2 (m2)
= Total area of assumed enclosure "walls", ft.2 (m2)
Figure 3-4. Partial Enclosure Flow Rate Reduction*
Determine the minimum rate of discharge for the hazard by multiplying the design flow rate
by the assumed enclosure.
(Equation 30)
Where:
= Minimum discharge rate, lb./min (kg/min)
= Design flow rate per unit volume from Equation (29), lb./min-ft.3
(kg/min-m3)
= Volume of assumed enclosure, ft.3 (m3)
qV
AO
AW
qmin qvV=
qmin
qV
V

Design
September 2013 3-46 P/N 81-CO2MAN-001
EXAMPLE 11 - LOCAL APPLICATION: RATE-BY-VOLUME - Assumed Enclosure
Consider a hazard with outside dimensions 4 ft. x 6 ft. x 3 ft. . Calculate the
design discharge rate and minimum agent supply for a Rate-by-Volume application.
Assume an enclosure about the hazard:
Assumed Enclosure Dimensions: ft. x 10 ft. x 5 ft.
= 8 ft. x 10 ft. x 5 ft. = 400 ft.3
From Equation (30):
Where is the Minimum Discharge Rate, is the Design Flow Rate per Unit Volume,
and is the Volume of the Assumed Enclosure.
From Equation (29):
Where is the Open Area of the Assumed Enclosure Walls and is the Total Area of
Assumed Enclosure Walls.
= (8 x 5) + (10 x 5) + (8 x 5) + (10 x 5)
= 180 ft.2
= (8 x 5) + (10 x 5) + (8 x 5) + (10 x 5)
= 180 ft.2
= 0.75 x ( ) + 0.25
= 0.75 x (180 180) + 0.25
= 1.0 lb./min./ft.3
W
L
H
3'
2'
2' 6' 2'
2'
4'
2'
W
L
H
V
qmin qvV=
qmin
qV
V
qV0.75 AOAW 0.25+=
AO
AW
AW
AW
AO
AO
qV
AO
AW
qV
qV

Design
P/N 81-CO2MAN-001 3-47 September 2013
= x
= 1.0 x 400
= 400 lb./min
From Equation (16):
Where is the Minimum Quantity of Agent to Be Supplied and is the Duration of Liquid
Discharge.
From Paragraph 3-6.1.3:
= 0.5 min.
= 1.4 x x
= 1.4 x 400 x 0.5
= 280 lb.
qmin
qV
V
qmin
qmin
Wmin 1.4 qt
liq
=
Wmin
tliq
tliq
Wmin
q
tliq
Wmin
Wmin

Design
September 2013 3-48 P/N 81-CO2MAN-001
EXAMPLE 12 - LOCAL APPLICATION: RATE-BY-VOLUMBE - Assumed Enclosure with Walls
Consider a hazard with outside dimensions 4 ft. x 6 ft. x 3 ft. that is located in a corner.
The 6 ft. side of the hazard is 1-1/2 ft. away from the wall and the 4 ft. side is 1 ft. away from the
wall. The walls extend at least 10 ft. beyond the hazard. Calculate the design discharge rate and
minimum agent supply for a rate-by-volume system.
Assume an enclosure about the hazard:
Assumed Enclosure Dimensions:
7-1/2 ft. x 9 ft. x 5 ft.
= 7-1/2 ft. x 9 ft. x 5 ft. = 337.5 ft.3
W
L
H
4 ft.
1-1/2 ft.
2 ft.
2 ft.
6 ft.
3 ft.
2 ft.
1 ft.
W
L
H
V

Design
P/N 81-CO2MAN-001 3-49 September 2013
3-6.3.3 NOZZLES
Type "S" and Type "M" nozzles are used when applying a Rate-by-Volume local application
system.
A sufficient number of nozzles shall be used to adequately cover the entire assumed volume.
Nozzles shall be located and directed so as to retain the discharged carbon dioxide within the
hazard volume by suitable cooperation between nozzles and flow obstructions. Nozzles shall
be located so as to compensate for any possible effects of air currents, winds, or forced drafts.
Figure 3-5 is provided as an illustrated example. Actual configurations may differ significantly,
as dictated by the geometry of the hazard.
From Equation (30):
Where is the Minimum Discharge Rate, is the Design Flow Rate per Unit Volume, and
is the Volume of the Assumed Enclosure.
From Equation (29):
Where is the Open Area of the Assumed Enclosure Walls and is the Total Area of
Assumed Enclosure Walls.
= (7-1/2 x 5) + (9 x 5) + (7-1/2 x 5) + (9 x 5)
= 165 ft.2
= (7.5 x 5) + (9 x 5)
= 82.5 ft.2
= 0.75 x ( ) + 0.25
= 0.75 x (82.5 165) + 0.25
= 0.625 lb./min./ft.3
= x
= 0.625 x 337.5
= 211 lb./min.
From Equation (16):
Where is the Minimum Quantity of Agent to Be Supplied and is the Duration of Liquid
Discharge.
From Paragraph 3-6.1.3:
= 0.5 min.
= 1.4 x q x
= 1.4 x 211 x 0.5
= 148 lb.
qmin qvV=
qmin
qV
V
qV0.75 AOAW 0.25+=
AO
AW
AW
AW
AO
AO
qV
AO
AW
qV
qV
qmin
qV
V
qmin
qmin
Wmin 1.4 qt
liq
=
Wmin
tliq
tliq
Wmin
tliq
Wmin
Wmin

Design
September 2013 3-50 P/N 81-CO2MAN-001
Figure 3-5. Nozzle Placement Example
When liquid or coated hazards are present within the assumed volume, Table 3-4 and
Table 3-5 shall be consulted to determine the appropriate discharge rate for each nozzle to
prevent splashing of the liquid.
3-6.4 Safeguards for Local Application Systems
Consideration shall be given to the possibility of carbon dioxide drifting and settling into
adjacent places outside the protected area and to the possibility that personnel could be
trapped in or enter into an atmosphere made hazardous by a carbon dioxide discharge.
Safeguards shall be provided to ensure prompt evacuation, to prevent entry into such
atmospheres and to provide means for prompt rescue of any trapped personnel. Personnel
training shall be provided.
If personnel could be in the protected space at any time, the following safety devices shall be
integrated into the carbon dioxide fire suppression system (Reference Paragraph 1-6.1):
• Pneumatic pre-discharge alarm (Pressure Operated Siren)
• Pneumatic Discharge delay (Discharge Delay)
• Addition of a distinctive odor to the discharging carbon dioxide (Odorizer Part No.
81-897637-000 and 10030080), or automatic alarms that are activated by an oxygen or
carbon dioxide detector, or establishment and enforcement of confined space entry
procedures
• Warning signs in accordance with NFPA 12 (Warning Signs Part No. 06-231866-85X)
• Carbon dioxide system Lock-Out valve (Lockout Valves)
WARNING
The Pneumatic Discharge Delay and any other valve that controls the flow of
agent shall be fitted with a manual bypass control that is supervised to alert
personnel when the device is in the bypass mode.
W
2 ft.
2 ft.
2 ft.
L
H

Design
P/N 81-CO2MAN-001 3-51 September 2013
All closed sections of pipe (i.e., upstream of a Pneumatic Discharge Delay, Lockout Valve, Stop
Valve, etc.…) shall be fitted with a Safety Outlet (Part No. 81-803242-000).
3-7 COMBINATION SYSTEMS
Large, complex hazards may be divided into smaller hazards that are protected by either a total
flooding or local application design. In such cases, a single agent bank and pipe network may
be used for the entire hazard. When a system utilizes both total flooding and local application
design methods, it is necessary to make adjustments to the design flow rate of the total
flooding portion. The discharge rate for the total flooding portion shall be computed in
accordance with Equation (11), using the total discharge time (i.e., liquid and vapor) calculated
from Equation (31).
(Equation 31)
Where:
= Total system discharge time (liquid and vapor), min
= Duration of liquid discharge of local application portion, min
EXAMPLE 13 - COMBINATION SYSTEMS - Total Flooding Discharge Rate
Consider a room with dimensions of 20 ft. by 30 ft. by 10 ft. and containing
ordinary combustibles. Determine the minimum discharge rate for this hazard if the carbon
dioxide system will also include a local application portion.
From Equation (11):
Where is the Minimum Discharge Rate of the Total Flooding Portion, is the
Minimum Agent Quantity of the Total Flooding Portion, and td is the Total System Discharge
Time.
From Equation (3):
Where is the Quantity of Agent for the Design Concentration, is the Quantity of Agent
to Compensate for Leakage, is the Quantity of Agent to Compensate for Ventilation, and
is the Quantity of Agent to Compensate for Extreme Temperatures.
From Equation (2):
Where is the Basic Quantity (34%) and is the Material Conversion Factor.
td1.4 tliq
=
td
tliq
L
W
H
qmin Wmin tdmax
=
qmin
Wmin
Wmin WCWLWVWT
+++=
WC
WL
WV
WT
WCWBfC
=
WB
fC

Design
September 2013 3-52 P/N 81-CO2MAN-001
From Equation (1):
Where is Volume Of The Protected Space and is the Volume Factor.
= 20 ft. x 30 ft. x 10 ft.
= 6,000 ft.3
= 20 ft.3/lb. from Table 3-2 for volumes 4,501 ft.3 to 50,000 ft.3.
= V f1
= 6,000 20
= 300 lb.
= 1.0, from Figure 3-1 for 34% concentration
= x
= 300 x 1.0
= 300 lb.
= 0 lb.
= 0 lb.
= 0 lb.
= + + +
= 300 + 0 + 0 + 0
= 300 lb.
From Equation (31):
Where is the Duration of Liquid Discharge of the Local Application Portion.
WBVf
1
=
V
f1
V
V
f1
WB
WB
WB
fc
WC
WB
fC
WC
WC
WL
WV
WT
Wmin
WC
WV
WL
WT
Wmin
Wmin
td 1.4 tliq
=
tliq

Design
P/N 81-CO2MAN-001 3-53 September 2013
3-8 MULTIPLE HAZARD SYSTEMS
When two or more hazards are reasonably close together, it may be desirable to use one
central supply of carbon dioxide and to utilize directional valves to route the agent to the
required area. In such an arrangement, the amount of agent shall be at least sufficient for the
largest single hazard or group of hazards being protected simultaneously.
Directional valves are normally set in the closed position. When a fire is detected, the
directional valve leading to the fire location is opened to allow agent to flow to that area.
It is strongly recommended to provide a reserve agent supply. Reference Paragraph 3-11.2 for
additional information.
Since the directional valves will remain open until reset, the system is capable of protecting
only one hazard at a time, regardless of whether a reserve agent supply is provided. Therefore,
it is vitally important to accurately determine which hazard areas are completely separate,
such that fire will not spread from one area to another. Where the spread of fire from one
hazard to another is possible, both areas must be protected simultaneously.
All closed sections of pipe (i.e., upstream of any directional valves) shall be fitted with a Safety
Outlet (Part No. 81-803242-000).
From Paragraph 3-6.1.3:
= 30
= 0.5 min.
= 1.4 x
= 1.4 x 0.5
= 0.7 min.
=
= 300 0.7
= 428.6 lb./min.
tliq
s
tliq
td
tliq
td
td
qmin
Wmin
td
qmin
qmin

Design
September 2013 3-54 P/N 81-CO2MAN-001
3-9 PRESSURE OPERATED SIRENS
Pressure Operated Sirens, Part No. 81-981574-000, necessarily discharge carbon dioxide to
operate. When this discharge does not contribute to a firefighting concentration (i.e., within a
total flooding hazard), the total system agent quantity must be compensated to account for
the carbon dioxide discharged by the siren. Operation of the siren requires 20.4 lb./min. (9.3
kg/min.).
(Equation 32)
(US Units)
or
(Metric Units)
Where:
= Minimum agent discharged through pneumatic siren, lb. (kg)
= Quantity of Pressure Operated Sirens
= Total system discharge time (liquid and vapor), min
= Pneumatic delay time, min
EXAMPLE 14 - PRESSURE OPERATED SIRENS - Siren Agent Discharge
Consider a combination system with a Pressure Operated Siren located inside the total
flooding hazard and one located outside. A 30-second Pneumatic Discharge Delay will provide
a pre-discharge alarm period. Determine the additional quantity of agent that is needed to
compensate for losses through the sirens.
From Equation (32):
Where is the Quantity of Pressure Operated Sirens, is the Discharge Time, and is the
Pneumatic Delay Time.
Since only one siren is located outside the total flooding hazard:
= 1
From Equation (31):
Where is the Duration of Liquid Discharge of the Local Application Portion.
From Paragraph 3-6.1.3:
= 30 s
= 0.5 min
Ws20.4 nt
d
tp+=
Ws9.3 nt
d
tp+=
Ws
n
td
tp
Ws20.4 nt
d
tp+=
n
td
tP
n
td1.4 tliq
=
tliq
tliq
tliq

Design
P/N 81-CO2MAN-001 3-55 September 2013
3-10 EXTENDED DISCHARGE SYSTEMS
An extended discharge is used to provide protection beyond the normal duration. It may be
applied either by increasing the agent supply or by providing a secondary system.
The duration of the extended discharge should be specified and agreed upon with the system
owner and Authority Having Jurisdiction.
Examples of special considerations that will necessitate an extended discharge include:
• Hazards containing a liquid having an auto-ignition temperature below its boiling point,
such as cooking oils, require an extended duration of protection to permit cooling of the oil
• Hazards containing a metal or other material that may become heated and remain a
persistent source of ignition beyond the duration of protection
• Hazards protected by a total flooding system that are not capable of maintaining the
minimum design concentration for the specified duration of protection
3-10.1 Increased Agent Supply
An increased agent supply is used when the carbon dioxide must be applied at the original
design rate. This approach is most appropriate for local application systems, which have no
duration of protection beyond the end of discharge. The agent supply is calculated in
accordance with Paragraph 3-6.1.4, adjusting the liquid discharge time to meet the
requirements of the hazard. It is imperative to verify that the excess carbon dioxide will not
create hazardous conditions in enclosed environments.
3-10.2 Secondary System
A secondary system is used when the carbon dioxide must be applied at a rate other than the
original design rate. This approach is most appropriate for total flooding applications that must
maintain concentration in an enclosure with appreciable leakage and/or forced ventilation. In
such cases, the primary system is designed to discharge at a high rate to achieve the minimum
concentration within 1 minute, while the secondary system discharges at a much lower rate to
compensate for losses. The secondary system flow rate and agent quantity are based on the
Uncloseable Opening (Paragraph 3-5.2.4.1) and Forced Ventilation (Paragraph 3-5.2.4.2)
calculations for total flooding systems. Note that if the primary and secondary systems are
= 1.4 x
= 1.4 x 0.5
= 0.7 min.
= 30
= 0.5 min.
= 20.4 x x ( + )
= 20.4 x 1 x (0.7 + 0.5)
= 24.48
25 lb.
td
tliq
td
td
tp
s
tp
Ws
n
td
tP
Ws
Ws
Ws

Design
September 2013 3-56 P/N 81-CO2MAN-001
actuated simultaneously, the compensation for Uncloseable Openings and/or Forced
Ventilation need not be added to both systems.
3-10.3 Common Applications
Common applications that require an extended discharge include:
• Commercial/industrial food processing deep-fat (hot oil) cookers
• Enclosed rotating electrical equipment, such as emergency generators
3-10.3.1 DEEP-FAT COOKERS
For deep-fat cookers, the duration of protection shall be sufficient to allow the oil to cool a
minimum of 60°F (33°C) below its auto-ignition temperature. In cases where a local
application design is used, the minimum liquid discharge time shall be 3 minutes. However,
tests have shown that longer discharges may be necessary to allow sufficient cooling of the oil.
Several safety devices must be employed to protect personnel from the carbon dioxide
discharge, splashed hot oil, fire, and products of combustion.
The NFPA 12 standard and Kidde Fire Systems shall be consulted before protecting deep-fat
cookers.
3-10.3.2 ENCLOSED ROTATING ELECTRICAL EQUIPMENT
For Enclosed Rotating Electrical Equipment, the NFPA 12 Standard requires that a minimum
concentration of 30% shall be maintained for the duration of the deceleration period and for
not less than 20 minutes.
3-10.3.2.1 Recirculating Ventilation
For enclosed, recirculating-type ventilation, NFPA 12 provides tables that can be used as a
guide to estimate the carbon dioxide quantity needed for the extended discharge to maintain
a minimum concentration of 30% during the deceleration time. The quantity is based on the
deceleration time and the internal volume of the machine, assuming average leakage.
3-10.3.2.2 Dampered, Non-Recirculating Ventilation
For dampered, non-recirculating-type ventilation, the extended discharge quantity is
calculated by added 35% more agent to the indicated quantity for recirculating-type
ventilation. Reference NFPA 12 for additional information.

Design
P/N 81-CO2MAN-001 3-57 September 2013
3-11 AGENT STORAGE BANKS
This paragraph covers the design and layout of the agent storage bank.
3-11.1 Agent Supply
All cylinders connected to a common manifold shall be interchangeable and of one select size.
Therefore, the supplied quantity of agent is generally greater than the minimum design
quantity that is calculated for the system.
(Equation 33)
Where
= Minimum agent supply for the system, lb. (kg)
= Minimum agent quantity for total flooding portion(s), lb.(kg)
= Minimum agent quantity for local application portion(s), lb.(kg)
= Minimum agent discharged through Pressure Operated Siren(s), lb.(kg)
Calculate the quantity of cylinders to be supplied.
(Equation 34)
Where
= Number of cylinders required
= Minimum agent supply for the system from Equation (33), lb.(kg)
= Selected cylinder capacity, lb.(kg)
Round up the calculated quantity of cylinders and calculate the actual quantity of agent to be
supplied.
(Equation 35)
Where
= Total carbon dioxide supplied, lb.(kg)
= Number of cylinders required, rounded up
= Selected cylinder capacity, lb.(kg)
Wmin,sys Wmin,TF Wmin,LA Ws
++=
Wmin,sys
Wmin,TF
Wmin,LA
Ws
ncyl Wmin,sys Wcyl
=
ncyl
Wmin,sys
Wcyl
Wsys ncyl Wcyl
=
Wsys
ncyl
Wcyl

Design
September 2013 3-58 P/N 81-CO2MAN-001
EXAMPLE 15 - AGENT SUPPLY - Supplied Quantity
Consider a local application that requires 448 lb.of carbon dioxide. A Pressure Operated Siren will
be located near the protected equipment. Determine the actual quantity of agent to be provided.
From Equation (33):
Where is the Minimum Agent Supply for the System, is the Minimum Agent
Quantity for the Total Flooding Portion(s), is the Minimum Agent Quantity for the Local
Application Portion(s), and is the Quantity of Agent Discharged Through the Pressure
Operated Siren(s).
= 0 lb.
= 448 lb.
From Equation (32):
Where is the Quantity of Pressure Operated Sirens, td is the Discharge Time, and is the
Pneumatic Delay Time.
= 1
From Equation (31):
Where is the Duration of Liquid Discharge of the Local Application Portion.
From Paragraph 3-6.1.3:
= 30 s
= 0.5 min.
= 1.4 x
= 1.4 x 0.5
= 0.7 min
= 30 s
= 0.5 min
= 20.4 x n x ( + )
= 20.4 x 1 x (0.7 + 0.5)
= 24.48
25 lb.
= + +
= 0 + 448 + 25
= 473 lb.
Wmin,sys Wmin,TF Wmin,LA Ws
++=
Wmin,sys
Wmin,TF
Wmin,LA
Ws
Wmin,TF
Wmin,LA
Ws20.4 nt
d
tp+=
n
tP
n
td1.4 tliq
=
tliq
tliq
tliq
td
tliq
td
td
tP
tP
Ws
td
tP
Ws
Ws
Ws
Wsys
Wmin,TF
Wmin,LA
Ws
Wsys
Wsys

Design
P/N 81-CO2MAN-001 3-59 September 2013
3-11.2 Main and Reserve Supplies
A reserve agent supply provides a means of rapidly returning the system to its ready state after
a fire or discharge event. A system of controls and valves is used to select a secondary agent
supply and to provide continuous protection while the discharged cylinders are refilled.
Occasionally, the reserve supply is also used to provide a "second shot" of agent during the
same fire event.
The reserve supply shall be equal to the main supply (calculated in Paragraph 3-11.1) and shall
be permanently connected to the piping, except where the authority having jurisdiction permits
an unconnected reserve.
It is strongly recommended to provide a reserve agent supply when multiple hazards are
protected from a common bank of cylinders using directional valves (See Paragraph 3-8).
3-11.3 Cylinder Location
The cylinder location is an important factor in system design, as this will affect the installation
of pipe, mechanical or pneumatic detection lines, and remote cable pull stations.
The carbon dioxide cylinders must be located as close to the hazard area as possible. Storage
containers and accessories shall be so located and arranged that inspection, testing,
recharging, and other maintenance is facilitated and interruption to protection is held to a
minimum. Storage containers shall not be located where they will be exposed to:
• fire or explosion
• direct sunlight
• outdoor weather
• mechanical, chemical, or other damage.
When excessive climatic or mechanical exposures are expected, suitable guards or enclosures
shall be provided.
From Equation (34):
Where is the Quantity of Cylinders Required and is the Selected Cylinder Capacity.
To minimize the quantity of cylinders needed, select the largest possible cylinder size:
= 100 lb.
=
l = 473 100
= 4.73
5 cylinders
From Equation (35):
Where is the Total Quantity of Agent Supplied.
= x
= 500 lb.
ncyl Wmin,sys Wcyl
=
ncyl
Wcyl
Wcyl
ncyl
Wmin,sys
Wcyl
ncyl
ncyl
ncyl
Wsys ncyl Wcyl
=
Wsys
Wsys
ncyl
Wcyl
Wsys

Design
September 2013 3-60 P/N 81-CO2MAN-001
The weight of the agent supply, racking, piping, and other equipment shall not exceed the
maximum load rating of the supporting structure(s).
The cylinders must be located in an environment where ambient storage temperatures shall
be:
• 0°F (-18°C) to 130°F (54°C) for total flooding systems
• 32°F (0°F) to 120°F (49°C) for local application or combination systems
External heating or cooling may be required to maintain this temperature range.
3-11.4 Single and Double Cylinder Arrangements
For installation of one or two cylinders, simple cylinder straps are used to secure the cylinders.
A 2 ft. (0.6 m) wide service aisle shall be maintained. Reference Paragraph 2-2.6.1 for
component descriptions and Paragraph 4-3.5 for installation information.
3-11.5 Multiple Cylinder Arrangements
For installation of three or more cylinders, two different styles (1 side x 1 row; 1 side x 2 rows)
of framing arrangements are available to provide flexibility of installation. A 2 ft. (0.6 m) wide
service aisle shall be maintained in front of all cylinder rows. Reference Paragraph 2-2.6.2 for
component descriptions and Paragraph 4-3.5 for installation information.
3-12 MANIFOLD AND PIPE NETWORK DESIGN
The discharge network can be broken into two distinct sections: the cylinder manifold and the
distribution network.
3-12.1 Pipe and Fitting Specifications
Pipe and tube used in the discharge network shall be in accordance with NFPA 12, current
edition.
Pipe that does not meet the specifications in Paragraph 3-12.1.1 shall be designed in
accordance with ASME B31.1, Power Piping Code, current edition and the requirements of NFPA
12, current edition. The internal pressure for this calculation shall be 2800 psi (19.3 MPa).
The Piping Design Handbook For Use With Special Hazard Fire Suppression Systems, published
by the Fire Suppression Systems Association (FSSA), is one resource that may be consulted
for the allowable working pressures for various pipe and tube materials and for guidance on
pipe support selection.
3-12.1.1 PIPE SPECIFICATIONS
Material Specification:
• Black or galvanized steel pipe shall be ASTM A-53 seamless or electric welded, Grade A or
B; or ASTM A 106, Grade A, B, or C.
• Stainless steel pipe shall be TP304 or TP316 for threaded connections, or TP304, TP316,
TP304L, or TP316L for welded connections.
• Furnace butt-weld ASTM A-53, ASTM A120, and ordinary cast iron pipe shall not be used.
• Flexible piping system components shall have a minimum burst pressure of 5,000 psi (34.5
MPa).
Schedule:
• Pipe sizes 3/4-inch (DN20) NPT and smaller may be Schedule 40 or greater.
• Pipe sizes 1-inch (DN25) through 4-inch (DN100) NPT shall be a minimum of Schedule 80.

Design
P/N 81-CO2MAN-001 3-61 September 2013
3-12.1.2 FITTING SPECIFICATIONS
Class 300 malleable or ductile iron fittings shall be used through 2-inch (DN50) internal pipe
size (IPS). Larger internal pipe sizes shall be forged steel fittings. Flanged joints used in open
sections of pipe shall be permitted to be Class 300. Flanged joints used in closed sections of
pipe shall be Class 600.
Stainless steel fittings shall be type 304 or 316 in accordance with ASTM A182, Class 3000,
threaded or socket welded, for all sizes 1/8-inch (DN6) through 4-inches (DN100).
3-12.1.3 TUBING SPECIFICATIONS
The use of stainless steel tubing materials is allowed provided the thickness of the tubing is
calculated in accordance with ASME B31.1 Power Piping Code. The internal pressure for this
calculation shall be 2800 psi (19.3 MPa).
3-12.1.4 CLOSED PIPING SECTIONS
NFPA 12 requires the installation of a pressure relief device where a valve arrangement (i.e.,
Time Delay, Stop Valve, Lock-Out Valve, etc.) introduces sections of closed piping.
The maximum allowable working pressure of the pipe shall be equal to or greater than the
maximum operating pressure of the pressure relief device. The maximum operating pressure
of the Safety Outlet, Part No. 81-803242-000, is 2800 psi (19.3 MPa).
The Piping Design Handbook For Use With Special Hazard Fire Suppression Systems, published
by the Fire Suppression Systems Association (FSSA), may be consulted for pipe selections used
in closed piping sections.
3-12.2 Pipe Size Estimates
For budgetary estimating purposes only, Table 3-9 may be used to estimate pipe sizes. The
actual system pipe sizes required may vary when hydraulic calculations are performed.
Table 3-9. Pipe Size Estimates
Flow Rate Pipe Size Min Pipe
Schedule
lb./min kg/min in. (mm)
Up to 100 Up to 50 3/8 in. (10mm) 40
101 - 130 51-60 1/2 in. (15mm) 40
131 - 270 61-125 3/4 in. (20mm) 40
271 - 390 126-180 1 in. (25mm) 80
391 - 800 181-365 1-1/4 in. (32mm) 80
801 - 1200 366-545 1-1/2 in. (40mm) 80
1201 - 2300 546-1045 2 in. (50mm) 80
2301 - 3600 1046-1635 2-1/2 in. (65mm) 80

Design
September 2013 3-62 P/N 81-CO2MAN-001
3-12.3 Pipe Hangers and Supports
The design of pipe hangers and supports shall be based on the Power Piping Code, ASME B31.1.
This Code requires that the materials, design and manufacture of standard pipe supports shall
be in accordance with the rules of MSS-SP-58; the companion document MSS-SP-69 provides
recommendations for the selection and application of pipe support types. This MSS Standard
Practice is published by the Manufacturers Standardization Society of the Valve and Fittings
Industry, Inc., located at 127 Park Street, NE, Vienna, Virginia 22180; phone (703) 281-6613.
The Piping Design Handbook For Use With Special Hazard Fire Suppression Systems, published
by the Fire Suppression Systems Association (FSSA), provides general information and
guidelines for the selection and application of pipe supports.
3-12.4 Cylinder Manifolds
The carbon dioxide cylinder bank is connected to the discharge pipe network through a
manifold. The manifold consists of an arrangement of pipe and fittings, called a header, which
collects the discharge from each cylinder into a single pipe. One or more headers are connected
to a single outlet connection, called a riser.
3-12.4.1 MANIFOLD ARRANGEMENTS
The manifold may be arranged as an End, Center, or H manifold, with additional design
considerations for connected Main and Reserve systems. The figures shown are exemplary only
and do not represent the only possible configurations. It is permissible to include elbows in the
manifold.
3-12.4.1.1 End
An "End" manifold consists of a single header. Any number of cylinders may be connected.
Figure 3-6. Example of an "End" Manifold
3-12.4.1.2 Center
A "Center" manifold consists of two identical headers connected to a single riser. The total
quantity of cylinders shall be a multiple of 2.

Design
P/N 81-CO2MAN-001 3-63 September 2013
Figure 3-7. Example of a "Center" Manifold
3-12.4.1.3 H
An "H" manifold consists of four identical headers connected to a single riser. The headers are
arranged to form two identical center manifolds, connected to the riser through identical pipe
sections. The total quantity of cylinders shall be a multiple of 4.
Figure 3-8. Example of an "H" Manifold
3-12.4.1.4 Main And Reserve
A "Main and Reserve" manifold consists of two identical "End", "Center", or "H" manifolds
connected to a single riser and isolated by check valves.

Design
September 2013 3-64 P/N 81-CO2MAN-001
Figure 3-9. Example of a "Main and Reserve" "End" Manifold
3-12.4.2 MANIFOLD PIPE SELECTION
A cylinder manifold may be designed by either of two methods: Single Pipe Size or Stepped
Pipe Size. Each approach has its own benefits with respect to cost/ease of fabrication, flow
resistance, and developed back pressure.
3-12.4.2.1 Single Pipe Size Manifolds
A manifold may be fabricated from a single pipe size that is appropriate for the flow rate of the
entire cylinder bank. This design allows for the maximum flow rate and simpler fabrication.
However, large pipe sizes will result in lower manifold pressures, adversely affecting actuation
of multiple cylinder systems. See Paragraph 3-13 for information regarding actuation.
Single size pipe manifolds may be best suited to Multiple Hazard Systems using Directional
(Stop) Valves. In such cases, it is recommended to actuate the carbon dioxide cylinders first
and to operate the appropriate Directional (Stop) Valve only after completing the time delay
period. This sequence provides an opportunity to develop sufficient manifold pressure for
complete system actuation (See Paragraph 3-8).
3-12.4.2.2 Stepped Pipe Size Manifolds
A manifold may be fabricated from multiple pipe sizes, where the size of each pipe section is
appropriate for the quantity of cylinders upstream of the section. This design allows for the
maximum manifold back pressure to be developed. See Paragraph 3-13 for information
regarding actuation.
3-12.4.3 MANIFOLD OBJECTS
A manifold generally includes several control valves and safety devices. Familiarity with the
principles of System Actuation, as outlined in Paragraph 3-13, may be necessary to fully
understand the purposes of the following devices. All devices shall be located, installed, or
suitably protected so that they are not subject to mechanical, chemical, or other damage that
would render them inoperative.
3-12.4.3.1 Safety Outlets
Safety Outlets (Part No. 81-803242-000) are used to provide a pressure relief device where a
valve arrangement (i.e., Time Delay, Stop Valve, Lock-Out Valve, etc.…) introduces sections
of closed piping. The device may be located anywhere within the closed section.

Design
P/N 81-CO2MAN-001 3-65 September 2013
See Paragraph 2-8.5 for additional information
3-12.4.3.2 Discharge Indicators
Discharge Indicators (Part No. 81-967082-000) are used to show that the system has operated
and needs recharging. The device must be located upstream of any flow-controlling valves,
typically at the capped end of the manifold header. Multiple indicators may be necessary if a
valve arrangement results in isolated groups of cylinders.
See Paragraph 2-8.6 for additional information.
3-12.4.3.3 Lockout Valve
Lockout Valves are used to manually prevent flow of agent to the distribution piping. The valve
shall be located downstream of all cylinders and upstream of all nozzles.
Model the lock out valves within the hydraulic calculation program by adding the corresponding
equivalent length to the applicable pipe node. Contact the Application Engineering team at
Kidde Fire Systems for assistance.
When providing a lockout valve fitted with a limit switch, refer to Figure 3-10 for wiring the
release circuit(s) through the limit switches.
Figure 3-10. Lockout Valve Release Circuit Wiring
The Lockout Valve shall be supervised to warn occupants that the system has been locked out.
See Paragraph 1-6.1.4 for additional information.
3-12.4.3.4 Directional (Stop) Valves
Directional (Stop) Valves (See Paragraph 2-5 for Part Numbers) may be used for two purposes.
In Multiple Hazard Systems, two or more Directional Valves are arranged to isolate the
protected hazards and to allow agent to flow to only one hazard at a time. See
Paragraph 3-12.5.2 for additional information.
For safety purposes, a single Stop Valve, located downstream of all cylinders and upstream of
all nozzles, may be arranged to prevent the flow of agent to the nozzles until a secondary
action occurs. See Paragraph 1-6.1.4 for additional information.
3-12.4.3.5 Pneumatic Discharge Delays
Pneumatic Discharge Delays (N2 or CO2 operated) are used to delay the start of discharge
while an evacuation signal is given and the enclosure is prepared.
1
2
3
4
5
6
7
8
Brown
Purple
Yellow
Orange
Blue
Red
GND
NC
C
NO
NC
C
NO
Switch
#1
Upper
Switch
#2
Upper

Design
September 2013 3-66 P/N 81-CO2MAN-001
The CO2 operated delay (Not FM Approved) may be located in the manifold header between
the pilot and slave cylinders (see Paragraph 3-13.2.1). Note that the Pneumatic Discharge
Delay has a 3/4-inch (DN20) NPT pipe thread, which limits the flow rate that may be passed
through the valve.
The N2 operated delay cannot be installed in the CO2 cylinder manifold. The N2 operated delay
shall be installed within the N2 actuation line terminating at the CO2 pilot cylinders connected
to the CO2 manifold.
When the actuation strategy and design flow rate are such that the Delay cannot be located in
a 3/4-inch (DN20) NPT pipe section, the Delay may be used in conjunction with a Stop Valve.
In this arrangement, a Stop Valve is located in accordance with Paragraph 3-12.4.3.4 and is
controlled by a pressure-operated control head (Part No. 82-878737-000, 82-878750-000, or
82-878751-000). A side tee is installed upstream of the Stop Valve and is piped to the
Pneumatic Discharge Delay. The outlet of the Delay is connected to the pressure-operated
control head.
The Pneumatic Discharge Delay shall be fitted with a manually operated control head to provide
a by-pass. The control head shall be supervised to warn occupants that the time delay has been
by-passed.
See Paragraph 1-6.1.3 for additional information.
3-12.4.3.6 Pressure Operated Sirens
Pressure Operated Sirens (N2 or CO2 operated) are used to provide an audible alarm prior to
the start of and during discharge. The siren must be located upstream of the Pneumatic
Discharge Delay. A union should be installed at each siren connection, and a dirt trap shall be
installed after the last siren.
The total length of 1/2-inch (DN15) pipe between the cylinders and the sirens cannot exceed
250 ft. (76 m).
See Paragraph 1-6.1.3 and Paragraph 4-5.3.1 for additional information.
The N2 pressure operated siren (P/N 90-981574-001) consumes approximately 0.5 to 0.9 lb.
(0.23 to 0.5 kg) of nitrogen per minute. Each siren driver cylinder can operate one or more
sirens. Table 3-10 indicates the number of sirens that can be installed on a line from any one
siren driver; the total length of actuation pipe that can be used must not exceed the limits
shown in this table.
108 cu. in. and 1040 cu. in. siren driver cylinders cannot be manifolded. A maximum of
two 2300 cu. in. siren drivers can be manifolded to provide up to twenty sirens on one
circuit. No other manifold combination is permitted.
Table 3-10. Siren Driver Cylinder Actuation Limits
Pilot Cylinder
Size Siren Part
Number
Number of
Sirens per
Siren Driver
Maximum
Length of 1/4
in. Sch. 80
Pipe
Maximum
Length of 1/4
in. Sch. 40
Pipe
Maximum Length
of 5/16 in. x
0.032 in. Wall
Tubing
108 cu. in. 90-981574-001 1 90 ft. 90 ft. 90 ft.
1040 cu. in. 90-981574-001 4 500 ft. 500 ft. 500 ft.
2300 cu. in. 90-981574-001 10 500 ft. 500 ft. 500 ft.
2 x 2300 cu. in. 90-981574-001 20 500 ft. 500 ft. 500 ft.

Design
P/N 81-CO2MAN-001 3-67 September 2013
3-12.4.3.7 Check Valves
Check Valves (See Paragraph 2-4 for Part Numbers) are used to isolate groups of cylinders in
Main and Reserve systems or in Directional Valve systems designed to discharge a different
quantity of cylinders for each hazard.
See Paragraph 3-12.4.1.4 (Main and Reserve Manifolds) and Paragraph 3-12.5.2 (Directional
Valve Systems) for more information.
3-12.4.3.8 Pressure Operated Switches
A Pressure Operated Switch (Part No. 81-486536-000 or 81-981332-000) shall be installed
between the manifold and the Lockout valve and shall provide an alarm-initiating signal to the
suppression control panel.
3-12.4.3.9 Odorizers
An odorizer assembly, Part No. 81-897600-000, shall be installed upstream of the lock-out
valve. In the event a safety outlet ruptures in a locked-out system, the scent from the odorizer
will provide a warning that carbon dioxide has vented into the area by the safety outlet.
3-12.5 Distribution Networks
The distribution network should be routed in the most efficient manner possible.
3-12.5.1 HYDRAULIC CALCULATIONS
Hydraulic flow calculations are used to determine the pipe sizes and nozzle orifice codes for the
system. Kidde Fire Systems CO2 Calculation Software (Part No. 81-190001-XXX) or the
guidelines in NFPA 12 may be used to perform these calculations.
The equivalent lengths for all Kidde pipe objects are included in the software.
See the Kidde Fire Systems CO2 Calculation Software User's Manual for additional information.

Design
September 2013 3-68 P/N 81-CO2MAN-001
3-12.5.2 DIRECTIONAL VALVE SYSTEMS
Directional Valve Systems are used to protect multiple, separate hazards with a single agent
supply. In this arrangement, the cylinder manifold is connected to a manifold of Directional
Valves, which lead to different hazards. Upon system actuation, the appropriate valve is
opened, along with the agent cylinders, to direct the discharge to the hazard where the fire is
occurring.
In cases where the protected hazards do not require the same quantity of agent, it is possible
to discharge only a portion of the cylinder bank.
A hydraulic flow calculation shall be performed for each hazard.
3-12.5.3 ODORIZER ASSEMBLY
An odorizer assembly shall be installed downstream of each directional valve. The scent from
the odorizer will provide a post-discharge warning to any personnel entering the protected area
or adjacent areas.
3-12.5.4 ELECTRICAL CLEARANCES
All system components shall be located so as to maintain minimum clearances from live parts.
Reference NFPA 12 for additional guidance.
3-13 ACTUATION SYSTEM DESIGN
The carbon dioxide suppression system is actuated by a sub-system of components that
responds to an alarm condition and opens the carbon dioxide cylinder valves.
3-13.1 Discharge Heads
A discharge head must be attached to every CO2 cylinder. Plain nut and grooved nut discharge
heads shall not both be used in a common manifold. See Paragraph 2-2.2 for additional
information.
3-13.2 Cylinder Actuation
Each cylinder may be actuated by either of two methods: with a control head or with manifold
back pressure.
3-13.2.1 ACTUATION WITH A CONTROL HEAD
A cylinder fitted with a Plain Nut or Grooved Nut Discharge Head, Part No. WK-872450-000 or
81-872442-000 respectively, may be actuated with any of the control heads described in
Paragraph 2-3.
3-13.2.2 ACTUATION WITH MANIFOLD BACKPRESSURE
A cylinder fitted with a Plain Nut Discharge Head, Part No. WK-872450-000, may be actuated
by manifold back pressure, as described in Paragraph 2-2.2.
Manifold back pressure is developed when one or more cylinders are actuated with control
heads. These are pilot cylinders. The remaining cylinders, which are not fitted with control
heads and are actuated with manifold back pressure, are slave cylinders.
Since a successful system actuation is dependent on developing sufficient back pressure, the
quantity of pilot cylinders is of vital importance.

Design
P/N 81-CO2MAN-001 3-69 September 2013
•CO
2 systems with no more than two cylinders may employ a single pilot cylinder.
•CO
2 systems with three or more cylinders shall employ one more pilot cylinder than the
minimum required for actuation of the entire cylinder bank.
For systems with three or more cylinders, it is recommended to employ an additional pilot
cylinder per every ten cylinders, provided the manifold uses stepped pipe sizes (see
Paragraph 3-12.4.2.2). The pilot cylinder quantity shall be proven acceptable by the discharge
test described in Paragraph 4-7.7. During this test, one pilot cylinder shall be operated as a
slave cylinder.
It is generally practiced to locate the pilot cylinder(s) together, starting at the second cylinder.
See Figure 3-11 for an example.
Figure 3-11. Pilot Cylinder Position within Manifold
3-13.3 Actuation Classifications
Three actuation classifications apply to CO2 systems: automatic, normal manual, and
emergency manual.
3-13.3.1 AUTOMATIC
Automatic actuation is a system operation that does not require any human action. Automatic
detection and actuation shall be used, except where manual only actuation is acceptable to the
authority having jurisdiction and where automatic actuation could result in an increased risk.
Automatic detection shall be by any listed or approved method or device that is capable of
detecting and indicating heat, flame, smoke, combustible vapors, or an abnormal condition in
the hazard such as a process trouble that is likely to produce fire.
3-13.3.2 NORMAL MANUAL
Normal manual actuation is a system operation that requires human action. The actuating
device shall be easily accessible to the hazard at all times and shall be clearly recognizable for
the purpose intended. Operation of the device shall cause complete operation of the system
and shall not cause the time delay to recycle. Normal manual actuation may incorporate
electrical, mechanical, pneumatic, or other devices.
1
23
456789
PILOT
CYLINDERS

Design
September 2013 3-70 P/N 81-CO2MAN-001
3-13.3.3 EMERGENCY MANUAL
Emergency manual actuation is a system operation that requires human action and that is fully
mechanical in nature. All valves that control the release and distribution of carbon dioxide shall
be provided with an emergency manual control. The actuating device shall be easily accessible,
shall be located at or near the valve being controlled, and shall be clearly recognizable for the
purpose intended.
3-13.4 Control Systems
The hazard survey (See Paragraph 3-2) should be used to determine the most effective means
of actuating the system, based on the expected fire growth rate, personnel safety, process
characteristics, and other factors. The actuation system may incorporate one or more of the
methods described in Paragraph 3-13.4.1 through 3-13.4.5, dependent on the selected control
head(s). Table 3-11 summarizes the actuation methods featured on each control head.
Stackable control heads may be coupled with one other control head, subject to the limitations
in Paragraph 2-3.
3-13.4.1 LEVER OPERATED ACTUATION
Lever operated actuation uses a lever, located directly on the control head, to provide both
normal manual and emergency manual actuation at a valve.
3-13.4.2 CABLE OPERATED ACTUATION
Cable operated systems provide normal manual actuation by using a stainless steel cable to
transmit an actuating force from a pull station to a control head.
Table 3-11. Control Head Actuation Features
P/N Description Actuation Features
Lever Cable Electric Pneumatic Pressure Stackable
WK-870652-000 Lever Operated X — — — — —
81-979469-000 Cable Operated X X — — —
WK-890181-000 Electric Operated, 24 VDC X — X — — —
81-895630-000 Electric & Cable
Operated, 24 VDC XX X — — —
WK-897494-000 Electric & Cable
Operated, 24 VDC,
Explosion Proof
XXX — — —
81-872335-000 Pneumatic, 3 in. / 5 sec X X — X — —
81-872365-000 Pneumatic, 6 in. / 5 sec X X — X — —
81-872362-000 Pneumatic, 6 in. / 2 sec X X — X — —
81-892330-000 Pneumatic, 3 in. Tandem X X — X — —
81-872360-000 Pneumatic, 6 in. Tandem X X — X — —
82-878737-000 Pressure Operated — — — — X —
82-878751-000 Lever and Pressure
Operated X—— — X —
82-878750-000 Stackable Pressure
Operated ——— — X X

Design
P/N 81-CO2MAN-001 3-71 September 2013
The actuating cable shall be housed in a protective casing, such as EMT or pipe, and corner
pulleys (Part No. 81-803808-000 for watertight applications or WK-844648-000 for industrial
applications) shall be used at each change in direction. It is not accept to bend the EMT. See
Table 3-12 for corner pulley quantity and cable length limitations.
Cable Pull stations shall not require a pull of more than 40 lb.(178 N) force or a movement of
more than 14" (356 mm) to actuate the system.
3-13.4.2.1 Tandem Control Heads
For actuation of two or more adjacent pilot cylinders, cable operated control heads may be
connected in tandem from a single pull station. A cable housing (See Paragraph 2-3.3.6) shall
be installed between each control head to protect the cable.
3-13.4.2.2 Multiple Pull Stations
Either the Tee Pulley (Part No. 83-843791-000) or the Dual Pull Mechanism (Part No.
81-840058-000) will allow multiple pull stations to be used with a single cable operated control
head. Each device counts as one corner pulley. The cable length from each pull station to the
control head may not exceed the maximum cable length specified in Table 3-12.
3-13.4.2.3 Multiple Cylinder Banks
The Dual Pull Equalizer (Part No. 81-840051-000) allows a single pull station to operate two
control heads. The Equalizer counts as one corner pulley. The cable length from each pull
station to the control head may not exceed the maximum cable length specified in Table 3-12.
3-13.4.3 PNEUMATIC HEAT DETECTOR OPERATED ACTUATION
Pneumatic heat detection systems provide a fully mechanical means of automatic actuation.
Heat Actuated Devices (HAD) are to be installed in an anticipated path of convective heat flow
from the fire and spaced at a maximum on-center distance of 20 ft.(6.1 m), or 15 ft.-10 in.
(4.8 m) for FM applications, for ceiling heights up to 12 ft.(3.7 m). Consult NFPA 72 for
reduction in spacing for ceiling heights greater than 12 ft. and for spacing guidelines when
different ceiling configurations are encountered. Ensure that no HAD is mounted at a location
where normal process conditions can cause temperature increases to occur at rates faster than
20°F (11°C) per minute. The HAD (See Figure 2-38) is attached to a mounting bracket for ease
of installation in industrial applications. Up to five HAD's may be connected to a single
pneumatic control head. They are connected to the control head using 1/8-in. (3 mm) copper
tubing. The tubing shall be housed in a protective casing, such as pipe or EMT.
Note: The final leg of the copper tubing system connects to the pneumatic control head by
means of 3/16-in. OD heavy wall copper tubing provided by Kidde Fire Systems. The 1/8-in.
copper tubing to the HAD's must be protected by 1/2-in. EMT or pipe.
Table 3-12. Corner Pulley Quantity and Cable Length Limits
Control Head
Type Part Number
Maximum Corner Pulleys Maximum Cable
Length
P/N
81-803808-000 P/N
81-844648-000 ft. (m)
Cable Operated 81-979469-000 15 30 100 ft. (30m)
Electric/Cable ALL 6 30 100 ft. (30m)
Pneumatic ALL 6 30 100 ft. (30m)

Design
September 2013 3-72 P/N 81-CO2MAN-001
The response time of a pneumatic detection system is dependent upon a number of factors,
such as:
1. Fire intensity
2. HAD spacing and location
3. Control head setting and vent size
4. Volume of tubing
The system will actuate when the entire sensing volume (i.e., HAD's, copper tubing, and
pneumatic control head sensing chamber) is pressurized to a level greater than the control
head setting (e.g., 4-inches of water). To ensure adequate response to a fire, the tubing
system must be limited to a total length of 200 ft. (61 m) or less.
3-13.4.3.1 Tandem Control Heads
For actuation of two or more adjacent pilot cylinders, pneumatic operated control heads may
be connected in tandem to a single set of HAD's and actuation cable. The tandem control head
shall have the same actuation pressure as the primary control head (See Paragraph 2-3.5). A
cable housing (See Paragraph 2-3.6.1) shall be installed between each control head to protect
the cable, if used.
3-13.4.3.2 Main and Reserve System Actuation
For systems with a connected reserve agent supply, a single set of HAD's is connected to the
Pneumatic Main-to-Reserve Valve, Part No. 81-871364-000. The two valve outlets are
connected to the pneumatic control heads on either the main or reserve supply, providing a
means of manually selecting either supply.
NOTE: There is no means of providing main/reserve selection for a connected cable operation.
3-13.4.4 ELECTRICALLY OPERATED ACTUATION
Electrical actuation uses an electrically operated control head and a suppression-releasing
panel, which is alarmed by automatic detectors and manual pull stations. See Paragraph 3-14
for additional information.
3-13.4.5 NITROGEN PRESSURE OPERATED ACTUATION
Nitrogen pressure actuated systems provide a means of actuating multiple components from
a single control. Pressure from a nitrogen cylinder actuates one or more pressure operated
control heads attached to carbon dioxide cylinders or stop valves. In addition to these
components, N2 actuation is required to drive the discharge delay when FM Approval is
required. The nitrogen cylinder is actuated by a lever, cable, electrical, or pneumatic heat
detector operated system, as discussed in previous sections.
3-13.4.5.1 Direct N2 Operation of CO2 Cylinders and Stop Valves
To achieve minimum actuation pressure in the pilot line, length limitations must be observed.
See Table 3-13 for limits.

Design
P/N 81-CO2MAN-001 3-73 September 2013
As an alternative to the above limits for the 108 cu. in. nitrogen cylinder, the 1040 cu. in.
nitrogen cylinder may also be used for direct operation of CO2 cylinders and stop valves. The
1040 cu. in. nitrogen cylinder cannot be used to drive the nitrogen operated discharge delay
unit. Therefore, the 1040 cu. in. nitrogen cylinder may be employed upstream of a 108 cu. in.
nitrogen cylinder or downstream of the discharge delay unit. A maximum actuation line length
of 460-ft is allowed between the 1040 cu. in. nitrogen cylinder and all of the downstream
pressure operated control heads. Either schedule 80 stainless steel pipe or 5/16" x 0.032 wall
stainless steel tubing may be used for the entire actuation line. Also in this arrangement, the
1040 cu. in. nitrogen cylinder assembly can actuate up to three additional nitrogen cylinders,
which will be used to drive nitrogen pressure operated sirens. When actuating siren driver
cylinders, a maximum actuation line length of 90-ft is allowed. This length is in addition to the
460-ft maximum allowed length between the pilot cylinder and the discharge delay. When the
length between the pilot cylinder and discharge delay is less than 460-ft, the resulting
difference may be added to the 90-ft actuation line length to the siren driver cylinders.
3-13.4.5.2 Nitrogen Actuation with In-Line Discharge Delay
When using a nitrogen operated discharge delay unit, the 108 cu. in. nitrogen cylinder
assembly shall be used to supply nitrogen to the delay unit. Either ¼" schedule 80 stainless
steel pipe or 5/16" x 0.032 wall stainless steel tubing may be used for the entire actuation line.
No more than 4-ft of actuation line length can be used to connect the nitrogen cylinder to the
discharge delay unit. A maximum actuation line length of 225-ft may be used from the outlet
of the discharge delay to all of the downstream pressure operated control heads. Also in this
arrangement, the 108 cu. in. nitrogen cylinder assembly can actuate up to a pair of additional
nitrogen cylinders, which will be used to drive the nitrogen pressure operated siren. When
actuating siren driver cylinders, a maximum actuation line length of 20-ft is allowed. This
length is in addition to the 4-ft maximum allowed length between the pilot cylinder and the
discharge delay. When the length between the pilot cylinder and discharge delay is less than
4-ft, the resulting difference may be added to the 20-ft actuation line length to the siren driver
cylinders. Refer to Figure 3-12 for a typical acuation arrangement utilizing an in-line discharge
delay.
Table 3-13. Nitrogen Pilot Line Length Limitations
Pipe or Tubing Maximum Linear Distance Permitted
Between N2 and CO2 Cylinders
1/4-inch (DN6) NPT Schedule 40
Galvanized Steel Pipe 300 ft. (91.44 m)
1/4-inch (DN6) NPT Schedule 80
Galvanized Steel Pipe 436 ft. (132.89 m)
1/4-inch (4mm) OD x 0.035 in. (1mm)
Wall Thickness Stainless Steel Tubing 427 ft. (130.14 m)
5/16 in. OD x 0.032 wall 436 ft. (132.89 m)

Design
September 2013 3-74 P/N 81-CO2MAN-001
Figure 3-12. Typical Actuation Arrangement Using In-line Discharge Delay
3-14 DETECTION DEVICES, ALARM DEVICES AND CONTROL PANELS
The majority of carbon dioxide suppression systems will include electrical detection,
notification, and actuation. This section covers the requirements of NFPA 12 for carbon dioxide
releasing systems. NFPA 70 and 72 shall be referenced for additional information.
3-14.1 Suppression Control Panels
The Suppression Control Panel shall be listed for use with all field devices, including the
electrical control heads.
All input (alarm initiation and supervisory) and output (notification and actuation) circuits shall
be supervised for system trouble.
The suppression control panel should be connected to existing protective signaling (fire alarm)
system(s) to aid life safety and property protection as outlined in NFPA 72, National Fire Alarm
Code.
3-14.2 System Power Supply
The power supply for the operation and control of the system shall be comprised of a primary
source and a secondary source.
The primary source of energy shall have the capacity for the intended service and shall be
supervised and reliable.
On loss of primary source or due to low voltage of the primary energy source, an independent
secondary (standby) power supply shall supply energy to the system. The secondary (standby)
supply shall be capable of operating the system under maximum normal load for 24 hours and
then be capable of operating the system continuously for the full design discharge period.
lanoitpOoT
neriSnegortiN
2#tiucriC
XAM)mm9121(.tF4 XAM)mm08586(.tF
522
3
4
5
8
6
7lanoitpOoT
neriSnegortiN
1#tiucriC
metsyS2OCPHsmetsySeriFeddiK
1
2
2
)mm6906(
.tF02

Design
P/N 81-CO2MAN-001 3-75 September 2013
3-14.3 Automatic Detection
The type of detector required for a particular application is dependent upon the type of
combustible products being protected. When designing a detection system, the system
designer must consider the following factors:
• Type and quantity of fuel
• Possible ignition sources
• Ranges of ambient conditions
• Value of protected property
The detection shall be by any listed or approved method or device that is capable of detecting
and indicating heat, flame, smoke, combustible vapors or an abnormal condition in the hazard
such as a process trouble that is likely to produce fire. When designing a suitable detection
system, it is necessary to survey the premises and gather intricate details such as ceiling types,
ceiling obstructions, (e.g. beams, joists, light fixtures, location of air diffusers and return
grills), ambient conditions (e.g., temperature and humidity) and elevation with respect to sea
level. When using smoke detectors for system actuation, it is recommended to space the
detectors at a maximum of half the listed spacing. Refer to NFPA 72 and manufacturer's
recommendations for coverage area and detector spacing.
3-14.4 Manual Controls
Manual pull stations for carbon dioxide release should be located at all exit/entrance doors and
shall be easily accessible at all times. For areas protected with total flooding applications, the
manual pull stations should be installed outside the protected area. At least one manual control
shall be located no more than 4 ft. (1.2 m) above the floor.
Abort switches shall not be used in CO2 suppression systems.
3-14.5 Notification
Pre-discharge alarm shall be provided to give positive warning of a discharge where hazards
to personnel could exist. Such alarms shall function to warn personnel against entry into
hazardous areas as long as such hazards exist or until such hazards are properly recognized.
Audible pre-discharge alarms shall be at least 15 dB above ambient noise level or 5 dB above
maximum sound level, whichever is greater, measured 5 ft. (1.5 m) above the floor of the
occupiable area. Such alarms shall have a maximum sound level of 120 dB at the minimum
hearing distance and a minimum sound level of 90 dB at 10' (3 m).
Visual or other methods of indication are also recommended.
3-14.6 Supervision of Controls
Interconnections between the components that are necessary for control of the system and life
safety, such as lockout valves and manual bypasses that may be left in the open position shall
be supervised. Such supervisory alarms shall be distinctive from alarms indicating system
operation or hazardous conditions.
3-14.7 Main and Reserve System Actuation
For systems with a connected reserve agent supply, the Main-to-Reserve Transfer Switch, Part
No. 84-802398-000, is used to select the supply to be discharged. Reference Paragraph 4-4.5
for wiring information.

Design
September 2013 3-76 P/N 81-CO2MAN-001
3-15 AUXILIARY EQUIPMENT AND SYSTEMS
A sub-system of components is used to provide auxiliary interlocks that occur at system
actuation. Such interlocks may include electrical connections, such as fan or process shutdown,
and/or mechanical operations, such as door or vent closure.
Where the continuing operation of equipment associated with a hazard being protected could
contribute to sustaining the fire in that hazard, the source of power or fuel shall be
automatically shut off.
NOTE This does not apply to lubricating oil systems associated with large rotating equipment,
where an extended discharge system is provided and that is designed to operate for the
deceleration/cooldown period.
All shutdown devices shall be considered integral parts of the system and shall function with
the system operation.
3-15.1 Pressure Operated Switches
One or more Pressure Operated Switches (Part No. 81-486536-000 or 81-981332-000) may
be used for auxiliary electrical functions such as HVAC shut down, closing motorized dampers,
or providing a release signal to the building alarm system. Refer to Paragraph 2-8.1 for
additional information.
3-15.2 Pressure Operated Trips
One or more Pressure Operated Trips (Part No. 81-874290-000) may be used for auxiliary
mechanical functions such as damper closure, door closure, or mechanical gas valve shutdown.
Typical applications of the pressure-operated trip are shown in Figure 3-13. Reference
Paragraph 2-8.2 for additional information.

Design
P/N 81-CO2MAN-001 3-77 September 2013
Figure 3-13. Pressure Trip Applications
The Trip shall be installed with the shortest feed pipe possible. However, should it be necessary
to install a pressure trip with a considerable length of the branched pipe, the quantity of carbon
dioxide required to fill the pipe volume should be added to the minimum design quantity for
the system.
3-16 HAND HOSE LINE SYSTEMS
A Hand Hose Line System consists of a hose reel or rack, hose, and a discharge nozzle
assembly connected by fixed piping to a supply of carbon dioxide.
TO SYSTEM PIPING
SLIDING DOOR SWINGING DOOR - SELF CLOSING
CHAIN OR
CABLE
TO SYSTEM
PIPING
SELF CLOSING
SPRING HINGES
OR DOOR CHECK
WINDOW - EITHER WEIGHTED
OR OFF BALANCE
SPRING LOADED LIQUID IR GAS
SHUT OFF VALVE
CHAIN OR CABLE HOLDS BACK
SPRING LOADED ARM - INSTALL
TRIP AS CLOSE AS POSSIBLE
TO MINIMIZE WHIPLASH
HORIZONTAL DUCT DAMPER VERTICAL DUCT DAMPER
OPEN
CLOSED

Design
September 2013 3-78 P/N 81-CO2MAN-001
Figure 3-14. Typical Hand Hose Line System with Rack
S
E
R
I
F
D
I
K
E
D
Y
S
M
E
S
T
CARBON DIOXIDE CYLINDER
HORN/VALVE ASSEMBLY
ON BRACKET
HOSE ON RACK
CABLE PULL STATION
FOR MANUAL RELEASE
PLAIN NUT DISCHARGE HEAD
CABLE OPERATED CONTROL HEAD
ACTUATION CABLE
IN PROTECTIVE CONDUIT
SYSTEM PIPE
HOSE CONNECTION
PRESSURE OPERATED SWITCH
PROVIDES NOTIFICATION OF
DISCHARGE

Design
P/N 81-CO2MAN-001 3-79 September 2013
Figure 3-15. Typical Hand Hose Line System with Reel
3-16.1 Uses
Hand hose line systems may be used to supplement fixed fire protection systems or to
supplement first response portable fire extinguishers for the protection of specific hazards for
which carbon dioxide is the extinguishing agent. These systems shall not be used as a
substitute for other fixed carbon dioxide fire-extinguishing systems equipped with fixed
nozzles, except where the hazard cannot adequately or economically be protected by a fixed
system. Hand hose line systems may be used to combat fires in all hazards covered under
Chapter 1, except those that are inaccessible and beyond the scope of manual firefighting. The
decision as to whether hose lines are applicable to the particular hazard shall rest with the
authority having jurisdiction.
3-16.2 Safety Requirements
Consideration shall be given to the possibility of carbon dioxide migrating and settling into
adjacent areas outside the protected space. Consideration shall also be given to where the
carbon dioxide can migrate or collect in the event of a discharge from a safety relief device of
a storage container. In any use of carbon dioxide, consideration shall be given to the possibility
that personnel could be trapped in or enter into an atmosphere made hazardous by a carbon
dioxide discharge. Safeguards shall be provided to ensure prompt evacuation, to prevent entry
into such atmospheres, and to provide means for prompt rescue of any trapped personnel.
Safety training shall be provided to all personnel that work near or in a protected space.
The provisions detailed in Paragraph 1-6.1 shall apply to hand hose line systems.
R
D
E
K
I
D
F
I
T
S
E
M
S
Y
E
S
CARBON DIOXIDE CYLINDER
HORN/VALVE ASSEMBLY
ON BRACKET
CABLE PULL STATION
FOR MANUAL RELEASE
PLAIN NUT DISCHARGE HEAD
CABLE OPERATED CONTROL HEAD
ACTUATION CABLE
IN PROTECTIVE CONDUIT
SYSTEM PIPE
HOSE ON REEL
PRESSURE OPERATED SWITCH
PROVIDES NOTIFICATION OF
DISCHARGE

Design
September 2013 3-80 P/N 81-CO2MAN-001
3-16.3 Location
Hand hose line systems shall be placed such that they are easily accessible and that the hose
length is adequate to reach the most distant hazard. In general, they should not be located
where they will be exposed to the hazard, nor shall they be located inside any hazard area
protected by a total flooding system.
The hose shall be coiled on a Hose Reel, P/N WK-994058-000, or Rack, P/N 81-919842-000,
such that it will be ready for immediate use without the necessity of coupling and that it can
be uncoiled with a minimum of delay. If installed outdoors, it shall be protected against the
weather.
The carbon dioxide supply shall be located as close to the hose reel or rack as possible so that
liquid carbon dioxide will be supplied to the hose line with a minimum of delay after actuation.
If multiple hose stations are used, they shall be spaced so that one or more hose lines can
cover any area within the hazard.
3-16.4 System Design
The rate and duration of discharge shall be determined by the type and potential size of the
hazard. A hand hose line shall have a quantity of carbon dioxide to permit its use for at least
1 minute. The possibility of these hose lines being used by inexperienced personnel shall be
considered, and a provision shall be made so that there will be a supply of carbon dioxide to
enable personnel to effect extinguishment of the hazards that they are likely to encounter.
3-16.4.1 FLOW RATE
Once a convenient cylinder location, hose location and pipe routing have been determined, a
hydraulic calculation shall be performed to determine the nominal flow rate of the system. The
equivalent lengths in Table 3-14 and Table 3-15 may be used to calculate pressure loss
through the various components. Each equivalent length is given in multiple pipe sizes for
convenience. The Horn/Valve Assembly may be modeled as a Code 8.5 Type V nozzle.
Table 3-14. Equivalent Lengths of Hand Hose Line Components (US Units)
P/N Description
Equivalent Length Nominal Pipe Size
1/2 in. 3/4 in. 1 in.
Sch 80 Sch 40 Sch 80 Sch 40 Sch 80
WK-994058-000 Hose Reel (Swivel Joint) 10 20 7 12 -
81-961966-000 Hose, 1/2 in. x 50 ft. 63 124 312 541 -
81-918435-000 Hose, 3/4 in. x 50 ft. - - 37.5 65 143
81-980564-000 Horn and Valve Assembly (Shutoff
Valve) 1.5 2.5 - - -

Design
P/N 81-CO2MAN-001 3-81 September 2013
Note that the equivalent lengths of hoses are given for 50-foot (15.24-meter) lengths of hose.
As the actual hose length may vary from 25 ft. to 200 ft. (7.62 m to 60.96 m), the equivalent
length for the system hose may be calculated from Equation (36).
(Equation 36)
(US Units)
or
(Metric Units)
Where:
= Equivalent length of hose, ft. (m)
= Equivalent length of 50 ft. (15.24 m) hose from Table 3-14 and
Table 3-15
= Actual length of hose, ft. (m)
3-16.4.2 MINIMUM AGENT QUANTITY
A hand hose line system is a local application of agent, and therefore only the liquid portion of
the discharge is effective. A vaporization factor of 40% must be applied to the total agent
quantity to be supplied.
(Equation 37)
Where:
= Minimum quantity of agent to be supplied, lb. (kg)
= Nominal system flow rate from hydraulic calculation, lb./min.
(kg/min.)
= Duration of discharge, minimum 1 min.
Table 3-15. Equivalent Lengths of Hand Hose Line Components (Metric Units)
P/N Description
Equivalent Length Nominal Pipe Size
15 mm 20 mm 25 mm
Sch 80 Sch 40 Sch 80 Sch 40 Sch 80
WK-994058-000 Hose Reel (Swivel Joint) 3.05 6.10 2.13 3.66 -
81-961966-000 Hose, 15 mm x 15.24 m 19.20 37.80 95.10 164.90 -
81-918435-000 Hose, 20 mm x 15.24 m - - 11.43 19.81 43.59
81-980564-000 Horn and Valve Assembly (Shutoff
Valve) 0.46 0.76 - - -
zz
r50L=
zz
r15.24L=
z
zr
L
W1.4 qt=
W
q
t

Design
September 2013 3-82 P/N 81-CO2MAN-001
3-16.4.3 MULTIPLE STATIONS
Where simultaneous use of two or more hose lines from a single bank of cylinders is possible,
a quantity of carbon dioxide shall be available to support the maximum number of hoses that
are likely to be used at any one time for at least 1 minute. All supply piping shall be sized for
the simultaneous operation of these hoses.
3-16.4.4 CARBON DIOXIDE SUPPLY
A separate carbon dioxide supply can be provided for hand hose line use, or carbon dioxide can
be piped from a central storage unit supplying several hose lines or from fixed manual or
automatic systems. Where hand hose lines are provided for use on a hazard protected by a
fixed system, separate supplies shall be provided unless sufficient carbon dioxide is provided
to ensure that the fixed protection for the largest single hazard on which the hose lines can be
used will not be jeopardized.
All controls for actuating the system shall be located in the immediate vicinity of the hose reel
or rack. Operation of hand hose line systems depends upon manual actuation and manual
manipulation of the horn and valve assembly. Therefore, speed and simplicity of operation are
essential for successful extinguishment. Refer to Paragraph 3-13 for additional information on
actuation systems.
The use of a Grooved Nut Discharge Head, P/N 81-872442-000, with a Lever Operated Control
Head, P/N WK-870652-000, allows the operator to actuate only one cylinder at a time in a
multiple cylinder bank and to close the cylinder valve without discharging the entire contents
of the cylinder.
3-16.4.5 ACTUATION
All controls for actuating the system shall be located in the immediate vicinity of the hose reel
or rack. Operation of hand hose line systems depends upon manual actuation and manual
manipulation of the horn and valve assembly. Therefore, speed and simplicity of operation are
essential for successful extinguishment. Refer to Paragraph 3-13 fir additional information on
actuation systems.
The use of a Grooved Nut Discharge Head, P/N 81-872442-000, with a Lever Operated Control
Head, P/N WK-870652-000, allows the operator to actuate only one cylinder at a time in a
multiple cylinder bank and to close the cylinder valve without discharging the entire contents
of the cylinder.

Installation
P/N 81-CO2MAN-001 4-1 September 2013
CHAPTER 4
INSTALLATION
4-1 INTRODUCTION
This section contains installation instructions for Kidde Fire Systems fixed carbon dioxide
systems as well as hose reel and rack systems.
Equipment installation shall be such that the components are located and arranged to permit
inspection, testing, recharging, and any other required maintenance that may be necessary.
Components must not be located where they may be subject to severe weather conditions,
direct sunlight, mechanical, chemical, or other damage which could render them inoperative.
4-2 GENERAL INSTALLATION REQUIREMENTS
Installation of Kidde Fire Systems fixed carbon dioxide systems shall comply with local and
regional standards, be conducted according to accepted practices, and be performed in
accordance with the approved installation drawings as well as with the instructions and
information contained in this manual.
4-3 INSTALLATION OF SUPPRESSION SYSTEMS
4-3.1 Discharge Pipe and Fittings
Pipe, tubing, and fittings must be installed in strict accordance with the approved installation
drawings and acceptable engineering practices. The piping between the cylinders and nozzles
must be the shortest route possible, with a minimum of fittings. Any deviations in the routing
or number of fittings must be approved by the design engineer prior to installation.
Piping and tubing must be reamed free of burrs and ridges after cutting, welding or threading.
Joint compound tape or thread sealant must be applied only to the male threads of the joint,
excluding the first two threads. Each pipe section must be swabbed clean, using a
nonflammable organic solvent.
All piping must be blown out with nitrogen, carbon dioxide, or dry compressed air prior to
installing the discharge nozzles. Dirt traps at least 2-inches (51 mm) in length must be installed
1at the end of each pipe run. The piping system must be securely supported and braced to
account for discharge reaction forces in addition to the load from piping deadweight and forces
resulting from thermal expansion/contraction. Consideration must be given to thermal
expansion/contraction by avoiding rigid restraints (anchors) at both ends of a long pipe run.
One end of the pipe run must be supported with an intermediate type pipe hanger (refer to
Pipe Design Handbook, Second Edition published by Fire Suppression Systems Association,
Baltimore, Maryland), in order to avoid structural buckling or pipe joint or support separation
due to thermal expansion/contraction. Care must be taken to insure the piping is not subjected
to vibration, mechanical, or chemical damage. Refer to Table 4-1 and Table 4-2 for pipe
support guidance.
Piping shall be of non-combustible material having physical and chemical characteristics such
that its deformation under stress can be predicted with reliability. Special corrosion resistant
materials or coatings may be required in severely corrosive atmospheres. Examples of
materials for piping and the standard covering these materials are:
(a) Ferrous Piping: Black or galvanized steel pipe shall be either ASTM A-53 seamless or
electric welded, Grade A or B, or ASTM A-106, Grade A, B, or C.
ASTM A-120, furnace butt-weld ASTM A-53 and ordinary cast-iron pipe shall not be used.

Installation
September 2013 4-2 P/N 81-CO2MAN-001
In systems using high pressure supply, 3/4-inch (DN20) and smaller pipe may be Schedule
40. Pipe 1-inch (DN25) through 4-inches (DN100) shall be a minimum of Schedule 80.
Furnace butt weld ASTM-53 pipe shall not be used.
Stainless steel shall be TP304 or TP316 for threaded connections or TP304, TP316, TP304L
or TP316L for welded connections.
(b) NFPA 12 does not preclude the use of other piping materials providing an internal
pressure of 2,800 PSI (19.3 MPa) which will not exceed the maximum allowable stress
value published in the ASME Code for Pressure Piping, B-31.1, an American National
Standard.; in other words, the thickness of the pipe wall shall be calculated in accordance
with ASME B31.1.
In accordance with NFPA 12, Class 150 and cast-iron fittings shall not be used.
(c) High Pressure Fittings: Class 300 malleable or ductile iron fittings shall be used
through 2-inch (DN50) internal pipe size (IPS). Larger internal pipe sizes shall be forged
steel fittings. Flanged joints used in open sections of pipe shall be permitted to be Class
300. Flanged joints used in closed sections of pipe shall be Class 600.
Stainless steel fittings shall be type 304 or 316 in accordance with ASTM A 182, Class 3000,
threaded or socket weld, for all sizes 1/8-inch (DN6) through 4-inch (DN100).
4-3.2 Pressure Operated Actuation Pipe, Tubing and Fittings
The pressure operated actuation tubing must be 1/4-inch (6 mm) O. D. stainless steel
(0.035-inch (1 mm) wall thickness) or 1/4-inch (DN6), schedule 40 or 80 galvanized steel pipe.
The pipe or tubing must be routed in the most direct manner, with a minimum of fittings.
Tubing fittings can be flared or compression-type. The pipe, tubing and fittings must have a
minimum allowable pressure rating of 1800 psig. The pressure/temperature ratings of the
fitting manufacturer must not be exceeded.
Piping and tubing must be reamed free of burrs and ridges after cutting, threading, or flaring.
Upon assembly, pipe or tubing must be blown out with nitrogen, carbon dioxide, or dry
compressed air; and must be securely supported, braced, and isolated from vibration,
mechanical, or chemical damage.
Reprinted with permission from NFPA 12-2005. Carbon Dioxide Extinguishing Systems, Copyright © 2005, National Fire Prevention Association,
Quincy, MA 02169. This reprinted material is not the complete and official position of the NFPA on the referenced subject, which is represented
only by the standard in its entirety

Installation
P/N 81-CO2MAN-001 4-3 September 2013
1 Extracted from FSSA Pipe Design handbook, Second Edition, with permission of the publisher,
FSSA.
Additional Pipe Hanger and Support Considerations:
• Riser supports shall take into consideration the weight of the entire riser including pipe,
valves and other concentrated loads
• Pipe supports shall be located at each change in direction
• Pipe supports shall be located as close as possible to concentrated loads
Table 4-1. Maximum Horizontal Pipe Hanger and Support Bracing1
Pipe Size Distance Between Supports Rod Diameter
1/4 in. (DN06) 7 ft. (2.1 m) 3/8 in.
1/2 in. (DN15) 7 ft. (2.1 m) 3/8 in.
3/4 in. (DN20) 7 ft. (2.1 m) 3/8 in.
1 in. (DN25) 7 ft. (2.1 m) 3/8 in.
1-1/4 in. (DN32) 7 ft. (2.1 m) 3/8 in.
1-1/2 in. (DN40) 9 ft. (2.7 m) 3/8 in.
2 in. (DN50) 10 ft. (3 m) 3/8 in.
2-1/2 in. (DN65) 11 ft. (3.4 m) 1/2 in.
3 in. (DN80) 12 ft. (3.7 m) 1/2 in.
4 in. (DN100) 14 ft. (4.3 m) 5/8 in.
5 in. (DN125) 16 ft. (4.9 m) 5/8 in.
6 in. (DN150) 17 ft. (5.2 m) 3/4 in.
8 in. (DN200) 19 ft. (5.8 m) 3/4 in.

Installation
September 2013 4-4 P/N 81-CO2MAN-001
4-3.3 Discharge Manifold
Securely support the discharge manifold. The manifold must be installed such that it is level
and the inlets are aligned to connect with the cylinder valve discharge head.
Figure 4-1. Typical Manifold Layout
Note: Not FM Approved.
Table 4-2. Maximum Pipe Hanger and Support Design Load Ratings
Applicable to all pipe support assembly components including pipe attachment, rod,
fixtures, clamps, bolts and nuts, and building structure attachments.
Nominal Pipe Size Ratings at Normal Temperature Range*
3/8 in. (DN10) 150 lbs. (65 kg)
1/2 in. (DN15) 150 lbs. (65 kg)
3/4 in. (DN20) 150 lbs. (65 kg)
1 in. (DN25) 150 lbs. (65 kg)
1-1/4 in. (DN32) 150 lbs. (65 kg)
1-1/2 in. (DN40) 150 lbs. (65 kg)
2 in. (DN50) 150 lbs. (65 kg)
2-1/2 in. (DN65) 170 lbs. (75 kg)
3 in. (DN80) 210 lbs. (95 kg)
3-1/2 in. (DN90) 250 lbs. (110 kg)
4 in. (DN100) 300 lbs. (135 kg)
*Normal temperature range is -20° F to 650° F (-29° C to 343° C) for carbon steel.
Extracted from MSS SP-58, 1993, with permission of the publisher, the Manufacturers
Standardization Society.
DISCHARGE HEAD
FLEX HOSE
STEPPED MANIFOLD
LOCKOUT VALVE
MECHANICAL TIME DELAY
WITH LEVER OPERATED
CONTROL HEAD
PRESSURE OPERATED
SIREN
CONTROL HEAD

Installation
P/N 81-CO2MAN-001 4-5 September 2013
4-3.4 Manifold “Y” Fitting
When the carbon dioxide system consists of two (2) cylinders this fitting (P/N 207877) may be
used to connect the Flex Hoses to the pipe network riser.
Refer to Paragraph 4-3.6 for information on Flex Hose installation.
Figure 4-2. Manifold “Y” Fitting
4-3.5 Carbon Dioxide Cylinder Assemblies
The carbon dioxide cylinders must be located as close to the hazard area as possible. The
cylinders must be located in an environment protected from the weather and where ambient
storage temperatures for, (a) local application systems shall not exceed 120°F (49°C) nor be
less than 32°F (0°F); and (b) total flooding systems shall not exceed 130°F (54°C) nor be less
than 0°F (-18°C). External heating or cooling may be required to maintain this temperature
range.
Orient the cylinders according to the approved installation drawings. Mount the cylinders
securely to the structural supports with the straps and/or brackets provided. Elevate the
cylinders at least two inches off the floor if moisture is present. Locate the cylinder straps as
shown in Figure 4-3 and Figure 4-5. For other strap and bracketing arrangements refer to
Figure 4-5 through Figure 4-20.
Reprinted with permission from NFPA 12-2005. Carbon Dioxide Extinguishing Systems, Copyright © 2005, National Fire Prevention Association,
Quincy, MA 02169. This reprinted material is not the complete and official position of the NFPA on the referenced subject, which is represented
only by the standard in its entirety
WARNING Each cylinder strap and/or bracket must be securely attached to structural
supports to absorb the force generated by cylinder discharge.
207877
3/4 in. NPT FEMALE(DN20)
3/4 in. (DN20) NPT FEMALE
3/4 in. (DN20) NPT FEMALE

Installation
September 2013 4-6 P/N 81-CO2MAN-001
Figure 4-3. Typical Cylinder Strap Location
Table 4-3. Typical Cylinder Strap Location Dimensions
Cylinder Capacity A B C D
25 lb. 8-3/4 in.
(222 mm) 17 in.
(431 mm) 8-1/2 in.
(216 mm) 10-3/8 in.
(264 mm)
35 lb. 8-3/4 in.
(222 mm) 23 in.
(584 mm) 8-1/2 in.
(216 mm) 10-3/8 in.
(264 mm)
50 lb. 8-3/4 in.
(222 mm) 34
(864 mm) 8-1/2 in.
(216 mm) 10-3/8 in.
(264 mm)
75 lb. 9-1/2 in.
(241 mm) 38 in.
(965 mm) 9-1/4 in.
(235 mm) 11-1/8 in.
(283 mm)
100 lb. 10-3/4 in.
(273 mm) 40 in.
(1016 mm) 10-9/16 in.
(268 mm) 12-3/8 in.
(314 mm)
WALL
APPROX. 14 in.
(356 mm)
C
D
B
TO BOTTOM OF CYLINDER
A
PLAN

Installation
P/N 81-CO2MAN-001 4-7 September 2013
Figure 4-4. Rack Framing - 3 to 6 Cylinders (50 and 75 lb. Capacity), Single Row
NOTES:
WITH THE ABOVE FRAMEWORK, CYLINDER ASSEMBLIES CAN BE
PLACED AGAINST A WALL OR CAN BE FREE STANDING BY
FASTENING GUSSETS TO FLOOR
ALLOW 2 ft. (610 mm) CLEARANCE IN FRONT OF CYLINDERS FOR SERVICE.
6 ft. 2 in. GUSSET - WK-241211-000
FASTEN TO FLOOR
CYLINDER CHANNEL (SEE TABLE)
10 in. CENTERS
POST CHANNEL - WK-241217-000
WEIGHING BAR BRACKET
(SHOWN IN POSITION FOR
75 LB. CAP CYLS.) - 81-241218-001
FASTEN WITH 3/8 in. X 1 in. LG.
BOLTS AND NUTS
WEIGHING BAR (SEE TABLE)
FASTEN WITH 3/8in. X 1 in. LG.
BOLTS AND NUTS
SLOT FOR PIPE CLAMP
THESE HOLES FOR PNEUMATIC SYSTEM ONLY
HOLES FOR PNEUMATIC SELECTION VALVE
HOLES FOR KNOCKOUT JUNCTION BOX
CHANNEL SUPPORT
WK-207281-000
FASTEN WITH (3) 3/8 in. X 1 in.
LG. BOLTS
MODEL 4706MODEL 4706
KIDDE
MODEL 4706MODEL 4706
KIDDEKIDDE
50 LB. CAP. CYL. 75 LB. CAP. CYL.
3 CYLS.
4 CYLS.
5 CYLS.
6 CYLS.
TABLE
WK-207283-000
WK-241213-000
6
5
4
3
NO.
CYLS
LENGTH
CYL
CHANNEL
P/N
WEIGH
BAR P/N
54 in.
64 in.
44 in.
34 in.
81-207284-000
WK-241214-000
WK-207285-000
WK-241215-000
81-207286-000
WK-241216-000
ALLOW 2 ft.
AISLE IN FRONT
OF CYLINDERS
FOR SERVICING
12-1/16 in.11-3/16 in.
SECURE
MANIFOLD
WITH PIPE
CLAMP

Installation
September 2013 4-8 P/N 81-CO2MAN-001
Figure 4-5. Rack Framing - 7 to 12 Cylinders (50 and 75 lb. Capacity), Single Row
NOTES:
ALLOW 2 ft. (610 mm) CLEARANCE IN FRONT
OF CYLINDERS FOR SERVICE.
THIS FRAMEWORK TO BE PLACED AGAINST A WALL,
BUT CAN ALSO BE INSTALLED FREE STANDING.
10 in. CENTERS
7 CYL.
8 CYL.
9 CYL.
10 CYL.
11 CYL.
12 CYL.
THESE HOLES FOR PNEUMATIC SYSTEM ONLY
HOLES FOR PNEUMATIC SELECTION VALVE
HOLES FOR KNOCKOUT JUNCTION BOX
GUSSET
WK-241211-000
FASTEN TO FLOOR
CYLINDER CHANNEL
(SEE TABLE)
POST CHANNEL
WK-241217-000
WEIGHING BAR
BRACKET (SHOWN IN
POSITION FOR 75 LB.
CAP CYLS.)
81-241218-000 -
FASTEN WITH 3/8 in. X
1 in. LG. BOLTS AND
NUTS
WEIGHING BAR (SEE TABLE)
FASTEN WITH 3/8in. X
1 in. LG. BOLTS AND
NUTS
CHANNEL SUPPORT
WK-207281-000 FASTEN
WITH (3) 3/8 in. X 1 in. LG.
BOLTS
SLOT FOR PIPE CLAMP
50 LB. CAP. CYL. 75 LB. CAP. CYL.
ALLOW 2 ft.
AISLE IN FRONT
OF CYLINDERS
FOR SERVICING
12-1/16 in.11-3/16 in.
SECURE
MANIFOLD
WITH PIPE
CLAMP
6 ft. 2 in.
TABLE
WK-207283-000
81-207284-000
WK-241213-000
WK-241214-000
10
9
8
7
NO.
CYLS
LENGTH
CYL
CHANNEL
P/N
WEIGH
BAR P/N
7 ft.
8 ft. 8 in.
6 ft. 2 in.
81-207284-000
WK-207285-000
WK-241215-000
WK-241216-000
(2) 81-207284-000
(2) 81-207286-000
WK-241214-000
WK-241215-000
WK-207285-000
81-207286-000
(2) WK-207285-000
9 ft. 6 in.
11
(2) WK-241215-000
7 ft. 10 in.
(2) WK-241214-000
12 10 ft. 4 in. (2) WK-241216-000

Installation
P/N 81-CO2MAN-001 4-9 September 2013
Figure 4-6. Cylinder Racks (50 and 75 lb. Capacity), Single Row
10 in. CENTERS
APPROX.
6-1/2 in.
½ in. - 13 X 1 in. LG. BOLT
WK-149132-480
1/2 in. - 13 NUTS - WK-151932-000
FOR 3 MAIN & 3 RESERVE CYLINDER ARRANGEMENT
FOR 5 MAIN & 5 RESERVE CYLINDER ARRANGEMENT
FOR 7 MAIN & 7 RESERVE CYLINDER ARRANGEMENT
NOTE:
INSTALL CYLINDER ROD AND FRONT
CLAMP BETWEEN EACH CYLINDER
FOR UNEVEN NO. OF CYLINDERS START WITH TWO RODS THEN CONTINUE WITH RODS
BETWEEN EVERY OTHER CYLINDER
PLAN
TYPICAL ARRANGEMENT FOR EVEN NO. OF CYLINDERS
1/2 in. -13 X 9-13/16 in. LG.
ROD - WK-207282-000
CYLINDER FRONT CLAMP - WK-241105-000
1/2 in. -13 NUT - WK-151932-000
(UNDER CHANNEL TO SECURE RODS & BOLTS)
CHANNEL SUPPORT - WK-207281-000
CYLINDER CHANNEL
(VARIOUS LENGTHS)
POST CHANNEL - WK-241217-000
(2) 1/2-in. WASHERS - WK-157732-000
(THIS END ONLY)
CYLINDER CRADLE - WK-241103-000
(CUT OFF CORNER INDICATES
LONGER LEG)
3/8 in. -16 X 1 in. LG.
BOLT AND NUT
WK-149124-160 AND
WK-151924-000
FRONT VIEW

Installation
September 2013 4-10 P/N 81-CO2MAN-001
Figure 4-7. Rack Framing - 5 to 12 Cylinders (50 and 75 lb. Capacity), Double Row (One Side)
6 ft. 2 in.
10 in. CENTERS
5-6 CYLS.
7-8 CYLS.
9-10 CYLS.
11-12 CYLS.
50 LB. CAP. CYL. 75 LB. CAP. CYL.
20-7/8 in.
SECURE
MANIFOLD
WITH PIPE
CLAMP
GUSSET - WK-241211-000
FASTEN TO FLOOR
CYLINDER CHANNEL (SEE TABLE)
POST CHANNEL - WK-241217-000
WEIGHING BAR BRACKET
(SHOWN IN POSITION FOR
75 LB. CAP CYLS.)
81-241220-000 - FASTEN
WITH 3/8 in. X 1 in.
LG. BOLTS AND NUTS
WEIGHING BAR (SEE TABLE)
FASTEN WITH 3/8 in. X 1 in. LG.
BOLTS AND NUTS
SLOT FOR PIPE CLAMP
CHANNEL SUPPORT
WK-207281-000 FASTEN WITH
(3) 3/8 in. X 1 in. LG. BOLTS
THESE HOLES FOR PNEUMATIC SYSTEM ONLY
HOLES FOR PNEUMATIC SELECTION VALVE
HOLES FOR KNOCKOUT JUNCTION BOX
NOTES:
THIS FRAMEWORK, CYLINDER ASSEMBLIES CAN BE
PLACED AGAINST A WALL OR CAN BE FREE STANDING BY
FASTENING GUSSETS TO FLOOR
ALLOW 2 ft. (610 mm) CLEARANCE IN FRONT OF CYLINDERS FOR SERVICE.
ALLOW 2 ft. AISLE IN FRONT
OF CYLINDERS FOR SERVICING
7 in. 9-1/8 in. 7-1/2 in.10-1/2 in.
22-3/4 in.
TABLE
(2) WK-207283-000
WK-241213-000
11 - 12
9 - 10
7 - 8
5 - 6
NO.
CYLS
LENGTH
CYL
CHANNEL
P/N
WEIGH
BAR P/N
54 in.
64 in.
44 in.
34 in.
(2) 81-207284-000
WK-241214-000
(2) WK-207285-000
WK-241215-000
(2) 81-207286-000
WK-241216-000

Installation
P/N 81-CO2MAN-001 4-11 September 2013
Figure 4-8. Rack Framing - 13 to 24 Cylinders (50 and 75 lb. Capacity), Double Row (One Side)
13 - 14 CYL.
15 - 16 CYL.
17 - 18 CYL.
19 - 20 CYL.
21 - 22 CYL.
23 - 24 CYL.
NOTES:
THIS FRAMEWORK TO BE PLACED AGAINST A WALL,
BUT CAN BE ALSO BE INSTALLED
FREE STANDING.
ALLOW 2 ft. (610 mm) CLEARANCE IN
FRONT OF CYLINDERS FOR SERVICE.
ALLOW 2 ft. AISLE IN FRONT OF
CYLINDERS FOR SERVICING.
CHANNEL SUPPORT
WK-20728-0001 - FASTEN WITH
(4) 3/8 in. X 1 in. LG. BOLTS
AND NUTS
GUSSET - WK-241211-000
FASTEN TO FLOOR
CYLINDER CHANNEL
(SEE TABLE)
MANIFOLD AND
WEIGHING BAR
BRACKET (SHOWN IN
POSITION FOR
75 LB. CAP CYLS.)
81-241220-000 - FASTEN
WITH 3/8 in. X 1 in. LG.
BOLTS AND NUTS
WEIGHING BAR (SEE TABLE)
FASTEN WITH 3/8in. X
1 in. LG. BOLTS AND
NUTS
CHANNEL SUPPORT
- WK-207281-000 FASTEN
WITH (3) 3/8 in. X 1 in. LG.
BOLTS
SLOT FOR PIPE CLAMP
SECURE
MANIFOLD
WITH PIPE
CLAMP
7-1/2 in.10-1/2 in.
22-3/4 in.
75 LB. CAP. CYL.
7 in. 9-1/8 in.
20-7/8 in.
50 LB. CAP. CYL.
6 ft. 2 in.
THESE HOLES FOR PNEUMATIC SYSTEM ONLY
HOLES FOR PNEUMATIC SELECTION VALVE
HOLES FOR KNOCKOUT JUNCTION BOX
TABLE
(2) WK-
(2) 81-
207283-000
207284-000
WK-241213-000
WK-241214-000
19-20
17-18
15-16
13-14
NO.
CYLS
LENGTH
CYL
CHANNEL
P/N
WEIGH
BAR P/N
7 ft.
8 ft. 8 in.
6 ft. 2 in.
(2) 81-
(2) WK-
207284-000
207285-000
WK-241215-000
WK-241216-000
(4) 81-207284-000
(4) 81-207286-000
WK-241214-000
WK-241215-000
(2) WK-
(2) 81-
207285-000
207286-000
(4) WK-207285-000
21-22
(2) WK-241215-000
7 ft. 10 in.
(2) WK-241214-000
23-24 10 ft. 4 in. (2) WK-241216-000
10 in. CENTERS
9ft. 6 in.

Installation
September 2013 4-12 P/N 81-CO2MAN-001
Figure 4-9. Cylinder Racks (50 and 75 lb. Capacity), Double Row (One Side)
NOTE:
THESE PARTS WILL BE SUPPLIED FOR "MAIN" & "RESERVE" SYSTEMS ONLY.
THE PARTS WILL SECURE THE REAR ROW "RESERVE" CYLS. WHEN THE FRONT ROW "MAIN" CYLS. ARE REMOVED FOR RECHARGING.
USE ONE SPACER CLIP PER ROD, AND SECURE WITH NUT SUPPLIED.
CAUTION:
BE SURE THE ROD END THREADED FOR 8" IS TOWARDS THE FRONT OF THE FRAMING
1/2 in. -13 NUT - WK-151932-000
UNDER CHANNEL TO SECURE RODS CHANNEL SUPPORT - WK-207281-000
CYLINDER CHANNEL (VARIOUS LENGTHS)
POST CHANNEL - WK-241217-000
1/2 in. -13 X 9-13/16 in. LG. ROD
WK-207282-000 (FOR ODD CYL. AS SHOWN)
CYLINDER CRADLE - WK-241103-000
(CUT OFF CORNER INDICATES
LONGER LEG)
ODD CYLINDER END CLAMP
81-241212-000 (IDENTIFIED BY CUT
OFF CORNER)
CYLINDER SPACER - 81-270582-000
1/2 in. -13 X 20-3/8 in. LG. ROD
WK-242441-000 (FOR STD. SYSTEMS)
CYL. END CLAMP - WK-241104-000
CYL. FRONT CLAMP - WK-241105-000
SPACER SPACER
SPACER CLIP - 81-242442-000
1/2 in. -13 NUT - WK-151932-000
1/2 in. -13 X 20-3/8 in.
LG. ROD - WK-242441-000
3/8 in.-16 X 1 in. LG.
BOLT AND NUT
WK-149124-160 AND
WK-151924-000
10 in. CENTERS
APPROX. 6 1/2 in.
PLAN
FRONT VIEW
SEE
NOTE
BELOW
(2) 1/2 in. WASHERS - WK-157732-000
(THIS END ONLY)

Installation
P/N 81-CO2MAN-001 4-13 September 2013
Figure 4-10. Rack Framing - 5 to 12 Cylinders (50 and 75 lb. Capacity), Double Row (Two Sides)
NOTES:
THIS FRAMEWORK IS A FREE STANDING ARRANGEMENT BY FASTENING
GUSSETS TO FLOOR. ONE ROW OF CYLINDERS CAN BE REMOVED FROM
EACH SIDE FOR SERVICING, THEREFORE A 2 ft. (610 mm) AISLE ON EACH SIDE IS REQUIRED.
ALLOW 2 ft. (610 mm) CLEARANCE IN FRONT OF CYLINDERS FOR SERVICE.
MODEL 4706MODEL 4706
KIDDEKIDDE
MODEL 4706MODEL 4706
KIDDEKIDDE
50 LB. CAP. CYL.
MODEL 4706MODEL 4706
KIDDEKIDDE
75 LB. CAP. CYL.
MODEL 4706
KIDDEKIDDE
5 - 6 CYLS.
7 - 8 CYLS.
9 - 10 CYLS.
11 - 12 CYLS.
19 7/8 in. 21 5/8 in.
6 ft. 2 in.
10 in. CENTERS
CYLINDER CHANNEL
(SEE TABLE)
POST CHANNEL
WK-241217-000
WEIGHING BAR BRACKET
(SHOWN IN POSITION FOR
75 LB. CAP CYLS.)
81-241220-000 - FASTEN WITH
3/8 in. X 1 in. LG. BOLTS AND
NUTS
SLOT FOR PIPE CLAMP
CHANNEL SUPPORT
WK-207281-000
FASTEN WITH (3) 3/8 in.
X 1 in. LG. BOLTS
WEIGHING BAR (SEE TABLE)
FASTEN WITH 3/8 in. X 1 in. LG.
BOLTS AND NUTS
GUSSET - WK-241211-000
FASTEN TO FLOOR
THESE HOLES FOR PNEUMATIC SYSTEM ONLY
HOLES FOR PNEUMATIC SELECTION VALVE
HOLES FOR KNOCKOUT JUNCTION BOX
TABLE
(2) WK-207283-000
WK-241213-000
11 - 12
9 - 10
7 - 8
5 - 6
NO.
CYLS
LENGTH
CYL
CHANNEL
P/N
WEIGH
BAR P/N
55 in.
65 in.
45 in.
35 in.
(2) 81-207284-000
WK-241214-000
(2) WK-207285-000
WK-241215-000
(2) 81-207286-000
WK-241216-000

Installation
September 2013 4-14 P/N 81-CO2MAN-001
Figure 4-11. Rack Framing - 13 to 24 Cylinders (50 and 75 lb. Capacity), Double Row (One Side)
MODEL 4706
KIDDE
MODEL 4706
KIDDE
50 LB. CAP. CYL. 75 LB. CAP. CYL.
19 7/8 in.
SECURE
MANIFOLD
WITH PIPE
CLAMP
21 5/8 in.
13 - 14 CYL.
15 - 16 CYL.
17 - 18 CYL.
19 - 20 CYL.
21 - 22 CYL.
23 - 24 CYL.
NOTES:
THIS FRAMEWORK IS A FREE STANDING ARRANGEMENT BY FASTENING
GUSSETS TO FLOOR. ONE ROW OF CYLINDERS CAN BE REMOVED FROM
EACH SIDE FOR SERVICING.
ALLOW 2 ft. (610 mm) CLEARANCE IN FRONT OF CYLINDERS FOR SERVICE.
ALLOW 2 ft. (610 mm) AISLE ON EACH SIDE OF
CYLINDERS IS REQUIRED.
CHANNEL SUPPORT - 207281
FASTEN WITH (4) 3/8 in. X 1 in.
LG. BOLTS AND NUTS
GUSSET (2)
WK-241211-000
FASTEN TO FLOOR
CYLINDER CHANNEL
(SEE TABLE)
WEIGHING BAR
BRACKET (SHOWN IN
POSITION FOR 75 LB.
CAP CYLS.)
81- 241218-000 - FASTEN
WITH 3/8 in. X 1 in. LG.
BOLTS AND NUTS
WEIGHING BAR (SEE TABLE)
FASTEN WITH 3/8in. X
1 in. LG. BOLTS AND
NUTS
CHANNEL SUPPORT
WK-207281-000
FASTEN WITH (3) 3/8 in.
X 1 in. LG. BOLTS
SLOT FOR PIPE CLAMP
6 ft. 2 in.
THESE HOLES FOR PNEUMATIC SYSTEM ONLY
HOLES FOR PNEUMATIC SELECTION VALVE
HOLES FOR KNOCKOUT JUNCTION BOX
TABLE
(2) WK-
(2) 81-
207283-000
207284-000
WK-241213-000
WK-241214-000
19-20
17-18
15-16
13-14
NO.
CYLS
LENGTH
CYL
CHANNEL
P/N
WEIGH
BAR P/N
7 ft. 1 in.
8 ft. 9 in.
6 ft. 3 in.
(2) 81-
(2) WK-
207284-000
207285-000
WK-241215-000
WK-241216-000
(4) 81-207284-000
(4) 81-207286-000
WK-241214-000
WK-241215-000
(2) WK-
(2) 81-
207285-000
207286-000
(4) WK-207285-000
9 ft. 7 in.
21-22
(2) WK-241215-000
7 ft. 11 in.
(2) WK-241214-000
23-24 10 ft. 5 in. (2) WK-241216-000
POST CHANNEL
WK-241217-000
10 in. CENTERS

Installation
P/N 81-CO2MAN-001 4-15 September 2013
Figure 4-12. Cylinder Racks (50 and 75 lb. Capacity), Double Row (Two Sides)
10 in. CENTERS
APPROX.
6 1/2 in.
½ in.-13 X 1 in. LG. BOLT
- WK-149132-480
1/2 in. -13 NUTS - WK-151932-000
IF A ROW CONTAINS AN UNEVEN NUMBER OF CYLINDERS, START WITH TWO RODS, THEN CONTINUE
WITH A ROD IN BETWEEN EVERY OTHER CYLINDER (SEE FRAMING DWG. FOR ARRANGEMENT)
PLAN
1/2 in.-13 X 9-13/16 in. LG.
ROD - WK-207282-000
CYLINDER FRONT CLAMP
WK-241105-00
1/2 in.-13 NUTS - WK-151932-000 (UNDER CHANNEL TO SECURE RODS AND BOLTS)
CHANNEL SUPPORT - WK-207281-0001
POST CHANNEL - WK-241217-000
(2) 1/2 in. WASHERS
WK-157732-000 (THIS END ONLY)
CYLINDER CRADLE
WK-241103-000 (CUT OFF CORNER
INDICATES LONGER LEG)
3/8 in. -16 X 1 in. LG.
BOLT AND NUT
WK-149124-160 AND
WK-151924-000
FRONT VIEW
CYLINDER CHANNEL
(VARIOUS LENGTHS)

Installation
September 2013 4-16 P/N 81-CO2MAN-001
Figure 4-13. Rack Framing -3 to 5 Cylinders (100 lb. Capacity), Single Row
NOTES:
WITH THE ABOVE FRAMEWORK, CYLINDER ASSEMBLIES CAN BE
PLACED AGAINST A WALL OR CAN BE FREE STANDING BY
FASTENING GUSSETS TO FLOOR
ALLOW 2 ft. (610 mm) CLEARANCE IN FRONT OF CYLINDERS FOR SERVICE.
6 ft. 4 in. GUSSET - WK-241211-000
FASTEN TO FLOOR
CYLINDER CHANNEL (SEE TABLE)
11 5/8 in. CENTERS
POST CHANNEL - WK-271566-000
WEIGHING BAR BRACKET
(SHOWN IN POSITION FOR
75 LB. CAP CYLS.) - WK-271567-000
FASTEN WITH 3/8 in. X 1 in. LG.
BOLTS AND NUTS
WEIGHING BAR (SEE TABLE)
FASTEN WITH 3/8in. X 1 in. LG.
BOLTS AND NUTS
SLOT FOR PIPE CLAMP
THESE HOLES FOR PNEUMATIC SYSTEM ONLY
HOLES FOR PNEUMATIC SELECTION VALVE
HOLES FOR KNOCKOUT JUNCTION BOX
CHANNEL SUPPORT
WK-207281-000
FASTEN WITH (3) 3/8 in. X 1 in.
LG. BOLTS
MODEL 4706MODEL 4706
KIDDEKIDDE
100 LB. CAP. CYL.
3 CYLS.
4 CYLS.
5 CYLS.
TABLE
WK-243796-000
WK-271563-000
5
4
3
NO.
CYLS
LENGTH
CYL
CHANNEL
P/N
WEIGH
BAR P/N
54 in.
44 in.
34 in.
WK- -000243797
WK-271564-000
WK- -000243798
WK-271565-000
ALLOW 2 ft.
AISLE IN FRONT
OF CYLINDERS
FOR SERVICING
13-5/16 in.
SECURE
MANIFOLD
WITH PIPE
CLAMP

Installation
P/N 81-CO2MAN-001 4-17 September 2013
Figure 4-14. Rack Framing - 6 to 10 Cylinders (100 lb. Capacity), Single Row
NOTES:
THIS FRAMEWORK TO BE PLACED AGAINST A WALL, BUT CAN ALSO
BE INSTALLED FREE STANDING.
ALLOW 2 ft. (610 mm) CLEARANCE IN FRONT OF CYLINDERS FOR SERVICE.
GUSSET - WK-241211-000
FASTEN TO FLOOR
CYLINDER CHANNEL (SEE TABLE)
POST CHANNEL - WK-271566-000
WEIGHING BAR (SEE TABLE)
FASTEN WITH 3/8 in. X 1 in.
LONG BOLTS & NUTS
SLOT FOR PIPE CLAMP
THESE HOLES FOR PNEUMATIC SYSTEM ONLY
HOLES FOR PNEUMATIC SELECTION VALVE
HOLES FOR KNOCKOUT JUNCTION BOX
WEIGHING BAR BRACKET (SHOWN
IN POSITION FOR 100 LB. CAP.
CYLS.) WK-271567-000 FASTEN
WITH 3/8 in. X 1 in. LG. BOLTS
& NUTS
CHANNEL SUPPORT
WK-207281-000 FASTEN WITH
(3) 3/8 in. X 1 in. LG. BOLTS
7 CYL.
8 CYL.
9 CYL.
10 CYL.
6 ft. 4 in.
11 5/8 in. CENTERS
100LB. CAP. CYL.
6 CYL.
ALLOW 2 ft. AISLE IN
FRONT OF CYLINDERS
FOR SERVICING.
13 5/16 in.
SECURE MANIFOLD
WITH PIPE CLAMP
TABLE
(2) WK-243796-000
(2) WK-271563-000
9
8
7
6
NO.
CYLS
LENGTH
CYL
CHANNEL
P/N
WEIGH
BAR P/N
7 ft. 1-3/8 in.
9 ft. 5/8 in.
6 ft. 1-3/4 in.
(2) WK-243797-000
(2) WK-271565-000
WK-243796-000
WK-243797-000
(2) WK-271564-000
(2) WK-243798-000
WK-243797-000
WK-243798-000
10 ft. 1/4 in.
10
WK-271564-000
WK-271565-000
8 ft. 1 in.
WK-271563-000
WK-271564-000

Installation
September 2013 4-18 P/N 81-CO2MAN-001
Figure 4-15. Rack Framing - 11 to 15 Cylinders (100 lb. Capacity), Single Row
NOTES:
THIS FRAMEWORK TO BE PLACED AGAINST A WALL, BUT CAN ALSO
BE INSTALLED FREE STANDING.
ALLOW 2 ft. (610 mm) CLEARANCE IN FRONT OF CYLINDERS FOR SERVICE.
WEIGHING BAR BRACKET (SHOWN
IN POSITION FOR 100 LB. CAP.
CYLS.) WK-271567-000 FASTEN
WITH 3/8 in. X 1 in. LG. BOLTS
& NUTS
100LB. CAP. CYL.
ALLOW 2 ft. AISLE IN
FRONT OF CYLINDERS
FOR SERVICING.
13 5/16 in.
SECURE MANIFOLD
WITH PIPE CLAMP
CHANNEL SUPPORT
WK-207281-000 - FASTEN WITH
(4) 3/8 in. X 1 in. LG. BOLTS
AND NUTS
GUSSET - WK-241211-000
FASTEN TO FLOOR
CYLINDER CHANNEL
(SEE TABLE)
WEIGHING BAR (SEE TABLE)
FASTEN WITH 3/8in. X
1 in. LG. BOLTS AND
NUTS
CHANNEL SUPPORT
- WK-207281-000 FASTEN WITH
(3) 3/8 in. X 1 in. LG.
BOLTS
SLOT FOR PIPE CLAMP
6 ft. 2 in.
THESE HOLES FOR PNEUMATIC SYSTEM ONLY
HOLES FOR PNEUMATIC SELECTION VALVE
HOLES FOR KNOCKOUT JUNCTION BOX
11 5/8 in. CENTERS
TABLE
(1) WK-
(2) WK-243797
243796-000
-000
(2) WK-271564-000
(1) WK-271563-000
15
14
13
12
NO.
CYLS
LENGTH
CYL
CHANNEL
P/N
WEIGH
BAR P/N
13 ft. 4 1/8 in.
15 ft. 4 3/8 in.
12 ft. 4 1/2 in.
(1) WK-243797
(2) WK-243798
-000
-000
(1) WK-243796
(2) WK-243798
-000
-000
(3) WK-271564-000
(2) WK-271565-000
(1) WK-271654-000
(2) WK-271565-000
(1) WK-271563-000
243797-000(3) WK-
(3) WK-243798-000
11 ft. 4 7/8 in.
11
(3) WK- -000
271565
14 ft. 4 3/4 in.
11 CYL.
12 CYL.
13 CYL.
14 CYL.
15 CYL.

Installation
P/N 81-CO2MAN-001 4-19 September 2013
Figure 4-16. Cylinder Racks (100 lb. Capacity), Single Row
FOR 3 MAIN & 3 RESERVE CYLINDER ARRANGEMENT
FOR 5 MAIN & 5 RESERVE CYLINDER ARRANGEMENT
FOR 7 MAIN & 7 RESERVE CYLINDER ARRANGEMENT
NOTE: INSTALL CYLINDER ROD AND FRONT
CLAMP BETWEEN EACH CYLINDER
11-5/8 in. CENTERS
APPROX. 7 in.
½ in.-13 X 1 in. LG. BOLT
WK-149132-480
1/2 in.-13 NUTS - WK-151932-000
FOR UNEVEN NO. OF CYLINDERS START WITH TWO RODS THEN CONTINUE WITH RODS
BETWEEN EVERY OTHER CYLINDER (SEE FRAMING DWG. FOR ARRANGEMENT)
PLAN
TYPICAL ARRANGEMENT FOR EVEN NO. OF CYLINDERS
1/2 in. -13 X 11 in. LG.
ROD - WK-243795-000
CYLINDER FRONT CLAMP
WK-241105-000
8 in.
13-5/8 in.
1/2in. -13 NUT - WK-151932-000
(UNDER CHANNEL TO SECURE
RODS & BOLTS)
CHANNEL SUPPORT
WK-207281-000
CYLINDER CHANNEL (VARIOUS
LENGTHS OF 3, 4 AND 5 CYL. SECTIONS)
POST CHANNEL
WK-271556-000
(2) 1/2 in. WASHERS - 1
WK-157732-000 (THIS END ONLY)
CYLINDER CRADLE - WK-271561-000
(CUT OFF CORNER INDICATES
LONGER LEG)
3/8 in.-16 X 1 in. LG.
BOLT AND NUT
WK-149124-160 AND
WK-151924-000
FRONT VIEW

Installation
September 2013 4-20 P/N 81-CO2MAN-001
Figure 4-17. Rack Framing - 5 to 10 Cylinders (100 lb. Capacity), Double Row (One Side)
6 ft. 2 in.
11 5/8 in. CENTERS
5-6 CYLS.
7-8 CYLS.
9-10 CYLS.
100 LB. CAP. CYL.
SECURE
MANIFOLD
WITH PIPE
CLAMP
GUSSET - WK-241211-000
FASTEN TO FLOOR
CYLINDER CHANNEL (SEE TABLE)
POST CHANNEL - WK-241566-000
WEIGHING BAR BRACKET
(SHOWN IN POSITION FOR
100 LB. CAP CYLS.) - WK-271568-000
FASTEN WITH 3/8 in. X 1 in.
LG. BOLTS AND NUTS
WEIGHING BAR (SEE TABLE)
FASTEN WITH 3/8 in. X 1 in. LG.
BOLTS AND NUTS
SLOT FOR PIPE CLAMP
CHANNEL SUPPORT - WK-20728-000
FASTEN WITH (3) 3/8 in. X 1 in.
LG. BOLTS
THESE HOLES FOR PNEUMATIC SYSTEM ONLY
HOLES FOR PNEUMATIC SELECTION VALVE
HOLES FOR KNOCKOUT JUNCTION BOX
NOTES:
THIS FRAMEWORK, CYLINDER ASSEMBLIES CAN BE
PLACED AGAINST A WALL OR CAN BE FREE STANDING BY
FASTENING GUSSETS TO FLOOR
ALLOW 2 ft. (610 mm) CLEARANCE IN FRONT OF CYLINDERS FOR SERVICE.
ALLOW 2 ft. AISLE IN FRONT
OF CYLINDERS FOR SERVICING
13-5/16 in
.
16-5/16 in.
32-1/2 in.
TABLE
(2) WK-243796-000
WK-271563-000
9 - 10
7 - 8
5 - 6
NO.
CYLS
LENGTH
CYL
CHANNEL
P/N
WEIGH
BAR P/N
54 in.
44 in.
34 in.
(2) WK-243797-000
WK-271564-000
(2) WK-243798-000
WK-271565-000

Installation
P/N 81-CO2MAN-001 4-21 September 2013
Figure 4-18. Rack Framing - 11 to 20 Cylinders (100 lb. Capacity), Double Row (One Side)
11 - 12 CYL.
15 - 16 CYL.
17 - 18 CYL.
19 - 20 CYL.
NOTES:
THIS FRAMEWORK TO BE PLACED AGAINST A WALL, BUT CAN
BE ALSO BE INSTALLED FREE STANDING.
ALLOW 2 ft. (610 mm) CLEARANCE IN FRONT OF CYLINDERS FOR SERVICE.
ALLOW 2 ft. (610 mm)
AISLE IN FRONT OF CYLINDERS FOR SERVICING.
CHANNEL SUPPORT
WK-207281-000 - FASTEN WITH
(4) 3/8 in. X 1 in. LG. BOLTS
AND NUTS
GUSSET - WK-241211-000
FASTEN TO FLOOR
CYLINDER CHANNEL
(SEE TABLE)
MANIFOLD AND
WEIGHING BAR
BRACKET (SHOWN IN
POSITION FOR 100 LB.
CAP CYLS.) - WK-271568-000
FASTEN WITH 3/8 in. X
1 in. LG. BOLTS AND
NUTS
WEIGHING BAR (SEE TABLE)
FASTEN WITH 3/8in. X
1 in. LG. BOLTS AND
NUTS
CHANNEL SUPPORT
- WK-207281-000 FASTEN WITH
(3) 3/8 in. X 1 in. LG.
BOLTS
SLOT FOR PIPE CLAMP
6 ft. 2 in.
THESE HOLES FOR PNEUMATIC SYSTEM ONLY
HOLES FOR PNEUMATIC SELECTION VALVE
HOLES FOR KNOCKOUT JUNCTION BOX
TABLE
(2) WK-
(2) WK-
243796-000
-000243797
WK- -000
WK- -000
271563
271564
19-20
17-18
15-16
13-14
NO.
CYLS
LENGTH
CYL
CHANNEL
P/N
WEIGH
BAR P/N
7 ft.
8 ft. 8 in.
6 ft. 2 in.
(2) WK-
(2) WK-
-000
-000
243797
243798
(2) WK-271563-000
(4) WK- -000243797
WK- -000
WK- -000
271564
271565
243796-000(2) WK-
(4) WK- -000243798
5 ft. 4 in.
11-12
(2) WK- -000
271565
7 ft. 10 in.
(2) WK- -000
271564
11 5/8 in. CENTERS
100 LB. CAP. CYL.
13-5/16 in
.
16-5/16 in.
32-1/2 in.
13 - 14 CYL.

Installation
September 2013 4-22 P/N 81-CO2MAN-001
Figure 4-19. Rack Framing - 21 to 30 Cylinders (100 lb. Capacity), Double Row (One Side)
NOTES:
THIS FRAMEWORK TO BE PLACED AGAINST A WALL, BUT CAN
BE ALSO BE INSTALLED FREE STANDING.
ALLOW 2 ft. (610 mm) CLEARANCE IN FRONT OF CYLINDERS FOR SERVICE.
ALLOW 2 ft. (610 mm)
AISLE IN FRONT OF CYLINDERS FOR SERVICING.
CHANNEL SUPPORT
WK-207281-000 - FASTEN WITH
(4) 3/8 in. X 1 in. LG. BOLTS
AND NUTS
GUSSET - WK-241211-000
FASTEN TO FLOOR
CYLINDER CHANNEL
(SEE TABLE)
MANIFOLD AND
WEIGHING BAR
BRACKET (SHOWN IN
POSITION FOR 100 LB.
CAP CYLS.) - WK-271568-000
FASTEN WITH 3/8 in. X
1 in. LG. BOLTS AND
NUTS
WEIGHING BAR (SEE TABLE)
FASTEN WITH 3/8in. X
1 in. LG. BOLTS AND
NUTS
CHANNEL SUPPORT
- WK-207281-000 FASTEN WITH
(3) 3/8 in. X 1 in. LG.
BOLTS
SLOT FOR PIPE CLAMP
6 ft. 2 in.
THESE HOLES FOR PNEUMATIC SYSTEM ONLY
HOLES FOR PNEUMATIC SELECTION VALVE
HOLES FOR KNOCKOUT JUNCTION BOX
TABLE
(4) WK-
(2) WK-243796
243797-000
-000
(2) WK-271564-000
(1) WK-271563-000
29-30
27-28
25-26
23-24
NO.
CYLS
LENGTH
CYL
CHANNEL
P/N
WEIGH
BAR P/N
13 ft. 4 1/8 in.
15 ft. 4 3/8 in.
12 ft. 4 1/2 in.
(4) WK-243798
(2) WK-243797
-000
-000
(4) WK-243798
(2) WK-243797
-000
-000
(3) WK-271564-000
(2) WK-271565-000
(1) WK-271654-000
(2) WK-271565-000
(1) WK-271563-000
243797-000(6) WK-
(6) WK-243798-000
11 ft. 4 7/8 in.
21-22
(3) WK- -000
271565
14 ft. 4 3/4 in.
11 5/8 in. CENTERS
100 LB. CAP. CYL.
13-5/16 in
.
16-5/16 in.
32-1/2 in.
21 - 22 CYL.
23 - 24 CYL.
27 - 28 CYL.
25 - 26 CYL.
29 - 30 CYL.

Installation
P/N 81-CO2MAN-001 4-23 September 2013
Figure 4-20. Cylinder Racks (100 lb. Capacity), Double Row (One Side)
11-5/8 in. CENTERS 8 in.
2 ft.-1-1/8 in.
1/2 in.-13 X 11 in. LG. ROD
- WK-243795-000 (FOR ODD CYL.
AS SHOWN)
NOTE: THESE PARTS WILL BE SUPPLIED FOR "MAIN" AND "RESERVE" SYSTEMS ONLY.
THE PARTS WILL SECURE THE REAR ROW "RESERVE" CYLS. WHEN THE FRONT ROW "MAIN" CYLINDERS ARE REMOVED FOR RECHARGING.
USE ONE SPACER CLIP PER ROD, AND SECURE WITH NUT SUPPLIED.
CAUTON: BE SURE THE ROD END THREADED FOR 9 in. (229 mm) IS TOWARDS THE FRONT OF THE FRAMING
1/2 in. -13 NUT - WK-151932-000
UNDER CHANNEL TO SECURE RODS CHANNEL SUPPORT - WK-207281-000
POST CHANNEL - WK-271566-000
CYLINDER CRADLE - WK-271561-000
(CUT OFF CORNER INDICATES
LONGER LEG)
ODD CYLINDER END CLAMP
- WK-271562-000 (SAME AS
CYLINDER END CLAMP)
CYLINDER SPACER - WK-290385-000
½ in.-13 X 22-5/8 in.
LG. ROD - WK-243799-000
(FOR STD. SYSTEMS)
CYL. END CLAMP
WK-271562-000
(SAME AS ODD CYLINDER
END CLAMP)
CYLINDER FRONT CLAMP - WK-241105-000
SPACER SPACER
SPACER CLIP - 81-242442-000
1/2 in.-13 NUT - WK-151932-000
1/2 in.-13 X 22-5/8 in. LG.
ROD - WK-243799-000
3/8 in.-16 X 1 in. LG.
BOLT AND NUT
WK-149124-160 AND
WK-151924-000
11-5/8 in. CENTERS
APPROX. 7 in.
PLAN SEE
NOTE
BELOW
FRONT VIEW
CYLINDER CHANNEL (VARIOUS LENGTHS
OF 3, 4, AND 5 CYLINDER SECTIONS)
(2) 1/2 in. WASHERS
WK-157732-000 (THIS END ONLY)

Installation
September 2013 4-24 P/N 81-CO2MAN-001
4-3.6 Flexible Discharge Hose to Piping
Use the following steps to connect the cylinder(s) to the system piping or manifold using the
flex hose.
1. Inspect hose to verify the thread connections and hose are not damaged.
2. Apply Teflon tape or pipe dope to the threaded male end and connect to the system piping
or manifold.
3. Connect the swivel female end to the male discharge head.
4. The hose may be installed horizontally or in a 90 degree up position.
5. Verify that the discharge hose does not flatten when installed and does not kink.
4-3.7 Swivel Adapter to Piping
Do not use the swivel adapter to connect more than one cylinder or more than one main and
reserve cylinder. Connect the cylinder to the system piping using the swivel adapter, by
following the steps listed below:
1. Disassemble the swivel adapter and inspect the thread connections, O-ring and union for
damage.
2. Apply Teflon tape or pipe dope to the male threads on the system piping and attach the
swivel nut piece to the system piping.
3. Connect the swivel union (1/2 in. NPT) (DN15) to the system piping.
4. Connect the other end (3/4 in. NPT) (DN20) to the discharge head.
Figure 4-21. Swivel Adapter to Piping
WARNING
Flexible hoses must always be connected to the system piping and to the
discharge heads before attaching the discharge heads to the cylinder valves, in
order to prevent injury in the event of inadvertent carbon dioxide discharge.
WARNING
The swivel adapter must always be connected to the system piping and to the
discharge head before attaching the discharge head to the cylinder valve, in
order to prevent injury in the event of inadvertent carbon dioxide discharge.
SWIVEL NUT
1/2 in. NPT
(DN15)
PIPE UNION
2-9/16 in. (66 mm) APPROX.
3/4 in. NPS
(DN20)

Installation
P/N 81-CO2MAN-001 4-25 September 2013
4-3.8 Discharge Head to Cylinder Valve
Install the discharge head as follows:
1. Wipe off cylinder valve sealing surface.
2. Verify that both O-rings within the discharge head are installed in the mating surface
grooves at the bottom of the swivel nut cavity. O-rings must be free of dirt or other
contaminants. The O-rings have been lightly greased at the factory and should not require
further greasing.
3. Make certain the pilot orifice located between the inner and outer O-ring is unobstructed.
4. Make certain the discharge port is clean and unobstructed.
5. Install discharge head on cylinder valve. Tighten securely.
4-3.9 Check Valves and Directional (Stop) Valves
4-3.9.1 2-inch AND SMALLER CHECK VALVES AND DIRECTIONAL (STOP) VALVES
Install the 2-inch (DN50) or smaller diameter directional (stop) valves or check valves by
following the steps listed below:
1. Inspect the valves to verify the threads are not damaged.
2. Use high pressure air, nitrogen, or CO2 to verify the valves allow flow in the direction shown
by the arrow on the valve body.
3. Kidde recommends installing union fittings before and after the valves to facilitate future
service work.
4. Apply Teflon tape or pipe dope to the piping male threads.
5. Valves can be installed horizontally or vertically.
6. Ensure the piping is properly supported with pipe hangers prior to installing the valves.
4-3.9.2 2-1/2 inch AND LARGER CHECK VALVES AND DIRECTIONAL (STOP) VALVES
Install the 2-1/2 inch (DN65) and larger diameter direction (stop) valves and check valves by
following the steps listed below:
1. Inspect the gaskets and valve assemblies for damage.
2. Use high pressure air, nitrogen, or CO2 to verify the valves allow flow in the direction shown
by the arrow on the valve body.
3. Weld the flange connections to the piping in accordance with the ASME B31 Boiler &
Pressure Vessel Code.
4. Align the valve body with the flanges, insert gaskets between the valve body and each
flange and insert the bolts through the bolt holes.
5. Tighten the hex nuts.
a. Valves can be installed horizontally or vertically.
WARNING
The discharge head must be securely connected into the system piping. Never
attach the discharge heads to the cylinder valves until the cylinders are secured
in brackets or racking. Under no circumstances is the discharge head to remain
attached to the cylinder valve after removal from service, handling, storage, or
during shipment. Failure to follow these instructions could result in serious
bodily injury, death, or property damage.
CAUTION All valves must be installed with the arrow on the valve body pointing in the
direction of flow.

Installation
September 2013 4-26 P/N 81-CO2MAN-001
b. All valves must be checked to ensure installation in the proper flow direction.
c. Ensure the piping is properly supported with pipe hangers prior to installing the
valves.
4-3.10 Lockout Valves
Thelockoutvalvewithlimitswitchmustbeinstalledinthedischargepipenetwork,downstreamofallcyl‐
inders,checkvalves,andselectorvalves.Allvalvesshouldbeeasilyaccessible.Lockoutvalvescanbein‐
stalledineithertheverticalorhorizontalpositionusinggoodpipefittingpractices.Placetwotothree
wrapsofTeflontapeonmalethreadsofpipe.Aunionisrecommendedafterthevalvetofacilitatefuture
servicework.Thevalveshouldbelockedinthe“open”positionusingapadlock.Allvalvesmustbeelectri‐
callysupervised.
Figure 4-22 shows the lockout valve wiring diagram when the ball valve is in the fully open
position.
Figure 4-22. Wiring Diagram for Lockout Valve when Ball Valve is in Fully Open Position
4-3.11 Pneumatic Discharge Delay
The discharge delay shall be installed with the arrow stamped on the unit pointing in the
direction of flow. The unit may be installed at any angle below horizontal. Install the discharge
delay by following the steps listed below:
1. Inspect the threads and the discharge delay for any damage.
2. Kidde recommends installing union fittings before and after the discharge delay to facilitate
future service work.
3. Ensure the piping is properly supported with pipe hangers prior to installing the discharge
delay.
4. Bushings or bell reducer fittings may be used to connect to 1/2-inch (DN15) piping. The
discharge delay connections are 3/4-inch (DN20).
5. Install the discharge delay with arrow stamped on the unit pointing in the direction of flow.
The unit may be installed at any angle below horizontal. Kidde prefers to always install the
discharge delay in the fully pendent position.
6. Provide sufficient clearance around the discharge delay to allow operation of the lever
operated or other control head provided.
7. Verify the control head is in the "SET" position.
CAUTION All valves must be installed with the arrow on the valve body pointing in the
direction of flow.
1
2
3
4
5
6
7
8
Brown
Purple
Yellow
Orange
Blue
Red
GND
NC
C
NO
NC
C
NO
Switch
#1
Upper
Switch
#2
Upper

Installation
P/N 81-CO2MAN-001 4-27 September 2013
a. Any bypass of the discharge delay must be supervised.
b. The discharge delay may be installed in the discharge piping or the actuation line.
Note: The discharge delay period is preset at the factory; however, the actual discharge delay
period may vary up to 100% depending on the ambient conditions and/or variations in
installation.
4-3.12 Discharge Nozzles
After the system piping has been blown free of debris, install the discharge nozzles in strict
accordance with the approved installation drawings and acceptable engineering practices.
Make certain the correct nozzle type, part number, and orifice size are installed in the proper
locations. Ensure that the nozzles are securely tightened to the piping.
4-4 ACTUATION SYSTEMS
4-4.1 Lever Operated Control Head
Install the lever operated control head by following the steps listed below:
1. Inspect the threads and control head for damage. Ensure the locking pin and seal wire are
intact.
2. Remove the protection cap from the appropriate control port.
3. Using a suitable wrench, tighten the swivel nut securely to the control port.
4. Provide suitable clearance around the control head to allow operation.
4-4.2 Cable Operated Actuation System Components
Kidde CO2 cable operated devices must use 1/16-inch stainless steel cable run in 3/8-inch NPT
galvanized pipe or 1/2-inch conduit. Do not run more than one cable in each pipe/conduit run.
At each change in direction, use either the 3/8-inch NPT corner pulley or the 1/2-inch EMT
corner pulley for conduit as required. Do not bend the pipe or conduit.
To install a cable operated control system, affix the pull boxes to an appropriate structure at
the locations noted on the installation plan. Connect the pipe/conduit to the pull boxes and
install the necessary pipe/conduit sections, corner pulleys and cable devices (i.e., dual pull
mechanism, tee pulley, dual pull equalizer, etc.) to terminate at the cable operated control
head(s). Do not exceed the allowable corner pulley quantities and cable lengths as noted in
Table 4-4. Remove all the corner pulley covers. Run the cable from the pull boxes through the
pipe/conduit, corner pulleys and other cable devices. Reattach the corner pulley covers.
After completing the cabling, test each pull box for pull length and pull force. Ensure the cable
controls do not require more than 40 lb. (178 N) and 14 inches (356 mm) of pull length.
The following sections will detail the specific installation requirements for all the components
necessary to complete the cabling.

Installation
September 2013 4-28 P/N 81-CO2MAN-001
Table 4-4. Corner Pulley and Cable Limitations
Control Head Type Part Number
Maximum Corner Pulleys Max. Cable
Length
Part No.
803808 Part No.
844648
Cable Operated 81-979469-000 15 30 100 ft.
(30 m)
Electric/Cable 81-895630-000 6 30 100 ft.
(30 m)
Electric/Cable, XP WK-897494-000 6 30 100 ft.
(30 m)
Pneumatic All 6 30 100 ft.
(30 m)

Installation
P/N 81-CO2MAN-001 4-29 September 2013
4-4.3 Cable Operated Control Head
The following procedures must be performed before attaching control head to cylinder valve
(refer to Figure 4-25):
1. Remove protection cap from CO2 cylinder valve pilot control port.
2. Remove cover from control head and take out wheel assembly, cable pipe locknut, and
closure disc.
3. Ensure plunger is below surface of control head body. Position control head at valve pilot
control port with arrow pointing in direction of pull.
4. Assemble cable pipe locknut to cable pipe and place locknut in position in the control head
body.
5. Slide wheel assembly on control cable to proper "SET" position. Tighten set screws
securely. Ensure wheel assembly is at start of stroke.
6. Cut off excess cable close to wheel assembly.
7. Insert closure disc and replace cover on control head. Control head is now armed!
8. Assemble control head to cylinder valve or stop valve pilot control port. Tighten swivel nut
securely.
4-4.4 Pull Boxes
Install the Kidde cable pull boxes following the steps listed below:
1. If mounting the pull box directly to the mounting surface, use the pull box as a template
to drill the necessary bolt holes at the appropriate height and location per the installation
plan.
2. If mounting the break glass (P/N 81-871403-000) pull station to the Z bracket
(P/N 81-60532-000), use the Z bracket as a template to drill the necessary bolt holes at
the appropriate height and location per the installation plan.
3. If using conduit, connect the conduit adapter (P/N WK-843837-000) to the pipe connection
on the back of the pull box, prior to attaching the pull box as required to the mounting
surface.
4. Insert 1/16-inch cable into the cable fastener.
CAUTION
To ensure that the manual lever does not snag or trap the pull cable, make sure
the local manual release lever is in the “SET” position, with locking pin and seal
wire installed, before assembling control head cover to body.

Installation
September 2013 4-30 P/N 81-CO2MAN-001
4-4.5 Main to Reserve Transfer Switch
The main to reserve transfer switch is used in the system to toggle the connection between the
electrical control heads installed on the main or reserved cylinders with a suppression control
unit. For electrical wiring with a single electrical control head, refer to Figure 4-23 and for two
electrical control heads, refer to Figure 4-24. The transfer switch is generally installed at the
cylinder bank.
Figure 4-23. Wiring Diagram with Single Solenoid (Main and Reserve)
Figure 4-24. Wiring Diagram with Dual Solenoid (Main and Reserve)
+
-
+
-
RESERVE
MAIN
M/R TRANSFER
SWITCH
+
-
RELEASE
CIRCUITS
+
-
+
-
RESERVE
MAIN
RESERVE
MAIN
+
-
+
-
M/R TRANSFER
SWITCH
RELEASE
CIRCUITS
+
-
+
+

Installation
P/N 81-CO2MAN-001 4-31 September 2013
4-4.6 Tandem Control Head
1. Install first control head as described in Paragraph 4-4.3, steps 1 through 7 above, except
that in step 7 the closure disk is omitted and cable is not to be cut until the second head
is installed.
2. Repeat steps 1, 2, 3 for second control head.
3. Assemble second cable pipe locknut to cable housing. Slide cable housing over free end of
control cable. Place cable housing into proper slots in both control heads. Adjust as
required to obtain proper spacing.
4. Repeat steps 5, 6, 7 and 8 for the second control head.
Figure 4-25. Cable Operated Control Heads
SINGLE HEAD
TANDEM HEADS
CABLE HOUSING
LOCAL MANUAL RELEASE LEVER
SEAL WIRE
LOCKING PIN
DIRECTION OF
PULL THREADED NUT
3/8 in. NPS FOR PIPE
1/16 in. CABLE
3/8in. PIPE (or 1/2 in. EMT
WITH ADAPTER P/N WK--843837-000)
SWIVEL NUT
1-1/2 in.
(38 mm)
1-1/4 in. - 18 NF-3
FEMALE
CLOSURE
DISC
4-1/4 in.
(108 mm)
CABLE CLAMP AND
WHEEL ASSEMBLY
CABLE CLAMP AND
WHEEL ASSEMBLY
CABLE HOUSING
3/8 in. PIPE OR
ADAPTER P/N WK-843837-000
1/16 in. CABLE
CYLINDER CENTERS
FLARE ON CABLE HOUSING FITS INTO SLOT
IN CONTROL HEAD (CLOSURE DISC REMOVED)
3/8 in. NPS MALE FLARED

Installation
September 2013 4-32 P/N 81-CO2MAN-001
4-4.7 Electric Control Heads
For electrical connections to the same control head, install the electric control head as follows
(refer to Figure 4-26):
1. Remove protective cap from CO2 cylinder valve or stop valve pilot control port. Ensure
control head is in "SET" position.
2. Make all electrical connections.
3. Install electric control head on pilot control port. Tighten swivel nut.
Figure 4-26. Electric Control Heads
WARNING
Before installing control head on the carbon dioxide cylinder valve, ensure that
the control head is in “Set” position (actuating pin is in the fully retracted or
“Set position). Failure to position control head in the “Set” position will result
in accidental carbon dioxide cylinder discharge when the control head is
installed on the cylinder valve.
ELECTRIC
CONTROL HEAD
VOLTS
AMPS
PART NO.
SET RELEASED
MADE IN U. S. A.
TO RESET
USE SCREWDRIVER
KIDDE-FENWAL, INC.
400 MAIN STREET
ASHLAND, MA 01721
INDICATOR AND
RESET SYSTEM
SEAL WIRE
LOCKING PIN
LOCAL MANUAL
RELEASE LEVER
SWIVEL NUT
1-1/2 in. (38 mm) HEX
1-1/4 in. - 18 NF-3 THREAD
CONNECTION FOR FLEXIBLE
ELECTRIC CONDUIT
3/4 in. NPT FEMALE
3/4 in. NPT TO FLEXIBLE
CONDUIT ADAPTER
PLUS OR HOT
CONNECTION
(TERMINAL #3)
TERMINAL STRIP
FLEXIBLE CONDUIT
OPTIONAL CONNECTION
FOR MICROSWITCH
(TERMINAL #2)
MINUS, NEUTRAL, OR
GROUND CONNECTION
(TERMINAL #1)
COVER REMOVED

Installation
P/N 81-CO2MAN-001 4-33 September 2013
4-4.8 Electric and Cable Operated Control Heads
The following procedures are to be performed before attaching control head to the cylinder
valve or stop valve (refer to Figure 4-27):
1. Remove four screws holding cable housing cover on control head. Remove cover.
2. Position control head in the approximate installed position at the carbon dioxide cylinder
valve or stop valve pilot control port, but do not assemble onto the pilot control port.
3. Check that the control head is in the "SET" position.
4. Assemble the pull cable conduit to the conduit connection on the control head.
Note: The corner pulley installation should allow flexibility for installation and removal of the
control head from pilot control port.
5. Feed cable into control head through the hole in the operating lever.
6. Feed cable through the cable clamp. Pull cable taut, allowing approximately 1/4-inch to
1/2-inch clearance between the cable clamp and the operating lever. Tighten set screws in
cable clamp to secure cable to clamp.
7. Cut off excess cable.
8. Verify manual remote cable operation to ensure control head actuates and all cable clamps
are tight.
9. Pull cable back to its normal set (un-operated) position.
10. Reset control head.
11. Replace control head cover.
12. Examine seal wire at locking pin. Ensure it is intact.
13. Make electrical connections.
14. Assemble control head to cylinder or stop valve pilot control port. Tighten swivel nut
securely.
WARNING
Before installing control head on the carbon dioxide cylinder valve, ensure that
the control head is in the “SET” position (actuating pin is in the fully retracted
or “SET” position). Failure to position control head in the “SET” position will
result in accidental carbon dioxide cylinder discharge when the control head is
installed on the cylinder.

Installation
September 2013 4-34 P/N 81-CO2MAN-001
Figure 4-27. Electric and Cable Operated Control Heads
MADE IN U. S. A.
RELEASED
ASHLAND, MA 01721
400 MAIN STREET
KIDDE-FENWAL, INC.
SET
ELECTRIC
PART NO.
VOLTS
CONTROL HEAD
USE SCREWDRIVER
TO RESET
AMPS
PU
SET RELEASED
TO RESET
USE SCREWDRIVER
FOR
MAINTENANCE
SEE
INSTRUCTIONS
CABLE
PULL
ELECTRIC
CONTROL HEAD
PART NO.
MADE IN U.S.A.
KIDDE-FENWAL, INC.
400 MAIN STREET
ASHLAND, MA 01721
VOLTS
HZ AMPS
EXPLOSION PROOF
1/2 in. EMT CONNECTION
COMPRESSION TYPE FOR
REMOTE CABLE SEAL
WIRE
CONNECTION FOR FLEXIBLE
ELECTRIC CONDUIT
3/4 in. NPT (FEMALE)
LOCKING PIN
LOCAL MANUAL
RELEASE LEVER
INDICATOR AND
RESET STEM
SWIVEL NUT
1-1/2 in. (38 mm) HEX
1-1/4 in. - 18 NF-3 THREAD
1/2 in. EMT CONNECTION
COMPRESSION TYPE TO
SECOND CONTROL HEAD
IF USED STANDARD
CONNECTING WIRES
36 in. (914 mm) LONG
CONNECTION FOR FLEXIBLE
ELECTRIC CONDUIT 1/2 in. NPT
FEMALE
LOCKING PIN
SEAL WIRE
LOCAL MANUAL
RELEASE LEVER
CONNECTION FOR REMOTE
PULL BOX PIPE OR CONDUIT
3/8 in. NPS MALE
SWIVEL NUT
1-1/2 in. (38 mm) HEX
1-1/4 in. - 18 NF-3 THREAD
CONNECTION FOR CABLE
HOUSING TO SECOND CONTROL
HEAD IF USED 3/8 in. NPS FEMALE
USE PNEUMATIC CONTROL HEAD
CABLE HOUSINGS
INDICATOR AND
RESET SYSTEM
OPERATING SOLENOID UL LISTED FOR
USE IN THE FOLLOWING HAZARDOUS
LOCATIONS:
I C -13 TO +150F (-25 TO +65C)
I D -40 TO +150F (-40 TO +65C)
II E, F, G -40 TO +150F (-40 TO +65C)
CLASS GROUP OPERATING TEMPERATURE

Installation
P/N 81-CO2MAN-001 4-35 September 2013
4-4.9 Pneumatic Heat Actuated Detection (HAD) System Components
4-4.9.1 HAD
HADs (Figure 4-28) are to be installed in an anticipated path of convective heat flow from the
fire and spaced at a maximum on-center distance of 20 feet (15 feet-10 inches for FM
applications) for ceiling heights up to 12 feet. Consult NFPA 72 for reduction in spacing for
ceiling heights greater than 12 feet, and for spacing guidelines when different ceiling
configurations are encountered. Ensure that no HAD is mounted at a location where normal
process conditions can cause temperature increases to occur at rates faster than 20oF per
minute.
The pneumatic heat actuated detector (HAD) is attached to a mounting bracket for ease of
installation in industrial applications. Depending upon the size of the area being protected, the
number of HADs used can range from a minimum of 1 to a maximum of 15. When up to 5 HADs
are required, they are parallel branched by means of tee connections from a common tubing
line, and the tubing is connected directly to the control head. When more than 5 HADs are
required, they are evenly distributed on separate tubing lines and the individual tubing lines
are connected directly to the control heads. Therefore, for 15 HADs, three (3) control heads
should be installed.
CAUTION
Pneumatic detectors shall be installed on the ceiling and not on the underside
of beams. Refer to the approved installation drawings for quantity and location
of detectors.

Installation
September 2013 4-36 P/N 81-CO2MAN-001
Figure 4-28. Pneumatic Detector (HAD)
4-4.9.2 TUBING
The response time of a pneumatic detection system is dependent upon a number of factors,
such as:
a. fire intensity
b. HAD spacing and location
c. control head setting and vent size
d. volume of copper tubing
It is important to remember that the system will actuate when the entire sensing volume
(HADs, copper tubing, and pneumatic-control-head sensing chamber) is pressurized to a level
equal to the control-head setting (e.g. 4 inches of water). To ensure a fast response to rapidly
progressing or intense fires, the tubing system must be limited to a total length of 200 feet or
less of 1/8-inch O.D. copper tubing for a single-line system, or a total length of 200 feet or less
of 1/8-inch O.D. copper tubing for each line of a multiple control head system.
1/8-inch copper tubing is used in industrial systems to interconnect the HADs to the pneumatic
control head(s) or a pneumatic main-reserve transfer valve.
Note: The final leg of the copper tubing system connects to the pneumatic control head by
means of 3/16-inch O.D. heavy wall copper tubing provided by Kidde Fire Systems.
1/4 in.
(6 mm)
1-3/4 in.
(45 mm)
SLOT FOR MOUNTING SCREW
1/2 in. EMT CONNECTOR (TYP)
1/2 in. EMT (TYP)
1/8 in. TUBING
MOUNTING
BRACKET
UPPER CAGE
LOWER CAGE
CHAMBER
1/8 in. TUBING UNION
(SUPPLIED WITH DETECTOR
2-7/8 in.
(73 mm)

Installation
P/N 81-CO2MAN-001 4-37 September 2013
The 1/8-inch copper tubing to the HADs must be protected by 1/2-inch EMT. Water which
collects in the conduit line and freezes may damage the tubing. This necessitates the draining
of all low points in tubing conduit which are subject to freezing. If necessary, drill a small hole
in the conduit or fitting at the low point.
Install the pneumatic detectors on the ceiling of the protected space. Connect each detector
on a detection system branch line to 1/2-inch conduit. Terminate single branch line conduit at
a junction box near the pneumatic control head. Conduit bends must be rounded smoothly.
Fasten and securely brace the conduit. Use standard junction boxes where required to make
connections.
Run 1/8-inch copper tubing through the conduit, checking each section of tubing for
obstructions with a manometer prior to installation and prior to making connections, as shown
in Figure 4-29. Connect the tubing sections by means of flared fittings and connect each
detector as shown.
Terminate the 1/8-inch tubing for single branch line systems at the junction box near the
control head. Connect the 1/8-inch tubing to 3/16-inch tubing in the junction box by means of
a reducing union, and then route 3/16-inch tubing from the junction box to the pneumatic
control head.
Figure 4-29. Manometer Pneumatic Detection
CAUTION Do not damage or drill through tubing.
5
4
3
2
1
2
0
1
2
3
4
5
FILL HERE
MANOMETER TEST SET
P/N WK-840041-000
RUBBER
BULB
C
PNEUMATIC
CONTROL
HEAD
1/8 in. NUT P/N WK-207648-000
1/8 in. TUBING-FLARE END WITH NUT-
CUT OTHER END SQUARE
3/16 in. FEMALE FITTING
3/16 in. X 17 in. (432 mm)
LONG TUBING P/N WK-802366000
3/16 in. - 1/8 in.
UNION
P/N 81-802536-000
(REMOVE 1/8 in.
NUT)
RUBBER
TUBE
B
RUBBER
TUBE
A
1/8 in.
UNION 1/8 in.
NUT
SYSTEM
ACTUATION
TUBING
INDUSTRIAL
DETECTOR P/N
WK-840845-000
1/8 in. UNION
AND NUT
P/N 81-802535-000
FILL
TO
HERE

Installation
September 2013 4-38 P/N 81-CO2MAN-001
4-4.9.3 MANOMETER TEST PROCEDURE
Fill manometer glass tube at point marked “FILL HERE” (see Figure 4-29). "Rock" water level
back and forth by squeezing rubber bulb to eliminate air bubbles. Add or pour out water until
level is at fill point marked “FILL TO HERE” (see Figure 4-29).
1. Connect the test fitting of the manometer test set to the diaphragm chamber of the control
head.
2. Make certain sufficient clearance is provided at swivel mounting nut so control head will
not be damaged upon operation.
3. If control head has been operated, reset by placing screwdriver in reset stem and turning
clockwise until stem locks in position (with arrow on reset stem lined up with "Set" arrow
on nameplate).
Note: Slight resistance will be met just before stem locks.
4. Close off the rubber tube "A" by squeezing tightly with the fingers or use a crimp clamp
and then apply pressure by gradually squeezing the rubber bulb "C". The control head
should operate at the factory pressure setting the 10% tolerance allowed. The pressure
required to operate the control head is the difference, in inches on the manometer,
between the water levels in the two tubes, and is equal to twice the reading of either tube,
for example, 3 inches both tubes or 1-1/2 inches one tube.
4-4.9.4 CONTROL HEAD VENT TEST
Before disconnecting the manometer from the control head, the vent must be tested. To test
the vent for correct calibration, perform the following:
1. Squeeze rubber bulb "C" about halfway or enough to achieve sufficient vacuum for test,
then close tube "A" by pinching with fingers or crimp clamp.
2. Let bulb expand gradually to its normal shape. This creates a partial vacuum, causing the
water level to change, indicating inches of vacuum applied to the control head (the vacuum
must be more than minimum of 3 inches in order to observe drop from 3 inches to 1 inch).
3. The water column will recede to "0" level as air passes through the vent. The time required
(number of seconds) for the water column to recede 2 inches reading from 3 inches to 1
inch on both legs or 1-1/2 inches to 1/2 inch on either leg is the number of the vent (the
calibrated rate of flow). For example, if the time required to pass the above amount of
water is 5 seconds the control head vent is "No. 5". When vents are tested in control heads,
the time will vary due to the control head diaphragm volume and a No. 5 vent will test 5-
7 seconds, which is acceptable. If a vent reads much higher, it will increase system
sensitivity; if a vent reads much lower, it will decrease system sensitivity and may not be
acceptable.
4. Repeat above procedure for testing tandem control head (if installed). Since there is no
vent in the tandem control head, the vacuum should hold (same as tubing tightness test).
5. Disconnect manometer test set from the control head (test fitting "A"). Reset the control
head by turning the reset stem to its "SET" position.
CAUTION
After the control head has operated, be sure to release rubber tube "A" first
before allowing the rubber bulb "C" to expand to normal; otherwise water may
be sucked into the tubing and control head, causing serious problems.

Installation
P/N 81-CO2MAN-001 4-39 September 2013
4-4.9.4.1 To Test Pneumatic Detectors And/or System Tubing For Tightness
Connect manometer system tubing as shown on Figure 4-29. Squeeze rubber bulb "C", then
close off rubber tube "A". Allowing rubber bulb "C" to expand gradually will cause water level
in manometer to change, and then hold steady. If detector(s) and/or system tubing is tight,
water level will not drop when observed for at least one minute. Relieve vacuum by opening
rubber tube "A". Hold a minimum of 8 inches vacuum (difference between 2 sides of "U" tube,
or 4 inches on each side of "U" tube).
4-4.9.4.2 Other Use For Manometer
Test tubing for freedom from obstructions before installation.
4-4.9.5 HEAT COLLECTOR
Mount heat collector (Figure 4-30) in designated location (see the approved installation
drawings). Install pneumatic detector in center of heat collector.
Figure 4-30. Heat Collector
CAUTION
When making tests with manometer, do not allow water to enter rubber tubing,
control head, detector, or system tubing.
Do not blow through system tubing as moisture from breath will impair system
operation.
16 in.
(406 mm)
1 in.
(25 mm)
MOUNTING SURFACE FOR
PNEUMATIC HEAT DETECTOR
(MOUNT IN CENTER)
16 in.
(406 mm)

Installation
September 2013 4-40 P/N 81-CO2MAN-001
4-4.10 Pneumatic Control Head
The following procedures are to be performed before attaching control head to cylinder valve
(refer to Figure 4-31):
1. Remove pilot port outlet protection cap from valve of cylinder to be equipped with control
head.
2. Be sure control head is in "SET" position.
3. Arrow on reset stem should line up with "SET" arrow on nameplate.
4. Connect heat detector tubing securely to diaphragm chamber of control head as follows:
Install a 3/16-inch tubing nut at the termination of the pneumatic detection tubing. Attach
the 3/16-inch tubing nut to the diaphragm connection on the pneumatic control head.
Although the tubing for an HAD detection system is 1/8-inch O.D. copper tubing, the
connection to the pneumatic control head is 3/16-inch O.D. copper tubing. The transition
from 1/8-inch O.D. copper tubing to 3/16-inch O.D. copper tubing is made by means of a
3/16-inch to 1/8-inch tubing reducing union.
5. If a Tandem Pneumatic Control Head (Figure 4-32) is required, both heads must be
connected using 3/16-inch O.D. pneumatic tubing (Part No. WK-802366-000) provided by
Kidde Fire Systems.
Note: If a mechanical pullbox is supplied, proceed with steps 6 through 8.
6. Connect control cable conduit to control head. Remove control head nameplate exposing
manual release chamber.
7. Loosen screws on cable clamp and feed cable through hole. Tighten the set screws
securely, allowing the cable to sag a little. Do not pull the cable taut. Cut off excess cable.
8. Make certain locking pin and seal wire have been assembled to nameplate. Local control
lever should be parallel with nameplate. Assemble nameplate to control head, being sure
to fit the small shaft into the cover bearing and the large pin under the trip lever.
9. Assemble control head to pilot control port. Tighten swivel coupling nut securely.
WARNING
Before installing control head on the carbon dioxide cylinder valve, ensure that
the control head is in the “Set” position (actuating pin in the fully retracted or
“Set” position). Failure to position control head in the “Set” position will result
in accidental carbon dioxide cylinder discharge when the control head is
installed on the cylinder valve.

Installation
P/N 81-CO2MAN-001 4-41 September 2013
Figure 4-31. Pneumatic Control Head
PATENT: 246675
WALTER KIDDE
PART NO.
SET RELEASED
INSTRUCTIONS
SEE
MAINTENANCE
FOR USE SCREWDRIVER
PULL
CABLE
Kidde
TO RESET
CONTROL HEAD
PNEUMATIC
CONNECTION FOR CABLE HOUSING
TO SECOND CONTROL HEAD IF USED
3/8 in. NPS FEMALE
SWIVEL NUT
1-1/2 in. (38 mm)
HEX 1-1/4 in. - 18 NF-3 THREAD
LOCAL MANUAL
RELEASE LEVER
CONNECTION FOR REMOTE
PULL BOX PIPE OR CONDUIT
3/8 in. NPS FEMALE
CONNECTION FOR DETECTION
TUBING - 3/16in. TUBING NUT
FITS HERE
LOCKING PIN
SEAL WIRE
INDICATOR AND
RESET STEM

Installation
September 2013 4-42 P/N 81-CO2MAN-001
Figure 4-32. Tandem Pneumatic Control Head
4-4.11 Nitrogen Actuation Station
4-4.11.1 INSTALLATION OF NITROGEN CYLINDER, P/N WK-877940-000, AND MOUNTING BRACKET,
P/N WK-877845-000
1. Locate the nitrogen cylinder mounting bracket in an area where the cylinder valve
assembly and control head will be protected from inclement weather by a suitable total or
partial enclosure.
2. Install the mounting bracket clamps and hardware. Install the nitrogen cylinder in position
in a mounting bracket; tighten sufficiently to hold the cylinder in place while allowing the
cylinder enough free play to be rotated.
3. Turn the cylinder until the cylinder valve discharge outlet is in the desired position. The
nitrogen cylinder must be positioned so that control head is readily accessible during
manual operation.
4. Securely tighten the mounting bracket clamps and hardware.
5. If the cylinder is being used to drive a pressure operated siren, P/N 90-981574-001, then
the add-on label P/N 06-231866-518 (supplied with the cylinder) should be affixed over
the area at the center of the cylinder main label (bounded by a dotted line). This ensures
the cylinder function is adequately indicated.
16
1"
3/16 in. X 17 in (432 mm) LONG
COPPER TUBING P/N 802366
CABLE BLOCK
3/16 in. COPPER TUBING
CONNECTION
3/16 in. TUBING TEE (SUPPLIED)
WITH TANDEM CONTROL HEAD
CABLE
3/8 in. PIPE OR
ALTERNATE
ASSEMBLY
TANDEM PNEUMATIC
CONTROL HEAD (NO VENT)
PRIMARY PNEUMATIC
CONTROL HEAD (VENTED)
CABLE HOUSING
CYLINDER CENTERS

Installation
P/N 81-CO2MAN-001 4-43 September 2013
4-4.11.2 NITROGEN PILOT CYLINDER INSTALLATION, 1040 CU. IN. AND 2300 CU. IN., P/NS
90-101040-000 AND 90-102300-100
The nitrogen pilot cylinders must be located as close to the hazard area as possible. The
storage location must be protected from the elements and maintained at a temperature
between 32°F (0°C) and 130°F (54°C). External heating and/or cooling may be required
to maintain this temperature range. Cylinders should be raised at least 2 in. (50 mm)
from the deck using a suitable bracket or blocks if the area is regularly washed down or
is subject to environmental wetting.
Single cylinders should be installed using two straps, P/N WK-270014-000, installed at
the heights shown in Figure 4-33. See Table 4-5 for strap dimensions. Where two
cylinders are installed, two double straps, P/N WK-241219-000 can be used. Install at
the same heights defined for single cylinder straps.
Figure 4-33. Typical 1040 and 2300 cu. in. Pilot (Driver) Cylinder Strap Installation (P/N 90-101040-000
and 90-102300-100)
WARNING
Nitrogen cylinders must not be moved unless the discharge and control heads
have been removed and the protection caps are installed. Failure to follow these
instructions could result in inadvertent discharge, serious bodily injury, death
or property damage.
Table 4-5. 1040 and 2300 cu. in. Nitrogen Pilot (Driver) Cylinder Strap Installation
Part Number Description ABC
in. mm in. mm in. mm
90-101040-000 1040 cu. in. 21 to 22 533 to 559 6 to 8 152 to 203 10.4 263
90-102300-100 2300 cu. in. 42 to 44 1067 to 1118 12 to 14 305 to 356 10.4 263
A
C
B

Installation
September 2013 4-44 P/N 81-CO2MAN-001
Before connecting cylinders into the discharge pipework, tighten straps until there is
clearance enough to allow the cylinders to be rotated in place if required. Tighten fully
when all components are correctly positioned.
4-4.12 Pressure Operated Control Heads
1. Refer to Figure 4-34 and remove protection cap from cylinder valve or stop valve pilot
control port.
2. Connect flexible actuation hose to pressure operated control head.
3. Apply Teflon tape to the threads of pressure operated control head.
4. Using a suitable wrench, assemble control head to cylinder valve or stop valve pilot control
port. Tighten swivel nut securely.
Figure 4-34. Pressure Operated Control Heads
4-4.13 Lever and Pressure Operated Control Heads
1. Refer to Figure 4-35 and ensure the control head is in the “Set” position with locking pin
and seal wire intact.
2. Remove protection cap from cylinder valve or stop valve pilot control port.
3. Connect flexible actuation hose to pressure operated control head.
4. Apply Teflon tape to the threads of lever and pressure operated control head.
5. Using a suitable wrench, assemble control head to cylinder valve or stop valve pilot control
port. Tighten swivel nut securely.
1 in.
(25 mm) HEX
1/8 in. - 27 NPT
PRESSURE INLET
PISTON
SWIVEL NUT
1-1/4 in. - 18 UNEF-3B

Installation
P/N 81-CO2MAN-001 4-45 September 2013
Figure 4-35. Lever and Pressure Operated Control Heads
4-5 AUXILIARY COMPONENTS
4-5.1 Pressure Operated Switches
Pressure operated switches must be connected to the pilot piping or discharge manifolds as
shown in Figure 4-36 and Figure 4-37. The preferred mounting position is upright. Both the
standard and explosion-proof pressure switches have 1/2-inch NPT pressure inlets to connect
to the piping. The electrical connections are either 1/2-inch conduit knockouts or 1-inch NPT
fittings. The minimum operating pressure required is 50 PSI.
SEAL WIRE
SAFETY PIN
LEVER
ALLOW APPROX.
2 in. (51 mm)
CLEARANCE FOR
OPERATION OF LEVER
PISTON BODY
1/8 in. NPT PRESSURE
INLET
1-1/4 in. - 18 UNEF-3B
TO OPEN
CLOSED
OPEN

Installation
September 2013 4-46 P/N 81-CO2MAN-001
Figure 4-36. Pressure-Operated Switches
PRESSURE OPERATED SWITCH
3P.D.T.
UL
FM
R
Kidde
FRONT VIEW
FRONT VIEW
COVER REMOVED
SWITCH 3PDT
COVER
GASKET
SIDE SECTION
1/2 in. NPT FEMALE -
CONNECT TO SYSTEM PIPING
BOX
(3) 1/2 in. CONDUIT
KNOCKOUTS EACH SIDE
1/2 in. SUPPLY PIPE
WITH UNION
(8) COVER SCREWS
WIRING
SCREW
TERMINALS
(4) 1/4 in.
MOUNTING HOLES
OPERATED
SET
OPERATED
SET

Installation
P/N 81-CO2MAN-001 4-47 September 2013
Figure 4-37. Pressure Operated Switches, Explosion Proof
4-5.2 Pressure Operated Trip
Install the pressure operated trip as shown in Figure 4-38. Connect the trip to the discharge
piping with 1/2-inch schedule 40 pipe. The minimum operating pressure required is 50 PSI.
The maximum load on the retaining ring is 100 pounds.
Figure 4-38. Pressure Operated Trip
3 POLE
SINGLE
THROW
TOGGLE
SWITCH
SET POSITION
GAS
INLET
PRESSURE
OPERA
TED
EXPLOSION
PROOF
SWITCH
3 POLE
1 in. NPT FEMALE BOTH ENDS
FOR ELECTRIC CONNECTION.
SWITCH SUPPLIED WITH (2)
1 in. NPT PIPE PLUGS
EXPLOSION PROOF
MACHINED JOINT.
DO NOT USE GASKET
OR MAR SURFACES. PRESSURE INLET
1/2 in. NPT FEMALE
OPERATING
HEAD
(2) 13/32 in. MOUNTING HOLES
UNION CONNECTION
(6) COVER
SCREWS
GUARD
STEM
RING
BRACKET WITH
3/8 in. (10 mm) DIA.
MOUNTING HOLE
BODY
1-3/8 in. (41 mm) HEX
1/2 in. NPT FEMALE
PRESSURE INLET

Installation
September 2013 4-48 P/N 81-CO2MAN-001
4-5.3 Pressure Operated Sirens
Either CO2 pressure operated sirens or Nitrogen pressure operated sirens may be used with
the CO2 suppression system. However, the installation requirements for each siren style are
unique. Refer to the following sections for proper installation guidance for each style.
4-5.3.1 CO2 PRESSURE OPERATED SIREN
The CO2 pressure operated siren (Figure 4-39) shall be located in accordance with the
installation plan. Connect the CO2 siren to the pilot piping with 1/2-inch schedule 40 pipe.
• When used with a CO2 discharge delay, the siren supply line shall be installed upstream of
the CO2 discharge delay.
• Typically located inside the protected space.
• Install a dirt trap and union as shown in Figure 4-39.
• Maximum 250 feet of 1/2-inch pipe between the Siren and the manifold.
Figure 4-39. Pressure Operated Siren
1/2 in. UNION
FILTER
NOZZLE
2-7/16 in. (62 mm)
MOUNTING HOLES
TYPICAL
DIRT TRAP
1/2 in. PIPE NIPPLE, 3 in. (76 mm) LONG
PIPE CAP

Installation
P/N 81-CO2MAN-001 4-49 September 2013
4-5.3.2 N2 PRESSURE OPERATED SIREN
The N2 pressure operated siren (Figure 4-39) shall be located in accordance with the
installation plan. Connect the N2 siren in accordance with requirements corresponding to the
siren driver cylinder noted in Table 4-6:
• Never connect a pipe supplying CO2 to the N2 pressure operated siren.
•The N
2 siren supply line shall start from a dedicated siren driver cylinder, which is separate
from the system nitrogen pilot cylinder.
• Typically located inside the protected space.
• Install a dirt trap and union as shown in Figure 4-39.
Table 4-6. Siren Driver Cylinder Actuation Limits
Pilot Cylinder
Size Siren Part
Number
Number of
Sirens per
Siren Driver
Maximum
Length of 1/4
in. Sch. 80
Pipe
Maximum
Length of 1/4
in. Sch. 40
Pipe
Maximum Length
of 5/16 in. x
0.032 in. Wall
Tubing
108 cu. in. 90-981574-001 1 90 ft. 90 ft. 90 ft.
1040 cu. in. 90-981574-001 4 500 ft. 500 ft. 500 ft.
2300 cu. in. 90-981574-001 10 500 ft. 500 ft. 500 ft.
2 x 2300 cu. in. 90-981574-001 20 500 ft. 500 ft. 500 ft.

Installation
September 2013 4-50 P/N 81-CO2MAN-001
4-5.4 Odorizer
When used, odorizer assemblies should be located immediately downstream of each selector
valve. For systems protecting a single hazard, a single odorizer assemble can be located
immediately downstream of the discharge manifold.
The odorizer assembly shall be installed upstream of the lock-out valve. In the event a safety
outlet ruptures in a locked-out system, the scent from the odorizer will provide a warning that
carbon dioxide has vented into the area by the safety outlet.
Odorizer assemblies must be attached to the discharge piping in the upright position. The
odorizer assembly requires approximately 9” of clearance. Odorizer assemblies connect to a
3/4” NPT fitting.
1. Install the 3/4” NPT fitting where the odorizer assembly will be located.
2. Screw the odorizer assembly to the 3/4” NPT fitting.
Figure 4-40. Odorizer Installation
CAUTION
To prevent damaging the odorizer assembly during testing, it is recommended
that the odorizer assembly not be installed until after system testing of the
discharge piping is complete. For periodic maintenance after the system has
been installed and in use, remove the odorizer assembly prior to any testing of
the discharge piping.
8.7” REF

Installation
P/N 81-CO2MAN-001 4-51 September 2013
4-5.5 Safety Outlet
NFPA 12 requires a pressure relief device to be installed in sections of closed piping. These
"closed sections of pipe" are normally located between the carbon dioxide cylinders and
Directional (Stop) Valves or lock-out valves. In order to prevent over pressurization of this
closed section of pipe when carbon dioxide is trapped and in the event of high temperature
exposure, a pressure relief device (Safety Outlet) is required.
1. Locate the Safety Outlet in an area where the carbon dioxide can be safely discharged
without exposing personnel.
2. Ensure that the maximum allowable working pressure of the closed section of pipe is equal
to or greater than the maximum operating pressure of the Safety Outlet, which is 2,800
psig for part number 81-803242-000.
3. The Safety Outlet (Figure 4-41) must be installed upstream of any stop valve. Connection
to the piping is made with a 3/4-inch NPT fitting. Attach the wrench to the body of the
safety outlet. Do not tighten or loosen the retaining nut containing the safety disc.
Figure 4-41. Safety Outlet
4-5.6 Discharge Indicator
The discharge indicator (Figure 4-42) must be installed on the discharge manifold in either a
horizontal or vertical position. The indicator has a 3/4-inch NPT male connection. Make certain
the indicator stem is in the normal position.
Figure 4-42. Discharge indicator
SEAL WIRE
BODY
3/4 in. NPT MALE
RETAINING NUT
BODY
3/4 in. NPT MALE
1-1/8 in. (29 mm) HEX
ACROSS FLATS
STEM
CAP
NORMAL
POSITION
DISCHARGE
INDICATION
POSITION

Installation
September 2013 4-52 P/N 81-CO2MAN-001
4-6 HOSE REEL/RACK
Hose reel (Figure 4-43) or rack (Figure 4-44) must be installed in a location where access to
the hose and discharge horn is unobstructed. In addition, the hose reel or rack location must
allow firefighting personnel to reach all hazard areas protected by the system, such as fuel
pumps, electrical apparatus, etc. with the hose.
Install the hand hose line system as follows:
1. Install the cylinder support equipment, discharge piping, safety equipment and actuation
system in accordance with the applicable sections of this manual.
2. Mount the hose rack or reel and attach the hose to the piping as shown in Figure 4-43 or
Figure 4-44.
Figure 4-43. Hose Reel Installation
TYPICAL HOSE ASSEMBLY
3/4 in. NPT MALE
3/4 in. PIPE
P/N WK-834900-000
HOSE THREADED PROTECTOR
1 in. (25 mm) LEFT-HAND
FEMALE FERRULE
HANDLE CLIP
HORN CLIP
31 in.
(787 mm)
38 in.
(965 mm)
13 in.
(330 mm)
9 in.
(229 mm)

Installation
P/N 81-CO2MAN-001 4-53 September 2013
Figure 4-44. Hose Rack Installation
3. Connect multiple hoses in accordance with Figure 4-45 to achieve the desired total length.
Figure 4-45. Hose Assembly
4. Connect the horn/valve assembly securely to the hose in accordance with Figure 4-46. The
temporary shut-off on the horn must be in the CLOSED position.
TYPICAL HOSE ASSEMBLY
3/4 in. NPT MALE
3/4 in. PIPE
P/N WK-834900-000
HOSE THREADED PROTECTOR
1 in. (25 mm) LEFT-HAND
FEMALE FERRULE
HANDLE CLIP
HORN CLIP
31 in.
(787 mm)
38 in.
(965 mm)
13 in.
(330 mm)
9 in.
(229 mm)
P/N WK-834900-000
HOSE-TO-HOSE
THREAD PROTECTOR
1 in. LEFT-HAND
FEMALE FERRULE

Installation
September 2013 4-54 P/N 81-CO2MAN-001
Figure 4-46. Horn and Valve Assembly
5. Mount the Handle and Horn Clips to the wall and place the horn/valve assembly in the
mounting clips provided.
Figure 4-47. Handle and Horn Clips
TYPICAL HOSE
MALE
FEMALE
3/4 in. NPT
L
U
L
U
3 in.
(76 mm)
9/32 in. (7mm)
DIA HOLE FOR
MOUNTING
1-1/4 in.
(32 mm) 1/8 in.
(3 mm)
2-5/16 in. (8 mm)
DIA HOLES FOR MOUNTING
CLIP
2 in.
(51 mm)
2-3/4 in.
(70 mm)
1/4 in.
(6 mm)
3 in.
(76 mm)
PULL OUT PIN

Installation
P/N 81-CO2MAN-001 4-55 September 2013
6. Install the carbon dioxide cylinders in accordance with Paragraph 6-9.1.
4-7 COMMISSIONING THE CARBON DIOXIDE SYSTEM
Note: The following procedure in part is based on language from NFPA 12, Standard on
Carbon Dioxide Extinguishing Systems 2005 Edition, NFPA 72, National Fire Alarm Code
2002 Edition, and the NFPA Fire Protection Systems Inspection, Test and Maintenance
Manual, Third Edition published in 2000.
The completed carbon dioxide system shall be inspected, tested, and documented by qualified
personnel, in accordance with the NFPA 12 Standard. The objective is to assure that the
installation of all required safety features is verified and that expert judgments can be made
as to the compliance with the specifications, the system design documents, this manual, the
requirements of the AHJ and good practice.
The system must be commissioned prior to being put into service. The goal of the
commissioning procedure is to verify that the system installation is operable in accordance with
all documented requirements.
Note: The following procedures are inclusive of all components, or component groups (i.e.
control heads), in the Kidde carbon dioxide product offering. These instructions must
be followed except where they do not apply to the installed system.
4-7.1 Pre-Commission Inspection
Review the system specifications including the hazard description, carbon dioxide agent
quantity calculations, plans of the protected area, system piping drawings, variances from the
current NFPA 12 Standard and requirements of the Authority Having Jurisdiction (AHJ).
The AHJ shall approve the type and extent of the approval testing to be performed. This
approval shall be documented before completion of the commissioning of the carbon dioxide
system and issuance of the commissioning certificate.
WARNING
Lever operated or cable operated control head must be in the “Set” position
before installing on the cylinder valve. Control head in the released position will
result in accidental discharge of carbon dioxide when installed on the cylinder
valve.
WARNING
A personnel-training program must be conducted before commissioning the
carbon dioxide system. This is to communicate to all necessary personnel the
steps and safeguards required to safeguard against injury or death in areas
where atmospheres will be made hazardous by the discharge of carbon dioxide.

Installation
September 2013 4-56 P/N 81-CO2MAN-001
4-7.2 Commissioning Procedure
Prior to commencing with the commissioning procedure, ensure that the availability of the
following documents is verified and reviewed for a full understanding. Request clarifications
from the AHJ and/or the system design engineer if required:
• Carbon dioxide system specifications
• System drawings/plans
• Kidde Engineered Carbon Dioxide (CO2) Fire Suppression Systems DIOM Manual,
P/N 81-CO2MAN-001
• Requirements of the AHJ
Request the approval to proceed from all appropriate authorities (owner, insurance
underwriter(s), fire department, etc.) before the system is inspected and tested.
4-7.3 Enclosure Inspection
1. Inspect the protected enclosure to assure that all openings are sealed or provided with
automatic closing devices.
2. If the unsealed openings are to remain (i.e. for pressure relief), ensure that the quantity
of carbon dioxide includes additional agent to account for the loss through the openings.
3. For local application systems, verify the structure being protected is the same as that which
is specified by the drawing.
4-7.4 System Inspection
1. Verify that only listed and/or approved (refer to NFPA 12 Definitions) components have
been installed in accordance with the approved drawings. Use the bill of material of the
system drawing as a checklist.
2. Conduct a thorough visual inspection of the installed system and hazard area (reference
NFPA 12).
a. The piping, operational equipment and discharge nozzles shall be inspected for
proper size and location; also, inspect the aiming point of the discharge nozzles.
b. Identify the locations of all heat detectors, smoke detectors, alarms, and manual
emergency releases in accordance with the approved system drawing.
c. Confirm that the control unit to which the detectors and manual releases are
connected is in the normal operating condition except for the isolated release
circuits.
d. Compare the actual hazard configuration with the original specifications and system
drawings; record deviations; As-Installed system design verification may be
required because of these deviations.
e. Inspect the hazard for unclosable openings and other sources of agent loss that
have not been identified on the system design specifications and drawings. Record
any discrepancies.
f. Inspect the cylinders to assure that they are properly supported and are not
damaged.
g. In accordance with NFPA 72, verify availability of the Fire Alarm System Record Of
Completion.
WARNING
Ensure that the system is disarmed, in order to prevent an accidental discharge
of carbon dioxide.
Before start of the inspection, ensure that the release outputs from the control
unit are isolated and that all control heads and discharge heads have been
removed from the carbon dioxide cylinders.

Installation
P/N 81-CO2MAN-001 4-57 September 2013
4-7.5 Labeling
1. Verify the labeling of devices for proper designations and instructions.
2. Compare the nameplate data on the carbon dioxide cylinders with the system
specifications.
3. Check the hydrostatic test date stamped on the cylinder(s).
4-7.6 Operational Tests of the Individual Components
1. Conduct nondestructive, operational tests on all devices necessary for functioning of the
system, including detection and actuating devices.
Note: Some system components, such as the (pressure operated switches,) may only be
tested during the full system discharge. Verification that all interlock functions properly
operate such as, damper closure, equipment power supply shut down, etc. is required
and must be documented.
2. Notify all appropriate authorities (owner, fire department, insurance underwriter, etc.)
when the carbon dioxide fire protection system will be tested, in accordance with the
approved schedule of work.
3. De-isolate the outputs from the control unit and assure that the carbon dioxide cylinders
remain disconnected from their associated discharge heads.
4. Operate all initiating devices such as heat detectors, smoke detectors and manual releases,
and verify proper receipt of all alarm initiating signals at the control unit.
5. Ensure that all control unit outputs (including the control heads) activate according to the
approved sequence of operations.
6. If any required function fails to occur, have it repaired, modified, or reprogrammed.
7. Reset the control heads after each activation.
8. Repeat steps 4 through 7 until all operating devices have been tested and the approved
operating sequence has been confirmed.
9. Verify the operability of all pre-discharge notification appliances and discharge time delay
devices.
10. For all occupiable enclosures, verify that the following safety features have been installed
and operate properly (where applicable):
a. Signage (per Standard NFPA 12)
b. Pneumatic pre-discharge alarm*
c. Pneumatic Discharge delay*
d. Odor additive* to the carbon dioxide discharge, or carbon dioxide detector, or
establishment and enforcement of confined space entry procedures.
Note: The operation of all pneumatic devices will be verified during the full system discharge
test.
11. Operate the electrical output from the control unit to the electrical control heads, ensuring
that the actuation pin is released.
12. Verify Check that all electrical signaling devices operate.
13. Verify Check that all auxiliary equipment responds as specified.
14. Verify Check pressure operated control heads manually during the full discharge test.
15. Test the control panel and its circuitry to assure compliance with NFPA 72.
16. Verify that all control panel circuits are electrically supervised for open circuit, short circuit,
and ground fault conditions to within 3 feet (.9 m) of any equipment being controlled, such
as air-handler shutdown.
17. Re-isolate the release outputs from the control unit.
18. Reset the electrical control heads.

Installation
September 2013 4-58 P/N 81-CO2MAN-001
4-7.7 Full Discharge Test
A full discharge test shall be performed on all systems.
1. Notify all personnel in the protected area, and all areas where carbon dioxide can migrate,
of the impending carbon dioxide system discharge test.
2. Arm the system by first installing the control head(s) onto the pilot cylinder(s), connecting
the discharge heads to all cylinders, and then de-isolating the release outputs from the
control unit after ensuring that no alarm conditions exist in the system.
3. Operate any initiating device or combination of initiating devices (as appropriate) to
actuate the extinguishing system.
4. Check operation of the pneumatic siren, time delays, damper closures, and equipment shut
downs.
5. Verify that carbon dioxide is discharged from all nozzles in accordance with the design
requirements for local-application systems. Confirm that the carbon-dioxide extinguishing
concentration is attained and maintained for the required period of time for total-flooding
systems.
4-7.8 Commissioning the System
Upon successful completion of the system inspection and test procedure, the system shall be
commissioned in accordance with the following procedure.
• Successfully perform the discharge tests in accordance with the specifications and to the
approval of the authority having jurisdiction, as previously detailed.
• Verify and document the details of the discharge test(s) and personnel-training program.
Fire fighting techniques with Hand Hose Line Systems and/or portable extinguishers must
be part of this program.
• Recharge all discharged cylinders after checking the last hydrostatic test date and retesting
the cylinders per applicable Department of Transportation (DOT)/Transport Canada (TC)
procedures. Begin to arm the system by reconnecting the cylinder(s) to the mounting rack,
installing the control head(s) onto the pilot cylinder(s), and connecting the discharge heads
to all cylinders. Return all parts of the system to full service.
• Verify and document the details of the personnel-training program. Fire fighting techniques
with Hand-Held Hose Lines and/or portable extinguishers must be part of this program.
• De-isolate the release outputs from the control unit after confirming that no automatic or
manual initiating devices are in an alarm state. This will make the system operability
effective.
• Notify all appropriate authorities (owner, insurance underwriter(s), fire department, etc.)
in writing that the carbon dioxide fire protection system is now armed and fully operational.
6. Submit a Certificate of Commissioning to the Owner.
4-7.9 References and Checklists
• For a definition of Control Unit and an explanation of the "Fire Alarm System Record Of
Completion" reference NFPA 72, National Fire Alarm Code Handbook.
• For information on inspection, test, and maintenance checklists reference the "Fire
Protection Systems: Inspection, Test and Maintenance Manual, Third Edition" published by
the National Fire Protection Association.

Operation
P/N 81-CO2MAN-001 5-1 September 2013
CHAPTER 5
OPERATION
5-1 INTRODUCTION
The following operation procedures are based on the CO2 system being used in normally
occupied areas or where occupancy is possible. In these instances a pressure operated time
delay and a pressure operated siren are required, to ensure that personnel are alerted and
afforded the time to evacuate the hazard area prior to system discharge, regardless of the
actuation mode.
In all cases the pressure operated time delay shall be equipped with a supervised manual
bypass.
5-2 AUTOMATIC OPERATION
When a system is operated automatically by the electric or pneumatic detection system,
proceed as follows:
1. All personnel must evacuate the hazard area promptly. Close all doors.
2. Call the fire department immediately.
3. If the system is provided with a reserve cylinder(s), see Paragraph 5-6.
4. Contact a Kidde Fire Systems distributor for service.
5-3 MANUAL OPERATION
5-3.1 Cable Operated Systems
Operate the system using the controls as follows:
1. Immediately evacuate all personnel from the hazard area. Close all doors.
2. Proceed to cable pull station for appropriate hazard.
3. Operate the control head cable pull station to actuate the CO2 cylinders
4. For multiple hazard systems operate the cable pull station for the appropriate stop valve.
5. Call the fire department immediately.
6. If the system is provided with a reserve cylinder(s), see Paragraph 5-6.
7. Contact a Kidde Fire Systems distributor for service.
5-3.2 Electric Systems
Operate electric systems as follows:
Proceed to the manual electric station for the hazard.
WARNING If the pressure operated time delay fails to operate, operate the manual bypass
installed on the time delay to immediately discharge the system.
WARNING If the pressure operated time delay fails to operate, operate the manual bypass
installed on the time delay to immediately discharge the system.

Operation
September 2013 5-2 P/N 81-CO2MAN-001
1. Immediately evacuate all personnel from the hazard area. Close all doors.
2. Operate the manual electric station.
3. Call the fire department immediately.
4. If the system is provided with a reserve cylinder(s), see Paragraph 5-6.
5. Contact a Kidde Fire Systems distributor for service.
5-3.3 Systems Equipped with Remote Nitrogen Actuator
1. Immediately evacuate all personnel from the hazard area. Close all doors.
2. Proceed to remote nitrogen actuator station for the appropriate hazard.
3. Operate the control head mounted on the nitrogen actuation cylinder.
4. Move the ball valve, installed in the actuation piping downstream of the nitrogen cylinder
to the OPEN position.
5. Call the fire department immediately.
6. If the system is provided with a reserve cylinder(s), see Paragraph 5-6.
7. Contact a Kidde Fire Systems distributor for service.
5-4 EMERGENCY OPERATION
5-4.1 Local Manual Operation - All Systems
1. Immediately evacuate the hazard area. Close all doors.
2. Proceed to the cylinder(s) for the hazard.
3. Remove the locking pin from the cylinder control head(s).
4. Rotate the local manual release lever to the “released” or “open” position.
5. Proceed to hazard area stop (directional) valve if one is installed. Remove the locking pin
from the stop (directional) valve control head. Rotate the local manual release lever to the
“released” or “open” position.
WARNING If the pressure operated time delay fails to operate, operate the manual bypass
installed on the time delay to immediately discharge the system.
WARNING If the pressure operated time delay fails to operate, operate the manual bypass
installed on the time delay to immediately discharge the system.
CAUTION This manual control is not part of the normal system actuation mode and should
only be used in a last resort, emergency condition.
WARNING If the pressure operated time delay fails to operate, operate the manual bypass
installed on the time delay to immediately discharge the system.

Operation
P/N 81-CO2MAN-001 5-3 September 2013
5-5 HOSE REEL OR RACK SYSTEMS
Hose line systems must be used by trained personnel only. It is the owner's responsibility to
ensure that personnel have been properly trained and are aware of all safety provisions.
5-5.1 Remote Manual Operation
If system is equipped with a remote cable pull station, operate system as follows:
1. Unwind hose from reel or rack.
2. Proceed to cable pull station. Break glass using attached hammer.
3. Pull handle to operate cylinder control head.
4. Approach fire carefully. Do not allow hose to lie in the path of the flames. Point horn at
hazard. Open horn valve by pushing stirrup handle forward.
5. Direct carbon dioxide discharge at base of the flames. As flames recede, follow slowly.
Follow detailed instructions below.
Surface Fires:
a. Direct carbon dioxide discharge close to the edge of the fire nearest you. DO NOT
point the horn at the center of the flame. If the hose horn must be aimed into an
inaccessible fire, the horn must be in the OPEN position.
b. Sweep the horn slowly back and forth across the base of the flames. Chase flames
slowly as the fire is extinguished. For vertical fires, direct the discharge at the
bottom and gradually work upward as the fire recedes.
c. Continue discharging carbon dioxide until all smoldering material is covered with
carbon dioxide "snow".
Electrical Fires - Switchboards, Motors, Etc.
a. Discharge carbon dioxide into all openings on burning substances.
b. Continue to discharge carbon dioxide until flames have been extinguished and the
burned material is coated with carbon dioxide "snow". This will prevent any
incandescent material from re-igniting.
6. After the fire has been extinguished, leave the horn valve open to relieve all pressure from
the hose.
7. Perform post fire maintenance. Refer to Chapter 7 for details.
CAUTION
While it is not necessary to de-energize equipment before discharging carbon
dioxide onto electrical fires, equipment must be de-energized as soon as
possible after system discharge to prevent the fire from spreading.
WARNING Except when in use, pressure shall not be permitted to remain in the hose line.

Operation
September 2013 5-4 P/N 81-CO2MAN-001
5-5.2 Local Manual Operation
1. Unwind hose from reel or rack. Verify that the horn valve is in the "closed" position.
Note: If a reel is used, it is not necessary to remove or unwind the entire length of hose.
However, if a rack is used, the hose must be completely removed before charging the
line.
2. Proceed to carbon dioxide cylinder(s).
3. Remove the locking pin from the cylinder control head, and rotate the local manual release
lever to the “released” or “open” position.
4. Approach fire carefully. Do not allow hose to lie in the path of the flames. Point horn at
hazard. Open horn valve by pushing stirrup handle forward.
5. Direct carbon dioxide discharge at base of the flames. As flames recede, follow slowly.
Follow detailed instructions below.
Surface Fires:
a. Direct carbon dioxide discharge close to the edge of the fire nearest you. DO NOT
point the horn at the center of the flame. If the hose horn must be aimed into an
inaccessible fire, the horn must be in the OPEN position.
b. Sweep the horn slowly back and forth across the base of the flames. Chase flames
slowly as the fire is extinguished. For vertical fires, direct the discharge at the
bottom and gradually work upward as the fire recedes.
c. Continue discharging carbon dioxide until all smoldering material is covered with
carbon dioxide "snow".
Electrical Fires - Switchboards, Motors, Etc.
a. Discharge carbon dioxide into all openings on burning substances.
b. Continue to discharge carbon dioxide until flames have been extinguished and the
burned material is coated with carbon dioxide "snow". This will prevent any
incandescent material from re-igniting.
6. After the fire has been extinguished, leave the horn valve open to relieve all pressure from
the hose.
7. Perform post fire maintenance. Refer to Chapter 7 for details.
WARNING Except when in use, pressure shall not be permitted to remain in the hose line.
CAUTION
While it is not necessary to de-energize equipment before discharging carbon
dioxide onto electrical fires, equipment must be de-energized as soon as
possible after system discharge to prevent the fire from spreading.
WARNING Except when in use, pressure shall not be permitted to remain in the hose line.

Operation
P/N 81-CO2MAN-001 5-5 September 2013
5-6 MAIN AND RESERVE SYSTEMS
After operating the “main” system as described above, place the “reserve” system in standby
mode as follows:
1. Reset all manually operated control heads, pressure operated trips, discharge indicators,
manual operation stations, and pressure operated switches. Ensure that the control panel
and all detectors are reset.
2. Ensure that the manual lever on the pneumatic Discharge delay is in the “closed” position
with the locking pin and seal wire installed.
3. If the system uses stop (directional) valves, reset control head on the valve.
4. Proceed to the main/reserve transfer switch. Move switch lever to the RESERVE position.
5. Immediately contact a Kidde Fire Systems distributor for service.
5-7 LOCKOUT VALVES
When it is necessary to perform maintenance on the CO2 system or need to perform work that
could cause false alarms and discharge, it is essential to lockout the CO2 system. The following
steps must be observed.
1. Unlock the valve and place it in the Closed position.
2. Lock the valve.
3. Verify that a Trouble indicator appears on the control unit.
4. When maintenance or test is complete, unlock the valve and place it in the Open position.
5. Lock the valve.
6. Verify the Trouble indicator is clear on the control unit.
WARNING The following procedures can be applied only when the reserve system has not
been previously discharged.
WARNING
When pneumatic main/reserve transfer switch, Part No. 81-871364-000, is
installed, wait at least 15 minutes before moving lever to the “reserve”
position. This allows any remaining pressure in the pneumatic system to vent
to atmosphere. Failure to follow these instructions may accidentally discharge
the reserve system when the transfer switch is moved.

Operation
September 2013 5-6 P/N 81-CO2MAN-001
THIS PAGE INTENTIONALLY LEFT BLANK.

Maintenance
P/N 81-CO2MAN-001 6-1 September 2013
CHAPTER 6
MAINTENANCE
6-1 GENERAL
Fire suppression systems require proper care to ensure normal operation at all times. Periodic
inspections must be made to determine the exact condition of the system equipment.
A regular program of systematic maintenance is essential for proper operation of the carbon
dioxide system. A periodic maintenance schedule must be followed and an inspection log
maintained for ready reference. As a minimum, the log should record inspection interval,
inspection procedure performed, maintenance performed, if any, as a result of inspection, and
name of inspector performing task. If inspection indicates areas of rust or corrosion,
immediately clean and repaint the area.
6-2 PREVENTIVE MAINTENANCE
Perform preventive maintenance in accordance with Table 6-1. The inspection procedures and
intervals are recommended and can be modified to fit into normal facility schedules providing
the intervals do not exceed the time periods shown in the table.
WARNING
CO2 and nitrogen cylinder assemblies must be stored, handled, transported,
serviced, maintained, tested, and installed only by trained personnel in
accordance with the instructions contained in this manual, NFPA-12, and CGA
pamphlets C-1, C-6, G-6, G-6.3 and P-1. CGA pamphlets may be obtained from
the Compressed Gas Association, 1725 Jefferson Davis Highway, Arlington, VA
22202-4102.
Before performing maintenance procedures, refer to the material safety data
sheets and safety bulletins at: http://www.kiddefiresystems.com.
WARNING
All actuation devices (control heads, discharge heads, etc.) must be removed
from the system cylinders prior to performing system maintenance. Observe all
safety precautions applicable to handling pressurized equipment. Recharge of
CO2 and nitrogen cylinder assemblies must be performed by personnel trained
in Kidde Fire Systems CO2 systems equipment. See the “Safety Summary” on
page iii for additional information.
CAUTION
To prevent operation of the Odorizer or damaging the Odorizer Cartridge,
remove the Odorizing cartridge(s) from all odorizer Assemblies prior to testing
the discharge piping or performing any system test.

Maintenance
September 2013 6-2 P/N 81-CO2MAN-001
6-3 INSPECTION PROCEDURES - MONTHLY
1. Make a general inspection survey of all cylinders and equipment for damaged or missing
parts. If any equipment requires replacement, refer to Paragraph 6-7.
2. Ensure that access to hazard areas, remote nitrogen or cable pull stations, discharge
nozzles, and cylinders are unobstructed and there are no obstructions to the operation of
the equipment or distribution of carbon dioxide.
3. Inspect flexible actuation hoses for loose fittings, damaged threads, cracks, distortion,
cuts, dirt and frayed wire braid. Tighten loose fittings. Replace hoses having stripped
threads or other damage. If necessary, clean parts as directed in Paragraph 6-6.3. Inspect
flexible actuation hose adapters for stripped threads and damage. Replace damaged
adapters. Inspect couplings and tees for tightness. Tighten if necessary. Replace damaged
parts.
4. Inspect control heads attached to CO2 cylinders, nitrogen cylinders, stop valves and time
delays for physical damage, deterioration, corrosion, distortion, cracks, dirt, and loose
couplings. Tighten loose couplings. Replace damaged or missing caps. Replace control
head if damage is found. If necessary, clean as directed in Paragraph 6-6.3. Ensure that
all control heads, actuation devices, etc. are all in the “set” or “closed” position with the
locking pin installed and seal wire intact.
5. Inspect carbon dioxide cylinder and valve assembly for leakage, physical damage such as
cracks, dents, distortion, and worn parts. Check safety disc for damage, and replace if
necessary. If necessary, clean cylinder and associated parts as described in
Paragraph 6-6.3.
6. Inspect cylinder straps, cradles, and attaching hardware for loose, damaged, or broken
parts. Check straps and associated parts for corrosion, oil, grease, grime, etc. Tighten
loose hardware. Replace damaged parts. If necessary, clean as directed in
Paragraph 6-6.3.
Table 6-1. Preventive Maintenance Schedule
Schedule Requirement Reference
Paragraph
Monthly Inspect hazard area system components Paragraph 6-3
Check nitrogen cylinder pressure Paragraph 6-3
Semi-Annually Check CO2 cylinder weight Paragraph 6-4
Test electric control head Paragraph 6-4.3
Test pressure switch Paragraph 6-4.4
Verify odorizer cartridge Paragraph 6-4.5
Annually Check nitrogen cylinder pressure Paragraph 6-5.1
Check CO2 cylinder weight Paragraph 6-5.1
Blow out distribution piping Paragraph 6-5.2
Perform complete system function Paragraph 6-5.3
Test pneumatic detection system Paragraph 6-5.4
Every 5 years Hydrostatic test all CO2 and nitrogen system hoses and flexible
connectors. Paragraph 6-6
Every 5 or 12 years CO2 cylinder hydrostatic test Paragraph 6-6.1
N2 cylinder hydrostatic test Paragraph 6-6.1

Maintenance
P/N 81-CO2MAN-001 6-3 September 2013
7. Inspect CO2 system discharge heads for cracks, corrosion, grime, etc. Ensure that
discharge heads are tightly secured to each CO2 cylinder valve and connected to the
discharge manifold with a flexible discharge hose or swivel adapter.
8. Inspect flexible discharge hoses for loose fittings, damaged threads, cracks, rust, kinks,
distortion, dirt, and frayed wire braid. Tighten loose fittings, and replace hoses which have
stripped threads. If necessary, clean as directed in Paragraph 6-6.3.
9. Inspect discharge manifold for physical damage, corrosion, and dirt. Inspect manifold
support brackets and clamps for looseness and damage. Inspect check and stop valves,
where applicable, for deformation, leakage, cracks, wear, corrosion, and dirt. Secure loose
parts. Replace damaged parts. If necessary, clean as directed in Paragraph 6-6.3.
10. Inspect discharge nozzles for dirt and physical damage. Replace damaged nozzles. If
nozzles are dirty or clogged, refer to Paragraph 6-6.4. Where frangible discs are used,
ensure they are intact and clean. Look for holes or cuts. Broken discs will allow vapors, oils,
etc. from the hazard to enter into the nozzles and system piping and seriously effect or
block system discharge.
11. Inspect pressure switches for deformations, cracks, dirt or other damage. Replace switch
if damage is found.
12. Check nitrogen cylinder pressure gauge for proper operating pressure. If pressure loss
(adjusted for temperature) exceeds 10%, recharge with nitrogen to 1800 PSIG at 70°F.
See Figure 6-1 for pressure-temperature relationship.
13. Inspect lock-out valve (if installed). Valve must be secured and locked in the “open”
position.
14. Visually inspect Control Panel/Detection system. Ensure that system is “normal” and free
from any “alarm” or “trouble” signals.
15. If any defects are found during the monthly inspection, immediately contact a Kidde Fire
Systems Distributor to service the systems.
CAUTION
Do not paint nozzle orifices. The part number of each nozzle is stamped on the
nozzle. Nozzles must be replaced by nozzles of the same part number. Nozzles
must never be interchanged, since random interchanging of nozzles will
adversely affect proper CO2 distribution within a hazard area.

Maintenance
September 2013 6-4 P/N 81-CO2MAN-001
Figure 6-1. Nitrogen Temperature vs. Pressure Data
6-4 SEMI-ANNUAL WEIGHING OF CO2 CYLINDERS
6-4.1 Weighing (using Kidde Fire Systems Weigh Scale)
Use the following steps to weigh the cylinder by using the weighing scale
(P/N 81-982505-000).
1. Remove control head(s) at the coupling nut only. When tandem heads are used, back off
each head at the same time before attempting to completely remove both heads from the
cylinders.
The flexible hose must remain connected to the discharge head.
2. Loosen the cylinder from the framing, leaving the framing components connected to each
other while allowing free vertical movement of the cylinder.
3. Hook scale on weighing angle, and slip yoke under discharge head. Adjust as shown on
Figure 6-2.
WARNING
The CO2 cylinders are equipped with a high flow rate discharge valve, which
when actuated, will open, remain open, and can not be closed. Accidental
actuation of the discharge valve on an unsecured, disconnected cylinder will
result in a discharge thrust capable to causing severe property damage and
bodily injury.
It is therefore extremely important that the exact sequence of cylinder removal
and installation always be followed. Cylinder removal or cylinder installation
must always be supervised to assure full compliance with the instructions in
this manual.
TEMPERATURE °F
N PRESSURE - TEMPERATURE CHART
2
PRESSURE PSIG
-40° 40° 60°-20° -20°0° 80° 100° 120° 140°
1200
1300
1400
1500
1600
1700
1800
1900
2000
2100
RECHARGE
NOMINAL PRESSURE
MINIMUM ALLOWABLE PRESSURE

Maintenance
P/N 81-CO2MAN-001 6-5 September 2013
Figure 6-2. Carbon Dioxide Cylinder Weighing Scale
4. Use the adjustment sleeve of the weighing scale assembly to bring the beam to the initial
position. The initial position must be determined to allow the cylinder to be suspended
freely when the beam is pulled down towards the horizontal position. Free suspension
should move the cylinder just free from its supporting surface when the beam is pulled
down using the finger grip ring.
5. Pull down on finger grip until cylinder is just clear of floor and lever is horizontal.
6. Read the weighing scale. One division between two lines represents 10 lb. (4.5 kg) of
weight. The weighing scale measures weights between 50 and 300 lbs. (23 and 136 kg).
The scale is calibrated to compensate for leverage. The empty cylinder weight is stamped
on the cylinder valve body.
7. From the scale reading, deduct the empty cylinder weight and deduct the discharge head
weight of 3.75 lbs. (1.7 kg). The resulting weight is the amount of carbon dioxide (charge
weight) within the cylinder.
8. The charge weight shall not deviate more than 10 percent (10%) from the net content of
the cylinder. For example, the weight of a cylinder filled with 100 lb. (45 kg) of carbon
dioxide shall not deviate more than 10 lb. (4.5 kg) (after subtraction of the weight of the
discharge head) from the full weight stamped on the valve body.
9. If the CO2 weight loss exceeds 10%, forward charged cylinder with discharge and control
heads removed and safety cap and cylinder protection cap installed, to a Kidde Fire
Systems distributor for recharge.
10. After all cylinders have been weighed, tighten clamps, and reinstall control heads on
cylinders. Tighten control head coupling nuts securely.
6-4.2 Weighing (without Kidde Fire Systems Weigh Scale)
1. Remove CO2 cylinders following procedures detailed in Paragraph 6-8.
2. Weigh cylinder(s) on platform scale. Empty cylinder weight is stamped on cylinder valve
body. Remove the cylinder protection cap only during weighing. This cap is not included in
the empty weight of the cylinder.
3. If CO2 weight loss exceeds 10% forward charged cylinder, with cylinder protection cap and
valve protection caps installed, to a Kidde Fire Systems distributor for recharge.
21 in.
(533 mm)
NOT INCLUDING CLEARANCE FOR
OPERATOR
ADJUSTMENT SLEEVE
WEIGHBAR
BEAM
DISCHARGE HEAD
YOKE
CARBON DIOXIDE CYLINDER
FINGER GRIP
RING
SCALE IS
CALIBRATED IN
POUNDS
POINTER INITIAL
POSITION
FINAL POSITION
WEIGHING SCALE
8-1/4 in. (210 mm) DIA.
ROTATED 90 DEGREES
FOR CLARITY
INITIAL POSITION

Maintenance
September 2013 6-6 P/N 81-CO2MAN-001
4. After all cylinders have been weighed, or recharged as may be required, reinstall into the
system following procedures detailed in Paragraph 6-9.
6-4.3 Electric Control Head Test
The electric control head must be tested semi-annually for proper operation. This test can be
performed without discharging the carbon dioxide cylinders. Test one hazard area at a time
before proceeding to the next hazard area as follows:
1. Remove electric control heads from all master carbon dioxide cylinders and nitrogen pilot
cylinders within the hazard area being tested. Let the electric control head(s) hang freely
from the flexible electric conduit connections. Leave all pressure operated control heads,
discharge heads and actuation hoses attached to the cylinders.
2. Operate carbon dioxide system electrically. This can be accomplished by actuation at the
system control panel or by manual operation of an electric pull station.
3. Ensure that each electric control head has operated. Observe that the actuating pin has
moved to its fully “released” position. If any control heads have not operated, check circuit
for electric continuity to these particular heads and repeat test. Replace all damaged
heads. Repeat test if any control heads have been replaced.
4. Replace any damaged head which fails to reset properly. Make certain electric control
heads are in the SET position before reconnecting to the system cylinders. Reattach all
electric control heads to threaded port on cylinder valves. Tighten swivel nuts securely.
Failure to follow this procedure will result in an accidental carbon dioxide discharge.
6-4.4 Pressure Switch Test
Perform pressure switch test as follows:
1. Contact appropriate personnel and obtain authorization for shutdown.
2. Check that hazard area operations controlled by pressure switch are operative.
3. Manually operate switch by pulling up on plunger.
4. Verify that hazard area operations, controlled by the pressure switch, shut down.
5. Return pressure switch to SET position.
6. Reactivate all systems shut down by pressure switch; this includes power and ventilation
systems, compressors, etc.
7. Re-connect any circuits that were disconnected.
CAUTION All electric control heads must be removed from carbon dioxide and nitrogen
pilot cylinders prior to testing to prevent accidental cylinder discharge.
CAUTION Electric control heads must be reset manually before reconnecting to the
cylinder valves, to prevent accidental carbon dioxide discharge.
WARNING If the pressure switch is connected to an electrical release, disconnect the
circuit prior to performing the test.

Maintenance
P/N 81-CO2MAN-001 6-7 September 2013
6-4.5 Verify Odorizer Cartridge
Verify the odorizer assembly as follows:
1. Remove the odorizer assembly.
2. Check to make sure the burst disc is intact.
3. Reattach the odorizer assembly. If the burst disc has ruptured, replace the odorizer
assembly.
6-5 ANNUAL MAINTENANCE
6-5.1 Equipment Inspection
Perform the procedures described in:
• Paragraph 6-3
• Paragraph 6-4
6-5.2 Distribution Piping Blow Out
Before blowing out system, remove pipe caps from the ends of the distribution piping to allow
any foreign matter to blow clear. In addition, remove any frangible discs from vent or flanged
nozzles (if installed). Blow out all distribution piping with dry air or CO2 to make sure there are
no obstructions.
1. Remove all discharge heads from the carbon dioxide cylinders.
2. Remove all pipe caps on dirt traps from distribution piping to allow any foreign matter to
blow clear.
3. Remove all frangible discs (if installed).
4. Discharge test cylinder into system manifold. Use of CO2 or dry air is acceptable. Discharge
duration is to be of sufficient length to insure that all piping is blown clear.
5. Reinstall all pipe caps and frangible discs as required.
6. Reconnect all discharge heads to CO2 cylinder valves.
6-5.3 Complete System Inspection
Perform complete system inspection and test in accordance with NFPA-12. Full system
functional tests are to be performed without the need to discharge the carbon dioxide
cylinders. The full functional tests are to be conducted with all of the electric, mechanical,
pressure operated or pneumatic control heads removed from the CO2 cylinders and/or nitrogen
pilot cylinders, as described in Paragraph 6-4.3, Paragraph 6-4.4 and Paragraph 6-5.4.
WARNING
Do not use water or oxygen to blow out pipe lines. The use of oxygen is
especially dangerous as the possible presence of even a minute quantity of oil
may cause an explosion.
WARNING
Do not disconnect discharge head(s) from flexible hose(s). Discharge of CO2
system will cause flexible hose, without discharge head attached, to flail
violently, resulting in possible equipment damage and severe bodily injury to
personnel.

Maintenance
September 2013 6-8 P/N 81-CO2MAN-001
6-5.4 Pneumatic Detection System Tests
6-5.4.1 PNEUMATIC CONTROL HEAD TEST - PRESSURE SETTING
Note: The tests to be performed using Manometer Test Set Kidde Fire Systems Part No. 81-
840041-000.
Figure 6-3. Manometer Pneumatic Detection
1. Connect the test fitting of the manometer test set to the diaphragm chamber of the control
head.
2. Make certain sufficient clearance is provided at mounting nut so control head will not be
damaged upon operation.
3. If control head has been operated, reset by placing screwdriver in reset stem and turning
clockwise until stem locks in position. This occurs when the arrow on the reset stem is lined
up with the “SET” arrow on the nameplate.
CAUTION
Before conducting any of the tests outlined below first remove the discharge
heads from the cylinders equipped with pneumatic control heads. Then remove
the pneumatic control heads from the cylinder valves. This will prevent
discharge of the system upon accidental operation of a control head. When
tandem heads are used, back-off each head at the same time before attempting
to remove either head from the cylinder valves. Do not allow the control heads
to rotate out of position.
5
4
3
2
1
2
0
1
2
3
4
5
FILL HERE
MANOMETER TEST SET
P/N WK-840041-000
RUBBER
BULB
C
PNEUMATIC
CONTROL
HEAD
1/8 in. NUT P/N WK-207648-000
1/8 in. TUBING-FLARE END WITH NUT-
CUT OTHER END SQUARE
3/16 in. FEMALE FITTING
3/16 in. X 17 in. (432 mm)
LONG TUBING P/N WK-802366000
3/16 in. - 1/8 in.
UNION
P/N 81-802536-000
(REMOVE 1/8 in.
NUT)
RUBBER
TUBE
B
RUBBER
TUBE
A
1/8 in.
UNION 1/8 in.
NUT
SYSTEM
ACTUATION
TUBING
INDUSTRIAL
DETECTOR P/N
WK-840845-000
1/8 in. UNION
AND NUT
P/N 81-802535-000
FILL
TO
HERE

Maintenance
P/N 81-CO2MAN-001 6-9 September 2013
4. Slight resistance will be met just before stem locks.
5. Use manometer test set Part No. 81-840041-000, and pour water into the open glass tube
until the water level in both tubes is exactly at the zero mark.
6. Close off the rubber tube “A” by squeezing tightly with the fingers or use a crimp clamp.
Apply pressure by gradually squeezing the rubber bulb "C". The control head should
operate at the factory pressure setting with +/- 10% tolerance allowed. The pressure
required to operate the control head is the difference, in inches, between the water levels
in the two tubes, and is equal to twice the reading of either tube.
6-5.4.2 CONTROL HEAD VENT TEST
Before disconnecting manometer from the control head, the vent must be tested. To test the
vent for correct calibration, perform the following steps:
1. Squeeze rubber bulb "C" about halfway or enough to achieve sufficient vacuum for test.
Then close tube "A" by pinching with fingers or crimp clamp.
2. Let bulb expand gradually to its normal shape. This creates a partial vacuum, causing the
manometer water level to change, indicating inches of vacuum applied to the control head.
The vacuum must be more than a minimum of 3 inches in order to observe a drop from 3
inches to 1 inch.
3. The water column will recede to "0" level as air passes through the vent. The vent setting
is the time required (in seconds) for the water column to drop 2 inches from a level of 3
inches to 1 inch on both legs (or from 1-1/2 inches to 1/2 inch on each leg) of the U-Tube
manometer. This is also known as the calibrated rate of flow. For example, if the time
required to pass the above amount of water is 5 seconds, the control head vent is "No. 5".
When vents are tested in control heads, the time will vary due to the added volume in the
control head diaphragm chamber, and a No. 5 vent will test 5-7 seconds, which is
acceptable. If a vent time reads much higher, it will increase system sensitivity; if a vent
time reads much lower, it will decrease system sensitivity and may not be acceptable.
Repeat above procedure for testing tandem control head, if installed. Since there is no vent
in the tandem control head, the vacuum should hold.
4. Disconnect manometer test set from the control head, test fitting "A". Reset the control
head by turning the reset stem to its “SET” position.
Note: For accuracy, Kidde Fire Systems test set Part No. 81-840041-000 must be used.
6-5.4.3 TEST FOR LEAKAGE OF SYSTEM TUBING AND DETECTORS
1. Connect the test fitting of the manometer to the pneumatic detector tubing at the control
head connection nut.
2. Squeeze the rubber bulb "C" fully. Close off the open rubber tube "A". Very gradually,
release the rubber bulb to its normal shape. This will cause the water level in the two tubes
to change, and a maximum vacuum will develop. Hold a minimum of 8 inches vacuum, the
difference between the two sides of the "U" tube, or 4 inches on each side of the "U" tube.
3. If all connections are absolutely tight, the water level will remain in the position taken in
paragraph 2 above and will not change as long as the rubber tube "A" is held closed.
Observe the level of the water for at least one minute, and then release the rubber tube
"A". It is absolutely essential the water level remain the same as long as the rubber tube
is held closed. Even a slow, steady fall of the water level is serious, for it indicates a leak
which may prevent automatic operation of the system. Disconnect the test set from the
detector tubing. After tests have been completed, reset the control heads.
CAUTION
After the control head has operated, be sure to release rubber tube "A" first
before allowing the rubber bulb "C" to expand to normal; otherwise, water may
be drawn into the tubing and control head, causing serious problems.

Maintenance
September 2013 6-10 P/N 81-CO2MAN-001
4. Functional Test of the Detection System. Hold a container of hot or boiling water under the
heat detector, immersing the actuating chamber in the water. At least 50% of the detector
should be immersed. The water must be at least 100F above the ambient temperature.
Note the time between the application of the hot water to the detector and the operation
of the control head. The control head should operate in approximately 15 seconds. Do not
apply heat for more than 15 seconds. The detector is not functioning if the control head
has not operated within this time.
When testing two control heads connected in tandem, both may not operate
simultaneously. Both control heads should operate within 30 seconds if the heat is
sustained.
5. The heat test should be performed on each heat detector. Between each test, wait about
ten minutes for the system to return to normal, and then reset the control head(s). To
reset, insert screwdriver in reset stem and turn clockwise until the stem locks in position
with the arrow on reset stem lining up with the "Set" arrow on the nameplate. (Slight
resistance will be met just before the stem locks.)
6. If the application of heat does not cause the control head to operate within 15 seconds,
remove the container of water and investigate the cause.
6-5.4.4 TROUBLESHOOTING OF PNEUMATIC DETECTION SYSTEM
Failure of the pneumatic detection system to operate when applying heat to the detectors may
be caused by:
• Insufficient heat applied to the detector
• Leakage in the tubing system (tubing connections not tight).
• Obstruction in the tubing.
The manometer can be used to assist in trouble shooting the system as follows:
1. Install manometer in system tubing at pneumatic control head connection. Replace union
connection with a control head "T." Connect manometer tube B to the "T" fitting. Close
open tube A of the manometer with a crimp clamp. The manometer is now an integral part
of the system and provides a visual record of pressure to which system is subjected by
heat or cold at the detector.
2. The installation of the manometer as described above provides a visual indication of the
pressure build-up within the system and will assist in determining if there is sufficient or
insufficient pressure build-up during the test of the system.
6-6 5 YEAR AND 12 YEAR INSPECTION AND TEST GUIDELINES
6-6.1 Carbon Dioxide and Nitrogen Cylinders
The United States' Code of Federal Regulations (CFR) Title 49 - Transportation and Canada's
Transport Canada (TC) Transport of Dangerous Goods Act (TDG) Part 5 govern the design,
fabrication, testing and stamping of hazardous goods transported over all public ways (roads,
rail, boat, etc.). When filled, CFR49/TDG classify Kidde cylinders as hazardous goods. In any
case of information within this section conflicting with CFR49/TDG, the requirements of
CFR49/TDG take precedence over the instructions provided within this section.
All Kidde cylinders are designed, fabricated, tested and stamped in compliance with
CFR49/TDG.
WARNING When using hot or boiling water, exercise care when immersing the Pneumatic
Detector Actuating Chamber. Do not stand directly beneath the water container.

Maintenance
P/N 81-CO2MAN-001 6-11 September 2013
6-6.1.1 CARBON DIOXIDE CYLINDERS
Kidde CO2 cylinders shall comply with CFR49/TDG requirements while in transit and shall
comply with NPFA 12 requirements while installed.
All Kidde CO2 cylinders shall be qualified for use over public ways in accordance with
CFR49/TDG as applicable. Per CFR49/TDG, qualified cylinders shall not have a hydrostatic test
date stamp that is more than five (5) years old. Cylinders with a date stamp more than 5 years
old shall be re-qualified in accordance with CFR49/TDG prior to shipment.
While installed, NPFA 12 allows CO2 cylinders to remain in service for a maximum of twelve
(12) years from the last stamped hydrostatic test date. At the end of the 12 year period,
cylinders shall be removed from service, vented (emptied) and re-qualified in accordance with
CFR49/TDG before returning to service. The applicable sections of this manual shall be followed
when removing, venting or reconnecting cylinders to service.
6-6.1.2 NITROGEN CYLINDERS
Kidde N2 cylinders shall comply with CFR49/TDG requirements while in transit and shall comply
with NPFA 12 requirements while installed.
All Kidde N2 cylinders shall be qualified for use over public ways in accordance with CFR49/TDG
as applicable. Per CFR49/TDG, qualified cylinders shall not have a hydrostatic test date stamp
that is more than allowed period of time. CFR49/TDG define the allowed period of time as ten
(10) years for 3AA cylinders with a water capacity of 125-lbm (3,467 cu. in.) or less.
CFR49/TDG define the allowed period of time as five (5) years for 3AA cylinders with a water
capacity greater than 125-lbm (3,467 cu. in.). Cylinders with a date stamp older than the
allowed period of time shall be re-qualified in accordance with CFR49/TDG prior to shipment.
While installed, NPFA 12 allows N2 cylinders to remain in service indefinitely.
Any cylinder (CO2/N2/Other) shall be re-qualified immediately if the cylinder shows evidence
of distortion, damage, cracks, corrosion or mechanical damage. Any cylinder failing
requalification shall be destroyed. The applicable sections of this manual shall be followed when
removing, venting or reconnecting cylinders to service.
6-6.2 Flexible Hoses
Flexible hoses must be hydrostatic pressure tested every five years in accordance with the
requirements in NFPA 12.
6-6.3 Cleaning
Remove dirt from metallic parts using a lint-free cloth moistened with dry cleaning solvent. Dry
parts with clean, dry, lint-free cloth or air blow dry. Wipe non-metallic parts with clean, dry
lint-free cloth. Clean and paint steel parts as required.
6-6.4 Nozzle Service
Service nozzles after use as follows:
1. Clean outside of nozzles with rag or soft brush.
2. Examine discharge orifices for damage or blockage. If nozzles appear to be blocked,
unscrew nozzles and clean by immersing in dry cleaning solvent and drying thoroughly with
lint-free cloth. Replace damaged nozzles. Nozzles must be replaced with same part
number. Clean and paint steel nozzle bowls as required.
3. Examine nozzle frangible discs (if installed). Replace damaged or ruptured frangible discs.

Maintenance
September 2013 6-12 P/N 81-CO2MAN-001
6-7 REPAIRS
Replace all damaged parts during inspection. Installation and removal procedures for CO2
system cylinders are provided below. Since replacement of other system components are
simple, refer to installation drawings and component drawings noted in Chapter 2 for guidance.
Part numbers of the components are provided in Chapter 8 and may be used to procure
replacement parts as required.
6-8 REMOVAL OF CYLINDERS
6-8.1 CO2 Cylinders
These instructions must be carefully followed in the exact sequence given when any cylinder
or group of cylinders are to be removed at any time.
1. Remove discharge head(s) from all cylinder valves by loosening mounting nut (right hand
thread). On multiple cylinder installations, swing discharge head and hose away from
cylinder and allow to hang.
2. Remove all control heads from the cylinder valves by loosening mounting nut (right hand
thread).
3. Install large top protection cap over threads on top of cylinder valve. Cap control head
outlet by screwing on side protection cap.
4. Install valve protection cap on cylinder.
5. Remove cylinder bracketing.
6. Remove cylinder(s).
6-8.2 Nitrogen Pilot Cylinders
1. Remove control head from nitrogen cylinder valve.
2. Install protection cap on nitrogen cylinder actuation port.
3. Loosen flexible actuation hose and remove adapter (Part No. WK-699205-010) from the
cylinder valve outlet.
4. Open bracket strap and remove nitrogen cylinder from bracket.
WARNING
When removing charged cylinders, always disconnect the discharge heads first.
This will minimize the possibility of accidentally discharging the CO2 system,
which could result in possible equipment or property damage or injury to
personnel.
WARNING Discharge head(s) must be left connected to the discharge hose and system
piping to prevent injury in the event of system discharge.
WARNING
Do not remove cylinder(s) from the bracketing if the valve protection cap is
missing. Obtain a new protection cap from Kidde Fire Systems or a distributor
of Kidde Fire Systems products.

Maintenance
P/N 81-CO2MAN-001 6-13 September 2013
6-9 INSTALLATION OF CYLINDERS
6-9.1 CO2 Cylinders
These instructions must be carefully followed in the exact sequence given below when any
cylinder or group of cylinders are to be installed at any time.
1. Place fully charged cylinder in cylinder rack before removing the cylinder protection cap.
2. Install the cylinder rack and tighten bolts only enough to allow for turning of cylinder as
may be required later.
3. Remove the cylinder protection cap and top protection cap from the cylinder valve. Remove
the side protection cap only from the cylinder valve(s) to be equipped with control head(s).
Return all caps to the storeroom.
4. Turn cylinder so that the cylinder valve control head port points in the proper direction;
tighten bolts of the cylinder rack securely.
5. Make certain that all control head(s) are in the “set” or “closed” position, (actuator plunger
should fully recede into the control head body). Ensure that the locking pin and seal wire
are intact.
6. Install control head(s) onto cylinder valve(s). Tighten securely.
7. Assemble discharge head(s) to cylinder valve(s) and tighten mounting nut.
6-9.2 Nitrogen Pilot Cylinders
1. Install nitrogen cylinder in mounting bracket. Rotate cylinder until valve outlet is in desired
position.
2. Tighten mounting bracket strap.
3. Remove pipe plug and connect adapter (Part No. WK-699205-010) to cylinder valve outlet
port. Attach flexible actuation hose to outlet port adapter.
4. Remove protection cap from cylinder valve control head port.
5. Install control head to cylinder valve.
6. Tighten the control head to the valve. Tightening the control head to the valve requires
that a wrench be used to hold the valve while the control head hex nut is tightened. The
WARNING
When installing charged cylinders, always install the discharge heads last. This
will minimize the possibility of accidentally discharging the CO2 system, which
could result in possible injury to personnel, or damage to equipment or
property.
WARNING Control heads must be in the “set” or “closed” position before attaching to the
cylinder valves to prevent accidental carbon dioxide discharge.
WARNING
Control head must be in the “set” or “closed” position before attaching to the
cylinder valve, which will prevent:
• an accidental discharge of the nitrogen cylinder and any corresponding
suppression agent
• a nitrogen leake during actuation
Failure to properly set the control head may cause damage to the unit and could
result in one of the aforementioned concerns.

Maintenance
September 2013 6-14 P/N 81-CO2MAN-001
outlet fitting (1/8 NPT to 5/16 tube connector) must be removed to expose the two flats
on the valve body (new cylinders are supplied with plastic shipping plug in this outlet).
7. Both the valve body and the control head hex nut are 1-1/2” across the flats. Hold the valve
body using a 1-1/2” wrench (preferred) or a suitable smooth jawed adjustable wrench.
8. Position the control head in the desired orientation and hand tighten the hex-nut. Using a
torque wrench1 fitted with a 1-1/2" crowfoot wrench, tighten to a minimum torque of 60
ft. lb.2.
9. Reinstall outlet fitting and connect to system hose, tubing or pipe (as appropriate).
1 Recommended 10-100 ft. lb. 1/2” drive torque wrench. Other ranges are acceptable
provided 40-60 ft. lb. is within optimum tolerance for the tool.
2 Set wrench to a minimum setting of 55 ft. lb. (most styles of crowfoot will increase the
actual torque value by approximately 10% since a typical 1-1/2" crowfoot wrench has a
center-to-center dimension of 2”. Actual minimum torque value is 60 ft. lb. Calculate effect
of crowfoot using tool manufacturer’s data.

Post-Discharge Maintenance
P/N 81-CO2MAN-001 7-1 September 2013
CHAPTER 7
POST-DISCHARGE MAINTENANCE
7-1 GENERAL
Fire suppression systems require proper care to ensure normal operation at all times. Periodic
inspections must be made to determine the exact condition of the system equipment.
A regular program of systematic maintenance is essential for proper operation of the carbon
dioxide system. A periodic maintenance schedule must be followed and a inspection log
maintained for ready reference. As a minimum, the log should record inspection interval,
inspection procedure performed, maintenance performed, if any, as a result of inspection, and
name of inspector performing task. If inspection indicates areas of rust or corrosion,
immediately clean and repaint the area.
7-2 POST FIRE MAINTENANCE
After a CO2 system discharge, qualified fire suppression system personnel must perform post
fire maintenance as directed in this section. Observe all warnings, especially those pertaining
to the length of elapsed time before entering the hazard area following discharge.
1. Return all cylinders to a Kidde Fire Systems distributor for recharge and retest (if required).
2. Recharge carbon dioxide and nitrogen cylinders in accordance with procedures outlined in
this manual.
WARNING
CO2 and nitrogen cylinder assemblies must be stored, handled, transported,
serviced, maintained, tested, and installed only by trained personnel in
accordance with the instructions contained in this manual, NFPA 12, and CGA
pamphlets C-1, C-6, G-6, G-6.3 and P-1. CGA pamphlets may be obtained from
the Compressed Gas Association, 1725 Jefferson Davis Highway, Arlington, VA
22202-4102.
Before performing maintenance procedures, refer to the material safety data
sheets and safety bulletins at: http://www.kiddefiresystems.com.
WARNING
All actuation devices (control heads, discharge heads, etc.) must be removed
from the system cylinders prior to performing system maintenance. Observe all
safety precautions applicable to handling pressurized equipment. Recharge of
CO2 and nitrogen cylinder assemblies must be performed by personnel trained
in Kidde Fire Systems CO2 systems equipment. See pages i and ii of this manual
for additional information.
WARNING
Do not enter the hazard with an open flame or lighted cigarette. The possible
presence of flammable vapors may cause re-ignition or explosion. For deep
seated hazards, the space must be kept tightly closed for 30 to 60 minutes after
system discharge. Ensure that fire is completely extinguished before ventilating
the area. Before permitting anyone to enter the hazard, vent area thoroughly or
use self-contained breathing apparatus.

Post-Discharge Maintenance
September 2013 7-2 P/N 81-CO2MAN-001
3. Reset all control heads on cylinders; and stop (directional) valves on multi-hazard systems.
Replace any control head that fails to reset properly. Reinstall locking pins. Replace seal
wires.
4. If pneumatic transmitter is installed, reset as follows:
a. Unscrew the slotted indicator cap.
b. Reverse cap and screw onto plunger.
c. Pull plunger out until it clicks into position.
d. Unscrew cap and reinstall over plunger. Green indicator showing through slots in
cap indicates transmitter is in "SET" position.
5. If system was operated using a nitrogen pilot cylinder, remove the control head from the
nitrogen cylinder. This will vent nitrogen pressure from the actuation piping and reset the
pressure operated control heads on the carbon dioxide cylinders.
6. If system was operated using a manual pull station, reset manual pull station.
7. If time delay was manually overridden, reset manual control lever on pneumatic Discharge
delay. Reinstall locking pin. Replace seal wire.
8. Replace all discharged odorizer assemblies.
7-3 CYLINDER RECHARGE
WARNING Control head(s) must be in the “set” or “closed” position before attaching to the
cylinder valve, to prevent accidental discharge of the carbon dioxide system.
CAUTION
Before resetting a control head fitted to a nitrogen cylinder, all pressure must
be relieved from the downstream actuation piping. Failure to follow this
procedure can cause the control head to not be operationally ready after reset.
CAUTION Pneumatic control head, attached to the pneumatic transmitter, must be reset
before resetting the transmitter.
CAUTION
CO2 and nitrogen cylinders must not be recharged without a retest if more than
five (5) years have elapsed from the date of last test. Retest shall be in
accordance with the requirements of CFR 49. After retest, interior of cylinders
must be thoroughly dried and free of residue.
WARNING
Under no circumstances while performing either cylinder recharge or leak test
should a CO2 cylinder have a discharge head or control head attached to the
cylinder valve. When handling carbon dioxide cylinders, observe the following:
a. Each cylinder is factory equipped with a valve protection cap threaded
securely over the valve assembly. This device is a safety feature and
provides protection during handling.
b. This protection cap must be installed at all times, except when the cylinder
is connected into the system piping, being filled, or leak tested.
c. The valve protection cap must be stored in a secure space and made readily
available for use. Do not move or handle cylinders without the cap
installed.

Post-Discharge Maintenance
P/N 81-CO2MAN-001 7-3 September 2013
7-3.1 Carbon Dioxide Agent
Carbon dioxide should be of excellent grade, pure and dry. The agent shall have the following
minimum properties:
a. The vapor phase shall be not less than 99.5 percent carbon dioxide.
b. The water content of the liquid phase shall comply with CGA G6.2. The water
content should be below 0.03 percent (32 ppm) by weight.
c. Oil content shall be not more than 10 ppm by weight.
7-3.2 CO2 Cylinders
Note: CO2 cylinders are filled by weight only, not by pressure.
Recharge of Kidde Fire Systems CO2 cylinders should only be performed by a Kidde Fire
Systems distributor. CO2 cylinder recharge shall be in accordance with the following
instructions. Where applicable, refer to Figure 7-1 and Figure 7-2 during performance of the
following procedure.
1. Secure CO2 cylinder to vise or bracket and relieve any remaining cylinder pressure. This
can be accomplished by utilizing the Kidde Fire Systems blow-off fixture, Part No.
81-930117-000.
2. Remove valve from cylinder (if necessary).
3. Remove valve seat.
4. Remove copper sealing gasket.
5. Remove main check assembly and spring.
6. Remove sleeve retainer, brass sleeve and pilot check assembly.
7. Kidde Fire Systems recommends replacing the safety burst disc. Remove the safety outlet
nut and reattach with a maximum torque of 350 in./lbs.
8. Examine rubber portions of main check, Part No. WK-932636000 (for 1/2-inch valve) and
Part No. WK-800760-000 (for 5/8-inch valve), and the pilot check Part No.
WK-923066-000 (for both 1/2-inch and 5/8-inch valve) for the following conditions: nicks,
voids, tool marks, bubbles, swelling, chips, grease, dirt, and foreign matter.
9. If any of these conditions exist, the checks should be replaced with new parts before the
cylinder and valve assembly are refilled.
10. Assemble the valve in the following order:
a. Pilot check assembly, Part No. WK-923066-000
b. Brass sleeve, Part No. WK-202805-000
c. Sleeve retainer, Part No. WK-202804-000
d. Spring, Part No. WK-326410-000)
e. Main check assembly, Part No. WK-932636-000 (for 1/2-inch valve) and Part No.
WK-800760-000 (for 5/8-inch valve)
f. Copper gasket, Part No. WK-326420-000
g. Valve seat, Part No. WK-202490-000
11. Install valve into cylinder using Teflon tape on valve threads.
Note: The main check assembly is installed with rubber seat facing up.
Note: The copper sealing gasket MUST be replaced once the valve seat is removed.
CAUTION
CO2 cylinders should be filled using an approved transfer pump. DO NOT use dry
ice converters as this may allow water vapor to enter the cylinder, causing
internal corrosion.

Post-Discharge Maintenance
September 2013 7-4 P/N 81-CO2MAN-001
Note: The tightening torque on the valve seat is 2200 in./lb.
12. Place CO2 cylinder on weigh scale and secure to prevent movement of cylinder during
recharge.
13. Install recharge adapter, Part No. WK-933537-000, to the valve control port.
14. Fill cylinder with required weight of CO2.
15. After cylinder is full remove recharge adapter, ensure that all CO2 fill valves are closed and
check cylinder for leakage. Allow time for cylinder to return to room temperature before
conducting the leak test. The areas that should closely be examined are the pilot port, the
discharge port, the safety outlet and the valve to cylinder threads.
If leakage is discovered at the pilot or discharge port:
a. Empty the cylinder and valve assembly of CO2.
b. Replace the main check and the pilot check assemblies (if not already replaced from
step 7).
c. Repeat steps 8 through 12.
If leakage is detected at the safety outlet, check torque on nut (350 in./lb. maximum).
If leakage persists at safety outlet:
a. Empty cylinder and valve assembly of CO2.
b. Remove safety outlet nut.
c. Replace safety disc and washer (white disc Part No. 81-902048-000 for 1/2-inch
valve, and red disc Part No. 81-903684-000 for 5/8-inch valve).
d. Install safety outlet nut and tighten to maximum torque of 350 in./lb.
e. Repeat steps 9 through 12.
Note: The Compressed Gas Association recommends that the safety disc and washer be
replaced when the cylinder is hydrotested.
If leakage is discovered at the valve threads make sure the valve is tightened into cylinder.
If leakage continues from the threads:
a. Empty cylinder and valve assembly of CO2.
b. Remove valve.
c. Examine threads of valve and cylinder; if threads are damaged replace valve.
d. Clean threads of valve and cylinder and re-tape valve threads with Teflon tape.
e. Install valve into cylinder.
f. Repeat steps 9 through 12.
If any leaks persist, replacement of the valve is necessary.
7-3.2.1 CO2 CYLINDER LEAK TEST
1. Leak test cylinder either by immersing in water using a bell jar over the valve to check for
leaks. Water temperature should not exceed 100°F (38°C), or apply a soap solution to all
pressure connection(s) and observe for bubble leaks.
WARNING
The red safety disc is set to rupture at a higher pressure than the white disc.
The red disc is designed for use on the 75 lb. and 100 lb. cylinders only. Use of
the red disc on the 25, 35 or 50 lb. CO2 cylinders will pose a safety hazard to
personnel and property.

Post-Discharge Maintenance
P/N 81-CO2MAN-001 7-5 September 2013
Figure 7-1. I/2-inch Type “I” Cylinder Valve
VALVE SEAT
MAIN CHECK
2-1/2 in. - 14 NS-3
(FOR DISCHARGE
HEAD CONNECTION)
SPRING
DISC RETAINER
SAFETY DISC
WASHER
1 in. NPT
TYPICAL CYLINDER
VALVE BODY
SLEEVE RETAINER
PILOT CHECK
SLEEVE
1-1/4 in. - 18 NS-3
(FOR CONTROL
HEAD CONNECTION)
TYPICAL
SIPHON TUBE
SIPHON TUBE THREADED IN PLACE
3/8 in. NPS
MATERIALS
VALVE BODY: BRASS
VALVE SEAT: BRASS
SLEEVE: BRASS
SLEEVE RETAINER: BRASS
MAIN CHECK: BRASS WITH RUBBER SEAT
PILOT CHECK: STAINLESS STEEL WITH RUBBER SEAT

Post-Discharge Maintenance
September 2013 7-6 P/N 81-CO2MAN-001
Figure 7-2. 5/8-inch Type “I” Cylinder Valve
7-4 NITROGEN PILOT CYLINDER, 108 CU. IN., SERVICE AND MAINTENANCE
7-4.1 Nitrogen Cylinder Replacement
Replace the nitrogen cylinder when expended or when loss of pressure occurs, as follows:
1. Remove the control head from the nitrogen cylinder valve.
2. Immediately install the protection cap on the nitrogen cylinder actuation port.
3. Remove the flexible actuation hose or tubing and adapter (P/N WK-699205-010) from the
cylinder valve outlet.
4. Remove the clamps and hardware that secure the nitrogen cylinder to the mounting
bracket.
WARNING
Any area in which nitrogen is used or stored must be properly ventilated. A
person working in an area where air has become enriched with nitrogen can
become unconscious without sensing the lack of oxygen. Remove the victim to
fresh air. Administer artificial respiration if necessary and summon a physician.
Never dispose of liquefied nitrogen in an indoor work or storage area.
WARNING
When removing a pressurized cylinder due to pressure loss, the control head
must be in the SET position with the safety pull pin installed. A control head in
the released position will cause the remaining contents of cylinder to discharge
resulting in a system activation which may damage property and cause bodily
injury.
VALVE SEAT
MAIN CHECK
2-1/2 in. - 14 NS-3
(FOR DISCHARGE
HEAD CONNECTION)
SPRING
DISC RETAINER
SAFETY DISC
WASHER
1 in. NPT
TYPICAL CYLINDER
VALVE BODY
SLEEVE RETAINER
PILOT CHECK
SLEEVE
1-1/4 in. - 18 NS-3
(FOR CONTROL
HEAD CONNECTION)
TYPICAL
SIPHON TUBE
SIPHON TUBE STAKED IN PLACE
MATERIALS
VALVE BODY: BRASS
VALVE SEAT: BRASS
SLEEVE: BRASS
SLEEVE RETAINER: BRASS
MAIN CHECK: BRASS WITH RUBBER SEAT
PILOT CHECK: STAINLESS STEEL WITH RUBBER SEAT

Post-Discharge Maintenance
P/N 81-CO2MAN-001 7-7 September 2013
7-4.2 Nitrogen Cylinder Recharge
Nitrogen cylinders must be recharged when the cylinder pressure gauge indicates pressure is
below normal (1800 PSIG at 70°F [124 bar gauge at 21°C] or as adjusted for temperature) or
immediately after discharge. Nitrogen used for charging must comply with Federal
Specification BB-N-411C, Grade A, Type 1. Copies of this specification may be obtained from:
Global Engineering Documents, 2625 S. Hickory St., Santa Ana, CA 92707.
Recharge the nitrogen cylinders as follows:
1. Remove the protection cap from the cylinder valve actuation port.
2. Install the nitrogen cylinder recharge adapter (P/N WK-933537-000) to the cylinder valve
actuation port and plug valve outlet port with 1/8" NPT pipe plug.
3. Connect the nitrogen recharging supply hose to the adapter. Tighten securely.
4. Open the nitrogen recharging control valve slowly until full nitrogen flow is obtained.
5. Monitor the recharging supply pressure gauge. Close the charging control valve when the
gauge indicates the proper cylinder pressure (1800 PSIG at 70°F [124 bar gauge at 21°C]).
6. Allow the cylinder to cool to ambient temperature and recheck the nitrogen cylinder
pressure.
7. Open the valve and add additional nitrogen as necessary to obtain a full cylinder charge at
ambient temperature (1800 PSIG at 70°F [124 bar gauge at 21°C]).
8. Close the valve and remove the supply hose and charging adapter from the nitrogen
cylinder.
9. Using a soap solution, thoroughly check the nitrogen cylinder valve for leakage. Bubbles in
the soap solution indicate leakage and shall be cause for rejection of the cylinder.
10. At the completion of the leak test, thoroughly clean and dry the cylinder valve.
11. Ensure the cylinder valve control head port is clean and dry.
12. Immediately install the protective cap to the actuation port of the cylinder valve.
13. Install the charged cylinder as described below.
7-4.3 Nitrogen Cylinder Installation
1. Install the nitrogen cylinder in position in the mounting bracket.
2. Tighten sufficiently to hold cylinder in place while allowing cylinder enough free play to be
manually rotated.
3. Turn the cylinder until the cylinder valve discharge outlet is in the desired position.
4. Securely tighten the mounting bracket clamps and hardware.
5. Remove the pipe plug, reconnect the adapter (P/N WK-699205-010) and flexible actuation
hose or tubing to the cylinder valve outlet port.
6. Remove the protective cap from the cylinder valve actuation port.
WARNING
Before recharging, the cylinder must be firmly secured by chains, clamps or
other devices to an immovable object such as a wall, structural I-beam or
permanently mounted holding rack.
CAUTION
The nitrogen cylinder must be positioned so that the control head, when
installed, is readily accessible and cannot be obstructed during manual
operation.

Post-Discharge Maintenance
September 2013 7-8 P/N 81-CO2MAN-001
7. Install the control head to the cylinder valve and tighten securely.
7-5 HOSE REEL OR RACK SYSTEM
1. Reset the control head. Reinstall locking pin. Replace seal wire.
2. Verify the hose horn valve is in the OPEN position to relieve all pressure from the hose.
3. Close horn valve.
4. Inspect hose and horn valve for fire damage. Replace if damage is found.
5. Rewind hose on rack or reel. Place horn in clip with horn facing down.
6. If hose reel or rack system was operated using a cable pull station, replace broken pull
station glass.
7. Remove empty cylinder(s). Reinstall charged cylinders as instructed in Paragraph 7-3.
WARNING
Ensure the control head is in the SET position (that is, the actuating pin is in the
fully retracted or SET position). Failure to do so will cause the nitrogen cylinder
to discharge when the control head is installed.

Parts List
P/N 81-CO2MAN-001 8-1 September 2013
CHAPTER 8
PARTS LIST
8-1 PARTS LIST
This chapter identifies the parts comprising the Kidde Fire Systems carbon dioxide fire
suppression system. The information is grouped as follows:
• Cylinders and Associated Equipment (Table 8-1)
• Manual and Pressure Control Equipment (Table 8-2)
• Electric Control Equipment (Table 8-3)
• Remote Control Equipment, Cable (Table 8-4)
• Pneumatic Control Equipment (Table 8-5)
•Check Valves (Table 8-6)
• Directional (Stop) Valves (Table 8-7)
• Lockout Valves (Table 8-8)
• Hose Equipment (Table 8-9)
• Auxiliary Equipment (Table 8-10)
• Carbon Dioxide Computer Program (Table 8-11)
• Manuals (Table 8-12)
• Maintenance and Repair Parts (Table 8-13)
• Carbon Dioxide Nozzles (Table 8-14)
• Nozzle Identification (Table 8-15)
• Carbon Dioxide Nozzles, Accessories (Table 8-16)
•CO
2 Valves Maintenance, Repair and Spare Parts (Table 8-17)
• Cylinder Rack and Framing Components (Table 8-18)
• Framing Kits - One Row, 3 through 15 Cylinders (Table 8-19)
• Framing Kits - Two Rows (One Side), 5 through 17 Cylinders (Table 8-20)
• Framing Kits - Two Rows (One Side), 18 through 30 Cylinders (Table 8-21)
Table 8-1. Cylinders and Associated Equipment
Part No. Description
81-870486-000 25 lb. (11.3 kg) Cylinder & Valve Assembly, Bent Siphon
81-982547-000 35 lb. (15.9 kg) Cylinder & Valve Assembly, Bent Siphon
81-982548-000 50 lb. (22.7 kg) Cylinder & Valve Assembly, Bent Siphon
81-870287-000 75 lb. (34.0 kg) Cylinder & Valve Assembly, Straight Siphon
81-870269-000 100 lb. (45.4 kg) Cylinder & Valve Assembly, Straight Siphon
81-872450-000 Discharge Head, Plain Nut
81-872442-000 Discharge Head, Grooved Nut
WK-251821-000 Flexible Hose, 3/4-inch Outlet
81-252184-000 Flexible Hose, 1/2-inch Outlet
81-207877-000 Manifold “Y” Fitting
WK-934208-000 Swivel Adapter, 1/2-inch NPT

Parts List
September 2013 8-2 P/N 81-CO2MAN-001
Table 8-2. Manual and Pressure Control Equipment
Part No. Description
WK-870652-000 Lever Operated Control Head
82-878751-000 Lever and Pressure Operated Control Head
82-878737-000 Pressure Operated Control Head
82-878750-000 Pressure Operated Control Head, Stackable
WK-264987-000 Actuation Hose, 22-inch
WK-699205-050 Male Branch Tee, 5/16-inch Flare x 1/8-inch NPT
WK-699205-030 Male Elbow, 5/16-inch Flare x 1/8-inch NPT
WK-699205-010 Male Connector, 5/16-inch Flare x 1/8-inch NPT
81-979469-000 Cable Operated Control Head
WK-331570-000 Cable Housing, 25 and 35 lb. Cylinders
WK-202355-000 Cable Housing, 50 and 75 lb. Cylinders
WK-200822-000 Cable Housing, 100 lb. Cylinders
WK-877940-000 Nitrogen Pilot Cylinder, 108 in.3 (1770 cc), no pressure switch
06-129773-001 Nitrogen Pilot Cylinder, 108 in.3 (1770 cc) With Supervisory Pressure Switch, Normally Open
Under Pressure
06-129773-002 Nitrogen Pilot Cylinder, 108 in.3 (1770 cc) With Supervisory Pressure Switch, Normally Closed
Under Pressure
81-87745-000 Mounting Bracket, Nitrogen Pilot Cylinder
WK-283888-000 Ball Valve, 1/4-inch, Marine
Table 8-3. Electric Control Equipment
Part No. Description
WK-890181-000 Electric Control Head, 24 Vdc
81-895630-000 Electric and Cable Operated Control Head, 24 Vdc
WK-897494-000 Electric and Cable Operated Control Head, 24 Vdc (Ex. Proof)
Table 8-4. Remote Control Equipment, Cable
Part No. Description
81-840098-000 Pull Box, Flush, 3/8-inch Pipe (Yacht Type)
81-871403-000 Pull Box, Surface 3/8-inch Pipe (Break Glass)
81-870087-000 Pull Box, Surface, 3/8-inch Pipe (Water Tight)
81-605320-000 Pull Box Bracket (81-871403-000)
81-803808-000 Corner Pulley, 3/8-inch Pipe (Water Tight)
WK-843837-000 Adapter, 1/2-inch EMT (F) x 3/8-inch Pipe (M)
WK-844648-000 Corner Pulley, 1/2-inch EMT
83-843791-000 Tee Pulley, 1/2-inch EMT
81-840058-000 Dual Pull Mechanism, 3/8-inch Pipe

Parts List
P/N 81-CO2MAN-001 8-3 September 2013
81-840051-000 Dual Pull Equalizer, 3/8-inch Pipe (1/16-inch Cable Only)
06-118316-100 1/16-inch Cable 100 ft. Roll
WK-219649-000 1/16-inch Cable 500 ft. Roll
Table 8-5. Pneumatic Control Equipment
Part No. Description
81-872318-000 Pneumatic Control Head, 1-inch 40 seconds
81-872335-000 Pneumatic Control Head, 3-inch 5 seconds
81-872365-000 Pneumatic Control Head, 6-inch 5 seconds
81-872362-000 Pneumatic Control Head, 6-inch 2 seconds
81-872310-000 Pneumatic Control Head, Tandem 1-inch
81-872330-000 Pneumatic Control Head, Tandem 3-inch
81-872360-000 Pneumatic Control Head, Tandem 6-inch
WK-840845-000 Pneumatic Heat Detector (1/8-inch Tubing, Industrial)
WK-841241-000 Pneumatic Heat Detector (3/16-inch Tubing, Marine)
WK-312720-000 Heat Collector, 16-inch x 16-inch (406 mm x 406 mm)
81-840044-000 Cable Housing, 25 and 35 lb. Cylinders
81-840398-000 Cable Housing, 50 and 75 lb. Cylinders
81-841739-000 Cable Housing, 100 lb. Cylinders
81-871364-000 Pneumatic Main-To-Reserve Valve
WK-207825-000 Rubber Grommet
WK-802366-000 Tubing, 3/16-inch x 17-inch (432 mm)
81-802367-000 Tubing, 3/16-inch x 46-inch (1168 mm)
WK-802486-000 Tubing, 3/16-inch x 12 feet (3.7 m)
WK-802555-000 Tubing, 1/8-inch x 50 feet (15.2 m)
WK-802556-000 Tubing, 1/8-inch x 100 feet (30.5 m)
WK-207809-000 Tubing, 1/8-inch x 250 feet (75.2 m)
WK-207648-000 Tubing Nut 1/8-inch
81-802537-000 Tee, 1/8-inch with Nuts
81-802535-000 Union, 1/8-inch with Nuts
81-802536-000 Union, 1/8-inch x 3/16-inch, with 1/8-inch Nut
WF-528103-000 Tubing Nut, 3/16-inch (Marine)
WK-528103-700 Tee, 3/16-inch without Nuts (Marine)
WK-528103-600 Union, 3/16-inch without Nuts (Marine)
WK-150530-000 Tubing Clip (Marine)
WK-802742-000 Vent, 2 Second
81-802743-000 Vent, 3 Second
WK-802745-000 Vent, 5 Second
WK-802746-000 Vent, 10 Second
Table 8-4. Remote Control Equipment, Cable (Continued)

Parts List
September 2013 8-4 P/N 81-CO2MAN-001
WK-200370-000 Vent Plug
WK-209145-000 Wrench, Vent Plug
WK-207875-000 Flaring Tool, 1/8-inch Tubing
Table 8-6. Check Valves
Part No. Description
WK-264985-000 1/4-inch Check Valve
WK-261193-000 3/8-inch Check Valve
81-800327-000 1/2-inch Check Valve
81-800266-000 3/4-inch Check Valve
WK-800443-000 1-inch Check Valve
81-800444-000 1-1/4-inch Check Valve
81-870152-000 1-1/2-inch Check Valve
81-870151-000 2-inch Check Valve
81-870100-000 3-inch Flanged Check Valve, Less Flanges
Table 8-7. Directional (Stop) Valves
Part No. Description
81-870023-000 1/2-inch Stop Valve
81-870022-000 3/4-inch Stop Valve
81-870122-000 1-inch Stop Valve
81-870032-000 1-1/4-inch Stop Valve
81-870123-000 1-1/2-inch Stop Valve
81-870049-000 2-inch Stop Valve
81-890010-000 3-inch Flanged Stop Valve, Less Flanges
81-890208-000 4-inch Flanged Stop Valve, Less Flanges
WK-263716-000 2-1/2-inch Flange (For Welding Pipe)
WK-681012-000 3-inch Flange (For Welding Pipe)
WK-200973-000 Gasket for 2-1/2-inch and 3-inch Flanges
WK-196648-720 Bolt, 3/4-inch x 4-1/2-inch Hex, for use with 2-1/2-inch and 3-inch Flanges
WK-152348-000 Nut, 3/4-inch Hex, for 2-1/2-inch and 3-inch Flanges
WK-681016-000 4-inch Flange (For Welding Pipe)
WK-200150-000 Gasket for 4-inch Flange
WK-196656-800 Bolt, 7/8-inch x 5-inch Hex, for use with 4-inch Flanges
WK-152356-000 Nut, 7/8-inch Hex, for 4-inch Flanges
Table 8-5. Pneumatic Control Equipment (Continued)
Part No. Description

Parts List
P/N 81-CO2MAN-001 8-5 September 2013
Table 8-8. Lockout Valves
Part No. Description
10611105 Lock-Out Valve, 1/4"
70985075 Lock-Out Valve, 1/2"
70985076 Lock-Out Valve, 3/4"
70985077 Lock-Out Valve, 1"
70985078 Lock-Out Valve, 1-1/4"
70985079 Lock-Out Valve, 1-1/2"
70985080 Lock-Out Valve, 2"
70985018 Lock-Out Valve, 1/4" (w/limit switch & Indicator)
70985020 Lock-Out Valve, 1/2" (w/limit switch & Indicator)
70985021 Lock-Out Valve, 3/4" (w/limit switch & Indicator)
70985022 Lock-Out Valve, 1" (w/limit switch & Indicator)
70985023 Lock-Out Valve, 1-1/4" (w/limit switch & Indicator)
70985024 Lock-Out Valve, 1-1/2" (w/limit switch & Indicator)
70985025 Lock-Out Valve, 2" (w/limit switch & Indicator)
70985090 Lock-Out Valve, 1/4" (w/XP&WP limit switch & Indicator)
70985069 Lock-Out Valve, 1/2" (w/XP&WP limit switch & Indicator)
70985070 Lock-Out Valve, 3/4" (w/XP&WP limit switch & Indicator)
70985071 Lock-Out Valve, 1" (w/XP&WP limit switch & Indicator)
70985072 Lock-Out Valve, 1-1/4" (w/XP&WP limit switch & Indicator)
70985073 Lock-Out Valve, 1-1/2" (w/XP&WP limit switch & Indicator)
70985074 Lock-Out Valve, 2" (w/XP&WP limit switch & Indicator)
10611104 SS Lock-Out Valve, 1/4"
10611100 SS Lock-Out Valve, 1/2"
10611101 SS Lock-Out Valve, 3/4"
10611099 SS Lock-Out Valve, 1"
10611102 SS Lock-Out Valve, 1-1/4"
10611098 SS Lock-Out Valve, 1-1/2"
10611103 SS Lock-Out Valve, 2"
10611106 SS Lock-Out Valve, 1/4" (w/limit switch & Indicator)
10611107 SS Lock-Out Valve, 1/2" (w/limit switch & Indicator)
10611108 SS Lock-Out Valve, 3/4" (w/limit switch & Indicator)
10611109 SS Lock-Out Valve, 1" (w/limit switch & Indicator)
10611110 SS Lock-Out Valve, 1-1/4" (w/limit switch & Indicator)
10611111 SS Lock-Out Valve, 1-1/2" (w/limit switch & Indicator)
10611112 SS Lock-Out Valve, 2" (w/limit switch & Indicator)
10611113 SS Lock-Out Valve, 1/4" (w/XP&WP limit switch & Indicator)
10611114 SS Lock-Out Valve, 1/2" (w/XP&WP limit switch & Indicator)
10611115 SS Lock-Out Valve, 3/4" (w/XP&WP limit switch & Indicator)

Parts List
September 2013 8-6 P/N 81-CO2MAN-001
10611116 SS Lock-Out Valve, 1" (w/XP&WP limit switch & Indicator)
10611117 SS Lock-Out Valve, 1-1/4" (w/XP&WP limit switch & Indicator)
10611118 SS Lock-Out Valve, 1-1/2" (w/XP&WP limit switch & Indicator)
10611119 SS Lock-Out Valve, 2" (w/XP&WP limit switch & Indicator)
06-231867-379 CO2 System Lockout Valve Operational Sign
Table 8-9. Hose Equipment
Part No. Description
WK-994058-000 Reel - Standard Paint - Red Enamel
WK-909000-000 Coupling Nut, Hose Reel (Required for 994058)
81-919842-000 Rack
81-907757-000 Hose, 1/2-inch x 25 feet (7.5 m)
81-961966-000 Hose, 1/2-inch x 50 feet (15 m)
81-918990-000 Hose, 3/4-inch x 25 feet (7.5 m)
81-918435-000 Hose, 3/4-inch x 50 feet (15 m)
WK-834900-000 Hose to Hose Thread protector (Ferrule)
WK-980564-000 Horn/Valve Assembly
81-960099-000 Clip, Handle
81-939000-000 Clip Horn
WK-282386-000 Instruction Plate, Model HR-1
WK-405710-000 Instruction Manual
Table 8-10. Auxiliary Equipment
Part No. Description
81-486536-000 Pressure Switch, 3 Pole Double Throw
81-981332-000 Pressure Switch, 3 Pole Single Throw (Ex. Proof)
81-874290-000 Pressure Trip
81-871071-000 CO2 Discharge Delay, 30 Second (Not FM Approved)
81-897636-000 CO2 Discharge Delay, 60 Second (Not FM Approved)
81-981574-000 CO2 Siren, Pressure Operated
81-871072-001 N2 Discharge Delay, 30 Second (For Use w/108-cuin N2 Cylinder Only)
81-871072-002 N2 Discharge Delay, 60 Second (For Use w/108-cuin N2 Cylinder Only)
90-101040-000 1040 cu. in. Nitrogen Cylinder (Pilot, Siren Driver)
90-102300-100 2300 cu. in. Nitrogen Siren Driver Cylinder
90-981574-001 N2 Siren, Pressure Operated (For Use with 108/1040/2300-cuin N2 Cylinders Only)
81-803242-000 Safety Outlet, 3/4-inch NPT 2400-2800 PSI (165-193 bars)
81-967082-000 Discharge Indicator, 3/4-inch NPT (Brass)
Table 8-8. Lockout Valves (Continued)
Part No. Description

Parts List
P/N 81-CO2MAN-001 8-7 September 2013
WK-31033-000 Nameplate, "Main"
WK-310340-000 Nameplate, "Reserve"
WK-404070-000 Record Card
WK-281704-000 Operating Instructions Plate, without Stop Valve
WK-281705-000 Operating Instructions Plate, with Stop Valve
81-897600-000 Odorizer Assembly
06-231866-851 Vacate Warning Sign
06-231866-852 Do Not Enter Warning Sign
06-231866-853 Odorizer Warning Sign
06-231866-854 Migration Warning Sign
06-231866-855 Storage Warning Sign
06-231866-856 Actuation Warning Sign
Table 8-11. Carbon Dioxide Computer Program
Part No. Description
81-190001-XXX CO2 Flow Calculation software with User's Manual & Hardware Key. Call for current Part Number
and Version.
Table 8-12. Manuals
Part No. Description
81-CO2MAN-001 Engineered Carbon Dioxide (CO2 ) Fire Suppression Systems Design, Installation, Operation,
and Maintenance Manual
81-220610-000 CO2 Marine Design Manual
06-236177-001 CO2 Carbon Dioxide Fire Suppression System Owner’s Manual
Table 8-13. Maintenance and Repair Parts
Part No. Description
WK-32957-000 Gasket, Discharge Head (Perforated)
WF-242466-000 O-ring, Outer, Discharge Head
WF-242467-000 O-ring, Inner, Discharge Head
WF-152620-000 Seal Wire
WK-907042-000 Replacement Hammer, Clip & Chain, Pull Box 870087
WK-802394-000 Handle, Pull Box 871403
WK-200863-000 Breakable Cover, Pull Box 840098
WK-928103-000 Replacement Glass, Pull Box 871403
WK-313020-000 Replacement Glass, Pull Box 870087
WK-312950-000 Handle, Pull Box 870087
WK-312960-000 Latch, Pull Box 870087
Table 8-10. Auxiliary Equipment (Continued)
Part No. Description

Parts List
September 2013 8-8 P/N 81-CO2MAN-001
WK-318190-000 Groove-Pin, Pull Box 870087
WK-662890-000 Beam, Pull Box 870087
WK-933073-000 Protective Cap, Vented
WK-290001-000 Upper Body, Type L Nozzle
WK-290002-000 Lower Body, Type L Nozzle
81-982505-000 Weigh Scale
WK-933537-000 Recharge Adapter
81-930117-000 Blow off Fixture
WK-840041-000 Manometer Test Set
Table 8-14. Carbon Dioxide Nozzles
Part No. Description
* Multijet, Type S, 1/2-inch NPT
* Multijet, Type S, Zinc plated, 1/2-inch NPT
* Multijet, Type S, Flanged, 1/2-inch NPT
* Multijet, Type M, 3/4-inch NPT
* Vent, Type V, 1/2-inch NPT
* Multijet, Type L, 1/2-inch NPT
* See Table 8-15 for part numbers.
Table 8-15. Nozzle Identification
Size S S-Zinc S-Flanged M V V-Stainless L
1XXXX930066** 81098656 X
1+XXXX93006781098657 X
2 803381 803397 802990 X 919309 81098658 X
2+ 803365 803881 802974 X 803327 81098659 X
3 803367 803882 802975 X 929242 81098660 842334
3+ 803367 803883 802976 X 803328 81098661 842335
4 803368 803884 802977 842319 915876 81098662 842336
4+ 803369 803885 802978 842320 803329 81098663 842337
5 803370 803886 802979 842321 214721 81098664 842338
5+ 803371 803887 802980 842322 214722 81098665 842339
6 803372 803888 802981 842323 214723 81098666 842340
6+ 803373 803889 802982 842324 214724 81098667 842341
7 803374 803890 802983 842325 214725 81098668 842342
7+ 803375 803891 802984 X 214726 81098669 842343
8 803376 803892 802985 842326 214727 81098670 842344
8+ 803877 803893 802986 X 214728 81098671 842345
Table 8-13. Maintenance and Repair Parts (Continued)
Part No. Description

Parts List
P/N 81-CO2MAN-001 8-9 September 2013
9 803378 803894 802987 842327 214729 81098672 842346
9+ 803379 803895 802988 X X X 842347
10 803380 803896 802989 842328 X X X
11 X X X 842329 X X X
12 X X X 842330 X X X
13 X X X 842331 X X X
14 X X X 842332 X X X
15 X X X 842333 X X X
Table 8-16. Carbon Dioxide Nozzles, Accessories
Part No. Description
81-803330-000 Flanged Mounting Kit, Type S Nozzle
WK-310020-000 Aluminum Disc for Flanged Type S Nozzle
81-220299-000 Stainless Steel Disc for Flanged Type S Nozzle
WK-201004-000 Disc Gasket for Flanged Type S Nozzle
81-844492-000 Flange and Cover Assembly, Type V Nozzle
WK-260884-000 Washer, for the Type V Nozzle
WK-260885-000 Disc, for the Type V Nozzle
Table 8-17. CO2 Valves Maintenance, Repair and Spare Parts
WK-981372-000 1/2-inch "I" Valve, 25, 35 & 50 lb. Cylinders
WK-840253-000 5/8-inch "I" Valve, 75 & 100 lb. Cylinders
81-902048-000 Safety Disc (White) and Washer, 25, 35 & 50 lb. Cylinders
81-903684-000 Safety Disc (Red) and Washer, 75 & 100 lb. Cylinders
WK-295500-000 Nut - Safety Disc
WK-923066-000 Pilot Check
WK-932636-000 Main Check, 1/2-inch "I" Valve
WK-800760-000 Main Check, 5/8-inch "I" Valve
WK-326420-000 Gasket
WK-326410-000 Spring
WK-202805-000 Sleeve
WK-202804-000 Retainer, Sleeve
WK-202490-000 Valve Seat
WK-203874-000 Siphon Tube, 25 lb. Cylinder
WK-346050-000 Siphon Tube, 35 lb. Cylinder
WK-346060-000 Siphon Tube, 50 lb. Cylinder
WK-202497-000 Siphon Tube, 75 lb. Cylinder
Table 8-15. Nozzle Identification (Continued)
Size S S-Zinc S-Flanged M V V-Stainless L

Parts List
September 2013 8-10 P/N 81-CO2MAN-001
WK-202332-000 Siphon Tube, 100 lb. Cylinder
Table 8-18. Cylinder Rack and Framing Components
Part No. Description
25 AND 35 lb. CYLINDER FRAMING
WK-270014-000 25 and 35 lb. Cylinder Strap
50 AND 75 lb. CYLINDER FRAMING
WK-241217-000 Post
WK-241211-000 Gusset
WK-207281-000 Channel Support
WK-241213-000 3 Cylinder Channel
WK-241214-000 4 Cylinder Channel
WK-241215-000 5 Cylinder Channel
WK-241216-000 6 Cylinder Channel
WK-241103-000 Cradle
WK-207282-000 Rack Rod, 1 Row
WK-241105-000 Front Clamp
WK-242441-000 Rack Rod, 2 Row
81-270582-000 Spacer
81-242442-000 Spacer Clip
WK-241104-000 End Clamp
81-241212-000 Odd Cylinder End Clamp
81-241218-000 Weigh Bar Bracket, 1 Row
81-241220-000 Weigh Bar Bracket, 2 Row
81-207283-000 3 Cylinder Weigh Bar
WK-207284-000 4 Cylinder Weigh Bar
81-207285-000 5 Cylinder Weigh Bar
WK-207286-000 6 Cylinder Weigh Bar
WK-270014-000 1 Cylinder Strap, 50 lb.
81-626690-000 1 Cylinder Strap, 75 lb.
WK-241219-000 2 Cylinder Strap, 50 & 75 lb.
100 lb. CYLINDER FRAMING
WK-271566-000 Post
WK-241211-000 Gusset
WK-207281-000 Channel Support
WK-271563-000 3 Cylinder Channel
WK-271564-000 4 Cylinder Channel
WK-271565-000 5 Cylinder Channel
Table 8-17. CO2 Valves Maintenance, Repair and Spare Parts (Continued)

Parts List
P/N 81-CO2MAN-001 8-11 September 2013
WK-271561-000 Cradle
WK-243795-000 Rack Rod, 1 Row
WK-241105-000 Front Clamp
WK-243799-000 Rack Rod, 2 Row
81-290385-000 Spacer
WK-242442-000 Spacer Clip
WK-271562-000 End Clamp
WK-271567-000 Weigh Bar Bracket, 1 Row
WK-271568-000 Weigh Bar Bracket, 2 Row
WK-243796-000 3 Cylinder Weigh Bar
WK-243797-000 4 Cylinder Weigh Bar
WK-243798-000 5 Cylinder Weigh Bar
WK-270157-000 1 Cylinder Strap, 100 lb.
WK-241254-000 2 Cylinder Strap, 100 lb.
100 lb. CYLINDER RACK AND FRAMING KITS
ONE ROW
81-010001-003 3 Cylinders
81-010001-004 4 Cylinders
81-010001-005 5 Cylinders
81-010001-006 6 Cylinders
81-010001-007 7 Cylinders
81-010001-008 8 Cylinders
81-010001-009 9 Cylinders
81-010001-010 10 Cylinders
81-010001-011 11 Cylinders
81-010001-012 12 Cylinders
81-010001-013 13 Cylinders
81-010001-014 14 Cylinders
81-010001-015 15 Cylinders
TWO ROW ONE SIDE
81-010021-005 5 Cylinders
81-010021-006 6 Cylinders
81-010021-007 7 Cylinders
81-010021-008 8 Cylinders
81-010021-009 9 Cylinders
81-010021-010 10 Cylinders
81-010021-011 11 Cylinders
81-010021-012 12 Cylinders
Table 8-18. Cylinder Rack and Framing Components (Continued)
Part No. Description

Parts List
September 2013 8-12 P/N 81-CO2MAN-001
81-010021-013 13 Cylinders
81-010021-014 14 Cylinders
81-010021-015 15 Cylinders
81-010021-016 16 Cylinders
81-010021-017 17 Cylinders
81-010021-018 18 Cylinders
81-010021-019 19 Cylinders
81-010021-020 20 Cylinders
81-010021-021 21 Cylinders
81-010021-022 22 Cylinders
81-010021-023 23 Cylinders
81-010021-024 24 Cylinders
81-010021-025 25 Cylinders
81-010021-026 26 Cylinders
81-010021-027 27 Cylinders
81-010021-028 28 Cylinders
81-010021-029 29 Cylinders
81-010021-030 30 Cylinders
Table 8-18. Cylinder Rack and Framing Components (Continued)
Part No. Description

Parts List
P/N 81-CO2MAN-001 8-13 September 2013
Table 8-19. Framing Kits - One Row, 3 through 15 Cylinders
Number of Cylinders 3456789101112131415
Kit Number 81-010001-XXX -003 -004 -005 -006 -007 -008 -009 -010 -011 -012 -013 -014 -
015
Part No. Description Quantity Supplied in Kit
WK-271566-000 Post 2 223333344444
WK-241211-000 Gusset 2 222222222222
WK-207281-000 Channel Support 2 225555577777
WK-271563-000 3 Cylinder Channel 1 — — 2 1 — — — 1 — — — —
WK-271564-000 4 Cylinder Channel — 1 — — 1 2 1 — 2321—
WK-271565-000 5 Cylinder Channel — — 1 — — — 1 2 — — 1 2 3
WK-271561-000 CRADLE 3 456789101112131415
WK-271567-000 1 Row Weigh Bar Bracket 2 223333344444
WK-243796-000 3 Cylinder Weigh Bar 1 — — 2 1 — — — 1 — — — —
WK-243797-000 4 Cylinder Weigh Bar — 1 — — 1 2 1 — 2321—
WK-243798-000 5 Cylinder Weigh Bar — — 1 — — — 1 2 — — 1 2 3
WK-241105-000 Front Clamp 2 233445566778
WK-243795-000 Rack Rod 1 Row 2 233445566778
ADDITIONAL PARTS TO ORDER FOR MAIN & RESERVE - NOT INCLUDED IN KITS
WK-241105-000 Front Clamp — 2 — 4 — 4 — 6 — 6 — 8 —
WK-243795-000 Rack Rod 1 Row — 2 — 4 — 4 — 6 — 6 — 8 —
HARDWARE - NOT SUPPLIED BY KIDDE FIRE SYSTEMS
— 3/8-inch - 16 x 1-inch
Long Bolt 16 16 16 26 26 26 26 26 36 36 36 36 36
— 3/8-inch -16 Nut 16161626262626263636363636
Main 1/2-inch -13 x 1-inch Long
Bolt 2334455667788
M & R 1/2-inch -13 x 1-inch Long
Bolt —3—3—5—5—7—7—
Main 1/2-inch -13 Nut 8 9 1213161720212425282932
M & R 1/2-inch -13 Nut — 9 — 15 — 17 — 23 — 25 — 31 —
— 1/2-inch Washer 2222222222222
Note: No hardware listed for fastening framing to floor or wall.

Parts List
September 2013 8-14 P/N 81-CO2MAN-001
Table 8-20. Framing Kits - Two Rows (One Side), 5 through 17 Cylinders
Number of Cylinders 567891011121314151617
Kit Number 81-010021-XXX -005 -006 -007 -008 -009 -010 -011 -012 -013 -014 -015 -016 -017
Part No. Description Quantity Supplied in Kit
WK-271566-000 Post 2222223333333
WK-241211-000 Gusset 2222222222222
WK-207281-000 Channel Support 2222225555555
WK-271563-000 3 Cylinder Channel 1 1 ————2 2 1 1———
WK-271564-000 4 Cylinder Channel — — 1 1 ———— 11221
WK-271565-000 5 Cylinder Channel ————1 1—————— 1
WK-271561-000 Cradle 3344556677889
WK-241105-000 Front Clamp 1223344556677
WK-271562-000 End Clamp 3232323232323
WK-243795-000 Rack Rod 1 Row 1 — 1 — 1 — 1 — 1 — 1 — 1
WK-243799-000 Rack Rod 2 Rows 3445566778899
WK-271568-000 2 Row Weigh Bar Bracket 2222223333333
WK-243796-000 3 Cylinder Weigh Bar 2 2 ————4 4 2 2———
WK-243797-000 4 Cylinder Weigh Bar — — 2 2 ————22442
WK-243798-000 5 Cylinder Weigh Bar ————2 2 ——————2
WK-290385-000 Cylinder Spacer 2334455667788
ADDITIONAL PARTS TO ORDER FOR MAIN & RESERVE - NOT INCLUDED IN KITS
81-242442-000 Spacer Clip — 2 — 3 — 4 — 5 — 6 — 7 —
HARDWARE - NOT SUPPLIED BY KIDDE FIRE SYSTEMS
— 3/8-inch - 16 x 1-inch
Long Bolt 18 18 18 18 18 18 30 30 30 30 30 30 30
— 3/8-inch -16 Nut 18181818181830303030303030
MAIN 1/2-inch -13 Nut 12121515181821212424272730
M & R 1/2-inch -13 Nut —14—18—22—26—30—34—
— 1/2-inch Washer 2222222222222
Note: No hardware listed for fastening framing to floor or wall.

Parts List
P/N 81-CO2MAN-001 8-15 September 2013
Table 8-21. Framing Kits - Two Rows (One Side), 18 through 30 Cylinders
Number of Cylinders 18192021222324252627282930
Kit Number 81-010021-XXX -018 -019 -020 -021 -022 -023 -024 -025 -026 -027 -028 -029 -030
Part No. Description Quantity Supplied in Kit
WK-271566-000 Post 3334444444444
WK-241211-000 Gusset 2222222222222
WK-207281-000 Channel Support 5558888888888
WK-271563-000 3 Cylinder Channel — — — 111111————
WK-271564-000 4 Cylinder Channel 1 — — 2211——11——
WK-271565-000 5 Cylinder Channel 1 2 2 — — 11222233
WK-271561-000 Cradle 9 10 10 11 11 12 12 13 13 14 14 15 15
WK-241105-000 Front Clamp 8899101011111212131314
WK-271562-000 End Clamp 2323232323232
WK-243795-000 Rack Rod 1 Row — 1 — 1 — 1 — 1 — 1 — 1 —
WK-243799-000 Rack Rod 2 Rows 10 10 11 11 12 12 13 13 14 14 15 15 16
WK-271568-000 2 Row Weigh Bar Bracket 3334444444444
WK-243796-000 3 Cylinder Weigh Bar — — — 222222————
WK-243797-000 4 Cylinder Weigh Bar 2 — — 4422——22——
WK-243798-000 5 Cylinder Weigh Bar 2 4 4 — — 22444466
WK-290385-000 Cylinder Spacer 9 9 10 10 11 11 12 12 13 13 14 14 15
ADDITIONAL PARTS TO ORDER FOR MAIN & RESERVE - NOT INCLUDED IN KITS
81-242442-000 Spacer Clip 8 — 9 — 10 — 11 — 12 — 13 — 14
HARDWARE - NOT SUPPLIED BY KIDDE FIRE SYSTEMS
— 3/8-inch - 16 x 1-inch
Long Bolt 30 30 30 42 42 42 42 42 42 42 42 42 42
— 3/8-inch -16 Nut 30303042424242424242424242
MAIN 1/2-inch -13 Nut 30333336363939424245454848
M & R 1/2-inch -13 Nut 38 — 42 — 46 — 50 — 54 — 58 — 62
— 1/2-inch Washer 2222222222222
Note: No hardware listed for fastening framing to floor or wall.

Parts List
September 2013 8-16 P/N 81-CO2MAN-001
THIS PAGE INTENTIONALLY LEFT BLANK.

P/N 81-CO2MAN-001 A-1 September 2013
APPENDIX A
FORMULA DERIVATIONS
A-1 THEORETICAL CO2 EXTINGUISHING CONCENTRATION FOR A TOTAL FLOODING
SYSTEM
If maximum residual oxygen values are known, the theoretical carbon dioxide extinguishing
concentration can be calculated from the following formula.
Equation A.1
Where: = maximum residual oxygen
Diffusion flame fires in most flammable liquids will be extinguished if the oxygen concentration
in the atmosphere is reduced to 15 percent. The theoretical carbon dioxide extinguishing
concentration for most flammable liquids can then be calculated from Equation A.1
A safety factor of 20 percent is then added for fire extinguishing systems. This yields the
following design concentration for most carbon dioxide extinguishing systems.
Therefore, a minimum carbon dioxide concentration of 34 percent by volume is required for all
total-flooding fire extinguishing systems.
The most complete list of theoretical carbon-dioxide extinguishing concentrations and the
suggested minimum design concentration are contained in Table 3-1.
A-2 QUANTITY OF CO2 REQUIRED FOR A TOTAL FLOODING SYSTEM UNDER A FREE
EFFLUX FLOODING CONDITION
The formula for calculating the quantity of carbon dioxide required to achieve a given
extinguishing concentration under free efflux flooding conditions is.
Equation A.2
Where: = weight of carbon dioxide, lb.
= enclosure volume, ft.3
= specific volume of superheated carbon dioxide vapor; 9 ft.3/lb.
= design concentration
= natural logarithm
%CO2
21 O2–
21
------------------------ 100=
O2
%CO221 15 –
21
----------------------- 10028.6%==
%CO228.6% 1.2 34.3%==
WV
S
--- 11 C–ln=
W
V
S
C
ln

September 2013 A-2 P/N 81-CO2MAN-001
The equation assumes instantaneous mixing of the discharged carbon dioxide with the
enclosure atmosphere.
A-3 DERIVATION OF THE MATERIAL CONVERSION FACTOR (MCF)
Equation A.3
Where: = material conversion factor
= higher design concentration
= reference design concentration, 0.34
= natural logarithm
A-4 RATE OF CARBON DIOXIDE LOSS THROUGH AN OPENING IN AN ENCLOSURE
The following equation can be used to calculate the rate of carbon dioxide loss through an
opening in an enclosure, assuming the conditions in the previous paragraph are true:
Equation A.4
Where:
= Rate of CO2 in lbs./min.
Example
Determine the weight of carbon dioxide per unit enclosure volume required to create a 34%
concentration.
From Equation A.2
Equation A.2 represents the idealized situation where the amount of carbon dioxide lost upon discharge
through openings or vents is only the amount necessary to displace the required atmosphere while
maintaining a constant pressure in the enclosure. In general, such a situation exists only in the limit of
very large volumes.
Example
A chemical storage room is known to contain Butadiene. Determine the material conversion factor for
carbon dioxide protection.
The recommended minimum design concentration for Butadiene is 41% (from Table 3-1). Using Equation
A.3:
W
V
-----1
S
---ln 1 1 C–
1
9
---ln 1 1 .34–0.1110.41550.0461 lb./ft.3
== = =
MCF 1C2–ln
1C1–ln
--------------------------
=
MCF
C2
C1
ln
MCF 1 .41–ln
1C1.34–ln
---------------------------------- 0.527–
0.415–
---------------- 1.27===
R60CpA 2gp
1p2h–
p1
--------------------------------=
R

P/N 81-CO2MAN-001 A-3 September 2013
= CO2 concentration fraction
= Density of CO2 vapor in lbs./ft.3
= Area of opening in ft.2 (flow coefficient included)
= Gravitational constant, 32.2 ft./sec.2
= Density of atmosphere in lbs./ft.3
= Density of surrounding air in lbs./ft.3
= Static head between opening and top of enclosure in ft.
A-5 DISCHARGE RATES FOR DEEP SEATED FIRES
The discharge rate required to satisfy the two minute constraint in the preceding paragraph
can be obtained. From Equation A.2, the quantity of carbon dioxide per cubic foot required to
create a 30 percent concentration is:
Equation A.5
Example
Determine the loss rate through a 1 foot by 1 foot opening in an enclosure. The midpoint of the opening
is 5 feet below the ceiling, and the system is designed to achieve a 34 percent concentration.
A number of factors must be calculated prior to applying Equation A.4
The density of air at 70°F is 0.075 lb./ft.3
The density of carbon dioxide vapor at 70°F can be calculated from its molecular weight (44) and the
molecular weight of air (29)
0.075 lb./ft.3 X (44/29) = 0.114 lb./ft.3
The density of a carbon dioxide/air mixture containing 34 percent by volume of carbon dioxide is:
0.114 lb./ft.3 X 0.34 + 0.075 lb./ft.3 X 0.66 = 0.089 lb./ft.3
The effective area of the opening can be reduced by a factor of 2 since there are no known openings
above this opening. The opening area for calculation purposes is thus:
1ft. X 1ft./2 = 0.5 ft.2
The carbon dioxide loss rate through the opening is:
lb./min.
C
p
A
g
p1
p2
h
R600.340.1140.5
·
232.20.089 0.075–5""
0.089
----------------------------------------------------------------------------1.167.11==
R8.2=
W
V
-----1
9
---1
1 0.3–
----------------ln 0.0396 lb./ft.3
==

September 2013 A-4 P/N 81-CO2MAN-001
An 8% safety factor is usually applied to the quantity calculated in Equation A.5, and thus the
required flooding factor to create a 30 percent concentration is:
The quantity (per cubic foot) calculated in Equation A.5 must be delivered within two minutes,
so the system discharge rate is obtained by dividing this quantity by 2. Thus the discharge rate
required to attain a 30 percent carbon dioxide concentration within two minutes is:
Equation A.6
The rate calculated in A.6 must be checked to ensure that it is high enough to attain the design
concentration is seven minutes. In general, the seven minute constraint will be satisfied if the
rate calculated in Equation A.6 is high enough to discharge at least 28.6 percent (2/7) of the
required quantity of carbon dioxide in the first two minutes. The maximum carbon dioxide
concentration that can be attained in seven minutes by a total flooding system discharging at
the rate calculated in Equation A.6 can be calculated by the following formula.
Equation A.7
Where: = minimum concentration at two minutes, 0.30
= maximum concentration at seven minutes
= natural logarithm
Solving Equation A.7 for
Equation A.8
Where: = exponential function
= 1 - EXP (ln (1-0.3)/(0.286) = 1 - 0.287 = 0.713 or 71.3%
Thus the discharge rate calculated in Equation A.6 will be adequate to attain all design
concentration less than 71.3 percent within seven minutes after the start of carbon dioxide
discharge. This rate will be insufficient to attain design concentrations in excess of 71.3 percent
within seven minutes, and thus the required discharge rates for these systems shall be
calculated by dividing the required quantity of carbon dioxide by seven minutes.
W
V
-----1.080.0396 lb./ft.3
0.0428 lb./ft.3
==
R0.0428 lb./ft.3/2 minutes 0.0214 lb./ft.3min==
1C1
–ln
1C2
–ln
------------------------- 0.286=
C1
C2
ln
C2
C21EXP 1C1
–0.286ln==
EXP
C2

P/N 81-CO2MAN-001 B-1 September 2013
APPENDIX B
OBSOLETE EQUIPMENT
B-1 INTRODUCTION
This appendix contains information concerning equipment and components that were
previously provided as part of the system or as an option for the system but are no longer
available for procurement.
B-2 OBSOLETE EQUIPMENT
The obsolete items contained in this appendix are:
•Mercury Check
• Pneumatic Transmitter
• Pneumatic Control Head, 1-inch, 40-second
• Pneumatic Main-to-Reserve Valve
•Lockout Valves
• Odorizer, 1.5" NPT Housing and Glass Cartridge
B-3 MERCURY CHECK
B-3.1 Description
The mercury check, Part No. 871346 (Figure B-1 and Figure B-2) is used for pneumatic
systems having more than five heat actuated detectors, or for applications where it is
necessary to isolate HADs subject to varying environmental and/or process conditions.
The mercury check can accept a detection signal from up to three separate detector branch
lines. It consists of three detection chambers manifolded together to a common outlet port,
and three interconnected wells filled with mercury. Each detection chamber is individually
vented by an appropriately-sized vent, and the level of the mercury can be adjusted to provide
the degree of sensitivity required for each tubing branch line and its associated HADs. The
mercury isolates the detection chambers from each other and its level above the manifold
outlet determines the pressure setting of the system in inches of water column.
Refer to Paragraph 2-3.6.4 for detailed vent information.

September 2013 B-2 P/N 81-CO2MAN-001
Figure B-1. 3-Well Mercury Check
871346
HASP FOR SEAL WIRE
CHAIN
COVER ON
(2) MOUNTING SCREWS
FOR CHECK BODY
(3) 1/8 in. TUBING UNIONS
(4) MOUNTING HOLES
(2) NIPPLES FOR ATTACHMENT
OF COVER
(3) KNOCKOUTS FOR CONDUIT
ENTRY ON THIS SURFACE
CHECK BODY
ENCLOSURE
3/16 in. END READY
FOR CONNECTION
LOCATION OF VENT
1/8 in. X 3/16 in.
TUBING UNION
COVER OFF
9-3/8 in.
(238 mm)
6-7/8 in.
(175 mm)

P/N 81-CO2MAN-001 B-3 September 2013
Figure B-2. 3-Well Mercury Check - Installation Detail
B-3.2 Installation
The mercury check is required for applications that use more than five HAD detectors.
The installation procedure for the mercury check is as follows:
1. Remove seal wire.
2. Remove the cover from the enclosure.
3. Route tubing from the pneumatic detectors into the mercury check box. Secure box to the
installation area using suitable attaching hardware. Ensure that the box is upright and
level.
4. Secure conduits to the box using conduit nuts.
5. Route the 3/16-inch tubing from the pneumatic control head through a grommet into the
mercury check box.
6. Fill mercury wells as follows:
7. The proper vent size and well setting is predetermined for each installation and can be
found on the layout drawing supplied with each system installation.
8. Unscrew two mounting screws and remove the transparent plastic body from the box.
9. Remove plastic caps from vent ports. Insert funnel Part No. 207635 (supplied), and slowly
fill each well with the full contents of a single vial of mercury. Make certain no mercury
enters tubing.
1/2 in. EMT
1/8 in. TUBING NUT
(3 SUPPLIED WITH
MERCURY CHECK)
(3) ADJUSTING SCREWS
TRANSPARENT
CHECK BODY
1/2 in. EMT CONNECTOR
COMPRESSION TYPE
RUBBER GROMMET
(SUPPLIED WITH
MECURY CHECK)
3/16 in. COPPER TUBING
FROM PNEUMATIC
CONTROL HEAD(S)
JUNCTION BOX
1/8 in. COPPER TUBING
FROM PNEUMATIC HEAT
DETECTORS

September 2013 B-4 P/N 81-CO2MAN-001
1. Remove funnel. Make certain the flat rubber gasket is in place at bottom of the vent port.
Install vent plug assembly. Tighten securely with Kidde Fire Systems tool Part No. 209145
while holding hex of vent housing with a wrench.
2. Keep mercury check upright at all times to prevent mercury from spilling out of wells.
3. Sequentially connect a manometer test set, Part No. 840041, to each well inlet using the
conversion coupling supplied with the test set to make connection. Close off tube “B”
(noted on manometer instructions) and gently squeeze the rubber bulb until a slight
pulsing is felt in the bulb. This can be visually observed as a dropping off of the reading,
followed by a steady reading as continued pressure is applied to the rubber bulb of
manometer. The sum of the readings of both legs of the manometer is the setting of the
well under test. The setting is obtained by turning the adjustment screw under each well
in either and upward or downward position. Turing the screw upward increases the setting;
turning the screw downward decreases the setting. Repeat this adjustment for each
additional well.
4. Attach the 1/8-inch tubing to a check union, as applicable, and secure in place using a
tubing nut.
5. Upon completion of the adjustments and assembly of the tubing to the unions, close the
box cover and assemble the seal wire. Crimp the lead seal with pliers or a crimping tool.
B-4 PNEUMATIC TRANSMITTER
B-4.1 Description
The pneumatic transmitter, Part No. 890176 (Figure B-3), is an intermediary actuation device
used for pneumatic systems that employ directional (stop) valves. It is always used in
conjunction with a pneumatic control head. The function of the pneumatic transmitter is to
engage the pilot check on the directional (stop) valve and to retransmit the pneumatic
actuation signal to the pilot cylinders controlling the discharge of the suppression system.
The pneumatic transmitter consists of a metal body to which a bellows housing is attached.
The body contains an actuator rod to engage the pilot check of a directional (or stop) valve and
a spring loaded bellows assembly located in the attached housing. The associated pneumatic
control head mounts to the pilot port on the body. Activation of the control head displaces the
actuator rod to open the pilot check on the directional valve and to release the spring loaded
bellows assembly. The compressed air is transmitted via copper tubing to the pilot CO2
cylinders controlling the actuation of the suppression system. The pneumatic transmitter is
connected to the system's 1/8-inch copper tubing network via a short segment of 3/16-inch
tubing and has a normally open micro switch contact that closes upon actuation. A visual
indicator shows when the transmitter is in its set position. The pneumatic transmitter requires
manual reset after actuation.
WARNING
Wear rubber gloves when filling mercury wells. Flush gloves with water and
wash hands thoroughly after filling procedure has been completed. Avoid
touching hands to mouth or eyes. Contact a physician immediately if irritation
develops.

P/N 81-CO2MAN-001 B-5 September 2013
Figure B-3. Pneumatic Transmitter
B-4.2 Installation
1. Refer to Figure B-3 and remove protection cap from pilot control port of the stop valve.
2. Position pneumatic transmitter on stop valve pilot control port.
3. Run 3/16-inch copper tubing from the pneumatic transmitter to a junction box located
adjacent to the transmitter.
4. Using reducing union Part No. 81-802536-000, connect the 3/16-inch O.D. tubing to the
1/8-inch tubing going to the pneumatic control heads on the pilot cylinders.
5. Make electrical connections.
Note: When the pneumatic transmitter is installed on main and reserve systems and the
reserve system has not been previously discharged, reset the pneumatic transmitter on
the directional (stop) valve.
WARNING
Pneumatic transmitter must be in the “Set” position (green indicator visible
through slots in cap) before installing on the stop valve. Pneumatic transmitter
left in the “Actuated” position will allow inadvertent discharge of carbon
dioxide into the hazard if the CO2 cylinders are actuated.
WARNING
Do not test or actuate the pneumatic transmitter with the pneumatic control
heads attached to the pilot CO2 cylinders. Actuation of the pneumatic
transmitter will cause the control heads to operate and result in CO2 system
discharge.
CONNECTION FOR 3/16 in.
COPPER TUBING
SWIVEL NUT
ACTUATION
SHAFT
RESET CAP
SWITCH-ONLY
ON P/N 890176
CONNECTION
FOR CONTROL HEAD
OPERATING
SHAFT BELLOWS

September 2013 B-6 P/N 81-CO2MAN-001
B-5 PNEUMATIC CONTROL HEAD (1-inch, 40-SECOND)
B-5.1 Description
The 1-inch, 40-second control head P/N 872318, is never connected directly to a HAD, only
indirectly through an intervening device such as a mercury check or a pneumatic transmitter.
The combination of diaphragm and vent settings for the pneumatic control head is shown in
Table B-1.
Figure B-4. Pneumatic Control Head (1-inch, 40-second)
B-5.2 Installation
Refer to Paragraph 4-4.10 for installation instructions.
Table B-1. Pneumatic Control Head (1-inch, 40-second), Settings
Setting Control Head Part Number
1-inch, 40-second vent 872318
PATENT: 246675
WALTER KIDDE
PART NO.
SET RELEASED
INSTRUCTIONS
SEE
MAINTENANCE
FOR USE SCREWDRIVER
PULL
CABLE
Kidde
TO RESET
CONTROL HEAD
PNEUMATIC
CONECTION FOR
DETECTION TUBING
3/16 in. TUBING NUT
FITS HERE
CONNECTION FOR REMOTE PULL
BOX PIPE OR CONDUIT
3/8 in. NPS FEMALE
LOCAL MANUAL
RELEASE LEVER
SWIVEL NUT
1-1/2 in. (38 mm)
HEX 1-1/4-18
NF-3 THREAD
4-13/16 in.
(122 mm)
CONNECTION FOR CABLE
HOUSING TO SECOND
CONTROL HEAD (IF USED)
3/8 in. NPS FEMALE
3-5/16 in.
(84 mm)
INDICATOR AND
RESET STEM
SEAL WIRE
LOCKING PIN

P/N 81-CO2MAN-001 B-7 September 2013
B-6 PNEUMATIC MAIN-TO-RESERVE VALVE
The pneumatic main-to-reserve transfer valve, Part No. 871364 (Figure B-5), is installed in
pneumatically-actuated systems having a connected main and reserve supply of carbon
dioxide, and is used to direct the pneumatic actuation signal to either the main or the reserve
pilot cylinders.
The valve contains an inlet port which is connected to two outlet ports. A toggle switch controls
a lever that transfers the pneumatic signal to one of the two outlet ports while blocking its
passage to the other. The toggle switch is normally placed in the "main" position. In the event
that the main suppression system discharges, the switch is placed in the "reserve" position to
provide uninterrupted fire protection while the main system is being recharged.
Figure B-5. Pneumatic Main-to-Reserve Valve
CAUTION
Never move the main-to-reserve transfer valve to the "reserve" position,
following a main suppression system actuation, unless the activating
detector(s) has/have cooled down.
RESERVE
MAIN
DO NOT FORCE BEYOND STOP POSITION
COVER OPEN
UL
PNEUMATIC SELECT OR VALVE
TO SHIFT FR OM MAIN
TO RESER VE CYLINDERS
1.LIFT COVER
2.MOVE LEVER T O RIGHT
KIDDE-FENWAL, INC.
400 MAIN STREET,ASHLAND, MA 01721
TEL: (508)881-2000 FAX: (508)881-8920
PART NO. 871364
(162mm)
COVER CLOSED
6-3/4 in.
(171 mm)
7 in.
(178 mm)
NAMEPLATE
RING - PULL TO
OPEN COVER
ENCLOSURE
6 MOUNTING HOLES
TOGGLE LEVER

September 2013 B-8 P/N 81-CO2MAN-001
B-7 LOCKOUT VALVES
Figure B-6. CO2 Lockout Valve with Limit Switch
A lockout valve is a manually operated valve installed between the carbon dioxide manifold and
the discharge pipe to the protected area. The lockout valve can be locked in the closed position
to prevent carbon dioxide from discharging into the protected area. The lockout valve shall be
installed at the end of the carbon dioxide manifold or, if a common manifold protects multiple
hazards, after each directional (stop) valve.
The lockout valve consists of a stainless steel ball valve with union ends. The ball valve has a
2,500 PSIG pressure rating. A NEMA4 enclosure, housing two SPDT limit switches with a 15A
rating, sits atop the valve. Limit Switch No.2 shall be wired in series with the electric control
head in the releasing circuit. Limit Switch No.1 may be wired to provide positive indication that
the valve is fully closed.
Table B-2 lists the lockout valve with limit switch specifications.
Note: The CO2 Lockout Valve is not a UL listed item.
5-17/64 in.
(134 mm)
5-3/64 in.
(148 mm)
F
G
D
A
C
B
E
SWITCH
ENCLOSURE
LOCKING HASP
HANDLE (SHOWN IN
THE OPEN POSITION)
1. BALL VALVE:
PRESSURE RATING 2,500 PSIG (127 BAR)
DOUBLE UNION END WITH NPT FEMALE
PIPE CONNECTIONS LOCKING
HANDLE AND BRACKET FOR BOTH
OPEN (PARALLEL WITH VALVE BODY)
AND CLOSED (PERPENDICULAR TO
VALVE BODY).
2. LIMIT SWITCH:
TWO (2) SPDT SWITCHES
NEMA 4 ENCLOSURE
3. LOCK NOT INCLUDED

P/N 81-CO2MAN-001 B-9 September 2013
B-7.1 Lockout Valve Installation
The construction of the two-way union end ball valve product design helps make installation
and maintenance easy. This product has the "free floating" ball principle. The ball is not fixed
and is free to align under line pressure. The resulting benefit from this feature of the valve
design is a tight shut-off with the flow in either direction, regardless of the position of the valve
in the pipeline. In order to facilitate maintenance, the assembly consists of a union on each
side of the valve body.
The lockout valve with limit switch must be installed in the discharge pipe network,
downstream of all cylinders, check valves, and directional/stop valves. Lockout valves can be
installed in either the vertical or horizontal position using good pipe fitting practices. Place two
to three wraps of Teflon tape on male threads of pipe. Attach lockout valve unions to pipe, but
do not fully tighten at this time. Rotate the valve body into position, then tighten both unions.
1. Use Teflon tape or paste on male threads.
2. Can be installed vertically and horizontally.
3. Should be locked in the "open" position using a padlock.
4. Must be located downstream of ALL cylinders and should be easily accessible.
5. Must be electrically supervised.
B-7.1.1 STEM SEAL ADJUSTMENT
If leakage is evident in the stem packing area, tighten the adjusting nut (the nut beneath the
handle) 1/8 turn. If the leak persists, repeat the above.
Note: The switches and the corresponding cams are preset by the valve assembly supplier to
the configurations indicated below. No adjustment to the cams is required. When the
cam is engaged with the switch, the switch contacts are closed, thus closing the
normally open contacts. Terminals 1 through 6 are used with the microswitches.
Terminals 7 and 8 are for optional equipment not part of this assembly.
• Switch 1 can also be wired to provide positive (LED, strobe, bell etc.) indication that the
valve is fully closed.
• Switch 2 must always be wired in series with the electric control head in the releasing
circuit.
Note: The limit switch assembly consists of two (2) single pole, double throw (SPDT)
mechanical switches, which are rated to 15 amps.
Table B-2. CO2 Lockout Valve with Limit Switch Specifications
General Dimensions
Assembly
Part Number Size A B C D E F G
81-934711-000 1/2 in.
(DN15) 21/32 in.
(17 mm) 3-15/19 in.
(100 mm) 1-15/16 in.
(49 mm) 2-1/4 in.
(57 mm) 5-1/2 in.
(140 mm) 2-51/64 in.
(71 mm) 2-1/2 in.
(64 mm)
81-934712-000 3/4 in.
(DN20) 13/16 in.
(21 mm) 4-1/2 in.
(114 mm) 2-3/16 in.
(56 mm) 2-39/64 in.
(66 mm) 5-1/2 in.
(140 mm) 2-51/64 in.
(71 mm) 2-1/2 in.
(64 mm)
81-934713-000 1 in.
(DN25) 1 in.
(25 mm) 4-15/16 in.
(125 mm) 2-3/8 in.
(60 mm) 2-63/64 in.
(76 mm) 6-1/2 in.
(165 mm) 2-51/64 in.
(71 mm) 2-1/2 in.
(64 mm)
81-934714-000 1-1/2 in.
(DN40) 1-7/16 in.
(37 mm) 5-7/8 in.
(149 mm) 2-3/4 in.
(70 mm) 3-7/8 in.
(98 mm) 8-1/2 in.
(216 mm) 2-51/64 in.
(71 mm) 2-3/4 in.
(70 mm)
81-934715-000 2 in.
(DN50) 1-23/32 in.
(44 mm) 6-7/8 in.
(175 mm) 3-3/8 in.
(86 mm) 4-1/2 in.
(114 mm) 8-1/2 in.
(216 mm) 2-51/64 in.
(71 mm) 2-3/4 in.
(70 mm)

September 2013 B-10 P/N 81-CO2MAN-001
B-7.1.2 WIRING DIAGRAM
1. With the ball valve in the fully open position (normal operating mode).
Figure B-7. Switch When Ball Valve is in Fully Open Position
2. With the ball valve in the fully closed position (service/maintenance mode).
Figure B-8. Switch When Ball Valve is in Fully Closed Position
B-7.2 Lockout Valves Maintenance
When it is necessary to perform maintenance on the CO2 system or need to perform work that
could cause false alarms and discharge, it is essential to lockout the CO2 system. The following
steps must be observed.
1. Unlock the valve and place it in the Closed position.
2. Lock the valve.
3. Verify that a Trouble indicator appears on the control unit.
4. When maintenance or test is complete, unlock the valve and place it in the Open position.
5. Lock the valve.
6. Verify the Trouble indicator is clear on the control unit.
12 3
NC
C
NO
BLACK
RED
WHITE
456
NC
C
NO
BLACK
RED
WHITE
SWITCH 1 IS OPEN
SWITCH 2 IS CLOSED
SWITCH 1 SWITCH 2
12 3
NC
C
NO
BLACK
RED
WHITE
456
NC
C
NO
BLACK
RED
WHITE
SWITCH 1 IS
SWITCH 2 IS
CLOSED
OPEN
SWITCH 1 SWITCH 2

P/N 81-CO2MAN-001 B-11 September 2013
B-8 ODORIZER, 1.5" NPT HOUSING AND GLASS CARTRIDGE
The odorizer assembly injects a scent into the carbon dioxide during a discharge to warn
personnel in the vicinity of the area protected by the fire suppression system that carbon
dioxide gas is present. The odorizer assembly consists of a protective housing and the odorizer
cartridge. This odorizer assembly was replaced by P/N 81-897600-000.
B-8.1 Odorizer Protective Housing
The protective housing, Part No. 81-897637-000 (Figure B-9), safely and securely attaches the
odorizer cartridge to the manifold. The stainless steel housing protects the odorizer cartridge
from inadvertent rupture.
Figure B-9. Odorizer Protective Housing
B-8.2 Odorizer Cartridge
The odorizer cartridge, Part No. 10030080 (Figure B-10), is a 50cc glass vial filled with oil of
wintergreen, which provides the scent to the carbon dioxide. Upon discharge, the carbon
dioxide pressure ruptures the vial against the protective housing to release the oil of
wintergreen.
Figure B-10. Odorizer Cartridge
CYLINDER
BODY
UNION ASSEMBLY
1-1/2 NPT
11-1/2 FEMALE
THREAD
3-7/16 in. (87 mm)
ACROSS FLATS
5-1/2 in.
(140 mm)
BOTTOM DISC: BLOWN GLASS
1/64 in. TO 5/16 in. THICK
3 in.
(76 mm)
1-7/8 in.
(48 mm)

September 2013 B-12 P/N 81-CO2MAN-001
B-8.3 Odorizer Installation
When used, odorizers should be located immediately downstream of each selector valve. For
systems protecting a single hazard, a single odorizer can be located immediately downstream
of the discharge manifold.
Note: An odorizer assembly, Part Nos. 81-897637-000 and 10030080, shall be installed
upstream of the lock-out valve. In the event a safety outlet ruptures in a locked-out
system, the scent from the odorizer will provide a warning that carbon dioxide has
vented into the area by the safety outlet.
Odorizers must be attached to the discharge piping in the upright position using a 1-1/2 inch
standard galvanized close nipple. When a welded connection is required, use a 1-1/2 inch
standard pipe, 1-3/4 inches long, threaded on one end. Install odorizer assembly after welding.
1. Attach the odorizer assembly to the piping.
2. Remove the union nut and cylinder body from the odorizer assembly, leaving just the union
headpiece attached to the piping.
3. Use a small pick or slotted screwdriver to remove the spiral retaining ring and the circular
screen.
4. Carefully insert the odorizing cartridge into the cylinder body. This is most easily done by
holding the cylinder body on its side. The narrow tip end of the odorizing cartridge should
go into the cylinder body first. DO NOT drop the odorizing cartridge into the cylinder body,
as this will most likely break the odorizing cartridge.
5. Replace the screen and secure with the spiral retaining ring. Make sure the o-ring is still in
its groove before placing the cylinder body back onto the union head piece. A small amount
of o-ring lubricant can be used to help keep the o-ring in place.
6. Thread the union nut back onto the odorizer assembly and tighten the assembly.
Figure B-11. Odorizer Installation
CAUTION
To prevent damaging the odorizing cartridge during testing, it is recommended
that the odorizing cartridges not be installed until after system testing of the
discharge piping is complete. For periodic maintenance after the system has
been installed and in use, remove the odorizing cartridge prior to any testing of
the discharge piping.
KIDDE Fire Systems
CYLINDER
BODY
SPIRAL
RETAINING
RING
O-RING
SCREEN
CLOSE
NIPPLE
ODORIZER CARTRIDGE
HEADER
UNION ASSEMBLY

P/N 81-CO2MAN-001 B-13 September 2013
B-8.4 Semi-annual Maintenance for Odorizer Cartridge
For systems using the odorizer cartridge, Part No. 10030080, disassemble the odorizer and
verify that the odorizing cartridge is still intact on a semi-annual basis.
B-8.5 Post Discharge Odorizer Maintenance
1. Remove the union nut and cylinder body from the odorizer assembly, leaving just the union
headpiece attached to the piping.
2. Use a small pick or slotted screwdriver to remove the spiral retaining ring and the circular
screen. Remove all glass particles.
3. Carefully insert the odorizing cartridge into the cylinder body. This is most easily done by
holding the cylinder body on its side. The narrow tip end of the odorizing cartridge should
go into the cylinder body first. DO NOT drop the odorizing cartridge into the cylinder body,
as this will most likely break the odorizing cartridge.
4. Replace the screen and secure with the spiral retaining ring. Make sure the o-ring is still in
its groove before placing the cylinder body back onto the union head piece. A small amount
of o-ring lubricant can be used to help keep the o-ring in place.
5. Thread the union nut back onto the odorizer assembly and tighten the assembly.

September 2013 B-14 P/N 81-CO2MAN-001
THIS PAGE INTENTIONALLY LEFT BLANK.

P/N 81-CO2MAN-001 C-1 September 2013
APPENDIX C
EUROPEAN EQUIPMENT
C-1 INTRODUCTION
Kidde Fire Systems CO2 equipment sold into the European Union must comply with Pressure
Equipment Directive (PED) 97/23/EC and Transportable Pressure Equipment Directive (TPED)
1999/36/EC. Refer to Table C-1 for a list of equipment.
Equipment, such as discharge heads, flex hoses, check valves, etc., that will be exposed to
pressure during a discharge shall be PED approved. PED approval is indicated by the CE mark
affixed to these components.
Equipment, such as cylinders and discharge valves, that retain pressure while during transport,
shall be TPED approved. TPED approval is indicated by the PI mark affixed to these components.
Table C-1. TPED and PED Approved Equipment for European Community Only*
Part No. Description
81-870287-002 75 lb. CO2 Cylinder and Valve Assembly- "Pi" marked and CE approved
81-870269-002 100 lb. CO2 Cylinder and Valve Assembly - "Pi" marked and CE approved
WK-981372-002 1/2-inch I-Valve - TPED Approved
WK-840253-002 5/8-inch I-Valve - TPED Approved
81-897494-001 Electric/Cable Control Head, 24 VDC ATEX/CE (NOT UL/FM)
81-100000-001 Explosion Proof Electric Control Head, Stackable, 24 VDC, ATEX Approved
* Component Equipment Only

September 2013 C-2 P/N 81-CO2MAN-001
THIS PAGE INTENTIONALLY LEFT BLANK.

P/N 81-CO2MAN-001 D-1 September 2013
APPENDIX D
EQUIVALENT LENGTH
D-1 VALVE AND DELAY EQUIVALENT LENGTH
The following table provides equivalent length information:
Part Name Part No. Nominal Pipe
Size, in.
Equivalent Length, ft
Sched 40 Sched 80
Directional (Stop) Valve
81-870023-000 1⁄211-
81-870022-000 3⁄417-
81-870122-000 1 21 13
81-870032-000 1 1⁄45235
81-870123-000 1 1⁄23424
81-870049-000 2 76 55
81-890010-000 w/
WK-236716-000 2 1⁄26950
81-890010-000 3 216 159
81-890208-000 4 206 157
Check Valve
81-800327-000 1⁄274
81-800266-000 3⁄41710
WK-800443-000 1 12 8
81-800444-000 1 1⁄45134
81-870152-000 1 1⁄2-40
81-870151-000 2 - 120
81-870100-000 3 - 600
CO2 Discharge Delay 81-871071-000 or
81-897636-000 3⁄415-
Cylinder Valve Assembly. For 25, 35, 50 lb (5, 7, 9, 11, 16, 23 kg) sizes. Includes dip
tube, valve, discharge head 872450 or 872442 and flexible hose.
1⁄27337
Cylinder Valve Assembly. For 50, 75, 100 lb (23, 34, 45 kg) sizes. Includes dip tube,
valve 840253, head 872450 or 872442 and flexible hose.
3⁄43116

September 2013 D-2 P/N 81-CO2MAN-001
THIS PAGE INTENTIONALLY LEFT BLANK.

These instructions do not purport to cover all the details or variations in the equipment
described, nor do they provide for every possible contingency to be met in connection with
installation, operation and maintenance. All specifications subject to change without no-
tice. Should further information be desired or should particular problems arise which are
not covered sufficiently for the purchaser’s purposes, the matter should be referred to
KIDDE-FENWAL INC., Ashland, Masssachusetts
Kidde is a registered trademark of Kidde-Fenwal, Inc.
400 Main Street
Ashland, MA 01721
Tel.: 508-881-2000
Fax: 508-881-8920
www.kiddefiresystems.com
81-CO2MAN-001 Rev. BC ©2013 Kidde-Fenwal, Inc. All Rights Reserved.