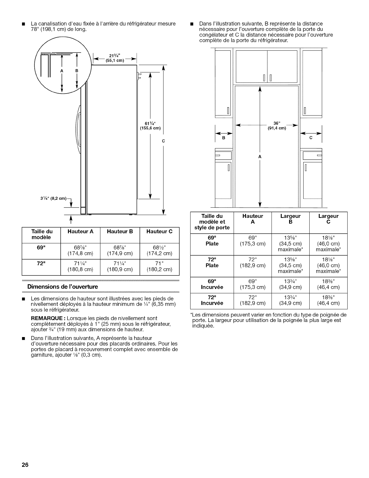
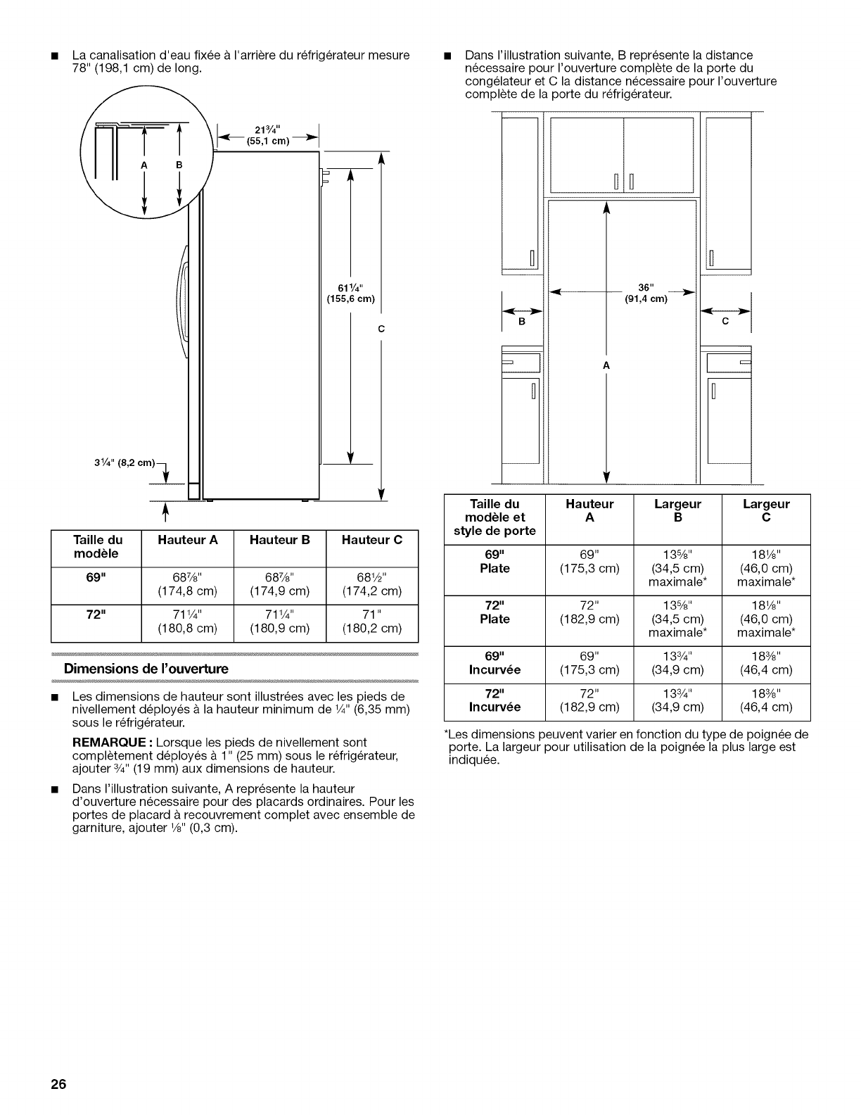
Kitchenaid KSC23C8EYB02 User Manual REFRIGERATOR Manuals And Guides 1102765L
User Manual: Kitchenaid KSC23C8EYB02 KSC23C8EYB02 KITCHENAID REFRIGERATOR - Manuals and Guides View the owners manual for your KITCHENAID REFRIGERATOR #KSC23C8EYB02. Home:Kitchen Appliance Parts:Kitchenaid Parts:Kitchenaid REFRIGERATOR Manual
Open the PDF directly: View PDF
.
Page Count: 72







































































