Kohler 9EOZD User Manual To The 944bb37a 12de 4d2a Bdb9 463fb653411a
User Manual: Kohler 9EOZD to the manual
Open the PDF directly: View PDF
.
Page Count: 64

Marine Generator Sets
Models:
7EFOZD/9EOZD
8.5EFOZD/10EOZD
9EFOZD/10EOZD
TP-6270 11/06c
Service Parts
TP-6270 11/062
Table of Contents
Description Page
Introduction 3.......................................................
Numbering System Significance 3.....................................
Illustrations 3.......................................................
How to Find Part Numbers 3..........................................
Hardware References 3..............................................
Specification Number Index 4.........................................
Group 1: Cylinder Block 5............................................
Group 2: Gear Housing 7............................................
Group 3: Mounting Flange and Oil Sump 10.............................
Group 4: Cylinder Head 12...........................................
Group 5: Intake Manifold 16..........................................
Group 6: Camshaft and Drive Gear 17.................................
Group 7: Crankshaft and Piston 19....................................
Group 8: Lubrication Oil System 21....................................
Group 9: Cooling Water System 23....................................
Group 10: Fuel Injection Pump 25.....................................
Group 12: Fuel Injection Valve 27......................................
Group 13: Fuel Line and Filter 29......................................
Group 14: Starting Motor 31..........................................
Group 15: Gasket Set 33.............................................
Group 101: Air Intake 35.............................................
Group 103: Fuel System 36..........................................
Group 104: Cooling System 38........................................
Group 105: Engine 42...............................................
Group 107: Nameplate and Decals 44..................................
Group 109: Skid and Plant Mounting 45................................
Group 201: Generator and Mounting 46................................
Group 301: Controller and Mounting 48................................
Group 701: Literature 49.............................................
Paint and Miscellaneous Parts 49......................................
Parts List: Accessories 50............................................
Appendix A. Glossary of Abbreviations 55..............................
Appendix B. Common Hardware Application Guidelines 57................
Appendix C. General Torque Specifications 58...........................
Appendix D. Common Hardware Identification 59........................
Appendix E. Common Hardware List 60................................
3
TP-6270 11/06
Introduction
This manual lists service replacement parts for
8.5EFOZD/10EOZD, 9EFOZD/10EOZD, and 7EFOZD/
9EOZD generator sets.
Information in this publication represents data available
at the time of print. Kohler Co. reserves the right to
change this publication and the products represented
without notice and without any obligation or liability
whatsoever.
This manual includes the following main sections:
Table of Contents. Lists the sections of the manual.
Introduction (and other information sections).
Contains introductory material about part numbers,
illustrations, and hardware.
Specification Number Index. Lists the generator set
specs and groups.
Group Parts Lists. List the part numbers of parts in the
groups.
Kit Sections. List modules and accessories and their
parts.
Appendices. Include Abbreviations, Common
Hardware Application Guidelines, General Torque
Specifications, Common Hardware Identification, and
Common Hardware List.
x:in:004:002
Numbering System Significance
This manual uses the following numbering systems:
Specification Number. The product identification
number located on the generator set nameplate.
Specification numbers break down into groups.
Group Number. A unique number representing a parts
group needed to assemble a generator set function. For
example, Group 101 is the Air Intake group.
Variation or Module Number. A group might have
several variations. Each variation performs the same
function with different parts lists. For example, a 50 Hz
generator alternator and a 60 Hz generator alternator
both perform the same function; however, with different
parts. Each difference requires a group variation or
module number.
Part Number. The part number identifies an individual
assembly, subassembly, component, or accessory kit.
x:in:004:003:a
Illustrations
Illustrations (or exploded-view drawings) best
representing the widest range of variations accompany
most groups in this manual. Illustrations do not depict all
details and may not show all parts. Do not use
illustrations for assembly or disassembly.
x:in:004:004a
How to Find Part Numbers
Use the following steps to locate a service replacement
part.
1. Locate the generator set nameplate to identify the
generator set spec number.
2. Locate a second generator set nameplate listing
accessories to identify installed modules.On
some models the accessory nameplate is mounted
inside the generator junction box.
3. Turn to the Specification Number Index.The
first column lists the generator set spec numbers.
The headings identify the groups of parts that make
up the generator set.
4. Identify the group most likely to include the
service part number.
5. Find the group variation number at the
intersection of the spec number row and the group
column. Note the variation number.
6. Page forward to locate the group identified in
step 4 or find the appropriate page in the Table of
Contents.
7. Find the part on the illustration and note the item
number of the part or find the part description in
the parts list.
8. Select the part number that corresponds to
your group variation. The first column lists the
illustration item number. Find the variation
identified in the Specification Number Index or the
module number found on the generator set
nameplate in the appropriate column on the right
side of the parts list table. Find the quantity used at
the intersection of the item number row and the
variation column. A blank space at the intersection
means the variation/module does not use that part
number.
x:in:004:005
Hardware References
Many common hardware items do not appear in parts
manuals or will appear as common hardware entries. A
common hardware entry lists the size of the hardware.
For example, an item that appears as “Hardware,
3/8-16” in the text means that the piece is 3/8-16 size.
Obtain common hardware locally or, if contacting the
factory, use the Common Hardware List in the appendix
to identify the common hardware part number and
specifications. See Common Hardware Application
Guidelines in the appendix for mating hardware
instructions.
Some hardware items require a specific size or some
other characteristic. In that case, use the part number
listedinthetext.
When replacing hardware, do not substitute inferior
grade hardware. Replacement hardware grade should
be equal to or better than the grade of the
manufacturer’s original hardware. Use the Common
Hardware List in the appendix to identify the common
hardware hardness.
x:in:004:006

4TP-6270 11/06
Specification Number Index
Group No. 1 2 3 4 5 6 7 8 9 10 12 13 14 15
Spec No. Variation Number
Group Title
GM30507-GA1 11111111111111
GM30507-GA2 11111111221121
GM30507-GA3 11111111111111
GM30507-GA4 11111111221121
GM37403-GA1 2222 -- 222332232
GM37403-GA2 2222 -- 222332232
Group No. 101 103 104 105 107 109 201 301 701
Spec No. Variation Number
Group Title
GM30507-GA1 GR1 GR2 GR3 GR4 GR5 GR6 GR7 GR8 44
GM30507-GA2 GR1 GR9 GR10 GR11 GR5 GR6 GR7 GR12 44
GM30507-GA3 GR1 GR2 GR3 GR4 GR14 GR6 GR13 GR8 44
GM30507-GA4 GR1 GR9 GR10 GR11 GR14 GR6 GR13 GR12 44
GM37403-GA1 2333323369
GM37403-GA2 2334323369

5
TP-6270 11/06
Group 1: Cylinder Block
6270_1
Quantity
Var. No.
Item Part Number Description 1
1GM35737 Block assembly, cylinder 1
4252771 Plug PT1/4 2
5252566 Plug 1
6252078 Plug 1
7GM35519 Plug 50 1
8252728 Plug 2
9225924 Plug 30 6
12 225703 Bolt 8
13 252933 Bush 1
Quantity
Var. No.
Item Part Number Description 1
14 252771 Plug PT1/4 1
24 GM35740 Bearing, main (std) 4
27 229802 Bearing 1
30 225705 Bolt 14
31 GM33836 Gasket, cylinder head 1
32 225709 Bearing, main 4
35 225710 Bearing, thrust 2
38 GM35428 Spacer 1

6TP-6270 11/06
Group 1: Cylinder Block, continued
6270_1_2
See Group 5
See Group 5
Quantity
Var. No.
Item Part Number Description 2
1GM47257 Block assembly, cylinder 1
5252078 Plug 1
6252028 Plug 4
7 GM47254 Plug 45 1
8 252771 Plug PT1/4 1
9 GM47253 Plug 25 3
10 225703 Bolt 8
13 GM47256 Bushing, camshaft 1
14 252728 Plug 1
15 GM47258 Main bearing set 4
27 229802 Bearing 1
30 225705 Bolt 14
31 GM47255 Gasket, cylinder head 1
32 225710 Bearing, thrust 2
35 GM47259 Main bearing, 0.25 US 4

7
TP-6270 11/06
Group 2: Gear Housing
6270_2
Quantity
Var. No.
Item Part Number Description 1
1GM35736 Housing assembly, gear 1
4GM35720 Plug, screw 1
5GM35721 Plug 1
6252931 Oil seal 1
7GM35464 Cover assembly, pump 1
8GM35463 Cover, lube oil pump 1
9GM35653 Valve, relief 1
10 GM35578 Spring 1
11 GM35520 Plug 1
12 GM35429 Flange, gear case 1
13 GM35430 Stud, M8 x 25 3
14 250837 Cap 1
15 256531 Cover 1
16 252932 Knock, pipe 2
17 GM35421 O-ring 4
Quantity
Var. No.
Item Part Number Description 1
18 GM35465 Rotor, inner 1
19 GM35466 Rotor, outer 1
20 GM35467 Screw, M6 x l6 7
21 252764 O-ring, pump 1
22 GM35522 Bolt, M8 x 85 3
23 252684 O-ring 1
24 252696 Bolt, M8 x 16 4
25 252696 Bolt, M8 x 16 3
26 256798 Bolt, M8 x 55 plated 12
27 GM35732 Nut 3
28 252750 Cover, blind 1
29 256796 O-ring 1
30 252693 Bolt 2
31 252998 Gasket 1

8TP-6270 11/06
Group 2: Gear Housing, continued
6270_2_2

9
TP-6270 11/06
Group 2: Gear Housing, continued
Quantity
Var. No.
Item Part Number Description 2
1GM47261 Case, gear 1
3GM47262 Bolt, stud M8 3
4GM47270 Cover assembly, gear case 1
5 GM47272 Cover assembly, gear case 1
6 GM47269 Cover, gear case 1
8 229634 Oil seal 1
9GM35720 Plug, screw 2
10 GM47266 Cover assembly, pump 1
11 GM47265 Cover, lub. oil pump 1
12 GM35653 Valve, relief 1
13 GM47271 Spring 1
14 GM35520 Plug 1
15 GM47267 Rotor, inner 1
16 GM47268 Rotor, outer 1
17 GM35467 Screw, M6 x 16 8
18 GM47263 Cover, pump timing 1
19 229674 Pipe, knock 4
20 GM47260 O-ring 1
21 GM47264 O-ring 3
22 252764 O-ring, fuel injection pump 1
23 225816 Bolt, M6 x 12 1
24 252693 Bolt 4
25 225921 Bolt 4
26 225921 Bolt 3
27 363207 Bolt, M6 x 60 7
28 229766 Bolt, M6 x 65 plated 2
29 GM35732 Nut 3
30 GM46206 Gasket, liquid 1
31 250837 Lub oil cap 1
32 252684 O-ring 1a p-32.0 1
33 252750 Cover, blind 1
34 256796 O-ring 1a s-24.0 1
35 252693 Bolt 2

10 TP-6270 11/06
Group 3: Mounting Flange and Oil Sump
6270_3
Quantity
Var. No.
Item Part Number Description 1
1256750 Parallel pin 8 x 16 2
2229114 Mounting flange 1
3252998 Gasket 1
4 229505 Bolt, M10 x 20 6
5 252714 Bolt 4
6 225706 Spacer 1
7252701 Bolt, M8 x 35 3
8GM35492 Sump assembly, oil 1
Quantity
Var. No.
Item Part Number Description 1
9225386 DrainplugM22 1
11 225425 Seal washer 1
12 252696 Bolt, M8 x 16 6
13 252703 Bolt 22
14 256750 Parallel pin 8 x 16 2
15 225866 Case assembly 1
17 252930 Rear oil seal 1
18 363430 Bolt, M8 x 30 6

11
TP-6270 11/06
Group 3: Mounting Flange and Oil Sump
6270_3_2
Quantity
Var. No.
Item Part Number Description 2
1256750 Parallel pin 8 x 16 2
2GM47276 Backplate 1
3229505 Bolt, M10 x 20 7
4 252714 Bolt 3
5 363026 Parallel pin 6 x 10 2
6 229671 Case assembly, oil seal 1
8250836 Oil seal 1
9229761 Bolt, M6 x 22 plated 10
10 GM47274 Spacer, oil sump 1
11 GM47275 Sump assembly, lub. oil 1
12 GM47273 Plug, M16 1
14 363448 Washer, seal 16S 1
15 252695 Bolt, M8 x 12 1
16 225819 Bolt, M8 x 30 plated 1
17 252703 Bolt 11
18 252704 Bolt 3
19 GM46206 Gasket, liquid 1

12 TP-6270 11/06
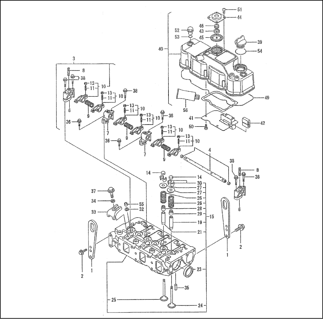
Group 4: Cylinder Head
6270_4

13
TP-6270 11/06
Group 4: Cylinder Head
Quantity
Var. No.
Item Part Number Description 1
1363110 Lifter, engine 2
2225818 Bolt, M8 x 14 4
3GM35440 Shaft assembly, rocker 1
4GM35441 Shaft, rocker arm 1
6GM35442 Support, rocker arm 2
7GM35443 Support, rocker arm 2
8GM35444 Stud 3
9252815 Spring 3
10 GM35447 Arm assembly, rocker 6
11 229844 Valve screw 6
13 252817 Nut, M8 6
14 250999 Cap 6
15 GM35448 Head assembly, cylinder 1
19 250835 Valve guide 3
21 GM35449 Guide, valve 3
23 252732 Plug 40 2
24 GM35438 Valve, intake 3
25 GM35439 Valve, exhaust 3
26 225713 Spring, valve 6
27 250882 Retainer 6
28 225766 Seal, valve stem 3
29 250844 Valve seal 3
30 250806 Pin, cotter 6
32 252744 Seat 3
33 GM35451 Retainer, nozzle 3
34 GM35495 Washer 3
35 250963 Spring pin 2
36 252699 Bolt, M8 x 25 plated 2
37 252703 Bolt 3
38 252704 Bolt 6
39 250837 Cap 1
40 GM35446 Bonnet assembly, head 1
41 GM35431 Plate, baffle 1
42 252805 Baffle 1
43 GM35434 Plate, diaphragm 1
44 GM35435 Cover, diaphragm 1
45 GM35436 Diaphragm 1
46 GM35437 Spring, diaphragm 1
49 GM35445 Gasket, bonnet 1
50 363201 Screw, tapping 5 x 10 4
51 363201 Screw, tapping 5 x 10 4
52 252470 Cap nut 3
53 250801 Oring 3
54 252684 O-ring 1
55 GM35450 Protector, nozzle 3
56 252998 Gasket 1

14 TP-6270 11/06
Group 4: Cylinder Head, continued
6270_4_2

15
TP-6270 11/06
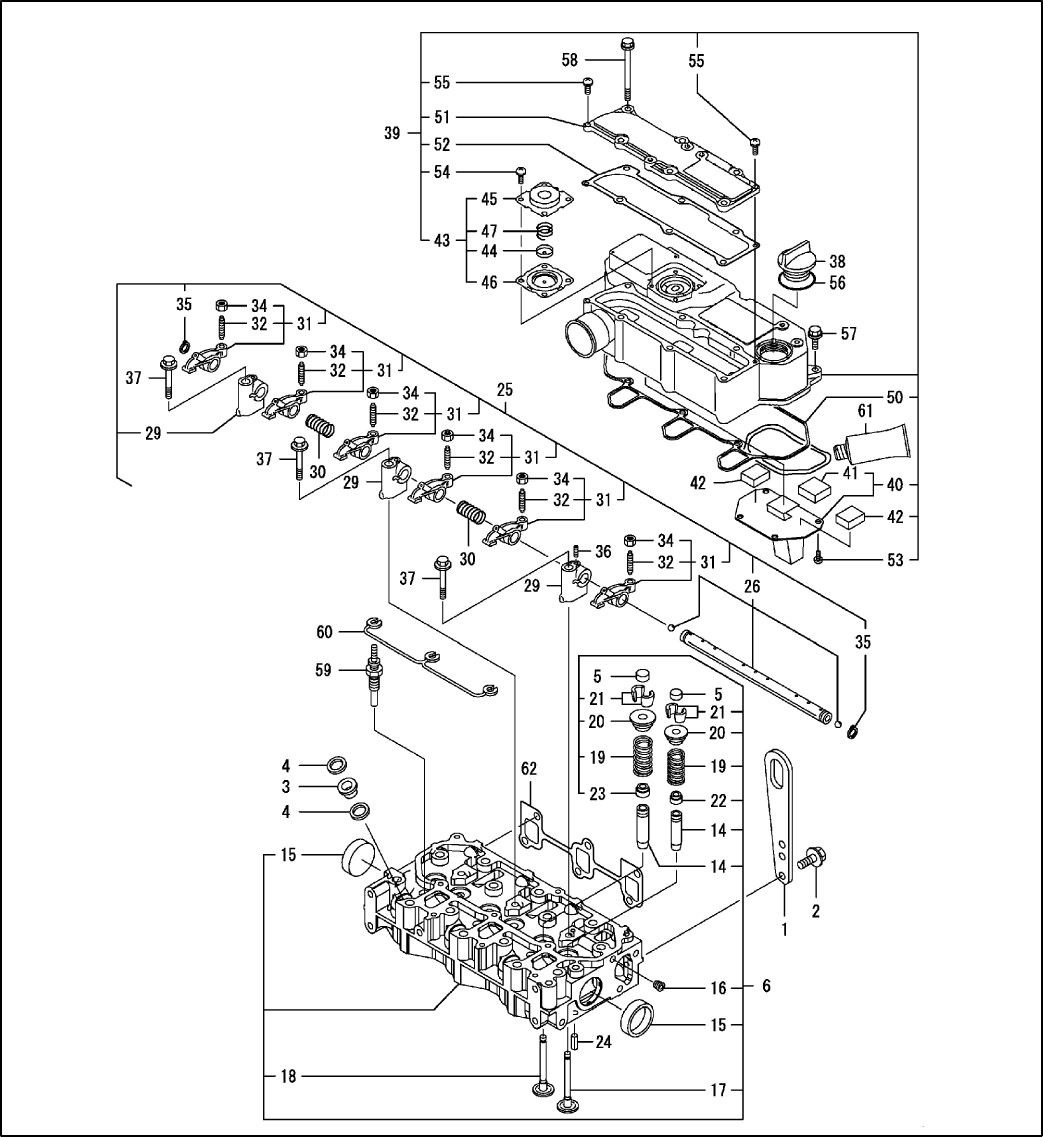
Group 4: Cylinder Head, continued
Quantity
Var. No.
Item Part Number Description 2
1GM38596 Lifter, engine 2
2252696 Bolt, M8 x 16 2
3GM47297 Protector, nozzle 3
4 229624 Gasket 6
5 GM47277 Cap, valve 6
6 GM47291 Head assembly, cylinder 1
14 GM35426 Guide, valve 6
15 GM47278 Plug 35 2
16 GM47299 Plug 1/16, screw 1
17 GM47281 Valve, intake 3
18 GM47282 Valve, exhaust 3
19 GM47283 Spring, valve 6
20 GM35587 Retainer, spring 6
21 GM35423 Cotter, valve 12
22 GM35424 Seal, valve stem 3
23 GM35425 Seal, valve stem 3
24 250963 Spring pin 6 x 12 2
25 GM47284 Support assembly, arm 1
26 GM47285 Shaft assembly, rocker 1
29 GM47286 Support, rocker arm 3
30 363034 Spring 2
31 GM47290 Arm assembly, rocker 6
32 229844 Valve screw 6
34 252817 Nut, M8 x p1.0 6
35 252345 Clip 2
36 363213 Screw, m5 x 16 1
37 252702 Bolt 3
38 250837 Lub oil cap 1
39 GM47289 Bonnet assembly, head 1
40 GM47279 Plate, baffle 1
41 GM47280 Baffle, breather 1
42 GM47280 Baffle, breather 2
43 GM47296 Diaphragm assembly 1
44 GM35434 Plate, diaphragm 1
45 GM35435 Cover, diaphragm 1
46 GM35436 Diaphragm 1
47 GM35437 Spring, diaphragm 1
50 GM47295 Gasket, bonnet 1
51 GM47287 Cover, bonnet 1
52 GM47288 Gasket, bonnet cover 1
53 363201 Screw, tapping 5 x 10 4
54 363201 Screw, tapping 5 x 10 4
55 GM47298 Screw, 5 x 16 2
56 252684 O-ring 1a p-32.0 1
57 225817 Bolt, M6 x 20 3
58 225429 Bolt, M6 x 75 Plated 6
59 GM47293 Plug, glow 3
60 GM47294 Connector, glow plug 1
61 GM46206 Gasket, liquid 1
62 GM47292 Gasket, manifold 1

16 TP-6270 11/06
Group 5: Intake Manifold
6270_5
Quantity
Var. No.
Item Part Number Description 1
1GM35433 Pipe, breather 1
2229425 Clamp 2
3GM35452 Manifold, intake 1
5 GM33685 Gasket, intake manifold 1
6 252697 Bolt 4
7 252707 Bolt 2
8225778 Gasket 1
9GM35579 Joint 1
10 252697 Bolt 4
11 225717 Gasket, exhaust manifold 1

17
TP-6270 11/06
Group 6: Camshaft and Drive Gear
6270_6
Quantity
Var. No.
Item Part Number Description 1
1252819 Tappet 6
2225718 Rod, push 6
3GM35453 Camshaft assembly 1
4 252804 Metal, thrust 1
6 256587 Gear, camshaft 1
7 252669 Key7x14 1
8GM35734 Nut, lock M14 plated 1
9225818 Bolt, M8 x 14 2
10 GM35459 Shaft, idle gear 1
11 GM35461 Gear assembly, idle 1
14 GM35460 Bush, idle gear 1
15 252702 Bolt 3
16 GM19682 Bolt, gear 4
17 GM35462 Gear, pump 1
18 GM35711 Flange 1
19 GM35714 Washer, spring 1

18 TP-6270 11/06
Group 6: Camshaft and Drive Gear, continued
6270_6_2
Quantity
Var. No.
Item Part Number Description 2
1363039 Tappet 6
2GM47300 Rod, push 6
3GM47301 Camshaft assembly 1
9 225816 Bolt, M6 x 12 2
10 GM47302 Shaft, idle gear 1
11 GM47303 Gear assembly, idle 1
14 GM47306 Bolt, M6 x 35 plated 3
15 GM19682 Bolt, gear 4
16 GM47304 Gear, pump 1
17 GM47305 Flange 1
18 252666 Washer, spring 1
19 252725 Nut 1

19
TP-6270 11/06
Group 7: Crankshaft and Piston
6270_7
Quantity
Var. No.
Item Part Number Description 1
1GM35454 Crankshaft assembly 1
2256750 Parallel pin 8 x 16 1
5GM35455 Gear, crankshaft 1
6 252669 Key7x14 1
8 256654 Spring pin 1
9 GM35456 V-pulley, crankshaft 1
10 252937 Washer 1
11 252763 Bolt, V pulley 1
12 252401 Bolt, flywheel 6
13 229117 Flywheel assembly 1
15 252774 Gear, ring 1
16 GM35457 Piston w/ring 3
18 GM35458 Ring set, piston 3
22 225395 Pin, piston 3
23 229738 Circlip 6
24 225838 Rod assembly, connecting 3
28 225726 Bushing piston pin 3
29 225723 Bolt 6
30 225724 Bearing, crankpin 3
32 225725 Crank bearing 3
34 GM35738 Piston w/ring, 0.25 OS 3
36 GM35739 Ring set, 0.25 OS 3

20 TP-6270 11/06
Group 7: Crankshaft and Piston, continued
6270_7_2
Quantity
Var. No.
Item Part Number Description 2
1GM47309 Crankshaft assembly 1
2256750 Parallel pin 8 x 16 1
5229748 Key, 4 x 12 1
6 GM47307 Gear, crankshaft 1
8 GM47320 Flywheel assembly 1
11 363081 Gear, frt. diff. drive 1
12 GM47308 V-pulley, crankshaft 1
13 229664 Bolt, M12 x 1.25 1
14 229639 Washer 1
15 GM47310 Piston w/ring 3
17 GM47312 Ring set 3
Quantity
Var. No.
Item Part Number Description 2
21 GM47311 Pin, piston 3
22 GM47321 Circlip 22 6
23 GM47315 Rod assembly, connecting 3
27 GM47319 Bushing, piston pin 3
28 GM47316 Bolt, connecting rod 6
29 GM47317 Metal assembly, crank pin 3
31 GM47314 Piston assembly, 0.25 OS 3
33 GM47313 Ring set, 0.25 OS 3
37 GM47318 Bearing, pin 0.25 US 3
39 229638 Bolt 5

21
TP-6270 11/06
Group 8: Lubrication Oil System
6270_8
Quantity
Var. No.
Item Part Number Description 1
1GM35468 Dipstick 1
2252759 Guide, dipstick 1
3225775 Gasket 1
4 GM35487 Pipe assembly, oil inlet 1
8 252701 Bolt, M8 x 35 2
9 GM35419 Switch, oil pressure 1
10 252084 Bolt 1
11 GM35471 Pipe assembly, oil 1
12 GM35550 Bolt assembly, joint 1
13 252677 Joint bolt 1
14 252734 Washer 8, seal 1
15 252734 Washer 8, seal 1
16 363452 Washer, seal 2
17 250989 Nut, M6 1
18 252834 Filter, oil* 1
19 252697 Bolt 3
20 GM35469 Bracket assembly, filter 1
21 GM35470 Bracket, filter 1
22 256582 Stud 1
23 225776 Gasket 1
* A Kohler-brand oil filter is available for generator models using this
variation. Oil filter GM47465 has 18% more media than filter 252834
for greater contaminant-holding capacity.

22 TP-6270 11/06
Group 8: Lubrication Oil System, continued
6270_8_2
Quantity
Var. No.
Item Part Number Description 2
1GM47323 Dipstick, lub. oil 1
2256582 Stud 1
3229678 Filter, oil 1
4 GM47322 O-ring 1
5 GM47324 Pipe assembly, lub, oil 1
9 229498 Bolt, M6 x 10 plated 2
10 GM35419 Switch, oil pressure 1
11 GM47325 Pipe assembly, hydraulic 1
12 GM35550 Bolt assembly, joint 2
13 252734 Washer 8, seal 2
14 252677 Joint bolt 3 2
15 252734 Washer 8, seal 2
16 252759 Guide, dipstick 1

23
TP-6270 11/06
Group 9: Cooling Water System
6270_9
Quantity
Var. No.
Item Part Number Description 1 2
1GM35472 Pump assembly, water 1 1
3GM35488 Gasket 1 1
4GM35489 Plate 1 1
8 GM29476 Gasket 1 1
9 GM35490 Pipe, water pump 1 1
11 252839 O-ring 1 1
13 GM35720 Plug, screw 2 2
14 225818 Bolt, M6 x 14 plated 2 2
15 225817 Bolt, M6 x 20 2 2
16 252701 Bolt, M8 x 35 1 1
17 256798 Bolt, M8 x 55 plated 3 3
18 225428 V-belt 1
18 344920 V-belt (24 V models) 1
19 252845 V-pulley 1 1
20 229408 Thermostat cover 1 1
21 249865 Gasket 1 1
22 252699 Bolt, M8 x 25 plated 1 1
Quantity
Var. No.
Item Part Number Description 1 2
23 252773 Packing 16 2 2
24 252757 Plug M16 2 2
25 256734 Petcock assembly 1 1
25 225704 Valve 1 1
28 250967 Gasket 8, round 1 1
29 252695 Bolt, M8 x 12 1 1
30 252705 Bolt 1 1
31 GM35473 Pipe assembly 1 1
32 GM35475 Pipe assembly 1 1
33 GM35477 Clamp 1 1
34 229411 Clamp 2 2
35 GM35482 Tube, corrugated 1 1
36 GM35474 Pipe assembly 1 1
37 GM35476 Pipe, water 1 1
38 229411 Clamp 2 2
39 GM35580 Gasket 1 1

24 TP-6270 11/06
Group 9: Cooling Water System, continued
6270_9_2
Quantity
Var. No.
Item Part Number Description 3
1GM47326 Pump assembly, water 1
3GM47329 Cover 1
4GM47328 Gasket 1
9 GM47333 Screw, M6 x 12 4
10 229780 Plug 1
11 GM47330 O-ring 1
12 GM35704 Plug, drain 1
13 GM47327 Gasket, water pump 1
14 250967 Gasket 8, round 1
15 252695 Bolt, M8 x 12 1
16 252704 Bolt 3
17 GM47331 V-pulley, water pump 1
18 GM47044 Belt, 36 in. 1
19 225816 Bolt, M6 x 12 4
20 GM42711 Cover, thermostat 1
21 252706 Bolt 1
22 252699 Bolt, M8 x 25 plated 1
23 252757 Plug m16 2
24 GM42701 Plug, drain 1
25 252773 Packing 16 2
26 249865 Gasket 1
27 GM47332 Adjuster, belt 1
28 252697 Bolt 1
29 GM35491 Bolt 1

25
TP-6270 11/06
Group 10: Fuel Injection Pump
6270_10
5
Quantity
Variation Number
Item Part Number Description 1 2
1GM35742 Injection pump assembly 1 1
2GM35478 Bracket, pump 1 1
3252696 Bolt, M8 x 16 1 1
4 252697 Bolt 1 1
5 344746 Solenoid (24 V models) 1

26 TP-6270 11/06
Group 10: Fuel Injection Pump, continued
6270_10_2
See Group 6
1
Quantity
Var. No.
Item Part Number Description 3
1GM47334 Pump assembly, fuel injection 1

27
TP-6270 11/06
Group 12: Fuel Injection Valve
6270_12
Quantity
Var. No.
Item Part Number Description 1
1GM35743 Fuel injector 3
2GM35494 Nozzle assembly 3
5256520 Nut, nozzle case 3
6 GM35479 Holder assembly, nozzle 3
10 256521 Spring nozzle 3
11 256522 Seat, nozzle spring 3
12 256523 Plate, stop 3
13 256707 Pin 6
14 256524 Shim set 3
26 225374 Retainer 1
Quantity
Var. No.
Item Part Number Description 1
29 225418 Bolt, M4 x 14 hex socket 1
30 256774 Clamp assembly, line 1
33 225418 Bolt, M4 x 14 hex socket 2
35 GM35484 Pipe assembly, injection 1
39 GM35485 Pipe assembly, injection 1
43 GM35486 Pipe assembly, injection 1
47 GM35573 Pipe, fuel oil 2
48 GM35483 Pipe, fuel oil 1
49 GM35574 Cap 1
50 249843 Hose clamp 7

28 TP-6270 11/06
Group 12: Fuel Injection Valve, continued
6270_12_2
Quantity
Var. No.
Item Part Number Description 2
1GM47337 Valve assembly, injection 3
2GM47336 Holder, nozzle 3
3GM47338 Nozzle assembly 3
4 256774 Clamp assembly, line 1
7 225418 Bolt, M4 x 14 hex socket 2
9 GM47340 Pipe, fuel injection 1
13 GM47341 Pipe, fuel injection 1
17 GM47342 Pipe, fuel injection 1
21 225406 Joint 1
22 GM47339 Pipe assembly, return 1
28 GM47345 Gasket, return 3
29 GM47343 Pipe, fuel oil 1
30 249843 Hose clamp 2
31 229662 Nut 3
32 GM47344 Valve assembly, check 1
38 225424 Seal washer 12S 2
40 — Clamp (see Group 103) 2
41 — Fuel line (see Group 103) 1

29
TP-6270 11/06
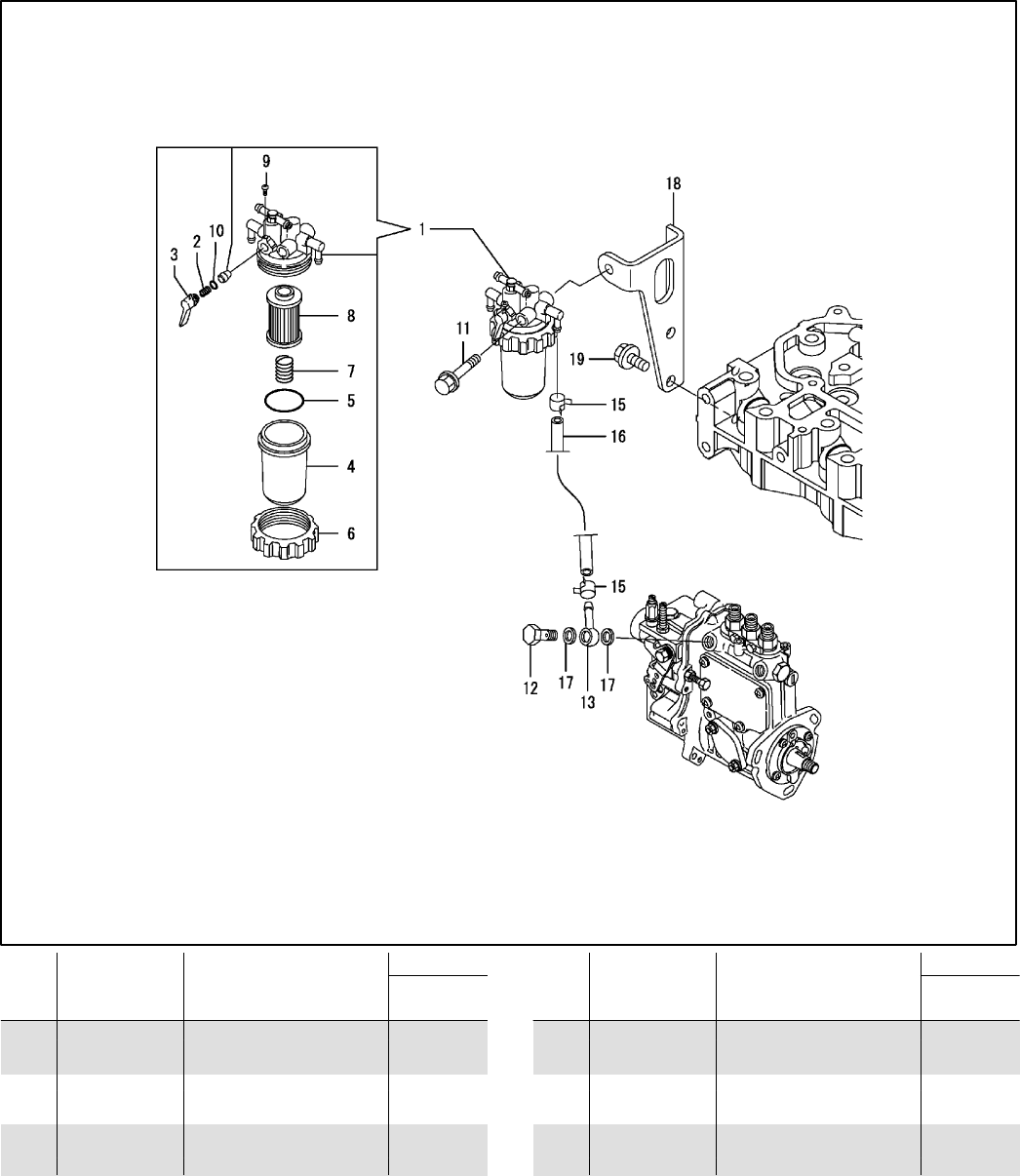
Group 13: Fuel Line and Filter
6270_13
Quantity
Var. No.
Item Part Number Description 1
1GM35541 Bracket, filter 1
2GM32359 Filter, fuel 1
3225819 Bolt M8 x 30 plated 2
4 X-386-93 Pipe, fuel oil 1
5 X-386-135 Pipe, fuel oil 1
6 252670 Clamp 4

30 TP-6270 11/06
Group 13: Fuel Line and Filter, continued
6270_13_2
Quantity
Var. No.
Item Part Number Description 2
1GM47042 Filter assembly, fuel 1
2GM47346 Spring, taper valve 1
3GM47349 Lever 1
4 229709 Cup, strainer 1
5 229550 O-ring 1
6 250821 Retainer 1
7229708 Spring 1
8GM10979 Element, fuel filter 1
9GM47347 Screw, M4 1
Quantity
Var. No.
Item Part Number Description 2
10 225811 O-ring 1
11 229758 Bolt w/washer, M8 x 70 1
12 229552 Bolt, pipe joint 1
13 256567 Joint 12, pipe 1
15 — Clamp (see Group 103) 2
16 — Fuel line (see Group 103) 1
17 225424 Seal washer, 12S 2
18 GM47348 Bracket, filter 1
19 252696 Bolt, M8 x 16 2

31
TP-6270 11/06
Group 14: Starting Motor
6270_14
Quantity
Var. No.
Item Part Number Description 1 2
1344743-P Starter, 12 V 1
1GM39020 Starter, 24 V 1
2225895 Armature assembly 1
3 GM35772 Ball bearing 1
4 GM35769 Ball bearing 1
6 225898 Field coil assembly 1
7225899 Screw 4
8225900 Brush (+) 2
9225901 Holder assembly 1
10 225902 Brush (--) 2
11 225903 Brush spring 4
12 225904 Rear cover 1
13 225905 Gear housing assembly 1
14 225906 Center housing 1
15 225907 Switch, magnetic 1
16 225908 Shift lever set 1
Quantity
Var. No.
Item Part Number Description 1 2
19 225909 Dust cover 1
20 225910 Through bolt 2
21 225911 Pinion assembly 1
22 225912 Pinion shaft 1
23 225913 Pinion stopper set 1
27 GM35770 Clutch assembly 1
28 GM35771 Ball bearing 1
29 GM35774 Ball bearing 1
30 225917 Cover 1
31 225920 Bolt 2
32 225921 Bolt 3
33 GM35516 Stud, starter 2
34 252481 Cover 1
35 252725 Nut 2

32 TP-6270 11/06
Group 14: Starting Motor, continued
6270_14_2
Quantity
Var. No.
Item Part Number Description 3
1229704 Starter 1
2363417 Cover terminal 1
3252630 Stopper set, pinion 1
4 GM47353 Switch, magnet 1
5 252631 Washer set, thrust 1
6 363004 Armature 1
7363005 Cover assy., rear 1
8GM47351 Holder assembly, brush 1
9363008 Brush (--) 2
10 GM47352 Brush (+) 1
Quantity
Var. No.
Item Part Number Description 3
11 363009 Spring, brush 4
12 363006 Cover kit, dust 1
13 363007 Shift lever kit 1
14 363092 Yok e ass y. 1
15 363078 Case, gear 1
16 363093 Through bolt 2
17 363079 Pinion 1
18 363010 Bolt, M6 x 37 2
19 225820 Bolt, M10 x 30 plated 2
19 229768 Bolt, M10 x 30 2

33
TP-6270 11/06
Group 15: Gasket Set
6270_15
Quantity
Var. No.
Item Part Number Description 1
1GM35741 Gasket set 1
2GM33836 Gasket, cylinder head 1
3252764 O-ring, pump 1
4 250844 Valve seal 3
5 GM35450 Protector, nozzle 3
6 252744 Seat 3
7GM35445 Gasket, bonnet 1
8225778 Gasket 1
9225717 Gasket, exhaust man 1
10 225425 Seal washer 1
11 225766 Seal, valve stem 3
12 225775 Gasket 1
13 GM35580 Gasket 1
14 249865 Gasket 1
15 GM35421 O-ring 4
16 250967 Gasket 8, round 1
17 252734 Washer 8, seal 2
18 GM35517 Gasket 2
19 250801 Oring 3
20 252684 O-ring 2
21 256796 O-ring 1
22 363452 Washer, seal 2
23 GM33685 Gasket, intake manifold 1
24 225776 Gasket 1

34 TP-6270 11/06
Group 15: Gasket Set, continued
6270_15_2
25
Quantity
Var. No.
Item Part Number Description 2
1GM47354 Gasket set 1
2GM47255 Gasket, cylinder head 1
3252764 O-ring, fuel injection pump 1
4 GM35424 Seal, valve stem 3
5 GM47297 Protector, nozzle 3
6 GM47295 Gasket, bonnet 1
7GM47292 Gasket, manifold 1
8GM35425 Seal, valve stem 3
9252734 Washer 8, seal 4
10 252684 O-ring 2
11 GM47322 O-ring 1
12 GM47260 O-ring 1
Quantity
Var. No.
Item Part Number Description 2
13 GM47264 O-ring 3
14 229624 Gasket 6
15 GM47288 Gasket, bonnet cover 1
16 252773 Packing 16 2
17 225424 Seal washer 4
18 GM47345 Gasket, return 3
19 GM47327 Gasket, water pump 1
20 250967 Gasket, round 1
21 363448 Washer, seal 16S 1
22 256796 O-ring 1
23 249865 Gasket 1
25 GM46206 Gasket, liquid 1

TP-6270 11/06 35
Group 101: Air Intake
12
3
5
6
7
8
9
10
13
11
12
11
4
7
7
7
6270_101
Quantity
Variation Number
Item Part Number Description GR1 2
1X-426-19 Clamp, hose, 1/2 in. 1 1
2X-426-6 Clamp, hose, 1.56/2.5 in. 1 1
3 278856 Cover, plastic 1 1
4X-400-28 Spacer, 0.282 ID x 0.5 OD x 0.531 in. 1 1
5 278857 Filter, air 1 1
6 278858 Element, air cleaner 1 1
7 278862 Clip, air cleaner 4 4
8GM31177-BLK Bracket, air cleaner mounting 1
8 GM37433 Bracket, air cleaner mounting 1
9 278855 Base, air cleaner 1 1
10 344224 Hose, molded air intake, 1.29 in. ID 1
10 GM37434 Hose, molded air intake 1
11 X-426-8 Clamp, hose, 0.81/1.75 in. 2 2
12 359585 Duct 1 1
13 359476 Connector, hose 1 1

36 TP-6270 11/06
Group 103: Fuel System
1
2
3
4
6
7
8
9
10
11
12
5
11
See Group 13 for additional fuel system parts. 6270_103a
5
AA
See Group 13
13
14
5
5
5
5
15
16

TP-6270 11/06 37
Group 103: Fuel System
Quantity
Part Variation Number
Item Number Description GR2 GR9 3
1 229051 Pump, fuel 1 1
1 344740 Pump, fuel 1
2 229168 Lead assembly 1 1 1
3X-555-1 Elbow, street, 1/4 x 1/4 111
4X-391-25 Connector, 90 deg. 5/16 in. ID hose 1 1 1
5X-426-9 Clamp, hose, .25/.70 in. 2 2 6
6X-386-101 Fuel line, flexible 1 1
6X-386-79 Hose 1
7 229065 Bracket, fuel pump 1 1
7 GM38396 Bracket, fuel pump 1
8M125A-12-80 Washer 2 2
9M933-12020-60 Bolt, hex head 2 2
10 X-101-25 Nut, hex elastic stop 3 3 3
11 X-25-40 Washer 6 6
12 X-284-39 Grommet 333
13 X-386-135 Line, flex fuel 1
14 X-386-79 Hose 1
15 GM38410 Bracket, fuel filter mounting 1
16 M931-08070-60 Screw, hex cap 1

38 TP-6270 11/06
Group 104: Cooling System
1
2
3
4
5
6
7
9
10
11
12
13
74
14
15
17
18
19
20
21
22
73
24
25
26
27
28
29
30
31
32
33
34
35
36 37
38
39
42
44
45
49
50
33
54
48
45
47
41
46
43
58
55
56
57
8
2
2
3
350
31
45
45
59
23
16
51
52
4
4
6270_104a
71
72
Note: Items 1--7, and 51 are removed when an optional sound shield is installed.

TP-6270 11/06 39
Group 104: Cooling System
Quantity
Part Variation Number
Item Number Description GR3 GR10 3
1 GM30592 Guard, belt 1 1
1 GM38459 Guard, belt 1
2X-284-39 Grommet 333
3X-25-40 Washer, plain 3 3
4 229330 Screw, wing 333
5 GM30573 Bracket, belt guard 1
5 GM33857 Bracket, belt guard 1
5 GM38461 Bracket, belt guard 1
6 GM30571 Bracket, belt guard 1
6 GM33855 Bracket, belt guard 1
6 GM38462 Bracket, belt guard 1
7 GM30572 Bracket, belt guard 1
7 GM33856 Bracket, belt guard 1
7 GM38460 Bracket, belt guard 1
8X-400-170 Spacer, 0.344 ID x 0.625 OD x 0.143 in. 1 1
9 229125 V-Belt, 27 in. 1 1
9 GM13660 V-Belt, 25.5 in. 1
10 GM30244 Pulley, pump drive 1 1
10 GM42280 Pulley, pump drive 1
11 M125A-10-80 Washer, plain 333
12 M933-10025-60 Screw, HC M10-1.50 333
13 GM46963 Service Kit, Seawater Pump* (before serial number 2104903) 1 1
13 GM46964 Service Kit, Seawater Pump* (before serial number 2104903) 1
13 -- Pump, seawater (serial number 2104903 and later, see item 74) 1 1 1
14 GM30243 Bracket, seawater pump 1 1
14 GM38443 Bracket, seawater pump 1
15 M931-08060-60 Screw, HC 2 2
16 GM30263 Switch, pressure 111
17 260115 Manifold, exhaust 1 1
17 GM37631 Manifold, exhaust 1
18 241311 Neck 111
19 M125A-08-80 Washer 6 6 6
20 M931-08120-60 Screw, hex head cap 6 6
20 M931-08100-60 Screw, hex head cap 2
20 M931-08140-60 Screw, hex head cap 4
21 249905 Gasket, exhaust 1 1 1
22 229063 Tube, mixing 1 1 1
23 X-25-85 Washer, 5/16 2 2 2
23 M125A-08-80 Washer, plain 4
24 X-125-5 Screw, 5/16-18 x 1 4 4
24 M933-08025-60 Screw, hex cap 4
25 GM47556 Thermostat 1 1 1
26 229963 Gasket, water outlet 1 1 1
27 229064 Cover, thermostat 1 1 1
28 X-25-85 Washer 2 2
28 M125A-08-80 Washer, plain 2
29 X-125-31 Screw, 5/16-8 x 0.875 2 2
29 M933-08020-60 Screw, hex cap 2
30 229232 Hose, coolant 1 1
30 GM37677 Hose, molded coolant 1
30 GM12028 Sleeving, expandable (not shown) 1
31 X-426-8 Clamp, hose, 1 15/16 x 1 3/16 2 2 2
32 229057 Hose, molded coolant 1 1
32 GM37407 Hose, molded coolant 1
33 X-426-8 Clamp, hose, 1 15/16 x 1 3/16 2 2 2
34 229064 Cover, thermostat 1 1 1
35 229963 Gasket, water outlet 1 1 1
36 X-25-85 Washer 2 2
36 M125A-08-80 Washer, plain 2
37 X-125-31 Screw, 5/16-8 x 0.875 2 2
37 M933-08020-60 Screw, hex cap 2
38 GM30020 Hose, molded coolant 1 1
38 344880 Hose, molded coolant, 1.10 in. ID 1
39 X-426-8 Clamp, hose, 1 15/16 x 1 3/16 2 2 2
41 X-400-104 Spacer, 0.375 ID x 0.75 ID x 0.5 in. 1 1
41 X-400-262 Spacer, 6.60 ID x 12.70 OD x 8.38 L 2
41 X-400-263 Spacer, 6.60 ID x 12.70 OD x 12.08 L 1
41 X-400-264 Spacer, 8.74 ID x 18.55 OD x 16.08 L 1
* Seawater pump service kit includes pump GM46936 (item 74), item 14 bracket, and hardware.

40 TP-6270 11/06
Group 104: Cooling System, continued
1
2
3
4
5
6
7
9
10
11
12
13
74
14
15
17
18
19
20
21
22
73
24
25
26
27
28
29
30
31
32
33
34
35
36 37
38
39
42
44
45
49
50
33
54
48
45
47
41
46
43
58
55
56
57
8
2
2
3
350
31
45
45
59
23
16
51
52
4
4
6270_104a
71
72
Note: Items 1--7, and 51 are removed when an optional sound shield is installed.

TP-6270 11/06 41
Group 104: Cooling System, continued
13
61
62
63
64
65
66
67
68
69
70
Pump 344089 Components
Before S/N 2104903
Pump GM46936 Components
S/N 2104903 and later
74 61
62
63
64 6869
70
Quantity
Part Variation Number
Item Number Description GR3 GR10 3
42 GM30880 Exchanger, heat 1 1
42 GM37676 Exchanger, heat 1
43 260085 Zinc anode 1 1 1
44 X-312-46 Hose, 0.63 in ID 1 1
44 GM38472 Hose, molded seawater 1
45 X-426-3 Clamp, hose, 1/2 x 1 13/32 4 4 4
46 X-582-2 Connector, hose 1 1
46 X-391-2 Connector, 90 deg., 5/8 in. ID hose 1
47 X-391-2 Connector, 90 deg., 5/8 in. ID hose 1 1 1
48 X-312-4 Hose, 0.63 in. ID 1 1
48 X-312-51 Hose, 0.63 in. ID 1
49 229232 Hose 1 1
49 GM37678 Hose, molded coolant 1
50 X-426-8 Clamp, hose, 1 15/16 x 1 3/16 2 2 2
51 X-672-21 Clamp, insulated 1 1
52 X-672-3 Clamp, insulated 1 1
54 X-391-2 Connector, 90 deg., 5/8 in. ID hose 1 1 1
55 359037 Bottle, overflow 111
56 X-426-9 Clamp, hose 2 2 2
57 X-386-34 Hose 111
58 229980 Cap 111
59 GM30570-WHT Bracket, water bottle 1 1
59 GM38437-WHT Bracket, water bottle 1
61 344306 Plate, cover 1 1 1
62 344584 Gasket 1 1 1
63 229826 Kit, impeller (includes gasket) 111
64 344043 Bearing, ball 111
65 344585 Housing 1 1 1
66 344606 Pulley 111
67 344587 Shaft, drive 111
68 GM16865 Seal 111
69 GM22995 Seat, ceramic 111
70 GM17702 Key 111
71 GM38448 Bracket, heat exchanger 1
72 X-672-33 Clamp, insulated, 2.62 in. 2
73 X-25-85 Washer, 5/16 4 4
73 M125A-08-80 Washer, plain 4
74 GM46936 Pump, seawater (serial number 2104903 and later) 111

42 TP-6270 11/06
Group 105: Engine
18
14
5
17
2
6270_105a
To Oil Pan
19
16
1
3
20
4
68
7
910
11
12
13
15
12 Volt Mounting 24 Volt Mounting Alternator Removed
15
2
421
22
23
24
25

TP-6270 11/06 43
Group 105: Engine
Quantity
Part Variation Number
Item Number Description GR4 GR11 3 4
1 229113 Guard, generator fan 1 1
2 229212 Bracket, alternator fan 1
2 254784 Arm, alternator adjusting 1
3 249872 Switch, high temperature cutout 1111
4 256924 Alternator 1 1
4 344742 Alternator 1
5 359653 Valve, drain 1111
6 GM28823 Sender, temperature 1111
7 GM29458 Engine assembly, 3TNV82 (see Groups 1-15 for parts) 1 1
7 GM35300 Engine assembly, 3TNV76 (see Groups 1-15 for parts) 1 1
8 GM30245 Bushing, adapter 1 1 1 1
9M934-06-60 Nut, hex, 6 mm 1 1 1
10 X-22-11 Washer, lock, 0.262 ID x 0.469 in. OD 2 1 1
11 X-22-16 Washer, lock, 0.326 ID x 0.883 in. OD 5 5 2 2
12 X-22-26 Washer, lock, 0.521 ID x 1.24 in. OD 1 1
13 X-22-5 Washer, lock, 0.326 ID x 0.62 in. OD 1
14 X-25-145 Washer, plain, 0.859 ID x 1.185 in. OD 1 1
15 X-400-258 Spacer 1
15 X-400-260 Spacer 1
15 X-400-152 Spacer, 0.344 ID x 0.625 OD x 1.5 in. 1 1
16 X-426-9 Clamp, hose, 0.25/0.720 in. 1 1 1 1
17 X-6084-1 Clip, hose 1 1 1 1
18 X-651-34 Hose 1111
19 X-67-113 Screw, hex washer, thread-forming 2 2
20 X-6238-10 Screw, 3/8-16 x 0.75 2211
21 X-431-37 Terminal, flag, female 1
22 X-400-74 Spacer, 0.344 ID x 0.625 OD x 0.25 in. 1
23 344815 Guard, alternator fan 1
24 229484 Pulley, tension assembly (Kit GM33125-KA1) 1 1 1
25 249959 Adapter, bushing 1 1
25 GM48799 Adapter, bushing 3/8-18 x M16 1 1
Note: Items 17 and 18 are removed when an optional sound shield is installed.

44 TP-6270 11/06
Group 107: Nameplate and Decals
Quantity
Part Variation Number
Item Number Description GR5 GR14 3
1 249810 Decal, warning “Hot Coolant” 1 1 1
2 344282 Decal, “Notice Zinc Anode” 1 1 1
3 226917 Decal, negative battery connection 1 1 1
4 344295 Decal, equipment ground 1 1 1
5 GM14167 Decal, drain 333
6 249808 Decal, warning “Rotating Parts” 111
7 224233 Decal, 1-800 number 1 1 1
8 294520 Decal, danger “High Voltage” 1 1 1
9 249809 Decal, warning “Hot Engine” 1 1 1
10 359446 Nameplate 1 1 1
11 X-6348-10 Decal, Kohler Power Systems 1 1 1
12 GM35838 Decal, reconnection 1 phase 1 1
12 229883 Decal, reconnection 3 phase 1
13 344486 Decal, CE 1 1 1
14 246242 Decal, notice “This generator set has been rewired...” 1 1
15 GM45906 Decal, fuse panel 1
Nameplate and decals not illustrated.

TP-6270 11/06 45
Group 109: Skid and Plant Mounting
1
2
3
4
5
6
7
8
9
10
11
12
7
8
10
10
11
12
6
15
6270_109a
10
11
11
Quantity
Part Variation Number
Item Number Description GR6 2
1 GM31907 Tray, drip 1
1 GM37600 Tray, drip 1
2 GM30382 Support, engine, left side 1
2 GM32403 Support, engine, right side 1
2 GM37601 Support, engine 2
3M125A-12-80 Washer 7
3M125A-10-80 Washer 1
4 # Screw, hex head 8 8
5X-22-26 Washer, lock, 0.521 ID x 1.24 in. OD 1
5X-22-14 Washer, lock, 0.391 ID x 0.975 in. OD 1
6 # Hardware, M8 8 8
7 278322 Vibromount 4
7 225124 Vibromount 4
8X-25-96 Washer, plain, 0.406 ID x 2 in. OD 4 4
9LK-0606-1515 Lead 1 1
10 X-22-12 Washer, lock, 0.262 ID x 0.743 in. OD 4 4
11 #Hardware, M6 2 2
12 # Hardware, M8 4 4
15 M982-08-80 Nut, elastic stop 4 4
# Common hardware; procure locally.

46 TP-6270 11/06
Group 201: Generator and Mounting
6
57
4
3
2
19
8
12
11
16
17
14
18
19
20 30
33
27
28
29
32
31
39
38
37
34
34
35 34
24
25
26
21
22
23
36
10
6270_201a
13
15
40

TP-6270 11/06 47
Group 201: Generator and Mounting
Quantity
Part Variation Number
Item Number Description GR7 GR13 3
1 GM29342 Stator assembly 1
1 GM29787 Stator assembly 1
1 GM29301 Stator assembly 1
2 229109 Guard, generator fan 1 1 1
3 257442 Clip, speed 1 1 1
4X-67-125 Screw, tapping, 10-24 1 1 1
5 229097 Plate, locator 1 1
5 229349 Plate, locator 1
6 229356 Pin, knurled 2 2 2
7M933-10012-60 Screw, M10-1.50 6 6 6
8 GM28588 Disc, drive 1
9X-6238-3 Screw, 3/8-16 x 0.875 8 8 8
10 257017 Disc, drive 2 2
10 257014 Disc, drive 2
11 M933-08016-60 Screw, HC M8-1.25 8 8 8
12 M125A-08-80 Washer 8 8 8
13 229346 Disc, fan locator 1
14 225215 Fan, generator 1 1
14 225214 Fan, generator 1
15 X-6351-7 Nut, flange, whiz lock, M5-0.8 4
15 X-6284-2 Screw, slotted pan head machine 4 4 4
16 X-400-189 Spacer 4 4 4
17 A-229147 Rotor assembly (includes item 18) 1 1
17 A-229837 Rotor assembly (includes item 18) 1
18 X-758-15 Bearing, ball 1 1 1
19 229110 O-ring 1 1 1
20 GM24810 Bracket, end 1 1 1
21 GM37366 Box, junction 1 1
21 GM38488 Box, junction 1
22 GM30021 Plate, circuit breaker 1 1
22 GM46204 Plate, circuit breaker 1
23 X-67-64 Screw, self-tapping 4 4 4
24 X-6266-1 Connector, cable 1 1 1
25 GM29689 Panel, junction box louver 1 1
25 GM38781 Panel, junction box louver 1
26 X-6216-1 Screw, self-tapping 10 10 14
27 X-801-3 Washer, hardened 4 4 5
28 X-6051-20 Screw, hex head 4 4
28 M931-10235-60 Screw, hex head 4
29 X-97-15 Screw, hex, 10-24 4 4 4
30 344567 Exciter, armature 1 1 1
31 X-25-129 Washer, plain 1 1 1
32 X-6238-3 Screw, 3/8-16 x 0.875 1 1 1
32 X-22-1 Washer, lock 1 1 1
33 A-229152 Circuit board, diode board 1 1 1
34 X-283-3 Terminal 3 3 3
35 X-51-8 Screw, 8-32 x 0.75 5 5 5
36 X-22-7 Washers, #8 5 5 5
37 X-712-17 Spacer 3 3 3
38 X-67-135 Screw, tapping, 10-24 3 3 3
39 GM30341 Exciter assembly, field 1 1 1
40 X-22-14 Washer, lock, 0.391 ID x 0.975 in. OD 1 1 1
Note: Item 25 is not used when an optional sound shield is installed. The sound shield parts are listed in the
Accessory section of this manual.

48 TP-6270 11/06
Group 301: Controller and Mounting
1
2
3
4
5
6
7
8
8
9
9
10
10
“LO” Lead Connections
“LO” Leads
See Group 201
See Group 201
12
11
13
14
15
16
16
16 17
16 18
19
14
14
20
21
6269_301
22 23
23
23
F3
F2
F1
A B
C
A
B
C
22
24
25
26
27

TP-6270 11/06 49
Group 301: Controller and Mounting
Quantity
Part Variation Number
Item Number Description GR8 GR12 3
1 282829 Vibromount 4 4 4
2 GM28483 SCR module 1 1 1
3 GM34969 Controller assembly, ADC 2100 (kit includes instructions) 1 1 1
4 GM29246 Harness, engine 1 1
4 GM46350 Harness, engine 1
5 GM29671 PCB assembly, relay board, 12 V 1 1
5 GM29778 PCB assembly, relay board, 24 V 1
6X-22-11 Washer, lock, 0.262 ID x 0.469 in. OD 2 2 2
7X-22-12 Washer, lock, 0.262 ID 0.743 in. OD 2 2 2
8X-22-20 Washer, lock, 0.172 ID x 0.373 in. OD 8 8 8
9X-67-64 Screw, self-tapping 6 6 6
10 X-6210-4 Nut, flange whiz, 8-32 8 8 8
11 GM28678 Connector, weathertight 1 1 1
12 320711 Connector, 9-position 1 1 1
13 GM29998 Connector, 6-position, blk, male 1 1 1
14 358337 Fuse, 10 A, 250 V 3 3
15 229989 Connector, receptacle 1 1 1
16 233959 Diode, 6 A 4 4 4
17 GM15493 Connector, weathertight, 3-position 1 1 1
18 292370 Connector, plug, 2-position 1 1 1
19 GM29249 Connector 1 1 1
20 259391 Relay, 12 V 1
20 272684 Relay, 24 V 1
20 GM28787 Relay, 12 V 1
21 200705 Grommet, round 1 1 1
22 223316 Fuse, 10 A, 250 A 2
23 238426 Fuse holder, 0.25 x 1.25 in. 3
24 358337 Fuse, 10 A, 250 V 1
25 M7985A-05012-20 Screw, pan head machine 1 1 1
26 M934-05-50 Nut, hex, 5 mm 1 1 1
27 X-81-8 Nut, hex, 1/4-20 1 1 1
Group 701: Literature
Quantity
Part Variation Number
Item Number Description 44 69
1TP-5375 Warranty, Marine 1 1
2TP-5620 Safety Precautions, Marine 1 1
3TP-6252 O/M 8--32EOZD/6.5--27EFOZD, Marine 1 1
4TP-6253 I/M EOZ/EFOZ/EOZD/EFOZD Models, Marine 1 1
5TP-6255 S/M 8--32EOZD/6.5--27EFOZD, Marine 1 1
6TP-6270 P/C 9/10EOZD, 7/8.5/9EFOZD Marine 1 1
7TP-6412 O/M Yanmar TNV Series 1 1
8TP-6293 S/M Yanmar TNV Series, Marine 1
8TP-6383 S/M Yanmar 2TNV/3TNV 1
Paint and Miscellaneous Parts
P
a
r
t
I
t
e
m
P
ar
t
N
u
m
b
e
r
D
e
s
c
r
i
p
t
i
o
n
Item Number Description
1 221334 White paint, gallon can
1 221335 White paint, spray can

50 TP-6270 11/06
Parts List: Accessories
Qty. Description Part No.
Circuit Breakers
Circuit Breaker Kit GM30331-KA(KP)8
1 Terminal, jumper 249956
1 Plate, circuit breaker GM30022
4 Screw, pan head, 6-32 x 3/16 in. X-49-21
1 Circuit breaker, 42 A, 250 V, 2-pole X-506-43
1 Installation Instructions TT-1394
Circuit Breaker Kit GM30331-KA(KP)9
1 Plate, circuit breaker GM30022
4 Screw, pan head, 6-32 x 3/16 in. X-49-21
1 Circuit breaker, 42 A, 250 V, 2-pole X-506-43
1 Installation Instructions TT-1394
Circuit Breaker Kit GM30331-KA(KP)10
1 Plate, cover 229183
1 Plate, circuit breaker GM30022
2 Screw, pan head, 6-32 x 3/16 in. X-49-21
2 Screw, pan head, 6-32 x 1/4 in. X-49-25
1 Circuit breaker, 42 A, 250 V, 1-pole X-506-60
2 Nut, flange whiz, 6-32 X-6210-3
1 Installation Instructions TT-1394
Circuit Breaker Kit GM30331-KA(KP)11
1 Plate, cover 229183
1 Plate, circuit breaker GM30022
2 Screw, pan head, 6-32 x 3/16 in. X-49-21
2 Screw, pan head, 6-32 x 1/4 in. X-49-25
1 Circuit breaker X-506-69
2 Nut, flange whiz, 6-32 X-6210-3
1 Installation Instructions TT-1394
Circuit Breaker Kit GM30331-KA(KP)45
3 Boot 238915
1 Plate, circuit breaker GM30024
6 Screw, pan head, 6-32 x 3/16 in. X-49-21
1 Circuit breaker, 20 A, 600 V, 3-pole 269251
1 Installation Instructions TT-1395
Circuit Breaker Kit GM30331-KA(KP)55
3 Boot 238915
1 Decal, notice 246242
1 Plate, circuit breaker GM37377
6 Screw, pan head, 6-32 x 3/16 in. X-49-21
1 Circuit breaker, 30 A, 480 V, 3-pole X-506-66
1 Installation Instructions TT-1395
Circuit Breaker Kit GM30331-KA(KP)56
3 Boot 238915
1 Decal, notice 246242
1 Plate, circuit breaker GM37377
6 Screw, pan head, 6-32 x 3/16 in. X-49-21
1 Circuit breaker, 35 A, 480 V, 3-pole X-506-67
1 Installation Instructions TT-1395
Circuit Breaker Kit GM46334-KA(KP)1
1 Decal, notice 246242
1 Decal, fuel panel GM45906
1 Plate, circuit breaker GM46205
1 Bracket, fuse holder GM46332
4 Screw, pan head, 6-32 x 3/16 in. X-49-21
1 Circuit breaker, 42 A, 250 V, 2-pole X-506-43
1 Channel, U X-6047-27
1 Installation Instructions TT-1395
Qty. Description Part No.
Circuit Breaker Kit GM46334-KA(KP)2
1 Decal, notice 246242
1 Terminal, jumper 249956
1 Decal, fuel panel GM45906
1 Plate, circuit breaker GM46205
1 Bracket, fuse holder GM46332
4 Screw, pan head, 6-32 x 3/16 in. X-49-21
1 Circuit breaker, 42 A, 250 V, 2-pole X-506-43
1 Channel, U X-6047-27
Circuit Breaker Kit GM46334-KA(KP)3
1 Plate, cover 229183
1 Decal, fuel panel GM45906
1 Plate, circuit breaker GM46205
1 Bracket, fuse holder GM46332
2 Screw, pan head, 6-32 x 3/16 in. X-49-21
2 Screw, pan head, 6-32 x 1/4 in. X-49-25
1 Circuit breaker, 80 A, 250 V, 1-pole X-506-52
1 Channel, U X-6047-27
Circuit Breaker Kit GM46334-KA(KP)4
1 Plate, cover 229183
1 Decal, fuel panel GM45906
1 Plate, circuit breaker GM46205
1 Bracket, fuse holder GM46332
2 Screw, pan head, 6-32 x 3/16 in. X-49-21
2 Screw, pan head, 6-32 x 1/4 in. X-49-25
1 Circuit breaker, 35 A, 250 V, 1-pole X-506-46
1 Channel, U X-6047-27
Circuit Breaker Kit GM46334-KA(KP)5
1 Decal, notice 246242
1 Decal, fuel panel GM45906
1 Plate, circuit breaker GM46205
1 Bracket, fuse holder GM46332
4 Screw, pan head, 6-32 x 3/16 in. X-49-21
1 Circuit breaker, 33 A, 250 V, 2-pole X-506-39
1 Channel, U X-6047-27
Electrical System
Harness, 12 in., Pigtail GM32332-KP1
1 Harness, pigtail GM32324
Harness, 15 in., Remote Panel GM32333-KP1
1 Harness, extension GM30248
Harness, 25 in., Remote Panel GM32333-KP2
1 Harness, extension GM32323
Harness, 100 ft. Remote Panel GM32333-KP4
1 Harness, extension GM47391
Harness, Y-Connection GM32333-KP5
1 Harness, Y remote gauge GM49054

51
TP-6270 11/06
Parts List: Accessories
Qty. Description Part No.
Isolated Ground System GM31865-KA(KP)1
1 Adapter, sender 229323
4 Insulator, panel 233269
1 Starter relay, 12 VDC, 20 A 259391
1 Vibromount 282829
1 Sensor, pressure GM28822
1 Switch, high temp. cutout GM29289
1 Solenoid GM30412
1 Harness, Engine 9 EOZD Yanmar GM31764
1 Bus, isolated ground GM31868
1 Alternator, battery charging GM31919
1 Tag, hang battery negative GM35413
1 Bracket, support GM33029
1 Spacer,.406 ID x .625 OD x .297 in. X-400-75
1 Cable, battery X-545-161
1 Cable, battery (black) X-545-178
2 Stud (metric) X-6054-23
1 Insulator, standoff X-6128-35
1 Installation Instructions TT-1407
Isolated Ground System GM31865-KA(KP)2
1 Adapter, sender 229323
4 Insulator, panel 233269
1 Relay 272684
1 Vibromount 282829
1 Sensor, pressure GM28822
1 Switch, high temp. cutout GM29289
1 Solenoid GM30413
1 Harness, Engine 9 EOZD Yanmar GM31764
1 Bus, isolated ground GM31868
1 Alternator, battery charging GM31920
1 Tag, hang battery negative GM35413
1 Bracket, support GM33029
1 Spacer,.406 ID x .625 OD x .297 in. X-400-75
1 Cable, battery X-545-161
1 Cable, battery (black) X-545-178
2 Stud (metric) X-6054-23
1 Insulator, standoff X-6128-35
1 Installation Instructions TT-1407
Isolated Ground System GM31865-KA(KP)3
1 Adapter, sender 229323
4 Insulator, panel 233269
1 Starter relay, 12 VDC, 20 A 259391
1 Vibromount 282829
1 Sensor, pressure GM28822
1 Switch, high temp. cutout GM29289
1 Solenoid GM30412
1 Harness, Engine 9 EOZD Yanmar GM31764
1 Bus, isolated ground GM31868
1 Alternator, battery charging GM31919
1 Tag, hang battery negative GM35413
1 Bracket, support GM33029
1 Spacer,.406 ID x .625 OD x .297 in. X-400-75
1 Cable, battery X-545-161
1 Cable, battery (black) X-545-179
2 Stud (metric) X-6054-23
1 Insulator, standoff X-6128-35
1 Installation Instructions TT-1407
Qty. Description Part No.
Isolated Ground System GM31865-KA(KP)4
1 Adapter, sender 229323
4 Insulator, panel 233269
1 Relay 272684
1 Vibromount 282829
1 Sensor, pressure GM28822
1 Switch, high temp. cutout GM29289
1 Solenoid GM30413
1 Harness, Engine 9 EOZD Yanmar GM31764
1 Bus, isolated ground GM31868
1 Alternator, battery charging GM31920
1 Bracket, support GM33029
1 Spacer,.406 ID x .625 OD x .297 in. X-400-75
1 Cable, battery X-545-161
1 Cable, battery (black) X-545-178
1 Cable, battery (black) X-545-179
2 Stud (metric) X-6054-23
1 Insulator, standoff X-6128-35
1 Installation Instructions TT-1407
Isolated Ground System GM31865-KA(KP)5
1 Adapter, sender 229323
4 Insulator, panel 233269
1 Starter relay, 12 VDC, 20 A 259391
1 Vibromount 282829
1 Sensor, pressure GM28822
1 Switch, high temp. cutout GM29289
1 Solenoid GM30412
1 Bus, isolated ground GM31868
1 Alternator, battery charging GM31919
1 Tag, hang battery negative GM35413
1 Bracket, support GM33029
1 Harness, Engine 9 EOZD Yanmar GM38630
1 Spacer,.406 ID x .625 OD x .297 in. X-400-75
1 Cable, battery X-545-161
1 Cable, battery (black) X-545-178
2 Stud (metric) X-6054-23
1 Insulator, standoff X-6128-35
Isolated Ground System,
Sound Shield GM31865-KA(KP)6
1 Adapter, sender 229323
4 Insulator, panel 233269
1 Starter relay, 12 VDC, 20 A 259391
1 Vibromount 282829
1 Sensor, pressure GM28822
1 Switch, high temp. cutout GM29289
1 Solenoid GM30412
1 Bus, isolated ground GM31868
1 Alternator, battery charging GM31919
1 Bracket, support GM33029
1 Harness, engine 9 EOZD Yanmar GM38630
1 Spacer,.406 ID x .625 OD x .297 in. X-400-75
1 Cable, battery X-545-161
1 Cable, battery (black) X-545-178
1 Cable, battery (black) X-545-179
2 Stud (metric) X-6054-23
1 Insulator, standoff X-6128-35
Isolated Standoff GM38314-KA1
2 Nut, hex, 6mm M934-06-60
2 Stud (metric) X-6054-23
1 Insulator, standoff X-6128-35
Oil Pressure Sender GM32112-KA(KP)1
1 Adapter, sender 229323
1 Sensor, pressure GM28822
1 Installation Instructions TT-1438

52 TP-6270 11/06
Parts List: Accessories
Qty. Description Part No.
Oil Press. and Water Temp. Sender GM24405-KA1
1 Adapter, sender 225307
1 Sender, water temperature 249287
1 Fitting, 45 deg. street elbow 267428
1 Sender, oil pressure 343473
Preheat Kit, 12 Volt GM32117-KA(KP)1
1 Wiring harness 229233
1 Relay 233442
1 Boot 238915
1 Washer, lock, 0.262 ID x 0.743 in. OD X-22-12
1 Installation Instructions TT-1397
Preheat Kit, 12 Volt GM32117-KA(KP)2
1 Wiring harness 229233
1 Relay 233442
1 Boot 238915
2 Gasket, air heater 344904
1 Heater, air 344903
1 Bracket, mounting GM32427
1 Washer, lock, 0.262 ID x 0.743 in. OD X-22-12
1 Installation Instructions TT-1397
Preheat Kit, 12 Volt GM32117-KA(KP)3
1 Wiring harness 229233
1 Boot 238915
1 Solenoid 344741
3 Gasket, air heater 344904
2 Heater, air 344903
1 Bracket, mounting GM32427
1 Washer, lock, 0.262 ID x 0.743 in. OD X-22-12
1 Installation Instructions TT-1397
Preheat Kit, 12 Volt GM32117-KA(KP)10
1 Wiring harness 229233
1 Relay, 12VDC 233442
2 Boot 238915
2 Mount, controller 241769
1 Bracket, fuel pump GM38779
1 Installation Instructions TT-1397
Remote Digital Gauge GM32337-KP1
1 Decal, warning 249494
1 Gauge, digital GM30565
1 Harness, remote GM32325
1 Installation Instructions TT-1379
1 Installation Instructions TT-1364
Remote Start Panel GM32335-KP1
1 Decal, warning 249494
1 Installation instructions TT-1378
1 Panel assembly, control (includes *) GM33848-1
1 *Meter, runtime 238736
1 *Panel, control GM33847
1 *Switch, rocker GM33849
1 *Harness, wiring GM33851
2 *Screw, pan head, M3 x 12 M7985A-03012-20
2 *Nut, hex, 3 mm M934-03-50
2 *Washer, lock, 0.146 ID x 0.285 in. OD X-22-6
Qty. Description Part No.
Remote Start Panel GM32335-KP2
1 Decal, warning 249494
1 Installation instructions TT-1378
1 Panel assembly, control (includes *) GM33848-2
1 *Meter, runtime 238736
1 *Panel, control GM33847
1 *Switch, rocker GM33850
1 *Harness, wiring GM33851
2 *Screw, pan head, M3 x 12 M7985A-03012-20
2 *Nut, hex, 3 mm M934-03-50
2 *Washer, lock, 0.146 ID x 0.285 in. OD X-22-6
Ship to Shore Switch PAA-246617
1 Switch, transfer, 3-pole A-246617
1 Installation Instructions TT-535
Miscellaneous Accessories
ABYC Conversion, 9EOZD GM41041-KA(KP)1
1 Filter assembly, fuel/water separator GM41013
1 Element, water separator GM41014
1 Bracket, fuel/water separator GM41018
1 Decal, notice GM50378
2 Connector, hose + vibra seal X-380-4
2 Connector, 90 deg., 5/16 in. ID hose X-391-25
1 Elbow, street, 90 deg. x 1/4 in. NPTF X-555-1
2 Line, flex fuel X-6251-3
1 Line, flex fuel X-6251-8
ABYC Conversion, 10EOZD GM41041-KA(KP)2
1 Filter assembly, fuel/water separator GM41013
1 Element, water separator GM41014
1 Bracket, fuel/water separator GM41054
1 Bracket, water bottle GM41055
1 Decal, notice GM50378
2 Connector, hose + vibra seal X-380-4
2 Connector, 90 deg., 5/16 in. ID hose X-391-25
1 Elbow, street, 90 deg. x 1/4 in. NPTF X-555-1
2 Line, flex fuel X-6251-12
1 Line, flex fuel X-6251-13
1 Line, flex fuel X-6251-7
Fuel/Water Separator GM31994-KP1
1 Filter assembly, fuel/water separator GM32181
1 Element, water separator GM32182
1 Installation Instructions TT-1375
Fuel Attachment Block GM33129-KA(KP)1
1 Fuel block 229835
1 Connector, hose X-380-4
1 Fuel line, flexible X-6251-12
1 Fuel line, flexible X-6251-9
2 Connector, 90 deg., 5/16 in. ID hose X-391-25
2 Spacer, 0.357 ID x 0.625 OD x 0.656in. X-400-100
6 Clamp, hose, 0.38/0.88 in. X-426-18
Keel Cooling Conversion GM32201-KA(KP)2
1 Gasket, exhaust 249905
1 Flange, exhaust outlet 254692
Keel Cooling Conversion GM32201-KA(KP)6
1 Gasket, exhaust 249905
1 Flange, exhaust outlet 254692
1 Guard, belt GM38783

53
TP-6270 11/06
Parts List: Accessories
Qty. Description Part No.
Siphon Break PA-229928
1 Installation Instructions TT-1268
1 Valve, siphon break (includes *) GM32985
1 *Valve, duct 328666
1 *Cap, siphon valve GM32984
1 *Loop, siphon valve loop GM32988
Siphon Break GM24866-KA1
1 Tubing, clear flexible plastic GM34883
1 Clamp, hose, .25/.70 X-426-9
1 Valve, siphon break (includes *) GM32985
1 *Valve, duct 328666
1 *Cap, siphon valve GM32984
1 *Loop, siphon valve loop GM32988
Tray, Stainless Steel GM42297-KA(KP)1
1 Tray, drip GM38793
Tray, Stainless Steel GM49018-KA(KP)4
1 Tray, drip GM40846
Sound Shield
Siphon Break Hose Connection GM32339-KA(KP)1
1 Valve, siphon break 229928
2 Coupling, hose 344934
2 Grommet, round X-284-42
1 Hose, .63 ID X-312-61
2 Clamp, hose, .56/1.06 in. X-426-3
Qty. Description Part No.
Sound Shield GM30508-KA(KP)1
1 Installation instructions TT-1382
8 Washer, 0.281 x 0.625 x 0.065 X-25-142
4 Washer, plain, 0.406 x 0.812 x 0.065 X-25-37
8 Clamp, hose, 2.75/1.81 X-426-16
2 Clamp, hose, 1.06/0.56 X-426-3
4 Screw, hex cap, 1/4-20 X-465-24
4 Screw, hardened, 3/8-16 x 0.62 X-6238-3
2 Hose, 2.0 in. ID x 6.0 in. GM10073
1 Tube, exhaust, 2 in. OD 229889
4 Connector, outside GM15486
1 Base, 22.75 x 36.75 in. GM31925
1 Extruded rail, 21.22 in. GM30386
2 Extruded rail, 28.38 in. GM29318
3 Extruded rail, 21.22 in. GM30385
2 Extruded rail, 17.25 in. 344686
1 Tube, exhaust, 2 in. OD 344694
1 Door, engine end, 18.58 x 17.54 in. GM34544
1 Door, generator end, 18.58 x 17.54 in. GM34600
1 Door, left hand nonservice side, 21.32 x 22 in. GM34596
1 Door, right hand service side, 21.32 x 22 in. GM34513
1 Panel, junction box, 15.4 x 14.4 in. GM34617
1 Panel, nonservice side, 8.9 x 22 in. GM34571
1 Panel ADC, service side, 8.9 x 22 in. GM34554
1 Roof, 30.3 x 18.6 in. GM34564
1 Rail, engine end, 18.75 x 4.5 in. GM34579
1 Bulkhead panel, generator end rail,
18.75 x 4.5 in. GM34585
24 Screw, drill, #8 stainless steel X-794-5
2 Retainer, stainless steel, 0.485 in. GM29918
2 Stud, wing head GM29920
5 Washer, plain, #6 screw size M125A-06-80
5 Screw, hex cap, M6 x 16 mm M933-06016-60
8 Washer, plain, 0.219 ID x 0.5 OD X-25-36
1 Hose, seawater pump, 0.63 ID x 40 in. X-312-13
1 Fuel return line, flex., 44 in. X-6251-14
1 Fuel inlet line, flex., 22 in. X-6251-9
5 Clamp, hose, 0.38/0.88 in. X-426-18
4 Bolt, hex cap, 1/4-20 x 0.875 X-465-22
8 Screw, pan head, 10-24 x 1/2 X-50-15
1 Cable, battery, red, (+) to starter X-545-177
1 Cable, battery, black (--) to ground
connection on engine block X-545-176
2 Washer, nylon, 0.296 ID x 0.516 OD X-6278-15
2 Seal, push-on trim, 5.81 in. X-6422-14
2 Seal, push-on trim, 3.19 in. X-6422-17
1 Connector, hose, 1/4 NPT X-380-4
1 Hose, oil drain 0.375 ID/0.625 OD x 30 in. X-651-5
1 Washer, lock, 3/8 in. thread size X-22-14
1 Nut, hex, 10 mm M6923-10-80
1 Washer, plain, #10 screw size M125A-10-80
1 Washer, lock, 1/4 in. thread size X-22-12
1 Panel, ADC, 8.4 x 4.4 in. GM30251
1 Bushing, nylon, 0.672 ID X-634-25
2 Frame, circuit breaker, 5.8 x 2.3 in. GM29899
3 Foam, insulation acoustic 359584
1 U-channel, 15 in. X-6047-7
1 Clamp X-672-21

54 TP-6270 11/06
Parts List: Accessories
Qty. Description Part No.
Sound Shield GM38536-KA(KP)1
3 Foam, acoustic insulation (Yanmar) 359584
4 Connector, outside corner GM15486
1 Battery lug GM20744
2 Frame, circuit breaker GM29899
2 Retainer GM29918
2 Stud, wing head GM29920
1 Panel, sound shield ADC lead GM30251
1 Hose, radiator GM32052
1 Rail subassembly sound shield, front GM34508
1 Base, sound shield GM38539
3 Rail, sound shield GM38540
1 Rail, sound shield GM38541
2 Rail, sound shield GM38542
1 Door subassembly, sound shield, front GM38546
1 Door subassembly, sound shield, right hand GM38547
1 Door subassembly, sound shield, left hand GM38548
1 Door subassembly, sound shield, rear GM38549
1 Tube, exhaust GM38562
1 Panel subassembly, bulkhead connection GM38563
1 Panel subassembly, sound shield exhaust GM38568
2 Rail, sound shield GM38578
1 Panel, subassembly, sound shield, right hand GM38581
1 Panel subassembly, sound shield, left hand GM38584
1 Roof, subassembly, sound shield GM38589
1 Panel, junction box GM38603
1 Panel, junction box GM42453
5 Washer, plain M125A-06-80
1 Washer, plain M125A-10-80
5 Screw, hex cap M933-06016-60
1 Screw, hex cap M933-10020-60
2 Washer, lock, 0.262 ID x 0.743 in. OD X-22-12
1 Washer, lock, 0.391 ID x 0.975 in. OD X-22-14
9 Washer, plain, 0.281 ID x 0.625 in. OD X-25-142
8 Washer, plain, 0.219 ID x 0.5 in. OD X-25-36
4 Washer, plain, 0.406 ID x 0.812 in. OD X-25-37
1 Hose, 0.63 ID X-312-51
1 Connector, hose + vibra seal X-380-4
1 Fuel line, flexible 22 in. X-6251-9
1 Fuel line, flexible 44 in. X-6251-14
4 Clamp, hose, 1.81/2.75 in. X-426-16
2 Clamp, hose, 0.56/1.06 in. X-426-3
5 Clamp, hose, 0.38/0.88 in. X-426-18
4 Bolt, hex cap X-465-22
5 Bolt, hex cap X-465-24
8 Screw, pan head, 10-24 x 1/2 X-50-15
1 Cable, battery X-545-175
1 Cable, battery, black X-545-193
1 Conduit, convoluted X-6003-26
1 Conduit, convoluted X-6003-27
1 Conduit, convoluted X-6003-32
1 Conduit, convoluted X-6003-14
1 Conduit, convoluted X-6003-48
1 Conduit, convoluted X-6003-105
1 Channel, U X-6047-27
2 U-channel X-6047-45
4 Bolt, hex cap X-6238-3
2 Washer, nylon X-6278-15
1 Bushing, 0.672 x 0.875 in. NPT X-634-25
2 Seal, push-on trim X-6422-14
2 Seal, push-on trim X-6422-17
1 Hose, rubber, straight, 0.375 in. ID X-651-15
24 Screw, drill #8 stainless steel X-794-5

TP-6270 11/06 Appendix 55
Appendix A Abbreviations
The following list contains abbreviations that may appear in this publication.
A, amp ampere
ABDC after bottom dead center
AC alternating current
A/D analog to digital
ADC analog to digital converter
adj. adjust, adjustment
ADV advertising dimensional
drawing
AHWT anticipatory high water
temperature
AISI American Iron and Steel
Institute
ALOP anticipatory low oil pressure
alt. alternator
Al aluminum
ANSI American National Standards
Institute
(formerly American Standards
Association, ASA)
AO anticipatory only
API American Petroleum Institute
approx. approximate, approximately
AR as required, as requested
AS as supplied, as stated, as
suggested
ASE American Society of Engineers
ASME American Society of
Mechanical Engineers
assy. assembly
ASTM American Society for Testing
Materials
ATDC after top dead center
ATS automatic transfer switch
auto. automatic
aux. auxiliary
A/V audiovisual
avg. average
AVR automatic voltage regulator
AWG American Wire Gauge
AWM appliance wiring material
bat. battery
BBDC before bottom dead center
BC battery charger, battery
charging
BCA battery charging alternator
BCI Battery Council International
BDC before dead center
BHP brake horsepower
blk. black (paint color), block
(engine)
blk. htr. block heater
BMEP brake mean effective pressure
bps bits per second
br. brass
BTDC before top dead center
Btu British thermal unit
Btu/min. British thermal units per minute
C Celsius, centigrade
cal. calorie
CARB California Air Resources Board
CB circuit breaker
cc cubic centimeter
CCA cold cranking amps
ccw. counterclockwise
CEC Canadian Electrical Code
cert. certificate, certification, certified
cfh cubic feet per hour
cfm cubic feet per minute
CG center of gravity
CID cubic inch displacement
CL centerline
cm centimeter
CMOS complementary metal oxide
substrate (semiconductor)
cogen. cogeneration
com communications (port)
coml commercial
Coml/Rec Commercial/Recreational
conn. connection
cont. continued
CPVC chlorinated polyvinyl chloride
crit. critical
CRT cathode ray tube
CSA Canadian Standards
Association
CT current transformer
Cu copper
cu. in. cubic inch
cw. clockwise
CWC city water-cooled
cyl. cylinder
D/A digital to analog
DAC digital to analog converter
dB decibel
dBA decibel (A weighted)
DC direct current
DCR direct current resistance
deg., °degree
dept. department
dia. diameter
DI/EO dual inlet/end outlet
DIN Deutsches Institut fur Normung
e. V. (also Deutsche Industrie
Normenausschuss)
DIP dual inline package
DPDT double-pole, double-throw
DPST double-pole, single-throw
DS disconnect switch
DVR digital voltage regulator
E, emer. emergency (power source)
EDI electronic data interchange
EFR emergency frequency relay
e.g. for example (exempli gratia)
EG electronic governor
EGSA Electrical Generating Systems
Association
EIA Electronic Industries
Association
EI/EO end inlet/end outlet
EMI electromagnetic interference
emiss. emission
eng. engine
EPA Environmental Protection
Agency
EPS emergency power system
ER emergency relay
ES engineering special,
engineered special
ESD electrostatic discharge
est. estimated
E-Stop emergency stop
etc. et cetera (and so forth)
exh. exhaust
ext. external
F Fahrenheit, female
fglass. fiberglass
FHM flat head machine (screw)
fl. oz. fluid ounce
flex. flexible
freq. frequency
FS full scale
ft. foot, feet
ft. lb. foot pounds (torque)
ft./min. feet per minute
ggram
ga. gauge (meters, wire size)
gal. gallon
gen. generator
genset generator set
GFI ground fault interrupter
GND, ground
gov. governor
gph gallons per hour
gpm gallons per minute
gr. grade, gross
GRD equipment ground
gr. wt. gross weight
H x W x D height by width by depth
HC hex cap
HCHT high cylinder head temperature
HD heavy duty
HET high exhaust temperature,
high engine temperature
hex hexagon
Hg mercury (element)
HH hex head
HHC hex head cap
HP horsepower
hr. hour
HS heat shrink
hsg. housing
HVAC heating, ventilation, and air
conditioning
HWT high water temperature
Hz hertz (cycles per second)
IC integrated circuit
ID inside diameter, identification
IEC International Electrotechnical
Commission
IEEE Institute of Electrical and
Electronics Engineers
IMS improved motor starting
in. inch
in. H2O inches of water
in. Hg inches of mercury
in. lb. inch pounds
Inc. incorporated
ind. industrial
int. internal
int./ext. internal/external
I/O input/output
IP iron pipe
ISO International Organization for
Standardization
J joule
JIS Japanese Industry Standard
k kilo (1000)
K kelvin
TP-6270 11/0656 Appendix
kA kiloampere
KB kilobyte (210 bytes)
kg kilogram
kg/cm2kilograms per square
centimeter
kgm kilogram-meter
kg/m3kilograms per cubic meter
kHz kilohertz
kJ kilojoule
km kilometer
kOhm, kΩkilo-ohm
kPa kilopascal
kph kilometers per hour
kV kilovolt
kVA kilovolt ampere
kVAR kilovolt ampere reactive
kW kilowatt
kWh kilowatt-hour
kWm kilowatt mechanical
L liter
LAN local area network
L x W x H length by width by height
lb. pound, pounds
lbm/ft3pounds mass per cubic feet
LCB line circuit breaker
LCD liquid crystal display
ld. shd. load shed
LED light emitting diode
Lph liters per hour
Lpm liters per minute
LOP low oil pressure
LP liquefied petroleum
LPG liquefied petroleum gas
LS left side
Lwa sound power level, A weighted
LWL low water level
LWT low water temperature
m meter, milli (1/1000)
M mega (106when used with SI
units), male
m3cubic meter
m3/min. cubic meters per minute
mA milliampere
man. manual
max. maximum
MB megabyte (220 bytes)
MCM one thousand circular mils
MCCB molded-case circuit breaker
meggar megohmmeter
MHz megahertz
mi. mile
mil one one-thousandth of an inch
min. minimum, minute
misc. miscellaneous
MJ megajoule
mJ millijoule
mm millimeter
mOhm,
mΩmilliohm
MOhm,
MΩmegohm
MOV metal oxide varistor
MPa megapascal
mpg miles per gallon
mph miles per hour
MS military standard
m/sec. meters per second
MTBF mean time between failure
MTBO mean time between overhauls
mtg. mounting
MW megawatt
mW milliwatt
μF microfarad
N, norm. normal (power source)
NA not available, not applicable
nat. gas natural gas
NBS National Bureau of Standards
NC normally closed
NEC National Electrical Code
NEMA National Electrical
Manufacturers Association
NFPA National Fire Protection
Association
Nm newton meter
NO normally open
no., nos. number, numbers
NPS National Pipe, Straight
NPSC National Pipe, Straight-coupling
NPT National Standard taper pipe
thread per general use
NPTF National Pipe, Taper-Fine
NR not required, normal relay
ns nanosecond
OC overcrank
OD outside diameter
OEM original equipment
manufacturer
OF overfrequency
opt. option, optional
OS oversize, overspeed
OSHA Occupational Safety and Health
Administration
OV overvoltage
oz. ounce
p., pp. page, pages
PC personal computer
PCB printed circuit board
pF picofarad
PF power factor
ph., ∅phase
PHC Phillips head crimptite (screw)
PHH Phillips hex head (screw)
PHM pan head machine (screw)
PLC programmable logic control
PMG permanent-magnet generator
pot potentiometer, potential
ppm parts per million
PROM programmable read-only
memory
psi pounds per square inch
pt. pint
PTC positive temperature coefficient
PTO power takeoff
PVC polyvinyl chloride
qt. quart, quarts
qty. quantity
R replacement (emergency)
power source
rad. radiator, radius
RAM random access memory
RDO relay driver output
ref. reference
rem. remote
Res/Coml Residential/Commercial
RFI radio frequency interference
RH round head
RHM round head machine (screw)
rly. relay
rms root mean square
rnd. round
ROM read only memory
rot. rotate, rotating
rpm revolutions per minute
RS right side
RTV room temperature vulcanization
SAE Society of Automotive
Engineers
scfm standard cubic feet per minute
SCR silicon controlled rectifier
s, sec. second
SI Systeme international d’unites,
International System of Units
SI/EO side in/end out
sil. silencer
SN serial number
SPDT single-pole, double-throw
SPST single-pole, single-throw
spec,
specs specification(s)
sq. square
sq. cm square centimeter
sq. in. square inch
SS stainless steel
std. standard
stl. steel
tach. tachometer
TD time delay
TDC top dead center
TDEC time delay engine cooldown
TDEN time delay emergency to
normal
TDES time delay engine start
TDNE time delay normal to
emergency
TDOE time delay off to emergency
TDON time delay off to normal
temp. temperature
term. terminal
TIF telephone influence factor
TIR total indicator reading
tol. tolerance
turbo. turbocharger
typ. typical (same in multiple
locations)
UF underfrequency
UHF ultrahigh frequency
UL Underwriter’s Laboratories, Inc.
UNC unified coarse thread (was NC)
UNF unified fine thread (was NF)
univ. universal
US undersize, underspeed
UV ultraviolet, undervoltage
V volt
VAC volts alternating current
VAR voltampere reactive
VDC volts direct current
VFD vacuum fluorescent display
VGA video graphics adapter
VHF very high frequency
W watt
WCR withstand and closing rating
w/ with
w/o without
wt. weight
xfmr transformer

TP-6270 11/06 57Appendix
Appendix B Common Hardware Application Guidelines
Use the information below and on the following pages to
identify proper fastening techniques when no specific
reference for reassembly is made.
Bolt/Screw Length: When bolt/screw length is not given,
use Figure 1 as a guide. As a general rule, a minimum
length of one thread beyond the nut and a maximum
length of 1/2 the bolt/screw diameter beyond the nut is
the preferred method.
Washers and Nuts: Use split lock washers as a bolt
locking device where specified. Use SAE flat washers
with whiz nuts, spiralock nuts, or standard nuts and
preloading (torque) of the bolt in all other applications.
See Appendix C, General Torque Specifications, and
other torque specifications in the service literature.
G-585
Preferred Nut/Bolt Clearance
Unacceptable Nut/Bolt Clearance
12
3
1. 1/2 of bolt diameter
2. Min. 1 full thread beyond top of nut
3. Below top of nut
Figure 1 Acceptable Bolt Lengths
Steps for common hardware application:
1. Determine entry hole type: round or slotted.
2. Determine exit hole type: fixed female thread
(weld nut), round, or slotted.
For round and slotted exit holes, determine if
hardware is greater than 1/2 inch in diameter, or
1/2 inch in diameter or less. Hardware that is
greater than 1/2 inch in diameter takes a standard
nut and SAE washer. Hardware 1/2 inch or less in
diameter can take a properly torqued whiz nut or
spiralock nut. See Figure 2.
3. Follow these SAE washer rules after determining
exit hole type:
a. Always use a washer between hardware and a
slot.
b. Always use a washer under a nut (see 2 above
for exception).
c. Use a washer under a bolt when the female
thread is fixed (weld nut).
4. Refer to Figure 2, which depicts the preceding
hardware configuration possibilities.
G-585
12
3
4
5
6
1. Cap screw
2. Entry hole types
3. Standard nut and SAE washer
4. Whiz nut or spiralock: up to 1/2 in. dia. hardware
5. Weld nuts: above 1/2 in. dia. hardware
6. Exit hole types
Figure 2 Acceptable Hardware Combinations

TP-6270 11/0658 Appendix
Appendix C General Torque Specifications
American Standard Fasteners Torque Specifications
T
o
r
q
u
e
Assembled into Cast Iron or Steel Assembled into
A
l
u
m
i
n
u
m
Size
Torque
Measurement Grade 2 Grade 5 Grade 8
A
luminum
Grade2or5
8-32 Nm (in. lb.) 1.8 (16) 2.3 (20) —
10-24 Nm (in. lb.) 2.9 (26) 3.6 (32) —
10-32 Nm (in. lb.) 2.9 (26) 3.6 (32) —
1/4-20 Nm (in. lb.) 6.8 (60) 10.8 (96) 14.9 (132)
1/4-28 Nm (in. lb.) 8.1 (72) 12.2 (108) 16.3 (144)
5/16-18 Nm (in. lb.) 13.6 (120) 21.7 (192) 29.8 (264)
5/16-24 Nm (in. lb.) 14.9 (132) 23.1 (204) 32.5 (288)
3/8-16 Nm (ft. lb.) 24.0 (18) 38.0 (28) 53.0 (39)
3/8-24 Nm (ft. lb.) 27.0 (20) 42.0 (31) 60.0 (44)
7/16-14 Nm (ft. lb.) 39.0 (29) 60.0 (44) 85.0 (63)
7/16-20 Nm (ft. lb.) 43.0 (32) 68.0 (50) 95.0 (70) SeeNote3
1/2-13 Nm (ft. lb.) 60.0 (44) 92.0 (68) 130.0 (96)
1/2-20 Nm (ft. lb.) 66.0 (49) 103.0 (76) 146.0 (108)
9/16-12 Nm (ft. lb.) 81.0 (60) 133.0 (98) 187.0 (138)
9/16-18 Nm (ft. lb.) 91.0 (67) 148.0 (109) 209.0 (154)
5/8-11 Nm (ft. lb.) 113.0 (83) 183.0 (135) 259.0 (191)
5/8-18 Nm (ft. lb.) 128.0 (94) 208.0 (153) 293.0 (216)
3/4-10 Nm (ft. lb.) 199.0 (147) 325.0 (240) 458.0 (338)
3/4-16 Nm (ft. lb.) 222.0 (164) 363.0 (268) 513.0 (378)
1-8 Nm (ft. lb.) 259.0 (191) 721.0 (532) 1109.0 (818)
1-12 Nm (ft. lb.) 283.0 (209) 789.0 (582) 1214.0 (895)
Metric Fasteners Torque Specifications, Measured in Nm (ft. lb.)
Assembled into Cast Iron or Steel Assembled into
A
l
u
m
i
n
u
m
Size (mm) Grade 5.8 Grade 8.8 Grade 10.9
A
l
um
i
num
Grade 5.8 or 8.8
M6 x 1.00 6.2 (4.6) 9.5 (7) 13.6 (10)
M8 x 1.25 15.0 (11) 23.0 (17) 33.0 (24)
M8 x 1.00 16.0 (11) 24.0 (18) 34.0 (25)
M10 x 1.50 30.0 (22) 45.0 (34) 65.0 (48)
M10 x 1.25 31.0 (23) 47.0 (35) 68.0 (50)
M12 x 1.75 53.0 (39) 80.0 (59) 115.0 (85)
M12 x 1.50 56.0 (41) 85.0 (63) 122.0 (90) SeeNote3
M14 x 2.00 83.0 (61) 126.0 (93) 180.0 (133)
M14 x 1.50 87.0 (64) 133.0 (98) 190.0 (140)
M16 x 2.00 127.0 (94) 194.0 (143) 278.0 (205)
M16 x 1.50 132.0 (97) 201.0 (148) 287.0 (212)
M18 x 2.50 179.0 (132) 273.0 (201) 390.0 (288)
M18 x 1.50 189.0 (140) 289.0 (213) 413.0 (305)
Notes:
1. The torque values above are general guidelines. Always use the torque values specified in the service manuals and/or assembly drawings
when they differ from the above torque values.
2. The torque values above are based on new plated threads. Increase torque values by 15% if non-plated threads are used.
3. Hardware threaded into aluminum must have either two diameters of thread engagement or a 30% or more reduction in the torque to
prevent stripped threads.
4. Torque values are calculated as equivalent stress loading on American hardware with an approximate preload of 90% of the yield strength
and a friction coefficient of 0.125.

TP-6270 11/06 Appendix 59
Appendix D Common Hardware Identification
Screw/Bolts/Studs
Head Styles
Hex Head or Machine Head
Hex Head or Machine Head
with Washer
Flat Head (FHM)
Round Head (RHM)
Pan Head
Hex Socket Head Cap or
AllentHead Cap
Hex Socket Head or Allent
Head Shoulder Bolt
Sheet Metal Screw
Stud
Drive Styles
Hex
Hex and Slotted
Phillipsr
Slotted
Hex Socket
Nuts
Nut Styles
Hex Head
Lock or Elastic
Square
Cap or Acorn
Wing
Washers
Washer Styles
Plain
Split Lock or Spring
Spring or Wave
External Tooth Lock
Internal Tooth Lock
Internal-External Tooth Lock
Hardness Grades
American Standard
Grade 2
Grade 5
Grade 8
Grade 8/9 (Hex Socket
Head)
Metric
Number stamped on
hardware; 5.8 shown 5.8
Allenthead screw is a trademark of Holo-Krome Co.
Phillipsrscrew is a registered trademark of Phillips Screw Company.
Sample Dimensions
1/4-20 x 1
Major Thread Diameter In Fractional Inches Or Screw Number Size
Length In Inches (Screws and Bolts)
Threads Per Inch
American Standard (Screws, Bolts, Studs, and Nuts)
Metric (Screws, Bolts, Studs, and Nuts)
M8-1.25 x 20
Major Thread Diameter In Millimeters
Length In Millimeters (Screws and Bolts)
Distance Between Threads In Millimeters
9/32 x5/8x 1/16
Plain Washers
Internal Dimension
Thickness
External Dimension
Lock Washers
Internal Dimension
5/8

TP-6270 11/0660 Appendix
Appendix E Common Hardware List
The Common Hardware List lists part numbers and dimensions for common hardware items.
American Standard
Part No. Dimensions
Hex Head Bolts (Grade 5)
X-465-17 1/4-20 x .38
X-465-6 1/4-20 x .50
X-465-2 1/4-20 x .62
X-465-16 1/4-20 x .75
X-465-18 1/4-20 x .88
X-465-7 1/4-20 x 1.00
X-465-8 1/4-20 x 1.25
X-465-9 1/4-20 x 1.50
X-465-10 1/4-20 x 1.75
X-465-11 1/4-20 x 2.00
X-465-12 1/4-20 x 2.25
X-465-14 1/4-20 x 2.75
X-465-21 1/4-20 x 5.00
X-465-25 1/4-28 x .38
X-465-20 1/4-28 x 1.00
X-125-33 5/16-18 x .50
X-125-23 5/16-18 x .62
X-125-3 5/16-18 x .75
X-125-31 5/16-18 x .88
X-125-5 5/16-18 x 1.00
X-125-24 5/16-18 x 1.25
X-125-34 5/16-18 x 1.50
X-125-25 5/16-18 x 1.75
X-125-26 5/16-18 x 2.00
230578 5/16-18 x 2.25
X-125-29 5/16-18 x 2.50
X-125-27 5/16-18 x 2.75
X-125-28 5/16-18 x 3.00
X-125-22 5/16-18 x 4.50
X-125-32 5/16-18 x 5.00
X-125-35 5/16-18 x 5.50
X-125-36 5/16-18 x 6.00
X-125-40 5/16-18 x 6.50
X-125-43 5/16-24 x 1.75
X-125-44 5/16-24 x 2.50
X-125-30 5/16-24 x .75
X-125-39 5/16-24 x 2.00
X-125-38 5/16-24 x 2.75
X-6238-2 3/8-16 x .62
X-6238-10 3/8-16 x .75
X-6238-3 3/8-16 x .88
X-6238-11 3/8-16 x 1.00
X-6238-4 3/8-16 x 1.25
X-6238-5 3/8-16 x 1.50
X-6238-1 3/8-16 x 1.75
X-6238-6 3/8-16 x 2.00
X-6238-17 3/8-16 x 2.25
X-6238-7 3/8-16 x 2.50
X-6238-8 3/8-16 x 2.75
X-6238-9 3/8-16 x 3.00
X-6238-19 3/8-16 x 3.25
X-6238-12 3/8-16 x 3.50
X-6238-20 3/8-16 x 3.75
X-6238-13 3/8-16 x 4.50
X-6238-18 3/8-16 x 5.50
X-6238-25 3/8-16 x 6.50
Part No. Dimensions
Hex Head Bolts, cont.
X-6238-14 3/8-24 x .75
X-6238-16 3/8-24 x 1.25
X-6238-21 3/8-24 x 4.00
X-6238-22 3/8-24 x 4.50
X-6024-5 7/16-14 x .75
X-6024-2 7/16-14 x 1.00
X-6024-8 7/16-14 x 1.25
X-6024-3 7/16-14 x 1.50
X-6024-4 7/16-14 x 2.00
X-6024-11 7/16-14 x 2.75
X-6024-12 7/16-14 x 6.50
X-129-15 1/2-13 x .75
X-129-17 1/2-13 x 1.00
X-129-18 1/2-13 x 1.25
X-129-19 1/2-13 x 1.50
X-129-20 1/2-13 x 1.75
X-129-21 1/2-13 x 2.00
X-129-22 1/2-13 x 2.25
X-129-23 1/2-13 x 2.50
X-129-24 1/2-13 x 2.75
X-129-25 1/2-13 x 3.00
X-129-27 1/2-13 x 3.50
X-129-29 1/2-13 x 4.00
X-129-30 1/2-13 x 4.50
X-463-9 1/2-13 x 5.50
X-129-44 1/2-13 x 6.00
X-129-51 1/2-20 x .75
X-129-45 1/2-20 x 1.25
X-129-52 1/2-20 x 1.50
X-6021-3 5/8-11 x 1.00
X-6021-4 5/8-11 x 1.25
X-6021-2 5/8-11 x 1.50
X-6021-1 5/8-11 x 1.75
273049 5/8-11 x 2.00
X-6021-5 5/8-11 x 2.25
X-6021-6 5/8-11 x 2.50
X-6021-7 5/8-11 x 2.75
X-6021-12 5/8-11 x 3.75
X-6021-11 5/8-11 x 4.50
X-6021-10 5/8-11 x 6.00
X-6021-9 5/8-18 x 2.50
X-6239-1 3/4-10 x 1.00
X-6239-8 3/4-10 x 1.25
X-6239-2 3/4-10 x 1.50
X-6239-3 3/4-10 x 2.00
X-6239-4 3/4-10 x 2.50
X-6239-5 3/4-10 x 3.00
X-6239-6 3/4-10 x 3.50
X-792-1 1-8 x 2.25
X-792-5 1-8 x 3.00
X-792-8 1-8 x 5.00
Part No. Dimensions Type
Hex Nuts
X-6009-1 1-8 Standard
X-6210-3 6-32 Whiz
X-6210-4 8-32 Whiz
X-6210-5 10-24 Whiz
X-6210-1 10-32 Whiz
X-6210-2 1/4-20 Spiralock
X-6210-6 1/4-28 Spiralock
X-6210-7 5/16-18 Spiralock
X-6210-8 5/16-24 Spiralock
X-6210-9 3/8-16 Spiralock
X-6210-10 3/8-24 Spiralock
X-6210-11 7/16-14 Spiralock
X-6210-12 1/2-13 Spiralock
X-6210-15 7/16-20 Spiralock
X-6210-14 1/2-20 Spiralock
X-85-3 5/8-11 Standard
X-88-12 3/4-10 Standard
X-89-2 1/2-20 Standard
Washers
Bolt/
Part No. ID OD Thick. Screw
X-25-46 .125 .250 .022 #4
X-25-9 .156 .375 .049 #6
X-25-48 .188 .438 .049 #8
X-25-36 .219 .500 .049 #10
X-25-40 .281 .625 .065 1/4
X-25-85 .344 .687 .065 5/16
X-25-37 .406 .812 .065 3/8
X-25-34 .469 .922 .065 7/16
X-25-26 .531 1.062 .095 1/2
X-25-15 .656 1.312 .095 5/8
X-25-29 .812 1.469 .134 3/4
X-25-127 1.062 2.000 .134 1
TP-6270 11/06 Appendix 61
Metric
Hex head bolts are hardness grade 8.8 unless noted.
Part No. Dimensions
Hex Head Bolts (Partial Thread)
M931-05055-60 M5-0.80 x 55
M931-06040-60 M6-1.00 x 40
M931-06055-60 M6-1.00 x 55
M931-06060-60 M6-1.00 x 60
M931-06060-SS M6-1.00 x 60
M931-06070-60 M6-1.00 x 70
M931-06070-SS M6-1.00 x 70
M931-06075-60 M6-1.00 x 75
M931-06090-60 M6-1.00 x 90
M931-06145-60 M6-1.00 x 145
M931-06150-60 M6-1.00 x 150
M931-08035-60 M8-1.25 x 35
M931-08040-60 M8-1.25 x 40
M931-08045-60 M8-1.25 x 45
M931-08050-60 M8-1.25 x 50
M931-08055-60 M8-1.25 x 55
M931-08055-82 M8-1.25 x 55*
M931-08060-60 M8-1.25 x 60
M931-08070-60 M8-1.25 x 70
M931-08070-82 M8-1.25 x 70*
M931-08075-60 M8-1.25 x 75
M931-08080-60 M8-1.25 x 80
M931-08090-60 M8-1.25 x 90
M931-08095-60 M8-1.25 x 95
M931-08100-60 M8-1.25 x 100
M931-08110-60 M8-1.25 x 110
M931-08120-60 M8-1.25 x 120
M931-08130-60 M8-1.25 x 130
M931-08140-60 M8-1.25 x 140
M931-08150-60 M8-1.25 x 150
M931-08200-60 M8-1.25 x 200
M931-10040-82 M10-1.25 x 40*
M931-10040-60 M10-1.50 x 40
M931-10045-60 M10-1.50 x 45
M931-10050-60 M10-1.50 x 50
M931-10050-82 M10-1.25 x 50*
M931-10055-60 M10-1.50 x 55
M931-10060-60 M10-1.50 x 60
M931-10065-60 M10-1.50 x 65
M931-10070-60 M10-1.50 x 70
M931-10080-60 M10-1.50 x 80
M931-10080-82 M10-1.25 x 80*
M931-10090-60 M10-1.50 x 90
M931-10090-82 M10-1.50 x 90*
M931-10100-60 M10-1.50 x 100
M931-10110-60 M10-1.50 x 110
M931-10120-60 M10-1.50 x 120
M931-10130-60 M10-1.50 x 130
M931-10140-60 M10-1.50 x 140
M931-10180-60 M10-1.50 x 180
M931-10235-60 M10-1.50 x 235
M931-10260-60 M10-1.50 x 260
M960-10330-60 M10-1.25 x 330
M931-12045-60 M12-1.75 x 45
M960-12050-60 M12-1.25 x 50
M960-12050-82 M12-1.25 x 50*
M931-12050-60 M12-1.75 x 50
M931-12050-82 M12-1.75 x 50*
M931-12055-60 M12-1.75 x 55
M931-12060-60 M12-1.75 x 60
M931-12060-82 M12-1.75 x 60*
M931-12065-60 M12-1.75 x 65
M931-12075-60 M12-1.75 x 75
M931-12080-60 M12-1.75 x 80
M931-12090-60 M12-1.75 x 90
M931-12100-60 M12-1.75 x 100
M931-12110-60 M12-1.75 x 110
Part No. Dimensions
Hex Head Bolts (Partial Thread),
continued
M960-16090-60 M16-1.50 x 90
M931-16090-60 M16-2.00 x 90
M931-16100-60 M16-2.00 x 100
M931-16100-82 M16-2.00 x 100*
M931-16120-60 M16-2.00 x 120
M931-16150-60 M16-2.00 x 150
M931-20065-60 M20-2.50 x 65
M931-20090-60 M20-2.50 x 90
M931-20100-60 M20-2.50 x 100
M931-20120-60 M20-2.50 x 120
M931-20140-60 M20-2.50 x 140
M931-20160-60 M20-2.50 x 160
M931-22090-60 M22-2.50 x 90
M931-22120-60 M22-2.50 x 120
M931-22160-60 M22-2.50 x 160
M931-24090-60 M24-3.00 x 90
M931-24120-60 M24-3.00 x 120
M931-24160-60 M24-3.00 x 160
M931-24200-60 M24-3.00 x 200
Hex Head Bolts (Full Thread)
M933-04006-60 M4-0.70 x 6
M933-05030-60 M5-0.80 x 30
M933-05035-60 M5-0.80 x 35
M933-05050-60 M5-0.80 x 50
M933-06010-60 M6-1.00 x 10
M933-06012-60 M6-1.00 x 12
M933-06014-60 M6-1.00 x 14
M933-06016-60 M6-1.00 x 16
M933-06020-60 M6-1.00 x 20
M933-06025-60 M6-1.00 x 25
M933-06030-60 M6-1.00 x 30
M933-06040-60 M6-1.00 x 40
M933-06050-60 M6-1.00 x 50
M933-07025-60 M7-1.00 x 25
M933-08010-60 M8-1.25 x 10
M933-08012-60 M8-1.25 x 12
M933-08016-60 M8-1.25 x 16
M933-08020-60 M8-1.25 x 20
M933-08025-60 M8-1.25 x 25
M933-08030-60 M8-1.25 x 30
M933-08030-82 M8-1.25 x 30*
M933-10012-60 M10-1.50 x 12
M961-10020-60 M10-1.25 x 20
M933-10020-60 M10-1.50 x 20
M933-10025-60 M10-1.50 x 25
M961-10025-60 M10-1.25 x 25
M933-10025-82 M10-1.50 x 25*
M961-10030-60 M10-1.25 x 30
M933-10030-60 M10-1.50 x 30
M933-10030-82 M10-1.50 x 30*
M961-10035-60 M10-1.25 x 35
M933-10035-60 M10-1.50 x 35
M933-10035-82 M10-1.50 x 35*
M961-10040-60 M10-1.25 x 40
Part No. Dimensions
Hex Head Bolts (Full Thread),
continued
M933-12016-60 M12-1.75 x 16
M933-12020-60 M12-1.75 x 20
M961-12020-60F M12-1.50 x 20
M933-12025-60 M12-1.75 x 25
M933-12025-82 M12-1.75 x 25*
M961-12030-60 M12-1.25 x 30
M933-12030-82 M12-1.75 x 30*
M961-12030-82F M12-1.50 x 30*
M933-12030-60 M12-1.75 x 30
M933-12035-60 M12-1.75 x 35
M961-12040-82 M12-1.25 x 40*
M933-12040-60 M12-1.75 x 40
M933-12040-82 M12-1.75 x 40*
M961-14025-60 M14-1.50 x 25
M933-14025-60 M14-2.00 x 25
M961-14050-82 M14-1.50 x 50*
M961-16025-60 M16-1.50 x 25
M933-16025-60 M16-2.00 x 25
M961-16030-82 M16-1.50 x 30*
M933-16030-82 M16-2.00 x 30*
M933-16035-60 M16-2.00 x 35
M961-16040-60 M16-1.50 x 40
M933-16040-60 M16-2.00 x 40
M961-16045-82 M16-1.50 x 45*
M933-16045-82 M16-2.00 x 45*
M933-16050-60 M16-2.00 x 50
M933-16050-82 M16-2.00 x 50*
M933-16060-60 M16-2.00 x 60
M933-16070-60 M16-2.00 x 70
M933-18035-60 M18-2.50 x 35
M933-18050-60 M18-2.50 x 50
M933-18060-60 M18-2.50 x 60
M933-20050-60 M20-2.50 x 50
M933-20055-60 M20-2.50 x 55
M933-24060-60 M24-3.00 x 60
M933-24065-60 M24-3.00 x 65
M933-24070-60 M24-3.00 x 70
Pan Head Machine Screws
M7985A-03010-20 M3-0.50 x 10
M7985A-03012-20 M3-0.50 x 12
M7985A-04010-20 M4-0.70 x 10
M7985A-04016-20 M4-0.70 x 16
M7985A-04020-20 M4-0.70 x 20
M7985A-04050-20 M4-0.70 x 50
M7985A-04100-20 M4-0.70 x 100
M7985A-05010-20 M5-0.80 x 10
M7985A-05012-20 M5-0.80 x 12
M7985A-05016-20 M5-0.80 x 16
M7985A-05020-20 M5-0.80 x 20
M7985A-05025-20 M5-0.80 x 25
M7985A-05030-20 M5-0.80 x 30
M7985A-05080-20 M5-0.80 x 80
M7985A-05100-20 M5-0.80 x 100
M7985A-06100-20 M6-1.00 x 100
Flat Head Machine Screws
M965A-04012-SS M4-0.70 x 12
M965A-05012-SS M5-0.80 x 12
M965A-05016-20 M5-0.80 x 16
M965A-06012-20 M6-1.00 x 12
* This metric hex bolt’s hardness is grade 10.9.
TP-6270 11/0662 Appendix
Metric, continued
Part No. Dimensions Type
Hex Nuts
M934-03-50 M3-0.50 Standard
M934-04-50 M4-0.70 Standard
M934-04-B M4-0.70 Brass
M934-05-50 M5-0.80 Standard
M934-06-60 M6-1.00 Standard
M934-06-64 M6-1.00 Std. (green)
M6923-06-80 M6-1.00 Spiralock
M982-06-80 M6-1.00 Elastic Stop
M934-08-60 M8-1.25 Standard
M6923-08-80 M8-1.25 Spiralock
M982-08-80 M8-1.25 Elastic Stop
M934-10-60 M10-1.50 Standard
M934-10-60F M10-1.25 Standard
M6923-10-80 M10-1.50 Spiralock
M6923-10-62 M10-1.50 Spiralock[
M982-10-80 M10-1.50 Elastic Stop
M934-12-60 M12-1.75 Standard
M934-12-60F M12-1.25 Standard
M6923-12-80 M12-1.75 Spiralock
M982-12-80 M12-1.75 Elastic Stop
M982-14-60 M14-2.00 Elastic Stop
M6923-16-80 M16-2.00 Spiralock
M982-16-80 M16-2.00 Elastic Stop
M934-18-80 M18-2.5 Standard
M982-18-60 M18-2.50 Elastic Stop
M934-20-80 M20-2.50 Standard
M982-20-80 M20-2.50 Elastic Stop
M934-22-60 M22-2.50 Standard
M934-24-80 M24-3.00 Standard
M982-24-60 M24-3.00 Elastic Stop
M934-30-80 M30-3.50 Standard
Washers
Bolt/
Part No. ID OD Thick. Screw
M125A-03-80 3.2 7.0 0.5 M3
M125A-04-80 4.3 9.0 0.8 M4
M125A-05-80 5.3 10.0 1.0 M5
M125A-06-80 6.4 12.0 1.6 M6
M125A-08-80 8.4 16.0 1.6 M8
M125A-10-80 10.5 20.0 2.0 M10
M125A-12-80 13.0 24.0 2.5 M12
M125A-14-80 15.0 28.0 2.5 M14
M125A-16-80 17.0 30.0 3.0 M16
M125A-18-80 19.0 34.0 3.0 M18
M125A-20-80 21.0 37.0 3.0 M20
M125A-24-80 25.0 44.0 4.0 M24
[This metric hex nut’s hardness is grade 8.

E2004, 2005, 2006 by Kohler Co. All rights reserved.
TP-6270 11/06c
KOHLER CO. Kohler, Wisconsin 53044
Phone 920-565-3381, Fax 920-459-1646
For the nearest sales and service outlet in the
US and Canada, phone 1-800-544-2444
KohlerPowerSystems.com
Kohler Power Systems
Asia Pacific Headquarters
7 Jurong Pier Road
Singapore 619159
Phone (65) 6264-6422, Fax (65) 6264-6455