LCN 4600 Series Installation Guide LCN4600installationguide
User Manual: LCN LCN 4600 Series Installation Guide Installation Guide
Open the PDF directly: View PDF
.
Page Count: 21

*28101*
28101
The 4600 Series electric Auto-Equalizer™ series combines all door
operator and door control functions in one package. This versatile,
easy-to-install system is low maintenance and offers the following
features:
• Top jamb mounting on either side of an interior door allows 90°
of power opening. (Mounting for exterior door on the inside only)
• Manual opening up to 170° (4630) or 100° (4640).
• Easy access to on / off and hold open switches.
• Quiet, reliable operator delivers consistent performance.
• No expensive service contracts or periodic maintenance
required.
• Fail safe operator acts as a standard door closer in event of
power outage.
• Low energy operator does not require guard rails or safety mats.
• Advanced, easy-to-install controller module allows independent
adjustment of:
a. Door Opening Speed » Delay / Trigger Time for Sequential
Option
b. Door Opening Force » Electric Strike Delay Time
c. Hold Open Time » 90° Slow Down
d. Alternate Action Timeout » Safety Scanner Lockout Time
Table of Contents
Pg. 2 ........... General Information
Pg. 3 ........... Install Mounting Plate
Pg. 4 ........... 4630 Template
Pg. 5 ........... 4640 Template
Pg. 6 ........... Installing Closer Assembly
Pg. 7-8 ........ 4600 Series Arm Installation
Pg. 9 ........... Closer Regulation & Power Adjustment
Pg. 10 ......... Controller Installation
Pg. 11 ......... Electrical Connections
Pg. 12-13 .... Typical Wiring
Pg. 14 ......... Auxiliary Electrical Device Wiring
Pg. 15 ........ Controller Setting Adjustment
Pg. 16-17 ... Controller Programming
Pg. 18 ........ Basic Operation & Cover Installation
Pg. 19 ........ Illustrated Parts List
4630, 4640 Electric Auto Equalizer Series
4600 Electronic Low
Energy Operator
Installation Instructions
Customer Service
1-877-671-7011 www.allegion.com/us
4640
PUSH SIDE MOUNT
4630
PULL SIDE MOUNT

Page 2
This installation instruction sheet is a valuable reference and
should not be discarded. It should be given to building owner
or maintenance supervisor after installation is complete.
General Information
The 4600 series Auto-Equalizer™ is designed to meet the
following codes & standards:
• ANSI A156.19, section 2.1
• ANSI A117.1, section 4.13.11 requirements.
• ADA law section 4.13.12
• UL listed for use on labeled doors.
• Complies with UL & NEC requirements for Class 1 (high
voltage) & Class 2 (low voltage) by providing separate conduit
connections for each.
Both the 4631 & 4642 are non-handed, non-sized door operators
that provide all the standard features of a heavy duty LCN door
closer; including independent adjustment of backcheck, main
speed and latch speed functions as well as adjustable closing
power: 4631 (size 1 to 4) / 4642 (size 2 to 5). Both models are
shipped with LCN’s “Ultra X” all-weather hydraulic uid for reliable
operation at a wide range of temperatures. Requirements for
installation are as follows:
• The 4631 is designed for pull side installation on the top
jamb and requires a minimum door width of 36” and a 2” min.
head frame. Top rail of door must be 1 Z\,” min. and butt hinge
size should not exceed 5”. Maximum pull side reveal of Z\,”.
Maximum door weight is 225 lbs.
• The 4642 is designed for push side installation on the top jamb
for both standard and ush ceiling conditions. It requires a
minimum door width of 36” and a 1 C\v” min. head frame. Top
rail of door must be at least 1 C\v” and butt hinge size should
not exceed 5”. The 4642 accommodates reveals up to 4 Z\x”.
For reveal depths of 4 Z\x” - 8”, requires 4642 L (Long Arm). For
reveal depths greater than 8” - consult factory. Maximum door
weight is 225 lbs.
The 4600 series can accommodate both surface and concealed
wiring applications. It requires 120VAC supplied to the
operator. Maximum AC current load is 1 amp. A built-in 12VDC &
24VDC power supply (rated for 1 amp combined current load) can
power peripheral actuators, electronic strikes or mag-lock devices.
The 4600 series is compatible with all LCN 8300 series actuators
and scanners. High-security card readers or keypads may also be
used as actuators. The 4600 series will accept inputs from a wide
variety of security systems, allowing security personnel to regulate
accessability. A 4600 will accept a re alarm input to deactivate
unit when re alarm is triggered. A circuit breaker and resettable
fuses protect high-voltage inputs and low-voltage output circuits,
respectively. To ensure proper electrical functions, installation
should be made when temperature is between 35° F up to 120° F.
The 4600 series installation has three sections:
Section 1 - Fastening mounting channel to frame / electrical
connections.
Section 2 - Installing closer body & arm assembly
Section 3 - Installation of controller and adjustment of settings.
Follow all instructions carefully. Failure to do so may result in
personal injury or property damage. Use extreme caution when
dealing with high voltage. High voltage connections should
be made by a qualied professional. Closer and controller
adjustments might be necessary to meet ANSI A156.19
requirements. To verify the force requirements, a force gauge is
needed. If you have any questions, call LCN at 866 - 671 - 7011.

Page 3
NOTICE:
The following procedures involve electrical connections and
running conduit for both high & low voltage wiring. Electrical
power must be disconnected during the installation of the 4600
series door operator. It is also important to examine the proper
template for your installation to determine the mounting channel
position and correct conduit location.
SECTION 1
SECURING MOUNTING PLATE
ASSEMBLY TO FRAME
NOTE: Before beginning installation, determine which conduit
connection option is to be used.
CONCEALED WIRING:
Both high & low voltage conduit lines should be run to door
frame and made accessible through two holes to be drilled in
frame per proper template on page 4 or 5.
SURFACE WIRING:
Mounting channel must be mounted to frame BEFORE running
high & low voltage conduit lines to the operator.
1. Prepare door and frame per template on page 4 for 4630/
page 5 for 4640. Be sure all holes are located correctly
before drilling and/or tapping. Mounting surface of frame
must be vertically level. Conduit access holes in frame
are for CONCEALED WIRING ONLY! If using concealed
wiring option, see step 2 below. FOR SURFACE WIRING,
proceed to step 3.
2. Refer to correct template to determine proper location
for conduit. Remove appropriate conduit plugs, exposing
conduit holes in back of mounting channel, as shown in
Fig 1. Attach 1/2” conduit to mounting channel, as shown in
Fig 2. Place mounting channel into position on frame. Once
mounting channel is in position and ush on frame, insert
fasteners and tighten securely.
NOTE: The conduit set-up shown is for a 4630 mounting. Conduit
location will vary with other mountings.
CONNECTIONS
HIGH VOLTAGE
LOW VOLTAGE
CONNECTIONS
END CAP
REMOVED
FROM
THIS END
Fig. 1
HIGH
VOLTAGE
LOW
VOLTAGE
HIGH VOLTAGE
CONNECTIONS
LOW VOLTAGE
CONNECTIONS
END CAP
REMOVED
FROM
THIS END
Fig. 2
3. Position mounting channel on frame, connect conduit and
tighten securely.
CONDUIT THROUGH TOP OF MOUNTING CHANNEL:
After mounting plate is attached to frame, run 1/2” conduit to
access holes in top of mounting channel. Conduit should be
connected to channel as shown here in Fig. 3.
LOW VOLTAGE
CONNECTION
HIGH VOLTAGE
CONNECTION
Fig. 3

Page 4
4630 GNINEPO MUMIXAM °071
GNINEPO REWOP °09
RAILIXUA DEDNEMMOCER POTS Y
RESOLC DNA ROOD DNAH TFEL
ETISOPPO DNAH THGIR ,NWOHS
SEIRES 0364
T/EDIS LLUP DETNUOM BMAJ PO
A DEDNAH-NON ™REZILAUQE-OTU

Page 5
LEFT HAND SHOWN, RIGHT HAND OPPOSITE
LEFT HAND SHOWN, RIGHT HAND OPPOSITE
4640 SERIES PUSH SIDE/TOP JAMB MOUNTED
NON-HANDED AUTO-EQUALIZER™
REGULAR/FLUSH CEILING MOUNTS
1. VOLTAGE SUPPLIED TO FRAME MUST CORRESPOND TO VOLTAGE OF OPERATOR.
2. MAXIMUM BUTT SIZE IS 5”.
3. MINIMUM DOOR WIDTH IS 36”.
4. MAXIMUM STOP THICKNESS IS 5/8”.
5. MAXIMUM REVEAL DEPTH IS 4 ½”UP TO 8” REVEALS WITH LONG ARM OPTION, CONSULT FACTORY.
6. AUXILIARY STOP RECOMMENDED AT MAXIMUM OPENING POINT (100°).
7. LOCATE OPERATOR & SHOE FROM THE CENTERLINE OF SWING CLEAR HINGE PIN IF USED.
8. CONSULT FACTORY IF DOOR IS HUNG ON PIVOTS OR WIDE-THROW HINGES.
9. REINFORCING PER ANSI/SDI-100 RECOMMENDED FOR HOLLOW METAL DOORS & FRAMES.
10. OVERALL OPERATOR SIZE: 33 ½”X 4 3/8” X 5 3/16”.

Page 6
SECTION 2
INSTALLING CLOSER ASSEMBLY
1. At this point of the installation, the mounting channel
assembly should be attached securely to door frame. All
electrical connections at the unit should be hooked up, but
UNPOWERED.
2. CLOSING FORCE ADJUSTMENT: (See Fig. 4). Turn spring
adjustment clockwise the required number of turns to match
door width as shown in Tables 1 & 2. Maximum adjustments:
14 turns clockwise.
TO INCREASE
SPRING POWER
TO DECREASE
SPRING POWER
Fig. 4
C.W.
Verify that closing force is not more than 15 lbs when measured
one inch from door edge to comply with ANSI A156.19.
TABLE 1
INTERIOR DOOR
MAXIMUM
DOOR WIDTH
NUMBER
OF TURNS
36” 0
48” 2 TURNS C.W.
54” 7 TURNS C.W.
TABLE 2
EXTERIOR DOOR
MAXIMUM
DOOR WIDTH
NUMBER
OF TURNS
36” 2 TURNS C.W.
42” 7 TURNS C.W.
NOTE: Do not allow any form of lubricant to come into contact with any part of clutch assembly.
NOTE: Electrical components not shown.
3. Mount closer to mounting channel assembly. Closer and clutch gear coupler’s should mesh loosely as shown in Fig. 5 above. Line
closer mounting holes up with holes in stand-offs attached to mounting channel. Fasten with (4) 1/4 - 20 x 2 B\zn”machine screws
provided and tighten securely.
4. It is extremely important that closer is properly aligned with motor/clutch assembly.
CLUTCH
Fig. 5

Page 7
4630 Series Arm Assembly
NOTE: Right hand door shown, left hand will be opposite.
5/16" LOCK WASHER
EXTENSION
ARM SET
SCREW
ROLLER
END CAP
TRACK
PLUG
ARM
SHAFT
SCREW
Fig. 6
SHAFT
SPACER
(2) 1/4 - 20 x 1 1/2" M.S.
OR
(2) No. 14 x 2 1/2" W.S.
ARM
ASSY
30°
1. Insert (4) track plugs into bottom of track, as shown in Fig. 6 above. Remove track end cap, insert track roller and replace end cap.
2. Mount track assembly to door, attaching securely with either (2) 1/4-20 x 1 Z\x” machine screws or (2) No. 14 x 2 Z\x” wood screws
provided.
3. Locate SHAFT EXTENSION, LOCK WASHER, SPACER & ARM SHAFT SCREW in fastener box. Fit arm and spacer onto shaft
extension. Place lock washer into the shaft extension so it locates between closer shaft and shaft extension. Place wrench on top
closer shaft and rotate approx. 30°, as shown above. Fit arm assembly over closer shaft and fasten with arm shaft screw as shown in
Fig. 6 above.
4. Open door partially. Pull closer arm away from frame. Fit hole in end of arm over the stud of track roller. Tighten arm set screw,
attaching arm to track.
5. Proceed to REGULATION INFORMATION on page 9.

Page 8
4640 Series Arm Assembly
NOTE: Left hand door shown, Right hand will be opposite.
Fig. 7
Fig. 8
5/16
" LOCK WASHER
EXTENSION
ARM
SHAFT
SCREW
ARM SET SCREW
ROD & SHOE
Preload to 90°
as shown
FOREARM
TUBE
MAIN
ARM
1. Locate SHAFT EXTENSION, LOCK WASHER & ARM SHAFT SCREW in fastener box. Fit arm onto shaft extension. Place lock
washer into shaft extension so it will rest between closer shaft and shaft extension. Fit arm assembly over closer shaft so main arm is
positioned at approx. 90° to operator assembly and fasten with arm shaft screw, as shown in Fig. 7 above.
2. Attach rod & shoe assembly to door with (2) 1/4 - 20 x B\,”” machine screws or (2) No. 14 x 1 Z\x” wood screws provided. The longer
end of shoe should point towards hinge edge, as shown above.
3. Open door partially, insert rod into forearm tube, then close the door.
4. Insert arm set screw into rod and nger tighten. Preload arm to 90°, as shown in Fig. 8 above. Holding arm in this position, place a
wrench on arm set screw and tighten securely.
5. Proceed to REGULATION INFORMATION on page 9.

Page 9
DOOR CLOSER HYDRAULIC REGULATION &
POWER ADJUSTMENT
1. CLOSING SPEED ADJUSTMENT: (See Fig. 9)
The hydraulic regulation of the 4600 series has been adjusted
prior to shipment. To meet ANSI A156.19 table 1 requirements,
open door to 90° and determine the closing time. Make sure
the spring power and closing speed are correct. If adjustments
are necessary, use 3/32 allen wrench provided and refer to
door diagram shown in Fig. 9. Turn MAIN SPEED & LATCH
SPEED screws clockwise to slow door speed, counter-
clockwise to increase speed. The installation of the controller
will make the MAIN and LATCH SPEED regulating screws
inaccessible.
NOTE: Do not back regulating screws out of closer or an oil leak
will occur
Fig. 9
LATCH SPEED
MAIN SPEED
BACKCHECK
2. BACKCHECK ADJUSTMENT:
Backcheck slows the door swing as it approaches full opening.
Adjust the backcheck setting only if necessary. Increase
backcheck strength by turning BACKCHECK screw clockwise
by quarter turns. Make sure backcheck adjustments conform to
ANSI A156.19 sections 4.2, 4.4, 4.5, and tables I & II. DO NOT
USE AN ABRUPT BACKCHECK SETTING.
a. Remove forearm set screw and open door, separating rod
from forearm tube.
b. Remove shoe screws and ip shoe 180° as shown in Fig.
10. Re-attach shoe to door.
c. Re-assemble arm, as in steps 3 & 4 on page 8.
d. Verify that closing force is no more than 15 lbs when
measured one inch from door edge to comply with ANSI
A156.19.
For 4640 series only
Fig. 10
STANDARD
INSTALLATION
SHOE POSITIONED
FOR INCREASED
POWER AT LATCH
LOCATING CAUTION / AUTOMATIC DOOR DECAL
1. Locate one decal on each side of door, near latch area to meet
ANSI A156.19-2007 code requirements. Decal must be located
at 50” (+/- 12”) from the oor to the center line of the sign. The
decal location must be visible without interference from door
trim or auxiliary door hardware.
2. Clean the 6” x 6” area where decal is to be placed. Apply decal
by removing the backing and “rolling” it onto door. This will help
prevent air bubbles from being trapped under decal.
AUTOMATIC
DOOR
CAUTION

Page 10
SECTION 3
INSTALLATION & ADJUSTMENT
OF CONTROLLER BOARD
NOTE: Be sure electrical power source is disconnected.
1. MOUNT CONTROLLER TO OPERATOR ASSEMBLY:
Locate controller assembly in shipping carton. Position the
controller as shown in Fig. 11. Slide onto mounting plate
assembly, guiding cut-outs in controller onto mounting pins as
shown.
2. Once the front of controller is tted onto pins, push entire
controller into position, as shown in Fig. 12. With controller in
proper position, insert (1) unpainted #8 - 32 x 3/8” at head
screw into bottom of mounting plate, as shown.
Fig. 11
Fig. 12
NOTE: For adjustments to door closer regulating screws,
controller must be removed. Do this by: Removing power to
operator, unplugging the electrical connections, removing screw,
tilting controller away from operator and disengaging controller
from mounting pins. Follow steps 1 & 2 above to reattach.
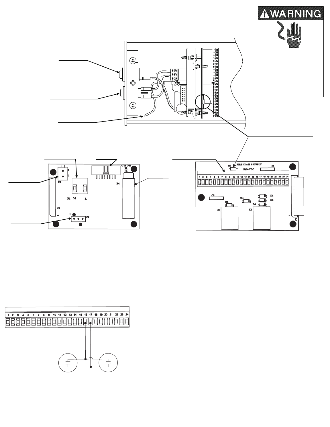
WIRING CONNECTIONS:
1. There will be 3 key wiring harness connectors shipped in the
hardware box. The rst is a ribbon cable connector. It should
be tted into receptacles on rear board assembly and the
controller as shown in CONNECTION #1 of Fig. 13.
Fig. 13
CONNECTION #1
CONTROLLER
RIBBON CABLE CONNECTION #2
120VAC POWER
CONNECTION #3
MOTOR / CLUTCH
2. The second connector is a 2 wire lead for the 120 VAC
power and should be tted rmly into into receptacles
on rear board assembly and the controller as shown in
CONNECTION #2 of Fig. 13.
3. The third connector is for the motor / clutch. The connector
should be tted rmly into receptacle on the controller as
shown in CONNECTION #3 of Fig. 13.
4. Electrical power can now be safely supplied to the 4600 series
operator. The controller settings have been pre-set prior to
shipment. Adjustment information is detailed on pages 15-17.
It will be necessary for the 4600 series door operator to be
functional while adjustments and settings are made. Trigger
actuator device(s) and check to make sure that door opens
freely. Arm assembly motion and door travel should not make
contact or have interference with any object.

Page 11
ELECTRICAL CONNECTIONS - Use copper wire only.
HAZARDOUS VOLTAGE
CAN SHOCK AND CAUSE
SEVERE INJURY.
Disconnect power before
making any electrical
connections or performing
any maintenance.
LANIMRETNOITCNUF
Actuator - Normal Input (N.O.) 16 & 17 or 18 & 19
Actuator - Sequential Input (N.O.) 8 & 19
Actuator - Alternate Action (N.O.) 15 & 17
Actuator - Continuous (N.O.) 6 & 2
9tuptuO laitneuqeS
Stop Side Safety (N.O.) 19 & 20
Swing Side Safety (N.O.) 19 & 21
Fire Alarm Contact (N.C.) 13 & 14 (Fire Shunt)
Auxiliary Relay Contacts(5 amp max) 10 - Common
11 - N.O.
12 - N.C.
E.S. Relay Contacts(5 amp max) 22 - Common
23 - N.O.
24 - N.C.
12V DC & 24V DC Negative* 2, 4, 13, 17, & 19
7 & 5*evitisoP CD V21
3 & 1*evitisoP CD V42
* Note: 1 Amp max load between 12V and 24V DC outputs
HIGH VOLTAGE ELECTRICAL CONNECTIONS
LOW VOLTAGE (CLASS 2 NEC) ELECTRICAL CONNECTIONS
SINGLE DOOR
WIRING CONNECTIONS
ANY NORMALLY OPEN
DRY CONTACT ACTUATOR
FIRE ALARM SHUNT
TO CONNECT TO FIRE ALARM,
CLIP LEADS ON SHUNT TO
REMOVE AND CONNECT
FIRE ALARM CONTACTS
TO TERMINALS 13 & 14
FIELD CONNECTION
TERMINALS
CONTROLLER
RIBBON CABLE
CONNECTOR
120 VAC
POWER INPUT
CONNECTOR
POWER TO
CONTROLLER
CONNECTOR
POWER
SWITCH
CONNECTOR
POWER BOARD
ACTUATOR BOARD
FUSE
1A SLO BLO
HOLD OPEN SWITCH
MUST BE CONNECTED
TO TERMINALS 6 & 2 IF
HOLD OPEN IS DESIRED.
CIRCUIT BREAKER
POWER SWITCH
(TO RESET-
TURN OFF THEN ON)
GROUND WIRE
(GREEN)

Page 12
SIMULTANEOUS PAIR WIRING CONNECTIONS
SEQUENTIAL WIRING CONNECTIONS - SIMULTANEOUS VESTIBULE
SEQUENTIAL WIRING CONNECTIONS - INDEPENDENT VESTIBULE
SEQUENTIAL
ACTUATOR
SEQUENTIAL
ACTUATOR
VESTIBULE
ACTUATOR
VESTIBULE
ACTUATOR
ANY NORMALLY OPEN
DRY CONTACT ACTUATOR
ANY NORMALLY OPEN
DRY CONTACT ACTUATOR
SEQUENTIAL
ACTUATOR
SEQUENTIAL
ACTUATOR
VESTIBULE
ACTUATOR
ANY NORMALLY OPEN
DRY CONTACT ACTUATOR

Page 13
SEQUENTIAL PAIR WIRING CONNECTIONS - SIMULTANEOUS VESTIBULE
SEQUENTIAL PAIR WIRING CONNECTIONS - INDEPENDENT VESTIBULE PAIRS
VESTIBULE
ACTUATOR
SEQUENTIAL
ACTUATOR
SEQUENTIAL
ACTUATOR
VESTIBULE
ACTUATOR
SEQUENTIAL
ACTUATOR
VESTIBULE
ACTUATOR
SEQUENTIAL
ACTUATOR

Page 14
WIRING INFORMATION FOR
ELECTRIC STRIKE / MAG-LOCK SYSTEM
24V DC
24V DC
WIRING INFORMATION FOR ELECTRONIC LATCHING DEVICES
12V or 24V power supply by others
FOR ADDITIONAL WIRING INFORMATION CONTACT LCN CLOSERS
ELECTRICAL APPLICATIONS DEPT. AT 866 - 671 - 7011
12V DC
12V DC

Page 15
CONTROLLER SETTING ADJUSTMENTS
PMOC KCOL EGLAHCS 7002 © YNA ETAD.GFM
ROPPUS LACINHCET T
1-800-526-2400
rllosregni.ncl.WWW and.com
®
34510
6789
1
2
0FF
0N
rewoP dloH
Open
Consult diagram above. Each setting / indicators labeled #1 - #10, which correspond with numbers below. Adjustments for #3 & #4
are made with a small at blade screwdriver. Turn clockwise to increase speed / force or counterclockwise to decrease speed / force.
Controller functions are preset before shipment. Adjustments should be made only if necessary. Factory pre-set positions are shown
on controller label.
1. ON/OFF SWITCH - Allows operator to be turned on & off without disconnecting power.
2. HOLD OPEN SWITCH - Provides option to keep door in hold open position (re signal will override).
3. OPENING SPEED - Adjusts opening speed of door. Opening speed must be within ANSI A156.19 specications (see TABLE 3
on pg. 18). Large, heavy doors and / or strong door closer backcheck settings may require a slower speed adjustment for proper
operation. As a general rule, a slower door speed and use of an auxiliary door stop will provide smoother operation.
4. OPENING FORCE - Adjusts amount of force the door exerts when opening (15 lbs. max). Normal adjustment is for door to open
90° or encounter an auxiliary door stop, where motor will stop. If clutch slips more than 1/4 turn when door stops, adjust OPENING
FORCE down until there is minimal or no clutch slippage. If OPENING FORCE is increased too much, it may overpower clutch &
motor. Motor will stop running after 15 seconds. It will then go into HOLD OPEN DELAY and cycle through the closing sequence.
5. TIME DISPLAY - Displays a numeric value relating to the timing adjustment indicated on the mode display. 16 = Approximately 5
Seconds.
6. UP BUTTON - Increases time display number or change from (OFF to ON) when in programming mode.
7. DOWN BUTTON - Decreases time display number or change from (ON to OFF) when in programming mode.
8. MODE BUTTON - Advances through programming setups indicated on Mode Indicator.
9. OPERATING INDICATORS - Displays operating information about internal functions and external hardware.
10. MODE INDICATION - When programming, indicates the program mode currently being displayed.

Page 16
CONTROLLER PROGRAMMING MODES
UP
DOWN
MODE
HOLD OPEN TIME
POWER
1
MODE
OPERATING
INDICATORS
2
3
4
5
6
7
8
9
90° SLOW DOWN TIME
ONE SHOT INPUT
EXTERIOR MODE
E.S. DELAY
E.S. 3 SEC. POWER
SEQUENTIAL DELAY
ALTERNATE ACTION TIME
LOCKOUT TIME
FIRE ALARM
NORMAL / SEQ
H.O. / ALT. ACTION
LOCKOUT TIMER
SAFETY CLEAR
SAFETY ACTIVE
1. HOLD OPEN TIME: Adjusts the amount of time door stays open after reaching the 90° position.
2. 90° SLOW DOWN TIME: The time from start of door movement to a transition at approximately 70°, when door opening speed is
reduced.
3. ONE SHOT INPUT (OFF/ON): If off, hold open delay starts upon last activation input signal. If on, hold open delay starts upon rst
activation input signal and ignores all others.
4. EXTERIOR MODE (OFF/ON): If off, door stops and hold open timer starts after door encounters rst restriction. If on, door will pause
for 1 second upon rst restriction(wind), then try to open again. Hold open timer starts after door encounters second restriction.
5. E.S. DELAY: Controls the time between activation signal and actual door movement. Allows time for electric latching hardware to
release before door starts to open. Default time should only be adjusted when using electric latching hardware.
6. E.S. 3 SECOND POWER (OFF/ON): If off, E.S. Relay is powered entire time door is open. Releases when door starts to close. If on,
E.S Relay is powered for only 3 seconds after door is activated, then releases.
7. SEQUENTIAL DELAY: Controls the time from rst door activation to second door activation during sequential door application.
Should only be adjusted for sequential door application.
8. ALTERNATE ACTION TIME: Controls the time the door will remain open after an alternate action input is received. Provides an
automatic second input to close the door if a second alternate action input is not received within the preset time. Should only be set if
using alternate action door application.
9. LOCKOUT TIME: Controls the time that a safety scanner input is ignored during door closing. Should only be set if safety scanners
are used.

Page 17
CONTROLLER PROGRAMMING
Apply power to operator after all components are installed.
Controller will perform a self diagnostics and Display will show an
Error Code if error is present. If no error is present, operator will
be in RUN Mode (“POWER” Operating Indicator Light “ON”) and
the Display will be blank.
Normal Operating Mode = Power and Safety Clear indicators on
controller lit.
ERROR CODES:
E01 = Non-functional Microprocessor
E02 = No 12V and 24V power supplies
E03 = Motor / Clutch not plugged in or open coil. Resistance
values (Clutch 1200 ohms) (Motor 40 to 70 ohms)
E04 = Continuous activation signal upon power up or when
leaving programming mode.
If (H.O./ALT. Action) indicator on controller is lit, check hold
open switch on end cap. Must be off.
If (NORMAL/SEQ.) indicator on controller is lit, check for mis
wired or stuck actuator switch.
Must be N.O. Contacts.
To enter programming mode, press MODE button.
HOLD OPEN TIME indicator will be lit and display will show
programmed time. To change time, press UP or DOWN button
respectively. Adjustment 0 to 999. Default 16. Must be at least 5
seconds of hold open time. To continue programming mode, press
mode button.
90° SLOW DOWNTIME indicator will be lit and display will
show programmed time. To change time, press UP or Down
button respectively. Adjustment 0 to 26. Default 9. To continue
programming mode, press mode button.
ONE SHOT INPUT indicator will be lit and display will show
programmed state. To change state, press UP or DOWN button
respectively. Adjustment ON/OFF. Default OFF. To continue
programming mode, press mode button.
EXTERIOR MODE indicator will be lit and display will show
programmed state. To change state, press UP or DOWN button
respectively. Adjustment ON/OFF. Default ON. To continue
programming mode, press mode button.
E.S. DELAY indicator will be lit and display will show programmed
time. To change time, press UP or DOWN button respectively.
Adjustment 0 to 16. Default 0. To continue programming mode,
press mode button.
E.S. 3 SECOND POWER indicator will be lit and display will
show programmed state. To change state, press UP or DOWN
button respectively. Adjustment ON/OFF. Default ON. To continue
programming mode, press mode button.
SEQUENTIAL DELAY indicator will be lit and display will
show programmed time. To change time, press UP or DOWN
button respectively. Adjustment 0 to 100. Default 0. To continue
programming mode, press mode button.
ALTERNATE ACTION TIME indicator will be lit and display will
show programmed time. To change time, press UP or DOWN
button respectively. Adjustment 0 to 3. Default 0 = No Time Out,
1 = 10 Minute Time Out, 2 = 20 Minute Time Out, 3 = 30 Minute
Time Out. To continue programming mode, press mode button.
LOCKOUT TIME indicator will be lit and display will show
programmed time. To change time, press UP or DOWN button
respectively. Adjustment 0 to 66. Default 20. To exit programming
mode, press mode button to return to RUN mode (display blank).
Programming is now complete. Activate operator to check that all
function and timings are correct. Setting can be changed at any
time by pressing Mode Button to scroll to the desired Program
Mode.
Note: Controller will automatically exit Programming Mode
and return to run Mode after 15 seconds with no input from
MODE, UP or DOWN buttons.
TO RESET BACKTO FACTORY DEFAULTS: HOLD DOWNTHE
MODE BUTTON WHILE TURNING POWER TO OPERATOR
“OFF” THEN BACK “ON” USING THE ON/OFF SWITCH ON
OPERATOR END CAP.

Page 18
TABLE 3 (below) lists the maximum door opening speeds
specied by ANSI 156.19 for Low - Energy Door Operators.
4630/4640 max. opening speed to 90° is 5 seconds. If weight of
door is unknown, use TABLE 4 to determine approximate door
weight.
TABLE 3
MAXIMUM
DOOR
WEIGHT
IN POUNDS
FASTEST OPENING TIME 0° to 80°
DOOR WIDTH IN INCHES
36” 42” 48”
100 lbs. 3.0 sec 3.5 sec 4.0 sec
125 lbs. 3.5 sec 4.0 sec 4.5 sec
150 lbs. 3.5 sec 4.0 sec 4.5 sec
200 lbs. 4.0 sec 4.5 sec 5.5 sec
TABLE 4
TYPE OF DOOR
WEIGHT
PER
SQ. FT.
TYPICAL
3’0” X 7’0”
DOOR
WEIGHT
- Solid Core Wood
- 20 Ga. Flush Hollow Metal
- Aluminum x 1/4” Glass
5.5 lbs 115 lbs
- Mineral Core Door
- 16 Ga. Flush Hollow Metal
- Aluminum x 1” Glass
7.0 lbs 147 lbs
BASIC OPERATION INFORMATION
Note: If re alarm contacts are activated at any time during
the opening cycle or while in hold open, the 4600 series Door
Operator will override any function and close the door immediately.
All power door functions are stopped until the re alarm contacts
are deactivated.
When triggered by actuator switch:
1. Controller checks for optional swing-side safety sensor input. If
activated, opening cycle is aborted.
a. If sequential actuator inputs are used then the A-B
SEQUENTIAL DELAY timer is started.
b. Auxiliary and E.S. Relay contacts are triggered.
2. Opening cycle starts after ELECTRIC STRIKE DELAY times
out.
3. Motor & clutch are activated.
a. If sequential actuator inputs are used then the A-B
SEQUENTIAL DELAY output will signal the next operator.
4. Controller monitors the motor during opening cycle for door
obstructions that exceed the present OPENING FORCE
setting. If an obstruction is encountered controller will pause
opening cycle for one second, then attempt to open door again
(SECOND CHANCE feature).
a. Opening cycle resumes until power opening range is
reached or a second obstruction is sensed.
b. Opening door encounters BACKCHECK range of door
closer. A strong BACKCHECK setting will cause controller
to act as though it hit an obstruction, triggering the
SECOND CHANCE feature. Some experimentation with
OPENING FORCE, OPENING SPEED & BACKCHECK
settings may be necessary for applications where wind and/
or air pressure problems occur.
c. Controller goes into HOLD OPEN DELAY mode for preset
amount of time.
d. The controller will maintain the hold open mode as long
as an actuator input signal is present. The HOLD OPEN
DELAY mode timer is reset with each additional actuator
input signal. With each additional sequential actuator input
a sequential output signal is sent.
5. Controller checks for optional push-side safety sensor input. If
activated, the operator will hold door open until sensor de-
activates.
a. Controller releases door for closing cycle. Closing cycle is
controlled by door closer assembly.
COVER INSTALLATION
1. Depending on conduit option used and hand of door, remove
proper knock - outs from operator cover. NOTE: If concealed
conduit option is being used, do not remove conduit knock -
outs.
2. Align cover with operator and guide into position as shown
here in Fig. 14. Attach cover to the operator using (2) painted #
8 - 32 x 3/8” at head machine screws, as shown.
Fig. 14

Page 19
4630/4640 REPLACEMENT PARTS LIST INFORMATION
4630 - 425
ARM SET
SCREW
4630 - 3034
ROLLER
4630 - 73
END CAP
4630 - 141
TRACK
PLUG
4630 - 159
ARM
SHAFT
SCREW
4640 - 83
ARM SET SCREW
4640 - 79
ROD & SHOE
4640 - 3077
MAIN ARM
4642 ARM PARTS
4630 - 3077T
ARM ASSY.
4631 ARM PARTS
- 480
SHAFT
EXTENDER
PACKAGE
- 3454
MOTOR / CLUTCH
ASSY.
- 20 CONDUIT
COVER
-155G
DOOR
DECAL
When ordering replacement parts remember to specify Model (4640 or 4630)
in front on the desired part #. Also specify Color / Finish when required.
4630 - 3038
TRACK
ASSY.
- 3498-1
RIBBON CABLE
CONNECTOR
4630 - 61
SHAFT
SPACER
AUTOMATIC
DOOR
CAUTION
- 3971
CYLINDER
ASSEMBLY
- 31 COVER
SCREW
- 334 - 2
BLANK
END CAP
- 3462
CONTROLLER
ASSEMBLY
- 3498-2
AC POWER
CABLE
- 31 MTG.
SCREW
- 72 COVER
4640 - 159
ARM
SHAFT
SCREW
- 3179-1
ON \ OFF
SWITCH ASSY.
- 31 -1
END CAP
SCREW
- 3180
PCB
BOARD
ASSEMBLY
- 3179-2
HOLD - OPEN
SWITCH ASSY.
- 334
SWITCH
END CAP

© Allegion 2014
Printed in U.S.A.
28101 Rev. 01/14-p

Additional Notes: Revision History Revision Description:
P > Revised artwork
1. None J K L M N P
N/A N/A N/A N/A N/A 043812
Material
White Paper
Edited By Approved By EC Number Release Date
R. Byun M. Sasso 043812 01-01-14
Notes
1. printed two sides
2. printed black
3. tolerance ± .13
4. printed in country may vary
5. drawings not to scale
6. printed saddle-stitch booklet
Title
4630/4640 Series Instruction Manual
Creation Date
04-27-10
Number
28101
Revision
P
Created By
N/A Activity
3899 Hancock Expwy
Security, CO 80911 © Allegion 2014Software: InDesign CS6
17.000 8.500
11.000 11.000
BEGINNING SHEET BEGINNING SHEET
FRONT FRONT