LG Electronics USA D090MJ Microwave Oven User Manual
LG Electronics USA Microwave Oven Users Manual
Users Manual

ENGLISH ESPAÑOL
Sears, Roebuck and Co., Hoffman Estates, IL 60179 U.S.A.
www.sears.com
Models MD-0942KT
TOAST N WAVE
Use and Care Guide
P/NO.: 3828W5A2688

2
TABLE OF CONTENTS
WARRANTY ......................................................... 2
SAFETY ............................................................ 3-5
Precautions To Avoid Possible Exposure
To Excessive Microwave Energy........................ 3
Grounding Instructions........................................ 3
Important Safety Instructions........................... 4-5
UNDERSTANDING YOUR
TOAST AND WAVE ........................................ 6-11
Specifications...................................................... 6
Installation........................................................... 6
Parts And Accessories........................................ 7
Control Panel...................................................... 8
Cookware Guide................................................. 9
Tips For Microwave Cooking ............................ 10
Tips For Toaster ................................................ 11
USING YOUR MICROWAVE OVEN ............. 12-18
Clock................................................................. 12
Kitchen Timer.................................................... 12
Child Lock......................................................... 12
Auto Cook......................................................... 13
Add Minute........................................................ 13
Auto Cook Table ............................................... 13
Auto Defrost...................................................... 14
Auto Defrost Table ............................................ 15
Timed Cooking.................................................. 15
Multi-Stage Cooking ......................................... 16
Microwave Power Levels.................................. 16
Cooking Tips................................................ 17-18
USING YOUR TOASTER.............................. 19-20
Operating Instruction ........................................ 19
Toast ................................................................. 19
Bagel................................................................. 19
Cooking Tips..................................................... 20
TROUBLESHOOTING .................................. 21-24
Questions And Answers .............................. 21-22
Before Calling For Service .......................... 23-24
WARRANTY
FULL ONE-YEAR WARRANTY ON
TOAST AND WAVE
For one year from the date of purchase, if this
Kenmore Toast and Wave fails due to a defect
in material or workmanship, Sears will repair it
free of charge.
FULL FIVE-YEAR WARRANTY ON
THE MAGNETRON
For five years from the date of purchase, if the
magnetron in this Kenmore Toast and Wave
fails due to a defect in material or workmanship,
Sears will repair it free of charge.
WARRANTY SERVICE
For warranty service, return the Toast and Wave
to your nearest Sears Parts & Repair Center in
the United States. For the location of your near-
est Sears Parts & Repair Center, call
1-800-4-MY-HOME®
.
This warranty applies only while this product is
in use in the United States.
This warranty gives you specific legal rights,
and you may also have other rights which vary
from state to state.
Sears, Roebuck and Co., D/817WA,
Hoffman Estates, IL. 60179 U.S.A.

ENGLISH
3
SAFETY
• Do not attempt to operate this oven with the door open, since open-door operation can result
in harmful exposure to microwave energy. It is important not to defeat or tamper with the safety
interlock.
• Do not operate the oven if it is damaged. It is particularly important that the oven door close
properly and that there is no damage to the:
– door (bent)
– hinges and latches (broken or loosened)
– door seals and sealing surfaces.
• Do not place any object between the oven front face and the door, or allow soil or cleaner
residue to accumulate on sealing surfaces.
• The oven should not be adjusted or repaired by anyone except properly qualified service
personnel.
PRECAUTIONS TO AVOID POSSIBLE EXPOSURE
TO EXCESSIVE MICROWAVE ENERGY ...
GROUNDING INSTRUCTIONS
This appliance must be grounded! If an electrical short circuit occurs, grounding reduces the risk of electric shock
by providing an escape wire for the electric current. This appliance is equipped with a cord having a grounding
wire with a grounding plug.
Put the plug into an outlet that is properly installed and grounded.
WARNING
If you use the grounding plug improperly, you risk electric shock.
Ask a qualified electrician or the Sears Service Department if you do not understand the grounding instructions or
if you wonder whether the appliance is properly grounded.
This appliance has a short power supply cord to reduce the risk of anyone’s tripping over or becoming entangled
in the cord. You may use an extension cord if you are careful.
If you use an extension cord, be sure that:
NOTE: This oven draws 11.5 amperes at 120 Volts, 60 Hz.
• The extension cord has the same electrical rating as
the appliance.
• The marked rating of the extension cord shall be
equal to or greater than the electrical rating of
the appliance.
• The extension cord is a grounding-type 3-wire cord.
• The extension cord does not drape over a
countertop or tabletop, where it can be pulled on
by children or tripped over accidentally.
• The electrical cord is dry and not pinched or
crushed in any way.

44
SAFETY
IMPORTANT SAFETY INSTRUCTIONS
The safety instructions below will tell you how to use your microwave oven to avoid harm to yourself or damage to your oven.
WARNING – To reduce the risk of burns, electric shock, fire, injury to persons, or exposure to excessive
microwave energy:
SAVE THESE INSTRUCTIONS!
1. Read all the instructions before using your microwave
oven.
2. Do not allow children to use this oven without close
supervision!
3. Read and follow the specific PRECAUTIONS TO AVOID
POSSIBLE EXPOSURE TO EXCESSIVE MICROWAVE
ENERGY found on page 3.
4. Do not tamper with the built – in safety switches on the
oven door! The oven has several built-insafety switches to
make sure the power is off when the door is open.
5. When cleaning the door and the surfaces that touch
the door, use only mild, nonabrasive soaps or
detergents and a sponge or soft cloth.
6. If your oven is dropped or damaged, have it thoroughly
checked by a qualified service technician before using it
again.
7. To avoid a fire hazard:
a) Do not severely overcook foods. It can cause a fire in
the oven.
b) Do not use recycled paper products in your oven.
They can contain particles that can cause arcing or may
ignite.
c) Do not overcook potatoes. Overcooking could cause
a fire.
d) Do not store combustible items (bread, cookies, etc.)
in the oven, because if lightning strikes the power lines,
it may cause the oven to turn ON.
e) Do not use wire twist-ties in the oven. Be sure to
remove them before placing the item in the oven.
f) Do not use the cavity for storage purposes. Do not
leave paper products, cooking utensils, or food in the
cavity when not in use.
8. If a fire should start:
a) Keep the oven door closed.
b) Turn the oven off.
c) Disconnect the power cord or shut off thepower at
the fuse or circuit breaker panel.
9. Do not use this oven for commercial purposes. This
microwave is made for household use only.
10. Install or locate this appliance in accordance with the
provided installation instructions.
11. To avoid electric shock:
a) This appliance must be grounded! Connect it only to
a properly grounded outlet. (See the Grounding
instructions on page 3.)
b) Do not operate this appliance if it has a damaged
cord or plug, if it is not working properly, or if it has
been damaged or dropped.
c) Do not immerse the electrical cord or plug in water.
d) Keep the cord away from heated surfaces.
e) This appliance should be serviced only by qualified
service personnel.
12. Liquids such as water, coffee, or tea are able to be
overheated beyond the boiling point without appearing to
be boiling due to surface tension of the liquid. Visible
bubbling or boiling when the container is removed from
the microwave oven is not always present. This could
result in very hot liquids suddenly boiling over when a
spoon or other utensil is inserted into the liquid. To reduce
the risk of injury to persons; 1) Do not overheat the liquid.
2) Stir the liquid both before and halfway through heating
it. 3) Do not use straight-sided containers with narrow
necks. 4) After heating, allow the container to stand in the
microwave oven for a short time before removing the
container. 5) Use extreme care when inserting a spoon or
other utensil into the container.
13. Keep the glass tray and the turntable roller rest in the
oven when you are cooking.
14. Do not use the oven outdoors. Do not store the oven
outdoors. Do not use this product near water.
– for example, near a kitchen sink, in a wet basement,
near a swimming pool, or similar location.
15. Do not cover or block any openings in the oven.
16. Do not run the microwave oven empty.
17. Do not let the cord hang over the edge of a table or
counter.
18. Do not heat glass turntable excessively.
– Do not cook bacon directly on the glass turntable.
– Do not allow the grey film on special microwave cooking
packages to touch the glass turntable.Put the package
on a microwave-safe dish.
– Keep a browning dish at least 3⁄16 inch above the glass
turntable. If you use the browning dish incorrectly, you
could break the glass turntable.
19. Be careful not to chip or scratch the edges of the
turntable. Chips or scratches may cause the turntable to
break during use.
20. Some produce such as whole eggs and sealed
containers - for example, closed glass jars are able to
explode and should not be heated in this oven.

ENGLISH
5
SAFETY
IMPORTANT SAFETY INSTRUCTIONS
When using electrical appliances, especially when children are present, basic safety precautions should always be
followed, including the following:
SAVE THESE INSTRUCTIONS!
1.Read all instructions before using your toaster.
2.Do not touch hot surfaces.
3.To protect against electrical hazards, do not immerse
cord, plug, or the appliance in water or other liquid.
4.Close supervision is necessary when any appliance
is used by or near children.
5.Unplug from outlet when not in use and before
cleaning. Allow to cool before putting on or taking off
parts and before cleaning.
6.Do not operate any appliance with a damaged cord
or plug or after the appliance malfunctions or has
been dropped or damaged in any manner. Return
appliance to the nearest authorized service center for
examination, repair or electrical or mechanical
adjustment.
7.The use of attachments not recommended by the
manufacturer may cause hazards.
8.Keep the cord away from heated surfaces. Do not let
the cord hang over the edge of table or counter, as it
could be pulled off.
9.Do not use outdoors.
10.Do not place on or near a hot gas or electric burner
or in a heated oven.
11.Do not use the appliance for other than its intended
use.
12.Oversized foods, metal foil packages or utensils
must not be inserted in this appliance, as they may
create a fire or electrical hazards.
13.A fire may occur if this toaster is covered or
touching flammable material, including curtains,
draperies, walls, etc., when in operation.
14.Do not attempt to dislodge food when this appliance
is plugged in.
15.Toast Door must be closed before attaching or
disconnecting the plug from wall outlet.
16.Do not close with metal scouring pads. Pieces can
burn off the pad and touch electrical parts involving
a risk of electric shock.
17.Do not use paper products when appliance is
operated in the toaster mode.
18.Do not store any materials, other than
manufacturer’s recommended accessories, in this
oven when not in use.
19.Do not cover crumb tray or any other part of the
oven with metal foil. This will cause overheating of
this appliance.
20.Extreme caution must be used when moving an
appliance containing hot oil or other hot liquids.

66
UNDERSTANDING YOUR TOAST AND WAVE
SPECIFICATIONS
*IEC 60705 RATING STANDARD
Specifications subject to change without prior notice.
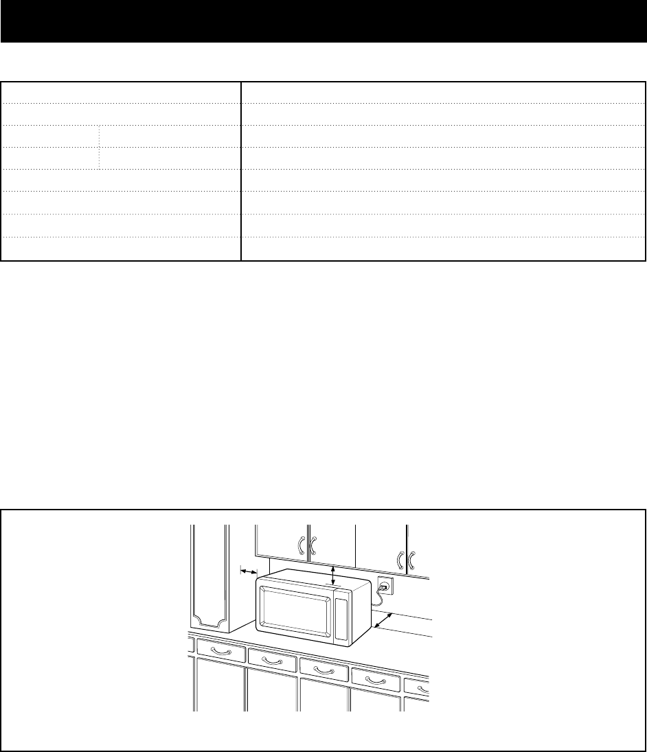
WARNING
To reduce the risk of fire or electric shock, do not install closer than 4 inch to side and back wall.
Power Supply
Rated Power Consumption
Output Microwave
Toaster
Rated Current
Overall Dimensions (WxHxD)
Oven Cavity Dimensions (WxHxD)
Capacity of Oven Cavity
120 V AC, 60 Hz
1,350 W
*900 W
800W
11.5 A
215/16” x 1115/16” x 169/16”
131/2” x 811/16” x 143/16”
0.9 Cu. Ft.
INSTALLATION
1. Remove your Kenmore Toast and Wave and all pack-
ing materials from the shipping carton.
2. Place the oven on a level surface that provides at
least 4 inches of space at the left, right, top, and rear
sides for proper ventilation.
3. Place the rotating ring in the circle on the oven floor
and then place the glass turntable on the top of the
turntable roller rest.
NOTE: Never place the glass turntable in the oven
upside down. Blocking the inlet and/or outlet
openings can damage the oven.
4
inches
4
inches
4
inches
Countertop

ENGLISH
7
Your oven comes with the following accessories:
1 Use and Care Guide
1 Glass Turntable
1 Rotating Ring
UNDERSTANDING YOUR TOAST AND WAVE
PARTS AND ACCESSORIES
Easy-Clean
Oven Cavity
See-Through Door
Safety Interlock System
Toaster
Control
Panel
Toaster
Indicator
Light
Toaster
Indicator
Light
Microwave Oven
microwave oventoaster
lighter
bagel
toast
frozen
STOP
clear
darker
start / clear
12345
67890
potato
beverage
popcorn
diner plate
fresh
vegetable
frozen
entree
add
minute
power
cook time
kitchen timer
clock
START
auto
defrost
Rotating Ring
Glass Turntable

88
UNDERSTANDING YOUR TOAST AND WAVE
1. Toast. Toast bread
2. Bagel. Toast bagels on cut side;
3. Stop/Clear. Touch this pad to stop the toaster or clear entries.
4. Start. Touch this pad to start the toasting process.
5. Darkness Control. Adjust Darkness Control to desired setting before cooking foods.
(Default : 5, "1" is the lightest and "9" is the darkest)
TOASTER CONTROL AREA
0
1 3
5
2 4
1. DISPLAY. The Display includes a clock and indicators that tell you time of day, cooking time settings, and cooking
functions selected.
2. STOP/CLEAR. Touch this pad to stop the oven or clear entries.
3. START. Touch this pad to start all entries (except the Auto Cook and Add Minute function which start automatically)
and to turn Child Lock on or off.
4. AUTO COOK. Touch this pad to select programming food items.
5. ADD MINUTE. Touch this pad to cook at 100% cook power for 1 minute to 99 minute 99 seconds.
6. AUTO DEFROST. This pad is an accurate defrosting method for frozen meat, poultry and fish up to 6.0 lbs or
4.0 kgs.
7. COOK TIME. Touch this pad to set a cooking time.
8. POWER. Touch this pad to set a cooking power.
9. CLOCK. Touch this pad to enter the time of day.
10. KITCHEN TIMER. Touch this pad to use your microwave oven as a kitchen timer.
11. NUMBER PADS. Touch Number Pads to enter cooking time, power level, quantities, or weights.
MICROWAVE CONTROL AREA
CONTROL PANEL
0
2 4
1
75 9
36 8 11
10

ENGLISH
9
UNDERSTANDING YOUR TOAST AND WAVE
USE
Ovenproof Glass
• Glass treated for use in high-intensity heat
includes utility dishes, bread dishes, pie plates, cake
plates, liquid measuring cups, casseroles, and bowls
without metallic trim.
China
• Bowls, cups, serving plates, and platters without
metallic trim can be used in your oven.
Plastic
• When using plastic wrap as a cover, make sure that
the dish is deep enough so the plastic wrap does not
touch the food. As the food heats, it may melt the
plastic wrap wherever the wrap touches the food.
• Place plastic wrap loosely over the top of the dish
and secure it by pressing the wrap to the sides of
the dish.
• Vent by turning back one corner of the plastic wrap.
This will allow excess steam to escape.
• Use plastic dishes, cups, semi-rigid freezer
containers, and plastic bags only for short time
cooking. Use these with care because the
plastic may soften from the heat of the food.
Paper
• Microwave-safe paper towels, waxed paper, paper
napkins, and paper plates with no metallic trim or
design can be used in your oven.
• Refer to the manufacturer’s label for use of any
paper product in the microwave oven.
DO NOT USE
Metal Utensil
• Metal shields food from microwave energy and
produces uneven cooking. Avoid metal skewers,
thermometers, or foil trays.
• Metal utensils can cause arcing, which is a
discharge of electric current. Arcing can damage
your microwave oven.
Metal Decoration
• Do not use metal-trimmed or metal-banded
dinnerware, casserole dishes, etc.
Centura™ Tableware
• The Corning Company recommends that you
do not use Centura tableware and some Corelle™
closed-handle cups for microwave
cooking.
Aluminum Foil
• Avoid large sheets of aluminum foil because
they hinder cooking and may cause arcing.
• Use small pieces of foil to shield poultry legs
and wings.
• Keep all aluminum foil at least 1 inch from the walls
and door of the oven.
Wood
• Wooden bowls, boards, and baskets will dry out and
may split or crack when you use them in the
microwave oven.
Tightly Closed Containers
• Tightly closed cookware can explode. Be sure
to leave an opening for steam to escape from
covered cookware.
Brown Paper
• Avoid using brown paper bags. They absorb
heat and could burn.
Metal Twist Ties
• Always remove metal twist ties as they can become
hot and cause a fire.
COOKWARE GUIDE
Most heat-resistant, non-metallic cookware is safe for use in your microwave oven. However, to test cookware
before using, follow these steps:
1. Place the empty cookware in the microwave oven.
2. Measure 1 cup of water in a glass measuring cup and place it in the oven beside the cookware.
3. Microwave on 100% power for 1 minute. If the dish is warm, it should not be used for microwave cooking.

1010
UNDERSTANDING YOUR TOAST AND WAVE
TIPS FOR MICROWAVE COOKING
BROWNING
Meat and poultry with high fat content that are cooked
for 10 or 15 minutes or longer will brown lightly. Foods
cooked a shorter time can be brushed with a browning
agent, such as Worcestershire sauce, soy sauce, or
barbecue sauce.
COVERING
A cover traps heat and steam and causes the food to
cook more quickly. Use a lid or microwave-safe plastic
wrap with one corner folded back to vent the excess
steam. Lids on glass casseroles can become hot
during cooking. Handle carefully. Waxed paper will
prevent the food from splattering in the oven and help
retain heat. When warming bread items, use waxed
paper, napkins, or paper towels. To absorb extra
moisture, wrap sandwiches and fatty foods in paper
towels.
SPACING
Arrange individual foods, such as baked potatoes,
cupcakes, and hors d’oeuvres in a circle and at least
1 inch apart. This will help the food cook more evenly.
STIRRING
Stirring blends flavors and redistributes the heat in
foods. Always stir from the outside toward the center
of the dish. Food at the outside of the dish heats first.
TURNING
Large foods, such as roasts and whole poultry, should
be turned so that the top and bottom cook evenly. Also
turn over chicken pieces and chops.
ARRANGEMENT
Do not stack food. Arrange in a single layer in the dish
for more even cooking. Because dense foods cook
more slowly, place thicker portions of meat, poultry, fish,
and vegetables toward the outside of the dish.
TESTING FOR DONENESS
Because foods cook quickly in a microwave oven, you
need to test frequently for doneness.
STANDING TIME
Depending on density, food often needs to stand from 2
to 15 minutes after you remove it from the oven.
Usually, you need to cover food during standing time to
retain heat. Remove most foods when they are slightly
undercooked and they will finish cooking during stand-
ing time. The internal temperature of food will rise about
10 °F during standing time.
SHIELDING
To prevent some portions of rectangular or square dish-
es from overcooking, you may need to shield
them with small strips of aluminum foil to block the
microwaves. You can also cover poultry legs and
wing tips with foil to keep them from overcooking.
Always keep foil at least 1 inch from oven walls
to prevent arcing.
PIERCING
Pierce the shell, skin, or membrane of foods before
cooking to prevent them from bursting. Foods that
require piercing include yolks and whites of eggs, hot
dogs, clams, oysters, and whole vegetables, such as
potatoes and squash.
CLEANING
Wipe the oven inside and outside with a soft cloth and
a mild detergent solution. Then rinse and wipe dry.
This should be done weekly or more often, if needed.
Never use cleaning powders or rough pads.
Excessive oil splatters on the inside top will be difficult
to remove if left for many days. Wipe splatters with a
wet paper towel, especially after cooking chicken or
bacon.
REMOVABLE PARTS
The turntable and turntable roller rest are removable.
They should be hand-washed in warm (not hot) water
with a mild detergent and a soft cloth. Once they are
clean, rinse well and dry with a soft cloth. Never use
cleaning powders, steel wool, or rough pads.
• The turntable may be cleaned at the sink. Be careful
not to chip or scratch the edges as this may cause
the turntable to break during use.
• The turntable roller rest should be cleaned regularly.
SPECIAL CARE
For best performance and safety, the inner door panel
and the oven front frame should be free of food or
grease buildup. Wipe often with a mild detergent; then
rinse and wipe dry. Never use cleaning powders or
rough pads.
After cleaning the control panel, touch STOP/CLEAR
to clear any entries that might have been entered
accidentally while cleaning the panel.

ENGLISH
11
UNDERSTANDING YOUR TOAST AND WAVE
TIPS FOR TOASTER
CLEANING
Never immerse the toaster in water. Always unplug the
toaster and allow the toaster to cool completely before
cleaning.
Exterior : Wipe surface with a soft, clean, damp cloth.
Never use abrasive cleaners, as they may
scratch the surface.
Interior : To remove crumbs, shake the toaster gently
so that crumbs fall into the crumb tray. If food
jams in the slots, disconnect the toaster plug
from wall outlet and wait until cooled com-
pletely. Remove food with wooden tongs. Do
not use fork or other sharp, metal object to
clean inside of the toaster, or to remove toast,
as it may damage heating elements.
Crumb Tray : After allowing the toaster to cool down
and closing the door, gently slide out the
crumb tray. Brush crumbs off the tray
and, if necessary, wipe it with a clean,
damp cloth. Always dry the tray thorough-
ly. When sliding the crumb tray into place
be sure to feel/hear it snap into position.
IMPORTANT
Before using the toaster for the first time, set the Darkness Control at medium and operate the toaster without bread
in order to burn off residues on the heating elements. You will notice an odor that is characteristic of new heating
elements. This is normal.
Toast cooking time are not shown and oven cook and toast cook are not operated at the same time.
MAINTANANCE
This toaster requires little maintenance. It contains no user-serviceable parts inside the housing. Do not remove the
cover. Contact qualified personnel if the product requires servicing.

1212
USING YOUR MICROWAVE OVEN
Example: To set the clock for 10:30(AM).
Touch: Display Shows:
CLOCK
1.
2.
3.
Use this safety feature to lock the control panel
when you are cleaning the oven, or so that children
cannot use the oven unsupervised.
To set CHILD LOCK:
Touch: Display Shows:
CHILD LOCK
Touch and hold
until LOCKED
appears in
the display.
(approximately
4 seconds)
To cancel CHILD LOCK:
Touch: Display Shows:
Touch and
hold until
LOCKED
disappears
from the
display.
(approximately
4 seconds)
Time of day.
13
0 0
1.
1.
2.
Your microwave oven can be used as a kitchen
timer. You can set up to 99 minutes, 99 seconds.
Example: To set 3 minutes.
Touch: Display Shows:
KITCHEN TIMER
TIMER and time
counting down.
30 0
1.
2.
3.
12:00
Clock
10:30
Clock
10:30
Clock
:0
Timer
3:00
Timer

ENGLISH
13
Time of day.
Twice
USING YOUR MICROWAVE OVEN
ADD MINUTE
A time-saving pad, this simplified control lets
you quickly set and start microwave cooking at
100% power without the need to touch START.
Example: To cook for 2 minutes.
Touch: Display Shows:
1.
2.
NOTE: Each time you touch ADD MINUTE, it will
add 1 minute up to 99 min 99 seconds.
Time counting down
and power 100
AUTO COOK
AUTO COOK TABLE
Use this function to cook food without entering a
cook time or power. Refer to the “Auto Cook Table”
below for more information.
Example: To cook 2 patato.
Touch: Display Shows:
1.
Time counting down
2.
3.
Time of day
DIRECTION
CODE CATEGORY
Potato
Popcorn
Fresh
Vegetable
Beverage
Dinner
plate
Frozen
Entrée
AMOUNT
1 - 4 medium
approx.
10 oz. each
Regular size
(3.0 - 3.5 oz.)
1 - 4 cups
1 - 2 cups
1-2 servings
(Approx. 10 -16 oz.)
10 oz.
Pierce each potato with a fork and place on the oven tray
around the edge, at least one inch apart.
After cooking, allow to stand for 5 minutes.
Place only one bag of prepackaged microwave popcorn on the
center of turntable.
Prepare as desired, wash, and leave residual water on the
vegetables. Place in an appropriately-sized microwave con-
tainer. Add amount of water according to the quantity.
(1-2 cups: 2 tablespoons, 3-4 cups: 4 tablespoons)
Cover with plastic wrap and vent.
After cooking, allow to stand for 3 minutes.
Use a wide-mouth mug. Do not cover.
(Be careful! The beverage will be very hot! Sometimes liquids
heated in cylindrical containers will splash out when the cup is
moved.)
Place foods to be heated on dinner plate or similar dish. Cover
with plastic wrap and vent.
After cooking, allow to stand for 3 minutes.
Remove from outer display package. Slit cover. If not in
microwave safe container, place on plate, cover with plastic
wrap and vent.
After cooking, allow to stand for 3 minutes.
2
MWO
Twice

1414
USING YOUR MICROWAVE OVEN
Example: To defrost 1.2 lbs of poultry.
Touch: Display Shows:
AUTO DEFROST
1.
2.
3.
twice
Time counting down
and DEFROST.
to enter the weight
1
2
Three defrost sequences are preset in the oven.
The auto defrost feature provides you with the best
defrosting method for frozen foods. The cooking guide
will show you which defrost sequence is recommended
for the food you are defrosting.
For added convenience, the Auto Defrost
includes a built-in beep mechanism that reminds
you to check, turn over, separate, or rearrange to get
best defrost results. Three different defrosting levels
are provided.
1 MEAT
2 POULTRY
3 FISH
*Available weight is 0.1~6.0 lbs.
NOTE:
When you touch the START pad, the display changes
to defrost time count down. The oven will beep during
the DEFROST cycle. At this time, open the door and
turn, separate, or rearrange the food.
Remove any portions that have thawed.
Return frozen portions to the oven and touch
START to resume the defrost cycle.
OPERATING TIPS
• For best results, remove fish, shellfish, meat, and
poultry from its original closed paper or plastic pack-
age (wrapper). Otherwise, the wrap will hold steam
and juice close to the foods, which can cause the
outer surface of the foods to cook.
• For best results, shape your ground meat into the
form of a doughnut before freezing. When defrosting,
scrape off thawed meat when the beep sounds and
continue defrosting.
• Place foods in a shallow container or on a microwave
roasting rack to catch drippings.
• Food should still be somewhat icy in the center when
removed from the oven.
1.2
Defrost
lbs
Defrost
MWO
MWO

ENGLISH
15
USING YOUR MICROWAVE OVEN
TIMED COOKING
1.
2.
5.
3.
4.
This feature lets you program a specific cook time
and power. For best results, there are 10 power
level settings in addition to HIGH power (100%).
Refer to the “Microwave Power Level Table” on
page 16 for more information.
NOTE: If you do not select a power level, the oven
will automatically cook at HIGH (100%) power.
Example: To cook for 5 minutes, 30 seconds
at 80% power.
Touch: Display Shows:
530
8
AUTO DEFROST TABLE
Category
MEAT
POULTRY
FISH
Food to be Defrosted
Beef
Ground beef, Round steak,
Cubes for stew, Tenderloin steak,
Pot roast, Rib roast, Rump roast,
Chuck roast, Hamburger patty
Lamb
Chops (1 inch thick), Rolled roast
Pork
Chops ( 1⁄2inch thick), Hot dogs,
Spareribs, Country-style ribs.
Rolled roast, Sausage
Veal
Cutlets (1 lb., 1⁄2inch thick)
Poultry
Whole (under 4 lbs.), Cut-up, Breasts
(boneless)
Cornish Hens
Whole
Turkey
Breast
Steaks/Chops
Round beef steak, Tenderloin steak
Lamb chops (1 inch thick)
Pork chops (1/2 inch thick)
Veal cutlets (1 lbs, 1/2 inch thick)
Fish
Fillets, Whole Steaks
Shellfish
Crab meat, Lobster tails, Shrimp,
Scallops
1
2
3
enter cooking time
and
:0
MWO
5:30
MWO
p-hi
MWO
p-8o
MWO

1616
USING YOUR MICROWAVE OVEN
30 0
70 0
8
MICROWAVE POWER LEVELS
Your microwave oven has 10 cook power levels to let
you cook or heat a wide variety of foods. Refer to the
table below for suggestions:
Microwave Power Level Table
• Boiling water.
• Making candy.
• Cooking poultry pieces, fish, & vegetables.
• Cooking tender cuts of meat.
• Whole poultry.
• Reheating rice, pasta, & vegetables.
• Reheating prepared foods quickly.
• Reheating sandwiches.
• Cooking egg, milk, & cheese dishes.
• Cooking cakes, breads.
• Melting chocolate.
• Cooking veal.
• Cooking whole fish.
• Cooking puddings & custard.
• Cooking ham, whole poultry, & lamb.
• Cooking rib roast, sirloin tip.
• Thawing meat, poultry, & seafood.
• Cooking less tender cuts of meat.
• Cooking pork chops, roast.
• Taking chill out of fruit.
• Softening butter.
• Keeping casseroles & main dishes warm.
• Softening butter & cream cheese.
• Standing time.
10
(High)
9
8
7
6
5
4
3
2
1
0
Use
Power
Level
For best results, some recipes call for different cook
powers during different stages of a cook cycle. You
can program your oven to switch from one power
level to another for up to 2 stages.
Example: To set a 2-stage cook cycle.
Touch: Display Shows:
MULTI-STAGE COOKING
1.
2.
5.
3.
4.
6.
to set a 7 minute cook
time for second stage.
to set a 3 minute cook
time for first stage.
7.
9.
5
8. to set an 50%
cook power for
the second
stage.
to set an 80%
cook power for
the first stage.
When the first stage is over, you will hear two
short tones as the oven begins the second
cook stage.
10.
Time counting down
and POWER 80.
:0
MWO
:0
MWO
7:00
MWO
p-hi
MWO
p-50
MWO
3:00
MWO
p-hi
MWO
p-8o
MWO

ENGLISH
17
ENGLISH
Meat
1. No special techniques are required. Meat should be
prepared as with conventional cooking. Season if
desired. Always thoroughly defrost meat before cook-
ing.
2. Place the meat on a microwave roasting rack or
microwave-proof plate and place on the turntable.
3. Cook according to the Meat Cooking Table (below).
Use the longer time for large cuts of meats and the
shorter time for small cuts of meats. For thicker
chops, use the longer time.
4. Turn the meat once halfway through the cooking
time.
5. Let stand for 5-10 minutes wrapped in foil after
cooking. The standing time is very important as it
completes the cooking process.
6. Make sure meat, especially pork, is thoroughly
cooked before eating.
Poultry
1. No special techniques are required. Poultry should
be prepared as with conventional cooking. Season if
desired.
2. Poultry should be thoroughly defrosted. Remove
giblets and any metal clamps.
3. Prick the skin and brush lightly with vegetable oil
unless the poultry is self-basting.
4. All poultry should be placed on a microwave roasting
rack or a microwave-proof plate and placed on the
turntable.
5. Cook according to the instructions in the Poultry
Cooking Table below. Turn over halfway through the
cooking time. Because of its shape, poultry has a
tendency to cook unevenly, especially in very bony
parts.Turning during roasting helps to cook these
areas evenly.
6. Let stand for 5-10 minutes wrapped in foil after
cooking before carving. The standing time is very
important, as it completes the cooking process.
7. Make sure poultry is thoroughly cooked before eating.
Whole poultry is completely cooked when the juices
run clear from the inside thigh when it is pierced with
a sharp knife. Poultry pieces should be pierced with
a sharp knife through the thickest part to ensure that
the juices are clear and the flesh is firm.
USING YOUR MICROWAVE OVEN
WARNING: Do not use aluminum foil during cooking cycle.
BEEF
Standing/Rolled Rib
– Medium
– Well-done
Ground Beef (to
brown for casserole)
Hamburgers,
Fresh or defrosted
(4 oz. each)
– 2 patties
– 4 patties
PORK
Loin, Leg
Bacon
– 4 slices
– 6 slices
Microwave
Power
8
8
HIGH(100%)
HIGH(100%)
HIGH(100%)
8
HIGH(100%)
HIGH(100%)
Cooking Time
Per Pound
9
1/2
to 11
1/2
minutes
11
1/2
to 14 minutes
61/2to 91/2minutes
2
1/2
to 4
1/2
minutes
3
1/2
to 5
1/2
minutes
12
1/2
to 16
1/2
minutes
2
1/2
to 3
1/2
minutes
3
1/2
to 4
1/2
minutes
Meat Cooking Table
CHICKEN
Whole
Breast (boned)
Portions
TURKEY
Whole
Microwave
Power
8
8
8
8
Cooking Time
Per Pound
11 to 15 minutes
10 to 14 minutes
11 to 17 minutes
11 to 15 minutes
Poultry Cooking Table
NOTES:
• The times listed above are only a guide. Allow for
difference in individual tastes and preferences. The
times may also vary due to the shape, cut, and
composition of the food.
• If whole poultry is stuffed, the weight of the stuffed
bird should be used when calculating the cooking
time.
NOTE: The times listed above are only a guide. Allow
for difference in individual tastes and preferences. The
times may also vary due to the shape, cut, and compo-
sition of the food.
Poultry
COOKING TIPS
Meat

1818
USING YOUR MICROWAVE OVEN
COOKING TIPS (continued)
Fish
1. Arrange fish in a large shallow non-metallic dish or casserole.
2. Cover with pierced microwave plastic wrap or casserole lid.
3. Place the dish on the turntable.
4. Cook according to the instructions in the Fresh Fish Cooking Table below. Flakes of butter can be added to the
fish if desired.
5. Let stand as directed in the Cooking Table before serving.
6. After standing time, check to see that the fish is thoroughly cooked. The fish should be opaque and flake easily.
Fresh Fish Cooking Table
Fish
Fish Fillets
Whole Mackerel,
Cleaned and Prepared
Whole Trout,
Cleaned and Prepared
Salmon Steaks
Microwave
Power
HIGH
HIGH
HIGH
HIGH
Cooking Time
Per Pound
4
1/2
to 8 minutes
4
1/2
to 8 minutes
5
1/2
to 9 minutes
5
1/2
to 8 minutes
Standing
Time
2 to 3 minutes
3 to 4 minutes
3 to 4 minutes
3 to 4 minutes
Butter
Add 15 to 30 ml (1 to 2 tbsp lemon juice)
–
–
Add 15 to 30 ml (1 to 2 tbsp lemon juice)

ENGLISH
19
USING YOUR TOASTER
OPERATING INSTRUCTION
• When using your toaster for the first time, wipe toaster body with a damp cloth. Make sure the crumb tray is
pushed all the way in place before plugging toaster into wall outlet. Thick breads may require longer settings or
even two heating cycles to achieve desired results.
• Remove all protective wrappings from food before placing into toasting slots. Place bread into slots and Close
the door. Then select one mode(Toast/Bagel) and press the Darkness Control to the desired setting(experiment
to suit individual taste). When you pressing the Start button, heating element will
switch on.
• Centering guides will automatically center the food for even browning. However,
uneven browning may occur if you are only using one toasting slot.
• Do not adjust the Darkness Control while the toaster is in use. To interrupt the
toasting cycle, press the "stop/clear" control button.
• During the toasting cycle, the indicator light wil be illuminated. If you open the door,
toasting will stop and the light will blink. The toasting cycle can be resumed by
closing the toaster door and pressing the start button.
• When the beep sounds, take out food carefully. Be careful hot surface.
This toaster automatically determines required cooking times for toasting.
Example: To toast for 8 step.
Touch: Display Shows: Indicator light
3 times
off
off
on
Toast
1.
2.
3.
5
Toast
8
Toast
Starting Toast
Toaster
Toaster
Use this function to cook bagel.
Example: To bagel for 7 step.
Touch: Display Shows: Indicator light
2 times
off
off
on
Bagel
1.
2.
3.
Starting Toast
5
Begel
7
Begel
Toaster
Toaster
lighter
frozen
start / clear
67890

2020
USING YOUR TOASTER
COOKING TIPS
WARNING
Never place any object in the toaster for any reason!
• DO NOT toast pastries with runny fillings or frosting.
• DO NOT toast torn slices of bread or broken pastries.
• DO NOT place buttered bread, wrapped food, or frozen pastries in the toaster.
• DO NOT use this toaster to toast or warm small-size bread slices. These include "melba" size breads, slices
of mini-baguettes, breadsticks, etc.
Note: Different types of bread and their moisture levels may require different darkness settings. For
example, dry bread will brown more rapidly than moist bread and so will be toasted to your taste
at a lighter setting.
Toast/Bagel Darkness Settings
Degree of darkness
Light
Medium
Dark
Select darkness level
1~3
4~6
7~9

2121
TROUBLESHOOTING
Questions and Answers
Operation
Question
Why is the oven light not on during
cooking?
Why does steam come out of the air
exhaust vent?
Will the Toast and Wave be damaged if it
operates empty?
Does microwave energy pass through the
viewing screen in the door?
Why does a tone sound when a pad on
the control panel is touched?
Can my Toast and Wave be damaged if
food is cooked for too long?
When the oven is plugged into wall outlet
for the first time, it does not work properly.
What is wrong?
Why do I see light reflection around the
outer case?
What are the various sounds I hear when
the microwave oven is operating?
Why does a fan sound for some time after
toasting?
What does "HOT" code on the display
mean?
What does "F-1" and "F-2" code on the
display mean?
There may be several reasons why the oven light is not on.
Have you:
• Set a cooking time?
• Touched START?
Steam is normally produced during cooking. The microwave oven
has been designed to vent this steam.
Yes. Never operate the oven and toaster empty or without the glass
turntable.
No. The metal screen bounces the energy back to the oven cavity.
The holes (or ports) allow only light to pass through. They do not
let microwave energy pass through.
The tone tells you that the setting has been entered.
Like any other cooking appliance, it is possible to overcook food
to the point that the food creates smoke and even possibly fire,
and damage to the inside of the oven. It is always best to be near
the oven while you are cooking.
The microcomputer controlling your oven may temporarily
become scrambled and fail to function as programmed when you
plug in for the first time or when power resumes after a power
interruption. Unplug the oven from the 120 volt household outlet
and then plug it back in to reset the microcomputer.
This light is from the oven light which is located between the
oven cavity and the outer wall of the oven.
The clicking sound is caused by a mechanical switch turning the
microwave oven’s magnetron ON and OFF.
The heavy hum and clunk is from the change in power the
magnetron draws as it is turned ON and OFF by a mechanical
switch.The change in blower speed is from the change in line
voltage caused by the magnetron being turned ON and OFF.
The fan blowing cools the toaster heater for about 1 minute after
toasting. This is normal.
That means internal temperature is irregularly high. Check you
operated toaster without no bread.
At this time, fan blows for about 3 minutes to cool down the toaster.
That means failure mode. Contact the nearest Sears Authorized
Service Center.
Answer

ENGLISH
22
TROUBLESHOOTING
Questions and Answers (continued)
Food
Question
What is wrong when baked foods have a
hard, dry, brown spot?
Why do eggs sometimes pop?
Why are scrambled eggs sometimes a
little dry after cooking?
Is it possible to pop popcorn in a
microwave oven?
Why do baked apples sometimes burst
during cooking?
Why do baked potatoes sometimes
burn during cooking?
Why is a standing time recommended
after microwave cooking time is over?
Why is additional time required for
cooking food stored in the refrigerator?
A hard, dry, brown spot indicates overcooking. Shorten the cooking
or reheating time.
When baking, frying, or poaching eggs, the yolk may pop due to
steam build-up inside the yolk membrane. To prevent this,
simply pierce the yolk with a wooden toothpick before cooking.
CAUTION: Never microwave eggs in the shell.
Eggs will dry out when they are overcooked, even if the same
recipe is used each time. The cooking time may need to be varied
for one of these reasons:
• Eggs vary in size.
• Eggs are at room temperature one time and at refrigerator
temperature another time.
• Eggs continue cooking during standing time.
Yes, if using one of the two methods described below:
(1) microwave-popping devices designed specifically for microwave
cooking
(2) prepackaged commercial microwave popcorn that is made
for specific times and power output needed
Follow exact directions given by each manufacturer for
its popcorn popping product and do not leave the oven
unattended while the corn is being popped. If corn fails
to pop after the suggested time, discontinue cooking.
Overcooking could result in an oven fire.
CAUTION:
•Never use a brown paper bag for popping corn or attempt to
pop leftover kernels.
•Do not pop prepackaged commercial microwave popcorn
directly on the glass turntable. To avoid excessive heating of
the glass turntable, place the popcorn bag on a plate.
The peel has not been removed from the top half of each apple to
allow for expansion of the interior of the apple during cooking. As in
conventional cooking methods, the interior of the apple expands
during the cooking process.
If the cooking time is too long, fire could result. At the end of the
recommended cooking time, potatoes should be slightly firm.
CAUTION: Do not overcook.
Standing time allows foods to continue cooking evenly for a few
minutes after the actual microwave oven cooking cycle. The
amount of standing time depends upon the density of the foods.
As in conventional cooking, the initial temperature of food affects
total cooking time. You need more time to cook food taken out of a
refrigerator than for food at room temperature.
Answer

2323
TROUBLESHOOTING
BEFORE CALLING FOR SERVICE
Problem
Oven and Toaster does not start
Arcing or Sparking
Incorrect time of day
Unevenly Cooked Foods
Overcooked Foods
Undercooked Foods
Improper Defrosting
Toaster malfunctions or fails to operate.
You can often correct operating problems yourself. If your Toast and Wave fails to work properly, locate the oper-
ating problem in the list below and try the solutions listed for each problem.
If the Toast and Wave still does not work properly, contact the nearest Sears Authorized Service Center. Sears
Authorized Service Centers are fully equipped to handle your service requirements.
• Is the power cord plugged in?
• Is the door closed?
• Are the cooking time or darkness control set?
• Are you using approved cookware?
• Is the oven empty?
• Have you tried to reset the time of day?
• Are you using approved cookware?
• Is the glass turntable in the oven?
• Did you turn or stir the food while it was cooking?
• Were the foods completely defrosted?
• Was the time/cooking power level correct?
• Was the time/cooking power level correct?
• Are you using approved cookware?
• Were the foods completely defrosted?
• Was the time/cooking power level correct?
• Are the ventilation ports clear?
• Are you using approved cookware?
• Was the time/cooking power level correct?
• Did you turn or stir the food during the defrosting cycle?
• Is the machine plugged in?
• Is the fuse in the circuit to the machine in working order?
• If you have a circuit breaker box, be sure the circuit is closed.
• Try unplugging and re-plugging.
Possible Causes

ENGLISH
24
TROUBLESHOOTING
WARNING:
This equipment generates and uses ISM frequency
energy and if not installed and used properly, that is
in strict accordance with the manufacturer's instruc-
tions, may cause interference to radio and television
reception. It has been type tested and found to
comply with limits for ISM Equipment pursuant to
part 18 of FCC Rules, which are designed to provide
reasonable protection against such interference in a
residential installation.
However, there is no guarantee that interference will
not occur in a particular installation. If this equipment
does cause interference to radio or television recep-
tion, which can be determined by turning the equip-
ment off and on, the user is encouraged to try to cor-
rect the interference by one or more of the following:
• Reorient the receiving antenna of the radio or televi-
sion.
• Relocate the Microwave Oven with respect to the
receiver.
• Move the microwave oven away from the receiver.
• Plug the microwave oven into a different outlet so
that the microwave oven and the receiver are on dif-
ferent branch circuits.
The manufacturer is not responsible for any radio
or TV interference caused by unauthorized modifi-
cation to this microwave oven. It is the responsibility
of the user to correct such interference.
FEDERAL COMMUNICATIONS COMMISSION RADIO FREQUENCY INTERFERENCE
STATEMENT (U.S.A. ONLY)

Your Home
in your home all
no matter who made it, no matter who sold it!
1-800-4-MY-HOME (1-800-469-4663)
www.sears.com www.sears.ca
Our Home
Sears Parts & Repair Center.
1-800-488-1222
www.sears.com
1-800-827-6655 1-800-361-6665
1-888-SU-HOGAR 1-800-LE-FOYER