LG LMHM2237BD/01 3828W5U0377 User Manual MICROWAVE/HOOD COMBO Manuals And Guides 1610153L
User Manual: LG LMHM2237BD/01 LMHM2237BD/01 LG MICROWAVE/HOOD COMBO - Manuals and Guides View the owners manual for your LG MICROWAVE/HOOD COMBO #LMHM2237BD01. Home:Kitchen Appliance Parts:LG Parts:LG MICROWAVE/HOOD COMBO Manual
Open the PDF directly: View PDF
.
Page Count: 16

Website: http://www.lg.com
MICROWAVE OVEN
INSTALLATION INSTRUCTIONS
PLEASE READ AND SAVE THESE INSTALLATION INSTRUCTIONS.
MFL06206505

– 2 –
Your Safety First
BEFORE YOU START
• Proper installation is the installer's responsibility!
Proper installation by a qualified technician or installer is recommended.
NOTE: Vent grille appearance varies by model.
BE SURE TO READ THE FOLLOWING SAFETY INSTRUCTIONS:
• Avoid Electric Shock!
– Before you drill into the wall, note where electrical outlets are and where electrical wires might be concealed
behind the wall. YOU COULD GET AN ELECTRIC SHOCK if you contact electrical wires with your drill bit.
– Locate and disconnect the power to any electrical circuits that could be affected by installing this oven.
IF YOU DO NOT DISCONNECT THE POWER, YOU COULD GET AN ELECTRIC SHOCK.
• ELECTRICAL RATING OF THIS OVEN : 120V AC 60Hz.
– You need a DEDICATED 120V, 60Hz, AC only, 15 or 20A, fused electrical supply (located in the cabinet
above the microwave as close as possible to the microwave) serving only the microwave.
Model Number Plate
Figure 1
For Your Safety
WARNI N G
Figure 2
• THIS APPLIANCE MUST BE GROUNDED!
– If there is an electrical short circuit, grounding reduces the risk of electric
shock by providing an escape wire for the electric current. This appliance
is equipped with a cord having a grounding wire with a grounding plug.
• Place the plug into a properly installed and grounded outlet. See Figure 3.
• Do not use an extension cord.
• Keep the power cord dry and do not pinch or crush it.
Failure to follow this instruction may cause a fire hazard.
• DO NOT, UNDER ANY CIRCUMSTANCES, REMOVE THE
POWER SUPPLY CORD GROUNDING PRONG!
This appliance MUST be grounded!
PROPERLY POLARIZED AND
GROUNDED OUTLET
Three-Pronged (Grounding) Plug
Figure 3
If you use the grounding plug improperly, you risk electric shock and/or fire!
Check with a qualified electrician if you are not sure whether the oven is properly grounded or if you do not
completely understand the grounding instructions.
DO NOT USE A FUSE IN THE NEUTRAL OR GROUNDING CIRCUIT.
Improper grounding could result in electric shock, fire or other personal injury.
– Read the entire manual before you begin. The model number label is located on the oven front.
See Figure 1. The mounting plate is located on the upper packing. See Figure 2.
w
• This oven should not be installed or located by anyone except properly qualified service personnel.
• You will need TWO people to install this oven. It is heavy and could cause personal injury if not handled
properly.
WARNI N G
w
wWARNI N G
Mounting Plate Mounting Plate
or

Your Safety First
• MAKE SURE YOU HAVE ENOUGH SPACE AND SUPPORT.
– Mount the oven against a flat, vertical wall, so it is supported by the wall. The wall should be constructed of
minimum 2" x 4" wood studding and 3/8" thick drywall or plaster/lath.
– ATTACH (See note on page 4) the two lag screws supporting the oven to a vertical, 2" x 4" wall stud.
– DO NOT mount the microwave oven to an island or peninsula cabinet.
– BE SURE the upper cabinet and rear wall structures can support 150 lbs., plus the weight of any
items you place inside the oven or upper cabinet.
– Locate the oven away from strong draft areas, such as windows, doors, and strong heating vents.
– BE SURE you have enough space. See Figure 4 below for minimum vertical and horizontal clearance.
• Before you begin installing the oven, PLACE A PIECE OF THE CARTON OR OTHER HEAVY
MATERIAL (a blanket) over the countertop or cooktop to protect it. Do not use a plastic cover.
Failure to protect these surfaces could result in property damage.
30" min. cabinet opening width
30" min. clearance from bottom
of cabinet to cooking surface
or countertop before installation.
Grounded Outlet
(inside upper cabinet)
Power Supply Cord Hole
(Use templates included
with installation instructions)
If you do not mount the oven as instructed,
you risk personal injury and/or property damage.
NOTE: Maximum cabinet depth is 13".
SAVE THESE INSTRUCTIONS FOR THE LOCAL ELECTRICAL INSPECTOR'S USE.
• DO NOT EXPOSE YOURSELF TO EXCESSIVE MICROWAVE ENERGY!
– DO NOT try to operate the microwave oven with the door open.
– DO NOT tamper with or defeat the safety interlocks.
– DO NOT place objects between the microwave oven front face and the door.
– DO NOT allow soil or cleaner residue to build up on the flat surfaces around
– DO NOT operate the microwave oven if it is damaged.
– The microwave oven door must close properly to operate safely.
– DO NOT USE THE MICROWAVE OVEN:
the microwave oven door.
• If the door is bent.
• If the hinges or latches are broken or loose.
• If the door seals, sealing surfaces or glass is broken.
– DO NOT ATTEMPT TO ADJUST OR REPAIR THE OVEN YOURSELF!
It should be adjusted and repaired by a qualified technician who can check for microwave leakage after
repairing the oven.
If you do not use the microwave oven as instructed,
you could be exposed to excessive microwave energy.
WARNI N G
w
WARNI N G
w
wCAUTION
– 3 –
Figure 4
Slide-out hood model requires a minimum 2 in. distance
from the top of the range control panel to the bottom of microwave oven 2" min.

– 4–
Parts, Tools, Materials
THE FOLLOWING PARTS ARE SUPPLIED WITH THE OVEN:
NOTE: Depending on your ventilation requirements, you may not use all of these parts.
Damper/duct connector
(for roof venting or wall venting installation)
Not Actual Size (2 pieces must be assembled as
shown) Not used if venting into kitchen.
One power cord clamp and
One dark-colored mounting screw
(to hold the power cord)
Actual Size
1/4" x 2" lag screws - Actual Size
(for wall stud holes) Two 1/4" x 3" toggle bolts - Actual Size
(for drywall holes)
Two 1/4" x 3" bolts - Actual Size
(for securing to the upper cabinet
Two 1/4" x 3" bolts - Actual Size
(for securing to the upper cabinet)
Two tapping screws - Actual Size
(for attaching the damper duct connector)
One upper cabinet template- Not Actual Size
One rear wall template- Not Actual Size
(1 piece mounting plate only)
One power cord clamp bushing - Actual Size (for the cord hole in a metal upper cabinet)
NOTE: You need to install at least one lag screws into a 2" x 4" stud and three anchor bolts into the wall.
and the mounting area must meet the 150 lbs. weight requirement.
Two
)
One mounting plate - Not Actual Size (for supporting the Microwave Oven )
WARNING - TO REDUCE THE RISK OF FIRE AND ELECTRIC SHOCK,
INSTALL AT LEAST 13-3/4 INCHES ABOVE A COOKTOP(OR RANGE)
SUITABLE FOR USE ABOVE GAS OR ELECTRIC
COOKING EQUIPMENT 36 INCHES OR LESS WIDE.
APTO PARA SU USO SOBRE EQUIPOS ELÉCTRICOS O
A GAS CON ANCHO DE 36 PULGADAS (90CM) O INFERIOR
ADVERTENCIA - PARA REDUCIR EL RIESGO DE INCENDIO Y DE DESCARGA ELÉCTRICA,
INSTALE AL MENOS A 13-3/4 PULGADAS (35CM) SOBRE LA VITROCERÁMICA (O FOGÓN)

– 5 –
Parts, Tools, Materials
Clear Tape
(for taping the templates to the wall)
Phillips Screwdriver
(for the screws)
Gloves
Pencil
Flat Blade Screwdriver
(for the toggle bolts)
Plumb Line
Measuring Tape
(metal preferred) Duct Tape
Caulking Gun and Caulk
Stud Finder or Thin Nail
Saber Saw
(for cutting vent holes for roof
or wall venting)
Keyhole Saw (for the power cord hole)
You will need the following tools and materials for the installation:
Carton or other heavy material such as a blanket for covering the counter top.
3/8" and 3/4" wood drill bits
1/2" and 3/16"
drill bits
Electric Drill
Small Side Cutters(Nipper) or Tin Snips
If you have brick or masonry walls, you will need special hardware and tools.
The ductwork you need for the installation is not included. All wall and roof caps must have a back-draft damper.
(Shown on page 4).
Wear proper gloves to protect your hands from injury.

– 6 –
STEP 1: Prepare The Electrical Connection
Improper grounding could result in electric shock or other personal injury.
1. Locate the grounded electric outlet for this oven in the
cabinet above the oven, as shown in Figure 5.
NOTE: The outlet should be on a circuit dedicated to the
microwave oven (120V, 60 Hz., AC only) with a 15 or 20A
fused electrical supply.
IMPORTANT: If you do not have the proper wall outlet,
you MUST have one installed by a qualified electrician.
2. You will cut the hole for the power supply cord (shown in
Figure 5) later when you prepare the wall and upper cabinet in
Step 4.
NOTE: Do not use an extension cord.
Keep the power cord dry and do not pinch or crush it.
DO NOT, UNDER ANY CIRCUMSTANCES, REMOVE THE POWER SUPPLY CORD
GROUNDING PRONG!
This appliance MUST be grounded!
AVOID ELECTRIC SHOCK! THIS APPLIANCE MUST BE GROUNDED!
Upper
Cabinet
Power-Supply-Cord Hole
Figure 5
Grounded Outlet
(Inside Cabinet)
WARNING
w
WARNING
w

– 7 –
STEP 2: Prepare The Venting System
THIS OVEN MUST BE PROPERLY VENTED!
NOTE: The ductwork you need for outside ventilation is not included with your oven. The standard ductwork
fittings and length are shown in Figure 10, page 8.
You may vent your oven in one of three ways. However, do NOT vent into a wall cavity, an attic, or an unused
area.
Roof-venting If your oven is located on an outside wall near the roof, as in Figure 7 (3 1/4" x 10" duct) and
Figure 9 (6" round duct.)
Wall-venting If your oven is located on an outside wall of your house, as in Figure 6 (3 1/4" x 10" duct) and
Figure 9 (6" round duct.)
Room-venting If your oven is located on an inside wall of your house, as in Figure 8.
NOTE: If you choose the rear exhaust method (roof or wall-venting), be sure there is enough clearance within the
wall for the exhaust duct.
REMEMBER AS YOU INSTALL THE
VENTING:
Keep the length of the ductwork and the number
of elbows to a minimum to ventilate your oven
efficiently. See examples on page 8.
Keep the size of the ductwork the same.
Do not install two elbows together.
Use duct tape to seal all joints in the duct system.
Use caulking to seal the exterior wall or roof
opening around the cap.
Cabinet
Oven
Wall Mounting
Through-the-wall Duct
Wall Cap
3 1/4"x10"
Duct
Cabinet
Oven
Figure 6
Wall Venting
Through-the-roof
3 1/4"x10"
Duct
Roof Cap
Roof Venting
Cabinet
Oven
Figure 7
Roof Venting
Figure 8
Room Venting
6"min diameter
Round Duct
3 1/4" to Round
Duct Transition
3 1/4" to Round
Ductwork Transition
Roof Cap
Wall Cap
Elbow
Figure 9
WARNING
w
After installation, you should check outside hood opening and operation.
When you install the oven, please refer to the Installation Manual.
For the outside hood opening position and size refer to the upper cabinet template or rear wall template.

– 8 –
STEP 2: Prepare The Venting System
Standard Fittings
NOTE: If the existing duct is round, you must use a rectangular-to-round adapter, with a rectangular 3" extension
duct installed between the damper assembly and the adapter to prevent the exhaust damper’s sticking.
Duct Length
The total length of the duct system, including straight duct, elbows, transitions, and wall or roof caps must not
exceed 140 feet.
For best performance, do not use more than three 90 degree elbows, and keep the length as short as possible.
Below are the standard fittings and their equivalent length in feet.
To calculate the equivalent length of each duct piece used, see the examples below.
Figure 10
6ft.
2ft. 2ft.
wall cap
6ft.
transition
wall cap
For 3 1/4" x 10" SYSTEMS
1 3 1/4” x 10” 90°elbow = 25 ft.
1 Wall Cap = 40 ft.
8 feet straight duct = 8 ft.
TOTAL LENGTH = 73 ft.
1 transition = 5 ft.
2 90°elbows = 20 ft.
1 Wall Cap = 40 ft.
8 feet straight = 8 ft.
TOTAL LENGTH = 73 ft.
For 6" ROUND SYSTEMS
3 1/4” x 10”
to 6" = 5 ft.
90˚elbow
= 10 ft 45˚elbow
= 5 ft
3 1/4” x 10”
wall cap
= 40 ft
3 1/4” x 10”
flat elbow
= 10 ft
3 1/4” x 10” roof
cap = 24 ft 3 1/4” x 10” 90˚
elbow = 25 ft
1 2 3
4 5 6 7
Examples

– 9 –
STEP 3: Prepare The Venting Blower
Your microwave oven is shipped with the blower assembled for roof-venting. You need to adjust the blower if you
want wall-venting or room-venting installation.
• DO NOT PULL OR STRETCH THE BLOWER WIRING! Pulling and stretching the blower wiring could result in
electric shock.
1. Remove any shipping materials and parts from inside the
microwave oven. Set them aside for later use.
2. Cover the counter top or cooktop with a thick, protective
covering to protect it from damage and dirt. See Figure 11.
NOTE: If you have a free-standing range, disconnect
it, move it onto a piece of cardboard or hardboard and
pull it away from the wall, so that you can get closer to
the upper cabinet and back wall for easier measuring
and drilling.
3. Locate the exhaust adaptor, grease filters and hardware packet.
4. At this point, remove any adhesive tape (if there is any), on the
exhaust adaptor, the grease filters and the power supply cord.
ROOF-VENTING INSTALLATION:
This oven is shipped assembled for roof-venting.
1. Insert the tabs on each side of the damper into the holes
at the inside rear of the adaptor.
Attach the exhaust adaptor to the blower plate with the two
tapping screws provided. See Figure 12.
Make sure that the damper swings freely.
A thick, protective
covering
Figure 11
ELECTRIC SHOCK HAZARD! UNPLUG UNIT BEFORE WORKING ON IT.
WARNING
w
wWARNING
FIRE HAZARD! CORRECTLY INSTALL THE VENT FAN BEFORE USE .
• When changing the vent fan position for a rear wall vent or room vent:
1. Properly align the ventilation fan openings and blower plate knockouts.
2. Ventilation fan openings should be completely exposed to the outside.
•Improper installation can cause problems such as:
1. Inability to assemble blower plate or ventilation motor correctly.
2. Abnormal noise during product operation.
3. Weak ventilation.
4. Product overheating - possibility of product breakdown or fire.
Figure 12
Damper
Exhaust
Adaptor
Back of
Oven
Exhaust
Adaptor
Blower Plate
3.After installation, check the air ventilation path. Refer to page 7 Figures 6-8 for proper vent selection.
NOTE: Set the product down on a flat surface only.
• Do not remove the packing tape on the slide-out vent.

STEP 3: Prepare The Venting Blower
WALL-VENTING INSTALLATION:
1. Remove one or two blower unit mounting screw(s) and one
or several blower plate mounting screw(s). Remove the
blower plate from the cabinet. See Figure 13.
2. Carefully lift the blower unit out of the microwave oven.
3. Use side cutters or tin snips to cut and remove knockouts
B from Back plate. Discard knockouts. Be careful not to
distort the plate. See Figure 15.
4. Reassemble the blower wire. See Figure 16.
5. Rotate and reinstall the blower unit so that the exhaust
ports face the rear of the cabinet and are aligned with the
rear cut-outs. See Figures 17 & 18.
6. Reattach the blower plate to microwave oven so the exhaust
ports and blower plate opening are aligned. Attach with one
blower unit mounting screw and then one or several blower
plate mounting screw(s). See Figure 19.
7. Insert the tabs on each side of the damper into the holes
at the inside rear of the adaptor.
Attach the exhaust adaptor to the back plate wall side.
Push in securely until it is past the top locking tabs
and in the lower locking tabs. Take care to assure
the damper hinge is installed so that it is at the top
and that the damper swings freely. See Figure 20.
Figure 13
Blower Plate
Mounting Screw
Blower Plate
Back Plate
Blower Unit
Mounting Screw
Blower Unit
Parts B
Figure 14
Blower
Unit
Exhaust Ports
Figure 15
Figure 16Figure 18
Blower Plate
Mounting Screw
Blower Plate
Back Plate
Blower Unit
Exhaust Ports
Blower Unit
Blower Unit
Mounting Screw
Figure 17
Exhaust
Ports
– 10 –
Slide exhaust
adaptor into
guides on
rear panel.
Exhaust Adaptor Damper
(hinge side up)
Locking
Tabs
Guides
Figure 19
See Figure 14.
Parts B
Knockouts Parts B
Figure 20
or

STEP 3: Prepare The Venting Blower
– 11–
ROOM-VENTING (Recirculating)
INSTALLATION:
1. Remove one or two blower unit mounting screw(s)
and one or several blower plate mounting screw(s).
Remove the blower plate. See Figure21.
2. Carefully lift the blower unit out of the microwave
oven.
4. Rotate blower unit 90° so the exhaust ports face
the front of the cabinet. See Figure 23.
6. Reattach blower plate to microwave oven.
Attach with the one blower unit mounting screw
and then the one or several blower plate
mounting screw(s). See Figure 25.
Figure 21
Figure 25
Blower Plate
Mounting Screw
Blower Plate
Back Plate
Parts B
Blower Unit
Figure 23
Blower Unit
Blower Unit
Mounting Screw
Blower Plate
Mounting Screw
Blower Plate
Back Plate
Blower Unit
Mounting Screw
Blower Unit
Parts B
5. Place blower unit back into microwave oven.
Be sure the wires are not pinched. See Figure 24.
3. Reassemble the blower wire. See Figure 22.
Figure 24
Figure 22
See Figure 14.

– 12 –
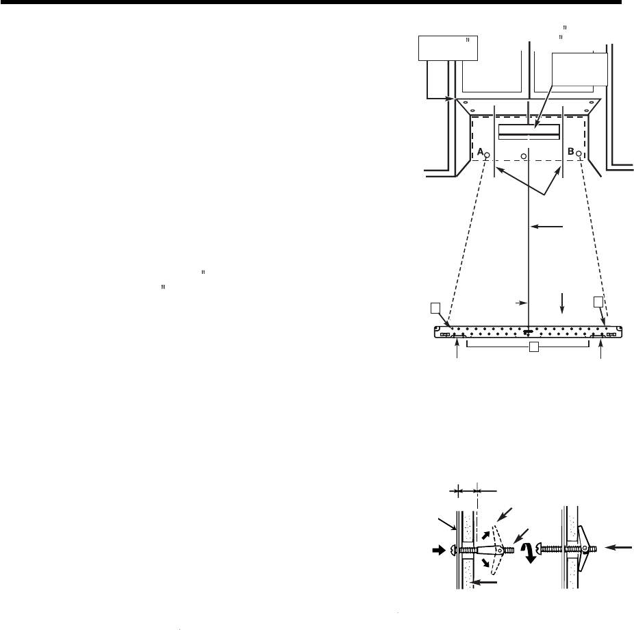
STEP 4: Prepare The Wall & Upper Cabinet
To avoid personal injury or property damage, do not attempt to install this microwave
oven if you cannot find a wall stud. Consult a carpenter or contractor.
Mounting Plate
Measure And Track/Tape Up The Templates
1. Using a plumb line and (metal) measuring tape, find and
mark the vertical center line on the back wall, as in
Figure 26.
2. Find and mark one or two points where the studs are on
the wall. (Studs are normally 16 inches apart). Then
measure and mark the stud locations. If you cannot find
any wall stud, consult a local building contractor.
3. Draw a vertical line on the wall at the center of th 30″
wide space.
NOTE: Be sure the minimum width is 30 inches.
DO NOT ATTEMPT TO INSTALL THE MICRO-
WAVE OVEN IF YOU CANNOT FIND A WALL
STUD.
CAUTION
Figure 26
Figure 27
4. Center the rear wall template in the space by lining up the
plumb line on wall with centerline on template.Then securely
tape or tack the rear wall template in place.Make sure the
minimum width is 30 inches and that the top of the rear
wall template is located a minimum of 30 inches above
the cooking surface. See Figure 26.
NOTE: If the cabinets are not plumb, adjust the rear wall
template to the cabinets. If the front edge of the
cabinet is lower than the back edge, adjust the
template to be level with the cabinet front.
5. Measure the bottom of the upper cabinet frame. Trim
edges A, B, and C on the upper cabinet template
so that the template will fit on the bottom of the upper
cabinet. If upper cabinet has a recessed frame, trim the
template so it fits inside the recessed area. Align the
centerline of the upper cabinet template with the
centerline of the rear wall template, then securely tape or
tack the upper cabinet template in place. See Figure 27.
WARNING
w
w
Upper Cabinet Template

– 13 –
STEP 4: Prepare The Wall & Upper Cabinet
Drill The Holes In The Wall And Upper Cabinet.
1. Drill holes on the circles. If there is a stud, drill a 3/16
"
hole
for lag screws. If there is no stud, drill a 3/4
"
hole for toggle
bolts. Make sure to use at least 1 lag screw in a stud, and
2 toggle screws in the drywall or the plaster.
2. Drill a 3/8” hole at points Jand Kon the upper cabinet
template.
NOTE: If the bottom of the upper cabinet is recessed 3/4
"
or more, you will need 2
"
x 2
"
filler blocks (not
included) to provide additional support for the bolts.
See Figure 28.
Mark the center of each filler block and drill a 3/8”
diameter hole at the marks.
Align filler blocks over the two openings in the top
of the microwave oven cabinet and attach to the
cabinet with masking tape. See Figure 29.
3. Cut or drill a 2
"
diameter hole at the area marked M. Power
supply cord hole on the upper cabinet template. If the upper
cabinet is metal, you will need to cover the edge of the hole
with the power supply cord bushing (supplied) to prevent
damage to the cord from the rough metal edge.
4. Cut out the venting areas (with the saber saw):
Roof-Venting: cut out the shaded area marked L on the
upper cabinet template.
Room-Venting: go to STEP 5, INSTALL THE MOUNTING
PLATE, located on page 14.
5. Complete whichever venting system you have chosen. Use
caulking compound to seal the exterior wall or roof opening
around the wall cap or roof cap.
Figure 28
Figure 29
Cabinet Front Cabinet
Bottom Shelf
Filler Block
Filler
Block
To avoid risk of personal injury, electric shock or death:
Note where electrical outlets and electrical wires are before you drill into the wall.
Locate and disconnect power to any electrical circuits that could be affected by
installing this oven.
To avoid risk of personal injury, electric shock or death, cover the edge of the power
supply cord hole with the power supply cord bushing.
Wall-Venting: Cut out the shaded area marked F on the
REAR WALL TEMPLATE.
WARNING
w
WARNING
w

– 14 –
STEP 5: Install The Mounting Plate
C
B
A
The Oven Must Be Connected To At Least One
Wall Stud.
4. Attach the plate to the wall. To use spring toggle head bolts:
Remove the toggle wings from the bolts. Insert the bolts into
the mounting plate and replace the spring toggle head to 3/4
past the bolt ends. Insert the spring toggle head into the
holes in the wall to mount the plate. You may pull forward on
the plate to help in tightening the toggle bolts. Tighten all
bolts. See Figure 31.
3. Remove the template from the rear wall.
1. Center the rear wall template in the space by lining up the
plumb line on wall with centerline on template.Then securely
tape or tack the rear wall template in place.Make sure the
minimum width is 30 inches and that the top of the rear
wall template is located a minimum of 30 inches above
the cooking surface. See Figure 26.
NOTE: If the cabinets are not plumb, adjust the rear wall
template to the cabinets. If the front edge of the
cabinet is lower than the back edge, adjust the
template to be level with the cabinet front.
a stud. If there is a stud, drill a 3/16 hole for lag screws.
If there is no stud, drill a 5/8 hole for toggle bolts.
These holes must be used for mounting. If the holes are
not used, the installation will not be secure. Installer must
use these holes for proper installation. See Figure 30.
Use toggle bolts through these holes, unless one of them
lines up with a stud. Use a wood screw for studs.
Make sure to use at least 1 lag screw in a stud,
and 2 toggle bolts in the drywall or the plaster.
2. Drill holes at points A, B. Drill the third hole inside area C,
through one of the bottom holes to match the location of
NOTE: Cut out the shaded area marked F on the REAR
WALL TEMPLATE for wall-venting.
Figure 31
Figure 30
Wall
Mounting
Plate
Space More Than Wall Thickness
Bolt
End
Toggle Bolt
Toggle Wings1
3/16 Hole on Studs
5/8 Hole on Drywall Only
Minimum 66
From the Floor
For Wall -
Venting Only
Draw Lines
on Studs
Draw
Center Line
Center Line
Mounting Plate
Support Tab Support Tab

STEP 6: Attach The Oven To The Wall
1. Carefully lift microwave oven and hang it on support tabs
(See Figure 30) at the bottom of the mounting
plate.Reaching through upper cabinet, thread
power supply cord through the power supply cord
hole in the bottom of the upper cabinet.
See Figure 32.
2. Rotate the microwave oven upward so the top of the
oven is against the bottom of the upper cabinet or cabinet
frame.
3. Then insert a bolt down through each hole in the
upper cabinet bottom.See Figure 33.
Tighten the bolts until the gap between the upper cabinet
and microwave oven is closed.
Figure 32
Figure 33
Power Cord
Power Cord
Hole
To avoid risk of personal injury or property damage, you will need two people to
install this microwave oven.
WARNI N G
4. Roof venting installation: See Figure 34.
Install ductwork through the vent opening in the
upper cabinet. Use caulking gun to seal the exterior roof
opening around the exhaust cap. See Figure 7 on page 7.
5. Use the power supply cord clamp to bundle the power
supply cord. Install the power supply cord clamp, using a
screw as shown in Figure 35, to the inside of the cabinet.
6. Grasp the filter screen with one hand holding the ring and the
other hand holding the opposite end. Insert the end of the
filter screen without ring into the opening and slide
towards the side of the microwave oven. Insert ring end of
filter screen into the opening and slide entire screen
towards the center of the microwave until screen is
securely in position. Repeat for other filter screen. See
Figure 36.
7. Plug in the power supply cord.
8. Read your Owner’s Manual, then check the operation of
your microwave oven.
Damper
Power
supply
Cord
Clamp
Figure 34
Figure 35
Figure 36
– 15 –
w
NOTE:
● Do not apply force directly to the outside bottom surface of the product.
The slide-out vent latch may be damaged if force is applied directly to the center bottom of the product.
● Set the product down on a flat surface only.
During unpacking, gently set the product onto a flat surface such as a
kitchen table or counter.
● Do not lift or support the product by the bottom center surface.
The product is best handled by the bottom sides near the legs.
● Do not remove the packing tape on the slide-out vent during installation.
Once the product is fully installed, remove the tape and check that the vent
easily slides open and closed with a push.
1
2
3
1
2

Printed in China