Lg As W1838 H0 Users Manual MFL42286407
LAN185HV to the manual 5d253215-9e0a-4e64-9776-67fb643a5ae9
2015-01-26
: Lg Lg-As-W1838-H0-Users-Manual-228141 lg-as-w1838-h0-users-manual-228141 lg pdf
Open the PDF directly: View PDF
.
Page Count: 9

Room Air Conditioner
SVC MANUAL(Exploded View)
MODEL :
AS-W1838*H0 (LAN185HV / LAU185HV)
AS-W2438*H0 (LAN245HV / LAU245HV)
CAUTION
Before Servicing the unit, read the safety precautions in General SVC manual.
Only for authorized service personnel.
Internal Use Only
http://biz.lgservice.com

- 2 -
Copyright ©2007 LG Electronics. Inc. All right reserved.
Only for training and service purposes LGE Internal Use Only
1. Specification
Note:
O
: Applied, - : No relation
*
For circuit breaker rating, please conform to local standards wherever necessary.
❈
Some of functions are slightly different depending upon models.
❈
The specification may be subject to change without prior notice for purpose of improvement.
❈
Capacity : based on 230V
Cooling Capacity kW
Btu/h.
Heating Capacity kW
Btu/h.
Power Input Cooling/Heating W
Running Current Cooling/Heating A
Starting Current Cooling/Heating A
EER W/W
Btu/h.W
COP W/W
Power Supply Ø / V / Hz
Power Factor %
Air Flow Rate Indoor,Max m3/min(CFM)
Outdoor,Max m3/min(CFM)
Moisture Removal l/h.
Sound Level Indoor,H/M/L dB(A)+3
Outdoor,Max dB(A)+3
Refrigerant & Charge (at 7.5 m) g(oz)
Additional Refrigerant charge g/m(oz/ft)
Compressor Type
Model
Motor Type
Oil Type
Oil Charge cc
O.L.P. name
Fan(Indoor) Type
Motor Output W
Fan(Outdoor) Type
Motor Type
Motor Output W
Circuit Breaker* A
Power Supply Cable AWG
Power and Transmission Cable No.*mm2+ AWG
Piping Connections Liquid Side mm(in)
Gas Side mm(in)
Drain Hose O.D., I.D. mm(in)
Dimensions Indoor (W*H*D) mm
inch
Outdoor (W*H*D) mm
inch
Net Weight Indoor kg(lbs)
Outdoor kg(lbs)
Operation Range Cooling(Outdoor) ˚C(˚F)
Heating(Outdoor) ˚C(˚F)
Max. Piping Length m(ft)
Max. Elevation Difference m(ft)
Tool Code(Chassis) Indoor + Outdoor
Functions Temperature Control
Plasma Filter
Prefilter(washable/anti-fungus)
Auto Clean
CHAOS Wind(Auto Wind)
Steps, Fan/Cool/Heat
Airflow Direction Control(up & Down)
Airflow Direction Control(left & right)
Remote Controller Type
Setting Temperature Range Cooling
Heating
Auto Operation (Micom Control)
Auto Changeover (Micom Control)
Self Diagnosis
Timer
Sleep Operation
Soft Dry Operation
Restart Delay(minute)
Deice Control(Defrost)
Hot Start
Jet Cool / Heat
Low Ambient Operation
Special Function
Network Functions Dry Contact
Network Solution
PI485
Models AS-W1838RH0 [LA185HV] AS-W2438RH0 [LA245HV]
1.76~5.28~5.80 3.87~7.03~7.74
6,005~18,000~19,790 13,200~24,000~26,400
1.40~6.07~6.65 3.37~8.09~8.88
4,776~20,700~22,690 11,500~27,600~30,300
1,640/1,770 2,450/2,900
7.3/8.3 11.0/13.0
7.3/8.3 11.0/13.0
3.22 2.87
11.0 9.8
3.43 2.79
1/208-230/60 1/208-230/60
98 97
18.5(650) 20.3(717)
42(1,483) 58(2,048)
2.1 2.7
40/38/34 45/40/37
53 54
R410A, 1,200(42) R410A, 1,800(63.5)
20(0.22) 30(0.32)
Rotary Rotary
5CS130XCA03 5KD240XCA21
BLDC BLDC
RB68A FV50S
360 900
--
Cross Flow Fan Cross Flow Fan
20 24
Propeller Propeller
AC Induction AC Induction
79 79
20 25
14 12
18 18
6.35(1/4) 9.52(3/8)
12.7(1/2) 15.88(5/8)
21.5,16(0.85,0.63) 21.5,16(0.85,0.63)
1,107*299*200 1,107*299*200
43.6*11.8*7.9 43.6*11.8*7.9
870*655*320 870*800*320
34.3*25.8*12.6 34.3*34.6*12.6
14.1(31.1) 14.1(31.1)
46(101.4) 60(132.3)
-10 ~ 46 (14.0~114.8)(Low Ambient) -10 ~ 46 (14.0~114.8)(Low Ambient)
-10 ~ 24 (14.0 ~ 75.2) -10 ~ 24 (14.0 ~ 75.2)
15(49) 30(98)
7(23) 15(49)
S8 + UE S8 + UE1
Thermistor Thermistor
NEO NEO
OO
OO
OO
3/4/4 3/4/4
Auto Auto
Auto Auto
Wireless LCD Wireless LCD
18 ~ 30 (64~86) 18 ~ 30 (64~86)
16 ~ 30 (60~86) 16 ~ 30 (60~86)
--
OO
OO
24h On/Off 24h On/Off
OO
OO
22
OO
OO
OO
OO
--
--
--
--

- 3 -
Copyright ©2007 LG Electronics. Inc. All right reserved.
Only for training and service purposes LGE Internal Use Only
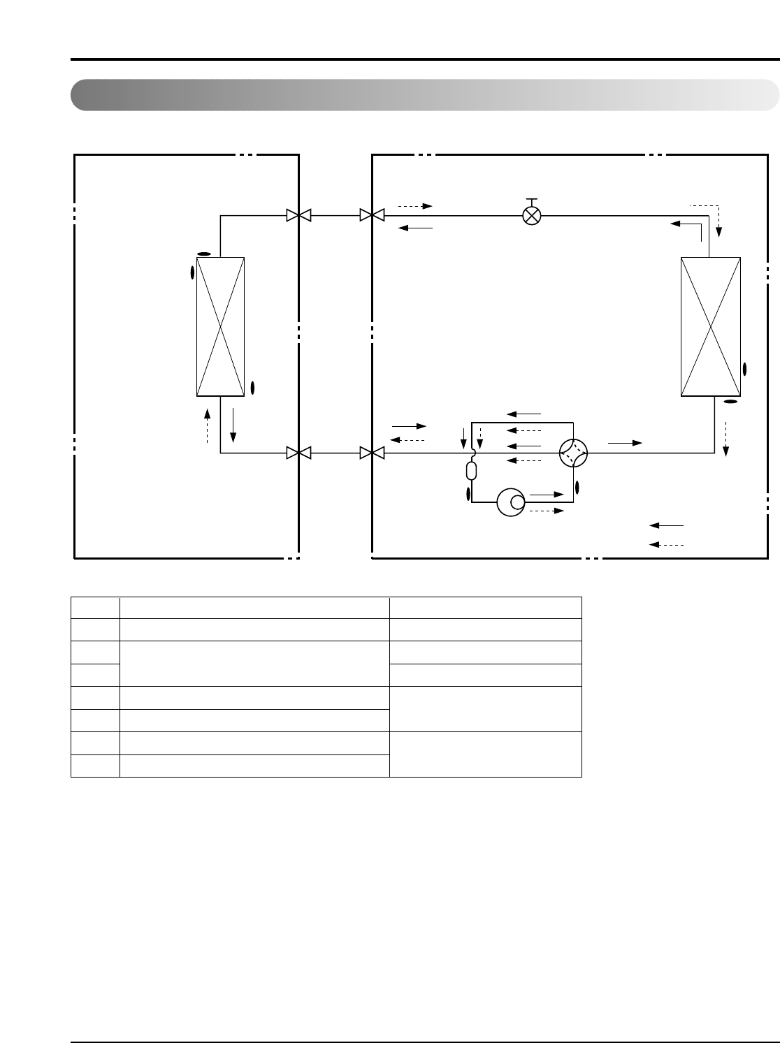
2. Piping Diagrams
Indoor Unit Outdoor Unit
Heat
Exchanger
(Evaporator)
Heat
Exchanger
(Condenser)
EEV
Compressor
Accumulator
Gas Side
3-Way Valve
2-Way Valve
Liquid Side
Cooling
Heating
Reversing Valve
Th1
Th2
Th3
Th5
Th4
Th6
Th7
LOC. Description PCB Connector
Th1 Thermistor for indoor air temperature CN_TH1(INDOOR)
Th2 Thermistor for evaporating temperature CN_TH2(INDOOR)
Th3 CN_TH3(INDOOR)
Th4 Thermistor for outdoor air temperature CN_TH2(OUTDOOR)
Th5 Thermistor for condensing temperature
Th6 Thermistor for discharge pipe temperature CN_TH3(OUTDOOR)
Th7 Thermistor for suction pipe temperature

- 4 -
Copyright ©2007 LG Electronics. Inc. All right reserved.
Only for training and service purposes LGE Internal Use Only
3. Wiring Diagrams
CN-MOTOR1
CN_L/R(BL) CN_UD (WH) CN_SUB(GRY)
CN_DISP1(WH)
CN_TH2(WH)
CN_TH1(YL)
CN_TH3(BK)
CN_HVB(BL)
Indoor Unit

- 5 -
Copyright ©2007 LG Electronics. Inc. All right reserved.
Only for training and service purposes LGE Internal Use Only
CN_FAN(A)CN_4WAY
CN_TH3
CN_COIL1
CN_COIL2
CN_TH1
CN_TH2
CN_LEV1
Outdoor Unit

Indoor Unit
4. Exploded View
359011
148000A
152302
135800
135080
135511
137211
135316 152313
263040
266001
131410 733010
135500A
352150
147581
146811A
135516
146811B
146811B
263230A
268711E
268711H
268711G
159830
35211B
W6640A
268711C
263230B 263230C
135311
354210
149304
354212
249951
342800
266090
149303
346810
267110
Note) * Please ensure GCSC since the replacement parts may be changed depending upon the buyer's request.
Please check the correct parts in View RPL(Replacement Part List) on GCSC.
(GCSC Website http://biz.Lgservice.com,)
- 6 -
Copyright ©2007 LG Electronics. Inc. All right reserved.
Only for training and service purposes LGE Internal Use Only

- 7 -
Copyright ©2007 LG Electronics. Inc. All right reserved.
Only for training and service purposes LGE Internal Use Only
Outdoor Unit 18k
554031
263230B
435512
437212
435511
268711F
552202
552116
550140
552203A
552203B
430411
447910
567480E
Discharge
Suction
649950
W0CZZ
437211
559010
546810
435301
349480
349600
561410
661400
552113
437210
554160
261704
430960A
Note) * Please ensure GCSC since the replacement parts may be changed depending upon the buyer's request.
Please check the correct parts in View RPL(Replacement Part List) on GCSC.
(GCSC Website http://biz.Lgservice.com,)

- 8 -
Copyright ©2007 LG Electronics. Inc. All right reserved.
Only for training and service purposes LGE Internal Use Only
Outdoor Unit 24k
435300
137213B
137213A
435512
554031
552202
552116
661400
263230D
435511
554160
561410
550140
430410
649950
261704
W0CZZ
668711F
552113
559010
437211
435301
546810
549610
447910
552203A
552203B
263230E
430960A
Note) * Please ensure GCSC since the replacement parts may be changed depending upon the buyer's request.
Please check the correct parts in View RPL(Replacement Part List) on GCSC.
(GCSC Website http://biz.Lgservice.com,)

P/NO : MFL42286407
January, 2008