Liebert Emerson 60 Hz Users Manual
60 HZ to the manual 340d91ce-3859-4daa-9d6c-f36e2672fe93
2015-02-09
: Liebert Liebert-Emerson-60-Hz-Users-Manual-571321 liebert-emerson-60-hz-users-manual-571321 liebert pdf
Open the PDF directly: View PDF
.
Page Count: 20
- Liebert Drycoolers
- Features and Benefits of Liebert Drycoolers
- Selection Procedure
- Performance Data
- Dimensional Data
- Electrical Data
- Guide Specifications
- Component Assembly/Installation
- Application/Installation Guidelines
- Pump Packages & Expansion Tank - Options
- Supplementary Application Data
- Maintenance Guidelines

HEAT REMOVAL/ENVIRONMENTAL CONTROL
Drycoolers - 60 Hz
GENERAL DATA

i
TABLE OF CONTENTS
LIEBERT DRYCOOLERS . . . . . . . . . . . . . . . . . . . . . . . . . . . . . . . . . . . . . . . . . . . . . . . . . . . . . . . . .1
FEATURES AND BENEFITS OF LIEBERT DRYCOOLERS . . . . . . . . . . . . . . . . . . . . . . . . . . . . . . . . . . .2
SELECTION PROCEDURE . . . . . . . . . . . . . . . . . . . . . . . . . . . . . . . . . . . . . . . . . . . . . . . . . . . . . . . .3
PERFORMANCE DATA . . . . . . . . . . . . . . . . . . . . . . . . . . . . . . . . . . . . . . . . . . . . . . . . . . . . . . . . . .4
DIMENSIONAL DATA . . . . . . . . . . . . . . . . . . . . . . . . . . . . . . . . . . . . . . . . . . . . . . . . . . . . . . . . . . .6
ELECTRICAL DATA . . . . . . . . . . . . . . . . . . . . . . . . . . . . . . . . . . . . . . . . . . . . . . . . . . . . . . . . . . . .8
GUIDE SPECIFICATIONS . . . . . . . . . . . . . . . . . . . . . . . . . . . . . . . . . . . . . . . . . . . . . . . . . . . . . . . .10
Standard Features for Direct Drive Propeller Fan Drycoolers . . . . . . . . . . . . . . . . . . . . . . . . . . . . . 10
General. . . . . . . . . . . . . . . . . . . . . . . . . . . . . . . . . . . . . . . . . . . . . . . . . . . . . . . . . . . . . . . . . . . . . . . . . . . 10
Coil . . . . . . . . . . . . . . . . . . . . . . . . . . . . . . . . . . . . . . . . . . . . . . . . . . . . . . . . . . . . . . . . . . . . . . . . . . . . . . 10
Casing. . . . . . . . . . . . . . . . . . . . . . . . . . . . . . . . . . . . . . . . . . . . . . . . . . . . . . . . . . . . . . . . . . . . . . . . . . . . 10
Fans . . . . . . . . . . . . . . . . . . . . . . . . . . . . . . . . . . . . . . . . . . . . . . . . . . . . . . . . . . . . . . . . . . . . . . . . . . . . . 10
Fan Motors. . . . . . . . . . . . . . . . . . . . . . . . . . . . . . . . . . . . . . . . . . . . . . . . . . . . . . . . . . . . . . . . . . . . . . . . 10
Electrical Control. . . . . . . . . . . . . . . . . . . . . . . . . . . . . . . . . . . . . . . . . . . . . . . . . . . . . . . . . . . . . . . . . . . 10
COMPONENT ASSEMBLY/INSTALLATION . . . . . . . . . . . . . . . . . . . . . . . . . . . . . . . . . . . . . . . . . . . . 11
APPLICATION/INSTALLATION GUIDELINES . . . . . . . . . . . . . . . . . . . . . . . . . . . . . . . . . . . . . . . . . . .12
Location Guidelines . . . . . . . . . . . . . . . . . . . . . . . . . . . . . . . . . . . . . . . . . . . . . . . . . . . . . . . . . . . . . . . 12
Drycooler Installation . . . . . . . . . . . . . . . . . . . . . . . . . . . . . . . . . . . . . . . . . . . . . . . . . . . . . . . . . . . . . 12
Electrical Requirements of the Drycooler . . . . . . . . . . . . . . . . . . . . . . . . . . . . . . . . . . . . . . . . . . . . . . 12
Glycol/Inhibitor Solution . . . . . . . . . . . . . . . . . . . . . . . . . . . . . . . . . . . . . . . . . . . . . . . . . . . . . . . . . . . 12
Piping Considerations . . . . . . . . . . . . . . . . . . . . . . . . . . . . . . . . . . . . . . . . . . . . . . . . . . . . . . . . . . . . . 12
PUMP PACKAGES & EXPANSION TANK - OPTIONS . . . . . . . . . . . . . . . . . . . . . . . . . . . . . . . . . . . .13
SUPPLEMENTARY APPLICATION DATA . . . . . . . . . . . . . . . . . . . . . . . . . . . . . . . . . . . . . . . . . . . . .14
MAINTENANCE GUIDELINES . . . . . . . . . . . . . . . . . . . . . . . . . . . . . . . . . . . . . . . . . . . . . . . . . . . . .14

ii
Figures
Figure 1 Drycooler model numbers . . . . . . . . . . . . . . . . . . . . . . . . . . . . . . . . . . . . . . . . . . . . . . . . . . . . . . . . . . 1
Figure 2 Capacity correction factor. . . . . . . . . . . . . . . . . . . . . . . . . . . . . . . . . . . . . . . . . . . . . . . . . . . . . . . . . . 5
Figure 3 Pressure drop correction factor . . . . . . . . . . . . . . . . . . . . . . . . . . . . . . . . . . . . . . . . . . . . . . . . . . . . . 5
Figure 4 Dimensional data—1-4 fan models . . . . . . . . . . . . . . . . . . . . . . . . . . . . . . . . . . . . . . . . . . . . . . . . . . 6
Figure 5 Dimensional data—6 & 8 fan models. . . . . . . . . . . . . . . . . . . . . . . . . . . . . . . . . . . . . . . . . . . . . . . . . 6
Figure 6 Typical footprint and unit anchor plan . . . . . . . . . . . . . . . . . . . . . . . . . . . . . . . . . . . . . . . . . . . . . . . 6
Figure 7 General arrangement diagram. . . . . . . . . . . . . . . . . . . . . . . . . . . . . . . . . . . . . . . . . . . . . . . . . . . . . 11
Figure 8 Pump package . . . . . . . . . . . . . . . . . . . . . . . . . . . . . . . . . . . . . . . . . . . . . . . . . . . . . . . . . . . . . . . . . . 13
Figure 9 Pump mounting. . . . . . . . . . . . . . . . . . . . . . . . . . . . . . . . . . . . . . . . . . . . . . . . . . . . . . . . . . . . . . . . . 13
Figure 10 Expansion tank . . . . . . . . . . . . . . . . . . . . . . . . . . . . . . . . . . . . . . . . . . . . . . . . . . . . . . . . . . . . . . . . . 13
Figure 11 Pump curve, 60 Hz . . . . . . . . . . . . . . . . . . . . . . . . . . . . . . . . . . . . . . . . . . . . . . . . . . . . . . . . . . . . . . 13
Tables
Table 1 Drycooler performance data . . . . . . . . . . . . . . . . . . . . . . . . . . . . . . . . . . . . . . . . . . . . . . . . . . . . . . . . 2
Table 2 Determining actual BTUH and MBH . . . . . . . . . . . . . . . . . . . . . . . . . . . . . . . . . . . . . . . . . . . . . . . . 3
Table 3 Altitude correction . . . . . . . . . . . . . . . . . . . . . . . . . . . . . . . . . . . . . . . . . . . . . . . . . . . . . . . . . . . . . . . 3
Table 4 Drycooler performance data . . . . . . . . . . . . . . . . . . . . . . . . . . . . . . . . . . . . . . . . . . . . . . . . . . . . . . . . 4
Table 5 Drycooler physical data . . . . . . . . . . . . . . . . . . . . . . . . . . . . . . . . . . . . . . . . . . . . . . . . . . . . . . . . . . . 7
Table 6 Drycooler electrical data . . . . . . . . . . . . . . . . . . . . . . . . . . . . . . . . . . . . . . . . . . . . . . . . . . . . . . . . . . . 8
Table 7 Drycooler electrical data—Quietline models . . . . . . . . . . . . . . . . . . . . . . . . . . . . . . . . . . . . . . . . . . . 9
Table 8 Pump data . . . . . . . . . . . . . . . . . . . . . . . . . . . . . . . . . . . . . . . . . . . . . . . . . . . . . . . . . . . . . . . . . . . . . 13
Table 9 Room dew point temperatures . . . . . . . . . . . . . . . . . . . . . . . . . . . . . . . . . . . . . . . . . . . . . . . . . . . . . 14
Table 10 Glycol concentration at various ambients . . . . . . . . . . . . . . . . . . . . . . . . . . . . . . . . . . . . . . . . . . . . 14
Table 11 Volume in standard tube . . . . . . . . . . . . . . . . . . . . . . . . . . . . . . . . . . . . . . . . . . . . . . . . . . . . . . . . . 14

1
LIEBERT DRYCOOLERS
Liebert drycoolers are designed to be used in conjunction with water cooled refrigeration and air conditioning
machines as well as a variety of commercial and industrial applications requiring the rejection of heat from
machinery or processes via a cooling fluid. During periods of low ambient temperatures, drycoolers may assist
or replace the capacity requirements of mechanical chillers for a “free cooling” effect.
Liebert offers a full range of control options as well as expansion tank and pump packages. For cooling fluids
other than water or water/glycol mixtures, contact Liebert, Heat Transfer.
Figure 1 Drycooler model numbers
DDN C1 0 9Y
Optional
Disconnect
(DNC, DNL,
& DNT only)
Drycooler
Control Code:
C = No Control
L = Main Control
T = Fan Cycling
O = Fan Cycling &
Pump Control
S = Special
Model Size
Letter Code for Voltage,
Phase and Frequency:
Y = 208/230-3-60
A = 460-3-60
B = 575-3-60
P = 208/230-1-60
Z = 460-1-60
V = 575-1-60
N = 200/230-3-50
M = 380/415-3-50
W = 200/230-1-50
N = Single Circuit
(No Pump)
S = Single Circuit
(With Pump)
D = Single Circuit
(Dual Pumps)
D
Optional
Circuiting
(see Table 4)

2
FEATURES AND BENEFITS OF LIEBERT DRYCOOLERS
Heat Rejection Module
The low-profile direct-drive propeller-fan type drycoolers utilize optimum circuitry to balance the heat rejec-
tion of the corresponding load. Constructed of aluminum with a copper-tube aluminum coil, the unit is quiet
and corrosion resistant.
Low Noise Level
All Liebert drycoolers are designed to operate at a minimal noise level. This is accomplished as the result of
the Liebert fan blade design combined with a cabinet structure that minimizes air resistance. Quiet-Line
models use low speed motors to achieve the quietest unit available.
Easy Installation and Service
The heat rejection module is quickly and easily installed, because all internal wiring is completed at the fac-
tory with only electrical connections to be made at the job site.
Maximum Reliability
Because these units are factory wired and tested, start-up problems are eliminated, and reliability of the
overall system is greatly increased.
Table 1 Drycooler performance data
Model
Number
*D**
Standard Unit Data
Conn. +
Size
In/Out
#
26"
Fans
Air
Flow
(CFM) dBA**
Internal
Volume
(gal.)
Shipping
Weight
(lbs.)
Total
Heat Rej.
@ 25 ITD
Flow
Rate
(gpm)
Press.
Drop
(Ft. Water)
#
Internal
Circuits
Standard Models
033 37950 10 9.1 4 3/4 1 7200 72.5 1.2 390
069 67040 20 8.9 8 1-1/4 1 6870 72.5 2.4 410
092 92380 30 8.6 12 1-1/2 1 6600 72.5 3.7 430
109 108760 40 8.1 16 2 1 6300 72.5 4.9 450
112 118200 40 10.1 16 2 1 6090 72.5 5.8 470
139 134100 40 7.1 16 2 2 13700 75.5 4.8 565
174 173400 40 10.5 16 2 2 13300 75.5 6.9 605
197 197000 40 13.9 16 2 2 12645 75.5 9.0 645
225 231000 65 10.9 26 2 2 12200 75.5 11.1 685
260 260200 60 10.1 24 2 3 19900 77.3 10.0 826
310 310500 80 9.8 32 2 3 19000 77.3 13.1 886
350 353000 80 14.6 32 2 3 17400 77.3 19.4 946
352 328400 60 12.9 24 2 4 24800 78.5 13.1 1070
419 393600 80 12.7 32 2 4 23650 78.5 17.4 1160
466 441200 100 12.7 40 2-1/2 4 22800 78.5 22.0 1250
491 469100 120 12.8 48 2-1/2 4 21700 78.5 26.3 1340
620 621000 160 9.8 64 2) 2-1/8 6 37900 80.3 27.0 1770
650 652100 130 15.2 52 2) 2-1/8 6 36500 80.3 33.1 1830
700 706100 160 14.6 64 2) 2-1/8 6 34800 80.3 39.3 1890
790 787200 160 12.7 64 2) 2-1/8 8 47300 81.5 35.0 2320
880 882000 200 12.7 80 4) 2-1/8 8 45500 81.5 44.4 2500
940 938200 240 12.5 96 4) 2-1/8 8 43400 81.5 52.6 2680
Quiet-Line Models
040 44435 20 8.8 8 1-1/4 1 3110 56.5 2.4 410
057 57000 30 8.6 12 1-1/2 1 2990 56.5 3.7 430
060 62790 40 8.1 16 2 1 2840 56.5 4.9 450
080 88865 40 7.0 16 2 2 6220 59.5 4.8 565
111 110765 40 10.4 16 2 2 5980 59.5 6.9 605
121 120800 40 13.7 16 2 2 5680 59.5 9.0 645
158 166150 60 10.0 24 2 3 8970 61.3 10.0 825
173 184850 80 9.7 32 2 3 8520 61.3 13.1 885
178 186040 80 14.5 32 2 3 7440 61.3 19.4 950
205 218980 60 12.9 24 2 4 11680 62.5 13.1 1070
248 248420 80 12.5 32 2 4 11360 62.5 17.4 1160
347 369100 160 9.8 64 2) 2-1/8 6 17040 64.3 27.0 1940
356 371800 160 14.6 64 2) 2-1/8 6 14880 64.3 39.3 2060
453 496000 60 12.6 64 2) 2-1/8 8 22720 65.5 35.0 2550
498 505230 240 12.4 96 4) 2-1/8 8 19840 65.5 52.6 2910
Standard data based on 95°F EAT, 120°F EFT, 40% EG.
** Sound Level - dBA @ 5 feet.
+ Connections 2" and smaller are FPT; 2-1/8" are ID. SWEAT

3
SELECTION PROCEDURE
Table 4 shows the performance specifications for
Liebert drycoolers using a 40% by volume ethylene
glycol solution at an average fluid temperature of
115°F with flow rates from 1.5 to 3 GPM/circuit and
at standard air (.075 lbs/ft3). Figure 2 and Figure 3
offer correction factors to Table 4 for average fluid
temperatures and glycol percentages other than
115°F and 40%. Table 3 correction factors may be
used for performance at altitudes above sea level.
For cooling applications other than shown, contact
the Liebert Heat Transfer Division.
To select a drycooler from the tables in this
bulletin, the following information must be known:
1. Fluid Flow Rate (GPM).
2. % Ethylene Glycol (% EG).
3. Design Air Temperature at the Drycooler (EAT).
4. Entering and Leaving Fluid Temperatures (EFT,
LFT) or Total Heat Rejection (BTU/HR) and one
of the Fluid Temperatures.
5. ITD (Initial Temperature Difference) = EFT -
EAT
From the known data, calculate the following:
• Average Fluid Temperature (AFT) = (EFT +
LFT)/2.
• Heat Rejection (BTUH) = Fluid Temp. Diff. x
GPM x BTU/GPM Factor (Table 2).
(Leaving Air Temperature should be lower than
145°F for proper motor operation.)
Using Table 4 to select a drycooler
Calculate required MBH/ITD with corrections for
glycol % and average fluid temperature.
2. Locate Model No. in Table 4 having a GPM
range within the required flow rate and an MBH
equal to or greater than required. This gives an
approximate size.
3. Divide the given GPM by the “No. of circuits” of
the drycooler selected. The result is “GPM/CIR”
and should be in the range of 1-1/2 to 3.
4. In Table 4, look up the model selected above and
under “GPM/CIR” find the actual MBH. You may
interpolate between columns.
The MBH found should be equal to or greater than
the “required MBH /ITD.”
If the MBH is less than required, repeat from Step 2
with a larger model. You may wish to repeat from
Step 2 with a smaller model for the most economical
selection meeting the required MBH/ITD.
Pressure Drop - After selecting a model, look up
the unit pressure drop following Step 3 and 4 above.
Multiply the pressure drop found by the Figure 3
correction factor. If the product is higher than your
system design, go back to Step 2 and select a model
with more circuits. This may be the same, or larger,
unit.
Example
Cool 40 GPM 20% ethylene glycol and water solution
from 125(F) to 115(F). Design EAT = 95(F).
Calculate:
BTUH = (125 - 115) x (40 GPM) x (480 BTU/
GPM)
BTUH = 192,000
AFT = (125 + 115)/2 = 120(F)
From Figure 2, corr. factor for 120 AFT and
20% EG = 1.04
2. Locate model in Table 4. Models 092 through
139 fall into the GPM range but do not have the
MBH capacity. Model 174 with 16 circuits is the
smallest model meeting both the GPM range and
MBH requirements.
3. GPM/CIR = 40 GPM/16 CIR = 2.5 GPM/CIR.
4. In Table 4, Model 174 with 16 circuits at the 2.5
GPM/CIR column provides 6.9 MBH/ITD, which
exceeds the required MBH/ ITD of 6.15.
Pressure Drop = 10.5 ft. (from Table 4) x 0.93 (from
Figure 3) = 9.8 ft. H2O.
• Leaving Fluid Temperature =
EFT - BTUH
(GPM) (BTU/GPM)
• Other useful information:
Leaving Air Temp. = EAT +
Drycooler BTUH
(1.08) (Drycooler CFM)
1. Required MBH/ITD =
BTUH
(EFT - EAT) (1000) (Fig. 1 Factor)
Table 2 Determining actual BTUH and MBH
% Glycol
Solution
0% 10% 20% 30% 40% 50%
BTUH/GPM 500 490 480 470 450 433
Table 3 Altitude correction
Alt. (Ft.) 0 1000 2000 5000 8000 12000 15000
Corr. Fact. 1 .979 .96 .9 .841 .762 .703
1. Required MBH/ITD =
192,000 BTUH
(125-95) (1000) (1.04)

4
PERFORMANCE DATA
Table 4 Drycooler performance data
Model
Number
GPM
Range
No. of
Circuits
MBH/°F Initial Temperature Difference
1.5 GPM/CIR 2.0 GPM/CIR 2.5 GPM/CIR 3.0 GPM/CIR
MBH/ITD PD ft. water MBH/ITD PD ft. water MBH/ITD PD ft. water MBH/ITD PD ft. water
Standard Models
033 6-12 4* 1.3 4.2 1.5 6.2 1.6 9.2 1.7 12.8
069 6-12 4 1.8 7.3 2.1 11.4 2.3 17.0 2.4 23.6
12-24 8* 2.3 3.9 2.5 6.0 2.7 8.9 2.8 12.4
092 9-18 6 2.7 7.0 3.0 11.7 3.3 16.7 3.5 23.0
18-36 12' 3.2 3.7 3.5 6.2 3.7 8.7 3.8 12.1
24-48 16 3.4 3.0 3.6 4.6 3.8 6.3 3.9 8.7
109 12-24 8 3.3 7.1 3.7 11.3 3.9 16.8 4.1 23.3
24-48 16* 3.9 3.8 4.1 6.0 4.3 8.2 4.5 11.4
112 24-48 16* 4.2 4.6 4.5 7.3 4.7 10.2 4.8 14.1
39-78 26 4.5 2.6 4.7 4.4 4.9 6.6 5.0 9.2
139 12-24 8 3.6 6.2 4.1 9.8 4.6 14.6 4.9 20.2
24-48 16* 4.5 3.3 5.0 5.2 5.4 7.1 5.6 9.8
174 24-48 16* 5.8 4.7 6.5 7.5 6.9 10.5 7.3 14.5
36-72 24 6.4 3.2 7.0 4.9 7.4 7.3 7.6 10.1
197 24-48 16* 6.5 6.2 7.3 9.9 7.9 14.1 8.2 19.4
48-96 32 7.7 3.0 8.3 5.0 8.7 7.0 8.9 9.8
225 24-48 16 7.1 7.4 8.0 12.0 8.6 17.2 9.0 23.9
39-78 26* 8.1 4.4 8.8 7.4 9.2 11.0 9.5 15.2
260 24-48 16 7.5 6.4 8.7 10.2 9.5 14.7 10.1 20.3
36-72 24* 9.7 4.4 9.7 6.8 10.4 10.4 10.9 14.0
310 24-48 16 8.3 8.4 9.7 13.5 10.7 19.5 11.4 26.9
48-96 32* 10.7 4.1 11.7 6.9 12.4 9.8 12.9 13.6
350 24-48 16 9.2 12.2 10.9 20.9 12.1 29.1 12.9 40.2
48-96 32* 12.3 6.0 13.4 10.1 14.1 14.6 14.6 20.2
72-144 48 13.4 4.2 14.2 6.7 14.8 10.0 15.1 13.5
352 24-48 16 8.8 8.1 10.4 13.1 11.6 18.9 12.5 26.2
36-72 24* 10.6 5.5 12.1 8.7 13.1 12.9 13.9 17.9
419 24-48 16 9.5 10.6 11.4 17.3 12.9 25.1 14.0 36.7
48-96 32* 13.2 5.2 14.7 8.8 15.7 12.7 16.5 17.5
466 39-78 26 13.1 7.9 15.0 13.2 16.2 19.6 17.1 27.1
60-120 40* 15.2 5.3 16.7 8.6 17.6 12.7 18.3 17.6
491 24-48 16 10.1 15.6 12.5 25.6
48-96 32 14.9 7.7 16.6 12.9 17.7 18.9 18.4 26.1
72-144 48* 16.7 5.3 18.0 8.6 18.8 12.8 19.3 17.4
620 48-96 32 16.7 8.0 19.4 13.3 21.4 19.4 22.8 26.9
96-192 64* 21.4 4.1 23.5 6.8 24.8 9.8 25.8 13.6
650 60-120 40 19.9 8.0 22.7 13.1 24.6 19.5 26.0 27.0
78-156 52* 22.0 6.3 24.4 10.2 26.1 15.2 27.2 20.6
120-240 80 24.6 4.1 26.5 6.7 27.8 9.9 28.7 13.4
700 48-96 32 18.5 11.8 21.8 19.8 24.1 29.0
96-192 64* 24.6 6.0 26.8 10.0 28.2 14.6 29.2 20.2
144-288 96 26.7 4.0 28.5 6.7 29.5 9.8 30.2 13.5
790 48-96 32 18.9 10.2 22.8 17.1 25.7 25.0
96-192 64* 26.4 5.2 29.4 8.7 31.5 12.6 33.0 17.5
880 78-156 52 26.2 8.1 29.9 13.1 32.4 19.5 34.2 26.6
120-240 80* 30.4 5.2 33.4 8.5 35.3 12.7 36.6 17.3
940 48-96 32 20.2 15.3 25.0 25.4
96-192 64 29.8 7.7 33.2 12.9 35.4 18.8 36.8 26.0
144-288 96* 33.4 5.1 35.9 8.6 37.5 12.6 38.6 17.4

5
Figure 2 Capacity correction factor Figure 3 Pressure drop correction factor
Quiet-Line Models
040 6-12 4 1.4 7.4 1.5 11.4 1.6 17.0 1.7 23.5
12-24 8* 1.6 3.9 1.7 5.9 1.8 8.9 1.8 12.3
057 18-36 12* 2.1 3.6 2.2 6.1 2.3 8.6 2.3 11.9
24-48 16 2.2 3.0 2.3 4.6 2.3 6.2 2.4 8.6
060 12-24 8 2.2 7.1 2.3 11.3 2.4 16.6 2.5 23.0
24-48 16* 2.4 3.8 2.5 5.9 2.5 8.1 2.5 11.3
080 12-24 8 2.7 6.2 3.0 9.8 3.2 14.5 3.3 20.1
24-48 16* 3.2 3.3 3.4 5.1 3.6 7.0 3.7 9.7
111 24-48 16* 4.4 4.7 4.3 7.4 4.4 10.4 4.5 14.3
36-72 24 4.2 3.2 4.4 4.8 4.6 7.2 4.6 10.0
121 24-48 16* 4.4 6.1 4.7 9.7 4.8 13.7 4.9 18.9
48-96 32 4.8 2.9 4.9 4.9 5.0 7.0 5.1 9.6
158 24-48 16 5.6 6.4 6.0 10.3 6.3 14.7 6.6 20.3
36-72 24* 6.0 4.3 6.4 6.7 6.6 10.0 6.8 13.8
173 24-48 16 6.1 8.4 6.6 13.5 6.9 19.5 7.1 26.9
48-96 32* 6.9 4.1 7.2 6.8 7.4 9.7 7.5 13.5
178 24-48 16 6.5 12.3 6.9 20.0 7.1 29.1 7.3 40.1
48-96 32* 7.1 6.0 7.3 10.0 7.4 14.5 7.5 20.0
72-144 48 7.3 4.1 7.4 6.6 7.5 9.9 7.6 13.3
205 24-48 16 6.9 8.2 7.7 13.2 8.2 18.9 8.6 26.2
36-72 24* 7.8 5.5 8.4 8.7 8.8 12.9 9.0 17.6
248 24-48 16 7.6 10.7 8.5 17.4 9.1 25.2 9.4 34.8
48-96 32* 9.1 5.2 9.6 8.7 9.9 12.5 10.1 17.3
347 48-96 32 12.2 8.0 13.2 13.3 13.9 19.4 14.3 26.8
96-192 64* 13.8 4.1 14.4 6.7 14.8 9.7 15.0 13.4
356 48-96 32 12.9 11.9 13.8 19.8 14.3 29.0 14.5 40.0
96-192 64* 14.2 6.0 14.7 9.9 14.9 14.4 15.0 20.0
144-288 96 14.6 4.0 14.9 6.6 15.0 9.6 15.2 13.3
453 48-96 32 15.2 10.3 17.0 17.2 18.1 25.1 18.9 34.7
96-192 64* 18.2 5.2 19.2 8.7 19.9 12.5 20.3 17.3
498 48-96 32 16.1 15.4 17.8 25.6 18.8 37.6 19.2 51.8
96-192 64 18.8 7.7 19.5 12.8 19.9 18.6 20.1 25.7
144-288 96* 19.5 5.1 20.0 8.5 20.2 12.4 20.4 17.2
* Standard Circuiting
Based on 40% Ethylene Glycol Solution at 115°F average solution temperature expressed in MBH.
Specifications subject to change without notice.
Table 4 Drycooler performance data (continued)
Model
Number
GPM
Range
No. of
Circuits
MBH/°F Initial Temperature Difference
1.5 GPM/CIR 2.0 GPM/CIR 2.5 GPM/CIR 3.0 GPM/CIR
MBH/ITD PD ft. water MBH/ITD PD ft. water MBH/ITD PD ft. water MBH/ITD PD ft. water
Average Fluid Temperature
Correction Factor
Glycol % and average temperature °F
Average Fluid Temperature
Correction Factor
Glycol % and fluid temperature °F

6
DIMENSIONAL DATA
Figure 4 Dimensional data—1-4 fan models
Figure 5 Dimensional data—6 & 8 fan models
Figure 6 Typical footprint and unit anchor plan
Eyebolts for lifting
condenser provided on
4, 6 & 8 fan models only Height to top
of fan guard
43-1/8"
(1095mm)
37-7/8"
(962mm)
L
C
18" (457mm)
43-3/16"
(1097mm)
70"
(1778mm)
43-9/16"
(962mm)
Center leg provided on 4 & 8 fan models only
Outlet/inlet connections
86-3/4"
(2203mm)
Center leg provided on 4 & 8 fan models only
18" (457mm)
C
37-7/8"
(962mm)
Height to top
of fan guard
43-1/8"
(1095mm)
70"
(1778mm)
L87-1/8"
(2213mm)
36" (914.4mm)
clearance
recommended on
all sides for
proper operation
and component
access
4-1/4"
(108mm)
1-3/4"
(44.5mm)
1-3/4"
(44.5mm)
4-1/4"
(108mm) 1"
(25.4mm)
1"
(25.4mm)
C
A B

7
Table 5 Drycooler physical data
Drycooler
Model Circuits A B C L
#Fans
& Motors**
Conn FNPT
In/Out
Standard Models
-033 any 42 - 44 51.5 1 3/4
-069 any 42 - 44 51.5 1 1-1/4
-092 any 42 - 44 51.5 1 1-1/2
-109 any 42 - 44 51.5 1 2
-112 any 42 - 44 51.5 1 2
-139 any 82 - 84 91.5 2 2
-174 any 82 - 84 91.5 2 2
-197 any 82 - 84 91.5 2 2
-225 any 82 - 84 91.5 2 2
-260 any 122 - 124 131.5 3 2
-310 any 122 - 124 131.5 3 2
-350 any 122 - 124 131.5 3 2
-352 any 82 80 164 171.5 4 2
-419 any 82 80 164 171.5 4 2
-466 any 82 80 164 171.5 4 2-1/2
-491 any 82 80 164 171.5 4 2-1/2
-620 641122 124 131.5 6 2) 2-1/8*
-620 32 122 124 131.5 6 2) 2-1/8*
-650 80 122 124 131.5 6 4) 2-1/8*
-650 521122 124 131.5 6 2) 2-1/8*
-650 40 122 124 131.5 6 2) 2-1/8*
-700 96 122 124 131.5 6 4) 2-1/8*
-700 641122 124 131.5 6 2) 2-1/8*
-700 32 122 124 131.5 6 2) 2-1/8*
-790 64182 80 164 171.5 8 2) 2-1/8*
-790 32 82 80 164 171.5 8 2) 2-1/8*
-880 80182 80 164 171.5 8 4) 2-1/8*
-880 52 82 80 164 171.5 8 2) 2-1/8*
-940 96182 80 164 171.5 8 4) 2-1/8*
-940 64 82 80 164 171.5 8 2) 2-1/8*
-940 32 82 80 164 171.5 8 2) 2-1/8*
Quiet-Line Models
-040 any 42 - 44 51.5 1 1-1/4
-057 any 42 - 44 51.5 1 1-1/2
-060 any 42 - 44 51.5 1
-080 any 82 - 84 91.5 2 2
-111 any 82 - 84 91.5 2 2
-121 any 82 - 84 91.5 2 2
-158 any 122 - 124 131.5 3 2
-173 any 122 - 124 131.5 3 2
-178 any 122 - 124 131.5 3 2
-205 any 82 80 164 171.5 4 2
-248 any 82 80 164 171.5 4 2
-347 any 122 - 124 131.5 6 2) 2-1/8*
-356 641122 - 124 131.5 6 2) 2-1/8*
-356 32 122 - 124 131.5 6 2) 2-1/8*
-453 64182 80 164 171.5 8 2) 2-1/8*
-453 32 82 80 164 171.5 8 2) 2-1/8*
-498 96182 80 164 171.5 8 4) 2-1/8*
-498 64 82 80 164 171.5 8 2) 2-1/8*
-498 32 82 80 164 171.5 8 2) 2-1/8*
* Connections are ODS
** Motors are 3/4 HP - standard models; 1/4 HP - Quiet-Line models
1. Standard circuiting

8
ELECTRICAL DATA
Table 6 Drycooler electrical data
# of
Fans123468
Model
# 33,69,92,109,112 139,174,197,225 260,310,350 352,419,466,491 620,650,700 790,880,940
Pump
Hp ph FLA WSA OPD ph FLA WSA OPD ph FLA WSA OPD ph FLA WSA OPD ph FLA WSA OPD ph FLA WSA OPD
208/230/60
0.75 1 11.6 13.5 20.0 - - - - - - - - - - - - - - - - - - - -
0.75 3 7.0 7.9 15.0 3 10.5 11.4 15.0 3 14.0 14.9 15.0 3 17.5 18.4 20.0 3 24.5 25.4 25.0 3 31.5 32.4 35.0
1.5 3 10.1 11.8 15.0 3 13.6 15.3 20.0 3 17.1 18.8 25.0 3 20.6 22.3 25.0 3 27.6 29.3 35.0 3 34.6 36.3 40.0
2.0 3 11.0 12.9 20.0 3 14.5 16.4 20.0 3 18.0 19.9 25.0 3 21.5 23.4 30.0 3 28.5 30.4 35.0 3 35.5 37.4 40.0
3.0 3 14.1 16.8 25.0 3 17.6 20.3 30.0 3 21.1 23.8 30.0 3 24.6 27.3 35.0 3 31.6 34.3 40.0 3 38.6 41.3 50.0
5.0 3 20.2 24.4 40.0 3 23.7 27.9 40.0 3 27.2 31.4 45.0 3 30.7 34.9 50.0 3 37.7 41.9 50.0 3 44.7 48.9 60.0
7.5 3 27.7 33.8 50.0 3 31.2 37.3 60.0 3 34.7 40.8 60.0 3 38.2 44.3 60.0 3 45.2 51.3 70.0 3 52.2 58.3 80.0
10.0 3 34.3 42.0 70.0 3 37.8 45.5 70.0 3 41.3 49.0 70.0 3 44.8 52.5 80.0 3 51.8 59.5 90.0 3 58.8 66.5 90.0
15 3 49.7 61.3 100.0 3 53.2 64.8 110.0 3 56.7 68.3 110.0 3 60.2 71.8 110.0 3 67.2 78.8 110.0 3 74.2 85.8 125.0
460/3/60
0.75 3 3.3 3.7 15.0 3 5.0 5.4 15.0 3 6.7 7.1 15.0 3 8.4 8.8 15.0 3 11.8 12.2 15.0 3 15.2 15.6 15.0
1.5 3 4.7 5.5 15.0 3 6.4 7.2 15.0 3 8.1 8.9 15.0 3 9.8 10.6 15.0 3 13.2 14.0 15.0 3 16.6 17.4 20.0
2.0 3 5.1 6.0 15.0 3 6.8 7.7 15.0 3 8.5 9.4 15.0 3 10.2 11.1 15.0 3 13.6 14.5 15.0 3 17.0 17.9 20.0
3.0 3 6.5 7.7 15.0 3 8.2 9.4 15.0 3 9.9 11.1 15.0 3 11.6 12.8 15.0 3 15.0 16.2 20.0 3 18.4 19.6 20.0
5.0 3 9.3 11.2 15.0 3 11.0 12.9 20.0 3 12.7 14.6 20.0 3 14.4 16.3 20.0 3 17.8 19.7 25.0 3 21.2 23.1 30.0
7.5 3 12.7 15.5 25.0 3 14.4 17.2 25.0 3 16.1 18.9 25.0 3 17.8 20.6 30.0 3 21.2 24.0 30.0 3 24.6 27.4 35.0
10.0 3 15.7 19.2 30.0 3 17.4 20.9 30.0 3 19.1 22.6 35.0 3 20.8 24.3 35.0 3 24.2 27.7 40.0 3 27.6 31.1 45.0
15 3 22.7 28.0 45.0 3 24.4 29.7 50.0 3 26.1 31.4 50.0 3 27.8 33.1 50.0 3 31.2 36.5 50.0 3 34.6 39.9 60.0
575/3/60
0.75 3 2.7 3.1 15.0 3 4.1 4.5 15.0 3 5.5 5.9 15.0 3 6.9 7.3 15.0 3 9.7 10.1 15.0 3 12.5 12.9 15.0
1.5 3 3.8 4.4 15.0 3 5.2 5.8 15.0 3 6.6 7.2 15.0 3 8.0 8.6 15.0 3 10.8 11.4 15.0 3 13.6 14.2 15.0
2.0 3 4.1 4.8 15.0 3 5.5 6.2 15.0 3 6.9 7.6 15.0 3 8.3 9.0 15.0 3 11.1 11.8 15.0 3 13.9 14.6 15.0
3.0 3 5.3 6.3 15.0 3 6.7 7.7 15.0 3 8.1 9.1 15.0 3 9.5 10.5 15.0 3 12.3 13.3 15.0 3 15.1 16.1 15.0
5.0 3 7.5 9.0 15.0 3 8.9 10.4 15.0 3 10.3 11.8 15.0 3 11.7 13.2 15.0 3 14.5 16.0 20.0 3 17.3 18.8 20.0
7.5 3 10.4 12.7 20.0 3 11.8 14.1 20.0 3 13.2 15.5 20.0 3 14.6 16.9 25.0 3 17.4 19.7 25.0 3 20.2 22.5 30.0
10.0 3 12.4 15.2 25.0 3 13.8 16.6 25.0 3 15.2 18.0 25.0 3 16.6 19.4 30.0 3 19.4 22.2 30.0 3 22.2 25.0 35.0
15 3 18.4 22.7 35.0 3 19.8 24.1 40.0 3 21.2 25.5 40.0 3 22.6 26.9 40.0 3 25.4 29.7 45.0 3 28.2 32.5 45.0

9
Table 7 Drycooler electrical data—Quietline models
# of
Fans123468
Model
# 40,57,60 80,111,121 158,173,178 205,248 347,356 453,498
Pump
Hp ph FLA WSA OPD ph FLA WSA OPD ph FLA WSA OPD ph FLA WSA OPD ph FLA WSA OPD ph FLA WSA OPD
208/230/60
0.75 3 5.3 6.2 15.0 3 7.1 8.0 15.0 3 8.9 9.8 15.0 3 10.7 11.6 15.0 3 14.3 15.2 15.0 3 17.9 18.8 20.0
1.5 3 8.4 10.1 15.0 3 10.2 11.9 15.0 3 12.0 13.7 20.0 3 13.8 15.5 20.0 3 17.4 19.1 25.0 3 21.0 22.7 25.0
2.0 3 9.3 11.2 15.0 3 11.1 13.0 20.0 3 12.9 14.8 20.0 3 14.7 16.6 20.0 3 18.3 20.2 25.0 3 21.9 23.8 30.0
3.0 3 12.4 15.1 25.0 3 14.2 16.9 25.0 3 16.0 18.7 25.0 3 17.8 20.5 30.0 3 21.4 24.1 30.0 3 25.0 27.7 35.0
5.0 3 18.5 22.7 35.0 3 20.3 24.5 40.0 3 22.1 26.3 40.0 3 23.9 28.1 40.0 3 27.5 31.7 45.0 3 31.1 35.3 50.0
7.5 3 26.0 32.1 50.0 3 27.8 33.9 50.0 3 29.6 35.7 50.0 3 31.4 37.5 60.0 3 35.0 41.1 60.0 3 38.6 44.7 60.0
10.0 3 32.6 40.3 70.0 3 34.4 42.1 70.0 3 36.2 43.9 70.0 3 38.0 45.7 70.0 3 41.6 49.3 80.0 3 45.2 52.9 80.0
15 3 48.0 59.6 100.0 3 49.8 61.4 100.0 3 51.6 63.2 100.0 3 53.4 65.0 110.0 3 57.0 68.6 110.0 3 60.6 72.2 110.0
460/3/60
0.75 3 2.5 2.9 15.0 3 3.4 3.8 15.0 3 4.3 4.7 15.0 3 5.2 5.6 15.0 3 7.0 7.4 15.0 3 8.8 9.2 15.0
1.5 3 3.9 4.7 15.0 3 4.8 5.6 15.0 3 5.7 6.5 15.0 3 6.6 7.4 15.0 3 8.4 9.2 15.0 3 10.2 11.0 15.0
2.0 3 4.3 5.2 15.0 3 5.2 6.1 15.0 3 6.1 7.0 15.0 3 7.0 7.9 15.0 3 8.8 9.7 15.0 3 10.6 11.5 15.0
3.0 3 5.7 6.9 15.0 3 6.6 7.8 15.0 3 7.5 8.7 15.0 3 8.4 9.6 15.0 3 10.2 11.4 15.0 3 12.0 13.2 15.0
5.0 3 8.5 10.4 15.0 3 9.4 11.3 15.0 3 10.3 12.2 15.0 3 11.2 13.1 20.0 3 13.0 14.9 20.0 3 14.8 16.7 20.0
7.5 3 11.9 14.7 25.0 3 12.8 15.6 25.0 3 13.7 16.5 25.0 3 14.6 17.4 25.0 3 16.4 19.2 30.0 3 18.2 21.0 30.0
10.0 3 14.9 18.4 30.0 3 15.8 19.3 30.0 3 16.7 20.2 30.0 3 17.6 21.1 35.0 3 19.4 22.9 35.0 3 21.2 24.7 35.0
15 3 21.9 27.2 45.0 3 22.8 28.1 45.0 3 23.7 29.0 45.0 3 24.6 29.9 50.0 3 26.4 31.7 50.0 3 28.2 33.5 50.0
575/3/60
0.75 3 2.0 2.3 15.0 3 2.7 3.0 15.0 3 3.4 3.7 15.0 3 4.1 4.4 15.0 3 5.5 5.8 15.0 3 6.9 7.2 15.0
1.5 3 3.1 3.7 15.0 3 3.8 4.4 15.0 3 4.5 5.1 15.0 3 5.2 5.8 15.0 3 6.6 7.2 15.0 3 8.0 8.6 15.0
2.0 3 3.4 4.1 15.0 3 4.1 4.8 15.0 3 4.8 5.5 15.0 3 5.5 6.2 15.0 3 6.9 7.6 15.0 3 8.3 9.0 15.0
3.0 3 4.6 5.6 15.0 3 5.3 6.3 15.0 3 6.0 7.0 15.0 3 6.7 7.7 15.0 3 8.1 9.1 15.0 3 9.5 10.5 15.0
5.0 3 6.8 8.3 15.0 3 7.5 9.0 15.0 3 8.2 9.7 15.0 3 8.9 10.4 15.0 3 10.3 11.8 15.0 3 11.7 13.2 15.0
7.5 3 9.7 12.0 20.0 3 10.4 12.7 20.0 3 11.1 13.4 20.0 3 11.8 14.1 20.0 3 13.2 15.5 20.0 3 14.6 16.9 25.0
10.0 3 11.7 14.5 25.0 3 12.4 15.2 25.0 3 13.1 15.9 25.0 3 13.8 16.6 25.0 3 15.2 18.0 25.0 3 16.6 19.4 30.0
15 3 17.7 22.0 35.0 3 18.4 22.7 35.0 3 19.1 23.4 40.0 3 19.8 24.1 40.0 3 21.2 25.5 40.0 3 22.6 26.9 40.0

10
GUIDE SPECIFICATIONS
Standard Features for Direct
Drive Propeller Fan
Drycoolers
Furnish and install Liebert Model
________ Air-Cooled Drycoolers,
arranged for vertical air flow. Dry-
coolers shall be draw-through
design and shall perform in accor-
dance with the schedule.
General
Each drycooler shall consist of cas-
ing, drycooler coil, propeller fans
direct-driven by individual fan
motors, fan guards, and mounting
legs.
Fan motors shall be furnished for
operation on a _______ V, ____PH,
______ Hz power supply.
Coil
The drycooler coil shall be con-
structed on copper tubes on a stag-
gered tube pattern. Tubes shall be
expanded into continuous, rippled
aluminum fins. The fins shall have
full-depth fin collars completely
covering the copper tube. Copper
tubes shall be connected to heavy
wall type “L” headers, inlet coil
connector tubes shall pass through
relieved holes in the tube sheet, for
maximum resistance to piping
strain and vibration.
Coils shall be factory leak-tested at
300 PSIG (minimum) dehydrated,
evacuated and sealed.
Casing
The drycooler casing shall be con-
structed of bright aluminum
sheet. Casing shall be divided into
individual fan sections by full
width baffles. Structural support
members, including coil support
frame, motor and drive support
shall be galvanized steel for
strength and corrosion resis-
tance. Aluminum legs with rig-
ging holes shall be provided for
hoisting the unit into position.
Fans
Fans shall have zinc plated steel
or aluminum blades. Fan shall be
secured to fan shaft by means of a
heavy-duty keyed hub and dual
set screws. Fan diameter shall be
30" or less. Fans shall be factory-
balanced and run before ship-
ment.
Fan guards shall be heavy gauge,
close-meshed, steel wire, with cor-
rosion resistant finish.
Fan Motors
Fan motors shall be equipped
with rain slingers and perma-
nently sealed ball bearings.
Motors shall include built-in over-
load protection. Motors shall be
rigidly mounted on die-formed
galvanized steel supports.
Quiet-Line Motors
Fan motors shall be 12-pole,
570 rpm, equipped with rain
shields and permanently sealed
ball bearings. Motors shall
include built-in overload protec-
tion. Motors shall be rigidly
mounted on die-formed galva-
nized steel supports.
Electrical Control
All electrical connections (and
electrical low ambient control
options) shall be provided in
weatherproof enclosure. The
enclose shall be integral with the
drycooler for pleasing appearance
as well as functional protection.
The base model (DNC) shall have
the motor(s) factory wired to a
three phase power block in the
electrical enclosure. Main electri-
cal control model (DNL) provides
magnetic contactor and control
voltage for remote starting of the
drycooler.
The drycooler shall be provided
with optional disconnect switch
mounted and wired.
Fan cycling model (DNT) shall be
used to control leaving fluid tem-
perature by cycling fans in one or
two steps. The 24 volt control cir-
cuit furnished, consists of control
transformer, fan contactor(s) and
temperature controls) as speci-
fied.
Fan cycling with pump control
model (DSO)-single pump, (DDO)-
dual pump shall have the features
as the fan cycling model plus
starter(s) for the pump(s) and a
built-in disconnect switch.

11
COMPONENT ASSEMBLY/INSTALLATION
Leg Assembly
The legs are shipped loose and are
to be field mounted as shown with
the hardware provided.
Rigging
Holes in the drycooler legs permit
lifting the unit. Spreader bars are
required. Four, 6 and 8 fan models
have additional lifting eyes.
High Voltage Electrical
Connections
Line Voltage is
connected to the
terminal strip
or directly to
the factory sup-
plied locking
disconnect
(optional).
Check voltage
and compare to nameplate.
Low Voltage Electrical
Connections
A control inter-
lock between the
indoor and out-
door equipment
must be mini-
mum 16 ga. for
up to 75 ft. or not
to exceed 1 volt
drop in control
line.
Typical rigging
Figure 7 General arrangement diagram
Secure each leg to drycooler
frame at all four points shown
using hardware provided
Models 620 through 940 have 2 sets
of connections on end of unit
Electrical service
supply by others
Outlet Inlet
Models 069-491
Pump
housing
Optional dual pump
system shown
Drycooler coil
Drycooler
electric box
Glycol
pumps
Fill*
Expansion
tank field
installed at
highest point
in system
Unions*
Unions*
Mixing valve*
Hose
bib*
Pressure
port*
Air vents at top of risers*
Pressure port*
Flow regulating valve*
Flow switch supplied
with dual pump systems*
Check valves*
on dual pump
systems only
Gate or ball*
valve for
isolation (typ)
Gate or ball*
valve for bypass
Flow direction
* Components are not supplied by Liebert,
and all components shown may not be
necessary for system operation.
Field piping

12
APPLICATION/INSTALLATION GUIDELINES
Location Guidelines
To ensure an adequate air supply,
locate drycoolers in a clean air
area, away from loose dirt and for-
eign matter that may clog the coil.
In addition, drycoolers must not
be placed near steam, hot air, or
fume exhausts. Also, drycoolers
should be no closer than 3 feet
from a wall, obstruction or adja-
cent unit with no obstructions over
the unit. Install drycoolers in a
level position to assure proper vent
and drain.
All drycooler legs have mounting
holes for securing the unit to steel
supports or concrete pads.
For roof installation, mount dry-
coolers on steel supports in accor-
dance with local codes. To
minimize sound and vibration
transmission, mount steel sup-
ports across load-bearing walls.
For ground installations, a con-
crete pad will support the load.
Drycooler Installation
The drycooler should be located
for maximum security and main-
tenance accessibility. Avoid
ground level sites with public
access or areas which contribute
to heavy snow or ice accumula-
tions. Utilize centrifugal fan dry-
coolers when placing a drycooler
in a building.
Electrical Requirements of
the Drycooler
Electrical service is required for
all drycoolers at the location of the
outdoor system. The power supply
does not necessarily have to be the
same voltage supply as required
by the indoor unit. This separate
power supply may be 208, 230,
460 or 575 volt, 60 Hz. For electri-
cal characteristics of the standard
voltage drycoolers, see Full Load
Amps (FLA) of the drycooler in
Tables 6 and 7 and FLA of the
pump, if used, in Table 8. Dual
element, time delay type fuses or
“HACR” circuit breakers at the
main power source. The only elec-
trical connection between the
indoor unit and the drycooler is a
two wire control interlock which is
field-connected when provided.
Glycol/Inhibitor Solution
The percentage of glycol to water
will be determined by the outdoor
ambient in which the system is
operating. Just as critical is the
inhibitor used with the glycol.
Commercial ethylene glycol
(Union Carbide Ucartherm, Dow
Chemical Dowtherm SR-1, and
Texaco E.G. Heat Transfer Fluid
100), when pure, is generally less
corrosive to the metals than water.
It will, however, assume the corro-
sivity of the water from which it is
prepared and may become increas-
ingly corrosive with use if not
properly inhibited. Proper inhibi-
tor maintenance must be per-
formed to prevent corrosion of the
glycol system. Consult glycol man-
ufacturer for testing and mainte-
nance of inhibitors.
Automotive antifreeze is unac-
ceptable and must not be used
in any glycol fluid system.
There are two basic concepts of
corrosion inhibition: They are clas-
sified as corrosion inhibitors or
environmental stabilizers. The cor-
rosion inhibitors function by form-
ing a surface barrier that protects
the metals. Environmental stabi-
lizers decrease corrosion by stabi-
lizing or favorably altering the
overall environment. An alkaline
buffer, such as borax, is a simple
example, since its prime purpose is
to maintain an alkaline condition
(ph above 7).
The quality of the water of dilu-
tion must be considered because
water may contain corrosive ele-
ments which reduce the effective-
ness of the inhibited formulation.
Surface waters that are classified
as soft and are low in chloride and
sulfate ion content (less than
100 ppm each) should be
employed.
Piping Considerations
CAUTION: When using water
under pressure to test the system
for leaks, immediately charge the
tested system with glycol. Com-
plete system drain-down cannot be
assured. Replacing broken, frozen
piping is a needless exercise. A
preferred test method utilizes com-
mon refrigerant gas pressurized
with nitrogen. A refrigerant type
leak detector will find even the
smallest leak when properly used.
Galvanized pipe or other com-
ponents should not be used
with an inhibited glycol system.
All fluid piping must comply
with local codes. Care in sizing
pipes will help reduce pumping
power and operating costs.
Manual shut-off valves and unions
should be installed at the supply
and return line of each major sys-
tem component. This permits rou-
tine service or emergency isolation
of the component.
Where connecting to a city water
supply, provide a disconnection
means. A city water source is desir-
able for initially charging the sys-
tem and as an emergency standby
cooling source.
The minimum glycol temperature
to be supplied from the drycooler
determines whether the supply
and return lines should be insu-
lated to prevent condensation (see
Table 9).
Vents are required at system high
points to vent trapped air when
filling the system.
Since the system is not open to the
atmosphere, an expansion tank
must be provided for expansion
and contraction of the fluid with
temperature change. A relief
valve is also necessary.
A fill port is necessary for charg-
ing the system with glycol.
Depending on the complexity of the
system, various other devices may
be specified, such as pressure
gauges, valves, pumps and sensors.

13
PUMP PACKAGES & EXPANSION TANK - OPTIONS
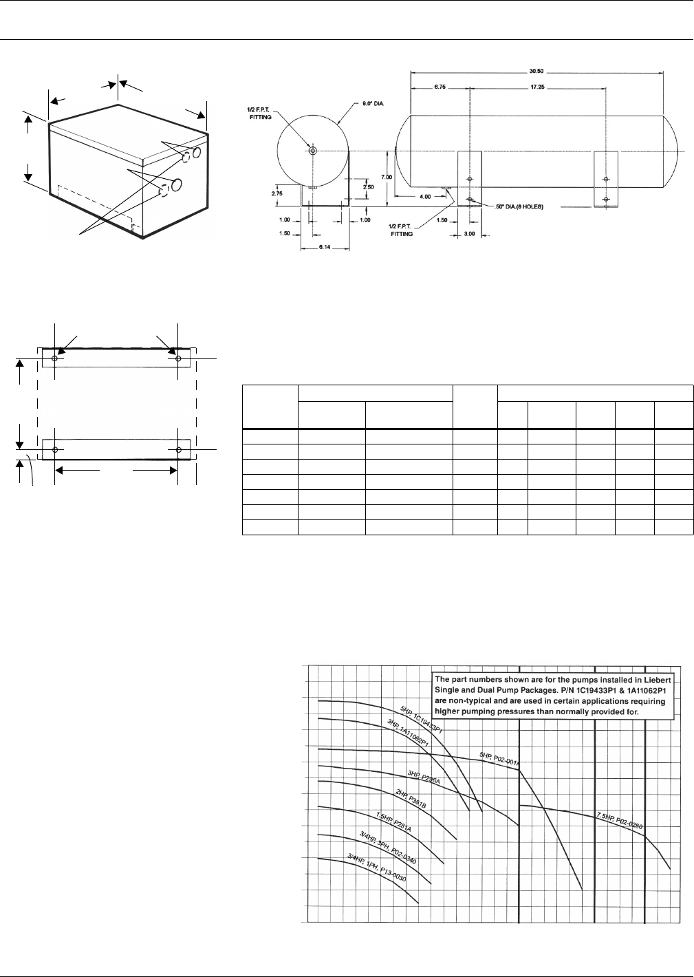
Figure 8 Pump package
Figure 9 Pump mounting
Notes
1. Single pump packages are
17-1/4" (438.2mm) wide. Dual
pump packages are 32-1/4"
(819.2mm) wide.
2. Mounting holes are 15-11/32"
(389.7mm) apart on single
pump packages and
30-11/32" (770.7mm) apart on
dual pump packages.
3. 7-1/2hp dimensions not
shown—consult factory.
Provided on dual
pump package only
Pump suction
connections
Pump
discharge
connections
30-1/4"
(768.4mm)
See
Note 1
19"
(483mm)
See
Note
2Pump Package
Mounting
1/2" (12.7mm)
diameter holes
23"
(584.2mm)
3/4"
(19.1mm) 3-1/2"
(88.9mm)
Figure 10 Expansion tank
Expansion Tank- (P/N 1C16717P1)
This tank, included in a standard pump package, has an internal volume of 8.8 gal. (33 l)
and a maximum pressure of 100 psi (690 kPa).
This tank is sized for a typical “open” system with a fluid volume of less than 75 gal.
(280l). When used in a “closed” system, volumes of up to 140 gal. (910l) can be accommo-
dated. The use of a safety relief valve, field supplied, is recommended for systems
“closed” to atmospheric venting. Other piping accessories for filling, venting, or adjusting
the fluid in the system, are recommended, but not included.
Figure 11 Pump curve, 60 Hz
Table 8 Pump data
Pump
Model
Connections
HP
Electric @ 60Hz
NPT
Suction
Female
Discharge PH
208
FLA
230
FLA
460
FLA
575
FLA
3/4 1-1/4" 3/4" 3/4 1 7.6 6.9 N/A N/A
3/4 1-1/4" 3/4" 3/4 3 3.5 3.2 1.6 1.3
1-1/2 1-1/4" 3/4" 1-1/2 3 6.6 6.0 3.0 2.4
2 1-1/4" 3/4" 2 3 7.5 6.8 3.4 2.7
3 1-1/2" 1" 3 3 10.6 9.6 4.8 3.9
5 1-1/2" 1-1/4" 5 3 16.7 15.2 7.6 6.1
7-1/2 3" 3" 7-1/2 3 24.2 22.0 11.0 9.0
To Calculate Total Pump and Drycooler Full Load Amps (FLA):
Total FLA = Pump FLA + Drycooler FLA
To Calculate Total Pump and Drycooler Wire Size Amps (WSA)
Total WSA = Largest Motor FLA x 1.25 + Sum of other Motor FLA values
To Calculate Total Pump and Drycooler Maximum Overcurrent Protective Device (OPD)
Total OPD = Largest Motor FLA x 4.0 + Sum of other Motor FLA values
Select standard fuse size (15A, 20A, 25A, 30A, etc.)
0 10 20 30 40 50 60 70 80 120 160 200 250 300 400
20
100
40
60
80
120
160
140
180
Flow Rate - GPM
Total Head - ft. water

14
SUPPLEMENTARY APPLICATION DATA
Table 9 Room dew point temperatures
Dry bulb
°F (°C)
Wet bulb
°F (°C)
Rel. hum.
%
Dew point*
°F (°C)
70 57.2 45 41.1
70 58.5 50 50.5
72 58.9 45 50.0
72 60.0 50 52.4
75 61.2 45 52.4
75 62.5 50 55.0
* Minimum glycol temperature before condensation will occur
Table 10 Glycol concentration at various
ambients
% Glycol
by volume 0 1020304050
Freezing
point °F 32 25 16 5 -10 -32
Apparent
specific
gravity
@50°F
1.000 1.014 1.028 1.042 1.057 1.071
Table 11 Volume in standard tube
Type “L” copper tube
Diameter (in.) Volume
Outside Inside Gal/ft (L/m)
.50 0.430 0.0075 (0.09)
.625 0.545 0.0121 (0.15)
.75 0.666 0.0181 (0.22)
.875 0.785 0.0251 (0.31)
1.125 1.025 0.0429 (0.53)
1.375 1.265 0.0653 (0.81)
1.625 1.505 0.0924 (1.15)
2.125 1.985 0.161 (2.00)
2.625 2.465 0.248 (3.08)
3.125 2.945 0.354 (4.40)
3.625 3.425 0.479 (5.95)
4.125 3.905 0.622 (7.73)
MAINTENANCE GUIDELINES
Restricted airflow through the
drycooler coil will reduce the oper-
ating efficiency of the unit and
can result in high fluid tempera-
tures and loss of cooling.
Clean the drycooler coil of all
debris that will inhibit air flow.
This can be done with compressed
air or commercial coil cleaner.
Check for bent or damaged coil
fins and repair as necessary. In
winter, do not permit snow to
accumulate around the sides or
underneath the drycooler.
Check all fluid lines and capillar-
ies for vibration isolation. Support
as necessary.
Visually inspect all fluid lines for
signs of fluid leaks.
Inspect the motor/fan assembly to
insure bearings are (free) and
motor is secure within the mount.
The glycol in drycooler systems
level must be periodically
checked. At the high point of the
system check:
• For positive pressure.
• For air to be vented.
• For an unlogged expansion
tank. A fluid sample for
proper concentrations of anti-
freeze and inhibitors.
The first three checks may give
indication of leaks in the system.
Important
When ordering replacement parts
for heat rejection equipment, it is
necessary to specify unit model
number - serial number - voltage.
Enter this information below for
future use.
Model No.
Serial No.
Voltage

The Company Behind the Products
With over a million installations around the globe,
Liebert is the world leader in computer protection
systems. Since its founding in 1965, Liebert has
developed a complete range of support and
protection systems for sensitive electronics:
• Environmental systems—close-control air
conditioning from 1 to 60 tons
• Power conditioning and UPS with power
ranges from 300 VA to more than 1000 kVA
• Integrated systems that provide both
environmental and power protection in a
single, flexible package
• Monitoring and control—from systems of any
size or location, on-site or remote
• Service and support through more than 100
service centers around the world and a 24/7
Customer Response Center
While every precaution has been taken to ensure
the accuracy and completeness of this literature,
Liebert Corporation assumes no responsibility and
disclaims all liability for damages resulting from
use of this information or for any errors or
omissions.
© 1994 Liebert Corporation
All rights reserved throughout the world.
Specifications subject to change without notice.
® Liebert and the Liebert logo are registered
trademarks of Liebert Corporation. All names
referred to are trademarks or registered
trademarks of their respective owners.
SL-10058 (10/02)
Technical Support
United States
1050 Dearborn Drive
P.O. Box 29186
Columbus, OH 43229
Single-Phase UPS
800-543-2378
Outside the United States
614-841-6598
3-Phase UPS
800-543-2378
Environmental Control
800-543-2778
Italy
Via Leonardo Da Vinci 8
Zona Industriale Tognana
35028 Piove Di Sacco (PD)
+39 049 9719 111
FAX: +39 049 5841 257
Asia
23F, Allied Kajima Bldg.
138 Gloucester Road
Wanchai
Hong Kong
+852 2 572 2201
FAX: +852 2 831 0114
Web Site
www.liebert.com
E-mail
UPStech@liebert.com
HEAT REMOVAL/ENVIRONMENTAL CONTROL
Drycoolers - 60 Hz
GENERAL DATA