Liebert Series 600 Users Manual 24495
SERIES 600 to the manual be1f1226-615b-4678-aa87-16e5a111f43e
2015-02-09
: Liebert Liebert-Series-600-Users-Manual-571414 liebert-series-600-users-manual-571414 liebert pdf
Open the PDF directly: View PDF
.
Page Count: 95
- Important Safety Instructions
- 1.0 Safety Precautions
- 2.0 Installation Considerations
- 3.0 Unloading and Handling
- 4.0 Inspections
- 5.0 Equipment Location
- 6.0 Batteries
- 7.0 Wiring Considerations
- 8.0 Wiring Connections
- 9.0 Wiring Inspection
- Table 1 Power Wiring Terminals - Factory Supplied
- Table 2 Torque Specifications
- Table 3 Table 310-16
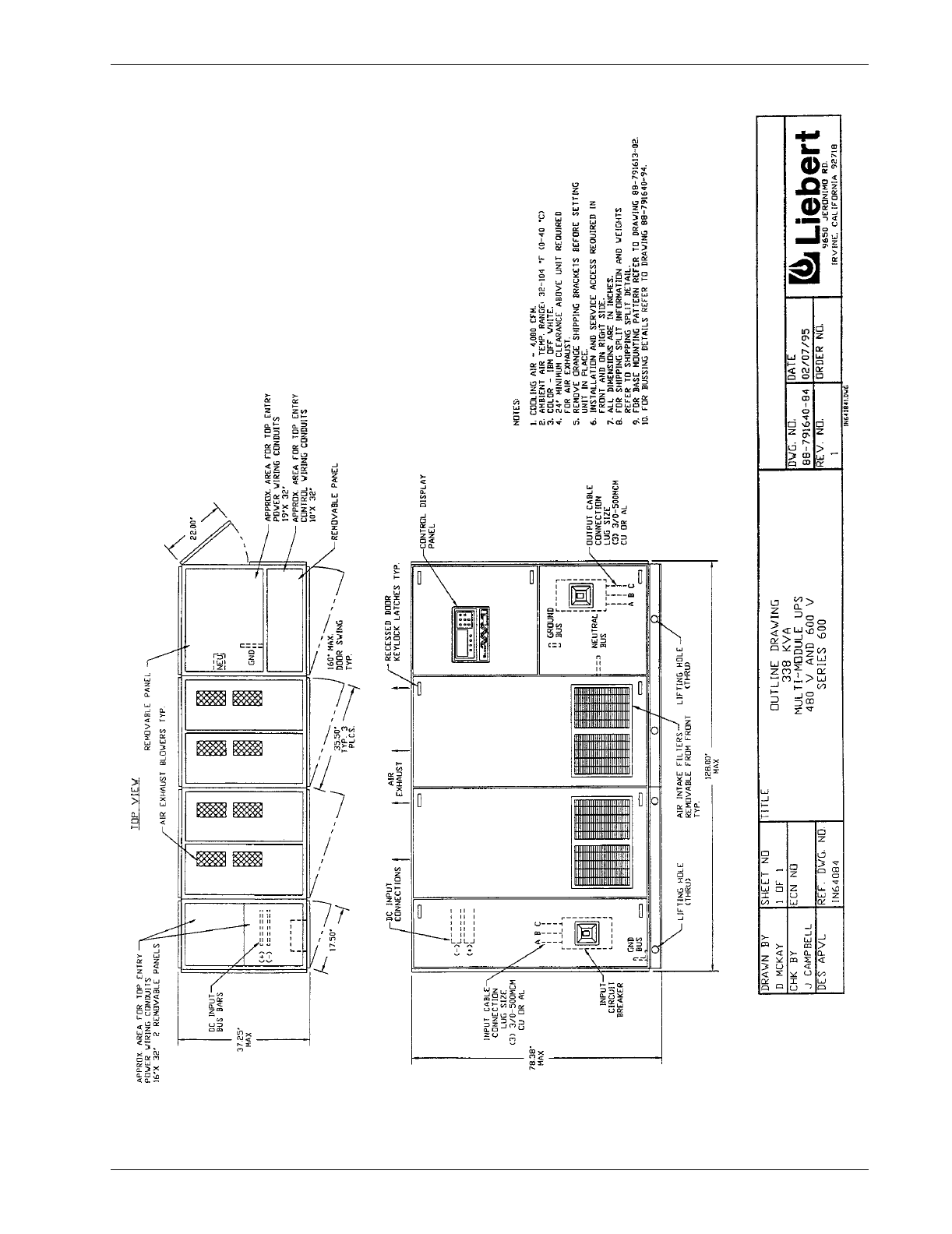
- Figure 5 Outline Drawing, 338 kVA
- Figure 6 Outline Drawing, 400 kVA
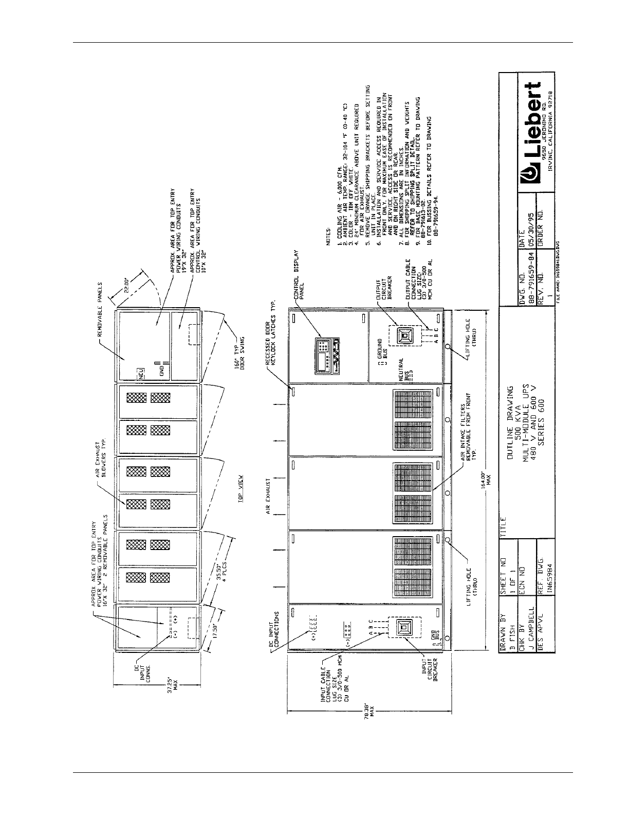
- Figure 7 Outline Drawing, 500 kVA
- Figure 8 Outline Drawing, 500 kVA, 208 VAC
- Figure 9 Outline Drawing, 625 kVA
- Figure 10 Outline Drawing, 750 kVA (High Link - 240 Cells)
- Figure 11 Outline Drawing, 750 kVA (Low Link - 180 Cells)
- Figure 12 Outline Drawing, 1000 kVA
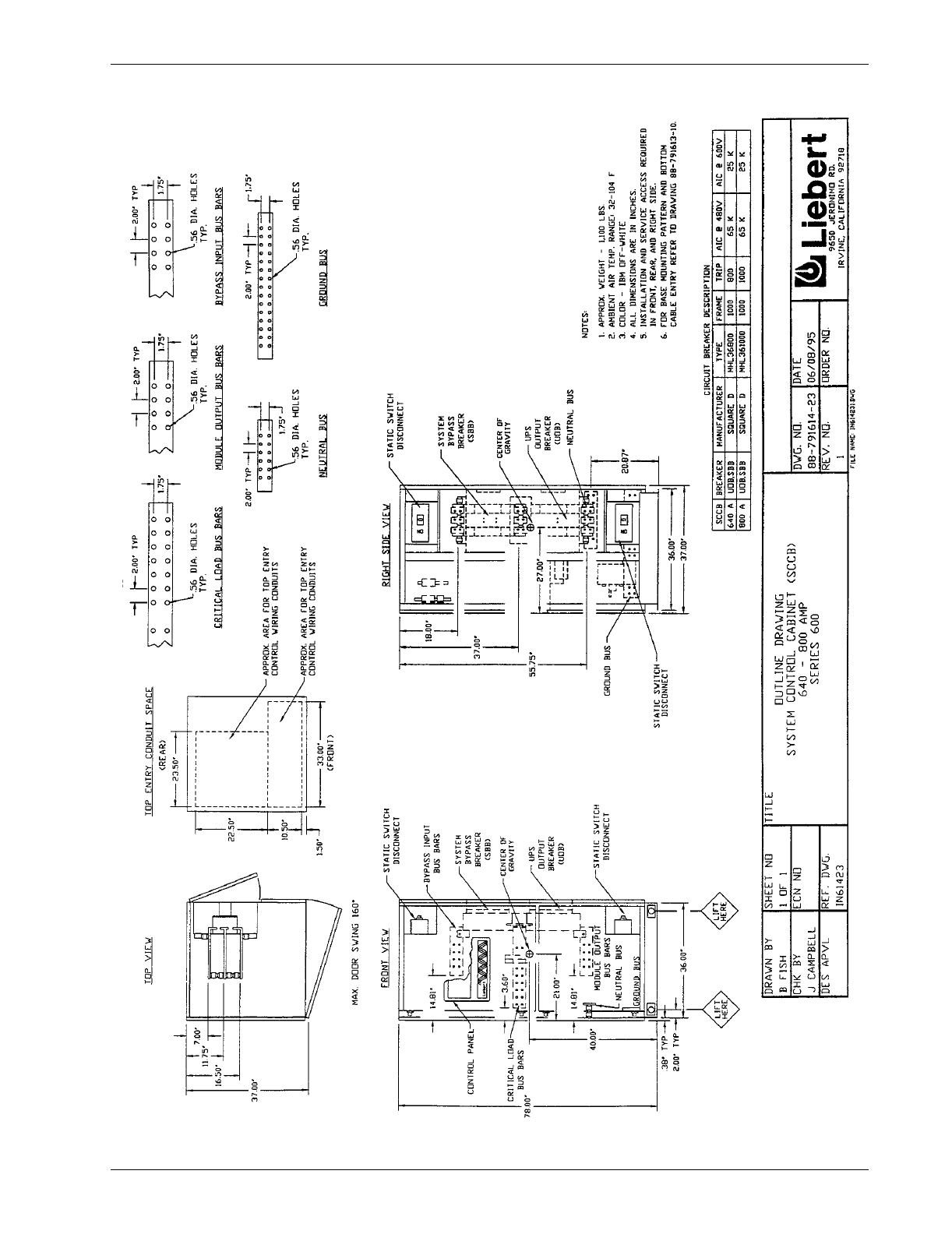
- Figure 13 Outline Drawing, System Control Cabinet (SCCB) 640 to 800 Amps
- Figure 14 Outline Drawing, System Control Cabinet (SCCB) 1280 to 1600 Amps
- Figure 15 Outline Drawing, System Control Cabinet (SCCB) 2000 to 3000 Amps
- Figure 16 Outline Drawing, System Control Cabinet (SCCB) 4000 Amps
- Figure 17 Outline Drawing, System Control Cabinet (SCCP) 200 to 480 Amps
- Figure 18 Outline Drawing, System Control Cabinet (SCCP) 560 to 960 Amps
- Figure 19 Outline Drawing, System Control Cabinet (SCCP) 1280 to 2000 Amps
- Figure 20 Outline Drawing, System Control Cabinet (SCCA) 2000 to 4000 Amps
- Figure 21 Base Mounting Details, 338 kVA
- Figure 22 Base Mounting Details, 400 and 500 kVA
- Figure 23 Base Mounting Details, 400 and 500 kVA, 208 VAC, Rectifier and Inverter Sections
- Figure 24 Base Mounting Details, 400 and 500 kVA, 208 VAC, Control and Output Sections
- Figure 25 Base Mounting Details, 625 kVA and 750 kVA (High Link - 240 Cells)
- Figure 26 Base Mounting Details, 750 kVA (Low Link - 180 Cells) and 1000 kVA, Rectifier and Inver...
- Figure 27 Base Mounting Details, 750 kVA (Low Link - 180 Cells) and 1000 kVA, Control Section
- Figure 28 Base Mounting Patterns, System Control Cabinets (SCCB) 640 to 3000 Amps
- Figure 29 Base Mounting Patterns, System Control Cabinets (SCCB) 4000 Amps
- Figure 30 Base Mounting Patterns, System Control Cabinets (SCCP) 200 to 480 Amps
- Figure 31 Base Mounting Patterns, System Control Cabinets (SCCP) 560 to 2000 Amps
- Figure 32 Base Mounting Patterns, System Control Cabinets (SCCA) 1600 to 4000 Amps
- Figure 33 Shipping Split Detail, 338 kVA
- Figure 34 Shipping Split Detail, 400 and 500 kVA
- Figure 35 Shipping Split Detail, 400 and 500 kVA, 208 VAC
- Figure 36 Shipping Split Detail, 625 kVA
- Figure 37 Shipping Split Detail, 750 kVA (High Link - 240 Cells)
- Figure 38 Shipping Split Detail, 750 kVA (Low Link - 180 Cells) and 1000 kVA
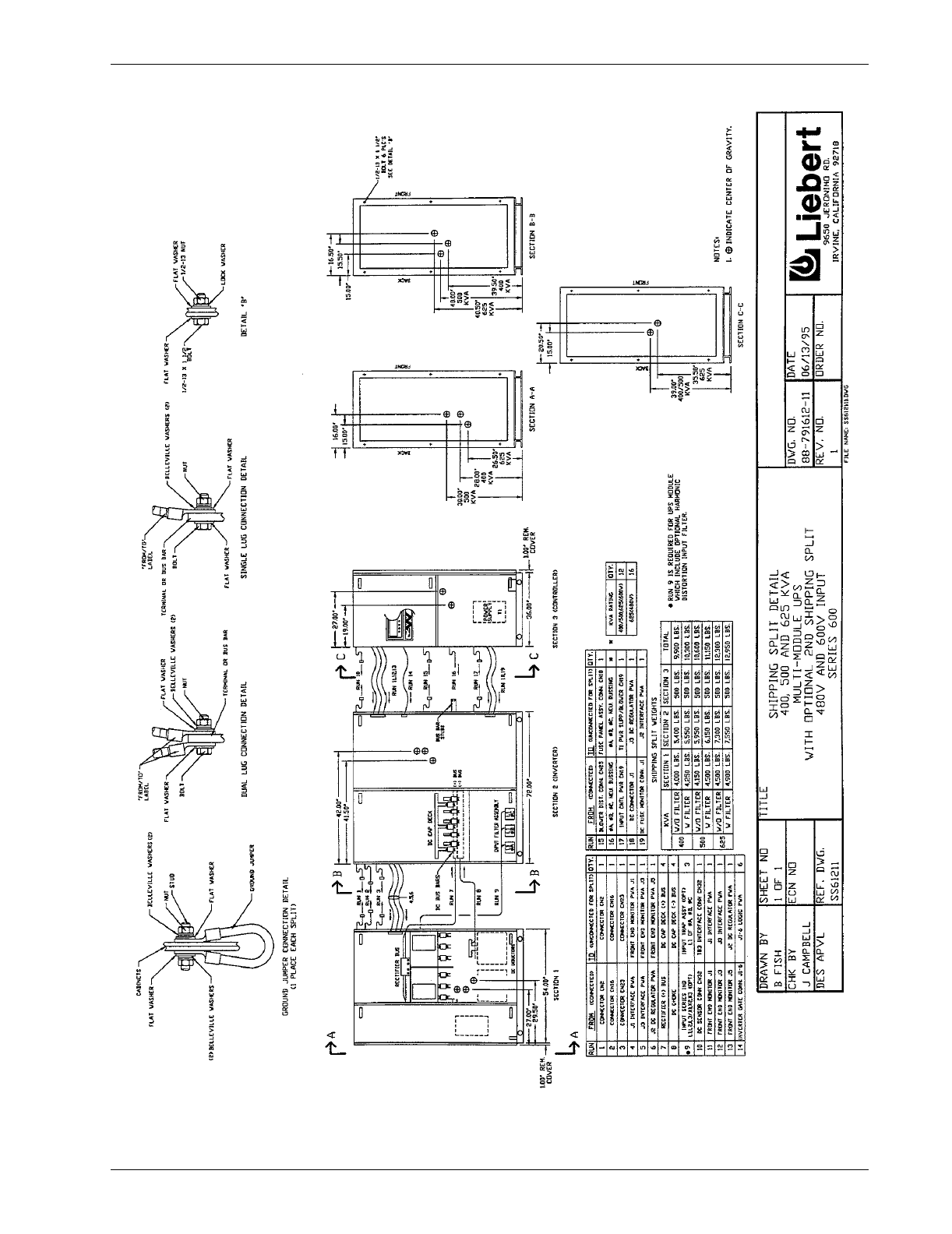
- Figure 39 Optional Shipping Split Detail, 400 to 625 kVA
- Figure 40 Optional Shipping Split Detail, 750 kVA
- Figure 41 Optional Shipping Split Detail, System Control Cabinet (SCCA) 4000 Amps
- Figure 42 Bussing Details, 338 kVA
- Figure 43 Bussing Details, 400 kVA
- Figure 44 Bussing Details, 500 kVA
- Figure 45 Bussing Details, 500 kVA, 208 VAC
- Figure 46 Bussing Details, 625 kVA
- Figure 47 Bussing Details, 750 kVA (High Link - 240 Cells)
- Figure 48 Bussing Details, 750 kVA (Low Link - 180 Cells)
- Figure 49 Bussing Details, 1000 kVA
- Figure 50 Module One-Line Diagram, 338 kVA
- Figure 51 Module One-Line Diagram, 400 kVA
- Figure 52 Module One-Line Diagram, 500 kVA
- Figure 53 Module One-Line Diagram, 500 kVA, 208 VAC
- Figure 54 Module One-Line Diagram, 625 kVA
- Figure 55 Module One-Line Diagram, 750 kVA (High Link - 240 Cells)
- Figure 56 Module One-Line Diagram, 750 kVA (Low Link - 180 Cells)
- Figure 57 Module One-Line Diagram, 1000 kVA
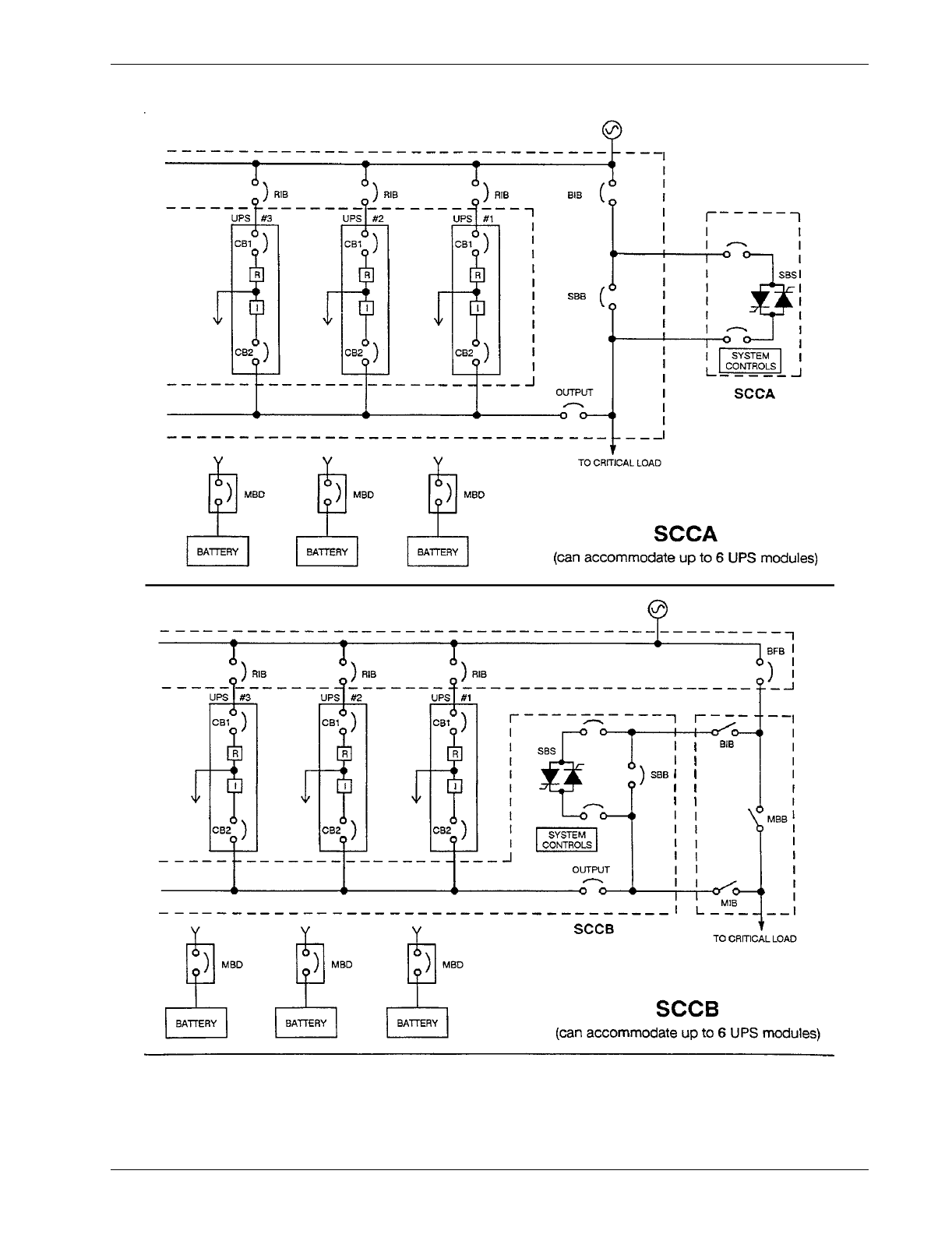
- Figure 58 One-Line Diagram, System Control Cabinet (SCCA)
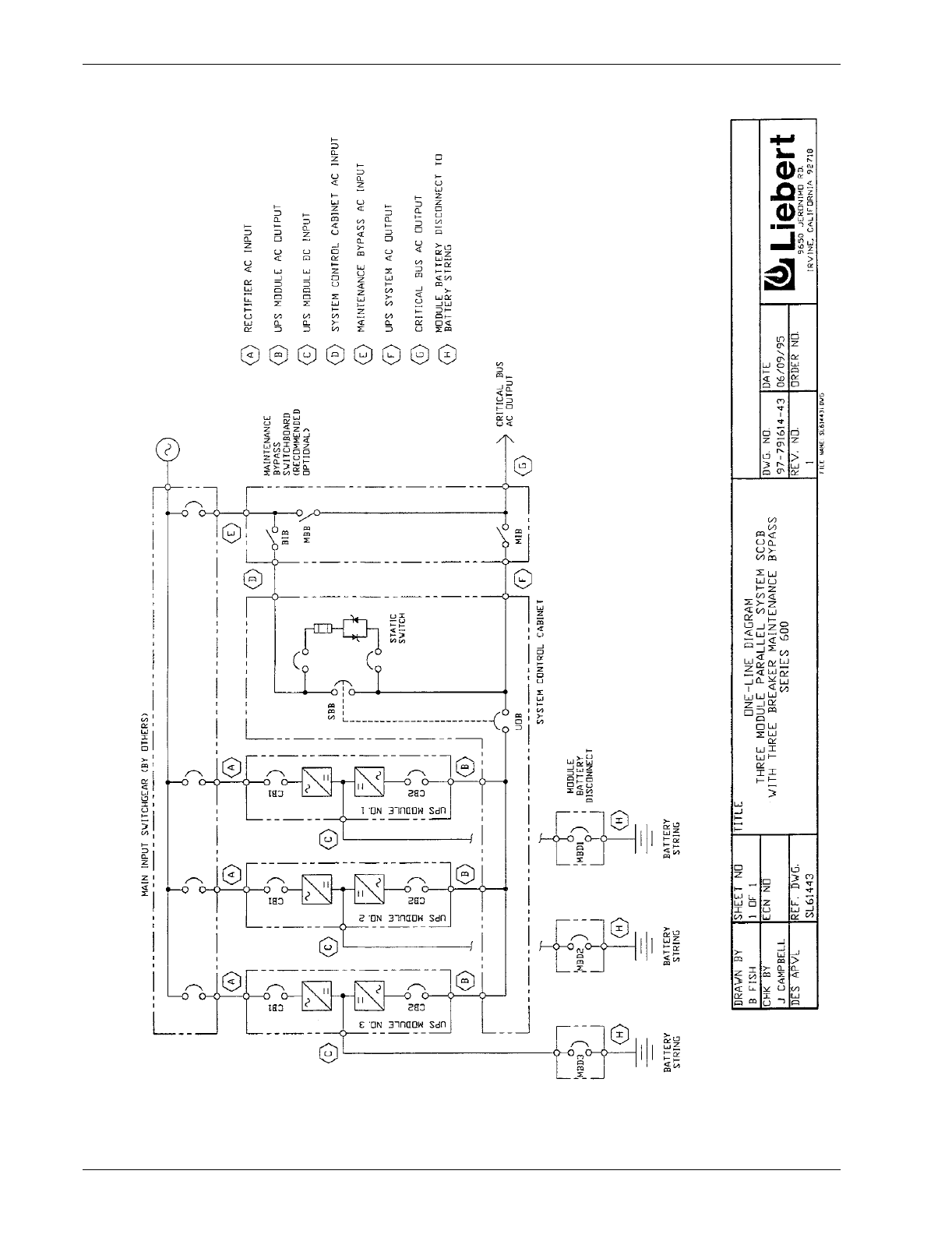
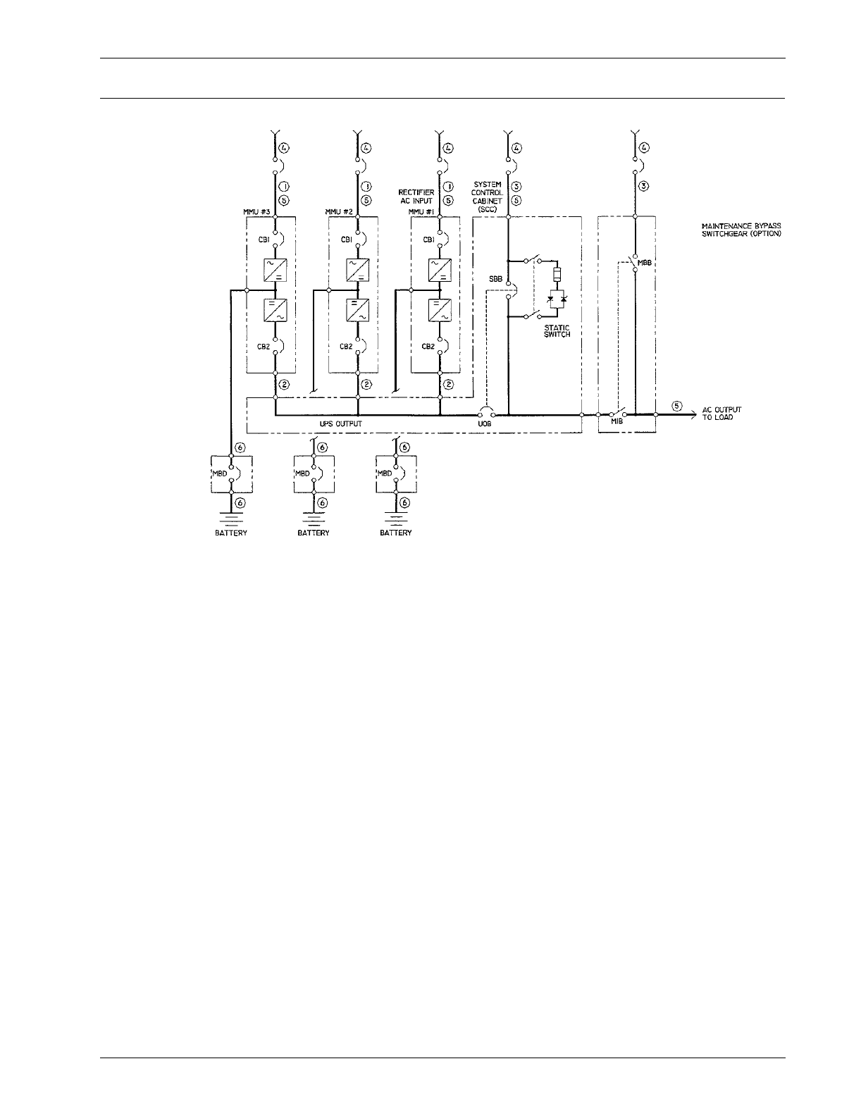
- Figure 59 System One-Line Diagram, Three Modules with Two Breaker Maintenance Bypass
- Figure 60 System One-Line Diagram, Three Modules with Three Breaker Maintenance Bypass
- Figure 61 Control Wiring Interconnect Diagram
- Figure 62 Control Wiring Interconnect Diagram, SCCA and Switchgear
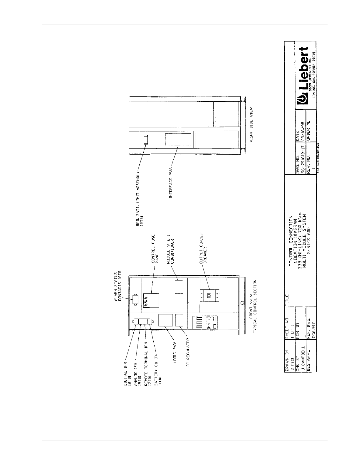
- Figure 63 Control Connection Location Diagram, Module
- Figure 64 Control Connection Location Diagram, System Control Cabinet
- Figure 65 Video Display Terminal Wiring
- Figure 66 Battery Circuit Breaker
- Figure 67 Parallel Battery Configurations
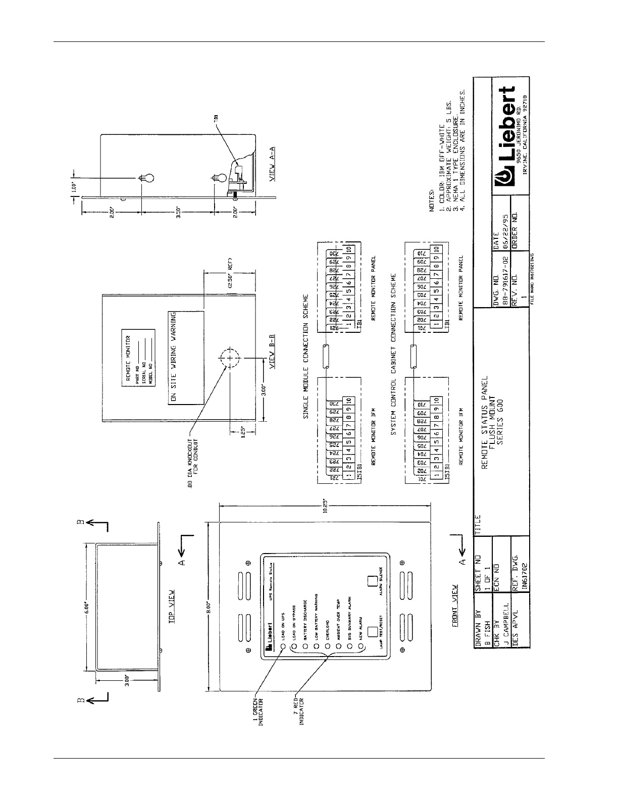
- Figure 68 Remote Status Panel
- 10.0 Appendix A - Series 600 UPS Site Planning Data
- 338-1000 kVA Multi-Module Units
- 10.1 Notes
- Table 4 338-1000 kVA Multi-Module Unit, 480 Volt - Standard Module
- Table 5 338-1000 kVA Multi-Module Unit, 480 Volt - Standard Module With Optional Low Distortion I...
- Table 6 338-500 kVA Multi-Module Unit, 208 Volt - Standard Module
- Table 7 338-500 kVA Multi-Module Unit, 208 Volt - Standard Module With Optional Low Distortion In...
- Table 8 338-1000 kVA Multi-Module Unit, 600 Volt - Standard Module
- Table 9 338-1000 kVA Multi-Module Unit, 600 Volt - Standard Module With Optional Low Distortion I...

POWER PROTECTION
Series 600™ UPS
Multi-Module Three Phase
338 kVA to 1000 kVA; 60 Hz
Installation
Manual


i
TABLE OF CONTENTS
IMPORTANT SAFETY INSTRUCTIONS . . . . . . . . . . . . . . . . . . . . . . . . . . . . . . . . . . . . . . . . . . . . .1
1.0 SAFETY PRECAUTIONS . . . . . . . . . . . . . . . . . . . . . . . . . . . . . . . . . . . . . . . . . . . . . . . . .3
2.0 INSTALLATION CONSIDERATIONS . . . . . . . . . . . . . . . . . . . . . . . . . . . . . . . . . . . . . . . . . .5
3.0 UNLOADING AND HANDLING . . . . . . . . . . . . . . . . . . . . . . . . . . . . . . . . . . . . . . . . . . . . .7
4.0 INSPECTIONS . . . . . . . . . . . . . . . . . . . . . . . . . . . . . . . . . . . . . . . . . . . . . . . . . . . . . . . .8
éïì ([WHUQDOý,QVSHFWLRQVïýïýïýïýïýïýïýïýïýïýïýïýïýïýïýïýïýïýïýïýïýïýïýïýïýïýïýïýïýïýïýïýïýïýïýïýïýïýïýïýïýïýïýïýïýïýïýïýïýïýïýïýïýïýïý å
éïë ,QWHUQDOý,QVSHFWLRQV ïýïýïýïýïýïýïýïýïýïýïýïýïýïýïýïýïýïýïýïýïýïýïýïýïýïýïýïýïýïýïýïýïýïýïýïýïýïýïýïýïýïýïýïýïýïýïýïýïýïýïýïýïýïýïý å
5.0 EQUIPMENT LOCATION . . . . . . . . . . . . . . . . . . . . . . . . . . . . . . . . . . . . . . . . . . . . . . . .10
6.0 BATTERIES . . . . . . . . . . . . . . . . . . . . . . . . . . . . . . . . . . . . . . . . . . . . . . . . . . . . . . . . .11
çïì %DWWHU\ý6DIHW\ý3UHFDXWLRQV ýïýïýïýïýïýïýïýïýïýïýïýïýïýïýïýïýïýïýïýïýïýïýïýïýïýïýïýïýïýïýïýïýïýïýïýïýïýïýïýïýïýïýïýïýïýïýïýïý ìì
çïë %DWWHU\ý,QVWDOODWLRQýïýïýïýïýïýïýïýïýïýïýïýïýïýïýïýïýïýïýïýïýïýïýïýïýïýïýïýïýïýïýïýïýïýïýïýïýïýïýïýïýïýïýïýïýïýïýïýïýïýïýïýïýïýïý ìê
7.0 WIRING CONSIDERATIONS . . . . . . . . . . . . . . . . . . . . . . . . . . . . . . . . . . . . . . . . . . . . . .14
æïì 3RZHUýDQGý&RQWUROý:LULQJ ïýïýïýïýïýïýïýïýïýïýïýïýïýïýïýïýïýïýïýïýïýïýïýïýïýïýïýïýïýïýïýïýïýïýïýïýïýïýïýïýïýïýïýïýïýïýïýïýïý ìæ
æïë %DWWHU\ý:LULQJ ýïýïýïýïýïýïýïýïýïýïýïýïýïýïýïýïýïýïýïýïýïýïýïýïýïýïýïýïýïýïýïýïýïýïýïýïýïýïýïýïýïýïýïýïýïýïýïýïýïýïýïýïýïýïýïýïýïýïý ìæ
8.0 WIRING CONNECTIONS . . . . . . . . . . . . . . . . . . . . . . . . . . . . . . . . . . . . . . . . . . . . . . . .18
9.0 WIRING INSPECTION . . . . . . . . . . . . . . . . . . . . . . . . . . . . . . . . . . . . . . . . . . . . . . . . . .19
10.0 APPENDIX A - SERIES 600 UPS SITE PLANNING DATA . . . . . . . . . . . . . . . . . . . . . . . .85
ìíïì 1RWHVýïýïýïýïýïýïýïýïýïýïýïýïýïýïýïýïýïýïýïýïýïýïýïýïýïýïýïýïýïýïýïýïýïýïýïýïýïýïýïýïýïýïýïýïýïýïýïýïýïýïýïýïýïýïýïýïýïýïýïýïýïýïýïýïýïýïý åè

ii
FIGURES
)LJXUHýì 0XOWLð0RGXOHýêêåýN9$ý836ïýïýïýïýïýïýïýïýïýïýïýïýïýïýïýïýïýïýïýïýïýïýïýïýïýïýïýïýïýïýïýïýïýïýïýïýïýïýïýïýïýïýïýïýïýïýïýïýïýïýïýïýïýé
)LJXUHýë 0XOWLð0RGXOHýéííýWRýìíííýN9$ý836ýïýïýïýïýïýïýïýïýïýïýïýïýïýïýïýïýïýïýïýïýïýïýïýïýïýïýïýïýïýïýïýïýïýïýïýïýïýïýïýïýïýïýïýïýïýïý ç
)LJXUHýê 6\VWHPý&RQWUROý&DELQHWV ýïýïýïýïýïýïýïýïýïýïýïýïýïýïýïýïýïýïýïýïýïýïýïýïýïýïýïýïýïýïýïýïýïýïýïýïýïýïýïýïýïýïýïýïýïýïýïýïýïýïýïýïýïýïýïý ä
)LJXUHýé 7\SLFDOý0XOWLð0RGXOHý&RQILJXUDWLRQV ïýïýïýïýïýïýïýïýïýïýïýïýïýïýïýïýïýïýïýïýïýïýïýïýïýïýïýïýïýïýïýïýïýïýïýïýïýïýïýïýïýïýïýïýìè
)LJXUHýè 2XWOLQHý'UDZLQJñýêêåýN9$ý ýïýïýïýïýïýïýïýïýïýïýïýïýïýïýïýïýïýïýïýïýïýïýïýïýïýïýïýïýïýïýïýïýïýïýïýïýïýïýïýïýïýïýïýïýïýïýïýïýïýïýïýïýëì
)LJXUHýç 2XWOLQHý'UDZLQJñýéííýN9$ý ýïýïýïýïýïýïýïýïýïýïýïýïýïýïýïýïýïýïýïýïýïýïýïýïýïýïýïýïýïýïýïýïýïýïýïýïýïýïýïýïýïýïýïýïýïýïýïýïýïýïýïýïýëë
)LJXUHýæ 2XWOLQHý'UDZLQJñýèííýN9$ý ýïýïýïýïýïýïýïýïýïýïýïýïýïýïýïýïýïýïýïýïýïýïýïýïýïýïýïýïýïýïýïýïýïýïýïýïýïýïýïýïýïýïýïýïýïýïýïýïýïýïýïýïýëê
)LJXUHýå 2XWOLQHý'UDZLQJñýèííýN9$ñýëíåý9$&ý ïýïýïýïýïýïýïýïýïýïýïýïýïýïýïýïýïýïýïýïýïýïýïýïýïýïýïýïýïýïýïýïýïýïýïýïýïýïýïýïýïýïýïýïýëé
)LJXUHýä 2XWOLQHý'UDZLQJñýçëèýN9$ý ýïýïýïýïýïýïýïýïýïýïýïýïýïýïýïýïýïýïýïýïýïýïýïýïýïýïýïýïýïýïýïýïýïýïýïýïýïýïýïýïýïýïýïýïýïýïýïýïýïýïýïýïýëè
)LJXUHýìí 2XWOLQHý'UDZLQJñýæèíýN9$ýõ+LJKý/LQNýðýëéíý&HOOVôý ïýïýïýïýïýïýïýïýïýïýïýïýïýïýïýïýïýïýïýïýïýïýïýïýïýïýïýïýïýïýïýïýïýëç
)LJXUHýìì 2XWOLQHý'UDZLQJñýæèíýN9$ýõ/RZý/LQNýðýìåíý&HOOVôý ýïýïýïýïýïýïýïýïýïýïýïýïýïýïýïýïýïýïýïýïýïýïýïýïýïýïýïýïýïýïýïýïýïý ëæ
)LJXUHýìë 2XWOLQHý'UDZLQJñýìíííýN9$ý ýïýïýïýïýïýïýïýïýïýïýïýïýïýïýïýïýïýïýïýïýïýïýïýïýïýïýïýïýïýïýïýïýïýïýïýïýïýïýïýïýïýïýïýïýïýïýïýïýïýïýïýëå
)LJXUHýìê 2XWOLQHý'UDZLQJñý6\VWHPý&RQWUROý&DELQHWýõ6&&%ôýçéíýWRýåííý$PSVý ýïýïýïýïýïýïýïýïýïýïýïýïýïýïýïýïýïýïýëä
)LJXUHýìé 2XWOLQHý'UDZLQJñý6\VWHPý&RQWUROý&DELQHWýõ6&&%ôýìëåíýWRýìçííý$PSVý ýïýïýïýïýïýïýïýïýïýïýïýïýïýïýïýïýêí
)LJXUHýìè 2XWOLQHý'UDZLQJñý6\VWHPý&RQWUROý&DELQHWýõ6&&%ôýëíííýWRýêíííý$PSVý ýïýïýïýïýïýïýïýïýïýïýïýïýïýïýïýïýêì
)LJXUHýìç 2XWOLQHý'UDZLQJñý6\VWHPý&RQWUROý&DELQHWýõ6&&%ôýéíííý$PSVýýïýïýïýïýïýïýïýïýïýïýïýïýïýïýïýïýïýïýïýïýïýïýïýêë
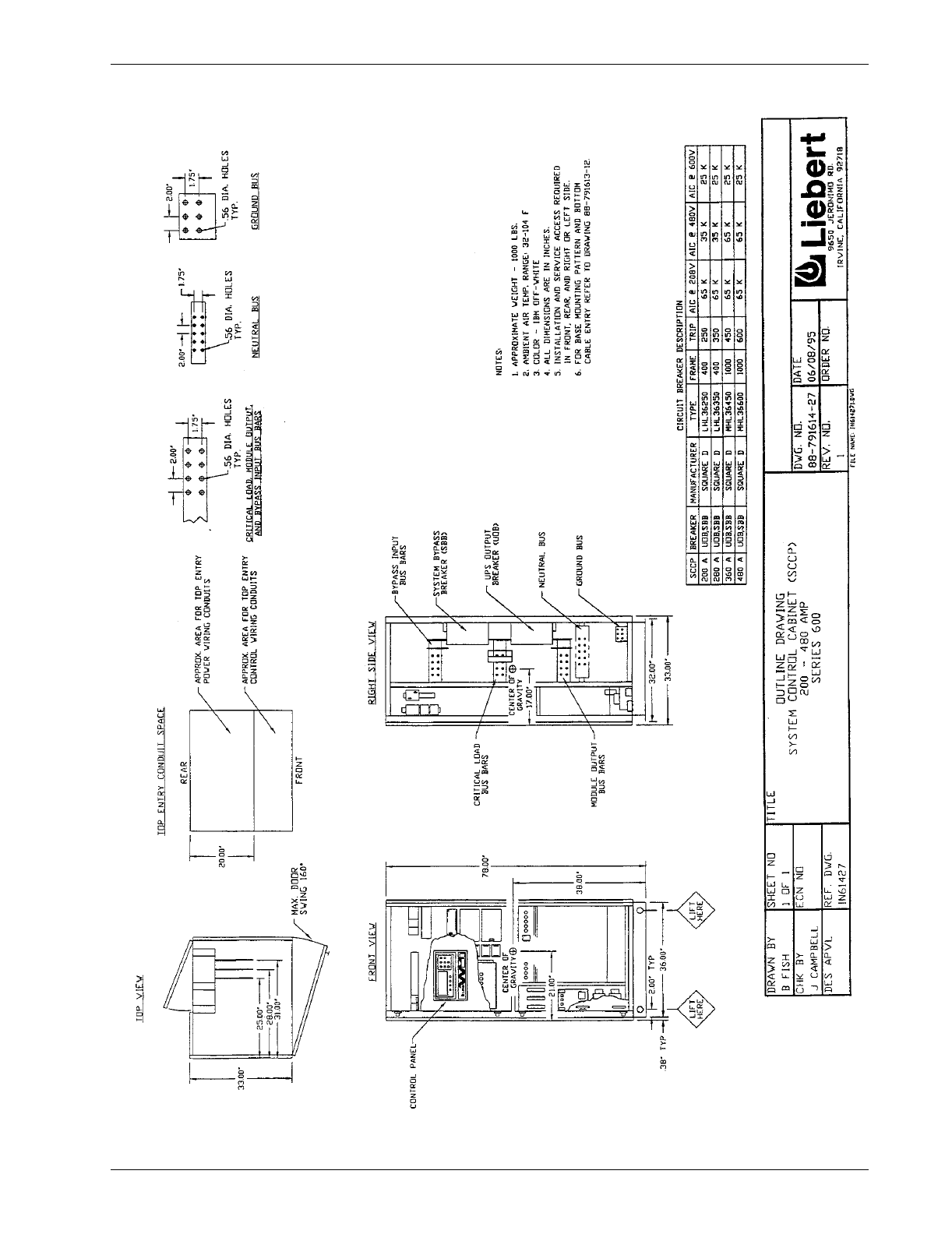
)LJXUHýìæ 2XWOLQHý'UDZLQJñý6\VWHPý&RQWUROý&DELQHWýõ6&&3ôýëííýWRýéåíý$PSVýïýïýïýïýïýïýïýïýïýïýïýïýïýïýïýïýïýïýïýêê
)LJXUHýìå 2XWOLQHý'UDZLQJñý6\VWHPý&RQWUROý&DELQHWýõ6&&3ôýèçíýWRýäçíý$PSVýïýïýïýïýïýïýïýïýïýïýïýïýïýïýïýïýïýïýïýêé
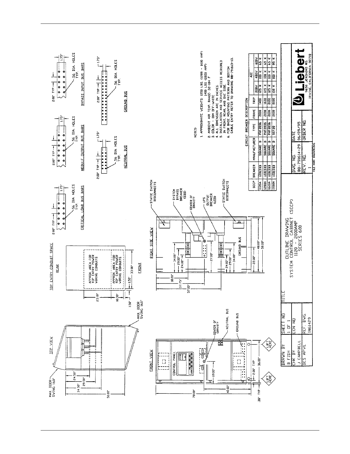
)LJXUHýìä 2XWOLQHý'UDZLQJñý6\VWHPý&RQWUROý&DELQHWýõ6&&3ôýìëåíýWRýëíííý$PSVýïýïýïýïýïýïýïýïýïýïýïýïýïýïýïýïýïýêè
)LJXUHýëí 2XWOLQHý'UDZLQJñý6\VWHPý&RQWUROý&DELQHWýõ6&&$ôýëíííýWRýéíííý$PSVý ýïýïýïýïýïýïýïýïýïýïýïýïýïýïýïýïýêç
)LJXUHýëì %DVHý0RXQWLQJý'HWDLOVñýêêåýN9$ý ýïýïýïýïýïýïýïýïýïýïýïýïýïýïýïýïýïýïýïýïýïýïýïýïýïýïýïýïýïýïýïýïýïýïýïýïýïýïýïýïýïýïýïýïýïýïýïýêæ
)LJXUHýëë %DVHý0RXQWLQJý'HWDLOVñýéííýDQGýèííýN9$ýýïýïýïýïýïýïýïýïýïýïýïýïýïýïýïýïýïýïýïýïýïýïýïýïýïýïýïýïýïýïýïýïýïýïýïýïýïýïýïýïýêå
)LJXUHýëê %DVHý0RXQWLQJý'HWDLOVñýéííýDQGýèííýN9$ñýëíåý9$&ñý5HFWLILHUýDQGý,QYHUWHUý6HFWLRQVý ýïýïýïýïýïýêä
)LJXUHýëé %DVHý0RXQWLQJý'HWDLOVñýéííýDQGýèííýN9$ñýëíåý9$&ñý&RQWUROýDQGý2XWSXWý6HFWLRQVý ïýïýïýïýïýïýïý éí
)LJXUHýëè %DVHý0RXQWLQJý'HWDLOVñýçëèýN9$ýDQGýæèíýN9$ýõ+LJKý/LQNýðýëéíý&HOOVôý ýïýïýïýïýïýïýïýïýïýïýïýïýïýïýïýïýéì
)LJXUHýëç %DVHý0RXQWLQJý'HWDLOVñýæèíýN9$ýõ/RZý/LQNýðýìåíý&HOOVôýDQGýìíííýN9$ñý
5HFWLILHUýDQGý,QYHUWHUý6HFWLRQVý ïýïýïýïýïýïýïýïýïýïýïýïýïýïýïýïýïýïýïýïýïýïýïýïýïýïýïýïýïýïýïýïýïýïýïýïýïýïýïýïýïýïýïýïýïýïýïýïýïýéë
)LJXUHýëæ %DVHý0RXQWLQJý'HWDLOVñýæèíýN9$ýõ/RZý/LQNýðýìåíý&HOOVôýDQGýìíííýN9$ñý&RQWUROý6HFWLRQý ýïýïýéê
)LJXUHýëå %DVHý0RXQWLQJý3DWWHUQVñý6\VWHPý&RQWUROý&DELQHWVýõ6&&%ôýçéíýWRýêíííý$PSVý ýïýïýïýïýïýïýïýïýïýïýéé
)LJXUHýëä %DVHý0RXQWLQJý3DWWHUQVñý6\VWHPý&RQWUROý&DELQHWVýõ6&&%ôýéíííý$PSVý ïýïýïýïýïýïýïýïýïýïýïýïýïýïýïýïýéè
)LJXUHýêí %DVHý0RXQWLQJý3DWWHUQVñý6\VWHPý&RQWUROý&DELQHWVýõ6&&3ôýëííýWRýéåíý$PSVý ýïýïýïýïýïýïýïýïýïýïýïýéç
)LJXUHýêì %DVHý0RXQWLQJý3DWWHUQVñý6\VWHPý&RQWUROý&DELQHWVýõ6&&3ôýèçíýWRýëíííý$PSVý ýïýïýïýïýïýïýïýïýïýïýéæ
)LJXUHýêë %DVHý0RXQWLQJý3DWWHUQVñý6\VWHPý&RQWUROý&DELQHWVýõ6&&$ôýìçííýWRýéíííý$PSVý ýïýïýïýïýïýïýïýïýïýéå
)LJXUHýêê 6KLSSLQJý6SOLWý'HWDLOñýêêåýN9$ý ïýïýïýïýïýïýïýïýïýïýïýïýïýïýïýïýïýïýïýïýïýïýïýïýïýïýïýïýïýïýïýïýïýïýïýïýïýïýïýïýïýïýïýïýïýïýïýïýïýéä
)LJXUHýêé 6KLSSLQJý6SOLWý'HWDLOñýéííýDQGýèííýN9$ýïýïýïýïýïýïýïýïýïýïýïýïýïýïýïýïýïýïýïýïýïýïýïýïýïýïýïýïýïýïýïýïýïýïýïýïýïýïýïýïýïýïýèí
)LJXUHýêè 6KLSSLQJý6SOLWý'HWDLOñýéííýDQGýèííýN9$ñýëíåý9$&ý ýïýïýïýïýïýïýïýïýïýïýïýïýïýïýïýïýïýïýïýïýïýïýïýïýïýïýïýïýïýïýïýïýïýèì
)LJXUHýêç 6KLSSLQJý6SOLWý'HWDLOñýçëèýN9$ý ïýïýïýïýïýïýïýïýïýïýïýïýïýïýïýïýïýïýïýïýïýïýïýïýïýïýïýïýïýïýïýïýïýïýïýïýïýïýïýïýïýïýïýïýïýïýïýïýïýèë
)LJXUHýêæ 6KLSSLQJý6SOLWý'HWDLOñýæèíýN9$ýõ+LJKý/LQNýðýëéíý&HOOVôý ýïýïýïýïýïýïýïýïýïýïýïýïýïýïýïýïýïýïýïýïýïýïýïýïýïýïýïýïýïýèê
)LJXUHýêå 6KLSSLQJý6SOLWý'HWDLOñýæèíýN9$ýõ/RZý/LQNýðýìåíý&HOOVôýDQGýìíííýN9$ýïýïýïýïýïýïýïýïýïýïýïýïýïýïýïýïýïýïýèé
)LJXUHýêä 2SWLRQDOý6KLSSLQJý6SOLWý'HWDLOñýéííýWRýçëèýN9$ý ýïýïýïýïýïýïýïýïýïýïýïýïýïýïýïýïýïýïýïýïýïýïýïýïýïýïýïýïýïýïýïýïýïýïýïýèè
)LJXUHýéí 2SWLRQDOý6KLSSLQJý6SOLWý'HWDLOñýæèíýN9$ýýïýïýïýïýïýïýïýïýïýïýïýïýïýïýïýïýïýïýïýïýïýïýïýïýïýïýïýïýïýïýïýïýïýïýïýïýïýïýïýïýïýèç
)LJXUHýéì 2SWLRQDOý6KLSSLQJý6SOLWý'HWDLOñý6\VWHPý&RQWUROý&DELQHWýõ6&&$ôýéíííý$PSVý ïýïýïýïýïýïýïýïýïýïýïýïýèæ
)LJXUHýéë %XVVLQJý'HWDLOVñýêêåýN9$ý ýïýïýïýïýïýïýïýïýïýïýïýïýïýïýïýïýïýïýïýïýïýïýïýïýïýïýïýïýïýïýïýïýïýïýïýïýïýïýïýïýïýïýïýïýïýïýïýïýïýïýïýïýïýèå
)LJXUHýéê %XVVLQJý'HWDLOVñýéííýN9$ý ýïýïýïýïýïýïýïýïýïýïýïýïýïýïýïýïýïýïýïýïýïýïýïýïýïýïýïýïýïýïýïýïýïýïýïýïýïýïýïýïýïýïýïýïýïýïýïýïýïýïýïýïýïýèä
)LJXUHýéé %XVVLQJý'HWDLOVñýèííýN9$ý ýïýïýïýïýïýïýïýïýïýïýïýïýïýïýïýïýïýïýïýïýïýïýïýïýïýïýïýïýïýïýïýïýïýïýïýïýïýïýïýïýïýïýïýïýïýïýïýïýïýïýïýïýïýçí
)LJXUHýéè %XVVLQJý'HWDLOVñýèííýN9$ñýëíåý9$&ý ïýïýïýïýïýïýïýïýïýïýïýïýïýïýïýïýïýïýïýïýïýïýïýïýïýïýïýïýïýïýïýïýïýïýïýïýïýïýïýïýïýïýïýïýïýçì
)LJXUHýéç %XVVLQJý'HWDLOVñýçëèýN9$ý ýïýïýïýïýïýïýïýïýïýïýïýïýïýïýïýïýïýïýïýïýïýïýïýïýïýïýïýïýïýïýïýïýïýïýïýïýïýïýïýïýïýïýïýïýïýïýïýïýïýïýïýïýïýçë
)LJXUHýéæ %XVVLQJý'HWDLOVñýæèíýN9$ýõ+LJKý/LQNýðýëéíý&HOOVôý ïýïýïýïýïýïýïýïýïýïýïýïýïýïýïýïýïýïýïýïýïýïýïýïýïýïýïýïýïýïýïýïýïýïýçê
)LJXUHýéå %XVVLQJý'HWDLOVñýæèíýN9$ýõ/RZý/LQNýðýìåíý&HOOVôý ýïýïýïýïýïýïýïýïýïýïýïýïýïýïýïýïýïýïýïýïýïýïýïýïýïýïýïýïýïýïýïýïýïýïýçé

iii
)LJXUHýéä %XVVLQJý'HWDLOVñýìíííýN9$ýýïýïýïýïýïýïýïýïýïýïýïýïýïýïýïýïýïýïýïýïýïýïýïýïýïýïýïýïýïýïýïýïýïýïýïýïýïýïýïýïýïýïýïýïýïýïýïýïýïýïýïýïý çè
)LJXUHýèí 0RGXOHý2QHð/LQHý'LDJUDPñýêêåýN9$ý ïýïýïýïýïýïýïýïýïýïýïýïýïýïýïýïýïýïýïýïýïýïýïýïýïýïýïýïýïýïýïýïýïýïýïýïýïýïýïýïýïýïýïýïý çç
)LJXUHýèì 0RGXOHý2QHð/LQHý'LDJUDPñýéííýN9$ý ïýïýïýïýïýïýïýïýïýïýïýïýïýïýïýïýïýïýïýïýïýïýïýïýïýïýïýïýïýïýïýïýïýïýïýïýïýïýïýïýïýïýïýïý çæ
)LJXUHýèë 0RGXOHý2QHð/LQHý'LDJUDPñýèííýN9$ý ïýïýïýïýïýïýïýïýïýïýïýïýïýïýïýïýïýïýïýïýïýïýïýïýïýïýïýïýïýïýïýïýïýïýïýïýïýïýïýïýïýïýïýïý çå
)LJXUHýèê 0RGXOHý2QHð/LQHý'LDJUDPñýèííýN9$ñýëíåý9$&ý ýïýïýïýïýïýïýïýïýïýïýïýïýïýïýïýïýïýïýïýïýïýïýïýïýïýïýïýïýïýïýïýïýïýïýïý çä
)LJXUHýèé 0RGXOHý2QHð/LQHý'LDJUDPñýçëèýN9$ý ïýïýïýïýïýïýïýïýïýïýïýïýïýïýïýïýïýïýïýïýïýïýïýïýïýïýïýïýïýïýïýïýïýïýïýïýïýïýïýïýïýïýïýïý æí
)LJXUHýèè 0RGXOHý2QHð/LQHý'LDJUDPñýæèíýN9$ýõ+LJKý/LQNýðýëéíý&HOOVôý ýïýïýïýïýïýïýïýïýïýïýïýïýïýïýïýïýïýïýïýïýïýïýïýïý æì
)LJXUHýèç 0RGXOHý2QHð/LQHý'LDJUDPñýæèíýN9$ýõ/RZý/LQNýðýìåíý&HOOVôý ïýïýïýïýïýïýïýïýïýïýïýïýïýïýïýïýïýïýïýïýïýïýïýïýïý æë
)LJXUHýèæ 0RGXOHý2QHð/LQHý'LDJUDPñýìíííýN9$ý ïýïýïýïýïýïýïýïýïýïýïýïýïýïýïýïýïýïýïýïýïýïýïýïýïýïýïýïýïýïýïýïýïýïýïýïýïýïýïýïýïýïýïý æê
)LJXUHýèå 2QHð/LQHý'LDJUDPñý6\VWHPý&RQWUROý&DELQHWýõ6&&$ôýýïýïýïýïýïýïýïýïýïýïýïýïýïýïýïýïýïýïýïýïýïýïýïýïýïýïýïýïýïýïýïý æé
)LJXUHýèä 6\VWHPý2QHð/LQHý'LDJUDPñý7KUHHý0RGXOHVýZLWKý7ZRý%UHDNHUý0DLQWHQDQFHý%\SDVVý ýïýïýïýïýïý æè
)LJXUHýçí 6\VWHPý2QHð/LQHý'LDJUDPñý7KUHHý0RGXOHVýZLWKý7KUHHý%UHDNHUý0DLQWHQDQFHý%\SDVVý ïýïýïýïý æç
)LJXUHýçì &RQWUROý:LULQJý,QWHUFRQQHFWý'LDJUDPý ïýïýïýïýïýïýïýïýïýïýïýïýïýïýïýïýïýïýïýïýïýïýïýïýïýïýïýïýïýïýïýïýïýïýïýïýïýïýïýïýïýïýïý ææ
)LJXUHýçë &RQWUROý:LULQJý,QWHUFRQQHFWý'LDJUDPñý6&&$ýDQGý6ZLWFKJHDUý ýïýïýïýïýïýïýïýïýïýïýïýïýïýïýïýïýïýïýïýïýïýïýïý æå
)LJXUHýçê &RQWUROý&RQQHFWLRQý/RFDWLRQý'LDJUDPñý0RGXOHýïýïýïýïýïýïýïýïýïýïýïýïýïýïýïýïýïýïýïýïýïýïýïýïýïýïýïýïýïýïýïýïýïýïýïýïý æä
)LJXUHýçé &RQWUROý&RQQHFWLRQý/RFDWLRQý'LDJUDPñý6\VWHPý&RQWUROý&DELQHWý ïýïýïýïýïýïýïýïýïýïýïýïýïýïýïýïýïýïýïýïýïýïý åí
)LJXUHýçè 9LGHRý'LVSOD\ý7HUPLQDOý:LULQJý ýïýïýïýïýïýïýïýïýïýïýïýïýïýïýïýïýïýïýïýïýïýïýïýïýïýïýïýïýïýïýïýïýïýïýïýïýïýïýïýïýïýïýïýïýïýïýïýïý åì
)LJXUHýçç %DWWHU\ý&LUFXLWý%UHDNHUý ýïýïýïýïýïýïýïýïýïýïýïýïýïýïýïýïýïýïýïýïýïýïýïýïýïýïýïýïýïýïýïýïýïýïýïýïýïýïýïýïýïýïýïýïýïýïýïýïýïýïýïýïýïýïý åë
)LJXUHýçæ 3DUDOOHOý%DWWHU\ý&RQILJXUDWLRQVý ïýïýïýïýïýïýïýïýïýïýïýïýïýïýïýïýïýïýïýïýïýïýïýïýïýïýïýïýïýïýïýïýïýïýïýïýïýïýïýïýïýïýïýïýïýïýïýïý åê
)LJXUHýçå 5HPRWHý6WDWXVý3DQHOý ïýïýïýïýïýïýïýïýïýïýïýïýïýïýïýïýïýïýïýïýïýïýïýïýïýïýïýïýïýïýïýïýïýïýïýïýïýïýïýïýïýïýïýïýïýïýïýïýïýïýïýïýïýïýïýïýïý åé
TABLES
7DEOHýì 3RZHUý:LULQJý7HUPLQDOVýðý)DFWRU\ý6XSSOLHG ýïýïýïýïýïýïýïýïýïýïýïýïýïýïýïýïýïýïýïýïýïýïýïýïýïýïýïýïýïýïýïýïýïýïýïýïýïýïý ìä
7DEOHýë 7RUTXHý6SHFLILFDWLRQV ïýïýïýïýïýïýïýïýïýïýïýïýïýïýïýïýïýïýïýïýïýïýïýïýïýïýïýïýïýïýïýïýïýïýïýïýïýïýïýïýïýïýïýïýïýïýïýïýïýïýïýïýïýïýïýïýïý ìä
7DEOHýê 7DEOHýêìíðìçýïýïýïýïýïýïýïýïýïýïýïýïýïýïýïýïýïýïýïýïýïýïýïýïýïýïýïýïýïýïýïýïýïýïýïýïýïýïýïýïýïýïýïýïýïýïýïýïýïýïýïýïýïýïýïýïýïýïýïýïýïýïýïýïý ëí
7DEOHýé êêåðìíííýN9$ý0XOWLð0RGXOHý8QLWñýéåíý9ROWýðý6WDQGDUGý0RGXOH ïýïýïýïýïýïýïýïýïýïýïýïýïýïýïýïýïýïýïýïýïýïýïý åç
7DEOHýè êêåðìíííýN9$ý0XOWLð0RGXOHý8QLWñýéåíý9ROWýðý6WDQGDUGý0RGXOHý:LWKý2SWLRQDOý/RZý
'LVWRUWLRQý,QSXWý)LOWHU ïýïýïýïýïýïýïýïýïýïýïýïýïýïýïýïýïýïýïýïýïýïýïýïýïýïýïýïýïýïýïýïýïýïýïýïýïýïýïýïýïýïýïýïýïýïýïýïýïýïýïýïýïýïýïýïý åç
7DEOHýç êêåðèííýN9$ý0XOWLð0RGXOHý8QLWñýëíåý9ROWýðý6WDQGDUGý0RGXOH ïýïýïýïýïýïýïýïýïýïýïýïýïýïýïýïýïýïýïýïýïýïýïýïý åæ
7DEOHýæ êêåðèííýN9$ý0XOWLð0RGXOHý8QLWñýëíåý9ROWýðý6WDQGDUGý0RGXOHý:LWKý2SWLRQDOý/RZý
'LVWRUWLRQý,QSXWý)LOWHU ïýïýïýïýïýïýïýïýïýïýïýïýïýïýïýïýïýïýïýïýïýïýïýïýïýïýïýïýïýïýïýïýïýïýïýïýïýïýïýïýïýïýïýïýïýïýïýïýïýïýïýïýïýïýïýïý åæ
7DEOHýå êêåðìíííýN9$ý0XOWLð0RGXOHý8QLWñýçííý9ROWýðý6WDQGDUGý0RGXOH ïýïýïýïýïýïýïýïýïýïýïýïýïýïýïýïýïýïýïýïýïýïýïý åå
7DEOHýä êêåðìíííýN9$ý0XOWLð0RGXOHý8QLWñýçííý9ROWýðý6WDQGDUGý0RGXOHý:LWKý2SWLRQDOý/RZý
'LVWRUWLRQý,QSXWý)LOWHU ïýïýïýïýïýïýïýïýïýïýïýïýïýïýïýïýïýïýïýïýïýïýïýïýïýïýïýïýïýïýïýïýïýïýïýïýïýïýïýïýïýïýïýïýïýïýïýïýïýïýïýïýïýïýïýïý åå

iv

1
IMPORTANT SAFETY INSTRUCTIONS
Save These Instructions.
7KLVýPDQXDOýFRQWDLQVýLPSRUWDQWýLQVWUXFWLRQVýWKDWýVKRXOGýEHýIROORZHGýGXULQJýLQVWDOODWLRQýRIý\RXUý
6HULHVýçííý836ýDQGýEDWWHULHVï
$:$51,1*
(;(5&,6(ý(;75(0(ý&$5(ý:+(1ý+$1'/,1*ý836ý&$%,1(76ý
72ý$92,'ý(48,30(17ý'$0$*(ý25ý,1-85<ý72ý3(56211(/ïý
7+(ý836ý02'8/(ý:(,*+7ý5$1*(6ý)520ýåêííý3281'6ý
õêæçè .*ôý72ýìæéííý3281'6ýõæåäêý.*ôï
/2&$7(ý&(17(5ý2)ý*5$9,7<ý6<0%2/6ý%()25(ý+$1'/,1*ý
($&+ý&$%,1(7ïý7(67ý/,)7ý$1'ý%$/$1&(ý7+(ý&$%,1(76ý
%()25(ý75$163257,1*ïý0$,17$,1ý0,1,080ý7,/7ý)520ý
9(57,&$/ý$7ý$//ý7,0(6ï
02'8/(6ý$1'ý6<67(0ý&21752/ý&$%,1(76ýõ6&&ª6ôý+$9(ý
+2/(6ý,17(1'('ý)25ý5,**,1*ý%$56ý25ý&+$,16ïý35(9(17ý
&+$,16ý25ý&$%/(6ý)520ý&217$&7,1*ý&$%,1(7ý%<ý86,1*ý
635($'(5ý%$5ý$1'ý$'(48$7(ý3$'',1*ï
02'8/(6ý$5(ý6833/,('ý:,7+ý%2/7ð21ý%5$&.(76ý)25ý
86(ý:,7+ý)25./,)7ïý5(&7$1*8/$5ý+2/(6ý$5(ý3529,'('ý
)25ý86(ý:,7+ý52/ð$ð/,)76ï
)2//2:ý$//ý%$77(5<ý6$)(7<ý35(&$87,216ý:+(1ý
,167$//,1*ñý&+$5*,1*ñý25ý6(59,&,1*ý%$77(5,(6ïý,1ý
$'',7,21ý72ý7+(ý+$=$5'ý2)ý(/(&75,&ý6+2&.ñý*$6ý
352'8&('ý%<ý%$77(5,(6ý&$1ý%(ý(;3/26,9(ý$1'ý
68/)85,&ý$&,'ý&$1ý&$86(ý6(9(5(ý%8516ï
,1ý&$6(ý2)ý),5(ý,192/9,1*ý(/(&75,&$/ý(48,30(17ñý
21/<ý&$5%21ý',2;,'(ý),5(ý(;7,1*8,6+(56ñý25ý7+26(ý
$33529('ý)25ý86(ý,1ý(/(&75,&$/ý),5(ý),*+7,1*ñý
6+28/'ý%(ý86('ï
(;75(0(ý&$87,21ý,6ý5(48,5('ý:+(1ý3(5)250,1*ý
0$,17(1$1&(ï
%(ý&2167$17/<ý$:$5(ý7+$7ý7+(ý836ý6<67(0ý&217$,16ý
+,*+ý'&ý$6ý:(//ý$6ý$&ý92/7$*(6ï
&+(&.ý)25ý92/7$*(ý:,7+ý%27+ý$&ý$1'ý'&ý92/70(7(56ý
35,25ý72ý0$.,1*ý&217$&7ïý

2
,Iý\RXýUHTXLUHýDVVLVWDQFHýIRUýDQ\ýUHDVRQñýFDOOýWKHýWROOðIUHHý/LHEHUWý&XVWRPHUý6HUYLFHý÷ý6XSSRUWý
QXPEHUâýìðåííðèéêðëêæåïý)RUý&6÷6ýWRýDVVLVWý\RXýH[SHGLHQWO\ñýSOHDVHýKDYHýWKHýIROORZLQJýLQIRUPDð
WLRQýDYDLODEOHãý
$:$51,1*
/2&$7(ý&(17(5ý2)ý*5$9,7<ý6<0%2/6
$1'ý'(7(50,1(ý81,7ý:(,*+7ý
%()25(ý+$1'/,1*ý&$%,1(7ï
3DUWý1XPEHUVã ______________________________________________________________
6HULDOý1XPEHUVã ______________________________________________________________
N9$ý5DWLQJã ______________________________________________________________
'DWHý3XUFKDVHGã ______________________________________________________________
'DWHý,QVWDOOHGã ______________________________________________________________
/RFDWLRQã ______________________________________________________________
,QSXWý9ROWDJHã ______________________________________________________________
2XWSXWý9ROWDJHã ______________________________________________________________
%DWWHU\ý5HVHUYHý7LPHã ______________________________________________________________

Safety Precautions 3
1.0 SAFETY PRECAUTIONS
5HDGýWKLVýPDQXDOýWKRURXJKO\ñýSD\LQJýVSHFLDOýDWWHQWLRQýWRýWKHýVHFWLRQVýWKDWýDSSO\ýWRý\RXñýEHIRUHý
ZRUNLQJýZLWKýWKHý836ïý5HWDLQýWKLVýVHFWLRQýIRUýXVHýE\ýLQVWDOOLQJýSHUVRQQHOï
8QGHUýW\SLFDOýRSHUDWLRQýDQGýZLWKýDOOý836ýGRRUVýFORVHGñýRQO\ýQRUPDOýVDIHW\ýSUHFDXWLRQVýDUHýQHFHVð
VDU\ïý7KHýDUHDýDURXQGýWKHý836ýV\VWHPýVKRXOGýEHýNHSWýIUHHýIURPýSXGGOHVýRIýZDWHUñýH[FHVVýPRLVð
WXUHñýRUýGHEULVï
6SHFLDOýVDIHW\ýSUHFDXWLRQVýDUHýUHTXLUHGýIRUýSURFHGXUHVýLQYROYLQJýKDQGOLQJñýLQVWDOODWLRQñýDQGýPDLQð
WHQDQFHýRIýWKHý836ýV\VWHPýRUýWKHýEDWWHU\ïý2EVHUYHýDOOýVDIHW\ýSUHFDXWLRQVýLQýWKLVýPDQXDOýEHIRUHý
KDQGOLQJýRUýLQVWDOOLQJýWKHý836ýV\VWHPïý2EVHUYHýDOOýVDIHW\ýSUHFDXWLRQVýLQýWKHý2SHUDWLRQýDQGý
0DLQWHQDQFHý0DQXDOñýEHIRUHýDVýZHOOýDVýGXULQJýSHUIRUPDQFHýRIýDOOýPDLQWHQDQFHýSURFHGXUHVïý
2EVHUYHýDOOýEDWWHU\ýVDIHW\ýSUHFDXWLRQVýEHIRUHýZRUNLQJýRQýRUýQHDUýWKHýEDWWHU\ï
7KLVýHTXLSPHQWýFRQWDLQVýVHYHUDOýFLUFXLWVýWKDWýDUHýHQHUJL]HGýZLWKýKLJKýYROWDJHïý2QO\ýWHVWý
HTXLSPHQWýGHVLJQDWHGýIRUýWURXEOHVKRRWLQJýVKRXOGýEHýXVHGïý7KLVýLVýSDUWLFXODUO\ýWUXHýIRUýRVFLOORð
VFRSHVïý$OZD\VýFKHFNýZLWKýDQý$&ýDQGý'&ýYROWPHWHUýWRýHQVXUHýVDIHW\ýEHIRUHýPDNLQJýFRQWDFWýRUý
XVLQJýWRROVïý(YHQýZKHQýWKHýSRZHUýLVýWXUQHGý2IIñýGDQJHURXVO\ýKLJKýSRWHQWLDOVýPD\ýH[LVWýDWýWKHý
FDSDFLWRUýEDQNVýDQGýDWýWKHýEDWWHULHVï
21/<ýTXDOLILHGýVHUYLFHýSHUVRQQHOýVKRXOGýSHUIRUPýPDLQWHQDQFHýRQýWKHý836ýV\VWHPïý
:KHQýSHUIRUPLQJýPDLQWHQDQFHýZLWKýDQ\ýSDUWýRIýWKHýHTXLSPHQWýXQGHUýSRZHUñýVHUYLFHýSHUVRQQHOý
DQGýWHVWýHTXLSPHQWýVKRXOGýEHýVWDQGLQJýRQýUXEEHUýPDWVïý7KHýVHUYLFHýSHUVRQQHOýVKRXOGýZHDUýLQVXð
ODWLQJýVKRHVýIRUýLVRODWLRQýIURPýGLUHFWýFRQWDFWýZLWKýWKHýIORRUýõHDUWKýJURXQGôï
8QOHVVýDOOýSRZHUýLVýUHPRYHGýIURPýWKHýHTXLSPHQWñýRQHýSHUVRQýVKRXOGýQHYHUýZRUNýDORQHïý$ýVHFRQGý
SHUVRQýVKRXOGýEHýVWDQGLQJýE\ýWRýDVVLVWýDQGýVXPPRQýKHOSýLQýFDVHýDQýDFFLGHQWýVKRXOGýRFFXUï
7KUHHýW\SHVýRIýPHVVDJHVýDUHýXVHGýWKURXJKRXWýWKHýPDQXDOýWRýVWUHVVýLPSRUWDQWýWH[Wïý&DUHIXOO\ýUHDGý
WKHýWH[WýEHORZýHDFKý:DUQLQJñý&DXWLRQñýDQGý1RWHýDQGýXVHýSURIHVVLRQDOýVNLOOVýDQGýSUXGHQWýFDUHý
ZKHQýSHUIRUPLQJýWKHýDFWLRQVýGHVFULEHGýE\ýWKDWýWH[Wï
$ý:DUQLQJýVLJQDOVýWKHýSUHVHQFHýRIýDýSRVVLEOHýVHULRXVñýOLIHðWKUHDWHQLQJýFRQGLWLRQïý)RUýH[DPSOHãý
$ý&DXWLRQýLQGLFDWHVýDýFRQGLWLRQýWKDWýFRXOGýVHULRXVO\ýGDPDJHýHTXLSPHQWýDQGýSRVVLEO\ýLQMXUHýSHUð
VRQQHOïý)RUýH[DPSOHãý
$ý1RWHýHPSKDVL]HVýLPSRUWDQWýWH[Wïý,IýWKHýQRWHýLVýQRWýIROORZHGñýHTXLSPHQWýFRXOGýEHýGDPDJHGýRUý
PD\ýQRWýRSHUDWHýSURSHUO\ïý)RUýH[DPSOHãýý
$:$51,1*
/(7+$/ý92/7$*(6ý0$<ý%(ý35(6(17ý:,7+,1ý7+,6ý81,7ý
(9(1ý:+(1ý,7ý,6ý$33$5(17/<ý127ý23(5$7,1*ïý2%6(59(ý
$//ý&$87,216ý$1'ý:$51,1*6ý,1ý7+,6ý0$18$/ïý)$,/85(ý
72ý'2ý62ý&28/'ý5(68/7ý,1ý6(5,286ý,1-85<ý25ý'($7+ïý'2ý
127ý:25.ý21ý25ý23(5$7(ý7+,6ý(48,30(17ý81/(66ý<28ý
$5(ý)8//<ý48$/,),('ý72ý'2ý62üüý1(9(5ý:25.ý$/21(ïý
$&$87,21
([WUHPHýFDUHýLVýQHFHVVDU\ýZKHQýUHPRYLQJýVKRULQJýEUDFHVïý'RýQRWý
VWULNHýWKHýFDELQHWýZLWKýKDPPHUVýRUýRWKHUýWRROVïý
127(ý
,IýWKHý836ýV\VWHPýKDVýDýEORZQýIXVHñýWKHýFDXVHýVKRXOGýEHýGHWHUPLQHGýEHIRUHý
\RXýUHSODFHýWKHýIXVHïý&RQWDFWý/LHEHUWý&XVWRPHUý6HUYLFHýDQGý6XSSRUWïý

4 Safety Precautions
Figure 1 Multi-Module 338 kVA UPS
$:$51,1*
/2&$7(ý&(17(5ý2)ý*5$9,7<ý6<0%2/6
$1'ý'(7(50,1(ý81,7ý:(,*+7ý
%()25(ý+$1'/,1*ý&$%,1(7ï

Installation Considerations 5
2.0 INSTALLATION CONSIDERATIONS
,QVWDOOý\RXUý6HULHVýçííý836ýLQýDFFRUGDQFHýZLWKýWKHýVXEPLWWDOýGUDZLQJýSDFNDJHýDQGýWKHýIROORZLQJý
SURFHGXUHVï
$ý/LHEHUWýDXWKRUL]HGýUHSUHVHQWDWLYHýPXVWýSHUIRUPýWKHýLQLWLDOýV\VWHPýFKHFNðRXWýDQGýVWDUWðXSýWRý
HQVXUHýSURSHUýV\VWHPýRSHUDWLRQïý(TXLSPHQWýZDUUDQWLHVýZLOOýEHýYRLGHGýXQOHVVýV\VWHPýVWDUWðXSýLVý
SHUIRUPHGýE\ýDý/LHEHUWýDXWKRUL]HGýUHSUHVHQWDWLYHïý&RQWDFWý\RXUýORFDOý/LHEHUWýVDOHVýUHSUHVHQWDWLYHý
RUý/LHEHUWý&XVWRPHUý6HUYLFHýDQGý6XSSRUWýDWýìðåííðèéêðëêæåýWRýDUUDQJHýIRUýV\VWHPýVWDUWðXSï
3URSHUýSODQQLQJýZLOOýVSHHGýXQORDGLQJñýORFDWLRQñýDQGýFRQQHFWLRQýRIýWKHý836ïý5HIHUýWRý)LJXUH éý
WKURXJKý)LJXUH çåýDQGý$SSHQGL[ý$ýðý6HULHVýçííý836ý6LWHý3ODQQLQJý'DWDï
8VHýWKHýVKRUWHVWýRXWSXWýGLVWULEXWLRQýFDEOHýUXQVýSRVVLEOHñýFRQVLVWHQWýZLWKýORJLFDOýHTXLSPHQWý
DUUDQJHPHQWVýDQGýZLWKýDOORZDQFHVýIRUýIXWXUHýDGGLWLRQVýLIýSODQQHGï
5HFRPPHQGHGýDPELHQWýRSHUDWLQJýWHPSHUDWXUHýLVýëèƒ&ýõææƒ)ôïý5HODWLYHýKXPLGLW\ýPXVWýEHýOHVVý
WKDQýäèøñýQRQðFRQGHQVLQJïý1RWHýWKDWýURRPýYHQWLODWLRQýLVýQHFHVVDU\ñýEXWýDLUýFRQGLWLRQLQJýPD\ýQRWý
EHýUHTXLUHGïý0D[LPXPýDPELHQWýRSHUDWLQJýWHPSHUDWXUHýLVýéíƒ&ýõìíéƒ)ôïý7KHýEDWWHULHVýVKRXOGýQRWý
H[FHHGýëèƒ&ýõææƒ)ôïý$WýHOHYDWLRQVýDERYHýéñíííýIHHWýõìëìäýPHWHUVôýGHUDWLQJýPD\ýEHýUHTXLUHGýõFRQð
VXOWý\RXUý/LHEHUWýVDOHVýUHSUHVHQWDWLYHôï
ìï (YHQýWKRXJKý\RXUý/LHEHUWý836ýXQLWýLVýDWýOHDVWýäìøýHIILFLHQWñýWKHýKHDWýRXWSXWýLVýVXEVWDQWLDOïý
)RUýPRUHýVSHFLILFýLQIRUPDWLRQñýVHHý$SSHQGL[ý$ýðý6HULHVýçííý836ý6LWHý3ODQQLQJý'DWDïý%Hý
VXUHýHQYLURQPHQWDOýFRQGLWLRQLQJýV\VWHPVýFDQýDFFRPPRGDWHýWKLVý%78ýORDGñýHYHQýGXULQJýXWLOLW\ý
RXWDJHVï
ëï 7KHýURXWLQJýõLQVLGHýWKHýIDFLOLW\ôýWRýWKHýLQVWDOODWLRQýVLWHñýDVýZHOOýDVýWKHýIORRUýDWýWKHýILQDOý
HTXLSPHQWýORFDWLRQñýPXVWýEHýFDSDEOHýRIýVXSSRUWLQJýWKHýFDELQHWýZHLJKWýDQGýWKHýZHLJKWýRIýDQ\ý
PRYLQJýHTXLSPHQWïý7KHýPRGXOHVýZHLJKýEHWZHHQýåêííýDQGýìæéííýSRXQGVïý5HIHUýWRý$SSHQGL[ý
$ýðý6HULHVýçííý836ý6LWHý3ODQQLQJý'DWDï
êï 3ODQýWKHýURXWLQJýWRýHQVXUHýWKDWýWKHýXQLWýFDQýPRYHýWKURXJKýDOOýDLVOHZD\VñýGRRUZD\VñýDQGý
DURXQGýFRUQHUVýZLWKRXWýULVNLQJýGDPDJHï
$&$87,21ý
5HDGýWKLVýPDQXDOýWKRURXJKO\ýEHIRUHýDWWHPSWLQJýWRýZLUHýRUý
RSHUDWHýWKHýXQLWïý,PSURSHUýLQVWDOODWLRQýLVýWKHýPRVWýVLJQLILFDQWý
FDXVHýRIý836ýVWDUWðXSýSUREOHPVï
'RýQRWýLQVWDOOýWKLVýHTXLSPHQWýQHDUýJDVýRUýHOHFWULFýKHDWHUVïý,WýLVý
SUHIHUDEOHýWRýLQVWDOOýWKHý836ýLQýDýUHVWULFWHGýORFDWLRQýWRýSUHYHQWý
DFFHVVýE\ýXQDXWKRUL]HGýSHUVRQQHOïý
$&$87,21
2EVHUYHýDOOýEDWWHU\ýVDIHW\ýSUHFDXWLRQVýZKHQýZRUNLQJýRQýRUýQHDUý
WKHýEDWWHU\ï

6 Installation Considerations
Figure 2 Multi-Module 400 to 1000 kVA UPS
$:$51,1*
/2&$7(ý&(17(5ý2)ý*5$9,7<ý6<0%2/6
$1'ý'(7(50,1(ý81,7ý:(,*+7ý
%()25(ý+$1'/,1*ý&$%,1(7ï

Unloading and Handling 7
3.0 UNLOADING AND HANDLING
7KHý836ýPRGXOHýLVýVKLSSHGýDVýVHSDUDWHýFDELQHWVýWRýDOORZýHDV\ýKDQGOLQJýDWýWKHýVLWHïý%HFDXVHýWKHý
ZHLJKWýGLVWULEXWLRQýLQýWKHýFDELQHWVýLVýXQHYHQñýXVHýH[WUHPHýFDUHýGXULQJýKDQGOLQJýDQGýWUDQVSRUWï
7RýUHGXFHýWKHýSRVVLELOLW\ýRIýVKLSSLQJýGDPDJHñýFDELQHWVýDUHýVKRUHGýZLWKýë[éýEUDFLQJñýVHFXUHGýZLWKý
VFUHZðW\SHýQDLOVïý7KLVýVKRULQJýPXVWýEHýFDUHIXOO\ýUHPRYHGýSULRUýWRýXQORDGLQJï
$:$51,1*
21/<ý48$/,),('ý3(56211(/ý6+28/'ý+$1'/(ý7+,6ý
(48,30(17ïý(;(5&,6(ý(;75(0(ý&$5(ý:+(1ý+$1'/,1*ý
836ý&$%,1(76ý72ý$92,'ý(48,30(17ý'$0$*(ý25ý,1-85<ý
72ý3(56211(/ïý7+(ý836ý02'8/(ý:(,*+7ý5$1*(6ý)520ý
åêííý3281'6ý72ýìæéííý3281'6ï
/2&$7(ý&(17(5ý2)ý*5$9,7<ý6<0%2/6ý%()25(ý+$1'/,1*ý
($&+ý&$%,1(7ïý7(67ý/,)7ý$1'ý%$/$1&(ý7+(ý&$%,1(7ý
%()25(ý75$163257,1*ïý0$,17$,1ý0,1,080ý7,/7ý)520ý
9(57,&$/ý$7ý$//ý7,0(6ï
02'8/(6ý$1'ý6<67(0ý&21752/ý&$%,1(76ýõ6&&ª6ôý+$9(ý
+2/(6ý,17(1'('ý)25ý5,**,1*ý%$56ý25ý&+$,16ïý35(9(17ý
&+$,16ý25ý&$%/(6ý)520ý&217$&7,1*ý&$%,1(7ý%<ý86,1*ý
635($'(5ý%$5ý$1'ý$'(48$7(ý3$'',1*ï
02'8/(6ý$5(ý6833/,('ý:,7+ý%2/7ð21ý%5$&.(76ý)25ý
86(ý:,7+ý)25./,)7ïý5(&7$1*8/$5ý+2/(6ý$5(ý3529,'('ý
)25ý86(ý:,7+ý52/ð$ð/,)76ï
$&$87,21
([WUHPHýFDUHýLVýQHFHVVDU\ýZKHQýUHPRYLQJýVKRULQJýEUDFHVïý'RýQRWý
VWULNHýFDELQHWýZLWKýKDPPHUVýRUýRWKHUýWRROVï

8 Inspections
4.0 INSPECTIONS
4.1 External Inspections
ìï :KLOHýWKHý836ýV\VWHPýLVýVWLOOýRQýWKHýWUXFNñýLQVSHFWýWKHýHTXLSPHQWýDQGýVKLSSLQJýFRQWDLQHUõVôý
IRUýDQ\ýVLJQVýRIýGDPDJHýRUýPLVKDQGOLQJïý'RýQRWýDWWHPSWýWRýLQVWDOOýWKHýV\VWHPýLIýGDPDJHýLVý
DSSDUHQWïý,IýDQ\ýGDPDJHýLVýQRWHGñýILOHýDýGDPDJHýFODLPýZLWKýWKHýVKLSSLQJýDJHQF\ýZLWKLQýëéý
KRXUVýDQGýFRQWDFWý/LHEHUWý&XVWRPHUý6HUYLFHýDQGý6XSSRUWýDWýìðåííðèéêðëêæåýWRýLQIRUPýWKHPýRIý
WKHýGDPDJHýFODLPýDQGýWKHýFRQGLWLRQýRIýWKHýHTXLSPHQWï
ëï /RFDWHýWKHýEDJýFRQWDLQLQJýWKHýNH\VýIRUýWKHýIURQWýDFFHVVýGRRUïý7KHýEDJýLVýDWWDFKHGýWRýWKHý
FDELQHWï
êï &RPSDUHýWKHýFRQWHQWVýRIýWKHýVKLSPHQWýZLWKýWKHýELOOýRIýODGLQJïý5HSRUWýDQ\ýPLVVLQJýLWHPVýWRýWKHý
FDUULHUýDQGýWRý/LHEHUWý&XVWRPHUý6HUYLFHýDQGý6XSSRUWýLPPHGLDWHO\ï
éï &KHFNýWKHýQDPHSODWHýRQýWKHýFDELQHWVýWRýYHULI\ýWKDWýWKHýPRGHOýQXPEHUVýFRUUHVSRQGýZLWKýWKHý
RQHýVSHFLILHGïý5HFRUGýWKHýPRGHOýQXPEHUVýDQGýVHULDOýQXPEHUVýLQýWKHýIURQWýRIýWKLVýLQVWDOODWLRQý
PDQXDOïý$ýUHFRUGýRIýWKLVýLQIRUPDWLRQýLVýQHFHVVDU\ýVKRXOGýVHUYLFLQJýEHFRPHýUHTXLUHGï
4.2 Internal Inspections
ìï 9HULI\ýWKDWýDOOýLWHPVýKDYHýEHHQýUHFHLYHGï
ëï ,IýVSDUHýSDUWVýZHUHýRUGHUHGñýYHULI\ýDUULYDOï
êï 2SHQýGRRUVýDQGýUHPRYHýFDELQHWýSDQHOVýWRýFKHFNýIRUýVKLSSLQJýGDPDJHýWRýLQWHUQDOýFRPSRQHQWVï
éï &KHFNýIRUýORRVHýFRQQHFWLRQVýRUýXQVHFXUHGýFRPSRQHQWVýLQýWKHýFDELQHWõVôï
èï &KHFNýIRUýLQVWDOODWLRQýRIýFLUFXLWýEUHDNHUýOLQHýVDIHW\ýVKLHOGVïý7KHUHýVKRXOGýEHýQRýH[SRVHGýFLUFXLWý
EUHDNHUýWHUPLQDOVýZKHQýWKHýFDELQHWýGRRUVýDUHýRSHQHGï
çï &KHFNýIRUýDQ\ýXQVDIHýFRQGLWLRQýWKDWýPD\ýEHýDýSRWHQWLDOýVDIHW\ýKD]DUGï
æï 836ýPRGXOHVýDUHýVKLSSHGýZLWKýLQWHUQDOO\ýPRXQWHGýVKLSSLQJýEUDFNHWVïý7KHýVKLSSLQJýEUDFNHWVý
õSDLQWHGýRUDQJHôýPXVWýEHýUHPRYHGýIURPýWKHýUHDUýõUHPRYHýUHDUýSDQHOVôï

Inspections 9
Figure 3 System Control Cabinets

10 Equipment Location
5.0 EQUIPMENT LOCATION
ìï +DQGOHýFDELQHWVýLQýDFFRUGDQFHýZLWKý:$51,1*6ýLQýêïí ðý8QORDGLQJýDQGý+DQGOLQJïý8VHýDý
VXLWDEOHýPDWHULDOýKDQGOLQJýGHYLFHýWRýPRYHýHDFKýFDELQHWýWRýLWVýILQDOýORFDWLRQïý([HUFLVHý
H[WUHPHýFDUHýEHFDXVHýRIýWKHýXQHYHQýZHLJKWýGLVWULEXWLRQï
ëï &DUHIXOO\ýORZHUýWKHýFDELQHWVýWRýWKHýIORRUýDQGýSRVLWLRQýWKHPýIRUýFDELQHWýLQWHUFRQQHFWLRQï
êï 9HULI\ýWKDWýWKHý836ýV\VWHPýLVýLQVWDOOHGýLQýDýFOHDQñýFRROýDQGýGU\ýORFDWLRQï
éï ,QVWDOODWLRQýDQGýVHUYLFHDELOLW\ýZLOOýEHýHDVLHUýLIýDGHTXDWHýDFFHVVýLVýSURYLGHGýRQýDOOýVLGHVýRIýWKHý
HTXLSPHQWñýEXWýRQO\ýDFFHVVýWRýWKHýIURQWýDQGýULJKWýVLGHýLVýUHTXLUHGï
Dï 9HULI\ýWKDWýWKHUHýLVýDGHTXDWHýFOHDUDQFHýWRýRSHQýFDELQHWýGRRUVïý6HHýGUDZLQJVýDQGýORFDOý
FRGHVýõéýIHHWýLVýUHFRPPHQGHGôï
Eï 9HULI\ýWKDWýWKHUHýLVýDGHTXDWHýDUHDýLQýIURQWýRIýFLUFXLWýEUHDNHUVýWRýSHUIRUPýPDLQWHQDQFHïý
&KHFNýLQVWDOODWLRQýGUDZLQJVýIRUýORFDWLRQýRIýEUHDNHUVïý&KHFNýZLWKýORFDOýFRGHVï
Fï 9HULI\ýWKDWýWKHUHýLVýDGHTXDWHýFOHDUDQFHýDERYHýDOOýFDELQHWVýWRýDOORZýH[KDXVWýDLUýWRýIORZý
ZLWKRXWýUHVWULFWLRQýõëýIHHWýPLQLPXPñýXQREVWUXFWHGôï
èï &RQQHFWýWKHýFDELQHWVñýLQWHUQDOýFDEOHVñýDQGýEXVýEDUVïý5HIHUýWRý6KLSSLQJý6SOLWý'HWDLOVý
õ)LJXUH êêýWRý)LJXUH éìôýDQGýRWKHUýGUDZLQJVï

Batteries 11
6.0 BATTERIES
6.1 Battery Safety Precautions
,QVWDOODWLRQýDQGýVHUYLFLQJýRIýEDWWHULHVýVKRXOGýEHýSHUIRUPHGýRUýVXSHUYLVHGýE\ýSHUVRQQHOýNQRZOHGJHð
DEOHýRIýEDWWHULHVýDQGýWKHýUHTXLUHGýSUHFDXWLRQVïý.HHSýXQDXWKRUL]HGýSHUVRQQHOýDZD\ýIURPýEDWWHULHVï
:KHQýUHSODFLQJýEDWWHULHVñýXVHýWKHýVDPHýQXPEHUýDQGýW\SHýRIýEDWWHULHVï
$&$87,21
/HDGðDFLGýEDWWHULHVýFRQWDLQýKD]DUGRXVýPDWHULDOVïý%DWWHULHVýPXVWý
EHýKDQGOHGñýWUDQVSRUWHGñýDQGýUHF\FOHGýRUýGLVFDUGHGýLQýDFFRUGDQFHý
ZLWKýIHGHUDOñýVWDWHñýDQGýORFDOýUHJXODWLRQVïý%HFDXVHýOHDGýLVýDýWR[LFý
VXEVWDQFHñýOHDGðDFLGýEDWWHULHVýVKRXOGýEHýUHF\FOHGýUDWKHUýWKDQý
GLVFDUGHGï
'RýQRWýRSHQýRUýPXWLODWHýWKHýEDWWHU\ýRUýEDWWHULHVïý5HOHDVHGý
HOHFWURO\WHýLVýKDUPIXOýWRýWKHýVNLQýDQGýH\HVïý,WýPD\ýEHýWR[LFïý'RýQRWý
GLVSRVHýRIýEDWWHU\ýRUýEDWWHULHVýLQýDýILUHïý7KHýEDWWHU\ýPD\ýH[SORGHï
$ýEDWWHU\ýFDQýSUHVHQWýDýULVNýRIýHOHFWULFDOýVKRFNýDQGýKLJKýVKRUWý
FLUFXLWýFXUUHQWïý7KHýIROORZLQJýSUHFDXWLRQVýVKRXOGýEHýREVHUYHGý
ZKHQýZRUNLQJýRQýEDWWHULHVãý
ìï 5HPRYHýZDWFKHVñýULQJVñýRUýRWKHUýPHWDOýREMHFWVï
ëï 8VHýWRROVýZLWKýLQVXODWHGýKDQGOHVï
êï :HDUýUXEEHUýJORYHVýDQGýERRWVï
éï 'RýQRWýOD\ýWRROVýRUýPHWDOýSDUWVýRQýWRSýRIýEDWWHULHVï
èï 'LVFRQQHFWýFKDUJLQJýVRXUFHýSULRUýWRýFRQQHFWLQJýRUý
GLVFRQQHFWLQJýEDWWHU\ýWHUPLQDOVï
çï 'HWHUPLQHýLIýEDWWHU\ýLVýLQDGYHUWHQWO\ýJURXQGHGïý,Iý
LQDGYHUWHQWO\ýJURXQGHGñýUHPRYHýVRXUFHýRIýJURXQGïý&RQWDFWý
ZLWKýDQ\ýSDUWýRIýDýJURXQGHGýEDWWHU\ýFDQýUHVXOWýLQýHOHFWULFDOý
VKRFNïý7KHýOLNHOLKRRGýRIýVXFKýVKRFNýZLOOýEHýUHGXFHGýLIýVXFKý
JURXQGVýDUHýUHPRYHGýGXULQJýLQVWDOODWLRQýDQGýPDLQWHQDQFHï
/HDGðDFLGýEDWWHULHVýFDQýSUHVHQWýDýULVNýRIýILUHýEHFDXVHýWKH\ý
JHQHUDWHýK\GURJHQýJDVïý7KHýIROORZLQJýSURFHGXUHVýVKRXOGýEHý
IROORZHGãý
ìï '2ý127ý602.(ýZKHQýQHDUýEDWWHULHVï
ëï '2ý127ýFDXVHýIODPHýRUýVSDUNýLQýEDWWHU\ýDUHDï
êï 'LVFKDUJHýVWDWLFýHOHFWULFLW\ýIURPýERG\ýEHIRUHýWRXFKLQJý
EDWWHULHVýE\ýILUVWýWRXFKLQJýDýJURXQGHGýPHWDOýVXUIDFHïý

12 Batteries
Battery Safety Precautions in French Per CSA Requirements
Instructions Importantes Concernant La Sécurité
Conserver Ces Instructions
$$'9(57,66(0(17
'(6ý3,(&(6ý6286ý$/,0(17$7,21ý6(5217ý/$,66((6ý6$16ý
3527(&7,21ý'85$17ý&(6ý352&('85(6ý'ª(175(7,(1ïý81ý
3(56211(/ý48$/,),(ý(67ý5(48,6ý3285ý())(&78(5ý&(6ý
75$9$8;ï
/(6ý)86,%/(6ý$ý&ï&ïý'(ý/$ý%$77(5,(ý'ª$&&808/$7(856ý
23(5(17ý(1ý7287ý7(036ý$ý/$ý7(16,21ý120,1$/(ïý/$ý
35(6(1&(ý'ª81ý)86,%/(ý$ý&ï&ïý%58/(ý,1',48(ý81ý
352%/(0(ý6(5,(8;ïý/(ý5(03/$&(0(17ý'(ý&(ý)86,%/(ñý
6$16ý$92,5ý'(7(50,1(ý/(6ý5$,6216ý'(ý/$ý
'()(&7826,7(ñý3(87ý(175$,1(5ý'(6ý%/(6685(6ý28ý'(6ý
'200$*(6ý6(5,(8;ý$ý/ª(48,3(0(17ïý3285ý$66,67$1&(ñý
$33(/(5ý/(ý'(3$57(0(17ý'(ý6(59,&(ý$ý/$ý&/,(17(/(ý
'(ý/,(%(57ïý
$'$1*(5
/HVýDFFXPXODWHXUVýSORPEðDFLGHýFRQWLHQQHQWýGHýODýPDWLqUHý
FRPSRUWDQWýXQýFHUWDLQýULVTXHïý/HVýDFFXPXODWHXUVýGRLYHQWýrWUHý
PDQLSXOpVñýWUDQVSRUWpVýHWýUHF\FOpVýRXýpOLPLQpVýHQýDFFRUGýDYHFýOHVý
ORLVýIpGpUDOHVñýSURYLQFLDOHVýHWýORFDOHVïý3DUFHýTXHýOHýSORPEýHVWýXQHý
VXEVWDQFHýWR[LTXHñýOHVýDFFXPXODWHXUVýSORPEðDFLGHýGHYUDLHQWýrWUHý
UHF\FOpVýSOXW{WýTXªpOLPLQpVï
,OýQHýIDXWýSDVýEU€OpýOHýRXýOHVýDFFXPXODWHXUVïý/ªDFFXPXODWHXUý
SRXUUDLWýDORUVýH[SORVpï
,OýQHýIDXWýSDVýRXYULUýRXýHQGRPPDJHUýOHýRXýOHVýDFFXPXODWHXUVïý
/ªpOHFWURO\WHýTXLýSRXUUDLWýVªHQýpFKDSSHUýHVWýGRPPDJHDEOHýSRXUýODý
SHDXýHWýOHVý\HX[ï
8QýDFFXPXODWHXUýUHSUpVHQWHýXQýULVTXHýGHýFKRFýpOHFWULTXHýHWýGHý
KDXWýFRXUDQWýGHýFRXUWðFLUFXLWïý/RUVTXHýGHVýDFFXPXODWHXUVýVRQWý
PDQLSXOpVñýOHVýPHVXUHVýSUpYHQWLYHVýVXLYDQWHVýGHYUDLHQWýrWUHý
REVHUYpHVã
ìï 5HWLUHUýWRXWHVýPRQWUHñýEDJXHVýRXýDXWUHVýREMHWVýPpWDOOLTXHVï
ëï 8WLOLVHUýGHVýRXWLOVýDYHFýPDQFKRQýLVROpï
êï 3RUWHUýGHVýJDQWVýHWýGHVýERWWHVýGHýFDRXWFKRXFï
éï 1HýSDVýGpSRVHUýOHVýRXWLOVýRXýOHVýSLqFHVýPpWDOOLTXHVýVXUýOHý
GHVVXVýGHVýDFFXPXODWHXUVï
èï ,QWHUURPSUHýODýVRXUFHýGHýFKDUJHýDYDQWýGHýUDFFRUGHUýRXýGHý
GpEUDQFKHUýOHVýERUQHVýGHýODýEDWWHULHýGªDFFXPXODWHXUVï
çï 'pWHUPLQHUýVLýOªDFFXPXODWHXUýHVWýPLVýjýODýWHUUHýSDUýHUUHXUïý6Lý
RXLñýGpIDLUHýFHWWHýPLVHýjýODýWHUUHïý7RXWýFRQWDFWýDYHFýXQý
DFFXPXODWHXUýPLVýjýODýWHUUHýSHXWýVHýWUDGXLUHýHQýXQýFKRFý
pOHFWULTXHïý/DýSRVVLELOLWLpýGHýWHOVýFKRFVýVHUDýUpGXLWpýVLýGHýWHOOHVý
PLVHVýjýODýWHUUHýVRQWýGpEUDQFKpHVýSRXUýODýGXUpHýGHý
OªLQVWDOODWLRQýRXýGHýOªHQWUHWLHQï

Batteries 13
6.2 Battery Installation
$ýUHPRWHýEDWWHU\ýGLVFRQQHFWýVZLWFKýZLWKýRYHUFXUUHQWýSURWHFWLRQýLVýUHTXLUHGýSHUýWKHý1DWLRQDOý(OHFð
WULFDOý&RGHïý$ýGLVFRQQHFWLQJýPHDQVýõSHUý8/ìææåôýVXFKýDVýDýPRGXOHýEDWWHU\ýGLVFRQQHFWýRUýEDWWHU\ý
LVRODWLRQýVZLWFKýVKRXOGýEHýSURYLGHGýIRUýHDFKýSDUDOOHOýVWULQJýRIýEDWWHULHVïý5HIHUýWRý)LJXUH ççýDQGý
)LJXUH çæïý&RQWDFWý\RXUý/LHEHUWýVDOHVýUHSUHVHQWDWLYHýUHJDUGLQJýWKLVýRSWLRQï
ìï ,QVWDOOýEDWWHU\ýUDFNVýDQGýEDWWHULHVýSHUýPDQXIDFWXUHUªVýLQVWDOODWLRQýDQGýPDLQWHQDQFHý
LQVWUXFWLRQVï
ëï 9HULI\ýEDWWHU\ýDUHDýKDVýDGHTXDWHýYHQWLODWLRQýDQGýEDWWHU\ýRSHUDWLQJýWHPSHUDWXUHýFRPSOLHVý
ZLWKýPDQXIDFWXUHUªVýVSHFLILFDWLRQï
,Iý\RXýKDYHýDQ\ýTXHVWLRQVýFRQFHUQLQJýEDWWHULHVñýEDWWHU\ýUDFNVñýRUýDFFHVVRULHVñýFRQWDFWý/LHEHUWý&XVð
WRPHUý6HUYLFHýDQGý6XSSRUWýDWýìðåííðèéêðëêæåï
/HVýDFFXPXODWHXUVýSORPEðDFLGHýSUpVHQWHQWýXQýULVTXHýGªLQFHQGLHý
SDUFHýTXªLOVýJpQqUHQWýGHVýJD]ýjýOªK\GURJqQHïý/HVýSURFpGXUHVý
VXLYDQWHVýGHYURQWýrWUHýUHVSHFWpHVï
ìï 1(ý3$6ý)80(5ýORUVTXHýSUqVýGHVýDFFXPXODWHXUVï
ëï 1(ý3$6ýSURGXLUHýGHýIODPPHVýRXýGªpWLQFHOOHVýSUqVýGHVý
DFFXPXODWHXUVï
êï 'pFKDUJHUýWRXWHýpOHFWULFLWpýVWDWLTXHýSUpVHQWHýVXUýYRWUHýFRUSVý
DYDQWýGHýWRXFKHUýXQýDFFXPXODWHXUýHQýWRXFKDQWýGªDERUGýXQHý
VXUIDFHýPpWDOOLTXHýPLVHýjýODýWHUUHïý
$'$1*(5
/ªpOHFWURO\WHýHVWýXQýDFLGHýVXOIXULTXHýGLOXpýTXLýHVWýGDQJHUHX[ýDXý
FRQWDFWýGHýODýSHDXýHWýGHVý\HX[ïý&HýSURGXLWýHVWýFRUURVLIýHWýDXVVLý
FRQGXFWHXUýHOHFWULTXHïý/HVýSURFpGXUHVýVXLYDQWHVýGHYURQWýrWUHý
REVHUYpHVã
ìï 3RUWHUýWRXMRXUVýGHVýYrWHPHQWVýSURWHFWHXUVýDLQVLýTXHýGHVý
OXQHWWHVýGHýSURWHFWLRQýSRXUýOHVý\HX[ï
ëï 6LýOªpOHFWURO\WHýHQWUHýHQýFRQWDFWýDYHFýODýSHDXñýQHWWR\HUý
LPPpGLDWHPHQWýHQýULQoDQWýDYHFýGHýOªHDXï
êï 6LýOªpOHFWURO\WHýHQWUHýHQýFRQWDFWýDYHFýOHVý\HX[ñýDUURVHUý
LPPpGLDWHPHQWýHWýJpQpUHXVHPHQWýDYHFýGHýOªHDXïý'HPDQGHUý
SRXUýGHýOªDLGHýPpGLFDOHï
éï /RUVTXHýOªpOHFWURO\WHýHVWýUHQYHUVpHñýODýVXUIDFHýDIIHFWpHýGHYUDLWý
rWUHýQHWWR\pHýHQýXWLOLVDQWýXQýDJHQWýQHXWUDOLVDQWýDGpTXDWïý8QHý
SUDWLTXHýFRXUDQWHýHVWýGªXWLOLVHUýXQýPpODQJHý
GªDSSUR[LPDWLYHPHQWýXQHýOLYUHýõèííýJUDPPHVôýGHýELFDUERQDWHý
GHýVRXGHýGDQVýDSSUR[LPDWLYHPHQWýXQýJDOORQýõéýOLWUHVôýGªHDXïý/Hý
PpODQJHýGHýELFDUERQDWHýGHýVRXGHýGHYUDýrWUHýDMRXWpýMXVTXªjýFHý
TXªLOýQª\ýDLWýSOXVýDSSDUHQFHýGHýUpDFWLRQýõPRXVVHôïý/HýOLTXLGHý
UpVLGXHOýGHYUDýrWUHýQHWWR\pýjýOªHDXýHWýODýVXUIDFHýFRQFHUQpHý
GHYUDýrWUHýDVVpFKpHïý

14 Wiring Considerations
7.0 WIRING CONSIDERATIONS
5HIHUýWRý$SSHQGL[ý$ýðý6HULHVýçííý836ý6LWHý3ODQQLQJý'DWDýDQGýLQVWDOODWLRQýGUDZLQJVý
õ)LJXUH éýWKURXJKý)LJXUH çåôïý'HWHUPLQHý$&ýFXUUHQWVýIRUý\RXUýV\VWHPýõN9$ñýYROWDJHñýDQGý
RSWLRQDOýLQSXWýILOWHUôïý$OVRýUHIHUýWRýHTXLSPHQWýQDPHSODWHýIRUýWKHýPRGHOýQXPEHUñýUDWLQJñýDQGýYROWð
DJHïý5HIHUýWRý7DEOH ìýDQGý7DEOH ëýIRUýZLUHýWHUPLQDWLRQýGDWDïýý
$:$51,1*ý
$//ý32:(5ý&211(&7,216ý0867ý%(ý&203/(7('ý%<ý$ý
/,&(16('ý(/(&75,&,$1ý7+$7ý,6ý(;3(5,(1&('ý,1ý:,5,1*ý
7+,6ý7<3(ý2)ý(48,30(17ïý:,5,1*ý0867ý%(ý,167$//('ý,1ý
$&&25'$1&(ý:,7+ý$//ý$33/,&$%/(ý1$7,21$/ý$1'ý/2&$/ý
(/(&75,&$/ý&2'(6ïý,03523(5ý:,5,1*ý0$<ý&$86(ý
'$0$*(ý72ý7+(ý(48,30(17ý25ý,1-85<ý72ý3(56211(/ïý
$:$51,1*
9(5,)<ý7+$7ý$//ý,1&20,1*ý+,*+ý$1'ý/2:ý92/7$*(ý
32:(5ý&,5&8,76ý$5(ý'(ð(1(5*,=('ý$1'ý/2&.('ý287ý
%()25(ý,167$//,1*ý&$%/(6ý25ý0$.,1*ý$1<ý(/(&75,&$/ý
&211(&7,216ïý
127(ý
8VHýæèƒ&ýFRSSHUýZLUHïý6HOHFWýZLUHýVL]HýEDVHGýRQýWKHýDPSDFLWLHVýLQý7DEOH êý
RIýWKLVýPDQXDOñýDýUHSULQWýRIý7DEOHýêìíðìçýDQGýDVVRFLDWHGýQRWHVýRIýWKHý
1DWLRQDOý(OHFWULFDOý&RGHýõ1)3$ýæíôïý
$&$87,21
7KHýZHLJKWýRIýSRZHUýFDEOHVýPXVWýEHýDGHTXDWHO\ýVXSSRUWHGýWRý
DYRLGýVWUHVVýRQýEXVýEDUVýDQGýOXJVïý,QýDGGLWLRQýWRýZHLJKWýVXSSRUWñý
WKHýIROORZLQJýUHVWUDLQLQJýPHWKRGýLVýUHFRPPHQGHGýWRýFRQWUROýFDEOHý
PRYHPHQWýGXULQJýH[WHUQDOýIDXOWýFRQGLWLRQVãý:UDSýOLQHýFDEOHVý
WRJHWKHUýDWýçýLQFKHVýDQGýìëýLQFKHVýIURPýWKHýWHUPLQDOVýZLWKýèý
ZUDSVýRIýêîåýLQFKýQ\ORQýURSHýRUýHTXLYDOHQWýõWHQVLOHýVWUHQJWKýRIý
ëíííýSRXQGVôïý6XSSRUWýUHPDLQGHUýRIýFDEOHýZLWKýèýZUDSVýHYHU\ýçý
LQFKHVýRUýìýZUDSýHYHU\ýìýLQFKïý
Abbreviations for Circuit Breakers
BFB Bypass Feeder Breaker
BIB Bypass Input Breaker
CB1 Module Input Breaker
CB2 Module Output Breaker
MBB Maintenance Bypass Breaker
MBD Module Battery Disconnect
MBFB Maintenance Bypass Feeder Breaker
MIB Maintenance Isolation Breaker
RIB Rectifier Input Breaker
SBB System Bypass Breaker
SBS Static Bypass Switch

Wiring Considerations 15
Figure 4 Typical Multi-Module Configurations

16 Wiring Considerations
Figure 4 Typical Multi-Module Configurations (continued)

Wiring Considerations 17
7.1 Power and Control Wiring
ìï 3RZHUýZLULQJýPXVWýEHýUXQýLQýLQGLYLGXDOñýVHSDUDWHýFRQGXLWVýRUýFDEOHýWUD\Vïý&RQWUROýZLULQJýPXVWý
EHýVWUDQGHGýDQGýUXQýLQýLQGLYLGXDOýVHSDUDWHýVWHHOýFRQGXLWVï
ëï 2EVHUYHýORFDOñýVWDWHýDQGýQDWLRQDOýHOHFWULFDOýFRGHVïý9HULI\ýXWLOLW\ýSRZHUýDQGýLWVýRYHUFXUUHQWý
SURWHFWLRQýUDWLQJýZLOOýDFFRPPRGDWHýWKHý836ýLQSXWýUDWLQJñýLQFOXGLQJýEDWWHU\ýUHFKDUJLQJï
êï $ýVDIHW\ýJURXQGýZLUHýPXVWýEHýUXQýIURPýEXLOGLQJýJURXQGýWRýJURXQGýSRLQWýLQýWKHý836ý0RGXOHý
&DELQHWýDQGýWKHý6&&ïý7KHýJURXQGLQJýFRQGXFWRUýVKDOOýFRPSO\ýZLWKýWKHýIROORZLQJýFRQGLWLRQVýRIý
LQVWDOODWLRQãý
Dï $QýLQVXODWHGýJURXQGLQJýFRQGXFWRUýWKDWýLVýJUHHQñýZLWKýRUýZLWKRXWýRQHýRUýPRUHý\HOORZý
VWULSHVñýLVýWRýEHýLQVWDOOHGýDVýSDUWýRIýWKHýEUDQFKýFLUFXLWýWKDWýVXSSOLHVýWKHýXQLWýRUýV\VWHPï
Eï 7KHýJURXQGLQJýFRQGXFWRUýGHVFULEHGýDERYHýLVýWRýEHýJURXQGHGýWRýHDUWKýDWýWKHýVHUYLFHý
HTXLSPHQWýRUñýLIýVXSSOLHGýE\ýDýVHSDUDWHO\ýGHULYHGýV\VWHPñýDWýWKHýVXSSO\ýWUDQVIRUPHUýRUý
PRWRUðJHQHUDWRUýVHWï
Fï 7KHýDWWDFKPHQWðSOXJýUHFHSWDFOHVýLQýWKHýYLFLQLW\ýRIýWKHýXQLWýRUýV\VWHPýDUHýDOOýWRýEHýRIýDý
JURXQGLQJýW\SHñýDQGýWKHýJURXQGLQJýFRQGXFWRUVýVHUYLQJýWKHVHýUHFHSWDFOHVýDUHýWRýEHý
FRQQHFWHGýWRýHDUWKýJURXQGýDWýWKHýVHUYLFHýHTXLSPHQWï
éï 2EVHUYHýFORFNZLVHýSKDVHýURWDWLRQýRIýDOOýSRZHUýZLULQJïý3KDVHý$ýOHDGVý3KDVHý%ýOHDGVý3KDVHý&ïý$ý
TXDOLILHGýHOHFWULFLDQýVKRXOGýFKHFNýWKHýSKDVHýURWDWLRQï
èï 1(&ý&ODVVý,ýZLULQJýPHWKRGVýDUHýUHTXLUHGýIRUýFRQWUROýDQGýFRPPXQLFDWLRQý&ODVVýëýFLUFXLWVï
7.2 Battery Wiring
3RZHUýZLULQJýWRýWKHýEDWWHULHVýFRQQHFWVýSRVLWLYHñýQHJDWLYHñýDQGýJURXQGýSRZHUýFDEOHVýIURPýWKHýEDWð
WHULHVýWRýWKHýDVVRFLDWHGý836ïý&RQQHFWLRQýRIýWKHý836ýWRýWKHýEDWWHULHVýVHUYHVýWRýERWKýFKDUJHýDQGýGLVð
FKDUJHýWKHýEDWWHULHVýõZKHQýQHHGHGôïý7KHýEDWWHU\ýGLVFRQQHFWýõFLUFXLWýEUHDNHUôýUHTXLUHVýDýFRQWUROý
FDEOHïý5HIHUýWRý)LJXUH ççýDQGý)LJXUH çæï
&DOOý/LHEHUWý&XVWRPHUý6HUYLFHýDQGý6XSSRUWýWRýVFKHGXOHýLQVWDOODWLRQýFKHFNðRXWýDQGýVWDUWðXSï
$&$87,21ý
3RZHUýDQGýFRQWUROýZLULQJýPXVWýEHýVHSDUDWHGüý
$&$87,21
%HýVXUHýSRODULW\ýLVýFRUUHFWýZKHQýZLULQJýWKHýEDWWHULHVýWRýWKHý
FRQQHFWHGýHTXLSPHQWýõSRVLWLYHýWRýSRVLWLYHâýQHJDWLYHýWRýQHJDWLYHôïý
,IýSRODULW\ýLVýQRWýFRUUHFWñýIXVHýIDLOXUHVýRUýHTXLSPHQWýGDPDJHýFDQý
UHVXOWïý
127(ý
,QVSHFWLRQýRIýWKHýEDWWHU\ýLQVWDOODWLRQýLVýDýVHUYLFHýWKDWýFDQýEHýSURYLGHGýE\ý
/LHEHUWïý$ý%DWWHU\ý6SHFLDOLVWýFDQýSHUIRUPýDýGHWDLOHGýLQVSHFWLRQýRIýWKHýHQWLUHý
EDWWHU\ýV\VWHPýWRýHQVXUHýLWýPHHWVýFXUUHQWý,(((ýVWDQGDUGVïý7KLVýLQVSHFWLRQý
VHUYLFHýLVýUHFRPPHQGHGýEHFDXVHýEDWWHULHVýDUHýDýYHU\ýFULWLFDOýSDUWýRIýWKHý836ý
V\VWHPïý

18 Wiring Connections
8.0 WIRING CONNECTIONS
5HIHUýWRýWKHýGUDZLQJVýLQýWKLVýPDQXDOýDQGýDQ\ýRWKHUýGUDZLQJVýSURYLGHGýE\ý/LHEHUWýIRUýWKLVýLQVWDOODð
WLRQïý0DNHýDOOýRIýWKHýIROORZLQJýFRQQHFWLRQVãý
ìï $&ýSRZHUýFDEOHVýIURPýLQSXWýSRZHUýVRXUFHýFLUFXLWýEUHDNHUýõ5,%ôýWRý836ý0RGXOHý,QSXWïý2EVHUYHý
SKDVHýURWDWLRQï
ëï $&ýSRZHUýFDEOHVýIURPýE\SDVVýSRZHUýVRXUFHýFLUFXLWýEUHDNHUýõ%,%ôýWRý836ýV\VWHPýE\SDVVýLQSXWý
DWý6\VWHPý&RQWUROý&DELQHWýõ6&&ôïý2EVHUYHýSKDVHýURWDWLRQï
êï $&ýSRZHUýFDEOHVýIURPý836ý0RGXOHý2XWSXWVýWRý6&&ýRUýWRýVZLWFKJHDUýIRUýFULWLFDOýORDGýEXVïý
2EVHUYHýSKDVHýURWDWLRQï
éï (DFKý836ý0RGXOHý2XWSXWý1HXWUDOýWRý6&&ýRUýWRýVZLWFKJHDUýIRUýFULWLFDOýORDGýEXVï
èï 7KHý836ý6\VWHPý2XWSXWý1HXWUDOýLVýFRQQHFWHGýWRýRQHýFRPPRQýSRLQWýDQGýVROLGO\ýJURXQGHGýSHUý
UHTXLUHPHQWVýRIýWKHý1DWLRQDOý(OHFWULFDOý&RGHïý7KHýJURXQGýFRQQHFWLRQýLQVLGHýWKHý836ý6&&ý
FDELQHWýPD\ýEHýUHTXLUHGýE\ýWKHýSRZHUýZLULQJýFRQILJXUDWLRQýDWý\RXUýVLWHï
çï '&ýSRZHUýFDEOHVýõDQGýJURXQGôýIURPýEDWWHU\ýWRý0RGXOHý%DWWHU\ý'LVFRQQHFWýõ0%'ôýFLUFXLWý
EUHDNHUñýDQGýWKHQýWRý836ý0RGXOHý'&ýEXVïý2EVHUYHýSRODULW\ïý'&ýSRZHUýFDEOHVýVKRXOGýEHý
LQVWDOOHGýLQýFRQGXLWýZLWKýFRQGXFWRUVýLQýPDWFKHGýSDLUVýõSRVLWLYHýDQGýQHJDWLYHôï
æï 0RGXOHý%DWWHU\ý'LVFRQQHFWýFRQWUROýZLULQJýWRý836ý0RGXOHïý0RGXOHý%DWWHU\ý'LVFRQQHFWýFRQWUROý
ZLULQJýPXVWýEHýKRXVHGýLQýLQGLYLGXDOýVHSDUDWHýVWHHOýFRQGXLWïý'RýQRWýUXQýLQýSRZHUýFLUFXLWý
FRQGXLWï
åï &RQWUROýZLULQJýIURPý6\VWHPý&RQWUROý&DELQHWýõ6&&ôýWRý836ýPRGXOHVïý:LULQJýPXVWýEHýUXQýLQý
LQGLYLGXDOýVHSDUDWHýVWHHOýFRQGXLWï
äï 3RZHUýDQGýFRQWUROýFRQQHFWLRQVýUHTXLUHGýIRUýWKHý0DLQWHQDQFHý%\SDVVý6ZLWFKERDUGï
ìíï 3RZHUýFRQQHFWLRQVýIURPý6&&ýWRýFULWLFDOýORDGýEXVïý2EVHUYHýSKDVHýURWDWLRQï
ììï &RQWUROýZLULQJýWRý5HPRWHý0RQLWRUý3DQHOñýLIýXVHGïý6HOHFWHGýDODUPýPHVVDJHVýDUHýDOVRýDYDLODEOHý
IRUýFXVWRPHUýXVHýWKURXJKýDýVHWýRIýFRQWDFWVýRQýDýVHSDUDWHýWHUPLQDOýERDUGïý:LULQJýPXVWýEHýUXQý
LQýLQGLYLGXDOýVHSDUDWHýVWHHOýFRQGXLWï
ìëï (PHUJHQF\ý3RZHUý2IIýFRQWUROýZLULQJýõWRý6&&ôýPXVWýEHýUXQýLQýVHSDUDWHýVWHHOýFRQGXLWï
ìêï &RPPXQLFDWLRQVýZLULQJýõWRý6&&ôýIRUýWHUPLQDOVñýVLWHýPRQLWRULQJñýRUýPRGHPýPXVWýEHýUXQýLQý
VHSDUDWHýVWHHOýFRQGXLWï
ìéï $Q\ýDGGLWLRQDOýVSHFLDOýZLULQJýUHTXLUHGýDWý\RXUýVLWHï
$:$51,1*
9(5,)<ý7+$7ý$//ý,1&20,1*ý+,*+ý$1'ý/2:ý92/7$*(ý
32:(5ý&,5&8,76ý$5(ý'(ð(1(5*,=('ý$1'ý/2&.('ý287ý
%()25(ý,167$//,1*ý&$%/(6ý25ý0$.,1*ý(/(&75,&$/ý
&211(&7,216ï
$//ý32:(5ý&211(&7,216ý0867ý%(ý&203/(7('ý%<ý$ý
/,&(16('ý(/(&75,&,$1ý(;3(5,(1&('ý,1ý:,5,1*ý836ý
(48,30(17ñý$1'ý,1ý$&&25'$1&(ý:,7+ý$//ý$33/,&$%/(ý
1$7,21$/ý$1'ý/2&$/ý(/(&75,&$/ý&2'(6ï
,03523(5ý:,5,1*ý0$<ý&$86(ý'$0$*(ý72ý7+(ý836ý25ý
,1-85<ý72ý3(56211(/ïý
$&$87,21
$OOýVKLHOGHGýFDEOHVñýQRQðVKLHOGHGýFDEOHVñýQRQðVKLHOGHGýFRQWUROý
ZLUHVñýQRQðVKLHOGHGýEDWWHU\ýEUHDNHUýFRQWUROýZLUHVñýDQGýQRQð
VKLHOGHGýUHPRWHýFRQWUROýZLUHVýPXVWýEHýKRXVHGýLQýLQGLYLGXDOñý
VHSDUDWHñýVWHHOýFRQGXLWVïý3ODFLQJýPXOWLSOHýFDEOHVýLQýWKHýVDPHý
FRQGXLWýZLWKýRWKHUýFRQWUROýRUýSRZHUýZLULQJýPD\ýFDXVHýV\VWHPý
IDLOXUHïý
$&$87,21ý
836ýE\SDVVýDQGýV\VWHPýRXWSXWýQHXWUDOýPXVWýEHýFRQQHFWHGýWRýRQO\ý
RQHýFRPPRQýSRLQWýLQýWKHý836ýV\VWHPïý7KLVýQHXWUDOýOLQHýPXVWýEHý
JURXQGHGýDWýWKHýVRXUFHï

Wiring Inspection 19
9.0 WIRING INSPECTION
ìï 9HULI\ýDOOýSRZHUýFRQQHFWLRQVýDUHýWLJKWï
ëï 9HULI\ýDOOýFRQWUROýZLUHýWHUPLQDWLRQVýDUHýWLJKWï
êï 9HULI\ýDOOýSRZHUýZLUHVýDQGýFRQQHFWLRQVýKDYHýSURSHUýVSDFLQJýEHWZHHQýH[SRVHGýVXUIDFHVñýSKDVHð
WRðSKDVHýDQGýSKDVHðWRðJURXQGï
éï 9HULI\ýWKDWýDOOýFRQWUROýZLUHVýDUHýUXQýLQýLQGLYLGXDOñýVHSDUDWHñýVWHHOýFRQGXLWï
ý
Table 1 Power Wiring Terminals - Factory Supplied
Connection Type
UPS Module Rating
kVA AC Input AC Output Battery Neutral Ground
338 - 1000 Lugs on circuit breakers, or bus
bars (for field supplied lugs).
Refer to installation drawings.
Bus bars for connecting hardware (1/2” on 1-3/4”
centers) are provided. A field supplied lug is
required.
Use 75ƒC copper wire. Select wire size based on the ampacities in Table 310-16 (see Table 3 of this manual)
and associated notes of the National Electrical Code (NFPA 70).
Use commercially available solderless lugs for the wire size required for your application. Connect wire to the
lug using tool and procedure specified by the lug manufacturer.
Table 2 Torque Specifications
Nut and Bolt Combinations
Bolt Shaft Size
Grade 2
Standard Electrical Connections
with Belleville Washers
Lb-in N-m Lb-in N-m
1/4 53 6.0 46 5.2
5/16 107 12 60 6.8
3/8 192 22 95 11
1/2 428 48 256 29
Circuit Breakers With Compression Lugs (For Power Wiring)
Current Rating Lb-in N-m
400 - 1200 Amps 300 34
Terminal Block Compression Lugs (For Control Wiring)
AWG Wire Size or Range Lb-in N-m
#22 - #14 3.5 to 5.3 0.4 to 0.6
Use the values in this table unless the equipment is labeled with a different
torque value.

20 Wiring Inspection
Table 3 Table 310-16
Allowable Ampacities of Insulated Conductors Rated 0-2000 Volts, 60° to 90°C (140° to 194°F)1
Not More than Three Conductors in Raceway or Cable or Earth (Directly Buried), based on Ambient Temperature of 30° (86°F)
Size Temperature Rating of Conductor. See Table 310-13. Size
AWG
kcmil
60°C
(140°F) 75°C
(167°F) 90°C
(194°F) 60°C
(140°F) 75°C
(167°F) 90°C
(194°F)
AWG
kcmil
Types
TW†
UF†
Types
FEPW+,
RH,RHW†,
THHW†,
THW†,
THWN†,
XHHW†,
USE†, ZW†
Types
TBS, SA,
SIS,FEP†,
FEPB†,MI,
RHH†, RHW-2
THHN†,THHW†,
THW-2,THWN-2,
USE-2, XHH,
XHHW†
XHHW-2,ZW-2
Types
TW†
UF†
Types
RH†, RHW†,
THHW†,
THW†,
THWN†,
XHHW†,
USE†
Types
TBS,
SA,SIS,
THHN†,
THHW†,
THW-2, THWN-2,
RHH†, RHW-2,
USE-2,
XHH, XHHW†,
XHHW-2, ZW-2
Copper Aluminum or Copper-Clad Aluminum
18
16
14
12
10
8
.......
.......
20†
25†
30
40
.......
.......
20†
25†
35†
50
14
18
25†
30†
40†
55
.......
.......
.......
20†
25
30
.......
.......
.......
20†
30†
40
.......
.......
.......
25†
35†
45
.......
.......
.......
12
10
8
6
4
3
2
1
55
70
85
95
110
65
85
100
115
130
75
95
110
130
150
40
55
65
75
85
50
65
75
90
100
60
75
85
100
115
6
4
3
2
1
1/0
2/0
3/0
4/0
125
145
165
195
150
175
200
230
170
195
225
260
100
115
130
150
120
135
155
180
135
150
175
205
1/0
2/0
3/0
4/0
250
300
350
400
500
215
240
260
280
320
255
285
310
335
380
290
320
350
380
430
170
190
210
225
260
205
230
250
270
310
230
255
280
305
350
250
300
350
400
500
600
700
750
800
900
355
385
400
410
435
420
460
475
490
520
475
520
535
555
585
285
310
320
330
355
340
375
385
395
425
385
420
435
450
480
600
700
750
800
900
1000
1250
1500
1750
2000
455
495
520
545
560
545
590
625
650
665
615
665
705
735
750
375
405
435
455
470
445
485
520
545
560
500
545
585
615
630
1000
1250
1500
1750
2000
Correction Factors
Ambient
Temp °C For ambient temperatures other than 30°C (86°F), multiply the allowable ampacities shown
above by the appropriate factor shown below. Ambient
Temp °F
21-25
26-30
31-35
36-40
41-45
46-50
51-55
56-60
61-70
71-80
1.08
1.00
.91
.82
.71
.58
.41
.......
.......
.......
1.05
1.00
.94
.88
.82
.75
.67
.58
.33
.......
1.04
1.00
.96
.91
.87
.82
.76
.71
.58
.41
1.08
1.00
.91
.82
.71
.58
.41
.......
.......
.......
1.05
1.00
.94
.88
.82
.75
.67
.58
.33
.......
1.04
1.00
.96
.91
.87
.82
.76
.71
.58
.41
70-77
78-86
87-95
96-104
105-113
114-122
123-131
132-140
141-158
159-176
† Unless otherwise specifically permitted elsewhere in this Code, the overcurrent protection for conductor types marked with an
obelisk (†) shall not exceed 15 amperes for No. 14, 20 amperes for No. 12, and 30 amperes for No. 10 copper; or 15 amperes for
No. 12 and 25 amperes for No. 10 aluminum and copper-clad aluminum after any correction factors for ambient temperature and
number of conductors have been applied.
1 Reprinted with permission from NFPA 70-1993, the National Electrical Code®, Copyright 1996, National Fire Protection Association,
Quincy, MA 02269. This reprinted material is not the complete and official position of the National Fire Protection Association, on the
referenced subject which is represented only by the standard in its entirety.

Wiring Inspection 21
Figure 5 Outline Drawing, 338 kVA

22 Wiring Inspection
Figure 6 Outline Drawing, 400 kVA

Wiring Inspection 23
Figure 7 Outline Drawing, 500 kVA

24 Wiring Inspection
Figure 8 Outline Drawing, 500 kVA, 208 VAC

Wiring Inspection 25
Figure 9 Outline Drawing, 625 kVA

26 Wiring Inspection
Figure 10 Outline Drawing, 750 kVA (High Link - 240 Cells)

Wiring Inspection 27
Figure 11 Outline Drawing, 750 kVA (Low Link - 180 Cells)

28 Wiring Inspection
Figure 12 Outline Drawing, 1000 kVA

Wiring Inspection 29
Figure 13 Outline Drawing, System Control Cabinet (SCCB) 640 to 800 Amps

30 Wiring Inspection
Figure 14 Outline Drawing, System Control Cabinet (SCCB) 1280 to 1600 Amps

Wiring Inspection 31
Figure 15 Outline Drawing, System Control Cabinet (SCCB) 2000 to 3000 Amps

32 Wiring Inspection
Figure 16 Outline Drawing, System Control Cabinet (SCCB) 4000 Amps

Wiring Inspection 33
Figure 17 Outline Drawing, System Control Cabinet (SCCP) 200 to 480 Amps

34 Wiring Inspection
Figure 18 Outline Drawing, System Control Cabinet (SCCP) 560 to 960 Amps

Wiring Inspection 35
Figure 19 Outline Drawing, System Control Cabinet (SCCP) 1280 to 2000 Amps

36 Wiring Inspection
Figure 20 Outline Drawing, System Control Cabinet (SCCA) 2000 to 4000 Amps

Wiring Inspection 37
Figure 21 Base Mounting Details, 338 kVA

38 Wiring Inspection
Figure 22 Base Mounting Details, 400 and 500 kVA

Wiring Inspection 39
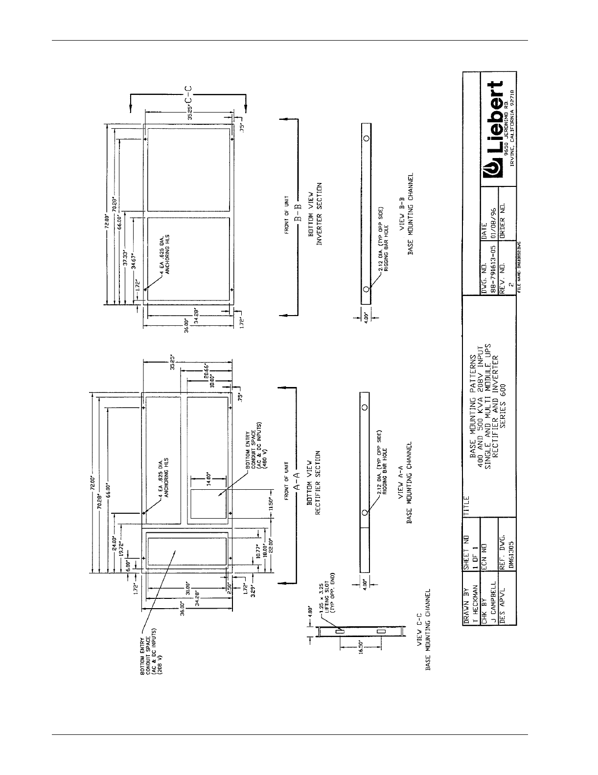
Figure 23 Base Mounting Details, 400 and 500 kVA, 208 VAC, Rectifier and Inverter Sections

40 Wiring Inspection
Figure 24 Base Mounting Details, 400 and 500 kVA, 208 VAC, Control and Output Sections

Wiring Inspection 41
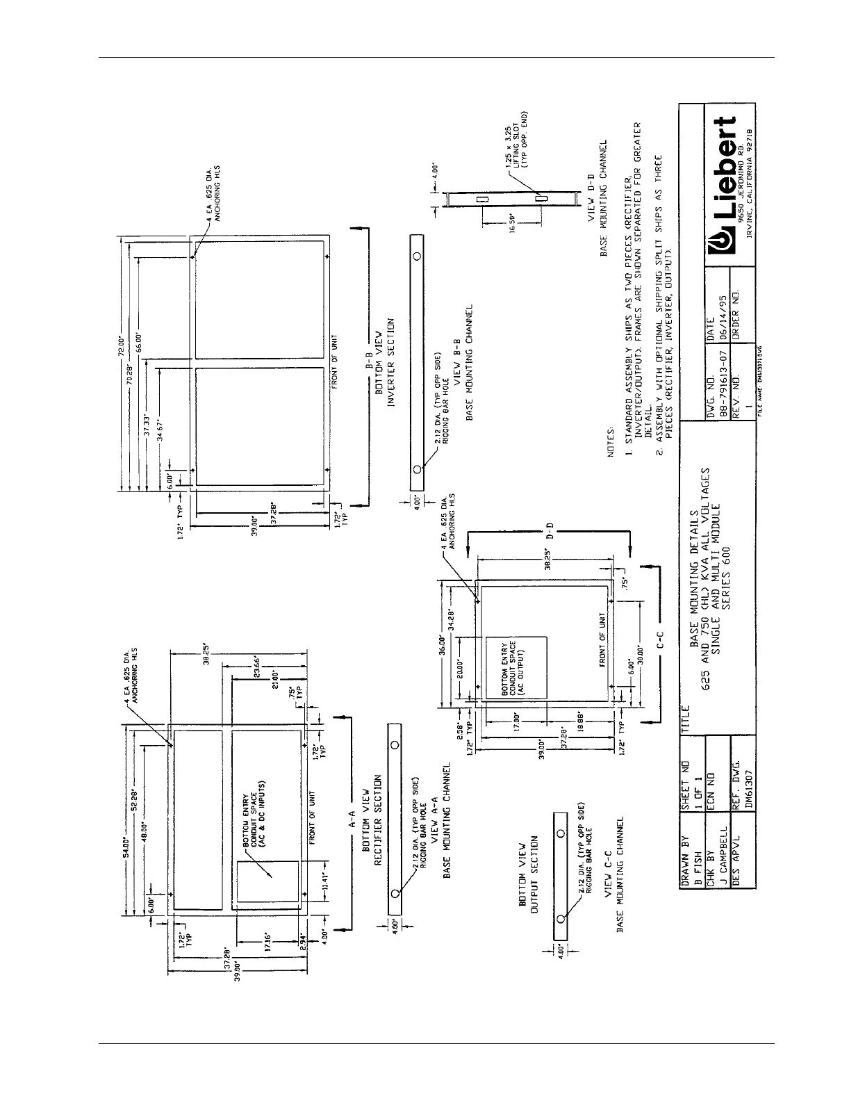
Figure 25 Base Mounting Details, 625 kVA and 750 kVA (High Link - 240 Cells)

42 Wiring Inspection
Figure 26 Base Mounting Details, 750 kVA (Low Link - 180 Cells) and 1000 kVA, Rectifier and Inverter
Sections

Wiring Inspection 43
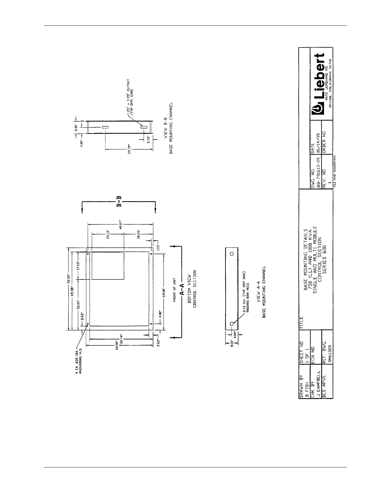
Figure 27 Base Mounting Details, 750 kVA (Low Link - 180 Cells) and 1000 kVA, Control Section

44 Wiring Inspection
Figure 28 Base Mounting Patterns, System Control Cabinets (SCCB) 640 to 3000 Amps

Wiring Inspection 45
Figure 29 Base Mounting Patterns, System Control Cabinets (SCCB) 4000 Amps

46 Wiring Inspection
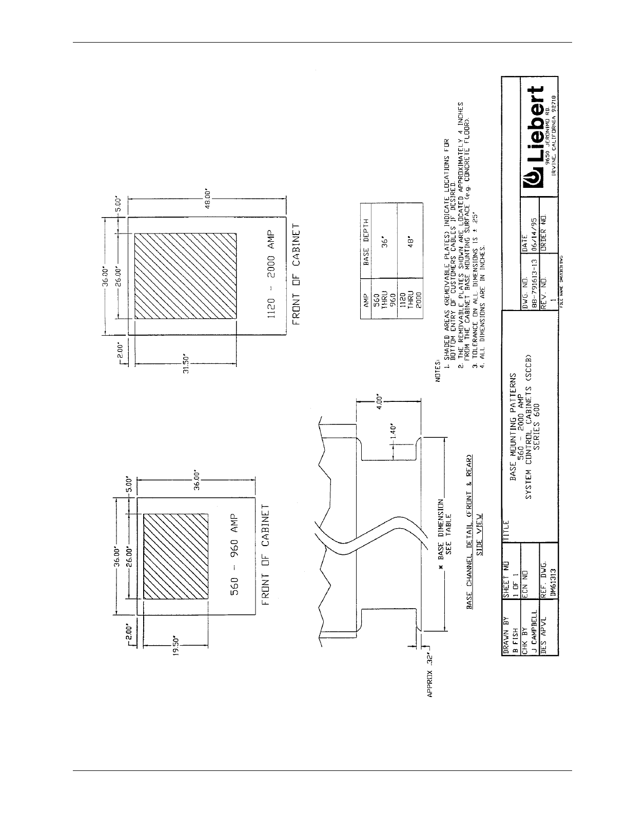
Figure 30 Base Mounting Patterns, System Control Cabinets (SCCP) 200 to 480 Amps

Wiring Inspection 47
Figure 31 Base Mounting Patterns, System Control Cabinets (SCCP) 560 to 2000 Amps

48 Wiring Inspection
Figure 32 Base Mounting Patterns, System Control Cabinets (SCCA) 1600 to 4000 Amps

Wiring Inspection 49
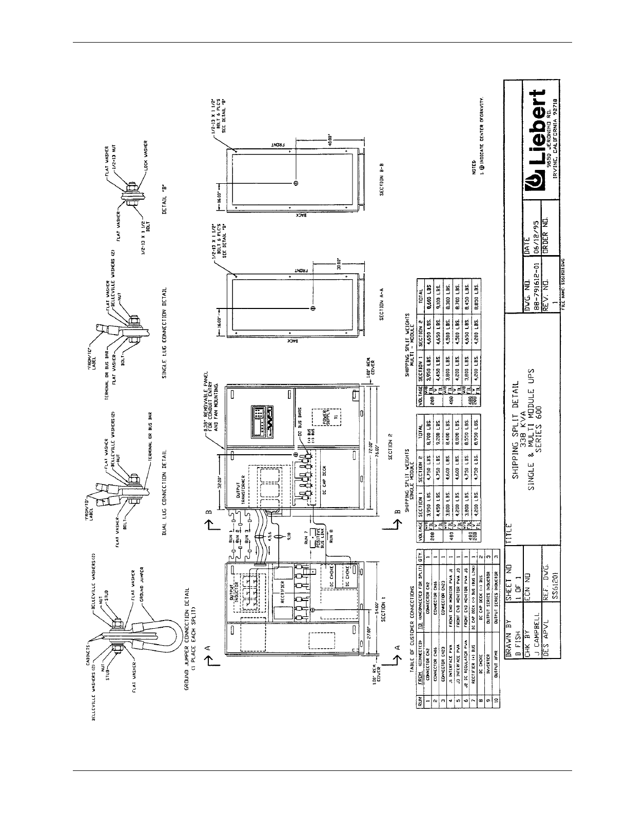
Figure 33 Shipping Split Detail, 338 kVA

50 Wiring Inspection
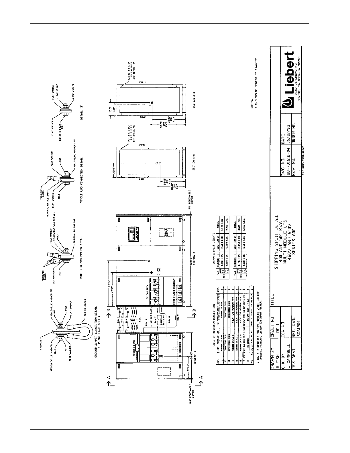
Figure 34 Shipping Split Detail, 400 and 500 kVA

Wiring Inspection 51
Figure 35 Shipping Split Detail, 400 and 500 kVA, 208 VAC

52 Wiring Inspection
Figure 36 Shipping Split Detail, 625 kVA

Wiring Inspection 53
Figure 37 Shipping Split Detail, 750 kVA (High Link - 240 Cells)

54 Wiring Inspection
Figure 38 Shipping Split Detail, 750 kVA (Low Link - 180 Cells) and 1000 kVA

Wiring Inspection 55
Figure 39 Optional Shipping Split Detail, 400 to 625 kVA

56 Wiring Inspection
Figure 40 Optional Shipping Split Detail, 750 kVA

Wiring Inspection 57
Figure 41 Optional Shipping Split Detail, System Control Cabinet (SCCA) 4000 Amps

58 Wiring Inspection
Figure 42 Bussing Details, 338 kVA

Wiring Inspection 59
Figure 43 Bussing Details, 400 kVA

60 Wiring Inspection
Figure 44 Bussing Details, 500 kVA

Wiring Inspection 61
Figure 45 Bussing Details, 500 kVA, 208 VAC

62 Wiring Inspection
Figure 46 Bussing Details, 625 kVA

Wiring Inspection 63
Figure 47 Bussing Details, 750 kVA (High Link - 240 Cells)

64 Wiring Inspection
Figure 48 Bussing Details, 750 kVA (Low Link - 180 Cells)

Wiring Inspection 65
Figure 49 Bussing Details, 1000 kVA

66 Wiring Inspection
Figure 50 Module One-Line Diagram, 338 kVA

Wiring Inspection 67
Figure 51 Module One-Line Diagram, 400 kVA

68 Wiring Inspection
Figure 52 Module One-Line Diagram, 500 kVA

Wiring Inspection 69
Figure 53 Module One-Line Diagram, 500 kVA, 208 VAC

70 Wiring Inspection
Figure 54 Module One-Line Diagram, 625 kVA

Wiring Inspection 71
Figure 55 Module One-Line Diagram, 750 kVA (High Link - 240 Cells)

72 Wiring Inspection
Figure 56 Module One-Line Diagram, 750 kVA (Low Link - 180 Cells)

Wiring Inspection 73
Figure 57 Module One-Line Diagram, 1000 kVA

74 Wiring Inspection
Figure 58 One-Line Diagram, System Control Cabinet (SCCA)

Wiring Inspection 75
Figure 59 System One-Line Diagram, Three Modules with Two Breaker Maintenance Bypass

76 Wiring Inspection
Figure 60 System One-Line Diagram, Three Modules with Three Breaker Maintenance Bypass

Wiring Inspection 77
Figure 61 Control Wiring Interconnect Diagram

78 Wiring Inspection
Figure 62 Control Wiring Interconnect Diagram, SCCA and Switchgear

Wiring Inspection 79
Figure 63 Control Connection Location Diagram, Module

80 Wiring Inspection
Figure 64 Control Connection Location Diagram, System Control Cabinet

Wiring Inspection 81
Figure 65 Video Display Terminal Wiring

82 Wiring Inspection
Figure 66 Battery Circuit Breaker

Wiring Inspection 83
Figure 67 Parallel Battery Configurations

84 Wiring Inspection
Figure 68 Remote Status Panel

Appendix A - Series 600 UPS Site Planning Data 85
10.0 APPENDIX A - SERIES 600 UPS SITE PLANNING DATA
338-1000 kVA Multi-Module Units
10.1 Notes
ìï 1RPLQDOýUHFWLILHUý$&ýLQSXWýFXUUHQWýõFRQVLGHUHGýFRQWLQXRXVôýLVýEDVHGýRQýIXOOýUDWHGýRXWSXWýORDGïý
0D[LPXPýFXUUHQWýLQFOXGHVýQRPLQDOýLQSXWýFXUUHQWýDQGýPD[LPXPýEDWWHU\ýUHFKDUJHýFXUUHQWý
õFRQVLGHUHGýQRQFRQWLQXRXVôïý&RQWLQXRXVýDQGýQRQFRQWLQXRXVýFXUUHQWýOLPLWýDUHýGHILQHGýLQý1(&ý
ìííïý0D[LPXPýLQSXWýFXUUHQWýLVýFRQWUROOHGýE\ýFXUUHQWýOLPLWýVHWWLQJýZKLFKýLVýDGMXVWDEOHïý9DOXHVý
VKRZQýDUHýIRUýPD[LPXPýVHWWLQJýRIýìëèøïý6WDQGDUGýIDFWRU\ýVHWWLQJýLVýììèøï
ëï 1RPLQDOý$&ýRXWSXWýFXUUHQWýõFRQVLGHUHGýFRQWLQXRXVôýLVýEDVHGýRQýIXOOýUDWHGýRXWSXWýORDGïý
0D[LPXPýFXUUHQWýLQFOXGHVýQRPLQDOýRXWSXWýFXUUHQWýDQGýRYHUORDGýIRUýìíýPLQXWHVï
êï %\SDVVý$&ýLQSXWýFXUUHQWýõFRQVLGHUHGýFRQWLQXRXVôýLVýEDVHGýRQýIXOOýUDWHGýRXWSXWýORDGï
éï )HHGHUýSURWHFWLRQýõE\ýRWKHUVýLQýH[WHUQDOýHTXLSPHQWôýIRUýUHFWLILHUý$&ýLQSXWýDQGýE\SDVVý$&ý
LQSXWýLVýUHFRPPHQGHGýWRýEHýSURYLGHGýE\ýVHSDUDWHýRYHUFXUUHQWýSURWHFWLRQýGHYLFHVï
èï 836ýRXWSXWýORDGýFDEOHVýPXVWýEHýUXQýLQýVHSDUDWHýFRQGXLWýIURPýLQSXWýFDEOHVï
çï 3RZHUýFDEOHýIURPýPRGXOHý'&ýEXVýWRýEDWWHU\ýVKRXOGýEHýVL]HGýIRUýDýWRWDOýPD[LPXPýëïíýYROWýOLQHý
GURSýõPHDVXUHGýDWýWKHýPRGXOHôýDWýPD[LPXPýGLVFKDUJHýFXUUHQWï
æï *URXQGLQJýFRQGXFWRUVýWRýEHýVL]HGýSHUý1(&ýëèíðäèïý$ýQHXWUDOýFRQGXFWRUýLVýUHTXLUHGýIURPýHDFKý
008ýRXWSXWýWRýWKHý6&&ïý1HXWUDOýFRQGXFWRUVýWRýEHýVL]HGýIRUýIXOOýFDSDFLW\ýSHUý1(&ýêìíðìçñý
1RWHýìíýIRUýV\VWHPVýZLWKýéðZLUHýORDGVýDQGýKDOIýFDSDFLW\ýIRUýV\VWHPVýZLWKýêðZLUHýORDGVï
åï 5HFWLILHUý$&ý,QSXWãýêðSKDVHñýêðZLUHñýSOXVýJURXQGï
008ý2XWSXWýWRý6\VWHPý&RQWUROý&DELQHWãýêðSKDVHñýéðZLUHñýSOXVýJURXQGï
%\SDVVý$&ý,QSXWýDQGý$&ý2XWSXWýWRý/RDGãýêðSKDVHñýêýRUýéðZLUHñýSOXVýJURXQGï
0RGXOHý'&ý,QSXWýIURPý%DWWHU\ãýëðZLUHñýõSRVLWLYHýDQGýQHJDWLYHôï
äï $OOýZLULQJýLVýWRýEHýLQýDFFRUGDQFHýZLWKý1DWLRQDOýDQGý/RFDOý(OHFWULFDOý&RGHVï
ìíï 0LQLPXPýFOHDUDQFHýLVýëýIHHWýDERYHý836ï
ììï 7RSýRUýERWWRPýFDEOHýHQWU\ýWKURXJKýUHPRYDEOHýDFFHVVýSODWHVïý&XWýSODWHýWRýVXLWýFRQGXLWýVL]Hï
ìëï &RQWUROýZLULQJýDQGýSRZHUýFDEOHVýPXVWýEHýUXQýLQýVHSDUDWHýFRQGXLWVïý&RQWUROýZLULQJýPXVWýEHý
VWUDQGHGýFRQGXFWRUVï
ìêï 836ýPRGXOHýZLOOýEHýVKLSSHGýLQýVHFWLRQVïý5HFRQQHFWýVKLSSLQJýVSOLWVýDFFRUGLQJýWRýGUDZLQJVý
VXSSOLHGýZLWKýWKHýHTXLSPHQWï

86 Appendix A - Series 600 UPS Site Planning Data
Table 4 338-1000 kVA Multi-Module Unit, 480 Volt - Standard Module
UPS
Rating
* Rectifier
AC
Input
Current
Inverter
AC
Output
Current
Required
Battery
Discon-
nect
Rating
Maximum
Battery
Current
at End of
Discharge
%
Efficiency
at
Full Load
Maximum
Heat Dis-
sipation
BTU/hr.
Dimen-
sions
Inches
Approx.
Weight
Lb.
Floor
Loading
Lbs./
Sq.Ft.
kVA kW Nom Max Nom Max Amperes Amperes Full
Load (WxDxH) (Un-
packed)
(Distribu-
ted
Loading)
338 270 420 525 406 507 1000 993 92 80131 128x38x78 8300 246
400 320 504 630 481 601 1200 1170 92 94970 164x38x78 9900 229
400 360 560 700 481 601 1200 1316 92 106842 164x38x78 9900 229
500 400 630 788 601 752 1600 1463 92 118713 164x38x78 10600 245
500 450 700 875 601 752 1600 1646 92 133552 164x38x78 10600 245
625 500 778 973 752 940 2000 1828 92 148391 164x41x78 12300 263
750HL 600 934 1167 902 1128 1600 1644 92 178070 164x41x78 13925 298
750LL 600 934 1167 902 1128 2000 2194 92 178070 177x44x82 14600 270
1000 800 1217 1522 1203 1504 2500 2169 93 205514 177x44x82 16555 306
1000 900 1369 1712 1203 1504 2500 2440 93 231203 177x44x82 16555 306
Applicable
Notes: 1,4,5,7,8,
9,11,12 2,5,7,8,
9,11,12 66,8,9,
11,12 ——1313—
For explanation of notes, see referenced numbers in 10.1 - Notes
* Nominal Input Power Factor 0.85 lagging at full load; 9% Maximum Total Input Harmonic Current Distortion (THD) at full load.
HL - 750 kVA module with 240 battery cells
LL - 750 kVA module with 180 battery cells
Table 5 338-1000 kVA Multi-Module Unit, 480 Volt - Standard Module With Optional Low
Distortion Input Filter
UPS
Rating
* Rectifier
AC
Input
Current
Inverter
AC
Output
Current
Required
Battery
Discon-
nect
Rating
Maximum
Battery
Current
at End of
Discharge
%
Efficiency
at
Full Load
Maximum
Heat Dis-
sipation
BTU/hr.
Dimen-
sions
Inches
Approx.
Weight
Lb.
Floor
Loading
Lb./
Sq.Ft.
kVA kW Nom Max Nom Max Amperes Amperes Full
Load (WxDxH) (Un-
packed)
(Distribu-
ted
Loading)
338 270 380 474 406 507 1000 993 92 80131 128x38x78 8700 258
400 320 455 568 481 601 1200 1170 92 94970 164x38x78 10300 238
400 360 512 639 481 601 1200 1316 92 106842 164x38x78 10300 238
500 400 562 703 601 752 1600 1463 92 118713 164x38x78 11150 258
500 450 633 791 601 752 1600 1646 92 133552 164x38x78 11150 258
625 500 711 888 752 940 2000 1828 92 148391 164x41x78 12950 277
750HL 600 853 1066 902 1128 1600 1644 92 178070 164x41x78 14200 304
750LL 600 853 1066 902 1128 2000 2194 92 178070 177x44x82 15450 286
1000 800 1125 1406 1203 1504 2500 2169 93 205514 177x44x82 17400 322
1000 900 1265 1582 1203 1504 2500 2440 93 231203 177x44x82 17400 322
Applicable
Notes: 1,4,5,7,8,
9,11,12 2,5,7,8,
9,11,12 66,8,9,
11,12 ——1313—
For explanation of notes, see referenced numbers in 10.1 - Notes
* Nominal Input Power Factor 0.92 lagging at full load; 4% Maximum Total Input Harmonic Current Distortion (THD) at full load.
HL - 750 kVA module with 240 battery cells
LL - 750 kVA module with 180 battery cells

Appendix A - Series 600 UPS Site Planning Data 87
Table 6 338-500 kVA Multi-Module Unit, 208 Volt - Standard Module
UPS
Rating
* Rectifier
AC
Input
Current
Inverter
AC
Output
Current
Required
Battery
Discon-
nect
Rating
Maximum
Battery
Current
at End of
Discharge
%
Efficiency
at
Full Load
Maximum
Heat Dis-
sipation
BTU/hr.
Dimen-
sions
Inches
Approx.
Weight
Lb.
Floor
Loading
Lb./
Sq.Ft.
kVA kW Nom Max Nom Max Amperes Amperes Full
Load (WxDxH) (Un-
packed)
(Distribu-
ted
Loading)
338 270 980 1226 937 1171 1000 998 92 91138 128x38x78 8600 255
400 320 1170 1462 1110 1388 1200 1176 92 101457 218x38x78 10250 214
400 360 1300 1625 1110 1388 1200 1323 92 114140 218x38x78 10250 214
500 400 1462 1827 1388 1735 1600 1470 92 126822 218x38x78 10950 228
500 450 1625 2031 1388 1735 1600 1654 92 142675 218x38x78 10950 228
Applicable
Notes: 1,4,5,7,8,
9,11,12 2,5,7,8,
9,11,12 66,8,9,
11,12 ——1313—
For explanation of notes, see referenced numbers in 10.1 - Notes
* Nominal Input Power Factor 0.85 lagging at full load; 9% Maximum Total Input Harmonic Current Distortion (THD) at full load.
Table 7 338-500 kVA Multi-Module Unit, 208 Volt - Standard Module With Optional Low
Distortion Input Filter
UPS
Rating
* Rectifier
AC
Input
Current
Inverter
AC
Output
Current
Required
Battery
Discon-
nect
Rating
Maximum
Battery
Current
at End of
Discharge
%
Efficiency
at
Full Load
Maximum
Heat Dis-
sipation
BTU/hr.
Dimen-
sions
Inches
Approx.
Weight
Lb.
Floor
Loading
Lb./
Sq.Ft.
kVA kW Nom Max Nom Max Amperes Amperes Full
Load (WxDxH) (Un-
packed)
(Distribu-
ted
Loading)
338 270 895 1119 937 1171 1000 998 92 91138 128x38x78 9100 270
400 320 1055 1319 1110 1388 1200 1176 92 101457 218x38x78 10750 224
400 360 1187 1484 1110 1388 1200 1323 92 114140 218x38x78 10750 224
500 400 1333 1667 1388 1735 1600 1470 92 126822 218x38x78 11650 243
500 450 1500 1875 1388 1735 1600 1654 92 142675 218x38x78 11650 243
Applicable
Notes: 1,4,5,7,8,
9,11,12 2,5,7,8,
9,11,12 66,8,9,
11,12 ——1313—
For explanation of notes, see referenced numbers in 10.1 - Notes
* Nominal Input Power Factor 0.92 lagging at full load; 4% Maximum Total Input Harmonic Current Distortion (THD) at full load.

88 Appendix A - Series 600 UPS Site Planning Data
Table 8 338-1000 kVA Multi-Module Unit, 600 Volt - Standard Module
UPS
Rating
* Rectifier
AC
Input
Current
Inverter
AC
Output
Current
Required
Battery
Discon-
nect
Rating
Maximum
Battery
Current
at End of
Discharge
%
Efficiency
at
Full Load
Maximum
Heat Dis-
sipation
BTU/hr.
Dimen-
sions
Inches
Approx.
Weight
Lb.
Floor
Loading
Lb./
Sq.Ft.
kVA kW Nom Max Nom Max Amperes Amperes Full
Load (WxDxH) (Un-
packed)
(Distribu-
ted
Loading)
338 270 336 420 325 406 1000 993 92 80131 128x38x78 8300 246
400 320 403 504 385 481 1200 1170 92 94970 164x38x78 9900 229
400 360 448 560 385 481 1200 1316 92 106842 164x38x78 9900 229
500 400 504 630 481 601 1600 1463 92 118713 164x38x78 10600 245
500 450 567 709 481 601 1600 1646 92 133552 164x38x78 10600 245
625 500 630 788 601 752 2000 1828 92 148391 164x41x78 12300 263
750HL 600 747 934 722 902 1600 1644 92 178070 164x41x78 13925 298
750LL 600 747 934 722 902 2000 2194 92 178070 177x44x82 14600 270
1000 800 974 1217 962 1203 2500 2169 93 205514 177x44x82 16555 306
1000 900 1096 1369 962 1203 2500 2440 93 231203 177x44x82 16555 306
Applicable
Notes: 1,4,5,7,8,
9,11,12 2,5,7,8,
9,11,12 66,8,9,
11,12 ——1313—
For explanation of notes, see referenced numbers in 10.1 - Notes
* Nominal Input Power Factor 0.85 lagging at full load; 9% Maximum Total Input Harmonic Current Distortion (THD) at full load.
HL - 750 kVA module with 240 battery cells
LL - 750 kVA module with 180 battery cells
Table 9 338-1000 kVA Multi-Module Unit, 600 Volt - Standard Module With Optional Low
Distortion Input Filter
UPS
Rating
* Rectifier
AC
Input
Current
Inverter
AC
Output
Current
Required
Battery
Discon-
nect
Rating
Maximum
Battery
Current
at End of
Discharge
%
Efficiency
at
Full Load
Maximum
Heat Dis-
sipation
BTU/hr.
Dimen-
sions
Inches
Approx.
Weight
Lb.
Floor
Loading
Lb./
Sq.Ft.
kVA kW Nom Max Nom Max Amperes Amperes Full
Load (WxDxH) (Un-
packed)
(Distribu-
ted
Loading)
338 270 307 384 325 406 1000 993 92 80131 128x38x78 8700 258
400 320 360 450 385 481 1200 1170 92 94970 164x38x78 10300 238
400 360 405 506 385 481 1200 1316 92 106842 164x38x78 10300 238
500 400 460 575 481 601 1600 1463 92 118713 164x38x78 11150 258
500 450 517 647 481 601 1600 1646 92 133552 164x38x78 11150 258
625 500 575 718 601 752 2000 1828 92 148391 164x41x78 12950 277
750HL 600 682 853 722 902 1600 1644 92 178070 164x41x78 14200 304
750LL 600 682 853 722 902 2000 2194 92 178070 177x44x82 15450 286
1000 800 890 1113 962 1203 2500 2169 93 205514 177x44x82 17400 322
1000 900 1012 1265 962 1203 2500 2440 93 231203 177x44x82 17400 322
Applicable
Notes: 1,4,5,7,8,
9,11,12 2,5,7,8,
9,11,12 66,8,9,
11,12 ——1313—
For explanation of notes, see referenced numbers in 10.1 - Notes
* Nominal Input Power Factor 0.92 lagging at full load; 4% Maximum Total Input Harmonic Current Distortion (THD) at full load.
HL - 750 kVA module with 240 battery cells
LL - 750 kVA module with 180 battery cells

5HYLVHGãý-XO\ýìääç
Series 600™ UPS
Multi-Module Three Phase
338 kVA to 1000 kVA; 60 Hz
Technical Support
The Company Behind The Products
:LWKýPRUHýWKDQýèííñíííýLQVWDOODWLRQVýDURXQGýWKHýJOREHñý/LHEHUWýLVýWKHýZRUOGýOHDGHUýLQýFRPSXWHUý
SURWHFWLRQýV\VWHPVïýý6LQFHýLWVýIRXQGLQJýLQýìäçèñý/LHEHUWýKDVýGHYHORSHGýDýFRPSOHWHýUDQJHýRIýVXSSRUWý
DQGýSURWHFWLRQýV\VWHPVýIRUýVHQVLWLYHýHOHFWURQLFVã
‡ (QYLURQPHQWDOýV\VWHPVãýFORVHðFRQWUROýDLUýFRQGLWLRQLQJýIURPýìïèýWRýçíýWRQVï
‡ 3RZHUýFRQGLWLRQLQJýDQGý836ýZLWKýSRZHUýUDQJHVýIURPýëèíý9$ýWRýPRUHýWKDQýìíííýN9$ï
‡ ,QWHJUDWHGýV\VWHPVýWKDWýSURYLGHýERWKýHQYLURQPHQWDOýDQGýSRZHUýSURWHFWLRQýLQýDýVLQJOHñýIOH[LEOHý
SDFNDJHï
‡ 0RQLWRULQJýDQGýFRQWUROý¦ýRQðVLWHýRUýUHPRWHý¦ýIURPýV\VWHPVýRIýDQ\ýVL]HýRUýORFDWLRQ
6HUYLFHýDQGýVXSSRUWñýWKURXJKýPRUHýWKDQýìííýVHUYLFHýFHQWHUVýDURXQGýWKHýZRUOGñýDQGýDýëéðKRXU
&XVWRPHUý5HVSRQVHý&HQWHUï
:KLOHýHYHU\ýSUHFDXWLRQýKDVýEHHQýWDNHQýWRýHQVXUHýDFFXUDF\ýDQGýFRPSOHWHQHVVýRIýWKLVýOLWHUDWXUHñý
/LHEHUWý&RUSRUDWLRQýDVVXPHVýQRýUHVSRQVLELOLW\ñýDQGýGLVFODLPVýDOOýOLDELOLW\ýIRUýGDPDJHVýUHVXOWLQJý
IURPýXVHýRIýWKLVýLQIRUPDWLRQýRUýIRUýDQ\ýHUURUVýRUýRPLVVLRQVïý
‹ýìääåý/LHEHUWý&RUSRUDWLRQïý$OOýULJKWVýUHVHUYHGýWKURXJKRXWýWKHýZRUOGïýý6SHFLILFDWLRQVýVXEMHFWýWRý
FKDQJHýZLWKRXWýQRWLFHïý
Šý/LHEHUWýDQGýWKHý/LHEHUWýORJRýDUHýUHJLVWHUHGýWUDGHPDUNVýRIý/LHEHUWý&RUSRUDWLRQïýý$OOýQDPHVý
UHIHUUHGýWRýDUHýWUDGHPDUNVýRUýUHJLVWHUHGýWUDGHPDUNVýRIýWKHLUýUHVSHFWLYHýRZQHUVïý
3ULQWHGýLQý8ï6ï$ïý
6/ðëééäè
U.S.A. 1-800-222-5877
Outside the U.S.A. 614-841-6755
U.K. +44 (0) 1793 553355
France +33 1 4 87 51 52
Germany +49 89 99 19 220
Italy +39 2 98250 1
Netherlands +00 31 475 503333
E-mail upstech@liebert.com
Web site http://www.liebert.com
Worldwide FAX
tech support 614-841-5471