Life Fitness Lifefitness X1 Consumer Cross Trainer Xx00 0203 Users Manual CT9500 CT95 0100 17
Life%20Fitness-%20PM%20CT%20X1-%20303%20X1%20English
Life Fitness- PM CT X1- 303 X1 English Life Fitness- PM CT X1- 303 X1 English
X1-XX00-0203 to the manual a88793e6-033d-411d-ac12-720b31cfd237
2015-01-21
: Life-Fitness Life-Fitness-Lifefitness-X1-Consumer-Cross-Trainer-X1-Xx00-0203-Users-Manual-353670 life-fitness-lifefitness-x1-consumer-cross-trainer-x1-xx00-0203-users-manual-353670 life-fitness pdf
Open the PDF directly: View PDF
.
Page Count: 12

1
X1 Consumer Cross Trainer
Customer Support Services
PARTS MANUAL
01 Sept. 2010

2
X1 Consumer Cross Trainer X1-XX00-0203
Contents S/N
CONSOLES AND TRANSFORMERS ……... …….………Page 3
UPRIGHT & RELATED COMPONENTS ………………….Page 4
USER ARM ASSEMBLIES & COMPONENTS……………Page 5
PEDAL LEVER ASSEMBLIES & COMPONENTS......…...Page 6
MAIN SHROUDS & CRANK COVERS …….……………..Page 7
IDLER & COUPLER ASSEMBLIES ……………………….Page 8
CRANK RELATED COMPONENTS……………………….Page 9
BRAKE AND TENSIONER COMPONENTS……………...Page 10
STABILIZER COMPONENTS AND GROMMETS………..Page 11
MOTOR, REED SWITCH AND CABLES……………….…Page 12
Operation Manual – 8591801
Hardware Bag -- 8586101

3
X1 Consumer Cross Trainer X1-XX00-0203
Consoles and Transformers S/N
Console part numbers:
BAS-000X-0203 BASIC BIKE/CT CONSOLE ENG
BAS-020X-0103
BAS-020X-0203 BASIC BIKE/CT CONSOLE GER/MET
ADV-000X-0203 ADV BIKE/CT CONSOLE ENG
ADV-020X-0103
ADV-020X-0203 ADV BIKE/CT CONSOLE GER/MET
8071301 100-240V, 1.5A DOM TRANSFORMER
8071401 230/50-9VDC, 1.5A CONT. TRANSFORMER
8071501 230/50-9VDC, 1.5A UK TRANSFORMER
8071601 240/50-9VDC, 1.5A AUST TRANSFORMER

4
X1 Consumer Cross Trainer X1-XX00-0203
Upright & related components S/N
REX2MX0
ACCESSORY TRAY
OVERLAY
REX2G72
ACCESSORY TRAY
REX2S1K
CONSOLE MAST
COVER
REX2S4K
UPRIGHT
GROMMET
REX21NN
NUT INSERT
REX2RL4
STATIONARY
GRIPS
REX2D1X
GROUND SCREW
REX0JAF
EXT. TOOTH LOCK WASHER
REX2H89
GROUND WIRE (NOT SHOWN)
REX2TCE
CONSOLE BRACKET
WELDMENT
REX2PHV
PHILLIPS SCREW (4)
FOR MOUNTING
CONSOLE
REX2P4Q
HEX BOLT (2)
REX0U7V
PHILLIPS SCREW (4)
REX2RKZ
UPRIGHT
WELDMENT
REX2PJ0
HEX BOLT (4)
REX2DVG
UPRIGHT
HEX BOLT
REX2S1L
UPRIGHT
JUNCTION
COVER
REX0KDJ
PHILLIPS SCREW (4)

5
X1 Consumer Cross Trainer X1-XX00-0203
User arm assemblies & components S/N
8586301
LEFT USER
ARM ASSY.
Assembly includes:
User arm weldment
Bearings
Grip
Grip cap and screws
REX2T9D
HEX NUT
REX2T9E
HEX BOLT
8586401
RIGHT USER
ARM ASSY.
Assembly includes:
User arm weldment
Bearings
Grip
Grip cap and screws
REX2RNQ
USER ARM
END CAP
REX2DVG
HEX BOLT
REX2MPQ
FLAT WASHER
REX2HLQ
GRIP CAP
REX0KD7
CAP SCREWS (2)
REX2RL3
USER ARM
GRIP
NOTE: SAME HARDWARE
IS USED ON BOTH
USER ARMS
REX0HVQ
BALL BEARING
(2 PER USER ARM)
REX0JEJ
RETAINING RING
REX22B3
FLAT WASHER
REX0JBD
WAVE WASHER

6
X1 Consumer Cross Trainer X1-XX00-0203
Pedal Lever Assemblies & components S/N
REX2T9D
HEX NUT
REX2BAD
SHAFT
REX2T9E
HEX BOLT
8586701
LEFT PEDAL LEVER
ASSEMBLY
Pedal Lever
Assemblies consist of:
Pedal Lever Weldment
Bearings
Rear Shaft
Front Axle
Washers
Retaining Rings
REX2S1P
LEFT PEDAL
REX2BKB SELF
ALIGNING BEARING
REX0JEE
RETAINING RING(SMALL)
REX0JE0
RETAINING RING(LARGE)
REX2T9W
PEDAL SCREWS
(6 PER PEDAL)
8586801
RIGHT PEDAL LEVER
ASSEMBLY
REX0JEG
C-RING
REX2LJZ
LINK AXLE
REX0HVP
BALL BEARING
(2 PER ASSY.)
REX0JB7
WAVE WASHER
REX2NDD
SPACER WASHER
REX0JEG
C-RING
NOTE: SAME HARDWARE
IS USED ON BOTH
PEDAL LEVER
ASSEMBLIES
REX2S1N
RIGHT PEDAL
REX294S
WASHER

7
X1 Consumer Cross Trainer X1-XX00-0203
Main Shrouds & Crank Covers S/N
REX2RP5
LEFT SHROUD
REX2RP4
RIGHT SHROUD
REX2T9X
SHROUD SCREWS
(6 PER SHROUD)
REX2ARH
LIFEFITNESS
LOGO LABEL
REX2LRT
CRANK PLATE
REX0K5T
CRANK PLATE
SCREWS(4)
REX2RSA
CRANK COVER
REX2T9G
CRANK COVER
SCREWS (4)

8
X1 Consumer Cross Trainer X1-XX00-0203
Idler and Coupler Assemblies S/N
8586901
LEFT COUPLER
ASSEMBLY
Coupler Assembies
consists of:
coupler weldment
bearings
link axle
washers
retaining ring
8587001
RIGHT COUPLER
ASSEMBLY
REX0HVP
BALL BEARING
(4 PER COUPLER)
REX0JEG
C-RING
REX2RNP
COUPLER END CAP
(2 PER COUPLER)
REX2MJK
HEX BOLT
REX0JEG
C-RING
REX2LJZ
LINK AXLE
REX0JB7
WAVE WASHER
REX2NDD
SPACER WASHER
REX0JEG
C-RING
8587101 RIGHT OR LEFT
IDLER ASSEMBLY
Idler Assembly consists of:
Idler Weldment
REX2BKA
REX0J4R
FLAT WASHER
REX2DVG
IDLER MTG. BOLT
BEARING
RETAINING RING REX0JDZ
REX0JB7
WAVE WASHER
REX2RNR
IDLER END CAP

9
X1 Consumer Cross Trainer X1-XX00-0203
Crank related components S/N
REX0JGQ
HEX KEY
(1 PER CRANK ARM)
REX2LL2
RIGHT OR LEFT
CRANK ARM
WELDMENT
REX218N
CRANK PULLEY
REX01H5
MAGNET
REX21NT
HEX BOLT (4)
REX2LL1
CRANK AXLE
WELDMENT
REX0J69
FLAT WASHER (4)
REX0KR3
LOCK NUT (4)
REX22RP
NYLOCK NUT
(1 PER CRANK ARM)
REX21NS
HEX BOLT
(1 PER CRANK ARM)
REX0JEJ
RETAINING RING(3)
one ring is on the users left
side of the crank axle weldment;
the other two are on
the users right side
REX0HVQ
FRAME BEARING (2)
REX2T9F
DRIVE BELT

10
X1 Consumer Cross Trainer X1-XX00-0203
Brake and Tensioner components S/N
REX0KR0
LOCK NUT (2)
REX21LF
BRAKE MTG.
BRACKET (2)
REX0J93
SPRING WASHER
REX20W4
HEX NUT
REX25ZJ
CAP SCREW (4)
REX21BJ
BRAKE ASSEMBLY
REX21LG
COLLAR SPACER (2)
REX22LR
C-RING
REX21NP
HEX BOLT (2)
REX0K2W
SHCS BRAKE
MTG. SCREW (3)
REX21A6
HOOK CLAMP
BOLT
REX21A7
SWIVEL STUD
REX0JEG
C-RING
REX0HVY
BEARING (2)
REX21X8
TENSIONER
SPACER 93)
REX21AA
TENSIONER
BRACKET
REX0KR5
NUT, NYLOCK

11
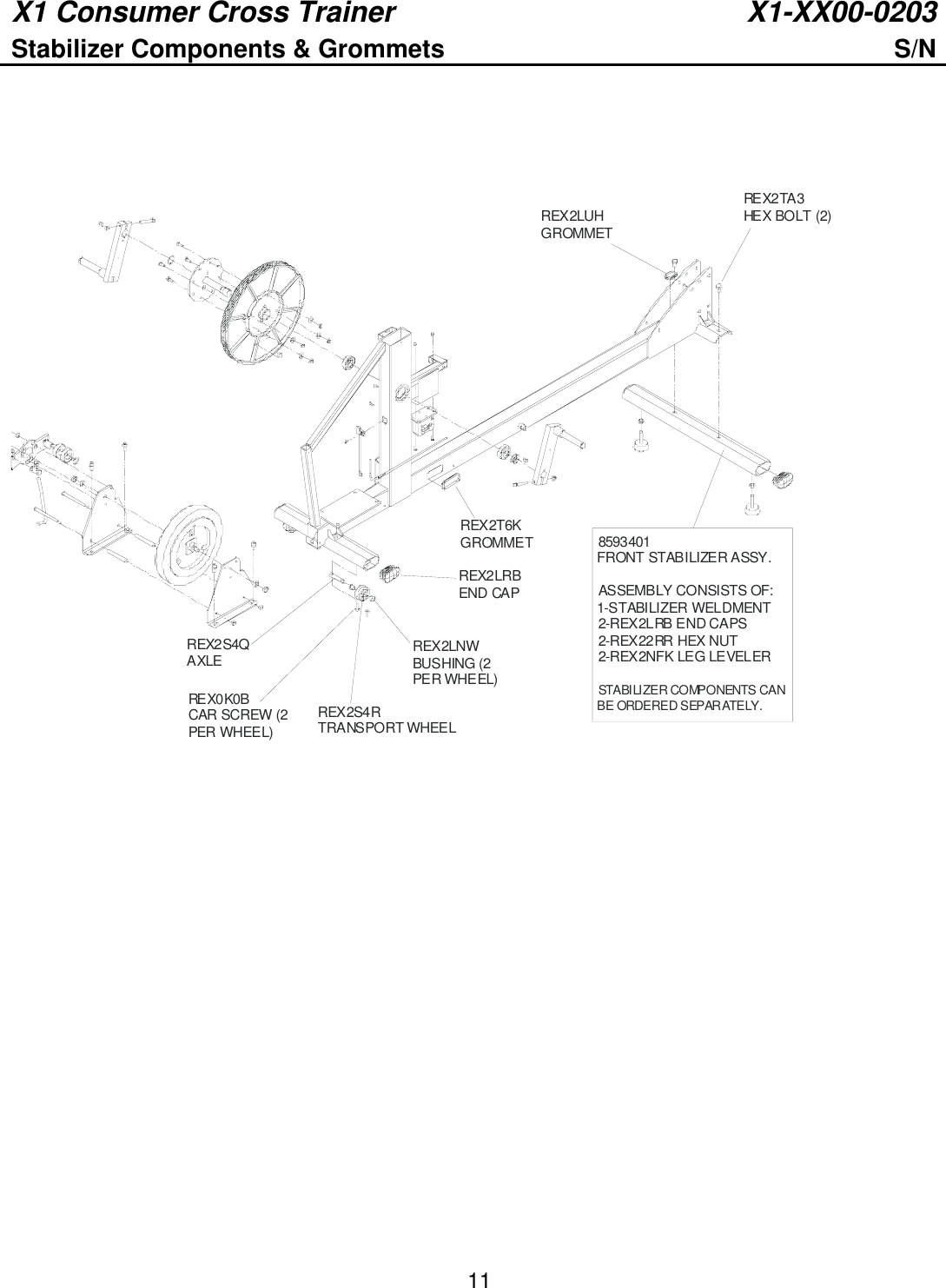
X1 Consumer Cross Trainer X1-XX00-0203
Stabilizer Components & Grommets S/N
REX0K0B
CAR SCREW (2
PER WHEEL)
REX2S4Q
AXLE
8593401
FRONT STABILIZERASSY.
ASSEMBLY CONSISTS OF:
1-STABILIZER WELDMENT
2-REX2LRB END CAPS
2-REX22RR HEX NUT
2-REX2NFK LEG LEVELER
STABILIZER COMPONENTS CAN
BE ORDERED SEPAR ATELY .
REX2S4R
TRANSPORTWHEEL
REX2LNW
BUSHING (2
PER WHEEL)
REX2LRB
END CAP
REX2T6K
GROMMET
REX2LUH
GROMMET
RE X2 TA 3
HE X BO LT (2)

12
X1 Consumer Cross Trainer X1-XX00-0203
Motor, Reed Switch & Cables S/N
REX0KMR
MOTOR MTG.
NUT (2)
REX01HL
RESISTANCE
MOTOR
REX0KEH
MOTOR MTG.
SCREW (2)
REX01J8
REED SWITCH
REX0K28
REED SWITCH
CAP SCREW
REX2JTW - Wire Harness, Upright
REX2GHY - Wire Harness, Base
REX2K86 - Wire Harness, Transformer to Base Harness
REX01QH – Brake cable (Mechanical)
REX2T9F – Drive Belt Poly-V