Lincoln Electric Idealarc Cv 250 Users Manual Im505
CV-250 to the manual 829c2592-3393-4396-8c34-bd7f10b9f221
2015-02-09
: Lincoln-Electric Lincoln-Electric-Idealarc-Cv-250-Users-Manual-574208 lincoln-electric-idealarc-cv-250-users-manual-574208 lincoln-electric pdf
Open the PDF directly: View PDF
.
Page Count: 42

IDEALARC CV-250
OPERATOR’S MANUAL
IM505
December, 1999
Safety Depends on You
Lincoln arc welding and cutting
equipment is designed and built
with safety in mind. However, your
overall safety can be increased by
proper installation ... and thought-
ful operation on your part. DO
NOT INSTALL, OPERATE OR
REPAIR THIS EQUIPMENT
WITHOUT READING THIS
MANUAL AND THE SAFETY
PRECAUTIONS CONTAINED
THROUGHOUT. And, most
importantly, think before you act
and be careful.
For use with machine Code Numbers 10013, 10014
®
• Sales and Service through Subsidiaries and Distributors Worldwide •
Cleveland, Ohio 44117-1199 U.S.A. TEL: 216.481.8100 FAX: 216.486.1751 WEB SITE: www.lincolnelectric.com
• World's Leader in Welding and Cutting Products •
Date of Purchase:
Serial Number:
Code Number:
Model:
Where Purchased:
RETURN TO MAIN MENU

FOR ENGINE
powered equipment.
1.a. Turn the engine off before troubleshooting and maintenance
work unless the maintenance work requires it to be running.
____________________________________________________
1.b.Operate engines in open, well-ventilated
areas or vent the engine exhaust fumes
outdoors.
____________________________________________________
1.c. Do not add the fuel near an open flame
welding arc or when the engine is running.
Stop the engine and allow it to cool before
refueling to prevent spilled fuel from vaporiz-
ing on contact with hot engine parts and
igniting. Do not spill fuel when filling tank. If
fuel is spilled, wipe it up and do not start
engine until fumes have been eliminated.
____________________________________________________
1.d. Keep all equipment safety guards, covers and devices in
position and in good repair.Keep hands, hair, clothing and
tools away from V-belts, gears, fans and all other moving
parts when starting, operating or repairing equipment.
____________________________________________________
1.e. In some cases it may be necessary to remove safety
guards to perform required maintenance. Remove
guards only when necessary and replace them when the
maintenance requiring their removal is complete.
Always use the greatest care when working near moving
parts.
___________________________________________________
1.f. Do not put your hands near the engine fan.
Do not attempt to override the governor or
idler by pushing on the throttle control rods
while the engine is running.
___________________________________________________
1.g. To prevent accidentally starting gasoline engines while
turning the engine or welding generator during maintenance
work, disconnect the spark plug wires, distributor cap or
magneto wire as appropriate.
i
SAFETY
i
ARC WELDING CAN BE HAZARDOUS. PROTECT YOURSELF AND OTHERS FROM POSSIBLE SERIOUS INJURY OR DEATH.
KEEP CHILDREN AWAY. PACEMAKER WEARERS SHOULD CONSULT WITH THEIR DOCTOR BEFORE OPERATING.
Read and understand the following safety highlights. For additional safety information, it is strongly recommended that you
purchase a copy of “Safety in Welding & Cutting - ANSI Standard Z49.1” from the American Welding Society, P.O. Box
351040, Miami, Florida 33135 or CSA Standard W117.2-1974. A Free copy of “Arc Welding Safety” booklet E205 is available
from the Lincoln Electric Company, 22801 St. Clair Avenue, Cleveland, Ohio 44117-1199.
BE SURE THAT ALL INSTALLATION, OPERATION, MAINTENANCE AND REPAIR PROCEDURES ARE
PERFORMED ONLY BY QUALIFIED INDIVIDUALS.
WARNING
Mar ‘95
ELECTRIC AND
MAGNETIC FIELDS
may be dangerous
2.a. Electric current flowing through any conductor causes
localized Electric and Magnetic Fields (EMF). Welding
current creates EMF fields around welding cables and
welding machines
2.b. EMF fields may interfere with some pacemakers, and
welders having a pacemaker should consult their physician
before welding.
2.c. Exposure to EMF fields in welding may have other health
effects which are now not known.
2.d. All welders should use the following procedures in order to
minimize exposure to EMF fields from the welding circuit:
2.d.1.
Route the electrode and work cables together - Secure
them with tape when possible.
2.d.2. Never coil the electrode lead around your body.
2.d.3. Do not place your body between the electrode and
work cables. If the electrode cable is on your right
side, the work cable should also be on your right side.
2.d.4. Connect the work cable to the workpiece as close as
possible to the area being welded.
2.d.5. Do not work next to welding power source.
1.h. To avoid scalding, do not remove the
radiator pressure cap when the engine is
hot.
CALIFORNIA PROPOSITION 65 WARNINGS
Diesel engine exhaust and some of its constituents
are known to the State of California to cause can-
cer, birth defects, and other reproductive harm.
The engine exhaust from this product contains
chemicals known to the State of California to cause
cancer, birth defects, or other reproductive harm.
The Above For Diesel Engines The Above For Gasoline Engines

ii
SAFETY
ii
ARC RAYS can burn.
4.a. Use a shield with the proper filter and cover
plates to protect your eyes from sparks and
the rays of the arc when welding or observing
open arc welding. Headshield and filter lens
should conform to ANSI Z87. I standards.
4.b. Use suitable clothing made from durable flame-resistant
material to protect your skin and that of your helpers from
the arc rays.
4.c. Protect other nearby personnel with suitable, non-flammable
screening and/or warn them not to watch the arc nor expose
themselves to the arc rays or to hot spatter or metal.
ELECTRIC SHOCK can
kill.
3.a. The electrode and work (or ground) circuits
are electrically “hot” when the welder is on.
Do not touch these “hot” parts with your bare
skin or wet clothing. Wear dry, hole-free
gloves to insulate hands.
3.b. Insulate yourself from work and ground using dry insulation.
Make certain the insulation is large enough to cover your full
area of physical contact with work and ground.
In addition to the normal safety precautions, if welding
must be performed under electrically hazardous
conditions (in damp locations or while wearing wet
clothing; on metal structures such as floors, gratings or
scaffolds; when in cramped positions such as sitting,
kneeling or lying, if there is a high risk of unavoidable or
accidental contact with the workpiece or ground) use
the following equipment:
• Semiautomatic DC Constant Voltage (Wire) Welder.
• DC Manual (Stick) Welder.
• AC Welder with Reduced Voltage Control.
3.c. In semiautomatic or automatic wire welding, the electrode,
electrode reel, welding head, nozzle or semiautomatic
welding gun are also electrically “hot”.
3.d. Always be sure the work cable makes a good electrical
connection with the metal being welded. The connection
should be as close as possible to the area being welded.
3.e. Ground the work or metal to be welded to a good electrical
(earth) ground.
3.f.
Maintain the electrode holder, work clamp, welding cable and
welding machine in good, safe operating condition. Replace
damaged insulation.
3.g. Never dip the electrode in water for cooling.
3.h. Never simultaneously touch electrically “hot” parts of
electrode holders connected to two welders because voltage
between the two can be the total of the open circuit voltage
of both welders.
3.i. When working above floor level, use a safety belt to protect
yourself from a fall should you get a shock.
3.j. Also see Items 6.c. and 8.
FUMES AND GASES
can be dangerous.
5.a. Welding may produce fumes and gases
hazardous to health. Avoid breathing these
fumes and gases.When welding, keep
your head out of the fume. Use enough
ventilation and/or exhaust at the arc to keep
fumes and gases away from the breathing zone. When
welding with electrodes which require special
ventilation such as stainless or hard facing (see
instructions on container or MSDS) or on lead or
cadmium plated steel and other metals or coatings
which produce highly toxic fumes, keep exposure as
low as possible and below Threshold Limit Values (TLV)
using local exhaust or mechanical ventilation. In
confined spaces or in some circumstances, outdoors, a
respirator may be required. Additional precautions are
also required when welding on galvanized steel.
5.b.
Do not weld in locations near chlorinated hydrocarbon
vapors
coming from degreasing, cleaning or spraying operations.
The heat and rays of the arc can react with solvent vapors
to
form phosgene, a highly toxic gas, and other irritating
products.
5.c. Shielding gases used for arc welding can displace air and
cause injury or death. Always use enough ventilation,
especially in confined areas, to insure breathing air is safe.
5.d. Read and understand the manufacturer’s instructions for this
equipment and the consumables to be used, including the
material safety data sheet (MSDS) and follow your
employer’s safety practices. MSDS forms are available from
your welding distributor or from the manufacturer.
5.e. Also see item 1.b. Mar ‘95

FOR ELECTRICALLY
powered equipment.
8.a. Turn off input power using the disconnect
switch at the fuse box before working on
the equipment.
8.b. Install equipment in accordance with the U.S. National
Electrical Code, all local codes and the manufacturer’s
recommendations.
8.c. Ground the equipment in accordance with the U.S. National
Electrical Code and the manufacturer’s recommendations.
CYLINDER may explode
if damaged.
7.a. Use only compressed gas cylinders
containing the correct shielding gas for the
process used and properly operating
regulators designed for the gas and
pressure used. All hoses, fittings, etc. should be suitable for
the application and maintained in good condition.
7.b. Always keep cylinders in an upright position securely
chained to an undercarriage or fixed support.
7.c. Cylinders should be located:
• Away from areas where they may be struck or subjected to
physical damage.
• A safe distance from arc welding or cutting operations and
any other source of heat, sparks, or flame.
7.d. Never allow the electrode, electrode holder or any other
electrically “hot” parts to touch a cylinder.
7.e. Keep your head and face away from the cylinder valve outlet
when opening the cylinder valve.
7.f. Valve protection caps should always be in place and hand
tight except when the cylinder is in use or connected for
use.
7.g. Read and follow the instructions on compressed gas
cylinders, associated equipment, and CGA publication P-l,
“Precautions for Safe Handling of Compressed Gases in
Cylinders,” available from the Compressed Gas Association
1235 Jefferson Davis Highway, Arlington, VA 22202.
iii
SAFETY
iii
Mar ‘95
WELDING SPARKS can
cause fire or explosion.
6.a.
Remove fire hazards from the welding area.
If this is not possible, cover them to prevent
the welding sparks from starting a fire.
Remember that welding sparks and hot
materials from welding can easily go through small cracks
and openings to adjacent areas. Avoid welding near
hydraulic lines. Have a fire extinguisher readily available.
6.b. Where compressed gases are to be used at the job site,
special precautions should be used to prevent hazardous
situations. Refer to “Safety in Welding and Cutting” (ANSI
Standard Z49.1) and the operating information for the
equipment being used.
6.c. When not welding, make certain no part of the electrode
circuit is touching the work or ground. Accidental contact
can cause overheating and create a fire hazard.
6.d. Do not heat, cut or weld tanks, drums or containers until the
proper steps have been taken to insure that such procedures
will not cause flammable or toxic vapors from substances
inside. They can cause an explosion even
though
they have
been “cleaned”. For information, purchase “Recommended
Safe Practices for the
Preparation
for Welding and Cutting of
Containers and Piping That Have Held Hazardous
Substances”, AWS F4.1 from the American Welding Society
(see address above).
6.e. Vent hollow castings or containers before heating, cutting or
welding. They may explode.
6.f.
Sparks and spatter are thrown from the welding arc. Wear oil
free protective garments such as leather gloves, heavy shirt,
cuffless trousers, high shoes and a cap over your hair. Wear
ear plugs when welding out of position or in confined places.
Always wear safety glasses with side shields when in a
welding area.
6.g. Connect the work cable to the work as close to the welding
area as practical. Work cables connected to the building
framework or other locations away from the welding area
increase the possibility of the welding current passing
through lifting chains, crane cables or other alternate cir-
cuits. This can create fire hazards or overheat lifting chains
or cables until they fail.
6.h. Also see item 1.c.

iv
SAFETY
iv
PRÉCAUTIONS DE SÛRETÉ
Pour votre propre protection lire et observer toutes les instruc-
tions et les précautions de sûreté specifiques qui parraissent
dans ce manuel aussi bien que les précautions de sûreté
générales suivantes:
Sûreté Pour Soudage A L’Arc
1. Protegez-vous contre la secousse électrique:
a. Les circuits à l’électrode et à la piéce sont sous tension
quand la machine à souder est en marche. Eviter toujours
tout contact entre les parties sous tension et la peau nue
ou les vétements mouillés. Porter des gants secs et sans
trous pour isoler les mains.
b. Faire trés attention de bien s’isoler de la masse quand on
soude dans des endroits humides, ou sur un plancher
metallique ou des grilles metalliques, principalement dans
les positions assis ou couché pour lesquelles une
grande partie du corps peut être en contact avec la
masse.
c. Maintenir le porte-électrode, la pince de masse, le câble
de soudage et la machine à souder en bon et sûr état
defonctionnement.
d.Ne jamais plonger le porte-électrode dans l’eau pour le
refroidir.
e. Ne jamais toucher simultanément les parties sous tension
des porte-électrodes connectés à deux machines à soud-
er parce que la tension entre les deux pinces peut être le
total de la tension à vide des deux machines.
f. Si on utilise la machine à souder comme une source de
courant pour soudage semi-automatique, ces precautions
pour le porte-électrode s’applicuent aussi au pistolet de
soudage.
2. Dans le cas de travail au dessus du niveau du sol, se pro-
téger contre les chutes dans le cas ou on recoit un choc. Ne
jamais enrouler le câble-électrode autour de n’importe quelle
partie du corps.
3. Un coup d’arc peut être plus sévère qu’un coup de soliel,
donc:
a. Utiliser un bon masque avec un verre filtrant approprié
ainsi qu’un verre blanc afin de se protéger les yeux du
rayonnement de l’arc et des projections quand on soude
ou quand on regarde l’arc.
b. Porter des vêtements convenables afin de protéger la
peau de soudeur et des aides contre le rayonnement de
l‘arc.
c. Protéger l’autre personnel travaillant à proximité au
soudage à l’aide d’écrans appropriés et non-inflamma-
bles.
4. Des gouttes de laitier en fusion sont émises de l’arc de
soudage. Se protéger avec des vêtements de protection
libres de l’huile, tels que les gants en cuir, chemise épaisse,
pantalons sans revers, et chaussures montantes.
5. Toujours porter des lunettes de sécurité dans la zone de
soudage. Utiliser des lunettes avec écrans lateraux dans les
zones où l’on pique le laitier.
6. Eloigner les matériaux inflammables ou les recouvrir afin de
prévenir tout risque d’incendie dû aux étincelles.
7. Quand on ne soude pas, poser la pince à une endroit isolé de
la masse. Un court-circuit accidental peut provoquer un
échauffement et un risque d’incendie.
8. S’assurer que la masse est connectée le plus prés possible
de la zone de travail qu’il est pratique de le faire. Si on place
la masse sur la charpente de la construction ou d’autres
endroits éloignés de la zone de travail, on augmente le risque
de voir passer le courant de soudage par les chaines de lev-
age, câbles de grue, ou autres circuits. Cela peut provoquer
des risques d’incendie ou d’echauffement des chaines et des
câbles jusqu’à ce qu’ils se rompent.
9. Assurer une ventilation suffisante dans la zone de soudage.
Ceci est particuliérement important pour le soudage de tôles
galvanisées plombées, ou cadmiées ou tout autre métal qui
produit des fumeés toxiques.
10. Ne pas souder en présence de vapeurs de chlore provenant
d’opérations de dégraissage, nettoyage ou pistolage. La
chaleur ou les rayons de l’arc peuvent réagir avec les
vapeurs du solvant pour produire du phosgéne (gas forte-
ment toxique) ou autres produits irritants.
11. Pour obtenir de plus amples renseignements sur la sûreté,
voir le code “Code for safety in welding and cutting” CSA
Standard W 117.2-1974.
PRÉCAUTIONS DE SÛRETÉ POUR
LES MACHINES À SOUDER À
TRANSFORMATEUR ET À
REDRESSEUR
1. Relier à la terre le chassis du poste conformement au code
de l’électricité et aux recommendations du fabricant. Le dis-
positif de montage ou la piece à souder doit être branché à
une bonne mise à la terre.
2. Autant que possible, I’installation et l’entretien du poste
seront effectués par un électricien qualifié.
3. Avant de faires des travaux à l’interieur de poste, la
debrancher à l’interrupteur à la boite de fusibles.
4. Garder tous les couvercles et dispositifs de sûreté à leur
Mar. ‘93

Thank You for selecting a QUALITY product by Lincoln Electric. We want you
to take pride in operating this Lincoln Electric Company product
••• as much pride as we have in bringing this product to you!
Read this Operators Manual completely before attempting to use this equipment. Save this manual and keep it
handy for quick reference. Pay particular attention to the safety instructions we have provided for your protection.
The level of seriousness to be applied to each is explained below:
WARNING
This statement appears where the information must be followed exactly to avoid serious personal injury or
loss of life.
This statement appears where the information must be followed to avoid minor personal injury or damage to
this equipment.
CAUTION
Please Examine Carton and Equipment For Damage Immediately
When this equipment is shipped, title passes to the purchaser upon receipt by the carrier. Consequently, Claims
for material damaged in shipment must be made by the purchaser against the transportation company at the
time the shipment is received.
Please record your equipment identification information below for future reference. This information can be
found on your machine nameplate.
Model Name & Number _____________________________________
Code & Serial Number _____________________________________
Date of Purchase _____________________________________
Whenever you request replacement parts for or information on this equipment always supply the information
you have recorded above.
vv

vi
TABLE OF CONTENTS
Page
Installation .......................................................................................................Section A
Technical Specifications ........................................................................................A-1
Select Suitable Location ........................................................................................A-2
Input Connections..................................................................................................A-2
Field Installed Options ...........................................................................................A-3
Required Equipment - Control Cable Connections................................................A-3
Output Connections...............................................................................................A-3
Paralleling .............................................................................................................A-4
Connection of Auxiliary Equipment to Wire Feeder Receptacle............................A-4
Operation .........................................................................................................Section B
Safety Precautions ................................................................................................B-1
General Description...............................................................................................B-2
Recommended Processes and Equipment ...........................................................B-2
Operational Features and Controls........................................................................B-2
Design Features ....................................................................................................B-2
Limitations..............................................................................................................B-2
Power Source Operation .......................................................................................B-2
Duty Cycle .............................................................................................................B-2
Controls and Settings ............................................................................................B-3
Graphic Symbols ...................................................................................................B-4
Output Panel Connections.....................................................................................B-5
Starting the Machine..............................................................................................B-6
Adjusting the Output Voltage using the Digital Meter ............................................B-6
Local/Remote Switch Operation ............................................................................B-6
Auxiliary Power......................................................................................................B-6
Overload Protection...............................................................................................B-6
Accessories.....................................................................................................Section C
Factory/Field Installed Options..............................................................................C-1
Compatible Lincoln Equipment..............................................................................C-1
Maintenance ....................................................................................................Section D
Safety Precautions ................................................................................................D-1
General Maintenance ............................................................................................D-1
Machine and Circuit Protection..............................................................................D-1
Troubleshooting..............................................................................................Section E
Safety Precautions.................................................................................................E-1
How to Use Troubleshooting Guide.......................................................................E-1
Built-in Diagnostic Routines and Error Codes -Troubleshooting Guide.................E-2
Machine -Troubleshooting Guide...........................................................................E-3
Options -Troubleshooting Guide............................................................................E-6
Procedure for Replacing PC Boards......................................................................E-7
Control and Meter PC Board Troubleshooting Procedures ...................................E-7
Output Voltage, Fault Protection, Snubber Circuit and K857 Remote Control Checks
....................E-8
Diagrams ..........................................................................................................Section F
Parts Manual....................................................................................................Appendix

A-1
CV-250
A-1 INSTALLATION
TECHNICAL SPECIFICATIONS – IDEALARC CV-250
Code
Number
10013
10014
Volts at Rated Amperes
30
32
30
Auxiliary Power
42 Volts AC, 10 Amps
115 Volts AC, 5 Amps
( Both Circuit Breaker Protected)
Idle Current - Amps
11/10/5
Input Current at
Rated Output
100% Duty Cycle 56/51/26
60% Duty Cycle 62/56/28
100% Duty Cycle 51/26/20
60% Duty Cycle 56/28/22
Amps
250
300
250
Normal Open Circuit Voltage
10-43
MAX OCV: 50
Input kVA
60% Load - 22.3
100% Load - 20.3
Power Factor at 100% Load
.53
Standard
Voltage
208/230/460/3/60
230/460/575/3/60
Duty Cycle
100% Duty Cycle
NEMA Class I (100)
60% Duty Cycle
100% Duty Cycle
Welding Current/Voltage Range
(Continuous)
30A/7V - 300A/32V
DC
Efficiency at 100% Load
72%
Idle Power
800W
INPUT - THREE PHASE ONLY
RATED OUTPUT
OUTPUT
MISC. INFORMATION
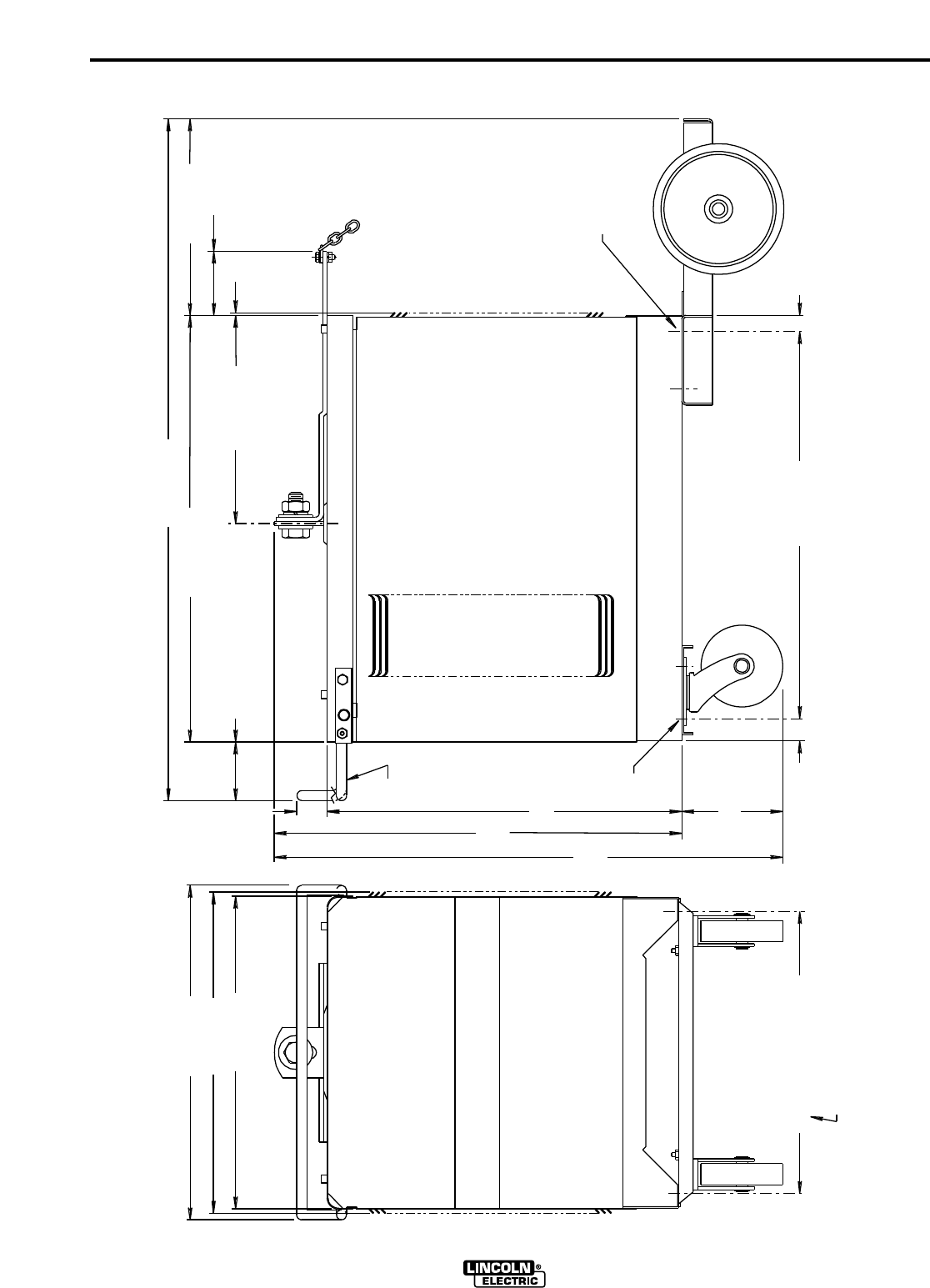
Height Width Depth Weight
21.5 in. 19.5 in. 27.0 in.
(Lift bail, add 3.12 in) 300 lbs
(137 kg)
546 mm 495 mm 686 mm
(Lift bail, add 80 mm)
PHYSICAL DIMENSIONS

A-2
INSTALLATION
CV-250
A-2
Read entire installation section before starting
installation.
SAFETY PRECAUTIONS
SELECT SUITABLE LOCATION
Place the welder where clean cooling air can freely
circulate in through the side louvers and out through
the rear louvers. Dirt, dust or any foreign material that
can be drawn into the welder should be kept at a
minimum. Failure to observe these precautions can
result in excessive operating temperatures and
nuisance shut-downs. Idealarc CV-250 power sources
carry an IP23 enclosure rating. They are rated for use
in damp, dirty environments subject to occasional
falling water such as rain.
STACKING
The CV-250 may be stacked three-high provided the
bottom machine is on a stable, hard, level surface. Be
sure that the two pins in the roof fit into the slots in the
base of the CV-250 above it.
TILTING
Do not place the machine on a surface that is inclined
enough to create a risk of the machine falling over.
INPUT CONNECTIONS
Be sure the voltage, phase, and frequency of the input
power is as specified on the welder nameplate.
Gain access to the input reconnect panel by removing
the right case side of the CV-250 (side nearest to the
Power switch.)
Have a qualified electrician connect the input leads to
L1, L2, and L3 of the input reconnect panel in accor-
dance with the National Electrical Code, all local
codes, and the connection diagram located on the
inside of the right case side. Use a three phase line.
The frame of the welder must be grounded. A ground
terminal marked with the symbol located on the
base of the machine is provided for this purpose. See
the National Electrical Code for details on proper
grounding methods.
Fuse the input circuit with the recommended super lag
fuses. Choose an input and grounding wire size
according to local codes or use the following table.
"Delay type"1circuit breakers may be used in place of
fuses. Using fuses or circuit breakers smaller than
recommended may result in "nuisance" tripping from
welder inrush currents even if not welding at high cur-
rents.
ELECTRIC SHOCK can kill.
•Only qualified personnel should
perform this installation.
• Turn the input power OFF at the discon-
nect switch or fuse box before working on
this equipment.
• Turn the Power switch on the CV-250
“OFF” before connecting or disconnect-
ing output cables, wire feeder or remote
connections, or other equipment.
• Do not touch electrically hot parts.
• Always connect the Idealarc CV-250
grounding terminal (located on the welder
base near the reconnect panel) to a good
electrical earth ground.
WARNING
RECOMMENDED INPUT WIRE AND FUSE SIZES
Input
Voltage /
Frequency
208/60
230/60
460/60
575/60
200/50/60
220/50/60
230/50/60
380/50/60
400/50/60
415/50/60
440/50/60
500/50/60
Input
Ampere
Rating on
Nameplate
56
51
26
20
59
54
52
31
30
29
27
24
Type 75°C
Copper
Ground Wire in
Conduit AWG
(IEC) Sizes
8 (10mm2)
8 (10mm2)
10 (6mm2)
10 (6mm2)
8 (10mm2)
8 (10mm2)
8 (10mm2)
10 (6mm2)
10 (6mm2)
10 (6mm2)
10 (6mm2)
10 (6mm2)
Fuse
(Super Lag)
or Breaker
Size
90
80
40
30
90
80
80
50
45
45
45
40
Type 75°C
Copper Wire in
Conduit AWG
(IEC) Sizes
6 (16mm2)
6 (16mm2)
10 (6mm2)
10 (6mm2)
4 (25 mm2)
6 (16mm2)
6 (16mm2)
8 (10mm2)
10 (6mm2)
10 (6mm2)
10 (6mm2)
10 (6mm2)
1Also called “inverse time” or “thermal/magnetic” circuit breakers; circuit
breakers which have a delay in tripping action that decreases as the magni-
tude of the current increases.

A-3
INSTALLATION
CV-250
A-3
FIELD INSTALLED OPTIONS
For installation of compatible field installed options
(see the ACCESSORIES section of this manual and
refer to the instructions included with those options.
REQUIRED EQUIPMENT-CONTROL
CABLE CONNECTIONS
Follow the instructions below which are appropriate
for the wire feeder that will be used.
LN-7 to CV-250
a) Turn the CV-250 Power switch to the "OFF" posi-
tion.
b) Connect the LN-7 control cable to the wire feeder
receptacle on the CV-250.
c) See OUTPUT CONNECTIONS for connection of
work and electrode cables.
LN-25 to CV-250
a) Turn the CV-250 Power switch to the "OFF" posi-
tion.
b) Plug a K484 jumper plug into the CV-250 wire
feeder receptacle.
c) See OUTPUT CONNECTIONS for connection of
work and electrode cables.
The output terminals are energized at all times when
the K484 is plugged in.
------------------------------------------------------------------------
LN-742 to CV-250
a) Turn the CV-250 Power switch to the "OFF" posi-
tion.
b) Connect the LN-742 control cable to the wire
feeder receptacle on the CV-250.
c) See OUTPUT CONNECTIONS for connection of
work and electrode cables.
Connection of Remote Control (K857)
NOTE: The K864 Remote Control Adapter is required
to install the K857.
Plug the K864 Remote Control Adapter into the power
source's 14-pin receptacle. Plug the K857 Remote
Control into the 6-pin receptacle of the K864 adapter.
If possible, tape the Remote cable to the heavy output
leads, so they can protect the smaller Remote cable
from damage and abuse.
OUTPUT CONNECTIONS
Output cables must have Magnum Twist-Mate™ plugs
for connection to the CV-250. Order K852-70 for con-
necting 1/0-2/0 (50-70 mm2) cables. Refer to S18737
for instructions on installing these plugs.
Use the shortest possible cable lengths. See Table
A.1 for recommended cable sizes based on length.
Connect the positive output lead to the terminal
marked "+". The negative output lead can be hooked
to either the low inductance terminal (marked "
") or the high inductance terminal (marked
" ").
WARNING
TABLE A.1
Cable Sizes for Combined Lengths of Copper
Electrode and Work Cable
Machine Size
Lengths up to
150 ft 150 to 200 ft
250 A 100%
(300 A 60%) 1/0 (50mm2) 2/0 (95mm2)

A-4
INSTALLATION
CV-250
A-4
PARALLELING
The CV-250 is not designed to be paralleled with any
other power source.
CONNECTION OF AUXILIARY EQUIPMENT
TO THE WIRE FEEDER RECEPTACLE
Occasionally, it may be necessary to make connection
to the circuits present in the 14-pin wire feeder recep-
tacle. These circuits, such as the auxiliary voltage,
contactor, and remote control circuits, may be
accessed with a K867 Universal Adapter. This
adapter plugs into the receptacle and provides the
user with short wire leads for connections. Refer to
the instructions provided with the K867, as well as the
wiring diagram for the CV-250 power source, for
details on making those connections. For your conve-
nience, wire feeder connection details are shown in
the DIAGRAM section.
NOTE: If you intend to use a standard Lincoln wire
feeder, order the appropriate input cable for
the specific feeder. It will make all of the con-
trol and power connections between the CV-
250 and the wire feeder WITHOUT the need
for a K867 Universal Adapter.

B-1
OPERATION
B-1
CV-250
ELECTRIC SHOCK
can kill.
• Do not touch electrically live parts
or electrode with skin or wet
clothing.
• Insulate yourself from work and
ground.
• Always wear dry insulating
gloves.
FUMES AND GASES
can be dangerous.
• Keep your head out of fumes.
• Use ventilation or exhaust to
remove fumes from breathing
zone.
WELDING SPARKS
can cause fire or
explosion
• Keep flammable material away.
• Do not weld on containers that
have held combustibles.
ARC RAYS
can burn.
• Wear eye, ear and body
protection.
OPERATING INSTRUCTIONS
Read and understand this entire section before oper-
ating the machine.
GENERAL WARNINGS
SAFETY PRECAUTIONS
Observe additional Safety Guidelines detailed
throughout of this manual.
WARNING

B-2
OPERATION
B-2
When using a CV-250 power source with wire feed-
ers, there will be a small spark if the electrode con-
tacts the work or ground within several seconds after
releasing the trigger.
When used with some wire feeders with the electrical
trigger interlock in the ON position, the arc might
restart if the electrode touches the work or ground
during these several seconds.
------------------------------------------------------------------------
GENERAL DESCRIPTION
The CV-250 is a constant voltage DC power source
designed for the GMAW process with limited FCAW
capability as well. It features an industrial rating of
250 amps, 30 volts, at 100% duty cycle. It complies
with the requirements for a NEMA Class I (100) power
source.
It is available from the factory in one model only, with
no options other than input voltage or frequency.
RECOMMENDED PROCESSES AND
EQUIPMENT
The CV-250 is capable of solid wire welding within the
rated output capacity of the machine. It is also capa-
ble of welding with the following flux-cored wires: NR-
152, NR-211, NS-3M, NR-203 Ni 1%, and
Outershield® 70 and 71.
The CV-250 is recommended for use with the LN-7,
LN-742 and LN-25 wire feeder models.
OPERATIONAL FEATURES AND
CONTROLS
• Two inductance positions: operator can choose the
optimum output characteristics.
• Solid State Output Contactor: no noise, no moving
parts to wear.
• Digital Voltmeter/Ammeter is standard.
• Power on/off switch.
• 42 VAC, 10 amp auxiliary power available for the
wire feeder.
• Circuit breaker protected.
• 115 VAC, 5 amp auxiliary power available for the
wire feeder; circuit breaker protected.
• Magnum Twist-Mate™ output receptacles.
• Single MS-type (14-pin) connection for wire feeder.
• Solid state controls, with line voltage compensation.
• Optional remote control capability.
DESIGN FEATURES
• "Clean" appearance and simple controls -- easy to
operate.
• Electronic and thermostatic protection from over-
loads.
• Submersion dipping of assembled transformer,
choke, and rectifier in special sealing/insulating
material gives extra protection against moisture and
corrosive atmospheres.
• Microprocessor based Control PC Board has built-in
diagnostic routines.
• Compact size, requires only 19" x 26" footprint.
• Modular construction for easy servicing.
• Recessed panels protect output studs and controls.
Large safety margins and protective circuits protect
rectifiers from transient voltages and high currents.
LIMITATIONS
The CV-250 is intended only for use with the following
FCAW electrodes: NR-152, NR-211, NR-203 Ni 1%,
NS-3M, Outershield 70 and 71. The machine has
been designed primarily for the GMAW process.
POWER SOURCE OPERATION
Be sure the CV-250 is properly installed, and that all
accessories are properly hooked up before attempting
operation.
DUTY CYCLE
250 Amps, 30 Volts at 100%
300 Amps, 32 Volts at 60%
Duty Cycle is based on operation for a 10 minute period.
CV-250
CAUTION

B-3
OPERATION
B-3
A. POWER SWITCH
- A two-position toggle switch.Controls the
input power to the CV-250.
B. VOLTAGE ADJUST
- Controls the CV-250 output voltage.
C. THERMAL PROTECTION INDICATION LIGHT
- Indicates that the protection thermostat has
activated. The digital meter will display "E10"
when this occurs. When the light turns off,
the machine will be capable of supplying
welding output power again.
NOTE: Leaving the power switch in the "ON" posi-
tion will result in the most rapid cooling.
D. VOLTS/AMPS SWITCH
- Selects either output current or arc voltage
to be displayed on the digital meter.
E. DIGITAL VOLTMETER/AMMETER
- Displays the CV-250 output current, or the
arc voltage.
NOTE: Due to voltage drops in the welding cables
and at cable connection points, the actual arc
voltage may be lower than that displayed on
the voltmeter. Use welding cables of the
proper capacity and make sure all connec-
tions are tight to minimize this effect.
F. 42 VOLT CIRCUIT BREAKER
-Protects the 42 volt 41-42 circuit in the wire
feeder receptacle from overloads and shorts.
If this circuit breaker opens, the CV-250 will
work normally. However, any equipment
powered by the 42 volt circuit will not work.
G. 115 VOLT CIRCUIT BREAKER
-Protects the 115 volt 31-32 circuit in the wire
feeder receptacle from overloads and shorts.
If this circuit breaker opens, the CV-250 will
work normally. However, any equipment
powered by the 115 volt circuit will not work.
H. LOCAL/REMOTE SWITCH
-Determines whether the welding voltage is
controlled at the CV-250, or controlled
remotely by a remote output control (such as
a K857).
CV-250
CONTROLS AND SETTINGS
All operator controls and adjustments are located on the case front of the CV-250. Refer to Figures B.1, and B.2
and corresponding explanations.
FIGURE B.1 - CONTROL PANEL
LOCAL +
-
REMOTE
HJ
A. POWER SWITCH F. 42 VOLT CIRCUIT BREAKER
B. VOLTAGE ADJUSTMENT G. 115 VOLT CIRCUIT BREAKER
C. THERMAL PROTECTION INDICATION LIGHT H. LOCAL / REMOTE SWITCH
D. VOLTS / AMPS SWITCH J. WIRE FEEDER VOLTMETER SWITCH
E. DIGITAL VOLTMETER / AMMETER

B-4
OPERATION
B-4
J. WIRE FEEDER VOLTMETER SWITCH
-This switch selects the polarity of the wire
feeder voltmeter, if so equipped. When weld-
ing electrode positive (MIG, Outershield and
some Innershield processes) set the switch
to "+".
-When welding electrode negative (most
Innershield electrodes) set the switch to "-".
-This switch has no effect on the welding
polarity. In fact, if the wire feeder being used
does not have a voltmeter, the setting of this
switch has no effect.
CV-250
GRAPHIC SYMBOLS THAT APPEAR ON
THIS MACHINE OR IN THIS MANUAL
OFF
ON
AC
POWER
REMOTE OUTPUT
VOLTAGE CONTROL
INDICATES WARNING INFORMATION
LOCATED ON RIGHT CASE SIDE
LOCAL OUTPUT
VOLTAGE CONTROL
CIRCUIT
BREAKER
THERMAL PROTEC-
TION INDICATOR
LIGHT
CLOCKWISE ROTA-
TION INCREASES
VOLTAGE
WARNING

B-5
OPERATION
B-5
CV-250
A., B., C. OUTPUT CONNECTORS
-Each connector is a Magnum Twist-Mate™,
receptacle. Insert a mating Twist-Mate™
plug, and twist clockwise to secure.
For GMAW processes, and most FCAW
processes, the positive output connection
goes to the wire feeder. One of the negative
output connections goes directly to the work.
A. POSITIVE OUTPUT CONNECTION.
B. LOW INDUCTANCE NEGATIVE CONNECTION.
-The low inductance connection is typically
used for short arc welding of mild steel, par-
ticularly on thin materials or when using CO2
shielding gas.
C. HIGH INDUCTANCE NEGATIVE OUTPUT CONNECTION.
-The high inductance connection is more suit-
able for short arc welding heavier weldments
or when using 75% Argon/25% CO2shield-
ing gas. This connection produces a softer
arc and a flatter bead with more wash-in than
the low inductance connection. A spray type
transfer is possible with either connection.
D. WIRE FEEDER RECEPTACLE
-14-pin MS style receptacle for wire feeder.
Provides connections for auxiliary power,
contactor closure, remote output control, wire
feeder voltmeter sense lead, and ground.
OUTPUT PANEL CONNECTIONS
FIGURE B.2 - OUTPUT PANEL
ABCD
A. POSITIVE OUTPUT CONNECTION C. HIGH INDUCTANCE NEG. CONNECTION
B. LOW INDUCTANCE NEG. CONNECTION D. WIRE FEEDER RECEPTACLE

B-6
OPERATION
B-6
STARTING THE MACHINE
The power switch at the extreme right side of the con-
trol panel energizes the CV-250.
ADJUSTING THE OUTPUT VOLTAGE
USING THE DIGITAL METER
The digital meters in the CV-250 incorporate a voltage pre-
set function. This allows the operator to set the desired
welding voltage before striking an arc. The digital meters
can also display welding current.
To make use of the voltage preset function, the Volts/Amps
switch must be in the "Volts" position. Turn the Voltage
Adjust knob until the digital meter displays the desired weld-
ing voltage. (See below if an external power source remote
control is installed.)
When an arc is struck, the digital meter displays the actual
welding voltage, as measured at the CV-250 output termi-
nals.
NOTE: The arc voltage at the electrode may be as much as
two volts different from the CV-250 output terminal
voltage. This is due to voltage drops present in the
welding cables, cable connections, and welding
gun. To minimize these drops, use cables of ade-
quate capacity, and make sure all connections are
clean and tight. Because of these voltage drops,
you may have to preset the CV-250 for a slightly
higher welding voltage than your procedure calls for.
To read welding current, set the Volts/Amps switch to the
"Amps" position. The welding current will be displayed
whenever an arc is struck.
LOCAL/REMOTE SWITCH OPERATION
If voltage control is desired at the CV-250, the Local/Remote
switch must be in the "Local" position. The Voltage Adjust
on the front panel can be used to adjust the CV-250 output.
(The remote control, even if connected, will have no effect if
the switch is in the "Local" position).
To use a remote control, such as the K857 (see INSTALLA-
TION section), place the Local/Remote switch (see Figure
B.1) in the "Remote" position. The remote control now con-
trols the output voltage, in the manner described above.
This control may be adjusted while welding to change the
CV-250 output.
AUXILIARY POWER
42 volt AC auxiliary power, as required for some wire
feeders, is available through the wire feeder recepta-
cle. A 10 amp circuit breaker protects the 42 volt cir-
cuit from overloads.
CV-250 machines can also supply 115 volt AC auxil-
iary power through the wire feeder receptacle. A 5
amp circuit breaker protects the 115 volt circuit from
overloads.
NOTE: Do not use circuits 2 or 4 for control of auxil-
iary loads. (The 2-4 circuit is isolated from the
31-32 and 41-42 circuits.)
Note that some types of equipment, especially pumps
and large motors, have starting currents which are
significantly higher than their running current. These
higher starting currents may cause the circuit breaker
to open. If this situation occurs, the user should refrain
from using the CV-250 auxiliary power for that equip-
ment.
___________________________________________
OVERLOAD PROTECTION
This welder has thermostatic protection from exces-
sive duty cycles, overloads, loss of cooling, and high
ambient temperatures. When the welder is subjected
to an overload or loss of cooling, a thermostat will
open. This condition will be indicated by the illumina-
tion of the yellow Thermostatic Protection Light on the
case front (see Figure B.1).The fan will continue to run
to cool the power source. No welding is possible until
the machine is allowed to cool and the Thermostatic
Protection Light goes out.
CV-250
CAUTION

C-1
ACCESSORIES
C-1
FACTORY INSTALLED
OPTIONS/ACCESSORIES
There are no factory installed options/accessories on
the CV-250.
FIELD INSTALLED OPTIONS
REMOTE VOLTAGE CONTROL (K857)
The K857 consists of a control box with 25 feet (7.6
m) of four conductor cable. Installation of a K857
Remote Voltage Control in the CV-250 requires a
K864 Remote Control Adapter. Refer to the instruc-
tions provided with the K857 for hookup to the CV-
250. When properly connected, and with the CV-250
Local-Remote Switch in the "Remote" position, the
K857 functions the same as the CV-250 Voltage
Adjust control, enabling minimum to maximum output
voltage adjustment of the CV-250.
UNDERCARRIAGE (K835)
Includes front casters, a handle, a bracket, and a rear
wheeled platform that is capable of carrying one gas
cylinder. The CV-250 lifting eye is not functional with
the K835 undercarriage installed.
TWO-CYLINDER UNDERCARRIAGE (K874)
Platform type undercarriage that can accommodate
either one or two gas bottles, or one gas bottle and a
Magnum water cooler. The CV-250 lifting eye is not
functional when the K874 undercarriage is installed.
WIRE FEEDER SWIVEL MOUNT (K178-1)
Allows an LN-7 or LN-742 to be securely mounted on
the roof of a CV-250.
UNIVERSAL ADAPTER (K867)
Provides a means of connecting auxiliary equipment
to the wire feeder receptacle on the CV-250 power
source. Consists of a 14-pin MS-type (Amphenol)
plug with 8 inch (0.2 meter) long flex leads, one for
each circuit present in the wire feeder receptacle. Not
required when using a standard wire feeder input
cable, such as a K480, with a Lincoln wire feeder.
COMPATIBLE LINCOLN EQUIPMENT
The CV-250 is intended for use with the LN-7, LN-742,
and LN-25 wire feed units. Use the Cables / Kits listed
below to make connection easily:
LN-7 / LN-7GMA Requires K480 Input Cable
LN-25
Requires K484 Jumper Plug Kit
LN-25 w/K444-1 Requires K864 Remote Control
Remote Voltage Adapter and K484 Jumper Plug
Control Kit Kit
LN-742 / LN-742H Requires K591 Input Cable
CV-250

D-1
MAINTENANCE
D-1
SAFETY PRECAUTIONS
GENERAL MAINTENANCE
1. The fan motor has sealed bearings which require
no service.
2. In extremely dusty locations, dirt may clog the air
channels causing the welder to run hot with prema-
ture tripping of thermal protection. Blow out the
welder with low pressure air at regular intervals to
eliminate excessive dirt and dust build-up on inter-
nal parts.
MACHINE AND CIRCUIT PROTECTION
The CV-250 Control PC Board has built-in diagnostic
routines to alert the operator when trouble exists.
When a trouble condition occurs, the CV-250 meter
will display an error code, in the form "EXX", where
"XX" refers to a specific error. See TROU-
BLESHOOTING section for an explanation of the error
codes.
The power source is thermostatically protected
against overload or insufficient cooling. If the machine
is overloaded, the thermostat will open, thermal pro-
tection indicator light will turn on, and the output will
be zero. The fan will continue to run and auxiliary
power will still be available. The thermostat will
remain open until the machine cools, at which time it
will close and the output will again be available.
The CV-250 is electronically protected against over-
loads and accidental short circuits. The overload pro-
tection circuit automatically reduces the output current
to a safe value when an overload is detected. If the
circuitry senses a short circuit, it will shut off the CV-
250 output. The short circuit protection circuit can be
reset by turning the CV-250 Power switch OFF for at
least 10 seconds. Remove the short before turning
the Power switch ON again.
CV-250
ELECTRIC SHOCK can kill.
• Only qualified personnel should
perform this maintenance.
• Turn the input power OFF at the
disconnect switch or fuse box
before working on this
equipment.
• Do not touch electrically hot
parts.
WARNING

E-1
TROUBLESHOOTING
E-1
CV-250
This Troubleshooting Guide is provided to
help you locate and remedy possible prob-
lems with machine setup or operation.
Simply follow the three-step procedure
listed below.
Step 1. LOCATE PROBLEM (SYMPTOM).
Look under the column labeled “PROBLEM
(SYMPTOMS)”. This column describes pos-
sible symptoms that the machine may
exhibit. Find the listing that best describes
the symptom that the machine is exhibiting.
Step 2. PERFORM EXTERNAL TESTS.
The second column labeled “POSSIBLE
AREAS OF MISADJUSTMENT(S)” lists the
obvious external possibilities that may con-
tribute to the machine symptom. Perform
these tests/checks in the order listed. In
general, these tests can be conducted with-
out removing the case wrap-around cover.
Step 3. PERFORM COMPONENT TESTS.
If you have exhausted all of the recom-
mended tests in Step 2, Consult your Local
Authorized Field Service Facility.
HOW TO USE TROUBLESHOOTING GUIDE
Service and Repair should only be performed by Lincoln Electric Factory Trained Personnel.
Unauthorized repairs performed on this equipment may result in danger to the technician and
machine operator and will invalidate your factory warranty. For your safety and to avoid
Electrical Shock, please observe all safety notes and precautions detailed throughout this
manual.
__________________________________________________________________________
WARNING
If for any reason you do not understand the test procedures or are unable to perform
the tests/repairs safely, contact your LOCAL AUTHORIZED LINCOLN ELECTRIC
FIELD SERVICE FACILITY for assistance before you proceed.
_____________________________________________________________________
CAUTION

E-2
TROUBLESHOOTING
E-2
CV-250
Observe all Safety Guidelines detailed throughout this manual
If for any reason you do not understand the test procedures or are unable to perform the tests/repairs safely, contact your
Local Lincoln Authorized Field Service Facility for technical troubleshooting assistance before you proceed.
CAUTION
ERROR
CODE TROUBLE REMEDY
E00
E10
E20
E30
E40
E50
E60
1. Output short circuited.
2. May be encountered while
starting or welding with 1/16" alu-
minum wire.
Thermostat circuit has opened.
Memory error.
1. Voltage Adjust potentiometer not
connected.
2. Remote Control not functioning
correctly.
Input line voltage too low.
Input line voltage too high.
Overload condition.
1. Turn power off. Remove short circuit.
2. a) Turn power off to clear error. Use recommended
wfs, voltage settings and angle of approach of wire
to work.
b) If problem still persists, call Local Lincoln
Authorized Field Service Facility.
Allow machine to cool. Be sure to provide adequate
ventilation for machine.
See PC Board Troubleshooting Procedure.
1. Check wiring between Voltage Adjust and the
Control PC Board.
2. See Options Troubleshooting Guide.
Turn power off. Insure machine input voltage is within
specifications. Turn power back on.
Turn power off. Insure machine input voltage is within
specifications. Turn power back on.
Reduce load on machine.
BUILT-IN DIAGNOSTIC ROUTINES AND ERROR CODES
The CV-250 Meter PC Board displays error codes when certain trouble conditions exist. The error codes, trouble
conditions, and possible remedies are listed below.
If, after attempting the remedies listed above, the error condition still exists, the problem may be with the wiring in
the following areas: the shunt (leads 218 and 219), or voltage feedback (leads 213B, 214B and 224B).

E-3
TROUBLESHOOTING
E-3
CV-250
Observe all Safety Guidelines detailed throughout this manual
If for any reason you do not understand the test procedures or are unable to perform the tests/repairs safely, contact your
Local Lincoln Authorized Field Service Facility for technical troubleshooting assistance before you proceed.
CAUTION
PROBLEMS
PROBLEMS
(SYMPTOMS)
POSSIBLE AREAS OF
MISADJUSTMENTS(S)
RECOMMENDED
COURSE OF ACTION
Machine has no output.
Machine has minimum output and no
control.
Machine has low output and no con-
trol.
1. Secondary contactor circuit (2
and 4 wire feeder receptacle) not
working.
2. Electrode or work lead loose or
broken.
3. Defective PC Board.
4. Protective circuits operating due
to output short circuit.
5. If using an LN-25, K484 jumper
plug kit not making connection
between 2 & 4 in wire feeder
receptacle.
6. If welding with 1/16" aluminum
wire and machine is flashing E00.
1. Voltage Control misconnected.
1. Open in feedback circuitry.
2. Faulty PC Board.
3. Voltage Adjust potentiometer
circuit open (lead 75).
1. Check 2 and 4 circuit wiring.
2. Repair connection.
3. See PC Board Troubleshooting
Procedure.
4. Turn power off. Remove output short
circuit.
5. Check for continuity between pins C
& D in the K484.
6. a) Turn power off to clear error. Use
recommended wfs, voltage set-
tings and angle of approach of
wire to work.
b) If problem still persists, call Local Lincoln
Authorized Field Service Facility.
1. Voltage Control wiring.
1. Check wiring and control and PC
board wiring harness plugs.
2. See PC Board Troubleshooting
Procedure.
3. Check and replace potentiometer if
faulty. Check wiring of lead #75.
MACHINE TROUBLESHOOTING GUIDE
Not all trouble conditions can be recognized by the PC board, and displayed as error codes. The following guide
covers most other trouble conditions.

E-4
TROUBLESHOOTING
E-4
CV-250
Observe all Safety Guidelines detailed throughout this manual
If for any reason you do not understand the test procedures or are unable to perform the tests/repairs safely, contact your
Local Lincoln Authorized Field Service Facility for technical troubleshooting assistance before you proceed.
CAUTION
PROBLEMS
PROBLEMS
(SYMPTOMS)
POSSIBLE AREAS OF
MISADJUSTMENTS(S)
RECOMMENDED
COURSE OF ACTION
Thermal Protection Indicator light is
on.
Machine does not have maximum
output
Machine will not shut off.
Variable or sluggish welding arc.
Digital meters do not light
- or -
Digital meter display is incorrect.
1. Thermostat circuit has opened.
2. Faulty Control PC Board.
1. Faulty Control PC Board.
2. Voltage Adjust potentiometer
defective.
3. Voltage Adjust potentiometer
leads open.
1. Defective power switch.
1. Poor work or electrode
connection.
2. Welding leads too small.
3. Welding current or voltage
too low.
4. Defective SCR bridge.
1. Faulty Meter PC board.
2. Faulty Control PC Board.
1. Allow machine to cool. Be sure to
provide adequate ventilation for
machine.
2. See PC Board Troubleshooting
Procedure.
1. See PC Board Troubleshooting
Procedure.
2. Check and replace if faulty.
3. Check and repair broken leads.
1. Replace.
1. Check and clean all connections.
2. Check table in this manual.
3. Check procedures for recommended
settings.
4. Check and replace if defective.
1. See PC Board Troubleshooting
Procedure.
2. See PC Board Troubleshooting
Procedure.

E-5
TROUBLESHOOTING
E-5
CV-250
Observe all Safety Guidelines detailed throughout this manual
If for any reason you do not understand the test procedures or are unable to perform the tests/repairs safely, contact your
Local Lincoln Authorized Field Service Facility for technical troubleshooting assistance before you proceed.
CAUTION
PROBLEMS
PROBLEMS
(SYMPTOMS)
POSSIBLE AREAS OF
MISADJUSTMENTS(S)
RECOMMENDED
COURSE OF ACTION
Poor arc striking with semiautomatic
wire feeders.
Poor arc characteristics
1. Poor work connection.
2. Improper procedures.
3. Wire feed acceleration too fast or
too slow.
4. Defective PC Board.
1. Control PC Board defective.
1. Work connection must be adequate
for application.
2. Adjust procedures for improved start-
ing.
3. Adjust wire feeder acceleration set-
ting, if provided.
4. See PC Board Troubleshooting
Procedure.
1. See PC Board Troubleshooting
Procedure.

E-6
TROUBLESHOOTING
E-6
CV-250
If for any reason you do not understand the test procedures or are unable to perform the tests/repairs safely, contact your
Local Lincoln Authorized Field Service Facility for technical troubleshooting assistance before you proceed.
CAUTION
Observe all Safety Guidelines detailed throughout this manual
PROBLEMS
PROBLEMS
(SYMPTOMS)
POSSIBLE AREAS OF
MISADJUSTMENTS(S)
RECOMMENDED
COURSE OF ACTION
Voltage control not functioning on
Remote Control.
Voltage Adjust not functioning on the
machine.
1. Local/Remote switch in wrong
position.
2. Faulty Local/Remote switch.
3. Faulty Remote Control poten-
tiometer.
4. Leads or connections open in
control circuit.
5. Faulty Control PC board.
1. Local/Remote switch in the
wrong position.
2. Faulty Local/Remote switch.
3. Faulty Voltage Adjust
potentiometer.
4. Leads or connections open in
control circuit.
5. Faulty Control PC board.
1. Place switch in "Remote".
2. Check and replace if found faulty.
3. Check and replace if found faulty.
4. Check all leads and connections,
internal or remote, for continuity;
repair if necessary.
5. See PC Board Troubleshooting
Procedure.
1. Place switch in "Local" position.
2. Check and replace if found faulty.
3. Check and replace if found faulty.
4. Check all leads and connections,
internal or remote, for continuity;
repair if necessary.
5. See PC Board Troubleshooting
Procedure.
OPTIONS TROUBLESHOOTING GUIDE
K857 (or other) Remote Output Control

E-7
TROUBLESHOOTING
E-7
CV-250
If for any reason you do not understand the test procedures or are unable to perform the tests/repairs safely, contact your
Local Lincoln Authorized Field Service Facility for technical troubleshooting assistance before you proceed.
CAUTION
Procedure for Replacing PC Boards
Before replacing a PC board which is suspected of
being defective, visually inspect the PC board in ques-
tion for any electrical or mechanical damage to any of
its components and conductors on the back of the
board.
a. If there is no visible damage to the PC board,
install a new one and see if this remedies the prob-
lem. If the problem is remedied, reinstall the old
PC board to see if the problem still exists. If it
does no longer exist with old PC board:
1. Check the PC board harness connector pins for
corrosion, contamination, or looseness.
2. Check leads in the plug harness for loose or
intermittent connection.
b. If PC board is visibly damaged electrically, before
possibly subjecting the new PC board to the same
cause of failure, check for possible shorts, opens,
or grounds caused by:
1. Frayed or pinched lead insulation.
2. Poor lead termination, such as a poor contact
or a short to adjacent connection or surface.
3. Shorted or open motor leads, or other external
leads.
4. Foreign matter or interference behind the PC
boards.
c. If PC board is visibly damaged mechanically,
inspect for cause, then remedy before installing a
replacement PC board.
If there is damage to the PC board or if replacing
PC board corrects problem, return it to the local
Lincoln Electric Field Service Shop.
ELECTRIC SHOCK can kill.
• Have a qualified individual install and
service this equipment.
• Turn the power source input power off
at the disconnect switch before work-
ing on this equipment.
• Do not touch electrically hot parts.
---------------------------------------------------------------------
WARNING
PC BOARD TROUBLESHOOTING
PROCEDURES
CONTROL PC BOARD
The Control PC Board controls all machine functions
including the thermal protection indicator light and the
Meter PC Board. Most problems, if not caused by
faulty wiring machine misuse, will stem from a faulty
Control PC Board.
Perform the following diagnostic procedure before
replacing the Control PC Board.
1. Turn off the input power at the fuse box.
2. Check for loose connections in the PC Board
plugs, particularly J3.
3. Disconnect the J3 plug from the Control PC Board.
Measure the resistance between the following wire
terminals in the plug:
A) Between wire #200 and wire #201.
B) Between wire #202 and wire #203.
Both of these resistances should be less than 1 ohm.
If these resistances are not less than 1 ohm, check the
wiring back to the main transformer.
If these voltages are less than 1 ohm, refer to
"Procedure for Replacing PC Boards."
METER PC BOARD
When the Meter PC Board malfunctions, first determine
if the rest of the machine functions correctly. If so, then
the problem is in either the harness between the meter
and control boards, or in the meter board itself. Refer
to "Procedure for Replacing PC Boards". As a last
resort, the Control PC Board may have to be replaced.

E-8
TROUBLESHOOTING
E-8
CV-250
If for any reason you do not understand the test procedures or are unable to perform the tests/repairs safely, contact your
Local Lincoln Authorized Field Service Facility for technical troubleshooting assistance before you proceed.
CAUTION
OUTPUT VOLTAGE
The open circuit voltage of the machine should be 10
to 43 volts. If any other condition exists, refer to the
Troubleshooting Guide.
FAULT PROTECTION OPERATION
The overload protection circuit on the PC Board will
cause the CV-250 meter to display "E60". This pro-
tection circuit will reset itself automatically. The short
circuit protection circuit will cause the meter to display
"E00". The CV-250 power switch must be turned
"OFF" and then "ON" to return the machine to normal
output.
CHECKING SNUBBER CIRCUIT
In case of an SCR malfunction or failure, the snubber
assembly should be checked. Disconnect the input
power to the CV-250 at the fuse box and remove the
right side of the machine.
1.Visually inspect the snubber PC Board assembly
(located below the Control PC board on the case front
for overheated components or damaged compo-
nents).
OPTIONAL K857 REMOTE CONTROL
CHECK
Disconnect the remote output control and connect an ohm-
meter between pins C and B and rotate the rheostat in the
remote control. The resistance reading should go from zero
to 10K ohms. Repeat with ohmmeter across A and B with
the same results. Connect ohmmeter across A and C. The
reading should be 10K ohms. A lower reading will indicate a
shorted or partially shorted rheostat. A very high reading
will indicate an open rheostat. In either of the last two
cases, replace the rheostat.

F-1
DIAGRAMS
F-1
CV-250
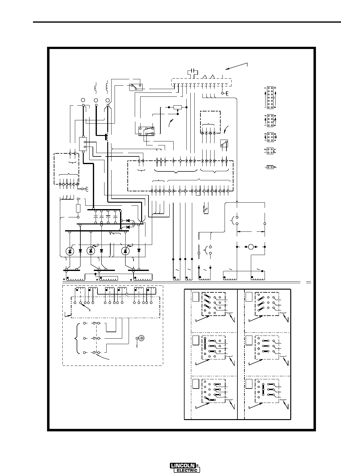
CONNECTOR CAVITY NUMBERING SEQUENCE
(COMPONENT SIDE OF P. C. BOARD)
ELECTRICAL SYMBOLS
PER E1537
+
-
L1
SECONDARY
THERMOSTAT
222
223
224
D4
C1
C2
C3
C4
+
+
+
+
R1
SCR2
D2
D5
222
204A
204D
CONTROL
P. C. BOARD
221
6 PIN
4 PIN 8 PIN
SNUBBER/BYPASS
P.C. BOARD
224
224A
224A
10A
CIRCUIT
BREAKER
CB1
L1 CHOKE
2
42V
12V
12V
-
204C
204D
204C
277
276
275
B
A
J
C
D
213
214 213
214
206
207
211
212
31
32
2
4
14 PIN
S2
M
L
N
G
F
E
H
VOLTMETER
CUSTOMER
CONNECTIONS
WIRE FEEDER
115 VAC
42 VAC
GROUND
WIRE
FEEDER
RECEPTACLE
205
WIRE FEEDER
S3
3
1
SCR3
D3
SCR1
D1
8
2
3
4
1
7
6
5
213A
213A
OUTPUT
CONTROL
208
209
210
1
2
3
4
J7
METER
P.C.
BOARD
VOLTS / AMPS
1
5
9
3
2
4
2
5
3
4
1
6
6
1
5
4
7
3
8
G1
204A
G3
G2
3
1
2
4
J1
J3
J2
J4
21
N.A.
N.A.
J1 J4
J7
J2
J5
J3
J5
J5
223
221
G3
G2
G1 214A
1
2
218
219
400 A. 50mV
SHUNT
J10
2 PIN
J10
224B
224B
224B
213B
213B
213B
NC
(SHOWN IN "VOLTS" POSITION)
7.5 OHM
220 W
214B
214B
s
s
42A 42 41
42
I
K
C1-C4 31,000 MFD EACH
MAIN TRANSFORMER
C
2
41A 41
s
FAN
33A
31A
32
33
CIRCUIT
BREAKER
5A
CB2
115V
31B 31
31
10
8
12
11
202
200
203
201
s
s
58V
58V
O2 TOP
O1 TOP
O1 TOP
O3 TOP
O3 BOT.
VOLTMETER
SWITCH
76
77
75
277
276
S4
(SHOWN IN LOCAL POSITION)
LOCAL/REMOTE SWITCH
R2
10K
CW
376
77
377
N.A. WIRING VIEWED FROM REAR OF POTENTIOMETER
2
4
2
2NC
+
-
2
L2
INPUT SUPPLY
LINES
S1
LINE
SWITCH
*
RECONNECT
PANEL
11
E
8
5
2
V
N.B.
B
UW
L1 L3
13
3
C
9
6
F
12
10
1
A
4
7
D
RECONNECT
PANEL
2 3 1
TO S1 LINE SWITCH
RECONNECT
PANEL
RECONNECT
PANEL
RECONNECT
PANEL
RECONNECT
PANEL
RECONNECT
PANEL
208/230/460 INPUT VOLTAGES
230/460/575 INPUT VOLTAGES
208V 230V 460V
230V 460V 575V
2 3 1
TO S1 LINE SWITCH
2 3 1
TO S1 LINE SWITCH
2 3 1
TO S1 LINE SWITCH
2 3 1
TO S1 LINE SWITCH
2 3 1
TO S1 LINE SWITCH
B
5
8
2
E
A
C
3
9
6
1
7
4
FD
B
5
8
2
E
A
C
3
9
6
1
7
4
FD
B
5
8
2
E
A
C
3
9
6
1
7
4
FD
2
E
5
8
8
31
FD
64
97
2
E
5
8
8
31
FD
64
97
2
E
5
8
8
31
FD
64
97
N.B. TAP LEADS A, B, AND C APPEAR ON THE TOP PRIMARY COILS
OF 208/230/460V MACHINES ONLY.
CLEVELAND, OHIO U.S.A.
3-10-95H
L9854
WIRING DIAGRAM CV 250 (60Hz)
TO A SYSTEM GROUND PER
NATIONAL ELECTRICAL CODE.
*
6NC
7NC
13NC
14NC
NC
NC
76
77
377
376
NOTE: This diagram is for reference only. It may not be accurate for all machines covered by this manual. The specific diagram for a particular code is pasted inside
the machine on one of the enclosure panels. If the diagram is illegible, write to the Service Department for a replacement. Give the equipment code number..

F-2
DIAGRAMS
F-2
CV-250
CV POWER SOURCE TO AN LN-7 AND K857
Only qualified persons should install, use or
service this machine.
using the disconnect switch at the fuse box
WARNING
Turn off input power to the Welding Power Source
Before connecting the wire feeder.
ELECTRIC
SHOCK
CAN KILL
N.A. WELDING CABLE MUST BE SIZED FOR CURRENT AND DUTY CYCLE OF APPLICATION.
N.B. DIAGRAM SHOWS ELECTRODE POSITIVE. TO CHANGE POLARITY, TURN POWER "OFF",
ELECTRODE CABLE
-
+
14 PIN
AMPHENOL
POWER SOURCE
CV/CV-I
K480 INPUT CABLE
LN-7/LN-7GMA
WIRE
FEEDER
REMOTE CONTROL
OPTIONAL K857
TO WORK ASSEMBLY
OPTIONAL K864 REMOTE
CONTROL ADAPTER
N.C.
N.C. USE OF THE K857 REMOTE CONTROL REQUIRES THE INSTALLATION OF A K864 REMOTE
CONTROL ADAPTER TO THE 14 PIN AMPHENOL OF THE POWER SOURCE.
6-18-93
S20662

F-3
DIAGRAMS
F-3
CV-250
CV POWER SOURCE TO A K867 UNIVERSAL ADAPTER
N.A. WELDING CABLE MUST BE SIZED FOR CURRENT AND DUTY CYCLE OF APPLICATION.
N.C. INSULATE EACH UNUSED LEAD INDIVIDUALLY.
N.C.
76
82
81
SPARE
2
4
41
42
31
32
GND
21
77
75
REMOTE OUTPUT CONTROL
N.D.
2
4
10K
MIN.
Only qualified persons should install, use or
service this machine.
using the disconnect switch at the fuse box
WARNING
Turn off input power to the Welding Power Source
Before connecting the wire feeder.
ELECTRIC
SHOCK
CAN KILL
6-18-93
NOT USED ON CV/CV-I POWER SOURCES
42 VAC
115 VAC
N.E.
POWER SOURCE FRAME CONNECTION
WIRE FEEDER VOLTMETER CONNECTION
CONNECTS TO (WORK TERMINAL) OF POWER SOURCE
CONNECT TOGETHER FOR
WELDING OUTPUT
N.F.
N.B. DIAGRAM SHOWS ELECTRODE POSITIVE. TO CHANGE POLARITY, TURN POWER "OFF",
N.D. FOR WIRE FEEDERS THAT RETURN A SIGNAL FOR WELDING OUTPUT, USE ISOLATION
RELAY TO CLOSE LEADS 2 & 4.
TO
K867
N.E. REFER TO POWER SOURCE INSTRUCTION MANUAL FOR MAXIMUM AUXILIARY
CURRENT DRAW.
TO
WIRE
FEEDER
K867 UNIVERSAL
ADAPTER PLUG
-
+
14 PIN
AMPHENOL
POWER SOURCE
CV/CV-I
TO WORK
ELECTRODE CABLE
{
REVERSE ELECTRODE AND WORK CABLES AT POWER SOURCE.
N.F. NOT PRESENT ON ALL MACHINES
N.F.
S20658

F-4
DIAGRAMS
F-4
CV-250
CV POWER SOURCE TO A K867 / K775 / LN-7
N.A. WELDING CABLE MUST BE SIZED FOR CURRENT AND DUTY CYCLE OF APPLICATION.
N.C. INSULATE EACH UNUSED LEAD INDIVIDUALLY.
SPARE
82
81
42
41
31
32
2
4
21
GND
75
76
77
31
32
2
4
21
GND
N.C.
K291 OR K404
INPUT CABLE
K775 OPTIONAL
REMOTE CONTROL
K867 UNIVERSAL
ADAPTER PLUG
75
76
77
GREEN
N.D.
Only qualified persons should install, use or
service this machine.
using the disconnect switch at the fuse box
WARNING
Turn off input power to the Welding Power Source
Before connecting the wire feeder.
ELECTRIC
SHOCK
CAN KILL
LN-7
WIRE
FEEDER
N.D. SPLICE LEADS AND INSULATE.
N.B. DIAGRAM SHOWS ELECTRODE POSITIVE. TO CHANGE POLARITY, TURN POWER "OFF",
ELECTRODE CABLE
-
+
14 PIN
AMPHENOL
POWER SOURCE
CV/CV-I
TO WORK
REVERSE ELECTRODE AND WORK CABLES AT POWER SOURCE.
6-18-93
S20659

F-5
DIAGRAMS
F-5
CV-250
CV POWER SOURCE TO AN LN-25
Only qualified persons should install, use or
service this machine.
using the disconnect switch at the fuse box
WARNING
Turn off input power to the Welding Power Source
Before connecting the wire feeder.
ELECTRIC
SHOCK
CAN KILL
N.A. WELDING CABLE MUST BE SIZED FOR CURRENT AND DUTY CYCLE OF APPLICATION.
N.B. DIAGRAM SHOWS ELECTRODE POSITIVE. TO CHANGE POLARITY, TURN POWER "OFF",
ELECTRODE CABLE
-
+
14 PIN
AMPHENOL
POWER SOURCE
CV/CV-I OPTIONAL K857
TO WORK
LN-25
WIRE FEEDER
REMOTE CONTROL
OPTIONAL
K484 JUMPER
PLUG
REVERSE ELECTRODE AND WORK CABLES AT POWER SOURCE.
N.C. USE OF THE K857 REMOTE CONTROL REQUIRES INSTALLATION OF A K864 REMOTE
CONTROL ADAPTER TO THE 14 PIN AMPHENOL OF THE POWER SOURCE.
N.D.N.D.
N.C.
OPTIONAL K864 REMOTE
CONTROL ADAPTER
N.D. CONNECT THE K484 JUMPER PLUG DIRECTLY TO THE 14 PIN AMPHENOL
OF THE POWER SOURCE IF NO REMOTE CONTROL IS USED.
IF USING A K857 REMOTE CONTROL,CONNECT THE K484 JUMPER PLUG
TO THE 14 PIN AMPHENOL OF THE K864 REMOTE CONTROL ADAPTER.
THE POWER SOURCE WELDING TERMINALS ARE ALWAYS "HOT" WHEN THE K484 JUMPER
6-18-93
S20661

F-6
DIAGRAMS
F-6
CV-250
CV POWER SOURCE TO AN LN-25 / K444-1
Only qualified persons should install, use or
service this machine.
using the disconnect switch at the fuse box
WARNING
Turn off input power to the Welding Power Source
Before connecting the wire feeder.
ELECTRIC
SHOCK
CAN KILL
N.A. WELDING CABLE MUST BE SIZED FOR CURRENT AND DUTY CYCLE OF APPLICATION.
N.B. DIAGRAM SHOWS ELECTRODE POSITIVE. TO CHANGE POLARITY, TURN POWER "OFF",
ELECTRODE CABLE
-
+
14 PIN
AMPHENOL
POWER SOURCE
CV/CV-I
TO WORK
LN-25
WIRE FEEDER
OPTIONAL
K484 JUMPER
PLUG
OPTIONAL K864 REMOTE
CONTROL ADAPTER
WITH K444-1 OPTION
N.D.N.D.
N.C.
N.C. CONNECT THE K484 JUMPER PLUG TO THE 14 PIN RECEPTACLE OF THE
K864 REMOTE CONTROL ADAPTER. CONNECT THE 6 PIN PLUG FROM THE
LN-25 (WITH K444-1 OPTION) TO THE 6 PIN RECEPTACLE OF THE K864
N.D. THE POWER SOURCE TERMINALS ARE ALWAYS "HOT" WHEN THE K484 JUMPER
PLUG KIT IS INSTALLED.
REVERSE ELECTRODE AND WORK CABLES AT POWER SOURCE, SWITCH LN-25 POLARITY SWITCH.
REMOTE CONTROL ADAPTER. SWITCH THE POWER SOURCE "LOCAL/REMOTE" SWITCH TO REMOTE.
CLEVELAND, OHIO U.S.A.
S20663
CV/CV-I POWER SOURCE TO LN-25 WITH K444-1 OPTION CONNECTION DIAGRAM
6-18-93

F-7
DIAGRAMS
F-7
CV-250
LINCOLN POWER SOURCE TO AN LN-742
Only qualified persons should install, use or
service this machine.
WARNING
ELECTRIC
SHOCK
CAN KILL
ELECTRODE CABLE
-
+
14 PIN
AMPHENOL
POWER SOURCE
LINCOLN
TO WORK
LN-742
WIRE
FEEDER
Power Source before connecting the wire feeder.
Turn off (0) the power switch on the Welding
AND 14-PIN CABLE PLUG, REAR VIEW AND 14-PIN CABLE PLUG, FRONT VIEW
K=42
C=2
D=4
E=77
F=76
G=75
H=21
I=41
K=42
I=41
H=21
G=75
F=76
E=77
D=4
C=2
PIN
C
D
E
F
G
H
I
K42
41
21
75
76
77
4
2
LEAD
42V AC
42V AC
WORK
OUTPUT CONTROL
OUTPUT CONTROL
OUTPUT CONTROL
TRIGGER CIRCUIT
TRIGGER CIRCUIT
(SEE APPROPRIATE WIRING DIAGRAM)
FUNCTION
FUNCTIONS ARE LISTED FOR REFERENCE
ONLY AND EACH MAY OR MAY NOT BE
PRESENT IN YOUR EQUIPMENT.
14-SOCKET BOX RECEPTACLE, FRONT VIEW 14-SOCKET BOX RECEPTACLE, REAR VIEW
LN-742
INPUT CABLE
ASSEMBLY
N.C. PINS NOT LISTED ARE NOT CONNECTED
ON CABLE.
N.A. WELDING CABLE MUST BE SIZED FOR CURRENT
AND DUTY CYCLE OF APPLICATION.
N.B. DIAGRAM SHOWS ELECTRODE POSITIVE. TO
CHANGE POLARITY, TURN POWER "OFF",
REVERSE ELECTRODE AND WORK CABLES AT
POWER SOURCE AND SET WIRE FEEDER
VOLTMETER POLARITY SWITCH ON POWER
SOURCE TO PROPER POLARITY.
N.D. IF USING K589-1, REMOTE CONTROL KIT,
SET POWER SOURCE CONTROL SWITCH
TO "REMOTE" POSITION.
N.D.
1-28-94
S20409

F-8
DIAGRAMS
F-8
CV-250
K867 UNIVERSAL ADAPTER INSTALLATION AND CONNECTION INSTRUCTIONS
INSTALLATION INSTRUCTIONS
THIS CONNECTOR IS MEANT TO BE USED WITH LINCOLN POWER SOURCES WHICH HAVE A 14-PIN
TO ANY OF THE 14 CIRCUITS PRESENT IN THE WIRE FEEDER RECEPTACLE.
WIRE FEEDER RECEPTACLE. IT IS DESIGNED TO ALLOW THE USER TO MAKE CONNECTIONS
CONSULT THE WIRING DIAGRAM OF THE POWER SOURCE AND WIRE FEEDER THIS ADAPTER WILL BE USED WITH.
2. CONSULT THE APPROPRIATE EQUIPMENT WIRING DIAGRAMS FOR THE CONNECTIONS TO UNIVERSAL ADAPTER.
THE STANDARD CONNECTOR PIN DESIGNATIONS AND FUNCTIONS ARE SHOWN BELOW.
MAY OR MAY NOT BE ISOLATED, INDEPENDENT CIRCUITS INSIDE THE WELDER.
3. USE LUG, CRIMP SPLICE OR SOLDER CONNECTIONS AS REQUIRED AND INSULATE EACH USED AND UNUSED LEAD
14-PIN BOX RECEPTACLE, FRONT VIEW
AND 14-PIN CABLE PLUG, REAR VIEW
14-PIN BOX RECEPTACLE, REAR VIEW
AND 14-PIN CABLE PLUG, FRONT VIEW
K=42
A=32
B=GND
C=2
L=82
D=4
E=77
M=81
F=76
G=75
N=SPARE
H=21
I=41
J=31
K=42
J=31
I=41
H=21
N=SPARE
G=75
F=76
M=81
E=77
D=4
C=2
L=82
B=GND
A=32
PIN
SPARE
WELDING MODE CONTROL
A
B
C
D
E
F
G
H
I
J
K
L
M
N
81
82
42
31
41
21
75
76
77
4
2
GND
32
LEAD
WELDING MODE CONTROL
STANDARD FUNCTION
24V AC
42V AC
115V AC
42V AC
WORK
OUTPUT CONTROL
OUTPUT CONTROL
OUTPUT CONTROL
TRIGGER CIRCUIT
TRIGGER CIRCUIT
CHASSIS CONNECTION
115V AC
NOTE: 115V AC (31, 32), 42V AC (41, 42), 24V AC (SPARE) AND TRIGGER CIRCUIT (2, 4)
1. TURN THE POWER SWITCH OF THE WELDING POWER SOURCE OFF BEFORE INSTALLING
THIS ADAPTER TO WIRE FEEDER CABLE.
(SEE APPROPRIATE WIRING DIAGRAM)
THESE FUNCTIONS ARE LISTED FOR
REFERENCE ONLY AND EACH MAY OR
MAY NOT BE PRESENT IN YOUR EQUIPMENT.
NOT ALL CIRCUITS ARE PRESENT IN EVERY POWER SOURCE, NOR ARE THEY REQUIRED FOR PROPER WIRE FEEDER OPERATION.
IN THE UNIVERSAL ADAPTER. THE INSULATING METHOD MUST BE RATED FOR 120V AC OR GREATER.
3-16-90
S19386

F-9
DIAGRAMS
F-9
CV-250
TWIST-MATE CABLE PLUG INSTALLATION INSTRUCTIONS
TURN THE POWER SWITCH OF THE WELDING POWER
SOURCE "OFF" BEFORE INSTALLING PLUGS ON CABLES
OR WHEN CONNECTING OR DISCONNECTING PLUGS TO
WELDING POWER SOURCE.
1.
WELDING CABLE
BOOT
TRIM
Slide the copper tube into the brass plug.
Insert cable into copper tube.
COPPER TUBE
Slide rubber boot over brass plug. The rubber boot must be
positioned to completely cover all electrical surfaces after
the plug is locked into the receptacle.
SET SCREW
BRASS PLUG
BOOT MARKING
2
2
50-70
70-95
CABLE SIZE
1/0-2/0
CABLE SKIN LENGTH
1 INCH (25.4mm)
2.
2/0-3/0
50-70
70-95
mm )
mm )
(
(
AMERICAN (EUROPEAN) RANGE
CHECK THAT THE CONNECTOR BOOT IS MARKED FOR THE
APPROPRIATE CABLE SIZE PER TABLE BELOW; AND
SKIN CABLE JACKET TO LENGTH SPECIFIED:
1 INCH (25.4mm)
35-50 2
mm )
(35-50
#2-#1
TWIST-MATE WELDING CABLE PLUG INSTALLATION INSTRUCTIONS
9-20-91J
1.5 INCH (38.1mm)
must apply firm pressure against welding cable. The top of the
(70-95 size may
have 2 set
screws)
SEE
ABOVE
Tighten set screw(s) to collapse copper tube. Screw(s)
brass plug after tightening.
set screw(s) will be nearly flush or below the surface of the
7.
6.
5.
4.
3. Slide rubber boot onto cable end.
If necessary, trim cable end of boot at groove(s) to match cable
diameter. Boot must fit tightly enough to seal around outside
different cable diameters without trimming. These boots do not
based lubricant will help to slide the boot over the cable.
have grooves at the cable end. Soap or other non petroleum
diameter of cable. NOTE: Some boots are designed to accommodate
S18737

F-10
DIAGRAMS
F-10
CV-250
CONNECTION OF NON-LINCOLN WIRE FEEDERS

F-11
DIAGRAMS
F-11
CV-250
DIMENSION PRINT
5-18-90J
N.A.
N.A.
N.A.
N.A. FOUR SLOTS IN BASE FOR MOUNTING
WELDER DOWN USING 5/16 SCREWS
1.68
N.B.
N.B. HANDLE CONFIGURATION ON EARLIER MODELS.
20.05 (509)
19.65 (499)
19.20 (487)
41.58 (1056)
26.00 (660)
3.61 (91) 12.60 (320)
(42.7)
11.99 (304)
3.90 (99)
.28
(7.0)
1.00 (25.4)
23.62 (600)
6.20 (157)
30.95
(786)
1.38
(35)
17.25 (438) (CENTERED)
21.50 (546)
24.75
(628)
M15665

Now Available...12th Edition
The Procedure Handbook of Arc Welding
With over 500,000 copies of previous editions published
since 1933, the Procedure Handbook is considered by many to
be the “Bible” of the arc welding industry.
This printing will go fast so don’t delay. Place your
order now using the coupon below.
The hardbound book contains over 750 pages of welding
information, techniques and procedures. Much of this material
has never been included in any other book.
A must for all welders, supervisors, engineers and
designers. Many welding instructors will want to use the book
as a reference for all students by taking advantage of the low
quantity discount prices which include shipping by
4th class parcel post.
$15.00 postage paid U.S.A. Mainland
How To Read Shop Drawings
The book contains the latest information and application
data on the American Welding Society Standard Welding
Symbols. Detailed discussion tells how engineers and
draftsmen use the “short-cut” language of symbols to pass
on assembly and welding information to shop personnel.
Practical exercises and examples develop the reader’s
ability
to visualize mechanically drawn objects as they will appear
in their assembled form.
187 pages with more than 100 illustrations. Size 8-1/2” x
11”
Durable, cloth-covered board binding.
$4.50 postage paid U.S.A.
Mainland
New Lessons in Arc Welding
Lessons, simply written, cover manipulatory techniques;
machine and electrode characteristics; related subjects,
such as distortion; and supplemental information on arc
welding applications, speeds and costs. Practice materials,
exercises, questions and answers are suggested for each
lesson.
528 pages, well illustrated, 6” x 9” size, bound in simulated,
gold embossed leather.
$5.00 postage paid U.S.A.
Mainland
Need Welding Training?
The Lincoln Electric Company operates the oldest and
most respected Arc Welding School in the United States at its
corporate
headquarters in Cleveland, Ohio. Over 100,000 stu-
dents have graduated. Tuition is low and the training is
“hands on”
For details write: Lincoln Welding School
22801 St. Clair Ave.
Cleveland, Ohio 44117-1199.
and ask for bulletin ED-80 or call 216-383-2259 and ask
for the
Welding School Registrar.
Lincoln Welding School
BASIC COURSE $700.00
5 weeks of fundamentals
There is a 10% discount on all orders of $50.00 or more for shipment at one time to one location.
Orders of $50 or less before discount or orders outside of North America must be prepaid with charge, check or money order in U.S. Funds Only.
Prices include shipment by 4 th Class Book Rate for U.S.A. Mainland Only. Please allow up to 4 weeks for delivery.
UPS Shipping for North America Only. All prepaid orders that request UPS shipment please add:
$5.00 For order value up to $49.99
$10.00 For order value between $50.00 & $99.99
$15.00 For order value between $100.00 & $149.00
For North America invoiced orders over $50.00 & credit card orders, if UPS is requested, it will be invoiced or charged to you at cost.
Outside U.S.A. Mainland order must be prepaid in U.S. Funds. Please add $2.00 per book for surface mail or $15.00 per book for air parcel post shipment.
METHOD OF PAYMENT: (Sorry, No C.O.D. Orders)
CHECK ONE:
Name: _______________________________________________
Please Invoice (only if order is over $50.00) Address: _______________________________________________
Check or Money Order Enclosed, U.S. Funds only _______________________________________________
Credit Card - Telephone: _______________________________________________
Signature as it appears on Charge Card:
Account No. |_|_|_|_|_|_|_|_|_|_|_|_|_|_|_|_|_|_|_|_|_| Exp Date |_|_| |_|_| ______________________
Month Year
USE THIS FORM TO ORDER:
Order from: BOOK DIVISION, The Lincoln Electric Company, 22801 St. Clair Avenue, Cleveland, Ohio 44117-1199
BOOKS OR FREE INFORMATIVE CATALOGS Telephone: 216-383-2211 or, for fastest service, FAX this completed form to: 216-361-5901.
Lincoln Welding School Titles: Price Code Quantity Cost
(ED-80) New Lessons in Arc Welding $5.00 L
Seminar Information Procedure Handbook “Twelfth Edition” $15.00 PH
(ED-45) How to Read Shop Drawings $4.50 H
Educational Video Information Incentive Management $5.00 IM
(ED-93) A New Approach to Industrial Economics $5.00 NA
James F. Lincoln Arc Welding The American Century of John C. Lincoln $5.00 AC
Foundation Book Information Welding Preheat Calculator $3.00 WC-8
(JFLF-515) Pipe Welding Charts $4.50 ED-89
SUB TOTAL
Additional Shipping Costs if any
TOTAL COST

WARNING
AVISO DE
PRECAUCION
ATTENTION
WARNUNG
ATENÇÃO
Spanish
French
German
Portuguese
Japanese
Chinese
Korean
Arabic
READ AND UNDERSTAND THE MANUFACTURER’S INSTRUCTION FOR THIS EQUIPMENT AND THE CONSUMABLES TO BE
USED AND FOLLOW YOUR EMPLOYER’S SAFETY PRACTICES.
SE RECOMIENDA LEER Y ENTENDER LAS INSTRUCCIONES DEL FABRICANTE PARA EL USO DE ESTE EQUIPO Y LOS
CONSUMIBLES QUE VA A UTILIZAR, SIGA LAS MEDIDAS DE SEGURIDAD DE SU SUPERVISOR.
LISEZ ET COMPRENEZ LES INSTRUCTIONS DU FABRICANT EN CE QUI REGARDE CET EQUIPMENT ET LES PRODUITS A
ETRE EMPLOYES ET SUIVEZ LES PROCEDURES DE SECURITE DE VOTRE EMPLOYEUR.
LESEN SIE UND BEFOLGEN SIE DIE BETRIEBSANLEITUNG DER ANLAGE UND DEN ELEKTRODENEINSATZ DES HER-
STELLERS. DIE UNFALLVERHÜTUNGSVORSCHRIFTEN DES ARBEITGEBERS SIND EBENFALLS ZU BEACHTEN.
●Do not touch electrically live parts or
electrode with skin or wet clothing.
●Insulate yourself from work and
ground.
●No toque las partes o los electrodos
bajo carga con la piel o ropa moja-
da.
●Aislese del trabajo y de la tierra.
●Ne laissez ni la peau ni des vête-
ments mouillés entrer en contact
avec des pièces sous tension.
●Isolez-vous du travail et de la terre.
●Berühren Sie keine stromführenden
Teile oder Elektroden mit Ihrem
Körper oder feuchter Kleidung!
●Isolieren Sie sich von den
Elektroden und dem Erdboden!
●Não toque partes elétricas e elec-
trodos com a pele ou roupa molha-
da.
●Isole-se da peça e terra.
●Keep flammable materials away.
●Mantenga el material combustible
fuera del área de trabajo.
●Gardez à l’écart de tout matériel
inflammable.
●Entfernen Sie brennbarres Material!
●Mantenha inflamáveis bem guarda-
dos.
●Wear eye, ear and body protection.
●Protéjase los ojos, los oídos y el
cuerpo.
●Protégez vos yeux, vos oreilles et
votre corps.
●Tragen Sie Augen-, Ohren- und Kör-
perschutz!
●Use proteção para a vista, ouvido e
corpo.

WARNING
AVISO DE
PRECAUCION
ATTENTION
WARNUNG
ATENÇÃO
Spanish
French
German
Portuguese
Japanese
Chinese
Korean
Arabic
LEIA E COMPREENDA AS INSTRUÇÕES DO FABRICANTE PARA ESTE EQUIPAMENTO E AS PARTES DE USO, E SIGA AS
PRÁTICAS DE SEGURANÇA DO EMPREGADOR.
●Keep your head out of fumes.
●Use ventilation or exhaust to
remove fumes from breathing zone.
●Los humos fuera de la zona de res-
piración.
●Mantenga la cabeza fuera de los
humos. Utilice ventilación o
aspiración para gases.
●Gardez la tête à l’écart des fumées.
●Utilisez un ventilateur ou un aspira-
teur pour ôter les fumées des zones
de travail.
●Vermeiden Sie das Einatmen von
Schweibrauch!
●Sorgen Sie für gute Be- und
Entlüftung des Arbeitsplatzes!
●Mantenha seu rosto da fumaça.
●Use ventilação e exhaustão para
remover fumo da zona respiratória.
●Turn power off before servicing.
●Desconectar el cable de ali-
mentación de poder de la máquina
antes de iniciar cualquier servicio.
●Débranchez le courant avant l’entre-
tien.
●Strom vor Wartungsarbeiten
abschalten! (Netzstrom völlig öff-
nen; Maschine anhalten!)
●Não opere com as tampas removidas.
●Desligue a corrente antes de fazer
serviço.
●Não toque as partes elétricas nuas.
●Do not operate with panel open or
guards off.
●No operar con panel abierto o
guardas quitadas.
●N’opérez pas avec les panneaux
ouverts ou avec les dispositifs de
protection enlevés.
●Anlage nie ohne Schutzgehäuse
oder Innenschutzverkleidung in
Betrieb setzen!
●Mantenha-se afastado das partes
moventes.
●Não opere com os paineis abertos
ou guardas removidas.

• Sales and Service through Subsidiaries and Distributors Worldwide •
Cleveland, Ohio 44117-1199 U.S.A. TEL: 216.481.8100 FAX: 216.486.1751 WEB SITE: www.lincolnelectric.com
• World's Leader in Welding and Cutting Products •