Linear Vs Gslg Series Industrial Variable Speed Gate Operator Quick Start Guide P1255_APeX_VS GSLG_Manual
2014-07-19
: Linear Linear-Vs-Gslg-Series-Industrial-Variable-Speed--Gate-Operator-Quick-Start-Guide linear-vs-gslg-series-industrial-variable-speed--gate-operator-quick-start-guide linear pdf
Open the PDF directly: View PDF
.
Page Count: 36

VS-GSLG
Slide Gate Operator
Installation Guide
USA & Canada (800) 421-1587 & (800) 392-0123
(760) 438-7000 - Toll Free FAX (800) 468-1340
www.linearcorp.com
Operator models contained in this manual
conform to UL325 standard for use in
Class I, II, III, and IV applications

VS-GSLG Slide Gate Operator Installation Guide - ii - P1255 Revision X5 7-7-2011
Table of Contents
Pre-installation Information . . . . . . . . . . . . . . . . . . . . . . . . . . . . . . . . . .1
Before You Begin... . . . . . . . . . . . . . . . . . . . . . . . . . . . . . . . . . . . . . .1
Always Check the Gate’s Action . . . . . . . . . . . . . . . . . . . . . . . . . . . . 1
Gate Operator Classifi cations . . . . . . . . . . . . . . . . . . . . . . . . . . . . . .1
Approved Obstruction Detection Devices . . . . . . . . . . . . . . . . . . . . . 1
Safety Information and Warnings . . . . . . . . . . . . . . . . . . . . . . . . . . . . . .1
Regulatory Warnings . . . . . . . . . . . . . . . . . . . . . . . . . . . . . . . . . . . . .1
Wiring Specifi cations . . . . . . . . . . . . . . . . . . . . . . . . . . . . . . . . . . . . . . .2
AC Power Wiring . . . . . . . . . . . . . . . . . . . . . . . . . . . . . . . . . . . . . . . .2
DC Control and Accessory Wiring . . . . . . . . . . . . . . . . . . . . . . . . . . .2
Mounting Pad Installation . . . . . . . . . . . . . . . . . . . . . . . . . . . . . . . . . . . .3
Gate Preparation . . . . . . . . . . . . . . . . . . . . . . . . . . . . . . . . . . . . . . . .3
Mounting Specifi cations . . . . . . . . . . . . . . . . . . . . . . . . . . . . . . . . . .3
Operator Preparation . . . . . . . . . . . . . . . . . . . . . . . . . . . . . . . . . . . . . . .4
Vent Plug Installation . . . . . . . . . . . . . . . . . . . . . . . . . . . . . . . . . . . . . 4
Gate Bracket and Chain Assembly . . . . . . . . . . . . . . . . . . . . . . . . . . . .4
Chain Supports . . . . . . . . . . . . . . . . . . . . . . . . . . . . . . . . . . . . . . . . . 4
Operator Setup . . . . . . . . . . . . . . . . . . . . . . . . . . . . . . . . . . . . . . . . . . . .5
Controller Access . . . . . . . . . . . . . . . . . . . . . . . . . . . . . . . . . . . . . . . 5
Manual Disconnect . . . . . . . . . . . . . . . . . . . . . . . . . . . . . . . . . . . . . . 5
AC Power Connection . . . . . . . . . . . . . . . . . . . . . . . . . . . . . . . . . . . .5
Earth Ground . . . . . . . . . . . . . . . . . . . . . . . . . . . . . . . . . . . . . . . . . . .5
Open and Close Limit Adjustment . . . . . . . . . . . . . . . . . . . . . . . . . . .6
Limit Nuts Rough Adjustment . . . . . . . . . . . . . . . . . . . . . . . . . . . . . . 6
Limit Nuts Fine Adjustment . . . . . . . . . . . . . . . . . . . . . . . . . . . . . . . .6
Setting Speeds using LSO-2 & LSC-2 . . . . . . . . . . . . . . . . . . . . . . .6
Torque Limiter Adjustment . . . . . . . . . . . . . . . . . . . . . . . . . . . . . . . . .7
Controller Features . . . . . . . . . . . . . . . . . . . . . . . . . . . . . . . . . . . . . . . . .8
Indicator Descriptions . . . . . . . . . . . . . . . . . . . . . . . . . . . . . . . . . . . . . . .9
Terminal Descriptions . . . . . . . . . . . . . . . . . . . . . . . . . . . . . . . . . . . . . .10
Operator Accessory Connections . . . . . . . . . . . . . . . . . . . . . . . . . . . .11
Basic Controller Programming. . . . . . . . . . . . . . . . . . . . . . . . . . . . . . .12
Programming Overview . . . . . . . . . . . . . . . . . . . . . . . . . . . . . . . . . .12
Entering Programming Mode . . . . . . . . . . . . . . . . . . . . . . . . . . . . .12
Exiting Programming Mode . . . . . . . . . . . . . . . . . . . . . . . . . . . . . . .12
Programming Keystrokes . . . . . . . . . . . . . . . . . . . . . . . . . . . . . . . .12
Left or Right Hand Operation. . . . . . . . . . . . . . . . . . . . . . . . . . . . . .12
Dual Gate Enable . . . . . . . . . . . . . . . . . . . . . . . . . . . . . . . . . . . . . .12
Auto Close Timer . . . . . . . . . . . . . . . . . . . . . . . . . . . . . . . . . . . . . . . 12
Run Alarm and Pre-start Alarm . . . . . . . . . . . . . . . . . . . . . . . . . . . .13
Maximum Open Direction Current Setting . . . . . . . . . . . . . . . . . . . . 13
Maximum Close Direction Current Setting . . . . . . . . . . . . . . . . . . . 13
Advanced Controller Programming . . . . . . . . . . . . . . . . . . . . . . . . . . . 14
Entering Advanced Programming Mode . . . . . . . . . . . . . . . . . . . . .14
Maximum Run Time . . . . . . . . . . . . . . . . . . . . . . . . . . . . . . . . . . . .14
Single Button Input Setup . . . . . . . . . . . . . . . . . . . . . . . . . . . . . . . . 14
Stagger Mode . . . . . . . . . . . . . . . . . . . . . . . . . . . . . . . . . . . . . . . . . 14
Stagger Delay Time . . . . . . . . . . . . . . . . . . . . . . . . . . . . . . . . . . . . . 14
Auxiliary Relay Mode . . . . . . . . . . . . . . . . . . . . . . . . . . . . . . . . . . . .15
Reverse Delay Time . . . . . . . . . . . . . . . . . . . . . . . . . . . . . . . . . . . .15
Brake Delay Time . . . . . . . . . . . . . . . . . . . . . . . . . . . . . . . . . . . . . .15
Constant Pressure Mode . . . . . . . . . . . . . . . . . . . . . . . . . . . . . . . . .15
Shadow Loop Open Prevention . . . . . . . . . . . . . . . . . . . . . . . . . . . .15
Reset Cycle Count . . . . . . . . . . . . . . . . . . . . . . . . . . . . . . . . . . . . .16
Maintenance Alert Trigger . . . . . . . . . . . . . . . . . . . . . . . . . . . . . . . .16
Mid-travel Stop Position . . . . . . . . . . . . . . . . . . . . . . . . . . . . . . . . . .16
Anti-tailgate Enable . . . . . . . . . . . . . . . . . . . . . . . . . . . . . . . . . . . . .16
Radio Enable . . . . . . . . . . . . . . . . . . . . . . . . . . . . . . . . . . . . . . . . . .16
Antenna Installation . . . . . . . . . . . . . . . . . . . . . . . . . . . . . . . . . . . . .16
Radio Transmitter Learn . . . . . . . . . . . . . . . . . . . . . . . . . . . . . . . . .17
Radio Transmitter Delete . . . . . . . . . . . . . . . . . . . . . . . . . . . . . . . . .17
MGT Obstacle Transmitter Learn . . . . . . . . . . . . . . . . . . . . . . . . . .17
MGT Obstacle Transmitter Delete . . . . . . . . . . . . . . . . . . . . . . . . . .17
Motor Type Selection . . . . . . . . . . . . . . . . . . . . . . . . . . . . . . . . . . . .17
Reset Controller to Factory Defaults . . . . . . . . . . . . . . . . . . . . . . . .17
Loop Layout Illustration . . . . . . . . . . . . . . . . . . . . . . . . . . . . . . . . . . . .18
Safety Edge Layout Illustration #1 . . . . . . . . . . . . . . . . . . . . . . . . . . . . 19
Safety Edge Layout Illustration #2 . . . . . . . . . . . . . . . . . . . . . . . . . . .20
Photoeye Installation Illustration . . . . . . . . . . . . . . . . . . . . . . . . . . . . . 21
Picket Gate Installation . . . . . . . . . . . . . . . . . . . . . . . . . . . . . . . . . . . . . 22
Track Gate Installation . . . . . . . . . . . . . . . . . . . . . . . . . . . . . . . . . . . . . 23
Dual Gate Installations . . . . . . . . . . . . . . . . . . . . . . . . . . . . . . . . . . . . .24
Optional In-Cabinet Heater . . . . . . . . . . . . . . . . . . . . . . . . . . . . . . . . . . 24
Gate Operation . . . . . . . . . . . . . . . . . . . . . . . . . . . . . . . . . . . . . . . . . . . .25
Open Button . . . . . . . . . . . . . . . . . . . . . . . . . . . . . . . . . . . . . . . . . .25
Close Button . . . . . . . . . . . . . . . . . . . . . . . . . . . . . . . . . . . . . . . . . . 25
Stop Button . . . . . . . . . . . . . . . . . . . . . . . . . . . . . . . . . . . . . . . . . . . 25
Single Input . . . . . . . . . . . . . . . . . . . . . . . . . . . . . . . . . . . . . . . . . . .25
Fire Department Input . . . . . . . . . . . . . . . . . . . . . . . . . . . . . . . . . . .25
Open Input . . . . . . . . . . . . . . . . . . . . . . . . . . . . . . . . . . . . . . . . . . . .25
Open Obstruction . . . . . . . . . . . . . . . . . . . . . . . . . . . . . . . . . . . . . .25
Close Obstruction . . . . . . . . . . . . . . . . . . . . . . . . . . . . . . . . . . . . . . 25
Reverse Input . . . . . . . . . . . . . . . . . . . . . . . . . . . . . . . . . . . . . . . . .25
Open Loop . . . . . . . . . . . . . . . . . . . . . . . . . . . . . . . . . . . . . . . . . . . .25
Reverse Loop . . . . . . . . . . . . . . . . . . . . . . . . . . . . . . . . . . . . . . . . .25
Shadow/Reset Loop . . . . . . . . . . . . . . . . . . . . . . . . . . . . . . . . . . . .25
Operation Indications . . . . . . . . . . . . . . . . . . . . . . . . . . . . . . . . . . . . . .25
Power-up Display . . . . . . . . . . . . . . . . . . . . . . . . . . . . . . . . . . . . . . .25
Idle Condition . . . . . . . . . . . . . . . . . . . . . . . . . . . . . . . . . . . . . . . . .25
Last Gate Position/Condition . . . . . . . . . . . . . . . . . . . . . . . . . . . . . .25
Pre-start Delay . . . . . . . . . . . . . . . . . . . . . . . . . . . . . . . . . . . . . . . .25
Reverse Delay . . . . . . . . . . . . . . . . . . . . . . . . . . . . . . . . . . . . . . . . .25
Run Timer . . . . . . . . . . . . . . . . . . . . . . . . . . . . . . . . . . . . . . . . . . . . 25
Error Indications . . . . . . . . . . . . . . . . . . . . . . . . . . . . . . . . . . . . . . . . . .26
Entrapment . . . . . . . . . . . . . . . . . . . . . . . . . . . . . . . . . . . . . . . . . . . 26
COMM LINK Connection Failure . . . . . . . . . . . . . . . . . . . . . . . . . . .26
MGT Obstacle Transmitter Trouble . . . . . . . . . . . . . . . . . . . . . . . . .26
Maximum Run Time Exceeded . . . . . . . . . . . . . . . . . . . . . . . . . . . .26
Troubleshooting . . . . . . . . . . . . . . . . . . . . . . . . . . . . . . . . . . . . . . . . . . .27
Contacting Technical Support . . . . . . . . . . . . . . . . . . . . . . . . . . . . .27
Operator fails to start . . . . . . . . . . . . . . . . . . . . . . . . . . . . . . . . . . . . 27
Motor operates, but gate does not move . . . . . . . . . . . . . . . . . . . . .27
Motor sounds like it is working harder than normal . . . . . . . . . . . . .27
Limit switch getting out of time . . . . . . . . . . . . . . . . . . . . . . . . . . . . 27
Gate stopping part way open or closed . . . . . . . . . . . . . . . . . . . . . . 27
Gate staying open with automatic system . . . . . . . . . . . . . . . . . . . .27
How to Order Replacement Parts . . . . . . . . . . . . . . . . . . . . . . . . . .27
Model VS-GSLG Exploded View . . . . . . . . . . . . . . . . . . . . . . . . . . . . . .28
Controller Parts List . . . . . . . . . . . . . . . . . . . . . . . . . . . . . . . . . . . . . . . 30
Preventative Maintenance . . . . . . . . . . . . . . . . . . . . . . . . . . . . . . . . . .31
General . . . . . . . . . . . . . . . . . . . . . . . . . . . . . . . . . . . . . . . . . . . . . . 31
Lubrication . . . . . . . . . . . . . . . . . . . . . . . . . . . . . . . . . . . . . . . . . . . .31
6-Month Preventative Maintenance . . . . . . . . . . . . . . . . . . . . . . . . .31
FCC Notice . . . . . . . . . . . . . . . . . . . . . . . . . . . . . . . . . . . . . . . . . . . . . . . 31
Variable Speed Drive Programming . . . . . . . . . . . . . . . . . . . . . . . . . . . 32
Programming the Hitachi Inverter . . . . . . . . . . . . . . . . . . . . . . . . . . 32
Gate Operator Installation Checklist . . . . . . . . . . . . . . . . . . . . . . . . . .34
ONLY QUALIFIED TECHNICIANS
SHOULD WORK ON
LINEAR SLIDE GATE
OPERATORS
WARNING
WARNING
CONTROLS INTENDED FOR USER ACTIVATION MUST BE
LOCATED AT LEAST SIX FEET (6') AWAY FROM ANY MOVING
PART OF THE GATE AND WHERE THE USER IS PREVENTED
FROM REACHING OVER, UNDER, AROUND OR THROUGH THE
GATE TO OPERATE THE CONTROLS. OUTDOOR OR EASILY
ACCESSIBLE CONTROLS SHALL HAVE A SECURITY FEATURE
TO PREVENT UNAUTHORIZED USE.

VS-GSLG Slide Gate Operator Installation Guide - 1 - P1255 Revision X5 7-7-2011
Pre-installation Information
Before You Begin...
Before unpacking, inspect the carton for exterior damage. If
you fi nd damage, advise the delivery carrier of a potential
claim. Inspect your package carefully. You can check your
accessory box parts with the enclosed packing slip for your
convenience. Claims for shortages will be honored for only
30 days from the date of shipment.
Before installing the operator, read this manual completely to
ensure all requirements for proper installation are present. Verify
that the voltage to be used matches the voltage of the operator.
If you have any questions about the requirements for proper
installation of this gate operator contact technical support at
800-421-1587.
Always Check the Gate’s Action
It’s very important before installing the gate operator to
make sure the gate slides is free and level throughout
the entire opening distance. If the gate does not seem to
operate properly, it may affect the operator performance
or greatly shorten the life of the unit. The gate should
also be designed so that airfl ow is ample to prevent
wind resistance and drag.
Gate Operator Classifi cations
All gate operators can be divided into one of four different
classifi cations, depending on their design and usage. Install
this gate operator only when the operator is appropriate for
the construction and usage class as defi ned below:
• Class I Residential Vehicular Gate Operator
A vehicular gate operator intended for use in a home or for one to
four single family dwellings with a common garage or parking area
associated with these dwellings.
• Class II Commercial / General Access Vehicular Gate Operator
A vehicular gate operator intended for use in a commercial location or
building such as a multi-family housing unit of fi ve or more single family
units, hotel, retail store or other building servicing the general public.
• Class III Industrial / Limited Access Vehicular Gate Operator
A vehicular gate operator intended for use in an industrial location or
building such as a factory or loading dock area or other location not
intended to service the general public.
• Class IV Restricted Access Vehicular Gate Operator
A vehicular gate operator intended for use in a guarded industrial
location or building such as an airport security area or other restricted
access locations not servicing the general public, in which unauthorized
access is prevented via supervision by security personnel.
Approved Obstruction Detection Devices
The following contact or non-contact obstruction detection
devices have been approved for use with this slide gate
operator as part of a UL325 compliant installation:
• Contact Edges
Miller Edge Models MGO20, MGR20, MGS20, ME120
• Photoeyes
MMTC Model IR-55 (165’ range - P/N 2520-441)
MMTC Model E3K (28’ range - P/N 2520-031)
Safety Information and Warnings
Regulatory Warnings
Read the following before beginning to install this slide gate
operator:
THE FOLLOWING FORMATS ARE USED FOR SAFETY NOTES
IN THESE INSTRUCTIONS.
WARNING
This type of warning note is used to
indicate possible mechanical hazards that
may cause serious injuries or death.
CAUTION
This type of warning note is used to
indicate the possibility of damage to the
gate or gate operator.
WARNING
This type of warning note is used to indicate
possible electrical shock hazards that may
cause serious injuries or death.
IMPORTANT INSTALLATION SAFETY INSTRUCTIONS
WARNING
TO REDUCE THE RISK OF SEVERE INJURY OR DEATH
TO PERSONS, REVIEW THESE INSTALLATION SAFETY
STEPS BEFORE PROCEEDING
1. READ AND FOLLOW ALL INSTALLATION INSTRUCTIONS.
2. Read the yellow “Safety Instructions” brochure enclosed with the
packet of information. If any pages are missing or are unreadable,
or you do not have the safety instructions, please call Linear at
1-800-421-1587 to request additional copies.
3. ALL ELECTRICAL CONNECTIONS TO THE POWER SUPPLY MUST
BE MADE BY A LICENSED ELECTRICIAN AND MUST OBSERVE ALL
NATIONAL AND LOCAL ELECTRICAL CODES.
4. A separate power-disconnect switch should be located near the
operator so that primary power can be turned off when necessary.
5. Install the enclosed warning signs on both sides of the gate. A
minimum of two (2) WARNING SIGNS shall be installed, one on each
side of the gate where easily visible.
6. Never reach between, through or around the fence to operate the
gate.
7. Never connect a button station within reach of the gate or on the
side of the gate operator.
8. Do not adjust the operator controller’s current sensing feature too
high. It should be adjusted high enough to keep the gate from falsely
triggering the sensing, but no higher than necessary for the gate to
operate. DO NOT DEFEAT THE PURPOSE OF THIS FUNCTION!
9. You must install all required safety equipment.
10. UL325 Compliance requires the use of contact edges or photoelectric
controls on all automatic or remotely-controlled gate operators.
11. The operator is intended for installation only on gates used for
vehicles. Pedestrians must be supplied with a separate access
opening. The pedestrian access opening shall be designed to
promote pedestrian usage. Locate the gate such that persons will
not come into contact with the vehicular gate during the entire path
of travel of the vehicular gate.

VS-GSLG Slide Gate Operator Installation Guide - 2 - P1255 Revision X5 7-7-2011
Wiring Specifi cations
Refer to the following steps for details on power and
accessory wiring for the operator.
AC Power Wiring
1. Find the listing on this page corresponding to the model, voltage and
horsepower rating of your operator.
2. The distance shown in the table is measured in feet from the
operator to the power source. DO NOT EXCEED THE MAXIMUM
DISTANCE. These calculations have been based on standard 115 V
and 230 V supplies with a 10% drop allowable. If your supply is under
the standard rating, the runs listed may be longer than what your
application will handle, and you should not run wire too near the
maximum distance for the gauge of wire you are using.
3. When large-gauge wire is used, a separate junction box (not
supplied) may be needed for the operator power connection.
4. Wire length calculations are based on the National Electrical Code,
Article 430 and have been carefully determined based on motor
inrush, brake solenoids, and operator requirements.
5. Connect power in accordance with local codes. The green ground
wire must be properly connected.
6. Wire insulation must be suitable to the application.
7. Electrical outlets are supplied in all 115 VAC models for convenience
with occasional use or low power consumption devices only. If
you choose to run dedicated equipment from these devices, it will
decrease the distance for maximum length and the charts will no
longer be accurate.
DC Control and Accessory Wiring
1. All control devices are now 24 VDC, which can be run up to 2000
feet with 14 AWG wire.
2. Control wiring must be run in a separate conduit from power wiring.
Running them together may cause interference and faulty signals in
some accessories.
3. A three-wire shielded conductor cable is required to connect two
operators together for dual operation. You must use Belden 8760
Twisted Pair Shielded Cable (or equivalent) only – P/N 2500-1982,
per foot). See Page 24 for details of this connection. Note: The shield
wire should be connected in both the operators.
WARNING
ALL AC ELECTRICAL CONNECTIONS TO THE POWER SOURCE AND
THE OPERATOR MUST BE MADE BY A LICENSED ELECTRICIAN
AND MUST OBSERVE ALL NATIONAL AND LOCAL ELECTRICAL
CODES.
USE COPPER WIRE ONLY!
MODEL VS-GSLG SINGLE PHASE POWER WIRING
VOLTS & HP MAXIMUM DISTANCE (FEET) WIRE GAUGE
SINGLE DUAL
115 VOLTS
1/2-HP
222 111 12
354 177 10
566 283 8
900 450 6
1430 715 4
115 VOLTS
3/4-HP
178 89 12
282 141 10
450 255 8
716 358 6
1140 570 4
115 VOLTS
1-HP
160 80 12
254 127 10
406 203 8
646 323 6
1026 513 4
208 VOLTS
1/2-HP
760 380 12
1200 600 10
1924 962 8
3060 1830 6
4864 2432 4
208 VOLTS
3/4-HP
604 302 12
958 478 10
1526 763 8
2424 1212 6
3856 1928 4
208 VOLTS
1-HP
544 272 12
864 432 10
1374 686 8
2184 1092 6
3476 1738 4
230 VOLTS
1/2-HP
894 447 12
1422 711 10
2264 1132 8
3600 1800 6
5724 2862 4
230 VOLTS
3/4-HP
710 355 12
1128 564 10
1796 898 8
2852 1426 6
4538 2269 4
230 VOLTS
1-HP
640 320 12
1016 508 10
1616 808 8
2570 1285 6
4090 2045 4
MODEL VS-GSLG THREE PHASE POWER WIRING
VOLTS & HP MAXIMUM DISTANCE (FEET) WIRE GAUGE
SINGLE DUAL
208 VOLTS
1/2-HP
1142 571 12
1816 908 10
2890 1445 8
208 VOLTS
3/4-HP
920 460 12
1464 732 10
2330 1165 8
208 VOLTS
1-HP
714 357 12
1136 568 10
1804 902 8
230 VOLTS
1/2-HP
1344 672 12
2137 1069 10
3400 1700 8
230 VOLTS
3/4-HP
1084 542 12
1723 862 10
2741 1371 8
230 VOLTS
1-HP
840 420 12
1336 668 10
2124 1062 8
460 VOLTS
1/2-HP
3841 1921 12
6106 3053 10
9712 4856 8
460 VOLTS
3/4-HP
3279 1640 12
5212 2606 10
8291 4146 8
460 VOLTS
1-HP
2689 1345 12
4274 2437 10
6798 3399 8

VS-GSLG Slide Gate Operator Installation Guide - 3 - P1255 Revision X5 7-7-2011
Mounting Pad Installation
The gate operator mounts bolted to posts secured in
concrete footings. The posts support the operator and
prevent it from moving during operation. For optional pad
mounting instructions, see Linear drawing #2700-360.
Gate Preparation
Before installing, make sure the gate rolls or slides freely,
and that all exposed rollers are properly covered. The gate
must be covered with fabric with openings no larger than
2-1/4” in size, to a minimum height of 72” above ground
level. On picket-style gates, if pickets are spaced less than
2-1/4” apart, mesh is optional.
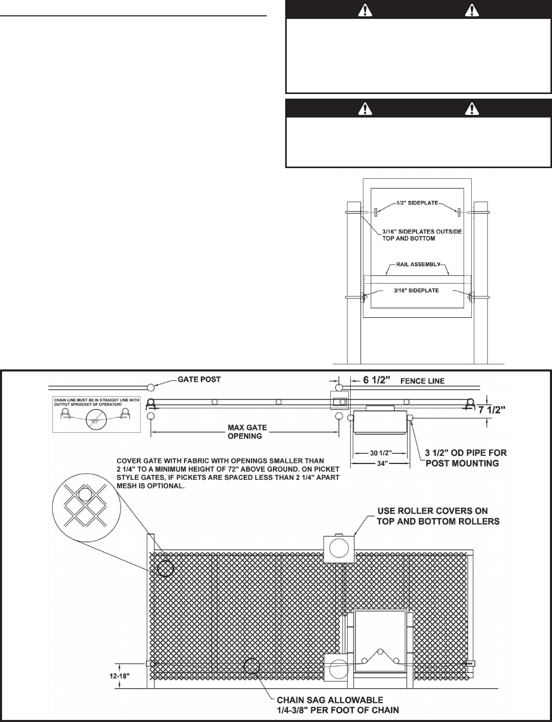
Mounting Specifi cations
Use two 3 - 3-1/2” OD galvanized posts and secure with
concrete footings as shown, length to be determined by
local codes, frost line depth and soil conditions.
Attach the operator with the U-bolts, side plates and
hardware provided. Four 3/16” side plates go on the outside
top and bottom, two 1/2” side plates go on the inside top,
and two 3/16” side plates go on the inside bottom (see the
illustration at right).
To assemble the drive chain and gate brackets, refer to
Page 4. Make sure that the chain sag does not exceed
recommended sizes and that the chain does not come into
contact with the moving parts of the gate or ground.
Figure 2. Post Mounting Specifi cations
WARNING
The operator is intended for installation only on gates used for
vehicles. Pedestrians must be supplied with a separate access
opening. The pedestrian access opening shall be designed to
promote pedestrian usage. Locate the gate such that persons
will not come into contact with the vehicular gate during the
entire path of travel of the vehicular gate.
WARNING
The gate must be installed in a location so that enough
clearance is supplied between the gate and adjacent
structures when opening and closing to reduce the risk of
entrapment.
Figure 1. Side
Plate Installation

VS-GSLG Slide Gate Operator Installation Guide - 4 - P1255 Revision X5 7-7-2011
Operator Preparation
Vent Plug Installation
In order to keep gear oil from spilling out during shipping,
gear reducers used in gate operators have either a solid
plug, or a sealed vent plug, installed at the factory.
For operators with a solid plug, replace the solid plug with
the vent plug provided (see Figure 3).
With the vent plug installed, remove the vent plug’s breather
pin to allow the gear box to vent (see Figure 3).
Gate Bracket and Chain Assembly
✓ NOTE: The item numbers shown in these illustrations
are for reference only. For the actual part numbers, refer
to the parts lists in the rear of this manual.
Assemble a gate bracket (1) to the front edge of the gate,
using two U-bolts (2), and mounting hardware (3). Before
tightening down completely, be sure the bracket is parallel
to the gate. Tighten the U-bolt hardware the rest of the way,
then screw the square head bolts (4) into the threaded
holes in the gate plate until they bottom out against the gate.
These will help keep the bracket from twisting on the pipe.
Additional mounting holes have been provided in the gate
bracket for installer convenience.
Slide a threaded chain pin (5) through the bracket as shown,
with spring (6), fl at washer (10), and two hex nuts (7). Attach
one end of the drive chain (8) to the chain pin using master
link (9) and begin unrolling the chain toward the operator.
Remove the rain cover from the back of the slide gate
operator. Carefully thread the drive chain under the fi rst
idler, over the drive sprocket, and then under the last idler.
Make sure you feed most of the chain through the idlers and
sprocket before attaching the chain to the back end of the
gate.
Assemble the other gate bracket on the rear edge of the
gate, using the same process as the front gate bracket.
Once this is done, take the other chain pin, spring and jam
nuts and assemble with the end of drive chain and the other
master link.
At this point you should be able to adjust the chain tension
by tightening the jam nuts on each end. Approximately
1/4” to 3/8” of slack per foot of drive chain is acceptable.
Make sure the chain does not drag on the ground, across
the gate rollers or the idler frame of the operator.
Chain Supports
When necessary, due to the length of the gate and chain,
chain supports should be added to the gate at equally
spaced distances to allow the chain to sag as little as
possible. A bolt located one inch below the chain line should
be adequate.
REMOVE THE
SOLID PLUG
WITH AN ALLEN
WRENCH
INSTALL THE VENT PLUG
(IF NOT ALREADY INSTALLED)
REMOVE THE
BREATHER PIN
GEAR
REDUCER
Figure 3. Vent Plug Installation
GATE PIPE SHOWN
FOR REFERENCE ONLY
1
2
3
4
Figure 4. Mounting Gate Bracket to Gate
Figure 5. Chain Pin and Chain Assembly
8
9
5
6
710
NOTE: IDLER CONFIGURATION
MAY APPEAR DIFFERENT DEPENDING
ON THE SLIDE OPERATOR MODEL
DRIVE
SPROCKET
DRIVE SPROCKET
IDLER
WHEEL
IDLER WHEEL
CHAIN
PATH
CHAIN
PATH
IDLER WHEEL
Figure 6. Chain Path

VS-GSLG Slide Gate Operator Installation Guide - 5 - P1255 Revision X5 7-7-2011
Operator Setup
Controller Access
The Controller is protected by a plastic dust cover. To
remove the dust cover, loosen the cover’s wing-screw and
lift the cover off (see Figure 7).
Manual Disconnect
The manual disconnect shifter lever and the locking lever is
illustrated in Figure 8. They can be found at the center and
to the left inside the operator cabinet. (The handle of each
has been fi nished in easy to spot red fi rm-grip coating.)
To disconnect the unit for manual operation, grasp the
handle of the spring-loaded shifter lever and pull it directly
toward you until the spring-loaded locking lever snaps into
place behind it. This action disengages the pinned shifter
block from the drive mechanism and holds the block in the
disengaged position.
To re-engage the operator, move the locking lever to the
right, releasing the spring-loaded shifter lever to snap back
into the engaged position.
AC Power Connection
All Linear gate operators are supplied with a power
disconnect switch to turn on and off the power available
to the operator. Following wiring specifi cations on Page 2,
incoming power should be brought into the operator and
connected to the labeled pigtails from the disconnect box.
A wiring connections print can also be found on the label
inside the cover of the operator.
Proper thermal protection is supplied with the operator. The
motor contains a thermal overload protector to guard from
overheating the motor due to overload or high-frequency
operation. This overload protector will reset automatically
after the motor cools down.
Earth Ground
Install a ground rod and connect it to the operator’s frame
in every gate operator installation. A good earth ground
is necessary to allow the Controller’s built-in surge and
lightning protection circuitry to work effectively. The physical
bolting of the operator to the mounting posts is not suffi cient
for a good earth ground.
✓ NOTE: Do not splice the ground wire. Use a single piece of solid
copper 12 AWG wire between the ground rod and the operator.
1. Install an 8-foot long copper ground rod next to the operator mounting
pad within three feet of the operator.
2. Use a clamp to connect a solid copper 12 AWG ground wire to the
ground rod.
3. Route the ground wire to the operator.
4. Connect the ground wire to the operator’s frame.
Figure 7. Controller Access
Figure 9. Power Disconnect Box Wiring
Figure 8. Manual Disconnect Lever
LOOSEN KNOB
TO REMOVE
CONTROLLER
COVER
MANUAL DISCONNECT
SHIFTER LEVER
PULL TO DISENGAGE
LOCKING LEVER
PUSH TO RIGHT TO
RE-ENGAGE OPERATOR
TO MANUALLY MOVE THE GATE,
PULL SHIFTER LEVER TO
DISENGAGE THE DRIVE TRAIN
GATE LIMIT SETTINGS WILL
NOT BE AFFECTED WHEN
GATE IS MANUALLY MOVED
PULL
PUSH
110 VOLT
OPERATOR
POWER
DISCONNECT
BOX
BLACK
220 VOLT
OPERATOR
POWER
DISCONNECT
BOX
WHITE
GREEN
BLACK
WHITE
GREEN
HOT
NEUTRAL
GROUND
HOT
HOT
GROUND
WARNING
ALL AC ELECTRICAL CONNECTIONS TO THE POWER SOURCE AND
THE OPERATOR MUST BE MADE BY A LICENSED ELECTRICIAN AND
MUST OBSERVE ALL NATIONAL AND LOCAL ELECTRICAL CODES

VS-GSLG Slide Gate Operator Installation Guide - 6 - P1255 Revision X5 7-7-2011
Operator Setup (cont.)
Open and Close Limit Adjustment
The limit nuts are not preset at the factory and must be adjusted
for the gate in each installation. The limit switches are activated
by two threaded nylon rotary limit nuts which are attached to
a threaded limit shaft driven by a chain and sprockets from
the main drive shaft. REMOVE THE CARDBOARD FILLER
BEFORE ADJUSTING THE LIMIT NUTS.
The Controller is factory setup for right-hand installations.
The OPEN limit switches are the ones closer to the front
of the operator. In left-hand installations, the CLOSE limit
switches are the ones closer to the front of the operator (see
Figures 10 & 11).
Limit Nuts Rough Adjustment
Before running the operator, set the limit nuts as follows:
1. With the gate connected to the gate operator in a mid-travel position,
turn the power disconnect switch OFF.
2. To adjust the limit nuts, press down on the detent plate and rotate the
limit nut along the threaded shaft (see Figure 12).
3. Adjust the OPEN limit nut until it is about 1/2” from activating the
LSO-2 OPEN limit switch.
4. Adjust the CLOSE limit nut until it is about 1/2” from activating the
LSC-2 CLOSE limit switch.
Limit Nuts Fine Adjustment
After fi nishing the rough limit nut adjustments, run the
operator to set the fi ne limit adjustment.
1. Turn the power disconnect switch ON.
2. Stand clear of any moving parts and press the OPEN button.
3. After the gate opens, press the CLOSE button.
4. Observe the gate in both directions as it runs through each complete
cycle. Adjust the open or close limit nuts again if necessary. Fine
levels of adjustment can be made by adjusting a few teeth on the
nut at a time. If the gate stops during travel, you may need to adjust
the Open or Close Current Setting or the Maximum Run Timer (see
Pages 13-14).
Setting Speeds using LSO-2 & LSC-2
Limit switches LSO-2 and LSC-2 control when the operator
accelerates to maximum speed and decelerates to
minimum speed. It is recommended that LSO-2 and LSC-2
are adjusted fi rst so the gate slows to near stop before
hitting LSO-1 or LSC-1 as these will apply the brake upon
activation.
Adjust LSO-2 and LSC-2 by slightly loosening the two
screws which hold them in place and sliding toward or away
from the center of the limit box. Care must be taken not to
adjust too close to the center as the limit nut may travel past
the switch and start accelerating at the end of the cycle.
PRESS DETENT
PLATE DOWN
ROTATE
LIMIT NUT
Figure 12. Setting the Limits
LIMIT
SHAFT
FRONT OF
OPERATOR
CLOSE LIMIT
SWITCH (LSC-2)
OPEN LIMIT
SWITCH (LSO-2)
CLOSE LIMIT
SWITCH (LSC-1)
OPEN LIMIT
SWITCH (LSO-1)
CLOSE LIMIT NUT
OPEN LIMIT NUT
RIGHT-HAND
INSTALLATION
LSC-2 & LSO-2
CONTROL MOTOR
SPEED RAMP UP & DOWN
LSC-1 & LSO-1
CONTROL GATE
FULL OPEN AND CLOSE
Figure 10. Limit Box Assembly (Right-hand Installation)
LIMIT
SHAFT
FRONT OF
OPERATOR
OPEN LIMIT
SWITCH (LSO-2)
CLOSE LIMIT
SWITCH (LSC-2)
OPEN LIMIT
SWITCH (LSO-1)
CLOSE LIMIT
SWITCH (LSC-1)
OPEN LIMIT NUT
CLOSE LIMIT NUT
LEFT-HAND
INSTALLATION
LSO-2 & LSC-2
CONTROL MOTOR
SPEED RAMP UP & DOWN
LSO-1 & LSC-1
CONTROL GATE
FULL OPEN AND CLOSE
Figure 11. Limit Box Assembly (Left-hand Installation)
CAUTION
If the operator is installed in a left-hand installation. Set the
Controller to left-hand operation BEFORE running the operator
for the fi ne setting of the limit cams. Failure to do so will result
in over-shooting the limit switches, and may cause damage to
the operator and/or gate. Refer to programming on Page 12.

VS-GSLG Slide Gate Operator Installation Guide - 7 - P1255 Revision X5 7-7-2011
Operator Setup (Cont.)
Torque Limiter Adjustment
Before adjusting the torque limiter, make sure the gate
is in good working condition. With the gate disconnected
from the gate arm, one person should be able to move the
gate by hand. Be certain the gate moves freely and without
binding throughout its travel.
Torque limiters are set light at the factory. They must be
adjusted during installation, preferably after limit cams have
been manually set. With the gate arm and gate attached,
adjust the torque limiter tight enough to keep it from slipping
during normal operation. The inherent entrapment protection
(current sensing) feature must activate prior to any slipping
of the torque limiter.
✓ NOTE: The open and close current sensing may need to be
adjusted before performing the following two steps. See Page 13.
To adjust the torque limiter in a Model VS-GSLG:
1. Loosen the set screw on the adjustment nut.
2. Cycle the gate open and closed while observing the torque limiter
action. TURN THE OPERATOR POWER DISCONNECT SWITCH
OFF BEFORE MAKING ANY ADJUSTMENTS.
To increase the torque, turn the adjustment nut clockwise one fl at, or
1/6 turn, at a time until desired output is obtained.
To reduce the torque, turn the adjustment nut counterclockwise one
fl at, or 1/6 turn, at a time until desired output is obtained.
3. When fi nished, tighten the set screw to lock the adjustment nut in
place.
Figure 13. Torque Limiter Adjustment
LOOSEN SET SCREW ON
THE ADJUSTMENT NUT
ADJUSTMENT NUT
TO INCREASE TORQUE
TURN ADJUSTMENT NUT
CLOCKWISE ONE FLAT
THEN RE-TEST
TO DECREASE TORQUE
TURN ADJUSTMENT NUT
COUNTERCLOCKWISE
ONE FLAT THEN RE-TEST
TIGHTEN SET SCREW
DURING TESTING
AND WHEN FINISHED !!!
MORE
LESS

VS-GSLG Slide Gate Operator Installation Guide - 8 - P1255 Revision X5 7-7-2011
Controller Features
SHADOW/RESET
PROGRAMMING
BUTTONS
POWER
INDICATORS
DISPLAY
WHIP
ANTENNA
OPERATION
BUTTONS
OPERATION AND
PROGRAMMING
INDICATORS
ANTENNA
CONNECTOR
MOTOR
BOARD
COVER
INPUT
POWER
TERMINALS
ACCESSORY
POWER
TERMINALS
RESET
BUTTON
TERMINALS
SOLAR
PANEL
TERMINALS
BATTERY
TERMINALS
PLUG-IN
LOOP
DETECTOR
CONNECTORS
PRIMARY/
SECONDARY
COMM LINK
TERMINALS
SINGLE
INPUT
TERMINALS
FIRE DEPT
INPUT
TERMINALS
OPEN INPUT
TERMINALS
3-BUTTON
STATION
TERMINALS
OPEN AND CLOSE
OBSTRUCTION
INPUT TERMINALSREVERSE
INPUT
TERMINALS
OPEN LOOP
INPUT TERMINALS
REVERSE LOOP
INPUT TERMINALS
SHADOW/RESET LOOP
INPUT TERMINALS
LIMIT SWITCH
INPUT TERMINALS
ALARM
OUTPUT
TERMINALS
AC MOTOR
OUTPUT
TERMINALS
AUXILIARY
RELAY
TERMINALS
Figure 14. Controller Features

VS-GSLG Slide Gate Operator Installation Guide - 9 - P1255 Revision X5 7-7-2011
Indicator Descriptions
INDICATOR DEFINITION INDICATION WHEN LIT
DURING NORMAL OPERATION
INDICATION WHEN LIT
DURING PROGRAMMING
OPERATION PROGRAMMING
24 VOLT INPUT
POWER LOW VOLTAGE AC POWER IS PRESENT
24 VOLT DC
ACCY POWER LOW VOLTAGE DC POWER IS PRESENT
OPEN
OPEN SIGNAL PRESENT FROM THE INTERNAL
RECEIVER OR AN EXTERNAL DEVICE
CONNECTED TO THE OPEN INPUT TERMINAL
CLOSE CLOSE SIGNAL IS PRESENT FROM A DEVICE
CONNECTED TO THE CLOSE INPUT TERMINAL
STOP STOP INPUT TERMINAL IS OPEN AND
NOT CONNECTED TO COMMON
PROGRAM CONTROLLER IS IN PROGRAMMING MODE
REVERSE DELAY SET SIGNAL FROM REVERSING DEVICE IS PRESENT SET REVERSE DELAY TIME
LOCKOUT ALARM SET CONTROLS AND OPERATOR ARE LOCKED OUT
BECAUSE OF EXISTING TROUBLE CONDITION SET RUN ALARM AND PRE-START ALARM
RADIO LEARN BUILT-IN RECEIVER IS DETECTING A RADIO
SIGNAL FROM A REMOTE CONTROL
TRANSMITTERS CAN BE ENTERED INTO
MEMORY (UP TO 40 TRANSMITTERS)
OPEN CURRENT SET MOTOR CURRENT HAS EXCEEDED THE
OPEN CURRENT SETTING WHILE OPENING SET MAXIMUM OPEN CURRENT
OPEN OBSTR MGT 2 SET
OPEN OBSTRUCTION TERMINAL CONNECTED
TO COMMON BY BEAM OR SAFETY EDGE, OR
SIGNAL FROM MGT OBSTACLE TRANSMITTER
SET MGT #2 FUNCTION
OPEN RELAY LH/RH SET OPEN RELAY IS ACTIVATED SET LEFT-HAND RIGHT-HAND OPERATION
OPEN LIMIT BRAKE DELAY OPEN LIMIT SWITCH IS ACTIVATED
CLOSE CURRENT SET MOTOR CURRENT HAS EXCEEDED THE
CLOSE CURRENT SETTING WHILE CLOSING SET MAXIMUM CLOSE CURRENT
CLOSE OBSTR MGT 1 SET
CLOSE OBSTRUCTION TERMINAL CONNECTED
TO COMMON BY BEAM OR SAFETY EDGE, OR
SIGNAL FROM MGT OBSTACLE TRANSMITTER
SET MGT #1 FUNCTION
CLOSE RELAY AUTO CLOSE SET CLOSE RELAY IS ACTIVATED SET AUTO-CLOSE TIME
CLOSE LIMIT AC DC SET CLOSE LIMIT SWITCH IS ACTIVATED SET MOTOR TYPE
SINGLE SET SINGLE TERMINAL CONNECTED TO COMMON
BY AN EXTERNAL PUSHBUTTON OR RADIO SET SINGLE BUTTON INPUT FUNCTION
MAX RUN SET MAXIMUM RUN TIMER HAS BEEN EXCEEDED SET MAXIMUM RUN TIME
COMM LINK SET DUAL OPERATOR CONNECTION DETECTED,
BLINKS IF CONNECTION HAS FAILED
MAINT ALERT SET MAINTENANCE IS REQUIRED ON OPERATOR SET MAINTENANCE ALERT CYCLE COUNT
"RL"
LEFT OR RIGHT
HAND OPERATION
"PM"
SINGLE OR
DUAL GATE
"AC"
AUTO CLOSE
TIMER
"RP"
RUN ALARM
PRE-START ALARM
"OC"
MAXIMUM OPEN
CURRENT
"CC"
MAXIMUM CLOSE
CURRENT
"AD"
ADVANCED
PROGRAMMING
"RT"
MAXIMUM
RUN TIMER
"SB"
SINGLE BUTTON
INPUT SETUP
"SM"
STAGGER
MODE
"ST"
STAGGER
TIME
"AR"
AUXILIARY
RELAY MODE
"RD"
REVERSE
DELAY TIME
"CT"
RESET CYCLE
COUNT
"MA"
MAINTENANCE ALERT
TRIGGER
"MT"
MID-TRAVEL
STOP POSITION
"RA"
RADIO
ENABLE
"TL"
LEARN
TRANSMITTERS
"TD"
DELETE
TRANSMITTERS
"ML"
LEARN MGT
TRANSMITTERS
"MD"
ERASE MGT
TRANSMITTERS
"CL"
RESET TO
FACTORY DEFAULTS
APEX FUNCTION DISPLAY INDICATIONS
MOTOR TYPE
SELECTION
"MO"
"CP"
CONSTANT
PRESSURE MODE
"SP"
SHADOW LOOP
OPEN INHIBIT
"AT"
ANTI-TAILGATE
ENABLE
"BD"
BRAKE
DELAY TIME

VS-GSLG Slide Gate Operator Installation Guide - 10 - P1255 Revision X5 7-7-2011
Terminal Descriptions
TERMINAL GROUP FUNCTION
AC N 24 VOLT INPUT FACTORY CONNECTED TO 24 VAC FROM TRANSFORMER OR
24 VDC FROM CONTINUOUS DUTY DC SUPPLY.
AC
DC -ACCESSORY POWER PROVIDES 24 VOLT DC POWER FOR ACCESSORIES. (.5A MAX)
DC +
RESET RESET BUTTON FACTORY CONNECTED TO THE CONTROLLER’S RESET BUTTON.
COMMON
C
COMM LINK FOR 3-WIRE NETWORK CONNECTION TO SECOND OPERATOR IN DUAL GATE INSTALLATIONS.B
A
COMMON SINGLE BUTTON INPUT CONNECT TO NORMALLY OPEN SWITCH FOR SINGLE BUTTON OPERATION. ALTERNATES
BETWEEN OPEN-CLOSE OR OPEN-STOP-CLOSE DEPENDING ON PROGRAMMING.
SINGLE
COMMON FIRE BOX INPUT CONNECT TO NORMALLY OPEN SWITCH IN FIRE BOX FOR FIRE DEPARTMENT ACCESS.
FIRE DEPT
COMMON
OPEN INPUT
CONNECT TO NORMALLY OPEN DEVICES (KEYPAD, CARD READER, KEYSWITCH,
TELEPHONE ENTRY SYSTEM) TO OPEN THE GATE. A CONSTANT OPEN INPUT WILL
OVERRIDE THE MID-TRAVEL STOP AND HALT THE AUTO CLOSE TIMER UNTIL RELEASED.
OPEN
OPEN
3-BUTTON
STATION INPUT
CONNECT TO 3-BUTTON STATION FOR OPEN-CLOSE-STOP CONTROL. A CONSTANT OPEN INPUT
WILL OVERRIDE THE MID-TRAVEL STOP AND HALT THE AUTO CLOSE TIMER UNTIL RELEASED.
CLOSE
COMMON
STOP
COM
OPEN
OBSTRUCTION
INPUT
CONNECT TO NORMALLY OPEN DEVICES (GATE EDGE, PHOTO BEAM) TO DETECT AN
OBSTRUCTION DURING OPENING. WHILE GATE IS MOVING, ANY OPEN OBSTRUCTION
SIGNAL WILL CAUSE THE GATE TO STOP, REVERSE A SHORT DISTANCE, AND THEN STOP
AGAIN. AT THIS TIME THE AUTO CLOSE TIMER IS DISABLED, AND A RENEWED INPUT
WILL BE REQUIRED TO START THE GATE AGAIN. SHOULD THE GATE BE RESTARTED
AND THE OBSTACLE SIGNAL OCCUR AGAIN PRIOR TO REACHING A LIMIT, THE GATE
WILL STOP AGAIN, LOCKOUT, AND SOUND THE CONTINUOUS TONE ALARM.
O-OBS
C-OBS
CLOSE
OBSTRUCTION
INPUT
CONNECT TO NORMALLY OPEN DEVICES (GATE EDGE, PHOTO BEAM) TO DETECT AN
OBSTRUCTION DURING CLOSING. WHILE GATE IS MOVING, ANY CLOSE OBSTRUCTION
SIGNAL WILL CAUSE THE GATE TO STOP, THEN REVERSE AND TRAVEL TO THE FULL
OPEN POSITION. SHOULD A OPEN OBSTRUCTION INPUT OR AN OPEN DIRECTION
INHERENT ENTRAPMENT CONDITION OCCUR PRIOR TO THE GATE REACHING THE
OPEN LIMIT, THE OPERATOR WILL LOCKOUT AND SOUND THE CONTINUOUS TONE
ALARM. IF THE AUTO CLOSE TIMER IS SET, WHEN THE CLOSE OBSTRUCTION INPUT
IS CLEARED, THE GATE WILL CLOSE WHEN THE AUTO CLOSE TIMER EXPIRES.
COM
COM REVERSE CONNECT TO NORMALLY OPEN DEVICES TO CAUSE A REVERSAL WHEN THE GATE IS
TRAVELING CLOSED. THE GATE WILL REVERSE TO THE FULL OPEN POSITION.
REV
OPEN LOOP
OPEN LOOP
CONNECT TO OPEN LOOP/FREE EXIT LOOP. THE GATE WILL OPEN
WHEN THE LOOP IS TRIGGERED, AND REMAIN OPEN AS LONG AS
THE LOOP IS TRIGGERED. REQUIRES LOOP DETECTOR.
OPEN LOOP
REVERSE LOOP
REVERSE LOOP
CONNECT TO REVERSE LOOP. TRIGGERING THE LOOP WILL CAUSE A
REVERSAL WHEN THE GATE IS TRAVELING CLOSED. THE GATE WILL REVERSE
TO THE FULL OPEN POSITION. REQUIRES LOOP DETECTOR.
REVERSE LOOP
SHADOW/RESET LOOP
SHADOW/RESET LOOP
CONNECT TO SHADOW/RESET LOOP TO KEEP THE GATE IN ITS FULLY OPEN
POSITION AS LONG AS THE SIGNAL IS PRESENT. USED TO KEEP GATE OPEN
WHILE VEHICLE IS PASSING THROUGH. REQUIRES LOOP DETECTOR.
SHADOW/RESET LOOP
-ALARM FACTORY CONNECTED TO THE ALARM BEEPER.
+
N.O.
AUX RELAY FOR CONNECTION TO AUXILIARY DEVICES (MAGNETIC LOCK, SOLENOID LOCK,
STROBE LIGHT) FOR ACTIVATION (OR DEACTIVATION) DURING GATE OPERATION.
COM
N.C.
+24 VOLT SOLAR PANEL NOT USED WITH THIS MODEL OPERATOR.
-
+24 VOLT BATTERY NOT USED WITH THIS MODEL OPERATOR.
-

VS-GSLG Slide Gate Operator Installation Guide - 11 - P1255 Revision X5 7-7-2011
Operator Accessory Connections
3-BUTTON STATION
KEYSWITCH
FIRE ACCESS SWITCH
SINGLE-CHANNEL RADIO RECEIVER
WIRELESS GATE EDGE SENSOR
MGT
TRANSMITTER
PHOTOEYE FOR REVERSE
PHOTOEYE FOR OPEN OBSTRUCTION
TELEPHONE ENTRY
KEYPAD
EXTERNAL POWER
SOLENOID LOCK
MAGLOCK
WARNING STROBE OR AUDIBLE SOUNDER
GATE EDGE SENSOR FOR REVERSE
CHANNEL #1
OPEN/CLOSE
TWO-CHANNEL RADIO RECEIVER
PHOTOEYE FOR CLOSE OBSTRUCTION
Figure 15. Operator Accessory Connections

VS-GSLG Slide Gate Operator Installation Guide - 12 - P1255 Revision X5 7-7-2011
Basic Controller Programming
Programming Overview
The Controller can be programmed with various options for the operator.
The programming fi elds are defi ned as “functions” that have “options”.
To make setup easier for the installer, the Controller’s programming is
divided into two groups: basic and advanced. The basic programming
group contains the functions commonly used in most slide gate
installations. The advanced programming group contains functions less
commonly used (i.e. dual gate stagger delay, maximum run timer, etc.).
Entering Programming Mode
Enter programming mode by pressing the UP and DOWN buttons
together for one second. While in programming mode the PROGRAM
indicator will light.
Exiting Programming Mode
Exit programming mode at any time by pressing the UP and DOWN
buttons together. The Controller will automatically exit programming
mode after three minutes of inactivity.
Programming Keystrokes
(Typical Programming Method)
While in programming mode, press the UP or DOWN buttons to scroll
through the programming functions. When the desired function is
displayed press the ENTER button to display the currently set option for
the function. When an option is displayed, the decimal points are lit.
To change the option, press and hold the ENTER button for 1 second. To
indicate that an option is ready to be changed, the display will fl ash. While
the display is fl ashing, press the UP or DOWN button to display the other
options available for that function.
When the desired option is displayed, press the ENTER button to store
it into memory. To select another function, press ENTER, UP, or DOWN.
Left or Right Hand Operation
The factory default is for right hand operation (operator on right side of
the driveway when viewed from the inside of the gate). For left hand
installations, program the Controller for left hand operation.
Dual Gate Enable
The factory default is for single gate operation. For dual gate operation,
wire the two gate controllers together through the COMM LINK terminals
(see Page 24) and enable dual gate operation with this programming
step.
✓ NOTE: The Mid-travel Stop feature is disabled when dual gate
operation is enabled for paired units.
Auto Close Timer
The factory default turns off the Auto Close Timer. The timer can be set
from 1 to 59 seconds and from 1 to 9 minutes. When the Auto Close
Timer is set, after opening, the gate will wait for the length of the Auto
Close Timer then close automatically.
PRESS DOWN AND UP
BUTTONS TOGETHER
FOR ONE SECOND
PROGRAM INDICATOR
WILL LIGHT WHEN SYSTEM
IS IN PROGRAM MODE
PROGRAM
INDICATOR
AND
DOWN UP
ENTERING
PROGRAMMING
FUNCTION
LEFT HAND INSTALLATION
(OPERATOR ON LEFT OF GATE
WHEN VIEWED FROM INSIDE)
RIGHT HAND INSTALLATION
(OPERATOR ON RIGHT OF GATE
WHEN VIEWED FROM INSIDE)
OPTIONS
PRESS UP OR
DOWN TO CYCLE
THROUGH OPTIONS
PRESS ENTER TO
SELECT AN OPTION
LEFT HAND
RIGHT HAND
"RL"
FUNCTION
DUAL GATE INSTALLATION
SINGLE GATE INSTALLATION
OPTIONS
PRESS UP OR
DOWN TO CYCLE
THROUGH OPTIONS
PRESS ENTER TO
SELECT AN OPTION
SINGLE GATE
DUAL GATE
"PM"
PRESS UP OR DOWN
TO SCROLL DISPLAY
THROUGH FUNCTIONS
PRESS ENTER FOR
ONE SECOND TO
SELECT OPTION
(THE DISPLAY
WILL FLASH)
PRESS UP
OR DOWN
TO CHANGE
OPTION
ENTER
PROGRAMMING
KEYSTROKES
SELECT
FUNCTION
CURRENTLY
SET OPTION
OPTION READY
TO CHANGE
PRESS ENTER TO
DISPLAY CURRENTLY
SET OPTION
CHOOSE
OPTION
OR
UP
DOWN
OR
UP
DOWN
OPTION
STORED
PRESS ENTER
TO STORE
OPTION
SELECT
FUNCTION
ENTER ENTER ENTER
OR
UP
DOWN
OR
PRESS UP, DOWN
OR ENTER SELECT
NEXT FUNCTION
FUNCTION
SET TIMER VALUE
1 TO 59 SECONDS
AUTO CLOSE TIMER DISABLED
SET TIMER VALUE
1 TO 9 MINUTES
OPTIONS
PRESS UP OR
DOWN TO CYCLE
THROUGH OPTIONS
PRESS ENTER TO
SELECT AN OPTION
AUTO CLOSE
TIMER
"AC"

VS-GSLG Slide Gate Operator Installation Guide - 13 - P1255 Revision X5 7-7-2011
Basic Controller Programming (Cont.)
Run Alarm and Pre-start Alarm
The factory default is Run Alarm on and a 3-second Pre-start Alarm. The
operator’s beeper will sound 3 seconds before the operator starts. The
options are:
• Run Alarm Off and Pre-start Alarm Off
• Run Alarm On and Pre-start Alarm Off
• Run Alarm On and Pre-start Alarm On for 1-9 Seconds
Maximum Open Direction Current Setting
To detect obstacles or mechanical problems with the gate, the operator
monitors its motor current. If the open current load exceeds the
programmed maximum load range number, the operator will stop, reverse
a short distance, then stop again. The Auto Close Timer will be disabled,
and another open request will be required to start the operator again. If
after restart, the overload or an open obstacle happens again before the
open limit is reached, the operator will lockout and sound the alarm.
To measure the motor load used during opening, while this function is
being displayed, push and hold the OPEN button to fully open the gate.
During movement, the motor current will be displayed as a load number
from 0 to 99. This number is useful for troubleshooting but not for setting
the motor current. At the end of travel, a different number will fl ash. This
number indicates the range above and below the average motor current
during the run. Using the + and - buttons, set the programmed range
number so that a minimal force (50-75 lbs.) will activate a reversal should
an obstruction occur, but high enough to keep the gate moving under
normal conditions without interruption.
Maximum Close Direction Current Setting
To detect obstacles or mechanical problems with the gate, the
operator monitors its motor current. If the close current load exceeds
the programmed maximum load range number, the operator will stop,
reverse, and travel to the full open position. Should a open obstruction
input or an open direction inherent entrapment condition occur prior to
the gate reaching the open limit, the operator will lockout and sound the
continuous tone alarm. Another close request will be required to start the
operator again. If after restart, the overload or a close obstacle happens
again before the close limit is reached, the operator will lockout and
sound the alarm. If the auto close timer is set, when the close obstruction
input is cleared, the gate will close when the auto close timer expires.
To measure the motor load used during closing, while this function is
being displayed, push and hold the CLOSE button to close the gate.
During movement, the motor current will be displayed as a load number
from 0 to 99. This number is useful for troubleshooting but not used for
setting the motor current. At the end of travel, a different number will fl ash.
This number indicates the range above and below the average motor
current during the run. Using the + and - buttons, set the programmed
range number so that a minimal force (50-75 lbs.) will activate a reversal
should an obstruction occur, but high enough to keep the gate moving
under normal conditions without interruption.
FUNCTION
SUGGESTED MINIMUM NUMBER WILL
FLASH, ADJUST TO THE PROPER FORCE
OPTIONS
MAX CLOSE
CURRENT
PRESS AND HOLD THE CLOSE BUTTON
UNTIL THE OPERATOR RUNS FULLY CLOSED
ENTER
PRESS ENTER TO STORE THE FORCE
"CC"
FUNCTION
SUGGESTED MINIMUM NUMBER WILL
FLASH, ADJUST TO THE PROPER FORCE
OPTIONS
MAX OPEN
CURRENT
PRESS AND HOLD THE OPEN BUTTON
UNTIL THE OPERATOR RUNS FULLY OPEN
ENTER
PRESS ENTER TO STORE THE FORCE
"OC"
FUNCTION
RUN ALARM ON
PRE-START ALARM OFF
RUN ALARM ON
PRE-START ALARM ON FOR 1 - 9 SECONDS
OPTIONS
RUN ALARM
PRE-START ALARM
PRESS UP OR
DOWN TO CYCLE
THROUGH OPTIONS
PRESS ENTER TO
SELECT AN OPTION
RUN ALARM OFF
PRE-START ALARM OFF
"RP"

VS-GSLG Slide Gate Operator Installation Guide - 14 - P1255 Revision X5 7-7-2011
Advanced Controller Programming
Entering Advanced Programming Mode
To access and program the Advanced Programming functions, for each
programming session, Advanced Programming must be enabled.
After exiting programming, the Advanced Programming functions
will be available on the programming display during the next
programming session unless the operator has run 50 or more
cycles. After that, Advanced Programming must be enabled again.
Maximum Run Time
The factory default for the Maximum Run Time (MRT) is 99 seconds.
When the operator starts, a timer will begin counting. If a open or close
limit is not reached or an obstacle or reversing input is not received
before the timer expires, the operator will stop, the unit locks out and the
alarm sounds. The timer can be set for 10 to 99 seconds, but should be
left at 99 in most applications. Setting it too close to the actual run time
may cause the time to expire with changing ambient temperature, gate
conditions, etc…
If AC is present and an open or close limit is not reached or an obstacle
or reversing input is not received before this timer exceeds MRT, the
operator will stop, the unit locks out and the alarm sounds.
Single Button Input Setup
This function is used for selecting the operation for single button controls
and radio receivers.
The factory default sets the SINGLE input terminal so successive inputs
will cycle the operator in OPEN-STOP-CLOSE-STOP order.
Alternately, the SINGLE input can be set to cause the gate to OPEN
unless the gate is fully open. If the gate is fully open, the input will cause
the gate to CLOSE.
Stagger Mode
This function is used in dual gate installations only. The factory
default sets the Stagger Mode to OFF. In dual gate installations the
two operators communicate through the 3-wire COMM LINK interface.
When using the Stagger Mode, set one operator for delayed opening and
the other operator for delayed closing. The Stagger Time programming
function (see below) sets the length of the delay.
✓ NOTE: This function will only be displayed if dual gate operation is
selected.
Stagger Delay Time
This function is used in dual gate installations only. The factory
default sets the Stagger Time to 0 seconds (OFF). The Stagger Time
sets the delay for the Stagger Mode. The Stagger Delay Time can be set
from 1-99 seconds.
✓ NOTE: This function will only be displayed if dual gate operation is
selected.
FUNCTION
ADVANCED PROGRAMMING FUNCTIONS
WILL NOT BE DISPLAYED
OPTIONS
PRESS UP OR
DOWN TO CYCLE
THROUGH OPTIONS
PRESS ENTER TO
SELECT AN OPTION
ADVANCED
PROGRAMMING
"AD"
ADVANCED PROGRAMMING OPTIONS
WILL BE DISPLAYED
NOTE: ADVANCED PROGRAMMING
WILL STAY ENABLED AFTER
EXITING PROGRAMMING UNTIL
THE GATE CYCLES 50 TIMES
FUNCTION
SINGLE INPUT WILL OPEN OPERATOR,
IF OPERATOR IS ALREADY OPEN, SINGLE
INPUT WILL CLOSE OPERATOR
SINGLE INPUT WILL CYCLE OPERATOR
IN ORDER OF OPEN-STOP-CLOSE-STOP
OPTIONS
PRESS UP OR
DOWN TO CYCLE
THROUGH OPTIONS
PRESS ENTER TO
SELECT AN OPTION
SINGLE BUTTON
INPUT SETUP
"SB"
FUNCTION
SETS THIS OPERATOR FOR
DELAYED OPEN
DISABLES STAGGER FUNCTION
SETS THIS OPERATOR FOR
DELAYED CLOSE
OPTIONS
PRESS UP OR
DOWN TO CYCLE
THROUGH OPTIONS
PRESS ENTER TO
SELECT AN OPTION
STAGGER
MODE
"SM"
DUAL GATES
ONLY
FUNCTION
SET STAGGER DELAY VALUE
1 TO 99 SECONDS
STAGGER TIMER DISABLED
OPTIONS
PRESS UP OR
DOWN TO CYCLE
THROUGH OPTIONS
PRESS ENTER TO
SELECT AN OPTION
STAGGER
DELAY TIME
"ST"
DUAL GATES
ONLY
FUNCTION
PRESS ENTER FOR 1 SECOND
WHILE DISPLAY IS FLASHING, PRESS
UP OR DOWN TO CHANGE THE
MAXIMUM RUN TIME (10-99 SECONDS)
OPTIONS
MAXIMUM RUN
TIMER
DISPLAY SHOWS CURRENT
MAXIMUM RUN TIME SETTING
ENTER
ENTER
PRESS ENTER TO STORE THE VALUE
"RT"

VS-GSLG Slide Gate Operator Installation Guide - 15 - P1255 Revision X5 7-7-2011
Advanced Controller Programming (Cont.)
Auxiliary Relay Mode
The Auxiliary Relay has normally open and normally closed contacts.
The factory setting disables the Auxiliary Relay. The relay can be set for:
• Maglock: To deactivate a magnetic or solenoid gate lock, the relay
will energize during any pending or actual gate motion (open only).
• M4: To deactivate a magnetic or solenoid gate lock, the relay will
energize during any pending or actual gate motion (open only).
3 seconds after the gate starts to move, the relay will de-energize.
This option is used for higher current solenoid locks.
• Ticket Dispenser: The relay will energize while the gate is moving
in the open direction and at the full open limit, or in an entrapment
condition.
• Strobe: To activate a warning strobe light, the relay will energize
during any pending or actual gate motion (either open or close).
• Alarm: The relay will energize if the gate is manually forced open
from the full closed position.
Reverse Delay Time
The factory default sets the Reverse Delay to 1 second. The operator
will wait the length of the delay before reversing direction. This feature
will not change the reversal time when the operator is responding to an
entrapment condition from an obstruction input or inherent entrapment
protection sensor. The Reverse Delay can be set from 1 to 9 seconds.
Heaver gates require a longer delay to allow time for the gate to stop.
Brake Delay Time
The factory default sets the Brake Delay to no delay (0 seconds). Heavy
gates may require delayed braking to allow the gate to slow down before
stopping it. The operator can be set to wait the length of the delay after
running before applying the brake. The Brake Delay can be set from
0 to 3 seconds.
Constant Pressure Mode
The factory default allows momentary pressure on a control station’s
OPEN or CLOSE button to cycle the operator. The controller can be set
to require constant pressure on the OPEN, CLOSE, or both buttons to
run the operator.
✓ NOTE: If a button is set for constant pressure, and it is released
before the operator reaches the open or close limit, the operator will
stop the gate at its current position.
Shadow Loop Open Prevention
If the shadow loop is triggered, it always prevents the gate from closing if
the Auto Close Timer activates or a CLOSE command is given while the
gate is at the full open position.
The controller can also be set to prevent the gate from opening if the
shadow loop is triggered while the gate is at the close limit position. This
prevents a swing gate from opening into a vehicle if it’s parked near the
gate on the inside.
FUNCTION
AUXILIARY RELAY USED FOR
MAGLOCK CONTROL
AUXILIARY RELAY DISABLED
AUXILIARY RELAY USED FOR
TICKET DISPENSER CONTROL
OPTIONS
PRESS UP OR
DOWN TO CYCLE
THROUGH OPTIONS
PRESS ENTER TO
SELECT AN OPTION
AUXILIARY
RELAY MODE
"AR"
AUXILIARY RELAY USED FOR
WARNING STROBE LIGHT
AUXILIARY RELAY USED FOR
CONNECTION TO ALARM DEVICE
AUXILIARY RELAY USED FOR
MAGLOCK OR SOLENOID CONTROL
3 SECOND DELAY TO RE-ENERGIZE
FUNCTION
SET TIMER VALUE
1 TO 9 SECONDS
OPTIONS
PRESS UP OR
DOWN TO CYCLE
THROUGH OPTIONS
PRESS ENTER TO
SELECT AN OPTION
REVERSE
DELAY TIME
"RD"
FUNCTION
SET TIMER VALUE
0 TO 3 SECONDS
OPTIONS
PRESS UP OR
DOWN TO CYCLE
THROUGH OPTIONS
PRESS ENTER TO
SELECT AN OPTION
BRAKE
DELAY TIME
"BD"
FUNCTION
CONSTANT PRESSURE SET TO OFF
(MOMENTARY PRESSURE ON)
OPTIONS
PRESS UP OR
DOWN TO CYCLE
THROUGH OPTIONS
PRESS ENTER TO
SELECT AN OPTION
CONSTANT
PRESSURE MODE
"CP"
OPEN BUTTON SET FOR
CONSTANT PRESSURE
CLOSE BUTTON SET FOR
CONSTANT PRESSURE
OPEN AND CLOSE BUTTONS BOTH SET
FOR CONSTANT PRESSURE
FUNCTION
STANDARD OPERATION
SHADOW LOOP INHIBITS CLOSING ONLY
OPTIONS
PRESS UP OR
DOWN TO CYCLE
THROUGH OPTIONS
PRESS ENTER TO
SELECT AN OPTION
SHADOW LOOP
OPEN PREVENTION
"SP"
OPEN INHIBIT ON, SHADOW LOOP INHIBITS
OPENING AND CLOSING

VS-GSLG Slide Gate Operator Installation Guide - 16 - P1255 Revision X5 7-7-2011
Advanced Controller Programming (Cont.)
Reset Cycle Count
The Controller counts of the number of times the operator has been
cycled full open and close. The cycle count can be displayed. The display
will scroll the cycle count number, fl ashing two digits at a time from left
to right.
To reset the Cycle Count, press and hold the ENTER button for 2 seconds
while the Cycle Count is displayed.
If the Maintenance Alert has been triggered, resetting the Cycle Count
will also reset the Maintenance Alert indicator.
Maintenance Alert Trigger
The Controller has a MAINT ALERT indicator that can be programmed
to light when the number of activations exceeds a set number of cycles.
The factory default sets the Maintenance Alert Trigger to 10,000 cycles.
The Maintenance Alert Trigger can be programmed for 5, 10, 15, or 25
thousand cycles.
The Maintenance Cycle Count can be reset independently from the
operator’s absolute Cycle Count.
Mid-travel Stop Position
The Controller can be programmed so the gate will stop at a mid-travel
point instead of fully opening. This can be useful in installations where a
large gate, that takes a long time to open and close fully, only needs to
be opened partway to allow traffi c to pass.
The factory default sets the Controller for full open operation. Alternately,
the Controller can be programmed to open for 1 to 99 seconds then stop,
before reaching the open limit.
When a Mid-travel Stop Position time has been programmed, the gate
will still fully open if the Fire Department input is triggered, if the OPEN
button is held down beyond the Mid-travel Stop Position, or a close
obstruction or reverse loop input is triggered.
✓ NOTE: The Mid-travel Stop feature is disabled when dual gate
operation is enabled for paired units.
Anti-tailgate Enable
The factory default sets the Anti-tailgate Enable to OFF. With this setting,
during a gate cycle, after the shadow loop has been triggered by the
vehicle and then has cleared after the vehicle passes, the Auto Close
Timer or a CLOSE command is required to begin closing the gate.
If the Anti-tailgate Enable is set to ON, the gate will close immediately
as soon as the shadow loop has cleared. Any subsequent shadow loop
triggers while the gate is closing will stop the gate. When the shadow loop
clears, the gate will continue closing.
Radio Enable
The Controller contains a built-in MegaCode® radio receiver to allow
activation from up to 40 access control transmitters and two Model MGT
(gate edge) transmitters. The factory default enables the internal radio
receiver. Alternately, the internal receiver can be disabled.
Antenna Installation
The Controller is supplied with a local whip antenna installed. If using a
remote antenna, remove the whip antenna and connect coax cable from
the antenna to the ANTENNA connector.
FUNCTION
SETS THIS MAINTENANCE ALERT TRIGGER
FOR 5, 10, 15, OR 25 THOUSAND CYCLES
DISABLES THE MAINTENANCE ALERT
FUNCTION
RESETS THE MAINTENANCE ALERT
INDICATOR AND SETS THE MAINTENANCE
ALERT COUNT TO ZERO
OPTIONS
PRESS UP OR
DOWN TO CYCLE
THROUGH OPTIONS
PRESS ENTER TO
SELECT AN OPTION
MAINTENANCE
ALERT TRIGGER
"MA"
FUNCTION
PRESS ENTER TO START THE CYCLE COUNT DISPLAY
1ST DISPLAY
NOTE: PRESS ENTER FOR 2 SECONDS
WHILE THE "CT" FUNCTION IS DISPLAYED
TO RESET THE CYCLE COUNT TO ZERO
RESET CYCLE
COUNT
"CT"
2ND DISPLAY 3RD DISPLAY 4TH DISPLAY
EXAMPLE ABOVE SHOWS 10,420 CYCLES
DECIMAL POINT LIT
ON 4TH DISPLAY
FUNCTION
SET LENGTH OF OPENING TIME
FROM 1 TO 99 SECONDS
MID-TRAVEL STOP DISABLED
(GATE RUNS FULL TRAVEL)
OPTIONS
PRESS UP OR
DOWN TO CYCLE
THROUGH OPTIONS
PRESS ENTER TO
SELECT AN OPTION
MID-TRAVEL
STOP POSITION
"MT"
FUNCTION
ANTI-TAILGATE ENABLE OFF
GATE REQUIRES AUTO OR MANUAL CLOSE
OPTIONS
PRESS UP OR
DOWN TO CYCLE
THROUGH OPTIONS
PRESS ENTER TO
SELECT AN OPTION
ANTI-TAILGATE
ENABLE
"AT"
ANTI-TAILGATE ENABLE ON
GATE CLOSES WHEN SHADOW LOOP CLEARS
FUNCTION
INTERNAL RADIO RECEIVER DISABLED
OPTIONS
PRESS UP OR
DOWN TO CYCLE
THROUGH OPTIONS
PRESS ENTER TO
SELECT AN OPTION
RADIO
ENABLE
"RA"
INTERNAL RADIO RECEIVER ENABLED

VS-GSLG Slide Gate Operator Installation Guide - 17 - P1255 Revision X5 7-7-2011
Advanced Controller Programming (Cont.)
Radio Transmitter Learn
The Controller’s built-in MegaCode® radio receiver can store the IDs of up to
40 transmitters. Refer to the fi gure for the steps required to learn transmitters.
✓ NOTE: This function will NOT be displayed if the transmitter memory
is full, or if the radio receiver is disabled.
Radio Transmitter Delete
Transmitters can be deleted from the Controller’s memory either
individually, or all at the same time. Refer to the fi gure for the steps
required to delete transmitters.
✓ NOTE: This function will NOT be displayed if no transmitters are
stored in memory, or if the radio receiver is disabled.
MGT Obstacle Transmitter Learn
The Controller supports one or two Model MGT Obstacle Transmitters.
The transmitters can be programmed to function as Open Obstruction,
Close Obstruction, Reverse, or Stop. Refer to the fi gure for the steps
required to learn MGT transmitters.
✓ NOTE: This function will NOT be displayed if two MGT transmitters
are already stored in memory, or if the radio receiver is disabled.
MGT Obstacle Transmitter Delete
MGT transmitters can be deleted from the Controller’s memory either
individually, or all at the same time. Refer to the fi gure for the steps
required to delete MGT transmitters.
✓ NOTE: This function will NOT be displayed if no MGT transmitters are
stored in memory, or if the radio receiver is disabled.
Motor Type Selection
The factory sets the default for the Controller to match the type of motor in
the operator. If required, change the motor selection option to a different
type of motor used in the operator. The options available are:
• AC Motor Only
• DC Motor Only with Mechanical Braking
• DC Motor with Electronic Soft Start/Stop
• 3 Phase AC Motor
• AC Motor with DC Motor Backup with Mechanical Braking
• AC Motor with DC Motor Backup with Electronic Soft Start/Stop
Reset Controller to Factory Defaults
The Controller can be reset with this function. ALL PROGRAMMED
DATA WILL BE LOST, and the factory defaults will be loaded. This
function will not erase radio transmitters, current sense values, or motor
type. Transmitters must be deleted with the two functions above.
FUNCTION
TO DELETE ALL MGT TRANSMITTERS, PRESS ENTER FOR
2 SECONDS, (TO EXIT WITHOUT DELETING ANY, QUICKLY
PRESS ENTER)
ERASE MGT
TRANSMITTERS
"MD" WILL BLINK FOR 30 SECONDS WHILE THE CONTROLLER
IS READY TO DELETE ALL MGT TRANSMITTERS
"MD"
ENTER
PRESS ENTER
ENTER
THE DISPLAY WILL SHOW "DELETE ALL" AND THE
CONTROLLER RETURNS TO PROGRAMMING MODE
FUNCTION
TO DELETE ALL TRANSMITTERS, PRESS ENTER FOR
2 SECONDS, OR TO PICK TRANSMITTERS GO TO NEXT STEP
DELETE
TRANSMITTERS
"TD" WILL BLINK FOR 30 SECONDS WHILE THE CONTROLLER
IS READY TO DELETE ONE OR MORE TRANSMITTERS,
(TO EXIT WITHOUT DELETING ANY, PRESS ENTER)
"TD"
ENTER
PRESS ENTER
ENTER
OR
UP DOWN
ENTER
PRESS UP OR DOWN TO SCROLL THROUGH THE LIST
OF TRANSMITTER ID NUMBERS
THE TRANSMITTER ID NUMBER IS DISPLAYED
(TO EXIT WITHOUT DELETING, PRESS ENTER)
(TO PICK A DIFFERENT TRANSMITTER ID, PRESS UP OR DOWN)
PRESS ENTER FOR 2 SECONDS TO DELETE THE
TRANSMITTER DISPLAYED
FUNCTION
ACTIVATE THE MGT TRANSMITTER, THE DISPLAY WILL
FLASH "rE" - IF THE TRANSMITTER IS ALREADY ENTERED,
"DU" WILL BE DISPLAYED, IF DECODE IS BAD "ERROR" WILL
BE DISPLAYED
LEARN MGT
TRANSMITTERS
PRESS ENTER, "ML" WILL BLINK FOR 30 SECONDS WHILE
THE CONTROLLER IS READY TO LEARN AN MGT
TRANSMITTER
"ML"
ENTER
OR
UP DOWN
ENTER
DISPLAY WILL SHOW "--" FOR 5 SECONDS, THEN SHOW THE
TRANSMITTER'S ID NUMBER - REPEAT STEPS FOR
SECOND MGT TRANSMITTER IF USED
PRESS ENTER TO ACCEPT THE SELECTION
PRESS UP OR DOWN TO SELECT THE MGT FUNCTION:
"rE" = REVERSE "St" = STOP
"OP" = OPEN OBSTRUCTION "CL" = CLOSE OBSTRUCTION
FUNCTION
ACTIVATE THE TRANSMITTER
DISPLAY WILL SHOW "- -" THEN THE
TRANSMITTER ID NUMBER - IF TRANSMITTER
IS ALREADY ENTERED, "dU" WILL BE DISPLAYED,
IF DECODE IS BAD "ERROR" WILL BE DISPLAYED
LEARN
TRANSMITTERS
"TL" WILL BLINK FOR 30 SECONDS WHILE
THE CONTROLLER IS READY TO
LEARN A TRANSMITTER
"TL"
ENTER
PRESS ENTER (ONCE FOR EACH TRANSMITTER,
UP TO 40 TRANSMITTERS TOTAL)
FUNCTION
RESET TO
FACTORY DEFAULTS
"CL"
ENTER
WHILE "CL" IS DISPLAYED, PRESS ENTER
ALL PROGRAMMED DATA WILL BE CLEARED
AND THE FACTORY DEFAULTS WILL BE
STORED IN MEMORY.
NOTE: THIS FUNCTION WILL NOT ERASE
TRANSMITTERS, CURRENT SENSE VALUES,
OR MOTOR TYPE.
FUNCTION
DC MOTOR ONLY WITH BRAKING
AC MOTOR ONLY
DC MOTOR WITH SOFT START/STOP
AC MOTOR PRIMARY WITH
DC MOTOR BACKUP WITH BRAKING
OPTIONS
PRESS UP OR
DOWN TO CYCLE
THROUGH OPTIONS
PRESS ENTER TO
SELECT AN OPTION
MOTOR TYPE
SELECTION
NOTE: SELECTION
MUST MATCH
MOTOR BOARD!
"MO"
3 PHASE AC MOTOR
AC MOTOR PRIMARY WITH
DC MOTOR BACKUP WITH SOFT START/STOP

VS-GSLG Slide Gate Operator Installation Guide - 18 - P1255 Revision X5 7-7-2011
Loop Layout Illustration
SEPARATE PEDESTRIAN
GATE REQUIRED 7 FEET
MINIMUM DISTANCE
FROM GATE
2"
3/8"
LOOP
SEALANT
MULTIPLE TURNS
REFER TO LOOP
INSTALLATION NOTES
FOR DETAILS
TWIST WIRE FROM END OF
LOOPS BACK TO OPERATOR
AT LEAST SIX TIMES PER
FOOT
2" MAX.
USE RELIEF CUTS
AT CORNERS

VS-GSLG Slide Gate Operator Installation Guide - 19 - P1255 Revision X5 7-7-2011
Safety Edge Layout Illustration #1
NOTES:
1. WIRE THESE EDGES FOR CLOSE OBSTRUCTION
2. WIRE THESE EDGES FOR OPEN OBSTRUCTION
3. ON LEADING EDGE, WIRE FOR CLOSING OBSTRUCTION
OR REVERSING IF DESIRED
4. ON TRAILING EDGE, WIRE FOR OPEN OBSTRUCTION
REFER TO ACCESSORY CONNECTIONS PAGES FOR DETAILS
5. IF SENSOR EDGES ARE HARD WIRED TO THE OPERATOR, CARE
MUST BE TAKEN IN ROUTING THE WIRES SUCH THAT THEY DO
NOT BECOME DAMAGED DURING NORMAL OPERATION
(AVOID PINCHING AND ABRASION)
THIS DRAWING IS INTENDED TO DRAW ATTENTION TO POSSIBLE
LOCATIONS FOR THE INSTALLATION OF CONTACT OR NON-CONTACT
OBSTRUCTION SENSING DEVICES. OTHER AREAS OF ENTRAPMENT
MAY EXIST DEPENDING ON EACH SPECIFIC INSTALLATION.
SEE NOTE
ITEM #4
SEE NOTE
ITEM #1
SEE NOTE
ITEM #2
SLIDE GATE OPERATOR WITH
RADIO RECEIVER MOUNTED INSIDE
SEE NOTE
ITEM #2
SEE NOTE
ITEM #1
SEE NOTE
ITEM #1
SEE NOTE
ITEM #3
1 GATE (REFERENCE ONLY)
2 EDGE
3 EDGE EXTRUSION
4 SPACERS (3)
5 8-32 X 1" SCREWS (3)
6 RETAINING BRACKET
REVERSING EDGE
ASSY CLOSEUP
1
2
3
4
5
6
ITEM DESCRIPTION
FOR CLARITY, FENCE AND
PEDESTRIAN GATE NOT SHOWN

VS-GSLG Slide Gate Operator Installation Guide - 20 - P1255 Revision X5 7-7-2011
Safety Edge Layout Illustration #2
NOTES:
1. WIRE THESE EDGES FOR CLOSE OBSTRUCTION
2. WIRE THESE EDGES FOR OPEN OBSTRUCTION
3. ON LEADING EDGE, WIRE FOR CLOSING OBSTRUCTION
OR REVERSING IF DESIRED
4. ON TRAILING EDGE, WIRE FOR OPEN OBSTRUCTION
REFER TO ACCESSORY CONNECTIONS PAGES FOR DETAILS
5. IF SENSOR EDGES ARE HARD WIRED TO THE OPERATOR, CARE
MUST BE TAKEN IN ROUTING THE WIRES SUCH THAT THEY DO
NOT BECOME DAMAGED DURING NORMAL OPERATION
(AVOID PINCHING AND ABRASION)
THIS DRAWING IS INTENDED TO DRAW ATTENTION TO POSSIBLE
LOCATIONS FOR THE INSTALLATION OF CONTACT OR NON-CONTACT
OBSTRUCTION SENSING DEVICES. OTHER AREAS OF ENTRAPMENT
MAY EXIST DEPENDING ON EACH SPECIFIC INSTALLATION.
JUNCTION BOX MOUNTED
TO FENCE POST
COILED CORD SHOULD EXTEND
EQUALLY DURING OPEN AND CLOSE
SEE NOTE
ITEM #4
SEE NOTE
ITEM #1
SEE NOTE
ITEM #2
SLIDE GATE OPERATOR WIRED DIRECT TO EDGE
USING JUNCTION BOX AND COIL CORD
SEE NOTE
ITEM #2
SEE NOTE
ITEM #1
SEE NOTE
ITEM #1
SEE NOTE
ITEM #3

VS-GSLG Slide Gate Operator Installation Guide - 21 - P1255 Revision X5 7-7-2011
Photoeye Installation Illustration
CARE MUST BE TAKEN IN THE PLACEMENT OF PHOTOEYES
TO MINIMIZE NUISANCE TRIPPING
PHOTOEYE TO PROTECT FENCE LINE
OUTSIDE OF PROTECTED AREA
WIRED FOR OPEN OBSTRUCTION
SEE ACCESSORY CONNECTIONS FOR DETAILS
OF WIRING PHOTOEYES
SEPARATE PEDESTRIAN WALKGATE
REQUIRED 7 FEET MINIMUM DISTANCE
FROM GATE
PHOTOEYE TO GUARD
POCKET AREA. WIRED
FOR OPEN OBSTRUCTION
PHOTOEYE CAN BE MOUNTED ACROSS DRIVE WIRED
FOR REVERSE ONLY, ON EITHER SIDE OF THE GATE
THIS DRAWING IS INTENDED TO DRAW ATTENTION TO POSSIBLE
LOCATIONS FOR THE INSTALLATION OF CONTACT OR NON-CONTACT
OBSTRUCTION SENSING DEVICES. OTHER AREAS OF ENTRAPMENT
MAY EXIST DEPENDING ON EACH SPECIFIC INSTALLATION.

VS-GSLG Slide Gate Operator Installation Guide - 22 - P1255 Revision X5 7-7-2011
Picket Gate Installation
CARD READER
ON STAND
PICKETS SPACE
SMALLER THAN
2 1/4"
MESH WITH OPENINGS
SMALLER THAN 2 1/4"
TO A MINIMUM HEIGHT
OF 48" ABOVE GROUND
OVER ENTIRE GATE
LENGTH
SEPARATE PEDESTRIAN
GATE REQUIRED
7 FT. MINIMUM DISTANCE
AWAY FROM GATE
POSSIBLE LOCATIONS FOR CONTACT AND NON-CONTACT DEVICES
SHOWN ABOVE. OTHER AREAS OF ENTRAPMENT MAY EXIST DEPENDING
ON EACH SPECIFIC INSTALLATION.
REFER TO INSTALLATION MANUAL FOR ADDITIONAL DETAILS
FOR THE INSTALLATION AND WIRING OF LOOPS, EDGES, AND
PHOTOEYES.
EDGES SHOWN ON LEADING AND
TRAILING EDGES OF GATE, AND
ON POSTS
ENTRAPMENT
ZONE #3
(BEHIND GATE)
PHOTOEYE BEHIND
GATE
ENTRAPMENT ZONE
#2 (BOTH SIDES OF GATE)
ENTRAPMENT
ZONE #1
REVERSING PHOTOEYE
ACROSS DRIVE
OR

VS-GSLG Slide Gate Operator Installation Guide - 23 - P1255 Revision X5 7-7-2011
Track Gate Installation
OVERHEAD TRACK GATE WITH ADDED C-CHANNEL FOR GATE BRACKET ATTACHMENT
OVERHEAD TRACK GATE WITH ADDED BUSTLE FOR GATE BRACKET ATTACHMENT
COVER GATE WITH FABRIC WITH OPENINGS SMALLE THAN
2-1/4" TO A MINIMUM HEIGHT OF 72" ABOVE GROUND. ON PICKET
STYLE GATES, IF PICKETS ARE SPACED LESS THAN 1-1/4" APART
MESH IS OPTIONAL
BUSTLE ATTACHED TO
END OF TRACK GATE
FOR GATE BRACKET
(BY OTHERS)
GATE BRACKET
BOLTED TO
CHANNEL
(BY OTHERS)
C-CHANNEL ATTACHED TO BACK
END OF TRACK GATE (BY OTHERS)
NOTE: BOTH TYPES OF ATTACHMENTS
TO BACK END OF GATE WILL WORK WITH
ROLLER GATES AS REQUIRED

VS-GSLG Slide Gate Operator Installation Guide - 24 - P1255 Revision X5 7-7-2011
Dual Gate Installations
Two operators can be used in dual gate installations. The operators
communicate with each other through the 3-wire COMM LINK terminals.
When one operator activates, the COMM LINK connection signals
the other operator to activate. Each operator functions independently,
controlling its gate and monitoring its inputs and accessories.
A three-wire shielded conductor cable is required to connect two
operators together for dual operation. Use Belden 8760 Twisted Pair
Shielded Cable (or equivalent) only – P/N 2500-1982, per foot).
✓ NOTE: The shield wire should be connected COMM LINK terminal
“C” in both operators.
Three of the programming functions available are only used for dual gate
installations:
• Dual Gate Enable
Dual Gate Enable must be set for all dual gate installations.
• Stagger Mode
The Stagger Mode function determines if the operator has a delayed
open or a delayed close. In dual swing gate installations, typically one
operator is programmed for delayed open, and the other operator is
programmed for delayed close.
• Stagger Delay Time
The Stagger Time sets the length of the delay for the Stagger Mode.
See Pages 12 & 14 for details on these three dual gate programming
functions.
Set the following parameters in each gate operator individually in a single gate
mode before connecting the network cable and operating in dual gate mode.
1. Open and Close Limit settings
2. Open and Closed direction inherent
entrapment protection (OC & CC)
After these parameters have been set, and each operator has been
tested independently and is functioning correctly in single gate mode,
then set BOTH operators to dual gate (dg) in the Paired Mode setup step
under Basic Programming steps.
Optional In-Cabinet Heater
The operator can be ordered with an optional cold weather
package that includes an in-cabinet heater to keep the drive
train and electronics warm in cold environments.
In-cabinet heaters can also be ordered separately and
should be wired to the operator as shown in Figure 17.
Contact Technical Services for heater wiring information for
a specifi c voltage and phase of operator.
OPERATOR #1
OPERATOR #2
USE BELDEN 8760 TWISTED PAIR
SHIELDED CABLE OR EQUIVALENT
SHIELD
CONNECT SHIELD
WIRE AT BOTH ENDS
DUAL GATE
COMM LINK
WIRING
CONNECT
C - C
B - B
A - A
SHIELD
Figure 16. COMM LINK Wiring
115 VOLT HEATER (P/N 2510-262)
208/230 VOLT HEATER (P/N 2510-273)
WHITE
BLACK
SINGLE PHASE 115V, 208V, & 230V MODELS
(All heaters have built-in switch and thermostat)
POWER BOX
THREE PHASE 208V & 230V MODELS
208/230 VOLT HEATER (P/N 2510-273) CONTACTOR
THREE PHASE 460V MODELS
460 VOLT HEATER (P/N 2510-354)
CONTACTOR
CONNECT TO LEADS LABELED
"ACCESSORY POWER CONNECTION"
Figure 17. In-cabinet Heater Wiring

VS-GSLG Slide Gate Operator Installation Guide - 25 - P1255 Revision X5 7-7-2011
Gate Operation
Open Button
Opens the gate. If the Controller is programmed to stop
opening the gate at mid-travel, a constant press of the OPEN
button will override the Mid-travel Stop and completely open
the gate. If the Auto Close Timer is set, it will be suspended
until the OPEN button is released.
Close Button
Closes the gate if the gate is open. Also closes the gate if
the gate is in the process of opening.
Stop Button
Stops the gate from opening or closing at any time.
Single Input
Opens the gate if it’s closed and closes the gate if it’s open
(open-close programming option). Activating the input while
the gate is moving will reverse the gate.
Can be programmed to stop the gate while the gate is
moving (open-stop-close programming option).
Fire Department Input
Fully opens the gate when the input is activated. Overrides
the Mid-travel Stop and Auto Close Timer (if either is
programmed for the gate). The gate will lockout in the open
position without sounding the alarm. Press the STOP button
to release the lockout.
Open Input
Functions the same as the OPEN button.
Open Obstruction
While the gate is opening, any open obstruction signal will
cause the gate to stop, reverse a short distance, and then
stop again. The Auto Close Timer will be disabled, and a
renewed input will be required to start the gate again. Should
the gate be restarted and the obstacle signal occur again
prior to reaching a limit, the gate will stop again, lockout,
and sound the emergency alarm.
Close Obstruction
While the gate is closing, any close obstruction signal
will cause the gate to stop, reverse, and travel to the full
open position. Should a open obstruction input or an open
direction inherent entrapment condition occur prior to the
gate reaching the open limit, the operator will lockout and
sound the continuous tone alarm. Another close request
will be required to start the operator again. If after restart,
the overload or a close obstacle happens again before the
close limit is reached, the operator will lockout and sound
the alarm. If the auto close timer is set, when the close
obstruction input is cleared, the gate will close when the
auto close timer expires.
Reverse Input
If the reverse input is triggered while the gate is closing, the
gate will reverse to the full open position. If the Auto Close
Timer is set, when the reverse input is cleared, the gate will
close when the Auto Close Timer expires.
Open Loop
Functions the same as the OPEN button.
Reverse Loop
Functions the same as the reverse input.
Shadow/Reset Loop
Holds the gate fully open or fully closed while triggered.
If open, the gate closes immediately when cleared if
Anti-tailgate is enabled.
Operation Indications
During normal operation, the Controller’s displays will
indicate current operating conditions and status.
Power-up Display
When the Controller powers up, dashes will show on the
display, then the fi rmware version number, then the gate
type (SL for slide and swing gates).
Exiting programming restarts the Controller. The power-up
display will show upon the restart.
Idle Condition
While the Controller is idling, waiting for a command, the
display will show circulating dashes.
Last Gate Position/Condition
When the gate moves or stops, the display will show the
status for up to one minute.
• Stop is displayed as St
• Full Close is displayed as FC
• Full Open is displayed as FO
• Entrapment is displayed as En
Pre-start Delay
During the pre-start delay, the display will countdown the
number of seconds remaining before the operator starts.
Reverse Delay
If the gate travel direction is reversed from a user activation
or reversing device, and a reverse delay is set, the display
will count down the delay time in seconds before the
operator restarts.
Run Timer
While the gate is opening or closing, the number of seconds
running time is displayed.

VS-GSLG Slide Gate Operator Installation Guide - 26 - P1255 Revision X5 7-7-2011
Error Indications
During abnormal operation, the Controller’s displays and
beeper will indicate the error condition that has occurred.
Entrapment
If an entrapment condition occurs detected by two repeated
open or close obstruction triggers, the Controller will lock
the operator out. The beeper will sound constantly and the
gate will not operate. To reset the Controller press the STOP
button or press the RESET button on the operator’s cover.
COMM LINK Connection Failure
In dual gate installations, if there is a connection failure
between the two operators, the COMM LINK indicator will
blink once a second. During this condition the gate will not
operate, except if triggered by the FIRE DEPT input, which
functions normally.
MGT Obstacle Transmitter Trouble
If any MGT transmitters are used with the operator, their
supervision feature will alert the Controller if there is any
trouble with the transmitter. MGT transmitters send hourly
status reports and will send low battery reports when the
transmitter has a low battery. The MGT transmitters also
have a tamper detection switch that will trigger when their
case is opened.
When the Controller detects a low transmitter battery, a
tamper signal, or missing transmitter status reports, the
gate will still operate normally, but the beeper will change
as follows:
• The Pre-start Alarm will beep twice as fast.
• The Run Alarm will beep twice as fast and continue for fi ve minutes
after the gate stops.
• The sounder will “chirp” every fi ve seconds when the gate is idle.
Correct the trouble (close case, replace battery, or replace
transmitter) to clear the obstacle transmitter trouble
indications.
Maximum Run Time Exceeded
If the Maximum Run Time is exceeded, the Controller stops
the operator the same as if a double obstacle has occurred
in an entrapment condition. The entrapment alarm sounds
constantly, and is cleared by pressing the STOP button or the
RESET button on the cover. After the STOP or RESET button
is pressed, because the Maximum Run Time has been
exceeded, the sounder will beep twice every fi ve seconds.
The next operation of the gate will clear the indication.
CONTROLLER ERROR CAUSES AND INDICATIONS
ERROR CAUSE ERROR INDICATION HOW TO CLEAR
TWO SAFETY REVERSALS (ON
SINGLE GATE OR ON EITHER
DUAL GATE)
En 00, CONTINUOUS ALARM
BEEPER, GATE DISABLED PRESS STOP BUTTON
MAXIMUM RUN TIMER
EXCEEDED ON OPENING
En 01, AND MAX RUN LED,
CONTINUOUS ALARM BEEPER,
GATE DISABLED
PRESS STOP BUTTON,
CLEARS CONTINUOUS ALARM,
THEN DOUBLE BEEP EVERY
5 SECONDS UNTIL NEXT
OPERATION
MAXIMUM RUN TIMER
EXCEEDED ON CLOSING
En 02, AND MAX RUN LED,
CONTINUOUS ALARM BEEPER,
GATE DISABLED
PRESS STOP BUTTON,
CLEARS CONTINUOUS ALARM,
THEN DOUBLE BEEP EVERY
5 SECONDS UNTIL NEXT
OPERATION
COMM LINK FAILURE
En 03, AND COMM LINK LED,
CONTINUOUS ALARM BEEPER
FOR 1 MINUTE, GATE DISABLED
(EXCEPT FOR FIRE DEPT INPUT)
PRESS STOP BUTTON, CLEARS
CONTINUOUS ALARM
GATE FULL OPEN RESULTING
FROM FIRE DEPT INPUT En 04, GATE DISABLED PRESS STOP BUTTON
FAIL SAFE OR FAIL SECURE
BECAUSE OF BATTERY VOLTAGE
DROP BELOW 21.6 VDC DUE TO
AC POWER LOSS
En 05, GATE DISABLED BATTERY VOLTAGE MUST RISE
ABOVE 24 VDC
OTHER CONTROLLER IN
ENTRAPMENT (DUAL GATE) En 06, GATE DISABLED CLEAR ENTRAPMENT ON OTHER
CONTROLLER (PRESS STOP)
LOW AC VOLTAGE AT
CONTROLLER En 07, GATE DISABLED RESTORE AC POWER TO
NORMAL LEVEL
INPUT TRIGGERED DURING
ENTRAPMENT LOCKOUT En 08, GATE DISABLED PRESS STOP BUTTON
COMPATIBILITY PROBLEM En 09, GATE DISABLED UPDATE FIRMWARE AND RESET
BOTH PAIRED CONTROLLERS
EEPROM PROBLEM En 10, GATE DISABLED TRY RESET, CALL TECH. SUPPORT
DC MOTOR MISMATCH En 11, GATE DISABLED
REPROGRAM MOTOR TYPE OR
CHANGE DC MOTOR BOARD,
NEXT GATE MOVEMENT WILL
RETRY DC MOTOR CHECK
MOTOR FAILURE En 12, GATE DISABLED CALL TECH. SUPPORT
AC POWER LOSS IN OPEN OR
CLOSE IMMEDIATE POWER
FAIL MODE
En 13 REAPPLY AC POWER
MAXIMUM RUN TIMER
EXCEEDED AFTER AC POWER
LOSS
En 14 BATTERY VOLTAGE MUST RISE
ABOVE 24 VOLTS
MGT SUPERVISORY CONDITION
(TAMPER, LOW BATTERY,
MISSING HOURLY STATUS)
FAST BEEPS DURING PRESTART,
FAST BEEP RUN ALARM, CHIRP
EVERY 5 SECONDS AT IDLE
CLEARS WHEN MGT CONDITION
CLEARS
WARNING
The Stop and/or Reset button must be located in the line-of-
sight of the gate. Activation of the reset control shall not
cause the operator to start.

VS-GSLG Slide Gate Operator Installation Guide - 27 - P1255 Revision X5 7-7-2011
Troubleshooting
Contacting Technical Support
For technical questions regarding Linear gate operators, contact the
Technical Services Department at:
1-800-421-1587 from 5:00 AM to 4:30 PM Pacifi c time
Operator fails to start
A. If the operator has been running a large number
of cycles, the motor may have become too hot and
tripped its thermal overload breaker. Allow the motor to
cool down and the thermal overload breaker will reset
automatically.
B. Make sure you have power at the master distribution
panel and that the power has not been turned off.
Motor operates, but gate does not move
A. In operators with torque limiters and friction pad clutches,
check for signs of slipping. You can mark the sprocket
and clutch with a yellow or white grease pen and watch
for the lines to move apart if slipping is taking place.
Adjust the torque limiter tighter if this is the problem.
B. Check for broken chain or worn belts.
C. Check all setscrews on pulleys and sprockets and tighten
them if necessary, and check for keys which may have
fallen loose from keyways.
Motor sounds like it is working harder than normal
A. Make sure the gate is moving freely and without binding
throughout its entire travel.
B. Check the drive chain for obstructions (if the operator
has one).
C. If the operator has an internal brake mechanism, make
sure it is releasing.
Limit switch getting out of time
A. Check for proper tension on all limit chains to be sure
there is no jumping taking place. Mark one tooth and its
corresponding link and run the gate. If the marks have
moved, the chain is skipping.
B. Check the setscrews in limit sprockets for tightness. In
rotary limit boxes, check the rotary limit nut for sloppiness
or stripped threads. Replace if necessary.
Gate stopping part way open or closed
(but no visible obstruction)
A. The Controller may have received a false obstruction
input triggered by current sensing set too low. Make sure
the gate moves freely through its entire travel before
adjusting the current sensing.
B. The Maximum Run Timer may have counted down and
expired. This can be caused by having the timer set too
low, if a chain or belt is broken, or if a sprocket or pulley
is slipping. When the timer expires, the gate stops and
the beeper will sound.
C. An obstruction signal from an accessory wired to the
obstruction input may have triggered falsely. Check the
control board for lit indicators for any of the following
inputs: safety, shadow/reset, open obstruction, close
obstruction, stop, etc. If any are lit when the operator
should be running, remove all devices hooked to that
function and hook them up one at a time and try to run
the operator until the problem device is found. Refer to
Page 9 for details on the control board indicators.
Gate staying open with automatic system
A. If there are vehicle detectors used with the operator, one
of the loops or loop detectors may be sending a false
signal or needs to be reset. Observe the indicators on
the loop detector. Unplug the detector and try running
the operator.
B. An opening or reversing device may be stuck or
malfunctioning. Try disconnecting these devices and
hook them back up one at a time and try running the
operator until the malfunctioning device is found.
C. Make sure the close limit switch isn’t activated. If it is, the
operator will think the gate is already closed.
How to Order Replacement Parts
Use the part numbers listed on the following pages.
Contact your local Linear dealer or distributor to order parts.
1. Supply the model number and serial number of your operator.
2. Specify the quantity of pieces needed and order by part number and name of part.
3. State whether to ship by freight, truck, parcel post, UPS or air express.
4. State whether transportation charges are to be prepaid or collect.
5. Specify name and address of person or company to whom parts are to be shipped.
6. Specify name and address of person or company to whom invoice is to be sent.

VS-GSLG Slide Gate Operator Installation Guide - 28 - P1255 Revision X5 7-7-2011
Model VS-GSLG Exploded View

VS-GSLG Slide Gate Operator Installation Guide - 29 - P1255 Revision X5 7-7-2011
MODEL VS-GSLG MECHANICAL PARTS LIST
REF. # PART # DESCRIPTION
2120-359 Complete Enclosure with Door Assembly
1 2120-144 Enclosure without Door
2120-360 Complete Door and Lock Assembly
2500-2192 C-Face Brake, 115V
2500-2397 C-Face Brake, 208/230/460V
5 2110-265 Rail Assembly
15 2100-573 Spacer Plate
2100-661 Back Brace
12 2100-1738 Drive Shaft, 1”
48 2400-501 Retaining Ring
9 2200-274 Bearing, 1”
43 2100-1737 Pillow Block Retaining Plate
40 2200-042 Sprocket, 48 B 15, 1” bore
2200-015 Shaft Collar, 1”
7 2120-388 Torque Limiter Assembly, 5-1/2”
7A 2100-1650 Plate with Solid Pin Groove
7B 2100-1661 Keyed Plate
7C 2300-390 Friction Disc (pair)
7D 2200-817 Belleville Washer
7E 2100-1621 Belleville Washer Retaining Disc
7F 2100-1622 Adjustment Nut
7G 2400-407 Brass Tipped Set Screw
7H 2400-416 Dowel Pin
7I 2100-529 Woodruff Key
8 2210-004 Sprocket, 40-A-48, with Bearing
42 2200-886 Drive Sprocket, 50-B-20, 1” Bore
2110-363 Gear Reducer/Disconnect Assembly
2 2200-551 Gear Reducer, 10:1
19 2120-132 Shifter Lever Assembly
18 2110-362 Shifter Lever Fulcrum Assembly
37 2100-551 Shifter Lever Rod
38 2400-169 Pal Nut
20 2100-1133 Locking Lever Plate
28 2100-910 Locking Lever
41 2200-291 Shifter and Locking Lever Spring
14 2200-014 Shaft Collar, 1”
11 2110-364 Sprocket, 40 A 24, with Bearing
30 2200-549 Disconnect Collar, 1” (keyed)
31 2110-131 Shifter Block
2400-133 Key, 1/4” x 1/4” x 2-1/4”
32 2200-115 Disconnect Spring
33 2400-308 Fender Washer, 3/8”
34 2400-017 Flat Washer, 3/8”
35 2400-016 Lock Washer, 3/8”
36 2400-207 HHCS, 3/8”-16 x 2-1/2”
16 2110-700 Idler Assembly
2300-697 UHMW Idler Wheel
2100-1731 Idler Shaft
6 2520-453 Rotary Limit Box Assembly
2500-764 Limit Switch
2100-057 Standard Limit Shaft
2200-030 Limit Nut
2100-261 Detent Plate
2110-162 Limit Box Enclosure with Cover
2100-756-PLT Limit Box Cover only
2200-029 Flange Bearing, 1/2” ID
2400-029 Push-On Nut
REF. # PART # DESCRIPTION
2200-042 Limit Drive Sprocket, 48-B-15, 1” bore
For drives up to 34 feet wide:
39 2200-008 Limit Box Sprocket, 48-B-10, 1/2” bore
2200-922 #48 Chain, 25 Links
For drives from 35 to 49 feet wide:
2200-041 Limit Box Sprocket, 48-B-15, 1/2” bore
2200-200 #48 Chain, per foot, 27 Links
For drives 50 to 65 feet wide:
2200-276 Limit Box Sprocket, 48-B-20, 1/2” bore
2200-654 #48 Chain, per foot, 29 Links required
For drives over 65 feet wide:
2200-432 Limit Box Sprocket, 48-B-30, 1/2” bore
2200-654 #48 Chain, per foot, 32 links required
2200-010 #48 Master Link
2200-605 #40 Chain, 37 Links
2200-006 #40 Master Link
17 2100-657 Rain Cover
24 2200-221 #50 Roller Chain, per foot
2200-111 #50 Master Link
25 2100-258 Chain Pin
26 2200-306 Tension Spring
22 2100-2007 Gate Bracket
27 2400-090 Hex Nut, 1/2”
23 2400-170 Gate U-Bolt
21 2400-038 Mounting U-Bolt
2500-867 Alarm, 24VAC
C-FACE MOTORS
4
2500-2313 1/2 HP, 208/230/460 VAC, 3 Phase
2500-2315 1 HP, 208/230/460 VAC, 3 Phase
2500-372 2 HP, 208/230/460 VAC, 3 Phase

VS-GSLG Slide Gate Operator Installation Guide - 30 - P1255 Revision X5 7-7-2011
Controller Parts List
SHADOW/RESET
OPEN/RESET
6
8
3
7
1
4
9
510
2
VS-GSLG CONTROLLER MECHANICAL PARTS LIST
REF. # PART # DESCRIPTION
Variable Speed Control Box Assemblies
2520-532 1/2 HP, 115V, 1-Phase Controller
2520-533 1/2 HP, 208/230V, 1-Phase Controller
2520-534 1/2 HP, 208/230V, 3-Phase Controller
2520-535 1/2 HP, 460V, 3-Phase Controller
2520-536 1 HP, 115V, 1-Phase Controller
2520-537 1 HP, 208/230V, 1-Phase Controller
2520-538 1 HP, 208/230V, 3-Phase Controller
2520-539 1 HP, 460V, 3-Phase Controller
2520-540 2 HP, 208/230V, 1-Phase Controller
2520-541 2 HP, 208/230V, 3-Phase Controller
2520-542 2 HP, 460V, 3-Phase Controller
1 2120-447 Enclosure with Cover
Transformers
2
2500-212 115V to 24V, 40VA
2500-791 208/230V to 24V, 40VA
2500-214 460V to 24V, 40VA
REF. # PART # DESCRIPTION
Hitachi Controllers
3
2500-2244 1/2 HP, 115V, 1-Phase
2500-2246 1/2 HP, 208/230V, 1-Phase or 3-Phase
2500-2249 1/2 HP, 460V, 3-Phase
2500-2245 1 HP, 115V, 1-Phase
2500-2247 1 HP, 208/230V, 1-Phase or 3-Phase
2500-2250 1 HP, 460V, 3-Phase
2500-2248 2 HP, 208/230V, 1-Phase or 3-Phase
2500-2251 2 HP, 460V, 3-Phase
Apex Parts
4 2500-1980 3-Phase Motor Board
5 2100-2149 Apex Mounting Straps
6 2500-2393 Apex Module
7 2500-2084-HALF Brake Contactor (1/2)
8 2500-2291 Power On/Off Switch, 30 Amp, 600VAC
Wiring Harnesses
9 2510-494 Limit Switch Harness
10 2510-500 Control Box Motor Harness, 115/230V
2510-501 Control Box Motor Harness, 460V

VS-GSLG Slide Gate Operator Installation Guide - 31 - P1255 Revision X5 7-7-2011
Preventative Maintenance
General
Linear gate operators are designed for many years of
trouble-free operation and, under recommended operating
conditions, will require only minimal maintenance. To ensure
that a unit is ready for operation at all times, and to preclude
serious damage or failure, inspect the unit systematically.
Proper adjustments and lubrication should be made as
recommended.
Lubrication
✓ Bearings — For models which have pillow block style
bearings with grease fi ttings, lubricate at least twice a
year with a lithium complex based, petroleum oil NLGI 2
rated grease. Oilite and precision sealed bearings do not
require additional lubrication.
✓ Motor — Motors have sealed ball bearings and do not
require further lubrication. If bearing noise develops after
several years of operation, bearings should be replaced
by a motor repair company, or the motor should be
replaced if necessary.
✓ Drive Chain and Sprocket — The main drive chain and
sprockets should be inspected for wear, cleaned, and
wiped down with a lightly oiled rag every six months.
6-Month Preventative Maintenance
1. For operators which utilize torque limiting clutches,
check for proper tightness. If there appears to be dust
from wear on the pads, inspect the pads and replace
if necessary. If the clutch cannot be adjusted tightly
enough to move the gate without slipping, the pads must
be replaced.
2. For operators with V-belts, inspect for wear and replace
as necessary. Check for proper tension and adjust if
required. Check all pulley setscrews for tightness and
tighten if necessary.
3. For operators with internal chain drives, inspect chain
and sprockets for wear and replace if necessary. Check
for proper tension and alignment, and adjust if required.
Check all hub sprocket setscrews and tighten if required.
4. Check limit switches and limit actuators (cams, limit nuts,
etc.) for wear and replace as required. In rotary limit
switch assemblies, wipe the limit shaft clean and apply a
light coating of dry lubricant.
5. For operators with magnetic brakes, check for proper
adjustment. Brake disc must run free when the brake
is engaged. For brake assemblies other than C-face
style, the brake should be adjusted so that the solenoid
plunger throw is between 3/8” to 1/2”. Too much throw
will damage the solenoid. If the solenoid emits a loud
buzzing sound when the motor is run, the brake
must be adjusted.
6. In operators which have a disconnect handle, inspect
disconnect handle for proper function and lubricate if
necessary. Use a lithium based grease on all moving
parts.
7. Inspect all nuts and bolts for proper tightness and tighten
as necessary.
8. Check all reversing devices for proper function. Inspect
all contact edges for wear and replace if required. Check
photoeyes for proper alignment and function.
9. Check current sensing for proper adjustment when
fi nished with inspection and maintenance.
10. Inspect the installation area. Are all the warning signs
intact and visible? If they are missing or need replaced,
contact Linear. Be sure there are no control stations
mounted within reach of the gate. Review safety literature
with the customer and advise them to remove any such
stations found.
FCC Notice
This device complies with FCC Rules Part 15 and Industry
Canada Rules & Regulations. Operation is subject to the
following two conditions: (1) This device may not cause
harmful interference and (2) this device must accept any
interference received, including interference that may cause
undesired operation.
WARNING
Always disconnect power from operator before servicing.
Keep clear of gate during operation.
For all gate operators, you must
inspect the gate for proper operation.
The gate should move easily without
binding through its entire travel. If
the gate does bind, adjust or fi x as
required. Failure to keep the gate in
good working condition will have
adverse effects on the operator.

VS-GSLG Slide Gate Operator Installation Guide - 32 - P1255 Revision X5 7-7-2011
Variable Speed Drive Programming
Programming the Hitachi Inverter
1. Apply power
2. Press FUNC
3. Use ▲▼ arrows to advance to F_ _ (F002 for L200)
4. Press FUNC arrow to get to F02 (L100 ONLY)
5. Press FUNC, arrows to change to 3.0 (3.00 for L200),
STR
6. Up arrow to advance to next parameter, (F03), FUNC
to view, arrows to change, STR to store and continue,
advance through listed parameters and store new values.
7. To switch from one letter prefi x to another, press FUNC
3 times, advance to desired letter prefi x, press FUNC,
advance to desired parameter.
8. When all parameters have been changed, advance to
D01, press FUNC, then press STR. This will display the
operating speed in Hz. (0-95)
CAUTION
This unit has been programmed at the factory. No changes
should be necessary for normal operation. PLEASE CONSULT
THE FACTORY BEFORE MAKING ANY CHANGES!
List of parameters set at factory
MODEL L100 MODEL L200
FUNCTION DESCRIPTION RECOMMENDED
SETTING FUNCTION DESCRIPTION RECOMMENDED
SETTING
F02 ACCEL TIME 3.0 F002 ACCEL TIME 3.00
F03 DECEL TIME 3.0 F003 DECEL TIME 3.00
A01 SPEED SOURCE 00 (POT) A001 SPEED SOURCE 00 (POT)
A02 RUN COMMAND SOURCE 01 A002 RUN COMMAND SOURCE 01
A04 MAX SPEED 95.0 (Hz) A004 MAX SPEED 95 (Hz)
A20 TARGET SPEED 95.0 (Hz) A020 TARGET SPEED 95.0 (Hz)
A21 SECOND SPEED 20.0 (Hz) A021 SECOND SPEED 20.0 (Hz)
A042 AUTO TORQUE BOOST 0
A044 BOOST PERCENT 00
A081 AUTO VOLTAGE
REGULATION
01
A62 MIN SPEED 20.0 (Hz) A062 MIN SPEED 20.0 (Hz)
B01 AUTO RESET 01 B001 AUTO RESET 01
B130 INHIBIT DECEL
OVERVOLTAGE
01
C03 TERM 3 FUNC 03 C003 TERM 3 FUNC 03
C04 TERM 4 FUNC 11 C004 TERM 4 FUNC 11
C014 TERM 4 STATE 01
Figure 18. Hitachi L200 Inverter
NOTE: L200 model
must have this switch in
the UP (SR) position.
NOTE: L200 model must
have these two switches
in the DOWN position.
VS-GSLG Slide Gate Operator Installation Guide - 33 - P1255 Revision X5 7-7-2011
This page left blank intentionally.

VS-GSLG Slide Gate Operator Installation Guide - 34 - P1255 Revision X5 7-7-2011
Gate Operator Installation Checklist
❑ ❑ 1. The gate has been checked to make sure it is level and moves freely in both directions.
❑ ❑ 2. Potential pinch areas have been guarded so as to be inaccessible OR have
contact and/or non-contact obstruction sensing devices installed.
❑ ❑ 3. The installer has installed one or more contact or non-contact obstruction sensing
devices, in compliance with UL325 requirements for this installation.
❑ ❑ 4. If pedestrian traffi c is expected, a separate pedestrian gate has been
installed, a minimum of seven feet from the gate. The customer has been
informed that all pedestrian traffi c must use the pedestrian gate.
❑ ❑ 5. Warning signs have been installed on each side of the gate in highly visible locations.
The customer has been informed that these signs must remain at all times.
❑ ❑ 6. There are no controls installed on the gate operator, or within seven feet of the gate.
❑ ❑ 7. The installer has properly adjusted the obstruction sensing feature and has tested
the gate to make sure that the gate stops and reverses a short distance with minimal
resistance applied (40 lbs. on a swing gate at the end of the gate, 75 lbs. on a slide gate)
❑ ❑ 8. The installer has instructed the customer in the proper use of the gate operator and reviewed
all of the operational functions, obstruction sensing devices, warning beeper and reset, etc.
❑ ❑ 9. The installer has instructed the customer in the proper use of the operator’s
manual disconnect feature. The manual disconnect must never be used
while the gate is in motion. The power switch must be turned off before
using the manual disconnect and disengaging the operator.
❑ ❑ 10. The installer has reviewed all safety instructions with the customer, and has left
the safety instructions and owner’s information sheets for their reference.
❑ ❑ 11. The installer has answered any questions the customer has regarding the
operation of the gate operator and gate operator safety precautions.
❑ ❑ 12. The installer has explained to the customer that a regular maintenance
schedule for both the gate and the gate operator is recommended.
By signing this installation checklist, I/we hereby certify that each item listed and checked above has been covered by the
installer and is clearly understood by the customer.
INSTALLER CUSTOMER
Customer’s Signature
Installer’s Signature
Date
Date