Lochinvar Knight Xl 399 800 Users Manual KBX SER Rev E
399 - 800 to the manual 029a7077-ffd4-4156-ab01-145a7b5dba1b
2015-02-09
: Lochinvar Lochinvar-Knight-Xl-399-800-Users-Manual-575415 lochinvar-knight-xl-399-800-users-manual-575415 lochinvar pdf
Open the PDF directly: View PDF
.
Page Count: 44

Service Manual
Models: 399 - 800
This manual must only be
used by a qualified heating
installer / service technician.
Read all instructions,
including this manual and the
Knight XL Installation and
Operation Manual, before
installing. Perform steps in
the order given. Failure to
comply could result in severe
personal injury, death, or
substantial property damage.
WARNING
Save this manual for future reference.
KBX-SER Rev E

2
Hazard definitions
The following defined terms are used throughout this manual to bring attention to the presence of hazards of various risk levels or
to important information concerning the life of the product.
DANGER
WARNING
CAUTION
CAUTION
NOTICE
DANGER indicates an imminently hazardous situation which, if not avoided, will result in death or serious
injury.
WARNING indicates a potentially hazardous situation which, if not avoided, could result in death or serious
injury.
CAUTION indicates a potentially hazardous situation which, if not avoided, may result in minor or moderate
injury.
CAUTION used without the safety alert symbol indicates a potentially hazardous situation which, if not
avoided, may result in property damage.
NOTICE indicates special instructions on installation, operation, or maintenance that are important but not
related to personal injury or property damage.
CONTENTS . . . . . . . . . . . . . . . . . . . . . . . . . . . . . . . . . . . . 2
Hazard Definitions . . . . . . . . . . . . . . . . . . . . . . . . . . . . . . . 2
PLEASE READ BEFORE PROCEEDING . . . . . . . . . . . . 3
Handling Ceramic Fiber Materials . . . . . . . . . . . . . . . . . . . 3
When servicing boiler . . . . . . . . . . . . . . . . . . . . . . . . . . 4
Boiler operation . . . . . . . . . . . . . . . . . . . . . . . . . . . . . . 4
Boiler water . . . . . . . . . . . . . . . . . . . . . . . . . . . . . . . . . 4
Freeze protection fluids . . . . . . . . . . . . . . . . . . . . . . . . 4
WHAT IS IN THIS MANUAL . . . . . . . . . . . . . . . . . . . . . . . 5
1. SERVICE
Near Boiler Piping . . . . . . . . . . . . . . . . . . . . . . . . . . . . . . . 6
The Knight Boiler Display . . . . . . . . . . . . . . . . . . . . . . . . . 7
Control Inputs . . . . . . . . . . . . . . . . . . . . . . . . . . . . . . . . 8
Control Outputs . . . . . . . . . . . . . . . . . . . . . . . . . . . . . . 9
General Operation . . . . . . . . . . . . . . . . . . . . . . . . . . . 10
Sequence of Operation . . . . . . . . . . . . . . . . . . . . . . . . . . 11-12
Display Panel Menu Access . . . . . . . . . . . . . . . . . . . . . . 13
Display Panel Parameter Access . . . . . . . . . . . . . . . . . . 14
Parameter Table . . . . . . . . . . . . . . . . . . . . . . . . . . . . . . . 15-16
Viewable and Changeable Control Parameters . . . . . . . 17-22
2. MAINTENANCE
Maintenance and Annual Startup . . . . . . . . . . . . . . . . . . 23-27
3. TROUBLESHOOTING
Before Troubleshooting . . . . . . . . . . . . . . . . . . . . . . . . . . 28
Check Control Module Fuses . . . . . . . . . . . . . . . . . . . . . 28
Table 3A - Troubleshooting Chart - No Display . . . . . . . . 29
Checking Temperature Sensors . . . . . . . . . . . . . . . . . . . 30
Table 3E - Troubleshooting Chart - Noisy System . . . . . 31
Table 3F - Troubleshooting Chart - Fault Messages . . . . 32-39
Combustion Analysis Procedure . . . . . . . . . . . . . . . . . . . 40
Table 3G - Troubleshooting Chart - Combustion Levels 40
Table 3H - Flue Products . . . . . . . . . . . . . . . . . . . . . . . . . 40
Gas Valve Adjustment Procedure . . . . . . . . . . . . . . . . . . 41
Revision Notes . . . . . . . . . . . . . . . . . . . . . . . . . Back Cover
Contents

Service Manual
Please read before proceeding
Installer – Read all instructions,
including this manual and the Knight XL
Installation and Operation Manual,
before installing. Perform steps in the
order given.
User – This manual is for use only by a
qualified heating installer/service
technician. Refer to the Knight XL User’s
Information Manual for your reference.
Have this boiler serviced/inspected by a
qualified service technician at least
annually.
Failure to comply with the above could
result in severe personal injury, death or
substantial property damage.
When calling or writing about the boiler –
Please have the boiler model and serial
number from the boiler rating plate.
Consider piping and installation when
determining boiler location (see the Knight
XL Installation and Operation Manual).
Any claims for damage or shortage in
shipment must be filed immediately against
the transportation company by the
consignee.
3
Handling ceramic fiber materials
REMOVAL OF COMBUSTION CHAMBER LINING
The combustion chamber door insulation in this product contains ceramic fiber material. Ceramic fibers
can be converted to cristobalite in very high temperature applications. The International Agency for
Research on Cancer (IARC) has concluded, “Crystalline silica inhaled in the form of quartz or cristobalite
from occupational sources is carcinogenic to humans (Group 1).”:
Avoid breathing dust and contact with skin and eyes.
• Use NIOSH certified dust respirator (N95). This type of respirator is based on the OSHA
requirements for cristobalite at the time this document was written. Other types of respirators may
be needed depending on the job site conditions. Current NIOSH recommendations can be found on
the NIOSH website at http://www.cdc.gov/niosh/homepage.html. NIOSH approved respirators,
manufacturers, and phone numbers are also listed on this website.
• Wear long-sleeved, loose fitting clothing, gloves, and eye protection.
Apply enough water to the combustion chamber lining to prevent airborne dust.
Remove the combustion chamber lining from the boiler and place it in a plastic bag for disposal.
Wash potentially contaminated clothes separately from other clothing. Rinse clothes washer
thoroughly.
NIOSH stated First Aid.
Eye: Irrigate immediately.
Breathing: Fresh air.
WARNING NOTICE
WARNING

4
Service Manual
Please read before proceeding
When servicing boiler –
• To avoid electric shock, disconnect electrical supply
before performing maintenance.
• To avoid severe burns, allow boiler to cool before
performing maintenance.
Boiler operation –
• Do not block flow of combustion or ventilation air to
the boiler.
• Should overheating occur or gas supply fail to shut off,
do not turn off or disconnect electrical supply to
circulator. Instead, shut off the gas supply at a location
external to the appliance.
• Do not use this boiler if any part has been under water.
The possible damage to a flooded appliance can be
extensive and present numerous safety hazards. Any
appliance that has been under water must be replaced.
Boiler water –
• Thoroughly flush the system (without boiler
connected) to remove sediment. The high-efficiency
heat exchanger can be damaged by build-up or
corrosion due to sediment.
• Do not use petroleum-based cleaning or sealing
compounds in the boiler system. Gaskets and seals in
the system may be damaged. This can result in
substantial property damage.
• Do not use “homemade cures” or “boiler patent
medicines”. Serious damage to the boiler, personnel,
and/or property may result.
• Continual fresh make-up water will reduce boiler life.
Mineral buildup in the heat exchanger reduces heat
transfer, overheats the stainless steel heat exchanger, and
causes failure. Addition of oxygen carried in by makeup
water can cause internal corrosion. Leaks in boiler
piping must be repaired at once to prevent the
introduction of makeup water.
Freeze protection fluids –
• NEVER use automotive antifreeze. Use only inhibited
propylene glycol solutions which are specifically
formulated for hydronic systems. Ethylene glycol is
toxic and can attack gaskets and seals used in hydronic
systems.

Service Manual
5
What is in this manual?
Service
Near boiler piping
• Typical system components
The Knight XL display
• Display panel readout, buttons and their functions
Control module inputs
• Control module inputs and options
Control module outputs
• Control module outputs and options
General
• How the boiler operates
• How the control module operates
• Access modes -- user and installer
• Sequence of operation -- Domestic Hot Water
(DHW)/space heating
Control panel menu access
• Accessing programming mode and locating menus
(See separate guide covering the interface.)
Control panel parameter access
• Accessing and changing parameters from the display panel
Quick start information -- parameter
table
• An index of available adjustments and readouts, where to
access them and where to find detailed information.
Knight XL operation
• A: General
• B: Temperature Setting
• C: Data Logging
• D: Functions
• E: DHW Settings
• F: Outdoor Air Reset Curve
• G: Anti-cycling
• H: Control Modes
• I: Circulation Pumps
• J: Service Notification
Maintenance
• Service and maintenance schedules
• Address reported problems
• Inspect boiler area and boiler interior
• Clean condensate trap
• Check all piping for leaks
• Check air openings
• Flue vent system and air piping
• Check water system
• Check expansion tank
• Check boiler relief valve
• Inspect ignition electrode
• Check ignition ground wiring
• Check all boiler wiring
• Check control settings
• Perform start-up and checks
• Check burner flame
• Check flame signal
• Check flue gas temperature
• General maintenance
• Review with owner
• Cleaning boiler heat exchanger
• Oiled bearing circulators
Troubleshooting
• Troubleshooting table - No display
• Checking temperature sensors
• Sensor tables
• Troubleshooting table - Fault messages displayed on
boiler interface
• Combustion analysis procedure
• Gas valve adjustment procedure

1 Service
6
Service Manual
FROM
R
TO
INDIRECT
DOMESTIC
HOT WATER
TANK
TO FLOOR
DRAIN
TO
SYSTEM
FROM
SYSTEM
BOILER PUMP
DOMESTIC HOT
WATER PUMP
SYSTEM PUMP
Near boiler piping
This piping reference is included to specify the Near Boiler Piping specific to the Knight XL. This piping scheme is important
for proper operation of the SMART SYSTEM control. See the Knight XL Installation and Operation Manual for more detailed
piping diagrams.

Service Manual
7
1 Service (continued)
• Hold 5 seconds to enter code
Input Mode (Menu Mode)
• Press to move up one level
in Menu Mode or to exit
Menu Mode
• Press to turn boiler off or
back on
• Press to select a menu item
• Press after parameter programming
to store parameter data
• Press to exit Service Mode
• Press to toggle display during normal
operation to show outlet and return
temperatures, fan speed, and flame
signal
• Press to toggle between digits when
entering access code or between hour,
minutes, etc., when entering date and
time
• Press to change boiler water
temperature set point during
normal operation
• Press to change displayed data
values in Menu Mode
• Press to navigate through menu
listing in Menu Mode
DISPLAY SCREEN
MENU / EXIT
SHUTDOWN
ENTER / RESET
SERVICE
BUTTON
PC
CONNECTION
PORT
NEXT
PREVIOUS
DOWNUP
The Knight XL display

1 Service
8
Service Manual
1 Service
GAS PRESSURE SWITCH
(OPTIONAL)
DHW THERMOSTAT
(OPTIONAL)
ROOM THERMOSTAT /
ZONE CONTROL
FLOW SWITCH
SYSTEM SENSOR
OUTDOOR SENSOR
(OPTIONAL)
SEQUENCER / BUILDING
MANAGEMENT SYSTEM
(OPTIONAL)
LOW VOLTAGE
CONNECTION
BOARD
INLET TEMPERATURE
SENSOR
OUTLET TEMPERATURE
SENSOR
FLUE GAS SENSOR
HIGH LIMIT
FLAME SENSOR
LOW WATER CUTOFF
(OPTIONAL)
BLOCKED DRAIN SWITCH
DISPLAY PANEL
PC INTERFACE
(OPTIONAL)
SMART CONTROL
MODULE
DHW TANK SENSOR
(OPTIONAL)
AIR PRESSURE SWITCH
Control inputs

1 Service
Service Manual
9
1 Service (continued)
LOW VOLTAGE
CONNECTION
BOARD
SMART CONTROL
MODULE
ALARM BELL
AUX. DEVICE RELAY
RUN TIME CONTACTS
SEQUENCER / BUILDING
MANAGEMENT SYSTEM
BOILER PUMP
SYSTEM PUMP
DHW PUMP
IGNITOR
BLOWER
GAS VALVE
DISPLAY PANEL
PC INTERFACE
Control outputs

1 Service
10
Service Manual
1 Service
General Operation
How the boiler operates
The Knight XL uses an advanced stainless steel heat exchanger
and an electronic control module that allows fully condensing
operation. The blower pulls in gas and air and pushes flue
products out of the boiler through the heat exchanger and
flue piping. The control module regulates blower speed to
control boiler firing rate. The gas valve senses the amount of
air flowing into the boiler and allows only the right amount
of gas to flow.
How the control module operates
The Knight XL control module receives input from boiler
sensors. The control module activates and controls the
blower and gas valve to regulate heat input and switches
boiler, DHW and system pumps on and off as needed. The
user/installer programs the module to meet system needs by
adjusting control parameters. These parameters set operating
temperatures and boiler operating modes. Boiler operation
can be based on boiler outlet water temperature, boiler return
water temperature or system supply temperature, depending
on the parameter setting.
Sequence of operation
Table 1 shows control module normal sequences of operation
for space heating and DHW operation. The combined
operation sequence is for a typical application, programmed
to provide DHW priority.
Access modes
User
The user can adjust space heating set point using the UP and
DOWN buttons at any time during normal operation. By
entering the USER code (0704), the user can also change
temperature units, time and date, and night setback settings.
In user mode, the following parameters can be viewed but not
changed: Boiler outlet water temperature in DHW mode;
boiler model number; software version; total operating hours,
and total cycles.
Installer
Most parameters are available only to the installer, accessible
only by entering the installer access code (5309).
Saving parameters
To save parameters:
Press the ENTER/RESET button.
To keep parameter settings only for a current operating cycle:
Press the MENU/EXIT button 1 time to return to the
parameter listings; press again to return to the menu listings.

1 Service
Service Manual
11
1 Service (continued)
Sequence of operation
Table 1A Sequence of operation - space heating and DHW
OPERATION DISPLAY
1. Upon a call for heat, the control turns on the appropriate pumps
(system and boiler pumps for space heating call; DHW pump
for DHW call).
BLR: Standby
OUT: 123.8F(129)
2. The control connects 120 VAC to the blower. The blower
does not run at this time.
• The manual reset high limit must be closed and reset.
• Once the pumps are turned on, the flow switch must close.
• If the unit is equipped with gas pressure switches, they must
close.
• If an auxiliary limit is connected to the unit, it must close.
• The air pressure switch must be closed.
BLR: Standby
OUT: 123.8F(129)
3. The control then starts a 15 second prepurge cycle. BLR: PREPURGE
OUT: 123.9F(129)
4. Once the prepurge cycle is complete, and the blocked drain
switch is closed, the control starts the 4 second trial for ignition
by sending spark voltage to the spark electrode and opening
the gas valve.
BLR: IGNITION
OUT: 123.9F(129)
5. If the control does not detect flame before the trial for ignition
ends, the control will perform a 10 second postpurge. The 399
model will start another prepurge and trial for ignition. If the
burner does not light after 4 trials on the 399 model, the control
will lock out for one hour and then try again.
On the 500 - 800 models, the control will lock out indefinitely
after the first trial for ignition fails.
BLR: POSTPURGE, PREPURGE
OUT: 123.9F(129)
6. If the control detects a flame before the trial for ignition ends, it
begins to modulate the burner in order to maintain the set point.
If the boiler lights due to a space heating call for heat, and the
ramp delay function is active (default is off), the modulation
will be held to a series of increasing limits after the burner has
lit.
BLR: SH 20% RATE
OUT: 124.8F(129)
7. If the space heating call for heat is active, and the DHW
thermostat or sensor starts a DHW call for heat, the control will
turn on the DHW pump, wait 2 seconds, and then turn off the
boiler pump. This will divert the hot water away from the
heating zone(s) and send it to the DHW tank instead. The
control will then modulate to maintain the outlet temperature to
the DHW boiler set point.
BLR: DHW 85% RATE
OUT: 177.8(180)

1 Service
12
Service Manual
1 Service
Sequence of operation (continued)
Table 1A (continued from previous page) Sequence of operation - space heating and DHW
OPERATION DISPLAY
8. If the boiler is not part of a cascade, and the DHW call for heat
remains active for more than 30 minutes, and the space heating
call for heat is also active, then the control will turn on the boiler
pump, turn off the DHW pump after 2 seconds, and resume
modulating based on the space heating set point. As long as
both the space heating and DHW calls for heat remain active,
the control will switch back and forth between the two modes
until one of them is satisfied.
BLR: SH 41% RATE
OUT: 123.0F(129)
9. Once both calls for heat are satisfied, the control will turn off the
burner. The blower will remain on for the 10 second postpurge
cycle. Any pumps that are running will continue to run for their
respective pump delay times, then turn off.
BLR: POSTPURGE
OUT: 127.4F(129)
10. Boiler pump off, system pump continues its delay if longer. BLR: Standby
OUT: 124.7F(129)
11. System pump off. BLR: Standby
OUT: 122.9F(129)

1 Service
Service Manual
13
1 Service (continued)
Display panel menu access
Table 1B Use this procedure to access menus from the display panel
Press 1 time in normal operation
Hold for 5 seconds -- display will change
Press 9 times to change last digit
in readout to “9”
Press 2 times to move to the second
digit
Press 3 times to change second digit
in readout to “3”
Press 1 time to change to the first
digit
Press 5 times to change first digit
in readout to “5”
If you enter a digit incorrectly, you can move to the digit by using the NEXT and PREVIOUS buttons
as needed until the digit you want is flashing. Then use UP and/or DOWN buttons to change the value.
Press to enter the code
After 2 seconds, display shows menus
(press ENTER/RESET to select a menu)
If the code is entered incorrectly, the display will return to its previous mode. You will have to start over
at step 1 to enter the code.
Press 1 time to highlight second listing
Press 1 time to toggle menu listing
Press 2 times to toggle menu listing
Press 2 times to toggle menu listing
Press 2 times to toggle menu listing
ENTER/RES
MENU/EXIT
UP
PREVIOUS
UP
PREVIOUS
UP
ENTER/RES
DOWN
DOWN
DOWN
DOWN
DOWN
To select a highlighted menu, press the ENTER/RESET button one time. The display will
change to the first parameter under that menu, with the first characters flashing.
BUTTON OPERATION DISPLAY COMMENTS
Boiler turns off (this ensures
uninterrupted programming)
Digit shown underlined at left will
flash
Digit shown underlined at left will
flash
Digit shown underlined at left will
flash
Digit shown underlined at left will
flash
Digit shown underlined at left will
flash
Digit shown underlined at left will
flash
The words, “INSTALLER CODE”
will flash while displayed
The caret symbol, “>” highlights
the selectable line
The caret symbol, “>” highlights
the selectable line
The menu toggles to the next two
menu options
The menu toggles to the next two
menu options
The menu toggles to the next two
menu options
The menu toggles to the next two
menu options
BLR:OFF
OUT:127.3ºF
Enter Menu Code:
0000 flashing
Enter Menu Code:
0009
Enter Menu Code:
0009
Enter Menu Code:
0309
Enter Menu Code:
0309
Enter Menu Code:
5309
Enter Menu Code:
INSTALLER CODE
>A General
B Temp Settings
A General
>B Temp Settings
>C Data Logging
D Functions
>E DHW Settings
F Outdoor Reset
>G Anti-cycling
H Control Modes
>I Circulation Pumps
J Service Notification

1 Service
14
Service Manual
1 Service
Display panel parameter access
Table 1C This is a typical example of accessing a parameter, shown for parameter I2, boiler pump delay
BLR:Pre-Purge
BUTTON OPERATION DISPLAY COMMENTS
This example shows how to access parameter I2, boiler pump delay. The first display shown is at the beginning
of the menu listings, after entering the installer acess code.
Beginning of menu listings
Press 1 time to highlight second listing
Press 1 time to toggle menu listing
Press 2 times to toggle menu listing
Press 2 times to toggle menu listing
Press 2 times to toggle menu listing
Press 1 time to list parameters
Press 1 time to change parameter
Press 1 time to select parameter
Press to increase (or decrease) value
Press 1 time to save
(or press MENU/EXIT to continue)
Press 1 time to return to normal
operation OUT:123.7ºF
A General
B Temp Settings
I2 Postrun Time SH
Pump 0.67 minutes
I2 Postrun Time SH
Pump 0.50 minutes
I2 Postrun Time SH
Pump
I1 Postrun Time
System Pump
I Circulation Pumps
J Service Notification
>G Anti-Cycling
H Control Modes
>E DHW Settings
F Heat Curve
>C Data Logging
D Functions
>A General
B Temp Settings
>A General
B Temp Settings
The caret symbol, “>” highlights
the selectable line
The caret symbol, “>” highlights
the selectable line
The menu toggles to the next two
menu options
The menu toggles to the next two
menu options
The menu toggles to the next two
menu options
The menu toggles to the next two
menu options
I1 will flash
I2 will flash
I2 will stop flashing; parameter
value will appear
Parameter will increase or decrease,
depending on button pressed
Display will change to normal
display as you exit menu mode
This display example assumes
a call for space heating is present
DOWN
DOWN
DOWN
DOWN
DOWN
ENTER/RES
UP
ENTER/RES
UP
(or DOWN)
ENTER/RES
ENTER/RES

1 Service
Service Manual
15
1 Service (continued)
Parameter table
Table 1D This table lists SMART SYSTEM control module parameters and where to access them
MENU SUB ITEM DESCRIPTION SEE
PAGE
USER ACCESS INSTALLER ACCESS
DISPLAY MODIFY DISPLAY MODIFY
A
1Boiler Model 17 Yes No Yes No
2User Code 17 Yes Yes Yes Yes
3Date and Time 17 Yes Yes Yes Yes
4Software Version 17 Yes No Yes No
5Temperature Units 17 Yes Yes Yes Yes
6Night Setback Temperature 17 Yes Yes Yes Yes
7Night Setback Times 17 Yes Yes Yes Yes
GENERAL
B
1SH Set Point User 17 Yes Yes Yes Yes
2SH Minimum Set Point 17 No No Yes Yes
3SH Maximum Set Point 17 No No Yes Yes
4SH Offset 17 No No Yes Yes
5SH Differential 18 No No Yes Yes
C
1Hours Running SH 18 Yes No Yes No
2Hours Running DHW 18 Yes No Yes No
3Ignition Attempts 18 Yes No Yes No
4Show Last 10 Errors 18 Yes No Yes No
D
1Reset Last 10 Errors 18 No No Yes Yes
2Service Mode Delay 18 No No Yes Yes
DATA
FUNCTIONS
E
1DHW Boiler Set Point 18 Yes Yes Yes Yes
2SH/DHW Switching Time 18 Yes Yes Yes Yes
3DHW Tank Set Point 18 Yes Yes Yes Yes
F
1Minimum Air Temperature 18 No No Yes Yes
2Maximum Air Temperature 19 No No Yes Yes
3Maximum SH Set Point 19 No No Ye s Yes
4Minimum SH Set Point 19 No No Yes Yes
5Outdoor Air Shutdown 19 Yes Yes Ye s Yes
6Outdoor Air Shutdown
Differential 19 Yes Yes Ye s Yes
7Shift Air Reset 19 No No Yes Yes
8Boost Temperature 20 Yes Yes Ye s Yes
9Boost Time 20 Yes Yes Ye s Yes
TEMPERATURE
SETTING
LOGGING
DHW
SETTINGS
OUTDOOR AIR RESET

1 Service
16
Service Manual
1 Service
Parameter table (continued)
Table 1D (continued from previous page) This table lists SMART SYSTEM control module parameters and
where to access them
The parameters for Building Management System operation are not listed in this table. They are only
accessible using the PC interface software. See separate documentation for access information. See page
21 of this manual for a brief discussion.
NOTICE
MENU SUB ITEM DESCRIPTION SEE
PAGE
USER ACCESS INSTALLER ACCESS
DISPLAY MODIFY DISPLAY MODIFY
G
1Anti-cycling Time 20 No No Yes Yes
2Return Temperature Differential
for Ending Anti-Cycling 20 No No Yes Yes
3Ramp Delay On/Off 20 No No Yes Yes
ANTI-CYCLING
H
1SH Controlling Sensor
(Outlet/System, Inlet) 21 No No Yes Yes
2SH Source (Thermostat, BMS,
and Cascade) 21 No No Yes Yes
3Boiler Cascade Address 21 No No Yes Yes
4Max. Cascade Set Point 21 No No Yes Yes
5Cascade Offset 22 No No Yes Yes
6Cascade Differential 22 No No Yes Yes
CONTROL
MODES
I
1System Pump Delay 22 No No Ye s Yes
2SH Pump Delay 22 No No Ye s Yes
3DHW Pump Delay 22 No No Yes Yes
CIRCULATION
PUMPS
J
1Service Notification in Month 22 No No Ye s Yes
2Service Notification Running
Hours 22 No No Ye s Yes
3Service Notification Boiler Cycles 22 No No Ye s Yes
4Reset Service Notification Counter 22 No No Ye s Yes
SERVICE
NOTIFICATION

1 Service
Service Manual
17
Viewable and changeable control parameters
A: General
Boiler model
The control will display “Knight Boiler” as the model number
because the same control is used on several models. This will be
displayed when parameter A1 has been accessed. This parameter
is not changeable.
User code
The User Code allows the user to access and change a limited
number of control parameters. The access code can be changed
by the user or the installer to a code of their choosing. To change
the code, parameter A2 must be accessed. The default code is
0704. The code can be changed one digit at a time by using the
arrow keys on the display.
Date and time
The control uses an internal clock for the night setback feature
and for logging of events. For these features to work correctly,
the clock must be set when the boiler is first installed or anytime
the boiler has been powered off for more than 30 days. To set the
clock, parameter A3 must be accessed. The date and time are
displayed as “YY:MM:DD W hh:mm”. YY = year, MM = month,
DD = date, W = day (1 = Sunday, 2 = Monday, etc.), hh = hour
(24 hour time; 2:00 PM = 14:00), mm = minutes.
Night setback times
If parameter A6 is set to anything other than 32°F (0°C), the
night setback feature becomes active. This will require start and
stop times to be programmed for the days that reduced
temperatures are required. These times can be changed by the
user or the installer by accessing parameter A7. Each day of the
week (Sunday through Saturday) will have an on and off time.
Example: Monday ON: 22:30, Tuesday OFF: 6:45. If you wish
to skip a day and have no night setback, leave the on and off
times the same. The default times for each day will be 00:00
(midnight).
B: Temperature settings
SH set point user
The SH set point user sets the water temperature set point for
fixed operation or the maximum temperature set point when
the outdoor air sensor is used. This parameter can be changed
by the user or the installer by accessing parameter B1. The
temperature range of this parameter is 50°F (10°C) to 190°F
(88°C). The default value is 125°F (52°C).
SH minimum set point
The SH minimum set point sets the minimum water
temperature set point that can be used for space heating
operation. The user or installer will not be able to program the
control with a lower SH set point. This parameter can only be
changed by the installer by accessing parameter B2. The
temperature range of this parameter is 32°F (0°C) to 190°F
(88°C). The default value is 70°F (21°C).
SH Maximum set point
The SH maximum set point sets the maximum water
temperature set point that can be used for space heating. The
user or installer will not be able to program the control with a
higher SH set point. This parameter can only be changed by the
installer by accessing parameter B3. The temperature range of
this parameter is 32°F (0°C) to 190°F (88°C). The default value
is 185°F (85°C).
SH Offset
The SH offset sets how many degrees above set point the
temperature has to go before the boiler will shut off. This
parameter can only be changed by the installer by accessing
parameter B4. The temperature range of this parameter is 0°F
(0°C) to 54°F (30°C). The default value is 10°F (5°C).
CAUTION Before changing parameters, note the
settings so that the unit can be returned to its
original operating parameters.
Software version
The software version allows the user to view the software version
in use by the control. This software controls the operation of the
boiler. When a new software version becomes available, the
existing control can be replaced with a new control to update the
software.
Temperature units
The control can be configured to display temperature in either
°C or °F. This parameter can be changed by the user or the
installer by accessing parameter A5. The default is °F.
Night setback temperature
Once the internal clock has been set correctly, the night setback
feature can be used to program a lower water temperature set
point for space heating. This parameter can be changed by the
user or the installer by accessing parameter A6. The
temperature range for this parameter is 32°F (0°C) to 140°F
(60°C). The feature is turned off with a setting of 32°F (0°C).
The default value is 32°F (0°C).
NOTICE The internal clock does not adjust for
Daylight Savings Time and therefore, will
require a manual adjustment.

18
Service Manual
1 Service
SH Differential
The SH differential sets how many degrees below the turn off
temperature the temperature has to go before the boiler will turn
on. This parameter can only be changed by the installer by
accessing parameter B5. The temperature range of this
parameter is 0°F (0°C) to 54°F (30°C). The default value is 20°F
(11°C).
C: Data logging
Hours running SH
The hours running SH parameter shows the total number of
hours the boiler has been in the SH firing position. This
parameter can be viewed by the user and the installer by
accessing parameter C1.
Hours running DHW
The hours running DHW parameter shows the total number of
hours the boiler has been in the DHW firing position. This
parameter can be viewed by the user and the installer by
accessing parameter C2.
Ignition attempts
The ignition attempts parameter shows the total number of
times the boiler has attempted to fire. This parameter can be
viewed by the user and the installer by accessing parameter C3.
Show last 10 errors
The control will log the 10 most current errors with the date and
time the error occurred. This parameter can be viewed by the
user and the installer by accessing parameter C4.
D: Functions
Reset last 10 errors
The reset last 10 errors parameter allows the error counter to be
reset to 0. This parameter can only be cleared by the installer by
accessing parameter D1. Once accessed, press the RESET key to
clear the counter.
Service mode delay
By pressing the pin button on the front of the display for five (5)
seconds, the control will be placed in Service Mode. This will
override all other heat demands. The Service Mode allows the
installer to set the unit to either maximum firing rate or
minimum firing rate for the purpose of combustion analysis.
The delay sets the length of time the boiler will stay in the
Service Mode if no keys have been pressed before going back to
its original state. This parameter can only be changed by the
installer by accessing parameter D2. The time range of this
parameter is 0 to 40 minutes. The default value is 20 minutes.
E: DHW settings
DHW boiler set point
When a DHW call for heat becomes active, the control will use
the DHW boiler set point to determine the firing rate of the
boiler based on the actual water temperature. This parameter
can be changed by the installer by accessing parameter E1. The
temperature range of this parameter is 50°F (10°C) to 190°F
(88°C). The default value is 180°F (82°C).
SH/DHW switching time
The SH/DHW switching time parameter sets the length of time
the control will stay in DHW Mode when a SH call has been
received. After this time period has expired the control will
revert to SH Mode. If a DHW call is still active the timer will
reset. After the time period has expired the control will revert
back to DHW Mode. This will continue until one of the
demands has been satisfied. This parameter can be changed by
the installer by accessing parameter E2. The time range of this
parameter is 10 minutes to 240 minutes. The default value is 30
minutes.
DHW tank set point
By installing a tank sensor, the SMART SYSTEM control can
perform the tank thermostat function. The SMART SYSTEM
control automatically detects the presence of this sensor, and
generates a DHW call for heat when the tank temperature drops
6°F (3.5°C) below the tank set point, and finishes the call for
heat when the tank temperature goes 4°F (2°C) above the tank
set point. This parameter can be changed by the installer by
accessing parameter E3. The temperature range of this
parameter is 32°F (0°C) to 212°F (100°C). The default value is
125°F (52°C).
F: Outdoor air reset
Outdoor air reset operation
If an outdoor air sensor is installed, the control will calculate the
water temperature set point based on the outdoor air
temperature. As the outdoor air temperature drops the water
temperature set point increases. This feature allows the boiler to
be more efficient in periods of mild weather, see FIG. 1-1 on
page 19.
Minimum air temperature
When the outdoor air temperature drops below this point, the
water temperature will be at its maximum setting (FIG. 1-1).
However, if the user set point is set lower, the water temperature
will be limited by the user set point instead. This parameter can
be changed by the installer by accessing parameter F1. The
temperature range of this parameter is -30°F (-34°C) to 90°F
(32°C). The default value is 25°F (-4°C).

1 Service
Service Manual
19
1 Service (continued)
WATER
TEMPERATURE
SET POINT
MAXIMUM
RESET
Default = 180°F
USER
SET POINT
Default = 125°F
MINIMUM
RESET
Default = 70°F
Default = 25°F Default = 70°F
OUTDOOR AIR
AT MAXIMUM RESET
OUTDOOR AIR
AT MINIMUM RESET
OUTDOOR
TEMPERATURE
Figure 1-1 Outdoor Air Reset Curve
Maximum air temperature
When the outdoor air temperature rises to or above this
point, the water temperature will be at its minimum setting
(FIG. 1-1). This parameter can be changed by the installer by
accessing parameter F2. The temperature range of this
parameter is -30°F (-34°C) to 90°F (32°C). The default value
is 70°F (21°C).
Maximum SH set point
When the outdoor temperature drops below its minimum
setting (F1) the water temperature will be at this point, if the
SH set point is set higher (FIG. 1-1). This parameter can be
changed by the installer by accessing parameter F3. The
temperature range of this parameter is 0°F (-18°C) to 190°F
(88°C). The default value is 180°F (82°C).
Minimum SH set point
When the outdoor temperature rises to or above its
maximum setting (F2) the water temperature will be at this
point (FIG. 1-1). This parameter can be changed by the
installer by accessing parameter F4. The temperature range of
this parameter is 0°F (-18°C) to 190°F (88°C). The default
value is 70°F (21°C).
Outdoor air shutdown
When the outdoor temperature rises above this point, the
control will block all SH demands (DHW demands will still
be active). This parameter can be changed by the user or the
installer by accessing parameter F5. The temperature range of
this parameter is 0°F (-18°C) to 120°F (49°C). The default
value is 70°F (21°C).
Outdoor air shutdown differential
The outdoor air shutdown differential parameter is the
number of degrees below parameter F5 the outdoor air
temperature must go before the boiler will respond to a SH
demand. This parameter can be changed by the user or the
installer by accessing parameter F6. The temperature range of
this parameter is 0°F (0°) to 90°F (50°C). The default value is
10°F (5°C).
Shift reset curve
The shift reset curve parameter shifts the actual set point
above the calculated set point the number of degrees in this
parameter. This parameter can be changed by the installer by
accessing parameter F7. The temperature range of this
parameter is -27°F (-15°C) to 27°F (15°C). The default value
is 0°F (0°C). This feature will be active if this parameter is set
to anything other than 0°F (0°C).

1 Service
20
Service Manual
1 Service
Boost temperature
If a SH demand lasts longer than the programmed time delay
setting (F9) and there have been no DHW demands, the
control will increase the water temperature set point by the
amount in this parameter. If the SH demand continues
through another time period, the set point will be increased
again. This will continue until either the SH demand ends, a
maximum of 20 increases has occurred, or the maximum set
point has been reached. Once the SH demand has been
satisfied the set point will revert back to its calculated setting.
The boost temperature can be changed by the installer by
accessing parameter F8. The temperature range of this
parameter is 0°F (0°C) to 45°F (25°C). The default value is
0°F (0°C). This feature will be active if this parameter is set to
anything other than 0°F (0°C).
Boost time
The boost time parameter sets the amount of time that must
elapse with a SH demand before the water temperature set
point will be increased. This parameter can be changed by the
installer by accessing parameter F9. The time range for this
parameter is 1 minute to 60 minutes. The default value is 20
minutes.
G: Anti-cycling
Anti-cycling time
Once a SH demand has been satisfied, a set amount of time
must elapse before the control will respond to a new SH
demand. The control will block the new heat demand and
anti-cycling will be shown in the display until the time has
elapsed or the water temperature drops below parameter G2.
This parameter can be changed by the installer by accessing
parameter G1. The time range for this parameter is 0 minutes
to 40 minutes. The default value is 1 minute.
Inlet temperature differential for ending anti-cycling
The control will bypass the anti-cycling time if the water
temperature drops too quickly. The control will use the water
temperature the boiler was at when it shut off as the starting
point. If the temperature drops below the temperature
parameter the control will abort anti-cycling and allow the
boiler to fire. This parameter can be changed by the installer
by accessing parameter G2. The temperature range of this
parameter is 0°F (0°C) to 54°F (30°C). The default value is
10°F (5°C).
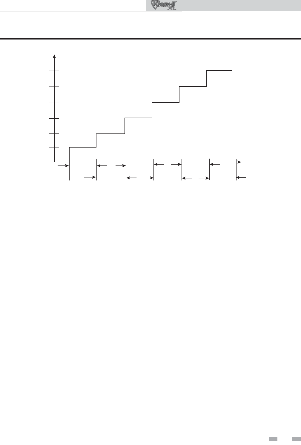
Ramp delay on/off
When the ramp delay on/off parameter is active, the ramp
delay limits the boiler firing rate when a SH cycle has started.
There are six (6) limiting steps used to limit temperature
overshoot and short cycles, see FIG. 1-2 on page 21 of this
manual. This feature can be turned on or off depending on
the installation. This parameter can be changed by the
installer by accessing parameter G3. The control range of this
parameter is 0 = Off, 1 = Ramp Up Only, and 2 = Ramp Up
and Ramp Down. The default value is 0.
When ramp delay is active, additional parameters for ramp
delay operation will have to be adjusted. These can only be
accessed by the optional PC software. See the Knight Smart
System PC Program Instructions Manual for additional ramp
delay parameter information.

1 Service
Service Manual
21
1 Service (continued)
H: Control modes
SH controlling sensor
The SH controlling sensor parameter selects the sensor the
control will use to regulate the boiler firing rate. This
parameter is adjustable by the installer by accessing
parameter H1. The sensor selections are as follows: The
outlet sensor regulates the firing rate based on the outlet
water temperature of the boiler and the inlet sensor regulates
the firing rate based on the inlet water temperature of the
boiler. If the outlet sensor is selected, and the optional system
supply sensor is connected, the control will regulate the firing
rate based on the system supply sensor temperature. The
default sensor is the Outlet Sensor.
SH source
The SH source parameter selects the method used to control
the modulation of the boiler. This parameter is adjustable by
the installer by accessing parameter H2. The control methods
are as follows:
1 - Thermostat. The control modulates the boiler based on
the user set point and the temperature of the selected
controlling sensor.
2 - BMS (Building Management System). The control
modulates the boiler based on the 0 - 10 VDC signal delivered
to the appropriate terminals on the connection board. When
BMS is selected additional parameters for BMS operation
may need to be adjusted. These can only be accessed by the
optional PC software. See the Knight Smart System PC
Program Instructions Manual for additional BMS parameter
information.
3 - Cascade. The boiler is part of a group of boilers sequenced
together. The designated Leader boiler determines the total
output needed from the group based on the set point and
controlling sensor reading. It assigns portions of this output
to itself (Leader) and the Member boilers. When Cascade is
selected, each boiler in the group requires a unique address
(see below). The default control is Thermostat.
Boiler cascade address
The boiler designated as the Leader needs to be programmed
with address 0. All the Member boilers require addresses
from 1 to 7, and the addresses must be different for each
Member. The addresses can be in any order, regardless of the
order in which the units are wired together. This parameter
is adjustable by the installer by accessing parameter H3. The
outdoor air (if used) and system supply sensor must be
connected to the Leader boiler. The default address is 1.
Max. cascade set point
This parameter determines the set point used by the
individual boilers in a Cascade. When a boiler is commanded
to fire by the Leader boiler, it will attempt to achieve this
temperature at its outlet. The Leader boiler will limit the
modulation of the last boiler to fire in order to hold the
temperature at the system supply sensor to the user set point.
If any of the boiler outlet temperatures reach the max.
cascade set point, the boiler will then modulate down on its
own in order to keep its outlet temperature within the max.
cascade set point. Therefore, this parameter can be used to
limit the outlet temperatures of all the boilers in a Cascade.
Note that this parameter does not apply when the boiler is
heating an indirect DHW tank. This parameter is adjustable
by the installer by accessing parameter H4. The default max.
cascade set point is 185°F (85°C).
Figure 1-2 Ramp Delay Interval
% RATE
RAMP 6
RAMP 5
RAMP 4
RAMP 3
RAMP 2
RAMP 1
CALL
FOR
HEAT
TIME
1TIME
2
TIME
3TIME
4
TIME
5TIME
6
MINUTES

1 Service
22
Service Manual
1 Service
Cascade offset
This parameter determines how much the temperature must
go above set point before the lead boiler will turn off. This
parameter can be adjusted by the installer by accessing
parameter H5. The default value is 9.9°F (5°C).
Cascade off-on differential
This parameter determines how much the temperature must
go below the turn off temperature (Set point + Offset) before
the lead boiler turns on. This parameter can be adjusted by
the installer by accessing parameter H6. The default value is
19.8°F (11°C).
I: Circulation pumps
System pump delay
The system pump delay parameter sets the length of time the
system pump (if connected) will run after a SH demand has
been satisfied. Setting the delay time to 0 will disable the
pump. This parameter is adjustable by the installer by
accessing parameter I1. The time range for this parameter is
0 minutes to 40 minutes. The default time is 30 seconds.
SH pump delay
The SH pump delay parameter sets the length of time the
boiler pump will run after a SH demand has been satisfied.
Setting the delay time to 0 will disable the pump. This
parameter is adjustable by the installer by accessing
parameter I2. The time range for this parameter is 0 minutes
to 40 minutes. The default time is 30 seconds.
DHW pump delay
The DHW pump delay parameter sets the length of time the
DHW pump (if connected) will run after a DHW demand
has been satisfied. Setting the delay time to 0 will disable the
pump. This parameter is adjustable by the installer by
accessing parameter I3. The time range for this parameter is
0 minutes to 40 minutes. The default time is 30 seconds.
J: Service Notification
Service notification in months
When the boiler control determines that a scheduled service
is due based on days of installation, the boiler display will
alternate the standard boiler display text with the message
SERVICE DUE every 5 seconds. This parameter is adjustable
by the installer by accessing parameter J1. The time range for
this parameter is 0 months to 36 months. The default time is
12 months.
Service notification running hours
When the boiler control determines that a scheduled service is
due based on the hours of actual operation, the boiler display
will alternate the standard boiler display text with the message
SERVICE DUE every 5 seconds. This parameter is adjustable
by the installer by accessing parameter J2. The time range for
this parameter is 0 hours to 100,000 hours. The default time
is 10,000 hours.
Service notification boiler cycles
When the boiler control determines that a scheduled service is
due based on the number of boiler cycles, the boiler display
will alternate the standard boiler display text with the message
SERVICE DUE every 5 seconds. This parameter is adjustable
by the installer by accessing parameter J3. The range for this
parameter is 0 cycles to 100,000 cycles. The default is 10,000
cycles.
Reset service notification counter
Once servicing has been completed, the service notification
counter should be reset. This parameter can be reset by the
installer by accessing parameter J4. Once accessed, press the
RESET key to reset the service notification counter.

2 Maintenance
Service Manual
23
Maintenance and annual startup
Table 2A Service and Maintenance Schedules
Service technician
(see the following pages for instructions)
General:
• Address reported problems
• Inspect interior; clean and vacuum if
necessary;
• Clean condensate trap and fill with fresh
water
• Check for leaks (water, gas, flue,
condensate)
• Verify flue and air lines in good condition
and sealed tight
• Check system water pressure/system
piping/expansion tank
• Check control settings
• Check ignition and flame sense
electrodes (sand off any deposits; clean
and reposition)
• Check wiring and connections
• Perform start-up checkout and
performance verification per Section 10
in the Knight XL Installation and
Operation Manual.
• Flame inspection (stable, uniform)
• Flame signal (at least 10 microamps at
high fire)
• Clean the heat exchanger if flue
temperature is more than 54°F (30°C)
above return water temperature.
If combustion or performance
indicate need:
• Clean heat exchanger
• Remove and clean burner using
compressed air only
• Clean the blower wheel
ANNUAL START-UP
Owner maintenance
(see the Knight XL User’s Information Manual for
instructions)
Daily
• Check boiler area
• Check pressure/temperature
gauge
Monthly
• Check vent piping
• Check air piping
• Check air and vent termination
screens
• Check relief valve
• Check condensate drain system
• Check automatic air vents
Periodically • Test low water cutoff (if used)
• Reset button (low water cutoff)
Every
6 months
• Check boiler piping (gas and
water) for leaks
• Operate relief valve
End
of season
months
• Shut boiler down (unless boiler
used for domestic hot water)

2 Maintenance
24
Service Manual
Follow the Service and maintenance procedures given throughout this manual and in component literature
shipped with the boiler. Failure to perform the service and maintenance could result in damage to the boiler
or system. Failure to follow the directions in this manual and component literature could result in severe
personal injury, death, or substantial property damage.
The boiler should be inspected annually only by a qualified service technician. In addition, the maintenance
and care of the boiler designated in Table 2A and explained on the following pages must be performed to
assure maximum boiler efficiency and reliability. Failure to service and maintain the boiler and system could
result in equipment failure.
Electrical shock hazard – Turn off power to the boiler before any service operation on the boiler except as
noted otherwise in this instruction manual. Failure to turn off electrical power could result in electrical
shock, causing severe personal injury or death.
Address reported problems
1. Inspect any problems reported by the owner and correct
before proceeding.
Inspect boiler area
1. Verify that boiler area is free of any combustible
materials, gasoline and other flammable vapors and
liquids.
2. Verify that air intake area is free of any of the
contaminants listed in Section 1 of the Knight XL
Installation and Operation Manual. If any of these are
present in the boiler intake air vicinity, they must be
removed. If they cannot be removed, reinstall the air and
vent lines per this manual and the Knight XL Installation
and Operation Manual.
Inspect boiler interior
1. Remove the front access cover and inspect the interior of
the boiler.
2. Vacuum any sediment from inside the boiler and
components. Remove any obstructions.
Clean condensate trap
1. Inspect the condensate drain line, condensate PVC
fittings, and condensate trap.
2. Remove the PVC cap retaining screw from the PVC cap
(FIG. 2-1).
3. Remove the 2 inch PVC cap with the switch located at the
top of the trap (FIG. 2-1).
4. Remove any sediment in the trap.
5. Fill with fresh water until the water begins to pour out of
the drain.
6. Replace the cap. Press the cap onto the trap until the cap
makes contact with the drain.
7. Replace the retaining screw.
Eliminate all system or boiler leaks.
Continual fresh makeup water will reduce
boiler life. Minerals can build up in
sections, reducing heat transfer,
overheating heat exchanger, and causing
heat exchanger failure. Leaking water may
also cause severe property damage.
1. Inspect all water and gas piping and verify to be leak free.
2. Look for signs of leaking lines and correct any problems
found.
3. Check gas line using the procedure found in Section 7 -
Gas Connections of the Knight XL Installation and
Operation Manual.
Check all piping for leaks
The condensate trap must be filled with
water during all times of boiler operation
to avoid flue gas emission from the
condensate drain line. Failure to fill the
trap could result in severe personal injury
or death.
WARNING
WARNING
WARNING
WARNING
WARNING
PVC TEE ASSEMBLY
(FACTORY SUPPLIED)
TO FLOOR
DRAIN
2” PVC CAP WITH
BLOCKED DRAIN SWITCH
RETAINING
SCREW
CONDENSATE FROM
HEAT EXCHANGER
Figure 2-1 Condensate Trap

2 Maintenance (continued)
Service Manual
25
Flue vent system and air piping
1. Visually inspect the entire flue gas venting system and air
piping for blockage, deterioration or leakage. Repair any
joints that show signs of leakage. Verify that air inlet pipe
is connected and properly sealed.
2. Verify that boiler vent discharge and air intake are clean
and free of obstructions.
Failure to inspect for the above conditions
and have them repaired can result in
severe personal injury or death.
Check water system
1. Verify all system components are correctly installed and
operational.
2. Check the cold fill pressure for the system. Verify it is
correct (must be a minimum of 12 psi (82.7 kPa)).
3. Watch the system pressure as the boiler heats up (during
testing) to ensure pressure does not rise too high.
Excessive pressure rise indicates expansion tank sizing or
performance problem.
4. Inspect automatic air vents and air separators. Remove
air vent caps and briefly press push valve to flush vent.
Replace caps. Make sure vents do not leak. Replace any
leaking vents.
Check expansion tank
1. Expansion tanks provide space for water to move in and
out as the heating system water expands due to
temperature increase or contracts as the water cools.
Tanks may be open, closed or diaphragm or bladder type.
See Section 6 - Hydronic Piping of the Knight XL
Installation and Operation Manual for suggested best
location of expansion tanks and air eliminators.
Check boiler relief valve
1. Inspect the relief valve and lift the lever to verify flow.
Before operating any relief valve, ensure that it is piped
with its discharge in a safe area to avoid severe scald
potential. Read Section 6 - Hydronic Piping of the
Knight XL Installation and Operation Manual before
proceeding further.
Safety relief valves should be re-inspected
AT LEAST ONCE EVERY THREE YEARS,
by a licensed plumbing contractor or
authorized inspection agency, to ensure
that the product has not been affected by
corrosive water conditions and to ensure
that the valve and discharge line have not
been altered or tampered with illegally.
Certain naturally occurring conditions
may corrode the valve or its components
over time, rendering the valve inoperative.
Such conditions are not detectable unless
the valve and its components are
physically removed and inspected. This
inspection must only be conducted by a
plumbing contractor or authorized
inspection agency – not by the owner.
Failure to re-inspect the boiler relief valve
as directed could result in unsafe pressure
buildup, which can result in severe
personal injury, death, or substantial
property damage.
Following installation, the valve lever
must be operated AT LEAST ONCE A
YEAR to ensure that waterways are clear.
Certain naturally occurring mineral
deposits may adhere to the valve,
rendering it inoperative. When manually
operating the lever, water will discharge
and precautions must be taken to avoid
contact with hot water and to avoid water
damage. Before operating lever, check to
see that a discharge line is connected to
this valve directing the flow of hot water
from the valve to a proper place of
disposal. Otherwise severe personal injury
may result. If no water flows, valve is
inoperative. Shut down the boiler until a
new relief valve has been installed.
2. After following the above warning directions, if the relief
valve weeps or will not seat properly, replace the relief
valve. Ensure that the reason for relief valve weeping is
the valve and not over-pressurization of the system due to
expansion tank waterlogging or undersizing.
WARNING
WARNING
WARNING

2 Maintenance
26
Service Manual
Inspect ignition and flame sense
electrodes
1. Remove the ignition and flame sense electrodes from the
boiler heat exchanger access cover.
2. Remove any deposits accumulated on the ignition/flame
sense electrode using sandpaper. If the electrodes cannot
be cleaned satisfactorily, replace with new ones.
3. Replace ignition/flame sense electrode, making sure
gasket is in good condition and correctly positioned.
Check ignition ground wiring
1. Inspect boiler ground wire from the heat exchanger access
cover to ground terminal strip.
2. Verify all wiring is in good condition and securely
attached.
3. Check ground continuity of wiring using continuity
meter.
4. Replace ground wires if ground continuity is not
satisfactory.
Check all boiler wiring
1. Inspect all boiler wiring, making sure wires are in good
condition and securely attached.
Check control settings
1. Set the SMART SYSTEM control module display to
Parameter Mode and check all settings. See Section 1 of
this manual. Adjust settings if necessary. See Section 1 of
this manual for adjustment procedures.
2. Check settings of external limit controls (if any) and
adjust if necessary.
Perform start-up and checks
1. Start boiler and perform checks and tests specified in
Section 10 - Start-up of the Knight XL Installation and
Operation Manual.
2. Verify cold fill pressure is correct and that operating
pressure does not go too high.
Check burner flame
1. Inspect flame through observation window.
2. If the flame is unsatisfactory at either high fire or low fire,
turn off boiler and allow boiler to cool down. Remove
the burner and clean it thoroughly using a vacuum
cleaner or compressed air. Do not use compressed air to
clean burner if performed inside a building.
3. Remove the burner, reference FIG.’s 2-2 thru 2-4.
4. When replacing the burner, ensure gasket is in good
condition and positioned correctly (FIG.’s 2-2 thru 2-4).
AIR / GAS ARM
SCREWS
(QTY. 5)
GASKET
BURNER
Figure 2-2 Burner Assembly - Model 399
BURNER
GASKET
SCREWS
(QTY. 5)
AIR / GAS ARM
Figure 2-3 Burner Assembly - Model 500

2 Maintenance (continued)
Service Manual
27
Check flame signal
1. At high fire the flame signal shown on the display should
be at least 10 microamps.
2. A lower flame signal may indicate a fouled or damaged
flame sense electrode. If cleaning the flame sense
electrode does not improve, ground wiring is in good
condition, and ground continuity is satisfactory, replace
the flame sense electrode.
3. See Section 3 - Troubleshooting in this manual for other
procedures to deal with low flame signal.
Review with owner
1. Review the Knight XL User’s Information Manual with
the owner.
2. Emphasize the need to perform the maintenance
schedule specified in the Knight XL User’s Information
Manual (and in this manual as well).
3. Remind the owner of the need to call a licensed
contractor should the boiler or system exhibit any
unusual behavior.
4. Remind the owner to follow the proper shutdown
procedure and to schedule an annual start-up at the
beginning of the next heating season.
Cleaning boiler heat exchanger
1. Shut down boiler:
• Follow the “To Turn Off Gas to Appliance” instructions
for the boiler in the Knight XL Installation and
Operation Manual.
• Do not drain the boiler unless it will be exposed to
freezing temperatures. If using freeze prevention fluid
in system, do not drain.
2. Allow time for the boiler to cool to room temperature if
it has been firing.
3. Remove the blower assembly (gas air/arm) from the heat
exchanger access cover. Set bolts aside.
4. Remove the nuts securing the heat exchanger access cover
to the heat exchanger and set aside.
5. Remove the heat exchanger access cover, cover gasket(s)
and chamber insulation assembly.
The boiler contains ceramic fiber
materials. Use care when handling these
materials per instructions on page 3 of this
manual. Failure to comply could result in
severe personal injury.
6. Use a vacuum cleaner to remove any accumulation on the
boiler heating surfaces. Do not use any solvent.
7. Finish cleaning using a clean cloth dampened with warm
water.
8. Install access cover gasket, chamber insulation assembly
and cover.
9. Secure nuts on the studs. DO NOT overtighten.
10. Re-install the blower assembly (gas air/arm) using the
bolts set aside in Step 3.
11. Close isolation valves on piping to isolate boiler from
system. Attach a hose to the boiler drain and flush boiler
thoroughly with clean water by using purging valves to
allow water to flow through the water make-up line to the
boiler.
12. When the boiler has been flushed, restore boiler to
operation.
13. Perform start-up and check-out procedures in the Knight
XL Installation and Operation Manual.
WARNING
AIR ARM
SCREWS
(QTY. 5)
GASKET
BURNER
Figure 2-4 Burner Assembly - Models 600 - 800

3 Troubleshooting
28
Service Manual
Label all wires prior to disconnection
when servicing controls. Wiring errors
can cause improper and dangerous
operation. Always disconnect power to
the boiler before servicing. Failure to
comply could result in severe personal
injury, death, or substantial property
damage.
Never jumper (bypass) any device except
for momentary testing as outlined in the
Troubleshooting chart. Severe personal
injury, death, or substantial property
damage can result.
Before troubleshooting:
1. Have the following items:
a. Voltmeter that can check 120 VAC, 24 VAC, and
12 VDC.
b. Continuity checker.
c. Contact thermometer.
2. Check for 120 VAC (minimum 102 VAC to maximum
132 VAC) to boiler.
3. Make sure thermostat is calling for heat and contacts
(including appropriate zone controls) are closed. Check
for 24 VAC between thermostat wire nuts and ground.
4. Make sure all external limit controls are installed and
operating.
Check the following:
1. Wire connectors to control module are securely plugged
in at the module and originating control.
2. Gas pressures:
• Maximum: 14 inches w.c. (3.5 kPa) (natural and LP)
with no flow (lockup) or with boiler on
• Minimum: 4 inches w.c. (1.0 kPa) (natural),
8 inches w.c. (2.0 kPa) (LP) with gas flowing (verify
during boiler startup)
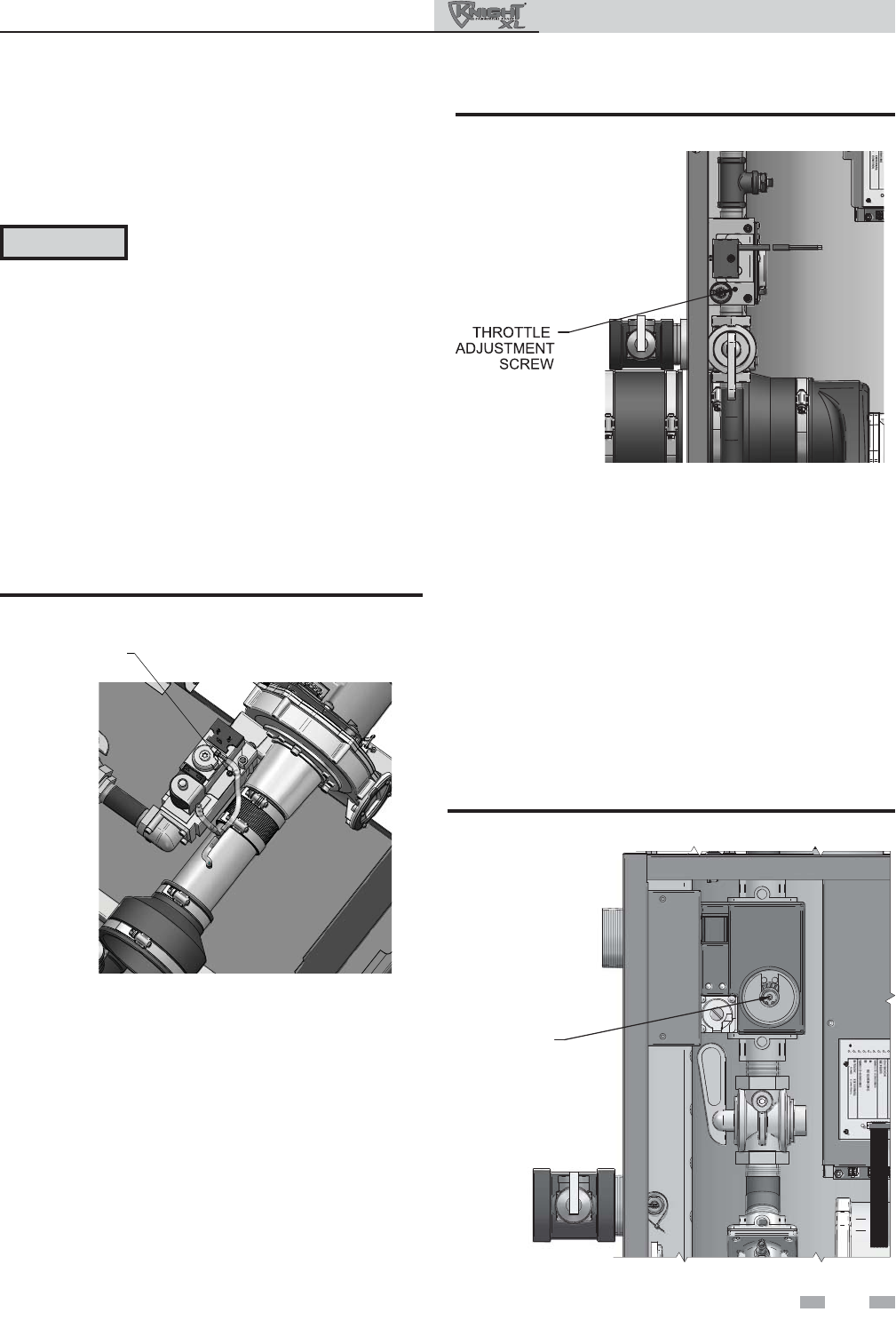
Check control module fuses
ALWAYS check control module fuses
before replacing control module or any
major components (blower, etc.). If one of
these fuses is blown, it can prevent the
control module or other components from
operating.
1. Turn OFF the power to the boiler at the external line
switch.
2. Remove top access cover.
3. Remove the control module cover.
4. Inspect fuses F2, F3, F4, and F5, see FIG 3-1 below.
F4 - 3.15 AMP FUSE
GAS VALVE
F3 - 1.25 AMP FUSE
MAIN BOARD
F5 - 5 AMP FUSE
PUMPS
F2 - 3.15 AMP FUSE
24V SUPPLY
Figure 3-1 Control Module Fuses
5. The boiler is shipped with three (3) spare fuses in a plastic
bag attached to the control module cover.
6. If necessary, replace open fuse (F3 is 1.25 amps, F2 and F4
are 3.15 amps, and F5 is 5 amps).
Note: Fuses F2 - F5 are all slow blow fuses.
Do not jumper fuse or replace with any
fuse except as specified. Failure to comply
could result in severe personal injury,
death, or substantial property damage.
7. Install control module cover and top access cover after
fuse inspection.
8. Restore power to the boiler at the external line switch and
verify boiler operation (Section 10 - Start-up in the
Knight Boiler Installation and Operation Manual) after
completing boiler service.
WARNING
WARNING
NOTICE
WARNING

3 Troubleshooting (continued)
Service Manual
29
Table 3A Troubleshooting Chart - No Display
FAULT CAUSE CORRECTIVE ACTION
No Display
- No 120 VAC supplied to unit. • Check external line switch, fuse, or breaker.
• Check position of ON/OFF switch. Turn switch to the
ON position.
• Check 120 VAC through the ON/OFF switch.
• Check wiring harness connection between display
board and main control board. Connect
harness at both points.
- No voltage through the switch. • Replace switch.
- Bad display board. • Replace board.
- Bad main control board. • Replace the main control board.
- Blown fuse. • Replace fuse F3 on the main control board, see
page 28 of this manual.
No Burner
Operation
- Main control board temperature set point
satisfied.
• Review temperature setting.
- Remote thermostat satisfied. • Review remote thermostat setting.
- Outside air temperature above Warm
Weather Shutdown (WWSD) set point for
main control board.
• Check location of outside air sensor. Check
resistance of outdoor air sensor and compare to Table
3D on page 30 of this manual.
- Unit locked out on fault. • Consult display for specific fault. Refer to fault
descriptions on page 32 of this manual for corrective
actions.
Unit Does Not
Modulate
Above 50%
- Ramp delay active. • Check ramp delay parameter settings. Optional PC
software required.
• Turn ramp delay feature off. See page 20 of this
manual for instructions on how to turn this feature off.
- Boiler controlled by BMS. • Check BMS parameter settings. Optional PC
software required.
- Flue sensor open. • Verify that the flue sensor is located in the flue outlet.
• Check wiring connections at the flue sensor.
• Check the resistance of the flue sensor and compare
to Table 3C on page 30 of this manual.

3 Troubleshooting
30
Service Manual
Table 3B - Inlet/Outlet System Sensor Resistance vs. Temperature
Temperature Resistance Temperature Resistance
50 18,780 158 1,990
68 12,263 176 1,458
86 8,194 194 1,084
104 5,592 212 817
122 3,893 -- --
140 2,760 -- --
Table 3C - Flue Temperature Sensor Resistance vs. Temperature
Temperature Resistance Temperature Resistance
68 14,773 176 1,707
86 9,804 194 1,266
104 6,652 212 952
122 4,607 230 726
140 3,252 248 560
158 2,337 -- --
Table 3D - Outdoor Air Sensor Resistance vs. Temperature
Temperature Resistance Temperature Resistance
-50 490,813 20 46,218
-40 336,606 30 34,558
-30 234,196 40 26,099
-20 165,180 50 19,900
10 118,018 60 15,311
0 85,362 70 11,883
10 62,465 80 9,299
Checking temperature sensors
The boiler temperature sensors (inlet water, outlet water, system water, flue, and outdoor air) are all resistance type devices. The
following tables show the correct values for the sensors at various temperatures. Use an ohmmeter to read the resistance of the
sensor at a known temperature. If the resistance of the sensor does not closely match its corresponding table, replace the sensor.

3 Troubleshooting (continued)
Service Manual
31
Table 3E Troubleshooting Chart - Noisy System
FAULT CAUSE CORRECTIVE ACTION
Noisy
Operation
- Supply gas problem. Natural gas pressures
should be between 4 inches w.c. (1.0 kPa)
and 14 inches w.c. (3.5 kPa). LP gas
pressures should be between 8 inches w.c.
(2.0 kPa) and 14 inches w.c. (3.2 kPa).
• Refer to Section 7 - Gas Connections of the Knight
XL Installation and Operation Manual for detailed
information concerning the gas supply.
- Gas/air mixture problem. • Refer to the Gas Valve Adjustment Procedure on
page 41 of this manual for the proper gas valve setting.
Verify that the vent/air intake lengths do not exceed the
maximum listed in the General Venting section of the
Knight XL Installation and Operation Manual.
- Dirty/damaged burner. • Refer to page 26 in this manual for the burner removal
and inspection procedure. Clean or replace the burner
as necessary.
- Low water flow through the heat exchanger. • Refer to Section 6 - Hydronic Piping of the
Knight XL Installation and Operation Manual for
minimum flow rates. Verify that the boiler is piped in a
primary/secondary fashion and that the boiler and
system pump are running on a call for heat.
- Air in the piping system. • Properly purge all air from the piping system.
- Low system water pressure. • Verify system pressure is a minimum of 12 psi
(82.7 kPa).
No Pump
Operation -
Boiler Pump
System Pump
or
DHW Pump
- Blown fuse. • Replace fuse F5 on the control board, see page 28 of
this manual.
- Faulty pump. • Replace pump.
- Internal fault on control board. • Replace main control board.
- Faulty pump relay. • Replace relay.
Relief Valve
Opening
- System pressure exceeds relief valve
setting.
• Lower the system pressure below the 50 psi
(344.7 kPa) rating of the supplied relief valve or replace
the standard relief valve with a higher rated valve up to
the maximum pressure of the heat exchanger.
• Improperly sized expansion tank.

3 Troubleshooting
32
Service Manual
Table 3F Troubleshooting Chart - Fault Messages Displayed on Boiler Interface
FAULT DESCRIPTION CORRECTIVE ACTION
Gas Pressure SW
(will require a manual
reset once the condition
has been corrected.
Press the RESET button
on the SMART SYSTEM
display to reset.)
Either the optional manual reset low gas
pressure switch or the optional manual reset
high gas pressure switch tripped (not
available on 399 models).
• Reset the pressure switches.
• Measure the supply gas pressure to determine cause
of failure. Natural gas pressures should be between
4 - 14 inches w.c. (1.0 - 3.5 kPa) and LP gas
pressures should be between 8 - 14 inches w.c.
(2.0 - 3.2 kPa).
• Refer to Section 7 - Gas Connections of the Knight
XL Installation and Operation Manual for detailed
information concerning the gas supply.
• Correct the supply gas pressure if necessary.
• Check for a loose or misplaced jumper if pressure
switches are not installed.
Flow
Switch/LWCO
(will require a manual
reset once condition has
been corrected. Press
the RESET button on
the SMART SYSTEM
display to reset.)
Either the flow switch or the optional low
water cutoff is not making. • Check boiler pump operation on a call for heat.
• Check for closed valves or obstructions in the boiler
piping.
• Verify system is full of water and all air has been
purged from the system.
• Check for loose or misplaced jumpers if flow switch or
LWCO is not installed.
Blown fuse. • Replace fuse F2 on the control board, see page 28 of
this manual.
Blocked Drain SW
(will require a manual
reset once condition has
been corrected. Press
the RESET button on
the SMART SYSTEM
display to reset.)
The blocked drain switch has detected
excessive condensate build up inside the
unit.
• Check condensate tube from unit to floor drain for
proper installation and obstructions.
• Inspect condensate trap for blockage. Clean if
necessary.
• Check for loose wiring connection at wire harness
plug.
• Bad blocked drain switch. Replace switch.
Flame
Sequence
(will require a manual
reset once the condition
has been corrected.
Press the RESET button
on the SMART SYSTEM
display to reset.)
The flame detector circuit is seeing a flame
signal while no flame is present. • Check supply voltage for proper polarity.
• Check external wiring for voltage feedback.
• Check the flame rod and make sure it is clean.
• Check the internal wiring for bad connections.
• Replace main control board.
GV/Relay
Fail
(will require a manual
reset once the condition
has been corrected.
Press the RESET button
on the SMART SYSTEM
display to reset.)
The main control board did not detect the gas
valve. • Check wiring harness connection at the gas valve and
at the main control board.
• Replace the gas valve wire harness.
• Replace the gas valve.
• Replace the main control board.

3 Troubleshooting (continued)
Service Manual
33
Table 3F (continued from previous page) Troubleshooting Chart - Fault Messages Displayed on Boiler Interface
FAULT DESCRIPTION CORRECTIVE ACTION
Anti-cycling
The main control board has received a call
for heat too quickly after the previous call for
heat has ended.
• The control board will release the call for heat after a
set time period.
• The control board will release the call for heat if the
outlet temperature drops too quickly.
No Flame Ign
(will require a manual
reset once the condition
has been corrected.
Press the RESET button
on the SMART SYSTEM
display to reset.)
The unit has failed to prove main burner
ignition after four (4) attempts on the 399
model or one (1) attempt on the 500 - 800
models. It will require a manual reset before
attempting to fire again.
• Inspect spark electrode and associated wiring for
damage and connection. Reference page 26 of this
manual for removal and cleaning procedures.
Replace if necessary.
• Check for proper electrical grounding of the unit.
• Check incoming supply gas pressure. Natural gas
pressures should be between 4 - 14 inches w.c.
(1.0 - 3.5 kPa) and LP gas pressures should be
between 8 - 14 inches w.c. (2.0 - 3.2 kPa). Refer
to Section 7 - Gas Connections of the Knight XL
Installation and Operation Manual for detailed
information concerning the gas supply.
• Verify that the plastic hose from the gas valve to the air
inlet is connected and is not damaged.
• Verify that the vent/air intake pipes are correctly
installed and that there are no obstructions.
• Check for 24 VAC to the gas valve at the 2-pin
connection on the side of the main control board during
the ignition attempt. If no voltage is present, replace
the main control board.
• If 24 VAC is present at the main control board, check
the wiring between the main control board and the gas
valve. Replace the wiring if necessary. Do not
disconnect the wiring from the gas valve and attempt to
measure voltage at that point. The main control board
can detect if the gas valve is not connected and will
display the Gas Valve Fail fault.
• If 24 VAC is present, check the outlet of the valve to
ensure the valve is flowing gas. With a manometer
connected to the outlet tap of the gas valve, when the
unit is in the prepurge period, there should be a
negative pressure present. When the valve is
energized a change in pressure should occur. If the
pressure change does not occur, the gas valve is not
opening. Replace the gas valve.
• Inspect flame sensor and associated wiring.
Reference page 26 of this manual for removal and
cleaning procedures. Replace if necessary.
• Inspect the burner. Reference page 26 of this manual
for removal and cleaning procedures. Replace if
necessary.
• Replace the main control board.

3 Troubleshooting
34
Service Manual
Table 3F (continued from previous page) Troubleshooting Chart - Fault Messages Displayed on Boiler Interface
FAULT DESCRIPTION CORRECTIVE ACTION
No Flame
Running
(will require a manual
reset once the condition
has been corrected.
Press the RESET button
on the SMART
SYSTEM display to
reset.)
The unit was running and lost the flame
signal. This condition occurred four (4)
straight times on the 399 model or twice on
the 500 - 800 models .
• Inspect spark electrode and associated wiring for
damage and connection. Reference page 26 of this
manual for removal and cleaning procedures. Replace
if necessary.
• Check for proper electrical grounding of unit.
• Check incoming supply gas pressure. Natural gas
pressures should be between 4 - 14 inches w.c.
(1.0 - 3.5 kPa) and LP gas pressures should be
between 8 - 14 inches w.c. (2.0 - 3.2 kPa).
Refer to Section 7 - Gas Connections of the Knight
XL Installation and Operation Manual for detailed
information concerning the gas supply.
• Verify that the plastic hose from the gas valve to the air
inlet is connected and is not damaged.
• Verify that the vent/air intake pipes are installed
correctly and there are no obstructions.
• Check for 24 VAC to the gas valve at the 2-pin
connection on the side of the main control board during
the ignition attempt. If no voltage is present, replace the
main control board.
• If 24 VAC is present at the main control board, check
the wiring between the main control board and the gas
valve. Replace the wiring if necessary. Do not
disconnect the wiring from the gas valve and attempt to
measure voltage at that point. The main control board
can detect if the gas valve is not connected and will
display the Gas Valve Fail fault.
• If 24 VAC is present, check the outlet of the valve to
ensure the valve is flowing gas. With a manometer
connected to the outlet tap of the gas valve, when the
unit is in the prepurge period, there should be a
negative pressure present. When the valve is
energized a change in pressure should occur. If the
pressure change does not occur, the gas valve is not
opening. Replace the gas valve.
• Inspect flame sensor and associated wiring.
Reference page 26 of this manual for removal and
cleaning procedures. Replace if necessary.
• Inspect the burner. Reference page 26 of this manual
for removal and cleaning procedures. Replace if
necessary.
• Replace the main control board.

3 Troubleshooting (continued)
Service Manual
35
Table 3F (continued from previous page) Troubleshooting Chart - Fault Messages Displayed on Boiler Interface
FAULT DESCRIPTION CORRECTIVE ACTION
Adjustable High
Limit w/Manual
Reset
(will require a manual
reset once the condition
has been corrected. Press
the RESET button on the
SMART SYSTEM display
to reset.)
The outlet water temperature has exceeded
the setting of the high limit.
• Verify that the system is full of water and that all air
has been properly purged from the system.
• Verify that the boiler is piped properly into the heating
system. Refer to Section 6 - Hydronic Piping of the
Knight XL Installation and Operation Manual
for the proper piping methods for the Knight XL.
• Check voltage to boiler pump motor on a call for
heat. If voltage is not present, check wiring back to
the pump relay.
• Replace the pump relay if necessary.
• If 120 VAC is present on a call for heat and the boiler
pump is not operating, replace the pump.
• If the system pump is a variable speed pump, ensure
that the system flow is not less than the boiler flow.
• If operating on either an inlet or system supply sensor,
check temperature setting of the main control board.
• If the high limit has tripped, check setting of the
device.
• Check resistance of water sensors and compare to
Table 3B on page 30 of this manual. Replace sensor
if necessary.
• Replace high limit.
Fan Low
OR
Fan Speed Low
(will require a manual
reset once the condition
has been corrected. Press
the RESET button on the
SMART SYSTEM display
to reset.)
The actual fan RPM is 30% lower than what
is being called for. • Vent/air intake lengths exceed the maximum allowed
lengths. Refer to Section 3 - General Venting of the
Knight XL Installation and Operation Manual for
proper lengths.
• Check for obstruction or blockage in the vent/air
intake pipes or at terminations.
• Check the wiring connections at the fan and at the
main control board.
• Replace the fan.
• Replace the main control board.
Blown fuse. • Replace fuse F4 on the control board, see page 28 of
this manual.

3 Troubleshooting
36
Service Manual
Table 3F (continued from previous page) Troubleshooting Chart - Fault Messages Displayed on Boiler Interface
FAULT DESCRIPTION CORRECTIVE ACTION
Fan High
OR
Fan Speed High
(will require a manual
reset once the condition
has been corrected. Press
the RESET button on the
SMART SYSTEM display
to reset.)
The actual fan RPM is 30% higher than what
is being called for.
• Vent/air intake lengths exceed the maximum allowed
lengths. Refer to Section 3 - General Venting of the
Knight XL Installation and Operation Manual for
proper lengths.
• Check for obstruction or blockage in the vent/air
intake pipes or at terminations.
• Check the wiring connections at the fan and at the
main control board.
• Replace the fan.
• Replace the main control board.
Sensor Open
(will require a manual
reset once the condition
has been corrected. Press
the RESET button on the
SMART SYSTEM display
to reset.)
Either the inlet water or outlet water
temperature sensor has been disconnected.
• Check the sensors and their associated wiring.
Repair or replace the sensor or wiring if damaged.
• Measure the resistance of the sensors and compare
the resistance to the tables on page 30 of this
manual.
• Replace the sensor if necessary.
Sensor Shorted
(will require a manual
reset once the condition
has been corrected. Press
the RESET button on the
SMART SYSTEM display
to reset.)
Either the inlet water or outlet water
temperature sensor has been shorted.
• Check the sensors and their associated wiring.
Repair or replace the sensor or wiring if damaged.
• Measure the resistance of the sensors and compare
the resistance to the tables on page 30 of this
manual.
• Replace the sensor if necessary.
Aux. Proving
(will require a manual
reset once the condition
has been corrected. Press
the RESET button on the
SMART SYSTEM display
to reset.)
An optional remote proving switch is not
making.
• Check function of remote devices.
• Check for loose or misplaced jumper if auxiliary
proving switch is not installed.
Tank Open
Sensors equipped with an internal limit (such
as the Lochinvar Squire®Indirect Tank), the
limit has opened due to temperature (195°F)
or the sensor has become disconnected.
• Check the tank temperature.
• Repair or replace the sensor wiring if damaged.
• Replace the sensor if necessary.

3 Troubleshooting (continued)
Service Manual
37
Table 3F (continued from previous page) Troubleshooting Chart - Fault Messages Displayed on Boiler Interface
FAULT DESCRIPTION CORRECTIVE ACTION
Temp O/Shoot
The stack temperature has exceeded the set
parameters for the boiler. • Inspect the heat exchanger. Reference page 27 of
this manual for the procedure on how to clean the flue
side of the heat exchanger.
• Inspect the flue sensor and associated wiring.
Measure the resistance of the flue sensor and
compare to Table 3C on page 30 of this manual.
Replace the sensor if necessary.
• Verify that the vent/air intake pipes are properly
installed and that there are no obstructions.
• Replace the main control board.
The temperature rise across the heat
exchanger has exceeded the set parameters
for the boiler.
• Verify that the system is full of water and that all air
has been properly purged from the system.
• Verify that the boiler is piped properly into the heating
system. Refer to Section 6 - Hydronic Piping of the
Knight XL Installation and Operation Manual
for the proper piping methods for the Knight XL boiler.
• Check for voltage to the boiler pump motor on a call
for heat. If voltage is not present, check the wiring
back to the pump relay. Replace the pump relay if
necessary.
• If 120 VAC is present on a call for heat and the boiler
pump is not operating, replace the pump.
• Verify that the boiler pump is set to the proper speed
or that the pump is the proper size. Reference
Section 6 - Hydronic Piping of the Knight
Boiler Installation and Operation Manual for boiler
pump specifications.
Outlet water temperature has exceeded the
maximum outlet water temperature.
• Verify that the system is full of water and that all air
has been properly purged from the system.
• Verify that the boiler is piped properly into the heating
system. Refer to Section 6 - Hydronic Piping of the
Knight XL Installation and Operation Manual
for the proper piping methods for the Knight XL boiler.
• Check for voltage to the boiler pump motor on a call
for heat. If voltage is not present, check wiring back
to the pump relay. Replace the pump relay if
necessary.
• If 120 VAC is present on a call for heat and the boiler
pump is not operating, replace the pump.

3 Troubleshooting
38
Service Manual
Table 3F (continued from previous page) Troubleshooting Chart - Fault Messages Displayed on Boiler Interface
FAULT DESCRIPTION CORRECTIVE ACTION
Temp O/Shoot
(continued)
Outlet water temperature has exceeded the
maximum outlet water temperature.
• Verify that the boiler pump is set to the proper speed
or that the boiler pump is the proper size. Reference
Section 6 - Hydronic Piping of the Knight XL
Installation and Operation Manual for boiler pump
specifications.
• Replace the main control board.
Rem Ctrl Flt
External control is cycling too often. • Check set point of the external control.
• Check the wiring between the external control and the
unit.
• Replace the control.
Parameters
Progr
(will require a manual
reset once the condition
has been corrected. Press
the RESET button on the
SMART SYSTEM display
to reset.)
After downloading parameters from a laptop,
the main control board must be reset. • Press the ENTER/RESET button on the SMART
SYSTEM display panel.
APS
Open
(will require a manual
reset once the condition
has been corrected. Press
the RESET button on the
SMART SYSTEM display
to reset.)
Air pressure switch contacts are open. • Check the wiring connections to switch. Wires should
be connected to the common and normally closed
terminals.
• Vent/air intake lengths exceed the maximum allowed
lengths. Refer to Section 3 - General Venting of the
Knight XL Installation and Operation Manual for
proper lengths.
• Check for obstruction or blockage in the vent/air
intake pipes or at terminations.
• Check reference hoses connected to the air pressure
switch for blockage or obstruction.
• Inspect the burner. Reference page 26 of this manual
for removal and cleaning procedures. Replace if
necessary.
• Inspect the heat exchanger. Reference page 27 of this
manual for removal and cleaning procedures.
Replace if necessary.
• Faulty air pressure switch. Replace switch.

3 Troubleshooting (continued)
Service Manual
39
Table 3F (continued from previous page) Troubleshooting Chart - Fault Messages Displayed on Boiler Interface
FAULT DESCRIPTION CORRECTIVE ACTION
Service Blk
While the unit is in Service Mode, the outlet
temperature has exceeded 185°F.
• Establish a heating load to remove the heat from the
boiler loop.
• Verify that the system is full of water and that all air
has been properly purged from the system.
• Verify that the boiler is piped properly into the heating
system. Refer to Section 6 - Hydronic Piping of the
Knight XL Installation and Operation Manual for the
proper piping methods for the Knight XL boiler.
• Check voltage to the boiler pump motor on a call for
heat. If voltage is not present, check the wiring back
to the pump relay. Replace the pump relay if
necessary.
• If 120 VAC is present on a call for heat and the boiler
pump is not operating, replace the pump.
• Verify that the boiler pump is set to the proper speed
or that the boiler pump is the proper size. Reference
Section 6 - Hydronic Piping of the Knight
XL Installation and Operation Manual for boiler
pump specifications.
Low 24 VAC
120 VAC input to the main control board has
dropped below 80 VAC. • Check 120 VAC supply to the transformer.
• Check wiring connections at the low voltage terminal
strip.
• Check the wire size/length to remote devices.
• Replace the transformer.
Watch Dog Error
The main control board has detected an
internal fault. • Replace the main control board.
Write EEProm The main control board has detected an
internal fault. • Replace the main control board.
CRC Parameters
The main control board has detected an
internal fault.
• Replace the main control board.
No Error Stored
The main control board has detected an
internal fault.
• Press the ENTER/RESET button on the SMART
SYSTEM display panel.

3 Troubleshooting
40
Service Manual
Combustion Analysis Procedure
1. Turn the main power off to the boiler by placing the
“On/Off” switch in the OFF position.
2. Remove the flue temperature sensor from the flue pipe
connection. Note: Combustion measurements will be
made at this point.
3. Turn the main power on to the boiler by placing the
“On/Off” switch in the ON position.
4. Place the boiler into the active position by pressing the
SHUTDOWN button on the display board (see page 7)
until BLR:Standby appears in the display window.
5. Locate the pinhole button above the “T” in the Knight
logo on the display board (see page 7). Press the button
once and hold for 5 seconds to place the boiler into
Service Mode. In Service Mode the boiler will fire at
ignition speed and will then modulate up to full fire.
6. Remove the flue temperature sensor. Insert the probe
from a combustion analyzer into the hole left by the
removal of the flue temperature sensor.
7. Once the boiler has modulated up to full fire, measure the
combustion. The values should be in the range listed in
Table 11 above. The CO levels should be less than
150 ppm for a properly installed unit.
If the combustion is not within the specified range,
reference the chart below for possible causes and
corrective actions.
Table 3G Troubleshooting Chart - Combustion Levels
POSSIBLE CAUSE CORRECTIVE ACTION
Vent/Air Intake Length
or Obstruction
• Refer to Section 3 - General Venting of the Knight XL Installation and Operation Manual
for the proper venting and air intake methods for the Knight XL boiler.
• Check for obstructions at the vent/air intake terminals.
Gas Supply Pressure • Refer to Section 7 - Gas Connections of the Knight XL Installation and Operation
Manual for the proper gas supply for the Knight XL boiler.
Dirty/Damaged Burner • Refer to page 26 of this manual for burner removal and cleaning procedures.
• Replace burner if necessary.
Gas Valve Adjustment • Refer to page 41 of this manual for the gas valve adjustment procedure.
Table 3H Flue Products
Natural Gas Propane
CO
2
O
2
CO
2
O
2
8.0% - 10% 3.0% - 6.5% 9.0% - 11% 4.1% - 6.9%
8. Once the combustion analysis is complete, test the safety
shutoff device by turning the manual shutoff valve to the
OFF position and ensuring that the boiler shuts down
and registers an alarm. Open the manual shutoff valve,
reset the control, and return to Service Mode.
9. Turn the main power off to the boiler and replace the flue
temperature sensor into the flue pipe connection.
10. Place the boiler back into normal operation.
You must replace the flue gas temperature
sensor to prevent flue gas spillage into the
room. Failure to comply could result in
severe personal injury, death, or
substantial property damage.
WARNING

3 Troubleshooting (continued)
Service Manual
41
Gas valve adjustment procedure
If adjustment of the gas valve is deemed necessary, use the
following procedures: (Note: The procedures below are
model specific.)
Figure 3-3 Gas Valve Adjustment: Model 500
Model 500
Locate the throttle adjustment screw on top of the gas valve,
see FIG. 3-3. Using a screwdriver, turn the screw a 1/4 turn
counterclockwise to increase CO2levels or a 1/4 turn
clockwise to decrease CO2levels. After one adjustment on
the valve, follow the Combustion Analysis Procedure on
page 40 of this manual to measure the combustion.
If combustion is still not within the specified range, repeat
the procedure. This procedure SHOULD NOT be
performed more than four (4) times. If after four (4)
adjustments and the combustion is still not within the
specified range, revisit the possible causes in Table 3G on
page 40 or replace the gas valve.
CAUTION Under normal operating conditions this
valve should not need adjusting.
Model 399
Models 600 - 800
Locate the throttle adjustment screw on top of the gas valve,
see FIG. 3-4. Using an Allen wrench, turn the screw a 1/4 turn
counterclockwise to increase CO2levels or a 1/4 turn
clockwise to decrease CO2levels. After one adjustment on
the valve, follow the Combustion Analysis Procedure on page
40 of this manual to measure the combustion.
If combustion is still not within the specified range, repeat the
procedure. This procedure SHOULD NOT be performed
more than four (4) times. If after four (4) adjustments and
the combustion is still not within the specified range, revisit
the possible causes in Table 3G on page 40 or replace the gas
valve.
THROTTLE
ADJUSTMENT
SCREW
(REMOVE BLUE CAP)
Figure 3-4 Gas Valve Adjustment: Models 600 - 800
Locate the throttle adjustment screw on the top of the gas
valve, see FIG. 3-2. Using a screwdriver, turn the screw 1/8
turn counterclockwise to increase CO2levels or 1/8 turn
clockwise to decrease CO2levels. After one adjustment on
the valve, follow the Combustion Analysis Procedure on
page 40 of this manual to measure the combustion.
If combustion is still not within the specified range, repeat
the procedure. This procedure SHOULD NOT be
performed more than four (4) times. If after four (4)
adjustments and the combustion is still not within the
specified range, revisit the possible causes in Table 3G on
page 40 or replace the gas valve.
THROTTLE ADJUSTMENT
SCREW
Figure 3-2 Gas Valve Adjustment: Model 399

4 Notes
42
Service Manual

4 Notes
Service Manual
43

Revision Notes: Revision B (ECO #C02407) reflects air pressure
switch changes, changes made to the Circulation Pumps Section (page
22) and removal of references to the pocket pc.
Revision C (ECO #C02545) reflects the addition of references to
periodic cleaning of screens in vent terminations and safety shutoff
testing and instructions.
Revision D (ECO #C02738) reflects the addition of the Gas Valve
Adjustment Procedure for a 399 model on page 41.
Revision E (ECO #CO2918) reflects the addition of Tank Sensor Open
on page 36 along with updating the condensate trap image on page 24.
.
KBX-SER Rev E
3/09