Locks PS900 4RL Option Board 106437
User Manual: Locks PS900-4RL Option Board Mayflower Sales - Schlage Electronics
Open the PDF directly: View PDF
.
Page Count: 8

*44487080*
44487080
900-4RL Specications
Inputs I1-I4 Dry contacts required (Closed = Active)
Connect control contacts between SC (Signal Common) and any input
Outputs O1-O4 • Form C contacts rated 30VDC, 3A (Dry) • 12/24VDC, 3A (Wet) when AC powered • 9.6-13.2VDC
or 19.2-26.4VDC when battery powered • May be used with PS914 to power EL device at 24VDC,
16A, 300ms • Maximum load cannot exceed power supply ratings or 6A for outputs combined
Board Input Power Board requires 0.18A max. of power supply output current to operate
Temperature Range 32°-120°F (0°- 49° C)
Compliance UL 294, ULC-S318, RoHS, & FCC Part 15
Fire Alarm Input Accepts 900-FA Fire Alarm Board (Optional)
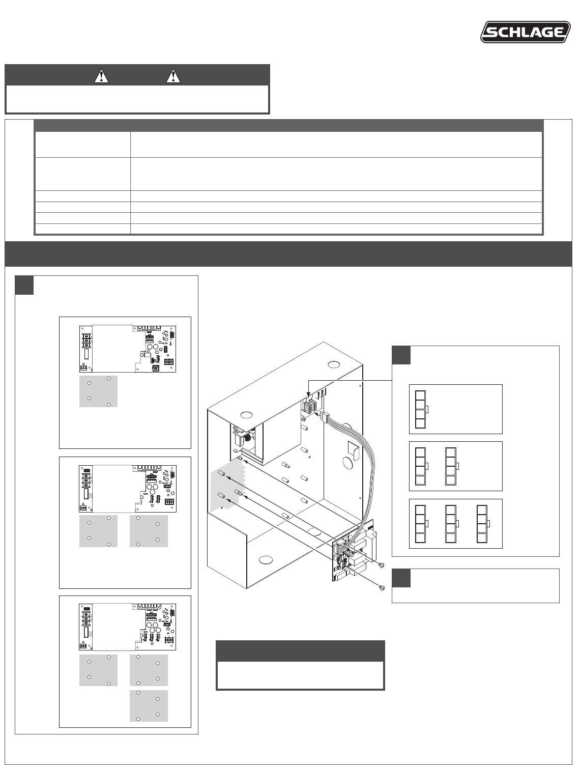
1 Install 4Rl Board(S) into Power Supply
1a Review Available 900-4RL
Mounting Locations (Gray)
PS902
PS904
PS914
PS906
1
1 2
2
3
1
1b Plug 4RL Cable into any
Available Option Connector
1c
Secure Board(s) with Screws
Option 1
Option 2
Option 1
Option 3
Option 2
Option 1
PS902
PS904, 914
PS906
1
Note
For UL listed installations, use only
UL listed locks and strikes
Refer to installation instructions for compatible
supply models - PS902, PS904, PS906, and PS914.
900-4RL Option Board
Installation Instructions
DANGeR
To avoid risk of electric shock, turn off AC power to
power supply before installing or wiring option board.

2
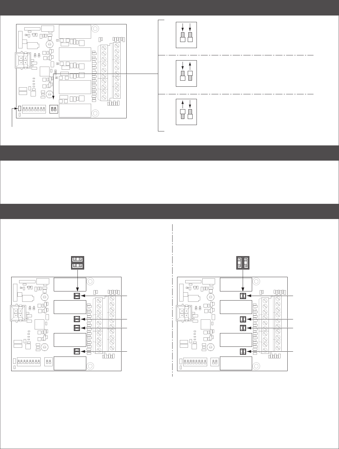
2 Choose Function of 900-4Rl Board by Setting SW2 Dip Switches
1 2
1 2
1 2
ON
OFF
ON
OFF
ON
OFF
SW2
Function LED (D17)
SW1
1 2
OFF ON
4tD Four Zone Controller Function (4TD):
Controls up to four inputs and four outputs with
time delay. This is the default setting.
Function LED will blink one time every 5 seconds
Ao Auto Operator Function (AO):
Coordinates the unlocking of one or two zones
with the signaling of an auto operator.
Function LED will blink two times every 5 seconds
SI Security Interlock Function (SI):
Controls multi-door interlocks. Two through six
door systems are possible (additional boards
required for three to six doors).
Function LED will blink three times every 5
seconds
3 To Complete Conguration and Wiring, go to Appropriate Section
For 4TD: Go to pages 3-4
For AO: Go to pages 5-6
For SI: Go to pages 7-8
Basic Troubleshooting: Go to page 8
(Optional) Dry Contact Conguration
Powered Outputs (Default) Dry Contact Outputs (Optional)
Output 2
Output 4
Output 3
Output 1
Output 2
Output 4
Output 3
Output 1
Jumpers factory
installed
Jumper
rotated 90˚
Zone 2
Zone 4
Zone 3
Zone 1
Zone 2
Zone 4
Zone 3
Zone 1
By default, all outputs provide12/24VDC For dry contact outputs, remove appropriate jumpers and
rotate 90˚, then reinstall (Zone 1 - Zone 4)

3
4TD - Set Time Delay Using SW1 Dip Switches
Summary of Operation
• Output turns “ON” when input is activated (closed).
• Time delay begins when input is released (opened).
• Locking Device output will remain “ON” during time delay.
• If I1-I4 inputs are wired together, outputs will sequence.
SW1
1 2 3 4 5 6 7 8
ON
OFF
SW1 SW2
12345678 12
DIP switches on SW1 can be turned “ON” by moving them
in the direction that the arrow is pointing. Switches below
shown in “OFF” position
Switch
Number
4TD DIP Switch Denitions
All switches shown in “OFF” position in wiring diagram
Enable Time Delay
Allows you to choose which outputs
will have the below time delay.
1 Turn “ON” to enable time delay for Locking Device 1
2 Turn “ON” to enable time delay for Locking Device 2
3 Turn “ON” to enable time delay for Locking Device 3
4 Turn “ON” to enable time delay for Locking Device 4
Set Time Delay
(0-75 seconds, 5 second increments)
0 Sec: Switches 5-8 “OFF”
75 Sec: Switches 5-8 “ON”
5 Adds 5 seconds to the time delay when “ON”
6 Adds 10 seconds to the time delay when “ON”
7 Adds 20 seconds to the time delay when “ON”
8 Adds 40 seconds to the time delay when “ON”
4TD Input / Output
Terminal Block Denitions
Input 1 Access Control 1
Input 2 Access Control 2
Input 3 Access Control 3
Input 4 Access Control 4
Output 1* Lock 1
Output 2* Lock 2
Output 3* Lock 3
Output 4* Lock 4
*See page 2 for dry contacts

4
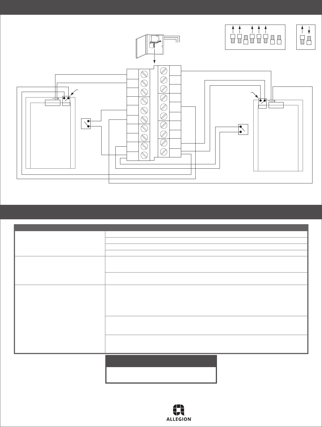
4TD - Wiring Example - Fail Secure
GND
NC2
C2
NO2
I2
NC1
C1
NO1
I1
SC
GND
NC4
C4
NO4
I4
NC3
C3
NO3
I3
SC
4RL
120/240 VAC
50/60Hz
Access
Control 2
EPT 2 or 10
EL Device 2
(not polarized)
Access
Control 1
EPT 2 or 10
EL Device 1
(not polarized)
PS914
x 4RL
Access
Control 4
EPT 2 or 10
EL Device 4
(not polarized)
Access
Control 3
EPT 2 or 10
EL Device 3
(not polarized)
Note:
To control EL1 & EL2 with Access Control 1, jumper I1-I2
To control EL1 - EL4 with Access Control 1, jumper I1-I2-I3-I4
0-100 ft, use 14 gauge stranded wire
0-200 ft, use 12 gauge stranded wire
Note:
Fail secure output only allowed if approved
by Authority Having Jurisdiction
4TD - Wiring Example - Fail Safe
GND
NC2
C2
NO2
I2
NC1
C1
NO1
I1
SC
GND
NC4
C4
NO4
I4
NC3
C3
NO3
I3
SC
4RL
120/240 VAC
50/60Hz
Access
Control 2
Mag Lock 2
Mag Lock 1
Access
Control 1
PS902
or
PS904
or
PS906
Access
Control 4
Mag Lock 4
Mag Lock 3
Access
Control 3
Note:
To control Mag Locks 1 & 2 with Access Control 1, jumper I1-I2
To control Mag Locks 1 - 4 with Access Control 1, jumper I1-I2-I3-I4
Refer to Wire Table
(page 7)

5
AO - Set Conguration Using SW1 Switches
DIP switches on SW1 can be turned “ON” by moving
them in the direction that the arrow is pointing.
Switches below shown in “OFF” position
SW1
1 2 3 4 5 6 7 8
ON
OFF
SW1
12345678 12
SW2
SW1 Switch
Number
AO DIP Switch Denitions
All switches shown in “OFF” position in wiring diagram
Set Auto Operator Signaling Option
Determines when the auto operator
signal will be active
1 Off
2 Off
Operator is signaled when latch monitor switch becomes active.
Monitor switch required
1 On
2 Off
Operator is signaled 0.5 seconds after control switch becomes
active. No monitor switch used.
1 Off
2 On
Operator is signaled 1.0 seconds after control switch becomes
active. No monitor switch used.
1 On
2 On
Operator is signaled 1.5 seconds after control switch becomes
active. No monitor switch used.
Not Used 3 Not used
Set Individual Mode or Sequential Mode
Individual Mode - One input will trigger
one locking device.
Sequential Mode - One input will trigger
two locking devices.
4 Turn “OFF” (default) to enable Individual Mode (single doors).
Turn “ON” to enable Sequential Mode (double doors).
Set Time Delay*
(0-30 seconds, 2 second increments)
0 Sec: Switches 5-8 “OFF”
30 Sec: Switches 5-8 “ON”
5 Adds 2 seconds to the time delay when “ON”
6 Adds 4 seconds to the time delay when “ON”
7 Adds 8 seconds to the time delay when “ON”
8 Adds 16 seconds to the time delay when “ON”
* Time Delay begins when an input is released.
AO INPUT / OUTPUT
TERMINAL BLOCK DEFINITIONS
Input 1 Access Control 1
Input 2 Lock Monitor 1
Input 3 Access Control 2
Input 4 Lock Monitor 2
Output 1* Lock 1
Output 2* AO Signal 1
Output 3* Lock 2
Output 4* AO Signal 2
*See page 2 for dry contacts

6
AO - Wiring Example - Two Single Doors
Summary of Operation
For each door, access control input unlocks door.
Latch monitor (LX) triggers auto operator.
Single Door Board Conguration
1. Position jumpers for dry contact for outputs 2
and 4 (see page 2).
2. Turn on switches 5 and 6 on SW1 (6 second
time delay).
3. If LX is not used, turn on switch 1 on SW1. GND
NC2
C2
NO2
I2
NC1
C1
NO1
I1
SC
GND
NC4
C4
NO4
I4
NC3
C3
NO3
I3
SC
4RL
120/240 VAC
50/60Hz
PS914
x 4RL
Access
Control
for Device 2
EL-LX Device 2
Auto Operator 2
EL
LX
(Optional)
EPT 10
Gray
White
Access
Control
for Device 1
EL-LX Device 1
Auto Operator 1
EL
LX
(Optional)
EPT 10
Gray
White
0-100 ft, use 14 gauge stranded wire
0-200 ft, use 12 gauge stranded wire
SW1 SW2
1 2 3 4 5 6 7 8
ON
OFF
1 2
AO - Wiring Example - Double Doors
Access
Control
for Devices
1 & 2
EPT 10
EL-LX Device 1 EL-LX Device 2
Auto Operator Auto Operator
White
Gray
EL EL
EPT 10
GND
NC2
C2
NO2
I2
NC1
C1
NO1
I1
SC
GND
NC4
C4
NO4
I4
NC3
C3
NO3
I3
SC
4RL
120/240 VAC
50/60Hz
PS914
x 4RL
Gray
White
Second auto operator,
if needed
LX
(Optional)
LX
(Optional)
0-100 ft, use 14 gauge stranded wire
0-200 ft, use 12 gauge stranded wire
Note:
Fail secure output only
allowed if approved
by Authority Having
Jurisdiction
Refer to Wire Table
(page 7)
SW1
1 2 3 4 5 6 7 8
ON
OFF
SW2
1 2
Summary of Operation
Access control input unlocks both doors. Both
latch monitors (LX) trigger auto operators.
Double Door Board Conguration
1. Position jumpers for dry contact for
outputs 2 and 4 (see page 2).
2. Turn on switches 4, 5, and 6 on SW1 (6
second time delay).
3. If LX is not used, turn on
switch 1 on SW1.

7
SI - Congure SW1 DIP Switches
DIP switches on SW1 can be turned “ON” by moving
them in the direction that the arrow is pointing.
Switches below shown in “OFF” position
SW1
1 2 3 4 5 6 7 8
ON
OFF
SW1
12345678 12
SW2
Switch
Number
SI DIP Switch Denitions
All switches shown in “OFF” position in wiring diagram
Enable Time Delay
Allows you to choose which outputs
will have the below time delay.
1 Turn “ON” to enable time delay for Locking Device 1
2 Turn “ON” to enable time delay for Locking Device 2
Enable Interlock 3 Turn “ON” to remove O2 from interlock (Allows a single
independent door)
4 Turn “ON” for global interlock (interlocks with other SI
boards that have this switch “ON”)
Set Time Delay (Output Active)*
(0-30 seconds, 2 second increments)
0 Sec: Switches 5-8 “OFF”
30 Sec: Switches 5-8 “ON”
5 Adds 2 seconds to the time delay when “ON”
6 Adds 4 seconds to the time delay when “ON”
7 Adds 8 seconds to the time delay when “ON”
8 Adds 16 seconds to the time delay when “ON”
*See page 2 for dry contacts
SI Input / Output Terminal Block Denitions
Input 1 Access Control 1
Input 2 Access Control 2
Input 3 Lock Monitor 1
Input 4 Lock Monitor 2
Output 1* Lock 1
Output 2* Lock 2
Output 3* Follows Output 1 by .5 Sec
Output 4* Follows Output 2 by .5 Sec
*See page 2 for dry contacts
Global Interlock Switch Setting Examples
SI Board #1 SI Board #2 SI Board #3 Application
SW1-3 SW1-4 SW1-3 SW1-4 SW1-3 SW1-4
Off Off Off Off Off Off Each SI board is a
standalone, 2-door interlock.
Off On Off On Off On 6-door interlock by setting all
boards “global”.
Off On On On A three-door interlock, plus an
additional independent door
on output 2 of SI Board #2.
Off On Off On Off Off 4-Door interlock (SI Board
#1,2) and a standalone 2-door
interlock (SI Board #3).
Wire table (suggested maximum) *Wiring allows for 10%
voltage drop at device
current at 12 or 24VDC
Max. ft = one way
distance between power
supply and device
Wire Ga
(AWG)
Device Current
(Amps DC)
Output*
(max. ft)
Input
(max. ft)
14 0.3 850
0.5 500
18 0.3 340 1200
0.5 200
12 Using EL device with EPT or Door Loop
(PS914 required)
200
14 100
12 Using EL device with Electric Hinge/Pivot
(PS914 required)
150
14 75

© Allegion 2014
Printed in U.S.A.
44487080 Rev. 01/14-b
SI - Wiring Example - 2 to 6 Door Interlock, Normally Locked
GND
NC2
C2
NO2
I2
NC1
C1
NO1
I1
SC
GND
NC4
C4
NO4
I4
NC3
C3
NO3
I3
SC
4RL
120/240 VAC
50/60Hz
Access
Control 2
Mag Lock 2 Mag Lock 1
Access
Control 1
DPS 2
(contact shown
with door closed)
DPS 1
(contact shown
with door closed)
PS904
x 4RL
Note:
Fail secure output only allowed if approved
by Authority Having Jurisdiction
Refer to Wire Table
(page 7)
SI Conguration
1. Turn on switches 1, 2, 4, 5, and 6 on SW1.
2. Install 2 doors per SI board.
3. Add up to 2 additional SI boards for a total
of 6 door interlock per power supply:
• PS902 (2 doors maximum)
• PS904 (4 doors maximum)
• PS906 (6 doors maximum)
1 2 3 4 5 6 7 8
ON
OFF
1 2
SW1 SW2
Basic Troubleshooting for All Functions
Symptom Check
900-4RL Function LED (yellow) is not
blinking, and inputs and outputs are
inactive
Verify 900-4RL cable is plugged into an “option” connector on the main board.
Check AC wiring and AC breaker.
Check PS-900 main board F1 fuse.
Use voltmeter to verify 12 VDC or 24 VDC output on PS-900 main board.
900-4RL Function LED (yellow) is
blinking, but inputs and outputs are
inactive
If 900-FA option is installed onto 900-4RL, verify re alarm contacts are closed across
FA1 and FA2.
If 900-FA option is not installed, then verify jumper wire is installed into FA-JMPR
connector on the 4RL board.
Inputs and outputs behaving
incorrectly.
Verify 2-position DIP switch is set for proper function.
Watch yellow LED to conrm 4RL function setting .
See page 2. (Verify each DIP switch is pushed into its fully-on or fully-off
position.)
Verify 8-position DIP switch is set properly for your application. If you are unsure of
proper settings, contact Technical Services for assistance. (Verify each DIP switch is
pushed into its fully-on or fully-off position.)
Verify wiring for all input and output hardware is connected to proper terminals.
(Reminder: If 900-4RL is mounted in location 1, top terminals will be GND. If 900-
4RL mounted in location 2 or 3, top terminals will be SC.)
Note
When installation is complete, secure
enclosure door with screws or keylock.