EnCoreDirections En Core Sample Procedures
User Manual: Manual
Open the PDF directly: View PDF
.
Page Count: 2

Sampling Procedures
Using The
En Core®T-Handle
NOTE:
1. En Core®Sampler is a SINGLE USE device. It cannot be
cleaned and/or reused.
2. En Core®Sampler is designed to store soil. Do not use En
Core Sampler to store solvent or free product!
3. En Core®Sampler must be used with En Core®T-Handle
and/or En Core®Extrusion Tool exclusively. (These items are
sold separately.)
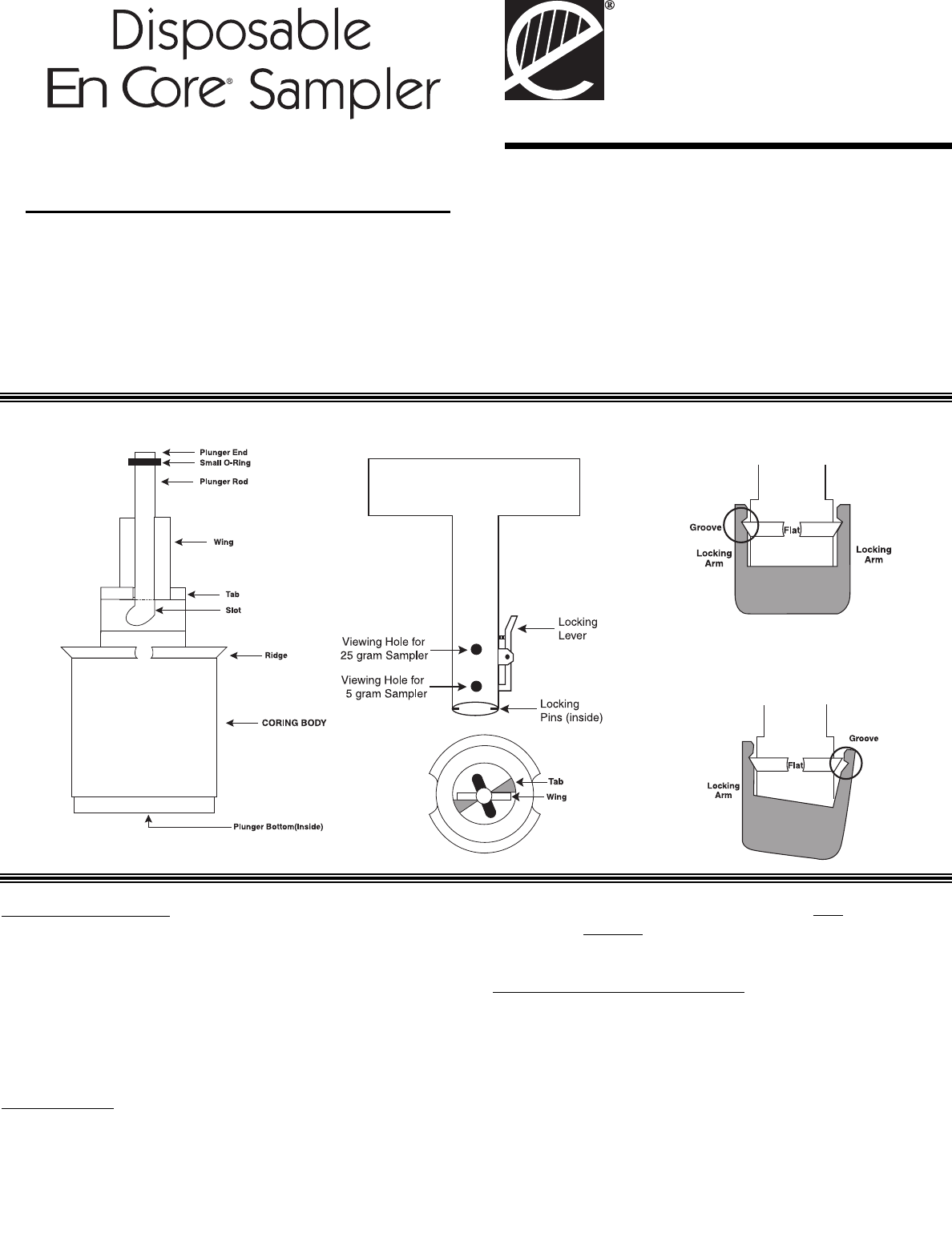
4. Cap coring body while it is still on T-handle. Push cap over flat
area of ridge and twist to lock cap in place. CAP MUST BE SEATED
TO SEAL SAMPLER (see diagram).
PREPARING SAMPLER FOR SHIPMENT:
5. Remove the capped Sampler by depressing locking lever on
T-Handle while twisting and pulling Sampler from T-Handle.
6. Lock plunger by rotating extended plunger rod fully counter-
clockwise until wings rest firmly against tabs (see plunger diagram).
7. Fill in sample description on the back of En Core Sampler bag.
8. Return full En Core Sampler to zipper bag. Seal bag and put on
ice.
BEFORE TAKING SAMPLE:
1. Hold coring body and push plunger rod down until small o-ring
rests against tabs. This will assure that plunger moves freely.
2. Depress locking lever on En Core T-Handle. Place coring body,
plunger end first, into open end of T-Handle, aligning the (2) slots
on the coring body with the (2) locking pins in the T-Handle. Twist
coring body clockwise to lock pins in slots. Check to ensure Sampler
is locked in place. Sampler is ready for use.
TAKING SAMPLE:
3. Turn T-Handle with T-up and coring body down. This positions
plunger bottom flush with bottom of coring body (ensure that
plunger bottom is in position). Using T-Handle, push Sampler into
soil until coring body is completely full. When full, small o-ring will
be centered in T-Handle viewing hole. Remove Sampler from soil.
Wipe excess soil from coring body exterior.
En Core®En Core®T-Handle Sampler Correctly Capped
(Locking arm grooves seated over coring body ridge.)
Sampler Incorrectly Capped
(Cap appears crooked; locking arm grooves not
fully seated over coring body ridge.)
Top
Bottom
For Sales & Service Contact
2650 E. 40th Ave. • Denver, CO 80205
Phone 303-320-4764 • Fax 303-322-7242
1-800-833-7958
www.geotechenv.com

IMPORTANT: FAILURE TO USE THE EN CORE®SAMPLER IN COMPLIANCE WITH
THE WRITTEN INSTRUCTIONS PROVIDED HEREIN VOIDS ALL EXPRESS AND
IMPLIED WARRANTIES, INCLUDING WARRANTY OF MERCHANTABILITY AND FIT-
NESS FOR A PARTICULAR PURPOSE.
PRINCIPLE OF USE. The En Core Sampler Cartridge System is a volumetric
sampling system designed to collect, store and deliver a soil sample. The En
Core Sampler comes in two sizes for sample volumes of approximately 25 or 5
grams. There are four components: the cartridge with a movable plunger; a
cap with two locking arms; a T-handle (purchased separately); and an extru-
sion handle (purchased separately). NOTE: The En Core Sampler is designed to
store soil. It is not designed to store solvent or free product.
The soil is stored in a sealed headspace-free state. The seals are achieved by
three special Viton® * o-rings, two located on the plunger and one on the cap
of the Sampler. At no time and under no condition should these o-rings be
removed or disturbed.
QUALITY CONTROL. The cartridge is sealed in an airtight package to pre-
vent contamination prior to use. Due to the stringent quality control require-
ments associated with the use of this system, the disposable cartridge is
designed to be used only once.
WARRANTY. En Novative Technologies, Inc. ("En Novative Technologies")
warrants that the En Core Sampler shall perform consistent with the research
conducted under En Novative Technologies' approval, within thirty (30) days
from the date of delivery, provided that the Customer gives En Novative
Technologies prompt notice of any defect or failure to perform and satisfacto-
ry proof thereof. THIS WARRANTY DOES NOT APPLY TO THE FOLLOWING, AS
SOLELY DETERMINED BY EN NOVATIVE TECHNOLOGIES: (a) Damage caused by
accident, abuse, mishandling or dropping; (b)Samplers that have been
opened, taken apart or mishandled; (c)Samplers not used in accordance with
the directions; and (d)Damages exceeding the cost of the sampler. Seller war-
rants that all En Core Samplers shall be free from defects in title. THE FORE-
GOING WARRANTIES ARE IN LIEU OF ALL OTHER WARRANTIES, WHETHER ORAL,
WRITTEN, EXPRESSED, IMPLIED OR STATUTORY, INCLUDING ANY INFORMATION
PROVIDED BY SALES REPRESENTATIVES OR IN MARKETING LITERATURE. IMPLIED
WARRANTIES OF FITNESS AND MERCHANTABILITY SHALL NOT APPLY. En
Novative Technologies' warranty obligations and Customer's remedies, except
as to title, are solely and exclusively as stated herein.
LIMITATION OF LIABILITY. IN NO EVENT SHALL EN NOVATIVE TECHNOLOGIES
BE LIABLE FOR ANTICIPATED PROFITS, INCIDENTAL, SPECIAL OR CONSEQUEN-
TIAL DAMAGES, INCLUDING, BUT NOT LIMITED TO, DAMAGES FOR LOSS OF REV-
ENUE, DOWN TIME, REMEDIATION ACTIVITIES, REMOBILIZATION OR RESAM-
PLING, COST OF CAPITAL, SERVICE INTERRUPTION OR FAILURE OF SUPPLY, LIA-
BILITY OF CUSTOMER TO A THIRD PARTY, OR FOR LABOR, OVERHEAD, TRANS-
PORTATION, SUBSTITUTE SUPPLY SOURCES OR ANY OTHER EXPENSE, DAMAGE OR
LOSS, INCLUDING PERSONAL INJURY OR PROPERTY DAMAGE. En Novative
Technologies' liability on any claim of any kind shall be replacement of the En
Core Sampler or refund of the purchase price. En Novative Technologies shall
not be liable for penalties of any description whatsoever. In the event the En
Core Sampler will be utilized by Customer on behalf of a third party, such
third party shall not occupy the position of a third-party beneficiary of the
obligation or warranty provided by En Novative Technologies, and no such
third party shall have the right to enforce same. All claims must be brought
within one (1) year of shipment, regardless of their nature.
EXTRUSION PROCEDURES
USING THE EXTRUSION TOOL
CAUTION! Always use the Extrusion Tool to extrude soil from the En Core Sampler. If the Extrusion
Tool is not used, the Sampler may fragment, causing injury.
1. To attach En Core Sampler to En Core Extrusion Tool: Depress lock-
ing lever on Extrusion Tool and place Sampler, plunger end first, into
open end of Extrusion Tool, aligning slots on coring body with pins in
Extrusion Tool. Turn coring body clockwise until it locks into place.
Release locking lever.
2. Rotate and gently push Extrusion Tool plunger knob clockwise until
plunger slides over wings of coring body. (When properly positioned
plunger will not rotate further.)
3. Hold Extrusion Tool with capped Sampler pointed upward so soil
does not fall out when cap is removed. Remove cap from Sampler by
rotating cap until locking arms are aligned with the flat area of ridge
and pull cap off. To release soil core push down on plunger knob of
En Core Extrusion Tool. Remove and properly dispose of En Core
Sampler.
Warranty and Disclaimers
* Viton® is a registered trademark of DuPont Dow Elastomers.
En Novative Technologies, Inc.
1795 Industrial Drive
Green Bay, WI 54302
Phone: 920-465-3960 • Fax: 920-465-3963
Toll Free: 888-411-0757
www.ennovativetech.com
The En Core™ Sampler is covered by One or More of the Following U.S.
Patents: 5,343,771; 5,505,098; 5,517,868; 5,522,271. Other U.S. and
Foreign Patents Pending.