*TQ_GX10_CHAP0 Sharp GX10 Schematics
User Manual: Manual Sharp - Schematics & Service Manuals PDF
Open the PDF directly: View PDF
.
Page Count: 27

5 – 6
GX10 CONFIDENTIAL
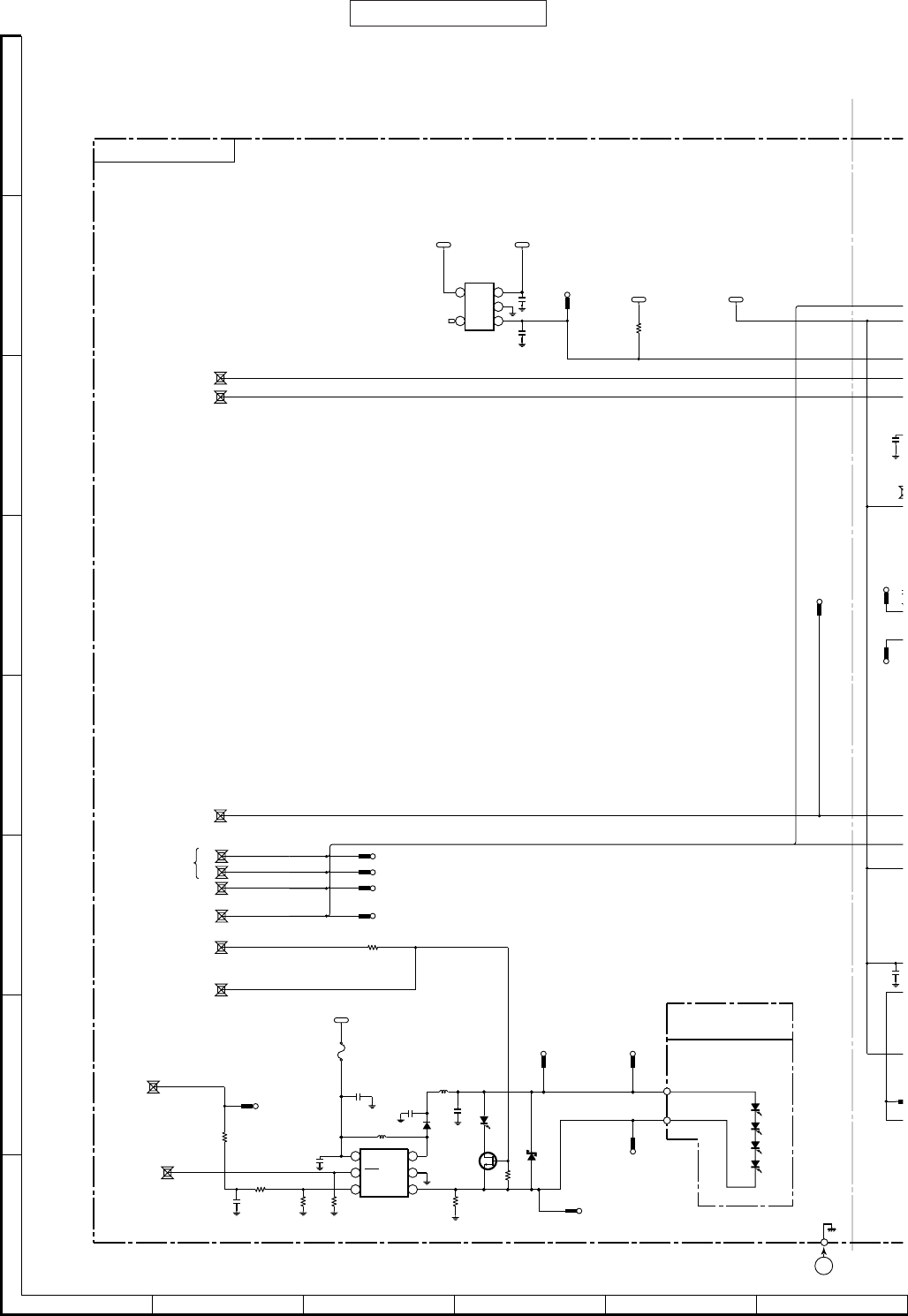
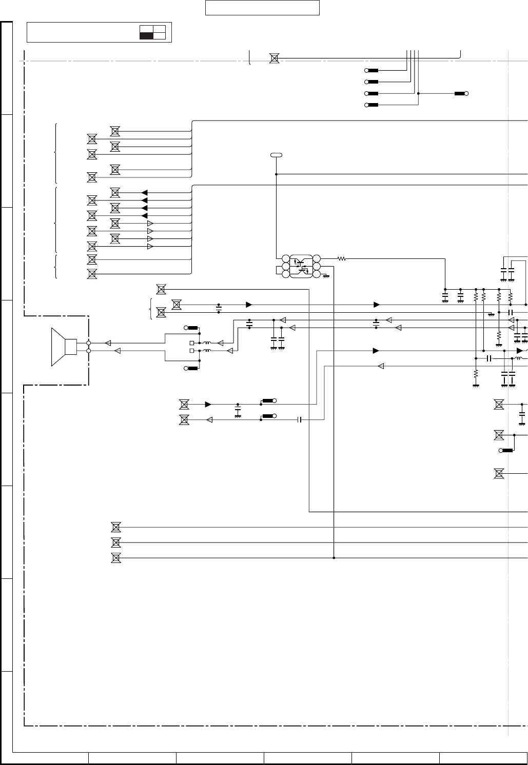
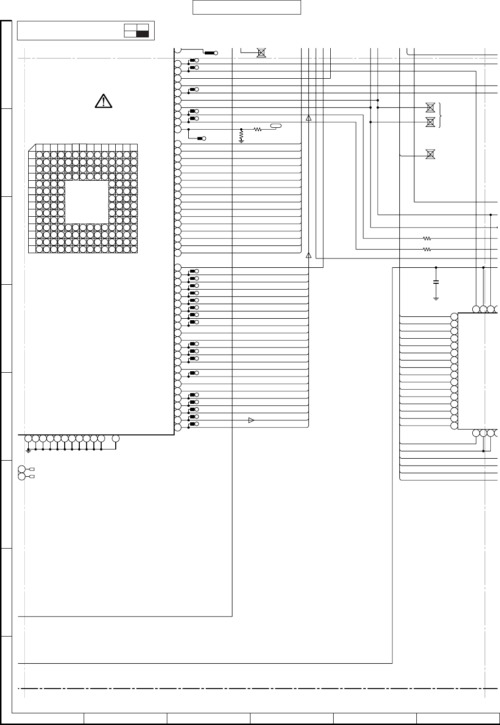
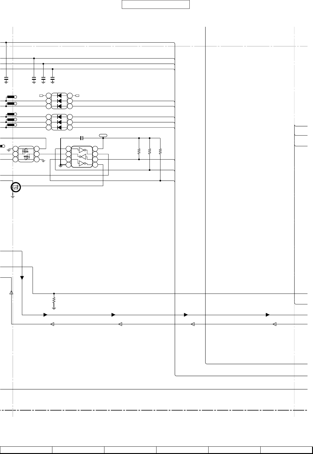
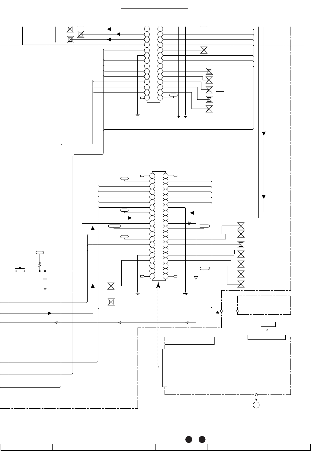
Figure 1 SCHEMATIC DIAGRAM (1/22)
[4] Schematic diagram/wiring side of P.W.Board
A
B
C
D
E
F
G
H
123456
NC
SW1
D
G
S
GND2
LED3
VIN
SHDN
RSET
4
52
1
3
6
CE
NCVOUT
GND
VDD
1
2
3
4
5
G
VDD
I
G
13M_CLK
G
/RD
G
/WR
G
/LCD_RST
G
CS_TFTLCD
G
TDO
G
BL_ON
VBAT
VBAT
G
ADD[16]
VMEM
G
DATA[0-15]
VINT
TPB007
TPB008
TP006
TP011
TP012
TP013
TP009
TP001
TP002
TP003
TP004
VLCD
G
PWM
G
BL_SW
TP031
TP032
BATTBB2
BL_ADJUST_2
/RD
/WR
/LCD_RST
CS_TFTLCD
13M_CLK
DATA[0-15]
VMEM
TDO
VDDCORE_1
BL_SW
SUB_BL_SW
BATTBB3
BATTBB1
LED3
BL_ON
3.0V
2.8V
2.5V
LED3
MAIN PWB-A(1/3)
( )
C
H
P
RE
G
RELAY FPC_B
PWB-D A
BACK LIGHT FPC
ASS'Y PWB-E
( )
1.46V
0V
1.09V
C004
1
C001
0.1
C008
0.1
L001
10µH
R003
1.1K
C011
22
D001
RB521S30
C009
2.2
C002
2.2
C005
1
C003
1
R002
10K
Q001
2SK3019
LED001
CW215TBS
R004
1M
FS001
0.63A
I
A
D
IC001
LT1932
DC-DC
IC004
IX2933AF
REGULATOR
R023
1M
R027
51K
C027
100P(CH)
C028
100P
(CH)
L003
33nH
D002
CRZ24
24V
R030
100K
5-14 (6-B)
5-13 (11-H)
5-13 (10-E)
5-14 (6-B)
5-12 (3-F)
5-16 (5-E)
5-13 (10-F)
5-8 (4-H)
5-16 (3-C)
5-11 (10-C)
5-12 (4-H)
5-11 (8-B)
5-17 (11-B) 5-9 (11-A)
5-16 (3-B)
5-9 (9-G)
5-17 (10-D) 5-17 (10-E)
5-12 (6-G)
5-27 (11-H)
• NOTES ON SCHEMATIC DIAGRAM can be found on page 5-1.

5 – 7
GX10
CONFIDENTIAL
789
10 11 12
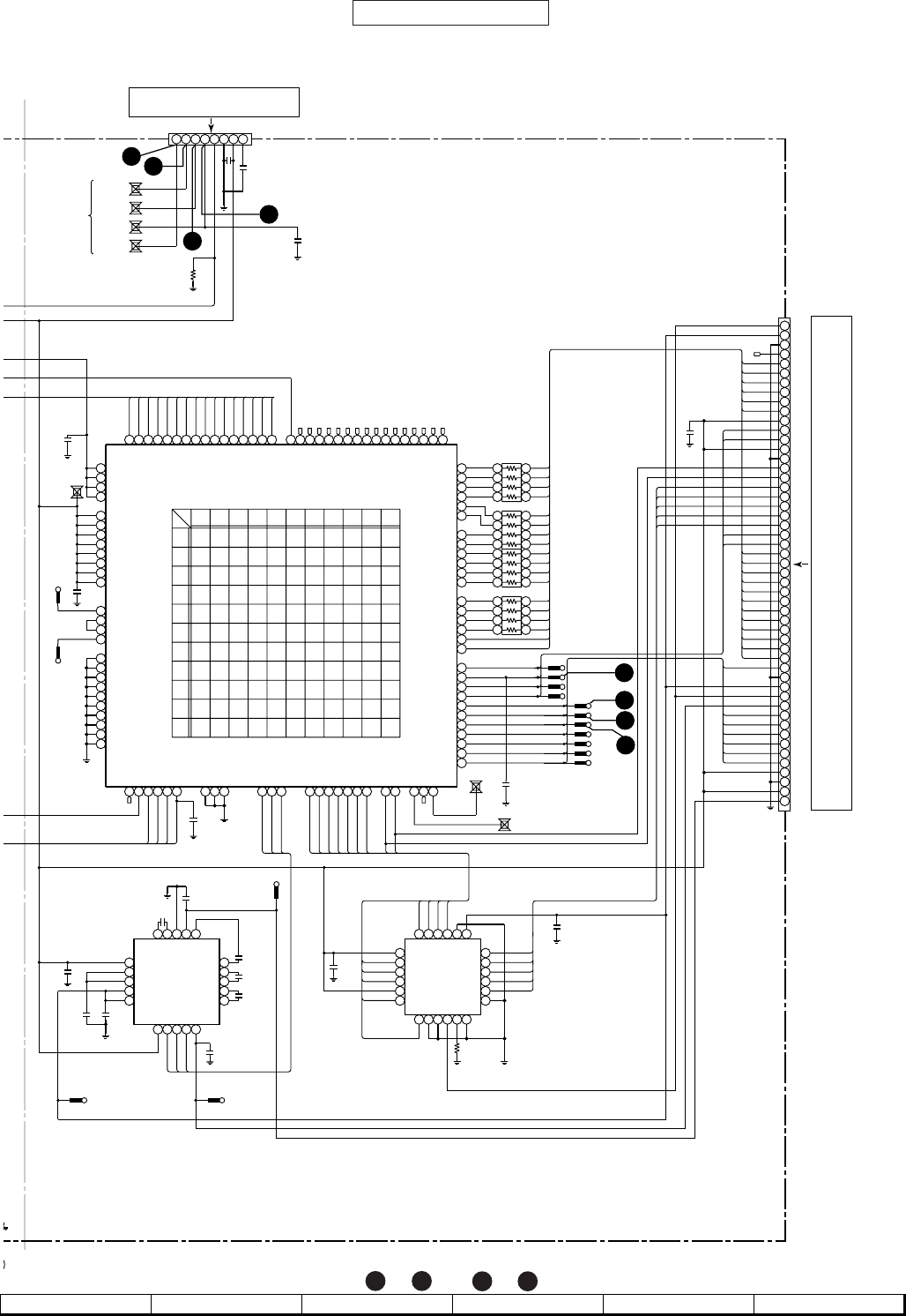
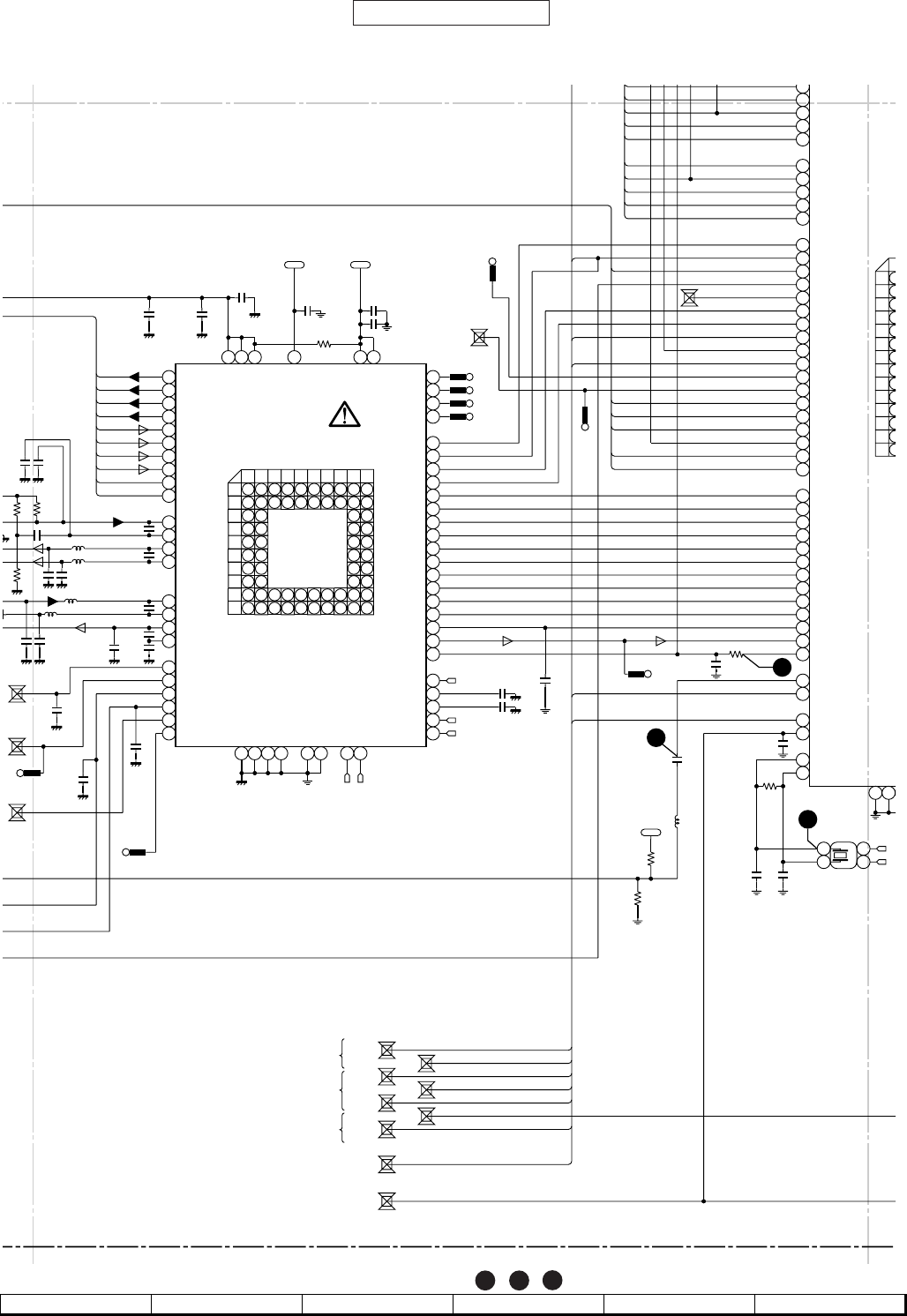
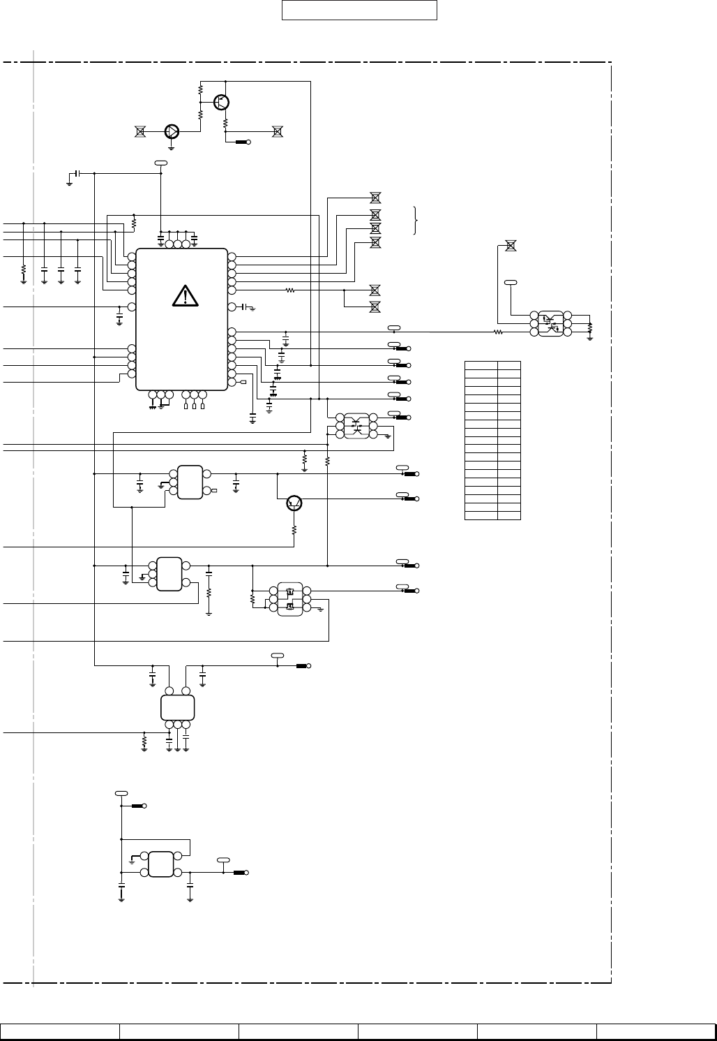
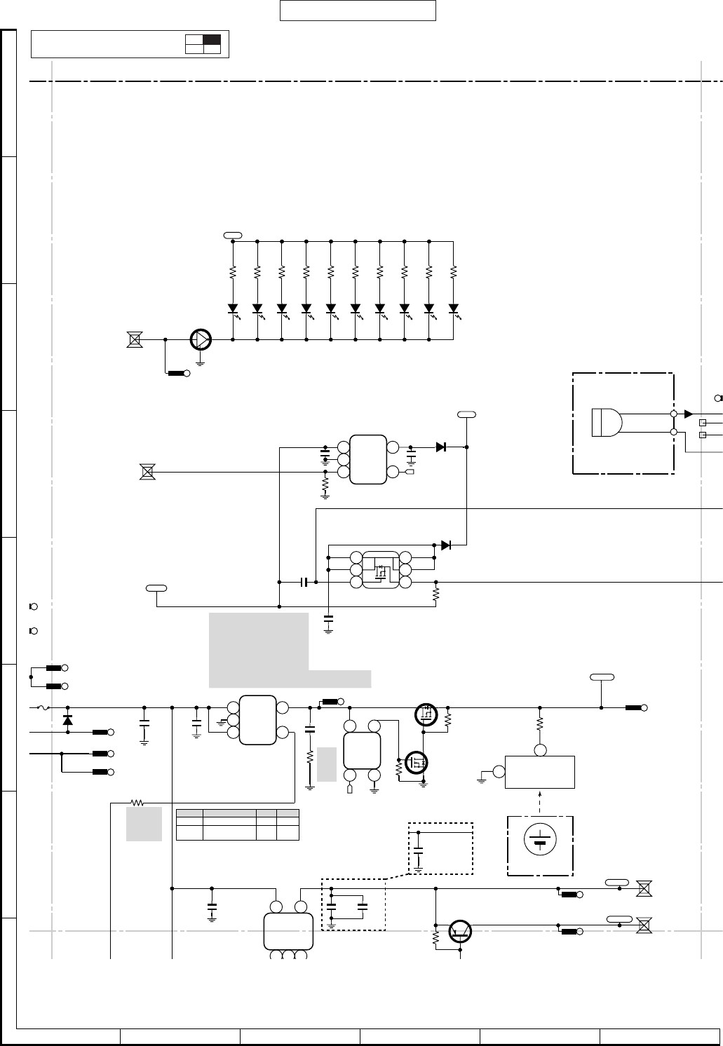
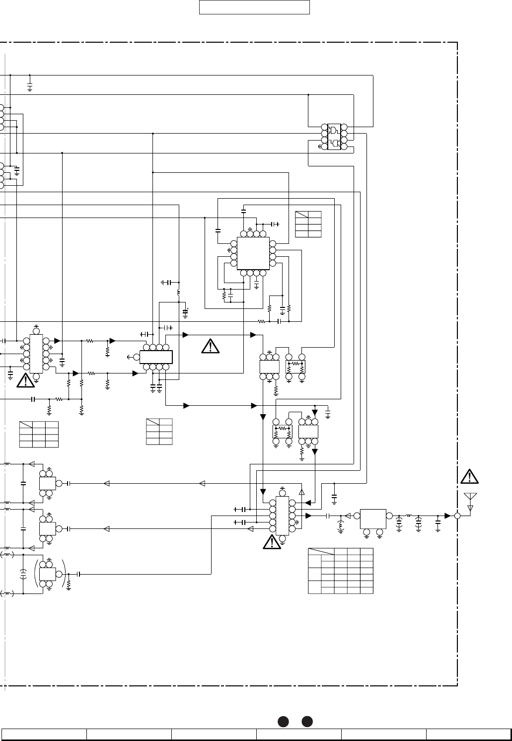
Figure 2 SCHEMATIC DIAGRAM (2/22)
12
3
4
5678
12
3
4
5678
12
3
4
5678
12
3
4
5678
NC
NC
NC
VCC
VOUT
LDOIN
5VOUT
5VIN
C4-
C2+
C2-
C3+
15VOUT
LDOON/OFF
CLKIN
SHDN
SCANBLANK
C4+
C1-
-10VOUT
C1+
GND
C3-
1
2
3
4
5
678910
11
12
13
14
15
1617181920
DB15
DB14
DB13
DB12
DB11
DB10
DB9
DB8
DB7
DB6
DB5
DB4
DB3
DB2
DB1
DB0
BNC
RS
NC
R4
R5
G2
G3
R2
R3
G4
B0
G5
G1
B1
G0
B4
B3
R0
B2
R1
B5
DCLK
SPL
PS2
PS1
LS
GSP
GCK
GCS2
ALW
GCS1
GMODE
NCS
NWR
NRD
NRES
TEST1
XIN
XOUT
TSTSCEN
TSTSCMD
PSD
ECK
SHD
SE_LD1
SE_CK
SE_DO
CV4
REV1
PSK
REV2
GS1
GS2
SE_DI
SE_LD2
VDDIO
VDDIO
VDDIO
VDDIO
VDDIO
VDDIO
VDDIO
VDDIO
VDDCORE
VDDCORE
VDDCORE
VDDCORE
DUMMY
DUMMY
DUMMY
DUMMY
GND
GND
GND
GND
GND
GND
GND
GND
12345678 10119
1110987654321
12 13 14 15 16 17 18 19 20 21
2423 26 31 323025 2827 29
3534 37 42 434136 3938 40
717069 73 78 797772 7574 76
828180 84 89 908883 8685 87
939291 95 100 1019994 9796 98
22
33
44
45 47 4846 49 51 5250
57 5955 6054 585653
65 6763 6862 666461
102 103 104 105 106 107 108 109 110 111 112
A
B
C
D
E
F
G
H
J
K
L
GND
GND
PWM
NC
NC
NC
NC
NC
NC
NC
NC
NC
NC
NC
NC
NC
NC
96
42
110
78
107
61
89
99
94
90 77
25
60
69
91
95
21
68
33
31
56
62
101
55
35
105
22
93
82
83
106
10
79
70
85
63
54
44
100
88
111
112
34
23
53
1
102
41
103
24
45
11
64
40
43
51 13
52
6
97
39
66 50
17
29
28
19
59
12
49
30
65
20
58
18
32
36
8
67
5
57
71
80
81
92
104
37
27 38
2
72
48
76
15
3
4
26
14
16
109
86
46
87
73 84 75
74
108
98
47
97
NC
NC
NC
NC
NC
NC
NC
NC
NC
NC
NC
NC
NC
NC
NC
NC
G
VDDIO
G
VDDIO
G
DISPCLK
G
DISPA0
G
DISPEN
G
DISPD0
TP014 TP015
TP016
TP012
TP013
TP017
TP018
TP019
TP020
TP021
TP022
TP023
TP024
TP025
TP026
TP027
G
PWM
VL
DIN
SCK
/CS-LD
CM
CV4
REV1
COM_L(NC)
COM_H(NC)
COM
COM_M
TP1(NC)
GND
V4
V3
V2
V1
V0
VDD
TP2(NC)
REV2
GS2
GS1
PSK
1
2
3
4
5
6
789
10 11 12
13
14
15
16
17
18
19
20
21
2223
24
V4
V3
V2
V1
R1
R2
R3
R4
R5
G0
G1
G2
G3
G4
G5
GSP
GCK
ALW
GMODE
GCS2
SPL
V0
PSD
REV1
/RD
/WR
R0
SHD
SE_CS
PS2
PS1
LS
DCLK
CS_TFTLCD
ECK
PSD
SHD
V4
V3
V2
V1
B0
B1
B2
B3
B4
B5
SE_DO
SE_CK
CV4
PSK
REV1
GCS1
ECK
COM
GS2
GS1
V0
CV4
REV2
B0_0
B1_0
G5_0
G4_0
G3_0
G2_0
G1_0
G0_0
R5_0
R4_0
R3_0
R2_0
R1_0
R0_1
LS
PS2
PS1
SPL
GSP
GCK
ALW
GMODE
GCS2
GCS1
VDDCORE
R0
R1
R2
R3
R4
R5
G0
G1
G2
G3
G4
G5
B0
B1
B2
B3
B4
B5
DATA[0]
DATA[1]
DATA[2]
DATA[3]
DATA[4]
DATA[5]
DATA[6]
DATA[7]
DATA[8]
DATA[9]
DATA[10]
DATA[11]
DATA[12]
DATA[13]
DATA[14]
DATA[15]
B5_0
B3_0
B4_0
B2_0
ADD[16]
/LCD_RST
/LCD_RST
DCLK
GS1
PSK
REV2
GS2
SE_CS
SE_DO
SE_CK
12345678
1
2
3
4
5
6
7
8
9
10
11
12
13
14
15
16
17
18
19
20
21
22
23
24
25
26
27
28
29
30
31
32
33
34
35
36
37
38
39
40
41
42
43
44
45
46
47
48
49
50
51
( )
CHARGE
PUMP
REGULATOR
( )
( )
30
28
29
31
24
23
25
26
C021
1
C018
1
C008
0.1
C019
1
C024
0.1
C012
2.2
C022
0.1
C011
2.2
C009
2.2
C015
1
R013
100K
C013
2.2
C010
0.1
R017
0
R014
0
R015
0
R016
0
IC002
ADM8830
IC005
LR38821A
TFT DISPLAY CONTROLLER
C017
0.1
C016
0.1
R006
470K
C014
0.1
CN002
CN001
IC003
ADD8502
GRAYSCALE
GENERATOR
C020
1
LCD001
SUB-SCREEN DISPLAY
LCD100
MAIN-SCREEN DISPLAY
5-12 (4-H)
• ( ) : Not Mount • The numbers
23
to
26
and
28
to
31
are waveform numbers shown in pages 5-4 ,5-5.

5 – 8
GX10 CONFIDENTIAL
A
B
C
D
E
F
G
H
123456
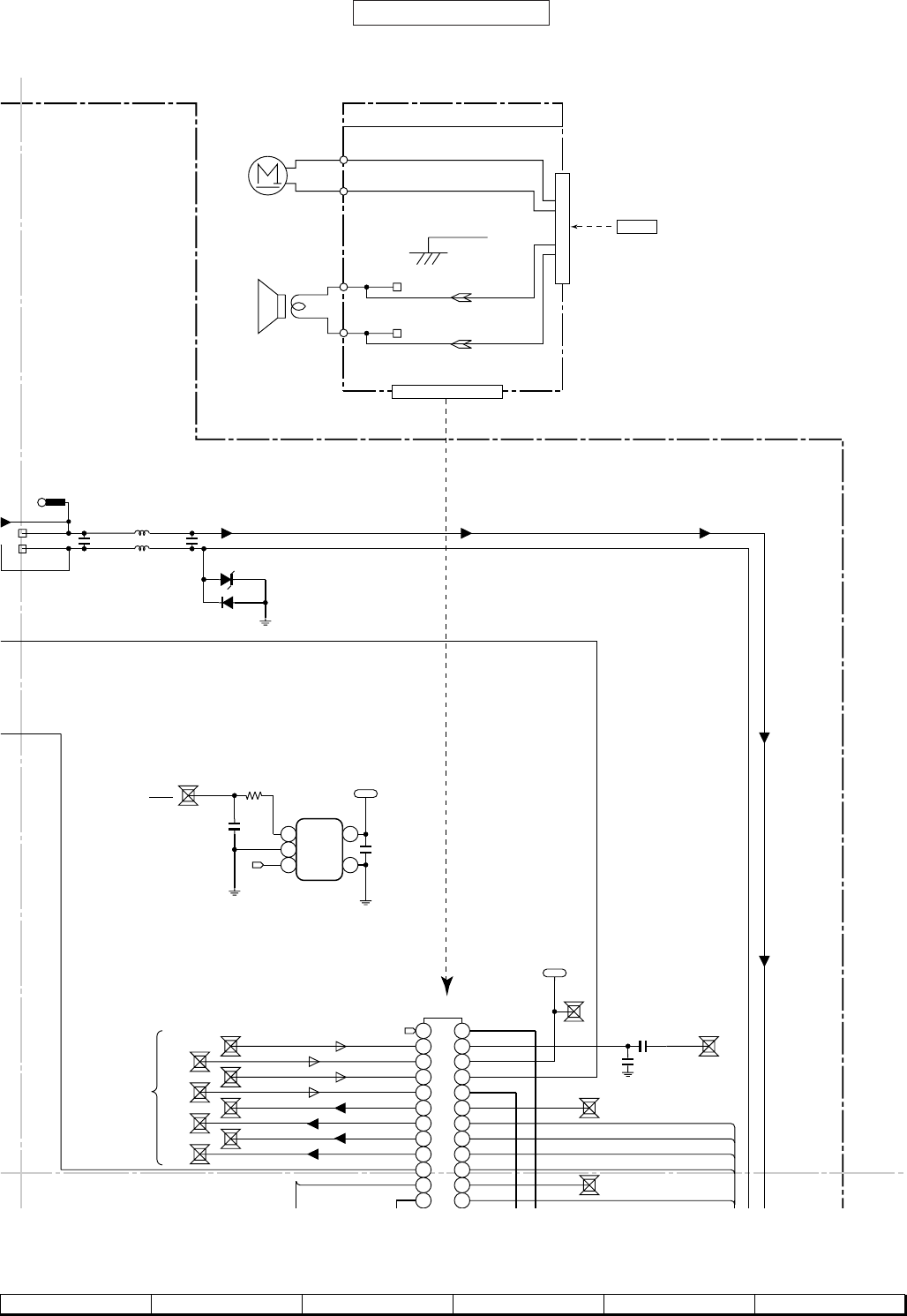
Figure 3 SCHEMATIC DIAGRAM (3/22)
G
SP1-1
G
SP2-1
G
KEYPADCOL[0-4],KEYPADROW[0-4]
G
CONT1
G
ADP
G
ADPDET
G
CONT2
G
CTS
G
RTS
G
RXD
G
TXD
VLCD
2.5V
G
TMS/CHECKER
G
TDO
G
TDI
G
TCK/LED_ON
TPB162
TPB169
CONT1
TXD
RTS
CTS
ADP
ADPDET
CONT2
RXD
TDO_1
TDI_1
TCK/LED_ON_1
TMS/CHECKER_1
( )
( )
( )
( )
MAIN PWB-A(2/3)
3.
0
R104
10K
R186
10K
RECEPTION SIGNAL
TRANSMISSION SIGNAL
SPEAKER SIGNAL
5-16 (5-A)
5-16 (3-B)
5-16 (3-E)
5-17 (10-B)
5-16 (3-A)
5-16 (3-B)
5-16 (3-D)
5-16 (3-B)
5-16 (3-C)
5-6 (2-F)
5-16 (3-D)
MAIN PWB-A (2/3)
• NOTES ON SCHEMATIC DIAGRAM can be found on page 5-1.

5 – 9
GX10
CONFIDENTIAL
789
10 11 12
Figure 4 SCHEMATIC DIAGRAM (4/22)
TP111
TP112
NC
DGND
VINT
VBAT
VBAT
VCORE
1.8V
VBAT
NB
VIN
VOUT
GND
CONT
1
2
34
5
GREEN
RED
12
34
KEYPADCOL3
KEYPADROW4
KEYPADROW0
KEYPADCOL2
USC3
USC2
KEYPADROW3
KEYPADCOL4
KEYPADCOL0
USC5
USC0
KEYPADROW2
USC1
KEYPADCOL1
USC4
KEYPADROW1
VCC1
SIMDATAOP
GPIO22
GPIO24
VCC3
SIMCLK
GPIO23
VCC2
4
5
6
13
14
18
19
31
32
40
42
95
96
102
103
104
114
46
54
60
61
68
81
153
G
SIMIO
G
SIMCLK
G
SIMRST
G
G
CLK1
EXT1
/IRQ
/RST
IFSEL
PLLC
VDD
VSS
VREFSPOUT1
SPOUT2
EXT2
D7
D6
D5
D4
D3
D2
D1
D0
/WR
SDIN(/CS)
SYNC(A0)
SCLK(/RD)
SDOUT
SPVSS
SPVDD
EQ3
EQ2
EQ1
HPOUT-R
HPOUT-L/MONO
1
2
3
4
5
6
7
8
9
10111213
14
15
16
17
18
19
20
21
22
23
24
25
26 27 28 29 30 31 32
TP155
TP156
TP157
VLCD
2.5V
NCNC
TP110
VRTC
1.8V
KEYPADROW[0]
KEYPADROW[1]
KEYPADROW[2]
KEYPADROW[3]
KEYPADROW[4]
KEYPADCOL[0]
KEYPADCOL[3]
KEYPADCOL[4]
EOC
SIMEN
ADP
RXD
TXD
ADPDET
CTS
DATA[7]
DATA[6]
MA2_A0
DATA[5]
DATA[4]
DATA[3]
DATA[0]
VVIB
/MA2CS
SIMRST
SIMCLK
SIMIO
ADP,ADPDET,CONT2,CTS,JTAGEN,RTS,RXD,TCK/LED_ON_1,TDI_1,TDO_1,TMS/CHECKER_1,TXD
DATA[2]
DATA[1]
TCK/LED_ON_1
RTS
KEYPADCOL[1]
KEYPADCOL[2]
[ADP3408 EO
C
[SIMRESET]
[ADP3408 SI
M
DGND
VVIB
( )
1
23
1
23
2.48V 2.3V
0V
0V
0V
0V
C142
0.1
C136
220P(CH)
C143
0.1
C132
10
R128
3.3K
C145
0.1
D101
1SS388
D102
1SS388
D103
1SS388
C137
0.047
C141
4.7
C115
0.1
C126
0.1
R123
18K
C135
0.1
C125
1
R122
68K
R507
2.2
C146
0.001
C
0
C
0
R130
220
Q104
RT1N144 U
Q103
RT1N144 U
R129
1K
C
0
C
0
IC101
NJM2871F03
3.0V REGULATOR
LED101
CL165UR
LED INDICATOR
IC103
YMU759B
SOUND
R172
1
R173
1
R183
10K
5-16 (3-E)
5-6 (4-B)
5-17 (10-C)
5-12 (2-E)
5-17 (8-G)
5-16 (3-D)
5-6 (5-B)
5-17 (10-D)
• ( ) : Not Mount

5 – 10
GX10 CONFIDENTIAL
A
B
C
D
E
F
G
H
123456
Figure 5 SCHEMATIC DIAGRAM (5/22)
TP106
TP107
VANA
2.45V
TP101
TP102
G
BATT_SENSE
G
MVBAT
G
ADC_MTC
1
2
34
5
6
G
JAKMIC
G
JAKEAR
G
MIC_INP_R
G
MIC_INN_R
G
BS2
G
BS0 G
BS1
G
SYNTHDATA
G
SYNTHEN
G
SYNTHCLK
G
ITXP
G
ITXN G
QTXP
G
QTXN
G
IRXP
G
IRXN G
QRXP
G
QRXN
G
AFCDAC
G
RAMPDAC
G
TCXOOUT
G
TXD
G
ADIN
G
JAKDET
TP167
TP168
TMS/CHECKER
TPB162
TPB163
TPB164
TPB165
TP154
TP170
G
ADIN_B
BS0,BS1,BS2,SYNTHCLK,SYNTH
D
BS2
BS0
BS1
SYNTHDATA
SYNTHEN
SYNTHCLK
AFCDAC,IRXN,IRXP,ITXN,ITXP,QRXN,QRXP,QTXN,QTXP,RAMPDAC
ITXP
ITXN
QTXP
QTXN
IRXP
AFCDAC
RAMPDAC
IRXN
QRXP
QRXN
DGND
MICBIAS
TXD
ADC_MTC
VANA_AD6521
RECIVER_OUTP
RECIVER_OUTN
MIC_INP
BATT_SENSE
A
D
TCXOOUT
0V
0V
0V
2.45V
2.43V
2.43V
( )
C114
47P(CH)
C101
47P(CH)
C102
47P
(CH)
R112
1.2K
C112
0.1
C108
10
C110
0.1
R110
1.2K
R111
2.2K
R107
1.2K
R108
2.2K
C104
10
R109
1.2K
Q101
EMD9
C111
0.001
C113
0.001
R106
1K
C109
0.1
C103
0.1
L103
FERRITE
BEADS
L104
FERRITE
BEADS
C183
47P
(CH)
C182
47P
(CH)
C185
47P(CH)
C184
47P(CH)
L1
F
E
C186
C187
EP100
EARPIECE
5-16 (4-G,H)
5-16 (3-B,C)
5-16 (3-G)
5-16 (3-A)
5-16 (3-F)
5-16 (3-F)
5-16 (3-F)
5-16 (3-A)
5-17 (10-B)
5-17 (8-A)
5-16 (3-F)
5-13 (11-C)
5-16 (3-D)
5-17 (10-C)
MAIN PWB-A (2/3)
• NOTES ON SCHEMATIC DIAGRAM can be found on page 5-1.

5 – 11
GX10
CONFIDENTIAL
789
10 11 12
Figure 6 SCHEMATIC DIAGRAM (6/22)
TP114
TP115
TP116
TP117
NC
NC
N
C
NC
NC
NC
VCORE
1.8V
VMEM
2.8V
G
PWRON
G
SIMEN G
CHRDET
G
EOC
G
CHGEN
G
/RESET
DVDD1
DGND1
IDACREF
AUXADC4
AUXADC2
AUXADC1
PEFOUT
REFCAP
AVDD2
AFCDAC
TDO
TDI
AGND4
IDACOUT
AUXADC3
AUXADC5
AUXADC6
AGND2
NC(REFCAP2)
QRXN
IRXP
ITXN
BSOFS
VSDI
IRXN
QTXP
VSFS
TCK
TMS
QTXN
QRXP
VSDO
BSDO
BSIFS
ITXP
AVDD1
DVDD2
BSDI
AGND1
VINAUXN
ASDI
ASFS
RAMPDAC
VINAUXP
VINNORN
VOUTAUXP
VOUTNORP
VOUTNORN
VOUTAUXN MCLKEN
RESET
DVDD3
TXON
ATSM
AGND3
BUZZER
VINNORP
NC(MICCAP)
AVDD3
MCLK
ASDO
DGND3
RXON
ARSM
43
4
53
64
47
61
10
29
J48
6
60
5
25
1
21
18
41
16
3
32
37
49
24
8
31
40
23
C
46
7
34
52
5655
54
30
H
G
20
87
13
27
51
58
44
62
22
42
F
19
10
33
2
28
B11
36
59
9
17
E
45
9
A
63
39
2
TOP VIEW
15
26
35
14
1
6
D
3
K57
5
12
4
50
38
1
2
3
4
5
6
7
8
9
10
11
12
13
14
15
16
17
18
19
20
21
22
23
24
25
26
27
28
29
30
31
32
33
34
35
36
37
38
39
40
41
42
43
44
45
46
47
48
49
50
51
52
53
54
55
56
57
58
59
60
61
62
63
64
TP118
M
C
7
1
0
N
D
8
P
8
E
1
9
1
3
F
G
H
1
J
11
2
5
K
A
L
B
4
1
4
1
6
GPO05
OSCIN
OSCOUT
GPO00
PWRON
USC3
USC2
USC6
GPO06
GPO01
USC5
GPO20
CLKOUTGATE
GPO19
CLKOUT
GPO16
ASDI
GPO11
GPO24
GPO18
USC4
GPO08
ASFS
BSDO
GPO07
ASDO
GPO10
GPO21
GPO02
BSDI
VSDI
CLKON
BSIFS
GPO03
BSOFS
GPO17
GPIO19
VSFS
VSDO
GPIO18
GPO04
GPO09
GND01
GPIO20
GPIO21
GND02
JTAGEN
CLKIN
nRESET
1
3
13
14
16
27
29
30
40
43
44
93
94
97
101
116
55
56
57
58
61
62
63
64
65
66
67
69
71
70
72
73
76
77
74
75
78
79
80
82
83
85
86
87
88
89
146
15
17
G
G
TXON G
RFON
G
TCXOEN
TP121
1
23
4
N
C
G
N
G
BL_SW
G
E
T
70
G
B
TP171
TP172
VCORE
1.8V
PWRON
PWRON
EOC
Y
NTHCLK,SYNTHDATA,SYNTHEN
RXON
RXON
ARSM
ATSM
ASDO
ASFS
ASDI
BSDO
BSOFS
BSDI
VSFS
VSDI
VSDO
BSIFS
BS2
BS0
BS1
SYNTHEN
SYNTHDATA
SYNTHCLK
CHGEN
SIMEN
TCXOEN
TCXOEN
ADPDET
CTS
CONT2
JTAGEN
TDO_1
CHGEN
ITXP
ITXN
QTXP
QTXN
IRXP
IRXN
QRXP
QRXN
AFCDAC
RAMPDAC
RFON
RFON
TXON
TXON
KEY_BL_ON
MA2_A0
/AD6521_RST
TDI_1
/RESET
TMS/CHECKER_1
BL_SW
TCK/LED_ON_1
BATT_SENSE
RTS
13M_CLK
ADIN_B
CLKOUTGATE
[ADP3408 TCX
O
[ADP3408 PW
R
[KEYPAD
Backlight ON]
[TCK]
[TMS]
[TDI]
[TDO]
AUXADC1: Temperature
AUXADC2:
AUXADC3: Main Battery sence
AUXADC4: Main Battery voltage
AUXADC5:
AUXADC6:
[Test mo
d
[LED ON]
[AD6521 ARSM]
[AD6521 ATSM]
[ADP3408
CHGEN]
[ADC_MTC]
[RFON]
[BS1]
[BS0]
[SYNTHDATA]
[SYNTHEN]
[MA2-A0]
[SYNTHCLK]
[Camera A18]
[BL_SW]
[RXON]
[TXON]
[BS2]
( )
( )
( )
L189
FERRITE
BEADS
21
27
22
C133
0.1
C128
0.1
C134
0.1
R133
10M
C119
47P(CH)
C121
47P(CH)
C120
47P(CH)
C114
47P(CH)
C116
47P
(CH)
C122
47P
(CH)
R112
1.2K
C112
0.1
C110
0.1
C139
1
C138
0.1
R110
1.2K
R111
2.2K
C117
47P(CH)
C131
0.1
C148
3P(CH)
C150
3P
(CH)
R131
27
C118
0.01
C149
0.1
IC102
AD6521ACA
ANALOG BASEBAND
C111
0.001
C113
0.001
C140
0.001
X101
32KHz
R177
100K
C176
1
C180
47P
(CH)
C181
47P(CH)
L105
FERRITE BEADS
C185
47P(CH)
C184
47P(CH)
L106
FERRITE BEADS
L108
FERRITE
BEADS
L107
FERRITE BEADS
C186
0.1
C109A
100P(CH)
C187
0.1
5-16 (3-G)
5-16 (5-B)
5-17 (10-B)
5-16 (5-B)
5-17 (10-C)
5-6 (3-B) 5-9 (12-E)
5-6 (2-F)
5-16 (3-G)
• The numbers
21
,
22
,
27
are waveform numbers shown in pages 5-4, 5-5.
• ( ) : Not Mount

5 – 12
GX10 CONFIDENTIAL
A
B
C
D
E
F
G
H
123456
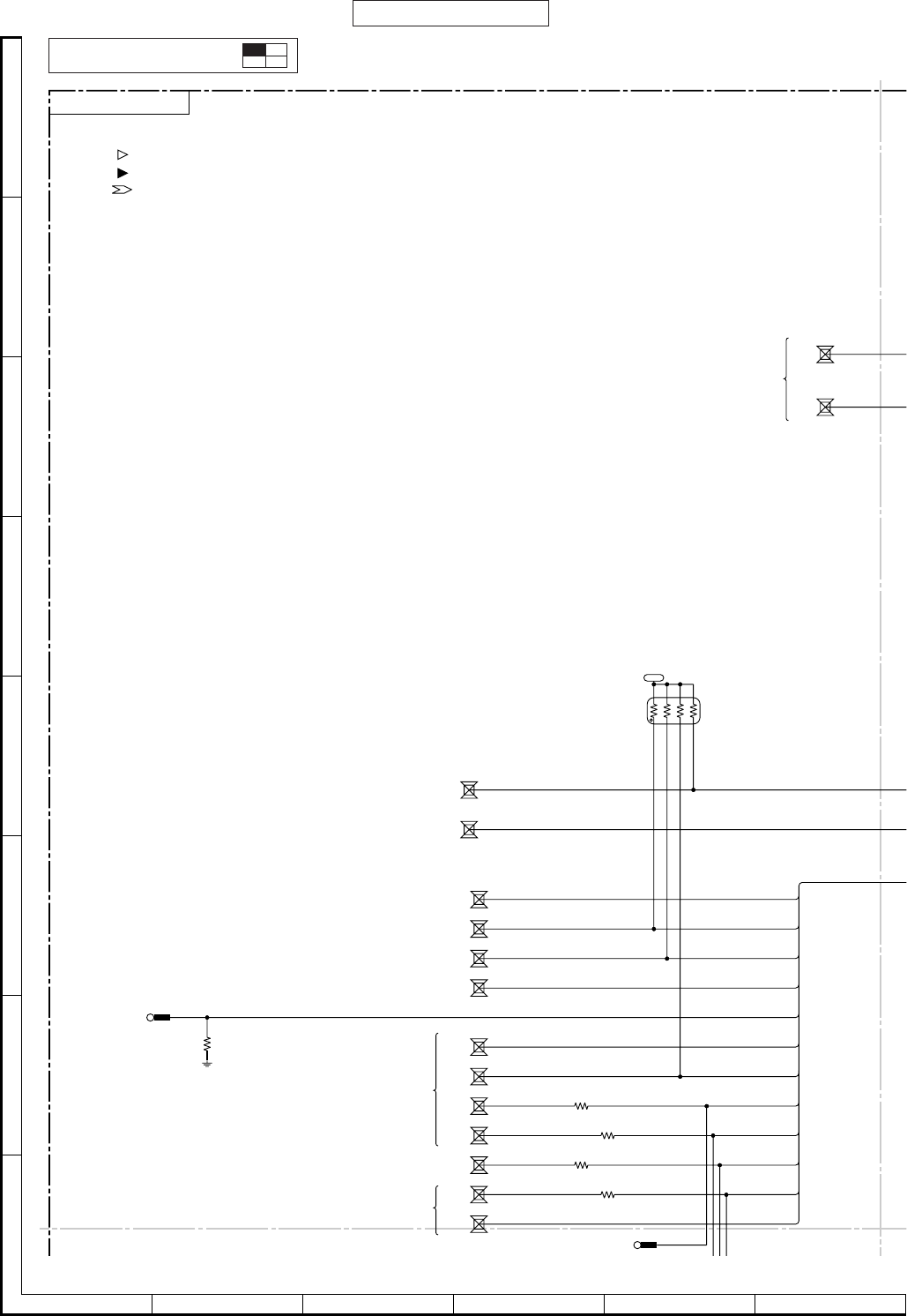
Figure 7 SCHEMATIC DIAGRAM (7/22)
VCORE
1.8V VINT
3.0V
VRTC
1.8V
VMEM
2.80V
VINT
3.0V
G
IR_ON
G
CAM_ON
G
/LCD_RST
R144
470K
GND
Vcc
1
2
34
5
GND
Vcc 1
2
3
4
5
VINT
3.0V
VDDRTC
O
L3
O
W4
O
W0
GPO22
GPIO15
GPIO13
GPIO09
GPIO06
O
L2
GPIO05
GPIO02
GPIO17
GPIO14
VEXT1
GPIO12
VEXT2
O
W3
O
L4
O
L0
GPO23
VEXT3
GPIO11
VCC4
GPIO10
GPIO07
GPIO03
O
W2
GPIO00
GPIO01
GPIO16
VEXT4
GPIO08
GPIO04
VPEG1
O
L1
O
W1
VCC1
O
P
VCC3
VMEM1
VSIM
nROMCS
nRAMCS
VMEM4
VMEM3
VMEM2
VCC2
2
7
8
9
11
21
22
26
33
34
35
38
39
104
106
113
131
132
48
50
51
52
53
59
81
137
145
153
141
28
10
37
23
24
25
36
47
GND
Vcc
1
2
34
5
G
BL_ON
G
DISPCLK
G
DISPA0
G
DISPEN
G
DISPD0
G
FLIP_SW
0.1
C163
0.1
C166 VINT
3.0V
G
IR_RXD
G
IR_TXD
TP158
TP159
VSIM
VINT
3.0V
DATA[0-15]
DATA[0-15]
ADD[1-22]
ADD[1-22]
ADD[1-22]
DATA[0-15]
DATA[0-15]
/MA2_IRQ,/MA2_RESET
/MA2_IRQ
/MA2_RESET
IR_ON
/FLASH_WP
DATA[0-15]
ADD[21]
ADD[22]
VPP
DATA[0-15]
/MA2_RESET
/MA2_IRQ ADD[20]
IR_TXD
[
ADP3408 EOC]
[
SIMRESET]
[
ADP3408 SIMEN]
[IrDA RX]
[IrDA TX]
[LCD Backlight ON]
[MA2 /IRQ]
[FLIP_SW]
[Camera /INT]
[Camera Power ON]
[External Connector 12pin]
[Camera /Reset]
[MA2 /Reset]
[LCD/Reset]
[64Mbit Flash]
[
32Mbit SCRAM
]
[ADP3408 CHRDET]
[Flash /WP]
[IrDA Power ON]
[Flash VPP]
[SUB_LCD CLK]
[SUB_LCD RS]
[SUB_LCD CS]
[SUB_LCD DATA]
TP122
( )
( )
( )
C153
0.1
C154
0.1 C158
0.1
C157
0.1
C156
0.1
C155
0.1
C161
0.1
C160
0.1
C159
0.1
C151
0.1
C152
0.1
R142
470K
C162
0.1
IC107
TC7SZ32AFE
LOGIC
R141
100
R143
470K
C179
0.001
C188
0.1
IC110
TC7SZ32AFE
LOGIC
IC108
TC7SZ32AFE
LOGIC
5-17
(10-C) 5-17
(10-C)
5-9
(12-E) 5-6
(2-F)
5-16 (3-D)
5-16 (3-G)
5-12 (5-F)
5-16 (5-D)
5-6 (5-B)
5-7 (8-B)
5-6 (2-H)
• NOTES ON SCHEMATIC DIAGRAM can be found on page 5-1.
MAIN PWB-A (2/3)

5 – 13
GX10
CONFIDENTIAL
789
10 11 12
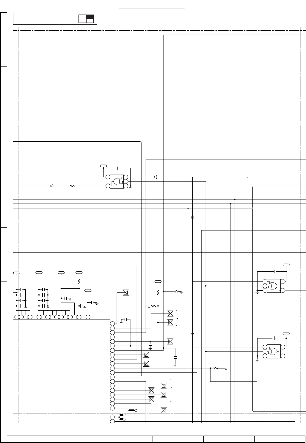
Figure 8 SCHEMATIC DIAGRAM (8/22)
GDATA[0-15]
GCS_TFTLCD
G13M_CLK
R148
100
VCAM
3.1V
VLCD
2.5V
VINT_SW
3.0V
1
2
3
4
5
6
7
8
9
10
11
12
13
14
15
16
17 18
19
20
21
22
23
24
25
26
27
28
29
30
31
32
33
34
TP166
G
ADIN
V+
GND
VO
GND
NC
1
2
34
5
VT
2.715V
NC
CS_TFTLCD
T
A[0-15]
DATA[0-15]
CS_SRAM
ADD[16]
ADD[3]
ADD[2]
DATA[0-15]
DATA[11]
DATA[3]
DATA[0]
DATA[14]
DATA[9]
DATA[8]
DATA[7]
DATA[6]
DATA[5]
DATA[4]
DATA[2]
DATA[1]
DATA[12]
DATA[10]
DATA[15]
DATA[13]
D12
D8
D15
A18
D14
CINT
A19
VLCD
A2
CSB
VCAM
EXCKI
RDB
D1
DGND
D4
D11
D7
D6
D13
D9
DGND
A17
RSTN
VINT_SW
A1
WRB
D0
DGND
D3
D10
D2
DGND
D5
CAMERA FPC ASS'Y PWB-G
R160
220
R170
220
R154
220
R161
220
R152
220
R151
220
R168
220
R159
220
R162
220
C170
0.001
R157
470K
R164
220
R155
220
R153
220
R166
220
CN101
C501
0.001
C506
2.2
C505
2.2
C503
0.1
C504
10
C502
0.1
C507
0.1
R149
470
IC105
LM20BIM7
TEMPERATURE
SENSOR
C169
0.1
C168
0.1
R146
100
5-17 (9-E)
5-17 (10-E) 5-6 (5-B)
5-10 (6-E)
5-17 (10-C)
5-6 (2-E)
5-6 (2-F)
5-6 (2-C)
• ( ) : Not Mount

5 – 14
GX10 CONFIDENTIAL
A
B
C
D
E
F
G
H
123456
Figure 9 SCHEMATIC DIAGRAM (9/22)
TP137
TP130
TP132
TP146
TP139
TP138
TP133
TP131
TP141
TP145
TP127
TP134
TP123
TP124
TP125
NC
TP126
TP144 A11
A15
A14
A13
A12
A16
A8
A10
A9
S/WE
S-A17 CE2
S-/OE
A18
F-A17
A7
A6
A3
A2
A1
SC-/CE1
A5
A4
A0
4
5
6
7
8
13
14
15
16
18
24 34
47
53
54
55
56
57
58
59
60
64
65
66
143
9
62
M
92
134
7
68
C
83
4
30
113
156
22
73
105
152
2
58
54
100
139
14
N
91
136
8
130
D
81
5
48
114
149
21
77
36
110
159
19
71
56
99
140
12
P
89
137
9
70
132
E
85
1
55
107
25
79
35
117
18
69
97
141
93
133
10
72
129
F
87
6
53
120
27
74
39
158
17
51
101
142
8
61
52
95
138
3
125
G
82
13
49
122
20
41
116
160
24
80
31
103
135
7
63
33
90
145
5
59
126
H
50
123
15
88
34
118
157
23
78
38
98
148
11
45
4
127
J96
12
119
16
86
29
115
153
28
37
106
150
13
57
32
104
144
3
128
K
94
14
67
124
A
44
111
154
26
76
42
108
151
6
66
46
102
146
10
64
121
L
11
60
131
B
84
2
43
112
155
75
40
109
147
1
65
47
GND09
GND11
GPO23
GND08
T
E
VSSRTC
GND10
ADD00
ADD02
ADD01
GND01
ADD03
ADD05
ADD04
GND02
ADD06
nGPCS1
ADD09
GPIO32
GND05
ADD08
ADD07
ADD10
GND07
GND04
DATA05
nROMCS
DATA13
ADD12
ADD18
DATA10
nRAMCS
DATA08
ADD11
nGPCS0
ADD21
nDISPLAYCS
nRD
DATA02
DATA04
DATA12
ADD15
ADD17
DATA07
ADD13
nHWR
ADD20
DATA15
DATA00
DATA03
nLWR
DATA11
ADD16
GND03
DATA09
nWE
DATA06
ADD14
GND06
ADD19
ADD22
DATA14
DATA01
TOP VIEW
12
20
33
41
45
91
97
98
99
105
107
108
110
111
112
115
117
118
119
120
121
122
123
124
125
126
127
129
130
131
132
133
134
90
49
84
89
136
138
139
140
143
144
147
148
149
150
152
154
155
156
157
158
159
160
142
109
100
135
151
92
128
G
G
ADD[16]
G
/RD
G
/WR
TP128
TP129
TP147
TP148
3
4
NC
TP158
TP159
VINT
3.0V
ADD[14]
ADD[7]
ADD[11]
ADD[15]
ADD[16]
ADD[5]
ADD[6]
ADD[10]
ADD[8]
ADD[3]
ADD[9]
ADD[12]
ADD[1-22]
ADD[13]
ADD[21]
ADD[4]
ADD[19]
ADD[1-22]
ADD[2]
ADD[1]
ADD[17]
ADD[19]
ADD[18]
ADD[17]
ADD[15]
ADD[4]
ADD[5]
ADD[6]
ADD[7]
ADD[8]
ADD[9]
ADD[10]
ADD[11]
ADD[12]
ADD[13]
ADD[14]
DATA[0]
DATA[3]
DATA[4]
DATA[5]
DATA[6]
DATA[7]
DATA[8]
DATA[9]
DATA[10]
DATA[11]
DATA[12]
DATA[13]
DATA[14]
DATA[15]
DATA[0-15]
ADD[1]
ADD[22]
ADD[20]
ADD[22]
ADD[21]
ADD[16]
ADD[2]
ADD[3]
IR_RXD
DATA[1]
DATA[2]
/LCDCS_/MA2CS
/RD
/RD
/WR
/WR
ADD[16]
ADD[20]
ADD[18]
/PSRAMCS
[16Mbit Flash]
[/UBE]
[/LBE]
P
3408 TCXOEN]
P
3408 PWRONIN]
N
]
K
]
S
]
]
O
]
[64Mbit Flash]
[32Mbit SCRAM]
[CAMERA]
[LCDC/MA2/4Mbit SRAM]
[Test mode]
[LED ON]
SM]
S
M]
T
A]
K
]
[Camera-A19]
1
8]
TP122
( )
( )
IC104
AD6526XCA
DIGITAL
BASEBAND
R195
100K
R503
100
R504
100
5-6 (5-B)
5-6 (2-F)
5-6 (2-C)
MAIN PWB-A (2/3)
• NOTES ON SCHEMATIC DIAGRAM can be found on page 5-1.

5 – 15
GX10
CONFIDENTIAL
789
10 11 12
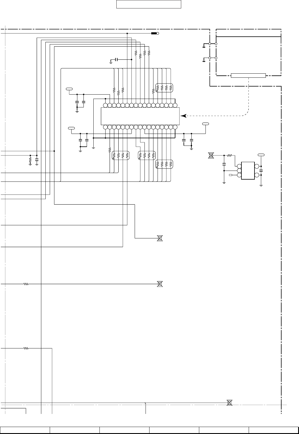
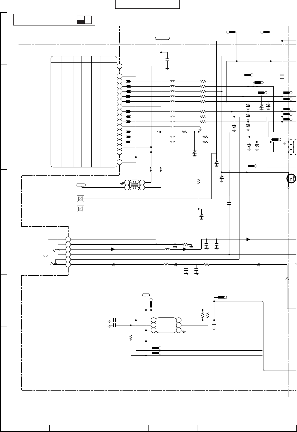
Figure 10 SCHEMATIC DIAGRAM (10/22)
NC
NC
NC
NC
NC
VINT
3.0V
VBACK
3.0V
NC
NC
NC
NC
NC
NC
NC
F2-CE
S-/CE1
NC
NC
A20
GND
A16
DQ15
S-/WE
DQ14
DQ7
F-/WE
RY/-BY
A21
S-A17
DQ13
DQ6
DQ4
DQ5
GND
/RST
T1
T2
DQ12
CE2
S-Vcc
F/SC-Vcc
F-/WP
F-Vpp
F-A19
DQ11
F/SC-Vcc
DQ10
DQ2
DQ3
/LB
/UB
S-/OE
T3
DQ9
DQ8
DQ0
DQ1
A18
F-A17
SC /CE1
F1-/CE
GND
F-/OE
123456789101112
A
B
C
D
E
F
G
H
123456789101112
20191413 1615 1817
28272221 2423 2625
36353029 3231 3433
44433837 4039 4241
52514645 4847 5049
60595453 5655 5857
70696463 6665 686761 62 71 72
1
2
3
9
10
11
12
3
17
18
19
20
21
22
23
24
25
26
27
28
29
30
31
32
33
34
35
36
37
38
39
40
41
42
43
44
45
46
47
48
49
50
51
52
53
54
61
62
63
67
68
69
70
71
72
GDATA[0-15]
TP152
TP153
TP149
TP150
TP151
TP160
DATA[8]
DATA[3]
DATA[12]
DATA[14]
DATA[10]
DATA[4]
DATA[11]
DATA[6]
DATA[7]
DATA[5]
DATA[13]
DATA[9]
DATA[0]
/ROMCS
DATA[15]
DATA[0-15]
/UBE
DATA[0-15]
/LBE
DATA[1]
DATA[2]
/RESET
/RD
/RD
/WR
/WR
C174
0.1
C173
0.1
R158
470K
C172
0.1
IC106
LRS1B04
4-LEVEL STACK
MEMORY
5-16 (3-G)
• ( ) : Not Mount

5 – 16
GX10 CONFIDENTIAL
A
B
C
D
E
F
G
H
123456
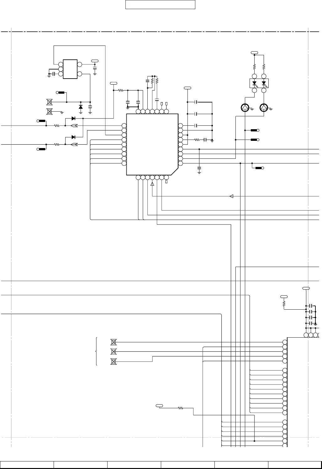
Figure 11 SCHEMATIC DIAGRAM (11/22)
5-8 (6-C)
5-10 (2-C)
5-6 (4-B)
5-10 (2-F)
5-8 (4-F)
5-10 (2-B,C)
5-10 (2-B,C)
5-6 (2-F)
5-8 (4-G)
5-9 (9-F)
5-8 (4-G)
5-12 (4-F)
5-10 (6-E)
5-8 (4-E)
5-9 (7-B)
5-10 (3-D)
5-10 (3-E)
5-10 (3-E)
5-10 (6-E)
5-11 (9-G)
5-10 (2-C)
5-12 (4-G)
5-11 (11-B)
5-15 (8-C)
5-10 (1-B)
5-12 (4-G)
5-6 (2-F)
5-12 (4-G)
5-11 (9-G)
5-8 (4-E)
CHGIN
G
CHGEN
G
SIMEN
G
TCXOEN
G
PWRON
G
IR_ON
G
/LCD_RST
G
CAM_ON
TP201
DGND
G
IR_SD
G
ADPDET
GSP1-1
GSP2-1
CN202
RAMPDAC
G
G
G
G
G
TXON
GMIC_INN_R
G
MIC_INP_R
G
JAKEAR
FLIP_SW
KEY_BL_ON
CHGIN
BS0
BS1
SYNTHEN
SYNTHCLK
SYNTHDATA
BS2
VEXT_CN
VSIM
AFCDAC
GDGND
G
KEYPADCOL[0-4],KEYPADROW[0-4]
GTDO
G
G
TDI
TCK/LED_ON
GRXD
GSIMIO
GSIMCLK
GADIN_B
GRTS
GSIMRST
GCTS
GTMS/CHECKER
GTXD
GVVIB
G/RESET_R
GIR_SD
GIR_RXD
GIR_TXD
GJAKMIC
VINT
G
G
G
G
G
G
G
RFON
VBACK
CN201
GITXN
GQTXP
GQTXN
GIRXP
GIRXN
GQRXP
GQRXN
GITXP
VBAT
GBATT_SENSE
GADP
GADPDET
GCONT2
GCONT1
GTCXOOUT
VIR
GJAKDET
VT TP217
TPB218
TP219
TPB220
CHGEN
/LCD_RST
ADPDET
CHGIN
KEYPADCOL[0]
KEYPADCOL[3] CAM_ON
SIMEN
KEYPADROW[2]
KEYPADROW[0]
KEYPADROW[1]
KEYPADROW[4]
KEYPADROW[3]
SP1-1
SP2-1
KEYPADCOL[4]
TCXOEN
KEYPADCOL[2]
KEYPADCOL[1]
PWRON
KEYPADROW[0]
KEYPADROW[1]
KEYPADROW[3]
KEYPADCOL[1]
KEYPADCOL[3]
KEYPADROW[2]
KEYPADROW[4]
KEYPADCOL[0]
KEYPADCOL[2]
DGND
AGND
MIC
MIC_GND
JAKEAR
VIR
JAKDET
VINT
JAKMIC
VEXT_ON
VEXT_ON
TCXOEN
VSIM
VSIM
RFON
DGND
TXON
RAMPDAC
AFCDAC
FLIP_SW
KEY_BL_ON
VBACK
BS2
BS1
BS0
SYNTHDATA
SYNTHCLK
SYNTHEN
2.85V
2.5V
BATT_SENSE
SIMCLK
ITXP
RXD
RESET_B
IRXP
SP1
DGND
IR_RXD
DGND
EGND
ADPDET
IR_SD
ISENSE
RTS
SP2
QTXN
VVIB
TDO
IR_TXD
QRXN
ADP
CONT2
CTS
GATEDR
SIMRST
SP2
QTXP
TDI
ADIN_B
QRXP
VIBGND
CONT1
TXD
VBAT
SIMIO
ITXN
SP1
TCK/LED_ON
POWONKEY
IRXN
VIBGND
TCXOOUT
TMS/CHECKER
CHGIN
VT
KEYPADCOL[4]
( )
( )
1
2
3
4
5
6
7
8
9
10
11
12
13
14
15
17
18
19
20
21
22
23
24
25
26
27
28
29
30
31
32
33
34
35
36
37
38
39
16
1
2
3
4
5
6
7
8
9
10
11
12
13
14
15
16
17
18
19
20
21
22
23
24
25
26
27
28
29
30
31
32
33
34
35
36
37
38
39
40
41
42
43
44
45
MAIN PWB-A(3/3)
( )
RELAY FPC_A PWB-C
RELAY FPC_B PWB-D
V203
650P
V201
650P
C232
0.1
C233
0.1
C236
100P(CH)
C237
100P(CH)
C238
100P(CH) C239
100P(CH)
C240
100P(CH)
D201
RSB6.8S
6,8V
D202
RSB6.8S
6.8V
RECEPTION SIGNAL
TRANSMISSION SIGNAL
SPEAKER SIGNAL
5-27 (11-F) 5-25 (11-B)
• NOTES ON SCHEMATIC DIAGRAM can be found on page 5-1.

5 – 17
GX10
CONFIDENTIAL
789
10 11 12
Figure 12 SCHEMATIC DIAGRAM (12/22)
VANA 2.45V
VCORE 1.8V
VSIM 2.85V
VMEM 2.8V
VT2.715V
VLCD 2.5V
VINT 3.0V
VINT_SW 3.0V
VCAM 3.1V
VBAT
VEXT_CN 2.5V
NC
NC
NC
NC
GND
Cont
Np(Vref)
Vin
Vout
1
2
34
5
1
2
3
4
5
6
G
ADC_MTC
GMVBAT
GCHRDET
GEOC
GKEYPADROW[4]
G/RESET
TP207
TP208
TP209
TP211
TP212
TP213
TP214
TP206
TP204
PWRONKEY
ROWX
RESCAP
BATSNS
GATEDR
ISENSE
REFOUT
CHRIN
VTCXO
VRTC
VMEM
DGND
NC
VBAT
VRTCIN
VBAT2
NC
NC
DGND
AGND
VAN
GATEIN
VSIM
CHGEN
SIMEN
MVBAT
VCORE
CHRDET
PWRONIN
TCXOEN
RESET
EOC
1
2
3
4
5
6
7
8
9
10
11
12
13
14
15
16
17
18
19
20
21
22
23
24
25
26
27
28
29
30
31
32
VRTC
1.8V
CE
VOUT
VDD
GND
1
23
4
3.0V
VBACK
TP205
TP203
G/RESET_R
G
BATT_SENSE
NC
Vss
Vin
CE
Vout
NC
1
2
34
5
TP215
TP216
VIR
1
2
3
4
5
6
VMEM
2.80V
1
2
34
5
6
G
SIMEN
GND
Vdd
CE
Vout
ECO
1
2
34
5
VMEM_OUT
VRTC_NO
G
EN
/LCD_RST
L
CD_RST
VANA
/RESET
VCAM_OUT
A
DPDET
IR_ON
C
HGIN
C
AM_ON
E
N
O
EN
R
ON
VSIM
VCORE
VANA
VT
VMEM
VIR
VLCD
VEXT_CN
VINT
VINT_SW
VBACK
VRTC
VCAM
VTXVCO
VRF
VSYNTH
VTCXO
3.0V
VBAT
3.0V
2.5V
2.9V
2.9V
2.85V
2.5V
2.715V
1.8V
2.9V
2.8V
2.5V
2.45V
3.0V
2.9V
2.8V
3.1V
VBAT
NAME
VOLTAGE
1
23
( )
( )
( )
( )
2.43V
2.44V
0V
0V
2.45V
0V
0V2.79V
3.01V
2.86V
0V
0V
0V
2.79V
2.9V
2.88V
0V2.51V
2.51V
3.01V3.01V
3.01V
0V
0V
0V
0V
0V
Q204
2SA1989 SR
C230
2.2
R212
10K
R211
68K
C228
0.22 C231
2.2
Q203
RT1N144 U
C229
2.2
C220
0.1
C227
4.7
C213
0.1
C223
4.7
C214
1
C221
1
C218
0.01
C215
0.1
C222
1
R216
470K
C216
10
C211
0.1
R210
470K
R215
8.2K
R218
330
IC206
TK11131C
1.8V REGULATOR
Q206
MCH6613
C224
0.1
C225
0.1
Q205
2SA1955 A
R219
1.2K
IC202
ADP3408ACP
POWER
SUPPLY
IC203
RQ5RW18B
1.8V REGULATOR
C219
1
C212
1
R223
470K
R222
470K
C210
10
IC201
XC6209B252MR
HIGH SPEED LDO
C232
0.1
C233
0.1
C234
0.0047
Q207
EMD6
R227
1K
Q208
EMD12
IC205
R1160N301B
REGULATOR
R232
1
5-10 (2-F)
5-10 (2-F)
5-10 (2-F)
5-11 (9-G)
5-8 (4-E)
5-11 (9-H)
5-6 (3-B)
5-12 (2-E)
5-9 (12-E)
5-10 (4-B)
5-13 (12-C)
5-12 (2-E)
5-6 (5-B)
5-6 (5-B)
5-13 (8-C)
5-13 (8-B)
5-9 (12-F)
• ( ) : Not Mount

5 – 18
GX10 CONFIDENTIAL
A
B
C
D
E
F
G
H
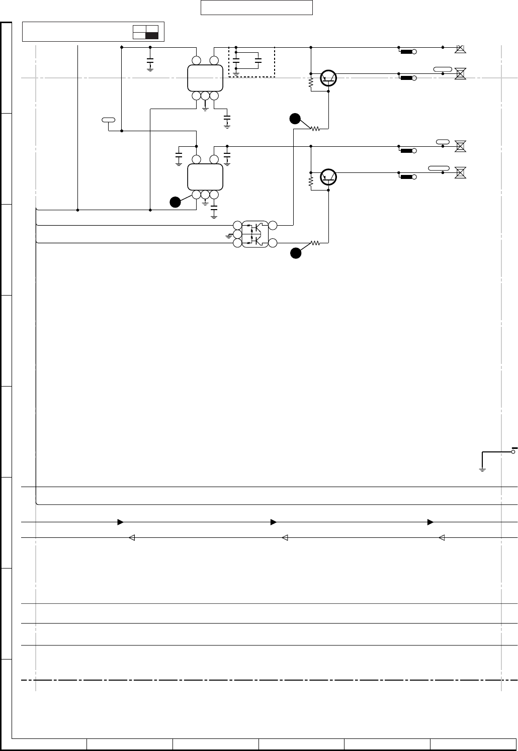
123456
Figure 13 WIRING SIDE OF P.W.BOARD (1/5)
TP101
TP102
TP106
TP107
TP110 TP111
TP112
TP114 TP115
TP116
TP117
TP121
TP149
TP152
TP154
TP155
TP156
TP157
TP172
TP159
TP160
TP166
TP167
TP168
TP170
TP171
TP001
TP002
TP003
TP004
TP006
TP009
TP201
TP203
TP204
TP205
TP011
TP206
TP012
TP207
TP013
TP208
TP014
TP209
TP015
TP016
TP017
TP018
TP019
TP211
TP212
TP213
TP214
TP020
TP021
TP215
TP022
TP216
TP217
TP023
TP024
TP219
TP025
TP026
TP027
TP031
TP032
EP100
EARPIECE
SOLDER
SOLDER SOLDER
FROM RELAY FPC_B PWB-D
D
MAIN PWB-A (FRONT SIDE)
1
54
3
25
23
24
26
D002
Q103
Q104
L103
L104
R129
R130
C102
R149
R152
C502
C504
C505
C506
C168
C169
C182
C183
IC105
R004
C219
5-32 (4-B)

5 – 19
GX10
CONFIDENTIAL
789
10 11 12
Figure 14 WIRING SIDE OF P.W.BOARD (2/5)
TPB162
TPB163
TPB164
TPB165
TPB169
TP118
TP122
TP123
TP125
TP126
TP127
TP128
TP129
TP130
TP131
TP132
TP133
TP134
TP137
TP138
TP139
TP141
TP144 TP145
TP146
TP147
TP148
TP150
TP151
TP153
TP158
TPB007
TPB008
TPB218
TPB220
D
TP124
GS
1
1
1
1
1
1
1
1
34
6
3
46
3
46
5
8
9
10 15
16
17
20
24
25
30
32
1
1
1
2
10
20
30
40
50
5
15
25
35
45
51
1
158
2
10
20
30
40
44
1
5
15
25
35
39
2
12
10
20
30
38
5
15
25
35
45
1
5
9
10 16
17
20
25
263032
15
1
1
1
1
2
3
4
3
4
5
3
46
3
3
3
3
4
4
4
5
5
5
4
5
5
610
11
15
1620
6
712
13
18
1924
1
1
1
3
3
3
4
4
4
55
5
5
10
1718
1520
25
30
34
13
64
SOLDER
SOLDER
SOLDER
B
FROM CAMERA FPC ASS'Y
PWB-G
FROM CAMERA FPC ASS'Y
PWB-G
FROM
LCD100
FROM RELAY
FPC_A PWB-C
FROM RELAY
FPC_B PWB-D
FROM
LCD001
FROM BACK LIGHT
FPC ASS'Y PWB-E
C
A
FROM CAMERA FPC ASS'Y
PWB-G
LED INDICATOR
MAIN PWB-A (REAR SIDE)
28 29 30 31
22
27
21
R210
R211
CN001
CN002
R212
R215
R216
R023
R218
R219
R027
CN201
CN202
R222
R223
R030
R227
C001
C002
R232
C003
C004
C005
R006
C008
C009
V201 V203
C010
C011
C012
C013
C014
C015
C016
C017
C018
C019
C210
C211
C212
C213
C020
C214
C021
C215
C186
C022
C216
C024
C218
C027
C028
C220
C221
C222
C223
C224
C225
C227
C228
C229
FS001
C230
C231
C232
C233
C234
C236
C237
C238
C239
C240
D001
Q101
D201
D202
LED101
L105
L106
L107
L108
IC001
IC002
IC003
IC004
IC005
IC201
IC202
IC203
IC205
IC206
R104
R106
R107
R108
R109
R110
R111
R112
R503
R504
CN101
R122
R123
R128
R131
R133
C101
C103
C109A
C104
R141
R142
R143
C108
R144
C109
R146
R148
C110
C111
X101
C112
C113
C114
C115
R151
C116
C117
R153
C118
R154
C501
C119
R155
C503
R157
R158
R159
C507
C120
C121
C122
R160
C125
R161
C126
R162
C128
R164
R166
R168
C131
C132
C133
C134
R170
C135
C136
R172
R507
D102 D103
C137
R173
C138
C139
R177
C140
C141
C142
C143
C145
C146
R183
C148
C149
R186
C150
C151
C152
C153
C154
C155
C156
C157
C158
Q001
C159
R195
C160
D101
C161
C162
C163
LED001
C166
Q203
Q204
Q205
Q206
Q207
Q208
L001
L003
C170
C172
C173
C174
C176
C179
C180
C181
IC101
IC102
IC103
IC104
C184
C185
L189
IC106
IC107
C187
IC108
C188
IC110
R002 R003
R013
R014
R015
R016 R017
5-32 (2-G)
5-32 (1-F)
5-32 (5-H)
5-32 (1-A)
5-32 (6-G)
5-32 (6-E)
5-32 (6-A)
5-32 (2-F)
• The numbers
21
to
31
are waveform numbers shown in pages 5-4 ,5-5.

5 – 20
GX10 CONFIDENTIAL
A
B
C
D
E
F
G
H
123456
Figure 15 SCHEMATIC DIAGRAM (13/22)
KEY PWB-B(1/2)
4
1
8
UP
M
RIGHT
5
7
DOWN
2
0
LEFT
VEXT_CN TP305
TP328
TP329
TP330
TP342
TPB343
KEYPADCOL[0]
KEYPADCOL[3]
KEYPADCOL[1]
KEYPADCOL[2]
SIDE_DOWNSIDE_UP
FLEXIBLE PWB, SIDE SWITCH PWB-H
RECEPTION SIGNAL
TRANSMISSION SIGNAL
SPEAKER SIGNAL
KEY PAD
( )( )
( )
CN302
EXTERNAL
CONNECTOR
V317
100P
V312
100P
V318
100P
5-27 (9-D)
KEY PWB-B (1/2)
• NOTES ON SCHEMATIC DIAGRAM can be found on page 5-1.

5 – 21
GX10
CONFIDENTIAL
789
10 11 12
Figure 16 SCHEMATIC DIAGRAM (14/22)
VINT
VINT
6
VINT
SEND
3
VINT
VINT
LEFT SOFT
9
RIGHT SOFT
BATT
SENSE
GND
1
2
3
G
BATT_SENSE TP314
GPOWONKEY
VIR
FROM POWER CIRCUT
VINT
G
IR_SD
G
IR_TXD
NC
G
IR_RXD
NC
NC
Vcc
GND
SD
RXD
TXD
LEDA
SHIELD
1
2
3
4
56
7
89
NC
TPB331
TP
B
TP
B
TP342
TP344
KEYPADCOL[3]
KEYPADCOL[4]
KEYPADCOL[0-4],KEYPADROW[0-4]
TDO
TCK/LED_ON
KEYPADROW[1]
KEYPADROW[2]
KEYPADROW[3]
KEYPADROW[4]
KEYPADROW[0]
POWONKEY
#
KEYPADROW2
Not
KEYPADROW4
2
Not
Not
8
RIGHT
DOWN
KEYPADROW3
Not
Not
Not
Not
3
UP
4
RIGHT SOFT
LEFT SOFT
KEYPADCOL2
0
5
7POWER
ON/OFF
KEYPADROW0
9
KEYPADCOL4KEYPADCOL1KEYPADCOL0
LEFT
M
KEYPADCOL3
6
KEYPADROW1
1
Goast
SEND
3.0V
Side UP Side DOWN
On the FPCOn the FPC
POWON
W
B-H
( )
( )( )( )
( )
( )( )
#
CONTACT
BATTERY
D305
1SS388
FS301
2.5A
CN303
V316
100P
V315
100P
C338
0.1
V314
100P
V313
100P
V312
100P
C333
4.7
UN301
INFRARED PORT
5-27 (9-D)
5-27 (10-A)
5-27 (10-B)
5-27 (10-B)
5-23 (8-C)
5-25 (10-G)
5-27 (10-B)
• ( ) : Not Mount

5 – 22
GX10 CONFIDENTIAL
A
B
C
D
E
F
G
H
123456
Figure 17 SCHEMATIC DIAGRAM (15/22)
TP312
T
P
T
P
VEXT_CN
T
P
1
2
3
TP313
CHGIN
TP311
T
P
T
P
TP304
VSIM
2.85V
TP302
TP303
TP301
CLK
RESET
Power
OP
I/O
GND
1
2
3
4
5
6
G
FLOAD_ON
G
/RESET_R
GND
(AUX_IN)
GND
RXD
TXD
(+)
GND
(AUX_OUT)
CONT1
CONT2
ADPDET
ADP
Flashload
_ON
AUX-OUT
VCC
AUX-IN
TCK
GND
TDO
GND
/RESET
VCC
-
TDI
JTAGEN
-
TMS
GND
-
-
Power(+)
Power(-)
NormalJTAG Down
load
-
-
DC(+)
-
Genie
GND
-
TXD
RXD
-
-
-
-
-
-
GND
-
GND
-
-
-
"High"
--
-
-
-
GND
-
-
GND
-
Debug_Tx
-
Debug_Rx
GND
-
-
-
-
-
-
-
"Low"
VCC
-
-
GND
RTS
-
RXD
TXD
-
-
GND
PC
cable
CTS
DTR
-
-
-
-
-
CONT1
TXD
-
-
RXD
GND
-
-
-
-
Printer
-
-
-
-
-
1
2
3
4
5
6
7
8
9
10
11
12
13
14
15
16
17
18
TP305
TPB325
TPB326
1
2
3
4
5
6
1
23
4
TPB343
SIMRST
SIMIO
FLOAD_ON
SIMCLK
SIMCLK
/RESET_R
( )
( )
( )
( )
( )
( )
( )
SIM CARD
CONNECTOR
0V
0V
R363
1K
C303
0.1
CN301
R305
20K
C304
47P(CH)
C334
0.001
L303
FERRITE BEADS
L301
FERRITE BEADS
V310
100P
C306
47P(CH)
C335
0.001 C328
1
R311
33
V303
100P
V307
100P
V302
15P
V301
100P
R319
100
R320
100
V319
100P
CN302
EXTERNAL
CONNECTOR
L310
FERRITE BEADS
L313
FERRITE BEADS
FL307
FERRITE BEADS
FL303
FERRITE BEADS
FL304
COMMON MODE
L312
FERRITE BEADS
L319
FERRITE BEADS
R309
100
L316
FERRITE BEADS
L311
FERRITE BEADS
L318
FERRITE BEADS
R317
100
R308
100
R316
100
V311
100P
V306
100P
V305
15P
V304
15P V309
100P
V308
15P
R310
100
R315
100
R314
100
R313
100
R312
100
L309
FERRITE BEADS
L308
FERRITE BEADS
L307
FERRITE BEADS
L306
FERRITE BEADS
L305
FERRITE BEADS
C337
0.1
JK301
HANDS FREE
CONNECTOR
5-24 (2-E)
5-24 (2-D)
5-27 (11-B)
5-27 (9-E)
KEY PWB-B (1/2)
• NOTES ON SCHEMATIC DIAGRAM can be found on page 5-1.

5 – 23
GX10
CONFIDENTIAL
789
10 11 12
Figure 18 SCHEMATIC DIAGRAM (16/22)
TP307
TP310
1
2
34
5
6
TP308
NC
1
2
34
5
6
VINT
3.0V
3
11
1
2
34
5
6
NC
TP306
TP309
VCC
GND
1
2
3
45
6
7
8
RTS
CONT1
CONT2
ADPDET
RXD
CTS
TXD
ADP
RFON
TXON
TMS/CHECKER
TDO
TCK/LED_ON
TCXO
E
TDI
( )
( )
( )
( )
0V
0V
0V
0V
0V
R366
470K
R332
470K
R333
470K
R334
470K
IC301
TC7WH04FK
LOGIC
Q302
2SK3019
Q301
UM6K1
3
09
0
0P
D302
HN2S01FU
C316
0.1
D301
HN2S01FU
5-21 (12-B)
• ( ) : Not Mount

5 – 24
GX10 CONFIDENTIAL
A
B
C
D
E
F
G
H
123456
Figure 19 SCHEMATIC DIAGRAM (17/22)
TP316
OUT
VDD
NC
Vss
1
2
34
VBACK
3.0V
TP321
NC
TP318
GVTCXO
2.9V
VTCXO
VSYNTH
2.9V
GVSYNTH
TP317
TP314
TP315
TP32
TP32
VBAT
G
KEY_BL_ON
1
2
34
5
6
CHGIN
VBAT TP324
NC
G
FLOAD_ON
Vss
Vin
CE
Vout
NC
1
2
34
5
1
2
GND
Cont
Np(Vref)
Vin
Vout
1
2
34
5
TPB331
TPB332
TPB333
TPB335
TPB334
GND
Vdd
CE
Vout
ECO
1
2
34
5
TP345
CHGIN
23
1
( )
HOLDER,
BACK-UP BATTERY
0V
0V
2.36V
1.14V1.14V
1.14V
0.95V
1.14V
0.98V
<3V>
<0V>
<0V>
0V
2.88V
2.88V
<0V>
<3V>
<3V>
< >: Indicates the measured value without a SIM card.
C318
10
TYPE 2
Two mounting methods are available
for C318: type 1 and type 2.
IC302
R1160N301B
XC6209B302MR
R369
1
0
TYPE A
TYPE B
R370
0
Not
mount
* Use them as a combination of Type A or Type B.
Q308
2SA1955 A
R349
2.2K
C318A
4.7
C318B
4.7
IC303
TK11129CSIL
C349
2.2
R356
7.5K
R353
470K
Q306
2SK3019
R346
470K
Q307
3LP02 M
IC305
R3111Q251C
VOLTAGE
DETECTOR
R369
1
or
0
C322
1
IC302
R1160N301B
REGULATOR
or
XC6209B302MR
HIGH SPEED LDO REGULATOR
C317
1
C332
10
D305
1SS388
FS301
2.5A
C321
0.01
Q305
CPH6311
R348
0.18
(1/2W)
D303
RB160M30
R326
10K
C330
1
IC306
XC6204B392MR
HIGH SPEED LDO
C331
1
D304
MA2ZD02
LED310
PY1103CF
R344
470
LED309
PY1103CF R343
470
LED308
PY1103CF R342
470
LED307
PY1103CF R341
470
LED306
PY1103CF R340
470
LED305
PY1103CF R339
470
LED304
PY1103CF R338
470
LED303
PY1103CF R337
470
LED302
PY1103CF R336
470
LED301
PY1103CF R335
470
Q303
RT1N234 U
MIC100
MICROPHONE
BAT100
BATTERY, BACK-UP
R370
0
or
Not mount
TYPE 1
5-27 (11-D)
5-22 (2-D)
5-22 (2-D)
5-27 (10-D)
5-28 (2-E)
5-28 (2-F)
KEY PWB-B (1/2)
• NOTES ON SCHEMATIC DIAGRAM can be found on page 5-1.

5 – 25
GX10
CONFIDENTIAL
789
10 11 12
Figure 20 SCHEMATIC DIAGRAM (18/22)
TP322
TP323
TP324
NC
QRXN G
QRXP
G
IRXN
G
G
G
G
IRXP
QTXN G
QTXP
ITXN G
ITXP
GIR_SD
G
TCXOOUT
GBATT_SENSE
G
VBAT
VBAT
VT
2.715V
NC
G
V+
GND
VO
GND
NC
1
2
34
5
TDI
CTS
TXD
ISENSE CONT1
CONT2
ADPDET
ADP
TDO
GATEDR
TA8
SP1
SPEAKER
MO1
VIBRATOR
TA9
VVIB
DGND
SP1
SP2
AGND
1
2
3
4
5
6
7
8
9
10
11
12 29
30
31
32
33
34
35
36
37
38
39
40
ADIN
ADIN_B
RELAY FPC_A PWB-C
CN201
MAIN PWB-A(3/3)
( )
( )
( )
C362
0.01
CN305
C348
0.1
C347
0.1
R368
470
IC307
LM20BIM7
TEMPERATURE
SENSOR
C326
47P(CH) L314
FERRITE BEADS
L315
FERRITE BEADS
D308
RSB6.8S
6.8V
5-27 (10-B)
5-27 (10-B)
5-28 (2-E)
5-28 (2-B) 5-28 (2-F)
5-21 (11-E)
• ( ) : Not Mount
5-16 (1-C)

5 – 26
GX10 CONFIDENTIAL
A
B
C
D
E
F
G
H
123456
Figure 21 SCHEMATIC DIAGRAM (19/22)
TP318
GVTXVCO
VRF
2.9V
GVTCXO
GND
Cont
Np(Vref)
Vin
Vout
1
2
34
5
VSYNTH
2.9V
VTXVCO
2.9V
GVSYNTH
TP319
1
2
34
5
TP317
GVRF
TP320
VBAT
GND
Cont
Np(Vref)
Vin
Vout
1
2
34
5
SIMCLK,SIMIO,SIMRST
KEYPADCOL[0-4],KEYPADROW[0-4]
ADP,ADPDET,CONT1,CONT2,CTS,RTS,RXD,TCK/LED_ON,TDI,TDO,TMS/CHECKER,TXD
ADP,ADPDET,CONT1,CONT2,CTS,RTS,RXD,TCK/LED_ON,TDI,TDO,TMS/CHECKER,TXD
RFON,TCXOEN,TXON
RFON
TXON
TCXOEN
F
3
2
1
0V
2.88V
2.88V
2.88V
2.88V
2.87V0V
0V
0V
2.88V
0V
IC304
TK11129CSIL
2.9V REGULATOR
C320
0.01
Q304
EMG9
R352
1.2K
R350
2.2K
Q309
2SA1955 A
Q308
2SA1955 A
R349
2.2K
R351
1.2K
C318A
4.7
C318B
4.7
C350
0.01
C323
1
C319
0.1
IC303
TK11129CSIL
2.9V REGULATOR
C349
2.2
5-28 (2-A)
5-28 (2-C)
KEY PWB-B (1/2)
• NOTES ON SCHEMATIC DIAGRAM can be found on page 5-1.

5 – 27
GX10
CONFIDENTIAL
789
10 11 12
Figure 22 SCHEMATIC DIAGRAM (20/22)
NC
NC
NCNC
NC
G
G
QTXN
G
ITXN G
ITXP
GIR_SD
GIR_RXD
GIR_TXD
GPOWONKEY
G/RESET_R
G
KEY_BL_ON
VBACK
GBS1
GBS0
GBS2
GSYNTHDATA
GSYNTHEN
GSYNTHCLK
G
AFCDAC
G
RAMPDAC
VSIM
VEXT_CN
VINT
CHGIN
VIR
VINT
1
2
3
4
5
6
7
8
9
10
11
12
13
14
15
16
17
18
19
20 21
22
23
24
25
26
27
28
29
30
31
32
33
34
35
36
37
38
39
40
VT
2.715V
G
ADIN
RFON
TCXOEN
KEYPADCOL[0]
KEYPADCOL[1]
KEYPADCOL[4]
KEYPADCOL[3]
KEYPADCOL[2]
KEYPADROW[2]
KEYPADROW[0]
KEYPADROW[1]
KEYPADROW[4]
KEYPADROW[3]
MIC
SIMRST
RTS
SIMIO
TDI
TCK/LED_ON
RXD
CTS
TXD
TMS/CHECKER
ISENSE CONT1
CONT2
ADPDET
ADP
JAKEAR
SIMCLK
TDO
TXON
MIC_GND
3.0V
ADIN_B
7
8
9
10
11
12
13
14
15
16
17
18
19
20 21
22
23
24
25
26
27
28
29
30
31
32
33
34
RELAY FPC-B PWB_D
RELAY FPC_C PWB-F
CN202
MAIN PWB-A(3/3)
MAIN PWB-A(1/3)
A
FLIP
C339
0.1
R354
470K
CN306
5-21 (10-C)
5-21 (10-C)
5-21 (10-C)
5-25 (8-E)
5-21 (9-F)
5-22 (2-D)
5-23 (9-E)
5-21 (10-B)
5-24 (6-F)
5-20 (4-H)
5-22 (3-F)
5-28 (2-D)
5-28 (2-G)
5-22
(2-D)
5-24 (2-C)
5-28 (2-A)
5-28 (2-B)
5-28 (2-B)
5-28 (2-G)
5-28 (2-F)
5-28 (2-F)
5-16 (1-F)
5-6 (6-H)
• The numbers 1 to 3 are waveform numbers shown in page 5-2.

5 – 28
GX10 CONFIDENTIAL
A
B
C
D
E
F
G
H
123456
Figure 23 SCHEMATIC DIAGRAM (21/22)
1234567891011121314
15
16
17
18
19
20
21
22
23
24
25
26
27
28
2930313233343536373839404142
43
44
45
46
47
48
49
50
51
52
53
54
55
56
G
VBAT
G
BS2
G
BS1
G
BS0
G
RAMPDAC
G
ITXN G
ITXP G
QTXN G
QTXP
G
QRXN G
QRXP G
IRXP G
IRXN
G
SYNTHDATA
G
SYNTHEN
G
VTCXO
G
SYNTHCLK
G
AFCDAC
G
VRF
G
VSYNTH
G
TCXOOUT
G
VTXVCO
1
2
3
4
5678
1
2
3
4
5678
123
4
56
NC
1
2
3
4
567
8
1
2
3
45
6
7
8
Vcc
OUTPUT
GND
Vcont
12
3
4
VRF
VTXVCO
GSM
DCS
PCS
Tx
Rx
Tx
Rx
Tx
Rx
BS0 BS1 BS2
LOW
LOW LOW
LOW
LOW LOW
LOW
HIGH
HIGH
HIGH
HIGH
HIGH
HIGH
HIGH
HIGH
HIGH
LOW
LOW
BS
VCO971
GSM
DCS
PCS
Rx (~35CH)
Tx, Rx (36CH~)
Pin 3
LOW
HIGH
LOW
HIGH
KEY PWB-B(2/2)
2017 ,
1815 ,
1916 ,
9
8
7
13 10
14
6
4
5
11
12
RECEPTION SIGNAL TRANSMISSION SIGNAL
C901
0.01
C905
0.01
C977
0.01
C976
0.01
C982
0.01
R953
10
C941
0.01
C942
0.01
R941
10
R942
10
C860
22P(CH
)
C980
0.0022 C981
0.0022
C902
C921
0.01
C978
3P(CH)
C979
3P(CH)
IC901
HD155148TF
RF
FL971
BALUN
VCO971
R923
0
C993
C922
0.01
C943
0.01
C946
0.01
C971
0.1
C873
0.001
L861
FERRITE
BEADS
L971
FERRITE BEADS
TCX951
26MHZ
TCXO
R886
10K
R871
47
R872
33
C871
100P(CH)
C8
6
0.0
R901
10
R905
10
C945
270P(CH)
R944
4.7K
R955
10K
C952
100P(CH)
R972
1.5K
R973
3.3K
C975
150P(CH)
R974
4.7K
C954
0.1
C955
0.1
C889
2.2
C956
2.2
R887
100K
C947
22P(CH)
C944
0.0018
C872
0.012
L901
8.2n
H
L902
8.2n
H
C910
L903
2.7nH
L904
2.7n
H
C924
220P(CH)
C923
220P(CH)
C974
0.001
C973
0.0082
L951
FERRITE BEADS
5-26 (6-B)
5-27 (11-E)
5-27 (11-E)
5-27 (11-E)
5-25 (10-G)
5-26 (6-B)
5-27 (9-E)
5-25 (8-G)
5-24 (6-G)
5-24 (6-H)
5-27 (11-F)
5-25 (11-G)
5-27 (11-F)
5-27 (9-E)
5-27 (11-E)
• NOTES ON SCHEMATIC DIAGRAM can be found on page 5-1.

5 – 29
GX10
CONFIDENTIAL
Figure 24 SCHEMATIC DIAGRAM (22/22)
789
10 11 12
5678
5678
1
2
3
4
5678
1234
5
6
7
8
9
101112
13
14
15
16
1234
56
7
8
9
1
2
3
4
5
6
789
10 11
12
12345
6
7
89
10
11
12
1
2
3
45
1
2
3
45
1
2
3
45
12
34
1
2
3
456
1
14
2323
4
56
1
23
4
GSM
DCS
PCS
LOW LOW
LOWHIGH
HIGH HIGH
Pin 3 Pin 7
VCO851
GSM
DCS
PCS
LOW
LOW
HIGH
Pin 8
IC881
HIGH
IC831
LOW
LOWDCS
GSM
Pin 7
PCS
HIGH
LOWRx
Pin 2
HIGH
HIGH
FL801
LOW
LOW
Tx
Pin 4
PCS
Rx LOW
Rx
DCS
Tx
LOW
Tx
LOW
Pin10
HIGH
LOW
GSM
LOW
LOW
LOW
LOW
LOW
LOW
LOW
GSM RX
DCS RX
PCS RX
DCS/PCS TX
GSM TX
DCS/PCS TX
GSM TX
PCS/DCS
GSM
AERIAL
C801
47P(CH)
C802
47P(CH)
C803
47P(CH)
C804
47P(CH)
C908
22P(CH)
C907
22P(CH)
C906
47P(CH)
C832
47P(CH)
C834
22P(CH)
C831
270P(CH)
C885
0.01
R882
22K
C857
10P(CH)
8
60
2
P(CH)
C859
47P(CH)
C881
100P(CH)
R881
10K
R885
10K C882
100P(CH)
C902
1P(CH)
IC992
TC7W00FK
LOGIC
IC993
NL27WZ08
LOGIC
IC991
NL27WZ08
LOGIC
IC881
HD155173
AUTO POWER
CONTROL
IC831
PF08123B
RF POWER AMP.
FL801
RF SWITCH
VCO851
FL901
SAW FILTER
FL902
SAW FILTER
C992
0.01
C993
0.01
C836
47P(CH)
T
E
C835
150/6.3
J801
TEST
CONNECTOR
FL811
DIRECTIONAL
COUPLER
FL816
DIRECTIONAL
COUPLER
C887
22P(CH) C886
47P(CH)
R812
47
R817
47
C861
0.001
R858
180
R859
56
C833
100P
(CH)
R853
47
R854
100
R851
47
R852
100
R856
68
R855
68
R857
56
R883
8.2K
L901
8.2nH
L902
8.2nH
C811
1.5P(CH)
C910
0.5P(CH)
L903
2.7nH
L904
2.7nH
ANT801
C884
100P(CH)
R911
47
C883
470P
FL831
FERRITE BEADS
R811
10dB
R816
10dB
L823
3.3nH
C824
1P(CH)
• The numbers
4
to
20
are waveform numbers shown in pages 5-2 to 5-4.
• ( ) : Not Mount

5 – 30
GX10 CONFIDENTIAL
A
B
C
D
E
F
G
H
123456
Figure 25 WIRING SIDE OF P.W.BOARD (3/5)
MIC100
MICROPHONE
KEY PWB-B (FRNT SIDE)
FUP
LEFT
SOFT RIGHT
SOFT
M
SEND END/
POWER
#
0
123
456
789
TP301
TP302
TP303
TP304
TP305
TP306
TP307
TP308
TP309
TP310
TP311
TP312
TP313
TP314
TP315
TP316 TP317
TP319
TP321
TP322
TP323 TP324
Q303
LED302
LED303
LED304
LED305
LED306
LED307
LED308
LED309
R335
R336
R338
R339
R340
R341 R342R343
R344
C326 FL303
LED310
LED301
L315
L314
TP320
TP318
V313
V314
V315
V316
V317
V318
D308
TP345
TP344
R337

5 – 31
GX10
CONFIDENTIAL
789
10 11 12
Figure 26 WIRING SIDE OF P.W.BOARD (4/5)
G
FROM RELAY FPC_C PWB-F
CONTACT BATTERY
RELAY FPC_B PWB-D
FROM
FLEXIBLE PWB,
SIDE SWITCH
PWB-H
(103-5)
AERIAL
BAT100
BATTERY,
BACK-UP
CONNECTOR
CHARGER
EXTERNAL CONNECTOR
RELAY FPC_A PWB-C
E
F
HANDS FREE
CONNECTOR
SOLDER
SOLDER
SOLDER
KEY PWB-B (REAR SIDE)
INFRARED PORT
TEST
CONNECTOR
TERMINAL, AERIAL
SIM CARD
CONNECTOR
HOLDER BACKUP
BATTERY(104-4)
14
1520
20
2125303540
151051
185
20
2125303540
151051
13
5
42
6
2528
29
30
35
40
42 43 45 50 1
1
3
1
1
1
2
34
33
55
4
4
13
45
4
5
14
5
1
45
81
1
14
5
8
34
5
45
81
45
8
5
6
7
8
4
3
2
1
1
12345678
910111213141516
17 18
2
3
4
5
6
8912
13
16
5
10
55
56
6
7
8
14
4
9
11
12
13
16
15
19
18
5
1
3
2
10
,
,
17 20
,
TYPE1
3
4
R349
C323
C318
TYPE2
3
4
R349
C323
C318
C318A
C318B
R812
R816 R811
L861
R817
C801
C802 C803
C804
R851R852
R853R854
R855 R856 R857
R858
R859
TP328
TP329
TP330
C831 C832
C833C834
R871
C835
C836
R872
Q301
Q302
Q305
Q306
R883
Q307
Q308
Q309
L301
C857
L303
FL304
C859
C860C861 C871
C872
C873
L901
R881
R882
R885
R887
C881
FL801
C882
C883
C886C887
C889
FL901
FL902
TCX951
IC831
CN302
CN303
CN305
CN306
R901
C303
R923
L971
R349
R350
R351
R370
R352
R353
C317
R354
C319
R356
C320
FL971
C321
C322
C323
C318
C901
IC881
L902
L903
L904
C902
C328
R941
R942
C906C907
C908
R944
C330
C331
C332
C910
C337
FS301 R953
R955
C921
C922
C923
C924
R972
R973
R974
D301
D302
D303
D304
C941
C942
C943
C944
C945
C946
C947
L951
C952
C954 C955
C956
IC302
IC303
IC304
IC305
IC306
C971
C973
C974
C975
C976
C977
C978
C979
C980
IC901
C981
FL811
C992
C993
FL816
FL831
J801
VCO851
VCO971
TPB331
TPB332
TPB333
FL307
V308
R305
C316
R334
R333
R369
R346
TPB334
TPB335
D305
C338
C811
R366
ANT801
C339
C304
C334
R311
C333
R332
C306
C335
C362
R911
C905
R905
C982
C885
R886
IC992 IC993 IC991
IC301
V303
V305
V306
V307
V309
V311
V319
L308
L309
L310
L311
L312
L313
L316
L318
L319
R308
R309
R314
R315
R316
R317
R319
R320
R313
L307
V302
V301
V304
L305
L306
R310
R312
R326
R368
C347
C348
IC307
C349
C350
V310
L823 C824
V312
TP342
TPB325
TPB343
TPB326
CN301
Q304
R363
R348
D
G
D
GS
S
C884
JK301
UN301
Two mounting methods are available
for C318: type 1 and type 2.
5-32 (2-E)
5-32 (5-C)
5-32 (3-C)
5-32 (4-D)
5-32 (4-E)
• The numbers 1 to
20
are waveform numbers shown in pages 5-2 to 5-4.

5 – 32
GX10 CONFIDENTIAL
A
B
C
D
E
F
G
H
123456
LCD001
SUB-SCREEN
DISPLAY
CN001
CAMERA FPC ASS'Y PWB-G
FLEXIBLE PWB, SIDE SWITCH PWB-H BACK LIGHT FPC ASS'Y PWB-ERELAY FPC_C PWB-F
RELAY FPC_A PWB-C RELAY FPC_B PWB-D
CN002
CN201 CN202
CN305
MO1
VIBRATOR
SP1
SPEAKER
CN101
CN306
LCD100
MAIN-SCREEN
DISPLAY
B
E
F
A
C
G
D
M
TO MAIN PWB-A
(REAR SIDE)
TO MAIN PWB-A
(REAR SIDE)
TO MAIN PWB-A
(REAR SIDE)
TO MAIN PWB-A
(REAR SIDE)
TO MAIN PWB-A
(REAR SIDE)
TO MAIN PWB-A
(REAR SIDE)
TO MAIN PWB-A
(FRONT SIDE)
TO MAIN PWB-A
(REAR SIDE)
TO MAIN PWB-A
(REAR SIDE)
TO KEY PWB-B
(REAR SIDE)
TO KEY PWB-B
(REAR SIDE)
TO KEY PWB-B
(REAR SIDE)
TO KEY PWB-B
(REAR SIDE)
TO KEY PWB-B
(REAR SIDE)
Figure 27 WIRING SIDE OF P.W.BOARD (5/5)
5-19 (7-G)
5-31 (11-B)
5-19 (12-G)
5-18 (4-H)
5-31 (10-A)
5-31 (12-C)
5-31 (12-D)
5-31 (10-A)
5-19 (10-H)
5-19 (8-B)
5-19 (10-A)
5-19 (8-B)
5-19 (7-E)
5-19 (7-H)