Mercedes Benz Sensotronic Brake Control R230 Users Manual 327 HO 09 SBC (WJB) 03 05 04
2015-02-05
: Mercedes-Benz Mercedes-Benz-Sensotronic-Brake-Control-R230-Users-Manual-398603 mercedes-benz-sensotronic-brake-control-r230-users-manual-398603 mercedes-benz pdf
Open the PDF directly: View PDF
.
Page Count: 53

1
Sensotronic Brake Control
(SBC)
327 HO 09 SBC (WJB) 03-05-04 R230 and W211: Starting MY2003

2
Objectives
At the end of this presentation, you should be able to:
1. Explain the function of and purpose for SBC
2. Describe the customer interface with SBC
3. List the hydraulic and electronic components used for SBC
4. Describe how the “normal” feel of the brake pedal is maintained
5. Explain emergency operation of the SBC braking system
6. Describe “temperature compensation”
7. Explain “Deactivation” and describe when it is necessary to do it
8. “Activate” the SBC system
9. Locate tools and the proper procedure for bleeding brakes
These technical training materials are current as of the date noted on the materials, and may be revised or updated without notice. Always check for revised or updated information.
To help avoid personal injury to you or others, and to avoid damage to the vehicle on which you are working, you must always ref er to the latest Mercedes -Benz Technical Publication and follow all
pertinent instructions when testing, diagnosing or making repair.
Illustrations and descriptions in this training reference are based on preliminary information and may not correspond to the final US version vehicles. Refer to the official introduction manual and WIS
when available. Copyright Mercedes-Benz USA, LLC, 2004
WIS document numbers shown apply to WIS Version USA/CDN at date of writing.
Reproduction by any means or by any information storage and retrieval system or translation in whole or part is not permitted without written authorization from Mercedes -Benz USA, LLC or it's
successors. Published by Mercedes -Benz USA, LLC Printed in U. S.A.

3
Contents
Advantages of SBC 5
Driving with SBC 8
SBC components 13
Brake operating unit (BOU) 17
Traction system hydraulic unit 27
Three pressure stages 32
Temperature Compensation 38
Deactivation 39
System activation 42
Bleeding the system 49

4
SBC Incorporates these Functions:
ABS (Anti lock Brakes 1984)
+ ASR (Automatic Slip Regulation 1991)
+ ETS (Electronic Traction System 1995)
+ ESP (Electronic Stability Program 1996)
+ BAS (Brake Assist System 1998)

5
Advantages of SBC
•Improves metering of required brake pressure
–each wheel can be precisely controlled
•Improved BAS function
–monitors release of accelerator pedal and application of
brake
–maximum pressure available immediately
–pre-filling of system (overcoming play)
–when the BAS function is anticipated, slight pressure is
applied

6
Advantages of SBC
•Electronic Brake Proportioning: EBP
–allows brake proportioning front to back and side to side
•No pedal vibration during ABS operation
–eliminates “distraction” to the driver during critical moments
–indicator light in instrument cluster signals traction loss
•Improved driving dynamics: ABS, ASR, and ESP
–faster response to brake request inputs

7
Advantages of SBC
•Pressure reduction at standstill
–reduces stress on components
•Dry braking function
–wiper input via CAN
–~every 7 to 14 minutes
–brake actuation changes
time interval

8
Driving with SBC -Wake-Up
SBC is functional as soon as it is “wakened” by:
•opening a door (via CAN)
•operating the central locking system (via CAN)
•depressing the brake pedal
•turning key to position 1
•operating parking brake
•The Wake-Up may be followed by a Pre-Drive self
Check performed by SBC

9
Driving with SBC –Pre-Drive Check (PDC)
When SBC performs a PDC after a "wake-up", the following are
checked:
Warning! Pressure is applied to brake calipers (~60 bar)
•reservoir pressure (if low, it will be corrected by running the
high pressure charge pump in the hydraulic unit)
•pressure sensors
•control valves
•leak tests
•operational checks
Note: self-tests are constantly conducted during driving (~ once every 16
brake applications)

10
Driving with SBC –Delayed Off Function
Time that SBC remains operational after use:
•with vehicle stationary and was locked = 20 seconds
•with vehicle stationary and ignition in “0”,
brake pedal not operated = 2 minutes
•with vehicle stationary, ignition in “0”,
brake pedal operated in delayed off phase and
released again = 4 minutes

11
Warning Display
Complete ESP control module failure -
Instrument cluster will scroll through failure displays

12
Warning Display
SBC control module failure
Certain faults will trigger audible signal

13
SBC Components
•Brake Operating Unit (BOU)
•Wheel speed sensors
•Traction System Hydraulic
Unit (A7/3)

14
W211 System Overview
SBC
control
module
(A7/3n1)
Circuit 30
Circuit 87
Circuit 31
Wheel speed sensors
L6/1, L6/2, L6/3, L6/4
Stop lamp switch
(S9/1)
SBC pedal travel
sensor (B37/1)
Rear SAM
(N10/2)
ESP control
module (N47/5)
Front
SAM
(N10/1)
SBC
CAN
Wheel
speeds
Wake up
Brake lights
Speed status
Brake lights
Diagnostics
Diagnostic connector
(X11/4)

15
R230 System Overview
SBC
control
module
(A7/3n1)
Circuit 30
Circuit 87
Circuit 31
Wheel speed sensors
L6/1, L6/2, L6/3, L6/4
Stop lamp switch
(S9/1)
SBC pedal travel
sensor (B37/1)
Diagnostic connector
(X11/4)
Rear SAM
(N10/8)
ESP control
module (N47/5)
SBC
CAN
Wheel
speeds
Brake lights
Passenger side
SAM (N10/11)
Wake up
Brake lights
Speed status

16
X11/4 Diagnosis Connection
X11/4
Pin 9
Z6/33
R230 W211
A7/3n1
SBC
N47/5
ESP
N15/5
ESM
N51/2
ABC
X11/4
Pin 9
A7/3n1
SBC
N47/5
ESP
Z70/4
N10/1
L.F.SAM

17
Brake Operating Unit -(BOU)

18
Brake Operating Unit
The Brake Operating Unit (BOU)
consists of the following:
•Brake fluid reservoir
(Do not overfill!)
•SBC pedal value sensor
•Tandem master cylinder
•Brake pressure simulator
(Note: no vacuum booster)

19
Master Cylinder
•Fluid return line
•Supply hose to SBC
•Do not overfill
•Fluid level sensor
•Hydraulic lines to SBC

20
Fluid Reservoir Cover
•Ultraviolet protection
(211 only)

21
Pedal Value Sensor -(B37/1)
•Contains two hall effect sensors
•Converts pedal travel value to
an electrical signal
•Provides input to SBC
control module A7/3

22
BOU Tandem Master Cylinder
Fluid reservoir
Floating piston
Primary piston
Brake pressure simulator
Fill valves
GF42.46-P-4200-03SL
A7/3
y1 y2
A7/3 -Traction system hydraulic
unit with separation valves y1 and
y2

23
Normal Braking -Light Pressure
A7/3
y1 y2
GF42.46-P-4200-03SL
•Driver applies
pressure to the
brake pedal
•Pedal travel sensor
sends a signal to A7/3
•Fill valves close
•y1 and y2 energized,
preventing fluid
movement externally
•Floating piston allows
fluid to enter simulator,
compressing the light
spring, providing pedal
feel to the driver

24
Normal Braking -Increased Pressure
A7/3
y1 y2
•Increasing pedal
travel causes the
larger spring to
compress, providing
harder pedal feel

25
Normal Braking -Strongest Feedback
A7/3
y1 y2
•Further pedal travel
causes piston to
compress rubber
bumper, providing
greatly increased
pedal pressure

26
Emergency Operation
A7/3
y1 y2
Left front Right front
GF42.46-P-4200-03SL
GF42.46-P-3000SL
•
All electrical functions
canceled
•Hydraulic pressure
created with NO
power assist
•Pressure directed
through A7/3 y1 and
y2 to ....
Left Front and
Right Front calipers
only!

27
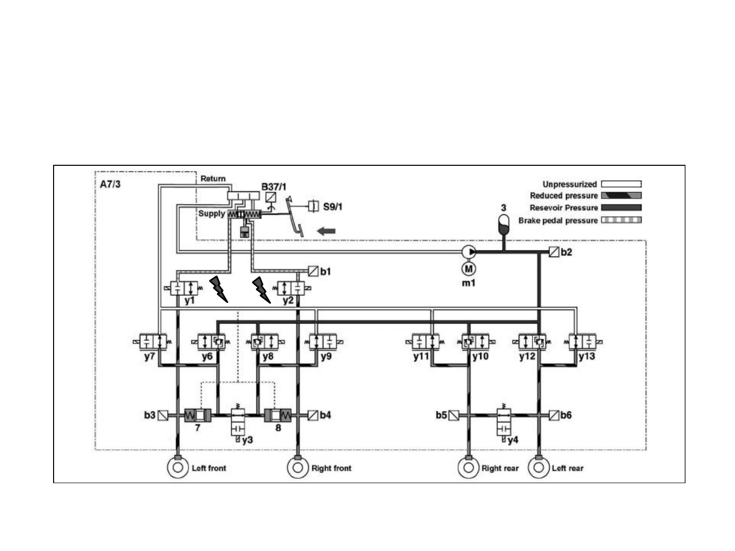
Traction System Hydraulic Unit (A7/3)
Consists of:
•SBC control module (A7/3n1)
•High pressure charge pump
(A7/3m1)
•Pressure reservoir

28
Traction System Hydraulic Unit
A7/3
GF42.50-P-4000-03S

29
Legend
1Brake Operating Unit
2Brake pressure simulator
3Pressure reservoir
7Left front media separator
(dividing piston)
8Right front media separators
(dividing piston)
A7/3 Traction system hydraulic unit
A7/3b1 Front axle pre-pressure sensor
A7/3b2 Reservoir pressure sensor
A7/3b3 Left front pressure sensor
A7/3b4 Right front pressure sensor
A7/3b5 Left rear pressure sensor
A7/3b6 Right rear pressure sensor
A7/3m1 High-pressure charge pump
A7/3y1 Left front separation valve
A7/3y2 Right front separation valve
A7/3y3 Front axle balance valve
A7/3y4 Rear axle balance valve
A7/3y6 Left front intake control valve
A7/3y7 Left front outlet control valve
A7/3y8 Right front intake control valve
A7/3y9 Right front outlet control valve
A7/3y10 Left rear intake control valve
A7/3y11 Left rear outlet control valve
A7/3y12 Right rear intake control valve
A7/3y13 Right rear outlet control valve
B37/1 SBC pedal value sensor
S9/1 Stop lamp switch (4-pin)

30
Emergency Operation Circuit
GF42.46-P3000SL
•Pressure applied directly
to front calipers
•y1 and y2 not energized
•b1, b3, and b4 pressure
sensors may provide
information to SBC control
module
•Media separator/Dividing
piston 7 and 8 isolate
emergency circuit from
normal circuit

31
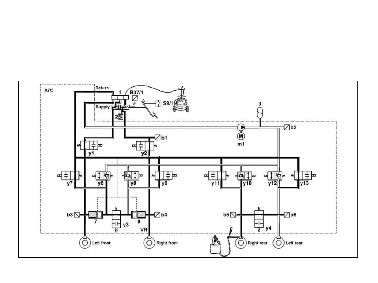
Brake Pressure Supply
GF 42.50-P-4000-04S
GF42.46-P-0001SL
•pressure reservoir charged to
160 bar
•the high pressure charge pump
runs as needed
•pressure blocked by y6, y8,
y10, y12

32
Three Pressure Stages
Same pressure stages as used with ABS functions:
•Pressure apply
•Pressure hold
•Pressure release

33
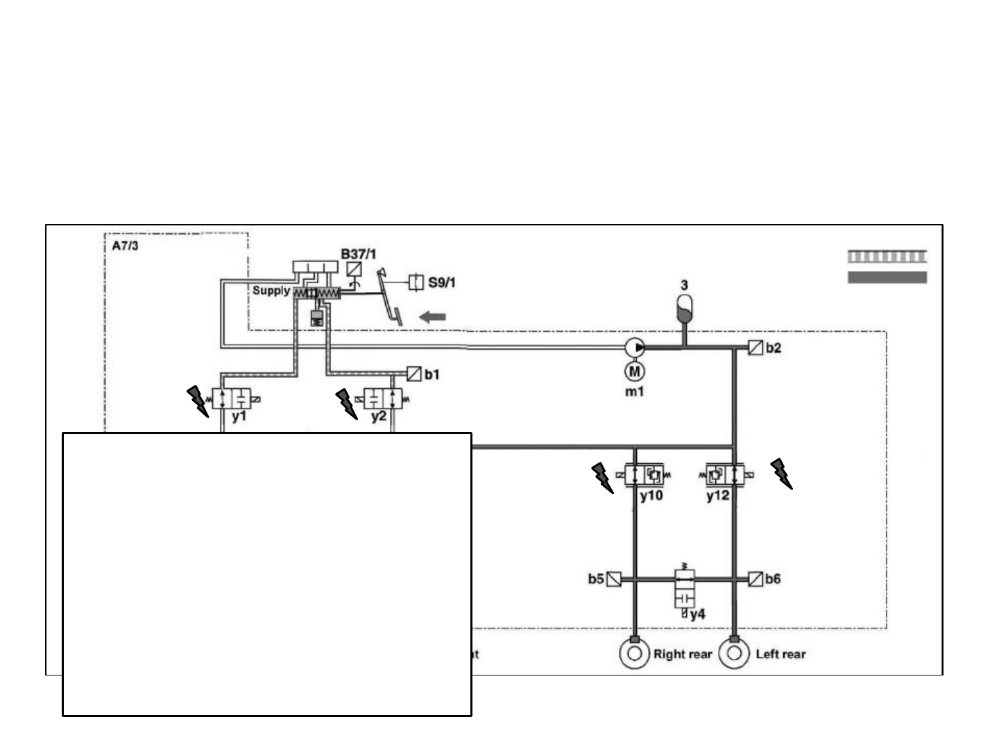
Pressure Apply -Rear Wheels
GF42.50-P-4000-04S
GF42.46-P-1000SL
GF42.46-P-4500-02SL
Reservoir pressure
Brake pedal pressure
•Brake pedal depressed
•B37/1 and b1 report brake
application to control module
•y1 and y2 energized
•y10 and y12 intake control valves
energized
•Pressure at each rear wheel
monitored by b5 and b6
•Balance valve y4 not energized

34
Pressure Apply -Front Wheels
GF42.50-P-4000-04S
GF42.46-P-1000SL
Reservoir pressure
Brake pedal pressure
•y6 and y8 energized
•pressure applied to left and
right dividing pistons 7 and 8
•7 and 8 apply pressure to caliper
•pressure at each wheel monitored
by b3 and b4
•Balance valve y3 not energized

35
Pressure Apply -All Wheels
GF42.50-P-4000-04S
GF42.46-P-1000SL
•Outlet control valves y7, y9, y11, y13 energized

36
Pressure Hold -All Wheels
GF42.50-P-4000-04S
GF42.46-P-1000SL
•y6, y8, y10, y12 de-energized

37
Pressure Reduction -All Wheels
GF42.50-P-4000-04S
GF42.46-P-1000SL
•y7, y9, y11, y13 de-energized

38
Temperature Compensation
During continuous brake use the
fluid in the calipers expand, this:
•creates high pressure
•prevents valves 7 & 8 from moving
To reduce this pressure, y1 and
y2 are pulsed

39
Deactivation
Deactivating the system will:
•empty the pressure reservoir
(a lower pressure with no volume may be retained)
•prevent the charge pump from operating
•Note: the warning buzzer is deactivated when accessing
SBC with the SDS.
SBC must be deactivated with SDS before any work is performed
on the system. This will prevent the pre-drive check from being
automatically performed which could cause injury.

40
Deactivation
SBC must be deactivated PRIOR to:
•working on the hydraulic system
•removing or installing brake pads
•replacing rotors
•replacing the pressure reservoir
•replacing the BOU
•replacing the SBC hydraulic unit (A7/3)

41
Deactivation
Charge pump disabled and accumulator fluid returned to the reservoir!
Pressure at A7/3b2

42
System Activation
Activation must be performed anytime the system has been
deactivated, BEFORE the engine is started!
Failure to activate will prevent proper operation and create fault
codes!
Activating SBC with SDS will:
•charge the accumulator
•perform a Predrive Check
•move the pads towards the rotors with ~60 bar pressure
•erase the fault memory
(Note: may have to activate several times to position the brake pads)

43
System Activation

44
Activation -Left Front
Caliper held with ~60 bar

45
Activation -Right Front
Caliper held with ~60 bar

46
Activation -Right Rear
Caliper held with ~60 bar

47
Activation -Left Rear
Caliper held with ~60 bar

48
Activation -Recharge

49
Bleeding the Brake System
Proper system bleeding is critical!
Follow directions in SDS
•Bleeding must be performed using the SDS
•Pressure at bleeder valves will exceed 100 bar
(Hold the bleeder hose securely)
•Bleeding may require ~1.5 hours
•Bleeding may use ~ 1.5 liters of brake fluid
AR42.10-P-0012R

50
Equipment Required
•Pressure bleeder
•Adapters
•Fluid receptacle
•SDS -follow instructions carefully
CAUTION:
Extremely high pressure at bleeder!
211 589 01 91 00
AR42.10-P-0010-02R
AR42.10-P-0012R
WS42.00-P-0048B

51
Bleeding the Brake System
AR42.10-P-0012R
Connect equipment and follow steps in SDS

52
Acronym List
(Used in This Handout.)
ABS -Anti-lock Brake System
ASR -Anti Slip Regulation
BAS -Brake Assist System
BOU -Brake Operating Unit
CAN -Controller Area Network
EBP -Electronic Brake Proportioning
EBR -Electronic Brake Regulation
E-Gas -Electronic Accelerator
ESP -Electronic Stability Program
ETS -Electronic Traction System
PDC -Predrive Check
SAM -Signal Acquisition Module
SBC -Sensotronic Brake Control

53
Appendix
AR42.10-P-0010I Carrying out bleeding operation
AR42.10-P-0012R Bleeding system with Star Diagnosis
GF42.45-P-0001-04SL ESP driver information
GF42.45-P-0001SL ESP function
GF42.45-P-2000SL ESP brake moment control
GF42.45-P-3500SL ASR control mode function
GF42.46-P-0001SL SBC function
GF42.46-P-1000SL SBC Normal braking function
GF42.46-P-2000SL SBC additional braking functions
GF42.46-P-3000SL SBC braking with malfunction
GF42.46-P-4200-03SL BOU function
GF42.46-P-4210SL SBC pedal value sensor
GF42.46-P-4500-02SL SBC control module – task
GF42.50-P-4000-03S Hydraulic unit design
GF42.50-P-4000-04S Hydraulic unit function
GF42.50-P-4000S Hydraulic unit task/location/function
WS42.00-P-0048B EHB adaptor