Mge Ups Systems 66103 Users Manual 66102_user_en_da
66103 to the manual 96e899da-265a-4fec-89e2-972a78c42bfd
2015-02-09
: Mge-Ups-Systems Mge-Ups-Systems-66103-Users-Manual-555611 mge-ups-systems-66103-users-manual-555611 mge-ups-systems pdf
Open the PDF directly: View PDF
.
Page Count: 120 [warning: Documents this large are best viewed by clicking the View PDF Link!]

www.mgeops.com
Network
Management Card
(66102 & 66103)
User manual
ENERGIZE YOUR ENTERPRISE
Network Management Card – User Manual 34003991EN/DA Page 1/120

ENERGIZE YOUR ENTERPRISE
Network Management Card – User Manual 34003991EN/DA Page 2/120
Contents
1
MGE OFFICE PROTECTION SYSTEMS NETWORK SOLUTION 5
1.1
G
ENERAL
P
RESENTATION
5
1.1.1
Connecting the UPS to the Ethernet network 6
1.1.2
Protection of the computers/servers 6
1.1.3
Supervision of the UPSs over the network 7
1.1.4
Connection 7
1.2
P
RESENTATION OF THE
N
ETWORK
M
ANAGEMENT
C
ARD
(NMC) 8
1.2.1
Compatibility with UPSs 8
1.2.2
Direct sending of E-mail 9
1.2.3
Sending text messages (SMS) 9
1.2.4
Compatibility with the Network Management Systems (NMS) – Trap sending 9
1.2.5
Environment Sensor (option) 9
1.3
T
ECHNICAL DATA
10
1.3.1
Hardware characteristics 10
1.3.2
EMC Compatibility 10
1.3.3
Configuration 10
1.3.4
Administration 11
1.3.5
Network 11
1.3.6
Environment sensor 11
1.3.7
MIB (Management Information Base) 12
1.3.8
Default parameters 13
2
INSTALLATION 14
2.1
U
NPACKING AND CHECK ON CONTENTS
14
2.2
I
NDICATIONS
14
2.3
I
NSTALLATION IN THE
UPS 15
2.4
S
ENSOR INSTALLATION
(
OPTION
) 16
3
CONFIGURATION 17
3.1
C
ONFIGURE
IP
PARAMETERS
17
3.1.1
Your network is equipped with a DHCP server 18
3.1.2
Your network is not equipped with a DHCP server 19
3.2
T
EST AFTER CONFIGURATION
19
4
SUPERVISION AND ADMINISTRATION BY BROWSER 20
4.1
O
PTIMISING THE PERFORMANCE OF YOUR BROWSER
20
4.2
UPS 21
4.2.1
UPS properties page 21
4.2.2
On-line help 33
4.2.3
UPS control 34
4.2.4
UPS weekly schedule programming 37
4.2.5
Shutdown parameters 38
4.2.6
Measurements 40
4.2.7
Event log 41
4.2.8
System log 42
4.3
N
OTIFICATION
43

ENERGIZE YOUR ENTERPRISE
Network Management Card – User Manual 34003991EN/DA Page 3/120
4.3.1
Email Notification 43
4.3.2
E-mail Message Settings 45
4.4
C
ONFIGURATION
47
4.4.1
Network settings 48
4.4.2
System 50
4.4.3
Notified Applications 52
4.4.4
Central shutdown configuration 54
4.4.5
Access control 55
4.4.6
Date and time 57
4.4.7
Firmware upload 59
4.5
E
NVIRONMENT
S
ENSOR
(
OPTION
) 60
4.5.1
Characteristics 60
4.5.2
Environment Status 61
4.5.3
Environment Settings 62
4.5.4
Log 64
5
SERVER PROTECTION 65
5.1
S
ET
-
UP OF THE SHUTDOWN PARAMETERS
65
5.1.1
Shutdown criteria managed by the Network Management Card 65
5.1.2
Controlled outlets 68
5.1.3
Protection of a server connected to a controlled outlet 68
5.2
T
HE DIFFERENT SERVER AND
UPS
SHUTDOWN SEQUENCES
69
5.2.1
Extended power outage, shutdown initiated by the Shutdown Timer (Shutdown after) 69
5.2.2
Extended power outage, shutdown initiated by the "Low battery power" message 69
5.2.3
Case of power restoration before the end of the "shutdown duration" counter 70
5.3
S
HUTDOWN MANAGEMENT WITH
2
NMC
BOARDS
71
5.3.1
Shutdown Duration 71
5.3.2
Settings 71
6
CONFIGURATION VIA RS232 72
6.1
C
HOICE
1:
R
ESTART
/
R
ESET
73
6.2
C
HOICE
2:
N
ETWORK
C
ONFIGURATION
73
6.2.1
Choice 1: Read Network settings 73
6.2.2
Choice 2: Modify Network settings 74
6.2.3
Choice 3: Set Ethernet speed 74
6.3
C
HOICE
3:
L
OST PASSWORD
/
S
ET
L
OGIN
P
ASSWORD TO
D
EFAULT
75
6.4
C
HOICE
4:
R
ETURN TO
D
EFAULT
C
ONFIGURATION
76
7
INDUSTRIAL NETWORK MANAGEMENT CARD (INMC OPTION) 77
7.1
P
RESENTATION
77
7.1.1
Overview 77
7.1.2
Functions 77
7.1.3
Technical characteristics 78
7.2
I
NSTALLATION
79
7.2.1
RS232 link configuration and connection 79
7.2.2
RS485 link configuration and connection 80
7.2.3
Configuration of the JBUS/MODBUS communication parameters 86
7.3
A
DDITIONAL
W
EB PAGES
90

ENERGIZE YOUR ENTERPRISE
Network Management Card – User Manual 34003991EN/DA Page 4/120
7.4
JBUS
TABLE
91
7.4.1
Data for Pulsar 700 / 1000 / 1500 91
7.4.2
Data for Pulsar M 2200 / 3000 93
7.4.3
Data for Pulsar MX 4000 / 5000 / 10000 95
7.4.4
Data for Pulsar MX frame 15 / 20 97
7.4.5
Sensor data 102
7.4.6
Other data 105
8
APPENDICES 106
8.1
T
ABLES OF ALARMS AND EVENTS
106
8.1.1
Table of alarms 106
8.1.2
Table of UPS events 109
8.1.3
Table of system alarms 111
8.2
SNMP
OBJECTS
112
8.2.1
MGE MIB 112
8.2.2
Table des TRAPS : (1.3.6.1.4.1.705.1.11) 115
9
GLOSSARY 117

ENERGIZE YOUR ENTERPRISE
Network Management Card – User Manual 34003991EN/DA Page 5/120
1 MGE Office Protection Systems Network Solution
1.1 General Presentation
MGE Office Protection Systems Network Solution:
provides information on events concerning the supply of power to the computers connected to your computer
network,
carries out automatic shutdown of computer systems,
monitors and controls all the UPSs connected to the network.
As illustrated in the picture below, MGE Office Protection Systems Network Solution provides these 3 main functions:
supervision of the UPSs over the Network,
protection of the computers,
connexion of the UPS to the Network.

ENERGIZE YOUR ENTERPRISE
Network Management Card – User Manual 34003991EN/DA Page 6/120
1.1.1 Connecting the UPS to the Ethernet network
This function can be performed either through network Cards inserted in the UPS (Network Management Card) or
through a software "agent" running on a nearby PC that is called the Network Management Proxy.
The Network Management Card or Proxy:
- manages communication with the UPS (as well as local protection of the machine on which Proxy is installed)
- periodically accesses the information concerning the UPS
- makes this information available to the connected applications (Network Shutdown Modules, Web Browser, Network
Management Systems, Enterprise Power Manager)
- sends notifications on certain events.
Operation may be in standard secure mode (the default mode) or in SSL secure mode (Secure Socket Layer SSL).
1.1.2 Protection of the computers/servers
This function is performed by the Network Shutdown Module installed on each of the servers to be protected.
Note that the Shutdown Module is available on several Operating Systems.
The Network Shutdown Module:
Continuously waits for information from the Network Management Card/Proxy connected to the MGE Office Protection
Systems.
Warns administrators and users if AC power fails and proceeds with graceful system shutdown before the end of
battery backup
power is reached.

ENERGIZE YOUR ENTERPRISE
Network Management Card – User Manual 34003991EN/DA Page 7/120
1.1.3 Supervision of the UPSs over the network
Depending on your needs, you can either use:
Your Internet browser to monitor each UPS, as Management Proxy and Management Card includes a Web server
Your company’s standard Network Management System (HP-Openview, CA Unicenter, HP Insight Manager, IBM Tivoli
Netview)
To simplify integration of MGE Office Protection Systems UPSs, you can use one of the Network Management System
Kits for MGE devices. These kits are available on the Management Pac 2 CD-ROM. (ref 66923)
The MGE supervisor "Enterprise Power Manager".
1.1.4 Connection
Before installing the MGE Office Protection Systems Network Solution, the UPS must be set up as indicated in the
steps below.
Shut down the computers to be protected by the UPS.
Connect the UPS to a wall outlet. (For UPSs above 3kVA, please refer to the UPS installation manual).
Connect the power cord of each computer to an outlet on the UPS. (For UPSs above 3kVA, please refer to the UPS
installation manual)

ENERGIZE YOUR ENTERPRISE
Network Management Card – User Manual 34003991EN/DA Page 8/120
1.1.4.1 How to connect UPS / agent / network:
Insert the optional card in the UPS and connect the UPS to the computer network.
Start the MGE Office Protection Systems UPS, then the computers.
1.1.4.2 Setting up the protection:
Set up the Network Management Card (see user manual).
Install and configure the Network Shutdown Module on all machines that are to be protected by the UPS.
The software components for each platform and the user manuals are on the Solution-Pac-2 CD or are available for
download on the
www.mgeops.com Web site, in the
“Downloads” section.
1.2 Presentation of the Network Management Card (NMC)
1.2.1 Compatibility with UPSs
The Minislot Network Management Card is compatible with the following UPSs:
Pulsar Evolution 500/800/1100 From technical level
06
Pulsar Evolution 2200/3000 From technical level
05
Pulsar Evolution 1500 From technical level
05
EXtreme C 700/1000/1500 From technical level
B2
EXtreme C 2200 - 3200 From technical level
02
Pulsar EX 700/1000/1500 RT (US°) From technical lev el
03
Pulsar EX 2200/3200 (US°) From technical level
09
Pulsar M 2200/3000 All models
Pulsar 700/1000/1500 All models
Evolution 650/850/1150/1550/2000 All models
Evolution S 1250/1750/2500/3000 All models
Pulsar MX 4/5/10 All models
Pulsar MX 15/20 All models
EX 5 / 7 / 11 RT Equipped with a card minislot (Q2 08)
EX 5 / 7 / 11 RT 3 : 1 Equipped with a card minislot (Q2 08)
Note:
If the UPS's NT is below that indicated in the table above, contact MGE's Office Protection Systems technical support.
The Network Management Card (66102) is not compatible with Pulsar EX 7/10, Pulsar EX 15/20/30, Pulsar ESV+,
8/11/14/22 ranges.
Network Management Cards acquire information on the operation status of the UPS systems and provide remote
control of these systems
by means of an ETHERNET network from any SNMP administration station or Web browser.
They also supply alarms to the Network Shutdown Modules to trigger shutdown or other automatic actions for
protected servers.

ENERGIZE YOUR ENTERPRISE
Network Management Card – User Manual 34003991EN/DA Page 9/120
Network Management Cards are compatible with the "Enterprise Power Management" supervision system and with the
MGE Office Protection Systems network protection system.
Network Shutdown Module
Entreprise Power Manager
Management-Pac 2
1.2.2 Direct sending of E-mail
When a UPS event occurs, the Network Management Card can directly notify up to 4 intranet or extranet addresses
by e-mail. (see E-mail Notification and
E-mail message settings)
1.2.3 Sending text messages (SMS)
The card offers the possibility of redirecting UPS alarms to an e-mail server. The format of these e-mails is compatible
with mobile telephone e-mail/SMS transfer systems proposed by ISPs. The format to be used depends on the service
provider.
For example, sms.0660256585@votre-login.activmail.net (text messages).
1.2.4 Compatibility with the Network Management Systems (NMS) – Trap
sending
The Network Management Cards are compatible with the major Network Management Systems (IBM Tivoli, CA
Unicenter, HP Insight Manager). The Management-Pac 2 offering includes the necessary SNMP plug-ins to allow an
easy integration in the NMS. Events are notified by SNMP trap.
NMS can subscribe on page
“Notified Applications”
The trap list is given in the
appendix.
1.2.5 Environment Sensor (option)
The Environment Sensor (66846) solution comprises a box to be connected to the Card Settings port of the
Network Management Cards.
Environment Sensor enables measurement of temperature and humidity around the UPS, consideration of external
alarms via 2 dry contacts and notification of alarms according to pre-programmed thresholds. (see Environmen
Status and Environment Configuration)

ENERGIZE YOUR ENTERPRISE
Network Management Card – User Manual 34003991EN/DA Page 10/120
1.3 Technical data
1.3.1 Hardware characteristics
Dimensions
Dimensions (L x l x H) 132 x 66 x 42 mm
Weight (gr) 70 g
Storage
Storage temperature -10 °C to 70 °C
Ambient conditions
Operating temperature 0 °C to 40 °C
Ambient humidity 90 % RH max without condensation
ROHS 100 % compatible
1.3.2 EMC Compatibility
When correctly installed and used in accordance with the manufacturer's instructions, the Network Management Card
complies with the following standards:
Safety for ATI: IEC/EN 60950-1 2002
EMC: EN 61000-6-2 (2002), EN 61000-6-3 (2002). IEC/EN 62040-2 (2002).
As per European directives:
Low voltage: 73/23/EEC and 93/68/EEC
EMC: 89/336/EEC and 93/68/EEC.
1.3.3 Configuration
The user can configure the card with one of the following means:
Web browser
Local serial link (network parameters)
BOOTP/DHCP (network parameters).

ENERGIZE YOUR ENTERPRISE
Network Management Card – User Manual 34003991EN/DA Page 11/120
1.3.4 Administration
Up to 50 workstations protected by Network Shutdown Modules - Central or local configuration.
Up to 5 browsers connected at the same time (3 in SSL).
◗ Minimum recommended browser versions: Internet Explorer 6.x / 7.0, Mozilla Firefox 1.5 / 2.0
E-mail sending configurable according to UPS alarms and transmission of a periodical report.
Control of UPS on/off switching via the HTML interface.
Adjustment and control of PowerShare outlets via the HTML interface, sequential starting of the installation and
optimisation of backup time by shutting down non-priority systems.
Automatic data and time adjustment via NTP server.
Protection by encrypted password.
Protection by secure SSL connection.
Saving of logs in the non-volatile memory.
Languages available: English/French/Spanish/German/Italian.
On-line help in English available for each page.
Card firmware updated via the network.
1.3.5 Network
◗ Fast ETHERNET 10/100 Mbits compatibility with auto-negotiation on the RJ45 outlet.
1.3.5.1 List of ports used
◗ BootP, DHCP UDP 68, 67
◗ HTML TCP 80
◗ SSL TCP 443
◗ NSM in connected mode TCP 5000
◗ SMTP 25
◗ NTP 123
◗ SNMP V1 161
◗ TRAP SNMP 162
1.3.6 Environment sensor
◗ Temperature measurement from 0 to 70 °C with +/- 1 °C accuracy.
◗ Measurement of humidity from 0 to 100 % with +/- 6 % accuracy.
◗ Min / max time-stamped function for temperature and humidity.
◗ Choice of temperature readings in Celsius or Fahrenheit.
◗ High and low thresholds, hysteresis and offset adjustable via Web interface.
◗ Possibility of notification of status changes by e-mail, SMS or SNMP trap.
◗ Position detection of 2 dry contacts (maximum sensor/contact distance: 20 m).
◗ Name and status of each configurable contact.

ENERGIZE YOUR ENTERPRISE
Network Management Card – User Manual 34003991EN/DA Page 12/120
◗ Recording of events and measurements in the card log
◗ Possibility of shutting down the installation in the event of a threshold being exceeded or on opening / closure of a
dry contact
◗ Connection to the card with straight CAT5 RJ45 network cables (maximum card/sensor distance: 20 m)
◗ Hot installation
1.3.7 MIB (Management Information Base)
◗ Compatible with MIB MGE Office Protection Systems V1.7
The list of objects managed can be found in the
appendix

ENERGIZE YOUR ENTERPRISE
Network Management Card – User Manual 34003991EN/DA Page 13/120
1.3.8 Default parameters
Function Parameter Default value Possible value
Network IP address 172.17.16.16 Network IP address
Subnet mask 255.255.0.0 Network IP address
Gateway Address 0.0.0.0 Network IP address
BOOTP/DHCP Enabled Active / Deactivated
Firmware Upload Enabled Active / Deactivated
SMTP server smtpserver 49 characters maximum
System UPS Contact Computer Room Manager 49 characters maximum
UPS Location Computer Room 31 characters maximum
History log interval (sec.) 60 10 to 99999 sec.
Environment log interval (sec.) 300 10 to 99999 sec.
Default Language English English / French / Spanish /
German / Italian
Manager table empty 50 maximum
Access control User name MGEUPS 10 characters maximum
Password MGEUPS 10 characters maximum
Community name read public 49 characters maximum
Trap port 161 Non configurable
Date and time Date and time adjustment Accept automatic update from
NSM or EPM
Synchronise with an NTP
server
Accept automatic update from
NSM or EPM
Synchronise manually
NTP server ntpserver 49 characters maximum
Serial link Speed 9600 baud Non configurable
Data bits 8 Non configurable
Stop bits 1 Non configurable
Parity without Non configurable
Flow control without Non configurable

ENERGIZE YOUR ENTERPRISE
Network Management Card – User Manual 34003991EN/DA Page 14/120
2 Installation
2.1 Unpacking and check on contents
The installation kit contents:
◗ A Network Management Card (66102)
◗ A serial communication cable for configuration (34003918)
◗ Installation manual (34003905)
2.2 Indications
MAC addre
ss

ENERGIZE YOUR ENTERPRISE
Network Management Card – User Manual 34003991EN/DA Page 15/120
Ethernet port
LED Colour Activity Description
ACT Green ◗ Off ◗ Card not connected to the network.
◗ On ◗ Card connected to the network but
without activity
◗ Flashing ◗ Port is active in receiving /
transmission
100M Orange ◗ Off ◗ Port operating at 10Mbits/s.
◗ On ◗ Port operating at 100Mbits/s.
Service port
LED Colour Activity Description
UPS Green ◗ Off ◗ Card startup in progress.
Data ◗ On ◗ Communication with UPS in
progress
◗ Flashing
◗ Normal operation.
Communication with the UPS is
operational
RS232 Orange ◗ Off ◗ Configuration menu is active
◗ On ◗ Normal operation. Configuration
menu is deactived
◗ Flashing ◗ Communication with the
Environment Sensor (option).
2.3 Installation in the UPS
The Network Management Card (66102) can be "hot" installed in all UPSs of the MGE Office Protection Systems range
equipped with a Minislot without having to shut it down.
◗ Remove the protective plastic cover from the Minislot
◗ Note the card's MAC address prior to insertion
◗ Insert and tighten the card's retaining screws
◗ Connect the ETHERNET cable
◗ Wait 2 min. the card is completely operational when the green UPS Data LED flashes continuously

ENERGIZE YOUR ENTERPRISE
Network Management Card – User Manual 34003991EN/DA Page 16/120
2.4 Sensor installation (option)
The Environment sensor is available as an option on the Network Management Card and is available from MGE Office
Protection Systems (reference 66846).
The sensor allows remote monitoring of the UPS's environment through regular measurements: temperature, humidity,
status of two external contacts. It also enables notification of alarms (e-mail, trap SNMP) according to pre-programmed
thresholds.
It is connected to the Service port (Settings/Sensor) directly on the Network Management Card with a standard
Ethernet cable (20 meters maximum).
Recognition is automatic. Supervision and configuration are performed via a menu that can be accessed directly from
the home page.

ENERGIZE YOUR ENTERPRISE
Network Management Card – User Manual 34003991EN/DA Page 17/120
3 Configuration
3.1 Configure IP parameters
Once the card has started:
Connect one end of the cable (34003918) to the Service port.
If the environment sensor was previously connected, the card must be restarted in order to access the configuration
menu.
Connect the other end of the cable to the COM port (IOIOI) of a PC.
Launch a HyperTerminal™ type emulator with the following configuration:
Speed: 9600
Data bits: 8
Parity: none
Stop bits: 1
Flow control: none
"Locally reproduce the characters entered" option: deactivated.
Enter MGEUPS or mgeups. The main menu is displayed:
-----------------------------------------------------------------------------
MGE UPS SYSTEMS
NETWORK MANAGEMENT CARD
-----------------------------------------------------------------------------
1 : Reset
2 : Network configuration
3 : Set Login Password to Default
4 : Return to Default Configuration
0 : Exit
-----------------------------------------------------------------------------

ENERGIZE YOUR ENTERPRISE
Network Management Card – User Manual 34003991EN/DA Page 18/120
3.1.1 Your network is equipped with a DHCP server
The card is configured by default with this service activated.
The card automatically collects IP parameters.
To know the IP parameters, type 2, the next menu is displayed:
-----------------------------------------------------------------------------
Network settings
-----------------------------------------------------------------------------
1 : Read Network settings
2 : Modify Network settings
3 : Set Ethernet speed
0 : Exit
-----------------------------------------------------------------------------
Then type 1. The menu is displayed:
Network configuration :
MAC address : 00:06:23:00:1F:8F
Mode : Static IP
IP address : 172.17.21.94
Subnet mask : 255.255.248.0
Gateway : 172.17.17.1
Note the IP address.
To exit, enter 0 then 0. The card is operational.
Note: As long as the card is not connected to the network, it continuously attempts to make connection. Once the
connection has been established, the operational mode presented in the table above becomes effective.

ENERGIZE YOUR ENTERPRISE
Network Management Card – User Manual 34003991EN/DA Page 19/120
3.1.2 Your network is not equipped with a DHCP server
In the main menu enter 2, then 2 again. The menu is displayed:
Follow the instructions and enter the static IP parameters.
At the end of the menu, wait for the "Done" message to be displayed indicating that the IP parameters have been
saved.
-----------------------------------------------------------------------------
Network settings
-----------------------------------------------------------------------------
1 : Read Network settings
2 : Modify Network settings
3 : Set Ethernet speed
0 : Exit
-----------------------------------------------------------------------------
For each of the following questions, you can press <Return> to select the value
shown in braces, or you can enter a new value.
Should this target obtain IP settings from the network?[N] N
Static IP address [172.17.21.94]? 172.17.21.21
Static IP address is 172.17.21.21
Subnet Mask IP address [255.255.248.0]? 255.255.255.0
Subnet Mask IP address is 255.255.255.0
Gateway address IP address [172.17.17.1]? 172.17.17.1
Gateway address IP address is 172.17.17.1
Wait during your new configuration is saved ...
Reset the card to take into account the new configuration.
Return to the main menu and enter 1 then 2.
The card restarts with the new IP parameters.
3.2 Test after configuration
To check that the Network Management Card is operational after installation and configuration.
From a station connected to the same subnet as the card, open a web browser and enter the IP address of the card in
the address field
Check the display of the
home page.

ENERGIZE YOUR ENTERPRISE
Network Management Card – User Manual 34003991EN/DA Page 20/120
4 Supervision and administration by browser
◗ On a computer equipped with a Web browser (Internet Explorer, FireFox or Netscape recommended), enter the
address initialised previously in the Installation chapter (e.g.
http://172.17.16.16.)
The "UPS properties" home page is displayed.
4.1 Optimising the performance of your browser
◗ To view status changes on the UPS in real time, the browser must be configured so that it automatically refreshes
all the objects on the current page.
Example on IE 6: Tools / Internet Options / General / Parameters menu, tick Every time this page is visited and
validate.

ENERGIZE YOUR ENTERPRISE
Network Management Card – User Manual 34003991EN/DA Page 21/120
4.2 UPS
4.2.1 UPS properties page
This page is automatically refreshed every 10 seconds.
From this page, access to the main UPS information is available thanks to the combo box (see screen copy below).
The different choices are the following ones:
“UPS Status”: (chosen by default) this page gives instant access to the essential information about your UPS.
“UPS Alarms”: to view the list of current alarms.
“UPS Modules”: (available on modular UPS) to view general information on each modules.
“About your UPS”: provides information on the UPS and the card, in particular, the model range and software
version.
These different pages are detailed in the following chapters.

ENERGIZE YOUR ENTERPRISE
Network Management Card – User Manual 34003991EN/DA Page 22/120
4.2.1.1 "UPS" zone: general information on the UPS.
Indication of the picture and generic name of the UPS range
Computer room: Customised name of your system.
You can change this name on the
"System" page.
UPS status icon :
The various icons showing the status of the UPS are:
Normal operation
Alarm present. This icon links directly to the
alarm page.
Loss of communication with the UPS
Animated synoptic: An animated synoptic gives a global overview of the UPS current operating mode.
This synoptic is available on On-Line and Line-interactive UPS.
The synoptic drawing depends on the UPS topology. The different drawings are described in the table below.
UPS with automatic bypass
UPS with automatic and manual bypass

ENERGIZE YOUR ENTERPRISE
Network Management Card – User Manual 34003991EN/DA Page 23/120
UPS without automatic bypass
Note: In case of loss of communication with the UPS, all the elements of the synoptic are grey.
The various elements of the synoptic are the following ones:
◗ AC Normal Input :
In tolerances
Out of tolerances
◗ AC Normal Flow :
AC to DC converter powered by AC Normal
AC to DC converter not powered by AC
Normal
◗ AC to DC Converter:
Powered
Not powered
Internal failure

ENERGIZE YOUR ENTERPRISE
Network Management Card – User Manual 34003991EN/DA Page 24/120
◗ Battery :
Remaining capacity > 50%
Remaining capacity < 50%
Battery to be checked (battery test result)
◗ Battery Output Flow :
DC to AC converter powered by battery
DC to AC converter not powered by
battery
◗ DC to AC Converter Input flow :
Energy flow
present
No energy flow
◗ DC to AC Converter :
Powered
Not powered
Internal failure
◗ DC to AC Converter Output :
Energy flow
present
No energy flow
◗ AC Bypass Input :
In tolerances
Out of tolerances

ENERGIZE YOUR ENTERPRISE
Network Management Card – User Manual 34003991EN/DA Page 25/120
◗ AC Automatic Bypass Flow :
Energy flow
present
No energy flow
◗ AC Automatic Bypass Status :
Powered
Not powered
Internal failure
◗ AC Manual Bypass Flow :
Energy flow
present
No energy flow
◗ AC Manual Bypass Status :
Open
Closed
◗ AC Output Flow :
Energy flow
present
No energy flow
◗ AC Output :
Load protected
Load not
protected

ENERGIZE YOUR ENTERPRISE
Network Management Card – User Manual 34003991EN/DA Page 26/120
◗ UPS measurements :
◗ Boxes showing measurements appear when synoptic elements are hovered by the pointer. See example below.
These measurements are available for AC to DC converter, Battery, DC to AC converter and automatic bypass.
The measurements available in these boxes depend on the UPS range.

ENERGIZE YOUR ENTERPRISE
Network Management Card – User Manual 34003991EN/DA Page 27/120
4.2.1.2 "UPS status" zone: Essential information
◗ "Active sources": (available on parallel or modular UPS)
x UPS + y UPS redundant : x indicates the minimal number of UPS necessary to power the load,
y indicates the number of UPS in redundancy.
An alarm can be generated if the number of UPS in redundancy is less than a configurable threshold. See UPS
modules section.
◗ "Power source": indicates whether the power comes from the utility or from the UPS battery
◗ "Output load level": indicates the power percentage used at UPS output
◗ "Output": indicates if the different UPS outputs are protected.
◗ "Master": indicates if the UPS main output is protected
◗ "Group1 and Group2": indicates if the controlled outlets (if available) are powered.
The various icons showing the status of the UPS outputs are:
(green outlet) Outlet powered
(red outlet) Outlet not powered or not
protected
Battery Information :
◗ "Battery load level": remaining battery charge (in percent).
The information is completed with the two following labels:
◗ “Charging” : if the utility power is present and the battery charge is in progress
◗ “Discharging”: if the UPS operates on battery.
◗ “Fault”: if the battery is faulty.
◗ "Remaining backup time": Estimation of the battery's maximum backup time remaining before UPS shutdown
◗ "Battery status": Result of the last automatic battery test carried out by the UPS
Possible values are:
– OK: the test was completed correctly
– NOK: the battery needs to be checked
– Deactivated: the automatic battery test is not validated on the UPS

ENERGIZE YOUR ENTERPRISE
Network Management Card – User Manual 34003991EN/DA Page 28/120
4.2.1.3 Viewing the modules
◗ Click on "UPS Modules" scroll list to view the information about the UPS modules.
◗ Active sources:
x UPS + y UPS redundant : x indicates the minimal number of UPS necessary to power the load,
y indicates the number of UPS in redundancy.
The addition of these 2 values is the total number of available UPS.
◗ The "Minimum redundant UPS modules to trigger alarm can be configured from this page. The button Save makes
the card setting the parameter into the UPS. A warning message informs the user about the consequences of this
parameters modification.
The redundancy lost can generate Email notification (if set in the email notification page) and SNMP trap. It can
also be used by NSM for server protection criteria.
◗ The Module Nr gives the location of the module in the UPS.

ENERGIZE YOUR ENTERPRISE
Network Management Card – User Manual 34003991EN/DA Page 29/120
◗ The Status can take the next forms:
or when the module is working properly with no alarm.
when the module has at least one alarm (level Warning) active.
when the module has at least one alarm (level Critical) active.
when the module has a communication fault.
When the module is working properly with no alarms, the icon is not reactive, otherwise it is reactive and clicking on it
makes the page Alarm Table appear.
◗ "Output load level": Value of the percentage of load at module output
◗ "Battery load level": Percentage of charge available in the battery module

ENERGIZE YOUR ENTERPRISE
Network Management Card – User Manual 34003991EN/DA Page 30/120
4.2.1.4 Viewing the alarms
Click on "Alarm Table" scroll list to view the list of current alarms. The table of managed alarms is included in the
appendix.
The level of the alarms appears like below:
Critical
Warning
Unknown
◗ Alarm table for standard UPS

ENERGIZE YOUR ENTERPRISE
Network Management Card – User Manual 34003991EN/DA Page 31/120
◗ Alarm table for modular UPS

ENERGIZE YOUR ENTERPRISE
Network Management Card – User Manual 34003991EN/DA Page 32/120
4.2.1.5 Viewing the “About your UPS” window
Click on "About your UPS" scroll list to view the information about the UPS and the card.

ENERGIZE YOUR ENTERPRISE
Network Management Card – User Manual 34003991EN/DA Page 33/120
4.2.2 On-line help
On-line contextual help in English is available at the top of each page by clicking on the Help link, which is always
located on the top right corner. The navigation menu of the on-line help is identical to that of the card's pages.
The Help page always opens a new window.

ENERGIZE YOUR ENTERPRISE
Network Management Card – User Manual 34003991EN/DA Page 34/120
4.2.3 UPS control
Click on the "UPS Control" section in the menu
The parameters of this menu can only be modified after entering the "Login" and "Password". The following screen is
proposed automatically:
The default login and password are: MGEUPS
Each field accepts up to 10 characters max.
After the login and password are entered, they remain active for 5 minutes.
If the browser is closed, they will have to be re-entered.
An error in either field results in systematic rejection of the requested action (save, page access, card reboot…). After
three unsuccessful attempts, the browser must be rebooted.
These two fields do not travel "decoded" on the IT network. They are encrypted with an MD5 type algorithm, ensuring
total confidentiality.
In the event of
password loss, the user can return to the default values via the maintenance menu.

ENERGIZE YOUR ENTERPRISE
Network Management Card – User Manual 34003991EN/DA Page 35/120
UPS configuration may prevent the shutdown and restart commands from being properly run. Read the UPS user
manual for more information.
This page enables triggering of
startup and shutdown sequences for the UPS main output and controlled outlets.
◗ The status of each output is displayed by a symbol associated with the Off label (red symbol) or On (green
symbol).
◗ The shutdown sequences take into account the time required for the registered servers to shut down without
losing data
(see shutdown parameters).
◗ The main outlet has priority over the controlled outlets. Shutdown of the main outlet causes the controlled outlets
to shut down. Controlled outlets can only be started if the master outlet is on.
The Check column proposes six different commands, and a command is only actually started after clicking on
'Execute':
"Safe power down": A sequence to switch off output power is launched immediately. The systems supplied are shut
down correctly while the shutdown sequence is running, then the output is cut.
"Safe power down & reboot": A sequence to switch off then restore output power is launched immediately. The
powered systems are shut down correctly during the shutdown sequence, then the output is switched off.
Finally, the restart sequence is launched at the end of the time delay specified in the "Toggle duration" parameter. The
output status is updated.

ENERGIZE YOUR ENTERPRISE
Network Management Card – User Manual 34003991EN/DA Page 36/120
"Immediate On": A sequence to switch on output power is launched immediately. The output is re-powered and the
systems supplied start up correctly.
"Delayed, safe power down": This is the same switch off sequence as for the "Safe power down" command, but
postponed by the number of seconds programmed in the "Off Delay" parameter.
"Delayed, safe power down & reboot": This is the same switch off then on sequence as for the "Safe power down &
reboot" command, but postponed by the number of seconds programmed in the "Off Delay" parameter.
"Delayed On": This is the same switch on sequence as for the "Immediate On" command, but postponed by the
number of seconds programmed in the "On Delay" parameter.
The Save button saves the Off Delay, Toggle duration and On Delay parameters on the card.
Security: The administrator must click on Save and enter his/her login/password to save modifications or run
commands. The default login and password by default are: MGEUPS

ENERGIZE YOUR ENTERPRISE
Network Management Card – User Manual 34003991EN/DA Page 37/120
4.2.4 UPS weekly schedule programming
Click on the "Weekly schedule" section of the menu.
UPS configuration may prevent the shutdown and restart commands from being properly run. Read the UPS user
manual for more information.
The weekly schedule enables the administrator to optimise power consumption or program a reboot of the protected
equipment at a set time.
In a shutdown sequence, the Network Shutdown Modules connected to the card are informed and ensure that each
machine is shut down correctly before the UPS output is switched off. Up to 7 UPS shutdown sequences can be
programmed in one week, with a minimum shutdown delay of 30 minutes.
The On / Off sequences are valid only if the card's time has been properly set.
Security: The administrator clicks on "Save" and enters his/her login / password to save any edits. The login and
password by default are: MGEUPS.

ENERGIZE YOUR ENTERPRISE
Network Management Card – User Manual 34003991EN/DA Page 38/120
4.2.5 Shutdown parameters
This page enables viewing and configuration of UPS operating parameters in battery mode and for power restoration.
Click on the "Shutdown parameters" section in the menu to see the list of parameters.
When you tick the Show advanced parameters option, extra parameters are displayed. These parameters enable, in
particular, adjustment of certain thresholds related to the percentage of remaining battery charge level.
The Output column enables each outlet to be named (maximum 20 characters).
Note
As priority is given to the main outlet, the card cannot supply the controlled outlets when main outlet power is off.

ENERGIZE YOUR ENTERPRISE
Network Management Card – User Manual 34003991EN/DA Page 39/120
For the main outlet ("Master" by default)
The first shutdown criteria initiates the restart of the
shutdown sequence.
◗ If remaining time is under (0 to 99999 seconds, 180 by default) is the minimum remaining backup time from which
the shutdown sequence is launched.
◗ If battery capacity is under (0 to 100%); this value cannot be less than that of the UPS and is the minimum
remaining battery capacity level from which the shutdown sequence is launched.
◗ Shutdown after (0 to 99999 minutes, not validated by default) is the operating time in minutes left for users after a
switch to backup before starting the shutdown sequence.
◗ Shutdown duration (120 seconds by default) is the time required for complete shutdown of systems when a switch
to backup time is long enough to trigger the shutdown sequences. It is calculated automatically at the maximum of
Shutdown duration of subscribed clients but can be modified in the Advanced mode.
◗ If battery capacity exceeds Minimum battery level to reach before restarting the UPS after utility restoration
.
Important: Certain UPSs do not support this option
For the controlled outlets ("group 1 or group 2" by default)
The page enables programming of operation time and level in backup mode to manage outlet load shedding in the
event of electric power failure:
◗ Switch Off after (from 0 to 99999, 65535 by default) defines the time during which the outlet is supplied starting
from the moment of utility failure. Caution, this time includes the outlet shutdown duration.
◗ Switch Off if battery capacity under (0 by default) is an extra condition for outlet shutdown that can trigger the
shutdown sequence before the shutdown duration runs out.
◗ Shutdown duration is the time required for complete shutdown of the systems supplied by the outlet when an
outlet shutdown sequence is launched.
It is calculated automatically using the maximum shutdown durations of notified applications on the outlets.
◗ Switch On after (from 0 to 99999, default 65535) is the period between main output startup and startup of the
relevant programmable outlet, therefore outlet startup can be delayed in relation to the main output.
Important: Certain UPSs do not support this option
Export settings to file: Enables exportation ("Download" button) and saving of card configuration information.
Import settings from file: Enables selection of a configuration file ("Browse" button) and uploading ("Upload" button) of card
configuration information
Security: The administrator has to click on Save and enter his/her login/password to save any modifications. The login
and password by default are: MGEUPS

ENERGIZE YOUR ENTERPRISE
Network Management Card – User Manual 34003991EN/DA Page 40/120
4.2.6 Measurements
Click on "Measurements" in the menu
◗ The next window shows the measurements for a mono phases UPS.
The following measurements are saved and time-stamped (env. 430):
◗ "AC Normal : Voltage": Value of the utility voltage supplying the UPS
◗ "AC Normal : Frequency": Value of the utility frequency supplying the UPS
◗ "AC Output : Voltage": Value of the output voltage of your UPS
◗ "AC Output : Frequency": Value of the output frequency of your UPS
◗ "AC Output : Power (kVA)": Value of the output power of your UPS
◗ "AC Output : Load level (%)": Value of the percentage of load at UPS output
◗ "Battery : Capacity (%)": Percentage of charge available in the battery
◗ "Battery : Remaining time (mn)": Estimation of the remaining backup time
◗ The save frequency of these values is defined in the "System" page (60 seconds by default). Approximately 435
time-stamps are stored permanently on the card. The oldest time-stamps are automatically deleted.
◗ "Save Log" enables all saved values to be opened or saved in CSV format. (compatible with Excel type
spreadsheets)
◗ "Clear Log" enables deletion of all records. Enter the login/password to validate this action.

ENERGIZE YOUR ENTERPRISE
Network Management Card – User Manual 34003991EN/DA Page 41/120
4.2.7 Event log
◗ Click on "Event Log". in the menu
◗ "Save log" enables all saved values to be opened or saved in CSV format. (compatible with Excel type
spreadsheets)
◗ "Clear log" enables deletion of all records. The administrator must enter his/her login / password to validate this
action.
The card can save 435 events. The table of managed alarms is included in the
appendix
.

ENERGIZE YOUR ENTERPRISE
Network Management Card – User Manual 34003991EN/DA Page 42/120
4.2.8 System log
◗ Click on "System log". in the menu
◗ "Save log" enables all saved values to be opened or saved in CSV format. (compatible with Excel type
spreadsheets)
◗ "Clear log" enables deletion of all records. The administrator must enter his/her login / password to validate this
action.
The card can save 435 events. The table of managed alarms is included in the appendix.

ENERGIZE YOUR ENTERPRISE
Network Management Card – User Manual 34003991EN/DA Page 43/120
4.3 Notification
4.3.1 Email Notification
The card offers the possibility of redirecting UPS alarms to an e-mail server. The format of these e-mails is
compatible with mobile telephone transfer systems using text messages (SMS).

ENERGIZE YOUR ENTERPRISE
Network Management Card – User Manual 34003991EN/DA Page 44/120
◗ Recipient List:
On the left side of this page, up to four recipients can be configured to receive e-mails from the card. Each
addressee has its own trigger events, selected from the right side of the page, for which an e-mail is sent. The
card’s log indicates e-mail transmission errors.
Each recipient is configured with the following parameters:
◗ Recipient: (Field is limited to 49 characters) this is the e-mail address of the person or department to
receive the e-mail.
The default value is recipientx@domain.com
◗ Attached files: The files selected (Measurements, Event log, System log, Environment
measurements) are enclosed with each e-mail sent. The files are sent in CSV format
◗ Periodic report: In addition to the e-mails sent when events occur, a periodic e-mail containing the 3
log files can be sent to the recipient every x days at the time specified by the user.
To configure the first transmission, specify the day, time and frequency of the next transmission in
the "next report" box. After this date, the page will show the date and time of the next transmission.
Data are sent in CSV format.
◗ Save: Saves any modifications.
◗ Test enables an e-mail to be sent to the recipient immediately. This is one way of checking e-mail transmission,
particularly access to the SMTP server configured in "Network" settings. A transmission report is added to the
system log.
The event label in the subject and text of the message is replaced with a test label.
If the user makes any modifications to the page, they must be saved before using the "Test" function.
◗ Notified events:
◗ The right side of the page shows the events that can be notified.
By default, only the main events of battery operation and a few UPS alarms are accessible. All the events appear if
the Show/Hide Events option is actuated.
By default, two events are selected for notification. The user can modify this pre-selection by ticking other events
or can, on the contrary, restore the initial configuration by clicking Set Default.
◗ Email Message Settings: access to the message configuration page
◗ Network Settings: enables the name of the SMTP server to be entered. See page
◗ Export settings to file: Enables exportation ("Download" button) and saving of card parameterisation information.
◗ Import settings from file: Enables selection of configuration file ("Browse" button) and uploading ("Upload" button)
of card configuration information.
◗ Security: The administrator has to click on Save and enter his/her login/password to save any modifications. The
default
login and password are: MGEUPS

ENERGIZE YOUR ENTERPRISE
Network Management Card – User Manual 34003991EN/DA Page 45/120
4.3.2 E-mail Message Settings
This page enables customisation of the content of the messages received by recipients of e-mails sent by the card.
Customisation is common to the four recipients that can be notified (see
E-mail notification).
◗ Sender
(59 characters maximum) identifies the source of the message. The default value is
ups@domain.com.
This field is free. However, depending on the type of SMTP server configuration, it is possible that the server
checks that the domain name contained in the Sender address exists, and even that the user in the Sender address
belongs to this domain.
◗ Subject
enables the user to specify the subject of the e-mail to be sent. By entering some free text and selecting from
several optional fields, if desired, the message subject is built:
- UPS name recalls the name of the UPS; it may or may not be selected.
- UPS location recalls the geographic location of the UPS (see System Settings); it may or may not be selected.
- Event message identifies the event generating the e-mail; it may or may not be selected.
◗ Message text is a free zone.

ENERGIZE YOUR ENTERPRISE
Network Management Card – User Manual 34003991EN/DA Page 46/120
The body of the e-mail sent is composed of:
- Message text, which is free text.
- The date and time of the event, as saved in the log.
- URL of the card, enabling a direct link with the card to be established.
- Attachments, as configured for the e-mail recipients .- duplication of the subject, as configured.

ENERGIZE YOUR ENTERPRISE
Network Management Card – User Manual 34003991EN/DA Page 47/120
4.4 Configuration
The parameters of this menu can only be modified after entering the "Login" and "Password". The following screen is
proposed automatically:
The default login and password are: MGEUPS
Each field accepts up to 10 characters max.
After the login and password are entered, they remain active for 5 minutes.
If the browser is closed, they will have to be re-entered.
An error in either field results in systematic rejection of the requested action (save, page access, card reboot…). After
three unsuccessful attempts, the browser must be rebooted.
These two fields do not travel "decoded" on the IT network. They are encrypted with an MD5 type algorithm, ensuring
total confidentiality.
In the event of
password loss, the user can return to the default values via the maintenance menu.

ENERGIZE YOUR ENTERPRISE
Network Management Card – User Manual 34003991EN/DA Page 48/120
4.4.1 Network settings
Click on "Network" in the menu.
This menu enables the administrator to configure the network parameters of the card and authorisation of the remote
upgrade of the embedded system.
◗ IP Address: The IP address of the card (e.g.: 172.17.22.252).
◗ Subnet Mask: The mask of the sub-network of your network (e.g.: 255.255.255.0).
◗ Gateway Address: Indicate the IP address of the gateway to access the stations located outside the card’s subnet
(e.g.: 172.17.17.1).
◗ Hostname must be suited to the card. This is the first part of the fully qualified domain name, used by the DNS.
As the card does not support NetBIOS protocol, the hostname will only be sent to DNS if the DHCP server sends it
the hostname with the new IP address. This mechanism is described in the update of the DNS protocol RFC 2136
◗ Domain Name is the domain to which the card belongs. This is the part of the fully qualified domain name that
follows the hostname and is used by the DNS. The default value of the two parameters comprising the fully
qualified domain name: ups.domain.com
◗ BOOTP/DHCP: Authorises (choose "Enabled") configuration of network parameters with your BootP/DHCP server
when the card is booted.
Mode of card operation with server: After each startup, the card makes 5 attempts to recover the network

ENERGIZE YOUR ENTERPRISE
Network Management Card – User Manual 34003991EN/DA Page 49/120
parameters. If no response is received from the server, the card boots with the last saved parameters from the
previous start. These parameters are those shown on the page.
The default value for this parameter is "Enable"
Note 1:
If the hostname is not used, the IP address supplied by the DHCP server must be fixed to maintain connection with the
clients installed on the stations to be protected.
Note 2:
During the first connection, if the DHCP query is not successful, the NMC starts with the following IP configuration:
IP address:172.17.16.16
Subnet mask: 255.255.255.0
Gateway Address: 0.0.0.0
◗ Firmware Upload: Authorise (chose "Enabled") remote updating of the card's embedded software.
The default value for this parameter is "Enabled".
◗ Primary DNS Server: contains the IP address of the main DNS server ensuring conversion of the domain name to IP
address.
◗ Secondary DNS Server: contains the IP address of the secondary DNS server ensuring conversion of the domain
name to IP address if the primary DNS server is not available.
◗ SMTP Server: contains the name or IP address of the local server with which the card connects to send e-mails.
It may be filled in either as host + domain name (DNS resolution), or directly with the IP address.
The default value is smtpserver. The card uses the standard port (25) for sending e-mails.
Export settings to file: Enables exportation ("Download" button) and saving of card configuration information.
Import settings from file: Enables selection of a configuration file ("Browse" button) and uploading ("Upload"
button) of card configuration information.
Important note:
The card must be rebooted after any changes to these parameters.. See "System" page
Security: The administrator has to click on Save and enter his/her login/password to save any modifications.

ENERGIZE YOUR ENTERPRISE
Network Management Card – User Manual 34003991EN/DA Page 50/120
4.4.2 System
Click on "System" in the menu.
This menu enables the customisation of the information on the UPS properties pages.
◗ UPS Contact: This text field is limited to 49 characters. Enter the name of the person responsible for UPS
administration at IT network level and/or electrical maintenance. This field does not appear on any other Web page.
By default, its value is "Computer Room Manager".
◗ UPS Location: Enter a description (limited to 49 characters) of the location of the UPS in your installation (e.g.
Computer room E1-C066). This text is displayed in the home page. By default, its value is "Computer Room".
◗ Default Language: Enables initialisation of the browser language at card connection.
Choice of one of the available languages: English, French, German, Spanish, Italian changes the language of the
html interface pages (reboot the browser after modification).
◗ History log interval: [from 5 to 99999 sec., 60 by default]. Measurement save period.
◗ Environment log interval: [from 60 to 99999 sec., 300 by default]. Temperature and humidity measurement save
period. Reset Communication button: performs a remote reboot of the card without modifying the configuration.
This action is compulsory for consideration of any changes made on the "Network Settings" page. Security of this
operation is ensured by requesting Login and Password.

ENERGIZE YOUR ENTERPRISE
Network Management Card – User Manual 34003991EN/DA Page 51/120
◗ Factory Reset button: enables restoration of the default configuration of all the card’s parameters. TCP/IP
parameters: IP address, subnet mask, gateway and BootP/DHCP value are maintained if the "Keep TCP/IP
parameters" option is selected. Security of this operation is ensured by requesting Login and Password. The
default login and password are: MGEUPS
◗ Export settings to file: Enables exportation ("Download" button) and saving of card configuration information.
◗ Import settings from file: Enables selection of a configuration file ("Browse" button) and uploading ("Upload"
button) of card configuration information.

ENERGIZE YOUR ENTERPRISE
Network Management Card – User Manual 34003991EN/DA Page 52/120
4.4.3 Notified Applications
Click on "Notified Applications" in the menu.
Security: The administrator has to enter his/her login/password in order to view this information.
This menu enables:
◗ The addition of the supervision stations receiving traps and configuration of the trap type.
◗ To list all the Notified Applications and the main parameters.
◗ To test the operation of notified applications
◗ by simulating power loss
◗ by sending a real shutdown sequence.
Up to 100 destinations can be managed by the card :
◗ 35 in TCP connected mode or
◗ 100 in UDP not connected mode or
◗ mixed mode: 20 connected and 50 not connected.
Important note: It is not necessary to add the Network Shutdown Modules protecting your servers in this list. These
modules subscribe and unsubscribe themselves automatically.
Select an entry in the list to modify the values in the edit zone at the bottom of the page. The table displays the
following information:
◗ The All button: Allows the following information to be displayed.
◗ Nr is the index where the application is stored into the table.
◗ Hostname or Address IP: By priority, the hostname of the computer is displayed when the IP address can be
converted into a hostname by a DNS server or if the application has been entered as a hostname.

ENERGIZE YOUR ENTERPRISE
Network Management Card – User Manual 34003991EN/DA Page 53/120
◗ Output: number of the UPS output from which the client is powered.
◗ Configuration: shows where the parameters of the Network Shutdown Module come from: Local (coming from the
application) or Central (coming from the card).
The Central shutdown configuration is available by clicking on the Configuration link.
◗ Shutdown duration: the shutdown duration necessary to properly shutdown the computer.
◗ Shutdown after: the time available to the user from the power failure until the launch of the shutoff sequence of the
UPS and equipment This parameter is optional.
Many actions are available on this page:
◗ Remove: Depending on the kind of application, the selected ones will definitively disappear from the table as SNMP
applications, or they will disappear and automatically re-subscribe as Network Shutdown Module applications.
◗ Utility failure Test: Two alarms, 'Utility failure' and 'Utility restored' spaced 60 seconds apart, will be sent to the
applications selected, making sure that the applications can be reached over the network.
◗ Shutdown Test: This test simulates a UPS on battery operation. It enables an easy check to see if the server
protection works correctly.
- No intervention on the UPS is required.
- The applications selected will process the simultaneous alarms and perform an actual shutdown sequence.
WARNING!
- This test will generate a REAL shutdown sequence of the selected servers on which the Network Shutdown Module
application is running.
◗ Add NMS: allows an SNMP trap receiver to be added such as a Network Management System.
◗ Modify NMS: allows an SNMP trap receiver to be modified.
Both buttons open a new window where it is possible to enter the Application name, the Hostname or IP Address, the
Trap community and the severity.
The default severity value is 1 – Warning

ENERGIZE YOUR ENTERPRISE
Network Management Card – User Manual 34003991EN/DA Page 54/120
4.4.4 Central shutdown configuration
Click on "Notified Applications" in the menu, then "Configuration".
This page is used to define either the "shutdown" or the "notification" settings used by the Network Shutdown
Modules that connect to Network Management Card. These settings are used by the Network Shutdown Modules if
they are in central-configuration mode or if their configuration is not valid.
◗ Shutdown duration: the shutdown duration necessary to properly shutdown the computer.
◗ Shutdown after: the time available to the user from the power failure until the launch of the shutoff sequence of the
UPS and equipment. This parameter is optional. Uncheck the box if you wish not to use this parameter.
◗ Broadcast : Sends network notifications to the Administrators and Users groups on events declared in the server
hosting the NSM
If you wish to set up a new configuration for the Network Shutdown Modules already set to "central-configuration
mode", proceed as indicated below:
◗ Change the Network Shutdown Module parameters in the "Notified Applications" page.
◗ Click the "Save" button.
◗ In this page, select the NSMs for which you want to apply the new configuration.
◗ Press the "Remove" button.
◗ The NSMs selected will disconnect then reconnect and use the new configuration.

ENERGIZE YOUR ENTERPRISE
Network Management Card – User Manual 34003991EN/DA Page 55/120
4.4.5 Access control
Click on "Access Control" in the menu.
To access this page, the login and password are systematically requested if they have not already been entered.
This menu enables configuration of the different parameters enabling secure access to the card via a browser or
SNMP.
◗ Login: This text field is limited to 10 characters - Enables secure access and modification of pages. Default value
"MGEUPS"
◗ Change / Confirm password: This text field is limited to 10 characters - Enables secure access to Configuration
menu pages. Default value "MGEUPS"
◗ Current Community Read name: Indicates the SNMP community name used for read operations
◗ Change Community Read-Only: This text field is limited to 49 characters - Enables the SNMP community name
used for read operations to be changed
◗ Security mode: manages the various authentication methods for page access
◗ Authentication for configuration: Only the configuration pages are protected by login / password
◗ Full authentication: All pages are protected by login / password
◗ SSL and full authentication: All pages are protected by login / password and are only accessible in SSL

ENERGIZE YOUR ENTERPRISE
Network Management Card – User Manual 34003991EN/DA Page 56/120
◗ SSL Access: When selected, access to the Web interface is made in secure mode (https).
Connections with Network Shutdown Modules stay in standard mode (secure TCP)
SSL Security Implementation:
SSL
version 3.0
TLS
version 1.0
Method
TLS_RSA_WITH_512_MD5
Auth
RSA
Key Exchange
RSA
Encryption
RC4_512
Digest
MD5
Changes take effect after a card reboot

ENERGIZE YOUR ENTERPRISE
Network Management Card – User Manual 34003991EN/DA Page 57/120
4.4.6 Date and time
Click on "Date and Time" in the menu.
This menu enables initialisation of the date and time of the card in three different ways.
The date format is always of year/month/day type
◗ Set manually: Enables initialisation of the date and time of the card, with the values entered in the Date and Time
fields. This update is made after clicking on the "Save" button
.
Maximum drift is +/- 2 min./month
◗ Accept automatic update from NSM or EPM: Enables initialisation of the date and time of the card, with the values
provide by the Network Shutdown Modules or the Enterprise Power Management.

ENERGIZE YOUR ENTERPRISE
Network Management Card – User Manual 34003991EN/DA Page 58/120
◗ Synchronize with NTP server: Enables connection with a time server, either available on the company’s internal
network or on the Web. This server communicates GMT time. The IP address or hostname of the time server must
be entered, and the time zone of your geographic area must then be selected from the list. Connection is made with
the server and the date and time are set after clicking on the "Save" button. Time is updated every five hours, thus
preventing any drift in the time. After two attempts, if the NTP server is not accessible, the card shifts to manual
mode.
The card uses the NTP protocol (UDP 123 port). The "firewall" must be set to transmit queries outside the intranet.
No error message is generated if the time server contact fails.
Note 1:
The even the card is used in a UPS supporting time-stamping, the card's time is automatically synchronized with that
of the UPS.
Note 2:
After start-up, if the card is in manual mode or if no NTP server was reached, the card initializes at
01/01/1970

ENERGIZE YOUR ENTERPRISE
Network Management Card – User Manual 34003991EN/DA Page 59/120
4.4.7 Firmware upload
Click on "Firmware Upload" in the menu.
This menu enables a new firmware version to be uploaded
To upload a new version of the card's firmware, select the file to be loaded using the "Browse…" button and click
Upload.
Do not interrupt the operation before the card displays the following screen:

ENERGIZE YOUR ENTERPRISE
Network Management Card – User Manual 34003991EN/DA Page 60/120
4.5 Environment Sensor (option)
The environment sensor (66846) is an option that enables temperature and humidity to be measured, and indication of
the position of two external contacts. It is connected with a standard network cable to the Card Settings port of the
Network Management Card.
The card automatically detects sensor presence. The main menu then displays an additional section "Environment"
with the following elements:
◗ Status
◗ Configuration
◗ Log
Important note: To switch the serial port to the configuration mode, just disconnect the cable and reset the card.
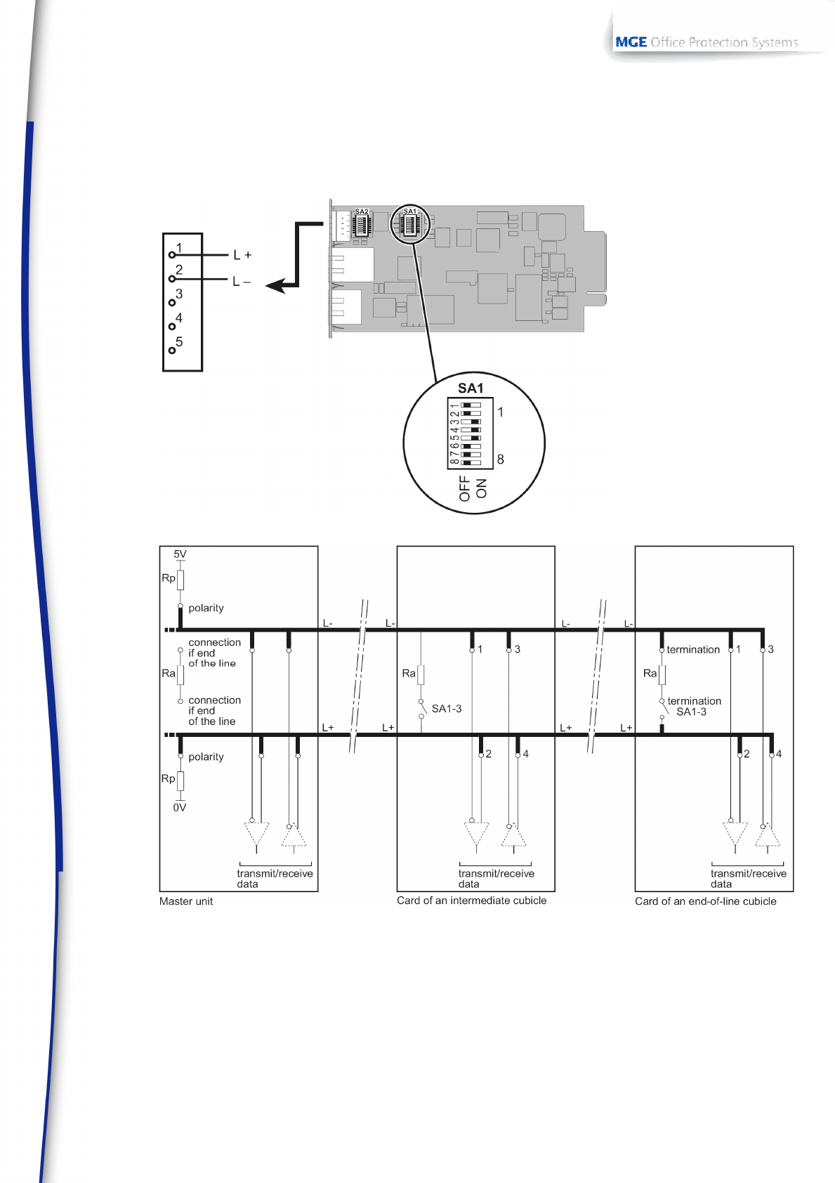
4.5.1 Characteristics
◗ Temperature measurement from 0 to 70 °C with +/- 1° C accuracy
◗ Measurement of humidity from 0 to 100% with +/- 6% accuracy
◗ Min / max time-stamped function for temperature and humidity
◗ Choice of temperature readings in Celsius or Fahrenheit
◗ High and low thresholds, hysteresis and offset adjustable via Web interface
◗ Possibility of notification of status changes by e-mail, SMS or SNMP trap
◗ Position detection of 2 dry contacts (maximum sensor/contact distance: 20 m)
◗ Name and status of each configurable contact
◗ Recording of events and measurements in the card log
◗ Possibility of shutting down the installation safely if one of the thresholds is exceeded or dry contact status
change
◗ Connection to the Network Management Card by CAT5 straight RJ45 network cables (maximum card/sensor
distance: 20m)

ENERGIZE YOUR ENTERPRISE
Network Management Card – User Manual 34003991EN/DA Page 61/120
4.5.2 Environment Status
For both measurements, a graduated gauge proposes the following functions:
The cursor indicates the current value.
Two red zones to the left and right represent the high and low thresholds that can be set on the Environment Settings
page.
When the measured value enters one of these zones, an alarm can be notified (see Notification parameter in the
Environment Settings page).
Time-stamped minimum and maximum temperatures show the extreme values recorded since the last Reset Min/Max,
a thin dotted line shows their positions on the gauge.
Min and Max can be forced at any time to the current value by clicking on the Reset Min/Max button.
Calibrate: The sensor is factory-calibrated, but the user can apply an offset to adjust the measurement.
Input #1 and Input #2 show the position of the two contacts acquired by the sensor.
The position is displayed with the parameters entered in the Environment Settings page.
The last status change of each contact is time-stamped.
The Internet browser updates this page every 10 seconds

ENERGIZE YOUR ENTERPRISE
Network Management Card – User Manual 34003991EN/DA Page 62/120
4.5.3 Environment Settings
The environment sensor measures temperature, humidity and gives the status of the 2 contacts (used for door, alarms
or generator unit).
The temperature and humidity thresholds can be adjusted and can trigger notification and correct shutdown of the
protected system.
The Sensor name is the function name given to the sensor, usually it enables location of the sensor.
Temperature: Choose the temperature unit (°C or °F) from the selection box.
High threshold: if this value is exceeded, a notification if enabled. The default value is 40 °C / 104 °F.
Low threshold: If this value is exceeded, a notification if enabled. The default value is 5 °C / 41 °F .
Hysteresis must be set to prevent multiple notifications if temperature fluctuates around a threshold.
The default value is 2 °C / -3.6 °F.
The high alarm disappears when the value drops below the High threshold - Hysteresis value
The low alarm disappears when the value returns above the Low threshold + Hysteresis value
Humidity
High threshold: If this value is exceeded, a notification is sent if this is validated. The default value is 90%.
Low threshold: If this value is exceeded, a notification is sent if this is validated. The default value is 5%.

ENERGIZE YOUR ENTERPRISE
Network Management Card – User Manual 34003991EN/DA Page 63/120
Hysteresis must be set to prevent multiple notifications if humidity fluctuates around a threshold. The default value is
5%.
The high alarm disappears when the value drops below the High threshold - Hysteresis value
The low alarm disappears when the value returns above the Low threshold + Hysteresis value
Input #1 and Input #2: Enter an identifier corresponding to the acquired contact (e.g.: rack door, air conditioning,
generator unit, etc.). Max. length is 28 characters.
when closed and when open: are the names associated to the two contact positions. (e.g.: "open" and "closed" for a
door, "On" and "Off" for a generator).
Each status change triggers a notification if enabled.
When the Notification box is enabled, the following functions are activated for each event selected:
◗ display in the list of current alarms
◗ Consideration in the
UPS log
◗ SNMP trap generation
◗ notification by e-mail (if the Environment sensor notification option is enabled in the e-mail notification page)
The list of messages is given in the
appendix
System shutdown can be triggered for each notification if this option is enabled. If notification is disabled, the
Shutdown option cannot be used.
Export settings to file: Enables exportation ("Download" button) and saving of card configuration information.
Import settings from file: Enables selection of a configuration file ("Browse" button) and uploading ("Upload" button)
of card configuration information.
Security: The user must be identified to access this page.

ENERGIZE YOUR ENTERPRISE
Network Management Card – User Manual 34003991EN/DA Page 64/120
4.5.4 Log
The two environment sensor measurements: Temperature and Humidity are recorded at an interval defined by the
Environment log interval in the
System settings page.
By default, this period is 300 seconds.
Each measurement is dated and stored in the log of the UPS’s communication card.
The size of log files is limited by a time indexing system.
The user can Save the log on his/her workstation at any time, in a CSV format file.
The user can also Clear the files contained in the card to reset the log.

ENERGIZE YOUR ENTERPRISE
Network Management Card – User Manual 34003991EN/DA Page 65/120
5 Server protection
5.1 Set-up of the shutdown parameters
The Network Shutdown Module, on protected server boot, subscribes itself automatically to
notified applications list
and sends its essential data:
◗ IP Address or hostname of the server on which it is installed: So that the card can inform it of power events.
◗ Time required to shutdown the server (Shutdown Duration, configurable in the "Set-up" menu of each NSM): The
card takes into account the longest shutdown time of all the Network Shutdown Modules subscribed (This is the
Shutdown duration of the
Shutdown parameters) page to manage UPS shutdowns without affecting any of
Shutdown Modules connected.
During normal operation, the Network Shutdown Module periodically checks its connection with the card.
In case of a major power event, the card sends information to the Network Shutdown Module which reacts according to
the situation. (shutdown order, programmed actions, messages to the administrator and to users via the network)
When the server shuts down, the Network Shutdown Module unsubscribes itself from the
notified applications.
5.1.1 Shutdown criteria managed by the Network Management Card
During an extended power failure, three criteria may cause the server shutdown procedure to be initiated. If several
criteria are selected, (See page
Shutdown parameters), the first criterion encountered will launch the shutdown
procedure.
At the end of the shutdown procedure, when all servers have been shut down, the UPS may shut down to avoid
unnecessary discharge of its batteries, depending on its configuration.

ENERGIZE YOUR ENTERPRISE
Network Management Card – User Manual 34003991EN/DA Page 66/120
Start of the shutdown sequence
Delay before
shutdown
Utility failure
Remaining autonomy
100%
Shutdown after :
If remaining time under
UPS Shut off
Card parameters UPS parameters
Shutdown duration
Battery
capacity
0%
Shutdown if
remainig
capacity
under
t
5.1.1.1 Backup time before initiating the shutdown procedure
(Shutdown After – Shutdown Timer)
When the UPS switches to battery, the Network Management Card starts the Shutdown Timer countdown and launches
the system shutdown procedure at the end of the countdown.
This value must be chosen so that users have time to complete their tasks and disconnect, without exceeding battery
backup time.
Note 1:
The Network Shutdown Module can also manage its own Shutdown Timer (configurable in the Shutdown Module"set-
up" menu of each Network Shutdown Module) launched when the UPS switches to battery.
Note that if this criterion is selected to initiate system shutdown, automatic system reboot when power is restored is
not guaranteed (e.g. power restoration if only this system was shut down).
5.1.1.2 Initiating the shutdown procedure when the battery level is lower than:
(If Capacity under)
When the card detects that the remaining backup time percentage is less than the configured level, the shutdown
sequence is started.
By default, this value is set at 20%.
Note:
The UPS already manages an equivalent parameter for the end of backup pre-alarm.
The card does not accept values less than that programmed in the UPS.
Check the UPS documentation.

ENERGIZE YOUR ENTERPRISE
Network Management Card – User Manual 34003991EN/DA Page 67/120
5.1.1.3 Shutdown when backup time is less than
When the Network Management Card detects that the percentage of backup time remaining is less than the value set,
the shutdown sequence is started.
5.1.1.4 Shutdown duration
Duration (in seconds) required for the system protected by the Shutdown Modules to shut down.
The Network Shutdown Modules transmit their own "Shutdown duration" to the Network Management Card.
Based on these values (maximum Shutdown duration of all subscribed customer systems) that the card will send to
the delayed shutdown order to the UPS.

ENERGIZE YOUR ENTERPRISE
Network Management Card – User Manual 34003991EN/DA Page 68/120
5.1.2 Controlled outlets
Certain UPS models are equipped with controlled outlets (generally 2) which are always dependant on the UPS's main
outlet.
Shutdown of the main outlet systematically causes shutdown of the programmable outlets.
The following notations are used to identify these outlets:
◗ Main outlet: Main
◗ Controlled outlet 1 1
◗ Controlled outlet 2 2
Start shutdown main
output
Shutdown duration
main output
Utility failure
Shutdown duration 1
Shutdown
duration 2
Shutdown duration 3
Utility
Main output
NSM 1 on main
output
NSM 2 on outlet 1
NSM 3 on main
output
Shutdown after:
Utility restore
Start shutdown
outlet 1
Shutdown
duration outlet
1
Outlet 1
5.1.3 Protection of a server connected to a controlled outlet
Network Shutdown Modules (NSM) starting with version 3.0 are compatible with the controlled outlets.
After connecting the server electrically to one of the controlled outlets, the NSM must be informed of the outlet number
to which it is connected.
Refer to the documentation of the NSM available on the internet site www.mgeops.com section “Downloads – Software
Download.
5.1.3.1 Load shedding or sequential shutdown
It is possible to optimise backup time by shutting down non-priority equipment or sequencing the shutdown of several
devices.
Two shutdown criteria are possible:
◗ Shutdown of outlets after a set battery back-up time (After)
◗ Shutdown of outlets at a given battery discharge level (if battery capacity under)
It is possible to specify values for both criteria. The first criterion reached will initiate server shutdown.

ENERGIZE YOUR ENTERPRISE
Network Management Card – User Manual 34003991EN/DA Page 69/120
5.1.3.2 Sequential startup
It is possible to delay outlet power-on to reduce inrush currents on startup or to sequence the startup of several
devices.
Controlled outlet startup after a given time is based on startup of the main outlet.
5.2 The different server and UPS shutdown sequences
5.2.1 Extended power outage, shutdown initiated by the Shutdown Timer
(Shutdown after)
During battery backup time, the Shutdown Timer of the Network Management Card is reached: After a user-defined
backup time period
(Shutdown parameters page), the shutdown of all servers is initiated, followed by the UPS
shutdown (depending on its configuration). The UPS restarts when utility power is restored (depending on its
configuration)
Shutdown duration: Maximum value of shutdown times of the Network Shutdown Modules subscribed to the card. This
value is updated each time a client subscribes/ unsubscribes.
Start shutdown main
output
Utility failure
Utility
Shutdown after
:
NSM 2 on output 1
NSM 1 on main
output
Shutdown duration
main output
Main output
Utility restore
Start shutdown
output 1
Output 1
Shutdown
duration output 1
Shutdown after 1
:
5.2.2 Extended power outage, shutdown initiated by the "Low battery power"
message
When the "Low battery power" criterion is displayed, the UPS is shut off after taking into account the shutdown
duration of the servers.
"Low battery power": The message appears if either of the two following criteria is checked:
- Low Battery Level
- Low Battery Delay

ENERGIZE YOUR ENTERPRISE
Network Management Card – User Manual 34003991EN/DA Page 70/120
Shutdown duration
Start shutdown main
output
Utility failure
Utility
Battery capacity
under:
NSM 2 on output 1
NSM 1 on main
output
Main output
Utility restore
Start shutdown
output 1
Output 1
Shutdown
duration output 1
Battery capacity
under: (output 1)
5.2.3 Case of power restoration before the end of the "shutdown duration"
counter
If power is restored before the end of the Shutdown Duration, the UPS is shut off after the Shutdown Duration for a
time equal to the forced reboot delay (10 seconds)
Shutdown
duration Forced Reboot
Start shutdown main
output
Utility failure
Utility
Battery capacity under
:
NSM 2 on output 1
NSM 1 on main
output
Main output
Utility restore
Start shutdown
output 1
Output 1
Shutdown
duration output 1
Battery capacity
under: (output 1)

ENERGIZE YOUR ENTERPRISE
Network Management Card – User Manual 34003991EN/DA Page 71/120
5.3 Shutdown management with 2 NMC boards
Certain UPS can have 2 NMC boards in order to:
◗ Increase the number of protected servers,
◗ Protect 2 groups of server connected to different networks physically separated.
5.3.1 Shutdown Duration
As described in the 5.1.1.4 paragraph, The Network Shutdown Modules transmit their own "Shutdown duration" to the
Network Management Card. Based on these values (maximum Shutdown duration of all subscribed customer systems)
that the card will send to the delayed shutdown order to the UPS.
If the UPS have two NMC cards, the maximum shutdown duration of the two groups of protected systems will be used
for the delayed shutdown order.
Example: If the subscribed customers of the first NMC card have a maximum Shutdown duration of 60s and the ones
of the second NMC card of 120s, the servers shutdown will be launched 120s before the UPS shutoff..
5.3.2 Settings
Set-up shutdown parameters to the same values on the 2 cards is highly recommended (for the main output and the
controlled outlets).
If the settings are not the same, the first criteria reached on one the 2 cards will launch the secure shutdown of all
servers
Please, note that in any case the shutdown of the protected servers will be executed safely.

ENERGIZE YOUR ENTERPRISE
Network Management Card – User Manual 34003991EN/DA Page 72/120
6 Configuration via RS232
◗ Use the cord supplied with the card.
◗ Connect the card to a computer equipped with a hyperterminal type emulator. The serial link must be set at 9600
baud, 8 bits, no parity, 1 stop bit, and without flow control.
◗ Check that UPS power is on.
◗ Enter the MGEUPS or mgeups password (non modifiable).
◗ The menu is in English only.
-----------------------------------------------------------------------------
MGE UPS SYSTEMS
NETWORK MANAGEMENT CARD
-----------------------------------------------------------------------------
1 : Reset
2 : Network configuration
3 : Set Login Password to Default
4 : Return to Default Configuration
0 : Exit
-----------------------------------------------------------------------------

ENERGIZE YOUR ENTERPRISE
Network Management Card – User Manual 34003991EN/DA Page 73/120
6.1 Choice 1: Restart / Reset
Use this function to restart the card; two choices are possible
1 : Hardware Reset: Equivalent to a restart of the electrical power supply.
2 : Restart application: Restarts only the application part.
-----------------------------------------------------------------------------
Reset
-----------------------------------------------------------------------------
1 : Hardware Reset
2 : Restart application
0 : Exit
-----------------------------------------------------------------------------
6.2 Choice 2: Network Configuration
Use this function to access network settings.
-----------------------------------------------------------------------------
Network settings
-----------------------------------------------------------------------------
1 : Read Network settings
2 : Modify Network settings
3 : Set Ethernet speed
0 : Exit
-----------------------------------------------------------------------------
6.2.1 Choice 1: Read Network settings
Enables reading of the card's routine settings
Network configuration :
MAC address : 00:06:23:00:1F:8F
Mode : Static IP
IP address : 172.17.18.129
Subnet mask : 255.255.248.0
Gateway : 172.17.17.1

ENERGIZE YOUR ENTERPRISE
Network Management Card – User Manual 34003991EN/DA Page 74/120
6.2.2 Choice 2: Modify Network settings
Enables the modification of network parameters
For each of the following questions, you can press <Return> to select the value
shown in braces, or you can enter a new value.
Should this target obtain IP settings from the network?[N]
Static IP address [172.17.18.129]?
Subnet Mask IP address [255.255.248.0]?
Gateway address IP address [172.17.17.1]?
Wait during your new configuration is saved ...
Reset the card to take into account the new configuration.
In DHCP mode, the card can receive the following parameters according to the DHCP server settings
◗ IP address
◗ Subnet Mask
◗ Gateway address
◗ Primary DNS server
◗ Secondary DNS server
The card must be
restarted in order for the new parameters to be taken into account.
6.2.3 Choice 3: Set Ethernet speed
Enables the modification of the network speed
Set the Ethernet speed : [1 : Automatic, 2 : 10 MBit]
1
New Ethernet speed : Automatic
Wait during the new setting is saved ...
Reset the card to take into account the new configuration.
The card must be
restarted in order for the new parameters to be taken into account.

ENERGIZE YOUR ENTERPRISE
Network Management Card – User Manual 34003991EN/DA Page 75/120
6.3 Choice 3: Lost password / Set Login Password to Default
In the even the login or password is lost, choice 3 enables the return to the default password:
-----------------------------------------------------------------------------
MGE UPS SYSTEMS
NETWORK MANAGEMENT CARD
-----------------------------------------------------------------------------
1 : Reset
2 : Network configuration
3 : Set Login Password to Default
4 : Return to Default Configuration
0 : Exit
-----------------------------------------------------------------------------
Wait during Login Password return to default ...
Wait for the confirmation message.
Login Password are succefully been set.
The card is now accessible via the Web with the password MGEUPS.
The card must be
restarted in order for the new parameters to be taken into account.

ENERGIZE YOUR ENTERPRISE
Network Management Card – User Manual 34003991EN/DA Page 76/120
6.4 Choice 4: Return to Default Configuration
Enables restoration of the
default configuration of all the card’s parameters
-----------------------------------------------------------------------------
MGE UPS SYSTEMS
NETWORK MANAGEMENT CARD
-----------------------------------------------------------------------------
1 : Reset
2 : Network configuration
3 : Set Login Password to Default
4 : Return to Default Configuration
0 : Exit
-----------------------------------------------------------------------------
Wait during configuration returns to default ...
Wait for the confirmation message.
Configuration has been set to default one.
You must Reset the card.
The card must be
restarted in order for the new parameters to be taken into account.

ENERGIZE YOUR ENTERPRISE
Network Management Card – User Manual 34003991EN/DA Page 77/120
7 Industrial Network Management Card (INMC option)
7.1 Presentation
7.1.1 Overview
7.1.2 Functions
The Industrial Network Management Card (INMC) provides the same functions than the NMC card described in the
previous section of this document.
The adding function consists to provide UPS (Uninterruptible Power Supply) data (states and measures) to be sent a
computer system.
The JBUS hexadecimal (MODBUS RTU) communication protocol is used in slave mode. The system provides a
communication channel with an RS485 or RS232 interface.
Note:
◗ 2 wires or 4 wires RS485 link are available.
Warning:
◗ RS232 and RS485 communication ports cannot be used together.
◗ JBUS/MODBUS communication is operational 2 minutes after the startup of the card.

ENERGIZE YOUR ENTERPRISE
Network Management Card – User Manual 34003991EN/DA Page 78/120
7.1.3 Technical characteristics
Functions Parameters Default values Possible values
JBUS/MODBUS
communication
- Baud rate
- Parity
- Slave number
- 9600 bauds
- without parity
- Slave nr 1
- 1200, 2400, 4800, 9600
- Without parity, even parity
- 1 to FF (hexadecimal)
RS232 link
- Link connection in
transmit
data (Tx) or receive data
(Rx)
- Rx on pin 1
- Tx on pin 3
- Rx on pin 1
- Tx on pin 3
RS485 link - Termination - No termination - With or without (2 or 4
wires)

ENERGIZE YOUR ENTERPRISE
Network Management Card – User Manual 34003991EN/DA Page 79/120
7.2 Installation
7.2.1 RS232 link configuration and connection
Set the SA2 switches like below:
The next figure shows the details of the connection in RS232 mode:
Pin number Function
1 Received data (input)
2 Not connected
3 Transmitted data (output)
4 Not connected
5 Signal Ground

ENERGIZE YOUR ENTERPRISE
Network Management Card – User Manual 34003991EN/DA Page 80/120
7.2.2 RS485 link configuration and connection
7.2.2.1 RS485 connection
La liaison EIA RS485, en 2 fils ou en 4 fils, doit être polarisée en un point unique de la ligne et adaptée aux deux
extrémités de cette ligne pour un fonctionnement correct A TRADUIRE
Normally, the master of the network sets the polarity of the line. The INMC card is a slave equipment and don’t have
polarisation resistor.
The two ends of the line must be terminated. Allow for 1 or 2 terminators to avoid mismatching the line when any
equipment at the end of the line is disconnected.
The next figure gives the detail of the RS485 connector and the internals drivers:
Pin number Function
1 R- : Receiver - (input)
2 R+ : Receiver + (input)
3 T- : Transmitter - (output)
4 T+ : Transmitter + (output)
5 0 V
Important notes:
Use twisted pair cable (cable specification 0.3mm
2
and capacitance 42pF/m)
The transmission range will increase if a cable with lower capacitance and larger diameter is used.
Use shielded cable in heavy industrial environments.

ENERGIZE YOUR ENTERPRISE
Network Management Card – User Manual 34003991EN/DA Page 81/120
The settings of the RS485 link are made through the SA1 switches:
SA1 description:
1: reserved
2: reserved
3: link termination between T- to R- (2 wires configuration) if set to ON
4: connection T- to R- (2 wires configuration) if set to ON
5: connection T+ to R+ (2 wires configuration) if set to ON
6: reserved
7: reserved
8: link termination between R+ and R- if set to ON

ENERGIZE YOUR ENTERPRISE
Network Management Card – User Manual 34003991EN/DA Page 82/120
7.2.2.2 RS485 link configuration for 2 wires connexion
Set the SA2 switches like below to set the RS485 mode:
Set the SA1 switches to select the two wires configuration with no termination:

ENERGIZE YOUR ENTERPRISE
Network Management Card – User Manual 34003991EN/DA Page 83/120
Set the SA1 switches to select the two wires configuration with termination:
The next figure gives a typical bus structure in the two wires configuration:

ENERGIZE YOUR ENTERPRISE
Network Management Card – User Manual 34003991EN/DA Page 84/120
7.2.2.3 RS485 link configuration for 4 wires connexion
Set the SA2 switches like below:
Set the SA1 switches to select the four wires configuration with no termination:

ENERGIZE YOUR ENTERPRISE
Network Management Card – User Manual 34003991EN/DA Page 85/120
Set the SA1 switches to select the four wires configuration with termination:
The next figure gives a typical bus structure in the four wires configuration:

ENERGIZE YOUR ENTERPRISE
Network Management Card – User Manual 34003991EN/DA Page 86/120
7.2.3 Configuration of the JBUS/MODBUS communication parameters
◗ Use the cord supplied with the card.
◗ Connect the card to a computer equipped with a Hyper terminal type emulator. The serial link must be set at 9600
baud, 8 bits, no parity, 1 stop bit, and without flow control.
◗ Check that UPS power is on.
◗ Enter the MGEUPS or mgeups password (not modifiable).
Connect the RS232 link
to a terminal
(Microsoft Hyper
terminal)

ENERGIZE YOUR ENTERPRISE
Network Management Card – User Manual 34003991EN/DA Page 87/120
◗ The next menu appears:
-----------------------------------------------------------------------------
MGE UPS SYSTEMS
NETWORK MANAGEMENT CARD
-----------------------------------------------------------------------------
1 : Reset
2 : Network configuration
3 : Set Login Password to Default
4 : Return to Default Configuration
5 : Jbus configuration
6 : Sensor configuration
0 : Exit
-----------------------------------------------------------------------------
◗ Type 5 and return to display the JBUS configuration menu.
◗
◗ The next menu appears:
-----------------------------------------------------------------------------
Jbus settings
-----------------------------------------------------------------------------
1 : Display Jbus settings
2 : Modify Jbus settings
3 : Display Jbus diagnostics
4 : Reset Jbus diagnostics
5 : Return to Jbus Default Configuration
6 : Display Jbus frames
0 : Exit
-----------------------------------------------------------------------------
7.2.3.1 Choice 1: Display Jbus settings
Enables reading of the card's Jbus settings
Jbus configuration :
Slave number : 7
Speed : 9600 bds
Data : 8 bits
stop bit : 1
Parity : None
7.2.3.2 Choice 2: Modify Jbus settings
Enables the modification of Jbus settings.

ENERGIZE YOUR ENTERPRISE
Network Management Card – User Manual 34003991EN/DA Page 88/120
Setting Jbus configuration :
Set Slave number : 0x7
Set the Baud Rate [1: 38400, 2: 19200, 3: 9600, 4: 4800, 5: 2400, 6: 1200] :3
Set data format [1: 8 bits, 2: 7 bits] :1
Set stop bit [1: 1 bits, 2: 2 bits] :1
Set Parity [1: None, 2: Even, 3: Odd] :1
Wait during the new setting is saved ...
TLS/ Slave JBUS initialized
The Jbus configuration is now updated.
7.2.3.3 Choice 3: Display Jbus diagnostics
Enables reading of the Jbus diagnostics.
Jbus diagnostics :
Cpt1 - Bus Message Count:0
Cpt2 - CRC Error Count :0
Cpt3 - Slave Exception Error Count:0
Cpt4 - Slave Message Count:0
Cpt5 - Slave No Response Count:0
Cpt6 - Slave NAK Count:0
Cpt7 - Slave Busy Count:0
Cpt8 - Bus Caracter Overrun Count:0
Cpt9 - Slave Correct Response Count:0
7.2.3.4 Choice 4: Reset Jbus diagnostics
Reset the Jbus diagnostic counters.
7.2.3.5 Choice 5: Return to Jbus Default Configuration
Returns to the Jbus default configuration (0x01, 9600, 8, 1, none)
Wait during Jbus configuration returns to default ...
Jbus Configuration has been set to default one.

ENERGIZE YOUR ENTERPRISE
Network Management Card – User Manual 34003991EN/DA Page 89/120
7.2.3.6 Choice 6: Display Jbus frames
Enables the display of the Jbus frames:
Recv : 01 01 00 00 00 64 3d e1
Send : 01 81 02 c1 91
Recv : 01 03 00 62 00 64 e5 ff
Send : 01 03 c8 00 00 00 00 00 00 00 00 00 00 00 00 00 ...
Recv : 01 01 00 00 00 64 3d e1
Send : 01 81 02 c1 91
Recv : 01 03 00 62 00 64 e5 ff
Send : 01 03 c8 00 00 00 00 00 00 00 00 00 00 00 00 00 ...

ENERGIZE YOUR ENTERPRISE
Network Management Card – User Manual 34003991EN/DA Page 90/120
7.3 Additional Web pages
The INMC card Jbus parameters could be set through the next page:

ENERGIZE YOUR ENTERPRISE
Network Management Card – User Manual 34003991EN/DA Page 91/120
7.4 JBUS table
7.4.1 Data for Pulsar 700 / 1000 / 1500
7.4.1.1 Status table
Status description Status to 0 Status to 1 Word (hex) Bit
Load protected no yes 40 0
UPS coupled no yes 40 1
Unit general alarm no yes 40 2
UPS in backup no yes 40 4
Battery low warning no yes 40 5
Low battery no yes 40 6
Operation on static switch no yes 40 7
Communication fault absent present 40 9
UPS overload no yes 40 A
Emergency stop absent present 40 B
Battery to be checked no yes 40 D
Device ventilation fault no yes 40 E
Battery present absent present 42 0
Mains 1 voltage out of tolerance no yes 44 8
Mains 1 frequency out of tolerance no yes 44 B
Bypass status no yes 46 7
Charger general fault no yes 49 0
Battery charge not in
charge in charge 49 1 & 3
Converter fault no yes 4A 1
Inverter fault no yes 4C 1

ENERGIZE YOUR ENTERPRISE
Network Management Card – User Manual 34003991EN/DA Page 92/120
7.4.1.2 Measurements table
Description of the physical quantity Word (hex) Unit
I output 109 A
U output 124 V
U battery 12D V
Output active power 136 W
Output apparent power 137 VA
% output load level 139 %
Power factor (Cos PHI) 13D -
Mains 1 frequency 13E Hz
Output frequency 141 Hz
Battery backup time 149 Min
Battery charging level 14B %
U mains 1 150 V
Nominal voltage of battery element 213 V

ENERGIZE YOUR ENTERPRISE
Network Management Card – User Manual 34003991EN/DA Page 93/120
7.4.2 Data for Pulsar M 2200 / 3000
7.4.2.1 Status table
Status description Status to 0 Status to 1 Word (hex) Bit
Load protected no yes 40 0
UPS coupled no yes 40 1
Unit general alarm no yes 40 2
UPS in backup no yes 40 4
Battery low warning no yes 40 5
Low battery no yes 40 6
Operation on static switch no yes 40 7
Communication fault absent present 40 9
UPS overload no yes 40 A
Emergency stop absent present 40 B
Battery to be checked no yes 40 D
Device ventilation fault no yes 40 E
Manual bypass switch (Q3BP) open closed 41 6
Battery present absent present 42 0
Mains 1 voltage out of tolerance no yes 44 8
Mains 1 frequency out of tolerance no yes 44 B
Redundancy lost no yes 45 7
Maintenance position no yes 46 1
Mains 2 overload no yes 46 5
Output on bypass no yes 46 7
Mains 2 frequency out of tolerance no yes 46 9
Mains 2 voltage out of tolerance no yes 46 A
Phase M2 out of tolerance no yes 46 B
Charger general fault no yes 49 0
Battery charge no yes 49 1 & 3
Converter fault no yes 4A 1
Inverter major fault no yes 4C 1

ENERGIZE YOUR ENTERPRISE
Network Management Card – User Manual 34003991EN/DA Page 94/120
7.4.2.2 Measurements table
Description of the physical quantity Word (hex) Unit
I mains 2 106 A
I output 109 A
U mains 2 11E V
U output 124 V
U battery 12D V
Output active power 136 W
Output apparent power 137 VA
% output load level 139 %
Power factor x 100 13D -
Mains 1 frequency 13E dHz
Output frequency 141 dHz
Battery backup time 149 Min
Battery charging level 14B %
U mains 1 150 V
Nominal voltage of battery element 213 V

ENERGIZE YOUR ENTERPRISE
Network Management Card – User Manual 34003991EN/DA Page 95/120
7.4.3 Data for Pulsar MX 4000 / 5000 / 10000
7.4.3.1 Status table
Status description Status to 0 Status to 1 Word (hex) Bit
Load protected no yes 40 0
UPS coupled no yes 40 1
Unit general alarm no yes 40 2
UPS in backup no yes 40 4
Battery low warning no yes 40 5
Low battery no yes 40 6
Operation on static switch no yes 40 7
Communication fault absent present 40 9
UPS overload no yes 40 A
Emergency stop absent present 40 B
Battery to be checked no yes 40 D
Device ventilation fault no yes 40 E
Manual bypass switch (Q3BP) open closed 41 6
UPS in “eco” mode no yes 41 7
Battery present absent present 42 0
Mains 1 voltage out of tolerance no yes 44 8
Mains 1 fuse fault no yes 44 9
Mains 1 frequency out of tolerance no yes 44 B
Redundancy lost no yes 45 7
Maintenance position no yes 46 1
Mains 2 overload no yes 46 5
Mains 2 thermal overload no yes 46 6
Output on bypass no yes 46 7
Mains 2 frequency out of tolerance no yes 46 9
Mains 2 voltage out of tolerance no yes 46 A
Phase M2 out of tolerance no yes 46 B
Mains 2 internal fault absent present 47 2
Charger general fault no yes 49 0
Battery charge no yes 49 1 & 3
Converter fault no yes 4A 1
Inverter major fault no yes 4C 1
Inverter overload no yes 4C 2
Inverter thermal overload no yes 4C 3
Inverter limitation no yes 4C 4
UPS fuse fault absent present 4C 5

ENERGIZE YOUR ENTERPRISE
Network Management Card – User Manual 34003991EN/DA Page 96/120
7.4.3.2 Measurements table
Description of the physical quantity Word (hex) Unit
I mains 1 100 A
I mains 2 106 A
I output 109 A
I battery 10E A
U mains 2 11E V
U output 124 V
U battery 12D V
Output active power 136 W
Output apparent power 137 VA
% output load level 139 %
Power factor (Cos PHI) 13D -
Mains 1 frequency 13E dHz
Mains 2 frequency 140 dHz
Output frequency 141 dHz
Battery backup time 149 Min
Battery charging level 14B %
U mains 1 150 V
Nominal voltage of battery element 213 V

ENERGIZE YOUR ENTERPRISE
Network Management Card – User Manual 34003991EN/DA Page 97/120
7.4.4 Data for Pulsar MX frame 15 / 20
7.4.4.1 Status table
Status description Status to 0 Status to 1 Word (hex) Bit
Load protected no yes 40 0
UPS coupled no yes 40 1
Unit general alarm no yes 40 2
UPS in backup no yes 40 4
Battery low warning no yes 40 5
Low battery no yes 40 6
Operation on static switch no yes 40 7
Communication fault absent present 40 9
UPS overload no yes 40 A
Emergency stop absent present 40 B
Battery to be checked no yes 40 D
Device ventilation fault no yes 40 E
Manual bypass switch (Q3BP) open closed 41 6
Battery present absent present 42 0
Mains 1 voltage out of tolerance no yes 44 8
Mains 1 fuse fault no yes 44 9
Mains 1 frequency out of tolerance no yes 44 B
Redundancy lost no yes 45 7
Maintenance position no yes 46 1
Mains 2 overload no yes 46 5
Mains 2 thermal overload no yes 46 6
Output on bypass no yes 46 7
Mains 2 frequency out of tolerance no yes 46 9
Mains 2 voltage out of tolerance no yes 46 A
Phase M2 out of tolerance no yes 46 B
Mains 2 internal fault absent present 47 2
Charger general fault no yes 49 0
Battery charge no yes 49 1 & 3
Inverter major fault no yes 4C 1
Inverter overload no yes 4C 2
Inverter thermal overload no yes 4C 3
Inverter limitation no yes 4C 4
UPS fuse fault absent present 4C 5

ENERGIZE YOUR ENTERPRISE
Network Management Card – User Manual 34003991EN/DA Page 98/120
7.4.4.2 Modular fault table
Description du Status Status to 0 Status to 1 Word
(hex)
Bit
General alarm Absent Present 61 0
Fan failure Absent Present 61 1
Internal communication fault Absent Present 61 2
Inverter thermal overload Absent Present 61 3
Inverter fault Absent Present 61 4
Inverter fuse blown Absent Present 61 5
Load short circuit Absent Present 61 6
Module 1
General alarm Absent Present 62 0
Fan failure Absent Present 62 1
Internal communication fault Absent Present 62 2
Inverter thermal overload Absent Present 62 3
Inverter fault Absent Present 62 4
Inverter fuse blown Absent Present 62 5
Load short circuit Absent Present 62 6
Module 2
General alarm Absent Present 63 0
Fan failure Absent Present 63 1
Internal communication fault Absent Present 63 2
Inverter thermal overload Absent Present 63 3
Inverter fault Absent Present 63 4
Inverter fuse blown Absent Present 63 5
Load short circuit Absent Present 63 6
Module 3
General alarm Absent Present 64 0
Fan failure Absent Present 64 1
Internal communication fault Absent Present 64 2
Inverter thermal overload Absent Present 64 3
Inverter fault Absent Present 64 4
Inverter fuse blown Absent Present 64 5
Load short circuit Absent Present 64 6
Module 4

ENERGIZE YOUR ENTERPRISE
Network Management Card – User Manual 34003991EN/DA Page 99/120
Description du Status Status to 0 Status to 1 Word
(hex)
Bit
General alarm Absent Present 65 0
Fan failure Absent Present 65 1
Internal communication fault Absent Present 65 2
Inverter thermal overload Absent Present 65 3
Inverter fault Absent Present 65 4
Inverter fuse blown Absent Present 65 5
Load short circuit Absent Present 65 6
Module 5
General alarm Absent Present 66 0
Fan failure Absent Present 66 1
Internal communication fault Absent Present 66 2
Inverter thermal overload Absent Present 66 3
Inverter fault Absent Present 66 4
Inverter fuse blown Absent Present 66 5
Load short circuit Absent Present 66 6
Module 6
General alarm Absent Present 67 0
Fan failure Absent Present 67 1
Internal communication fault Absent Present 67 2
Inverter thermal overload Absent Present 67 3
Inverter fault Absent Present 67 4
Inverter fuse blown Absent Present 67 5
Load short circuit Absent Present 67 6
Module 7
General alarm Absent Present 68 0
Fan failure Absent Present 68 1
Internal communication fault Absent Present 68 2
Inverter thermal overload Absent Present 68 3
Inverter fault Absent Present 68 4
Inverter fuse blown Absent Present 68 5
Load short circuit Absent Present 68 6
Module 8

ENERGIZE YOUR ENTERPRISE
Network Management Card – User Manual 34003991EN/DA Page 100/120
7.4.4.3 Measurements table
Description of the physical quantity Word (hex) Unit
I1 (I phase 1) mains 1 100 A
I2 (I phase 2) mains 1 101 A
I3 (I phase 3) mains 1 102 A
I1 (I phase 1) mains 2 106 A
I2 (I phase 2) mains 2 107 A
I3 (I phase 3) mains 2 108 A
I1 (I phase 1) output 109 A
I2 (I phase 2) output 10A A
I3 (I phase 3) output 10B A
I battery 10E A
U12 mains 1 115 V
U23 mains 1 116 V
U31 mains 1 117 V
U mains 2 (phase 1) 11E V
U mains 2 (phase 2) 11F V
U mains 2 (phase 3) 120 V
U12 mains 2 121 V
U23 mains 2 122 V
U31 mains 2 123 V
U1N output 124 V
U2N output 125 V
U3N output 126 V
U12 output 127 V
U23 output 128 V
U31 output 129 V
U battery 12D V
Output active power (phase 1) 130 W
Output active power (phase 2) 131 W
Output active power (phase 3) 132 W
Output apparent power (phase 1) 133 VA
Output apparent power (phase 2) 134 VA
Output apparent power (phase 3) 135 VA
Output total active power 136 W
Output total apparent power 137 VA
% output load level 139 %
Peak factor phase 1 x 100 13A -
Peak factor phase 2 x 100 13B -
Peak factor phase 3 x 100 13C -
Power factor x 100 13D -
Mains 1 frequency 13E dHz
Mains 2 frequency 140 dHz
Output frequency 141 dHz
Battery backup time 149 Min
Battery charging level 14B %

ENERGIZE YOUR ENTERPRISE
Network Management Card – User Manual 34003991EN/DA Page 101/120
Description of the physical quantity Word (hex) Unit
U mains 1 (phase 1) 150 V
U mains 1 (phase 2) 151 V
U mains 1 (phase 3) 152 V
Nominal voltage of battery element 213 V

ENERGIZE YOUR ENTERPRISE
Network Management Card – User Manual 34003991EN/DA Page 102/120
7.4.5 Sensor data
7.4.5.1 Status table
Status description Status to 0 Status to 1 Word (hex) Bit
Input 1 alarm no yes 45 5
Input 2 alarm no yes 45 6
Alarm : humidity too low no yes 45 4
Alarm : humidity too high no yes 45 3
Alarm : temperature too low no yes 45 2
Alarm : temperature too high no yes 45 1
Communication fault no yes 45 0
Input 1 open close 48 0
Input 2 open close 48 1

ENERGIZE YOUR ENTERPRISE
Network Management Card – User Manual 34003991EN/DA Page 103/120
7.4.5.2 Measurements table
Description of the physical quantity Word (hex) Unit
Temperature measure 180 °C / °F
Maximum temperature 181 °C / °F
Maximum temperature date (MSB) in Unix timestamp 182
Maximum temperature date (LSB) in Unix timestamp 183
Minimum temperature (°C) 184 °C / °F
Minimum temperature date (MSB) in Unix timestamp 185
Minimum temperature date (LSB) in Unix timestamp 186
Humidity measure (%) 187 %
Maximum humidity (%) 188 %
Maximum humidity date (MSB) in Unix timestamp 189
Maximum humidity date (LSB) in Unix timestamp 190
Minimum humidity (%) 18B %
Minimum humidity date (MSB) in Unix timestamp 192
Minimum humidity date (LSB) in Unix timestamp 193
Input 1 changing date (MSB) in Unix timestamp 194
Input 1 changing date (LSB) in Unix timestamp 195
Input 2 changing date (MSB) in Unix timestamp 196
Input 2 changing date (LSB) in Unix timestamp 197

ENERGIZE YOUR ENTERPRISE
Network Management Card – User Manual 34003991EN/DA Page 104/120
7.4.5.3 Read of the personalization table
Description Word (hex) Unit
High threshold temperature (°C) 32C 0
Low threshold temperature (°C) 32D 0
Temperature hysteresis (°C) 32E 0
Offset temperature 32F 0
High threshold humidity (%) 330 0
Low threshold humidity (%) 331 0
Humidity hysteresis (%) 332 0
Humidity offset 333 0
Inputs call mask – input 1 close notification 334 0
Inputs call mask – input 2 close notification 334 2
Inputs call mask – low humidity notification 334 7
Inputs call mask – high humidity notification 334 6
Inputs call mask – input 1 open notification 334 1
Inputs call mask – input 2 open notification 334 3
Inputs call mask – low temperature notification 334 5
Inputs call mask – high temperature notification 334 4
Input 1 identification 336 0
Input 2 identification 33A 0

ENERGIZE YOUR ENTERPRISE
Network Management Card – User Manual 34003991EN/DA Page 105/120
7.4.6 Other data
Information description Word (hex) Example
Manufacturer name 1A0 « MGE Office Protection
Systems »
Product name 1A8 « Pulsar »
UPS model 1B0 « 700 »
Serial number 1B8 « AN2E49008 »

ENERGIZE YOUR ENTERPRISE
Network Management Card – User Manual 34003991EN/DA Page 106/120
8 Appendices
8.1 Tables of alarms and events
8.1.1 Table of alarms
List of time dated alarms
Alarm on Alarm off
Battery fuse blown Battery fuse OK
No Battery Battery present
Battery temperature fault Battery temperature OK
Battery charger fault Battery charger OK
Battery fault Battery OK
MAX charger voltage fault Charger voltage OK
MIN charger voltage fault Charger voltage OK
Charger temperature fault Charger temperature OK
Rectifier fault Rectifier OK
Chopper fault Chopper OK
Normal AC frequency out of tolerance Normal AC frequency OK
Normal AC fuses blown Normal AC fuses OK
Normal AC module fault Normal AC module OK
Normal AC voltage out of tolerance Normal AC voltage OK
Normal AC NOK Normal AC OK
Site wiring fault Site wiring OK
Bypass AC frequency out of tolerance Bypass AC frequency OK
Bypass AC phase out of tolerance Bypass AC phase OK
Bypass AC voltage out of tolerance Bypass AC voltage OK
Automatic Bypass fault Automatic Bypass OK
Automatic Bypass overload Automatic Bypass load OK
Automatic Bypass overtemperature Automatic Bypass temperature OK
Automatic Bypass thermal overload Automatic Bypass load OK
Automatic Bypass switch (Q4S) open Automatic Bypass switch (Q4S) closed
Normal AC switch (Q1) open Normal AC switch (Q1) closed
Battery switch (QF1) open Battery switch (QF1) closed
Manual Bypass switch (Q3BP) closed Manual Bypass switch (Q3BP) open
UPS on manual bypass
Output switch (Q5N) open Output switch (Q5N) closed
Single wave load fault Load OK
Negative DC bus too high Negative DC bus OK
Positive DC bus too high Positive DC bus OK
Negative DC bus too low Negative DC bus OK
Positive DC bus too low Positive DC bus OK
Inverter limitation Inverter end of limitation
Inverter fuses blown Input fuses OK
Inverter fault Inverter OK

ENERGIZE YOUR ENTERPRISE
Network Management Card – User Manual 34003991EN/DA Page 107/120
Inverter overload Inverter load OK
Inverter over temperature Inverter temperature OK
Inverter short circuit Inverter OK
Inverter thermal overload Inverter load OK
Load not protected - On Automatic Bypass Load protected - Return from Bypass
Load short circuit Load OK
Load not powered Load powered
Protection Lost Protection OK
Emergency button ON Emergency button OFF
Fan fault Fan OK
Redundancy Lost Redundancy OK
Low battery Battery OK
UPS communication failed UPS communication restored
UPS data base not available UPS data base OK
UPS on battery UPS on normal AC
UPS internal fault UPS OK
UPS overload UPS returns to normal load
UPS overtemperature UPS temperature OK
Imminent UPS shutoff UPS OK
<Sensor name>:
Temperature is above high threshold xx °C
<Sensor name>:
La température est au dessus du seuil haut xx °C
<Sensor name>:
Humidity is above high threshold xx %
<Sensor name>:
L'humidité est au dessus du seuil haut xx %
<Sensor name>:
Temperature is below low threshold xx °C
<Sensor name>:
La température est en dessous du seuil bas xx °C
<Sensor name>:
Humidity is below low threshold xx %
<Sensor name>:
L'humidité est en dessous du seuil bas xx %
<Sensor name>: <Input #1 label> <when closed label> <Sensor name>: <Input #1 label> <when closed label>
<Sensor name>: <Input #1 label> <when open label> <Sensor name>: <Input #1 label> <when open label>
<Sensor name>: <Input #2 label> <when closed label> <Sensor name>: <Input #2 label> <when closed label>
<Sensor name>: <Input #2 label> <when open label> <Sensor name>: <Input #2 label> <when open label>

ENERGIZE YOUR ENTERPRISE
Network Management Card – User Manual 34003991EN/DA Page 108/120
If the UPS is modular UPS, for each module:
Battery fuse blown Battery fuse OK
No Battery Battery present
Battery temperature fault Battery temperature OK
Battery charger fault Battery charger OK
Low battery Battery OK
Charger temperature fault Charger temperature OK
MAX charger voltage fault Charger voltage OK
MIN charger voltage fault Charger voltage OK
Chopper fault Chopper OK
Normal AC fuses blown Normal AC fuses OK
Normal AC module fault Normal AC module OK
Inverter fuses blown Input fuses OK
Inverter fault Inverter OK
Inverter short circuit Inverter OK
Load short circuit Load OK
Rectifier fuse blown Rectifier OK
Rectifier fault Rectifier OK
DC bus unbalanced Load OK
Emergency button ON Emergency button OFF
Load not powered Load powered
UPS internal fault UPS OK
Battery fault Battery OK
Imminent UPS shutoff UPS OK
Normal AC frequency out of tolerance Normal AC frequency OK
Normal AC voltage out of tolerance Normal AC voltage OK
Normal AC switch (Q1) open Normal AC switch (Q1) closed
Site wiring fault Site wiring OK
Automatic Bypass switch (Q4S) open Automatic Bypass switch (Q4S) closed
Bypass AC frequency out of tolerance Bypass AC frequency OK
Automatic Bypass fault Automatic Bypass OK
Automatic Bypass overload Automatic Bypass load OK
Automatic Bypass overtemperature Automatic Bypass temperature OK
Automatic Bypass thermal overload Automatic Bypass load OK
Bypass AC phase out of tolerance Bypass AC phase OK
Bypass AC voltage out of tolerance Bypass AC voltage OK
Load not protected - On Automatic Bypass Load protected - Return from Bypass
Battery switch (QF1) open Battery switch (QF1) closed
Manual Bypass switch (Q3BP) closed Manual Bypass switch (Q3BP) open
UPS on manual bypass
Inverter limitation Inverter end of limitation
Inverter overload Inverter load OK
Inverter overtemperature Inverter temperature OK
Inverter thermal overload Inverter load OK
Negative DC bus too high Negative DC bus OK
Positive DC bus too high Positive DC bus OK
Negative DC bus too low Negative DC bus OK

ENERGIZE YOUR ENTERPRISE
Network Management Card – User Manual 34003991EN/DA Page 109/120
Positive DC bus too low Positive DC bus OK
Output switch (Q5N) open Output switch (Q5N) closed
Normal AC NOK Normal AC OK
UPS on battery UPS on normal AC
UPS overload UPS returns to normal load
UPS overtemperature UPS temperature OK
Fan fault Fan OK
UPS communication failed UPS communication restored
8.1.2 Table of UPS events
List of time dated informations
Alarm on Alarm off
Battery fuse blown Battery fuse OK
Battery temperature fault Battery temperature OK
No Battery Battery present
Battery charger fault Battery charger OK
Charger temperature fault Charger temperature OK
MAX charger voltage fault Charger voltage OK
MIN charger voltage fault Charger voltage OK
End of Warranty LCM message OK
End of battery life LCM message OK
End of life of the wearing parts LCM message OK
Outlet 1 open Outlet 1 closed
Outlet 2 open Outlet 2 closed
Chopper fault Chopper OK
Normal AC switch (Q1) open Normal AC switch (Q1) closed
Normal AC frequency out of tolerance Normal AC frequency OK
Normal AC fuses blown Normal AC fuses OK
Normal AC module fault Normal AC module OK
Normal AC voltage out of tolerance Normal AC voltage OK
Site wiring fault Site wiring OK
Automatic Bypass switch (Q4S) open Automatic Bypass switch (Q4S) closed
Bypass AC frequency out of tolerance Bypass AC frequency OK
Automatic Bypass fault Automatic Bypass OK
Automatic Bypass overload Automatic Bypass load OK
Automatic Bypass overtemperature Automatic Bypass temperature OK
Bypass AC phase out of tolerance Bypass AC phase OK
Automatic Bypass thermal overload Automatic Bypass load OK
Load not protected - On Automatic Bypass Load protected - Return from Bypass
Bypass AC voltage out of tolerance Bypass AC voltage OK
Battery switch (QF1) open Battery switch (QF1) closed
Manual Bypass switch (Q3BP) closed Manual Bypass switch (Q3BP) open
UPS on manual bypass
Inverter limitation Inverter end of limitation
Inverter fuses blown Input fuses OK

ENERGIZE YOUR ENTERPRISE
Network Management Card – User Manual 34003991EN/DA Page 110/120
Inverter fault Inverter OK
Inverter overload Inverter load OK
Inverter overtemperature Inverter temperature OK
Inverter short circuit Inverter OK
Inverter thermal overload Inverter load OK
Output switch (Q5N) open Output switch (Q5N) closed
Load short circuit Load OK
Single wave load fault Load OK
Negative DC bus too high Negative DC bus OK
Positive DC bus too high Positive DC bus OK
Rectifier fault Rectifier OK
Negative DC bus too low Negative DC bus OK
Positive DC bus too low Positive DC bus OK
Protection Lost Protection OK
Redundancy Lost Redundancy OK
Normal AC NOK Normal AC OK
Low battery Battery OK
UPS communication failed UPS communication restored
UPS data base not available UPS data base OK
UPS on battery UPS on normal AC
Emergency button ON Emergency button OFF
Fan fault Fan OK
Load not powered Load powered
UPS internal fault UPS OK
Battery fault Battery OK
UPS overload UPS returns to normal load
UPS overtemperature UPS temperature OK
Imminent UPS shutoff UPS OK
< Sensor Name> : Temperature is above high threshold
<xx> (°C) or (°F)
<Sensor Name> : Temperature is in normal range
< Sensor Name> : Humidity is above high threshold <xx>
(%)
<Sensor Name> : Temperature is in normal range
< Sensor Name> : Temperature is below low threshold
<xx> °C or (°F)
<Sensor Name> : Temperature is in normal range
< Sensor Name> : Humidity is below high threshold <xx>
(%)
<Sensor Name> : Temperature is in normal range
<Sensor name>: <Input #1 label> <when closed label>
<Sensor name>: <Input #1 label> <when open label>
<Sensor name>: <Input #2 label> <when closed label>
<Sensor name>: <Input #2 label> <when open label>>

ENERGIZE YOUR ENTERPRISE
Network Management Card – User Manual 34003991EN/DA Page 111/120
8.1.3 Table of system alarms
Network Management Card startup
Send test mail SUCCESS
Send test mail ERROR
Send mail to <recipient> ERROR
<Sensor name> Communication failure
<Sensor name> Communication restored
Firmware upgraded
Connected NSM list Full, last connection refused
sendTrap()-> Unable to resolve hostname <hostname>
SNMP Send Trap # <num> failure to <hostname>
Time changed by user with yyyy/mm/dd hh:mm:ss
Time synchronized by NSM or EPM with yyyy/mm/dd hh:mm:ss

ENERGIZE YOUR ENTERPRISE
Network Management Card – User Manual 34003991EN/DA Page 112/120
8.2 SNMP objects
8.2.1 MGE MIB
The NMC card implement reduce MGE Office Protection Systems MIB, with the objects bellow managed.
The entire MIB description is available on www.mgeops.com area “Downloads – Software Download.
Le chemin d’accès à la MIB MGE est 1.3.6.1.4.1.705.1.
MIB object SNMP Format Add.path
upsmgIdentFamilyName String {1,1,0}
upsmgIdentModelName String {1,2,0}
upsmgIdentFirmwareVersion String {1,4,0}
upsmgIdentSerialNumber String {1,7,0}
upsmgConfigLowBatteryTime seconds {4,7,0}
upsmgConfigLowBatteryLevel % {4,8,0}
upsmgConfigAutoRestart 1(yes) 2(no) {4,9,0}
upsmgConfigVARating VA {4,12,0}
upsmgBatteryRemainingTime seconds {5,1,0}
upsmgBatteryLevel % {5,2,0}
upsmgBatteryVoltage deciVolts {5,5,0}
upsmgBatteryCurrent deciAmps {5,6,0}
upsmgBatteryFaultBattery 1(yes) 2(no) {5,9,0}
upsmgBatteryReplacement 1(yes) 2(no) {5,11,0}
upsmgBatteryLowBattery 1(yes) 2(no) {5,14,0}
upsmgBatteryChargerFault 1(yes) 2(no) {5,15,0}
upsmgBatteryLowCondition 1(yes) 2(no) {5,16,0}
upsmgInputPhaseNum {6,1,0}
mginputVoltage_1 DeciVolts {6,2,1,2,1,0}
mginputVoltage_2 DeciVolts {6,2,1,2,2,0}
mginputVoltage_3 DeciVolts {6,2,1,2,3,0}
mginputFrequency_1 DeciHz {6,2,1,3,1,0}
mginputFrequency_2 DeciHz {6,2,1,3,2,0}
mginputFrequency_3 DeciHz {6,2,1,3,3,0}
mginputMinimumVoltage
{6,2,1,4,0}
mginputMaximumVoltage {6,2,1,5,0}
mginputCurrent_1 DeciAmps {6,2,1,6,1,0}
mginputCurrent_2 DeciAmps {6,2,1,6,2,0}
mginputCurrent_3 DeciAmps {6,2,1,6,3,0}
upsmgInputBadStatus {6,3,0}
upsmgInputLineFailCause {6,4,0}
upsmgOutputPhaseNum {7,1,0}
mgoutputPhaseIndex_1 {7,2,1,1,1,0}
mgoutputPhaseIndex_2 {7,2,1,1,2,0}
mgoutputPhaseIndex_3 {7,2,1,1,3,0}
mgoutputVoltage_1 deciVolts {7,2,1,2,1,0}
mgoutputVoltage_2 deciVolts {7,2,1,2,2,0}
mgoutputVoltage_3 deciVolts {7,2,1,2,3,0}

ENERGIZE YOUR ENTERPRISE
Network Management Card – User Manual 34003991EN/DA Page 113/120
mgoutputFrequency_1 deciHz {7,2,1,3,1,0}
mgoutputFrequency_2 deciHz {7,2,1,3,2,0}
mgoutputFrequency_3 deciHz {7,2,1,3,3,0}
mgoutputLoadPerPhase_1 % {7,2,1,4,1,0}
mgoutputLoadPerPhase_2 % {7,2,1,4,2,0}
mgoutputLoadPerPhase_3 % {7,2,1,4,3,0}
mgoutputCurrent_1 deciAmps {7,2,1,5,1,0}
mgoutputCurrent_2 deciAmps {7,2,1,5,2,0}
mgoutputCurrent_3 deciAmps {7,2,1,5,3,0}
upsmgOutputOnBattery 1(yes) 2(no) {7,3,0}
upsmgOutputOnByPass 1(yes) 2(no) {7,4,0}
upsmgOutputUtilityOff 1(yes) 2(no) {7,7,0}
upsmgOutputInverterOff 1(yes) 2(no) {7,9,0}
upsmgOutputOverLoad 1(yes) 2(no) {7,10,0}
upsmgOutputOverTemp 1(yes) 2(no) {7,11,0}
upsmgAgentIpAddress {12,1,0}
upsmgAgentSubnetMask {12,2,0}
upsmgAgentDefGateway {12,3,0}
upsmgAgentType {12,6,0}
upsmgAgentMibVersion {12,11,0}
upsmgAgentFirmwareVersion {12,12,0}
upsmgAgentCommUPS 1(yes) 2(no) {12,13,0}

ENERGIZE YOUR ENTERPRISE
Network Management Card – User Manual 34003991EN/DA Page 114/120
If the Environment Sensor is detected , the following information are managed.
upsmgEnvironAmbientTemp 0.1 degré {8,1,0}
upsmgEnvironAmbientHumidity 0.1 % {8,2,0}
upsmgEnvironmentNum {8,6,0}
upsmgEnvironmentIndex {8,7,1,1,1 }
upsmgEnvironmentComFailure 1(yes) 2(no) {8,7,1,2,1}
upsmgEnvironmentTemperature 0.1 degré {8,7,1,3,1}
upsmgEnvironmentTemperatureLo
w
1(yes) 2(no) {8,7,1,4,1}
upsmgEnvironmentTemperatureHi
gh
1(yes) 2(no) {8,7,1,5,1}
upsmgEnvironmentHumidity 0.1 % {8,7,1,6,1}
upsmgEnvironmentHumidityLow 1(yes) 2(no) {8,7,1,7,1}
upsmgEnvironmentHumidityHigh 1(yes) 2(no) {8,7,1,8,1}
upsmgEnvironmentInput1State closed(1), open(2) {8,7,1,9,1}
upsmgEnvironmentInput2State closed(1), open(2) {8,7,1,10,1}

ENERGIZE YOUR ENTERPRISE
Network Management Card – User Manual 34003991EN/DA Page 115/120
8.2.2 Table des TRAPS : (1.3.6.1.4.1.705.1.11)
SNMP traps are sent when alarms appears and desappears.
Level : 1:informational , 2:major, 3:critical
MIB TRAP Trap # Level
-upsmgBatteryFault Trap 1 Level 3
-upsmgBatteryOK Trap 2 Level 1
-upsmgAtLowBattery Trap 5 Level 3
-upsmgFromLowBattery Trap 6 Level 1
-upsmgChargerFault Trap 7 Level 3
-upsmgChargerOK Trap 8 Level 1
-upsmgOnBattery Trap 11 Level 2
-upsmgReturnFromBattery Trap 12 Level 1
-upsmgOnByPass Trap 13 Level 2
-upsmgReturnFromByPass Trap 14 Level 1
-upsmgUtilityFailure Trap 17 Level 2
-upsmgUtilityRestored Trap 18 Level 1
-upsmgOverLoad Trap 21 Level 3
-upsmgLoadOK Trap 22 Level 1
-upsmgOverTemperature Trap 23 Level 3
-upsmgTemperatureOK Trap 24 Level 1
-upsmgOffToStart Trap 29 Level 2
-upsmgOffInProgress Trap 31 Level 3
-upsmgCommunicationFailure Trap 37 Level 3
-upsmgCommunicationRestored Trap 38 Level 1
-upsmgRedundancyLost Trap 65 Level 2
-upsmgRedundancyOK Trap 66 Level 2
-upsmgProtectionLost Trap 67 Level 2
-upsmgProtectionOK Trap 68 Level 2
If the Environment Sensor is detected , the following information are managed.:
- upsEnvironmentComFailure Trap 53 Level 2
- upsEnvironmentComOK Trap 54 Level 2
- upsEnvironmentTemperatureLow Trap 55 Level 2
- upsEnvironmentTemperatureHigh Trap 56 Level 2
- upsEnvironmentTemperatureOK Trap 57 Level 2
- upsEnvironmentHumidityLow Trap 58 Level 2
- upsEnvironmentHumidityHigh Trap 59 Level 2
- upsEnvironmentHumidityOK Trap 60 Level 2
- upsEnvironmentInput1Closed Trap 61 Level 2

ENERGIZE YOUR ENTERPRISE
Network Management Card – User Manual 34003991EN/DA Page 116/120
- upsEnvironmentInput1Open Trap 62 Level 2
- upsEnvironmentInput2Open Trap 64 Level 2
- upsEnvironmentInput2Closed Trap 63 Level 2
The level is used to select traps to be sent to the supervisor. This adjustment is available from the “Notified
applications” page

ENERGIZE YOUR ENTERPRISE
Network Management Card – User Manual 34003991EN/DA Page 117/120
9 Glossary
Bootp:
Protocol based on UDP used to allocate an IP address corresponding to an Ethernet card during the startup phase.
Defined by the RCF 951
Community name:
Access key to access SNMP agent information
DHCP Dynamic Host Configuration Protocol
This IETF protocol enables remote, automatic, self-configuration of the IP addresses of a workstation.
DNS Domain Name Sevicel
The DNS protocol ensure correspondence between the name of a machine and its IP address
E-mail
Electronic means of transmitting messages and/or files.
Gateway
Interconnection equipment between networks with different conventions, to enable communication between them
HTML
(HyperText Markup Language) Language used to describe hypertext pages on the web.
HTTPS : is the secure version of HTTP, the communication protocol of the World Wide Web. It was invented by
Netscape Communications Corporation to provide authentication and encrypted communication and is used in
electronic commerce.
IP
Internet Protocol. Network layer protocol in the TCP/IP stack offering a no-connection inter-network service . The IP
protocol offers functions for addressing, service type specification, fragmentation and re-assembling and security.
Defined in RFC 791.
MIB MANAGEMENT INFORMATION BASE
- Group of software commands to control and administrate a device through the network. Each type of device (server,
hub, PC, UPS, etc.) has its own MIB
NETWORK MANAGEMENT CARD
Communication cards to supervise UPS and communicate with Network Shutdown Module to insure power protection
on servers
NETWORK MANAGEMENT PROXY
Communication software installed on a PC connected to the UPS to supervise it and communicate with Network
Shutdown Module to insure power protection on servers

ENERGIZE YOUR ENTERPRISE
Network Management Card – User Manual 34003991EN/DA Page 118/120

ENERGIZE YOUR ENTERPRISE
Network Management Card – User Manual 34003991EN/DA Page 119/120
NMS NETWORK MANAGEMENT STATION (SNMP)
The dedicated PC or workstation is used on the company’s networks to administrate all devices connected to the
network. Data are transmitted using the SNMP protocol. Popular NMS systems include HP OpenView, IBM Tivoli, CA
Unicenter, etc.
NSM : NETWORK SHUTDOWN MODULE
Protection software installed on a PC or server to protect it
NTP Network Time Protocol
Protocol to position a set of machines on a network at the same time.
Programmable outlet (controlled outlet):
Outlet that can be remote-switched on or off. UM-Client components enable management of such outlets.
REBOOT: To restart a system after an interruption.
– To perform an obstacle-free “reboot”, it is essential that the system is correctly and carefully shut down beforehand.
– The reboot is usually automatic if the computer is re-supplied with electricity (from the utility or from the UPS).
RFC
Request for Comments. All documents defining internal Internet operation.
SNMP (SIMPLE NETWORK MANAGEMENT PROTOCOL)
Protocol used to remote-supervise, administrate and control devices connected to a company network.
SMTP (SIMPLE MAIL TRANSFER PROTOCOL)
Enables message transfer between e-mail servers or between the client and its server. It is based on the server’s port
25. It is described in RFC 821
SSL (Secure Sockets Layers) is a protocol developed by Netscape Communications Corporation for securing data
transmission in commercial transactions on the Internet. Using public-key cryptography, SSL provides server
authentication, data encryption, and data integrity for client/server communications
Subnet mask:
Mask of bits used to identify and differentiate the network address and the equipment address in an IP address.
Normally, the mask is automatically determined by the class of address, which defines in a unique manner the network
part/equipment part division of the IP address.
- Class A: internet address: 255.0.0.0.
- Class B: internet address: 255.255.0.0.
- Class C: internet address: 255.255.255.0.
TCP/IP
Transmission Control Protocol/Internet Protocol. Common name of a series of protocols developed by the DOD in the
US to help build Internet networks throughout the world.
Trap (SNMP) : This term describes an event that affects an MIB variable. Traps are sent to the manager, which is

ENERGIZE YOUR ENTERPRISE
Network Management Card – User Manual 34003991EN/DA Page 120/120
programmed to perform specific tasks upon reception of the traps.