Miele Da408 Users Manual S
DA409 to the manual 53cfcad7-d795-44b3-8527-8f4714e7f8ca
2015-01-24
: Miele Miele-Da408-Users-Manual-222650 miele-da408-users-manual-222650 miele pdf
Open the PDF directly: View PDF
.
Page Count: 36
- Contents
- IMPORTANT SAFETY INSTRUCTIONS 3
- Functional description 7
- Guide to the appliance 8
- Operation 10
- Cleaning and Care 17
- After Sales Service 21
- Installation instructions 23
- Caring for the environment 25
- Installation accessories 26
- Plywood backing 28
- Electrical data 29
- Appliance dimensions 30
- Installation 32
- Air extraction 33

Operating and Installation
Instructions
Ventilation System
DA 408
DA 409
To prevent accidents
and machine damage,
read these instructions
before
installation or use. M.-Nr. 06 241 950
en - US, CA

IMPORTANT SAFETY INSTRUCTIONS
Functional description
Guide to the appliance
Operation
Turning on the fan .................................................10
Selecting the power level............................................10
Delayed Shut Down ................................................12
Turning off the fan .................................................12
Turning the lighting on/off ...........................................13
Dimming the lighting ...............................................13
Filter timers ......................................................14
Checking the filter timers ............................................14
Reprogramming the timers ..........................................15
Cleaning and Care
Cleaning the casing................................................17
Grease filters .....................................................18
Active charcoal filter ...............................................19
Changing the light bulb .............................................20
After Sales Service
Installation instructions
Caring for the environment
Installation accessories
Plywood backing
Electrical data
Appliance dimensions
Installation
Installation instructions .............................................32
Dismantling ......................................................32
Air extraction
Contents
2

Read these Operating Instructions carefully before installing or
using the Ventilation System.
This appliance is intended for
residential use only. Use the
appliance only for its intended
purpose. The manufacturer cannot
be held responsible for damages
caused by improper use of the
hood.
This appliance complies with current
safety requirements. Improper use
of the appliance can lead to
personal injury and material
damage.
READ AND SAVE THESE
INSTRUCTIONS
,CAUTION
For General Ventilation Use Only.
Do not use to exhaust hazardous or
explosive materials and vapors.
~This appliance is designed to vent
cooking smoke and odors only.
~Be certain your appliance is
properly installed and grounded by a
qualified technician.
To guarantee the electrical safety of this
appliance, continuity must exist
between the appliance and an effective
grounding system. It is imperative that
this basic safety requirement be met. If
there is any doubt, have the electrical
system of the house checked by a
qualified electrician. The manufacturer
cannot be held responsible for
damages caused by the lack, or
inadequacy, of an effective grounding
system.
~Before connecting the appliance to
the power supply make sure that the
voltage and frequency listed on the
data plate correspond with the
household electrical supply. This data
must correspond to prevent machine
damage. If in doubt consult a qualified
electrician.
~Installation work and repairs should
only be performed by a qualified
technician in accordance with all
applicable codes and standards.
Repairs and other work by unqualified
persons could be dangerous and the
manufacturer will not be held
responsible.
IMPORTANT SAFETY INSTRUCTIONS
3

~This equipment is not designed for
maritime use or for use in mobile
installations such as recreational
vehicles or aircraft. However, under
certain conditions it may be possible for
installation in these applications. Please
contact the nearest Miele dealer or the
Technical Service Department with
specific requirements.
~Before servicing or cleaning the unit,
switch power off at the service panel
and lock the service disconnecting
means to prevent power from being
switched on accidentally. If the service
disconnecting means cannot be
locked, securely fasten a prominent
warning, such as a tag, to the service
panel.
~Before discarding an old appliance,
unplug it from the power supply and
remove the power cord and any doors
to prevent hazards.
Use
~Do not allow children to play with or
operate the appliance or its controls.
Supervise its use by the elderly or
infirm.
~Do not flambé or grill with an open
flame beneath the hood.
Flames could be drawn up into the
hood by the suction and the grease
filters may catch fire.
~Never operate gas burners without
cookware. Turn the burner off when not
in use. Adjust the burner so that the
flames do not extend beneath the
cookware. Do not overheat the
cookware, e.g. when using a wok. The
hood can be damaged due to
excessive heat from the burners and
the cookware.
~Do not use the hood without the
grease filters in place.
~Clean the grease filters regularly.
Dirty filters are a fire hazard.
~Do not use a steam cleaner to clean
the hood. Steam could penetrate the
electrical components and cause a
short circuit.
~Always turn on the hood when using
the cooktop to prevent damage from
condensation.
IMPORTANT SAFETY INSTRUCTIONS
4

,WARNING - TO REDUCE
THE RISK OF A COOKTOP
GREASE FIRE:
~Never leave surface units
unattended at high settings. Boilovers
cause smoking and greasy spillovers
may ignite. Heat oils slowly on low or
medium settings.
~Always turn the hood on when
cooking at a high heat.
~Clean ventilation fans frequently.
Grease should not be allowed to
accumulate on the fan or filter.
~Use the proper pan size. Always use
cookware appropriate for the size of the
surface element.
,WARNING
TO REDUCE THE RISK OF INJURY
TO PERSONS IN THE EVENT OF A
COOKTOP GREASE FIRE, OBSERVE
THE FOLLOWING:
~SMOTHER FLAMES with a close
fitting lid, cookie sheet, or metal tray
then turn off the burner.
BE CAREFUL TO PREVENT BURNS.
If the flames do not go out immediately,
EVACUATE AND CALL THE FIRE
DEPARTMENT.
~NEVER PICK UP A FLAMING PAN
-You may be burned.
~DO NOT USE WATER, including
wet dishcloths or towels - a violent
steam explosion may result.
~Use a fire extinguisher
ONLY if:
– You have a Class ABC extinguisher
and know how to operate it.
– The fire is small and contained in the
area where it started.
–The fire department has been called.
–You can fight the fire with your back
to an exit.
IMPORTANT SAFETY INSTRUCTIONS
5

Installation
~,WARNING
To reduce the risk of fire only use
metal ductwork.
~Provided a larger distance is not
given by the manufacturer of the
cooktop, follow the minimum safety
distances between a cooktop and the
bottom of the hood:
–22" (550 mm) above electric
cooktops,
–30" (762 mm) above gas cooktops,
– 26" (650 mm) above an open electric
grill or an open electric boiler/fryer.
If local building codes require a greater
safety distance, follow their
requirement.
If there is more than one appliance
beneath the hood and they have
different minimum safety distances
always select the greater distance.
~Be careful not to damage hidden
electrical wiring or plumbing when
cutting or drilling into the wall or ceiling.
~Do not use an extension cord to
connect the appliance to electricity.
Extension cords do not guarantee the
required safety of the appliance,
(e.g. danger of overheating).
~Do not install this hood over
cooktops burning solid fuel.
~Any fittings, sealant, or materials
used to install the ductwork must be
made of approved non-flammable
materials.
~Never connect an exhaust hood to
an active chimney, dryer vent, vent flue,
or room ventilating ductwork. Seek
professional advice before connecting
an exhaust hood vent to an existing,
inactive chimney or vent flue.
~Ducted fans must always be vented
outdoors.
~Make sure that the airflow in the
room is sufficient for combustion and
exhausting of all non-electric heating
appliances (water heaters, gas
cooktops, gas ovens, etc.), otherwise
backdrafts may occur. Follow the
heating manufacturer’s guidelines and
safety standards or those published by
the National Fire Protection Association
(NFPA) or the American Society for
Heating, Refrigeration and Air
Conditioning Engineers (ASHRAE).
If in doubt, consult an experienced
professional.
IMPORTANT SAFETY INSTRUCTIONS
6

The hood offers two modes of
operation:
Air extraction
The air is drawn in and cleaned by the
grease filters and directed outside.
The hood comes equipped with a
non-return flap. This flap automatically
closes when the hood is turned off so
that no exchange of outside air and
room air can occur. When the hood is
turned on, the air pressure of the
exhaust fan automatically opens the
flap blowing the inside air and cooking
odors outside.
Recirculation mode
Air is drawn through the grease filters
and an active charcoal filter. The
filtered air is then recirculated back into
the kitchen through a vent at the top of
the hood’s chimney.
The recirculation mode requires an
install kit and charcoal filter which are
optional accessories.
Before using the hood in
recirculation mode, ensure that the
active charcoal filter is in place, see
"Cleaning and care".
Functional description
7

Guide to the appliance
8

aChimney extension
bChimney
cCanopy
dControl panel
eGrease filter
fRecirculation vent
gOverhead lighting
hCharcoal filter
optional accessory
iLight button
This button turns the light on and off
and also dims the light.
The lighting can be used independently
from the fan.
jOn/Off button
kFan power selection
Four fan speed selection
lDelayed shut down
This button activates the Delayed Shut
Down feature. The fan can be set to
turn off automatically after either 5 or 15
minutes.
mGrease filter button
The indicator next to the grease filter
button lights when the grease filters
need to be cleaned. This button is also
used:
–to reset the grease filter timer after
cleaning the grease filters (see
"Cleaning and Care").
–to show how long the grease filters
have been in use (see "Operation/
Filter timers").
–to change the number of hours
counted by the grease filter timer
(see "Operation/Reprogramming the
timers").
nCharcoal filter button
The indicator next to the charcoal filter
button lights when the charcoal filter
needs to be replaced.
This button is also used:
–to reset the charcoal filter timer after
changing the filter (see "Cleaning
and care").
–to show how long the charcoal filter
has been in use (see "Operation/
Filter timers")
–to change the number of hours
counted by the charcoal filter timer
(see "Operation/Reprogramming the
timers").
Guide to the appliance
9

Turning on the fan
^Press the On/Off button.
Selecting the power level
^Use the "–/+" controls to select the
desired power level.
&= increases the fan speed
$= decreases the fan speed
Level "1" to "3" (green indicators) are
usually sufficient for normal cooking.
Intensive setting
Level "4" (yellow indicator) should only
be used for short periods of time when
frying or cooking food with a strong
aroma.
Automatically switching back the
Intensive power level
The intensive level "4" can be
programmed to automatically switch
back to level "3" after 10 minutes.
^Turn the fan and the lights off.
^Press and hold the "Delay Shut down"
button for 10 secs. The first indicator
of the fan power levels lights.
^Press the following buttons one after
another,
– light,
–the "-" button, and
–the light button again.
Operation
10

If the power level indicators flash the
automatic switch back is not activated.
^To activate the automatic switch back
press the "+" button.
The power level indicators light.
^To deactivate the automatic switch
back press the "–" button.
^To save the setting press the Delay
Shut down button.
If the procedure is not stored within
4 minutes of programming, the hood
will automatically default to the "old"
data.
Fan performance
The maximum air flow capacity is
625 cfm. Factors such as narrow duct
diameter and bends will affect this
value.
Level 1 operates at 40% capacity
Level 2 operates at 60% capacity
Level 3 operates at 80% capacity
Level 4 operates at 100% capacity
There will also be a slight decrease in
airflow for hoods operated in
recirculation mode due to the active
charcoal filter.
Operation
11

Delayed Shut Down
If odors or smoke remain in the kitchen
after cooking has been completed, the
Delayed Shut Down feature can be
selected to allow the hood to continue
running for either 5 or 15 minutes.
^Press the Delayed Shut Down button
while the fan is still running.
Press once = 5 minute delay
(left indicator lights)
Press twice = 15 minute delay
(right indicator lights)
To cancel the Delayed Shut Down
feature press the button again.
Turning off the fan
^Press the On/Off button to turn the
fan off.
The indicator will go out.
Automatic Safety Shut Off
The fan will turn off automatically
10 hours after the last button was
activated. The lighting however will
remain on.
^Press the On/Off button to turn the
fan back on again.
Operation
12

Turning the lighting on/off
The overhead lighting can be turned on
and off independently from the fan.
^Press the light button briefly to turn
on the lighting.
The light button indicator illuminates.
^Press the light button briefly again to
turn off the lighting.
The light button indicator will go out.
Dimming the lighting
The brightness of the lighting can be
adjusted.
^While the lighting is turned on, press
the light button.
The lighting will dim until the button is
released.
^If the button is pressed again, the
lighting will brighten until the button is
released.
If the button is pressed continuously,
the light will cycle between bright and
dark.
^Press the light button again to turn off
the lighting.
Operation
13

Filter timers
Grease filters
A timer monitors the hours of fan
operation. The indicator for the grease
filter will light after 30 hours of
operation. The grease filters must then
be cleaned.
After the grease filters have been
cleaned and put in place, the grease
filter timer must be reset.
^To do this, press the grease filter
button for about 3 seconds.
The indicator will go out.
Charcoal filter
Recirculation mode only
The timer for the charcoal filter is not
preset. Please program this timer, see
"Operation/Reprogramming the
charcoal filter timer".
The charcoal filter indicator will light
once the selected time has elapsed.
The charcoal filter must then be
replaced and the charcoal filter timer
reset.
^To do this, press the charcoal filter
button for about 3 seconds.
The indicator will go out.
Checking the filter timers
To check the percentage of time
already used:
^Press the On/Off button to turn the
fan on.
^Press and hold the grease or
charcoal filter button.
The number of flashing "–/+" indicators
show the percentage of programmed
hours that have been used.
1 indicator = less than 25 %
2 indicators = less than 50 %
3 indicators = less than 75 %
4 indicators = less than 100 %
This information will remain stored in
memory in the event of a power failure.
Operation
14

Reprogramming the timers
The grease filter timer is preset to 30
hours. This time can be lengthened or
shortened to 20, 30, 40, or 50 hours.
–A time of 20 hours should be
programmed in kitchens with
frequent pan or deep frying.
–A time of 20 hours should also be
programmed if the kitchen is only
used occasionally to prevent grease
which has accumulated over a long
period of time from hardening on the
filters making cleaning more difficult.
Reprogramming the grease filter
timer
^Press the On/Off button to turn off the
fan.
^Press the Delayed Shut Down and
grease filter buttons at the same time.
The indicator for the grease filter and
one of the "–/+" indicators will flash.
The lit indicator shows the programmed
time:
1st indicator from the left = 20 hours
2nd indicator from the left = 30 hours
3rd indicator from the left = 40 hours
4th indicator from the left = 50 hours
^Use the "–/+" button to select the
desired time.
^Store the selection by pressing the
grease filter button.
If the procedure is not stored within
4 minutes of programming, the hood
will automatically default to the "old"
data.
Operation
15

Reprogramming the charcoal filter
timer
The active charcoal filter can only be
used in recirculation mode and cannot
be used to exhaust fumes.
The charcoal filter timer is not preset.
Before using the hood in recirculation
mode, the charcoal filter timer must be
programmed.
^Turn off the fan using the On/Off
button.
^Press the Delayed Shut Down and
charcoal filter buttons at the same
time.
The indicator for the charcoal filter and
one of the "–/+" indicators will flash.
The lit indicator shows the programmed
time:
1st indicator from the left = 20 hours
2nd indicator from the left = 30 hours
3rd indicator from the left = 40 hours
4th indicator from the left = 50 hours
^Use the "–/+" button to select the
desired time.
^Store the selection by pressing the
charcoal filter button.
If the procedure is not stored within
4 minutes of programming, the hood
will automatically default to the "old"
data.
Operation
16

Before cleaning or servicing the
hood, disconnect it from the power
supply by either removing the fuse,
unplugging it from the outlet, or
manually "tripping" the circuit
breaker.
Cleaning the casing
Warning: Never use abrasive
cleaners, scouring pads, steel wool
or caustic (oven) cleaners on the
hood. They will damage the surface.
^All external surfaces and controls can
be cleaned with warm water and
liquid dish soap applied with a soft
sponge.
^Wipe dry using a soft cloth.
Do not use too much water when
cleaning the controls. Water could
penetrate the electronics and cause
damage.
^Glass surfaces can be cleaned using
a glass cleaner.
Avoid:
–cleaning agents containing soda,
acids or chlorides,
–abrasive cleaning agents
e.g. powder or cream cleansers,
–abrasive sponges, e.g. pot scourers
or sponges which have been
previously used with abrasive
cleaning agents.
These will damage the surface.
Stainless steel
Stainless steel surfaces can be cleaned
using a non-abrasive stainless steel
cleaner.
To help prevent resoiling, a conditioner
for stainless steel can be applied.
Controls
These controls may become dis-
colored or damaged if not cleaned
regularly.
Do not use a stainless steel cleaner
on these controls.
Cleaning and Care
17

Grease filters
The reusable metal grease filters
remove solid particles from the vented
kitchen air (grease, dust, etc).
The grease filters should be cleaned
every3-4weeks or when the grease
filter indicator lights.
A dirty filter is a fire hazard.
^To remove the grease filters pull the
locking clips, 1, forward. Lower the
filter 45°, 2, unhook it at the rear, 3,
and take it out. Support the grease
filter so that it does not fall onto the
cooktop.
Cleaning the grease filter
^By hand: use a scrub brush with a
solution of warm water and mild
detergent.
Do not use the pure detergent,
aggressive all purpose cleaners,
oven sprays, abrasive cleaning
agents or limescale removers. They
could destroy the filter.
^In a dishwasher: place the filter
vertically in the lower basket, making
sure that the spray arm is not
blocked.
Use a hot temperature program,
e.g. "Heavy Soil" or "Pots and pans".
Use the recommended amount of
dishwasher detergent. Overuse could
destroy the filter.
Depending on the detergent,
cleaning the grease filters in a
dishwasher may cause permanent
discoloration of the filter surface.
Performance of the filter will not be
affected by this discoloration.
^After cleaning, the filters can be
placed on a towel to air dry.
^While the filters are removed, clean
any dirt or grease from the filter
casing to prevent the risk of fire.
When putting the grease filters back
make sure that the locking clips are
visibly facing the cooking surface.
If the filters are incorrectly installed,
insert a small screwdriver into the slit
along its edge to disengage it from the
casing.
^After returning the grease filters,
press and hold the grease filter
button for 3 seconds to reset the
timer. The indicator light will go out.
^If the grease filters are cleaned
before the grease filter timer has
reached its maximum, press the
grease filter button for 6 seconds to
reset the counter to zero.
Cleaning and Care
18

Active charcoal filter
In recirculation mode an active
charcoal filter must be used in addition
to the grease filters. It is designed to
absorb cooking odors.
The active charcoal filter will be
replaced in the canopy above the
grease filters.
Replacement active charcoal filters
can be ordered from Miele.
^Remove the grease filters to access
the charcoal filter. See "Cleaning and
Care".
^Insert the charcoal filter with the flap
facing the front.
Before using:
^Program the charcoal filter timer, see
"Operation / Reprogramming the
charcoal filter timer".
Replace the active charcoal filter when
the charcoal filter indicator lights, at
least every 6 months or when they no
longer absorb odors efficiently.
^After replacing the charcoal filter,
press and hold the charcoal filter
button for about 3 seconds to reset
the charcoal filter timer.
The indicator light will go out.
^If the charcoal filter is replaced
before the timer has reached its
maximum, the charcoal filter button
should be pressed for 6 seconds to
reset the counter to zero.
Cleaning and Care
19

Changing the light bulb
Before changing the light bulbs,
disconnect the hood from the power
supply by either removing the fuse,
unplugging it, or manually "tripping"
the circuit breaker.
When in use halogen bulbs become
extremely hot, use caution. Do not
attempt to change the bulbs until
they have had sufficient time to cool.
Do not touch the bulb surface.
Fingerprints or body oils deposited
on the bulb will decrease its life.
Follow the bulb manufacturer’s
instructions.
^Remove the grease filters.
^Turn the knurled screw to the left. The
halogen lamp will swivel down.
^Turn the bulb counterclockwise and
pull it out of its socket.
^Replace the bulb with a new one in
the reverse order.
^Return the grease filters.
Cleaning and Care
20

Repairs
In the event of a fault which you cannot
easily fix yourself, please contact the
Miele Technical Service Department.
^When contacting the Technical
Service Department, please quote
the model and serial number of your
appliance.
These are shown on the data plate
which is visible when the grease filters
are removed.
MieleCare
MieleCare, our Extended Service
Contract program, gives you the
assurance of knowing that your
appliance investment is covered by
5 years of worry free ownership.
MieleCare is the only Extended Service
Contract in the industry that guarantees
repairs by a Miele Authorized Service
Provider using genuine Miele parts.
Only genuine Miele parts installed by
factory trained professionals can
guarantee the safety, reliability, and
longevity of your Miele appliance.
Please note that unless expressly
approved in writing by Miele’s Service
department, Extended Service
Contracts offered by other providers for
Miele products will not be recognized
by Miele. Our goal is to prevent
unauthorized (and untrained) service
personnel from working on your Miele
products, possibly doing further
damage to them, you and/or your
home.
To learn more about MieleCare
Extended Service Contracts, please
contact your appliance dealer or visit
us online at:
http://store.miele.com
After Sales Service
21
22

Installation Instructions
24

Disposal of packing material
The cardboard box and packing
materials protect the appliance during
shipping. They have been designed to
be biodegradable and recyclable.
Please recycle.
To prevent suffocation of children,
ensure that any plastic wrappings,
bags, etc. are disposed of safely
and kept out of their reach.
Disposal of an old appliance
Old appliances may contain materials
that can be recycled. Please contact
your local recycling center about the
possibility of recycling these materials.
Before discarding an old hood,
unplug it from the outlet and cut off
its power cord to prevent hazards.
Caring for the environment
25

Installation accessories
26

a3 protective shields
to prevent scratches to the chimney
during installation.
b2 hose clips for securing the
ducting.
c1 reducing collar
for use with 5" (125 mm) exhaust
ducting.
dTelescopic retaining plate
secures the chimney extension.
eInstallation kit for recirculation
mode; contains diverter and hose
(optional accessory)
Caution: During the installation
process be careful of sharp edges.
8 large headed screws5x40mm
for securing the retaining plates and the
canopy.
(S8 wall anchors included in the
packaging are not for use in USA / CDN.)
2 M 6 locking nuts for securing the
motor assembly.
2 screws 3.9 x 7.5 mm for securing the
chimney.
1 allen wrench
for adjusting the unit height
1 lever for dismantling the chimney
Installation instruction sheet
Installation accessories
27

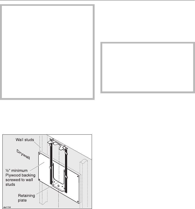
The majority of the weight of the
installed ventilation system will be
supported by the lower retaining
plate. It must be firmly attached to
the stud framing behind the drywall.
If studs are not available in the
required locations, a plywood
backing (min. ½" (13 mm) thick)
spanning at least two studs must be
installed. Failure to adequately
support the weight as stated may
result in the ventilation system falling
off the wall, causing personal injury
and property damage.
(If plywood backing is not needed,
proceed to the included installation
sheet.)
To install a plywood backing
^Determine and mark the location of
the retaining plate for the canopy as
outlined on the installation sheet.
^Make a cutting line 3" (76 mm) above
and 3" (76 mm) below the outline of
the retaining plate.
^Find the studs to the left and right of
the mounting location by tapping the
wall or using a stud finder.
^Mark a vertical cutting line along the
center of each stud.
Be careful not to damage any wiring
or plumbing that may be located
behind the wall. Make sure that the
power supply to the area where this
installation is being performed has
been turned off at the breaker panel
before cutting into the wall.
^Remove the drywall between the
cutting lines and replace it with
plywood of a matching thickness
(min. ½" (13 mm) thick). Tape the
joints and refinish the wall.
^Proceed to the included installation
sheet to complete the installation.
Plywood backing
28

All electrical work should be
performed by a qualified electrician
in strict accordance with national
and local safety regulations.
Installation, repairs and other work
by unqualified persons could be
dangerous. The manufacturer
cannot be held responsible for
unauthorized work.
Ensure that power to the appliance
is off while installation or repair work
is performed.
^Verify that the voltage, load and
circuit rating information found on the
data plate (located behind the
grease filters), match the household
electrical supply before installing the
hood.
^Use only with rangehood
cord-connection kits that have been
investigated and found acceptable
for use with this model rangehood.
If there is any question concerning the
electrical connection of this appliance
to your power supply, please consult a
licensed electrician or call Miele’s
Technical Service Department.
U1-800-999-1360
V1-800-565-6435
WARNING:
THIS APPLIANCE MUST BE
GROUNDED
Grounding Instructions
This appliance must be grounded. In
the event of an electrical short circuit,
grounding reduces the risk of electric
shock by providing a path of least
resistance. This appliance is equipped
with a cord having a grounding wire
with a grounding plug. The plug must
be plugged into an outlet that is
properly installed and grounded.
WARNING - Improper grounding can
result in a risk of electric shock.
If there is any doubt, have the electrical
system of the house checked by a
qualified electrician. The manufacturer
cannot be held responsible for
damages caused by the lack, or
inadequacy, of an effective grounding
system.
Do not use an extension cord. If the
power supply cord is too short, have a
qualified electrician install an outlet
near the appliance.
Important
The hood comes equipped witha4ft
(1.2 m) power cord with a NEMA 5-15
molded plug for connection to a
120 VAC, 60 Hz, 15 A power outlet.
DA 408, 409
Maximum load ..............450W
Overhead lighting ..........2x50W
Voltage .....................120V
Frequency ..................60Hz
Circuit rating..................15A
Electrical data
29

1) Air extraction mode
2) Recirculation mode
3) Air extraction vent installed upwards
4) and 5) Installation area
Wall/ceiling area respectively for vent
hole and outlet installation.
For recirculation mode only 4)
and only outlet installation.
Vent hole 5 7/8" (150 mm) with reducing
collar 5" (125 mm).
Appliance dimensions
30

Do not install this exhaust hood over
cooktops burning solid fuel.
Provided a larger distance is not
given by the manufacturer of the
cooktop, follow the minimum safety
distances between a cooktop and
the bottom of the hood:
- 22" (550 mm) above electric
cooktops,
- 30" (762 mm) above gas cooktops,
- 26" (650 mm) above an open
electric grill or an open electric
boiler/fryer.
If local building codes require a
greater safety distance, follow their
requirement.
If there is more than one appliance
beneath the hood and they have
different minimum safety distances
always select the greater distance.
See "Important Safety Instructions"
for further information.
Cut out area in wall or ceiling for
entrance of 6" (150 mm)
ductwork or 5" (125 mm)
ductwork with a reducing collar.
Distance between cooktop and
hood (S)
The installation procedure differs
depending on the model and venting
method.
Before beginning the installation:
^Read all instructions.
^Determine height (S), regarding the
user’s body height, i.e. a comfortable
height for the user.
However, the greater the distance the
less effectively cooking odors are
drawn in.
^If the hood is fitted flush to the
ceiling, regard the possible unit
height when selecting the installation
height.
Standard unit height (H):
Air Extraction ............285/16 - 40"
..................(720 - 1015 mm)
Recirculation .........3211/16 -451/4"
..................(830 - 1150 mm)
To fit the lower chimney section, the
distance between the top of the
chimney and the ceiling must be at
least 7/8" (20 mm).
Appliance dimensions
31

Installation instructions
^See the enclosed installation
instruction sheet.
^Please read the "Important Safety
Instructions" and Installation
instructions before installing this
hood.
Protective film
The casing is covered with a protective
film to prevent scratching during
transport.
^Peel off the film before installing the
casing parts.
Dismantling
If the hood needs to be disassembled,
follow the instructions on the installation
sheet in the reverse order.
A lever is enclosed for easier removal
of the chimney extension.
^After removing the screws from the
chimney, slide the lever between the
chimney and the chimney extension
and gently apply pressure to ease
the chimney from its hooks.
Installation
32

,WARNING
Danger of toxic fumes.
Gas cooking appliances release
carbon monoxide that can be
harmful or fatal if inhaled.
The exhaust gases extracted by
the hood should be vented
outside of the building only.
Do not terminate the exhaust
ducts in attics, garages,
crawlspaces, etc.
To reduce the risk of fire, only use
metal ductwork.
Please read and follow the
"IMPORTANT SAFETY
INSTRUCTIONS" to reduce the risk of
personal injury. Follow all local building
codes when installing the hood.
Exhaust ducting and connections
–The ducting should be as short and
straight as possible, and the number
of sharp bends should be minimized.
–For most efficient air extraction, the
diameter of the ductwork should not
be less than 6" (150 mm). Use of flat
ducts also reduces the air extraction
efficiency.
–Noise levels of the hood will increase
if flat ducts or round ducts of less
than 6" (150 mm) in diameter are
used.
– Use smooth or flexible pipes made
from approved non-flammable
materials for exhaust ducting.
– Where the ductwork is horizontal, it
must slope away from the hood at
least 1/8" per foot (1 cm per meter) to
prevent condensation dripping into
the appliance.
– If the exhaust is ducted through an
outside wall, a Miele Telescopic Wall
Vent can be used.
Air extraction
33

– If the exhaust is ducted into an
inactive flue, the air must be expelled
parallel to the flow direction of the
flue.
Never connect an exhaust hood to
an active chimney, dryer vent, flue,
or room venting ductwork. Seek
professional advice before
connecting an exhaust hood vent to
an existing, inactive chimney or vent
flue.
Important
If the ductwork runs through rooms,
ceilings, garages, etc. where
temperature variations exist, it may
need to be insulated to reduce
condensation.
Condensate trap
optional accessory
In some cases, a condensate trap may
also be required to collect and
evaporate any condensate which may
occur. This optional accessory is
available for ducts 5" (125 mm) and
57/8" (150 mm) in diameter.
^When installing a condensate trap,
ensure that it is positioned vertically
and if possible directly above the
exhaust outlet.
Air extraction
34
35

M.-Nr. 06 241 950 / 07
Alteration rights reserved / 4607
For most the updated manual see the Miele web site.