Miele Kf 1913 Sf Operating And Installation Instructions KF1803SF_us.vp
2015-06-11
: Miele Miele-Kf-1913-Sf-Operating-And-Installation-Instructions-748377 miele-kf-1913-sf-operating-and-installation-instructions-748377 miele pdf
Open the PDF directly: View PDF
.
Page Count: 84
- Contents
- IMPORTANT SAFETY INSTRUCTIONS 4
- Guide to the Fridge-Freezer combination 8
- Before use 10
- Settings 11
- Temperature and door alarm 14
- Setting the temperature 15
- SmartFresh drawers 17
- Using the refrigerator efficiently 20
- Using the freezer efficiently 21
- SuperCool 23
- Ice cube maker 24
- Automatic defrost 25
- Adjusting the interior fittings 26
- Cleaning and care 30
- Water filter 36
- Lead free certificate 41
- Frequently asked questions 42
- Causes of noises 49
- After sales service 50
- Caring for the environment 53
- Installation 54
- Dimensions 60
- Installing the appliance 63
- Plumbing 76
- Electrical connection 79
- RemoteVision (optional accessory) 80
- Contact details 83

Operating and installation instructions
Refrigerator-freezer combination
To avoid the risk of accidents or damage to the appliance it is essential
to read the operating and installation instructions
before it is installed and used for the first time.
In this way, you protect yourself and prevent damage to your device.
M.-Nr. 09 920 880en - US, CA

IMPORTANT SAFETY INSTRUCTIONS.................................4
Guide to the Fridge-Freezer combination ..............................8
Before use ......................................................10
Turning the appliance On/Off ........................................10
Settings.........................................................11
Turning the button sound On/Off ......................................12
Turning off for longer periods of time ..................................13
Temperature and door alarm .......................................14
Temperature alarm ................................................14
Door alarm .......................................................14
Setting the temperature............................................15
Setting the temperature in the refrigerator and freezer sections..............15
SmartFresh drawers ..............................................17
Storage temperatures ..............................................17
Humidity.........................................................17
Using the SmartFresh drawers .......................................17
Using the refrigerator efficiently ....................................20
Using the freezer efficiently ........................................21
Freezing food.....................................................21
Defrosting .......................................................22
Cooling drinks quickly ..............................................22
SuperCool.......................................................23
Ice cube maker ...................................................24
Automatic defrost ................................................25
Adjusting the interior fittings .......................................26
Moving the shelves ................................................26
Floating drawer ...................................................26
Removing the storage shelf from above the drawer .......................28
Ice cube container.................................................29
Small freezer basket ...............................................29
Cleaning and care ................................................30
Cleaning the interior and accessories ..................................31
Appliance doors ..................................................31
Humidity filters ....................................................33
Ventilation slits ....................................................33
Door seals .......................................................33
Changing the light bulb .............................................34
Contents
2

Water filter ......................................................36
Water filter change indicator .........................................36
Exchanging the water filter ..........................................37
Confirming the filter change .........................................38
Using an external water filter .........................................38
Lead free certificate ...............................................41
Frequently asked questions ........................................42
Causes of noises .................................................49
After sales service ................................................50
Caring for the environment.........................................53
Installation ......................................................54
Climate Range ....................................................54
Installation site ....................................................54
Stainless steel panels ..............................................57
Installation options .................................................57
Adjusting the door opening angle (optional accessory) ....................59
Dimensions......................................................60
Installing the appliance ............................................63
Before you begin ..................................................63
RemoteVision module installation .....................................65
Preparing the installation niche .......................................66
Sliding the appliance into the installation niche ..........................70
Aligning the appliance..............................................72
Attaching the appliance to the installation niche..........................73
Plumbing........................................................76
Electrical connection..............................................79
RemoteVision (optional accessory) ..................................80
Contact details ..................................................83
Contents
3

When using the appliance, follow
basic safety precautions, including
the following:
Read all instructions before
installation and use to prevent
accidents and machine damage.
This appliance is intended for
residential use only. Use only as
described in this Operating manual.
Only use the appliance for its
intended purpose.
This appliance complies with current
safety requirements. Improper use
of the appliance can lead to
personal injury and material
damage.
Keep these operating instructions in
a safe place and pass them on to
any future user.
Electrical Safety
~Before installation, make sure that
the voltage and frequency listed on the
data plate correspond with the
household electrical supply. This data
must correspond to prevent injury and
machine damage. Consult a qualified
electrician if in doubt.
~Before installation or service,
disconnect the power supply to the
work area by unplugging the unit,
"tripping" the circuit breaker or
removing the fuse.
~Do not use an extension cord to
connect this appliance to electricity.
Extension cords do not guarantee the
required safety of the appliance
(e.g., danger of overheating).
~Be certain your appliance is
properly installed and grounded by a
qualified technician. To guarantee the
electrical safety of this appliance
continuity must exist between the
appliance and an effective grounding
system. It is imperative that this basic
safety requirement be met. If there is
any doubt, have the electrical system of
the house checked by a qualified
electrician.
~Only connect power to the
appliance when all installation and
plumbing work is complete.
IMPORTANT SAFETY INSTRUCTIONS
4

Installation
This appliance is top-heavy and
must be secured to prevent the
possibility of tipping forward.
Keep the doors closed until the
appliance is completely installed
and secured per the installation
instructions.
~This appliance must be installed
and connected in compliance with the
installation instructions.
~Installation and repair work should
be performed by a Miele authorized
service technician. Work by unqualified
persons could be dangerous and may
void the warranty.
~Installation must comply with local
plumbing regulations and state laws.
~Do not operate any appliance with a
damaged cord or plug, or if the
appliance has been damaged in any
manner. Contact Miele’s Technical Ser-
vice Department.
~This appliance must not be used in
a non-stationary location (e.g. on a
ship).
~Do not install the fridge/freezer in a
room with too low an ambient
temperature, e.g., a garage, as this
may lead to the appliance switching off
for longer periods so that it cannot
maintain the required temperature.
~The ice cube maker is not suitable
for connection to a hot water supply.
~In refrigerators with an automatic ice
maker, avoid contact with the moving
parts of the ejector mechanism, or with
the heating element located on the
bottom of the ice maker. Do not place
fingers or hands on the automatic ice
making mechanism while the
refrigerator is plugged in.
~Do not use water that is
microbiologically or chemically unsafe
or of unknown quality without adequate
disinfection or other treatment before or
after the filter is used; the filter alone is
not an adequate safeguard.
Use
~This appliance is not designed for
commercial use. It is intended for use in
domestic households and in similar
working and residential environments
such as:
– shops, offices and similar work
environments
– by customers in hotels, motels, Bed
& Breakfasts or similar residential
environments.
~This appliance is not intended for
outdoor use.
~Persons who lack physical, sensory
or mental abilities, or experience with
the machine should not use it without
supervision or instruction by a
responsible person.
~To reduce the risk of injury, do not
allow children to play in, on or near the
appliance, especially in the door hinge
area.
IMPORTANT SAFETY INSTRUCTIONS
5

~After your appliance is in operation,
do not touch the cold surfaces in the
machine, ice cubes or frozen food,
particularly when hands are damp or
wet. Skin may adhere to these
extremely cold surfaces.
~Do not refreeze frozen foods which
have thawed completely.
~Do not handle frozen food or ice
with wet hands. Danger of injury.
~Do not store or use gasoline or other
flammable vapors and liquids in the
vicinity of this or any other appliance.
~Do not deactivate the water filter
display.
~Do not use sharp-edged objects to
remove frost and ice, or separate
frozen foods and remove ice trays.
They will damage the evaporator,
causing irreversible damage to the
appliance.
~Do not use defrosting sprays or
de-icers, as they might contain
substances which could damage the
plastic parts or which could cause a
build-up of gases and pose a danger to
health.
~Do not use any oils or grease on the
door seal, as these will cause the seal
to deteriorate and become porous with
time.
~Do not block the ventilation gaps in
the plinth or the top of the appliance
housing unit, as this can impair the
efficiency of the appliance, increase the
electricity consumption and cause
damage to the appliance.
~Never use a steam cleaner to clean
the appliance. Pressurized steam could
damage electrical components and
cause a short circuit.
The following applies to
stainless steel appliances:
~Do not use sticky notes, transparent
adhesive tape, masking tape or other
types of adhesive on the coated
surface of the appliance door. These
will damage the surface, causing it to
lose its soil resistant protective coating.
~The high-quality surface coating of
the appliance door is susceptible to
scratches. Even a magnet can cause
damage.
IMPORTANT SAFETY INSTRUCTIONS
6

Disposal of your old appliance
~Before disposing of an old
appliance, first make the door latch or
lock unusable.
~Take off the doors.
~Leave the shelves in place so that
children may not easily climb inside.
~Consult with your municipal policy
on recycling.
~Be careful not to damage any part of
the pipework while awaiting disposal
by:
- puncturing the refrigerant
channels in the evaporator.
- bending any pipework.
- scratching the surface coating.
Splashes of refrigerant can damage the
eyes.
~Your old refrigerator may have a
cooling system that used CFCs
(chlorofluorocarbons). CFCs are believed
to harm stratospheric ozone.
If you intentionally release this CFC
refrigerant, you can be subject to fines
and imprisonment under provisions of
environmental legislation. Make sure the
CFC refrigerant is removed and disposed
of by a qualified technician.
SAVE THESE
INSTRUCTIONS
IMPORTANT SAFETY INSTRUCTIONS
7

aHinged door shelf
bShelves (height adjustable)
cDoor shelves (height adjustable)
dFloating drawer
eControl panel
fHumidity filter
gMain switch to turn the appliance
On/Off
hSmartFresh drawer
iIce maker
jWater filter
kSmall freezer basket
lLarge freezer basket
mIce cube container
Guide to the Fridge-Freezer combination
8

Control panel
aAccess button "p"
activates the control panel
bRefrigerator
cLeft SmartFresh drawer
dRight SmartFresh drawer
eFreezer
fTemperature display
Xcolder; Ywarmer
Allows you to set the desired
temperature in the refrigerator or
freezer section
gFood type(s) to be stored in the
SmartFresh drawer
(left: high humidity
right: low humidity)
hOn/Off sensor button for the
SuperCool function
iOn/Off sensor button for the ice cube
maker
jSensor button for the temperature
and door alarm*
kWater filter change indicator*
* Only visible when the relevant
function is activated
Guide to the Fridge-Freezer combination
9

Before using for the first time
The stainless steel surface of the
appliance is protected with a plastic
film, which protects it during shipping.
Do not remove this protective film until
the appliance has been completely
installed.
After removing the protective film clean
the exterior surface with the supplied
stainless steel agent. This will aid in
preventing resoiling.
^Clean the inside of the appliance and
the accessories with a mild solution
of warm water and liquid dish soap.
Dry with a soft cloth.
If the appliance was transported or
laid horizontally for any reason,
allow it to stand vertical for at least 8
hours before turning it on. Failure to
do so will affect the functioning of
the appliance.
Turning the appliance On/Off
^Open the upper appliance door.
^Turn the appliance On/Off with the
main switch.
The main switch is located on the
right-side underneath the control panel.
All zones are switched on or off
together.
Once on, the appliance begins cooling.
When the doors are open, the interior
lights come on.
The access button will light in the
control panel.
The preset temperatures (factory
default settings) are reached after a
few hours. Do not put any food in
the appliance until the preset
temperatures are reached.
,Turning off the appliance with
the main switch does not safely
isolate it from the power supply.
Before use
10

Using the settings
This appliance is operated with the use
of touch keys activated by a finger.
– An available button will appear white.
– A selected button will appear yellow.
^Touch the access button "p"soit
turns yellow.
On the control panel you will now see
the sensor buttons of the four appliance
zones.
At the right of the control panel there is
a sensor button to turn the ice maker on
and off.
When the ice maker is in operation, the
sensor button appears yellow.
^To change settings (e.g., to set the
temperature, etc.), touch the sensor
button for the appliance zone you
wish to set.
The selected sensor button appears
yellow and depending on the zone
selected additional sensor buttons may
appear on the control panel.
Depending on the zone selected, you
can now:
– adjust the temperature,
– select the SuperCool function, or
– select settings for the SmartFresh
drawers by food type, or
– turn on the ice cube maker.
For additional information, see the
corresponding sections in this manual.
^To de-select a zone touch the sensor
button for that particular zone so that
it turns white, or select another
sensor button.
^To leave the settings menu, touch the
access button "p" so it turns white.
The last settings entered are stored.
If the access button is not pressed
the display will go out after approx.
30 secs.
The sensor buttons for the four
appliance zones now disappear from
the control panel.
Settings
11

Custom settings
In the custom settings mode you can
select and change functions. The
function possibilities are described in
the respective chapters of this manual.
Function Display text
Temperature unit
°C-°F
(see "Setting the
temperature")
†
RemoteVision
Module settings
(optional accessory)
;
Button sound on/off
(see "Settings")
=
No function ^
To enter and exit the
Settings mode
c
Turning the button sound
On/Off
If you prefer the buttons to be silent
when touched, the button sound can be
turned off.
^Touch the access button "p"soit
turns yellow.
^Touch the sensor button for the
refrigerator section so it turns yellow.
^Note the position of the Xbutton, but
do not touch.
^Touch the access button "p" again so
it turns white.
Only the access button "p" is visible.
^Place one finger on the position of
the Xbutton and hold (the Xbutton
will not be visible).
^While holding down the Xbutton,
press the access button "p" once.
Keep holding the Xbutton down until
the following appears in the display
(approx. 5 seconds).
^Tap the Xbutton until =appears in
the display.
^Touch the access button "p"to
confirm.
Settings
12

^By touching the Xbutton, you can
choose between:
=0: Button sound is off
=1: Button sound is on
=– : Return to menu.
^Touch the access button "p"to
confirm the setting.
^Tap the Xbutton until you see ;in
the display.
^Touch the access button "p".
You have now left the Custom settings
mode.
When you are in the Custom settings
mode the door alarm is turned off
automatically. Once the door is
closed it is reactivated.
Turning off for longer periods
of time
If the appliance is not going to be used
for an extended time (for example,
during a vacation) some precautions
should be taken.
^Shut off the water supply line,
(several hours before switching off
the appliance)
^Take all food out of the appliance
^Turn the appliance off at the main
switch
^Unplug the appliance
^Empty the ice cube container
^Clean the interior
^Remove and discard the water filter
(secure the filter cap)
^Leave the doors open to prevent
odors
Settings
13

The appliance is equipped with an
alarm system, to ensure that the
temperature does not rise unnoticed
because of energy loss or open doors.
The alarm system is always
operational, it does not need to be
turned on.
Temperature alarm
If the temperature becomes too warm,
an alarm sounds, the "alarm" indicator
turns red and flashes. At the same time
the affected zone flashes in the display.
If the freezer zone is affected, the
temperature display shows the warmest
temperature reached during the alarm.
The alarm will sound and the display
will flash if:
– too much warm air flows into the
appliance, for example when food is
being loaded, re-arranged, or taken
out.
– large amounts of food are being
frozen at once.
– the power fails.
Turning the temperature alarm Off
As soon as the alarm condition is
corrected, the alarm signal turns off
and the affected zone stops flashing in
the display. The "alarm" indicator goes
out.
^To turn the alarm off early, press
the "alarm" sensor button.
The alarm signal turns off. The "alarm"
indicator remains red and the
corresponding appliance zone
continues to flash until the alarm
condition is corrected.
If the temperature in the freezer
zone reaches 0°F (-18°C) or higher,
check that food has not defrosted.
Door alarm
If one of the appliance doors is left
open for over 5 minutes, an alarm
signal will sound and the "alarm"
indicator will turn red.
Turning the door alarm Off
Once the door is closed the alarm turns
off and the "alarm" indicator goes out. If
the door has not been closed properly,
the alarm will sound again after five
minutes.
^To turn the alarm off early, press
the "alarm" sensor button. The "alarm"
indicator and signal will turn off.
Temperature and door alarm
14

Setting the temperature in the
refrigerator and freezer
sections
The refrigerator and freezer sections
can be set independently of each other.
^Touch the access button "p"soit
turns yellow.
^Touch the sensor button for the
refrigerator or freezer section so it
turns yellow.
^Use the Xand Ybuttons next to the
temperature display to set the
temperature warmer or colder.
Tap the Xand Ysensor buttons to
raise/lower the temperature 1°, or hold
them down to move through the
temperature range more quickly.
The temperature display on the
control panel always shows the
desired temperature.
When you have adjusted the
temperature, wait for approx. 6 hours if
the appliance is not very full and for
approx. 24 hours if the appliance is full
before checking the temperature, as it
will take this long for the appliance to
reach the temperature. If, after this
time, the temperature is still too high or
too low, you will need to adjust it again.
Temperature range
The temperature can be selected within
the following ranges:
– Refrigerator:
36°F to 46°F (2°C to 8°C)
A temperature of 37°F (4°C) in the
refrigerator section is recommended.
– Freezer:
7°F to -11°F (-14°C to -24°C).
To freeze fresh food and store frozen
food for an extended period of time, a
temperature of 0°F (-18°C) is
suggested.
The room temperature and the
installation location can affect the time it
takes for the appliance to get to the
desired temperature. If the room
temperature is too high, it may not be
possible for the appliance to reach the
lowest temperature.
Setting the temperature
15

Temperature unit
(Fahrenheit/Celsius)
The temperature can be displayed in
degrees Fahrenheit (°F) or Celsius (°C).
^Touch the access button "p"soit
turns yellow.
^Touch the sensor button for the
refrigerator section so it turns yellow.
^Note the position of the Xbutton, but
do not touch.
^Touch the access button "p" again so
it turns white.
Only the access button "p" is visible.
^Place one finger on the position of
the Xbutton and hold (the Xbutton
will not be visible).
^While holding down the Xbutton,
press the access button "p" once.
Keep holding the Xbutton down until
the following appears in the display
(approx. 5 seconds).
^Tap the Xbutton until †appears in
the display.
^Touch the access button "p"to
confirm.
^By touching the Xbutton you can
select either Fahrenheit or Celsius for
the temperature display.
†0: Fahrenheit
†1: Celsius
†–: return to menu
^Touch the access button "p"to
confirm the setting.
^Tap the Xbutton until a ;appears in
the display.
^Touch the access button "p".
You have left the Custom settings
mode.
When you are in the Custom settings
mode the door alarm is turned off
automatically. Once the door is
closed it is reactivated.
Setting the temperature
16

The SmartFresh drawers provide the
right combination of temperature and
humidity. The result is freshness up to
three times longer than in the other
zones of the refrigerator.
Storage temperatures
For fresh foods that are not adversely
affected by cold, the best range is
32° - 37°F (0° - 3°C). This helps to keep
the food fresh considerably longer than
in the rest of the refrigerator, spoiling is
minimal.
Humidity
The level of humidity in the SmartFresh
drawers is dependent on:
– the moisture content of the stored
food, and
– the quantity of food stored.
The closer the humidity in the appliance
matches the moisture content of the
food, the more moisture the food will
retain, and the fresher and crisper it will
stay over a longer period of time.
Using the SmartFresh drawers
There are two SmartFresh drawers.
^Use the respective sensor button to
select the desired drawer.
– Left: Foods that are best stored
under humid conditions, such as
vegetables and fruit
– Right: Foods that are best stored
under dry conditions, such as meat,
fish and dairy products
The selected sensor button turns
yellow, and the symbols for the food
choices appear.
^Use the sensor buttons to select the
desired food type(s).
^To delete a food type, simply touch
the sensor button again.
Please note that you cannot select
foods that require humid conditions and
foods that require dry conditions at the
same time. But several food types
within one group can be selected at the
same time.
^Place the food in the SmartFresh
drawer.
SmartFresh drawers
17

For optimal storage conditions, it is
always best to store similar foods
together in one crisper.
Foods that are best stored under dry
conditions
– fresh fish and shellfish, meats,
poultry, sausage, dairy products and
deli salads.
Foods that are best stored under
moist conditions
– fresh produce, e.g., vegetables,
lettuce, herbs, mushrooms,
cabbage, fruit.
Remember that higher moisture levels
can only be attained when the food is
stored unpacked so air can circulate
freely.
Foods that are best stored under dry
conditions:
– fresh fish and shellfish, meat, poultry,
sausage, dairy products and deli
salads.
Please note that foods rich in protein
deteriorate faster than others. Shellfish,
for example, deteriorates faster than
fish, and fish deteriorates faster than
meat.
Always keep these foods covered or
wrapped.
Exception: Meat (The surface of the
meat dries out slightly, slowing the
growth of bacteria so the meat lasts
longer. Do not let one type of meat
come into direct contact with another
type; always keep them in separate
packages. This prevents premature
deterioration of the meat through
bacterial cross-contamination).
Take food out of the SmartFresh
drawer approx. 30-60 minutes
before using it. The flavor and taste
do not fully develop until the food
has reached room temperature.
Important: If the divider is not in
place, the function of the
SmartFresh drawers is impaired!
SmartFresh drawers
18

If you are not satisfied with your
stored food (for example the food
wilts or becomes withered after only
a short storage time), check the
following again:
^Store only fresh food. The initial
condition of the food is most
important for maintaining freshness.
^Before storing food, clean the
SmartFresh zone.
^Very moist food should be dried off
before storing it.
^Do not store cold-sensitive food in
the SmartFresh zone.
^Remember that not all foods can be
stored together.
^For optimal storage conditions, it is
always best to store similar foods
together in one drawer (for humid or
dry storage).
^The food in the humid SmartFresh
drawer should be stored unwrapped.
A high humidity in the SmartFresh
zone is created solely by the
moisture in the stored food. If the
humidity level is not high enough, for
example when not enough food is
stored, the humidity level can be
raised with a damp sponge..
^If you feel that the temperature in the
SmartFresh zone is too high or too
low, try to adjust it by raising or
lowering the temperature in the
refrigerator by 1 to 2 °C. Make sure
that ice crystals do not form on the
bottom of the SmartFresh zone; if this
happens the temperature must be
increased, otherwise the food will be
damaged by the cold.
^Do not allow water to collect on the
bottom of the SmartFresh zone, use a
cloth to dry it. If necessary, wipe food
dry before storing it, or put a grill on
the bottom of the SmartFresh zone so
that the moisture can drain off.
SmartFresh drawers
19

Different storage zones
Due to the natural circulation of air in
the appliance, there are different
temperature zones in the refrigerator.
Cold, heavy air sinks to the lowest
section of the appliance. Make use of
these different zones when placing
food in the appliance.
This appliance uses a dynamic
cooling feature to establish a
constant temperature during
cooling. As a result, the differences
between temperature zones are less
pronounced.
Warmest area
The warmest area is in the top section
of the door (storage shelf). Use this
area to store items such as butter and
cheese.
Coldest area
The coldest area in the refrigerator is
directly above the SmartFresh drawers.
The temperature in the drawers
themselves is even colder.
Use these cold areas in the refrigerator
for all highly perishable foods, such as:
– fish, meat, poultry,
– deli meats, store-bought meals,
– dishes or baked goods containing
eggs or cream,
– fresh bread dough, pastry dough,
cake batters,
– dairy products,
– plastic-wrapped vegetables and
other fresh food whose best-before
date requires storage at a
temperature of at least 4°C.
Do not store explosive materials in
the appliance or any products
containing propellants (e.g. spray
cans). Danger of explosion.
If storing high-proof alcohol, make
sure it is tightly closed and stored
upright.
Do not store cooking oil in the
refrigerator door. Traces of oil can
cause stress cracks to occur in the
plastic components in the door.
Do not allow food to touch the rear
wall of the appliance, it may freeze
to the wall.
To allow air to circulate efficiently,
do not pack food too closely
together in the refrigerator. Do not
cover the fan in the rear wall of the
refrigerator, as this is essential for
keeping the appliance cool.
Using the refrigerator efficiently
20

Freezing food
Fresh food should be frozen as quickly
as possible. This helps maintain the
nutritional value, vitamin content,
appearance and taste of the food.
Never refreeze partially or fully
defrosted food. Consume defrosted
food as soon as possible, it will lose its
nutritional value and spoil if left for too
long. Do not refreeze defrosted food
unless it has been cooked.
Before placing food in the freezer
^When you are planning to freeze
large amounts of food (more than
4 ½ lbs [2 kg]), switch on the
SuperCool function ahead of time
(see "SuperCool").
This will provide the food already in
the freezer with a protective boost of
cold air.
Placing food in the freezer
Food to be frozen can be placed
anywhere in the freezer section.
Use the large freezer basket for large
quantities of food.
Load bearing capacity of the baskets:
Small
basket
Large
basket
KF 18X Vi/SF 30 lbs
(14 kg)
72 lbs
(33 kg)
KF 19X Vi/SF 41 lbs
(19 kg)
94 lbs
(43 kg)
^Spread the food to be frozen across
the bottom of the freezer basket or
across the shelves, so that it will
freeze through to the core as quickly
as possible.
^When placing items in the freezer,
make sure the packaging and
containers are dry, to keep them from
sticking together when frozen.
When freezing, make sure that
already frozen food does not come
into contact with fresh food being
frozen, this could cause the frozen
food to defrost.
Using the freezer efficiently
21

Defrosting
Frozen food can be defrosted in
different ways:
– in a microwave oven,
– at room temperature,
– in the refrigerator (the cold given off
by the frozen food helps to keep the
other food cold),
– in a steam oven.
Poultry It is especially important to
observe proper hygiene when
defrosting poultry. Never save the liquid
from defrosted poultry. Drain it away
and promptly wash the container, the
sink and your hands. Danger of
salmonella poisoning.
Fruit should be defrosted at room
temperature in its packaging, or in a
covered bowl.
Most vegetables can be cooked while
still frozen. Simply place directly into
boiling water or hot oil.
Cooling drinks quickly
To cool drinks quickly, switch on the
SuperCool function. See "SuperCool" for
more information.
Do not leave bottles in the freezer for
more than 1 hour, closed containers
could burst.
Using the freezer efficiently
22

When the SuperCool function is
activated, the appliance is cooled as
quickly as possible (to a factory-preset
temperature).
SuperCool
When used with the refrigerator the
SuperCool function is ideal for the rapid
cooling of drinks and refrigerating large
quantities of food.
When used with the freezer the
SuperCool function is ideal for freezing
large quantities of unfrozen food. The
function should be switched on 4-6
hours before the fresh food is placed in
the freezer.
If the max. freezing capacity is used,
24 hours are recommended.
This helps food to freeze quickly and
retain its nutrients, vitamins, flavor and
appearance.
Switching on SuperCool
^Touch the sensor for the refrigerator
or freezer (as desired) so it turns
yellow.
^Touch the SuperCool sensor button
so it turns yellow.
In the temperature display for the zone
selected, the new temperature setting
appears:
Refrigerator: 35°F (2°C)
Freezer: -22°F (-30°C)
The temperature in the appliance now
begins to fall, with maximum cooling in
the zone selected.
Switching off SuperCool
The SuperCool function automatically
switches off after:
Refrigerator: approx. 6 hours
Freezer: approx. 52 hours
The sensor button turns white, and the
appliance continues running at normal
power.
To save energy, the SuperCool function
can be switched off early, once the
food and/or drinks are sufficiently
chilled.
^Touch the SuperCool sensor button
so that it turns white.
The temperature display for the zone
selected returns to the original
temperature setting.
The appliance now continues running
at normal power.
SuperCool
23

For the automatic ice cube maker to
operate, it must be connected to the
household water supply. See
"Plumbing".
Turning on the ice cube maker
^Make sure that the ice cube
container is under the ice cube
maker, as far as possible.
Ice cubes will not be produced unless
the container is completely closed.
^Touch the sensor button for the ice
cube maker so that it turns yellow.
As soon as the freezer has cooled to a
freezing temperature, the ice cube
container fills with water. Cold air is
blown directly over the container.
As soon as the ice cubes are frozen,
they fall into the ice cube container.
The ice cube maker can produce
approx. 140 ice cubes within 24 hours.
Note: Ice production will vary due to
your water source temperature,
pressure and hardness.
The production volume of the ice
depends on the temperature in the
freezer. The lower the temperature the
more ice cubes produced.
After the appliance is turned on for the
very first time, it can take up to 10 hours
for the first ice cubes to drop out of the
ice cube maker and collect in the
container.
Once the ice cube container is full, the
ice cube maker switches off
automatically.
Do not use the ice cube container
for rapid cooling of food or drinks.
The ice cube maker may become
blocked and be damaged.
Do not use the first three containers
of ice cubes from the ice cube
maker.
Discard the ice produced in the first
24 hours after switching on the ice
cube maker.
This applies for the very first use,
and whenever the appliance has
been out of service for an extended
period of time.
The amount of ice cubes produced
depends on the temperature in the
freezer section. The lower the
temperature, the more ice cubes will be
produced in a given period of time.
Turning off the ice cube maker
The water supply line must be shut
off several hours before the
appliance or ice cube maker is
switched off.
^Touch the sensor button for the ice
cube maker so that it turns white.
Ice cube maker
24

Refrigerator section and
SmartFresh drawers
The refrigerator and SmartFresh
drawers defrost automatically.
During normal operation, condensate
and frost can form on the rear wall of
the refrigerator and drawers.
You do not need to remove this
build-up, it will defrost and evaporate
automatically with the heat generated
by the appliance.
Freezer section
The freezer section defrosts
automatically.
The moisture generated in the
appliance collects in the evaporator. It
is automatically defrosted and
dissipated by the condenser
periodically.
This automatic defrosting system
enables the freezer to remain
permanently ice-free, while ensuring
that the food stored in the freezer stays
frozen.
Automatic defrost
25

Moving the shelves
The shelves can be adjusted according
to the height of the food.
^Using both hands, grasp the shelf
from underneath and lift slightly so
that the rear of the shelf is slightly
above the mountings.
^Pull the shelf forward.
^Move the shelf to the desired height,
then insert the (rear) hooks into
place.
^Make sure the shelf is level.
Floating drawer
The floating drawer can be moved to
the left or right, moved to another shelf,
or removed.
^Pull the drawer straight out, so that it
passes over the catches and remove.
^To replace the drawer slide it straight
in along the rails.
SmartFresh drawer
These drawers are set on telescopic
tracks. They can be pulled in and out
for loading and unloading, or removed
for cleaning.
^Open the drawer.
On the hinged-side of the door is a
safety lock, which must be turned to a
horizontal position before the drawer
can be removed.
^Using a suitable object, e.g., coin,
turn the safety lock to a horizontal
position a.
^On both sides of the drawer, pull the
latches bupward and lift the drawer
out of the refrigerator.
Push the tracks back into the
refrigerator to avoid injury.
Adjusting the interior fittings
26

The divider in the drawer can also be
removed for cleaning.
^Remove the drawer.
^Lift the divider upward and out.
To re-insert the divider, slide it back
down along the tracks.
Important: If the divider is not in
place, the SmartFresh drawer will
not work properly.
Replacing the SmartFresh drawer
^Completely extend the telescopic
tracks.
^Lay the drawer on the tracks so that it
connects in the front and back.
^Turn the safety lock back to the
vertical position.
^Slide the drawer in.
Adjusting the interior fittings
27

Adjusting the door shelves
For easier loading, unloading, and
cleaning, the door shelves can be
shifted or completely removed.
^Using both hands, grasp the door
shelf by the frame and tip it slightly
forward.
^Slide the tipped shelf up or down
along the slide-rails, and click it into
place with the lower hooks.
^Make sure the shelf is level.
Removing a door shelf
^Slide it upward all the way to the top
of the slide-rails, until it can be
removed.
Replacing a door shelf
^Start at the top of the slide-rails and
slide the shelf down into the desired
position.
Removing the hinged door shelf
^Pull the stops upward and out of the
shelf, and remove the shelf lid
upward.
^Now remove the hinged container
upward and out.
Removing the storage shelf
from above the drawer
^Remove the rear finishing strip, move
the glass plate slightly toward the
rear, and carefully lift it upward and
out.
Adjusting the interior fittings
28

Ice cube container
The ice cube container is set on
telescopic tracks, and can be removed
for loading, unloading and cleaning.
^Slide the container forward until
resistance is felt.
^On both sides of the container, pull
the latches (see arrow) upward and
lift the container out of the freezer.
Push the tracks back into the freezer
to avoid injury.
Replacing the ice cube container
^Completely extend the telescopic
tracks.
^Lay the container onto the tracks so
that it connects in the front and back.
^Slide the container in.
Small freezer basket
The small freezer basket can be
removed for cleaning.
^Slide the basket forward until
resistance is felt.
On the hinged-side of the door is a
safety lock, which must be turned to a
horizontal position before the drawer
can be removed.
^Using a suitable object, e.g., coin,
turn the safety lock to a horizontal
position a.
^On both sides of the basket, pull the
latches bupward and lift the basket
out of the freezer.
Replacing the small freezer basket
^Fully extend the telescopic tracks.
^Lay the basket onto the tracks so that
it connects in the front and back.
^Turn the safety lock back to the
vertical position.
^Slide the freezer basket in.
Replacing the large freezer basket
^Place the basket into the freezer,
making sure it is seated correctly in
the connection holes.
Adjusting the interior fittings
29

To reduce the risk of electrical
shock, disconnect the appliance
from the power supply by shutting
off the power main, tripping the
circuit breaker or unplugging the
power cord before maintenance.
Never use cleaning agents
containing abrasive substances
such as sand, soda, acids,
chlorides or chemical solvents.
Non-abrasive cleaning agents are
also unsuitable, as they can cause
matte areas to appear.
Stainless steel surfaces can be
cleaned using a non-abrasive
stainless steel cleaner (available
from Miele).
Only use a mild solution of warm
water and liquid dish soap to clean
this appliance.
Do not use a steam cleaner to clean
this appliance. Pressurized steam
could penetrate electrical
components and cause a short
circuit.
Do not allow water to get into the
electronic unit or lights.
The data plate located inside the
appliance must not be removed. It
contains information which is
required in the event of a service
call.
To better maintain your appliance
avoid the following:
– cleaners containing soda, ammonia,
thinners, or chlorides
– solvent based cleaning agents
– stainless steel cleaners
– cleaners containing descaling
agents or lime removers,
– abrasive cleaners,
– dishwasher soap (powder),
– caustic (oven) cleaners,
– scouring pads, steel wool, hard
brushes,
– glass cleaners,
– metal scrapers,
– eraser sponges,
– steam cleaning products.
Glass cleaners may be used to
clean the exterior. However do not
allow them to sit or "puddle", this can
cause damage to the surface.
Remove the cleaner promptly.
Cleaning and care
30

The stainless steel doors have a
special coating that is soil-resistant.
Do not wipe these with a stainless
steel conditioner, it will leave visible
streaks.
Use a stainless steel conditioner to
clean and maintain the stainless
steel surfaces of the appliance. It
contains material-friendly
substances and - unlike stainless
steel cleaning agents - no polishing
substances.
This gently removes soiling and
each application forms a protective
layer that is stain- and
water-repellent.
Before cleaning
^Use the main switch to turn the
appliance off completely.
The main switch is located on the right
side underneath the control panel.
^Unplug the power cord.
^Remove any food from the appliance
and store it in a cool place.
^Take out any removable parts,
e.g., shelves.
Cleaning the interior and
accessories
Use a mild solution of warm water and
liquid dish soap. Wash all accessories
and drawers by hand. Do not wash in a
dishwasher.
^Clean the appliance as needed.
^After washing, wipe down the interior
and accessories with a clean wet
cloth, then dry with a soft cloth.
Leave the appliance doors open for a
short time, so the moisture can
evaporate.
Appliance doors
Remove soiling on the appliance
doors and side walls right away. If
soiling is left on, it may become
diffficult to remove and the surfaces
may discolor.
All surfaces are susceptible to
scratches. All surfaces may become
discolored when they come into
contact with unsuitable cleaning
materials.
^Clean the surface with a soft sponge,
liquid dish soap and warm water. A
clean, damp microfiber cloth may
also be used, without a cleaning
agent.
^After cleaning, rinse everything with
clean water, then dry with a soft
cloth.
Cleaning and care
31

Additional instructions for stainless
steel appliances:
– Appliance doors
The appliance doors are finished with a
high-quality surface coating. It protects
them from soiling and makes cleaning
easier.
Do not treat appliance doors with
stainless steel cleaning agents:
This will damage the coating!
Aluminum frames
The shelf frames are made of
aluminum.
^Clean the frames with a mild solution
of warm water and liquid dish soap.
Aluminum is susceptible to
scratches and nicks, treat with care.
The aluminum frames may become
discolored or otherwise altered if
soiling is not cleaned away
promptly.
Do not use stainless steel cleaners;
lime removers; scouring pads, such
as pot scrubbers; or used sponges
that still contain abrasive cleanser
residue to clean the frames.
Cleaning and care
32

Humidity filters
The two humidity filters, located above
the SmartFresh drawers, must be
removed for cleaning.
^Remove the SmartFresh drawer.
^Unhook the filter cover, 1. in each
side of the drawer and remove them
along with the filter mat downwards
starting from 2.
^Remove the filter mat.
^Clean the filters by rinsing them with
lukewarm water.
Do not clean in a dishwasher or
washing machine. This will damage
the filter.
^Air-dry the filters.
^Place the filters back in the filter
cover.
^Put the filter cover back in place,
inserting the rear hooks first.
^Re-insert the SmartFresh drawer.
Ventilation slits
^Check the ventilation slits in the base
panel regularly. Remove any dirt/dust
with a vacuum cleaner or brush.
Clean as needed.
Door seals
Do not use oil or grease on the door
seals. This may cause the seals to
deteriorate and become porous over
time.
^Clean the door seals with warm water
and dry thoroughly.
Cleaning and care
33

After cleaning
^Return all shelves and accessories.
^Place food back in the refrigerator
section, close the appliance doors,
insert the plug in the power outlet
and turn the appliance on.
^Switch on the SuperCool function for
the freezer section. The freezer
section will cool down quickly.
^Once the temperature in the freezer
section is cold enough, place food in
the freezer baskets and return them
to the freezer.
Changing the light bulb
The lighting automatically switches off
after the door has been open for
approx. 5 minutes. This is not a fault.
After the bulb has cooled for a short
time it will turn on again.
If the light does not come on when the
door is opened briefly, the light bulb
should be changed.
^Use the main switch to turn the
appliance off.
To reduce the risk of electric shock,
disconnect the appliance from the
power supply by unplugging or
tripping the circuit breaker.
Upper lighting
^Grasp the front of the light cover with
both hands, and slide it back.
^Carefully pull the cover forward and
out.
Cleaning and care
34

Never touch a halogen bulb with
bare fingers.
When inserting a glass halogen bulb
always hold it with a soft cloth.
^Remove the defective light bulb.
^Place the new bulb in the socket.
Halogen bulb type:
20 W/12 V/socket GY 6.35.
^Slip the rear of the light cover back
into position, then pull it forward and
into place.
Side lighting
^Turn the light cover counterclockwise
and pull out.
Never touch a halogen bulb with
bare fingers.
When inserting a glass halogen bulb
always hold it with a soft cloth.
^Pull the defective light bulb from the
socket.
^Place the new bulb in the socket.
Halogen bulb type:
5 W/12 V/socket G 4.
^Put the light cover back on and turn
clockwise into place.
^Restore power to the appliance.
Cleaning and care
35

The appliance is supplied with an
active charcoal filter which improves
the taste and smell of ice cubes by
removing chlorine and other
substances from the incoming tap
water.
Additional water filters are available
from Miele.
It is important to change the water
filter regularly.
To avoid serious illness or death, do
not use water that is
microbiologically or chemically
unsafe or of unknown quality without
adequate disinfection or other
treatment before or after use of a
filter.
Note:
– After installing a new water filter and
switching on the ice maker, discard
the first 24 hours' worth of ice
production.
– If the ice maker has not been used
for a prolonged time discard any ice
cubes in the freezer, empty the
container and discard the ice
production of the next 24 hours.
– If the appliance or ice maker have
not been routinely used for several
weeks or months, or if the ice cubes
have an unpleasant odor, change
the water filter.
Water filter change indicator
The change indicator will appear
approx. every 6 months depending on
the quantity of ice produced.
– When the filter indicator lights red,
this is an indication that a filter
change will soon be necessary.
New water filters (Bypass and Active
charcoal filters) are available from
Miele.
^When the filter indicator flashes red in
the display the filter must be
changed.
Water filter
36

Exchanging the water filter
Note: Air trapped in the system may
cause water and the filter cartridge
to eject forcefully. Use caution when
removing.
^Push in and rotate the filter cap on
the base panel of your appliance
counterclockwise 180°, 1.
^Pull the used filter cartridge out of the
appliance, 2.
^Remove the cap from the used filter,
3.
^Take a new filter cartridge out of the
packaging and remove the protective
cap.
^Push the cap onto the new filter
cartridge, 4.
^Push the filter cartridge with cap, in a
horizontal position, all the way into
the opening in the base panel, 5.
^Rotate the filter cartridge clockwise
180° until the cap is in a horizontal
position, 6.
Water filter
37

^After the filter change the filter
indicator in the display still flashes.
The change must be be confirmed in
the electronic.
Confirming the filter change
^Press and hold the filter change
sensor button.
^At the same time place a finger on
the access button. Press and hold
both sensor buttons for approx. 5
seconds until a beep is heard.
The water filter change has been
confirmed and the filter change
indicator had been reset.
The filter change indicator goes out.
^Close the door.
After installing a new water filter
discard the first 24 hours of ice
production.
Using an external water filter
If your household water supply already
has an external water filter installed,
leave the standard water filter (bypass
cartridge) installed in the appliance.
Water filter
38

Water filter
39
State of California
Department of Public Health
Water Treatment Device
Certificate Number
Date Issued: March 10, 2006
Trad
e
mark/Mod
e
l
D
e
s
i
g
nat
i
on R
e
p
l
ac
e
m
e
nt E
l
e
m
e
nts
Date Revised: April 3, 2008
177506 -
9000 077095 9000 077104
Miele 07134220 07134220
Manufactur
e
r:Cuno, Incorporated
Th
e
wat
e
rtr
e
atm
e
nt d
e
v
i
c
e
(s)
li
st
e
donth
i
sc
e
rt
i
f
i
cat
e
hav
e
m
e
tth
e
t
e
st
i
n
g
r
e
qu
i
r
e
m
e
nts pursuant to S
e
ct
i
on
11
6830
of th
e
H
e
a
l
th and Saf
e
ty Cod
e
for th
e
fo
ll
ow
i
n
g
h
e
a
l
th r
e
l
at
e
d contam
i
nants:
Cysts
Turbidity
None
None
M
i
crob
i
o
l
o
g
i
ca
l
Contam
i
nants and Turb
i
d
i
ty Inor
g
an
i
c/Rad
i
o
l
o
g
i
ca
l
Contam
i
nants
Or
g
an
i
cContam
i
nants
Do not use where water is microbiologically unsafe or with water of unknown quality, except that systems certified for
cyst reduction may be used on disinfected waters that may contain filterable cysts.
740 galsRat
e
dS
e
rv
i
c
e
Capac
i
ty:0.75 gpm
Rat
e
dS
e
rv
i
c
e
F
l
ow:
Cond
i
t
i
ons of C
e
rt
i
f
i
cat
i
on:

Water filter
40
To a capacity of 739.68 gallons (2800 liters).
* Based on the use of Cryptosporium parvum oocysts
Performance Data Sheet For Filter Model 07134220
System tested and certified by NSF International in Model 07134220
against NSF/ANSI Standard 53 for the reduction of Cysts and
Turbidity and against Standard 42 for the reduction of Chlorine Taste
and Odor; Nominal Particulate Class I.
This system has been tested according to NSF/ANSI Standards 42 and 53 for the reduction of the substances
listed below. The concentration of the indicated substances in water entering the system was reduced to a
concentration less than or equal to the permissible limit for water leaving the system, as specified in
NSF/ANSI 42 and 53.
For estimated costs of replacement
elements please visit your local appliance
dealer or parts distributor.
IMPORTANT: Must be installed and operated
in accordance with application guidelines.
Failure to do so may void warranty.
Change filter at least every 6 months.
Flush new cartridge for 3 minutes.
Substance Average Influent Challenge Product Average Maximum Permissible Max. Min. % NSF
Influent Concentration Water % Product Water Effluent Reduction Test
Concentration mg/L Concentration Reduction Concentration
Cysts* 166500 Minimum 50,000/L 1 99.99 99.95 1 99.99 516458-05
Turbidity 10.7 11 + 1 NTU 0.31 97.09 0.5 NTU 0.49 95.42 516456-05
Particulate
Class I Particle size: At least 10,000
> 0.5 to < 1 um 5700000 particles/ml 30583 99.52 > 85% 69000 98.9 511079-03
Chlorine taste
and odor 1.9 2.0 mg/L ± 10% 0.05 97.3 > 50% 0.06 96.84 511081-03
Note that while the testing was
performed under standard
laboratory conditions, actual
performance may vary.
WARNING: Do not use with water that is
microbiologically unsafe or of unknown quality
without adequate disinfection before or after the
system. Systems certified for cyst reduction may be
used on disinfected waters that may contain filterable
cysts.
CAUTION: To avoid property damage due to water
leakage, you MUST read and follow these operating
instructions before installation and use of this
product.
Using Replacement Cartridge 07134220
Application Guidelines/Water Supply Parameters
Water pressure 30- 120 psi (207 - 827 kPa)
Water temperature* 33°F - 100°F (0.6°C - 38°C)
Service flow 0.75 gpm (2.83 lpm)
NSF is a registered trademark of NSF International.
CUNO is a trademark of 3M Company used under license.
© 2007 3M Company. All rights reserved.

This product KF 1803 SF, KF 1813 SF (KIMBM30US) / KF 1903 SF, KF 1913 SF
(KIMBM36US) is tested and certified by WQA against ORD0902 for California
"lead free" compliance.
Miele & Cie. KG
Carl-Miele-Straße 29
D-33332 Gütersloh
Lead free certificate
41

With the aid of the following guide minor problems can be corrected without a ser-
vice call.
Repairs should only be carried out by a qualified and trained person in strict
accordance with local and national safety regulations. Unauthorized repairs
could cause personal injury or machine damage and may void the warranty.
Problems with temperature
Issue Possible fault Solution
The refrigerator
or freezer
section does
not get cold.
The machine is not
turned on.
Check whether the appliance is
switched on at the main switch. The
temperature display must be lit up.
The machine is not
plugged in.
Check that the plug is correctly
inserted in the power outlet.
Check that the fuse has
not tripped.
Reset the circuit breaker.
If the breaker trips again the
appliance or the outlet may be
defective. Contact Miele or a
qualified electrician.
The temperature is set
incorrectly.
Check the display.
The
temperature in
the refrigerator
or freezer
section is too
low.
Select a warmer
temperature.
See "Selecting the correct
temperature".
The SuperCool function
is still on.
SuperCool automatically shuts off
after: 6 hours for refrigerator;
52 hours for freezer.
The door is not closed. Check that the doors have been
closed properly.
A large amount of food
is being frozen at the
same time.
This makes the compressor run
longer, causing the temperature in
the freezer section to fall
automatically.
Frequently asked questions
42

Problems with temperature
Issue Possible fault Solution
The freezer section is
too warm.
The room temperature is
lower than the ambient
temperature for which the
appliance is designed.
Raise the temperature of
the room.
Operating the appliance
in a room that is too cold
will cause the cooling
system to switch off for
too long, causing the
freezer section to become
too warm.
The temperature display
for the freezer shows
-18°C, although I have
set a higher
temperature.
This is not a fault. If the ice maker is turned on while
the ambient temperature of the room is (<+18 ° C), a
temperature of -18°C is automatically displayed. Only
then will the ice maker function properly.
Frequently asked questions
43

General problems
Issue Possible fault Solution
Water is flowing out of
the appliance.
Close the shut-off valve immediately.
Check whether the water
pipe in the appliance is
defective.
Contact Miele Technical
Service.
Check whether the water
pressure is too low.
Contact a plumber.
Check whether the correct
water valve has been
installed.
Self-tapping valves and
3/16" (4.76 mm) saddle
valves reduce the water
pressure and can block
the pipe.
The door to the
freezer section will not
open.
This is not a fault.
The suction caused by
opening and closing the
door too many times in
succession prevents it
from opening.
Wait a few minutes, then
try again. It should now
open without force.
The compressor kicks
on very frequently and
for too long.
The ventilation slits in the
plinth and in the top of the
appliance are covered or
dusty.
Clean with a vacuum or
brush.
The doors have been
opened too frequently, or a
large amount of fresh food
has been put in at once for
freezing.
Once the fridge gets down
to the set temperature the
compressor will turn off.
The door is not closed. Check that the doors have
been closed properly.
Nothing shows in the
display.
Power is not reaching the
appliance or there has
been a power failure.
Check the power supply to
the machine.
Frequently asked questions
44

Alarm / Indicator warnings
Issue Possible fault Solution
The alarm is ringing. The appliance door(s)
have been open for
longer than 5 minutes.
Close the door(s).
The alarm is ringing and
the "alarm" indicator for
the door or temperature
is flashing.
The door is not closed. Once the alarm condition
has been corrected, the
alarm will turn off and the
"alarm" indicator will stop
flashing.
The temperature indicator
will indicate the highest
temperature reached
during the alarm.
A large amount of food is
being frozen at the same
time.
There has been a power
failure.
The filter display is red. This is a warning that the
water filter needs to be
changed soon.
Order replacement filters
from Miele.
The filter display is
flashing red.
The water filter needs to
be changed.
See "Exchanging the
water filter".
Frequently asked questions
45

Problems with the ice maker
Issue Possible fault Solution
The ice cube maker
will not switch on.
The appliance is not
plugged in.
Check that the appliance
is connected to the power
supply.
The ice cube maker
is not producing any
ice cubes.
When the appliance is turned on for the very first time, it
can take up to 10 hours for the first ice cubes to drop
out of the ice cube maker and collect in the container.
The appliance is not turned
on.
Check that the appliance
is switched on.
The water supply line was
not primed (purged of air)
before the appliance was
used for the first time.
Contact Miele.
Check if:
– the ice cube maker is
switched on.
– the water supply line is
open.
– there are ice cubes stuck
together and blocking the
exit.
– the ice cube container is
in the right position.
– the freezer compartment
temperature is too high.
– the water pressure is too
low. The water pressure
must be between 25 and
80 psi (1.7-5.5 bar).
See "Ice Cube Maker"
and/or "Plumbing" for more
information.
Check whether the correct
water valve has been
installed.
Self-tapping valves and
3/16" (4.76 mm) saddle
valves reduce the water
pressure and can block
the pipe.
Frequently asked questions
46

Problems with the ice maker
Issue Possible fault Solution
The ice cubes are
small.
Other domestic appliances
that use water are in
operation.
Avoid using such items as
a dishwasher, washing
machine or shower at the
same time.
Check whether the water
filter needs changing.
See "Water filter" for more
information.
Check the water pressure.
The water pressure must be
between 25 and 80 psi
(1.7-5.5 bar).
Consult a plumber.
Check whether the correct
water valve has been
installed.
Self-tapping valves and
3/16" (4.76 mm) saddle
valves reduce the water
pressure and can block
the pipe.
The ice cubes have
an unpleasant
odor/flavor.
When ice is stored for an
extended period it may
absorb odors, which affects
the taste.
Use the ice maker more
frequently.
Check if the ice cube
container is dirty.
Clean the container.
Unsealed packages in the
freezer will transfer
odor/flavor particles to the
ice cubes.
Check that food has been
packed in airtight
containers.
Frequently asked questions
47

Problems with the ice maker
Issue Possible fault Solution
The ice maker is not
producing enough ice
or the ice cubes are
misshapen.
Check the water
pressure. The water
pressure must be
between 25 and 80 psi
(1.7-5.5 bar).
Contact a plumber.
Check that the freezer
temperature is not too
low.
See "Selecting the correct
temperature".
Change the water filter. See "Water filter".
Ice is forming in the
supply hose to the ice
maker.
Check the water
pressure. The water
pressure must be
between 25 and 80 psi
(1.7-5.5 bar).
Contact a plumber.
Check whether the
freezer compartment
temperature is too high.
See "Selecting the correct
temperature".
Frequently asked questions
48

Normal noises What causes them?
Brrrrr... A humming noise is made by the motor (compressor). This
noise can get louder for brief periods when the motor
switches on.
Blub, blub.... A gurgling noise can be heard when the coolant circulates
through the pipes.
Click.... Clicking sounds occur whenever the thermostat switches the
motor on or off.
Sssrrrrr.... In multi-section and frost-free appliances, the movement of
air circulating through the appliance can sometimes just
barely be heard.
In appliances with a water tank, a humming noise can be
heard when the water pump is running.
Crack... A cracking noise can be heard when the appliance materials
expand.
Please bear in mind that a certain amount of noise is unavoidable (from the
compressor and the coolant circulating through the system).
Noises that you
can easily
eliminate
Possible cause Remedy
Rattling, clinking The appliance is not level. Realign the appliance using a
spirit level, by raising or
lowering the screw feet
underneath the appliance.
The appliance is touching
another appliance or piece of
furniture.
Move it away.
Drawers, baskets or shelves
are jiggling or are stuck.
Check all removable items
and refit them correctly.
Bottles or containers are
touching.
Separate them.
The transport cable clips are
still hanging on the back of the
appliance.
Remove the cable clips.
Causes of noises
49

In the event of a fault which you cannot
easily fix yourself, please contact the
Miele Technical Service Department at
the address on the back of this booklet.
When contacting the Technical Service
department, please quote the model
and serial number of your appliance
given on the data plate inside the
appliance.
MieleCare
(USA only)
MieleCare, our Extended Service
Contract program; gives you the
assurance of knowing that your
appliance investment is covered by 5
years of worry-free ownership.
MieleCare is the only Extended Service
Contract in the industry that guarantees
repairs by a Miele Authorized Service
Provider using genuine Miele parts.
Only genuine Miele parts installed by
factory-trained professionals can
guarantee the safety, reliability and
longevity of your Miele appliance.
Please note that unless expressly
approved in writing by the Miele Ser-
vice department, Extended Service
Contracts offered by other providers for
Miele products will not be recognized
by Miele. Our goal is to prevent
unauthorized (and untrained) service
personnel from working on your Miele
products, possibly doing further
damage to them, you and/or your
home.
To learn more about MieleCare
Extended Service Contracts, please
contact your appliance dealer or visit
us online at:
http://mieleusa.com/mielecare
After sales service
50
51

Installation Instructions
Information is subject to change. Please refer to our website to obtain the most
current product specification, technical & warranty information.
To prevent accidents
and machine damage
read these instructions
before
installation or use.

Disposing of the packaging
materials
The packaging is designed to protect
the appliance from damage during
transportation. The packaging materials
used are selected from materials which
are environmentally friendly for disposal
and should be recycled.
Ensure that any plastic wrappings,
bags, etc. are disposed of safely and
kept out of the reach of children. Return
the packaging to your dealer.
Disposal of your old appliance
Old appliances may contain materials
that can be recycled. Please contract
your local recycling authority about the
possibility of recycling these materials.
Instead, please contact your
municipality's waste collection center to
return and recycle electric and
electronic appliances.
Please take care not to damage the
pipework while the appliance is being
stored for transport to a waste disposal
facility.
By protecting the pipework, you help
keep the coolants and compressor oil
from contaminating the environment.
Before discarding an old appliance
disconnect it from the electrical supply
and cut off the power cord to prevent it
from becoming a hazard.
Caring for the environment
53

Have the appliance installed by a
qualified technician, according to
the enclosed installation
instructions.
,WARNING
This appliance is top-heavy and
must be secured to prevent it from
tipping forward.
Keep the doors closed until the
appliance is completely installed
and secured as per the installation
instructions.
Empty weight of your machine:
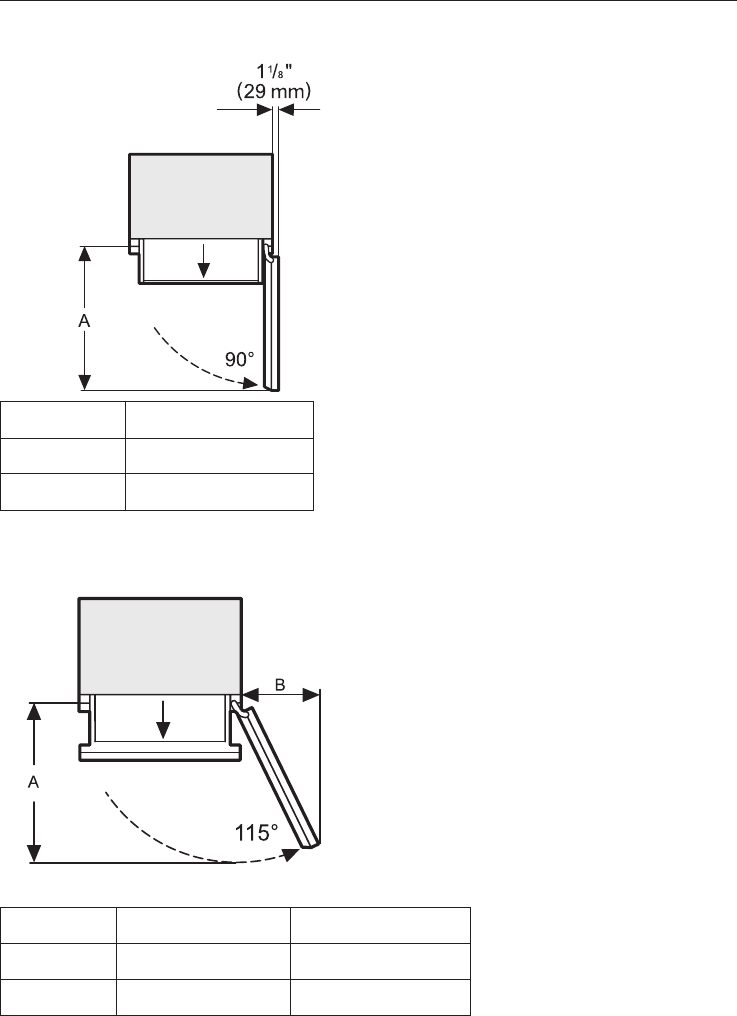
KF 18X3 SF ........511lbs(232 kg)
KF 19X3 SF ........562lbs(255 kg)
Climate Range
The appliance is designed for use
within certain climate ranges (ambient
temperatures) and should not be used
outside this range. The climate range of
this appliance is stated on the data
plate inside the appliance.
Climate
range
Ambient room temperature
SN
N
ST
T
+50°F (10 °C) to +90°F (32 °C)
+60°F (16 °C) to +90°F (32 °C)
+60°F (16 °C) to +100°F (38 °C)
+60°F (16 °C) to 110°F (43 °C)
Operating in a room which is too cold
will cause the compressor to switch off
for too long, causing the internal
temperature in the appliance to rise
with the risk of food deteriorating and
going off.
Installation site
The appliance should be installed in a
dry, well-ventilated room.
Do not install the appliance:
- outdoors
- in an environment with dripping
water
- in rooms that are at risk of frost.
The installation location should not be
exposed to direct sunlight, nor near a
heat source, such as an oven,
radiator, etc.
The ambient temperature should not
drop below 55°F (13°C) or rise above
110°F (43°C), otherwise malfunctions
may occur.
If installation next to a heat source is
unavoidable observe the following
minimum distances from the heat
source:
–1
1/4" (3 cm) from an electric cooktop
or electric oven.
– 12" (30 cm) from a gas or oil
cooktop, range or oven.
The following should also be taken into
consideration:
– The electrical outlet must be easily
accessible in case of an
emergency,not concealed behind
the appliance.
– The plug and cord must not touch
the rear of the appliance as they
could be damaged by vibrations
from the appliance.
– Do not plug in other devices behind
this appliance.
Installation
54

Important! When there is high
humidity a build-up of condensation
on the outer surfaces of the
appliance can occur.This can cause
the surfaces to corrode.To prevent
this, it is advisable to install the
appliance in a dry and/or an
air-conditioned room with sufficient
ventilation.Please ensure that doors
close and seal properly after
installation and that the appliance is
installed in accordance with these
installation instructions and and with
the required ventilation openings.
– If the room is too cold, it will cause
the cooling system in the appliance
to remain off for too long.This can
cause the temperature in the
appliance to rise, resulting in
damage.
Installation
55

Base
A fully loaded appliance is very heavy.
The load-bearing capacity of your floor
must meet the following requirements:
KF 18X3 SF .......1,007 lbs (457 kg)
KF 19X3 SF .......1,250 lbs (567 kg)
To ensure that the appliance is installed
securely and functions properly, the
base must be flat, level and made of a
hard, rigid material.
If in doubt, contact Miele.
Furniture/fixtures
The new appliance will be mounted
securely to adjacent and overhead
furniture/fixtures.
For this reason, it is essential that all
attachable furniture/fixtures be
connected securely to the floor or wall
by a suitable means.
Ventilation
The air intake and outlet must not be
blocked or covered in any way. They
also need to be dusted/cleaned on a
regular basis.
Installation niche
To ensure safe, trouble-free installation
and the best possible cosmetic result,
check to be sure that the installation
space complies with the installation
dimensions. See "Niche dimensions".
The side walls of the installation cavity
must be plumb.
The minimum thickness of the side
walls and the top wall must be 5/8"
(16 mm).
The minimum thickness of the toe-kick
panel must be ½" (13 mm). A thickness
of 3/4" (19 mm) is recommended.
Installation
56

Stainless steel panels
Stainless steel door panels and toe-kick
covers are available from Miele.
Installation options
There are many different installation
options. You are limited only by the
design of the kitchen.
The door hinge cannot be
exchanged.
Single column
The appliance can be installed at any
preferred location in the kitchen.
However, be sure the door will open
and close properly in the chosen
location.
Side-by-side
This appliance can be installed
"side-by-side" with another
fridge/freezer using a "Merging Kit".
The "Merging Kit" is available from
Miele.
Contact Miele or your dealer for
specific information about which
combinations will work with your
appliance.
For instructions on how to attach the
appliances and install the heating
mat, please refer to the instructions
included with the "Merging Kit",
available from Miele.
Appliances attached together using
the "Merging Kit"
If the appliances are installed directly
next to each other (without a partition),
they need to be attached together
using the "Merging Kit".
Installation
57

Installation with partition using the
"Merging Kit"
The minimum thickness of the partition
is 5/8" (16 mm).
If there is a partition with a thickness
from 5/8" (16 mm) to 6 5/16" (160 mm)
between the adjacent appliances, then
each appliance should be individually
installed within its own niche using the
mounting accessories included.
The "Merging Kit" will also be needed.
The "Merging Kit" is available from
Miele.
Installation with partition without
using the "Merging Kit"
If there is a partition with a thickness of
more than 6 5/16" (160 mm) between
the adjacent appliances, then each
appliance should be individually
installed within its own niche using the
mounting accessories included (the
"Merging Kit" is not necessary).
Side panels
If one side of the appliance is visible, a
side panel must be used.
The side panel must be firmly secured
to the wall, the floor and the overhead
furniture/fixtures before the appliance is
placed in the cavity.
The dimensions of the side panel are
taken from the opposite wall of the
installation space. During installation,
ensure that the cavity is square and the
measurements are correct.
Installation
58

Adjusting the door opening
angle (optional accessory)
Depending on the installation site, it
may be necessary to adjust the door
opening angle to 90°.
^Open the door.
^Insert the banking pin through the
holes and drive in with a hammer.
The door opening angle is now limited
to 90°.
Installation
59

Door dimensions (opening angle 90°)
A
KF 18X3 SF 32 5/8" (829 mm)
KF 19X3 SF 38 11/16" (982 mm)
Door dimensions (opening angle 115°)
AB
KF 18X3 SF 32 5/8" (829 mm) 14 5/16" (363 mm)
KF 19X3 SF 38 11/16" (982 mm) 16 7/8" (428 mm)
Dimensions
60

Niche dimensions
AB
KF 1803 SF, KF 1813 SF 30 ½" (774.6 mm) 30" (762 mm)
KF 1903 SF, KF 1913 SF 36 ½" (927 mm) 36" (915 mm)
Dimensions
61

Power supply and water connection
1. Power supply
2. Water connection
A
KF 18X3 SF 15" (381 mm)
KF 19X3 SF 18" (458 mm)
Install a pressure limiting device and water hammer arrester for inlet water
pressures exceeding 80 psi.(Refer to Uniform Plumbing Code, Sections 608.2
and 609.10) Never install or operate where inlet water pressure may exceed
120 psi.
,Power bars or extension cords are not safe (risk of fire). Do not use them to
connect the appliance to the power supply.
Dimensions
62

Before you begin
Read these instructions completely
and carefully.
Have the appliance installed by a
qualified technician, according to
the enclosed installation
instructions.
To reduce the risk of injury or
damage to the product, two people
should be used for installation.
These installation instructions are
intended for use by qualified installers.
In addition to these instructions, the
appliance must be installed in
accordance with all local codes. In the
absence of a local code, the following
should be used:
– In the USA, the National Electric
Code, ANSI/NFPA 70 - latest
edition/State and Municipal codes
and/or local codes.
– In Canada, the Canadian Electric
code C22.1 - latest edition/Provincial
and Municipal codes and/or local
codes.
Tools needed for installation
– Cordless screwdriver
– Torx screwdriver
– Hammer drill
– Wood drills in different sizes
– Hammer
– Rachet (5/16"/8mm)
– Adhesive tape
– Multi-grip pliers
– Level
– Tape measure
– Square
When fastening the cabinet to the wall
behind it (see "Installing the appliance")
use:
– suitable plugs/screws depending on
the type of wall.
–several mounting brackets, if required.
Other
– Stepladder
– Dolly, hand truck
– Wooden beam (cross section
min. 3" x 4" [75 mm x 100 mm] as an
alternative tilt protection, length
depends on the width of the
installation cavity)
– Wood screws in different sizes
Optional accessories
–"Merging Kit" for side-by-side installation
– RemoteVision module for wireless
monitoring
Installing the appliance
63

Aligning the housing unit
The housing unit must be carefully
aligned using a spirit level before
installing the appliance. The unit
corners must be at right angles, as
otherwise the furniture door will not
align correctly with the 4 corners of the
appliance.
– The side panels of the housing must
be even.
– The housing unit panels must be at
least 16 mm thick.
– The plinth facing must be at least
13 mm thick (or preferably 19 mm).
Check the installation niche
To ensure a safe, trouble-free
installation and the best possible
cosmetic result, check to be sure
that the installation space complies
with the installation requirements.
^Check the base (see "Installation").
^Check the dimensions of the cavity.
^Check that the cavity is square.
^Check the location of the power
outlet.
^Check the location of the water
connection (see "Plumbing").
^Check that all furniture parts in the
vicinity of the appliance are securely
connected to the wall.
^Check that the adjacent
furniture/fixtures do not collide with
the open door.
Before installation
,Caution - the appliance is very
heavy. Use caution when unpacking
and opening the door, danger of
tipping.
^To protect the base from damage
during installation, attach a hard
board, linoleum, etc., to the floor in
front of the intended installation
location.
^Take the supplied accessories out of
the protective packaging.
Installing the appliance
64

There are transportation safety
devices inside the appliance to
protect the shelves and storage
compartments until installation is
complete. Do not remove them,or
parts may be damaged.
^Check the appliance for damage in
transit.
Do not install the appliance if it is
visibly damaged. If in doubt, contact
your dealer.
^Loosen the bracket that holds the
appliance to the pallet.
,Caution! The appliance is no
longer secured and may be
unstable.
^From the rear of the appliance
carefully lift it from the pallet.
Once the appliance is on the ground it
can be wheeled around.
RemoteVision module
installation
(optional accessory)
Always disconnect the appliance
from the power supply when
performing installation, maintenance
or service work.
Install the RemoteVision module
before placing the appliance in its
installation niche.
Once connected the RemoteVision
module will increase the energy
consumption of the appliance.
The slot for the RemoteVision module is
located in the lower area of the back of
your appliance.
^Unscrew the screws aon the cover
band pull off the sticker c.
Installing the appliance
65

^Remove the cover b.
^Push the module into the slot until it
locks into place.
^Connect the appliance to the power
supply and turn it on. After several
seconds the indicator light ewill
come on.
The indicator light will display different
colors one after the other; any control
light at the end indicates that the
module was correctly installed.
If the indicator light does not come on,
installation of the module was
unsuccessful. In that case, repeat the
process. If that does not correct the
problem, contact Miele.
^Pull the antenna dstraight out.
^Guide the cover bover the antenna
dand screw on the cover.
^Angle the antenna dso that it faces
to the right or left.
If necessary, disconnect the power
supply and continue installing the
appliance.
Preparing the installation
niche
,Keep the appliance door closed
until it is securely fastened in the
niche. Tipping hazard.
Because of the size and weight of
the appliance, it is essential to
ensure that the appliance cannot tip
over once it has been mounted in
the niche.
Installing the appliance
66

Mounting Accessories
The mounting accessories needed for
installing the appliance into the niche
are included in the packaging. Several
plastic bags are included which are
numbered alphabetically.
The bag needed for each step will be
marked with its respective letter.
Anti-tip brackets
The anti-tip brackets akeep the
appliance safely secured in the
installation niche band prevent it from
tipping.
,Risk of tipping
The installation niche must be
securely attached to the wall behind
it. This is the only way the
appliance, which is later secured in
the niche, can be prevented from
tipping!
Two anti-tip brackets are
recommended for each appliance. For
side-by-side installations 4 brackets are
recommended.
^Position the anti-tip brackets on the
left and right in the installation niche
so that there is no more than 3/8"
(10 mm) of space between the
brackets and the side walls.
^Mark the drill holes in the anti-tip
brackets on the back wall and on the
ceiling of the installation niche.
^Set the brackets aside - they will be
needed again later.
Screws are supplied with the
appliance for various
applications/materials.
If the anti-tip brackets cannot be
attached securely with the screws
supplied, an alternative anti-tip
device can be used.
Assure that there are no electrical
wires or plumbing in the area which
the screws could penetrate-risk of
injury and damage.
Installing the appliance
67

^Now attach the installation niche to
the wall.
The built-in cabinet must be secured to
the wall behind it with several screws.
In a cabinet with a back wall
^screw the back wall of the cabinet in
several places directly to the wall
behind it.
For this, use suitable plugs/screws
depending on the type of wall.
In a cabinet without a back wall
^screw the cabinet to the wall behind
it in several places using suitable
mounting brackets.
For this, use suitable plugs/screws
depending on the type of wall.
Installing the appliance
68

Securing an alternative anti-tip
device
If the anti-tip brackets cannot be
attached securely, an alternative
anti-tip device can be used.
Ensure that there is no "give" between
the appliance and the anti-tip device.
If possible, always screw the
wooden beam to existing studs.
^Cut a wooden beam
(cross section min. 3" x 4"
[75 mm x 100 mm]) to the required
length.
– The length is equal to the width of
the installation niche.
– If the installation niche is deeper than
the appliance, select a beam with a
larger cross section, or attach two
beams.
– The beam must cover the appliance
by at least 2" (50.8 mm).
^Mark the installation height (lower
edge of the beam) on the rear wall of
the niche.
^Select screws according to the
thickness of the wooden beam.
Example: 3 ½" (89 mm) screw for 2x4
beam.
Determine the number of screws
based on the cavity width, to ensure
that the beam will be attached
securely.
^Locate wall studs near the rear wall
of the cavity and mark drill holes in
the beam.
^Pre-drill the wooden beam.
^Attach the wooden beam to the rear
wall of the niche.
Now prepare the water connection
from the appliance to the main
supply line (see "Plumbing").
Installing the appliance
69

Sliding the appliance into the
installation niche
If a side-by-side installation is
desired, connect the two appliances
together. See the Installation Manual
included with the "Merging Kit".
^Open the bottom door.
^To remove the stainless steel front,
loosen the two nuts and remove the
cover strip.
^Unscrew the plinth.
^To protect the corners of the
installation space, attach edge
protectors where needed (not
included).
^Plug the appliance into the power
outlet a.
The plug of the appliance should be
easily accessible after installation.
If the plug is not accessible after the
appliance has been installed,
disconnection from the power
supply should be completed via the
circuit breaker.
In the case of side-by-side
installations, a separate outlet must
be used for each appliance.
Installing the appliance
70

^To prevent the power cord from
becoming caught:
Tie a piece of string to the middle of
the power cord and feed it forward
under the appliance. When sliding
the appliance in, pull the cable
forward b.
^Carefully slide the appliance into the
space.
If resistance is felt when attempting to
slide the appliance into the installation
niche - for example, because the floor
is uneven,
^Turn the rear adjustable wheels
slightly outward (see "Aligning the
appliance"), then push the appliance
in.
Be careful not to damage the water
pipe or power cord attached to the
floor.
^Remove the edge protectors.
Installing the appliance
71

Aligning the appliance
^Align the appliance with the custom
front.
The height-adjustable feet at the front
and rear can all be adjusted from the
front:
– Front feet:
Adjust with a rachet 5/16" (8 mm) c.
– Rear feet:
Adjust with a (cordless) screwdriver
and/or a rachet 5/16" (8 mm) for fine
adjustment d.
Important!
When unscrewing the
height-adjustable feet, proceed
gradually, alternating between left
and right.
^Unscrew the height-adjustable feet
until the mark on the base has
reached the indicated guide
dimension 1 1/4" (32 mm). The guide
dimension of 1 1/4" (32 mm) is
related to a niche height of 84"
(2134 mm).
Important!
The height-adjustable feet can only
be unscrewed as far as the mark 2
3/16" (62 mm) on the base (max.
niche height of 85 3/16" (2164 mm).
^Align the custom doors with a level.
^If using a wooden beam as an
alternative anti-tip device, rotate the
appliance all the way toward the
wooden beam.
Note:
– The adjustment of the rear feet is
aided if the appliance is lifted at the
rear (tipped forward slightly).
Installing the appliance
72

Attaching the appliance to the
installation niche
^Open the appliance doors.
^Fasten the appliance on the left and
right hand sides with the 3 (supplied)
wood screws.
If there is a fairly large gap above the
appliance, cut a wooden beam to fit
exactly and place it in the gap.
Now connect the water supply to the
appliance (see "Plumbing").
^Open the lower appliance door and
hand the stainless steel cover on the
double-threaded bolts.
^Screw the nuts onto the
double-threaded bolts.
^Replace the cover strip.
Installing the appliance
73

Attaching the toe-kick cover
The maximum height of the toe-kick
cover is 4" (101 mm) from the top of
the floor. Do not cover the ventilation
slits in the plinth. Risk of damage to
the appliance.
^If required, cut the toe-kick cover to
the required length and height.
^Attach the plinth to the appliance,
and put the included cover plates in
place.
^Remove the foil from the adhesive
strips.
^Attach the toe-kick cover to the
plinth.
Installing the appliance
74

Mounting the air separator
The air separator keeps the supply and
exhaust air separate. This prevents
warm exhaust air from flowing into the
machine, optimizing the energy
performance of the unit.
^If necessary, shorten the three parts
of the air separator.
^Insert the foam pieces back into the
sides. ^Clip the air separator, left and right of
the partition, in the exhaust grille. Be
sure that it clicks into place and
guides the foam partition under the
exhaust grille.
Installing the appliance
75

All plumbing work should be carried
out by a suitably qualified and
competent person, in accordance
with all applicable local and national
regulations.
Disconnect the appliance from the
electrical power supply before
connecting it to the water supply.
Turn off the water supply before
connecting the water lines to the ice
cube maker.
The water quality must conform to
country requirements for drinking
water.
– The appliance is only suitable for
connection to the cold water supply.
– The water pressure must be between
25 and 80 psi (1.7-5.5 bar).
– A separate shut-off valve must be
installed, so that the water supply
can be interrupted as needed.
– The maximum outer diameter of the
water pipe (without fittings):
3/8" (10 mm).
The shut-off valve for the water
connection must not be located
behind the appliance. It is
recommended to place the shut-off
valve directly next to the appliance
(base unit) or in another easily
accessible location.
Do not use pipe extenders.
In the event that the piping has to be
replaced only Original Miele Spare
parts are suitable for use. Contact
Miele.
Plumbing
76

Preparing the water connection
The connection to the household
water supply must be installed
before the appliance is installed.
^Turn off the main water valve to prevent
damage caused by leaking water.
^Attach the connecting pipe to the
shut-off valve, according to the
instructions supplied by the
manufacturer of the ice cube maker
installation kit.
^Install the connecting pipe. Always
observe the indicated clearance
dimensions to prevent damage to the
connecting pipe when pushing in the
appliance.
^Secure the connecting pipe to the
floor with adhesive tape.
^You may now proceed to install the
appliance. See "Installing the
appliance".
For appliances with a hose guide
^position the device in front of the
niche and push the stainless steel
tube through the hose guide at the
back of the unit.
At this point the niche should be ready
for the appliance to be pushed back
into it (see "Installing the appliance").
^You can now continue with the
installation.
Plumbing
77

Connecting the water supply
When connecting the water pipe to
the solenoid valve of the appliance,
follow the instructions supplied by
the manufacturer of the ice cube
maker installation kit.
When bending the water pipe, be sure
not to kink it, otherwise there is a risk of
leaks and water damage.
Use bending aids.
^Remove the cap from the appliance
connection, 1.
^Bend the water pipe to suit the
location of the connection on the
appliance, 2.
^Push the union nut and seal onto the
water pipe.
^Push the end of the water pipe into
the appliance connection and screw
on the union nut, 3. First tighten by
hand.
^Then use an open-ended wrench to
tighten the union nut. Do not over
tighten.
^Open the shut-off valve and the main
water connection. Check for leaks at
the connection for the shut-off valve
and to the appliance.
^Turn the appliance on.
After a maximum of 10 hours the first
ice cubes will drop out of the ice
cube maker and collect in the ice
cube container.
Plumbing
78

,Avoid the risk of electrical
shock
- Plug into a grounded 3-prong
outlet.
- Do not move the ground plug.
- Do not use an adapter.
- Do not use an extension cord.
Failure to follow these instructions
can result in death, fire, or electrical
shock.
Improper connection of the
equipment grounding conductor
may result in electric shock. If you
are in any doubt as to whether the
appliance has been properly
grounded, have the appliance
checked by a qualified electrician or
service technician.
Installation, repairs and other work
by unqualified persons could be
dangerous.
Before installing the appliance,
verify that the voltage, load and
circuit rating information found on
the data plate match the household
electrical supply.
If there are any questions regarding the
electrical connection of this appliance
to the power supply, please consult a
licensed electrician or call the Miele
Technical Service.
U1-800-999-1360
V1-800-565-6435
The appliance is supplied with a
UL-listed, 3-wire power cord and
NEMA 5-15 P plug ready for connection
to a 120 V, 60 Hz supply.
The fuse rating is 15 amps.
The appliance requires a 3-wire
receptacle.
The receptacle must be installed by a
licensed electrician only.
In the case of side-by-side installations,
a separate outlet must be used for each
appliance. Ideally, the power outlet
should be next to the appliance and
easily accessible. Do not connect the
appliance to the power supply by an
extension cord. Extension cords do not
guarantee the required safety of the
appliance (danger of overheating).
If any changes are needed to the
household wiring or power supply, this
work must be performed by a qualified
electrician.
Electrical connection
79

Miele's RemoteVision Wi-Fi technology
creates a 'virtual link' between your
appliance and our monitoring center. If
a fault occurs, Miele's client service
center will be notified and contact you,
or another trusted individual identified
on your call roster, in order to gain
access to your appliance to fix the
problem.
For information on set-up and
installation of the RemoteVision module
see the "Installation" section of this
manual.
Be sure your wireless system meets the
following requirements
– A wireless router that supports an
IEEE 802.11b/g protocol
– Windows XP®or newer operating
system, Mac®OS X 10.3 or higher
– Cable or DSL modem
– Microsoft®Internet Explorer 6 or
higher, Safari 2.0 or higher, Firefox
1.5 or higher
* Please note that each wireless router
manufacturer supplies their own device
drivers and setup programs. Due to the
differences in manufacturers, exact
router setup instructions are not
included in this manual. Wording and
instructions may vary.
RemoteVision (optional accessory)
80

Accessing the RemoteVision
control panel
^Touch the access button "p"soit
turns yellow.
^Note the position of the Xbutton, but
do not touch.
^Touch the access button "p" again so
it turns white.
Only the access button "p" is visible.
^Place one finger on the position of
the Xbutton and hold (the Xbutton
will not be visible).
^While holding down the Xbutton,
press the access button "p" once.
Keep holding the Xbutton down until
the following appears in the display
(approx. 5 seconds).
Access to the Custom settings mode is
now active for approximately 10
seconds.
^Tap the Xbutton until ;appears in
the display.
^Touch the access button "p"to
confirm.
See the table on the following page for
a description of each setting in the
display.
^Use the Yor Xbuttons to select the
RemoteVision options.
The module has been connected to
the network when ;#appears in the
display.
If ;#does not appear, refer to the
"Network options" section of the
XKM 2000 Installation Instruction
manual.
^Press and hold the access button "p"
for 2 seconds to confirm the change.
^To return to the main menu, tap the X
button until a solid ;-appears in the
display.
^Press the access button "p"to
confirm.
^Tap the Xbutton until a ;appears in
the display.
^Touch the access button "p".
You have left the Custom settings
mode.
When you are in the Custom settings
mode the door alarm is turned off
automatically. Once the door is
closed it is reactivated.
RemoteVision (optional accessory)
81

MasterCool control panel
options for RemoteVision
Status indicators Description of function
Flashing ;~Module booting phase
Flashing ;‡Not connected to network
Flashing ;|Connection to network established, no IP address
assigned
Solid ;#Connected to network
Flashing ;< In Ad-Hoc Mode, not connected
Flashing ;= In Ad-Hoc Mode, connected
Selectable
options
Description of function
;-Back
;2Reboot the module
;3Reset to factory settings
;4Enter Ad-Hoc Mode
Note: If you cannot select any option
(other than ;-"Back", the module has
not been installed correctly.
RemoteVision (optional accessory)
82

83

M.-Nr. 09 920 880 / 00en - US, CA
KF 1803 SF
KF 1813 SF
KF 1903 SF
KF 1913 SF