Miller Electric Wire Feeder Users Manual
wire feeder to the manual 2fc17fd8-b2d7-4407-b54f-3d738ebcf0b3
2015-02-02
: Miller-Electric Miller-Electric-Wire-Feeder-Users-Manual-437325 miller-electric-wire-feeder-users-manual-437325 miller-electric pdf
Open the PDF directly: View PDF
.
Page Count: 24

cover 1/94 – ST-108 014-A PRINTED IN USA
1995 MILLER Electric Mfg. Co.
Read and follow these instructions and all
safety blocks carefully.
Have only trained and qualified persons
install, operate, or service this unit.
Call your distributor if you do not understand
the directions.
Give this manual to the operator.
For help, call your distributor
or: MILLER Electric Mfg. Co., P.O. Box 1079,
Appleton, WI 54912 414-734-9821
OWNER’S
MANUAL
OM-877 Form: 108 026
November 1995
10KW AUXILIARY POWER BANK

Miller Electric manufactures a full line
of welders and welding related equipment.
For information on other quality Miller
products, contact your local Miller distributor
to receive the latest full line catalog or
individual catalog sheets. To locate your nearest
distributor or service agency call 1-800-4-A-Miller,
or visit us at www.MillerWelds.com on the web.
Thank you and congratulations on choosing Miller. Now
you can get the job done and get it done right. We know
you don’t have time to do it any other way.
That’s why when Niels Miller first started building arc
welders in 1929, he made sure his products offered
long-lasting value and superior quality. Like you, his
customers couldn’t afford anything less. Miller products
had to be more than the best they could be. They had to
be the best you could buy.
Today, the people that build and sell Miller products continue the
tradition. They’re just as committed to providing equipment and service
that meets the high standards of quality and value established in 1929.
This Owner’s Manual is designed to help you get the most out of your
Miller products. Please take time to read the Safety precautions. They will
help you protect yourself against potential hazards on the worksite. We’ve
made installation and operation quick and easy.
With Miller you can count on years of reliable
service with proper maintenance. And if for
some reason the unit needs repair, there’s a
Troubleshooting section that will help you
figure out what the problem is. The parts list
will then help you to decide which exact part
you may need to fix the problem. Warranty and
service information for your particular model
are also provided.
Miller is the first welding
equipment manufacturer in
the U.S.A. to be registered to
the ISO 9001 Quality System
Standard.
Working as hard as you do
– every power source from
Miller is backed by the most
hassle-free warranty in the
business.
From Miller to You
Miller offers a Technical
Manual which provides
more detailed service and
parts information for your
unit. To obtain a Technical
Manual, contact your local
distributor. Your distributor
can also supply you with
Welding Process Manuals
such as SMAW, GTAW,
GMAW, and GMAW-P.

OM-877 – 11/95
TABLE OF CONTENTS
SECTION 1 – SAFETY RULES FOR OPERATION OF ARC WELDING POWER SOURCE 1. . . . . . .
1-1. Introduction 1. . . . . . . . . . . . . . . . . . . . . . . . . . . . . . . . . . . . . . . . . . . . . . . . . . . . . . . . . . . . . . . . . . .
1-2. General Precautions 1. . . . . . . . . . . . . . . . . . . . . . . . . . . . . . . . . . . . . . . . . . . . . . . . . . . . . . . . . . .
1-3. Arc Welding 4. . . . . . . . . . . . . . . . . . . . . . . . . . . . . . . . . . . . . . . . . . . . . . . . . . . . . . . . . . . . . . . . . . .
1-4. Standards Booklet Index 5. . . . . . . . . . . . . . . . . . . . . . . . . . . . . . . . . . . . . . . . . . . . . . . . . . . . . . . .
SECTION 2 – SAFETY PRECAUTIONS AND SIGNAL WORDS 6. . . . . . . . . . . . . . . . . . . . . . . . . . . . . .
2-1. General Information And Safety 6. . . . . . . . . . . . . . . . . . . . . . . . . . . . . . . . . . . . . . . . . . . . . . . . . .
2-2. Safety Alert Symbol And Signal Words 6. . . . . . . . . . . . . . . . . . . . . . . . . . . . . . . . . . . . . . . . . . .
SECTION 3 – SPECIFICATIONS 7. . . . . . . . . . . . . . . . . . . . . . . . . . . . . . . . . . . . . . . . . . . . . . . . . . . . . . . . . .
3-1. Description 7. . . . . . . . . . . . . . . . . . . . . . . . . . . . . . . . . . . . . . . . . . . . . . . . . . . . . . . . . . . . . . . . . . . .
SECTION 4 – INSTALLATION 7. . . . . . . . . . . . . . . . . . . . . . . . . . . . . . . . . . . . . . . . . . . . . . . . . . . . . . . . . . . .
4-1. Location 7. . . . . . . . . . . . . . . . . . . . . . . . . . . . . . . . . . . . . . . . . . . . . . . . . . . . . . . . . . . . . . . . . . . . . .
4-2. Interconnecting Cord Installation 7. . . . . . . . . . . . . . . . . . . . . . . . . . . . . . . . . . . . . . . . . . . . . . . . .
SECTION 5 – OPERATOR CONTROLS 9. . . . . . . . . . . . . . . . . . . . . . . . . . . . . . . . . . . . . . . . . . . . . . . . . . . .
5-1. 120 Volt Load/240 Volt Load Selector Switch 9. . . . . . . . . . . . . . . . . . . . . . . . . . . . . . . . . . . . . .
5-2. Pilot Lights 9. . . . . . . . . . . . . . . . . . . . . . . . . . . . . . . . . . . . . . . . . . . . . . . . . . . . . . . . . . . . . . . . . . . .
5-3. Amperage Load Switches 9. . . . . . . . . . . . . . . . . . . . . . . . . . . . . . . . . . . . . . . . . . . . . . . . . . . . . . .
5-4. Voltmeter 10. . . . . . . . . . . . . . . . . . . . . . . . . . . . . . . . . . . . . . . . . . . . . . . . . . . . . . . . . . . . . . . . . . . . .
5-5. Hertz Meter 10. . . . . . . . . . . . . . . . . . . . . . . . . . . . . . . . . . . . . . . . . . . . . . . . . . . . . . . . . . . . . . . . . . .
5-6. Dual-Scale AC Ammeter 10. . . . . . . . . . . . . . . . . . . . . . . . . . . . . . . . . . . . . . . . . . . . . . . . . . . . . . . .
SECTION 6 – SEQUENCE OF OPERATION 10. . . . . . . . . . . . . . . . . . . . . . . . . . . . . . . . . . . . . . . . . . . . . . . .
6-1. Loading Procedure 10. . . . . . . . . . . . . . . . . . . . . . . . . . . . . . . . . . . . . . . . . . . . . . . . . . . . . . . . . . . . .
6-2. Shutting Down 11. . . . . . . . . . . . . . . . . . . . . . . . . . . . . . . . . . . . . . . . . . . . . . . . . . . . . . . . . . . . . . . . .
SECTION 7 – MAINTENANCE 11. . . . . . . . . . . . . . . . . . . . . . . . . . . . . . . . . . . . . . . . . . . . . . . . . . . . . . . . . . . .
7-1. Inspection And Upkeep 11. . . . . . . . . . . . . . . . . . . . . . . . . . . . . . . . . . . . . . . . . . . . . . . . . . . . . . . . .
7-2. Internal Cleaning 11. . . . . . . . . . . . . . . . . . . . . . . . . . . . . . . . . . . . . . . . . . . . . . . . . . . . . . . . . . . . . .
SECTION 8 – PARTS LIST 12. . . . . . . . . . . . . . . . . . . . . . . . . . . . . . . . . . . . . . . . . . . . . . . . . . . . . . . . . . . . . . .
Figure 8-1. Main Assembly 12. . . . . . . . . . . . . . . . . . . . . . . . . . . . . . . . . . . . . . . . . . . . . . . . . . . . . . . . . . . .
Figure 8-2. Panel, Front w/Components 14. . . . . . . . . . . . . . . . . . . . . . . . . . . . . . . . . . . . . . . . . . . . . . . . .
Figure 8-3. Resistor Assembly 15. . . . . . . . . . . . . . . . . . . . . . . . . . . . . . . . . . . . . . . . . . . . . . . . . . . . . . . . .


OM-877 Page 1
SECTION 1 – SAFETY RULES FOR OPERATION OF ARC WELDING POWER SOURCE
1-1. INTRODUCTION
We learn by experience. Learning safety through per-
sonal experience, like a child touching a hot stove is
harmful, wasteful, and unwise. Let the experience of
others teach you.
Safe practices developed from experience in the use of
welding and cutting are described in this manual. Re-
search, development, and field experience have
evolved reliable equipment and safe installation, opera-
tion, and servicing practices. Accidents occur when
equipment is improperly used or maintained. The rea-
son for the safe practices may not always be given.
Some are based on common sense, others may require
technical volumes to explain. It is wiser to follow the
rules.
Read and understand these safe practices before at-
tempting to install, operate, or service the equipment.
Comply with these procedures as applicable to the par-
ticular equipment used and their instruction manuals,
for personal safety and for the safety of others.
Failure to observe these safe practices may cause seri-
ous injury or death. When safety becomes a habit, the
equipment can be used with confidence.
These safe practices are divided into two Sections:
1-General Precautions, common to arc welding and cut-
ting; and 2-Arc Welding (and Cutting) (only).
Reference standards: Published Standards on safety
are also available for additional and more complete pro-
cedures than those given in this manual. They are listed
in the Standards Index in this manual. ANSI Z49.1 is the
most complete.
The National Electrical Code, Occupational Safety and
Health Administration, local industrial codes, and local
inspection requirements also provide a basis for equip-
ment installation, use, and service.
1-2. GENERAL PRECAUTIONS
Different arc welding processes, electrode alloys,
and fluxes can produce different fumes, gases, and
radiation levels. In addition to the information in
this manual, be sure to consult flux and electrode
manufacturers Material Safety Data Sheets
(MSDSs) for specific technical data and precaution-
ary measures concerning their material.
A. Burn Prevention
Wear protective clothing-gauntlet gloves designed for
use in welding, hat, and high safety-toe shoes. Button
shirt collar and pocket flaps, and wear cuffless trousers
to avoid entry of sparks and slag.
Wear helmet with safety goggles and glasses with side
shields underneath, appropriate filter lenses or plates
(protected by clear cover glass). This is a MUST for
welding or cutting, (and chipping) to protect the eyes
from radiant energy and flying metal. Replace cover
glass when broken, pitted, or spattered. See 1-3A.2.
Avoid oily or greasy clothing. A spark may ignite them.
Hot metal such as electrode stubs and workpieces
should never be handled without gloves.
Medical first aid and eye treatment. First aid facilities
and a qualified first aid person should be available for
each shift unless medical facilities are close by for im-
mediate treatment of flash burns of the eyes and skin
burns.
Ear plugs should be worn when working on overhead or
in a confined space. A hard hat should be worn when
others work overhead.
Flammable hair preparations should not be used by per-
sons intending to weld or cut.
B. Toxic Fume Prevention
Severe discomfort, illness or death can result from
fumes, vapors, heat, or oxygen enrichment or depletion
that welding (or cutting) may produce. Prevent them
with adequate ventilation as described in ANSI Stan-
dard Z49.1 listed in Standards Index. NEVER ventilate
with oxygen.
Lead -, cadmium -, zinc -, mercury -, and beryllium-bear-
ing and similar materials, when welded (or cut) may pro-
duce harmful concentrations of toxic fumes. Adequate
local exhaust ventilation must be used, or each person
in the area as well as the operator must wear an air-sup-
plied respirator. For beryllium, both must be used.
Metals coated with or containing materials that emit
toxic fumes should not be heated unless coating is re-
moved from the work surface, the area is well ventilated
and, if necessary, while wearing an air-supplied respira-
tor.
Work in a confined space only while it is being ventilated
and, if necessary, while wearing an air-supplied respira-
tor.
Gas leaks in a confined space should be avoided.
Leaked gas in large quantities can change oxygen con-
centration dangerously. Do not bring gas cylinders into a
confined space.
Leaving confined space, shut OFF gas supply at source
to prevent possible accumulation of gases in the space if
downstream valves have been accidentally opened or
left open. Check to be sure that the space is safe before
re-entering it.
Vapors from chlorinated solvents can be decomposed
by the heat of the arc (or flame) to form PHOSGENE, a
highly toxic gas, and other lung and eye irritating prod-
ucts. The ultraviolet (radiant) energy of the arc can also
decompose trichloroethylene and perchloroethylene
vapors to form phosgene. DO NOT WELD or cut where
solvent vapors can be drawn into the welding or cutting
OM-877 Page 2
atmosphere or where the radiant energy can penetrate
to atmospheres containing even minute amounts of
trichloroethylene or perchloroethylene.
C. Fire and Explosion Prevention
Causes of fire and explosion are: combustibles reached
by the arc, flame, flying sparks, hot slag or heated mate-
rial; misuse of compressed gases and cylinders; and
short circuits.
BE AWARE THAT flying sparks or falling slag can pass
through cracks, along pipes, through windows or doors,
and through wall or floor openings, out of sight of the
goggled operator. Sparks and slag can fly 35 feet.
To prevent fires and explosion:
Keep equipment clean and operable, free of oil, grease,
and (in electrical parts) of metallic particles that can
cause short circuits.
If combustibles are in area, do NOT weld or cut. Move
the work if practicable, to an area free of combustibles.
Avoid paint spray rooms, dip tanks, storage areas, ven-
tilators. If the work cannot be moved, move comb-
ustibles at least 35 feet away out of reach of sparks and
heat; or protect against ignition with suitable and snug-
fitting, fire-resistant covers or shields.
Walls touching combustibles on opposite sides should
not be welded on (or cut). Walls, ceilings, and floor near
work should be protected by heat-resistant covers or
shields.
Fire watcher must be standing by with suitable fire extin-
guishing equipment during and for some time after weld-
ing or cutting if:
a. appreciable combustibles (including building
construction) are within 35 feet
b. appreciable combustibles are further than 35
feet but can be ignited by sparks
c. openings (concealed or visible) in floors or walls
within 35 feet may expose combustibles to
sparks
d. combustibles adjacent to walls, ceilings, roofs,
or metal partitions can be ignited by radiant or
conducted heat.
Hot work permit should be obtained before operation to
ensure supervisor’s approval that adequate precau-
tions have been taken.
After work is done, check that area is free of sparks,
glowing embers, and flames.
An empty container that held combustibles, or that can
produce flammable or toxic vapors when heated, must
never be welded on or cut, unless container has first
been cleaned as described in AWS Standard A6.0,
listed 7 in Standards Index.
This includes: a thorough steam or caustic cleaning (or
a solvent or water washing, depending on the combusti-
ble’s solubility) followed by purging and inerting with ni-
trogen or carbon dioxide, and using protective equip-
ment as recommended in A6.0. Waterfilling just below
working level may substitute for inerting.
A container with unknown contents should be cleaned
(see preceding paragraph). Do NOT depend on sense
of smell or sight to determine if it is safe to weld or cut.
Hollow castings or containers must be vented before
welding or cutting. They can explode.
Explosive atmospheres. Never weld or cut where the air
may contain flammable dust, gas, or liquid vapors (such
as gasoline).
D. Compressed Gas Equipment
Standard precautions. Comply with precautions in this
manual, and those detailed in CGA Standard P-1, SAFE
HANDLING OF COMPRESSED GASES IN CYLIN-
DERS, listed 11 in Standards Index.
1. Pressure Regulators
Regulator relief valve is designed to protect only the
regulator from overpressure; it is not intended to protect
any downstream equipment. Provide such protection
with one or more relief devices.
Never connect a regulator to a cylinder containing gas
other than that for which the regulator was designed.
Remove faulty regulator from service immediately for
repair (first close cylinder valve). The following symp-
toms indicate a faulty regulator:
Leaks-if gas leaks externally.
Excessive Creep-if delivery pressure continues to rise
with downstream valve closed.
Faulty Gauge-if gauge pointer does not move off stop
pin when pressurized, nor returns to stop pin after pres-
sure release.
Repair. Do NOT attempt to repair. Send faulty regula-
tors for repair to manufacturer’s designated repair cen-
ter, where special techniques and tools are used by
trained personnel.
2. Cylinders
Cylinders must be handled carefully to prevent leaks
and damage to their walls, valves, or safety devices:
Avoid electrical circuit contact with cylinders including
third rails, electrical wires, or welding circuits. They can
produce short circuit arcs that may lead to a serious ac-
cident. (See 1-3C.)
ICC or DOT marking must be on each cylinder. It is an
assurance of safety when the cylinder is properly han-
dled.
Identifying gas content. Use only cylinders with name of
gas marked on them; do not rely on color to identify gas
content. Notify supplier if unmarked. NEVER DEFACE
or alter name, number, or other markings on a cylinder. It
is illegal and hazardous.
Empties: Keep valves closed, replace caps securely;
mark MT; keep them separate from FULLS and return
promptly.
Prohibited use. Never use a cylinder or its contents for
other than its intended use, NEVER as a support or
roller.
OM-877 Page 3
Locate or secure cylinders so they cannot be knocked
over.
Passageways and work areas. Keep cylinders clear of
areas where they may be struck.
Transporting cylinders. With a crane, use a secure sup-
port such as a platform or cradle. Do NOT lift cylinders
off the ground by their valves or caps, or by chains,
slings, or magnets.
Do NOT expose cylinders to excessive heat, sparks,
slag, and flame, etc. that may cause rupture. Do not al-
low contents to exceed 130°F. Cool with water spray
where such exposure exists.
Protect cylinders particularly valves from bumps, falls,
falling objects, and weather. Replace caps securely
when moving cylinders.
Stuck valve. Do NOT use a hammer or wrench to open a
cylinder valve that can not be opened by hand. Notify
your supplier.
Mixing gases. Never try to mix any gases in a cylinder.
Never refill any cylinder.
Cylinder fittings should never be modified or ex-
changed.
3. Hose
Prohibited use. Never use hose other than that de-
signed for the specified gas. A general hose identifica-
tion rule is: red for fuel gas, green for oxygen, and black
for inert gases.
Use ferrules or clamps designed for the hose (not ordi-
nary wire or other substitute) as a binding to connect
hoses to fittings.
No copper tubing splices. Use only standard brass fit-
tings to splice hose.
Avoid long runs to prevent kinks and abuse. Suspend
hose off ground to keep it from being run over, stepped
on, or otherwise damaged.
Coil excess hose to prevent kinks and tangles.
Protect hose from damage by sharp edges, and by
sparks, slag, and open flame.
Examine hose regularly for leaks, wear, and loose con-
nections. Immerse pressured hose in water; bubbles in-
dicate leaks.
Repair leaky or worn hose by cutting area out and splic-
ing (1-2D3). Do NOT tape.
4. Proper Connections
Clean cylinder valve outlet of impurities that may clog
orifices and damage seats before connecting regulator.
Except for hydrogen, crack valve momentarily, pointing
outlet away from people and sources of ignition. Wipe
with a clean lintless cloth.
Match regulator to cylinder. Before connecting, check
that the regulator label and cylinder marking area, and
that the regulator inlet and cylinder outlet match.
NEVER CONNECT a regulator designed for a particular
gas or gases to a cylinder containing any other gas.
Tighten connections. When assembling threaded con-
nections, clean and smooth seats where necessary.
Tighten. If connection leaks, disassemble, clean, and
retighten using properly fitting wrench.
Adapters. Use a CGA adapter (available from your sup-
plier) between cylinder and regulator, if one is required.
use two wrenches to tighten adapter marked RIGHT
and LEFT HAND threads.
Regulator outlet (or hose) connections may be identified
by right hand threads for oxygen and left hand threads
(with grooved hex on nut or shank) for fuel gas.
5. Pressurizing Steps:
Drain regulator of residual gas through suitable vent be-
fore opening cylinder (or manifold valve) by turning ad-
justing screw in (clockwise). Draining prevents exces-
sive compression heat at high pressure seat by allowing
seat to open on pressurization. Leave adjusting screw
engaged slightly on single-stage regulators.
Stand to side of regulator while opening cylinder valve.
Open cylinder valve slowly so that regulator pressure in-
creases slowly. When gauge is pressurized (gauge
reaches regulator maximum) leave cylinder valve in fol-
lowing position: For oxygen, and inert gases, open fully
to seal stem against possible leak. For fuel gas, open to
less than one turn to permit quick emergency shutoff.
Use pressure charts (available from your supplier) for
safe and efficient, recommended pressure settings on
regulators.
Check for leaks on first pressurization and regularly
there-after. Brush with soap solution (capfull of Ivory
Liquid* or equivalent per gallon of water). Bubbles indi-
cate leak. Clean off soapy water after test; dried soap is
combustible.
E. User Responsibilities
Remove leaky or defective equipment from service im-
mediately for repair. See User Responsibility statement
in equipment manual.
F. Leaving Equipment Unattended
Close gas supply at source and drain gas.
G. Rope Staging-Support
Rope staging-support should not be used for welding or
cutting operation; rope may burn.
*Trademark of Proctor & Gamble.
OM-877 Page 4
1-3. ARC WELDING
Comply with precautions in 1-1, 1-2, and this section.
Arc Welding, properly done, is a safe process, but a
careless operator invites trouble. The equipment carries
high currents at significant voltages. The arc is very
bright and hot. Sparks fly, fumes rise, ultraviolet and in-
frared energy radiates, weldments are hot, and com-
pressed gases may be used. The wise operator avoids
unnecessary risks and protects himself and others from
accidents. Precautions are described here and in stan-
dards referenced in index.
A. Burn Protection
Comply with precautions in 1-2.
The welding arc is intense and visibly bright. Its radiation
can damage eyes, penetrate lightweight clothing, reflect
from light-colored surfaces, and burn the skin and eyes.
Skin burns resemble acute sunburn, those from gas-
shielded arcs are more severe and painful. DON’T GET
BURNED; COMPLY WITH PRECAUTIONS.
1. Protective Clothing
Wear long-sleeve clothing (particularly for gas-shielded
arc) in addition to gloves, hat, and shoes (1-2A). As nec-
essary, use additional protective clothing such as
leather jacket or sleeves, flame-proof apron, and fire-re-
sistant leggings. Avoid outer garments of untreated cot-
ton.
Bare skin protection. Wear dark, substantial clothing.
Button collar to protect chest and neck and button pock-
ets to prevent entry of sparks.
2. Eye and Head Protection
Protect eyes from exposure to arc. NEVER look at an
electric arc without protection.
Welding helmet or shield containing a filter plate shade
no. 12 or denser must be used when welding. Place over
face before striking arc.
Protect filter plate with a clear cover plate.
Cracked or broken helmet or shield should NOT be
worn; radiation can pass through to cause burns.
Cracked, broken, or loose filter plates must be replaced
IMMEDIATELY. Replace clear cover plate when broken,
pitted, or spattered.
Flash goggles with side shields MUST be worn under
the helmet to give some protection to the eyes should
the helmet not be lowered over the face before an arc is
struck. Looking at an arc momentarily with unprotected
eyes (particularly a high intensity gas-shielded arc) can
cause a retinal burn that may leave a permanent dark
area in the field of vision.
3. Protection of Nearby Personnel
Enclosed welding area. For production welding, a sepa-
rate room or enclosed bay is best. In open areas, sur-
round the operation with low-reflective, non-combusti-
ble screens or panels. Allow for free air circulation, par-
ticularly at floor level.
Viewing the weld. Provide face shields for all persons
who will be looking directly at the weld.
Others working in area. See that all persons are wearing
flash goggles.
Before starting to weld, make sure that screen flaps or
bay doors are closed.
B. Toxic Fume Prevention
Comply with precautions in 1-2B.
Generator engine exhaust must be vented to the out-
side air. Carbon monoxide can kill.
C. Fire and Explosion Prevention
Comply with precautions in 1-2C.
Equipment’s rated capacity. Do not overload arc weld-
ing equipment. It may overheat cables and cause a fire.
Loose cable connections may overheat or flash and
cause a fire.
Never strike an arc on a cylinder or other pressure ves-
sel. It creates a brittle area that can cause a violent rup-
ture or lead to such a rupture under rough handling.
D. Compressed Gas Equipment
Comply with precautions in 1-2D.
E. Shock Prevention
Exposed hot conductors or other bare metal in the weld-
ing circuit, or in ungrounded, electrically-HOT equip-
ment can fatally shock a person whose body becomes a
conductor. DO NOT STAND, SIT, LIE, LEAN ON, OR
TOUCH a wet surface when welding, without suitable
protection.
To protect against shock:
Wear dry insulating gloves and body protection. Keep
body and clothing dry. Never work in damp area without
adequate insulation against electrical shock. Stay on a
dry duckboard, or rubber mat when dampness or sweat
can not be avoided. Sweat, sea water, or moisture be-
tween body and an electrically HOT part or grounded
metal reduces the electrical resistance, and could en-
able dangerous and possibly lethal currents to flow
through the body.
A voltage will exist between the electrode and any con-
ducting object in the work circuit. Examples of conduct-
ing objects include, but are not limited to, buildings, elec-
trical tools, work benches, welding power source cases,
workpieces, etc. Never touch the electrode and any
metal object unless the welding power source is
off.
1. Grounding the Equipment
Arc welding equipment must be grounded according to
the National Electrical Code, and the work must be
grounded according to ANSI Z49.1 “Safety In Welding
And Cutting.”
When installing, connect the frames of each unit such as
welding power source, control, work table, and water cir-
culator to the building ground. Conductors must be ade-
OM-877 Page 5
quate to carry ground currents safely. Equipment made
electrically HOT by stray current may shock, possibly
fatally. Do NOT GROUND to electrical conduit, or to a
pipe carrying ANY gas or flammable liquid such as oil or
fuel.
Three-phase connection. Check phase requirements of
equipment before installing. If only 3-phase power is
available, connect single-phase equipment to only two
wires of the 3-phase line. Do NOT connect the equip-
ment ground lead to the third (live) wire, or the equip-
ment will become electrically HOT-a dangerous condi-
tion that can shock, possibly fatally.
Before welding, check ground for continuity. Be sure
conductors are touching bare metal of equipment
frames at connections.
If a line cord with a ground lead is provided with the
equipment for connection to a switchbox, connect the
ground lead to the grounded switchbox. If a three-prong
plug is added for connection to a grounded mating re-
ceptacle, the ground lead must be connected to the
ground prong only. If the line cord comes with a three-
prong plug, connect to a grounded mating receptacle.
Never remove the ground prong from a plug, or use a
plug with a broken off ground prong.
2. Electrode Holders
Fully insulated electrode holders should be used. Do
NOT use holders with protruding screws.
3. Connectors
Fully insulated lock-type connectors should be used to
join welding cable lengths.
4. Cables
Frequently inspect cables for wear, cracks and damage.
IMMEDIATELY REPLACE those with excessively worn
or damaged insulation to avoid possibly-lethal shock
from bared cable. Cables with damaged areas may be
taped to give resistance equivalent to original cable.
Keep cable dry, free of oil and grease, and protected
from hot metal and sparks.
5. Terminals And Other Exposed Parts
Terminals and other exposed parts of electrical units
should have insulating covers secured before opera-
tion.
6. Electrode
a. Equipment with output on/off control (contac-
tor)
Welding power sources for use with the gas
metal arc welding (GMAW), gas tungsten arc
welding (GTAW) and similar processes nor-
mally are equipped with devices that permit on-
off control of the welding power output. When
so equipped the electrode wire becomes elec-
trically HOT when the power source switch is
ON and the welding gun switch is closed. Never
touch the electrode wire or any conducting ob-
ject in contact with the electrode circuit unless
the welding power source is off.
b. Equipment without output on/off control (no
contactor)
Welding power sources used with shielded
metal arc welding (SMAW) and similar proc-
esses may not be equipped with welding power
output on-off control devices. With such equip-
ment the electrode is electrically HOT when the
power switch is turned ON. Never touch the
electrode unless the welding power source is
off.
7. Safety Devices
Safety devices such as interlocks and circuit breakers
should not be disconnected or shunted out.
Before installation, inspection, or service, of equipment,
shut OFF all power and remove line fuses (or lock or
red-tag switches) to prevent accidental turning ON of
power. Disconnect all cables from welding power
source, and pull all 115 volts line-cord plugs.
Do not open power circuit or change polarity while weld-
ing. If, in an emergency, it must be disconnected, guard
against shock burns, or flash from switch arcing.
Leaving equipment unattended. Always shut OFF and
disconnect all power to equipment.
Power disconnect switch must be available near the
welding power source.
F. Protection For Wearers of Electronic Life Sup-
port Devices (Pacemakers)
Magnetic fields from high currents can affect pacemak-
er operation. Persons wearing electronic life support
equipment (pacemaker) should consult with their doctor
before going near arc welding, gouging, or spot welding
operations.
1-4. STANDARDS BOOKLET INDEX
For more information, refer to the following standards or
their latest revisions and comply as applicable:
1. ANSI Standard Z49.1, SAFETY IN WELDING
AND CUTTING obtainable from the American
Welding Society, 550 N.W. LeJeune Rd, Miami,
FL 33126.
2. NIOSH, SAFETY AND HEALTH IN ARC WELD-
ING AND GAS WELDING AND CUTTING ob-
tainable from the Superintendent of Documents,
U.S. Government Printing Office, Washington,
D.C. 20402.
3. OSHA, SAFETY AND HEALTH STANDARDS,
29CFR 1910, obtainable from the Superinten-
dent of Documents, U.S. Government Printing
Office, Washington, D.C. 20402.
4. ANSI Standard Z87.1, SAFE PRACTICES FOR
OCCUPATION AND EDUCATIONAL EYE AND
FACE PROTECTION obtainable from the Ameri-
can National Standards Institute, 1430 Broad-
way, New York, NY 10018.

OM-877 Page 6
5. ANSI Standard Z41.1, STANDARD FOR MEN’S
SAFETY-TOE FOOTWEAR obtainable from the
American National Standards Institute, 1430
Broadway, New York, NY 10018.
6. ANSI Standard Z49.2, FIRE PREVENTION IN
THE USE OF CUTTING AND WELDING PROC-
ESSES obtainable from the American National
Standards Institute, 1430 Broadway, New York,
NY 10018.
7. AWS Standard A6.0, WELDING AND CUTTING
CONTAINERS WHICH HAVE HELD COMBUS-
TIBLES obtainable from the American Welding
Society, 550 N.W. LeJeune Rd, Miami, FL 33126.
8. NFPA Standard 51, OXYGEN-FUEL GAS SYS-
TEMS FOR WELDING, CUTTING, AND ALLIED
PROCESSES obtainable from the National Fire
Protection Association, Batterymarch Park,
Quincy, MA 02269.
9. NFPA Standard 70, NATIONAL ELECTRICAL
CODE obtainable from the National Fire Protec-
tion Association, Batterymarch Park, Quincy, MA
02269.
10. NFPA Standard 51B, CUTTING AND WELDING
PROCESSES obtainable from the National Fire
Protection Association, Batterymarch Park,
Quincy, MA 02269.
11. CGA Pamphlet P-1, SAFE HANDLING OF
COMPRESSED GASES IN CYLINDERS obtain-
able from the Compressed Gas Association,
1235 Jefferson Davis Highway, Suite 501, Ar-
lington, VA 22202.
12. CSA Standard W117.2, CODE FOR SAFETY IN
WELDING AND CUTTING obtainable from the
Canadian Standards Association, Standards
Sales, 178 Rexdale Boulevard, Rexdale, On-
tario, Canada M9W 1R3.
13. NWSA booklet, WELDING SAFETY BIBLIOG-
RAPHY obtainable from the National Welding
Supply Association, 1900 Arch Street, Philadel-
phia, PA 19103.
14. American Welding Society Standard AWSF4.1,
RECOMMENDED SAFE PRACTICES FOR
THE PREPARATION FOR WELDING AND
CUTTING OF CONTAINERS AND PIPING
THAT HAVE HELD HAZARDOUS SUB-
STANCES, obtainable from the American Weld-
ing Society, 550 N.W. LeJeune Rd, Miami, FL
33126.
15. ANSI Standard Z88.2, PRACTICE FOR RESPI-
RATORY PROTECTION, obtainable from the
American National Standards Institute, 1430
Broadway, New York, NY 10018.
SECTION 2 – SAFETY PRECAUTIONS AND SIGNAL WORDS
2-1. GENERAL INFORMATION AND SAFETY
A. General
Information presented in this manual and on various la-
bels, tags, and plates on the unit pertains to equipment
design, installation, operation, maintenance, and
troubleshooting which should be read, understood, and
followed for the safe and effective use of this equipment.
The nameplate of this unit uses international symbols
for labeling the front panel controls. The symbols also
appear at the appropriate section in the text.
B. Safety
The installation, operation, maintenance, and trouble-
shooting of arc welding equipment requires practices
and procedures which ensure personal safety and the
safety of others. Therefore, this equipment is to be in-
stalled, operated, and maintained only by qualified per-
sons in accordance with this manual and all applicable
codes such as, but not limited to, those listed at the end
of Section 1 – Safety Rules For Operation Of Arc Weld-
ing Power Source.
2-2. SAFETY ALERT SYMBOL AND SIGNAL
WORDS
The following safety alert symbol and signal words are
used throughout this manual to call attention to and
identify different levels of hazard and special instruc-
tions.
This safety alert symbol is used with the signal
words WARNING and CAUTION to call atten-
tion to the safety statements.
WARNING statements identify procedures or
practices which must be followed to avoid seri-
ous personal injury or loss of life.
CAUTION statements identify procedures or
practices which must be followed to avoid minor
personal injury or damage to this equipment.
IMPORTANT statements identify special instructions
necessary for the most efficient operation of this equip-
ment.

OM-877 Page 7
SECTION 3 – SPECIFICATIONS
Rated Load For Single-
Phase
AC Input 50/60 Hertz 100%
Duty Cycle
Weight
Net Ship
10 kW At
120 Volts, 83 Amperes
240 Volts, 42 Amperes
125 lb
(57 kg) 145 lb
(66 kg)
Figure 3-1. Specifications
22 in
(559 mm)
37-3/4 in
(959 mm)
30 in
(762 mm)
ST-108 014
Figure 3-2. Dimensional View
3-1. DESCRIPTION
This unit is designed to provide an adjustable load dur-
ing output testing procedures for any single-phase 120
or 240 volts ac power source. This unit is equipped with
analog meters which provide simple and accurate read-
ings of voltage, amperage, and frequency.
SECTION 4 – INSTALLATION
4-1. LOCATION (Figure 3-2)
CAUTION: IMPROPER LIFTING OF EQUIP-
MENT can result in personal injury and
equipment damage.
•Use equipment of adequate capacity to lift the
unit.
•If using lift forks to handle this unit, be sure the
lift forks are long enough to extend out of the
opposite side of the base.
Using lift forks too short will expose internal
components to damage should the tips of the lift
forks penetrate the bottom of unit.
RESTRICTED AIRFLOW can cause improp-
er cooling and unit damage; ENTRY OF
OBJECTS THROUGH TOP can damage unit.
•Maintain at least 12 in (305 mm) of unre-
stricted space on all sides of the unit, and
keep air intakes on sides and outlet openings
on top free of obstructions.
•Do not place tools, parts, etc. on top of unit.
•Do not allow any objects to fall into top of unit.
•Do not place any filtering device over the
intake air passages.
Warranty is void if any type of filtering device is
used.
This unit is equipped with rubber casters to allow easy
movement.
The service life and operating efficiency of this unit are
reduced when the unit is subjected to high levels of dust,
dirt, moisture, corrosive vapors, and extreme heat.
4-2. INTERCONNECTING CORD INSTALLATION
A. Cord Selection
It is necessary to obtain a proper 3-conductor cord for
making 120 volt and/or 240 volt input connections inside
the unit. Select a cord of adequate amperage capacity
and proper wire size for the rated amperage output of
the power source. In most applications, it should not be
necessary for the required cord length to exceed 25 ft
(7.6 m). Table 4-1 provides a guide for selecting proper
size cord for single-phase power sources based on am-
pacity rating.

OM-877 Page 8
Table 4-1. Cord Size By Ampacity Rating
Cord Size–AWG* Ampacity Of Cord
18 10
14 18
12 25
10 30
8 40
6 50
4 70
2 95
*Cord sizes are based on National Electrical Code (1984 Edition)
specifications for allowable ampacity for not more than two ther-
moset or thermoplastic insulated current-carrying copper conduc-
tors in a cord (see Article 400 in NEC for specific information.)
B. Cord Connections
Using proper cords of desired length, make connections
to the load bank as follows:
1. Remove front access panel from unit (see Figure
5-1).
2. Strip cord jacket back approximately 5 in (127
mm) and separate conductors; strip 1/4 in (6 mm)
of insulation from end of each conductor.
3. Obtain ring terminals of proper capacity and size
to fit 1/4 in (6 mm) terminal studs. Install terminals
securely onto stripped ends of conductors for
both cords.
4. Insert cords up through strain reliefs in bottom of
front access opening. Be sure cords are in cor-
rect locations for 120 volt and 240 volt connec-
tions (see unit nameplate and Figure 4-1).
IMPORTANT: Do not remove existing leads from ter-
minal studs.
5. Remove only the outside nut from each terminal
board stud for 120 and 240 volt connections. Re-
move top nut from ground terminal stud (see
Figure 4-1).
6. Install conductor ring terminals onto studs as in-
dicated in Figure 4-1, and secure with nuts re-
moved in Step 5.
7. Secure cords by tightening strain relief clamp
screws.
8. Reinstall front access panel onto unit.
9. Obtain and install a proper plug that matches the
power source receptacle onto remaining end of
cords.
10. Place cords in storage area while unit is not in
use.
ST-108 013-A
Cord Storage
Area
Ground Terminal – Connect
Ground Conductors
Strain Relief Opening – Insert
120V Cord Up From
Cord Storage Area
Front Access
Panel Removed
120V Terminal L1 – Connect
White Conductor
Front Control Panel
120V Terminal L2 –
Connect Black
Conductor
Input Terminal Board
240V Terminal L2 –
Connect Black Conductor
240V Terminal L1 –
Connect White Conductor
Strain Relief Opening – Insert
240V Cord Up From
Cord Storage Area
Figure 4-1. Input Terminal Board And Ground Connectors

OM-877 Page 9
SECTION 5 – OPERATOR CONTROLS
ST-108 014-A
Cord Storage
Area
Amperage Load
Switches
Load Selector
Switch
120/240VAC
Pilot Light For
120VAC Load
AC Voltmeter
Hertz Meter
Front Access Panel
Pilot Light For
240VAC Load
Dual Scale
AC Ammeter
Figure 5-1. Front Panel Controls And Component Locations
5-1. 120 VOLT LOAD/240 VOLT LOAD
SELECTOR SWITCH (Figure 5-1)
CAUTION: ARCING can damage switch con-
tacts.
•Do not change the position of the selector
switch under load.
Arcing causes the contacts to become pitted
and eventually inoperative.
The 120 VOLT LOAD/240 VOLT LOAD selector switch
is used to select the proper voltage load terminals inside
the unit, and to disconnect and isolate the other voltage
load terminals. Before making selection with selector
switch, be sure that the AMPERAGE load switches are
placed in the OFF positions (see Section 5-3).
5-2. PILOT LIGHTS (Figure 5-1)
Two pilot lights are provided on the unit. The pilot light for
the corresponding voltage load will illuminate when
input voltage is present at the Load Bank.
5-3. AMPERAGE LOAD SWITCHES (Figure 5-1)
CAUTION: INCORRECT SWITCH POSI-
TIONS can damage internal components.
•When operating on 240 volts, set amperage
switches at same position or within one posi-
tion of another.
A balanced load setting at both amperage load
switches is necessary to prevent resistor
damage inside the unit.
IMPORTANT: Always place both AMPERAGE load
switches in the OFF position before connecting a power
source, when changing the 120 VOLT LOAD/240 VOLT
LOAD selector switch position, and after completing
power source output checking procedures.
OFF 5
10
15
20
25
30
35
40
45
OFF 5
10
15
20
25
30
35
40
45 +
AMPERAGE
Ref. SC-096 625
Figure 5-2. Amperage Load Switch Scales
Two AMPERAGE load switches provide the selection of
resistance values when checking output from an ac
power source. The scales around each switch are cali-
brated in amperes with the inside scale for 120 vac input
and the outside scale for 240 vac input (see Figure 5-2).

OM-877 Page 10
Table 5-1. Power Requirements For Load
Amperage At Input Voltage
AMPERES
AT 120V
KW 1
8
1.5
12
2
17
2.5
21
3
25
4
33
5
42
6
50
7
58
7.5
62
8
67
9
75
10
83
AMPERES
AT 240V 4 6 8 1012172125 2931333742
Power requirements up to 10kw at 120 or 240 vac input
for various ampere load values are shown in Table 5-1
and on the unit nameplate. Ampere values selected at
the two AMPERAGE load switches differ between 120
and 240 VAC input as follows:
120 Volt Operation: When this unit is used as a 120 volt
load, AMPERAGE load switch settings are added
together to obtain the approximate load value. For
example, if one switch is set at 20 amperes and the
other switch at 20 amperes, the result would be a total
load of approximately 40 amperes.
240 Volt Operation: When this unit is used as a 240 volt
load, both Amperage load switches must be set at the
same value to obtain that approximate load value. For
example, if one switch is set at 20 amperes and the
other switch at 20 amperes, the result would be a total
load of approximately 20 amperes.
IMPORTANT: Do not change either switch setting more
than one position higher or lower from the setting on the
other switch (see CAUTION at beginning of Section 5-3
and on the unit nameplate).
5-4. VOLTMETER (Figure 5-1)
CAUTION: DC (DIRECT CURRENT)
SOURCES will damage unit.
•Do not connect unit to any dc source.
The voltmeter displays the voltage of the ac power
source. The scale range is 0–300 in increments of 2.5
volts.
5-5. HERTZ METER (Figure 5-1)
CAUTION: DC (DIRECT CURRENT)
SOURCES will damage unit.
•Do not connect unit to any dc source.
The hertz meter displays the frequency of the power
being supplied by the ac power source. The scale range
is 45–65 in increments of 0.5 Hz.
5-6. DUAL-SCALE AC AMMETER (Figure 5-1)
SN-107 796
Figure 5-3. Dual-Scale AC Ammeter
CAUTION: DC (DIRECT CURRENT)
SOURCES will damage unit.
•Do not connect unit to any dc source.
The ammeter is a dual-scale meter that displays ac
amperes for the 120 volts input on the top scale and ac
amperes for the 240 volts input on the bottom scale.
SECTION 6 – SEQUENCE OF OPERATION
WARNING: ELECTRIC SHOCK can kill.
•Do not touch live electrical parts.
•Shut down auxiliary power source before
connecting load bank.
HOT SURFACES can cause burns and melt
or ignite materials.
•Do not touch load bank panels while oper-
ating.
•Do not place any objects on load bank.
ARCING AND EXHAUST SPARKS can cause
fire.
•Watch for fire.
•Have a fire extinguisher nearby and know
how to use it.
•Disconnect welding cables from power
source, if applicable, before testing auxiliary
power output.
ENGINE EXHAUST GASES can kill.
•Use in open, well ventilated areas or vent
exhaust out of doors, if applicable.
MAGNETIC FIELDS FROM HIGH
CURRENTS can affect pacemaker opera-
tion.
•Wearers should consult with their doctor
before going near equipment producing auxil-
iary power during load bank operation.
See Section 1 – Safety Rules For Operation Of
Arc Welding Power Source for basic informa-
tion.
6-1. LOADING PROCEDURE
1. Make required connections to unit according to
Section 4-2.
2. Place AMPERAGE load switches in the OFF
position (see Section 5-3).

OM-877 Page 11
3. Connect Load Bank cord to the ac power source.
Be sure to use appropriate cord when Load Bank
has both 120 and 240 volt cords installed.
4. Place 120 VOLT LOAD/240 VOLT LOAD
selector switch in proper position (see Section
5-1).
5. Turn on or start the ac power source.
6. Check pilot lights for proper input voltage load
selection (see Section 5-2).
7. Rotate AMPERAGE load switches to select
desired ampere load value (see Section 5-3).
8. Compare meter readings with ac power source
Owner’s Manual to check for compliance with
specifications.
6-2. SHUTTING DOWN
1. Rotate AMPERAGE load switches to the OFF
position.
2. Shut down the power source.
3. Disconnect Load Bank cord from power source,
and place cord in the Load Bank cord storage.
SECTION 7 – MAINTENANCE
IMPORTANT: Every six months inspect the labels on
the unit for legibility. All precautionary labels must be
maintained in a clearly readable state and replaced
when necessary. See Parts List for part number of
precautionary labels.
7-1. INSPECTION AND UPKEEP
Usage and shop conditions will determine the frequency
and type of maintenance. Inspect equipment every six
months as follows:
WARNING: ELECTRIC SHOCK can kill.
•Do not touch live electrical parts.
•Shut down and disconnect Load Bank from
auxiliary power source before inspecting,
maintaining, or servicing.
MOVING PARTS can cause serious injury.
•Keep clear of moving parts.
HOT SURFACES can cause severe burns.
•Allow cooling period before servicing.
Maintenance to be performed only by qualified
persons.
1. Remove grease and grime from components;
remove moisture from electrical parts and cords.
2. Check cord terminal connections. Be sure that
connections are clean and tight.
7-2. INTERNAL CLEANING
WARNING: ELECTRIC SHOCK can kill.
•Do not touch live electrical parts.
•Shut down and disconnect Load Bank from
auxiliary power source before inspecting,
maintaining, or servicing.
HOT SURFACES can cause severe burns.
•Allow cooling period before servicing.
Blow out or vacuum the dust and dirt from around the
internal components. Do this annually depending on the
location of the unit and the amount of dust and dirt in the
atmosphere. If dirty or dusty conditions are present,
clean unit monthly. The outer enclosure should be
removed and a clean, dry airstream or vacuum suction
should be used for this cleaning operation.
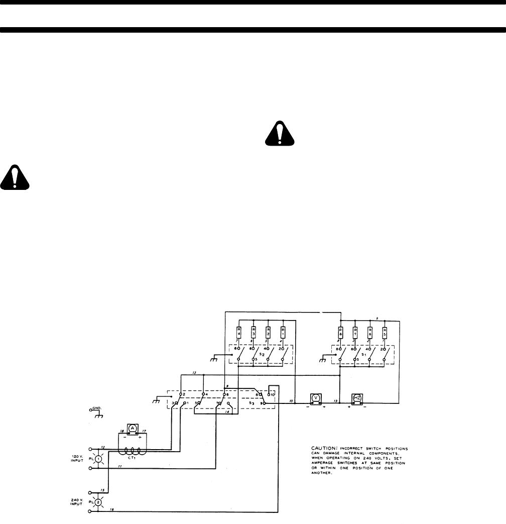
SN-106 867-A
Figure 7-1. Circuit Diagram

OM-877 Page 12
SECTION 8 – PARTS LIST
Figure 8-1. Main Assembly
ST-108 016
1
2
Fig 8-2
3
Fig 8-3
4 5
6
7
8
910
1112
13
14

OM-877 Page 13
Description
Part
No.
Item
No.
Figure 8-1. Main Assembly
Quantity
1 106 661 PANEL, LH side 1. . . . . . . . . . . . . . . . . . . . . . . . . . . . . . . . . . . . . . . . . . . . . . . . . . . . . . . . . . . . . . . . . . .
2 Figure 8-2 PANEL, front-w/components 1. . . . . . . . . . . . . . . . . . . . . . . . . . . . . . . . . . . . . . . . . . . . . . . . . . . . . . .
3 106 870 RESISTOR ASSEMBLY (Figure 8-3) 1. . . . . . . . . . . . . . . . . . . . . . . . . . . . . . . . . . . . . . . . . . . . . . . . .
4 082 136 PANEL, rear-top 1. . . . . . . . . . . . . . . . . . . . . . . . . . . . . . . . . . . . . . . . . . . . . . . . . . . . . . . . . . . . . . . . . . .
5 123 154 LABEL, general precautionary 1. . . . . . . . . . . . . . . . . . . . . . . . . . . . . . . . . . . . . . . . . . . . . . . . . . . . . . .
6 +082 129 COVER, top 1. . . . . . . . . . . . . . . . . . . . . . . . . . . . . . . . . . . . . . . . . . . . . . . . . . . . . . . . . . . . . . . . . . . . .
7 082 139 PANEL, rear-lower 1. . . . . . . . . . . . . . . . . . . . . . . . . . . . . . . . . . . . . . . . . . . . . . . . . . . . . . . . . . . . . . . . .
8 106 659 PANEL, RH side 1. . . . . . . . . . . . . . . . . . . . . . . . . . . . . . . . . . . . . . . . . . . . . . . . . . . . . . . . . . . . . . . . . .
9 138 049 CASTER, rbr sta 3 in bolt down 2. . . . . . . . . . . . . . . . . . . . . . . . . . . . . . . . . . . . . . . . . . . . . . . . . . . . .
10 138 168 PAN, base 1. . . . . . . . . . . . . . . . . . . . . . . . . . . . . . . . . . . . . . . . . . . . . . . . . . . . . . . . . . . . . . . . . . . . . . . .
11 073 310 CASTER, swivel 2. . . . . . . . . . . . . . . . . . . . . . . . . . . . . . . . . . . . . . . . . . . . . . . . . . . . . . . . . . . . . . . . . .
12 106 674 PANEL, retaining-cables 1. . . . . . . . . . . . . . . . . . . . . . . . . . . . . . . . . . . . . . . . . . . . . . . . . . . . . . . . . . . .
13 082 138 PANEL, front-lower 1. . . . . . . . . . . . . . . . . . . . . . . . . . . . . . . . . . . . . . . . . . . . . . . . . . . . . . . . . . . . . . . .
14 090 398 PANEL, front-center 1. . . . . . . . . . . . . . . . . . . . . . . . . . . . . . . . . . . . . . . . . . . . . . . . . . . . . . . . . . . . . . .
+When ordering a component originally displaying a precautionary label, the label should also be ordered.
BE SURE TO PROVIDE MODEL AND SERIAL NUMBER WHEN ORDERING REPLACEMENT PARTS.

OM-877 Page 14
Description
Part
No.
Dia.
Mkgs.
Item
No.
Figure 8-2. Panel, Front w/Components (Fig 1 Item 2)
Quantity
1 NAMEPLATE, (order by model and serial number) 1. . . . . . . . . . . . . . . . . . . . . . . . . . . . . . . . . . . . . . . . . . . . . .
2 106 673 PANEL, front 1. . . . . . . . . . . . . . . . . . . . . . . . . . . . . . . . . . . . . . . . . . . . . . . . . . . . . . . . . . . . . . . . . . . . .
3 S1,2 059 734 SWITCH, current 10 positon 2. . . . . . . . . . . . . . . . . . . . . . . . . . . . . . . . . . . . . . . . . . . . . . . . . . .
4 106 671 BRACKET, mtg switch 2. . . . . . . . . . . . . . . . . . . . . . . . . . . . . . . . . . . . . . . . . . . . . . . . . . . . . . . . . . . . .
5 106 672 PANEL, baffle air 1. . . . . . . . . . . . . . . . . . . . . . . . . . . . . . . . . . . . . . . . . . . . . . . . . . . . . . . . . . . . . . . . . .
6 CT1 036 282 TRANSFOARMER, current 100/5 1. . . . . . . . . . . . . . . . . . . . . . . . . . . . . . . . . . . . . . . . . . . . . .
7 S3 106 670 SWITCH, selector 1. . . . . . . . . . . . . . . . . . . . . . . . . . . . . . . . . . . . . . . . . . . . . . . . . . . . . . . . . . . . .
8 088 838 EXTENSION, handle switch 1. . . . . . . . . . . . . . . . . . . . . . . . . . . . . . . . . . . . . . . . . . . . . . . . . . . . . . . .
9 006 790 KNOB, switch 2. . . . . . . . . . . . . . . . . . . . . . . . . . . . . . . . . . . . . . . . . . . . . . . . . . . . . . . . . . . . . . . . . . . . .
10 A 106 665 METER, amp dual scale 1. . . . . . . . . . . . . . . . . . . . . . . . . . . . . . . . . . . . . . . . . . . . . . . . . . . . . . . . .
11 PL2 099 001 LIGHT, indicator red lens 250VAC 1. . . . . . . . . . . . . . . . . . . . . . . . . . . . . . . . . . . . . . . . . . . . . .
12 059 773 HANDLE, switch 1. . . . . . . . . . . . . . . . . . . . . . . . . . . . . . . . . . . . . . . . . . . . . . . . . . . . . . . . . . . . . . . . . .
13 PL1 027 645 LIGHT, indicator red lens 125VAC 1. . . . . . . . . . . . . . . . . . . . . . . . . . . . . . . . . . . . . . . . . . . . . .
14 HZ 088 225 METER, hertz 45-65 scale 1. . . . . . . . . . . . . . . . . . . . . . . . . . . . . . . . . . . . . . . . . . . . . . . . . . . . . .
15 V 085 631 METER, volt ac 0-300 1. . . . . . . . . . . . . . . . . . . . . . . . . . . . . . . . . . . . . . . . . . . . . . . . . . . . . . . . . .
ST-108 015-A
3
4
1
2
5
6
78
9
10
11
12
13
14
15
Figure 8-2. Panel, Front w/Components
+When ordering a component originally displaying a precautionary label, the label should also be ordered.
BE SURE TO PROVIDE MODEL AND SERIAL NUMBER WHEN ORDERING REPLACEMENT PARTS.

OM-877 Page 15
Description
Part
No.
Item
No.
Figure 8-3. Resistor Assembly (Fig 1 Item 3)
Quantity
1 106 667 BUS BAR, connecting resistors 2. . . . . . . . . . . . . . . . . . . . . . . . . . . . . . . . . . . . . . . . . . . . . . . . . . . . .
2 059 800 RESISTOR, 25A 4. . . . . . . . . . . . . . . . . . . . . . . . . . . . . . . . . . . . . . . . . . . . . . . . . . . . . . . . . . . . . . . . . .
3 059 726 INSULATOR, end 48. . . . . . . . . . . . . . . . . . . . . . . . . . . . . . . . . . . . . . . . . . . . . . . . . . . . . . . . . . . . . . . . .
059 724 RING, retaining 48. . . . . . . . . . . . . . . . . . . . . . . . . . . . . . . . . . . . . . . . . . . . . . . . . . . . . . . . . . . . . . . . . . . . . .
4 059 728 INSULATOR, support 20. . . . . . . . . . . . . . . . . . . . . . . . . . . . . . . . . . . . . . . . . . . . . . . . . . . . . . . . . . . . . .
059 725 RING, retaining 20. . . . . . . . . . . . . . . . . . . . . . . . . . . . . . . . . . . . . . . . . . . . . . . . . . . . . . . . . . . . . . . . . . . . . .
5 059 727 INSULATOR, support 28. . . . . . . . . . . . . . . . . . . . . . . . . . . . . . . . . . . . . . . . . . . . . . . . . . . . . . . . . . . . . .
059 724 RING, retaining 28. . . . . . . . . . . . . . . . . . . . . . . . . . . . . . . . . . . . . . . . . . . . . . . . . . . . . . . . . . . . . . . . . . . . . .
6 070 270 BUS BAR, connecting resistors 6. . . . . . . . . . . . . . . . . . . . . . . . . . . . . . . . . . . . . . . . . . . . . . . . . . . . .
7 106 669 BUS BAR, connecting resistors 2. . . . . . . . . . . . . . . . . . . . . . . . . . . . . . . . . . . . . . . . . . . . . . . . . . . . .
8 106 666 BUS BAR, connecting resistors 6. . . . . . . . . . . . . . . . . . . . . . . . . . . . . . . . . . . . . . . . . . . . . . . . . . . . .
9 059 779 RESISTOR, 20A 6. . . . . . . . . . . . . . . . . . . . . . . . . . . . . . . . . . . . . . . . . . . . . . . . . . . . . . . . . . . . . . . . . .
10 059 797 RESISTOR, 5A 4. . . . . . . . . . . . . . . . . . . . . . . . . . . . . . . . . . . . . . . . . . . . . . . . . . . . . . . . . . . . . . . . . . .
11 059 798 RESISTOR, 10A 10. . . . . . . . . . . . . . . . . . . . . . . . . . . . . . . . . . . . . . . . . . . . . . . . . . . . . . . . . . . . . . . . . .
12 106 668 BUS BAR, connecting resistors 2. . . . . . . . . . . . . . . . . . . . . . . . . . . . . . . . . . . . . . . . . . . . . . . . . . . . .
ST-108 012-A
1
2
3
4
5
6
7
6
8
9
2
10
11
9
11
10
9
1
6
12
12
Figure 8-3. Resistor Assembly
BE SURE TO PROVIDE MODEL AND SERIAL NUMBER WHEN ORDERING REPLACEMENT PARTS.

OM-877 Page 16
Notes

OM-877 Page 17
Notes

OM-877 Page 18
Notes

Warranty Questions?
Call
1-800-4-A-MILLER
for your local
Miller distributor.
miller_warr 7/00
Your distributor also gives
you ...
Service
You always get the fast,
reliable response you
need. Most replacement
parts can be in your
hands in 24 hours.
Support
Need fast answers to the
tough welding questions?
Contact your distributor.
The expertise of the
distributor and Miller is
there to help you, every
step of the way.
Effective January 1, 2000
(Equipment with a serial number preface of “LA” or newer)
This limited warranty supersedes all previous Miller warranties and is exclusive with no other
guarantees or warranties expressed or implied.
LIMITED WARRANTY – Subject to the terms and conditions
below, Miller Electric Mfg. Co., Appleton, Wisconsin, warrants
to its original retail purchaser that new Miller equipment sold
after the effective date of this limited warranty is free of defects
in material and workmanship at the time it is shipped by Miller.
THIS WARRANTY IS EXPRESSLY IN LIEU OF ALL OTHER
WARRANTIES, EXPRESS OR IMPLIED, INCLUDING THE
WARRANTIES OF MERCHANTABILITY AND FITNESS.
Within the warranty periods listed below, Miller will repair or
replace any warranted parts or components that fail due to
such defects in material or workmanship. Miller must be
notified in writing within thirty (30) days of such defect or
failure, at which time Miller will provide instructions on the
warranty claim procedures to be followed.
Miller shall honor warranty claims on warranted equipment
listed below in the event of such a failure within the warranty
time periods. All warranty time periods start on the date that
the equipment was delivered to the original retail purchaser, or
one year after the equipment is sent to a North American
distributor or eighteen months after the equipment is sent to an
International distributor.
1. 5 Years Parts – 3 Years Labor
* Original main power rectifiers
* Inverters (input and output rectifiers only)
2. 3 Years — Parts and Labor
* Transformer/Rectifier Power Sources
* Plasma Arc Cutting Power Sources
* Semi-Automatic and Automatic Wire Feeders
* Inverter Power Supplies
* Intellitig
* Engine Driven Welding Generators
(NOTE: Engines are warranted separately by
the engine manufacturer.)
3. 1 Year — Parts and Labor
* DS-2 Wire Feeder
* Motor Driven Guns (w/exception of Spoolmate
185 & Spoolmate 250)
* Process Controllers
* Positioners and Controllers
* Automatic Motion Devices
* RFCS Foot Controls
* Induction Heating Power Sources
* Water Coolant Systems
* HF Units
* Grids
* Maxstar 140
* Spot Welders
* Load Banks
* Miller Cyclomatic Equipment
* Running Gear/Trailers
* Plasma Cutting Torches (except APT & SAF
Models)
* Field Options
(NOTE: Field options are covered under True
Blue for the remaining warranty period of the
product they are installed in, or for a minimum of
one year — whichever is greater.)
4. 6 Months — Batteries
5. 90 Days — Parts
* MIG Guns/TIG Torches
* Induction Heating Coils and Blankets
* APT, ZIPCUT & PLAZCUT Model Plasma Cutting
Torches
* Remote Controls
* Accessory Kits
* Replacement Parts (No labor)
* Spoolmate 185 & Spoolmate 250
* Canvas Covers
Miller’s True Blue Limited Warranty shall not apply to:
1. Consumable components; such as contact tips,
cutting nozzles, contactors, brushes, slip rings,
relays or parts that fail due to normal wear.
2. Items furnished by Miller, but manufactured by others,
such as engines or trade accessories. These items are
covered by the manufacturer’s warranty, if any.
3. Equipment that has been modified by any party other
than Miller, or equipment that has been improperly
installed, improperly operated or misused based upon
industry standards, or equipment which has not had
reasonable and necessary maintenance, or equipment
which has been used for operation outside of the
specifications for the equipment.
MILLER PRODUCTS ARE INTENDED FOR PURCHASE
AND USE BY COMMERCIAL/INDUSTRIAL USERS AND
PERSONS TRAINED AND EXPERIENCED IN THE USE
AND MAINTENANCE OF WELDING EQUIPMENT.
In the event of a warranty claim covered by this warranty, the
exclusive remedies shall be, at Miller’s option: (1) repair; or (2)
replacement; or, where authorized in writing by Miller in
appropriate cases, (3) the reasonable cost of repair or
replacement at an authorized Miller service station; or (4)
payment of or credit for the purchase price (less reasonable
depreciation based upon actual use) upon return of the goods
at customer’s risk and expense. Miller’s option of repair or
replacement will be F.O.B., Factory at Appleton, Wisconsin, or
F.O.B. at a Miller authorized service facility as determined by
Miller. Therefore no compensation or reimbursement for
transportation costs of any kind will be allowed.
TO THE EXTENT PERMITTED BY LAW, THE REMEDIES
PROVIDED HEREIN ARE THE SOLE AND EXCLUSIVE
REMEDIES. IN NO EVENT SHALL MILLER BE LIABLE FOR
DIRECT, INDIRECT, SPECIAL, INCIDENTAL OR
CONSEQUENTIAL DAMAGES (INCLUDING LOSS OF
PROFIT), WHETHER BASED ON CONTRACT, TORT OR
ANY OTHER LEGAL THEORY.
ANY EXPRESS WARRANTY NOT PROVIDED HEREIN
AND ANY IMPLIED WARRANTY, GUARANTY OR
REPRESENTATION AS TO PERFORMANCE, AND ANY
REMEDY FOR BREACH OF CONTRACT TORT OR ANY
OTHER LEGAL THEORY WHICH, BUT FOR THIS
PROVISION, MIGHT ARISE BY IMPLICATION,
OPERATION OF LAW, CUSTOM OF TRADE OR COURSE
OF DEALING, INCLUDING ANY IMPLIED WARRANTY OF
MERCHANTABILITY OR FITNESS FOR PARTICULAR
PURPOSE, WITH RESPECT TO ANY AND ALL
EQUIPMENT FURNISHED BY MILLER IS EXCLUDED AND
DISCLAIMED BY MILLER.
Some states in the U.S.A. do not allow limitations of how long
an implied warranty lasts, or the exclusion of incidental,
indirect, special or consequential damages, so the above
limitation or exclusion may not apply to you. This warranty
provides specific legal rights, and other rights may be
available, but may vary from state to state.
In Canada, legislation in some provinces provides for certain
additional warranties or remedies other than as stated herein,
and to the extent that they may not be waived, the limitations
and exclusions set out above may not apply. This Limited
Warranty provides specific legal rights, and other rights may
be available, but may vary from province to province.

PRINTED IN USA 2000 Miller Electric Mfg. Co. 6/00
Miller Electric Mfg. Co.
An Illinois Tool Works Company
1635 West Spencer Street
Appleton, WI 54914 USA
International Headquarters–USA
USA Phone: 920-735-4505 Auto-Attended
USA & Canada FAX: 920-735-4134
International FAX: 920-735-4125
European Headquarters –
United Kingdom
Phone: 44 (0) 1204-593493
FAX: 44 (0) 1204-598066
www.MillerWelds.com
Model Name Serial/Style Number
Purchase Date (Date which equipment was delivered to original customer.)
Distributor
Address
City
State Zip
Please complete and retain with your personal records.
Always provide Model Name and Serial/Style Number.
Call 1-800-4-A-Miller or see our website at www.MillerWelds.com
to locate a DISTRIBUTOR or SERVICE AGENCY near you.
Welding Supplies and Consumables
Options and Accessories
Personal Safety Equipment
Service and Repair
Replacement Parts
Training (Schools, Videos, Books)
Technical Manuals (Servicing Information
and Parts)
Circuit Diagrams
Welding Process Handbooks
Contact the Delivering Carrier for:
For assistance in filing or settling claims,
contact your distributor and/or equipment
manufacturer’s Transportation Department.
For Service
Owner’s Record
File a claim for loss or damage during
shipment.
Contact your Distributor for: