Contents
- 1. Quick Start
- 2. Manual
Quick Start

1
3800 Richardson Road South • Hope Hull, AL 36043
Tel: 334-284-8665 •Fax: 334-613-6302
http://www.miltope.com
nMAP2 Wireless
Access Point
Quick Start Guide
M365-780, 5 January 2015
The nMAP2 Wireless Access Point is a wireless communication device designed for use in the airborne environment. The nMAP2 wireless access
point is not used in ground-based locations such as a home or office. The nMAP2 Wireless Access Point must be installed by personnel qualified
and authorized to install equipment aboard aircraft. This quick start guide introduces the 802.11n/ac Multifunction Access Point, 2nd Generation
(nMAP2) part number 903920-1 and provides basic setup information for use as a stand-alone access point using nMAP2 Wireless Access Point
Operating Software part number 999239. After following the directions provided in this quick start guide, see nMAP2 Wireless Access Point
Operating Software Operator’s Manual M365-768, available from VT Miltope, for detailed instructions to configure the operating software for your
application.
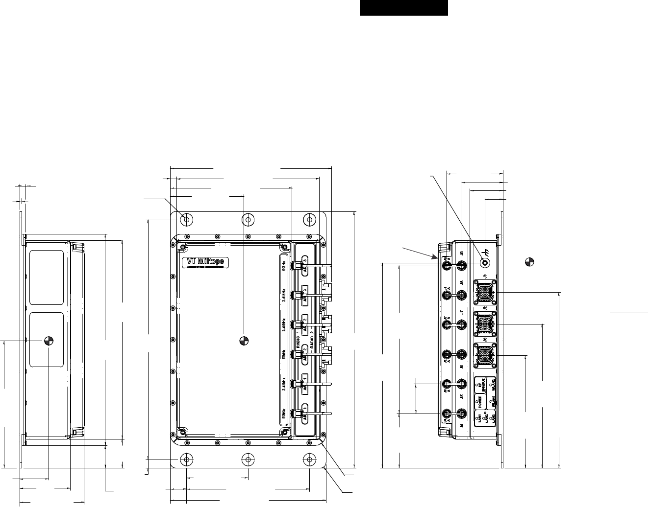
INPUT POWER/DISCRETE CONNECTOR J1 (RED)
LAN PORT 2 CONNECTOR J2 (BLUE)
1408041A
MOUNTING HOLES
(6 PLACES)
SPECIFICATIONS
INPUT POWER 97 -134 VAC, 360 - 800 Hz OR 18 - 32 VDC, 28 W MAXIMUM
-15°C to +70°C
OPERATING HUMIDITY 5% TO 95% RELATIVE HUMIDITY, NON-CONDENSING
OPERATING ALTITUDE ATMOSPHERIC PRESSURE EQUIVALENT TO -15,000 TO +15,000 FEET
LAN PORTS 1 AND 3 CONNECTOR J3 (GREEN)
8-32 THREADED GROUND POINT
0.28 INCH MAXIMUM SCREW DEPTH
LAN1 ACTIVE
INDICATOR
LAN2 ACTIVE
INDICATOR
LAN3 ACTIVE
INDICATOR
POWER
INDICATOR
RF ENABLE
INDICATOR
WLAN1 ACTIVE
INDICATOR
WLAN2 ACTIVE
INDICATOR
HARDWARE OVERVIEW

2
The nMAP2 access point has two radios and an integral antenna array.
The default and available operation for each radio are:
Radio Default Mode Other Choices*
1
Operating mode:
Access Point
Wireless mode:
802.11ac
Operating Modes:
Client
Ad-Hoc
802.11s
Pseudo Ad-Hoc (ahdemo)
Monitor
Access Point (WDS)
Client (WDS)
Wireless modes:
802.11b (not compatible with antenna)
802.11g (not compatible with antenna)
802.11a
802.11g+n (not compatible with antenna)
802.11a+n
2
Operating mode:
Access Point
Wireless mode:
802.11g+n
Operating Modes:
Client
Ad-Hoc
802.11s
Pseudo Ad-Hoc (ahdemo)
Monitor
Access Point (WDS)
Client (WDS)
Wireless Modes:
802.11b
802.11g
802.11g+n
802.11a+n (not compatible with antenna)
802.11ac (not compatible with antenna)
* Choices may be limited by Country selected during setup.
Reset lines are available in connector J1. Momentary connection of
pins 13 and 14 reboots the nMAP2 access point (WLAN1 and WLAN2
indicators flash in unison, one flash per second for approximately one
minute). Holding connection until WLAN1 and WLAN2 indicators flash
alternately at one flash per second resets the nMAP2 to the factory
default settings. Reset lines are not connected in aircraft installation.
Two discrete inputs accessed via connector J1 enable remote on/off
(power supply enable) and RF on/RF off (RF enable) control. Inputs
must be connected to signal ground to power up and enable RF.
The nMAP2 access point has three auto sensing 10/100/1000 Base-T
Ethernet ports accessed via connectors J2 and J3.
Connector J1 provides connection for input power, discrete signals, and
IP address selection. (See nMAP2 Operator’s Manual M365-769 for IP
address selection wiring.)
Pin* Signal Pin* Signal
1 IP Strap 0 11 No connection
2 IP Strap 1 12 No connection
3 IP Strap 2 13 Reset (not used on aircraft)
4 IP Strap 3 14 Signal Ground
5 Power Supply Enable 15 28 VDC Positive (Primary)
6 IP Strap 0 Ground 16 115 VAC Line (Hot)
7 IP Strap 1 Ground 17 No connection
8 IP Strap 2 Ground 18 115 VAC Neutral
9 IP Strap 3 Ground 19 Chassis Ground
10 RF Enable 20 28 VDC Return
* Use Deutsch shell DMC-MD 20A, insert & contacts DMC M 20-22SN,
backshell 787-8055-13M or equivalent for mating connector.
Connector J2 provides connection for Ethernet port 2 and power out.
Pin* Signal Pin* Signal
1 Port 2 Bidirectional Pair A+ 11 No connection
2 Port 2 Bidirectional Pair B+ 12 No connection
3 Port 2 A/B Inner Shield 13 No connection
4 Port 2 Bidirectional Pair C+ 14 No connection
5 Port 2 Bidirectional Pair D+ 15 No connection
6 Port 2 Bidirectional Pair B- 16 No connection
7 Port 2 Bidirectional Pair A- 17 No connection
8 Port 2 C/D Inner Shield 18 No connection
9 Port 2 Bidirectional Pair D- 19 No connection
10 Port 2 Bidirectional Pair C- 20 No connection
* Use Deutsch shell DMC-MD 20B, insert & contacts DMC-M 20-22PN,
backshell 787-8055-13M or equivalent for mating connector.
RADIOS AND ANTENNAS DISCRETE INPUTS
INTERFACE CONNECTORS
RESET OPERATION
ETHERNET PORTS

3
Connector J3 provides connection for Ethernet ports 1 and 3.
Pin* Signal Pin* Signal Pin* Signal Pin* Signal
1 Port 1 Bidirectional Pair B+ 6 Port 1 Bidirectional Pair A- 11 Port 3 Bidirectional Pair B+ 16 Port 3 Bidirectional Pair A-
2 Port 1 Bidirectional Pair A+ 7 Port 1 Bidirectional Pair B- 12 Port 3 Bidirectional Pair A+ 17 Port 3 Bidirectional Pair B-
3 Port 1 A/B Inner Shield 8 Port 1 C/D Inner Shield 13 Port 3 A/B Inner Shield 18 Port 3 C/D Inner Shield
4 Port 1 Bidirectional Pair D+ 9 Port 1 Bidirectional Pair C- 14 Port 3 Bidirectional Pair D+ 19 Port 3 Bidirectional Pair C-
5 Port 1 Bidirectional Pair C+ 10 Port 1 Bidirectional Pair D- 15 Port 3 Bidirectional Pair C+ 20 Port 3 Bidirectional Pair D-
* Use Deutsch shell DMC-MD 20C, insert & contacts DMC-M 20-22SN, backshell 787-8055-13M or equivalent for mating connector.
Indicator Function
POWER Indicator Lit solid green to indicate powered up and enabled for operation. Flashes to indicate powered up, but operation is
disabled (standby mode). The internal unmanaged Ethernet switch continues to function in standby mode.
RF ENABLE Indicator Lit solid green to indicate RF output is enabled.
WLAN Indicators Flash green to indicate RF data transfers are occurring on the applicable radio card.
LAN Indicators Flash green to indicate applicable LAN data transfers are occurring.
Lit solid green to indicate that a link is established on applicable wired LAN ports, but no data transfers are occurring.
Connect the nMAP2 Access Point in the lab environment as shown:
nMAP2 WIRELESS ACCESS POINT
1408201B
COMPUTER WITH 10/100/1000BASETX
ETHERNET CAPABILITY
P4
P2
115 VAC
(97 - 134 VAC)
360 - 800 Hz
INPUT POWER
TEST BOX MILTOPE
PART NUMBER CT2014-013
ETHERNET
LAN PORT 1
28 VDC
(18 - 32 VDC)
INPUT POWER
OR
J2 TEST CABLE MILTOPE PART
NUMBER CT2014-017
USE OF J2 TEST CABLE IS
OPTIONAL FOR CONNECTION
TO AN ADDITIONAL COMPUTER
J1 TEST CABLE MILTOPE
PART NUMBER CT2014-016
WHAT IS IN THE BOX: nMAP-2 WIRELESS ACCESS POINT PART NUMBER 903920-1
EQUIPMENT REQUIRED, BUT NOT SUPPLIED:
DESKTOP COMPUTER WITH 10/100/1000 BASE TX ETHERNET CAPABILITY
LAPTOP COMPUTER WITH IEEE 802.11a/g (IEEE 802.11a/ac/g/n
RECOMMENDED) WIRELESS CAPABILITY AND SETTABLE WIRELESS MODE
TEST BOX, MILTOPE PART NUMBER CT2014-013
J1 TEST CABLE, MILTOPE PART NUMBER CT2014-016
J2 TEST CABLE, MILTOPE PART NUMBER CT2014-017
J3 TEST CABLE, MILTOPE PART NUMBER CT2014-018
P1
P6
(LAN
PORT 2)
J1J2
P2
J3
P3
P5
USE OF P5 (LAN PORT 3) IS OPTIONAL FOR
CONNECTION TO AN ADDITIONAL COMPUTER
LAPTOP COMPUTER WITH
IEEE 802.11a/g CAPABILITY
(IEEE 802.11a/ac/g/n RECOMMENDED)
J3 TEST CABLE MILTOPE
PART NUMBER CT2014-018
J1
P3
RED (POS)
BLK (RTN)
STATUS INDICATORS
INITIAL SETUP
4
A. Ensure that test box POWER switch is in the OFF position,
RF ON/RF OFF switch is in the RF OFF position, and all
IP STRAPS switches are in the 1 position.
B. Power up:
1. Power up the desktop and laptop computers.
CAUTION: nMAP2 input power is 134 VAC maximum or
32 VDC maximum connected to appropriate lines.
2. Connect the test cable AC or DC input lines to the power source
and apply power to the test cable. All the nMAP2 access point
indicators flash followed by each indicator flashing. When
indicator test is complete, POWER indicator will be flashing.
3. Place the test box POWER switch in the ON position. The
nMAP2 access point POWER indicator will light solid green.
WARNING: The nMAP2 access point internal antennas radiate
radio frequency (RF) power. To avoid exceeding
Federal Communications Commission (FCC) radio
frequency exposure limits, human proximity to the
nMAP2 shall be no less than eight inches
(20 centimeters) while RF is enabled.
4. Place the RF ON/RF OFF switch in the RF ON position. After
up to 40 seconds, the nMAP2 access point RF ENABLE
indicator will light solid green.
C. Configure the desktop computer with an IP address of 192.168.1.67
and if necessary, reboot the computer. (Refer to operating system
user’s manual for network configuration.)
D. Wired LAN Test
1. On the desktop computer, open a Command Prompt window
and type ping –n 25 192.168.1.1 <Enter> (Windows) or
ping -c 25 192.168.1.1 <Enter> (Linux). The nMAP2 access
point LAN1 indicator will flash indicating wired LAN activity.
2. Verify that no errors or timeouts are reported and Reply from
192.168.1.1 is displayed 25 times in the Command Prompt
window. This confirms wired LAN communication between the
desktop computer and the nMAP2 access point.
E. Configure for simple wireless LAN test on Radio 1: Configure the
wireless adapter in the laptop computer for 802.11a (5 GHz)
operation with an IP address of 192.168.1.69. (Refer to the
wireless adapter user’s manual for configuration instructions.)
Associate the computer with wireless network (SSID) VTMiltope.
F. Test wireless LAN1:
1. On the laptop computer, open a Command Prompt window and
type ping –n 25 192.168.1.1 <Enter> (Windows) or
ping -c 25 192.168.1.1 <Enter> (Linux). The nMAP2 access
point WLAN1 indicator will flash indicating wireless LAN activity.
2. Verify that no errors or timeouts are reported and Reply from
192.168.1.1 is displayed 25 times in the Command Prompt
window. This confirms wireless communication between the
laptop computer and nMAP2 access point Radio 1.
3. On the laptop computer, type ping –n 25 192.168.1.67 <Enter>
(Windows) or ping –c 25 192.168.1.67 <Enter> (Linux). The
nMAP2 access point WLAN1 indicator will flash indicating
wireless LAN activity.
4. Verify that no errors or timeouts are reported and Reply from
192.168.1.67 is displayed 25 times in the Command Prompt
window. This confirms communication between the laptop
computer and the desktop computer.
G. Configure for simple wireless LAN test on Radio 2: Configure the
wireless adapter in the laptop computer for 802.11g (2.4 GHz)
operation. (Refer to the wireless adapter user’s manual for
configuration instructions.) Associate the computer with wireless
network (SSID) VTMiltope.
H. Test the wireless LAN2:
1. On the laptop computer, type ping –n 25 192.168.1.1 <Enter>
(Windows) or ping -c 25 192.168.1.1 <Enter> (Linux) in the
Command Prompt window. The nMAP2 access point WLAN2
indicator will flash indicating wireless LAN activity.
2. Verify that no errors or timeouts are reported and Reply from
192.168.1.1 is displayed 25 times in the Command Prompt
window. This confirms wireless communication between the
laptop computer and nMAP2 access point Radio 2.
3. On the laptop computer, type ping –n 25 192.168.1.67 <Enter>
(Windows) or ping –c 25 192.168.1.67 <Enter> (Linux). The
nMAP2 access point WLAN2 indicator will flash indicating
wireless LAN activity.
4. Verify that no errors or timeouts are reported and Reply from
192.168.1.67 is displayed 25 times in the Command Prompt
window. This confirms communication between the laptop
computer and the desktop computer.

5
I. Refer to nMAP2 Wireless Access Point Operating Software
Operator’s Manual M365-768 for detailed instructions for
configuring the nMAP2 access point for a specific application.
NOTE: Selecting the country of operation during the configuration
process will limit radio configuration to settings that comply
with the regulatory requirements of the selected country.
The default country setting is USA.
The nMAP2 Wireless Access Point must be installed by personnel
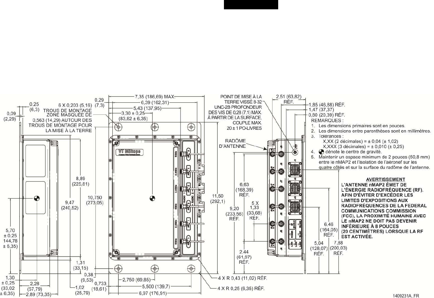
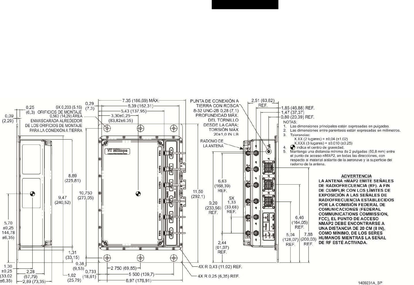
qualified and authorized to install equipment aboard an aircraft.
Mounting the nMAP2 Access Point – As shown in the nMAP2 access
point outline drawing, six mounting holes are provided. Mount the
nMAP2 access point using number 10-24 mounting hardware.
Recommended torque value for mounting hardware is 24.0 inch-
pounds. Although not mandatory for specification compliance, it is
recommended that the nMAP2 access point be mounted to a grounded
surface within the aircraft. An unpainted area around each mounting
hole provides ground connection to the mounting surface.
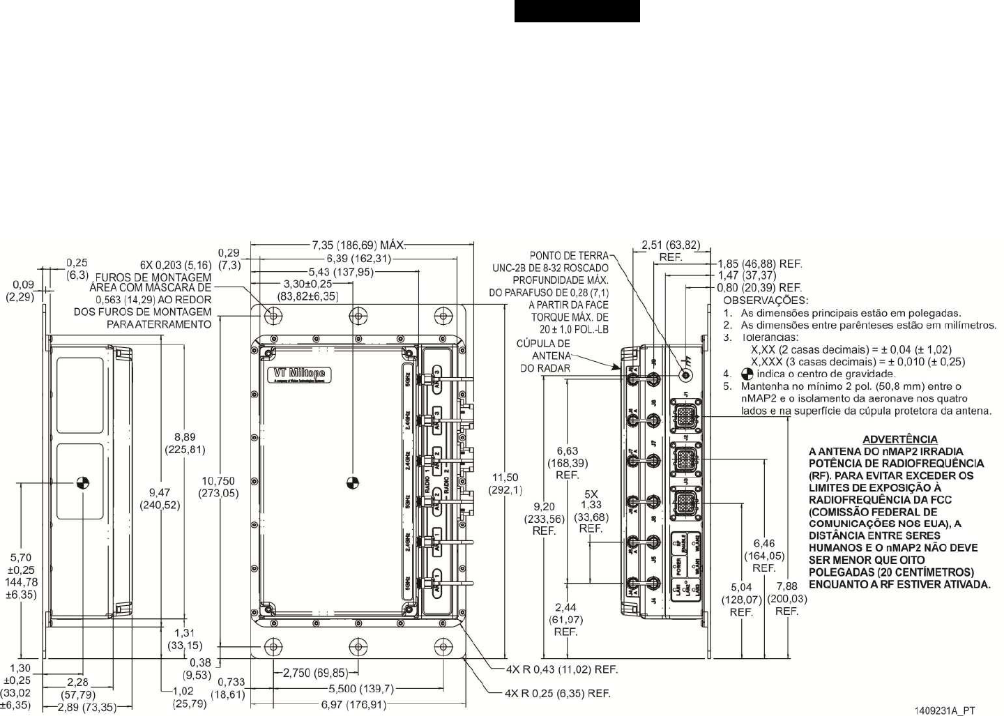
NOTES:
1. Primary dimensions are in inches.
2. Dimensions in parenthesis are in millimeters.
3. Tolerances:
X.XX (2 Places) = ±0.04 (±1.02)
X.XXX (3 Places) = ±0.010 (±0.25)
4. denotes center of gravity.
5. Maintain minimum 2 inches (50.8 mm)
between nMAP2 and aircraft insulation on all
four sides and antenna radome surface.
1409231A
0.563 (14.29) MASKED
AREA AROUND
MOUNTING HOLES
FOR GROUNDING
6.39 (162.31)
0.733
(18.61) 6.97 (176.91)
0.38
(9.53)
3.30±0.25
(83.82±6.35)
7
.
3
5
(
1
8
6
.
6
9
)
M
A
X
11.50
(292.1)
0.29
(7.3)
2.750 (69.85)
5.500 (139.7)
10.750
(273.05)
4X R 0.43 (11.02) REF
4X R 0.25 (6.35) REF
6X 0.203 (5.16)
MOUNTING HOLES
9.47
(240.52)
1.02
(25.79)
1.30
±0.25
(
33.02
±
6.35)
5.70
±0.25
144.78
±6.35)
0.09
(2.29)
0.25
(6.3)
8.89
(225.81)
1.31
(33.15)
2.28
(57.79)
2.89 (73.35)
8-32 UNC-2B THREADED
GROUND POINT
0.28 (7.1) MAX
SCREW DEPTH
FROM FACE,
20±1.0 IN-LBS
MAX TORQUE
2
.
5
1
(
6
3
.
8
2
)
REF 1.85 (46.88) REF
0.80 (20.39) REF
2.44
(61.97)
REF
5.04
(128.07)
REF
6.46
(164.05)
REF
7.88
(200.03)
REF
1.33
(33.68)
REF
5X
6.63
(168.39)
REF
9.20
(233.56)
REF
5.43 (137.95)
1.47 (37.37)
WARNING
THE nMAP2 ANTENNA RADIATES
RADIO FREQUENCY (RF) POWER.
TO AVOID EXCEEDING FEDERAL
COMMUNICATIONS COMMISSION
(FCC) RADIO FREQUENCY
EXPOSURE LIMITS, HUMAN
PROXIMITY TO THE nMAP2 SHALL
BE NO LESS THAN EIGHT INCHES
(20 CENTIMETERS) WHILE RF IS
ENABLED.
ANTENNA
RADOME
nMAP2 Access Point Outline Drawing
INSTALLATION

6
1409232-
TO AIRCRAFT ETHERNET LAN
AIRCRAFT POWER (115 VAC, 360 TO 800 Hz OR 28 VDC)
DISCRETE INPUTS (POWER SUPPLY ENABLE AND RF ENABLE)
RESET INPUT
IP STRAP INPUTS
SEE INTERFACE CONNECTORS SECTION
FOR CONNECTOR PIN ASSIGNMENTS
TO AIRCRAFT ETHERNET LAN
TO AIRCRAFT ETHERNET LAN
Technical and warranty support for the nMAP2 Wireless Access Point is available from Miltope Corporation Monday through Friday from 8:00 AM
to 5:00 PM Central Time by calling 1-800-MILTOPE (1-800-645-8673) and selecting “Product Support” from the menu. Support is also available by
sending an e-mail to techsupport@miltope.com. Correspondence can be sent to:
Miltope Corporation
Attn: Product Support Department
3800 Richardson Road South
Hope Hull, AL 36043 USA
POWER AND INTERFACE CONNECTIONS
TECHNICAL AND WARRANTY SUPPORT

7
The nMAP2 Wireless Access point complies with the following radio
frequency and safety standards.
A. USA – Federal Communications Commission (FCC)
Manufacturer’s FCC Declaration of Conformity Statement
Manufacturer: Miltope Corporation
3800 Richardson Road South
Hope Hull, Alabama 36043
Phone: 334-284-8665
This device has been tested and found to comply with the limits for a
Class B digital device, pursuant to Part 15 of the FCC Rules. These
limits are designed to provide reasonable protection against harmful
interference in a residential installation. This equipment also
complies with RTCA specification DO-160G section 21.3 (conducted
emissions) Category H and section 21.4 (radiated emissions)
category H (modified for 2.4 GHz and 5 GHz transmission frequency).
RTCA specification DO-160G applies to equipment installed and
operated aboard aircraft. This equipment generates, uses and can
radiate radio frequency energy. If not installed and used in
accordance with the instructions provided in this guide and the
applicable operating software operator’s manual, it may cause
harmful interference to radio communications. However, there is no
guarantee that interference will not occur in a particular installation. If
this equipment does cause harmful interference to radio or television
reception, which can be determined by turning the equipment off and
on, the user/installer is encouraged to try to correct the interference
by one or more of the following measures:
Reorient or relocate the receiving antenna.
Increase the separation between the equipment and receiver.
Connect the equipment on a circuit different from that to which the
receiver is connected.
WARNING: Changes or modifications to this device will void the
FCC certification
Miltope Corporation is not responsible for any interference caused by
unauthorized modification of the nMAP2 access point, or the
substitution or attachment of connecting cables and equipment
(antennas) other than that specified by Miltope Corporation.
The correction of interference caused by such unauthorized
modification, substitution or attachment is the responsibility of the
user/installer.
WARNING: Exposure to Radio Frequency (RF) Radiation
In accordance with FCC requirements of human exposure to radio
frequency fields, the radiating element shall be installed such that a
minimum separation distance of 20 cm (8 inches) is maintained
between it and the user or general population.
This device is restricted to indoor use when using the 5.15 to
5.25 GHz band (channels 36, 40, 44, and 48) and 5.73 to 5.83 GHz
band (channels 149, 153, 157, 161, and 165).
The nMAP2 access point is compliant with FCC Report and Orders
FCC-03-287A1 and FCC-06-96A1.
B. Canada – Industry Canada (IC)
This device complies with the limits for a Class B digital device and
conforms to Industry Canada standard ICES-003. Products that
contain a radio transmitter comply with Industry Canada standard
RSS210 and are labeled with an IC approval number.
This device complies with the Class B limits of Industry Canada.
Operation is subject to the following two conditions: 1) this device
may not cause harmful interference, and 2) this device must accept
interference received, including interference that may cause
undesired operation.
This device is restricted to indoor use when using the 5.15 to
5.25 GHz band (channels 36, 40, 44, and 48) and 5.73 to 5.83 GHz
band (channels 149, 153, 157, 161, and 165).
REGULATORY COMPLIANCE
8
C. European Community
This device complies with the EMC Directive 2004/108/EC, Low
Voltage Directive 2006/95/EC and R&TTE Directive 1999/5/EC.
Compliance with these directives implies conformity to harmonized
European standards (European Norms) that are listed on the EU
Declaration of Conformity that has been issued by Miltope
Corporation for this device.
Countries of Operation and Conditions of Use
Requirements for indoor vs. outdoor operation, licensing and allowed
channels of operation apply in some countries as described below.
NOTE: The user/installer must use the configuration utility provided
with this device to ensure the channels of operation are in
conformance with the spectrum usage rules for EU and
EFTA countries as described below. If more than one unit is
deployed, users must ensure that frequencies are spread
among different channels according to channel availability.
2.4 GHz Operation
This device may be operated indoors or outdoors in EU and EFTA
countries using the 2.4 GHz band (Channels 1 through 13),
except where noted below.
In France, this device may use the entire 2400 - 2483.5 MHz
band (Channels 1 through 13) for indoor applications. For outdoor
use, only the 2400 - 2454 MHz frequency band (Channels 1
through 9) may be used. For the latest requirements, see
http://www.art-telecom.fr.
5 GHz Operation
This device requires the user or installer to properly enter the
current country of operation in the 5 GHz Radio Configuration
Window,
This device will automatically limit the allowable channels
determined by the current country of operation. Incorrectly
entering the country of operation may result in illegal operation
and may cause harmful interference to other systems. The user is
obligated to ensure the device is operating according to the
channel limitations, indoor/outdoor restrictions and license
requirements for each European Community country as described
in nMAP-2 Wireless Access Point Operating Software Operator’s
Manual M365-768.
This device does not support channels that are used by radar
operations (5.26 through 5.70 GHz band/channels 52 through
140).
This device is restricted to indoor use when operated in EU and
EFTA countries using the 5.15 through 5.35 GHz band (channels
36, 40, 44, and 48) and the 5.73 through 5.83 GHz band
(channels 149, 153, 157, 161, and 165).
Disposal of Waste Equipment by Users in Private Household in
the European Union
This product must not be disposed of with your other household
waste. Instead, it is your responsibility to dispose of your waste
equipment by handing it over to a designated collection point for the
recycling of waste electrical and electronic equipment. The separate
collection and recycling of your waste equipment at the time of
disposal will help to conserve natural resources and ensure that it is
recycled in a manner that protects human health and the
environment. For more information about where you can drop off
your waste equipment for recycling, please contact your local city
office or your household waste disposal service.

1
3800 Richardson Road South • Hope Hull, AL 36043, États-Unis
Tél. : 334-284-8665 •Fax : 334-613-6302
http://www.miltope.com
Point d'accès nMAP2
sans fil Guide de démarrage rapide
M365-780, 5 janvier 2015
Le point d’accès sans fil nMAP2 est un appareil de communication sans fil conçu pour une utilisation dans un environnement aéroporté. Il n’est pas utilisé
dans des emplacements au sol comme un bureau ou à domicile. Il doit être installé par des techniciens qualifiés autorisés à installer des équipements à
bord d’un aéronef. Ce guide de démarrage rapide présente le point d’accès 802.11n/ac « Multifunction Access Point (nMAP) » sans fil de deuxième
génération et contient les informations de base sur son installation comme point d’accès nMAP2 autonome au moyen du logiciel d'utilisation référence
999239. Après avoir suivi les instructions de ce guide de démarrage rapide, consultez le manuel réf. M365-768 du logiciel d'utilisation du point d'accès
sans fil nMAP2, disponible auprès de VT Miltope, pour des instructions de configuration détaillées adaptées à votre application.
APERÇU DU MATÉRIEL

2
Le point d'accès nMAP2 a deux radios et une batterie d'antennes intégrée. Le
mode par défaut et le domaine d'utilisation de chaque radio sont :
Radio Mode par défaut Autres choix*
1 Mode de
fonctionnement :
Point d'accès
Mode sans fil :
802.11ac
Modes de fonctionnement :
Client
Ad-Hoc
802.11s
Pseudo ad-hoc (ahdemo)
Moniteur
Point d'accès (WDS)
Client (WDS)
Modes sans fil :
802.11b (incompatible avec l'antenne)
802.11g (incompatible avec l'antenne)
802.11a
802.11g+n (incompatible avec l'antenne)
802.11a+n
2 Mode de
fonctionnement :
Point d'accès
Mode sans fil :
802.11g+n
Modes de fonctionnement :
Client
Ad-Hoc
802.11s
Pseudo ad-hoc (ahdemo)
Moniteur
Point d'accès (WDS)
Client (WDS)
Modes sans fil :
802.11b
802.11g
802.11g+n
802.11a+n (incompatible avec l'antenne)
802.11ac (incompatible avec l'antenne)
*Les choix peuvent être limités selon le pays sélectionné à l'installation.
Des lignes de réinitialisation sont disponibles dans le connecteur J1. La
connexion momentanée des broches 13 et 14 éteint et redémarre le point
d’accès nMAP2 (les indicateurs WLAN1 et WLAN2 clignotent à l'unisson, à un
clignotement par seconde pendant environ une minute). Le maintien de la
connexion jusqu'à ce que les indicateurs WLAN1 et WLAN2 clignotent en
alternance à un clignotement par seconde rétablit les réglages par défaut
définis en usine. Les lignes de réinitialisation ne sont pas connectées aux
installations de l'aéronef.
Deux entrées discrètes accessibles via le connecteur J1 permettent une
télécommande marche/arrêt électrique et RF. Les entrées doivent être
connectées au fil de terre de signalisation pour allumer et activer la RF.
Le point d'accès nMAP2 a trois ports Ethernet 10/100/1000 Base-T
autodétecteurs, accessibles via les connecteurs J2 et J3.
Le connecteur J1 sert à la connexion de l'alimentation électrique, des signaux
discrets et de la sélection d'adresse IP (voir le mode d'emploi M365-769 pour le
câblage de sélection d'adresse IP).
Broche* Signal Broche* Signal
1 Connexion IP 0 11 Pas de connexion
2 Connexion IP 1 12 Pas de connexion
3 Connexion IP 2 13 Réinitialisation (non utilisé sur
l'aéronef)
4 Connexion IP 3 14 Fil de terre de signalisation
5 Activation alimentation
électrique 15 28 CC, positif (primaire)
6 Terre de connexion IP 0 16 Ligne 115 V CA (sous tension)
7 Terre de connexion IP 1 17 Pas de connexion
8 Terre de connexion IP 2 18 118 V CA, neutre
9 Terre de connexion IP 3 19 Fil de terre du châssis
10 Activation RF 20 28 V CC, retour
* Utiliser un boîtier Deutsch DMC-MD 20A, un insert et des contacts
DMC M 20-22SN, un boîtier arrière 787-8055-13M ou équivalent pour le
connecteur d'accouplement.
Le connecteur J2 sert à la connexion du port 2 Ethernet et des sorties
électriques.
Broche* Signal Broche* Signal
1 Paire bidirectionnelle A+ de port 2 11 Pas de connexion
2 Paire bidirectionnelle B+ de port 2 12 Pas de connexion
3 Blindage intérieur A/B port 2 13 Pas de connexion
4 Paire bidirectionnelle C+ de port 2 14 Pas de connexion
5 Paire bidirectionnelle D+ de port 2 15 Pas de connexion
6 Paire bidirectionnelle B- de port 2 16 Pas de connexion
7 Paire bidirectionnelle A- de port 2 17 Pas de connexion
8 Blindage intérieur C/D de port 2 18 Pas de connexion
9 Paire bidirectionnelle D- de port 2 19 Pas de connexion
10 Paire bidirectionnelle C- de port 2 20 Pas de connexion
* Utiliser un boîtier Deutsch DMC-MD 20B, un insert et des contacts
DMC M 20-22PN, un boîtier arrière 787-8055-13M ou équivalent pour le
connecteur d'accouplement.
RADIOS ET ANTENNES ENTRÉES DISCRÈTES
CONNECTEURS D'INTERFACE
RÉINITIALISER L'OPÉRATION
PORTS ETHERNET

3
Le connecteur J3 permet la connexion des ports Ethernet 1 et 3.
Broche* Signal Broche* Signal Broche* Signal Broche* Signal
1 Paire bidirectionnelle B+ de
port 1 6 Paire bidirectionnelle A+ de
port 1 11 Paire bidirectionnelle B+ de
port 3 16 Paire bidirectionnelle A- de
port 3
2 Paire bidirectionnelle A+ de
port 1 7 Paire bidirectionnelle B- de
port 1 12 Paire bidirectionnelle A+ de
port 3 17 Paire bidirectionnelle B- de
port 3
3 Blindage intérieur A/B port 1 8 Blindage intérieur C/D de port
113 Blindage intérieur A/B port 3 18 Blindage intérieur C/D de port
3
4 Paire bidirectionnelle D+ de
port 1 9 Paire bidirectionnelle C- de
port 1 14 Paire bidirectionnelle D+ de
port 3 19 Paire bidirectionnelle C- de
port 3
5 Paire bidirectionnelle C+ de
port 1 10 Paire bidirectionnelle D- de
port 1 15 Paire bidirectionnelle C+ de
port 3 20 Paire bidirectionnelle D- de
port 3
* Utiliser un boîtier Deutsch DMC-MD 20C, un insert et des contacts DMC -M 20--22SN, un boîtier arrière 787-8055-13M ou équivalent pour le connecteur
d'accouplement.
Indicateur Fonction
Indicateur de tension Vert lorsque sous tension et prêt à fonctionner. Clignote à la mise sous tension ; l'appareil n'est pas encore prêt à fonctionner (mode d'attente). Le
commutateur Ethernet interne non géré continue de fonctionner en mode d'attente.
indicateur d'activation RF Vert lorsque la sortie RF est activée.
indicateurs WLAN Vert clignotant pendant les transferts de données RF sur la carte radio applicable
indicateurs LAN Vert clignotant pendant les transferts de données LAN applicables
Vert sans clignotement lorsque d'un lien est établi sur les ports LAN câblés applicables, sans transferts de données.
Connecter le point d'accès nMAP2 en environnement de laboratoire comme ci-après :
INDICATEURS DE STATUT
RÉGLAGE INITIAL
4
A. Vérifier que l’interrupteur de tension de boîte de test est en position OFF
(arrêt), que le commutateur RF ON/RF OFF (marche / arrêt RF) est sur RF
OFF (arrêt) et que tous les commutateurs de connexion IP sont sur 1.
B. Mise sous tension :
1. Mettre les ordinateurs (portables et de bureau) sous tension.
ATTENTION : le courant d'alimentation nMAP2 est de 134 V CA maximum
ou de 32 V CC maximum une fois connecté aux lignes
appropriées.
2. Connecter les lignes d’entrée CC ou CA du câble de test à la source
d’alimentation et appliquer la tension sur le câble de test. Tous les
indicateurs du point d’accès nMAP se mettent à clignoter, ensemble,
puis séparément. Lorsque le test des indicateurs est terminé,
l'indicateur de tension est le seul à clignoter.
3. Mettre l'interrupteur de tension de la boîte de test sur ON. l'indicateur
de tension du point d'accès nMAP2 s'arrête de clignoter et passe au
vert.
AVERTISSEMENT : Les antennes internes du point d'accès nMAP2
irradient des radiofréquences. Afin d’éviter d’excéder
les limites d’expositions aux radiofréquences de la
Federal Communications Commission (FCC), la
proximité humaine avec le nMAP2 ne doit pas devenir
inférieure à 8 pouces (20 centimètres) lorsque la RF
est activée.
4. Mettre l'interrupteur RF ON/RF OFF sur RF ON. Après un délai de 40
secondes ou moins, l'indicateur d'activation RF du point d'accès
nMAP2 passe au vert.
C. Configurer l'ordinateur de bureau avec une adresse IP de 192.168.1.67. Si
nécessaire, redémarrer l'ordinateur (se référer au mode d'emploi du
système d’exploitation pour des instructions sur la configuration du réseau).
D. Test du réseau LAN câblé
1. Sur l'ordinateur de bureau, ouvrir la fenêtre de commande et taper
ping –n 25 192.168.1.1 <Entrée> (Windows) ou
ping -c 25 192.168.1.1 <Entrée> (Linux). l'indicateur LAN1 du point
d’accès nMAP2 clignotera pour indiquer l’activité du réseau LAN câblé.
2. Vérifier l'absence de message d'erreur ou de délai expiré et l'affichage
de Reply from 192.168.1.1 25 fois dans la fenêtre de
commande. Ceci confirme la communication LAN câblée entre
l'ordinateur de bureau et le point d'accès nMAP2.
E. Configurer un test de LAN sans fil simple sur Radio 1 : Configurer
l'adaptateur sans fil de l'ordinateur portable pour un fonctionnement
802.11a (5 GHz), avec une adresse IP de 192.168.1.69 (voir les
instructions de configuration dans le mode d'emploi de l'adaptateur sans
fil). Associer l'ordinateur au réseau sans fil (SSID) VTMiltope.
F. Tester le LAN1 sans fil :
1. Sur l'ordinateur portable, ouvrir la fenêtre de commande et taper ping
–n 25 192.168.1.1 <Entrée> (Windows) ou ping -c 25 192.168.1.1
<Entrée> (Linux). l'indicateur WLAN1 du point d’accès nMAP2
clignotera pour indiquer l’activité du réseau LAN sans fil.
2. Vérifier l'absence de message d'erreur ou de délai expiré et l'affichage
de Reply from 192.168.1.1 25 fois dans la fenêtre de
commande. Ceci confirme la communication sans fil entre l'ordinateur
portable et le point d'accès nMAP2 Radio 1.
3. Sur l'ordinateur portable, taper ping –n 25 192.168.1.67 <Entrée>
(Windows) ou ping -c 25 192.168.1.67 <Entrée> (Linux). l'indicateur
WLAN1 du point d’accès nMAP2 clignotera pour indiquer l’activité du
réseau LAN sans fil.
4. Vérifier l'absence de message d'erreur ou de délai expiré et l'affichage
de Reply from 192.168.1.67 25 fois dans la fenêtre de
commande. Ceci confirme la communication entre l'ordinateur portable
et l'ordinateur de bureau.
G. Configurer un test de LAN sans fil simple sur Radio 2 : Configurer
l'adaptateur sans fil de l'ordinateur portable pour un fonctionnement
802.11g (2,4 GHz) (voir les instructions de configuration dans le mode
d'emploi de l'adaptateur sans fil). Associer l'ordinateur au réseau sans fil
(SSID) VTMiltope.
H. Tester le LAN2 sans fil :
1. Sur l'ordinateur portable, taper ping –n 25 192.168.1.1 <Entrée>
(Windows) ou ping -c 25 192.168.1.1 <Entrée> (Linux). l'indicateur
WLAN2 du point d’accès nMAP2 clignotera pour indiquer l’activité du
réseau LAN sans fil.
2. Vérifier l'absence de message d'erreur ou de délai expiré et l'affichage
de Reply from 192.168.1.1 25 fois dans la fenêtre de
commande. Ceci confirme la communication sans fil entre l'ordinateur
portable et le point d'accès nMAP2 Radio 2.
3. Sur l'ordinateur portable, taper ping –n 25 192.168.1.67 <Entrée>
(Windows) ou ping -c 25 192.168.1.67 <Entrée> (Linux). l'indicateur
WLAN2 du point d’accès nMAP2 clignotera pour indiquer l’activité du
réseau LAN sans fil.
4. Vérifier l'absence de message d'erreur ou de délai expiré et l'affichage
de Reply from 192.168.1.67 25 fois dans la fenêtre de
commande. Ceci confirme la communication entre l'ordinateur portable
et l'ordinateur de bureau.

5
I. Se référer au manuel réf. M365-768 du logiciel d'utilisation du point d'accès
sans fil nMAP2 des instructions détaillées de configuration du point d’accès
nMAP2 pour une application particulière.
REMARQUE : Le pays sélectionné durant la configuration limite la
configuration radio aux réglages autorisés dans ce pays.
Le pays sélectionné par défaut est les États-Unis.
Le point d'accès sans fil nMAP2 doit être installé par des techniciens qualifiés
autorisés à installer les équipements à bord des aéronefs.
Montage du point d'accès nMAP2 - comme illustré sur le schéma du point
d'accès nMAP2, six trous de montage sont prévus. Monter le point d'accès
nMAP2 à l'aide de pièces de montage 10-24. Le couple recommandé est de 24
pouces-livres. Bien que ceci ne soit pas obligatoire, il est recommandé de
monter le point d'accès nMAP2 sur une surface mise à la terre dans l'aéronef.
Une zone non peinte autour de chaque trou de montage fournit la connexion à
la terre vers la surface de montage.
Schéma de point d'accès nMAP2
INSTALLATION

6
Le soutien technique et de garantie pour le Point d’accès nMAP sans fil est disponible auprès de Miltope Corporation du lundi au vendredi de 8h00 à 17h00, heure
normale du Centre, en appelant au 1-800-MILTOPE (1-800-645-8673) et en sélectionnant « Product Support » (soutien de produit) dans le menu. Le soutien est
aussi disponible par courriel en envoyant un message à techsupport@miltope.com. Vous pouvez aussi transmettre toute correspondance à :
Miltope Corporation
Attn: Product Support Department
3800 Richardson Road South
Hope Hull, AL 36043, États-Unis
CONNEXIONS ÉLECTRIQUES ET D'INTERFAÇAGE
SOUTIEN TECHNIQUE ET DE GARANTIE

7
Le point d'accès sans fil nMAP2 respecte les normes de radiofréquence
et de sécurité suivantes.
A. États-Unis – Federal Communications Commission (FCC)
Déclaration de conformité du fabricant à la FCC
Fabricant : Miltope Corporation
3800 Richardson Road South
Hope Hull, Alabama 36043, États-Unis
Téléphone : 334-284-8665
Cet appareil a été testé et a été jugé conforme aux limites applicables
aux appareils numériques de Classe B, conformément à la Partie 15 du
règlement de la FCC. Ces limites ont pour objet de fournir une protection
raisonnable contre les interférences nuisibles à l'intérieur de locaux
résidentiels. Cet équipement est aussi conforme à la spécification RTCA
DO-160G, sections 21.3 (émissions par conduction) et section 21.4
(émissions rayonnées) catégorie H (modifié pour les fréquences de
transmission 2,4 GHz et 5 GHz). La spécification RTCA DO 160E
s’applique aux appareils installés et opérés à bord des aéronefs. Cet
équipement génère, utilise et peut irradier une énergie radiofréquence.
S’il n’est pas installé ou utilisé en conformité avec les instructions de ce
guide et dans le manuel du logiciel correspondant, il peut provoquer des
interférences nuisibles aux communications radio. Il n'existe cependant
aucune garantie que des interférences ne se produiront pas dans une
installation particulière. Si cet équipement provoque effectivement des
interférences nuisibles à la réception des ondes radio ou de télévision,
ce qui peut être déterminé en l'éteignant puis en le rallumant, l’utilisateur
ou l’installateur est encouragé à tenter de corriger cette situation par une
ou plusieurs des mesures suivantes :
Réorienter ou relocaliser l'antenne de réception
Augmenter la distance entre l'équipement et le récepteur
Raccorder l'équipement à un circuit différent de celui du récepteur
AVERTISSEMENT : Toute modification de ce dispositif annulera la
certification FCC.
Miltope Corporation n'est pas responsable des interférences provoqués
par une modification non autorisée du point d'accès nMAP2, ou par un
remplacement par, ou la connexion de câbles ou de dispositifs
(antennes) autres que ceux spécifiés par Miltope Corporation.
La correction des interférences produites par une telle modification,
substitution ou connexion non autorisée est la responsabilité de
l'utilisateur/installateur.
AVERTISSEMENT : Exposition aux rayonnements radio fréquence
(RF)
Conformément aux exigences de la FCC relatives à l’exposition humaine
aux champs de radiofréquence, l’élément irradiant doit être installé de
telle manière que la distance de séparation ne peut devenir inférieure à
20 cm (8 pouces) entre l’élément et l’utilisateur ou la population
générale.
Ce dispositif est limité à un usage intérieur pour les bandes entre
5,15 et 5,25 GHz (canaux 36, 40, 44 et 48) et entre 5,73 et 5,83 GHz
(canaux 149, 153, 157, 161 et 165).
Le point d'accès nMAP2 est conforme au rapport et ordres de la FCC
FCC-03-287A1 et FCC-06-96A1.
B. Canada – Industrie Canada (IC)
Cet appareil est conforme aux limites pour un appareil numérique de
Classe B et conforme à la norme d’Industrie Canada ICES-003. Les
produits qui contiennent un émetteur radio sont conformes à la norme
RSS210 d’Industrie Canada et portent une étiquette d’approbation par IC
Cet appareil est conforme aux limites de Classe B d’Industrie Canada.
Son utilisation est sujette à deux conditions : 1) cet appareil ne doit pas
provoquer des interférences nuisibles, et 2) il doit pouvoir accepter les
interférences reçues, y compris celles pouvant résulter en un
fonctionnement indésirable.
Ce dispositif est limité à un usage intérieur pour les bandes entre
5,15 et 5,25 GHz (canaux 36, 40, 44 et 48) et entre 5,73 et 5,83 GHz
(canaux 149, 153, 157, 161 et 165).
CONFORMITÉ RÉGLEMENTAIRE
8
C. Communauté européenne
Ce dispositif est conforme à la directive EMC 2004/108/EC, à la directive
sur les basses tensions 2006/95/EC et à la directive R&TTE 1999/5/EC.
Le respect de ces directives implique une conformité avec les normes
européennes harmonisées (normes européennes), listées sur la
Déclaration de conformité UE émise par Miltope Corporation pour ce
dispositif.
Pays d'utilisation et conditions d'emploi
Comme décrit ci-dessous, certains pays imposent des limites d'utilisation
à l’intérieur ou à l'extérieur, de cession de licence et de choix de canaux.
REMARQUE : L’utilisateur / l’installateur doit utiliser l'utilitaire de
configuration fourni avec cet appareil pour s'assurer que
les canaux utilisés respectent les règles ci-après
d’utilisation du spectre en vigueur dans les pays de l'UE
et de l’EFTA. Si plusieurs unités sont déployées,
l'utilisateur doit s’assurer que les fréquences sont
distribuées parmi différents canaux selon la disponibilité
de ces derniers.
Fonctionnement sur 2,4 GHz
Ce dispositif est autorisé à l’intérieur ou à l’extérieur dans les pays de
l’UE et de l’EFTA sur la bande de 2,4 GHz (canaux 1 à 13), avec les
exceptions notées ci-dessous.
En France, cet appareil est autorisé à utiliser toute la bande de 2
400 à 2 483,5 MHz (canaux 1 à 13) pour les applications à l’intérieur
À l'extérieur, la bande autorisée est uniquement celle entre 2 400 et
2 454 MHz (canaux 1 à 9). Voir http://www.art-telecom.fr pour la
réglementation la plus récente.
Fonctionnement sur 5 GHz
Cet appareil exige que l’utilisateur ou l’installateur entre correctement
le pays actuel d'utilisation dans la fenêtre de configuration radio à
5 GHz.
Ceci limitera automatiquement les canaux admissibles dans le pays
sélectionné. Une erreur d'entrée du pays risque d'entraîner un emploi
illégal et de produire des interférences nuisibles à d'autres systèmes.
L’utilisateur a l’obligation de s’assurer que l’appareil fonctionne en
conformité avec les limitations de canaux, les restrictions d'usage à
l’intérieur ou à l’extérieur et les règles de licence de chaque pays de
la Communauté Européenne, tel que décrit dans le Manuel du
logiciel M365-634 du point d’accès nMAP sans fil.
Ce dispositif n'est pas compatible avec les canaux radar (bande
entre 5,26 et 5,70 GHz/canaux 52 à 140).
Ce dispositif est limité à un usage intérieur pour les bandes entre
5,15 et 5,35 GHz (canaux 36, 40, 44 et 48) et entre 5,73 et 5,83 GHz
(canaux 149, 153, 157, 161 et 165) dans les pays de l'UE et de
l'EFTA.
Élimination des équipements usagés par les utilisateurs dans les
foyers privés dans l'Union européenne.
Ce produit ne doit pas être jeté avec les déchets ménagers. Au contraire,
vous êtes responsable de l'élimination de vos équipements usagés et à
cet effet, vous êtes tenu de les remettre à un point de collecte agréé pour
le recyclage des équipements électriques et électroniques usagés. Le tri
et le recyclage séparés de vos équipements usagés permettent de
préserver les ressources naturelles et de s'assurer que ces équipements
sont recyclés dans le respect de la santé humaine et de l'environnement.
Pour plus d'informations sur les lieux de collecte des équipements
usagés, veuillez contacter votre mairie, votre service de traitement des
déchets ménagers ou le magasin où vous avez acheté le produit.

1
3800 Richardson Road South • Hope Hull, AL 36043
Tel: 334-284-8665 •Fax: 334-613-6302
http://www.miltope.com
Punto de acceso
inalámbrico nMAP2 Guía de inicio rápido
M365-780, 5 de enero de 2015
El punto de acceso inalámbrico nMAP2 es un dispositivo de comunicación inalámbrica diseñado para usar en entornos aeronáuticos. El punto de
acceso inalámbrico nMAP2 no está diseñado para usarse en ubicaciones en tierra, como una casa o una oficina. La instalación del punto de
acceso inalámbrico nMAP2 debe estar a cargo de personal calificado y autorizado para instalar el equipo en aeronaves. Esta guía de inicio rápido
describe el punto de acceso multifunción 802.11n/ac de 2.ageneración (nMAP2), número de pieza 903920-1, y brinda información básica para
configurarlo como punto de acceso independiente mediante el software operativo del punto de acceso inalámbrico nMAP2, número de
pieza 999239. Después de seguir las instrucciones incluidas en la guía de inicio rápido, consulte el Manual del usuario del software operativo del
punto de acceso inalámbrico nMAP2 M365-768, disponible en VT Miltope, para obtener instrucciones detalladas para configurar el software
operativo según su aplicación.
GENERALIDADES DEL HARDWARE

2
El punto de acceso nMAP2 tiene dos radios y una red de antenas integral. Los
modos predeterminados y disponibles de funcionamiento para cada radio son
los siguientes:
Radio Modo
predeterminado
Otras opciones*
1 Modo de
funcionamiento:
punto de acceso
Modo de conexión
inalámbrica:
802.11ac
Modos de funcionamiento:
Cliente
Ad hoc
802.11s
Pseudo ad hoc (ahdemo)
Monitor
Punto de acceso (WDS)
Cliente (WDS)
Modos de conexión inalámbrica:
802.11b (no compatible con la antena)
802.11g (no compatible con la antena)
802.11a
802.11g+n (no compatible con la antena)
802.11a+n
2 Modo de
funcionamiento:
punto de acceso
Modo de conexión
inalámbrica:
802.11g+n
Modos de funcionamiento:
Cliente
Ad hoc
802.11s
Pseudo ad hoc (ahdemo)
Monitor
Punto de acceso (WDS)
Cliente (WDS)
Modos de conexión inalámbrica:
802.11b
802.11g
802.11g+n
802.11a+n (no compatible con la antena)
802.11ac (no compatible con la antena)
*Puede haber limitaciones en las opciones según el país que eligió en la configuración.
Existen líneas de restablecimiento disponibles en el conector J1. La conexión
momentánea de las clavijas 13 y 14 reiniciará el punto de acceso nMAP2 (los
indicadores “WLAN1” y “WLAN2” parpadearán simultáneamente, un parpadeo
por segundo durante aproximadamente un minuto). Si mantiene presionado el
botón de conexión hasta que los indicadores “WLAN1” y “WLAN2” parpadeen
de manera alternada una vez por segundo, podrá restaurar el punto de acceso
nMAP2 a los valores predeterminados de fábrica. Las líneas de
restablecimiento no se conectan en las instalaciones en aeronaves.
Hay dos entradas discretas a las que se accede con el conector J1 que
permiten el encendido/apagado remoto (activación de la alimentación) y el
encendido/apagado de la señal de radiofrecuencia (activación de RF). Las
entradas deben estar conectadas a la conexión a tierra de las señales para
poder encender el equipo y activar la radiofrecuencia.
El punto de acceso nMAP2 tiene tres puertos Ethernet tipo 10/100/1000 Base-
T con detección automática a los que se accede mediante los conectores J2 y
J3.
El conector J1 permite conectar la alimentación de entrada, las señales
discretas y la selección de direcciones IP. (Consulte el Manual del usuario
nMAP2 M365769 para obtener información sobre el cableado para la selección
de direcciones IP).
Clavija* Señal Clavija* Señal
1 Restricción por IP 0 11 Sin conexión
2 Restricción por IP 1 12 Sin conexión
3 Restricción por IP 2 13 Restablecer (no se usa en
aeronaves)
4 Restricción por IP 3 14 Conexión a tierra de las señales
5 Activar alimentación 15 Alimentación de 28 VCC, positivo
(primario)
6 Conexión a tierra de
restricción por IP 0 16 Línea de alimentación de 115 VCA
(con corriente)
7 Conexión a tierra de
restricción por IP 1 17 Sin conexión
8 Conexión a tierra de
restricción por IP 2 18 Alimentación de 115 VCA, neutro
9 Conexión a tierra de
restricción por IP 3 19 Conexión a tierra del chasis
10 Activar RF 20 Alimentación de 28 VCC, retorno
* Utilice la carcasa Deutsch DMC-MD 20A, la inserción y los contactos
DMC M 20-22SN, la carcasa posterior 787-8055-13M o equivalente para el
conector de acoplamiento.
El conector J2 proporciona conexión para el puerto Ethernet 2 y la salida de
alimentación.
Clavija* Señal Clavija* Señal
1 Par bidireccional A+ del puerto 2 11 Sin conexión
2 Par bidireccional B+ del puerto 2 12 Sin conexión
3 Blindaje interior A/B del puerto 2 13 Sin conexión
4 Par bidireccional C+ del puerto 2 14 Sin conexión
5 Par bidireccional D+ del puerto 2 15 Sin conexión
6 Par bidireccional B- del puerto 2 16 Sin conexión
7 Par bidireccional A- del puerto 2 17 Sin conexión
8 Blindaje interior C/D del puerto 2 18 Sin conexión
9 Par bidireccional D- del puerto 2 19 Sin conexión
10 Par bidireccional C- del puerto 2 20 Sin conexión
*Utilice la carcasa Deutsch DMC-MD 20B, la inserción y los contactos
DMCM 20-22SN, la carcasa posterior 787-8055-13M o equivalente para el conector
de acoplamiento.
RADIOS Y ANTENAS
CONECTORES DE INTERFAZ
OPERACIÓN DE RESTABLECIMIENTO
PUERTOS ETHERNET
ENTRADAS DISCRETAS

3
El conector J3 proporciona conexión para los puertos Ethernet 1 y 3.
Clavija* Señal Clavija* Señal Clavija* Señal Clavija* Señal
1 Par bidireccional B+ del puerto
16 Par bidireccional A- del puerto
111 Par bidireccional B+ del puerto
316 Par bidireccional A- del puerto
3
2 Par bidireccional A+ del puerto
17 Par bidireccional B- del puerto
112 Par bidireccional A+ del puerto
317 Par bidireccional B- del puerto
3
3 Blindaje interior A/B del puerto
18 Blindaje interior C/D del puerto
113 Blindaje interior A/B del puerto
318 Blindaje interior C/D del puerto
3
4 Par bidireccional D+ del puerto
19 Par bidireccional C- del puerto
114 Par bidireccional D+ del puerto
319 Par bidireccional C- del puerto
3
5 Par bidireccional C+ del puerto
110 Par bidireccional D- del puerto
115 Par bidireccional C+ del puerto
320 Par bidireccional D- del puerto
3
* Utilice la carcasa Deutsch DMC-MD 20C, la inserción y los contactos DMC-M 20--22SN, la carcasa posterior 787-8055-13M o equivalente para el conector de
acoplamiento.
Indicador Función
Indicador “POWER”
(encendido) Se enciende en color verde constante para indicar que está conectado y listo para funcionar. Parpadea para indicar que está conectado, pero no
está habilitado para funcionar (modo de espera). El interruptor de Ethernet interno no administrado sigue funcionando en el modo de espera.
Indicador “RF ENABLE”
(activar señal de RF) Se enciende en color verde constante para indicar que la salida de RF está activada.
Indicadores “WLAN” La luz verde parpadea para indicar que se están transfiriendo datos en la tarjeta de radio correspondiente.
Indicadores “LAN” La luz verde parpadea para indicar que se están transfiriendo datos por red de área local (LAN).
La luz verde encendida de manera constante indica que se estableció comunicación en los puertos de LAN cableada correspondientes, pero no
se produce transferencia de datos.
Conecte el punto de acceso nMAP2 en el entorno de laboratorio, tal como se muestra a continuación:
INDICADORES DE ESTADO
CONFIGURACIÓN INICIAL
4
A. Asegúrese de que el interruptor “POWER” (encendido) esté en la posición
“OFF” (apagado), el interruptor “RF ON/RF OFF” (activar/desactivar señal de
RF) esté en la posición “RF OFF” (desactivar señal de RF) y todos los
interruptores “IP STRAP” (restricción por IP) estén en la posición 1.
B. Encendido:
1. Encienda las computadoras portátiles y de escritorio.
PRECAUCIÓN: la alimentación de entrada nMAP2 es de 134 VCA máximo o
de 32 VCC máximo conectado a las líneas adecuadas.
2. Conecte las líneas de entrada de CA o CC del cable de prueba a la fuente
de alimentación y envíe corriente para probar el cable. Parpadearán todos
los indicadores del punto de acceso nMAP2 y luego parpadeará cada uno
de los indicadores. Cuando finalice la prueba de los indicadores,
parpadeará el indicador “POWER” (encendido).
3. Coloque el interruptor “POWER” (encendido) de la caja de prueba en la
posición “ON” (encendido). El indicador “POWER” (encendido) del punto
de acceso nMAP2 se encenderá en verde de manera constante.
ADVERTENCIA: Las antenas internas del punto de acceso nMAP2 envían
señales de radiofrecuencia (RF). A fin de cumplir con los
límites de exposición a las señales de radiofrecuencia
establecidos por la Comisión Federal de Comunicaciones
(Federal Communications Commission, FCC), el punto de
acceso nMAP2 debe encontrarse a una distancia de 20 cm
(8 in), como mínimo, de los seres humanos mientras la señal
de RF esté activada.
4. Coloque el interruptor “RF ON/RF OFF” (activar/desactivar señal de RF)
en la posición “RF ON” (activar RF). Después de un máximo de
40 segundos, se encenderá de manera constante la luz verde del
indicador “RF ENABLE” (activar señal de RF) del punto de acceso
nMAP2.
C. Configure la computadora de escritorio con la dirección IP 192.168.1.67 y, si
es necesario, reiníciela. (Consulte el manual del usuario del sistema operativo
para obtener información sobre la configuración de la red).
D. Prueba de LAN cableada
1. En la computadora de escritorio, abra una ventana del símbolo del
sistema y escriba lo siguiente ping –n 25 192.168.1.1 <Intro> (Windows)
oping -c 25 192.168.1.1 <Intro> (Linux). El indicador “LAN1” del punto de
acceso nMAP2 parpadeará para indicar que existe actividad en la LAN
cableada.
2. Verifique que no se hayan informado errores de tiempo de espera ni otros
errores, y, además, que la leyenda Reply from 192.168.1.1
(Respuesta desde 192.168.1.1) aparezca 25 veces en la ventana del
símbolo del sistema. Esto confirma que existe comunicación por LAN
cableada entre la computadora de escritorio y el punto de acceso nMAP2.
E. Realice la configuración para llevar a cabo una prueba simple de LAN
inalámbrica en la radio 1: configure el adaptador inalámbrico en la
computadora portátil para el funcionamiento en modo 802.11a (5 GHz) con la
dirección IP 198.162.1.69. (Consulte el manual del usuario del adaptador
inalámbrico para obtener las instrucciones de configuración). Asocie la
computadora con la red inalámbrica (SSID) VTMiltope.
F. Pruebe la red inalámbrica LAN1:
1. En la computadora portátil, abra una ventana del símbolo del sistema y
escriba lo siguiente ping –n 25 192.168.1.1 <Intro> (Windows) o
ping -c 25 192.168.1.1 <Intro> (Linux). El indicador “WLAN1” del punto
de acceso nMAP2 parpadeará para indicar que existe actividad en la LAN
inalámbrica.
2. Verifique que no se hayan informado errores de tiempo de espera ni otros
errores, y, además, que la leyenda Reply from 192.168.1.1
(Respuesta desde 192.168.1.1) aparezca 25 veces en la ventana del
símbolo del sistema. Esto confirma que existe comunicación inalámbrica
entre la computadora portátil y la radio 1 del punto de acceso nMAP2.
3. En la computadora portátil, ingrese lo siguiente: ping –n 25 192.168.1.67
<Intro> (Windows) o ping –c 25 192.168.1.67 <Intro> (Linux). El
indicador “WLAN1” del punto de acceso nMAP2 parpadeará para indicar
que existe actividad en la LAN inalámbrica.
4. Verifique que no se hayan informado errores de tiempo de espera ni otros
errores, y, además, que la leyenda Reply from 192.168.1.67
(Respuesta desde 192.168.1.1) aparezca 25 veces en la ventana del
símbolo del sistema. Esto confirma que existe comunicación entre la
computadora portátil y la computadora de escritorio.
G. Realice la configuración para llevar a cabo una prueba simple de LAN
inalámbrica en la radio 2: configure el adaptador inalámbrico de la
computadora portátil para el funcionamiento en modo 802.11g (2,4 GHz).
(Consulte el manual del usuario del adaptador inalámbrico para obtener las
instrucciones de configuración). Asocie la computadora con la red inalámbrica
(SSID) VTMiltope.
H. Pruebe la red inalámbrica LAN2:
1. En la computadora portátil, en la ventana del símbolo del sistema ingrese
lo siguiente: ping –n 25 192.168.1.1 <Intro> (Windows) o
ping -c 25 192.168.1.1<Intro> (Linux). El indicador “WLAN2” del punto de
acceso nMAP2 parpadeará para indicar que existe actividad en la LAN
inalámbrica.
2. Verifique que no se hayan informado errores de tiempo de espera ni otros
errores, y, además, que la leyenda Reply from 192.168.1.1
(Respuesta desde 192.168.1.1) aparezca 25 veces en la ventana del
símbolo del sistema. Esto confirma que existe comunicación inalámbrica
entre la computadora portátil y la radio 2 del punto de acceso nMAP2.
3. En la computadora portátil, ingrese lo siguiente: ping –n 25 192.168.1.67
<Intro> (Windows) o ping –c 25 192.168.1.67 <Intro> (Linux). El
indicador “WLAN2” del punto de acceso nMAP2 parpadeará para indicar
que existe actividad en la LAN inalámbrica.
4. Verifique que no se hayan informado errores de tiempo de espera ni otros
errores, y, además, que la leyenda Reply from 192.168.1.67
(Respuesta desde 192.168.1.1) aparezca 25 veces en la ventana del
símbolo del sistema. Esto confirma que existe comunicación entre la
computadora portátil y la computadora de escritorio.

5
I. Consulte el Manual del usuario del software operativo del punto de acceso
inalámbrico nMAP2 M365-768 a fin de obtener instrucciones detalladas
para configurar el punto de acceso nMAP2 para una aplicación específica.
NOTA: La configuración de la radio dependerá del país de
funcionamiento que eligió durante el proceso de configuración, ya
que los valores de configuración cumplirán con los requisitos
regulatorios del país seleccionado. El país predeterminado en la
configuración son los Estados Unidos.
La instalación del punto de acceso inalámbrico nMAP2 debe estar a cargo de
personal calificado y autorizado para instalar el equipo en aeronaves.
Montaje del punto de acceso nMAP2: tal como se muestra en el croquis del
punto de acceso nMAP2, tiene seis orificios de montaje. Instale el punto de
acceso nMAP2 con el equipo de montaje número 10-24. El valor de torsión
recomendado para el equipo de montaje es de 24 pulgadas libras. Aunque no
es obligatorio para cumplir con las especificaciones, se recomienda instalar el
punto de acceso nMAP2 en una superficie con conexión a tierra dentro de la
aeronave. Cada orificio de montaje tiene un área sin pintar que permite realizar
la conexión a tierra con la superficie de montaje.
Croquis del punto de acceso nMAP2
INSTALACIÓN

6
El horario de atención del Servicio técnico y de garantía de Miltope Corporation para el punto de acceso nMAP2 es de lunes a viernes de 8:00 a. m. a 5:00 p. m,
hora del Centro; también puede llamar al 1-800-MILTOPE (1-800-645-8673) y seleccionar la opción “Product Support” (Servicio técnico de productos) del menú. O
bien puede enviar un correo electrónico a techsupport@miltope.com. Puede enviar correspondencia a la siguiente dirección:
Miltope Corporation
Attn: Product Support Department
3800 Richardson Road South
Hope Hull, AL 36043 USA
CONEXIÓN ELÉCTRICA Y CONEXIONES
DE LA INTERFAZ
SERVICIO TÉCNICO Y DE GARANTÍA

7
El punto de acceso nMAP2 cumple con las siguientes normas de
seguridad y radiofrecuencia.
A. EE. UU: Comisión Federal de Comunicaciones (FCC)
Declaración de conformidad con la FCC del fabricante
Fabricante: Miltope Corporation
3800 Richardson Road South
Hope Hull, Alabama 36043
Teléfono: 334-284-8665
Este dispositivo ha sido probado y cumple con los límites de los
dispositivos digitales clase B conforme a la Sección 15 de las reglas de la
FCC. Estos límites se crearon para brindar una protección razonable
contra interferencias perjudiciales en instalaciones residenciales. Este
equipo también cumple con las secciones 21.3 (emisiones conducidas),
categoría H y 21.4 (emisiones irradiadas), categoría H (modificado para
una frecuencia de transmisión de 2,4 GHz y 5 GHz) de la especificación
DO-160G de la Comisión Radiotécnica para la Aeronáutica (Radio
Technical Commission for Aeronautics, RTCA). La especificación
DO-160G de la RTCA rige para los equipos que se instalan y funcionan
en aeronaves. Este tipo de equipo genera, usa y envía señales de
radiofrecuencia. Si el equipo no se instala y usa según las instrucciones
incluidas en esta guía y en el manual del usuario del software operativo
vigente, puede provocar interferencias perjudiciales en la comunicación
radial. No obstante, no se garantiza que no habrá interferencias en una
instalación particular. Si este equipo produce una interferencia perjudicial
en la recepción de las emisiones de radio o de televisión, la cual se
puede determinar al apagar y encender el equipo, se recomienda al
usuario/instalador que tome una o más de las siguientes medidas para
corregir la interferencia:
Reoriente o reubique la antena receptora.
Aumente la distancia existente entre el equipo y el receptor.
Conecte el equipo a un circuito diferente de aquel al que está
conectado el receptor.
ADVERTENCIA: Las modificaciones o los cambios realizados en este
dispositivo anularán la certificación de la FCC.
Miltope Corporation no es responsable por ninguna interferencia
provocada por las modificaciones no autorizadas en el punto de acceso
nMAP2 ni por el reemplazo o la colocación de cables de conexión y
equipos (antenas) que no sean los especificados por Miltope Corporation.
El usuario es responsable de corregir la interferencia provocada por tal
modificación, reemplazo o colocación no autorizados.
ADVERTENCIA: Exposición a las señales de radiofrecuencia
(RF)
En cumplimiento con los requisitos que establece la FCC sobre la
exposición de las personas a las señales de radiofrecuencia, el elemento
emisor debe instalarse a una distancia de, al menos, 20 cm (8 in) del
usuario o la población en general.
Este dispositivo está restringido para usarse en interiores cuando
se usa una banda de frecuencia entre 5,15 y 5,25 GHz (canales 36,
40, 44 y 48) y entre 5,73 y 5,83 GHz (canales 149, 153, 157, 161 y 165).
El punto de acceso nMAP2 cumple con los siguientes documentos de
Informe y Orden de la FCC: FCC-03-287A1 y FCC-06-96A1.
B. Canadá: Ministerio de Industria de Canadá (IC)
Este dispositivo cumple con los límites de los dispositivos digitales clase
B y con la norma ICES-003 del Ministerio de Industria de Canadá. Los
productos que contienen un radiotransmisor cumplen con la norma
RSS210 del Ministerio de Industria de Canadá y están etiquetados con el
número de aprobación de IC.
Este dispositivo cumple con los límites de los dispositivos digitales clase
B del Ministerio de Industria de Canadá. El funcionamiento está sujeto a
las dos condiciones siguientes: 1) este dispositivo no deberá producir
interferencia perjudicial y 2) este dispositivo debe aceptar cualquier
interferencia recibida, incluso aquella que produzca un funcionamiento no
deseado.
Este dispositivo está restringido para usarse en interiores cuando
se usa una banda de frecuencia entre 5,15 y 5,25 GHz (canales 36,
40, 44 y 48) y entre 5,73 y 5,83 GHz (canales 149, 153, 157, 161 y 165).
CUMPLIMIENTO REGULATORIO
8
C. Comunidad Europea
Este dispositivo cumple con la directiva 2004/108/CE de compatibilidad
electromagnética (CEM), la directiva 2006/95/CE de bajo voltaje y la
directiva 1999/5/CE para equipos radioeléctricos y equipos terminales de
comunicación (R&TTE). El cumplimiento de estas directivas implica el
cumplimiento de
las normas europeas armonizadas (Normas europeas) especificadas en
la Declaración de Conformidad de la UE que publicó Miltope Corporation
para este dispositivo.
Países de funcionamiento y condiciones de uso
A continuación, se detallan los requisitos para su uso en exteriores o
interiores, los requisitos de licencia y los canales de funcionamiento
permitidos que rigen en algunos países.
NOTA: El usuario/instalador debe usar la utilidad de configuración que
viene con el dispositivo para asegurarse de que los canales de
funcionamiento estén en conformidad con las normas de uso
del espectro radioeléctrico de los países de la Unión Europea
(UE) y de la Asociación Europea de Libre Cambio (EFTA), tal
como se describe a continuación. Si se instala más de un
dispositivo, los usuarios deben asegurarse de que las
frecuencias se encuentren distribuidas entre los diferentes
canales en función de la disponibilidad de canales.
Funcionamiento a 2,4 GHz
Este dispositivo puede usarse en exteriores o interiores en los países
de la UE y EFTA que usen bandas de frecuencia de 2,4 GHz
(canales 1 a 13), salvo en los casos especificados.
En Francia, este dispositivo puede operar en toda la banda de
frecuencia de 2400 a 2483,5 MHz (canales 1 a 13) para aplicaciones
en interiores. Para el uso en exteriores, solo se puede operar en la
banda de frecuencia de 2400 a 2454 MHz (canales 1 a 9). Para
obtener información sobre los requisitos más recientes, visite el sitio
http://www.art-telecom.fr.
Funcionamiento a 5 GHz
El usuario o instalador de este dispositivo debe ingresar
correctamente el país de funcionamiento actual en la ventana de
configuración de la radio de 5 GHz.
Este dispositivo limitará automáticamente los canales disponibles en
función del país de funcionamiento. Si ingresa incorrectamente el
país de funcionamiento, el dispositivo funcionará de forma ilegal y
puede ocasionar interferencias perjudiciales en otros sistemas. El
usuario debe asegurarse de que el dispositivo funciona de acuerdo
con los límites de canales, las restricciones para uso en
exteriores/interiores y los requisitos de licencia para cada país de la
Comunidad Europea, tal como se describe en el Manual del usuario
del software operativo del punto de acceso inalámbrico nMAP2
M365-768.
Este dispositivo no es compatible con canales utilizados por
operaciones de radar (banda de frecuencia de 5,26 a 5,70 GHz,
canales 52 a 140).
Este dispositivo está restringido para usarse en interiores en países
de la UE y la EFTA cuando se usa una banda de frecuencia entre
5,15 y 5,35 GHz (canales 36, 40, 44 y 48) y entre 5,73 y 5,83 GHz
(canales 149, 153, 157, 161 y 165).
Eliminación de equipos por parte del usuario en residencias
particulares de la Unión Europea
Este producto no debe desecharse junto con los desperdicios habituales
de su hogar. Para desecharlo, usted debe llevarlo a un punto de
recolección designado destinado al reciclado de equipos eléctricos y
electrónicos de desecho. La recolección separada y el reciclado de este
tipo de equipos ayudan a conservar los recursos naturales y, además,
asegura que el reciclado se realice de manera tal que proteja tanto la
salud de los seres humanos como el medioambiente. Para obtener más
información sobre los lugares donde puede llevar el equipo para su
reciclado, comuníquese con su municipalidad o el servicio local de
recolección de residuos.

1
3800 Richardson Road South • Hope Hull, AL, EUA 36043
Tel.: 334-284-8665 •Fax: 334-613-6302
http://www.miltope.com
Ponto de acesso
sem fio nMAP2 Guia de início rápido
M365-780, 5 de janeiro de 2015
O ponto de acesso sem fio nMAP2 é um dispositivo de comunicação sem fio projetado para ser usado em ambiente aeronáutico. O ponto de
acesso sem fio nMAP2 não é usado em locais baseados no solo tais como residências e escritórios. O ponto de acesso sem fio nMAP2 deve ser
instalado por pessoal qualificado e autorizado a instalar equipamentos a bordo de aeronaves. Este guia de início rápido apresenta o ponto de
acesso multifuncional 802.11n/ac, 2ª geração (nMAP2), número de peça 903920-1, e fornece informações de configuração básica para uso como
ponto de acesso autônomo que utiliza o software de operação do ponto de acesso sem fio nMAP2, número de peça 999239. Após seguir as
orientações fornecidas neste guia de início rápido, consulte o Manual do operador do ponto de acesso sem fio nMAP2, M365-768, que pode ser
obtido junto à VT Miltope, para ver instruções detalhadas para configurar o software de operação para a sua aplicação.
VISÃO GERAL DO HARDWARE

2
O ponto de acesso nMAP2 possui dois rádios e um arranjo de antenas
integrado. O padrão e a operação disponível para cada rádio são:
Rádio Modo padrão Outras opções*
1 Modo de
operação: ponto
de acesso
Modo sem fio:
802.11ac
Modos de operação:
Cliente
Ad-Hoc
802.11s
Pseudo Ad-Hoc (ahdemo)
Monitor
Ponto de acesso (WDS)
Cliente (WDS)
Modos sem fio:
802.11b (não compatível com antena)
802.11g (não compatível com antena)
802.11a
802.11g+n (não compatível com antena)
802.11a+n
2 Modo de
operação: ponto
de acesso
Modo sem fio:
802.11g+n
Modos de operação:
Cliente
Ad-Hoc
802.11s
Pseudo Ad-Hoc (ahdemo)
Monitor
Ponto de acesso (WDS)
Cliente (WDS)
Modos sem fio:
802.11b
802.11g
802.11g+n
802.11a+n (não compatível com antena)
802.11ac (não compatível com antena)
* As opções podem ser limitadas pelo país selecionado durante a
configuração.
As linhas de redefinição estão disponíveis no conector J1. A conexão
momentânea dos pinos 13 e 14 reinicializa o ponto de acesso nMAP2 (os
indicadores WLAN1 e WLAN2 piscam simultaneamente, uma piscada por
segundo durante aproximadamente um minuto). Manter a conexão até que os
indicadores WLAN1 e WLAN2 pisquem alternadamente uma piscada por
segundo redefine o nMAP2 para as configurações padrão de fábrica. As linhas
de redefinição não estão conectadas na instalação para aeronave.
As duas entradas discretas acessadas através do conector J1 ativam o botão
liga/desliga remoto (ativação da fonte de alimentação) e o controle de RF
lig./RF desl. As entradas devem ser conectadas ao terra de sinal para
alimentar e ativar a RF.
O ponto de acesso nMAP2 possui três portas Ethernet 10/100/1000 Base-T de
detecção automática acessadas através dos conectores J2 e J3.
O conector J1 fornece conexão para alimentação de entrada, sinais discretos e
seleção de endereço IP. Consulte o Manual do operador do nMAP2, M365-
769, para ver a fiação de seleção do endereço IP.
Pino* Sinal Pino* Sinal
1 IP Strap 0 11 Sem conexão
2 IP Strap 1 12 Sem conexão
3 IP Strap 2 13 Redefinição (não utilizada em
aeronave)
4 IP Strap 3 14 Terra de sinal
5 Ativação da fonte de
alimentação 15 28 VCC positivo (primário)
6 Terra de IP Strap 0 16 Linha de 115 VCA (energizada)
7 Terra de IP Strap 1 17 Sem conexão
8 Terra de IP Strap 2 18 Neutro de 115 VCA
9 Terra de IP Strap 3 19 Terra do chassi
10 Ativação de RF 20 Retorno de 28 VCC
* Use invólucro Deutsch DMC-MD 20A, inserto e contatos DMC M 20-22SN,
invólucro traseiro 787-8055-13M ou equivalente para o conector
correspondente.
O conector J2 fornece conexão para porta Ethernet 2 e saída de alimentação.
Pino* Sinal Pino* Sinal
1 Par bidirecional A+ da Porta 2 11 Sem conexão
2 Par bidirecional B+ da Porta 2 12 Sem conexão
3 Blindagem interna A/B da
Porta 2 13 Sem conexão
4 Par bidirecional C+ da Porta 2 14 Sem conexão
5 Par bidirecional D+ da Porta 2 15 Sem conexão
6 Par bidirecional B- da Porta 2 16 Sem conexão
7 Par bidirecional A- da Porta 2 17 Sem conexão
8 Blindagem interna C/D da
Porta 2 18 Sem conexão
9 Par bidirecional D- da Porta 2 19 Sem conexão
10 Par bidirecional C- da Porta 2 20 Sem conexão
* Use invólucro Deutsch DMC-MD 20B, inserto e contatos DMC M 20-22PN,
invólucro traseiro 787-8055-13M ou equivalente para o conector
correspondente.
RÁDIOS E ANTENAS
ENTRADAS DISCRETAS
CONECTORES DE INTERFACE
REDEFINIÇÃO DA OPERAÇÃO
PORTAS ETHERNET

3
O conector J3 fornece conexão para portas Ethernet 1 e 3.
Pino* Sinal Pino* Sinal Pino* Sinal Pino* Sinal
1 Par bidirecional B+ da Porta 1 6 Par bidirecional A- da Porta 1 11 Par bidirecional B+ da Porta 3 16 Par bidirecional A- da Porta 3
2 Par bidirecional A+ da Porta 1 7 Par bidirecional B- da Porta 1 12 Par bidirecional A+ da Porta 3 17 Par bidirecional B- da Porta 3
3 Blindagem interna A/B da
Porta 1 8 Blindagem interna C/D da
Porta 1 13 Blindagem interna A/B da
Porta 3 18 Blindagem interna C/D da
Porta 3
4 Par bidirecional D+ da Porta 1 9 Par bidirecional C- da Porta 1 14 Par bidirecional D+ da Porta 3 19 Par bidirecional C- da Porta 3
5 Par bidirecional C+ da Porta 1 10 Par bidirecional D- da Porta 1 15 Par bidirecional C+ da Porta 3 20 Par bidirecional D- da Porta 3
* Use invólucro Deutsch DMC-MD 20C, inserto e contatos DMC-M 20-22SN, invólucro traseiro 787-8055-13M ou equivalente para o conector correspondente.
Indicador Função
Indicador POWER
(Alimentação) Permanece constantemente aceso em verde para indicar que o dispositivo está energizado e ativado para operação. Pisca para
indicar que o dispositivo está energizado, mas a operação está desativada (modo de espera). O comutador interno de Ethernet não
gerenciado continua a funcionar no modo de espera.
Indicador RF ENABLE
(Ativar RF) Permanece constantemente aceso em verde para indicar que a saída de RF está ativada.
Indicadores WLAN Piscam em verde para indicar que as transferências de dados de RF estão ocorrendo no cartão de rádio aplicável.
Indicadores LAN Piscam em verde para indicar que as transferências de dados da LAN estão ocorrendo.
Permanecem constantemente acesos em verde para indicar que um link foi estabelecido nas portas LAN cabeadas aplicáveis, mas
nenhuma transferência de dados está ocorrendo.
Conecte o ponto de acesso nMAP2 em ambiente de laboratório como mostrado a seguir:
INDICADORES DE STATUS
CONFIGURAÇÃO INICIAL
4
A. Certifique-se de que o interruptor POWER (Alimentação) esteja na posição
OFF (desligado), que o interruptor RF ON/RF OFF (RF lig./RF desl.) esteja
na posição RF OFF (RF desligada) e que todos os interruptores IP STRAP
estejam na posição 1.
B. Ligação:
1. Ligue os computadores desktop e laptop.
CUIDADO: a alimentação de entrada do nMAP2 é 134 VCA máxima ou
32 VCC máxima conectada às linhas apropriadas.
2. Conecte o cabo de teste de CA ou as linhas de entrada de CC à fonte
de alimentação e energize o cabo de teste. Todos os indicadores do
ponto de acesso nMAP2 piscam e, em seguida, cada indicador pisca.
Quando o teste de indicadores está concluído, o indicador POWER
pisca.
3. Coloque o interruptor POWER (Alimentação) da caixa de teste na
posição ON (ligado). O indicador POWER do nMAP2 acenderá em
verde.
ADVERTÊNCIA: As antenas internas do ponto de acesso nMAP2 irradiam
potência de radiofrequência (RF). Para evitar exceder
os limites de exposição à radiofrequência da FCC
(Comissão Federal de Comunicações dos EUA), a
distância entre seres humanos e o nMAP2 não deve ser
menor que 20 cm (8 pol.) enquanto a RF estiver ativada.
4. Coloque o interruptor RF ON/RF OFF na posição RF ON (RF ligada).
Após até 40 segundos o indicador RF ENABLE (Ativar RF) do ponto de
acesso nMAP2 acenderá em verde.
C. Configure o computador desktop com o endereço IP 192.168.1.67 e, se
necessário, reinicialize o computador. Consulte o manual do usuário do
sistema operacional para saber como configurar a rede.
D. Teste de LAN cabeada
1. No computador desktop, abra uma janela de prompt de comando e
digite ping –n 25 192.168.1.1 <Enter> (Windows) ou
ping -c 25 192.168.1.1 <Enter> (Linux). O indicador LAN1 do ponto de
acesso nMAP2 pisca indicando atividade na LAN cabeada.
2. Verifique se não há erros ou tempos limite relatados e se Reply from
192.168.1.1 (Resposta de 192.168.1.1) é exibido 25 vezes na janela
de prompt de comando. Isso confirma comunicação da LAN cabeada
entre o computador desktop e o ponto de acesso nMAP2.
E. Configure para o teste simples de LAN sem fio no Rádio 1: Configure o
adaptador sem fio do computador laptop para operação 802.11a (5 GHz)
com o endereço IP 192.168.1.69. Consulte o manual do usuário do
adaptador sem fio para ver as instruções de configuração. Associe o
computador à rede sem fio (SSID) VTMiltope.
F. Teste a LAN1 sem fio:
1. No computador laptop, abra uma janela de prompt de comando e
digite ping –n 25 192.168.1.1 <Enter> (Windows) ou
ping -c 25 192.168.1.1 <Enter> (Linux). O indicador WLAN1 do ponto
de acesso nMAP2 pisca indicando atividade da LAN sem fio.
2. Verifique se não há erros ou tempos limite relatados e se Reply from
192.168.1.1 (Resposta de 192.168.1.1) é exibido 25 vezes na janela
de prompt de comando. Isso confirma a comunicação sem fio entre o
computador laptop e o Rádio 1 do ponto de acesso nMAP2.
3. No computador laptop, digite ping –n 25 192.168.1.67 <Enter>
(Windows) ou ping –c 25 192.168.1.67 <Enter> (Linux). O indicador
WLAN1 do ponto de acesso nMAP2 pisca indicando atividade da LAN
sem fio.
4. Verifique se não há erros ou tempos limite relatados e se Reply from
192.168.1.67 (Resposta de 192.168.1.67) é exibido 25 vezes na
janela de prompt de comando. Isso confirma a comunicação entre o
computador laptop e o computador desktop.
G. Configure para o teste simples de LAN sem fio no Rádio 2: Configure o
adaptador sem fio no computador laptop para operação 802.11g (2,4
GHz). Consulte o manual do usuário do adaptador sem fio para ver as
instruções de configuração. Associe o computador à rede sem fio (SSID)
VTMiltope.
H. Teste a LAN2 sem fio:
1. No computador laptop, digite ping –n 25 192.168.1.1 <Enter>
(Windows) ou ping -c 25 192.168.1.1 <Enter> (Linux) na janela de
prompt de comando. O indicador WLAN2 do ponto de acesso nMAP2
pisca indicando atividade da LAN sem fio.
2. Verifique se não há erros ou tempos limite relatados e se Reply from
192.168.1.1 (Resposta de 192.168.1.1) é exibido 25 vezes na janela
de prompt de comando. Isso confirma a comunicação sem fio entre o
computador laptop e o Rádio 2 do ponto de acesso nMAP2.
3. No computador laptop, digite ping –n 25 192.168.1.67 <Enter>
(Windows) ou ping –c 25 192.168.1.67 <Enter> (Linux). O indicador
WLAN2 do ponto de acesso nMAP2 pisca indicando atividade da LAN
sem fio.
4. Verifique se não há erros ou tempos limite relatados e se Reply from
192.168.1.67 (Resposta de 192.168.1.67) é exibido 25 vezes na
janela de prompt de comando. Isso confirma a comunicação entre o
computador laptop e o computador desktop.

5
I. Consulte o manual do operador do software de operação do ponto de
acesso nMAP2, M365-768, para ver instruções detalhadas sobre a
configuração do ponto de acesso nMAP2 para uma aplicação específica.
OBSERVAÇÃO: selecionar o país de operação durante o processo de
configuração limita a configuração do rádio às
configurações que atendem aos requisitos
regulamentares do país selecionado. A configuração de
país padrão é EUA.
O ponto de acesso sem fio nMAP2 deve ser instalado por pessoal qualificado e
autorizado a instalar equipamentos a bordo de uma aeronave.
Montagem do ponto de acesso nMAP2 – como mostrado no desenho
esquemático do ponto de acesso nMAP2, estão disponíveis seis furos de
montagem. Monte o ponto de acesso nMAP2 usando as peças de montagem
números 10 a 24. O torque recomendado para as peças de montagem é de
24,0 lb-in. Embora não seja necessário para cumprir as especificações,
recomenda-se que o ponto de acesso nMAP2 seja montado em uma superfície
aterrada dentro da aeronave. Uma área sem pintura ao redor de cada furo de
montagem fornece conexão terra para a superfície de montagem.
Desenho esquemático do ponto de acesso nMAP2
INSTALAÇÃO

6
Suporte técnico e de garantia para o ponto de acesso sem fio nMAP2 podem ser obtidas da Miltope Corporation de segunda-feira a sexta-feira, das 8h:00 às
17h:00 (horário da região central dos EUA) pelo telefone 1-800-MILTOPE (1-800-645-8673) e selecionando “Product Support” (Suporte a produto) no menu. O
suporte técnico também está disponível através do e-mail techsupport@miltope.com. Correspondências podem ser enviadas para:
Miltope Corporation
Attn: Product Support Department
3800 Richardson Road South
Hope Hull, AL 36043 EUA
CONEXÕES DE ALIMENTAÇÃO E INTERFACE
ASSISTÊNCIA TÉCNICA E GARANTIA

7
O ponto de acesso nMAP2 está em conformidade com as seguintes
normas de radiofrequência e segurança.
A. EUA – FCC (Comissão Federal de Comunicações)
Declaração do fabricante de conformidade com a FCC
Fabricante: Miltope Corporation
3800 Richardson Road South
Hope Hull, Alabama, EUA 36043
Tel.: 334-284-8665
Este dispositivo foi testado e está em conformidade com os limites para
um dispositivo digital Classe B, conforme a Parte 15 das regras da FCC.
Esses limites são projetados para fornecer proteção razoável contra
interferência prejudicial em uma instalação residencial. Este
equipamento também está em conformidade com especificação DO-
160G seção 21.3 (emissões conduzidas) e seção 21.4(emissões
irradiadas) categoria H da RTCA (modificada para as frequências de
transmissão de 2,4 GHz e 5 GHz). A especificação DO-160G da RTCA
aplica-se a equipamentos instalados e operados a bordo de aeronaves.
Este equipamento gera, usa e pode irradiar energia de radiofrequência.
Se não for instalado e usado de acordo com as instruções fornecidas
neste guia e no manual do operador do sistema operacional aplicável,
pode causar interferência prejudicial à comunicação por rádio. No
entanto, não há garantia de que a interferência não ocorrerá em uma
instalação específica. Se este equipamento causar interferência
prejudicial à recepção de rádio ou televisão, o que pode ser determinado
por desligar e voltar a ligar o equipamento, recomendamos que o
usuário/instalador tente corrigir a interferência através de uma ou mais
das seguintes medidas:
Reorientar ou reposicionar a antena receptora.
Aumentar a separação entre o equipamento e o receptor.
Conectar o equipamento a um circuito diferente daquele ao qual o
receptor está conectado.
ADVERTÊNCIA: Alterações ou modificações neste dispositivo
invalidam a certificação da FCC
A Miltope Corporation não é responsável por qualquer interferência
causada por modificação não autorizada do ponto de acesso nMAP2 ou
pela substituição ou ligação de cabos de conexão e equipamentos
(antenas) diferentes dos especificados pela Miltope Corporation.
A correção da interferência causada por tal modificação, substituição ou
uso de acessório não autorizado é responsabilidade do
usuário/instalador.
ADVERTÊNCIA: Exposição à radiação de RF (Radiofrequência)
De acordo com os requisitos da FCC para exposição humana a campos
de radiofrequência, o elemento irradiante deve ser instalado de forma a
manter distância de separação mínima de 20 cm (8 pol.) entre o mesmo
e o usuário ou a população em geral.
Este dispositivo está restrito a uso interno quando se utiliza a
banda de 5,15 a 5,25 GHz (canais 36, 40, 44 e 48) e a banda de 5,73 a
5,83 GHz (canais 149, 153, 157, 161 e 165).
O ponto de acesso nMAP2 atende ao Relatório e Ordens FCC-03-287A1
e FCC-06-96A1 FCC da FCC.
B. Canadá – Industry Canada (IC)
Este dispositivo está em conformidade com os limites para um
dispositivo digital Classe B e está em conformidade com a norma
Industry Canada ICES-003. Os produtos que contêm um transmissor de
rádio atendem à norma Industry Canada RSS210 e recebem uma
etiqueta com um número de aprovação IC.
Este dispositivo está em conformidade com os limites da Classe B da
Industry Canada. A operação está sujeita às duas condições seguintes:
1) este dispositivo não pode causar interferência prejudicial e 2) este
dispositivo deve aceitar interferência recebida, incluindo interferência
que possa causar operação indesejada.
Este dispositivo está restrito a uso interno quando se utiliza a
banda de 5,15 a 5,25 GHz (canais 36, 40, 44 e 48) e a banda de 5,73 a
5,83 GHz (canais 149, 153, 157, 161 e 165).
CONFORMIDADE
REGULAMENTAR
8
C. Comunidade Europeia
Este dispositivo está em conformidade com a diretiva EMC
2004/108/EC, Diretiva para baixa tensão 2006/95/EC e Diretiva R&TTE
1999/5/EC. A conformidade com essas diretivas implica na
conformidade com as
normas europeias harmonizadas (Normas europeias) relacionadas na
Declaração de conformidade da UE, emitida pela Miltope Corporation
para este dispositivo.
Países de operação e condições de uso
Requisitos para operação interna e externa, licenciamento e canais de
operação permitidos aplicáveis a alguns países como descrito a seguir.
OBSERVAÇÃO: O usuário/instalador deve usar o utilitário de
configuração fornecido com este dispositivo para
garantir que os canais de operação estejam em
conformidade com as regras de utilização do espectro
para os países da UE (União Europeia) e da EFTA
(Associação de Livre Comércio Europeia), como
descrito abaixo. Se mais de uma unidade for
implantada, os usuários devem garantir que as
frequências estejam espalhadas entre diferentes
canais de acordo com a disponibilidade de canais.
Operação em 2,4 GHz
Este dispositivo pode ser operado em ambientes internos ou
externos nos países da UE e da EFTA que utilizam a banda de 2,4
GHz (canais 1 a 13), exceto onde indicado abaixo.
Na França, este dispositivo pode usar toda a banda de 2400 a
2483,5 MHz (canais 1 a 13) para aplicações internas. Para
aplicações externas, somente pode ser usada a banda de frequência
de 2400 a 2454 MHz (canais 7 a 9). Para ver os requisitos mais
recentes, consulte http://www.art-telecom.fr.
Operação em 5 GHz
Este dispositivo requer que o usuário ou instalador insira
corretamente o país de operação atual na janela 5 GHz Radio
Configuration (Configuração de rádio em 5 GHz),
Este dispositivo restringirá automaticamente os canais permitidos
determinados pelo país de operação atual. A inserção incorreta do
país de operação pode resultar em operação ilegal e pode causar
interferência prejudicial em outros sistemas. O usuário está obrigado
a garantir que o dispositivo opere de acordo com as limitações de
canal, restrições para uso interno/externo e requisitos de
licenciamento para cada país da Comunidade Europeia como
descrito no Manual do operador do software de operação do ponto
de acesso sem fio nMAP2, M365-768.
Este dispositivo não suporta canais que são usados por operações
de radar (banda de 5,26 a 5,70 GHz/canais 52 a 140).
Este dispositivo está restrito a uso interno quando operado dos
países da UE e EFTA que usam a banda de 5,15 a 5,35 GHz (canais
36, 40, 44 e 48) e a banda de 5,73 a 5,83 GHz (canais 149, 153,
157, 161 e 165).
Descarte de equipamentos usados por usuários residenciais na
União Europeia
Este produto não deve ser descartado junto com lixo doméstico. Em vez
disso, é de sua responsabilidade descartar o equipamento usado
entregando-o em um ponto de coleta designado para a reciclagem de
equipamentos elétricos e eletrônicos usados. A coleta seletiva e a
reciclagem de equipamento usado, no momento do descarte, ajudará a
preservar os recursos naturais e a garantir que a reciclagem seja feita de
modo a proteger a saúde humana e o meio ambiente. Para obter mais
informações sobre onde o equipamento pode ser entregue para fins de
reciclagem, entre em contato com a prefeitura local ou o serviço de
coleta de lixo doméstico.