Mitsubishi Electronics Split Type Heat Pump Air Conditioners Pmfy P08Nbmu E Users Manual OC341B 1.qxp
PMFY-P12NBMU-E to the manual 9d0af49a-8359-41a4-82b3-f631e05bdb02
2015-02-09
: Mitsubishi-Electronics Mitsubishi-Electronics-Split-Type-Heat-Pump-Air-Conditioners-Pmfy-P08Nbmu-E-Users-Manual-556510 mitsubishi-electronics-split-type-heat-pump-air-conditioners-pmfy-p08nbmu-e-users-manual-556510 mitsubishi-electronics pdf
Open the PDF directly: View PDF .
Page Count: 36

SPLIT-TYPE, HEAT PUMP AIR CONDITIONERS
TECHNICAL & SERVICE MANUAL
No. OC341
REVISED EDITION-B
INDOOR UNIT
CONTENTS
1. TECHNICAL CHANGES·······················2
2. FEATURES ···········································2
3. PART NAMES AND FUNCTIONS ········3
4. SPECIFICATION···································5
5. OUTLINES AND DIMENSIONS············9
6. WIRING DIAGRAM·····························10
7.
REFRIGERANT SYSTEM DIAGRAM
···12
8. MICROPROCESSOR CONTROL·······13
9. TROUBLESHOOTING························20
10. DISASSEMBLY PROCEDURE···········27
11. PARTS LIST········································30
12. RoHS PARTS LIST·····························33
July 2007
R410A / R22
NOTE:
• This manual describes only
service data of the indoor units.
• RoHS compliant products have
<G> mark on the spec name
plate.
• For servicing RoHS compliant
products, refer to the RoHS
PARTS LIST.
Revision:
• PMFY-P06/08/12/15NBMU-E1are
added in REVISED EDITION-B.
• Some descriptions have been
modified.
• Please void OC341 REVISED
EDITION-A.
PMFY-P06NBMU-E PMFY-P06NBMU-E
PMFY-P06NBMU-E1
PMFY-P08NBMU-E PMFY-P08NBMU-E
PMFY-P08NBMU-E1
PMFY-P12NBMU-E PMFY-P12NBMU-E
PMFY-P12NBMU-E1
PMFY-P15NBMU-E PMFY-P15NBMU-E
PMFY-P15NBMU-E1
Indoor unit
[Model names] [Service Ref.]
OC341B--1.qxp 07.7.11 1:29 PM Page 1

2
2FEATURES
1. Fresh Air Intake
Air recycled indefinitely can become stale and stagnant with air quality suffering significantly. Fresh air is the
answer and it is for this reason that the PMFY- series takes in air directly from outdoors. This fresh air intake
allows you to enjoy the comfort of crisp, refreshing air in the confines of your living or working space.
2. Light and Compact
The main unit weighs only 31 lb. and the panel merely 7 lb. This makes the PMFY- series one of the lightest in the
industry. The unit size is also quite small, having been standardised to a strikingly compact 33-5/8 inch. All of
this make the chore of installation and maintenance that much simpler and easier.
Models Cooling capacity / Heating capacity
PMFY-P06NBMU-E 6,000 / 6,700 Btu/h
PMFY-P08NBMU-E 8,000 / 9,000 Btu/h
PMFY-P12NBMU-E 12,000 / 13,500 Btu/h
PMFY-P15NBMU-E 15,000 / 17,000 Btu/h
Indoor Unit
1TECHNICAL CHANGES
PMFY-P06NBMU-E ➔PMFY-P06NBMU-E1
PMFY-P08NBMU-E ➔PMFY-P08NBMU-E1
PMFY-P12NBMU-E ➔PMFY-P12NBMU-E1
PMFY-P15NBMU-E ➔PMFY-P15NBMU-E1
1. FAN MOTOR(MF) has been changed.
2. CONTROLLER BOARD(I.B) has been changed.
OC341B--1.qxp 07.7.11 1:29 PM Page 2

3
PART NAMES AND FUNCTIONS
3
Guide vane
Air flow can be changed to horizontal
by moving the guide vane to the left or right.
Air intake
Returns air from room.
Filters
Remove dust and pollutants
from return air.
Auto Air Swing Vane
Disperses airflow up and
down and adjusts the angle
of airflow direction.
Horizontal Air Outlet
● Indoor Unit
PAR-21MAA
ON/OFF
FILTER
CHECK
OPERATION
CLEAR
TEST
TEMP.
MENU
BACK DAY
MONITOR/SET
CLOCK
ON/OFF
Temperature setting buttons
Down
Up
Timer Menu button
(Monitor/Set button)
Mode button (Return button)
Set Time buttons
Back
Ahead
Timer On/Off button
(Set Day button)
Opening the
lid
ON/OFF button
Fan Speed button
Filter button
(<Enter> button)
Test Run button
Check button (Clear button)
Airflow Up/Down button
Louver button
( Operation button)
To return operation
number
Ventilation button
( Operation button)
To go to next operation
number
Built-in temperature sensor
● Wired remote controller
Once the controllers are set, the same operation mode can be repeated by simply pressing the ON/OFF button.
OC341B--1.qxp 07.7.11 1:29 PM Page 3

4
● Wired remote controller
●
●
˚F˚C
˚F˚C
ERROR CODE
AFTER
TIMER
TIME SUN MON TUE WED THU FRI SAT
ON
OFF
Hr
AFTER
FILTER
FUNCTION
ONLY1Hr.
WEEKLY
SIMPLE
AUTO OFF
Note:
“PLEASE WAIT” message
This message is displayed for approximately 3 minutes when power is supplied to the indoor unit or when the unit is recovering from a power failure.
“NOT AVAILABLE” message
This message is displayed if an invalid button is pressed (to operate a function that the indoor unit does not have).
If a single remote controller is used to operate multiple indoor units simultaneously that are different types, this message will not be displayed as
far as any of the indoor units is equipped with the function.
Display Section
For purposes of this explanation,
all parts of the display are shown
as lit. During actual operation, only
the relevant items will be lit.
Identifies the current operation
Shows the operating mode, etc.
*Multilanguage display is available.
“Centrally Controlled” indicator
Indicates that operation from the
remote controller has been prohib-
ited by a master controller.
“Timer is Off” indicator
Indicates that the timer is off.
Temperature Setting
Shows the target temperature.
Day-of-Week
Shows the current day of the week.
Time/Timer Display
Shows the current time, unless the simple or Auto Off
timer is set.
If the simple or Auto Off timer is set, the time to be
switched off is shown.
“Sensor” indication
Displayed when the remote controller
sensor is used.
“Locked” indicator
Indicates that remote controller but-
tons have been locked.
“Clean The Filter” indicator
To be displayed on when it is time to
clean the filter.
Timer indicators
The indicator comes on if the corre-
sponding timer is set.
Up/Down Air Direction indica-
tor
Shows the direction of the
outcoming airflow.
“One Hour Only” indicator
Room Temperature display
Shows the room temperature. The room
temperature display range is 46~102°F.
The display blinks if the temperature
is less than
46°F or 102°F
or more.
Louver display
Indicates the action of the swing louver.
Does not appear if the louver is not
running.
(Power On indicator)
Indicates that the power is on.
Fan Speed indicator
Shows the selected fan speed.
Ventilation indicator
Appears when the unit is running in
Ventilation mode.
Displayed if the airflow is set to
low or downward during COOL
or DRY mode. (Operation varies
according to model.)
The indicator goes off in one hour,
when the airflow direction also
changes.
OC341B--1.qxp 07.7.11 1:29 PM Page 4

5
4SPECIFICATION
4-1. SPECIFICATIONS
Note 1. Rating conditions
Cooling: Indoor: D.B. 80°F W.B. 67°F
outdoor: D.B. 95°F W.B. 75°F
Heating: Indoor: D.B. 70°F
outdoor: D.B. 47°F W.B. 43°F
Note 2. The number indicated in < > is for the grille.
W3. Air flow and the noise level are indicated as Low - Medium2 - Medium1 - High.
Item
V·Hz
Btu/h
Btu/h
kW
kW
A
A
—
in.
in.
in.
—
—
CFM
in W.G.
kW
—
—
[in.
[in.
[in.
dB
lb.
Cooling capacity
Power
Heat exchanger
Insulator
Air filter
Fan ✕ No
Air flow W3
Pipe
dimensions
Field drain pipe size
Noise level W3
Product weight
Exterior
(munsell symbol)
Fan motor
output
External
static pressure
Liquid
side
Gas
side
Heating capacity
Dimensions
Height
Width
Depth
Electric characteristic
Input
Cooling
Heating
Cooling
Heating
Current
PMFY-P06NBMU-E
PMFY-P06NBMU-E1
PMFY-P08NBMU-E
PMFY-P08NBMU-E1
PMFY-P12NBMU-E
PMFY-P12NBMU-E1
PMFY-P15NBMU-E
PMFY-P15NBMU-E1
Single phase 208-230V 60Hz
6,000
6,700
0.042
0.042
0.20
0.20
8,000
9,000
0.042
0.042
0.20
0.20
12,000
13,500
0.044
0.044
0.21
0.21
15,000
17,000
0.054
0.054
0.26
0.26
250-280-300-320
32-34-36-37
230-250-280-300
27-30-33-35
270-300-340-370
33-35-37-39
Unit : Galvanized sheets · Standard grilles : ABS resin acrylic coating Munsell<6.4Y 8.9/0.4>
9-1/16<1-3/16>
31-15/16<39-3/8>
15-9/16<18-1/2>
Cross fin
Line flow fan ✕ 1
0
0.028
Polyethylene sheet
PP honey comb fabric
1/2"
1/4"
1" O.D. (PVC pipe VP-20 connectable)
31<7>
F a n
OC341B--1.qxp 07.7.11 1:29 PM Page 5

6
4-2. ELECTRICAL PARTS SPECIFICATIONS
Parts name
Service Ref.
Symbol
TH21
TH22
TH23
FUSE
MF
MV
DP
DS
LEV
TB2
TB5
TB15
Resistance 30˚F/15.8k", 50˚F/9.6k", 70˚F/6.0k", 80˚F/4.8k", 90˚F/3.9k", 100˚F/3.2k"
Resistance 30˚F/15.8k", 50˚F/9.6k", 70˚F/6.0k", 80˚F/4.8k", 90˚F/3.9k", 100˚F/3.2k"
Resistance 30˚F/15.8k", 50˚F/9.6k", 70˚F/6.0k", 80˚F/4.8k", 90˚F/3.9k", 100˚F/3.2k"
250V 6A
Thermistor resistance 30_F/6.3k", 50_F/3.9k", 70_F/2.5k", 80_F/2.0k", 90_F/1.6k", 100_F/1.3k"
(L1, L2, GR) Rated to 330V 30A
(M1, M2, S) Rated to 250V 20A
(1,2) Rated to 250V 10A
Liquid pipe thermistor
Gas pipe thermistor
Drain pump
Drain sensor
Linear expansion valve
PMFY-P06NBMU-E
PMFY-P06NBMU-E1
PMFY-P08NBMU-E
PMFY-P08NBMU-E1
PMFY-P12NBMU-E
PMFY-P12NBMU-E1
PMFY-P15NBMU-E
PMFY-P15NBMU-E1
Room temperature
thermistor
Fuse
(Indoor controller board)
Fan motor
Vane motor
Power supply
terminal block
Transmission
terminal block
DC Brushless Motor
8-pole OUTPUT 28W
PN0H28-MB
MSFJC 20M23
12V/380
"
PJV-1063
208-240V 50/60Hz
DC12V Stepping motor drive
port dimension [
3.2
(0~2000pulse)
EDM-40YGME
MA-remote controller
terminal block
wNote : Refer to WIRING DIAGRAM for the supplied voltage.
w
w
w
OC341B--1.qxp 07.7.11 1:29 PM Page 6

7
4-3. AIR CAPACITY TAKEN FROM OUTSIDE
PMFY-P·NBMU-E series are capable of taking air from outside. When taking air from outside, the duct fan is used.
The air capacity should be 20% or less of the airflow SPEC(Hi).
PMFY-P06NBMU-E
PMFY-P06NBMU-E1
PMFY-P08NBMU-E
PMFY-P08NBMU-E1
PMFY-P12NBMU-E
PMFY-P12NBMU-E1
PMFY-P15NBMU-E
PMFY-P15NBMU-E1
300 CFM
320 CFM
320 CFM
370 CFM
60 CFM
64 CFM
64 CFM
74 CFM
Air flow (Hi) Air capacity taken from outsideService Ref.
(Knockout)
4-{1/8
Fresh air intake hole (Knockout)
Fresh air intake hole
90-
{4-
13/16
{
3-15/16
4-1/4
9-13/16 11-3/8
(Unit:inch)
~
CN51
Multiple remote
controller adapter
PAC-SA88HA-E
Indoor controller board
Distance between indoor
controller board and relay
must be within 33 feet.
Be sure to secure insulation
material by tape, etc.
5Green
Yellow
Orange
Connector (5P)
Indoor unit side Multiple remote
controller adapter
PAC-SA88HA-E Be sure to secure insulation
material by tape, etc.
CN51
on
indoor unit
board Red
Brown
MB
1
Installation at site
Q
0
BA
C
1
2
3
Curve in the
right graphs
Duct characteristics
at site
Q
A
EC
Q
Qa
AD
Operation in conjunction with duct fan (Booster fan)
●Whenever the indoor unit is operating, the duct fan
operates.
(1)Connect the optional multiple remote controller
adaptor (PAC-SA88HA-E) to the connector CN51
on the indoor controller board.
(2)Drive the relay after connecting the 12V DC relay
between the Yellow and Orange connector lines.
(w)Use a relay of 1W or smaller.
MB: Electromagnetic switch power relay for duct fan.
X: Auxiliary relay (12V DC LY-1F)
How to read curves
0.2
Static pressure (in.W.G.)
0.1
00
-0.1
-0.2
-0.3
-0.4 010
Air flow (CFM)
20
Characteristic diagram of air capacity taken from outside of PMFY-P·NBMU-E
30 40 50 60 70 80
2 intake
1 intake
Q…Designed amount of fresh air
intake <CFM>
A…Static pressure loss of fresh air
intake duct system with air flow
amount Q <in. W.G>
B…Forced static pressure at air condi-
tioner inlet with air flow amount Q
<in. W.G>
C…Static pressure of booster fan with
air flow amount Q <in. W.G>
D…Static pressure loss increase
amount of fresh air intake duct
system for air flow amount Q
<in. W.G>
E…Static pressure of indoor unit with
air flow amount Q <in. W.G>
Qa…Estimated amount of fresh air
intake without D <CFM>
OC341B--1.qxp 07.7.11 1:29 PM Page 7

8
4-4. NOISE CRITERION CURVES
90
80
70
60
50
40
30
20
10 63 125 250 500 1000 2000 4000 8000
APPROXIMATE THRESHOLD OF HEARING
FOR CONTINUOUS NOISE
NC-60
NC-50
NC-40
NC-30
NC-20
NC-70
OCTAVE BAND SOUND PRESSURE LEVEL, dB (0 dB = 0.0002 µbar)
BAND CENTER FREQUENCIES, Hz
PMFY-P06NBMU-E
PMFY-P06NBMU-E1High
NOTCH
Medium1
Medium2
Low
35
SPL(dB)
33
30
27
LINE
90
80
70
60
50
40
30
20
10 63 125 250 500 1000 2000 4000 8000
APPROXIMATE
THRESHOLD OF
HEARING FOR
CONTINUOUS
NOISE
NC-60
NC-50
NC-40
NC-30
NC-20
NC-70
OCTAVE BAND SOUND PRESSURE LEVEL, dB (0 dB = 0.0002 µbar)
BAND CENTER FREQUENCIES, Hz
PMFY-P08NBMU-E
PMFY-P12NBMU-E
PMFY-P08NBMU-E1
PMFY-P12NBMU-E1
High
NOTCH
Medium1
Medium2
Low
37
SPL(dB)
36
34
32
LINE
90
80
70
60
50
40
30
20
10 63 125 250 500 1000 2000 4000 8000
APPROXIMATE
THRESHOLD OF
HEARING FOR
CONTINUOUS
NOISE
NC-60
NC-50
NC-40
NC-30
NC-20
NC-70
OCTAVE BAND SOUND PRESSURE LEVEL, dB (0 dB = 0.0002 µbar)
BAND CENTER FREQUENCIES, Hz
PMFY-P15NBMU-E
PMFY-P15NBMU-E1High
NOTCH
Medium1
Medium2
Low
39
SPL(dB)
37
35
33
LINE
UNIT
5ft
MICROPHONE
CEILING
OC341B--1.qxp 07.7.11 1:29 PM Page 8

9
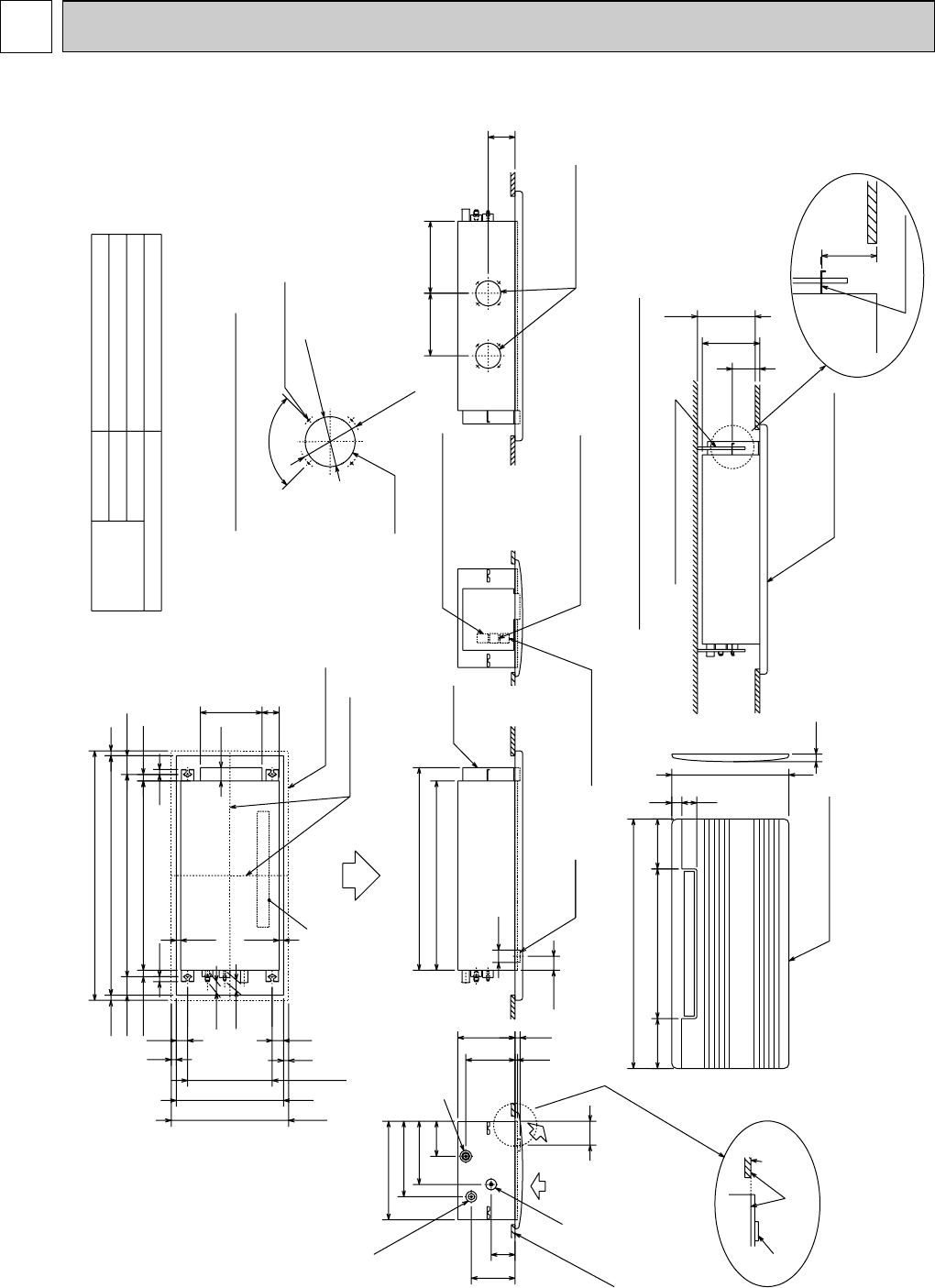
5OUTLINES AND DIMENSIONS
Details of fresh air intake hole
Knockout
4-{1/8(2.8) Burring hole
Fresh air intake hole
4-5/16 (110)
9-1/16(230)
9-1/2
(235) or more
4-5/16
(110)
Suspension bolt(M10 or W 3/8)
Panel(grille):PMP-16BMU
Installation space required around indoor unit
Mounting plate
6-15/16(176)
Panel(grille):PMP-16BMU
Lower view
2-3/8(60) 1-9/16(40)
7-7/8(200)
23-5/8(600)
7-7/8(200)
Top
Air outlet(lower)
1-13/18(46)
1-11/16(43)
13/16(20) 13/16(20)
2-1/16(53)
2-11/16(69)
9-3/8(247)
1-3/16(30)
Right side
Outer line of grille
Center line of unit
29-7/8(759)
1-1/32(26)
31-15/18(811) suspension bolt pitch2-15/18(74.5)
37-13-16(960) ceiling opening13/16(20)
1-1/32(26)
2-15/18(74.5)
13/16(20)
39-3/8(1000) outer side of grille
11/16(17.5) 11/16(17.5)
1-25/32(45)
13-3/8(340) Suspension bolt pitch
1-25/32(45)
16-15/16(430)
Ceiling opening
18-1/2(470)
Outer side of grille
13/16(20)
13/16(20)
Terminal block for power supply
Terminal block for transmission
31-15/16(812)
3-3/8(96)
Left side
Front drain pan
Electrical box
Drainage pipe
PVC pipe:
VP-20[O.D.{1"(26)]
Refrigerant pipe(gas)
O.D.{1/2"(12.7)
Refrigerant
pipe(liquid)
O.D.{1/4"(6.35)
Ceiling panel
Drain pan Ceiling
panel
O.D.{1/2"({12.7)
PVC pipe:VP-20[I.D.{31/32"({25)]
O.D.{1/4"({6.35)
O.D.{1-11/16({43)
Drainage piping
Gas pipe
Liquid pipe
Pipe cover
Refrigerant
piping
39-3/8(1000) outer side of grille
18-1/2(470) Outer side of grille
{1-31/32(50)
2-3/16(56)
9-1/16(230)
3-3/8(96)
13/16(20)
13/32(10)
11-7/8(302)
10(254)
7-13/16(198)
5-9/16(141)
29-7/8(759)
15-9/16(395)
90-
{4-
13/6(122)
{3-15/16(
100)
4-1/4
(108)
9-13/16(250) 11-3/8(288.5)
Same line
Terminal block for
remote controller
PMFY-P06NBMU-E PMFY-P06NBMU-E1
PMFY-P08NBMU-E PMFY-P08NBMU-E1
PMFY-P12NBMU-E PMFY-P12NBMU-E1
PMFY-P15NBMU-E PMFY-P15NBMU-E1
Unit : in. (mm)
OC341B--1.qxp 07.7.11 1:29 PM Page 9

10
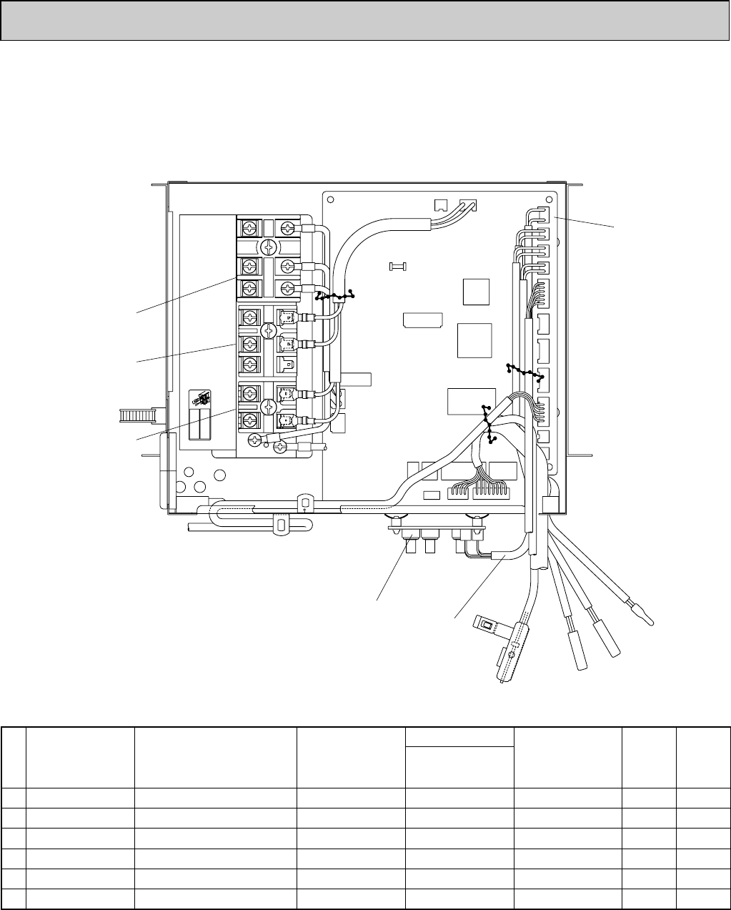
6WIRING DIAGRAM
Note
1.At servicing for outdoor unit, always follow the wiring diagram of outdoor unit.
2.In case of using MA-Remote controller, please connect to TB15. (Remote controller wire is non-polar.)
3.In case of using M-NET, please connect to TB5. (Transmission wire is non-polar.)
4.Symbol [S] of TB5 is the shield wire connection.
5.Symbols used in wiring diagram above are, : terminal block, :connecter.
6.The setting of the SW2, SW3 dip switches differs in the capacity for the detail, refer to the fig : w1.
7.Please set the switch SW5 according to the power supply voltage.
CN51
CN52
SW2
SW3
SW4
A.B Address board
SW1
SW5
SW11
SW12
Mode selection
Voltage selection
Address setting 1st digit
Address setting 2nd digit
SW14 Connection No.
Centrally control
Remote Indication
Switch
Switch
Capacity code
Mode selection
Model selection
ZNR Varistor
X1 Aux.relay Drain pump
FUSE Fuse (6A / 250V)
LED1 Power supply (I.B)
LED2 Power supply (I.B)
T Transformer
TH21
MF
MV
Thermistor Room temp. detection
(32
°
F
/15k", 77
°
F
/5.4k")
Pipe temp. detection / Liquid
(32
°
F
/15k", 77
°
F
/5.4k")
Pipe temp. detection / Gas
(32
°
F
1/15k", 77
°
F
/5.4k")
LEV Linear expansion valve
TH22
TH23
Fan motor (with inner thermo)
Vane motor
TB15 MA-Remote Controller
[Legend]
Symbol Name
I.B Indoor controller board
CN25
CN27
CN32
Connector Humidifier
Damper
Remote switch
Symbol Name Symbol Name
DS
DP
Drain sensor
Drain water lifting-up mech.
TB2
TB5 Transmission
Terminal
block
Power supply
Models
P06
P08
P12
P15
SW2
123456
ON
OFF
123456
ON
OFF
123456
ON
OFF
123456
ON
OFF
SW3
1234567
ON
OFF
1234567
ON
OFF
123456
ON
OFF
123456
7
7
8
8
8
8
9
9
9
9
10
10
10
10
ON
OFF
<fig : w1>
Mark Meaning Function
Power supply for
MA-Remote controller
Main power supply (Indoor unit:208-230V)
Power on ➝ Lamp is lit.
LED on indoor board for service
LED1
Main power supply
Power supply for MA-Remote controller
on ➝ Lamp is lit.
LED2
1
2
3
4
5
5
6
MF FAN
(
WHT
)
LED2
LED1
2
1(BLU)
(M-NET)
CN2M
BLU
BLU
TB5
M1
M2
TB2
PULL BOX
FUSE(15A)
BREAKER
(15A)
L1
L2
S
(
SHIELD)
TO OUTDOOR UNIT
BC CONTROLLER
REMOTE CONTROLLER
DC24-30V
2
3
1CN3A
(BLU)
ORN
ORN
TB15
1
2
TO MA-REMOTE
CONTROLLER
DC8.7-13V
POWER SUPPLY
~ / N 208—230V 60Hz
TO NEXT INDOOR UNIT
3 2 1
(BLK)
GAS
CN29
2 1
(WHT)
LIQUID
CN21
2 1
DS TH23 TH22
(RED)
INTAKE
CN20
(WHT)
LEV
CN60
(GRN)
REMOTE
INDICATION
CN52
2 1 6 5 4 3 2 1
15
(GRN)
VANE
CN6V
6 5 4 3 2 1 2 1
1 2 3 4 5
TH21
(WHT)
DRAIN
CN31
6
LEV MV
CN25
2 1
CN27 8
7
6
5
4
3
4
3
3
2
1
1
2
1
12345678910
SW3
123456
SW2
12345
SW4
ON
OFF
ON
OFF
ON
OFF
(RED)
ADDRESS
CN81
(RED)
ADDRESS
CN42
(WHT)
REMOTE
SWITCH
CN32
3212 13
DP
X1
X1
(WHT)
CNP
CND
(RED)
FUSE
250V
6A
T
BRN
RED
ORN
YLW
GRN
BLU
BRN
ORN
YLW
RED
WHT
(WHT)
CENTRALLY
CONTROL
CN51
15
RED
BLU
GRN / YLW
See fig : w1
8 7 6 5 4 3 2 1
4321
8
4
0
SW14SWC
2
1
CONNECTION
No.
0
SW11
1ST
DIGIT
0
SW12
2ND
DIGIT
3RD
DIGIT
12345678910
SW1
SW5
230V208V
(RED)
ADDRESS
CN82
(RED)
ADDRESS
CN43
A.B
I.B
G
<w2>
(w2)Use copper supply wire.
PMFY-P06NBMU-E PMFY-P08NBMU-E PMFY-P12NBMU-E PMFY-P15NBMU-E
OC341B--1.qxp 07.7.11 1:29 PM Page 10

11
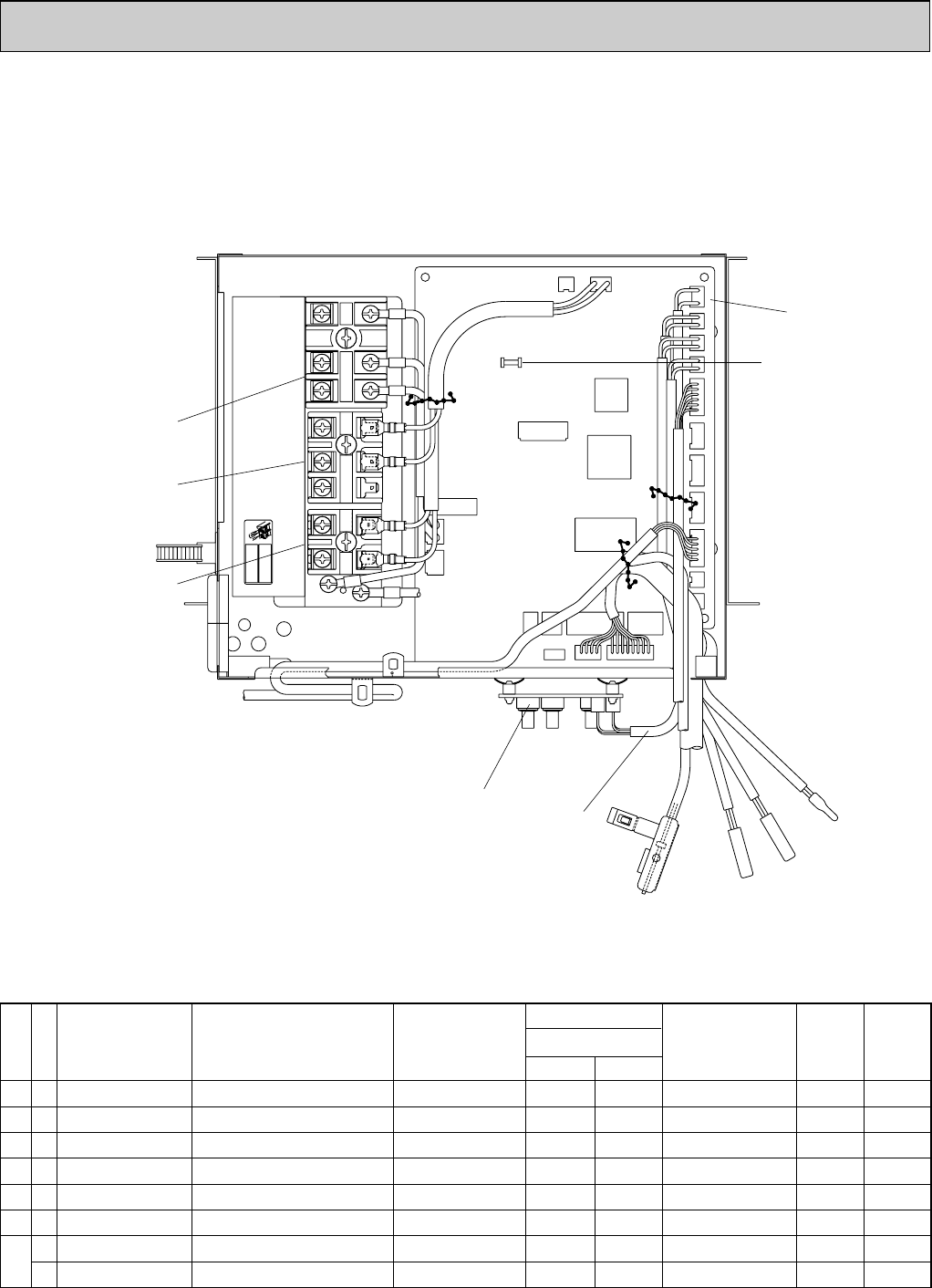
Note
1.At servicing for outdoor unit, always follow the wiring diagram of outdoor unit.
2.In case of using MA-Remote controller, please connect to TB15. (Remote controller wire is non-polar.)
3.In case of using M-NET, please connect to TB5. (Transmission line is non-polar.)
4.Symbol [S]of TB5 is the shield wire connection.
5.Symbols used in wiring diagram above are, : terminal block, :connector.
6.The setting of the SW2, SW3 dip switches differs in the capacity for the detail, refer to the fig :w1.
7.Please set the switch SW5 according to the power supply voltage.
CN51
CN52
SW2
SW3
SW4
A.B Address board
SW1
SW5
SW11
SW12
Mode selection
Voltage selection
Address setting 1st digit
Address setting 2nd digit
SW14 Connection No.
Centrally control
Remote Indication
Switch
Switch
Capacity code
Mode selection
Model selection
ZNR Varistor
X1 Aux.relay Drain pump
FUSE Fuse (6A / 250V)
LED1 Power supply(I.B)
LED2 Power supply(I.B)
T Transformer
TH21
MF
MV
Thermistor Room temp. detection
(32°F/15k
Ω,
77°F/5.4k
Ω)
Pipe temp. detection / Liquid
(32°F/15k
Ω,
77°F/5.4k
Ω)
Pipe temp. detection / Gas
(32°F/15k
Ω,
77°F/5.4k
Ω)
LEV Linear expansion valve
TH22
TH23
Fan motor
Vane motor
TB15 MA-Remote Controller
[Legend]
Symbol Name
I.B Indoor controller board
CN25
CN27
CN32
Connector Humidifier
Damper
Remote switch
Symbol Name Symbol Name
DS
DP
Drain sensor
Drain water lifting-up mech.
TB2
TB5 Transmission
Terminal
block
Power supply
Models
P06
P08
P12
P15
SW2
123456
ON
OFF
123456
ON
OFF
123456
ON
OFF
123456
ON
OFF
SW3
1234567
ON
OFF
1234567
ON
OFF
123456
ON
OFF
123456
7
7
8
8
8
8
9
9
9
9
10
10
10
10
ON
OFF
<fig:w1>
Mark Meaning Function
Power supply for
MA-Remote controller
Main power supply (Indoor unit:208-230V)
Power on Lamp is lit.
LED on indoor board for service
LED1
Main power supply
Power supply for MA-Remote controller
on Lamp is lit.
LED2
6
1
3
MS
3~
MF FAN
(WHT)
LED2
LED1
2
1(BLU)
(M-NET)
CN2M
BLU
BLU
TB5
TB2
PULL BOX
FUSE
(15A)
BREAKER
(15A)
(SHIELD)
TO OUTDOOR UNIT
BC CONTROLLER
REMOTE CONTROLLER
DC24-30V
CN3A
(BLU)
ORN
ORN
TB15
TO MA-REMOTE
CONTROLLER
DC8.7-13V
POWER SUPPLY
~ / N 208-230V 60Hz
TO NEXT INDOOR UNIT
(BLK)
GAS
CN29
(WHT)
LIQUID
CN21
DS TH23 TH22
(RED)
INTAKE
CN20
(WHT)LEV
CN60
(GRN)
REMOTE
INDICATION
CN52
15
(GRN)VANE
CN6V
6161
15
2121212131
TH21
(WHT)
DRAIN
CN31
LEV
MM
MV
CN25 21
CN27 8
4
1
1
12345678910
SW3
123456
SW2
12345
SW4
ON
OFF
ON
OFF
ON
OFF
(RED)
ADDRESS
CN81
(RED)
ADDRESS
CN42
(WHT)
REMOTE
SWITCH
CN32
M
1~
DP
X1
(WHT)
CNP
CND
(RED)
FUSE
T
BRN
RED
ORN
YLW
GRN
BLU
BRN
ORN
YLW
RED
WHT
(WHT)
CENTRALLY
CONTROL
CN51
15
RED
BLU
GRN / YLW See fig : w1
81
41
8
4
SW14SWC
2
1
CONNECTION
No.
SW11
1ST
DIGIT
SW12
2ND
DIGIT
3RD
DIGIT
12345678910
SW1
SW5
230V208V
(RED)ADDRESS
CN82
(RED)
ADDRESS
CN43
A.B
I.B
<w2>
<w2>Use Copper Supply Wire.
t°t°t°t°
3
1
3
1
31
31
1
2
L1
L2
GR
U
M1
M2
S
0
1
2
3
4
5
6
7
8
9
A
B
C
D
E
F
0
1
2
3
4
5
6
7
8
9
0
1
2
3
4
5
6
7
8
9
PMFY-P06NBMU-E1PMFY-P08NBMU-E1PMFY-P12NBMU-E1PMFY-P15NBMU-E1
OC341B--1.qxp 07.7.11 1:29 PM Page 11

12
REFRIGERANT SYSTEM DIAGRAM7
Strainer (#100mesh)
Strainer pipe (#100mesh)
Strainer
(#100mesh)
Strainer
(#50mesh)
Heat exchanger
Thermistor TH21
<Room temperature detection>
Thermistor TH23
<Gas pipe temperature
detection>
Thermistor TH22
<Liquid pipe temperature
detection>
Linear expansion valve
w1w2
Gas pipe
Liquid pipe
Flare connection
Gas pipe
Liquid pipe
[1/2"(12.7)
[1/4"(6.35)
Item
Service Ref.
Capillary tube w1
Capillary tube w2
O.D.[4.6 o I.D.[3.4 o R200 O.D.[3.6 o I.D.[2.4 o R200
O.D.[3.6 o I.D.[2.4 o R80
PMFY-P06/ P08/ P12/ P15NBMU-E
PMFY-P06/ P08/ P12/ P15NBMU-E1
PMFY-P06/ P08NBMU-E
PMFY-P06/ P08NBMU-E1
PMFY-P12/ P15NBMU-E
PMFY-P12/ P15NBMU-E1
Unit:in.(mm)
Unit:mm
PMFY-P06NBMU-E PMFY-P08NBMU-E PMFY-P12NBMU-E PMFY-P15NBMU-E
PMFY-P06NBMU-E1PMFY-P08NBMU-E1PMFY-P12NBMU-E1PMFY-P15NBMU-E1
OC341B--1.qxp 07.7.11 1:29 PM Page 12

13
8 MICROPROCESSOR CONTROL
PAR-21MAA
ON/OFF
FILTER
CHECK
OPERATION
CLEAR
TEST
TEMP.
MENU
BACK DAY
MONITOR/SET
CLOCK
ON/OFF
˚F˚C
˚F˚C
ERROR CODE
AFTER
TIMER
TIME SUN MON TUE WED THU FRI SAT
ON
OFF
Hr
AFTER
FILTER
FUNCTION
ONLY1Hr.
WEEKLY
SIMPLE
AUTO OFF
INDOOR UNIT CONTROL
8-1. COOL OPERATION
<How to operate>
1Press POWER ON/OFF button.
2Press the operation MODE button to display COOL.
3Press the TEMP. button to set the desired temperature.
NOTE: The set temperature changes 2°F when the or button is
pressed once. Cooling 67 to 87°F.
Control modes Control details
1-1. Functions regulated by temperature
• Room temperature ] desired temperature + 2°F ···Thermo ON
• Room temperature [ desired temperature ···Thermo OFF
1-2. Anti-freezing control
Detected condition : When the liquid pipe temp. (TH22) is 32°F or less in 16
minutes from compressors start up, anti-freezing control
starts and the thermo
stat
OFF.
Released condition : The timer which prevents reactivating is set for 3 minutes,
and anti-freezing control is cancelled when any one of the
following conditions is satisfied.
1Liquid pipe temp. (TH22) turns to be 50°F or above.
2The condition of the thermostat OFF becomes
complete by thermoregulating, etc.
3The operation mode becomes a mode other than COOL.
4 The operation stops.
1-3. Compressor time delay
• 3 minutes minimum off cycle.
By the remote controller setting (switch of 4 speeds)
2. Fan
1. Functions regulated
by temperature
Remarks
Type Fan speed notch
[Low], [Medium2], [Medium1], [High]
4 speeds
To be continued to the next page
OC341B--1.qxp 07.7.11 1:29 PM Page 13

14
→
3
2
1
→
Control modes Control details
3-1. Drain pump control
• Always drain pump ON during the COOL and DRY mode operation.
(Regardless of the thermostat ON/ OFF)
• When the operation mode is changed from COOL or DRY to any other mode
(including Stop), the drain pump continues to run for 3 minutes.
Drain sensor function
• The indoor circuit board energizes the drain sensor at a fixed voltage for a fixed
duration. After energizing, the circuit board then compares the drain sensor’s
temperature to the one before energizing, and judges whether the sensor is in
the air or in the water.
Basic control system
• While drain pump is turned on, it will repeat the following control system and judge
whether the sensor is in the air or in the water.
•Drain sensor temperature rise (∆t)
•Temperature of drain sensor before current is applied (T0)
•Temperature of drain sensor after current is applied (T1)
[ ∆t = T1 – T0 ]
(1)Initial setting : Start at COOL mode and horizontal vane.
(2)Vane position : Horizontal →Downward A →Downward B →Downward C→Swing
(3)Restriction of the downward vane setting
When setting the downward vane A, B or C in [Medium1], [Medium2] or [Low] of
the fan speed notch, the vane changes to horizontal position after 1 hour has
passed.
4. Vane
(up/ down vane change)
3. Drain pump
Remarks
✻1
Drain sensor
Indoor controller
board
CN31
✻1
"Only 1 Hr"
appears on the
wired remote
controller.
Timing of
energizing
drain sensor
From the preceding page
ON
OFF
Stand by for
a minute 30
sec. 30
sec.
Detect the
temperature
before
energizing.
(T0) Detect the
temperature
after
energizing.
(T1)
Judge whether
the sensor is in
the air or in the
water.
Stand by for
a minute
·······Repeat
OC341B--1.qxp 07.7.11 1:29 PM Page 14

15
Control modes Control details
1-1. Dry mode temperature is controlled by TH21.
Dry mode ON Room temperature ] desired temperature + 2°F
Dry mode OFF Room temperature [ desired temperature
1-2. Frozen prevention control
No control function
Indoor fan operation control depends on the compressor conditions.
3. Drain pump
1. Functions regulated
by temperature
Remarks
Room
temperature
3 min. passed since starting operation
Call
Room temperature (Ta)
Dry mode
ON
time (min)
Dry mode
OFF
time (min)
Less than 64°F
Over 64°FON
OFF
Ta ] 83°F
83°F > Ta ] 79°F
79°F > Ta ] 75°F
75°F > Ta
Unconditional
93
73
53
33
10
3
Dry mode OFF
2. Fan
Note: Remote controller setting is not acceptable.
Dry mode
Fan speed notch
ON
OFF
[Low]
Stop
4. Vane
(up/ down vane change)
Same control as COOL operation
Same control as COOL operation
PAR-21MAA
ON/OFF
FILTER
CHECK
OPERATION
CLEAR
TEST
TEMP.
MENU
BACK DAY
MONITOR/SET
CLOCK
ON/OFF
˚F˚C
˚F˚C
ERROR CODE
AFTER
TIMER
TIME SUN MON TUE WED THU FRI SAT
ON
OFF
Hr
AFTER
FILTER
FUNCTION
ONLY1Hr.
WEEKLY
SIMPLE
AUTO OFF
8-2. DRY OPERATION
<How to operate>
1Press POWER ON/OFF button.
2Press the operation MODE button to display DRY.
3Press the TEMP. button to set the desired temperature.
NOTE: The set temperature changes 2°F when the or button is
pressed once. Dry 67 to 87°F.
OC341B--1.qxp 07.7.11 1:29 PM Page 15

16
Control modes Control details
Set by remote controller.
2. Drain pump
Remarks
1. Fan
Type Fan speed notch
4 speeds type [Low], [Medium2], [Medium1], [High]
3. Vane
(up/ down vane change)
2-1. Drain pump control
The drain pump turns ON for the specified amount of time when any of the
following conditions is satisfied:
1 ON for 3 minutes after the operation mode is switched from COOL or DRY to
another operation mode (FAN).
2 ON for 6 minutes after the drain sensor is determined to be submerged
using the liquid level detection method given below.
3 ON for 6 minutes after indoor piping (liquid piping) temperature – indoor
room temperature [ -18°F, AND the drain sensor input is at the short or
open level.
(If condition 2 or 3 is still being met after the drain pump has been turned ON
for 6 minutes, the drain pump is kept ON for a further 6 minutes.)
2-2. Liquid level detection method
The liquid level is detected by determining whether or not the drain sensor is
submerged, based on the amount the temperature rises after self-heating the
sensor. This process is performed if any of the following conditions is satisfied:
1 Drain pump is ON.
2 Indoor piping (liquid piping) temperature – indoor room temperature [ -18°F
3 Indoor piping (liquid piping) temperature or indoor room temperature is at
the short or open level temperature.
4 Every 1 hour after the drain pump has been switched from ON to OFF.
Same as the control performed during the COOL operation, but with no restriction
on the vane's downward blow setting.
PAR-21MAA
ON/OFF
FILTER
CHECK
OPERATION
CLEAR
TEST
TEMP.
MENU
BACK DAY
MONITOR/SET
CLOCK
ON/OFF
˚F˚C
˚F˚C
ERROR CODE
AFTER
TIMER
TIME SUN MON TUE WED THU FRI SAT
ON
OFF
Hr
AFTER
FILTER
FUNCTION
ONLY1Hr.
WEEKLY
SIMPLE
AUTO OFF
8-3. FAN OPERATION
<How to operate>
1Press POWER ON/OFF button.
2Press the operation MODE button to display FAN.
OC341B--1.qxp 07.7.11 1:29 PM Page 16

17
Control modes Control details
1-1. Minimum compressor off cycle is 3 minutes.
• Room temperature [ desired temperature -2°F ···Thermo ON
• Room temperature ] desired temperature ···Thermo OFF
1. Functions
regulated by
temperature
Remarks
Controlled by the remote controller (4-speed)
Priority is given to below-mentioned control mode
2-1. Stand by (hot adjust) mode
2-2. Preheating exclusion mode
2-3. Thermo OFF mode (When the compressor off by the thermoregulating)
2-4. Cool air prevention mode (Defrosting mode)
2-1. Stand by (hot adjust) mode
The fan controller becomes the stand by (hot adjust) mode for the following
conditions.
1 When starting the HEAT operation
2 When the thermoregulating function changes from OFF to ON.
3 When releasing the HEAT defrosting operation
2. Fan
A: Stand by (hot adjust) mode start
B: 5 minutes have passed since the condition A or the indoor liquid pipe
temperature turned 95°F or more
C: 2 minutes have passed since the condition A
(Terminating the stand by (hot adjust) mode)
ACB
[Extra Low]
[Low]
Set fan speed by the remote controller
Hot adjust mode ✻1
2-2. Preheating exclusion mode
When the condition changes the auxiliary heater ON to OFF
(thermoregulating or operation stop, etc), the indoor fan operates in [Low] mode for
1 minute.
✻1
"STAND BY"
will be displayed
during the stand
by (hot adjust)
mode.
To be continued to the next page
✻1
This control is
same for the
model without
auxiliary heater.
PAR-21MAA
ON/OFF
FILTER
CHECK
OPERATION
CLEAR
TEST
TEMP.
MENU
BACK DAY
MONITOR/SET
CLOCK
ON/OFF
˚F˚C
˚F˚C
ERROR CODE
AFTER
TIMER
TIME SUN MON TUE WED THU FRI SAT
ON
OFF
Hr
AFTER
FILTER
FUNCTION
ONLY1Hr.
WEEKLY
SIMPLE
AUTO OFF
8-4. HEAT OPERATION
<How to operate>
1Press POWER ON/OFF button.
2Press the operation MODE button to display HEAT.
3Press the TEMP. button to set the desired temperature.
NOTE: The set temperature changes 2°F when the or button is
pressed once. Heating 63 to 83°F.
<Display in HEAT operation>
[DEFROST]
The [DEFROST] symbol is only displayed during the defrost operation.
[STANDBY]
The [STANDBY] symbol is only displayed during hot adjust mode.
OC341B--1.qxp 07.7.11 1:29 PM Page 17

18
→
Control modes Control details
2. Fan
Remarks
2-3. Thermo OFF mode
When the thermoregulating function changes to OFF, the indoor fan operates in
[Extra low].
2-4. Heat defrosting mode
The indoor fan stops.
No drain pump operation
However, when the control changes from COOL or DRY operation, the drain pump
operates for 3 minutes.
(1) Initial setting : OFF → HEAT···[last setting]
When changing the mode from exception of HEAT to HEAT
operation ···[Downward C]
(2) Vane position :
Horizontal →Downward A →Downward B →Downward C→Swing
(3) Restriction of vane position
1 The vane is horizontally fixed for the following modes.
(The control by the remote controller is temporarily invalidated and controlled by
the unit.)
• Thermo OFF
• Stand by (hot adjust) [Extra low] mode
• Heat defrost mode
3. Drain pump
4. Vane control
(Up/ down vane
change)
From the preceding page
OC341B--1.qxp 07.7.11 1:29 PM Page 18

19
1. Drain pump
Control modes Control details
HEAT mode for room temperature < Desired temperature
COOL mode for room temperature ] Desired temperature
(1) HEAT mode → COOL mode
Room temperature ] Desired temperature + 3°F or 3 minutes has passed
(2) COOL mode → HEAT mode
Room temperature [ Desired temperature - 3°F or 3 minutes has passed
1. Initial value of
operation mode
Remarks
2. Mode change
Same control as cool operation
3. COOL mode
Same control as heat operation
4. HEAT mode
Control modes Control details
1-1. Drain pump control
The drain pump turns ON for the specified amount of time when any of the
following conditions is satisfied.
(regardless of whether the compressor is ON or OFF)
1 ON for 3 minutes after the operation mode is switched from COOL or DRY to
another operation mode (HEAT mode).
2 ON for 6 minutes after the drain sensor is determined to be submerged using the
liquid level detection method given below.
3 ON for 6 minutes after indoor piping (liquid piping) temperature – indoor room
temperature [ 14°F, and the drain sensor input is at the short or open level.
(If condition 2 or 3 is still being met after the drain pump has been turned ON for 6
minutes, the drain pump is kept ON for a further 6 minutes.)
1-2. Liquid level detection method
The liquid level is detected by determining whether or not the drain sensor is
submerged, based on the amount the temperature rises after self-heating the
sensor.
This process is performed if any of the following conditions is satisfied:
1 Drain pump is ON.
2 Indoor piping (liquid piping) temperature – indoor room temperature [ 14°F
(except during defrosting)
3 Indoor piping (liquid piping) temperature or indoor room temperature is at the
short or open level temperature.
4 Every 1 hour after the drain pump has been switched from ON to OFF.
Remarks
PAR-21MAA
ON/OFF
FILTER
CHECK
OPERATION
CLEAR
TEST
TEMP.
MENU
BACK DAY
MONITOR/SET
CLOCK
ON/OFF
˚F˚C
˚F˚C
ERROR CODE
AFTER
TIMER
TIME SUN MON TUE WED THU FRI SAT
ON
OFF
Hr
AFTER
FILTER
FUNCTION
ONLY1Hr.
WEEKLY
SIMPLE
AUTO OFF
8-5. AUTO OPERATION [AUTOMATIC COOL/HEAT CHANGE OVER OPERATION]
<How to operate>
1Press POWER ON/OFF button.
2Press the operation MODE button to display AUTO.
3Press the TEMP. button to set the desired temperature.
NOTE: The set temperature changes 2°F when the or button is
pressed once. Automatic 67 to 83°F.
When in AUTO mode, the unit will switch from either heat or cool
automatically to maintain the set temperature.
8-6. WHEN UNIT IS STOPPED
OC341B--1.qxp 07.7.11 1:29 PM Page 19

20
9TROUBLE SHOOTING
9-1. HOW TO CHECK THE PARTS
PMFY-P06NBMU-E PMFY-P08NBMU-E PMFY-P12NBMU-E PMFY-P15NBMU-E
PMFY-P06NBMU-E1PMFY-P08NBMU-E1PMFY-P12NBMU-E1PMFY-P15NBMU-E1
Parts name Check points
Disconnect the connector then measure the resistance with a tester.
(At the ambient temperature 50°F~86°F)
Disconnect the connector then measure the resistance with a tester.
Measure the resistance between the terminals with a tester.
(At the ambient temperature 68°F~86°F)
Measure the resistance between the terminals with a tester.
(At the ambient temperature 68°F)
Measure the resistance after 3 minutes have passed since the power supply was turned off.
(At the ambient temperature 32°F~140°F
Vane motor (MV)
Linear expansion
valve (LEV)
Drain pump (DP)
Drain sensor (DS)
Refer to the next page for the details.
Refer to the next page for the details.
Refer to the next
page for the details.
Thermistor (TH21)
<Room temperature
detection>
Thermistor (TH22)
<Liquid pipe temperature
detection>
Thermistor (TH23)
<Gas pipe temperature
detection>
1
2
Blue
Blue
1
2
3
Normal
4.3k"~9.6k"
Abnormal
Open or short
Abnormal
Open or short
Normal
0.6k"~6.0k"
Abnormal
Open or short
Normal
150k" i10%
White-Red Yellow-Brown Orange-Red Blue-Brown
NormalConnector Abnormal
380" i7% Open or short
Normal Abnormal
400"~480"Open or short
Brown — Yellow
Brown — Red
Brown — Orange
Brown — Green
Orange
Red
White
Blue
Brown
Yellow
3
6
15
4
2
MV
M
Orange
Red
Brown
Green
Yellow
31
5
4
2
OC341B--1.qxp 07.7.11 1:29 PM Page 20

21
4[4
3
6
5
[3
2[2
1[1
[4
[3
[2
[1
Controller board
Drive circuit
Connector (CN60)
DC12V
Brown
Red
Blue
Orange
Yellow
White
M
4
6
2
3
5
1
Blue
Brown
Yellow
Orange
Red
White
Linear expansion valve
Linear expansion valve
11Operation summary of the linear expansion valve
• Linear expansion valves open/close through the use of a stepping motor after receiving the pulse signal from the indoor
controller board.
• Valve position can be changed in proportion to the number of pulse signals.
<Connection between the indoor controller board and the linear expansion valve>
Note : Since the number of the connector at the controller board side and the relay connector are different, follow the color of
the lead wire.
<Thermistor characteristic graph>
Thermistor <Room temperature detection> (TH21)
Thermistor <Liquid pipe temperature detection> (TH22)
Thermistor <Gas pipe temperature detection> (TH23)
Thermistor R0=15k' ±3%
Fixed number of B=3480K ± 2%
Rt=15exp { 3480( ) }
30_F 15.8k'
50_F 9.6k'
70_F 6.0k'
80_F 4.8k'
90_F 3.9k'
100_F 3.2k'
Drain sensor (DS)
Thermistor R0=6.0k' ±5%
Fixed number of B=3390K ±2%
Rt=6exp { 3390( ) }
30_F 6.3k'
50_F 3.9k'
70_F 2.5k'
80_F 2.0k'
90_F 1.6k'
100_F 1.3k'
140_F 0.6k'
Thermistor for
lower temperature
1
273+(t-32)/1.8
1
273
1
273+(t-32)/1.8
1
273
Thermistor for
drain sensor
0
10
20
30
40
50
0-20 20 40 60 80 100 120
< Thermistor for lower temperature >
Temperature (°F)
Resistance (k")
20 40 60
80
100 120 140 170
< Thermistor for drain sensor >
Temperature (°F)
0
1
2
3
4
5
6
7
8
9
10
Resistance (k")
OC341B--1.qxp 07.7.11 1:29 PM Page 21

22
Output
(Phase)
Output
{1
1
ON
{2ON
{3OFF
{4OFF
2
OFF
ON
ON
OFF
3
OFF
OFF
ON
ON
4
ON
OFF
OFF
ON
<Output pulse signal and the valve operation>
22Linear expansion valve operation
33Trouble shooting
D
A
E
B
C
Open
Extra tightening (80~100pulse)
Pulse number
2000 pulse
Opening a valve
all the way
Close
Valve position (capacity)
Closing a valve : 1 → 2 → 3 → 4 → 1
Opening a valve : 4 → 3 → 2 → 1 → 4
The output pulse shifts in above order.
• When linear expansion valve operation stops, all output phase
become OFF.
• At phase interruption or when phase does not shift in order, motor
does not rotate smoothly and motor will lock and vibrate.
• When the switch is turned on, 2200 pulse closing valve signal will be
send till it goes to point Ain order to define the valve position.
• When the valve moves smoothly, there is no sound or vibration
occurring from the linear expansion valves : however, when the
pulse number moves from Eto Aor when the valve is locked, more
sound can be heard than in a normal situation.
• Sound can be detected by placing the ear against the screw driver
handle while putting the screw driver tip to the linear expansion
valve.
6
5
4
3
2
1
LED1k"
Symptom Check points
Operation circuit fail-
ure of the micro
processor
Disconnect the connector on the controller board, then con-
nect LED for checking.
When power is turned on, pulse signals will send for 10
seconds. If the LED does not light or keeps lighting even
after the signals stop, that means some failures in the
operation circuit.
Countermeasures
Exchange the indoor con-
troller board at drive circuit
failure.
Linear expansion
valve mechanism is
locked.
Valve doesn't close
completely.
Wrong connection of
the connector or
contact failure
To check the linear expansion valve, operate the indoor unit
in fan mode and at the same time operate other indoor units
in cooling mode, then check the pipe temperature <liquid
pipe temperature> of the indoor unit by the
outdoor multi controller board operation
monitor. During fan operation, linear
expansion valve is closed completely and if
there is any leaking, detecting temperature
of the thermistor will go lower. If the detect-
ed temperature is much lower than the tem-
perature indicated in the remote controller,
it means the valve is not closed all the way. It is not neces-
sary to exchange the linear expansion valve, if the leakage is
small and not affecting normal operation.
Thermistor
(Liquid pipe)
Linear
expansion
valve
Motor will idle and make a ticking noise when the motor is
operated while the linear expansion valve is locked. This
ticking sound is the sign of the abnormality.
Check the color of lead wire and missing terminal of the con-
nector.
Exchange the linear
expansion valve.
Exchange the linear
expansion valve.
If large amount of refriger-
ant is leaked, exchange
the linear expansion valve.
Disconnect the connector
at the controller board,
then check the continuity.
Measure the resistance between each coil (white-red, yellow-
brown, orange-red, blue-brown) with a tester. It is normal if
the resistance is in the range of 150Ω±10%.
Short or breakage of
the motor coil of the
linear expansion
valve
OC341B--1.qxp 07.7.11 1:29 PM Page 22

23
9-2. TROUBLESHOOTING
Notes
· High voltage is applied to the connecter (FAN) for the fan motor. Give attention to the service.
· Do not pull out the connector (FAN) for the motor with the power supply on, doing so may result in damage to the board.
Self check
Conditions : The indoor fan does not rotate.
Turn OFF the power supply.
Wiring contact check
Contact of fan motor connector (FAN)
Contact of power supply cable.
Fan motor check
Measure the resistance between the fan motor connecter 1(+) and 3(–).
(With the connector pulled out from the board)
Turn ON the power supply.
Power supply check
Check the voltage of the indoor controller board with the connector (FAN) connected to the board.
Approx. 294~325V DC between the connecter (FAN) 1(+) and 3(–)
Fan motor position sensor signal check
Rotate the fan motor more than one turn slowly and check the voltage between
the connector (FAN) 6(+) and 3(–) with the connector (FAN) connected to the board.
Indoor controller board fuse check
Turn off the power supply and check if there is
any broken wire by using a tester.
Check method of indoor fan motor (fan motor / controller board)
Correct wiring connection.
Replace the fan motor.
Is the resistance 1M" or more?
Replace the fuse.
Replace the fan motor.
Does the voltage repeat 0V DC and 15V DC ?
Replace the indoor controller board.
Replace the indoor controller board.
Is the voltage normal?
Is the fuse normal?
Was contact good?
Yes
1
2
Yes
No
Yes
Yes
No
No
No
No
Yes
OC341B--1.qxp 07.7.11 1:29 PM Page 23

24
9-3. FUNCTION OF DIP SWITCH
PMFY-P·NBMU-E PMFY-P·NBMU-E
1
Switch Function Remarks
<Initial setting>
ON
OFF 123456789
10
Address board
Operation by switch
ON OFF
Pole
Built-in remote controller
Provided
2,500h
Effective
Fan operation at Heating mode
Low w
Setting air flow
Effective
Effective
Filter clogging detection
Filter cleaning sign
Fresh air intake
Humidifier control
Air flow at
Heat thermo OFF
Auto restart function
Power ON/OFF by breaker
Indoor unit
Not provided
100h
Not effective
Thermo ON operation at
Heating mode
Extra low w
Depends on SW1-7
Not effective
Not effective
Cooling only
Available
Available
Available
Second setting w6
Horizontal angle
Effective
Not effective
—
—
Heat pump / Cool only
Louver
Vane
Vane swing function
Vane horizontal angle
Vane cooling limit angle setting w4
Heating 4deg. up
Target superheat setting w5
Target sub cool setting w5
Heat pump
Not available
Not available
Not available
First setting
Down B, C
Not effective
Effective
—
—
1
2
3
4
5
6
7
8
9
10
1
2
3
4
5
6
7
8
9
10
SW1
Function
setting
SW2
Capacity
code
setting
1~6
1~5
SW3
Function
setting
SW4
Model
Selection
(Setting
for
PMFY
series)
Changing the opening of linear
expansion valve when the
thermostat is OFF
Thermistor <Room temperature
detection> position
<Initial setting>
ON
OFF 123456789
10
Indoor controller board
(
w4
) At cooling mode, each
angle can be used only
1 hour.
Do not use SW3-9, 10 as trouble
might be caused by the usage
condition.
w6 Second setting
means first setting.
Indoor controller board
<Initial setting>
Set for each capacity.
Indoor controller board
(
w5
) SW 3-9 setting
PMFY-P06, P08NBMU-E=ON
PMFY-P12, P15NBMU-E=OFF
SW 3-10 setting
PMFY-P06, P08NBMU-E=ON
PMFY-P12, P15NBMU-E=OFF
ON
OFF 12345
ON
OFF 12345
ON
OFF
MODELS
PMFY-P06NBMU-E
PMFY-P08NBMU-E
PMFY-P12NBMU-E
PMFY-P15NBMU-E
SW 2 MODELS SW 2
123456
ON
OFF 123456
ON
OFF 123456
ON
OFF 123456
Under
suspension
Under
suspension
Before
power
supply
ON
Before
power
supply
ON
Effective
timing
Switching remote
controller display Indicating if the
thermo is ON Indicating fan operation
ON/OFF
In case replacing the indoor controller board, make sure to set the switch to the
initial setting, which is shown below.
SW 1-7
OFF
ON
OFF
ON
SW 1-8
OFF
OFF
ON
ON
SW 1-8
Extra low
Low
Setting air flow
stop
w
OC341B--1.qxp 07.7.11 1:29 PM Page 24

25
0
5
9
4
8
3
7
2
6
1
0
5
9
4
8
3
7
2
6
1
0
5
9
4
8
3
7
2
6
1
0
5
9
4
8
3
7
2
6
1
0
8
F
7
E
6
D
5
C
4
B
3
A
2
9
1
0
8
F
7
E
6
D
5
C
4
B
3
A
2
9
1
220V
(208V) 240V
(230V)
Rotary switchRotary switch
SW14
Connection
No.
setting
SW5
Voltage
Selection
SW11
1st digit
address
setting
SW12
2nd digit
address
setting
2
Address setting should be done when M-NET
remote controller is being used.
This is the switch to be used when the indoor
unit is operated with R2 series outdoor unit
as a set.
If the unit is used at the 230V area,
set the voltage to 230V.
If the unit is used at the 208V, set the voltage
to 208V.
Address board
<Initial setting>
Address board
<Initial setting>
Address board
SW12
10
SW11
1
SW12 SW11
SW14
SW14
<Initial setting>
220V
(208V) 240V
(230V)
Switch Pole RemarksOperation by switch Effective
timing
Before
power
supply
ON
OC341B--1.qxp 07.7.11 1:29 PM Page 25

26
9-4. TEST POINT DIAGRAM
PMFY-P06NBMU-E PMFY-P08NBMU-E PMFY-P12NBMU-E PMFY-P15NBMU-E
PMFY-P06NBMU-E1PMFY-P08NBMU-E1PMFY-P12NBMU-E1PMFY-P15NBMU-E1
LED1
Power supply (I.B)
(Indoor unit :
208-230V)
CNP
Drain pump output
(DP)
Between 11 to 33
208-230V AC
FUSE
6.3A 250V
FAN
Fan motor output
(MF)
CN2M
Connect to the terminal block (TB5)
(M-NET transmission connecting wire)
24-30V DC (non-polar)
CN3A
Connect to the terminal block (TB15)
(MA-Remote controller connecting wire)
Between 11 to 338.7-13V DC (Pin11(+))
CN29
Pipe temperature
thermistor/Gas
(TH23)
CN60
Linear expansion
valve output (LEV)
CN31
Drain sensor (DS)
CN51
Centrally control
SW2
Capacity setting
CN52
Remote indication
CN6V
Vane motor output
(MV)
CN20
Room temperature
thermistor (TH21)
CN25
Connecter
(Humidifier)
CN27
Connector
(Damper)
SW3
Function setting
CN32
Connector
(Remote switch) SW4
Model selection
CND
Connect to the
terminal block (TB2)
(Power supply for
indoor controller
board connecting
wire)
Between 11 to 33
208-230V AC
LED2
Power supply (R.B)
CN21
Pipe temperature
thermistor/Liquid
(TH22)
CN41
HA terminal-A
OC341B--1.qxp 07.7.11 1:29 PM Page 26

27
DISASSEMBLY PROCEDURE10
OPERATING PROCEDURE PHOTOS&ILLUSTRATIONS
1. Removing the intake grille
(1) Press the of the air intake grille.(See figure 1)
(2) Put your fingers on both ends of the air intake grille and let
it down after the grille clicks.
PUSH
Opening the air intake grille
(1) Press the of air intake grille, and pull down both
ends with your fingers after the grille clicks.
(See figure 1)
(2) Pull out the handle of air intake grille toward you.
(See figure 2)
(3) Unhook the string, which secures air intake grille.
(See figure 3)
PUSH
Removing the air intake grille
Be careful when removing heavy parts.
Photo 1
Figure 1
Air filter
PMFY-P06NBMU-E PMFY-P08NBMU-E PMFY-P12NBMU-E PMFY-P15NBMU-E
PMFY-P06NBMU-E1PMFY-P08NBMU-E1PMFY-P12NBMU-E1PMFY-P15NBMU-E1
Figure 2
Figure 3
OC341B--1.qxp 07.7.11 1:29 PM Page 27

28
3. Removing the nozzle
Note when the nozzle is removed.
· The insulation material (white) which prevents water
drop is mounted to the side of vane motor. Remove the
insulation material before removing nozzle.
(See figure 4)
·After completing the service, re-mount the insulation
material as before as shown in right figure.
·After service, mount the double layer insulation
without fail.
The hard material side should be faced toward the
nozzle. (See figure 4)
(1) Remove the panel.
(2) Remove the room temperature thermistor.
(3) Unhook the claws in the middle of nozzle and remove the
drain pan. (5 screws) (See photo 2)
(4) Remove the nozzle side of the heat exchanger.(2 screws)
(5) Remove the address board cover.
(6) Remove the electrical parts cover.
(7) Disconnect the connector of vane motor.
(8) Remove the insulation material (white) on the right side of
nozzle.
(9)Remove the nozzle. (6 screws)
OPERATING PROCEDURE PHOTOS&ILLUSTRATIONS
2. Removing the electrical parts box
(1) Remove the panel.
(2) Remove the address board cover.
(3) Remove the electrical parts cover.
(4) Disconnect the connectors of
fan motor, vane motor,
drain pump, room temperature thermistor,
pipe temperature thermistor,
condenser/evaporator temperature thermistor,
and drain sensor on the electrical controller board.
(5) Disconnect the lead wire and earth wire from terminal
block.
(6)Remove the electrical parts box.
4. Removing the vane motor
(1) Remove the nozzle. Refer to above-mentioned 3
Removing the nozzle.
(2) Remove the vane motor.
Photo 5
Photo 4
Photo 3
Photo 2
Vane motor
Nozzle
Vane motor
Nozzle
Drain pan
Hard side of insulation
Insulation material
Electrical parts
Soft side of insulation
Room temperature thermistor
Nozzle
Claw in middle
of nozzle
Electrical parts
cover
Figure 4
Heat exchanger
Address board
cover
Vane motor
OC341B--1.qxp 07.7.11 1:29 PM Page 28

29
OPERATING PROCEDURE PHOTOS&ILLUSTRATIONS
5. Removing the drain pump
(1) Remove the panel.
(2) Unhook the claw in the middle of nozzle and remove the
drain pan.
(3) Remove the address board cover.
(4) Remove the electrical parts cover.
(5) Disconnect the connector of drain pump.
(6) Remove the drain hose.
(7) Remove the drain pump.(2 screws)
6. Removing the fan motor and line flow fan
(1) Remove the panel.
(2) Unhook the claw in the middle of nozzle and remove the
drain pan.
(3) Unscrew 2 screws at the nozzle side of the heat exchanger.
(4) Remove the address board cover.
(5) Remove the electrical parts cover.
(6) Disconnect the connector of vane motor, fan motor and
drain pump.
(7) Remove the nozzle side of the heat exchanger.(2 screws)
(8) Remove the nozzle.
(9) Remove the drain pump.
(10) Unscrew 2 screws in the motor support.
(11) Remove the fan motor and line flow fan. (The fan motor
and line flow fan can be removed without removing the
heat exchanger.)
Photo 6 Drain pump
Fan motor
Drain sensor
Photo 7
Fan motor
Line flow fan
7. Removing the thermistor<Room temperature detection>
(1) Remove the panel.
(2) Remove the address board cover.
(3) Remove the electrical parts cover.
(4) Remove the thermistor. <intake temperature detector>
(5) Disconnect the lead wire from the cord clamp. (5 points)
(6) Disconnect the connector (CN20) on the indoor controller
board.
8. Removing the thermistor
<Liquid pipe temperature detection>
<Gas pipe temperature detection>
(1) Remove the panel.
(2) Remove the address board cover.
(3) Remove the electrical parts cover.
(4) Remove the drain pan.
(5) Remove the thermistor <Gas pipe temperature detection>
/<Liquid pipe temperature detection>.
(6) Disconnect the lead wire from the cord clamp.
(7) Disconnect the connector (CN21)/(CN29) on the indoor
controller board.
OC341B--1.qxp 07.7.11 1:29 PM Page 29

30
11 PARTS LIST (non-RoHS compliant)
PANEL PARTS FOR
PMFY-P06NBMU-E PMFY-P08NBMU-E PMFY-P12NBMU-E PMFY-P15NBMU-E
PMP-16BMU
1
2
3
4
5
6
7
8
9
10
11
1
2
2
2
1
1
1
2
1
2
1
AIR OUTLET GRILLE
LATCH
PANEL HOOK
GRILLE CATCH
L.L.FILTER
L.L.FILTER
INTAKE GRILLE
GRILLE CATCH
RECEIVER COVER
MAGNET
SCREW CAP
No. Part No. Part Name Specification
Q'ty/set Remarks
(Drawing No.)
Wiring
Diagram
Symbol
Recom-
mended
Q'ty
PMP-16BMU
T7W E11 003
R01 E00 055
R01 E00 099
R01 E01 054
R01 E01 500
R01 E02 500
TW7 E01 691
R01 E00 054
R01 E00 648
R01 E00 044
R01 E00 096
6
7
8
9
10 11
1
2
4
2
3
4
5
10
3
OC341B--1.qxp 07.7.11 1:29 PM Page 30

31
FUNCTIONAL PARTS
PMFY-P06NBMU-E
PMFY-P08NBMU-E
PMFY-P12NBMU-E
PMFY-P15NBMU-E
1
2
3
4
5
6
7
8
9
10
11
12
13
14
15
16
17
18
19
20
21
22
23
1
1
1
1
1
1
1
1
1
1
1
1
1
1
1
1
1
1
1
1
1
1
1
1
1
1
1
1
1
1
1
1
1
1
1
1
1
1
1
1
1
1
1
1
1
1
PMFY-P · NBMU-E
TH21
TH22
TH23
LEV
MV
DS
DP
MF
BEARING MOUNT
SLEEVE BEARING
LINE FLOW FAN
STABILIZER ASSY
VANE SLEEVE
HEAT EXCHANGER
HEAT EXCHANGER
DRAIN PAN ASSY
THERMISTOR
GUIDE VANE
THERMISTOR
THERMISTOR
LINEAR EXPANSION VALVE
VANE
VANE MOTOR
CASING ASSY
SENSOR HOLDER
DRAIN SENSOR
DRAIN PUMP
MOTOR SUPPORT
FAN MOTOR
RUBBER MOUNT
DRAIN PIPE ASSY
SCREW ASSY
ROOM
LIQUID
GAS
No. Part No. Part Name Specification
Q'ty/set Remarks
(Drawing No.)
Wiring
Diagram
Symbol
Recom-
mended
Q'ty
06/ 08 12/ 15
R01 22A 102
R01 005 103
R01 E02 114
R01 E00 079
R01 E00 092
T7W K08 480
T7W K09 480
R01 E10 529
R01 E00 202
R01 E00 038
R01 E01 202
R01 E03 202
R01 E66 401
R01 E01 002
R01 E01 223
R01 E00 110
R01 31K 241
R01 E01 266
T7W E07 355
R01 E00 130
R01 E14 220
R01 E07 105
R01 E00 527
R01 E01 673
6
7
8
1
2
3
4
5
13
16
21
18
17
20
19
9
10
11
15
12
22
Part number that is circled is not shown in the figure.
14
10
OC341B--2.qxp 07.7.11 1:30 PM Page 31

32
ELECTRICAL PARTS
PMFY-P06NBMU-E PMFY-P08NBMU-E PMFY-P12NBMU-E PMFY-P15NBMU-E
1
2
3
4
5
6
TB2
TB5
TB15
A.B
I.B
TERMINAL BLOCK
TERMINAL BLOCK
TERMINAL BLOCK
ADDRESS BOARD
CABLE ASSY
INDOOR CONTROLLER BOARD
3P (L1,L2,G)
3P (M1,M2,S)
2P(1,2)
with POWER BOARD
No. Part No. Part Name Specification
Q'ty/set Remarks
(Drawing No.)
Wiring
Diagram
Symbol
Recom-
mended
Q'ty
PMFY-P
06/08/12/15
NBMU-E
1
1
1
1
1
1
T7W E11 716
T7W E17 716
R01 556 246
T7W E00 294
R01 E00 304
T7W E43 310
CNP
FAN
CN60 CN6V
RG79L094H01
1
2
3
5
6
4
OC341B--2.qxp 07.7.11 1:30 PM Page 32

33
12 RoHS PARTS LIST
PANEL PARTS FOR
PMFY-P06NBMU-E PMFY-P08NBMU-E PMFY-P12NBMU-E PMFY-P15NBMU-E
PMFY-P06NBMU-E1PMFY-P08NBMU-E1PMFY-P12NBMU-E1PMFY-P15NBMU-E1
PMP-16BMU
1
2
3
4
5
6
7
8
9
10
11
1
2
2
2
1
1
1
2
1
2
1
AIR OUTLET GRILLE
LATCH
PANEL HOOK
GRILLE CATCH
L.L.FILTER
L.L.FILTER
INTAKE GRILLE
GRILLE CATCH
RECEIVER COVER
MAGNET
SCREW CAP
No.
G
G
G
G
G
G
G
G
G
G
G
RoHS
Part No. Part Name Specification
Q'ty/set Remarks
(Drawing No.)
Wiring
Diagram
Symbol
Recom-
mended
Q'ty
PMP-16BMU
T7W E16 003
R01 E01 055
R01 E01 099
R01 E07 054
R01 E14 500
R01 E15 500
T7W E04 691
R01 E06 054
R01 E01 648
R01 E01 044
R01 E04 096
6
7
8
9
10 11
1
2
3
4
2
3
4
5
10
OC341B--2.qxp 07.7.11 1:30 PM Page 33

34
FUNCTIONAL PARTS
PMFY-P06NBMU-E
PMFY-P08NBMU-E
PMFY-P12NBMU-E
PMFY-P15NBMU-E
PMFY-P06NBMU-E1
PMFY-P08NBMU-E1
PMFY-P12NBMU-E1
PMFY-P15NBMU-E1
1
2
3
4
5
6
7
8
9
10
11
12
13
14
15
16
17
18
19
20
21
22
23
1
1
1
1
1
1
1
1
1
1
1
1
1
1
1
1
1
1
1
1
1
1
1
1
1
1
1
1
1
1
1
1
1
1
1
1
1
1
1
1
1
1
1
1
1
1
PMFY-
TH21
TH22
TH23
LEV
MV
DS
DP
MF
MF
BEARING MOUNT
SLEEVE BEARING
LINE FLOW FAN
STABILIZER ASSY
VANE SLEEVE
HEAT EXCHANGER
HEAT EXCHANGER
DRAIN PAN ASSY
THERMISTOR
GUIDE VANE
THERMISTOR
THERMISTOR
LINEAR EXPANSION VALVE
VANE
VANE MOTOR
CASING ASSY
SENSOR HOLDER
DRAIN SENSOR
DRAIN PUMP
MOTOR SUPPORT
FAN MOTOR
FAN MOTOR
RUBBER MOUNT
DRAIN PIPE ASSY
SCREW ASSY
ROOM
LIQUID
GAS
No.
G
G
G
G
G
G
G
G
G
G
G
G
G
G
G
G
G
G
G
G
G
G
G
G
G
RoHS
Part No. Part Name Specification
Q'ty/set Remarks
(Drawing No.)
Wiring
Diagram
Symbol
Recom-
mended
Q'ty
06/08 12/15
1
1
1
1
1
1
1
1
1
1
1
1
1
1
1
1
1
1
1
1
1
1
1
1
1
1
1
1
1
1
1
1
1
1
1
1
1
1
1
1
1
1
1
1
1
1
06/08 12/15
R01 23A 102
R01 E04 103
R01 E32 114
R01 E01 079
R01 E02 092
T7W H08 480
T7W H09 480
R01 E30 529
R01 H12 202
R01 E03 038
R01 H16 202
R01 H17 202
R01 H06 401
R01 E16 002
R01 E18 223
R01 E05 110
R01 32K 241
R01 E11 266
T7W E11 355
R01 E35 130
R01 E24 220
R01 E45 220
R01 E13 105
R01 E05 527
R01 E03 673
P·NBMU-E P·NBMU-E1
6
7
8
1
2
3
4
5
13
16
21
18
17
20
19
9
10
11
15
12
22
Part number that is circled is not shown in the figure.
14
OC341B--2.qxp 07.7.11 1:30 PM Page 34

35
ELECTRICAL PARTS
PMFY-P06NBMU-E PMFY-P08NBMU-E PMFY-P12NBMU-E PMFY-P15NBMU-E
PMFY-P06NBMU-E1PMFY-P08NBMU-E1PMFY-P12NBMU-E1PMFY-P15NBMU-E1
1
2
3
4
5
6
7
TB2
TB5
TB15
A.B
FUSE
I.B
I.B
TERMINAL BLOCK
TERMINAL BLOCK
TERMINAL BLOCK
ADDRESS BOARD
CABLE ASSY
FUSE
INDOOR CONTROLLER BOARD
INDOOR CONTROLLER BOARD
3P (L1,L2,G)
3P (M1,M2,S)
2P(1,2)
250V, 6A
No.
G
G
G
G
G
G
G
G
RoHS
Part No. Part Name Specification
Q'ty/set Remarks
(Drawing No.)
Wiring
Diagram
Symbol
Recom-
mended
Q'ty
PMFY-P06/08/12/15
NBMU-E
1
1
1
1
1
1
1
NBMU-E1
1
1
1
1
1
1
1
T7W E41 716
R01 E27 246
R01 E21 246
T7W E01 294
R01 E07 304
T7W 420 239
T7W E59 310
T7W E67 310
CNP
FAN
CN60 CN6V
RG79L094H01
7
1
2
3
5
4
6
OC341B--2.qxp 07.7.11 1:30 PM Page 35

HEAD OFFICE : TOKYO BLDG., 2-7-3, MARUNOUCHI, CHIYODA-KU, TOKYO100-8310, JAPAN
cCopyright 2005 MITSUBISHI ELECTRIC ENGINEERING CO., LTD.
Distributed in Jul. 2007. No. OC341 REVISED EDITION-B PDF 9
Distributed in Aug. 2006. No. OC341 REVISED EDITION-A PDF 9
Distributed in Jun. 2005. No. OC341 PDF 10
Made in Japan
New publication, effective Jul. 2007
Specifications subject to change without notice
OC341B--2.qxp 07.7.11 1:30 PM Page 36