Moffat Gsc 5062 Users Manual GSC5062
GSC 5062 a47695a5-50e5-6a34-55e1-e1addabab986
GSC 5062 to the manual a47695a5-50e5-6a34-55e1-e1addabab986
2015-02-02
: Moffat Moffat-Gsc-5062-Users-Manual-438129 moffat-gsc-5062-users-manual-438129 moffat pdf
Open the PDF directly: View PDF
.
Page Count: 25

GAS COOKER
GSC 5062
GB
2

3
CONTENTS
Instructions for the user Instructions for the installer
Important Safety Information
Description of the appliance
Technical Features
Using the appliance
- Using the oven
- Hints & Tips
- Using the Grill
- Using the Hob
Maintenance and Cleaning
Something Not Working
Service & Spare Parts
Customer Care
Guarantee Conditions
4
5
6
7
7
9
10
11
13
15
16
16
17
Safety Advice
Electric connection
Technical Data
Installation
- Positioning
- Ventilation
- Location
Gas connections
Conversion of gas
18
18
19
19
19
20
20
21
22
How to read the instruction book
The symbols below will guide you when reading the
instruction book
Safety instructions
Step by Step Operation
Advice and recommendations
Environmental Information

4
IMPORTANT SAFETY INFORMATION
Installation
• This cooker must be installed by qualified
personnel, according to the manufacturer’s
instructions and to the relevant British
Standards.
• This cooker is heavy. Take care when moving
it.
• Any gas installation must be carried out by a
registered CORGI installer.
• Remove all packaging before using the
cooker.
• Ensure that the gas and electrical supply
complies with the type stated on the rating
plate, located near the gas supply pipe.
• Do not attempt to modify the cooker in any
way.
Child Safety
• This cooker is designed to be operated by
adults. Do not allow children to play near or
with the cooker.
• The cooker gets hot when it is in use. Children
should be kept away until it has cooled.
• Children can also injure themselves by pulling
pans or pots off the cooker.
During Use
• This cooker is intended for domestic cooking
only. It is not designed for commercial or
industrial purposes.
• When in use a gas cooker will produce heat
and moisture in the room in which it has been
installed. Ensure there is a continuous air
supply, keeping air vents in good condition or
installing a cooker hood with a venting hose.
• When using the cooker for a long period time,
the ventilation should be improved, by
opening a window or increasing the extractor
speed.
• Do not use this cooker if it is in contact with
water. Do not operate the cooker with wet
hands.
• The grill pan will become hot during use,
always use oven gloves when removing or
replacing a hot grill pan.
• Ensure the control knobs are in the ‘OFF’
position when not in use.
• When using other electrical appliances,
ensure the cable does not come into contact
with the hot surfaces of the cooker.
• Unstable or misshapen pans should not be
used on the hob burners as unstable pans
can cause an accident by tipping or spillage.
• Never leave the cooker unattended when
cooking with oil and fats.
• This cooker should be kept clean at all times.
A build-up of fats or foodstuffs could result in
a fire.
• Never use plastic dishes in the oven or on the
hob burners. Never line any part of the oven
with aluminium foil.
• Always ensure that the oven vent, which is
located at the centre back of the hob, is left
unobstructed to ensure ventilation of the oven
cavity.
• Perishable food, plastic items and aerosols
may be affected by heat and should not be
stored above the cooker.
Service
• This cooker should only be repaired or
serviced by an authorised Service Engineer
and only genuine approved spare parts
should be used.
Environmental Information
• After installation, please dispose of the
packaging with due regard to safety and the
environment.
• When disposing of an old appliance, make it
unusable, by cutting off the cable.
You MUST read these warnings carefully before installing or using the appliance. If you
need assistance, contact our Customer Care Department on 08705 950950.
Keep this instruction book for future
reference and ensure it is passed on to any
new owner.

5
DESCRIPTION OF THE APPLIANCE
Control panel
Oven door with
glass
Oven door
handle
Adjustable
small feet
Cooker lid
Hob
2
1
3
4
2000W
2000W
1000W
2600W
semi-rapid
semi-rapid
auxiliary
rapid
1. Front left burner (semi-rapid)
2. Back left burner (semi-rapid)
3. Back right burner (auxiliary)
4. Front right burner (rapid)
Control panel
Model : GSC 5062 W
FRONT
LEFT
BURNER
CONTROL
KNOB
BACK
LEFT
BURNER
CONTROL
KNOB
BACK
RIGHT
BURNER
CONTROL
KNOB
FRONT
RIGHT
BURNER
CONTROL
KNOB
OVEN/GRILL
KNOB
small rapid
normal
normal
GSC 5062
W
grill
9
IGNITION
SWITCH
oven
1
2
3
4
57
8
6

6
TECHNICAL FEATURES
Free standing Class 1
Hob Cooker lid
Pan support
Front right
Back right
Front left
Back left
Enamelled
Enamelled
Rapid
Auxiliary
Semi rapid
Semi rapid
2,60kW
1,00kW
2,00kW
2,00kW
Oven Oven
Oven power
Grill
Grill power
Gas
3,20kW
Gas
2,50kW
Accessories Oven grid
Roasting tray
Roasting grid
Grill Deflector
Chromed
Enamelled
Chromed
Enamelled
Dimensions
Height with the lid closed
Height to the hob
Width
Depth
910 - 920 mm
880 - 890 mm
500 mm
600 mm
This appliance complies with the following
EEC Directives :
89/336 (Electromagnetical Compatibility
Directive) and subsequent modifications,
90/396 (Gas Appliance Directive)
93/68 (General Directives) and subsequent
modifications.

7
USING THE APPLIANCE
Before the First Use of the Cooker
Remove all packaging both inside and
outside of the cooker, before using it.
Before first use, the oven should be heated
without food. During this time, an unpleasant
odour may be emitted. This is quite normal.
1. Remove the oven accessories and ensure all
packaging has been removed.
2. Ignite the oven burner (see instructions) and
turn the control knob to 9 (maximum).
3. Open a window for ventilation
4. Allow the oven to run empty for
approximately 45 minutes.
This procedure should be repeated with the grill
function for approximately 5-10 minutes.
Using the Oven
The cooker gets hot when it is in use.
Children should be kept away until it
has cooled.
Stand clear when opening the drop
down oven door.
Do not allow it to fall open - support the
door using the door handle, until it is
fully open.
Attention: when turning on the oven and
grill burner the oven door has to be
opened.
The oven has three shelf levels, and is supplied
with one shelf.
The shelf positions are counted from the bottom
of the oven as shown in the diagram.
Do not place cookware or foil directly
on the oven base.
Oven Safety device
The cooker features a thermocouple; if for
any reason the flame should extinguish, the
device will stop the gas flow.
Use
The oven can be used for traditional cooking, or
for grilling, but not both functions simultaneously.
The symbol on the knob corresponds to the
symbol on the control panel.
Off
“9” Maximum
“1” Minimum
“Grill” Grill function (heat come from the top
burner only.
oven grill
1
2
3
4
57
8
9
6
Shelf
levels
1
2
3
oven grill
1
2
3
4
57
8
9
6

8
Ignition
Attention: when turning on the oven and
grill burner the oven door has to be
opened.
• Open the oven door and lift the small lid
on the bottom of the cavity, push and turn
the control knob to the left to position 9,
keeping the control knob pressed.
• At the same time, push the electronic
ignition knob (see fig). Keep it pushed until
the gas ignites (1 spark / second).
• Release the knob after 10 seconds and
check that the burner is ignited through the
holes in the burner cover.
OR
Power Cut
• Open the oven door and lift the small lid on
the bottom of the cavity, push and turn the
control knob to the left to position 9, keeping
the control knob pressed.
• Release the knob after 10 seconds and
check that the burner is ignited through the
holes in the burner cover.
If for any reason the flame should extinguish turn
control knob to the off position, after at least 1
minute, try to re-ignite the oven.
oven grill
1
2
3
4
57
8
9
6
Gas Mark Temperature oC
1 150
2 162
3 175
4 187
5 200
6 212
7 225
8 237
9 250
Cooking in the Oven
Traditional cooking is made by natural
convection; the heated air circulates on the
principle of ascending and descending draughts.
It is necessary to pre-heat the oven.
All cookers vary and it is important to be
aware of the approximate cooking
temperatures before you use the cooker.
The chart shows the gas mark temperatures
together with the approximate equivalent
temperatures in oC.
It may be necessary to adjust the temperature to
suit your individual requirements. Only
experience will enable you to determine the
correct setting for your personal requirements.

9
Hints and Tips
Condensation and steam
When food is heated it produces steam in the
same way as a boiling kettle. The oven vents
allow some of this steam to escape. However,
always stand back from the oven when
opening the oven door to allow any build up of
steam or heat to release.
If the steam comes into contact with a cool
surface on the outside of the oven, e.g. a trim, it
will condense and produce water droplets. This
is quite normal and is not a fault with the oven.
To prevent discolouration, regularly wipe away
condensation and also soilage from surfaces.
Cookware
Use any ovenproof cookware, which will
withstand temperatures of 250°C.
Oven dishes, etc. should not be placed
directly on the oven base.
Oven Cooking
• Turn off the oven 5 minutes before the end of
cooking time, and use residual heat to
complete the cooking.
• The thickness, the material and the colour of
the pan will influence the cooking results.
• When cooking, certain dishes increase in
volume, ensure the pan is large enough.
• To prevent fat dripping when roasting use tall
rim pans proportional to the item being
roasted.
• Prick the skin of poultry and sausages with a
fork before cooking to avoid spitting.
• Use heatproof glass dishes for soufflés.
The effects of dishes on cooking results
Dishes and tins vary in their thickness,
conductivity, colour, etc. which affects the way
they transmit heat to the food inside them.
AAluminium, earthenware, oven glassware
and bright shiny utensils reduce cooking and
base browning.
BEnamelled cast iron, anodised aluminium,
aluminium with non-stick interior and coloured
exterior and dark, heavy utensils increase
cooking and base browning.

10
Using the Grill
When using the grill it has to be
supervised, the oven door opened and the
grill deflector “A” in its place.
Heat comes from the top of the oven. It is
suitable for grilling meat (beef bacon, pork bacon
…) that remains tender, for toast or to brown food
already cooked.
Grill burner ignition
Attention: when turning on the oven and
grill burner the oven door has to be opened.
• Open the oven door push and turn the
control knob to the right to the “grill symbol”
and keeping the control knob pressed.
• At the same time, push the electronic
ignition knob (see fig). Keep it pushed until
the gas ignites (1 spark / second).
• Upon ignition, keep the knob pressed for
approximately 10 seconds (until the safety
valve automatically keeps the grill burner
lit).
OR
Power Cut
• Open the oven door.
• Hold a flame to the gas grill burner holes (see
fig.).
• Press the oven/grill function control knob, then
turn it to the “grill symbol”. Upon ignition,
keep the knob pressed for approximately
10 seconds (until the safety valve
automatically keeps the grill burner lit).
If for any reason the flame should extinguish turn
the control knob to the OFF position, leave for at
least 1 minute and then re-ignite.
Accessible parts may become hot when
the grill is in us. Children should be kept
away.
The grill pan will become hot during use,
always use oven gloves when removing or
replacing a hot grill pan.
Grilling
When using the grill it has to be
supervised, the oven door opened and
the grill deflector “A” in its place.
When grilling, only the top burner is heating. It is
not necessary to preheat the grill.
1. Insert the food on the 2nd level.
2. Turn the knob to position “grill”.
3. Adjust the grid and pan position to allow for
different thicknesses of food. Position the
food close the grill for faster cooking and
further away for gentler cooking.
A
oven grill
1
2
3
4
57
8
9
6
9
oven grill
1
2
3
4
57
8
6

11
Heat comes from the top of the oven. It is suitable
for grilling meat (beef bacon, pork bacon …) that
remains tender, for toast or to brown already
cooked dishes.
Grilling meat
When using the grill it has to be
supervised, the oven door opened and
the grill deflector “A” in its place.
Attention: when turning on the oven and
grill burner the oven door has to be
opened.
• Prepare the meat to be grilled, lightly brush it
with oil on both sides.
• Place it on the roasting grid.
• Turn the oven/grill control knob to position
“grill”.
• Slide the roasting grid together with the
roasting tray in the guide 2.
• When the first side is brown, turn the meat
without pricking it in order that the juices are
not lost.
• Grill the second side.
Cooking time is determined by the thickness of
the piece to be grilled not by its weight.
Browning
• Turn the oven/grill control knob to the “grill”
position
• Place the dish on the grid and slide it on shelf
guide 2 or 3.
• Leave the dish under the grill for a few minutes.
Using the Hob
The Hob Burners
The symbol on the knob corresponds to a symbol
on the control panel (See description of appliance).
Off
Maximum level
Minimum level
Use the maximum level for boiling and the
minimum for simmering.
Always choose positions between the minimum
and maximum, never between maximum and off.
Ignition of the burners
• Push the knob and turn it left to the symbol “big
flame”.
• At the same time, push the electronic ignition
knob (see fig). Keep it pushed until the gas
ignites (1 spark / second).
• Release the knob and watch that the burner
has ignited.
• Upon ignition, adjust the flame as required.

12
OR
Power Cut
• Push the corresponding knob in completely
and turn it left to the symbol “large flame”
symbol and ignite with a match.
• Release the knob and watch that the burner
has ignited. Upon ignition, adjust the flame as
required.
• If for any reason the flame should extinguish
turn off the relevant control knob, leave for at
least one minute and then re-ignite.
Extinguishing of burners
Turn the knob clockwise to mark « ».
Do not put anything on the hob that is
liable to melt.
Selecting the Correct burner
Above every knob there is a symbol for the
corresponding burner.
For good cooking results, always choose pans,
which correctly fit to the diameter of the burner
used (see figs). Choose thick, flat bottom pots.
We recommend the flame is lowered as soon as
the liquid starts boiling.
For a correct ignition always keep the burner ring
and the spark plugs clean.
The following diameter pans can be used:
Good use
Bad use
(
Power waste
)
Burner Power Diameter (mm)
(kW) min. max.
Rapid 2,60 165 260
Semi-
Rapid 2,00 140 220
Auxiliary 1,00 120 160
Accessories delivered with the
appliance
The following accessories are supplied with your
appliance.
• Grill Deflector
To be used when the grill is operation.
• Shelf for placing dishes on (roast, pastry
mounds)
The dish should be put in the middle of the
shelf to balance the weight.
• A roasting tray with roasting grid on it.
It is used to collect juice when cooking in it,
place it on the shelf 2.
If you do not use the roasting tray, remove it
from the oven.
In addition to the accessories supplied we
recommend you only use heatproof dishes/pans
(according to the manufacturer’s instructions).

13
MAINTENANCE AND CLEANING
The oven should be kept clean at all
times. A build-up of fats or other
foodstuffs could result in a fire,
especially in the grill pan.
Before cleaning, ensure all control
knobs are in the OFF position, and the
appliance has cooled completely.
Before any maintenance or cleaning can
be carried out, you must DISCONNECT
the cooker from the electricity supply.
Cleaning materials
Before using any cleaning materials on your
oven, check that they are suitable and that their
use is recommended by the manufacturer.
Cleaners that contain bleach should NOT
be used as they may dull the surface
finishes. Harsh abrasives should also be
avoided.
External cleaning
Regularly wipe over the control panel, oven door
and door seal using a soft cloth well wrung out in
warm water to which a little washing up liquid has
been added.
To prevent damaging or weakening the
door glass panels avoid the use of the
following:
• Household detergent and bleaches
• Impregnated pads unsuitable for non
stick saucepans
• Brillo/Ajax pads or steel wool pads
• Chemical oven pads or aerosols
• Rust removers
• Bath/Sink stain removers
Oven Cavity
The enamelled oven cavity is best cleaned whilst
the oven is still warm.
Wipe the oven over with a soft cloth soaked in
warm soapy water after each use. From time to
time it will be necessary to do a more thorough
cleaning, using a proprietary oven cleaner.
Oven Door Glass
The internal oven door glass can be removed for
cleaning. For this purpose remove the 2 fixing
screws. Clean the outer and inner door glass
using warm soapy water. Should the inner door
glass become heavily soiled it is recommended
that a cleaning product such as Hob Brite, or Bar
Keepers Friend be used.
Always support the door while removing the
glass panel as the door may spring closed due to
its lighter weight.
Removing the Oven Door
1. Open the door completely.
2. Turn the two locking levers (1) on the hinge
arms fully upwards.
3. Hold the oven door at the sides using both
hands and close the door partially to a 30o
angle.
4. Lift the door and pull out.
Hanging the Oven Door
1. Hold the oven door at the sides using both
hands and hold the door at an angle of
approx 30o.
2. Introduce and then push the hinges into the
cut-outs on the front of the oven, ensuring
that the supports (2) of the hinge arms are
correctly placed in the cut-outs (3) of the
hinge support.
3. Turn the locking levers (1) fully downwards.

14
DO NOT clean the oven door while the
glass panels are warm. If this precaution is
not observed the glass panel may shatter.
If the door glass panel becomes chipped or
has deep scratches, the glass will be
weakened and must be replaced to prevent
the possibility of the panel shattering.
Contact your local Service Centre who will be
pleased to advise further.
IMPORTANT: The inner door glass must be in
place when using the oven.
Hob
After every use wipe with a soft cloth well wrung
out in warm water to which a little washing up
liquid has been added, avoiding any leakage
through the holes of the hob. Rinse and dry with
a soft cloth.
To remove more stubborn stains, wet and leave
to dissolve, do not scratch and avoid the use of
abrasive or caustic products that could damage
the enamel.
Burners
The burner caps and crowns can be removed for
cleaning.
Wash the burners caps and crowns using hot
soapy water, and remove marks with a mild
paste cleaner. A well-moistened soap
impregnated steel wool pad can be used with
caution, if the marks are particularly difficult to
remove.
After cleaning, be sure to wipe dry with a soft
cloth.
Burner cap
Burner
ring
Ignition

15
SOMETHING NOT WORKING
If the appliance is not working correctly, please carry out the following checks, before contacting your
local Service Force Service Centre.
IMPORTANT: If you call out an engineer to a fault listed below, or to repair a fault caused by
incorrect use or installation, a charge will be made even if the appliance is under guarantee.
Symptoms Solutions
1. No burner ignition
2. The gas ring burns unevenly
3. One of the oven or grill burners does not
ignite
4. Cooking results are not satisfactory
5. The oven smokes
Check that:
• Gas supply is completely open
• The position of gas pipe is correct
• The burner is not wet
• The burner cap and ring burner have been
replaced correctly after cleaning
Check that:
• The main jet is not blocked and the ring
burner is clean of food particles
• The burner cap and ring burner have been
replaced correctly after cleaning
Check that:
• The burner is in its correct place
• The burner is not wet
• The control knob has been pressed for 10
seconds upon ignition
Check that:
• The correct temperature has been selected
• The cooking time is adapted
• The grill is placed correctly in the oven
Check that:
• The oven does not need cleaning
• The food does not spill over
• There is no excessive fat / juice on the oven
sides
• Check the fuses.
If after these checks, the appliance still does not operate correctly, contact your local Service Force
Centre. When you contact the Service Force Centre you will need to give the following details:
1. Your name, address and post code.
2. Your telephone number
3. Clear and concise details of the fault
4. The model and serial number of the appliance (found on the rating plate*)
5. The purchase date
* The rating plate can be found on the lower left hand corner of the front frame of the cavity.
Please note that a valid purchase receipt or guarantee documentation is required for in-guarantee
service calls.

16
SERVICE AND SPARE PARTS
In the event of your appliance requiring service, or if you wish to purchase spare parts, please contact
your local Service Force Centre by telephoning:-
08705 929929
Your telephone call will be automatically routed to the Service Force Centre covering your post code area.
For the address of your local Service Force Centre and further information about Service Force, please
visit the website at www.serviceforce.co.uk
Before calling out an engineer, please ensure you have read the details under the heading “Something
Not Working” and have the model number and purchase date to hand.
In-guarantee customers should ensure that the checks under the heading “Something Not
Working” have been made as the engineer will make a charge if the fault is not a mechanical or
electrical breakdown. Please note that it will be necessary to provide proof of purchase for any in-
guarantee service calls.
CUSTOMER CARE
For general enquiries concerning your Moffat appliance and or for further information on our products,
contact our Customer Care Department by letter or telephone as follows:
Customer Care Department
Moffat
55-77 High Street
Slough
Berkshire SL1 1DZ
Tel: 08705 950 950 (*)
(*) Calls may be recorded for training purposes.

17
GUARANTEE CONDITIONS
Standard Guarantee Conditions
We Moffat undertake that if, within 12 months of the date of the purchase, this Moffat appliance or any
part thereof is proved to be defective by any reason only of faulty workmanship or materials, we will, at
our option, repair or replace the same FREE OF ANY CHARGE for labour, materials or carriage on
condition that:
• The appliance has been correctly installed and used only on the electricity supply stated on the rating
plate.
• The appliance has been used for normal domestic purposes only, and in accordance with the
manufacturer's instructions.
• The appliance has not been serviced maintained, repaired, taken apart or tampered with by any
person not authorised by us.
• All service work under this guarantee must be undertaken by a Service Force Centre.
• Any appliance or defective part replaced shall become the Company's property.
• This guarantee is in addition to your statutory and other legal rights.
Home visits are made between 8.30am and 5.30pm Monday to Friday. Visits may be available outside
these hours, in which case a premium will be charged.
Exclusions
This guarantee does not cover:
• Damage or calls resulting from transportation, improper use or neglect, the replacement of any light
bulbs or removable parts of glass or plastic.
• Costs incurred for calls to put right an appliance which is improperly installed or calls to appliance
outside the United Kingdom.
• Appliances found to be in use within a commercial or similar environment, plus those, which are the
subject to rental agreements.
• Products of Moffat manufacture which are not marketed by Moffat.
European Guarantee
If you should move to another country within Europe then your guarantee moves with you to your new
home subject to the following qualifications:
• The guarantee starts from the date you first purchased your product.
• The guarantee is for the same period and to the same extent for labour and parts as exist in the new
country of use for this brand or range of products.
• This guarantee relates to you and cannot be transferred to another user.
• Your new home is within the European Community (EC) or European Free Trade Area.
• The product is installed and used in accordance with our instructions and is only used domestically,
i.e. a normal household
• The electrical supply complies with the specification given in the rating label.
• The product is installed taking into account regulations in your new country.
Before you move, please contact your nearest Customer Care Centre, listed below, to give them details of
your new home. They will then ensure that the local Service Organisation is aware of your move and able
to look after you and your appliances.
France Senlis +33 (0) 3 44 62 20 13
Germany Nürnberg +49 (0) 800 234 7378
Italy Pordenone +39 (0) 800117511
Sweden Stockholm +46 (0) 20 78 77 50
UK Slough
+44 (0) 1753 219898

18
INSTRUCTIONS FOR THE INSTALLER
SAFETY ADVICE
• Before installation ensure that the local
distribution conditions (gas type and
pressure) and the pre-setting of the
appliance are consistent.
• This appliance must be installed only in a
room with good ventilation.
• This appliance must not connected to a flu. It
has to be installed and connected in
accordance with the rules in force. Special
attention should be paid to the applicable
disposal concerning ventilation.
• The adjacent furniture panels have to be heat
proof or protected by such material.
• The adjusting conditions of this appliance are
mentioned on the rating plate.
Connection to gas supply.
Check that the gas flow and the diameter of the
supply pipe is sufficient to supply all the
appliances of the installation.
• Check that all connections are tight.
• Install an accessible and visible gas tap to
isolate the appliance.
ELECTRIC CONNECTION
Any electrical work required to install
this cooker should be carried out by a
qualified electrician or competent person, in
accordance with the current regulations.
This cooker must be earthed.
This cooker is designed to be connected to a
240V 50Hz AC electrical supply.
Before switching on, make sure the electricity
supply voltage is the same as that indicated on
the rating plate.
Check on the rating plate the value for the
total connection power for establishing the
fuse power.
Fuse capacity: 5 A
If the supply cable is damaged it must be
replaced by the manufacturer or its
service agent.
Before connecting check that:
• The plug used for connection is easily
accessible when the appliance is installed.
-Installation of flues and ventilation for gas
appliances of rated input not exceeding
60 kW (1st, 2n
d
and 3r
d
family gases) – Part
2 Specification for installation of
ventilation for gas appliances – BS 5440;
-Gas burning appliances – Part 3 Domestic
cooking appliances burning gas – BS
5386;
-Specification for installation of low
pressure gas pipe work of up to 20mm
(R1) in domestic premises (2n
d
family gas)
– BS 6891;
-Pipe threads for tubes and fittings where
pressure-tight joints are made on the
threads (metric dimensions) – BS 21:
1985;
-Flexible hoses, end fittings and sockets
for gas burning appliances – BS 669;
Installation of domestic gas cooking
appliances (1st, 2n
d
and 3r
d
family gases) – BS
6172: 1990;
Warning
The supply cable must not be routed across
the back of the oven.
power cord
YES
NO
power cord

19
TECHNICAL DATA
Table no.1
(Cat : II 2H3+)
Cons
Burner
Normal
power
(kW)
Economic
power
(kW)
By-
pass
(mm)
Gas Type Pressure
(mbar)
Nozzle
diameter
(mm) m3/h g/h
RAPID 2.60 0.72 0.42
Natural Gas
Butane
Propane
20 mbar
28-30mbar
37mbar
1.12
0,86
0,86
0.248
188,8
SEMI-
RAPID 2.00 0.43 0.32
Natural Gas
Butane
Propane
20 mbar
28-30mbar
37mbar
0.96
0,71
0,71
0.191
145,2
AUXILIARY 1.00 0.35 0.29
Natural Gas
Butane
Propane
20 mbar
28-30mbar
37mbar
0.70
0,50
0,50
0.093
72,6
OVEN 3.20 1.00 0.46
Natural Gas
Butane
Propane
20 mbar
28-30mbar
37mbar
1.30
0,88
0,88
0.305
232,4
GRILL 2.50 - -
Natural Gas
Butane
Propane
20 mbar
28-30mbar
37mbar
1,15
0,80
0,80
0,238
181,5
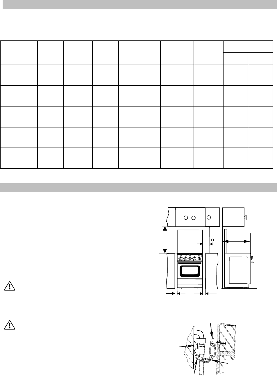
INSTALLATION
Positioning
Remove all the packaging and install the cooker
in a dry, ventilated room not near curtains, paper,
alcohol, petrol etc. (See figure).
This appliance is approved to class “1” regarding
overheating of surrounding surfaces.
It is mandatory to keep 20mm distance to the
adjacent furniture.
L.P.G. cookers or ovens MUST NOT be
installed below ground level, i.e. in a
basement, or aboard any boat, yacht or
other vessel.
The cooking appliance must be fitted
with a stability chain firmly secured to
the wall (see fig)
20 mm 20 mm
610 mm
150 mm
660 mm
Stability
chain
Stability
hook
Chain to be as
short as
practicable
Firmly fix
chain to rear
of cooker

20
Ventilation
The room containing the cooker should have an
air supply in accordance with B.S. 5440: Part 2:
Current Editions.
The following requirements for ventilation must
be met.
The cooker should not be installed in a bed
sitting room with a volume of less than 20m
3
, if it
is installed in a room of volume less 5m
3
an air
vent of effective area of 110cm
2
is required; if it is
installed in a room of volume between 5m
3
and
10m
3
, an air vent of effective area 50cm
2
is
required, while if the volume exceeds 11m
3
no air
vent is required. However, if the room has a door,
which opens directly to the outside, no air vent is
required even when the volume is between 5m
3
and 11m3.
If there are other fuel burning appliances in the
same room, B.S. 5440: Part. 2: Current Editions
should be consulted to determine the requisite air
vent requirements.
Location
The cooker may be located in a kitchen, a
kitchen/diner or bed sitting room but not in a
bathroom, shower room or garage.
For information regarding the fitting of flexible
supply pipes, the highest temperature at the rear
of this cooker which may come into contact with
the supply pipe is 70°C above ambient.
When the appliance has been installed there
must be enough space for the hotplate lid (when
present) to open fully.
L.P.G. cookers or ovens MUST NOT be
installed below ground level, i.e. in a
basement, or aboard any boat, yacht or other
vessel.
Levelling
Fix the support with two legs with the washer and
nuts, delivered with the cooker, see the figure.
• Unscrew the legs as far as possible (approx.
16mm from fully screwed in).
• Place the plinth (pos.3) so that the springs
(pos.2) reach the threaded area of the legs
and the clamp of the plinth (pos.4) is in front
of the holes (pos.5) on the under side of the
structure.
• Push the plinth towards the appliance with
both hands until the springs fasten on the legs
and the clamps go into the corresponding
holes.
• Adjust the legs as necessary.
1
3
2
5
4

21
GAS CONNECTIONS
Your cooker is delivered adjusted for the kind of
gas stated on the rating plate
If the appliance is supplied with natural gas and
the pressure for natural gas is 20mbar. The
following methods of connection to the gas
supply must be used:
Right Hand Connection (from front)
Ensure that the rubber hose is not in contact
with any part of the hatched area shown in the
diagram and that the loop of the hose when
connected is not in contact with the floor when
the appliance is in position.
Left Hand Connection (from front)
Ensure that the rubber hose is not in contact
with any part of the hatched area shown in the
diagram and the hose is retained in the clamp
provided, it will be necessary to fit the maximum
length hose when using this method.
Fixing and use of the 2 clips provided with
the cooker
The enclosed gas hose fixing clips must be fixed
to the back of the cooker, dependant on the
position of the supply bayonet connector (see
fig.).
When selecting the most suitable position for the
clips, please ensure that the gas hose cannot
come into contact with any part of the “Hot” zone
when pushing the cooker into its final position.
Finally, secure the hose into the clips.
Rigid Connection
Where it is not possible to make the connection
using a rubber hose, a rigid pipe work
connection must be used.
Recommendations when using an appliance
flexible connector are as follows:
- For NATURAL the gas installation pipes to the
termination point shall comply with:
Specification for installation of low-pressure
gas pipe work of up to 20mm (R1) in
domestic premises (2nd family gas) – BS
6891;
BACK OF THE COOKER
power cord
connection
of flexible
hose clamps
BACK OF THE COOKER
clamps
connection
of flexible
hose
power cord
Clip Position
Options
clip

22
Connection shall be by means of an appliance
flexible connector for use with a self-sealing
plug-in device, complying with:
Flexible hoses, end fittings and sockets for
gas burning appliances – BS 669;
- The appliance flexible connector should not
be subjected to undue forces either in
normal use or whilst connected or
disconnected; The socket which the plug of
the appliance flexible connector fits should
be permanently attached to a firmly fixed
gas installation pipe and positioned such
that the appliance flexible connector hose
hangs freely downwards (see fig. 27);
- The appliance flexible connector should be
positioned such that it will not suffer
mechanical damage, e.g. abrasion from the
surrounding kitchen furniture, which may be
moved in use such as a drawer or door, or
by being trapped by any stability device.
The plug-in-connector should be accessible
for disconnection after moving the
appliance.
Straight bayonet
socket
incorporating
spring loaded
valve
Cooker hose with
bayonet fixing
Cooker hose with
bayonet fixing
Alternative
backplate
elbow
Copper pipe
Adaptor
backplate
Right angled
bayonet socket
incorporating
spring loaded
valve
Distribuitor
pipe
Female
elbow
CONVERSION OF GAS
Your cooker is designed to work with natural gas,
and is convertible for use with propane or butane.
The LPG conversion kit is available from your
Service Force Centre and must be fitted by a
Corgi Registered engineer.
For changing the gas type it is necessary to:
• replace the nozzles (hob, oven and grill);
• adjust the minimum level (hob and oven);
• adjust the primary air (oven and grill);
• check the gas connection;
Stick the label supplied with the
appliance (in the nozzles bag) corresponding
to the gas type utilised.
Replace the nozzles of the hob burners
Every appliance has spare nozzles for every type
of gas. The whole length of every nozzle is
marked in millimetres on the nozzle.
Hob burners
• Remove the pan support;
• Remove the caps and the burner crowns;
• Using a No 7 socket spanner unscrew the
nozzles and replace them with those required
for the type of gas in use (see table no. 1).
Reassemble the parts following the same
procedure in reverse.
These burners do not need any primary air
regulation.

23
Adjustment of minimum level for the hob
burners
The burner is correctly adjusted when the flame
is stable silent and goes out without any noise.
When changing the type of gas check that the
minimum level is correct. The air admission is
correct when the flame is about 4 mm in length.
The top burners do not need adjustment of
primary air.
Check that, turning the knob quickly from the
maximum position to the minimum one, the flame
does not go out.
Hob burners
To adjust the minimum level:
• Light the burner
• Turn the knob to the position of the minimum
flame;
• Remove the knob;
• Unscrew or screw the by-pass screw (on the
right above of tap shaft) until a regular small
flame is reached.
• For LPG screw completely the by-pass
screw.
Reassemble the parts following the same
procedure in reverse.
Check that, when turning the knob quickly from
the maximum position to the minimum one, the
flame does not go out.
Replace the nozzles of the oven burners
Oven burner
To replace the gas oven nozzle, follow this
procedure:
• Check the table no.1 for diameter of nozzle;
• Remove the oven removable base panel;
• Remove the screw on the oven burner rod at
the rear of the oven;
• Remove the oven burner by pushing it
backwards.
• Replace the nozzle by means of a No 10
socket spanner;
Reassemble the parts following the same
procedure in reverse.
Grill burner
To replace the gas grill nozzle, follow this
procedure:
• Remove the grill burner after removing the
fixing screw.
• Replace the nozzle by means of a No 10
socket spanner;
• Refit all parts and test.

24
Table no.2
Air adjusting (mm)
Gas type Oven Grill
G20 2,5 25,5
G30 3,5 24
G31 3,5 24
Flame adjustment
Oven burners
The burner is correctly adjusted when the flame
is stable, silent and goes out without any noise.
• When the flames are too short, the nozzle is
whistling or the flames have the tendency to
detach from the burner, it means that there is
too much air in the valve. If there is too much
air there is a risk that the flames will
extinguish.
• But, if the flames are too long, soft, lighting,
there is not enough air in the valves. These
flames discolour the bottom of pans.
• Loosen the screw M which fixing the air
adjuster A;
• Move the air adjuster A forward or backward
until achieving the right mixture (see table no.
2);
• Tighten the fixing screw M.
Grill burner
• Loosen the screw fixing the Venturi.
• Move the adjusting collar left or right until
achieving the correct flame picture (see table
no. 2).
• Tighten the fixing screw.
Adjustment of minimum level
Oven burner
• Remove the top pan support as well as the
burner caps and the burner crowns.
• Unscrew and remove the 2 top plate fixing
screws and remove the top plate.
• Light the burner knob on position 9 and leave
the oven door closed for about 10 min.
• Turn the knob slowly to position 1.
• Pull off the knob to adjust minimum flow.
• Unscrew or screw the by-pass screw (is it
above of tap shaft) until a regular small flame
is reached.
• For LPG screw completely the by-pass screw.
The flame shouldn’t extinguish when closing the
oven door.
Grill burner
The grill temperature cannot be adjusted. To
obtain a lower temperature or slower cooking
time the grill pan must be lowered away from the
flame.
AFTER COMPLETION OF ANY
REPAIRS, ADJUSTMENTS OR CONVERSION
THE STATUTORY SAFETY TESTS MUST BE
CARRIED OUT.
M
A
air adjusting
adjusting collar screw
opening
.