Multiquip Mq Power 60 Hz Generator Dca125Usi Users Manual DCA 125USI_60 Rev 1
MQ Power 60 HZ Generator DCA125USI Generators_portable_ultrasilent_DCA125USI_rev_1_60_hz_manual_DataId_19064_Version_1
DCA125USI to the manual cb9604fc-4068-4264-a556-5c831ac6bbb7
2015-02-09
: Multiquip Multiquip-Mq-Power-60-Hz-Generator-Dca125Usi-Users-Manual-558486 multiquip-mq-power-60-hz-generator-dca125usi-users-manual-558486 multiquip pdf
Open the PDF directly: View PDF
.
Page Count: 90

THIS MANUAL MUST ACCOMPANY THE EQUIPMENT AT ALL TIMES.
To fi nd the latest revision of this
publication, visit our website at:
www.multiquip.com
®
MODEL DCA125USI
60 HZ GENERATOR
(ISUZU 4HK1X DIESEL ENGINE)
Revision #1 (03/25/11)
OPERATION AND PARTS MANUAL

PAGE 2 — DCA125USI 60 HZ GENERATOR • OPERATION AND PARTS MANUAL — REV. #1 (03/25/11)
PROPOSITION 65 WARNING
Diesel engine exhaust and some of

DCA125USI 60 HZ GEN. • OPERATION AND PARTS MANUAL — REV. #1 (03/25/11) — PAGE 3
If you believe that your vehicle has a defect that could cause a crash or could
cause injury or death, you should immediately inform the National Highway
Traffi c Safety Administration (NHTSA) in addition to notifying Multiquip at
1-800-421-1244.
If NHTSA receives similar complaints, it may open an investigation, and if it
fi nds that a safety defect exists in a group of vehicles, it may order a recall and
remedy campaign. However, NHTSA cannot become involved in individual
problems between you, your dealer, or Multiquip.
To contact NHTSA, you may either call the Vehicle Safety Hotline toll-free at
1-888-327-4236 (TTY: 1-800-424-9153), go to http://www.nhtsa.dot.gov; or
write to:
Administrator
NHTSA
1200 New Jersey Avenue S.E.
Washington, DC 20590
You can also obtain information about motor vehicle safety from
http://www.safecar.gov.
REPORTING SAFETY DEFECTS

PAGE 4 — DCA125USI 60 HZ GENERATOR • OPERATION AND PARTS MANUAL — REV. #1 (03/25/11)
TABLE OF CONTENTS
DCA125USI 60 Hz Generator
Proposition 65 Warning ........................................... 2
Reporting Safety Defects ......................................... 3
Table Of Contents .................................................... 4
Parts Ordering Procedures ...................................... 5
Safety Information .............................................. 6-11
Specifi cations ........................................................ 12
Dimensions ............................................................ 13
Installation ............................................................. 14
Installation ............................................................. 15
General Information ............................................... 16
Major Components ................................................ 17
Generator Control Panel ........................................ 18
Engine Operating Panel.................................... 20-21
Output Terminal Panel Familiarization .............. 22-24
Load Application .................................................... 25
Generator Outputs ................................................. 26
Generator Outputs/Gauge Reading ....................... 27
Output Terminal Panel Connections ................. 28-29
Inspection/Setup ............................................... 30-33
Generator Start-Up Procedure ........................ 34-35
Generator Shut-Down Procedures ........................ 36
Maintenance ..................................................... 37-40
Trailer Maintenance .......................................... 41-44
Trailer WirIng Diagram ........................................... 45
Generator Wiring Diagram ..................................... 46
Engine Wiring Diagram .......................................... 47
Controller Wiring Diagram ..................................... 48
Troubleshooting (Generator) .................................. 49
Troubleshooting (Diagnostic Lamp) ....................... 50
Explanation Of Code In Remarks Column............. 52
Suggested Spare Parts ......................................... 53
Component Drawings
Generator Assembly ......................................... 54-55
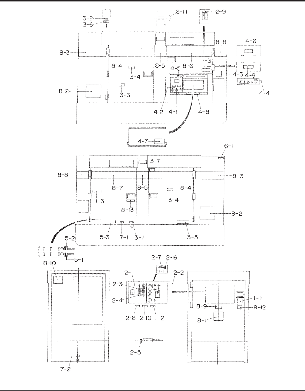
Control Box Assembly ...................................... 56-59
Engine and Radiator Assembly ........................ 60-65
Output Terminal Assembly ................................ 66-66
Battery Assembly.............................................. 68-69
Muffl er Assembly .............................................. 70-71
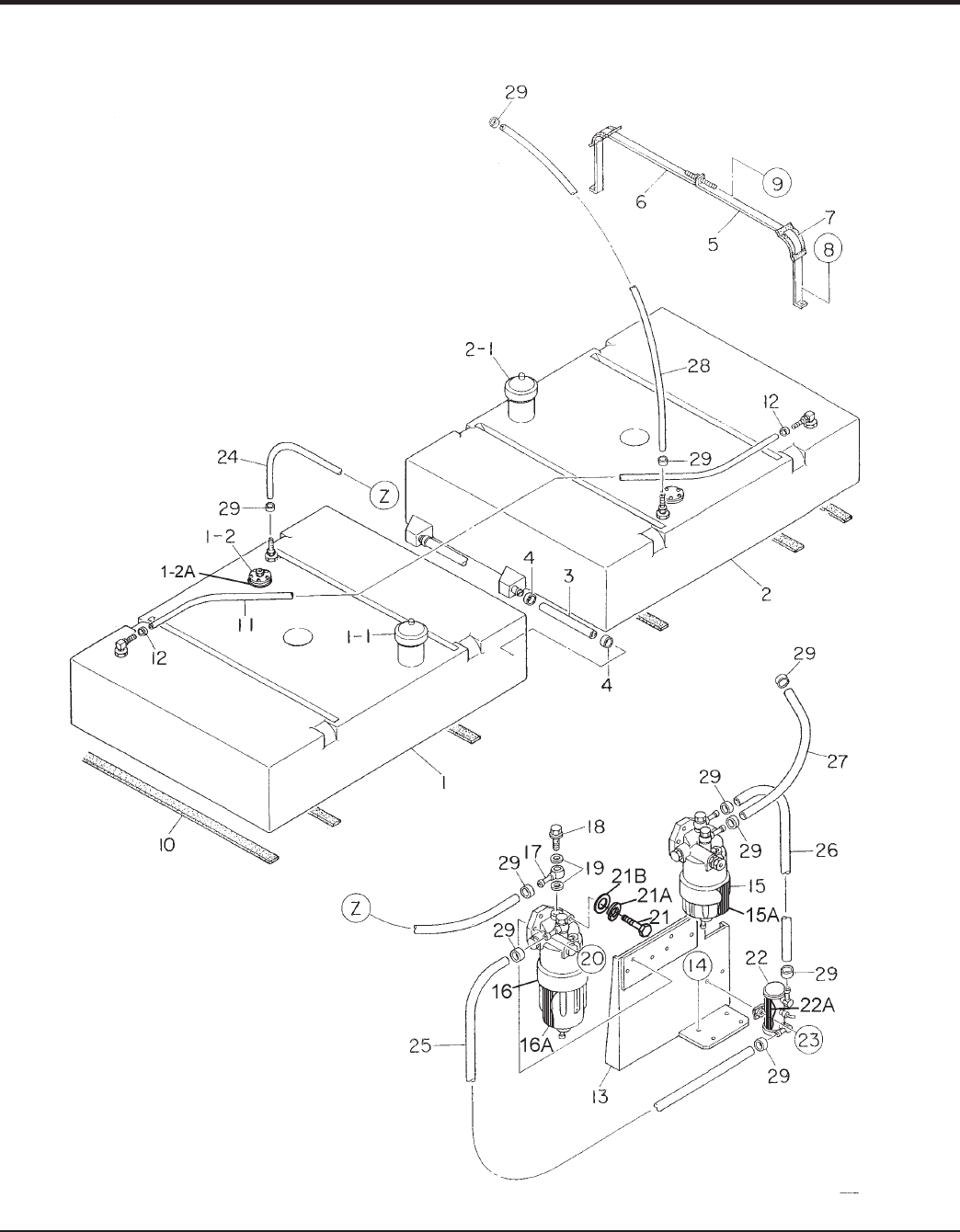
Fuel Tank Assembly ......................................... 72-73
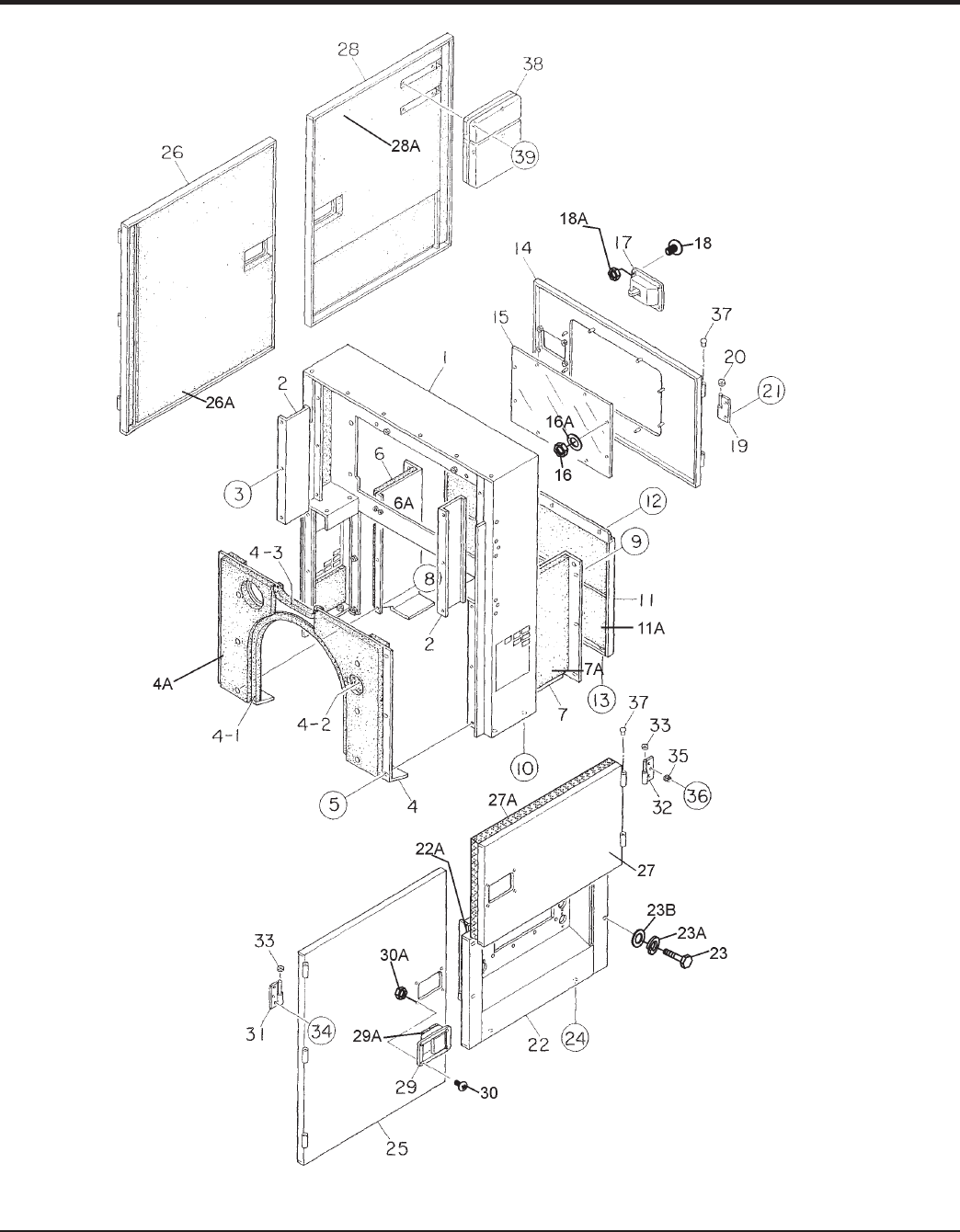
Enclosure Part 1 Assembly .............................. 74-77
Enclosure Part 2 Assembly .............................. 78-81
Rubber Seals Assembly ................................... 82-83
Nameplate and Decals Assembly .................... 84-87
Terms And Conditions Of Sale — Parts ................ 88

DCA125USI 60 HZ GEN. • OPERATION AND PARTS MANUAL — REV. #1 (03/25/11) — PAGE 5
PARTS ORDERING PROCEDURES
www.multiquip.com
Ordering parts has never been easier!
Choose from three easy options:
WE ACCEPT ALL MAJOR CREDIT CARDS!
When ordering parts, please supply:
❒ Dealer Account Number
❒ Dealer Name and Address
❒ Shipping Address (if different than billing address)
❒ Return Fax Number
❒ Applicable Model Number
❒ Quantity, Part Number and Description of Each Part
❒ Specify Preferred Method of Shipment:
✓ UPS/Fed Ex ✓ DHL
■ Priority One ✓ Tr u ck
■ Ground
■ Next Day
■ Second/Third Day
If you have an MQ Account, to obtain a Username
and Password, E-mail us at: parts@multiquip.
com.
To obtain an MQ Account, contact you
r
District Sales Manager for more information.
Order via Internet (Dealers Only):
Order parts on-line using Multiquip’s SmartEquip website!
■ View Parts Diagrams
■ Order Parts
■ Print Specification Information
Note: Discounts Are Subject To Change
Goto www.multiquip.com and click on
Order Parts to log in and save!
Use the internet and qualify for a 5% Discount
on Standard orders for all orders which include
complete part numbers.*
Order via Fax (Dealers Only):
All customers are welcome to order parts via Fax.
Domestic (US) Customers dial:
1-800-6-PARTS-7 (800-672-7877)
Fax your order in and qualify for a 2% Discount
on Standard orders for all orders which include
complete part numbers.*
Order via Phone: Domestic (US) Dealers Call:
1-800-427-1244
Best Deal!
International Customers should contact
their local Multiquip Representatives for
Parts Ordering information.
Non-Dealer Customers:
Contact your local Multiquip Dealer for
parts or call 800-427-1244 for help in
locating a dealer near you.
Note: Discounts Are Subject To Change
Effective:
January 1st, 2006
NOTICE
All orders are treated as Standard Orders and will
ship the same day if received prior to 3PM PST.

PAGE 6 — DCA125USI 60 HZ GENERATOR • OPERATION AND PARTS MANUAL — REV. #1 (03/25/11)
SAFETY INFORMATION
Do not operate or service the equipment before reading the
entire manual. Safety precautions should be followed at all
times when operating this equipment. Failure to read and
understand the safety messages and operating instructions
could result in injury to yourself and others.
SAFETY MESSAGES
The four safety messages shown below will inform you
about potential hazards that could injure you or others. The
safety messages specifi cally address the level of exposure
to the operator and are preceded by one of four words:
DANGER, WARNING, CAUTION or NOTICE.
SAFETY SYMBOLS
DANGER
Indicates a hazardous situation which, if not avoided,
WILL result in DEATH or SERIOUS INJURY.
WARNING
Indicates a hazardous situation which, if not avoided,
COULD result in DEATH or SERIOUS INJURY.
CAUTION
Indicates a hazardous situation which, if not avoided,
COULD result in MINOR or MODERATE INJURY.
NOTICE
Addresses practices not related to personal injury.
Potential hazards associated with the operation of this
equipment will be referenced with hazard symbols which
may appear throughout this manual in conjunction with
safety messages.

DCA125USI 60 HZ GEN. • OPERATION AND PARTS MANUAL — REV. #1 (03/25/11) — PAGE 7
SAFETY INFORMATION
GENERAL SAFETY
CAUTION
NEVER operate this equipment without proper protective
clothing, shatterproof glasses, respiratory protection,
hearing protection, steel-toed boots and other protective
devices required by the job or city and state regulations.
NEVER operate this equipment when not
feeling well due to fatigue, illness or when
under medication.
NEVER operate this equipment under the infl uence of
drugs or alcohol.
ALWAYS check the equipment for loosened threads or
bolts before starting.
DO NOT use the equipment for any purpose other than
its intended purposes or applications.
NOTICE
This equipment should only be operated by trained and
qualifi ed personnel 18 years of age and older.
Whenever necessary, replace nameplate, operation and
safety decals when they become diffi cult read.
Manufacturer does not assume responsibility for any
accident due to equipment modifi cations. Unauthorized
equipment modifi cation will void all warranties.
NEVER use accessories or attachments that are not
recommended by MQ Power for this equipment. Damage
to the equipment and/or injury to user may result.
ALWAYS know the location of the nearest
fi re extinguisher.
ALWAYS know the location of the nearest
fi rst aid kit.
ALWAYS know the location of the nearest
phone or keep a phone on the job site. Also, know the
phone numbers of the nearest ambulance, doctor and
fi re department. This information will be invaluable in
the case of an emergency.
GENERATOR SAFETY
DANGER
NEVER operate the equipment in an explosive
atmosphere or near combustible materials. An
explosion or fi re could result causing severe
bodily harm or even death.
WARNING
NEVER disconnect any emergency or safety devices.
These devices are intended for operator safety.
Disconnection of these devices can cause severe injury,
bodily harm or even death. Disconnection of any of these
devices will void all warranties.
CAUTION
NEVER lubricate components or attempt service on a
running machine.
NOTICE
ALWAYS ensure generator is on level ground before use.
ALWAYS keep the machine in proper running condition.
Fix damage to machine and replace any broken parts
immediately.
ALWAYS store equipment properly when it is not being
used. Equipment should be stored in a clean, dry location
out of the reach of children and unauthorized personnel

PAGE 8 — DCA125USI 60 HZ GENERATOR • OPERATION AND PARTS MANUAL — REV. #1 (03/25/11)
SAFETY INFORMATION
ENGINE SAFETY
DANGER
The engine fuel exhaust gases contain poisonous carbon
monoxide. This gas is colorless and odorless, and can
cause death if inhaled.
The engine of this equipment
requires an adequate free
fl ow of cooling air. NEVER
operate this equipment in
any enclosed or narrow area
where free fl ow of the air is
restricted. If the air fl ow is
restricted it will cause injury to people and property and
serious damage to the equipment or engine.
WARNING
DO NOT place hands or fingers inside engine
compartment when engine is running.
NEVER operate the engine with heat shields or
guards removed.
Keep fi ngers, hands hair and clothing away
from all moving parts to prevent injury.
DO NOT remove the radiator cap while the
engine is hot. High pressure boiling water
will gush out of the radiator and severely
scald any persons in the general area of
the generator.
DO NOT remove the coolant drain plug while the engine
is hot. Hot coolant will gush out of the coolant tank and
severely scald any persons in the general area of the
generator.
DO NOT remove the engine oil drain plug while the
engine is hot. Hot oil will gush out of the oil tank and
severely scald any persons in the general area of the
generator.
CAUTION
NEVER touch the hot exhaust manifold,
muffl er or cylinder. Allow these parts to cool
before servicing equipment.
NOTICE
NEVER run engine without an air fi lter or with a dirty air
fi lter. Severe engine damage may occur. Service air fi lter
frequently to prevent engine malfunction.
NEVER tamper with the factory settings
of the engine or engine governor. Damage
to the engine or equipment can result
if operating in speed ranges above the
maximum allowable.
Wet stacking is a common problem with diesel engines
which are operated for extended periods with light or
no load applied. When a diesel engine operates without
suffi cient load (less than 40% of the rated output), it will
not operate at its optimum temperature. This will allow
unburned fuel to accumulate in the exhaust system,
which can foul the fuel injectors, engine valves and
exhaust system, including turbochargers, and reduce
the operating performance.
In order for a diesel engine to operate at peak effi ciency,
it must be able to provide fuel and air in the proper ratio
and at a high enough engine temperature for the engine
to completely burn all of the fuel.
Wet stacking does not usually cause any permanent
damage and can be alleviated if additional load is
applied to relieve the condition. It can reduce the system
performance and increase maintenance. Applying an
increasing load over a period of time until the excess
fuel is burned off and the system capacity is reached
usually can repair the condition. This can take several
hours to burn off the accumulated unburned fuel.
State Health Safety Codes and Public Resources
Codes specify that in certain locations, spark arresters
must be used on internal combustion engines that use
hydrocarbon fuels. A spark arrester is a device designed
to prevent accidental discharge of sparks or fl ames
from the engine exhaust. Spark arresters are qualifi ed
and rated by the United States Forest Service for this
purpose. In order to comply with local laws regarding
spark arresters, consult the engine distributor or the
local Health and Safety Administrator.

DCA125USI 60 HZ GEN. • OPERATION AND PARTS MANUAL — REV. #1 (03/25/11) — PAGE 9
SAFETY INFORMATION
FUEL SAFETY
DANGER
DO NOT start the engine near spilled fuel or combustible
fl uids. Diesel fuel is extremely fl ammable and its vapors
can cause an explosion if ignited.
ALWAYS refuel in a well-ventilated area, away from
sparks and open fl ames.
ALWAYS use extreme caution when working with
fl ammable liquids.
DO NOT fi ll the fuel tank while the engine is running
or hot.
DO NOT overfi ll tank, since spilled fuel could ignite if it
comes into contact with hot engine parts or sparks from
the ignition system.
Store fuel in appropriate containers, in well-ventilated
areas and away from sparks and fl ames.
NEVER use fuel as a cleaning agent.
DO NOT smoke around or near the
equipment. Fire or explosion could result
from fuel vapors or if fuel is spilled on a
hot engine.
TOWING SAFETY
CAUTION
Check with your local county or state safety
towing regulations, in addition to meeting
Department of Transportation (DOT)
Safety Towing Regulations, before towing
your generator.
Refer to MQ Power trailer manual for additional safety
information.
In order to reduce the possibility of an accident while
transporting the generator on public roads, ALWAYS
make sure the trailer that supports the generator and
the towing vehicle are mechanically sound and in good
operating condition.
ALWAYS shutdown engine before transporting
Make sure the hitch and coupling of the towing vehicle
are rated equal to, or greater than the trailer “gross
vehicle weight rating.”
ALWAYS inspect the hitch and coupling for wear. NEVER
tow a trailer with defective hitches, couplings, chains, etc.
Check the tire air pressure on both towing vehicle and
trailer. Trailer tires should be infl ated to 50 psi cold.
Also check the tire tread wear on both vehicles.
ALWAYS make sure the trailer is equipped with a safety
chain.
ALWAYS properly attach trailer’s safety chains to towing
vehicle.
ALWAYS make sure the vehicle and trailer directional,
backup, brake and trailer lights are connected and
working properly.
DOT Requirements include the following:
• Connect and test electric brake operation.
• Secure portable power cables in cable tray with tie
wraps.
The maximum speed for highway towing is 55 MPH unless
posted otherwise. Recommended off-road towing is not to
exceed 15 MPH or less depending on type of terrain.
Avoid sudden stops and starts. This can cause skidding,
or jack-knifi ng. Smooth, gradual starts and stops will
improve towing.
Avoid sharp turns to prevent rolling.
Trailer should be adjusted to a level position at all times
when towing.
Raise and lock trailer wheel stand in up position when
towing.
Place chock blocks underneath wheel to prevent rolling
while parked.
Place support blocks underneath the trailer’s bumper
to prevent tipping while parked.
Use the trailer’s swivel jack to adjust the trailer height to
a level position while parked.

PAGE 10 — DCA125USI 60 HZ GENERATOR • OPERATION AND PARTS MANUAL — REV. #1 (03/25/11)
SAFETY INFORMATION
ELECTRICAL SAFETY
DANGER
DO NOT touch output terminals during
operation. Contact with output terminals
during operation can cause electrocution,
electrical shock or burn.
The electrical voltage required to
operate the generator can cause severe
injury or even death through physical contact with live
circuits. Turn generator and all circuit breakers OFF
before performing maintenance on the generator or
making contact with output terminals.
NEVER insert any objects into the output
receptacles during operation. This is
extremely dangerous. The possibility exists
of electrical shock, electrocution or
death.
Backfeed to a utility system can cause
electrocution and/or property damage.
NEVER connect the generator to a
building’s electrical system without
a transfer switch or other approved
device. All installations should be
performed by a licensed electrician in accordance with
all applicable laws and electrical codes. Failure to do so
could result in electrical shock or burn, causing serious
injury or even death.
Power Cord/Cable Safety
DANGER
NEVER let power cords or cables lay in water.
NEVER stand in water while AC power from the
generator is being transferred to a load.
NEVER use damaged or worn cables or cords when
connecting equipment to generator. Inspect for cuts in
the insulation.
NEVER grab or touch a live power
cord or cable with wet hands. The
possibility exists of electrical shock,
electrocution or death.
Make sure power cables are securely connected to the
generator’s output receptacles. Incorrect connections
may cause electrical shock and damage to the
generator.
NOTICE
ALWAYS make certain that proper power or extension
cord has been selected for the job. See Cable Selection
Chart in this manual.
Grounding Safety
DANGER
ALWAYS make sure that electrical circuits are properly
grounded to a suitable earth ground (ground rod) per
the National Electrical Code (NEC) and local codes
before operating generator. Severe injury or death by
electrocution can result from operating an ungrounded
generator.
NEVER use gas piping as an electrical ground.

DCA125USI 60 HZ GEN. • OPERATION AND PARTS MANUAL — REV. #1 (03/25/11) — PAGE 11
SAFETY INFORMATION
BATTERY SAFETY
DANGER
DO NOT drop the battery. There is a possibility that the
battery will explode.
DO NOT expose the battery to open fl ames,
sparks, cigarettes, etc. The battery contains
combustible gases and liquids. If these
gases and liquids come into contact with a
fl ame or spark, an explosion could occur.
WARNING
ALWAYS wear safety glasses when handling
the battery to avoid eye irritation. The battery
contains acids that can cause injury to the
eyes and skin.
Use well-insulated gloves when picking up the battery.
ALWAYS keep the battery charged. If the battery is not
charged, combustible gas will build up.
ALWAYS recharge the battery in a well-ventilated
environment to avoid the risk of a dangerous concentration
of combustible gasses.
If the battery liquid (dilute sulfuric acid) comes into
contact with clothing or skin, rinse skin or clothing
immediately with plenty of water.
If the battery liquid (dilute sulfuric acid) comes into
contact with eyes, rinse eyes immediately with plenty
of water and contact the nearest doctor or hospital to
seek medical attention.
CAUTION
ALWAYS disconnect the NEGATIVE battery terminal
before performing service on the generator.
ALWAYS keep battery cables in good working condition.
Repair or replace all worn cables.
ENVIRONMENTAL SAFETY
NOTICE
Dispose of hazardous waste properly.
Examples of potentially hazardous waste
are used motor oil, fuel and fuel fi lters.
DO NOT use food or plastic containers to
dispose of hazardous waste.
DO NOT pour waste, oil or fuel directly onto the ground,
down a drain or into any water source.

PAGE 12 — DCA125USI 60 HZ GENERATOR • OPERATION AND PARTS MANUAL — REV. #1 (03/25/11)
SPECIFICATIONS
Table 1. Generator Specifi cations
Model DCA125USI
Type Revolving fi eld, self ventilated,
open protected type synchronous generator
Armature Connection Star with Neutral Zigzag
Phase 31
Standby Output 110 kW (137.5 kVA) 79 kW
Prime Output 100 kW (100 kVA) 72 kW
3Ø Voltage (L-L/L-N)
Voltage Selector Switch at 3Ø 240/139
208Y/120, 220Y/127,
240Y/139 N/A
3Ø Voltage (L-L/L-N)
Voltage Selector Switch at 3Ø 480/277
416Y/240, 440Y/254,
480Y/277 N/A
1Ø Voltage (L-L/L-N)
Voltage Selector Switch at 1Ø 240/120 N/A 240/120
Power Factor 0.8 1.0
Frequency 60 Hz
Speed 1800 rpm
Aux. AC Power Single Phase, 60 Hz
Aux. Voltage/Output 120V/4.8 Kw (2.4 kW x 2)
Sound Level dB (A)
Full Load at 23 ft. (7.0 Meters) 65
Dry Weight 5,689 lbs. (2,580 kg)
Wet Weight 7,012 lbs. (3,180 kg)
Table 2. Engine Specifi cations
Model ISUZU 4HK1XYGD-03 Tier 3
Type 4 cycle, water-cooled, direct injection, turbocharged,
air to air intercooled
No. of Cylinders 4 cylinders
Bore x Stroke 4.53 in. x 4.92 in. (115 mm x 125 mm)
Displacement 317 cu. in. (5193 cc)
Rated Output 152 HP/1800 RPM
Starting Electric
Coolant Capacity 5.2 gal. (19.7 liters)
Lube Oil Capacity 6.1 gal. (23.4 liters)
Fuel Type #2 Diesel Fuel
Fuel Leak Warning Capacity 42.3gal. (160 liters)
Fuel Tank Capacity 169 gal. (640 liters)
Fuel Consumption
7.3 gal. (27.6 L)/hr at full
load
5.7 gal. (21.7 L)/hr at 3/4
load
4.0 gal. (15.1 L)/hr at 1/2
load
2.4 gal. (9.1 L)/hr at 1/4
load
Battery 12V-128 Ah x 1

DCA125USI 60 HZ GEN. • OPERATION AND PARTS MANUAL — REV. #1 (03/25/11) — PAGE 13
DIMENSIONS
Figure 1. Dimensions
Table 3. Dimensions
Reference
Letter Dimension in. (mm) Reference Letter Dimension in. (mm)
A 38.20 in. (970 mm.) F 120.10 in. (3,050 mm.)
B 37.00 in. (940 mm.) G 73.00 in. (1,855 mm.)
C 36.20 in. (920 mm.) H 48.80 in. (1,200 mm.)
D 37.00 in. (940 mm.)
E 3620 in. (920 mm.)

PAGE 14 — DCA125USI 60 HZ GENERATOR • OPERATION AND PARTS MANUAL — REV. #1 (03/25/11)
INSTALLATION
Figure 2. Typical Generator Grounding Application

DCA125USI 60 HZ GEN. • OPERATION AND PARTS MANUAL — REV. #1 (03/25/11) — PAGE 15
INSTALLATION
OUTDOOR INSTALLATION
Install the generator in a area that is free of debris,
bystanders, and overhead obstructions. Make sure the
generator is on secure level ground so that it cannot slide
or shift around. Also install the generator in a manner so
that the exhaust will not be discharged in the direction of
nearby homes.
The installation site must be relatively free from moisture
and dust. All electrical equipment should be protected from
excessive moisture. Failure to do will result in deterioration
of the insulation and will result in short circuits and
grounding.
Foreign materials such as dust, sand, lint and abrasive
materials have a tendency to cause excessive wear to
engine and alternator parts.
INDOOR INSTALLATION
Exhaust gases from diesel engines are extremely
poisonous. Whenever an engine is installed indoors the
exhaust fumes must be vented to the outside. The engine
should be installed at least two feet from any outside wall.
Using an exhaust pipe which is too long or too small can
cause excessive back pressure which will cause the engine
to heat excessively and possibly burn the valves.
MOUNTING
The generator must be mounted on a solid foundation (such
as concrete) and set fi rmly on the foundation to isolate
vibration of the generator when it is running. The generator
must set at least 6 inches above the fl oor or grade level (in
accordance to NFPA 110, Chapter 5-4.1). DO NOT remove
the metal skids on the bottom of the generator. They are
to resist damage to the bottom of the generator and to
maintain alignment.
CAUTION
Pay close attention to ventilation when operating the
generator inside tunnels and caves. The engine exhaust
contains noxious elements. Engine exhaust must be
routed to a ventilated area.
GENERATOR GROUNDING
To guard against electrical shock and possible damage to
the equipment, it is important to provide a good EARTH
ground.
Article 250 (Grounding) of the National Electrical Code
(NEC) provides guide lines for proper grounding and
specifi es that the cable ground shall be connected to the
grounding system of the building as close to the point of
cable entry as practical.
NEC articles 250-64(b) and 250-66 set the following
grounding requirements:
1. Use one of the following wire types to connect the
generator to earth ground.
a. Copper - 10 AWG (5.3 mm2)
b. Aluminum - 8 AWG (8.4 mm2)
2. When grounding the generator (Figure 2) connect the
ground cable between the lock washer and the nut on
the generator and tighten the nut fully. Connect the
other end of the ground cable to earth ground.
3. NEC article 250-52(c) specifi es that the earth ground rod
should be buried a minimum of 8 ft. into the ground.
NOTICE
When connecting the generator to any buildings
electrical system ALWAYS consult with a licensed
electrician.

PAGE 16 — DCA125USI 60 HZ GENERATOR • OPERATION AND PARTS MANUAL — REV. #1 (03/25/11)
GENERATOR
This MQ Power Model generator (Figure 3) is a high quality
portable (requires a trailer for transport) power source for
telecom sites, lighting facilities, power tools, submersible
pumps and other industrial and construction machinery.
ENGINE OPERATING PANEL
The “Engine Operating Panel” is provided with the following:
Tachometer
Water Temperature Gauge
Warning Lamp
Pre-Heat Lamp
Oil Pressure Gauge
Charging Ammeter Gauge
Fuel Level Gauge
Fuel Leak Detection Lamp
Panel Light/Panel Light Switch
ECU Controller
Engine Speed Switch
Warning Lamp (Diagnostic Lamp)
GENERATOR CONTROL PANEL
The “Generator Control Panel” is provided with the following:
Frequency Meter (Hz)
AC Ammeter (Amps)
AC Voltmeter (Volts)
Ammeter Change-Over Switch
Voltmeter Change-Over Switch
Voltage Regulator
3-Pole, 350 amp Main Circuit Breaker
“Control Box” (located behind the Gen. Control Panel)
• Automatic Voltage Regulator
• Current Transformer
• Over-Current Relay
• Starter Relay
• Voltage Selector Switch
• Diagnostic Switch
OUTPUT TERMINAL PANEL
The “Output Terminal Panel” is provided with the following:
Three 120/240V output receptacles (CS-6369), 50A
Three auxiliary circuit breakers, 50A
Two 120V output receptacles (GFCI), 20A
Two GFCI circuit breakers, 20A
Five output terminal lugs (3Ø power)
Battery Charger (Optional)
Jacket Water Heater (Optional)
Low Coolant Level Switch
OPEN DELTA EXCITATION SYSTEM
This generator is equipped with the state of the art “Open-
Delta” excitation system. The open delta system consist
of an electrically independent winding wound among
stationary windings of the AC output section.
There are four connections of the open delta A, B, C and
D. During steady state loads, the power from the voltage
regulator is supplied from the parallel connections of A to
B, A to D, and C to D. These three phases of the voltage
input to the voltage regulator are then rectifi ed and are the
excitation current for the exciter section.
When a heavy load, such as a motor starting or a short
circuit occurs, the automatic voltage regulator (AVR)
switches the confi guration of the open delta to the series
connection of B to C. This has the effect of adding the
voltages of each phase to provide higher excitation to the
exciter section and thus better voltage response during the
application of heavy loads.
The connections of the AVR to the AC output windings are
for sensing only. No power is required from these windings.
The open-delta design provides virtually unlimited excitation
current, offering maximum motor starting capabilities. The
excitation does not have a “fi xed ceiling” and responds
according the demands of the required load.
ENGINE
The DCA125USI is powered by a 4 cylinder, water cooled,
direct injection, turbocharged ISUZU 4HK1X diesel engine.
This engine is designed to meet every performance
requirement for the generator. Reference Table 2 for engine
specifi cations.
In keeping with MQ Power’s policy of constantly improving
its products, the specifi cations quoted herein are subject
to change without prior notice.
ELECTRIC GOVERNOR SYSTEM
The electric governor system controls the RPMs of the engine.
When the engine demand increases or decreases, the
governor system regulates the frequency variation to ±.25%.
EXTENSION CABLES
When electric power is to be provided to various tools or
loads at some distance from the generator, extension cords
are normally used. Cables should be sized to allow for
distance in length and amperage so that the voltage drop
between the generator and point of use (load) is held to
a minimum. Use the cable selection chart (Table 6) as a
guide for selecting proper extension cable size.
GENERAL INFORMATION

DCA125USI 60 HZ GEN. • OPERATION AND PARTS MANUAL — REV. #1 (03/25/11) — PAGE 17
MAJOR COMPONENTS
Table 4. Generator Major Components
ITEM NO. DESCRIPTION
1 Muffl er Assembly
2 Engine Assembly
3 Enclosure Assembly
4 Generator Assembly
5 Output Terminal Assembly
6 Fuel Tank Assembly
7 Battery Assembly
8 Engine Operating Panel Assembly
9 Generator Control Panel Assembly
Figure 3. Major Components

PAGE 18 — DCA125USI 60 HZ GENERATOR • OPERATION AND PARTS MANUAL — REV. #1 (03/25/11)
GENERATOR CONTROL PANEL
Figure 4. Generator Control Panel
The defi nitions below describe the controls and functions
of the Generator Control Panel (Figure 4).
1. Main Circuit Breaker—This three-pole, 350A main
breaker is provided to protect the the U,V, and W
Output Terminal Lugs from overload.
2. Voltage Regulator Control — Allows ±15% manual
adjustment of the generator’s output voltage.
3. Ammeter Change-Over Switch — This switch allows
the AC ammeter to indicate the current fl owing to the
load connected to any phase of the output terminals,
or to be switched off. This switch does not effect the
generator output in any fashion, it is for current reading
only.
4. Voltmeter Change-Over Switch — This switch allows
the AC voltmeter to indicate phase to phase voltage
between any two phases of the output terminals or to
be switched off.
5. Frequency Meter — Indicates the output frequency
in hertz (Hz). Normally 60 Hz.
6. AC Ammeter — Indicates the amount of current the
load is drawing from the generator per leg selected by
the ammeter phase-selector switch.
7. AC Voltmeter — Indicates the output voltage present
at the U,V, and W Output Terminal Lugs.
Located behind the generator control panel is the Generator
Control Box. This box contains some of the necessary
electronic components required to make the generator
function.
The Control Box is equipped with the following major
components:
Over-Current Relay
Automatic Voltage Regulator (AVR)
Starter Relay
Current Transformer
Voltage Selector Switch
Main Circuit Breaker
NOTICE
Remember the overcurrent relay monitors the current
fl owing from the U,V, and W Output Terminal Lugs
to the load.
In the event of a short circuit or over current condition,
it will automatically trip the 350 amp main breaker.
To restore power to the Output Terminal Panel, press
the reset button on the overcurrent relay and place the
main circuit breaker in the closed position (ON).

DCA125USI 60 HZ GEN. • OPERATION AND PARTS MANUAL — REV. #1 (03/25/11) — PAGE 19
NOTES

PAGE 20 — DCA125USI 60 HZ GENERATOR • OPERATION AND PARTS MANUAL — REV. #1 (03/25/11)
ENGINE OPERATING PANEL
Figure 5. Engine Operating Panel

DCA125USI 60 HZ GEN. • OPERATION AND PARTS MANUAL — REV. #1 (03/25/11) — PAGE 21
The defi nitions below describe the controls and functions
of the Engine Operating Panel (Figure 5).
1. Panel Light — Normally used in dark areas or at night
time. When activated, panel lights will illuminate. When
the generator is not in use be sure to turn the panel
light switch to the OFF position.
2. Panel Light Switch — When activated will turn on
control panel light.
3. Preheat Lamp — As the engine cranks, this lamp
will illuminate to indicate automatic preheating of
the engine glow plugs. When the lamp turns off, this
indicates that the preheat cycle is complte and the
engine will start automatically.
4. Warning Lamp (Diagnostic Lamp) — When lit
indicates a that a failure has occured in the engine
control system.
5. Fuel Leak Detection Lamp — This lamp will illuminate
when a leak in the fuel tank containment enclosure is
detected.
6. Engine Speed Switch — This switch controls the
speed of the engine (low/high).
7. Oil Pressure Gauge — During normal operation this
gauge should read between 42 ~71 psi. (290~490 kPa).
When starting the generator the oil pressure may read
a little higher, but after the engine warms up the oil
pressure should return to the correct pressure range.
8. Water Temperature Gauge — During normal operation
this gauge be should read between 167°~203°F (75°
~95°C
9. Charging Ammeter Gauge — Indicates the current
being supplied by the engine’s alternator which
provides current for generator’s control circuits and
battery charging system.
10. Fuel Gauge — Indicates amount of diesel fuel
available.
11. Tachometer — Indicates engine speed in RPM’s for
60 Hz operation. This meter should indicate 1800
RPM’s when the rated load is applied. In addition a
built in hour meter will record the number of operational
hours that the generator has been in use.
12. Auto START/STOP Engine
Controller (ECU) — This controller
has a vertical row of status LED's
(inset), that when lit, indicate
that an engine malfunction (fault)
has been detected. When a fault
has been detected the engine
controller will evaluate the fault
and all major faults will shutdown the generator. During
cranking cycle, the ECU will attempt to crank the engine
for 10 seconds before disengaging.
If the engine does not engage (start) by the third
attempt, the engine will be shutdown by the engine
controller’s Over Crank Protection mode. If the engine
engages at a speed (RPM's) that is not safe, the
controller will shutdown the engine by initializing the
Over Speed Protection mode.
Also the engine controller will shut down the engine in
the event of low oil pressure, high coolant temperature,
low coolant level, and loss of magnetic pickup.
These conditions can be observed by monitoring the
LED status indicators on the front of the controller
module.
A. MPEC Control Switch — This switch controls the
running of the unit. If this switch is set to the OFF/
RESET position, the unit will not run. When this switch
is set to the manual position, the generator will start
immediately.
If the generator is to be connected to a building’s
AC power source via an automatic transfer switch
(isolation), place the switch in the AUTO position. In this
position, should an outage occur, the automatic transfer
switch (ATS) will start the generator automatically
via the generator’s auto-start contacts connected to
the ATS’s start contacts. Please refer to your ATS
installation manual for further instructions for the
correct installation of the auto-start contacts of the
generator to the ATS.
B. Low Oil Pressure — Indicates the engine pressure
has fallen below 15 psi (103 kPa). The oil pressure is
detected using variable resistive values from the oil
pressure sending unit. This is considered a major fault.
C. High Coolant Temperature — Indicates the engine
temperature has exceeded 230°F (110°C). The engine
temperature is detected using variable resistive values
from the temperature sending unit. This is considered
a major fault.
D. Overcrank Shutdown — Indicates the unit has
attempted to start a pre- programmed number of
times, and has failed to start. The number of cycles and
duration are programmable. It is pre-set at 3 cycles with
a 10 second duration. This is considered a major fault.
E. Overspeed Shutdown — Indicates the engine is
running at an unsafe speed. This is considered a
major fault.
F. Engine Running — Indicates that engine is running
at a safe operating speed.
ENGINE OPERATING PANEL

PAGE 22 — DCA125USI 60 HZ GENERATOR • OPERATION AND PARTS MANUAL — REV. #1 (03/25/11)
OUTPUT TERMINAL PANEL FAMILIARIZATION
OUTPUT TERMINAL PANEL
The Output Terminal Panel (Figure 6) shown below is
located on the right-hand side (left from control panel) of
the generator. Lift up on the cover to gain access to
receptacles and terminal lugs.
NOTICE
Terminal legs “O” and “Ground” are considered bonded
grounds.
OUTPUT TERMINAL FAMILIARIZATION
The “Output Terminal Panel ” (Figure 6) is provided with
the following:
Three 120/240V output receptacles @ 50 amp
Three Circuit Breakers @ 50 amps
Two 120V GFCI receptacles @ 20 amp
Two GFCI Circuit Breakers @ 20 amps
Five Output Terminal Lugs ( U, V, W, O, Ground)
Figure 6. Output Terminal Panel

DCA125USI 60 HZ GEN. • OPERATION AND PARTS MANUAL — REV. #1 (03/25/11) — PAGE 23
OUTPUT TERMINAL PANEL FAMILIARIZATION
120 VAC GFCI Receptacles
There are two 120 VAC, 20 amp GFCI (Duplex Nema
5-20R) receptacles provided on the output terminal panel.
These receptacles can be accessed in any voltage
selector switch position. Each receptacle is protected by a
20 amp circuit breaker. These breakers are located directly
above the GFCI receptacles. Remember the load output
(current) of both GFCI receptacles is dependent on the load
requirements of the U, V, and W output terminal lugs.
Pressing the reset button resets the GFCI receptacle after
being tripped. Pressing the test button (Figure 7) in the
center of the receptacle will check the GFCI function. Both
receptacles should be tested at least once a month.
Figure 7. G.F.C.I. Receptacle
Twist Lock Dual Voltage 120/240 VAC Receptacles
There are three 120/240V, 50 amp auxiliary twist-lock (CS-
6369) receptacles (Figure 8) provided on the output
terminal panel. These receptacles can only be accessed
when the voltage selector switch is placed in the single-
phase 240/120 position.
Figure 8. 120/240V Twist-Lock
Auxiliary Receptacles
Each auxiliary receptacle is protected by a 50 amp circuit
breaker. These breakers are located directly above the
GFCI receptacles. Remember the load output (current) on
all three receptacles is dependent on the load requirements
of the output terminal lugs.
Turn the voltage regulator control knob (Figure 9) on the
control panel to obtain the desired voltage. Turning the knob
clockwise will increase the voltage, turning the knob
counter-clockwise will decrease the voltage.
Figure 9. Voltage Regulator Control Knob
Removing the Plastic Face Plate (Hard Wire Hookup
Panel)
The output terminal lugs are protected by a plastic face
plate cover (Figure 10). Un-screw the securing bolts and
lift the plastic terminal cover to gain access to the terminal
enclosure.
After the load wires have been securely attached to the
terminal lugs, reinstall the plastic face plate.
Figure 10. Plastic Face Plate
(Output Terminal Lugs)

PAGE 24 — DCA125USI 60 HZ GENERATOR • OPERATION AND PARTS MANUAL — REV. #1 (03/25/11)
OUTPUT TERMINAL PANEL FAMILIARIZATION
Connecting Loads
Loads can be connected to the generator by the output
terminal lugs or the convenience receptacles (Figure 11).
Make sure to read the operation manual before attempting
to connect a load to the generator.
To protect the output terminals from overload, a 3-pole, 350
amp main circuit breaker is provided. Make sure to switch
ALL circuit breakers to the OFF position prior to starting
the engine.
Figure 11. Connecting Loads
Over Current Relay
An over current relay (Figure 12) is connected to the main
circuit breaker. In the event of an overload, both the circuit
breaker and the over current relay may trip. If the circuit
breaker can not be reset, the reset button on the over
current relay must be pressed. The over current relay is
located in the control box.
Figure 12. Over Current Relay

DCA125USI 60 HZ GEN. • OPERATION AND PARTS MANUAL — REV. #1 (03/25/11) — PAGE 25
LOAD APPLICATION
SINGLE PHASE LOAD
Always be sure to check the nameplate on the generator
and equipment to insure the wattage, amperage, frequency,
and voltage requirements are satisfactorily supplied by the
generator for operating the equipment.
Generally, the wattage listed on the nameplate of the
equipment is its rated output. Equipment may require
130—150% more wattage than the rating on the nameplate,
as the wattage is infl uenced by the effi ciency, power factor
and starting system of the equipment.
WATTS = VOLTAGE x AMPERAGE
The power factor of this generator is 0.8. See Table 5 below
when connecting loads.
Table 6. Cable Selection (60 Hz, Single Phase Operation)
Current
in
Amperes
Load in Watts Maximum Allowable Cable Length
At 100
Volts
At 200
Volts #10 Wire #12 Wire #14 Wire #16 Wire
2.5 300 600 1000 ft. 600 ft. 375 ft. 250 ft.
5 600 1200 500 ft. 300 ft. 200 ft. 125 ft.
7.5 900 1800 350 ft. 200 ft. 125 ft. 100 ft.
10 1200 2400 250 ft. 150 ft. 100 ft.
15 1800 3600 150 ft. 100 ft. 65 ft.
20 2400 4800 125 ft. 75 ft. 50 ft.
CAUTION: Equipment damage can result from low voltage
NOTICE
If wattage is not given on the equipment’s name plate,
approximate wattage may be determined by multiplying
nameplate voltage by the nameplate amperage.
Table 5. Power Factor By Load
Type of Load Power Factor
Single-phase induction motors 0.4-0.75
Electric heaters, incandescent lamps 1.0
Fluorescent lamps, mercury lamps 0.4-0.9
Electronic devices, communication
equipment 1.0
Common power tools 0.8
THREE PHASE LOAD
When calculating the power requirements for 3-phase
power use the following equation:
An inadequate size connecting cable which cannot carry the
required load can cause a voltage drop which can burn out
the appliance or tool and overheat the cable. See Table 6.
When connecting a resistance load such as an
incandescent lamp or electric heater, a capacity of up to
the generating set’s rated output (kW) can be used.
When connecting a fl uorescent or mercury lamp, a
capacity of up to the generating set’s rated output (kW)
multiplied by 0.6 can be used.
When connecting an electric drill or other power tools,
pay close attention to the required starting current
capacity.
When connecting ordinary power tools, a capacity of up to
the generating set’s rated output (kW) multiplied by 0.8 can
be used.
NOTICE
Motors and motor-driven equipment draw much greater
current for starting than during operation.
NOTICE
If 3Ø load (kVA) is not given on the equipment
nameplate, approximate 3Ø load may be determined
by multiplying voltage by amperage by 1.732.
DANGER
Before connecting this generator to any building’s
electrical system, a licensed electrician must install
an isolation (transfer) switch. Serious damage to
the building’s electrical system may occur without this
transfer switch.

PAGE 26 — DCA125USI 60 HZ GENERATOR • OPERATION AND PARTS MANUAL — REV. #1 (03/25/11)
GENERATOR OUTPUTS
GENERATOR OUTPUT VOLTAGES
A wide range of voltages are available to supply voltage for
many different applications. Voltages are selected by using
the voltage selector switch (Figure 13). To obtain some of
the voltages as listed in Table 7 (see below) will require a
fi ne adjustment using the voltage regulator (VR) control
knob located on the control panel.
Voltage Selector Switch
The voltage selector switch (Figure 13) is located above
the output terminal panel’s Hard Wire Hook-up Panel. It
has been provided for ease of voltage selection.
Figure 13. Voltage Selector Switch
Voltage Selector Switch Locking Button
To lock the voltage selector switch, press and hold the
red button located at the bottom of the switch. While
holding the red button down, insert a pad lock into the hole
next to the button to retain it in the inward locked position.
When the lock is removed, the red button is spring loaded
and will return to its normal outward unlocked position.
CAUTION
NEVER change the position of the voltage selector
switch while the engine is running. ALWAYS place
circuit breaker in the OFF position before selecting
voltage.
Table 7. Voltages Available
UVWO Output
Terminal Lugs
Voltage Selector Switch
3-Phase 240/139V Position
Voltage Selector Switch
3-Phase 480/270V Position
3Ø Line-Line 208V 220V 240V 416V 440V 480V
1Ø Line-Neutral 120V 127V 139V 240V 254V 277V
Voltage Selector Switch Single-Phase 240/120V Position
1Ø Line-Neutral/
Line-Line
120V
Line-Neutral N/A N/A 240V
Line-Line N/A N/A
Generator Amperage
Table 8 shows the maximum amps the generator can
provide. DO NOT exceed the maximum amps as listed..
GFCI Receptacle Load Capability
The load capability of the GFCI receptacles is directly
related to the voltage being supplied at either the output
terminals or the 2 twist lock auxiliary receptacles.
Table 9 and Table 10 show what amount of current is
available at the GFCI receptacles when the output terminals
and twist lock receptacles are in use. Be careful that your
load does not to exceed the available current capability at
the receptacles.
Table 8. Generator Maximum Amps
Rated Voltage Maximum Amps
1Ø 120 Volt 277.8 amps (4 wire)
301A x 2 (Zigzag)
1Ø 240 Volt 138.9 amps (4 wire)
301A (Zigzag)
3Ø 240 Volt 301 amps
3Ø 480 Volt 150 amps
Table 9. 1Ø GFCI Receptacle Load Capacity
KW in Use
Twist Lock (C6369)
Available Load
Current (Amps)
1Ø 240/120V GFCI Duplex
5-20R 120V
72.0 0 amps/receptacle
70.8 5 amps/receptacle
69.6 10 amps/receptacle
68.4 15 amps/receptacle
67.2 20 amps/receptacle
Table 10. 3Ø GFCI Receptacle Load Capacity
KVA in Use
(UVWO Terminals)
Available Load
Current (Amps)
3Ø 240/480V GFCI Duplex
5-20R 120V
125 0 amps/receptacle
121 5 amps/receptacle
117 10 amps/receptacle
113 15 amps/receptacle
108 20 amps/receptacle

DCA125USI 60 HZ GEN. • OPERATION AND PARTS MANUAL — REV. #1 (03/25/11) — PAGE 27
GENERATOR OUTPUTS/GAUGE READING
HOW TO READ THE AC AMMETER AND AC
VOLTAGE GAUGES
The AC ammeter and AC voltmeter gauges are controlled
by the AC ammeter and AC voltmeter change-over
switches.
Both of these switches are located on the control panel and
DO NOT effect the generator output. They are provided to
help observe how much power is being supplied, produced
at the UVWO terminals lugs.
Before taking a reading from either gauge, set the Voltage
Selector Switch (Figure 14) to the position which produces
the required voltage (For example, for 3Ø 240V, choose
the center 3Ø 240/139V position on the voltage selector
switch)
Figure 14. Voltage Selector Switch
240/139V 3Ø Positio
AC Voltmeter Gauge Reading
Place the AC Voltmeter Change-Over Switch (Figure 15)
in the W-U position and observe the phase to phase voltage
reading between the W and U terminals as indicated on
the AC Voltmeter Gauge (Figure 16)
NOTICE
For 3Ø 208V/1Ø,120V, place the Voltage Selector
Switch in the 3 Phase 240/139 position.
Figure 15. AC Voltmeter
Change-Over Switch
Figure 16. AC Voltmeter
Gauge
AC Ammeter Gauge Reading
Place the AC Ammeter Change-Over Switch (Figure 17)
in the U position and observe the current reading (load
drain) on the U terminal as indicated on the AC Ammeter
Gauge (Figure 18). This process can be repeated for
terminals V and W.
Figure 17. AC Ammeter
Change-Over Switch
Figure 18. AC Ammeter
(Amp Reading on U Lug)
NOTICE
The ammeter gauge will only show a reading when
the Output Terminal Lugs are connected to a load
and in use.

PAGE 28 — DCA125USI 60 HZ GENERATOR • OPERATION AND PARTS MANUAL — REV. #1 (03/25/11)
OUTPUT TERMINAL PANEL CONNECTIONS
UVWO TERMINAL OUTPUT VOLTAGES
Various output voltages can be obtained using the UVWO
output terminal lugs. The voltages at the terminals are
dependent on the position of the Voltage Selector Switch
and the adjustment of the Voltage Regulator Control
Knob.
Remember the voltage selector switch determines the
range of the output voltage. The voltage regulator (VR)
allows the user to increase or decrease the selected
voltage.
3Ø-240/139 UVWO Terminal Output Voltages
1. Place the voltage selector switch in the 3Ø 240/139
position as shown in Figure 19.
Figure 19. Voltage Selector Switch
3Ø-240/139V Position
2. Connect the load wires to the UVWO terminals as
shown in Figure 20.
Figure 20. UVWO Terminal Lugs
3Ø-240/139V Connections
3. Turn the voltage regulator knob (Figure 21) clockwise
to increase voltage output, turn counterclockwise to
decrease voltage output. Use voltage regulator
adjustment knob whenever fi ne tuning of the output
voltage is required.
Figure 21. Voltage Regulator Knob
3Ø-208V/1Ø-120V UVWO Terminal Output Voltages
1. Place the voltage selector switch in the 3Ø 240/139
position as shown in Figure 22.
Figure 22. Voltage Selector Switch
3Ø-240/139V Position
2. Connect the load wires to the UVWO terminals as
shown in Figure 23.
Figure 23. UVWO Terminal Lugs
3Ø-208/1Ø-120V Connections Connections
NOTICE
To achieve a 3Ø 208V output the voltage selector switch
must be in the 3Ø-240/139 position and the voltage
regulator must be adjusted to 208V.

DCA125USI 60 HZ GEN. • OPERATION AND PARTS MANUAL — REV. #1 (03/25/11) — PAGE 29
OUTPUT TERMINAL PANEL CONNECTIONS
3Ø-480/277V UVWO Terminal Output Voltages
1. Place the voltage selector switch in the 3Ø 480/277
position as shown in Figure 24.
Figure 24. Voltage Selector Switch
3Ø-480/277V Position
2. Connect the load wires to the UVWO terminals as
shown in Figure 25.
Figure 25. UVWO Terminal Lugs
3Ø-480/277V Connections
3. Turn the voltage regulator knob (Figure 21) clockwise
to increase voltage output, turn counterclockwise
to decrease voltage output. Use voltage regulator
adjustment knob whenever fi ne tuning of the output
voltage is required.
1Ø-240/120V UVWO Terminal Output Voltages
1. Place the voltage selector switch in the 1Ø 240/120
position as shown in Figure 26.
Figure 26. Voltage Selector Switch
1Ø-240/120V Position
2. Connect the load wires to the UVWO terminals as
shown in Figure 27.
Figure 27. UVWO Terminal Lugs
1Ø-240/120V Connections
3. Turn the voltage regulator knob (Figure 21) clockwise
to increase voltage output, turn counterclockwise to
decrease voltage output. Use voltage regulator
adjustment knob whenever fi ne tuning of the output
voltage is required.
NOTICE
ALWAYS make sure that the connections to the UVWO
terminals are secure and tight. The possibility of arcing
exists, that could cause a fi re.

PAGE 30 — DCA125USI 60 HZ GENERATOR • OPERATION AND PARTS MANUAL — REV. #1 (03/25/11)
INSPECTION/SETUP
CIRCUIT BREAKERS
To protect the generator from an overload, a 3-pole, 350
amp, main circuit breaker is provided to protect the U,V,
and W Output Terminals from overload. In addition two
single-pole, 20 amp GFCI circuit breakers are provided to
protect the GFCI receptacles from overload. Three 50 amp
load circuit breakers have also been provided to protect the
auxiliary receptacles from overload. Make sure to switch
ALL circuit breakers to the OFF position prior to starting
the engine.
LUBRICATION OIL
Fill the engine crankcase with lubricating oil through the
fi ller hole, but DO NOT overfi ll. Make sure the generator is
level and verify that the oil level is maintained between the
two notches (Figure 28) on the dipstick. See Table 11 for
proper selection of engine oil.
Figure 28. Engine Oil Dipstick
When checking the engine oil, be sure to check if the oil is
clean. If the oil is not clean, drain the oil by removing the
oil drain plug, and refi ll with the specifi ed amount of oil as
outlined in the ISUZU Engine Owner’s Manual. Oil should
be warm before draining.
Other types of motor oils may be substituted if they meet
the following requirements:
API Service Classifi cation CC/SC
API Service Classifi cation CC/SD
API Service Classifi cation CC/SE
API Service Classifi cation CC/SF
Table 11. Recommended Motor Oil
FUEL CHECK
Refi lling the Fuel System
This generator has an internal fuel tank located inside
the trailer frame and may also be equipped with an
environmental fuel tank (Figure 29). ALWAYS fi ll the fuel
tanks with clean fresh #2 diesel fuel. DO NOT fi ll the fuel
tanks beyond their capacities.
Pay attention to the fuel tank capacity when replenishing
fuel. The fuel tank cap must be closed tightly after fi lling.
Handle fuel in a safety container. If the container does not
have a spout, use a funnel. Wipe up any spilled fuel
immediately.
Figure 29. Internal Fuel Tank System
DANGER
Fuel spillage on a hot engine can cause
a fi re or explosion. If fuel spillage occurs,
wipe up the spilled fuel completely to
prevent fire hazards. NEVER smoke
around or near the generator.
CAUTION
ONLY properly trained personnel who have read
and understand this section should refi ll the fuel tank
system.

DCA125USI 60 HZ GEN. • OPERATION AND PARTS MANUAL — REV. #1 (03/25/11) — PAGE 31
INSPECTION/SETUP
Refueling Procedure:
1. Level Tanks — Make sure fuel cells are level with the
ground. Failure to do so will cause fuel to spill from the
tank before reaching full capacity (Figure 30).
Figure 30. Only Fill on Level Ground
WARNING
Diesel fuel and its vapors are dangerous
to your health and the surrounding
environment. Avoid skin contact and/or
inhaling fumes.
CAUTION
ALWAYS place trailer on fi rm level ground before
refueling to prevent spilling and maximize the amount
of fuel that can be pumped into the tank.
NOTICE
ONLY use #2 diesel fuel when refueling.
2. Open cabinet doors on the “right side” of the generator
(from generator control panel position). Remove fuel
cap and fi ll tank (Figure 31).
Figure 31. Fueling the Generator
3. NEVER overfi ll fuel tank — It is important to read the
fuel gauge when fi lling trailer fuel tank. DO NOT wait
for fuel to rise in fi ller neck (Figure 32).
Figure 32. Full Fuel Tank
Figure 33. Fuel Expansion
CAUTION
DO NOT OVERFILL fuel system. Leave room for fuel
expansion. Fuel expands when heated (Figure 33).

PAGE 32 — DCA125USI 60 HZ GENERATOR • OPERATION AND PARTS MANUAL — REV. #1 (03/25/11)
COOLANT (ANTIFREEZE/SUMMER COOLANT/
WATER)
ISUZU recommends ISUZU antifreeze/summer coolant for
use in their engines, which can be purchased in concentrate
(and mixed with 50% demineralized water) or pre-diluted. See
the ISUZU Engine Owner’s Manual for further details.
Day-to-day addition of coolant is done from the recovery
tank. When adding coolant to the radiator, DO NOT remove
the radiator cap until the unit has completely cooled. See
Table 12 for engine, radiator, and recovery tank coolant
capacities. Make sure the coolant level in the recovery tank
is always between the “H” and the “L” markings.
Operation in Freezing Weather
When operating in freezing weather, be certain the proper
amount of antifreeze (Table 13) has been added.
WARNING
If adding coolant/antifreeze mix to the
radiator, DO NOT remove the radiator cap
until the unit has completely cooled. The
possibility of hot! coolant exists which can
cause severe burns.
Table 12. Coolant Capacity
Engine and Radiator 5.2 gal (19.7 liters)
Reserve Tank TBD
Table 13. Anti-Freeze
Operating Temperatures
Vol %
Anti-Freeze
Freezing Point
°C °F
50 -37 -34
NOTICE
When the antifreeze is mixed with water, the antifreeze
mixing ratio must be less than 50%.
CLEANING THE RADIATOR
The engine may overheat if the radiator fi ns become
overloaded with dust or debris. Periodically clean the
radiator fi ns with compressed air. Cleaning inside the
machine is dangerous, so clean only with the engine turned
off and the negative battery terminal disconnected.
AIR CLEANER
Periodic cleaning/replacement is necessary. Inspect it in
accordance with the ISUZU Engine Owner’s Manual.
FAN BELT TENSION
A slack fan belt may contribute to overheating, or to
insuffi cient charging of the battery. Inspect the fan belt for
damage and wear and adjust it in accordance with the
ISUZU Engine Owner’s Manual.
The fan belt tension is proper if the fan belt bends 10 to 15
mm (Figure 34) when depressed with the thumb as shown
below.
Figure 34. Fan Belt Tension
CAUTION
NEVER place hands near the belts or fan
while the generator set is running.
INSPECTION/SETUP

DCA125USI 60 HZ GEN. • OPERATION AND PARTS MANUAL — REV. #1 (03/25/11) — PAGE 33
BATTERY
This unit is of negative ground DO NOT connect in reverse.
Always maintain battery fl uid level between the specifi ed
marks. Battery life will be shortened, if the fl uid level are
not properly maintained. Add only distilled water when
replenishment is necessary.
DO NOT over fill. Check to see whether the battery
cables are loose. Poor contact may result in poor starting
or malfunctions. Always keep the terminals firmly
tightened. Coating the terminals with an approved battery
terminal treatment compound. Replace battery with only
recommended type battery.
The battery is suffi ciently charged if the specifi c gravity
of the battery fl uid is 1.28 (at 68° F). If the specifi c gravity
should fall to 1.245 or lower, it indicates that the battery is
dead and needs to be recharged or replaced.
Before charging the battery with an external electric source,
be sure to disconnect the battery cables.
Battery Cable Installation
ALWAYS be sure the battery cables (Figure 35) are
properly connected to the battery terminals as shown below.
The red cable is connected to the positive terminal of the
battery, and the black cable is connected to the negative
terminal of the battery.
Figure 35. Battery Connections
CAUTION
ALWAYS disconnect the negative terminal FIRST and
reconnect negative terminal LAST.
When connecting battery do the following:
1. NEVER connect the battery cables to the battery
terminals when the MPEC Control Switch is in either
the MANUAL position. ALWAYS make sure that the
MPEC Control Switch is in the OFF/RESET position
when connecting the battery.
2. Place a small amount of battery terminal treatment
compound around both battery terminals. This will
ensure a good connection and will help prevent
corrosion around the battery terminals.
ALTERNATOR
The polarity of the alternator is negative grounding type.
When an inverted circuit connection takes place, the
circuit will be in short circuit instantaneously resulting the
alternator failure.
DO NOT put water directly on the alternator. Entry of water
into the alternator can cause corrosion and damage the
alternator.
WIRING
Inspect the entire generator for bad or worn electrical wiring
or connections. If any wiring or connections are exposed
(insulation missing) replace wiring immediately.
PIPING AND HOSE CONNECTION
Inspect all piping, oil hose, and fuel hose connections for
wear and tightness. Tighten all hose clamps and check
hoses for leaks.
If any hose (fuel or oil) lines are defective replace them
immediately.
NOTICE
If the battery cable is connected incorrectly, electrical
damage to the generator will occur. Pay close attention to
the polarity of the battery when connecting the battery.
CAUTION
Inadequate battery connections may cause poor
starting of the generator, and create other malfunctions.
INSPECTION/SETUP

PAGE 34 — DCA125USI 60 HZ GENERATOR • OPERATION AND PARTS MANUAL — REV. #1 (03/25/11)
GENERATOR START-UP PROCEDURE
BEFORE STARTING
1. Place the main, G.F.C.I., and aux. circuit breakers
(Figure 36) in the OFF position prior to starting the
engine.
Figure 36. Main, Aux. and GFCI
Circuit Breakers (OFF)
2. Make sure the voltage change-over board has been
confi gured for the desired output voltage.
3. Connect the load to the receptacles or the output
terminal lugs as shown in Figure 10. These load
connection points can be found on the output terminal
panel and the output terminal panel’s hard wire hookup
panel.
4. Tighten terminal nuts securely to prevent load wires
from slipping out.
5. Close all engine enclosure doors (Figure 37).
Figure 37. Engine Enclosure Doors
CAUTION
The engine’s exhaust contains harmful emissions.
ALWAYS have adequate ventilation when operating.
Direct exhaust away from nearby personnel.
WARNING
NEVER manually start the engine with the main, GFCI or
auxiliary circuit breakers in the ON (closed) position.
INCORREC
T
CORRECT
STARTING
1. Place the voltage selector switch in the desired
voltage position (Figure 38)..
Figure 38. Voltage Selector Switch
STARTING (MANUAL)
1. Place the engine speed switch (Figure 39) in the LOW
(down) position.
Figure 39. Engine Speed Switch (Low)
2. Located in the control box is the engine controller
diagnostic switch (Figure 40). Verify that this switch
has been placed in the OFF position (down).
Figure 40. Diagnostic Switch
3. Place the MPEC control switch in the MANUAL
position to start the engine (Figure 41).
Figure 41. MPEC Control Switch
(Manual Position)

DCA125USI 60 HZ GEN. • OPERATION AND PARTS MANUAL — REV. #1 (03/25/11) — PAGE 35
GENERATOR START-UP PROCEDURE
4. Depending on the temperature of the coolant (cold
weather conditions), the pre-heat lamp (Figure 42) will
light (ON) and remain on until the pre-heating cycle has
been completed. After completion of the pre-heating
cycle, the light will go OFF and the engine will start up
automatically.
Figure 42. Pre-Heat Lamp
5. Once the engine starts, let the engine run for 1-2
minutes. Listen for any abnormal noises. If any
abnormalities exist, shut down the engine and correct
the problem. If the engine is running smoothly, place
the engine speed switch (Figure 43) in the HIGH (up)
position.
Figure 43. Engine Speed Switch (High)
6. Verify that the Engine Running status LED on the
MPEC unit (Figure 44) in ON (lit) after the engine has
been started
Figure 44. Engine Running LED (ON)
7. The generator’s frequency meter (Figure 45) should be
displaying the 60 cycle output frequency in HERTZ.
Figure 45. Frequency Meter
8. The generator’s AC-voltmeter (Figure 46) will display
the generator’s output in VOLTS.
Figure 46. Voltmeter
9. If the voltage is not within the specifi ed tolerance, use
the voltage adjustment control knob (Figure 47) to
increase or decrease the desired voltage.
Figure 47. Voltage Adjust Control Knob
10. The ammeter (Figure 48) will indicate zero amps with
no load applied. When a load is applied, the ammeter
will indicate the amount of current that the load is
drawing from the generator.
Figure 48. Ammeter (No Load)
11. The engine oil pressure gauge (Figure 49) will indicate
the oil pressure of the engine. Under normal operating
conditions the oil pressure is approximately 42 to 71
psi. (290~490 kPa).
Figure 49. Oil Pressure Gauge

PAGE 36 — DCA125USI 60 HZ GENERATOR • OPERATION AND PARTS MANUAL — REV. #1 (03/25/11)
GENERATOR SHUT-DOWN PROCEDURES
NORMAL SHUTDOWN PROCEDURE
To shutdown the generator, use the following procedure:
1. Place both the MAIN, GFCI and LOAD circuit breakers
as shown in Figure 54 to the OFF position..
Figure 54. Main, GFCI and Load
Circuit Breakers Off
2. Place the engine speed switch (Figure 55) in the “LOW”
(down) position..
Figure 55. Ignition Switch (Normal)
3. Let the engine cool by running it at low speed for 3-5
minutes with no load applied.
4. Place the MPEC Control Switch (Figure 56) to the
OFF/RESET position.
Figure 56. MPEC Control Switch (Off/Reset)
5. Verify that all status LEDs on the MPEC display are
OFF (not lit).
6. Remove all loads from the generator.
7. Inspect entire generator for any damage or loosening of
components that may have occurred during operation.
EMERGENCY SHUTDOWN PROCEDURE
1. Place the MPEC Control Switch (Figure 56) in the
OFF/RESET position.
WARNING
NEVER stop the engine suddenly except in an
emergency.
12. The coolant temperature gauge (Figure 50) will
indicate the coolant temperature. Under normal
operating conditions the coolant temperature should
be between 167°~203°F (75°~95°C) (Green Zone).
Figure 50. Coolant Temperature Gauge
13. The tachometer gauge (Figure 51) will indicate the
speed of the engine when the generator is operating.
Under normal operating conditions this speed is
approximately 1800 RPM’s.
Figure 51. Engine Tachometer Gauge
14. Place the main, GFCI, and aux. circuit breakers in the
ON position (Figure 52).
Figure 52. Main, Aux. and GFCI
Circuit Breakers (ON)
15. Observe the generator’s ammeter (Figure 53) and
verify it reads the anticipated amount of current with
respect to the load. The ammeter will only display a
current reading if a load is in use.
Figure 53. Ammeter (Load)
16. The generator will run until manually stopped or an
abnormal condition occurs.

DCA125USI 60 HZ GEN. • OPERATION AND PARTS MANUAL — REV. #1 (03/25/11) — PAGE 37
*1 Replace engine oil and fi lter at 100 hours, fi rst time only.
*2 Add “Supplemental Coolant Additives (SCA’S)” to recharge the engine coolant.
*3 Replace primary air fi lter element when restriction indicator shows a vacuum of 625 mm (25 in. H20).
*4 If blowby hose needs to be replaced, ensure that the slope of the blowby hose is at least a 1/2 inch per foot,
with no sags or dips that could collect moisture and/or oil.
Table 14. Inspection/Maintenance 10 Hrs
DAILY 250 Hrs 500 Hrs 1000
Hrs
Engine
Check Engine Fluid Levels X
Check Air Cleaner X
Check Battery Acid Level X
Check Fan Belt Condition X
Check for Leaks X
Check for Loosening of Parts X
Replace Engine Oil and Filter * 1X
Clean Air Filter X
Check Fuel Filter/Water Separator Bowl X
Clean Unit, Inside and Outside X
Change Fuel Filter X
Clean Radiator and Check Coolant Protection Level*2X
Replace Air Filter Element * 3X
Check all Hoses and Clamps * 4X
Clean Inside of Fuel Tank X
Generator Measure Insulation Resistance Over 3M ohms X
Check Rotor Rear Support Bearing X
MAINTENANCE
GENERAL INSPECTION
Prior to each use, the generator should be cleaned and
inspected for defi ciencies. Check for loose, missing or
damaged nuts, bolts or other fasteners. Also check for
fuel, oil, and coolant leaks. Use Table 14 as a general
maintenance guideline. Engine Side, refer to the Engine
Instruction Manual.
AIR CLEANER
Every 250 hours: Remove air cleaner element (Figure 57)
and clean the heavy duty paper element with light spray of
compressed air. Replace the air cleaner as needed.
Air Cleaner with Dust Indicator
This indicator (Figure 57) is attached to the air cleaner.
When the air cleaner element is clogged, air intake
restriction becomes greater and the dust indicator signal
shows RED meaning the element needs changing or
service. After changing the air element, press the dust
indicator button to reset the indicator.
Figure 57. Air Cleaner/Indicator
NOTICE
The air fi lter should not be changed until the indicator
reads “RED”. Dispose of old air fi lter. It may not be
cleaned or reused.

PAGE 38 — DCA125USI 60 HZ GENERATOR • OPERATION AND PARTS MANUAL — REV. #1 (03/25/11)
MAINTENANCE
If the engine is operating in very dusty or dry grass
conditions, a clogged air cleaner will result. This can lead to
a loss of power, excessive carbon buildup in the combustion
chamber and high fuel consumption. Change air cleaner
more frequently if these conditions exists.
FUEL ADDITION
Add diesel fuel (the grade may vary according to season
and locations).
Removing Water from the Fuel Tank
After prolonged use, water and other impurities accumulate
in the bottom of the tank. Occasionally inspect the fuel
tank for water contamination and drain the contents if
required.
During cold weather, the more empty volume inside the
tank, the easier it is for water to condense. This can be
reduced by keeping the tank full with diesel fuel.
Cleaning Inside the Fuel Tank
If necessary, drain the fuel inside the fuel tank completely.
Using a spray washer (Figure 58) wash out any deposits
or debris that have accumulated inside the fuel tank.
Figure 58. Fuel Tank Cleaning
FUEL TANK INSPECTION
In addition to cleaning the fuel tank, the following
components should be inspected for wear:
Rubber Suspension — look for signs of wear or
deformity due to contact with oil. Replace the rubber
suspension if necessary.
Fuel Hoses — inspect nylon and rubber hoses for signs
of wear, deterioration and hardening.
Fuel Tank Lining — inspect the fuel tank lining for signs
of excessive amounts of oil or other foreign matter.
Replacing Fuel Filter
Replace the fuel fi lter cartridge with new one every 500
hours or so.
Loosen the drain plug at the lower top of the fuel fi lter.
Drain the fuel in the fuel body together with the mixed
water. DO NOT spill the fuel during disassembly.
Vent any air
AIR REMOVAL
If air enters the fuel injection system of a diesel engine,
starting becomes impossible. After running out of fuel,
or after disassembling the fuel system, bleed the system
according to the following procedure. See the ISUZU
Engine Manual for details.
To restart after running out of fuel, turn the switch to the
“ON” position for 15-30 seconds. Try again, if needed.

DCA125USI 60 HZ GEN. • OPERATION AND PARTS MANUAL — REV. #1 (03/25/11) — PAGE 39
CHECK OIL LEVEL
Check the crankcase oil level prior to each use, or when the
fuel tank is fi lled. Insuffi cient oil may cause severe damage
to the engine. Make sure the generator is level. The oil
level must be between the two notches on the dipstick as
shown in Figure 28.
Replacing Oil Filter
Remove the old oil fi lter.
Apply a fi lm of oil to the gasket on the new oil fi lter.
Install the new oil fi lter.
After the oil cartridge has been replaced, the engine oil
will drop slightly. Run the engine for a while and check for
leaks before adding more oil if needed. Clean excessive
oil from engine.
FLUSHING OUT RADIATOR AND REPLACING
COOLANT
Open both cocks located at the crankcase side and at
the lower part of the radiator and drain coolant. Open
the radiator cap while draining. Remove the overfl ow
tank and drain.
Check hoses for softening and kinks. Check clamps for
signs of leakage.
Tighten both cocks and replace the overfl ow tank.
Replace with coolant as recommended by the engine
manufacturer.
Close radiator cap tightly.
Flush the radiator by running clean tap water through
radiator until signs of rust and dirt are removed. DO
NOT clean radiator core with any objects, such as a
screwdriver.
WARNING
Allow engine to cool when fl ushing out
radiator. Flushing the radiator while hot
could cause serious burns from water or
steam.
RADIATOR CLEANING
The radiator (Figure 59) should be sprayed (cleaned) with
a high pressure washer when excessive amounts of dirt
and debris have accumulated on the cooling fi ns or tube.
When using a high pressure washer, stand at least 5 feet
(1.5 meters) away from the radiator to prevent damage to
the fi ns and tube.
Figure 59. Radiator Cleaning
GENERATOR STORAGE
For long term storage of the generator the following is
recommended:
Drain the fuel tank completely. Treat with a fuel stabilizer
if necessary.
Completely drain the oil from the crankcase and refi ll if
necessary with fresh oil.
Clean the entire generator, internal and external.
Cover the generating set and store in a clean, dry place.
Disconnect the battery.
Make sure engine coolant is at proper level.
If generator is mounted on a trailer, jack trailer up and
place on blocks so tires do not touch the ground or block
and completely remove the tires.
MAINTENANCE

PAGE 40 — DCA125USI 60 HZ GENERATOR • OPERATION AND PARTS MANUAL — REV. #1 (03/25/11)
MAINTENANCE
JACKET WATER HEATER AND INTERNAL BATTERY
CHARGER 120 VAC INPUT RECEPTACLES
(OPTIONAL)
This generator can be optionally equipped with two 120
VAC, 20 amp input receptacles located on the output
terminal panel.
The purpose of these receptacles is to provide power via
commercial power to the jacket water heater and internal
battery charger.
These receptacles will ONLY function when commercial
power has been supplied to them (Figure 60). To apply
commercial power to these receptacles, a power cord of
adequate size will be required (See Table 6).
When using the generator in hot climates there is no reason
to apply power to jacket water heater. However, if the
generator will be used in cold climates it is always a good
idea to apply power to the jacket water heater at all times. To
apply power to the jacket water heater simply apply power
to the jacket water heater receptacle via commercial power
using an power cord of adequate size.
If the generator will be used daily, the battery should
normally not require charging. If the generator will be idle
(not used) for long periods of time, apply power to the
battery charger receptacle via commercial power using an
power cord of adequate size.
NOTICE
To ensure adequate starting capability, always have
power applied to the generator's internal battery
charger..
Figure 60. Battery Charger & Jacket Water Heater Power Connections

DCA125USI 60 HZ GEN. • OPERATION AND PARTS MANUAL — REV. #1 (03/25/11) — PAGE 41
TRAILER MAINTENANCE
TRAILER MAINTENANCE
This section is intended to provide the user with generic
trailer service and maintenance information. The service
and maintenance guidelines referenced in this section refer
to a wide range of trailers.
Remember periodic inspection of the trailer will ensure safe
towing of the generator and will prevent personal injury and
damage to the equipment.
The definitions below describe some of the major
components of a typical trailer that would be used with
generator.
1. Fuel Cell — Provides an adequate amount of fuel for
the equipment in use. Fuel cells must be empty when
transporting equipment.
2. Braking System — System employed in stopping
the trailer. Typical braking systems are electric, surge,
hydraulic, hydraulic-surge and air.
3. GVWR — Gross Vehicle Weight Rating (GVWR) is
the maximum number of pounds the trailer can carry,
including the fuel cell (empty).
4. Frame Length — Measurement is from the ball hitch
to the rear bumper (refl ector).
5. Frame Width — Measurement is from fender to
fender
6. Jack Stand — Trailer support device with maximum
pound requirement from the tongue of the trailer.
7. Coupler — Type of hitch used on the trailer for
towing.
8. Tire Size — Indicates the diameter of the tire in
inches (10,12,14, etc.), and the width in millimeters
(175,185,205, etc.). The tire diameter must match the
diameter of the tire rim.
9. Tire Ply — The tire ply (layers) number is rated in
letters; 2-ply,4-ply,6-ply, etc.
10. Wheel Hub — The wheel hub is connected to the
trailer’s axle.
11. Tire Rim — Tires mounted on a tire rim. The tire rim
must match the size of the tire.
12. Lug Nuts — Used to secure the wheel to the wheel
hub. Always use a torque wrench to tighten down
the lug nuts. See Table 18 and Figure 63 for lug nut
tightening and sequence.
13. Axle — Indicates the maximum weight the axle can
support in pounds, and the diameter of the axle
expressed in inches. Please note that some trailers
have a double axle. This will be shown as 2-6000 lbs.,
meaning two axles with a total weight capacity of 6000
pounds.
14. Suspension — Protects the trailer chassis from shocks
transmitted through the wheels. Types of suspension
used are leaf, Q-fl ex, and air ride.
15. Electrical — Electrical connectors (looms) are provided
with the trailer so the brake lights and turn signals can
be connected to the towing vehicle.
16. Application — Indicates which units can be employed
on a particular trailer.

PAGE 42 — DCA125USI 60 HZ GENERATOR • OPERATION AND PARTS MANUAL — REV. #1 (03/25/11)
TRAILER MAINTENANCE
BRAKES
Trailer brakes should be inspected the fi rst 200 miles of
operation. This will allow the brake shoes and drums to seat
properly. After the fi rst 200 mile interval, inspect the brakes
every 3,000 miles. If driving over rough terrain, inspect the
brakes more frequently.
Figure 61 displays the major hydraulic surge brake
components that will require inspection and maintenance.
Please inspect these components as required using steps
1 through 8 and Table 15 as listed below:
Brake Adjustment
1. Place the trailer on jack stands. Make sure the jack
stands are placed on secure level ground.
2. Check the wheel and drum for free rotation.
3. Remove the adjusting hole cover from the adjusting
slot at the bottom brake backing plate.
4. With a screwdriver or standard adjusting tool, rotate
the star wheel of the adjuster assembly to expand the
brake shoes.
5. Adjust the brake shoes outward until the pressure of
the lining against the wheel drum makes the wheel
diffi cult to turn.
6. Adjust, rotate the star wheel in the opposite direction
until the wheel rotates freely with slight lining drag.
7. Replace the adjusting hole cover and lower the trailer
to the ground.
8. Repeat steps 1 through 7 on the remaining brakes.
Hydraulic Surge Brakes
Hydraulic surge brakes (Figure 61) should not require any
special attention with the exception of routine maintenance
such as shoe and lining replacement. Brake lines should
be periodically checked for cracks, kinks, or blockage.
Figure 61. Hydraulic Brake Components
Actuator
Hydraulic surge braking requires the installation of an
actuator at the tongue of the trailer. Remember the surge
or push of the trailer toward the tow vehicle automatically
synchronizes the trailer brakes with the tow vehicle brakes.
As the trailer pushes against the tow vehicle the actuator
telescopes together and applies force to the master
cylinder, supplying hydraulic pressure to the trailer brakes.
Periodically check and test the surge “actuator” to make sure
that it is functioning correctly. Never use an undersize actuator.
Table 15. Hydraulic Brake Troubleshooting
Symptom Possible Cause Solution
No Brakes Brake line broken or kinked? Repair or replace.
Weak Brakes or Brakes Pull to
One Side
Brake lining glazed? Reburnish or replace.
Trailer overloaded? Correct weight.
Brake drums scored or grooved? Machine or replace.
Tire pressure correct? Infl ate all tires equally.
Tires unmatched on the same axle? Match tires.
Locking Brakes
Brake components loose, bent or
broken? Replace components.
Brake drums out-of-round? Replace.
Noisy Brakes System lubricated? Lubricate.
Brake components correct? Replace and correct.
Dragging Brakes
Brake lining thickness incorrect or
not adjusted correctly?
Install new shoes and
linings.
Enough brake fl uid or correct fl uid? Replace rubber parts
fi ll with dot 4 fl uid.

DCA125USI 60 HZ GEN. • OPERATION AND PARTS MANUAL — REV. #1 (03/25/11) — PAGE 43
TRAILER MAINTENANCE
TIRES/WHEELS/LUG NUTS
Tires and wheels are a very important and critical
components of the trailer. When specifying or replacing the
trailer wheels it is important the wheels, tires, and axle are
properly matched.
Tire Wear/Infl ation
Tire infl ation pressure is the most important factor in tire
life. Pressure should be checked cold before operation DO
NOT bleed air from tires when they are hot!. Check infl ation
pressure weekly during use to insure the maximum tire life
and tread wear.
Table 16 (Tire Wear Troubleshooting) will help pinpoint the
causes and solutions of tire wear problems.
CAUTION
ALWAYS wear safety glasses when
removing or installing force fi tted parts.
Failure to comply may result in serious
injury.
CAUTION
DO NOT attempt to repair or modify a
wheel. DO NOT install in inner tube to
correct a leak through the rim. If the rim
is cracked, the air pressure in the inner
tube may cause pieces of the rim to explode (break off)
with great force and cause serious eye or bodily injury.
Table 16. Tire Wear Troubleshooting
Wear Pattern Cause Solution
Center Wear Over infl ation. Adjust pressure to particular
load per tire manufacturer.
Edge Wear Under infl ation. Adjust pressure to particular
load per tire manufacturer.
Side Wear Loss of camber
or overloading.
Make sure load does not
exceed axle rating.
Align wheels.
Toe Wear Incorrect toe-in. Align wheels.
Cupping Out-of-balance. Check bearing adjustment
and balance tires.
Flat Spots Wheel lockup and
tire skidding.
Avoid sudden stops when
possible and adjust brakes.
Suspension
The leaf suspension springs and associated components
(Figure 62) should be visually inspected every 6,000 miles
for signs of excessive wear, elongation of bolt holes, and
loosening of fasteners. Replace all damaged parts
(suspension) immediately. Torqued suspension components
as detailed in Table 17.
Figure 62. Major Suspension Components
Table 17. Suspension Torque Requirements
Item Torque (Ft.-Lbs.)
3/8" U-Bolt Min-30 Max-35
7/16" U-Bolt Min-45 Max-60
1/2" U-Bolt Min-45 Max-60
Shackle Bolt
Spring Eye Bolt
Snug fi t only. Parts must rotate freely.
Locking nuts or cotter pins are
provided to retain nut-bolt assembly.
Shoulder Type
Shackle Bolt
Min-30 Max-50

PAGE 44 — DCA125USI 60 HZ GENERATOR • OPERATION AND PARTS MANUAL — REV. #1 (03/25/11)
TRAILER MAINTENANCE
Lug Nut Torque Requirements
It is extremely important to apply and maintain proper wheel
mounting torque on the trailer. Be sure to use only the
fasteners matched to the cone angle of the wheel. Proper
procedure for attachment of the wheels is as follows:
1. Start all wheel lug nuts by hand.
2. Torque all lug nuts in sequence (Figure 63). DO NOT
torque the wheel lug nuts all the way down. Tighten each
lug nut in 3 separate passes as defi ned by Table 18.
3. After fi rst road use, retorque all lug nuts in sequence.
Check all wheel lug nuts periodically.
Table 18. Tire Torque Requirements
Wheel Size First Pass
FT-LBS
Second Pass
FT-LBS
Third Pass
FT-LBS
12" 20-25 35-40 50-65
13" 20-25 35-40 50-65
14" 20-25 50-60 90-120
15" 20-25 50-60 90-120
16" 20-25 50-60 90-120
Figure 63. Wheel Lug Nuts
Tightening Sequence
NOTICE
NEVER use an pneumatic air gun to tighten wheel
lug nuts.

DCA125USI 60 HZ GEN. • OPERATION AND PARTS MANUAL — REV. #1 (03/25/11) — PAGE 45
TRAILER WIRING DIAGRAM
Figure 64. Trailer/Towing Vehicle Wiring Diagram

PAGE 46 — DCA125USI 60 HZ GENERATOR • OPERATION AND PARTS MANUAL — REV. #1 (03/25/11)
GENERATOR WIRING DIAGRAM
Figure 65. Generator Wiring Diagram

DCA125USI 60 HZ GEN. • OPERATION AND PARTS MANUAL — REV. #1 (03/25/11) — PAGE 47
ENGINE WIRING DIAGRAM
Figure 66. Engine Wiring Diagram

PAGE 48 — DCA125USI 60 HZ GENERATOR • OPERATION AND PARTS MANUAL — REV. #1 (03/25/11)
CONTROLLER WIRING DIAGRAM
Figure 67. Controller Wiring Diagram

DCA125USI 60 HZ GEN. • OPERATION AND PARTS MANUAL — REV. #1 (03/25/11) — PAGE 49
TROUBLESHOOTING (GENERATOR)
Practically all breakdowns can be prevented by proper handling and maintenance inspections, but in the event of a
breakdown, use Table 19 shown below for diagnosis of the Generator. If the problem cannot be remedied, consult our
company’s business offi ce or service plant.
Table 19. Generator Troubleshooting
Symptom Possible Problem Solution
No Voltage Output
AC Voltmeter defective? Check output voltage using a voltmeter.
Is wiring connection loose? Check wiring and repair.
Is AVR defective? Replace if necessary.
Defective Rotating Rectifi er? Check and replace.
Defective Exciter Field? Check for approximately 17.3 ohms across J & K on CN1
Low Voltage Output
Is engine speed correct? Turn engine throttle lever to “High”.
Is wiring connections loose? Check wiring and repair.
Defective AVR? Replace if necessary.
High Voltage Output Is wiring connections loose? Check wiring and repair.
Defective AVR? Replace if necessary.
Circuit Breaker Tripped
Short Circuit in load? Check load and repair.
Over current? Confi rm load requirements and reduce.
Defective circuit breaker? Check and replace.
Over current Relay actuated? Confi rm load requirement and replace.

PAGE 50 — DCA125USI 60 HZ GENERATOR • OPERATION AND PARTS MANUAL — REV. #1 (03/25/11)
TROUBLESHOOTING (DIAGNOSTIC LAMP)
The engine controller of this generator diagnoses problems
that arise from the engine control system and the engine
itself. Press the diagnostic button (Figure 68) on the
diagnostic panel to determine if an engine malfunction has
occurred.
Figure 68. Diagnostic Panel
METHOD OF OPERATION
1. Normally, the diagnostic lamp will be dimly lit when
the MPEC Control Switch is placed in the MANUAL
position.
2. If engine trouble occurs, the diagnostic lamp will be
brightly lit as long as the control switch is left in the
manual position.
3. The diagnostic lamp will indicate that an engine
malfunction has occurred.
NOTICE
For a complete understanding of error codes and
troubleshooting procedures, refer to the enclosed
engine instruction manual.
NOTICE
If the engine is cranked while the diagnostic switch is in
the “ON” position, the engine will not be stopped even if
the starter switch is turned to the “OFF” position. In such
case, turn the diagnostic switch to the “OFF” position.

DCA125USI 60 HZ GEN. • OPERATION AND PARTS MANUAL — REV. #1 (03/25/11) — PAGE 51
NOTES

PAGE 52 — DCA125USI 60 HZ GENERATOR • OPERATION AND PARTS MANUAL — REV. #1 (03/25/11)
EXPLANATION OF CODE IN REMARKS COLUMN
The following section explains the different symbols and
remarks used in the Parts section of this manual. Use the
help numbers found on the back page of the manual if there
are any questions.
SAMPLE PARTS LIST
NO. PART NO. PART NAME QTY. REMARKS
1 12345 BOLT ......................1 .....INCLUDES ITEMS W/%
2% WASHER, 1/4 IN. ...........NOT SOLD SEPARATELY
2% 12347 WASHER, 3/8 IN. ...1 .....MQ-45T ONLY
3 12348 HOSE ..................A/R ...MAKE LOCALLY
4 12349 BEARING ..............1 .....S/N 2345B AND ABOVE
NO. Column
Unique Symbols — All items with same unique
symbol
(@, #, +, %, or >) in the number column belong to the
same assembly or kit, which is indicated by a note in the
“Remarks” column.
Duplicate Item Numbers — Duplicate numbers indicate
multiple part numbers, which are in effect for the same
general item, such as different size saw blade guards in
use or a part that has been updated on newer versions
of the same machine.
PART NO. Column
Numbers Used — Part numbers can be indicated by a
number, a blank entry, or TBD.
TBD (To Be Determined) is generally used to show a
part that has not been assigned a formal part number
at the time of publication.
A blank entry generally indicates that the item is not sold
separately or is not sold by Multiquip. Other entries will
be clarified in the “Remarks” Column.
NOTICE
The contents and part numbers listed in the parts
section are subject to change without notice. Multiquip
does not guarantee the availability of the parts listed.
NOTICE
When ordering a part that has more than one item
number listed, check the remarks column for help in
determining the proper part to order.
QTY. Column
Numbers Used — Item quantity can be indicated by a
number, a blank entry, or A/R.
A/R (As Required) is generally used for hoses or othe
r
parts that are sold in bulk and cut to length.
A blank entry generally indicates that the item is not sold
separately. Other entries will be clarified in the “Remarks
”
Column.
REMARKS Column
Some of the most common notes found in the “Remarks
”
Column are listed below. Other additional notes needed
to describe the item can also be shown.
Assembly/Kit — All items on the parts list with the
same unique symbol will be included when this item is
purchased.
Indicated by:
“INCLUDES ITEMS W/(unique symbol)”
Serial Number Break — Used to list an effective serial
number range where a particular part is used.
Indicated by:
“S/N XXXXX AND BELOW”
“S/N XXXX AND ABOVE”
“S/N XXXX TO S/N XXX”
Specific Model Number Use — Indicates that the part
is used only with the specific model number or model
number variant listed. It can also be used to show a
part is NOT used on a specific model or model numbe
r
variant.
Indicated by:
“XXXXX ONLY”
“NOT USED ON XXXX”
“Make/Obtain Locally” — Indicates that the part can
be purchased at any hardware shop or made out of
available items. Examples include battery cables, shims,
and certain washers and nuts.
“Not Sold Separately” — Indicates that an item cannot
be purchased as a separate item and is either part of an
assembly/kit that can be purchased, or is not available
for sale through Multiquip.

DCA125USI 60 HZ GEN. • OPERATION AND PARTS MANUAL — REV. #1 (03/25/11) — PAGE 53
SUGGESTED SPARE PARTS
DCA125USI WHISPERWATT GENERATOR WITH
ISUZU 4HK1X DIESEL ENGINE
1 to 3 units
QTY. P/N DESCRIPTION
5............1132402322 .......... CARTRIDGE, OIL FILTER
3............0602046684 .......... ELEMENT, AIR (OUTER)
3............P777639 ............... ELEMENT, AIR (INNER)
1............8980627130 ..........BELT, FAN
3............M3310502603 ....... RADIATOR HOSE, UPPER
3............M3310502703 ....... RADIATOR HOSE, LOWER
3............8980714010 .......... FUEL FILTER, FEED PUMP
3............8981430410 .......... FILTER FUEL, ELEMENT MAIN
3............8980742880 .......... FILTER FUEL, ELEMENT PRE
1............0602122272 .......... UNIT, OIL PRESSURE
1............0602123260 ..........UNIT, WATER TEMPERATURE
1............9095720140 ..........PACKING, WATER TEMPERATURE
1............8121468300 ..........SENSOR, WATER TEMPERATURE
1............8980274560 .......... SENSOR, OIL PRESSURE
1............1096300850 .......... GASKET, OIL PRESSURE SENSOR
1............8971256011 ..........SWITCH, OVERHEAT
1............0601870440 .......... CIRCUIT BREAKER, 1P, 20 AMP
1............0601870441 .......... CIRCUIT BREAKER 2P, 50 AMP
1............0601820602 ..........AUTOMATIC VOLTAGE REGULATOR
3............0601806671 .......... FUSE, 15 AMP
1............0601806644 .......... FUSE, 30 AMP
1............0601806640 .......... FUSE, 65 AMP
2............LY2DUS12VDC .... RELAY
NOTICE
Part number on this Suggested Spare Parts list may
supersede/replace the P/N shown in the text pages of
this book.

PAGE 54 — DCA125USI 60 HZ GENERATOR • OPERATION AND PARTS MANUAL — REV. #1 (03/25/11)
GENERATOR ASSY.

DCA125USI 60 HZ GEN. • OPERATION AND PARTS MANUAL — REV. #1 (03/25/11) — PAGE 55
GENERATOR ASSY.
NO. PART NO. PART NAME QTY. REMARKS
1 C0110001002 ROTOR ASSY ..............................1 ....... INCLUDES ITEMS W/#
1-1# FIELD ASSY 1
1-2# 8131070013 FAN 1
1-3# 8131611014 COUPLING DISK 8
1-4# 8131015003 BALANCING PLATE .....................1 ....... PURCHASE ITEM 1-14 AS A SET
1-5# 0012112035 HEX HEAD BOLT 10
1-6# 0042612000 WASHER, LOCK 10
1-7# 8101026013 SET PLATE, RECTIFIER .............1 ....... PURCHASE ITEM 1-14 AS A SET
1-8# 0601821349 RECTIFIER 2
1-9# 0601822601 SURGE ABSORBER 1
1-10# 8001020004 WASHER, INSULATOR 1
1-11# 8001020504 WASHER, INSULATOR 1
1-12# 012210020 HEX HEAD BOLT 4
1-13# 0040010000 WASHER, LOCK 4
1-14# 0601000209 BALANCING WEIGHT KIT 1
1-15# 0071906312 BEARING 1
2 C0130000503 STARTOR ASSY 1
3 0845041804 GROMMET 2
4 8131315202 END BRACKET 1
5 8101350013 FIELD ASSY, EXCITER 1
6 0012110060 HEX HEAD BOLT 4
7 0042610000 WASHER, LOCK 4
8 031110160 WASHER, FLAT 4
9 0010112035 HEX HEAD BOLT 6
10 0040012000 WASHER, LOCK 6
11 031112230 WASHER, FLAT 6
12 8131310104 COVER,BEARING 1
13 8131312204 GASKET, BEARING 1
14 8131331003 COVER, END BRACKET 1
15 0105050616 HEX HEAD BOLT 10
16 8101333003 COVER, END BRACKET 1
17 0010006030 HEX HEAD BOLT 2
18 0040006000 WASHER, LOCK 2
19 952404470 WASHER, FLAT 2
20 M3163400503 COUPLING RING 1
21 0010310075 HEX HEAD BOLT 8
22 030210250 WASHER, LOCK 8
23 012010030 HEX HEAD BOLT 12
24 M3163600003 COUPLING ADAPTER 1
25 012010030 HEX HEAD BOLT 12
26 012010030 HEX HEAD BOLT 12
27 8131332014 COVER, FAN 1
28 0600815000 NUT 1
29 0605000063 RUBBER SUSPENSION 2
30 0030016000 HEX NUT 2
30A 0040016000 WASHER, LOCK 2

PAGE 56 — DCA125USI 60 HZ GENERATOR • OPERATION AND PARTS MANUAL — REV. #1 (03/25/11)
CONTROL BOX ASSY.

DCA125USI 60 HZ GEN. • OPERATION AND PARTS MANUAL — REV. #1 (03/25/11) — PAGE 57
NO. PART NO. PART NAME QTY. REMARKS
1 M3213001802 CONTROL BOX 1
1-1 0330000210 EDGING 2
1-2 0330000280 EDGING 1
1-3 0330000340 EDGING 2
2 0601808827 CIRCUIT BREAKER, 3P 350A 1
2-1 0342604120 HEX SOCKET HEAD CAP SCREW 6
3 0021006080 MACHINE SCREW 4
4 0601823863 RELAY UNIT 2
5 7538070 MACHINE SCREW .....................................4 ................REPLACES P/N 0027104016
6 0601820602 AUTOMATIC VOLTAGE REGULATOR 1
7 0027105016 MACHINE SCREW 4
8 0601801124 CURRENT TRANSFORMER 3
9 011206020 HEX HEAD BOLT 6X20 ...............................6 ................REPLACES P/N 0027106020
10 0601820847 OVER CURRENT RELAY 1
11 0601820848 OVER CURRENT RELAY 1
12 7538070 MACHINE SCREW .....................................2 ................REPLACES P/N 0027104016
12A OEMAA8 HEX NUT .....................................................2 ................REPLACES P/N 0207004000
13 0601802218 HOLDER, FUSE 1
13A 0601806671 FUSE, 15A 3
14 0027103016 MACHINE SCREW 2
15 0601815153 TERMINAL 1
16 0027104020 MACHINE SCREW 2
17 8121468300 SENSOR, INLET AIR TEMP. .......................1 ................REPLACES P/N 0603210240
18 M3260500503 SET PANEL, ELECTRIC PARTS 1
19 0016906016 HEX HEAD BOLT 4
20 8980710280 CONTROLLER ............................................1 ................REPLACES P/N 0602202686
21 M3260500604 BRACKET 1
22 0016906016 HEX HEAD BOLT 4
23 0601831205 PUSH BUTTON SWITCH 1
24 0601831330 DIAGONASTIC SWITCH 1
25 0016906016 HEX HEAD BOLT 4
26 0601821370 RECTIFIER .................................................1 ................REPLACES P/N 0601823240
27 0027104030 MACHINE SCREW 1
28 LY2DUS12VDC RELAY .........................................................2 ................REPLACES P/N 0601827656
28A PTF08A BASE ...........................................................2 ................REPLACES P/N 0601823109
28B PYCA1 CLIP ............................................................4 ................REPLACES P/N 0601824400
29 0027104020 MACHINE SCREW 4
30 8972177780 SENSOR, BAROMETRIC PRESSURE ......1 ................REPLACES P/N 0602130220
31 7538070 MACHINE SCREW 2 REPLACES P/N 0027104016
32 5825530444 RELAY, STARTER .......................................1 ................REPLACES P/N 0602201402
35 0027105016 MACHINE SCREW 3
36 8970119490 RELAY, GLOW PLUG ..................................1 ................REPLACES P/N 0602202685
37 0027105016 MACHINE SCREW 2
38 M3213500704 CONTROL BOX COVER 1
39 0016906016 HEX HEAD BOLT 8
40 M3270100504 SELECTOR SWITCH 1
40A M3550002504 DECAL: SELECTOR SWITCH NUMBER 1
40B M3550002604 DECAL: SELECTOR SWITCH NUMBER 1
41 M3213602704 SWITCH BRACKET 1
CONTROL BOX ASSY.

PAGE 58 — DCA125USI 60 HZ GENERATOR • OPERATION AND PARTS MANUAL — REV. #1 (03/25/11)
CONTROL BOX ASSY. ( CONTINUED)

DCA125USI 60 HZ GEN. • OPERATION AND PARTS MANUAL — REV. #1 (03/25/11) — PAGE 59
CONTROL BOX ASSY. (CONTINUED)
NO. PART NO. PART NAME QTY. REMARKS
42 M3213602804 SWITCH BRACKET 1
43 0027104035 MACHINE SCREW 4
43A OEMAA8 HEX NUT 4
44 7538070 MACHINE SCREW .....................................4 ................REPLACES P/N 0027104016
44A OEMAA8 HEX NUT 4
45 0016906016 HEX HEAD BOLT 4
46 M3213602604 SWITCH COVER 1
46-1 0317700180 WEATHER STRIP 1
47 M3213602504 SWITCH COVER 1
48 0016906016 HEX HEAD BOLT 10
49 011008020 HEX HEAD BOLT .......................................10 ...............REPLACES P/N 0019208020
49A 0040508000 TOOTHED WASHER 1
50 M3223001203 CONTROL PANEL 1
51 0601807641 FREQUENCY METER, 45~65Hz 240V 1
52 0601808988 AC AMMETER, 0~200A/400A:5A 1
53 0601801040 CHANGE OVER SWITCH, AMMETER 1
54 0601806859 AC VOLTMETER, 0~600V 1
55 0601801041 CHANGE OVER SWITCH, VOLTMETER 1
56 0601840073 RHEOSTAT (VR), 2W 1K OHM 1
57 0601840100 KNOB ..........................................................1 ................REPLACES P/N 0601840121
58 0602202641 CONTROLLER, ECU (CAN77) 1
59 0027104040 MACHINE SCREW 2
59A OEMAA8 HEX NUT 2
60 82608 SWITCH ......................................................1 ................REPLACES P/N 0601831340
61 0602103092 ALARM LAMP 3
61A 0601810245 BULB, DC 18V 3
62 0602120095 TACHOMETER 1
63 0602122093 OIL PRESSURE GAUGE 1
64 0602123090 WATER TEMPERATURE GAUGE 1
65 0602121081 CHARGING AMMETER 1
67 9826800370 PANEL LIGHT .............................................1 ................REPLACES P/N 0601810141
68 0601831330 SWITCH, PANEL LIGHT 1
69 0601831395 SWITCH, ENGINE SPEED 1
70 M1223100004 STOPPER 1
71 M3223100004 STOPPER 1
72 0027105010 MACHINE SCREW 4
73 0027105010 MACHINE SCREW 4
74 M9220100004 SET SCREW 2
75 0080200007 SNAP RING 2
76 0602122272 UNIT, OIL PRESSURE 1
77 M9200100004 ADAPTER 1
78 8943998582 ADAPTER....................................................1 ................REPLACES P/N 0602020220
79 0602123260 UNIT, WATER TEMPERATURE 1
80 9095720140 PACKING .....................................................1 ................REPLACES P/N 0602021109
81 0602120465 PICK UP, TACHOMETER 1
82 0601806644 FUSE, 30A 1
83 0601806640 FUSE, 65A 1
84 M3246703004 WIRE HARNESS. GENERATOR 1
85 M3357202002 WIRE HARNESS, ENGINE 1
86 M3357201802 WIRE HARNESS, CONTROLLER 1

PAGE 60 — DCA125USI 60 HZ GENERATOR • OPERATION AND PARTS MANUAL — REV. #1 (03/25/11)
ENGINE AND RADIATOR ASSY.

DCA125USI 60 HZ GEN. • OPERATION AND PARTS MANUAL — REV. #1 (03/25/11) — PAGE 61
ENGINE AND RADIATOR ASSY.
NO. PART NO. PART NAME QTY. REMARKS
1 M3923200144 ENGINE, ISUZU 4HK1X 1
1A 8980627130 FAN BELT ....................................................1 ................REPLACES P/N 0602015253
2 M3303200603 ENGINE FOOT 2
3 0105091025 HEX HEAD BOLT ........................................8 ................REPLACES P/N 0105091025
4 0040010000 WASHER, LOCK 8
5 060500060 RUBBER SUSPENSION 2
6 0030012000 HEX NUT 2
7 0040012000 WASHER, LOCK 2
8 M3923200114 RADIATOR 1
8-1 0602011029 CAP 1
9 M9200100904 PLUG 1
10 0150000016 O-RING 1
11 M3310202904 RADIATOR BRACKET 2
12 011008020 HEX HEAD BOLT ........................................8 ................REPLACES P/N 0019208020
13 M3310202803 RADIATOR BRACKET 1
13A M3493114104 ACOUSTIC SHEET 1
14 0016910025 HEX HEAD BOLT 6
15 0016910025 HEX HEAD BOLT 4
16 M3310202104 RADIATOR BRACKET 1
17 011008020 HEX HEAD BOLT ........................................2 ................REPLACES P/N 0019208020
18 M3310502603 RADIATOR HOSE, UPPER 1
19 M3310502703 RADIATOR HOSE, LOWER 1
20 0605515148 HOSE BAND 1
21 M3310600303 HOSE SUPPORT 1
22 0016906016 HEX HEAD BOLT 4
23 M3310600204 HOSE BRACKET 2
24 011206020 HEX HEAD BOLT ........................................2 ................REPLACES P/N 0016906020
25 M3310203003 FAN BRACKET 1
26 0016910025 HEX HEAD BOLT 4
27 M1924200004 FAN MOTOR 2
28 0016910025 HEX HEAD BOLT 8
29 0602046258 AIR CLEANER 1
29A 0602046684 ELEMENT, AIR CLEANER, OUTER 1
29B P777639 ELEMENT, AIR CLEANER, INNER .............1 ................REPLACES P/N 0602046685
30 0602040650 INDICATOR, AIR CLEANER 1
31 M3373200204 BRACKET AIR CLEANER 1
32 011008020 HEX HEAD BOLT ........................................2 ................REPLACES P/N 0019208020
33 0602040596 BAND, AIR CLEANER 2
34 011008020 HEX HEAD BOLT ........................................4 ................REPLACES P/N 0019208020
35 020108060 HEX NUT .....................................................4 ................REPLACES P/N020108060
36 M3373101203 HOSE, AIR CLEANER 1
37 M3373101103 HOSE, AIR CLEANER 1
38 M3326100140 BLOW BY PIPE 1
39 0605515146 HOSE BAND 1

PAGE 62 — DCA125USI 60 HZ GENERATOR • OPERATION AND PARTS MANUAL — REV. #1 (03/25/11)
ENGINE AND RADIATOR ASSY. (CONTINUED)

DCA125USI 60 HZ GEN. • OPERATION AND PARTS MANUAL — REV. #1 (03/25/11) — PAGE 63
ENGINE AND RADIATOR ASSY. (CONTINUED)
NO. PART NO. PART NAME QTY. REMARKS
40 0605515197 HOSE BAND 3
41 M3373100903 AIR DUCT HOSE 1
42 0605515197 HOSE BAND 1
43 0191701050 BLOW BY HOSE 1
44 0605515149 HOSE BAND 2
45 M9100000204 HOSE JOINT 1
46 0602021731 SEAL WASHER 1
47 7812014003B DRAIN JOINT ..............................................1 ................REPLACES P/N M2320300103
48 0802011104 PLUG ...........................................................1 ................REPLACES P/N M9200200004
49 0150000018 O-RING 1
50 011206020 HEX HEAD BOLT ........................................2 ................REPLACES P/N 0016906020
51 0199102250 DRAIN HOSE 1
52 0605515170 HOSE BAND ...............................................2 ................REPLACES P/N 0605515106
53 0602022581 ADAPTER 1
54 0602022561 90 DEGREE ELBOW 1
55 0603306590 CONNECTOR 1
56 0603300285 LOCKNUT 1
57 0605511395 VALVE 1
58 0603306395 HOSE JOINT 1
59 0602021070 CAP 1
60 0269200800 DRAIN HOSE 1
61 M3323500004 BRACKET, OIL FILTER 1
62 0016910025 HEX HEAD BOLT 2
63 8973243861 OIL FILTER ..................................................1 ................REPLACES P/N 0602041007
63A 1132402322 CARTRIDGE, OIL FILTER ..........................1 ................REPLACES P/N 0602041221
64 0010110120 HEX HEAD BOLT 2
64A 0040010000 WASHER, LOCK 2
64B 031110160 WASHER, FLAT ..........................................2 ................REPLACES P/N 0041210000
65 0010110150 HEX HEAD BOLT 2
65A 0040010000 WASHER, LOCK 2
65B 031110160 WASHER, FLAT ..........................................2 ................REPLACES P/N 0041210000
66 0602022530 ADAPTER 4
67 0602022930 HOSE JOINT 4
68 0379001250 HOSE 2
69 0605515198 HOSE BAND 4
70 0802081003C RESERVE TANK, 5L ...................................1 ................REPLACES P/N M9300000203
71 0802010900 CAP, RESERVE TANK .................................1 ................REPLACES P/N 0602010900
72 M3316100303 BRACKET, RESERVE TANK 1
73 011008020 HEX HEAD BOLT ........................................3 ................REPLACES P/N 0019208020
74 0199102100 HOSE 1
75 0193600700 HOSE 1
76 0193601000 HOSE 1
77 0605515170 HOSE BAND ...............................................3 ................REPLACES P/N 0605515106
78 M3923200124 INTERCOOLER 1
78A M3490202004 ACOUSTIC SHEET 1
79 0132004000 PLUG, 3/8 1

PAGE 64 — DCA125USI 60 HZ GENERATOR • OPERATION AND PARTS MANUAL — REV. #1 (03/25/11)
ENGINE AND RADIATOR ASSY. (CONTINUED)

DCA125USI 60 HZ GEN. • OPERATION AND PARTS MANUAL — REV. #1 (03/25/11) — PAGE 65
NO. PART NO. PART NAME QTY. REMARKS
80 M3310202603 BRACKET, INTER COOLER 1
80A M3493114504 ACOUSTIC SHEET 2
81 012210020 HEX HEAD BOLT ........................................8 ................REPLACES P/N 0017110020
82 0016906016 HEX HEAD BOLT 12
83 M3310502803 COOLER HOSE 1
84 M3310502903 COOLER HOSE 1
85 0605515208 HOSE BAND 2
86 0605515204 HOSE BAND 1
87 0605515207 HOSE BAND 1
88 M3310600404 HOSE BRACKET 1
89 011206020 HEX HEAD BOLT ........................................1 ................REPLACES P/N 0016906020
90 M3310303803 FAN SHROUD 1
91 M3310303903 FAN SHROUD 1
92 011206020 HEX HEAD BOLT ........................................8 ................REPLACES P/N 0016906020
93 M3310304104 BRACKET, FAN SHROUD 1
94 0016906016 HEX HEAD BOLT 8
95 M3310304003 FAN GUARD 1
96 011206020 HEX HEAD BOLT ........................................6 ................REPLACES P/N 0016906020
97 M3326200204 BLOWBY HOSE BRACKET 1
98 011008020 HEX HEAD BOLT ........................................1 ................REPLACES P/N 0019208020
99 9095720140 PACKING SENSOR WATER TEMP. 1
100 8121468300 SENSOR, WATER TEMPERATURE 1
101 8980274560 SENSOR, OIL PRESSURE 1
102 1096300850 GASKET, SENSOR OIL PRESSURE 1
103 8971256011 SWITCH, OVERHEAT 1
ENGINE AND RADIATOR ASSY. (CONTINUED)

PAGE 66 — DCA125USI 60 HZ GENERATOR • OPERATION AND PARTS MANUAL — REV. #1 (03/25/11)
OUTPUT TERMINAL ASSY.

DCA125USI 60 HZ GEN. • OPERATION AND PARTS MANUAL — REV. #1 (03/25/11) — PAGE 67
OUTPUT TERMINAL ASSY.
NO. PART NO. PART NAME QTY. REMARKS
1 M3230700003 TERMINAL BOARD 1
2 M9220100304 OUTPUT TERMINAL BOLT 5
3 0801830804 TIE BOLT .....................................................5 ................REPLACES P/N M9220100404
4 0039316000 HEX NUT 10
5 0040016000 WASHER, LOCK 15
6 0401450160 WASHER, FLAT .........................................20 ...............REPLACES P/N 0041416000
7 0012108035 HEX HEAD BOLT ........................................5 ................REPLACES P/N 0016908035
8 M3236100803 TERMINAL COVER 1
9 M3236100404 OUTPUT WINDOW 1
10 0605010040 HINGE 2
11 0027103010 MACHINE SCREW 4
11A 0207003000 HEX NUT .....................................................4 ................REPLACES P/N 0030003000
11B 58413 WASHER, FLAT 4 REPLACES P/N 0041203000
12 0027103010 MACHINE SCREW 4
12A 0207003000 HEX NUT .....................................................4 ................REPLACES P/N 0030003000
13 M9220100804 SET SCREW 2
13A 0040006000 WASHER, LOCK 2
13B 952404470 WASHER, FLAT 2
13C 0080200005 RETAINING RING 2
14 0016906016 HEX HEAD BOLT 4
15 M3236400004 CABLE, OUTLET COVER 1
16 M3236300004 SUPPORTER, CABLE OUTLET COVER 1
17 011206020 HEX HEAD BOLT ........................................6 ................REPLACES P/N 0016906020
18 0601815194 TERMINAL BLOCK 1
19 7538070 MACHINE SCREW .....................................2 ................REPLACES P/N 0027104016
20 0603306775 BLIND PLUG 2
21 7538070 MACHINE SCREW .....................................4 ................REPLACES P/N 0027104016
22 0601870440 CIRCUIT BREAKER, 1P 20A 2
23 0601870441 CIRCUIT BREAKER, 2P 50A 3
24 M1260700504 BREAKER, FITTING COVER 1
24-1 0222100100 CUSHION RUBBER 2
25 011206020 HEX HEAD BOLT ........................................2 ................REPLACES P/N 0016906020
26 0601812597 RECEPTACLE, GF530EM 125V 20Ax2 ......2 ................REPLACES P/N 0601812598
27 0601811034 RECEPTACLE, CS6369 250V 50A .............3 ................REPLACES P/N 0601812538
28 7538070 MACHINE SCREW ....................................10 ...............REPLACES P/N 0027104016
28A OEMAA8 HEX NUT 10
29 M3236400204 COVER 1
30 0016906016 HEX HEAD BOLT 8
31 M3236100213 TERMINAL COVER 1
32 012212045 HEX HEAD BOLT ........................................2 ................REPLACES P/N 012212045
33 031112230 WASHER, FLAT 2
34 0805009804 STAY RUBBER ............................................2 ................REPLACES P/N M9310200004
35 0030012000 HEX NUT 2
36 M4236100604 COVER 1
37 M4236400304 BRACKET 1
38 0016906016 HEX HEAC BOLT 2

PAGE 68 — DCA125USI 60 HZ GENERATOR • OPERATION AND PARTS MANUAL — REV. #1 (03/25/11)
BATTERY ASSY.

DCA125USI 60 HZ GEN. • OPERATION AND PARTS MANUAL — REV. #1 (03/25/11) — PAGE 69
BATTERY ASSY.
NO. PART NO. PART NAME QTY. REMARKS
1 0602220198 BATTERY 1
2 M9310500404 BATTERY SHEET 1
3 M9103000504 BATTERY BAND 1
4 0602220921 BATTERY BOLT SET 2
5 M3346901604 BATTERY CABLE 1
6 M3346901504 BATTERY CABLE 1
7 CABLE .........................................................1 ................MAKE LOCALLY
8 012010030 HEX HEAD BOLT ........................................1 ................REPLACES P/N 0017110030
8A 0040510000 TOOTHED WASHER 1
9 011008020 HEX HEAD BOLT ........................................1 ................REPLACES P/N 0019208020
9A 0040508000 TOOTHED WASHER 1

PAGE 70 — DCA125USI 60 HZ GENERATOR • OPERATION AND PARTS MANUAL — REV. #1 (03/25/11)
MUFFLER ASSY.

DCA125USI 60 HZ GEN. • OPERATION AND PARTS MANUAL — REV. #1 (03/25/11) — PAGE 71
MUFFLER ASSY.
NO. PART NO. PART NAME QTY. REMARKS
1 M3330101002 MUFFLER 1
2 012212030 HEX HEAD BOLT ........................................4 ................REPLACES P/N 0017112030
3 M3333001603 EXHAUST PIPE 1
4 141451840 GASKET ......................................................1 ................REPLACES P/N 0602320108
5 M3333200304 GASKET 1
6 0039308000 HEX NUT 8
7 0017110050 HEX HEAD BOLT 4
8 M3330401104 COVER 1
9 M3330401003 BRACKET 1
10 011008020 HEX HEAD BOLT ........................................4 ................REPLACES P/N 0019208020
11 0602326061 U-BOLT SET 1

PAGE 72 — DCA125USI 60 HZ GENERATOR • OPERATION AND PARTS MANUAL — REV. #1 (03/25/11)
FUEL TANK ASSY.

DCA125USI 60 HZ GEN. • OPERATION AND PARTS MANUAL — REV. #1 (03/25/11) — PAGE 73
FUEL TANK ASSY.
NO. PART NO. PART NAME QTY. REMARKS
1 M3363001402 FUEL TANK 1
1-1 0605505070 FUEL TANK CAP 1
1-2 0605501074 FUEL SENDER UNIT 1
1-2A 0605516090 GASKET 1
2 M3363001504 FUEL TANK 1
2-1 0605505070 FUEL TANK CAP 1
3 0191700260 CONNECT HOSE 2
4 0605515134 HOSE BAND 4
5 M3363200404 TANK BAND 4
6 M3363200904 TANK BAND 4
7 M9310500104 SUPPORTER SHEET 8
8 011008020 HEX HEAD BOLT ........................................8 ................REPLACES P/N 0019208020
9 0207008000 HEX NUT 8
10 0222101000 TANK SHEET 6
11 0191302500 VENT HOSE 1
12 0605515109 HOSE BAND 2
13 M3366700203 FUEL FILTER BRACKET 1
14 011008020 HEX HEAD BOLT ........................................4 ................REPLACES P/N 0019208020
15 8980139861 FUEL FILTER (MAIN) ..................................1 ................REPLACES P/N 0602042426
15A 8981430410 ELEMENT, FUEL FILTER ............................1 ................REPLACES P/N 8980088400
16 8980758551 FUEL FILTER (PRE.) ..................................1 ................REPLACES P/N 8980758550
16A 8980742880 ELEMENT, FUEL FILTER ............................1 ................REPLACES P/N 8980758540
17 8973834270 JOINT PIPE .................................................4 ................REPLACES P/N 0602042661
18 1096750951 JOINT BOLT ................................................4 ................REPLACES P/N 0602042621
19 1096300860 PACKING .....................................................8 ................REPLACES P/N 0602042641
20 0017110040 HEX HEAD BOLT 4
21 0010110080 HEX HEAD BOLT 2
21A 0040010000 WASHER, LOCK 2
21B 031110160 WASHER, FLAT ..........................................2 ................REPLACES P/N 0041210000
22 8980682750 FUEL FEED PUMP .....................................1 ................REPLACES P/N 0602023240
22A 8980714010 FUEL FILTER ..............................................1 ................REPLACES P/N 0602042517
23 011606025 HEX HEAD BOLT ........................................2 ................REPLACES P/N 0016906025
24 0191301790 SUCTION HOSE 1
25 0191300800 SUCTION HOSE 1
26 0191300230 SUCTION HOSE 1
27 0191300850 SUCTION HOSE 1
28 0191300750 RETURN HOSE 1
29 0605515109 HOSE BAND 10

PAGE 74 — DCA125USI 60 HZ GENERATOR • OPERATION AND PARTS MANUAL — REV. #1 (03/25/11)
ENCLOSURE ASSY. PART 1.

DCA125USI 60 HZ GEN. • OPERATION AND PARTS MANUAL — REV. #1 (03/25/11) — PAGE 75
ENCLOSURE ASSY. PART1.
NO. PART NO. PART NAME QTY. REMARKS
1 M3413002502 BASE 1
2 M3363300303 ENVIROMENTAL TANK 1
3 0016910030 HEX HEAD BOLT 12
4 0603306797 PLUG, 1-1/2 1
5 M3423002802 FRONT FRAME 1
5A M3493114403 ACOUSTIC SHEET 1
6 M3423002902 FRONT FRAME 1
6A M3493114403 ACOUSTIC SHEET 1
7 0601851765 GROMMET 1
8 011008020 HEX HEAD BOLT .......................................27 ...............REPLACES P/N 0019208020
9 M3423003003 FRONT FRAME 1
10 011008020 HEX HEAD BOLT ........................................8 ................REPLACES P/N 0019208020
11 0016910025 HEX HEAD BOLT 6
12 M3310400403 HOSE COVER 1
13 011206020 HEX HEAD BOLT ........................................7 ................REPLACES P/N 0016906020
14 M3310400304 HOSE COVER 1
15 011206020 HEX HEAD BOLT ........................................8 ................REPLACES P/N 0016906020
16 M3423500204 BRACKET 1
17 011008020 HEX HEAD BOLT ........................................2 ................REPLACES P/N 0019208020
18 M3423200704 DUCT COVER 2
19 011206020 HEX HEAD BOLT .......................................14 ...............REPLACES P/N 0016906020
20 M3310302704 SHROUD BRACKET 1
21 0016906016 HEX HEAD BOLT 6
22 M3423300304 DISCHARGE GUIDE 1
22A M3493113704 ACOUSTIC SHEET 1
23 011008020 HEX HEAD BOLT ........................................4 ................REPLACES P/N 0019208020
24 M3423202603 COVER FRONT FRAME 1
24A M3493111803 ACOUSTIC SHEET 1
25 M3423202403 FRONT LOUVER 1
26 0019206016 HEX HEAD BOLT 6
27 011008020 HEX HEAD BOLT ........................................4 ................REPLACES P/N 0019208020
28 011008020 HEX HEAD BOLT ........................................4 ................REPLACES P/N 0019208020
29 M3433001402 CENTER FRAME 1
29A M3493201304 ACOUSTIC SHEET 1
30 0010114040 HEX HEAD BOLT 4
30A 515455840 HEX NUT 4 REPLACES P/N 0030014000
30B 030214350 WASHER, LOCK .........................................4 ................REPLACES P/N 0040014000
30C 0041220000 WASHER, FLAT 8
31 0010120050 HEX HEAD BOLT 4
31A 0030020000 HEX NUT 4
31B 030220510 WASHER, LOCK .........................................4 ................REPLACES P/N 0040020000
31C 0041220000 WASHER, FLAT 8
32 M3463101503 ROOF PANEL 1
32A M3493509204 ACOUSTIC SHEET 1

PAGE 76 — DCA125USI 60 HZ GENERATOR • OPERATION AND PARTS MANUAL — REV. #1 (03/25/11)
ENCLOSURE ASSY. PART 1 (CONTINUED)

DCA125USI 60 HZ GEN. • OPERATION AND PARTS MANUAL — REV. #1 (03/25/11) — PAGE 77
ENCLOSURE ASSY. PART 1 (CONTINUED)
NO. PART NO. PART NAME QTY. REMARKS
33 M3463202202 ROOF PANEL 1
33A M3493509303 ACOUSTIC SHEET 1
34 M3463201104 BACK PLATE 2
35 0016906016 HEX HEAD BOLT 12
36 M3463202303 DUCT 1
36A M3493506004 ACOUSTIC SHEET 1
37 011008020 HEX HEAD BOLT ........................................8 ................REPLACES P/N 0019208020
38 M3423202704 OVER COVER, FRONT FRAME 1
38A M3493108004 ACOUSTIC SHEET 1
39 011008020 HEX HEAD BOLT .......................................51 ...............REPLACES P/N 0019208020
40 0017110025 HEX HEAD BOLT ........................................8 ................REPLACES P/N 0019210025
41 M3310600004 COVER, RADIATOR CAP 1
42 011008020 HEX HEAD BOLT ........................................4 ................REPLACES P/N 0019208020
43 011008020 HEX HEAD BOLT ........................................1 ................REPLACES P/N 0019208020
43A 0040508000 TOOTHED WASHER 1
44 0605503062 FUEL LEAK DETECTED SWITCH 1
45 M1414800104 BRACKET 1
46 011008020 HEX HEAD BOLT ........................................2 ................REPLACES P/N 0019208020

PAGE 78 — DCA125USI 60 HZ GENERATOR • OPERATION AND PARTS MANUAL — REV. #1 (03/25/11)
ENCLOSURE ASSY. PART 2.

DCA125USI 60 HZ GEN. • OPERATION AND PARTS MANUAL — REV. #1 (03/25/11) — PAGE 79
NO. PART NO. PART NAME QTY. REMARKS
1 M3443001902 REAR FRAME 1
1A M3493308603 ACOUSTIC SHEET 1
2 M3443002004 DUCT 2
3 011008020 HEX HEAD BOLT ...........................................6 .................REPLACES P/N 0019208020
4 M3443400103 PANEL, REAR FRAME 1
4A M3493308904 ACOUSTIC SHEET 1
4-1 0314501550 RUBBER SEAL 1
4-2 0330000250 EDGING 1
4-3 0330000325 EDGING 1
5 011008020 HEX HEAD BOLT ...........................................6 .................REPLACES P/N 0019208020
6 M3443002103 DUCT 1
6A M3493308804 ACOUSTIC SHEET 1
7 M3443002203 DUCT 1
7A M3443008804 ACOUSTIC SHEET 1
8 011008020 HEX HEAD BOLT ...........................................6 .................REPLACES P/N 0019208020
9 011008020 HEX HEAD BOLT ...........................................6 .................REPLACES P/N 0019208020
10 0016910025 HEX HEAD BOLT 4
11 M3443301803 COVER, REAR FRAME 1
11A M3493308704 ACOUSTIC SHEET 2
12 011008020 HEX HEAD BOLT ...........................................4 .................REPLACES P/N 0019208020
13 011008020 HEX HEAD BOLT ...........................................4 .................REPLACES P/N 0019208020
14 M3443200803 DOOR, REAR FRAME 1
15 M3443600304 WINDOW PLATE 1
16 0207306000 HEX NUT 8
16A 952404470 WASHER, FLAT 8
17 B9114000002 DOOR HANDLE ASSY ..................................1 .................REPLACES P/N M9113000002
18 0021806016 MACHINE SCREW 4
18A 020106050 HEX NUT .......................................................4 .................REPLACES P/N 0030006000
19 M9110100204 HINGE 2
20 M9116100004 WASHER 2
21 011008020 HEX HEAD BOLT ...........................................3 .................REPLACES P/N 0019208020
22 M3453201702 SPLASHER PANEL 1
22A M3493426704 ACOUSTIC SHEET 1
23 0019104065 HEX HEAD BOLT 4
23A 0042308000 WASHER, LOCK 4
23B 0042408000 WASHER, FLAT 4
24 0016910025 HEX HEAD BOLT 2
25 M3453005303 SIDE DOOR 1
25A M3493426504 ACOUSTIC SHEET 1
26 M3453005403 SIDE DOOR 1
26A M3493426504 ACOUSTIC SHEET 1
27 M3453002703 SIDE DOOR 1
27A M3493417204 ACOUSTIC SHEET 1
28 M3453005503 SIDE DOOR 1
28A M3493426604 ACOUSTIC SHEET 1
ENCLOSURE ASSY. PART 2.

PAGE 80 — DCA125USI 60 HZ GENERATOR • OPERATION AND PARTS MANUAL — REV. #1 (03/25/11)
ENCLOSURE ASSY. PART 2 (CONTINUED)

DCA125USI 60 HZ GEN. • OPERATION AND PARTS MANUAL — REV. #1 (03/25/11) — PAGE 81
NO. PART NO. PART NAME QTY. REMARKS
29 B9114000002 DOOR HANDLE ASSY ...............................4 ................REPLACES P/N M9113000002
29A C9312500004 SEAL RUBBER 4
30 0021806016 MACHINE SCREW 16
30A 020106050 HEX NUT ....................................................16 ...............REPLACES P/N 0030006000
31 0845046904 HINGE .........................................................6 ................REPLACES P/N M9110100804
32 0845047004 HINGE .........................................................5 ................REPLACES P/N M9110100904
33 M9116100004 WASHER 11
34 011008020 HEX HEAD BOLT .......................................26 ...............REPLACES P/N 0019208020
35 0601850097 STOPPER 8
36 0027208025 MACHINE SCREW 8
37 M9310000004 CAP 13
38 0600800320 MANUAL PAK 1
39 0021806016 MACHINE SCREW 4
ENCLOSURE ASSY. PART 2 (CONTINUED)

PAGE 82 — DCA125USI 60 HZ GENERATOR • OPERATION AND PARTS MANUAL — REV. #1 (03/25/11)
RUBBER SEALS ASSY.

DCA125USI 60 HZ GEN. • OPERATION AND PARTS MANUAL — REV. #1 (03/25/11) — PAGE 83
RUBBER SEALS ASSY.
NO. PART NO. PART NAME QTY. REMARKS
1 0229200870 RUBBER SEAL 1
2 0229201130 RUBBER SEAL 1
3 0229201240 RUBBER SEAL 3
4 0228901070 RUBBER SEAL 1
5 0314502700 RUBBER SEAL 1
6 0229200125 RUBBER SEAL 4
7 0228901165 RUBBER SEAL 3
8 0228900925 RUBBER SEAL 4
9 0228901105 RUBBER SEAL 3
10 0228900565 RUBBER SEAL 1
11 0228900945 RUBBER SEAL 4
12 0228900505 RUBBER SEAL 1
13 0229201090 RUBBER SEAL 1
14 0229201335 RUBBER SEAL 2
15 0228901335 RUBBER SEAL 1
16 0228900655 RUBBER SEAL 1
17 0229201090 RUBBER SEAL 1
18 0228100630 RUBBER SEAL 2
19 0229401080 RUBBER SEAL 1
20 0228800565 RUBBER SEAL 1
21 0228801080 RUBBER SEAL 1
22 0228800545 RUBBER SEAL 1
23 0228100370 RUBBER SEAL 2
24 0228100640 RUBBER SEAL 2

PAGE 84 — DCA125USI 60 HZ GENERATOR • OPERATION AND PARTS MANUAL — REV. #1 (03/25/11)
NAMEPLATE AND DECALS ASSY.

DCA125USI 60 HZ GEN. • OPERATION AND PARTS MANUAL — REV. #1 (03/25/11) — PAGE 85
NO. PART NO. PART NAME QTY. REMARKS
1-1 M3550003003 DECAL : OPERATING PROCEDURES .....................1 ........... M35000300A
1-2 M9520100304 DECAL : SAFETY INSTRUCTIONS ..........................1 ........... M92010030
1-3 M9520100603 DECAL : CAUTION ....................................................2 ........... M92010060
CONTROL BOX GROUP
2-1 M3550003503 DECAL : CONTROL PANEL ......................................1 ........... M35000350
2-2 M3550003603 DCEAL : OPERATING PANEL...................................1 ........... M35000360
2-3 M9520000104 PLATE : AMMETER CHANGE- OVER SWITCH .......1 ........... M92000010
2-4 M9520000204 PLATE : VOLTMETER CHANGE- OVER SWITCH ....1 ........... M92000020
2-5 M9520000804 DECAL : AC ...............................................................1 ........... M92000080
2-6 M9520000904 DECAL : DIAGNOSTIC SWITCH ..............................1 ........... M92000090
2-7 M9520001104 DECAL : DIAGNOSTIC BUTTON ..............................1 ........... M92000110
2-8 M9520100004 DECAL : WARNING ELECTRIC SHOCK HAZZARD 1 ........... M92010000
2-9 M9520100204 DECAL : CAUTION ....................................................1 ........... M92010020A
2-10 M9520200404 DECAL : OVER CURRENT RELAY ...........................1 ........... M92020040
ENGINE & RADIATOR GROUP
3-1 M9500000004 DECAL : OIL DRAIN PLUG .......................................1 ........... M90000000
3-2 M9500100004 DECAL : WATER .......................................................1 ........... M90010000
3-3 M9500100304 DECAL : INTER-COOLER DRAIN ............................1 ........... M90010030
3-4 M9503000004 DECAL : WARNING MOVING PARTS .......................2 ........... M90300000
3-5 M9503000103 DECAL : WATER - OIL CHECK ................................1 ........... M90300010
3-6 M9503100004 DECAL : WARNING HOT COOLANT ........................1 ........... M90310000
3-7 M9510100004 DECAL : CAUTION HOT PARTS ...............................1 ........... M91010000
OUTPUT TERMINAL GROUP
4-1 M1550000204 DECAL : NOTE ..........................................................1 ........... M15000020
4-2 M1550002203 DECAL : RECEPTACLE & CIRCUIT BREAKER .......1 ........... M15000220
4-3 M3550000004 DECAL : NOTE ..........................................................1 ........... M35000000
4-4 M9520000004 DECAL : GROUND ....................................................1 ........... M92000000
4-5 M9520000504 DECAL : START CONTACT .......................................1 ........... M92000050
4-6 M9520100004 DECAL : WARNING ELECTRIC SHOCK HAZZARD 1 ........... M92010000
4-7 M9520100404 DECAL : DANGER HIGH VOLTAGE ..........................1 ........... M92010040
4-8 M9520100503 DECAL : WARNING ...................................................1 ........... M92010050
4-9 M9520200003 DECAL : OUTPUT TERMINAL ..................................1 ........... M92020000
BATTERY GROUP
5-1 M9500300004 DECAL : - ..................................................................1 ........... M90030000
5-2 M9500300104 DECAL : + ..................................................................1 ........... M90030010
5-3 M9510100403 DECAL : CAUTION ....................................................1 ........... M91010040
MUFFLER GROUP
6-1 M9503200004 DECAL : WARNING ENGINE EXHAUST ..................1 ........... M90320000
NAMEPLATE AND DECALS ASSY.

PAGE 86 — DCA125USI 60 HZ GENERATOR • OPERATION AND PARTS MANUAL — REV. #1 (03/25/11)
NAMEPLATE AND DECALS ASSY. (CONTINUED)

DCA125USI 60 HZ GEN. • OPERATION AND PARTS MANUAL — REV. #1 (03/25/11) — PAGE 87
NAMEPLATE AND DECALS ASSY. (CONTINUED)
NO. PART NO. PART NAME QTY. REMARKS
FUEL TANK GROUP
7-1 M9500500004 DECAL : DIESEL FUEL .............................................1 ........... M90050000
7-2 M9510000004 DECAL : FUEL DRAIN PLUG ...................................1 ........... M91000000
ENCLOSURE GROUP
8-1 M9512200004 DECAL : MQ ..............................................................1 ........... M91220000
8-2 M9510200304 DECAL : MQ POWER ...............................................2
8-3 M3560102004 STRIPE .....................................................................2
8-4 M3560102103 STRIPE : WHISPERWATT.........................................2
8-5 M3560102204 STRIPE .....................................................................2
8-6 M3560102303 STRIPE : 125 .............................................................1
8-7 M3560102403 STRIPE : 125 .............................................................1
8-8 M3560102504 STRIPE .....................................................................2
8-9 M9510100304 DECAL : ENVIRONMENTAL WARNING ...................1 ........... M91010030
8-10 0600500092 PLATE : MQ POWER ................................................1
8-10A 0021106016 MACHINE SCREW ....................................................4
8-11 M3550002204 DECAL : CAUTION ....................................................1 ........... M35000220
8-12 M9503200104 DECAL : DANGER EXHAUST GAS ..........................1 ........... M90320010
8-13 M9510000104 DECAL : DOCUMENT BOX LOCATED .....................1 ........... M91000010

PAGE 88 — DCA125USI 60 HZ GENERATOR • OPERATION AND PARTS MANUAL — REV. #1 (03/25/11)
TERMS AND CONDITIONS OF SALE — PARTS
PAYMENT TERMS
Terms of payment for parts are net 30 days.
FREIGHT POLICY
All parts orders will be shipped collect or
prepaid with the charges added to the invoice.
All shipments are F.O.B. point of origin.
Multiquip’s responsibility ceases when a
signed manifest has been obtained from the
carrier, and any claim for shortage or damage
must be settled between the consignee and
the carrier.
MINIMUM ORDER
The minimum charge for orders from Multiquip
is $15.00 net. Customers will be asked for
instructions regarding handling of orders not
meeting this requirement.
RETURNED GOODS POLICY
Return shipments will be accepted and
credit will be allowed, subject to the following
provisions:
1. A Returned Material Authorization
must be approved by Multiquip prior to
shipment.
2. To obtain a Return Material Authorization,
a list must be provided to Multiquip
Parts Sales that defi nes item numbers,
quantities, and descriptions of the items
to be returned.
a. The parts numbers and descriptions
must match the current parts price
list.
b. The list must be typed or computer
generated.
c. The list must state the reason(s)
for the return.
d. The list must reference the sales
order(s) or invoice(s) under
which the items were originally
purchased.
e. The list must include the name
and phone number of the person
requesting the RMA.
3. A copy of the Return Material Authorization
must accompany the return shipment.
4. Freight is at the sender’s expense. All
parts must be returned freight prepaid to
Multiquip’s designated receiving point.
5. Parts must be in new and resalable
condition, in the original Multiquip
package (if any), and with Multiquip part
numbers clearly marked.
6. The following items are not returnable:
a. Obsolete parts. (If an item is in the
price book and shows as being
replaced by another item, it is
obsolete.)
b. Any parts with a limited shelf life
(such as gaskets, seals, “O” rings,
and other rubber parts) that were
purchased more than six months
prior to the return date.
c. Any line item with an extended
dealer net price of less than
$5.00.
d. Special order items.
e. Electrical components.
f. Paint, chemicals, and lubricants.
g. Decals and paper products.
h. Items purchased in kits.
7. The sender will be notifi ed of any material
received that is not acceptable.
8. Such material will be held for five
working days from notifi cation, pending
instructions. If a reply is not received
within five days, the material will be
returned to the sender at his expense.
9. Credit on returned parts will be issued
at dealer net price at time of the original
purchase, less a 15% restocking
charge.
10. In cases where an item is accepted, for
which the original purchase document
can not be determined, the price will be
based on the list price that was effective
twelve months prior to the RMA date.
11. Credit issued will be applied to future
purchases only.
PRICING AND REBATES
Prices are subject to change without prior
notice. Price changes are effective on a
specifi c date and all orders received on or
after that date will be billed at the revised price.
Rebates for price declines and added charges
for price increases will not be made for stock
on hand at the time of any price change.
Multiquip reserves the right to quote and
sell direct to Government agencies, and to
Original Equipment Manufacturer accounts
who use our products as integral parts of their
own products.
SPECIAL EXPEDITING SERVICE
A $35.00 surcharge will be added to the
invoice for special handling including bus
shipments, insured parcel post or in cases
where Multiquip must personally deliver the
parts to the carrier.
LIMITATIONS OF SELLER’S LIABILITY
Multiquip shall not be liable hereunder for
damages in excess of the purchase price of
the item with respect to which damages are
claimed, and in no event shall Multiquip be
liable for loss of profi t or good will or for any
other special, consequential or incidental
damages.
LIMITATION OF WARRANTIES
No warranties, express or implied, are
made in connection with the sale of parts or
trade accessories nor as to any engine not
manufactured by Multiquip. Such warranties
made in connection with the sale of new,
complete units are made exclusively by a
statement of warranty packaged with such
units, and Multiquip neither assumes nor
authorizes any person to assume for it
any other obligation or liability whatever in
connection with the sale of its products. Apart
from such written statement of warranty,
there are no warranties, express, implied or
statutory, which extend beyond the description
of the products on the face hereof.
Effective: February 22, 2006

DCA125USI 60 HZ GEN. • OPERATION AND PARTS MANUAL — REV. #1 (03/25/11) — PAGE 89
NOTES

OPERATION AND PARTS MANUAL
Your Local Dealer is:
HERE’S HOW TO GET HELP
PLEASE HAVE THE MODEL AND SERIAL
NUMBER ON-HAND WHEN CALLING
UNITED STATES
Multiquip Corporate Office MQ Parts Department
18910 Wilmington Ave.
Carson, CA 90746
Contact: mq@multiquip.com
Tel. (800) 421-1244
Fax (800) 537-3927
800-427-1244
310-537-3700
Fax: 800-672-7877
Fax: 310-637-3284
Service Department Warranty Department
800-421-1244
310-537-3700
Fax: 310-537-4259 800-421-1244
310-537-3700
Fax: 310-943-2249
Technical Assistance
800-478-1244 Fax: 310-943-2238
MEXICO UNITED KINGDOM
MQ Cipsa Multiquip (UK) Limited Head Office
Carr. Fed. Mexico-Puebla KM 126.5
Momoxpan, Cholula, Puebla 72760 Mexico
Contact: pmastretta@cipsa.com.mx
Tel: (52) 222-225-9900
Fax: (52) 222-285-0420
Unit 2, Northpoint Industrial Estate,
Globe Lane,
Dukinfield, Cheshire SK16 4UJ
Contact: sales@multiquip.co.uk
Tel: 0161 339 2223
Fax: 0161 339 3226
CANADA
Multiquip
4110 Industriel Boul.
Laval, Quebec, Canada H7L 6V3
Contact: jmartin@multiquip.com
Tel: (450) 625-2244
Tel: (877) 963-4411
Fax: (450) 625-8664
©
COPYRIGHT 2011, MULTIQUIP INC.
Multiquip Inc, the MQ logo and the MQ Power logo are registered trademarks of Multiquip Inc. and may not be used, reproduced, or altered without written permission. All othe
r
trademarks are the property of their respective owners and used with permission.
This manual MUST accompany the equipment at all times. This manual is considered a permanent part of the equipment and should remain with the unit if resold.
The information and specifications included in this publication were in effect at the time of approval for printing. Illustrations, descriptions, references and technical data contained in
this manual are for guidance only and may not be considered as binding. Multiquip Inc. reserves the right to discontinue or change specifications, design or the information published
in this publication at any time without notice and without incurring any obligations.