Multiquip Saw Mp2H Users Manual MP2 5E1 5E3 75E3 H Parts Rev 1 032610.pmd
MP2H to the manual 2bcee691-9f0b-4a3b-8b34-a010c7eb2150
2015-02-09
: Multiquip Multiquip-Multiquip-Saw-Mp2H-Users-Manual-558625 multiquip-multiquip-saw-mp2h-users-manual-558625 multiquip pdf
Open the PDF directly: View PDF
.
Page Count: 64

THIS MANUAL MUST ACCOMPANY THE EQUIPMENT AT ALL TIMES.
To find the latest revision of this
publication, visit our website at:
www.multiquip.com
PARTS MANUAL
MP2 SERIES
MODELS
MP25E1
MP25E3
MP275E3
MP2H
MASONRY SAWS
(5HP 1Ø ELECTRIC MOTOR)
(5HP 3Ø ELECTRIC MOTOR)
(HONDA GX270QWH2 GASOLINE ENGINE)
Revision #1 (03/26/10)
P/N: 38269

PAGE 2 — MQ MP2 SERIES SAW — PARTS MANUAL — REV. #1 (03/26/10)
Engine exhaust and some of
its constituents, and some dust created
of California to cause cancer, birth
defects and other reproductive harm.
by power sanding, sawing, grinding,
drillingandotherconstructionactivities
contains chemicals known to the State
Some examples of these chemicals are:
Leadfromlead-basedpaints.
Crystallinesilicafrombricks.
Cementandothermasonryproducts.
Arsenicandchromiumfromchemically
treatedlumber.
Your risk from these exposures varies,
dependingonhowoftenyoudothistype
of work. To reduce your exposure to
these chemicals: work in aALWAYS
well ventilated area, and work with
approved safety equipment, such as
dust masks that are specially designed
to filter out microscopic particles.
PROPOSITION 65 WARNING

MQ MP2 SERIES SAW — PARTS MANUAL — REV. #1 (03/26/10) — PAGE 3
Grinding/cutting/drilling of masonry, concrete, metal and
other materials with silica in their composition may give
off dust or mists containing crystalline silica. Silica is a
basic component of sand, quartz, brick clay, granite and
numerous other minerals and rocks. Repeated and/or
substantial inhalation of airborne crystalline silica can
cause serious or fatal respiratory diseases, including
silicosis. In addition, California and some other
authorities have listed respirable crystalline silica as a
substance known to cause cancer. When cutting such
materials, always follow the respiratory precautions
mentioned above.
WARNING
Grinding/cutting/drilling of masonry, concrete, metal and
other materials can generate dust, mists and fumes
containing chemicals known to cause serious or fatal
injury or illness, such as respiratory disease, cancer,
birth defects or other reproductive harm. If you are
unfamiliar with the risks associated with the particular
process and/or material being cut or the composition of
the tool being used, review the material safety data
sheet and/or consult your employer, the material
manufacturer/supplier, governmental agencies such as
OSHA and NIOSH and other sources on hazardous
materials. California and some other authorities, for
instance, have published lists of substances known to
cause cancer, reproductive toxicity, or other harmful
effects.
Control dust, mist and fumes at the source where
possible. In this regard use good work practices and
follow the recommendations of the manufacturers or
suppliers, OSHA/NIOSH, and occupational and trade
associations. Water should be used for dust
suppression when wet cutting is feasible. When the
hazards from inhalation of dust, mists and fumes cannot
be eliminated, the operator and any bystanders should
always wear a respirator approved by NIOSH/MSHA for
the materials being used.
WARNING
SILICOSIS WARNING RESPIRATORY HAZARDS
SILICOSIS/RESPIRATORY WARNINGS

PAGE 4 — MQ MP2 SERIES SAW — PARTS MANUAL — REV. #1 (03/26/10)
TABLE OF CONTENTS
MP2 MASONRY SAW
Proposition 65 Warning ............................................. 2
Silicosis/Respiratory Warnings .................................. 3
Table Of Contents ..................................................... 4
Parts Ordering Procedures ....................................... 5
Explanation of Codes in Remarks............................. 6
Suggested Spare Parts ............................................. 7
COMPONENT DRAWINGS
Nameplate and Decals........................................... 8-9
Tray Assembly .................................................... 10-11
Cart Assembly.................................................... 12-13
Motor Plate and Blade Guard Assembly ............ 14-15
Electric Motor Assembly..................................... 16-17
Water Pump Assembly (Electric Motors Only) ..... 18-19
Gasoline Engine Mount Assy. ............................ 20-21
Gasoline Engine Jackshaft Assy. ....................... 22-23
Gasoline Engine Covers Assy. ........................... 24-25
Water Pump Assembly (Gasoline Engines Only) .. 26-27
Step Pedal Assembly ......................................... 28-29
Specification and part number are subject
to change without notice.
HONDA GX270QWH2
GASOLINE ENGINE
Air Cleaner (Cyclone) Assembly ........................ 30-31
Camshaft Assembly ........................................... 32-33
Carburetor Assembly ......................................... 34-35
Control Assembly ............................................... 36-37
Crankcase Cover Assembly ............................... 38-39
Crankshaft Assembly ......................................... 40-41
Cylinder Barrel Assembly ................................... 42-43
Cylinder Head Assembly .................................... 44-45
Fan Cover Assembly .......................................... 46-47
Flywheel Assembly ............................................ 48-49
Fuel Tank Assembly ........................................... 50-51
Ignition Coil Assembly ........................................ 52-53
Labels Assembly ................................................ 54-55
Muffler Assembly ............................................... 56-57
Piston Assembly ................................................. 58-59
Recoil Starter Assembly..................................... 60-61
Terms and Conditions of Sale — Parts ................... 62

MQ MP2 SERIES SAW — PARTS MANUAL — REV. #1 (03/26/10) — PAGE 5
PARTS ORDERING PROCEDURES
www.multiquip.com
Ordering parts has never been easier!
Choose from three easy options:
WE ACCEPT ALL MAJOR CREDIT CARDS!
When ordering parts, please supply:
R Dealer Account Number
R Dealer Name and Address
R Shipping Address (if different than billing address)
R Return Fax Number
R Applicable Model Number
R Quantity, Part Number and Description of Each Part
R Specify Preferred Method of Shipment:
UPS/Fed Ex DHL
N Priority One Tr u c k
N Ground
N Next Day
N Second/Third Day
If you have an MQ Account, to obtain a Username
and Password, E-mail us at: parts@multiquip.
com.
To obtain an MQ Account, contact you
r
District Sales Manager for more information.
Order via Internet (Dealers Only):
Order parts on-line using Multiquip’s SmartEquip website!
N View Parts Diagrams
N Order Parts
N Print Specification Information
Note: Discounts Are Subject To Change
Goto www.multiquip.com and click on
Order Parts to log in and save!
Use the internet and qualify for a 5% Discount
on Standard orders for all orders which include
complete part numbers.*
Order via Fax (Dealers Only):
All customers are welcome to order parts via Fax.
Domestic (US) Customers dial:
1-800-6-PARTS-7 (800-672-7877)
Fax your order in and qualify for a 2% Discount
on Standard orders for all orders which include
complete part numbers.*
Order via Phone: Domestic (US) Dealers Call:
1-800-427-1244
Best Deal!
International Customers should contact
their local Multiquip Representatives for
Parts Ordering information.
Non-Dealer Customers:
Contact your local Multiquip Dealer for
parts or call 800-427-1244 for help in
locating a dealer near you.
Note: Discounts Are Subject To Change
Effective:
January 1st, 2006
NOTICE
All orders are treated as Standard Orders and will
ship the same day if received prior to 3PM PST.

PAGE 6 — MQ MP2 SERIES SAW — PARTS MANUAL — REV. #1 (03/26/10)
EXPLANATION OF CODE IN REMARKS COLUMN
The following section explains the different symbols and
remarks used in the Parts section of this manual. Use the
help numbers found on the back page of the manual if there
are any questions.
SAMPLE PARTS LIST
NO. PART NO. PART NAME QTY. REMARKS
1 12345 BOLT ......................1 .....INCLUDES ITEMS W/%
2% WASHER, 1/4 IN. ...........NOT SOLD SEPARATELY
2% 12347 WASHER, 3/8 IN. ...1 .....MQ-45T ONLY
3 12348 HOSE ..................A/R ...MAKE LOCALLY
4 12349 BEARING ..............1 .....S/N 2345B AND ABOVE
NO. Column
Unique Symbols — All items with same unique
symbol
(@, #, +, %, or >) in the number column belong to the
same assembly or kit, which is indicated by a note in the
“Remarks” column.
Duplicate Item Numbers — Duplicate numbers indicate
multiple part numbers, which are in effect for the same
general item, such as different size saw blade guards in
use or a part that has been updated on newer versions
of the same machine.
PART NO. Column
Numbers Used — Part numbers can be indicated by a
number, a blank entry, or TBD.
TBD (To Be Determined) is generally used to show a
part that has not been assigned a formal part number
at the time of publication.
A blank entry generally indicates that the item is not sold
separately or is not sold by Multiquip. Other entries will
be clarified in the “Remarks” Column.
NOTICE
The contents and part numbers listed in the parts
section are subject to change without notice. Multiquip
does not guarantee the availability of the parts listed.
NOTICE
When ordering a part that has more than one item
number listed, check the remarks column for help in
determining the proper part to order.
QTY. Column
Numbers Used — Item quantity can be indicated by a
number, a blank entry, or A/R.
A/R (As Required) is generally used for hoses or other
parts that are sold in bulk and cut to length.
A blank entry generally indicates that the item is not sold
separately. Other entries will be clarified in the “Remarks”
Column.
REMARKS Column
Some of the most common notes found in the “Remarks
”
Column are listed below. Other additional notes needed
to describe the item can also be shown.
Assembly/Kit — All items on the parts list with the
same unique symbol will be included when this item is
purchased.
Indicated by:
“INCLUDES ITEMS W/(unique symbol)”
Serial Number Break — Used to list an effective serial
number range where a particular part is used.
Indicated by:
“S/N XXXXX AND BELOW”
“S/N XXXX AND ABOVE”
“S/N XXXX TO S/N XXX”
Specific Model Number Use — Indicates that the part
is used only with the specific model number or model
number variant listed. It can also be used to show a
part is NOT used on a specific model or model number
variant.
Indicated by:
“XXXXX ONLY”
“NOT USED ON XXXX”
“Make/Obtain Locally” — Indicates that the part can
be purchased at any hardware shop or made out of
available items. Examples include battery cables, shims,
and certain washers and nuts.
“Not Sold Separately” — Indicates that an item cannot
be purchased as a separate item and is either part of an
assembly/kit that can be purchased, or is not available
for sale through Multiquip.

MQ MP2 SERIES SAW — PARTS MANUAL — REV. #1 (03/26/10) — PAGE 7
SUGGESTED SPARE PARTS
Qty. P/N Description
2 ............ 20478 .................... KNOB, COMFORT GRIP
1 ............ 23783-001 ............ WRENCH, HEX 3/4
4 ............ 21004-005 ............ V-BELT, ELECTRIC MOTOR AX-48
1 ............ 23843-001 ............ WATER PUMP, ELECTRIC MOTOR
4 FT. ...... 23867-006 ............ VINYL WATER TUBING
1 ............ 27036-501 ............ CONVEYOR CART ASSY.
2 ............ 23830-001 ............ BLADE SHAFT BEARING
2 ............ 8136 ...................... BLADE SCREW
2 ............ 5054 A .................. WASHER, LOCK
2 ............ 23832-001 ............ OUTER BLADE FLANGE
2 ............ 23833-001 ............ INNER BLADE FLANGE
2 ............ 18637-001 ............ HANDLE LOCK
Qty. P/N Description
2 ............ 20478 .................... HANDLE GRIP
2 ............ 23830-001 ............ BLADE SHAFT BEARING
2 ............ 8136 ...................... BLADE SCREW
2 ............ 5054 A .................. WASHER, LOCK
1 ............ 23783-001 ............ WRENCH, HEX 3/4
4 ............ 16779-012 ............ V-BELT, DRIVE, 3VX250
4 ............ 16779-004 ............ V-BELT, JACK SHAFT 3VX375
1 ............ 25685-001 ............ STRAINER
1 ............ 27036-501 ............ CONVEYOR CART ASSY.
2 ............ 23833-001 ............ OUTER BLADE FLANGE
2 ............ 23846-001 ............ INNER BLADE FLANGE
2 ............ 18637-001 ............ KNOB, LOCK
3 ............ 17210ZE1505 ....... ELEMENT, AIR CLEANER
3 ............ 9807956846 .......... SPARK PLUG
1 ............ 17620ZH7023 ....... CAP, FUEL FILLER
1 ............ 28462ZE2W11 ...... ROPE, RECOIL STARTER

PAGE 8 — MQ MP2 SERIES SAW — PARTS MANUAL — REV. #1 (03/26/10)
NAME PLATE AND DECALS
NAMEPLATE AND DECALS
GASOLINE MODELS ONLY
7
9
15
5
2
412
13 14
1
6
11
8
4
4
18
17
10
16
19

MQ MP2 SERIES SAW — PARTS MANUAL — REV. #1 (03/26/10) — PAGE 9
NAMEPLATE AND DECALS
NO. PART NO. PART NAME QTY.REMARKS
1 PLATE, MODEL/SERIAL NUMBER ..................... 1 ................ CONTACT PARTS DEPT.
2 21302 DECAL, BELT GUARD WARNING 1
4 38243 DECAL, MP2 LOGO 3
5 15580 DECAL, RESPIRATORY WARNING 1
6 35137 DECAL, READ OPERATORS MANUAL 1
7 25491 DECAL, CW ROTATION 1
8 25249-001 DECAL, BLADE WARNING 1
9 22122-001 DECAL, PREVENT SERIOUS INJURY 1
10 29730 DECAL, US FLAG 1
11 38213 DECAL, MULTIQUIP 4 x 4 IN. 1
12 13118 DECAL, POWDER COATED 1
13 25139-001 DECAL, EXTENSION CORD SIZE ...................... 1 ................ELECTRIC MODELS ONLY
14 25215-001 DECAL, ELECTRIC CORD WARNING ................. 1 ................ ELECTRIC MODELS ONLY
15 27082-001 DECAL, CRANK HANDLE TURN DIRECTION 1
16 20525 DECAL, PROP 65 1
17 38239 DECAL,MP2 LOGO ............................................. 1 ................ GASOLINE MODELS ONLY
18 21302 DECAL, BELT GUARD WARNING ........................ 1 ................ GASOLINE MODELS ONLY
19 35136 DECAL, BLADE LOWER, CW 1
NAME PLATE AND DECALS

PAGE 10 — MQ MP2 SERIES SAW — PARTS MANUAL — REV. #1 (03/26/10)
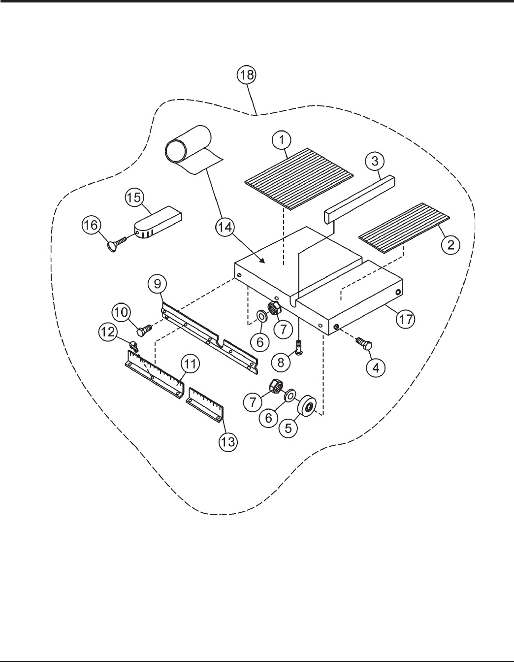
TRAY ASSY.
TRAY ASSY.

MQ MP2 SERIES SAW — PARTS MANUAL — REV. #1 (03/26/10) — PAGE 11
TRAY ASSY.
TRAY ASSY.
NO. PART NO. PART NAME QTY.REMARKS
1 26963-351 FRAME ................................................................ 1 ......... YELLOW
2 27026-001 CURTAIN, SPLASH 1
3 23853-001 SNAP HOOK, SHOWER CURTAIN 3
4*2509 NUT, WING 1/4 - 20 PLTD 1
5*12391-004 WASHER, FLAT 1/4 AN970-4 1
6*23847-001 RUBBER STOPPER 1
7*0948 WASHER, FLAT SAE 1/4 1
8*5277 SCREW, HHC 1/4 - 20 X 1-1/2 1
9 23862-501 RUBBER STOPPER ASSY. ................................. 1 ......... INCLUDES ITEMS W/*
10 23783-001 WRENCH, HEX 3/4 1

PAGE 12 — MQ MP2 SERIES SAW — PARTS MANUAL — REV. #1 (03/26/10)
CART ASSY.
CART ASSY.

MQ MP2 SERIES SAW — PARTS MANUAL — REV. #1 (03/26/10) — PAGE 13
CART ASSY.
NO. PART NO. PART NAME QTY.REMARKS
1*23804-003 MAT, RUBBER V-RIB 6.75 X 12.06 IN. 1
2*23804-004 MAT, RUBBER V-RIB 14.94 X 12.06 IN. 1
3*27035-001 INSERT, CONVEYOR CART 1
4*0730 SCREW, HHC 1/4-20 X 1 IN. 4
5*23793-001 WHEEL, CONVEYOR CART 4
6*0948 WASHER, FLAT 4
7*08233-004 NUT, LOCK 1/4 IN. - 20 GRIPCO 7
8*23796-001 SCREW, RD HD 2
9*27037-001 SIDE CONVEYOR 1
10*23866-001 SCREW, HHST, 10-32 x 1/2 IN. 5
11*27032-001 RULER, LONG SIDE 1
12*23795-008 SCREW, HHST 5
13*27033-001 RULER, SHORT 1
14*26076-301 TAPE, ROLL ADHESIVE TRNSFR 8.5 FT.
15*24288-001 GUIDE, CUTTING 1
16*08622-012 SCREW, THUMB 5/16 - 18 X 1-1/2 IN. 1
17*26992-351 CART, CONVEYOR 1
18 27036-501 CART ASSEMBLY .................................. 1 ......... INCLUDES ITEMS W/*
CART ASSY.

PAGE 14 — MQ MP2 SERIES SAW — PARTS MANUAL — REV. #1 (03/26/10)
MOTOR PLATE & BLADE GUARD ASSY.
MOTOR PLATE & BLADE GUARD ASSY.

MQ MP2 SERIES SAW — PARTS MANUAL — REV. #1 (03/26/10) — PAGE 15
MOTOR PLATE & BLADE GUARD ASSY.
NO. PART NO. PART NAME QTY.REMARKS
1 20478 GRIP, HANDLE 1
2 23835-702 TUBE, SPINDLE ASSY. 1
3 16105 SCREW, HEX 5/16-24 x 3/4 IN. 4
5 0300 B WASHER, FLAT 5/16 IN. 4
6 27023-001 BEARING, PILLOW BLOCK ................................ 2 ......... INCLUDES ITEMS W/#
7 2621 ZERK FITTING 3
8 1162 A CAP, GREASE ZERK #2 YLW 3
9# TBD SET SCREW, PILLOW BLOCK 4
10 23834-003 SHAFT, SPINDLE 1
11 07011-017 KEY, WOODRUFF KEY 1
12 0627 KEY, SQUARE 3/16 x 1-1/4 IN. 1
13 06330-006 WASHER, SPRING 1
14 23830-001 BEARING 2
15 23829-002 SPACER, 1/2" ...................................................... 1 ......... S/N YG55003339 AND BELOW
15 23829-001 SPACER, 1/4" ...................................................... 1 ......... S/N YG55003340 AND ABOVE
16 27030-001 PULLEY, SPINDLE .............................................. 1 ......... ELECTRIC MODELS ONLY
16 28324-001 PULLEY, SPINDLE .............................................. 1 ......... GASOLINE MODELS ONLY
17 10138 SET SCREW, SPINDLE PULLEY 3
18 1284 SCREW, HEX 3/8-16 x 1-1/2 IN. 4
19 10136 WASHER, FLAT 3/8 IN. 5
20 10133 NUT, GRIPPO 3/8-16 IN. 4
21 5291 PIN, CLEVIS 3/8 x 1-1/8 IN. 1
22 0683 PIN, COTTER 3/32 DIA. x 3/4 IN. 1
23 08327-012 YOKE END, ADJUSTABLE 1
24 2199 NUT, JAM 3/8-24 IN. 2
25 27021-001 TIE ROD 1
26 27034-001 BALL JOINT, QUICK DISCONNECT 1
28 0166 A WASHER, LOCK 3/8 IN. 1
29 07037-006 NUT, HEX 3/8-24 IN. 1
30 23867-005 TUBING, VINYL 2
31 25628-001 HOSE CLAMP, BLADE GUARD 2
32 12694-001 HOSE CLAMP 2
33 8136 BOLT, HEX 1/2-20 x 1-1/2 IN. 1
34 5054 A WASHER, LOCK 1
35 23832-001 OUTER FLANGE 1
36 23833-001 INNER FLANGE 1
37 27008-351 BLADE GUARD ASSY. ........................................ 1 ......... YELLOW
38 17510-002 SNAP RING 2
39 23825-351 MOUNTING PLATE, BLADE GUARD 1
40 0131 A SCREW, HEX 1/4-20 x 3/4 IN. 3
41 0181 B WASHER, LOCK 1/4 IN. 5
42 0948 WASHER, FLAT 1/4 IN. 3
43 26984-351 MOTOR PLATE .................................................... 1 ......... YELLOW
43 29003-351 MOTOR PLATE .................................................... 1 ......... 9 HP HONDA
44 0131 A SCREW, HHC 1/4-20 x 3/4 IN. 2
45 27078-001 SPLASH SHIELD, BLADE GUARD 1
46 0949 NUT, HEX 1/4-20 IN. 2
MOTOR PLATE & BLADE GUARD ASSY.

PAGE 16 — MQ MP2 SERIES SAW — PARTS MANUAL — REV. #1 (03/26/10)
ELECTRIC MOTOR
ELECTRIC MOTOR
15
1MOTOR PLATE & BLADE
GUARD ASSY., ITEM 16
NOTES:
5
18
910
7
6
4
8
32
13
1
12
13
15
13 16
1
7
10
9
11
14
20
19
SINGLE PHASE SWITCH
24
THREE PHASE SWITCH
26
25
TO MOTOR
BARE WIRE
23
22
21
27
1A

MQ MP2 SERIES SAW — PARTS MANUAL — REV. #1 (03/26/10) — PAGE 17
ELECTRIC MOTOR
NO. PART NO. PART NAME QTY.REMARKS
1 27022-401 ELECTRIC MOTOR, 5 HP 1Ø .............. 1 ............ INCLUDES ITEMS W/*
1 27090-401 ELECTRIC MOTOR, 5 HP 3Ø .............. 1 ............ INCLUDES ITEMS W/*
2*6059 B KEY, 1/4 x 2 2
3 27029-001 PULLEY (MOTOR) 1
4 16193-006 SCREW, SHS 5/16-18 x 3/8 IN. 2
5 27002-351 BELT GUARD 1
6 21004-005 BELT - AX-48 2
7 0948 WASHER, FLAT 1/4 5
8 29710-351 MOUNT, BELT GUARD 1
9 0131 A SCREW, HHC 1/4 - 20 x 1/2 IN. 3
10 0181 B WASHER, LOCK 1/4 IN. 5
11 0949 NUT, HEX 1/4-20 IN. 3
12 1023 SCREW, HHC 3/16-16 x 1-1/2 IN. 4
13 10136 WASHER, FLAT 3/8 IN. 6
14 27016-001 SPACER, MOTOR 2
15 10133 NUT, NYLOC 3/8-16 IN. 6
16 23811-354 BELT TIGHTENER 2
18 0131 A SCREW, HHC 1/4 - 20 x 1/2 IN. 2
19 23865-001 SCREW, SELF-TAP 2
20 24037-501 SWITCHBOX, 1 PHASE 1
21 C799Mp55 SWITCHBOX, 3 PHASE 1
22 27090-001 STARTER 1
23 27090-003 TRIP, UNDER VOLTAGE 1
24 BOLT .................................................... 2 ............ OBTAIN LOCALLY
25 WASHER, FLAT ................................... 2 ............ OBTAIN LOCALLY
26 NUT, HEX ............................................. 2 ............ OBTAIN LOCALLY
27 CA302LN SWITCH 1
ELECTRIC MOTOR

PAGE 18 — MQ MP2 SERIES SAW — PARTS MANUAL — REV. #1 (03/26/10)
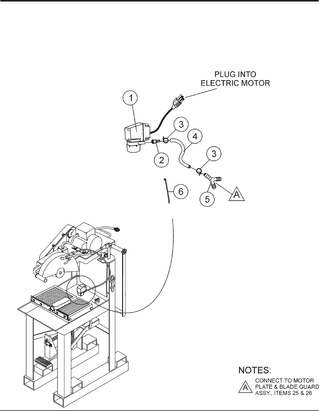
WATER PUMP ASSY. (ELECTRIC MOTORS ONLY)
WATER PUMP ASSY. (ELECTRIC MOTORs ONLY)

MQ MP2 SERIES SAW — PARTS MANUAL — REV. #1 (03/26/10) — PAGE 19
WATER PUMP ASSY. (ELECTRIC MOTORs ONLY)
NO. PART NO. PART NAME QTY.REMARKS
1 23843-001 WATER PUMP, ELECTRIC..................... 1 ..................USE WITH SINGLE PHASE MOTORS
1 28693-501 WATER PUMP, ELECTRIC ..................... 1 ..................USE WITH THREE PHASE MOTORS
2 26077-001 FITTING, BRASS 6 BARB 1/4FP 1
3 12694-001 HOSE CLAMP 2
4 23867-006 TUBING, VINYL 5/16 .............................4 .................. CUT TO 4 FT.
5 14233-002 Y-FITTING 1
6 1662 TIE, CABLE 1
WATER PUMP ASSY. (ELECTRIC MOTORS ONLY)

PAGE 20 — MQ MP2 SERIES SAW — PARTS MANUAL — REV. #1 (03/26/10)
1
2
3
4
5
6
2
4
7
5
9
2
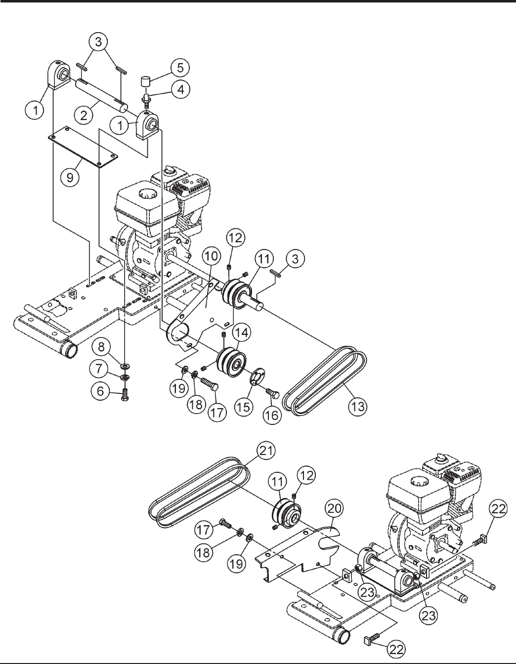
GASOLINE ENGINE MOUNT ASSY.
GASOLINE ENGINE MOUNT ASSY.

MQ MP2 SERIES SAW — PARTS MANUAL — REV. #1 (03/26/10) — PAGE 21
GASOLINE ENGINE MOUNT ASSY.
NO. PART NO. PART NAME QTY.REMARKS
1 15101 ENGINE, HONDA 9 H.P. 1 GX270QWH2
2 1023 SCREW, HHC 3/8-16 x 1-1/4 IN. 8
3 0166 A WASHER, LOCK 3/8 IN. 4
4 10136 WASHER, FLAT 3/8 IN. 2
5 10133 NUT, GRIPPO 3/8-16 IN. 4
6 29004-351 BASE PLATE, ENGINE MOUNT 1
7 23811-354 BELT TIGHTENER 2
9 28275-001 WASHER, FLAT 2
GASOLINE ENGINE MOUNT ASSY.

PAGE 22 — MQ MP2 SERIES SAW — PARTS MANUAL — REV. #1 (03/26/10)
GASOLINE ENGINE JACKSHAFT ASSY.
GASOLINE ENGINE JACKSHAFT ASSY.

MQ MP2 SERIES SAW — PARTS MANUAL — REV. #1 (03/26/10) — PAGE 23
GASOLINE ENGINE JACKSHAFT ASSY.
NO. PART NO. PART NAME QTY.REMARKS
1 28321-001 BEARINGS, PILLOW BLOCK 2
2 28919-001 JACKSHAFT 1
3 10057-011 KEY, SQUARE 1/4 X 1-1/4 3
4 1162 A CAP, GREASE ZERK #2 YLW 2
5 2621 ZERK, GREASE STR 1/4-28 2
6 1023 SCREW, HEX 3/8-16 x 1-1/4 IN. 4
7 0166 A WASHER, LOCK 3/8 IN. 4
8 28275-001 WASHER, FLAT 3/8 IN. 4
9 28844-001 SUPPORT PLATE, JACKSHAFT 1
10 29005-351 BELT GUARD MOUNT 1
11 28322-003 PULLEY, ENGINE/JACKSHAFT 2
12 16193-006` SCREW, SET 5/16-18 x 3/8 IN. 4
13 16779-012 DRIVE BELT 3VX250 2
14 29007-001 PULLEY, JACKSHAFT 1
15 29008-001 BUSHING, SPLIT TYPE 1
16 0424 SCREW, 1/4-20 X 1-1/4 IN. 3
17 0131 A SCREW, HHC 1/4 - 20 X 3/4 IN. 4
18 0181 B WASHER, LOCK 1/4 IN. 4
19 0949 WASHER, FLAT 1/4 IN. 4
20 28769-351 MOUNTING BRACKET, BELT GUARD 1
21 16779-004 SPINDLE V-BELT 3VX375 2
22 27058-001 SCREW, SQ. HD 3/8-16 x 2.50 IN. 2
23 1456 NUT, HEX 3/8-16 IN. 2
GASOLINE ENGINE JACKSHAFT ASSY.

PAGE 24 — MQ MP2 SERIES SAW — PARTS MANUAL — REV. #1 (03/26/10)
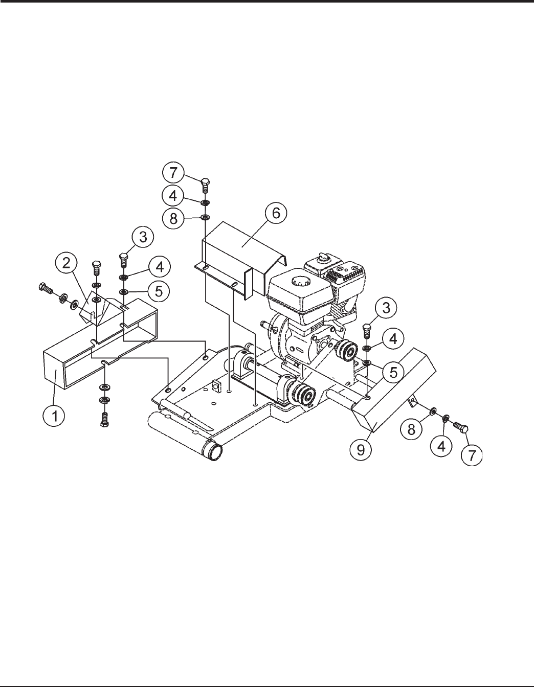
GASOLINE ENGINE COVERS ASSY.
GASOLINE ENGINE COVERS ASSY.

MQ MP2 SERIES SAW — PARTS MANUAL — REV. #1 (03/26/10) — PAGE 25
GASOLINE ENGINE COVERS ASSY.
NO. PART NO. PART NAME QTY.REMARKS
1 28886-351 BELT GUARD, LEFT SIDE .................... 1 ........... YELLOW
2 28178-351 COVER, WATER PUMP ........................ 1 ........... YELLOW
3 1579 SCREW, HEX 1/4-20 x 1/2 4
4 0181 B WASHER, LOCK 1/4 IN. 5
5 0948 WASHER, FLAT 3/8 IN. 4
6 28906-351 JACKSHAFT COVER ........................... 1 ........... YELLOW
7 0131 A SCREW, HEX 1/4-20 x 3/4 IN. 2
8 0181 B WASHER, LOCK 1/4 IN. 2
9 28928-351 BELT GUARD, JACKSHAFT ................. 1 ........... YELLOW
GASOLINE ENGINE COVERS ASSY.

PAGE 26 — MQ MP2 SERIES SAW — PARTS MANUAL — REV. #1 (03/26/10)
WATER PUMP ASSY. (GASOLINE ENGINES ONLY)
WATER PUMP ASSY. (GASOLINE ENGINES ONLY)

MQ MP2 SERIES SAW — PARTS MANUAL — REV. #1 (03/26/10) — PAGE 27
WATER PUMP ASSY. (GASOLINE ENGINES ONLY)
NO. PART NO. PART NAME QTY.REMARKS
1*28917-002 PULLEY-WATER PUMP 2" IN. 1
2*10138 SCREW, SHS 1/4-20 X 1/2 IN. 4
3*28910-001 SHAFT, PUMP 1
4*3360 GRIP, PUMP HANDLE 1
5*10120-010 SCREW, RHM 1/4 - 20 X 5/8 2
6*28179-001 BRACKET, PUMP MOUNTING 1
7*0166 A WASHER, LOCK, 3/8 IN. 2
8*0205 SCREW, HHC 3/8-16 X 1.0 IN. 2
9*09189-006 BEARING, BALL 2
10*28916-001 CAP, WATER PUMP 1
11*10136 WASHER, FLAT 3/8 IN. 2
12*60021 HOSE, BRAIDED PVC 3/8 x 5/8 IN. ...........2 ........... CUT TO 24 IN.
13*12694-001 HOSE CLAMP 4
14*25874-001 FITTING, PLASTIC STR 6 BARB 2
15*25802-001 HEAD, WATER PUMP 1
16*2925 FITTING, PLASTIC 90 6 BARB 1
17*60021 HOSE, BRAIDED PVC 3/8 x 5/8 IN. ...........3 ........... CUT TO 32 IN.
18*25875-001 BULB, PRIMER 1
19*60021 HOSE, BRAIDED PVC 3/8 x 5/8 IN. ...........1 ........... CUT TO 8 IN.
20*25685-001 STRAINER, INLET 3/8 IN. 1
21 TRAK20WP PUMP ASSY. ..............................................1 ........... INCLUDES ITEMS W/*
WATER PUMP ASSY. (GASOLINE ENGINES ONLY)

PAGE 28 — MQ MP2 SERIES SAW — PARTS MANUAL — REV. #1 (03/26/10)
STEP PEDAL ASSY.
STEP PEDAL ASSY.

MQ MP2 SERIES SAW — PARTS MANUAL — REV. #1 (03/26/10) — PAGE 29
STEP PEDAL ASSY.
NO. PART NO. PART NAME QTY.REMARKS
1 06500-020 SCREW, HEX 5/16-18 x 2-1/2 IN. 1
2 18637-001 KNOB 1
3 0106 JAM NUT 5/16-18 IN. 2
4 23860-001 ACORN NUT 1/2-13 IN. 1
5 23768-001 HANDLE, BLADE HEIGHT ADJ. 1
6 23730-001 WASHER, FLAT 1
7 0424 SCREW, HEX 1/4-20 x 1-1/4 IN. 2
8 23842-001 BEARING-FLANGED 1
9 0181 B WASHER, LOCK 1/4 IN. 2
10 0949 NUT, HEX 1/4-20 IN. 2
11 26976-351 FOOT PEDAL 1
12 27017-001 BOLT, CARRIAGE 1/2-13 x 4 IN. 1
13 968011 NUT, HEX 1/2-13 1
14 14821-005 CLAMP 2
15 23845-002 BELLOWS 1
16 27076-001 ROD, BLADE HEIGHT ADJ. 1
17 27018-351 PIVOT TUBE 1
18 19974 CLEVIS PIN 1/2 DIA. x 1-1/2 IN. 2
19 27025-001 BUSHING 4
20 27024-002 BUSHING, FLANGED 2
21 27024-001 BUSHING, FLANGED 2
22 0447 WASHER, FLAT 1/2 IN. 6
23 27079-002 CLEVIS PIN 1/2 DIA. x 5 IN. 1
24 3216 COTTER PIN 1/8 DIA. x 7/8 IN. 3
25 27012-351 PIVOT BRACKET, STEP PEDAL 1
26 28957-351 PIVOT BRACKET, MOTOR PLATE 1
27 10096-019 SNAP RING 4
28 3264 WASHER, FLAT 1 IN. 4
29 27028-001 EXTENSION SPRING 2
30 2621 ZERK FITTING 1
31 1162 A CAP, GREASE ZERK #2 YLW 1
STEP PEDAL ASSY.

PAGE 30 — MQ MP2 SERIES SAW — PARTS MANUAL — REV. #1 (03/26/10)
GX270QWH2 ENGINE — AIR CLEANER ASSY.
AIR CLEANER ASSY.

MQ MP2 SERIES SAW — PARTS MANUAL — REV. #1 (03/26/10) — PAGE 31
AIR CLEANER ASSY.
NO. PART NO. PART NAME QTY.REMARKS
1 16271ZE2000 GASKET, ELBOW 1
2 17210ZE3010 ELEMENT, AIR CLEANER .................................. 1 ............. INCLUDES ITEMS W/$
2 17210ZE3505 ELEMENT, AIR CLEANER .................................. 1 ............. INCLUDES ITEMS W/$
3$ 17218ZE3000 FILTER (OUTER) 1
3$ 17218ZE3505 FILTER (OUTER) 1
4*17219HA2405 SEAL, AIR CLEANER COVER 1
4*17219KL4000 SEAL, AIR CLEANER COVER 1
5 17230ZE3841 COVER, AIR CLEANER (CYCLONE) 1
6$ 17232891000 GROMMET, AIR CLEANER 1
7*17238ZE2310 COLLAR, AIR CLEANER 2
8*17239ZE3840 COLLAR B, AIR CLEANER 1
9 17410ZE3840 ELBOW, AIR CLEANER ...................................... 1 ............. INCLUDES ITEMS W/*
10 17470ZE3841 CASE, PRE AIR CLEANER 1
11 17475ZE3841 CAP, PRE AIR CLEANER 1
12 17476ZE3841 GUIDE, PRE AIR CLEANER 1
13 90142MB0000 SCREW, PAN (5X16.5) 5
16 90325044000 WINGNUT, TOOL BOX SETTING 2
17 90009ZE2003 BOLT-WASHER (6X22) 1
18 9405006000 NUT, FLANGE (6MM) 2
GX270QWH2 ENGINE — AIR CLEANER ASSY.

PAGE 32 — MQ MP2 SERIES SAW — PARTS MANUAL — REV. #1 (03/26/10)
GX270QWH2 ENGINE — CAMSHAFT ASSY.
CAMSHAFT ASSY.

MQ MP2 SERIES SAW — PARTS MANUAL — REV. #1 (03/26/10) — PAGE 33
CAMSHAFT ASSY.
NO. PART NO. PART NAME QTY.REMARKS
1 14100ZE3020 CAMSHAFT ASSY. ............................................. 1 ............. INCLUDES ITEMS W/*
2 14410ZE2013 ROD, PUSH 2
3 14431ZE2010 ARM, VALVE ROCKER 2
4 14441ZE2000 LIFTER, VALVE 2
5 14451ZE1013 PIVOT, ROCKER ARM 2
6*14568ZE1000 SPRING, WEIGHT RETURN 1
7 14711ZE2000 VALVE, IN. 1
8 14721ZE2000 VALVE, EX. 1
9 14751ZE2003 SPRING, VALVE 2
10 14771ZE2000 RETAINER, IN. VALVE SPRING 1
11 14773ZE2000 RETAINER, EX. VALVE SPRING 1
12 14781ZE2000 ROTATOR, VALVE 1
13 14791ZE2010 PLATE, PUSH ROD GUIDE 1
14 90012ZE0010 BOLT, PIVOT (8MM) 2
15 90206ZE1000 NUT, PIVOT ADJ. 2
16 12209ZE8003 SEAL, VALVE STEM 1
GX270QWH2 ENGINE — CAMSHAFT ASSY.

PAGE 34 — MQ MP2 SERIES SAW — PARTS MANUAL — REV. #1 (03/26/10)
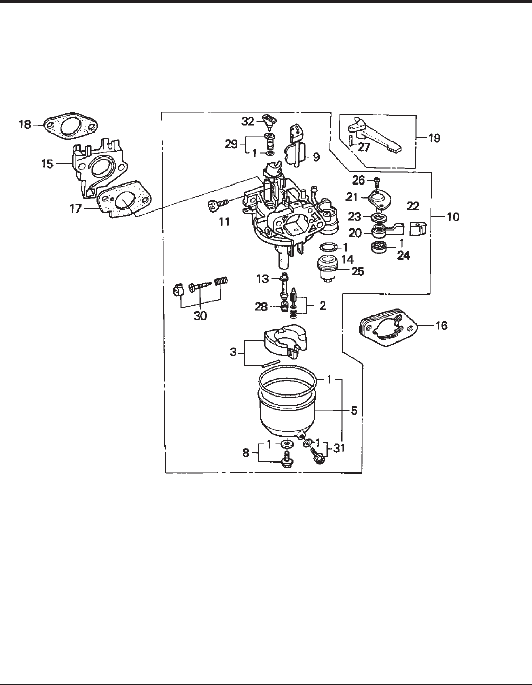
GX270QWH2 ENGINE — CARBURETOR ASSY.
CARBURETOR ASSY.

MQ MP2 SERIES SAW — PARTS MANUAL — REV. #1 (03/26/10) — PAGE 35
CARBURETOR ASSY.
NO. PART NO. PART NAME QTY.REMARKS
1$*16010ZE2812 GASKET SET 1
2*16011ZA0931 VALVE SET, FLOAT 1
3*16013ZA0931 FLOAT SET 1
*5 16015ZE8005 CHAMBER SET, FLOAT ...................................... 1 ............. INCLUDES ITEMS W/$
8*16028ZE0005 SCREW SET B 1
9*16044ZE2005 CHOKE SET 1
10 16100ZH9W01 CARBURETOR ASSY. (BE75A B) .......................1 ............. INCLUDES ITEMS W/*
11*16124ZE0005 SCREW, THROTTLE STOP 1
13*16166ZH9W00 NOZZLE, MAIN 1
14*16173001004 GASKET, FUEL STRAINER CUP 1
15 16211ZE2000 INSULATOR, CARBURETOR 1
16 16220ZA0702 SPACER, CARBURETOR 1
17 16221ZA0800 GASKET, CARBURETOR 1
18 16223ZA0800 GASKET, INSULATOR 1
19 16610ZE1000 LEVER, CHOKE (STD) ....................................... 1 ............. INCLUDES ITEMS W/+
20*16953ZE1812 LEVER, VALVE 1
21*16954ZE1812 PLATE, LEVER SETTING 1
23*16956ZE1811 SPRING, VALVE LEVER 1
24*16957ZE1812 GASKET, VALVE 1
25*16967ZE0811 CUP, FUEL STRAINER 1
26*93500030060H SCREW, PAN (3X6) 2
27+ 9430520122 PIN, SPRING (2X12) 1
28 99101ZH80880 JET, MAIN (#88) (OPTIONAL) 1
28 99101ZH80900 JET, MAIN (#90) (OPTIONAL) 1
28*99101ZH80920 JET, MAIN (#92) 1
29*99204ZE00350 JET SET, PILOT (#35) 1
30*16016ZH7W01 SCREW SET 1
31$*16024ZE1811 SCREW SET, DRAIN 1
32*16172ZE3W10 COLLAR, SET 1
GX270QWH2 ENGINE — CARBURETOR ASSY.

PAGE 36 — MQ MP2 SERIES SAW — PARTS MANUAL — REV. #1 (03/26/10)
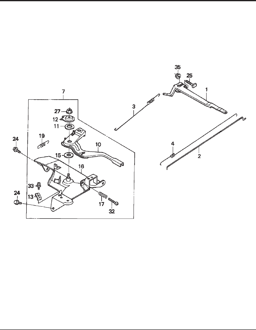
GX270QWH2 ENGINE — CONTROL ASSY.
CONTROL ASSY.

MQ MP2 SERIES SAW — PARTS MANUAL — REV. #1 (03/26/10) — PAGE 37
CONTROL ASSY.
NO. PART NO. PART NAME QTY.REMARKS
1 16551ZE2000 ARM, GOVERNOR 1
2 16555ZE2000 ROD, GOVERNOR 1
3 16561ZE2000 SPRING, GOVERNOR 1
4 16562ZE2000 SPRING, THROTTLE RETURN 1
7 16570ZE2W20 CONTROL ASSY. (REMOTE) 1 INCLUDES ITEMS W/*
10*16571ZE2W00 LEVER, CONTROL 1
11*16574ZE1000 SPRING, LEVER 1
12*16575ZE2W00 WASHER, CONTROL LEVER 1
13*16576891000 HOLDER, CABLE 1
15*16578ZE1000 SPACER, CONTROL LEVER 1
16*16581ZE2W00 BASE, CONTROL 1
17*16584883300 SPRING, CONTROL ADJUSTING 1
19*16592883310 SPRING, CABLE RETURN 1
24 90013883000 BOLT, FLANGE (6X12) (CT200) 2
25 90015ZE5010 BOLT, GOVERNOR ARM 1
27*90114SA0000 NUT, SELF-LOCK (6MM) 1
32*93500050280A SCREW, PAN (5X28) 1
33*93500050160A SCREW, PAN (5X16) 1
35 9405006000 NUT, FLANGE (6MM) 1
GX270QWH2 ENGINE — CONTROL ASSY.

PAGE 38 — MQ MP2 SERIES SAW — PARTS MANUAL — REV. #1 (03/26/10)
GX270QWH2 ENGINE — CRANKCASE COVER ASSY.
CRANKCASE COVER ASSY.

MQ MP2 SERIES SAW — PARTS MANUAL — REV. #1 (03/26/10) — PAGE 39
CRANKCASE COVER ASSY.
NO. PART NO. PART NAME QTY.REMARKS
2 11300ZE2602 COVER ASSY., CRANKCASE (Q-TYPE) ............1 ............. INCLUDES ITEMS W/*
3 11381ZE2801 GASKET, CASE COVER ..................................... 1 ............. INCLUDES ITEMS W/+
4 15600735003 CAP ASSY., OIL FILLER .................................... 1 ............. INCLUDES ITEMS W/+
6 15600ZG4003 CAP ASSY., OIL FILLER 1
8+ 15625ZE1003 GASKET, OIL FILLER CAP ................................. 2 ............. INCLUDES ITEMS W/$
9*16510ZE2000 GOVERNOR ASSY. (STD) 1
10$*16511ZE2000 WEIGHT, GOVERNOR 2
11$*16512ZE2000 HOLDER, GOVERNOR WEIGHT 1
12$*16513ZE2000 PIN, GOVERNOR WEIGHT 2
13*16531Z0A000 SLIDER, GOVERNOR 1
15*90602ZE1000 CLIP, GOVERNOR HOLDER 1
16 90701HC4000 PIN, DOWEL (8X12) 2
17*91201890003 OIL SEAL (30X46X8) 1
18*9410106800 WASHER, PLAIN (6MM) 1
19 957010803500 BOLT, FLANGE (8X35) 7
20*961006206000 BEARING, RADIAL BALL (6206) 1
GX270QWH2 ENGINE — CRANKCASE COVER ASSY.

PAGE 40 — MQ MP2 SERIES SAW — PARTS MANUAL — REV. #1 (03/26/10)
GX270QWH2 ENGINE — CRANKSHAFT ASSY.
CRANKSHAFT ASSY.

MQ MP2 SERIES SAW — PARTS MANUAL — REV. #1 (03/26/10) — PAGE 41
CRANKSHAFT ASSY.
NO. PART NO. PART NAME QTY.REMARKS
2 13310ZH9600 CRANKSHAFT (Q-TYPE) .................................... 1 ............. INCLUDES ITEMS W/*
12 90745ZE2600 KEY (6.3X6.3X43) 1
13*91001ZH9003 BEARING, RADIAL BALL (6206 SH) 1
GX270QWH2 ENGINE — CRANKSHAFT ASSY.

PAGE 42 — MQ MP2 SERIES SAW — PARTS MANUAL — REV. #1 (03/26/10)
GX270QWH2 ENGINE — CYLINDER BARREL ASSY.
CYLINDER BARREL ASSY.

MQ MP2 SERIES SAW — PARTS MANUAL — REV. #1 (03/26/10) — PAGE 43
CYLINDER BARREL ASSY.
NO. PART NO. PART NAME QTY.REMARKS
1 12000ZH9802 CYLINDER ASSY. (ALERT) .................................1 ............. INCLUDES ITEMS W/*
2 15510ZE2043 SWITCH ASSY., OIL LEVER 1
3 16541ZE2010 SHAFT, GOVERNOR ARM 1
6 90131896650 BOLT, DRAIN PLUG 2
7 90446KE1000 WASHER (8.2X17X0.8) 1
9*91201890003 OIL SEAL (30X46X8) 1
10 91353671003 O-RING (13.5X1.5) (ARAI) 1
11 9405010000 NUT, FLANGE (10MM) 1
12 9410912000 WASHER, DRAIN PLUG (12MM) 2
13 9425110000 PIN, LOCK (10MM) 1
14 957010601200 BOLT, FLANGE (6X12) 2
16 34150ZH7003 ALERT UNIT, OIL 1
17 90013883000 BOLT, FLANGE (6X12) (CT200) 1
GX270QWH2 ENGINE — CYLINDER BARREL ASSY.

PAGE 44 — MQ MP2 SERIES SAW — PARTS MANUAL — REV. #1 (03/26/10)
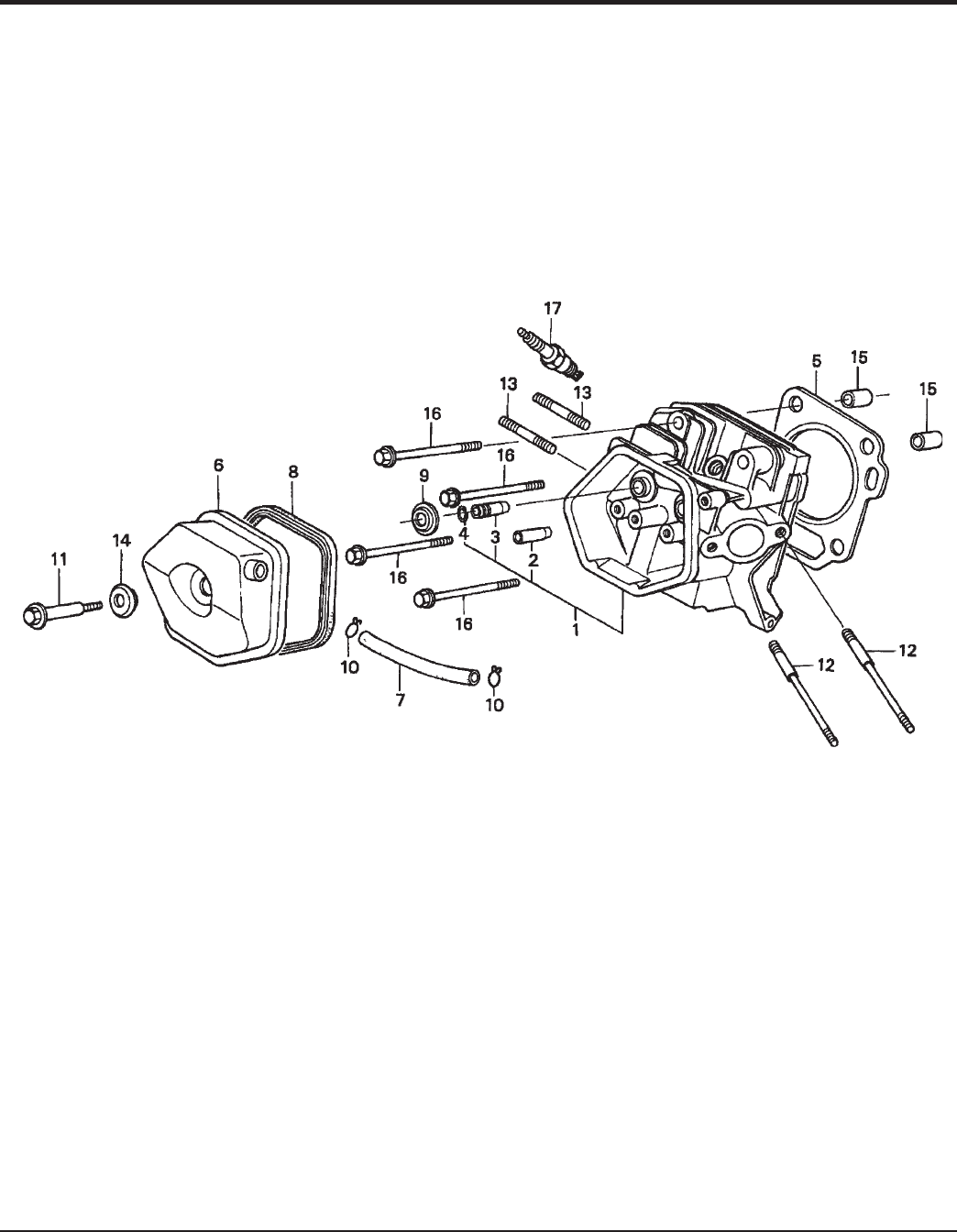
GX270QWH2 ENGINE — CYLINDER HEAD ASSY.
CYLINDER HEAD ASSY.

MQ MP2 SERIES SAW — PARTS MANUAL — REV. #1 (03/26/10) — PAGE 45
CYLINDER HEAD ASSY.
NO. PART NO. PART NAME QTY.REMARKS
1 12200ZH9000 CYLINDER HEAD .......................................................... 1.............. INCLUDES ITEMS W/*
2*12204ZE2306 GUIDE, VALVE (OS) (OPTIONAL) 1
3*12205ZE2305 GUIDE, EX. VALVE (OS) (OPTIONAL) 1
4*12216ZE2300 CLIP, VALVE GUIDE 1
5 12251ZH9000 GASKET, CYLINDER HEAD 1
6 12310ZE3791 COVER, HEAD 1
7 12315ZE3840 TUBE, BREATHER 1
8 12391ZE2020 GASKET, CYLINDER HEAD COVER 1
9 14775ZE2010 SEAT, VALVE SPRING 1
10 17316611000 CLIP, BREATHER TUBE 2
11 90014ZE2000 BOLT, HEAD COVER 1
12 90042ZE2000 BOLT, STUD (8X123) 2
13 92900080320E BOLT 2, STUD (8X32) 2
14 90441ZE2010 WASHER, HEAD COVER 1
15 9430112200 PIN A, DOWEL (12X20) 2
16 957011008000 BOLT, FLANGE (10X80) 4
17 9807955846 SPARK PLUG (BPR5ES) (NGK) (OPTIONAL) 1
17 9807955855 SPARK PLUG (W16EPR-U) (DENSO) (OPTIONAL) 1
17 9807956846 SPARK PLUG (BPR6ES) (NGK) 1
17 9807956855 SPARK PLUG (W20EPR-U) (DENSO) 1
GX270QWH2 ENGINE — CYLINDER HEAD ASSY.

PAGE 46 — MQ MP2 SERIES SAW — PARTS MANUAL — REV. #1 (03/26/10)
GX270QWH2 ENGINE — FAN COVER ASSY.
FAN COVER ASSY.

MQ MP2 SERIES SAW — PARTS MANUAL — REV. #1 (03/26/10) — PAGE 47
FAN COVER ASSY.
NO. PART NO. PART NAME QTY.REMARKS
3 16731ZE2003 CLIP, TUBE 1
5 19610ZE2010ZC COVER, FAN *NH1* (BLACK) 1
7 19631ZE2D00 SHROUD 1
11 36100ZH7003 SWITCH ASSY., ENGINE STOP 1
17 90013883000 BOLT, FLANGE (6X12) (CT200) 5
18 90013883000 BOLT, FLANGE (6X12) (CT200) 1
22 90684ZA0601 CLIP, WIRE 1
GX270QWH2 ENGINE — FAN COVER ASSY.

PAGE 48 — MQ MP2 SERIES SAW — PARTS MANUAL — REV. #1 (03/26/10)
GX270QWH2 ENGINE — FLYWHEEL ASSY.
FLYWHEEL ASSY.

MQ MP2 SERIES SAW — PARTS MANUAL — REV. #1 (03/26/10) — PAGE 49
FLYWHEEL ASSY.
NO. PART NO. PART NAME QTY.REMARKS
1 19511ZE2000 FAN, COOLING 1
3 28450ZE2W11 PULLEY, STARTER (SCREEN GRID) 1
5 31100ZE2010 FLYWHEEL 1
8 90201ZE3V00 NUT, SPECIAL (16MM) (1) 1
9 90741ZE2000 KEY, SPECIAL WOODRUFF (25X18) 1
GX270QWH2 ENGINE — FLYWHEEL ASSY.

PAGE 50 — MQ MP2 SERIES SAW — PARTS MANUAL — REV. #1 (03/26/10)
GX270QWH2 ENGINE — FUEL TANK ASSY.
FUEL TANK ASSY.

MQ MP2 SERIES SAW — PARTS MANUAL — REV. #1 (03/26/10) — PAGE 51
FUEL TANK ASSY.
NO. PART NO. PART NAME QTY.REMARKS
1 16854ZH8000 RUBBER, SUPPORTER (107MM) 1
2 16955ZE1000 JOINT, FUEL TANK 1
5 17510ZE2010ZD TANK, FUEL *NH1* (BLACK) 1
7 17620ZH7023 CAP, FUEL FILLER .......................................... 1..............INCLUDES ITEMS W/*
12 91353671003 O-RING (13.5X1.5) (ARAI) 1
14 9405008000 NUT, FLANGE (8MM) 2
15 950014500360M BULK HOSE, FUEL (4.5X3000) (4.5X222) 1
16 9500202080 CLIP, TUBE (B8) 2
17 957010802500 BOLT, FLANGE (8X25) 2
22 17631ZH7003 GASKET, FUEL FILLER CAP 1
GX270QWH2 ENGINE — FUEL TANK ASSY.

PAGE 52 — MQ MP2 SERIES SAW — PARTS MANUAL — REV. #1 (03/26/10)
GX270QWH2 ENGINE — IGNITION COIL ASSY.
IGNITION COIL ASSY.

MQ MP2 SERIES SAW — PARTS MANUAL — REV. #1 (03/26/10) — PAGE 53
IGNITION COIL ASSY.
NO. PART NO. PART NAME QTY.REMARKS
1 30500ZF6W02 COIL ASSY., IGNITION 1
4 30700ZE1013 CAP ASSY., NOISE SUPPRESSOR 1
8 31512ZE2000 GROMMET, WIRE 1
10 36101ZE1010 WIRE, STOP SWITCH (370MM) 1
13 90015883000 BOLT, FLANGE (6X28) 2
18 90684ZA0601 CLIP, WIRE HARNESS 1
GX270QWH2 ENGINE — IGNITION COIL ASSY.

PAGE 54 — MQ MP2 SERIES SAW — PARTS MANUAL — REV. #1 (03/26/10)
GX270QWH2 ENGINE — LABELS ASSY.
LABELS ASSY.

MQ MP2 SERIES SAW — PARTS MANUAL — REV. #1 (03/26/10) — PAGE 55
LABELS ASSY.
NO. PART NO. PART NAME QTY.REMARKS
3 87521ZH9020 EMBLEM (INTERNAL) 1
7 87522ZH9010 LABEL, CAUTION 1
10 87528ZE2810 MARK, CHOKE (EXTERNAL) 1
17 87532ZH8810 MARK, OIL ALERT (E) 1
21 87534ZE1841 LABEL, AIR CLEANER CAUTION 1
22 87535ZE1840 MARK, AIR CLEANER SALES POINT 1
GX270QWH2 ENGINE — LABELS ASSY.

PAGE 56 — MQ MP2 SERIES SAW — PARTS MANUAL — REV. #1 (03/26/10)
GX270QWH2 ENGINE — MUFFLER ASSY.
MUFFLER (2) ASSY.

MQ MP2 SERIES SAW — PARTS MANUAL — REV. #1 (03/26/10) — PAGE 57
MUFFLER ASSY.
NO. PART NO. PART NAME QTY.REMARKS
2 18310ZE2W61 MUFFLER (100DB) 1
3 18320ZE2W61 PROTECTOR, MUFFLER 1
5 18330ZH9N00 PIPE, EX. 1
6 18331ZE2810 CAP, MUFFLER 1
7 18333ZF6W01 GASKET, EX. PIPE 1
8 18355ZE2W00 ARRESTER, SPARK (OPTIONAL) 1
9 18381ZE2W10 GASKET, MUFFLER (ARRESTER) (OPTIONAL) 1
10 18381ZE2800 GASKET, MUFFLER 1
19 90050ZE1000 SCREW, TAPPING (5X8) 4
22 90055ZE1000 SCREW, TAPPING (4X6) 3
26 90006ZE2000 SCREW, TAPPING (6X10) 1
27 9405008000 NUT, FLANGE (8MM) 5
31 90055ZE1000 SCREW, TAPPING (4X6) (OPTIONAL) 1
GX270QWH2 ENGINE — MUFFLER ASSY.

PAGE 58 — MQ MP2 SERIES SAW — PARTS MANUAL — REV. #1 (03/26/10)
GX270QWH2 ENGINE — PISTON ASSY.
PISTON ASSY.

MQ MP2 SERIES SAW — PARTS MANUAL — REV. #1 (03/26/10) — PAGE 59
PISTON ASSY.
NO. PART NO. PART NAME QTY.REMARKS
1 13010ZE8601 RING SET, PISTON (STD) 1
1 13011ZE8601 RING SET, PISTON (OS 0.25) (OPTIONAL) 1
1 13012ZE8601 RING SET, PISTON (OS 0.50) (OPTIONAL) 1
1 13013ZE8601 RING SET, PISTON (0.75) (OPTIONAL) 1
2 13101ZH9000 PISTON (STD) 1
2 13102ZH9000 PISTON (OS 0.25) (OPTIONAL) 1
2 13103ZH9000 PISTON (OS 0.50) (OPTIONAL) 1
2 13104ZH9000 PISTON (0.75) (OPTIONAL) 1
3 13111ZE2000 PIN, PISTON 1
4 13200ZE2010 ROD ASSY., CONNECTING (STD).................................. 1 ........ INCLUDES ITEMS W/*
4 13200ZE2305 ROD ASSY., CONNECTING (US 0.25) (OPTIONAL)....... 1 ........ INCLUDES ITEMS W/*
5*90001ZE8000 BOLT, CONNECTING ROD 2
6 90551ZE1000 CLIP, PISTON PIN (18MM) 2
GX270QWH2 ENGINE — PISTON ASSY.

PAGE 60 — MQ MP2 SERIES SAW — PARTS MANUAL — REV. #1 (03/26/10)
GX270QWH2 ENGINE — RECOIL STARTER ASSY.
RECOIL STARTER ASSY.

MQ MP2 SERIES SAW — PARTS MANUAL — REV. #1 (03/26/10) — PAGE 61
RECOIL STARTER ASSY.
NO. PART NO. PART NAME QTY.REMARKS
1 28400ZE2W01ZB STARTER ASSY., RECOIL *NH1* (BLACK) .......... 1 ......... INCLUDES ITEMS W/*
2*28410ZE2W01ZB CASE, RECOIL STARTER *NH1* (BLACK) 1
3*28421ZE2W01 PULLEY, RECOIL STARTER 1
4*28422ZE2W01 RATCHET, STARTER 2
5*28441ZE2W01 SPRING, FRICTION 1
6*28442ZE2W01 SPRING, STARTER RETURN 1
7*28443ZE2W01 SPRING, RATCHET 2
8*28444ZE2W01 RETAINER, SPRING 1
10*28461ZE2W02 GRIP, STARTER 1
11*28462ZE2W11 ROPE, RECOIL STARTER 1
13*90004ZE2W01 SCREW, CENTER 1
14 90008ZE2003 BOLT, FLANGE (6X10) 3
GX270QWH2 ENGINE — RECOIL STARTER ASSY.

PAGE 62 — MQ MP2 SERIES SAW — PARTS MANUAL — REV. #1 (03/26/10)
TERMS AND CONDITIONS OF SALE — PARTS
PAYMENT TERMS
Terms of payment for parts are net 30 days.
FREIGHT POLICY
All parts orders will be shipped collect or
prepaid with the charges added to the invoice.
All shipments are F.O.B. point of origin.
Multiquip’s responsibility ceases when a
signed manifest has been obtained from the
carrier, and any claim for shortage or damage
must be settled between the consignee and
the carrier.
MINIMUM ORDER
The minimum charge for orders from Multiquip
is $15.00 net. Customers will be asked for
instructions regarding handling of orders not
meeting this requirement.
RETURNED GOODS POLICY
Return shipments will be accepted and
credit will be allowed, subject to the following
provisions:
A Returned Material Authorization 1.
must be approved by Multiquip prior to
shipment.
To obtain a Return Material Authorization, 2.
a list must be provided to Multiquip
Parts Sales that defines item numbers,
quantities, and descriptions of the items
to be returned.
The parts numbers and descriptions a.
must match the current parts price
list.
The list must be typed or computer b.
generated.
The list must state the reason(s) c.
for the return.
The list must reference the sales d.
order(s) or invoice(s) under
which the items were originally
purchased.
The list must include the name e.
and phone number of the person
requesting the RMA.
A copy of the Return Material Authorization 3.
must accompany the return shipment.
Freight is at the sender’s expense. All 4.
parts must be returned freight prepaid to
Multiquip’s designated receiving point.
Parts must be in new and resalable 5.
condition, in the original Multiquip
package (if any), and with Multiquip part
numbers clearly marked.
The following items are not returnable:6.
Obsolete parts. (If an item is in the a.
price book and shows as being
replaced by another item, it is
obsolete.)
Any parts with a limited shelf life b.
(such as gaskets, seals, “O” rings,
and other rubber parts) that were
purchased more than six months
prior to the return date.
Any line item with an extended c.
dealer net price of less than
$5.00.
Special order items.d.
Electrical components.e.
Paint, chemicals, and lubricants.f.
Decals and paper products.g.
Items purchased in kits.h.
The sender will be notified of any material 7.
received that is not acceptable.
Such material will be held for five 8.
working days from notification, pending
instructions. If a reply is not received
within five days, the material will be
returned to the sender at his expense.
Credit on returned parts will be issued 9.
at dealer net price at time of the original
purchase, less a 15% restocking
charge.
In cases where an item is accepted, for 10.
which the original purchase document
can not be determined, the price will be
based on the list price that was effective
twelve months prior to the RMA date.
Credit issued will be applied to future 11.
purchases only.
PRICING AND REBATES
Prices are subject to change without prior
notice. Price changes are effective on a
specific date and all orders received on or
after that date will be billed at the revised price.
Rebates for price declines and added charges
for price increases will not be made for stock
on hand at the time of any price change.
Multiquip reserves the right to quote and
sell direct to Government agencies, and to
Original Equipment Manufacturer accounts
who use our products as integral parts of their
own products.
SPECIAL EXPEDITING SERVICE
A $35.00 surcharge will be added to the
invoice for special handling including bus
shipments, insured parcel post or in cases
where Multiquip must personally deliver the
parts to the carrier.
LIMITATIONS OF SELLER’S LIABILITY
Multiquip shall not be liable hereunder for
damages in excess of the purchase price of
the item with respect to which damages are
claimed, and in no event shall Multiquip be
liable for loss of profit or good will or for any
other special, consequential or incidental
damages.
LIMITATION OF WARRANTIES
No warranties, express or implied, are
made in connection with the sale of parts or
trade accessories nor as to any engine not
manufactured by Multiquip. Such warranties
made in connection with the sale of new,
complete units are made exclusively by a
statement of warranty packaged with such
units, and Multiquip neither assumes nor
authorizes any person to assume for it
any other obligation or liability whatever in
connection with the sale of its products. Apart
from such written statement of warranty,
there are no warranties, express, implied or
statutory, which extend beyond the description
of the products on the face hereof.
Effective: February 22, 2006

MQ MP2 SERIES SAW — PARTS MANUAL — REV. #1 (03/26/10) — PAGE 63
NOTES

PARTS MANUAL
Your Local Dealer is:
HERE’S HOW TO GET HELP
PLEASE HAVE THE MODEL AND SERIAL
NUMBER ON-HAND WHEN CALLING
©
COPYRIGHT 2009, MULTIQUIP INC.
Multiquip Inc and the MQ logo are registered trademarks of Multiquip Inc. and may not be used, reproduced, or altered without written permission. All other trademarks are the property
of their respective owners and used with permission.
This manual MUST accompany the equipment at all times. This manual is considered a permanent part of the equipment and should remain with the unit if resold.
The information and specifications included in this publication were in effect at the time of approval for printing. Illustrations, descriptions, references and technical data contained in
this manual are for guidance only and may not be considered as binding. Multiquip Inc. reserves the right to discontinue or change specifications, design or the information published
in this publication at any time without notice and without incurring any obligations.
UNITED STATES
Multiquip Corporate Office MQ Parts Department
18910 Wilmington Ave.
Carson, CA 90746
Contact: mq@multiquip.com
Tel. (800) 421-1244
Fax (800) 537-3927
800-427-1244
310-537-3700
Fax: 800-672-7877
Fax: 310-637-3284
Mayco Parts Warranty Department
800-306-2926
310-537-3700
Fax: 800-672-7877
Fax: 310-637-3284
800-421-1244, Ext. 279
310-537-3700, Ext. 279
Fax: 310-537-1173
Service Department Technical Assistance
800-421-1244
310-537-3700
Fax: 310-537-4259 800-478-1244 Fax: 310-631-5032
MEXICO UNITED KINGDOM
MQ Cipsa Multiquip (UK) Limited Head Office
Carr. Fed. Mexico-Puebla KM 126.5
Momoxpan, Cholula, Puebla 72760 Mexico
Contact: pmastretta@cipsa.com.mx
Tel: (52) 222-225-9900
Fax: (52) 222-285-0420
Hanover Mill, Fitzroy Street,
Ashton-under-Lyne,
Lancashire OL7 0TL
Contact: sales@multiquip.co.uk
Tel: 0161 339 2223
Fax: 0161 339 3226
CANADA
Multiquip
4110 Industriel Boul.
Laval, Quebec, Canada H7L 6V3
Contact: jmartin@multiquip.com
Tel: (450) 625-2244
Fax: (450) 625-8664